Обзор одноэтажного дома "Дом 43" с полезной площадью 295 м2
Современное строительство частных домов предлагает множество решений, которые позволяют максимально эффективно использовать свободное пространство и создавать уютные, функциональные жилые пространства. Одноэтажный дом с размерами 8 на 20 метров и полезной площадью 295 м2 — это пример того, как удачно сочетать комфорт и компактность. Данный проект ориентирован на семью, которая ценит удобство, продуманность планировки и качественные решения во всех аспектах строительства.
Несмотря на относительно скромные внешние габариты, дом предлагает внушительную площадь внутреннего пространства, что является несомненным преимуществом для проживания на одном этаже, без необходимости подниматься по лестницам или использовать чердачные помещения. В этой статье мы подробно рассмотрим основные характеристики дома, его планировочные особенности, преимущества и стоимость строительства, чтобы вы смогли оценить его привлекательность.
Габариты и особенности планировки одноэтажного дома
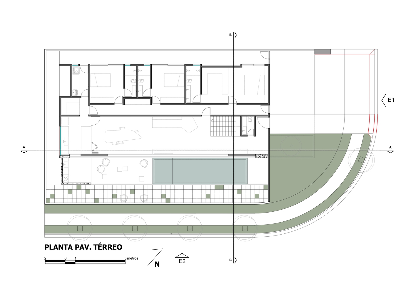
Размеры дома 8 x 20 метров делают его идеально подходящим для участка с ограниченной шириной и значительной глубиной. Такой формат позволяет создать длинный и одновременно компактный дом, оптимально вписывающийся в разные типы участков.
Одноэтажное решение с общей полезной площадью 295 м2 является достаточным для комфортного проживания большой семьи. При этом наличие большого пространства на одном уровне обеспечивает простоту перемещений и удобство использования всех помещений как пожилыми людьми, так и детьми.
Преимущества одноэтажного строительства
Одноэтажные дома всегда привлекали тех, кто ценит комфорт, безопасность и продуманность. К главными преимуществам такого формата относятся:
- Отсутствие лестниц, что снижает риски травм и облегчает доступ в дом для членов семьи с ограниченной мобильностью.
- Более простой и доступный ремонт как внутренних, так и наружных коммуникаций и отделки.
- Возможность максимально использовать пространство вокруг дома для организации сада, зоны отдыха и других элементов ландшафтного дизайна.
- Лучшая теплоизоляция и меньшие теплопотери за счет компактного объема дома.
В проекте "Дом 43" эти преимущества реализованы на высоком уровне, при этом сохранив современный вид и удобную структуру помещений.
Планировка и функциональное зонирование дома
Ключевой особенностью дома являются 3 спальни и более 5 санузлов, что говорит о высоком уровне комфорта и приватности для всех членов семьи и гостей. Размещение такого количества санузлов в одноэтажном доме — редкий и очень выгодный архитектурный ход.
Спальни: личное пространство и удобство
Три спальни позволяют комфортно организовать пространство как для семьи с несколькими детьми, так и для тех, кто часто принимает гостей. В каждой спальне можно предусмотреть место для хранения, рабочий уголок и средства индивидуального комфорта. Благодаря большой площади дома – 295 м2, каждая комната становится уютной и функциональной, рассчитанной на долгое проживание и различные сценарии.
Санузлы: все для комфорта и уюта
Количество санузлов в 5+ — это идеальное решение для больших семей или тех, кто любит иметь отдельную зону для каждого члена семьи и для гостей. Такой подход отличается высокой практичностью: утром, в часы наибольшей нагрузки, не возникает очередей, каждая ванная комната оборудована всем необходимым для комфорта.
Распределение санузлов по дому может включать гостевой санузел, отдельную ванную для каждой спальни, дополнительную зону для хозяйственных нужд и отдельное помещение под постирочную или спа-зону.
Преимущества большого количества санузлов для семьи
| Преимущество | Описание |
|---|---|
| Удобство использования | Каждый член семьи и гость имеют доступ к личному санузлу без необходимости ждать. |
| Чистота и гигиена | Отдельные комнаты повышают уровень санитарии и облегчают уход за помещениями. |
| Приватность | Каждая зона защищена от лишних взглядов и шума, что особенно важно для семейного уюта. |
| Гибкость в планировании пространства | Санузлы можно использовать и под дополнительные функции, например, небольшую сауну или прачечную. |
Экономический аспект: стоимость строительства и рентабельность
Стоимость строительства дома с полезной площадью 295 м2 по проекту "Дом 43" составляет около 14 577 486 рублей. Для дома такого масштаба и с такой степенью оснащения цена считается вполне адекватной, особенно при учёте современных технологий строительства и высокого уровня материалов.
Экономическая привлекательность данного проекта проявляется в нескольких направлениях:
- Оптимизация полезного пространства. Большая площадь без излишеств позволяет рационально использовать каждый квадратный метр.
- Одноэтажная конструкция сокращает инженерные и строительные издержки. Отсутствие второго этажа позволяет упростить конструкцию фундамента и крыши.
- Высокий уровень функциональности способствует снижению эксплуатационных расходов. Современные инженерные системы и качественная изоляция помогают экономить энергию.
- Долговечность и качество работ. Высокий уровень профессионализма при возведении такого дома гарантирует снижение затрат на ремонт в будущем.
Анализ затрат и выгод
Рассмотрим основные статьи расходов и потенциальную выгоду от строительства данного дома в табличной форме:
| Статья затрат | Сумма (примерно) | Комментарий |
|---|---|---|
| Фундамент и земляные работы | 3 000 000 руб. | Упрощённый фундамент благодаря одноэтажной конструкции |
| Строительство стен и перекрытий | 5 500 000 руб. | Качественные материалы, учитывая площадь дома |
| Инженерные системы (вода, электрика, отопление) | 3 000 000 руб. | Современные коммуникации с энергоэффективными решениями |
| Отделочные работы | 2 000 000 руб. | Использование современных отделочных материалов |
| Прочие расходы | 1 077 486 руб. | Неожиданные или дополнительные расходы |
| Итого | 14 577 486 руб. |
Архитектурные особенности и дизайн
Хотя в параметрах проекта не указаны дополнительные элементы, такие как террасы или балконы, функциональное зонирование в доме "Дом 43" выполнено на высоком уровне. Линейная структура дома позволяет рационально расположить все помещения с учётом естественного освещения и циркуляции воздуха.
Интерьер и экстерьер этого одноэтажного дома строятся на принципах минимализма и практичности, при этом архитекторы уделяют внимание гармонии с окружающим ландшафтом и обеспечению приватности внутри дома.
Использование пространства в плане 8 x 20 метров
Узкая и длинная форма дома идеально подходит для организации функциональных зон, разделённых на:
- Дневная зона: просторная гостиная, объединённая с кухней и столовой, объединяющая членов семьи в любое время суток.
- Ночная зона: три спальни, расположенные с максимальной звукоизоляцией и уединением.
- Обслуживающая зона: санузлы, кладовые, технические помещения.
Такое деление помогает избежать путаницы и увеличивает комфорт проживания.
Инженерные системы и энергоэффективность
При строительстве дома площадью 295 м2 очень важно уделить внимание системам отопления, вентиляции, водоснабжения и электроснабжения, чтобы обеспечить комфортные условия и снизить эксплуатационные расходы.
Проект "Дом 43" предусматривает интеграцию современных инженерных решений, которые позволяют значительно повысить энергоэффективность здания. В числе таких решений – использование теплоизоляционных материалов нового поколения, энергоэффективных окон и дверей, а также системой "умный дом", управляющей микроклиматом в помещении.
Основные инженерные системы дома
| Система | Описание | Преимущества |
|---|---|---|
| Отопление | Тепловой насос или газовый котёл, радиаторы и тёплый пол | Эффективное распределение тепла, экономия ресурсов |
| Вентиляция | Механическая вытяжка с рекуперацией тепла | Чистый воздух без лишних потерь тепла |
| Водоснабжение | Автоматизированное подключение к сети и системы фильтрации | Гарантированное качество и подача воды |
| Электроснабжение | Интеллектуальная система управления, LED-освещение | Максимальная экономия электроэнергии, удобство управления |
Практические рекомендации по выбору дома такого формата
Перед тем как приступить к строительству или покупке дома с параметрами, похожими на "Дом 43", важно учитывать несколько ключевых аспектов, которые влияют на комфорт и расходы в будущем.
Выбор участка
Дом с размером 8 x 20 метров требует участка, который по длине будет значительно больше 20 метров, чтобы оставить место для фундаментов, отступов, садовых зон и подъездных путей. Важно учесть особенности ландшафта, рельефа и коммуникаций.
Планировка и адаптация под ваши нужды
3 спальни и более 5 санузлов — это отличный старт для семьи. Однако в зависимости от ваших индивидуальных потребностей проект можно адаптировать: увеличить размер гостиной, добавить небольшую мастерскую или игровую зону для детей.
Бюджет и сроки строительства
Оптимальное планирование и работа с надёжными подрядчиками существенно сокращают сроки и уменьшают риск бюджетных перерасходов. Дом этого размера укладывается в разумные показатели бюджета, однако всегда рекомендуется держать небольшой резерв на непредвиденные расходы.
Кому подходит одноэтажный дом "Дом 43"?
Этот проект является отличным выбором для тех, кто хочет иметь просторное, функциональное жильё на одном уровне без излишней архитектурной сложности и переплат за лишние метры. Особенности проекта делают его идеальным для:
- Семей с детьми, где продуманное количество спален и санузлов будет максимально удобным.
- Пожилых людей или семей с членами, испытывающими трудности с лестницами.
- Клиентов, которые хотят экономить на отоплении и техническом обслуживании дома.
- Любителей современных инженерных решений и энергоэффективности.
Таким образом, "Дом 43" — это проект с уникальным сочетанием компактности и комфорта, который при грамотном проектировании и сопровождении строительства обеспечит высокий уровень жизни и экономическую выгоду на долгие годы.




















