Обзор проекта одноэтажного дома 8х9 метров площадью 146 м²
Проект одноэтажного жилого дома размером 8 на 9 метров с общей полезной площадью 146 м² представляет собой идеальное решение для тех, кто ищет комфорт, функциональность и оптимальное использование пространства. Благодаря своей компактности и продуманной планировке, такой дом подходит как для небольшой семьи, так и для тех, кто ценит удобство и простоту одноуровневого жилья.
Дом рассчитан на одного этажа, что облегчает организацию внутреннего пространства и делает его доступным для всех членов семьи, включая пожилых людей и маленьких детей. Отсутствие лестниц снижает риск травматизма и обеспечивает максимальное удобство.
Размеры и планировка: как 72 квадратных метра превращаются в 146 полезных
Размеры дома 8 на 9 метров — достаточно компактны, чтобы строительство было экономичным, но при этом достаточно просторны для реализации полноценного жилого комфорта. Важным преимуществом является то, что несмотря на относительно небольшую площадь застройки, внутри удалось вместить 146 м² полезной площади, что говорит о высокой степени рационального использования пространства, грамотной организации комнат и продуманной планировки.
Одноэтажный формат дома позволяет использовать каждый квадратный метр максимально эффективно, не требуя дополнительных площадей для лестничных маршей и холлов, характерных для многоэтажных зданий. Это увеличивает площадь жилых и функциональных помещений без увеличения занимаемого участка под застройку.
Планировка: две спальни и два санузла — удобство для семьи
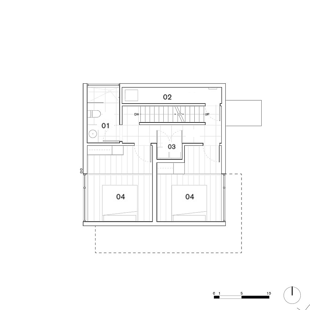
Одним из ключевых преимуществ этого дома является наличие двух полноценных спален. Это отличный вариант для семьи с детьми или тех, кто часто принимает гостей. Каждая спальня достаточно просторна, чтобы оборудовать её необходимой мебелью и сохранить при этом свободное пространство для комфортного перемещения.
Наличие двух санузлов – значительный плюс, который обеспечивает комфорт и удобство всем членам семьи. Особенно это важно в утренние часы, когда каждый стремится подготовиться как можно быстрее. Разделение гостевого и хозяйственного санузла также помогает поддерживать порядок и оптимизирует использование ванной комнаты.
Преимущества двух санузлов в одноэтажном доме
- Снижение очередей и экономия времени в часы пик
- Повышение комфорта для гостей и домочадцев
- Разделение функций: один санузел может быть оборудован ванной, второй – душевой или гостевым туалетом
- Увеличение стоимости недвижимости благодаря улучшенной планировке
Преимущества одноэтажного дома с размерами 8 x 9 метров
Одноэтажные дома сегодня приобретают всё большую популярность. Сочетание компактных внешних габаритов и больших внутренних пространств идеально подходит для участков ограниченного размера. Дом 8х9 метров сочетает удобство управления и содержания с эргономичной планировкой, что положительно сказывается на бюджете строительства и эксплуатации.
Проект данного дома предусматривает возможность рационального зонирования внутреннего пространства, что позволяет максимально эффективно использовать каждый метр. Это позволяет получить полноценные жилые комнаты и функциональные зоны, такие как кухня, гостиная и санузлы без чрезмерного нагромождения мебели и ощущения тесноты.
Рассмотрим основные преимущества:
- Оптимальная площадь: 146 м² – это достаточно для комфортного проживания семьи из 3-4 человек.
- Экономия на отоплении: Одноэтажный дом проще и дешевле отапливать.
- Уход и обслуживание: Нет лестниц, которые требуют дополнительного ухода и уборки.
- Универсальность: Подходит для пожилых, семей с маленькими детьми и тех, кто предпочитает удобство одноуровневой жизни.
Стоимость строительства и что в неё входит
Стоимость дома 30, с размерами 8 x 9 метров и площадью 146 м², составляет 5 856 897 рублей. Рассматривая данное предложение, важно понимать, что эта цена справедлива для качественной постройки с применением современных технологий, и включает в себя комплекс работ и материалов, необходимый для реализации проекта под ключ.
Строительство дома такого уровня обычно подразумевает использование прочных материалов с хорошими теплоизоляционными характеристиками, что обеспечивает комфорт в любое время года и снижает эксплуатационные расходы. Помимо этого, стоимость учитывает не только саму постройку, но и проведение различных инженерных коммуникаций и отделочные работы, которые делают дом пригодным для проживания сразу после завершения строительства.
Что, как правило, включено в стоимость за 5 856 897 рублей
| Компонент | Описание |
|---|---|
| Фундамент | Бетонный фундамент с гидроизоляцией и армированием, рассчитанный на индивидуальные особенности участка |
| Стены | Возведение несущих стен из современных материалов с хорошей теплоизоляцией |
| Крыша | Конструктивная кровля с материалами, обеспечивающими долговечность и защиту от осадков |
| Окна и двери | Установка качественных окон ПВХ с энергосберегающими характеристиками и прочных дверей |
| Инженерные системы | Прокладка электричества, водоснабжения, канализации и отопления |
| Внутренняя отделка | Черновая отделка помещений под дальнейшее декорирование или отделка средним уровнем качества |
| Работы и сервис | Работы по монтажу, контроль качества и сдача объекта заказчику |
Как грамотно подобрать участок под строительство дома 8х9 м
Размеры дома 8 x 9 метров позволяют существенно экономить площадь участка. Одноэтажный формат и размеры здания подходят под участки с минимальными требованиями по ширине и длине, что актуально при ограниченном пространстве, особенно в условиях городской застройки или во вновь образованных коттеджных поселках.
Главным условием успешного выбора участка является соответствие местных строительных норм и правил. Нужно обратить внимание на возможность подключения коммуникаций, рельеф местности и доступ к подъездным путям. Поскольку дом не имеет гаража и террасы, требования к площади участка становятся еще менее строгими, что расширяет перечень возможных земельных участков для строительства.
Критерии выбора участка для дома 8х9 метров
- Достаточная площадь для свободного размещения одноэтажного здания и зоны отдыха
- Наличие удобного доступа к дорогам и коммуникациям
- Равнина или минимальный рельеф для упрощения строительства и снижения затрат
- Отсутствие ограничений по высоте дома и планировке (согласно местным нормам)
- Возможность дальнейшего расширения, если это потребуется
Планировочные решения — что ждет внутри вашего дома
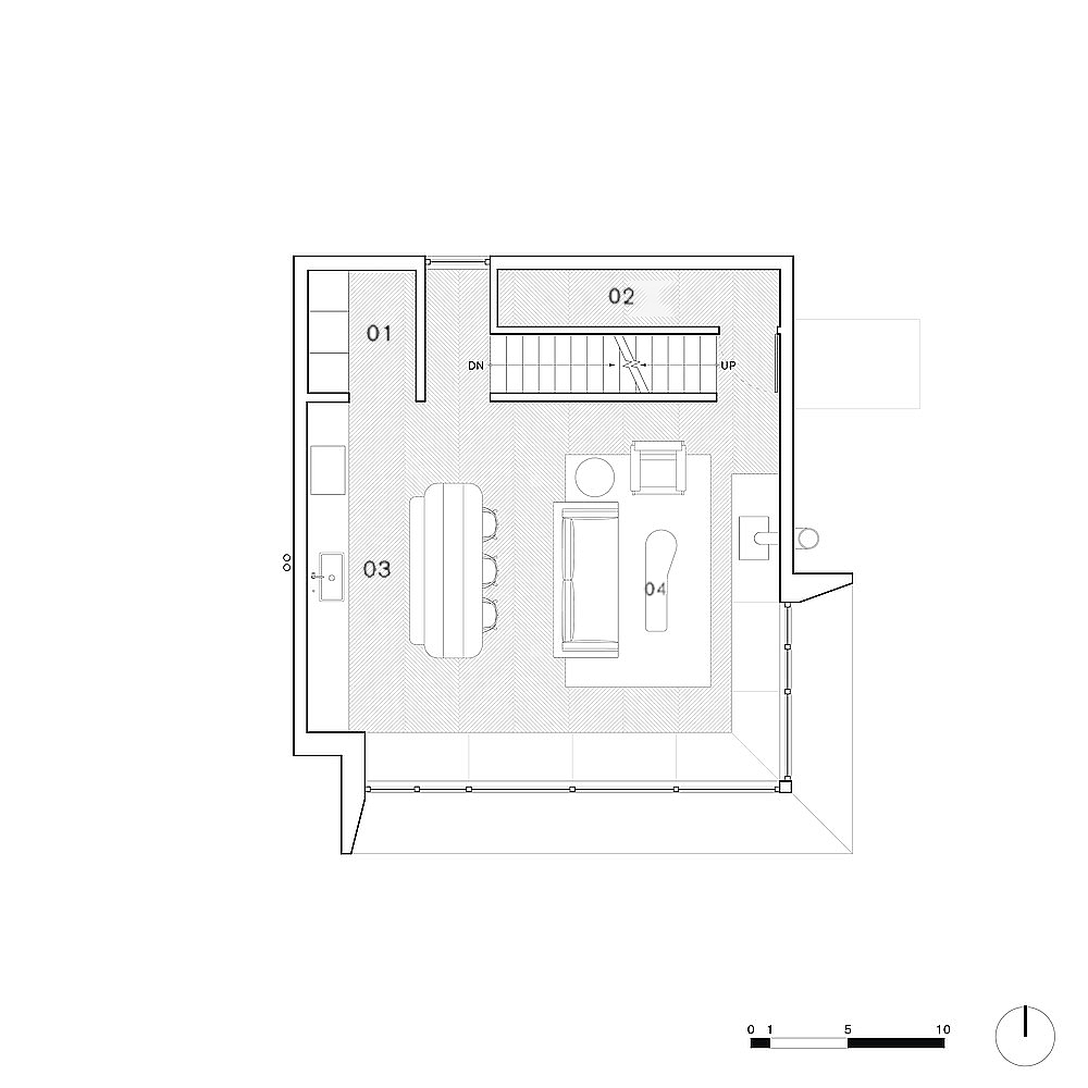
Проект дома предусматривает логичное и удобное распределение комнат, что делает повседневную жизнь комфортной и практичной. Центральное место занимает просторная гостиная, которая объединена с кухонной зоной, создавая эффект открытого пространства, что визуально увеличивает внутренний объем и способствует общению семьи и гостей.
Две спальни размещены таким образом, чтобы обеспечить максимальную приватность и удобство. Санузлы расположены по обеим сторонам дома, что удобно для членов семьи и гостей. Такая планировка исключает сквозной проход через спальни и способствует оптимальному распределению тепла и света.
Основные зоны дома в деталях
| Зона | Функция | Примечания |
|---|---|---|
| Гостиная с кухней | Место для отдыха и приема пищи | Совмещенное пространство с возможностью зонирования мебелью и освещением |
| Спальня 1 | Основная спальня для хозяев | Просторная, с возможностью размещения большой кровати и гардероба |
| Спальня 2 | Детская или гостевая | Гибкая комната под разные нужды |
| Санузлы (2 шт.) | Гигиенические помещения | Один из санузлов может быть совмещенным, второй — гостевым или хозяйственным |
Почему стоит выбирать одноэтажный дом с двумя спальнями
Двухспальная планировка на одном этаже является идеальным решением для большинства семей. Она предоставляет достаточную приватность, при этом не требует лишних метражей и расходов на строительство многоуровневых зданий. Наличие двух санузлов гарантирует, что утренний и вечерний ритуалы не будут конфликтовать между членами семьи.
Кроме того, одноэтажный дом легче адаптировать под изменения потребностей семьи — например, перепрофилировать одну из спален в кабинет или игровую комнату для детей. Такой дом проще в обслуживании, экономичнее в отоплении и удобен как для постоянного проживания, так и для сезонного использования.
Экономическая составляющая строительства дома размером 8x9 м
Одним из самых важных аспектов при выборе проекта является стоимость строения. Дом площадью 146 м² с параметрами, описанными в проекте, обойдется примерно в 5 856 897 рублей. Это относительно небольшая сумма для нового индивидуального жилого дома с современными стандартами комфортности.
Такой бюджет позволяет использовать современные, энергоэффективные материалы и технологии, что в будущем обеспечит существенную экономию на эксплуатационных расходах. Кроме того, строительство в один этаж снижает трудозатраты и сроки реализации проекта — что немаловажно для тех, кто хочет как можно быстрее заселиться в готовый дом.
Основные факторы, влияющие на стоимость дома
- Тип и качество строительных материалов
- Уровень инженерного оснащения (отопление, водоснабжение, электрика)
- Отделочные работы и тип покрытия пола
- Сложность архитектурных решений и наличие дополнительных элементов
- Работы по ландшафту и благоустройству участка (если включены)
Возможности для индивидуальной адаптации проекта
Даже при строгих габаритах 8х9 метров и одноэтажном исполнении проект дома открывает широкие возможности для индивидуализации. Вы можете адаптировать интерьер под собственные предпочтения, изменить планировку комнат или доработать фасад, что придаст дому уникальный стиль и улучшит комфорт проживания.
Для тех, кто мечтает о более просторной гостиной или дополнительном кабинете, возможно изменение внутренних перегородок с сохранением несущей способности конструкции. Также стоит рассмотреть варианты расширения дома в будущем, например пристроив веранду или небольшую пристройку, если размеры участка позволяют.
Индивидуализация плана включает
- Перепланировку внутренних помещений
- Изменение отделочных материалов и цветовых решений
- Дополнение системами «умного дома»
- Установка дополнительного оборудования и внутренней мебели на заказ
Экологичность и энергоэффективность дома 30
Проект дома также учитывает современные тренды на энергосбережение и экологичность. Использование качественной теплоизоляции стен, окон и кровли, а также эффективных систем отопления снижает затраты на эксплуатацию и делает проживание в доме комфортным в любое время года.
Эко-ориентированный подход особенно востребован среди современных жителей загородных домов, которые стремятся сохранить ресурсы, минимизировать влияние на окружающую среду и проживать в здоровой атмосфере.
Основные экологические и энергоэффективные решения
| Решение | Описание |
|---|---|
| Теплоизоляция | Современные материалы для стен и крыши снижают потери тепла до 50% |
| Энергосберегающие окна | Двойной или тройной стеклопакет с защитой от ультрафиолета |
| Современные системы отопления | Возможность установки тепловых насосов или других энергоэффективных котлов |
| Использование экологичных материалов | Малотоксичные отделочные материалы и покрытия, безопасные для здоровья |
Заключительные мысли о доме 30 — одноэтажном доме 8x9 м
Дом размером 8 на 9 метров, площадью 146 м² и стоимостью около 5,8 миллионов рублей — отличный выбор для тех, кто ищет сбалансированное сочетание цены, качества и функциональности. Его компактность позволяет экономить средства на строительстве и содержании, а продуманная планировка дарит комфорт и удобство проживания.
Наличие двух спален и двух санузлов создает все условия для семейной жизни, а одноэтажный формат делает дом доступным для всех возрастных категорий. Высокое качество материалов, современная инженерия и возможность индивидуальной адаптации делают этот проект привлекательным как для постоянного проживания, так и для дачи или загородного дома отдыха.
Если вы ищете надежное, уютное и практичное жильё под ключ, «Дом 30» станет вами прекрасным выбором, который оправдает ваши ожидания как в плане функциональности, так и в финансовом плане.
























