Двухэтажный дом 12х13 метров – современный комфорт и простор
Сегодня многие семьи стремятся построить просторный и функциональный загородный дом, который станет настоящей крепостью и уютным гнездом одновременно. Одним из наиболее удачных решений для таких целей является двухэтажный дом размером 12 на 13 метров с общей площадью около 222,57 м². Такой дом идеально подходит для большой семьи, обеспечивая необходимое пространство для отдыха, работы и приема гостей. В этой статье мы подробно рассмотрим все особенности данного проекта, предложим советы по планировке и эксплуатации, а также расскажем, почему именно дом с такими параметрами становится все более востребованным среди владельцев загородной недвижимости.
Размеры дома 12х13 м: оптимальное решение для загородного участка
Габариты дома 12 на 13 метров создают достаточную площадь для размещения всех необходимых жилых и бытовых помещений, не занимая при этом чрезмерно много места на участке. Такой размер позволяет гармонично вписать постройку в ландшафт, обеспечить удобное зонирование внутренних помещений и простую организацию систем коммуникаций.
Важно понимать, что размер 12х13 метров является достаточно универсальным. С одной стороны, дом занимает достаточно площади для размещения более пяти спален и двух санузлов. С другой стороны, он не слишком велик, что упрощает строительные работы и снижает затраты на отопление и обслуживание. Именно поэтому двухэтажные дома таких размеров пользуются огромной популярностью среди застройщиков и архитекторов.
Преимущества площади и конфигурации 12x13
- Оптимальное использование земли: дом не занимает слишком много пространства, оставляя место для сада, дорожек и зоны отдыха.
- Разумная теплоэффективность: компактный формат позволяет поддерживать комфортные температурные условия с меньшими затратами.
- Удобная планировка этажей: площадь позволяет создавать функциональные помещения — гостиные, кухни, спальни, а также вспомогательные комнаты.
- Универсальность: дом подходит для семей с детьми, а также для приема гостей и организации рабочего пространства.
Два этажа – простор и функциональность
Двухэтажный формат дома дает сразу несколько ключевых преимуществ, которые никак нельзя упускать из виду при выборе или проектировании загородного дома. Прежде всего, он существенно увеличивает жилую площадь без необходимости расширять габариты дома в плане. Это особенно важно на участках с ограниченной площадью.
С двумя этажами появляется возможность разделить зону дневного и ночного отдыха, организовав, например, на первом этаже гостиную, кухню и санузел, а на втором — расположить все спальни и дополнительные ванные комнаты. Такая планировка помогает обеспечить комфорт для всех членов семьи и сделать жизнь более удобной.
Почему двухэтажный дом – это лучшие условия для семьи?
- Максимальное использование площади: благодаря этажности, площадь в 222,57 м² эффективно распределяется между всеми необходимыми комнатами.
- Приватность: спальные комнаты находятся на втором этаже, что обеспечивает личное пространство для каждого члена семьи.
- Разделение функциональных зон: дневная зона и зона отдыха четко разграничены, облегчая организацию пространства.
- Эстетика и представительность: двухэтажный дом чаще выглядит более внушительно и придает статус владельцам.
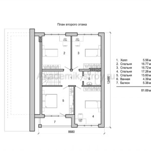
Количество спален: пять и больше – комфорт для большой семьи
Одной из основных задач при проектировании загородного дома является обеспечение достаточного количества спальных комнат. В рассматриваемом доме легко размещаются более пяти спален, что является редкостью для многих типовых проектов и позволяет всем членам семьи иметь собственное личное пространство. Этот параметр особенно важен для больших семей или домов, где часто бывают гости.
Пять и более спален позволяют гибко использовать помещения: часть из них можно использовать как кабинеты для удаленной работы, детские комнаты или даже комнаты для хобби. Такая вариативность делает дом невероятно удобным и функциональным.
Распределение спален и их назначение
| Этаж | Количество спален | Назначение |
|---|---|---|
| Первый этаж | 1-2 | Гостевая, возможно кабинет |
| Второй этаж | 3-4 и более | Основные спальни семьи, детские комнаты |
Такое распределение позволяет организовать пространство максимально комфортно и с учетом всех потребностей жильцов.
Два санузла: удобство и практичность в повседневной жизни
Количество санузлов в доме является важным показателем уровня комфорта. В проекте дома размером 12 на 13 метров предусмотрено два санузла, что оптимально для семьи с пятью и более членами. Два санузла позволяют избежать очередей во время утренней или вечерней подготовки, а также обеспечивают дополнительную гигиеническую зону для гостей или детей.
Расположение санузлов тоже играет ключевую роль. Обычно одну ванную делают на первом этаже ближе к гостиной и кухне, а вторую – на верхнем этаже, рядом со спальнями. Это обеспечивает удобство для всех жильцов и гостей.
Преимущества двух санузлов
- Удобство для большой семьи и гостей
- Отсутствие очередей и спешки в утренние часы
- Возможность оборудовать один из санузлов под ванную, второй – под гостевой туалет
- Упрощение санитарных процедур и гигиены
Особенности планировки и зонирования дома размером 12х13 м
При проектировании дома 12 на 13 метров важно продумать четкое разделение пространства для различных функций. Такой подход повышает качество жизни и дает возможность более эффективно использовать каждый квадратный метр.
Первый этаж – центр общественной жизни
Основное предназначение первого этажа – это общественные зоны, такие как гостиная, кухня и столовая. Здесь же можно расположить гостевые спальни и санузел. Просторная гостиная с кухней, объединяемая в единое пространство, создает ощущение простора и свободы, обеспечивает хорошее естественное освещение. Отдельное внимание стоит уделить входной зоне — там часто проектируют гардеробную или небольшую кладовку для хранения верхней одежды и обуви.
Второй этаж – уединение и отдых
Второй этаж полностью посвящен зонам личного отдыха. Здесь расположены пять и более спален, а также санузел. Благодаря такому зонированию члены семьи могут комфортно отдыхать, не нарушая покой друг друга. Часто проект включает в себя и дополнительную комнату для техники или прачечную, что делает дом еще более удобным в эксплуатации.
Советы по внутреннему зонированию
- Зонируйте пространство с помощью перегородок или мебели, чтобы максимально использовать каждый метр.
- Обязательно учитывайте естественное освещение при расположении комнат.
- Для детских комнат и спальни родителей выбирайте более тихие и защищенные от шума зоны.
- Ванную комнату лучше располагать рядом со спальнями для удобства использования ночью.
Экономия и эффективность строительства дома 12x13 с площадью 222,57 м²
Строительство дома размером 12 на 13 метров с общей площадью около 222,57 м² требует серьезного планирования и точных расчетов архитекторов и строителей. Следует тщательно подбирать строительные материалы, методы утепления, а также системы отопления и вентиляции для обеспечения комфортного климата внутри помещения.
Такие дома чаще всего строятся с применением современных энергоэффективных технологий, что позволяет сократить расходы на эксплуатацию. Например, использование качественного утеплителя, двойных стеклопакетов, и систем рекуперации воздуха снижает затраты на отопление и обеспечивает комфорт в любую погоду.
Основные статьи затрат при строительстве дома 12х13
| Статья затрат | Описание | Рекомендации по экономии |
|---|---|---|
| Фундамент | Основание здания – ключевой элемент конструкции | Выбор оптимального типа фундамента с учетом грунта |
| Конструкция стен | Материалы (кирпич, газобетон, дерево) | Использование энергоэффективных материалов для снижения затрат на отопление |
| Кровля | Материал и монтаж | Выбор долговечных и легких покрытий |
| Внутренняя отделка | Плитка, обои, напольные покрытия | Рациональное планирование отделки, выбор качественных, но доступных материалов |
| Инженерные системы | Отопление, вода, электрика | Автоматизация и контроль для снижения энергозатрат |
Преимущества выбора проекта с размерами 12 на 13 метров
Дом площадью около 222,57 м² и размерами 12 на 13 метров прекрасно вписывается в запросы современных семей, желающих получить просторное жилье с высокой функциональностью. Такой проект обладает рядом важных преимуществ:
- Гибкость использования пространства: возможность адаптировать планировку под любые нужды семьи.
- Доступность строительства: относительно невысокая стоимость с учетом площади и этажности.
- Сочетание комфорта и практичности: удобно эксплуатировать и поддерживать в чистоте.
- Эстетическая привлекательность: аккуратный вид, возможность выбора фасадных решений.
Советы по выбору участка и планированию строительства
Хотя проект дома имеет фиксированные габариты, правильный выбор участка и грамотное планирование строительства играет ключевую роль для успешного завершения проекта. Чтобы дом 12х13 м мог реализовать свой потенциал, необходимо учитывать несколько важных аспектов.
Выбор участка
Проект данного дома требует свободного земельного участка, чтобы разместить постройку и имелась возможность создания зон отдыха и хозяйственных построек. При выборе участка следует учитывать:
- Равнинность и тип почвы – для правильного выбора фундамента.
- Ориентация на стороны света – для планирования освещения и отопления.
- Доступность коммуникаций – электроснабжение, водоснабжение, канализация.
- Расположение относительно дорог и соседних строений – для обеспечения приватности и удобств.
Планирование строительства
Строительство дома 12 на 13 метров лучше начинать с детального проектирования, включающего все инженерные системы, выбор материалов и согласование с подрядчиками. Необходимо учитывать сезонные особенности региона и правильно распределить этапы работ, чтобы избежать задержек и дополнительных затрат.
Итоги: дом 12х13 метров – отличный выбор для семьи и инвестиций
Подводя итог, хочется отметить, что двухэтажный дом размером 12х13 метров и общей площадью около 222,57 м² – это современное, комфортное и практичное жилье. Он идеально подходит для большой семьи с пятью и более спальнями и двумя санузлами, гарантируя удобное зонирование и функциональность.
Такие дома позволяют владельцам полностью реализовать свои потребности в комфорте и уюте, обеспечивают эффективное использование площади и пропорциональную нагрузку на инженерные системы. Эти проекты сочетают в себе достоинства компактности и простора, делая каждый квадратный метр максимально полезным.
Если вы задумались о строительстве загородного дома, дом 12х13 метров с двумя этажами и площадью 222,57 м² заслуживает вашего внимания как отличное решение, способное служить надежной и удобной основой для жизни на многие годы.






















