Двухэтажный дом 12х12 – оптимальное решение для большой семьи
Планировка и архитектура частного дома играют ключевую роль в создании комфортного и функционального жилого пространства. Если вы рассматриваете вариант строительства собственного дома и хотите сочетать удобство, стиль и рациональность, двухэтажный дом размером 12 на 12 метров станет отличным выбором. Этот параметр определяет квадратуру и формирует основу для продуманной планировки, которая способна разместить все необходимые комнаты и зоны для комфортной жизни большой семьи. Размер 12x12 метров предоставляет возможность использовать пространство максимально эффективно, не распыляя его на бесконечные коридоры и холлы.
Двухэтажная конструкция дома позволяет значительно увеличить жилую площадь без необходимости расширять площадь земельного участка, что особенно важно в условиях загородного строительства, где земля может иметь ограниченные параметры. При этом такой дом отлично вписывается практически в любой ландшафт и может стать гармоничным дополнением участка.
Основные преимущества дома 12x12 с двумя этажами
Выбор двухэтажного дома размером 12 на 12 метров обусловлен не только эстетическими факторами, но и практичностью. Одна из главных возможностей такого проекта – рациональное зонирование пространства. Два этажа позволяют отделить дневные и ночные зоны, обеспечив уединение и комфорт каждому члену семьи. За счет компактного квадратного плана минимизируются потери полезной площади на проходы и технические помещения.
Большое количество спален, которые доступны в доме площадью около 180 квадратных метров, создают идеальные условия для семьи с несколькими детьми или для приема гостей. Более пяти спален в данном размере дома – это отличное решение для тех, кто часто принимает родственников или хочет обустроить домашний офис или мастерскую в отдельной комнате.
Комфорт и функциональность
Два санузла (один на каждом этаже) существенно повышают удобство проживания, позволяя избежать очередей и делить пространство грамотно между жителями, что особенно актуально для большой семьи. При планировании дома важно предусмотреть оптимальное расположение ванных комнат, чтобы они были легко доступны из всех спален и общих зон.
Эффективное использование участка
Особенностью дома с размерами 12х12 м является его компактность и при этом достаточно большой объем жилых помещений. При грамотном ландшафтном дизайне и благоустройстве вы сможете максимально использовать свободное пространство на участке для организации зоны отдыха, садовых композиций и хозяйственных построек.
Подробности планировки двухэтажного дома 12х12
Стандартный план дома с такими параметрами обычно предусматривает рациональное распределение помещений между этажами, что способствует максимальному комфорту и удобству в эксплуатации. На первом этаже обычно располагаются общественные зоны – гостиная, кухня, столовая и, возможно, гостевая комната или кабинет.
Вторая половина дома может включать в себя вместительные спальни, где каждая получает необходимую приватность. Как правило, проект предусматривает пять и более спальных комнат, что идеально подходит для многодетных семей или тех, кто хочет иметь гостевые и рабочие помещения.
Первый этаж: пространство для семьи и гостей
Гостевая зона с большой гостиной позволяет собрать всех домочадцев и гостей в уютной обстановке. Открытые планировки последних лет популярны тем, что позволяют объединить кухню и столовую с гостиной, увеличивая ощущение простора и создавая удобство для общения.
На этом этаже также можно разместить санузел, прихожую и технические помещения, такие как котельная или прачечная, повысив комфорт и функциональность дома. Входная группа организована так, чтобы обеспечить удобный доступ с улицы, а также возможный выход на небольшой сад или террасу.
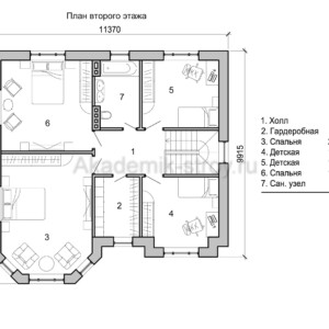
Второй этаж: зона отдыха и приватности
Главной особенностью второго этажа является наличие большого количества спален. Каждая из них имеет свой размер и расположение, что позволяет грамотно разделить пространство для взрослых и детей. Наличие двух санузлов позволяет существенно повысить уровень удобства, особенно в утренние часы, когда спрос на ванные комнаты наиболее высок.
Также на втором этаже можно выделить место под гардеробные или мини-кабинеты, что станет отличным вариантом для организации рабочего места на дому без ущерба комфорту остальных членов семьи.
Технические особенности строительства и материалы
Выбирая проект двухэтажного дома размером 12x12 метров, важно заранее продумать не только планировку, но и особенности конструкции, материалы и особенности возведения. Качество строения напрямую зависит от правильно выбранных технологий и сырья, что влияет на теплоизоляцию, долговечность и комфорт проживания.
Современные строительные материалы позволяют рассчитывать на высокие показатели энергоэффективности, что немаловажно в условиях российского климата с холодными зимами. Использование утепленных стен, эффективных оконных систем и качественных отделочных материалов существенно снизит энергозатраты и сделает дом максимально уютным.
Каркасное строительство
Одним из популярных вариантов для дома такого размера является каркасная технология. Быстрая сборка, небольшая нагрузка на фундамент и возможность комфортного размещения коммуникаций делают этот вариант привлекательным как для профессионалов, так и для тех, кто планирует самостоятельное строительство.
Классический кирпич и блоки
Для более устойчивых и долговечных домов часто выбирают кирпич или газобетонные блоки. Эти материалы обладают хорошей теплоемкостью и звукоизоляцией, а при грамотном проектировании дома с размерами 12x12 м позволяют создать уютный и теплый микроклимат в помещениях, что увеличит срок службы здания.
Оптимальные технологии кровли
Хотя данные о типе и угле наклона крыши не обозначены, важно отметить, что в проекте двухэтажного дома особое внимание уделяется кровле как одному из важнейших конструктивных элементов. Правильный выбор кровельного материала и конструкции существенно влияет на долговечность и внешний вид дома.
Важность планирования удобства и эргономики
Одна из ключевых задач при проектировании двухэтажного дома 12 на 12 — создать такой интерьер и план, который будет удобен для всех членов семьи. Эргономика, легкий доступ ко всем помещениям, достаточный уровень естественного освещения — все эти факторы влияют на качество жизни.
Воплощение идей рационального зонирования, обеспечение логистической удобности и продуманное размещение коммуникаций позволяет избежать многих ошибок в будущем, снизить затраты на эксплуатацию дома и сделать пребывание в нем максимально комфортным.
Примеры зонирования помещений
| Этаж | Назначение помещения | Основные особенности |
|---|---|---|
| Первый | Гостиная, кухня-столовая, санузел, технические помещения | Общая зона для отдыха и приема гостей, удобная коммуникация |
| Второй | Спальни (5+), 2 санузла, гардеробные, кабинет | Приватная зона для отдыха и работы, максимальный комфорт |
Расположение санузлов
- Первый этаж – гостевой санузел для удобства жильцов и гостей.
- Второй этаж – санузлы, расположенные рядом со спальнями для быстрого доступа.
Влияние размеров дома 12x12 на выбор участка и ориентацию
Размеры дома 12 на 12 метров диктуют минимальные требования к участку, на котором он будет возводиться. Важно учитывать не только площадь, но и форму участка, чтобы обеспечить достаточный отступ от границ, место для организации придомовой территории и комфорт для проезда техники.
Правильная ориентация дома на участке помогает максимально использовать естественное освещение и увеличить энергоэффективность здания. Южная сторона обычно отводится под окна гостиной и столовой, чтобы обеспечить солнечный свет в самое активное время суток. Северная сторона чаще всего размещается техническими помещениями и вспомогательными зонами.
Рекомендации по минимальным размерам участка
| Параметр | Рекомендация | Обоснование |
|---|---|---|
| Минимальная ширина участка | 18-20 м | Для обеспечения отступов от границ и организации подъезда к дому |
| Минимальная длина участка | 25-30 м | Для размещения дома и обустройства зоны отдыха и хозяйственных построек |
Ориентация по сторонам света
- Главный фасад и гостиная — на юг или юго-восток для достаточного освещения.
- Спальни — на запад или северо-запад для комфортного отдыха.
- Технические помещения — на север для минимизации теплопотерь.
Варианты отделки и оформление интерьера
Проект двухэтажного дома 12х12 м с пятью и более спальнями и двумя санузлами предоставляет широкие возможности для реализации различных дизайнерских решений. Внутренняя отделка должна сочетать в себе практичность и стиль, обеспечивая эстетическое удовольствие и удобство в повседневной жизни всех членов семьи.
Для общественных зон отлично подходят светлые и теплые оттенки, которые визуально расширяют пространство и создают атмосферу уюта. Отделка стен натуральным деревом, камнем или декоративными штукатурками подчеркнет изысканность и стиль современного дома.
Выбор материалов для пола и стен
- Керамогранит и плитка в кухне и санузлах – за счет высокой прочности и влажностойкости.
- Паркет, ламинат или инженерная доска в жилых и спальных комнатах – для теплоты и комфорта.
- Влагоустойчивые обои или краска в помещениях с повышенной влажностью.
Мебель и зонирование пространства
Учитывая наличие множества спальных комнат, каждая из них может быть обставлена индивидуально согласно вкусу жильцов. Гостиная с кухней и столовой оформляется в едином стиле, с удобной обеденной зоной и мягкими диванами для отдыха. На втором этаже наличие рабочей зоны в кабинете или мини-офиса идеально подчеркивает современный ритм жизни и необходимость разделения работы и отдыха.
Финансовый аспект строительства и эксплуатации
Общий бюджет строительства двухэтажного дома 12х12 с пятью и более спальнями во многом зависит от выбранных материалов, сложности архитектурных решений и условий участка. Важно заранее планировать расходы и учитывать возможные дополнительные затраты на отделку, инженерные системы и благоустройство прилегающей территории.
Кроме того, расходы на эксплуатацию дома такого размера следует планировать с учетом потребностей в отоплении, вентиляции и обслуживании коммуникаций. Энергоэффективные технологии способны существенно снизить эти затраты в перспективе.
Основные статьи бюджета строительства
| Статья расходов | Описание | Процент от общего бюджета |
|---|---|---|
| Фундамент и конструкция | Основание для устойчивости здания | 25-30% |
| Стены и кровля | Основные ограждающие конструкции | 30-35% |
| Инженерные системы | Отопление, электрика, водоснабжение | 15-20% |
| Отделочные работы | Внутренние и внешние отделочные материалы | 20-25% |
Эксплуатационные расходы и их оптимизация
- Использование энергоэффективных окон и утеплителей снижает затраты на отопление.
- Установка современной системы вентиляции с рекуперацией помогает поддерживать комфортный микроклимат.
- Автоматизация инженерных систем снижает расходы и повышает надежность работы дома.
























