Обзор одноэтажного дома АС-225: размеры и стоимость
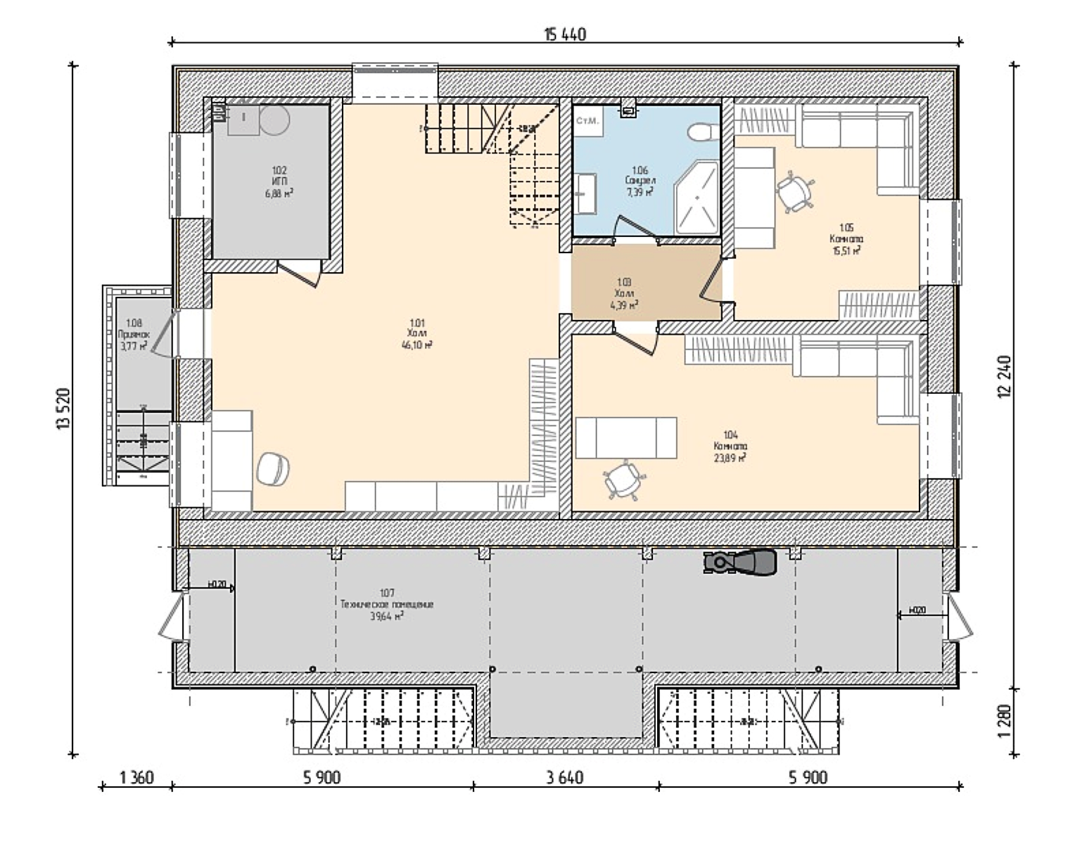
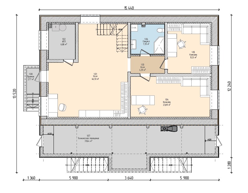
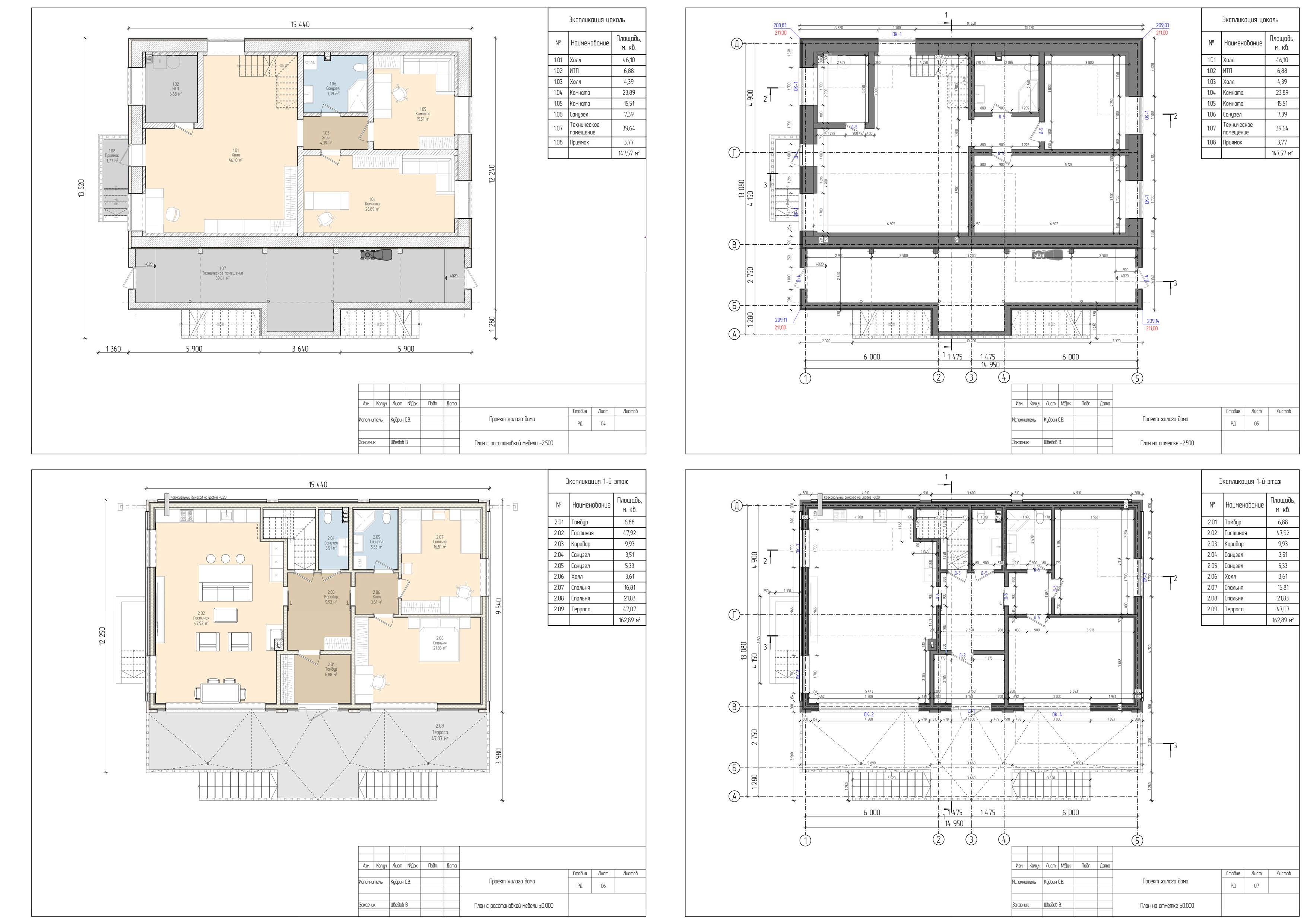
Проект одноэтажного дома АС-225 представляет собой интересное решение для тех, кто ищет вместительное и функциональное жильё с комфортной планировкой, но при этом не желает увеличивать этажность. Дом размером 9 на 16 метров предлагает впечатляющую полезную площадь в 309 м², что для одноэтажного здания является отличным показателем. Такое пространство позволяет грамотно распланировать все необходимые зоны, включая жилые помещения и отдыха, а также хозяйственные комнаты.
Стоимость данного проекта составляет 8 267 586 рублей, что при таком метраже и количестве комнат является вполне оправданным вложением. Рынок загородного строительства предлагает множество вариантов домов, но именно сочетание площади, эргономики и цены выделяет АС-225 среди конкурентов.
Преимущества одноэтажного дома с большой площадью
Одноэтажные дома традиционно ценятся за удобство и простоту в эксплуатации. Отсутствие лестничных пролетов делает дом безопасным и комфортным для всех возрастов, особенно для семей с маленькими детьми и пожилыми людьми. Проект АС-225 со своей обширной полезной площадью позволяет избежать ощущения излишней компактности, характерной для многих одноэтажных строений.
В отличие от многоэтажных домов, одноэтажные проекты способствуют более эффективной организации пространства. Удобный доступ ко всем комнатам без необходимости подниматься по лестнице – это значительное преимущество в плане повседневной жизни и удобства.
Планировка 4 спальни и 3 санузла: комфорт для большой семьи
Наличие четырёх спален – это отличный показатель для дома такой площади. Это позволяет каждому члену семьи иметь личное пространство, что особенно важно в современных условиях. Кроме того, такая конфигурация подходит для приема гостей или организации домашнего кабинета.
Три санузла – также существенный плюс. В больших семьях и при частом посещении гостей дополнительные санитарные узлы значительно повышают комфорт и позволяют избежать утренних очередей, обеспечивая рациональное распределение потоков бытовых потребностей.
Размеры дома и их влияние на участок
Размеры дома 9×16 м делают его компактным, но при этом достаточно вместительным. Такой дом легко можно разместить на участке умеренной площади, не занимая чрезмерно много места. Это позволяет оставить свободную территорию для ландшафтного дизайна, организации зоны отдыха или детской площадки.
Минимальные требования к участку
Хотя конкретных параметров минимальной ширины и длины участка, необходимых для строительства АС-225, в проектной документации не указано, исходя из размеров самого дома, можно рекомендовать земляной участок с шириной не менее 15-18 метров и длиной около 20-25 метров. Это обеспечит возможность удобного размещения дома с отступами, предусмотренными СНиП, а также оставит место для подъездных путей и зоны отдыха.
Архитектурные особенности и привлекательность проекта
Несмотря на то, что проект не предусматривает террасы и балконы, одноэтажный дом АС-225 выигрывает за счёт лаконичной и эргономичной архитектуры. Отсутствие дополнительных выступающих конструкций позволяет снизить себестоимость строительства и уменьшить расходы на отделочные работы.
Такая архитектурная простота зачастую становится преимуществом как с эстетической точки зрения, так и с технической: дом легче обслуживать, он менее подвержен воздействию погодных условий на элементы фасада.
Варианты оформления фасада
Для визуального оживления фасада дома можно использовать различные отделочные материалы: декоративный камень, деревянную облицовку, фасадные панели или штукатурку с выделением цветовых акцентов. Такой подход поможет придать дому индивидуальность, соответствующую вкусам владельцев и стилевым предпочтениям.
Особенности внутренней планировки
Продуманная планировка одноэтажного дома 9×16 м и общей полезной площадью 309 м² обеспечивает максимально комфортное зонирование помещения. В рамках проекта предусмотрено размещение четырех спален и трёх санузлов, что позволяет грамотно организовать пространство для отдыха, работы и бытовых задач.
Большое количество санузлов (три) существенно повышает уровень комфорта, позволяя избежать утренних инсценировок с очередями. Это особенно актуально для семей с несколькими взрослыми членами, а также при наличии гостей.
Примерная схема распределения помещений
| Помещение | Площадь (м²) | Функционал |
|---|---|---|
| Гостиная | 40 | Общая зона отдыха и прием гостей |
| Кухня-столовая | 30 | Приготовление и приём пищи |
| Спальня 1 (хозяев) | 25 | Личная спальня с гардеробной |
| Спальня 2 | 20 | Детская или гостевая спальня |
| Спальня 3 | 18 | Рабочий кабинет или дополнительная спальня |
| Спальня 4 | 18 | Гостевая или детская спальня |
| Санузлы (3 шт.) | 12 (сумма) | Гигиенические зоны, включая душ и туалет |
| Хозяйственные помещения и коридоры | 46 | Хранение, переходы между зонами |
Экономика строительства и цена проекта
Цена проекта АС-225, включающая геометрические параметры дома и материалы, составляет 8 267 586 рублей. Как показывает практика, стоимость домов в сегменте 300+ м² одноэтажного исполнения варьируется в зависимости от выбранных материалов и сложности конструкции. Данный проект удачно балансирует между уровнем комфорта и бюджетом.
Вложения в строительство такого дома оправданы за счёт создания оптимальной жилплощади и снижения эксплуатационных затрат, характерных для многоэтажных домов. Одноэтажное жилое строение проще в отоплении и обслуживании инженерных систем, а площадь 309 м² предоставляет широкий простор для жизни.
Основные статьи расходов
- Фундамент и лестничные конструкции (минимальны, благодаря одноэтажной конструкции)
- Стены и кровля – важнейшая часть бюджета
- Отделочные материалы и инженерное оборудование
- Инженерные сети: отопление, электричество, сантехника
- Архитектурные доработки и декор
Почему выбирают проекты с полезной площадью свыше 300 м²
Дома с такой полезной площадью даёт возможность проживать большой семье без стеснений или же организовать дополнительные зоны для гостей и работы. Современный образ жизни предполагает разнообразный функционал жилых помещений: личные кабинеты, гостиные, комнаты для хобби и спорта. Проекты, подобные АС-225, как раз и обеспечивают такое пространство.
Кроме того, большая площадь упрощает организацию приватных зон для каждого члена семьи и минимизирует взаимные раздражения, повышая качество жизни в доме.
Особенности эксплуатации и комфорта
- Оптимальная циркуляция воздуха и естественное освещение
- Наличие трёх санузлов исключает очереди и улучшает гигиенические условия
- Одноэтажная планировка способствует легкому распределению комнат и уменьшению шумов
- Удобство передвижения без лестниц, что важно для пожилых и детей
Итоги: АС-225 — идеальный выбор для просторного и комфортного жилья
Одноэтажный дом АС-225 размером 9 на 16 метров с полезной площадью 309 м² — это сбалансированное решение для тех, кто хочет совместить простор и удобство без лишних этажей. Наличие четырёх спален и трёх санузлов превращает такой дом в настоящий оазис комфорта для большой семьи или для тех, кто ценит личное пространство и функциональность.
Стоимость около 8,3 миллионов рублей отвечает уровню качества и площади, при этом проект остаётся доступным на рынке частного строительства. Если рассматривать долгосрочные выгоды — этот одноэтажный дом становится отличным вложением и комфортным местом для жизни на много лет вперед.


























