Двухэтажный дом 12x14 м: оптимальный выбор для семьи
Проект двухэтажного дома размером 12 на 14 метров с общей площадью около 197 квадратных метров — это идеальное решение для семей, желающих сочетать комфорт, функциональность и современный дизайн. Такой дом достаточно просторен, чтобы разместить все необходимое для жизни семьи из 3-5 человек, при этом не требуя слишком большого участка земли и больших затрат на строительство и содержание.
Два этажа — это не просто способ увеличить жилую площадь, но и возможность рационального зонирования пространства. Первый этаж часто отводится под общественные зоны: гостиную, кухню, столовую и гостевой санузел, второй — под приватные помещения, такие как спальни и санузлы. Такой подход обеспечивает удобство и комфорт для всех членов семьи.
Габариты дома и их влияние на проектирование
Размеры дома 12 на 14 метров определяют общую площадь застройки, а значит, влияют на расположение дома на участке и земельные затраты. Площадь застройки такого дома составляет около 168 квадратных метров (без учета выступающих элементов), что требует хорошо организованного участка не менее 20 на 22 метра с учетом отступов и дорожек.
Формат прямоугольника 12х14 м является удобным с точки зрения планировки: фасады достаточно компактны, легко проектировать окна, обеспечивающие достаточное естественное освещение. Кроме того, рациональная форма минимизирует теплопотери благодаря уменьшению внешних стен, что важно для энергоэффективности.
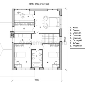
Планировка двухэтажного дома: оптимальное распределение пространства
Одним из главных преимуществ дома площадью 196.83 м² является возможность комфортного обустройства четырех спален и двух санузлов — оптимальное соотношение для семьи, в которой возможно проживание нескольких поколений или частые гости.
Первый этаж: общественные зоны и функциональные помещения
Как правило, первый этаж включается в себя гостиную, кухню, столовую, гостевой санузел и при необходимости технические помещения, например, кладовые или постирочные. Благодаря площадь около 100 квадратных метров на первый этаж, можно спроектировать просторную гостиную с панорамными окнами, объединенную с кухней и столовой зоной, что создаст ощущение простора и свободы.
Второй этаж: приватные помещения и комфорт
Второй этаж предназначен для четырёх спален и двух санузлов — одним, как правило, пользуется хозяйская спальня, а второй санузел обслуживает остальные комнаты. Такая схема позволяет избежать утренних очередей и улучшить комфорт проживания. Кроме того, наличие нескольких спален откроет различные варианты использования: комнаты для детей, зона для работы или хобби, гостевая спальня.
Распределение спален
- Главная спальня с санузлом и гардеробной.
- Детская спальня с достаточным пространством для игр и учёбы.
- Вторая детская или гостевая спальня.
- Дополнительная комната, которая может служить кабинетом или спортзалом.
Преимущества двухэтажного дома площадью около 197 м²
Проект такого дома отличается рядом важных достоинств, которые делают его востребованным выбором для загородного строительства.
Рациональное использование участка
Небольшой по площади участок зачастую ограничивает размеры дома. Двухэтажное решение с размерами 12 на 14 метров позволяет максимально использовать пространство вертикально, оставляя больше места для организации двора, сада или зоны отдыха. Минимальная площадь участка для комфортного размещения такого дома, с учетом отступов и придомовых зон, составляет около 400−450 м², что значительно доступнее, чем для одноэтажного аналога с такой же площадью.
Энергоэффективность и экономия
За счет компактной формы и уменьшенного количества внешних стен дом легче утеплить и сократить теплопотери. Кроме того, использование двух этажей позволяет снизить затраты на фундамент и кровлю в сравнении с одноэтажным домом такой же площади. Это действительно важно как для бюджета строительства, так и для дальнейшего обслуживания.
Комфорт и удобство проживания
Наличие четырех спален позволяет семье с детьми не чувствовать себя стеснённо, а наличие двух санузлов – избежать дискомфорта в утренние часы. Кроме того, разделение зон на приватную и общественную увеличивает качество жизни, позволяя каждому члену семьи иметь свою зону уединения.
Особенности строительства и проектирования дома 12x14 метров
Планируя строительство дома площадью 196.83 м², необходимо учитывать ряд важных аспектов, от выбора материалов до технических решений.
Фундамент и несущие конструкции
При проектировании двухэтажного дома особое внимание уделяется надежности фундамента, так как он должен выдерживать значительную нагрузку. Для дома 12 на 14 метров с двумя этажами чаще всего выбирают ленточный фундамент с заглублением ниже уровня промерзания грунта. Это обеспечивает долговечность и устойчивость здания.
Материалы стен и теплоизоляция
Для такого проекта традиционно применяются различные варианты — кирпич, газобетон, деревянный каркас или комбинированные технологии. Выбор материала зависит от климатических условий региона, бюджета и желаемого уровня энергоэффективности. Обязательным условием является качественная теплоизоляция, которая позволит экономить на отоплении в зимний период.
Крыша и кровля
Тип крыши в проекте важно подобрать с учетом стиля здания и климата. Для дома 12x14 м оптимальным вариантом является двускатная или четырехскатная крыша с углом наклона, позволяющим эффективно отводить осадки и выдерживать нагрузку снега. Современные кровельные материалы обеспечивают долговечность и защиту от атмосферных явлений.
Примерная стоимость строительства и бюджетирование
Оценка бюджетов строительства — ключевой этап. Стоимость дома площадью около 197 м² зависит от выбранных материалов, региона строительства, сложности проекта и уровня отделки.
| Этап | Описание | Ориентировочная стоимость (руб.) |
|---|---|---|
| Фундамент | Ленточный, заглубленный | 500 000 - 800 000 |
| Стены и конструкции | Газобетон или кирпич | 1 500 000 - 2 500 000 |
| Крыша | Двускатная, металлочерепица | 400 000 - 700 000 |
| Инженерные сети | Отопление, водоснабжение, электрика | 300 000 - 600 000 |
| Отделочные работы | Черновая или отделка под ключ | 1 000 000 - 3 000 000 |
Итого, общая стоимость может варьироваться от 3,7 до 7,6 миллионов рублей в зависимости от технических и дизайнерских решений. Важно понимать, что грамотное планирование позволит оптимизировать затраты и получить качественный комфортный дом за разумные деньги.
Оптимизация планировки и советы архитектора
Когда речь идет о проекте дома 12x14 метров, важно учитывать не только размеры комнат, но и эргономику, удобство перемещения и зонирование. Вот несколько ключевых советов:
- Используйте открытые планировки на первом этаже. Это поможет визуально расширить пространство и упростить коммуникацию между зоной отдыха и кухней.
- Обеспечьте наличие достаточного естественного освещения. Панорамные окна или угловые остекления увеличат свет и создадут ощущение объединения с природой.
- Расположите санузлы рядом с зонами отдыха. Это повысит удобство и сократит протяженность инженерных коммуникаций.
- Планируйте места для хранения. Гардеробные, кладовые и встроенные шкафы помогут поддерживать порядок и использовать пространство рационально.
- Избегайте громоздких прихожих и коридоров. Используйте пространство эффективно, чтобы не «есть» полезную жилую площадь.
Примерная планировка двух этажей для дома 12x14
| Первый этаж | Второй этаж |
|---|---|
|
|
Выводы по выбору и строительству двухэтажного дома 12x14 м
Двухэтажный дом с размерами 12 на 14 метров и четырьмя спальнями — это разумный и современный выбор для семьи, стремящейся к комфорту и функциональному пространству. Такой проект позволяет оптимально использовать площадь участка, обеспечивая разделение зон и комфортное проживание.
Важно уделять внимание не только количеству квадратных метров, но и эргономике планировки, энергоэффективности материалов и правильной организации инженерных систем. Комплексный подход поможет создать жилище, в котором приятно жить, принимать гостей и развиваться всем членам семьи.
Планируя строительство, обращайтесь к специалистам, чтобы адаптировать проект под ваши персональные потребности и учитывая особенности участка. Это гарантирует, что дом прослужит верой и правдой долгие годы, радуя своей красотой и удобством.
























