Введение в проект одноэтажного дома АС-220
Проект АС-220 представляет собой современный одноэтажный жилой дом с площадью 156 квадратных метров, который идеально подойдет для семьи из нескольких человек, ценящих комфорт и функциональность. Размеры дома 10х16 метров создают достаточно простора для организации различных зон отдыха и функциональных помещений, обеспечивая гармоничное распределение пространства. Одноэтажная архитектоника делает дом не только удобным, но и экономичным в строительстве и эксплуатации.
В нашем материале мы подробно рассмотрим особенности и преимущества данного проекта, а также разберём ключевые параметры, такие как планировка, количество спален и санузлов, структуру помещений и общие технические характеристики. Также будет уделено внимание стоимости строительства и тому, как дом АС-220 соответствует современным стандартам энергоэффективности и комфорта.
Общая характеристика дома
Одноэтажный дом размером 10 на 16 метров — это классический формат, который хорошо подходит для семей с двумя детьми или для тех, кто предпочитает компактное жильё без лишних этажей. Общая полезная площадь 156 м² позволяет без ущерба комфорту оборудовать гостиную зону, кухню-столовую, спальни и остальные необходимые помещения.
Отсутствие второго этажа делает дом доступным для пожилых людей и семей с маленькими детьми, снижая риски травматизма, а также уменьшает затраты на строительство каркасных элементов и коммуникаций. Такой проект отлично подойдет как дачный вариант с возможностью постоянного проживания, так и для городской усадьбы.
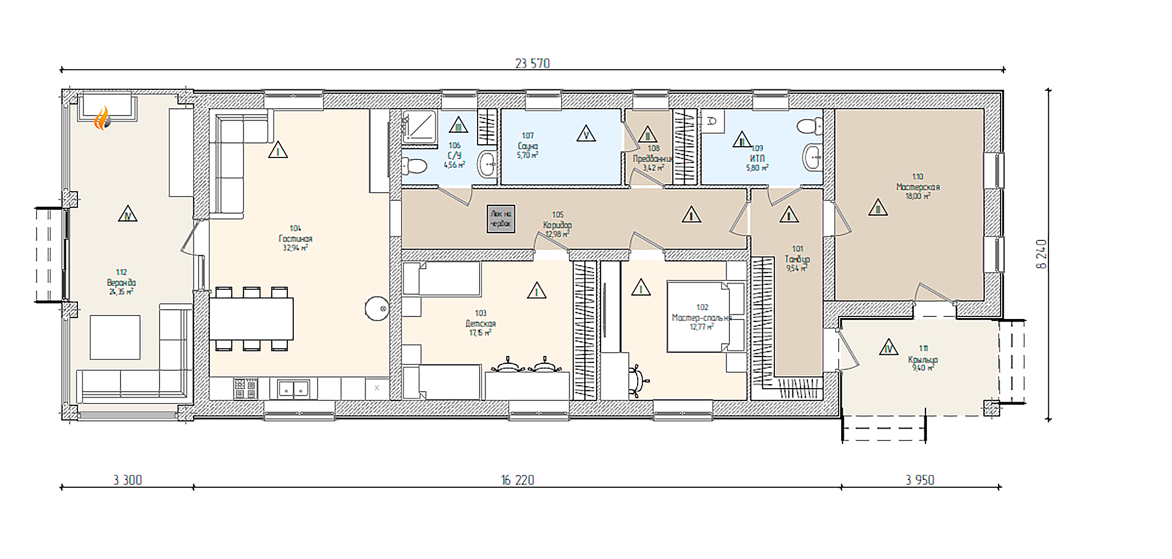
Планировка и функциональность
Количество и расположение спален
В доме предусмотрено две уютные спальни, что идеально для семьи из трех-пяти человек. Размещение спален таким образом, чтобы обеспечить максимальную приватность и тишину, является одним из приоритетов проектировщиков. Каждая спальня имеет достаточный метраж для расстановки основной мебели — кровати, шкафов и рабочих мест.
Двухспальный вариант позволяет организовать пространство не только для физического отдыха, но и для личного пространства каждого члена семьи, что особенно важно в современном ритме жизни.
Санузел в доме
Хотя в проекте предусмотрен только один санузел, он обладает достаточно просторной площадью для комфортного использования. Его расположение выбиралось таким образом, чтобы он был максимально удобен для всех жителей дома и гостей. Организация ванной комнаты требует продуманного подхода, чтобы оптимально использовать пространство и возможности современных сантехнических приборов.
Общая планировка дома
При проектировании дома АС-220 была уделена особое внимание распределению зон — гостиной, кухни, спален и вспомогательных помещений. Пространство гостиной объединено с кухней, что создает эффект открытости и визуального увеличения площади, кроме того, облегчает семейное общение в процессе приготовления еды и отдыха.
Входные группы и холл максимально рациональны и одновременно уютны, позволяя удобно расположить мебель и хранить вещи. Такие решения делают дом удобным, светлым и функциональным.
Архитектурные и конструктивные особенности
Размеры и конфигурация здания
Габариты дома 10х16 метров — это золотая середина между компактностью и просторностью. Достаточная длина и ширина позволяют организовать внутреннее пространство без перегородок, сохраняя при этом зонирование. Дом не выглядит громоздко, что облегчает его интеграцию в разнообразные ландшафтные условия.
Одноэтажное исполнение
Одноэтажная конструкция упрощает не только процесс строительства, но и последующую эксплуатацию дома. Так, отсутствуют лестницы и перекрытия между этажами, что снижает затраты на материалы, время строительства и риск ошибок. К тому же одноуровневое пространство воспринимается более открытым и светлым, что повышает комфорт проживания.
Отсутствие гаража в проекте
В представленной конфигурации дома АС-220 не предусмотрен гараж. Это позволяет максимально использовать площадь под жилые и вспомогательные помещения. Вместе с тем, отсутствие гаража требует обдуманного решения по размещению автомобиля на участке — на открытой площадке или в отдельном строении.
Материалы и технология строительства
Для строительства дома АС-220 рекомендуются современные, экологически безопасные и долговечные материалы, которые обеспечивают высокий уровень теплоизоляции и звукоизоляции. Применение таких технологий позволяет снизить эксплуатационные расходы и создать комфортный микроклимат внутри помещений.
Современные утеплители и пароизоляционные мембраны предотвращают образование конденсата и обеспечивают естественное дыхание стен, тем самым продлевая срок службы конструкций. Технология строительства также предусматривает минимизацию мостиков холода, что особенно важно для домов с одноэтажной планировкой.
Стены и фундамент
Поскольку дом имеет размер 10х16 м и полезную площадь в 156 м², фундамент и стены должны быть достаточно надежными для обеспечения устойчивости и долгосрочности эксплуатации. Как правило, выбирают ленточный или плитный фундамент в зависимости от особенностей грунта на участке.
Стены, выполненные из газобетона или кирпича, обеспечивают хорошую теплоемкость и прочность, а также способствуют созданию благоприятного микроклимата. Дополнительная отделка фасада с использованием современных материалов добавит привлекательности и индивидуальности зданию.
Потенциал комфорта и энергоэффективности
Проект дома АС-220 с площадью 156 м2 разработан с учетом современных требований к комфорту и энергоэффективности. Правильная ориентация здания по сторонам света, оптимальное количество окон и продуманное размещение комнат позволяют лучше использовать естественное освещение и вентиляцию.
Минимизация теплопотерь достигается путем качественной теплоизоляции стен и крыши, а также грамотного проектирования инженерных коммуникаций. Это не только снижает расходы на отопление и кондиционирование, но и делает проживание более приятным и уютным.
Стоимость строительства и экономические аспекты
Одним из ключевых параметров проекта является стоимость — 8 389 580 рублей. За эту сумму инвестор получает полноценный одноэтажный дом с двумя спальнями и одним санузлом общей площадью 156 квадратных метров. Соотношение цена/качество в данном случае выглядит привлекательно, учитывая современные технологии и материалы.
При планировании бюджета стоит учитывать, что окончательная стоимость может изменяться в зависимости от выбора отделочных материалов, инженерного оборудования и особенностей участка. Однако базовая комплектация и выполнение всех строительных работ входя в указанную сумму, делают проект особенно интересным для семей, стремящихся получить качественное жильё.
Таблица: Основные параметры и стоимость дома АС-220
| Параметр | Значение |
|---|---|
| Полезная площадь, м² | 156 |
| Размеры дома, м | 10 x 16 |
| Этажность | 1 этаж |
| Количество спален | 2 |
| Количество санузлов | 1 |
| Стоимость строительства, руб. | 8 389 580 |
Преимущества и целевая аудитория дома АС-220
Одноэтажный дом АС-220 отлично подходит для различных категорий покупателей, особенно для семей среднего размера, которые желают жить в комфортных условиях без излишних затрат на строительство многоэтажного здания. Простота в эксплуатации и обслуживание, а также разумная площадь делают этот проект очень практичным.
Дом понравится тем, кто ценит простор и функциональность, но при этом хочет избежать лишних архитектурных излишеств и сложностей эксплуатации. Это прекрасный выбор для тех, кто планирует постоянное проживание или комфортный дачный дом. Вместе с тем, отсутствие гаража можно компенсировать дополнительными строениями на участке.
Список преимуществ дома АС-220
- Оптимальная площадь — 156 м², достаточно для семьи из 3-5 человек.
- Одноэтажная планировка — удобство, безопасность и простота эксплуатации.
- Две спальни — пространство для отдыха и личного уединения каждого члена семьи.
- Просторный санузел, оптимально расположенный по центру дома.
- Доступная стоимость строительства при высоком качестве исполнения.
- Энергосберегающие технологии в конструкции и отделке.
Заключение: почему стоит выбрать проект АС-220
Выбор проекта дома — это ответственное решение, которое должно учитывать множество факторов — от бюджета до комфорта будущих жильцов. Проект АС-220 органично сочетает в себе оптимальные размеры, современный дизайн и функциональность, а также приемлемую стоимость строительства.
Если вы ищете качественный одноэтажный дом с двумя спальнями и всеми необходимыми удобствами, площадью 156 м², этот проект станет надежным решением. Он позволит создать уютное семейное гнездышко, где будет комфортно и радостно жить на протяжении многих лет.
Планируйте строительство с учетом предложенных параметров, консультируйтесь с профессионалами и выбирайте материалы, которые помогут сделать ваш дом долговечным и энергоэффективным. Дом АС-220 — это не просто дом, это ваш новый стиль жизни.














