Обзор проекта АС-215: одноэтажный дом 17x10 м с площадью 97 м²
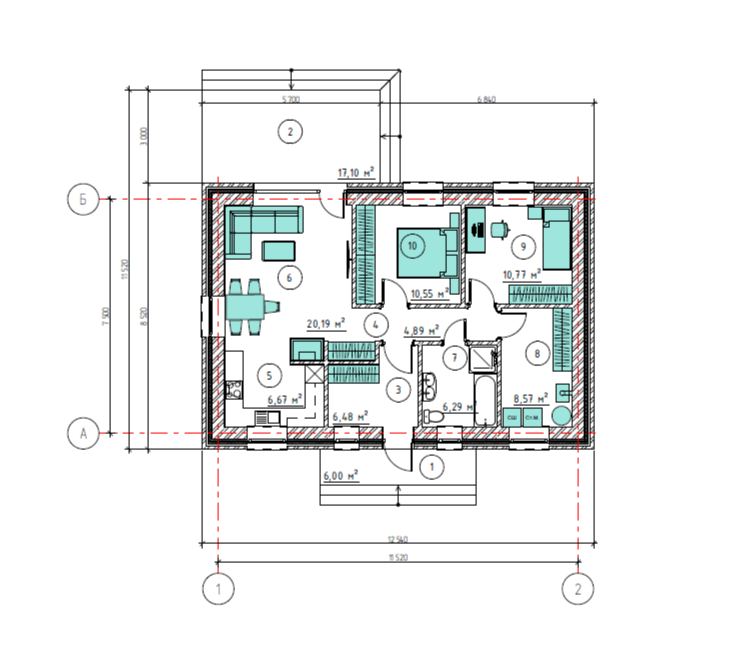
Проект АС-215 представляет собой современный одноэтажный жилой дом площадью 97 квадратных метров, созданный для комфортного проживания небольшой семьи. С размерами 17 на 10 метров, этот дом идеально подходит для тех, кто ценит простоту, функциональность и уют, не желая при этом переплачивать за излишнюю площадь. Одноэтажное решение в сочетании с оптимально продуманной планировкой позволяет максимально эффективно использовать каждый квадратный метр.
На сегодняшний день именно дома небольшого размера пользуются высоким спросом, поскольку они значительно сокращают затраты на строительство и эксплуатацию, обеспечивая при этом все необходимое для комфортной жизни. Проект АС-215 прекрасно впишется как в городской пригород, так и в загородную зону, создавая достойное пространственное решение для семьи из 3-4 человек.
Размеры и планировка: почему 17x10 метров — оптимальный выбор
Габариты дома 17 на 10 метров — это удачное сочетание компактности и удобства. В таких размерах легко разместить все необходимые помещения, при этом не допуская ощущения тесноты или загромождения. Одноэтажный дом с такими габаритами позволяет не только комфортно жить, но и осуществлять грамотное зонирование пространства.
Длина и ширина дома способствуют созданию удобных коммуникационных потоков внутри помещения. Благодаря прямоугольной форме плана можно рационально расположить комнаты и обеспечить достаточное количество света в каждом из них. Выбор именно этих размеров обусловлен желанием максимально использовать площадь земельного участка, где будет расположен дом, а также облегчить процесс строительства.
Преимущества одноэтажного дома площадью 97 м²
Небольшой одноэтажный дом, как проект АС-215, может похвастаться рядом преимуществ, которые делают его привлекательным для покупателей:
- Быстрое и относительно недорогое строительство за счет одного этажа.
- Отсутствие лестниц — идеальное решение для семей с маленькими детьми или пожилыми членами семьи.
- Удобство обслуживания всех коммуникаций и инженерных систем.
- Энергоэффективность — меньшая площадь и компактное расположение помещений упрощают отопление и охлаждение.
- Легкость адаптации интерьера под разные цели и стили.
Жилая комфортная среда: 2 спальни и 1 санузел
Проект АС-215 предусматривает две спальные комнаты, что прекрасно подходит для семейной жизни. Количество спален позволяет выделить личное пространство каждому члену семьи. Особенно актуально, если в доме проживают родители и ребенок, либо даже два взрослых с отдельными зонами для сна и работы.
Наличие одного санузла — это разумный компромисс между комфортом и экономией пространства. Продуманная планировка санузла обеспечивает вместительность и функциональность, сохраняя достаточно места для других помещений.
Как разместить две спальни и санузел наиболее оптимально?
Для удобства владельцев рекомендуется уделить внимание следующим аспектам при планировке:
- Зонирование спальни: Размещение комнат в удалении от гостевой зоны для обеспечения тишины и уединения.
- Расположение санузла: Близость к спальням и гостиной для облегчения доступности, но при этом с сохранением приватности.
- Использование многофункциональной мебели: Модульные решения помогут сэкономить место и создать удобную атмосферу.
Финансовая составляющая: стоимость дома 5 461 638 рублей
Цена строительства дома АС-215 составляет 5 461 638 рублей, что для площади 97 м² является вполне конкурентным предложением на рынке загородного жилищного строительства. Стоимость включает комплексный подход: все этапы от проектирования до возведения стен, а также основные инженерные коммуникации.
Важно отметить, что цена напрямую связана с качеством используемых материалов и уровнем отделки, а также с выбранными технологиями строительства. Для данного проекта был выбран оптимальный баланс между экономичностью и надежностью, что позволяет получить долгосрочный и комфортный дом без необоснованных переплат.
На что влияет стоимость строительства?
Основные факторы, которые формируют итоговую цену, располагаются в следующей таблице:
| Параметр | Описание | Влияние на стоимость |
|---|---|---|
| Площадь дома | Общая полезная площадь 97 м² | Чем больше площадь, тем выше затраты на материалы и стройработы |
| Количество этажей | 1 этаж | Упрощает конструкцию и снижает расходы |
| Количество и тип комнат | 2 спальни, 1 санузел | Влияет на сложность планировки и инженерные работы |
| Качество материалов | Используемые строительные и отделочные материалы | Повышает или снижает общую стоимость |
| Инженерные коммуникации | Отопление, водоснабжение, канализация | Сложность и объем работ влияют на итоговую цену |
Особенности использования и преимущества проекта для владельцев
Выбор проекта одноэтажного дома с габаритами 17x10 — это решение, которое рассчитано на комфортное семейное проживание и практичность. Благодаря простоте архитектурного решения значительно упрощается процесс возведения, что сокращает сроки строительства и позволяет быстрее вселиться в новое жилье.
Такой дом отлично подходит для тех, кто планирует обустроить свой участок без значительных затрат площади, уделяя внимание функциональности и эргономике. Отсутствие гаража в проекте позволяет сэкономить пространство участка или использовать его для сада, детской площадки или зоны отдыха.
Для кого подходит дом АС-215?
- Для молодых семей с одним-двумя детьми.
- Для пожилых людей, которым важна безопасность и отсутствие лестничных маршей.
- Для тех, кто ценит разумные расходы без потери комфорта.
- Для желающих иметь загородный дом для постоянного проживания или сезонного отдыха.
Технологические и строительные аспекты проекта
Проект АС-215 выполнен с использованием современных строительных технологий, которые обеспечивают надежность и энергоэффективность дома. Одноэтажное строительство упрощает организацию инженерных систем и позволяет без лишних затрат поддерживать комфортный микроклимат внутри помещений.
Строительные материалы подбирались с учетом долговечности и практичности, что снижает расходы на ремонт и обслуживание в будущем. Важным фактором является возможность адаптации проекта под различные климатические условия благодаря гибкости конструкторских решений.
Типичные этапы строительства дома по проекту АС-215
- Подготовка участка и разметка фундамента.
- Заливка фундамента и устройство основания.
- Возведение несущих стен и наружных конструкций.
- Монтаж кровли и защитных элементов.
- Устройство внутренних перегородок и прокладка коммуникаций.
- Отделочные работы внутри дома.
- Благоустройство прилегающей территории.
Заключение: почему стоит выбрать проект АС-215
Дом АС-215 площадью 97 м² — это оптимальный вариант для тех, кто ищет комфорт, функциональность и разумные финансовые вложения в загородное жильё. Одноэтажная конструкция, удачные размеры и продуманная планировка делают этот проект универсальным и удобным для широкого круга семей.
Стоимость, которая чуть выше пяти миллионов рублей, полностью оправдана высоким качеством строительства и удобством эксплуатации. Этот дом — отличный выбор для тех, кто ценит качество, продуманность и уют собственного жилища.













