Введение в строительство одноэтажного дома 5x17 с полезной площадью 154 м2
Жизнь в горах давно привлекает людей своей гармонией с природой, чистым воздухом и завораживающими видами. Построить собственную резиденцию в таком месте означает не только получить уникальный дом, но и обрести уголок уединения и комфорта вдали от шума городской жизни. Одноэтажный дом размером 5 на 17 метров с полезной площадью 154 м² — это отличный вариант для тех, кто хочет наслаждаться горами без чрезмерного строительства и масштабных проектов.
В этой статье мы подробно разберем все ключевые особенности и преимущества такого дома, а также оценим его стоимость — 8 380 509 рублей. Вы узнаете, почему этот проект может стать идеальным решением именно для вашего участка и образа жизни.
Основные характеристики дома
Перед тем, как перейти к преимуществам и особенностям, давайте обозначим ключевые параметры рассматриваемого дома, которые влияют как на комфорт проживания, так и на технические и архитектурные решения.
Размеры и площадь
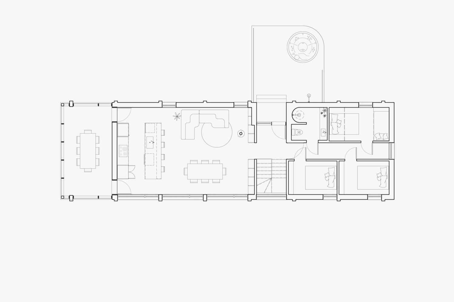
Дом имеет компактные размеры — 5 метров в ширину и 17 метров в длину. Эти пропорции позволяют эффективно использовать участок, особенно в горных условиях, где рельеф иногда ограничивает площадь, пригодную для застройки. Небольшая ширина фасада снижает нагрузку на фундамент и облегчает организацию кровли.
Полезная площадь дома составляет 154 м² — что для одноэтажного здания является весьма внушительным показателем. Эта площадь предоставляет достаточно пространства, чтобы разместить все необходимые зоны для комфортной жизни, включая три спальни и два санузла.
Количество этажей и расположение
Одноэтажный дом — это оптимальный выбор для жизни в горах. Отсутствие второго этажа облегчает строительство, снижает затраты на материалы и инженерные коммуникации. Кроме того, одноуровневое пространство более удобное для семей с детьми и пожилыми людьми, не требуя использования лестниц.
Одноэтажная конструкция идеально вписывается в природный ландшафт, не нарушая гармонию и сохраняя максимальную функциональность.
Спальные комнаты и санузлы
Три спальни — важный момент для семейного дома. Такой набор помещений позволяет обеспечить уединение каждого члена семьи, а также создать гостевую или рабочую зону при необходимости. Расположение спален в доме обычно планируется с учетом максимального комфорта и приватности.
Два санузла обеспечивают удобство в повседневной жизни, особенно когда жильцы не ограничены по времени и не хотят ждать своей очереди утром или вечером. Это особенно важно для семей с детьми или для тех, кто регулярно принимает гостей.
Преимущества одноэтажного дома в горах
Резиденция в горах — это всегда вызов для архитекторов и строителей, но выбор именно одноэтажного дома с площадью 154 м² в размерах 5x17 м радикально упрощает множество аспектов.
Удобство и функциональность
Одноуровневая планировка позволяет максимально упростить доступ ко всем помещениям. Вам не нужно будет подниматься по лестнице с тяжелыми сумками после поездки или спускаться ночью к кухне. Все зоны находятся на одном уровне, что повышает удобство и безопасность, особенно при проживании с маленькими детьми или пожилыми родственниками.
Экономия при строительстве и эксплуатации
Одноэтажные дома обычно требуют меньших затрат на устройство фундамента и кровли, чем дома с несколькими этажами. Такая конструкция проще и быстрее возводится. Кроме того, эксплуатация дома обходится дешевле — затраты на отопление, вентиляцию и освещение распределяются более равномерно.
Кроме экономии на инженерных системах, меньше материалов уходит на лестницы и дополнительные перекрытия, что значительно снижает итоговую смету. При заявленной стоимости в 8 380 509 рублей — это разумное и сбалансированное решение.
Гармония с горным ландшафтом
Одноэтажный дом с компактными размерами легко вписать в разнообразные горные участки. Зачастую рельеф силен для крупномасштабных построек, и строить высокие здания недопустимо или нецелесообразно. Такой дом менее инвазивен для окружающей среды, он сохраняет природную эстетику и общий визуальный комфорт.
Архитектурные особенности проекта
Проект дома 5x17 м с полезной площадью 154 м² имеет уникальные архитектурные решения, направленные на максимальное использование пространства и создание уюта.
Рациональное зонирование жилья
При проектировании данного дома большое внимание уделяется зонированию внутренних помещений. Обычно дом делится на две примерно равные части — дневную и ночную зоны. В дневной части располагается просторная гостиная, кухня и столовая, объединенные в едином пространстве для создания атмосферы общения и совместного времяпрепровождения.
Ночная зона состоит из трех спален, расположенных так, чтобы минимизировать звуковое влияние дневных помещений. Два санузла размещены таким образом, чтобы удобство использования было максимальным для всех членов семьи.
Оптимальное использование глубины и ширины дома
Ширина 5 метров традиционно считается узкой, что требует особого подхода к планировке. Однако длина в 17 метров позволяет расположить все помещения в линейном порядке, обеспечив удобный проход и хорошее естественное освещение комнат с двух сторон дома.
Материалы и внешний вид
При строительстве горного дома важна не только практичность, но и соответствие природному окружению. Рекомендуется использовать экологически чистые материалы — дерево, камень, натуральный утеплитель. Такая отделка подчеркивает связь дома с природой и добавляет уюта в интерьере.
Экономика строительства и оценка стоимости
Цена в 8 380 509 рублей представляет собой сбалансированные затраты на здание площадью 154 м². Эта сумма учитывает проектирование, материалы, работу строителей и базовые инженерные системы.
Составление бюджета строительства
Для наглядности, приведем таблицу примерного распределения стоимости строительства данного дома:
| Статья расходов | Процент от общей стоимости | Сумма, руб. |
|---|---|---|
| Фундамент | 15% | 1 257 076 |
| Стены и конструктив | 30% | 2 514 153 |
| Кровля | 10% | 838 051 |
| Инженерные системы (отопление, электрика, сантехника) | 20% | 1 676 102 |
| Отделочные работы | 15% | 1 257 076 |
| Прочие расходы | 10% | 838 051 |
Такой ориентировочный бюджет поможет правильно спланировать финансирование и избежать неприятных сюрпризов в процессе строительства.
Экономия на эксплуатации
Правильно спроектированный одноэтажный дом в горах будет характеризоваться высокой энергоэффективностью. Современные материалы для утепления, качественные окна и продуманные инженерные решения снижают расходы на отопление в холодный сезон. Это особенно важно в горах, где зимы могут быть длительными и суровыми.
Планировка комнат: подробное описание
Любой жилищный проект будет успешен, если планировка продумана с учетом потребностей жильцов. Данный дом не исключение, три спальни и два санузла разложены максимально удобно и логично.
Три спальни
Спальни устроены таким образом, чтобы обеспечить приватность и комфорт. Обычно главная спальня немного больше остальных, с удобной зоной для гардероба. Две остальные комнаты могут использоваться под детские, офисы или гостевые, в зависимости от ваших нужд.
Два санузла
Первый санузел обычно располагается вблизи главной спальни и имеет полноценное оснащение с ванной или душевой кабинкой. Второй санузел — гостевой, удобный для всех обитателей дома и посетителей.
Общие помещения
Гостиная, кухня и столовая — в помещении с открытой планировкой. Такое пространство создает ощущение воздушности и свободы, при этом объединяет членов семьи или гостей для совместного отдыха и общения. Вход в дом оснащён тамбуром для защиты от холода и сохранения тепла зимой.
Почему стоит выбрать именно этот проект для резиденции в горах?
Выбор загородного дома непрост, особенно если речь идет о горах, где условия строительства и эксплуатации налагают дополнительные требования. Рассмотрим основные причины, по которым проект одноэтажного дома 5x17 с полезной площадью 154 м² отвечает этим вызовам.
Оптимальные размеры и планировка
Компактный фасад шириной в 5 метров позволяет разместить дом на участках с ограниченной шириной, что характерно для горных территорий. Длина в 17 метров дает возможность растянуть функциональные зоны и обеспечить комфортное расположение комнат по ширине.
Экономическая целесообразность
Стоимость в 8 380 509 рублей адекватна качеству, площади и уровню оснащения дома. Вложение окупается за счет сниженных расходов на строительство и содержание, а также благодаря высокому уровню комфорта и энергоэффективности дома.
Комфорт для всей семьи
Три спальни и два санузла — такая конфигурация отлично подходит для семей разного состава. У каждого есть свое пространство, что минимизирует конфликты и обеспечивает благоприятную атмосферу дома.
Соответствие горным условиям
Одноэтажное строение легче адаптировать к наклону рельефа, упрощается прокладка коммуникаций и монтаж конструкций. С точки зрения безопасности, небольшая высота здания снижает риски, связанные с экстремальными погодными условиями, с которым часто сталкиваются в горах.
Практические рекомендации по выбору участка и подготовке к строительству
Чтобы ваш дом в горах стал действительно уютным и функциональным, необходимо обращать внимание не только на сам проект дома, но и на характеристики участка.
Выбор участка
- Минимальная ширина участка должна учитывать ширину дома и дополнительные отступы для подъездов, ландшафтного дизайна и инженерных коммуникаций.
- Горный рельеф требует тщательного изучения геологического состояния грунта — наличие склонов, устойчивость почвы, риски схода снега или оползней.
- Оптимально, чтобы участок освещался солнцем большую часть дня, что повышает энергоэффективность и комфорт.
Подготовка к строительству
Перед началом работ рекомендуется провести полное инженерное обследование участка, чтобы предусмотреть особенности фундамента и систему отвода воды. Также необходимо согласовать проект с органами местного самоуправления, особенно если земля находится в охранных или заповедных зонах.
Заключительные мысли по проекту дома 5x17 м в горах
Одноэтажный дом с полезной площадью 154 м² — это более чем просто жилье. Это грамотное, экономичное и очень комфортное решение для тех, кто мечтает о своей резиденции в горах. Благодаря продуманной планировке и использованию современных технологий и материалов, дом готов стать надежным и уютным убежищем на многие годы.
Стоимость в 8 380 509 рублей полностью оправдывает качество, а компактные размеры обеспечивают универсальность применения на различных участках с непростым рельефом. Если вы хотите соединить красоту гор с удобством современного жилья, именно этот проект станет оптимальным выбором.





















