Обзор одноэтажного деревянного дома размером 15 на 19 метров
Строительство частного дома — важное и ответственное решение, к которому стоит подойти с максимальной тщательностью. Одноэтажные дома сегодня пользуются особой популярностью благодаря своей функциональности, простоте эксплуатации и уюту. В данной статье мы подробно расскажем о проекте одноэтажного деревянного дома размером 15 на 19 метров с полезной площадью 321 м² и стоимостью 13 218 708 рублей. Рассмотрим ключевые преимущества такого решения, особенности планировки, материалы и технологии строительства, а также нюансы организации внутреннего пространства.
Деревянный дом, благодаря натуральным материалам и современным технологиям, становится все более востребованным. Он обеспечивает комфортный микроклимат, экологичность и эстетичное сочетание с природой. Кроме того, дома из дерева — отличный вариант с точки зрения энергоэффективности и долговечности при правильной эксплуатации. Теперь углубимся в характеристики и преимущества конкретного проекта.
Определяющие параметры дома
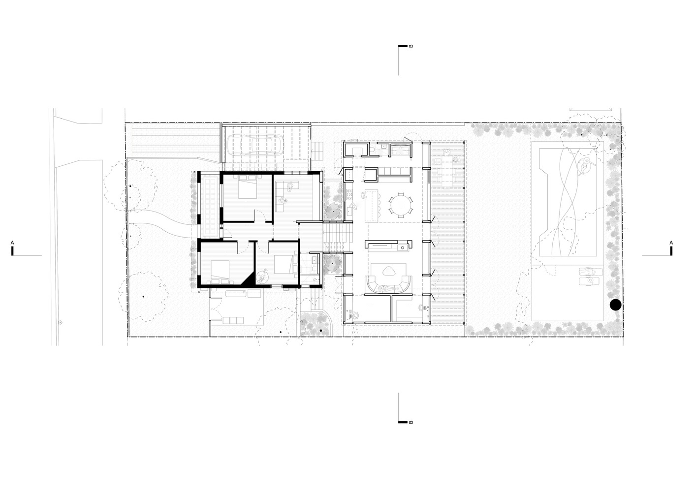
Данный одноэтажный дом имеет размеры 15 на 19 метров, что позволяет создавать просторные помещения и продуманную планировку. При этом общая полезная площадь достигает внушительных 321 м², что достаточно много для комфортного проживания большой семьи или совмещения жилой и рабочей зон. Проект включает 4 спальни, что свидетельствует о семейной ориентированности дома, а наличие 3 санузлов обеспечивает удобство для всех жителей.
Размеры и площадь
| Параметр | Значение | Комментарий |
|---|---|---|
| Длина дома | 19 м | Большая длина фасада для уютных комнат с видом на участок |
| Ширина дома | 15 м | Обеспечивает просторный интерьер и удобное зонирование |
| Полезная площадь | 321 м² | Отражает все жилые и вспомогательные помещения |
| Этажность | 1 этаж | Удобство беспрепятственного передвижения и безопасность |
| Количество спален | 4 | Идеально для большой семьи или гостей |
| Количество санузлов | 3 | Снижает нагрузки при совместном проживании |
Такой объем жилой площади в сопровождении четырех спален и трех санузлов выделяется как один из наиболее оптимальных вариантов для семьи, ценящей как личное пространство каждого, так и общие зоны для совместного времяпровождения.
Одноэтажная конструкция: преимущества и особенности
Одноэтажный деревянный дом обладает рядом важных преимуществ, которые делают жизнь более комфортной. Прежде всего, отсутствие лестниц создает удобство для всех возрастных групп: детей, пожилых членов семьи, людей с ограниченными возможностями. Кроме того, одноэтажный дом проще в плане инженерных коммуникаций и пожарной безопасности, что снижает риски и затраты на обслуживание.
Для просторных участков одноэтажный проект позволяет широко использовать площадь земли вокруг дома, создавая уютные открытые зоны, сады и зоны отдыха. Совместно с продуманной планировкой это повышает качество жизни и атмосферу проживания.
Особенности планировки дома
Планировка дома 15 x 19 метров ориентирована на удобство и практичность, а также максимальный комфорт для всех членов семьи. Основные принципы, использованные при проектировании, — зонирование жилых и хозяйственных пространств, обеспечение светлых и проветриваемых комнат, а также возможность использовать гостиную как центр общения.
Зонирование помещений
Планировка представляет собой четкое разделение на несколько функциональных зон:
- Ночная зона: включает 4 спальни, расположенные таким образом, чтобы гарантировать уединение и тишину. Каждая спальня имеет окна, выходящие в тихий двор или зеленую зону.
- Гигиеническая зона: 3 санузла распределены по дому для максимального удобства. Один из санузлов текущего доступа расположен рядом с гостиной и кухней, другие — рядом с приватными спальнями.
- Общая зона: просторная гостиная, объединенная с кухней и столовой, становится центральным местом для встреч и семейных ужинов. Здесь предусмотрены большие окна и выход на территорию участка.
- Технические и вспомогательные помещения: кладовые, котельная и хозяйственные комнаты расположены в стороне от жилых пространств, что исключает шум и неудобства.
Комфорт и эргономика
При проектировании особое внимание уделялось свету и вентиляции. За счет большого количества окон и правильной ориентации по сторонам света достигается комфортный микроклимат и хорошее естественное освещение. Высокие потолки и просторные комнаты создают ощущение свободы и легкости.
Материалы и технологии строительства
Выбор материалов — ключевой аспект при строительстве деревянного дома. Проект города предусматривает использование пиленого или профилированного бруса высокого качества, который сочетает в себе долговечность, надежность и эстетическую привлекательность. Дерево обладает уникальными теплоизоляционными свойствами, благодаря чему в доме удается создавать комфортный микроклимат при минимальных затратах на отопление.
Преимущества деревянных домов
- Экологичность: натуральное дерево не выделяет вредных веществ и поддерживает здоровье жильцов.
- Теплоизоляция: древесина — отличный теплоизолятор, что снижает затраты на энергопотребление.
- Дышащий материал: помогает регулировать влажность внутри помещений.
- Удобство отделки: дерево легко поддается обработке и позволяет воплощать разные дизайнерские решения.
Технологии и этапы строительства
Для данного дома используются современные технологии обработки древесины, устойчивые к воздействию влаги и насекомых. Обработка антисептиками и антипиренами обеспечивает безопасность и долговечность конструкции. Все элементы деревянного каркаса проходят строгий контроль качества на каждом этапе.
- Фундамент: выбирается с учетом грунтов и особенностей участка, чаще всего ленточный или плитный фундамент.
- Каркас и стеновые панели: собираются из бруса с межвенцовыми утеплителями на основе эковаты или ленточного утеплителя.
- Кровля: применяется современное покрытие, обеспечивающее надежную защиту от атмосферных осадков и теплоизоляцию.
- Инженерные системы: реализуются с учетом энергоэффективности и удобства обслуживания.
Стоимость и экономическая составляющая
Стоимость данного проекта составляет 13 218 708 рублей. В эту сумму входят все основные работы по возведению дома, включая материалы, отделку и работу специалистов. Несмотря на довольно внушительную цену, это инвестиция в надежный, комфортный и функциональный дом, который прослужит десятилетия.
Расходы на строительство в деталях
| Статья расходов | Примерная доля в бюджете | Комментарий |
|---|---|---|
| Материалы | 50% | Высококачественный брус, утеплители, кровля и отделка |
| Работы по возведению | 30% | Монтаж, устройство фундамента, кровли и инженерных систем |
| Инженерные коммуникации | 10% | Системы отопления, водоснабжения, электрики |
| Дополнительные расходы | 10% | Проектирование, оформление документов, непредвиденные расходы |
Учитывая площадь дома более 300 м², стоимость за квадратный метр составляет около 41 000 рублей — вполне приемлемая ставка для деревянного дома премиум-класса с продуманной планировкой и качественными материалами.
Экономическая целесообразность и выгоды
При сравнении с зданиями из кирпича или блоков деревянный дом выигрывает по сроку строительства и затратам на отопление и вентиляцию. Экономия на энергоносителях в долгосрочной перспективе часто превышает первоначальные инвестиции благодаря теплоэффективности древесины и натуральным свойствам для поддержания комфортного микроклимата.
Кроме того, дерево — материал с высокой экологической ценностью, что может положительно сказаться и на рыночной стоимости дома при последующей продаже. Такой проект идеально подходит для тех, кто хочет совместить комфорт современной жизни с природной гармонией.
Особенности эксплуатации и обслуживания деревянного одноэтажного дома
Для того чтобы дом служил долго и сохранял все свои свойства, важно соблюдать ряд правил по уходу и эксплуатации. Деревянные конструкции требуют регулярного контроля и профилактических мер, которые не занимают много времени, но существенно продлевают срок службы.
Регулярный уход
- Периодическая обработка защитными составами, предотвращающими гниение и поражение насекомыми.
- Контроль за целостностью крыши и фасадов, своевременный ремонт мелких повреждений.
- Проветривание помещений для поддержания оптимального уровня влажности и исключения конденсата.
- Проверка инженерных систем, особенно отопления и вентиляции.
Долговременная эксплуатация
При качественном строительстве и регулярном обслуживании срок службы деревянного дома может превышать 50 лет, при этом дом сохраняет все эксплуатационные и эстетические качества. Важно также правильно организовать дренаж на участке, чтобы избежать избыточной влаги вокруг фундамента и стен.
Итоги: почему стоит выбрать такой проект
Одноэтажный деревянный дом площадью 321 м² с четырьмя спальнями и тремя санузлами — это отличное решение для тех, кто ценит простор, удобство и экологичность. Ключевые преимущества включают:
- Функциональность и комфорт планировки, обеспечивающие индивидуальное пространство для каждого члена семьи.
- Высокие экологические и теплоизоляционные свойства деревянного материала.
- Отсутствие этажей упрощает быт и повышает безопасность проживающих.
- Оптимальное сочетание цены и качества с ориентиром на долгосрочную эксплуатацию.
Такая конструкция идеально подходит для проживания в любую погоду и время года, благодаря современным технологиям строительства и отделки. Выбирая этот проект, вы инвестируете в уют, надежность и здоровье своей семьи на долгие годы.

























