Одноэтажный дом 5x26 метров: простор и комфорт на 344 м²
Проект одноэтажного дома с размерами 5 на 26 метров — это отличное решение для тех, кто ценит рациональное использование пространства и предпочитает жить в доме без лестниц. Дом площадью 344 м² предлагает уникальное сочетание компактных габаритов и обширной полезной площади, что позволяет создать комфортное и функциональное жилое пространство для большой семьи или для тех, кто любит принимать гостей и проводить время дома с максимально удобством.
Одноэтажное строительство отличается отсутствием сложных конструктивных решений, связанных с лестничными маршами и распределением жилья по этажам, что значительно упрощает планировку и делает дом более доступным для проживания людей всех возрастов. В этом проекте площадь в 344 м² позволяет организовать зоны для отдыха, работы, личного пространства и общение, не жертвуя ни уютом, ни практичностью.
Основные характеристики дома и особенности планировки
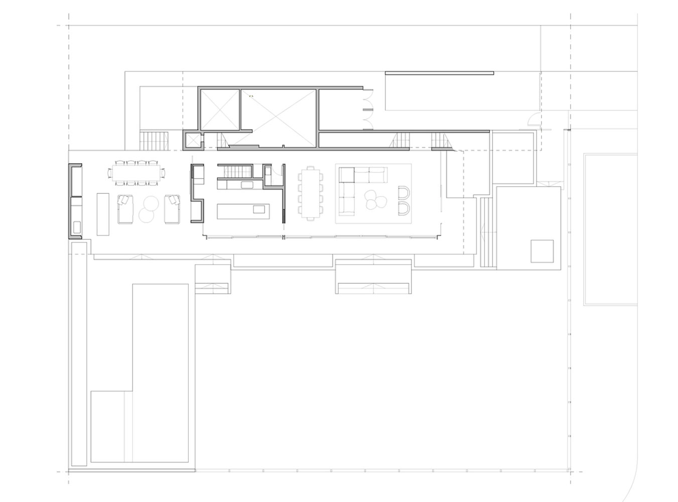
Размеры дома — 5 на 26 метров — представляют собой узкий прямоугольник, который требует продуманного зонирования. При таких параметрах можно эффективно разделить жилище на несколько функциональных блоков, учитывая особенности освещения, вентиляции и приватности.
Дом рассчитан на один этаж, что идеально подходит для семей с детьми, пожилыми родственниками или тех, кто предпочитает избегать лишних трудностей с подъёмом и спуском по лестницам. Это также означает, что вся площадь используется максимально удобно и без потерь.
Количество спален и санузлов: максимум комфорта для семьи
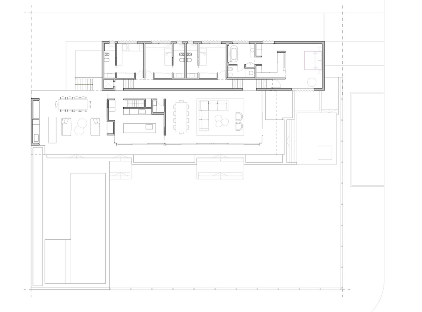
Проект предполагает наличие четырех просторных спален. Такой объем жилых комнат идеально подходит для семьи из четырёх – пяти человек, позволяя каждому члену семьи иметь своё личное пространство. Четыре спальни дают возможность выделить гостевую комнату, детские комнаты и родительскую спальню с собственной зоной отдыха без лишнего шума.
Особое внимание стоит уделить санитарным узлам — их количество здесь превышает пять (5+), что является большим плюсом в плане комфорта и удобства дома. Большое количество санузлов позволяет сократить время ожидания в утренние часы, устранить возможные очереди и добавить приватности каждому жильцу или гостю. Кроме того, это очень удобно при приёме гостей, а также при распределении зон общего и личного пользования.
Рациональная организация пространства в доме 5x26
Такая вытянутая форма дома требует тщательно продуманного зонирования, чтобы обеспечить максимальный комфорт и избежать ощущения узости. Организация пространства внутри дома делится на несколько ключевых зон: общественные, личные, технические и вспомогательные.
Общественные зоны: гостиная, кухня и столовая
В составе одного этажа гостиная может стать центром дома, объединяя жильцов и гостей. При длине дома 26 метров можно расположить просторную гостиную, совмещённую со столовой и кухней, создав открытую планировку, визуально расширяющую пространство и делая дом более светлым и тёплым.
Открытая кухня — хорошее решение, когда пространство ограничено в ширину. Она может быть выполнена в виде линейного или Г-образного варианта, что позволяет обеспечить удобное размещение всех необходимых бытовых приборов и рабочих поверхностей без загромождения.
Личные зоны: спальни и рабочие кабинеты
Четыре спальни расположены в тихой части дома, что обеспечивает тишину и приватность для каждого члена семьи. Спальни можно дополнить встроенными шкафами или гардеробными, что позволит хранить вещи аккуратно, не занимая лишнего пространства.
Если в семье есть необходимость — несколько спален могут использоваться под кабинет или творческую мастерскую, что станет идеальным решением для удалённой работы или хобби.
Комфортные санузлы
Пять и более санузлов — это экономия времени и комфорт на каждый день. В проекте можно предусмотреть санузлы при каждой спальне, а также гостевой санузел, что тонко регулирует уровень приватности и предотвращает неудобства.
Стоимость строительства и экономическая сторона проекта
Общая стоимость дома 5х26 метров с площадью 344 м² составляет 12 424 753 рублей. Эта цифра включает все ключевые этапы возведения дома от заливки фундамента и возведения наружных стен до установки кровли и внутренних отделочных работ. Рассмотрим подробнее составляющие бюджета.
| Статья расходов | Описание | Примерная стоимость (руб.) |
|---|---|---|
| Фундамент | Заливка ленточного фундамента с гидроизоляцией | 1 500 000 |
| Стены и перекрытия | Возведение наружных и межкомнатных стен, установка перекрытий | 4 200 000 |
| Кровля | Монтаж кровельной системы и покрытия | 1 200 000 |
| Внутренняя отделка | Штукатурка, покраска, укладка напольных покрытий | 2 000 000 |
| Инженерные коммуникации | Электрика, сантехника, отопление | 2 000 000 |
| Прочие расходы | Проектные работы, разрешения, стоимость материалов | 1 524 753 |
Такой бюджет укладывается в премиум-сегмент домов, что объясняется внушительной площадью и высоким уровнем комфорта. Следующим этапом при планировании становится выбор отделочных материалов и инженерных решений, исходя из предпочтений заказчика и климатических особенностей региона.
Преимущества проекта одноэтажного дома 5х26
Этот проект выделяется рядом преимуществ, которые делают его привлекательным для различных категорий покупателей. Разберем основные плюсы более подробно:
- Рациональное использование пространства: вытянутые габариты позволяют разместить все необходимые помещения в линейной последовательности, оптимизируя расположение коммуникаций.
- Отсутствие лестниц: повышает безопасность, особенно если в доме проживают дети, пожилые или люди с ограниченными возможностями передвижения.
- Простая технология строительства: позволяет значительно снизить сроки возведения и стоимость содержания.
- Гибкость планировки: наличие 4 спален и 5+ санузлов даёт простор для персонализации интерьера и способов использования комнат.
- Энергоэффективность: благодаря компактной форме дома легче организовать качественную теплоизоляцию и систему отопления, что экономит средства в отопительный сезон.
Кому подойдет такой дом?
Основная аудитория данного проекта — это семьи среднего и большого размера, которые хотят жить в просторном и удобном одноэтажном доме в пригороде или на сельском участке. Также проект заинтересует пожилых людей и инвалидов, которым важна удобная и безопасная планировка без нужды подниматься на второй этаж.
Кроме того, такой дом может стать отличным вариантом в качестве дачи для большой семьи или загородного дома для постоянного проживания с возможностью размещения гостей благодаря большому количеству спален и санузлов.
Рекомендации по выбору участка для строительства
Учитывая габариты строения — 5 метров в ширину и 26 в длину — для корректной реализации проекта необходимо подобрать участок с соответствующими параметрами. Длина участка должна быть не меньше длины дома плюс место для отступов и дополнительных построек, территории для сада, зоны отдыха или парковки, если гаража нет.
Минимальная ширина участка под данный проект должна быть не менее 8-10 метров, чтобы обеспечить комфорт не только для основного здания, но и для прохода вокруг дома, а также размещения инженерных коммуникаций. Такой участок обычно сложно найти в городской черте, но он отлично подходит для загородной застройки или коттеджных посёлков с просторными участками.
Особенности эксплуатации одноэтажного дома с большой площадью
Обслуживание дома площадью 344 м² требует разумного подхода к организации инженерных систем и планированию пространства для уборки и поддержания порядка. Важно продумать систему отопления, вентиляции и кондиционирования воздуха, чтобы обеспечить равномерный микроклимат во всех помещениях. При этом оптимальным станет использование современных энергоэффективных систем, позволяющих значительно снизить эксплуатационные расходы без потери комфорта.
Большое количество санузлов — это, с одной стороны, преимущество, однако с другой — дополнительные затраты на обслуживание. Поэтому рекомендуется внедрять зоны с автономным управлением, современные водосберегающие приборы и фильтры для воды.
Заключение: инвестиции в комфорт и качество жизни
Проект одноэтажного дома 5x26 м с площадью 344 м² и стоимостью около 12,4 миллионов рублей предлагает вашему вниманию комбинацию продуманного жилого пространства и высокого уровня комфорта. Его рациональная планировка и высокий уровень обеспечения всех бытовых потребностей создают долговечное и удобное жильё, адаптированное под разные жизненные ситуации и предпочтения.
Такой дом воплощает мечты о просторном и практичном загородном доме, дающем возможность наслаждаться природой, общением с близкими и уединением в собственной комфортной атмосфере. Именно поэтому он является отличным выбором как для постоянного проживания, так и для загородного отдыха.

























