Двухэтажный гараж 91.99 м2 за руб.
154 м2
Полезная
площадь
площадь
2 этажа
Этажей
26 м2
Террасы
и балконы
и балконы
0Без
гаража
гаража
0
Количество
спален
спален
0
Количество
санузлов
санузлов
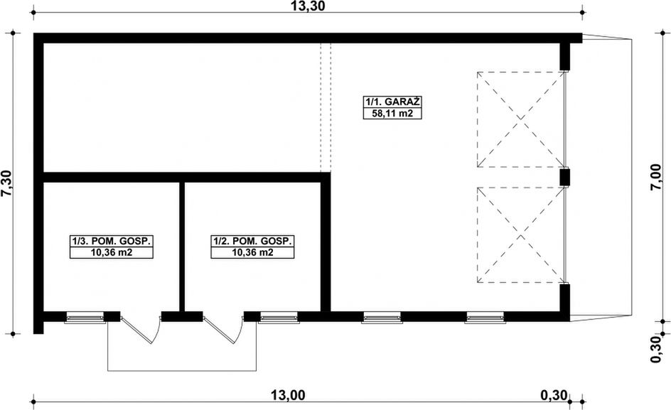
Планировки
Первый этаж
- 1. (m²) 78,83
- 2. Гараж на 2 машины 58,11
- 3. Подсобное помещение 10,36
- Подсобное помещение 10,36
Чердак
- 1. (m²) 81,63
- Чердак 81,63
Фасады
Передний
Задний
Левый
Правый
Подробная информация
Полезная площадь
78,83 m²
Количество спален
0
Количество санузлов
0
Гараж
2
Мин. шир. и дл. участка
20,3 x 14,30 m
Угол наклона крыши
15°
Наклон ската крыши в градусах. Внимание! В некоторых проектах возникает более чем один наклон крыши.
Вид материалов
Murowana
Материалы и опции
Общие
Площади дома
| № п/п | Наименование | Ед. из. | Строительная площадь | Полезная площадь |
| 1 | 1 этаж | м2 | 12.77 | 10.36 |
| 2 | 2 этаж | м2 | 100.59 | 81.63 |
| 3 | Итого | м2 | 113.36 | 91.99 |
Калькулятор опций
0₽
В ипотеку от 7 686 ₽/мес.
0₽
0 дней
stdClass Object
(
[id] => 1
[attribute_id] => 1
[name] => Ленточный монолитный ж/б
[material_modifier] => 1
[work_modifier] => 1
[options] => Array
(
[0] => размер 200 х 700 мм
[1] => размер 300 х 900 мм
[2] => размер 400 х 1 000 мм
[3] => размер 500 х 1 100 мм
[4] => размер 600 х 1 200 мм
)
[days] => [20,21,22,25,30]
[material_price] => [2823,3630,4475,5210,12047]
[work_price] => [2154,2826,3731,4577,5293]
[image] => https://akademik-stroy.ru/wp-content/uploads/materials/lentochnyj-monolitnyj-zh-b.jpg
[area_modifier] => 12.77
[parent_name] => Фундамент
[parent_id] => 1
[material_sum] => 49749
[work_sum] => 31633
[total_sum] => 81382
[total_days] => 20
[display_material_sum] => 49 749
[display_work_sum] => 31 633
[display_total_sum] => 81 382
)
1
81 382₽
Работа:31 633 ₽
Материалы:49 749 ₽
Дни:20
stdClass Object
(
[id] => 2
[attribute_id] => 1
[name] => Забивные Ж/Б сваи
[material_modifier] => 1
[work_modifier] => 1
[options] => Array
(
[0] => 150х150х3000мм
[1] => 150х150х4000мм
[2] => 200х200х3000мм
[3] => 200х200х4000мм
[4] => 200х200х5000мм
[5] => 200х200х6000мм
)
[days] => [2,2,2,2,2,2]
[material_price] => [1990,2850,3255,4360,5120,6837]
[work_price] => [1002,1185,1336,1438,1574,1839]
[image] => https://akademik-stroy.ru/wp-content/uploads/materials/zabivnye-zh-b-svai.png
[area_modifier] => 12.77
[parent_name] => Фундамент
[parent_id] => 1
[material_sum] => 35069
[work_sum] => 14715
[total_sum] => 49784
[total_days] => 2
[display_material_sum] => 35 069
[display_work_sum] => 14 715
[display_total_sum] => 49 784
)
1
49 784₽
Работа:14 715 ₽
Материалы:35 069 ₽
Дни:2
stdClass Object
(
[id] => 71
[attribute_id] => 1
[name] => Свайно-ростверковый ж/б
[material_modifier] => 1
[work_modifier] => 1
[options] => Array
(
[0] => ростверк 200х300 мм
[1] => ростверк 300х600 мм
[2] => ростверк 400х900 мм
[3] => ростверк 500х1200 мм
)
[days] => [20,23,25,27]
[material_price] => [3018,3474,7109,9792]
[work_price] => [2024,3012,5635,7022]
[image] => https://akademik-stroy.ru/wp-content/uploads/materials/svajno-rostverkovyj-monolitnyj-zh-b-3.png
[area_modifier] => 12.77
[parent_name] => Фундамент
[parent_id] => 1
[material_sum] => 53185
[work_sum] => 29723
[total_sum] => 82908
[total_days] => 20
[display_material_sum] => 53 185
[display_work_sum] => 29 723
[display_total_sum] => 82 908
)
1
82 908₽
Работа:29 723 ₽
Материалы:53 185 ₽
Дни:20
stdClass Object
(
[id] => 72
[attribute_id] => 1
[name] => Монолитная ж/б плита
[material_modifier] => 1
[work_modifier] => 1
[options] => Array
(
[0] => 200 мм
[1] => 300 мм
[2] => 400 мм
[3] => 500 мм
[4] => 600 мм
)
[days] => [30,33,35,37,40]
[material_price] => [5348,8555,12788,14388,15189]
[work_price] => [4314,4881,7037,8061,10230]
[image] => https://akademik-stroy.ru/wp-content/uploads/materials/monolitnaya-zhb-plita.png
[area_modifier] => 12.77
[parent_name] => Фундамент
[parent_id] => 1
[material_sum] => 94246
[work_sum] => 63353
[total_sum] => 157599
[total_days] => 30
[display_material_sum] => 94 246
[display_work_sum] => 63 353
[display_total_sum] => 157 599
)
1
157 599₽
Работа:63 353 ₽
Материалы:94 246 ₽
Дни:30
stdClass Object
(
[id] => 73
[attribute_id] => 1
[name] => Утепленная шведская плита
[material_modifier] => 1
[work_modifier] => 1
[options] => Array
(
[0] => 200 мм
[1] => 300 мм
[2] => 400 мм
[3] => 500 мм
[4] => 600 мм
)
[days] => [32,37,39,42,45]
[material_price] => [10249,12692,13760,14936,16230]
[work_price] => [5960,7337,8072,8878,9765]
[image] => https://akademik-stroy.ru/wp-content/uploads/materials/uteplennaya-shvedskaya-plita.jpg
[area_modifier] => 12.77
[parent_name] => Фундамент
[parent_id] => 1
[material_sum] => 180614
[work_sum] => 87526
[total_sum] => 268140
[total_days] => 32
[display_material_sum] => 180 614
[display_work_sum] => 87 526
[display_total_sum] => 268 140
)
1
268 140₽
Работа:87 526 ₽
Материалы:180 614 ₽
Дни:32
stdClass Object
(
[id] => 75
[attribute_id] => 1
[name] => Ленточный из ФБС
[material_modifier] => 1
[work_modifier] => 1
[options] => Array
(
[0] => толщ. 300 мм
[1] => толщ. 400 мм
[2] => толщ. 500 мм
[3] => толщ. 600 мм
)
[days] => [20,20,20,20]
[material_price] => [3675,4902,6126,7350]
[work_price] => [2451,3264,4083,4902]
[image] => https://akademik-stroy.ru/wp-content/uploads/materials/lentochnyj-iz-fbs.png
[area_modifier] => 12.77
[parent_name] => Фундамент
[parent_id] => 1
[material_sum] => 64763
[work_sum] => 35994
[total_sum] => 100757
[total_days] => 20
[display_material_sum] => 64 763
[display_work_sum] => 35 994
[display_total_sum] => 100 757
)
1
100 757₽
Работа:35 994 ₽
Материалы:64 763 ₽
Дни:20
stdClass Object
(
[id] => 76
[attribute_id] => 1
[name] => Цокольный этаж из ФБС
[material_modifier] => 1
[work_modifier] => 1
[options] => Array
(
[0] => толщ. 300 мм
[1] => толщ. 400 мм
[2] => толщ. 500 мм
[3] => толщ. 600 мм
)
[days] => [30,32,34,36]
[material_price] => [20916,23299,26680,29060]
[work_price] => [17524,18700,19873,21046]
[image] => https://akademik-stroy.ru/wp-content/uploads/materials/cokolnyj-ehtazh-iz-fbs.jpg
[area_modifier] => 12.77
[parent_name] => Фундамент
[parent_id] => 1
[material_sum] => 368594
[work_sum] => 257349
[total_sum] => 625943
[total_days] => 30
[display_material_sum] => 368 594
[display_work_sum] => 257 349
[display_total_sum] => 625 943
)
1
625 943₽
Работа:257 349 ₽
Материалы:368 594 ₽
Дни:30
stdClass Object
(
[id] => 77
[attribute_id] => 1
[name] => Цокольный этаж монолитный ж/б
[material_modifier] => 1
[work_modifier] => 1
[options] => Array
(
[0] => толщ. 200 мм
[1] => толщ. 300 мм
[2] => толщ. 400 мм
[3] => толщ. 500 мм
[4] => толщ. 600 мм
)
[days] => [40,42,44,46,48]
[material_price] => [25421,29148,32275,35602,37326]
[work_price] => [20441,21907,23375,24841,26306]
[image] => https://akademik-stroy.ru/wp-content/uploads/materials/cokolnyj-etazh-zh-b.jpg
[area_modifier] => 12.77
[parent_name] => Фундамент
[parent_id] => 1
[material_sum] => 447984
[work_sum] => 300186
[total_sum] => 748170
[total_days] => 40
[display_material_sum] => 447 984
[display_work_sum] => 300 186
[display_total_sum] => 748 170
)
1
748 170₽
Работа:300 186 ₽
Материалы:447 984 ₽
Дни:40
stdClass Object
(
[id] => 191
[attribute_id] => 1
[name] => Винтовые сваи
[material_modifier] => 1
[work_modifier] => 1
[options] => Array
(
[0] => 57х200мм
[1] => 76х250мм
[2] => 108х300мм
[3] => 133х350мм
)
[days] => [1,1,2,2]
[material_price] => [1200,1300,1450,1600]
[work_price] => [400,600,900,1100]
[image] => https://akademik-stroy.ru/wp-content/uploads/materials/vintovye-svai.png
[area_modifier] => 12.77
[parent_name] => Фундамент
[parent_id] => 1
[material_sum] => 21147
[work_sum] => 5874
[total_sum] => 27021
[total_days] => 1
[display_material_sum] => 21 147
[display_work_sum] => 5 874
[display_total_sum] => 27 021
)
1
27 021₽
Работа:5 874 ₽
Материалы:21 147 ₽
Дни:1
stdClass Object
(
[id] => 3
[attribute_id] => 2
[name] => Деревянные балки
[material_modifier] => 1
[work_modifier] => 1
[options] => Array
(
[0] => без утепления
[1] => утепление 200 мм
[2] => утепление 250 мм
[3] => утепление 300 мм
[4] => утепление 350 мм
[5] => утепление 400 мм
[6] => утепление 450 мм
[7] => утепление 500 мм
)
[days] => [8,9,9,9,11,12,13,14]
[material_price] => [1634,2042,2344,2947,3149,3652,3354,3557]
[work_price] => [1230,1339,1393,1426,1460,1513,1587,1620]
[image] => https://akademik-stroy.ru/wp-content/uploads/materials/derevyannye-balki.png
[area_modifier] => 12.77
[parent_name] => Перекрытие цоколя
[parent_id] => 2
[material_sum] => 28795
[work_sum] => 18063
[total_sum] => 46858
[total_days] => 8
[display_material_sum] => 28 795
[display_work_sum] => 18 063
[display_total_sum] => 46 858
)
1
46 858₽
Работа:18 063 ₽
Материалы:28 795 ₽
Дни:8
stdClass Object
(
[id] => 4
[attribute_id] => 2
[name] => Сборные ж/б плиты
[material_modifier] => 1
[work_modifier] => 1
[options] => Array
(
[0] => без утепления
[1] => утепление 150мм
[2] => утепление 200мм
[3] => утепление 250мм
[4] => утепление 300мм
[5] => утепление 350мм
[6] => утепление 400мм
[7] => утепление 450мм
[8] => утепление 500мм
)
[days] => [13,15,15,15,15,15,15,15,15]
[material_price] => [3067,5577,5928,6679,7730,8782,9833,10884,11935]
[work_price] => [1520,1956,2102,2247,2392,2537,2684,2829,2974]
[image] => https://akademik-stroy.ru/wp-content/uploads/materials/sbornye-zh-b-plity-2.jpg
[area_modifier] => 12.77
[parent_name] => Перекрытие цоколя
[parent_id] => 2
[material_sum] => 54049
[work_sum] => 22322
[total_sum] => 76371
[total_days] => 13
[display_material_sum] => 54 049
[display_work_sum] => 22 322
[display_total_sum] => 76 371
)
1
76 371₽
Работа:22 322 ₽
Материалы:54 049 ₽
Дни:13
stdClass Object
(
[id] => 78
[attribute_id] => 2
[name] => Монолитная ж/б плита
[material_modifier] => 1
[work_modifier] => 1
[options] => Array
(
[0] => без утепления
[1] => утепление 150 мм
[2] => утепление 200 мм
[3] => утепление 250 мм
[4] => утепление 300 мм
[5] => утепление 350 мм
[6] => утепление 400 мм
[7] => утепление 450 мм
[8] => утепление 500 мм
)
[days] => [18,20,20,20,20,20,20,20,20]
[material_price] => [4837,6572,7224,7375,79426,8177,8728,9180,10031]
[work_price] => [3348,3921,4112,4302,4493,4684,4875,5066,5256]
[image] => https://akademik-stroy.ru/wp-content/uploads/materials/monolitnaya-zh-b-plita-2.jpg
[area_modifier] => 12.77
[parent_name] => Перекрытие цоколя
[parent_id] => 2
[material_sum] => 85241
[work_sum] => 49167
[total_sum] => 134408
[total_days] => 18
[display_material_sum] => 85 241
[display_work_sum] => 49 167
[display_total_sum] => 134 408
)
1
134 408₽
Работа:49 167 ₽
Материалы:85 241 ₽
Дни:18
stdClass Object
(
[id] => 6
[attribute_id] => 3
[name] => Пеноблок
[material_modifier] => 1
[work_modifier] => 1
[options] => Array
(
[0] => 300 мм
[1] => 400 мм
[2] => 500 мм
[3] => 600 мм
)
[days] => [29,31,34,39]
[material_price] => [3000,4000,4500,4937]
[work_price] => [5033,5805,6400,8710]
[image] => https://akademik-stroy.ru/wp-content/uploads/materials/penoblok.jpg
[area_modifier] => 12.77
[parent_name] => Стены 1 этаж (несущие)
[parent_id] => 3
[material_sum] => 52868
[work_sum] => 73912
[total_sum] => 126780
[total_days] => 29
[display_material_sum] => 52 868
[display_work_sum] => 73 912
[display_total_sum] => 126 780
)
1
126 780₽
Работа:73 912 ₽
Материалы:52 868 ₽
Дни:29
stdClass Object
(
[id] => 79
[attribute_id] => 3
[name] => Керамический блок
[material_modifier] => 1
[work_modifier] => 1
[options] => Array
(
[0] => 380 мм
[1] => 380 мм Thermo
[2] => 440 мм
[3] => 510 мм
)
[days] => [23,23,24,25]
[material_price] => [4510,5098,6093,8013]
[work_price] => [4737,4937,5903,6958]
[image] => https://akademik-stroy.ru/wp-content/uploads/materials/keramicheskij-blok.jpg
[area_modifier] => 12.77
[parent_name] => Стены 1 этаж (несущие)
[parent_id] => 3
[material_sum] => 79478
[work_sum] => 69565
[total_sum] => 149043
[total_days] => 23
[display_material_sum] => 79 478
[display_work_sum] => 69 565
[display_total_sum] => 149 043
)
1
149 043₽
Работа:69 565 ₽
Материалы:79 478 ₽
Дни:23
stdClass Object
(
[id] => 80
[attribute_id] => 3
[name] => Кирпич
[material_modifier] => 1
[work_modifier] => 1
[options] => Array
(
[0] => Кирпич 250 мм
[1] => Кирпич 380 мм
[2] => Кирпич 510 мм
[3] => Кирпич 640 мм
[4] => Кирпич 770 мм
)
[days] => [30,30,31,33,36]
[material_price] => [5500,7142,9206,10171,12235]
[work_price] => [8736,10041,12018,15240,18462]
[image] => https://akademik-stroy.ru/wp-content/uploads/materials/kirpich.jpg
[area_modifier] => 12.77
[parent_name] => Стены 1 этаж (несущие)
[parent_id] => 3
[material_sum] => 96924
[work_sum] => 128293
[total_sum] => 225217
[total_days] => 30
[display_material_sum] => 96 924
[display_work_sum] => 128 293
[display_total_sum] => 225 217
)
1
225 217₽
Работа:128 293 ₽
Материалы:96 924 ₽
Дни:30
stdClass Object
(
[id] => 81
[attribute_id] => 3
[name] => Монолитные
[material_modifier] => 1
[work_modifier] => 1
[options] => Array
(
[0] => 150 мм
[1] => 200 мм
[2] => 250 мм
[3] => 300 мм
[4] => 350 мм
[5] => 400 мм
)
[days] => [45,46,47,49,50,53]
[material_price] => [6545,7876,10175,12011,13908,15204]
[work_price] => [5106,6444,7698,8552,9807,11461]
[image] => https://akademik-stroy.ru/wp-content/uploads/materials/monolitnye.jpg
[area_modifier] => 12.77
[parent_name] => Стены 1 этаж (несущие)
[parent_id] => 3
[material_sum] => 115340
[work_sum] => 74984
[total_sum] => 190324
[total_days] => 45
[display_material_sum] => 115 340
[display_work_sum] => 74 984
[display_total_sum] => 190 324
)
1
190 324₽
Работа:74 984 ₽
Материалы:115 340 ₽
Дни:45
stdClass Object
(
[id] => 82
[attribute_id] => 3
[name] => Клееный брус
[material_modifier] => 1
[work_modifier] => 1
[options] => Array
(
[0] => 160 мм
[1] => 175 мм
[2] => 200 мм
[3] => 215 мм
[4] => 240 мм
[5] => 270 мм
[6] => 282 мм
)
[days] => [24,28,32,37,40,42,48]
[material_price] => [16975,18773,19950,20545,21599,22159,23275]
[work_price] => [4806,5287,5815,6397,7036,7740,8514]
[image] => https://akademik-stroy.ru/wp-content/uploads/materials/kleenyj-brus.jpg
[area_modifier] => 12.77
[parent_name] => Стены 1 этаж (несущие)
[parent_id] => 3
[material_sum] => 299144
[work_sum] => 70579
[total_sum] => 369723
[total_days] => 24
[display_material_sum] => 299 144
[display_work_sum] => 70 579
[display_total_sum] => 369 723
)
1
369 723₽
Работа:70 579 ₽
Материалы:299 144 ₽
Дни:24
stdClass Object
(
[id] => 83
[attribute_id] => 3
[name] => Каркасные
[material_modifier] => 1
[work_modifier] => 1
[options] => Array
(
[0] => 150 мм
[1] => 200 мм
[2] => 250 мм
[3] => 300 мм
)
[days] => [15,16,17,18]
[material_price] => [2379,2639,2898,3258]
[work_price] => [2418,2686,2985,3716]
[image] => https://akademik-stroy.ru/wp-content/uploads/materials/karkasnye.jpg
[area_modifier] => 12.77
[parent_name] => Стены 1 этаж (несущие)
[parent_id] => 3
[material_sum] => 41924
[work_sum] => 35510
[total_sum] => 77434
[total_days] => 15
[display_material_sum] => 41 924
[display_work_sum] => 35 510
[display_total_sum] => 77 434
)
1
77 434₽
Работа:35 510 ₽
Материалы:41 924 ₽
Дни:15
stdClass Object
(
[id] => 84
[attribute_id] => 3
[name] => СИП-панели
[material_modifier] => 1
[work_modifier] => 1
[options] => Array
(
[0] => 120 мм
[1] => 170 мм
[2] => 220 мм
)
[days] => [7,7,7]
[material_price] => [1210,1856,2292]
[work_price] => [1410,1551,1706]
[image] => https://akademik-stroy.ru/wp-content/uploads/materials/sip-paneli.jpg
[area_modifier] => 12.77
[parent_name] => Стены 1 этаж (несущие)
[parent_id] => 3
[material_sum] => 21323
[work_sum] => 20707
[total_sum] => 42030
[total_days] => 7
[display_material_sum] => 21 323
[display_work_sum] => 20 707
[display_total_sum] => 42 030
)
1
42 030₽
Работа:20 707 ₽
Материалы:21 323 ₽
Дни:7
stdClass Object
(
[id] => 85
[attribute_id] => 3
[name] => Сухой брус
[material_modifier] => 1
[work_modifier] => 1
[options] => Array
(
[0] => 150 мм
[1] => 180 мм
[2] => 200 мм
)
[days] => [7,8,9]
[material_price] => [6010,7190,8709]
[work_price] => [3204,3845,4229]
[image] => https://akademik-stroy.ru/wp-content/uploads/materials/suhoj-brus.jpg
[area_modifier] => 12.77
[parent_name] => Стены 1 этаж (несущие)
[parent_id] => 3
[material_sum] => 105912
[work_sum] => 47052
[total_sum] => 152964
[total_days] => 7
[display_material_sum] => 105 912
[display_work_sum] => 47 052
[display_total_sum] => 152 964
)
1
152 964₽
Работа:47 052 ₽
Материалы:105 912 ₽
Дни:7
stdClass Object
(
[id] => 86
[attribute_id] => 3
[name] => Профилированный брус
[material_modifier] => 1
[work_modifier] => 1
[options] => Array
(
[0] => 150 мм
[1] => 180 мм
[2] => 200 мм
)
[days] => [7,8,9]
[material_price] => [8190,9228,10051]
[work_price] => [3845,4614,5075]
[image] => https://akademik-stroy.ru/wp-content/uploads/materials/profilirovannyj-brus.jpg
[area_modifier] => 12.77
[parent_name] => Стены 1 этаж (несущие)
[parent_id] => 3
[material_sum] => 144329
[work_sum] => 56466
[total_sum] => 200795
[total_days] => 7
[display_material_sum] => 144 329
[display_work_sum] => 56 466
[display_total_sum] => 200 795
)
1
200 795₽
Работа:56 466 ₽
Материалы:144 329 ₽
Дни:7
stdClass Object
(
[id] => 87
[attribute_id] => 3
[name] => Оцилиндрованное бревно
[material_modifier] => 1
[work_modifier] => 1
[options] => Array
(
[0] => 180 мм
[1] => 220 мм
[2] => 260 мм
[3] => 320 мм
)
[days] => [7,8,9,10]
[material_price] => [75190,9532,10868,13116]
[work_price] => [3845,4691,5535,6863]
[image] => https://akademik-stroy.ru/wp-content/uploads/materials/ocilindrovannoe-brevno-1.jpg
[area_modifier] => 12.77
[parent_name] => Стены 1 этаж (несущие)
[parent_id] => 3
[material_sum] => 1325043
[work_sum] => 56466
[total_sum] => 1381509
[total_days] => 7
[display_material_sum] => 1 325 043
[display_work_sum] => 56 466
[display_total_sum] => 1 381 509
)
1
1 381 509₽
Работа:56 466 ₽
Материалы:1 325 043 ₽
Дни:7
stdClass Object
(
[id] => 88
[attribute_id] => 3
[name] => Срубы
[material_modifier] => 1
[work_modifier] => 1
[options] => Array
(
[0] => 260 мм
[1] => 320 мм
[2] => 360 мм
[3] => 400 мм
[4] => 500 мм
)
[days] => [7,8,9,10,11]
[material_price] => [37975,46709,52314,58069,73167]
[work_price] => [4806,5911,6621,7349,9260]
[image] => https://akademik-stroy.ru/wp-content/uploads/materials/sruby.jpg
[area_modifier] => 12.77
[parent_name] => Стены 1 этаж (несущие)
[parent_id] => 3
[material_sum] => 669218
[work_sum] => 70579
[total_sum] => 739797
[total_days] => 7
[display_material_sum] => 669 218
[display_work_sum] => 70 579
[display_total_sum] => 739 797
)
1
739 797₽
Работа:70 579 ₽
Материалы:669 218 ₽
Дни:7
stdClass Object
(
[id] => 174
[attribute_id] => 3
[name] => Брус
[material_modifier] => 1
[work_modifier] => 1
[options] => Array
(
[0] => 150 мм
[1] => 180 мм
[2] => 200 мм
)
[days] => [7,8,9]
[material_price] => [5127,6152,7367]
[work_price] => [1602,1922,2115]
[image] => https://akademik-stroy.ru/wp-content/uploads/materials/brus.jpg
[area_modifier] => 12.77
[parent_name] => Стены 1 этаж (несущие)
[parent_id] => 3
[material_sum] => 90351
[work_sum] => 23526
[total_sum] => 113877
[total_days] => 7
[display_material_sum] => 90 351
[display_work_sum] => 23 526
[display_total_sum] => 113 877
)
1
113 877₽
Работа:23 526 ₽
Материалы:90 351 ₽
Дни:7
stdClass Object
(
[id] => 175
[attribute_id] => 3
[name] => Газобетон
[material_modifier] => 1
[work_modifier] => 1
[options] => Array
(
[0] => 300 мм
[1] => 375 мм
[2] => 400 мм
[3] => 500 мм
[4] => 600 мм
)
[days] => [29,31,35,37,44]
[material_price] => [4298,5573,6356,7288,9119]
[work_price] => [4538,5251,5926,6733,7195]
[image] => https://akademik-stroy.ru/wp-content/uploads/materials/gazobeton.jpg
[area_modifier] => 12.77
[parent_name] => Стены 1 этаж (несущие)
[parent_id] => 3
[material_sum] => 75742
[work_sum] => 66643
[total_sum] => 142385
[total_days] => 29
[display_material_sum] => 75 742
[display_work_sum] => 66 643
[display_total_sum] => 142 385
)
1
142 385₽
Работа:66 643 ₽
Материалы:75 742 ₽
Дни:29
stdClass Object
(
[id] => 176
[attribute_id] => 3
[name] => Блок
[material_modifier] => 1
[work_modifier] => 1
[options] => Array
(
[0] => 300 мм
[1] => 375 мм
[2] => 400 мм
[3] => 500 мм
[4] => 600 мм
)
[days] => [29,31,35,37,44]
[material_price] => [2698,3973,4356,6588,7119]
[work_price] => [5038,5851,6426,8733,9195]
[image] => https://akademik-stroy.ru/wp-content/uploads/materials/blok.jpg
[area_modifier] => 12.77
[parent_name] => Стены 1 этаж (несущие)
[parent_id] => 3
[material_sum] => 47546
[work_sum] => 73986
[total_sum] => 121532
[total_days] => 29
[display_material_sum] => 47 546
[display_work_sum] => 73 986
[display_total_sum] => 121 532
)
1
121 532₽
Работа:73 986 ₽
Материалы:47 546 ₽
Дни:29
stdClass Object
(
[id] => 177
[attribute_id] => 3
[name] => Газосиликатный блок
[material_modifier] => 1
[work_modifier] => 1
[options] => Array
(
[0] => 300 мм
[1] => 375 мм
[2] => 400 мм
[3] => 500 мм
[4] => 600 мм
)
[days] => [29,31,35,37,44]
[material_price] => [4298,5573,6356,7288,9119]
[work_price] => [4538,5251,5926,6733,7195]
[image] => https://akademik-stroy.ru/wp-content/uploads/materials/gazosilikatnyj-blok.jpg
[area_modifier] => 12.77
[parent_name] => Стены 1 этаж (несущие)
[parent_id] => 3
[material_sum] => 75742
[work_sum] => 66643
[total_sum] => 142385
[total_days] => 29
[display_material_sum] => 75 742
[display_work_sum] => 66 643
[display_total_sum] => 142 385
)
1
142 385₽
Работа:66 643 ₽
Материалы:75 742 ₽
Дни:29
stdClass Object
(
[id] => 178
[attribute_id] => 3
[name] => Керамзитобетонный блок
[material_modifier] => 1
[work_modifier] => 1
[options] => Array
(
[0] => 300 мм
[1] => 375 мм
[2] => 400 мм
[3] => 500 мм
[4] => 600 мм
)
[days] => [23,23,24,25,28]
[material_price] => [3641,4298,5693,7613,9612]
[work_price] => [5737,5737,6903,7958,8901]
[image] => https://akademik-stroy.ru/wp-content/uploads/materials/keramzitobetonnyj-blok.jpg
[area_modifier] => 12.77
[parent_name] => Стены 1 этаж (несущие)
[parent_id] => 3
[material_sum] => 64164
[work_sum] => 84251
[total_sum] => 148415
[total_days] => 23
[display_material_sum] => 64 164
[display_work_sum] => 84 251
[display_total_sum] => 148 415
)
1
148 415₽
Работа:84 251 ₽
Материалы:64 164 ₽
Дни:23
stdClass Object
(
[id] => 179
[attribute_id] => 3
[name] => Деревянные
[material_modifier] => 1
[work_modifier] => 1
[options] => Array
(
[0] => 180 мм
[1] => 220 мм
[2] => 260 мм
[3] => 320 мм
)
[days] => [7,8,9,10]
[material_price] => [7950,9458,11961,14472]
[work_price] => [4037,4925,5812,7207]
[image] => https://akademik-stroy.ru/wp-content/uploads/materials/derevyannye.jpg
[area_modifier] => 12.77
[parent_name] => Стены 1 этаж (несущие)
[parent_id] => 3
[material_sum] => 140100
[work_sum] => 59285
[total_sum] => 199385
[total_days] => 7
[display_material_sum] => 140 100
[display_work_sum] => 59 285
[display_total_sum] => 199 385
)
1
199 385₽
Работа:59 285 ₽
Материалы:140 100 ₽
Дни:7
stdClass Object
(
[id] => 181
[attribute_id] => 3
[name] => Камень
[material_modifier] => 1
[work_modifier] => 1
[options] => Array
(
[0] => 300 мм
[1] => 400 мм
[2] => 500 мм
[3] => 600 мм
)
[days] => [25,27,31,34]
[material_price] => [5262,6844,8330,9815]
[work_price] => [8331,9135,10427,11069]
[image] => https://akademik-stroy.ru/wp-content/uploads/materials/kamen.jpg
[area_modifier] => 12.77
[parent_name] => Стены 1 этаж (несущие)
[parent_id] => 3
[material_sum] => 92730
[work_sum] => 122345
[total_sum] => 215075
[total_days] => 25
[display_material_sum] => 92 730
[display_work_sum] => 122 345
[display_total_sum] => 215 075
)
1
215 075₽
Работа:122 345 ₽
Материалы:92 730 ₽
Дни:25
stdClass Object
(
[id] => 182
[attribute_id] => 3
[name] => Каркасно-щитовые
[material_modifier] => 1
[work_modifier] => 1
[options] => Array
(
[0] => 150 мм
[1] => 200 мм
[2] => 250 мм
[3] => 300 мм
[4] => 350 мм
[5] => 400 мм
)
[days] => [15,16,17,18,19,20]
[material_price] => [2379,2639,2898,3458,3601,4175]
[work_price] => [2538,2820,3134,3483,4062,5642]
[image] => https://akademik-stroy.ru/wp-content/uploads/materials/karkasno-shchitovye.jpg
[area_modifier] => 12.77
[parent_name] => Стены 1 этаж (несущие)
[parent_id] => 3
[material_sum] => 41924
[work_sum] => 37272
[total_sum] => 79196
[total_days] => 15
[display_material_sum] => 41 924
[display_work_sum] => 37 272
[display_total_sum] => 79 196
)
1
79 196₽
Работа:37 272 ₽
Материалы:41 924 ₽
Дни:15
stdClass Object
(
[id] => 183
[attribute_id] => 3
[name] => Рубленные
[material_modifier] => 1
[work_modifier] => 1
[options] => Array
(
[0] => 150 мм
[1] => 200 мм
[2] => 250 мм
[3] => 300 мм
[4] => 350 мм
[5] => 400 мм
)
[days] => [15,16,17,18,17,18]
[material_price] => [35950,50267,60583,75900,80217,100533]
[work_price] => [9612,12816,16020,19224,22428,25632]
[image] => https://akademik-stroy.ru/wp-content/uploads/materials/rublennye.jpg
[area_modifier] => 12.77
[parent_name] => Стены 1 этаж (несущие)
[parent_id] => 3
[material_sum] => 633532
[work_sum] => 141157
[total_sum] => 774689
[total_days] => 15
[display_material_sum] => 633 532
[display_work_sum] => 141 157
[display_total_sum] => 774 689
)
1
774 689₽
Работа:141 157 ₽
Материалы:633 532 ₽
Дни:15
stdClass Object
(
[id] => 185
[attribute_id] => 3
[name] => Теплоблок
[material_modifier] => 1
[work_modifier] => 1
[options] => Array
(
[0] => 300 мм (с облицовкой, не покрашенный)
[1] => 400 мм (с облицовкой, не покрашенный)
[2] => 300 мм (с облицовкой, покрашенный)
[3] => 400 мм (с облицовкой, покрашенный)
)
[days] => [15,16,15,16]
[material_price] => [2888,3729,3957,4258]
[work_price] => [2564,3229,2949,3713]
[image] => https://akademik-stroy.ru/wp-content/uploads/materials/teploblok.jpg
[area_modifier] => 12.77
[parent_name] => Стены 1 этаж (несущие)
[parent_id] => 3
[material_sum] => 50894
[work_sum] => 37654
[total_sum] => 88548
[total_days] => 15
[display_material_sum] => 50 894
[display_work_sum] => 37 654
[display_total_sum] => 88 548
)
1
88 548₽
Работа:37 654 ₽
Материалы:50 894 ₽
Дни:15
stdClass Object
(
[id] => 186
[attribute_id] => 3
[name] => Арболитовые блоки
[material_modifier] => 1
[work_modifier] => 1
[options] => Array
(
[0] => 300 мм
[1] => 400 мм
[2] => 600 мм
)
[days] => [19,22,27]
[material_price] => [3210,4475,5852]
[work_price] => [4214,4788,5866]
[image] => https://akademik-stroy.ru/wp-content/uploads/materials/arbolitovye-bloki.png
[area_modifier] => 12.77
[parent_name] => Стены 1 этаж (несущие)
[parent_id] => 3
[material_sum] => 56569
[work_sum] => 61885
[total_sum] => 118454
[total_days] => 19
[display_material_sum] => 56 569
[display_work_sum] => 61 885
[display_total_sum] => 118 454
)
1
118 454₽
Работа:61 885 ₽
Материалы:56 569 ₽
Дни:19
stdClass Object
(
[id] => 187
[attribute_id] => 3
[name] => Полистиролбетон
[material_modifier] => 1
[work_modifier] => 1
[options] => Array
(
[0] => 300 мм
[1] => 400 мм
[2] => 600 мм
)
[days] => [29,31,35]
[material_price] => [2798,4573,5256]
[work_price] => [5038,5851,6426]
[image] => https://akademik-stroy.ru/wp-content/uploads/materials/polistirolbeton.jpg
[area_modifier] => 12.77
[parent_name] => Стены 1 этаж (несущие)
[parent_id] => 3
[material_sum] => 49308
[work_sum] => 73986
[total_sum] => 123294
[total_days] => 29
[display_material_sum] => 49 308
[display_work_sum] => 73 986
[display_total_sum] => 123 294
)
1
123 294₽
Работа:73 986 ₽
Материалы:49 308 ₽
Дни:29
stdClass Object
(
[id] => 188
[attribute_id] => 3
[name] => Шлакоблок
[material_modifier] => 1
[work_modifier] => 1
[options] => Array
(
[0] => 400 мм
[1] => 600 мм
)
[days] => [15,16]
[material_price] => [2391,3471]
[work_price] => [2642,3662]
[image] => https://akademik-stroy.ru/wp-content/uploads/materials/shlakoblok.jpg
[area_modifier] => 12.77
[parent_name] => Стены 1 этаж (несущие)
[parent_id] => 3
[material_sum] => 42136
[work_sum] => 38799
[total_sum] => 80935
[total_days] => 15
[display_material_sum] => 42 136
[display_work_sum] => 38 799
[display_total_sum] => 80 935
)
1
80 935₽
Работа:38 799 ₽
Материалы:42 136 ₽
Дни:15
stdClass Object
(
[id] => 189
[attribute_id] => 3
[name] => Теплая керамика
[material_modifier] => 1
[work_modifier] => 1
[options] => Array
(
[0] => 380 мм
[1] => 380 мм Thermo
[2] => 440 мм
[3] => 510 мм
)
[days] => [23,23,24,25]
[material_price] => [4510,5098,6093,8013]
[work_price] => [4737,4937,5903,6958]
[image] => https://akademik-stroy.ru/wp-content/uploads/materials/teplaya-keramika.jpg
[area_modifier] => 12.77
[parent_name] => Стены 1 этаж (несущие)
[parent_id] => 3
[material_sum] => 79478
[work_sum] => 69565
[total_sum] => 149043
[total_days] => 23
[display_material_sum] => 79 478
[display_work_sum] => 69 565
[display_total_sum] => 149 043
)
1
149 043₽
Работа:69 565 ₽
Материалы:79 478 ₽
Дни:23
stdClass Object
(
[id] => 190
[attribute_id] => 3
[name] => Несъемная опалубка
[material_modifier] => 1
[work_modifier] => 1
[options] => Array
(
[0] => 200 мм
[1] => 250 мм
[2] => 300 мм
[3] => 350 мм
)
[days] => [15,17,19,21]
[material_price] => [3302,3902,4108,5008]
[work_price] => [2100,2100,2300,2534]
[image] => https://akademik-stroy.ru/wp-content/uploads/materials/nesemnaya-opalubka.jpg
[area_modifier] => 12.77
[parent_name] => Стены 1 этаж (несущие)
[parent_id] => 3
[material_sum] => 58190
[work_sum] => 30840
[total_sum] => 89030
[total_days] => 15
[display_material_sum] => 58 190
[display_work_sum] => 30 840
[display_total_sum] => 89 030
)
1
89 030₽
Работа:30 840 ₽
Материалы:58 190 ₽
Дни:15
stdClass Object
(
[id] => 251
[attribute_id] => 3
[name] => Бревно
[material_modifier] => 1
[work_modifier] => 1
[options] => Array
(
[0] => 260 мм
[1] => 320 мм
[2] => 360 мм
[3] => 400 мм
[4] => 500 мм
)
[days] => [7,8,9,10,11]
[material_price] => [1874,24045,26930,30972,38825]
[work_price] => [5046,6207,6952,7716,9723]
[image] => https://akademik-stroy.ru/wp-content/uploads/materials/sruby.jpg
[area_modifier] => 12.77
[parent_name] => Стены 1 этаж (несущие)
[parent_id] => 3
[material_sum] => 33025
[work_sum] => 74103
[total_sum] => 107128
[total_days] => 7
[display_material_sum] => 33 025
[display_work_sum] => 74 103
[display_total_sum] => 107 128
)
1
107 128₽
Работа:74 103 ₽
Материалы:33 025 ₽
Дни:7
stdClass Object
(
[id] => 7
[attribute_id] => 4
[name] => Деревянные балки
[material_modifier] => 1
[work_modifier] => 1
[options] => Array
(
[0] => без утепления
[1] => утепление 200 мм
[2] => утепление 250 мм
[3] => утепление 300 мм
[4] => утепление 350 мм
[5] => утепление 400 мм
[6] => утепление 450 мм
[7] => утепление 500 мм
)
[days] => [8,9,9,9,11,12,13,14]
[material_price] => [1634,2042,2344,2947,3149,3652,3354,3557]
[work_price] => [1230,1339,1393,1426,1460,1513,1587,1620]
[image] => https://akademik-stroy.ru/wp-content/uploads/materials/derevyannye-balki.png
[area_modifier] => 12.77
[parent_name] => Перекрытие первого этажа
[parent_id] => 4
[material_sum] => 28795
[work_sum] => 18063
[total_sum] => 46858
[total_days] => 8
[display_material_sum] => 28 795
[display_work_sum] => 18 063
[display_total_sum] => 46 858
)
1
46 858₽
Работа:18 063 ₽
Материалы:28 795 ₽
Дни:8
stdClass Object
(
[id] => 8
[attribute_id] => 4
[name] => Сборные ж/б плиты
[material_modifier] => 1
[work_modifier] => 1
[options] => Array
(
[0] => без утепления
[1] => утепление 150 мм
[2] => утепление 200 мм
[3] => утепление 250 мм
[4] => утепление 300 мм
[5] => утепление 350 мм
[6] => утепление 400 мм
[7] => утепление 450 мм
[8] => утепление 500 мм
)
[days] => [13,15,15,15,15,15,15,15,15]
[material_price] => [3067,5577,5928,6679,7730,8782,9833,10884,11935]
[work_price] => [1520,1956,2102,2247,2392,2537,2684,2829,2974]
[image] => https://akademik-stroy.ru/wp-content/uploads/materials/sbornye-zh-b-plity-2.jpg
[area_modifier] => 12.77
[parent_name] => Перекрытие первого этажа
[parent_id] => 4
[material_sum] => 54049
[work_sum] => 22322
[total_sum] => 76371
[total_days] => 13
[display_material_sum] => 54 049
[display_work_sum] => 22 322
[display_total_sum] => 76 371
)
1
76 371₽
Работа:22 322 ₽
Материалы:54 049 ₽
Дни:13
stdClass Object
(
[id] => 89
[attribute_id] => 4
[name] => Монолитная ж/б плита
[material_modifier] => 1
[work_modifier] => 1
[options] => Array
(
[0] => без утепления
[1] => утепление 150 мм
[2] => утепление 200 мм
[3] => утепление 250 мм
[4] => утепление 300 мм
[5] => утепление 350 мм
[6] => утепление 400 мм
[7] => утепление 450 мм
[8] => утепление 500 мм
)
[days] => [18,20,20,20,20,20,20,20,20]
[material_price] => [4837,6572,7224,7375,79426,8177,8728,9180,10031]
[work_price] => [3348,3921,4112,4302,4493,4684,4875,5066,5256]
[image] => https://akademik-stroy.ru/wp-content/uploads/materials/monolitnaya-zh-b-plita-2.jpg
[area_modifier] => 12.77
[parent_name] => Перекрытие первого этажа
[parent_id] => 4
[material_sum] => 85241
[work_sum] => 49167
[total_sum] => 134408
[total_days] => 18
[display_material_sum] => 85 241
[display_work_sum] => 49 167
[display_total_sum] => 134 408
)
1
134 408₽
Работа:49 167 ₽
Материалы:85 241 ₽
Дни:18
stdClass Object
(
[id] => 10
[attribute_id] => 5
[name] => Пеноблок
[material_modifier] => 1
[work_modifier] => 1
[options] => Array
(
[0] => 300 мм
[1] => 400 мм
[2] => 500 мм
[3] => 600 мм
)
[days] => [29,31,34,39]
[material_price] => [3000,4000,4500,4937]
[work_price] => [5033,5805,6400,8710]
[image] => https://akademik-stroy.ru/wp-content/uploads/materials/penoblok.jpg
[area_modifier] => 100.59
[parent_name] => Стены 2 этаж (несущие)
[parent_id] => 5
[material_sum] => 416443
[work_sum] => 582210
[total_sum] => 998653
[total_days] => 29
[display_material_sum] => 416 443
[display_work_sum] => 582 210
[display_total_sum] => 998 653
)
1
998 653₽
Работа:582 210 ₽
Материалы:416 443 ₽
Дни:29
stdClass Object
(
[id] => 90
[attribute_id] => 5
[name] => Керамический блок
[material_modifier] => 1
[work_modifier] => 1
[options] => Array
(
[0] => 380 мм
[1] => 380 мм Thermo
[2] => 440 мм
[3] => 510 мм
)
[days] => [23,23,24,25]
[material_price] => [4510,5098,6093,8013]
[work_price] => [4737,4937,5903,6958]
[image] => https://akademik-stroy.ru/wp-content/uploads/materials/keramicheskij-blok.jpg
[area_modifier] => 100.59
[parent_name] => Стены 2 этаж (несущие)
[parent_id] => 5
[material_sum] => 626052
[work_sum] => 547969
[total_sum] => 1174021
[total_days] => 23
[display_material_sum] => 626 052
[display_work_sum] => 547 969
[display_total_sum] => 1 174 021
)
1
1 174 021₽
Работа:547 969 ₽
Материалы:626 052 ₽
Дни:23
stdClass Object
(
[id] => 91
[attribute_id] => 5
[name] => Кирпич
[material_modifier] => 1
[work_modifier] => 1
[options] => Array
(
[0] => Кирпич 250 мм
[1] => Кирпич 380 мм
[2] => Кирпич 510 мм
[3] => Кирпич 640 мм
[4] => Кирпич 770 мм
)
[days] => [30,30,31,33,36]
[material_price] => [5500,7142,9206,10171,12235]
[work_price] => [8736,10041,12018,15240,18462]
[image] => https://akademik-stroy.ru/wp-content/uploads/materials/kirpich.jpg
[area_modifier] => 100.59
[parent_name] => Стены 2 этаж (несущие)
[parent_id] => 5
[material_sum] => 763478
[work_sum] => 1010567
[total_sum] => 1774045
[total_days] => 30
[display_material_sum] => 763 478
[display_work_sum] => 1 010 567
[display_total_sum] => 1 774 045
)
1
1 774 045₽
Работа:1 010 567 ₽
Материалы:763 478 ₽
Дни:30
stdClass Object
(
[id] => 92
[attribute_id] => 5
[name] => Монолитные
[material_modifier] => 1
[work_modifier] => 1
[options] => Array
(
[0] => 150 мм
[1] => 200 мм
[2] => 250 мм
[3] => 300 мм
[4] => 350 мм
[5] => 400 мм
)
[days] => [45,46,47,49,50,53]
[material_price] => [6545,7876,10175,12011,13908,15204]
[work_price] => [5106,6444,7698,8552,9807,11461]
[image] => https://akademik-stroy.ru/wp-content/uploads/materials/monolitnye.jpg
[area_modifier] => 100.59
[parent_name] => Стены 2 этаж (несущие)
[parent_id] => 5
[material_sum] => 908539
[work_sum] => 590654
[total_sum] => 1499193
[total_days] => 45
[display_material_sum] => 908 539
[display_work_sum] => 590 654
[display_total_sum] => 1 499 193
)
1
1 499 193₽
Работа:590 654 ₽
Материалы:908 539 ₽
Дни:45
stdClass Object
(
[id] => 93
[attribute_id] => 5
[name] => Клееный брус
[material_modifier] => 1
[work_modifier] => 1
[options] => Array
(
[0] => 160 мм
[1] => 175 мм
[2] => 200 мм
[3] => 215 мм
[4] => 240 мм
[5] => 270 мм
[6] => 282 мм
)
[days] => [24,28,32,37,40,42,48]
[material_price] => [16975,18773,19950,20545,21599,22159,23275]
[work_price] => [4806,5287,5815,6397,7036,7740,8514]
[image] => https://akademik-stroy.ru/wp-content/uploads/materials/kleenyj-brus.jpg
[area_modifier] => 100.59
[parent_name] => Стены 2 этаж (несущие)
[parent_id] => 5
[material_sum] => 2356371
[work_sum] => 555951
[total_sum] => 2912322
[total_days] => 24
[display_material_sum] => 2 356 371
[display_work_sum] => 555 951
[display_total_sum] => 2 912 322
)
1
2 912 322₽
Работа:555 951 ₽
Материалы:2 356 371 ₽
Дни:24
stdClass Object
(
[id] => 94
[attribute_id] => 5
[name] => Каркасные
[material_modifier] => 1
[work_modifier] => 1
[options] => Array
(
[0] => 150 мм
[1] => 200 мм
[2] => 250 мм
[3] => 300 мм
)
[days] => [15,16,17,18]
[material_price] => [2379,2639,2898,3258]
[work_price] => [2418,2686,2985,3716]
[image] => https://akademik-stroy.ru/wp-content/uploads/materials/karkasnye.jpg
[area_modifier] => 100.59
[parent_name] => Стены 2 этаж (несущие)
[parent_id] => 5
[material_sum] => 330239
[work_sum] => 279711
[total_sum] => 609950
[total_days] => 15
[display_material_sum] => 330 239
[display_work_sum] => 279 711
[display_total_sum] => 609 950
)
1
609 950₽
Работа:279 711 ₽
Материалы:330 239 ₽
Дни:15
stdClass Object
(
[id] => 95
[attribute_id] => 5
[name] => СИП-панели
[material_modifier] => 1
[work_modifier] => 1
[options] => Array
(
[0] => 120 мм
[1] => 170 мм
[2] => 220 мм
)
[days] => [7,7,7]
[material_price] => [1210,1856,2292]
[work_price] => [1410,1551,1706]
[image] => https://akademik-stroy.ru/wp-content/uploads/materials/sip-paneli.jpg
[area_modifier] => 100.59
[parent_name] => Стены 2 этаж (несущие)
[parent_id] => 5
[material_sum] => 167965
[work_sum] => 163107
[total_sum] => 331072
[total_days] => 7
[display_material_sum] => 167 965
[display_work_sum] => 163 107
[display_total_sum] => 331 072
)
1
331 072₽
Работа:163 107 ₽
Материалы:167 965 ₽
Дни:7
stdClass Object
(
[id] => 96
[attribute_id] => 5
[name] => Сухой брус
[material_modifier] => 1
[work_modifier] => 1
[options] => Array
(
[0] => 150 мм
[1] => 180 мм
[2] => 200 мм
)
[days] => [7,8,9]
[material_price] => [6010,7190,8709]
[work_price] => [3204,3845,4229]
[image] => https://akademik-stroy.ru/wp-content/uploads/materials/suhoj-brus.jpg
[area_modifier] => 100.59
[parent_name] => Стены 2 этаж (несущие)
[parent_id] => 5
[material_sum] => 834273
[work_sum] => 370634
[total_sum] => 1204907
[total_days] => 7
[display_material_sum] => 834 273
[display_work_sum] => 370 634
[display_total_sum] => 1 204 907
)
1
1 204 907₽
Работа:370 634 ₽
Материалы:834 273 ₽
Дни:7
stdClass Object
(
[id] => 97
[attribute_id] => 5
[name] => Профилированный брус
[material_modifier] => 1
[work_modifier] => 1
[options] => Array
(
[0] => 150 мм
[1] => 180 мм
[2] => 200 мм
)
[days] => [7,8,9]
[material_price] => [8190,9228,10051]
[work_price] => [3845,4614,5075]
[image] => https://akademik-stroy.ru/wp-content/uploads/materials/profilirovannyj-brus.jpg
[area_modifier] => 100.59
[parent_name] => Стены 2 этаж (несущие)
[parent_id] => 5
[material_sum] => 1136888
[work_sum] => 444784
[total_sum] => 1581672
[total_days] => 7
[display_material_sum] => 1 136 888
[display_work_sum] => 444 784
[display_total_sum] => 1 581 672
)
1
1 581 672₽
Работа:444 784 ₽
Материалы:1 136 888 ₽
Дни:7
stdClass Object
(
[id] => 98
[attribute_id] => 5
[name] => Оцилиндрованное бревно
[material_modifier] => 1
[work_modifier] => 1
[options] => Array
(
[0] => 180 мм
[1] => 220 мм
[2] => 260 мм
[3] => 320 мм
)
[days] => [7,8,9,10]
[material_price] => [75190,9532,10868,13116]
[work_price] => [3845,4691,5535,6863]
[image] => https://akademik-stroy.ru/wp-content/uploads/materials/ocilindrovannoe-brevno-1.jpg
[area_modifier] => 100.59
[parent_name] => Стены 2 этаж (несущие)
[parent_id] => 5
[material_sum] => 10437440
[work_sum] => 444784
[total_sum] => 10882224
[total_days] => 7
[display_material_sum] => 10 437 440
[display_work_sum] => 444 784
[display_total_sum] => 10 882 224
)
1
10 882 224₽
Работа:444 784 ₽
Материалы:10 437 440 ₽
Дни:7
stdClass Object
(
[id] => 99
[attribute_id] => 5
[name] => Срубы
[material_modifier] => 1
[work_modifier] => 1
[options] => Array
(
[0] => 260 мм
[1] => 320 мм
[2] => 360 мм
[3] => 400 мм
[4] => 500 мм
)
[days] => [7,8,9,10,11]
[material_price] => [16175,23709,26314,29069,32167]
[work_price] => [4806,5911,6621,7349,9260]
[image] => https://akademik-stroy.ru/wp-content/uploads/materials/suhoj-brus.jpg
[area_modifier] => 100.59
[parent_name] => Стены 2 этаж (несущие)
[parent_id] => 5
[material_sum] => 2245320
[work_sum] => 555951
[total_sum] => 2801271
[total_days] => 7
[display_material_sum] => 2 245 320
[display_work_sum] => 555 951
[display_total_sum] => 2 801 271
)
1
2 801 271₽
Работа:555 951 ₽
Материалы:2 245 320 ₽
Дни:7
stdClass Object
(
[id] => 194
[attribute_id] => 5
[name] => Брус
[material_modifier] => 1
[work_modifier] => 1
[options] => Array
(
[0] => 150 мм
[1] => 180 мм
[2] => 200 мм
)
[days] => [10,13,15]
[material_price] => [5127,6152,7367]
[work_price] => [1602,1922,2115]
[image] => https://akademik-stroy.ru/wp-content/uploads/materials/brus.jpg
[area_modifier] => 100.59
[parent_name] => Стены 2 этаж (несущие)
[parent_id] => 5
[material_sum] => 711700
[work_sum] => 185317
[total_sum] => 897017
[total_days] => 10
[display_material_sum] => 711 700
[display_work_sum] => 185 317
[display_total_sum] => 897 017
)
1
897 017₽
Работа:185 317 ₽
Материалы:711 700 ₽
Дни:10
stdClass Object
(
[id] => 195
[attribute_id] => 5
[name] => Газобетон
[material_modifier] => 1
[work_modifier] => 1
[options] => Array
(
[0] => 300 мм
[1] => 375 мм
[2] => 400 мм
[3] => 500 мм
[4] => 600 мм
)
[days] => [29,31,35,37,44]
[material_price] => [4298,5573,6356,7288,9119]
[work_price] => [4538,5251,5926,6733,7195]
[image] => https://akademik-stroy.ru/wp-content/uploads/materials/gazobeton.jpg
[area_modifier] => 100.59
[parent_name] => Стены 2 этаж (несущие)
[parent_id] => 5
[material_sum] => 596623
[work_sum] => 524949
[total_sum] => 1121572
[total_days] => 29
[display_material_sum] => 596 623
[display_work_sum] => 524 949
[display_total_sum] => 1 121 572
)
1
1 121 572₽
Работа:524 949 ₽
Материалы:596 623 ₽
Дни:29
stdClass Object
(
[id] => 196
[attribute_id] => 5
[name] => Блок
[material_modifier] => 1
[work_modifier] => 1
[options] => Array
(
[0] => 300 мм
[1] => 375 мм
[2] => 400 мм
[3] => 500 мм
[4] => 600 мм
)
[days] => [29,31,35,37,44]
[material_price] => [2698,3973,4356,6588,7119]
[work_price] => [5038,5851,6426,8733,9195]
[image] => https://akademik-stroy.ru/wp-content/uploads/materials/blok.jpg
[area_modifier] => 100.59
[parent_name] => Стены 2 этаж (несущие)
[parent_id] => 5
[material_sum] => 374521
[work_sum] => 582788
[total_sum] => 957309
[total_days] => 29
[display_material_sum] => 374 521
[display_work_sum] => 582 788
[display_total_sum] => 957 309
)
1
957 309₽
Работа:582 788 ₽
Материалы:374 521 ₽
Дни:29
stdClass Object
(
[id] => 197
[attribute_id] => 5
[name] => Газосиликатный блок
[material_modifier] => 1
[work_modifier] => 1
[options] => Array
(
[0] => 300 мм
[1] => 375 мм
[2] => 400 мм
[3] => 500 мм
[4] => 600 мм
)
[days] => [29,31,35,37,44]
[material_price] => [4298,5573,6356,7288,9119]
[work_price] => [4538,5251,5926,6733,7195]
[image] => https://akademik-stroy.ru/wp-content/uploads/materials/gazosilikatnyj-blok.jpg
[area_modifier] => 100.59
[parent_name] => Стены 2 этаж (несущие)
[parent_id] => 5
[material_sum] => 596623
[work_sum] => 524949
[total_sum] => 1121572
[total_days] => 29
[display_material_sum] => 596 623
[display_work_sum] => 524 949
[display_total_sum] => 1 121 572
)
1
1 121 572₽
Работа:524 949 ₽
Материалы:596 623 ₽
Дни:29
stdClass Object
(
[id] => 198
[attribute_id] => 5
[name] => Керамзитобетонный блок
[material_modifier] => 1
[work_modifier] => 1
[options] => Array
(
[0] => 300 мм
[1] => 375 мм
[2] => 400 мм
[3] => 500 мм
[4] => 600 мм
)
[days] => [23,23,24,25,28]
[material_price] => [3641,4298,5693,7613,9612]
[work_price] => [5737,5737,6903,7958,8901]
[image] => https://akademik-stroy.ru/wp-content/uploads/materials/keramzitobetonnyj-blok.jpg
[area_modifier] => 100.59
[parent_name] => Стены 2 этаж (несущие)
[parent_id] => 5
[material_sum] => 505423
[work_sum] => 663648
[total_sum] => 1169071
[total_days] => 23
[display_material_sum] => 505 423
[display_work_sum] => 663 648
[display_total_sum] => 1 169 071
)
1
1 169 071₽
Работа:663 648 ₽
Материалы:505 423 ₽
Дни:23
stdClass Object
(
[id] => 199
[attribute_id] => 5
[name] => Деревянные
[material_modifier] => 1
[work_modifier] => 1
[options] => Array
(
[0] => 180 мм
[1] => 220 мм
[2] => 260 мм
[3] => 320 мм
)
[days] => [7,8,9,10]
[material_price] => [7950,9458,11961,14472]
[work_price] => [4037,4925,5812,7207]
[image] => https://akademik-stroy.ru/wp-content/uploads/materials/derevyannye.jpg
[area_modifier] => 100.59
[parent_name] => Стены 2 этаж (несущие)
[parent_id] => 5
[material_sum] => 1103573
[work_sum] => 466994
[total_sum] => 1570567
[total_days] => 7
[display_material_sum] => 1 103 573
[display_work_sum] => 466 994
[display_total_sum] => 1 570 567
)
1
1 570 567₽
Работа:466 994 ₽
Материалы:1 103 573 ₽
Дни:7
stdClass Object
(
[id] => 200
[attribute_id] => 5
[name] => Камень
[material_modifier] => 1
[work_modifier] => 1
[options] => Array
(
[0] => 300 мм
[1] => 400 мм
[2] => 500 мм
[3] => 600 мм
)
[days] => [25,27,31,34]
[material_price] => [5262,6844,8330,9815]
[work_price] => [8331,9135,10427,11069]
[image] => https://akademik-stroy.ru/wp-content/uploads/materials/kamen.jpg
[area_modifier] => 100.59
[parent_name] => Стены 2 этаж (несущие)
[parent_id] => 5
[material_sum] => 730440
[work_sum] => 963718
[total_sum] => 1694158
[total_days] => 25
[display_material_sum] => 730 440
[display_work_sum] => 963 718
[display_total_sum] => 1 694 158
)
1
1 694 158₽
Работа:963 718 ₽
Материалы:730 440 ₽
Дни:25
stdClass Object
(
[id] => 201
[attribute_id] => 5
[name] => Каркасно-щитовые
[material_modifier] => 1
[work_modifier] => 1
[options] => Array
(
[0] => 150 мм
[1] => 200 мм
[2] => 250 мм
[3] => 300 мм
[4] => 350 мм
[5] => 400 мм
)
[days] => [15,16,17,18,19,20]
[material_price] => [2379,2639,2898,3458,3601,4175]
[work_price] => [2538,2820,3134,3483,4062,5642]
[image] => https://akademik-stroy.ru/wp-content/uploads/materials/karkasno-shchitovye.jpg
[area_modifier] => 100.59
[parent_name] => Стены 2 этаж (несущие)
[parent_id] => 5
[material_sum] => 330239
[work_sum] => 293592
[total_sum] => 623831
[total_days] => 15
[display_material_sum] => 330 239
[display_work_sum] => 293 592
[display_total_sum] => 623 831
)
1
623 831₽
Работа:293 592 ₽
Материалы:330 239 ₽
Дни:15
stdClass Object
(
[id] => 202
[attribute_id] => 5
[name] => Рубленные
[material_modifier] => 1
[work_modifier] => 1
[options] => Array
(
[0] => 150 мм
[1] => 200 мм
[2] => 250 мм
[3] => 300 мм
[4] => 350 мм
[5] => 400 мм
)
[days] => [15,16,17,18,17,18]
[material_price] => [35950,50267,60583,75900,80217,100533]
[work_price] => [9612,12816,16020,19224,22428,25632]
[image] => https://akademik-stroy.ru/wp-content/uploads/materials/rublennye.jpg
[area_modifier] => 100.59
[parent_name] => Стены 2 этаж (несущие)
[parent_id] => 5
[material_sum] => 4990370
[work_sum] => 1111902
[total_sum] => 6102272
[total_days] => 15
[display_material_sum] => 4 990 370
[display_work_sum] => 1 111 902
[display_total_sum] => 6 102 272
)
1
6 102 272₽
Работа:1 111 902 ₽
Материалы:4 990 370 ₽
Дни:15
stdClass Object
(
[id] => 203
[attribute_id] => 5
[name] => Теплоблок
[material_modifier] => 1
[work_modifier] => 1
[options] => Array
(
[0] => 300 мм (с облицовкой, не покрашенный)
[1] => 400 мм (с облицовкой, не покрашенный)
[2] => 300 мм (с облицовкой, покрашенный)
[3] => 400 мм (с облицовкой, покрашенный)
)
[days] => [15,16,15,16]
[material_price] => [2888,3729,3957,4258]
[work_price] => [2564,3229,2949,3713]
[image] => https://akademik-stroy.ru/wp-content/uploads/materials/teploblok.jpg
[area_modifier] => 100.59
[parent_name] => Стены 2 этаж (несущие)
[parent_id] => 5
[material_sum] => 400895
[work_sum] => 296600
[total_sum] => 697495
[total_days] => 15
[display_material_sum] => 400 895
[display_work_sum] => 296 600
[display_total_sum] => 697 495
)
1
697 495₽
Работа:296 600 ₽
Материалы:400 895 ₽
Дни:15
stdClass Object
(
[id] => 204
[attribute_id] => 5
[name] => Арболитовые блоки
[material_modifier] => 1
[work_modifier] => 1
[options] => Array
(
[0] => 300 мм
[1] => 400 мм
[2] => 600 мм
)
[days] => [19,22,27]
[material_price] => [3210,4475,5852]
[work_price] => [4214,4788,5866]
[image] => https://akademik-stroy.ru/wp-content/uploads/materials/arbolitovye-bloki.png
[area_modifier] => 100.59
[parent_name] => Стены 2 этаж (несущие)
[parent_id] => 5
[material_sum] => 445594
[work_sum] => 487469
[total_sum] => 933063
[total_days] => 19
[display_material_sum] => 445 594
[display_work_sum] => 487 469
[display_total_sum] => 933 063
)
1
933 063₽
Работа:487 469 ₽
Материалы:445 594 ₽
Дни:19
stdClass Object
(
[id] => 205
[attribute_id] => 5
[name] => Полистиролбетон
[material_modifier] => 1
[work_modifier] => 1
[options] => Array
(
[0] => 300 мм
[1] => 400 мм
[2] => 600 мм
)
[days] => [29,31,35]
[material_price] => [2798,4573,5256]
[work_price] => [5038,5851,6426]
[image] => https://akademik-stroy.ru/wp-content/uploads/materials/polistirolbeton.jpg
[area_modifier] => 100.59
[parent_name] => Стены 2 этаж (несущие)
[parent_id] => 5
[material_sum] => 388402
[work_sum] => 582788
[total_sum] => 971190
[total_days] => 29
[display_material_sum] => 388 402
[display_work_sum] => 582 788
[display_total_sum] => 971 190
)
1
971 190₽
Работа:582 788 ₽
Материалы:388 402 ₽
Дни:29
stdClass Object
(
[id] => 206
[attribute_id] => 5
[name] => Шлакоблок
[material_modifier] => 1
[work_modifier] => 1
[options] => Array
(
[0] => 400 мм
[1] => 600 мм
)
[days] => [15,16]
[material_price] => [2391,3471]
[work_price] => [2642,3662]
[image] => https://akademik-stroy.ru/wp-content/uploads/materials/shlakoblok.jpg
[area_modifier] => 100.59
[parent_name] => Стены 2 этаж (несущие)
[parent_id] => 5
[material_sum] => 331905
[work_sum] => 305623
[total_sum] => 637528
[total_days] => 15
[display_material_sum] => 331 905
[display_work_sum] => 305 623
[display_total_sum] => 637 528
)
1
637 528₽
Работа:305 623 ₽
Материалы:331 905 ₽
Дни:15
stdClass Object
(
[id] => 245
[attribute_id] => 5
[name] => Теплая керамика
[material_modifier] => 1
[work_modifier] => 1
[options] => Array
(
[0] => 380 мм
[1] => 380 мм Thermo
[2] => 440 мм
[3] => 510 мм
)
[days] => [10,10,11,12]
[material_price] => [4510,5098,6093,8013]
[work_price] => [4737,4937,5903,6958]
[image] => https://akademik-stroy.ru/wp-content/uploads/materials/teplaya-keramika.jpg
[area_modifier] => 100.59
[parent_name] => Стены 2 этаж (несущие)
[parent_id] => 5
[material_sum] => 626052
[work_sum] => 547969
[total_sum] => 1174021
[total_days] => 10
[display_material_sum] => 626 052
[display_work_sum] => 547 969
[display_total_sum] => 1 174 021
)
1
1 174 021₽
Работа:547 969 ₽
Материалы:626 052 ₽
Дни:10
stdClass Object
(
[id] => 246
[attribute_id] => 5
[name] => Несъемная опалубка
[material_modifier] => 1
[work_modifier] => 1
[options] => Array
(
[0] => 380 мм
[1] => 380 мм Thermo
[2] => 440 мм
[3] => 510 мм
)
[days] => [10,10,11,12]
[material_price] => [3302,3902,4108,5008]
[work_price] => [2100,2100,2300,2534]
[image] => https://akademik-stroy.ru/wp-content/uploads/materials/nesemnaya-opalubka.jpg
[area_modifier] => 100.59
[parent_name] => Стены 2 этаж (несущие)
[parent_id] => 5
[material_sum] => 458364
[work_sum] => 242925
[total_sum] => 701289
[total_days] => 10
[display_material_sum] => 458 364
[display_work_sum] => 242 925
[display_total_sum] => 701 289
)
1
701 289₽
Работа:242 925 ₽
Материалы:458 364 ₽
Дни:10
stdClass Object
(
[id] => 254
[attribute_id] => 5
[name] => Бревно
[material_modifier] => 1
[work_modifier] => 1
[options] => Array
(
[0] => 260 мм
[1] => 320 мм
[2] => 360 мм
[3] => 400 мм
[4] => 500 мм
)
[days] => [7,8,9,10,11]
[material_price] => [1874,24045,26930,30972,38825]
[work_price] => [5046,6207,6952,7716,9723]
[image] => https://akademik-stroy.ru/wp-content/uploads/materials/sruby.jpg
[area_modifier] => 100.59
[parent_name] => Стены 2 этаж (несущие)
[parent_id] => 5
[material_sum] => 260138
[work_sum] => 583714
[total_sum] => 843852
[total_days] => 7
[display_material_sum] => 260 138
[display_work_sum] => 583 714
[display_total_sum] => 843 852
)
1
843 852₽
Работа:583 714 ₽
Материалы:260 138 ₽
Дни:7
stdClass Object
(
[id] => 164
[attribute_id] => 37
[name] => Металлочерепица
[material_modifier] => 1
[work_modifier] => 1
[options] => Array
(
)
[days] => [20]
[material_price] => [6112]
[work_price] => [5726]
[image] => https://akademik-stroy.ru/wp-content/uploads/materials/metallocherepica.jpg
[area_modifier] => 12.77
[parent_name] => Крыша (Скатная)
[parent_id] => 37
[material_sum] => 107709
[work_sum] => 84089
[total_sum] => 191798
[total_days] => 20
[display_material_sum] => 107 709
[display_work_sum] => 84 089
[display_total_sum] => 191 798
)
1
191 798₽
Работа:84 089 ₽
Материалы:107 709 ₽
Дни:20
stdClass Object
(
[id] => 165
[attribute_id] => 37
[name] => Гибкая черепица
[material_modifier] => 1
[work_modifier] => 1
[options] => Array
(
)
[days] => [20]
[material_price] => [6980]
[work_price] => [5950]
[image] => https://akademik-stroy.ru/wp-content/uploads/materials/gibkaya-cherepica.jpg
[area_modifier] => 12.77
[parent_name] => Крыша (Скатная)
[parent_id] => 37
[material_sum] => 123006
[work_sum] => 87379
[total_sum] => 210385
[total_days] => 20
[display_material_sum] => 123 006
[display_work_sum] => 87 379
[display_total_sum] => 210 385
)
1
210 385₽
Работа:87 379 ₽
Материалы:123 006 ₽
Дни:20
stdClass Object
(
[id] => 166
[attribute_id] => 37
[name] => Цементно-песчаная черепица
[material_modifier] => 1
[work_modifier] => 1
[options] => Array
(
)
[days] => [20]
[material_price] => [10560]
[work_price] => [9456]
[image] => https://akademik-stroy.ru/wp-content/uploads/materials/cementno-peschanaya-cherepica.jpg
[area_modifier] => 12.77
[parent_name] => Крыша (Скатная)
[parent_id] => 37
[material_sum] => 186095
[work_sum] => 138866
[total_sum] => 324961
[total_days] => 20
[display_material_sum] => 186 095
[display_work_sum] => 138 866
[display_total_sum] => 324 961
)
1
324 961₽
Работа:138 866 ₽
Материалы:186 095 ₽
Дни:20
stdClass Object
(
[id] => 167
[attribute_id] => 37
[name] => Композитная черепица
[material_modifier] => 1
[work_modifier] => 1
[options] => Array
(
)
[days] => [20]
[material_price] => [9506]
[work_price] => [8905]
[image] => https://akademik-stroy.ru/wp-content/uploads/materials/kompozitnaya-cherepica.jpg
[area_modifier] => 12.77
[parent_name] => Крыша (Скатная)
[parent_id] => 37
[material_sum] => 167520
[work_sum] => 130774
[total_sum] => 298294
[total_days] => 20
[display_material_sum] => 167 520
[display_work_sum] => 130 774
[display_total_sum] => 298 294
)
1
298 294₽
Работа:130 774 ₽
Материалы:167 520 ₽
Дни:20
stdClass Object
(
[id] => 168
[attribute_id] => 37
[name] => Керамическая черепица
[material_modifier] => 1
[work_modifier] => 1
[options] => Array
(
)
[days] => [20]
[material_price] => [12750]
[work_price] => [9456]
[image] => https://akademik-stroy.ru/wp-content/uploads/materials/keramicheskaya-cherepica.jpg
[area_modifier] => 12.77
[parent_name] => Крыша (Скатная)
[parent_id] => 37
[material_sum] => 224688
[work_sum] => 138866
[total_sum] => 363554
[total_days] => 20
[display_material_sum] => 224 688
[display_work_sum] => 138 866
[display_total_sum] => 363 554
)
1
363 554₽
Работа:138 866 ₽
Материалы:224 688 ₽
Дни:20
stdClass Object
(
[id] => 169
[attribute_id] => 37
[name] => Металлическая фальцевая
[material_modifier] => 1
[work_modifier] => 1
[options] => Array
(
)
[days] => [20]
[material_price] => [8550]
[work_price] => [8190]
[image] => https://akademik-stroy.ru/wp-content/uploads/materials/metallicheskaya-falcevaya.jpg
[area_modifier] => 12.77
[parent_name] => Крыша (Скатная)
[parent_id] => 37
[material_sum] => 150673
[work_sum] => 120274
[total_sum] => 270947
[total_days] => 20
[display_material_sum] => 150 673
[display_work_sum] => 120 274
[display_total_sum] => 270 947
)
1
270 947₽
Работа:120 274 ₽
Материалы:150 673 ₽
Дни:20
stdClass Object
(
[id] => 170
[attribute_id] => 37
[name] => Медная фальцевая
[material_modifier] => 1
[work_modifier] => 1
[options] => Array
(
)
[days] => [20]
[material_price] => [20450]
[work_price] => [16750]
[image] => https://akademik-stroy.ru/wp-content/uploads/materials/mednaya-falcevaya.jpg
[area_modifier] => 12.77
[parent_name] => Крыша (Скатная)
[parent_id] => 37
[material_sum] => 360382
[work_sum] => 245982
[total_sum] => 606364
[total_days] => 20
[display_material_sum] => 360 382
[display_work_sum] => 245 982
[display_total_sum] => 606 364
)
1
606 364₽
Работа:245 982 ₽
Материалы:360 382 ₽
Дни:20
stdClass Object
(
[id] => 171
[attribute_id] => 37
[name] => Зеленая кровля
[material_modifier] => 1
[work_modifier] => 1
[options] => Array
(
)
[days] => [20]
[material_price] => [19850]
[work_price] => [16780]
[image] => https://akademik-stroy.ru/wp-content/uploads/materials/zelenaya-krovlya.jpg
[area_modifier] => 12.77
[parent_name] => Крыша (Скатная)
[parent_id] => 37
[material_sum] => 349809
[work_sum] => 246423
[total_sum] => 596232
[total_days] => 20
[display_material_sum] => 349 809
[display_work_sum] => 246 423
[display_total_sum] => 596 232
)
1
596 232₽
Работа:246 423 ₽
Материалы:349 809 ₽
Дни:20
stdClass Object
(
[id] => 172
[attribute_id] => 37
[name] => Профлист
[material_modifier] => 1
[work_modifier] => 1
[options] => Array
(
)
[days] => [20]
[material_price] => [3450]
[work_price] => [3750]
[image] => https://akademik-stroy.ru/wp-content/uploads/materials/proflist.jpg
[area_modifier] => 12.77
[parent_name] => Крыша (Скатная)
[parent_id] => 37
[material_sum] => 60798
[work_sum] => 55071
[total_sum] => 115869
[total_days] => 20
[display_material_sum] => 60 798
[display_work_sum] => 55 071
[display_total_sum] => 115 869
)
1
115 869₽
Работа:55 071 ₽
Материалы:60 798 ₽
Дни:20
stdClass Object
(
[id] => 51
[attribute_id] => 26
[name] => Есть
[material_modifier] => 1
[work_modifier] => 1
[options] => Array
(
[0] => Профиль 58 мм, 3-камерный, стеклопакет 2-камерный до 32 мм
[1] => Профиль 60 мм, 4-камерный, стеклопакет 2-камерный до 32 мм
[2] => Профиль 70 мм, 5-камерный, стеклопакет 2-камерный до 40 мм
[3] => Профиль 72 мм, 5-камерный, стеклопакет 2-камерный до 40 мм
[4] => Алюминиевые окна Alutech профиль 72 мм, стеклопакет 2-камерный
)
[days] => [3,3,3,3,3]
[material_price] => [1339,2124,2867,3023,29596]
[work_price] => [635,647,659,668,2579]
[image] => https://akademik-stroy.ru/wp-content/uploads/materials/okna.jpg
[area_modifier] => 91.99
[parent_name] => Окна
[parent_id] => 26
[material_sum] => 169981
[work_sum] => 67176
[total_sum] => 237157
[total_days] => 3
[display_material_sum] => 169 981
[display_work_sum] => 67 176
[display_total_sum] => 237 157
)
1
237 157₽
Работа:67 176 ₽
Материалы:169 981 ₽
Дни:3
stdClass Object
(
[id] => 52
[attribute_id] => 26
[name] => Нет
[material_modifier] => 2
[work_modifier] => 1
[options] =>
[days] => null
[material_price] => null
[work_price] => null
[image] => https://akademik-stroy.ru/wp-content/uploads/materials/okna.jpg
[area_modifier] => 91.99
[parent_name] => Окна
[parent_id] => 26
[material_sum] => 0
[work_sum] => 0
[total_sum] => 0
[total_days] => 0
[display_material_sum] => 0
[display_work_sum] => 0
[display_total_sum] => 0
)
1
0₽
Работа:0 ₽
Материалы:0 ₽
Дни:0
stdClass Object
(
[id] => 53
[attribute_id] => 27
[name] => Есть
[material_modifier] => 1
[work_modifier] => 1
[options] => Array
(
)
[days] => [1]
[material_price] => [10000]
[work_price] => [5500]
[image] => https://akademik-stroy.ru/wp-content/uploads/materials/dveri.jpg
[area_modifier] => 1
[parent_name] => Двери входные
[parent_id] => 27
[material_sum] => 13800
[work_sum] => 6325
[total_sum] => 20125
[total_days] => 1
[display_material_sum] => 13 800
[display_work_sum] => 6 325
[display_total_sum] => 20 125
)
1
20 125₽
Работа:6 325 ₽
Материалы:13 800 ₽
Дни:1
stdClass Object
(
[id] => 54
[attribute_id] => 27
[name] => Нет
[material_modifier] => 1
[work_modifier] => 1
[options] => Array
(
)
[days] => [0]
[material_price] => [0]
[work_price] => [0]
[image] => https://akademik-stroy.ru/wp-content/uploads/materials/dveri.jpg
[area_modifier] => 1
[parent_name] => Двери входные
[parent_id] => 27
[material_sum] => 0
[work_sum] => 0
[total_sum] => 0
[total_days] => 0
[display_material_sum] => 0
[display_work_sum] => 0
[display_total_sum] => 0
)
1
0₽
Работа:0 ₽
Материалы:0 ₽
Дни:0
stdClass Object
(
[id] => 25
[attribute_id] => 13
[name] => Нет
[material_modifier] => 1
[work_modifier] => 1
[options] => Array
(
)
[days] => [0]
[material_price] => [0]
[work_price] => [0]
[image] => https://akademik-stroy.ru/wp-content/uploads/materials/mineralovata-krov.jpg
[area_modifier] => 12.77
[parent_name] => Утепление кровли (Мансарда)
[parent_id] => 13
[material_sum] => 0
[work_sum] => 0
[total_sum] => 0
[total_days] => 0
[display_material_sum] => 0
[display_work_sum] => 0
[display_total_sum] => 0
)
1
0₽
Работа:0 ₽
Материалы:0 ₽
Дни:0
stdClass Object
(
[id] => 26
[attribute_id] => 13
[name] => Минераловатный
[material_modifier] => 1
[work_modifier] => 1
[options] => Array
(
[0] => 50 мм
[1] => 100 мм
[2] => 150 мм
[3] => 200 мм
[4] => 250 мм
[5] => 300 мм
[6] => 350 мм
[7] => 400 мм
[8] => 450 мм
[9] => 500 мм
)
[days] => [5,5,6,6,6,7,7,7,8,8]
[material_price] => [1158,1414,1772,2230,3602,4060,4974,5890,6408,7718]
[work_price] => [650,846,846,1098,1318,1450,1596,1754,1930,2122]
[image] => https://akademik-stroy.ru/wp-content/uploads/materials/mineralovata-krov.jpg
[area_modifier] => 12.77
[parent_name] => Утепление кровли (Мансарда)
[parent_id] => 13
[material_sum] => 20407
[work_sum] => 9546
[total_sum] => 29953
[total_days] => 5
[display_material_sum] => 20 407
[display_work_sum] => 9 546
[display_total_sum] => 29 953
)
1
29 953₽
Работа:9 546 ₽
Материалы:20 407 ₽
Дни:5
stdClass Object
(
[id] => 123
[attribute_id] => 13
[name] => Эковата (целлюлозная вата)
[material_modifier] => 1
[work_modifier] => 1
[options] => Array
(
[0] => 50 мм
[1] => 100 мм
[2] => 150 мм
[3] => 200 мм
[4] => 250 мм
[5] => 300 мм
[6] => 350 мм
[7] => 400 мм
[8] => 450 мм
[9] => 500 мм
)
[days] => [3,3,4,4,4,5,5,5,5,5]
[material_price] => [820,1638,2458,3276,5734,6552,8190,9828,11466,13104]
[work_price] => [234,304,304,396,474,522,574,632,694,764]
[image] => https://akademik-stroy.ru/wp-content/uploads/materials/ehkovata-krov.jpg
[area_modifier] => 12.77
[parent_name] => Утепление кровли (Мансарда)
[parent_id] => 13
[material_sum] => 14451
[work_sum] => 3436
[total_sum] => 17887
[total_days] => 3
[display_material_sum] => 14 451
[display_work_sum] => 3 436
[display_total_sum] => 17 887
)
1
17 887₽
Работа:3 436 ₽
Материалы:14 451 ₽
Дни:3
stdClass Object
(
[id] => 124
[attribute_id] => 13
[name] => Экструдированный пенополистирол
[material_modifier] => 1
[work_modifier] => 1
[options] => Array
(
[0] => 50 мм
[1] => 100 мм
[2] => 150 мм
[3] => 200 мм
[4] => 250 мм
[5] => 300 мм
[6] => 350 мм
[7] => 400 мм
[8] => 450 мм
[9] => 500 мм
)
[days] => [3,3,4,4,4,5,5,5,5,6]
[material_price] => [1146,2292,3438,4584,8020,9166,11458,13750,16040,18332]
[work_price] => [390,508,508,660,790,870,958,1052,1158,1274]
[image] => https://akademik-stroy.ru/wp-content/uploads/materials/epps-krov.jpg
[area_modifier] => 12.77
[parent_name] => Утепление кровли (Мансарда)
[parent_id] => 13
[material_sum] => 20195
[work_sum] => 5727
[total_sum] => 25922
[total_days] => 3
[display_material_sum] => 20 195
[display_work_sum] => 5 727
[display_total_sum] => 25 922
)
1
25 922₽
Работа:5 727 ₽
Материалы:20 195 ₽
Дни:3
stdClass Object
(
[id] => 125
[attribute_id] => 13
[name] => ПСБ (ППС-пенополистирол)
[material_modifier] => 1
[work_modifier] => 1
[options] => Array
(
[0] => 50 мм
[1] => 100 мм
[2] => 150 мм
[3] => 200 мм
[4] => 250 мм
[5] => 300 мм
[6] => 350 мм
[7] => 400 мм
[8] => 450 мм
[9] => 500 мм
)
[days] => [3,3,4,4,4,5,5,5,5,6]
[material_price] => [476,954,1430,1906,3336,3814,4766,5720,6674,7626]
[work_price] => [390,508,508,660,790,870,958,1052,1158,1274]
[image] => https://akademik-stroy.ru/wp-content/uploads/materials/psb-krov.jpg
[area_modifier] => 12.77
[parent_name] => Утепление кровли (Мансарда)
[parent_id] => 13
[material_sum] => 8388
[work_sum] => 5727
[total_sum] => 14115
[total_days] => 3
[display_material_sum] => 8 388
[display_work_sum] => 5 727
[display_total_sum] => 14 115
)
1
14 115₽
Работа:5 727 ₽
Материалы:8 388 ₽
Дни:3
stdClass Object
(
[id] => 126
[attribute_id] => 13
[name] => ППУ (Пенополиуретан)
[material_modifier] => 1
[work_modifier] => 1
[options] => Array
(
[0] => 50 мм
[1] => 100 мм
[2] => 150 мм
[3] => 200 мм
[4] => 250 мм
[5] => 300 мм
[6] => 350 мм
[7] => 400 мм
[8] => 450 мм
[9] => 500 мм
)
[days] => [2,2,3,3,3,3,4,4,4,4]
[material_price] => [2080,4160,6240,8320,14560,16640,20800,24960,29120,33280]
[work_price] => [234,304,304,396,474,522,574,632,694,764]
[image] => https://akademik-stroy.ru/wp-content/uploads/materials/ppu-krov.jpg
[area_modifier] => 12.77
[parent_name] => Утепление кровли (Мансарда)
[parent_id] => 13
[material_sum] => 36655
[work_sum] => 3436
[total_sum] => 40091
[total_days] => 2
[display_material_sum] => 36 655
[display_work_sum] => 3 436
[display_total_sum] => 40 091
)
1
40 091₽
Работа:3 436 ₽
Материалы:36 655 ₽
Дни:2
stdClass Object
(
[id] => 127
[attribute_id] => 13
[name] => PIR-плиты (пенополиизоцианурат)
[material_modifier] => 1
[work_modifier] => 1
[options] => Array
(
[0] => 50 мм
[1] => 100 мм
[2] => 150 мм
[3] => 200 мм
[4] => 250 мм
[5] => 300 мм
[6] => 350 мм
[7] => 400 мм
[8] => 450 мм
[9] => 500 мм
)
[days] => [3,3,4,4,4,5,5,5,5,6]
[material_price] => [2646,5290,7936,10580,18516,21162,26452,31742,37032,42324]
[work_price] => [390,508,508,660,790,870,958,1052,1158,1274]
[image] => https://akademik-stroy.ru/wp-content/uploads/materials/pir-krov.jpg
[area_modifier] => 12.77
[parent_name] => Утепление кровли (Мансарда)
[parent_id] => 13
[material_sum] => 46629
[work_sum] => 5727
[total_sum] => 52356
[total_days] => 3
[display_material_sum] => 46 629
[display_work_sum] => 5 727
[display_total_sum] => 52 356
)
1
52 356₽
Работа:5 727 ₽
Материалы:46 629 ₽
Дни:3
stdClass Object
(
[id] => 27
[attribute_id] => 14
[name] => Нет
[material_modifier] => 1
[work_modifier] => 1
[options] => Array
(
)
[days] => [0]
[material_price] => [0]
[work_price] => [0]
[image] => https://akademik-stroy.ru/wp-content/uploads/materials/mansardnye-okna-2.jpg
[area_modifier] => 1
[parent_name] => Мансардные окна
[parent_id] => 14
[material_sum] => 0
[work_sum] => 0
[total_sum] => 0
[total_days] => 0
[display_material_sum] => 0
[display_work_sum] => 0
[display_total_sum] => 0
)
1
0₽
Работа:0 ₽
Материалы:0 ₽
Дни:0
stdClass Object
(
[id] => 28
[attribute_id] => 14
[name] => Есть
[material_modifier] => 1
[work_modifier] => 1
[options] => Array
(
[0] => 55x78
[1] => 55x98
)
[days] => [6,7]
[material_price] => [47480,68700]
[work_price] => [17900,19500]
[image] => https://akademik-stroy.ru/wp-content/uploads/materials/mansardnye-okna-2.jpg
[area_modifier] => 1
[parent_name] => Мансардные окна
[parent_id] => 14
[material_sum] => 65522
[work_sum] => 20585
[total_sum] => 86107
[total_days] => 6
[display_material_sum] => 65 522
[display_work_sum] => 20 585
[display_total_sum] => 86 107
)
1
86 107₽
Работа:20 585 ₽
Материалы:65 522 ₽
Дни:6
stdClass Object
(
[id] => 29
[attribute_id] => 15
[name] => Нет
[material_modifier] => 1
[work_modifier] => 1
[options] => Array
(
)
[days] => [0]
[material_price] => [0]
[work_price] => [0]
[image] => https://akademik-stroy.ru/wp-content/uploads/materials/sofit.jpg
[area_modifier] => 12.77
[parent_name] => Подшивка кровли
[parent_id] => 15
[material_sum] => 0
[work_sum] => 0
[total_sum] => 0
[total_days] => 0
[display_material_sum] => 0
[display_work_sum] => 0
[display_total_sum] => 0
)
1
0₽
Работа:0 ₽
Материалы:0 ₽
Дни:0
stdClass Object
(
[id] => 30
[attribute_id] => 15
[name] => Есть
[material_modifier] => 1
[work_modifier] => 1
[options] => Array
(
[0] => Софиты (ПВХ)
[1] => Cedral
[2] => ДПК
[3] => Планкен
)
[days] => [7,10,9,8]
[material_price] => [1803,3213,3025,3150]
[work_price] => [1529,2188,2075,1923]
[image] => https://akademik-stroy.ru/wp-content/uploads/materials/sofit.jpg
[area_modifier] => 12.77
[parent_name] => Подшивка кровли
[parent_id] => 15
[material_sum] => 31774
[work_sum] => 22454
[total_sum] => 54228
[total_days] => 7
[display_material_sum] => 31 774
[display_work_sum] => 22 454
[display_total_sum] => 54 228
)
1
54 228₽
Работа:22 454 ₽
Материалы:31 774 ₽
Дни:7
stdClass Object
(
[id] => 31
[attribute_id] => 16
[name] => Нет
[material_modifier] => 1
[work_modifier] => 1
[options] => Array
(
)
[days] => [0]
[material_price] => [0]
[work_price] => [0]
[image] => https://akademik-stroy.ru/wp-content/uploads/materials/docke-standard-pvh.jpg
[area_modifier] => 12.77
[parent_name] => Водосточная система
[parent_id] => 16
[material_sum] => 0
[work_sum] => 0
[total_sum] => 0
[total_days] => 0
[display_material_sum] => 0
[display_work_sum] => 0
[display_total_sum] => 0
)
1
0₽
Работа:0 ₽
Материалы:0 ₽
Дни:0
stdClass Object
(
[id] => 32
[attribute_id] => 16
[name] => Есть
[material_modifier] => 1
[work_modifier] => 1
[options] => Array
(
[0] => Döcke Standard (ПВХ)
[1] => Металлические Grand Line
)
[days] => [7,7]
[material_price] => [1842,2703]
[work_price] => [1491,1529]
[image] => https://akademik-stroy.ru/wp-content/uploads/materials/docke-standard-pvh.jpg
[area_modifier] => 12.77
[parent_name] => Водосточная система
[parent_id] => 16
[material_sum] => 32461
[work_sum] => 21896
[total_sum] => 54357
[total_days] => 7
[display_material_sum] => 32 461
[display_work_sum] => 21 896
[display_total_sum] => 54 357
)
1
54 357₽
Работа:21 896 ₽
Материалы:32 461 ₽
Дни:7
stdClass Object
(
[id] => 33
[attribute_id] => 17
[name] => Нет
[material_modifier] => 1
[work_modifier] => 1
[options] => Array
(
)
[days] => [0]
[material_price] => [0]
[work_price] => [0]
[image] => https://akademik-stroy.ru/wp-content/uploads/materials/mineralovata.jpg
[area_modifier] => 113.36
[parent_name] => Дополнительное утепление наружных стен
[parent_id] => 17
[material_sum] => 0
[work_sum] => 0
[total_sum] => 0
[total_days] => 0
[display_material_sum] => 0
[display_work_sum] => 0
[display_total_sum] => 0
)
1
0₽
Работа:0 ₽
Материалы:0 ₽
Дни:0
stdClass Object
(
[id] => 34
[attribute_id] => 17
[name] => Минераловатный
[material_modifier] => 1
[work_modifier] => 1
[options] => Array
(
[0] => 50 мм
[1] => 100 мм
[2] => 150 мм
[3] => 200 мм
[4] => 250 мм
[5] => 300 мм
)
[days] => [7,8,10,12,14,15]
[material_price] => [3437,3613,3803,3915,4601,4830]
[work_price] => [2325,2423,2523,2749,2859,3025]
[image] => https://akademik-stroy.ru/wp-content/uploads/materials/mineralovata.jpg
[area_modifier] => 113.36
[parent_name] => Дополнительное утепление наружных стен
[parent_id] => 17
[material_sum] => 537673
[work_sum] => 303096
[total_sum] => 840769
[total_days] => 7
[display_material_sum] => 537 673
[display_work_sum] => 303 096
[display_total_sum] => 840 769
)
1
840 769₽
Работа:303 096 ₽
Материалы:537 673 ₽
Дни:7
stdClass Object
(
[id] => 128
[attribute_id] => 17
[name] => Эковата (целлюлозная вата)
[material_modifier] => 1
[work_modifier] => 1
[options] => Array
(
[0] => 50 мм
[1] => 100 мм
[2] => 150 мм
[3] => 200 мм
[4] => 250 мм
[5] => 300 мм
)
[days] => [3,4,5,6,7,8]
[material_price] => [810,1319,1629,1838,2267,2676]
[work_price] => [1225,1323,1423,1549,1659,1725]
[image] => https://akademik-stroy.ru/wp-content/uploads/materials/ehkovata.jpg
[area_modifier] => 113.36
[parent_name] => Дополнительное утепление наружных стен
[parent_id] => 17
[material_sum] => 126714
[work_sum] => 159696
[total_sum] => 286410
[total_days] => 3
[display_material_sum] => 126 714
[display_work_sum] => 159 696
[display_total_sum] => 286 410
)
1
286 410₽
Работа:159 696 ₽
Материалы:126 714 ₽
Дни:3
stdClass Object
(
[id] => 129
[attribute_id] => 17
[name] => Экструдированный пенополистирол
[material_modifier] => 1
[work_modifier] => 1
[options] => Array
(
[0] => 50 мм
[1] => 100 мм
[2] => 150 мм
[3] => 200 мм
[4] => 250 мм
[5] => 300 мм
)
[days] => [5,6,7,8,9,10]
[material_price] => [4560,4300,5119,6292,7010,8583]
[work_price] => [1795,1954,2254,2330,2595,2735]
[image] => https://akademik-stroy.ru/wp-content/uploads/materials/epps.jpg
[area_modifier] => 113.36
[parent_name] => Дополнительное утепление наружных стен
[parent_id] => 17
[material_sum] => 713352
[work_sum] => 234003
[total_sum] => 947355
[total_days] => 5
[display_material_sum] => 713 352
[display_work_sum] => 234 003
[display_total_sum] => 947 355
)
1
947 355₽
Работа:234 003 ₽
Материалы:713 352 ₽
Дни:5
stdClass Object
(
[id] => 130
[attribute_id] => 17
[name] => ПСБ (ППС-пенополистирол)
[material_modifier] => 1
[work_modifier] => 1
[options] => Array
(
[0] => 50 мм
[1] => 100 мм
[2] => 150 мм
[3] => 200 мм
[4] => 250 мм
[5] => 300 мм
)
[days] => [5,6,7,8,9,10]
[material_price] => [4822,5200,5819,6292,7010,7583]
[work_price] => [1795,1954,2254,2330,2595,2735]
[image] => https://akademik-stroy.ru/wp-content/uploads/materials/psb.jpg
[area_modifier] => 113.36
[parent_name] => Дополнительное утепление наружных стен
[parent_id] => 17
[material_sum] => 754338
[work_sum] => 234003
[total_sum] => 988341
[total_days] => 5
[display_material_sum] => 754 338
[display_work_sum] => 234 003
[display_total_sum] => 988 341
)
1
988 341₽
Работа:234 003 ₽
Материалы:754 338 ₽
Дни:5
stdClass Object
(
[id] => 131
[attribute_id] => 17
[name] => ППУ (Пенополиуретан)
[material_modifier] => 1
[work_modifier] => 1
[options] => Array
(
[0] => 50 мм
[1] => 100 мм
[2] => 150 мм
[3] => 200 мм
[4] => 250 мм
[5] => 300 мм
)
[days] => [3,4,5,6,7,8]
[material_price] => [2860,3400,4219,4592,5010,5583]
[work_price] => [729,900,980,1120,1280,1530]
[image] => https://akademik-stroy.ru/wp-content/uploads/materials/ppu.jpg
[area_modifier] => 113.36
[parent_name] => Дополнительное утепление наружных стен
[parent_id] => 17
[material_sum] => 447409
[work_sum] => 95035
[total_sum] => 542444
[total_days] => 3
[display_material_sum] => 447 409
[display_work_sum] => 95 035
[display_total_sum] => 542 444
)
1
542 444₽
Работа:95 035 ₽
Материалы:447 409 ₽
Дни:3
stdClass Object
(
[id] => 132
[attribute_id] => 17
[name] => PIR-плиты (пенополиизоцианурат)
[material_modifier] => 1
[work_modifier] => 1
[options] => Array
(
[0] => 50 мм
[1] => 100 мм
[2] => 150 мм
[3] => 200 мм
[4] => 250 мм
[5] => 300 мм
)
[days] => [5,6,7,8,9,10]
[material_price] => [8323,15645,20968,25900,29258,30581]
[work_price] => [800,900,970,1150,1280,1330]
[image] => https://akademik-stroy.ru/wp-content/uploads/materials/pir.jpg
[area_modifier] => 113.36
[parent_name] => Дополнительное утепление наружных стен
[parent_id] => 17
[material_sum] => 1302023
[work_sum] => 104291
[total_sum] => 1406314
[total_days] => 5
[display_material_sum] => 1 302 023
[display_work_sum] => 104 291
[display_total_sum] => 1 406 314
)
1
1 406 314₽
Работа:104 291 ₽
Материалы:1 302 023 ₽
Дни:5
stdClass Object
(
[id] => 37
[attribute_id] => 19
[name] => Нет
[material_modifier] => 1
[work_modifier] => 1
[options] => Array
(
)
[days] => [0]
[material_price] => [0]
[work_price] => [0]
[image] => https://akademik-stroy.ru/wp-content/uploads/materials/imitaciya-brusa.jpg
[area_modifier] => 113.36
[parent_name] => Наружная отделка фасада
[parent_id] => 19
[material_sum] => 0
[work_sum] => 0
[total_sum] => 0
[total_days] => 0
[display_material_sum] => 0
[display_work_sum] => 0
[display_total_sum] => 0
)
1
0₽
Работа:0 ₽
Материалы:0 ₽
Дни:0
stdClass Object
(
[id] => 38
[attribute_id] => 19
[name] => Имитация бруса
[material_modifier] => 1
[work_modifier] => 1
[options] => Array
(
[0] => Сосна
[1] => Ель
[2] => Лиственница
)
[days] => [20,20,20]
[material_price] => [2994,2762,4954]
[work_price] => [1397,1231,1577]
[image] => https://akademik-stroy.ru/wp-content/uploads/materials/imitaciya-brusa.jpg
[area_modifier] => 113.36
[parent_name] => Наружная отделка фасада
[parent_id] => 19
[material_sum] => 468372
[work_sum] => 182119
[total_sum] => 650491
[total_days] => 20
[display_material_sum] => 468 372
[display_work_sum] => 182 119
[display_total_sum] => 650 491
)
1
650 491₽
Работа:182 119 ₽
Материалы:468 372 ₽
Дни:20
stdClass Object
(
[id] => 136
[attribute_id] => 19
[name] => Планкен
[material_modifier] => 1
[work_modifier] => 1
[options] => Array
(
[0] => Сосна
[1] => Ель
[2] => Лиственница
)
[days] => [20,20,20]
[material_price] => [3194,2862,5154]
[work_price] => [1537,1354,1735]
[image] => https://akademik-stroy.ru/wp-content/uploads/materials/planken.jpg
[area_modifier] => 113.36
[parent_name] => Наружная отделка фасада
[parent_id] => 19
[material_sum] => 499659
[work_sum] => 200369
[total_sum] => 700028
[total_days] => 20
[display_material_sum] => 499 659
[display_work_sum] => 200 369
[display_total_sum] => 700 028
)
1
700 028₽
Работа:200 369 ₽
Материалы:499 659 ₽
Дни:20
stdClass Object
(
[id] => 137
[attribute_id] => 19
[name] => Штукатурка
[material_modifier] => 1
[work_modifier] => 1
[options] => Array
(
[0] => Цементно-песчаная (минеральная)
[1] => Мокрый фасад
)
[days] => [35,35]
[material_price] => [2231,3938]
[work_price] => [1202,2422]
[image] => https://akademik-stroy.ru/wp-content/uploads/materials/shtukaturka.jpg
[area_modifier] => 113.36
[parent_name] => Наружная отделка фасада
[parent_id] => 19
[material_sum] => 349011
[work_sum] => 156698
[total_sum] => 505709
[total_days] => 35
[display_material_sum] => 349 011
[display_work_sum] => 156 698
[display_total_sum] => 505 709
)
1
505 709₽
Работа:156 698 ₽
Материалы:349 011 ₽
Дни:35
stdClass Object
(
[id] => 138
[attribute_id] => 19
[name] => Облицовочный кирпич
[material_modifier] => 1
[work_modifier] => 1
[options] => Array
(
[0] => Керамический
[1] => Клинкерный
[2] => Ручной формовки
[3] => Гиперпрессованный
[4] => Силикатный кирпич
)
[days] => [45,45,45,45,45]
[material_price] => [8174,9148,1040,1257,5876]
[work_price] => [3240,3758,4536,4017,3369]
[image] => https://akademik-stroy.ru/wp-content/uploads/materials/oblicovochnyj-kirpich.jpg
[area_modifier] => 113.36
[parent_name] => Наружная отделка фасада
[parent_id] => 19
[material_sum] => 1278714
[work_sum] => 422379
[total_sum] => 1701093
[total_days] => 45
[display_material_sum] => 1 278 714
[display_work_sum] => 422 379
[display_total_sum] => 1 701 093
)
1
1 701 093₽
Работа:422 379 ₽
Материалы:1 278 714 ₽
Дни:45
stdClass Object
(
[id] => 139
[attribute_id] => 19
[name] => Фасадная плитка
[material_modifier] => 1
[work_modifier] => 1
[options] => Array
(
[0] => Клинкерная
[1] => Керамическая
[2] => Плитка ручной формовки
)
[days] => [40,40,40]
[material_price] => [2974,1487,3470]
[work_price] => [3007,2592,3629]
[image] => https://akademik-stroy.ru/wp-content/uploads/materials/fasadnaya-plitka.jpg
[area_modifier] => 113.36
[parent_name] => Наружная отделка фасада
[parent_id] => 19
[material_sum] => 465243
[work_sum] => 392005
[total_sum] => 857248
[total_days] => 40
[display_material_sum] => 465 243
[display_work_sum] => 392 005
[display_total_sum] => 857 248
)
1
857 248₽
Работа:392 005 ₽
Материалы:465 243 ₽
Дни:40
stdClass Object
(
[id] => 140
[attribute_id] => 19
[name] => Сайдинг
[material_modifier] => 1
[work_modifier] => 1
[options] => Array
(
[0] => Виниловый
[1] => Металлический
[2] => Фиброцементный
)
[days] => [20,20,20]
[material_price] => [1263,1944,4147]
[work_price] => [1263,1944,2074]
[image] => https://akademik-stroy.ru/wp-content/uploads/materials/sajding.jpg
[area_modifier] => 113.36
[parent_name] => Наружная отделка фасада
[parent_id] => 19
[material_sum] => 197580
[work_sum] => 164650
[total_sum] => 362230
[total_days] => 20
[display_material_sum] => 197 580
[display_work_sum] => 164 650
[display_total_sum] => 362 230
)
1
362 230₽
Работа:164 650 ₽
Материалы:197 580 ₽
Дни:20
stdClass Object
(
[id] => 141
[attribute_id] => 19
[name] => Камень
[material_modifier] => 1
[work_modifier] => 1
[options] => Array
(
[0] => Травертин
[1] => Дагестанский
[2] => Искусственный
[3] => Натуральный
[4] => Керамогранит
)
[days] => [45,45,45,45,45]
[material_price] => [4536,3888,2592,3240,2462]
[work_price] => [3240,3240,2462,3110,1944]
[image] => https://akademik-stroy.ru/wp-content/uploads/materials/kamen-1.jpg
[area_modifier] => 113.36
[parent_name] => Наружная отделка фасада
[parent_id] => 19
[material_sum] => 709597
[work_sum] => 422379
[total_sum] => 1131976
[total_days] => 45
[display_material_sum] => 709 597
[display_work_sum] => 422 379
[display_total_sum] => 1 131 976
)
1
1 131 976₽
Работа:422 379 ₽
Материалы:709 597 ₽
Дни:45
stdClass Object
(
[id] => 142
[attribute_id] => 19
[name] => Термопанели
[material_modifier] => 1
[work_modifier] => 1
[options] => Array
(
)
[days] => [20]
[material_price] => [6221]
[work_price] => [2333]
[image] => https://akademik-stroy.ru/wp-content/uploads/materials/termo.png
[area_modifier] => 113.36
[parent_name] => Наружная отделка фасада
[parent_id] => 19
[material_sum] => 973193
[work_sum] => 304139
[total_sum] => 1277332
[total_days] => 20
[display_material_sum] => 973 193
[display_work_sum] => 304 139
[display_total_sum] => 1 277 332
)
1
1 277 332₽
Работа:304 139 ₽
Материалы:973 193 ₽
Дни:20
stdClass Object
(
[id] => 143
[attribute_id] => 19
[name] => Плитка HAUBERK
[material_modifier] => 1
[work_modifier] => 1
[options] => Array
(
)
[days] => [20]
[material_price] => [2786]
[work_price] => [1944]
[image] => https://akademik-stroy.ru/wp-content/uploads/materials/hauberk.jpg
[area_modifier] => 113.36
[parent_name] => Наружная отделка фасада
[parent_id] => 19
[material_sum] => 435833
[work_sum] => 253428
[total_sum] => 689261
[total_days] => 20
[display_material_sum] => 435 833
[display_work_sum] => 253 428
[display_total_sum] => 689 261
)
1
689 261₽
Работа:253 428 ₽
Материалы:435 833 ₽
Дни:20
stdClass Object
(
[id] => 144
[attribute_id] => 19
[name] => Фальцевый фасад
[material_modifier] => 1
[work_modifier] => 1
[options] => Array
(
)
[days] => [20]
[material_price] => [3240]
[work_price] => [2592]
[image] => https://akademik-stroy.ru/wp-content/uploads/materials/falcevyj-fasad.jpg
[area_modifier] => 113.36
[parent_name] => Наружная отделка фасада
[parent_id] => 19
[material_sum] => 506855
[work_sum] => 337903
[total_sum] => 844758
[total_days] => 20
[display_material_sum] => 506 855
[display_work_sum] => 337 903
[display_total_sum] => 844 758
)
1
844 758₽
Работа:337 903 ₽
Материалы:506 855 ₽
Дни:20
stdClass Object
(
[id] => 145
[attribute_id] => 19
[name] => Комбинированный
[material_modifier] => 1
[work_modifier] => 1
[options] => Array
(
)
[days] => [20]
[material_price] => [4629]
[work_price] => [3499]
[image] => https://akademik-stroy.ru/wp-content/uploads/materials/Kombinirovannyj.jpg
[area_modifier] => 113.36
[parent_name] => Наружная отделка фасада
[parent_id] => 19
[material_sum] => 724146
[work_sum] => 456144
[total_sum] => 1180290
[total_days] => 20
[display_material_sum] => 724 146
[display_work_sum] => 456 144
[display_total_sum] => 1 180 290
)
1
1 180 290₽
Работа:456 144 ₽
Материалы:724 146 ₽
Дни:20
stdClass Object
(
[id] => 257
[attribute_id] => 19
[name] => Японские фиброцементные
[material_modifier] => 1
[work_modifier] => 1
[options] => Array
(
)
[days] => [20]
[material_price] => [7043]
[work_price] => [2993]
[image] => https://akademik-stroy.ru/wp-content/uploads/materials/paneli.jpg
[area_modifier] => 113.36
[parent_name] => Наружная отделка фасада
[parent_id] => 19
[material_sum] => 1101784
[work_sum] => 390179
[total_sum] => 1491963
[total_days] => 20
[display_material_sum] => 1 101 784
[display_work_sum] => 390 179
[display_total_sum] => 1 491 963
)
1
1 491 963₽
Работа:390 179 ₽
Материалы:1 101 784 ₽
Дни:20
stdClass Object
(
[id] => 258
[attribute_id] => 19
[name] => Панели Каньон
[material_modifier] => 1
[work_modifier] => 1
[options] => Array
(
)
[days] => [20]
[material_price] => [4543]
[work_price] => [2592]
[image] => https://akademik-stroy.ru/wp-content/uploads/materials/kanon.png
[area_modifier] => 113.36
[parent_name] => Наружная отделка фасада
[parent_id] => 19
[material_sum] => 710692
[work_sum] => 337903
[total_sum] => 1048595
[total_days] => 20
[display_material_sum] => 710 692
[display_work_sum] => 337 903
[display_total_sum] => 1 048 595
)
1
1 048 595₽
Работа:337 903 ₽
Материалы:710 692 ₽
Дни:20
stdClass Object
(
[id] => 39
[attribute_id] => 20
[name] => Нет
[material_modifier] => 1
[work_modifier] => 1
[options] => Array
(
)
[days] => [0]
[material_price] => [0]
[work_price] => [0]
[image] => https://akademik-stroy.ru/wp-content/uploads/materials/terrasy.jpg
[area_modifier] => 30
[parent_name] => Террасы, крыльца, навесы
[parent_id] => 20
[material_sum] => 0
[work_sum] => 0
[total_sum] => 0
[total_days] => 0
[display_material_sum] => 0
[display_work_sum] => 0
[display_total_sum] => 0
)
1
0₽
Работа:0 ₽
Материалы:0 ₽
Дни:0
stdClass Object
(
[id] => 40
[attribute_id] => 20
[name] => Есть
[material_modifier] => 1
[work_modifier] => 1
[options] => Array
(
)
[days] => [5]
[material_price] => [10450]
[work_price] => [1950]
[image] => https://akademik-stroy.ru/wp-content/uploads/materials/terrasy.jpg
[area_modifier] => 30
[parent_name] => Террасы, крыльца, навесы
[parent_id] => 20
[material_sum] => 432630
[work_sum] => 67275
[total_sum] => 499905
[total_days] => 5
[display_material_sum] => 432 630
[display_work_sum] => 67 275
[display_total_sum] => 499 905
)
1
499 905₽
Работа:67 275 ₽
Материалы:432 630 ₽
Дни:5
stdClass Object
(
[id] => 41
[attribute_id] => 21
[name] => Нет
[material_modifier] => 1
[work_modifier] => 1
[options] => Array
(
)
[days] => [0]
[material_price] => [0]
[work_price] => [0]
[image] => https://akademik-stroy.ru/wp-content/uploads/materials/balkony.jpg
[area_modifier] => 30
[parent_name] => Балконы
[parent_id] => 21
[material_sum] => 0
[work_sum] => 0
[total_sum] => 0
[total_days] => 0
[display_material_sum] => 0
[display_work_sum] => 0
[display_total_sum] => 0
)
1
0₽
Работа:0 ₽
Материалы:0 ₽
Дни:0
stdClass Object
(
[id] => 42
[attribute_id] => 21
[name] => Есть
[material_modifier] => 1
[work_modifier] => 1
[options] => Array
(
)
[days] => [12]
[material_price] => [3600]
[work_price] => [1950]
[image] => https://akademik-stroy.ru/wp-content/uploads/materials/balkony.jpg
[area_modifier] => 30
[parent_name] => Балконы
[parent_id] => 21
[material_sum] => 149040
[work_sum] => 67275
[total_sum] => 216315
[total_days] => 12
[display_material_sum] => 149 040
[display_work_sum] => 67 275
[display_total_sum] => 216 315
)
1
216 315₽
Работа:67 275 ₽
Материалы:149 040 ₽
Дни:12
stdClass Object
(
[id] => 43
[attribute_id] => 22
[name] => Нет
[material_modifier] => 1
[work_modifier] => 1
[options] => Array
(
)
[days] => [0]
[material_price] => [0]
[work_price] => [0]
[image] => https://akademik-stroy.ru/wp-content/uploads/materials/uteplennaya.jpg
[area_modifier] => 12.77
[parent_name] => Отмостка
[parent_id] => 22
[material_sum] => 0
[work_sum] => 0
[total_sum] => 0
[total_days] => 0
[display_material_sum] => 0
[display_work_sum] => 0
[display_total_sum] => 0
)
1
0₽
Работа:0 ₽
Материалы:0 ₽
Дни:0
stdClass Object
(
[id] => 44
[attribute_id] => 22
[name] => Утепленная отмостка
[material_modifier] => 1
[work_modifier] => 1
[options] => Array
(
)
[days] => [15]
[material_price] => [2550]
[work_price] => [1750]
[image] => https://akademik-stroy.ru/wp-content/uploads/materials/uteplennaya.jpg
[area_modifier] => 12.77
[parent_name] => Отмостка
[parent_id] => 22
[material_sum] => 44938
[work_sum] => 25700
[total_sum] => 70638
[total_days] => 15
[display_material_sum] => 44 938
[display_work_sum] => 25 700
[display_total_sum] => 70 638
)
1
70 638₽
Работа:25 700 ₽
Материалы:44 938 ₽
Дни:15
stdClass Object
(
[id] => 146
[attribute_id] => 22
[name] => Не утепленная отмостка
[material_modifier] => 1
[work_modifier] => 1
[options] => Array
(
)
[days] => [10]
[material_price] => [1650]
[work_price] => [1450]
[image] => https://akademik-stroy.ru/wp-content/uploads/materials/ne-uteplennaya.jpg
[area_modifier] => 12.77
[parent_name] => Отмостка
[parent_id] => 22
[material_sum] => 29077
[work_sum] => 21294
[total_sum] => 50371
[total_days] => 10
[display_material_sum] => 29 077
[display_work_sum] => 21 294
[display_total_sum] => 50 371
)
1
50 371₽
Работа:21 294 ₽
Материалы:29 077 ₽
Дни:10
stdClass Object
(
[id] => 45
[attribute_id] => 23
[name] => Нет
[material_modifier] => 1
[work_modifier] => 1
[options] => Array
(
)
[days] => [0]
[material_price] => [0]
[work_price] => [0]
[image] => https://akademik-stroy.ru/wp-content/uploads/materials/drenazh-2.jpg
[area_modifier] => 12.77
[parent_name] => Дренаж вокруг дома
[parent_id] => 23
[material_sum] => 0
[work_sum] => 0
[total_sum] => 0
[total_days] => 0
[display_material_sum] => 0
[display_work_sum] => 0
[display_total_sum] => 0
)
1
0₽
Работа:0 ₽
Материалы:0 ₽
Дни:0
stdClass Object
(
[id] => 46
[attribute_id] => 23
[name] => Есть
[material_modifier] => 1
[work_modifier] => 1
[options] => Array
(
)
[days] => [5]
[material_price] => [2366]
[work_price] => [1911]
[image] => https://akademik-stroy.ru/wp-content/uploads/materials/drenazh-2.jpg
[area_modifier] => 12.77
[parent_name] => Дренаж вокруг дома
[parent_id] => 23
[material_sum] => 41695
[work_sum] => 28064
[total_sum] => 69759
[total_days] => 5
[display_material_sum] => 41 695
[display_work_sum] => 28 064
[display_total_sum] => 69 759
)
1
69 759₽
Работа:28 064 ₽
Материалы:41 695 ₽
Дни:5
stdClass Object
(
[id] => 47
[attribute_id] => 24
[name] => Нет
[material_modifier] => 1
[work_modifier] => 1
[options] => Array
(
)
[days] => [0]
[material_price] => [0]
[work_price] => [0]
[image] => https://akademik-stroy.ru/wp-content/uploads/materials/septik.jpg
[area_modifier] => 1
[parent_name] => Автономная канализация (септики)
[parent_id] => 24
[material_sum] => 0
[work_sum] => 0
[total_sum] => 0
[total_days] => 0
[display_material_sum] => 0
[display_work_sum] => 0
[display_total_sum] => 0
)
1
0₽
Работа:0 ₽
Материалы:0 ₽
Дни:0
stdClass Object
(
[id] => 48
[attribute_id] => 24
[name] => Есть
[material_modifier] => 1
[work_modifier] => 1
[options] => Array
(
[0] => Для дачи на 4 человека
[1] => Для дома на 5 человек
[2] => Для дома на 6 человек
[3] => Для дома на 7 человек
[4] => Для дома на 10 человек
)
[days] => [7,7,7,8,8]
[material_price] => [196340,220500,240940,264200,293340]
[work_price] => [50000,55000,60500,66550,73206]
[image] => https://akademik-stroy.ru/wp-content/uploads/materials/septik.jpg
[area_modifier] => 1
[parent_name] => Автономная канализация (септики)
[parent_id] => 24
[material_sum] => 270949
[work_sum] => 57500
[total_sum] => 328449
[total_days] => 7
[display_material_sum] => 270 949
[display_work_sum] => 57 500
[display_total_sum] => 328 449
)
1
328 449₽
Работа:57 500 ₽
Материалы:270 949 ₽
Дни:7
stdClass Object
(
[id] => 49
[attribute_id] => 25
[name] => Нет
[material_modifier] => 1
[work_modifier] => 1
[options] => Array
(
)
[days] => [0]
[material_price] => [0]
[work_price] => [0]
[image] => https://akademik-stroy.ru/wp-content/uploads/materials/gkl.jpg
[area_modifier] => 113.36
[parent_name] => Внутренние (не несущие) перегородки
[parent_id] => 25
[material_sum] => 0
[work_sum] => 0
[total_sum] => 0
[total_days] => 0
[display_material_sum] => 0
[display_work_sum] => 0
[display_total_sum] => 0
)
1
0₽
Работа:0 ₽
Материалы:0 ₽
Дни:0
stdClass Object
(
[id] => 147
[attribute_id] => 25
[name] => Каркасно-обшивные
[material_modifier] => 1
[work_modifier] => 1
[options] => Array
(
[0] => 75 мм (без шумоизоляции)
[1] => 75 мм (с шумоизоляцией)
)
[days] => [11,11]
[material_price] => [580,970]
[work_price] => [380,570]
[image] => https://akademik-stroy.ru/wp-content/uploads/materials/gkl.jpg
[area_modifier] => 113.36
[parent_name] => Внутренние (не несущие) перегородки
[parent_id] => 25
[material_sum] => 90733
[work_sum] => 49538
[total_sum] => 140271
[total_days] => 11
[display_material_sum] => 90 733
[display_work_sum] => 49 538
[display_total_sum] => 140 271
)
1
140 271₽
Работа:49 538 ₽
Материалы:90 733 ₽
Дни:11
stdClass Object
(
[id] => 148
[attribute_id] => 25
[name] => Пазогребневые
[material_modifier] => 1
[work_modifier] => 1
[options] => Array
(
[0] => 80 мм
[1] => 100 мм
)
[days] => [5,5]
[material_price] => [1022,1313]
[work_price] => [600,700]
[image] => https://akademik-stroy.ru/wp-content/uploads/materials/pazogrebnevye-bloki.jpg
[area_modifier] => 113.36
[parent_name] => Внутренние (не несущие) перегородки
[parent_id] => 25
[material_sum] => 159878
[work_sum] => 78218
[total_sum] => 238096
[total_days] => 5
[display_material_sum] => 159 878
[display_work_sum] => 78 218
[display_total_sum] => 238 096
)
1
238 096₽
Работа:78 218 ₽
Материалы:159 878 ₽
Дни:5
stdClass Object
(
[id] => 149
[attribute_id] => 25
[name] => Газобетонные
[material_modifier] => 1
[work_modifier] => 1
[options] => Array
(
[0] => 100 мм
[1] => 200 мм
)
[days] => [11,11]
[material_price] => [1160,1920]
[work_price] => [700,900]
[image] => https://akademik-stroy.ru/wp-content/uploads/materials/gazobeton-2.jpg
[area_modifier] => 113.36
[parent_name] => Внутренние (не несущие) перегородки
[parent_id] => 25
[material_sum] => 181467
[work_sum] => 91255
[total_sum] => 272722
[total_days] => 11
[display_material_sum] => 181 467
[display_work_sum] => 91 255
[display_total_sum] => 272 722
)
1
272 722₽
Работа:91 255 ₽
Материалы:181 467 ₽
Дни:11
stdClass Object
(
[id] => 150
[attribute_id] => 25
[name] => Кирпичные
[material_modifier] => 1
[work_modifier] => 1
[options] => Array
(
[0] => 120 мм
[1] => 250 мм
[2] => 360 мм
)
[days] => [7,7,7]
[material_price] => [1785,3570,5355]
[work_price] => [900,1600,1800]
[image] => https://akademik-stroy.ru/wp-content/uploads/materials/kirpich-1.jpg
[area_modifier] => 113.36
[parent_name] => Внутренние (не несущие) перегородки
[parent_id] => 25
[material_sum] => 279240
[work_sum] => 117328
[total_sum] => 396568
[total_days] => 7
[display_material_sum] => 279 240
[display_work_sum] => 117 328
[display_total_sum] => 396 568
)
1
396 568₽
Работа:117 328 ₽
Материалы:279 240 ₽
Дни:7
stdClass Object
(
[id] => 55
[attribute_id] => 28
[name] => Нет
[material_modifier] => 1
[work_modifier] => 1
[options] => Array
(
)
[days] => [0]
[material_price] => [0]
[work_price] => [0]
[image] => https://akademik-stroy.ru/wp-content/uploads/materials/ehlektrika.jpg
[area_modifier] => 91.99
[parent_name] => Электрика
[parent_id] => 28
[material_sum] => 0
[work_sum] => 0
[total_sum] => 0
[total_days] => 0
[display_material_sum] => 0
[display_work_sum] => 0
[display_total_sum] => 0
)
1
0₽
Работа:0 ₽
Материалы:0 ₽
Дни:0
stdClass Object
(
[id] => 56
[attribute_id] => 28
[name] => Есть
[material_modifier] => 1
[work_modifier] => 1
[options] => Array
(
)
[days] => [10]
[material_price] => [650]
[work_price] => [950]
[image] => https://akademik-stroy.ru/wp-content/uploads/materials/ehlektrika.jpg
[area_modifier] => 91.99
[parent_name] => Электрика
[parent_id] => 28
[material_sum] => 82515
[work_sum] => 100499
[total_sum] => 183014
[total_days] => 10
[display_material_sum] => 82 515
[display_work_sum] => 100 499
[display_total_sum] => 183 014
)
1
183 014₽
Работа:100 499 ₽
Материалы:82 515 ₽
Дни:10
stdClass Object
(
[id] => 57
[attribute_id] => 29
[name] => Нет
[material_modifier] => 1
[work_modifier] => 1
[options] => Array
(
)
[days] => [0]
[material_price] => [0]
[work_price] => [0]
[image] => https://akademik-stroy.ru/wp-content/uploads/materials/santekhnika-kanalizaciya-1.jpg
[area_modifier] => 91.99
[parent_name] => Сантехника, канализация в доме
[parent_id] => 29
[material_sum] => 0
[work_sum] => 0
[total_sum] => 0
[total_days] => 0
[display_material_sum] => 0
[display_work_sum] => 0
[display_total_sum] => 0
)
1
0₽
Работа:0 ₽
Материалы:0 ₽
Дни:0
stdClass Object
(
[id] => 58
[attribute_id] => 29
[name] => Есть
[material_modifier] => 1
[work_modifier] => 1
[options] => Array
(
)
[days] => [10]
[material_price] => [600]
[work_price] => [730]
[image] => https://akademik-stroy.ru/wp-content/uploads/materials/santekhnika-kanalizaciya-1.jpg
[area_modifier] => 91.99
[parent_name] => Сантехника, канализация в доме
[parent_id] => 29
[material_sum] => 76168
[work_sum] => 77226
[total_sum] => 153394
[total_days] => 10
[display_material_sum] => 76 168
[display_work_sum] => 77 226
[display_total_sum] => 153 394
)
1
153 394₽
Работа:77 226 ₽
Материалы:76 168 ₽
Дни:10
stdClass Object
(
[id] => 59
[attribute_id] => 30
[name] => Нет
[material_modifier] => 1
[work_modifier] => 1
[options] => Array
(
)
[days] => [0]
[material_price] => [0]
[work_price] => [0]
[image] => https://akademik-stroy.ru/wp-content/uploads/materials/otoplenie-1.jpg
[area_modifier] => 91.99
[parent_name] => Отопление
[parent_id] => 30
[material_sum] => 0
[work_sum] => 0
[total_sum] => 0
[total_days] => 0
[display_material_sum] => 0
[display_work_sum] => 0
[display_total_sum] => 0
)
1
0₽
Работа:0 ₽
Материалы:0 ₽
Дни:0
stdClass Object
(
[id] => 60
[attribute_id] => 30
[name] => Есть
[material_modifier] => 1
[work_modifier] => 1
[options] => Array
(
)
[days] => [5]
[material_price] => [610]
[work_price] => [560]
[image] => https://akademik-stroy.ru/wp-content/uploads/materials/otoplenie-1.jpg
[area_modifier] => 91.99
[parent_name] => Отопление
[parent_id] => 30
[material_sum] => 77437
[work_sum] => 59242
[total_sum] => 136679
[total_days] => 5
[display_material_sum] => 77 437
[display_work_sum] => 59 242
[display_total_sum] => 136 679
)
1
136 679₽
Работа:59 242 ₽
Материалы:77 437 ₽
Дни:5
stdClass Object
(
[id] => 61
[attribute_id] => 31
[name] => Нет
[material_modifier] => 1
[work_modifier] => 1
[options] => Array
(
)
[days] => [0]
[material_price] => [0]
[work_price] => [0]
[image] => https://akademik-stroy.ru/wp-content/uploads/materials/vodyanye.jpg
[area_modifier] => 30
[parent_name] => Теплые полы
[parent_id] => 31
[material_sum] => 0
[work_sum] => 0
[total_sum] => 0
[total_days] => 0
[display_material_sum] => 0
[display_work_sum] => 0
[display_total_sum] => 0
)
1
0₽
Работа:0 ₽
Материалы:0 ₽
Дни:0
stdClass Object
(
[id] => 151
[attribute_id] => 31
[name] => Водяные
[material_modifier] => 1
[work_modifier] => 1
[options] => Array
(
)
[days] => [9]
[material_price] => [10200]
[work_price] => [2500]
[image] => https://akademik-stroy.ru/wp-content/uploads/materials/vodyanye.jpg
[area_modifier] => 30
[parent_name] => Теплые полы
[parent_id] => 31
[material_sum] => 422280
[work_sum] => 86250
[total_sum] => 508530
[total_days] => 9
[display_material_sum] => 422 280
[display_work_sum] => 86 250
[display_total_sum] => 508 530
)
1
508 530₽
Работа:86 250 ₽
Материалы:422 280 ₽
Дни:9
stdClass Object
(
[id] => 152
[attribute_id] => 31
[name] => Электро
[material_modifier] => 1
[work_modifier] => 1
[options] => Array
(
)
[days] => [5]
[material_price] => [6300]
[work_price] => [1500]
[image] => https://akademik-stroy.ru/wp-content/uploads/materials/ehlektricheskij.jpg
[area_modifier] => 30
[parent_name] => Теплые полы
[parent_id] => 31
[material_sum] => 260820
[work_sum] => 51750
[total_sum] => 312570
[total_days] => 5
[display_material_sum] => 260 820
[display_work_sum] => 51 750
[display_total_sum] => 312 570
)
1
312 570₽
Работа:51 750 ₽
Материалы:260 820 ₽
Дни:5
stdClass Object
(
[id] => 63
[attribute_id] => 32
[name] => Нет
[material_modifier] => 1
[work_modifier] => 1
[options] => Array
(
)
[days] => [0]
[material_price] => [0]
[work_price] => [0]
[image] => https://akademik-stroy.ru/wp-content/uploads/materials/shtukaturka-shpatlevka-1.jpg
[area_modifier] => 91.99
[parent_name] => Черновая отделка стен
[parent_id] => 32
[material_sum] => 0
[work_sum] => 0
[total_sum] => 0
[total_days] => 0
[display_material_sum] => 0
[display_work_sum] => 0
[display_total_sum] => 0
)
1
0₽
Работа:0 ₽
Материалы:0 ₽
Дни:0
stdClass Object
(
[id] => 153
[attribute_id] => 32
[name] => Штукатурка и шпатлевка
[material_modifier] => 1
[work_modifier] => 1
[options] => Array
(
)
[days] => [20]
[material_price] => [1850]
[work_price] => [2600]
[image] => https://akademik-stroy.ru/wp-content/uploads/materials/shtukaturka-shpatlevka-1.jpg
[area_modifier] => 91.99
[parent_name] => Черновая отделка стен
[parent_id] => 32
[material_sum] => 234850
[work_sum] => 275050
[total_sum] => 509900
[total_days] => 20
[display_material_sum] => 234 850
[display_work_sum] => 275 050
[display_total_sum] => 509 900
)
1
509 900₽
Работа:275 050 ₽
Материалы:234 850 ₽
Дни:20
stdClass Object
(
[id] => 154
[attribute_id] => 32
[name] => Гипсокортон на стены
[material_modifier] => 1
[work_modifier] => 1
[options] => Array
(
)
[days] => [15]
[material_price] => [950]
[work_price] => [2100]
[image] => https://akademik-stroy.ru/wp-content/uploads/materials/gkl-1.jpg
[area_modifier] => 91.99
[parent_name] => Черновая отделка стен
[parent_id] => 32
[material_sum] => 120599
[work_sum] => 222156
[total_sum] => 342755
[total_days] => 15
[display_material_sum] => 120 599
[display_work_sum] => 222 156
[display_total_sum] => 342 755
)
1
342 755₽
Работа:222 156 ₽
Материалы:120 599 ₽
Дни:15
stdClass Object
(
[id] => 155
[attribute_id] => 32
[name] => Вагонка
[material_modifier] => 1
[work_modifier] => 1
[options] => Array
(
)
[days] => [15]
[material_price] => [1250]
[work_price] => [950]
[image] => https://akademik-stroy.ru/wp-content/uploads/materials/vagonka.jpg
[area_modifier] => 91.99
[parent_name] => Черновая отделка стен
[parent_id] => 32
[material_sum] => 158683
[work_sum] => 100499
[total_sum] => 259182
[total_days] => 15
[display_material_sum] => 158 683
[display_work_sum] => 100 499
[display_total_sum] => 259 182
)
1
259 182₽
Работа:100 499 ₽
Материалы:158 683 ₽
Дни:15
stdClass Object
(
[id] => 65
[attribute_id] => 33
[name] => Нет
[material_modifier] => 1
[work_modifier] => 1
[options] => Array
(
)
[days] => [0]
[material_price] => [0]
[work_price] => [0]
[image] => https://akademik-stroy.ru/wp-content/uploads/materials/styazhka.jpg
[area_modifier] => 91.99
[parent_name] => Черновая отделка полов
[parent_id] => 33
[material_sum] => 0
[work_sum] => 0
[total_sum] => 0
[total_days] => 0
[display_material_sum] => 0
[display_work_sum] => 0
[display_total_sum] => 0
)
1
0₽
Работа:0 ₽
Материалы:0 ₽
Дни:0
stdClass Object
(
[id] => 156
[attribute_id] => 33
[name] => Стяжка + наливные полы
[material_modifier] => 1
[work_modifier] => 1
[options] => Array
(
)
[days] => [10]
[material_price] => [1000]
[work_price] => [900]
[image] => https://akademik-stroy.ru/wp-content/uploads/materials/styazhka.jpg
[area_modifier] => 91.99
[parent_name] => Черновая отделка полов
[parent_id] => 33
[material_sum] => 126946
[work_sum] => 95210
[total_sum] => 222156
[total_days] => 10
[display_material_sum] => 126 946
[display_work_sum] => 95 210
[display_total_sum] => 222 156
)
1
222 156₽
Работа:95 210 ₽
Материалы:126 946 ₽
Дни:10
stdClass Object
(
[id] => 157
[attribute_id] => 33
[name] => ОСБ на пол
[material_modifier] => 1
[work_modifier] => 1
[options] => Array
(
)
[days] => [7]
[material_price] => [580]
[work_price] => [350]
[image] => https://akademik-stroy.ru/wp-content/uploads/materials/osb-1.jpg
[area_modifier] => 91.99
[parent_name] => Черновая отделка полов
[parent_id] => 33
[material_sum] => 73629
[work_sum] => 37026
[total_sum] => 110655
[total_days] => 7
[display_material_sum] => 73 629
[display_work_sum] => 37 026
[display_total_sum] => 110 655
)
1
110 655₽
Работа:37 026 ₽
Материалы:73 629 ₽
Дни:7
stdClass Object
(
[id] => 67
[attribute_id] => 34
[name] => Нет
[material_modifier] => 1
[work_modifier] => 1
[options] => Array
(
)
[days] => [0]
[material_price] => [0]
[work_price] => [0]
[image] => https://akademik-stroy.ru/wp-content/uploads/materials/chistovaya-otdelka.jpg
[area_modifier] => 91.99
[parent_name] => Чистовая отделка стен и полов
[parent_id] => 34
[material_sum] => 0
[work_sum] => 0
[total_sum] => 0
[total_days] => 0
[display_material_sum] => 0
[display_work_sum] => 0
[display_total_sum] => 0
)
1
0₽
Работа:0 ₽
Материалы:0 ₽
Дни:0
stdClass Object
(
[id] => 68
[attribute_id] => 34
[name] => Есть
[material_modifier] => 1
[work_modifier] => 1
[options] => Array
(
)
[days] => [50]
[material_price] => [6000]
[work_price] => [3500]
[image] => https://akademik-stroy.ru/wp-content/uploads/materials/chistovaya-otdelka.jpg
[area_modifier] => 91.99
[parent_name] => Чистовая отделка стен и полов
[parent_id] => 34
[material_sum] => 761677
[work_sum] => 370260
[total_sum] => 1131937
[total_days] => 50
[display_material_sum] => 761 677
[display_work_sum] => 370 260
[display_total_sum] => 1 131 937
)
1
1 131 937₽
Работа:370 260 ₽
Материалы:761 677 ₽
Дни:50
stdClass Object
(
[id] => 69
[attribute_id] => 35
[name] => Нет
[material_modifier] => 1
[work_modifier] => 1
[options] => Array
(
)
[days] => [0]
[material_price] => [0]
[work_price] => [0]
[image] => https://akademik-stroy.ru/wp-content/uploads/materials/mnogourovnevyj-gkl.jpg
[area_modifier] => 91.99
[parent_name] => Отделка потолка
[parent_id] => 35
[material_sum] => 0
[work_sum] => 0
[total_sum] => 0
[total_days] => 0
[display_material_sum] => 0
[display_work_sum] => 0
[display_total_sum] => 0
)
1
0₽
Работа:0 ₽
Материалы:0 ₽
Дни:0
stdClass Object
(
[id] => 70
[attribute_id] => 35
[name] => Есть
[material_modifier] => 1
[work_modifier] => 1
[options] => Array
(
[0] => Многоуровневый потолок из гипсокартона
[1] => Многоуровневый потолок из гипсокартона и натяжного потолка
[2] => Одноуровневый потолок из гипсокартона
[3] => Одноуровневый натяжной потолок
)
[days] => [10,10,1,1]
[material_price] => [900,700,700,600]
[work_price] => [1000,800,500,300]
[image] => https://akademik-stroy.ru/wp-content/uploads/materials/mnogourovnevyj-gkl.jpg
[area_modifier] => 91.99
[parent_name] => Отделка потолка
[parent_id] => 35
[material_sum] => 114252
[work_sum] => 105789
[total_sum] => 220041
[total_days] => 10
[display_material_sum] => 114 252
[display_work_sum] => 105 789
[display_total_sum] => 220 041
)
1
220 041₽
Работа:105 789 ₽
Материалы:114 252 ₽
Дни:10
Преимущества работы с нами
7 этапов оплаты
Независимый строительный надзор
Экологически чистые материалы
16 лет гарантии
Онлайн-кабинет с веб-камерой
Строители с опытом более 15 лет
Собственное производство

