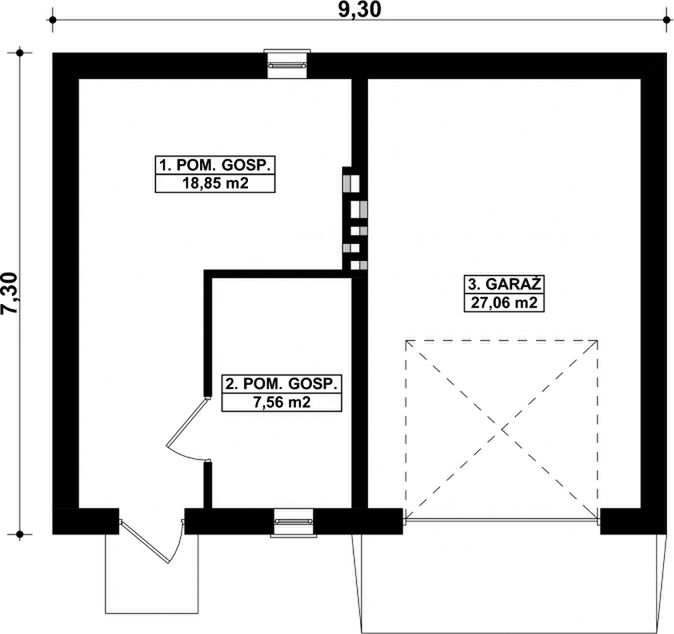
Одноэтажный гараж 27.06 м2
154 м2
Полезная
площадь
площадь
1 этаж
Этажей
26 м2
Террасы
и балконы
и балконы
0Без
гаража
гаража
0
Количество
спален
спален
0
Количество
санузлов
санузлов
Планировки
Первый этаж
- 1. (m²) 53,47
- 2. Подсобное помещение 18,85
- 3. Подсобное помещение 7,56
- Гараж на 1 машину 27,06
Фасады
Передний
Задний
Левый
Правый
Подробная информация
Полезная площадь
53,47 m²
Количество спален
0
Количество санузлов
0
Гараж
1
Мин. шир. и дл. участка
15,3 x 15,30 m
Угол наклона крыши
37,50°
Наклон ската крыши в градусах. Внимание! В некоторых проектах возникает более чем один наклон крыши.
Вид материалов
Murowana
Материалы и опции
Общие
Площади дома
| № п/п | Наименование | Ед. из. | Строительная площадь | Полезная площадь |
| 1 | 1 этаж | м2 | 33.35 | 27.06 |
| 2 | Итого | м2 | 33.35 | 27.06 |
Калькулятор опций
0₽
В ипотеку от 207 ₽/мес.
0₽
0 дней
stdClass Object
(
[id] => 1
[attribute_id] => 1
[name] => Ленточный монолитный ж/б
[material_modifier] => 1
[work_modifier] => 1
[options] => Array
(
[0] => размер 200 х 700 мм
[1] => размер 300 х 900 мм
[2] => размер 400 х 1 000 мм
[3] => размер 500 х 1 100 мм
[4] => размер 600 х 1 200 мм
)
[days] => [20,21,22,25,30]
[material_price] => [2823,3630,4475,5210,12047]
[work_price] => [2154,2826,3731,4577,5293]
[image] => https://akademik-stroy.ru/wp-content/uploads/materials/lentochnyj-monolitnyj-zh-b.jpg
[area_modifier] => 33.35
[parent_name] => Фундамент
[parent_id] => 1
[material_sum] => 225953
[work_sum] => 143672
[total_sum] => 369625
[total_days] => 20
[display_material_sum] => 225 953
[display_work_sum] => 143 672
[display_total_sum] => 369 625
)
1
369 625₽
Работа:143 672 ₽
Материалы:225 953 ₽
Дни:20
stdClass Object
(
[id] => 2
[attribute_id] => 1
[name] => Забивные Ж/Б сваи
[material_modifier] => 1
[work_modifier] => 1
[options] => Array
(
[0] => 150х150х3000мм
[1] => 150х150х4000мм
[2] => 200х200х3000мм
[3] => 200х200х4000мм
[4] => 200х200х5000мм
[5] => 200х200х6000мм
)
[days] => [2,2,2,2,2,2]
[material_price] => [1990,2850,3255,4360,5120,6837]
[work_price] => [1002,1185,1336,1438,1574,1839]
[image] => https://akademik-stroy.ru/wp-content/uploads/materials/zabivnye-zh-b-svai.png
[area_modifier] => 33.35
[parent_name] => Фундамент
[parent_id] => 1
[material_sum] => 159280
[work_sum] => 66833
[total_sum] => 226113
[total_days] => 2
[display_material_sum] => 159 280
[display_work_sum] => 66 833
[display_total_sum] => 226 113
)
1
226 113₽
Работа:66 833 ₽
Материалы:159 280 ₽
Дни:2
stdClass Object
(
[id] => 71
[attribute_id] => 1
[name] => Свайно-ростверковый ж/б
[material_modifier] => 1
[work_modifier] => 1
[options] => Array
(
[0] => ростверк 200х300 мм
[1] => ростверк 300х600 мм
[2] => ростверк 400х900 мм
[3] => ростверк 500х1200 мм
)
[days] => [20,23,25,27]
[material_price] => [3018,3474,7109,9792]
[work_price] => [2024,3012,5635,7022]
[image] => https://akademik-stroy.ru/wp-content/uploads/materials/svajno-rostverkovyj-monolitnyj-zh-b-3.png
[area_modifier] => 33.35
[parent_name] => Фундамент
[parent_id] => 1
[material_sum] => 241561
[work_sum] => 135001
[total_sum] => 376562
[total_days] => 20
[display_material_sum] => 241 561
[display_work_sum] => 135 001
[display_total_sum] => 376 562
)
1
376 562₽
Работа:135 001 ₽
Материалы:241 561 ₽
Дни:20
stdClass Object
(
[id] => 72
[attribute_id] => 1
[name] => Монолитная ж/б плита
[material_modifier] => 1
[work_modifier] => 1
[options] => Array
(
[0] => 200 мм
[1] => 300 мм
[2] => 400 мм
[3] => 500 мм
[4] => 600 мм
)
[days] => [30,33,35,37,40]
[material_price] => [5348,8555,12788,14388,15189]
[work_price] => [4314,4881,7037,8061,10230]
[image] => https://akademik-stroy.ru/wp-content/uploads/materials/monolitnaya-zhb-plita.png
[area_modifier] => 33.35
[parent_name] => Фундамент
[parent_id] => 1
[material_sum] => 428054
[work_sum] => 287744
[total_sum] => 715798
[total_days] => 30
[display_material_sum] => 428 054
[display_work_sum] => 287 744
[display_total_sum] => 715 798
)
1
715 798₽
Работа:287 744 ₽
Материалы:428 054 ₽
Дни:30
stdClass Object
(
[id] => 73
[attribute_id] => 1
[name] => Утепленная шведская плита
[material_modifier] => 1
[work_modifier] => 1
[options] => Array
(
[0] => 200 мм
[1] => 300 мм
[2] => 400 мм
[3] => 500 мм
[4] => 600 мм
)
[days] => [32,37,39,42,45]
[material_price] => [10249,12692,13760,14936,16230]
[work_price] => [5960,7337,8072,8878,9765]
[image] => https://akademik-stroy.ru/wp-content/uploads/materials/uteplennaya-shvedskaya-plita.jpg
[area_modifier] => 33.35
[parent_name] => Фундамент
[parent_id] => 1
[material_sum] => 820330
[work_sum] => 397532
[total_sum] => 1217862
[total_days] => 32
[display_material_sum] => 820 330
[display_work_sum] => 397 532
[display_total_sum] => 1 217 862
)
1
1 217 862₽
Работа:397 532 ₽
Материалы:820 330 ₽
Дни:32
stdClass Object
(
[id] => 75
[attribute_id] => 1
[name] => Ленточный из ФБС
[material_modifier] => 1
[work_modifier] => 1
[options] => Array
(
[0] => толщ. 300 мм
[1] => толщ. 400 мм
[2] => толщ. 500 мм
[3] => толщ. 600 мм
)
[days] => [20,20,20,20]
[material_price] => [3675,4902,6126,7350]
[work_price] => [2451,3264,4083,4902]
[image] => https://akademik-stroy.ru/wp-content/uploads/materials/lentochnyj-iz-fbs.png
[area_modifier] => 33.35
[parent_name] => Фундамент
[parent_id] => 1
[material_sum] => 294147
[work_sum] => 163482
[total_sum] => 457629
[total_days] => 20
[display_material_sum] => 294 147
[display_work_sum] => 163 482
[display_total_sum] => 457 629
)
1
457 629₽
Работа:163 482 ₽
Материалы:294 147 ₽
Дни:20
stdClass Object
(
[id] => 76
[attribute_id] => 1
[name] => Цокольный этаж из ФБС
[material_modifier] => 1
[work_modifier] => 1
[options] => Array
(
[0] => толщ. 300 мм
[1] => толщ. 400 мм
[2] => толщ. 500 мм
[3] => толщ. 600 мм
)
[days] => [30,32,34,36]
[material_price] => [20916,23299,26680,29060]
[work_price] => [17524,18700,19873,21046]
[image] => https://akademik-stroy.ru/wp-content/uploads/materials/cokolnyj-ehtazh-iz-fbs.jpg
[area_modifier] => 33.35
[parent_name] => Фундамент
[parent_id] => 1
[material_sum] => 1674117
[work_sum] => 1168851
[total_sum] => 2842968
[total_days] => 30
[display_material_sum] => 1 674 117
[display_work_sum] => 1 168 851
[display_total_sum] => 2 842 968
)
1
2 842 968₽
Работа:1 168 851 ₽
Материалы:1 674 117 ₽
Дни:30
stdClass Object
(
[id] => 77
[attribute_id] => 1
[name] => Цокольный этаж монолитный ж/б
[material_modifier] => 1
[work_modifier] => 1
[options] => Array
(
[0] => толщ. 200 мм
[1] => толщ. 300 мм
[2] => толщ. 400 мм
[3] => толщ. 500 мм
[4] => толщ. 600 мм
)
[days] => [40,42,44,46,48]
[material_price] => [25421,29148,32275,35602,37326]
[work_price] => [20441,21907,23375,24841,26306]
[image] => https://akademik-stroy.ru/wp-content/uploads/materials/cokolnyj-etazh-zh-b.jpg
[area_modifier] => 33.35
[parent_name] => Фундамент
[parent_id] => 1
[material_sum] => 2034697
[work_sum] => 1363415
[total_sum] => 3398112
[total_days] => 40
[display_material_sum] => 2 034 697
[display_work_sum] => 1 363 415
[display_total_sum] => 3 398 112
)
1
3 398 112₽
Работа:1 363 415 ₽
Материалы:2 034 697 ₽
Дни:40
stdClass Object
(
[id] => 191
[attribute_id] => 1
[name] => Винтовые сваи
[material_modifier] => 1
[work_modifier] => 1
[options] => Array
(
[0] => 57х200мм
[1] => 76х250мм
[2] => 108х300мм
[3] => 133х350мм
)
[days] => [1,1,2,2]
[material_price] => [1200,1300,1450,1600]
[work_price] => [400,600,900,1100]
[image] => https://akademik-stroy.ru/wp-content/uploads/materials/vintovye-svai.png
[area_modifier] => 33.35
[parent_name] => Фундамент
[parent_id] => 1
[material_sum] => 96048
[work_sum] => 26680
[total_sum] => 122728
[total_days] => 1
[display_material_sum] => 96 048
[display_work_sum] => 26 680
[display_total_sum] => 122 728
)
1
122 728₽
Работа:26 680 ₽
Материалы:96 048 ₽
Дни:1
stdClass Object
(
[id] => 3
[attribute_id] => 2
[name] => Деревянные балки
[material_modifier] => 1
[work_modifier] => 1
[options] => Array
(
[0] => без утепления
[1] => утепление 200 мм
[2] => утепление 250 мм
[3] => утепление 300 мм
[4] => утепление 350 мм
[5] => утепление 400 мм
[6] => утепление 450 мм
[7] => утепление 500 мм
)
[days] => [8,9,9,9,11,12,13,14]
[material_price] => [1634,2042,2344,2947,3149,3652,3354,3557]
[work_price] => [1230,1339,1393,1426,1460,1513,1587,1620]
[image] => https://akademik-stroy.ru/wp-content/uploads/materials/derevyannye-balki.png
[area_modifier] => 33.35
[parent_name] => Перекрытие цоколя
[parent_id] => 2
[material_sum] => 130785
[work_sum] => 82041
[total_sum] => 212826
[total_days] => 8
[display_material_sum] => 130 785
[display_work_sum] => 82 041
[display_total_sum] => 212 826
)
1
212 826₽
Работа:82 041 ₽
Материалы:130 785 ₽
Дни:8
stdClass Object
(
[id] => 4
[attribute_id] => 2
[name] => Сборные ж/б плиты
[material_modifier] => 1
[work_modifier] => 1
[options] => Array
(
[0] => без утепления
[1] => утепление 150мм
[2] => утепление 200мм
[3] => утепление 250мм
[4] => утепление 300мм
[5] => утепление 350мм
[6] => утепление 400мм
[7] => утепление 450мм
[8] => утепление 500мм
)
[days] => [13,15,15,15,15,15,15,15,15]
[material_price] => [3067,5577,5928,6679,7730,8782,9833,10884,11935]
[work_price] => [1520,1956,2102,2247,2392,2537,2684,2829,2974]
[image] => https://akademik-stroy.ru/wp-content/uploads/materials/sbornye-zh-b-plity-2.jpg
[area_modifier] => 33.35
[parent_name] => Перекрытие цоколя
[parent_id] => 2
[material_sum] => 245483
[work_sum] => 101384
[total_sum] => 346867
[total_days] => 13
[display_material_sum] => 245 483
[display_work_sum] => 101 384
[display_total_sum] => 346 867
)
1
346 867₽
Работа:101 384 ₽
Материалы:245 483 ₽
Дни:13
stdClass Object
(
[id] => 78
[attribute_id] => 2
[name] => Монолитная ж/б плита
[material_modifier] => 1
[work_modifier] => 1
[options] => Array
(
[0] => без утепления
[1] => утепление 150 мм
[2] => утепление 200 мм
[3] => утепление 250 мм
[4] => утепление 300 мм
[5] => утепление 350 мм
[6] => утепление 400 мм
[7] => утепление 450 мм
[8] => утепление 500 мм
)
[days] => [18,20,20,20,20,20,20,20,20]
[material_price] => [4837,6572,7224,7375,79426,8177,8728,9180,10031]
[work_price] => [3348,3921,4112,4302,4493,4684,4875,5066,5256]
[image] => https://akademik-stroy.ru/wp-content/uploads/materials/monolitnaya-zh-b-plita-2.jpg
[area_modifier] => 33.35
[parent_name] => Перекрытие цоколя
[parent_id] => 2
[material_sum] => 387153
[work_sum] => 223312
[total_sum] => 610465
[total_days] => 18
[display_material_sum] => 387 153
[display_work_sum] => 223 312
[display_total_sum] => 610 465
)
1
610 465₽
Работа:223 312 ₽
Материалы:387 153 ₽
Дни:18
stdClass Object
(
[id] => 6
[attribute_id] => 3
[name] => Пеноблок
[material_modifier] => 1
[work_modifier] => 1
[options] => Array
(
[0] => 300 мм
[1] => 400 мм
[2] => 500 мм
[3] => 600 мм
)
[days] => [29,31,34,39]
[material_price] => [3000,4000,4500,4937]
[work_price] => [5033,5805,6400,8710]
[image] => https://akademik-stroy.ru/wp-content/uploads/materials/penoblok.jpg
[area_modifier] => 33.35
[parent_name] => Стены 1 этаж (несущие)
[parent_id] => 3
[material_sum] => 240120
[work_sum] => 335701
[total_sum] => 575821
[total_days] => 29
[display_material_sum] => 240 120
[display_work_sum] => 335 701
[display_total_sum] => 575 821
)
1
575 821₽
Работа:335 701 ₽
Материалы:240 120 ₽
Дни:29
stdClass Object
(
[id] => 79
[attribute_id] => 3
[name] => Керамический блок
[material_modifier] => 1
[work_modifier] => 1
[options] => Array
(
[0] => 380 мм
[1] => 380 мм Thermo
[2] => 440 мм
[3] => 510 мм
)
[days] => [23,23,24,25]
[material_price] => [4510,5098,6093,8013]
[work_price] => [4737,4937,5903,6958]
[image] => https://akademik-stroy.ru/wp-content/uploads/materials/keramicheskij-blok.jpg
[area_modifier] => 33.35
[parent_name] => Стены 1 этаж (несущие)
[parent_id] => 3
[material_sum] => 360980
[work_sum] => 315958
[total_sum] => 676938
[total_days] => 23
[display_material_sum] => 360 980
[display_work_sum] => 315 958
[display_total_sum] => 676 938
)
1
676 938₽
Работа:315 958 ₽
Материалы:360 980 ₽
Дни:23
stdClass Object
(
[id] => 80
[attribute_id] => 3
[name] => Кирпич
[material_modifier] => 1
[work_modifier] => 1
[options] => Array
(
[0] => Кирпич 250 мм
[1] => Кирпич 380 мм
[2] => Кирпич 510 мм
[3] => Кирпич 640 мм
[4] => Кирпич 770 мм
)
[days] => [30,30,31,33,36]
[material_price] => [5500,7142,9206,10171,12235]
[work_price] => [8736,10041,12018,15240,18462]
[image] => https://akademik-stroy.ru/wp-content/uploads/materials/kirpich.jpg
[area_modifier] => 33.35
[parent_name] => Стены 1 этаж (несущие)
[parent_id] => 3
[material_sum] => 440220
[work_sum] => 582691
[total_sum] => 1022911
[total_days] => 30
[display_material_sum] => 440 220
[display_work_sum] => 582 691
[display_total_sum] => 1 022 911
)
1
1 022 911₽
Работа:582 691 ₽
Материалы:440 220 ₽
Дни:30
stdClass Object
(
[id] => 81
[attribute_id] => 3
[name] => Монолитные
[material_modifier] => 1
[work_modifier] => 1
[options] => Array
(
[0] => 150 мм
[1] => 200 мм
[2] => 250 мм
[3] => 300 мм
[4] => 350 мм
[5] => 400 мм
)
[days] => [45,46,47,49,50,53]
[material_price] => [6545,7876,10175,12011,13908,15204]
[work_price] => [5106,6444,7698,8552,9807,11461]
[image] => https://akademik-stroy.ru/wp-content/uploads/materials/monolitnye.jpg
[area_modifier] => 33.35
[parent_name] => Стены 1 этаж (несущие)
[parent_id] => 3
[material_sum] => 523862
[work_sum] => 340570
[total_sum] => 864432
[total_days] => 45
[display_material_sum] => 523 862
[display_work_sum] => 340 570
[display_total_sum] => 864 432
)
1
864 432₽
Работа:340 570 ₽
Материалы:523 862 ₽
Дни:45
stdClass Object
(
[id] => 82
[attribute_id] => 3
[name] => Клееный брус
[material_modifier] => 1
[work_modifier] => 1
[options] => Array
(
[0] => 160 мм
[1] => 175 мм
[2] => 200 мм
[3] => 215 мм
[4] => 240 мм
[5] => 270 мм
[6] => 282 мм
)
[days] => [24,28,32,37,40,42,48]
[material_price] => [16975,18773,19950,20545,21599,22159,23275]
[work_price] => [4806,5287,5815,6397,7036,7740,8514]
[image] => https://akademik-stroy.ru/wp-content/uploads/materials/kleenyj-brus.jpg
[area_modifier] => 33.35
[parent_name] => Стены 1 этаж (несущие)
[parent_id] => 3
[material_sum] => 1358679
[work_sum] => 320560
[total_sum] => 1679239
[total_days] => 24
[display_material_sum] => 1 358 679
[display_work_sum] => 320 560
[display_total_sum] => 1 679 239
)
1
1 679 239₽
Работа:320 560 ₽
Материалы:1 358 679 ₽
Дни:24
stdClass Object
(
[id] => 83
[attribute_id] => 3
[name] => Каркасные
[material_modifier] => 1
[work_modifier] => 1
[options] => Array
(
[0] => 150 мм
[1] => 200 мм
[2] => 250 мм
[3] => 300 мм
)
[days] => [15,16,17,18]
[material_price] => [2379,2639,2898,3258]
[work_price] => [2418,2686,2985,3716]
[image] => https://akademik-stroy.ru/wp-content/uploads/materials/karkasnye.jpg
[area_modifier] => 33.35
[parent_name] => Стены 1 этаж (несущие)
[parent_id] => 3
[material_sum] => 190415
[work_sum] => 161281
[total_sum] => 351696
[total_days] => 15
[display_material_sum] => 190 415
[display_work_sum] => 161 281
[display_total_sum] => 351 696
)
1
351 696₽
Работа:161 281 ₽
Материалы:190 415 ₽
Дни:15
stdClass Object
(
[id] => 84
[attribute_id] => 3
[name] => СИП-панели
[material_modifier] => 1
[work_modifier] => 1
[options] => Array
(
[0] => 120 мм
[1] => 170 мм
[2] => 220 мм
)
[days] => [7,7,7]
[material_price] => [1210,1856,2292]
[work_price] => [1410,1551,1706]
[image] => https://akademik-stroy.ru/wp-content/uploads/materials/sip-paneli.jpg
[area_modifier] => 33.35
[parent_name] => Стены 1 этаж (несущие)
[parent_id] => 3
[material_sum] => 96848
[work_sum] => 94047
[total_sum] => 190895
[total_days] => 7
[display_material_sum] => 96 848
[display_work_sum] => 94 047
[display_total_sum] => 190 895
)
1
190 895₽
Работа:94 047 ₽
Материалы:96 848 ₽
Дни:7
stdClass Object
(
[id] => 85
[attribute_id] => 3
[name] => Сухой брус
[material_modifier] => 1
[work_modifier] => 1
[options] => Array
(
[0] => 150 мм
[1] => 180 мм
[2] => 200 мм
)
[days] => [7,8,9]
[material_price] => [6010,7190,8709]
[work_price] => [3204,3845,4229]
[image] => https://akademik-stroy.ru/wp-content/uploads/materials/suhoj-brus.jpg
[area_modifier] => 33.35
[parent_name] => Стены 1 этаж (несущие)
[parent_id] => 3
[material_sum] => 481040
[work_sum] => 213707
[total_sum] => 694747
[total_days] => 7
[display_material_sum] => 481 040
[display_work_sum] => 213 707
[display_total_sum] => 694 747
)
1
694 747₽
Работа:213 707 ₽
Материалы:481 040 ₽
Дни:7
stdClass Object
(
[id] => 86
[attribute_id] => 3
[name] => Профилированный брус
[material_modifier] => 1
[work_modifier] => 1
[options] => Array
(
[0] => 150 мм
[1] => 180 мм
[2] => 200 мм
)
[days] => [7,8,9]
[material_price] => [8190,9228,10051]
[work_price] => [3845,4614,5075]
[image] => https://akademik-stroy.ru/wp-content/uploads/materials/profilirovannyj-brus.jpg
[area_modifier] => 33.35
[parent_name] => Стены 1 этаж (несущие)
[parent_id] => 3
[material_sum] => 655528
[work_sum] => 256462
[total_sum] => 911990
[total_days] => 7
[display_material_sum] => 655 528
[display_work_sum] => 256 462
[display_total_sum] => 911 990
)
1
911 990₽
Работа:256 462 ₽
Материалы:655 528 ₽
Дни:7
stdClass Object
(
[id] => 87
[attribute_id] => 3
[name] => Оцилиндрованное бревно
[material_modifier] => 1
[work_modifier] => 1
[options] => Array
(
[0] => 180 мм
[1] => 220 мм
[2] => 260 мм
[3] => 320 мм
)
[days] => [7,8,9,10]
[material_price] => [75190,9532,10868,13116]
[work_price] => [3845,4691,5535,6863]
[image] => https://akademik-stroy.ru/wp-content/uploads/materials/ocilindrovannoe-brevno-1.jpg
[area_modifier] => 33.35
[parent_name] => Стены 1 этаж (несущие)
[parent_id] => 3
[material_sum] => 6018208
[work_sum] => 256462
[total_sum] => 6274670
[total_days] => 7
[display_material_sum] => 6 018 208
[display_work_sum] => 256 462
[display_total_sum] => 6 274 670
)
1
6 274 670₽
Работа:256 462 ₽
Материалы:6 018 208 ₽
Дни:7
stdClass Object
(
[id] => 88
[attribute_id] => 3
[name] => Срубы
[material_modifier] => 1
[work_modifier] => 1
[options] => Array
(
[0] => 260 мм
[1] => 320 мм
[2] => 360 мм
[3] => 400 мм
[4] => 500 мм
)
[days] => [7,8,9,10,11]
[material_price] => [37975,46709,52314,58069,73167]
[work_price] => [4806,5911,6621,7349,9260]
[image] => https://akademik-stroy.ru/wp-content/uploads/materials/sruby.jpg
[area_modifier] => 33.35
[parent_name] => Стены 1 этаж (несущие)
[parent_id] => 3
[material_sum] => 3039519
[work_sum] => 320560
[total_sum] => 3360079
[total_days] => 7
[display_material_sum] => 3 039 519
[display_work_sum] => 320 560
[display_total_sum] => 3 360 079
)
1
3 360 079₽
Работа:320 560 ₽
Материалы:3 039 519 ₽
Дни:7
stdClass Object
(
[id] => 174
[attribute_id] => 3
[name] => Брус
[material_modifier] => 1
[work_modifier] => 1
[options] => Array
(
[0] => 150 мм
[1] => 180 мм
[2] => 200 мм
)
[days] => [7,8,9]
[material_price] => [5127,6152,7367]
[work_price] => [1602,1922,2115]
[image] => https://akademik-stroy.ru/wp-content/uploads/materials/brus.jpg
[area_modifier] => 33.35
[parent_name] => Стены 1 этаж (несущие)
[parent_id] => 3
[material_sum] => 410365
[work_sum] => 106853
[total_sum] => 517218
[total_days] => 7
[display_material_sum] => 410 365
[display_work_sum] => 106 853
[display_total_sum] => 517 218
)
1
517 218₽
Работа:106 853 ₽
Материалы:410 365 ₽
Дни:7
stdClass Object
(
[id] => 175
[attribute_id] => 3
[name] => Газобетон
[material_modifier] => 1
[work_modifier] => 1
[options] => Array
(
[0] => 300 мм
[1] => 375 мм
[2] => 400 мм
[3] => 500 мм
[4] => 600 мм
)
[days] => [29,31,35,37,44]
[material_price] => [4298,5573,6356,7288,9119]
[work_price] => [4538,5251,5926,6733,7195]
[image] => https://akademik-stroy.ru/wp-content/uploads/materials/gazobeton.jpg
[area_modifier] => 33.35
[parent_name] => Стены 1 этаж (несущие)
[parent_id] => 3
[material_sum] => 344012
[work_sum] => 302685
[total_sum] => 646697
[total_days] => 29
[display_material_sum] => 344 012
[display_work_sum] => 302 685
[display_total_sum] => 646 697
)
1
646 697₽
Работа:302 685 ₽
Материалы:344 012 ₽
Дни:29
stdClass Object
(
[id] => 176
[attribute_id] => 3
[name] => Блок
[material_modifier] => 1
[work_modifier] => 1
[options] => Array
(
[0] => 300 мм
[1] => 375 мм
[2] => 400 мм
[3] => 500 мм
[4] => 600 мм
)
[days] => [29,31,35,37,44]
[material_price] => [2698,3973,4356,6588,7119]
[work_price] => [5038,5851,6426,8733,9195]
[image] => https://akademik-stroy.ru/wp-content/uploads/materials/blok.jpg
[area_modifier] => 33.35
[parent_name] => Стены 1 этаж (несущие)
[parent_id] => 3
[material_sum] => 215948
[work_sum] => 336035
[total_sum] => 551983
[total_days] => 29
[display_material_sum] => 215 948
[display_work_sum] => 336 035
[display_total_sum] => 551 983
)
1
551 983₽
Работа:336 035 ₽
Материалы:215 948 ₽
Дни:29
stdClass Object
(
[id] => 177
[attribute_id] => 3
[name] => Газосиликатный блок
[material_modifier] => 1
[work_modifier] => 1
[options] => Array
(
[0] => 300 мм
[1] => 375 мм
[2] => 400 мм
[3] => 500 мм
[4] => 600 мм
)
[days] => [29,31,35,37,44]
[material_price] => [4298,5573,6356,7288,9119]
[work_price] => [4538,5251,5926,6733,7195]
[image] => https://akademik-stroy.ru/wp-content/uploads/materials/gazosilikatnyj-blok.jpg
[area_modifier] => 33.35
[parent_name] => Стены 1 этаж (несущие)
[parent_id] => 3
[material_sum] => 344012
[work_sum] => 302685
[total_sum] => 646697
[total_days] => 29
[display_material_sum] => 344 012
[display_work_sum] => 302 685
[display_total_sum] => 646 697
)
1
646 697₽
Работа:302 685 ₽
Материалы:344 012 ₽
Дни:29
stdClass Object
(
[id] => 178
[attribute_id] => 3
[name] => Керамзитобетонный блок
[material_modifier] => 1
[work_modifier] => 1
[options] => Array
(
[0] => 300 мм
[1] => 375 мм
[2] => 400 мм
[3] => 500 мм
[4] => 600 мм
)
[days] => [23,23,24,25,28]
[material_price] => [3641,4298,5693,7613,9612]
[work_price] => [5737,5737,6903,7958,8901]
[image] => https://akademik-stroy.ru/wp-content/uploads/materials/keramzitobetonnyj-blok.jpg
[area_modifier] => 33.35
[parent_name] => Стены 1 этаж (несущие)
[parent_id] => 3
[material_sum] => 291426
[work_sum] => 382658
[total_sum] => 674084
[total_days] => 23
[display_material_sum] => 291 426
[display_work_sum] => 382 658
[display_total_sum] => 674 084
)
1
674 084₽
Работа:382 658 ₽
Материалы:291 426 ₽
Дни:23
stdClass Object
(
[id] => 179
[attribute_id] => 3
[name] => Деревянные
[material_modifier] => 1
[work_modifier] => 1
[options] => Array
(
[0] => 180 мм
[1] => 220 мм
[2] => 260 мм
[3] => 320 мм
)
[days] => [7,8,9,10]
[material_price] => [7950,9458,11961,14472]
[work_price] => [4037,4925,5812,7207]
[image] => https://akademik-stroy.ru/wp-content/uploads/materials/derevyannye.jpg
[area_modifier] => 33.35
[parent_name] => Стены 1 этаж (несущие)
[parent_id] => 3
[material_sum] => 636318
[work_sum] => 269268
[total_sum] => 905586
[total_days] => 7
[display_material_sum] => 636 318
[display_work_sum] => 269 268
[display_total_sum] => 905 586
)
1
905 586₽
Работа:269 268 ₽
Материалы:636 318 ₽
Дни:7
stdClass Object
(
[id] => 181
[attribute_id] => 3
[name] => Камень
[material_modifier] => 1
[work_modifier] => 1
[options] => Array
(
[0] => 300 мм
[1] => 400 мм
[2] => 500 мм
[3] => 600 мм
)
[days] => [25,27,31,34]
[material_price] => [5262,6844,8330,9815]
[work_price] => [8331,9135,10427,11069]
[image] => https://akademik-stroy.ru/wp-content/uploads/materials/kamen.jpg
[area_modifier] => 33.35
[parent_name] => Стены 1 этаж (несущие)
[parent_id] => 3
[material_sum] => 421170
[work_sum] => 555678
[total_sum] => 976848
[total_days] => 25
[display_material_sum] => 421 170
[display_work_sum] => 555 678
[display_total_sum] => 976 848
)
1
976 848₽
Работа:555 678 ₽
Материалы:421 170 ₽
Дни:25
stdClass Object
(
[id] => 182
[attribute_id] => 3
[name] => Каркасно-щитовые
[material_modifier] => 1
[work_modifier] => 1
[options] => Array
(
[0] => 150 мм
[1] => 200 мм
[2] => 250 мм
[3] => 300 мм
[4] => 350 мм
[5] => 400 мм
)
[days] => [15,16,17,18,19,20]
[material_price] => [2379,2639,2898,3458,3601,4175]
[work_price] => [2538,2820,3134,3483,4062,5642]
[image] => https://akademik-stroy.ru/wp-content/uploads/materials/karkasno-shchitovye.jpg
[area_modifier] => 33.35
[parent_name] => Стены 1 этаж (несущие)
[parent_id] => 3
[material_sum] => 190415
[work_sum] => 169285
[total_sum] => 359700
[total_days] => 15
[display_material_sum] => 190 415
[display_work_sum] => 169 285
[display_total_sum] => 359 700
)
1
359 700₽
Работа:169 285 ₽
Материалы:190 415 ₽
Дни:15
stdClass Object
(
[id] => 183
[attribute_id] => 3
[name] => Рубленные
[material_modifier] => 1
[work_modifier] => 1
[options] => Array
(
[0] => 150 мм
[1] => 200 мм
[2] => 250 мм
[3] => 300 мм
[4] => 350 мм
[5] => 400 мм
)
[days] => [15,16,17,18,17,18]
[material_price] => [35950,50267,60583,75900,80217,100533]
[work_price] => [9612,12816,16020,19224,22428,25632]
[image] => https://akademik-stroy.ru/wp-content/uploads/materials/rublennye.jpg
[area_modifier] => 33.35
[parent_name] => Стены 1 этаж (несущие)
[parent_id] => 3
[material_sum] => 2877438
[work_sum] => 641120
[total_sum] => 3518558
[total_days] => 15
[display_material_sum] => 2 877 438
[display_work_sum] => 641 120
[display_total_sum] => 3 518 558
)
1
3 518 558₽
Работа:641 120 ₽
Материалы:2 877 438 ₽
Дни:15
stdClass Object
(
[id] => 185
[attribute_id] => 3
[name] => Теплоблок
[material_modifier] => 1
[work_modifier] => 1
[options] => Array
(
[0] => 300 мм (с облицовкой, не покрашенный)
[1] => 400 мм (с облицовкой, не покрашенный)
[2] => 300 мм (с облицовкой, покрашенный)
[3] => 400 мм (с облицовкой, покрашенный)
)
[days] => [15,16,15,16]
[material_price] => [2888,3729,3957,4258]
[work_price] => [2564,3229,2949,3713]
[image] => https://akademik-stroy.ru/wp-content/uploads/materials/teploblok.jpg
[area_modifier] => 33.35
[parent_name] => Стены 1 этаж (несущие)
[parent_id] => 3
[material_sum] => 231156
[work_sum] => 171019
[total_sum] => 402175
[total_days] => 15
[display_material_sum] => 231 156
[display_work_sum] => 171 019
[display_total_sum] => 402 175
)
1
402 175₽
Работа:171 019 ₽
Материалы:231 156 ₽
Дни:15
stdClass Object
(
[id] => 186
[attribute_id] => 3
[name] => Арболитовые блоки
[material_modifier] => 1
[work_modifier] => 1
[options] => Array
(
[0] => 300 мм
[1] => 400 мм
[2] => 600 мм
)
[days] => [19,22,27]
[material_price] => [3210,4475,5852]
[work_price] => [4214,4788,5866]
[image] => https://akademik-stroy.ru/wp-content/uploads/materials/arbolitovye-bloki.png
[area_modifier] => 33.35
[parent_name] => Стены 1 этаж (несущие)
[parent_id] => 3
[material_sum] => 256928
[work_sum] => 281074
[total_sum] => 538002
[total_days] => 19
[display_material_sum] => 256 928
[display_work_sum] => 281 074
[display_total_sum] => 538 002
)
1
538 002₽
Работа:281 074 ₽
Материалы:256 928 ₽
Дни:19
stdClass Object
(
[id] => 187
[attribute_id] => 3
[name] => Полистиролбетон
[material_modifier] => 1
[work_modifier] => 1
[options] => Array
(
[0] => 300 мм
[1] => 400 мм
[2] => 600 мм
)
[days] => [29,31,35]
[material_price] => [2798,4573,5256]
[work_price] => [5038,5851,6426]
[image] => https://akademik-stroy.ru/wp-content/uploads/materials/polistirolbeton.jpg
[area_modifier] => 33.35
[parent_name] => Стены 1 этаж (несущие)
[parent_id] => 3
[material_sum] => 223952
[work_sum] => 336035
[total_sum] => 559987
[total_days] => 29
[display_material_sum] => 223 952
[display_work_sum] => 336 035
[display_total_sum] => 559 987
)
1
559 987₽
Работа:336 035 ₽
Материалы:223 952 ₽
Дни:29
stdClass Object
(
[id] => 188
[attribute_id] => 3
[name] => Шлакоблок
[material_modifier] => 1
[work_modifier] => 1
[options] => Array
(
[0] => 400 мм
[1] => 600 мм
)
[days] => [15,16]
[material_price] => [2391,3471]
[work_price] => [2642,3662]
[image] => https://akademik-stroy.ru/wp-content/uploads/materials/shlakoblok.jpg
[area_modifier] => 33.35
[parent_name] => Стены 1 этаж (несущие)
[parent_id] => 3
[material_sum] => 191376
[work_sum] => 176221
[total_sum] => 367597
[total_days] => 15
[display_material_sum] => 191 376
[display_work_sum] => 176 221
[display_total_sum] => 367 597
)
1
367 597₽
Работа:176 221 ₽
Материалы:191 376 ₽
Дни:15
stdClass Object
(
[id] => 189
[attribute_id] => 3
[name] => Теплая керамика
[material_modifier] => 1
[work_modifier] => 1
[options] => Array
(
[0] => 380 мм
[1] => 380 мм Thermo
[2] => 440 мм
[3] => 510 мм
)
[days] => [23,23,24,25]
[material_price] => [4510,5098,6093,8013]
[work_price] => [4737,4937,5903,6958]
[image] => https://akademik-stroy.ru/wp-content/uploads/materials/teplaya-keramika.jpg
[area_modifier] => 33.35
[parent_name] => Стены 1 этаж (несущие)
[parent_id] => 3
[material_sum] => 360980
[work_sum] => 315958
[total_sum] => 676938
[total_days] => 23
[display_material_sum] => 360 980
[display_work_sum] => 315 958
[display_total_sum] => 676 938
)
1
676 938₽
Работа:315 958 ₽
Материалы:360 980 ₽
Дни:23
stdClass Object
(
[id] => 190
[attribute_id] => 3
[name] => Несъемная опалубка
[material_modifier] => 1
[work_modifier] => 1
[options] => Array
(
[0] => 200 мм
[1] => 250 мм
[2] => 300 мм
[3] => 350 мм
)
[days] => [15,17,19,21]
[material_price] => [3302,3902,4108,5008]
[work_price] => [2100,2100,2300,2534]
[image] => https://akademik-stroy.ru/wp-content/uploads/materials/nesemnaya-opalubka.jpg
[area_modifier] => 33.35
[parent_name] => Стены 1 этаж (несущие)
[parent_id] => 3
[material_sum] => 264292
[work_sum] => 140070
[total_sum] => 404362
[total_days] => 15
[display_material_sum] => 264 292
[display_work_sum] => 140 070
[display_total_sum] => 404 362
)
1
404 362₽
Работа:140 070 ₽
Материалы:264 292 ₽
Дни:15
stdClass Object
(
[id] => 251
[attribute_id] => 3
[name] => Бревно
[material_modifier] => 1
[work_modifier] => 1
[options] => Array
(
[0] => 260 мм
[1] => 320 мм
[2] => 360 мм
[3] => 400 мм
[4] => 500 мм
)
[days] => [7,8,9,10,11]
[material_price] => [1874,24045,26930,30972,38825]
[work_price] => [5046,6207,6952,7716,9723]
[image] => https://akademik-stroy.ru/wp-content/uploads/materials/sruby.jpg
[area_modifier] => 33.35
[parent_name] => Стены 1 этаж (несущие)
[parent_id] => 3
[material_sum] => 149995
[work_sum] => 336568
[total_sum] => 486563
[total_days] => 7
[display_material_sum] => 149 995
[display_work_sum] => 336 568
[display_total_sum] => 486 563
)
1
486 563₽
Работа:336 568 ₽
Материалы:149 995 ₽
Дни:7
stdClass Object
(
[id] => 7
[attribute_id] => 4
[name] => Деревянные балки
[material_modifier] => 1
[work_modifier] => 1
[options] => Array
(
[0] => без утепления
[1] => утепление 200 мм
[2] => утепление 250 мм
[3] => утепление 300 мм
[4] => утепление 350 мм
[5] => утепление 400 мм
[6] => утепление 450 мм
[7] => утепление 500 мм
)
[days] => [8,9,9,9,11,12,13,14]
[material_price] => [1634,2042,2344,2947,3149,3652,3354,3557]
[work_price] => [1230,1339,1393,1426,1460,1513,1587,1620]
[image] => https://akademik-stroy.ru/wp-content/uploads/materials/derevyannye-balki.png
[area_modifier] => 33.35
[parent_name] => Перекрытие первого этажа
[parent_id] => 4
[material_sum] => 130785
[work_sum] => 82041
[total_sum] => 212826
[total_days] => 8
[display_material_sum] => 130 785
[display_work_sum] => 82 041
[display_total_sum] => 212 826
)
1
212 826₽
Работа:82 041 ₽
Материалы:130 785 ₽
Дни:8
stdClass Object
(
[id] => 8
[attribute_id] => 4
[name] => Сборные ж/б плиты
[material_modifier] => 1
[work_modifier] => 1
[options] => Array
(
[0] => без утепления
[1] => утепление 150 мм
[2] => утепление 200 мм
[3] => утепление 250 мм
[4] => утепление 300 мм
[5] => утепление 350 мм
[6] => утепление 400 мм
[7] => утепление 450 мм
[8] => утепление 500 мм
)
[days] => [13,15,15,15,15,15,15,15,15]
[material_price] => [3067,5577,5928,6679,7730,8782,9833,10884,11935]
[work_price] => [1520,1956,2102,2247,2392,2537,2684,2829,2974]
[image] => https://akademik-stroy.ru/wp-content/uploads/materials/sbornye-zh-b-plity-2.jpg
[area_modifier] => 33.35
[parent_name] => Перекрытие первого этажа
[parent_id] => 4
[material_sum] => 245483
[work_sum] => 101384
[total_sum] => 346867
[total_days] => 13
[display_material_sum] => 245 483
[display_work_sum] => 101 384
[display_total_sum] => 346 867
)
1
346 867₽
Работа:101 384 ₽
Материалы:245 483 ₽
Дни:13
stdClass Object
(
[id] => 89
[attribute_id] => 4
[name] => Монолитная ж/б плита
[material_modifier] => 1
[work_modifier] => 1
[options] => Array
(
[0] => без утепления
[1] => утепление 150 мм
[2] => утепление 200 мм
[3] => утепление 250 мм
[4] => утепление 300 мм
[5] => утепление 350 мм
[6] => утепление 400 мм
[7] => утепление 450 мм
[8] => утепление 500 мм
)
[days] => [18,20,20,20,20,20,20,20,20]
[material_price] => [4837,6572,7224,7375,79426,8177,8728,9180,10031]
[work_price] => [3348,3921,4112,4302,4493,4684,4875,5066,5256]
[image] => https://akademik-stroy.ru/wp-content/uploads/materials/monolitnaya-zh-b-plita-2.jpg
[area_modifier] => 33.35
[parent_name] => Перекрытие первого этажа
[parent_id] => 4
[material_sum] => 387153
[work_sum] => 223312
[total_sum] => 610465
[total_days] => 18
[display_material_sum] => 387 153
[display_work_sum] => 223 312
[display_total_sum] => 610 465
)
1
610 465₽
Работа:223 312 ₽
Материалы:387 153 ₽
Дни:18
stdClass Object
(
[id] => 164
[attribute_id] => 37
[name] => Металлочерепица
[material_modifier] => 1
[work_modifier] => 1
[options] => Array
(
)
[days] => [20]
[material_price] => [6112]
[work_price] => [5726]
[image] => https://akademik-stroy.ru/wp-content/uploads/materials/metallocherepica.jpg
[area_modifier] => 33.35
[parent_name] => Крыша (Скатная)
[parent_id] => 37
[material_sum] => 489204
[work_sum] => 381924
[total_sum] => 871128
[total_days] => 20
[display_material_sum] => 489 204
[display_work_sum] => 381 924
[display_total_sum] => 871 128
)
1
871 128₽
Работа:381 924 ₽
Материалы:489 204 ₽
Дни:20
stdClass Object
(
[id] => 165
[attribute_id] => 37
[name] => Гибкая черепица
[material_modifier] => 1
[work_modifier] => 1
[options] => Array
(
)
[days] => [20]
[material_price] => [6980]
[work_price] => [5950]
[image] => https://akademik-stroy.ru/wp-content/uploads/materials/gibkaya-cherepica.jpg
[area_modifier] => 33.35
[parent_name] => Крыша (Скатная)
[parent_id] => 37
[material_sum] => 558679
[work_sum] => 396865
[total_sum] => 955544
[total_days] => 20
[display_material_sum] => 558 679
[display_work_sum] => 396 865
[display_total_sum] => 955 544
)
1
955 544₽
Работа:396 865 ₽
Материалы:558 679 ₽
Дни:20
stdClass Object
(
[id] => 166
[attribute_id] => 37
[name] => Цементно-песчаная черепица
[material_modifier] => 1
[work_modifier] => 1
[options] => Array
(
)
[days] => [20]
[material_price] => [10560]
[work_price] => [9456]
[image] => https://akademik-stroy.ru/wp-content/uploads/materials/cementno-peschanaya-cherepica.jpg
[area_modifier] => 33.35
[parent_name] => Крыша (Скатная)
[parent_id] => 37
[material_sum] => 845222
[work_sum] => 630715
[total_sum] => 1475937
[total_days] => 20
[display_material_sum] => 845 222
[display_work_sum] => 630 715
[display_total_sum] => 1 475 937
)
1
1 475 937₽
Работа:630 715 ₽
Материалы:845 222 ₽
Дни:20
stdClass Object
(
[id] => 167
[attribute_id] => 37
[name] => Композитная черепица
[material_modifier] => 1
[work_modifier] => 1
[options] => Array
(
)
[days] => [20]
[material_price] => [9506]
[work_price] => [8905]
[image] => https://akademik-stroy.ru/wp-content/uploads/materials/kompozitnaya-cherepica.jpg
[area_modifier] => 33.35
[parent_name] => Крыша (Скатная)
[parent_id] => 37
[material_sum] => 760860
[work_sum] => 593964
[total_sum] => 1354824
[total_days] => 20
[display_material_sum] => 760 860
[display_work_sum] => 593 964
[display_total_sum] => 1 354 824
)
1
1 354 824₽
Работа:593 964 ₽
Материалы:760 860 ₽
Дни:20
stdClass Object
(
[id] => 168
[attribute_id] => 37
[name] => Керамическая черепица
[material_modifier] => 1
[work_modifier] => 1
[options] => Array
(
)
[days] => [20]
[material_price] => [12750]
[work_price] => [9456]
[image] => https://akademik-stroy.ru/wp-content/uploads/materials/keramicheskaya-cherepica.jpg
[area_modifier] => 33.35
[parent_name] => Крыша (Скатная)
[parent_id] => 37
[material_sum] => 1020510
[work_sum] => 630715
[total_sum] => 1651225
[total_days] => 20
[display_material_sum] => 1 020 510
[display_work_sum] => 630 715
[display_total_sum] => 1 651 225
)
1
1 651 225₽
Работа:630 715 ₽
Материалы:1 020 510 ₽
Дни:20
stdClass Object
(
[id] => 169
[attribute_id] => 37
[name] => Металлическая фальцевая
[material_modifier] => 1
[work_modifier] => 1
[options] => Array
(
)
[days] => [20]
[material_price] => [8550]
[work_price] => [8190]
[image] => https://akademik-stroy.ru/wp-content/uploads/materials/metallicheskaya-falcevaya.jpg
[area_modifier] => 33.35
[parent_name] => Крыша (Скатная)
[parent_id] => 37
[material_sum] => 684342
[work_sum] => 546273
[total_sum] => 1230615
[total_days] => 20
[display_material_sum] => 684 342
[display_work_sum] => 546 273
[display_total_sum] => 1 230 615
)
1
1 230 615₽
Работа:546 273 ₽
Материалы:684 342 ₽
Дни:20
stdClass Object
(
[id] => 170
[attribute_id] => 37
[name] => Медная фальцевая
[material_modifier] => 1
[work_modifier] => 1
[options] => Array
(
)
[days] => [20]
[material_price] => [20450]
[work_price] => [16750]
[image] => https://akademik-stroy.ru/wp-content/uploads/materials/mednaya-falcevaya.jpg
[area_modifier] => 33.35
[parent_name] => Крыша (Скатная)
[parent_id] => 37
[material_sum] => 1636818
[work_sum] => 1117225
[total_sum] => 2754043
[total_days] => 20
[display_material_sum] => 1 636 818
[display_work_sum] => 1 117 225
[display_total_sum] => 2 754 043
)
1
2 754 043₽
Работа:1 117 225 ₽
Материалы:1 636 818 ₽
Дни:20
stdClass Object
(
[id] => 171
[attribute_id] => 37
[name] => Зеленая кровля
[material_modifier] => 1
[work_modifier] => 1
[options] => Array
(
)
[days] => [20]
[material_price] => [19850]
[work_price] => [16780]
[image] => https://akademik-stroy.ru/wp-content/uploads/materials/zelenaya-krovlya.jpg
[area_modifier] => 33.35
[parent_name] => Крыша (Скатная)
[parent_id] => 37
[material_sum] => 1588794
[work_sum] => 1119226
[total_sum] => 2708020
[total_days] => 20
[display_material_sum] => 1 588 794
[display_work_sum] => 1 119 226
[display_total_sum] => 2 708 020
)
1
2 708 020₽
Работа:1 119 226 ₽
Материалы:1 588 794 ₽
Дни:20
stdClass Object
(
[id] => 172
[attribute_id] => 37
[name] => Профлист
[material_modifier] => 1
[work_modifier] => 1
[options] => Array
(
)
[days] => [20]
[material_price] => [3450]
[work_price] => [3750]
[image] => https://akademik-stroy.ru/wp-content/uploads/materials/proflist.jpg
[area_modifier] => 33.35
[parent_name] => Крыша (Скатная)
[parent_id] => 37
[material_sum] => 276138
[work_sum] => 250125
[total_sum] => 526263
[total_days] => 20
[display_material_sum] => 276 138
[display_work_sum] => 250 125
[display_total_sum] => 526 263
)
1
526 263₽
Работа:250 125 ₽
Материалы:276 138 ₽
Дни:20
stdClass Object
(
[id] => 51
[attribute_id] => 26
[name] => Есть
[material_modifier] => 1
[work_modifier] => 1
[options] => Array
(
[0] => Профиль 58 мм, 3-камерный, стеклопакет 2-камерный до 32 мм
[1] => Профиль 60 мм, 4-камерный, стеклопакет 2-камерный до 32 мм
[2] => Профиль 70 мм, 5-камерный, стеклопакет 2-камерный до 40 мм
[3] => Профиль 72 мм, 5-камерный, стеклопакет 2-камерный до 40 мм
[4] => Алюминиевые окна Alutech профиль 72 мм, стеклопакет 2-камерный
)
[days] => [3,3,3,3,3]
[material_price] => [1339,2124,2867,3023,29596]
[work_price] => [635,647,659,668,2579]
[image] => https://akademik-stroy.ru/wp-content/uploads/materials/okna.jpg
[area_modifier] => 27.06
[parent_name] => Окна
[parent_id] => 26
[material_sum] => 86960
[work_sum] => 34366
[total_sum] => 121326
[total_days] => 3
[display_material_sum] => 86 960
[display_work_sum] => 34 366
[display_total_sum] => 121 326
)
1
121 326₽
Работа:34 366 ₽
Материалы:86 960 ₽
Дни:3
stdClass Object
(
[id] => 52
[attribute_id] => 26
[name] => Нет
[material_modifier] => 2
[work_modifier] => 1
[options] =>
[days] => null
[material_price] => null
[work_price] => null
[image] => https://akademik-stroy.ru/wp-content/uploads/materials/okna.jpg
[area_modifier] => 27.06
[parent_name] => Окна
[parent_id] => 26
[material_sum] => 0
[work_sum] => 0
[total_sum] => 0
[total_days] => 0
[display_material_sum] => 0
[display_work_sum] => 0
[display_total_sum] => 0
)
1
0₽
Работа:0 ₽
Материалы:0 ₽
Дни:0
stdClass Object
(
[id] => 53
[attribute_id] => 27
[name] => Есть
[material_modifier] => 1
[work_modifier] => 1
[options] => Array
(
)
[days] => [1]
[material_price] => [10000]
[work_price] => [5500]
[image] => https://akademik-stroy.ru/wp-content/uploads/materials/dveri.jpg
[area_modifier] => 1
[parent_name] => Двери входные
[parent_id] => 27
[material_sum] => 24000
[work_sum] => 11000
[total_sum] => 35000
[total_days] => 1
[display_material_sum] => 24 000
[display_work_sum] => 11 000
[display_total_sum] => 35 000
)
1
35 000₽
Работа:11 000 ₽
Материалы:24 000 ₽
Дни:1
stdClass Object
(
[id] => 54
[attribute_id] => 27
[name] => Нет
[material_modifier] => 1
[work_modifier] => 1
[options] => Array
(
)
[days] => [0]
[material_price] => [0]
[work_price] => [0]
[image] => https://akademik-stroy.ru/wp-content/uploads/materials/dveri.jpg
[area_modifier] => 1
[parent_name] => Двери входные
[parent_id] => 27
[material_sum] => 0
[work_sum] => 0
[total_sum] => 0
[total_days] => 0
[display_material_sum] => 0
[display_work_sum] => 0
[display_total_sum] => 0
)
1
0₽
Работа:0 ₽
Материалы:0 ₽
Дни:0
stdClass Object
(
[id] => 25
[attribute_id] => 13
[name] => Нет
[material_modifier] => 1
[work_modifier] => 1
[options] => Array
(
)
[days] => [0]
[material_price] => [0]
[work_price] => [0]
[image] => https://akademik-stroy.ru/wp-content/uploads/materials/mineralovata-krov.jpg
[area_modifier] => 33.35
[parent_name] => Утепление кровли (Мансарда)
[parent_id] => 13
[material_sum] => 0
[work_sum] => 0
[total_sum] => 0
[total_days] => 0
[display_material_sum] => 0
[display_work_sum] => 0
[display_total_sum] => 0
)
1
0₽
Работа:0 ₽
Материалы:0 ₽
Дни:0
stdClass Object
(
[id] => 26
[attribute_id] => 13
[name] => Минераловатный
[material_modifier] => 1
[work_modifier] => 1
[options] => Array
(
[0] => 50 мм
[1] => 100 мм
[2] => 150 мм
[3] => 200 мм
[4] => 250 мм
[5] => 300 мм
[6] => 350 мм
[7] => 400 мм
[8] => 450 мм
[9] => 500 мм
)
[days] => [5,5,6,6,6,7,7,7,8,8]
[material_price] => [1158,1414,1772,2230,3602,4060,4974,5890,6408,7718]
[work_price] => [650,846,846,1098,1318,1450,1596,1754,1930,2122]
[image] => https://akademik-stroy.ru/wp-content/uploads/materials/mineralovata-krov.jpg
[area_modifier] => 33.35
[parent_name] => Утепление кровли (Мансарда)
[parent_id] => 13
[material_sum] => 92686
[work_sum] => 43355
[total_sum] => 136041
[total_days] => 5
[display_material_sum] => 92 686
[display_work_sum] => 43 355
[display_total_sum] => 136 041
)
1
136 041₽
Работа:43 355 ₽
Материалы:92 686 ₽
Дни:5
stdClass Object
(
[id] => 123
[attribute_id] => 13
[name] => Эковата (целлюлозная вата)
[material_modifier] => 1
[work_modifier] => 1
[options] => Array
(
[0] => 50 мм
[1] => 100 мм
[2] => 150 мм
[3] => 200 мм
[4] => 250 мм
[5] => 300 мм
[6] => 350 мм
[7] => 400 мм
[8] => 450 мм
[9] => 500 мм
)
[days] => [3,3,4,4,4,5,5,5,5,5]
[material_price] => [820,1638,2458,3276,5734,6552,8190,9828,11466,13104]
[work_price] => [234,304,304,396,474,522,574,632,694,764]
[image] => https://akademik-stroy.ru/wp-content/uploads/materials/ehkovata-krov.jpg
[area_modifier] => 33.35
[parent_name] => Утепление кровли (Мансарда)
[parent_id] => 13
[material_sum] => 65633
[work_sum] => 15608
[total_sum] => 81241
[total_days] => 3
[display_material_sum] => 65 633
[display_work_sum] => 15 608
[display_total_sum] => 81 241
)
1
81 241₽
Работа:15 608 ₽
Материалы:65 633 ₽
Дни:3
stdClass Object
(
[id] => 124
[attribute_id] => 13
[name] => Экструдированный пенополистирол
[material_modifier] => 1
[work_modifier] => 1
[options] => Array
(
[0] => 50 мм
[1] => 100 мм
[2] => 150 мм
[3] => 200 мм
[4] => 250 мм
[5] => 300 мм
[6] => 350 мм
[7] => 400 мм
[8] => 450 мм
[9] => 500 мм
)
[days] => [3,3,4,4,4,5,5,5,5,6]
[material_price] => [1146,2292,3438,4584,8020,9166,11458,13750,16040,18332]
[work_price] => [390,508,508,660,790,870,958,1052,1158,1274]
[image] => https://akademik-stroy.ru/wp-content/uploads/materials/epps-krov.jpg
[area_modifier] => 33.35
[parent_name] => Утепление кровли (Мансарда)
[parent_id] => 13
[material_sum] => 91726
[work_sum] => 26013
[total_sum] => 117739
[total_days] => 3
[display_material_sum] => 91 726
[display_work_sum] => 26 013
[display_total_sum] => 117 739
)
1
117 739₽
Работа:26 013 ₽
Материалы:91 726 ₽
Дни:3
stdClass Object
(
[id] => 125
[attribute_id] => 13
[name] => ПСБ (ППС-пенополистирол)
[material_modifier] => 1
[work_modifier] => 1
[options] => Array
(
[0] => 50 мм
[1] => 100 мм
[2] => 150 мм
[3] => 200 мм
[4] => 250 мм
[5] => 300 мм
[6] => 350 мм
[7] => 400 мм
[8] => 450 мм
[9] => 500 мм
)
[days] => [3,3,4,4,4,5,5,5,5,6]
[material_price] => [476,954,1430,1906,3336,3814,4766,5720,6674,7626]
[work_price] => [390,508,508,660,790,870,958,1052,1158,1274]
[image] => https://akademik-stroy.ru/wp-content/uploads/materials/psb-krov.jpg
[area_modifier] => 33.35
[parent_name] => Утепление кровли (Мансарда)
[parent_id] => 13
[material_sum] => 38099
[work_sum] => 26013
[total_sum] => 64112
[total_days] => 3
[display_material_sum] => 38 099
[display_work_sum] => 26 013
[display_total_sum] => 64 112
)
1
64 112₽
Работа:26 013 ₽
Материалы:38 099 ₽
Дни:3
stdClass Object
(
[id] => 126
[attribute_id] => 13
[name] => ППУ (Пенополиуретан)
[material_modifier] => 1
[work_modifier] => 1
[options] => Array
(
[0] => 50 мм
[1] => 100 мм
[2] => 150 мм
[3] => 200 мм
[4] => 250 мм
[5] => 300 мм
[6] => 350 мм
[7] => 400 мм
[8] => 450 мм
[9] => 500 мм
)
[days] => [2,2,3,3,3,3,4,4,4,4]
[material_price] => [2080,4160,6240,8320,14560,16640,20800,24960,29120,33280]
[work_price] => [234,304,304,396,474,522,574,632,694,764]
[image] => https://akademik-stroy.ru/wp-content/uploads/materials/ppu-krov.jpg
[area_modifier] => 33.35
[parent_name] => Утепление кровли (Мансарда)
[parent_id] => 13
[material_sum] => 166483
[work_sum] => 15608
[total_sum] => 182091
[total_days] => 2
[display_material_sum] => 166 483
[display_work_sum] => 15 608
[display_total_sum] => 182 091
)
1
182 091₽
Работа:15 608 ₽
Материалы:166 483 ₽
Дни:2
stdClass Object
(
[id] => 127
[attribute_id] => 13
[name] => PIR-плиты (пенополиизоцианурат)
[material_modifier] => 1
[work_modifier] => 1
[options] => Array
(
[0] => 50 мм
[1] => 100 мм
[2] => 150 мм
[3] => 200 мм
[4] => 250 мм
[5] => 300 мм
[6] => 350 мм
[7] => 400 мм
[8] => 450 мм
[9] => 500 мм
)
[days] => [3,3,4,4,4,5,5,5,5,6]
[material_price] => [2646,5290,7936,10580,18516,21162,26452,31742,37032,42324]
[work_price] => [390,508,508,660,790,870,958,1052,1158,1274]
[image] => https://akademik-stroy.ru/wp-content/uploads/materials/pir-krov.jpg
[area_modifier] => 33.35
[parent_name] => Утепление кровли (Мансарда)
[parent_id] => 13
[material_sum] => 211786
[work_sum] => 26013
[total_sum] => 237799
[total_days] => 3
[display_material_sum] => 211 786
[display_work_sum] => 26 013
[display_total_sum] => 237 799
)
1
237 799₽
Работа:26 013 ₽
Материалы:211 786 ₽
Дни:3
stdClass Object
(
[id] => 27
[attribute_id] => 14
[name] => Нет
[material_modifier] => 1
[work_modifier] => 1
[options] => Array
(
)
[days] => [0]
[material_price] => [0]
[work_price] => [0]
[image] => https://akademik-stroy.ru/wp-content/uploads/materials/mansardnye-okna-2.jpg
[area_modifier] => 1
[parent_name] => Мансардные окна
[parent_id] => 14
[material_sum] => 0
[work_sum] => 0
[total_sum] => 0
[total_days] => 0
[display_material_sum] => 0
[display_work_sum] => 0
[display_total_sum] => 0
)
1
0₽
Работа:0 ₽
Материалы:0 ₽
Дни:0
stdClass Object
(
[id] => 28
[attribute_id] => 14
[name] => Есть
[material_modifier] => 1
[work_modifier] => 1
[options] => Array
(
[0] => 55x78
[1] => 55x98
)
[days] => [6,7]
[material_price] => [47480,68700]
[work_price] => [17900,19500]
[image] => https://akademik-stroy.ru/wp-content/uploads/materials/mansardnye-okna-2.jpg
[area_modifier] => 1
[parent_name] => Мансардные окна
[parent_id] => 14
[material_sum] => 113952
[work_sum] => 35800
[total_sum] => 149752
[total_days] => 6
[display_material_sum] => 113 952
[display_work_sum] => 35 800
[display_total_sum] => 149 752
)
1
149 752₽
Работа:35 800 ₽
Материалы:113 952 ₽
Дни:6
stdClass Object
(
[id] => 29
[attribute_id] => 15
[name] => Нет
[material_modifier] => 1
[work_modifier] => 1
[options] => Array
(
)
[days] => [0]
[material_price] => [0]
[work_price] => [0]
[image] => https://akademik-stroy.ru/wp-content/uploads/materials/sofit.jpg
[area_modifier] => 33.35
[parent_name] => Подшивка кровли
[parent_id] => 15
[material_sum] => 0
[work_sum] => 0
[total_sum] => 0
[total_days] => 0
[display_material_sum] => 0
[display_work_sum] => 0
[display_total_sum] => 0
)
1
0₽
Работа:0 ₽
Материалы:0 ₽
Дни:0
stdClass Object
(
[id] => 30
[attribute_id] => 15
[name] => Есть
[material_modifier] => 1
[work_modifier] => 1
[options] => Array
(
[0] => Софиты (ПВХ)
[1] => Cedral
[2] => ДПК
[3] => Планкен
)
[days] => [7,10,9,8]
[material_price] => [1803,3213,3025,3150]
[work_price] => [1529,2188,2075,1923]
[image] => https://akademik-stroy.ru/wp-content/uploads/materials/sofit.jpg
[area_modifier] => 33.35
[parent_name] => Подшивка кровли
[parent_id] => 15
[material_sum] => 144312
[work_sum] => 101984
[total_sum] => 246296
[total_days] => 7
[display_material_sum] => 144 312
[display_work_sum] => 101 984
[display_total_sum] => 246 296
)
1
246 296₽
Работа:101 984 ₽
Материалы:144 312 ₽
Дни:7
stdClass Object
(
[id] => 31
[attribute_id] => 16
[name] => Нет
[material_modifier] => 1
[work_modifier] => 1
[options] => Array
(
)
[days] => [0]
[material_price] => [0]
[work_price] => [0]
[image] => https://akademik-stroy.ru/wp-content/uploads/materials/docke-standard-pvh.jpg
[area_modifier] => 33.35
[parent_name] => Водосточная система
[parent_id] => 16
[material_sum] => 0
[work_sum] => 0
[total_sum] => 0
[total_days] => 0
[display_material_sum] => 0
[display_work_sum] => 0
[display_total_sum] => 0
)
1
0₽
Работа:0 ₽
Материалы:0 ₽
Дни:0
stdClass Object
(
[id] => 32
[attribute_id] => 16
[name] => Есть
[material_modifier] => 1
[work_modifier] => 1
[options] => Array
(
[0] => Döcke Standard (ПВХ)
[1] => Металлические Grand Line
)
[days] => [7,7]
[material_price] => [1842,2703]
[work_price] => [1491,1529]
[image] => https://akademik-stroy.ru/wp-content/uploads/materials/docke-standard-pvh.jpg
[area_modifier] => 33.35
[parent_name] => Водосточная система
[parent_id] => 16
[material_sum] => 147434
[work_sum] => 99450
[total_sum] => 246884
[total_days] => 7
[display_material_sum] => 147 434
[display_work_sum] => 99 450
[display_total_sum] => 246 884
)
1
246 884₽
Работа:99 450 ₽
Материалы:147 434 ₽
Дни:7
stdClass Object
(
[id] => 33
[attribute_id] => 17
[name] => Нет
[material_modifier] => 1
[work_modifier] => 1
[options] => Array
(
)
[days] => [0]
[material_price] => [0]
[work_price] => [0]
[image] => https://akademik-stroy.ru/wp-content/uploads/materials/mineralovata.jpg
[area_modifier] => 33.35
[parent_name] => Дополнительное утепление наружных стен
[parent_id] => 17
[material_sum] => 0
[work_sum] => 0
[total_sum] => 0
[total_days] => 0
[display_material_sum] => 0
[display_work_sum] => 0
[display_total_sum] => 0
)
1
0₽
Работа:0 ₽
Материалы:0 ₽
Дни:0
stdClass Object
(
[id] => 34
[attribute_id] => 17
[name] => Минераловатный
[material_modifier] => 1
[work_modifier] => 1
[options] => Array
(
[0] => 50 мм
[1] => 100 мм
[2] => 150 мм
[3] => 200 мм
[4] => 250 мм
[5] => 300 мм
)
[days] => [7,8,10,12,14,15]
[material_price] => [3437,3613,3803,3915,4601,4830]
[work_price] => [2325,2423,2523,2749,2859,3025]
[image] => https://akademik-stroy.ru/wp-content/uploads/materials/mineralovata.jpg
[area_modifier] => 33.35
[parent_name] => Дополнительное утепление наружных стен
[parent_id] => 17
[material_sum] => 275097
[work_sum] => 155078
[total_sum] => 430175
[total_days] => 7
[display_material_sum] => 275 097
[display_work_sum] => 155 078
[display_total_sum] => 430 175
)
1
430 175₽
Работа:155 078 ₽
Материалы:275 097 ₽
Дни:7
stdClass Object
(
[id] => 128
[attribute_id] => 17
[name] => Эковата (целлюлозная вата)
[material_modifier] => 1
[work_modifier] => 1
[options] => Array
(
[0] => 50 мм
[1] => 100 мм
[2] => 150 мм
[3] => 200 мм
[4] => 250 мм
[5] => 300 мм
)
[days] => [3,4,5,6,7,8]
[material_price] => [810,1319,1629,1838,2267,2676]
[work_price] => [1225,1323,1423,1549,1659,1725]
[image] => https://akademik-stroy.ru/wp-content/uploads/materials/ehkovata.jpg
[area_modifier] => 33.35
[parent_name] => Дополнительное утепление наружных стен
[parent_id] => 17
[material_sum] => 64832
[work_sum] => 81708
[total_sum] => 146540
[total_days] => 3
[display_material_sum] => 64 832
[display_work_sum] => 81 708
[display_total_sum] => 146 540
)
1
146 540₽
Работа:81 708 ₽
Материалы:64 832 ₽
Дни:3
stdClass Object
(
[id] => 129
[attribute_id] => 17
[name] => Экструдированный пенополистирол
[material_modifier] => 1
[work_modifier] => 1
[options] => Array
(
[0] => 50 мм
[1] => 100 мм
[2] => 150 мм
[3] => 200 мм
[4] => 250 мм
[5] => 300 мм
)
[days] => [5,6,7,8,9,10]
[material_price] => [4560,4300,5119,6292,7010,8583]
[work_price] => [1795,1954,2254,2330,2595,2735]
[image] => https://akademik-stroy.ru/wp-content/uploads/materials/epps.jpg
[area_modifier] => 33.35
[parent_name] => Дополнительное утепление наружных стен
[parent_id] => 17
[material_sum] => 364982
[work_sum] => 119727
[total_sum] => 484709
[total_days] => 5
[display_material_sum] => 364 982
[display_work_sum] => 119 727
[display_total_sum] => 484 709
)
1
484 709₽
Работа:119 727 ₽
Материалы:364 982 ₽
Дни:5
stdClass Object
(
[id] => 130
[attribute_id] => 17
[name] => ПСБ (ППС-пенополистирол)
[material_modifier] => 1
[work_modifier] => 1
[options] => Array
(
[0] => 50 мм
[1] => 100 мм
[2] => 150 мм
[3] => 200 мм
[4] => 250 мм
[5] => 300 мм
)
[days] => [5,6,7,8,9,10]
[material_price] => [4822,5200,5819,6292,7010,7583]
[work_price] => [1795,1954,2254,2330,2595,2735]
[image] => https://akademik-stroy.ru/wp-content/uploads/materials/psb.jpg
[area_modifier] => 33.35
[parent_name] => Дополнительное утепление наружных стен
[parent_id] => 17
[material_sum] => 385953
[work_sum] => 119727
[total_sum] => 505680
[total_days] => 5
[display_material_sum] => 385 953
[display_work_sum] => 119 727
[display_total_sum] => 505 680
)
1
505 680₽
Работа:119 727 ₽
Материалы:385 953 ₽
Дни:5
stdClass Object
(
[id] => 131
[attribute_id] => 17
[name] => ППУ (Пенополиуретан)
[material_modifier] => 1
[work_modifier] => 1
[options] => Array
(
[0] => 50 мм
[1] => 100 мм
[2] => 150 мм
[3] => 200 мм
[4] => 250 мм
[5] => 300 мм
)
[days] => [3,4,5,6,7,8]
[material_price] => [2860,3400,4219,4592,5010,5583]
[work_price] => [729,900,980,1120,1280,1530]
[image] => https://akademik-stroy.ru/wp-content/uploads/materials/ppu.jpg
[area_modifier] => 33.35
[parent_name] => Дополнительное утепление наружных стен
[parent_id] => 17
[material_sum] => 228914
[work_sum] => 48624
[total_sum] => 277538
[total_days] => 3
[display_material_sum] => 228 914
[display_work_sum] => 48 624
[display_total_sum] => 277 538
)
1
277 538₽
Работа:48 624 ₽
Материалы:228 914 ₽
Дни:3
stdClass Object
(
[id] => 132
[attribute_id] => 17
[name] => PIR-плиты (пенополиизоцианурат)
[material_modifier] => 1
[work_modifier] => 1
[options] => Array
(
[0] => 50 мм
[1] => 100 мм
[2] => 150 мм
[3] => 200 мм
[4] => 250 мм
[5] => 300 мм
)
[days] => [5,6,7,8,9,10]
[material_price] => [8323,15645,20968,25900,29258,30581]
[work_price] => [800,900,970,1150,1280,1330]
[image] => https://akademik-stroy.ru/wp-content/uploads/materials/pir.jpg
[area_modifier] => 33.35
[parent_name] => Дополнительное утепление наружных стен
[parent_id] => 17
[material_sum] => 666173
[work_sum] => 53360
[total_sum] => 719533
[total_days] => 5
[display_material_sum] => 666 173
[display_work_sum] => 53 360
[display_total_sum] => 719 533
)
1
719 533₽
Работа:53 360 ₽
Материалы:666 173 ₽
Дни:5
stdClass Object
(
[id] => 37
[attribute_id] => 19
[name] => Нет
[material_modifier] => 1
[work_modifier] => 1
[options] => Array
(
)
[days] => [0]
[material_price] => [0]
[work_price] => [0]
[image] => https://akademik-stroy.ru/wp-content/uploads/materials/imitaciya-brusa.jpg
[area_modifier] => 33.35
[parent_name] => Наружная отделка фасада
[parent_id] => 19
[material_sum] => 0
[work_sum] => 0
[total_sum] => 0
[total_days] => 0
[display_material_sum] => 0
[display_work_sum] => 0
[display_total_sum] => 0
)
1
0₽
Работа:0 ₽
Материалы:0 ₽
Дни:0
stdClass Object
(
[id] => 38
[attribute_id] => 19
[name] => Имитация бруса
[material_modifier] => 1
[work_modifier] => 1
[options] => Array
(
[0] => Сосна
[1] => Ель
[2] => Лиственница
)
[days] => [20,20,20]
[material_price] => [2994,2762,4954]
[work_price] => [1397,1231,1577]
[image] => https://akademik-stroy.ru/wp-content/uploads/materials/imitaciya-brusa.jpg
[area_modifier] => 33.35
[parent_name] => Наружная отделка фасада
[parent_id] => 19
[material_sum] => 239640
[work_sum] => 93180
[total_sum] => 332820
[total_days] => 20
[display_material_sum] => 239 640
[display_work_sum] => 93 180
[display_total_sum] => 332 820
)
1
332 820₽
Работа:93 180 ₽
Материалы:239 640 ₽
Дни:20
stdClass Object
(
[id] => 136
[attribute_id] => 19
[name] => Планкен
[material_modifier] => 1
[work_modifier] => 1
[options] => Array
(
[0] => Сосна
[1] => Ель
[2] => Лиственница
)
[days] => [20,20,20]
[material_price] => [3194,2862,5154]
[work_price] => [1537,1354,1735]
[image] => https://akademik-stroy.ru/wp-content/uploads/materials/planken.jpg
[area_modifier] => 33.35
[parent_name] => Наружная отделка фасада
[parent_id] => 19
[material_sum] => 255648
[work_sum] => 102518
[total_sum] => 358166
[total_days] => 20
[display_material_sum] => 255 648
[display_work_sum] => 102 518
[display_total_sum] => 358 166
)
1
358 166₽
Работа:102 518 ₽
Материалы:255 648 ₽
Дни:20
stdClass Object
(
[id] => 137
[attribute_id] => 19
[name] => Штукатурка
[material_modifier] => 1
[work_modifier] => 1
[options] => Array
(
[0] => Цементно-песчаная (минеральная)
[1] => Мокрый фасад
)
[days] => [35,35]
[material_price] => [2231,3938]
[work_price] => [1202,2422]
[image] => https://akademik-stroy.ru/wp-content/uploads/materials/shtukaturka.jpg
[area_modifier] => 33.35
[parent_name] => Наружная отделка фасада
[parent_id] => 19
[material_sum] => 178569
[work_sum] => 80173
[total_sum] => 258742
[total_days] => 35
[display_material_sum] => 178 569
[display_work_sum] => 80 173
[display_total_sum] => 258 742
)
1
258 742₽
Работа:80 173 ₽
Материалы:178 569 ₽
Дни:35
stdClass Object
(
[id] => 138
[attribute_id] => 19
[name] => Облицовочный кирпич
[material_modifier] => 1
[work_modifier] => 1
[options] => Array
(
[0] => Керамический
[1] => Клинкерный
[2] => Ручной формовки
[3] => Гиперпрессованный
[4] => Силикатный кирпич
)
[days] => [45,45,45,45,45]
[material_price] => [8174,9148,1040,1257,5876]
[work_price] => [3240,3758,4536,4017,3369]
[image] => https://akademik-stroy.ru/wp-content/uploads/materials/oblicovochnyj-kirpich.jpg
[area_modifier] => 33.35
[parent_name] => Наружная отделка фасада
[parent_id] => 19
[material_sum] => 654247
[work_sum] => 216108
[total_sum] => 870355
[total_days] => 45
[display_material_sum] => 654 247
[display_work_sum] => 216 108
[display_total_sum] => 870 355
)
1
870 355₽
Работа:216 108 ₽
Материалы:654 247 ₽
Дни:45
stdClass Object
(
[id] => 139
[attribute_id] => 19
[name] => Фасадная плитка
[material_modifier] => 1
[work_modifier] => 1
[options] => Array
(
[0] => Клинкерная
[1] => Керамическая
[2] => Плитка ручной формовки
)
[days] => [40,40,40]
[material_price] => [2974,1487,3470]
[work_price] => [3007,2592,3629]
[image] => https://akademik-stroy.ru/wp-content/uploads/materials/fasadnaya-plitka.jpg
[area_modifier] => 33.35
[parent_name] => Наружная отделка фасада
[parent_id] => 19
[material_sum] => 238039
[work_sum] => 200567
[total_sum] => 438606
[total_days] => 40
[display_material_sum] => 238 039
[display_work_sum] => 200 567
[display_total_sum] => 438 606
)
1
438 606₽
Работа:200 567 ₽
Материалы:238 039 ₽
Дни:40
stdClass Object
(
[id] => 140
[attribute_id] => 19
[name] => Сайдинг
[material_modifier] => 1
[work_modifier] => 1
[options] => Array
(
[0] => Виниловый
[1] => Металлический
[2] => Фиброцементный
)
[days] => [20,20,20]
[material_price] => [1263,1944,4147]
[work_price] => [1263,1944,2074]
[image] => https://akademik-stroy.ru/wp-content/uploads/materials/sajding.jpg
[area_modifier] => 33.35
[parent_name] => Наружная отделка фасада
[parent_id] => 19
[material_sum] => 101091
[work_sum] => 84242
[total_sum] => 185333
[total_days] => 20
[display_material_sum] => 101 091
[display_work_sum] => 84 242
[display_total_sum] => 185 333
)
1
185 333₽
Работа:84 242 ₽
Материалы:101 091 ₽
Дни:20
stdClass Object
(
[id] => 141
[attribute_id] => 19
[name] => Камень
[material_modifier] => 1
[work_modifier] => 1
[options] => Array
(
[0] => Травертин
[1] => Дагестанский
[2] => Искусственный
[3] => Натуральный
[4] => Керамогранит
)
[days] => [45,45,45,45,45]
[material_price] => [4536,3888,2592,3240,2462]
[work_price] => [3240,3240,2462,3110,1944]
[image] => https://akademik-stroy.ru/wp-content/uploads/materials/kamen-1.jpg
[area_modifier] => 33.35
[parent_name] => Наружная отделка фасада
[parent_id] => 19
[material_sum] => 363061
[work_sum] => 216108
[total_sum] => 579169
[total_days] => 45
[display_material_sum] => 363 061
[display_work_sum] => 216 108
[display_total_sum] => 579 169
)
1
579 169₽
Работа:216 108 ₽
Материалы:363 061 ₽
Дни:45
stdClass Object
(
[id] => 142
[attribute_id] => 19
[name] => Термопанели
[material_modifier] => 1
[work_modifier] => 1
[options] => Array
(
)
[days] => [20]
[material_price] => [6221]
[work_price] => [2333]
[image] => https://akademik-stroy.ru/wp-content/uploads/materials/termo.png
[area_modifier] => 33.35
[parent_name] => Наружная отделка фасада
[parent_id] => 19
[material_sum] => 497929
[work_sum] => 155611
[total_sum] => 653540
[total_days] => 20
[display_material_sum] => 497 929
[display_work_sum] => 155 611
[display_total_sum] => 653 540
)
1
653 540₽
Работа:155 611 ₽
Материалы:497 929 ₽
Дни:20
stdClass Object
(
[id] => 143
[attribute_id] => 19
[name] => Плитка HAUBERK
[material_modifier] => 1
[work_modifier] => 1
[options] => Array
(
)
[days] => [20]
[material_price] => [2786]
[work_price] => [1944]
[image] => https://akademik-stroy.ru/wp-content/uploads/materials/hauberk.jpg
[area_modifier] => 33.35
[parent_name] => Наружная отделка фасада
[parent_id] => 19
[material_sum] => 222991
[work_sum] => 129665
[total_sum] => 352656
[total_days] => 20
[display_material_sum] => 222 991
[display_work_sum] => 129 665
[display_total_sum] => 352 656
)
1
352 656₽
Работа:129 665 ₽
Материалы:222 991 ₽
Дни:20
stdClass Object
(
[id] => 144
[attribute_id] => 19
[name] => Фальцевый фасад
[material_modifier] => 1
[work_modifier] => 1
[options] => Array
(
)
[days] => [20]
[material_price] => [3240]
[work_price] => [2592]
[image] => https://akademik-stroy.ru/wp-content/uploads/materials/falcevyj-fasad.jpg
[area_modifier] => 33.35
[parent_name] => Наружная отделка фасада
[parent_id] => 19
[material_sum] => 259330
[work_sum] => 172886
[total_sum] => 432216
[total_days] => 20
[display_material_sum] => 259 330
[display_work_sum] => 172 886
[display_total_sum] => 432 216
)
1
432 216₽
Работа:172 886 ₽
Материалы:259 330 ₽
Дни:20
stdClass Object
(
[id] => 145
[attribute_id] => 19
[name] => Комбинированный
[material_modifier] => 1
[work_modifier] => 1
[options] => Array
(
)
[days] => [20]
[material_price] => [4629]
[work_price] => [3499]
[image] => https://akademik-stroy.ru/wp-content/uploads/materials/Kombinirovannyj.jpg
[area_modifier] => 33.35
[parent_name] => Наружная отделка фасада
[parent_id] => 19
[material_sum] => 370505
[work_sum] => 233383
[total_sum] => 603888
[total_days] => 20
[display_material_sum] => 370 505
[display_work_sum] => 233 383
[display_total_sum] => 603 888
)
1
603 888₽
Работа:233 383 ₽
Материалы:370 505 ₽
Дни:20
stdClass Object
(
[id] => 257
[attribute_id] => 19
[name] => Японские фиброцементные
[material_modifier] => 1
[work_modifier] => 1
[options] => Array
(
)
[days] => [20]
[material_price] => [7043]
[work_price] => [2993]
[image] => https://akademik-stroy.ru/wp-content/uploads/materials/paneli.jpg
[area_modifier] => 33.35
[parent_name] => Наружная отделка фасада
[parent_id] => 19
[material_sum] => 563722
[work_sum] => 199633
[total_sum] => 763355
[total_days] => 20
[display_material_sum] => 563 722
[display_work_sum] => 199 633
[display_total_sum] => 763 355
)
1
763 355₽
Работа:199 633 ₽
Материалы:563 722 ₽
Дни:20
stdClass Object
(
[id] => 258
[attribute_id] => 19
[name] => Панели Каньон
[material_modifier] => 1
[work_modifier] => 1
[options] => Array
(
)
[days] => [20]
[material_price] => [4543]
[work_price] => [2592]
[image] => https://akademik-stroy.ru/wp-content/uploads/materials/kanon.png
[area_modifier] => 33.35
[parent_name] => Наружная отделка фасада
[parent_id] => 19
[material_sum] => 363622
[work_sum] => 172886
[total_sum] => 536508
[total_days] => 20
[display_material_sum] => 363 622
[display_work_sum] => 172 886
[display_total_sum] => 536 508
)
1
536 508₽
Работа:172 886 ₽
Материалы:363 622 ₽
Дни:20
stdClass Object
(
[id] => 39
[attribute_id] => 20
[name] => Нет
[material_modifier] => 1
[work_modifier] => 1
[options] => Array
(
)
[days] => [0]
[material_price] => [0]
[work_price] => [0]
[image] => https://akademik-stroy.ru/wp-content/uploads/materials/terrasy.jpg
[area_modifier] => 30
[parent_name] => Террасы, крыльца, навесы
[parent_id] => 20
[material_sum] => 0
[work_sum] => 0
[total_sum] => 0
[total_days] => 0
[display_material_sum] => 0
[display_work_sum] => 0
[display_total_sum] => 0
)
1
0₽
Работа:0 ₽
Материалы:0 ₽
Дни:0
stdClass Object
(
[id] => 40
[attribute_id] => 20
[name] => Есть
[material_modifier] => 1
[work_modifier] => 1
[options] => Array
(
)
[days] => [5]
[material_price] => [10450]
[work_price] => [1950]
[image] => https://akademik-stroy.ru/wp-content/uploads/materials/terrasy.jpg
[area_modifier] => 30
[parent_name] => Террасы, крыльца, навесы
[parent_id] => 20
[material_sum] => 752400
[work_sum] => 117000
[total_sum] => 869400
[total_days] => 5
[display_material_sum] => 752 400
[display_work_sum] => 117 000
[display_total_sum] => 869 400
)
1
869 400₽
Работа:117 000 ₽
Материалы:752 400 ₽
Дни:5
stdClass Object
(
[id] => 41
[attribute_id] => 21
[name] => Нет
[material_modifier] => 1
[work_modifier] => 1
[options] => Array
(
)
[days] => [0]
[material_price] => [0]
[work_price] => [0]
[image] => https://akademik-stroy.ru/wp-content/uploads/materials/balkony.jpg
[area_modifier] => 30
[parent_name] => Балконы
[parent_id] => 21
[material_sum] => 0
[work_sum] => 0
[total_sum] => 0
[total_days] => 0
[display_material_sum] => 0
[display_work_sum] => 0
[display_total_sum] => 0
)
1
0₽
Работа:0 ₽
Материалы:0 ₽
Дни:0
stdClass Object
(
[id] => 42
[attribute_id] => 21
[name] => Есть
[material_modifier] => 1
[work_modifier] => 1
[options] => Array
(
)
[days] => [12]
[material_price] => [3600]
[work_price] => [1950]
[image] => https://akademik-stroy.ru/wp-content/uploads/materials/balkony.jpg
[area_modifier] => 30
[parent_name] => Балконы
[parent_id] => 21
[material_sum] => 259200
[work_sum] => 117000
[total_sum] => 376200
[total_days] => 12
[display_material_sum] => 259 200
[display_work_sum] => 117 000
[display_total_sum] => 376 200
)
1
376 200₽
Работа:117 000 ₽
Материалы:259 200 ₽
Дни:12
stdClass Object
(
[id] => 43
[attribute_id] => 22
[name] => Нет
[material_modifier] => 1
[work_modifier] => 1
[options] => Array
(
)
[days] => [0]
[material_price] => [0]
[work_price] => [0]
[image] => https://akademik-stroy.ru/wp-content/uploads/materials/uteplennaya.jpg
[area_modifier] => 33.35
[parent_name] => Отмостка
[parent_id] => 22
[material_sum] => 0
[work_sum] => 0
[total_sum] => 0
[total_days] => 0
[display_material_sum] => 0
[display_work_sum] => 0
[display_total_sum] => 0
)
1
0₽
Работа:0 ₽
Материалы:0 ₽
Дни:0
stdClass Object
(
[id] => 44
[attribute_id] => 22
[name] => Утепленная отмостка
[material_modifier] => 1
[work_modifier] => 1
[options] => Array
(
)
[days] => [15]
[material_price] => [2550]
[work_price] => [1750]
[image] => https://akademik-stroy.ru/wp-content/uploads/materials/uteplennaya.jpg
[area_modifier] => 33.35
[parent_name] => Отмостка
[parent_id] => 22
[material_sum] => 204102
[work_sum] => 116725
[total_sum] => 320827
[total_days] => 15
[display_material_sum] => 204 102
[display_work_sum] => 116 725
[display_total_sum] => 320 827
)
1
320 827₽
Работа:116 725 ₽
Материалы:204 102 ₽
Дни:15
stdClass Object
(
[id] => 146
[attribute_id] => 22
[name] => Не утепленная отмостка
[material_modifier] => 1
[work_modifier] => 1
[options] => Array
(
)
[days] => [10]
[material_price] => [1650]
[work_price] => [1450]
[image] => https://akademik-stroy.ru/wp-content/uploads/materials/ne-uteplennaya.jpg
[area_modifier] => 33.35
[parent_name] => Отмостка
[parent_id] => 22
[material_sum] => 132066
[work_sum] => 96715
[total_sum] => 228781
[total_days] => 10
[display_material_sum] => 132 066
[display_work_sum] => 96 715
[display_total_sum] => 228 781
)
1
228 781₽
Работа:96 715 ₽
Материалы:132 066 ₽
Дни:10
stdClass Object
(
[id] => 45
[attribute_id] => 23
[name] => Нет
[material_modifier] => 1
[work_modifier] => 1
[options] => Array
(
)
[days] => [0]
[material_price] => [0]
[work_price] => [0]
[image] => https://akademik-stroy.ru/wp-content/uploads/materials/drenazh-2.jpg
[area_modifier] => 33.35
[parent_name] => Дренаж вокруг дома
[parent_id] => 23
[material_sum] => 0
[work_sum] => 0
[total_sum] => 0
[total_days] => 0
[display_material_sum] => 0
[display_work_sum] => 0
[display_total_sum] => 0
)
1
0₽
Работа:0 ₽
Материалы:0 ₽
Дни:0
stdClass Object
(
[id] => 46
[attribute_id] => 23
[name] => Есть
[material_modifier] => 1
[work_modifier] => 1
[options] => Array
(
)
[days] => [5]
[material_price] => [2366]
[work_price] => [1911]
[image] => https://akademik-stroy.ru/wp-content/uploads/materials/drenazh-2.jpg
[area_modifier] => 33.35
[parent_name] => Дренаж вокруг дома
[parent_id] => 23
[material_sum] => 189375
[work_sum] => 127464
[total_sum] => 316839
[total_days] => 5
[display_material_sum] => 189 375
[display_work_sum] => 127 464
[display_total_sum] => 316 839
)
1
316 839₽
Работа:127 464 ₽
Материалы:189 375 ₽
Дни:5
stdClass Object
(
[id] => 47
[attribute_id] => 24
[name] => Нет
[material_modifier] => 1
[work_modifier] => 1
[options] => Array
(
)
[days] => [0]
[material_price] => [0]
[work_price] => [0]
[image] => https://akademik-stroy.ru/wp-content/uploads/materials/septik.jpg
[area_modifier] => 1
[parent_name] => Автономная канализация (септики)
[parent_id] => 24
[material_sum] => 0
[work_sum] => 0
[total_sum] => 0
[total_days] => 0
[display_material_sum] => 0
[display_work_sum] => 0
[display_total_sum] => 0
)
1
0₽
Работа:0 ₽
Материалы:0 ₽
Дни:0
stdClass Object
(
[id] => 48
[attribute_id] => 24
[name] => Есть
[material_modifier] => 1
[work_modifier] => 1
[options] => Array
(
[0] => Для дачи на 4 человека
[1] => Для дома на 5 человек
[2] => Для дома на 6 человек
[3] => Для дома на 7 человек
[4] => Для дома на 10 человек
)
[days] => [7,7,7,8,8]
[material_price] => [196340,220500,240940,264200,293340]
[work_price] => [50000,55000,60500,66550,73206]
[image] => https://akademik-stroy.ru/wp-content/uploads/materials/septik.jpg
[area_modifier] => 1
[parent_name] => Автономная канализация (септики)
[parent_id] => 24
[material_sum] => 471216
[work_sum] => 100000
[total_sum] => 571216
[total_days] => 7
[display_material_sum] => 471 216
[display_work_sum] => 100 000
[display_total_sum] => 571 216
)
1
571 216₽
Работа:100 000 ₽
Материалы:471 216 ₽
Дни:7
stdClass Object
(
[id] => 49
[attribute_id] => 25
[name] => Нет
[material_modifier] => 1
[work_modifier] => 1
[options] => Array
(
)
[days] => [0]
[material_price] => [0]
[work_price] => [0]
[image] => https://akademik-stroy.ru/wp-content/uploads/materials/gkl.jpg
[area_modifier] => 33.35
[parent_name] => Внутренние (не несущие) перегородки
[parent_id] => 25
[material_sum] => 0
[work_sum] => 0
[total_sum] => 0
[total_days] => 0
[display_material_sum] => 0
[display_work_sum] => 0
[display_total_sum] => 0
)
1
0₽
Работа:0 ₽
Материалы:0 ₽
Дни:0
stdClass Object
(
[id] => 147
[attribute_id] => 25
[name] => Каркасно-обшивные
[material_modifier] => 1
[work_modifier] => 1
[options] => Array
(
[0] => 75 мм (без шумоизоляции)
[1] => 75 мм (с шумоизоляцией)
)
[days] => [11,11]
[material_price] => [580,970]
[work_price] => [380,570]
[image] => https://akademik-stroy.ru/wp-content/uploads/materials/gkl.jpg
[area_modifier] => 33.35
[parent_name] => Внутренние (не несущие) перегородки
[parent_id] => 25
[material_sum] => 46423
[work_sum] => 25346
[total_sum] => 71769
[total_days] => 11
[display_material_sum] => 46 423
[display_work_sum] => 25 346
[display_total_sum] => 71 769
)
1
71 769₽
Работа:25 346 ₽
Материалы:46 423 ₽
Дни:11
stdClass Object
(
[id] => 148
[attribute_id] => 25
[name] => Пазогребневые
[material_modifier] => 1
[work_modifier] => 1
[options] => Array
(
[0] => 80 мм
[1] => 100 мм
)
[days] => [5,5]
[material_price] => [1022,1313]
[work_price] => [600,700]
[image] => https://akademik-stroy.ru/wp-content/uploads/materials/pazogrebnevye-bloki.jpg
[area_modifier] => 33.35
[parent_name] => Внутренние (не несущие) перегородки
[parent_id] => 25
[material_sum] => 81801
[work_sum] => 40020
[total_sum] => 121821
[total_days] => 5
[display_material_sum] => 81 801
[display_work_sum] => 40 020
[display_total_sum] => 121 821
)
1
121 821₽
Работа:40 020 ₽
Материалы:81 801 ₽
Дни:5
stdClass Object
(
[id] => 149
[attribute_id] => 25
[name] => Газобетонные
[material_modifier] => 1
[work_modifier] => 1
[options] => Array
(
[0] => 100 мм
[1] => 200 мм
)
[days] => [11,11]
[material_price] => [1160,1920]
[work_price] => [700,900]
[image] => https://akademik-stroy.ru/wp-content/uploads/materials/gazobeton-2.jpg
[area_modifier] => 33.35
[parent_name] => Внутренние (не несущие) перегородки
[parent_id] => 25
[material_sum] => 92846
[work_sum] => 46690
[total_sum] => 139536
[total_days] => 11
[display_material_sum] => 92 846
[display_work_sum] => 46 690
[display_total_sum] => 139 536
)
1
139 536₽
Работа:46 690 ₽
Материалы:92 846 ₽
Дни:11
stdClass Object
(
[id] => 150
[attribute_id] => 25
[name] => Кирпичные
[material_modifier] => 1
[work_modifier] => 1
[options] => Array
(
[0] => 120 мм
[1] => 250 мм
[2] => 360 мм
)
[days] => [7,7,7]
[material_price] => [1785,3570,5355]
[work_price] => [900,1600,1800]
[image] => https://akademik-stroy.ru/wp-content/uploads/materials/kirpich-1.jpg
[area_modifier] => 33.35
[parent_name] => Внутренние (не несущие) перегородки
[parent_id] => 25
[material_sum] => 142871
[work_sum] => 60030
[total_sum] => 202901
[total_days] => 7
[display_material_sum] => 142 871
[display_work_sum] => 60 030
[display_total_sum] => 202 901
)
1
202 901₽
Работа:60 030 ₽
Материалы:142 871 ₽
Дни:7
stdClass Object
(
[id] => 55
[attribute_id] => 28
[name] => Нет
[material_modifier] => 1
[work_modifier] => 1
[options] => Array
(
)
[days] => [0]
[material_price] => [0]
[work_price] => [0]
[image] => https://akademik-stroy.ru/wp-content/uploads/materials/ehlektrika.jpg
[area_modifier] => 27.06
[parent_name] => Электрика
[parent_id] => 28
[material_sum] => 0
[work_sum] => 0
[total_sum] => 0
[total_days] => 0
[display_material_sum] => 0
[display_work_sum] => 0
[display_total_sum] => 0
)
1
0₽
Работа:0 ₽
Материалы:0 ₽
Дни:0
stdClass Object
(
[id] => 56
[attribute_id] => 28
[name] => Есть
[material_modifier] => 1
[work_modifier] => 1
[options] => Array
(
)
[days] => [10]
[material_price] => [650]
[work_price] => [950]
[image] => https://akademik-stroy.ru/wp-content/uploads/materials/ehlektrika.jpg
[area_modifier] => 27.06
[parent_name] => Электрика
[parent_id] => 28
[material_sum] => 42214
[work_sum] => 51414
[total_sum] => 93628
[total_days] => 10
[display_material_sum] => 42 214
[display_work_sum] => 51 414
[display_total_sum] => 93 628
)
1
93 628₽
Работа:51 414 ₽
Материалы:42 214 ₽
Дни:10
stdClass Object
(
[id] => 57
[attribute_id] => 29
[name] => Нет
[material_modifier] => 1
[work_modifier] => 1
[options] => Array
(
)
[days] => [0]
[material_price] => [0]
[work_price] => [0]
[image] => https://akademik-stroy.ru/wp-content/uploads/materials/santekhnika-kanalizaciya-1.jpg
[area_modifier] => 27.06
[parent_name] => Сантехника, канализация в доме
[parent_id] => 29
[material_sum] => 0
[work_sum] => 0
[total_sum] => 0
[total_days] => 0
[display_material_sum] => 0
[display_work_sum] => 0
[display_total_sum] => 0
)
1
0₽
Работа:0 ₽
Материалы:0 ₽
Дни:0
stdClass Object
(
[id] => 58
[attribute_id] => 29
[name] => Есть
[material_modifier] => 1
[work_modifier] => 1
[options] => Array
(
)
[days] => [10]
[material_price] => [600]
[work_price] => [730]
[image] => https://akademik-stroy.ru/wp-content/uploads/materials/santekhnika-kanalizaciya-1.jpg
[area_modifier] => 27.06
[parent_name] => Сантехника, канализация в доме
[parent_id] => 29
[material_sum] => 38966
[work_sum] => 39508
[total_sum] => 78474
[total_days] => 10
[display_material_sum] => 38 966
[display_work_sum] => 39 508
[display_total_sum] => 78 474
)
1
78 474₽
Работа:39 508 ₽
Материалы:38 966 ₽
Дни:10
stdClass Object
(
[id] => 59
[attribute_id] => 30
[name] => Нет
[material_modifier] => 1
[work_modifier] => 1
[options] => Array
(
)
[days] => [0]
[material_price] => [0]
[work_price] => [0]
[image] => https://akademik-stroy.ru/wp-content/uploads/materials/otoplenie-1.jpg
[area_modifier] => 27.06
[parent_name] => Отопление
[parent_id] => 30
[material_sum] => 0
[work_sum] => 0
[total_sum] => 0
[total_days] => 0
[display_material_sum] => 0
[display_work_sum] => 0
[display_total_sum] => 0
)
1
0₽
Работа:0 ₽
Материалы:0 ₽
Дни:0
stdClass Object
(
[id] => 60
[attribute_id] => 30
[name] => Есть
[material_modifier] => 1
[work_modifier] => 1
[options] => Array
(
)
[days] => [5]
[material_price] => [610]
[work_price] => [560]
[image] => https://akademik-stroy.ru/wp-content/uploads/materials/otoplenie-1.jpg
[area_modifier] => 27.06
[parent_name] => Отопление
[parent_id] => 30
[material_sum] => 39616
[work_sum] => 30307
[total_sum] => 69923
[total_days] => 5
[display_material_sum] => 39 616
[display_work_sum] => 30 307
[display_total_sum] => 69 923
)
1
69 923₽
Работа:30 307 ₽
Материалы:39 616 ₽
Дни:5
stdClass Object
(
[id] => 61
[attribute_id] => 31
[name] => Нет
[material_modifier] => 1
[work_modifier] => 1
[options] => Array
(
)
[days] => [0]
[material_price] => [0]
[work_price] => [0]
[image] => https://akademik-stroy.ru/wp-content/uploads/materials/vodyanye.jpg
[area_modifier] => 30
[parent_name] => Теплые полы
[parent_id] => 31
[material_sum] => 0
[work_sum] => 0
[total_sum] => 0
[total_days] => 0
[display_material_sum] => 0
[display_work_sum] => 0
[display_total_sum] => 0
)
1
0₽
Работа:0 ₽
Материалы:0 ₽
Дни:0
stdClass Object
(
[id] => 151
[attribute_id] => 31
[name] => Водяные
[material_modifier] => 1
[work_modifier] => 1
[options] => Array
(
)
[days] => [9]
[material_price] => [10200]
[work_price] => [2500]
[image] => https://akademik-stroy.ru/wp-content/uploads/materials/vodyanye.jpg
[area_modifier] => 30
[parent_name] => Теплые полы
[parent_id] => 31
[material_sum] => 734400
[work_sum] => 150000
[total_sum] => 884400
[total_days] => 9
[display_material_sum] => 734 400
[display_work_sum] => 150 000
[display_total_sum] => 884 400
)
1
884 400₽
Работа:150 000 ₽
Материалы:734 400 ₽
Дни:9
stdClass Object
(
[id] => 152
[attribute_id] => 31
[name] => Электро
[material_modifier] => 1
[work_modifier] => 1
[options] => Array
(
)
[days] => [5]
[material_price] => [6300]
[work_price] => [1500]
[image] => https://akademik-stroy.ru/wp-content/uploads/materials/ehlektricheskij.jpg
[area_modifier] => 30
[parent_name] => Теплые полы
[parent_id] => 31
[material_sum] => 453600
[work_sum] => 90000
[total_sum] => 543600
[total_days] => 5
[display_material_sum] => 453 600
[display_work_sum] => 90 000
[display_total_sum] => 543 600
)
1
543 600₽
Работа:90 000 ₽
Материалы:453 600 ₽
Дни:5
stdClass Object
(
[id] => 63
[attribute_id] => 32
[name] => Нет
[material_modifier] => 1
[work_modifier] => 1
[options] => Array
(
)
[days] => [0]
[material_price] => [0]
[work_price] => [0]
[image] => https://akademik-stroy.ru/wp-content/uploads/materials/shtukaturka-shpatlevka-1.jpg
[area_modifier] => 27.06
[parent_name] => Черновая отделка стен
[parent_id] => 32
[material_sum] => 0
[work_sum] => 0
[total_sum] => 0
[total_days] => 0
[display_material_sum] => 0
[display_work_sum] => 0
[display_total_sum] => 0
)
1
0₽
Работа:0 ₽
Материалы:0 ₽
Дни:0
stdClass Object
(
[id] => 153
[attribute_id] => 32
[name] => Штукатурка и шпатлевка
[material_modifier] => 1
[work_modifier] => 1
[options] => Array
(
)
[days] => [20]
[material_price] => [1850]
[work_price] => [2600]
[image] => https://akademik-stroy.ru/wp-content/uploads/materials/shtukaturka-shpatlevka-1.jpg
[area_modifier] => 27.06
[parent_name] => Черновая отделка стен
[parent_id] => 32
[material_sum] => 120146
[work_sum] => 140712
[total_sum] => 260858
[total_days] => 20
[display_material_sum] => 120 146
[display_work_sum] => 140 712
[display_total_sum] => 260 858
)
1
260 858₽
Работа:140 712 ₽
Материалы:120 146 ₽
Дни:20
stdClass Object
(
[id] => 154
[attribute_id] => 32
[name] => Гипсокортон на стены
[material_modifier] => 1
[work_modifier] => 1
[options] => Array
(
)
[days] => [15]
[material_price] => [950]
[work_price] => [2100]
[image] => https://akademik-stroy.ru/wp-content/uploads/materials/gkl-1.jpg
[area_modifier] => 27.06
[parent_name] => Черновая отделка стен
[parent_id] => 32
[material_sum] => 61697
[work_sum] => 113652
[total_sum] => 175349
[total_days] => 15
[display_material_sum] => 61 697
[display_work_sum] => 113 652
[display_total_sum] => 175 349
)
1
175 349₽
Работа:113 652 ₽
Материалы:61 697 ₽
Дни:15
stdClass Object
(
[id] => 155
[attribute_id] => 32
[name] => Вагонка
[material_modifier] => 1
[work_modifier] => 1
[options] => Array
(
)
[days] => [15]
[material_price] => [1250]
[work_price] => [950]
[image] => https://akademik-stroy.ru/wp-content/uploads/materials/vagonka.jpg
[area_modifier] => 27.06
[parent_name] => Черновая отделка стен
[parent_id] => 32
[material_sum] => 81180
[work_sum] => 51414
[total_sum] => 132594
[total_days] => 15
[display_material_sum] => 81 180
[display_work_sum] => 51 414
[display_total_sum] => 132 594
)
1
132 594₽
Работа:51 414 ₽
Материалы:81 180 ₽
Дни:15
stdClass Object
(
[id] => 65
[attribute_id] => 33
[name] => Нет
[material_modifier] => 1
[work_modifier] => 1
[options] => Array
(
)
[days] => [0]
[material_price] => [0]
[work_price] => [0]
[image] => https://akademik-stroy.ru/wp-content/uploads/materials/styazhka.jpg
[area_modifier] => 27.06
[parent_name] => Черновая отделка полов
[parent_id] => 33
[material_sum] => 0
[work_sum] => 0
[total_sum] => 0
[total_days] => 0
[display_material_sum] => 0
[display_work_sum] => 0
[display_total_sum] => 0
)
1
0₽
Работа:0 ₽
Материалы:0 ₽
Дни:0
stdClass Object
(
[id] => 156
[attribute_id] => 33
[name] => Стяжка + наливные полы
[material_modifier] => 1
[work_modifier] => 1
[options] => Array
(
)
[days] => [10]
[material_price] => [1000]
[work_price] => [900]
[image] => https://akademik-stroy.ru/wp-content/uploads/materials/styazhka.jpg
[area_modifier] => 27.06
[parent_name] => Черновая отделка полов
[parent_id] => 33
[material_sum] => 64944
[work_sum] => 48708
[total_sum] => 113652
[total_days] => 10
[display_material_sum] => 64 944
[display_work_sum] => 48 708
[display_total_sum] => 113 652
)
1
113 652₽
Работа:48 708 ₽
Материалы:64 944 ₽
Дни:10
stdClass Object
(
[id] => 157
[attribute_id] => 33
[name] => ОСБ на пол
[material_modifier] => 1
[work_modifier] => 1
[options] => Array
(
)
[days] => [7]
[material_price] => [580]
[work_price] => [350]
[image] => https://akademik-stroy.ru/wp-content/uploads/materials/osb-1.jpg
[area_modifier] => 27.06
[parent_name] => Черновая отделка полов
[parent_id] => 33
[material_sum] => 37668
[work_sum] => 18942
[total_sum] => 56610
[total_days] => 7
[display_material_sum] => 37 668
[display_work_sum] => 18 942
[display_total_sum] => 56 610
)
1
56 610₽
Работа:18 942 ₽
Материалы:37 668 ₽
Дни:7
stdClass Object
(
[id] => 67
[attribute_id] => 34
[name] => Нет
[material_modifier] => 1
[work_modifier] => 1
[options] => Array
(
)
[days] => [0]
[material_price] => [0]
[work_price] => [0]
[image] => https://akademik-stroy.ru/wp-content/uploads/materials/chistovaya-otdelka.jpg
[area_modifier] => 27.06
[parent_name] => Чистовая отделка стен и полов
[parent_id] => 34
[material_sum] => 0
[work_sum] => 0
[total_sum] => 0
[total_days] => 0
[display_material_sum] => 0
[display_work_sum] => 0
[display_total_sum] => 0
)
1
0₽
Работа:0 ₽
Материалы:0 ₽
Дни:0
stdClass Object
(
[id] => 68
[attribute_id] => 34
[name] => Есть
[material_modifier] => 1
[work_modifier] => 1
[options] => Array
(
)
[days] => [50]
[material_price] => [6000]
[work_price] => [3500]
[image] => https://akademik-stroy.ru/wp-content/uploads/materials/chistovaya-otdelka.jpg
[area_modifier] => 27.06
[parent_name] => Чистовая отделка стен и полов
[parent_id] => 34
[material_sum] => 389664
[work_sum] => 189420
[total_sum] => 579084
[total_days] => 50
[display_material_sum] => 389 664
[display_work_sum] => 189 420
[display_total_sum] => 579 084
)
1
579 084₽
Работа:189 420 ₽
Материалы:389 664 ₽
Дни:50
stdClass Object
(
[id] => 69
[attribute_id] => 35
[name] => Нет
[material_modifier] => 1
[work_modifier] => 1
[options] => Array
(
)
[days] => [0]
[material_price] => [0]
[work_price] => [0]
[image] => https://akademik-stroy.ru/wp-content/uploads/materials/mnogourovnevyj-gkl.jpg
[area_modifier] => 27.06
[parent_name] => Отделка потолка
[parent_id] => 35
[material_sum] => 0
[work_sum] => 0
[total_sum] => 0
[total_days] => 0
[display_material_sum] => 0
[display_work_sum] => 0
[display_total_sum] => 0
)
1
0₽
Работа:0 ₽
Материалы:0 ₽
Дни:0
stdClass Object
(
[id] => 70
[attribute_id] => 35
[name] => Есть
[material_modifier] => 1
[work_modifier] => 1
[options] => Array
(
[0] => Многоуровневый потолок из гипсокартона
[1] => Многоуровневый потолок из гипсокартона и натяжного потолка
[2] => Одноуровневый потолок из гипсокартона
[3] => Одноуровневый натяжной потолок
)
[days] => [10,10,1,1]
[material_price] => [900,700,700,600]
[work_price] => [1000,800,500,300]
[image] => https://akademik-stroy.ru/wp-content/uploads/materials/mnogourovnevyj-gkl.jpg
[area_modifier] => 27.06
[parent_name] => Отделка потолка
[parent_id] => 35
[material_sum] => 58450
[work_sum] => 54120
[total_sum] => 112570
[total_days] => 10
[display_material_sum] => 58 450
[display_work_sum] => 54 120
[display_total_sum] => 112 570
)
1
112 570₽
Работа:54 120 ₽
Материалы:58 450 ₽
Дни:10
Преимущества работы с нами
7 этапов оплаты
Независимый строительный надзор
Экологически чистые материалы
16 лет гарантии
Онлайн-кабинет с веб-камерой
Строители с опытом более 15 лет
Собственное производство
