Одноэтажный гараж 60.3 м2
154 м2
Полезная
площадь
площадь
1 этаж
Этажей
26 м2
Террасы
и балконы
и балконы
0Без
гаража
гаража
0
Количество
спален
спален
0
Количество
санузлов
санузлов
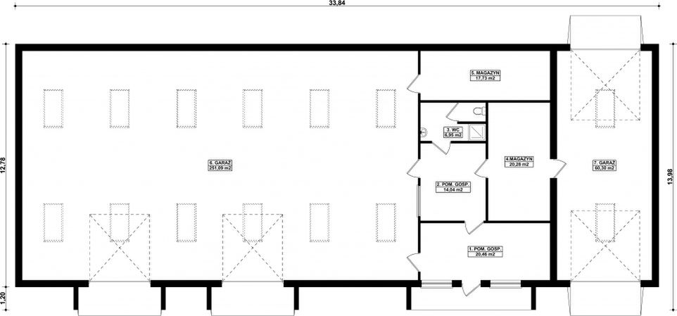
Планировки
Первый этаж
- 1. (m²) 390,85
- 2. Подсобное помещение 20,46
- 3. Подсобное помещение 14,04
- 4. Туалет 6,95
- 5. Склад 20,28
- 6. Склад 17,73
- 7. Гараж на 3 машины 251,09
- Гараж на 1 машину 60,30
Фасады
Передний
Задний
Левый
Правый
Подробная информация
Полезная площадь
390,85 m²
Количество спален
0
Количество санузлов
1
Гараж
4
Мин. шир. и дл. участка
39,84 x 20,98 m
Угол наклона крыши
3°
Наклон ската крыши в градусах. Внимание! В некоторых проектах возникает более чем один наклон крыши.
Вид материалов
Murowana
Материалы и опции
Общие
Площади дома
| № п/п | Наименование | Ед. из. | Строительная площадь | Полезная площадь |
| 1 | 1 этаж | м2 | 74.31 | 60.3 |
| 2 | Итого | м2 | 74.31 | 60.3 |
Калькулятор опций
0₽
В ипотеку от 207 ₽/мес.
0₽
0 дней
stdClass Object
(
[id] => 1
[attribute_id] => 1
[name] => Ленточный монолитный ж/б
[material_modifier] => 1
[work_modifier] => 1
[options] => Array
(
[0] => размер 200 х 700 мм
[1] => размер 300 х 900 мм
[2] => размер 400 х 1 000 мм
[3] => размер 500 х 1 100 мм
[4] => размер 600 х 1 200 мм
)
[days] => [20,21,22,25,30]
[material_price] => [2823,3630,4475,5210,12047]
[work_price] => [2154,2826,3731,4577,5293]
[image] => https://akademik-stroy.ru/wp-content/uploads/materials/lentochnyj-monolitnyj-zh-b.jpg
[area_modifier] => 74.31
[parent_name] => Фундамент
[parent_id] => 1
[material_sum] => 352426
[work_sum] => 224089
[total_sum] => 576515
[total_days] => 20
[display_material_sum] => 352 426
[display_work_sum] => 224 089
[display_total_sum] => 576 515
)
1
576 515₽
Работа:224 089 ₽
Материалы:352 426 ₽
Дни:20
stdClass Object
(
[id] => 2
[attribute_id] => 1
[name] => Забивные Ж/Б сваи
[material_modifier] => 1
[work_modifier] => 1
[options] => Array
(
[0] => 150х150х3000мм
[1] => 150х150х4000мм
[2] => 200х200х3000мм
[3] => 200х200х4000мм
[4] => 200х200х5000мм
[5] => 200х200х6000мм
)
[days] => [2,2,2,2,2,2]
[material_price] => [1990,2850,3255,4360,5120,6837]
[work_price] => [1002,1185,1336,1438,1574,1839]
[image] => https://akademik-stroy.ru/wp-content/uploads/materials/zabivnye-zh-b-svai.png
[area_modifier] => 74.31
[parent_name] => Фундамент
[parent_id] => 1
[material_sum] => 248433
[work_sum] => 104242
[total_sum] => 352675
[total_days] => 2
[display_material_sum] => 248 433
[display_work_sum] => 104 242
[display_total_sum] => 352 675
)
1
352 675₽
Работа:104 242 ₽
Материалы:248 433 ₽
Дни:2
stdClass Object
(
[id] => 71
[attribute_id] => 1
[name] => Свайно-ростверковый ж/б
[material_modifier] => 1
[work_modifier] => 1
[options] => Array
(
[0] => ростверк 200х300 мм
[1] => ростверк 300х600 мм
[2] => ростверк 400х900 мм
[3] => ростверк 500х1200 мм
)
[days] => [20,23,25,27]
[material_price] => [3018,3474,7109,9792]
[work_price] => [2024,3012,5635,7022]
[image] => https://akademik-stroy.ru/wp-content/uploads/materials/svajno-rostverkovyj-monolitnyj-zh-b-3.png
[area_modifier] => 74.31
[parent_name] => Фундамент
[parent_id] => 1
[material_sum] => 376770
[work_sum] => 210565
[total_sum] => 587335
[total_days] => 20
[display_material_sum] => 376 770
[display_work_sum] => 210 565
[display_total_sum] => 587 335
)
1
587 335₽
Работа:210 565 ₽
Материалы:376 770 ₽
Дни:20
stdClass Object
(
[id] => 72
[attribute_id] => 1
[name] => Монолитная ж/б плита
[material_modifier] => 1
[work_modifier] => 1
[options] => Array
(
[0] => 200 мм
[1] => 300 мм
[2] => 400 мм
[3] => 500 мм
[4] => 600 мм
)
[days] => [30,33,35,37,40]
[material_price] => [5348,8555,12788,14388,15189]
[work_price] => [4314,4881,7037,8061,10230]
[image] => https://akademik-stroy.ru/wp-content/uploads/materials/monolitnaya-zhb-plita.png
[area_modifier] => 74.31
[parent_name] => Фундамент
[parent_id] => 1
[material_sum] => 667649
[work_sum] => 448803
[total_sum] => 1116452
[total_days] => 30
[display_material_sum] => 667 649
[display_work_sum] => 448 803
[display_total_sum] => 1 116 452
)
1
1 116 452₽
Работа:448 803 ₽
Материалы:667 649 ₽
Дни:30
stdClass Object
(
[id] => 73
[attribute_id] => 1
[name] => Утепленная шведская плита
[material_modifier] => 1
[work_modifier] => 1
[options] => Array
(
[0] => 200 мм
[1] => 300 мм
[2] => 400 мм
[3] => 500 мм
[4] => 600 мм
)
[days] => [32,37,39,42,45]
[material_price] => [10249,12692,13760,14936,16230]
[work_price] => [5960,7337,8072,8878,9765]
[image] => https://akademik-stroy.ru/wp-content/uploads/materials/uteplennaya-shvedskaya-plita.jpg
[area_modifier] => 74.31
[parent_name] => Фундамент
[parent_id] => 1
[material_sum] => 1279493
[work_sum] => 620043
[total_sum] => 1899536
[total_days] => 32
[display_material_sum] => 1 279 493
[display_work_sum] => 620 043
[display_total_sum] => 1 899 536
)
1
1 899 536₽
Работа:620 043 ₽
Материалы:1 279 493 ₽
Дни:32
stdClass Object
(
[id] => 75
[attribute_id] => 1
[name] => Ленточный из ФБС
[material_modifier] => 1
[work_modifier] => 1
[options] => Array
(
[0] => толщ. 300 мм
[1] => толщ. 400 мм
[2] => толщ. 500 мм
[3] => толщ. 600 мм
)
[days] => [20,20,20,20]
[material_price] => [3675,4902,6126,7350]
[work_price] => [2451,3264,4083,4902]
[image] => https://akademik-stroy.ru/wp-content/uploads/materials/lentochnyj-iz-fbs.png
[area_modifier] => 74.31
[parent_name] => Фундамент
[parent_id] => 1
[material_sum] => 458790
[work_sum] => 254987
[total_sum] => 713777
[total_days] => 20
[display_material_sum] => 458 790
[display_work_sum] => 254 987
[display_total_sum] => 713 777
)
1
713 777₽
Работа:254 987 ₽
Материалы:458 790 ₽
Дни:20
stdClass Object
(
[id] => 76
[attribute_id] => 1
[name] => Цокольный этаж из ФБС
[material_modifier] => 1
[work_modifier] => 1
[options] => Array
(
[0] => толщ. 300 мм
[1] => толщ. 400 мм
[2] => толщ. 500 мм
[3] => толщ. 600 мм
)
[days] => [30,32,34,36]
[material_price] => [20916,23299,26680,29060]
[work_price] => [17524,18700,19873,21046]
[image] => https://akademik-stroy.ru/wp-content/uploads/materials/cokolnyj-ehtazh-iz-fbs.jpg
[area_modifier] => 74.31
[parent_name] => Фундамент
[parent_id] => 1
[material_sum] => 2611170
[work_sum] => 1823092
[total_sum] => 4434262
[total_days] => 30
[display_material_sum] => 2 611 170
[display_work_sum] => 1 823 092
[display_total_sum] => 4 434 262
)
1
4 434 262₽
Работа:1 823 092 ₽
Материалы:2 611 170 ₽
Дни:30
stdClass Object
(
[id] => 77
[attribute_id] => 1
[name] => Цокольный этаж монолитный ж/б
[material_modifier] => 1
[work_modifier] => 1
[options] => Array
(
[0] => толщ. 200 мм
[1] => толщ. 300 мм
[2] => толщ. 400 мм
[3] => толщ. 500 мм
[4] => толщ. 600 мм
)
[days] => [40,42,44,46,48]
[material_price] => [25421,29148,32275,35602,37326]
[work_price] => [20441,21907,23375,24841,26306]
[image] => https://akademik-stroy.ru/wp-content/uploads/materials/cokolnyj-etazh-zh-b.jpg
[area_modifier] => 74.31
[parent_name] => Фундамент
[parent_id] => 1
[material_sum] => 3173578
[work_sum] => 2126559
[total_sum] => 5300137
[total_days] => 40
[display_material_sum] => 3 173 578
[display_work_sum] => 2 126 559
[display_total_sum] => 5 300 137
)
1
5 300 137₽
Работа:2 126 559 ₽
Материалы:3 173 578 ₽
Дни:40
stdClass Object
(
[id] => 191
[attribute_id] => 1
[name] => Винтовые сваи
[material_modifier] => 1
[work_modifier] => 1
[options] => Array
(
[0] => 57х200мм
[1] => 76х250мм
[2] => 108х300мм
[3] => 133х350мм
)
[days] => [1,1,2,2]
[material_price] => [1200,1300,1450,1600]
[work_price] => [400,600,900,1100]
[image] => https://akademik-stroy.ru/wp-content/uploads/materials/vintovye-svai.png
[area_modifier] => 74.31
[parent_name] => Фундамент
[parent_id] => 1
[material_sum] => 149809
[work_sum] => 41614
[total_sum] => 191423
[total_days] => 1
[display_material_sum] => 149 809
[display_work_sum] => 41 614
[display_total_sum] => 191 423
)
1
191 423₽
Работа:41 614 ₽
Материалы:149 809 ₽
Дни:1
stdClass Object
(
[id] => 3
[attribute_id] => 2
[name] => Деревянные балки
[material_modifier] => 1
[work_modifier] => 1
[options] => Array
(
[0] => без утепления
[1] => утепление 200 мм
[2] => утепление 250 мм
[3] => утепление 300 мм
[4] => утепление 350 мм
[5] => утепление 400 мм
[6] => утепление 450 мм
[7] => утепление 500 мм
)
[days] => [8,9,9,9,11,12,13,14]
[material_price] => [1634,2042,2344,2947,3149,3652,3354,3557]
[work_price] => [1230,1339,1393,1426,1460,1513,1587,1620]
[image] => https://akademik-stroy.ru/wp-content/uploads/materials/derevyannye-balki.png
[area_modifier] => 74.31
[parent_name] => Перекрытие цоколя
[parent_id] => 2
[material_sum] => 203990
[work_sum] => 127962
[total_sum] => 331952
[total_days] => 8
[display_material_sum] => 203 990
[display_work_sum] => 127 962
[display_total_sum] => 331 952
)
1
331 952₽
Работа:127 962 ₽
Материалы:203 990 ₽
Дни:8
stdClass Object
(
[id] => 4
[attribute_id] => 2
[name] => Сборные ж/б плиты
[material_modifier] => 1
[work_modifier] => 1
[options] => Array
(
[0] => без утепления
[1] => утепление 150мм
[2] => утепление 200мм
[3] => утепление 250мм
[4] => утепление 300мм
[5] => утепление 350мм
[6] => утепление 400мм
[7] => утепление 450мм
[8] => утепление 500мм
)
[days] => [13,15,15,15,15,15,15,15,15]
[material_price] => [3067,5577,5928,6679,7730,8782,9833,10884,11935]
[work_price] => [1520,1956,2102,2247,2392,2537,2684,2829,2974]
[image] => https://akademik-stroy.ru/wp-content/uploads/materials/sbornye-zh-b-plity-2.jpg
[area_modifier] => 74.31
[parent_name] => Перекрытие цоколя
[parent_id] => 2
[material_sum] => 382887
[work_sum] => 158132
[total_sum] => 541019
[total_days] => 13
[display_material_sum] => 382 887
[display_work_sum] => 158 132
[display_total_sum] => 541 019
)
1
541 019₽
Работа:158 132 ₽
Материалы:382 887 ₽
Дни:13
stdClass Object
(
[id] => 78
[attribute_id] => 2
[name] => Монолитная ж/б плита
[material_modifier] => 1
[work_modifier] => 1
[options] => Array
(
[0] => без утепления
[1] => утепление 150 мм
[2] => утепление 200 мм
[3] => утепление 250 мм
[4] => утепление 300 мм
[5] => утепление 350 мм
[6] => утепление 400 мм
[7] => утепление 450 мм
[8] => утепление 500 мм
)
[days] => [18,20,20,20,20,20,20,20,20]
[material_price] => [4837,6572,7224,7375,79426,8177,8728,9180,10031]
[work_price] => [3348,3921,4112,4302,4493,4684,4875,5066,5256]
[image] => https://akademik-stroy.ru/wp-content/uploads/materials/monolitnaya-zh-b-plita-2.jpg
[area_modifier] => 74.31
[parent_name] => Перекрытие цоколя
[parent_id] => 2
[material_sum] => 603855
[work_sum] => 348306
[total_sum] => 952161
[total_days] => 18
[display_material_sum] => 603 855
[display_work_sum] => 348 306
[display_total_sum] => 952 161
)
1
952 161₽
Работа:348 306 ₽
Материалы:603 855 ₽
Дни:18
stdClass Object
(
[id] => 6
[attribute_id] => 3
[name] => Пеноблок
[material_modifier] => 1
[work_modifier] => 1
[options] => Array
(
[0] => 300 мм
[1] => 400 мм
[2] => 500 мм
[3] => 600 мм
)
[days] => [29,31,34,39]
[material_price] => [3000,4000,4500,4937]
[work_price] => [5033,5805,6400,8710]
[image] => https://akademik-stroy.ru/wp-content/uploads/materials/penoblok.jpg
[area_modifier] => 74.31
[parent_name] => Стены 1 этаж (несущие)
[parent_id] => 3
[material_sum] => 374522
[work_sum] => 523603
[total_sum] => 898125
[total_days] => 29
[display_material_sum] => 374 522
[display_work_sum] => 523 603
[display_total_sum] => 898 125
)
1
898 125₽
Работа:523 603 ₽
Материалы:374 522 ₽
Дни:29
stdClass Object
(
[id] => 79
[attribute_id] => 3
[name] => Керамический блок
[material_modifier] => 1
[work_modifier] => 1
[options] => Array
(
[0] => 380 мм
[1] => 380 мм Thermo
[2] => 440 мм
[3] => 510 мм
)
[days] => [23,23,24,25]
[material_price] => [4510,5098,6093,8013]
[work_price] => [4737,4937,5903,6958]
[image] => https://akademik-stroy.ru/wp-content/uploads/materials/keramicheskij-blok.jpg
[area_modifier] => 74.31
[parent_name] => Стены 1 этаж (несущие)
[parent_id] => 3
[material_sum] => 563032
[work_sum] => 492809
[total_sum] => 1055841
[total_days] => 23
[display_material_sum] => 563 032
[display_work_sum] => 492 809
[display_total_sum] => 1 055 841
)
1
1 055 841₽
Работа:492 809 ₽
Материалы:563 032 ₽
Дни:23
stdClass Object
(
[id] => 80
[attribute_id] => 3
[name] => Кирпич
[material_modifier] => 1
[work_modifier] => 1
[options] => Array
(
[0] => Кирпич 250 мм
[1] => Кирпич 380 мм
[2] => Кирпич 510 мм
[3] => Кирпич 640 мм
[4] => Кирпич 770 мм
)
[days] => [30,30,31,33,36]
[material_price] => [5500,7142,9206,10171,12235]
[work_price] => [8736,10041,12018,15240,18462]
[image] => https://akademik-stroy.ru/wp-content/uploads/materials/kirpich.jpg
[area_modifier] => 74.31
[parent_name] => Стены 1 этаж (несущие)
[parent_id] => 3
[material_sum] => 686624
[work_sum] => 908841
[total_sum] => 1595465
[total_days] => 30
[display_material_sum] => 686 624
[display_work_sum] => 908 841
[display_total_sum] => 1 595 465
)
1
1 595 465₽
Работа:908 841 ₽
Материалы:686 624 ₽
Дни:30
stdClass Object
(
[id] => 81
[attribute_id] => 3
[name] => Монолитные
[material_modifier] => 1
[work_modifier] => 1
[options] => Array
(
[0] => 150 мм
[1] => 200 мм
[2] => 250 мм
[3] => 300 мм
[4] => 350 мм
[5] => 400 мм
)
[days] => [45,46,47,49,50,53]
[material_price] => [6545,7876,10175,12011,13908,15204]
[work_price] => [5106,6444,7698,8552,9807,11461]
[image] => https://akademik-stroy.ru/wp-content/uploads/materials/monolitnye.jpg
[area_modifier] => 74.31
[parent_name] => Стены 1 этаж (несущие)
[parent_id] => 3
[material_sum] => 817083
[work_sum] => 531198
[total_sum] => 1348281
[total_days] => 45
[display_material_sum] => 817 083
[display_work_sum] => 531 198
[display_total_sum] => 1 348 281
)
1
1 348 281₽
Работа:531 198 ₽
Материалы:817 083 ₽
Дни:45
stdClass Object
(
[id] => 82
[attribute_id] => 3
[name] => Клееный брус
[material_modifier] => 1
[work_modifier] => 1
[options] => Array
(
[0] => 160 мм
[1] => 175 мм
[2] => 200 мм
[3] => 215 мм
[4] => 240 мм
[5] => 270 мм
[6] => 282 мм
)
[days] => [24,28,32,37,40,42,48]
[material_price] => [16975,18773,19950,20545,21599,22159,23275]
[work_price] => [4806,5287,5815,6397,7036,7740,8514]
[image] => https://akademik-stroy.ru/wp-content/uploads/materials/kleenyj-brus.jpg
[area_modifier] => 74.31
[parent_name] => Стены 1 этаж (несущие)
[parent_id] => 3
[material_sum] => 2119173
[work_sum] => 499987
[total_sum] => 2619160
[total_days] => 24
[display_material_sum] => 2 119 173
[display_work_sum] => 499 987
[display_total_sum] => 2 619 160
)
1
2 619 160₽
Работа:499 987 ₽
Материалы:2 119 173 ₽
Дни:24
stdClass Object
(
[id] => 83
[attribute_id] => 3
[name] => Каркасные
[material_modifier] => 1
[work_modifier] => 1
[options] => Array
(
[0] => 150 мм
[1] => 200 мм
[2] => 250 мм
[3] => 300 мм
)
[days] => [15,16,17,18]
[material_price] => [2379,2639,2898,3258]
[work_price] => [2418,2686,2985,3716]
[image] => https://akademik-stroy.ru/wp-content/uploads/materials/karkasnye.jpg
[area_modifier] => 74.31
[parent_name] => Стены 1 этаж (несущие)
[parent_id] => 3
[material_sum] => 296996
[work_sum] => 251554
[total_sum] => 548550
[total_days] => 15
[display_material_sum] => 296 996
[display_work_sum] => 251 554
[display_total_sum] => 548 550
)
1
548 550₽
Работа:251 554 ₽
Материалы:296 996 ₽
Дни:15
stdClass Object
(
[id] => 84
[attribute_id] => 3
[name] => СИП-панели
[material_modifier] => 1
[work_modifier] => 1
[options] => Array
(
[0] => 120 мм
[1] => 170 мм
[2] => 220 мм
)
[days] => [7,7,7]
[material_price] => [1210,1856,2292]
[work_price] => [1410,1551,1706]
[image] => https://akademik-stroy.ru/wp-content/uploads/materials/sip-paneli.jpg
[area_modifier] => 74.31
[parent_name] => Стены 1 этаж (несущие)
[parent_id] => 3
[material_sum] => 151057
[work_sum] => 146688
[total_sum] => 297745
[total_days] => 7
[display_material_sum] => 151 057
[display_work_sum] => 146 688
[display_total_sum] => 297 745
)
1
297 745₽
Работа:146 688 ₽
Материалы:151 057 ₽
Дни:7
stdClass Object
(
[id] => 85
[attribute_id] => 3
[name] => Сухой брус
[material_modifier] => 1
[work_modifier] => 1
[options] => Array
(
[0] => 150 мм
[1] => 180 мм
[2] => 200 мм
)
[days] => [7,8,9]
[material_price] => [6010,7190,8709]
[work_price] => [3204,3845,4229]
[image] => https://akademik-stroy.ru/wp-content/uploads/materials/suhoj-brus.jpg
[area_modifier] => 74.31
[parent_name] => Стены 1 этаж (несущие)
[parent_id] => 3
[material_sum] => 750293
[work_sum] => 333325
[total_sum] => 1083618
[total_days] => 7
[display_material_sum] => 750 293
[display_work_sum] => 333 325
[display_total_sum] => 1 083 618
)
1
1 083 618₽
Работа:333 325 ₽
Материалы:750 293 ₽
Дни:7
stdClass Object
(
[id] => 86
[attribute_id] => 3
[name] => Профилированный брус
[material_modifier] => 1
[work_modifier] => 1
[options] => Array
(
[0] => 150 мм
[1] => 180 мм
[2] => 200 мм
)
[days] => [7,8,9]
[material_price] => [8190,9228,10051]
[work_price] => [3845,4614,5075]
[image] => https://akademik-stroy.ru/wp-content/uploads/materials/profilirovannyj-brus.jpg
[area_modifier] => 74.31
[parent_name] => Стены 1 этаж (несущие)
[parent_id] => 3
[material_sum] => 1022446
[work_sum] => 400011
[total_sum] => 1422457
[total_days] => 7
[display_material_sum] => 1 022 446
[display_work_sum] => 400 011
[display_total_sum] => 1 422 457
)
1
1 422 457₽
Работа:400 011 ₽
Материалы:1 022 446 ₽
Дни:7
stdClass Object
(
[id] => 87
[attribute_id] => 3
[name] => Оцилиндрованное бревно
[material_modifier] => 1
[work_modifier] => 1
[options] => Array
(
[0] => 180 мм
[1] => 220 мм
[2] => 260 мм
[3] => 320 мм
)
[days] => [7,8,9,10]
[material_price] => [75190,9532,10868,13116]
[work_price] => [3845,4691,5535,6863]
[image] => https://akademik-stroy.ru/wp-content/uploads/materials/ocilindrovannoe-brevno-1.jpg
[area_modifier] => 74.31
[parent_name] => Стены 1 этаж (несущие)
[parent_id] => 3
[material_sum] => 9386780
[work_sum] => 400011
[total_sum] => 9786791
[total_days] => 7
[display_material_sum] => 9 386 780
[display_work_sum] => 400 011
[display_total_sum] => 9 786 791
)
1
9 786 791₽
Работа:400 011 ₽
Материалы:9 386 780 ₽
Дни:7
stdClass Object
(
[id] => 88
[attribute_id] => 3
[name] => Срубы
[material_modifier] => 1
[work_modifier] => 1
[options] => Array
(
[0] => 260 мм
[1] => 320 мм
[2] => 360 мм
[3] => 400 мм
[4] => 500 мм
)
[days] => [7,8,9,10,11]
[material_price] => [37975,46709,52314,58069,73167]
[work_price] => [4806,5911,6621,7349,9260]
[image] => https://akademik-stroy.ru/wp-content/uploads/materials/sruby.jpg
[area_modifier] => 74.31
[parent_name] => Стены 1 этаж (несущие)
[parent_id] => 3
[material_sum] => 4740829
[work_sum] => 499987
[total_sum] => 5240816
[total_days] => 7
[display_material_sum] => 4 740 829
[display_work_sum] => 499 987
[display_total_sum] => 5 240 816
)
1
5 240 816₽
Работа:499 987 ₽
Материалы:4 740 829 ₽
Дни:7
stdClass Object
(
[id] => 174
[attribute_id] => 3
[name] => Брус
[material_modifier] => 1
[work_modifier] => 1
[options] => Array
(
[0] => 150 мм
[1] => 180 мм
[2] => 200 мм
)
[days] => [7,8,9]
[material_price] => [5127,6152,7367]
[work_price] => [1602,1922,2115]
[image] => https://akademik-stroy.ru/wp-content/uploads/materials/brus.jpg
[area_modifier] => 74.31
[parent_name] => Стены 1 этаж (несущие)
[parent_id] => 3
[material_sum] => 640059
[work_sum] => 166662
[total_sum] => 806721
[total_days] => 7
[display_material_sum] => 640 059
[display_work_sum] => 166 662
[display_total_sum] => 806 721
)
1
806 721₽
Работа:166 662 ₽
Материалы:640 059 ₽
Дни:7
stdClass Object
(
[id] => 175
[attribute_id] => 3
[name] => Газобетон
[material_modifier] => 1
[work_modifier] => 1
[options] => Array
(
[0] => 300 мм
[1] => 375 мм
[2] => 400 мм
[3] => 500 мм
[4] => 600 мм
)
[days] => [29,31,35,37,44]
[material_price] => [4298,5573,6356,7288,9119]
[work_price] => [4538,5251,5926,6733,7195]
[image] => https://akademik-stroy.ru/wp-content/uploads/materials/gazobeton.jpg
[area_modifier] => 74.31
[parent_name] => Стены 1 этаж (несущие)
[parent_id] => 3
[material_sum] => 536566
[work_sum] => 472106
[total_sum] => 1008672
[total_days] => 29
[display_material_sum] => 536 566
[display_work_sum] => 472 106
[display_total_sum] => 1 008 672
)
1
1 008 672₽
Работа:472 106 ₽
Материалы:536 566 ₽
Дни:29
stdClass Object
(
[id] => 176
[attribute_id] => 3
[name] => Блок
[material_modifier] => 1
[work_modifier] => 1
[options] => Array
(
[0] => 300 мм
[1] => 375 мм
[2] => 400 мм
[3] => 500 мм
[4] => 600 мм
)
[days] => [29,31,35,37,44]
[material_price] => [2698,3973,4356,6588,7119]
[work_price] => [5038,5851,6426,8733,9195]
[image] => https://akademik-stroy.ru/wp-content/uploads/materials/blok.jpg
[area_modifier] => 74.31
[parent_name] => Стены 1 этаж (несущие)
[parent_id] => 3
[material_sum] => 336820
[work_sum] => 524123
[total_sum] => 860943
[total_days] => 29
[display_material_sum] => 336 820
[display_work_sum] => 524 123
[display_total_sum] => 860 943
)
1
860 943₽
Работа:524 123 ₽
Материалы:336 820 ₽
Дни:29
stdClass Object
(
[id] => 177
[attribute_id] => 3
[name] => Газосиликатный блок
[material_modifier] => 1
[work_modifier] => 1
[options] => Array
(
[0] => 300 мм
[1] => 375 мм
[2] => 400 мм
[3] => 500 мм
[4] => 600 мм
)
[days] => [29,31,35,37,44]
[material_price] => [4298,5573,6356,7288,9119]
[work_price] => [4538,5251,5926,6733,7195]
[image] => https://akademik-stroy.ru/wp-content/uploads/materials/gazosilikatnyj-blok.jpg
[area_modifier] => 74.31
[parent_name] => Стены 1 этаж (несущие)
[parent_id] => 3
[material_sum] => 536566
[work_sum] => 472106
[total_sum] => 1008672
[total_days] => 29
[display_material_sum] => 536 566
[display_work_sum] => 472 106
[display_total_sum] => 1 008 672
)
1
1 008 672₽
Работа:472 106 ₽
Материалы:536 566 ₽
Дни:29
stdClass Object
(
[id] => 178
[attribute_id] => 3
[name] => Керамзитобетонный блок
[material_modifier] => 1
[work_modifier] => 1
[options] => Array
(
[0] => 300 мм
[1] => 375 мм
[2] => 400 мм
[3] => 500 мм
[4] => 600 мм
)
[days] => [23,23,24,25,28]
[material_price] => [3641,4298,5693,7613,9612]
[work_price] => [5737,5737,6903,7958,8901]
[image] => https://akademik-stroy.ru/wp-content/uploads/materials/keramzitobetonnyj-blok.jpg
[area_modifier] => 74.31
[parent_name] => Стены 1 этаж (несущие)
[parent_id] => 3
[material_sum] => 454545
[work_sum] => 596843
[total_sum] => 1051388
[total_days] => 23
[display_material_sum] => 454 545
[display_work_sum] => 596 843
[display_total_sum] => 1 051 388
)
1
1 051 388₽
Работа:596 843 ₽
Материалы:454 545 ₽
Дни:23
stdClass Object
(
[id] => 179
[attribute_id] => 3
[name] => Деревянные
[material_modifier] => 1
[work_modifier] => 1
[options] => Array
(
[0] => 180 мм
[1] => 220 мм
[2] => 260 мм
[3] => 320 мм
)
[days] => [7,8,9,10]
[material_price] => [7950,9458,11961,14472]
[work_price] => [4037,4925,5812,7207]
[image] => https://akademik-stroy.ru/wp-content/uploads/materials/derevyannye.jpg
[area_modifier] => 74.31
[parent_name] => Стены 1 этаж (несущие)
[parent_id] => 3
[material_sum] => 992484
[work_sum] => 419985
[total_sum] => 1412469
[total_days] => 7
[display_material_sum] => 992 484
[display_work_sum] => 419 985
[display_total_sum] => 1 412 469
)
1
1 412 469₽
Работа:419 985 ₽
Материалы:992 484 ₽
Дни:7
stdClass Object
(
[id] => 181
[attribute_id] => 3
[name] => Камень
[material_modifier] => 1
[work_modifier] => 1
[options] => Array
(
[0] => 300 мм
[1] => 400 мм
[2] => 500 мм
[3] => 600 мм
)
[days] => [25,27,31,34]
[material_price] => [5262,6844,8330,9815]
[work_price] => [8331,9135,10427,11069]
[image] => https://akademik-stroy.ru/wp-content/uploads/materials/kamen.jpg
[area_modifier] => 74.31
[parent_name] => Стены 1 этаж (несущие)
[parent_id] => 3
[material_sum] => 656912
[work_sum] => 866707
[total_sum] => 1523619
[total_days] => 25
[display_material_sum] => 656 912
[display_work_sum] => 866 707
[display_total_sum] => 1 523 619
)
1
1 523 619₽
Работа:866 707 ₽
Материалы:656 912 ₽
Дни:25
stdClass Object
(
[id] => 182
[attribute_id] => 3
[name] => Каркасно-щитовые
[material_modifier] => 1
[work_modifier] => 1
[options] => Array
(
[0] => 150 мм
[1] => 200 мм
[2] => 250 мм
[3] => 300 мм
[4] => 350 мм
[5] => 400 мм
)
[days] => [15,16,17,18,19,20]
[material_price] => [2379,2639,2898,3458,3601,4175]
[work_price] => [2538,2820,3134,3483,4062,5642]
[image] => https://akademik-stroy.ru/wp-content/uploads/materials/karkasno-shchitovye.jpg
[area_modifier] => 74.31
[parent_name] => Стены 1 этаж (несущие)
[parent_id] => 3
[material_sum] => 296996
[work_sum] => 264038
[total_sum] => 561034
[total_days] => 15
[display_material_sum] => 296 996
[display_work_sum] => 264 038
[display_total_sum] => 561 034
)
1
561 034₽
Работа:264 038 ₽
Материалы:296 996 ₽
Дни:15
stdClass Object
(
[id] => 183
[attribute_id] => 3
[name] => Рубленные
[material_modifier] => 1
[work_modifier] => 1
[options] => Array
(
[0] => 150 мм
[1] => 200 мм
[2] => 250 мм
[3] => 300 мм
[4] => 350 мм
[5] => 400 мм
)
[days] => [15,16,17,18,17,18]
[material_price] => [35950,50267,60583,75900,80217,100533]
[work_price] => [9612,12816,16020,19224,22428,25632]
[image] => https://akademik-stroy.ru/wp-content/uploads/materials/rublennye.jpg
[area_modifier] => 74.31
[parent_name] => Стены 1 этаж (несущие)
[parent_id] => 3
[material_sum] => 4488027
[work_sum] => 999975
[total_sum] => 5488002
[total_days] => 15
[display_material_sum] => 4 488 027
[display_work_sum] => 999 975
[display_total_sum] => 5 488 002
)
1
5 488 002₽
Работа:999 975 ₽
Материалы:4 488 027 ₽
Дни:15
stdClass Object
(
[id] => 185
[attribute_id] => 3
[name] => Теплоблок
[material_modifier] => 1
[work_modifier] => 1
[options] => Array
(
[0] => 300 мм (с облицовкой, не покрашенный)
[1] => 400 мм (с облицовкой, не покрашенный)
[2] => 300 мм (с облицовкой, покрашенный)
[3] => 400 мм (с облицовкой, покрашенный)
)
[days] => [15,16,15,16]
[material_price] => [2888,3729,3957,4258]
[work_price] => [2564,3229,2949,3713]
[image] => https://akademik-stroy.ru/wp-content/uploads/materials/teploblok.jpg
[area_modifier] => 74.31
[parent_name] => Стены 1 этаж (несущие)
[parent_id] => 3
[material_sum] => 360540
[work_sum] => 266743
[total_sum] => 627283
[total_days] => 15
[display_material_sum] => 360 540
[display_work_sum] => 266 743
[display_total_sum] => 627 283
)
1
627 283₽
Работа:266 743 ₽
Материалы:360 540 ₽
Дни:15
stdClass Object
(
[id] => 186
[attribute_id] => 3
[name] => Арболитовые блоки
[material_modifier] => 1
[work_modifier] => 1
[options] => Array
(
[0] => 300 мм
[1] => 400 мм
[2] => 600 мм
)
[days] => [19,22,27]
[material_price] => [3210,4475,5852]
[work_price] => [4214,4788,5866]
[image] => https://akademik-stroy.ru/wp-content/uploads/materials/arbolitovye-bloki.png
[area_modifier] => 74.31
[parent_name] => Стены 1 этаж (несущие)
[parent_id] => 3
[material_sum] => 400739
[work_sum] => 438399
[total_sum] => 839138
[total_days] => 19
[display_material_sum] => 400 739
[display_work_sum] => 438 399
[display_total_sum] => 839 138
)
1
839 138₽
Работа:438 399 ₽
Материалы:400 739 ₽
Дни:19
stdClass Object
(
[id] => 187
[attribute_id] => 3
[name] => Полистиролбетон
[material_modifier] => 1
[work_modifier] => 1
[options] => Array
(
[0] => 300 мм
[1] => 400 мм
[2] => 600 мм
)
[days] => [29,31,35]
[material_price] => [2798,4573,5256]
[work_price] => [5038,5851,6426]
[image] => https://akademik-stroy.ru/wp-content/uploads/materials/polistirolbeton.jpg
[area_modifier] => 74.31
[parent_name] => Стены 1 этаж (несущие)
[parent_id] => 3
[material_sum] => 349305
[work_sum] => 524123
[total_sum] => 873428
[total_days] => 29
[display_material_sum] => 349 305
[display_work_sum] => 524 123
[display_total_sum] => 873 428
)
1
873 428₽
Работа:524 123 ₽
Материалы:349 305 ₽
Дни:29
stdClass Object
(
[id] => 188
[attribute_id] => 3
[name] => Шлакоблок
[material_modifier] => 1
[work_modifier] => 1
[options] => Array
(
[0] => 400 мм
[1] => 600 мм
)
[days] => [15,16]
[material_price] => [2391,3471]
[work_price] => [2642,3662]
[image] => https://akademik-stroy.ru/wp-content/uploads/materials/shlakoblok.jpg
[area_modifier] => 74.31
[parent_name] => Стены 1 этаж (несущие)
[parent_id] => 3
[material_sum] => 298494
[work_sum] => 274858
[total_sum] => 573352
[total_days] => 15
[display_material_sum] => 298 494
[display_work_sum] => 274 858
[display_total_sum] => 573 352
)
1
573 352₽
Работа:274 858 ₽
Материалы:298 494 ₽
Дни:15
stdClass Object
(
[id] => 189
[attribute_id] => 3
[name] => Теплая керамика
[material_modifier] => 1
[work_modifier] => 1
[options] => Array
(
[0] => 380 мм
[1] => 380 мм Thermo
[2] => 440 мм
[3] => 510 мм
)
[days] => [23,23,24,25]
[material_price] => [4510,5098,6093,8013]
[work_price] => [4737,4937,5903,6958]
[image] => https://akademik-stroy.ru/wp-content/uploads/materials/teplaya-keramika.jpg
[area_modifier] => 74.31
[parent_name] => Стены 1 этаж (несущие)
[parent_id] => 3
[material_sum] => 563032
[work_sum] => 492809
[total_sum] => 1055841
[total_days] => 23
[display_material_sum] => 563 032
[display_work_sum] => 492 809
[display_total_sum] => 1 055 841
)
1
1 055 841₽
Работа:492 809 ₽
Материалы:563 032 ₽
Дни:23
stdClass Object
(
[id] => 190
[attribute_id] => 3
[name] => Несъемная опалубка
[material_modifier] => 1
[work_modifier] => 1
[options] => Array
(
[0] => 200 мм
[1] => 250 мм
[2] => 300 мм
[3] => 350 мм
)
[days] => [15,17,19,21]
[material_price] => [3302,3902,4108,5008]
[work_price] => [2100,2100,2300,2534]
[image] => https://akademik-stroy.ru/wp-content/uploads/materials/nesemnaya-opalubka.jpg
[area_modifier] => 74.31
[parent_name] => Стены 1 этаж (несущие)
[parent_id] => 3
[material_sum] => 412224
[work_sum] => 218471
[total_sum] => 630695
[total_days] => 15
[display_material_sum] => 412 224
[display_work_sum] => 218 471
[display_total_sum] => 630 695
)
1
630 695₽
Работа:218 471 ₽
Материалы:412 224 ₽
Дни:15
stdClass Object
(
[id] => 251
[attribute_id] => 3
[name] => Бревно
[material_modifier] => 1
[work_modifier] => 1
[options] => Array
(
[0] => 260 мм
[1] => 320 мм
[2] => 360 мм
[3] => 400 мм
[4] => 500 мм
)
[days] => [7,8,9,10,11]
[material_price] => [1874,24045,26930,30972,38825]
[work_price] => [5046,6207,6952,7716,9723]
[image] => https://akademik-stroy.ru/wp-content/uploads/materials/sruby.jpg
[area_modifier] => 74.31
[parent_name] => Стены 1 этаж (несущие)
[parent_id] => 3
[material_sum] => 233952
[work_sum] => 524956
[total_sum] => 758908
[total_days] => 7
[display_material_sum] => 233 952
[display_work_sum] => 524 956
[display_total_sum] => 758 908
)
1
758 908₽
Работа:524 956 ₽
Материалы:233 952 ₽
Дни:7
stdClass Object
(
[id] => 7
[attribute_id] => 4
[name] => Деревянные балки
[material_modifier] => 1
[work_modifier] => 1
[options] => Array
(
[0] => без утепления
[1] => утепление 200 мм
[2] => утепление 250 мм
[3] => утепление 300 мм
[4] => утепление 350 мм
[5] => утепление 400 мм
[6] => утепление 450 мм
[7] => утепление 500 мм
)
[days] => [8,9,9,9,11,12,13,14]
[material_price] => [1634,2042,2344,2947,3149,3652,3354,3557]
[work_price] => [1230,1339,1393,1426,1460,1513,1587,1620]
[image] => https://akademik-stroy.ru/wp-content/uploads/materials/derevyannye-balki.png
[area_modifier] => 74.31
[parent_name] => Перекрытие первого этажа
[parent_id] => 4
[material_sum] => 203990
[work_sum] => 127962
[total_sum] => 331952
[total_days] => 8
[display_material_sum] => 203 990
[display_work_sum] => 127 962
[display_total_sum] => 331 952
)
1
331 952₽
Работа:127 962 ₽
Материалы:203 990 ₽
Дни:8
stdClass Object
(
[id] => 8
[attribute_id] => 4
[name] => Сборные ж/б плиты
[material_modifier] => 1
[work_modifier] => 1
[options] => Array
(
[0] => без утепления
[1] => утепление 150 мм
[2] => утепление 200 мм
[3] => утепление 250 мм
[4] => утепление 300 мм
[5] => утепление 350 мм
[6] => утепление 400 мм
[7] => утепление 450 мм
[8] => утепление 500 мм
)
[days] => [13,15,15,15,15,15,15,15,15]
[material_price] => [3067,5577,5928,6679,7730,8782,9833,10884,11935]
[work_price] => [1520,1956,2102,2247,2392,2537,2684,2829,2974]
[image] => https://akademik-stroy.ru/wp-content/uploads/materials/sbornye-zh-b-plity-2.jpg
[area_modifier] => 74.31
[parent_name] => Перекрытие первого этажа
[parent_id] => 4
[material_sum] => 382887
[work_sum] => 158132
[total_sum] => 541019
[total_days] => 13
[display_material_sum] => 382 887
[display_work_sum] => 158 132
[display_total_sum] => 541 019
)
1
541 019₽
Работа:158 132 ₽
Материалы:382 887 ₽
Дни:13
stdClass Object
(
[id] => 89
[attribute_id] => 4
[name] => Монолитная ж/б плита
[material_modifier] => 1
[work_modifier] => 1
[options] => Array
(
[0] => без утепления
[1] => утепление 150 мм
[2] => утепление 200 мм
[3] => утепление 250 мм
[4] => утепление 300 мм
[5] => утепление 350 мм
[6] => утепление 400 мм
[7] => утепление 450 мм
[8] => утепление 500 мм
)
[days] => [18,20,20,20,20,20,20,20,20]
[material_price] => [4837,6572,7224,7375,79426,8177,8728,9180,10031]
[work_price] => [3348,3921,4112,4302,4493,4684,4875,5066,5256]
[image] => https://akademik-stroy.ru/wp-content/uploads/materials/monolitnaya-zh-b-plita-2.jpg
[area_modifier] => 74.31
[parent_name] => Перекрытие первого этажа
[parent_id] => 4
[material_sum] => 603855
[work_sum] => 348306
[total_sum] => 952161
[total_days] => 18
[display_material_sum] => 603 855
[display_work_sum] => 348 306
[display_total_sum] => 952 161
)
1
952 161₽
Работа:348 306 ₽
Материалы:603 855 ₽
Дни:18
stdClass Object
(
[id] => 160
[attribute_id] => 36
[name] => Не эксплуатируемая
[material_modifier] => 1
[work_modifier] => 1
[options] => Array
(
)
[days] => [10]
[material_price] => [8068]
[work_price] => [4163]
[image] => https://akademik-stroy.ru/wp-content/uploads/materials/ne-ehkspluatiruemaya-3.jpg
[area_modifier] => 74.31
[parent_name] => Плоская крыша
[parent_id] => 36
[material_sum] => 1007216
[work_sum] => 433094
[total_sum] => 1440310
[total_days] => 10
[display_material_sum] => 1 007 216
[display_work_sum] => 433 094
[display_total_sum] => 1 440 310
)
1
1 440 310₽
Работа:433 094 ₽
Материалы:1 007 216 ₽
Дни:10
stdClass Object
(
[id] => 161
[attribute_id] => 36
[name] => Зеленая кровля (Эксплуатируемая)
[material_modifier] => 1
[work_modifier] => 1
[options] => Array
(
)
[days] => [10]
[material_price] => [10056]
[work_price] => [8446]
[image] => https://akademik-stroy.ru/wp-content/uploads/materials/zelenaya-krovlya-2.jpg
[area_modifier] => 74.31
[parent_name] => Плоская крыша
[parent_id] => 36
[material_sum] => 1255399
[work_sum] => 878671
[total_sum] => 2134070
[total_days] => 10
[display_material_sum] => 1 255 399
[display_work_sum] => 878 671
[display_total_sum] => 2 134 070
)
1
2 134 070₽
Работа:878 671 ₽
Материалы:1 255 399 ₽
Дни:10
stdClass Object
(
[id] => 162
[attribute_id] => 36
[name] => Эксплуатируемая
[material_modifier] => 1
[work_modifier] => 1
[options] => Array
(
)
[days] => [10]
[material_price] => [9593]
[work_price] => [7459]
[image] => https://akademik-stroy.ru/wp-content/uploads/materials/ehkspluatiruemaya-2.jpg
[area_modifier] => 74.31
[parent_name] => Плоская крыша
[parent_id] => 36
[material_sum] => 1197598
[work_sum] => 775990
[total_sum] => 1973588
[total_days] => 10
[display_material_sum] => 1 197 598
[display_work_sum] => 775 990
[display_total_sum] => 1 973 588
)
1
1 973 588₽
Работа:775 990 ₽
Материалы:1 197 598 ₽
Дни:10
stdClass Object
(
[id] => 163
[attribute_id] => 36
[name] => Нет
[material_modifier] => 1
[work_modifier] => 1
[options] => Array
(
)
[days] => [0]
[material_price] => [0]
[work_price] => [0]
[image] => https://akademik-stroy.ru/wp-content/uploads/materials/ne-ehkspluatiruemaya-3.jpg
[area_modifier] => 74.31
[parent_name] => Плоская крыша
[parent_id] => 36
[material_sum] => 0
[work_sum] => 0
[total_sum] => 0
[total_days] => 0
[display_material_sum] => 0
[display_work_sum] => 0
[display_total_sum] => 0
)
1
0₽
Работа:0 ₽
Материалы:0 ₽
Дни:0
stdClass Object
(
[id] => 51
[attribute_id] => 26
[name] => Есть
[material_modifier] => 1
[work_modifier] => 1
[options] => Array
(
[0] => Профиль 58 мм, 3-камерный, стеклопакет 2-камерный до 32 мм
[1] => Профиль 60 мм, 4-камерный, стеклопакет 2-камерный до 32 мм
[2] => Профиль 70 мм, 5-камерный, стеклопакет 2-камерный до 40 мм
[3] => Профиль 72 мм, 5-камерный, стеклопакет 2-камерный до 40 мм
[4] => Алюминиевые окна Alutech профиль 72 мм, стеклопакет 2-камерный
)
[days] => [3,3,3,3,3]
[material_price] => [1339,2124,2867,3023,29596]
[work_price] => [635,647,659,668,2579]
[image] => https://akademik-stroy.ru/wp-content/uploads/materials/okna.jpg
[area_modifier] => 60.3
[parent_name] => Окна
[parent_id] => 26
[material_sum] => 135646
[work_sum] => 53607
[total_sum] => 189253
[total_days] => 3
[display_material_sum] => 135 646
[display_work_sum] => 53 607
[display_total_sum] => 189 253
)
1
189 253₽
Работа:53 607 ₽
Материалы:135 646 ₽
Дни:3
stdClass Object
(
[id] => 52
[attribute_id] => 26
[name] => Нет
[material_modifier] => 2
[work_modifier] => 1
[options] =>
[days] => null
[material_price] => null
[work_price] => null
[image] => https://akademik-stroy.ru/wp-content/uploads/materials/okna.jpg
[area_modifier] => 60.3
[parent_name] => Окна
[parent_id] => 26
[material_sum] => 0
[work_sum] => 0
[total_sum] => 0
[total_days] => 0
[display_material_sum] => 0
[display_work_sum] => 0
[display_total_sum] => 0
)
1
0₽
Работа:0 ₽
Материалы:0 ₽
Дни:0
stdClass Object
(
[id] => 53
[attribute_id] => 27
[name] => Есть
[material_modifier] => 1
[work_modifier] => 1
[options] => Array
(
)
[days] => [1]
[material_price] => [10000]
[work_price] => [5500]
[image] => https://akademik-stroy.ru/wp-content/uploads/materials/dveri.jpg
[area_modifier] => 1
[parent_name] => Двери входные
[parent_id] => 27
[material_sum] => 16800
[work_sum] => 7700
[total_sum] => 24500
[total_days] => 1
[display_material_sum] => 16 800
[display_work_sum] => 7 700
[display_total_sum] => 24 500
)
1
24 500₽
Работа:7 700 ₽
Материалы:16 800 ₽
Дни:1
stdClass Object
(
[id] => 54
[attribute_id] => 27
[name] => Нет
[material_modifier] => 1
[work_modifier] => 1
[options] => Array
(
)
[days] => [0]
[material_price] => [0]
[work_price] => [0]
[image] => https://akademik-stroy.ru/wp-content/uploads/materials/dveri.jpg
[area_modifier] => 1
[parent_name] => Двери входные
[parent_id] => 27
[material_sum] => 0
[work_sum] => 0
[total_sum] => 0
[total_days] => 0
[display_material_sum] => 0
[display_work_sum] => 0
[display_total_sum] => 0
)
1
0₽
Работа:0 ₽
Материалы:0 ₽
Дни:0
stdClass Object
(
[id] => 31
[attribute_id] => 16
[name] => Нет
[material_modifier] => 1
[work_modifier] => 1
[options] => Array
(
)
[days] => [0]
[material_price] => [0]
[work_price] => [0]
[image] => https://akademik-stroy.ru/wp-content/uploads/materials/docke-standard-pvh.jpg
[area_modifier] => 74.31
[parent_name] => Водосточная система
[parent_id] => 16
[material_sum] => 0
[work_sum] => 0
[total_sum] => 0
[total_days] => 0
[display_material_sum] => 0
[display_work_sum] => 0
[display_total_sum] => 0
)
1
0₽
Работа:0 ₽
Материалы:0 ₽
Дни:0
stdClass Object
(
[id] => 32
[attribute_id] => 16
[name] => Есть
[material_modifier] => 1
[work_modifier] => 1
[options] => Array
(
[0] => Döcke Standard (ПВХ)
[1] => Металлические Grand Line
)
[days] => [7,7]
[material_price] => [1842,2703]
[work_price] => [1491,1529]
[image] => https://akademik-stroy.ru/wp-content/uploads/materials/docke-standard-pvh.jpg
[area_modifier] => 74.31
[parent_name] => Водосточная система
[parent_id] => 16
[material_sum] => 229957
[work_sum] => 155115
[total_sum] => 385072
[total_days] => 7
[display_material_sum] => 229 957
[display_work_sum] => 155 115
[display_total_sum] => 385 072
)
1
385 072₽
Работа:155 115 ₽
Материалы:229 957 ₽
Дни:7
stdClass Object
(
[id] => 33
[attribute_id] => 17
[name] => Нет
[material_modifier] => 1
[work_modifier] => 1
[options] => Array
(
)
[days] => [0]
[material_price] => [0]
[work_price] => [0]
[image] => https://akademik-stroy.ru/wp-content/uploads/materials/mineralovata.jpg
[area_modifier] => 74.31
[parent_name] => Дополнительное утепление наружных стен
[parent_id] => 17
[material_sum] => 0
[work_sum] => 0
[total_sum] => 0
[total_days] => 0
[display_material_sum] => 0
[display_work_sum] => 0
[display_total_sum] => 0
)
1
0₽
Работа:0 ₽
Материалы:0 ₽
Дни:0
stdClass Object
(
[id] => 34
[attribute_id] => 17
[name] => Минераловатный
[material_modifier] => 1
[work_modifier] => 1
[options] => Array
(
[0] => 50 мм
[1] => 100 мм
[2] => 150 мм
[3] => 200 мм
[4] => 250 мм
[5] => 300 мм
)
[days] => [7,8,10,12,14,15]
[material_price] => [3437,3613,3803,3915,4601,4830]
[work_price] => [2325,2423,2523,2749,2859,3025]
[image] => https://akademik-stroy.ru/wp-content/uploads/materials/mineralovata.jpg
[area_modifier] => 74.31
[parent_name] => Дополнительное утепление наружных стен
[parent_id] => 17
[material_sum] => 429078
[work_sum] => 241879
[total_sum] => 670957
[total_days] => 7
[display_material_sum] => 429 078
[display_work_sum] => 241 879
[display_total_sum] => 670 957
)
1
670 957₽
Работа:241 879 ₽
Материалы:429 078 ₽
Дни:7
stdClass Object
(
[id] => 128
[attribute_id] => 17
[name] => Эковата (целлюлозная вата)
[material_modifier] => 1
[work_modifier] => 1
[options] => Array
(
[0] => 50 мм
[1] => 100 мм
[2] => 150 мм
[3] => 200 мм
[4] => 250 мм
[5] => 300 мм
)
[days] => [3,4,5,6,7,8]
[material_price] => [810,1319,1629,1838,2267,2676]
[work_price] => [1225,1323,1423,1549,1659,1725]
[image] => https://akademik-stroy.ru/wp-content/uploads/materials/ehkovata.jpg
[area_modifier] => 74.31
[parent_name] => Дополнительное утепление наружных стен
[parent_id] => 17
[material_sum] => 101121
[work_sum] => 127442
[total_sum] => 228563
[total_days] => 3
[display_material_sum] => 101 121
[display_work_sum] => 127 442
[display_total_sum] => 228 563
)
1
228 563₽
Работа:127 442 ₽
Материалы:101 121 ₽
Дни:3
stdClass Object
(
[id] => 129
[attribute_id] => 17
[name] => Экструдированный пенополистирол
[material_modifier] => 1
[work_modifier] => 1
[options] => Array
(
[0] => 50 мм
[1] => 100 мм
[2] => 150 мм
[3] => 200 мм
[4] => 250 мм
[5] => 300 мм
)
[days] => [5,6,7,8,9,10]
[material_price] => [4560,4300,5119,6292,7010,8583]
[work_price] => [1795,1954,2254,2330,2595,2735]
[image] => https://akademik-stroy.ru/wp-content/uploads/materials/epps.jpg
[area_modifier] => 74.31
[parent_name] => Дополнительное утепление наружных стен
[parent_id] => 17
[material_sum] => 569274
[work_sum] => 186741
[total_sum] => 756015
[total_days] => 5
[display_material_sum] => 569 274
[display_work_sum] => 186 741
[display_total_sum] => 756 015
)
1
756 015₽
Работа:186 741 ₽
Материалы:569 274 ₽
Дни:5
stdClass Object
(
[id] => 130
[attribute_id] => 17
[name] => ПСБ (ППС-пенополистирол)
[material_modifier] => 1
[work_modifier] => 1
[options] => Array
(
[0] => 50 мм
[1] => 100 мм
[2] => 150 мм
[3] => 200 мм
[4] => 250 мм
[5] => 300 мм
)
[days] => [5,6,7,8,9,10]
[material_price] => [4822,5200,5819,6292,7010,7583]
[work_price] => [1795,1954,2254,2330,2595,2735]
[image] => https://akademik-stroy.ru/wp-content/uploads/materials/psb.jpg
[area_modifier] => 74.31
[parent_name] => Дополнительное утепление наружных стен
[parent_id] => 17
[material_sum] => 601982
[work_sum] => 186741
[total_sum] => 788723
[total_days] => 5
[display_material_sum] => 601 982
[display_work_sum] => 186 741
[display_total_sum] => 788 723
)
1
788 723₽
Работа:186 741 ₽
Материалы:601 982 ₽
Дни:5
stdClass Object
(
[id] => 131
[attribute_id] => 17
[name] => ППУ (Пенополиуретан)
[material_modifier] => 1
[work_modifier] => 1
[options] => Array
(
[0] => 50 мм
[1] => 100 мм
[2] => 150 мм
[3] => 200 мм
[4] => 250 мм
[5] => 300 мм
)
[days] => [3,4,5,6,7,8]
[material_price] => [2860,3400,4219,4592,5010,5583]
[work_price] => [729,900,980,1120,1280,1530]
[image] => https://akademik-stroy.ru/wp-content/uploads/materials/ppu.jpg
[area_modifier] => 74.31
[parent_name] => Дополнительное утепление наружных стен
[parent_id] => 17
[material_sum] => 357045
[work_sum] => 75841
[total_sum] => 432886
[total_days] => 3
[display_material_sum] => 357 045
[display_work_sum] => 75 841
[display_total_sum] => 432 886
)
1
432 886₽
Работа:75 841 ₽
Материалы:357 045 ₽
Дни:3
stdClass Object
(
[id] => 132
[attribute_id] => 17
[name] => PIR-плиты (пенополиизоцианурат)
[material_modifier] => 1
[work_modifier] => 1
[options] => Array
(
[0] => 50 мм
[1] => 100 мм
[2] => 150 мм
[3] => 200 мм
[4] => 250 мм
[5] => 300 мм
)
[days] => [5,6,7,8,9,10]
[material_price] => [8323,15645,20968,25900,29258,30581]
[work_price] => [800,900,970,1150,1280,1330]
[image] => https://akademik-stroy.ru/wp-content/uploads/materials/pir.jpg
[area_modifier] => 74.31
[parent_name] => Дополнительное утепление наружных стен
[parent_id] => 17
[material_sum] => 1039050
[work_sum] => 83227
[total_sum] => 1122277
[total_days] => 5
[display_material_sum] => 1 039 050
[display_work_sum] => 83 227
[display_total_sum] => 1 122 277
)
1
1 122 277₽
Работа:83 227 ₽
Материалы:1 039 050 ₽
Дни:5
stdClass Object
(
[id] => 37
[attribute_id] => 19
[name] => Нет
[material_modifier] => 1
[work_modifier] => 1
[options] => Array
(
)
[days] => [0]
[material_price] => [0]
[work_price] => [0]
[image] => https://akademik-stroy.ru/wp-content/uploads/materials/imitaciya-brusa.jpg
[area_modifier] => 74.31
[parent_name] => Наружная отделка фасада
[parent_id] => 19
[material_sum] => 0
[work_sum] => 0
[total_sum] => 0
[total_days] => 0
[display_material_sum] => 0
[display_work_sum] => 0
[display_total_sum] => 0
)
1
0₽
Работа:0 ₽
Материалы:0 ₽
Дни:0
stdClass Object
(
[id] => 38
[attribute_id] => 19
[name] => Имитация бруса
[material_modifier] => 1
[work_modifier] => 1
[options] => Array
(
[0] => Сосна
[1] => Ель
[2] => Лиственница
)
[days] => [20,20,20]
[material_price] => [2994,2762,4954]
[work_price] => [1397,1231,1577]
[image] => https://akademik-stroy.ru/wp-content/uploads/materials/imitaciya-brusa.jpg
[area_modifier] => 74.31
[parent_name] => Наружная отделка фасада
[parent_id] => 19
[material_sum] => 373773
[work_sum] => 145335
[total_sum] => 519108
[total_days] => 20
[display_material_sum] => 373 773
[display_work_sum] => 145 335
[display_total_sum] => 519 108
)
1
519 108₽
Работа:145 335 ₽
Материалы:373 773 ₽
Дни:20
stdClass Object
(
[id] => 136
[attribute_id] => 19
[name] => Планкен
[material_modifier] => 1
[work_modifier] => 1
[options] => Array
(
[0] => Сосна
[1] => Ель
[2] => Лиственница
)
[days] => [20,20,20]
[material_price] => [3194,2862,5154]
[work_price] => [1537,1354,1735]
[image] => https://akademik-stroy.ru/wp-content/uploads/materials/planken.jpg
[area_modifier] => 74.31
[parent_name] => Наружная отделка фасада
[parent_id] => 19
[material_sum] => 398742
[work_sum] => 159900
[total_sum] => 558642
[total_days] => 20
[display_material_sum] => 398 742
[display_work_sum] => 159 900
[display_total_sum] => 558 642
)
1
558 642₽
Работа:159 900 ₽
Материалы:398 742 ₽
Дни:20
stdClass Object
(
[id] => 137
[attribute_id] => 19
[name] => Штукатурка
[material_modifier] => 1
[work_modifier] => 1
[options] => Array
(
[0] => Цементно-песчаная (минеральная)
[1] => Мокрый фасад
)
[days] => [35,35]
[material_price] => [2231,3938]
[work_price] => [1202,2422]
[image] => https://akademik-stroy.ru/wp-content/uploads/materials/shtukaturka.jpg
[area_modifier] => 74.31
[parent_name] => Наружная отделка фасада
[parent_id] => 19
[material_sum] => 278520
[work_sum] => 125049
[total_sum] => 403569
[total_days] => 35
[display_material_sum] => 278 520
[display_work_sum] => 125 049
[display_total_sum] => 403 569
)
1
403 569₽
Работа:125 049 ₽
Материалы:278 520 ₽
Дни:35
stdClass Object
(
[id] => 138
[attribute_id] => 19
[name] => Облицовочный кирпич
[material_modifier] => 1
[work_modifier] => 1
[options] => Array
(
[0] => Керамический
[1] => Клинкерный
[2] => Ручной формовки
[3] => Гиперпрессованный
[4] => Силикатный кирпич
)
[days] => [45,45,45,45,45]
[material_price] => [8174,9148,1040,1257,5876]
[work_price] => [3240,3758,4536,4017,3369]
[image] => https://akademik-stroy.ru/wp-content/uploads/materials/oblicovochnyj-kirpich.jpg
[area_modifier] => 74.31
[parent_name] => Наружная отделка фасада
[parent_id] => 19
[material_sum] => 1020449
[work_sum] => 337070
[total_sum] => 1357519
[total_days] => 45
[display_material_sum] => 1 020 449
[display_work_sum] => 337 070
[display_total_sum] => 1 357 519
)
1
1 357 519₽
Работа:337 070 ₽
Материалы:1 020 449 ₽
Дни:45
stdClass Object
(
[id] => 139
[attribute_id] => 19
[name] => Фасадная плитка
[material_modifier] => 1
[work_modifier] => 1
[options] => Array
(
[0] => Клинкерная
[1] => Керамическая
[2] => Плитка ручной формовки
)
[days] => [40,40,40]
[material_price] => [2974,1487,3470]
[work_price] => [3007,2592,3629]
[image] => https://akademik-stroy.ru/wp-content/uploads/materials/fasadnaya-plitka.jpg
[area_modifier] => 74.31
[parent_name] => Наружная отделка фасада
[parent_id] => 19
[material_sum] => 371277
[work_sum] => 312830
[total_sum] => 684107
[total_days] => 40
[display_material_sum] => 371 277
[display_work_sum] => 312 830
[display_total_sum] => 684 107
)
1
684 107₽
Работа:312 830 ₽
Материалы:371 277 ₽
Дни:40
stdClass Object
(
[id] => 140
[attribute_id] => 19
[name] => Сайдинг
[material_modifier] => 1
[work_modifier] => 1
[options] => Array
(
[0] => Виниловый
[1] => Металлический
[2] => Фиброцементный
)
[days] => [20,20,20]
[material_price] => [1263,1944,4147]
[work_price] => [1263,1944,2074]
[image] => https://akademik-stroy.ru/wp-content/uploads/materials/sajding.jpg
[area_modifier] => 74.31
[parent_name] => Наружная отделка фасада
[parent_id] => 19
[material_sum] => 157674
[work_sum] => 131395
[total_sum] => 289069
[total_days] => 20
[display_material_sum] => 157 674
[display_work_sum] => 131 395
[display_total_sum] => 289 069
)
1
289 069₽
Работа:131 395 ₽
Материалы:157 674 ₽
Дни:20
stdClass Object
(
[id] => 141
[attribute_id] => 19
[name] => Камень
[material_modifier] => 1
[work_modifier] => 1
[options] => Array
(
[0] => Травертин
[1] => Дагестанский
[2] => Искусственный
[3] => Натуральный
[4] => Керамогранит
)
[days] => [45,45,45,45,45]
[material_price] => [4536,3888,2592,3240,2462]
[work_price] => [3240,3240,2462,3110,1944]
[image] => https://akademik-stroy.ru/wp-content/uploads/materials/kamen-1.jpg
[area_modifier] => 74.31
[parent_name] => Наружная отделка фасада
[parent_id] => 19
[material_sum] => 566278
[work_sum] => 337070
[total_sum] => 903348
[total_days] => 45
[display_material_sum] => 566 278
[display_work_sum] => 337 070
[display_total_sum] => 903 348
)
1
903 348₽
Работа:337 070 ₽
Материалы:566 278 ₽
Дни:45
stdClass Object
(
[id] => 142
[attribute_id] => 19
[name] => Термопанели
[material_modifier] => 1
[work_modifier] => 1
[options] => Array
(
)
[days] => [20]
[material_price] => [6221]
[work_price] => [2333]
[image] => https://akademik-stroy.ru/wp-content/uploads/materials/termo.png
[area_modifier] => 74.31
[parent_name] => Наружная отделка фасада
[parent_id] => 19
[material_sum] => 776635
[work_sum] => 242711
[total_sum] => 1019346
[total_days] => 20
[display_material_sum] => 776 635
[display_work_sum] => 242 711
[display_total_sum] => 1 019 346
)
1
1 019 346₽
Работа:242 711 ₽
Материалы:776 635 ₽
Дни:20
stdClass Object
(
[id] => 143
[attribute_id] => 19
[name] => Плитка HAUBERK
[material_modifier] => 1
[work_modifier] => 1
[options] => Array
(
)
[days] => [20]
[material_price] => [2786]
[work_price] => [1944]
[image] => https://akademik-stroy.ru/wp-content/uploads/materials/hauberk.jpg
[area_modifier] => 74.31
[parent_name] => Наружная отделка фасада
[parent_id] => 19
[material_sum] => 347806
[work_sum] => 202242
[total_sum] => 550048
[total_days] => 20
[display_material_sum] => 347 806
[display_work_sum] => 202 242
[display_total_sum] => 550 048
)
1
550 048₽
Работа:202 242 ₽
Материалы:347 806 ₽
Дни:20
stdClass Object
(
[id] => 144
[attribute_id] => 19
[name] => Фальцевый фасад
[material_modifier] => 1
[work_modifier] => 1
[options] => Array
(
)
[days] => [20]
[material_price] => [3240]
[work_price] => [2592]
[image] => https://akademik-stroy.ru/wp-content/uploads/materials/falcevyj-fasad.jpg
[area_modifier] => 74.31
[parent_name] => Наружная отделка фасада
[parent_id] => 19
[material_sum] => 404484
[work_sum] => 269656
[total_sum] => 674140
[total_days] => 20
[display_material_sum] => 404 484
[display_work_sum] => 269 656
[display_total_sum] => 674 140
)
1
674 140₽
Работа:269 656 ₽
Материалы:404 484 ₽
Дни:20
stdClass Object
(
[id] => 145
[attribute_id] => 19
[name] => Комбинированный
[material_modifier] => 1
[work_modifier] => 1
[options] => Array
(
)
[days] => [20]
[material_price] => [4629]
[work_price] => [3499]
[image] => https://akademik-stroy.ru/wp-content/uploads/materials/Kombinirovannyj.jpg
[area_modifier] => 74.31
[parent_name] => Наружная отделка фасада
[parent_id] => 19
[material_sum] => 577888
[work_sum] => 364015
[total_sum] => 941903
[total_days] => 20
[display_material_sum] => 577 888
[display_work_sum] => 364 015
[display_total_sum] => 941 903
)
1
941 903₽
Работа:364 015 ₽
Материалы:577 888 ₽
Дни:20
stdClass Object
(
[id] => 257
[attribute_id] => 19
[name] => Японские фиброцементные
[material_modifier] => 1
[work_modifier] => 1
[options] => Array
(
)
[days] => [20]
[material_price] => [7043]
[work_price] => [2993]
[image] => https://akademik-stroy.ru/wp-content/uploads/materials/paneli.jpg
[area_modifier] => 74.31
[parent_name] => Наружная отделка фасада
[parent_id] => 19
[material_sum] => 879254
[work_sum] => 311374
[total_sum] => 1190628
[total_days] => 20
[display_material_sum] => 879 254
[display_work_sum] => 311 374
[display_total_sum] => 1 190 628
)
1
1 190 628₽
Работа:311 374 ₽
Материалы:879 254 ₽
Дни:20
stdClass Object
(
[id] => 258
[attribute_id] => 19
[name] => Панели Каньон
[material_modifier] => 1
[work_modifier] => 1
[options] => Array
(
)
[days] => [20]
[material_price] => [4543]
[work_price] => [2592]
[image] => https://akademik-stroy.ru/wp-content/uploads/materials/kanon.png
[area_modifier] => 74.31
[parent_name] => Наружная отделка фасада
[parent_id] => 19
[material_sum] => 567152
[work_sum] => 269656
[total_sum] => 836808
[total_days] => 20
[display_material_sum] => 567 152
[display_work_sum] => 269 656
[display_total_sum] => 836 808
)
1
836 808₽
Работа:269 656 ₽
Материалы:567 152 ₽
Дни:20
stdClass Object
(
[id] => 39
[attribute_id] => 20
[name] => Нет
[material_modifier] => 1
[work_modifier] => 1
[options] => Array
(
)
[days] => [0]
[material_price] => [0]
[work_price] => [0]
[image] => https://akademik-stroy.ru/wp-content/uploads/materials/terrasy.jpg
[area_modifier] => 30
[parent_name] => Террасы, крыльца, навесы
[parent_id] => 20
[material_sum] => 0
[work_sum] => 0
[total_sum] => 0
[total_days] => 0
[display_material_sum] => 0
[display_work_sum] => 0
[display_total_sum] => 0
)
1
0₽
Работа:0 ₽
Материалы:0 ₽
Дни:0
stdClass Object
(
[id] => 40
[attribute_id] => 20
[name] => Есть
[material_modifier] => 1
[work_modifier] => 1
[options] => Array
(
)
[days] => [5]
[material_price] => [10450]
[work_price] => [1950]
[image] => https://akademik-stroy.ru/wp-content/uploads/materials/terrasy.jpg
[area_modifier] => 30
[parent_name] => Террасы, крыльца, навесы
[parent_id] => 20
[material_sum] => 526680
[work_sum] => 81900
[total_sum] => 608580
[total_days] => 5
[display_material_sum] => 526 680
[display_work_sum] => 81 900
[display_total_sum] => 608 580
)
1
608 580₽
Работа:81 900 ₽
Материалы:526 680 ₽
Дни:5
stdClass Object
(
[id] => 41
[attribute_id] => 21
[name] => Нет
[material_modifier] => 1
[work_modifier] => 1
[options] => Array
(
)
[days] => [0]
[material_price] => [0]
[work_price] => [0]
[image] => https://akademik-stroy.ru/wp-content/uploads/materials/balkony.jpg
[area_modifier] => 30
[parent_name] => Балконы
[parent_id] => 21
[material_sum] => 0
[work_sum] => 0
[total_sum] => 0
[total_days] => 0
[display_material_sum] => 0
[display_work_sum] => 0
[display_total_sum] => 0
)
1
0₽
Работа:0 ₽
Материалы:0 ₽
Дни:0
stdClass Object
(
[id] => 42
[attribute_id] => 21
[name] => Есть
[material_modifier] => 1
[work_modifier] => 1
[options] => Array
(
)
[days] => [12]
[material_price] => [3600]
[work_price] => [1950]
[image] => https://akademik-stroy.ru/wp-content/uploads/materials/balkony.jpg
[area_modifier] => 30
[parent_name] => Балконы
[parent_id] => 21
[material_sum] => 181440
[work_sum] => 81900
[total_sum] => 263340
[total_days] => 12
[display_material_sum] => 181 440
[display_work_sum] => 81 900
[display_total_sum] => 263 340
)
1
263 340₽
Работа:81 900 ₽
Материалы:181 440 ₽
Дни:12
stdClass Object
(
[id] => 43
[attribute_id] => 22
[name] => Нет
[material_modifier] => 1
[work_modifier] => 1
[options] => Array
(
)
[days] => [0]
[material_price] => [0]
[work_price] => [0]
[image] => https://akademik-stroy.ru/wp-content/uploads/materials/uteplennaya.jpg
[area_modifier] => 74.31
[parent_name] => Отмостка
[parent_id] => 22
[material_sum] => 0
[work_sum] => 0
[total_sum] => 0
[total_days] => 0
[display_material_sum] => 0
[display_work_sum] => 0
[display_total_sum] => 0
)
1
0₽
Работа:0 ₽
Материалы:0 ₽
Дни:0
stdClass Object
(
[id] => 44
[attribute_id] => 22
[name] => Утепленная отмостка
[material_modifier] => 1
[work_modifier] => 1
[options] => Array
(
)
[days] => [15]
[material_price] => [2550]
[work_price] => [1750]
[image] => https://akademik-stroy.ru/wp-content/uploads/materials/uteplennaya.jpg
[area_modifier] => 74.31
[parent_name] => Отмостка
[parent_id] => 22
[material_sum] => 318344
[work_sum] => 182060
[total_sum] => 500404
[total_days] => 15
[display_material_sum] => 318 344
[display_work_sum] => 182 060
[display_total_sum] => 500 404
)
1
500 404₽
Работа:182 060 ₽
Материалы:318 344 ₽
Дни:15
stdClass Object
(
[id] => 146
[attribute_id] => 22
[name] => Не утепленная отмостка
[material_modifier] => 1
[work_modifier] => 1
[options] => Array
(
)
[days] => [10]
[material_price] => [1650]
[work_price] => [1450]
[image] => https://akademik-stroy.ru/wp-content/uploads/materials/ne-uteplennaya.jpg
[area_modifier] => 74.31
[parent_name] => Отмостка
[parent_id] => 22
[material_sum] => 205987
[work_sum] => 150849
[total_sum] => 356836
[total_days] => 10
[display_material_sum] => 205 987
[display_work_sum] => 150 849
[display_total_sum] => 356 836
)
1
356 836₽
Работа:150 849 ₽
Материалы:205 987 ₽
Дни:10
stdClass Object
(
[id] => 45
[attribute_id] => 23
[name] => Нет
[material_modifier] => 1
[work_modifier] => 1
[options] => Array
(
)
[days] => [0]
[material_price] => [0]
[work_price] => [0]
[image] => https://akademik-stroy.ru/wp-content/uploads/materials/drenazh-2.jpg
[area_modifier] => 74.31
[parent_name] => Дренаж вокруг дома
[parent_id] => 23
[material_sum] => 0
[work_sum] => 0
[total_sum] => 0
[total_days] => 0
[display_material_sum] => 0
[display_work_sum] => 0
[display_total_sum] => 0
)
1
0₽
Работа:0 ₽
Материалы:0 ₽
Дни:0
stdClass Object
(
[id] => 46
[attribute_id] => 23
[name] => Есть
[material_modifier] => 1
[work_modifier] => 1
[options] => Array
(
)
[days] => [5]
[material_price] => [2366]
[work_price] => [1911]
[image] => https://akademik-stroy.ru/wp-content/uploads/materials/drenazh-2.jpg
[area_modifier] => 74.31
[parent_name] => Дренаж вокруг дома
[parent_id] => 23
[material_sum] => 295373
[work_sum] => 198809
[total_sum] => 494182
[total_days] => 5
[display_material_sum] => 295 373
[display_work_sum] => 198 809
[display_total_sum] => 494 182
)
1
494 182₽
Работа:198 809 ₽
Материалы:295 373 ₽
Дни:5
stdClass Object
(
[id] => 47
[attribute_id] => 24
[name] => Нет
[material_modifier] => 1
[work_modifier] => 1
[options] => Array
(
)
[days] => [0]
[material_price] => [0]
[work_price] => [0]
[image] => https://akademik-stroy.ru/wp-content/uploads/materials/septik.jpg
[area_modifier] => 1
[parent_name] => Автономная канализация (септики)
[parent_id] => 24
[material_sum] => 0
[work_sum] => 0
[total_sum] => 0
[total_days] => 0
[display_material_sum] => 0
[display_work_sum] => 0
[display_total_sum] => 0
)
1
0₽
Работа:0 ₽
Материалы:0 ₽
Дни:0
stdClass Object
(
[id] => 48
[attribute_id] => 24
[name] => Есть
[material_modifier] => 1
[work_modifier] => 1
[options] => Array
(
[0] => Для дачи на 4 человека
[1] => Для дома на 5 человек
[2] => Для дома на 6 человек
[3] => Для дома на 7 человек
[4] => Для дома на 10 человек
)
[days] => [7,7,7,8,8]
[material_price] => [196340,220500,240940,264200,293340]
[work_price] => [50000,55000,60500,66550,73206]
[image] => https://akademik-stroy.ru/wp-content/uploads/materials/septik.jpg
[area_modifier] => 1
[parent_name] => Автономная канализация (септики)
[parent_id] => 24
[material_sum] => 329851
[work_sum] => 70000
[total_sum] => 399851
[total_days] => 7
[display_material_sum] => 329 851
[display_work_sum] => 70 000
[display_total_sum] => 399 851
)
1
399 851₽
Работа:70 000 ₽
Материалы:329 851 ₽
Дни:7
stdClass Object
(
[id] => 49
[attribute_id] => 25
[name] => Нет
[material_modifier] => 1
[work_modifier] => 1
[options] => Array
(
)
[days] => [0]
[material_price] => [0]
[work_price] => [0]
[image] => https://akademik-stroy.ru/wp-content/uploads/materials/gkl.jpg
[area_modifier] => 74.31
[parent_name] => Внутренние (не несущие) перегородки
[parent_id] => 25
[material_sum] => 0
[work_sum] => 0
[total_sum] => 0
[total_days] => 0
[display_material_sum] => 0
[display_work_sum] => 0
[display_total_sum] => 0
)
1
0₽
Работа:0 ₽
Материалы:0 ₽
Дни:0
stdClass Object
(
[id] => 147
[attribute_id] => 25
[name] => Каркасно-обшивные
[material_modifier] => 1
[work_modifier] => 1
[options] => Array
(
[0] => 75 мм (без шумоизоляции)
[1] => 75 мм (с шумоизоляцией)
)
[days] => [11,11]
[material_price] => [580,970]
[work_price] => [380,570]
[image] => https://akademik-stroy.ru/wp-content/uploads/materials/gkl.jpg
[area_modifier] => 74.31
[parent_name] => Внутренние (не несущие) перегородки
[parent_id] => 25
[material_sum] => 72408
[work_sum] => 39533
[total_sum] => 111941
[total_days] => 11
[display_material_sum] => 72 408
[display_work_sum] => 39 533
[display_total_sum] => 111 941
)
1
111 941₽
Работа:39 533 ₽
Материалы:72 408 ₽
Дни:11
stdClass Object
(
[id] => 148
[attribute_id] => 25
[name] => Пазогребневые
[material_modifier] => 1
[work_modifier] => 1
[options] => Array
(
[0] => 80 мм
[1] => 100 мм
)
[days] => [5,5]
[material_price] => [1022,1313]
[work_price] => [600,700]
[image] => https://akademik-stroy.ru/wp-content/uploads/materials/pazogrebnevye-bloki.jpg
[area_modifier] => 74.31
[parent_name] => Внутренние (не несущие) перегородки
[parent_id] => 25
[material_sum] => 127587
[work_sum] => 62420
[total_sum] => 190007
[total_days] => 5
[display_material_sum] => 127 587
[display_work_sum] => 62 420
[display_total_sum] => 190 007
)
1
190 007₽
Работа:62 420 ₽
Материалы:127 587 ₽
Дни:5
stdClass Object
(
[id] => 149
[attribute_id] => 25
[name] => Газобетонные
[material_modifier] => 1
[work_modifier] => 1
[options] => Array
(
[0] => 100 мм
[1] => 200 мм
)
[days] => [11,11]
[material_price] => [1160,1920]
[work_price] => [700,900]
[image] => https://akademik-stroy.ru/wp-content/uploads/materials/gazobeton-2.jpg
[area_modifier] => 74.31
[parent_name] => Внутренние (не несущие) перегородки
[parent_id] => 25
[material_sum] => 144815
[work_sum] => 72824
[total_sum] => 217639
[total_days] => 11
[display_material_sum] => 144 815
[display_work_sum] => 72 824
[display_total_sum] => 217 639
)
1
217 639₽
Работа:72 824 ₽
Материалы:144 815 ₽
Дни:11
stdClass Object
(
[id] => 150
[attribute_id] => 25
[name] => Кирпичные
[material_modifier] => 1
[work_modifier] => 1
[options] => Array
(
[0] => 120 мм
[1] => 250 мм
[2] => 360 мм
)
[days] => [7,7,7]
[material_price] => [1785,3570,5355]
[work_price] => [900,1600,1800]
[image] => https://akademik-stroy.ru/wp-content/uploads/materials/kirpich-1.jpg
[area_modifier] => 74.31
[parent_name] => Внутренние (не несущие) перегородки
[parent_id] => 25
[material_sum] => 222841
[work_sum] => 93631
[total_sum] => 316472
[total_days] => 7
[display_material_sum] => 222 841
[display_work_sum] => 93 631
[display_total_sum] => 316 472
)
1
316 472₽
Работа:93 631 ₽
Материалы:222 841 ₽
Дни:7
stdClass Object
(
[id] => 55
[attribute_id] => 28
[name] => Нет
[material_modifier] => 1
[work_modifier] => 1
[options] => Array
(
)
[days] => [0]
[material_price] => [0]
[work_price] => [0]
[image] => https://akademik-stroy.ru/wp-content/uploads/materials/ehlektrika.jpg
[area_modifier] => 60.3
[parent_name] => Электрика
[parent_id] => 28
[material_sum] => 0
[work_sum] => 0
[total_sum] => 0
[total_days] => 0
[display_material_sum] => 0
[display_work_sum] => 0
[display_total_sum] => 0
)
1
0₽
Работа:0 ₽
Материалы:0 ₽
Дни:0
stdClass Object
(
[id] => 56
[attribute_id] => 28
[name] => Есть
[material_modifier] => 1
[work_modifier] => 1
[options] => Array
(
)
[days] => [10]
[material_price] => [650]
[work_price] => [950]
[image] => https://akademik-stroy.ru/wp-content/uploads/materials/ehlektrika.jpg
[area_modifier] => 60.3
[parent_name] => Электрика
[parent_id] => 28
[material_sum] => 65848
[work_sum] => 80199
[total_sum] => 146047
[total_days] => 10
[display_material_sum] => 65 848
[display_work_sum] => 80 199
[display_total_sum] => 146 047
)
1
146 047₽
Работа:80 199 ₽
Материалы:65 848 ₽
Дни:10
stdClass Object
(
[id] => 57
[attribute_id] => 29
[name] => Нет
[material_modifier] => 1
[work_modifier] => 1
[options] => Array
(
)
[days] => [0]
[material_price] => [0]
[work_price] => [0]
[image] => https://akademik-stroy.ru/wp-content/uploads/materials/santekhnika-kanalizaciya-1.jpg
[area_modifier] => 60.3
[parent_name] => Сантехника, канализация в доме
[parent_id] => 29
[material_sum] => 0
[work_sum] => 0
[total_sum] => 0
[total_days] => 0
[display_material_sum] => 0
[display_work_sum] => 0
[display_total_sum] => 0
)
1
0₽
Работа:0 ₽
Материалы:0 ₽
Дни:0
stdClass Object
(
[id] => 58
[attribute_id] => 29
[name] => Есть
[material_modifier] => 1
[work_modifier] => 1
[options] => Array
(
)
[days] => [10]
[material_price] => [600]
[work_price] => [730]
[image] => https://akademik-stroy.ru/wp-content/uploads/materials/santekhnika-kanalizaciya-1.jpg
[area_modifier] => 60.3
[parent_name] => Сантехника, канализация в доме
[parent_id] => 29
[material_sum] => 60782
[work_sum] => 61627
[total_sum] => 122409
[total_days] => 10
[display_material_sum] => 60 782
[display_work_sum] => 61 627
[display_total_sum] => 122 409
)
1
122 409₽
Работа:61 627 ₽
Материалы:60 782 ₽
Дни:10
stdClass Object
(
[id] => 59
[attribute_id] => 30
[name] => Нет
[material_modifier] => 1
[work_modifier] => 1
[options] => Array
(
)
[days] => [0]
[material_price] => [0]
[work_price] => [0]
[image] => https://akademik-stroy.ru/wp-content/uploads/materials/otoplenie-1.jpg
[area_modifier] => 60.3
[parent_name] => Отопление
[parent_id] => 30
[material_sum] => 0
[work_sum] => 0
[total_sum] => 0
[total_days] => 0
[display_material_sum] => 0
[display_work_sum] => 0
[display_total_sum] => 0
)
1
0₽
Работа:0 ₽
Материалы:0 ₽
Дни:0
stdClass Object
(
[id] => 60
[attribute_id] => 30
[name] => Есть
[material_modifier] => 1
[work_modifier] => 1
[options] => Array
(
)
[days] => [5]
[material_price] => [610]
[work_price] => [560]
[image] => https://akademik-stroy.ru/wp-content/uploads/materials/otoplenie-1.jpg
[area_modifier] => 60.3
[parent_name] => Отопление
[parent_id] => 30
[material_sum] => 61795
[work_sum] => 47275
[total_sum] => 109070
[total_days] => 5
[display_material_sum] => 61 795
[display_work_sum] => 47 275
[display_total_sum] => 109 070
)
1
109 070₽
Работа:47 275 ₽
Материалы:61 795 ₽
Дни:5
stdClass Object
(
[id] => 61
[attribute_id] => 31
[name] => Нет
[material_modifier] => 1
[work_modifier] => 1
[options] => Array
(
)
[days] => [0]
[material_price] => [0]
[work_price] => [0]
[image] => https://akademik-stroy.ru/wp-content/uploads/materials/vodyanye.jpg
[area_modifier] => 30
[parent_name] => Теплые полы
[parent_id] => 31
[material_sum] => 0
[work_sum] => 0
[total_sum] => 0
[total_days] => 0
[display_material_sum] => 0
[display_work_sum] => 0
[display_total_sum] => 0
)
1
0₽
Работа:0 ₽
Материалы:0 ₽
Дни:0
stdClass Object
(
[id] => 151
[attribute_id] => 31
[name] => Водяные
[material_modifier] => 1
[work_modifier] => 1
[options] => Array
(
)
[days] => [9]
[material_price] => [10200]
[work_price] => [2500]
[image] => https://akademik-stroy.ru/wp-content/uploads/materials/vodyanye.jpg
[area_modifier] => 30
[parent_name] => Теплые полы
[parent_id] => 31
[material_sum] => 514080
[work_sum] => 105000
[total_sum] => 619080
[total_days] => 9
[display_material_sum] => 514 080
[display_work_sum] => 105 000
[display_total_sum] => 619 080
)
1
619 080₽
Работа:105 000 ₽
Материалы:514 080 ₽
Дни:9
stdClass Object
(
[id] => 152
[attribute_id] => 31
[name] => Электро
[material_modifier] => 1
[work_modifier] => 1
[options] => Array
(
)
[days] => [5]
[material_price] => [6300]
[work_price] => [1500]
[image] => https://akademik-stroy.ru/wp-content/uploads/materials/ehlektricheskij.jpg
[area_modifier] => 30
[parent_name] => Теплые полы
[parent_id] => 31
[material_sum] => 317520
[work_sum] => 63000
[total_sum] => 380520
[total_days] => 5
[display_material_sum] => 317 520
[display_work_sum] => 63 000
[display_total_sum] => 380 520
)
1
380 520₽
Работа:63 000 ₽
Материалы:317 520 ₽
Дни:5
stdClass Object
(
[id] => 63
[attribute_id] => 32
[name] => Нет
[material_modifier] => 1
[work_modifier] => 1
[options] => Array
(
)
[days] => [0]
[material_price] => [0]
[work_price] => [0]
[image] => https://akademik-stroy.ru/wp-content/uploads/materials/shtukaturka-shpatlevka-1.jpg
[area_modifier] => 60.3
[parent_name] => Черновая отделка стен
[parent_id] => 32
[material_sum] => 0
[work_sum] => 0
[total_sum] => 0
[total_days] => 0
[display_material_sum] => 0
[display_work_sum] => 0
[display_total_sum] => 0
)
1
0₽
Работа:0 ₽
Материалы:0 ₽
Дни:0
stdClass Object
(
[id] => 153
[attribute_id] => 32
[name] => Штукатурка и шпатлевка
[material_modifier] => 1
[work_modifier] => 1
[options] => Array
(
)
[days] => [20]
[material_price] => [1850]
[work_price] => [2600]
[image] => https://akademik-stroy.ru/wp-content/uploads/materials/shtukaturka-shpatlevka-1.jpg
[area_modifier] => 60.3
[parent_name] => Черновая отделка стен
[parent_id] => 32
[material_sum] => 187412
[work_sum] => 219492
[total_sum] => 406904
[total_days] => 20
[display_material_sum] => 187 412
[display_work_sum] => 219 492
[display_total_sum] => 406 904
)
1
406 904₽
Работа:219 492 ₽
Материалы:187 412 ₽
Дни:20
stdClass Object
(
[id] => 154
[attribute_id] => 32
[name] => Гипсокортон на стены
[material_modifier] => 1
[work_modifier] => 1
[options] => Array
(
)
[days] => [15]
[material_price] => [950]
[work_price] => [2100]
[image] => https://akademik-stroy.ru/wp-content/uploads/materials/gkl-1.jpg
[area_modifier] => 60.3
[parent_name] => Черновая отделка стен
[parent_id] => 32
[material_sum] => 96239
[work_sum] => 177282
[total_sum] => 273521
[total_days] => 15
[display_material_sum] => 96 239
[display_work_sum] => 177 282
[display_total_sum] => 273 521
)
1
273 521₽
Работа:177 282 ₽
Материалы:96 239 ₽
Дни:15
stdClass Object
(
[id] => 155
[attribute_id] => 32
[name] => Вагонка
[material_modifier] => 1
[work_modifier] => 1
[options] => Array
(
)
[days] => [15]
[material_price] => [1250]
[work_price] => [950]
[image] => https://akademik-stroy.ru/wp-content/uploads/materials/vagonka.jpg
[area_modifier] => 60.3
[parent_name] => Черновая отделка стен
[parent_id] => 32
[material_sum] => 126630
[work_sum] => 80199
[total_sum] => 206829
[total_days] => 15
[display_material_sum] => 126 630
[display_work_sum] => 80 199
[display_total_sum] => 206 829
)
1
206 829₽
Работа:80 199 ₽
Материалы:126 630 ₽
Дни:15
stdClass Object
(
[id] => 65
[attribute_id] => 33
[name] => Нет
[material_modifier] => 1
[work_modifier] => 1
[options] => Array
(
)
[days] => [0]
[material_price] => [0]
[work_price] => [0]
[image] => https://akademik-stroy.ru/wp-content/uploads/materials/styazhka.jpg
[area_modifier] => 60.3
[parent_name] => Черновая отделка полов
[parent_id] => 33
[material_sum] => 0
[work_sum] => 0
[total_sum] => 0
[total_days] => 0
[display_material_sum] => 0
[display_work_sum] => 0
[display_total_sum] => 0
)
1
0₽
Работа:0 ₽
Материалы:0 ₽
Дни:0
stdClass Object
(
[id] => 156
[attribute_id] => 33
[name] => Стяжка + наливные полы
[material_modifier] => 1
[work_modifier] => 1
[options] => Array
(
)
[days] => [10]
[material_price] => [1000]
[work_price] => [900]
[image] => https://akademik-stroy.ru/wp-content/uploads/materials/styazhka.jpg
[area_modifier] => 60.3
[parent_name] => Черновая отделка полов
[parent_id] => 33
[material_sum] => 101304
[work_sum] => 75978
[total_sum] => 177282
[total_days] => 10
[display_material_sum] => 101 304
[display_work_sum] => 75 978
[display_total_sum] => 177 282
)
1
177 282₽
Работа:75 978 ₽
Материалы:101 304 ₽
Дни:10
stdClass Object
(
[id] => 157
[attribute_id] => 33
[name] => ОСБ на пол
[material_modifier] => 1
[work_modifier] => 1
[options] => Array
(
)
[days] => [7]
[material_price] => [580]
[work_price] => [350]
[image] => https://akademik-stroy.ru/wp-content/uploads/materials/osb-1.jpg
[area_modifier] => 60.3
[parent_name] => Черновая отделка полов
[parent_id] => 33
[material_sum] => 58756
[work_sum] => 29547
[total_sum] => 88303
[total_days] => 7
[display_material_sum] => 58 756
[display_work_sum] => 29 547
[display_total_sum] => 88 303
)
1
88 303₽
Работа:29 547 ₽
Материалы:58 756 ₽
Дни:7
stdClass Object
(
[id] => 67
[attribute_id] => 34
[name] => Нет
[material_modifier] => 1
[work_modifier] => 1
[options] => Array
(
)
[days] => [0]
[material_price] => [0]
[work_price] => [0]
[image] => https://akademik-stroy.ru/wp-content/uploads/materials/chistovaya-otdelka.jpg
[area_modifier] => 60.3
[parent_name] => Чистовая отделка стен и полов
[parent_id] => 34
[material_sum] => 0
[work_sum] => 0
[total_sum] => 0
[total_days] => 0
[display_material_sum] => 0
[display_work_sum] => 0
[display_total_sum] => 0
)
1
0₽
Работа:0 ₽
Материалы:0 ₽
Дни:0
stdClass Object
(
[id] => 68
[attribute_id] => 34
[name] => Есть
[material_modifier] => 1
[work_modifier] => 1
[options] => Array
(
)
[days] => [50]
[material_price] => [6000]
[work_price] => [3500]
[image] => https://akademik-stroy.ru/wp-content/uploads/materials/chistovaya-otdelka.jpg
[area_modifier] => 60.3
[parent_name] => Чистовая отделка стен и полов
[parent_id] => 34
[material_sum] => 607824
[work_sum] => 295470
[total_sum] => 903294
[total_days] => 50
[display_material_sum] => 607 824
[display_work_sum] => 295 470
[display_total_sum] => 903 294
)
1
903 294₽
Работа:295 470 ₽
Материалы:607 824 ₽
Дни:50
stdClass Object
(
[id] => 69
[attribute_id] => 35
[name] => Нет
[material_modifier] => 1
[work_modifier] => 1
[options] => Array
(
)
[days] => [0]
[material_price] => [0]
[work_price] => [0]
[image] => https://akademik-stroy.ru/wp-content/uploads/materials/mnogourovnevyj-gkl.jpg
[area_modifier] => 60.3
[parent_name] => Отделка потолка
[parent_id] => 35
[material_sum] => 0
[work_sum] => 0
[total_sum] => 0
[total_days] => 0
[display_material_sum] => 0
[display_work_sum] => 0
[display_total_sum] => 0
)
1
0₽
Работа:0 ₽
Материалы:0 ₽
Дни:0
stdClass Object
(
[id] => 70
[attribute_id] => 35
[name] => Есть
[material_modifier] => 1
[work_modifier] => 1
[options] => Array
(
[0] => Многоуровневый потолок из гипсокартона
[1] => Многоуровневый потолок из гипсокартона и натяжного потолка
[2] => Одноуровневый потолок из гипсокартона
[3] => Одноуровневый натяжной потолок
)
[days] => [10,10,1,1]
[material_price] => [900,700,700,600]
[work_price] => [1000,800,500,300]
[image] => https://akademik-stroy.ru/wp-content/uploads/materials/mnogourovnevyj-gkl.jpg
[area_modifier] => 60.3
[parent_name] => Отделка потолка
[parent_id] => 35
[material_sum] => 91174
[work_sum] => 84420
[total_sum] => 175594
[total_days] => 10
[display_material_sum] => 91 174
[display_work_sum] => 84 420
[display_total_sum] => 175 594
)
1
175 594₽
Работа:84 420 ₽
Материалы:91 174 ₽
Дни:10
Преимущества работы с нами
7 этапов оплаты
Независимый строительный надзор
Экологически чистые материалы
16 лет гарантии
Онлайн-кабинет с веб-камерой
Строители с опытом более 15 лет
Собственное производство

