Одноэтажный гараж 102.13 м2
154 м2
Полезная
площадь
площадь
1 этаж
Этажей
26 м2
Террасы
и балконы
и балконы
0Без
гаража
гаража
0
Количество
спален
спален
0
Количество
санузлов
санузлов
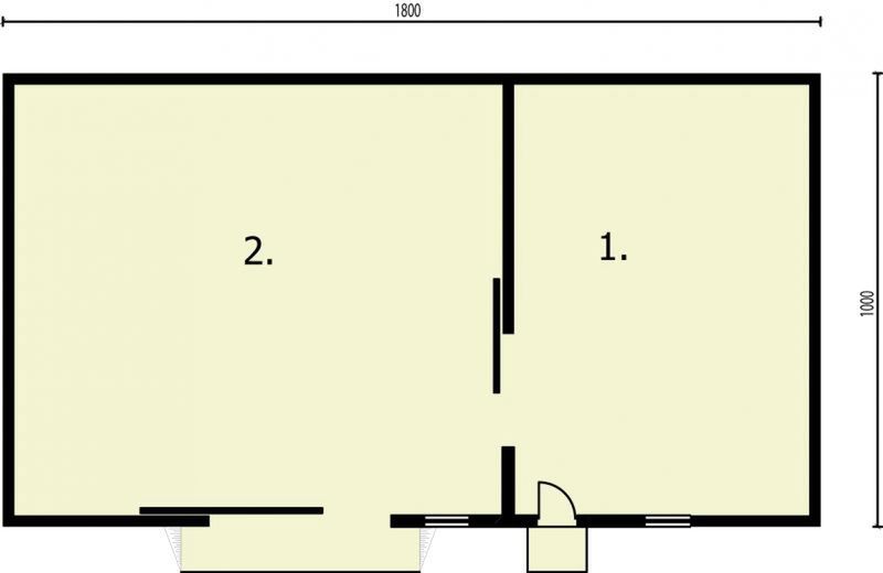
Планировки
Первый этаж
- 1. (m²) 163,88
- 2. Подсобное помещение 61,75
- Гараж на 2 машины 102,13
Фасады
Передний
Задний
Левый
Правый
Подробная информация
Полезная площадь
163,88 m²
Количество спален
0
Количество санузлов
0
Гараж
2
Мин. шир. и дл. участка
24 x 17 m
Угол наклона крыши
3°
Наклон ската крыши в градусах. Внимание! В некоторых проектах возникает более чем один наклон крыши.
Вид материалов
Murowana
Материалы и опции
Общие
Площади дома
| № п/п | Наименование | Ед. из. | Строительная площадь | Полезная площадь |
| 1 | 1 этаж | м2 | 125.85 | 102.13 |
| 2 | Итого | м2 | 125.85 | 102.13 |
Калькулятор опций
0₽
В ипотеку от 207 ₽/мес.
0₽
0 дней
stdClass Object
(
[id] => 1
[attribute_id] => 1
[name] => Ленточный монолитный ж/б
[material_modifier] => 1
[work_modifier] => 1
[options] => Array
(
[0] => размер 200 х 700 мм
[1] => размер 300 х 900 мм
[2] => размер 400 х 1 000 мм
[3] => размер 500 х 1 100 мм
[4] => размер 600 х 1 200 мм
)
[days] => [20,21,22,25,30]
[material_price] => [2823,3630,4475,5210,12047]
[work_price] => [2154,2826,3731,4577,5293]
[image] => https://akademik-stroy.ru/wp-content/uploads/materials/lentochnyj-monolitnyj-zh-b.jpg
[area_modifier] => 125.85
[parent_name] => Фундамент
[parent_id] => 1
[material_sum] => 490279
[work_sum] => 311743
[total_sum] => 802022
[total_days] => 20
[display_material_sum] => 490 279
[display_work_sum] => 311 743
[display_total_sum] => 802 022
)
1
802 022₽
Работа:311 743 ₽
Материалы:490 279 ₽
Дни:20
stdClass Object
(
[id] => 2
[attribute_id] => 1
[name] => Забивные Ж/Б сваи
[material_modifier] => 1
[work_modifier] => 1
[options] => Array
(
[0] => 150х150х3000мм
[1] => 150х150х4000мм
[2] => 200х200х3000мм
[3] => 200х200х4000мм
[4] => 200х200х5000мм
[5] => 200х200х6000мм
)
[days] => [2,2,2,2,2,2]
[material_price] => [1990,2850,3255,4360,5120,6837]
[work_price] => [1002,1185,1336,1438,1574,1839]
[image] => https://akademik-stroy.ru/wp-content/uploads/materials/zabivnye-zh-b-svai.png
[area_modifier] => 125.85
[parent_name] => Фундамент
[parent_id] => 1
[material_sum] => 345609
[work_sum] => 145017
[total_sum] => 490626
[total_days] => 2
[display_material_sum] => 345 609
[display_work_sum] => 145 017
[display_total_sum] => 490 626
)
1
490 626₽
Работа:145 017 ₽
Материалы:345 609 ₽
Дни:2
stdClass Object
(
[id] => 71
[attribute_id] => 1
[name] => Свайно-ростверковый ж/б
[material_modifier] => 1
[work_modifier] => 1
[options] => Array
(
[0] => ростверк 200х300 мм
[1] => ростверк 300х600 мм
[2] => ростверк 400х900 мм
[3] => ростверк 500х1200 мм
)
[days] => [20,23,25,27]
[material_price] => [3018,3474,7109,9792]
[work_price] => [2024,3012,5635,7022]
[image] => https://akademik-stroy.ru/wp-content/uploads/materials/svajno-rostverkovyj-monolitnyj-zh-b-3.png
[area_modifier] => 125.85
[parent_name] => Фундамент
[parent_id] => 1
[material_sum] => 524145
[work_sum] => 292928
[total_sum] => 817073
[total_days] => 20
[display_material_sum] => 524 145
[display_work_sum] => 292 928
[display_total_sum] => 817 073
)
1
817 073₽
Работа:292 928 ₽
Материалы:524 145 ₽
Дни:20
stdClass Object
(
[id] => 72
[attribute_id] => 1
[name] => Монолитная ж/б плита
[material_modifier] => 1
[work_modifier] => 1
[options] => Array
(
[0] => 200 мм
[1] => 300 мм
[2] => 400 мм
[3] => 500 мм
[4] => 600 мм
)
[days] => [30,33,35,37,40]
[material_price] => [5348,8555,12788,14388,15189]
[work_price] => [4314,4881,7037,8061,10230]
[image] => https://akademik-stroy.ru/wp-content/uploads/materials/monolitnaya-zhb-plita.png
[area_modifier] => 125.85
[parent_name] => Фундамент
[parent_id] => 1
[material_sum] => 928803
[work_sum] => 624354
[total_sum] => 1553157
[total_days] => 30
[display_material_sum] => 928 803
[display_work_sum] => 624 354
[display_total_sum] => 1 553 157
)
1
1 553 157₽
Работа:624 354 ₽
Материалы:928 803 ₽
Дни:30
stdClass Object
(
[id] => 73
[attribute_id] => 1
[name] => Утепленная шведская плита
[material_modifier] => 1
[work_modifier] => 1
[options] => Array
(
[0] => 200 мм
[1] => 300 мм
[2] => 400 мм
[3] => 500 мм
[4] => 600 мм
)
[days] => [32,37,39,42,45]
[material_price] => [10249,12692,13760,14936,16230]
[work_price] => [5960,7337,8072,8878,9765]
[image] => https://akademik-stroy.ru/wp-content/uploads/materials/uteplennaya-shvedskaya-plita.jpg
[area_modifier] => 125.85
[parent_name] => Фундамент
[parent_id] => 1
[material_sum] => 1779975
[work_sum] => 862576
[total_sum] => 2642551
[total_days] => 32
[display_material_sum] => 1 779 975
[display_work_sum] => 862 576
[display_total_sum] => 2 642 551
)
1
2 642 551₽
Работа:862 576 ₽
Материалы:1 779 975 ₽
Дни:32
stdClass Object
(
[id] => 75
[attribute_id] => 1
[name] => Ленточный из ФБС
[material_modifier] => 1
[work_modifier] => 1
[options] => Array
(
[0] => толщ. 300 мм
[1] => толщ. 400 мм
[2] => толщ. 500 мм
[3] => толщ. 600 мм
)
[days] => [20,20,20,20]
[material_price] => [3675,4902,6126,7350]
[work_price] => [2451,3264,4083,4902]
[image] => https://akademik-stroy.ru/wp-content/uploads/materials/lentochnyj-iz-fbs.png
[area_modifier] => 125.85
[parent_name] => Фундамент
[parent_id] => 1
[material_sum] => 638248
[work_sum] => 354727
[total_sum] => 992975
[total_days] => 20
[display_material_sum] => 638 248
[display_work_sum] => 354 727
[display_total_sum] => 992 975
)
1
992 975₽
Работа:354 727 ₽
Материалы:638 248 ₽
Дни:20
stdClass Object
(
[id] => 76
[attribute_id] => 1
[name] => Цокольный этаж из ФБС
[material_modifier] => 1
[work_modifier] => 1
[options] => Array
(
[0] => толщ. 300 мм
[1] => толщ. 400 мм
[2] => толщ. 500 мм
[3] => толщ. 600 мм
)
[days] => [30,32,34,36]
[material_price] => [20916,23299,26680,29060]
[work_price] => [17524,18700,19873,21046]
[image] => https://akademik-stroy.ru/wp-content/uploads/materials/cokolnyj-ehtazh-iz-fbs.jpg
[area_modifier] => 125.85
[parent_name] => Фундамент
[parent_id] => 1
[material_sum] => 3632544
[work_sum] => 2536205
[total_sum] => 6168749
[total_days] => 30
[display_material_sum] => 3 632 544
[display_work_sum] => 2 536 205
[display_total_sum] => 6 168 749
)
1
6 168 749₽
Работа:2 536 205 ₽
Материалы:3 632 544 ₽
Дни:30
stdClass Object
(
[id] => 77
[attribute_id] => 1
[name] => Цокольный этаж монолитный ж/б
[material_modifier] => 1
[work_modifier] => 1
[options] => Array
(
[0] => толщ. 200 мм
[1] => толщ. 300 мм
[2] => толщ. 400 мм
[3] => толщ. 500 мм
[4] => толщ. 600 мм
)
[days] => [40,42,44,46,48]
[material_price] => [25421,29148,32275,35602,37326]
[work_price] => [20441,21907,23375,24841,26306]
[image] => https://akademik-stroy.ru/wp-content/uploads/materials/cokolnyj-etazh-zh-b.jpg
[area_modifier] => 125.85
[parent_name] => Фундамент
[parent_id] => 1
[material_sum] => 4414941
[work_sum] => 2958375
[total_sum] => 7373316
[total_days] => 40
[display_material_sum] => 4 414 941
[display_work_sum] => 2 958 375
[display_total_sum] => 7 373 316
)
1
7 373 316₽
Работа:2 958 375 ₽
Материалы:4 414 941 ₽
Дни:40
stdClass Object
(
[id] => 191
[attribute_id] => 1
[name] => Винтовые сваи
[material_modifier] => 1
[work_modifier] => 1
[options] => Array
(
[0] => 57х200мм
[1] => 76х250мм
[2] => 108х300мм
[3] => 133х350мм
)
[days] => [1,1,2,2]
[material_price] => [1200,1300,1450,1600]
[work_price] => [400,600,900,1100]
[image] => https://akademik-stroy.ru/wp-content/uploads/materials/vintovye-svai.png
[area_modifier] => 125.85
[parent_name] => Фундамент
[parent_id] => 1
[material_sum] => 208408
[work_sum] => 57891
[total_sum] => 266299
[total_days] => 1
[display_material_sum] => 208 408
[display_work_sum] => 57 891
[display_total_sum] => 266 299
)
1
266 299₽
Работа:57 891 ₽
Материалы:208 408 ₽
Дни:1
stdClass Object
(
[id] => 3
[attribute_id] => 2
[name] => Деревянные балки
[material_modifier] => 1
[work_modifier] => 1
[options] => Array
(
[0] => без утепления
[1] => утепление 200 мм
[2] => утепление 250 мм
[3] => утепление 300 мм
[4] => утепление 350 мм
[5] => утепление 400 мм
[6] => утепление 450 мм
[7] => утепление 500 мм
)
[days] => [8,9,9,9,11,12,13,14]
[material_price] => [1634,2042,2344,2947,3149,3652,3354,3557]
[work_price] => [1230,1339,1393,1426,1460,1513,1587,1620]
[image] => https://akademik-stroy.ru/wp-content/uploads/materials/derevyannye-balki.png
[area_modifier] => 125.85
[parent_name] => Перекрытие цоколя
[parent_id] => 2
[material_sum] => 283782
[work_sum] => 178015
[total_sum] => 461797
[total_days] => 8
[display_material_sum] => 283 782
[display_work_sum] => 178 015
[display_total_sum] => 461 797
)
1
461 797₽
Работа:178 015 ₽
Материалы:283 782 ₽
Дни:8
stdClass Object
(
[id] => 4
[attribute_id] => 2
[name] => Сборные ж/б плиты
[material_modifier] => 1
[work_modifier] => 1
[options] => Array
(
[0] => без утепления
[1] => утепление 150мм
[2] => утепление 200мм
[3] => утепление 250мм
[4] => утепление 300мм
[5] => утепление 350мм
[6] => утепление 400мм
[7] => утепление 450мм
[8] => утепление 500мм
)
[days] => [13,15,15,15,15,15,15,15,15]
[material_price] => [3067,5577,5928,6679,7730,8782,9833,10884,11935]
[work_price] => [1520,1956,2102,2247,2392,2537,2684,2829,2974]
[image] => https://akademik-stroy.ru/wp-content/uploads/materials/sbornye-zh-b-plity-2.jpg
[area_modifier] => 125.85
[parent_name] => Перекрытие цоколя
[parent_id] => 2
[material_sum] => 532655
[work_sum] => 219986
[total_sum] => 752641
[total_days] => 13
[display_material_sum] => 532 655
[display_work_sum] => 219 986
[display_total_sum] => 752 641
)
1
752 641₽
Работа:219 986 ₽
Материалы:532 655 ₽
Дни:13
stdClass Object
(
[id] => 78
[attribute_id] => 2
[name] => Монолитная ж/б плита
[material_modifier] => 1
[work_modifier] => 1
[options] => Array
(
[0] => без утепления
[1] => утепление 150 мм
[2] => утепление 200 мм
[3] => утепление 250 мм
[4] => утепление 300 мм
[5] => утепление 350 мм
[6] => утепление 400 мм
[7] => утепление 450 мм
[8] => утепление 500 мм
)
[days] => [18,20,20,20,20,20,20,20,20]
[material_price] => [4837,6572,7224,7375,79426,8177,8728,9180,10031]
[work_price] => [3348,3921,4112,4302,4493,4684,4875,5066,5256]
[image] => https://akademik-stroy.ru/wp-content/uploads/materials/monolitnaya-zh-b-plita-2.jpg
[area_modifier] => 125.85
[parent_name] => Перекрытие цоколя
[parent_id] => 2
[material_sum] => 840056
[work_sum] => 484548
[total_sum] => 1324604
[total_days] => 18
[display_material_sum] => 840 056
[display_work_sum] => 484 548
[display_total_sum] => 1 324 604
)
1
1 324 604₽
Работа:484 548 ₽
Материалы:840 056 ₽
Дни:18
stdClass Object
(
[id] => 6
[attribute_id] => 3
[name] => Пеноблок
[material_modifier] => 1
[work_modifier] => 1
[options] => Array
(
[0] => 300 мм
[1] => 400 мм
[2] => 500 мм
[3] => 600 мм
)
[days] => [29,31,34,39]
[material_price] => [3000,4000,4500,4937]
[work_price] => [5033,5805,6400,8710]
[image] => https://akademik-stroy.ru/wp-content/uploads/materials/penoblok.jpg
[area_modifier] => 125.85
[parent_name] => Стены 1 этаж (несущие)
[parent_id] => 3
[material_sum] => 521019
[work_sum] => 728414
[total_sum] => 1249433
[total_days] => 29
[display_material_sum] => 521 019
[display_work_sum] => 728 414
[display_total_sum] => 1 249 433
)
1
1 249 433₽
Работа:728 414 ₽
Материалы:521 019 ₽
Дни:29
stdClass Object
(
[id] => 79
[attribute_id] => 3
[name] => Керамический блок
[material_modifier] => 1
[work_modifier] => 1
[options] => Array
(
[0] => 380 мм
[1] => 380 мм Thermo
[2] => 440 мм
[3] => 510 мм
)
[days] => [23,23,24,25]
[material_price] => [4510,5098,6093,8013]
[work_price] => [4737,4937,5903,6958]
[image] => https://akademik-stroy.ru/wp-content/uploads/materials/keramicheskij-blok.jpg
[area_modifier] => 125.85
[parent_name] => Стены 1 этаж (несущие)
[parent_id] => 3
[material_sum] => 783265
[work_sum] => 685574
[total_sum] => 1468839
[total_days] => 23
[display_material_sum] => 783 265
[display_work_sum] => 685 574
[display_total_sum] => 1 468 839
)
1
1 468 839₽
Работа:685 574 ₽
Материалы:783 265 ₽
Дни:23
stdClass Object
(
[id] => 80
[attribute_id] => 3
[name] => Кирпич
[material_modifier] => 1
[work_modifier] => 1
[options] => Array
(
[0] => Кирпич 250 мм
[1] => Кирпич 380 мм
[2] => Кирпич 510 мм
[3] => Кирпич 640 мм
[4] => Кирпич 770 мм
)
[days] => [30,30,31,33,36]
[material_price] => [5500,7142,9206,10171,12235]
[work_price] => [8736,10041,12018,15240,18462]
[image] => https://akademik-stroy.ru/wp-content/uploads/materials/kirpich.jpg
[area_modifier] => 125.85
[parent_name] => Стены 1 этаж (несущие)
[parent_id] => 3
[material_sum] => 955202
[work_sum] => 1264339
[total_sum] => 2219541
[total_days] => 30
[display_material_sum] => 955 202
[display_work_sum] => 1 264 339
[display_total_sum] => 2 219 541
)
1
2 219 541₽
Работа:1 264 339 ₽
Материалы:955 202 ₽
Дни:30
stdClass Object
(
[id] => 81
[attribute_id] => 3
[name] => Монолитные
[material_modifier] => 1
[work_modifier] => 1
[options] => Array
(
[0] => 150 мм
[1] => 200 мм
[2] => 250 мм
[3] => 300 мм
[4] => 350 мм
[5] => 400 мм
)
[days] => [45,46,47,49,50,53]
[material_price] => [6545,7876,10175,12011,13908,15204]
[work_price] => [5106,6444,7698,8552,9807,11461]
[image] => https://akademik-stroy.ru/wp-content/uploads/materials/monolitnye.jpg
[area_modifier] => 125.85
[parent_name] => Стены 1 этаж (несущие)
[parent_id] => 3
[material_sum] => 1136690
[work_sum] => 738979
[total_sum] => 1875669
[total_days] => 45
[display_material_sum] => 1 136 690
[display_work_sum] => 738 979
[display_total_sum] => 1 875 669
)
1
1 875 669₽
Работа:738 979 ₽
Материалы:1 136 690 ₽
Дни:45
stdClass Object
(
[id] => 82
[attribute_id] => 3
[name] => Клееный брус
[material_modifier] => 1
[work_modifier] => 1
[options] => Array
(
[0] => 160 мм
[1] => 175 мм
[2] => 200 мм
[3] => 215 мм
[4] => 240 мм
[5] => 270 мм
[6] => 282 мм
)
[days] => [24,28,32,37,40,42,48]
[material_price] => [16975,18773,19950,20545,21599,22159,23275]
[work_price] => [4806,5287,5815,6397,7036,7740,8514]
[image] => https://akademik-stroy.ru/wp-content/uploads/materials/kleenyj-brus.jpg
[area_modifier] => 125.85
[parent_name] => Стены 1 этаж (несущие)
[parent_id] => 3
[material_sum] => 2948099
[work_sum] => 695560
[total_sum] => 3643659
[total_days] => 24
[display_material_sum] => 2 948 099
[display_work_sum] => 695 560
[display_total_sum] => 3 643 659
)
1
3 643 659₽
Работа:695 560 ₽
Материалы:2 948 099 ₽
Дни:24
stdClass Object
(
[id] => 83
[attribute_id] => 3
[name] => Каркасные
[material_modifier] => 1
[work_modifier] => 1
[options] => Array
(
[0] => 150 мм
[1] => 200 мм
[2] => 250 мм
[3] => 300 мм
)
[days] => [15,16,17,18]
[material_price] => [2379,2639,2898,3258]
[work_price] => [2418,2686,2985,3716]
[image] => https://akademik-stroy.ru/wp-content/uploads/materials/karkasnye.jpg
[area_modifier] => 125.85
[parent_name] => Стены 1 этаж (несущие)
[parent_id] => 3
[material_sum] => 413168
[work_sum] => 349951
[total_sum] => 763119
[total_days] => 15
[display_material_sum] => 413 168
[display_work_sum] => 349 951
[display_total_sum] => 763 119
)
1
763 119₽
Работа:349 951 ₽
Материалы:413 168 ₽
Дни:15
stdClass Object
(
[id] => 84
[attribute_id] => 3
[name] => СИП-панели
[material_modifier] => 1
[work_modifier] => 1
[options] => Array
(
[0] => 120 мм
[1] => 170 мм
[2] => 220 мм
)
[days] => [7,7,7]
[material_price] => [1210,1856,2292]
[work_price] => [1410,1551,1706]
[image] => https://akademik-stroy.ru/wp-content/uploads/materials/sip-paneli.jpg
[area_modifier] => 125.85
[parent_name] => Стены 1 этаж (несущие)
[parent_id] => 3
[material_sum] => 210144
[work_sum] => 204066
[total_sum] => 414210
[total_days] => 7
[display_material_sum] => 210 144
[display_work_sum] => 204 066
[display_total_sum] => 414 210
)
1
414 210₽
Работа:204 066 ₽
Материалы:210 144 ₽
Дни:7
stdClass Object
(
[id] => 85
[attribute_id] => 3
[name] => Сухой брус
[material_modifier] => 1
[work_modifier] => 1
[options] => Array
(
[0] => 150 мм
[1] => 180 мм
[2] => 200 мм
)
[days] => [7,8,9]
[material_price] => [6010,7190,8709]
[work_price] => [3204,3845,4229]
[image] => https://akademik-stroy.ru/wp-content/uploads/materials/suhoj-brus.jpg
[area_modifier] => 125.85
[parent_name] => Стены 1 этаж (несущие)
[parent_id] => 3
[material_sum] => 1043775
[work_sum] => 463707
[total_sum] => 1507482
[total_days] => 7
[display_material_sum] => 1 043 775
[display_work_sum] => 463 707
[display_total_sum] => 1 507 482
)
1
1 507 482₽
Работа:463 707 ₽
Материалы:1 043 775 ₽
Дни:7
stdClass Object
(
[id] => 86
[attribute_id] => 3
[name] => Профилированный брус
[material_modifier] => 1
[work_modifier] => 1
[options] => Array
(
[0] => 150 мм
[1] => 180 мм
[2] => 200 мм
)
[days] => [7,8,9]
[material_price] => [8190,9228,10051]
[work_price] => [3845,4614,5075]
[image] => https://akademik-stroy.ru/wp-content/uploads/materials/profilirovannyj-brus.jpg
[area_modifier] => 125.85
[parent_name] => Стены 1 этаж (несущие)
[parent_id] => 3
[material_sum] => 1422382
[work_sum] => 556477
[total_sum] => 1978859
[total_days] => 7
[display_material_sum] => 1 422 382
[display_work_sum] => 556 477
[display_total_sum] => 1 978 859
)
1
1 978 859₽
Работа:556 477 ₽
Материалы:1 422 382 ₽
Дни:7
stdClass Object
(
[id] => 87
[attribute_id] => 3
[name] => Оцилиндрованное бревно
[material_modifier] => 1
[work_modifier] => 1
[options] => Array
(
[0] => 180 мм
[1] => 220 мм
[2] => 260 мм
[3] => 320 мм
)
[days] => [7,8,9,10]
[material_price] => [75190,9532,10868,13116]
[work_price] => [3845,4691,5535,6863]
[image] => https://akademik-stroy.ru/wp-content/uploads/materials/ocilindrovannoe-brevno-1.jpg
[area_modifier] => 125.85
[parent_name] => Стены 1 этаж (несущие)
[parent_id] => 3
[material_sum] => 13058473
[work_sum] => 556477
[total_sum] => 13614950
[total_days] => 7
[display_material_sum] => 13 058 473
[display_work_sum] => 556 477
[display_total_sum] => 13 614 950
)
1
13 614 950₽
Работа:556 477 ₽
Материалы:13 058 473 ₽
Дни:7
stdClass Object
(
[id] => 88
[attribute_id] => 3
[name] => Срубы
[material_modifier] => 1
[work_modifier] => 1
[options] => Array
(
[0] => 260 мм
[1] => 320 мм
[2] => 360 мм
[3] => 400 мм
[4] => 500 мм
)
[days] => [7,8,9,10,11]
[material_price] => [37975,46709,52314,58069,73167]
[work_price] => [4806,5911,6621,7349,9260]
[image] => https://akademik-stroy.ru/wp-content/uploads/materials/sruby.jpg
[area_modifier] => 125.85
[parent_name] => Стены 1 этаж (несущие)
[parent_id] => 3
[material_sum] => 6595232
[work_sum] => 695560
[total_sum] => 7290792
[total_days] => 7
[display_material_sum] => 6 595 232
[display_work_sum] => 695 560
[display_total_sum] => 7 290 792
)
1
7 290 792₽
Работа:695 560 ₽
Материалы:6 595 232 ₽
Дни:7
stdClass Object
(
[id] => 174
[attribute_id] => 3
[name] => Брус
[material_modifier] => 1
[work_modifier] => 1
[options] => Array
(
[0] => 150 мм
[1] => 180 мм
[2] => 200 мм
)
[days] => [7,8,9]
[material_price] => [5127,6152,7367]
[work_price] => [1602,1922,2115]
[image] => https://akademik-stroy.ru/wp-content/uploads/materials/brus.jpg
[area_modifier] => 125.85
[parent_name] => Стены 1 этаж (несущие)
[parent_id] => 3
[material_sum] => 890421
[work_sum] => 231853
[total_sum] => 1122274
[total_days] => 7
[display_material_sum] => 890 421
[display_work_sum] => 231 853
[display_total_sum] => 1 122 274
)
1
1 122 274₽
Работа:231 853 ₽
Материалы:890 421 ₽
Дни:7
stdClass Object
(
[id] => 175
[attribute_id] => 3
[name] => Газобетон
[material_modifier] => 1
[work_modifier] => 1
[options] => Array
(
[0] => 300 мм
[1] => 375 мм
[2] => 400 мм
[3] => 500 мм
[4] => 600 мм
)
[days] => [29,31,35,37,44]
[material_price] => [4298,5573,6356,7288,9119]
[work_price] => [4538,5251,5926,6733,7195]
[image] => https://akademik-stroy.ru/wp-content/uploads/materials/gazobeton.jpg
[area_modifier] => 125.85
[parent_name] => Стены 1 этаж (несущие)
[parent_id] => 3
[material_sum] => 746447
[work_sum] => 656773
[total_sum] => 1403220
[total_days] => 29
[display_material_sum] => 746 447
[display_work_sum] => 656 773
[display_total_sum] => 1 403 220
)
1
1 403 220₽
Работа:656 773 ₽
Материалы:746 447 ₽
Дни:29
stdClass Object
(
[id] => 176
[attribute_id] => 3
[name] => Блок
[material_modifier] => 1
[work_modifier] => 1
[options] => Array
(
[0] => 300 мм
[1] => 375 мм
[2] => 400 мм
[3] => 500 мм
[4] => 600 мм
)
[days] => [29,31,35,37,44]
[material_price] => [2698,3973,4356,6588,7119]
[work_price] => [5038,5851,6426,8733,9195]
[image] => https://akademik-stroy.ru/wp-content/uploads/materials/blok.jpg
[area_modifier] => 125.85
[parent_name] => Стены 1 этаж (несущие)
[parent_id] => 3
[material_sum] => 468570
[work_sum] => 729137
[total_sum] => 1197707
[total_days] => 29
[display_material_sum] => 468 570
[display_work_sum] => 729 137
[display_total_sum] => 1 197 707
)
1
1 197 707₽
Работа:729 137 ₽
Материалы:468 570 ₽
Дни:29
stdClass Object
(
[id] => 177
[attribute_id] => 3
[name] => Газосиликатный блок
[material_modifier] => 1
[work_modifier] => 1
[options] => Array
(
[0] => 300 мм
[1] => 375 мм
[2] => 400 мм
[3] => 500 мм
[4] => 600 мм
)
[days] => [29,31,35,37,44]
[material_price] => [4298,5573,6356,7288,9119]
[work_price] => [4538,5251,5926,6733,7195]
[image] => https://akademik-stroy.ru/wp-content/uploads/materials/gazosilikatnyj-blok.jpg
[area_modifier] => 125.85
[parent_name] => Стены 1 этаж (несущие)
[parent_id] => 3
[material_sum] => 746447
[work_sum] => 656773
[total_sum] => 1403220
[total_days] => 29
[display_material_sum] => 746 447
[display_work_sum] => 656 773
[display_total_sum] => 1 403 220
)
1
1 403 220₽
Работа:656 773 ₽
Материалы:746 447 ₽
Дни:29
stdClass Object
(
[id] => 178
[attribute_id] => 3
[name] => Керамзитобетонный блок
[material_modifier] => 1
[work_modifier] => 1
[options] => Array
(
[0] => 300 мм
[1] => 375 мм
[2] => 400 мм
[3] => 500 мм
[4] => 600 мм
)
[days] => [23,23,24,25,28]
[material_price] => [3641,4298,5693,7613,9612]
[work_price] => [5737,5737,6903,7958,8901]
[image] => https://akademik-stroy.ru/wp-content/uploads/materials/keramzitobetonnyj-blok.jpg
[area_modifier] => 125.85
[parent_name] => Стены 1 этаж (несущие)
[parent_id] => 3
[material_sum] => 632343
[work_sum] => 830302
[total_sum] => 1462645
[total_days] => 23
[display_material_sum] => 632 343
[display_work_sum] => 830 302
[display_total_sum] => 1 462 645
)
1
1 462 645₽
Работа:830 302 ₽
Материалы:632 343 ₽
Дни:23
stdClass Object
(
[id] => 179
[attribute_id] => 3
[name] => Деревянные
[material_modifier] => 1
[work_modifier] => 1
[options] => Array
(
[0] => 180 мм
[1] => 220 мм
[2] => 260 мм
[3] => 320 мм
)
[days] => [7,8,9,10]
[material_price] => [7950,9458,11961,14472]
[work_price] => [4037,4925,5812,7207]
[image] => https://akademik-stroy.ru/wp-content/uploads/materials/derevyannye.jpg
[area_modifier] => 125.85
[parent_name] => Стены 1 этаж (несущие)
[parent_id] => 3
[material_sum] => 1380700
[work_sum] => 584265
[total_sum] => 1964965
[total_days] => 7
[display_material_sum] => 1 380 700
[display_work_sum] => 584 265
[display_total_sum] => 1 964 965
)
1
1 964 965₽
Работа:584 265 ₽
Материалы:1 380 700 ₽
Дни:7
stdClass Object
(
[id] => 181
[attribute_id] => 3
[name] => Камень
[material_modifier] => 1
[work_modifier] => 1
[options] => Array
(
[0] => 300 мм
[1] => 400 мм
[2] => 500 мм
[3] => 600 мм
)
[days] => [25,27,31,34]
[material_price] => [5262,6844,8330,9815]
[work_price] => [8331,9135,10427,11069]
[image] => https://akademik-stroy.ru/wp-content/uploads/materials/kamen.jpg
[area_modifier] => 125.85
[parent_name] => Стены 1 этаж (несущие)
[parent_id] => 3
[material_sum] => 913867
[work_sum] => 1205725
[total_sum] => 2119592
[total_days] => 25
[display_material_sum] => 913 867
[display_work_sum] => 1 205 725
[display_total_sum] => 2 119 592
)
1
2 119 592₽
Работа:1 205 725 ₽
Материалы:913 867 ₽
Дни:25
stdClass Object
(
[id] => 182
[attribute_id] => 3
[name] => Каркасно-щитовые
[material_modifier] => 1
[work_modifier] => 1
[options] => Array
(
[0] => 150 мм
[1] => 200 мм
[2] => 250 мм
[3] => 300 мм
[4] => 350 мм
[5] => 400 мм
)
[days] => [15,16,17,18,19,20]
[material_price] => [2379,2639,2898,3458,3601,4175]
[work_price] => [2538,2820,3134,3483,4062,5642]
[image] => https://akademik-stroy.ru/wp-content/uploads/materials/karkasno-shchitovye.jpg
[area_modifier] => 125.85
[parent_name] => Стены 1 этаж (несущие)
[parent_id] => 3
[material_sum] => 413168
[work_sum] => 367318
[total_sum] => 780486
[total_days] => 15
[display_material_sum] => 413 168
[display_work_sum] => 367 318
[display_total_sum] => 780 486
)
1
780 486₽
Работа:367 318 ₽
Материалы:413 168 ₽
Дни:15
stdClass Object
(
[id] => 183
[attribute_id] => 3
[name] => Рубленные
[material_modifier] => 1
[work_modifier] => 1
[options] => Array
(
[0] => 150 мм
[1] => 200 мм
[2] => 250 мм
[3] => 300 мм
[4] => 350 мм
[5] => 400 мм
)
[days] => [15,16,17,18,17,18]
[material_price] => [35950,50267,60583,75900,80217,100533]
[work_price] => [9612,12816,16020,19224,22428,25632]
[image] => https://akademik-stroy.ru/wp-content/uploads/materials/rublennye.jpg
[area_modifier] => 125.85
[parent_name] => Стены 1 этаж (несущие)
[parent_id] => 3
[material_sum] => 6243544
[work_sum] => 1391121
[total_sum] => 7634665
[total_days] => 15
[display_material_sum] => 6 243 544
[display_work_sum] => 1 391 121
[display_total_sum] => 7 634 665
)
1
7 634 665₽
Работа:1 391 121 ₽
Материалы:6 243 544 ₽
Дни:15
stdClass Object
(
[id] => 185
[attribute_id] => 3
[name] => Теплоблок
[material_modifier] => 1
[work_modifier] => 1
[options] => Array
(
[0] => 300 мм (с облицовкой, не покрашенный)
[1] => 400 мм (с облицовкой, не покрашенный)
[2] => 300 мм (с облицовкой, покрашенный)
[3] => 400 мм (с облицовкой, покрашенный)
)
[days] => [15,16,15,16]
[material_price] => [2888,3729,3957,4258]
[work_price] => [2564,3229,2949,3713]
[image] => https://akademik-stroy.ru/wp-content/uploads/materials/teploblok.jpg
[area_modifier] => 125.85
[parent_name] => Стены 1 этаж (несущие)
[parent_id] => 3
[material_sum] => 501568
[work_sum] => 371081
[total_sum] => 872649
[total_days] => 15
[display_material_sum] => 501 568
[display_work_sum] => 371 081
[display_total_sum] => 872 649
)
1
872 649₽
Работа:371 081 ₽
Материалы:501 568 ₽
Дни:15
stdClass Object
(
[id] => 186
[attribute_id] => 3
[name] => Арболитовые блоки
[material_modifier] => 1
[work_modifier] => 1
[options] => Array
(
[0] => 300 мм
[1] => 400 мм
[2] => 600 мм
)
[days] => [19,22,27]
[material_price] => [3210,4475,5852]
[work_price] => [4214,4788,5866]
[image] => https://akademik-stroy.ru/wp-content/uploads/materials/arbolitovye-bloki.png
[area_modifier] => 125.85
[parent_name] => Стены 1 этаж (несущие)
[parent_id] => 3
[material_sum] => 557490
[work_sum] => 609882
[total_sum] => 1167372
[total_days] => 19
[display_material_sum] => 557 490
[display_work_sum] => 609 882
[display_total_sum] => 1 167 372
)
1
1 167 372₽
Работа:609 882 ₽
Материалы:557 490 ₽
Дни:19
stdClass Object
(
[id] => 187
[attribute_id] => 3
[name] => Полистиролбетон
[material_modifier] => 1
[work_modifier] => 1
[options] => Array
(
[0] => 300 мм
[1] => 400 мм
[2] => 600 мм
)
[days] => [29,31,35]
[material_price] => [2798,4573,5256]
[work_price] => [5038,5851,6426]
[image] => https://akademik-stroy.ru/wp-content/uploads/materials/polistirolbeton.jpg
[area_modifier] => 125.85
[parent_name] => Стены 1 этаж (несущие)
[parent_id] => 3
[material_sum] => 485937
[work_sum] => 729137
[total_sum] => 1215074
[total_days] => 29
[display_material_sum] => 485 937
[display_work_sum] => 729 137
[display_total_sum] => 1 215 074
)
1
1 215 074₽
Работа:729 137 ₽
Материалы:485 937 ₽
Дни:29
stdClass Object
(
[id] => 188
[attribute_id] => 3
[name] => Шлакоблок
[material_modifier] => 1
[work_modifier] => 1
[options] => Array
(
[0] => 400 мм
[1] => 600 мм
)
[days] => [15,16]
[material_price] => [2391,3471]
[work_price] => [2642,3662]
[image] => https://akademik-stroy.ru/wp-content/uploads/materials/shlakoblok.jpg
[area_modifier] => 125.85
[parent_name] => Стены 1 этаж (несущие)
[parent_id] => 3
[material_sum] => 415252
[work_sum] => 382370
[total_sum] => 797622
[total_days] => 15
[display_material_sum] => 415 252
[display_work_sum] => 382 370
[display_total_sum] => 797 622
)
1
797 622₽
Работа:382 370 ₽
Материалы:415 252 ₽
Дни:15
stdClass Object
(
[id] => 189
[attribute_id] => 3
[name] => Теплая керамика
[material_modifier] => 1
[work_modifier] => 1
[options] => Array
(
[0] => 380 мм
[1] => 380 мм Thermo
[2] => 440 мм
[3] => 510 мм
)
[days] => [23,23,24,25]
[material_price] => [4510,5098,6093,8013]
[work_price] => [4737,4937,5903,6958]
[image] => https://akademik-stroy.ru/wp-content/uploads/materials/teplaya-keramika.jpg
[area_modifier] => 125.85
[parent_name] => Стены 1 этаж (несущие)
[parent_id] => 3
[material_sum] => 783265
[work_sum] => 685574
[total_sum] => 1468839
[total_days] => 23
[display_material_sum] => 783 265
[display_work_sum] => 685 574
[display_total_sum] => 1 468 839
)
1
1 468 839₽
Работа:685 574 ₽
Материалы:783 265 ₽
Дни:23
stdClass Object
(
[id] => 190
[attribute_id] => 3
[name] => Несъемная опалубка
[material_modifier] => 1
[work_modifier] => 1
[options] => Array
(
[0] => 200 мм
[1] => 250 мм
[2] => 300 мм
[3] => 350 мм
)
[days] => [15,17,19,21]
[material_price] => [3302,3902,4108,5008]
[work_price] => [2100,2100,2300,2534]
[image] => https://akademik-stroy.ru/wp-content/uploads/materials/nesemnaya-opalubka.jpg
[area_modifier] => 125.85
[parent_name] => Стены 1 этаж (несущие)
[parent_id] => 3
[material_sum] => 573468
[work_sum] => 303928
[total_sum] => 877396
[total_days] => 15
[display_material_sum] => 573 468
[display_work_sum] => 303 928
[display_total_sum] => 877 396
)
1
877 396₽
Работа:303 928 ₽
Материалы:573 468 ₽
Дни:15
stdClass Object
(
[id] => 251
[attribute_id] => 3
[name] => Бревно
[material_modifier] => 1
[work_modifier] => 1
[options] => Array
(
[0] => 260 мм
[1] => 320 мм
[2] => 360 мм
[3] => 400 мм
[4] => 500 мм
)
[days] => [7,8,9,10,11]
[material_price] => [1874,24045,26930,30972,38825]
[work_price] => [5046,6207,6952,7716,9723]
[image] => https://akademik-stroy.ru/wp-content/uploads/materials/sruby.jpg
[area_modifier] => 125.85
[parent_name] => Стены 1 этаж (несущие)
[parent_id] => 3
[material_sum] => 325463
[work_sum] => 730295
[total_sum] => 1055758
[total_days] => 7
[display_material_sum] => 325 463
[display_work_sum] => 730 295
[display_total_sum] => 1 055 758
)
1
1 055 758₽
Работа:730 295 ₽
Материалы:325 463 ₽
Дни:7
stdClass Object
(
[id] => 7
[attribute_id] => 4
[name] => Деревянные балки
[material_modifier] => 1
[work_modifier] => 1
[options] => Array
(
[0] => без утепления
[1] => утепление 200 мм
[2] => утепление 250 мм
[3] => утепление 300 мм
[4] => утепление 350 мм
[5] => утепление 400 мм
[6] => утепление 450 мм
[7] => утепление 500 мм
)
[days] => [8,9,9,9,11,12,13,14]
[material_price] => [1634,2042,2344,2947,3149,3652,3354,3557]
[work_price] => [1230,1339,1393,1426,1460,1513,1587,1620]
[image] => https://akademik-stroy.ru/wp-content/uploads/materials/derevyannye-balki.png
[area_modifier] => 125.85
[parent_name] => Перекрытие первого этажа
[parent_id] => 4
[material_sum] => 283782
[work_sum] => 178015
[total_sum] => 461797
[total_days] => 8
[display_material_sum] => 283 782
[display_work_sum] => 178 015
[display_total_sum] => 461 797
)
1
461 797₽
Работа:178 015 ₽
Материалы:283 782 ₽
Дни:8
stdClass Object
(
[id] => 8
[attribute_id] => 4
[name] => Сборные ж/б плиты
[material_modifier] => 1
[work_modifier] => 1
[options] => Array
(
[0] => без утепления
[1] => утепление 150 мм
[2] => утепление 200 мм
[3] => утепление 250 мм
[4] => утепление 300 мм
[5] => утепление 350 мм
[6] => утепление 400 мм
[7] => утепление 450 мм
[8] => утепление 500 мм
)
[days] => [13,15,15,15,15,15,15,15,15]
[material_price] => [3067,5577,5928,6679,7730,8782,9833,10884,11935]
[work_price] => [1520,1956,2102,2247,2392,2537,2684,2829,2974]
[image] => https://akademik-stroy.ru/wp-content/uploads/materials/sbornye-zh-b-plity-2.jpg
[area_modifier] => 125.85
[parent_name] => Перекрытие первого этажа
[parent_id] => 4
[material_sum] => 532655
[work_sum] => 219986
[total_sum] => 752641
[total_days] => 13
[display_material_sum] => 532 655
[display_work_sum] => 219 986
[display_total_sum] => 752 641
)
1
752 641₽
Работа:219 986 ₽
Материалы:532 655 ₽
Дни:13
stdClass Object
(
[id] => 89
[attribute_id] => 4
[name] => Монолитная ж/б плита
[material_modifier] => 1
[work_modifier] => 1
[options] => Array
(
[0] => без утепления
[1] => утепление 150 мм
[2] => утепление 200 мм
[3] => утепление 250 мм
[4] => утепление 300 мм
[5] => утепление 350 мм
[6] => утепление 400 мм
[7] => утепление 450 мм
[8] => утепление 500 мм
)
[days] => [18,20,20,20,20,20,20,20,20]
[material_price] => [4837,6572,7224,7375,79426,8177,8728,9180,10031]
[work_price] => [3348,3921,4112,4302,4493,4684,4875,5066,5256]
[image] => https://akademik-stroy.ru/wp-content/uploads/materials/monolitnaya-zh-b-plita-2.jpg
[area_modifier] => 125.85
[parent_name] => Перекрытие первого этажа
[parent_id] => 4
[material_sum] => 840056
[work_sum] => 484548
[total_sum] => 1324604
[total_days] => 18
[display_material_sum] => 840 056
[display_work_sum] => 484 548
[display_total_sum] => 1 324 604
)
1
1 324 604₽
Работа:484 548 ₽
Материалы:840 056 ₽
Дни:18
stdClass Object
(
[id] => 160
[attribute_id] => 36
[name] => Не эксплуатируемая
[material_modifier] => 1
[work_modifier] => 1
[options] => Array
(
)
[days] => [10]
[material_price] => [8068]
[work_price] => [4163]
[image] => https://akademik-stroy.ru/wp-content/uploads/materials/ne-ehkspluatiruemaya-3.jpg
[area_modifier] => 125.85
[parent_name] => Плоская крыша
[parent_id] => 36
[material_sum] => 1401194
[work_sum] => 602501
[total_sum] => 2003695
[total_days] => 10
[display_material_sum] => 1 401 194
[display_work_sum] => 602 501
[display_total_sum] => 2 003 695
)
1
2 003 695₽
Работа:602 501 ₽
Материалы:1 401 194 ₽
Дни:10
stdClass Object
(
[id] => 161
[attribute_id] => 36
[name] => Зеленая кровля (Эксплуатируемая)
[material_modifier] => 1
[work_modifier] => 1
[options] => Array
(
)
[days] => [10]
[material_price] => [10056]
[work_price] => [8446]
[image] => https://akademik-stroy.ru/wp-content/uploads/materials/zelenaya-krovlya-2.jpg
[area_modifier] => 125.85
[parent_name] => Плоская крыша
[parent_id] => 36
[material_sum] => 1746456
[work_sum] => 1222368
[total_sum] => 2968824
[total_days] => 10
[display_material_sum] => 1 746 456
[display_work_sum] => 1 222 368
[display_total_sum] => 2 968 824
)
1
2 968 824₽
Работа:1 222 368 ₽
Материалы:1 746 456 ₽
Дни:10
stdClass Object
(
[id] => 162
[attribute_id] => 36
[name] => Эксплуатируемая
[material_modifier] => 1
[work_modifier] => 1
[options] => Array
(
)
[days] => [10]
[material_price] => [9593]
[work_price] => [7459]
[image] => https://akademik-stroy.ru/wp-content/uploads/materials/ehkspluatiruemaya-2.jpg
[area_modifier] => 125.85
[parent_name] => Плоская крыша
[parent_id] => 36
[material_sum] => 1666045
[work_sum] => 1079522
[total_sum] => 2745567
[total_days] => 10
[display_material_sum] => 1 666 045
[display_work_sum] => 1 079 522
[display_total_sum] => 2 745 567
)
1
2 745 567₽
Работа:1 079 522 ₽
Материалы:1 666 045 ₽
Дни:10
stdClass Object
(
[id] => 163
[attribute_id] => 36
[name] => Нет
[material_modifier] => 1
[work_modifier] => 1
[options] => Array
(
)
[days] => [0]
[material_price] => [0]
[work_price] => [0]
[image] => https://akademik-stroy.ru/wp-content/uploads/materials/ne-ehkspluatiruemaya-3.jpg
[area_modifier] => 125.85
[parent_name] => Плоская крыша
[parent_id] => 36
[material_sum] => 0
[work_sum] => 0
[total_sum] => 0
[total_days] => 0
[display_material_sum] => 0
[display_work_sum] => 0
[display_total_sum] => 0
)
1
0₽
Работа:0 ₽
Материалы:0 ₽
Дни:0
stdClass Object
(
[id] => 51
[attribute_id] => 26
[name] => Есть
[material_modifier] => 1
[work_modifier] => 1
[options] => Array
(
[0] => Профиль 58 мм, 3-камерный, стеклопакет 2-камерный до 32 мм
[1] => Профиль 60 мм, 4-камерный, стеклопакет 2-камерный до 32 мм
[2] => Профиль 70 мм, 5-камерный, стеклопакет 2-камерный до 40 мм
[3] => Профиль 72 мм, 5-камерный, стеклопакет 2-камерный до 40 мм
[4] => Алюминиевые окна Alutech профиль 72 мм, стеклопакет 2-камерный
)
[days] => [3,3,3,3,3]
[material_price] => [1339,2124,2867,3023,29596]
[work_price] => [635,647,659,668,2579]
[image] => https://akademik-stroy.ru/wp-content/uploads/materials/okna.jpg
[area_modifier] => 102.13
[parent_name] => Окна
[parent_id] => 26
[material_sum] => 188718
[work_sum] => 74580
[total_sum] => 263298
[total_days] => 3
[display_material_sum] => 188 718
[display_work_sum] => 74 580
[display_total_sum] => 263 298
)
1
263 298₽
Работа:74 580 ₽
Материалы:188 718 ₽
Дни:3
stdClass Object
(
[id] => 52
[attribute_id] => 26
[name] => Нет
[material_modifier] => 2
[work_modifier] => 1
[options] =>
[days] => null
[material_price] => null
[work_price] => null
[image] => https://akademik-stroy.ru/wp-content/uploads/materials/okna.jpg
[area_modifier] => 102.13
[parent_name] => Окна
[parent_id] => 26
[material_sum] => 0
[work_sum] => 0
[total_sum] => 0
[total_days] => 0
[display_material_sum] => 0
[display_work_sum] => 0
[display_total_sum] => 0
)
1
0₽
Работа:0 ₽
Материалы:0 ₽
Дни:0
stdClass Object
(
[id] => 53
[attribute_id] => 27
[name] => Есть
[material_modifier] => 1
[work_modifier] => 1
[options] => Array
(
)
[days] => [1]
[material_price] => [10000]
[work_price] => [5500]
[image] => https://akademik-stroy.ru/wp-content/uploads/materials/dveri.jpg
[area_modifier] => 1
[parent_name] => Двери входные
[parent_id] => 27
[material_sum] => 13800
[work_sum] => 6325
[total_sum] => 20125
[total_days] => 1
[display_material_sum] => 13 800
[display_work_sum] => 6 325
[display_total_sum] => 20 125
)
1
20 125₽
Работа:6 325 ₽
Материалы:13 800 ₽
Дни:1
stdClass Object
(
[id] => 54
[attribute_id] => 27
[name] => Нет
[material_modifier] => 1
[work_modifier] => 1
[options] => Array
(
)
[days] => [0]
[material_price] => [0]
[work_price] => [0]
[image] => https://akademik-stroy.ru/wp-content/uploads/materials/dveri.jpg
[area_modifier] => 1
[parent_name] => Двери входные
[parent_id] => 27
[material_sum] => 0
[work_sum] => 0
[total_sum] => 0
[total_days] => 0
[display_material_sum] => 0
[display_work_sum] => 0
[display_total_sum] => 0
)
1
0₽
Работа:0 ₽
Материалы:0 ₽
Дни:0
stdClass Object
(
[id] => 31
[attribute_id] => 16
[name] => Нет
[material_modifier] => 1
[work_modifier] => 1
[options] => Array
(
)
[days] => [0]
[material_price] => [0]
[work_price] => [0]
[image] => https://akademik-stroy.ru/wp-content/uploads/materials/docke-standard-pvh.jpg
[area_modifier] => 125.85
[parent_name] => Водосточная система
[parent_id] => 16
[material_sum] => 0
[work_sum] => 0
[total_sum] => 0
[total_days] => 0
[display_material_sum] => 0
[display_work_sum] => 0
[display_total_sum] => 0
)
1
0₽
Работа:0 ₽
Материалы:0 ₽
Дни:0
stdClass Object
(
[id] => 32
[attribute_id] => 16
[name] => Есть
[material_modifier] => 1
[work_modifier] => 1
[options] => Array
(
[0] => Döcke Standard (ПВХ)
[1] => Металлические Grand Line
)
[days] => [7,7]
[material_price] => [1842,2703]
[work_price] => [1491,1529]
[image] => https://akademik-stroy.ru/wp-content/uploads/materials/docke-standard-pvh.jpg
[area_modifier] => 125.85
[parent_name] => Водосточная система
[parent_id] => 16
[material_sum] => 319906
[work_sum] => 215789
[total_sum] => 535695
[total_days] => 7
[display_material_sum] => 319 906
[display_work_sum] => 215 789
[display_total_sum] => 535 695
)
1
535 695₽
Работа:215 789 ₽
Материалы:319 906 ₽
Дни:7
stdClass Object
(
[id] => 33
[attribute_id] => 17
[name] => Нет
[material_modifier] => 1
[work_modifier] => 1
[options] => Array
(
)
[days] => [0]
[material_price] => [0]
[work_price] => [0]
[image] => https://akademik-stroy.ru/wp-content/uploads/materials/mineralovata.jpg
[area_modifier] => 125.85
[parent_name] => Дополнительное утепление наружных стен
[parent_id] => 17
[material_sum] => 0
[work_sum] => 0
[total_sum] => 0
[total_days] => 0
[display_material_sum] => 0
[display_work_sum] => 0
[display_total_sum] => 0
)
1
0₽
Работа:0 ₽
Материалы:0 ₽
Дни:0
stdClass Object
(
[id] => 34
[attribute_id] => 17
[name] => Минераловатный
[material_modifier] => 1
[work_modifier] => 1
[options] => Array
(
[0] => 50 мм
[1] => 100 мм
[2] => 150 мм
[3] => 200 мм
[4] => 250 мм
[5] => 300 мм
)
[days] => [7,8,10,12,14,15]
[material_price] => [3437,3613,3803,3915,4601,4830]
[work_price] => [2325,2423,2523,2749,2859,3025]
[image] => https://akademik-stroy.ru/wp-content/uploads/materials/mineralovata.jpg
[area_modifier] => 125.85
[parent_name] => Дополнительное утепление наружных стен
[parent_id] => 17
[material_sum] => 596914
[work_sum] => 336491
[total_sum] => 933405
[total_days] => 7
[display_material_sum] => 596 914
[display_work_sum] => 336 491
[display_total_sum] => 933 405
)
1
933 405₽
Работа:336 491 ₽
Материалы:596 914 ₽
Дни:7
stdClass Object
(
[id] => 128
[attribute_id] => 17
[name] => Эковата (целлюлозная вата)
[material_modifier] => 1
[work_modifier] => 1
[options] => Array
(
[0] => 50 мм
[1] => 100 мм
[2] => 150 мм
[3] => 200 мм
[4] => 250 мм
[5] => 300 мм
)
[days] => [3,4,5,6,7,8]
[material_price] => [810,1319,1629,1838,2267,2676]
[work_price] => [1225,1323,1423,1549,1659,1725]
[image] => https://akademik-stroy.ru/wp-content/uploads/materials/ehkovata.jpg
[area_modifier] => 125.85
[parent_name] => Дополнительное утепление наружных стен
[parent_id] => 17
[material_sum] => 140675
[work_sum] => 177291
[total_sum] => 317966
[total_days] => 3
[display_material_sum] => 140 675
[display_work_sum] => 177 291
[display_total_sum] => 317 966
)
1
317 966₽
Работа:177 291 ₽
Материалы:140 675 ₽
Дни:3
stdClass Object
(
[id] => 129
[attribute_id] => 17
[name] => Экструдированный пенополистирол
[material_modifier] => 1
[work_modifier] => 1
[options] => Array
(
[0] => 50 мм
[1] => 100 мм
[2] => 150 мм
[3] => 200 мм
[4] => 250 мм
[5] => 300 мм
)
[days] => [5,6,7,8,9,10]
[material_price] => [4560,4300,5119,6292,7010,8583]
[work_price] => [1795,1954,2254,2330,2595,2735]
[image] => https://akademik-stroy.ru/wp-content/uploads/materials/epps.jpg
[area_modifier] => 125.85
[parent_name] => Дополнительное утепление наружных стен
[parent_id] => 17
[material_sum] => 791949
[work_sum] => 259786
[total_sum] => 1051735
[total_days] => 5
[display_material_sum] => 791 949
[display_work_sum] => 259 786
[display_total_sum] => 1 051 735
)
1
1 051 735₽
Работа:259 786 ₽
Материалы:791 949 ₽
Дни:5
stdClass Object
(
[id] => 130
[attribute_id] => 17
[name] => ПСБ (ППС-пенополистирол)
[material_modifier] => 1
[work_modifier] => 1
[options] => Array
(
[0] => 50 мм
[1] => 100 мм
[2] => 150 мм
[3] => 200 мм
[4] => 250 мм
[5] => 300 мм
)
[days] => [5,6,7,8,9,10]
[material_price] => [4822,5200,5819,6292,7010,7583]
[work_price] => [1795,1954,2254,2330,2595,2735]
[image] => https://akademik-stroy.ru/wp-content/uploads/materials/psb.jpg
[area_modifier] => 125.85
[parent_name] => Дополнительное утепление наружных стен
[parent_id] => 17
[material_sum] => 837451
[work_sum] => 259786
[total_sum] => 1097237
[total_days] => 5
[display_material_sum] => 837 451
[display_work_sum] => 259 786
[display_total_sum] => 1 097 237
)
1
1 097 237₽
Работа:259 786 ₽
Материалы:837 451 ₽
Дни:5
stdClass Object
(
[id] => 131
[attribute_id] => 17
[name] => ППУ (Пенополиуретан)
[material_modifier] => 1
[work_modifier] => 1
[options] => Array
(
[0] => 50 мм
[1] => 100 мм
[2] => 150 мм
[3] => 200 мм
[4] => 250 мм
[5] => 300 мм
)
[days] => [3,4,5,6,7,8]
[material_price] => [2860,3400,4219,4592,5010,5583]
[work_price] => [729,900,980,1120,1280,1530]
[image] => https://akademik-stroy.ru/wp-content/uploads/materials/ppu.jpg
[area_modifier] => 125.85
[parent_name] => Дополнительное утепление наружных стен
[parent_id] => 17
[material_sum] => 496705
[work_sum] => 105506
[total_sum] => 602211
[total_days] => 3
[display_material_sum] => 496 705
[display_work_sum] => 105 506
[display_total_sum] => 602 211
)
1
602 211₽
Работа:105 506 ₽
Материалы:496 705 ₽
Дни:3
stdClass Object
(
[id] => 132
[attribute_id] => 17
[name] => PIR-плиты (пенополиизоцианурат)
[material_modifier] => 1
[work_modifier] => 1
[options] => Array
(
[0] => 50 мм
[1] => 100 мм
[2] => 150 мм
[3] => 200 мм
[4] => 250 мм
[5] => 300 мм
)
[days] => [5,6,7,8,9,10]
[material_price] => [8323,15645,20968,25900,29258,30581]
[work_price] => [800,900,970,1150,1280,1330]
[image] => https://akademik-stroy.ru/wp-content/uploads/materials/pir.jpg
[area_modifier] => 125.85
[parent_name] => Дополнительное утепление наружных стен
[parent_id] => 17
[material_sum] => 1445480
[work_sum] => 115782
[total_sum] => 1561262
[total_days] => 5
[display_material_sum] => 1 445 480
[display_work_sum] => 115 782
[display_total_sum] => 1 561 262
)
1
1 561 262₽
Работа:115 782 ₽
Материалы:1 445 480 ₽
Дни:5
stdClass Object
(
[id] => 37
[attribute_id] => 19
[name] => Нет
[material_modifier] => 1
[work_modifier] => 1
[options] => Array
(
)
[days] => [0]
[material_price] => [0]
[work_price] => [0]
[image] => https://akademik-stroy.ru/wp-content/uploads/materials/imitaciya-brusa.jpg
[area_modifier] => 125.85
[parent_name] => Наружная отделка фасада
[parent_id] => 19
[material_sum] => 0
[work_sum] => 0
[total_sum] => 0
[total_days] => 0
[display_material_sum] => 0
[display_work_sum] => 0
[display_total_sum] => 0
)
1
0₽
Работа:0 ₽
Материалы:0 ₽
Дни:0
stdClass Object
(
[id] => 38
[attribute_id] => 19
[name] => Имитация бруса
[material_modifier] => 1
[work_modifier] => 1
[options] => Array
(
[0] => Сосна
[1] => Ель
[2] => Лиственница
)
[days] => [20,20,20]
[material_price] => [2994,2762,4954]
[work_price] => [1397,1231,1577]
[image] => https://akademik-stroy.ru/wp-content/uploads/materials/imitaciya-brusa.jpg
[area_modifier] => 125.85
[parent_name] => Наружная отделка фасада
[parent_id] => 19
[material_sum] => 519977
[work_sum] => 202184
[total_sum] => 722161
[total_days] => 20
[display_material_sum] => 519 977
[display_work_sum] => 202 184
[display_total_sum] => 722 161
)
1
722 161₽
Работа:202 184 ₽
Материалы:519 977 ₽
Дни:20
stdClass Object
(
[id] => 136
[attribute_id] => 19
[name] => Планкен
[material_modifier] => 1
[work_modifier] => 1
[options] => Array
(
[0] => Сосна
[1] => Ель
[2] => Лиственница
)
[days] => [20,20,20]
[material_price] => [3194,2862,5154]
[work_price] => [1537,1354,1735]
[image] => https://akademik-stroy.ru/wp-content/uploads/materials/planken.jpg
[area_modifier] => 125.85
[parent_name] => Наружная отделка фасада
[parent_id] => 19
[material_sum] => 554712
[work_sum] => 222446
[total_sum] => 777158
[total_days] => 20
[display_material_sum] => 554 712
[display_work_sum] => 222 446
[display_total_sum] => 777 158
)
1
777 158₽
Работа:222 446 ₽
Материалы:554 712 ₽
Дни:20
stdClass Object
(
[id] => 137
[attribute_id] => 19
[name] => Штукатурка
[material_modifier] => 1
[work_modifier] => 1
[options] => Array
(
[0] => Цементно-песчаная (минеральная)
[1] => Мокрый фасад
)
[days] => [35,35]
[material_price] => [2231,3938]
[work_price] => [1202,2422]
[image] => https://akademik-stroy.ru/wp-content/uploads/materials/shtukaturka.jpg
[area_modifier] => 125.85
[parent_name] => Наружная отделка фасада
[parent_id] => 19
[material_sum] => 387464
[work_sum] => 173962
[total_sum] => 561426
[total_days] => 35
[display_material_sum] => 387 464
[display_work_sum] => 173 962
[display_total_sum] => 561 426
)
1
561 426₽
Работа:173 962 ₽
Материалы:387 464 ₽
Дни:35
stdClass Object
(
[id] => 138
[attribute_id] => 19
[name] => Облицовочный кирпич
[material_modifier] => 1
[work_modifier] => 1
[options] => Array
(
[0] => Керамический
[1] => Клинкерный
[2] => Ручной формовки
[3] => Гиперпрессованный
[4] => Силикатный кирпич
)
[days] => [45,45,45,45,45]
[material_price] => [8174,9148,1040,1257,5876]
[work_price] => [3240,3758,4536,4017,3369]
[image] => https://akademik-stroy.ru/wp-content/uploads/materials/oblicovochnyj-kirpich.jpg
[area_modifier] => 125.85
[parent_name] => Наружная отделка фасада
[parent_id] => 19
[material_sum] => 1419603
[work_sum] => 468917
[total_sum] => 1888520
[total_days] => 45
[display_material_sum] => 1 419 603
[display_work_sum] => 468 917
[display_total_sum] => 1 888 520
)
1
1 888 520₽
Работа:468 917 ₽
Материалы:1 419 603 ₽
Дни:45
stdClass Object
(
[id] => 139
[attribute_id] => 19
[name] => Фасадная плитка
[material_modifier] => 1
[work_modifier] => 1
[options] => Array
(
[0] => Клинкерная
[1] => Керамическая
[2] => Плитка ручной формовки
)
[days] => [40,40,40]
[material_price] => [2974,1487,3470]
[work_price] => [3007,2592,3629]
[image] => https://akademik-stroy.ru/wp-content/uploads/materials/fasadnaya-plitka.jpg
[area_modifier] => 125.85
[parent_name] => Наружная отделка фасада
[parent_id] => 19
[material_sum] => 516504
[work_sum] => 435196
[total_sum] => 951700
[total_days] => 40
[display_material_sum] => 516 504
[display_work_sum] => 435 196
[display_total_sum] => 951 700
)
1
951 700₽
Работа:435 196 ₽
Материалы:516 504 ₽
Дни:40
stdClass Object
(
[id] => 140
[attribute_id] => 19
[name] => Сайдинг
[material_modifier] => 1
[work_modifier] => 1
[options] => Array
(
[0] => Виниловый
[1] => Металлический
[2] => Фиброцементный
)
[days] => [20,20,20]
[material_price] => [1263,1944,4147]
[work_price] => [1263,1944,2074]
[image] => https://akademik-stroy.ru/wp-content/uploads/materials/sajding.jpg
[area_modifier] => 125.85
[parent_name] => Наружная отделка фасада
[parent_id] => 19
[material_sum] => 219349
[work_sum] => 182791
[total_sum] => 402140
[total_days] => 20
[display_material_sum] => 219 349
[display_work_sum] => 182 791
[display_total_sum] => 402 140
)
1
402 140₽
Работа:182 791 ₽
Материалы:219 349 ₽
Дни:20
stdClass Object
(
[id] => 141
[attribute_id] => 19
[name] => Камень
[material_modifier] => 1
[work_modifier] => 1
[options] => Array
(
[0] => Травертин
[1] => Дагестанский
[2] => Искусственный
[3] => Натуральный
[4] => Керамогранит
)
[days] => [45,45,45,45,45]
[material_price] => [4536,3888,2592,3240,2462]
[work_price] => [3240,3240,2462,3110,1944]
[image] => https://akademik-stroy.ru/wp-content/uploads/materials/kamen-1.jpg
[area_modifier] => 125.85
[parent_name] => Наружная отделка фасада
[parent_id] => 19
[material_sum] => 787781
[work_sum] => 468917
[total_sum] => 1256698
[total_days] => 45
[display_material_sum] => 787 781
[display_work_sum] => 468 917
[display_total_sum] => 1 256 698
)
1
1 256 698₽
Работа:468 917 ₽
Материалы:787 781 ₽
Дни:45
stdClass Object
(
[id] => 142
[attribute_id] => 19
[name] => Термопанели
[material_modifier] => 1
[work_modifier] => 1
[options] => Array
(
)
[days] => [20]
[material_price] => [6221]
[work_price] => [2333]
[image] => https://akademik-stroy.ru/wp-content/uploads/materials/termo.png
[area_modifier] => 125.85
[parent_name] => Наружная отделка фасада
[parent_id] => 19
[material_sum] => 1080420
[work_sum] => 337649
[total_sum] => 1418069
[total_days] => 20
[display_material_sum] => 1 080 420
[display_work_sum] => 337 649
[display_total_sum] => 1 418 069
)
1
1 418 069₽
Работа:337 649 ₽
Материалы:1 080 420 ₽
Дни:20
stdClass Object
(
[id] => 143
[attribute_id] => 19
[name] => Плитка HAUBERK
[material_modifier] => 1
[work_modifier] => 1
[options] => Array
(
)
[days] => [20]
[material_price] => [2786]
[work_price] => [1944]
[image] => https://akademik-stroy.ru/wp-content/uploads/materials/hauberk.jpg
[area_modifier] => 125.85
[parent_name] => Наружная отделка фасада
[parent_id] => 19
[material_sum] => 483853
[work_sum] => 281350
[total_sum] => 765203
[total_days] => 20
[display_material_sum] => 483 853
[display_work_sum] => 281 350
[display_total_sum] => 765 203
)
1
765 203₽
Работа:281 350 ₽
Материалы:483 853 ₽
Дни:20
stdClass Object
(
[id] => 144
[attribute_id] => 19
[name] => Фальцевый фасад
[material_modifier] => 1
[work_modifier] => 1
[options] => Array
(
)
[days] => [20]
[material_price] => [3240]
[work_price] => [2592]
[image] => https://akademik-stroy.ru/wp-content/uploads/materials/falcevyj-fasad.jpg
[area_modifier] => 125.85
[parent_name] => Наружная отделка фасада
[parent_id] => 19
[material_sum] => 562701
[work_sum] => 375134
[total_sum] => 937835
[total_days] => 20
[display_material_sum] => 562 701
[display_work_sum] => 375 134
[display_total_sum] => 937 835
)
1
937 835₽
Работа:375 134 ₽
Материалы:562 701 ₽
Дни:20
stdClass Object
(
[id] => 145
[attribute_id] => 19
[name] => Комбинированный
[material_modifier] => 1
[work_modifier] => 1
[options] => Array
(
)
[days] => [20]
[material_price] => [4629]
[work_price] => [3499]
[image] => https://akademik-stroy.ru/wp-content/uploads/materials/Kombinirovannyj.jpg
[area_modifier] => 125.85
[parent_name] => Наружная отделка фасада
[parent_id] => 19
[material_sum] => 803932
[work_sum] => 506402
[total_sum] => 1310334
[total_days] => 20
[display_material_sum] => 803 932
[display_work_sum] => 506 402
[display_total_sum] => 1 310 334
)
1
1 310 334₽
Работа:506 402 ₽
Материалы:803 932 ₽
Дни:20
stdClass Object
(
[id] => 257
[attribute_id] => 19
[name] => Японские фиброцементные
[material_modifier] => 1
[work_modifier] => 1
[options] => Array
(
)
[days] => [20]
[material_price] => [7043]
[work_price] => [2993]
[image] => https://akademik-stroy.ru/wp-content/uploads/materials/paneli.jpg
[area_modifier] => 125.85
[parent_name] => Наружная отделка фасада
[parent_id] => 19
[material_sum] => 1223179
[work_sum] => 433169
[total_sum] => 1656348
[total_days] => 20
[display_material_sum] => 1 223 179
[display_work_sum] => 433 169
[display_total_sum] => 1 656 348
)
1
1 656 348₽
Работа:433 169 ₽
Материалы:1 223 179 ₽
Дни:20
stdClass Object
(
[id] => 258
[attribute_id] => 19
[name] => Панели Каньон
[material_modifier] => 1
[work_modifier] => 1
[options] => Array
(
)
[days] => [20]
[material_price] => [4543]
[work_price] => [2592]
[image] => https://akademik-stroy.ru/wp-content/uploads/materials/kanon.png
[area_modifier] => 125.85
[parent_name] => Наружная отделка фасада
[parent_id] => 19
[material_sum] => 788996
[work_sum] => 375134
[total_sum] => 1164130
[total_days] => 20
[display_material_sum] => 788 996
[display_work_sum] => 375 134
[display_total_sum] => 1 164 130
)
1
1 164 130₽
Работа:375 134 ₽
Материалы:788 996 ₽
Дни:20
stdClass Object
(
[id] => 39
[attribute_id] => 20
[name] => Нет
[material_modifier] => 1
[work_modifier] => 1
[options] => Array
(
)
[days] => [0]
[material_price] => [0]
[work_price] => [0]
[image] => https://akademik-stroy.ru/wp-content/uploads/materials/terrasy.jpg
[area_modifier] => 30
[parent_name] => Террасы, крыльца, навесы
[parent_id] => 20
[material_sum] => 0
[work_sum] => 0
[total_sum] => 0
[total_days] => 0
[display_material_sum] => 0
[display_work_sum] => 0
[display_total_sum] => 0
)
1
0₽
Работа:0 ₽
Материалы:0 ₽
Дни:0
stdClass Object
(
[id] => 40
[attribute_id] => 20
[name] => Есть
[material_modifier] => 1
[work_modifier] => 1
[options] => Array
(
)
[days] => [5]
[material_price] => [10450]
[work_price] => [1950]
[image] => https://akademik-stroy.ru/wp-content/uploads/materials/terrasy.jpg
[area_modifier] => 30
[parent_name] => Террасы, крыльца, навесы
[parent_id] => 20
[material_sum] => 432630
[work_sum] => 67275
[total_sum] => 499905
[total_days] => 5
[display_material_sum] => 432 630
[display_work_sum] => 67 275
[display_total_sum] => 499 905
)
1
499 905₽
Работа:67 275 ₽
Материалы:432 630 ₽
Дни:5
stdClass Object
(
[id] => 41
[attribute_id] => 21
[name] => Нет
[material_modifier] => 1
[work_modifier] => 1
[options] => Array
(
)
[days] => [0]
[material_price] => [0]
[work_price] => [0]
[image] => https://akademik-stroy.ru/wp-content/uploads/materials/balkony.jpg
[area_modifier] => 30
[parent_name] => Балконы
[parent_id] => 21
[material_sum] => 0
[work_sum] => 0
[total_sum] => 0
[total_days] => 0
[display_material_sum] => 0
[display_work_sum] => 0
[display_total_sum] => 0
)
1
0₽
Работа:0 ₽
Материалы:0 ₽
Дни:0
stdClass Object
(
[id] => 42
[attribute_id] => 21
[name] => Есть
[material_modifier] => 1
[work_modifier] => 1
[options] => Array
(
)
[days] => [12]
[material_price] => [3600]
[work_price] => [1950]
[image] => https://akademik-stroy.ru/wp-content/uploads/materials/balkony.jpg
[area_modifier] => 30
[parent_name] => Балконы
[parent_id] => 21
[material_sum] => 149040
[work_sum] => 67275
[total_sum] => 216315
[total_days] => 12
[display_material_sum] => 149 040
[display_work_sum] => 67 275
[display_total_sum] => 216 315
)
1
216 315₽
Работа:67 275 ₽
Материалы:149 040 ₽
Дни:12
stdClass Object
(
[id] => 43
[attribute_id] => 22
[name] => Нет
[material_modifier] => 1
[work_modifier] => 1
[options] => Array
(
)
[days] => [0]
[material_price] => [0]
[work_price] => [0]
[image] => https://akademik-stroy.ru/wp-content/uploads/materials/uteplennaya.jpg
[area_modifier] => 125.85
[parent_name] => Отмостка
[parent_id] => 22
[material_sum] => 0
[work_sum] => 0
[total_sum] => 0
[total_days] => 0
[display_material_sum] => 0
[display_work_sum] => 0
[display_total_sum] => 0
)
1
0₽
Работа:0 ₽
Материалы:0 ₽
Дни:0
stdClass Object
(
[id] => 44
[attribute_id] => 22
[name] => Утепленная отмостка
[material_modifier] => 1
[work_modifier] => 1
[options] => Array
(
)
[days] => [15]
[material_price] => [2550]
[work_price] => [1750]
[image] => https://akademik-stroy.ru/wp-content/uploads/materials/uteplennaya.jpg
[area_modifier] => 125.85
[parent_name] => Отмостка
[parent_id] => 22
[material_sum] => 442866
[work_sum] => 253273
[total_sum] => 696139
[total_days] => 15
[display_material_sum] => 442 866
[display_work_sum] => 253 273
[display_total_sum] => 696 139
)
1
696 139₽
Работа:253 273 ₽
Материалы:442 866 ₽
Дни:15
stdClass Object
(
[id] => 146
[attribute_id] => 22
[name] => Не утепленная отмостка
[material_modifier] => 1
[work_modifier] => 1
[options] => Array
(
)
[days] => [10]
[material_price] => [1650]
[work_price] => [1450]
[image] => https://akademik-stroy.ru/wp-content/uploads/materials/ne-uteplennaya.jpg
[area_modifier] => 125.85
[parent_name] => Отмостка
[parent_id] => 22
[material_sum] => 286560
[work_sum] => 209855
[total_sum] => 496415
[total_days] => 10
[display_material_sum] => 286 560
[display_work_sum] => 209 855
[display_total_sum] => 496 415
)
1
496 415₽
Работа:209 855 ₽
Материалы:286 560 ₽
Дни:10
stdClass Object
(
[id] => 45
[attribute_id] => 23
[name] => Нет
[material_modifier] => 1
[work_modifier] => 1
[options] => Array
(
)
[days] => [0]
[material_price] => [0]
[work_price] => [0]
[image] => https://akademik-stroy.ru/wp-content/uploads/materials/drenazh-2.jpg
[area_modifier] => 125.85
[parent_name] => Дренаж вокруг дома
[parent_id] => 23
[material_sum] => 0
[work_sum] => 0
[total_sum] => 0
[total_days] => 0
[display_material_sum] => 0
[display_work_sum] => 0
[display_total_sum] => 0
)
1
0₽
Работа:0 ₽
Материалы:0 ₽
Дни:0
stdClass Object
(
[id] => 46
[attribute_id] => 23
[name] => Есть
[material_modifier] => 1
[work_modifier] => 1
[options] => Array
(
)
[days] => [5]
[material_price] => [2366]
[work_price] => [1911]
[image] => https://akademik-stroy.ru/wp-content/uploads/materials/drenazh-2.jpg
[area_modifier] => 125.85
[parent_name] => Дренаж вокруг дома
[parent_id] => 23
[material_sum] => 410910
[work_sum] => 276574
[total_sum] => 687484
[total_days] => 5
[display_material_sum] => 410 910
[display_work_sum] => 276 574
[display_total_sum] => 687 484
)
1
687 484₽
Работа:276 574 ₽
Материалы:410 910 ₽
Дни:5
stdClass Object
(
[id] => 47
[attribute_id] => 24
[name] => Нет
[material_modifier] => 1
[work_modifier] => 1
[options] => Array
(
)
[days] => [0]
[material_price] => [0]
[work_price] => [0]
[image] => https://akademik-stroy.ru/wp-content/uploads/materials/septik.jpg
[area_modifier] => 1
[parent_name] => Автономная канализация (септики)
[parent_id] => 24
[material_sum] => 0
[work_sum] => 0
[total_sum] => 0
[total_days] => 0
[display_material_sum] => 0
[display_work_sum] => 0
[display_total_sum] => 0
)
1
0₽
Работа:0 ₽
Материалы:0 ₽
Дни:0
stdClass Object
(
[id] => 48
[attribute_id] => 24
[name] => Есть
[material_modifier] => 1
[work_modifier] => 1
[options] => Array
(
[0] => Для дачи на 4 человека
[1] => Для дома на 5 человек
[2] => Для дома на 6 человек
[3] => Для дома на 7 человек
[4] => Для дома на 10 человек
)
[days] => [7,7,7,8,8]
[material_price] => [196340,220500,240940,264200,293340]
[work_price] => [50000,55000,60500,66550,73206]
[image] => https://akademik-stroy.ru/wp-content/uploads/materials/septik.jpg
[area_modifier] => 1
[parent_name] => Автономная канализация (септики)
[parent_id] => 24
[material_sum] => 270949
[work_sum] => 57500
[total_sum] => 328449
[total_days] => 7
[display_material_sum] => 270 949
[display_work_sum] => 57 500
[display_total_sum] => 328 449
)
1
328 449₽
Работа:57 500 ₽
Материалы:270 949 ₽
Дни:7
stdClass Object
(
[id] => 49
[attribute_id] => 25
[name] => Нет
[material_modifier] => 1
[work_modifier] => 1
[options] => Array
(
)
[days] => [0]
[material_price] => [0]
[work_price] => [0]
[image] => https://akademik-stroy.ru/wp-content/uploads/materials/gkl.jpg
[area_modifier] => 125.85
[parent_name] => Внутренние (не несущие) перегородки
[parent_id] => 25
[material_sum] => 0
[work_sum] => 0
[total_sum] => 0
[total_days] => 0
[display_material_sum] => 0
[display_work_sum] => 0
[display_total_sum] => 0
)
1
0₽
Работа:0 ₽
Материалы:0 ₽
Дни:0
stdClass Object
(
[id] => 147
[attribute_id] => 25
[name] => Каркасно-обшивные
[material_modifier] => 1
[work_modifier] => 1
[options] => Array
(
[0] => 75 мм (без шумоизоляции)
[1] => 75 мм (с шумоизоляцией)
)
[days] => [11,11]
[material_price] => [580,970]
[work_price] => [380,570]
[image] => https://akademik-stroy.ru/wp-content/uploads/materials/gkl.jpg
[area_modifier] => 125.85
[parent_name] => Внутренние (не несущие) перегородки
[parent_id] => 25
[material_sum] => 100730
[work_sum] => 54996
[total_sum] => 155726
[total_days] => 11
[display_material_sum] => 100 730
[display_work_sum] => 54 996
[display_total_sum] => 155 726
)
1
155 726₽
Работа:54 996 ₽
Материалы:100 730 ₽
Дни:11
stdClass Object
(
[id] => 148
[attribute_id] => 25
[name] => Пазогребневые
[material_modifier] => 1
[work_modifier] => 1
[options] => Array
(
[0] => 80 мм
[1] => 100 мм
)
[days] => [5,5]
[material_price] => [1022,1313]
[work_price] => [600,700]
[image] => https://akademik-stroy.ru/wp-content/uploads/materials/pazogrebnevye-bloki.jpg
[area_modifier] => 125.85
[parent_name] => Внутренние (не несущие) перегородки
[parent_id] => 25
[material_sum] => 177494
[work_sum] => 86837
[total_sum] => 264331
[total_days] => 5
[display_material_sum] => 177 494
[display_work_sum] => 86 837
[display_total_sum] => 264 331
)
1
264 331₽
Работа:86 837 ₽
Материалы:177 494 ₽
Дни:5
stdClass Object
(
[id] => 149
[attribute_id] => 25
[name] => Газобетонные
[material_modifier] => 1
[work_modifier] => 1
[options] => Array
(
[0] => 100 мм
[1] => 200 мм
)
[days] => [11,11]
[material_price] => [1160,1920]
[work_price] => [700,900]
[image] => https://akademik-stroy.ru/wp-content/uploads/materials/gazobeton-2.jpg
[area_modifier] => 125.85
[parent_name] => Внутренние (не несущие) перегородки
[parent_id] => 25
[material_sum] => 201461
[work_sum] => 101309
[total_sum] => 302770
[total_days] => 11
[display_material_sum] => 201 461
[display_work_sum] => 101 309
[display_total_sum] => 302 770
)
1
302 770₽
Работа:101 309 ₽
Материалы:201 461 ₽
Дни:11
stdClass Object
(
[id] => 150
[attribute_id] => 25
[name] => Кирпичные
[material_modifier] => 1
[work_modifier] => 1
[options] => Array
(
[0] => 120 мм
[1] => 250 мм
[2] => 360 мм
)
[days] => [7,7,7]
[material_price] => [1785,3570,5355]
[work_price] => [900,1600,1800]
[image] => https://akademik-stroy.ru/wp-content/uploads/materials/kirpich-1.jpg
[area_modifier] => 125.85
[parent_name] => Внутренние (не несущие) перегородки
[parent_id] => 25
[material_sum] => 310006
[work_sum] => 130255
[total_sum] => 440261
[total_days] => 7
[display_material_sum] => 310 006
[display_work_sum] => 130 255
[display_total_sum] => 440 261
)
1
440 261₽
Работа:130 255 ₽
Материалы:310 006 ₽
Дни:7
stdClass Object
(
[id] => 55
[attribute_id] => 28
[name] => Нет
[material_modifier] => 1
[work_modifier] => 1
[options] => Array
(
)
[days] => [0]
[material_price] => [0]
[work_price] => [0]
[image] => https://akademik-stroy.ru/wp-content/uploads/materials/ehlektrika.jpg
[area_modifier] => 102.13
[parent_name] => Электрика
[parent_id] => 28
[material_sum] => 0
[work_sum] => 0
[total_sum] => 0
[total_days] => 0
[display_material_sum] => 0
[display_work_sum] => 0
[display_total_sum] => 0
)
1
0₽
Работа:0 ₽
Материалы:0 ₽
Дни:0
stdClass Object
(
[id] => 56
[attribute_id] => 28
[name] => Есть
[material_modifier] => 1
[work_modifier] => 1
[options] => Array
(
)
[days] => [10]
[material_price] => [650]
[work_price] => [950]
[image] => https://akademik-stroy.ru/wp-content/uploads/materials/ehlektrika.jpg
[area_modifier] => 102.13
[parent_name] => Электрика
[parent_id] => 28
[material_sum] => 91611
[work_sum] => 111577
[total_sum] => 203188
[total_days] => 10
[display_material_sum] => 91 611
[display_work_sum] => 111 577
[display_total_sum] => 203 188
)
1
203 188₽
Работа:111 577 ₽
Материалы:91 611 ₽
Дни:10
stdClass Object
(
[id] => 57
[attribute_id] => 29
[name] => Нет
[material_modifier] => 1
[work_modifier] => 1
[options] => Array
(
)
[days] => [0]
[material_price] => [0]
[work_price] => [0]
[image] => https://akademik-stroy.ru/wp-content/uploads/materials/santekhnika-kanalizaciya-1.jpg
[area_modifier] => 102.13
[parent_name] => Сантехника, канализация в доме
[parent_id] => 29
[material_sum] => 0
[work_sum] => 0
[total_sum] => 0
[total_days] => 0
[display_material_sum] => 0
[display_work_sum] => 0
[display_total_sum] => 0
)
1
0₽
Работа:0 ₽
Материалы:0 ₽
Дни:0
stdClass Object
(
[id] => 58
[attribute_id] => 29
[name] => Есть
[material_modifier] => 1
[work_modifier] => 1
[options] => Array
(
)
[days] => [10]
[material_price] => [600]
[work_price] => [730]
[image] => https://akademik-stroy.ru/wp-content/uploads/materials/santekhnika-kanalizaciya-1.jpg
[area_modifier] => 102.13
[parent_name] => Сантехника, канализация в доме
[parent_id] => 29
[material_sum] => 84564
[work_sum] => 85738
[total_sum] => 170302
[total_days] => 10
[display_material_sum] => 84 564
[display_work_sum] => 85 738
[display_total_sum] => 170 302
)
1
170 302₽
Работа:85 738 ₽
Материалы:84 564 ₽
Дни:10
stdClass Object
(
[id] => 59
[attribute_id] => 30
[name] => Нет
[material_modifier] => 1
[work_modifier] => 1
[options] => Array
(
)
[days] => [0]
[material_price] => [0]
[work_price] => [0]
[image] => https://akademik-stroy.ru/wp-content/uploads/materials/otoplenie-1.jpg
[area_modifier] => 102.13
[parent_name] => Отопление
[parent_id] => 30
[material_sum] => 0
[work_sum] => 0
[total_sum] => 0
[total_days] => 0
[display_material_sum] => 0
[display_work_sum] => 0
[display_total_sum] => 0
)
1
0₽
Работа:0 ₽
Материалы:0 ₽
Дни:0
stdClass Object
(
[id] => 60
[attribute_id] => 30
[name] => Есть
[material_modifier] => 1
[work_modifier] => 1
[options] => Array
(
)
[days] => [5]
[material_price] => [610]
[work_price] => [560]
[image] => https://akademik-stroy.ru/wp-content/uploads/materials/otoplenie-1.jpg
[area_modifier] => 102.13
[parent_name] => Отопление
[parent_id] => 30
[material_sum] => 85973
[work_sum] => 65772
[total_sum] => 151745
[total_days] => 5
[display_material_sum] => 85 973
[display_work_sum] => 65 772
[display_total_sum] => 151 745
)
1
151 745₽
Работа:65 772 ₽
Материалы:85 973 ₽
Дни:5
stdClass Object
(
[id] => 61
[attribute_id] => 31
[name] => Нет
[material_modifier] => 1
[work_modifier] => 1
[options] => Array
(
)
[days] => [0]
[material_price] => [0]
[work_price] => [0]
[image] => https://akademik-stroy.ru/wp-content/uploads/materials/vodyanye.jpg
[area_modifier] => 30
[parent_name] => Теплые полы
[parent_id] => 31
[material_sum] => 0
[work_sum] => 0
[total_sum] => 0
[total_days] => 0
[display_material_sum] => 0
[display_work_sum] => 0
[display_total_sum] => 0
)
1
0₽
Работа:0 ₽
Материалы:0 ₽
Дни:0
stdClass Object
(
[id] => 151
[attribute_id] => 31
[name] => Водяные
[material_modifier] => 1
[work_modifier] => 1
[options] => Array
(
)
[days] => [9]
[material_price] => [10200]
[work_price] => [2500]
[image] => https://akademik-stroy.ru/wp-content/uploads/materials/vodyanye.jpg
[area_modifier] => 30
[parent_name] => Теплые полы
[parent_id] => 31
[material_sum] => 422280
[work_sum] => 86250
[total_sum] => 508530
[total_days] => 9
[display_material_sum] => 422 280
[display_work_sum] => 86 250
[display_total_sum] => 508 530
)
1
508 530₽
Работа:86 250 ₽
Материалы:422 280 ₽
Дни:9
stdClass Object
(
[id] => 152
[attribute_id] => 31
[name] => Электро
[material_modifier] => 1
[work_modifier] => 1
[options] => Array
(
)
[days] => [5]
[material_price] => [6300]
[work_price] => [1500]
[image] => https://akademik-stroy.ru/wp-content/uploads/materials/ehlektricheskij.jpg
[area_modifier] => 30
[parent_name] => Теплые полы
[parent_id] => 31
[material_sum] => 260820
[work_sum] => 51750
[total_sum] => 312570
[total_days] => 5
[display_material_sum] => 260 820
[display_work_sum] => 51 750
[display_total_sum] => 312 570
)
1
312 570₽
Работа:51 750 ₽
Материалы:260 820 ₽
Дни:5
stdClass Object
(
[id] => 63
[attribute_id] => 32
[name] => Нет
[material_modifier] => 1
[work_modifier] => 1
[options] => Array
(
)
[days] => [0]
[material_price] => [0]
[work_price] => [0]
[image] => https://akademik-stroy.ru/wp-content/uploads/materials/shtukaturka-shpatlevka-1.jpg
[area_modifier] => 102.13
[parent_name] => Черновая отделка стен
[parent_id] => 32
[material_sum] => 0
[work_sum] => 0
[total_sum] => 0
[total_days] => 0
[display_material_sum] => 0
[display_work_sum] => 0
[display_total_sum] => 0
)
1
0₽
Работа:0 ₽
Материалы:0 ₽
Дни:0
stdClass Object
(
[id] => 153
[attribute_id] => 32
[name] => Штукатурка и шпатлевка
[material_modifier] => 1
[work_modifier] => 1
[options] => Array
(
)
[days] => [20]
[material_price] => [1850]
[work_price] => [2600]
[image] => https://akademik-stroy.ru/wp-content/uploads/materials/shtukaturka-shpatlevka-1.jpg
[area_modifier] => 102.13
[parent_name] => Черновая отделка стен
[parent_id] => 32
[material_sum] => 260738
[work_sum] => 305369
[total_sum] => 566107
[total_days] => 20
[display_material_sum] => 260 738
[display_work_sum] => 305 369
[display_total_sum] => 566 107
)
1
566 107₽
Работа:305 369 ₽
Материалы:260 738 ₽
Дни:20
stdClass Object
(
[id] => 154
[attribute_id] => 32
[name] => Гипсокортон на стены
[material_modifier] => 1
[work_modifier] => 1
[options] => Array
(
)
[days] => [15]
[material_price] => [950]
[work_price] => [2100]
[image] => https://akademik-stroy.ru/wp-content/uploads/materials/gkl-1.jpg
[area_modifier] => 102.13
[parent_name] => Черновая отделка стен
[parent_id] => 32
[material_sum] => 133892
[work_sum] => 246644
[total_sum] => 380536
[total_days] => 15
[display_material_sum] => 133 892
[display_work_sum] => 246 644
[display_total_sum] => 380 536
)
1
380 536₽
Работа:246 644 ₽
Материалы:133 892 ₽
Дни:15
stdClass Object
(
[id] => 155
[attribute_id] => 32
[name] => Вагонка
[material_modifier] => 1
[work_modifier] => 1
[options] => Array
(
)
[days] => [15]
[material_price] => [1250]
[work_price] => [950]
[image] => https://akademik-stroy.ru/wp-content/uploads/materials/vagonka.jpg
[area_modifier] => 102.13
[parent_name] => Черновая отделка стен
[parent_id] => 32
[material_sum] => 176174
[work_sum] => 111577
[total_sum] => 287751
[total_days] => 15
[display_material_sum] => 176 174
[display_work_sum] => 111 577
[display_total_sum] => 287 751
)
1
287 751₽
Работа:111 577 ₽
Материалы:176 174 ₽
Дни:15
stdClass Object
(
[id] => 65
[attribute_id] => 33
[name] => Нет
[material_modifier] => 1
[work_modifier] => 1
[options] => Array
(
)
[days] => [0]
[material_price] => [0]
[work_price] => [0]
[image] => https://akademik-stroy.ru/wp-content/uploads/materials/styazhka.jpg
[area_modifier] => 102.13
[parent_name] => Черновая отделка полов
[parent_id] => 33
[material_sum] => 0
[work_sum] => 0
[total_sum] => 0
[total_days] => 0
[display_material_sum] => 0
[display_work_sum] => 0
[display_total_sum] => 0
)
1
0₽
Работа:0 ₽
Материалы:0 ₽
Дни:0
stdClass Object
(
[id] => 156
[attribute_id] => 33
[name] => Стяжка + наливные полы
[material_modifier] => 1
[work_modifier] => 1
[options] => Array
(
)
[days] => [10]
[material_price] => [1000]
[work_price] => [900]
[image] => https://akademik-stroy.ru/wp-content/uploads/materials/styazhka.jpg
[area_modifier] => 102.13
[parent_name] => Черновая отделка полов
[parent_id] => 33
[material_sum] => 140939
[work_sum] => 105705
[total_sum] => 246644
[total_days] => 10
[display_material_sum] => 140 939
[display_work_sum] => 105 705
[display_total_sum] => 246 644
)
1
246 644₽
Работа:105 705 ₽
Материалы:140 939 ₽
Дни:10
stdClass Object
(
[id] => 157
[attribute_id] => 33
[name] => ОСБ на пол
[material_modifier] => 1
[work_modifier] => 1
[options] => Array
(
)
[days] => [7]
[material_price] => [580]
[work_price] => [350]
[image] => https://akademik-stroy.ru/wp-content/uploads/materials/osb-1.jpg
[area_modifier] => 102.13
[parent_name] => Черновая отделка полов
[parent_id] => 33
[material_sum] => 81745
[work_sum] => 41107
[total_sum] => 122852
[total_days] => 7
[display_material_sum] => 81 745
[display_work_sum] => 41 107
[display_total_sum] => 122 852
)
1
122 852₽
Работа:41 107 ₽
Материалы:81 745 ₽
Дни:7
stdClass Object
(
[id] => 67
[attribute_id] => 34
[name] => Нет
[material_modifier] => 1
[work_modifier] => 1
[options] => Array
(
)
[days] => [0]
[material_price] => [0]
[work_price] => [0]
[image] => https://akademik-stroy.ru/wp-content/uploads/materials/chistovaya-otdelka.jpg
[area_modifier] => 102.13
[parent_name] => Чистовая отделка стен и полов
[parent_id] => 34
[material_sum] => 0
[work_sum] => 0
[total_sum] => 0
[total_days] => 0
[display_material_sum] => 0
[display_work_sum] => 0
[display_total_sum] => 0
)
1
0₽
Работа:0 ₽
Материалы:0 ₽
Дни:0
stdClass Object
(
[id] => 68
[attribute_id] => 34
[name] => Есть
[material_modifier] => 1
[work_modifier] => 1
[options] => Array
(
)
[days] => [50]
[material_price] => [6000]
[work_price] => [3500]
[image] => https://akademik-stroy.ru/wp-content/uploads/materials/chistovaya-otdelka.jpg
[area_modifier] => 102.13
[parent_name] => Чистовая отделка стен и полов
[parent_id] => 34
[material_sum] => 845636
[work_sum] => 411073
[total_sum] => 1256709
[total_days] => 50
[display_material_sum] => 845 636
[display_work_sum] => 411 073
[display_total_sum] => 1 256 709
)
1
1 256 709₽
Работа:411 073 ₽
Материалы:845 636 ₽
Дни:50
stdClass Object
(
[id] => 69
[attribute_id] => 35
[name] => Нет
[material_modifier] => 1
[work_modifier] => 1
[options] => Array
(
)
[days] => [0]
[material_price] => [0]
[work_price] => [0]
[image] => https://akademik-stroy.ru/wp-content/uploads/materials/mnogourovnevyj-gkl.jpg
[area_modifier] => 102.13
[parent_name] => Отделка потолка
[parent_id] => 35
[material_sum] => 0
[work_sum] => 0
[total_sum] => 0
[total_days] => 0
[display_material_sum] => 0
[display_work_sum] => 0
[display_total_sum] => 0
)
1
0₽
Работа:0 ₽
Материалы:0 ₽
Дни:0
stdClass Object
(
[id] => 70
[attribute_id] => 35
[name] => Есть
[material_modifier] => 1
[work_modifier] => 1
[options] => Array
(
[0] => Многоуровневый потолок из гипсокартона
[1] => Многоуровневый потолок из гипсокартона и натяжного потолка
[2] => Одноуровневый потолок из гипсокартона
[3] => Одноуровневый натяжной потолок
)
[days] => [10,10,1,1]
[material_price] => [900,700,700,600]
[work_price] => [1000,800,500,300]
[image] => https://akademik-stroy.ru/wp-content/uploads/materials/mnogourovnevyj-gkl.jpg
[area_modifier] => 102.13
[parent_name] => Отделка потолка
[parent_id] => 35
[material_sum] => 126845
[work_sum] => 117450
[total_sum] => 244295
[total_days] => 10
[display_material_sum] => 126 845
[display_work_sum] => 117 450
[display_total_sum] => 244 295
)
1
244 295₽
Работа:117 450 ₽
Материалы:126 845 ₽
Дни:10
Преимущества работы с нами
7 этапов оплаты
Независимый строительный надзор
Экологически чистые материалы
16 лет гарантии
Онлайн-кабинет с веб-камерой
Строители с опытом более 15 лет
Собственное производство



