Одноэтажный гараж 44.6 м2
154 м2
Полезная
площадь
площадь
1 этаж
Этажей
26 м2
Террасы
и балконы
и балконы
0Без
гаража
гаража
0
Количество
спален
спален
0
Количество
санузлов
санузлов
Планировки
Первый этаж
- 1. (m²) 44,60
- Гараж на 2 машины 44,60
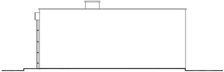
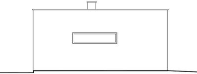
Фасады
Передний
Задний
Левый
Правый
Подробная информация
Полезная площадь
44,60 m²
Количество спален
0
Количество санузлов
0
Гараж
2
Мин. шир. и дл. участка
15,84 x 13,54 m
Угол наклона крыши
1,70°
Наклон ската крыши в градусах. Внимание! В некоторых проектах возникает более чем один наклон крыши.
Вид материалов
Murowana
Материалы и опции
Общие
Площади дома
| № п/п | Наименование | Ед. из. | Строительная площадь | Полезная площадь |
| 1 | 1 этаж | м2 | 54.96 | 44.6 |
| 2 | Итого | м2 | 54.96 | 44.6 |
Калькулятор опций
0₽
В ипотеку от 207 ₽/мес.
0₽
0 дней
stdClass Object
(
[id] => 1
[attribute_id] => 1
[name] => Ленточный монолитный ж/б
[material_modifier] => 1
[work_modifier] => 1
[options] => Array
(
[0] => размер 200 х 700 мм
[1] => размер 300 х 900 мм
[2] => размер 400 х 1 000 мм
[3] => размер 500 х 1 100 мм
[4] => размер 600 х 1 200 мм
)
[days] => [20,21,22,25,30]
[material_price] => [2823,3630,4475,5210,12047]
[work_price] => [2154,2826,3731,4577,5293]
[image] => https://akademik-stroy.ru/wp-content/uploads/materials/lentochnyj-monolitnyj-zh-b.jpg
[area_modifier] => 54.96
[parent_name] => Фундамент
[parent_id] => 1
[material_sum] => 316510
[work_sum] => 201253
[total_sum] => 517763
[total_days] => 20
[display_material_sum] => 316 510
[display_work_sum] => 201 253
[display_total_sum] => 517 763
)
1
517 763₽
Работа:201 253 ₽
Материалы:316 510 ₽
Дни:20
stdClass Object
(
[id] => 2
[attribute_id] => 1
[name] => Забивные Ж/Б сваи
[material_modifier] => 1
[work_modifier] => 1
[options] => Array
(
[0] => 150х150х3000мм
[1] => 150х150х4000мм
[2] => 200х200х3000мм
[3] => 200х200х4000мм
[4] => 200х200х5000мм
[5] => 200х200х6000мм
)
[days] => [2,2,2,2,2,2]
[material_price] => [1990,2850,3255,4360,5120,6837]
[work_price] => [1002,1185,1336,1438,1574,1839]
[image] => https://akademik-stroy.ru/wp-content/uploads/materials/zabivnye-zh-b-svai.png
[area_modifier] => 54.96
[parent_name] => Фундамент
[parent_id] => 1
[material_sum] => 223116
[work_sum] => 93619
[total_sum] => 316735
[total_days] => 2
[display_material_sum] => 223 116
[display_work_sum] => 93 619
[display_total_sum] => 316 735
)
1
316 735₽
Работа:93 619 ₽
Материалы:223 116 ₽
Дни:2
stdClass Object
(
[id] => 71
[attribute_id] => 1
[name] => Свайно-ростверковый ж/б
[material_modifier] => 1
[work_modifier] => 1
[options] => Array
(
[0] => ростверк 200х300 мм
[1] => ростверк 300х600 мм
[2] => ростверк 400х900 мм
[3] => ростверк 500х1200 мм
)
[days] => [20,23,25,27]
[material_price] => [3018,3474,7109,9792]
[work_price] => [2024,3012,5635,7022]
[image] => https://akademik-stroy.ru/wp-content/uploads/materials/svajno-rostverkovyj-monolitnyj-zh-b-3.png
[area_modifier] => 54.96
[parent_name] => Фундамент
[parent_id] => 1
[material_sum] => 338373
[work_sum] => 189106
[total_sum] => 527479
[total_days] => 20
[display_material_sum] => 338 373
[display_work_sum] => 189 106
[display_total_sum] => 527 479
)
1
527 479₽
Работа:189 106 ₽
Материалы:338 373 ₽
Дни:20
stdClass Object
(
[id] => 72
[attribute_id] => 1
[name] => Монолитная ж/б плита
[material_modifier] => 1
[work_modifier] => 1
[options] => Array
(
[0] => 200 мм
[1] => 300 мм
[2] => 400 мм
[3] => 500 мм
[4] => 600 мм
)
[days] => [30,33,35,37,40]
[material_price] => [5348,8555,12788,14388,15189]
[work_price] => [4314,4881,7037,8061,10230]
[image] => https://akademik-stroy.ru/wp-content/uploads/materials/monolitnaya-zhb-plita.png
[area_modifier] => 54.96
[parent_name] => Фундамент
[parent_id] => 1
[material_sum] => 599609
[work_sum] => 403066
[total_sum] => 1002675
[total_days] => 30
[display_material_sum] => 599 609
[display_work_sum] => 403 066
[display_total_sum] => 1 002 675
)
1
1 002 675₽
Работа:403 066 ₽
Материалы:599 609 ₽
Дни:30
stdClass Object
(
[id] => 73
[attribute_id] => 1
[name] => Утепленная шведская плита
[material_modifier] => 1
[work_modifier] => 1
[options] => Array
(
[0] => 200 мм
[1] => 300 мм
[2] => 400 мм
[3] => 500 мм
[4] => 600 мм
)
[days] => [32,37,39,42,45]
[material_price] => [10249,12692,13760,14936,16230]
[work_price] => [5960,7337,8072,8878,9765]
[image] => https://akademik-stroy.ru/wp-content/uploads/materials/uteplennaya-shvedskaya-plita.jpg
[area_modifier] => 54.96
[parent_name] => Фундамент
[parent_id] => 1
[material_sum] => 1149101
[work_sum] => 556855
[total_sum] => 1705956
[total_days] => 32
[display_material_sum] => 1 149 101
[display_work_sum] => 556 855
[display_total_sum] => 1 705 956
)
1
1 705 956₽
Работа:556 855 ₽
Материалы:1 149 101 ₽
Дни:32
stdClass Object
(
[id] => 75
[attribute_id] => 1
[name] => Ленточный из ФБС
[material_modifier] => 1
[work_modifier] => 1
[options] => Array
(
[0] => толщ. 300 мм
[1] => толщ. 400 мм
[2] => толщ. 500 мм
[3] => толщ. 600 мм
)
[days] => [20,20,20,20]
[material_price] => [3675,4902,6126,7350]
[work_price] => [2451,3264,4083,4902]
[image] => https://akademik-stroy.ru/wp-content/uploads/materials/lentochnyj-iz-fbs.png
[area_modifier] => 54.96
[parent_name] => Фундамент
[parent_id] => 1
[material_sum] => 412035
[work_sum] => 229002
[total_sum] => 641037
[total_days] => 20
[display_material_sum] => 412 035
[display_work_sum] => 229 002
[display_total_sum] => 641 037
)
1
641 037₽
Работа:229 002 ₽
Материалы:412 035 ₽
Дни:20
stdClass Object
(
[id] => 76
[attribute_id] => 1
[name] => Цокольный этаж из ФБС
[material_modifier] => 1
[work_modifier] => 1
[options] => Array
(
[0] => толщ. 300 мм
[1] => толщ. 400 мм
[2] => толщ. 500 мм
[3] => толщ. 600 мм
)
[days] => [30,32,34,36]
[material_price] => [20916,23299,26680,29060]
[work_price] => [17524,18700,19873,21046]
[image] => https://akademik-stroy.ru/wp-content/uploads/materials/cokolnyj-ehtazh-iz-fbs.jpg
[area_modifier] => 54.96
[parent_name] => Фундамент
[parent_id] => 1
[material_sum] => 2345068
[work_sum] => 1637302
[total_sum] => 3982370
[total_days] => 30
[display_material_sum] => 2 345 068
[display_work_sum] => 1 637 302
[display_total_sum] => 3 982 370
)
1
3 982 370₽
Работа:1 637 302 ₽
Материалы:2 345 068 ₽
Дни:30
stdClass Object
(
[id] => 77
[attribute_id] => 1
[name] => Цокольный этаж монолитный ж/б
[material_modifier] => 1
[work_modifier] => 1
[options] => Array
(
[0] => толщ. 200 мм
[1] => толщ. 300 мм
[2] => толщ. 400 мм
[3] => толщ. 500 мм
[4] => толщ. 600 мм
)
[days] => [40,42,44,46,48]
[material_price] => [25421,29148,32275,35602,37326]
[work_price] => [20441,21907,23375,24841,26306]
[image] => https://akademik-stroy.ru/wp-content/uploads/materials/cokolnyj-etazh-zh-b.jpg
[area_modifier] => 54.96
[parent_name] => Фундамент
[parent_id] => 1
[material_sum] => 2850162
[work_sum] => 1909844
[total_sum] => 4760006
[total_days] => 40
[display_material_sum] => 2 850 162
[display_work_sum] => 1 909 844
[display_total_sum] => 4 760 006
)
1
4 760 006₽
Работа:1 909 844 ₽
Материалы:2 850 162 ₽
Дни:40
stdClass Object
(
[id] => 191
[attribute_id] => 1
[name] => Винтовые сваи
[material_modifier] => 1
[work_modifier] => 1
[options] => Array
(
[0] => 57х200мм
[1] => 76х250мм
[2] => 108х300мм
[3] => 133х350мм
)
[days] => [1,1,2,2]
[material_price] => [1200,1300,1450,1600]
[work_price] => [400,600,900,1100]
[image] => https://akademik-stroy.ru/wp-content/uploads/materials/vintovye-svai.png
[area_modifier] => 54.96
[parent_name] => Фундамент
[parent_id] => 1
[material_sum] => 134542
[work_sum] => 37373
[total_sum] => 171915
[total_days] => 1
[display_material_sum] => 134 542
[display_work_sum] => 37 373
[display_total_sum] => 171 915
)
1
171 915₽
Работа:37 373 ₽
Материалы:134 542 ₽
Дни:1
stdClass Object
(
[id] => 3
[attribute_id] => 2
[name] => Деревянные балки
[material_modifier] => 1
[work_modifier] => 1
[options] => Array
(
[0] => без утепления
[1] => утепление 200 мм
[2] => утепление 250 мм
[3] => утепление 300 мм
[4] => утепление 350 мм
[5] => утепление 400 мм
[6] => утепление 450 мм
[7] => утепление 500 мм
)
[days] => [8,9,9,9,11,12,13,14]
[material_price] => [1634,2042,2344,2947,3149,3652,3354,3557]
[work_price] => [1230,1339,1393,1426,1460,1513,1587,1620]
[image] => https://akademik-stroy.ru/wp-content/uploads/materials/derevyannye-balki.png
[area_modifier] => 54.96
[parent_name] => Перекрытие цоколя
[parent_id] => 2
[material_sum] => 183201
[work_sum] => 114921
[total_sum] => 298122
[total_days] => 8
[display_material_sum] => 183 201
[display_work_sum] => 114 921
[display_total_sum] => 298 122
)
1
298 122₽
Работа:114 921 ₽
Материалы:183 201 ₽
Дни:8
stdClass Object
(
[id] => 4
[attribute_id] => 2
[name] => Сборные ж/б плиты
[material_modifier] => 1
[work_modifier] => 1
[options] => Array
(
[0] => без утепления
[1] => утепление 150мм
[2] => утепление 200мм
[3] => утепление 250мм
[4] => утепление 300мм
[5] => утепление 350мм
[6] => утепление 400мм
[7] => утепление 450мм
[8] => утепление 500мм
)
[days] => [13,15,15,15,15,15,15,15,15]
[material_price] => [3067,5577,5928,6679,7730,8782,9833,10884,11935]
[work_price] => [1520,1956,2102,2247,2392,2537,2684,2829,2974]
[image] => https://akademik-stroy.ru/wp-content/uploads/materials/sbornye-zh-b-plity-2.jpg
[area_modifier] => 54.96
[parent_name] => Перекрытие цоколя
[parent_id] => 2
[material_sum] => 343867
[work_sum] => 142017
[total_sum] => 485884
[total_days] => 13
[display_material_sum] => 343 867
[display_work_sum] => 142 017
[display_total_sum] => 485 884
)
1
485 884₽
Работа:142 017 ₽
Материалы:343 867 ₽
Дни:13
stdClass Object
(
[id] => 78
[attribute_id] => 2
[name] => Монолитная ж/б плита
[material_modifier] => 1
[work_modifier] => 1
[options] => Array
(
[0] => без утепления
[1] => утепление 150 мм
[2] => утепление 200 мм
[3] => утепление 250 мм
[4] => утепление 300 мм
[5] => утепление 350 мм
[6] => утепление 400 мм
[7] => утепление 450 мм
[8] => утепление 500 мм
)
[days] => [18,20,20,20,20,20,20,20,20]
[material_price] => [4837,6572,7224,7375,79426,8177,8728,9180,10031]
[work_price] => [3348,3921,4112,4302,4493,4684,4875,5066,5256]
[image] => https://akademik-stroy.ru/wp-content/uploads/materials/monolitnaya-zh-b-plita-2.jpg
[area_modifier] => 54.96
[parent_name] => Перекрытие цоколя
[parent_id] => 2
[material_sum] => 542317
[work_sum] => 312810
[total_sum] => 855127
[total_days] => 18
[display_material_sum] => 542 317
[display_work_sum] => 312 810
[display_total_sum] => 855 127
)
1
855 127₽
Работа:312 810 ₽
Материалы:542 317 ₽
Дни:18
stdClass Object
(
[id] => 6
[attribute_id] => 3
[name] => Пеноблок
[material_modifier] => 1
[work_modifier] => 1
[options] => Array
(
[0] => 300 мм
[1] => 400 мм
[2] => 500 мм
[3] => 600 мм
)
[days] => [29,31,34,39]
[material_price] => [3000,4000,4500,4937]
[work_price] => [5033,5805,6400,8710]
[image] => https://akademik-stroy.ru/wp-content/uploads/materials/penoblok.jpg
[area_modifier] => 54.96
[parent_name] => Стены 1 этаж (несущие)
[parent_id] => 3
[material_sum] => 336355
[work_sum] => 470243
[total_sum] => 806598
[total_days] => 29
[display_material_sum] => 336 355
[display_work_sum] => 470 243
[display_total_sum] => 806 598
)
1
806 598₽
Работа:470 243 ₽
Материалы:336 355 ₽
Дни:29
stdClass Object
(
[id] => 79
[attribute_id] => 3
[name] => Керамический блок
[material_modifier] => 1
[work_modifier] => 1
[options] => Array
(
[0] => 380 мм
[1] => 380 мм Thermo
[2] => 440 мм
[3] => 510 мм
)
[days] => [23,23,24,25]
[material_price] => [4510,5098,6093,8013]
[work_price] => [4737,4937,5903,6958]
[image] => https://akademik-stroy.ru/wp-content/uploads/materials/keramicheskij-blok.jpg
[area_modifier] => 54.96
[parent_name] => Стены 1 этаж (несущие)
[parent_id] => 3
[material_sum] => 505654
[work_sum] => 442587
[total_sum] => 948241
[total_days] => 23
[display_material_sum] => 505 654
[display_work_sum] => 442 587
[display_total_sum] => 948 241
)
1
948 241₽
Работа:442 587 ₽
Материалы:505 654 ₽
Дни:23
stdClass Object
(
[id] => 80
[attribute_id] => 3
[name] => Кирпич
[material_modifier] => 1
[work_modifier] => 1
[options] => Array
(
[0] => Кирпич 250 мм
[1] => Кирпич 380 мм
[2] => Кирпич 510 мм
[3] => Кирпич 640 мм
[4] => Кирпич 770 мм
)
[days] => [30,30,31,33,36]
[material_price] => [5500,7142,9206,10171,12235]
[work_price] => [8736,10041,12018,15240,18462]
[image] => https://akademik-stroy.ru/wp-content/uploads/materials/kirpich.jpg
[area_modifier] => 54.96
[parent_name] => Стены 1 этаж (несущие)
[parent_id] => 3
[material_sum] => 616651
[work_sum] => 816222
[total_sum] => 1432873
[total_days] => 30
[display_material_sum] => 616 651
[display_work_sum] => 816 222
[display_total_sum] => 1 432 873
)
1
1 432 873₽
Работа:816 222 ₽
Материалы:616 651 ₽
Дни:30
stdClass Object
(
[id] => 81
[attribute_id] => 3
[name] => Монолитные
[material_modifier] => 1
[work_modifier] => 1
[options] => Array
(
[0] => 150 мм
[1] => 200 мм
[2] => 250 мм
[3] => 300 мм
[4] => 350 мм
[5] => 400 мм
)
[days] => [45,46,47,49,50,53]
[material_price] => [6545,7876,10175,12011,13908,15204]
[work_price] => [5106,6444,7698,8552,9807,11461]
[image] => https://akademik-stroy.ru/wp-content/uploads/materials/monolitnye.jpg
[area_modifier] => 54.96
[parent_name] => Стены 1 этаж (несущие)
[parent_id] => 3
[material_sum] => 733815
[work_sum] => 477064
[total_sum] => 1210879
[total_days] => 45
[display_material_sum] => 733 815
[display_work_sum] => 477 064
[display_total_sum] => 1 210 879
)
1
1 210 879₽
Работа:477 064 ₽
Материалы:733 815 ₽
Дни:45
stdClass Object
(
[id] => 82
[attribute_id] => 3
[name] => Клееный брус
[material_modifier] => 1
[work_modifier] => 1
[options] => Array
(
[0] => 160 мм
[1] => 175 мм
[2] => 200 мм
[3] => 215 мм
[4] => 240 мм
[5] => 270 мм
[6] => 282 мм
)
[days] => [24,28,32,37,40,42,48]
[material_price] => [16975,18773,19950,20545,21599,22159,23275]
[work_price] => [4806,5287,5815,6397,7036,7740,8514]
[image] => https://akademik-stroy.ru/wp-content/uploads/materials/kleenyj-brus.jpg
[area_modifier] => 54.96
[parent_name] => Стены 1 этаж (несущие)
[parent_id] => 3
[material_sum] => 1903210
[work_sum] => 449034
[total_sum] => 2352244
[total_days] => 24
[display_material_sum] => 1 903 210
[display_work_sum] => 449 034
[display_total_sum] => 2 352 244
)
1
2 352 244₽
Работа:449 034 ₽
Материалы:1 903 210 ₽
Дни:24
stdClass Object
(
[id] => 83
[attribute_id] => 3
[name] => Каркасные
[material_modifier] => 1
[work_modifier] => 1
[options] => Array
(
[0] => 150 мм
[1] => 200 мм
[2] => 250 мм
[3] => 300 мм
)
[days] => [15,16,17,18]
[material_price] => [2379,2639,2898,3258]
[work_price] => [2418,2686,2985,3716]
[image] => https://akademik-stroy.ru/wp-content/uploads/materials/karkasnye.jpg
[area_modifier] => 54.96
[parent_name] => Стены 1 этаж (несущие)
[parent_id] => 3
[material_sum] => 266730
[work_sum] => 225919
[total_sum] => 492649
[total_days] => 15
[display_material_sum] => 266 730
[display_work_sum] => 225 919
[display_total_sum] => 492 649
)
1
492 649₽
Работа:225 919 ₽
Материалы:266 730 ₽
Дни:15
stdClass Object
(
[id] => 84
[attribute_id] => 3
[name] => СИП-панели
[material_modifier] => 1
[work_modifier] => 1
[options] => Array
(
[0] => 120 мм
[1] => 170 мм
[2] => 220 мм
)
[days] => [7,7,7]
[material_price] => [1210,1856,2292]
[work_price] => [1410,1551,1706]
[image] => https://akademik-stroy.ru/wp-content/uploads/materials/sip-paneli.jpg
[area_modifier] => 54.96
[parent_name] => Стены 1 этаж (несущие)
[parent_id] => 3
[material_sum] => 135663
[work_sum] => 131739
[total_sum] => 267402
[total_days] => 7
[display_material_sum] => 135 663
[display_work_sum] => 131 739
[display_total_sum] => 267 402
)
1
267 402₽
Работа:131 739 ₽
Материалы:135 663 ₽
Дни:7
stdClass Object
(
[id] => 85
[attribute_id] => 3
[name] => Сухой брус
[material_modifier] => 1
[work_modifier] => 1
[options] => Array
(
[0] => 150 мм
[1] => 180 мм
[2] => 200 мм
)
[days] => [7,8,9]
[material_price] => [6010,7190,8709]
[work_price] => [3204,3845,4229]
[image] => https://akademik-stroy.ru/wp-content/uploads/materials/suhoj-brus.jpg
[area_modifier] => 54.96
[parent_name] => Стены 1 этаж (несущие)
[parent_id] => 3
[material_sum] => 673832
[work_sum] => 299356
[total_sum] => 973188
[total_days] => 7
[display_material_sum] => 673 832
[display_work_sum] => 299 356
[display_total_sum] => 973 188
)
1
973 188₽
Работа:299 356 ₽
Материалы:673 832 ₽
Дни:7
stdClass Object
(
[id] => 86
[attribute_id] => 3
[name] => Профилированный брус
[material_modifier] => 1
[work_modifier] => 1
[options] => Array
(
[0] => 150 мм
[1] => 180 мм
[2] => 200 мм
)
[days] => [7,8,9]
[material_price] => [8190,9228,10051]
[work_price] => [3845,4614,5075]
[image] => https://akademik-stroy.ru/wp-content/uploads/materials/profilirovannyj-brus.jpg
[area_modifier] => 54.96
[parent_name] => Стены 1 этаж (несущие)
[parent_id] => 3
[material_sum] => 918250
[work_sum] => 359246
[total_sum] => 1277496
[total_days] => 7
[display_material_sum] => 918 250
[display_work_sum] => 359 246
[display_total_sum] => 1 277 496
)
1
1 277 496₽
Работа:359 246 ₽
Материалы:918 250 ₽
Дни:7
stdClass Object
(
[id] => 87
[attribute_id] => 3
[name] => Оцилиндрованное бревно
[material_modifier] => 1
[work_modifier] => 1
[options] => Array
(
[0] => 180 мм
[1] => 220 мм
[2] => 260 мм
[3] => 320 мм
)
[days] => [7,8,9,10]
[material_price] => [75190,9532,10868,13116]
[work_price] => [3845,4691,5535,6863]
[image] => https://akademik-stroy.ru/wp-content/uploads/materials/ocilindrovannoe-brevno-1.jpg
[area_modifier] => 54.96
[parent_name] => Стены 1 этаж (несущие)
[parent_id] => 3
[material_sum] => 8430182
[work_sum] => 359246
[total_sum] => 8789428
[total_days] => 7
[display_material_sum] => 8 430 182
[display_work_sum] => 359 246
[display_total_sum] => 8 789 428
)
1
8 789 428₽
Работа:359 246 ₽
Материалы:8 430 182 ₽
Дни:7
stdClass Object
(
[id] => 88
[attribute_id] => 3
[name] => Срубы
[material_modifier] => 1
[work_modifier] => 1
[options] => Array
(
[0] => 260 мм
[1] => 320 мм
[2] => 360 мм
[3] => 400 мм
[4] => 500 мм
)
[days] => [7,8,9,10,11]
[material_price] => [37975,46709,52314,58069,73167]
[work_price] => [4806,5911,6621,7349,9260]
[image] => https://akademik-stroy.ru/wp-content/uploads/materials/sruby.jpg
[area_modifier] => 54.96
[parent_name] => Стены 1 этаж (несущие)
[parent_id] => 3
[material_sum] => 4257696
[work_sum] => 449034
[total_sum] => 4706730
[total_days] => 7
[display_material_sum] => 4 257 696
[display_work_sum] => 449 034
[display_total_sum] => 4 706 730
)
1
4 706 730₽
Работа:449 034 ₽
Материалы:4 257 696 ₽
Дни:7
stdClass Object
(
[id] => 174
[attribute_id] => 3
[name] => Брус
[material_modifier] => 1
[work_modifier] => 1
[options] => Array
(
[0] => 150 мм
[1] => 180 мм
[2] => 200 мм
)
[days] => [7,8,9]
[material_price] => [5127,6152,7367]
[work_price] => [1602,1922,2115]
[image] => https://akademik-stroy.ru/wp-content/uploads/materials/brus.jpg
[area_modifier] => 54.96
[parent_name] => Стены 1 этаж (несущие)
[parent_id] => 3
[material_sum] => 574831
[work_sum] => 149678
[total_sum] => 724509
[total_days] => 7
[display_material_sum] => 574 831
[display_work_sum] => 149 678
[display_total_sum] => 724 509
)
1
724 509₽
Работа:149 678 ₽
Материалы:574 831 ₽
Дни:7
stdClass Object
(
[id] => 175
[attribute_id] => 3
[name] => Газобетон
[material_modifier] => 1
[work_modifier] => 1
[options] => Array
(
[0] => 300 мм
[1] => 375 мм
[2] => 400 мм
[3] => 500 мм
[4] => 600 мм
)
[days] => [29,31,35,37,44]
[material_price] => [4298,5573,6356,7288,9119]
[work_price] => [4538,5251,5926,6733,7195]
[image] => https://akademik-stroy.ru/wp-content/uploads/materials/gazobeton.jpg
[area_modifier] => 54.96
[parent_name] => Стены 1 этаж (несущие)
[parent_id] => 3
[material_sum] => 481885
[work_sum] => 423994
[total_sum] => 905879
[total_days] => 29
[display_material_sum] => 481 885
[display_work_sum] => 423 994
[display_total_sum] => 905 879
)
1
905 879₽
Работа:423 994 ₽
Материалы:481 885 ₽
Дни:29
stdClass Object
(
[id] => 176
[attribute_id] => 3
[name] => Блок
[material_modifier] => 1
[work_modifier] => 1
[options] => Array
(
[0] => 300 мм
[1] => 375 мм
[2] => 400 мм
[3] => 500 мм
[4] => 600 мм
)
[days] => [29,31,35,37,44]
[material_price] => [2698,3973,4356,6588,7119]
[work_price] => [5038,5851,6426,8733,9195]
[image] => https://akademik-stroy.ru/wp-content/uploads/materials/blok.jpg
[area_modifier] => 54.96
[parent_name] => Стены 1 этаж (несущие)
[parent_id] => 3
[material_sum] => 302495
[work_sum] => 470710
[total_sum] => 773205
[total_days] => 29
[display_material_sum] => 302 495
[display_work_sum] => 470 710
[display_total_sum] => 773 205
)
1
773 205₽
Работа:470 710 ₽
Материалы:302 495 ₽
Дни:29
stdClass Object
(
[id] => 177
[attribute_id] => 3
[name] => Газосиликатный блок
[material_modifier] => 1
[work_modifier] => 1
[options] => Array
(
[0] => 300 мм
[1] => 375 мм
[2] => 400 мм
[3] => 500 мм
[4] => 600 мм
)
[days] => [29,31,35,37,44]
[material_price] => [4298,5573,6356,7288,9119]
[work_price] => [4538,5251,5926,6733,7195]
[image] => https://akademik-stroy.ru/wp-content/uploads/materials/gazosilikatnyj-blok.jpg
[area_modifier] => 54.96
[parent_name] => Стены 1 этаж (несущие)
[parent_id] => 3
[material_sum] => 481885
[work_sum] => 423994
[total_sum] => 905879
[total_days] => 29
[display_material_sum] => 481 885
[display_work_sum] => 423 994
[display_total_sum] => 905 879
)
1
905 879₽
Работа:423 994 ₽
Материалы:481 885 ₽
Дни:29
stdClass Object
(
[id] => 178
[attribute_id] => 3
[name] => Керамзитобетонный блок
[material_modifier] => 1
[work_modifier] => 1
[options] => Array
(
[0] => 300 мм
[1] => 375 мм
[2] => 400 мм
[3] => 500 мм
[4] => 600 мм
)
[days] => [23,23,24,25,28]
[material_price] => [3641,4298,5693,7613,9612]
[work_price] => [5737,5737,6903,7958,8901]
[image] => https://akademik-stroy.ru/wp-content/uploads/materials/keramzitobetonnyj-blok.jpg
[area_modifier] => 54.96
[parent_name] => Стены 1 этаж (несущие)
[parent_id] => 3
[material_sum] => 408223
[work_sum] => 536019
[total_sum] => 944242
[total_days] => 23
[display_material_sum] => 408 223
[display_work_sum] => 536 019
[display_total_sum] => 944 242
)
1
944 242₽
Работа:536 019 ₽
Материалы:408 223 ₽
Дни:23
stdClass Object
(
[id] => 179
[attribute_id] => 3
[name] => Деревянные
[material_modifier] => 1
[work_modifier] => 1
[options] => Array
(
[0] => 180 мм
[1] => 220 мм
[2] => 260 мм
[3] => 320 мм
)
[days] => [7,8,9,10]
[material_price] => [7950,9458,11961,14472]
[work_price] => [4037,4925,5812,7207]
[image] => https://akademik-stroy.ru/wp-content/uploads/materials/derevyannye.jpg
[area_modifier] => 54.96
[parent_name] => Стены 1 этаж (несущие)
[parent_id] => 3
[material_sum] => 891341
[work_sum] => 377185
[total_sum] => 1268526
[total_days] => 7
[display_material_sum] => 891 341
[display_work_sum] => 377 185
[display_total_sum] => 1 268 526
)
1
1 268 526₽
Работа:377 185 ₽
Материалы:891 341 ₽
Дни:7
stdClass Object
(
[id] => 181
[attribute_id] => 3
[name] => Камень
[material_modifier] => 1
[work_modifier] => 1
[options] => Array
(
[0] => 300 мм
[1] => 400 мм
[2] => 500 мм
[3] => 600 мм
)
[days] => [25,27,31,34]
[material_price] => [5262,6844,8330,9815]
[work_price] => [8331,9135,10427,11069]
[image] => https://akademik-stroy.ru/wp-content/uploads/materials/kamen.jpg
[area_modifier] => 54.96
[parent_name] => Стены 1 этаж (несущие)
[parent_id] => 3
[material_sum] => 589967
[work_sum] => 778382
[total_sum] => 1368349
[total_days] => 25
[display_material_sum] => 589 967
[display_work_sum] => 778 382
[display_total_sum] => 1 368 349
)
1
1 368 349₽
Работа:778 382 ₽
Материалы:589 967 ₽
Дни:25
stdClass Object
(
[id] => 182
[attribute_id] => 3
[name] => Каркасно-щитовые
[material_modifier] => 1
[work_modifier] => 1
[options] => Array
(
[0] => 150 мм
[1] => 200 мм
[2] => 250 мм
[3] => 300 мм
[4] => 350 мм
[5] => 400 мм
)
[days] => [15,16,17,18,19,20]
[material_price] => [2379,2639,2898,3458,3601,4175]
[work_price] => [2538,2820,3134,3483,4062,5642]
[image] => https://akademik-stroy.ru/wp-content/uploads/materials/karkasno-shchitovye.jpg
[area_modifier] => 54.96
[parent_name] => Стены 1 этаж (несущие)
[parent_id] => 3
[material_sum] => 266730
[work_sum] => 237130
[total_sum] => 503860
[total_days] => 15
[display_material_sum] => 266 730
[display_work_sum] => 237 130
[display_total_sum] => 503 860
)
1
503 860₽
Работа:237 130 ₽
Материалы:266 730 ₽
Дни:15
stdClass Object
(
[id] => 183
[attribute_id] => 3
[name] => Рубленные
[material_modifier] => 1
[work_modifier] => 1
[options] => Array
(
[0] => 150 мм
[1] => 200 мм
[2] => 250 мм
[3] => 300 мм
[4] => 350 мм
[5] => 400 мм
)
[days] => [15,16,17,18,17,18]
[material_price] => [35950,50267,60583,75900,80217,100533]
[work_price] => [9612,12816,16020,19224,22428,25632]
[image] => https://akademik-stroy.ru/wp-content/uploads/materials/rublennye.jpg
[area_modifier] => 54.96
[parent_name] => Стены 1 этаж (несущие)
[parent_id] => 3
[material_sum] => 4030656
[work_sum] => 898068
[total_sum] => 4928724
[total_days] => 15
[display_material_sum] => 4 030 656
[display_work_sum] => 898 068
[display_total_sum] => 4 928 724
)
1
4 928 724₽
Работа:898 068 ₽
Материалы:4 030 656 ₽
Дни:15
stdClass Object
(
[id] => 185
[attribute_id] => 3
[name] => Теплоблок
[material_modifier] => 1
[work_modifier] => 1
[options] => Array
(
[0] => 300 мм (с облицовкой, не покрашенный)
[1] => 400 мм (с облицовкой, не покрашенный)
[2] => 300 мм (с облицовкой, покрашенный)
[3] => 400 мм (с облицовкой, покрашенный)
)
[days] => [15,16,15,16]
[material_price] => [2888,3729,3957,4258]
[work_price] => [2564,3229,2949,3713]
[image] => https://akademik-stroy.ru/wp-content/uploads/materials/teploblok.jpg
[area_modifier] => 54.96
[parent_name] => Стены 1 этаж (несущие)
[parent_id] => 3
[material_sum] => 323798
[work_sum] => 239560
[total_sum] => 563358
[total_days] => 15
[display_material_sum] => 323 798
[display_work_sum] => 239 560
[display_total_sum] => 563 358
)
1
563 358₽
Работа:239 560 ₽
Материалы:323 798 ₽
Дни:15
stdClass Object
(
[id] => 186
[attribute_id] => 3
[name] => Арболитовые блоки
[material_modifier] => 1
[work_modifier] => 1
[options] => Array
(
[0] => 300 мм
[1] => 400 мм
[2] => 600 мм
)
[days] => [19,22,27]
[material_price] => [3210,4475,5852]
[work_price] => [4214,4788,5866]
[image] => https://akademik-stroy.ru/wp-content/uploads/materials/arbolitovye-bloki.png
[area_modifier] => 54.96
[parent_name] => Стены 1 этаж (несущие)
[parent_id] => 3
[material_sum] => 359900
[work_sum] => 393722
[total_sum] => 753622
[total_days] => 19
[display_material_sum] => 359 900
[display_work_sum] => 393 722
[display_total_sum] => 753 622
)
1
753 622₽
Работа:393 722 ₽
Материалы:359 900 ₽
Дни:19
stdClass Object
(
[id] => 187
[attribute_id] => 3
[name] => Полистиролбетон
[material_modifier] => 1
[work_modifier] => 1
[options] => Array
(
[0] => 300 мм
[1] => 400 мм
[2] => 600 мм
)
[days] => [29,31,35]
[material_price] => [2798,4573,5256]
[work_price] => [5038,5851,6426]
[image] => https://akademik-stroy.ru/wp-content/uploads/materials/polistirolbeton.jpg
[area_modifier] => 54.96
[parent_name] => Стены 1 этаж (несущие)
[parent_id] => 3
[material_sum] => 313707
[work_sum] => 470710
[total_sum] => 784417
[total_days] => 29
[display_material_sum] => 313 707
[display_work_sum] => 470 710
[display_total_sum] => 784 417
)
1
784 417₽
Работа:470 710 ₽
Материалы:313 707 ₽
Дни:29
stdClass Object
(
[id] => 188
[attribute_id] => 3
[name] => Шлакоблок
[material_modifier] => 1
[work_modifier] => 1
[options] => Array
(
[0] => 400 мм
[1] => 600 мм
)
[days] => [15,16]
[material_price] => [2391,3471]
[work_price] => [2642,3662]
[image] => https://akademik-stroy.ru/wp-content/uploads/materials/shlakoblok.jpg
[area_modifier] => 54.96
[parent_name] => Стены 1 этаж (несущие)
[parent_id] => 3
[material_sum] => 268075
[work_sum] => 246847
[total_sum] => 514922
[total_days] => 15
[display_material_sum] => 268 075
[display_work_sum] => 246 847
[display_total_sum] => 514 922
)
1
514 922₽
Работа:246 847 ₽
Материалы:268 075 ₽
Дни:15
stdClass Object
(
[id] => 189
[attribute_id] => 3
[name] => Теплая керамика
[material_modifier] => 1
[work_modifier] => 1
[options] => Array
(
[0] => 380 мм
[1] => 380 мм Thermo
[2] => 440 мм
[3] => 510 мм
)
[days] => [23,23,24,25]
[material_price] => [4510,5098,6093,8013]
[work_price] => [4737,4937,5903,6958]
[image] => https://akademik-stroy.ru/wp-content/uploads/materials/teplaya-keramika.jpg
[area_modifier] => 54.96
[parent_name] => Стены 1 этаж (несущие)
[parent_id] => 3
[material_sum] => 505654
[work_sum] => 442587
[total_sum] => 948241
[total_days] => 23
[display_material_sum] => 505 654
[display_work_sum] => 442 587
[display_total_sum] => 948 241
)
1
948 241₽
Работа:442 587 ₽
Материалы:505 654 ₽
Дни:23
stdClass Object
(
[id] => 190
[attribute_id] => 3
[name] => Несъемная опалубка
[material_modifier] => 1
[work_modifier] => 1
[options] => Array
(
[0] => 200 мм
[1] => 250 мм
[2] => 300 мм
[3] => 350 мм
)
[days] => [15,17,19,21]
[material_price] => [3302,3902,4108,5008]
[work_price] => [2100,2100,2300,2534]
[image] => https://akademik-stroy.ru/wp-content/uploads/materials/nesemnaya-opalubka.jpg
[area_modifier] => 54.96
[parent_name] => Стены 1 этаж (несущие)
[parent_id] => 3
[material_sum] => 370215
[work_sum] => 196207
[total_sum] => 566422
[total_days] => 15
[display_material_sum] => 370 215
[display_work_sum] => 196 207
[display_total_sum] => 566 422
)
1
566 422₽
Работа:196 207 ₽
Материалы:370 215 ₽
Дни:15
stdClass Object
(
[id] => 251
[attribute_id] => 3
[name] => Бревно
[material_modifier] => 1
[work_modifier] => 1
[options] => Array
(
[0] => 260 мм
[1] => 320 мм
[2] => 360 мм
[3] => 400 мм
[4] => 500 мм
)
[days] => [7,8,9,10,11]
[material_price] => [1874,24045,26930,30972,38825]
[work_price] => [5046,6207,6952,7716,9723]
[image] => https://akademik-stroy.ru/wp-content/uploads/materials/sruby.jpg
[area_modifier] => 54.96
[parent_name] => Стены 1 этаж (несущие)
[parent_id] => 3
[material_sum] => 210110
[work_sum] => 471458
[total_sum] => 681568
[total_days] => 7
[display_material_sum] => 210 110
[display_work_sum] => 471 458
[display_total_sum] => 681 568
)
1
681 568₽
Работа:471 458 ₽
Материалы:210 110 ₽
Дни:7
stdClass Object
(
[id] => 7
[attribute_id] => 4
[name] => Деревянные балки
[material_modifier] => 1
[work_modifier] => 1
[options] => Array
(
[0] => без утепления
[1] => утепление 200 мм
[2] => утепление 250 мм
[3] => утепление 300 мм
[4] => утепление 350 мм
[5] => утепление 400 мм
[6] => утепление 450 мм
[7] => утепление 500 мм
)
[days] => [8,9,9,9,11,12,13,14]
[material_price] => [1634,2042,2344,2947,3149,3652,3354,3557]
[work_price] => [1230,1339,1393,1426,1460,1513,1587,1620]
[image] => https://akademik-stroy.ru/wp-content/uploads/materials/derevyannye-balki.png
[area_modifier] => 54.96
[parent_name] => Перекрытие первого этажа
[parent_id] => 4
[material_sum] => 183201
[work_sum] => 114921
[total_sum] => 298122
[total_days] => 8
[display_material_sum] => 183 201
[display_work_sum] => 114 921
[display_total_sum] => 298 122
)
1
298 122₽
Работа:114 921 ₽
Материалы:183 201 ₽
Дни:8
stdClass Object
(
[id] => 8
[attribute_id] => 4
[name] => Сборные ж/б плиты
[material_modifier] => 1
[work_modifier] => 1
[options] => Array
(
[0] => без утепления
[1] => утепление 150 мм
[2] => утепление 200 мм
[3] => утепление 250 мм
[4] => утепление 300 мм
[5] => утепление 350 мм
[6] => утепление 400 мм
[7] => утепление 450 мм
[8] => утепление 500 мм
)
[days] => [13,15,15,15,15,15,15,15,15]
[material_price] => [3067,5577,5928,6679,7730,8782,9833,10884,11935]
[work_price] => [1520,1956,2102,2247,2392,2537,2684,2829,2974]
[image] => https://akademik-stroy.ru/wp-content/uploads/materials/sbornye-zh-b-plity-2.jpg
[area_modifier] => 54.96
[parent_name] => Перекрытие первого этажа
[parent_id] => 4
[material_sum] => 343867
[work_sum] => 142017
[total_sum] => 485884
[total_days] => 13
[display_material_sum] => 343 867
[display_work_sum] => 142 017
[display_total_sum] => 485 884
)
1
485 884₽
Работа:142 017 ₽
Материалы:343 867 ₽
Дни:13
stdClass Object
(
[id] => 89
[attribute_id] => 4
[name] => Монолитная ж/б плита
[material_modifier] => 1
[work_modifier] => 1
[options] => Array
(
[0] => без утепления
[1] => утепление 150 мм
[2] => утепление 200 мм
[3] => утепление 250 мм
[4] => утепление 300 мм
[5] => утепление 350 мм
[6] => утепление 400 мм
[7] => утепление 450 мм
[8] => утепление 500 мм
)
[days] => [18,20,20,20,20,20,20,20,20]
[material_price] => [4837,6572,7224,7375,79426,8177,8728,9180,10031]
[work_price] => [3348,3921,4112,4302,4493,4684,4875,5066,5256]
[image] => https://akademik-stroy.ru/wp-content/uploads/materials/monolitnaya-zh-b-plita-2.jpg
[area_modifier] => 54.96
[parent_name] => Перекрытие первого этажа
[parent_id] => 4
[material_sum] => 542317
[work_sum] => 312810
[total_sum] => 855127
[total_days] => 18
[display_material_sum] => 542 317
[display_work_sum] => 312 810
[display_total_sum] => 855 127
)
1
855 127₽
Работа:312 810 ₽
Материалы:542 317 ₽
Дни:18
stdClass Object
(
[id] => 160
[attribute_id] => 36
[name] => Не эксплуатируемая
[material_modifier] => 1
[work_modifier] => 1
[options] => Array
(
)
[days] => [10]
[material_price] => [8068]
[work_price] => [4163]
[image] => https://akademik-stroy.ru/wp-content/uploads/materials/ne-ehkspluatiruemaya-3.jpg
[area_modifier] => 54.96
[parent_name] => Плоская крыша
[parent_id] => 36
[material_sum] => 904571
[work_sum] => 388957
[total_sum] => 1293528
[total_days] => 10
[display_material_sum] => 904 571
[display_work_sum] => 388 957
[display_total_sum] => 1 293 528
)
1
1 293 528₽
Работа:388 957 ₽
Материалы:904 571 ₽
Дни:10
stdClass Object
(
[id] => 161
[attribute_id] => 36
[name] => Зеленая кровля (Эксплуатируемая)
[material_modifier] => 1
[work_modifier] => 1
[options] => Array
(
)
[days] => [10]
[material_price] => [10056]
[work_price] => [8446]
[image] => https://akademik-stroy.ru/wp-content/uploads/materials/zelenaya-krovlya-2.jpg
[area_modifier] => 54.96
[parent_name] => Плоская крыша
[parent_id] => 36
[material_sum] => 1127463
[work_sum] => 789127
[total_sum] => 1916590
[total_days] => 10
[display_material_sum] => 1 127 463
[display_work_sum] => 789 127
[display_total_sum] => 1 916 590
)
1
1 916 590₽
Работа:789 127 ₽
Материалы:1 127 463 ₽
Дни:10
stdClass Object
(
[id] => 162
[attribute_id] => 36
[name] => Эксплуатируемая
[material_modifier] => 1
[work_modifier] => 1
[options] => Array
(
)
[days] => [10]
[material_price] => [9593]
[work_price] => [7459]
[image] => https://akademik-stroy.ru/wp-content/uploads/materials/ehkspluatiruemaya-2.jpg
[area_modifier] => 54.96
[parent_name] => Плоская крыша
[parent_id] => 36
[material_sum] => 1075552
[work_sum] => 696909
[total_sum] => 1772461
[total_days] => 10
[display_material_sum] => 1 075 552
[display_work_sum] => 696 909
[display_total_sum] => 1 772 461
)
1
1 772 461₽
Работа:696 909 ₽
Материалы:1 075 552 ₽
Дни:10
stdClass Object
(
[id] => 163
[attribute_id] => 36
[name] => Нет
[material_modifier] => 1
[work_modifier] => 1
[options] => Array
(
)
[days] => [0]
[material_price] => [0]
[work_price] => [0]
[image] => https://akademik-stroy.ru/wp-content/uploads/materials/ne-ehkspluatiruemaya-3.jpg
[area_modifier] => 54.96
[parent_name] => Плоская крыша
[parent_id] => 36
[material_sum] => 0
[work_sum] => 0
[total_sum] => 0
[total_days] => 0
[display_material_sum] => 0
[display_work_sum] => 0
[display_total_sum] => 0
)
1
0₽
Работа:0 ₽
Материалы:0 ₽
Дни:0
stdClass Object
(
[id] => 51
[attribute_id] => 26
[name] => Есть
[material_modifier] => 1
[work_modifier] => 1
[options] => Array
(
[0] => Профиль 58 мм, 3-камерный, стеклопакет 2-камерный до 32 мм
[1] => Профиль 60 мм, 4-камерный, стеклопакет 2-камерный до 32 мм
[2] => Профиль 70 мм, 5-камерный, стеклопакет 2-камерный до 40 мм
[3] => Профиль 72 мм, 5-камерный, стеклопакет 2-камерный до 40 мм
[4] => Алюминиевые окна Alutech профиль 72 мм, стеклопакет 2-камерный
)
[days] => [3,3,3,3,3]
[material_price] => [1339,2124,2867,3023,29596]
[work_price] => [635,647,659,668,2579]
[image] => https://akademik-stroy.ru/wp-content/uploads/materials/okna.jpg
[area_modifier] => 44.6
[parent_name] => Окна
[parent_id] => 26
[material_sum] => 121828
[work_sum] => 48146
[total_sum] => 169974
[total_days] => 3
[display_material_sum] => 121 828
[display_work_sum] => 48 146
[display_total_sum] => 169 974
)
1
169 974₽
Работа:48 146 ₽
Материалы:121 828 ₽
Дни:3
stdClass Object
(
[id] => 52
[attribute_id] => 26
[name] => Нет
[material_modifier] => 2
[work_modifier] => 1
[options] =>
[days] => null
[material_price] => null
[work_price] => null
[image] => https://akademik-stroy.ru/wp-content/uploads/materials/okna.jpg
[area_modifier] => 44.6
[parent_name] => Окна
[parent_id] => 26
[material_sum] => 0
[work_sum] => 0
[total_sum] => 0
[total_days] => 0
[display_material_sum] => 0
[display_work_sum] => 0
[display_total_sum] => 0
)
1
0₽
Работа:0 ₽
Материалы:0 ₽
Дни:0
stdClass Object
(
[id] => 53
[attribute_id] => 27
[name] => Есть
[material_modifier] => 1
[work_modifier] => 1
[options] => Array
(
)
[days] => [1]
[material_price] => [10000]
[work_price] => [5500]
[image] => https://akademik-stroy.ru/wp-content/uploads/materials/dveri.jpg
[area_modifier] => 1
[parent_name] => Двери входные
[parent_id] => 27
[material_sum] => 20400
[work_sum] => 9350
[total_sum] => 29750
[total_days] => 1
[display_material_sum] => 20 400
[display_work_sum] => 9 350
[display_total_sum] => 29 750
)
1
29 750₽
Работа:9 350 ₽
Материалы:20 400 ₽
Дни:1
stdClass Object
(
[id] => 54
[attribute_id] => 27
[name] => Нет
[material_modifier] => 1
[work_modifier] => 1
[options] => Array
(
)
[days] => [0]
[material_price] => [0]
[work_price] => [0]
[image] => https://akademik-stroy.ru/wp-content/uploads/materials/dveri.jpg
[area_modifier] => 1
[parent_name] => Двери входные
[parent_id] => 27
[material_sum] => 0
[work_sum] => 0
[total_sum] => 0
[total_days] => 0
[display_material_sum] => 0
[display_work_sum] => 0
[display_total_sum] => 0
)
1
0₽
Работа:0 ₽
Материалы:0 ₽
Дни:0
stdClass Object
(
[id] => 31
[attribute_id] => 16
[name] => Нет
[material_modifier] => 1
[work_modifier] => 1
[options] => Array
(
)
[days] => [0]
[material_price] => [0]
[work_price] => [0]
[image] => https://akademik-stroy.ru/wp-content/uploads/materials/docke-standard-pvh.jpg
[area_modifier] => 54.96
[parent_name] => Водосточная система
[parent_id] => 16
[material_sum] => 0
[work_sum] => 0
[total_sum] => 0
[total_days] => 0
[display_material_sum] => 0
[display_work_sum] => 0
[display_total_sum] => 0
)
1
0₽
Работа:0 ₽
Материалы:0 ₽
Дни:0
stdClass Object
(
[id] => 32
[attribute_id] => 16
[name] => Есть
[material_modifier] => 1
[work_modifier] => 1
[options] => Array
(
[0] => Döcke Standard (ПВХ)
[1] => Металлические Grand Line
)
[days] => [7,7]
[material_price] => [1842,2703]
[work_price] => [1491,1529]
[image] => https://akademik-stroy.ru/wp-content/uploads/materials/docke-standard-pvh.jpg
[area_modifier] => 54.96
[parent_name] => Водосточная система
[parent_id] => 16
[material_sum] => 206522
[work_sum] => 139307
[total_sum] => 345829
[total_days] => 7
[display_material_sum] => 206 522
[display_work_sum] => 139 307
[display_total_sum] => 345 829
)
1
345 829₽
Работа:139 307 ₽
Материалы:206 522 ₽
Дни:7
stdClass Object
(
[id] => 33
[attribute_id] => 17
[name] => Нет
[material_modifier] => 1
[work_modifier] => 1
[options] => Array
(
)
[days] => [0]
[material_price] => [0]
[work_price] => [0]
[image] => https://akademik-stroy.ru/wp-content/uploads/materials/mineralovata.jpg
[area_modifier] => 54.96
[parent_name] => Дополнительное утепление наружных стен
[parent_id] => 17
[material_sum] => 0
[work_sum] => 0
[total_sum] => 0
[total_days] => 0
[display_material_sum] => 0
[display_work_sum] => 0
[display_total_sum] => 0
)
1
0₽
Работа:0 ₽
Материалы:0 ₽
Дни:0
stdClass Object
(
[id] => 34
[attribute_id] => 17
[name] => Минераловатный
[material_modifier] => 1
[work_modifier] => 1
[options] => Array
(
[0] => 50 мм
[1] => 100 мм
[2] => 150 мм
[3] => 200 мм
[4] => 250 мм
[5] => 300 мм
)
[days] => [7,8,10,12,14,15]
[material_price] => [3437,3613,3803,3915,4601,4830]
[work_price] => [2325,2423,2523,2749,2859,3025]
[image] => https://akademik-stroy.ru/wp-content/uploads/materials/mineralovata.jpg
[area_modifier] => 54.96
[parent_name] => Дополнительное утепление наружных стен
[parent_id] => 17
[material_sum] => 385351
[work_sum] => 217229
[total_sum] => 602580
[total_days] => 7
[display_material_sum] => 385 351
[display_work_sum] => 217 229
[display_total_sum] => 602 580
)
1
602 580₽
Работа:217 229 ₽
Материалы:385 351 ₽
Дни:7
stdClass Object
(
[id] => 128
[attribute_id] => 17
[name] => Эковата (целлюлозная вата)
[material_modifier] => 1
[work_modifier] => 1
[options] => Array
(
[0] => 50 мм
[1] => 100 мм
[2] => 150 мм
[3] => 200 мм
[4] => 250 мм
[5] => 300 мм
)
[days] => [3,4,5,6,7,8]
[material_price] => [810,1319,1629,1838,2267,2676]
[work_price] => [1225,1323,1423,1549,1659,1725]
[image] => https://akademik-stroy.ru/wp-content/uploads/materials/ehkovata.jpg
[area_modifier] => 54.96
[parent_name] => Дополнительное утепление наружных стен
[parent_id] => 17
[material_sum] => 90816
[work_sum] => 114454
[total_sum] => 205270
[total_days] => 3
[display_material_sum] => 90 816
[display_work_sum] => 114 454
[display_total_sum] => 205 270
)
1
205 270₽
Работа:114 454 ₽
Материалы:90 816 ₽
Дни:3
stdClass Object
(
[id] => 129
[attribute_id] => 17
[name] => Экструдированный пенополистирол
[material_modifier] => 1
[work_modifier] => 1
[options] => Array
(
[0] => 50 мм
[1] => 100 мм
[2] => 150 мм
[3] => 200 мм
[4] => 250 мм
[5] => 300 мм
)
[days] => [5,6,7,8,9,10]
[material_price] => [4560,4300,5119,6292,7010,8583]
[work_price] => [1795,1954,2254,2330,2595,2735]
[image] => https://akademik-stroy.ru/wp-content/uploads/materials/epps.jpg
[area_modifier] => 54.96
[parent_name] => Дополнительное утепление наружных стен
[parent_id] => 17
[material_sum] => 511260
[work_sum] => 167710
[total_sum] => 678970
[total_days] => 5
[display_material_sum] => 511 260
[display_work_sum] => 167 710
[display_total_sum] => 678 970
)
1
678 970₽
Работа:167 710 ₽
Материалы:511 260 ₽
Дни:5
stdClass Object
(
[id] => 130
[attribute_id] => 17
[name] => ПСБ (ППС-пенополистирол)
[material_modifier] => 1
[work_modifier] => 1
[options] => Array
(
[0] => 50 мм
[1] => 100 мм
[2] => 150 мм
[3] => 200 мм
[4] => 250 мм
[5] => 300 мм
)
[days] => [5,6,7,8,9,10]
[material_price] => [4822,5200,5819,6292,7010,7583]
[work_price] => [1795,1954,2254,2330,2595,2735]
[image] => https://akademik-stroy.ru/wp-content/uploads/materials/psb.jpg
[area_modifier] => 54.96
[parent_name] => Дополнительное утепление наружных стен
[parent_id] => 17
[material_sum] => 540635
[work_sum] => 167710
[total_sum] => 708345
[total_days] => 5
[display_material_sum] => 540 635
[display_work_sum] => 167 710
[display_total_sum] => 708 345
)
1
708 345₽
Работа:167 710 ₽
Материалы:540 635 ₽
Дни:5
stdClass Object
(
[id] => 131
[attribute_id] => 17
[name] => ППУ (Пенополиуретан)
[material_modifier] => 1
[work_modifier] => 1
[options] => Array
(
[0] => 50 мм
[1] => 100 мм
[2] => 150 мм
[3] => 200 мм
[4] => 250 мм
[5] => 300 мм
)
[days] => [3,4,5,6,7,8]
[material_price] => [2860,3400,4219,4592,5010,5583]
[work_price] => [729,900,980,1120,1280,1530]
[image] => https://akademik-stroy.ru/wp-content/uploads/materials/ppu.jpg
[area_modifier] => 54.96
[parent_name] => Дополнительное утепление наружных стен
[parent_id] => 17
[material_sum] => 320659
[work_sum] => 68112
[total_sum] => 388771
[total_days] => 3
[display_material_sum] => 320 659
[display_work_sum] => 68 112
[display_total_sum] => 388 771
)
1
388 771₽
Работа:68 112 ₽
Материалы:320 659 ₽
Дни:3
stdClass Object
(
[id] => 132
[attribute_id] => 17
[name] => PIR-плиты (пенополиизоцианурат)
[material_modifier] => 1
[work_modifier] => 1
[options] => Array
(
[0] => 50 мм
[1] => 100 мм
[2] => 150 мм
[3] => 200 мм
[4] => 250 мм
[5] => 300 мм
)
[days] => [5,6,7,8,9,10]
[material_price] => [8323,15645,20968,25900,29258,30581]
[work_price] => [800,900,970,1150,1280,1330]
[image] => https://akademik-stroy.ru/wp-content/uploads/materials/pir.jpg
[area_modifier] => 54.96
[parent_name] => Дополнительное утепление наружных стен
[parent_id] => 17
[material_sum] => 933161
[work_sum] => 74746
[total_sum] => 1007907
[total_days] => 5
[display_material_sum] => 933 161
[display_work_sum] => 74 746
[display_total_sum] => 1 007 907
)
1
1 007 907₽
Работа:74 746 ₽
Материалы:933 161 ₽
Дни:5
stdClass Object
(
[id] => 37
[attribute_id] => 19
[name] => Нет
[material_modifier] => 1
[work_modifier] => 1
[options] => Array
(
)
[days] => [0]
[material_price] => [0]
[work_price] => [0]
[image] => https://akademik-stroy.ru/wp-content/uploads/materials/imitaciya-brusa.jpg
[area_modifier] => 54.96
[parent_name] => Наружная отделка фасада
[parent_id] => 19
[material_sum] => 0
[work_sum] => 0
[total_sum] => 0
[total_days] => 0
[display_material_sum] => 0
[display_work_sum] => 0
[display_total_sum] => 0
)
1
0₽
Работа:0 ₽
Материалы:0 ₽
Дни:0
stdClass Object
(
[id] => 38
[attribute_id] => 19
[name] => Имитация бруса
[material_modifier] => 1
[work_modifier] => 1
[options] => Array
(
[0] => Сосна
[1] => Ель
[2] => Лиственница
)
[days] => [20,20,20]
[material_price] => [2994,2762,4954]
[work_price] => [1397,1231,1577]
[image] => https://akademik-stroy.ru/wp-content/uploads/materials/imitaciya-brusa.jpg
[area_modifier] => 54.96
[parent_name] => Наружная отделка фасада
[parent_id] => 19
[material_sum] => 335682
[work_sum] => 130525
[total_sum] => 466207
[total_days] => 20
[display_material_sum] => 335 682
[display_work_sum] => 130 525
[display_total_sum] => 466 207
)
1
466 207₽
Работа:130 525 ₽
Материалы:335 682 ₽
Дни:20
stdClass Object
(
[id] => 136
[attribute_id] => 19
[name] => Планкен
[material_modifier] => 1
[work_modifier] => 1
[options] => Array
(
[0] => Сосна
[1] => Ель
[2] => Лиственница
)
[days] => [20,20,20]
[material_price] => [3194,2862,5154]
[work_price] => [1537,1354,1735]
[image] => https://akademik-stroy.ru/wp-content/uploads/materials/planken.jpg
[area_modifier] => 54.96
[parent_name] => Наружная отделка фасада
[parent_id] => 19
[material_sum] => 358106
[work_sum] => 143605
[total_sum] => 501711
[total_days] => 20
[display_material_sum] => 358 106
[display_work_sum] => 143 605
[display_total_sum] => 501 711
)
1
501 711₽
Работа:143 605 ₽
Материалы:358 106 ₽
Дни:20
stdClass Object
(
[id] => 137
[attribute_id] => 19
[name] => Штукатурка
[material_modifier] => 1
[work_modifier] => 1
[options] => Array
(
[0] => Цементно-песчаная (минеральная)
[1] => Мокрый фасад
)
[days] => [35,35]
[material_price] => [2231,3938]
[work_price] => [1202,2422]
[image] => https://akademik-stroy.ru/wp-content/uploads/materials/shtukaturka.jpg
[area_modifier] => 54.96
[parent_name] => Наружная отделка фасада
[parent_id] => 19
[material_sum] => 250136
[work_sum] => 112305
[total_sum] => 362441
[total_days] => 35
[display_material_sum] => 250 136
[display_work_sum] => 112 305
[display_total_sum] => 362 441
)
1
362 441₽
Работа:112 305 ₽
Материалы:250 136 ₽
Дни:35
stdClass Object
(
[id] => 138
[attribute_id] => 19
[name] => Облицовочный кирпич
[material_modifier] => 1
[work_modifier] => 1
[options] => Array
(
[0] => Керамический
[1] => Клинкерный
[2] => Ручной формовки
[3] => Гиперпрессованный
[4] => Силикатный кирпич
)
[days] => [45,45,45,45,45]
[material_price] => [8174,9148,1040,1257,5876]
[work_price] => [3240,3758,4536,4017,3369]
[image] => https://akademik-stroy.ru/wp-content/uploads/materials/oblicovochnyj-kirpich.jpg
[area_modifier] => 54.96
[parent_name] => Наружная отделка фасада
[parent_id] => 19
[material_sum] => 916456
[work_sum] => 302720
[total_sum] => 1219176
[total_days] => 45
[display_material_sum] => 916 456
[display_work_sum] => 302 720
[display_total_sum] => 1 219 176
)
1
1 219 176₽
Работа:302 720 ₽
Материалы:916 456 ₽
Дни:45
stdClass Object
(
[id] => 139
[attribute_id] => 19
[name] => Фасадная плитка
[material_modifier] => 1
[work_modifier] => 1
[options] => Array
(
[0] => Клинкерная
[1] => Керамическая
[2] => Плитка ручной формовки
)
[days] => [40,40,40]
[material_price] => [2974,1487,3470]
[work_price] => [3007,2592,3629]
[image] => https://akademik-stroy.ru/wp-content/uploads/materials/fasadnaya-plitka.jpg
[area_modifier] => 54.96
[parent_name] => Наружная отделка фасада
[parent_id] => 19
[material_sum] => 333440
[work_sum] => 280950
[total_sum] => 614390
[total_days] => 40
[display_material_sum] => 333 440
[display_work_sum] => 280 950
[display_total_sum] => 614 390
)
1
614 390₽
Работа:280 950 ₽
Материалы:333 440 ₽
Дни:40
stdClass Object
(
[id] => 140
[attribute_id] => 19
[name] => Сайдинг
[material_modifier] => 1
[work_modifier] => 1
[options] => Array
(
[0] => Виниловый
[1] => Металлический
[2] => Фиброцементный
)
[days] => [20,20,20]
[material_price] => [1263,1944,4147]
[work_price] => [1263,1944,2074]
[image] => https://akademik-stroy.ru/wp-content/uploads/materials/sajding.jpg
[area_modifier] => 54.96
[parent_name] => Наружная отделка фасада
[parent_id] => 19
[material_sum] => 141606
[work_sum] => 118005
[total_sum] => 259611
[total_days] => 20
[display_material_sum] => 141 606
[display_work_sum] => 118 005
[display_total_sum] => 259 611
)
1
259 611₽
Работа:118 005 ₽
Материалы:141 606 ₽
Дни:20
stdClass Object
(
[id] => 141
[attribute_id] => 19
[name] => Камень
[material_modifier] => 1
[work_modifier] => 1
[options] => Array
(
[0] => Травертин
[1] => Дагестанский
[2] => Искусственный
[3] => Натуральный
[4] => Керамогранит
)
[days] => [45,45,45,45,45]
[material_price] => [4536,3888,2592,3240,2462]
[work_price] => [3240,3240,2462,3110,1944]
[image] => https://akademik-stroy.ru/wp-content/uploads/materials/kamen-1.jpg
[area_modifier] => 54.96
[parent_name] => Наружная отделка фасада
[parent_id] => 19
[material_sum] => 508569
[work_sum] => 302720
[total_sum] => 811289
[total_days] => 45
[display_material_sum] => 508 569
[display_work_sum] => 302 720
[display_total_sum] => 811 289
)
1
811 289₽
Работа:302 720 ₽
Материалы:508 569 ₽
Дни:45
stdClass Object
(
[id] => 142
[attribute_id] => 19
[name] => Термопанели
[material_modifier] => 1
[work_modifier] => 1
[options] => Array
(
)
[days] => [20]
[material_price] => [6221]
[work_price] => [2333]
[image] => https://akademik-stroy.ru/wp-content/uploads/materials/termo.png
[area_modifier] => 54.96
[parent_name] => Наружная отделка фасада
[parent_id] => 19
[material_sum] => 697489
[work_sum] => 217977
[total_sum] => 915466
[total_days] => 20
[display_material_sum] => 697 489
[display_work_sum] => 217 977
[display_total_sum] => 915 466
)
1
915 466₽
Работа:217 977 ₽
Материалы:697 489 ₽
Дни:20
stdClass Object
(
[id] => 143
[attribute_id] => 19
[name] => Плитка HAUBERK
[material_modifier] => 1
[work_modifier] => 1
[options] => Array
(
)
[days] => [20]
[material_price] => [2786]
[work_price] => [1944]
[image] => https://akademik-stroy.ru/wp-content/uploads/materials/hauberk.jpg
[area_modifier] => 54.96
[parent_name] => Наружная отделка фасада
[parent_id] => 19
[material_sum] => 312362
[work_sum] => 181632
[total_sum] => 493994
[total_days] => 20
[display_material_sum] => 312 362
[display_work_sum] => 181 632
[display_total_sum] => 493 994
)
1
493 994₽
Работа:181 632 ₽
Материалы:312 362 ₽
Дни:20
stdClass Object
(
[id] => 144
[attribute_id] => 19
[name] => Фальцевый фасад
[material_modifier] => 1
[work_modifier] => 1
[options] => Array
(
)
[days] => [20]
[material_price] => [3240]
[work_price] => [2592]
[image] => https://akademik-stroy.ru/wp-content/uploads/materials/falcevyj-fasad.jpg
[area_modifier] => 54.96
[parent_name] => Наружная отделка фасада
[parent_id] => 19
[material_sum] => 363264
[work_sum] => 242176
[total_sum] => 605440
[total_days] => 20
[display_material_sum] => 363 264
[display_work_sum] => 242 176
[display_total_sum] => 605 440
)
1
605 440₽
Работа:242 176 ₽
Материалы:363 264 ₽
Дни:20
stdClass Object
(
[id] => 145
[attribute_id] => 19
[name] => Комбинированный
[material_modifier] => 1
[work_modifier] => 1
[options] => Array
(
)
[days] => [20]
[material_price] => [4629]
[work_price] => [3499]
[image] => https://akademik-stroy.ru/wp-content/uploads/materials/Kombinirovannyj.jpg
[area_modifier] => 54.96
[parent_name] => Наружная отделка фасада
[parent_id] => 19
[material_sum] => 518996
[work_sum] => 326919
[total_sum] => 845915
[total_days] => 20
[display_material_sum] => 518 996
[display_work_sum] => 326 919
[display_total_sum] => 845 915
)
1
845 915₽
Работа:326 919 ₽
Материалы:518 996 ₽
Дни:20
stdClass Object
(
[id] => 257
[attribute_id] => 19
[name] => Японские фиброцементные
[material_modifier] => 1
[work_modifier] => 1
[options] => Array
(
)
[days] => [20]
[material_price] => [7043]
[work_price] => [2993]
[image] => https://akademik-stroy.ru/wp-content/uploads/materials/paneli.jpg
[area_modifier] => 54.96
[parent_name] => Наружная отделка фасада
[parent_id] => 19
[material_sum] => 789650
[work_sum] => 279642
[total_sum] => 1069292
[total_days] => 20
[display_material_sum] => 789 650
[display_work_sum] => 279 642
[display_total_sum] => 1 069 292
)
1
1 069 292₽
Работа:279 642 ₽
Материалы:789 650 ₽
Дни:20
stdClass Object
(
[id] => 258
[attribute_id] => 19
[name] => Панели Каньон
[material_modifier] => 1
[work_modifier] => 1
[options] => Array
(
)
[days] => [20]
[material_price] => [4543]
[work_price] => [2592]
[image] => https://akademik-stroy.ru/wp-content/uploads/materials/kanon.png
[area_modifier] => 54.96
[parent_name] => Наружная отделка фасада
[parent_id] => 19
[material_sum] => 509354
[work_sum] => 242176
[total_sum] => 751530
[total_days] => 20
[display_material_sum] => 509 354
[display_work_sum] => 242 176
[display_total_sum] => 751 530
)
1
751 530₽
Работа:242 176 ₽
Материалы:509 354 ₽
Дни:20
stdClass Object
(
[id] => 39
[attribute_id] => 20
[name] => Нет
[material_modifier] => 1
[work_modifier] => 1
[options] => Array
(
)
[days] => [0]
[material_price] => [0]
[work_price] => [0]
[image] => https://akademik-stroy.ru/wp-content/uploads/materials/terrasy.jpg
[area_modifier] => 30
[parent_name] => Террасы, крыльца, навесы
[parent_id] => 20
[material_sum] => 0
[work_sum] => 0
[total_sum] => 0
[total_days] => 0
[display_material_sum] => 0
[display_work_sum] => 0
[display_total_sum] => 0
)
1
0₽
Работа:0 ₽
Материалы:0 ₽
Дни:0
stdClass Object
(
[id] => 40
[attribute_id] => 20
[name] => Есть
[material_modifier] => 1
[work_modifier] => 1
[options] => Array
(
)
[days] => [5]
[material_price] => [10450]
[work_price] => [1950]
[image] => https://akademik-stroy.ru/wp-content/uploads/materials/terrasy.jpg
[area_modifier] => 30
[parent_name] => Террасы, крыльца, навесы
[parent_id] => 20
[material_sum] => 639540
[work_sum] => 99450
[total_sum] => 738990
[total_days] => 5
[display_material_sum] => 639 540
[display_work_sum] => 99 450
[display_total_sum] => 738 990
)
1
738 990₽
Работа:99 450 ₽
Материалы:639 540 ₽
Дни:5
stdClass Object
(
[id] => 41
[attribute_id] => 21
[name] => Нет
[material_modifier] => 1
[work_modifier] => 1
[options] => Array
(
)
[days] => [0]
[material_price] => [0]
[work_price] => [0]
[image] => https://akademik-stroy.ru/wp-content/uploads/materials/balkony.jpg
[area_modifier] => 30
[parent_name] => Балконы
[parent_id] => 21
[material_sum] => 0
[work_sum] => 0
[total_sum] => 0
[total_days] => 0
[display_material_sum] => 0
[display_work_sum] => 0
[display_total_sum] => 0
)
1
0₽
Работа:0 ₽
Материалы:0 ₽
Дни:0
stdClass Object
(
[id] => 42
[attribute_id] => 21
[name] => Есть
[material_modifier] => 1
[work_modifier] => 1
[options] => Array
(
)
[days] => [12]
[material_price] => [3600]
[work_price] => [1950]
[image] => https://akademik-stroy.ru/wp-content/uploads/materials/balkony.jpg
[area_modifier] => 30
[parent_name] => Балконы
[parent_id] => 21
[material_sum] => 220320
[work_sum] => 99450
[total_sum] => 319770
[total_days] => 12
[display_material_sum] => 220 320
[display_work_sum] => 99 450
[display_total_sum] => 319 770
)
1
319 770₽
Работа:99 450 ₽
Материалы:220 320 ₽
Дни:12
stdClass Object
(
[id] => 43
[attribute_id] => 22
[name] => Нет
[material_modifier] => 1
[work_modifier] => 1
[options] => Array
(
)
[days] => [0]
[material_price] => [0]
[work_price] => [0]
[image] => https://akademik-stroy.ru/wp-content/uploads/materials/uteplennaya.jpg
[area_modifier] => 54.96
[parent_name] => Отмостка
[parent_id] => 22
[material_sum] => 0
[work_sum] => 0
[total_sum] => 0
[total_days] => 0
[display_material_sum] => 0
[display_work_sum] => 0
[display_total_sum] => 0
)
1
0₽
Работа:0 ₽
Материалы:0 ₽
Дни:0
stdClass Object
(
[id] => 44
[attribute_id] => 22
[name] => Утепленная отмостка
[material_modifier] => 1
[work_modifier] => 1
[options] => Array
(
)
[days] => [15]
[material_price] => [2550]
[work_price] => [1750]
[image] => https://akademik-stroy.ru/wp-content/uploads/materials/uteplennaya.jpg
[area_modifier] => 54.96
[parent_name] => Отмостка
[parent_id] => 22
[material_sum] => 285902
[work_sum] => 163506
[total_sum] => 449408
[total_days] => 15
[display_material_sum] => 285 902
[display_work_sum] => 163 506
[display_total_sum] => 449 408
)
1
449 408₽
Работа:163 506 ₽
Материалы:285 902 ₽
Дни:15
stdClass Object
(
[id] => 146
[attribute_id] => 22
[name] => Не утепленная отмостка
[material_modifier] => 1
[work_modifier] => 1
[options] => Array
(
)
[days] => [10]
[material_price] => [1650]
[work_price] => [1450]
[image] => https://akademik-stroy.ru/wp-content/uploads/materials/ne-uteplennaya.jpg
[area_modifier] => 54.96
[parent_name] => Отмостка
[parent_id] => 22
[material_sum] => 184995
[work_sum] => 135476
[total_sum] => 320471
[total_days] => 10
[display_material_sum] => 184 995
[display_work_sum] => 135 476
[display_total_sum] => 320 471
)
1
320 471₽
Работа:135 476 ₽
Материалы:184 995 ₽
Дни:10
stdClass Object
(
[id] => 45
[attribute_id] => 23
[name] => Нет
[material_modifier] => 1
[work_modifier] => 1
[options] => Array
(
)
[days] => [0]
[material_price] => [0]
[work_price] => [0]
[image] => https://akademik-stroy.ru/wp-content/uploads/materials/drenazh-2.jpg
[area_modifier] => 54.96
[parent_name] => Дренаж вокруг дома
[parent_id] => 23
[material_sum] => 0
[work_sum] => 0
[total_sum] => 0
[total_days] => 0
[display_material_sum] => 0
[display_work_sum] => 0
[display_total_sum] => 0
)
1
0₽
Работа:0 ₽
Материалы:0 ₽
Дни:0
stdClass Object
(
[id] => 46
[attribute_id] => 23
[name] => Есть
[material_modifier] => 1
[work_modifier] => 1
[options] => Array
(
)
[days] => [5]
[material_price] => [2366]
[work_price] => [1911]
[image] => https://akademik-stroy.ru/wp-content/uploads/materials/drenazh-2.jpg
[area_modifier] => 54.96
[parent_name] => Дренаж вокруг дома
[parent_id] => 23
[material_sum] => 265272
[work_sum] => 178549
[total_sum] => 443821
[total_days] => 5
[display_material_sum] => 265 272
[display_work_sum] => 178 549
[display_total_sum] => 443 821
)
1
443 821₽
Работа:178 549 ₽
Материалы:265 272 ₽
Дни:5
stdClass Object
(
[id] => 47
[attribute_id] => 24
[name] => Нет
[material_modifier] => 1
[work_modifier] => 1
[options] => Array
(
)
[days] => [0]
[material_price] => [0]
[work_price] => [0]
[image] => https://akademik-stroy.ru/wp-content/uploads/materials/septik.jpg
[area_modifier] => 1
[parent_name] => Автономная канализация (септики)
[parent_id] => 24
[material_sum] => 0
[work_sum] => 0
[total_sum] => 0
[total_days] => 0
[display_material_sum] => 0
[display_work_sum] => 0
[display_total_sum] => 0
)
1
0₽
Работа:0 ₽
Материалы:0 ₽
Дни:0
stdClass Object
(
[id] => 48
[attribute_id] => 24
[name] => Есть
[material_modifier] => 1
[work_modifier] => 1
[options] => Array
(
[0] => Для дачи на 4 человека
[1] => Для дома на 5 человек
[2] => Для дома на 6 человек
[3] => Для дома на 7 человек
[4] => Для дома на 10 человек
)
[days] => [7,7,7,8,8]
[material_price] => [196340,220500,240940,264200,293340]
[work_price] => [50000,55000,60500,66550,73206]
[image] => https://akademik-stroy.ru/wp-content/uploads/materials/septik.jpg
[area_modifier] => 1
[parent_name] => Автономная канализация (септики)
[parent_id] => 24
[material_sum] => 400534
[work_sum] => 85000
[total_sum] => 485534
[total_days] => 7
[display_material_sum] => 400 534
[display_work_sum] => 85 000
[display_total_sum] => 485 534
)
1
485 534₽
Работа:85 000 ₽
Материалы:400 534 ₽
Дни:7
stdClass Object
(
[id] => 49
[attribute_id] => 25
[name] => Нет
[material_modifier] => 1
[work_modifier] => 1
[options] => Array
(
)
[days] => [0]
[material_price] => [0]
[work_price] => [0]
[image] => https://akademik-stroy.ru/wp-content/uploads/materials/gkl.jpg
[area_modifier] => 54.96
[parent_name] => Внутренние (не несущие) перегородки
[parent_id] => 25
[material_sum] => 0
[work_sum] => 0
[total_sum] => 0
[total_days] => 0
[display_material_sum] => 0
[display_work_sum] => 0
[display_total_sum] => 0
)
1
0₽
Работа:0 ₽
Материалы:0 ₽
Дни:0
stdClass Object
(
[id] => 147
[attribute_id] => 25
[name] => Каркасно-обшивные
[material_modifier] => 1
[work_modifier] => 1
[options] => Array
(
[0] => 75 мм (без шумоизоляции)
[1] => 75 мм (с шумоизоляцией)
)
[days] => [11,11]
[material_price] => [580,970]
[work_price] => [380,570]
[image] => https://akademik-stroy.ru/wp-content/uploads/materials/gkl.jpg
[area_modifier] => 54.96
[parent_name] => Внутренние (не несущие) перегородки
[parent_id] => 25
[material_sum] => 65029
[work_sum] => 35504
[total_sum] => 100533
[total_days] => 11
[display_material_sum] => 65 029
[display_work_sum] => 35 504
[display_total_sum] => 100 533
)
1
100 533₽
Работа:35 504 ₽
Материалы:65 029 ₽
Дни:11
stdClass Object
(
[id] => 148
[attribute_id] => 25
[name] => Пазогребневые
[material_modifier] => 1
[work_modifier] => 1
[options] => Array
(
[0] => 80 мм
[1] => 100 мм
)
[days] => [5,5]
[material_price] => [1022,1313]
[work_price] => [600,700]
[image] => https://akademik-stroy.ru/wp-content/uploads/materials/pazogrebnevye-bloki.jpg
[area_modifier] => 54.96
[parent_name] => Внутренние (не несущие) перегородки
[parent_id] => 25
[material_sum] => 114585
[work_sum] => 56059
[total_sum] => 170644
[total_days] => 5
[display_material_sum] => 114 585
[display_work_sum] => 56 059
[display_total_sum] => 170 644
)
1
170 644₽
Работа:56 059 ₽
Материалы:114 585 ₽
Дни:5
stdClass Object
(
[id] => 149
[attribute_id] => 25
[name] => Газобетонные
[material_modifier] => 1
[work_modifier] => 1
[options] => Array
(
[0] => 100 мм
[1] => 200 мм
)
[days] => [11,11]
[material_price] => [1160,1920]
[work_price] => [700,900]
[image] => https://akademik-stroy.ru/wp-content/uploads/materials/gazobeton-2.jpg
[area_modifier] => 54.96
[parent_name] => Внутренние (не несущие) перегородки
[parent_id] => 25
[material_sum] => 130057
[work_sum] => 65402
[total_sum] => 195459
[total_days] => 11
[display_material_sum] => 130 057
[display_work_sum] => 65 402
[display_total_sum] => 195 459
)
1
195 459₽
Работа:65 402 ₽
Материалы:130 057 ₽
Дни:11
stdClass Object
(
[id] => 150
[attribute_id] => 25
[name] => Кирпичные
[material_modifier] => 1
[work_modifier] => 1
[options] => Array
(
[0] => 120 мм
[1] => 250 мм
[2] => 360 мм
)
[days] => [7,7,7]
[material_price] => [1785,3570,5355]
[work_price] => [900,1600,1800]
[image] => https://akademik-stroy.ru/wp-content/uploads/materials/kirpich-1.jpg
[area_modifier] => 54.96
[parent_name] => Внутренние (не несущие) перегородки
[parent_id] => 25
[material_sum] => 200131
[work_sum] => 84089
[total_sum] => 284220
[total_days] => 7
[display_material_sum] => 200 131
[display_work_sum] => 84 089
[display_total_sum] => 284 220
)
1
284 220₽
Работа:84 089 ₽
Материалы:200 131 ₽
Дни:7
stdClass Object
(
[id] => 55
[attribute_id] => 28
[name] => Нет
[material_modifier] => 1
[work_modifier] => 1
[options] => Array
(
)
[days] => [0]
[material_price] => [0]
[work_price] => [0]
[image] => https://akademik-stroy.ru/wp-content/uploads/materials/ehlektrika.jpg
[area_modifier] => 44.6
[parent_name] => Электрика
[parent_id] => 28
[material_sum] => 0
[work_sum] => 0
[total_sum] => 0
[total_days] => 0
[display_material_sum] => 0
[display_work_sum] => 0
[display_total_sum] => 0
)
1
0₽
Работа:0 ₽
Материалы:0 ₽
Дни:0
stdClass Object
(
[id] => 56
[attribute_id] => 28
[name] => Есть
[material_modifier] => 1
[work_modifier] => 1
[options] => Array
(
)
[days] => [10]
[material_price] => [650]
[work_price] => [950]
[image] => https://akademik-stroy.ru/wp-content/uploads/materials/ehlektrika.jpg
[area_modifier] => 44.6
[parent_name] => Электрика
[parent_id] => 28
[material_sum] => 59140
[work_sum] => 72029
[total_sum] => 131169
[total_days] => 10
[display_material_sum] => 59 140
[display_work_sum] => 72 029
[display_total_sum] => 131 169
)
1
131 169₽
Работа:72 029 ₽
Материалы:59 140 ₽
Дни:10
stdClass Object
(
[id] => 57
[attribute_id] => 29
[name] => Нет
[material_modifier] => 1
[work_modifier] => 1
[options] => Array
(
)
[days] => [0]
[material_price] => [0]
[work_price] => [0]
[image] => https://akademik-stroy.ru/wp-content/uploads/materials/santekhnika-kanalizaciya-1.jpg
[area_modifier] => 44.6
[parent_name] => Сантехника, канализация в доме
[parent_id] => 29
[material_sum] => 0
[work_sum] => 0
[total_sum] => 0
[total_days] => 0
[display_material_sum] => 0
[display_work_sum] => 0
[display_total_sum] => 0
)
1
0₽
Работа:0 ₽
Материалы:0 ₽
Дни:0
stdClass Object
(
[id] => 58
[attribute_id] => 29
[name] => Есть
[material_modifier] => 1
[work_modifier] => 1
[options] => Array
(
)
[days] => [10]
[material_price] => [600]
[work_price] => [730]
[image] => https://akademik-stroy.ru/wp-content/uploads/materials/santekhnika-kanalizaciya-1.jpg
[area_modifier] => 44.6
[parent_name] => Сантехника, канализация в доме
[parent_id] => 29
[material_sum] => 54590
[work_sum] => 55349
[total_sum] => 109939
[total_days] => 10
[display_material_sum] => 54 590
[display_work_sum] => 55 349
[display_total_sum] => 109 939
)
1
109 939₽
Работа:55 349 ₽
Материалы:54 590 ₽
Дни:10
stdClass Object
(
[id] => 59
[attribute_id] => 30
[name] => Нет
[material_modifier] => 1
[work_modifier] => 1
[options] => Array
(
)
[days] => [0]
[material_price] => [0]
[work_price] => [0]
[image] => https://akademik-stroy.ru/wp-content/uploads/materials/otoplenie-1.jpg
[area_modifier] => 44.6
[parent_name] => Отопление
[parent_id] => 30
[material_sum] => 0
[work_sum] => 0
[total_sum] => 0
[total_days] => 0
[display_material_sum] => 0
[display_work_sum] => 0
[display_total_sum] => 0
)
1
0₽
Работа:0 ₽
Материалы:0 ₽
Дни:0
stdClass Object
(
[id] => 60
[attribute_id] => 30
[name] => Есть
[material_modifier] => 1
[work_modifier] => 1
[options] => Array
(
)
[days] => [5]
[material_price] => [610]
[work_price] => [560]
[image] => https://akademik-stroy.ru/wp-content/uploads/materials/otoplenie-1.jpg
[area_modifier] => 44.6
[parent_name] => Отопление
[parent_id] => 30
[material_sum] => 55500
[work_sum] => 42459
[total_sum] => 97959
[total_days] => 5
[display_material_sum] => 55 500
[display_work_sum] => 42 459
[display_total_sum] => 97 959
)
1
97 959₽
Работа:42 459 ₽
Материалы:55 500 ₽
Дни:5
stdClass Object
(
[id] => 61
[attribute_id] => 31
[name] => Нет
[material_modifier] => 1
[work_modifier] => 1
[options] => Array
(
)
[days] => [0]
[material_price] => [0]
[work_price] => [0]
[image] => https://akademik-stroy.ru/wp-content/uploads/materials/vodyanye.jpg
[area_modifier] => 30
[parent_name] => Теплые полы
[parent_id] => 31
[material_sum] => 0
[work_sum] => 0
[total_sum] => 0
[total_days] => 0
[display_material_sum] => 0
[display_work_sum] => 0
[display_total_sum] => 0
)
1
0₽
Работа:0 ₽
Материалы:0 ₽
Дни:0
stdClass Object
(
[id] => 151
[attribute_id] => 31
[name] => Водяные
[material_modifier] => 1
[work_modifier] => 1
[options] => Array
(
)
[days] => [9]
[material_price] => [10200]
[work_price] => [2500]
[image] => https://akademik-stroy.ru/wp-content/uploads/materials/vodyanye.jpg
[area_modifier] => 30
[parent_name] => Теплые полы
[parent_id] => 31
[material_sum] => 624240
[work_sum] => 127500
[total_sum] => 751740
[total_days] => 9
[display_material_sum] => 624 240
[display_work_sum] => 127 500
[display_total_sum] => 751 740
)
1
751 740₽
Работа:127 500 ₽
Материалы:624 240 ₽
Дни:9
stdClass Object
(
[id] => 152
[attribute_id] => 31
[name] => Электро
[material_modifier] => 1
[work_modifier] => 1
[options] => Array
(
)
[days] => [5]
[material_price] => [6300]
[work_price] => [1500]
[image] => https://akademik-stroy.ru/wp-content/uploads/materials/ehlektricheskij.jpg
[area_modifier] => 30
[parent_name] => Теплые полы
[parent_id] => 31
[material_sum] => 385560
[work_sum] => 76500
[total_sum] => 462060
[total_days] => 5
[display_material_sum] => 385 560
[display_work_sum] => 76 500
[display_total_sum] => 462 060
)
1
462 060₽
Работа:76 500 ₽
Материалы:385 560 ₽
Дни:5
stdClass Object
(
[id] => 63
[attribute_id] => 32
[name] => Нет
[material_modifier] => 1
[work_modifier] => 1
[options] => Array
(
)
[days] => [0]
[material_price] => [0]
[work_price] => [0]
[image] => https://akademik-stroy.ru/wp-content/uploads/materials/shtukaturka-shpatlevka-1.jpg
[area_modifier] => 44.6
[parent_name] => Черновая отделка стен
[parent_id] => 32
[material_sum] => 0
[work_sum] => 0
[total_sum] => 0
[total_days] => 0
[display_material_sum] => 0
[display_work_sum] => 0
[display_total_sum] => 0
)
1
0₽
Работа:0 ₽
Материалы:0 ₽
Дни:0
stdClass Object
(
[id] => 153
[attribute_id] => 32
[name] => Штукатурка и шпатлевка
[material_modifier] => 1
[work_modifier] => 1
[options] => Array
(
)
[days] => [20]
[material_price] => [1850]
[work_price] => [2600]
[image] => https://akademik-stroy.ru/wp-content/uploads/materials/shtukaturka-shpatlevka-1.jpg
[area_modifier] => 44.6
[parent_name] => Черновая отделка стен
[parent_id] => 32
[material_sum] => 168320
[work_sum] => 197132
[total_sum] => 365452
[total_days] => 20
[display_material_sum] => 168 320
[display_work_sum] => 197 132
[display_total_sum] => 365 452
)
1
365 452₽
Работа:197 132 ₽
Материалы:168 320 ₽
Дни:20
stdClass Object
(
[id] => 154
[attribute_id] => 32
[name] => Гипсокортон на стены
[material_modifier] => 1
[work_modifier] => 1
[options] => Array
(
)
[days] => [15]
[material_price] => [950]
[work_price] => [2100]
[image] => https://akademik-stroy.ru/wp-content/uploads/materials/gkl-1.jpg
[area_modifier] => 44.6
[parent_name] => Черновая отделка стен
[parent_id] => 32
[material_sum] => 86435
[work_sum] => 159222
[total_sum] => 245657
[total_days] => 15
[display_material_sum] => 86 435
[display_work_sum] => 159 222
[display_total_sum] => 245 657
)
1
245 657₽
Работа:159 222 ₽
Материалы:86 435 ₽
Дни:15
stdClass Object
(
[id] => 155
[attribute_id] => 32
[name] => Вагонка
[material_modifier] => 1
[work_modifier] => 1
[options] => Array
(
)
[days] => [15]
[material_price] => [1250]
[work_price] => [950]
[image] => https://akademik-stroy.ru/wp-content/uploads/materials/vagonka.jpg
[area_modifier] => 44.6
[parent_name] => Черновая отделка стен
[parent_id] => 32
[material_sum] => 113730
[work_sum] => 72029
[total_sum] => 185759
[total_days] => 15
[display_material_sum] => 113 730
[display_work_sum] => 72 029
[display_total_sum] => 185 759
)
1
185 759₽
Работа:72 029 ₽
Материалы:113 730 ₽
Дни:15
stdClass Object
(
[id] => 65
[attribute_id] => 33
[name] => Нет
[material_modifier] => 1
[work_modifier] => 1
[options] => Array
(
)
[days] => [0]
[material_price] => [0]
[work_price] => [0]
[image] => https://akademik-stroy.ru/wp-content/uploads/materials/styazhka.jpg
[area_modifier] => 44.6
[parent_name] => Черновая отделка полов
[parent_id] => 33
[material_sum] => 0
[work_sum] => 0
[total_sum] => 0
[total_days] => 0
[display_material_sum] => 0
[display_work_sum] => 0
[display_total_sum] => 0
)
1
0₽
Работа:0 ₽
Материалы:0 ₽
Дни:0
stdClass Object
(
[id] => 156
[attribute_id] => 33
[name] => Стяжка + наливные полы
[material_modifier] => 1
[work_modifier] => 1
[options] => Array
(
)
[days] => [10]
[material_price] => [1000]
[work_price] => [900]
[image] => https://akademik-stroy.ru/wp-content/uploads/materials/styazhka.jpg
[area_modifier] => 44.6
[parent_name] => Черновая отделка полов
[parent_id] => 33
[material_sum] => 90984
[work_sum] => 68238
[total_sum] => 159222
[total_days] => 10
[display_material_sum] => 90 984
[display_work_sum] => 68 238
[display_total_sum] => 159 222
)
1
159 222₽
Работа:68 238 ₽
Материалы:90 984 ₽
Дни:10
stdClass Object
(
[id] => 157
[attribute_id] => 33
[name] => ОСБ на пол
[material_modifier] => 1
[work_modifier] => 1
[options] => Array
(
)
[days] => [7]
[material_price] => [580]
[work_price] => [350]
[image] => https://akademik-stroy.ru/wp-content/uploads/materials/osb-1.jpg
[area_modifier] => 44.6
[parent_name] => Черновая отделка полов
[parent_id] => 33
[material_sum] => 52771
[work_sum] => 26537
[total_sum] => 79308
[total_days] => 7
[display_material_sum] => 52 771
[display_work_sum] => 26 537
[display_total_sum] => 79 308
)
1
79 308₽
Работа:26 537 ₽
Материалы:52 771 ₽
Дни:7
stdClass Object
(
[id] => 67
[attribute_id] => 34
[name] => Нет
[material_modifier] => 1
[work_modifier] => 1
[options] => Array
(
)
[days] => [0]
[material_price] => [0]
[work_price] => [0]
[image] => https://akademik-stroy.ru/wp-content/uploads/materials/chistovaya-otdelka.jpg
[area_modifier] => 44.6
[parent_name] => Чистовая отделка стен и полов
[parent_id] => 34
[material_sum] => 0
[work_sum] => 0
[total_sum] => 0
[total_days] => 0
[display_material_sum] => 0
[display_work_sum] => 0
[display_total_sum] => 0
)
1
0₽
Работа:0 ₽
Материалы:0 ₽
Дни:0
stdClass Object
(
[id] => 68
[attribute_id] => 34
[name] => Есть
[material_modifier] => 1
[work_modifier] => 1
[options] => Array
(
)
[days] => [50]
[material_price] => [6000]
[work_price] => [3500]
[image] => https://akademik-stroy.ru/wp-content/uploads/materials/chistovaya-otdelka.jpg
[area_modifier] => 44.6
[parent_name] => Чистовая отделка стен и полов
[parent_id] => 34
[material_sum] => 545904
[work_sum] => 265370
[total_sum] => 811274
[total_days] => 50
[display_material_sum] => 545 904
[display_work_sum] => 265 370
[display_total_sum] => 811 274
)
1
811 274₽
Работа:265 370 ₽
Материалы:545 904 ₽
Дни:50
stdClass Object
(
[id] => 69
[attribute_id] => 35
[name] => Нет
[material_modifier] => 1
[work_modifier] => 1
[options] => Array
(
)
[days] => [0]
[material_price] => [0]
[work_price] => [0]
[image] => https://akademik-stroy.ru/wp-content/uploads/materials/mnogourovnevyj-gkl.jpg
[area_modifier] => 44.6
[parent_name] => Отделка потолка
[parent_id] => 35
[material_sum] => 0
[work_sum] => 0
[total_sum] => 0
[total_days] => 0
[display_material_sum] => 0
[display_work_sum] => 0
[display_total_sum] => 0
)
1
0₽
Работа:0 ₽
Материалы:0 ₽
Дни:0
stdClass Object
(
[id] => 70
[attribute_id] => 35
[name] => Есть
[material_modifier] => 1
[work_modifier] => 1
[options] => Array
(
[0] => Многоуровневый потолок из гипсокартона
[1] => Многоуровневый потолок из гипсокартона и натяжного потолка
[2] => Одноуровневый потолок из гипсокартона
[3] => Одноуровневый натяжной потолок
)
[days] => [10,10,1,1]
[material_price] => [900,700,700,600]
[work_price] => [1000,800,500,300]
[image] => https://akademik-stroy.ru/wp-content/uploads/materials/mnogourovnevyj-gkl.jpg
[area_modifier] => 44.6
[parent_name] => Отделка потолка
[parent_id] => 35
[material_sum] => 81886
[work_sum] => 75820
[total_sum] => 157706
[total_days] => 10
[display_material_sum] => 81 886
[display_work_sum] => 75 820
[display_total_sum] => 157 706
)
1
157 706₽
Работа:75 820 ₽
Материалы:81 886 ₽
Дни:10
Преимущества работы с нами
7 этапов оплаты
Независимый строительный надзор
Экологически чистые материалы
16 лет гарантии
Онлайн-кабинет с веб-камерой
Строители с опытом более 15 лет
Собственное производство
