Двухэтажный гараж 103.6 м2
154 м2
Полезная
площадь
площадь
2 этажа
Этажей
26 м2
Террасы
и балконы
и балконы
0Без
гаража
гаража
0
Количество
спален
спален
0
Количество
санузлов
санузлов
Планировки
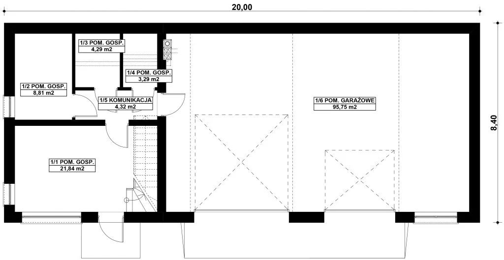
Первый этаж
- 1. (m²) 138,30
- 2. Подсобное помещение 21,84
- 3. Подсобное помещение 8,81
- 4. Подсобное помещение 4,29
- 5. Подсобное помещение 3,29
- 6. Коридор 4,32
- Подсобное помещение 95,75
Piętro 1
- 1. (m²) 41,32
- 2. Коридор 6,90
- 3. Подсобное помещение 17,76
- 4. Подсобное помещение 8,81
- Подсобное помещение 7,85
Фасады
Передний
Задний
Левый
Правый
Подробная информация
Полезная площадь
168 m²
Количество спален
0
Количество санузлов
0
Гараж
0
Мин. шир. и дл. участка
28 x 16,40 m
Угол наклона крыши
8°
Наклон ската крыши в градусах. Внимание! В некоторых проектах возникает более чем один наклон крыши.
Вид материалов
Murowana
Материалы и опции
Общие
Площади дома
| № п/п | Наименование | Ед. из. | Строительная площадь | Полезная площадь |
| 1 | 1 этаж | м2 | 117.99 | 95.75 |
| 2 | 2 этаж | м2 | 9.67 | 7.85 |
| 3 | Итого | м2 | 127.66 | 103.6 |
Калькулятор опций
0₽
В ипотеку от 207 ₽/мес.
0₽
0 дней
stdClass Object
(
[id] => 1
[attribute_id] => 1
[name] => Ленточный монолитный ж/б
[material_modifier] => 1
[work_modifier] => 1
[options] => Array
(
[0] => размер 200 х 700 мм
[1] => размер 300 х 900 мм
[2] => размер 400 х 1 000 мм
[3] => размер 500 х 1 100 мм
[4] => размер 600 х 1 200 мм
)
[days] => [20,21,22,25,30]
[material_price] => [2823,3630,4475,5210,12047]
[work_price] => [2154,2826,3731,4577,5293]
[image] => https://akademik-stroy.ru/wp-content/uploads/materials/lentochnyj-monolitnyj-zh-b.jpg
[area_modifier] => 117.99
[parent_name] => Фундамент
[parent_id] => 1
[material_sum] => 459658
[work_sum] => 292273
[total_sum] => 751931
[total_days] => 20
[display_material_sum] => 459 658
[display_work_sum] => 292 273
[display_total_sum] => 751 931
)
1
751 931₽
Работа:292 273 ₽
Материалы:459 658 ₽
Дни:20
stdClass Object
(
[id] => 2
[attribute_id] => 1
[name] => Забивные Ж/Б сваи
[material_modifier] => 1
[work_modifier] => 1
[options] => Array
(
[0] => 150х150х3000мм
[1] => 150х150х4000мм
[2] => 200х200х3000мм
[3] => 200х200х4000мм
[4] => 200х200х5000мм
[5] => 200х200х6000мм
)
[days] => [2,2,2,2,2,2]
[material_price] => [1990,2850,3255,4360,5120,6837]
[work_price] => [1002,1185,1336,1438,1574,1839]
[image] => https://akademik-stroy.ru/wp-content/uploads/materials/zabivnye-zh-b-svai.png
[area_modifier] => 117.99
[parent_name] => Фундамент
[parent_id] => 1
[material_sum] => 324024
[work_sum] => 135960
[total_sum] => 459984
[total_days] => 2
[display_material_sum] => 324 024
[display_work_sum] => 135 960
[display_total_sum] => 459 984
)
1
459 984₽
Работа:135 960 ₽
Материалы:324 024 ₽
Дни:2
stdClass Object
(
[id] => 71
[attribute_id] => 1
[name] => Свайно-ростверковый ж/б
[material_modifier] => 1
[work_modifier] => 1
[options] => Array
(
[0] => ростверк 200х300 мм
[1] => ростверк 300х600 мм
[2] => ростверк 400х900 мм
[3] => ростверк 500х1200 мм
)
[days] => [20,23,25,27]
[material_price] => [3018,3474,7109,9792]
[work_price] => [2024,3012,5635,7022]
[image] => https://akademik-stroy.ru/wp-content/uploads/materials/svajno-rostverkovyj-monolitnyj-zh-b-3.png
[area_modifier] => 117.99
[parent_name] => Фундамент
[parent_id] => 1
[material_sum] => 491409
[work_sum] => 274634
[total_sum] => 766043
[total_days] => 20
[display_material_sum] => 491 409
[display_work_sum] => 274 634
[display_total_sum] => 766 043
)
1
766 043₽
Работа:274 634 ₽
Материалы:491 409 ₽
Дни:20
stdClass Object
(
[id] => 72
[attribute_id] => 1
[name] => Монолитная ж/б плита
[material_modifier] => 1
[work_modifier] => 1
[options] => Array
(
[0] => 200 мм
[1] => 300 мм
[2] => 400 мм
[3] => 500 мм
[4] => 600 мм
)
[days] => [30,33,35,37,40]
[material_price] => [5348,8555,12788,14388,15189]
[work_price] => [4314,4881,7037,8061,10230]
[image] => https://akademik-stroy.ru/wp-content/uploads/materials/monolitnaya-zhb-plita.png
[area_modifier] => 117.99
[parent_name] => Фундамент
[parent_id] => 1
[material_sum] => 870795
[work_sum] => 585360
[total_sum] => 1456155
[total_days] => 30
[display_material_sum] => 870 795
[display_work_sum] => 585 360
[display_total_sum] => 1 456 155
)
1
1 456 155₽
Работа:585 360 ₽
Материалы:870 795 ₽
Дни:30
stdClass Object
(
[id] => 73
[attribute_id] => 1
[name] => Утепленная шведская плита
[material_modifier] => 1
[work_modifier] => 1
[options] => Array
(
[0] => 200 мм
[1] => 300 мм
[2] => 400 мм
[3] => 500 мм
[4] => 600 мм
)
[days] => [32,37,39,42,45]
[material_price] => [10249,12692,13760,14936,16230]
[work_price] => [5960,7337,8072,8878,9765]
[image] => https://akademik-stroy.ru/wp-content/uploads/materials/uteplennaya-shvedskaya-plita.jpg
[area_modifier] => 117.99
[parent_name] => Фундамент
[parent_id] => 1
[material_sum] => 1668806
[work_sum] => 808703
[total_sum] => 2477509
[total_days] => 32
[display_material_sum] => 1 668 806
[display_work_sum] => 808 703
[display_total_sum] => 2 477 509
)
1
2 477 509₽
Работа:808 703 ₽
Материалы:1 668 806 ₽
Дни:32
stdClass Object
(
[id] => 75
[attribute_id] => 1
[name] => Ленточный из ФБС
[material_modifier] => 1
[work_modifier] => 1
[options] => Array
(
[0] => толщ. 300 мм
[1] => толщ. 400 мм
[2] => толщ. 500 мм
[3] => толщ. 600 мм
)
[days] => [20,20,20,20]
[material_price] => [3675,4902,6126,7350]
[work_price] => [2451,3264,4083,4902]
[image] => https://akademik-stroy.ru/wp-content/uploads/materials/lentochnyj-iz-fbs.png
[area_modifier] => 117.99
[parent_name] => Фундамент
[parent_id] => 1
[material_sum] => 598386
[work_sum] => 332573
[total_sum] => 930959
[total_days] => 20
[display_material_sum] => 598 386
[display_work_sum] => 332 573
[display_total_sum] => 930 959
)
1
930 959₽
Работа:332 573 ₽
Материалы:598 386 ₽
Дни:20
stdClass Object
(
[id] => 76
[attribute_id] => 1
[name] => Цокольный этаж из ФБС
[material_modifier] => 1
[work_modifier] => 1
[options] => Array
(
[0] => толщ. 300 мм
[1] => толщ. 400 мм
[2] => толщ. 500 мм
[3] => толщ. 600 мм
)
[days] => [30,32,34,36]
[material_price] => [20916,23299,26680,29060]
[work_price] => [17524,18700,19873,21046]
[image] => https://akademik-stroy.ru/wp-content/uploads/materials/cokolnyj-ehtazh-iz-fbs.jpg
[area_modifier] => 117.99
[parent_name] => Фундамент
[parent_id] => 1
[material_sum] => 3405673
[work_sum] => 2377805
[total_sum] => 5783478
[total_days] => 30
[display_material_sum] => 3 405 673
[display_work_sum] => 2 377 805
[display_total_sum] => 5 783 478
)
1
5 783 478₽
Работа:2 377 805 ₽
Материалы:3 405 673 ₽
Дни:30
stdClass Object
(
[id] => 77
[attribute_id] => 1
[name] => Цокольный этаж монолитный ж/б
[material_modifier] => 1
[work_modifier] => 1
[options] => Array
(
[0] => толщ. 200 мм
[1] => толщ. 300 мм
[2] => толщ. 400 мм
[3] => толщ. 500 мм
[4] => толщ. 600 мм
)
[days] => [40,42,44,46,48]
[material_price] => [25421,29148,32275,35602,37326]
[work_price] => [20441,21907,23375,24841,26306]
[image] => https://akademik-stroy.ru/wp-content/uploads/materials/cokolnyj-etazh-zh-b.jpg
[area_modifier] => 117.99
[parent_name] => Фундамент
[parent_id] => 1
[material_sum] => 4139205
[work_sum] => 2773609
[total_sum] => 6912814
[total_days] => 40
[display_material_sum] => 4 139 205
[display_work_sum] => 2 773 609
[display_total_sum] => 6 912 814
)
1
6 912 814₽
Работа:2 773 609 ₽
Материалы:4 139 205 ₽
Дни:40
stdClass Object
(
[id] => 191
[attribute_id] => 1
[name] => Винтовые сваи
[material_modifier] => 1
[work_modifier] => 1
[options] => Array
(
[0] => 57х200мм
[1] => 76х250мм
[2] => 108х300мм
[3] => 133х350мм
)
[days] => [1,1,2,2]
[material_price] => [1200,1300,1450,1600]
[work_price] => [400,600,900,1100]
[image] => https://akademik-stroy.ru/wp-content/uploads/materials/vintovye-svai.png
[area_modifier] => 117.99
[parent_name] => Фундамент
[parent_id] => 1
[material_sum] => 195391
[work_sum] => 54275
[total_sum] => 249666
[total_days] => 1
[display_material_sum] => 195 391
[display_work_sum] => 54 275
[display_total_sum] => 249 666
)
1
249 666₽
Работа:54 275 ₽
Материалы:195 391 ₽
Дни:1
stdClass Object
(
[id] => 3
[attribute_id] => 2
[name] => Деревянные балки
[material_modifier] => 1
[work_modifier] => 1
[options] => Array
(
[0] => без утепления
[1] => утепление 200 мм
[2] => утепление 250 мм
[3] => утепление 300 мм
[4] => утепление 350 мм
[5] => утепление 400 мм
[6] => утепление 450 мм
[7] => утепление 500 мм
)
[days] => [8,9,9,9,11,12,13,14]
[material_price] => [1634,2042,2344,2947,3149,3652,3354,3557]
[work_price] => [1230,1339,1393,1426,1460,1513,1587,1620]
[image] => https://akademik-stroy.ru/wp-content/uploads/materials/derevyannye-balki.png
[area_modifier] => 117.99
[parent_name] => Перекрытие цоколя
[parent_id] => 2
[material_sum] => 266058
[work_sum] => 166897
[total_sum] => 432955
[total_days] => 8
[display_material_sum] => 266 058
[display_work_sum] => 166 897
[display_total_sum] => 432 955
)
1
432 955₽
Работа:166 897 ₽
Материалы:266 058 ₽
Дни:8
stdClass Object
(
[id] => 4
[attribute_id] => 2
[name] => Сборные ж/б плиты
[material_modifier] => 1
[work_modifier] => 1
[options] => Array
(
[0] => без утепления
[1] => утепление 150мм
[2] => утепление 200мм
[3] => утепление 250мм
[4] => утепление 300мм
[5] => утепление 350мм
[6] => утепление 400мм
[7] => утепление 450мм
[8] => утепление 500мм
)
[days] => [13,15,15,15,15,15,15,15,15]
[material_price] => [3067,5577,5928,6679,7730,8782,9833,10884,11935]
[work_price] => [1520,1956,2102,2247,2392,2537,2684,2829,2974]
[image] => https://akademik-stroy.ru/wp-content/uploads/materials/sbornye-zh-b-plity-2.jpg
[area_modifier] => 117.99
[parent_name] => Перекрытие цоколя
[parent_id] => 2
[material_sum] => 499388
[work_sum] => 206247
[total_sum] => 705635
[total_days] => 13
[display_material_sum] => 499 388
[display_work_sum] => 206 247
[display_total_sum] => 705 635
)
1
705 635₽
Работа:206 247 ₽
Материалы:499 388 ₽
Дни:13
stdClass Object
(
[id] => 78
[attribute_id] => 2
[name] => Монолитная ж/б плита
[material_modifier] => 1
[work_modifier] => 1
[options] => Array
(
[0] => без утепления
[1] => утепление 150 мм
[2] => утепление 200 мм
[3] => утепление 250 мм
[4] => утепление 300 мм
[5] => утепление 350 мм
[6] => утепление 400 мм
[7] => утепление 450 мм
[8] => утепление 500 мм
)
[days] => [18,20,20,20,20,20,20,20,20]
[material_price] => [4837,6572,7224,7375,79426,8177,8728,9180,10031]
[work_price] => [3348,3921,4112,4302,4493,4684,4875,5066,5256]
[image] => https://akademik-stroy.ru/wp-content/uploads/materials/monolitnaya-zh-b-plita-2.jpg
[area_modifier] => 117.99
[parent_name] => Перекрытие цоколя
[parent_id] => 2
[material_sum] => 787590
[work_sum] => 454285
[total_sum] => 1241875
[total_days] => 18
[display_material_sum] => 787 590
[display_work_sum] => 454 285
[display_total_sum] => 1 241 875
)
1
1 241 875₽
Работа:454 285 ₽
Материалы:787 590 ₽
Дни:18
stdClass Object
(
[id] => 6
[attribute_id] => 3
[name] => Пеноблок
[material_modifier] => 1
[work_modifier] => 1
[options] => Array
(
[0] => 300 мм
[1] => 400 мм
[2] => 500 мм
[3] => 600 мм
)
[days] => [29,31,34,39]
[material_price] => [3000,4000,4500,4937]
[work_price] => [5033,5805,6400,8710]
[image] => https://akademik-stroy.ru/wp-content/uploads/materials/penoblok.jpg
[area_modifier] => 117.99
[parent_name] => Стены 1 этаж (несущие)
[parent_id] => 3
[material_sum] => 488479
[work_sum] => 682920
[total_sum] => 1171399
[total_days] => 29
[display_material_sum] => 488 479
[display_work_sum] => 682 920
[display_total_sum] => 1 171 399
)
1
1 171 399₽
Работа:682 920 ₽
Материалы:488 479 ₽
Дни:29
stdClass Object
(
[id] => 79
[attribute_id] => 3
[name] => Керамический блок
[material_modifier] => 1
[work_modifier] => 1
[options] => Array
(
[0] => 380 мм
[1] => 380 мм Thermo
[2] => 440 мм
[3] => 510 мм
)
[days] => [23,23,24,25]
[material_price] => [4510,5098,6093,8013]
[work_price] => [4737,4937,5903,6958]
[image] => https://akademik-stroy.ru/wp-content/uploads/materials/keramicheskij-blok.jpg
[area_modifier] => 117.99
[parent_name] => Стены 1 этаж (несущие)
[parent_id] => 3
[material_sum] => 734346
[work_sum] => 642756
[total_sum] => 1377102
[total_days] => 23
[display_material_sum] => 734 346
[display_work_sum] => 642 756
[display_total_sum] => 1 377 102
)
1
1 377 102₽
Работа:642 756 ₽
Материалы:734 346 ₽
Дни:23
stdClass Object
(
[id] => 80
[attribute_id] => 3
[name] => Кирпич
[material_modifier] => 1
[work_modifier] => 1
[options] => Array
(
[0] => Кирпич 250 мм
[1] => Кирпич 380 мм
[2] => Кирпич 510 мм
[3] => Кирпич 640 мм
[4] => Кирпич 770 мм
)
[days] => [30,30,31,33,36]
[material_price] => [5500,7142,9206,10171,12235]
[work_price] => [8736,10041,12018,15240,18462]
[image] => https://akademik-stroy.ru/wp-content/uploads/materials/kirpich.jpg
[area_modifier] => 117.99
[parent_name] => Стены 1 этаж (несущие)
[parent_id] => 3
[material_sum] => 895544
[work_sum] => 1185375
[total_sum] => 2080919
[total_days] => 30
[display_material_sum] => 895 544
[display_work_sum] => 1 185 375
[display_total_sum] => 2 080 919
)
1
2 080 919₽
Работа:1 185 375 ₽
Материалы:895 544 ₽
Дни:30
stdClass Object
(
[id] => 81
[attribute_id] => 3
[name] => Монолитные
[material_modifier] => 1
[work_modifier] => 1
[options] => Array
(
[0] => 150 мм
[1] => 200 мм
[2] => 250 мм
[3] => 300 мм
[4] => 350 мм
[5] => 400 мм
)
[days] => [45,46,47,49,50,53]
[material_price] => [6545,7876,10175,12011,13908,15204]
[work_price] => [5106,6444,7698,8552,9807,11461]
[image] => https://akademik-stroy.ru/wp-content/uploads/materials/monolitnye.jpg
[area_modifier] => 117.99
[parent_name] => Стены 1 этаж (несущие)
[parent_id] => 3
[material_sum] => 1065697
[work_sum] => 692825
[total_sum] => 1758522
[total_days] => 45
[display_material_sum] => 1 065 697
[display_work_sum] => 692 825
[display_total_sum] => 1 758 522
)
1
1 758 522₽
Работа:692 825 ₽
Материалы:1 065 697 ₽
Дни:45
stdClass Object
(
[id] => 82
[attribute_id] => 3
[name] => Клееный брус
[material_modifier] => 1
[work_modifier] => 1
[options] => Array
(
[0] => 160 мм
[1] => 175 мм
[2] => 200 мм
[3] => 215 мм
[4] => 240 мм
[5] => 270 мм
[6] => 282 мм
)
[days] => [24,28,32,37,40,42,48]
[material_price] => [16975,18773,19950,20545,21599,22159,23275]
[work_price] => [4806,5287,5815,6397,7036,7740,8514]
[image] => https://akademik-stroy.ru/wp-content/uploads/materials/kleenyj-brus.jpg
[area_modifier] => 117.99
[parent_name] => Стены 1 этаж (несущие)
[parent_id] => 3
[material_sum] => 2763975
[work_sum] => 652119
[total_sum] => 3416094
[total_days] => 24
[display_material_sum] => 2 763 975
[display_work_sum] => 652 119
[display_total_sum] => 3 416 094
)
1
3 416 094₽
Работа:652 119 ₽
Материалы:2 763 975 ₽
Дни:24
stdClass Object
(
[id] => 83
[attribute_id] => 3
[name] => Каркасные
[material_modifier] => 1
[work_modifier] => 1
[options] => Array
(
[0] => 150 мм
[1] => 200 мм
[2] => 250 мм
[3] => 300 мм
)
[days] => [15,16,17,18]
[material_price] => [2379,2639,2898,3258]
[work_price] => [2418,2686,2985,3716]
[image] => https://akademik-stroy.ru/wp-content/uploads/materials/karkasnye.jpg
[area_modifier] => 117.99
[parent_name] => Стены 1 этаж (несущие)
[parent_id] => 3
[material_sum] => 387364
[work_sum] => 328095
[total_sum] => 715459
[total_days] => 15
[display_material_sum] => 387 364
[display_work_sum] => 328 095
[display_total_sum] => 715 459
)
1
715 459₽
Работа:328 095 ₽
Материалы:387 364 ₽
Дни:15
stdClass Object
(
[id] => 84
[attribute_id] => 3
[name] => СИП-панели
[material_modifier] => 1
[work_modifier] => 1
[options] => Array
(
[0] => 120 мм
[1] => 170 мм
[2] => 220 мм
)
[days] => [7,7,7]
[material_price] => [1210,1856,2292]
[work_price] => [1410,1551,1706]
[image] => https://akademik-stroy.ru/wp-content/uploads/materials/sip-paneli.jpg
[area_modifier] => 117.99
[parent_name] => Стены 1 этаж (несущие)
[parent_id] => 3
[material_sum] => 197020
[work_sum] => 191321
[total_sum] => 388341
[total_days] => 7
[display_material_sum] => 197 020
[display_work_sum] => 191 321
[display_total_sum] => 388 341
)
1
388 341₽
Работа:191 321 ₽
Материалы:197 020 ₽
Дни:7
stdClass Object
(
[id] => 85
[attribute_id] => 3
[name] => Сухой брус
[material_modifier] => 1
[work_modifier] => 1
[options] => Array
(
[0] => 150 мм
[1] => 180 мм
[2] => 200 мм
)
[days] => [7,8,9]
[material_price] => [6010,7190,8709]
[work_price] => [3204,3845,4229]
[image] => https://akademik-stroy.ru/wp-content/uploads/materials/suhoj-brus.jpg
[area_modifier] => 117.99
[parent_name] => Стены 1 этаж (несущие)
[parent_id] => 3
[material_sum] => 978585
[work_sum] => 434746
[total_sum] => 1413331
[total_days] => 7
[display_material_sum] => 978 585
[display_work_sum] => 434 746
[display_total_sum] => 1 413 331
)
1
1 413 331₽
Работа:434 746 ₽
Материалы:978 585 ₽
Дни:7
stdClass Object
(
[id] => 86
[attribute_id] => 3
[name] => Профилированный брус
[material_modifier] => 1
[work_modifier] => 1
[options] => Array
(
[0] => 150 мм
[1] => 180 мм
[2] => 200 мм
)
[days] => [7,8,9]
[material_price] => [8190,9228,10051]
[work_price] => [3845,4614,5075]
[image] => https://akademik-stroy.ru/wp-content/uploads/materials/profilirovannyj-brus.jpg
[area_modifier] => 117.99
[parent_name] => Стены 1 этаж (несущие)
[parent_id] => 3
[material_sum] => 1333547
[work_sum] => 521722
[total_sum] => 1855269
[total_days] => 7
[display_material_sum] => 1 333 547
[display_work_sum] => 521 722
[display_total_sum] => 1 855 269
)
1
1 855 269₽
Работа:521 722 ₽
Материалы:1 333 547 ₽
Дни:7
stdClass Object
(
[id] => 87
[attribute_id] => 3
[name] => Оцилиндрованное бревно
[material_modifier] => 1
[work_modifier] => 1
[options] => Array
(
[0] => 180 мм
[1] => 220 мм
[2] => 260 мм
[3] => 320 мм
)
[days] => [7,8,9,10]
[material_price] => [75190,9532,10868,13116]
[work_price] => [3845,4691,5535,6863]
[image] => https://akademik-stroy.ru/wp-content/uploads/materials/ocilindrovannoe-brevno-1.jpg
[area_modifier] => 117.99
[parent_name] => Стены 1 этаж (несущие)
[parent_id] => 3
[material_sum] => 12242902
[work_sum] => 521722
[total_sum] => 12764624
[total_days] => 7
[display_material_sum] => 12 242 902
[display_work_sum] => 521 722
[display_total_sum] => 12 764 624
)
1
12 764 624₽
Работа:521 722 ₽
Материалы:12 242 902 ₽
Дни:7
stdClass Object
(
[id] => 88
[attribute_id] => 3
[name] => Срубы
[material_modifier] => 1
[work_modifier] => 1
[options] => Array
(
[0] => 260 мм
[1] => 320 мм
[2] => 360 мм
[3] => 400 мм
[4] => 500 мм
)
[days] => [7,8,9,10,11]
[material_price] => [37975,46709,52314,58069,73167]
[work_price] => [4806,5911,6621,7349,9260]
[image] => https://akademik-stroy.ru/wp-content/uploads/materials/sruby.jpg
[area_modifier] => 117.99
[parent_name] => Стены 1 этаж (несущие)
[parent_id] => 3
[material_sum] => 6183325
[work_sum] => 652119
[total_sum] => 6835444
[total_days] => 7
[display_material_sum] => 6 183 325
[display_work_sum] => 652 119
[display_total_sum] => 6 835 444
)
1
6 835 444₽
Работа:652 119 ₽
Материалы:6 183 325 ₽
Дни:7
stdClass Object
(
[id] => 174
[attribute_id] => 3
[name] => Брус
[material_modifier] => 1
[work_modifier] => 1
[options] => Array
(
[0] => 150 мм
[1] => 180 мм
[2] => 200 мм
)
[days] => [7,8,9]
[material_price] => [5127,6152,7367]
[work_price] => [1602,1922,2115]
[image] => https://akademik-stroy.ru/wp-content/uploads/materials/brus.jpg
[area_modifier] => 117.99
[parent_name] => Стены 1 этаж (несущие)
[parent_id] => 3
[material_sum] => 834810
[work_sum] => 217373
[total_sum] => 1052183
[total_days] => 7
[display_material_sum] => 834 810
[display_work_sum] => 217 373
[display_total_sum] => 1 052 183
)
1
1 052 183₽
Работа:217 373 ₽
Материалы:834 810 ₽
Дни:7
stdClass Object
(
[id] => 175
[attribute_id] => 3
[name] => Газобетон
[material_modifier] => 1
[work_modifier] => 1
[options] => Array
(
[0] => 300 мм
[1] => 375 мм
[2] => 400 мм
[3] => 500 мм
[4] => 600 мм
)
[days] => [29,31,35,37,44]
[material_price] => [4298,5573,6356,7288,9119]
[work_price] => [4538,5251,5926,6733,7195]
[image] => https://akademik-stroy.ru/wp-content/uploads/materials/gazobeton.jpg
[area_modifier] => 117.99
[parent_name] => Стены 1 этаж (несущие)
[parent_id] => 3
[material_sum] => 699827
[work_sum] => 615754
[total_sum] => 1315581
[total_days] => 29
[display_material_sum] => 699 827
[display_work_sum] => 615 754
[display_total_sum] => 1 315 581
)
1
1 315 581₽
Работа:615 754 ₽
Материалы:699 827 ₽
Дни:29
stdClass Object
(
[id] => 176
[attribute_id] => 3
[name] => Блок
[material_modifier] => 1
[work_modifier] => 1
[options] => Array
(
[0] => 300 мм
[1] => 375 мм
[2] => 400 мм
[3] => 500 мм
[4] => 600 мм
)
[days] => [29,31,35,37,44]
[material_price] => [2698,3973,4356,6588,7119]
[work_price] => [5038,5851,6426,8733,9195]
[image] => https://akademik-stroy.ru/wp-content/uploads/materials/blok.jpg
[area_modifier] => 117.99
[parent_name] => Стены 1 этаж (несущие)
[parent_id] => 3
[material_sum] => 439305
[work_sum] => 683599
[total_sum] => 1122904
[total_days] => 29
[display_material_sum] => 439 305
[display_work_sum] => 683 599
[display_total_sum] => 1 122 904
)
1
1 122 904₽
Работа:683 599 ₽
Материалы:439 305 ₽
Дни:29
stdClass Object
(
[id] => 177
[attribute_id] => 3
[name] => Газосиликатный блок
[material_modifier] => 1
[work_modifier] => 1
[options] => Array
(
[0] => 300 мм
[1] => 375 мм
[2] => 400 мм
[3] => 500 мм
[4] => 600 мм
)
[days] => [29,31,35,37,44]
[material_price] => [4298,5573,6356,7288,9119]
[work_price] => [4538,5251,5926,6733,7195]
[image] => https://akademik-stroy.ru/wp-content/uploads/materials/gazosilikatnyj-blok.jpg
[area_modifier] => 117.99
[parent_name] => Стены 1 этаж (несущие)
[parent_id] => 3
[material_sum] => 699827
[work_sum] => 615754
[total_sum] => 1315581
[total_days] => 29
[display_material_sum] => 699 827
[display_work_sum] => 615 754
[display_total_sum] => 1 315 581
)
1
1 315 581₽
Работа:615 754 ₽
Материалы:699 827 ₽
Дни:29
stdClass Object
(
[id] => 178
[attribute_id] => 3
[name] => Керамзитобетонный блок
[material_modifier] => 1
[work_modifier] => 1
[options] => Array
(
[0] => 300 мм
[1] => 375 мм
[2] => 400 мм
[3] => 500 мм
[4] => 600 мм
)
[days] => [23,23,24,25,28]
[material_price] => [3641,4298,5693,7613,9612]
[work_price] => [5737,5737,6903,7958,8901]
[image] => https://akademik-stroy.ru/wp-content/uploads/materials/keramzitobetonnyj-blok.jpg
[area_modifier] => 117.99
[parent_name] => Стены 1 этаж (несущие)
[parent_id] => 3
[material_sum] => 592850
[work_sum] => 778445
[total_sum] => 1371295
[total_days] => 23
[display_material_sum] => 592 850
[display_work_sum] => 778 445
[display_total_sum] => 1 371 295
)
1
1 371 295₽
Работа:778 445 ₽
Материалы:592 850 ₽
Дни:23
stdClass Object
(
[id] => 179
[attribute_id] => 3
[name] => Деревянные
[material_modifier] => 1
[work_modifier] => 1
[options] => Array
(
[0] => 180 мм
[1] => 220 мм
[2] => 260 мм
[3] => 320 мм
)
[days] => [7,8,9,10]
[material_price] => [7950,9458,11961,14472]
[work_price] => [4037,4925,5812,7207]
[image] => https://akademik-stroy.ru/wp-content/uploads/materials/derevyannye.jpg
[area_modifier] => 117.99
[parent_name] => Стены 1 этаж (несущие)
[parent_id] => 3
[material_sum] => 1294468
[work_sum] => 547774
[total_sum] => 1842242
[total_days] => 7
[display_material_sum] => 1 294 468
[display_work_sum] => 547 774
[display_total_sum] => 1 842 242
)
1
1 842 242₽
Работа:547 774 ₽
Материалы:1 294 468 ₽
Дни:7
stdClass Object
(
[id] => 181
[attribute_id] => 3
[name] => Камень
[material_modifier] => 1
[work_modifier] => 1
[options] => Array
(
[0] => 300 мм
[1] => 400 мм
[2] => 500 мм
[3] => 600 мм
)
[days] => [25,27,31,34]
[material_price] => [5262,6844,8330,9815]
[work_price] => [8331,9135,10427,11069]
[image] => https://akademik-stroy.ru/wp-content/uploads/materials/kamen.jpg
[area_modifier] => 117.99
[parent_name] => Стены 1 этаж (несущие)
[parent_id] => 3
[material_sum] => 856791
[work_sum] => 1130421
[total_sum] => 1987212
[total_days] => 25
[display_material_sum] => 856 791
[display_work_sum] => 1 130 421
[display_total_sum] => 1 987 212
)
1
1 987 212₽
Работа:1 130 421 ₽
Материалы:856 791 ₽
Дни:25
stdClass Object
(
[id] => 182
[attribute_id] => 3
[name] => Каркасно-щитовые
[material_modifier] => 1
[work_modifier] => 1
[options] => Array
(
[0] => 150 мм
[1] => 200 мм
[2] => 250 мм
[3] => 300 мм
[4] => 350 мм
[5] => 400 мм
)
[days] => [15,16,17,18,19,20]
[material_price] => [2379,2639,2898,3458,3601,4175]
[work_price] => [2538,2820,3134,3483,4062,5642]
[image] => https://akademik-stroy.ru/wp-content/uploads/materials/karkasno-shchitovye.jpg
[area_modifier] => 117.99
[parent_name] => Стены 1 этаж (несущие)
[parent_id] => 3
[material_sum] => 387364
[work_sum] => 344377
[total_sum] => 731741
[total_days] => 15
[display_material_sum] => 387 364
[display_work_sum] => 344 377
[display_total_sum] => 731 741
)
1
731 741₽
Работа:344 377 ₽
Материалы:387 364 ₽
Дни:15
stdClass Object
(
[id] => 183
[attribute_id] => 3
[name] => Рубленные
[material_modifier] => 1
[work_modifier] => 1
[options] => Array
(
[0] => 150 мм
[1] => 200 мм
[2] => 250 мм
[3] => 300 мм
[4] => 350 мм
[5] => 400 мм
)
[days] => [15,16,17,18,17,18]
[material_price] => [35950,50267,60583,75900,80217,100533]
[work_price] => [9612,12816,16020,19224,22428,25632]
[image] => https://akademik-stroy.ru/wp-content/uploads/materials/rublennye.jpg
[area_modifier] => 117.99
[parent_name] => Стены 1 этаж (несущие)
[parent_id] => 3
[material_sum] => 5853602
[work_sum] => 1304238
[total_sum] => 7157840
[total_days] => 15
[display_material_sum] => 5 853 602
[display_work_sum] => 1 304 238
[display_total_sum] => 7 157 840
)
1
7 157 840₽
Работа:1 304 238 ₽
Материалы:5 853 602 ₽
Дни:15
stdClass Object
(
[id] => 185
[attribute_id] => 3
[name] => Теплоблок
[material_modifier] => 1
[work_modifier] => 1
[options] => Array
(
[0] => 300 мм (с облицовкой, не покрашенный)
[1] => 400 мм (с облицовкой, не покрашенный)
[2] => 300 мм (с облицовкой, покрашенный)
[3] => 400 мм (с облицовкой, покрашенный)
)
[days] => [15,16,15,16]
[material_price] => [2888,3729,3957,4258]
[work_price] => [2564,3229,2949,3713]
[image] => https://akademik-stroy.ru/wp-content/uploads/materials/teploblok.jpg
[area_modifier] => 117.99
[parent_name] => Стены 1 этаж (несущие)
[parent_id] => 3
[material_sum] => 470242
[work_sum] => 347905
[total_sum] => 818147
[total_days] => 15
[display_material_sum] => 470 242
[display_work_sum] => 347 905
[display_total_sum] => 818 147
)
1
818 147₽
Работа:347 905 ₽
Материалы:470 242 ₽
Дни:15
stdClass Object
(
[id] => 186
[attribute_id] => 3
[name] => Арболитовые блоки
[material_modifier] => 1
[work_modifier] => 1
[options] => Array
(
[0] => 300 мм
[1] => 400 мм
[2] => 600 мм
)
[days] => [19,22,27]
[material_price] => [3210,4475,5852]
[work_price] => [4214,4788,5866]
[image] => https://akademik-stroy.ru/wp-content/uploads/materials/arbolitovye-bloki.png
[area_modifier] => 117.99
[parent_name] => Стены 1 этаж (несущие)
[parent_id] => 3
[material_sum] => 522672
[work_sum] => 571791
[total_sum] => 1094463
[total_days] => 19
[display_material_sum] => 522 672
[display_work_sum] => 571 791
[display_total_sum] => 1 094 463
)
1
1 094 463₽
Работа:571 791 ₽
Материалы:522 672 ₽
Дни:19
stdClass Object
(
[id] => 187
[attribute_id] => 3
[name] => Полистиролбетон
[material_modifier] => 1
[work_modifier] => 1
[options] => Array
(
[0] => 300 мм
[1] => 400 мм
[2] => 600 мм
)
[days] => [29,31,35]
[material_price] => [2798,4573,5256]
[work_price] => [5038,5851,6426]
[image] => https://akademik-stroy.ru/wp-content/uploads/materials/polistirolbeton.jpg
[area_modifier] => 117.99
[parent_name] => Стены 1 этаж (несущие)
[parent_id] => 3
[material_sum] => 455588
[work_sum] => 683599
[total_sum] => 1139187
[total_days] => 29
[display_material_sum] => 455 588
[display_work_sum] => 683 599
[display_total_sum] => 1 139 187
)
1
1 139 187₽
Работа:683 599 ₽
Материалы:455 588 ₽
Дни:29
stdClass Object
(
[id] => 188
[attribute_id] => 3
[name] => Шлакоблок
[material_modifier] => 1
[work_modifier] => 1
[options] => Array
(
[0] => 400 мм
[1] => 600 мм
)
[days] => [15,16]
[material_price] => [2391,3471]
[work_price] => [2642,3662]
[image] => https://akademik-stroy.ru/wp-content/uploads/materials/shlakoblok.jpg
[area_modifier] => 117.99
[parent_name] => Стены 1 этаж (несущие)
[parent_id] => 3
[material_sum] => 389317
[work_sum] => 358489
[total_sum] => 747806
[total_days] => 15
[display_material_sum] => 389 317
[display_work_sum] => 358 489
[display_total_sum] => 747 806
)
1
747 806₽
Работа:358 489 ₽
Материалы:389 317 ₽
Дни:15
stdClass Object
(
[id] => 189
[attribute_id] => 3
[name] => Теплая керамика
[material_modifier] => 1
[work_modifier] => 1
[options] => Array
(
[0] => 380 мм
[1] => 380 мм Thermo
[2] => 440 мм
[3] => 510 мм
)
[days] => [23,23,24,25]
[material_price] => [4510,5098,6093,8013]
[work_price] => [4737,4937,5903,6958]
[image] => https://akademik-stroy.ru/wp-content/uploads/materials/teplaya-keramika.jpg
[area_modifier] => 117.99
[parent_name] => Стены 1 этаж (несущие)
[parent_id] => 3
[material_sum] => 734346
[work_sum] => 642756
[total_sum] => 1377102
[total_days] => 23
[display_material_sum] => 734 346
[display_work_sum] => 642 756
[display_total_sum] => 1 377 102
)
1
1 377 102₽
Работа:642 756 ₽
Материалы:734 346 ₽
Дни:23
stdClass Object
(
[id] => 190
[attribute_id] => 3
[name] => Несъемная опалубка
[material_modifier] => 1
[work_modifier] => 1
[options] => Array
(
[0] => 200 мм
[1] => 250 мм
[2] => 300 мм
[3] => 350 мм
)
[days] => [15,17,19,21]
[material_price] => [3302,3902,4108,5008]
[work_price] => [2100,2100,2300,2534]
[image] => https://akademik-stroy.ru/wp-content/uploads/materials/nesemnaya-opalubka.jpg
[area_modifier] => 117.99
[parent_name] => Стены 1 этаж (несущие)
[parent_id] => 3
[material_sum] => 537652
[work_sum] => 284946
[total_sum] => 822598
[total_days] => 15
[display_material_sum] => 537 652
[display_work_sum] => 284 946
[display_total_sum] => 822 598
)
1
822 598₽
Работа:284 946 ₽
Материалы:537 652 ₽
Дни:15
stdClass Object
(
[id] => 251
[attribute_id] => 3
[name] => Бревно
[material_modifier] => 1
[work_modifier] => 1
[options] => Array
(
[0] => 260 мм
[1] => 320 мм
[2] => 360 мм
[3] => 400 мм
[4] => 500 мм
)
[days] => [7,8,9,10,11]
[material_price] => [1874,24045,26930,30972,38825]
[work_price] => [5046,6207,6952,7716,9723]
[image] => https://akademik-stroy.ru/wp-content/uploads/materials/sruby.jpg
[area_modifier] => 117.99
[parent_name] => Стены 1 этаж (несущие)
[parent_id] => 3
[material_sum] => 305136
[work_sum] => 684684
[total_sum] => 989820
[total_days] => 7
[display_material_sum] => 305 136
[display_work_sum] => 684 684
[display_total_sum] => 989 820
)
1
989 820₽
Работа:684 684 ₽
Материалы:305 136 ₽
Дни:7
stdClass Object
(
[id] => 7
[attribute_id] => 4
[name] => Деревянные балки
[material_modifier] => 1
[work_modifier] => 1
[options] => Array
(
[0] => без утепления
[1] => утепление 200 мм
[2] => утепление 250 мм
[3] => утепление 300 мм
[4] => утепление 350 мм
[5] => утепление 400 мм
[6] => утепление 450 мм
[7] => утепление 500 мм
)
[days] => [8,9,9,9,11,12,13,14]
[material_price] => [1634,2042,2344,2947,3149,3652,3354,3557]
[work_price] => [1230,1339,1393,1426,1460,1513,1587,1620]
[image] => https://akademik-stroy.ru/wp-content/uploads/materials/derevyannye-balki.png
[area_modifier] => 117.99
[parent_name] => Перекрытие первого этажа
[parent_id] => 4
[material_sum] => 266058
[work_sum] => 166897
[total_sum] => 432955
[total_days] => 8
[display_material_sum] => 266 058
[display_work_sum] => 166 897
[display_total_sum] => 432 955
)
1
432 955₽
Работа:166 897 ₽
Материалы:266 058 ₽
Дни:8
stdClass Object
(
[id] => 8
[attribute_id] => 4
[name] => Сборные ж/б плиты
[material_modifier] => 1
[work_modifier] => 1
[options] => Array
(
[0] => без утепления
[1] => утепление 150 мм
[2] => утепление 200 мм
[3] => утепление 250 мм
[4] => утепление 300 мм
[5] => утепление 350 мм
[6] => утепление 400 мм
[7] => утепление 450 мм
[8] => утепление 500 мм
)
[days] => [13,15,15,15,15,15,15,15,15]
[material_price] => [3067,5577,5928,6679,7730,8782,9833,10884,11935]
[work_price] => [1520,1956,2102,2247,2392,2537,2684,2829,2974]
[image] => https://akademik-stroy.ru/wp-content/uploads/materials/sbornye-zh-b-plity-2.jpg
[area_modifier] => 117.99
[parent_name] => Перекрытие первого этажа
[parent_id] => 4
[material_sum] => 499388
[work_sum] => 206247
[total_sum] => 705635
[total_days] => 13
[display_material_sum] => 499 388
[display_work_sum] => 206 247
[display_total_sum] => 705 635
)
1
705 635₽
Работа:206 247 ₽
Материалы:499 388 ₽
Дни:13
stdClass Object
(
[id] => 89
[attribute_id] => 4
[name] => Монолитная ж/б плита
[material_modifier] => 1
[work_modifier] => 1
[options] => Array
(
[0] => без утепления
[1] => утепление 150 мм
[2] => утепление 200 мм
[3] => утепление 250 мм
[4] => утепление 300 мм
[5] => утепление 350 мм
[6] => утепление 400 мм
[7] => утепление 450 мм
[8] => утепление 500 мм
)
[days] => [18,20,20,20,20,20,20,20,20]
[material_price] => [4837,6572,7224,7375,79426,8177,8728,9180,10031]
[work_price] => [3348,3921,4112,4302,4493,4684,4875,5066,5256]
[image] => https://akademik-stroy.ru/wp-content/uploads/materials/monolitnaya-zh-b-plita-2.jpg
[area_modifier] => 117.99
[parent_name] => Перекрытие первого этажа
[parent_id] => 4
[material_sum] => 787590
[work_sum] => 454285
[total_sum] => 1241875
[total_days] => 18
[display_material_sum] => 787 590
[display_work_sum] => 454 285
[display_total_sum] => 1 241 875
)
1
1 241 875₽
Работа:454 285 ₽
Материалы:787 590 ₽
Дни:18
stdClass Object
(
[id] => 10
[attribute_id] => 5
[name] => Пеноблок
[material_modifier] => 1
[work_modifier] => 1
[options] => Array
(
[0] => 300 мм
[1] => 400 мм
[2] => 500 мм
[3] => 600 мм
)
[days] => [29,31,34,39]
[material_price] => [3000,4000,4500,4937]
[work_price] => [5033,5805,6400,8710]
[image] => https://akademik-stroy.ru/wp-content/uploads/materials/penoblok.jpg
[area_modifier] => 9.67
[parent_name] => Стены 2 этаж (несущие)
[parent_id] => 5
[material_sum] => 40034
[work_sum] => 55969
[total_sum] => 96003
[total_days] => 29
[display_material_sum] => 40 034
[display_work_sum] => 55 969
[display_total_sum] => 96 003
)
1
96 003₽
Работа:55 969 ₽
Материалы:40 034 ₽
Дни:29
stdClass Object
(
[id] => 90
[attribute_id] => 5
[name] => Керамический блок
[material_modifier] => 1
[work_modifier] => 1
[options] => Array
(
[0] => 380 мм
[1] => 380 мм Thermo
[2] => 440 мм
[3] => 510 мм
)
[days] => [23,23,24,25]
[material_price] => [4510,5098,6093,8013]
[work_price] => [4737,4937,5903,6958]
[image] => https://akademik-stroy.ru/wp-content/uploads/materials/keramicheskij-blok.jpg
[area_modifier] => 9.67
[parent_name] => Стены 2 этаж (несущие)
[parent_id] => 5
[material_sum] => 60184
[work_sum] => 52678
[total_sum] => 112862
[total_days] => 23
[display_material_sum] => 60 184
[display_work_sum] => 52 678
[display_total_sum] => 112 862
)
1
112 862₽
Работа:52 678 ₽
Материалы:60 184 ₽
Дни:23
stdClass Object
(
[id] => 91
[attribute_id] => 5
[name] => Кирпич
[material_modifier] => 1
[work_modifier] => 1
[options] => Array
(
[0] => Кирпич 250 мм
[1] => Кирпич 380 мм
[2] => Кирпич 510 мм
[3] => Кирпич 640 мм
[4] => Кирпич 770 мм
)
[days] => [30,30,31,33,36]
[material_price] => [5500,7142,9206,10171,12235]
[work_price] => [8736,10041,12018,15240,18462]
[image] => https://akademik-stroy.ru/wp-content/uploads/materials/kirpich.jpg
[area_modifier] => 9.67
[parent_name] => Стены 2 этаж (несущие)
[parent_id] => 5
[material_sum] => 73395
[work_sum] => 97149
[total_sum] => 170544
[total_days] => 30
[display_material_sum] => 73 395
[display_work_sum] => 97 149
[display_total_sum] => 170 544
)
1
170 544₽
Работа:97 149 ₽
Материалы:73 395 ₽
Дни:30
stdClass Object
(
[id] => 92
[attribute_id] => 5
[name] => Монолитные
[material_modifier] => 1
[work_modifier] => 1
[options] => Array
(
[0] => 150 мм
[1] => 200 мм
[2] => 250 мм
[3] => 300 мм
[4] => 350 мм
[5] => 400 мм
)
[days] => [45,46,47,49,50,53]
[material_price] => [6545,7876,10175,12011,13908,15204]
[work_price] => [5106,6444,7698,8552,9807,11461]
[image] => https://akademik-stroy.ru/wp-content/uploads/materials/monolitnye.jpg
[area_modifier] => 9.67
[parent_name] => Стены 2 этаж (несущие)
[parent_id] => 5
[material_sum] => 87340
[work_sum] => 56781
[total_sum] => 144121
[total_days] => 45
[display_material_sum] => 87 340
[display_work_sum] => 56 781
[display_total_sum] => 144 121
)
1
144 121₽
Работа:56 781 ₽
Материалы:87 340 ₽
Дни:45
stdClass Object
(
[id] => 93
[attribute_id] => 5
[name] => Клееный брус
[material_modifier] => 1
[work_modifier] => 1
[options] => Array
(
[0] => 160 мм
[1] => 175 мм
[2] => 200 мм
[3] => 215 мм
[4] => 240 мм
[5] => 270 мм
[6] => 282 мм
)
[days] => [24,28,32,37,40,42,48]
[material_price] => [16975,18773,19950,20545,21599,22159,23275]
[work_price] => [4806,5287,5815,6397,7036,7740,8514]
[image] => https://akademik-stroy.ru/wp-content/uploads/materials/kleenyj-brus.jpg
[area_modifier] => 9.67
[parent_name] => Стены 2 этаж (несущие)
[parent_id] => 5
[material_sum] => 226525
[work_sum] => 53445
[total_sum] => 279970
[total_days] => 24
[display_material_sum] => 226 525
[display_work_sum] => 53 445
[display_total_sum] => 279 970
)
1
279 970₽
Работа:53 445 ₽
Материалы:226 525 ₽
Дни:24
stdClass Object
(
[id] => 94
[attribute_id] => 5
[name] => Каркасные
[material_modifier] => 1
[work_modifier] => 1
[options] => Array
(
[0] => 150 мм
[1] => 200 мм
[2] => 250 мм
[3] => 300 мм
)
[days] => [15,16,17,18]
[material_price] => [2379,2639,2898,3258]
[work_price] => [2418,2686,2985,3716]
[image] => https://akademik-stroy.ru/wp-content/uploads/materials/karkasnye.jpg
[area_modifier] => 9.67
[parent_name] => Стены 2 этаж (несущие)
[parent_id] => 5
[material_sum] => 31747
[work_sum] => 26889
[total_sum] => 58636
[total_days] => 15
[display_material_sum] => 31 747
[display_work_sum] => 26 889
[display_total_sum] => 58 636
)
1
58 636₽
Работа:26 889 ₽
Материалы:31 747 ₽
Дни:15
stdClass Object
(
[id] => 95
[attribute_id] => 5
[name] => СИП-панели
[material_modifier] => 1
[work_modifier] => 1
[options] => Array
(
[0] => 120 мм
[1] => 170 мм
[2] => 220 мм
)
[days] => [7,7,7]
[material_price] => [1210,1856,2292]
[work_price] => [1410,1551,1706]
[image] => https://akademik-stroy.ru/wp-content/uploads/materials/sip-paneli.jpg
[area_modifier] => 9.67
[parent_name] => Стены 2 этаж (несущие)
[parent_id] => 5
[material_sum] => 16147
[work_sum] => 15680
[total_sum] => 31827
[total_days] => 7
[display_material_sum] => 16 147
[display_work_sum] => 15 680
[display_total_sum] => 31 827
)
1
31 827₽
Работа:15 680 ₽
Материалы:16 147 ₽
Дни:7
stdClass Object
(
[id] => 96
[attribute_id] => 5
[name] => Сухой брус
[material_modifier] => 1
[work_modifier] => 1
[options] => Array
(
[0] => 150 мм
[1] => 180 мм
[2] => 200 мм
)
[days] => [7,8,9]
[material_price] => [6010,7190,8709]
[work_price] => [3204,3845,4229]
[image] => https://akademik-stroy.ru/wp-content/uploads/materials/suhoj-brus.jpg
[area_modifier] => 9.67
[parent_name] => Стены 2 этаж (несущие)
[parent_id] => 5
[material_sum] => 80201
[work_sum] => 35630
[total_sum] => 115831
[total_days] => 7
[display_material_sum] => 80 201
[display_work_sum] => 35 630
[display_total_sum] => 115 831
)
1
115 831₽
Работа:35 630 ₽
Материалы:80 201 ₽
Дни:7
stdClass Object
(
[id] => 97
[attribute_id] => 5
[name] => Профилированный брус
[material_modifier] => 1
[work_modifier] => 1
[options] => Array
(
[0] => 150 мм
[1] => 180 мм
[2] => 200 мм
)
[days] => [7,8,9]
[material_price] => [8190,9228,10051]
[work_price] => [3845,4614,5075]
[image] => https://akademik-stroy.ru/wp-content/uploads/materials/profilirovannyj-brus.jpg
[area_modifier] => 9.67
[parent_name] => Стены 2 этаж (несущие)
[parent_id] => 5
[material_sum] => 109292
[work_sum] => 42758
[total_sum] => 152050
[total_days] => 7
[display_material_sum] => 109 292
[display_work_sum] => 42 758
[display_total_sum] => 152 050
)
1
152 050₽
Работа:42 758 ₽
Материалы:109 292 ₽
Дни:7
stdClass Object
(
[id] => 98
[attribute_id] => 5
[name] => Оцилиндрованное бревно
[material_modifier] => 1
[work_modifier] => 1
[options] => Array
(
[0] => 180 мм
[1] => 220 мм
[2] => 260 мм
[3] => 320 мм
)
[days] => [7,8,9,10]
[material_price] => [75190,9532,10868,13116]
[work_price] => [3845,4691,5535,6863]
[image] => https://akademik-stroy.ru/wp-content/uploads/materials/ocilindrovannoe-brevno-1.jpg
[area_modifier] => 9.67
[parent_name] => Стены 2 этаж (несущие)
[parent_id] => 5
[material_sum] => 1003380
[work_sum] => 42758
[total_sum] => 1046138
[total_days] => 7
[display_material_sum] => 1 003 380
[display_work_sum] => 42 758
[display_total_sum] => 1 046 138
)
1
1 046 138₽
Работа:42 758 ₽
Материалы:1 003 380 ₽
Дни:7
stdClass Object
(
[id] => 99
[attribute_id] => 5
[name] => Срубы
[material_modifier] => 1
[work_modifier] => 1
[options] => Array
(
[0] => 260 мм
[1] => 320 мм
[2] => 360 мм
[3] => 400 мм
[4] => 500 мм
)
[days] => [7,8,9,10,11]
[material_price] => [16175,23709,26314,29069,32167]
[work_price] => [4806,5911,6621,7349,9260]
[image] => https://akademik-stroy.ru/wp-content/uploads/materials/suhoj-brus.jpg
[area_modifier] => 9.67
[parent_name] => Стены 2 этаж (несущие)
[parent_id] => 5
[material_sum] => 215849
[work_sum] => 53445
[total_sum] => 269294
[total_days] => 7
[display_material_sum] => 215 849
[display_work_sum] => 53 445
[display_total_sum] => 269 294
)
1
269 294₽
Работа:53 445 ₽
Материалы:215 849 ₽
Дни:7
stdClass Object
(
[id] => 194
[attribute_id] => 5
[name] => Брус
[material_modifier] => 1
[work_modifier] => 1
[options] => Array
(
[0] => 150 мм
[1] => 180 мм
[2] => 200 мм
)
[days] => [10,13,15]
[material_price] => [5127,6152,7367]
[work_price] => [1602,1922,2115]
[image] => https://akademik-stroy.ru/wp-content/uploads/materials/brus.jpg
[area_modifier] => 9.67
[parent_name] => Стены 2 этаж (несущие)
[parent_id] => 5
[material_sum] => 68418
[work_sum] => 17815
[total_sum] => 86233
[total_days] => 10
[display_material_sum] => 68 418
[display_work_sum] => 17 815
[display_total_sum] => 86 233
)
1
86 233₽
Работа:17 815 ₽
Материалы:68 418 ₽
Дни:10
stdClass Object
(
[id] => 195
[attribute_id] => 5
[name] => Газобетон
[material_modifier] => 1
[work_modifier] => 1
[options] => Array
(
[0] => 300 мм
[1] => 375 мм
[2] => 400 мм
[3] => 500 мм
[4] => 600 мм
)
[days] => [29,31,35,37,44]
[material_price] => [4298,5573,6356,7288,9119]
[work_price] => [4538,5251,5926,6733,7195]
[image] => https://akademik-stroy.ru/wp-content/uploads/materials/gazobeton.jpg
[area_modifier] => 9.67
[parent_name] => Стены 2 этаж (несущие)
[parent_id] => 5
[material_sum] => 57355
[work_sum] => 50465
[total_sum] => 107820
[total_days] => 29
[display_material_sum] => 57 355
[display_work_sum] => 50 465
[display_total_sum] => 107 820
)
1
107 820₽
Работа:50 465 ₽
Материалы:57 355 ₽
Дни:29
stdClass Object
(
[id] => 196
[attribute_id] => 5
[name] => Блок
[material_modifier] => 1
[work_modifier] => 1
[options] => Array
(
[0] => 300 мм
[1] => 375 мм
[2] => 400 мм
[3] => 500 мм
[4] => 600 мм
)
[days] => [29,31,35,37,44]
[material_price] => [2698,3973,4356,6588,7119]
[work_price] => [5038,5851,6426,8733,9195]
[image] => https://akademik-stroy.ru/wp-content/uploads/materials/blok.jpg
[area_modifier] => 9.67
[parent_name] => Стены 2 этаж (несущие)
[parent_id] => 5
[material_sum] => 36004
[work_sum] => 56025
[total_sum] => 92029
[total_days] => 29
[display_material_sum] => 36 004
[display_work_sum] => 56 025
[display_total_sum] => 92 029
)
1
92 029₽
Работа:56 025 ₽
Материалы:36 004 ₽
Дни:29
stdClass Object
(
[id] => 197
[attribute_id] => 5
[name] => Газосиликатный блок
[material_modifier] => 1
[work_modifier] => 1
[options] => Array
(
[0] => 300 мм
[1] => 375 мм
[2] => 400 мм
[3] => 500 мм
[4] => 600 мм
)
[days] => [29,31,35,37,44]
[material_price] => [4298,5573,6356,7288,9119]
[work_price] => [4538,5251,5926,6733,7195]
[image] => https://akademik-stroy.ru/wp-content/uploads/materials/gazosilikatnyj-blok.jpg
[area_modifier] => 9.67
[parent_name] => Стены 2 этаж (несущие)
[parent_id] => 5
[material_sum] => 57355
[work_sum] => 50465
[total_sum] => 107820
[total_days] => 29
[display_material_sum] => 57 355
[display_work_sum] => 50 465
[display_total_sum] => 107 820
)
1
107 820₽
Работа:50 465 ₽
Материалы:57 355 ₽
Дни:29
stdClass Object
(
[id] => 198
[attribute_id] => 5
[name] => Керамзитобетонный блок
[material_modifier] => 1
[work_modifier] => 1
[options] => Array
(
[0] => 300 мм
[1] => 375 мм
[2] => 400 мм
[3] => 500 мм
[4] => 600 мм
)
[days] => [23,23,24,25,28]
[material_price] => [3641,4298,5693,7613,9612]
[work_price] => [5737,5737,6903,7958,8901]
[image] => https://akademik-stroy.ru/wp-content/uploads/materials/keramzitobetonnyj-blok.jpg
[area_modifier] => 9.67
[parent_name] => Стены 2 этаж (несущие)
[parent_id] => 5
[material_sum] => 48588
[work_sum] => 63798
[total_sum] => 112386
[total_days] => 23
[display_material_sum] => 48 588
[display_work_sum] => 63 798
[display_total_sum] => 112 386
)
1
112 386₽
Работа:63 798 ₽
Материалы:48 588 ₽
Дни:23
stdClass Object
(
[id] => 199
[attribute_id] => 5
[name] => Деревянные
[material_modifier] => 1
[work_modifier] => 1
[options] => Array
(
[0] => 180 мм
[1] => 220 мм
[2] => 260 мм
[3] => 320 мм
)
[days] => [7,8,9,10]
[material_price] => [7950,9458,11961,14472]
[work_price] => [4037,4925,5812,7207]
[image] => https://akademik-stroy.ru/wp-content/uploads/materials/derevyannye.jpg
[area_modifier] => 9.67
[parent_name] => Стены 2 этаж (несущие)
[parent_id] => 5
[material_sum] => 106090
[work_sum] => 44893
[total_sum] => 150983
[total_days] => 7
[display_material_sum] => 106 090
[display_work_sum] => 44 893
[display_total_sum] => 150 983
)
1
150 983₽
Работа:44 893 ₽
Материалы:106 090 ₽
Дни:7
stdClass Object
(
[id] => 200
[attribute_id] => 5
[name] => Камень
[material_modifier] => 1
[work_modifier] => 1
[options] => Array
(
[0] => 300 мм
[1] => 400 мм
[2] => 500 мм
[3] => 600 мм
)
[days] => [25,27,31,34]
[material_price] => [5262,6844,8330,9815]
[work_price] => [8331,9135,10427,11069]
[image] => https://akademik-stroy.ru/wp-content/uploads/materials/kamen.jpg
[area_modifier] => 9.67
[parent_name] => Стены 2 этаж (несущие)
[parent_id] => 5
[material_sum] => 70219
[work_sum] => 92645
[total_sum] => 162864
[total_days] => 25
[display_material_sum] => 70 219
[display_work_sum] => 92 645
[display_total_sum] => 162 864
)
1
162 864₽
Работа:92 645 ₽
Материалы:70 219 ₽
Дни:25
stdClass Object
(
[id] => 201
[attribute_id] => 5
[name] => Каркасно-щитовые
[material_modifier] => 1
[work_modifier] => 1
[options] => Array
(
[0] => 150 мм
[1] => 200 мм
[2] => 250 мм
[3] => 300 мм
[4] => 350 мм
[5] => 400 мм
)
[days] => [15,16,17,18,19,20]
[material_price] => [2379,2639,2898,3458,3601,4175]
[work_price] => [2538,2820,3134,3483,4062,5642]
[image] => https://akademik-stroy.ru/wp-content/uploads/materials/karkasno-shchitovye.jpg
[area_modifier] => 9.67
[parent_name] => Стены 2 этаж (несущие)
[parent_id] => 5
[material_sum] => 31747
[work_sum] => 28224
[total_sum] => 59971
[total_days] => 15
[display_material_sum] => 31 747
[display_work_sum] => 28 224
[display_total_sum] => 59 971
)
1
59 971₽
Работа:28 224 ₽
Материалы:31 747 ₽
Дни:15
stdClass Object
(
[id] => 202
[attribute_id] => 5
[name] => Рубленные
[material_modifier] => 1
[work_modifier] => 1
[options] => Array
(
[0] => 150 мм
[1] => 200 мм
[2] => 250 мм
[3] => 300 мм
[4] => 350 мм
[5] => 400 мм
)
[days] => [15,16,17,18,17,18]
[material_price] => [35950,50267,60583,75900,80217,100533]
[work_price] => [9612,12816,16020,19224,22428,25632]
[image] => https://akademik-stroy.ru/wp-content/uploads/materials/rublennye.jpg
[area_modifier] => 9.67
[parent_name] => Стены 2 этаж (несущие)
[parent_id] => 5
[material_sum] => 479738
[work_sum] => 106890
[total_sum] => 586628
[total_days] => 15
[display_material_sum] => 479 738
[display_work_sum] => 106 890
[display_total_sum] => 586 628
)
1
586 628₽
Работа:106 890 ₽
Материалы:479 738 ₽
Дни:15
stdClass Object
(
[id] => 203
[attribute_id] => 5
[name] => Теплоблок
[material_modifier] => 1
[work_modifier] => 1
[options] => Array
(
[0] => 300 мм (с облицовкой, не покрашенный)
[1] => 400 мм (с облицовкой, не покрашенный)
[2] => 300 мм (с облицовкой, покрашенный)
[3] => 400 мм (с облицовкой, покрашенный)
)
[days] => [15,16,15,16]
[material_price] => [2888,3729,3957,4258]
[work_price] => [2564,3229,2949,3713]
[image] => https://akademik-stroy.ru/wp-content/uploads/materials/teploblok.jpg
[area_modifier] => 9.67
[parent_name] => Стены 2 этаж (несущие)
[parent_id] => 5
[material_sum] => 38539
[work_sum] => 28513
[total_sum] => 67052
[total_days] => 15
[display_material_sum] => 38 539
[display_work_sum] => 28 513
[display_total_sum] => 67 052
)
1
67 052₽
Работа:28 513 ₽
Материалы:38 539 ₽
Дни:15
stdClass Object
(
[id] => 204
[attribute_id] => 5
[name] => Арболитовые блоки
[material_modifier] => 1
[work_modifier] => 1
[options] => Array
(
[0] => 300 мм
[1] => 400 мм
[2] => 600 мм
)
[days] => [19,22,27]
[material_price] => [3210,4475,5852]
[work_price] => [4214,4788,5866]
[image] => https://akademik-stroy.ru/wp-content/uploads/materials/arbolitovye-bloki.png
[area_modifier] => 9.67
[parent_name] => Стены 2 этаж (несущие)
[parent_id] => 5
[material_sum] => 42836
[work_sum] => 46862
[total_sum] => 89698
[total_days] => 19
[display_material_sum] => 42 836
[display_work_sum] => 46 862
[display_total_sum] => 89 698
)
1
89 698₽
Работа:46 862 ₽
Материалы:42 836 ₽
Дни:19
stdClass Object
(
[id] => 205
[attribute_id] => 5
[name] => Полистиролбетон
[material_modifier] => 1
[work_modifier] => 1
[options] => Array
(
[0] => 300 мм
[1] => 400 мм
[2] => 600 мм
)
[days] => [29,31,35]
[material_price] => [2798,4573,5256]
[work_price] => [5038,5851,6426]
[image] => https://akademik-stroy.ru/wp-content/uploads/materials/polistirolbeton.jpg
[area_modifier] => 9.67
[parent_name] => Стены 2 этаж (несущие)
[parent_id] => 5
[material_sum] => 37338
[work_sum] => 56025
[total_sum] => 93363
[total_days] => 29
[display_material_sum] => 37 338
[display_work_sum] => 56 025
[display_total_sum] => 93 363
)
1
93 363₽
Работа:56 025 ₽
Материалы:37 338 ₽
Дни:29
stdClass Object
(
[id] => 206
[attribute_id] => 5
[name] => Шлакоблок
[material_modifier] => 1
[work_modifier] => 1
[options] => Array
(
[0] => 400 мм
[1] => 600 мм
)
[days] => [15,16]
[material_price] => [2391,3471]
[work_price] => [2642,3662]
[image] => https://akademik-stroy.ru/wp-content/uploads/materials/shlakoblok.jpg
[area_modifier] => 9.67
[parent_name] => Стены 2 этаж (несущие)
[parent_id] => 5
[material_sum] => 31907
[work_sum] => 29380
[total_sum] => 61287
[total_days] => 15
[display_material_sum] => 31 907
[display_work_sum] => 29 380
[display_total_sum] => 61 287
)
1
61 287₽
Работа:29 380 ₽
Материалы:31 907 ₽
Дни:15
stdClass Object
(
[id] => 245
[attribute_id] => 5
[name] => Теплая керамика
[material_modifier] => 1
[work_modifier] => 1
[options] => Array
(
[0] => 380 мм
[1] => 380 мм Thermo
[2] => 440 мм
[3] => 510 мм
)
[days] => [10,10,11,12]
[material_price] => [4510,5098,6093,8013]
[work_price] => [4737,4937,5903,6958]
[image] => https://akademik-stroy.ru/wp-content/uploads/materials/teplaya-keramika.jpg
[area_modifier] => 9.67
[parent_name] => Стены 2 этаж (несущие)
[parent_id] => 5
[material_sum] => 60184
[work_sum] => 52678
[total_sum] => 112862
[total_days] => 10
[display_material_sum] => 60 184
[display_work_sum] => 52 678
[display_total_sum] => 112 862
)
1
112 862₽
Работа:52 678 ₽
Материалы:60 184 ₽
Дни:10
stdClass Object
(
[id] => 246
[attribute_id] => 5
[name] => Несъемная опалубка
[material_modifier] => 1
[work_modifier] => 1
[options] => Array
(
[0] => 380 мм
[1] => 380 мм Thermo
[2] => 440 мм
[3] => 510 мм
)
[days] => [10,10,11,12]
[material_price] => [3302,3902,4108,5008]
[work_price] => [2100,2100,2300,2534]
[image] => https://akademik-stroy.ru/wp-content/uploads/materials/nesemnaya-opalubka.jpg
[area_modifier] => 9.67
[parent_name] => Стены 2 этаж (несущие)
[parent_id] => 5
[material_sum] => 44064
[work_sum] => 23353
[total_sum] => 67417
[total_days] => 10
[display_material_sum] => 44 064
[display_work_sum] => 23 353
[display_total_sum] => 67 417
)
1
67 417₽
Работа:23 353 ₽
Материалы:44 064 ₽
Дни:10
stdClass Object
(
[id] => 254
[attribute_id] => 5
[name] => Бревно
[material_modifier] => 1
[work_modifier] => 1
[options] => Array
(
[0] => 260 мм
[1] => 320 мм
[2] => 360 мм
[3] => 400 мм
[4] => 500 мм
)
[days] => [7,8,9,10,11]
[material_price] => [1874,24045,26930,30972,38825]
[work_price] => [5046,6207,6952,7716,9723]
[image] => https://akademik-stroy.ru/wp-content/uploads/materials/sruby.jpg
[area_modifier] => 9.67
[parent_name] => Стены 2 этаж (несущие)
[parent_id] => 5
[material_sum] => 25008
[work_sum] => 56114
[total_sum] => 81122
[total_days] => 7
[display_material_sum] => 25 008
[display_work_sum] => 56 114
[display_total_sum] => 81 122
)
1
81 122₽
Работа:56 114 ₽
Материалы:25 008 ₽
Дни:7
stdClass Object
(
[id] => 11
[attribute_id] => 6
[name] => Деревянные балки
[material_modifier] => 1
[work_modifier] => 1
[options] => Array
(
[0] => без утепления
[1] => утепление 200 мм
[2] => утепление 250 мм
[3] => утепление 300 мм
[4] => утепление 350 мм
[5] => утепление 400 мм
[6] => утепление 450 мм
[7] => утепление 500 мм
)
[days] => [8,9,9,9,11,12,13,14]
[material_price] => [1634,2042,2344,2947,3149,3652,3354,3557]
[work_price] => [1230,1339,1393,1426,1460,1513,1587,1620]
[image] => https://akademik-stroy.ru/wp-content/uploads/materials/derevyannye-balki.png
[area_modifier] => 9.67
[parent_name] => Перекрытие второго этажа
[parent_id] => 6
[material_sum] => 21805
[work_sum] => 13678
[total_sum] => 35483
[total_days] => 8
[display_material_sum] => 21 805
[display_work_sum] => 13 678
[display_total_sum] => 35 483
)
1
35 483₽
Работа:13 678 ₽
Материалы:21 805 ₽
Дни:8
stdClass Object
(
[id] => 12
[attribute_id] => 6
[name] => Сборные ж/б плиты
[material_modifier] => 1
[work_modifier] => 1
[options] => Array
(
[0] => без утепления
[1] => утепление 150 мм
[2] => утепление 200 мм
[3] => утепление 250 мм
[4] => утепление 300 мм
[5] => утепление 350 мм
[6] => утепление 400 мм
[7] => утепление 450 мм
[8] => утепление 500 мм
)
[days] => [13,15,15,15,15,15,15,15,15]
[material_price] => [3067,5577,5928,6679,7730,8782,9833,10884,11935]
[work_price] => [1520,1956,2102,2247,2392,2537,2684,2829,2974]
[image] => https://akademik-stroy.ru/wp-content/uploads/materials/sbornye-zh-b-plity-2.jpg
[area_modifier] => 9.67
[parent_name] => Перекрытие второго этажа
[parent_id] => 6
[material_sum] => 40928
[work_sum] => 16903
[total_sum] => 57831
[total_days] => 13
[display_material_sum] => 40 928
[display_work_sum] => 16 903
[display_total_sum] => 57 831
)
1
57 831₽
Работа:16 903 ₽
Материалы:40 928 ₽
Дни:13
stdClass Object
(
[id] => 100
[attribute_id] => 6
[name] => Монолитная ж/б плита
[material_modifier] => 1
[work_modifier] => 1
[options] => Array
(
[0] => без утепления
[1] => утепление 150 мм
[2] => утепление 200 мм
[3] => утепление 250 мм
[4] => утепление 300 мм
[5] => утепление 350 мм
[6] => утепление 400 мм
[7] => утепление 450 мм
[8] => утепление 500 мм
)
[days] => [18,20,20,20,20,20,20,20,20]
[material_price] => [4837,6572,7224,7375,79426,8177,8728,9180,10031]
[work_price] => [3348,3921,4112,4302,4493,4684,4875,5066,5256]
[image] => https://akademik-stroy.ru/wp-content/uploads/materials/monolitnaya-zh-b-plita-2.jpg
[area_modifier] => 9.67
[parent_name] => Перекрытие второго этажа
[parent_id] => 6
[material_sum] => 64548
[work_sum] => 37231
[total_sum] => 101779
[total_days] => 18
[display_material_sum] => 64 548
[display_work_sum] => 37 231
[display_total_sum] => 101 779
)
1
101 779₽
Работа:37 231 ₽
Материалы:64 548 ₽
Дни:18
stdClass Object
(
[id] => 160
[attribute_id] => 36
[name] => Не эксплуатируемая
[material_modifier] => 1
[work_modifier] => 1
[options] => Array
(
)
[days] => [10]
[material_price] => [8068]
[work_price] => [4163]
[image] => https://akademik-stroy.ru/wp-content/uploads/materials/ne-ehkspluatiruemaya-3.jpg
[area_modifier] => 117.99
[parent_name] => Плоская крыша
[parent_id] => 36
[material_sum] => 1313682
[work_sum] => 564871
[total_sum] => 1878553
[total_days] => 10
[display_material_sum] => 1 313 682
[display_work_sum] => 564 871
[display_total_sum] => 1 878 553
)
1
1 878 553₽
Работа:564 871 ₽
Материалы:1 313 682 ₽
Дни:10
stdClass Object
(
[id] => 161
[attribute_id] => 36
[name] => Зеленая кровля (Эксплуатируемая)
[material_modifier] => 1
[work_modifier] => 1
[options] => Array
(
)
[days] => [10]
[material_price] => [10056]
[work_price] => [8446]
[image] => https://akademik-stroy.ru/wp-content/uploads/materials/zelenaya-krovlya-2.jpg
[area_modifier] => 117.99
[parent_name] => Плоская крыша
[parent_id] => 36
[material_sum] => 1637380
[work_sum] => 1146025
[total_sum] => 2783405
[total_days] => 10
[display_material_sum] => 1 637 380
[display_work_sum] => 1 146 025
[display_total_sum] => 2 783 405
)
1
2 783 405₽
Работа:1 146 025 ₽
Материалы:1 637 380 ₽
Дни:10
stdClass Object
(
[id] => 162
[attribute_id] => 36
[name] => Эксплуатируемая
[material_modifier] => 1
[work_modifier] => 1
[options] => Array
(
)
[days] => [10]
[material_price] => [9593]
[work_price] => [7459]
[image] => https://akademik-stroy.ru/wp-content/uploads/materials/ehkspluatiruemaya-2.jpg
[area_modifier] => 117.99
[parent_name] => Плоская крыша
[parent_id] => 36
[material_sum] => 1561992
[work_sum] => 1012101
[total_sum] => 2574093
[total_days] => 10
[display_material_sum] => 1 561 992
[display_work_sum] => 1 012 101
[display_total_sum] => 2 574 093
)
1
2 574 093₽
Работа:1 012 101 ₽
Материалы:1 561 992 ₽
Дни:10
stdClass Object
(
[id] => 163
[attribute_id] => 36
[name] => Нет
[material_modifier] => 1
[work_modifier] => 1
[options] => Array
(
)
[days] => [0]
[material_price] => [0]
[work_price] => [0]
[image] => https://akademik-stroy.ru/wp-content/uploads/materials/ne-ehkspluatiruemaya-3.jpg
[area_modifier] => 117.99
[parent_name] => Плоская крыша
[parent_id] => 36
[material_sum] => 0
[work_sum] => 0
[total_sum] => 0
[total_days] => 0
[display_material_sum] => 0
[display_work_sum] => 0
[display_total_sum] => 0
)
1
0₽
Работа:0 ₽
Материалы:0 ₽
Дни:0
stdClass Object
(
[id] => 51
[attribute_id] => 26
[name] => Есть
[material_modifier] => 1
[work_modifier] => 1
[options] => Array
(
[0] => Профиль 58 мм, 3-камерный, стеклопакет 2-камерный до 32 мм
[1] => Профиль 60 мм, 4-камерный, стеклопакет 2-камерный до 32 мм
[2] => Профиль 70 мм, 5-камерный, стеклопакет 2-камерный до 40 мм
[3] => Профиль 72 мм, 5-камерный, стеклопакет 2-камерный до 40 мм
[4] => Алюминиевые окна Alutech профиль 72 мм, стеклопакет 2-камерный
)
[days] => [3,3,3,3,3]
[material_price] => [1339,2124,2867,3023,29596]
[work_price] => [635,647,659,668,2579]
[image] => https://akademik-stroy.ru/wp-content/uploads/materials/okna.jpg
[area_modifier] => 103.6
[parent_name] => Окна
[parent_id] => 26
[material_sum] => 191434
[work_sum] => 75654
[total_sum] => 267088
[total_days] => 3
[display_material_sum] => 191 434
[display_work_sum] => 75 654
[display_total_sum] => 267 088
)
1
267 088₽
Работа:75 654 ₽
Материалы:191 434 ₽
Дни:3
stdClass Object
(
[id] => 52
[attribute_id] => 26
[name] => Нет
[material_modifier] => 2
[work_modifier] => 1
[options] =>
[days] => null
[material_price] => null
[work_price] => null
[image] => https://akademik-stroy.ru/wp-content/uploads/materials/okna.jpg
[area_modifier] => 103.6
[parent_name] => Окна
[parent_id] => 26
[material_sum] => 0
[work_sum] => 0
[total_sum] => 0
[total_days] => 0
[display_material_sum] => 0
[display_work_sum] => 0
[display_total_sum] => 0
)
1
0₽
Работа:0 ₽
Материалы:0 ₽
Дни:0
stdClass Object
(
[id] => 53
[attribute_id] => 27
[name] => Есть
[material_modifier] => 1
[work_modifier] => 1
[options] => Array
(
)
[days] => [1]
[material_price] => [10000]
[work_price] => [5500]
[image] => https://akademik-stroy.ru/wp-content/uploads/materials/dveri.jpg
[area_modifier] => 1
[parent_name] => Двери входные
[parent_id] => 27
[material_sum] => 13800
[work_sum] => 6325
[total_sum] => 20125
[total_days] => 1
[display_material_sum] => 13 800
[display_work_sum] => 6 325
[display_total_sum] => 20 125
)
1
20 125₽
Работа:6 325 ₽
Материалы:13 800 ₽
Дни:1
stdClass Object
(
[id] => 54
[attribute_id] => 27
[name] => Нет
[material_modifier] => 1
[work_modifier] => 1
[options] => Array
(
)
[days] => [0]
[material_price] => [0]
[work_price] => [0]
[image] => https://akademik-stroy.ru/wp-content/uploads/materials/dveri.jpg
[area_modifier] => 1
[parent_name] => Двери входные
[parent_id] => 27
[material_sum] => 0
[work_sum] => 0
[total_sum] => 0
[total_days] => 0
[display_material_sum] => 0
[display_work_sum] => 0
[display_total_sum] => 0
)
1
0₽
Работа:0 ₽
Материалы:0 ₽
Дни:0
stdClass Object
(
[id] => 31
[attribute_id] => 16
[name] => Нет
[material_modifier] => 1
[work_modifier] => 1
[options] => Array
(
)
[days] => [0]
[material_price] => [0]
[work_price] => [0]
[image] => https://akademik-stroy.ru/wp-content/uploads/materials/docke-standard-pvh.jpg
[area_modifier] => 117.99
[parent_name] => Водосточная система
[parent_id] => 16
[material_sum] => 0
[work_sum] => 0
[total_sum] => 0
[total_days] => 0
[display_material_sum] => 0
[display_work_sum] => 0
[display_total_sum] => 0
)
1
0₽
Работа:0 ₽
Материалы:0 ₽
Дни:0
stdClass Object
(
[id] => 32
[attribute_id] => 16
[name] => Есть
[material_modifier] => 1
[work_modifier] => 1
[options] => Array
(
[0] => Döcke Standard (ПВХ)
[1] => Металлические Grand Line
)
[days] => [7,7]
[material_price] => [1842,2703]
[work_price] => [1491,1529]
[image] => https://akademik-stroy.ru/wp-content/uploads/materials/docke-standard-pvh.jpg
[area_modifier] => 117.99
[parent_name] => Водосточная система
[parent_id] => 16
[material_sum] => 299926
[work_sum] => 202312
[total_sum] => 502238
[total_days] => 7
[display_material_sum] => 299 926
[display_work_sum] => 202 312
[display_total_sum] => 502 238
)
1
502 238₽
Работа:202 312 ₽
Материалы:299 926 ₽
Дни:7
stdClass Object
(
[id] => 33
[attribute_id] => 17
[name] => Нет
[material_modifier] => 1
[work_modifier] => 1
[options] => Array
(
)
[days] => [0]
[material_price] => [0]
[work_price] => [0]
[image] => https://akademik-stroy.ru/wp-content/uploads/materials/mineralovata.jpg
[area_modifier] => 127.67
[parent_name] => Дополнительное утепление наружных стен
[parent_id] => 17
[material_sum] => 0
[work_sum] => 0
[total_sum] => 0
[total_days] => 0
[display_material_sum] => 0
[display_work_sum] => 0
[display_total_sum] => 0
)
1
0₽
Работа:0 ₽
Материалы:0 ₽
Дни:0
stdClass Object
(
[id] => 34
[attribute_id] => 17
[name] => Минераловатный
[material_modifier] => 1
[work_modifier] => 1
[options] => Array
(
[0] => 50 мм
[1] => 100 мм
[2] => 150 мм
[3] => 200 мм
[4] => 250 мм
[5] => 300 мм
)
[days] => [7,8,10,12,14,15]
[material_price] => [3437,3613,3803,3915,4601,4830]
[work_price] => [2325,2423,2523,2749,2859,3025]
[image] => https://akademik-stroy.ru/wp-content/uploads/materials/mineralovata.jpg
[area_modifier] => 127.67
[parent_name] => Дополнительное утепление наружных стен
[parent_id] => 17
[material_sum] => 605546
[work_sum] => 341358
[total_sum] => 946904
[total_days] => 7
[display_material_sum] => 605 546
[display_work_sum] => 341 358
[display_total_sum] => 946 904
)
1
946 904₽
Работа:341 358 ₽
Материалы:605 546 ₽
Дни:7
stdClass Object
(
[id] => 128
[attribute_id] => 17
[name] => Эковата (целлюлозная вата)
[material_modifier] => 1
[work_modifier] => 1
[options] => Array
(
[0] => 50 мм
[1] => 100 мм
[2] => 150 мм
[3] => 200 мм
[4] => 250 мм
[5] => 300 мм
)
[days] => [3,4,5,6,7,8]
[material_price] => [810,1319,1629,1838,2267,2676]
[work_price] => [1225,1323,1423,1549,1659,1725]
[image] => https://akademik-stroy.ru/wp-content/uploads/materials/ehkovata.jpg
[area_modifier] => 127.67
[parent_name] => Дополнительное утепление наружных стен
[parent_id] => 17
[material_sum] => 142710
[work_sum] => 179855
[total_sum] => 322565
[total_days] => 3
[display_material_sum] => 142 710
[display_work_sum] => 179 855
[display_total_sum] => 322 565
)
1
322 565₽
Работа:179 855 ₽
Материалы:142 710 ₽
Дни:3
stdClass Object
(
[id] => 129
[attribute_id] => 17
[name] => Экструдированный пенополистирол
[material_modifier] => 1
[work_modifier] => 1
[options] => Array
(
[0] => 50 мм
[1] => 100 мм
[2] => 150 мм
[3] => 200 мм
[4] => 250 мм
[5] => 300 мм
)
[days] => [5,6,7,8,9,10]
[material_price] => [4560,4300,5119,6292,7010,8583]
[work_price] => [1795,1954,2254,2330,2595,2735]
[image] => https://akademik-stroy.ru/wp-content/uploads/materials/epps.jpg
[area_modifier] => 127.67
[parent_name] => Дополнительное утепление наружных стен
[parent_id] => 17
[material_sum] => 803402
[work_sum] => 263543
[total_sum] => 1066945
[total_days] => 5
[display_material_sum] => 803 402
[display_work_sum] => 263 543
[display_total_sum] => 1 066 945
)
1
1 066 945₽
Работа:263 543 ₽
Материалы:803 402 ₽
Дни:5
stdClass Object
(
[id] => 130
[attribute_id] => 17
[name] => ПСБ (ППС-пенополистирол)
[material_modifier] => 1
[work_modifier] => 1
[options] => Array
(
[0] => 50 мм
[1] => 100 мм
[2] => 150 мм
[3] => 200 мм
[4] => 250 мм
[5] => 300 мм
)
[days] => [5,6,7,8,9,10]
[material_price] => [4822,5200,5819,6292,7010,7583]
[work_price] => [1795,1954,2254,2330,2595,2735]
[image] => https://akademik-stroy.ru/wp-content/uploads/materials/psb.jpg
[area_modifier] => 127.67
[parent_name] => Дополнительное утепление наружных стен
[parent_id] => 17
[material_sum] => 849562
[work_sum] => 263543
[total_sum] => 1113105
[total_days] => 5
[display_material_sum] => 849 562
[display_work_sum] => 263 543
[display_total_sum] => 1 113 105
)
1
1 113 105₽
Работа:263 543 ₽
Материалы:849 562 ₽
Дни:5
stdClass Object
(
[id] => 131
[attribute_id] => 17
[name] => ППУ (Пенополиуретан)
[material_modifier] => 1
[work_modifier] => 1
[options] => Array
(
[0] => 50 мм
[1] => 100 мм
[2] => 150 мм
[3] => 200 мм
[4] => 250 мм
[5] => 300 мм
)
[days] => [3,4,5,6,7,8]
[material_price] => [2860,3400,4219,4592,5010,5583]
[work_price] => [729,900,980,1120,1280,1530]
[image] => https://akademik-stroy.ru/wp-content/uploads/materials/ppu.jpg
[area_modifier] => 127.67
[parent_name] => Дополнительное утепление наружных стен
[parent_id] => 17
[material_sum] => 503888
[work_sum] => 107032
[total_sum] => 610920
[total_days] => 3
[display_material_sum] => 503 888
[display_work_sum] => 107 032
[display_total_sum] => 610 920
)
1
610 920₽
Работа:107 032 ₽
Материалы:503 888 ₽
Дни:3
stdClass Object
(
[id] => 132
[attribute_id] => 17
[name] => PIR-плиты (пенополиизоцианурат)
[material_modifier] => 1
[work_modifier] => 1
[options] => Array
(
[0] => 50 мм
[1] => 100 мм
[2] => 150 мм
[3] => 200 мм
[4] => 250 мм
[5] => 300 мм
)
[days] => [5,6,7,8,9,10]
[material_price] => [8323,15645,20968,25900,29258,30581]
[work_price] => [800,900,970,1150,1280,1330]
[image] => https://akademik-stroy.ru/wp-content/uploads/materials/pir.jpg
[area_modifier] => 127.67
[parent_name] => Дополнительное утепление наружных стен
[parent_id] => 17
[material_sum] => 1466384
[work_sum] => 117456
[total_sum] => 1583840
[total_days] => 5
[display_material_sum] => 1 466 384
[display_work_sum] => 117 456
[display_total_sum] => 1 583 840
)
1
1 583 840₽
Работа:117 456 ₽
Материалы:1 466 384 ₽
Дни:5
stdClass Object
(
[id] => 37
[attribute_id] => 19
[name] => Нет
[material_modifier] => 1
[work_modifier] => 1
[options] => Array
(
)
[days] => [0]
[material_price] => [0]
[work_price] => [0]
[image] => https://akademik-stroy.ru/wp-content/uploads/materials/imitaciya-brusa.jpg
[area_modifier] => 127.67
[parent_name] => Наружная отделка фасада
[parent_id] => 19
[material_sum] => 0
[work_sum] => 0
[total_sum] => 0
[total_days] => 0
[display_material_sum] => 0
[display_work_sum] => 0
[display_total_sum] => 0
)
1
0₽
Работа:0 ₽
Материалы:0 ₽
Дни:0
stdClass Object
(
[id] => 38
[attribute_id] => 19
[name] => Имитация бруса
[material_modifier] => 1
[work_modifier] => 1
[options] => Array
(
[0] => Сосна
[1] => Ель
[2] => Лиственница
)
[days] => [20,20,20]
[material_price] => [2994,2762,4954]
[work_price] => [1397,1231,1577]
[image] => https://akademik-stroy.ru/wp-content/uploads/materials/imitaciya-brusa.jpg
[area_modifier] => 127.67
[parent_name] => Наружная отделка фасада
[parent_id] => 19
[material_sum] => 527497
[work_sum] => 205108
[total_sum] => 732605
[total_days] => 20
[display_material_sum] => 527 497
[display_work_sum] => 205 108
[display_total_sum] => 732 605
)
1
732 605₽
Работа:205 108 ₽
Материалы:527 497 ₽
Дни:20
stdClass Object
(
[id] => 136
[attribute_id] => 19
[name] => Планкен
[material_modifier] => 1
[work_modifier] => 1
[options] => Array
(
[0] => Сосна
[1] => Ель
[2] => Лиственница
)
[days] => [20,20,20]
[material_price] => [3194,2862,5154]
[work_price] => [1537,1354,1735]
[image] => https://akademik-stroy.ru/wp-content/uploads/materials/planken.jpg
[area_modifier] => 127.67
[parent_name] => Наружная отделка фасада
[parent_id] => 19
[material_sum] => 562734
[work_sum] => 225663
[total_sum] => 788397
[total_days] => 20
[display_material_sum] => 562 734
[display_work_sum] => 225 663
[display_total_sum] => 788 397
)
1
788 397₽
Работа:225 663 ₽
Материалы:562 734 ₽
Дни:20
stdClass Object
(
[id] => 137
[attribute_id] => 19
[name] => Штукатурка
[material_modifier] => 1
[work_modifier] => 1
[options] => Array
(
[0] => Цементно-песчаная (минеральная)
[1] => Мокрый фасад
)
[days] => [35,35]
[material_price] => [2231,3938]
[work_price] => [1202,2422]
[image] => https://akademik-stroy.ru/wp-content/uploads/materials/shtukaturka.jpg
[area_modifier] => 127.67
[parent_name] => Наружная отделка фасада
[parent_id] => 19
[material_sum] => 393068
[work_sum] => 176478
[total_sum] => 569546
[total_days] => 35
[display_material_sum] => 393 068
[display_work_sum] => 176 478
[display_total_sum] => 569 546
)
1
569 546₽
Работа:176 478 ₽
Материалы:393 068 ₽
Дни:35
stdClass Object
(
[id] => 138
[attribute_id] => 19
[name] => Облицовочный кирпич
[material_modifier] => 1
[work_modifier] => 1
[options] => Array
(
[0] => Керамический
[1] => Клинкерный
[2] => Ручной формовки
[3] => Гиперпрессованный
[4] => Силикатный кирпич
)
[days] => [45,45,45,45,45]
[material_price] => [8174,9148,1040,1257,5876]
[work_price] => [3240,3758,4536,4017,3369]
[image] => https://akademik-stroy.ru/wp-content/uploads/materials/oblicovochnyj-kirpich.jpg
[area_modifier] => 127.67
[parent_name] => Наружная отделка фасада
[parent_id] => 19
[material_sum] => 1440133
[work_sum] => 475698
[total_sum] => 1915831
[total_days] => 45
[display_material_sum] => 1 440 133
[display_work_sum] => 475 698
[display_total_sum] => 1 915 831
)
1
1 915 831₽
Работа:475 698 ₽
Материалы:1 440 133 ₽
Дни:45
stdClass Object
(
[id] => 139
[attribute_id] => 19
[name] => Фасадная плитка
[material_modifier] => 1
[work_modifier] => 1
[options] => Array
(
[0] => Клинкерная
[1] => Керамическая
[2] => Плитка ручной формовки
)
[days] => [40,40,40]
[material_price] => [2974,1487,3470]
[work_price] => [3007,2592,3629]
[image] => https://akademik-stroy.ru/wp-content/uploads/materials/fasadnaya-plitka.jpg
[area_modifier] => 127.67
[parent_name] => Наружная отделка фасада
[parent_id] => 19
[material_sum] => 523973
[work_sum] => 441489
[total_sum] => 965462
[total_days] => 40
[display_material_sum] => 523 973
[display_work_sum] => 441 489
[display_total_sum] => 965 462
)
1
965 462₽
Работа:441 489 ₽
Материалы:523 973 ₽
Дни:40
stdClass Object
(
[id] => 140
[attribute_id] => 19
[name] => Сайдинг
[material_modifier] => 1
[work_modifier] => 1
[options] => Array
(
[0] => Виниловый
[1] => Металлический
[2] => Фиброцементный
)
[days] => [20,20,20]
[material_price] => [1263,1944,4147]
[work_price] => [1263,1944,2074]
[image] => https://akademik-stroy.ru/wp-content/uploads/materials/sajding.jpg
[area_modifier] => 127.67
[parent_name] => Наружная отделка фасада
[parent_id] => 19
[material_sum] => 222521
[work_sum] => 185434
[total_sum] => 407955
[total_days] => 20
[display_material_sum] => 222 521
[display_work_sum] => 185 434
[display_total_sum] => 407 955
)
1
407 955₽
Работа:185 434 ₽
Материалы:222 521 ₽
Дни:20
stdClass Object
(
[id] => 141
[attribute_id] => 19
[name] => Камень
[material_modifier] => 1
[work_modifier] => 1
[options] => Array
(
[0] => Травертин
[1] => Дагестанский
[2] => Искусственный
[3] => Натуральный
[4] => Керамогранит
)
[days] => [45,45,45,45,45]
[material_price] => [4536,3888,2592,3240,2462]
[work_price] => [3240,3240,2462,3110,1944]
[image] => https://akademik-stroy.ru/wp-content/uploads/materials/kamen-1.jpg
[area_modifier] => 127.67
[parent_name] => Наружная отделка фасада
[parent_id] => 19
[material_sum] => 799173
[work_sum] => 475698
[total_sum] => 1274871
[total_days] => 45
[display_material_sum] => 799 173
[display_work_sum] => 475 698
[display_total_sum] => 1 274 871
)
1
1 274 871₽
Работа:475 698 ₽
Материалы:799 173 ₽
Дни:45
stdClass Object
(
[id] => 142
[attribute_id] => 19
[name] => Термопанели
[material_modifier] => 1
[work_modifier] => 1
[options] => Array
(
)
[days] => [20]
[material_price] => [6221]
[work_price] => [2333]
[image] => https://akademik-stroy.ru/wp-content/uploads/materials/termo.png
[area_modifier] => 127.67
[parent_name] => Наружная отделка фасада
[parent_id] => 19
[material_sum] => 1096044
[work_sum] => 342532
[total_sum] => 1438576
[total_days] => 20
[display_material_sum] => 1 096 044
[display_work_sum] => 342 532
[display_total_sum] => 1 438 576
)
1
1 438 576₽
Работа:342 532 ₽
Материалы:1 096 044 ₽
Дни:20
stdClass Object
(
[id] => 143
[attribute_id] => 19
[name] => Плитка HAUBERK
[material_modifier] => 1
[work_modifier] => 1
[options] => Array
(
)
[days] => [20]
[material_price] => [2786]
[work_price] => [1944]
[image] => https://akademik-stroy.ru/wp-content/uploads/materials/hauberk.jpg
[area_modifier] => 127.67
[parent_name] => Наружная отделка фасада
[parent_id] => 19
[material_sum] => 490850
[work_sum] => 285419
[total_sum] => 776269
[total_days] => 20
[display_material_sum] => 490 850
[display_work_sum] => 285 419
[display_total_sum] => 776 269
)
1
776 269₽
Работа:285 419 ₽
Материалы:490 850 ₽
Дни:20
stdClass Object
(
[id] => 144
[attribute_id] => 19
[name] => Фальцевый фасад
[material_modifier] => 1
[work_modifier] => 1
[options] => Array
(
)
[days] => [20]
[material_price] => [3240]
[work_price] => [2592]
[image] => https://akademik-stroy.ru/wp-content/uploads/materials/falcevyj-fasad.jpg
[area_modifier] => 127.67
[parent_name] => Наружная отделка фасада
[parent_id] => 19
[material_sum] => 570838
[work_sum] => 380559
[total_sum] => 951397
[total_days] => 20
[display_material_sum] => 570 838
[display_work_sum] => 380 559
[display_total_sum] => 951 397
)
1
951 397₽
Работа:380 559 ₽
Материалы:570 838 ₽
Дни:20
stdClass Object
(
[id] => 145
[attribute_id] => 19
[name] => Комбинированный
[material_modifier] => 1
[work_modifier] => 1
[options] => Array
(
)
[days] => [20]
[material_price] => [4629]
[work_price] => [3499]
[image] => https://akademik-stroy.ru/wp-content/uploads/materials/Kombinirovannyj.jpg
[area_modifier] => 127.67
[parent_name] => Наружная отделка фасада
[parent_id] => 19
[material_sum] => 815559
[work_sum] => 513725
[total_sum] => 1329284
[total_days] => 20
[display_material_sum] => 815 559
[display_work_sum] => 513 725
[display_total_sum] => 1 329 284
)
1
1 329 284₽
Работа:513 725 ₽
Материалы:815 559 ₽
Дни:20
stdClass Object
(
[id] => 257
[attribute_id] => 19
[name] => Японские фиброцементные
[material_modifier] => 1
[work_modifier] => 1
[options] => Array
(
)
[days] => [20]
[material_price] => [7043]
[work_price] => [2993]
[image] => https://akademik-stroy.ru/wp-content/uploads/materials/paneli.jpg
[area_modifier] => 127.67
[parent_name] => Наружная отделка фасада
[parent_id] => 19
[material_sum] => 1240868
[work_sum] => 439434
[total_sum] => 1680302
[total_days] => 20
[display_material_sum] => 1 240 868
[display_work_sum] => 439 434
[display_total_sum] => 1 680 302
)
1
1 680 302₽
Работа:439 434 ₽
Материалы:1 240 868 ₽
Дни:20
stdClass Object
(
[id] => 258
[attribute_id] => 19
[name] => Панели Каньон
[material_modifier] => 1
[work_modifier] => 1
[options] => Array
(
)
[days] => [20]
[material_price] => [4543]
[work_price] => [2592]
[image] => https://akademik-stroy.ru/wp-content/uploads/materials/kanon.png
[area_modifier] => 127.67
[parent_name] => Наружная отделка фасада
[parent_id] => 19
[material_sum] => 800407
[work_sum] => 380559
[total_sum] => 1180966
[total_days] => 20
[display_material_sum] => 800 407
[display_work_sum] => 380 559
[display_total_sum] => 1 180 966
)
1
1 180 966₽
Работа:380 559 ₽
Материалы:800 407 ₽
Дни:20
stdClass Object
(
[id] => 39
[attribute_id] => 20
[name] => Нет
[material_modifier] => 1
[work_modifier] => 1
[options] => Array
(
)
[days] => [0]
[material_price] => [0]
[work_price] => [0]
[image] => https://akademik-stroy.ru/wp-content/uploads/materials/terrasy.jpg
[area_modifier] => 30
[parent_name] => Террасы, крыльца, навесы
[parent_id] => 20
[material_sum] => 0
[work_sum] => 0
[total_sum] => 0
[total_days] => 0
[display_material_sum] => 0
[display_work_sum] => 0
[display_total_sum] => 0
)
1
0₽
Работа:0 ₽
Материалы:0 ₽
Дни:0
stdClass Object
(
[id] => 40
[attribute_id] => 20
[name] => Есть
[material_modifier] => 1
[work_modifier] => 1
[options] => Array
(
)
[days] => [5]
[material_price] => [10450]
[work_price] => [1950]
[image] => https://akademik-stroy.ru/wp-content/uploads/materials/terrasy.jpg
[area_modifier] => 30
[parent_name] => Террасы, крыльца, навесы
[parent_id] => 20
[material_sum] => 432630
[work_sum] => 67275
[total_sum] => 499905
[total_days] => 5
[display_material_sum] => 432 630
[display_work_sum] => 67 275
[display_total_sum] => 499 905
)
1
499 905₽
Работа:67 275 ₽
Материалы:432 630 ₽
Дни:5
stdClass Object
(
[id] => 41
[attribute_id] => 21
[name] => Нет
[material_modifier] => 1
[work_modifier] => 1
[options] => Array
(
)
[days] => [0]
[material_price] => [0]
[work_price] => [0]
[image] => https://akademik-stroy.ru/wp-content/uploads/materials/balkony.jpg
[area_modifier] => 30
[parent_name] => Балконы
[parent_id] => 21
[material_sum] => 0
[work_sum] => 0
[total_sum] => 0
[total_days] => 0
[display_material_sum] => 0
[display_work_sum] => 0
[display_total_sum] => 0
)
1
0₽
Работа:0 ₽
Материалы:0 ₽
Дни:0
stdClass Object
(
[id] => 42
[attribute_id] => 21
[name] => Есть
[material_modifier] => 1
[work_modifier] => 1
[options] => Array
(
)
[days] => [12]
[material_price] => [3600]
[work_price] => [1950]
[image] => https://akademik-stroy.ru/wp-content/uploads/materials/balkony.jpg
[area_modifier] => 30
[parent_name] => Балконы
[parent_id] => 21
[material_sum] => 149040
[work_sum] => 67275
[total_sum] => 216315
[total_days] => 12
[display_material_sum] => 149 040
[display_work_sum] => 67 275
[display_total_sum] => 216 315
)
1
216 315₽
Работа:67 275 ₽
Материалы:149 040 ₽
Дни:12
stdClass Object
(
[id] => 43
[attribute_id] => 22
[name] => Нет
[material_modifier] => 1
[work_modifier] => 1
[options] => Array
(
)
[days] => [0]
[material_price] => [0]
[work_price] => [0]
[image] => https://akademik-stroy.ru/wp-content/uploads/materials/uteplennaya.jpg
[area_modifier] => 117.99
[parent_name] => Отмостка
[parent_id] => 22
[material_sum] => 0
[work_sum] => 0
[total_sum] => 0
[total_days] => 0
[display_material_sum] => 0
[display_work_sum] => 0
[display_total_sum] => 0
)
1
0₽
Работа:0 ₽
Материалы:0 ₽
Дни:0
stdClass Object
(
[id] => 44
[attribute_id] => 22
[name] => Утепленная отмостка
[material_modifier] => 1
[work_modifier] => 1
[options] => Array
(
)
[days] => [15]
[material_price] => [2550]
[work_price] => [1750]
[image] => https://akademik-stroy.ru/wp-content/uploads/materials/uteplennaya.jpg
[area_modifier] => 117.99
[parent_name] => Отмостка
[parent_id] => 22
[material_sum] => 415207
[work_sum] => 237455
[total_sum] => 652662
[total_days] => 15
[display_material_sum] => 415 207
[display_work_sum] => 237 455
[display_total_sum] => 652 662
)
1
652 662₽
Работа:237 455 ₽
Материалы:415 207 ₽
Дни:15
stdClass Object
(
[id] => 146
[attribute_id] => 22
[name] => Не утепленная отмостка
[material_modifier] => 1
[work_modifier] => 1
[options] => Array
(
)
[days] => [10]
[material_price] => [1650]
[work_price] => [1450]
[image] => https://akademik-stroy.ru/wp-content/uploads/materials/ne-uteplennaya.jpg
[area_modifier] => 117.99
[parent_name] => Отмостка
[parent_id] => 22
[material_sum] => 268663
[work_sum] => 196748
[total_sum] => 465411
[total_days] => 10
[display_material_sum] => 268 663
[display_work_sum] => 196 748
[display_total_sum] => 465 411
)
1
465 411₽
Работа:196 748 ₽
Материалы:268 663 ₽
Дни:10
stdClass Object
(
[id] => 45
[attribute_id] => 23
[name] => Нет
[material_modifier] => 1
[work_modifier] => 1
[options] => Array
(
)
[days] => [0]
[material_price] => [0]
[work_price] => [0]
[image] => https://akademik-stroy.ru/wp-content/uploads/materials/drenazh-2.jpg
[area_modifier] => 117.99
[parent_name] => Дренаж вокруг дома
[parent_id] => 23
[material_sum] => 0
[work_sum] => 0
[total_sum] => 0
[total_days] => 0
[display_material_sum] => 0
[display_work_sum] => 0
[display_total_sum] => 0
)
1
0₽
Работа:0 ₽
Материалы:0 ₽
Дни:0
stdClass Object
(
[id] => 46
[attribute_id] => 23
[name] => Есть
[material_modifier] => 1
[work_modifier] => 1
[options] => Array
(
)
[days] => [5]
[material_price] => [2366]
[work_price] => [1911]
[image] => https://akademik-stroy.ru/wp-content/uploads/materials/drenazh-2.jpg
[area_modifier] => 117.99
[parent_name] => Дренаж вокруг дома
[parent_id] => 23
[material_sum] => 385247
[work_sum] => 259301
[total_sum] => 644548
[total_days] => 5
[display_material_sum] => 385 247
[display_work_sum] => 259 301
[display_total_sum] => 644 548
)
1
644 548₽
Работа:259 301 ₽
Материалы:385 247 ₽
Дни:5
stdClass Object
(
[id] => 47
[attribute_id] => 24
[name] => Нет
[material_modifier] => 1
[work_modifier] => 1
[options] => Array
(
)
[days] => [0]
[material_price] => [0]
[work_price] => [0]
[image] => https://akademik-stroy.ru/wp-content/uploads/materials/septik.jpg
[area_modifier] => 1
[parent_name] => Автономная канализация (септики)
[parent_id] => 24
[material_sum] => 0
[work_sum] => 0
[total_sum] => 0
[total_days] => 0
[display_material_sum] => 0
[display_work_sum] => 0
[display_total_sum] => 0
)
1
0₽
Работа:0 ₽
Материалы:0 ₽
Дни:0
stdClass Object
(
[id] => 48
[attribute_id] => 24
[name] => Есть
[material_modifier] => 1
[work_modifier] => 1
[options] => Array
(
[0] => Для дачи на 4 человека
[1] => Для дома на 5 человек
[2] => Для дома на 6 человек
[3] => Для дома на 7 человек
[4] => Для дома на 10 человек
)
[days] => [7,7,7,8,8]
[material_price] => [196340,220500,240940,264200,293340]
[work_price] => [50000,55000,60500,66550,73206]
[image] => https://akademik-stroy.ru/wp-content/uploads/materials/septik.jpg
[area_modifier] => 1
[parent_name] => Автономная канализация (септики)
[parent_id] => 24
[material_sum] => 270949
[work_sum] => 57500
[total_sum] => 328449
[total_days] => 7
[display_material_sum] => 270 949
[display_work_sum] => 57 500
[display_total_sum] => 328 449
)
1
328 449₽
Работа:57 500 ₽
Материалы:270 949 ₽
Дни:7
stdClass Object
(
[id] => 49
[attribute_id] => 25
[name] => Нет
[material_modifier] => 1
[work_modifier] => 1
[options] => Array
(
)
[days] => [0]
[material_price] => [0]
[work_price] => [0]
[image] => https://akademik-stroy.ru/wp-content/uploads/materials/gkl.jpg
[area_modifier] => 127.67
[parent_name] => Внутренние (не несущие) перегородки
[parent_id] => 25
[material_sum] => 0
[work_sum] => 0
[total_sum] => 0
[total_days] => 0
[display_material_sum] => 0
[display_work_sum] => 0
[display_total_sum] => 0
)
1
0₽
Работа:0 ₽
Материалы:0 ₽
Дни:0
stdClass Object
(
[id] => 147
[attribute_id] => 25
[name] => Каркасно-обшивные
[material_modifier] => 1
[work_modifier] => 1
[options] => Array
(
[0] => 75 мм (без шумоизоляции)
[1] => 75 мм (с шумоизоляцией)
)
[days] => [11,11]
[material_price] => [580,970]
[work_price] => [380,570]
[image] => https://akademik-stroy.ru/wp-content/uploads/materials/gkl.jpg
[area_modifier] => 127.67
[parent_name] => Внутренние (не несущие) перегородки
[parent_id] => 25
[material_sum] => 102187
[work_sum] => 55792
[total_sum] => 157979
[total_days] => 11
[display_material_sum] => 102 187
[display_work_sum] => 55 792
[display_total_sum] => 157 979
)
1
157 979₽
Работа:55 792 ₽
Материалы:102 187 ₽
Дни:11
stdClass Object
(
[id] => 148
[attribute_id] => 25
[name] => Пазогребневые
[material_modifier] => 1
[work_modifier] => 1
[options] => Array
(
[0] => 80 мм
[1] => 100 мм
)
[days] => [5,5]
[material_price] => [1022,1313]
[work_price] => [600,700]
[image] => https://akademik-stroy.ru/wp-content/uploads/materials/pazogrebnevye-bloki.jpg
[area_modifier] => 127.67
[parent_name] => Внутренние (не несущие) перегородки
[parent_id] => 25
[material_sum] => 180061
[work_sum] => 88092
[total_sum] => 268153
[total_days] => 5
[display_material_sum] => 180 061
[display_work_sum] => 88 092
[display_total_sum] => 268 153
)
1
268 153₽
Работа:88 092 ₽
Материалы:180 061 ₽
Дни:5
stdClass Object
(
[id] => 149
[attribute_id] => 25
[name] => Газобетонные
[material_modifier] => 1
[work_modifier] => 1
[options] => Array
(
[0] => 100 мм
[1] => 200 мм
)
[days] => [11,11]
[material_price] => [1160,1920]
[work_price] => [700,900]
[image] => https://akademik-stroy.ru/wp-content/uploads/materials/gazobeton-2.jpg
[area_modifier] => 127.67
[parent_name] => Внутренние (не несущие) перегородки
[parent_id] => 25
[material_sum] => 204374
[work_sum] => 102774
[total_sum] => 307148
[total_days] => 11
[display_material_sum] => 204 374
[display_work_sum] => 102 774
[display_total_sum] => 307 148
)
1
307 148₽
Работа:102 774 ₽
Материалы:204 374 ₽
Дни:11
stdClass Object
(
[id] => 150
[attribute_id] => 25
[name] => Кирпичные
[material_modifier] => 1
[work_modifier] => 1
[options] => Array
(
[0] => 120 мм
[1] => 250 мм
[2] => 360 мм
)
[days] => [7,7,7]
[material_price] => [1785,3570,5355]
[work_price] => [900,1600,1800]
[image] => https://akademik-stroy.ru/wp-content/uploads/materials/kirpich-1.jpg
[area_modifier] => 127.67
[parent_name] => Внутренние (не несущие) перегородки
[parent_id] => 25
[material_sum] => 314490
[work_sum] => 132138
[total_sum] => 446628
[total_days] => 7
[display_material_sum] => 314 490
[display_work_sum] => 132 138
[display_total_sum] => 446 628
)
1
446 628₽
Работа:132 138 ₽
Материалы:314 490 ₽
Дни:7
stdClass Object
(
[id] => 55
[attribute_id] => 28
[name] => Нет
[material_modifier] => 1
[work_modifier] => 1
[options] => Array
(
)
[days] => [0]
[material_price] => [0]
[work_price] => [0]
[image] => https://akademik-stroy.ru/wp-content/uploads/materials/ehlektrika.jpg
[area_modifier] => 103.6
[parent_name] => Электрика
[parent_id] => 28
[material_sum] => 0
[work_sum] => 0
[total_sum] => 0
[total_days] => 0
[display_material_sum] => 0
[display_work_sum] => 0
[display_total_sum] => 0
)
1
0₽
Работа:0 ₽
Материалы:0 ₽
Дни:0
stdClass Object
(
[id] => 56
[attribute_id] => 28
[name] => Есть
[material_modifier] => 1
[work_modifier] => 1
[options] => Array
(
)
[days] => [10]
[material_price] => [650]
[work_price] => [950]
[image] => https://akademik-stroy.ru/wp-content/uploads/materials/ehlektrika.jpg
[area_modifier] => 103.6
[parent_name] => Электрика
[parent_id] => 28
[material_sum] => 92929
[work_sum] => 113183
[total_sum] => 206112
[total_days] => 10
[display_material_sum] => 92 929
[display_work_sum] => 113 183
[display_total_sum] => 206 112
)
1
206 112₽
Работа:113 183 ₽
Материалы:92 929 ₽
Дни:10
stdClass Object
(
[id] => 57
[attribute_id] => 29
[name] => Нет
[material_modifier] => 1
[work_modifier] => 1
[options] => Array
(
)
[days] => [0]
[material_price] => [0]
[work_price] => [0]
[image] => https://akademik-stroy.ru/wp-content/uploads/materials/santekhnika-kanalizaciya-1.jpg
[area_modifier] => 103.6
[parent_name] => Сантехника, канализация в доме
[parent_id] => 29
[material_sum] => 0
[work_sum] => 0
[total_sum] => 0
[total_days] => 0
[display_material_sum] => 0
[display_work_sum] => 0
[display_total_sum] => 0
)
1
0₽
Работа:0 ₽
Материалы:0 ₽
Дни:0
stdClass Object
(
[id] => 58
[attribute_id] => 29
[name] => Есть
[material_modifier] => 1
[work_modifier] => 1
[options] => Array
(
)
[days] => [10]
[material_price] => [600]
[work_price] => [730]
[image] => https://akademik-stroy.ru/wp-content/uploads/materials/santekhnika-kanalizaciya-1.jpg
[area_modifier] => 103.6
[parent_name] => Сантехника, канализация в доме
[parent_id] => 29
[material_sum] => 85781
[work_sum] => 86972
[total_sum] => 172753
[total_days] => 10
[display_material_sum] => 85 781
[display_work_sum] => 86 972
[display_total_sum] => 172 753
)
1
172 753₽
Работа:86 972 ₽
Материалы:85 781 ₽
Дни:10
stdClass Object
(
[id] => 59
[attribute_id] => 30
[name] => Нет
[material_modifier] => 1
[work_modifier] => 1
[options] => Array
(
)
[days] => [0]
[material_price] => [0]
[work_price] => [0]
[image] => https://akademik-stroy.ru/wp-content/uploads/materials/otoplenie-1.jpg
[area_modifier] => 103.6
[parent_name] => Отопление
[parent_id] => 30
[material_sum] => 0
[work_sum] => 0
[total_sum] => 0
[total_days] => 0
[display_material_sum] => 0
[display_work_sum] => 0
[display_total_sum] => 0
)
1
0₽
Работа:0 ₽
Материалы:0 ₽
Дни:0
stdClass Object
(
[id] => 60
[attribute_id] => 30
[name] => Есть
[material_modifier] => 1
[work_modifier] => 1
[options] => Array
(
)
[days] => [5]
[material_price] => [610]
[work_price] => [560]
[image] => https://akademik-stroy.ru/wp-content/uploads/materials/otoplenie-1.jpg
[area_modifier] => 103.6
[parent_name] => Отопление
[parent_id] => 30
[material_sum] => 87210
[work_sum] => 66718
[total_sum] => 153928
[total_days] => 5
[display_material_sum] => 87 210
[display_work_sum] => 66 718
[display_total_sum] => 153 928
)
1
153 928₽
Работа:66 718 ₽
Материалы:87 210 ₽
Дни:5
stdClass Object
(
[id] => 61
[attribute_id] => 31
[name] => Нет
[material_modifier] => 1
[work_modifier] => 1
[options] => Array
(
)
[days] => [0]
[material_price] => [0]
[work_price] => [0]
[image] => https://akademik-stroy.ru/wp-content/uploads/materials/vodyanye.jpg
[area_modifier] => 30
[parent_name] => Теплые полы
[parent_id] => 31
[material_sum] => 0
[work_sum] => 0
[total_sum] => 0
[total_days] => 0
[display_material_sum] => 0
[display_work_sum] => 0
[display_total_sum] => 0
)
1
0₽
Работа:0 ₽
Материалы:0 ₽
Дни:0
stdClass Object
(
[id] => 151
[attribute_id] => 31
[name] => Водяные
[material_modifier] => 1
[work_modifier] => 1
[options] => Array
(
)
[days] => [9]
[material_price] => [10200]
[work_price] => [2500]
[image] => https://akademik-stroy.ru/wp-content/uploads/materials/vodyanye.jpg
[area_modifier] => 30
[parent_name] => Теплые полы
[parent_id] => 31
[material_sum] => 422280
[work_sum] => 86250
[total_sum] => 508530
[total_days] => 9
[display_material_sum] => 422 280
[display_work_sum] => 86 250
[display_total_sum] => 508 530
)
1
508 530₽
Работа:86 250 ₽
Материалы:422 280 ₽
Дни:9
stdClass Object
(
[id] => 152
[attribute_id] => 31
[name] => Электро
[material_modifier] => 1
[work_modifier] => 1
[options] => Array
(
)
[days] => [5]
[material_price] => [6300]
[work_price] => [1500]
[image] => https://akademik-stroy.ru/wp-content/uploads/materials/ehlektricheskij.jpg
[area_modifier] => 30
[parent_name] => Теплые полы
[parent_id] => 31
[material_sum] => 260820
[work_sum] => 51750
[total_sum] => 312570
[total_days] => 5
[display_material_sum] => 260 820
[display_work_sum] => 51 750
[display_total_sum] => 312 570
)
1
312 570₽
Работа:51 750 ₽
Материалы:260 820 ₽
Дни:5
stdClass Object
(
[id] => 63
[attribute_id] => 32
[name] => Нет
[material_modifier] => 1
[work_modifier] => 1
[options] => Array
(
)
[days] => [0]
[material_price] => [0]
[work_price] => [0]
[image] => https://akademik-stroy.ru/wp-content/uploads/materials/shtukaturka-shpatlevka-1.jpg
[area_modifier] => 103.6
[parent_name] => Черновая отделка стен
[parent_id] => 32
[material_sum] => 0
[work_sum] => 0
[total_sum] => 0
[total_days] => 0
[display_material_sum] => 0
[display_work_sum] => 0
[display_total_sum] => 0
)
1
0₽
Работа:0 ₽
Материалы:0 ₽
Дни:0
stdClass Object
(
[id] => 153
[attribute_id] => 32
[name] => Штукатурка и шпатлевка
[material_modifier] => 1
[work_modifier] => 1
[options] => Array
(
)
[days] => [20]
[material_price] => [1850]
[work_price] => [2600]
[image] => https://akademik-stroy.ru/wp-content/uploads/materials/shtukaturka-shpatlevka-1.jpg
[area_modifier] => 103.6
[parent_name] => Черновая отделка стен
[parent_id] => 32
[material_sum] => 264491
[work_sum] => 309764
[total_sum] => 574255
[total_days] => 20
[display_material_sum] => 264 491
[display_work_sum] => 309 764
[display_total_sum] => 574 255
)
1
574 255₽
Работа:309 764 ₽
Материалы:264 491 ₽
Дни:20
stdClass Object
(
[id] => 154
[attribute_id] => 32
[name] => Гипсокортон на стены
[material_modifier] => 1
[work_modifier] => 1
[options] => Array
(
)
[days] => [15]
[material_price] => [950]
[work_price] => [2100]
[image] => https://akademik-stroy.ru/wp-content/uploads/materials/gkl-1.jpg
[area_modifier] => 103.6
[parent_name] => Черновая отделка стен
[parent_id] => 32
[material_sum] => 135820
[work_sum] => 250194
[total_sum] => 386014
[total_days] => 15
[display_material_sum] => 135 820
[display_work_sum] => 250 194
[display_total_sum] => 386 014
)
1
386 014₽
Работа:250 194 ₽
Материалы:135 820 ₽
Дни:15
stdClass Object
(
[id] => 155
[attribute_id] => 32
[name] => Вагонка
[material_modifier] => 1
[work_modifier] => 1
[options] => Array
(
)
[days] => [15]
[material_price] => [1250]
[work_price] => [950]
[image] => https://akademik-stroy.ru/wp-content/uploads/materials/vagonka.jpg
[area_modifier] => 103.6
[parent_name] => Черновая отделка стен
[parent_id] => 32
[material_sum] => 178710
[work_sum] => 113183
[total_sum] => 291893
[total_days] => 15
[display_material_sum] => 178 710
[display_work_sum] => 113 183
[display_total_sum] => 291 893
)
1
291 893₽
Работа:113 183 ₽
Материалы:178 710 ₽
Дни:15
stdClass Object
(
[id] => 65
[attribute_id] => 33
[name] => Нет
[material_modifier] => 1
[work_modifier] => 1
[options] => Array
(
)
[days] => [0]
[material_price] => [0]
[work_price] => [0]
[image] => https://akademik-stroy.ru/wp-content/uploads/materials/styazhka.jpg
[area_modifier] => 103.6
[parent_name] => Черновая отделка полов
[parent_id] => 33
[material_sum] => 0
[work_sum] => 0
[total_sum] => 0
[total_days] => 0
[display_material_sum] => 0
[display_work_sum] => 0
[display_total_sum] => 0
)
1
0₽
Работа:0 ₽
Материалы:0 ₽
Дни:0
stdClass Object
(
[id] => 156
[attribute_id] => 33
[name] => Стяжка + наливные полы
[material_modifier] => 1
[work_modifier] => 1
[options] => Array
(
)
[days] => [10]
[material_price] => [1000]
[work_price] => [900]
[image] => https://akademik-stroy.ru/wp-content/uploads/materials/styazhka.jpg
[area_modifier] => 103.6
[parent_name] => Черновая отделка полов
[parent_id] => 33
[material_sum] => 142968
[work_sum] => 107226
[total_sum] => 250194
[total_days] => 10
[display_material_sum] => 142 968
[display_work_sum] => 107 226
[display_total_sum] => 250 194
)
1
250 194₽
Работа:107 226 ₽
Материалы:142 968 ₽
Дни:10
stdClass Object
(
[id] => 157
[attribute_id] => 33
[name] => ОСБ на пол
[material_modifier] => 1
[work_modifier] => 1
[options] => Array
(
)
[days] => [7]
[material_price] => [580]
[work_price] => [350]
[image] => https://akademik-stroy.ru/wp-content/uploads/materials/osb-1.jpg
[area_modifier] => 103.6
[parent_name] => Черновая отделка полов
[parent_id] => 33
[material_sum] => 82921
[work_sum] => 41699
[total_sum] => 124620
[total_days] => 7
[display_material_sum] => 82 921
[display_work_sum] => 41 699
[display_total_sum] => 124 620
)
1
124 620₽
Работа:41 699 ₽
Материалы:82 921 ₽
Дни:7
stdClass Object
(
[id] => 67
[attribute_id] => 34
[name] => Нет
[material_modifier] => 1
[work_modifier] => 1
[options] => Array
(
)
[days] => [0]
[material_price] => [0]
[work_price] => [0]
[image] => https://akademik-stroy.ru/wp-content/uploads/materials/chistovaya-otdelka.jpg
[area_modifier] => 103.6
[parent_name] => Чистовая отделка стен и полов
[parent_id] => 34
[material_sum] => 0
[work_sum] => 0
[total_sum] => 0
[total_days] => 0
[display_material_sum] => 0
[display_work_sum] => 0
[display_total_sum] => 0
)
1
0₽
Работа:0 ₽
Материалы:0 ₽
Дни:0
stdClass Object
(
[id] => 68
[attribute_id] => 34
[name] => Есть
[material_modifier] => 1
[work_modifier] => 1
[options] => Array
(
)
[days] => [50]
[material_price] => [6000]
[work_price] => [3500]
[image] => https://akademik-stroy.ru/wp-content/uploads/materials/chistovaya-otdelka.jpg
[area_modifier] => 103.6
[parent_name] => Чистовая отделка стен и полов
[parent_id] => 34
[material_sum] => 857808
[work_sum] => 416990
[total_sum] => 1274798
[total_days] => 50
[display_material_sum] => 857 808
[display_work_sum] => 416 990
[display_total_sum] => 1 274 798
)
1
1 274 798₽
Работа:416 990 ₽
Материалы:857 808 ₽
Дни:50
stdClass Object
(
[id] => 69
[attribute_id] => 35
[name] => Нет
[material_modifier] => 1
[work_modifier] => 1
[options] => Array
(
)
[days] => [0]
[material_price] => [0]
[work_price] => [0]
[image] => https://akademik-stroy.ru/wp-content/uploads/materials/mnogourovnevyj-gkl.jpg
[area_modifier] => 103.6
[parent_name] => Отделка потолка
[parent_id] => 35
[material_sum] => 0
[work_sum] => 0
[total_sum] => 0
[total_days] => 0
[display_material_sum] => 0
[display_work_sum] => 0
[display_total_sum] => 0
)
1
0₽
Работа:0 ₽
Материалы:0 ₽
Дни:0
stdClass Object
(
[id] => 70
[attribute_id] => 35
[name] => Есть
[material_modifier] => 1
[work_modifier] => 1
[options] => Array
(
[0] => Многоуровневый потолок из гипсокартона
[1] => Многоуровневый потолок из гипсокартона и натяжного потолка
[2] => Одноуровневый потолок из гипсокартона
[3] => Одноуровневый натяжной потолок
)
[days] => [10,10,1,1]
[material_price] => [900,700,700,600]
[work_price] => [1000,800,500,300]
[image] => https://akademik-stroy.ru/wp-content/uploads/materials/mnogourovnevyj-gkl.jpg
[area_modifier] => 103.6
[parent_name] => Отделка потолка
[parent_id] => 35
[material_sum] => 128671
[work_sum] => 119140
[total_sum] => 247811
[total_days] => 10
[display_material_sum] => 128 671
[display_work_sum] => 119 140
[display_total_sum] => 247 811
)
1
247 811₽
Работа:119 140 ₽
Материалы:128 671 ₽
Дни:10
Преимущества работы с нами
7 этапов оплаты
Независимый строительный надзор
Экологически чистые материалы
16 лет гарантии
Онлайн-кабинет с веб-камерой
Строители с опытом более 15 лет
Собственное производство

