Двухэтажный гараж 152.64 м2
154 м2
Полезная
площадь
площадь
2 этажа
Этажей
26 м2
Террасы
и балконы
и балконы
0Без
гаража
гаража
0
Количество
спален
спален
0
Количество
санузлов
санузлов
Планировки
Подвал
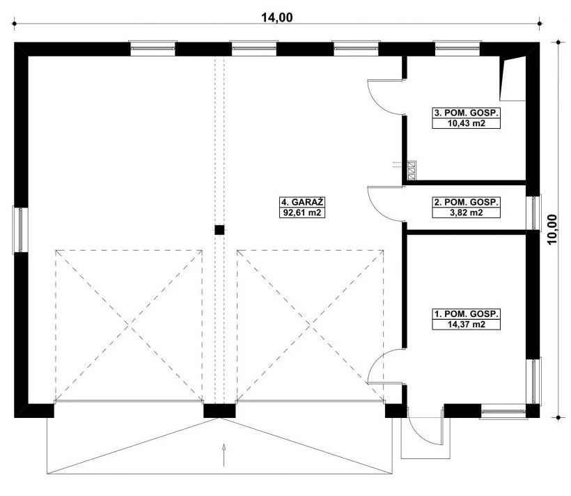
- 1. (m²) 60,03
- Подсобное помещение 60,03
Первый этаж
- 1. (m²) 121,23
- 2. Подсобное помещение 14,37
- 3. Подсобное помещение 3,82
- 4. Подсобное помещение 10,43
- Гараж на 2 машины 92,61
Фасады
Передний
Задний
Левый
Правый
Подробная информация
Полезная площадь
181,26 m²
Количество спален
0
Количество санузлов
0
Гараж
2
Мин. шир. и дл. участка
22 x 18 m
Угол наклона крыши
30°
Наклон ската крыши в градусах. Внимание! В некоторых проектах возникает более чем один наклон крыши.
Вид материалов
Murowana
Материалы и опции
Общие
Площадь от и до
Тип крыши
Форма
Площади дома
| № п/п | Наименование | Ед. из. | Строительная площадь | Полезная площадь |
| 1 | 1 этаж | м2 | 73.97 | 60.03 |
| 2 | 2 этаж | м2 | 114.12 | 92.61 |
| 3 | Итого | м2 | 188.09 | 152.64 |
Калькулятор опций
0₽
В ипотеку от 207 ₽/мес.
0₽
0 дней
stdClass Object
(
[id] => 1
[attribute_id] => 1
[name] => Ленточный монолитный ж/б
[material_modifier] => 1
[work_modifier] => 1
[options] => Array
(
[0] => размер 200 х 700 мм
[1] => размер 300 х 900 мм
[2] => размер 400 х 1 000 мм
[3] => размер 500 х 1 100 мм
[4] => размер 600 х 1 200 мм
)
[days] => [20,21,22,25,30]
[material_price] => [2823,3630,4475,5210,12047]
[work_price] => [2154,2826,3731,4577,5293]
[image] => https://akademik-stroy.ru/wp-content/uploads/materials/lentochnyj-monolitnyj-zh-b.jpg
[area_modifier] => 73.97
[parent_name] => Фундамент
[parent_id] => 1
[material_sum] => 275639
[work_sum] => 175265
[total_sum] => 450904
[total_days] => 20
[display_material_sum] => 275 639
[display_work_sum] => 175 265
[display_total_sum] => 450 904
)
1
450 904₽
Работа:175 265 ₽
Материалы:275 639 ₽
Дни:20
stdClass Object
(
[id] => 2
[attribute_id] => 1
[name] => Забивные Ж/Б сваи
[material_modifier] => 1
[work_modifier] => 1
[options] => Array
(
[0] => 150х150х3000мм
[1] => 150х150х4000мм
[2] => 200х200х3000мм
[3] => 200х200х4000мм
[4] => 200х200х5000мм
[5] => 200х200х6000мм
)
[days] => [2,2,2,2,2,2]
[material_price] => [1990,2850,3255,4360,5120,6837]
[work_price] => [1002,1185,1336,1438,1574,1839]
[image] => https://akademik-stroy.ru/wp-content/uploads/materials/zabivnye-zh-b-svai.png
[area_modifier] => 73.97
[parent_name] => Фундамент
[parent_id] => 1
[material_sum] => 194304
[work_sum] => 81530
[total_sum] => 275834
[total_days] => 2
[display_material_sum] => 194 304
[display_work_sum] => 81 530
[display_total_sum] => 275 834
)
1
275 834₽
Работа:81 530 ₽
Материалы:194 304 ₽
Дни:2
stdClass Object
(
[id] => 71
[attribute_id] => 1
[name] => Свайно-ростверковый ж/б
[material_modifier] => 1
[work_modifier] => 1
[options] => Array
(
[0] => ростверк 200х300 мм
[1] => ростверк 300х600 мм
[2] => ростверк 400х900 мм
[3] => ростверк 500х1200 мм
)
[days] => [20,23,25,27]
[material_price] => [3018,3474,7109,9792]
[work_price] => [2024,3012,5635,7022]
[image] => https://akademik-stroy.ru/wp-content/uploads/materials/svajno-rostverkovyj-monolitnyj-zh-b-3.png
[area_modifier] => 73.97
[parent_name] => Фундамент
[parent_id] => 1
[material_sum] => 294679
[work_sum] => 164687
[total_sum] => 459366
[total_days] => 20
[display_material_sum] => 294 679
[display_work_sum] => 164 687
[display_total_sum] => 459 366
)
1
459 366₽
Работа:164 687 ₽
Материалы:294 679 ₽
Дни:20
stdClass Object
(
[id] => 72
[attribute_id] => 1
[name] => Монолитная ж/б плита
[material_modifier] => 1
[work_modifier] => 1
[options] => Array
(
[0] => 200 мм
[1] => 300 мм
[2] => 400 мм
[3] => 500 мм
[4] => 600 мм
)
[days] => [30,33,35,37,40]
[material_price] => [5348,8555,12788,14388,15189]
[work_price] => [4314,4881,7037,8061,10230]
[image] => https://akademik-stroy.ru/wp-content/uploads/materials/monolitnaya-zhb-plita.png
[area_modifier] => 73.97
[parent_name] => Фундамент
[parent_id] => 1
[material_sum] => 522181
[work_sum] => 351017
[total_sum] => 873198
[total_days] => 30
[display_material_sum] => 522 181
[display_work_sum] => 351 017
[display_total_sum] => 873 198
)
1
873 198₽
Работа:351 017 ₽
Материалы:522 181 ₽
Дни:30
stdClass Object
(
[id] => 73
[attribute_id] => 1
[name] => Утепленная шведская плита
[material_modifier] => 1
[work_modifier] => 1
[options] => Array
(
[0] => 200 мм
[1] => 300 мм
[2] => 400 мм
[3] => 500 мм
[4] => 600 мм
)
[days] => [32,37,39,42,45]
[material_price] => [10249,12692,13760,14936,16230]
[work_price] => [5960,7337,8072,8878,9765]
[image] => https://akademik-stroy.ru/wp-content/uploads/materials/uteplennaya-shvedskaya-plita.jpg
[area_modifier] => 73.97
[parent_name] => Фундамент
[parent_id] => 1
[material_sum] => 1000716
[work_sum] => 484947
[total_sum] => 1485663
[total_days] => 32
[display_material_sum] => 1 000 716
[display_work_sum] => 484 947
[display_total_sum] => 1 485 663
)
1
1 485 663₽
Работа:484 947 ₽
Материалы:1 000 716 ₽
Дни:32
stdClass Object
(
[id] => 75
[attribute_id] => 1
[name] => Ленточный из ФБС
[material_modifier] => 1
[work_modifier] => 1
[options] => Array
(
[0] => толщ. 300 мм
[1] => толщ. 400 мм
[2] => толщ. 500 мм
[3] => толщ. 600 мм
)
[days] => [20,20,20,20]
[material_price] => [3675,4902,6126,7350]
[work_price] => [2451,3264,4083,4902]
[image] => https://akademik-stroy.ru/wp-content/uploads/materials/lentochnyj-iz-fbs.png
[area_modifier] => 73.97
[parent_name] => Фундамент
[parent_id] => 1
[material_sum] => 358828
[work_sum] => 199431
[total_sum] => 558259
[total_days] => 20
[display_material_sum] => 358 828
[display_work_sum] => 199 431
[display_total_sum] => 558 259
)
1
558 259₽
Работа:199 431 ₽
Материалы:358 828 ₽
Дни:20
stdClass Object
(
[id] => 76
[attribute_id] => 1
[name] => Цокольный этаж из ФБС
[material_modifier] => 1
[work_modifier] => 1
[options] => Array
(
[0] => толщ. 300 мм
[1] => толщ. 400 мм
[2] => толщ. 500 мм
[3] => толщ. 600 мм
)
[days] => [30,32,34,36]
[material_price] => [20916,23299,26680,29060]
[work_price] => [17524,18700,19873,21046]
[image] => https://akademik-stroy.ru/wp-content/uploads/materials/cokolnyj-ehtazh-iz-fbs.jpg
[area_modifier] => 73.97
[parent_name] => Фундамент
[parent_id] => 1
[material_sum] => 2042247
[work_sum] => 1425875
[total_sum] => 3468122
[total_days] => 30
[display_material_sum] => 2 042 247
[display_work_sum] => 1 425 875
[display_total_sum] => 3 468 122
)
1
3 468 122₽
Работа:1 425 875 ₽
Материалы:2 042 247 ₽
Дни:30
stdClass Object
(
[id] => 77
[attribute_id] => 1
[name] => Цокольный этаж монолитный ж/б
[material_modifier] => 1
[work_modifier] => 1
[options] => Array
(
[0] => толщ. 200 мм
[1] => толщ. 300 мм
[2] => толщ. 400 мм
[3] => толщ. 500 мм
[4] => толщ. 600 мм
)
[days] => [40,42,44,46,48]
[material_price] => [25421,29148,32275,35602,37326]
[work_price] => [20441,21907,23375,24841,26306]
[image] => https://akademik-stroy.ru/wp-content/uploads/materials/cokolnyj-etazh-zh-b.jpg
[area_modifier] => 73.97
[parent_name] => Фундамент
[parent_id] => 1
[material_sum] => 2482117
[work_sum] => 1663223
[total_sum] => 4145340
[total_days] => 40
[display_material_sum] => 2 482 117
[display_work_sum] => 1 663 223
[display_total_sum] => 4 145 340
)
1
4 145 340₽
Работа:1 663 223 ₽
Материалы:2 482 117 ₽
Дни:40
stdClass Object
(
[id] => 191
[attribute_id] => 1
[name] => Винтовые сваи
[material_modifier] => 1
[work_modifier] => 1
[options] => Array
(
[0] => 57х200мм
[1] => 76х250мм
[2] => 108х300мм
[3] => 133х350мм
)
[days] => [1,1,2,2]
[material_price] => [1200,1300,1450,1600]
[work_price] => [400,600,900,1100]
[image] => https://akademik-stroy.ru/wp-content/uploads/materials/vintovye-svai.png
[area_modifier] => 73.97
[parent_name] => Фундамент
[parent_id] => 1
[material_sum] => 117168
[work_sum] => 32547
[total_sum] => 149715
[total_days] => 1
[display_material_sum] => 117 168
[display_work_sum] => 32 547
[display_total_sum] => 149 715
)
1
149 715₽
Работа:32 547 ₽
Материалы:117 168 ₽
Дни:1
stdClass Object
(
[id] => 3
[attribute_id] => 2
[name] => Деревянные балки
[material_modifier] => 1
[work_modifier] => 1
[options] => Array
(
[0] => без утепления
[1] => утепление 200 мм
[2] => утепление 250 мм
[3] => утепление 300 мм
[4] => утепление 350 мм
[5] => утепление 400 мм
[6] => утепление 450 мм
[7] => утепление 500 мм
)
[days] => [8,9,9,9,11,12,13,14]
[material_price] => [1634,2042,2344,2947,3149,3652,3354,3557]
[work_price] => [1230,1339,1393,1426,1460,1513,1587,1620]
[image] => https://akademik-stroy.ru/wp-content/uploads/materials/derevyannye-balki.png
[area_modifier] => 73.97
[parent_name] => Перекрытие цоколя
[parent_id] => 2
[material_sum] => 159544
[work_sum] => 100081
[total_sum] => 259625
[total_days] => 8
[display_material_sum] => 159 544
[display_work_sum] => 100 081
[display_total_sum] => 259 625
)
1
259 625₽
Работа:100 081 ₽
Материалы:159 544 ₽
Дни:8
stdClass Object
(
[id] => 4
[attribute_id] => 2
[name] => Сборные ж/б плиты
[material_modifier] => 1
[work_modifier] => 1
[options] => Array
(
[0] => без утепления
[1] => утепление 150мм
[2] => утепление 200мм
[3] => утепление 250мм
[4] => утепление 300мм
[5] => утепление 350мм
[6] => утепление 400мм
[7] => утепление 450мм
[8] => утепление 500мм
)
[days] => [13,15,15,15,15,15,15,15,15]
[material_price] => [3067,5577,5928,6679,7730,8782,9833,10884,11935]
[work_price] => [1520,1956,2102,2247,2392,2537,2684,2829,2974]
[image] => https://akademik-stroy.ru/wp-content/uploads/materials/sbornye-zh-b-plity-2.jpg
[area_modifier] => 73.97
[parent_name] => Перекрытие цоколя
[parent_id] => 2
[material_sum] => 299463
[work_sum] => 123678
[total_sum] => 423141
[total_days] => 13
[display_material_sum] => 299 463
[display_work_sum] => 123 678
[display_total_sum] => 423 141
)
1
423 141₽
Работа:123 678 ₽
Материалы:299 463 ₽
Дни:13
stdClass Object
(
[id] => 78
[attribute_id] => 2
[name] => Монолитная ж/б плита
[material_modifier] => 1
[work_modifier] => 1
[options] => Array
(
[0] => без утепления
[1] => утепление 150 мм
[2] => утепление 200 мм
[3] => утепление 250 мм
[4] => утепление 300 мм
[5] => утепление 350 мм
[6] => утепление 400 мм
[7] => утепление 450 мм
[8] => утепление 500 мм
)
[days] => [18,20,20,20,20,20,20,20,20]
[material_price] => [4837,6572,7224,7375,79426,8177,8728,9180,10031]
[work_price] => [3348,3921,4112,4302,4493,4684,4875,5066,5256]
[image] => https://akademik-stroy.ru/wp-content/uploads/materials/monolitnaya-zh-b-plita-2.jpg
[area_modifier] => 73.97
[parent_name] => Перекрытие цоколя
[parent_id] => 2
[material_sum] => 472287
[work_sum] => 272417
[total_sum] => 744704
[total_days] => 18
[display_material_sum] => 472 287
[display_work_sum] => 272 417
[display_total_sum] => 744 704
)
1
744 704₽
Работа:272 417 ₽
Материалы:472 287 ₽
Дни:18
stdClass Object
(
[id] => 6
[attribute_id] => 3
[name] => Пеноблок
[material_modifier] => 1
[work_modifier] => 1
[options] => Array
(
[0] => 300 мм
[1] => 400 мм
[2] => 500 мм
[3] => 600 мм
)
[days] => [29,31,34,39]
[material_price] => [3000,4000,4500,4937]
[work_price] => [5033,5805,6400,8710]
[image] => https://akademik-stroy.ru/wp-content/uploads/materials/penoblok.jpg
[area_modifier] => 73.97
[parent_name] => Стены 1 этаж (несущие)
[parent_id] => 3
[material_sum] => 292921
[work_sum] => 409520
[total_sum] => 702441
[total_days] => 29
[display_material_sum] => 292 921
[display_work_sum] => 409 520
[display_total_sum] => 702 441
)
1
702 441₽
Работа:409 520 ₽
Материалы:292 921 ₽
Дни:29
stdClass Object
(
[id] => 79
[attribute_id] => 3
[name] => Керамический блок
[material_modifier] => 1
[work_modifier] => 1
[options] => Array
(
[0] => 380 мм
[1] => 380 мм Thermo
[2] => 440 мм
[3] => 510 мм
)
[days] => [23,23,24,25]
[material_price] => [4510,5098,6093,8013]
[work_price] => [4737,4937,5903,6958]
[image] => https://akademik-stroy.ru/wp-content/uploads/materials/keramicheskij-blok.jpg
[area_modifier] => 73.97
[parent_name] => Стены 1 этаж (несущие)
[parent_id] => 3
[material_sum] => 440358
[work_sum] => 385435
[total_sum] => 825793
[total_days] => 23
[display_material_sum] => 440 358
[display_work_sum] => 385 435
[display_total_sum] => 825 793
)
1
825 793₽
Работа:385 435 ₽
Материалы:440 358 ₽
Дни:23
stdClass Object
(
[id] => 80
[attribute_id] => 3
[name] => Кирпич
[material_modifier] => 1
[work_modifier] => 1
[options] => Array
(
[0] => Кирпич 250 мм
[1] => Кирпич 380 мм
[2] => Кирпич 510 мм
[3] => Кирпич 640 мм
[4] => Кирпич 770 мм
)
[days] => [30,30,31,33,36]
[material_price] => [5500,7142,9206,10171,12235]
[work_price] => [8736,10041,12018,15240,18462]
[image] => https://akademik-stroy.ru/wp-content/uploads/materials/kirpich.jpg
[area_modifier] => 73.97
[parent_name] => Стены 1 этаж (несущие)
[parent_id] => 3
[material_sum] => 537022
[work_sum] => 710822
[total_sum] => 1247844
[total_days] => 30
[display_material_sum] => 537 022
[display_work_sum] => 710 822
[display_total_sum] => 1 247 844
)
1
1 247 844₽
Работа:710 822 ₽
Материалы:537 022 ₽
Дни:30
stdClass Object
(
[id] => 81
[attribute_id] => 3
[name] => Монолитные
[material_modifier] => 1
[work_modifier] => 1
[options] => Array
(
[0] => 150 мм
[1] => 200 мм
[2] => 250 мм
[3] => 300 мм
[4] => 350 мм
[5] => 400 мм
)
[days] => [45,46,47,49,50,53]
[material_price] => [6545,7876,10175,12011,13908,15204]
[work_price] => [5106,6444,7698,8552,9807,11461]
[image] => https://akademik-stroy.ru/wp-content/uploads/materials/monolitnye.jpg
[area_modifier] => 73.97
[parent_name] => Стены 1 этаж (несущие)
[parent_id] => 3
[material_sum] => 639056
[work_sum] => 415460
[total_sum] => 1054516
[total_days] => 45
[display_material_sum] => 639 056
[display_work_sum] => 415 460
[display_total_sum] => 1 054 516
)
1
1 054 516₽
Работа:415 460 ₽
Материалы:639 056 ₽
Дни:45
stdClass Object
(
[id] => 82
[attribute_id] => 3
[name] => Клееный брус
[material_modifier] => 1
[work_modifier] => 1
[options] => Array
(
[0] => 160 мм
[1] => 175 мм
[2] => 200 мм
[3] => 215 мм
[4] => 240 мм
[5] => 270 мм
[6] => 282 мм
)
[days] => [24,28,32,37,40,42,48]
[material_price] => [16975,18773,19950,20545,21599,22159,23275]
[work_price] => [4806,5287,5815,6397,7036,7740,8514]
[image] => https://akademik-stroy.ru/wp-content/uploads/materials/kleenyj-brus.jpg
[area_modifier] => 73.97
[parent_name] => Стены 1 этаж (несущие)
[parent_id] => 3
[material_sum] => 1657446
[work_sum] => 391050
[total_sum] => 2048496
[total_days] => 24
[display_material_sum] => 1 657 446
[display_work_sum] => 391 050
[display_total_sum] => 2 048 496
)
1
2 048 496₽
Работа:391 050 ₽
Материалы:1 657 446 ₽
Дни:24
stdClass Object
(
[id] => 83
[attribute_id] => 3
[name] => Каркасные
[material_modifier] => 1
[work_modifier] => 1
[options] => Array
(
[0] => 150 мм
[1] => 200 мм
[2] => 250 мм
[3] => 300 мм
)
[days] => [15,16,17,18]
[material_price] => [2379,2639,2898,3258]
[work_price] => [2418,2686,2985,3716]
[image] => https://akademik-stroy.ru/wp-content/uploads/materials/karkasnye.jpg
[area_modifier] => 73.97
[parent_name] => Стены 1 этаж (несущие)
[parent_id] => 3
[material_sum] => 232287
[work_sum] => 196745
[total_sum] => 429032
[total_days] => 15
[display_material_sum] => 232 287
[display_work_sum] => 196 745
[display_total_sum] => 429 032
)
1
429 032₽
Работа:196 745 ₽
Материалы:232 287 ₽
Дни:15
stdClass Object
(
[id] => 84
[attribute_id] => 3
[name] => СИП-панели
[material_modifier] => 1
[work_modifier] => 1
[options] => Array
(
[0] => 120 мм
[1] => 170 мм
[2] => 220 мм
)
[days] => [7,7,7]
[material_price] => [1210,1856,2292]
[work_price] => [1410,1551,1706]
[image] => https://akademik-stroy.ru/wp-content/uploads/materials/sip-paneli.jpg
[area_modifier] => 73.97
[parent_name] => Стены 1 этаж (несущие)
[parent_id] => 3
[material_sum] => 118145
[work_sum] => 114727
[total_sum] => 232872
[total_days] => 7
[display_material_sum] => 118 145
[display_work_sum] => 114 727
[display_total_sum] => 232 872
)
1
232 872₽
Работа:114 727 ₽
Материалы:118 145 ₽
Дни:7
stdClass Object
(
[id] => 85
[attribute_id] => 3
[name] => Сухой брус
[material_modifier] => 1
[work_modifier] => 1
[options] => Array
(
[0] => 150 мм
[1] => 180 мм
[2] => 200 мм
)
[days] => [7,8,9]
[material_price] => [6010,7190,8709]
[work_price] => [3204,3845,4229]
[image] => https://akademik-stroy.ru/wp-content/uploads/materials/suhoj-brus.jpg
[area_modifier] => 73.97
[parent_name] => Стены 1 этаж (несущие)
[parent_id] => 3
[material_sum] => 586819
[work_sum] => 260700
[total_sum] => 847519
[total_days] => 7
[display_material_sum] => 586 819
[display_work_sum] => 260 700
[display_total_sum] => 847 519
)
1
847 519₽
Работа:260 700 ₽
Материалы:586 819 ₽
Дни:7
stdClass Object
(
[id] => 86
[attribute_id] => 3
[name] => Профилированный брус
[material_modifier] => 1
[work_modifier] => 1
[options] => Array
(
[0] => 150 мм
[1] => 180 мм
[2] => 200 мм
)
[days] => [7,8,9]
[material_price] => [8190,9228,10051]
[work_price] => [3845,4614,5075]
[image] => https://akademik-stroy.ru/wp-content/uploads/materials/profilirovannyj-brus.jpg
[area_modifier] => 73.97
[parent_name] => Стены 1 этаж (несущие)
[parent_id] => 3
[material_sum] => 799675
[work_sum] => 312856
[total_sum] => 1112531
[total_days] => 7
[display_material_sum] => 799 675
[display_work_sum] => 312 856
[display_total_sum] => 1 112 531
)
1
1 112 531₽
Работа:312 856 ₽
Материалы:799 675 ₽
Дни:7
stdClass Object
(
[id] => 87
[attribute_id] => 3
[name] => Оцилиндрованное бревно
[material_modifier] => 1
[work_modifier] => 1
[options] => Array
(
[0] => 180 мм
[1] => 220 мм
[2] => 260 мм
[3] => 320 мм
)
[days] => [7,8,9,10]
[material_price] => [75190,9532,10868,13116]
[work_price] => [3845,4691,5535,6863]
[image] => https://akademik-stroy.ru/wp-content/uploads/materials/ocilindrovannoe-brevno-1.jpg
[area_modifier] => 73.97
[parent_name] => Стены 1 этаж (несущие)
[parent_id] => 3
[material_sum] => 7341582
[work_sum] => 312856
[total_sum] => 7654438
[total_days] => 7
[display_material_sum] => 7 341 582
[display_work_sum] => 312 856
[display_total_sum] => 7 654 438
)
1
7 654 438₽
Работа:312 856 ₽
Материалы:7 341 582 ₽
Дни:7
stdClass Object
(
[id] => 88
[attribute_id] => 3
[name] => Срубы
[material_modifier] => 1
[work_modifier] => 1
[options] => Array
(
[0] => 260 мм
[1] => 320 мм
[2] => 360 мм
[3] => 400 мм
[4] => 500 мм
)
[days] => [7,8,9,10,11]
[material_price] => [37975,46709,52314,58069,73167]
[work_price] => [4806,5911,6621,7349,9260]
[image] => https://akademik-stroy.ru/wp-content/uploads/materials/sruby.jpg
[area_modifier] => 73.97
[parent_name] => Стены 1 этаж (несущие)
[parent_id] => 3
[material_sum] => 3707894
[work_sum] => 391050
[total_sum] => 4098944
[total_days] => 7
[display_material_sum] => 3 707 894
[display_work_sum] => 391 050
[display_total_sum] => 4 098 944
)
1
4 098 944₽
Работа:391 050 ₽
Материалы:3 707 894 ₽
Дни:7
stdClass Object
(
[id] => 174
[attribute_id] => 3
[name] => Брус
[material_modifier] => 1
[work_modifier] => 1
[options] => Array
(
[0] => 150 мм
[1] => 180 мм
[2] => 200 мм
)
[days] => [7,8,9]
[material_price] => [5127,6152,7367]
[work_price] => [1602,1922,2115]
[image] => https://akademik-stroy.ru/wp-content/uploads/materials/brus.jpg
[area_modifier] => 73.97
[parent_name] => Стены 1 этаж (несущие)
[parent_id] => 3
[material_sum] => 500602
[work_sum] => 130350
[total_sum] => 630952
[total_days] => 7
[display_material_sum] => 500 602
[display_work_sum] => 130 350
[display_total_sum] => 630 952
)
1
630 952₽
Работа:130 350 ₽
Материалы:500 602 ₽
Дни:7
stdClass Object
(
[id] => 175
[attribute_id] => 3
[name] => Газобетон
[material_modifier] => 1
[work_modifier] => 1
[options] => Array
(
[0] => 300 мм
[1] => 375 мм
[2] => 400 мм
[3] => 500 мм
[4] => 600 мм
)
[days] => [29,31,35,37,44]
[material_price] => [4298,5573,6356,7288,9119]
[work_price] => [4538,5251,5926,6733,7195]
[image] => https://akademik-stroy.ru/wp-content/uploads/materials/gazobeton.jpg
[area_modifier] => 73.97
[parent_name] => Стены 1 этаж (несущие)
[parent_id] => 3
[material_sum] => 419658
[work_sum] => 369243
[total_sum] => 788901
[total_days] => 29
[display_material_sum] => 419 658
[display_work_sum] => 369 243
[display_total_sum] => 788 901
)
1
788 901₽
Работа:369 243 ₽
Материалы:419 658 ₽
Дни:29
stdClass Object
(
[id] => 176
[attribute_id] => 3
[name] => Блок
[material_modifier] => 1
[work_modifier] => 1
[options] => Array
(
[0] => 300 мм
[1] => 375 мм
[2] => 400 мм
[3] => 500 мм
[4] => 600 мм
)
[days] => [29,31,35,37,44]
[material_price] => [2698,3973,4356,6588,7119]
[work_price] => [5038,5851,6426,8733,9195]
[image] => https://akademik-stroy.ru/wp-content/uploads/materials/blok.jpg
[area_modifier] => 73.97
[parent_name] => Стены 1 этаж (несущие)
[parent_id] => 3
[material_sum] => 263434
[work_sum] => 409927
[total_sum] => 673361
[total_days] => 29
[display_material_sum] => 263 434
[display_work_sum] => 409 927
[display_total_sum] => 673 361
)
1
673 361₽
Работа:409 927 ₽
Материалы:263 434 ₽
Дни:29
stdClass Object
(
[id] => 177
[attribute_id] => 3
[name] => Газосиликатный блок
[material_modifier] => 1
[work_modifier] => 1
[options] => Array
(
[0] => 300 мм
[1] => 375 мм
[2] => 400 мм
[3] => 500 мм
[4] => 600 мм
)
[days] => [29,31,35,37,44]
[material_price] => [4298,5573,6356,7288,9119]
[work_price] => [4538,5251,5926,6733,7195]
[image] => https://akademik-stroy.ru/wp-content/uploads/materials/gazosilikatnyj-blok.jpg
[area_modifier] => 73.97
[parent_name] => Стены 1 этаж (несущие)
[parent_id] => 3
[material_sum] => 419658
[work_sum] => 369243
[total_sum] => 788901
[total_days] => 29
[display_material_sum] => 419 658
[display_work_sum] => 369 243
[display_total_sum] => 788 901
)
1
788 901₽
Работа:369 243 ₽
Материалы:419 658 ₽
Дни:29
stdClass Object
(
[id] => 178
[attribute_id] => 3
[name] => Керамзитобетонный блок
[material_modifier] => 1
[work_modifier] => 1
[options] => Array
(
[0] => 300 мм
[1] => 375 мм
[2] => 400 мм
[3] => 500 мм
[4] => 600 мм
)
[days] => [23,23,24,25,28]
[material_price] => [3641,4298,5693,7613,9612]
[work_price] => [5737,5737,6903,7958,8901]
[image] => https://akademik-stroy.ru/wp-content/uploads/materials/keramzitobetonnyj-blok.jpg
[area_modifier] => 73.97
[parent_name] => Стены 1 этаж (несущие)
[parent_id] => 3
[material_sum] => 355509
[work_sum] => 466802
[total_sum] => 822311
[total_days] => 23
[display_material_sum] => 355 509
[display_work_sum] => 466 802
[display_total_sum] => 822 311
)
1
822 311₽
Работа:466 802 ₽
Материалы:355 509 ₽
Дни:23
stdClass Object
(
[id] => 179
[attribute_id] => 3
[name] => Деревянные
[material_modifier] => 1
[work_modifier] => 1
[options] => Array
(
[0] => 180 мм
[1] => 220 мм
[2] => 260 мм
[3] => 320 мм
)
[days] => [7,8,9,10]
[material_price] => [7950,9458,11961,14472]
[work_price] => [4037,4925,5812,7207]
[image] => https://akademik-stroy.ru/wp-content/uploads/materials/derevyannye.jpg
[area_modifier] => 73.97
[parent_name] => Стены 1 этаж (несущие)
[parent_id] => 3
[material_sum] => 776241
[work_sum] => 328479
[total_sum] => 1104720
[total_days] => 7
[display_material_sum] => 776 241
[display_work_sum] => 328 479
[display_total_sum] => 1 104 720
)
1
1 104 720₽
Работа:328 479 ₽
Материалы:776 241 ₽
Дни:7
stdClass Object
(
[id] => 181
[attribute_id] => 3
[name] => Камень
[material_modifier] => 1
[work_modifier] => 1
[options] => Array
(
[0] => 300 мм
[1] => 400 мм
[2] => 500 мм
[3] => 600 мм
)
[days] => [25,27,31,34]
[material_price] => [5262,6844,8330,9815]
[work_price] => [8331,9135,10427,11069]
[image] => https://akademik-stroy.ru/wp-content/uploads/materials/kamen.jpg
[area_modifier] => 73.97
[parent_name] => Стены 1 этаж (несущие)
[parent_id] => 3
[material_sum] => 513784
[work_sum] => 677868
[total_sum] => 1191652
[total_days] => 25
[display_material_sum] => 513 784
[display_work_sum] => 677 868
[display_total_sum] => 1 191 652
)
1
1 191 652₽
Работа:677 868 ₽
Материалы:513 784 ₽
Дни:25
stdClass Object
(
[id] => 182
[attribute_id] => 3
[name] => Каркасно-щитовые
[material_modifier] => 1
[work_modifier] => 1
[options] => Array
(
[0] => 150 мм
[1] => 200 мм
[2] => 250 мм
[3] => 300 мм
[4] => 350 мм
[5] => 400 мм
)
[days] => [15,16,17,18,19,20]
[material_price] => [2379,2639,2898,3458,3601,4175]
[work_price] => [2538,2820,3134,3483,4062,5642]
[image] => https://akademik-stroy.ru/wp-content/uploads/materials/karkasno-shchitovye.jpg
[area_modifier] => 73.97
[parent_name] => Стены 1 этаж (несущие)
[parent_id] => 3
[material_sum] => 232287
[work_sum] => 206509
[total_sum] => 438796
[total_days] => 15
[display_material_sum] => 232 287
[display_work_sum] => 206 509
[display_total_sum] => 438 796
)
1
438 796₽
Работа:206 509 ₽
Материалы:232 287 ₽
Дни:15
stdClass Object
(
[id] => 183
[attribute_id] => 3
[name] => Рубленные
[material_modifier] => 1
[work_modifier] => 1
[options] => Array
(
[0] => 150 мм
[1] => 200 мм
[2] => 250 мм
[3] => 300 мм
[4] => 350 мм
[5] => 400 мм
)
[days] => [15,16,17,18,17,18]
[material_price] => [35950,50267,60583,75900,80217,100533]
[work_price] => [9612,12816,16020,19224,22428,25632]
[image] => https://akademik-stroy.ru/wp-content/uploads/materials/rublennye.jpg
[area_modifier] => 73.97
[parent_name] => Стены 1 этаж (несущие)
[parent_id] => 3
[material_sum] => 3510172
[work_sum] => 782100
[total_sum] => 4292272
[total_days] => 15
[display_material_sum] => 3 510 172
[display_work_sum] => 782 100
[display_total_sum] => 4 292 272
)
1
4 292 272₽
Работа:782 100 ₽
Материалы:3 510 172 ₽
Дни:15
stdClass Object
(
[id] => 185
[attribute_id] => 3
[name] => Теплоблок
[material_modifier] => 1
[work_modifier] => 1
[options] => Array
(
[0] => 300 мм (с облицовкой, не покрашенный)
[1] => 400 мм (с облицовкой, не покрашенный)
[2] => 300 мм (с облицовкой, покрашенный)
[3] => 400 мм (с облицовкой, покрашенный)
)
[days] => [15,16,15,16]
[material_price] => [2888,3729,3957,4258]
[work_price] => [2564,3229,2949,3713]
[image] => https://akademik-stroy.ru/wp-content/uploads/materials/teploblok.jpg
[area_modifier] => 73.97
[parent_name] => Стены 1 этаж (несущие)
[parent_id] => 3
[material_sum] => 281985
[work_sum] => 208625
[total_sum] => 490610
[total_days] => 15
[display_material_sum] => 281 985
[display_work_sum] => 208 625
[display_total_sum] => 490 610
)
1
490 610₽
Работа:208 625 ₽
Материалы:281 985 ₽
Дни:15
stdClass Object
(
[id] => 186
[attribute_id] => 3
[name] => Арболитовые блоки
[material_modifier] => 1
[work_modifier] => 1
[options] => Array
(
[0] => 300 мм
[1] => 400 мм
[2] => 600 мм
)
[days] => [19,22,27]
[material_price] => [3210,4475,5852]
[work_price] => [4214,4788,5866]
[image] => https://akademik-stroy.ru/wp-content/uploads/materials/arbolitovye-bloki.png
[area_modifier] => 73.97
[parent_name] => Стены 1 этаж (несущие)
[parent_id] => 3
[material_sum] => 313426
[work_sum] => 342881
[total_sum] => 656307
[total_days] => 19
[display_material_sum] => 313 426
[display_work_sum] => 342 881
[display_total_sum] => 656 307
)
1
656 307₽
Работа:342 881 ₽
Материалы:313 426 ₽
Дни:19
stdClass Object
(
[id] => 187
[attribute_id] => 3
[name] => Полистиролбетон
[material_modifier] => 1
[work_modifier] => 1
[options] => Array
(
[0] => 300 мм
[1] => 400 мм
[2] => 600 мм
)
[days] => [29,31,35]
[material_price] => [2798,4573,5256]
[work_price] => [5038,5851,6426]
[image] => https://akademik-stroy.ru/wp-content/uploads/materials/polistirolbeton.jpg
[area_modifier] => 73.97
[parent_name] => Стены 1 этаж (несущие)
[parent_id] => 3
[material_sum] => 273198
[work_sum] => 409927
[total_sum] => 683125
[total_days] => 29
[display_material_sum] => 273 198
[display_work_sum] => 409 927
[display_total_sum] => 683 125
)
1
683 125₽
Работа:409 927 ₽
Материалы:273 198 ₽
Дни:29
stdClass Object
(
[id] => 188
[attribute_id] => 3
[name] => Шлакоблок
[material_modifier] => 1
[work_modifier] => 1
[options] => Array
(
[0] => 400 мм
[1] => 600 мм
)
[days] => [15,16]
[material_price] => [2391,3471]
[work_price] => [2642,3662]
[image] => https://akademik-stroy.ru/wp-content/uploads/materials/shlakoblok.jpg
[area_modifier] => 73.97
[parent_name] => Стены 1 этаж (несущие)
[parent_id] => 3
[material_sum] => 233458
[work_sum] => 214972
[total_sum] => 448430
[total_days] => 15
[display_material_sum] => 233 458
[display_work_sum] => 214 972
[display_total_sum] => 448 430
)
1
448 430₽
Работа:214 972 ₽
Материалы:233 458 ₽
Дни:15
stdClass Object
(
[id] => 189
[attribute_id] => 3
[name] => Теплая керамика
[material_modifier] => 1
[work_modifier] => 1
[options] => Array
(
[0] => 380 мм
[1] => 380 мм Thermo
[2] => 440 мм
[3] => 510 мм
)
[days] => [23,23,24,25]
[material_price] => [4510,5098,6093,8013]
[work_price] => [4737,4937,5903,6958]
[image] => https://akademik-stroy.ru/wp-content/uploads/materials/teplaya-keramika.jpg
[area_modifier] => 73.97
[parent_name] => Стены 1 этаж (несущие)
[parent_id] => 3
[material_sum] => 440358
[work_sum] => 385435
[total_sum] => 825793
[total_days] => 23
[display_material_sum] => 440 358
[display_work_sum] => 385 435
[display_total_sum] => 825 793
)
1
825 793₽
Работа:385 435 ₽
Материалы:440 358 ₽
Дни:23
stdClass Object
(
[id] => 190
[attribute_id] => 3
[name] => Несъемная опалубка
[material_modifier] => 1
[work_modifier] => 1
[options] => Array
(
[0] => 200 мм
[1] => 250 мм
[2] => 300 мм
[3] => 350 мм
)
[days] => [15,17,19,21]
[material_price] => [3302,3902,4108,5008]
[work_price] => [2100,2100,2300,2534]
[image] => https://akademik-stroy.ru/wp-content/uploads/materials/nesemnaya-opalubka.jpg
[area_modifier] => 73.97
[parent_name] => Стены 1 этаж (несущие)
[parent_id] => 3
[material_sum] => 322409
[work_sum] => 170871
[total_sum] => 493280
[total_days] => 15
[display_material_sum] => 322 409
[display_work_sum] => 170 871
[display_total_sum] => 493 280
)
1
493 280₽
Работа:170 871 ₽
Материалы:322 409 ₽
Дни:15
stdClass Object
(
[id] => 251
[attribute_id] => 3
[name] => Бревно
[material_modifier] => 1
[work_modifier] => 1
[options] => Array
(
[0] => 260 мм
[1] => 320 мм
[2] => 360 мм
[3] => 400 мм
[4] => 500 мм
)
[days] => [7,8,9,10,11]
[material_price] => [1874,24045,26930,30972,38825]
[work_price] => [5046,6207,6952,7716,9723]
[image] => https://akademik-stroy.ru/wp-content/uploads/materials/sruby.jpg
[area_modifier] => 73.97
[parent_name] => Стены 1 этаж (несущие)
[parent_id] => 3
[material_sum] => 182978
[work_sum] => 410578
[total_sum] => 593556
[total_days] => 7
[display_material_sum] => 182 978
[display_work_sum] => 410 578
[display_total_sum] => 593 556
)
1
593 556₽
Работа:410 578 ₽
Материалы:182 978 ₽
Дни:7
stdClass Object
(
[id] => 7
[attribute_id] => 4
[name] => Деревянные балки
[material_modifier] => 1
[work_modifier] => 1
[options] => Array
(
[0] => без утепления
[1] => утепление 200 мм
[2] => утепление 250 мм
[3] => утепление 300 мм
[4] => утепление 350 мм
[5] => утепление 400 мм
[6] => утепление 450 мм
[7] => утепление 500 мм
)
[days] => [8,9,9,9,11,12,13,14]
[material_price] => [1634,2042,2344,2947,3149,3652,3354,3557]
[work_price] => [1230,1339,1393,1426,1460,1513,1587,1620]
[image] => https://akademik-stroy.ru/wp-content/uploads/materials/derevyannye-balki.png
[area_modifier] => 73.97
[parent_name] => Перекрытие первого этажа
[parent_id] => 4
[material_sum] => 159544
[work_sum] => 100081
[total_sum] => 259625
[total_days] => 8
[display_material_sum] => 159 544
[display_work_sum] => 100 081
[display_total_sum] => 259 625
)
1
259 625₽
Работа:100 081 ₽
Материалы:159 544 ₽
Дни:8
stdClass Object
(
[id] => 8
[attribute_id] => 4
[name] => Сборные ж/б плиты
[material_modifier] => 1
[work_modifier] => 1
[options] => Array
(
[0] => без утепления
[1] => утепление 150 мм
[2] => утепление 200 мм
[3] => утепление 250 мм
[4] => утепление 300 мм
[5] => утепление 350 мм
[6] => утепление 400 мм
[7] => утепление 450 мм
[8] => утепление 500 мм
)
[days] => [13,15,15,15,15,15,15,15,15]
[material_price] => [3067,5577,5928,6679,7730,8782,9833,10884,11935]
[work_price] => [1520,1956,2102,2247,2392,2537,2684,2829,2974]
[image] => https://akademik-stroy.ru/wp-content/uploads/materials/sbornye-zh-b-plity-2.jpg
[area_modifier] => 73.97
[parent_name] => Перекрытие первого этажа
[parent_id] => 4
[material_sum] => 299463
[work_sum] => 123678
[total_sum] => 423141
[total_days] => 13
[display_material_sum] => 299 463
[display_work_sum] => 123 678
[display_total_sum] => 423 141
)
1
423 141₽
Работа:123 678 ₽
Материалы:299 463 ₽
Дни:13
stdClass Object
(
[id] => 89
[attribute_id] => 4
[name] => Монолитная ж/б плита
[material_modifier] => 1
[work_modifier] => 1
[options] => Array
(
[0] => без утепления
[1] => утепление 150 мм
[2] => утепление 200 мм
[3] => утепление 250 мм
[4] => утепление 300 мм
[5] => утепление 350 мм
[6] => утепление 400 мм
[7] => утепление 450 мм
[8] => утепление 500 мм
)
[days] => [18,20,20,20,20,20,20,20,20]
[material_price] => [4837,6572,7224,7375,79426,8177,8728,9180,10031]
[work_price] => [3348,3921,4112,4302,4493,4684,4875,5066,5256]
[image] => https://akademik-stroy.ru/wp-content/uploads/materials/monolitnaya-zh-b-plita-2.jpg
[area_modifier] => 73.97
[parent_name] => Перекрытие первого этажа
[parent_id] => 4
[material_sum] => 472287
[work_sum] => 272417
[total_sum] => 744704
[total_days] => 18
[display_material_sum] => 472 287
[display_work_sum] => 272 417
[display_total_sum] => 744 704
)
1
744 704₽
Работа:272 417 ₽
Материалы:472 287 ₽
Дни:18
stdClass Object
(
[id] => 10
[attribute_id] => 5
[name] => Пеноблок
[material_modifier] => 1
[work_modifier] => 1
[options] => Array
(
[0] => 300 мм
[1] => 400 мм
[2] => 500 мм
[3] => 600 мм
)
[days] => [29,31,34,39]
[material_price] => [3000,4000,4500,4937]
[work_price] => [5033,5805,6400,8710]
[image] => https://akademik-stroy.ru/wp-content/uploads/materials/penoblok.jpg
[area_modifier] => 114.12
[parent_name] => Стены 2 этаж (несущие)
[parent_id] => 5
[material_sum] => 451915
[work_sum] => 631803
[total_sum] => 1083718
[total_days] => 29
[display_material_sum] => 451 915
[display_work_sum] => 631 803
[display_total_sum] => 1 083 718
)
1
1 083 718₽
Работа:631 803 ₽
Материалы:451 915 ₽
Дни:29
stdClass Object
(
[id] => 90
[attribute_id] => 5
[name] => Керамический блок
[material_modifier] => 1
[work_modifier] => 1
[options] => Array
(
[0] => 380 мм
[1] => 380 мм Thermo
[2] => 440 мм
[3] => 510 мм
)
[days] => [23,23,24,25]
[material_price] => [4510,5098,6093,8013]
[work_price] => [4737,4937,5903,6958]
[image] => https://akademik-stroy.ru/wp-content/uploads/materials/keramicheskij-blok.jpg
[area_modifier] => 114.12
[parent_name] => Стены 2 этаж (несущие)
[parent_id] => 5
[material_sum] => 679379
[work_sum] => 594645
[total_sum] => 1274024
[total_days] => 23
[display_material_sum] => 679 379
[display_work_sum] => 594 645
[display_total_sum] => 1 274 024
)
1
1 274 024₽
Работа:594 645 ₽
Материалы:679 379 ₽
Дни:23
stdClass Object
(
[id] => 91
[attribute_id] => 5
[name] => Кирпич
[material_modifier] => 1
[work_modifier] => 1
[options] => Array
(
[0] => Кирпич 250 мм
[1] => Кирпич 380 мм
[2] => Кирпич 510 мм
[3] => Кирпич 640 мм
[4] => Кирпич 770 мм
)
[days] => [30,30,31,33,36]
[material_price] => [5500,7142,9206,10171,12235]
[work_price] => [8736,10041,12018,15240,18462]
[image] => https://akademik-stroy.ru/wp-content/uploads/materials/kirpich.jpg
[area_modifier] => 114.12
[parent_name] => Стены 2 этаж (несущие)
[parent_id] => 5
[material_sum] => 828511
[work_sum] => 1096648
[total_sum] => 1925159
[total_days] => 30
[display_material_sum] => 828 511
[display_work_sum] => 1 096 648
[display_total_sum] => 1 925 159
)
1
1 925 159₽
Работа:1 096 648 ₽
Материалы:828 511 ₽
Дни:30
stdClass Object
(
[id] => 92
[attribute_id] => 5
[name] => Монолитные
[material_modifier] => 1
[work_modifier] => 1
[options] => Array
(
[0] => 150 мм
[1] => 200 мм
[2] => 250 мм
[3] => 300 мм
[4] => 350 мм
[5] => 400 мм
)
[days] => [45,46,47,49,50,53]
[material_price] => [6545,7876,10175,12011,13908,15204]
[work_price] => [5106,6444,7698,8552,9807,11461]
[image] => https://akademik-stroy.ru/wp-content/uploads/materials/monolitnye.jpg
[area_modifier] => 114.12
[parent_name] => Стены 2 этаж (несущие)
[parent_id] => 5
[material_sum] => 985928
[work_sum] => 640966
[total_sum] => 1626894
[total_days] => 45
[display_material_sum] => 985 928
[display_work_sum] => 640 966
[display_total_sum] => 1 626 894
)
1
1 626 894₽
Работа:640 966 ₽
Материалы:985 928 ₽
Дни:45
stdClass Object
(
[id] => 93
[attribute_id] => 5
[name] => Клееный брус
[material_modifier] => 1
[work_modifier] => 1
[options] => Array
(
[0] => 160 мм
[1] => 175 мм
[2] => 200 мм
[3] => 215 мм
[4] => 240 мм
[5] => 270 мм
[6] => 282 мм
)
[days] => [24,28,32,37,40,42,48]
[material_price] => [16975,18773,19950,20545,21599,22159,23275]
[work_price] => [4806,5287,5815,6397,7036,7740,8514]
[image] => https://akademik-stroy.ru/wp-content/uploads/materials/kleenyj-brus.jpg
[area_modifier] => 114.12
[parent_name] => Стены 2 этаж (несущие)
[parent_id] => 5
[material_sum] => 2557087
[work_sum] => 603307
[total_sum] => 3160394
[total_days] => 24
[display_material_sum] => 2 557 087
[display_work_sum] => 603 307
[display_total_sum] => 3 160 394
)
1
3 160 394₽
Работа:603 307 ₽
Материалы:2 557 087 ₽
Дни:24
stdClass Object
(
[id] => 94
[attribute_id] => 5
[name] => Каркасные
[material_modifier] => 1
[work_modifier] => 1
[options] => Array
(
[0] => 150 мм
[1] => 200 мм
[2] => 250 мм
[3] => 300 мм
)
[days] => [15,16,17,18]
[material_price] => [2379,2639,2898,3258]
[work_price] => [2418,2686,2985,3716]
[image] => https://akademik-stroy.ru/wp-content/uploads/materials/karkasnye.jpg
[area_modifier] => 114.12
[parent_name] => Стены 2 этаж (несущие)
[parent_id] => 5
[material_sum] => 358369
[work_sum] => 303536
[total_sum] => 661905
[total_days] => 15
[display_material_sum] => 358 369
[display_work_sum] => 303 536
[display_total_sum] => 661 905
)
1
661 905₽
Работа:303 536 ₽
Материалы:358 369 ₽
Дни:15
stdClass Object
(
[id] => 95
[attribute_id] => 5
[name] => СИП-панели
[material_modifier] => 1
[work_modifier] => 1
[options] => Array
(
[0] => 120 мм
[1] => 170 мм
[2] => 220 мм
)
[days] => [7,7,7]
[material_price] => [1210,1856,2292]
[work_price] => [1410,1551,1706]
[image] => https://akademik-stroy.ru/wp-content/uploads/materials/sip-paneli.jpg
[area_modifier] => 114.12
[parent_name] => Стены 2 этаж (несущие)
[parent_id] => 5
[material_sum] => 182272
[work_sum] => 177000
[total_sum] => 359272
[total_days] => 7
[display_material_sum] => 182 272
[display_work_sum] => 177 000
[display_total_sum] => 359 272
)
1
359 272₽
Работа:177 000 ₽
Материалы:182 272 ₽
Дни:7
stdClass Object
(
[id] => 96
[attribute_id] => 5
[name] => Сухой брус
[material_modifier] => 1
[work_modifier] => 1
[options] => Array
(
[0] => 150 мм
[1] => 180 мм
[2] => 200 мм
)
[days] => [7,8,9]
[material_price] => [6010,7190,8709]
[work_price] => [3204,3845,4229]
[image] => https://akademik-stroy.ru/wp-content/uploads/materials/suhoj-brus.jpg
[area_modifier] => 114.12
[parent_name] => Стены 2 этаж (несущие)
[parent_id] => 5
[material_sum] => 905337
[work_sum] => 402205
[total_sum] => 1307542
[total_days] => 7
[display_material_sum] => 905 337
[display_work_sum] => 402 205
[display_total_sum] => 1 307 542
)
1
1 307 542₽
Работа:402 205 ₽
Материалы:905 337 ₽
Дни:7
stdClass Object
(
[id] => 97
[attribute_id] => 5
[name] => Профилированный брус
[material_modifier] => 1
[work_modifier] => 1
[options] => Array
(
[0] => 150 мм
[1] => 180 мм
[2] => 200 мм
)
[days] => [7,8,9]
[material_price] => [8190,9228,10051]
[work_price] => [3845,4614,5075]
[image] => https://akademik-stroy.ru/wp-content/uploads/materials/profilirovannyj-brus.jpg
[area_modifier] => 114.12
[parent_name] => Стены 2 этаж (несущие)
[parent_id] => 5
[material_sum] => 1233728
[work_sum] => 482671
[total_sum] => 1716399
[total_days] => 7
[display_material_sum] => 1 233 728
[display_work_sum] => 482 671
[display_total_sum] => 1 716 399
)
1
1 716 399₽
Работа:482 671 ₽
Материалы:1 233 728 ₽
Дни:7
stdClass Object
(
[id] => 98
[attribute_id] => 5
[name] => Оцилиндрованное бревно
[material_modifier] => 1
[work_modifier] => 1
[options] => Array
(
[0] => 180 мм
[1] => 220 мм
[2] => 260 мм
[3] => 320 мм
)
[days] => [7,8,9,10]
[material_price] => [75190,9532,10868,13116]
[work_price] => [3845,4691,5535,6863]
[image] => https://akademik-stroy.ru/wp-content/uploads/materials/ocilindrovannoe-brevno-1.jpg
[area_modifier] => 114.12
[parent_name] => Стены 2 этаж (несущие)
[parent_id] => 5
[material_sum] => 11326501
[work_sum] => 482671
[total_sum] => 11809172
[total_days] => 7
[display_material_sum] => 11 326 501
[display_work_sum] => 482 671
[display_total_sum] => 11 809 172
)
1
11 809 172₽
Работа:482 671 ₽
Материалы:11 326 501 ₽
Дни:7
stdClass Object
(
[id] => 99
[attribute_id] => 5
[name] => Срубы
[material_modifier] => 1
[work_modifier] => 1
[options] => Array
(
[0] => 260 мм
[1] => 320 мм
[2] => 360 мм
[3] => 400 мм
[4] => 500 мм
)
[days] => [7,8,9,10,11]
[material_price] => [16175,23709,26314,29069,32167]
[work_price] => [4806,5911,6621,7349,9260]
[image] => https://akademik-stroy.ru/wp-content/uploads/materials/suhoj-brus.jpg
[area_modifier] => 114.12
[parent_name] => Стены 2 этаж (несущие)
[parent_id] => 5
[material_sum] => 2436576
[work_sum] => 603307
[total_sum] => 3039883
[total_days] => 7
[display_material_sum] => 2 436 576
[display_work_sum] => 603 307
[display_total_sum] => 3 039 883
)
1
3 039 883₽
Работа:603 307 ₽
Материалы:2 436 576 ₽
Дни:7
stdClass Object
(
[id] => 194
[attribute_id] => 5
[name] => Брус
[material_modifier] => 1
[work_modifier] => 1
[options] => Array
(
[0] => 150 мм
[1] => 180 мм
[2] => 200 мм
)
[days] => [10,13,15]
[material_price] => [5127,6152,7367]
[work_price] => [1602,1922,2115]
[image] => https://akademik-stroy.ru/wp-content/uploads/materials/brus.jpg
[area_modifier] => 114.12
[parent_name] => Стены 2 этаж (несущие)
[parent_id] => 5
[material_sum] => 772323
[work_sum] => 201102
[total_sum] => 973425
[total_days] => 10
[display_material_sum] => 772 323
[display_work_sum] => 201 102
[display_total_sum] => 973 425
)
1
973 425₽
Работа:201 102 ₽
Материалы:772 323 ₽
Дни:10
stdClass Object
(
[id] => 195
[attribute_id] => 5
[name] => Газобетон
[material_modifier] => 1
[work_modifier] => 1
[options] => Array
(
[0] => 300 мм
[1] => 375 мм
[2] => 400 мм
[3] => 500 мм
[4] => 600 мм
)
[days] => [29,31,35,37,44]
[material_price] => [4298,5573,6356,7288,9119]
[work_price] => [4538,5251,5926,6733,7195]
[image] => https://akademik-stroy.ru/wp-content/uploads/materials/gazobeton.jpg
[area_modifier] => 114.12
[parent_name] => Стены 2 этаж (несущие)
[parent_id] => 5
[material_sum] => 647444
[work_sum] => 569664
[total_sum] => 1217108
[total_days] => 29
[display_material_sum] => 647 444
[display_work_sum] => 569 664
[display_total_sum] => 1 217 108
)
1
1 217 108₽
Работа:569 664 ₽
Материалы:647 444 ₽
Дни:29
stdClass Object
(
[id] => 196
[attribute_id] => 5
[name] => Блок
[material_modifier] => 1
[work_modifier] => 1
[options] => Array
(
[0] => 300 мм
[1] => 375 мм
[2] => 400 мм
[3] => 500 мм
[4] => 600 мм
)
[days] => [29,31,35,37,44]
[material_price] => [2698,3973,4356,6588,7119]
[work_price] => [5038,5851,6426,8733,9195]
[image] => https://akademik-stroy.ru/wp-content/uploads/materials/blok.jpg
[area_modifier] => 114.12
[parent_name] => Стены 2 этаж (несущие)
[parent_id] => 5
[material_sum] => 406422
[work_sum] => 632430
[total_sum] => 1038852
[total_days] => 29
[display_material_sum] => 406 422
[display_work_sum] => 632 430
[display_total_sum] => 1 038 852
)
1
1 038 852₽
Работа:632 430 ₽
Материалы:406 422 ₽
Дни:29
stdClass Object
(
[id] => 197
[attribute_id] => 5
[name] => Газосиликатный блок
[material_modifier] => 1
[work_modifier] => 1
[options] => Array
(
[0] => 300 мм
[1] => 375 мм
[2] => 400 мм
[3] => 500 мм
[4] => 600 мм
)
[days] => [29,31,35,37,44]
[material_price] => [4298,5573,6356,7288,9119]
[work_price] => [4538,5251,5926,6733,7195]
[image] => https://akademik-stroy.ru/wp-content/uploads/materials/gazosilikatnyj-blok.jpg
[area_modifier] => 114.12
[parent_name] => Стены 2 этаж (несущие)
[parent_id] => 5
[material_sum] => 647444
[work_sum] => 569664
[total_sum] => 1217108
[total_days] => 29
[display_material_sum] => 647 444
[display_work_sum] => 569 664
[display_total_sum] => 1 217 108
)
1
1 217 108₽
Работа:569 664 ₽
Материалы:647 444 ₽
Дни:29
stdClass Object
(
[id] => 198
[attribute_id] => 5
[name] => Керамзитобетонный блок
[material_modifier] => 1
[work_modifier] => 1
[options] => Array
(
[0] => 300 мм
[1] => 375 мм
[2] => 400 мм
[3] => 500 мм
[4] => 600 мм
)
[days] => [23,23,24,25,28]
[material_price] => [3641,4298,5693,7613,9612]
[work_price] => [5737,5737,6903,7958,8901]
[image] => https://akademik-stroy.ru/wp-content/uploads/materials/keramzitobetonnyj-blok.jpg
[area_modifier] => 114.12
[parent_name] => Стены 2 этаж (несущие)
[parent_id] => 5
[material_sum] => 548474
[work_sum] => 720177
[total_sum] => 1268651
[total_days] => 23
[display_material_sum] => 548 474
[display_work_sum] => 720 177
[display_total_sum] => 1 268 651
)
1
1 268 651₽
Работа:720 177 ₽
Материалы:548 474 ₽
Дни:23
stdClass Object
(
[id] => 199
[attribute_id] => 5
[name] => Деревянные
[material_modifier] => 1
[work_modifier] => 1
[options] => Array
(
[0] => 180 мм
[1] => 220 мм
[2] => 260 мм
[3] => 320 мм
)
[days] => [7,8,9,10]
[material_price] => [7950,9458,11961,14472]
[work_price] => [4037,4925,5812,7207]
[image] => https://akademik-stroy.ru/wp-content/uploads/materials/derevyannye.jpg
[area_modifier] => 114.12
[parent_name] => Стены 2 этаж (несущие)
[parent_id] => 5
[material_sum] => 1197575
[work_sum] => 506773
[total_sum] => 1704348
[total_days] => 7
[display_material_sum] => 1 197 575
[display_work_sum] => 506 773
[display_total_sum] => 1 704 348
)
1
1 704 348₽
Работа:506 773 ₽
Материалы:1 197 575 ₽
Дни:7
stdClass Object
(
[id] => 200
[attribute_id] => 5
[name] => Камень
[material_modifier] => 1
[work_modifier] => 1
[options] => Array
(
[0] => 300 мм
[1] => 400 мм
[2] => 500 мм
[3] => 600 мм
)
[days] => [25,27,31,34]
[material_price] => [5262,6844,8330,9815]
[work_price] => [8331,9135,10427,11069]
[image] => https://akademik-stroy.ru/wp-content/uploads/materials/kamen.jpg
[area_modifier] => 114.12
[parent_name] => Стены 2 этаж (несущие)
[parent_id] => 5
[material_sum] => 792659
[work_sum] => 1045807
[total_sum] => 1838466
[total_days] => 25
[display_material_sum] => 792 659
[display_work_sum] => 1 045 807
[display_total_sum] => 1 838 466
)
1
1 838 466₽
Работа:1 045 807 ₽
Материалы:792 659 ₽
Дни:25
stdClass Object
(
[id] => 201
[attribute_id] => 5
[name] => Каркасно-щитовые
[material_modifier] => 1
[work_modifier] => 1
[options] => Array
(
[0] => 150 мм
[1] => 200 мм
[2] => 250 мм
[3] => 300 мм
[4] => 350 мм
[5] => 400 мм
)
[days] => [15,16,17,18,19,20]
[material_price] => [2379,2639,2898,3458,3601,4175]
[work_price] => [2538,2820,3134,3483,4062,5642]
[image] => https://akademik-stroy.ru/wp-content/uploads/materials/karkasno-shchitovye.jpg
[area_modifier] => 114.12
[parent_name] => Стены 2 этаж (несущие)
[parent_id] => 5
[material_sum] => 358369
[work_sum] => 318600
[total_sum] => 676969
[total_days] => 15
[display_material_sum] => 358 369
[display_work_sum] => 318 600
[display_total_sum] => 676 969
)
1
676 969₽
Работа:318 600 ₽
Материалы:358 369 ₽
Дни:15
stdClass Object
(
[id] => 202
[attribute_id] => 5
[name] => Рубленные
[material_modifier] => 1
[work_modifier] => 1
[options] => Array
(
[0] => 150 мм
[1] => 200 мм
[2] => 250 мм
[3] => 300 мм
[4] => 350 мм
[5] => 400 мм
)
[days] => [15,16,17,18,17,18]
[material_price] => [35950,50267,60583,75900,80217,100533]
[work_price] => [9612,12816,16020,19224,22428,25632]
[image] => https://akademik-stroy.ru/wp-content/uploads/materials/rublennye.jpg
[area_modifier] => 114.12
[parent_name] => Стены 2 этаж (несущие)
[parent_id] => 5
[material_sum] => 5415450
[work_sum] => 1206614
[total_sum] => 6622064
[total_days] => 15
[display_material_sum] => 5 415 450
[display_work_sum] => 1 206 614
[display_total_sum] => 6 622 064
)
1
6 622 064₽
Работа:1 206 614 ₽
Материалы:5 415 450 ₽
Дни:15
stdClass Object
(
[id] => 203
[attribute_id] => 5
[name] => Теплоблок
[material_modifier] => 1
[work_modifier] => 1
[options] => Array
(
[0] => 300 мм (с облицовкой, не покрашенный)
[1] => 400 мм (с облицовкой, не покрашенный)
[2] => 300 мм (с облицовкой, покрашенный)
[3] => 400 мм (с облицовкой, покрашенный)
)
[days] => [15,16,15,16]
[material_price] => [2888,3729,3957,4258]
[work_price] => [2564,3229,2949,3713]
[image] => https://akademik-stroy.ru/wp-content/uploads/materials/teploblok.jpg
[area_modifier] => 114.12
[parent_name] => Стены 2 этаж (несущие)
[parent_id] => 5
[material_sum] => 435044
[work_sum] => 321864
[total_sum] => 756908
[total_days] => 15
[display_material_sum] => 435 044
[display_work_sum] => 321 864
[display_total_sum] => 756 908
)
1
756 908₽
Работа:321 864 ₽
Материалы:435 044 ₽
Дни:15
stdClass Object
(
[id] => 204
[attribute_id] => 5
[name] => Арболитовые блоки
[material_modifier] => 1
[work_modifier] => 1
[options] => Array
(
[0] => 300 мм
[1] => 400 мм
[2] => 600 мм
)
[days] => [19,22,27]
[material_price] => [3210,4475,5852]
[work_price] => [4214,4788,5866]
[image] => https://akademik-stroy.ru/wp-content/uploads/materials/arbolitovye-bloki.png
[area_modifier] => 114.12
[parent_name] => Стены 2 этаж (несущие)
[parent_id] => 5
[material_sum] => 483549
[work_sum] => 528992
[total_sum] => 1012541
[total_days] => 19
[display_material_sum] => 483 549
[display_work_sum] => 528 992
[display_total_sum] => 1 012 541
)
1
1 012 541₽
Работа:528 992 ₽
Материалы:483 549 ₽
Дни:19
stdClass Object
(
[id] => 205
[attribute_id] => 5
[name] => Полистиролбетон
[material_modifier] => 1
[work_modifier] => 1
[options] => Array
(
[0] => 300 мм
[1] => 400 мм
[2] => 600 мм
)
[days] => [29,31,35]
[material_price] => [2798,4573,5256]
[work_price] => [5038,5851,6426]
[image] => https://akademik-stroy.ru/wp-content/uploads/materials/polistirolbeton.jpg
[area_modifier] => 114.12
[parent_name] => Стены 2 этаж (несущие)
[parent_id] => 5
[material_sum] => 421486
[work_sum] => 632430
[total_sum] => 1053916
[total_days] => 29
[display_material_sum] => 421 486
[display_work_sum] => 632 430
[display_total_sum] => 1 053 916
)
1
1 053 916₽
Работа:632 430 ₽
Материалы:421 486 ₽
Дни:29
stdClass Object
(
[id] => 206
[attribute_id] => 5
[name] => Шлакоблок
[material_modifier] => 1
[work_modifier] => 1
[options] => Array
(
[0] => 400 мм
[1] => 600 мм
)
[days] => [15,16]
[material_price] => [2391,3471]
[work_price] => [2642,3662]
[image] => https://akademik-stroy.ru/wp-content/uploads/materials/shlakoblok.jpg
[area_modifier] => 114.12
[parent_name] => Стены 2 этаж (несущие)
[parent_id] => 5
[material_sum] => 360176
[work_sum] => 331656
[total_sum] => 691832
[total_days] => 15
[display_material_sum] => 360 176
[display_work_sum] => 331 656
[display_total_sum] => 691 832
)
1
691 832₽
Работа:331 656 ₽
Материалы:360 176 ₽
Дни:15
stdClass Object
(
[id] => 245
[attribute_id] => 5
[name] => Теплая керамика
[material_modifier] => 1
[work_modifier] => 1
[options] => Array
(
[0] => 380 мм
[1] => 380 мм Thermo
[2] => 440 мм
[3] => 510 мм
)
[days] => [10,10,11,12]
[material_price] => [4510,5098,6093,8013]
[work_price] => [4737,4937,5903,6958]
[image] => https://akademik-stroy.ru/wp-content/uploads/materials/teplaya-keramika.jpg
[area_modifier] => 114.12
[parent_name] => Стены 2 этаж (несущие)
[parent_id] => 5
[material_sum] => 679379
[work_sum] => 594645
[total_sum] => 1274024
[total_days] => 10
[display_material_sum] => 679 379
[display_work_sum] => 594 645
[display_total_sum] => 1 274 024
)
1
1 274 024₽
Работа:594 645 ₽
Материалы:679 379 ₽
Дни:10
stdClass Object
(
[id] => 246
[attribute_id] => 5
[name] => Несъемная опалубка
[material_modifier] => 1
[work_modifier] => 1
[options] => Array
(
[0] => 380 мм
[1] => 380 мм Thermo
[2] => 440 мм
[3] => 510 мм
)
[days] => [10,10,11,12]
[material_price] => [3302,3902,4108,5008]
[work_price] => [2100,2100,2300,2534]
[image] => https://akademik-stroy.ru/wp-content/uploads/materials/nesemnaya-opalubka.jpg
[area_modifier] => 114.12
[parent_name] => Стены 2 этаж (несущие)
[parent_id] => 5
[material_sum] => 497408
[work_sum] => 263617
[total_sum] => 761025
[total_days] => 10
[display_material_sum] => 497 408
[display_work_sum] => 263 617
[display_total_sum] => 761 025
)
1
761 025₽
Работа:263 617 ₽
Материалы:497 408 ₽
Дни:10
stdClass Object
(
[id] => 254
[attribute_id] => 5
[name] => Бревно
[material_modifier] => 1
[work_modifier] => 1
[options] => Array
(
[0] => 260 мм
[1] => 320 мм
[2] => 360 мм
[3] => 400 мм
[4] => 500 мм
)
[days] => [7,8,9,10,11]
[material_price] => [1874,24045,26930,30972,38825]
[work_price] => [5046,6207,6952,7716,9723]
[image] => https://akademik-stroy.ru/wp-content/uploads/materials/sruby.jpg
[area_modifier] => 114.12
[parent_name] => Стены 2 этаж (несущие)
[parent_id] => 5
[material_sum] => 282296
[work_sum] => 633434
[total_sum] => 915730
[total_days] => 7
[display_material_sum] => 282 296
[display_work_sum] => 633 434
[display_total_sum] => 915 730
)
1
915 730₽
Работа:633 434 ₽
Материалы:282 296 ₽
Дни:7
stdClass Object
(
[id] => 11
[attribute_id] => 6
[name] => Деревянные балки
[material_modifier] => 1
[work_modifier] => 1
[options] => Array
(
[0] => без утепления
[1] => утепление 200 мм
[2] => утепление 250 мм
[3] => утепление 300 мм
[4] => утепление 350 мм
[5] => утепление 400 мм
[6] => утепление 450 мм
[7] => утепление 500 мм
)
[days] => [8,9,9,9,11,12,13,14]
[material_price] => [1634,2042,2344,2947,3149,3652,3354,3557]
[work_price] => [1230,1339,1393,1426,1460,1513,1587,1620]
[image] => https://akademik-stroy.ru/wp-content/uploads/materials/derevyannye-balki.png
[area_modifier] => 114.12
[parent_name] => Перекрытие второго этажа
[parent_id] => 6
[material_sum] => 246143
[work_sum] => 154404
[total_sum] => 400547
[total_days] => 8
[display_material_sum] => 246 143
[display_work_sum] => 154 404
[display_total_sum] => 400 547
)
1
400 547₽
Работа:154 404 ₽
Материалы:246 143 ₽
Дни:8
stdClass Object
(
[id] => 12
[attribute_id] => 6
[name] => Сборные ж/б плиты
[material_modifier] => 1
[work_modifier] => 1
[options] => Array
(
[0] => без утепления
[1] => утепление 150 мм
[2] => утепление 200 мм
[3] => утепление 250 мм
[4] => утепление 300 мм
[5] => утепление 350 мм
[6] => утепление 400 мм
[7] => утепление 450 мм
[8] => утепление 500 мм
)
[days] => [13,15,15,15,15,15,15,15,15]
[material_price] => [3067,5577,5928,6679,7730,8782,9833,10884,11935]
[work_price] => [1520,1956,2102,2247,2392,2537,2684,2829,2974]
[image] => https://akademik-stroy.ru/wp-content/uploads/materials/sbornye-zh-b-plity-2.jpg
[area_modifier] => 114.12
[parent_name] => Перекрытие второго этажа
[parent_id] => 6
[material_sum] => 462008
[work_sum] => 190809
[total_sum] => 652817
[total_days] => 13
[display_material_sum] => 462 008
[display_work_sum] => 190 809
[display_total_sum] => 652 817
)
1
652 817₽
Работа:190 809 ₽
Материалы:462 008 ₽
Дни:13
stdClass Object
(
[id] => 100
[attribute_id] => 6
[name] => Монолитная ж/б плита
[material_modifier] => 1
[work_modifier] => 1
[options] => Array
(
[0] => без утепления
[1] => утепление 150 мм
[2] => утепление 200 мм
[3] => утепление 250 мм
[4] => утепление 300 мм
[5] => утепление 350 мм
[6] => утепление 400 мм
[7] => утепление 450 мм
[8] => утепление 500 мм
)
[days] => [18,20,20,20,20,20,20,20,20]
[material_price] => [4837,6572,7224,7375,79426,8177,8728,9180,10031]
[work_price] => [3348,3921,4112,4302,4493,4684,4875,5066,5256]
[image] => https://akademik-stroy.ru/wp-content/uploads/materials/monolitnaya-zh-b-plita-2.jpg
[area_modifier] => 114.12
[parent_name] => Перекрытие второго этажа
[parent_id] => 6
[material_sum] => 728638
[work_sum] => 420281
[total_sum] => 1148919
[total_days] => 18
[display_material_sum] => 728 638
[display_work_sum] => 420 281
[display_total_sum] => 1 148 919
)
1
1 148 919₽
Работа:420 281 ₽
Материалы:728 638 ₽
Дни:18
stdClass Object
(
[id] => 164
[attribute_id] => 37
[name] => Металлочерепица
[material_modifier] => 1
[work_modifier] => 1
[options] => Array
(
)
[days] => [20]
[material_price] => [6112]
[work_price] => [5726]
[image] => https://akademik-stroy.ru/wp-content/uploads/materials/metallocherepica.jpg
[area_modifier] => 73.97
[parent_name] => Крыша (Скатная)
[parent_id] => 37
[material_sum] => 596778
[work_sum] => 465907
[total_sum] => 1062685
[total_days] => 20
[display_material_sum] => 596 778
[display_work_sum] => 465 907
[display_total_sum] => 1 062 685
)
1
1 062 685₽
Работа:465 907 ₽
Материалы:596 778 ₽
Дни:20
stdClass Object
(
[id] => 165
[attribute_id] => 37
[name] => Гибкая черепица
[material_modifier] => 1
[work_modifier] => 1
[options] => Array
(
)
[days] => [20]
[material_price] => [6980]
[work_price] => [5950]
[image] => https://akademik-stroy.ru/wp-content/uploads/materials/gibkaya-cherepica.jpg
[area_modifier] => 73.97
[parent_name] => Крыша (Скатная)
[parent_id] => 37
[material_sum] => 681530
[work_sum] => 484134
[total_sum] => 1165664
[total_days] => 20
[display_material_sum] => 681 530
[display_work_sum] => 484 134
[display_total_sum] => 1 165 664
)
1
1 165 664₽
Работа:484 134 ₽
Материалы:681 530 ₽
Дни:20
stdClass Object
(
[id] => 166
[attribute_id] => 37
[name] => Цементно-песчаная черепица
[material_modifier] => 1
[work_modifier] => 1
[options] => Array
(
)
[days] => [20]
[material_price] => [10560]
[work_price] => [9456]
[image] => https://akademik-stroy.ru/wp-content/uploads/materials/cementno-peschanaya-cherepica.jpg
[area_modifier] => 73.97
[parent_name] => Крыша (Скатная)
[parent_id] => 37
[material_sum] => 1031083
[work_sum] => 769406
[total_sum] => 1800489
[total_days] => 20
[display_material_sum] => 1 031 083
[display_work_sum] => 769 406
[display_total_sum] => 1 800 489
)
1
1 800 489₽
Работа:769 406 ₽
Материалы:1 031 083 ₽
Дни:20
stdClass Object
(
[id] => 167
[attribute_id] => 37
[name] => Композитная черепица
[material_modifier] => 1
[work_modifier] => 1
[options] => Array
(
)
[days] => [20]
[material_price] => [9506]
[work_price] => [8905]
[image] => https://akademik-stroy.ru/wp-content/uploads/materials/kompozitnaya-cherepica.jpg
[area_modifier] => 73.97
[parent_name] => Крыша (Скатная)
[parent_id] => 37
[material_sum] => 928170
[work_sum] => 724573
[total_sum] => 1652743
[total_days] => 20
[display_material_sum] => 928 170
[display_work_sum] => 724 573
[display_total_sum] => 1 652 743
)
1
1 652 743₽
Работа:724 573 ₽
Материалы:928 170 ₽
Дни:20
stdClass Object
(
[id] => 168
[attribute_id] => 37
[name] => Керамическая черепица
[material_modifier] => 1
[work_modifier] => 1
[options] => Array
(
)
[days] => [20]
[material_price] => [12750]
[work_price] => [9456]
[image] => https://akademik-stroy.ru/wp-content/uploads/materials/keramicheskaya-cherepica.jpg
[area_modifier] => 73.97
[parent_name] => Крыша (Скатная)
[parent_id] => 37
[material_sum] => 1244915
[work_sum] => 769406
[total_sum] => 2014321
[total_days] => 20
[display_material_sum] => 1 244 915
[display_work_sum] => 769 406
[display_total_sum] => 2 014 321
)
1
2 014 321₽
Работа:769 406 ₽
Материалы:1 244 915 ₽
Дни:20
stdClass Object
(
[id] => 169
[attribute_id] => 37
[name] => Металлическая фальцевая
[material_modifier] => 1
[work_modifier] => 1
[options] => Array
(
)
[days] => [20]
[material_price] => [8550]
[work_price] => [8190]
[image] => https://akademik-stroy.ru/wp-content/uploads/materials/metallicheskaya-falcevaya.jpg
[area_modifier] => 73.97
[parent_name] => Крыша (Скатная)
[parent_id] => 37
[material_sum] => 834825
[work_sum] => 666396
[total_sum] => 1501221
[total_days] => 20
[display_material_sum] => 834 825
[display_work_sum] => 666 396
[display_total_sum] => 1 501 221
)
1
1 501 221₽
Работа:666 396 ₽
Материалы:834 825 ₽
Дни:20
stdClass Object
(
[id] => 170
[attribute_id] => 37
[name] => Медная фальцевая
[material_modifier] => 1
[work_modifier] => 1
[options] => Array
(
)
[days] => [20]
[material_price] => [20450]
[work_price] => [16750]
[image] => https://akademik-stroy.ru/wp-content/uploads/materials/mednaya-falcevaya.jpg
[area_modifier] => 73.97
[parent_name] => Крыша (Скатная)
[parent_id] => 37
[material_sum] => 1996746
[work_sum] => 1362897
[total_sum] => 3359643
[total_days] => 20
[display_material_sum] => 1 996 746
[display_work_sum] => 1 362 897
[display_total_sum] => 3 359 643
)
1
3 359 643₽
Работа:1 362 897 ₽
Материалы:1 996 746 ₽
Дни:20
stdClass Object
(
[id] => 171
[attribute_id] => 37
[name] => Зеленая кровля
[material_modifier] => 1
[work_modifier] => 1
[options] => Array
(
)
[days] => [20]
[material_price] => [19850]
[work_price] => [16780]
[image] => https://akademik-stroy.ru/wp-content/uploads/materials/zelenaya-krovlya.jpg
[area_modifier] => 73.97
[parent_name] => Крыша (Скатная)
[parent_id] => 37
[material_sum] => 1938162
[work_sum] => 1365338
[total_sum] => 3303500
[total_days] => 20
[display_material_sum] => 1 938 162
[display_work_sum] => 1 365 338
[display_total_sum] => 3 303 500
)
1
3 303 500₽
Работа:1 365 338 ₽
Материалы:1 938 162 ₽
Дни:20
stdClass Object
(
[id] => 172
[attribute_id] => 37
[name] => Профлист
[material_modifier] => 1
[work_modifier] => 1
[options] => Array
(
)
[days] => [20]
[material_price] => [3450]
[work_price] => [3750]
[image] => https://akademik-stroy.ru/wp-content/uploads/materials/proflist.jpg
[area_modifier] => 73.97
[parent_name] => Крыша (Скатная)
[parent_id] => 37
[material_sum] => 336859
[work_sum] => 305126
[total_sum] => 641985
[total_days] => 20
[display_material_sum] => 336 859
[display_work_sum] => 305 126
[display_total_sum] => 641 985
)
1
641 985₽
Работа:305 126 ₽
Материалы:336 859 ₽
Дни:20
stdClass Object
(
[id] => 51
[attribute_id] => 26
[name] => Есть
[material_modifier] => 1
[work_modifier] => 1
[options] => Array
(
[0] => Профиль 58 мм, 3-камерный, стеклопакет 2-камерный до 32 мм
[1] => Профиль 60 мм, 4-камерный, стеклопакет 2-камерный до 32 мм
[2] => Профиль 70 мм, 5-камерный, стеклопакет 2-камерный до 40 мм
[3] => Профиль 72 мм, 5-камерный, стеклопакет 2-камерный до 40 мм
[4] => Алюминиевые окна Alutech профиль 72 мм, стеклопакет 2-камерный
)
[days] => [3,3,3,3,3]
[material_price] => [1339,2124,2867,3023,29596]
[work_price] => [635,647,659,668,2579]
[image] => https://akademik-stroy.ru/wp-content/uploads/materials/okna.jpg
[area_modifier] => 152.64
[parent_name] => Окна
[parent_id] => 26
[material_sum] => 269788
[work_sum] => 106619
[total_sum] => 376407
[total_days] => 3
[display_material_sum] => 269 788
[display_work_sum] => 106 619
[display_total_sum] => 376 407
)
1
376 407₽
Работа:106 619 ₽
Материалы:269 788 ₽
Дни:3
stdClass Object
(
[id] => 52
[attribute_id] => 26
[name] => Нет
[material_modifier] => 2
[work_modifier] => 1
[options] =>
[days] => null
[material_price] => null
[work_price] => null
[image] => https://akademik-stroy.ru/wp-content/uploads/materials/okna.jpg
[area_modifier] => 152.64
[parent_name] => Окна
[parent_id] => 26
[material_sum] => 0
[work_sum] => 0
[total_sum] => 0
[total_days] => 0
[display_material_sum] => 0
[display_work_sum] => 0
[display_total_sum] => 0
)
1
0₽
Работа:0 ₽
Материалы:0 ₽
Дни:0
stdClass Object
(
[id] => 53
[attribute_id] => 27
[name] => Есть
[material_modifier] => 1
[work_modifier] => 1
[options] => Array
(
)
[days] => [1]
[material_price] => [10000]
[work_price] => [5500]
[image] => https://akademik-stroy.ru/wp-content/uploads/materials/dveri.jpg
[area_modifier] => 1
[parent_name] => Двери входные
[parent_id] => 27
[material_sum] => 13200
[work_sum] => 6050
[total_sum] => 19250
[total_days] => 1
[display_material_sum] => 13 200
[display_work_sum] => 6 050
[display_total_sum] => 19 250
)
1
19 250₽
Работа:6 050 ₽
Материалы:13 200 ₽
Дни:1
stdClass Object
(
[id] => 54
[attribute_id] => 27
[name] => Нет
[material_modifier] => 1
[work_modifier] => 1
[options] => Array
(
)
[days] => [0]
[material_price] => [0]
[work_price] => [0]
[image] => https://akademik-stroy.ru/wp-content/uploads/materials/dveri.jpg
[area_modifier] => 1
[parent_name] => Двери входные
[parent_id] => 27
[material_sum] => 0
[work_sum] => 0
[total_sum] => 0
[total_days] => 0
[display_material_sum] => 0
[display_work_sum] => 0
[display_total_sum] => 0
)
1
0₽
Работа:0 ₽
Материалы:0 ₽
Дни:0
stdClass Object
(
[id] => 25
[attribute_id] => 13
[name] => Нет
[material_modifier] => 1
[work_modifier] => 1
[options] => Array
(
)
[days] => [0]
[material_price] => [0]
[work_price] => [0]
[image] => https://akademik-stroy.ru/wp-content/uploads/materials/mineralovata-krov.jpg
[area_modifier] => 73.97
[parent_name] => Утепление кровли (Мансарда)
[parent_id] => 13
[material_sum] => 0
[work_sum] => 0
[total_sum] => 0
[total_days] => 0
[display_material_sum] => 0
[display_work_sum] => 0
[display_total_sum] => 0
)
1
0₽
Работа:0 ₽
Материалы:0 ₽
Дни:0
stdClass Object
(
[id] => 26
[attribute_id] => 13
[name] => Минераловатный
[material_modifier] => 1
[work_modifier] => 1
[options] => Array
(
[0] => 50 мм
[1] => 100 мм
[2] => 150 мм
[3] => 200 мм
[4] => 250 мм
[5] => 300 мм
[6] => 350 мм
[7] => 400 мм
[8] => 450 мм
[9] => 500 мм
)
[days] => [5,5,6,6,6,7,7,7,8,8]
[material_price] => [1158,1414,1772,2230,3602,4060,4974,5890,6408,7718]
[work_price] => [650,846,846,1098,1318,1450,1596,1754,1930,2122]
[image] => https://akademik-stroy.ru/wp-content/uploads/materials/mineralovata-krov.jpg
[area_modifier] => 73.97
[parent_name] => Утепление кровли (Мансарда)
[parent_id] => 13
[material_sum] => 113068
[work_sum] => 52889
[total_sum] => 165957
[total_days] => 5
[display_material_sum] => 113 068
[display_work_sum] => 52 889
[display_total_sum] => 165 957
)
1
165 957₽
Работа:52 889 ₽
Материалы:113 068 ₽
Дни:5
stdClass Object
(
[id] => 123
[attribute_id] => 13
[name] => Эковата (целлюлозная вата)
[material_modifier] => 1
[work_modifier] => 1
[options] => Array
(
[0] => 50 мм
[1] => 100 мм
[2] => 150 мм
[3] => 200 мм
[4] => 250 мм
[5] => 300 мм
[6] => 350 мм
[7] => 400 мм
[8] => 450 мм
[9] => 500 мм
)
[days] => [3,3,4,4,4,5,5,5,5,5]
[material_price] => [820,1638,2458,3276,5734,6552,8190,9828,11466,13104]
[work_price] => [234,304,304,396,474,522,574,632,694,764]
[image] => https://akademik-stroy.ru/wp-content/uploads/materials/ehkovata-krov.jpg
[area_modifier] => 73.97
[parent_name] => Утепление кровли (Мансарда)
[parent_id] => 13
[material_sum] => 80065
[work_sum] => 19040
[total_sum] => 99105
[total_days] => 3
[display_material_sum] => 80 065
[display_work_sum] => 19 040
[display_total_sum] => 99 105
)
1
99 105₽
Работа:19 040 ₽
Материалы:80 065 ₽
Дни:3
stdClass Object
(
[id] => 124
[attribute_id] => 13
[name] => Экструдированный пенополистирол
[material_modifier] => 1
[work_modifier] => 1
[options] => Array
(
[0] => 50 мм
[1] => 100 мм
[2] => 150 мм
[3] => 200 мм
[4] => 250 мм
[5] => 300 мм
[6] => 350 мм
[7] => 400 мм
[8] => 450 мм
[9] => 500 мм
)
[days] => [3,3,4,4,4,5,5,5,5,6]
[material_price] => [1146,2292,3438,4584,8020,9166,11458,13750,16040,18332]
[work_price] => [390,508,508,660,790,870,958,1052,1158,1274]
[image] => https://akademik-stroy.ru/wp-content/uploads/materials/epps-krov.jpg
[area_modifier] => 73.97
[parent_name] => Утепление кровли (Мансарда)
[parent_id] => 13
[material_sum] => 111896
[work_sum] => 31733
[total_sum] => 143629
[total_days] => 3
[display_material_sum] => 111 896
[display_work_sum] => 31 733
[display_total_sum] => 143 629
)
1
143 629₽
Работа:31 733 ₽
Материалы:111 896 ₽
Дни:3
stdClass Object
(
[id] => 125
[attribute_id] => 13
[name] => ПСБ (ППС-пенополистирол)
[material_modifier] => 1
[work_modifier] => 1
[options] => Array
(
[0] => 50 мм
[1] => 100 мм
[2] => 150 мм
[3] => 200 мм
[4] => 250 мм
[5] => 300 мм
[6] => 350 мм
[7] => 400 мм
[8] => 450 мм
[9] => 500 мм
)
[days] => [3,3,4,4,4,5,5,5,5,6]
[material_price] => [476,954,1430,1906,3336,3814,4766,5720,6674,7626]
[work_price] => [390,508,508,660,790,870,958,1052,1158,1274]
[image] => https://akademik-stroy.ru/wp-content/uploads/materials/psb-krov.jpg
[area_modifier] => 73.97
[parent_name] => Утепление кровли (Мансарда)
[parent_id] => 13
[material_sum] => 46477
[work_sum] => 31733
[total_sum] => 78210
[total_days] => 3
[display_material_sum] => 46 477
[display_work_sum] => 31 733
[display_total_sum] => 78 210
)
1
78 210₽
Работа:31 733 ₽
Материалы:46 477 ₽
Дни:3
stdClass Object
(
[id] => 126
[attribute_id] => 13
[name] => ППУ (Пенополиуретан)
[material_modifier] => 1
[work_modifier] => 1
[options] => Array
(
[0] => 50 мм
[1] => 100 мм
[2] => 150 мм
[3] => 200 мм
[4] => 250 мм
[5] => 300 мм
[6] => 350 мм
[7] => 400 мм
[8] => 450 мм
[9] => 500 мм
)
[days] => [2,2,3,3,3,3,4,4,4,4]
[material_price] => [2080,4160,6240,8320,14560,16640,20800,24960,29120,33280]
[work_price] => [234,304,304,396,474,522,574,632,694,764]
[image] => https://akademik-stroy.ru/wp-content/uploads/materials/ppu-krov.jpg
[area_modifier] => 73.97
[parent_name] => Утепление кровли (Мансарда)
[parent_id] => 13
[material_sum] => 203092
[work_sum] => 19040
[total_sum] => 222132
[total_days] => 2
[display_material_sum] => 203 092
[display_work_sum] => 19 040
[display_total_sum] => 222 132
)
1
222 132₽
Работа:19 040 ₽
Материалы:203 092 ₽
Дни:2
stdClass Object
(
[id] => 127
[attribute_id] => 13
[name] => PIR-плиты (пенополиизоцианурат)
[material_modifier] => 1
[work_modifier] => 1
[options] => Array
(
[0] => 50 мм
[1] => 100 мм
[2] => 150 мм
[3] => 200 мм
[4] => 250 мм
[5] => 300 мм
[6] => 350 мм
[7] => 400 мм
[8] => 450 мм
[9] => 500 мм
)
[days] => [3,3,4,4,4,5,5,5,5,6]
[material_price] => [2646,5290,7936,10580,18516,21162,26452,31742,37032,42324]
[work_price] => [390,508,508,660,790,870,958,1052,1158,1274]
[image] => https://akademik-stroy.ru/wp-content/uploads/materials/pir-krov.jpg
[area_modifier] => 73.97
[parent_name] => Утепление кровли (Мансарда)
[parent_id] => 13
[material_sum] => 258356
[work_sum] => 31733
[total_sum] => 290089
[total_days] => 3
[display_material_sum] => 258 356
[display_work_sum] => 31 733
[display_total_sum] => 290 089
)
1
290 089₽
Работа:31 733 ₽
Материалы:258 356 ₽
Дни:3
stdClass Object
(
[id] => 27
[attribute_id] => 14
[name] => Нет
[material_modifier] => 1
[work_modifier] => 1
[options] => Array
(
)
[days] => [0]
[material_price] => [0]
[work_price] => [0]
[image] => https://akademik-stroy.ru/wp-content/uploads/materials/mansardnye-okna-2.jpg
[area_modifier] => 1
[parent_name] => Мансардные окна
[parent_id] => 14
[material_sum] => 0
[work_sum] => 0
[total_sum] => 0
[total_days] => 0
[display_material_sum] => 0
[display_work_sum] => 0
[display_total_sum] => 0
)
1
0₽
Работа:0 ₽
Материалы:0 ₽
Дни:0
stdClass Object
(
[id] => 28
[attribute_id] => 14
[name] => Есть
[material_modifier] => 1
[work_modifier] => 1
[options] => Array
(
[0] => 55x78
[1] => 55x98
)
[days] => [6,7]
[material_price] => [47480,68700]
[work_price] => [17900,19500]
[image] => https://akademik-stroy.ru/wp-content/uploads/materials/mansardnye-okna-2.jpg
[area_modifier] => 1
[parent_name] => Мансардные окна
[parent_id] => 14
[material_sum] => 62674
[work_sum] => 19690
[total_sum] => 82364
[total_days] => 6
[display_material_sum] => 62 674
[display_work_sum] => 19 690
[display_total_sum] => 82 364
)
1
82 364₽
Работа:19 690 ₽
Материалы:62 674 ₽
Дни:6
stdClass Object
(
[id] => 29
[attribute_id] => 15
[name] => Нет
[material_modifier] => 1
[work_modifier] => 1
[options] => Array
(
)
[days] => [0]
[material_price] => [0]
[work_price] => [0]
[image] => https://akademik-stroy.ru/wp-content/uploads/materials/sofit.jpg
[area_modifier] => 73.97
[parent_name] => Подшивка кровли
[parent_id] => 15
[material_sum] => 0
[work_sum] => 0
[total_sum] => 0
[total_days] => 0
[display_material_sum] => 0
[display_work_sum] => 0
[display_total_sum] => 0
)
1
0₽
Работа:0 ₽
Материалы:0 ₽
Дни:0
stdClass Object
(
[id] => 30
[attribute_id] => 15
[name] => Есть
[material_modifier] => 1
[work_modifier] => 1
[options] => Array
(
[0] => Софиты (ПВХ)
[1] => Cedral
[2] => ДПК
[3] => Планкен
)
[days] => [7,10,9,8]
[material_price] => [1803,3213,3025,3150]
[work_price] => [1529,2188,2075,1923]
[image] => https://akademik-stroy.ru/wp-content/uploads/materials/sofit.jpg
[area_modifier] => 73.97
[parent_name] => Подшивка кровли
[parent_id] => 15
[material_sum] => 176046
[work_sum] => 124410
[total_sum] => 300456
[total_days] => 7
[display_material_sum] => 176 046
[display_work_sum] => 124 410
[display_total_sum] => 300 456
)
1
300 456₽
Работа:124 410 ₽
Материалы:176 046 ₽
Дни:7
stdClass Object
(
[id] => 31
[attribute_id] => 16
[name] => Нет
[material_modifier] => 1
[work_modifier] => 1
[options] => Array
(
)
[days] => [0]
[material_price] => [0]
[work_price] => [0]
[image] => https://akademik-stroy.ru/wp-content/uploads/materials/docke-standard-pvh.jpg
[area_modifier] => 73.97
[parent_name] => Водосточная система
[parent_id] => 16
[material_sum] => 0
[work_sum] => 0
[total_sum] => 0
[total_days] => 0
[display_material_sum] => 0
[display_work_sum] => 0
[display_total_sum] => 0
)
1
0₽
Работа:0 ₽
Материалы:0 ₽
Дни:0
stdClass Object
(
[id] => 32
[attribute_id] => 16
[name] => Есть
[material_modifier] => 1
[work_modifier] => 1
[options] => Array
(
[0] => Döcke Standard (ПВХ)
[1] => Металлические Grand Line
)
[days] => [7,7]
[material_price] => [1842,2703]
[work_price] => [1491,1529]
[image] => https://akademik-stroy.ru/wp-content/uploads/materials/docke-standard-pvh.jpg
[area_modifier] => 73.97
[parent_name] => Водосточная система
[parent_id] => 16
[material_sum] => 179854
[work_sum] => 121318
[total_sum] => 301172
[total_days] => 7
[display_material_sum] => 179 854
[display_work_sum] => 121 318
[display_total_sum] => 301 172
)
1
301 172₽
Работа:121 318 ₽
Материалы:179 854 ₽
Дни:7
stdClass Object
(
[id] => 33
[attribute_id] => 17
[name] => Нет
[material_modifier] => 1
[work_modifier] => 1
[options] => Array
(
)
[days] => [0]
[material_price] => [0]
[work_price] => [0]
[image] => https://akademik-stroy.ru/wp-content/uploads/materials/mineralovata.jpg
[area_modifier] => 188.1
[parent_name] => Дополнительное утепление наружных стен
[parent_id] => 17
[material_sum] => 0
[work_sum] => 0
[total_sum] => 0
[total_days] => 0
[display_material_sum] => 0
[display_work_sum] => 0
[display_total_sum] => 0
)
1
0₽
Работа:0 ₽
Материалы:0 ₽
Дни:0
stdClass Object
(
[id] => 34
[attribute_id] => 17
[name] => Минераловатный
[material_modifier] => 1
[work_modifier] => 1
[options] => Array
(
[0] => 50 мм
[1] => 100 мм
[2] => 150 мм
[3] => 200 мм
[4] => 250 мм
[5] => 300 мм
)
[days] => [7,8,10,12,14,15]
[material_price] => [3437,3613,3803,3915,4601,4830]
[work_price] => [2325,2423,2523,2749,2859,3025]
[image] => https://akademik-stroy.ru/wp-content/uploads/materials/mineralovata.jpg
[area_modifier] => 188.1
[parent_name] => Дополнительное утепление наружных стен
[parent_id] => 17
[material_sum] => 853380
[work_sum] => 481066
[total_sum] => 1334446
[total_days] => 7
[display_material_sum] => 853 380
[display_work_sum] => 481 066
[display_total_sum] => 1 334 446
)
1
1 334 446₽
Работа:481 066 ₽
Материалы:853 380 ₽
Дни:7
stdClass Object
(
[id] => 128
[attribute_id] => 17
[name] => Эковата (целлюлозная вата)
[material_modifier] => 1
[work_modifier] => 1
[options] => Array
(
[0] => 50 мм
[1] => 100 мм
[2] => 150 мм
[3] => 200 мм
[4] => 250 мм
[5] => 300 мм
)
[days] => [3,4,5,6,7,8]
[material_price] => [810,1319,1629,1838,2267,2676]
[work_price] => [1225,1323,1423,1549,1659,1725]
[image] => https://akademik-stroy.ru/wp-content/uploads/materials/ehkovata.jpg
[area_modifier] => 188.1
[parent_name] => Дополнительное утепление наружных стен
[parent_id] => 17
[material_sum] => 201117
[work_sum] => 253465
[total_sum] => 454582
[total_days] => 3
[display_material_sum] => 201 117
[display_work_sum] => 253 465
[display_total_sum] => 454 582
)
1
454 582₽
Работа:253 465 ₽
Материалы:201 117 ₽
Дни:3
stdClass Object
(
[id] => 129
[attribute_id] => 17
[name] => Экструдированный пенополистирол
[material_modifier] => 1
[work_modifier] => 1
[options] => Array
(
[0] => 50 мм
[1] => 100 мм
[2] => 150 мм
[3] => 200 мм
[4] => 250 мм
[5] => 300 мм
)
[days] => [5,6,7,8,9,10]
[material_price] => [4560,4300,5119,6292,7010,8583]
[work_price] => [1795,1954,2254,2330,2595,2735]
[image] => https://akademik-stroy.ru/wp-content/uploads/materials/epps.jpg
[area_modifier] => 188.1
[parent_name] => Дополнительное утепление наружных стен
[parent_id] => 17
[material_sum] => 1132212
[work_sum] => 371403
[total_sum] => 1503615
[total_days] => 5
[display_material_sum] => 1 132 212
[display_work_sum] => 371 403
[display_total_sum] => 1 503 615
)
1
1 503 615₽
Работа:371 403 ₽
Материалы:1 132 212 ₽
Дни:5
stdClass Object
(
[id] => 130
[attribute_id] => 17
[name] => ПСБ (ППС-пенополистирол)
[material_modifier] => 1
[work_modifier] => 1
[options] => Array
(
[0] => 50 мм
[1] => 100 мм
[2] => 150 мм
[3] => 200 мм
[4] => 250 мм
[5] => 300 мм
)
[days] => [5,6,7,8,9,10]
[material_price] => [4822,5200,5819,6292,7010,7583]
[work_price] => [1795,1954,2254,2330,2595,2735]
[image] => https://akademik-stroy.ru/wp-content/uploads/materials/psb.jpg
[area_modifier] => 188.1
[parent_name] => Дополнительное утепление наружных стен
[parent_id] => 17
[material_sum] => 1197264
[work_sum] => 371403
[total_sum] => 1568667
[total_days] => 5
[display_material_sum] => 1 197 264
[display_work_sum] => 371 403
[display_total_sum] => 1 568 667
)
1
1 568 667₽
Работа:371 403 ₽
Материалы:1 197 264 ₽
Дни:5
stdClass Object
(
[id] => 131
[attribute_id] => 17
[name] => ППУ (Пенополиуретан)
[material_modifier] => 1
[work_modifier] => 1
[options] => Array
(
[0] => 50 мм
[1] => 100 мм
[2] => 150 мм
[3] => 200 мм
[4] => 250 мм
[5] => 300 мм
)
[days] => [3,4,5,6,7,8]
[material_price] => [2860,3400,4219,4592,5010,5583]
[work_price] => [729,900,980,1120,1280,1530]
[image] => https://akademik-stroy.ru/wp-content/uploads/materials/ppu.jpg
[area_modifier] => 188.1
[parent_name] => Дополнительное утепление наружных стен
[parent_id] => 17
[material_sum] => 710115
[work_sum] => 150837
[total_sum] => 860952
[total_days] => 3
[display_material_sum] => 710 115
[display_work_sum] => 150 837
[display_total_sum] => 860 952
)
1
860 952₽
Работа:150 837 ₽
Материалы:710 115 ₽
Дни:3
stdClass Object
(
[id] => 132
[attribute_id] => 17
[name] => PIR-плиты (пенополиизоцианурат)
[material_modifier] => 1
[work_modifier] => 1
[options] => Array
(
[0] => 50 мм
[1] => 100 мм
[2] => 150 мм
[3] => 200 мм
[4] => 250 мм
[5] => 300 мм
)
[days] => [5,6,7,8,9,10]
[material_price] => [8323,15645,20968,25900,29258,30581]
[work_price] => [800,900,970,1150,1280,1330]
[image] => https://akademik-stroy.ru/wp-content/uploads/materials/pir.jpg
[area_modifier] => 188.1
[parent_name] => Дополнительное утепление наружных стен
[parent_id] => 17
[material_sum] => 2066534
[work_sum] => 165528
[total_sum] => 2232062
[total_days] => 5
[display_material_sum] => 2 066 534
[display_work_sum] => 165 528
[display_total_sum] => 2 232 062
)
1
2 232 062₽
Работа:165 528 ₽
Материалы:2 066 534 ₽
Дни:5
stdClass Object
(
[id] => 37
[attribute_id] => 19
[name] => Нет
[material_modifier] => 1
[work_modifier] => 1
[options] => Array
(
)
[days] => [0]
[material_price] => [0]
[work_price] => [0]
[image] => https://akademik-stroy.ru/wp-content/uploads/materials/imitaciya-brusa.jpg
[area_modifier] => 188.1
[parent_name] => Наружная отделка фасада
[parent_id] => 19
[material_sum] => 0
[work_sum] => 0
[total_sum] => 0
[total_days] => 0
[display_material_sum] => 0
[display_work_sum] => 0
[display_total_sum] => 0
)
1
0₽
Работа:0 ₽
Материалы:0 ₽
Дни:0
stdClass Object
(
[id] => 38
[attribute_id] => 19
[name] => Имитация бруса
[material_modifier] => 1
[work_modifier] => 1
[options] => Array
(
[0] => Сосна
[1] => Ель
[2] => Лиственница
)
[days] => [20,20,20]
[material_price] => [2994,2762,4954]
[work_price] => [1397,1231,1577]
[image] => https://akademik-stroy.ru/wp-content/uploads/materials/imitaciya-brusa.jpg
[area_modifier] => 188.1
[parent_name] => Наружная отделка фасада
[parent_id] => 19
[material_sum] => 743386
[work_sum] => 289053
[total_sum] => 1032439
[total_days] => 20
[display_material_sum] => 743 386
[display_work_sum] => 289 053
[display_total_sum] => 1 032 439
)
1
1 032 439₽
Работа:289 053 ₽
Материалы:743 386 ₽
Дни:20
stdClass Object
(
[id] => 136
[attribute_id] => 19
[name] => Планкен
[material_modifier] => 1
[work_modifier] => 1
[options] => Array
(
[0] => Сосна
[1] => Ель
[2] => Лиственница
)
[days] => [20,20,20]
[material_price] => [3194,2862,5154]
[work_price] => [1537,1354,1735]
[image] => https://akademik-stroy.ru/wp-content/uploads/materials/planken.jpg
[area_modifier] => 188.1
[parent_name] => Наружная отделка фасада
[parent_id] => 19
[material_sum] => 793045
[work_sum] => 318021
[total_sum] => 1111066
[total_days] => 20
[display_material_sum] => 793 045
[display_work_sum] => 318 021
[display_total_sum] => 1 111 066
)
1
1 111 066₽
Работа:318 021 ₽
Материалы:793 045 ₽
Дни:20
stdClass Object
(
[id] => 137
[attribute_id] => 19
[name] => Штукатурка
[material_modifier] => 1
[work_modifier] => 1
[options] => Array
(
[0] => Цементно-песчаная (минеральная)
[1] => Мокрый фасад
)
[days] => [35,35]
[material_price] => [2231,3938]
[work_price] => [1202,2422]
[image] => https://akademik-stroy.ru/wp-content/uploads/materials/shtukaturka.jpg
[area_modifier] => 188.1
[parent_name] => Наружная отделка фасада
[parent_id] => 19
[material_sum] => 553939
[work_sum] => 248706
[total_sum] => 802645
[total_days] => 35
[display_material_sum] => 553 939
[display_work_sum] => 248 706
[display_total_sum] => 802 645
)
1
802 645₽
Работа:248 706 ₽
Материалы:553 939 ₽
Дни:35
stdClass Object
(
[id] => 138
[attribute_id] => 19
[name] => Облицовочный кирпич
[material_modifier] => 1
[work_modifier] => 1
[options] => Array
(
[0] => Керамический
[1] => Клинкерный
[2] => Ручной формовки
[3] => Гиперпрессованный
[4] => Силикатный кирпич
)
[days] => [45,45,45,45,45]
[material_price] => [8174,9148,1040,1257,5876]
[work_price] => [3240,3758,4536,4017,3369]
[image] => https://akademik-stroy.ru/wp-content/uploads/materials/oblicovochnyj-kirpich.jpg
[area_modifier] => 188.1
[parent_name] => Наружная отделка фасада
[parent_id] => 19
[material_sum] => 2029539
[work_sum] => 670388
[total_sum] => 2699927
[total_days] => 45
[display_material_sum] => 2 029 539
[display_work_sum] => 670 388
[display_total_sum] => 2 699 927
)
1
2 699 927₽
Работа:670 388 ₽
Материалы:2 029 539 ₽
Дни:45
stdClass Object
(
[id] => 139
[attribute_id] => 19
[name] => Фасадная плитка
[material_modifier] => 1
[work_modifier] => 1
[options] => Array
(
[0] => Клинкерная
[1] => Керамическая
[2] => Плитка ручной формовки
)
[days] => [40,40,40]
[material_price] => [2974,1487,3470]
[work_price] => [3007,2592,3629]
[image] => https://akademik-stroy.ru/wp-content/uploads/materials/fasadnaya-plitka.jpg
[area_modifier] => 188.1
[parent_name] => Наружная отделка фасада
[parent_id] => 19
[material_sum] => 738420
[work_sum] => 622178
[total_sum] => 1360598
[total_days] => 40
[display_material_sum] => 738 420
[display_work_sum] => 622 178
[display_total_sum] => 1 360 598
)
1
1 360 598₽
Работа:622 178 ₽
Материалы:738 420 ₽
Дни:40
stdClass Object
(
[id] => 140
[attribute_id] => 19
[name] => Сайдинг
[material_modifier] => 1
[work_modifier] => 1
[options] => Array
(
[0] => Виниловый
[1] => Металлический
[2] => Фиброцементный
)
[days] => [20,20,20]
[material_price] => [1263,1944,4147]
[work_price] => [1263,1944,2074]
[image] => https://akademik-stroy.ru/wp-content/uploads/materials/sajding.jpg
[area_modifier] => 188.1
[parent_name] => Наружная отделка фасада
[parent_id] => 19
[material_sum] => 313593
[work_sum] => 261327
[total_sum] => 574920
[total_days] => 20
[display_material_sum] => 313 593
[display_work_sum] => 261 327
[display_total_sum] => 574 920
)
1
574 920₽
Работа:261 327 ₽
Материалы:313 593 ₽
Дни:20
stdClass Object
(
[id] => 141
[attribute_id] => 19
[name] => Камень
[material_modifier] => 1
[work_modifier] => 1
[options] => Array
(
[0] => Травертин
[1] => Дагестанский
[2] => Искусственный
[3] => Натуральный
[4] => Керамогранит
)
[days] => [45,45,45,45,45]
[material_price] => [4536,3888,2592,3240,2462]
[work_price] => [3240,3240,2462,3110,1944]
[image] => https://akademik-stroy.ru/wp-content/uploads/materials/kamen-1.jpg
[area_modifier] => 188.1
[parent_name] => Наружная отделка фасада
[parent_id] => 19
[material_sum] => 1126253
[work_sum] => 670388
[total_sum] => 1796641
[total_days] => 45
[display_material_sum] => 1 126 253
[display_work_sum] => 670 388
[display_total_sum] => 1 796 641
)
1
1 796 641₽
Работа:670 388 ₽
Материалы:1 126 253 ₽
Дни:45
stdClass Object
(
[id] => 142
[attribute_id] => 19
[name] => Термопанели
[material_modifier] => 1
[work_modifier] => 1
[options] => Array
(
)
[days] => [20]
[material_price] => [6221]
[work_price] => [2333]
[image] => https://akademik-stroy.ru/wp-content/uploads/materials/termo.png
[area_modifier] => 188.1
[parent_name] => Наружная отделка фасада
[parent_id] => 19
[material_sum] => 1544625
[work_sum] => 482721
[total_sum] => 2027346
[total_days] => 20
[display_material_sum] => 1 544 625
[display_work_sum] => 482 721
[display_total_sum] => 2 027 346
)
1
2 027 346₽
Работа:482 721 ₽
Материалы:1 544 625 ₽
Дни:20
stdClass Object
(
[id] => 143
[attribute_id] => 19
[name] => Плитка HAUBERK
[material_modifier] => 1
[work_modifier] => 1
[options] => Array
(
)
[days] => [20]
[material_price] => [2786]
[work_price] => [1944]
[image] => https://akademik-stroy.ru/wp-content/uploads/materials/hauberk.jpg
[area_modifier] => 188.1
[parent_name] => Наружная отделка фасада
[parent_id] => 19
[material_sum] => 691742
[work_sum] => 402233
[total_sum] => 1093975
[total_days] => 20
[display_material_sum] => 691 742
[display_work_sum] => 402 233
[display_total_sum] => 1 093 975
)
1
1 093 975₽
Работа:402 233 ₽
Материалы:691 742 ₽
Дни:20
stdClass Object
(
[id] => 144
[attribute_id] => 19
[name] => Фальцевый фасад
[material_modifier] => 1
[work_modifier] => 1
[options] => Array
(
)
[days] => [20]
[material_price] => [3240]
[work_price] => [2592]
[image] => https://akademik-stroy.ru/wp-content/uploads/materials/falcevyj-fasad.jpg
[area_modifier] => 188.1
[parent_name] => Наружная отделка фасада
[parent_id] => 19
[material_sum] => 804466
[work_sum] => 536311
[total_sum] => 1340777
[total_days] => 20
[display_material_sum] => 804 466
[display_work_sum] => 536 311
[display_total_sum] => 1 340 777
)
1
1 340 777₽
Работа:536 311 ₽
Материалы:804 466 ₽
Дни:20
stdClass Object
(
[id] => 145
[attribute_id] => 19
[name] => Комбинированный
[material_modifier] => 1
[work_modifier] => 1
[options] => Array
(
)
[days] => [20]
[material_price] => [4629]
[work_price] => [3499]
[image] => https://akademik-stroy.ru/wp-content/uploads/materials/Kombinirovannyj.jpg
[area_modifier] => 188.1
[parent_name] => Наружная отделка фасада
[parent_id] => 19
[material_sum] => 1149344
[work_sum] => 723978
[total_sum] => 1873322
[total_days] => 20
[display_material_sum] => 1 149 344
[display_work_sum] => 723 978
[display_total_sum] => 1 873 322
)
1
1 873 322₽
Работа:723 978 ₽
Материалы:1 149 344 ₽
Дни:20
stdClass Object
(
[id] => 257
[attribute_id] => 19
[name] => Японские фиброцементные
[material_modifier] => 1
[work_modifier] => 1
[options] => Array
(
)
[days] => [20]
[material_price] => [7043]
[work_price] => [2993]
[image] => https://akademik-stroy.ru/wp-content/uploads/materials/paneli.jpg
[area_modifier] => 188.1
[parent_name] => Наружная отделка фасада
[parent_id] => 19
[material_sum] => 1748721
[work_sum] => 619282
[total_sum] => 2368003
[total_days] => 20
[display_material_sum] => 1 748 721
[display_work_sum] => 619 282
[display_total_sum] => 2 368 003
)
1
2 368 003₽
Работа:619 282 ₽
Материалы:1 748 721 ₽
Дни:20
stdClass Object
(
[id] => 258
[attribute_id] => 19
[name] => Панели Каньон
[material_modifier] => 1
[work_modifier] => 1
[options] => Array
(
)
[days] => [20]
[material_price] => [4543]
[work_price] => [2592]
[image] => https://akademik-stroy.ru/wp-content/uploads/materials/kanon.png
[area_modifier] => 188.1
[parent_name] => Наружная отделка фасада
[parent_id] => 19
[material_sum] => 1127991
[work_sum] => 536311
[total_sum] => 1664302
[total_days] => 20
[display_material_sum] => 1 127 991
[display_work_sum] => 536 311
[display_total_sum] => 1 664 302
)
1
1 664 302₽
Работа:536 311 ₽
Материалы:1 127 991 ₽
Дни:20
stdClass Object
(
[id] => 39
[attribute_id] => 20
[name] => Нет
[material_modifier] => 1
[work_modifier] => 1
[options] => Array
(
)
[days] => [0]
[material_price] => [0]
[work_price] => [0]
[image] => https://akademik-stroy.ru/wp-content/uploads/materials/terrasy.jpg
[area_modifier] => 30
[parent_name] => Террасы, крыльца, навесы
[parent_id] => 20
[material_sum] => 0
[work_sum] => 0
[total_sum] => 0
[total_days] => 0
[display_material_sum] => 0
[display_work_sum] => 0
[display_total_sum] => 0
)
1
0₽
Работа:0 ₽
Материалы:0 ₽
Дни:0
stdClass Object
(
[id] => 40
[attribute_id] => 20
[name] => Есть
[material_modifier] => 1
[work_modifier] => 1
[options] => Array
(
)
[days] => [5]
[material_price] => [10450]
[work_price] => [1950]
[image] => https://akademik-stroy.ru/wp-content/uploads/materials/terrasy.jpg
[area_modifier] => 30
[parent_name] => Террасы, крыльца, навесы
[parent_id] => 20
[material_sum] => 413820
[work_sum] => 64350
[total_sum] => 478170
[total_days] => 5
[display_material_sum] => 413 820
[display_work_sum] => 64 350
[display_total_sum] => 478 170
)
1
478 170₽
Работа:64 350 ₽
Материалы:413 820 ₽
Дни:5
stdClass Object
(
[id] => 41
[attribute_id] => 21
[name] => Нет
[material_modifier] => 1
[work_modifier] => 1
[options] => Array
(
)
[days] => [0]
[material_price] => [0]
[work_price] => [0]
[image] => https://akademik-stroy.ru/wp-content/uploads/materials/balkony.jpg
[area_modifier] => 30
[parent_name] => Балконы
[parent_id] => 21
[material_sum] => 0
[work_sum] => 0
[total_sum] => 0
[total_days] => 0
[display_material_sum] => 0
[display_work_sum] => 0
[display_total_sum] => 0
)
1
0₽
Работа:0 ₽
Материалы:0 ₽
Дни:0
stdClass Object
(
[id] => 42
[attribute_id] => 21
[name] => Есть
[material_modifier] => 1
[work_modifier] => 1
[options] => Array
(
)
[days] => [12]
[material_price] => [3600]
[work_price] => [1950]
[image] => https://akademik-stroy.ru/wp-content/uploads/materials/balkony.jpg
[area_modifier] => 30
[parent_name] => Балконы
[parent_id] => 21
[material_sum] => 142560
[work_sum] => 64350
[total_sum] => 206910
[total_days] => 12
[display_material_sum] => 142 560
[display_work_sum] => 64 350
[display_total_sum] => 206 910
)
1
206 910₽
Работа:64 350 ₽
Материалы:142 560 ₽
Дни:12
stdClass Object
(
[id] => 43
[attribute_id] => 22
[name] => Нет
[material_modifier] => 1
[work_modifier] => 1
[options] => Array
(
)
[days] => [0]
[material_price] => [0]
[work_price] => [0]
[image] => https://akademik-stroy.ru/wp-content/uploads/materials/uteplennaya.jpg
[area_modifier] => 73.97
[parent_name] => Отмостка
[parent_id] => 22
[material_sum] => 0
[work_sum] => 0
[total_sum] => 0
[total_days] => 0
[display_material_sum] => 0
[display_work_sum] => 0
[display_total_sum] => 0
)
1
0₽
Работа:0 ₽
Материалы:0 ₽
Дни:0
stdClass Object
(
[id] => 44
[attribute_id] => 22
[name] => Утепленная отмостка
[material_modifier] => 1
[work_modifier] => 1
[options] => Array
(
)
[days] => [15]
[material_price] => [2550]
[work_price] => [1750]
[image] => https://akademik-stroy.ru/wp-content/uploads/materials/uteplennaya.jpg
[area_modifier] => 73.97
[parent_name] => Отмостка
[parent_id] => 22
[material_sum] => 248983
[work_sum] => 142392
[total_sum] => 391375
[total_days] => 15
[display_material_sum] => 248 983
[display_work_sum] => 142 392
[display_total_sum] => 391 375
)
1
391 375₽
Работа:142 392 ₽
Материалы:248 983 ₽
Дни:15
stdClass Object
(
[id] => 146
[attribute_id] => 22
[name] => Не утепленная отмостка
[material_modifier] => 1
[work_modifier] => 1
[options] => Array
(
)
[days] => [10]
[material_price] => [1650]
[work_price] => [1450]
[image] => https://akademik-stroy.ru/wp-content/uploads/materials/ne-uteplennaya.jpg
[area_modifier] => 73.97
[parent_name] => Отмостка
[parent_id] => 22
[material_sum] => 161107
[work_sum] => 117982
[total_sum] => 279089
[total_days] => 10
[display_material_sum] => 161 107
[display_work_sum] => 117 982
[display_total_sum] => 279 089
)
1
279 089₽
Работа:117 982 ₽
Материалы:161 107 ₽
Дни:10
stdClass Object
(
[id] => 45
[attribute_id] => 23
[name] => Нет
[material_modifier] => 1
[work_modifier] => 1
[options] => Array
(
)
[days] => [0]
[material_price] => [0]
[work_price] => [0]
[image] => https://akademik-stroy.ru/wp-content/uploads/materials/drenazh-2.jpg
[area_modifier] => 73.97
[parent_name] => Дренаж вокруг дома
[parent_id] => 23
[material_sum] => 0
[work_sum] => 0
[total_sum] => 0
[total_days] => 0
[display_material_sum] => 0
[display_work_sum] => 0
[display_total_sum] => 0
)
1
0₽
Работа:0 ₽
Материалы:0 ₽
Дни:0
stdClass Object
(
[id] => 46
[attribute_id] => 23
[name] => Есть
[material_modifier] => 1
[work_modifier] => 1
[options] => Array
(
)
[days] => [5]
[material_price] => [2366]
[work_price] => [1911]
[image] => https://akademik-stroy.ru/wp-content/uploads/materials/drenazh-2.jpg
[area_modifier] => 73.97
[parent_name] => Дренаж вокруг дома
[parent_id] => 23
[material_sum] => 231017
[work_sum] => 155492
[total_sum] => 386509
[total_days] => 5
[display_material_sum] => 231 017
[display_work_sum] => 155 492
[display_total_sum] => 386 509
)
1
386 509₽
Работа:155 492 ₽
Материалы:231 017 ₽
Дни:5
stdClass Object
(
[id] => 47
[attribute_id] => 24
[name] => Нет
[material_modifier] => 1
[work_modifier] => 1
[options] => Array
(
)
[days] => [0]
[material_price] => [0]
[work_price] => [0]
[image] => https://akademik-stroy.ru/wp-content/uploads/materials/septik.jpg
[area_modifier] => 1
[parent_name] => Автономная канализация (септики)
[parent_id] => 24
[material_sum] => 0
[work_sum] => 0
[total_sum] => 0
[total_days] => 0
[display_material_sum] => 0
[display_work_sum] => 0
[display_total_sum] => 0
)
1
0₽
Работа:0 ₽
Материалы:0 ₽
Дни:0
stdClass Object
(
[id] => 48
[attribute_id] => 24
[name] => Есть
[material_modifier] => 1
[work_modifier] => 1
[options] => Array
(
[0] => Для дачи на 4 человека
[1] => Для дома на 5 человек
[2] => Для дома на 6 человек
[3] => Для дома на 7 человек
[4] => Для дома на 10 человек
)
[days] => [7,7,7,8,8]
[material_price] => [196340,220500,240940,264200,293340]
[work_price] => [50000,55000,60500,66550,73206]
[image] => https://akademik-stroy.ru/wp-content/uploads/materials/septik.jpg
[area_modifier] => 1
[parent_name] => Автономная канализация (септики)
[parent_id] => 24
[material_sum] => 259169
[work_sum] => 55000
[total_sum] => 314169
[total_days] => 7
[display_material_sum] => 259 169
[display_work_sum] => 55 000
[display_total_sum] => 314 169
)
1
314 169₽
Работа:55 000 ₽
Материалы:259 169 ₽
Дни:7
stdClass Object
(
[id] => 49
[attribute_id] => 25
[name] => Нет
[material_modifier] => 1
[work_modifier] => 1
[options] => Array
(
)
[days] => [0]
[material_price] => [0]
[work_price] => [0]
[image] => https://akademik-stroy.ru/wp-content/uploads/materials/gkl.jpg
[area_modifier] => 188.1
[parent_name] => Внутренние (не несущие) перегородки
[parent_id] => 25
[material_sum] => 0
[work_sum] => 0
[total_sum] => 0
[total_days] => 0
[display_material_sum] => 0
[display_work_sum] => 0
[display_total_sum] => 0
)
1
0₽
Работа:0 ₽
Материалы:0 ₽
Дни:0
stdClass Object
(
[id] => 147
[attribute_id] => 25
[name] => Каркасно-обшивные
[material_modifier] => 1
[work_modifier] => 1
[options] => Array
(
[0] => 75 мм (без шумоизоляции)
[1] => 75 мм (с шумоизоляцией)
)
[days] => [11,11]
[material_price] => [580,970]
[work_price] => [380,570]
[image] => https://akademik-stroy.ru/wp-content/uploads/materials/gkl.jpg
[area_modifier] => 188.1
[parent_name] => Внутренние (не несущие) перегородки
[parent_id] => 25
[material_sum] => 144009
[work_sum] => 78626
[total_sum] => 222635
[total_days] => 11
[display_material_sum] => 144 009
[display_work_sum] => 78 626
[display_total_sum] => 222 635
)
1
222 635₽
Работа:78 626 ₽
Материалы:144 009 ₽
Дни:11
stdClass Object
(
[id] => 148
[attribute_id] => 25
[name] => Пазогребневые
[material_modifier] => 1
[work_modifier] => 1
[options] => Array
(
[0] => 80 мм
[1] => 100 мм
)
[days] => [5,5]
[material_price] => [1022,1313]
[work_price] => [600,700]
[image] => https://akademik-stroy.ru/wp-content/uploads/materials/pazogrebnevye-bloki.jpg
[area_modifier] => 188.1
[parent_name] => Внутренние (не несущие) перегородки
[parent_id] => 25
[material_sum] => 253754
[work_sum] => 124146
[total_sum] => 377900
[total_days] => 5
[display_material_sum] => 253 754
[display_work_sum] => 124 146
[display_total_sum] => 377 900
)
1
377 900₽
Работа:124 146 ₽
Материалы:253 754 ₽
Дни:5
stdClass Object
(
[id] => 149
[attribute_id] => 25
[name] => Газобетонные
[material_modifier] => 1
[work_modifier] => 1
[options] => Array
(
[0] => 100 мм
[1] => 200 мм
)
[days] => [11,11]
[material_price] => [1160,1920]
[work_price] => [700,900]
[image] => https://akademik-stroy.ru/wp-content/uploads/materials/gazobeton-2.jpg
[area_modifier] => 188.1
[parent_name] => Внутренние (не несущие) перегородки
[parent_id] => 25
[material_sum] => 288019
[work_sum] => 144837
[total_sum] => 432856
[total_days] => 11
[display_material_sum] => 288 019
[display_work_sum] => 144 837
[display_total_sum] => 432 856
)
1
432 856₽
Работа:144 837 ₽
Материалы:288 019 ₽
Дни:11
stdClass Object
(
[id] => 150
[attribute_id] => 25
[name] => Кирпичные
[material_modifier] => 1
[work_modifier] => 1
[options] => Array
(
[0] => 120 мм
[1] => 250 мм
[2] => 360 мм
)
[days] => [7,7,7]
[material_price] => [1785,3570,5355]
[work_price] => [900,1600,1800]
[image] => https://akademik-stroy.ru/wp-content/uploads/materials/kirpich-1.jpg
[area_modifier] => 188.1
[parent_name] => Внутренние (не несущие) перегородки
[parent_id] => 25
[material_sum] => 443201
[work_sum] => 186219
[total_sum] => 629420
[total_days] => 7
[display_material_sum] => 443 201
[display_work_sum] => 186 219
[display_total_sum] => 629 420
)
1
629 420₽
Работа:186 219 ₽
Материалы:443 201 ₽
Дни:7
stdClass Object
(
[id] => 55
[attribute_id] => 28
[name] => Нет
[material_modifier] => 1
[work_modifier] => 1
[options] => Array
(
)
[days] => [0]
[material_price] => [0]
[work_price] => [0]
[image] => https://akademik-stroy.ru/wp-content/uploads/materials/ehlektrika.jpg
[area_modifier] => 152.64
[parent_name] => Электрика
[parent_id] => 28
[material_sum] => 0
[work_sum] => 0
[total_sum] => 0
[total_days] => 0
[display_material_sum] => 0
[display_work_sum] => 0
[display_total_sum] => 0
)
1
0₽
Работа:0 ₽
Материалы:0 ₽
Дни:0
stdClass Object
(
[id] => 56
[attribute_id] => 28
[name] => Есть
[material_modifier] => 1
[work_modifier] => 1
[options] => Array
(
)
[days] => [10]
[material_price] => [650]
[work_price] => [950]
[image] => https://akademik-stroy.ru/wp-content/uploads/materials/ehlektrika.jpg
[area_modifier] => 152.64
[parent_name] => Электрика
[parent_id] => 28
[material_sum] => 130965
[work_sum] => 159509
[total_sum] => 290474
[total_days] => 10
[display_material_sum] => 130 965
[display_work_sum] => 159 509
[display_total_sum] => 290 474
)
1
290 474₽
Работа:159 509 ₽
Материалы:130 965 ₽
Дни:10
stdClass Object
(
[id] => 57
[attribute_id] => 29
[name] => Нет
[material_modifier] => 1
[work_modifier] => 1
[options] => Array
(
)
[days] => [0]
[material_price] => [0]
[work_price] => [0]
[image] => https://akademik-stroy.ru/wp-content/uploads/materials/santekhnika-kanalizaciya-1.jpg
[area_modifier] => 152.64
[parent_name] => Сантехника, канализация в доме
[parent_id] => 29
[material_sum] => 0
[work_sum] => 0
[total_sum] => 0
[total_days] => 0
[display_material_sum] => 0
[display_work_sum] => 0
[display_total_sum] => 0
)
1
0₽
Работа:0 ₽
Материалы:0 ₽
Дни:0
stdClass Object
(
[id] => 58
[attribute_id] => 29
[name] => Есть
[material_modifier] => 1
[work_modifier] => 1
[options] => Array
(
)
[days] => [10]
[material_price] => [600]
[work_price] => [730]
[image] => https://akademik-stroy.ru/wp-content/uploads/materials/santekhnika-kanalizaciya-1.jpg
[area_modifier] => 152.64
[parent_name] => Сантехника, канализация в доме
[parent_id] => 29
[material_sum] => 120891
[work_sum] => 122570
[total_sum] => 243461
[total_days] => 10
[display_material_sum] => 120 891
[display_work_sum] => 122 570
[display_total_sum] => 243 461
)
1
243 461₽
Работа:122 570 ₽
Материалы:120 891 ₽
Дни:10
stdClass Object
(
[id] => 59
[attribute_id] => 30
[name] => Нет
[material_modifier] => 1
[work_modifier] => 1
[options] => Array
(
)
[days] => [0]
[material_price] => [0]
[work_price] => [0]
[image] => https://akademik-stroy.ru/wp-content/uploads/materials/otoplenie-1.jpg
[area_modifier] => 152.64
[parent_name] => Отопление
[parent_id] => 30
[material_sum] => 0
[work_sum] => 0
[total_sum] => 0
[total_days] => 0
[display_material_sum] => 0
[display_work_sum] => 0
[display_total_sum] => 0
)
1
0₽
Работа:0 ₽
Материалы:0 ₽
Дни:0
stdClass Object
(
[id] => 60
[attribute_id] => 30
[name] => Есть
[material_modifier] => 1
[work_modifier] => 1
[options] => Array
(
)
[days] => [5]
[material_price] => [610]
[work_price] => [560]
[image] => https://akademik-stroy.ru/wp-content/uploads/materials/otoplenie-1.jpg
[area_modifier] => 152.64
[parent_name] => Отопление
[parent_id] => 30
[material_sum] => 122906
[work_sum] => 94026
[total_sum] => 216932
[total_days] => 5
[display_material_sum] => 122 906
[display_work_sum] => 94 026
[display_total_sum] => 216 932
)
1
216 932₽
Работа:94 026 ₽
Материалы:122 906 ₽
Дни:5
stdClass Object
(
[id] => 61
[attribute_id] => 31
[name] => Нет
[material_modifier] => 1
[work_modifier] => 1
[options] => Array
(
)
[days] => [0]
[material_price] => [0]
[work_price] => [0]
[image] => https://akademik-stroy.ru/wp-content/uploads/materials/vodyanye.jpg
[area_modifier] => 30
[parent_name] => Теплые полы
[parent_id] => 31
[material_sum] => 0
[work_sum] => 0
[total_sum] => 0
[total_days] => 0
[display_material_sum] => 0
[display_work_sum] => 0
[display_total_sum] => 0
)
1
0₽
Работа:0 ₽
Материалы:0 ₽
Дни:0
stdClass Object
(
[id] => 151
[attribute_id] => 31
[name] => Водяные
[material_modifier] => 1
[work_modifier] => 1
[options] => Array
(
)
[days] => [9]
[material_price] => [10200]
[work_price] => [2500]
[image] => https://akademik-stroy.ru/wp-content/uploads/materials/vodyanye.jpg
[area_modifier] => 30
[parent_name] => Теплые полы
[parent_id] => 31
[material_sum] => 403920
[work_sum] => 82500
[total_sum] => 486420
[total_days] => 9
[display_material_sum] => 403 920
[display_work_sum] => 82 500
[display_total_sum] => 486 420
)
1
486 420₽
Работа:82 500 ₽
Материалы:403 920 ₽
Дни:9
stdClass Object
(
[id] => 152
[attribute_id] => 31
[name] => Электро
[material_modifier] => 1
[work_modifier] => 1
[options] => Array
(
)
[days] => [5]
[material_price] => [6300]
[work_price] => [1500]
[image] => https://akademik-stroy.ru/wp-content/uploads/materials/ehlektricheskij.jpg
[area_modifier] => 30
[parent_name] => Теплые полы
[parent_id] => 31
[material_sum] => 249480
[work_sum] => 49500
[total_sum] => 298980
[total_days] => 5
[display_material_sum] => 249 480
[display_work_sum] => 49 500
[display_total_sum] => 298 980
)
1
298 980₽
Работа:49 500 ₽
Материалы:249 480 ₽
Дни:5
stdClass Object
(
[id] => 63
[attribute_id] => 32
[name] => Нет
[material_modifier] => 1
[work_modifier] => 1
[options] => Array
(
)
[days] => [0]
[material_price] => [0]
[work_price] => [0]
[image] => https://akademik-stroy.ru/wp-content/uploads/materials/shtukaturka-shpatlevka-1.jpg
[area_modifier] => 152.64
[parent_name] => Черновая отделка стен
[parent_id] => 32
[material_sum] => 0
[work_sum] => 0
[total_sum] => 0
[total_days] => 0
[display_material_sum] => 0
[display_work_sum] => 0
[display_total_sum] => 0
)
1
0₽
Работа:0 ₽
Материалы:0 ₽
Дни:0
stdClass Object
(
[id] => 153
[attribute_id] => 32
[name] => Штукатурка и шпатлевка
[material_modifier] => 1
[work_modifier] => 1
[options] => Array
(
)
[days] => [20]
[material_price] => [1850]
[work_price] => [2600]
[image] => https://akademik-stroy.ru/wp-content/uploads/materials/shtukaturka-shpatlevka-1.jpg
[area_modifier] => 152.64
[parent_name] => Черновая отделка стен
[parent_id] => 32
[material_sum] => 372747
[work_sum] => 436550
[total_sum] => 809297
[total_days] => 20
[display_material_sum] => 372 747
[display_work_sum] => 436 550
[display_total_sum] => 809 297
)
1
809 297₽
Работа:436 550 ₽
Материалы:372 747 ₽
Дни:20
stdClass Object
(
[id] => 154
[attribute_id] => 32
[name] => Гипсокортон на стены
[material_modifier] => 1
[work_modifier] => 1
[options] => Array
(
)
[days] => [15]
[material_price] => [950]
[work_price] => [2100]
[image] => https://akademik-stroy.ru/wp-content/uploads/materials/gkl-1.jpg
[area_modifier] => 152.64
[parent_name] => Черновая отделка стен
[parent_id] => 32
[material_sum] => 191411
[work_sum] => 352598
[total_sum] => 544009
[total_days] => 15
[display_material_sum] => 191 411
[display_work_sum] => 352 598
[display_total_sum] => 544 009
)
1
544 009₽
Работа:352 598 ₽
Материалы:191 411 ₽
Дни:15
stdClass Object
(
[id] => 155
[attribute_id] => 32
[name] => Вагонка
[material_modifier] => 1
[work_modifier] => 1
[options] => Array
(
)
[days] => [15]
[material_price] => [1250]
[work_price] => [950]
[image] => https://akademik-stroy.ru/wp-content/uploads/materials/vagonka.jpg
[area_modifier] => 152.64
[parent_name] => Черновая отделка стен
[parent_id] => 32
[material_sum] => 251856
[work_sum] => 159509
[total_sum] => 411365
[total_days] => 15
[display_material_sum] => 251 856
[display_work_sum] => 159 509
[display_total_sum] => 411 365
)
1
411 365₽
Работа:159 509 ₽
Материалы:251 856 ₽
Дни:15
stdClass Object
(
[id] => 65
[attribute_id] => 33
[name] => Нет
[material_modifier] => 1
[work_modifier] => 1
[options] => Array
(
)
[days] => [0]
[material_price] => [0]
[work_price] => [0]
[image] => https://akademik-stroy.ru/wp-content/uploads/materials/styazhka.jpg
[area_modifier] => 152.64
[parent_name] => Черновая отделка полов
[parent_id] => 33
[material_sum] => 0
[work_sum] => 0
[total_sum] => 0
[total_days] => 0
[display_material_sum] => 0
[display_work_sum] => 0
[display_total_sum] => 0
)
1
0₽
Работа:0 ₽
Материалы:0 ₽
Дни:0
stdClass Object
(
[id] => 156
[attribute_id] => 33
[name] => Стяжка + наливные полы
[material_modifier] => 1
[work_modifier] => 1
[options] => Array
(
)
[days] => [10]
[material_price] => [1000]
[work_price] => [900]
[image] => https://akademik-stroy.ru/wp-content/uploads/materials/styazhka.jpg
[area_modifier] => 152.64
[parent_name] => Черновая отделка полов
[parent_id] => 33
[material_sum] => 201485
[work_sum] => 151114
[total_sum] => 352599
[total_days] => 10
[display_material_sum] => 201 485
[display_work_sum] => 151 114
[display_total_sum] => 352 599
)
1
352 599₽
Работа:151 114 ₽
Материалы:201 485 ₽
Дни:10
stdClass Object
(
[id] => 157
[attribute_id] => 33
[name] => ОСБ на пол
[material_modifier] => 1
[work_modifier] => 1
[options] => Array
(
)
[days] => [7]
[material_price] => [580]
[work_price] => [350]
[image] => https://akademik-stroy.ru/wp-content/uploads/materials/osb-1.jpg
[area_modifier] => 152.64
[parent_name] => Черновая отделка полов
[parent_id] => 33
[material_sum] => 116861
[work_sum] => 58766
[total_sum] => 175627
[total_days] => 7
[display_material_sum] => 116 861
[display_work_sum] => 58 766
[display_total_sum] => 175 627
)
1
175 627₽
Работа:58 766 ₽
Материалы:116 861 ₽
Дни:7
stdClass Object
(
[id] => 67
[attribute_id] => 34
[name] => Нет
[material_modifier] => 1
[work_modifier] => 1
[options] => Array
(
)
[days] => [0]
[material_price] => [0]
[work_price] => [0]
[image] => https://akademik-stroy.ru/wp-content/uploads/materials/chistovaya-otdelka.jpg
[area_modifier] => 152.64
[parent_name] => Чистовая отделка стен и полов
[parent_id] => 34
[material_sum] => 0
[work_sum] => 0
[total_sum] => 0
[total_days] => 0
[display_material_sum] => 0
[display_work_sum] => 0
[display_total_sum] => 0
)
1
0₽
Работа:0 ₽
Материалы:0 ₽
Дни:0
stdClass Object
(
[id] => 68
[attribute_id] => 34
[name] => Есть
[material_modifier] => 1
[work_modifier] => 1
[options] => Array
(
)
[days] => [50]
[material_price] => [6000]
[work_price] => [3500]
[image] => https://akademik-stroy.ru/wp-content/uploads/materials/chistovaya-otdelka.jpg
[area_modifier] => 152.64
[parent_name] => Чистовая отделка стен и полов
[parent_id] => 34
[material_sum] => 1208909
[work_sum] => 587664
[total_sum] => 1796573
[total_days] => 50
[display_material_sum] => 1 208 909
[display_work_sum] => 587 664
[display_total_sum] => 1 796 573
)
1
1 796 573₽
Работа:587 664 ₽
Материалы:1 208 909 ₽
Дни:50
stdClass Object
(
[id] => 69
[attribute_id] => 35
[name] => Нет
[material_modifier] => 1
[work_modifier] => 1
[options] => Array
(
)
[days] => [0]
[material_price] => [0]
[work_price] => [0]
[image] => https://akademik-stroy.ru/wp-content/uploads/materials/mnogourovnevyj-gkl.jpg
[area_modifier] => 152.64
[parent_name] => Отделка потолка
[parent_id] => 35
[material_sum] => 0
[work_sum] => 0
[total_sum] => 0
[total_days] => 0
[display_material_sum] => 0
[display_work_sum] => 0
[display_total_sum] => 0
)
1
0₽
Работа:0 ₽
Материалы:0 ₽
Дни:0
stdClass Object
(
[id] => 70
[attribute_id] => 35
[name] => Есть
[material_modifier] => 1
[work_modifier] => 1
[options] => Array
(
[0] => Многоуровневый потолок из гипсокартона
[1] => Многоуровневый потолок из гипсокартона и натяжного потолка
[2] => Одноуровневый потолок из гипсокартона
[3] => Одноуровневый натяжной потолок
)
[days] => [10,10,1,1]
[material_price] => [900,700,700,600]
[work_price] => [1000,800,500,300]
[image] => https://akademik-stroy.ru/wp-content/uploads/materials/mnogourovnevyj-gkl.jpg
[area_modifier] => 152.64
[parent_name] => Отделка потолка
[parent_id] => 35
[material_sum] => 181336
[work_sum] => 167904
[total_sum] => 349240
[total_days] => 10
[display_material_sum] => 181 336
[display_work_sum] => 167 904
[display_total_sum] => 349 240
)
1
349 240₽
Работа:167 904 ₽
Материалы:181 336 ₽
Дни:10
Преимущества работы с нами
7 этапов оплаты
Независимый строительный надзор
Экологически чистые материалы
16 лет гарантии
Онлайн-кабинет с веб-камерой
Строители с опытом более 15 лет
Собственное производство

