Одноэтажный гараж 16.97 м2
154 м2
Полезная
площадь
площадь
1 этаж
Этажей
26 м2
Террасы
и балконы
и балконы
0Без
гаража
гаража
0
Количество
спален
спален
0
Количество
санузлов
санузлов
Планировки
Первый этаж
- 1. (m²) 55,84
- 2. Подсобное помещение 38,87
- Подсобное помещение 16,97
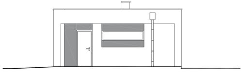
Фасады
Передний
Задний
Левый
Правый
Подробная информация
Полезная площадь
55,84 m²
Количество спален
0
Количество санузлов
0
Гараж
0
Мин. шир. и дл. участка
17,84 x 13,54 m
Угол наклона крыши
3°
Наклон ската крыши в градусах. Внимание! В некоторых проектах возникает более чем один наклон крыши.
Вид материалов
Murowana
Материалы и опции
Общие
Площади дома
| № п/п | Наименование | Ед. из. | Строительная площадь | Полезная площадь |
| 1 | 1 этаж | м2 | 20.91 | 16.97 |
| 2 | Итого | м2 | 20.91 | 16.97 |
Калькулятор опций
0₽
В ипотеку от 207 ₽/мес.
0₽
0 дней
stdClass Object
(
[id] => 1
[attribute_id] => 1
[name] => Ленточный монолитный ж/б
[material_modifier] => 1
[work_modifier] => 1
[options] => Array
(
[0] => размер 200 х 700 мм
[1] => размер 300 х 900 мм
[2] => размер 400 х 1 000 мм
[3] => размер 500 х 1 100 мм
[4] => размер 600 х 1 200 мм
)
[days] => [20,21,22,25,30]
[material_price] => [2823,3630,4475,5210,12047]
[work_price] => [2154,2826,3731,4577,5293]
[image] => https://akademik-stroy.ru/wp-content/uploads/materials/lentochnyj-monolitnyj-zh-b.jpg
[area_modifier] => 20.91
[parent_name] => Фундамент
[parent_id] => 1
[material_sum] => 141669
[work_sum] => 90080
[total_sum] => 231749
[total_days] => 20
[display_material_sum] => 141 669
[display_work_sum] => 90 080
[display_total_sum] => 231 749
)
1
231 749₽
Работа:90 080 ₽
Материалы:141 669 ₽
Дни:20
stdClass Object
(
[id] => 2
[attribute_id] => 1
[name] => Забивные Ж/Б сваи
[material_modifier] => 1
[work_modifier] => 1
[options] => Array
(
[0] => 150х150х3000мм
[1] => 150х150х4000мм
[2] => 200х200х3000мм
[3] => 200х200х4000мм
[4] => 200х200х5000мм
[5] => 200х200х6000мм
)
[days] => [2,2,2,2,2,2]
[material_price] => [1990,2850,3255,4360,5120,6837]
[work_price] => [1002,1185,1336,1438,1574,1839]
[image] => https://akademik-stroy.ru/wp-content/uploads/materials/zabivnye-zh-b-svai.png
[area_modifier] => 20.91
[parent_name] => Фундамент
[parent_id] => 1
[material_sum] => 99866
[work_sum] => 41904
[total_sum] => 141770
[total_days] => 2
[display_material_sum] => 99 866
[display_work_sum] => 41 904
[display_total_sum] => 141 770
)
1
141 770₽
Работа:41 904 ₽
Материалы:99 866 ₽
Дни:2
stdClass Object
(
[id] => 71
[attribute_id] => 1
[name] => Свайно-ростверковый ж/б
[material_modifier] => 1
[work_modifier] => 1
[options] => Array
(
[0] => ростверк 200х300 мм
[1] => ростверк 300х600 мм
[2] => ростверк 400х900 мм
[3] => ростверк 500х1200 мм
)
[days] => [20,23,25,27]
[material_price] => [3018,3474,7109,9792]
[work_price] => [2024,3012,5635,7022]
[image] => https://akademik-stroy.ru/wp-content/uploads/materials/svajno-rostverkovyj-monolitnyj-zh-b-3.png
[area_modifier] => 20.91
[parent_name] => Фундамент
[parent_id] => 1
[material_sum] => 151455
[work_sum] => 84644
[total_sum] => 236099
[total_days] => 20
[display_material_sum] => 151 455
[display_work_sum] => 84 644
[display_total_sum] => 236 099
)
1
236 099₽
Работа:84 644 ₽
Материалы:151 455 ₽
Дни:20
stdClass Object
(
[id] => 72
[attribute_id] => 1
[name] => Монолитная ж/б плита
[material_modifier] => 1
[work_modifier] => 1
[options] => Array
(
[0] => 200 мм
[1] => 300 мм
[2] => 400 мм
[3] => 500 мм
[4] => 600 мм
)
[days] => [30,33,35,37,40]
[material_price] => [5348,8555,12788,14388,15189]
[work_price] => [4314,4881,7037,8061,10230]
[image] => https://akademik-stroy.ru/wp-content/uploads/materials/monolitnaya-zhb-plita.png
[area_modifier] => 20.91
[parent_name] => Фундамент
[parent_id] => 1
[material_sum] => 268384
[work_sum] => 180411
[total_sum] => 448795
[total_days] => 30
[display_material_sum] => 268 384
[display_work_sum] => 180 411
[display_total_sum] => 448 795
)
1
448 795₽
Работа:180 411 ₽
Материалы:268 384 ₽
Дни:30
stdClass Object
(
[id] => 73
[attribute_id] => 1
[name] => Утепленная шведская плита
[material_modifier] => 1
[work_modifier] => 1
[options] => Array
(
[0] => 200 мм
[1] => 300 мм
[2] => 400 мм
[3] => 500 мм
[4] => 600 мм
)
[days] => [32,37,39,42,45]
[material_price] => [10249,12692,13760,14936,16230]
[work_price] => [5960,7337,8072,8878,9765]
[image] => https://akademik-stroy.ru/wp-content/uploads/materials/uteplennaya-shvedskaya-plita.jpg
[area_modifier] => 20.91
[parent_name] => Фундамент
[parent_id] => 1
[material_sum] => 514336
[work_sum] => 249247
[total_sum] => 763583
[total_days] => 32
[display_material_sum] => 514 336
[display_work_sum] => 249 247
[display_total_sum] => 763 583
)
1
763 583₽
Работа:249 247 ₽
Материалы:514 336 ₽
Дни:32
stdClass Object
(
[id] => 75
[attribute_id] => 1
[name] => Ленточный из ФБС
[material_modifier] => 1
[work_modifier] => 1
[options] => Array
(
[0] => толщ. 300 мм
[1] => толщ. 400 мм
[2] => толщ. 500 мм
[3] => толщ. 600 мм
)
[days] => [20,20,20,20]
[material_price] => [3675,4902,6126,7350]
[work_price] => [2451,3264,4083,4902]
[image] => https://akademik-stroy.ru/wp-content/uploads/materials/lentochnyj-iz-fbs.png
[area_modifier] => 20.91
[parent_name] => Фундамент
[parent_id] => 1
[material_sum] => 184426
[work_sum] => 102501
[total_sum] => 286927
[total_days] => 20
[display_material_sum] => 184 426
[display_work_sum] => 102 501
[display_total_sum] => 286 927
)
1
286 927₽
Работа:102 501 ₽
Материалы:184 426 ₽
Дни:20
stdClass Object
(
[id] => 76
[attribute_id] => 1
[name] => Цокольный этаж из ФБС
[material_modifier] => 1
[work_modifier] => 1
[options] => Array
(
[0] => толщ. 300 мм
[1] => толщ. 400 мм
[2] => толщ. 500 мм
[3] => толщ. 600 мм
)
[days] => [30,32,34,36]
[material_price] => [20916,23299,26680,29060]
[work_price] => [17524,18700,19873,21046]
[image] => https://akademik-stroy.ru/wp-content/uploads/materials/cokolnyj-ehtazh-iz-fbs.jpg
[area_modifier] => 20.91
[parent_name] => Фундамент
[parent_id] => 1
[material_sum] => 1049649
[work_sum] => 732854
[total_sum] => 1782503
[total_days] => 30
[display_material_sum] => 1 049 649
[display_work_sum] => 732 854
[display_total_sum] => 1 782 503
)
1
1 782 503₽
Работа:732 854 ₽
Материалы:1 049 649 ₽
Дни:30
stdClass Object
(
[id] => 77
[attribute_id] => 1
[name] => Цокольный этаж монолитный ж/б
[material_modifier] => 1
[work_modifier] => 1
[options] => Array
(
[0] => толщ. 200 мм
[1] => толщ. 300 мм
[2] => толщ. 400 мм
[3] => толщ. 500 мм
[4] => толщ. 600 мм
)
[days] => [40,42,44,46,48]
[material_price] => [25421,29148,32275,35602,37326]
[work_price] => [20441,21907,23375,24841,26306]
[image] => https://akademik-stroy.ru/wp-content/uploads/materials/cokolnyj-etazh-zh-b.jpg
[area_modifier] => 20.91
[parent_name] => Фундамент
[parent_id] => 1
[material_sum] => 1275727
[work_sum] => 854843
[total_sum] => 2130570
[total_days] => 40
[display_material_sum] => 1 275 727
[display_work_sum] => 854 843
[display_total_sum] => 2 130 570
)
1
2 130 570₽
Работа:854 843 ₽
Материалы:1 275 727 ₽
Дни:40
stdClass Object
(
[id] => 191
[attribute_id] => 1
[name] => Винтовые сваи
[material_modifier] => 1
[work_modifier] => 1
[options] => Array
(
[0] => 57х200мм
[1] => 76х250мм
[2] => 108х300мм
[3] => 133х350мм
)
[days] => [1,1,2,2]
[material_price] => [1200,1300,1450,1600]
[work_price] => [400,600,900,1100]
[image] => https://akademik-stroy.ru/wp-content/uploads/materials/vintovye-svai.png
[area_modifier] => 20.91
[parent_name] => Фундамент
[parent_id] => 1
[material_sum] => 60221
[work_sum] => 16728
[total_sum] => 76949
[total_days] => 1
[display_material_sum] => 60 221
[display_work_sum] => 16 728
[display_total_sum] => 76 949
)
1
76 949₽
Работа:16 728 ₽
Материалы:60 221 ₽
Дни:1
stdClass Object
(
[id] => 3
[attribute_id] => 2
[name] => Деревянные балки
[material_modifier] => 1
[work_modifier] => 1
[options] => Array
(
[0] => без утепления
[1] => утепление 200 мм
[2] => утепление 250 мм
[3] => утепление 300 мм
[4] => утепление 350 мм
[5] => утепление 400 мм
[6] => утепление 450 мм
[7] => утепление 500 мм
)
[days] => [8,9,9,9,11,12,13,14]
[material_price] => [1634,2042,2344,2947,3149,3652,3354,3557]
[work_price] => [1230,1339,1393,1426,1460,1513,1587,1620]
[image] => https://akademik-stroy.ru/wp-content/uploads/materials/derevyannye-balki.png
[area_modifier] => 20.91
[parent_name] => Перекрытие цоколя
[parent_id] => 2
[material_sum] => 82001
[work_sum] => 51439
[total_sum] => 133440
[total_days] => 8
[display_material_sum] => 82 001
[display_work_sum] => 51 439
[display_total_sum] => 133 440
)
1
133 440₽
Работа:51 439 ₽
Материалы:82 001 ₽
Дни:8
stdClass Object
(
[id] => 4
[attribute_id] => 2
[name] => Сборные ж/б плиты
[material_modifier] => 1
[work_modifier] => 1
[options] => Array
(
[0] => без утепления
[1] => утепление 150мм
[2] => утепление 200мм
[3] => утепление 250мм
[4] => утепление 300мм
[5] => утепление 350мм
[6] => утепление 400мм
[7] => утепление 450мм
[8] => утепление 500мм
)
[days] => [13,15,15,15,15,15,15,15,15]
[material_price] => [3067,5577,5928,6679,7730,8782,9833,10884,11935]
[work_price] => [1520,1956,2102,2247,2392,2537,2684,2829,2974]
[image] => https://akademik-stroy.ru/wp-content/uploads/materials/sbornye-zh-b-plity-2.jpg
[area_modifier] => 20.91
[parent_name] => Перекрытие цоколя
[parent_id] => 2
[material_sum] => 153914
[work_sum] => 63566
[total_sum] => 217480
[total_days] => 13
[display_material_sum] => 153 914
[display_work_sum] => 63 566
[display_total_sum] => 217 480
)
1
217 480₽
Работа:63 566 ₽
Материалы:153 914 ₽
Дни:13
stdClass Object
(
[id] => 78
[attribute_id] => 2
[name] => Монолитная ж/б плита
[material_modifier] => 1
[work_modifier] => 1
[options] => Array
(
[0] => без утепления
[1] => утепление 150 мм
[2] => утепление 200 мм
[3] => утепление 250 мм
[4] => утепление 300 мм
[5] => утепление 350 мм
[6] => утепление 400 мм
[7] => утепление 450 мм
[8] => утепление 500 мм
)
[days] => [18,20,20,20,20,20,20,20,20]
[material_price] => [4837,6572,7224,7375,79426,8177,8728,9180,10031]
[work_price] => [3348,3921,4112,4302,4493,4684,4875,5066,5256]
[image] => https://akademik-stroy.ru/wp-content/uploads/materials/monolitnaya-zh-b-plita-2.jpg
[area_modifier] => 20.91
[parent_name] => Перекрытие цоколя
[parent_id] => 2
[material_sum] => 242740
[work_sum] => 140013
[total_sum] => 382753
[total_days] => 18
[display_material_sum] => 242 740
[display_work_sum] => 140 013
[display_total_sum] => 382 753
)
1
382 753₽
Работа:140 013 ₽
Материалы:242 740 ₽
Дни:18
stdClass Object
(
[id] => 6
[attribute_id] => 3
[name] => Пеноблок
[material_modifier] => 1
[work_modifier] => 1
[options] => Array
(
[0] => 300 мм
[1] => 400 мм
[2] => 500 мм
[3] => 600 мм
)
[days] => [29,31,34,39]
[material_price] => [3000,4000,4500,4937]
[work_price] => [5033,5805,6400,8710]
[image] => https://akademik-stroy.ru/wp-content/uploads/materials/penoblok.jpg
[area_modifier] => 20.91
[parent_name] => Стены 1 этаж (несущие)
[parent_id] => 3
[material_sum] => 150552
[work_sum] => 210480
[total_sum] => 361032
[total_days] => 29
[display_material_sum] => 150 552
[display_work_sum] => 210 480
[display_total_sum] => 361 032
)
1
361 032₽
Работа:210 480 ₽
Материалы:150 552 ₽
Дни:29
stdClass Object
(
[id] => 79
[attribute_id] => 3
[name] => Керамический блок
[material_modifier] => 1
[work_modifier] => 1
[options] => Array
(
[0] => 380 мм
[1] => 380 мм Thermo
[2] => 440 мм
[3] => 510 мм
)
[days] => [23,23,24,25]
[material_price] => [4510,5098,6093,8013]
[work_price] => [4737,4937,5903,6958]
[image] => https://akademik-stroy.ru/wp-content/uploads/materials/keramicheskij-blok.jpg
[area_modifier] => 20.91
[parent_name] => Стены 1 этаж (несущие)
[parent_id] => 3
[material_sum] => 226330
[work_sum] => 198101
[total_sum] => 424431
[total_days] => 23
[display_material_sum] => 226 330
[display_work_sum] => 198 101
[display_total_sum] => 424 431
)
1
424 431₽
Работа:198 101 ₽
Материалы:226 330 ₽
Дни:23
stdClass Object
(
[id] => 80
[attribute_id] => 3
[name] => Кирпич
[material_modifier] => 1
[work_modifier] => 1
[options] => Array
(
[0] => Кирпич 250 мм
[1] => Кирпич 380 мм
[2] => Кирпич 510 мм
[3] => Кирпич 640 мм
[4] => Кирпич 770 мм
)
[days] => [30,30,31,33,36]
[material_price] => [5500,7142,9206,10171,12235]
[work_price] => [8736,10041,12018,15240,18462]
[image] => https://akademik-stroy.ru/wp-content/uploads/materials/kirpich.jpg
[area_modifier] => 20.91
[parent_name] => Стены 1 этаж (несущие)
[parent_id] => 3
[material_sum] => 276012
[work_sum] => 365340
[total_sum] => 641352
[total_days] => 30
[display_material_sum] => 276 012
[display_work_sum] => 365 340
[display_total_sum] => 641 352
)
1
641 352₽
Работа:365 340 ₽
Материалы:276 012 ₽
Дни:30
stdClass Object
(
[id] => 81
[attribute_id] => 3
[name] => Монолитные
[material_modifier] => 1
[work_modifier] => 1
[options] => Array
(
[0] => 150 мм
[1] => 200 мм
[2] => 250 мм
[3] => 300 мм
[4] => 350 мм
[5] => 400 мм
)
[days] => [45,46,47,49,50,53]
[material_price] => [6545,7876,10175,12011,13908,15204]
[work_price] => [5106,6444,7698,8552,9807,11461]
[image] => https://akademik-stroy.ru/wp-content/uploads/materials/monolitnye.jpg
[area_modifier] => 20.91
[parent_name] => Стены 1 этаж (несущие)
[parent_id] => 3
[material_sum] => 328454
[work_sum] => 213533
[total_sum] => 541987
[total_days] => 45
[display_material_sum] => 328 454
[display_work_sum] => 213 533
[display_total_sum] => 541 987
)
1
541 987₽
Работа:213 533 ₽
Материалы:328 454 ₽
Дни:45
stdClass Object
(
[id] => 82
[attribute_id] => 3
[name] => Клееный брус
[material_modifier] => 1
[work_modifier] => 1
[options] => Array
(
[0] => 160 мм
[1] => 175 мм
[2] => 200 мм
[3] => 215 мм
[4] => 240 мм
[5] => 270 мм
[6] => 282 мм
)
[days] => [24,28,32,37,40,42,48]
[material_price] => [16975,18773,19950,20545,21599,22159,23275]
[work_price] => [4806,5287,5815,6397,7036,7740,8514]
[image] => https://akademik-stroy.ru/wp-content/uploads/materials/kleenyj-brus.jpg
[area_modifier] => 20.91
[parent_name] => Стены 1 этаж (несущие)
[parent_id] => 3
[material_sum] => 851873
[work_sum] => 200987
[total_sum] => 1052860
[total_days] => 24
[display_material_sum] => 851 873
[display_work_sum] => 200 987
[display_total_sum] => 1 052 860
)
1
1 052 860₽
Работа:200 987 ₽
Материалы:851 873 ₽
Дни:24
stdClass Object
(
[id] => 83
[attribute_id] => 3
[name] => Каркасные
[material_modifier] => 1
[work_modifier] => 1
[options] => Array
(
[0] => 150 мм
[1] => 200 мм
[2] => 250 мм
[3] => 300 мм
)
[days] => [15,16,17,18]
[material_price] => [2379,2639,2898,3258]
[work_price] => [2418,2686,2985,3716]
[image] => https://akademik-stroy.ru/wp-content/uploads/materials/karkasnye.jpg
[area_modifier] => 20.91
[parent_name] => Стены 1 этаж (несущие)
[parent_id] => 3
[material_sum] => 119388
[work_sum] => 101121
[total_sum] => 220509
[total_days] => 15
[display_material_sum] => 119 388
[display_work_sum] => 101 121
[display_total_sum] => 220 509
)
1
220 509₽
Работа:101 121 ₽
Материалы:119 388 ₽
Дни:15
stdClass Object
(
[id] => 84
[attribute_id] => 3
[name] => СИП-панели
[material_modifier] => 1
[work_modifier] => 1
[options] => Array
(
[0] => 120 мм
[1] => 170 мм
[2] => 220 мм
)
[days] => [7,7,7]
[material_price] => [1210,1856,2292]
[work_price] => [1410,1551,1706]
[image] => https://akademik-stroy.ru/wp-content/uploads/materials/sip-paneli.jpg
[area_modifier] => 20.91
[parent_name] => Стены 1 этаж (несущие)
[parent_id] => 3
[material_sum] => 60723
[work_sum] => 58966
[total_sum] => 119689
[total_days] => 7
[display_material_sum] => 60 723
[display_work_sum] => 58 966
[display_total_sum] => 119 689
)
1
119 689₽
Работа:58 966 ₽
Материалы:60 723 ₽
Дни:7
stdClass Object
(
[id] => 85
[attribute_id] => 3
[name] => Сухой брус
[material_modifier] => 1
[work_modifier] => 1
[options] => Array
(
[0] => 150 мм
[1] => 180 мм
[2] => 200 мм
)
[days] => [7,8,9]
[material_price] => [6010,7190,8709]
[work_price] => [3204,3845,4229]
[image] => https://akademik-stroy.ru/wp-content/uploads/materials/suhoj-brus.jpg
[area_modifier] => 20.91
[parent_name] => Стены 1 этаж (несущие)
[parent_id] => 3
[material_sum] => 301606
[work_sum] => 133991
[total_sum] => 435597
[total_days] => 7
[display_material_sum] => 301 606
[display_work_sum] => 133 991
[display_total_sum] => 435 597
)
1
435 597₽
Работа:133 991 ₽
Материалы:301 606 ₽
Дни:7
stdClass Object
(
[id] => 86
[attribute_id] => 3
[name] => Профилированный брус
[material_modifier] => 1
[work_modifier] => 1
[options] => Array
(
[0] => 150 мм
[1] => 180 мм
[2] => 200 мм
)
[days] => [7,8,9]
[material_price] => [8190,9228,10051]
[work_price] => [3845,4614,5075]
[image] => https://akademik-stroy.ru/wp-content/uploads/materials/profilirovannyj-brus.jpg
[area_modifier] => 20.91
[parent_name] => Стены 1 этаж (несущие)
[parent_id] => 3
[material_sum] => 411007
[work_sum] => 160798
[total_sum] => 571805
[total_days] => 7
[display_material_sum] => 411 007
[display_work_sum] => 160 798
[display_total_sum] => 571 805
)
1
571 805₽
Работа:160 798 ₽
Материалы:411 007 ₽
Дни:7
stdClass Object
(
[id] => 87
[attribute_id] => 3
[name] => Оцилиндрованное бревно
[material_modifier] => 1
[work_modifier] => 1
[options] => Array
(
[0] => 180 мм
[1] => 220 мм
[2] => 260 мм
[3] => 320 мм
)
[days] => [7,8,9,10]
[material_price] => [75190,9532,10868,13116]
[work_price] => [3845,4691,5535,6863]
[image] => https://akademik-stroy.ru/wp-content/uploads/materials/ocilindrovannoe-brevno-1.jpg
[area_modifier] => 20.91
[parent_name] => Стены 1 этаж (несущие)
[parent_id] => 3
[material_sum] => 3773335
[work_sum] => 160798
[total_sum] => 3934133
[total_days] => 7
[display_material_sum] => 3 773 335
[display_work_sum] => 160 798
[display_total_sum] => 3 934 133
)
1
3 934 133₽
Работа:160 798 ₽
Материалы:3 773 335 ₽
Дни:7
stdClass Object
(
[id] => 88
[attribute_id] => 3
[name] => Срубы
[material_modifier] => 1
[work_modifier] => 1
[options] => Array
(
[0] => 260 мм
[1] => 320 мм
[2] => 360 мм
[3] => 400 мм
[4] => 500 мм
)
[days] => [7,8,9,10,11]
[material_price] => [37975,46709,52314,58069,73167]
[work_price] => [4806,5911,6621,7349,9260]
[image] => https://akademik-stroy.ru/wp-content/uploads/materials/sruby.jpg
[area_modifier] => 20.91
[parent_name] => Стены 1 этаж (несущие)
[parent_id] => 3
[material_sum] => 1905737
[work_sum] => 200987
[total_sum] => 2106724
[total_days] => 7
[display_material_sum] => 1 905 737
[display_work_sum] => 200 987
[display_total_sum] => 2 106 724
)
1
2 106 724₽
Работа:200 987 ₽
Материалы:1 905 737 ₽
Дни:7
stdClass Object
(
[id] => 174
[attribute_id] => 3
[name] => Брус
[material_modifier] => 1
[work_modifier] => 1
[options] => Array
(
[0] => 150 мм
[1] => 180 мм
[2] => 200 мм
)
[days] => [7,8,9]
[material_price] => [5127,6152,7367]
[work_price] => [1602,1922,2115]
[image] => https://akademik-stroy.ru/wp-content/uploads/materials/brus.jpg
[area_modifier] => 20.91
[parent_name] => Стены 1 этаж (несущие)
[parent_id] => 3
[material_sum] => 257293
[work_sum] => 66996
[total_sum] => 324289
[total_days] => 7
[display_material_sum] => 257 293
[display_work_sum] => 66 996
[display_total_sum] => 324 289
)
1
324 289₽
Работа:66 996 ₽
Материалы:257 293 ₽
Дни:7
stdClass Object
(
[id] => 175
[attribute_id] => 3
[name] => Газобетон
[material_modifier] => 1
[work_modifier] => 1
[options] => Array
(
[0] => 300 мм
[1] => 375 мм
[2] => 400 мм
[3] => 500 мм
[4] => 600 мм
)
[days] => [29,31,35,37,44]
[material_price] => [4298,5573,6356,7288,9119]
[work_price] => [4538,5251,5926,6733,7195]
[image] => https://akademik-stroy.ru/wp-content/uploads/materials/gazobeton.jpg
[area_modifier] => 20.91
[parent_name] => Стены 1 этаж (несущие)
[parent_id] => 3
[material_sum] => 215691
[work_sum] => 189779
[total_sum] => 405470
[total_days] => 29
[display_material_sum] => 215 691
[display_work_sum] => 189 779
[display_total_sum] => 405 470
)
1
405 470₽
Работа:189 779 ₽
Материалы:215 691 ₽
Дни:29
stdClass Object
(
[id] => 176
[attribute_id] => 3
[name] => Блок
[material_modifier] => 1
[work_modifier] => 1
[options] => Array
(
[0] => 300 мм
[1] => 375 мм
[2] => 400 мм
[3] => 500 мм
[4] => 600 мм
)
[days] => [29,31,35,37,44]
[material_price] => [2698,3973,4356,6588,7119]
[work_price] => [5038,5851,6426,8733,9195]
[image] => https://akademik-stroy.ru/wp-content/uploads/materials/blok.jpg
[area_modifier] => 20.91
[parent_name] => Стены 1 этаж (несущие)
[parent_id] => 3
[material_sum] => 135396
[work_sum] => 210689
[total_sum] => 346085
[total_days] => 29
[display_material_sum] => 135 396
[display_work_sum] => 210 689
[display_total_sum] => 346 085
)
1
346 085₽
Работа:210 689 ₽
Материалы:135 396 ₽
Дни:29
stdClass Object
(
[id] => 177
[attribute_id] => 3
[name] => Газосиликатный блок
[material_modifier] => 1
[work_modifier] => 1
[options] => Array
(
[0] => 300 мм
[1] => 375 мм
[2] => 400 мм
[3] => 500 мм
[4] => 600 мм
)
[days] => [29,31,35,37,44]
[material_price] => [4298,5573,6356,7288,9119]
[work_price] => [4538,5251,5926,6733,7195]
[image] => https://akademik-stroy.ru/wp-content/uploads/materials/gazosilikatnyj-blok.jpg
[area_modifier] => 20.91
[parent_name] => Стены 1 этаж (несущие)
[parent_id] => 3
[material_sum] => 215691
[work_sum] => 189779
[total_sum] => 405470
[total_days] => 29
[display_material_sum] => 215 691
[display_work_sum] => 189 779
[display_total_sum] => 405 470
)
1
405 470₽
Работа:189 779 ₽
Материалы:215 691 ₽
Дни:29
stdClass Object
(
[id] => 178
[attribute_id] => 3
[name] => Керамзитобетонный блок
[material_modifier] => 1
[work_modifier] => 1
[options] => Array
(
[0] => 300 мм
[1] => 375 мм
[2] => 400 мм
[3] => 500 мм
[4] => 600 мм
)
[days] => [23,23,24,25,28]
[material_price] => [3641,4298,5693,7613,9612]
[work_price] => [5737,5737,6903,7958,8901]
[image] => https://akademik-stroy.ru/wp-content/uploads/materials/keramzitobetonnyj-blok.jpg
[area_modifier] => 20.91
[parent_name] => Стены 1 этаж (несущие)
[parent_id] => 3
[material_sum] => 182720
[work_sum] => 239921
[total_sum] => 422641
[total_days] => 23
[display_material_sum] => 182 720
[display_work_sum] => 239 921
[display_total_sum] => 422 641
)
1
422 641₽
Работа:239 921 ₽
Материалы:182 720 ₽
Дни:23
stdClass Object
(
[id] => 179
[attribute_id] => 3
[name] => Деревянные
[material_modifier] => 1
[work_modifier] => 1
[options] => Array
(
[0] => 180 мм
[1] => 220 мм
[2] => 260 мм
[3] => 320 мм
)
[days] => [7,8,9,10]
[material_price] => [7950,9458,11961,14472]
[work_price] => [4037,4925,5812,7207]
[image] => https://akademik-stroy.ru/wp-content/uploads/materials/derevyannye.jpg
[area_modifier] => 20.91
[parent_name] => Стены 1 этаж (несущие)
[parent_id] => 3
[material_sum] => 398963
[work_sum] => 168827
[total_sum] => 567790
[total_days] => 7
[display_material_sum] => 398 963
[display_work_sum] => 168 827
[display_total_sum] => 567 790
)
1
567 790₽
Работа:168 827 ₽
Материалы:398 963 ₽
Дни:7
stdClass Object
(
[id] => 181
[attribute_id] => 3
[name] => Камень
[material_modifier] => 1
[work_modifier] => 1
[options] => Array
(
[0] => 300 мм
[1] => 400 мм
[2] => 500 мм
[3] => 600 мм
)
[days] => [25,27,31,34]
[material_price] => [5262,6844,8330,9815]
[work_price] => [8331,9135,10427,11069]
[image] => https://akademik-stroy.ru/wp-content/uploads/materials/kamen.jpg
[area_modifier] => 20.91
[parent_name] => Стены 1 этаж (несущие)
[parent_id] => 3
[material_sum] => 264068
[work_sum] => 348402
[total_sum] => 612470
[total_days] => 25
[display_material_sum] => 264 068
[display_work_sum] => 348 402
[display_total_sum] => 612 470
)
1
612 470₽
Работа:348 402 ₽
Материалы:264 068 ₽
Дни:25
stdClass Object
(
[id] => 182
[attribute_id] => 3
[name] => Каркасно-щитовые
[material_modifier] => 1
[work_modifier] => 1
[options] => Array
(
[0] => 150 мм
[1] => 200 мм
[2] => 250 мм
[3] => 300 мм
[4] => 350 мм
[5] => 400 мм
)
[days] => [15,16,17,18,19,20]
[material_price] => [2379,2639,2898,3458,3601,4175]
[work_price] => [2538,2820,3134,3483,4062,5642]
[image] => https://akademik-stroy.ru/wp-content/uploads/materials/karkasno-shchitovye.jpg
[area_modifier] => 20.91
[parent_name] => Стены 1 этаж (несущие)
[parent_id] => 3
[material_sum] => 119388
[work_sum] => 106139
[total_sum] => 225527
[total_days] => 15
[display_material_sum] => 119 388
[display_work_sum] => 106 139
[display_total_sum] => 225 527
)
1
225 527₽
Работа:106 139 ₽
Материалы:119 388 ₽
Дни:15
stdClass Object
(
[id] => 183
[attribute_id] => 3
[name] => Рубленные
[material_modifier] => 1
[work_modifier] => 1
[options] => Array
(
[0] => 150 мм
[1] => 200 мм
[2] => 250 мм
[3] => 300 мм
[4] => 350 мм
[5] => 400 мм
)
[days] => [15,16,17,18,17,18]
[material_price] => [35950,50267,60583,75900,80217,100533]
[work_price] => [9612,12816,16020,19224,22428,25632]
[image] => https://akademik-stroy.ru/wp-content/uploads/materials/rublennye.jpg
[area_modifier] => 20.91
[parent_name] => Стены 1 этаж (несущие)
[parent_id] => 3
[material_sum] => 1804115
[work_sum] => 401974
[total_sum] => 2206089
[total_days] => 15
[display_material_sum] => 1 804 115
[display_work_sum] => 401 974
[display_total_sum] => 2 206 089
)
1
2 206 089₽
Работа:401 974 ₽
Материалы:1 804 115 ₽
Дни:15
stdClass Object
(
[id] => 185
[attribute_id] => 3
[name] => Теплоблок
[material_modifier] => 1
[work_modifier] => 1
[options] => Array
(
[0] => 300 мм (с облицовкой, не покрашенный)
[1] => 400 мм (с облицовкой, не покрашенный)
[2] => 300 мм (с облицовкой, покрашенный)
[3] => 400 мм (с облицовкой, покрашенный)
)
[days] => [15,16,15,16]
[material_price] => [2888,3729,3957,4258]
[work_price] => [2564,3229,2949,3713]
[image] => https://akademik-stroy.ru/wp-content/uploads/materials/teploblok.jpg
[area_modifier] => 20.91
[parent_name] => Стены 1 этаж (несущие)
[parent_id] => 3
[material_sum] => 144931
[work_sum] => 107226
[total_sum] => 252157
[total_days] => 15
[display_material_sum] => 144 931
[display_work_sum] => 107 226
[display_total_sum] => 252 157
)
1
252 157₽
Работа:107 226 ₽
Материалы:144 931 ₽
Дни:15
stdClass Object
(
[id] => 186
[attribute_id] => 3
[name] => Арболитовые блоки
[material_modifier] => 1
[work_modifier] => 1
[options] => Array
(
[0] => 300 мм
[1] => 400 мм
[2] => 600 мм
)
[days] => [19,22,27]
[material_price] => [3210,4475,5852]
[work_price] => [4214,4788,5866]
[image] => https://akademik-stroy.ru/wp-content/uploads/materials/arbolitovye-bloki.png
[area_modifier] => 20.91
[parent_name] => Стены 1 этаж (несущие)
[parent_id] => 3
[material_sum] => 161091
[work_sum] => 176229
[total_sum] => 337320
[total_days] => 19
[display_material_sum] => 161 091
[display_work_sum] => 176 229
[display_total_sum] => 337 320
)
1
337 320₽
Работа:176 229 ₽
Материалы:161 091 ₽
Дни:19
stdClass Object
(
[id] => 187
[attribute_id] => 3
[name] => Полистиролбетон
[material_modifier] => 1
[work_modifier] => 1
[options] => Array
(
[0] => 300 мм
[1] => 400 мм
[2] => 600 мм
)
[days] => [29,31,35]
[material_price] => [2798,4573,5256]
[work_price] => [5038,5851,6426]
[image] => https://akademik-stroy.ru/wp-content/uploads/materials/polistirolbeton.jpg
[area_modifier] => 20.91
[parent_name] => Стены 1 этаж (несущие)
[parent_id] => 3
[material_sum] => 140415
[work_sum] => 210689
[total_sum] => 351104
[total_days] => 29
[display_material_sum] => 140 415
[display_work_sum] => 210 689
[display_total_sum] => 351 104
)
1
351 104₽
Работа:210 689 ₽
Материалы:140 415 ₽
Дни:29
stdClass Object
(
[id] => 188
[attribute_id] => 3
[name] => Шлакоблок
[material_modifier] => 1
[work_modifier] => 1
[options] => Array
(
[0] => 400 мм
[1] => 600 мм
)
[days] => [15,16]
[material_price] => [2391,3471]
[work_price] => [2642,3662]
[image] => https://akademik-stroy.ru/wp-content/uploads/materials/shlakoblok.jpg
[area_modifier] => 20.91
[parent_name] => Стены 1 этаж (несущие)
[parent_id] => 3
[material_sum] => 119990
[work_sum] => 110488
[total_sum] => 230478
[total_days] => 15
[display_material_sum] => 119 990
[display_work_sum] => 110 488
[display_total_sum] => 230 478
)
1
230 478₽
Работа:110 488 ₽
Материалы:119 990 ₽
Дни:15
stdClass Object
(
[id] => 189
[attribute_id] => 3
[name] => Теплая керамика
[material_modifier] => 1
[work_modifier] => 1
[options] => Array
(
[0] => 380 мм
[1] => 380 мм Thermo
[2] => 440 мм
[3] => 510 мм
)
[days] => [23,23,24,25]
[material_price] => [4510,5098,6093,8013]
[work_price] => [4737,4937,5903,6958]
[image] => https://akademik-stroy.ru/wp-content/uploads/materials/teplaya-keramika.jpg
[area_modifier] => 20.91
[parent_name] => Стены 1 этаж (несущие)
[parent_id] => 3
[material_sum] => 226330
[work_sum] => 198101
[total_sum] => 424431
[total_days] => 23
[display_material_sum] => 226 330
[display_work_sum] => 198 101
[display_total_sum] => 424 431
)
1
424 431₽
Работа:198 101 ₽
Материалы:226 330 ₽
Дни:23
stdClass Object
(
[id] => 190
[attribute_id] => 3
[name] => Несъемная опалубка
[material_modifier] => 1
[work_modifier] => 1
[options] => Array
(
[0] => 200 мм
[1] => 250 мм
[2] => 300 мм
[3] => 350 мм
)
[days] => [15,17,19,21]
[material_price] => [3302,3902,4108,5008]
[work_price] => [2100,2100,2300,2534]
[image] => https://akademik-stroy.ru/wp-content/uploads/materials/nesemnaya-opalubka.jpg
[area_modifier] => 20.91
[parent_name] => Стены 1 этаж (несущие)
[parent_id] => 3
[material_sum] => 165708
[work_sum] => 87822
[total_sum] => 253530
[total_days] => 15
[display_material_sum] => 165 708
[display_work_sum] => 87 822
[display_total_sum] => 253 530
)
1
253 530₽
Работа:87 822 ₽
Материалы:165 708 ₽
Дни:15
stdClass Object
(
[id] => 251
[attribute_id] => 3
[name] => Бревно
[material_modifier] => 1
[work_modifier] => 1
[options] => Array
(
[0] => 260 мм
[1] => 320 мм
[2] => 360 мм
[3] => 400 мм
[4] => 500 мм
)
[days] => [7,8,9,10,11]
[material_price] => [1874,24045,26930,30972,38825]
[work_price] => [5046,6207,6952,7716,9723]
[image] => https://akademik-stroy.ru/wp-content/uploads/materials/sruby.jpg
[area_modifier] => 20.91
[parent_name] => Стены 1 этаж (несущие)
[parent_id] => 3
[material_sum] => 94045
[work_sum] => 211024
[total_sum] => 305069
[total_days] => 7
[display_material_sum] => 94 045
[display_work_sum] => 211 024
[display_total_sum] => 305 069
)
1
305 069₽
Работа:211 024 ₽
Материалы:94 045 ₽
Дни:7
stdClass Object
(
[id] => 7
[attribute_id] => 4
[name] => Деревянные балки
[material_modifier] => 1
[work_modifier] => 1
[options] => Array
(
[0] => без утепления
[1] => утепление 200 мм
[2] => утепление 250 мм
[3] => утепление 300 мм
[4] => утепление 350 мм
[5] => утепление 400 мм
[6] => утепление 450 мм
[7] => утепление 500 мм
)
[days] => [8,9,9,9,11,12,13,14]
[material_price] => [1634,2042,2344,2947,3149,3652,3354,3557]
[work_price] => [1230,1339,1393,1426,1460,1513,1587,1620]
[image] => https://akademik-stroy.ru/wp-content/uploads/materials/derevyannye-balki.png
[area_modifier] => 20.91
[parent_name] => Перекрытие первого этажа
[parent_id] => 4
[material_sum] => 82001
[work_sum] => 51439
[total_sum] => 133440
[total_days] => 8
[display_material_sum] => 82 001
[display_work_sum] => 51 439
[display_total_sum] => 133 440
)
1
133 440₽
Работа:51 439 ₽
Материалы:82 001 ₽
Дни:8
stdClass Object
(
[id] => 8
[attribute_id] => 4
[name] => Сборные ж/б плиты
[material_modifier] => 1
[work_modifier] => 1
[options] => Array
(
[0] => без утепления
[1] => утепление 150 мм
[2] => утепление 200 мм
[3] => утепление 250 мм
[4] => утепление 300 мм
[5] => утепление 350 мм
[6] => утепление 400 мм
[7] => утепление 450 мм
[8] => утепление 500 мм
)
[days] => [13,15,15,15,15,15,15,15,15]
[material_price] => [3067,5577,5928,6679,7730,8782,9833,10884,11935]
[work_price] => [1520,1956,2102,2247,2392,2537,2684,2829,2974]
[image] => https://akademik-stroy.ru/wp-content/uploads/materials/sbornye-zh-b-plity-2.jpg
[area_modifier] => 20.91
[parent_name] => Перекрытие первого этажа
[parent_id] => 4
[material_sum] => 153914
[work_sum] => 63566
[total_sum] => 217480
[total_days] => 13
[display_material_sum] => 153 914
[display_work_sum] => 63 566
[display_total_sum] => 217 480
)
1
217 480₽
Работа:63 566 ₽
Материалы:153 914 ₽
Дни:13
stdClass Object
(
[id] => 89
[attribute_id] => 4
[name] => Монолитная ж/б плита
[material_modifier] => 1
[work_modifier] => 1
[options] => Array
(
[0] => без утепления
[1] => утепление 150 мм
[2] => утепление 200 мм
[3] => утепление 250 мм
[4] => утепление 300 мм
[5] => утепление 350 мм
[6] => утепление 400 мм
[7] => утепление 450 мм
[8] => утепление 500 мм
)
[days] => [18,20,20,20,20,20,20,20,20]
[material_price] => [4837,6572,7224,7375,79426,8177,8728,9180,10031]
[work_price] => [3348,3921,4112,4302,4493,4684,4875,5066,5256]
[image] => https://akademik-stroy.ru/wp-content/uploads/materials/monolitnaya-zh-b-plita-2.jpg
[area_modifier] => 20.91
[parent_name] => Перекрытие первого этажа
[parent_id] => 4
[material_sum] => 242740
[work_sum] => 140013
[total_sum] => 382753
[total_days] => 18
[display_material_sum] => 242 740
[display_work_sum] => 140 013
[display_total_sum] => 382 753
)
1
382 753₽
Работа:140 013 ₽
Материалы:242 740 ₽
Дни:18
stdClass Object
(
[id] => 160
[attribute_id] => 36
[name] => Не эксплуатируемая
[material_modifier] => 1
[work_modifier] => 1
[options] => Array
(
)
[days] => [10]
[material_price] => [8068]
[work_price] => [4163]
[image] => https://akademik-stroy.ru/wp-content/uploads/materials/ne-ehkspluatiruemaya-3.jpg
[area_modifier] => 20.91
[parent_name] => Плоская крыша
[parent_id] => 36
[material_sum] => 404885
[work_sum] => 174097
[total_sum] => 578982
[total_days] => 10
[display_material_sum] => 404 885
[display_work_sum] => 174 097
[display_total_sum] => 578 982
)
1
578 982₽
Работа:174 097 ₽
Материалы:404 885 ₽
Дни:10
stdClass Object
(
[id] => 161
[attribute_id] => 36
[name] => Зеленая кровля (Эксплуатируемая)
[material_modifier] => 1
[work_modifier] => 1
[options] => Array
(
)
[days] => [10]
[material_price] => [10056]
[work_price] => [8446]
[image] => https://akademik-stroy.ru/wp-content/uploads/materials/zelenaya-krovlya-2.jpg
[area_modifier] => 20.91
[parent_name] => Плоская крыша
[parent_id] => 36
[material_sum] => 504650
[work_sum] => 353212
[total_sum] => 857862
[total_days] => 10
[display_material_sum] => 504 650
[display_work_sum] => 353 212
[display_total_sum] => 857 862
)
1
857 862₽
Работа:353 212 ₽
Материалы:504 650 ₽
Дни:10
stdClass Object
(
[id] => 162
[attribute_id] => 36
[name] => Эксплуатируемая
[material_modifier] => 1
[work_modifier] => 1
[options] => Array
(
)
[days] => [10]
[material_price] => [9593]
[work_price] => [7459]
[image] => https://akademik-stroy.ru/wp-content/uploads/materials/ehkspluatiruemaya-2.jpg
[area_modifier] => 20.91
[parent_name] => Плоская крыша
[parent_id] => 36
[material_sum] => 481415
[work_sum] => 311935
[total_sum] => 793350
[total_days] => 10
[display_material_sum] => 481 415
[display_work_sum] => 311 935
[display_total_sum] => 793 350
)
1
793 350₽
Работа:311 935 ₽
Материалы:481 415 ₽
Дни:10
stdClass Object
(
[id] => 163
[attribute_id] => 36
[name] => Нет
[material_modifier] => 1
[work_modifier] => 1
[options] => Array
(
)
[days] => [0]
[material_price] => [0]
[work_price] => [0]
[image] => https://akademik-stroy.ru/wp-content/uploads/materials/ne-ehkspluatiruemaya-3.jpg
[area_modifier] => 20.91
[parent_name] => Плоская крыша
[parent_id] => 36
[material_sum] => 0
[work_sum] => 0
[total_sum] => 0
[total_days] => 0
[display_material_sum] => 0
[display_work_sum] => 0
[display_total_sum] => 0
)
1
0₽
Работа:0 ₽
Материалы:0 ₽
Дни:0
stdClass Object
(
[id] => 51
[attribute_id] => 26
[name] => Есть
[material_modifier] => 1
[work_modifier] => 1
[options] => Array
(
[0] => Профиль 58 мм, 3-камерный, стеклопакет 2-камерный до 32 мм
[1] => Профиль 60 мм, 4-камерный, стеклопакет 2-камерный до 32 мм
[2] => Профиль 70 мм, 5-камерный, стеклопакет 2-камерный до 40 мм
[3] => Профиль 72 мм, 5-камерный, стеклопакет 2-камерный до 40 мм
[4] => Алюминиевые окна Alutech профиль 72 мм, стеклопакет 2-камерный
)
[days] => [3,3,3,3,3]
[material_price] => [1339,2124,2867,3023,29596]
[work_price] => [635,647,659,668,2579]
[image] => https://akademik-stroy.ru/wp-content/uploads/materials/okna.jpg
[area_modifier] => 16.97
[parent_name] => Окна
[parent_id] => 26
[material_sum] => 54535
[work_sum] => 21552
[total_sum] => 76087
[total_days] => 3
[display_material_sum] => 54 535
[display_work_sum] => 21 552
[display_total_sum] => 76 087
)
1
76 087₽
Работа:21 552 ₽
Материалы:54 535 ₽
Дни:3
stdClass Object
(
[id] => 52
[attribute_id] => 26
[name] => Нет
[material_modifier] => 2
[work_modifier] => 1
[options] =>
[days] => null
[material_price] => null
[work_price] => null
[image] => https://akademik-stroy.ru/wp-content/uploads/materials/okna.jpg
[area_modifier] => 16.97
[parent_name] => Окна
[parent_id] => 26
[material_sum] => 0
[work_sum] => 0
[total_sum] => 0
[total_days] => 0
[display_material_sum] => 0
[display_work_sum] => 0
[display_total_sum] => 0
)
1
0₽
Работа:0 ₽
Материалы:0 ₽
Дни:0
stdClass Object
(
[id] => 53
[attribute_id] => 27
[name] => Есть
[material_modifier] => 1
[work_modifier] => 1
[options] => Array
(
)
[days] => [1]
[material_price] => [10000]
[work_price] => [5500]
[image] => https://akademik-stroy.ru/wp-content/uploads/materials/dveri.jpg
[area_modifier] => 1
[parent_name] => Двери входные
[parent_id] => 27
[material_sum] => 24000
[work_sum] => 11000
[total_sum] => 35000
[total_days] => 1
[display_material_sum] => 24 000
[display_work_sum] => 11 000
[display_total_sum] => 35 000
)
1
35 000₽
Работа:11 000 ₽
Материалы:24 000 ₽
Дни:1
stdClass Object
(
[id] => 54
[attribute_id] => 27
[name] => Нет
[material_modifier] => 1
[work_modifier] => 1
[options] => Array
(
)
[days] => [0]
[material_price] => [0]
[work_price] => [0]
[image] => https://akademik-stroy.ru/wp-content/uploads/materials/dveri.jpg
[area_modifier] => 1
[parent_name] => Двери входные
[parent_id] => 27
[material_sum] => 0
[work_sum] => 0
[total_sum] => 0
[total_days] => 0
[display_material_sum] => 0
[display_work_sum] => 0
[display_total_sum] => 0
)
1
0₽
Работа:0 ₽
Материалы:0 ₽
Дни:0
stdClass Object
(
[id] => 31
[attribute_id] => 16
[name] => Нет
[material_modifier] => 1
[work_modifier] => 1
[options] => Array
(
)
[days] => [0]
[material_price] => [0]
[work_price] => [0]
[image] => https://akademik-stroy.ru/wp-content/uploads/materials/docke-standard-pvh.jpg
[area_modifier] => 20.91
[parent_name] => Водосточная система
[parent_id] => 16
[material_sum] => 0
[work_sum] => 0
[total_sum] => 0
[total_days] => 0
[display_material_sum] => 0
[display_work_sum] => 0
[display_total_sum] => 0
)
1
0₽
Работа:0 ₽
Материалы:0 ₽
Дни:0
stdClass Object
(
[id] => 32
[attribute_id] => 16
[name] => Есть
[material_modifier] => 1
[work_modifier] => 1
[options] => Array
(
[0] => Döcke Standard (ПВХ)
[1] => Металлические Grand Line
)
[days] => [7,7]
[material_price] => [1842,2703]
[work_price] => [1491,1529]
[image] => https://akademik-stroy.ru/wp-content/uploads/materials/docke-standard-pvh.jpg
[area_modifier] => 20.91
[parent_name] => Водосточная система
[parent_id] => 16
[material_sum] => 92439
[work_sum] => 62354
[total_sum] => 154793
[total_days] => 7
[display_material_sum] => 92 439
[display_work_sum] => 62 354
[display_total_sum] => 154 793
)
1
154 793₽
Работа:62 354 ₽
Материалы:92 439 ₽
Дни:7
stdClass Object
(
[id] => 33
[attribute_id] => 17
[name] => Нет
[material_modifier] => 1
[work_modifier] => 1
[options] => Array
(
)
[days] => [0]
[material_price] => [0]
[work_price] => [0]
[image] => https://akademik-stroy.ru/wp-content/uploads/materials/mineralovata.jpg
[area_modifier] => 20.91
[parent_name] => Дополнительное утепление наружных стен
[parent_id] => 17
[material_sum] => 0
[work_sum] => 0
[total_sum] => 0
[total_days] => 0
[display_material_sum] => 0
[display_work_sum] => 0
[display_total_sum] => 0
)
1
0₽
Работа:0 ₽
Материалы:0 ₽
Дни:0
stdClass Object
(
[id] => 34
[attribute_id] => 17
[name] => Минераловатный
[material_modifier] => 1
[work_modifier] => 1
[options] => Array
(
[0] => 50 мм
[1] => 100 мм
[2] => 150 мм
[3] => 200 мм
[4] => 250 мм
[5] => 300 мм
)
[days] => [7,8,10,12,14,15]
[material_price] => [3437,3613,3803,3915,4601,4830]
[work_price] => [2325,2423,2523,2749,2859,3025]
[image] => https://akademik-stroy.ru/wp-content/uploads/materials/mineralovata.jpg
[area_modifier] => 20.91
[parent_name] => Дополнительное утепление наружных стен
[parent_id] => 17
[material_sum] => 172482
[work_sum] => 97232
[total_sum] => 269714
[total_days] => 7
[display_material_sum] => 172 482
[display_work_sum] => 97 232
[display_total_sum] => 269 714
)
1
269 714₽
Работа:97 232 ₽
Материалы:172 482 ₽
Дни:7
stdClass Object
(
[id] => 128
[attribute_id] => 17
[name] => Эковата (целлюлозная вата)
[material_modifier] => 1
[work_modifier] => 1
[options] => Array
(
[0] => 50 мм
[1] => 100 мм
[2] => 150 мм
[3] => 200 мм
[4] => 250 мм
[5] => 300 мм
)
[days] => [3,4,5,6,7,8]
[material_price] => [810,1319,1629,1838,2267,2676]
[work_price] => [1225,1323,1423,1549,1659,1725]
[image] => https://akademik-stroy.ru/wp-content/uploads/materials/ehkovata.jpg
[area_modifier] => 20.91
[parent_name] => Дополнительное утепление наружных стен
[parent_id] => 17
[material_sum] => 40649
[work_sum] => 51230
[total_sum] => 91879
[total_days] => 3
[display_material_sum] => 40 649
[display_work_sum] => 51 230
[display_total_sum] => 91 879
)
1
91 879₽
Работа:51 230 ₽
Материалы:40 649 ₽
Дни:3
stdClass Object
(
[id] => 129
[attribute_id] => 17
[name] => Экструдированный пенополистирол
[material_modifier] => 1
[work_modifier] => 1
[options] => Array
(
[0] => 50 мм
[1] => 100 мм
[2] => 150 мм
[3] => 200 мм
[4] => 250 мм
[5] => 300 мм
)
[days] => [5,6,7,8,9,10]
[material_price] => [4560,4300,5119,6292,7010,8583]
[work_price] => [1795,1954,2254,2330,2595,2735]
[image] => https://akademik-stroy.ru/wp-content/uploads/materials/epps.jpg
[area_modifier] => 20.91
[parent_name] => Дополнительное утепление наружных стен
[parent_id] => 17
[material_sum] => 228839
[work_sum] => 75067
[total_sum] => 303906
[total_days] => 5
[display_material_sum] => 228 839
[display_work_sum] => 75 067
[display_total_sum] => 303 906
)
1
303 906₽
Работа:75 067 ₽
Материалы:228 839 ₽
Дни:5
stdClass Object
(
[id] => 130
[attribute_id] => 17
[name] => ПСБ (ППС-пенополистирол)
[material_modifier] => 1
[work_modifier] => 1
[options] => Array
(
[0] => 50 мм
[1] => 100 мм
[2] => 150 мм
[3] => 200 мм
[4] => 250 мм
[5] => 300 мм
)
[days] => [5,6,7,8,9,10]
[material_price] => [4822,5200,5819,6292,7010,7583]
[work_price] => [1795,1954,2254,2330,2595,2735]
[image] => https://akademik-stroy.ru/wp-content/uploads/materials/psb.jpg
[area_modifier] => 20.91
[parent_name] => Дополнительное утепление наружных стен
[parent_id] => 17
[material_sum] => 241987
[work_sum] => 75067
[total_sum] => 317054
[total_days] => 5
[display_material_sum] => 241 987
[display_work_sum] => 75 067
[display_total_sum] => 317 054
)
1
317 054₽
Работа:75 067 ₽
Материалы:241 987 ₽
Дни:5
stdClass Object
(
[id] => 131
[attribute_id] => 17
[name] => ППУ (Пенополиуретан)
[material_modifier] => 1
[work_modifier] => 1
[options] => Array
(
[0] => 50 мм
[1] => 100 мм
[2] => 150 мм
[3] => 200 мм
[4] => 250 мм
[5] => 300 мм
)
[days] => [3,4,5,6,7,8]
[material_price] => [2860,3400,4219,4592,5010,5583]
[work_price] => [729,900,980,1120,1280,1530]
[image] => https://akademik-stroy.ru/wp-content/uploads/materials/ppu.jpg
[area_modifier] => 20.91
[parent_name] => Дополнительное утепление наружных стен
[parent_id] => 17
[material_sum] => 143526
[work_sum] => 30487
[total_sum] => 174013
[total_days] => 3
[display_material_sum] => 143 526
[display_work_sum] => 30 487
[display_total_sum] => 174 013
)
1
174 013₽
Работа:30 487 ₽
Материалы:143 526 ₽
Дни:3
stdClass Object
(
[id] => 132
[attribute_id] => 17
[name] => PIR-плиты (пенополиизоцианурат)
[material_modifier] => 1
[work_modifier] => 1
[options] => Array
(
[0] => 50 мм
[1] => 100 мм
[2] => 150 мм
[3] => 200 мм
[4] => 250 мм
[5] => 300 мм
)
[days] => [5,6,7,8,9,10]
[material_price] => [8323,15645,20968,25900,29258,30581]
[work_price] => [800,900,970,1150,1280,1330]
[image] => https://akademik-stroy.ru/wp-content/uploads/materials/pir.jpg
[area_modifier] => 20.91
[parent_name] => Дополнительное утепление наружных стен
[parent_id] => 17
[material_sum] => 417681
[work_sum] => 33456
[total_sum] => 451137
[total_days] => 5
[display_material_sum] => 417 681
[display_work_sum] => 33 456
[display_total_sum] => 451 137
)
1
451 137₽
Работа:33 456 ₽
Материалы:417 681 ₽
Дни:5
stdClass Object
(
[id] => 37
[attribute_id] => 19
[name] => Нет
[material_modifier] => 1
[work_modifier] => 1
[options] => Array
(
)
[days] => [0]
[material_price] => [0]
[work_price] => [0]
[image] => https://akademik-stroy.ru/wp-content/uploads/materials/imitaciya-brusa.jpg
[area_modifier] => 20.91
[parent_name] => Наружная отделка фасада
[parent_id] => 19
[material_sum] => 0
[work_sum] => 0
[total_sum] => 0
[total_days] => 0
[display_material_sum] => 0
[display_work_sum] => 0
[display_total_sum] => 0
)
1
0₽
Работа:0 ₽
Материалы:0 ₽
Дни:0
stdClass Object
(
[id] => 38
[attribute_id] => 19
[name] => Имитация бруса
[material_modifier] => 1
[work_modifier] => 1
[options] => Array
(
[0] => Сосна
[1] => Ель
[2] => Лиственница
)
[days] => [20,20,20]
[material_price] => [2994,2762,4954]
[work_price] => [1397,1231,1577]
[image] => https://akademik-stroy.ru/wp-content/uploads/materials/imitaciya-brusa.jpg
[area_modifier] => 20.91
[parent_name] => Наружная отделка фасада
[parent_id] => 19
[material_sum] => 150251
[work_sum] => 58423
[total_sum] => 208674
[total_days] => 20
[display_material_sum] => 150 251
[display_work_sum] => 58 423
[display_total_sum] => 208 674
)
1
208 674₽
Работа:58 423 ₽
Материалы:150 251 ₽
Дни:20
stdClass Object
(
[id] => 136
[attribute_id] => 19
[name] => Планкен
[material_modifier] => 1
[work_modifier] => 1
[options] => Array
(
[0] => Сосна
[1] => Ель
[2] => Лиственница
)
[days] => [20,20,20]
[material_price] => [3194,2862,5154]
[work_price] => [1537,1354,1735]
[image] => https://akademik-stroy.ru/wp-content/uploads/materials/planken.jpg
[area_modifier] => 20.91
[parent_name] => Наружная отделка фасада
[parent_id] => 19
[material_sum] => 160288
[work_sum] => 64277
[total_sum] => 224565
[total_days] => 20
[display_material_sum] => 160 288
[display_work_sum] => 64 277
[display_total_sum] => 224 565
)
1
224 565₽
Работа:64 277 ₽
Материалы:160 288 ₽
Дни:20
stdClass Object
(
[id] => 137
[attribute_id] => 19
[name] => Штукатурка
[material_modifier] => 1
[work_modifier] => 1
[options] => Array
(
[0] => Цементно-песчаная (минеральная)
[1] => Мокрый фасад
)
[days] => [35,35]
[material_price] => [2231,3938]
[work_price] => [1202,2422]
[image] => https://akademik-stroy.ru/wp-content/uploads/materials/shtukaturka.jpg
[area_modifier] => 20.91
[parent_name] => Наружная отделка фасада
[parent_id] => 19
[material_sum] => 111961
[work_sum] => 50268
[total_sum] => 162229
[total_days] => 35
[display_material_sum] => 111 961
[display_work_sum] => 50 268
[display_total_sum] => 162 229
)
1
162 229₽
Работа:50 268 ₽
Материалы:111 961 ₽
Дни:35
stdClass Object
(
[id] => 138
[attribute_id] => 19
[name] => Облицовочный кирпич
[material_modifier] => 1
[work_modifier] => 1
[options] => Array
(
[0] => Керамический
[1] => Клинкерный
[2] => Ручной формовки
[3] => Гиперпрессованный
[4] => Силикатный кирпич
)
[days] => [45,45,45,45,45]
[material_price] => [8174,9148,1040,1257,5876]
[work_price] => [3240,3758,4536,4017,3369]
[image] => https://akademik-stroy.ru/wp-content/uploads/materials/oblicovochnyj-kirpich.jpg
[area_modifier] => 20.91
[parent_name] => Наружная отделка фасада
[parent_id] => 19
[material_sum] => 410204
[work_sum] => 135497
[total_sum] => 545701
[total_days] => 45
[display_material_sum] => 410 204
[display_work_sum] => 135 497
[display_total_sum] => 545 701
)
1
545 701₽
Работа:135 497 ₽
Материалы:410 204 ₽
Дни:45
stdClass Object
(
[id] => 139
[attribute_id] => 19
[name] => Фасадная плитка
[material_modifier] => 1
[work_modifier] => 1
[options] => Array
(
[0] => Клинкерная
[1] => Керамическая
[2] => Плитка ручной формовки
)
[days] => [40,40,40]
[material_price] => [2974,1487,3470]
[work_price] => [3007,2592,3629]
[image] => https://akademik-stroy.ru/wp-content/uploads/materials/fasadnaya-plitka.jpg
[area_modifier] => 20.91
[parent_name] => Наружная отделка фасада
[parent_id] => 19
[material_sum] => 149247
[work_sum] => 125753
[total_sum] => 275000
[total_days] => 40
[display_material_sum] => 149 247
[display_work_sum] => 125 753
[display_total_sum] => 275 000
)
1
275 000₽
Работа:125 753 ₽
Материалы:149 247 ₽
Дни:40
stdClass Object
(
[id] => 140
[attribute_id] => 19
[name] => Сайдинг
[material_modifier] => 1
[work_modifier] => 1
[options] => Array
(
[0] => Виниловый
[1] => Металлический
[2] => Фиброцементный
)
[days] => [20,20,20]
[material_price] => [1263,1944,4147]
[work_price] => [1263,1944,2074]
[image] => https://akademik-stroy.ru/wp-content/uploads/materials/sajding.jpg
[area_modifier] => 20.91
[parent_name] => Наружная отделка фасада
[parent_id] => 19
[material_sum] => 63382
[work_sum] => 52819
[total_sum] => 116201
[total_days] => 20
[display_material_sum] => 63 382
[display_work_sum] => 52 819
[display_total_sum] => 116 201
)
1
116 201₽
Работа:52 819 ₽
Материалы:63 382 ₽
Дни:20
stdClass Object
(
[id] => 141
[attribute_id] => 19
[name] => Камень
[material_modifier] => 1
[work_modifier] => 1
[options] => Array
(
[0] => Травертин
[1] => Дагестанский
[2] => Искусственный
[3] => Натуральный
[4] => Керамогранит
)
[days] => [45,45,45,45,45]
[material_price] => [4536,3888,2592,3240,2462]
[work_price] => [3240,3240,2462,3110,1944]
[image] => https://akademik-stroy.ru/wp-content/uploads/materials/kamen-1.jpg
[area_modifier] => 20.91
[parent_name] => Наружная отделка фасада
[parent_id] => 19
[material_sum] => 227635
[work_sum] => 135497
[total_sum] => 363132
[total_days] => 45
[display_material_sum] => 227 635
[display_work_sum] => 135 497
[display_total_sum] => 363 132
)
1
363 132₽
Работа:135 497 ₽
Материалы:227 635 ₽
Дни:45
stdClass Object
(
[id] => 142
[attribute_id] => 19
[name] => Термопанели
[material_modifier] => 1
[work_modifier] => 1
[options] => Array
(
)
[days] => [20]
[material_price] => [6221]
[work_price] => [2333]
[image] => https://akademik-stroy.ru/wp-content/uploads/materials/termo.png
[area_modifier] => 20.91
[parent_name] => Наружная отделка фасада
[parent_id] => 19
[material_sum] => 312195
[work_sum] => 97566
[total_sum] => 409761
[total_days] => 20
[display_material_sum] => 312 195
[display_work_sum] => 97 566
[display_total_sum] => 409 761
)
1
409 761₽
Работа:97 566 ₽
Материалы:312 195 ₽
Дни:20
stdClass Object
(
[id] => 143
[attribute_id] => 19
[name] => Плитка HAUBERK
[material_modifier] => 1
[work_modifier] => 1
[options] => Array
(
)
[days] => [20]
[material_price] => [2786]
[work_price] => [1944]
[image] => https://akademik-stroy.ru/wp-content/uploads/materials/hauberk.jpg
[area_modifier] => 20.91
[parent_name] => Наружная отделка фасада
[parent_id] => 19
[material_sum] => 139813
[work_sum] => 81298
[total_sum] => 221111
[total_days] => 20
[display_material_sum] => 139 813
[display_work_sum] => 81 298
[display_total_sum] => 221 111
)
1
221 111₽
Работа:81 298 ₽
Материалы:139 813 ₽
Дни:20
stdClass Object
(
[id] => 144
[attribute_id] => 19
[name] => Фальцевый фасад
[material_modifier] => 1
[work_modifier] => 1
[options] => Array
(
)
[days] => [20]
[material_price] => [3240]
[work_price] => [2592]
[image] => https://akademik-stroy.ru/wp-content/uploads/materials/falcevyj-fasad.jpg
[area_modifier] => 20.91
[parent_name] => Наружная отделка фасада
[parent_id] => 19
[material_sum] => 162596
[work_sum] => 108397
[total_sum] => 270993
[total_days] => 20
[display_material_sum] => 162 596
[display_work_sum] => 108 397
[display_total_sum] => 270 993
)
1
270 993₽
Работа:108 397 ₽
Материалы:162 596 ₽
Дни:20
stdClass Object
(
[id] => 145
[attribute_id] => 19
[name] => Комбинированный
[material_modifier] => 1
[work_modifier] => 1
[options] => Array
(
)
[days] => [20]
[material_price] => [4629]
[work_price] => [3499]
[image] => https://akademik-stroy.ru/wp-content/uploads/materials/Kombinirovannyj.jpg
[area_modifier] => 20.91
[parent_name] => Наружная отделка фасада
[parent_id] => 19
[material_sum] => 232302
[work_sum] => 146328
[total_sum] => 378630
[total_days] => 20
[display_material_sum] => 232 302
[display_work_sum] => 146 328
[display_total_sum] => 378 630
)
1
378 630₽
Работа:146 328 ₽
Материалы:232 302 ₽
Дни:20
stdClass Object
(
[id] => 257
[attribute_id] => 19
[name] => Японские фиброцементные
[material_modifier] => 1
[work_modifier] => 1
[options] => Array
(
)
[days] => [20]
[material_price] => [7043]
[work_price] => [2993]
[image] => https://akademik-stroy.ru/wp-content/uploads/materials/paneli.jpg
[area_modifier] => 20.91
[parent_name] => Наружная отделка фасада
[parent_id] => 19
[material_sum] => 353446
[work_sum] => 125167
[total_sum] => 478613
[total_days] => 20
[display_material_sum] => 353 446
[display_work_sum] => 125 167
[display_total_sum] => 478 613
)
1
478 613₽
Работа:125 167 ₽
Материалы:353 446 ₽
Дни:20
stdClass Object
(
[id] => 258
[attribute_id] => 19
[name] => Панели Каньон
[material_modifier] => 1
[work_modifier] => 1
[options] => Array
(
)
[days] => [20]
[material_price] => [4543]
[work_price] => [2592]
[image] => https://akademik-stroy.ru/wp-content/uploads/materials/kanon.png
[area_modifier] => 20.91
[parent_name] => Наружная отделка фасада
[parent_id] => 19
[material_sum] => 227986
[work_sum] => 108397
[total_sum] => 336383
[total_days] => 20
[display_material_sum] => 227 986
[display_work_sum] => 108 397
[display_total_sum] => 336 383
)
1
336 383₽
Работа:108 397 ₽
Материалы:227 986 ₽
Дни:20
stdClass Object
(
[id] => 39
[attribute_id] => 20
[name] => Нет
[material_modifier] => 1
[work_modifier] => 1
[options] => Array
(
)
[days] => [0]
[material_price] => [0]
[work_price] => [0]
[image] => https://akademik-stroy.ru/wp-content/uploads/materials/terrasy.jpg
[area_modifier] => 30
[parent_name] => Террасы, крыльца, навесы
[parent_id] => 20
[material_sum] => 0
[work_sum] => 0
[total_sum] => 0
[total_days] => 0
[display_material_sum] => 0
[display_work_sum] => 0
[display_total_sum] => 0
)
1
0₽
Работа:0 ₽
Материалы:0 ₽
Дни:0
stdClass Object
(
[id] => 40
[attribute_id] => 20
[name] => Есть
[material_modifier] => 1
[work_modifier] => 1
[options] => Array
(
)
[days] => [5]
[material_price] => [10450]
[work_price] => [1950]
[image] => https://akademik-stroy.ru/wp-content/uploads/materials/terrasy.jpg
[area_modifier] => 30
[parent_name] => Террасы, крыльца, навесы
[parent_id] => 20
[material_sum] => 752400
[work_sum] => 117000
[total_sum] => 869400
[total_days] => 5
[display_material_sum] => 752 400
[display_work_sum] => 117 000
[display_total_sum] => 869 400
)
1
869 400₽
Работа:117 000 ₽
Материалы:752 400 ₽
Дни:5
stdClass Object
(
[id] => 41
[attribute_id] => 21
[name] => Нет
[material_modifier] => 1
[work_modifier] => 1
[options] => Array
(
)
[days] => [0]
[material_price] => [0]
[work_price] => [0]
[image] => https://akademik-stroy.ru/wp-content/uploads/materials/balkony.jpg
[area_modifier] => 30
[parent_name] => Балконы
[parent_id] => 21
[material_sum] => 0
[work_sum] => 0
[total_sum] => 0
[total_days] => 0
[display_material_sum] => 0
[display_work_sum] => 0
[display_total_sum] => 0
)
1
0₽
Работа:0 ₽
Материалы:0 ₽
Дни:0
stdClass Object
(
[id] => 42
[attribute_id] => 21
[name] => Есть
[material_modifier] => 1
[work_modifier] => 1
[options] => Array
(
)
[days] => [12]
[material_price] => [3600]
[work_price] => [1950]
[image] => https://akademik-stroy.ru/wp-content/uploads/materials/balkony.jpg
[area_modifier] => 30
[parent_name] => Балконы
[parent_id] => 21
[material_sum] => 259200
[work_sum] => 117000
[total_sum] => 376200
[total_days] => 12
[display_material_sum] => 259 200
[display_work_sum] => 117 000
[display_total_sum] => 376 200
)
1
376 200₽
Работа:117 000 ₽
Материалы:259 200 ₽
Дни:12
stdClass Object
(
[id] => 43
[attribute_id] => 22
[name] => Нет
[material_modifier] => 1
[work_modifier] => 1
[options] => Array
(
)
[days] => [0]
[material_price] => [0]
[work_price] => [0]
[image] => https://akademik-stroy.ru/wp-content/uploads/materials/uteplennaya.jpg
[area_modifier] => 20.91
[parent_name] => Отмостка
[parent_id] => 22
[material_sum] => 0
[work_sum] => 0
[total_sum] => 0
[total_days] => 0
[display_material_sum] => 0
[display_work_sum] => 0
[display_total_sum] => 0
)
1
0₽
Работа:0 ₽
Материалы:0 ₽
Дни:0
stdClass Object
(
[id] => 44
[attribute_id] => 22
[name] => Утепленная отмостка
[material_modifier] => 1
[work_modifier] => 1
[options] => Array
(
)
[days] => [15]
[material_price] => [2550]
[work_price] => [1750]
[image] => https://akademik-stroy.ru/wp-content/uploads/materials/uteplennaya.jpg
[area_modifier] => 20.91
[parent_name] => Отмостка
[parent_id] => 22
[material_sum] => 127969
[work_sum] => 73185
[total_sum] => 201154
[total_days] => 15
[display_material_sum] => 127 969
[display_work_sum] => 73 185
[display_total_sum] => 201 154
)
1
201 154₽
Работа:73 185 ₽
Материалы:127 969 ₽
Дни:15
stdClass Object
(
[id] => 146
[attribute_id] => 22
[name] => Не утепленная отмостка
[material_modifier] => 1
[work_modifier] => 1
[options] => Array
(
)
[days] => [10]
[material_price] => [1650]
[work_price] => [1450]
[image] => https://akademik-stroy.ru/wp-content/uploads/materials/ne-uteplennaya.jpg
[area_modifier] => 20.91
[parent_name] => Отмостка
[parent_id] => 22
[material_sum] => 82804
[work_sum] => 60639
[total_sum] => 143443
[total_days] => 10
[display_material_sum] => 82 804
[display_work_sum] => 60 639
[display_total_sum] => 143 443
)
1
143 443₽
Работа:60 639 ₽
Материалы:82 804 ₽
Дни:10
stdClass Object
(
[id] => 45
[attribute_id] => 23
[name] => Нет
[material_modifier] => 1
[work_modifier] => 1
[options] => Array
(
)
[days] => [0]
[material_price] => [0]
[work_price] => [0]
[image] => https://akademik-stroy.ru/wp-content/uploads/materials/drenazh-2.jpg
[area_modifier] => 20.91
[parent_name] => Дренаж вокруг дома
[parent_id] => 23
[material_sum] => 0
[work_sum] => 0
[total_sum] => 0
[total_days] => 0
[display_material_sum] => 0
[display_work_sum] => 0
[display_total_sum] => 0
)
1
0₽
Работа:0 ₽
Материалы:0 ₽
Дни:0
stdClass Object
(
[id] => 46
[attribute_id] => 23
[name] => Есть
[material_modifier] => 1
[work_modifier] => 1
[options] => Array
(
)
[days] => [5]
[material_price] => [2366]
[work_price] => [1911]
[image] => https://akademik-stroy.ru/wp-content/uploads/materials/drenazh-2.jpg
[area_modifier] => 20.91
[parent_name] => Дренаж вокруг дома
[parent_id] => 23
[material_sum] => 118735
[work_sum] => 79918
[total_sum] => 198653
[total_days] => 5
[display_material_sum] => 118 735
[display_work_sum] => 79 918
[display_total_sum] => 198 653
)
1
198 653₽
Работа:79 918 ₽
Материалы:118 735 ₽
Дни:5
stdClass Object
(
[id] => 47
[attribute_id] => 24
[name] => Нет
[material_modifier] => 1
[work_modifier] => 1
[options] => Array
(
)
[days] => [0]
[material_price] => [0]
[work_price] => [0]
[image] => https://akademik-stroy.ru/wp-content/uploads/materials/septik.jpg
[area_modifier] => 1
[parent_name] => Автономная канализация (септики)
[parent_id] => 24
[material_sum] => 0
[work_sum] => 0
[total_sum] => 0
[total_days] => 0
[display_material_sum] => 0
[display_work_sum] => 0
[display_total_sum] => 0
)
1
0₽
Работа:0 ₽
Материалы:0 ₽
Дни:0
stdClass Object
(
[id] => 48
[attribute_id] => 24
[name] => Есть
[material_modifier] => 1
[work_modifier] => 1
[options] => Array
(
[0] => Для дачи на 4 человека
[1] => Для дома на 5 человек
[2] => Для дома на 6 человек
[3] => Для дома на 7 человек
[4] => Для дома на 10 человек
)
[days] => [7,7,7,8,8]
[material_price] => [196340,220500,240940,264200,293340]
[work_price] => [50000,55000,60500,66550,73206]
[image] => https://akademik-stroy.ru/wp-content/uploads/materials/septik.jpg
[area_modifier] => 1
[parent_name] => Автономная канализация (септики)
[parent_id] => 24
[material_sum] => 471216
[work_sum] => 100000
[total_sum] => 571216
[total_days] => 7
[display_material_sum] => 471 216
[display_work_sum] => 100 000
[display_total_sum] => 571 216
)
1
571 216₽
Работа:100 000 ₽
Материалы:471 216 ₽
Дни:7
stdClass Object
(
[id] => 49
[attribute_id] => 25
[name] => Нет
[material_modifier] => 1
[work_modifier] => 1
[options] => Array
(
)
[days] => [0]
[material_price] => [0]
[work_price] => [0]
[image] => https://akademik-stroy.ru/wp-content/uploads/materials/gkl.jpg
[area_modifier] => 20.91
[parent_name] => Внутренние (не несущие) перегородки
[parent_id] => 25
[material_sum] => 0
[work_sum] => 0
[total_sum] => 0
[total_days] => 0
[display_material_sum] => 0
[display_work_sum] => 0
[display_total_sum] => 0
)
1
0₽
Работа:0 ₽
Материалы:0 ₽
Дни:0
stdClass Object
(
[id] => 147
[attribute_id] => 25
[name] => Каркасно-обшивные
[material_modifier] => 1
[work_modifier] => 1
[options] => Array
(
[0] => 75 мм (без шумоизоляции)
[1] => 75 мм (с шумоизоляцией)
)
[days] => [11,11]
[material_price] => [580,970]
[work_price] => [380,570]
[image] => https://akademik-stroy.ru/wp-content/uploads/materials/gkl.jpg
[area_modifier] => 20.91
[parent_name] => Внутренние (не несущие) перегородки
[parent_id] => 25
[material_sum] => 29107
[work_sum] => 15892
[total_sum] => 44999
[total_days] => 11
[display_material_sum] => 29 107
[display_work_sum] => 15 892
[display_total_sum] => 44 999
)
1
44 999₽
Работа:15 892 ₽
Материалы:29 107 ₽
Дни:11
stdClass Object
(
[id] => 148
[attribute_id] => 25
[name] => Пазогребневые
[material_modifier] => 1
[work_modifier] => 1
[options] => Array
(
[0] => 80 мм
[1] => 100 мм
)
[days] => [5,5]
[material_price] => [1022,1313]
[work_price] => [600,700]
[image] => https://akademik-stroy.ru/wp-content/uploads/materials/pazogrebnevye-bloki.jpg
[area_modifier] => 20.91
[parent_name] => Внутренние (не несущие) перегородки
[parent_id] => 25
[material_sum] => 51288
[work_sum] => 25092
[total_sum] => 76380
[total_days] => 5
[display_material_sum] => 51 288
[display_work_sum] => 25 092
[display_total_sum] => 76 380
)
1
76 380₽
Работа:25 092 ₽
Материалы:51 288 ₽
Дни:5
stdClass Object
(
[id] => 149
[attribute_id] => 25
[name] => Газобетонные
[material_modifier] => 1
[work_modifier] => 1
[options] => Array
(
[0] => 100 мм
[1] => 200 мм
)
[days] => [11,11]
[material_price] => [1160,1920]
[work_price] => [700,900]
[image] => https://akademik-stroy.ru/wp-content/uploads/materials/gazobeton-2.jpg
[area_modifier] => 20.91
[parent_name] => Внутренние (не несущие) перегородки
[parent_id] => 25
[material_sum] => 58213
[work_sum] => 29274
[total_sum] => 87487
[total_days] => 11
[display_material_sum] => 58 213
[display_work_sum] => 29 274
[display_total_sum] => 87 487
)
1
87 487₽
Работа:29 274 ₽
Материалы:58 213 ₽
Дни:11
stdClass Object
(
[id] => 150
[attribute_id] => 25
[name] => Кирпичные
[material_modifier] => 1
[work_modifier] => 1
[options] => Array
(
[0] => 120 мм
[1] => 250 мм
[2] => 360 мм
)
[days] => [7,7,7]
[material_price] => [1785,3570,5355]
[work_price] => [900,1600,1800]
[image] => https://akademik-stroy.ru/wp-content/uploads/materials/kirpich-1.jpg
[area_modifier] => 20.91
[parent_name] => Внутренние (не несущие) перегородки
[parent_id] => 25
[material_sum] => 89578
[work_sum] => 37638
[total_sum] => 127216
[total_days] => 7
[display_material_sum] => 89 578
[display_work_sum] => 37 638
[display_total_sum] => 127 216
)
1
127 216₽
Работа:37 638 ₽
Материалы:89 578 ₽
Дни:7
stdClass Object
(
[id] => 55
[attribute_id] => 28
[name] => Нет
[material_modifier] => 1
[work_modifier] => 1
[options] => Array
(
)
[days] => [0]
[material_price] => [0]
[work_price] => [0]
[image] => https://akademik-stroy.ru/wp-content/uploads/materials/ehlektrika.jpg
[area_modifier] => 16.97
[parent_name] => Электрика
[parent_id] => 28
[material_sum] => 0
[work_sum] => 0
[total_sum] => 0
[total_days] => 0
[display_material_sum] => 0
[display_work_sum] => 0
[display_total_sum] => 0
)
1
0₽
Работа:0 ₽
Материалы:0 ₽
Дни:0
stdClass Object
(
[id] => 56
[attribute_id] => 28
[name] => Есть
[material_modifier] => 1
[work_modifier] => 1
[options] => Array
(
)
[days] => [10]
[material_price] => [650]
[work_price] => [950]
[image] => https://akademik-stroy.ru/wp-content/uploads/materials/ehlektrika.jpg
[area_modifier] => 16.97
[parent_name] => Электрика
[parent_id] => 28
[material_sum] => 26473
[work_sum] => 32243
[total_sum] => 58716
[total_days] => 10
[display_material_sum] => 26 473
[display_work_sum] => 32 243
[display_total_sum] => 58 716
)
1
58 716₽
Работа:32 243 ₽
Материалы:26 473 ₽
Дни:10
stdClass Object
(
[id] => 57
[attribute_id] => 29
[name] => Нет
[material_modifier] => 1
[work_modifier] => 1
[options] => Array
(
)
[days] => [0]
[material_price] => [0]
[work_price] => [0]
[image] => https://akademik-stroy.ru/wp-content/uploads/materials/santekhnika-kanalizaciya-1.jpg
[area_modifier] => 16.97
[parent_name] => Сантехника, канализация в доме
[parent_id] => 29
[material_sum] => 0
[work_sum] => 0
[total_sum] => 0
[total_days] => 0
[display_material_sum] => 0
[display_work_sum] => 0
[display_total_sum] => 0
)
1
0₽
Работа:0 ₽
Материалы:0 ₽
Дни:0
stdClass Object
(
[id] => 58
[attribute_id] => 29
[name] => Есть
[material_modifier] => 1
[work_modifier] => 1
[options] => Array
(
)
[days] => [10]
[material_price] => [600]
[work_price] => [730]
[image] => https://akademik-stroy.ru/wp-content/uploads/materials/santekhnika-kanalizaciya-1.jpg
[area_modifier] => 16.97
[parent_name] => Сантехника, канализация в доме
[parent_id] => 29
[material_sum] => 24437
[work_sum] => 24776
[total_sum] => 49213
[total_days] => 10
[display_material_sum] => 24 437
[display_work_sum] => 24 776
[display_total_sum] => 49 213
)
1
49 213₽
Работа:24 776 ₽
Материалы:24 437 ₽
Дни:10
stdClass Object
(
[id] => 59
[attribute_id] => 30
[name] => Нет
[material_modifier] => 1
[work_modifier] => 1
[options] => Array
(
)
[days] => [0]
[material_price] => [0]
[work_price] => [0]
[image] => https://akademik-stroy.ru/wp-content/uploads/materials/otoplenie-1.jpg
[area_modifier] => 16.97
[parent_name] => Отопление
[parent_id] => 30
[material_sum] => 0
[work_sum] => 0
[total_sum] => 0
[total_days] => 0
[display_material_sum] => 0
[display_work_sum] => 0
[display_total_sum] => 0
)
1
0₽
Работа:0 ₽
Материалы:0 ₽
Дни:0
stdClass Object
(
[id] => 60
[attribute_id] => 30
[name] => Есть
[material_modifier] => 1
[work_modifier] => 1
[options] => Array
(
)
[days] => [5]
[material_price] => [610]
[work_price] => [560]
[image] => https://akademik-stroy.ru/wp-content/uploads/materials/otoplenie-1.jpg
[area_modifier] => 16.97
[parent_name] => Отопление
[parent_id] => 30
[material_sum] => 24844
[work_sum] => 19006
[total_sum] => 43850
[total_days] => 5
[display_material_sum] => 24 844
[display_work_sum] => 19 006
[display_total_sum] => 43 850
)
1
43 850₽
Работа:19 006 ₽
Материалы:24 844 ₽
Дни:5
stdClass Object
(
[id] => 61
[attribute_id] => 31
[name] => Нет
[material_modifier] => 1
[work_modifier] => 1
[options] => Array
(
)
[days] => [0]
[material_price] => [0]
[work_price] => [0]
[image] => https://akademik-stroy.ru/wp-content/uploads/materials/vodyanye.jpg
[area_modifier] => 30
[parent_name] => Теплые полы
[parent_id] => 31
[material_sum] => 0
[work_sum] => 0
[total_sum] => 0
[total_days] => 0
[display_material_sum] => 0
[display_work_sum] => 0
[display_total_sum] => 0
)
1
0₽
Работа:0 ₽
Материалы:0 ₽
Дни:0
stdClass Object
(
[id] => 151
[attribute_id] => 31
[name] => Водяные
[material_modifier] => 1
[work_modifier] => 1
[options] => Array
(
)
[days] => [9]
[material_price] => [10200]
[work_price] => [2500]
[image] => https://akademik-stroy.ru/wp-content/uploads/materials/vodyanye.jpg
[area_modifier] => 30
[parent_name] => Теплые полы
[parent_id] => 31
[material_sum] => 734400
[work_sum] => 150000
[total_sum] => 884400
[total_days] => 9
[display_material_sum] => 734 400
[display_work_sum] => 150 000
[display_total_sum] => 884 400
)
1
884 400₽
Работа:150 000 ₽
Материалы:734 400 ₽
Дни:9
stdClass Object
(
[id] => 152
[attribute_id] => 31
[name] => Электро
[material_modifier] => 1
[work_modifier] => 1
[options] => Array
(
)
[days] => [5]
[material_price] => [6300]
[work_price] => [1500]
[image] => https://akademik-stroy.ru/wp-content/uploads/materials/ehlektricheskij.jpg
[area_modifier] => 30
[parent_name] => Теплые полы
[parent_id] => 31
[material_sum] => 453600
[work_sum] => 90000
[total_sum] => 543600
[total_days] => 5
[display_material_sum] => 453 600
[display_work_sum] => 90 000
[display_total_sum] => 543 600
)
1
543 600₽
Работа:90 000 ₽
Материалы:453 600 ₽
Дни:5
stdClass Object
(
[id] => 63
[attribute_id] => 32
[name] => Нет
[material_modifier] => 1
[work_modifier] => 1
[options] => Array
(
)
[days] => [0]
[material_price] => [0]
[work_price] => [0]
[image] => https://akademik-stroy.ru/wp-content/uploads/materials/shtukaturka-shpatlevka-1.jpg
[area_modifier] => 16.97
[parent_name] => Черновая отделка стен
[parent_id] => 32
[material_sum] => 0
[work_sum] => 0
[total_sum] => 0
[total_days] => 0
[display_material_sum] => 0
[display_work_sum] => 0
[display_total_sum] => 0
)
1
0₽
Работа:0 ₽
Материалы:0 ₽
Дни:0
stdClass Object
(
[id] => 153
[attribute_id] => 32
[name] => Штукатурка и шпатлевка
[material_modifier] => 1
[work_modifier] => 1
[options] => Array
(
)
[days] => [20]
[material_price] => [1850]
[work_price] => [2600]
[image] => https://akademik-stroy.ru/wp-content/uploads/materials/shtukaturka-shpatlevka-1.jpg
[area_modifier] => 16.97
[parent_name] => Черновая отделка стен
[parent_id] => 32
[material_sum] => 75347
[work_sum] => 88244
[total_sum] => 163591
[total_days] => 20
[display_material_sum] => 75 347
[display_work_sum] => 88 244
[display_total_sum] => 163 591
)
1
163 591₽
Работа:88 244 ₽
Материалы:75 347 ₽
Дни:20
stdClass Object
(
[id] => 154
[attribute_id] => 32
[name] => Гипсокортон на стены
[material_modifier] => 1
[work_modifier] => 1
[options] => Array
(
)
[days] => [15]
[material_price] => [950]
[work_price] => [2100]
[image] => https://akademik-stroy.ru/wp-content/uploads/materials/gkl-1.jpg
[area_modifier] => 16.97
[parent_name] => Черновая отделка стен
[parent_id] => 32
[material_sum] => 38692
[work_sum] => 71274
[total_sum] => 109966
[total_days] => 15
[display_material_sum] => 38 692
[display_work_sum] => 71 274
[display_total_sum] => 109 966
)
1
109 966₽
Работа:71 274 ₽
Материалы:38 692 ₽
Дни:15
stdClass Object
(
[id] => 155
[attribute_id] => 32
[name] => Вагонка
[material_modifier] => 1
[work_modifier] => 1
[options] => Array
(
)
[days] => [15]
[material_price] => [1250]
[work_price] => [950]
[image] => https://akademik-stroy.ru/wp-content/uploads/materials/vagonka.jpg
[area_modifier] => 16.97
[parent_name] => Черновая отделка стен
[parent_id] => 32
[material_sum] => 50910
[work_sum] => 32243
[total_sum] => 83153
[total_days] => 15
[display_material_sum] => 50 910
[display_work_sum] => 32 243
[display_total_sum] => 83 153
)
1
83 153₽
Работа:32 243 ₽
Материалы:50 910 ₽
Дни:15
stdClass Object
(
[id] => 65
[attribute_id] => 33
[name] => Нет
[material_modifier] => 1
[work_modifier] => 1
[options] => Array
(
)
[days] => [0]
[material_price] => [0]
[work_price] => [0]
[image] => https://akademik-stroy.ru/wp-content/uploads/materials/styazhka.jpg
[area_modifier] => 16.97
[parent_name] => Черновая отделка полов
[parent_id] => 33
[material_sum] => 0
[work_sum] => 0
[total_sum] => 0
[total_days] => 0
[display_material_sum] => 0
[display_work_sum] => 0
[display_total_sum] => 0
)
1
0₽
Работа:0 ₽
Материалы:0 ₽
Дни:0
stdClass Object
(
[id] => 156
[attribute_id] => 33
[name] => Стяжка + наливные полы
[material_modifier] => 1
[work_modifier] => 1
[options] => Array
(
)
[days] => [10]
[material_price] => [1000]
[work_price] => [900]
[image] => https://akademik-stroy.ru/wp-content/uploads/materials/styazhka.jpg
[area_modifier] => 16.97
[parent_name] => Черновая отделка полов
[parent_id] => 33
[material_sum] => 40728
[work_sum] => 30546
[total_sum] => 71274
[total_days] => 10
[display_material_sum] => 40 728
[display_work_sum] => 30 546
[display_total_sum] => 71 274
)
1
71 274₽
Работа:30 546 ₽
Материалы:40 728 ₽
Дни:10
stdClass Object
(
[id] => 157
[attribute_id] => 33
[name] => ОСБ на пол
[material_modifier] => 1
[work_modifier] => 1
[options] => Array
(
)
[days] => [7]
[material_price] => [580]
[work_price] => [350]
[image] => https://akademik-stroy.ru/wp-content/uploads/materials/osb-1.jpg
[area_modifier] => 16.97
[parent_name] => Черновая отделка полов
[parent_id] => 33
[material_sum] => 23622
[work_sum] => 11879
[total_sum] => 35501
[total_days] => 7
[display_material_sum] => 23 622
[display_work_sum] => 11 879
[display_total_sum] => 35 501
)
1
35 501₽
Работа:11 879 ₽
Материалы:23 622 ₽
Дни:7
stdClass Object
(
[id] => 67
[attribute_id] => 34
[name] => Нет
[material_modifier] => 1
[work_modifier] => 1
[options] => Array
(
)
[days] => [0]
[material_price] => [0]
[work_price] => [0]
[image] => https://akademik-stroy.ru/wp-content/uploads/materials/chistovaya-otdelka.jpg
[area_modifier] => 16.97
[parent_name] => Чистовая отделка стен и полов
[parent_id] => 34
[material_sum] => 0
[work_sum] => 0
[total_sum] => 0
[total_days] => 0
[display_material_sum] => 0
[display_work_sum] => 0
[display_total_sum] => 0
)
1
0₽
Работа:0 ₽
Материалы:0 ₽
Дни:0
stdClass Object
(
[id] => 68
[attribute_id] => 34
[name] => Есть
[material_modifier] => 1
[work_modifier] => 1
[options] => Array
(
)
[days] => [50]
[material_price] => [6000]
[work_price] => [3500]
[image] => https://akademik-stroy.ru/wp-content/uploads/materials/chistovaya-otdelka.jpg
[area_modifier] => 16.97
[parent_name] => Чистовая отделка стен и полов
[parent_id] => 34
[material_sum] => 244368
[work_sum] => 118790
[total_sum] => 363158
[total_days] => 50
[display_material_sum] => 244 368
[display_work_sum] => 118 790
[display_total_sum] => 363 158
)
1
363 158₽
Работа:118 790 ₽
Материалы:244 368 ₽
Дни:50
stdClass Object
(
[id] => 69
[attribute_id] => 35
[name] => Нет
[material_modifier] => 1
[work_modifier] => 1
[options] => Array
(
)
[days] => [0]
[material_price] => [0]
[work_price] => [0]
[image] => https://akademik-stroy.ru/wp-content/uploads/materials/mnogourovnevyj-gkl.jpg
[area_modifier] => 16.97
[parent_name] => Отделка потолка
[parent_id] => 35
[material_sum] => 0
[work_sum] => 0
[total_sum] => 0
[total_days] => 0
[display_material_sum] => 0
[display_work_sum] => 0
[display_total_sum] => 0
)
1
0₽
Работа:0 ₽
Материалы:0 ₽
Дни:0
stdClass Object
(
[id] => 70
[attribute_id] => 35
[name] => Есть
[material_modifier] => 1
[work_modifier] => 1
[options] => Array
(
[0] => Многоуровневый потолок из гипсокартона
[1] => Многоуровневый потолок из гипсокартона и натяжного потолка
[2] => Одноуровневый потолок из гипсокартона
[3] => Одноуровневый натяжной потолок
)
[days] => [10,10,1,1]
[material_price] => [900,700,700,600]
[work_price] => [1000,800,500,300]
[image] => https://akademik-stroy.ru/wp-content/uploads/materials/mnogourovnevyj-gkl.jpg
[area_modifier] => 16.97
[parent_name] => Отделка потолка
[parent_id] => 35
[material_sum] => 36655
[work_sum] => 33940
[total_sum] => 70595
[total_days] => 10
[display_material_sum] => 36 655
[display_work_sum] => 33 940
[display_total_sum] => 70 595
)
1
70 595₽
Работа:33 940 ₽
Материалы:36 655 ₽
Дни:10
Преимущества работы с нами
7 этапов оплаты
Независимый строительный надзор
Экологически чистые материалы
16 лет гарантии
Онлайн-кабинет с веб-камерой
Строители с опытом более 15 лет
Собственное производство
