Одноэтажный гараж 40.59 м2
154 м2
Полезная
площадь
площадь
1 этаж
Этажей
26 м2
Террасы
и балконы
и балконы
0Без
гаража
гаража
0
Количество
спален
спален
0
Количество
санузлов
санузлов
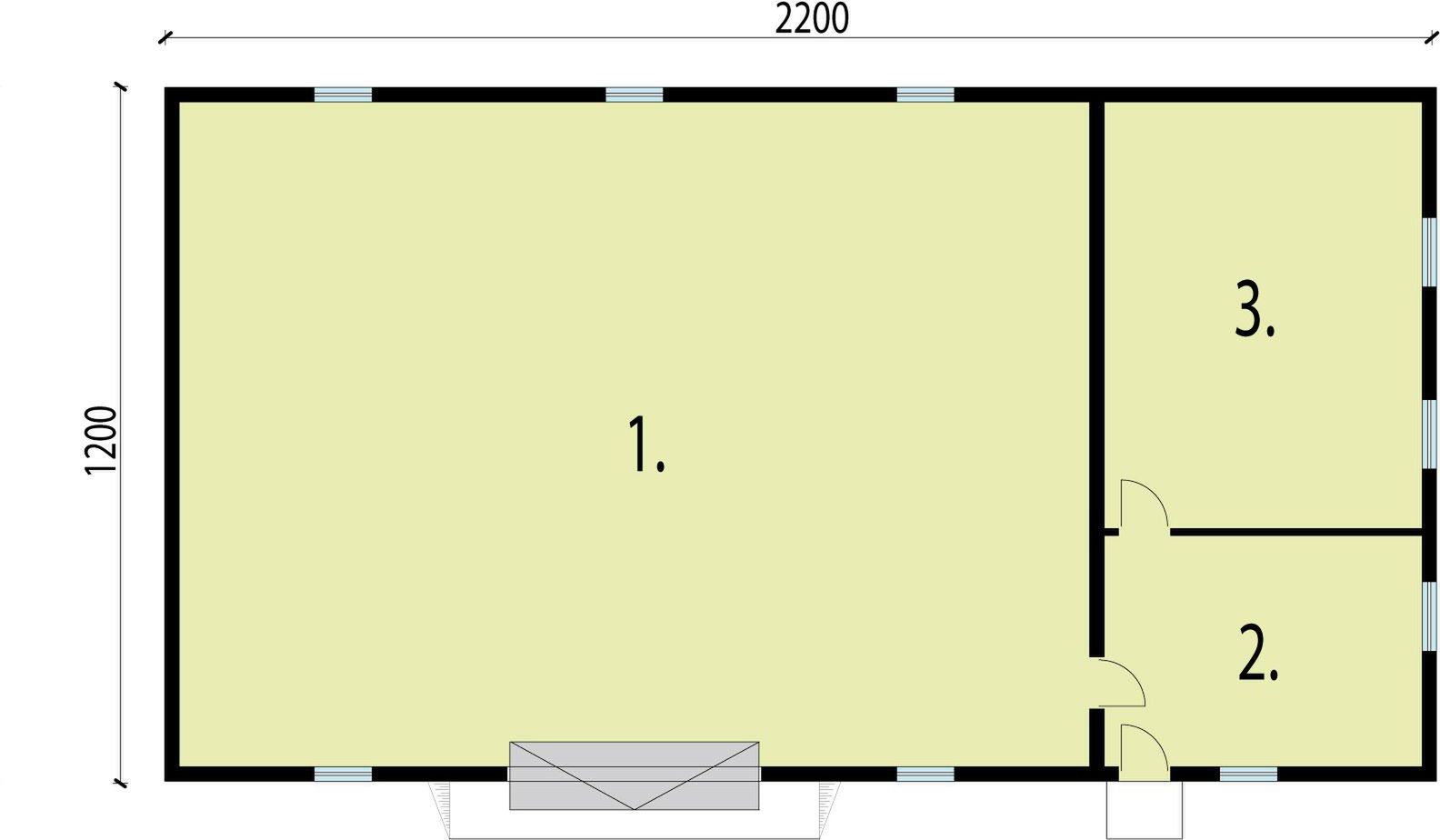
Планировки
Первый этаж
- 1. (m²) 243,72
- 2. Гараж на 1 машину 181,13
- 3. Подсобное помещение 22
- Подсобное помещение 40,59
Фасады
Передний
Задний
Левый
Правый
Подробная информация
Полезная площадь
243,72 m²
Количество спален
0
Количество санузлов
0
Гараж
1
Мин. шир. и дл. участка
29 x 20 m
Угол наклона крыши
30°
Наклон ската крыши в градусах. Внимание! В некоторых проектах возникает более чем один наклон крыши.
Вид материалов
Murowana
Материалы и опции
Общие
Площади дома
| № п/п | Наименование | Ед. из. | Строительная площадь | Полезная площадь |
| 1 | 1 этаж | м2 | 50.02 | 40.59 |
| 2 | Итого | м2 | 50.02 | 40.59 |
Калькулятор опций
0₽
В ипотеку от 207 ₽/мес.
0₽
0 дней
stdClass Object
(
[id] => 1
[attribute_id] => 1
[name] => Ленточный монолитный ж/б
[material_modifier] => 1
[work_modifier] => 1
[options] => Array
(
[0] => размер 200 х 700 мм
[1] => размер 300 х 900 мм
[2] => размер 400 х 1 000 мм
[3] => размер 500 х 1 100 мм
[4] => размер 600 х 1 200 мм
)
[days] => [20,21,22,25,30]
[material_price] => [2823,3630,4475,5210,12047]
[work_price] => [2154,2826,3731,4577,5293]
[image] => https://akademik-stroy.ru/wp-content/uploads/materials/lentochnyj-monolitnyj-zh-b.jpg
[area_modifier] => 50.02
[parent_name] => Фундамент
[parent_id] => 1
[material_sum] => 288061
[work_sum] => 183163
[total_sum] => 471224
[total_days] => 20
[display_material_sum] => 288 061
[display_work_sum] => 183 163
[display_total_sum] => 471 224
)
1
471 224₽
Работа:183 163 ₽
Материалы:288 061 ₽
Дни:20
stdClass Object
(
[id] => 2
[attribute_id] => 1
[name] => Забивные Ж/Б сваи
[material_modifier] => 1
[work_modifier] => 1
[options] => Array
(
[0] => 150х150х3000мм
[1] => 150х150х4000мм
[2] => 200х200х3000мм
[3] => 200х200х4000мм
[4] => 200х200х5000мм
[5] => 200х200х6000мм
)
[days] => [2,2,2,2,2,2]
[material_price] => [1990,2850,3255,4360,5120,6837]
[work_price] => [1002,1185,1336,1438,1574,1839]
[image] => https://akademik-stroy.ru/wp-content/uploads/materials/zabivnye-zh-b-svai.png
[area_modifier] => 50.02
[parent_name] => Фундамент
[parent_id] => 1
[material_sum] => 203061
[work_sum] => 85204
[total_sum] => 288265
[total_days] => 2
[display_material_sum] => 203 061
[display_work_sum] => 85 204
[display_total_sum] => 288 265
)
1
288 265₽
Работа:85 204 ₽
Материалы:203 061 ₽
Дни:2
stdClass Object
(
[id] => 71
[attribute_id] => 1
[name] => Свайно-ростверковый ж/б
[material_modifier] => 1
[work_modifier] => 1
[options] => Array
(
[0] => ростверк 200х300 мм
[1] => ростверк 300х600 мм
[2] => ростверк 400х900 мм
[3] => ростверк 500х1200 мм
)
[days] => [20,23,25,27]
[material_price] => [3018,3474,7109,9792]
[work_price] => [2024,3012,5635,7022]
[image] => https://akademik-stroy.ru/wp-content/uploads/materials/svajno-rostverkovyj-monolitnyj-zh-b-3.png
[area_modifier] => 50.02
[parent_name] => Фундамент
[parent_id] => 1
[material_sum] => 307959
[work_sum] => 172109
[total_sum] => 480068
[total_days] => 20
[display_material_sum] => 307 959
[display_work_sum] => 172 109
[display_total_sum] => 480 068
)
1
480 068₽
Работа:172 109 ₽
Материалы:307 959 ₽
Дни:20
stdClass Object
(
[id] => 72
[attribute_id] => 1
[name] => Монолитная ж/б плита
[material_modifier] => 1
[work_modifier] => 1
[options] => Array
(
[0] => 200 мм
[1] => 300 мм
[2] => 400 мм
[3] => 500 мм
[4] => 600 мм
)
[days] => [30,33,35,37,40]
[material_price] => [5348,8555,12788,14388,15189]
[work_price] => [4314,4881,7037,8061,10230]
[image] => https://akademik-stroy.ru/wp-content/uploads/materials/monolitnaya-zhb-plita.png
[area_modifier] => 50.02
[parent_name] => Фундамент
[parent_id] => 1
[material_sum] => 545714
[work_sum] => 366837
[total_sum] => 912551
[total_days] => 30
[display_material_sum] => 545 714
[display_work_sum] => 366 837
[display_total_sum] => 912 551
)
1
912 551₽
Работа:366 837 ₽
Материалы:545 714 ₽
Дни:30
stdClass Object
(
[id] => 73
[attribute_id] => 1
[name] => Утепленная шведская плита
[material_modifier] => 1
[work_modifier] => 1
[options] => Array
(
[0] => 200 мм
[1] => 300 мм
[2] => 400 мм
[3] => 500 мм
[4] => 600 мм
)
[days] => [32,37,39,42,45]
[material_price] => [10249,12692,13760,14936,16230]
[work_price] => [5960,7337,8072,8878,9765]
[image] => https://akademik-stroy.ru/wp-content/uploads/materials/uteplennaya-shvedskaya-plita.jpg
[area_modifier] => 50.02
[parent_name] => Фундамент
[parent_id] => 1
[material_sum] => 1045816
[work_sum] => 506803
[total_sum] => 1552619
[total_days] => 32
[display_material_sum] => 1 045 816
[display_work_sum] => 506 803
[display_total_sum] => 1 552 619
)
1
1 552 619₽
Работа:506 803 ₽
Материалы:1 045 816 ₽
Дни:32
stdClass Object
(
[id] => 75
[attribute_id] => 1
[name] => Ленточный из ФБС
[material_modifier] => 1
[work_modifier] => 1
[options] => Array
(
[0] => толщ. 300 мм
[1] => толщ. 400 мм
[2] => толщ. 500 мм
[3] => толщ. 600 мм
)
[days] => [20,20,20,20]
[material_price] => [3675,4902,6126,7350]
[work_price] => [2451,3264,4083,4902]
[image] => https://akademik-stroy.ru/wp-content/uploads/materials/lentochnyj-iz-fbs.png
[area_modifier] => 50.02
[parent_name] => Фундамент
[parent_id] => 1
[material_sum] => 375000
[work_sum] => 208418
[total_sum] => 583418
[total_days] => 20
[display_material_sum] => 375 000
[display_work_sum] => 208 418
[display_total_sum] => 583 418
)
1
583 418₽
Работа:208 418 ₽
Материалы:375 000 ₽
Дни:20
stdClass Object
(
[id] => 76
[attribute_id] => 1
[name] => Цокольный этаж из ФБС
[material_modifier] => 1
[work_modifier] => 1
[options] => Array
(
[0] => толщ. 300 мм
[1] => толщ. 400 мм
[2] => толщ. 500 мм
[3] => толщ. 600 мм
)
[days] => [30,32,34,36]
[material_price] => [20916,23299,26680,29060]
[work_price] => [17524,18700,19873,21046]
[image] => https://akademik-stroy.ru/wp-content/uploads/materials/cokolnyj-ehtazh-iz-fbs.jpg
[area_modifier] => 50.02
[parent_name] => Фундамент
[parent_id] => 1
[material_sum] => 2134285
[work_sum] => 1490136
[total_sum] => 3624421
[total_days] => 30
[display_material_sum] => 2 134 285
[display_work_sum] => 1 490 136
[display_total_sum] => 3 624 421
)
1
3 624 421₽
Работа:1 490 136 ₽
Материалы:2 134 285 ₽
Дни:30
stdClass Object
(
[id] => 77
[attribute_id] => 1
[name] => Цокольный этаж монолитный ж/б
[material_modifier] => 1
[work_modifier] => 1
[options] => Array
(
[0] => толщ. 200 мм
[1] => толщ. 300 мм
[2] => толщ. 400 мм
[3] => толщ. 500 мм
[4] => толщ. 600 мм
)
[days] => [40,42,44,46,48]
[material_price] => [25421,29148,32275,35602,37326]
[work_price] => [20441,21907,23375,24841,26306]
[image] => https://akademik-stroy.ru/wp-content/uploads/materials/cokolnyj-etazh-zh-b.jpg
[area_modifier] => 50.02
[parent_name] => Фундамент
[parent_id] => 1
[material_sum] => 2593979
[work_sum] => 1738180
[total_sum] => 4332159
[total_days] => 40
[display_material_sum] => 2 593 979
[display_work_sum] => 1 738 180
[display_total_sum] => 4 332 159
)
1
4 332 159₽
Работа:1 738 180 ₽
Материалы:2 593 979 ₽
Дни:40
stdClass Object
(
[id] => 191
[attribute_id] => 1
[name] => Винтовые сваи
[material_modifier] => 1
[work_modifier] => 1
[options] => Array
(
[0] => 57х200мм
[1] => 76х250мм
[2] => 108х300мм
[3] => 133х350мм
)
[days] => [1,1,2,2]
[material_price] => [1200,1300,1450,1600]
[work_price] => [400,600,900,1100]
[image] => https://akademik-stroy.ru/wp-content/uploads/materials/vintovye-svai.png
[area_modifier] => 50.02
[parent_name] => Фундамент
[parent_id] => 1
[material_sum] => 122449
[work_sum] => 34014
[total_sum] => 156463
[total_days] => 1
[display_material_sum] => 122 449
[display_work_sum] => 34 014
[display_total_sum] => 156 463
)
1
156 463₽
Работа:34 014 ₽
Материалы:122 449 ₽
Дни:1
stdClass Object
(
[id] => 3
[attribute_id] => 2
[name] => Деревянные балки
[material_modifier] => 1
[work_modifier] => 1
[options] => Array
(
[0] => без утепления
[1] => утепление 200 мм
[2] => утепление 250 мм
[3] => утепление 300 мм
[4] => утепление 350 мм
[5] => утепление 400 мм
[6] => утепление 450 мм
[7] => утепление 500 мм
)
[days] => [8,9,9,9,11,12,13,14]
[material_price] => [1634,2042,2344,2947,3149,3652,3354,3557]
[work_price] => [1230,1339,1393,1426,1460,1513,1587,1620]
[image] => https://akademik-stroy.ru/wp-content/uploads/materials/derevyannye-balki.png
[area_modifier] => 50.02
[parent_name] => Перекрытие цоколя
[parent_id] => 2
[material_sum] => 166735
[work_sum] => 104592
[total_sum] => 271327
[total_days] => 8
[display_material_sum] => 166 735
[display_work_sum] => 104 592
[display_total_sum] => 271 327
)
1
271 327₽
Работа:104 592 ₽
Материалы:166 735 ₽
Дни:8
stdClass Object
(
[id] => 4
[attribute_id] => 2
[name] => Сборные ж/б плиты
[material_modifier] => 1
[work_modifier] => 1
[options] => Array
(
[0] => без утепления
[1] => утепление 150мм
[2] => утепление 200мм
[3] => утепление 250мм
[4] => утепление 300мм
[5] => утепление 350мм
[6] => утепление 400мм
[7] => утепление 450мм
[8] => утепление 500мм
)
[days] => [13,15,15,15,15,15,15,15,15]
[material_price] => [3067,5577,5928,6679,7730,8782,9833,10884,11935]
[work_price] => [1520,1956,2102,2247,2392,2537,2684,2829,2974]
[image] => https://akademik-stroy.ru/wp-content/uploads/materials/sbornye-zh-b-plity-2.jpg
[area_modifier] => 50.02
[parent_name] => Перекрытие цоколя
[parent_id] => 2
[material_sum] => 312959
[work_sum] => 129252
[total_sum] => 442211
[total_days] => 13
[display_material_sum] => 312 959
[display_work_sum] => 129 252
[display_total_sum] => 442 211
)
1
442 211₽
Работа:129 252 ₽
Материалы:312 959 ₽
Дни:13
stdClass Object
(
[id] => 78
[attribute_id] => 2
[name] => Монолитная ж/б плита
[material_modifier] => 1
[work_modifier] => 1
[options] => Array
(
[0] => без утепления
[1] => утепление 150 мм
[2] => утепление 200 мм
[3] => утепление 250 мм
[4] => утепление 300 мм
[5] => утепление 350 мм
[6] => утепление 400 мм
[7] => утепление 450 мм
[8] => утепление 500 мм
)
[days] => [18,20,20,20,20,20,20,20,20]
[material_price] => [4837,6572,7224,7375,79426,8177,8728,9180,10031]
[work_price] => [3348,3921,4112,4302,4493,4684,4875,5066,5256]
[image] => https://akademik-stroy.ru/wp-content/uploads/materials/monolitnaya-zh-b-plita-2.jpg
[area_modifier] => 50.02
[parent_name] => Перекрытие цоколя
[parent_id] => 2
[material_sum] => 493571
[work_sum] => 284694
[total_sum] => 778265
[total_days] => 18
[display_material_sum] => 493 571
[display_work_sum] => 284 694
[display_total_sum] => 778 265
)
1
778 265₽
Работа:284 694 ₽
Материалы:493 571 ₽
Дни:18
stdClass Object
(
[id] => 6
[attribute_id] => 3
[name] => Пеноблок
[material_modifier] => 1
[work_modifier] => 1
[options] => Array
(
[0] => 300 мм
[1] => 400 мм
[2] => 500 мм
[3] => 600 мм
)
[days] => [29,31,34,39]
[material_price] => [3000,4000,4500,4937]
[work_price] => [5033,5805,6400,8710]
[image] => https://akademik-stroy.ru/wp-content/uploads/materials/penoblok.jpg
[area_modifier] => 50.02
[parent_name] => Стены 1 этаж (несущие)
[parent_id] => 3
[material_sum] => 306122
[work_sum] => 427976
[total_sum] => 734098
[total_days] => 29
[display_material_sum] => 306 122
[display_work_sum] => 427 976
[display_total_sum] => 734 098
)
1
734 098₽
Работа:427 976 ₽
Материалы:306 122 ₽
Дни:29
stdClass Object
(
[id] => 79
[attribute_id] => 3
[name] => Керамический блок
[material_modifier] => 1
[work_modifier] => 1
[options] => Array
(
[0] => 380 мм
[1] => 380 мм Thermo
[2] => 440 мм
[3] => 510 мм
)
[days] => [23,23,24,25]
[material_price] => [4510,5098,6093,8013]
[work_price] => [4737,4937,5903,6958]
[image] => https://akademik-stroy.ru/wp-content/uploads/materials/keramicheskij-blok.jpg
[area_modifier] => 50.02
[parent_name] => Стены 1 этаж (несущие)
[parent_id] => 3
[material_sum] => 460204
[work_sum] => 402806
[total_sum] => 863010
[total_days] => 23
[display_material_sum] => 460 204
[display_work_sum] => 402 806
[display_total_sum] => 863 010
)
1
863 010₽
Работа:402 806 ₽
Материалы:460 204 ₽
Дни:23
stdClass Object
(
[id] => 80
[attribute_id] => 3
[name] => Кирпич
[material_modifier] => 1
[work_modifier] => 1
[options] => Array
(
[0] => Кирпич 250 мм
[1] => Кирпич 380 мм
[2] => Кирпич 510 мм
[3] => Кирпич 640 мм
[4] => Кирпич 770 мм
)
[days] => [30,30,31,33,36]
[material_price] => [5500,7142,9206,10171,12235]
[work_price] => [8736,10041,12018,15240,18462]
[image] => https://akademik-stroy.ru/wp-content/uploads/materials/kirpich.jpg
[area_modifier] => 50.02
[parent_name] => Стены 1 этаж (несущие)
[parent_id] => 3
[material_sum] => 561224
[work_sum] => 742857
[total_sum] => 1304081
[total_days] => 30
[display_material_sum] => 561 224
[display_work_sum] => 742 857
[display_total_sum] => 1 304 081
)
1
1 304 081₽
Работа:742 857 ₽
Материалы:561 224 ₽
Дни:30
stdClass Object
(
[id] => 81
[attribute_id] => 3
[name] => Монолитные
[material_modifier] => 1
[work_modifier] => 1
[options] => Array
(
[0] => 150 мм
[1] => 200 мм
[2] => 250 мм
[3] => 300 мм
[4] => 350 мм
[5] => 400 мм
)
[days] => [45,46,47,49,50,53]
[material_price] => [6545,7876,10175,12011,13908,15204]
[work_price] => [5106,6444,7698,8552,9807,11461]
[image] => https://akademik-stroy.ru/wp-content/uploads/materials/monolitnye.jpg
[area_modifier] => 50.02
[parent_name] => Стены 1 этаж (несущие)
[parent_id] => 3
[material_sum] => 667857
[work_sum] => 434184
[total_sum] => 1102041
[total_days] => 45
[display_material_sum] => 667 857
[display_work_sum] => 434 184
[display_total_sum] => 1 102 041
)
1
1 102 041₽
Работа:434 184 ₽
Материалы:667 857 ₽
Дни:45
stdClass Object
(
[id] => 82
[attribute_id] => 3
[name] => Клееный брус
[material_modifier] => 1
[work_modifier] => 1
[options] => Array
(
[0] => 160 мм
[1] => 175 мм
[2] => 200 мм
[3] => 215 мм
[4] => 240 мм
[5] => 270 мм
[6] => 282 мм
)
[days] => [24,28,32,37,40,42,48]
[material_price] => [16975,18773,19950,20545,21599,22159,23275]
[work_price] => [4806,5287,5815,6397,7036,7740,8514]
[image] => https://akademik-stroy.ru/wp-content/uploads/materials/kleenyj-brus.jpg
[area_modifier] => 50.02
[parent_name] => Стены 1 этаж (несущие)
[parent_id] => 3
[material_sum] => 1732143
[work_sum] => 408673
[total_sum] => 2140816
[total_days] => 24
[display_material_sum] => 1 732 143
[display_work_sum] => 408 673
[display_total_sum] => 2 140 816
)
1
2 140 816₽
Работа:408 673 ₽
Материалы:1 732 143 ₽
Дни:24
stdClass Object
(
[id] => 83
[attribute_id] => 3
[name] => Каркасные
[material_modifier] => 1
[work_modifier] => 1
[options] => Array
(
[0] => 150 мм
[1] => 200 мм
[2] => 250 мм
[3] => 300 мм
)
[days] => [15,16,17,18]
[material_price] => [2379,2639,2898,3258]
[work_price] => [2418,2686,2985,3716]
[image] => https://akademik-stroy.ru/wp-content/uploads/materials/karkasnye.jpg
[area_modifier] => 50.02
[parent_name] => Стены 1 этаж (несущие)
[parent_id] => 3
[material_sum] => 242755
[work_sum] => 205612
[total_sum] => 448367
[total_days] => 15
[display_material_sum] => 242 755
[display_work_sum] => 205 612
[display_total_sum] => 448 367
)
1
448 367₽
Работа:205 612 ₽
Материалы:242 755 ₽
Дни:15
stdClass Object
(
[id] => 84
[attribute_id] => 3
[name] => СИП-панели
[material_modifier] => 1
[work_modifier] => 1
[options] => Array
(
[0] => 120 мм
[1] => 170 мм
[2] => 220 мм
)
[days] => [7,7,7]
[material_price] => [1210,1856,2292]
[work_price] => [1410,1551,1706]
[image] => https://akademik-stroy.ru/wp-content/uploads/materials/sip-paneli.jpg
[area_modifier] => 50.02
[parent_name] => Стены 1 этаж (несущие)
[parent_id] => 3
[material_sum] => 123469
[work_sum] => 119898
[total_sum] => 243367
[total_days] => 7
[display_material_sum] => 123 469
[display_work_sum] => 119 898
[display_total_sum] => 243 367
)
1
243 367₽
Работа:119 898 ₽
Материалы:123 469 ₽
Дни:7
stdClass Object
(
[id] => 85
[attribute_id] => 3
[name] => Сухой брус
[material_modifier] => 1
[work_modifier] => 1
[options] => Array
(
[0] => 150 мм
[1] => 180 мм
[2] => 200 мм
)
[days] => [7,8,9]
[material_price] => [6010,7190,8709]
[work_price] => [3204,3845,4229]
[image] => https://akademik-stroy.ru/wp-content/uploads/materials/suhoj-brus.jpg
[area_modifier] => 50.02
[parent_name] => Стены 1 этаж (несущие)
[parent_id] => 3
[material_sum] => 613265
[work_sum] => 272449
[total_sum] => 885714
[total_days] => 7
[display_material_sum] => 613 265
[display_work_sum] => 272 449
[display_total_sum] => 885 714
)
1
885 714₽
Работа:272 449 ₽
Материалы:613 265 ₽
Дни:7
stdClass Object
(
[id] => 86
[attribute_id] => 3
[name] => Профилированный брус
[material_modifier] => 1
[work_modifier] => 1
[options] => Array
(
[0] => 150 мм
[1] => 180 мм
[2] => 200 мм
)
[days] => [7,8,9]
[material_price] => [8190,9228,10051]
[work_price] => [3845,4614,5075]
[image] => https://akademik-stroy.ru/wp-content/uploads/materials/profilirovannyj-brus.jpg
[area_modifier] => 50.02
[parent_name] => Стены 1 этаж (несущие)
[parent_id] => 3
[material_sum] => 835714
[work_sum] => 326956
[total_sum] => 1162670
[total_days] => 7
[display_material_sum] => 835 714
[display_work_sum] => 326 956
[display_total_sum] => 1 162 670
)
1
1 162 670₽
Работа:326 956 ₽
Материалы:835 714 ₽
Дни:7
stdClass Object
(
[id] => 87
[attribute_id] => 3
[name] => Оцилиндрованное бревно
[material_modifier] => 1
[work_modifier] => 1
[options] => Array
(
[0] => 180 мм
[1] => 220 мм
[2] => 260 мм
[3] => 320 мм
)
[days] => [7,8,9,10]
[material_price] => [75190,9532,10868,13116]
[work_price] => [3845,4691,5535,6863]
[image] => https://akademik-stroy.ru/wp-content/uploads/materials/ocilindrovannoe-brevno-1.jpg
[area_modifier] => 50.02
[parent_name] => Стены 1 этаж (несущие)
[parent_id] => 3
[material_sum] => 7672448
[work_sum] => 326956
[total_sum] => 7999404
[total_days] => 7
[display_material_sum] => 7 672 448
[display_work_sum] => 326 956
[display_total_sum] => 7 999 404
)
1
7 999 404₽
Работа:326 956 ₽
Материалы:7 672 448 ₽
Дни:7
stdClass Object
(
[id] => 88
[attribute_id] => 3
[name] => Срубы
[material_modifier] => 1
[work_modifier] => 1
[options] => Array
(
[0] => 260 мм
[1] => 320 мм
[2] => 360 мм
[3] => 400 мм
[4] => 500 мм
)
[days] => [7,8,9,10,11]
[material_price] => [37975,46709,52314,58069,73167]
[work_price] => [4806,5911,6621,7349,9260]
[image] => https://akademik-stroy.ru/wp-content/uploads/materials/sruby.jpg
[area_modifier] => 50.02
[parent_name] => Стены 1 этаж (несущие)
[parent_id] => 3
[material_sum] => 3874999
[work_sum] => 408673
[total_sum] => 4283672
[total_days] => 7
[display_material_sum] => 3 874 999
[display_work_sum] => 408 673
[display_total_sum] => 4 283 672
)
1
4 283 672₽
Работа:408 673 ₽
Материалы:3 874 999 ₽
Дни:7
stdClass Object
(
[id] => 174
[attribute_id] => 3
[name] => Брус
[material_modifier] => 1
[work_modifier] => 1
[options] => Array
(
[0] => 150 мм
[1] => 180 мм
[2] => 200 мм
)
[days] => [7,8,9]
[material_price] => [5127,6152,7367]
[work_price] => [1602,1922,2115]
[image] => https://akademik-stroy.ru/wp-content/uploads/materials/brus.jpg
[area_modifier] => 50.02
[parent_name] => Стены 1 этаж (несущие)
[parent_id] => 3
[material_sum] => 523163
[work_sum] => 136224
[total_sum] => 659387
[total_days] => 7
[display_material_sum] => 523 163
[display_work_sum] => 136 224
[display_total_sum] => 659 387
)
1
659 387₽
Работа:136 224 ₽
Материалы:523 163 ₽
Дни:7
stdClass Object
(
[id] => 175
[attribute_id] => 3
[name] => Газобетон
[material_modifier] => 1
[work_modifier] => 1
[options] => Array
(
[0] => 300 мм
[1] => 375 мм
[2] => 400 мм
[3] => 500 мм
[4] => 600 мм
)
[days] => [29,31,35,37,44]
[material_price] => [4298,5573,6356,7288,9119]
[work_price] => [4538,5251,5926,6733,7195]
[image] => https://akademik-stroy.ru/wp-content/uploads/materials/gazobeton.jpg
[area_modifier] => 50.02
[parent_name] => Стены 1 этаж (несущие)
[parent_id] => 3
[material_sum] => 438571
[work_sum] => 385884
[total_sum] => 824455
[total_days] => 29
[display_material_sum] => 438 571
[display_work_sum] => 385 884
[display_total_sum] => 824 455
)
1
824 455₽
Работа:385 884 ₽
Материалы:438 571 ₽
Дни:29
stdClass Object
(
[id] => 176
[attribute_id] => 3
[name] => Блок
[material_modifier] => 1
[work_modifier] => 1
[options] => Array
(
[0] => 300 мм
[1] => 375 мм
[2] => 400 мм
[3] => 500 мм
[4] => 600 мм
)
[days] => [29,31,35,37,44]
[material_price] => [2698,3973,4356,6588,7119]
[work_price] => [5038,5851,6426,8733,9195]
[image] => https://akademik-stroy.ru/wp-content/uploads/materials/blok.jpg
[area_modifier] => 50.02
[parent_name] => Стены 1 этаж (несущие)
[parent_id] => 3
[material_sum] => 275306
[work_sum] => 428401
[total_sum] => 703707
[total_days] => 29
[display_material_sum] => 275 306
[display_work_sum] => 428 401
[display_total_sum] => 703 707
)
1
703 707₽
Работа:428 401 ₽
Материалы:275 306 ₽
Дни:29
stdClass Object
(
[id] => 177
[attribute_id] => 3
[name] => Газосиликатный блок
[material_modifier] => 1
[work_modifier] => 1
[options] => Array
(
[0] => 300 мм
[1] => 375 мм
[2] => 400 мм
[3] => 500 мм
[4] => 600 мм
)
[days] => [29,31,35,37,44]
[material_price] => [4298,5573,6356,7288,9119]
[work_price] => [4538,5251,5926,6733,7195]
[image] => https://akademik-stroy.ru/wp-content/uploads/materials/gazosilikatnyj-blok.jpg
[area_modifier] => 50.02
[parent_name] => Стены 1 этаж (несущие)
[parent_id] => 3
[material_sum] => 438571
[work_sum] => 385884
[total_sum] => 824455
[total_days] => 29
[display_material_sum] => 438 571
[display_work_sum] => 385 884
[display_total_sum] => 824 455
)
1
824 455₽
Работа:385 884 ₽
Материалы:438 571 ₽
Дни:29
stdClass Object
(
[id] => 178
[attribute_id] => 3
[name] => Керамзитобетонный блок
[material_modifier] => 1
[work_modifier] => 1
[options] => Array
(
[0] => 300 мм
[1] => 375 мм
[2] => 400 мм
[3] => 500 мм
[4] => 600 мм
)
[days] => [23,23,24,25,28]
[material_price] => [3641,4298,5693,7613,9612]
[work_price] => [5737,5737,6903,7958,8901]
[image] => https://akademik-stroy.ru/wp-content/uploads/materials/keramzitobetonnyj-blok.jpg
[area_modifier] => 50.02
[parent_name] => Стены 1 этаж (несущие)
[parent_id] => 3
[material_sum] => 371531
[work_sum] => 487840
[total_sum] => 859371
[total_days] => 23
[display_material_sum] => 371 531
[display_work_sum] => 487 840
[display_total_sum] => 859 371
)
1
859 371₽
Работа:487 840 ₽
Материалы:371 531 ₽
Дни:23
stdClass Object
(
[id] => 179
[attribute_id] => 3
[name] => Деревянные
[material_modifier] => 1
[work_modifier] => 1
[options] => Array
(
[0] => 180 мм
[1] => 220 мм
[2] => 260 мм
[3] => 320 мм
)
[days] => [7,8,9,10]
[material_price] => [7950,9458,11961,14472]
[work_price] => [4037,4925,5812,7207]
[image] => https://akademik-stroy.ru/wp-content/uploads/materials/derevyannye.jpg
[area_modifier] => 50.02
[parent_name] => Стены 1 этаж (несущие)
[parent_id] => 3
[material_sum] => 811224
[work_sum] => 343282
[total_sum] => 1154506
[total_days] => 7
[display_material_sum] => 811 224
[display_work_sum] => 343 282
[display_total_sum] => 1 154 506
)
1
1 154 506₽
Работа:343 282 ₽
Материалы:811 224 ₽
Дни:7
stdClass Object
(
[id] => 181
[attribute_id] => 3
[name] => Камень
[material_modifier] => 1
[work_modifier] => 1
[options] => Array
(
[0] => 300 мм
[1] => 400 мм
[2] => 500 мм
[3] => 600 мм
)
[days] => [25,27,31,34]
[material_price] => [5262,6844,8330,9815]
[work_price] => [8331,9135,10427,11069]
[image] => https://akademik-stroy.ru/wp-content/uploads/materials/kamen.jpg
[area_modifier] => 50.02
[parent_name] => Стены 1 этаж (несущие)
[parent_id] => 3
[material_sum] => 536939
[work_sum] => 708418
[total_sum] => 1245357
[total_days] => 25
[display_material_sum] => 536 939
[display_work_sum] => 708 418
[display_total_sum] => 1 245 357
)
1
1 245 357₽
Работа:708 418 ₽
Материалы:536 939 ₽
Дни:25
stdClass Object
(
[id] => 182
[attribute_id] => 3
[name] => Каркасно-щитовые
[material_modifier] => 1
[work_modifier] => 1
[options] => Array
(
[0] => 150 мм
[1] => 200 мм
[2] => 250 мм
[3] => 300 мм
[4] => 350 мм
[5] => 400 мм
)
[days] => [15,16,17,18,19,20]
[material_price] => [2379,2639,2898,3458,3601,4175]
[work_price] => [2538,2820,3134,3483,4062,5642]
[image] => https://akademik-stroy.ru/wp-content/uploads/materials/karkasno-shchitovye.jpg
[area_modifier] => 50.02
[parent_name] => Стены 1 этаж (несущие)
[parent_id] => 3
[material_sum] => 242755
[work_sum] => 215816
[total_sum] => 458571
[total_days] => 15
[display_material_sum] => 242 755
[display_work_sum] => 215 816
[display_total_sum] => 458 571
)
1
458 571₽
Работа:215 816 ₽
Материалы:242 755 ₽
Дни:15
stdClass Object
(
[id] => 183
[attribute_id] => 3
[name] => Рубленные
[material_modifier] => 1
[work_modifier] => 1
[options] => Array
(
[0] => 150 мм
[1] => 200 мм
[2] => 250 мм
[3] => 300 мм
[4] => 350 мм
[5] => 400 мм
)
[days] => [15,16,17,18,17,18]
[material_price] => [35950,50267,60583,75900,80217,100533]
[work_price] => [9612,12816,16020,19224,22428,25632]
[image] => https://akademik-stroy.ru/wp-content/uploads/materials/rublennye.jpg
[area_modifier] => 50.02
[parent_name] => Стены 1 этаж (несущие)
[parent_id] => 3
[material_sum] => 3668367
[work_sum] => 817347
[total_sum] => 4485714
[total_days] => 15
[display_material_sum] => 3 668 367
[display_work_sum] => 817 347
[display_total_sum] => 4 485 714
)
1
4 485 714₽
Работа:817 347 ₽
Материалы:3 668 367 ₽
Дни:15
stdClass Object
(
[id] => 185
[attribute_id] => 3
[name] => Теплоблок
[material_modifier] => 1
[work_modifier] => 1
[options] => Array
(
[0] => 300 мм (с облицовкой, не покрашенный)
[1] => 400 мм (с облицовкой, не покрашенный)
[2] => 300 мм (с облицовкой, покрашенный)
[3] => 400 мм (с облицовкой, покрашенный)
)
[days] => [15,16,15,16]
[material_price] => [2888,3729,3957,4258]
[work_price] => [2564,3229,2949,3713]
[image] => https://akademik-stroy.ru/wp-content/uploads/materials/teploblok.jpg
[area_modifier] => 50.02
[parent_name] => Стены 1 этаж (несущие)
[parent_id] => 3
[material_sum] => 294694
[work_sum] => 218027
[total_sum] => 512721
[total_days] => 15
[display_material_sum] => 294 694
[display_work_sum] => 218 027
[display_total_sum] => 512 721
)
1
512 721₽
Работа:218 027 ₽
Материалы:294 694 ₽
Дни:15
stdClass Object
(
[id] => 186
[attribute_id] => 3
[name] => Арболитовые блоки
[material_modifier] => 1
[work_modifier] => 1
[options] => Array
(
[0] => 300 мм
[1] => 400 мм
[2] => 600 мм
)
[days] => [19,22,27]
[material_price] => [3210,4475,5852]
[work_price] => [4214,4788,5866]
[image] => https://akademik-stroy.ru/wp-content/uploads/materials/arbolitovye-bloki.png
[area_modifier] => 50.02
[parent_name] => Стены 1 этаж (несущие)
[parent_id] => 3
[material_sum] => 327551
[work_sum] => 358333
[total_sum] => 685884
[total_days] => 19
[display_material_sum] => 327 551
[display_work_sum] => 358 333
[display_total_sum] => 685 884
)
1
685 884₽
Работа:358 333 ₽
Материалы:327 551 ₽
Дни:19
stdClass Object
(
[id] => 187
[attribute_id] => 3
[name] => Полистиролбетон
[material_modifier] => 1
[work_modifier] => 1
[options] => Array
(
[0] => 300 мм
[1] => 400 мм
[2] => 600 мм
)
[days] => [29,31,35]
[material_price] => [2798,4573,5256]
[work_price] => [5038,5851,6426]
[image] => https://akademik-stroy.ru/wp-content/uploads/materials/polistirolbeton.jpg
[area_modifier] => 50.02
[parent_name] => Стены 1 этаж (несущие)
[parent_id] => 3
[material_sum] => 285510
[work_sum] => 428401
[total_sum] => 713911
[total_days] => 29
[display_material_sum] => 285 510
[display_work_sum] => 428 401
[display_total_sum] => 713 911
)
1
713 911₽
Работа:428 401 ₽
Материалы:285 510 ₽
Дни:29
stdClass Object
(
[id] => 188
[attribute_id] => 3
[name] => Шлакоблок
[material_modifier] => 1
[work_modifier] => 1
[options] => Array
(
[0] => 400 мм
[1] => 600 мм
)
[days] => [15,16]
[material_price] => [2391,3471]
[work_price] => [2642,3662]
[image] => https://akademik-stroy.ru/wp-content/uploads/materials/shlakoblok.jpg
[area_modifier] => 50.02
[parent_name] => Стены 1 этаж (несущие)
[parent_id] => 3
[material_sum] => 243980
[work_sum] => 224660
[total_sum] => 468640
[total_days] => 15
[display_material_sum] => 243 980
[display_work_sum] => 224 660
[display_total_sum] => 468 640
)
1
468 640₽
Работа:224 660 ₽
Материалы:243 980 ₽
Дни:15
stdClass Object
(
[id] => 189
[attribute_id] => 3
[name] => Теплая керамика
[material_modifier] => 1
[work_modifier] => 1
[options] => Array
(
[0] => 380 мм
[1] => 380 мм Thermo
[2] => 440 мм
[3] => 510 мм
)
[days] => [23,23,24,25]
[material_price] => [4510,5098,6093,8013]
[work_price] => [4737,4937,5903,6958]
[image] => https://akademik-stroy.ru/wp-content/uploads/materials/teplaya-keramika.jpg
[area_modifier] => 50.02
[parent_name] => Стены 1 этаж (несущие)
[parent_id] => 3
[material_sum] => 460204
[work_sum] => 402806
[total_sum] => 863010
[total_days] => 23
[display_material_sum] => 460 204
[display_work_sum] => 402 806
[display_total_sum] => 863 010
)
1
863 010₽
Работа:402 806 ₽
Материалы:460 204 ₽
Дни:23
stdClass Object
(
[id] => 190
[attribute_id] => 3
[name] => Несъемная опалубка
[material_modifier] => 1
[work_modifier] => 1
[options] => Array
(
[0] => 200 мм
[1] => 250 мм
[2] => 300 мм
[3] => 350 мм
)
[days] => [15,17,19,21]
[material_price] => [3302,3902,4108,5008]
[work_price] => [2100,2100,2300,2534]
[image] => https://akademik-stroy.ru/wp-content/uploads/materials/nesemnaya-opalubka.jpg
[area_modifier] => 50.02
[parent_name] => Стены 1 этаж (несущие)
[parent_id] => 3
[material_sum] => 336939
[work_sum] => 178571
[total_sum] => 515510
[total_days] => 15
[display_material_sum] => 336 939
[display_work_sum] => 178 571
[display_total_sum] => 515 510
)
1
515 510₽
Работа:178 571 ₽
Материалы:336 939 ₽
Дни:15
stdClass Object
(
[id] => 251
[attribute_id] => 3
[name] => Бревно
[material_modifier] => 1
[work_modifier] => 1
[options] => Array
(
[0] => 260 мм
[1] => 320 мм
[2] => 360 мм
[3] => 400 мм
[4] => 500 мм
)
[days] => [7,8,9,10,11]
[material_price] => [1874,24045,26930,30972,38825]
[work_price] => [5046,6207,6952,7716,9723]
[image] => https://akademik-stroy.ru/wp-content/uploads/materials/sruby.jpg
[area_modifier] => 50.02
[parent_name] => Стены 1 этаж (несущие)
[parent_id] => 3
[material_sum] => 191224
[work_sum] => 429082
[total_sum] => 620306
[total_days] => 7
[display_material_sum] => 191 224
[display_work_sum] => 429 082
[display_total_sum] => 620 306
)
1
620 306₽
Работа:429 082 ₽
Материалы:191 224 ₽
Дни:7
stdClass Object
(
[id] => 7
[attribute_id] => 4
[name] => Деревянные балки
[material_modifier] => 1
[work_modifier] => 1
[options] => Array
(
[0] => без утепления
[1] => утепление 200 мм
[2] => утепление 250 мм
[3] => утепление 300 мм
[4] => утепление 350 мм
[5] => утепление 400 мм
[6] => утепление 450 мм
[7] => утепление 500 мм
)
[days] => [8,9,9,9,11,12,13,14]
[material_price] => [1634,2042,2344,2947,3149,3652,3354,3557]
[work_price] => [1230,1339,1393,1426,1460,1513,1587,1620]
[image] => https://akademik-stroy.ru/wp-content/uploads/materials/derevyannye-balki.png
[area_modifier] => 50.02
[parent_name] => Перекрытие первого этажа
[parent_id] => 4
[material_sum] => 166735
[work_sum] => 104592
[total_sum] => 271327
[total_days] => 8
[display_material_sum] => 166 735
[display_work_sum] => 104 592
[display_total_sum] => 271 327
)
1
271 327₽
Работа:104 592 ₽
Материалы:166 735 ₽
Дни:8
stdClass Object
(
[id] => 8
[attribute_id] => 4
[name] => Сборные ж/б плиты
[material_modifier] => 1
[work_modifier] => 1
[options] => Array
(
[0] => без утепления
[1] => утепление 150 мм
[2] => утепление 200 мм
[3] => утепление 250 мм
[4] => утепление 300 мм
[5] => утепление 350 мм
[6] => утепление 400 мм
[7] => утепление 450 мм
[8] => утепление 500 мм
)
[days] => [13,15,15,15,15,15,15,15,15]
[material_price] => [3067,5577,5928,6679,7730,8782,9833,10884,11935]
[work_price] => [1520,1956,2102,2247,2392,2537,2684,2829,2974]
[image] => https://akademik-stroy.ru/wp-content/uploads/materials/sbornye-zh-b-plity-2.jpg
[area_modifier] => 50.02
[parent_name] => Перекрытие первого этажа
[parent_id] => 4
[material_sum] => 312959
[work_sum] => 129252
[total_sum] => 442211
[total_days] => 13
[display_material_sum] => 312 959
[display_work_sum] => 129 252
[display_total_sum] => 442 211
)
1
442 211₽
Работа:129 252 ₽
Материалы:312 959 ₽
Дни:13
stdClass Object
(
[id] => 89
[attribute_id] => 4
[name] => Монолитная ж/б плита
[material_modifier] => 1
[work_modifier] => 1
[options] => Array
(
[0] => без утепления
[1] => утепление 150 мм
[2] => утепление 200 мм
[3] => утепление 250 мм
[4] => утепление 300 мм
[5] => утепление 350 мм
[6] => утепление 400 мм
[7] => утепление 450 мм
[8] => утепление 500 мм
)
[days] => [18,20,20,20,20,20,20,20,20]
[material_price] => [4837,6572,7224,7375,79426,8177,8728,9180,10031]
[work_price] => [3348,3921,4112,4302,4493,4684,4875,5066,5256]
[image] => https://akademik-stroy.ru/wp-content/uploads/materials/monolitnaya-zh-b-plita-2.jpg
[area_modifier] => 50.02
[parent_name] => Перекрытие первого этажа
[parent_id] => 4
[material_sum] => 493571
[work_sum] => 284694
[total_sum] => 778265
[total_days] => 18
[display_material_sum] => 493 571
[display_work_sum] => 284 694
[display_total_sum] => 778 265
)
1
778 265₽
Работа:284 694 ₽
Материалы:493 571 ₽
Дни:18
stdClass Object
(
[id] => 164
[attribute_id] => 37
[name] => Металлочерепица
[material_modifier] => 1
[work_modifier] => 1
[options] => Array
(
)
[days] => [20]
[material_price] => [6112]
[work_price] => [5726]
[image] => https://akademik-stroy.ru/wp-content/uploads/materials/metallocherepica.jpg
[area_modifier] => 50.02
[parent_name] => Крыша (Скатная)
[parent_id] => 37
[material_sum] => 623673
[work_sum] => 486905
[total_sum] => 1110578
[total_days] => 20
[display_material_sum] => 623 673
[display_work_sum] => 486 905
[display_total_sum] => 1 110 578
)
1
1 110 578₽
Работа:486 905 ₽
Материалы:623 673 ₽
Дни:20
stdClass Object
(
[id] => 165
[attribute_id] => 37
[name] => Гибкая черепица
[material_modifier] => 1
[work_modifier] => 1
[options] => Array
(
)
[days] => [20]
[material_price] => [6980]
[work_price] => [5950]
[image] => https://akademik-stroy.ru/wp-content/uploads/materials/gibkaya-cherepica.jpg
[area_modifier] => 50.02
[parent_name] => Крыша (Скатная)
[parent_id] => 37
[material_sum] => 712245
[work_sum] => 505952
[total_sum] => 1218197
[total_days] => 20
[display_material_sum] => 712 245
[display_work_sum] => 505 952
[display_total_sum] => 1 218 197
)
1
1 218 197₽
Работа:505 952 ₽
Материалы:712 245 ₽
Дни:20
stdClass Object
(
[id] => 166
[attribute_id] => 37
[name] => Цементно-песчаная черепица
[material_modifier] => 1
[work_modifier] => 1
[options] => Array
(
)
[days] => [20]
[material_price] => [10560]
[work_price] => [9456]
[image] => https://akademik-stroy.ru/wp-content/uploads/materials/cementno-peschanaya-cherepica.jpg
[area_modifier] => 50.02
[parent_name] => Крыша (Скатная)
[parent_id] => 37
[material_sum] => 1077551
[work_sum] => 804082
[total_sum] => 1881633
[total_days] => 20
[display_material_sum] => 1 077 551
[display_work_sum] => 804 082
[display_total_sum] => 1 881 633
)
1
1 881 633₽
Работа:804 082 ₽
Материалы:1 077 551 ₽
Дни:20
stdClass Object
(
[id] => 167
[attribute_id] => 37
[name] => Композитная черепица
[material_modifier] => 1
[work_modifier] => 1
[options] => Array
(
)
[days] => [20]
[material_price] => [9506]
[work_price] => [8905]
[image] => https://akademik-stroy.ru/wp-content/uploads/materials/kompozitnaya-cherepica.jpg
[area_modifier] => 50.02
[parent_name] => Крыша (Скатная)
[parent_id] => 37
[material_sum] => 970000
[work_sum] => 757228
[total_sum] => 1727228
[total_days] => 20
[display_material_sum] => 970 000
[display_work_sum] => 757 228
[display_total_sum] => 1 727 228
)
1
1 727 228₽
Работа:757 228 ₽
Материалы:970 000 ₽
Дни:20
stdClass Object
(
[id] => 168
[attribute_id] => 37
[name] => Керамическая черепица
[material_modifier] => 1
[work_modifier] => 1
[options] => Array
(
)
[days] => [20]
[material_price] => [12750]
[work_price] => [9456]
[image] => https://akademik-stroy.ru/wp-content/uploads/materials/keramicheskaya-cherepica.jpg
[area_modifier] => 50.02
[parent_name] => Крыша (Скатная)
[parent_id] => 37
[material_sum] => 1301020
[work_sum] => 804082
[total_sum] => 2105102
[total_days] => 20
[display_material_sum] => 1 301 020
[display_work_sum] => 804 082
[display_total_sum] => 2 105 102
)
1
2 105 102₽
Работа:804 082 ₽
Материалы:1 301 020 ₽
Дни:20
stdClass Object
(
[id] => 169
[attribute_id] => 37
[name] => Металлическая фальцевая
[material_modifier] => 1
[work_modifier] => 1
[options] => Array
(
)
[days] => [20]
[material_price] => [8550]
[work_price] => [8190]
[image] => https://akademik-stroy.ru/wp-content/uploads/materials/metallicheskaya-falcevaya.jpg
[area_modifier] => 50.02
[parent_name] => Крыша (Скатная)
[parent_id] => 37
[material_sum] => 872449
[work_sum] => 696428
[total_sum] => 1568877
[total_days] => 20
[display_material_sum] => 872 449
[display_work_sum] => 696 428
[display_total_sum] => 1 568 877
)
1
1 568 877₽
Работа:696 428 ₽
Материалы:872 449 ₽
Дни:20
stdClass Object
(
[id] => 170
[attribute_id] => 37
[name] => Медная фальцевая
[material_modifier] => 1
[work_modifier] => 1
[options] => Array
(
)
[days] => [20]
[material_price] => [20450]
[work_price] => [16750]
[image] => https://akademik-stroy.ru/wp-content/uploads/materials/mednaya-falcevaya.jpg
[area_modifier] => 50.02
[parent_name] => Крыша (Скатная)
[parent_id] => 37
[material_sum] => 2086734
[work_sum] => 1424320
[total_sum] => 3511054
[total_days] => 20
[display_material_sum] => 2 086 734
[display_work_sum] => 1 424 320
[display_total_sum] => 3 511 054
)
1
3 511 054₽
Работа:1 424 320 ₽
Материалы:2 086 734 ₽
Дни:20
stdClass Object
(
[id] => 171
[attribute_id] => 37
[name] => Зеленая кровля
[material_modifier] => 1
[work_modifier] => 1
[options] => Array
(
)
[days] => [20]
[material_price] => [19850]
[work_price] => [16780]
[image] => https://akademik-stroy.ru/wp-content/uploads/materials/zelenaya-krovlya.jpg
[area_modifier] => 50.02
[parent_name] => Крыша (Скатная)
[parent_id] => 37
[material_sum] => 2025510
[work_sum] => 1426871
[total_sum] => 3452381
[total_days] => 20
[display_material_sum] => 2 025 510
[display_work_sum] => 1 426 871
[display_total_sum] => 3 452 381
)
1
3 452 381₽
Работа:1 426 871 ₽
Материалы:2 025 510 ₽
Дни:20
stdClass Object
(
[id] => 172
[attribute_id] => 37
[name] => Профлист
[material_modifier] => 1
[work_modifier] => 1
[options] => Array
(
)
[days] => [20]
[material_price] => [3450]
[work_price] => [3750]
[image] => https://akademik-stroy.ru/wp-content/uploads/materials/proflist.jpg
[area_modifier] => 50.02
[parent_name] => Крыша (Скатная)
[parent_id] => 37
[material_sum] => 352041
[work_sum] => 318878
[total_sum] => 670919
[total_days] => 20
[display_material_sum] => 352 041
[display_work_sum] => 318 878
[display_total_sum] => 670 919
)
1
670 919₽
Работа:318 878 ₽
Материалы:352 041 ₽
Дни:20
stdClass Object
(
[id] => 51
[attribute_id] => 26
[name] => Есть
[material_modifier] => 1
[work_modifier] => 1
[options] => Array
(
[0] => Профиль 58 мм, 3-камерный, стеклопакет 2-камерный до 32 мм
[1] => Профиль 60 мм, 4-камерный, стеклопакет 2-камерный до 32 мм
[2] => Профиль 70 мм, 5-камерный, стеклопакет 2-камерный до 40 мм
[3] => Профиль 72 мм, 5-камерный, стеклопакет 2-камерный до 40 мм
[4] => Алюминиевые окна Alutech профиль 72 мм, стеклопакет 2-камерный
)
[days] => [3,3,3,3,3]
[material_price] => [1339,2124,2867,3023,29596]
[work_price] => [635,647,659,668,2579]
[image] => https://akademik-stroy.ru/wp-content/uploads/materials/okna.jpg
[area_modifier] => 40.59
[parent_name] => Окна
[parent_id] => 26
[material_sum] => 110874
[work_sum] => 43817
[total_sum] => 154691
[total_days] => 3
[display_material_sum] => 110 874
[display_work_sum] => 43 817
[display_total_sum] => 154 691
)
1
154 691₽
Работа:43 817 ₽
Материалы:110 874 ₽
Дни:3
stdClass Object
(
[id] => 52
[attribute_id] => 26
[name] => Нет
[material_modifier] => 2
[work_modifier] => 1
[options] =>
[days] => null
[material_price] => null
[work_price] => null
[image] => https://akademik-stroy.ru/wp-content/uploads/materials/okna.jpg
[area_modifier] => 40.59
[parent_name] => Окна
[parent_id] => 26
[material_sum] => 0
[work_sum] => 0
[total_sum] => 0
[total_days] => 0
[display_material_sum] => 0
[display_work_sum] => 0
[display_total_sum] => 0
)
1
0₽
Работа:0 ₽
Материалы:0 ₽
Дни:0
stdClass Object
(
[id] => 53
[attribute_id] => 27
[name] => Есть
[material_modifier] => 1
[work_modifier] => 1
[options] => Array
(
)
[days] => [1]
[material_price] => [10000]
[work_price] => [5500]
[image] => https://akademik-stroy.ru/wp-content/uploads/materials/dveri.jpg
[area_modifier] => 1
[parent_name] => Двери входные
[parent_id] => 27
[material_sum] => 20400
[work_sum] => 9350
[total_sum] => 29750
[total_days] => 1
[display_material_sum] => 20 400
[display_work_sum] => 9 350
[display_total_sum] => 29 750
)
1
29 750₽
Работа:9 350 ₽
Материалы:20 400 ₽
Дни:1
stdClass Object
(
[id] => 54
[attribute_id] => 27
[name] => Нет
[material_modifier] => 1
[work_modifier] => 1
[options] => Array
(
)
[days] => [0]
[material_price] => [0]
[work_price] => [0]
[image] => https://akademik-stroy.ru/wp-content/uploads/materials/dveri.jpg
[area_modifier] => 1
[parent_name] => Двери входные
[parent_id] => 27
[material_sum] => 0
[work_sum] => 0
[total_sum] => 0
[total_days] => 0
[display_material_sum] => 0
[display_work_sum] => 0
[display_total_sum] => 0
)
1
0₽
Работа:0 ₽
Материалы:0 ₽
Дни:0
stdClass Object
(
[id] => 25
[attribute_id] => 13
[name] => Нет
[material_modifier] => 1
[work_modifier] => 1
[options] => Array
(
)
[days] => [0]
[material_price] => [0]
[work_price] => [0]
[image] => https://akademik-stroy.ru/wp-content/uploads/materials/mineralovata-krov.jpg
[area_modifier] => 50.02
[parent_name] => Утепление кровли (Мансарда)
[parent_id] => 13
[material_sum] => 0
[work_sum] => 0
[total_sum] => 0
[total_days] => 0
[display_material_sum] => 0
[display_work_sum] => 0
[display_total_sum] => 0
)
1
0₽
Работа:0 ₽
Материалы:0 ₽
Дни:0
stdClass Object
(
[id] => 26
[attribute_id] => 13
[name] => Минераловатный
[material_modifier] => 1
[work_modifier] => 1
[options] => Array
(
[0] => 50 мм
[1] => 100 мм
[2] => 150 мм
[3] => 200 мм
[4] => 250 мм
[5] => 300 мм
[6] => 350 мм
[7] => 400 мм
[8] => 450 мм
[9] => 500 мм
)
[days] => [5,5,6,6,6,7,7,7,8,8]
[material_price] => [1158,1414,1772,2230,3602,4060,4974,5890,6408,7718]
[work_price] => [650,846,846,1098,1318,1450,1596,1754,1930,2122]
[image] => https://akademik-stroy.ru/wp-content/uploads/materials/mineralovata-krov.jpg
[area_modifier] => 50.02
[parent_name] => Утепление кровли (Мансарда)
[parent_id] => 13
[material_sum] => 118163
[work_sum] => 55272
[total_sum] => 173435
[total_days] => 5
[display_material_sum] => 118 163
[display_work_sum] => 55 272
[display_total_sum] => 173 435
)
1
173 435₽
Работа:55 272 ₽
Материалы:118 163 ₽
Дни:5
stdClass Object
(
[id] => 123
[attribute_id] => 13
[name] => Эковата (целлюлозная вата)
[material_modifier] => 1
[work_modifier] => 1
[options] => Array
(
[0] => 50 мм
[1] => 100 мм
[2] => 150 мм
[3] => 200 мм
[4] => 250 мм
[5] => 300 мм
[6] => 350 мм
[7] => 400 мм
[8] => 450 мм
[9] => 500 мм
)
[days] => [3,3,4,4,4,5,5,5,5,5]
[material_price] => [820,1638,2458,3276,5734,6552,8190,9828,11466,13104]
[work_price] => [234,304,304,396,474,522,574,632,694,764]
[image] => https://akademik-stroy.ru/wp-content/uploads/materials/ehkovata-krov.jpg
[area_modifier] => 50.02
[parent_name] => Утепление кровли (Мансарда)
[parent_id] => 13
[material_sum] => 83673
[work_sum] => 19898
[total_sum] => 103571
[total_days] => 3
[display_material_sum] => 83 673
[display_work_sum] => 19 898
[display_total_sum] => 103 571
)
1
103 571₽
Работа:19 898 ₽
Материалы:83 673 ₽
Дни:3
stdClass Object
(
[id] => 124
[attribute_id] => 13
[name] => Экструдированный пенополистирол
[material_modifier] => 1
[work_modifier] => 1
[options] => Array
(
[0] => 50 мм
[1] => 100 мм
[2] => 150 мм
[3] => 200 мм
[4] => 250 мм
[5] => 300 мм
[6] => 350 мм
[7] => 400 мм
[8] => 450 мм
[9] => 500 мм
)
[days] => [3,3,4,4,4,5,5,5,5,6]
[material_price] => [1146,2292,3438,4584,8020,9166,11458,13750,16040,18332]
[work_price] => [390,508,508,660,790,870,958,1052,1158,1274]
[image] => https://akademik-stroy.ru/wp-content/uploads/materials/epps-krov.jpg
[area_modifier] => 50.02
[parent_name] => Утепление кровли (Мансарда)
[parent_id] => 13
[material_sum] => 116939
[work_sum] => 33163
[total_sum] => 150102
[total_days] => 3
[display_material_sum] => 116 939
[display_work_sum] => 33 163
[display_total_sum] => 150 102
)
1
150 102₽
Работа:33 163 ₽
Материалы:116 939 ₽
Дни:3
stdClass Object
(
[id] => 125
[attribute_id] => 13
[name] => ПСБ (ППС-пенополистирол)
[material_modifier] => 1
[work_modifier] => 1
[options] => Array
(
[0] => 50 мм
[1] => 100 мм
[2] => 150 мм
[3] => 200 мм
[4] => 250 мм
[5] => 300 мм
[6] => 350 мм
[7] => 400 мм
[8] => 450 мм
[9] => 500 мм
)
[days] => [3,3,4,4,4,5,5,5,5,6]
[material_price] => [476,954,1430,1906,3336,3814,4766,5720,6674,7626]
[work_price] => [390,508,508,660,790,870,958,1052,1158,1274]
[image] => https://akademik-stroy.ru/wp-content/uploads/materials/psb-krov.jpg
[area_modifier] => 50.02
[parent_name] => Утепление кровли (Мансарда)
[parent_id] => 13
[material_sum] => 48571
[work_sum] => 33163
[total_sum] => 81734
[total_days] => 3
[display_material_sum] => 48 571
[display_work_sum] => 33 163
[display_total_sum] => 81 734
)
1
81 734₽
Работа:33 163 ₽
Материалы:48 571 ₽
Дни:3
stdClass Object
(
[id] => 126
[attribute_id] => 13
[name] => ППУ (Пенополиуретан)
[material_modifier] => 1
[work_modifier] => 1
[options] => Array
(
[0] => 50 мм
[1] => 100 мм
[2] => 150 мм
[3] => 200 мм
[4] => 250 мм
[5] => 300 мм
[6] => 350 мм
[7] => 400 мм
[8] => 450 мм
[9] => 500 мм
)
[days] => [2,2,3,3,3,3,4,4,4,4]
[material_price] => [2080,4160,6240,8320,14560,16640,20800,24960,29120,33280]
[work_price] => [234,304,304,396,474,522,574,632,694,764]
[image] => https://akademik-stroy.ru/wp-content/uploads/materials/ppu-krov.jpg
[area_modifier] => 50.02
[parent_name] => Утепление кровли (Мансарда)
[parent_id] => 13
[material_sum] => 212245
[work_sum] => 19898
[total_sum] => 232143
[total_days] => 2
[display_material_sum] => 212 245
[display_work_sum] => 19 898
[display_total_sum] => 232 143
)
1
232 143₽
Работа:19 898 ₽
Материалы:212 245 ₽
Дни:2
stdClass Object
(
[id] => 127
[attribute_id] => 13
[name] => PIR-плиты (пенополиизоцианурат)
[material_modifier] => 1
[work_modifier] => 1
[options] => Array
(
[0] => 50 мм
[1] => 100 мм
[2] => 150 мм
[3] => 200 мм
[4] => 250 мм
[5] => 300 мм
[6] => 350 мм
[7] => 400 мм
[8] => 450 мм
[9] => 500 мм
)
[days] => [3,3,4,4,4,5,5,5,5,6]
[material_price] => [2646,5290,7936,10580,18516,21162,26452,31742,37032,42324]
[work_price] => [390,508,508,660,790,870,958,1052,1158,1274]
[image] => https://akademik-stroy.ru/wp-content/uploads/materials/pir-krov.jpg
[area_modifier] => 50.02
[parent_name] => Утепление кровли (Мансарда)
[parent_id] => 13
[material_sum] => 270000
[work_sum] => 33163
[total_sum] => 303163
[total_days] => 3
[display_material_sum] => 270 000
[display_work_sum] => 33 163
[display_total_sum] => 303 163
)
1
303 163₽
Работа:33 163 ₽
Материалы:270 000 ₽
Дни:3
stdClass Object
(
[id] => 27
[attribute_id] => 14
[name] => Нет
[material_modifier] => 1
[work_modifier] => 1
[options] => Array
(
)
[days] => [0]
[material_price] => [0]
[work_price] => [0]
[image] => https://akademik-stroy.ru/wp-content/uploads/materials/mansardnye-okna-2.jpg
[area_modifier] => 1
[parent_name] => Мансардные окна
[parent_id] => 14
[material_sum] => 0
[work_sum] => 0
[total_sum] => 0
[total_days] => 0
[display_material_sum] => 0
[display_work_sum] => 0
[display_total_sum] => 0
)
1
0₽
Работа:0 ₽
Материалы:0 ₽
Дни:0
stdClass Object
(
[id] => 28
[attribute_id] => 14
[name] => Есть
[material_modifier] => 1
[work_modifier] => 1
[options] => Array
(
[0] => 55x78
[1] => 55x98
)
[days] => [6,7]
[material_price] => [47480,68700]
[work_price] => [17900,19500]
[image] => https://akademik-stroy.ru/wp-content/uploads/materials/mansardnye-okna-2.jpg
[area_modifier] => 1
[parent_name] => Мансардные окна
[parent_id] => 14
[material_sum] => 96859
[work_sum] => 30430
[total_sum] => 127289
[total_days] => 6
[display_material_sum] => 96 859
[display_work_sum] => 30 430
[display_total_sum] => 127 289
)
1
127 289₽
Работа:30 430 ₽
Материалы:96 859 ₽
Дни:6
stdClass Object
(
[id] => 29
[attribute_id] => 15
[name] => Нет
[material_modifier] => 1
[work_modifier] => 1
[options] => Array
(
)
[days] => [0]
[material_price] => [0]
[work_price] => [0]
[image] => https://akademik-stroy.ru/wp-content/uploads/materials/sofit.jpg
[area_modifier] => 50.02
[parent_name] => Подшивка кровли
[parent_id] => 15
[material_sum] => 0
[work_sum] => 0
[total_sum] => 0
[total_days] => 0
[display_material_sum] => 0
[display_work_sum] => 0
[display_total_sum] => 0
)
1
0₽
Работа:0 ₽
Материалы:0 ₽
Дни:0
stdClass Object
(
[id] => 30
[attribute_id] => 15
[name] => Есть
[material_modifier] => 1
[work_modifier] => 1
[options] => Array
(
[0] => Софиты (ПВХ)
[1] => Cedral
[2] => ДПК
[3] => Планкен
)
[days] => [7,10,9,8]
[material_price] => [1803,3213,3025,3150]
[work_price] => [1529,2188,2075,1923]
[image] => https://akademik-stroy.ru/wp-content/uploads/materials/sofit.jpg
[area_modifier] => 50.02
[parent_name] => Подшивка кровли
[parent_id] => 15
[material_sum] => 183980
[work_sum] => 130017
[total_sum] => 313997
[total_days] => 7
[display_material_sum] => 183 980
[display_work_sum] => 130 017
[display_total_sum] => 313 997
)
1
313 997₽
Работа:130 017 ₽
Материалы:183 980 ₽
Дни:7
stdClass Object
(
[id] => 31
[attribute_id] => 16
[name] => Нет
[material_modifier] => 1
[work_modifier] => 1
[options] => Array
(
)
[days] => [0]
[material_price] => [0]
[work_price] => [0]
[image] => https://akademik-stroy.ru/wp-content/uploads/materials/docke-standard-pvh.jpg
[area_modifier] => 50.02
[parent_name] => Водосточная система
[parent_id] => 16
[material_sum] => 0
[work_sum] => 0
[total_sum] => 0
[total_days] => 0
[display_material_sum] => 0
[display_work_sum] => 0
[display_total_sum] => 0
)
1
0₽
Работа:0 ₽
Материалы:0 ₽
Дни:0
stdClass Object
(
[id] => 32
[attribute_id] => 16
[name] => Есть
[material_modifier] => 1
[work_modifier] => 1
[options] => Array
(
[0] => Döcke Standard (ПВХ)
[1] => Металлические Grand Line
)
[days] => [7,7]
[material_price] => [1842,2703]
[work_price] => [1491,1529]
[image] => https://akademik-stroy.ru/wp-content/uploads/materials/docke-standard-pvh.jpg
[area_modifier] => 50.02
[parent_name] => Водосточная система
[parent_id] => 16
[material_sum] => 187959
[work_sum] => 126786
[total_sum] => 314745
[total_days] => 7
[display_material_sum] => 187 959
[display_work_sum] => 126 786
[display_total_sum] => 314 745
)
1
314 745₽
Работа:126 786 ₽
Материалы:187 959 ₽
Дни:7
stdClass Object
(
[id] => 33
[attribute_id] => 17
[name] => Нет
[material_modifier] => 1
[work_modifier] => 1
[options] => Array
(
)
[days] => [0]
[material_price] => [0]
[work_price] => [0]
[image] => https://akademik-stroy.ru/wp-content/uploads/materials/mineralovata.jpg
[area_modifier] => 50.02
[parent_name] => Дополнительное утепление наружных стен
[parent_id] => 17
[material_sum] => 0
[work_sum] => 0
[total_sum] => 0
[total_days] => 0
[display_material_sum] => 0
[display_work_sum] => 0
[display_total_sum] => 0
)
1
0₽
Работа:0 ₽
Материалы:0 ₽
Дни:0
stdClass Object
(
[id] => 34
[attribute_id] => 17
[name] => Минераловатный
[material_modifier] => 1
[work_modifier] => 1
[options] => Array
(
[0] => 50 мм
[1] => 100 мм
[2] => 150 мм
[3] => 200 мм
[4] => 250 мм
[5] => 300 мм
)
[days] => [7,8,10,12,14,15]
[material_price] => [3437,3613,3803,3915,4601,4830]
[work_price] => [2325,2423,2523,2749,2859,3025]
[image] => https://akademik-stroy.ru/wp-content/uploads/materials/mineralovata.jpg
[area_modifier] => 50.02
[parent_name] => Дополнительное утепление наружных стен
[parent_id] => 17
[material_sum] => 350714
[work_sum] => 197704
[total_sum] => 548418
[total_days] => 7
[display_material_sum] => 350 714
[display_work_sum] => 197 704
[display_total_sum] => 548 418
)
1
548 418₽
Работа:197 704 ₽
Материалы:350 714 ₽
Дни:7
stdClass Object
(
[id] => 128
[attribute_id] => 17
[name] => Эковата (целлюлозная вата)
[material_modifier] => 1
[work_modifier] => 1
[options] => Array
(
[0] => 50 мм
[1] => 100 мм
[2] => 150 мм
[3] => 200 мм
[4] => 250 мм
[5] => 300 мм
)
[days] => [3,4,5,6,7,8]
[material_price] => [810,1319,1629,1838,2267,2676]
[work_price] => [1225,1323,1423,1549,1659,1725]
[image] => https://akademik-stroy.ru/wp-content/uploads/materials/ehkovata.jpg
[area_modifier] => 50.02
[parent_name] => Дополнительное утепление наружных стен
[parent_id] => 17
[material_sum] => 82653
[work_sum] => 104167
[total_sum] => 186820
[total_days] => 3
[display_material_sum] => 82 653
[display_work_sum] => 104 167
[display_total_sum] => 186 820
)
1
186 820₽
Работа:104 167 ₽
Материалы:82 653 ₽
Дни:3
stdClass Object
(
[id] => 129
[attribute_id] => 17
[name] => Экструдированный пенополистирол
[material_modifier] => 1
[work_modifier] => 1
[options] => Array
(
[0] => 50 мм
[1] => 100 мм
[2] => 150 мм
[3] => 200 мм
[4] => 250 мм
[5] => 300 мм
)
[days] => [5,6,7,8,9,10]
[material_price] => [4560,4300,5119,6292,7010,8583]
[work_price] => [1795,1954,2254,2330,2595,2735]
[image] => https://akademik-stroy.ru/wp-content/uploads/materials/epps.jpg
[area_modifier] => 50.02
[parent_name] => Дополнительное утепление наружных стен
[parent_id] => 17
[material_sum] => 465306
[work_sum] => 152636
[total_sum] => 617942
[total_days] => 5
[display_material_sum] => 465 306
[display_work_sum] => 152 636
[display_total_sum] => 617 942
)
1
617 942₽
Работа:152 636 ₽
Материалы:465 306 ₽
Дни:5
stdClass Object
(
[id] => 130
[attribute_id] => 17
[name] => ПСБ (ППС-пенополистирол)
[material_modifier] => 1
[work_modifier] => 1
[options] => Array
(
[0] => 50 мм
[1] => 100 мм
[2] => 150 мм
[3] => 200 мм
[4] => 250 мм
[5] => 300 мм
)
[days] => [5,6,7,8,9,10]
[material_price] => [4822,5200,5819,6292,7010,7583]
[work_price] => [1795,1954,2254,2330,2595,2735]
[image] => https://akademik-stroy.ru/wp-content/uploads/materials/psb.jpg
[area_modifier] => 50.02
[parent_name] => Дополнительное утепление наружных стен
[parent_id] => 17
[material_sum] => 492041
[work_sum] => 152636
[total_sum] => 644677
[total_days] => 5
[display_material_sum] => 492 041
[display_work_sum] => 152 636
[display_total_sum] => 644 677
)
1
644 677₽
Работа:152 636 ₽
Материалы:492 041 ₽
Дни:5
stdClass Object
(
[id] => 131
[attribute_id] => 17
[name] => ППУ (Пенополиуретан)
[material_modifier] => 1
[work_modifier] => 1
[options] => Array
(
[0] => 50 мм
[1] => 100 мм
[2] => 150 мм
[3] => 200 мм
[4] => 250 мм
[5] => 300 мм
)
[days] => [3,4,5,6,7,8]
[material_price] => [2860,3400,4219,4592,5010,5583]
[work_price] => [729,900,980,1120,1280,1530]
[image] => https://akademik-stroy.ru/wp-content/uploads/materials/ppu.jpg
[area_modifier] => 50.02
[parent_name] => Дополнительное утепление наружных стен
[parent_id] => 17
[material_sum] => 291837
[work_sum] => 61990
[total_sum] => 353827
[total_days] => 3
[display_material_sum] => 291 837
[display_work_sum] => 61 990
[display_total_sum] => 353 827
)
1
353 827₽
Работа:61 990 ₽
Материалы:291 837 ₽
Дни:3
stdClass Object
(
[id] => 132
[attribute_id] => 17
[name] => PIR-плиты (пенополиизоцианурат)
[material_modifier] => 1
[work_modifier] => 1
[options] => Array
(
[0] => 50 мм
[1] => 100 мм
[2] => 150 мм
[3] => 200 мм
[4] => 250 мм
[5] => 300 мм
)
[days] => [5,6,7,8,9,10]
[material_price] => [8323,15645,20968,25900,29258,30581]
[work_price] => [800,900,970,1150,1280,1330]
[image] => https://akademik-stroy.ru/wp-content/uploads/materials/pir.jpg
[area_modifier] => 50.02
[parent_name] => Дополнительное утепление наружных стен
[parent_id] => 17
[material_sum] => 849286
[work_sum] => 68027
[total_sum] => 917313
[total_days] => 5
[display_material_sum] => 849 286
[display_work_sum] => 68 027
[display_total_sum] => 917 313
)
1
917 313₽
Работа:68 027 ₽
Материалы:849 286 ₽
Дни:5
stdClass Object
(
[id] => 37
[attribute_id] => 19
[name] => Нет
[material_modifier] => 1
[work_modifier] => 1
[options] => Array
(
)
[days] => [0]
[material_price] => [0]
[work_price] => [0]
[image] => https://akademik-stroy.ru/wp-content/uploads/materials/imitaciya-brusa.jpg
[area_modifier] => 50.02
[parent_name] => Наружная отделка фасада
[parent_id] => 19
[material_sum] => 0
[work_sum] => 0
[total_sum] => 0
[total_days] => 0
[display_material_sum] => 0
[display_work_sum] => 0
[display_total_sum] => 0
)
1
0₽
Работа:0 ₽
Материалы:0 ₽
Дни:0
stdClass Object
(
[id] => 38
[attribute_id] => 19
[name] => Имитация бруса
[material_modifier] => 1
[work_modifier] => 1
[options] => Array
(
[0] => Сосна
[1] => Ель
[2] => Лиственница
)
[days] => [20,20,20]
[material_price] => [2994,2762,4954]
[work_price] => [1397,1231,1577]
[image] => https://akademik-stroy.ru/wp-content/uploads/materials/imitaciya-brusa.jpg
[area_modifier] => 50.02
[parent_name] => Наружная отделка фасада
[parent_id] => 19
[material_sum] => 305510
[work_sum] => 118792
[total_sum] => 424302
[total_days] => 20
[display_material_sum] => 305 510
[display_work_sum] => 118 792
[display_total_sum] => 424 302
)
1
424 302₽
Работа:118 792 ₽
Материалы:305 510 ₽
Дни:20
stdClass Object
(
[id] => 136
[attribute_id] => 19
[name] => Планкен
[material_modifier] => 1
[work_modifier] => 1
[options] => Array
(
[0] => Сосна
[1] => Ель
[2] => Лиственница
)
[days] => [20,20,20]
[material_price] => [3194,2862,5154]
[work_price] => [1537,1354,1735]
[image] => https://akademik-stroy.ru/wp-content/uploads/materials/planken.jpg
[area_modifier] => 50.02
[parent_name] => Наружная отделка фасада
[parent_id] => 19
[material_sum] => 325918
[work_sum] => 130697
[total_sum] => 456615
[total_days] => 20
[display_material_sum] => 325 918
[display_work_sum] => 130 697
[display_total_sum] => 456 615
)
1
456 615₽
Работа:130 697 ₽
Материалы:325 918 ₽
Дни:20
stdClass Object
(
[id] => 137
[attribute_id] => 19
[name] => Штукатурка
[material_modifier] => 1
[work_modifier] => 1
[options] => Array
(
[0] => Цементно-песчаная (минеральная)
[1] => Мокрый фасад
)
[days] => [35,35]
[material_price] => [2231,3938]
[work_price] => [1202,2422]
[image] => https://akademik-stroy.ru/wp-content/uploads/materials/shtukaturka.jpg
[area_modifier] => 50.02
[parent_name] => Наружная отделка фасада
[parent_id] => 19
[material_sum] => 227653
[work_sum] => 102211
[total_sum] => 329864
[total_days] => 35
[display_material_sum] => 227 653
[display_work_sum] => 102 211
[display_total_sum] => 329 864
)
1
329 864₽
Работа:102 211 ₽
Материалы:227 653 ₽
Дни:35
stdClass Object
(
[id] => 138
[attribute_id] => 19
[name] => Облицовочный кирпич
[material_modifier] => 1
[work_modifier] => 1
[options] => Array
(
[0] => Керамический
[1] => Клинкерный
[2] => Ручной формовки
[3] => Гиперпрессованный
[4] => Силикатный кирпич
)
[days] => [45,45,45,45,45]
[material_price] => [8174,9148,1040,1257,5876]
[work_price] => [3240,3758,4536,4017,3369]
[image] => https://akademik-stroy.ru/wp-content/uploads/materials/oblicovochnyj-kirpich.jpg
[area_modifier] => 50.02
[parent_name] => Наружная отделка фасада
[parent_id] => 19
[material_sum] => 834081
[work_sum] => 275510
[total_sum] => 1109591
[total_days] => 45
[display_material_sum] => 834 081
[display_work_sum] => 275 510
[display_total_sum] => 1 109 591
)
1
1 109 591₽
Работа:275 510 ₽
Материалы:834 081 ₽
Дни:45
stdClass Object
(
[id] => 139
[attribute_id] => 19
[name] => Фасадная плитка
[material_modifier] => 1
[work_modifier] => 1
[options] => Array
(
[0] => Клинкерная
[1] => Керамическая
[2] => Плитка ручной формовки
)
[days] => [40,40,40]
[material_price] => [2974,1487,3470]
[work_price] => [3007,2592,3629]
[image] => https://akademik-stroy.ru/wp-content/uploads/materials/fasadnaya-plitka.jpg
[area_modifier] => 50.02
[parent_name] => Наружная отделка фасада
[parent_id] => 19
[material_sum] => 303469
[work_sum] => 255697
[total_sum] => 559166
[total_days] => 40
[display_material_sum] => 303 469
[display_work_sum] => 255 697
[display_total_sum] => 559 166
)
1
559 166₽
Работа:255 697 ₽
Материалы:303 469 ₽
Дни:40
stdClass Object
(
[id] => 140
[attribute_id] => 19
[name] => Сайдинг
[material_modifier] => 1
[work_modifier] => 1
[options] => Array
(
[0] => Виниловый
[1] => Металлический
[2] => Фиброцементный
)
[days] => [20,20,20]
[material_price] => [1263,1944,4147]
[work_price] => [1263,1944,2074]
[image] => https://akademik-stroy.ru/wp-content/uploads/materials/sajding.jpg
[area_modifier] => 50.02
[parent_name] => Наружная отделка фасада
[parent_id] => 19
[material_sum] => 128878
[work_sum] => 107398
[total_sum] => 236276
[total_days] => 20
[display_material_sum] => 128 878
[display_work_sum] => 107 398
[display_total_sum] => 236 276
)
1
236 276₽
Работа:107 398 ₽
Материалы:128 878 ₽
Дни:20
stdClass Object
(
[id] => 141
[attribute_id] => 19
[name] => Камень
[material_modifier] => 1
[work_modifier] => 1
[options] => Array
(
[0] => Травертин
[1] => Дагестанский
[2] => Искусственный
[3] => Натуральный
[4] => Керамогранит
)
[days] => [45,45,45,45,45]
[material_price] => [4536,3888,2592,3240,2462]
[work_price] => [3240,3240,2462,3110,1944]
[image] => https://akademik-stroy.ru/wp-content/uploads/materials/kamen-1.jpg
[area_modifier] => 50.02
[parent_name] => Наружная отделка фасада
[parent_id] => 19
[material_sum] => 462857
[work_sum] => 275510
[total_sum] => 738367
[total_days] => 45
[display_material_sum] => 462 857
[display_work_sum] => 275 510
[display_total_sum] => 738 367
)
1
738 367₽
Работа:275 510 ₽
Материалы:462 857 ₽
Дни:45
stdClass Object
(
[id] => 142
[attribute_id] => 19
[name] => Термопанели
[material_modifier] => 1
[work_modifier] => 1
[options] => Array
(
)
[days] => [20]
[material_price] => [6221]
[work_price] => [2333]
[image] => https://akademik-stroy.ru/wp-content/uploads/materials/termo.png
[area_modifier] => 50.02
[parent_name] => Наружная отделка фасада
[parent_id] => 19
[material_sum] => 634796
[work_sum] => 198384
[total_sum] => 833180
[total_days] => 20
[display_material_sum] => 634 796
[display_work_sum] => 198 384
[display_total_sum] => 833 180
)
1
833 180₽
Работа:198 384 ₽
Материалы:634 796 ₽
Дни:20
stdClass Object
(
[id] => 143
[attribute_id] => 19
[name] => Плитка HAUBERK
[material_modifier] => 1
[work_modifier] => 1
[options] => Array
(
)
[days] => [20]
[material_price] => [2786]
[work_price] => [1944]
[image] => https://akademik-stroy.ru/wp-content/uploads/materials/hauberk.jpg
[area_modifier] => 50.02
[parent_name] => Наружная отделка фасада
[parent_id] => 19
[material_sum] => 284286
[work_sum] => 165306
[total_sum] => 449592
[total_days] => 20
[display_material_sum] => 284 286
[display_work_sum] => 165 306
[display_total_sum] => 449 592
)
1
449 592₽
Работа:165 306 ₽
Материалы:284 286 ₽
Дни:20
stdClass Object
(
[id] => 144
[attribute_id] => 19
[name] => Фальцевый фасад
[material_modifier] => 1
[work_modifier] => 1
[options] => Array
(
)
[days] => [20]
[material_price] => [3240]
[work_price] => [2592]
[image] => https://akademik-stroy.ru/wp-content/uploads/materials/falcevyj-fasad.jpg
[area_modifier] => 50.02
[parent_name] => Наружная отделка фасада
[parent_id] => 19
[material_sum] => 330612
[work_sum] => 220408
[total_sum] => 551020
[total_days] => 20
[display_material_sum] => 330 612
[display_work_sum] => 220 408
[display_total_sum] => 551 020
)
1
551 020₽
Работа:220 408 ₽
Материалы:330 612 ₽
Дни:20
stdClass Object
(
[id] => 145
[attribute_id] => 19
[name] => Комбинированный
[material_modifier] => 1
[work_modifier] => 1
[options] => Array
(
)
[days] => [20]
[material_price] => [4629]
[work_price] => [3499]
[image] => https://akademik-stroy.ru/wp-content/uploads/materials/Kombinirovannyj.jpg
[area_modifier] => 50.02
[parent_name] => Наружная отделка фасада
[parent_id] => 19
[material_sum] => 472347
[work_sum] => 297534
[total_sum] => 769881
[total_days] => 20
[display_material_sum] => 472 347
[display_work_sum] => 297 534
[display_total_sum] => 769 881
)
1
769 881₽
Работа:297 534 ₽
Материалы:472 347 ₽
Дни:20
stdClass Object
(
[id] => 257
[attribute_id] => 19
[name] => Японские фиброцементные
[material_modifier] => 1
[work_modifier] => 1
[options] => Array
(
)
[days] => [20]
[material_price] => [7043]
[work_price] => [2993]
[image] => https://akademik-stroy.ru/wp-content/uploads/materials/paneli.jpg
[area_modifier] => 50.02
[parent_name] => Наружная отделка фасада
[parent_id] => 19
[material_sum] => 718673
[work_sum] => 254507
[total_sum] => 973180
[total_days] => 20
[display_material_sum] => 718 673
[display_work_sum] => 254 507
[display_total_sum] => 973 180
)
1
973 180₽
Работа:254 507 ₽
Материалы:718 673 ₽
Дни:20
stdClass Object
(
[id] => 258
[attribute_id] => 19
[name] => Панели Каньон
[material_modifier] => 1
[work_modifier] => 1
[options] => Array
(
)
[days] => [20]
[material_price] => [4543]
[work_price] => [2592]
[image] => https://akademik-stroy.ru/wp-content/uploads/materials/kanon.png
[area_modifier] => 50.02
[parent_name] => Наружная отделка фасада
[parent_id] => 19
[material_sum] => 463571
[work_sum] => 220408
[total_sum] => 683979
[total_days] => 20
[display_material_sum] => 463 571
[display_work_sum] => 220 408
[display_total_sum] => 683 979
)
1
683 979₽
Работа:220 408 ₽
Материалы:463 571 ₽
Дни:20
stdClass Object
(
[id] => 39
[attribute_id] => 20
[name] => Нет
[material_modifier] => 1
[work_modifier] => 1
[options] => Array
(
)
[days] => [0]
[material_price] => [0]
[work_price] => [0]
[image] => https://akademik-stroy.ru/wp-content/uploads/materials/terrasy.jpg
[area_modifier] => 30
[parent_name] => Террасы, крыльца, навесы
[parent_id] => 20
[material_sum] => 0
[work_sum] => 0
[total_sum] => 0
[total_days] => 0
[display_material_sum] => 0
[display_work_sum] => 0
[display_total_sum] => 0
)
1
0₽
Работа:0 ₽
Материалы:0 ₽
Дни:0
stdClass Object
(
[id] => 40
[attribute_id] => 20
[name] => Есть
[material_modifier] => 1
[work_modifier] => 1
[options] => Array
(
)
[days] => [5]
[material_price] => [10450]
[work_price] => [1950]
[image] => https://akademik-stroy.ru/wp-content/uploads/materials/terrasy.jpg
[area_modifier] => 30
[parent_name] => Террасы, крыльца, навесы
[parent_id] => 20
[material_sum] => 639540
[work_sum] => 99450
[total_sum] => 738990
[total_days] => 5
[display_material_sum] => 639 540
[display_work_sum] => 99 450
[display_total_sum] => 738 990
)
1
738 990₽
Работа:99 450 ₽
Материалы:639 540 ₽
Дни:5
stdClass Object
(
[id] => 41
[attribute_id] => 21
[name] => Нет
[material_modifier] => 1
[work_modifier] => 1
[options] => Array
(
)
[days] => [0]
[material_price] => [0]
[work_price] => [0]
[image] => https://akademik-stroy.ru/wp-content/uploads/materials/balkony.jpg
[area_modifier] => 30
[parent_name] => Балконы
[parent_id] => 21
[material_sum] => 0
[work_sum] => 0
[total_sum] => 0
[total_days] => 0
[display_material_sum] => 0
[display_work_sum] => 0
[display_total_sum] => 0
)
1
0₽
Работа:0 ₽
Материалы:0 ₽
Дни:0
stdClass Object
(
[id] => 42
[attribute_id] => 21
[name] => Есть
[material_modifier] => 1
[work_modifier] => 1
[options] => Array
(
)
[days] => [12]
[material_price] => [3600]
[work_price] => [1950]
[image] => https://akademik-stroy.ru/wp-content/uploads/materials/balkony.jpg
[area_modifier] => 30
[parent_name] => Балконы
[parent_id] => 21
[material_sum] => 220320
[work_sum] => 99450
[total_sum] => 319770
[total_days] => 12
[display_material_sum] => 220 320
[display_work_sum] => 99 450
[display_total_sum] => 319 770
)
1
319 770₽
Работа:99 450 ₽
Материалы:220 320 ₽
Дни:12
stdClass Object
(
[id] => 43
[attribute_id] => 22
[name] => Нет
[material_modifier] => 1
[work_modifier] => 1
[options] => Array
(
)
[days] => [0]
[material_price] => [0]
[work_price] => [0]
[image] => https://akademik-stroy.ru/wp-content/uploads/materials/uteplennaya.jpg
[area_modifier] => 50.02
[parent_name] => Отмостка
[parent_id] => 22
[material_sum] => 0
[work_sum] => 0
[total_sum] => 0
[total_days] => 0
[display_material_sum] => 0
[display_work_sum] => 0
[display_total_sum] => 0
)
1
0₽
Работа:0 ₽
Материалы:0 ₽
Дни:0
stdClass Object
(
[id] => 44
[attribute_id] => 22
[name] => Утепленная отмостка
[material_modifier] => 1
[work_modifier] => 1
[options] => Array
(
)
[days] => [15]
[material_price] => [2550]
[work_price] => [1750]
[image] => https://akademik-stroy.ru/wp-content/uploads/materials/uteplennaya.jpg
[area_modifier] => 50.02
[parent_name] => Отмостка
[parent_id] => 22
[material_sum] => 260204
[work_sum] => 148810
[total_sum] => 409014
[total_days] => 15
[display_material_sum] => 260 204
[display_work_sum] => 148 810
[display_total_sum] => 409 014
)
1
409 014₽
Работа:148 810 ₽
Материалы:260 204 ₽
Дни:15
stdClass Object
(
[id] => 146
[attribute_id] => 22
[name] => Не утепленная отмостка
[material_modifier] => 1
[work_modifier] => 1
[options] => Array
(
)
[days] => [10]
[material_price] => [1650]
[work_price] => [1450]
[image] => https://akademik-stroy.ru/wp-content/uploads/materials/ne-uteplennaya.jpg
[area_modifier] => 50.02
[parent_name] => Отмостка
[parent_id] => 22
[material_sum] => 168367
[work_sum] => 123299
[total_sum] => 291666
[total_days] => 10
[display_material_sum] => 168 367
[display_work_sum] => 123 299
[display_total_sum] => 291 666
)
1
291 666₽
Работа:123 299 ₽
Материалы:168 367 ₽
Дни:10
stdClass Object
(
[id] => 45
[attribute_id] => 23
[name] => Нет
[material_modifier] => 1
[work_modifier] => 1
[options] => Array
(
)
[days] => [0]
[material_price] => [0]
[work_price] => [0]
[image] => https://akademik-stroy.ru/wp-content/uploads/materials/drenazh-2.jpg
[area_modifier] => 50.02
[parent_name] => Дренаж вокруг дома
[parent_id] => 23
[material_sum] => 0
[work_sum] => 0
[total_sum] => 0
[total_days] => 0
[display_material_sum] => 0
[display_work_sum] => 0
[display_total_sum] => 0
)
1
0₽
Работа:0 ₽
Материалы:0 ₽
Дни:0
stdClass Object
(
[id] => 46
[attribute_id] => 23
[name] => Есть
[material_modifier] => 1
[work_modifier] => 1
[options] => Array
(
)
[days] => [5]
[material_price] => [2366]
[work_price] => [1911]
[image] => https://akademik-stroy.ru/wp-content/uploads/materials/drenazh-2.jpg
[area_modifier] => 50.02
[parent_name] => Дренаж вокруг дома
[parent_id] => 23
[material_sum] => 241429
[work_sum] => 162500
[total_sum] => 403929
[total_days] => 5
[display_material_sum] => 241 429
[display_work_sum] => 162 500
[display_total_sum] => 403 929
)
1
403 929₽
Работа:162 500 ₽
Материалы:241 429 ₽
Дни:5
stdClass Object
(
[id] => 47
[attribute_id] => 24
[name] => Нет
[material_modifier] => 1
[work_modifier] => 1
[options] => Array
(
)
[days] => [0]
[material_price] => [0]
[work_price] => [0]
[image] => https://akademik-stroy.ru/wp-content/uploads/materials/septik.jpg
[area_modifier] => 1
[parent_name] => Автономная канализация (септики)
[parent_id] => 24
[material_sum] => 0
[work_sum] => 0
[total_sum] => 0
[total_days] => 0
[display_material_sum] => 0
[display_work_sum] => 0
[display_total_sum] => 0
)
1
0₽
Работа:0 ₽
Материалы:0 ₽
Дни:0
stdClass Object
(
[id] => 48
[attribute_id] => 24
[name] => Есть
[material_modifier] => 1
[work_modifier] => 1
[options] => Array
(
[0] => Для дачи на 4 человека
[1] => Для дома на 5 человек
[2] => Для дома на 6 человек
[3] => Для дома на 7 человек
[4] => Для дома на 10 человек
)
[days] => [7,7,7,8,8]
[material_price] => [196340,220500,240940,264200,293340]
[work_price] => [50000,55000,60500,66550,73206]
[image] => https://akademik-stroy.ru/wp-content/uploads/materials/septik.jpg
[area_modifier] => 1
[parent_name] => Автономная канализация (септики)
[parent_id] => 24
[material_sum] => 400534
[work_sum] => 85000
[total_sum] => 485534
[total_days] => 7
[display_material_sum] => 400 534
[display_work_sum] => 85 000
[display_total_sum] => 485 534
)
1
485 534₽
Работа:85 000 ₽
Материалы:400 534 ₽
Дни:7
stdClass Object
(
[id] => 49
[attribute_id] => 25
[name] => Нет
[material_modifier] => 1
[work_modifier] => 1
[options] => Array
(
)
[days] => [0]
[material_price] => [0]
[work_price] => [0]
[image] => https://akademik-stroy.ru/wp-content/uploads/materials/gkl.jpg
[area_modifier] => 50.02
[parent_name] => Внутренние (не несущие) перегородки
[parent_id] => 25
[material_sum] => 0
[work_sum] => 0
[total_sum] => 0
[total_days] => 0
[display_material_sum] => 0
[display_work_sum] => 0
[display_total_sum] => 0
)
1
0₽
Работа:0 ₽
Материалы:0 ₽
Дни:0
stdClass Object
(
[id] => 147
[attribute_id] => 25
[name] => Каркасно-обшивные
[material_modifier] => 1
[work_modifier] => 1
[options] => Array
(
[0] => 75 мм (без шумоизоляции)
[1] => 75 мм (с шумоизоляцией)
)
[days] => [11,11]
[material_price] => [580,970]
[work_price] => [380,570]
[image] => https://akademik-stroy.ru/wp-content/uploads/materials/gkl.jpg
[area_modifier] => 50.02
[parent_name] => Внутренние (не несущие) перегородки
[parent_id] => 25
[material_sum] => 59184
[work_sum] => 32313
[total_sum] => 91497
[total_days] => 11
[display_material_sum] => 59 184
[display_work_sum] => 32 313
[display_total_sum] => 91 497
)
1
91 497₽
Работа:32 313 ₽
Материалы:59 184 ₽
Дни:11
stdClass Object
(
[id] => 148
[attribute_id] => 25
[name] => Пазогребневые
[material_modifier] => 1
[work_modifier] => 1
[options] => Array
(
[0] => 80 мм
[1] => 100 мм
)
[days] => [5,5]
[material_price] => [1022,1313]
[work_price] => [600,700]
[image] => https://akademik-stroy.ru/wp-content/uploads/materials/pazogrebnevye-bloki.jpg
[area_modifier] => 50.02
[parent_name] => Внутренние (не несущие) перегородки
[parent_id] => 25
[material_sum] => 104286
[work_sum] => 51020
[total_sum] => 155306
[total_days] => 5
[display_material_sum] => 104 286
[display_work_sum] => 51 020
[display_total_sum] => 155 306
)
1
155 306₽
Работа:51 020 ₽
Материалы:104 286 ₽
Дни:5
stdClass Object
(
[id] => 149
[attribute_id] => 25
[name] => Газобетонные
[material_modifier] => 1
[work_modifier] => 1
[options] => Array
(
[0] => 100 мм
[1] => 200 мм
)
[days] => [11,11]
[material_price] => [1160,1920]
[work_price] => [700,900]
[image] => https://akademik-stroy.ru/wp-content/uploads/materials/gazobeton-2.jpg
[area_modifier] => 50.02
[parent_name] => Внутренние (не несущие) перегородки
[parent_id] => 25
[material_sum] => 118367
[work_sum] => 59524
[total_sum] => 177891
[total_days] => 11
[display_material_sum] => 118 367
[display_work_sum] => 59 524
[display_total_sum] => 177 891
)
1
177 891₽
Работа:59 524 ₽
Материалы:118 367 ₽
Дни:11
stdClass Object
(
[id] => 150
[attribute_id] => 25
[name] => Кирпичные
[material_modifier] => 1
[work_modifier] => 1
[options] => Array
(
[0] => 120 мм
[1] => 250 мм
[2] => 360 мм
)
[days] => [7,7,7]
[material_price] => [1785,3570,5355]
[work_price] => [900,1600,1800]
[image] => https://akademik-stroy.ru/wp-content/uploads/materials/kirpich-1.jpg
[area_modifier] => 50.02
[parent_name] => Внутренние (не несущие) перегородки
[parent_id] => 25
[material_sum] => 182143
[work_sum] => 76531
[total_sum] => 258674
[total_days] => 7
[display_material_sum] => 182 143
[display_work_sum] => 76 531
[display_total_sum] => 258 674
)
1
258 674₽
Работа:76 531 ₽
Материалы:182 143 ₽
Дни:7
stdClass Object
(
[id] => 55
[attribute_id] => 28
[name] => Нет
[material_modifier] => 1
[work_modifier] => 1
[options] => Array
(
)
[days] => [0]
[material_price] => [0]
[work_price] => [0]
[image] => https://akademik-stroy.ru/wp-content/uploads/materials/ehlektrika.jpg
[area_modifier] => 40.59
[parent_name] => Электрика
[parent_id] => 28
[material_sum] => 0
[work_sum] => 0
[total_sum] => 0
[total_days] => 0
[display_material_sum] => 0
[display_work_sum] => 0
[display_total_sum] => 0
)
1
0₽
Работа:0 ₽
Материалы:0 ₽
Дни:0
stdClass Object
(
[id] => 56
[attribute_id] => 28
[name] => Есть
[material_modifier] => 1
[work_modifier] => 1
[options] => Array
(
)
[days] => [10]
[material_price] => [650]
[work_price] => [950]
[image] => https://akademik-stroy.ru/wp-content/uploads/materials/ehlektrika.jpg
[area_modifier] => 40.59
[parent_name] => Электрика
[parent_id] => 28
[material_sum] => 53822
[work_sum] => 65553
[total_sum] => 119375
[total_days] => 10
[display_material_sum] => 53 822
[display_work_sum] => 65 553
[display_total_sum] => 119 375
)
1
119 375₽
Работа:65 553 ₽
Материалы:53 822 ₽
Дни:10
stdClass Object
(
[id] => 57
[attribute_id] => 29
[name] => Нет
[material_modifier] => 1
[work_modifier] => 1
[options] => Array
(
)
[days] => [0]
[material_price] => [0]
[work_price] => [0]
[image] => https://akademik-stroy.ru/wp-content/uploads/materials/santekhnika-kanalizaciya-1.jpg
[area_modifier] => 40.59
[parent_name] => Сантехника, канализация в доме
[parent_id] => 29
[material_sum] => 0
[work_sum] => 0
[total_sum] => 0
[total_days] => 0
[display_material_sum] => 0
[display_work_sum] => 0
[display_total_sum] => 0
)
1
0₽
Работа:0 ₽
Материалы:0 ₽
Дни:0
stdClass Object
(
[id] => 58
[attribute_id] => 29
[name] => Есть
[material_modifier] => 1
[work_modifier] => 1
[options] => Array
(
)
[days] => [10]
[material_price] => [600]
[work_price] => [730]
[image] => https://akademik-stroy.ru/wp-content/uploads/materials/santekhnika-kanalizaciya-1.jpg
[area_modifier] => 40.59
[parent_name] => Сантехника, канализация в доме
[parent_id] => 29
[material_sum] => 49682
[work_sum] => 50372
[total_sum] => 100054
[total_days] => 10
[display_material_sum] => 49 682
[display_work_sum] => 50 372
[display_total_sum] => 100 054
)
1
100 054₽
Работа:50 372 ₽
Материалы:49 682 ₽
Дни:10
stdClass Object
(
[id] => 59
[attribute_id] => 30
[name] => Нет
[material_modifier] => 1
[work_modifier] => 1
[options] => Array
(
)
[days] => [0]
[material_price] => [0]
[work_price] => [0]
[image] => https://akademik-stroy.ru/wp-content/uploads/materials/otoplenie-1.jpg
[area_modifier] => 40.59
[parent_name] => Отопление
[parent_id] => 30
[material_sum] => 0
[work_sum] => 0
[total_sum] => 0
[total_days] => 0
[display_material_sum] => 0
[display_work_sum] => 0
[display_total_sum] => 0
)
1
0₽
Работа:0 ₽
Материалы:0 ₽
Дни:0
stdClass Object
(
[id] => 60
[attribute_id] => 30
[name] => Есть
[material_modifier] => 1
[work_modifier] => 1
[options] => Array
(
)
[days] => [5]
[material_price] => [610]
[work_price] => [560]
[image] => https://akademik-stroy.ru/wp-content/uploads/materials/otoplenie-1.jpg
[area_modifier] => 40.59
[parent_name] => Отопление
[parent_id] => 30
[material_sum] => 50510
[work_sum] => 38642
[total_sum] => 89152
[total_days] => 5
[display_material_sum] => 50 510
[display_work_sum] => 38 642
[display_total_sum] => 89 152
)
1
89 152₽
Работа:38 642 ₽
Материалы:50 510 ₽
Дни:5
stdClass Object
(
[id] => 61
[attribute_id] => 31
[name] => Нет
[material_modifier] => 1
[work_modifier] => 1
[options] => Array
(
)
[days] => [0]
[material_price] => [0]
[work_price] => [0]
[image] => https://akademik-stroy.ru/wp-content/uploads/materials/vodyanye.jpg
[area_modifier] => 30
[parent_name] => Теплые полы
[parent_id] => 31
[material_sum] => 0
[work_sum] => 0
[total_sum] => 0
[total_days] => 0
[display_material_sum] => 0
[display_work_sum] => 0
[display_total_sum] => 0
)
1
0₽
Работа:0 ₽
Материалы:0 ₽
Дни:0
stdClass Object
(
[id] => 151
[attribute_id] => 31
[name] => Водяные
[material_modifier] => 1
[work_modifier] => 1
[options] => Array
(
)
[days] => [9]
[material_price] => [10200]
[work_price] => [2500]
[image] => https://akademik-stroy.ru/wp-content/uploads/materials/vodyanye.jpg
[area_modifier] => 30
[parent_name] => Теплые полы
[parent_id] => 31
[material_sum] => 624240
[work_sum] => 127500
[total_sum] => 751740
[total_days] => 9
[display_material_sum] => 624 240
[display_work_sum] => 127 500
[display_total_sum] => 751 740
)
1
751 740₽
Работа:127 500 ₽
Материалы:624 240 ₽
Дни:9
stdClass Object
(
[id] => 152
[attribute_id] => 31
[name] => Электро
[material_modifier] => 1
[work_modifier] => 1
[options] => Array
(
)
[days] => [5]
[material_price] => [6300]
[work_price] => [1500]
[image] => https://akademik-stroy.ru/wp-content/uploads/materials/ehlektricheskij.jpg
[area_modifier] => 30
[parent_name] => Теплые полы
[parent_id] => 31
[material_sum] => 385560
[work_sum] => 76500
[total_sum] => 462060
[total_days] => 5
[display_material_sum] => 385 560
[display_work_sum] => 76 500
[display_total_sum] => 462 060
)
1
462 060₽
Работа:76 500 ₽
Материалы:385 560 ₽
Дни:5
stdClass Object
(
[id] => 63
[attribute_id] => 32
[name] => Нет
[material_modifier] => 1
[work_modifier] => 1
[options] => Array
(
)
[days] => [0]
[material_price] => [0]
[work_price] => [0]
[image] => https://akademik-stroy.ru/wp-content/uploads/materials/shtukaturka-shpatlevka-1.jpg
[area_modifier] => 40.59
[parent_name] => Черновая отделка стен
[parent_id] => 32
[material_sum] => 0
[work_sum] => 0
[total_sum] => 0
[total_days] => 0
[display_material_sum] => 0
[display_work_sum] => 0
[display_total_sum] => 0
)
1
0₽
Работа:0 ₽
Материалы:0 ₽
Дни:0
stdClass Object
(
[id] => 153
[attribute_id] => 32
[name] => Штукатурка и шпатлевка
[material_modifier] => 1
[work_modifier] => 1
[options] => Array
(
)
[days] => [20]
[material_price] => [1850]
[work_price] => [2600]
[image] => https://akademik-stroy.ru/wp-content/uploads/materials/shtukaturka-shpatlevka-1.jpg
[area_modifier] => 40.59
[parent_name] => Черновая отделка стен
[parent_id] => 32
[material_sum] => 153187
[work_sum] => 179408
[total_sum] => 332595
[total_days] => 20
[display_material_sum] => 153 187
[display_work_sum] => 179 408
[display_total_sum] => 332 595
)
1
332 595₽
Работа:179 408 ₽
Материалы:153 187 ₽
Дни:20
stdClass Object
(
[id] => 154
[attribute_id] => 32
[name] => Гипсокортон на стены
[material_modifier] => 1
[work_modifier] => 1
[options] => Array
(
)
[days] => [15]
[material_price] => [950]
[work_price] => [2100]
[image] => https://akademik-stroy.ru/wp-content/uploads/materials/gkl-1.jpg
[area_modifier] => 40.59
[parent_name] => Черновая отделка стен
[parent_id] => 32
[material_sum] => 78663
[work_sum] => 144906
[total_sum] => 223569
[total_days] => 15
[display_material_sum] => 78 663
[display_work_sum] => 144 906
[display_total_sum] => 223 569
)
1
223 569₽
Работа:144 906 ₽
Материалы:78 663 ₽
Дни:15
stdClass Object
(
[id] => 155
[attribute_id] => 32
[name] => Вагонка
[material_modifier] => 1
[work_modifier] => 1
[options] => Array
(
)
[days] => [15]
[material_price] => [1250]
[work_price] => [950]
[image] => https://akademik-stroy.ru/wp-content/uploads/materials/vagonka.jpg
[area_modifier] => 40.59
[parent_name] => Черновая отделка стен
[parent_id] => 32
[material_sum] => 103505
[work_sum] => 65553
[total_sum] => 169058
[total_days] => 15
[display_material_sum] => 103 505
[display_work_sum] => 65 553
[display_total_sum] => 169 058
)
1
169 058₽
Работа:65 553 ₽
Материалы:103 505 ₽
Дни:15
stdClass Object
(
[id] => 65
[attribute_id] => 33
[name] => Нет
[material_modifier] => 1
[work_modifier] => 1
[options] => Array
(
)
[days] => [0]
[material_price] => [0]
[work_price] => [0]
[image] => https://akademik-stroy.ru/wp-content/uploads/materials/styazhka.jpg
[area_modifier] => 40.59
[parent_name] => Черновая отделка полов
[parent_id] => 33
[material_sum] => 0
[work_sum] => 0
[total_sum] => 0
[total_days] => 0
[display_material_sum] => 0
[display_work_sum] => 0
[display_total_sum] => 0
)
1
0₽
Работа:0 ₽
Материалы:0 ₽
Дни:0
stdClass Object
(
[id] => 156
[attribute_id] => 33
[name] => Стяжка + наливные полы
[material_modifier] => 1
[work_modifier] => 1
[options] => Array
(
)
[days] => [10]
[material_price] => [1000]
[work_price] => [900]
[image] => https://akademik-stroy.ru/wp-content/uploads/materials/styazhka.jpg
[area_modifier] => 40.59
[parent_name] => Черновая отделка полов
[parent_id] => 33
[material_sum] => 82804
[work_sum] => 62103
[total_sum] => 144907
[total_days] => 10
[display_material_sum] => 82 804
[display_work_sum] => 62 103
[display_total_sum] => 144 907
)
1
144 907₽
Работа:62 103 ₽
Материалы:82 804 ₽
Дни:10
stdClass Object
(
[id] => 157
[attribute_id] => 33
[name] => ОСБ на пол
[material_modifier] => 1
[work_modifier] => 1
[options] => Array
(
)
[days] => [7]
[material_price] => [580]
[work_price] => [350]
[image] => https://akademik-stroy.ru/wp-content/uploads/materials/osb-1.jpg
[area_modifier] => 40.59
[parent_name] => Черновая отделка полов
[parent_id] => 33
[material_sum] => 48026
[work_sum] => 24151
[total_sum] => 72177
[total_days] => 7
[display_material_sum] => 48 026
[display_work_sum] => 24 151
[display_total_sum] => 72 177
)
1
72 177₽
Работа:24 151 ₽
Материалы:48 026 ₽
Дни:7
stdClass Object
(
[id] => 67
[attribute_id] => 34
[name] => Нет
[material_modifier] => 1
[work_modifier] => 1
[options] => Array
(
)
[days] => [0]
[material_price] => [0]
[work_price] => [0]
[image] => https://akademik-stroy.ru/wp-content/uploads/materials/chistovaya-otdelka.jpg
[area_modifier] => 40.59
[parent_name] => Чистовая отделка стен и полов
[parent_id] => 34
[material_sum] => 0
[work_sum] => 0
[total_sum] => 0
[total_days] => 0
[display_material_sum] => 0
[display_work_sum] => 0
[display_total_sum] => 0
)
1
0₽
Работа:0 ₽
Материалы:0 ₽
Дни:0
stdClass Object
(
[id] => 68
[attribute_id] => 34
[name] => Есть
[material_modifier] => 1
[work_modifier] => 1
[options] => Array
(
)
[days] => [50]
[material_price] => [6000]
[work_price] => [3500]
[image] => https://akademik-stroy.ru/wp-content/uploads/materials/chistovaya-otdelka.jpg
[area_modifier] => 40.59
[parent_name] => Чистовая отделка стен и полов
[parent_id] => 34
[material_sum] => 496822
[work_sum] => 241511
[total_sum] => 738333
[total_days] => 50
[display_material_sum] => 496 822
[display_work_sum] => 241 511
[display_total_sum] => 738 333
)
1
738 333₽
Работа:241 511 ₽
Материалы:496 822 ₽
Дни:50
stdClass Object
(
[id] => 69
[attribute_id] => 35
[name] => Нет
[material_modifier] => 1
[work_modifier] => 1
[options] => Array
(
)
[days] => [0]
[material_price] => [0]
[work_price] => [0]
[image] => https://akademik-stroy.ru/wp-content/uploads/materials/mnogourovnevyj-gkl.jpg
[area_modifier] => 40.59
[parent_name] => Отделка потолка
[parent_id] => 35
[material_sum] => 0
[work_sum] => 0
[total_sum] => 0
[total_days] => 0
[display_material_sum] => 0
[display_work_sum] => 0
[display_total_sum] => 0
)
1
0₽
Работа:0 ₽
Материалы:0 ₽
Дни:0
stdClass Object
(
[id] => 70
[attribute_id] => 35
[name] => Есть
[material_modifier] => 1
[work_modifier] => 1
[options] => Array
(
[0] => Многоуровневый потолок из гипсокартона
[1] => Многоуровневый потолок из гипсокартона и натяжного потолка
[2] => Одноуровневый потолок из гипсокартона
[3] => Одноуровневый натяжной потолок
)
[days] => [10,10,1,1]
[material_price] => [900,700,700,600]
[work_price] => [1000,800,500,300]
[image] => https://akademik-stroy.ru/wp-content/uploads/materials/mnogourovnevyj-gkl.jpg
[area_modifier] => 40.59
[parent_name] => Отделка потолка
[parent_id] => 35
[material_sum] => 74523
[work_sum] => 69003
[total_sum] => 143526
[total_days] => 10
[display_material_sum] => 74 523
[display_work_sum] => 69 003
[display_total_sum] => 143 526
)
1
143 526₽
Работа:69 003 ₽
Материалы:74 523 ₽
Дни:10
Преимущества работы с нами
7 этапов оплаты
Независимый строительный надзор
Экологически чистые материалы
16 лет гарантии
Онлайн-кабинет с веб-камерой
Строители с опытом более 15 лет
Собственное производство


