Одноэтажный гараж 35.85 м2
154 м2
Полезная
площадь
площадь
1 этаж
Этажей
26 м2
Террасы
и балконы
и балконы
0Без
гаража
гаража
0
Количество
спален
спален
0
Количество
санузлов
санузлов
Планировки
Первый этаж
- 1. (m²) 35,85
- Гараж на 2 машины 35,85
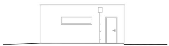
Фасады
Передний
Задний
Левый
Правый
Подробная информация
Полезная площадь
35,85 m²
Количество спален
0
Количество санузлов
0
Гараж
2
Мин. шир. и дл. участка
10,5 x 11,50 m
Угол наклона крыши
2°
Наклон ската крыши в градусах. Внимание! В некоторых проектах возникает более чем один наклон крыши.
Вид материалов
Murowana
Материалы и опции
Общие
Площади дома
| № п/п | Наименование | Ед. из. | Строительная площадь | Полезная площадь |
| 1 | 1 этаж | м2 | 44.18 | 35.85 |
| 2 | Итого | м2 | 44.18 | 35.85 |
Калькулятор опций
0₽
В ипотеку от 207 ₽/мес.
0₽
0 дней
stdClass Object
(
[id] => 1
[attribute_id] => 1
[name] => Ленточный монолитный ж/б
[material_modifier] => 1
[work_modifier] => 1
[options] => Array
(
[0] => размер 200 х 700 мм
[1] => размер 300 х 900 мм
[2] => размер 400 х 1 000 мм
[3] => размер 500 х 1 100 мм
[4] => размер 600 х 1 200 мм
)
[days] => [20,21,22,25,30]
[material_price] => [2823,3630,4475,5210,12047]
[work_price] => [2154,2826,3731,4577,5293]
[image] => https://akademik-stroy.ru/wp-content/uploads/materials/lentochnyj-monolitnyj-zh-b.jpg
[area_modifier] => 44.18
[parent_name] => Фундамент
[parent_id] => 1
[material_sum] => 254429
[work_sum] => 161778
[total_sum] => 416207
[total_days] => 20
[display_material_sum] => 254 429
[display_work_sum] => 161 778
[display_total_sum] => 416 207
)
1
416 207₽
Работа:161 778 ₽
Материалы:254 429 ₽
Дни:20
stdClass Object
(
[id] => 2
[attribute_id] => 1
[name] => Забивные Ж/Б сваи
[material_modifier] => 1
[work_modifier] => 1
[options] => Array
(
[0] => 150х150х3000мм
[1] => 150х150х4000мм
[2] => 200х200х3000мм
[3] => 200х200х4000мм
[4] => 200х200х5000мм
[5] => 200х200х6000мм
)
[days] => [2,2,2,2,2,2]
[material_price] => [1990,2850,3255,4360,5120,6837]
[work_price] => [1002,1185,1336,1438,1574,1839]
[image] => https://akademik-stroy.ru/wp-content/uploads/materials/zabivnye-zh-b-svai.png
[area_modifier] => 44.18
[parent_name] => Фундамент
[parent_id] => 1
[material_sum] => 179353
[work_sum] => 75256
[total_sum] => 254609
[total_days] => 2
[display_material_sum] => 179 353
[display_work_sum] => 75 256
[display_total_sum] => 254 609
)
1
254 609₽
Работа:75 256 ₽
Материалы:179 353 ₽
Дни:2
stdClass Object
(
[id] => 71
[attribute_id] => 1
[name] => Свайно-ростверковый ж/б
[material_modifier] => 1
[work_modifier] => 1
[options] => Array
(
[0] => ростверк 200х300 мм
[1] => ростверк 300х600 мм
[2] => ростверк 400х900 мм
[3] => ростверк 500х1200 мм
)
[days] => [20,23,25,27]
[material_price] => [3018,3474,7109,9792]
[work_price] => [2024,3012,5635,7022]
[image] => https://akademik-stroy.ru/wp-content/uploads/materials/svajno-rostverkovyj-monolitnyj-zh-b-3.png
[area_modifier] => 44.18
[parent_name] => Фундамент
[parent_id] => 1
[material_sum] => 272004
[work_sum] => 152015
[total_sum] => 424019
[total_days] => 20
[display_material_sum] => 272 004
[display_work_sum] => 152 015
[display_total_sum] => 424 019
)
1
424 019₽
Работа:152 015 ₽
Материалы:272 004 ₽
Дни:20
stdClass Object
(
[id] => 72
[attribute_id] => 1
[name] => Монолитная ж/б плита
[material_modifier] => 1
[work_modifier] => 1
[options] => Array
(
[0] => 200 мм
[1] => 300 мм
[2] => 400 мм
[3] => 500 мм
[4] => 600 мм
)
[days] => [30,33,35,37,40]
[material_price] => [5348,8555,12788,14388,15189]
[work_price] => [4314,4881,7037,8061,10230]
[image] => https://akademik-stroy.ru/wp-content/uploads/materials/monolitnaya-zhb-plita.png
[area_modifier] => 44.18
[parent_name] => Фундамент
[parent_id] => 1
[material_sum] => 482000
[work_sum] => 324007
[total_sum] => 806007
[total_days] => 30
[display_material_sum] => 482 000
[display_work_sum] => 324 007
[display_total_sum] => 806 007
)
1
806 007₽
Работа:324 007 ₽
Материалы:482 000 ₽
Дни:30
stdClass Object
(
[id] => 73
[attribute_id] => 1
[name] => Утепленная шведская плита
[material_modifier] => 1
[work_modifier] => 1
[options] => Array
(
[0] => 200 мм
[1] => 300 мм
[2] => 400 мм
[3] => 500 мм
[4] => 600 мм
)
[days] => [32,37,39,42,45]
[material_price] => [10249,12692,13760,14936,16230]
[work_price] => [5960,7337,8072,8878,9765]
[image] => https://akademik-stroy.ru/wp-content/uploads/materials/uteplennaya-shvedskaya-plita.jpg
[area_modifier] => 44.18
[parent_name] => Фундамент
[parent_id] => 1
[material_sum] => 923714
[work_sum] => 447632
[total_sum] => 1371346
[total_days] => 32
[display_material_sum] => 923 714
[display_work_sum] => 447 632
[display_total_sum] => 1 371 346
)
1
1 371 346₽
Работа:447 632 ₽
Материалы:923 714 ₽
Дни:32
stdClass Object
(
[id] => 75
[attribute_id] => 1
[name] => Ленточный из ФБС
[material_modifier] => 1
[work_modifier] => 1
[options] => Array
(
[0] => толщ. 300 мм
[1] => толщ. 400 мм
[2] => толщ. 500 мм
[3] => толщ. 600 мм
)
[days] => [20,20,20,20]
[material_price] => [3675,4902,6126,7350]
[work_price] => [2451,3264,4083,4902]
[image] => https://akademik-stroy.ru/wp-content/uploads/materials/lentochnyj-iz-fbs.png
[area_modifier] => 44.18
[parent_name] => Фундамент
[parent_id] => 1
[material_sum] => 331217
[work_sum] => 184085
[total_sum] => 515302
[total_days] => 20
[display_material_sum] => 331 217
[display_work_sum] => 184 085
[display_total_sum] => 515 302
)
1
515 302₽
Работа:184 085 ₽
Материалы:331 217 ₽
Дни:20
stdClass Object
(
[id] => 76
[attribute_id] => 1
[name] => Цокольный этаж из ФБС
[material_modifier] => 1
[work_modifier] => 1
[options] => Array
(
[0] => толщ. 300 мм
[1] => толщ. 400 мм
[2] => толщ. 500 мм
[3] => толщ. 600 мм
)
[days] => [30,32,34,36]
[material_price] => [20916,23299,26680,29060]
[work_price] => [17524,18700,19873,21046]
[image] => https://akademik-stroy.ru/wp-content/uploads/materials/cokolnyj-ehtazh-iz-fbs.jpg
[area_modifier] => 44.18
[parent_name] => Фундамент
[parent_id] => 1
[material_sum] => 1885101
[work_sum] => 1316158
[total_sum] => 3201259
[total_days] => 30
[display_material_sum] => 1 885 101
[display_work_sum] => 1 316 158
[display_total_sum] => 3 201 259
)
1
3 201 259₽
Работа:1 316 158 ₽
Материалы:1 885 101 ₽
Дни:30
stdClass Object
(
[id] => 77
[attribute_id] => 1
[name] => Цокольный этаж монолитный ж/б
[material_modifier] => 1
[work_modifier] => 1
[options] => Array
(
[0] => толщ. 200 мм
[1] => толщ. 300 мм
[2] => толщ. 400 мм
[3] => толщ. 500 мм
[4] => толщ. 600 мм
)
[days] => [40,42,44,46,48]
[material_price] => [25421,29148,32275,35602,37326]
[work_price] => [20441,21907,23375,24841,26306]
[image] => https://akademik-stroy.ru/wp-content/uploads/materials/cokolnyj-etazh-zh-b.jpg
[area_modifier] => 44.18
[parent_name] => Фундамент
[parent_id] => 1
[material_sum] => 2291124
[work_sum] => 1535242
[total_sum] => 3826366
[total_days] => 40
[display_material_sum] => 2 291 124
[display_work_sum] => 1 535 242
[display_total_sum] => 3 826 366
)
1
3 826 366₽
Работа:1 535 242 ₽
Материалы:2 291 124 ₽
Дни:40
stdClass Object
(
[id] => 191
[attribute_id] => 1
[name] => Винтовые сваи
[material_modifier] => 1
[work_modifier] => 1
[options] => Array
(
[0] => 57х200мм
[1] => 76х250мм
[2] => 108х300мм
[3] => 133х350мм
)
[days] => [1,1,2,2]
[material_price] => [1200,1300,1450,1600]
[work_price] => [400,600,900,1100]
[image] => https://akademik-stroy.ru/wp-content/uploads/materials/vintovye-svai.png
[area_modifier] => 44.18
[parent_name] => Фундамент
[parent_id] => 1
[material_sum] => 108153
[work_sum] => 30042
[total_sum] => 138195
[total_days] => 1
[display_material_sum] => 108 153
[display_work_sum] => 30 042
[display_total_sum] => 138 195
)
1
138 195₽
Работа:30 042 ₽
Материалы:108 153 ₽
Дни:1
stdClass Object
(
[id] => 3
[attribute_id] => 2
[name] => Деревянные балки
[material_modifier] => 1
[work_modifier] => 1
[options] => Array
(
[0] => без утепления
[1] => утепление 200 мм
[2] => утепление 250 мм
[3] => утепление 300 мм
[4] => утепление 350 мм
[5] => утепление 400 мм
[6] => утепление 450 мм
[7] => утепление 500 мм
)
[days] => [8,9,9,9,11,12,13,14]
[material_price] => [1634,2042,2344,2947,3149,3652,3354,3557]
[work_price] => [1230,1339,1393,1426,1460,1513,1587,1620]
[image] => https://akademik-stroy.ru/wp-content/uploads/materials/derevyannye-balki.png
[area_modifier] => 44.18
[parent_name] => Перекрытие цоколя
[parent_id] => 2
[material_sum] => 147268
[work_sum] => 92380
[total_sum] => 239648
[total_days] => 8
[display_material_sum] => 147 268
[display_work_sum] => 92 380
[display_total_sum] => 239 648
)
1
239 648₽
Работа:92 380 ₽
Материалы:147 268 ₽
Дни:8
stdClass Object
(
[id] => 4
[attribute_id] => 2
[name] => Сборные ж/б плиты
[material_modifier] => 1
[work_modifier] => 1
[options] => Array
(
[0] => без утепления
[1] => утепление 150мм
[2] => утепление 200мм
[3] => утепление 250мм
[4] => утепление 300мм
[5] => утепление 350мм
[6] => утепление 400мм
[7] => утепление 450мм
[8] => утепление 500мм
)
[days] => [13,15,15,15,15,15,15,15,15]
[material_price] => [3067,5577,5928,6679,7730,8782,9833,10884,11935]
[work_price] => [1520,1956,2102,2247,2392,2537,2684,2829,2974]
[image] => https://akademik-stroy.ru/wp-content/uploads/materials/sbornye-zh-b-plity-2.jpg
[area_modifier] => 44.18
[parent_name] => Перекрытие цоколя
[parent_id] => 2
[material_sum] => 276420
[work_sum] => 114161
[total_sum] => 390581
[total_days] => 13
[display_material_sum] => 276 420
[display_work_sum] => 114 161
[display_total_sum] => 390 581
)
1
390 581₽
Работа:114 161 ₽
Материалы:276 420 ₽
Дни:13
stdClass Object
(
[id] => 78
[attribute_id] => 2
[name] => Монолитная ж/б плита
[material_modifier] => 1
[work_modifier] => 1
[options] => Array
(
[0] => без утепления
[1] => утепление 150 мм
[2] => утепление 200 мм
[3] => утепление 250 мм
[4] => утепление 300 мм
[5] => утепление 350 мм
[6] => утепление 400 мм
[7] => утепление 450 мм
[8] => утепление 500 мм
)
[days] => [18,20,20,20,20,20,20,20,20]
[material_price] => [4837,6572,7224,7375,79426,8177,8728,9180,10031]
[work_price] => [3348,3921,4112,4302,4493,4684,4875,5066,5256]
[image] => https://akademik-stroy.ru/wp-content/uploads/materials/monolitnaya-zh-b-plita-2.jpg
[area_modifier] => 44.18
[parent_name] => Перекрытие цоколя
[parent_id] => 2
[material_sum] => 435945
[work_sum] => 251455
[total_sum] => 687400
[total_days] => 18
[display_material_sum] => 435 945
[display_work_sum] => 251 455
[display_total_sum] => 687 400
)
1
687 400₽
Работа:251 455 ₽
Материалы:435 945 ₽
Дни:18
stdClass Object
(
[id] => 6
[attribute_id] => 3
[name] => Пеноблок
[material_modifier] => 1
[work_modifier] => 1
[options] => Array
(
[0] => 300 мм
[1] => 400 мм
[2] => 500 мм
[3] => 600 мм
)
[days] => [29,31,34,39]
[material_price] => [3000,4000,4500,4937]
[work_price] => [5033,5805,6400,8710]
[image] => https://akademik-stroy.ru/wp-content/uploads/materials/penoblok.jpg
[area_modifier] => 44.18
[parent_name] => Стены 1 этаж (несущие)
[parent_id] => 3
[material_sum] => 270382
[work_sum] => 378008
[total_sum] => 648390
[total_days] => 29
[display_material_sum] => 270 382
[display_work_sum] => 378 008
[display_total_sum] => 648 390
)
1
648 390₽
Работа:378 008 ₽
Материалы:270 382 ₽
Дни:29
stdClass Object
(
[id] => 79
[attribute_id] => 3
[name] => Керамический блок
[material_modifier] => 1
[work_modifier] => 1
[options] => Array
(
[0] => 380 мм
[1] => 380 мм Thermo
[2] => 440 мм
[3] => 510 мм
)
[days] => [23,23,24,25]
[material_price] => [4510,5098,6093,8013]
[work_price] => [4737,4937,5903,6958]
[image] => https://akademik-stroy.ru/wp-content/uploads/materials/keramicheskij-blok.jpg
[area_modifier] => 44.18
[parent_name] => Стены 1 этаж (несущие)
[parent_id] => 3
[material_sum] => 406474
[work_sum] => 355777
[total_sum] => 762251
[total_days] => 23
[display_material_sum] => 406 474
[display_work_sum] => 355 777
[display_total_sum] => 762 251
)
1
762 251₽
Работа:355 777 ₽
Материалы:406 474 ₽
Дни:23
stdClass Object
(
[id] => 80
[attribute_id] => 3
[name] => Кирпич
[material_modifier] => 1
[work_modifier] => 1
[options] => Array
(
[0] => Кирпич 250 мм
[1] => Кирпич 380 мм
[2] => Кирпич 510 мм
[3] => Кирпич 640 мм
[4] => Кирпич 770 мм
)
[days] => [30,30,31,33,36]
[material_price] => [5500,7142,9206,10171,12235]
[work_price] => [8736,10041,12018,15240,18462]
[image] => https://akademik-stroy.ru/wp-content/uploads/materials/kirpich.jpg
[area_modifier] => 44.18
[parent_name] => Стены 1 этаж (несущие)
[parent_id] => 3
[material_sum] => 495700
[work_sum] => 656126
[total_sum] => 1151826
[total_days] => 30
[display_material_sum] => 495 700
[display_work_sum] => 656 126
[display_total_sum] => 1 151 826
)
1
1 151 826₽
Работа:656 126 ₽
Материалы:495 700 ₽
Дни:30
stdClass Object
(
[id] => 81
[attribute_id] => 3
[name] => Монолитные
[material_modifier] => 1
[work_modifier] => 1
[options] => Array
(
[0] => 150 мм
[1] => 200 мм
[2] => 250 мм
[3] => 300 мм
[4] => 350 мм
[5] => 400 мм
)
[days] => [45,46,47,49,50,53]
[material_price] => [6545,7876,10175,12011,13908,15204]
[work_price] => [5106,6444,7698,8552,9807,11461]
[image] => https://akademik-stroy.ru/wp-content/uploads/materials/monolitnye.jpg
[area_modifier] => 44.18
[parent_name] => Стены 1 этаж (несущие)
[parent_id] => 3
[material_sum] => 589883
[work_sum] => 383491
[total_sum] => 973374
[total_days] => 45
[display_material_sum] => 589 883
[display_work_sum] => 383 491
[display_total_sum] => 973 374
)
1
973 374₽
Работа:383 491 ₽
Материалы:589 883 ₽
Дни:45
stdClass Object
(
[id] => 82
[attribute_id] => 3
[name] => Клееный брус
[material_modifier] => 1
[work_modifier] => 1
[options] => Array
(
[0] => 160 мм
[1] => 175 мм
[2] => 200 мм
[3] => 215 мм
[4] => 240 мм
[5] => 270 мм
[6] => 282 мм
)
[days] => [24,28,32,37,40,42,48]
[material_price] => [16975,18773,19950,20545,21599,22159,23275]
[work_price] => [4806,5287,5815,6397,7036,7740,8514]
[image] => https://akademik-stroy.ru/wp-content/uploads/materials/kleenyj-brus.jpg
[area_modifier] => 44.18
[parent_name] => Стены 1 этаж (несущие)
[parent_id] => 3
[material_sum] => 1529909
[work_sum] => 360959
[total_sum] => 1890868
[total_days] => 24
[display_material_sum] => 1 529 909
[display_work_sum] => 360 959
[display_total_sum] => 1 890 868
)
1
1 890 868₽
Работа:360 959 ₽
Материалы:1 529 909 ₽
Дни:24
stdClass Object
(
[id] => 83
[attribute_id] => 3
[name] => Каркасные
[material_modifier] => 1
[work_modifier] => 1
[options] => Array
(
[0] => 150 мм
[1] => 200 мм
[2] => 250 мм
[3] => 300 мм
)
[days] => [15,16,17,18]
[material_price] => [2379,2639,2898,3258]
[work_price] => [2418,2686,2985,3716]
[image] => https://akademik-stroy.ru/wp-content/uploads/materials/karkasnye.jpg
[area_modifier] => 44.18
[parent_name] => Стены 1 этаж (несущие)
[parent_id] => 3
[material_sum] => 214413
[work_sum] => 181606
[total_sum] => 396019
[total_days] => 15
[display_material_sum] => 214 413
[display_work_sum] => 181 606
[display_total_sum] => 396 019
)
1
396 019₽
Работа:181 606 ₽
Материалы:214 413 ₽
Дни:15
stdClass Object
(
[id] => 84
[attribute_id] => 3
[name] => СИП-панели
[material_modifier] => 1
[work_modifier] => 1
[options] => Array
(
[0] => 120 мм
[1] => 170 мм
[2] => 220 мм
)
[days] => [7,7,7]
[material_price] => [1210,1856,2292]
[work_price] => [1410,1551,1706]
[image] => https://akademik-stroy.ru/wp-content/uploads/materials/sip-paneli.jpg
[area_modifier] => 44.18
[parent_name] => Стены 1 этаж (несущие)
[parent_id] => 3
[material_sum] => 109054
[work_sum] => 105899
[total_sum] => 214953
[total_days] => 7
[display_material_sum] => 109 054
[display_work_sum] => 105 899
[display_total_sum] => 214 953
)
1
214 953₽
Работа:105 899 ₽
Материалы:109 054 ₽
Дни:7
stdClass Object
(
[id] => 85
[attribute_id] => 3
[name] => Сухой брус
[material_modifier] => 1
[work_modifier] => 1
[options] => Array
(
[0] => 150 мм
[1] => 180 мм
[2] => 200 мм
)
[days] => [7,8,9]
[material_price] => [6010,7190,8709]
[work_price] => [3204,3845,4229]
[image] => https://akademik-stroy.ru/wp-content/uploads/materials/suhoj-brus.jpg
[area_modifier] => 44.18
[parent_name] => Стены 1 этаж (несущие)
[parent_id] => 3
[material_sum] => 541664
[work_sum] => 240640
[total_sum] => 782304
[total_days] => 7
[display_material_sum] => 541 664
[display_work_sum] => 240 640
[display_total_sum] => 782 304
)
1
782 304₽
Работа:240 640 ₽
Материалы:541 664 ₽
Дни:7
stdClass Object
(
[id] => 86
[attribute_id] => 3
[name] => Профилированный брус
[material_modifier] => 1
[work_modifier] => 1
[options] => Array
(
[0] => 150 мм
[1] => 180 мм
[2] => 200 мм
)
[days] => [7,8,9]
[material_price] => [8190,9228,10051]
[work_price] => [3845,4614,5075]
[image] => https://akademik-stroy.ru/wp-content/uploads/materials/profilirovannyj-brus.jpg
[area_modifier] => 44.18
[parent_name] => Стены 1 этаж (несущие)
[parent_id] => 3
[material_sum] => 738142
[work_sum] => 288783
[total_sum] => 1026925
[total_days] => 7
[display_material_sum] => 738 142
[display_work_sum] => 288 783
[display_total_sum] => 1 026 925
)
1
1 026 925₽
Работа:288 783 ₽
Материалы:738 142 ₽
Дни:7
stdClass Object
(
[id] => 87
[attribute_id] => 3
[name] => Оцилиндрованное бревно
[material_modifier] => 1
[work_modifier] => 1
[options] => Array
(
[0] => 180 мм
[1] => 220 мм
[2] => 260 мм
[3] => 320 мм
)
[days] => [7,8,9,10]
[material_price] => [75190,9532,10868,13116]
[work_price] => [3845,4691,5535,6863]
[image] => https://akademik-stroy.ru/wp-content/uploads/materials/ocilindrovannoe-brevno-1.jpg
[area_modifier] => 44.18
[parent_name] => Стены 1 этаж (несущие)
[parent_id] => 3
[material_sum] => 6776664
[work_sum] => 288783
[total_sum] => 7065447
[total_days] => 7
[display_material_sum] => 6 776 664
[display_work_sum] => 288 783
[display_total_sum] => 7 065 447
)
1
7 065 447₽
Работа:288 783 ₽
Материалы:6 776 664 ₽
Дни:7
stdClass Object
(
[id] => 88
[attribute_id] => 3
[name] => Срубы
[material_modifier] => 1
[work_modifier] => 1
[options] => Array
(
[0] => 260 мм
[1] => 320 мм
[2] => 360 мм
[3] => 400 мм
[4] => 500 мм
)
[days] => [7,8,9,10,11]
[material_price] => [37975,46709,52314,58069,73167]
[work_price] => [4806,5911,6621,7349,9260]
[image] => https://akademik-stroy.ru/wp-content/uploads/materials/sruby.jpg
[area_modifier] => 44.18
[parent_name] => Стены 1 этаж (несущие)
[parent_id] => 3
[material_sum] => 3422580
[work_sum] => 360959
[total_sum] => 3783539
[total_days] => 7
[display_material_sum] => 3 422 580
[display_work_sum] => 360 959
[display_total_sum] => 3 783 539
)
1
3 783 539₽
Работа:360 959 ₽
Материалы:3 422 580 ₽
Дни:7
stdClass Object
(
[id] => 174
[attribute_id] => 3
[name] => Брус
[material_modifier] => 1
[work_modifier] => 1
[options] => Array
(
[0] => 150 мм
[1] => 180 мм
[2] => 200 мм
)
[days] => [7,8,9]
[material_price] => [5127,6152,7367]
[work_price] => [1602,1922,2115]
[image] => https://akademik-stroy.ru/wp-content/uploads/materials/brus.jpg
[area_modifier] => 44.18
[parent_name] => Стены 1 этаж (несущие)
[parent_id] => 3
[material_sum] => 462082
[work_sum] => 120320
[total_sum] => 582402
[total_days] => 7
[display_material_sum] => 462 082
[display_work_sum] => 120 320
[display_total_sum] => 582 402
)
1
582 402₽
Работа:120 320 ₽
Материалы:462 082 ₽
Дни:7
stdClass Object
(
[id] => 175
[attribute_id] => 3
[name] => Газобетон
[material_modifier] => 1
[work_modifier] => 1
[options] => Array
(
[0] => 300 мм
[1] => 375 мм
[2] => 400 мм
[3] => 500 мм
[4] => 600 мм
)
[days] => [29,31,35,37,44]
[material_price] => [4298,5573,6356,7288,9119]
[work_price] => [4538,5251,5926,6733,7195]
[image] => https://akademik-stroy.ru/wp-content/uploads/materials/gazobeton.jpg
[area_modifier] => 44.18
[parent_name] => Стены 1 этаж (несущие)
[parent_id] => 3
[material_sum] => 387367
[work_sum] => 340831
[total_sum] => 728198
[total_days] => 29
[display_material_sum] => 387 367
[display_work_sum] => 340 831
[display_total_sum] => 728 198
)
1
728 198₽
Работа:340 831 ₽
Материалы:387 367 ₽
Дни:29
stdClass Object
(
[id] => 176
[attribute_id] => 3
[name] => Блок
[material_modifier] => 1
[work_modifier] => 1
[options] => Array
(
[0] => 300 мм
[1] => 375 мм
[2] => 400 мм
[3] => 500 мм
[4] => 600 мм
)
[days] => [29,31,35,37,44]
[material_price] => [2698,3973,4356,6588,7119]
[work_price] => [5038,5851,6426,8733,9195]
[image] => https://akademik-stroy.ru/wp-content/uploads/materials/blok.jpg
[area_modifier] => 44.18
[parent_name] => Стены 1 этаж (несущие)
[parent_id] => 3
[material_sum] => 243163
[work_sum] => 378384
[total_sum] => 621547
[total_days] => 29
[display_material_sum] => 243 163
[display_work_sum] => 378 384
[display_total_sum] => 621 547
)
1
621 547₽
Работа:378 384 ₽
Материалы:243 163 ₽
Дни:29
stdClass Object
(
[id] => 177
[attribute_id] => 3
[name] => Газосиликатный блок
[material_modifier] => 1
[work_modifier] => 1
[options] => Array
(
[0] => 300 мм
[1] => 375 мм
[2] => 400 мм
[3] => 500 мм
[4] => 600 мм
)
[days] => [29,31,35,37,44]
[material_price] => [4298,5573,6356,7288,9119]
[work_price] => [4538,5251,5926,6733,7195]
[image] => https://akademik-stroy.ru/wp-content/uploads/materials/gazosilikatnyj-blok.jpg
[area_modifier] => 44.18
[parent_name] => Стены 1 этаж (несущие)
[parent_id] => 3
[material_sum] => 387367
[work_sum] => 340831
[total_sum] => 728198
[total_days] => 29
[display_material_sum] => 387 367
[display_work_sum] => 340 831
[display_total_sum] => 728 198
)
1
728 198₽
Работа:340 831 ₽
Материалы:387 367 ₽
Дни:29
stdClass Object
(
[id] => 178
[attribute_id] => 3
[name] => Керамзитобетонный блок
[material_modifier] => 1
[work_modifier] => 1
[options] => Array
(
[0] => 300 мм
[1] => 375 мм
[2] => 400 мм
[3] => 500 мм
[4] => 600 мм
)
[days] => [23,23,24,25,28]
[material_price] => [3641,4298,5693,7613,9612]
[work_price] => [5737,5737,6903,7958,8901]
[image] => https://akademik-stroy.ru/wp-content/uploads/materials/keramzitobetonnyj-blok.jpg
[area_modifier] => 44.18
[parent_name] => Стены 1 этаж (несущие)
[parent_id] => 3
[material_sum] => 328153
[work_sum] => 430883
[total_sum] => 759036
[total_days] => 23
[display_material_sum] => 328 153
[display_work_sum] => 430 883
[display_total_sum] => 759 036
)
1
759 036₽
Работа:430 883 ₽
Материалы:328 153 ₽
Дни:23
stdClass Object
(
[id] => 179
[attribute_id] => 3
[name] => Деревянные
[material_modifier] => 1
[work_modifier] => 1
[options] => Array
(
[0] => 180 мм
[1] => 220 мм
[2] => 260 мм
[3] => 320 мм
)
[days] => [7,8,9,10]
[material_price] => [7950,9458,11961,14472]
[work_price] => [4037,4925,5812,7207]
[image] => https://akademik-stroy.ru/wp-content/uploads/materials/derevyannye.jpg
[area_modifier] => 44.18
[parent_name] => Стены 1 этаж (несущие)
[parent_id] => 3
[material_sum] => 716511
[work_sum] => 303203
[total_sum] => 1019714
[total_days] => 7
[display_material_sum] => 716 511
[display_work_sum] => 303 203
[display_total_sum] => 1 019 714
)
1
1 019 714₽
Работа:303 203 ₽
Материалы:716 511 ₽
Дни:7
stdClass Object
(
[id] => 181
[attribute_id] => 3
[name] => Камень
[material_modifier] => 1
[work_modifier] => 1
[options] => Array
(
[0] => 300 мм
[1] => 400 мм
[2] => 500 мм
[3] => 600 мм
)
[days] => [25,27,31,34]
[material_price] => [5262,6844,8330,9815]
[work_price] => [8331,9135,10427,11069]
[image] => https://akademik-stroy.ru/wp-content/uploads/materials/kamen.jpg
[area_modifier] => 44.18
[parent_name] => Стены 1 этаж (несущие)
[parent_id] => 3
[material_sum] => 474249
[work_sum] => 625708
[total_sum] => 1099957
[total_days] => 25
[display_material_sum] => 474 249
[display_work_sum] => 625 708
[display_total_sum] => 1 099 957
)
1
1 099 957₽
Работа:625 708 ₽
Материалы:474 249 ₽
Дни:25
stdClass Object
(
[id] => 182
[attribute_id] => 3
[name] => Каркасно-щитовые
[material_modifier] => 1
[work_modifier] => 1
[options] => Array
(
[0] => 150 мм
[1] => 200 мм
[2] => 250 мм
[3] => 300 мм
[4] => 350 мм
[5] => 400 мм
)
[days] => [15,16,17,18,19,20]
[material_price] => [2379,2639,2898,3458,3601,4175]
[work_price] => [2538,2820,3134,3483,4062,5642]
[image] => https://akademik-stroy.ru/wp-content/uploads/materials/karkasno-shchitovye.jpg
[area_modifier] => 44.18
[parent_name] => Стены 1 этаж (несущие)
[parent_id] => 3
[material_sum] => 214413
[work_sum] => 190619
[total_sum] => 405032
[total_days] => 15
[display_material_sum] => 214 413
[display_work_sum] => 190 619
[display_total_sum] => 405 032
)
1
405 032₽
Работа:190 619 ₽
Материалы:214 413 ₽
Дни:15
stdClass Object
(
[id] => 183
[attribute_id] => 3
[name] => Рубленные
[material_modifier] => 1
[work_modifier] => 1
[options] => Array
(
[0] => 150 мм
[1] => 200 мм
[2] => 250 мм
[3] => 300 мм
[4] => 350 мм
[5] => 400 мм
)
[days] => [15,16,17,18,17,18]
[material_price] => [35950,50267,60583,75900,80217,100533]
[work_price] => [9612,12816,16020,19224,22428,25632]
[image] => https://akademik-stroy.ru/wp-content/uploads/materials/rublennye.jpg
[area_modifier] => 44.18
[parent_name] => Стены 1 этаж (несущие)
[parent_id] => 3
[material_sum] => 3240073
[work_sum] => 721919
[total_sum] => 3961992
[total_days] => 15
[display_material_sum] => 3 240 073
[display_work_sum] => 721 919
[display_total_sum] => 3 961 992
)
1
3 961 992₽
Работа:721 919 ₽
Материалы:3 240 073 ₽
Дни:15
stdClass Object
(
[id] => 185
[attribute_id] => 3
[name] => Теплоблок
[material_modifier] => 1
[work_modifier] => 1
[options] => Array
(
[0] => 300 мм (с облицовкой, не покрашенный)
[1] => 400 мм (с облицовкой, не покрашенный)
[2] => 300 мм (с облицовкой, покрашенный)
[3] => 400 мм (с облицовкой, покрашенный)
)
[days] => [15,16,15,16]
[material_price] => [2888,3729,3957,4258]
[work_price] => [2564,3229,2949,3713]
[image] => https://akademik-stroy.ru/wp-content/uploads/materials/teploblok.jpg
[area_modifier] => 44.18
[parent_name] => Стены 1 этаж (несущие)
[parent_id] => 3
[material_sum] => 260287
[work_sum] => 192572
[total_sum] => 452859
[total_days] => 15
[display_material_sum] => 260 287
[display_work_sum] => 192 572
[display_total_sum] => 452 859
)
1
452 859₽
Работа:192 572 ₽
Материалы:260 287 ₽
Дни:15
stdClass Object
(
[id] => 186
[attribute_id] => 3
[name] => Арболитовые блоки
[material_modifier] => 1
[work_modifier] => 1
[options] => Array
(
[0] => 300 мм
[1] => 400 мм
[2] => 600 мм
)
[days] => [19,22,27]
[material_price] => [3210,4475,5852]
[work_price] => [4214,4788,5866]
[image] => https://akademik-stroy.ru/wp-content/uploads/materials/arbolitovye-bloki.png
[area_modifier] => 44.18
[parent_name] => Стены 1 этаж (несущие)
[parent_id] => 3
[material_sum] => 289308
[work_sum] => 316497
[total_sum] => 605805
[total_days] => 19
[display_material_sum] => 289 308
[display_work_sum] => 316 497
[display_total_sum] => 605 805
)
1
605 805₽
Работа:316 497 ₽
Материалы:289 308 ₽
Дни:19
stdClass Object
(
[id] => 187
[attribute_id] => 3
[name] => Полистиролбетон
[material_modifier] => 1
[work_modifier] => 1
[options] => Array
(
[0] => 300 мм
[1] => 400 мм
[2] => 600 мм
)
[days] => [29,31,35]
[material_price] => [2798,4573,5256]
[work_price] => [5038,5851,6426]
[image] => https://akademik-stroy.ru/wp-content/uploads/materials/polistirolbeton.jpg
[area_modifier] => 44.18
[parent_name] => Стены 1 этаж (несущие)
[parent_id] => 3
[material_sum] => 252176
[work_sum] => 378384
[total_sum] => 630560
[total_days] => 29
[display_material_sum] => 252 176
[display_work_sum] => 378 384
[display_total_sum] => 630 560
)
1
630 560₽
Работа:378 384 ₽
Материалы:252 176 ₽
Дни:29
stdClass Object
(
[id] => 188
[attribute_id] => 3
[name] => Шлакоблок
[material_modifier] => 1
[work_modifier] => 1
[options] => Array
(
[0] => 400 мм
[1] => 600 мм
)
[days] => [15,16]
[material_price] => [2391,3471]
[work_price] => [2642,3662]
[image] => https://akademik-stroy.ru/wp-content/uploads/materials/shlakoblok.jpg
[area_modifier] => 44.18
[parent_name] => Стены 1 этаж (несущие)
[parent_id] => 3
[material_sum] => 215494
[work_sum] => 198430
[total_sum] => 413924
[total_days] => 15
[display_material_sum] => 215 494
[display_work_sum] => 198 430
[display_total_sum] => 413 924
)
1
413 924₽
Работа:198 430 ₽
Материалы:215 494 ₽
Дни:15
stdClass Object
(
[id] => 189
[attribute_id] => 3
[name] => Теплая керамика
[material_modifier] => 1
[work_modifier] => 1
[options] => Array
(
[0] => 380 мм
[1] => 380 мм Thermo
[2] => 440 мм
[3] => 510 мм
)
[days] => [23,23,24,25]
[material_price] => [4510,5098,6093,8013]
[work_price] => [4737,4937,5903,6958]
[image] => https://akademik-stroy.ru/wp-content/uploads/materials/teplaya-keramika.jpg
[area_modifier] => 44.18
[parent_name] => Стены 1 этаж (несущие)
[parent_id] => 3
[material_sum] => 406474
[work_sum] => 355777
[total_sum] => 762251
[total_days] => 23
[display_material_sum] => 406 474
[display_work_sum] => 355 777
[display_total_sum] => 762 251
)
1
762 251₽
Работа:355 777 ₽
Материалы:406 474 ₽
Дни:23
stdClass Object
(
[id] => 190
[attribute_id] => 3
[name] => Несъемная опалубка
[material_modifier] => 1
[work_modifier] => 1
[options] => Array
(
[0] => 200 мм
[1] => 250 мм
[2] => 300 мм
[3] => 350 мм
)
[days] => [15,17,19,21]
[material_price] => [3302,3902,4108,5008]
[work_price] => [2100,2100,2300,2534]
[image] => https://akademik-stroy.ru/wp-content/uploads/materials/nesemnaya-opalubka.jpg
[area_modifier] => 44.18
[parent_name] => Стены 1 этаж (несущие)
[parent_id] => 3
[material_sum] => 297600
[work_sum] => 157723
[total_sum] => 455323
[total_days] => 15
[display_material_sum] => 297 600
[display_work_sum] => 157 723
[display_total_sum] => 455 323
)
1
455 323₽
Работа:157 723 ₽
Материалы:297 600 ₽
Дни:15
stdClass Object
(
[id] => 251
[attribute_id] => 3
[name] => Бревно
[material_modifier] => 1
[work_modifier] => 1
[options] => Array
(
[0] => 260 мм
[1] => 320 мм
[2] => 360 мм
[3] => 400 мм
[4] => 500 мм
)
[days] => [7,8,9,10,11]
[material_price] => [1874,24045,26930,30972,38825]
[work_price] => [5046,6207,6952,7716,9723]
[image] => https://akademik-stroy.ru/wp-content/uploads/materials/sruby.jpg
[area_modifier] => 44.18
[parent_name] => Стены 1 этаж (несущие)
[parent_id] => 3
[material_sum] => 168898
[work_sum] => 378985
[total_sum] => 547883
[total_days] => 7
[display_material_sum] => 168 898
[display_work_sum] => 378 985
[display_total_sum] => 547 883
)
1
547 883₽
Работа:378 985 ₽
Материалы:168 898 ₽
Дни:7
stdClass Object
(
[id] => 7
[attribute_id] => 4
[name] => Деревянные балки
[material_modifier] => 1
[work_modifier] => 1
[options] => Array
(
[0] => без утепления
[1] => утепление 200 мм
[2] => утепление 250 мм
[3] => утепление 300 мм
[4] => утепление 350 мм
[5] => утепление 400 мм
[6] => утепление 450 мм
[7] => утепление 500 мм
)
[days] => [8,9,9,9,11,12,13,14]
[material_price] => [1634,2042,2344,2947,3149,3652,3354,3557]
[work_price] => [1230,1339,1393,1426,1460,1513,1587,1620]
[image] => https://akademik-stroy.ru/wp-content/uploads/materials/derevyannye-balki.png
[area_modifier] => 44.18
[parent_name] => Перекрытие первого этажа
[parent_id] => 4
[material_sum] => 147268
[work_sum] => 92380
[total_sum] => 239648
[total_days] => 8
[display_material_sum] => 147 268
[display_work_sum] => 92 380
[display_total_sum] => 239 648
)
1
239 648₽
Работа:92 380 ₽
Материалы:147 268 ₽
Дни:8
stdClass Object
(
[id] => 8
[attribute_id] => 4
[name] => Сборные ж/б плиты
[material_modifier] => 1
[work_modifier] => 1
[options] => Array
(
[0] => без утепления
[1] => утепление 150 мм
[2] => утепление 200 мм
[3] => утепление 250 мм
[4] => утепление 300 мм
[5] => утепление 350 мм
[6] => утепление 400 мм
[7] => утепление 450 мм
[8] => утепление 500 мм
)
[days] => [13,15,15,15,15,15,15,15,15]
[material_price] => [3067,5577,5928,6679,7730,8782,9833,10884,11935]
[work_price] => [1520,1956,2102,2247,2392,2537,2684,2829,2974]
[image] => https://akademik-stroy.ru/wp-content/uploads/materials/sbornye-zh-b-plity-2.jpg
[area_modifier] => 44.18
[parent_name] => Перекрытие первого этажа
[parent_id] => 4
[material_sum] => 276420
[work_sum] => 114161
[total_sum] => 390581
[total_days] => 13
[display_material_sum] => 276 420
[display_work_sum] => 114 161
[display_total_sum] => 390 581
)
1
390 581₽
Работа:114 161 ₽
Материалы:276 420 ₽
Дни:13
stdClass Object
(
[id] => 89
[attribute_id] => 4
[name] => Монолитная ж/б плита
[material_modifier] => 1
[work_modifier] => 1
[options] => Array
(
[0] => без утепления
[1] => утепление 150 мм
[2] => утепление 200 мм
[3] => утепление 250 мм
[4] => утепление 300 мм
[5] => утепление 350 мм
[6] => утепление 400 мм
[7] => утепление 450 мм
[8] => утепление 500 мм
)
[days] => [18,20,20,20,20,20,20,20,20]
[material_price] => [4837,6572,7224,7375,79426,8177,8728,9180,10031]
[work_price] => [3348,3921,4112,4302,4493,4684,4875,5066,5256]
[image] => https://akademik-stroy.ru/wp-content/uploads/materials/monolitnaya-zh-b-plita-2.jpg
[area_modifier] => 44.18
[parent_name] => Перекрытие первого этажа
[parent_id] => 4
[material_sum] => 435945
[work_sum] => 251455
[total_sum] => 687400
[total_days] => 18
[display_material_sum] => 435 945
[display_work_sum] => 251 455
[display_total_sum] => 687 400
)
1
687 400₽
Работа:251 455 ₽
Материалы:435 945 ₽
Дни:18
stdClass Object
(
[id] => 160
[attribute_id] => 36
[name] => Не эксплуатируемая
[material_modifier] => 1
[work_modifier] => 1
[options] => Array
(
)
[days] => [10]
[material_price] => [8068]
[work_price] => [4163]
[image] => https://akademik-stroy.ru/wp-content/uploads/materials/ne-ehkspluatiruemaya-3.jpg
[area_modifier] => 44.18
[parent_name] => Плоская крыша
[parent_id] => 36
[material_sum] => 727146
[work_sum] => 312666
[total_sum] => 1039812
[total_days] => 10
[display_material_sum] => 727 146
[display_work_sum] => 312 666
[display_total_sum] => 1 039 812
)
1
1 039 812₽
Работа:312 666 ₽
Материалы:727 146 ₽
Дни:10
stdClass Object
(
[id] => 161
[attribute_id] => 36
[name] => Зеленая кровля (Эксплуатируемая)
[material_modifier] => 1
[work_modifier] => 1
[options] => Array
(
)
[days] => [10]
[material_price] => [10056]
[work_price] => [8446]
[image] => https://akademik-stroy.ru/wp-content/uploads/materials/zelenaya-krovlya-2.jpg
[area_modifier] => 44.18
[parent_name] => Плоская крыша
[parent_id] => 36
[material_sum] => 906319
[work_sum] => 634345
[total_sum] => 1540664
[total_days] => 10
[display_material_sum] => 906 319
[display_work_sum] => 634 345
[display_total_sum] => 1 540 664
)
1
1 540 664₽
Работа:634 345 ₽
Материалы:906 319 ₽
Дни:10
stdClass Object
(
[id] => 162
[attribute_id] => 36
[name] => Эксплуатируемая
[material_modifier] => 1
[work_modifier] => 1
[options] => Array
(
)
[days] => [10]
[material_price] => [9593]
[work_price] => [7459]
[image] => https://akademik-stroy.ru/wp-content/uploads/materials/ehkspluatiruemaya-2.jpg
[area_modifier] => 44.18
[parent_name] => Плоская крыша
[parent_id] => 36
[material_sum] => 864590
[work_sum] => 560216
[total_sum] => 1424806
[total_days] => 10
[display_material_sum] => 864 590
[display_work_sum] => 560 216
[display_total_sum] => 1 424 806
)
1
1 424 806₽
Работа:560 216 ₽
Материалы:864 590 ₽
Дни:10
stdClass Object
(
[id] => 163
[attribute_id] => 36
[name] => Нет
[material_modifier] => 1
[work_modifier] => 1
[options] => Array
(
)
[days] => [0]
[material_price] => [0]
[work_price] => [0]
[image] => https://akademik-stroy.ru/wp-content/uploads/materials/ne-ehkspluatiruemaya-3.jpg
[area_modifier] => 44.18
[parent_name] => Плоская крыша
[parent_id] => 36
[material_sum] => 0
[work_sum] => 0
[total_sum] => 0
[total_days] => 0
[display_material_sum] => 0
[display_work_sum] => 0
[display_total_sum] => 0
)
1
0₽
Работа:0 ₽
Материалы:0 ₽
Дни:0
stdClass Object
(
[id] => 51
[attribute_id] => 26
[name] => Есть
[material_modifier] => 1
[work_modifier] => 1
[options] => Array
(
[0] => Профиль 58 мм, 3-камерный, стеклопакет 2-камерный до 32 мм
[1] => Профиль 60 мм, 4-камерный, стеклопакет 2-камерный до 32 мм
[2] => Профиль 70 мм, 5-камерный, стеклопакет 2-камерный до 40 мм
[3] => Профиль 72 мм, 5-камерный, стеклопакет 2-камерный до 40 мм
[4] => Алюминиевые окна Alutech профиль 72 мм, стеклопакет 2-камерный
)
[days] => [3,3,3,3,3]
[material_price] => [1339,2124,2867,3023,29596]
[work_price] => [635,647,659,668,2579]
[image] => https://akademik-stroy.ru/wp-content/uploads/materials/okna.jpg
[area_modifier] => 35.85
[parent_name] => Окна
[parent_id] => 26
[material_sum] => 97926
[work_sum] => 38700
[total_sum] => 136626
[total_days] => 3
[display_material_sum] => 97 926
[display_work_sum] => 38 700
[display_total_sum] => 136 626
)
1
136 626₽
Работа:38 700 ₽
Материалы:97 926 ₽
Дни:3
stdClass Object
(
[id] => 52
[attribute_id] => 26
[name] => Нет
[material_modifier] => 2
[work_modifier] => 1
[options] =>
[days] => null
[material_price] => null
[work_price] => null
[image] => https://akademik-stroy.ru/wp-content/uploads/materials/okna.jpg
[area_modifier] => 35.85
[parent_name] => Окна
[parent_id] => 26
[material_sum] => 0
[work_sum] => 0
[total_sum] => 0
[total_days] => 0
[display_material_sum] => 0
[display_work_sum] => 0
[display_total_sum] => 0
)
1
0₽
Работа:0 ₽
Материалы:0 ₽
Дни:0
stdClass Object
(
[id] => 53
[attribute_id] => 27
[name] => Есть
[material_modifier] => 1
[work_modifier] => 1
[options] => Array
(
)
[days] => [1]
[material_price] => [10000]
[work_price] => [5500]
[image] => https://akademik-stroy.ru/wp-content/uploads/materials/dveri.jpg
[area_modifier] => 1
[parent_name] => Двери входные
[parent_id] => 27
[material_sum] => 20400
[work_sum] => 9350
[total_sum] => 29750
[total_days] => 1
[display_material_sum] => 20 400
[display_work_sum] => 9 350
[display_total_sum] => 29 750
)
1
29 750₽
Работа:9 350 ₽
Материалы:20 400 ₽
Дни:1
stdClass Object
(
[id] => 54
[attribute_id] => 27
[name] => Нет
[material_modifier] => 1
[work_modifier] => 1
[options] => Array
(
)
[days] => [0]
[material_price] => [0]
[work_price] => [0]
[image] => https://akademik-stroy.ru/wp-content/uploads/materials/dveri.jpg
[area_modifier] => 1
[parent_name] => Двери входные
[parent_id] => 27
[material_sum] => 0
[work_sum] => 0
[total_sum] => 0
[total_days] => 0
[display_material_sum] => 0
[display_work_sum] => 0
[display_total_sum] => 0
)
1
0₽
Работа:0 ₽
Материалы:0 ₽
Дни:0
stdClass Object
(
[id] => 31
[attribute_id] => 16
[name] => Нет
[material_modifier] => 1
[work_modifier] => 1
[options] => Array
(
)
[days] => [0]
[material_price] => [0]
[work_price] => [0]
[image] => https://akademik-stroy.ru/wp-content/uploads/materials/docke-standard-pvh.jpg
[area_modifier] => 44.18
[parent_name] => Водосточная система
[parent_id] => 16
[material_sum] => 0
[work_sum] => 0
[total_sum] => 0
[total_days] => 0
[display_material_sum] => 0
[display_work_sum] => 0
[display_total_sum] => 0
)
1
0₽
Работа:0 ₽
Материалы:0 ₽
Дни:0
stdClass Object
(
[id] => 32
[attribute_id] => 16
[name] => Есть
[material_modifier] => 1
[work_modifier] => 1
[options] => Array
(
[0] => Döcke Standard (ПВХ)
[1] => Металлические Grand Line
)
[days] => [7,7]
[material_price] => [1842,2703]
[work_price] => [1491,1529]
[image] => https://akademik-stroy.ru/wp-content/uploads/materials/docke-standard-pvh.jpg
[area_modifier] => 44.18
[parent_name] => Водосточная система
[parent_id] => 16
[material_sum] => 166014
[work_sum] => 111983
[total_sum] => 277997
[total_days] => 7
[display_material_sum] => 166 014
[display_work_sum] => 111 983
[display_total_sum] => 277 997
)
1
277 997₽
Работа:111 983 ₽
Материалы:166 014 ₽
Дни:7
stdClass Object
(
[id] => 33
[attribute_id] => 17
[name] => Нет
[material_modifier] => 1
[work_modifier] => 1
[options] => Array
(
)
[days] => [0]
[material_price] => [0]
[work_price] => [0]
[image] => https://akademik-stroy.ru/wp-content/uploads/materials/mineralovata.jpg
[area_modifier] => 44.18
[parent_name] => Дополнительное утепление наружных стен
[parent_id] => 17
[material_sum] => 0
[work_sum] => 0
[total_sum] => 0
[total_days] => 0
[display_material_sum] => 0
[display_work_sum] => 0
[display_total_sum] => 0
)
1
0₽
Работа:0 ₽
Материалы:0 ₽
Дни:0
stdClass Object
(
[id] => 34
[attribute_id] => 17
[name] => Минераловатный
[material_modifier] => 1
[work_modifier] => 1
[options] => Array
(
[0] => 50 мм
[1] => 100 мм
[2] => 150 мм
[3] => 200 мм
[4] => 250 мм
[5] => 300 мм
)
[days] => [7,8,10,12,14,15]
[material_price] => [3437,3613,3803,3915,4601,4830]
[work_price] => [2325,2423,2523,2749,2859,3025]
[image] => https://akademik-stroy.ru/wp-content/uploads/materials/mineralovata.jpg
[area_modifier] => 44.18
[parent_name] => Дополнительное утепление наружных стен
[parent_id] => 17
[material_sum] => 309767
[work_sum] => 174621
[total_sum] => 484388
[total_days] => 7
[display_material_sum] => 309 767
[display_work_sum] => 174 621
[display_total_sum] => 484 388
)
1
484 388₽
Работа:174 621 ₽
Материалы:309 767 ₽
Дни:7
stdClass Object
(
[id] => 128
[attribute_id] => 17
[name] => Эковата (целлюлозная вата)
[material_modifier] => 1
[work_modifier] => 1
[options] => Array
(
[0] => 50 мм
[1] => 100 мм
[2] => 150 мм
[3] => 200 мм
[4] => 250 мм
[5] => 300 мм
)
[days] => [3,4,5,6,7,8]
[material_price] => [810,1319,1629,1838,2267,2676]
[work_price] => [1225,1323,1423,1549,1659,1725]
[image] => https://akademik-stroy.ru/wp-content/uploads/materials/ehkovata.jpg
[area_modifier] => 44.18
[parent_name] => Дополнительное утепление наружных стен
[parent_id] => 17
[material_sum] => 73003
[work_sum] => 92005
[total_sum] => 165008
[total_days] => 3
[display_material_sum] => 73 003
[display_work_sum] => 92 005
[display_total_sum] => 165 008
)
1
165 008₽
Работа:92 005 ₽
Материалы:73 003 ₽
Дни:3
stdClass Object
(
[id] => 129
[attribute_id] => 17
[name] => Экструдированный пенополистирол
[material_modifier] => 1
[work_modifier] => 1
[options] => Array
(
[0] => 50 мм
[1] => 100 мм
[2] => 150 мм
[3] => 200 мм
[4] => 250 мм
[5] => 300 мм
)
[days] => [5,6,7,8,9,10]
[material_price] => [4560,4300,5119,6292,7010,8583]
[work_price] => [1795,1954,2254,2330,2595,2735]
[image] => https://akademik-stroy.ru/wp-content/uploads/materials/epps.jpg
[area_modifier] => 44.18
[parent_name] => Дополнительное утепление наружных стен
[parent_id] => 17
[material_sum] => 410980
[work_sum] => 134815
[total_sum] => 545795
[total_days] => 5
[display_material_sum] => 410 980
[display_work_sum] => 134 815
[display_total_sum] => 545 795
)
1
545 795₽
Работа:134 815 ₽
Материалы:410 980 ₽
Дни:5
stdClass Object
(
[id] => 130
[attribute_id] => 17
[name] => ПСБ (ППС-пенополистирол)
[material_modifier] => 1
[work_modifier] => 1
[options] => Array
(
[0] => 50 мм
[1] => 100 мм
[2] => 150 мм
[3] => 200 мм
[4] => 250 мм
[5] => 300 мм
)
[days] => [5,6,7,8,9,10]
[material_price] => [4822,5200,5819,6292,7010,7583]
[work_price] => [1795,1954,2254,2330,2595,2735]
[image] => https://akademik-stroy.ru/wp-content/uploads/materials/psb.jpg
[area_modifier] => 44.18
[parent_name] => Дополнительное утепление наружных стен
[parent_id] => 17
[material_sum] => 434593
[work_sum] => 134815
[total_sum] => 569408
[total_days] => 5
[display_material_sum] => 434 593
[display_work_sum] => 134 815
[display_total_sum] => 569 408
)
1
569 408₽
Работа:134 815 ₽
Материалы:434 593 ₽
Дни:5
stdClass Object
(
[id] => 131
[attribute_id] => 17
[name] => ППУ (Пенополиуретан)
[material_modifier] => 1
[work_modifier] => 1
[options] => Array
(
[0] => 50 мм
[1] => 100 мм
[2] => 150 мм
[3] => 200 мм
[4] => 250 мм
[5] => 300 мм
)
[days] => [3,4,5,6,7,8]
[material_price] => [2860,3400,4219,4592,5010,5583]
[work_price] => [729,900,980,1120,1280,1530]
[image] => https://akademik-stroy.ru/wp-content/uploads/materials/ppu.jpg
[area_modifier] => 44.18
[parent_name] => Дополнительное утепление наружных стен
[parent_id] => 17
[material_sum] => 257764
[work_sum] => 54752
[total_sum] => 312516
[total_days] => 3
[display_material_sum] => 257 764
[display_work_sum] => 54 752
[display_total_sum] => 312 516
)
1
312 516₽
Работа:54 752 ₽
Материалы:257 764 ₽
Дни:3
stdClass Object
(
[id] => 132
[attribute_id] => 17
[name] => PIR-плиты (пенополиизоцианурат)
[material_modifier] => 1
[work_modifier] => 1
[options] => Array
(
[0] => 50 мм
[1] => 100 мм
[2] => 150 мм
[3] => 200 мм
[4] => 250 мм
[5] => 300 мм
)
[days] => [5,6,7,8,9,10]
[material_price] => [8323,15645,20968,25900,29258,30581]
[work_price] => [800,900,970,1150,1280,1330]
[image] => https://akademik-stroy.ru/wp-content/uploads/materials/pir.jpg
[area_modifier] => 44.18
[parent_name] => Дополнительное утепление наружных стен
[parent_id] => 17
[material_sum] => 750129
[work_sum] => 60085
[total_sum] => 810214
[total_days] => 5
[display_material_sum] => 750 129
[display_work_sum] => 60 085
[display_total_sum] => 810 214
)
1
810 214₽
Работа:60 085 ₽
Материалы:750 129 ₽
Дни:5
stdClass Object
(
[id] => 37
[attribute_id] => 19
[name] => Нет
[material_modifier] => 1
[work_modifier] => 1
[options] => Array
(
)
[days] => [0]
[material_price] => [0]
[work_price] => [0]
[image] => https://akademik-stroy.ru/wp-content/uploads/materials/imitaciya-brusa.jpg
[area_modifier] => 44.18
[parent_name] => Наружная отделка фасада
[parent_id] => 19
[material_sum] => 0
[work_sum] => 0
[total_sum] => 0
[total_days] => 0
[display_material_sum] => 0
[display_work_sum] => 0
[display_total_sum] => 0
)
1
0₽
Работа:0 ₽
Материалы:0 ₽
Дни:0
stdClass Object
(
[id] => 38
[attribute_id] => 19
[name] => Имитация бруса
[material_modifier] => 1
[work_modifier] => 1
[options] => Array
(
[0] => Сосна
[1] => Ель
[2] => Лиственница
)
[days] => [20,20,20]
[material_price] => [2994,2762,4954]
[work_price] => [1397,1231,1577]
[image] => https://akademik-stroy.ru/wp-content/uploads/materials/imitaciya-brusa.jpg
[area_modifier] => 44.18
[parent_name] => Наружная отделка фасада
[parent_id] => 19
[material_sum] => 269841
[work_sum] => 104923
[total_sum] => 374764
[total_days] => 20
[display_material_sum] => 269 841
[display_work_sum] => 104 923
[display_total_sum] => 374 764
)
1
374 764₽
Работа:104 923 ₽
Материалы:269 841 ₽
Дни:20
stdClass Object
(
[id] => 136
[attribute_id] => 19
[name] => Планкен
[material_modifier] => 1
[work_modifier] => 1
[options] => Array
(
[0] => Сосна
[1] => Ель
[2] => Лиственница
)
[days] => [20,20,20]
[material_price] => [3194,2862,5154]
[work_price] => [1537,1354,1735]
[image] => https://akademik-stroy.ru/wp-content/uploads/materials/planken.jpg
[area_modifier] => 44.18
[parent_name] => Наружная отделка фасада
[parent_id] => 19
[material_sum] => 287866
[work_sum] => 115438
[total_sum] => 403304
[total_days] => 20
[display_material_sum] => 287 866
[display_work_sum] => 115 438
[display_total_sum] => 403 304
)
1
403 304₽
Работа:115 438 ₽
Материалы:287 866 ₽
Дни:20
stdClass Object
(
[id] => 137
[attribute_id] => 19
[name] => Штукатурка
[material_modifier] => 1
[work_modifier] => 1
[options] => Array
(
[0] => Цементно-песчаная (минеральная)
[1] => Мокрый фасад
)
[days] => [35,35]
[material_price] => [2231,3938]
[work_price] => [1202,2422]
[image] => https://akademik-stroy.ru/wp-content/uploads/materials/shtukaturka.jpg
[area_modifier] => 44.18
[parent_name] => Наружная отделка фасада
[parent_id] => 19
[material_sum] => 201074
[work_sum] => 90277
[total_sum] => 291351
[total_days] => 35
[display_material_sum] => 201 074
[display_work_sum] => 90 277
[display_total_sum] => 291 351
)
1
291 351₽
Работа:90 277 ₽
Материалы:201 074 ₽
Дни:35
stdClass Object
(
[id] => 138
[attribute_id] => 19
[name] => Облицовочный кирпич
[material_modifier] => 1
[work_modifier] => 1
[options] => Array
(
[0] => Керамический
[1] => Клинкерный
[2] => Ручной формовки
[3] => Гиперпрессованный
[4] => Силикатный кирпич
)
[days] => [45,45,45,45,45]
[material_price] => [8174,9148,1040,1257,5876]
[work_price] => [3240,3758,4536,4017,3369]
[image] => https://akademik-stroy.ru/wp-content/uploads/materials/oblicovochnyj-kirpich.jpg
[area_modifier] => 44.18
[parent_name] => Наружная отделка фасада
[parent_id] => 19
[material_sum] => 736700
[work_sum] => 243343
[total_sum] => 980043
[total_days] => 45
[display_material_sum] => 736 700
[display_work_sum] => 243 343
[display_total_sum] => 980 043
)
1
980 043₽
Работа:243 343 ₽
Материалы:736 700 ₽
Дни:45
stdClass Object
(
[id] => 139
[attribute_id] => 19
[name] => Фасадная плитка
[material_modifier] => 1
[work_modifier] => 1
[options] => Array
(
[0] => Клинкерная
[1] => Керамическая
[2] => Плитка ручной формовки
)
[days] => [40,40,40]
[material_price] => [2974,1487,3470]
[work_price] => [3007,2592,3629]
[image] => https://akademik-stroy.ru/wp-content/uploads/materials/fasadnaya-plitka.jpg
[area_modifier] => 44.18
[parent_name] => Наружная отделка фасада
[parent_id] => 19
[material_sum] => 268038
[work_sum] => 225844
[total_sum] => 493882
[total_days] => 40
[display_material_sum] => 268 038
[display_work_sum] => 225 844
[display_total_sum] => 493 882
)
1
493 882₽
Работа:225 844 ₽
Материалы:268 038 ₽
Дни:40
stdClass Object
(
[id] => 140
[attribute_id] => 19
[name] => Сайдинг
[material_modifier] => 1
[work_modifier] => 1
[options] => Array
(
[0] => Виниловый
[1] => Металлический
[2] => Фиброцементный
)
[days] => [20,20,20]
[material_price] => [1263,1944,4147]
[work_price] => [1263,1944,2074]
[image] => https://akademik-stroy.ru/wp-content/uploads/materials/sajding.jpg
[area_modifier] => 44.18
[parent_name] => Наружная отделка фасада
[parent_id] => 19
[material_sum] => 113831
[work_sum] => 94859
[total_sum] => 208690
[total_days] => 20
[display_material_sum] => 113 831
[display_work_sum] => 94 859
[display_total_sum] => 208 690
)
1
208 690₽
Работа:94 859 ₽
Материалы:113 831 ₽
Дни:20
stdClass Object
(
[id] => 141
[attribute_id] => 19
[name] => Камень
[material_modifier] => 1
[work_modifier] => 1
[options] => Array
(
[0] => Травертин
[1] => Дагестанский
[2] => Искусственный
[3] => Натуральный
[4] => Керамогранит
)
[days] => [45,45,45,45,45]
[material_price] => [4536,3888,2592,3240,2462]
[work_price] => [3240,3240,2462,3110,1944]
[image] => https://akademik-stroy.ru/wp-content/uploads/materials/kamen-1.jpg
[area_modifier] => 44.18
[parent_name] => Наружная отделка фасада
[parent_id] => 19
[material_sum] => 408817
[work_sum] => 243343
[total_sum] => 652160
[total_days] => 45
[display_material_sum] => 408 817
[display_work_sum] => 243 343
[display_total_sum] => 652 160
)
1
652 160₽
Работа:243 343 ₽
Материалы:408 817 ₽
Дни:45
stdClass Object
(
[id] => 142
[attribute_id] => 19
[name] => Термопанели
[material_modifier] => 1
[work_modifier] => 1
[options] => Array
(
)
[days] => [20]
[material_price] => [6221]
[work_price] => [2333]
[image] => https://akademik-stroy.ru/wp-content/uploads/materials/termo.png
[area_modifier] => 44.18
[parent_name] => Наружная отделка фасада
[parent_id] => 19
[material_sum] => 560681
[work_sum] => 175222
[total_sum] => 735903
[total_days] => 20
[display_material_sum] => 560 681
[display_work_sum] => 175 222
[display_total_sum] => 735 903
)
1
735 903₽
Работа:175 222 ₽
Материалы:560 681 ₽
Дни:20
stdClass Object
(
[id] => 143
[attribute_id] => 19
[name] => Плитка HAUBERK
[material_modifier] => 1
[work_modifier] => 1
[options] => Array
(
)
[days] => [20]
[material_price] => [2786]
[work_price] => [1944]
[image] => https://akademik-stroy.ru/wp-content/uploads/materials/hauberk.jpg
[area_modifier] => 44.18
[parent_name] => Наружная отделка фасада
[parent_id] => 19
[material_sum] => 251094
[work_sum] => 146006
[total_sum] => 397100
[total_days] => 20
[display_material_sum] => 251 094
[display_work_sum] => 146 006
[display_total_sum] => 397 100
)
1
397 100₽
Работа:146 006 ₽
Материалы:251 094 ₽
Дни:20
stdClass Object
(
[id] => 144
[attribute_id] => 19
[name] => Фальцевый фасад
[material_modifier] => 1
[work_modifier] => 1
[options] => Array
(
)
[days] => [20]
[material_price] => [3240]
[work_price] => [2592]
[image] => https://akademik-stroy.ru/wp-content/uploads/materials/falcevyj-fasad.jpg
[area_modifier] => 44.18
[parent_name] => Наружная отделка фасада
[parent_id] => 19
[material_sum] => 292012
[work_sum] => 194675
[total_sum] => 486687
[total_days] => 20
[display_material_sum] => 292 012
[display_work_sum] => 194 675
[display_total_sum] => 486 687
)
1
486 687₽
Работа:194 675 ₽
Материалы:292 012 ₽
Дни:20
stdClass Object
(
[id] => 145
[attribute_id] => 19
[name] => Комбинированный
[material_modifier] => 1
[work_modifier] => 1
[options] => Array
(
)
[days] => [20]
[material_price] => [4629]
[work_price] => [3499]
[image] => https://akademik-stroy.ru/wp-content/uploads/materials/Kombinirovannyj.jpg
[area_modifier] => 44.18
[parent_name] => Наружная отделка фасада
[parent_id] => 19
[material_sum] => 417199
[work_sum] => 262796
[total_sum] => 679995
[total_days] => 20
[display_material_sum] => 417 199
[display_work_sum] => 262 796
[display_total_sum] => 679 995
)
1
679 995₽
Работа:262 796 ₽
Материалы:417 199 ₽
Дни:20
stdClass Object
(
[id] => 257
[attribute_id] => 19
[name] => Японские фиброцементные
[material_modifier] => 1
[work_modifier] => 1
[options] => Array
(
)
[days] => [20]
[material_price] => [7043]
[work_price] => [2993]
[image] => https://akademik-stroy.ru/wp-content/uploads/materials/paneli.jpg
[area_modifier] => 44.18
[parent_name] => Наружная отделка фасада
[parent_id] => 19
[material_sum] => 634766
[work_sum] => 224792
[total_sum] => 859558
[total_days] => 20
[display_material_sum] => 634 766
[display_work_sum] => 224 792
[display_total_sum] => 859 558
)
1
859 558₽
Работа:224 792 ₽
Материалы:634 766 ₽
Дни:20
stdClass Object
(
[id] => 258
[attribute_id] => 19
[name] => Панели Каньон
[material_modifier] => 1
[work_modifier] => 1
[options] => Array
(
)
[days] => [20]
[material_price] => [4543]
[work_price] => [2592]
[image] => https://akademik-stroy.ru/wp-content/uploads/materials/kanon.png
[area_modifier] => 44.18
[parent_name] => Наружная отделка фасада
[parent_id] => 19
[material_sum] => 409448
[work_sum] => 194675
[total_sum] => 604123
[total_days] => 20
[display_material_sum] => 409 448
[display_work_sum] => 194 675
[display_total_sum] => 604 123
)
1
604 123₽
Работа:194 675 ₽
Материалы:409 448 ₽
Дни:20
stdClass Object
(
[id] => 39
[attribute_id] => 20
[name] => Нет
[material_modifier] => 1
[work_modifier] => 1
[options] => Array
(
)
[days] => [0]
[material_price] => [0]
[work_price] => [0]
[image] => https://akademik-stroy.ru/wp-content/uploads/materials/terrasy.jpg
[area_modifier] => 30
[parent_name] => Террасы, крыльца, навесы
[parent_id] => 20
[material_sum] => 0
[work_sum] => 0
[total_sum] => 0
[total_days] => 0
[display_material_sum] => 0
[display_work_sum] => 0
[display_total_sum] => 0
)
1
0₽
Работа:0 ₽
Материалы:0 ₽
Дни:0
stdClass Object
(
[id] => 40
[attribute_id] => 20
[name] => Есть
[material_modifier] => 1
[work_modifier] => 1
[options] => Array
(
)
[days] => [5]
[material_price] => [10450]
[work_price] => [1950]
[image] => https://akademik-stroy.ru/wp-content/uploads/materials/terrasy.jpg
[area_modifier] => 30
[parent_name] => Террасы, крыльца, навесы
[parent_id] => 20
[material_sum] => 639540
[work_sum] => 99450
[total_sum] => 738990
[total_days] => 5
[display_material_sum] => 639 540
[display_work_sum] => 99 450
[display_total_sum] => 738 990
)
1
738 990₽
Работа:99 450 ₽
Материалы:639 540 ₽
Дни:5
stdClass Object
(
[id] => 41
[attribute_id] => 21
[name] => Нет
[material_modifier] => 1
[work_modifier] => 1
[options] => Array
(
)
[days] => [0]
[material_price] => [0]
[work_price] => [0]
[image] => https://akademik-stroy.ru/wp-content/uploads/materials/balkony.jpg
[area_modifier] => 30
[parent_name] => Балконы
[parent_id] => 21
[material_sum] => 0
[work_sum] => 0
[total_sum] => 0
[total_days] => 0
[display_material_sum] => 0
[display_work_sum] => 0
[display_total_sum] => 0
)
1
0₽
Работа:0 ₽
Материалы:0 ₽
Дни:0
stdClass Object
(
[id] => 42
[attribute_id] => 21
[name] => Есть
[material_modifier] => 1
[work_modifier] => 1
[options] => Array
(
)
[days] => [12]
[material_price] => [3600]
[work_price] => [1950]
[image] => https://akademik-stroy.ru/wp-content/uploads/materials/balkony.jpg
[area_modifier] => 30
[parent_name] => Балконы
[parent_id] => 21
[material_sum] => 220320
[work_sum] => 99450
[total_sum] => 319770
[total_days] => 12
[display_material_sum] => 220 320
[display_work_sum] => 99 450
[display_total_sum] => 319 770
)
1
319 770₽
Работа:99 450 ₽
Материалы:220 320 ₽
Дни:12
stdClass Object
(
[id] => 43
[attribute_id] => 22
[name] => Нет
[material_modifier] => 1
[work_modifier] => 1
[options] => Array
(
)
[days] => [0]
[material_price] => [0]
[work_price] => [0]
[image] => https://akademik-stroy.ru/wp-content/uploads/materials/uteplennaya.jpg
[area_modifier] => 44.18
[parent_name] => Отмостка
[parent_id] => 22
[material_sum] => 0
[work_sum] => 0
[total_sum] => 0
[total_days] => 0
[display_material_sum] => 0
[display_work_sum] => 0
[display_total_sum] => 0
)
1
0₽
Работа:0 ₽
Материалы:0 ₽
Дни:0
stdClass Object
(
[id] => 44
[attribute_id] => 22
[name] => Утепленная отмостка
[material_modifier] => 1
[work_modifier] => 1
[options] => Array
(
)
[days] => [15]
[material_price] => [2550]
[work_price] => [1750]
[image] => https://akademik-stroy.ru/wp-content/uploads/materials/uteplennaya.jpg
[area_modifier] => 44.18
[parent_name] => Отмостка
[parent_id] => 22
[material_sum] => 229824
[work_sum] => 131436
[total_sum] => 361260
[total_days] => 15
[display_material_sum] => 229 824
[display_work_sum] => 131 436
[display_total_sum] => 361 260
)
1
361 260₽
Работа:131 436 ₽
Материалы:229 824 ₽
Дни:15
stdClass Object
(
[id] => 146
[attribute_id] => 22
[name] => Не утепленная отмостка
[material_modifier] => 1
[work_modifier] => 1
[options] => Array
(
)
[days] => [10]
[material_price] => [1650]
[work_price] => [1450]
[image] => https://akademik-stroy.ru/wp-content/uploads/materials/ne-uteplennaya.jpg
[area_modifier] => 44.18
[parent_name] => Отмостка
[parent_id] => 22
[material_sum] => 148710
[work_sum] => 108904
[total_sum] => 257614
[total_days] => 10
[display_material_sum] => 148 710
[display_work_sum] => 108 904
[display_total_sum] => 257 614
)
1
257 614₽
Работа:108 904 ₽
Материалы:148 710 ₽
Дни:10
stdClass Object
(
[id] => 45
[attribute_id] => 23
[name] => Нет
[material_modifier] => 1
[work_modifier] => 1
[options] => Array
(
)
[days] => [0]
[material_price] => [0]
[work_price] => [0]
[image] => https://akademik-stroy.ru/wp-content/uploads/materials/drenazh-2.jpg
[area_modifier] => 44.18
[parent_name] => Дренаж вокруг дома
[parent_id] => 23
[material_sum] => 0
[work_sum] => 0
[total_sum] => 0
[total_days] => 0
[display_material_sum] => 0
[display_work_sum] => 0
[display_total_sum] => 0
)
1
0₽
Работа:0 ₽
Материалы:0 ₽
Дни:0
stdClass Object
(
[id] => 46
[attribute_id] => 23
[name] => Есть
[material_modifier] => 1
[work_modifier] => 1
[options] => Array
(
)
[days] => [5]
[material_price] => [2366]
[work_price] => [1911]
[image] => https://akademik-stroy.ru/wp-content/uploads/materials/drenazh-2.jpg
[area_modifier] => 44.18
[parent_name] => Дренаж вокруг дома
[parent_id] => 23
[material_sum] => 213241
[work_sum] => 143528
[total_sum] => 356769
[total_days] => 5
[display_material_sum] => 213 241
[display_work_sum] => 143 528
[display_total_sum] => 356 769
)
1
356 769₽
Работа:143 528 ₽
Материалы:213 241 ₽
Дни:5
stdClass Object
(
[id] => 47
[attribute_id] => 24
[name] => Нет
[material_modifier] => 1
[work_modifier] => 1
[options] => Array
(
)
[days] => [0]
[material_price] => [0]
[work_price] => [0]
[image] => https://akademik-stroy.ru/wp-content/uploads/materials/septik.jpg
[area_modifier] => 1
[parent_name] => Автономная канализация (септики)
[parent_id] => 24
[material_sum] => 0
[work_sum] => 0
[total_sum] => 0
[total_days] => 0
[display_material_sum] => 0
[display_work_sum] => 0
[display_total_sum] => 0
)
1
0₽
Работа:0 ₽
Материалы:0 ₽
Дни:0
stdClass Object
(
[id] => 48
[attribute_id] => 24
[name] => Есть
[material_modifier] => 1
[work_modifier] => 1
[options] => Array
(
[0] => Для дачи на 4 человека
[1] => Для дома на 5 человек
[2] => Для дома на 6 человек
[3] => Для дома на 7 человек
[4] => Для дома на 10 человек
)
[days] => [7,7,7,8,8]
[material_price] => [196340,220500,240940,264200,293340]
[work_price] => [50000,55000,60500,66550,73206]
[image] => https://akademik-stroy.ru/wp-content/uploads/materials/septik.jpg
[area_modifier] => 1
[parent_name] => Автономная канализация (септики)
[parent_id] => 24
[material_sum] => 400534
[work_sum] => 85000
[total_sum] => 485534
[total_days] => 7
[display_material_sum] => 400 534
[display_work_sum] => 85 000
[display_total_sum] => 485 534
)
1
485 534₽
Работа:85 000 ₽
Материалы:400 534 ₽
Дни:7
stdClass Object
(
[id] => 49
[attribute_id] => 25
[name] => Нет
[material_modifier] => 1
[work_modifier] => 1
[options] => Array
(
)
[days] => [0]
[material_price] => [0]
[work_price] => [0]
[image] => https://akademik-stroy.ru/wp-content/uploads/materials/gkl.jpg
[area_modifier] => 44.18
[parent_name] => Внутренние (не несущие) перегородки
[parent_id] => 25
[material_sum] => 0
[work_sum] => 0
[total_sum] => 0
[total_days] => 0
[display_material_sum] => 0
[display_work_sum] => 0
[display_total_sum] => 0
)
1
0₽
Работа:0 ₽
Материалы:0 ₽
Дни:0
stdClass Object
(
[id] => 147
[attribute_id] => 25
[name] => Каркасно-обшивные
[material_modifier] => 1
[work_modifier] => 1
[options] => Array
(
[0] => 75 мм (без шумоизоляции)
[1] => 75 мм (с шумоизоляцией)
)
[days] => [11,11]
[material_price] => [580,970]
[work_price] => [380,570]
[image] => https://akademik-stroy.ru/wp-content/uploads/materials/gkl.jpg
[area_modifier] => 44.18
[parent_name] => Внутренние (не несущие) перегородки
[parent_id] => 25
[material_sum] => 52274
[work_sum] => 28540
[total_sum] => 80814
[total_days] => 11
[display_material_sum] => 52 274
[display_work_sum] => 28 540
[display_total_sum] => 80 814
)
1
80 814₽
Работа:28 540 ₽
Материалы:52 274 ₽
Дни:11
stdClass Object
(
[id] => 148
[attribute_id] => 25
[name] => Пазогребневые
[material_modifier] => 1
[work_modifier] => 1
[options] => Array
(
[0] => 80 мм
[1] => 100 мм
)
[days] => [5,5]
[material_price] => [1022,1313]
[work_price] => [600,700]
[image] => https://akademik-stroy.ru/wp-content/uploads/materials/pazogrebnevye-bloki.jpg
[area_modifier] => 44.18
[parent_name] => Внутренние (не несущие) перегородки
[parent_id] => 25
[material_sum] => 92110
[work_sum] => 45064
[total_sum] => 137174
[total_days] => 5
[display_material_sum] => 92 110
[display_work_sum] => 45 064
[display_total_sum] => 137 174
)
1
137 174₽
Работа:45 064 ₽
Материалы:92 110 ₽
Дни:5
stdClass Object
(
[id] => 149
[attribute_id] => 25
[name] => Газобетонные
[material_modifier] => 1
[work_modifier] => 1
[options] => Array
(
[0] => 100 мм
[1] => 200 мм
)
[days] => [11,11]
[material_price] => [1160,1920]
[work_price] => [700,900]
[image] => https://akademik-stroy.ru/wp-content/uploads/materials/gazobeton-2.jpg
[area_modifier] => 44.18
[parent_name] => Внутренние (не несущие) перегородки
[parent_id] => 25
[material_sum] => 104548
[work_sum] => 52574
[total_sum] => 157122
[total_days] => 11
[display_material_sum] => 104 548
[display_work_sum] => 52 574
[display_total_sum] => 157 122
)
1
157 122₽
Работа:52 574 ₽
Материалы:104 548 ₽
Дни:11
stdClass Object
(
[id] => 150
[attribute_id] => 25
[name] => Кирпичные
[material_modifier] => 1
[work_modifier] => 1
[options] => Array
(
[0] => 120 мм
[1] => 250 мм
[2] => 360 мм
)
[days] => [7,7,7]
[material_price] => [1785,3570,5355]
[work_price] => [900,1600,1800]
[image] => https://akademik-stroy.ru/wp-content/uploads/materials/kirpich-1.jpg
[area_modifier] => 44.18
[parent_name] => Внутренние (не несущие) перегородки
[parent_id] => 25
[material_sum] => 160877
[work_sum] => 67595
[total_sum] => 228472
[total_days] => 7
[display_material_sum] => 160 877
[display_work_sum] => 67 595
[display_total_sum] => 228 472
)
1
228 472₽
Работа:67 595 ₽
Материалы:160 877 ₽
Дни:7
stdClass Object
(
[id] => 55
[attribute_id] => 28
[name] => Нет
[material_modifier] => 1
[work_modifier] => 1
[options] => Array
(
)
[days] => [0]
[material_price] => [0]
[work_price] => [0]
[image] => https://akademik-stroy.ru/wp-content/uploads/materials/ehlektrika.jpg
[area_modifier] => 35.85
[parent_name] => Электрика
[parent_id] => 28
[material_sum] => 0
[work_sum] => 0
[total_sum] => 0
[total_days] => 0
[display_material_sum] => 0
[display_work_sum] => 0
[display_total_sum] => 0
)
1
0₽
Работа:0 ₽
Материалы:0 ₽
Дни:0
stdClass Object
(
[id] => 56
[attribute_id] => 28
[name] => Есть
[material_modifier] => 1
[work_modifier] => 1
[options] => Array
(
)
[days] => [10]
[material_price] => [650]
[work_price] => [950]
[image] => https://akademik-stroy.ru/wp-content/uploads/materials/ehlektrika.jpg
[area_modifier] => 35.85
[parent_name] => Электрика
[parent_id] => 28
[material_sum] => 47537
[work_sum] => 57898
[total_sum] => 105435
[total_days] => 10
[display_material_sum] => 47 537
[display_work_sum] => 57 898
[display_total_sum] => 105 435
)
1
105 435₽
Работа:57 898 ₽
Материалы:47 537 ₽
Дни:10
stdClass Object
(
[id] => 57
[attribute_id] => 29
[name] => Нет
[material_modifier] => 1
[work_modifier] => 1
[options] => Array
(
)
[days] => [0]
[material_price] => [0]
[work_price] => [0]
[image] => https://akademik-stroy.ru/wp-content/uploads/materials/santekhnika-kanalizaciya-1.jpg
[area_modifier] => 35.85
[parent_name] => Сантехника, канализация в доме
[parent_id] => 29
[material_sum] => 0
[work_sum] => 0
[total_sum] => 0
[total_days] => 0
[display_material_sum] => 0
[display_work_sum] => 0
[display_total_sum] => 0
)
1
0₽
Работа:0 ₽
Материалы:0 ₽
Дни:0
stdClass Object
(
[id] => 58
[attribute_id] => 29
[name] => Есть
[material_modifier] => 1
[work_modifier] => 1
[options] => Array
(
)
[days] => [10]
[material_price] => [600]
[work_price] => [730]
[image] => https://akademik-stroy.ru/wp-content/uploads/materials/santekhnika-kanalizaciya-1.jpg
[area_modifier] => 35.85
[parent_name] => Сантехника, канализация в доме
[parent_id] => 29
[material_sum] => 43880
[work_sum] => 44490
[total_sum] => 88370
[total_days] => 10
[display_material_sum] => 43 880
[display_work_sum] => 44 490
[display_total_sum] => 88 370
)
1
88 370₽
Работа:44 490 ₽
Материалы:43 880 ₽
Дни:10
stdClass Object
(
[id] => 59
[attribute_id] => 30
[name] => Нет
[material_modifier] => 1
[work_modifier] => 1
[options] => Array
(
)
[days] => [0]
[material_price] => [0]
[work_price] => [0]
[image] => https://akademik-stroy.ru/wp-content/uploads/materials/otoplenie-1.jpg
[area_modifier] => 35.85
[parent_name] => Отопление
[parent_id] => 30
[material_sum] => 0
[work_sum] => 0
[total_sum] => 0
[total_days] => 0
[display_material_sum] => 0
[display_work_sum] => 0
[display_total_sum] => 0
)
1
0₽
Работа:0 ₽
Материалы:0 ₽
Дни:0
stdClass Object
(
[id] => 60
[attribute_id] => 30
[name] => Есть
[material_modifier] => 1
[work_modifier] => 1
[options] => Array
(
)
[days] => [5]
[material_price] => [610]
[work_price] => [560]
[image] => https://akademik-stroy.ru/wp-content/uploads/materials/otoplenie-1.jpg
[area_modifier] => 35.85
[parent_name] => Отопление
[parent_id] => 30
[material_sum] => 44612
[work_sum] => 34129
[total_sum] => 78741
[total_days] => 5
[display_material_sum] => 44 612
[display_work_sum] => 34 129
[display_total_sum] => 78 741
)
1
78 741₽
Работа:34 129 ₽
Материалы:44 612 ₽
Дни:5
stdClass Object
(
[id] => 61
[attribute_id] => 31
[name] => Нет
[material_modifier] => 1
[work_modifier] => 1
[options] => Array
(
)
[days] => [0]
[material_price] => [0]
[work_price] => [0]
[image] => https://akademik-stroy.ru/wp-content/uploads/materials/vodyanye.jpg
[area_modifier] => 30
[parent_name] => Теплые полы
[parent_id] => 31
[material_sum] => 0
[work_sum] => 0
[total_sum] => 0
[total_days] => 0
[display_material_sum] => 0
[display_work_sum] => 0
[display_total_sum] => 0
)
1
0₽
Работа:0 ₽
Материалы:0 ₽
Дни:0
stdClass Object
(
[id] => 151
[attribute_id] => 31
[name] => Водяные
[material_modifier] => 1
[work_modifier] => 1
[options] => Array
(
)
[days] => [9]
[material_price] => [10200]
[work_price] => [2500]
[image] => https://akademik-stroy.ru/wp-content/uploads/materials/vodyanye.jpg
[area_modifier] => 30
[parent_name] => Теплые полы
[parent_id] => 31
[material_sum] => 624240
[work_sum] => 127500
[total_sum] => 751740
[total_days] => 9
[display_material_sum] => 624 240
[display_work_sum] => 127 500
[display_total_sum] => 751 740
)
1
751 740₽
Работа:127 500 ₽
Материалы:624 240 ₽
Дни:9
stdClass Object
(
[id] => 152
[attribute_id] => 31
[name] => Электро
[material_modifier] => 1
[work_modifier] => 1
[options] => Array
(
)
[days] => [5]
[material_price] => [6300]
[work_price] => [1500]
[image] => https://akademik-stroy.ru/wp-content/uploads/materials/ehlektricheskij.jpg
[area_modifier] => 30
[parent_name] => Теплые полы
[parent_id] => 31
[material_sum] => 385560
[work_sum] => 76500
[total_sum] => 462060
[total_days] => 5
[display_material_sum] => 385 560
[display_work_sum] => 76 500
[display_total_sum] => 462 060
)
1
462 060₽
Работа:76 500 ₽
Материалы:385 560 ₽
Дни:5
stdClass Object
(
[id] => 63
[attribute_id] => 32
[name] => Нет
[material_modifier] => 1
[work_modifier] => 1
[options] => Array
(
)
[days] => [0]
[material_price] => [0]
[work_price] => [0]
[image] => https://akademik-stroy.ru/wp-content/uploads/materials/shtukaturka-shpatlevka-1.jpg
[area_modifier] => 35.85
[parent_name] => Черновая отделка стен
[parent_id] => 32
[material_sum] => 0
[work_sum] => 0
[total_sum] => 0
[total_days] => 0
[display_material_sum] => 0
[display_work_sum] => 0
[display_total_sum] => 0
)
1
0₽
Работа:0 ₽
Материалы:0 ₽
Дни:0
stdClass Object
(
[id] => 153
[attribute_id] => 32
[name] => Штукатурка и шпатлевка
[material_modifier] => 1
[work_modifier] => 1
[options] => Array
(
)
[days] => [20]
[material_price] => [1850]
[work_price] => [2600]
[image] => https://akademik-stroy.ru/wp-content/uploads/materials/shtukaturka-shpatlevka-1.jpg
[area_modifier] => 35.85
[parent_name] => Черновая отделка стен
[parent_id] => 32
[material_sum] => 135298
[work_sum] => 158457
[total_sum] => 293755
[total_days] => 20
[display_material_sum] => 135 298
[display_work_sum] => 158 457
[display_total_sum] => 293 755
)
1
293 755₽
Работа:158 457 ₽
Материалы:135 298 ₽
Дни:20
stdClass Object
(
[id] => 154
[attribute_id] => 32
[name] => Гипсокортон на стены
[material_modifier] => 1
[work_modifier] => 1
[options] => Array
(
)
[days] => [15]
[material_price] => [950]
[work_price] => [2100]
[image] => https://akademik-stroy.ru/wp-content/uploads/materials/gkl-1.jpg
[area_modifier] => 35.85
[parent_name] => Черновая отделка стен
[parent_id] => 32
[material_sum] => 69477
[work_sum] => 127985
[total_sum] => 197462
[total_days] => 15
[display_material_sum] => 69 477
[display_work_sum] => 127 985
[display_total_sum] => 197 462
)
1
197 462₽
Работа:127 985 ₽
Материалы:69 477 ₽
Дни:15
stdClass Object
(
[id] => 155
[attribute_id] => 32
[name] => Вагонка
[material_modifier] => 1
[work_modifier] => 1
[options] => Array
(
)
[days] => [15]
[material_price] => [1250]
[work_price] => [950]
[image] => https://akademik-stroy.ru/wp-content/uploads/materials/vagonka.jpg
[area_modifier] => 35.85
[parent_name] => Черновая отделка стен
[parent_id] => 32
[material_sum] => 91418
[work_sum] => 57898
[total_sum] => 149316
[total_days] => 15
[display_material_sum] => 91 418
[display_work_sum] => 57 898
[display_total_sum] => 149 316
)
1
149 316₽
Работа:57 898 ₽
Материалы:91 418 ₽
Дни:15
stdClass Object
(
[id] => 65
[attribute_id] => 33
[name] => Нет
[material_modifier] => 1
[work_modifier] => 1
[options] => Array
(
)
[days] => [0]
[material_price] => [0]
[work_price] => [0]
[image] => https://akademik-stroy.ru/wp-content/uploads/materials/styazhka.jpg
[area_modifier] => 35.85
[parent_name] => Черновая отделка полов
[parent_id] => 33
[material_sum] => 0
[work_sum] => 0
[total_sum] => 0
[total_days] => 0
[display_material_sum] => 0
[display_work_sum] => 0
[display_total_sum] => 0
)
1
0₽
Работа:0 ₽
Материалы:0 ₽
Дни:0
stdClass Object
(
[id] => 156
[attribute_id] => 33
[name] => Стяжка + наливные полы
[material_modifier] => 1
[work_modifier] => 1
[options] => Array
(
)
[days] => [10]
[material_price] => [1000]
[work_price] => [900]
[image] => https://akademik-stroy.ru/wp-content/uploads/materials/styazhka.jpg
[area_modifier] => 35.85
[parent_name] => Черновая отделка полов
[parent_id] => 33
[material_sum] => 73134
[work_sum] => 54851
[total_sum] => 127985
[total_days] => 10
[display_material_sum] => 73 134
[display_work_sum] => 54 851
[display_total_sum] => 127 985
)
1
127 985₽
Работа:54 851 ₽
Материалы:73 134 ₽
Дни:10
stdClass Object
(
[id] => 157
[attribute_id] => 33
[name] => ОСБ на пол
[material_modifier] => 1
[work_modifier] => 1
[options] => Array
(
)
[days] => [7]
[material_price] => [580]
[work_price] => [350]
[image] => https://akademik-stroy.ru/wp-content/uploads/materials/osb-1.jpg
[area_modifier] => 35.85
[parent_name] => Черновая отделка полов
[parent_id] => 33
[material_sum] => 42418
[work_sum] => 21331
[total_sum] => 63749
[total_days] => 7
[display_material_sum] => 42 418
[display_work_sum] => 21 331
[display_total_sum] => 63 749
)
1
63 749₽
Работа:21 331 ₽
Материалы:42 418 ₽
Дни:7
stdClass Object
(
[id] => 67
[attribute_id] => 34
[name] => Нет
[material_modifier] => 1
[work_modifier] => 1
[options] => Array
(
)
[days] => [0]
[material_price] => [0]
[work_price] => [0]
[image] => https://akademik-stroy.ru/wp-content/uploads/materials/chistovaya-otdelka.jpg
[area_modifier] => 35.85
[parent_name] => Чистовая отделка стен и полов
[parent_id] => 34
[material_sum] => 0
[work_sum] => 0
[total_sum] => 0
[total_days] => 0
[display_material_sum] => 0
[display_work_sum] => 0
[display_total_sum] => 0
)
1
0₽
Работа:0 ₽
Материалы:0 ₽
Дни:0
stdClass Object
(
[id] => 68
[attribute_id] => 34
[name] => Есть
[material_modifier] => 1
[work_modifier] => 1
[options] => Array
(
)
[days] => [50]
[material_price] => [6000]
[work_price] => [3500]
[image] => https://akademik-stroy.ru/wp-content/uploads/materials/chistovaya-otdelka.jpg
[area_modifier] => 35.85
[parent_name] => Чистовая отделка стен и полов
[parent_id] => 34
[material_sum] => 438804
[work_sum] => 213308
[total_sum] => 652112
[total_days] => 50
[display_material_sum] => 438 804
[display_work_sum] => 213 308
[display_total_sum] => 652 112
)
1
652 112₽
Работа:213 308 ₽
Материалы:438 804 ₽
Дни:50
stdClass Object
(
[id] => 69
[attribute_id] => 35
[name] => Нет
[material_modifier] => 1
[work_modifier] => 1
[options] => Array
(
)
[days] => [0]
[material_price] => [0]
[work_price] => [0]
[image] => https://akademik-stroy.ru/wp-content/uploads/materials/mnogourovnevyj-gkl.jpg
[area_modifier] => 35.85
[parent_name] => Отделка потолка
[parent_id] => 35
[material_sum] => 0
[work_sum] => 0
[total_sum] => 0
[total_days] => 0
[display_material_sum] => 0
[display_work_sum] => 0
[display_total_sum] => 0
)
1
0₽
Работа:0 ₽
Материалы:0 ₽
Дни:0
stdClass Object
(
[id] => 70
[attribute_id] => 35
[name] => Есть
[material_modifier] => 1
[work_modifier] => 1
[options] => Array
(
[0] => Многоуровневый потолок из гипсокартона
[1] => Многоуровневый потолок из гипсокартона и натяжного потолка
[2] => Одноуровневый потолок из гипсокартона
[3] => Одноуровневый натяжной потолок
)
[days] => [10,10,1,1]
[material_price] => [900,700,700,600]
[work_price] => [1000,800,500,300]
[image] => https://akademik-stroy.ru/wp-content/uploads/materials/mnogourovnevyj-gkl.jpg
[area_modifier] => 35.85
[parent_name] => Отделка потолка
[parent_id] => 35
[material_sum] => 65821
[work_sum] => 60945
[total_sum] => 126766
[total_days] => 10
[display_material_sum] => 65 821
[display_work_sum] => 60 945
[display_total_sum] => 126 766
)
1
126 766₽
Работа:60 945 ₽
Материалы:65 821 ₽
Дни:10
Преимущества работы с нами
7 этапов оплаты
Независимый строительный надзор
Экологически чистые материалы
16 лет гарантии
Онлайн-кабинет с веб-камерой
Строители с опытом более 15 лет
Собственное производство
