Одноэтажный дом 13x16 - 195.73 м2 за руб.
Планировки
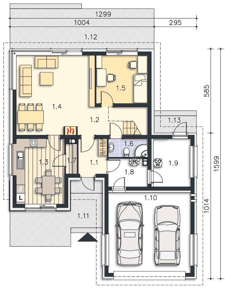
План первого этажа
- 1. Тамбур 4,83 м²
- 2. Холл 7,14 м²
- 3. Кухня-столовая 15,16 м²
- 4. Гостиная 30,25 м²
- 5. Комната 11,96 м²
- 6. Ванная комната 3,51 м²
- 7. Кладовая 1,62 м²
- 8. Помещение вспомогательное 5,19 м²
- 9. Котельная 8,64 м²
- 10. Гараж 32,10 м²
- 11. Терраса 17,89 м²
- 12. Терраса 28,11 м²
- Крыльцо 3,54 м²
План второго этажа
- 1. Лестница 4,30 м²
- 2. Холл 7,62 м²
- 3. Комната 15,10 м²
- 4. Комната 15,10 м²
- 5. Ванная комната 10,28 м²
- 6. Спальня 19,05 м²
- 7. Прачечная 5,61 м²
- Балкон 4,44 м²
Площади дома
| № п/п | Наименование | Ед. из. | Строительная площадь | Полезная площадь |
| 1 | 1 этаж | м2 | 146.24 | 118.67 |
| 2 | 2 этаж | м2 | 94.96 | 77.06 |
| 3 | Итого | м2 | 241.2 | 195.73 |
154 м2
Полезная
площадь
площадь
13 x 16 м
Размеры
1 этаж
Этажей
26 м2
Террасы
и балконы
и балконы
1Без
гаража
гаража
4
Количество
спален
спален
2
Количество
санузлов
санузлов
Калькулятор опций
0₽
В ипотеку от 23 047 ₽/мес.
0₽
0 дней
stdClass Object
(
[id] => 1
[attribute_id] => 1
[name] => Ленточный монолитный ж/б
[material_modifier] => 1
[work_modifier] => 1
[options] => Array
(
[0] => размер 200 х 700 мм
[1] => размер 300 х 900 мм
[2] => размер 400 х 1 000 мм
[3] => размер 500 х 1 100 мм
[4] => размер 600 х 1 200 мм
)
[days] => [20,21,22,25,30]
[material_price] => [2823,3630,4475,5210,12047]
[work_price] => [2154,2826,3731,4577,5293]
[image] => https://akademik-stroy.ru/wp-content/uploads/materials/lentochnyj-monolitnyj-zh-b.jpg
[area_modifier] => 146.24
[parent_name] => Фундамент
[parent_id] => 1
[material_sum] => 520173
[work_sum] => 330751
[total_sum] => 850924
[total_days] => 20
[display_material_sum] => 520 173
[display_work_sum] => 330 751
[display_total_sum] => 850 924
)
1
850 924₽
Работа:330 751 ₽
Материалы:520 173 ₽
Дни:20
stdClass Object
(
[id] => 2
[attribute_id] => 1
[name] => Забивные Ж/Б сваи
[material_modifier] => 1
[work_modifier] => 1
[options] => Array
(
[0] => 150х150х3000мм
[1] => 150х150х4000мм
[2] => 200х200х3000мм
[3] => 200х200х4000мм
[4] => 200х200х5000мм
[5] => 200х200х6000мм
)
[days] => [2,2,2,2,2,2]
[material_price] => [1990,2850,3255,4360,5120,6837]
[work_price] => [1002,1185,1336,1438,1574,1839]
[image] => https://akademik-stroy.ru/wp-content/uploads/materials/zabivnye-zh-b-svai.png
[area_modifier] => 146.24
[parent_name] => Фундамент
[parent_id] => 1
[material_sum] => 366682
[work_sum] => 153859
[total_sum] => 520541
[total_days] => 2
[display_material_sum] => 366 682
[display_work_sum] => 153 859
[display_total_sum] => 520 541
)
1
520 541₽
Работа:153 859 ₽
Материалы:366 682 ₽
Дни:2
stdClass Object
(
[id] => 71
[attribute_id] => 1
[name] => Свайно-ростверковый ж/б
[material_modifier] => 1
[work_modifier] => 1
[options] => Array
(
[0] => ростверк 200х300 мм
[1] => ростверк 300х600 мм
[2] => ростверк 400х900 мм
[3] => ростверк 500х1200 мм
)
[days] => [20,23,25,27]
[material_price] => [3018,3474,7109,9792]
[work_price] => [2024,3012,5635,7022]
[image] => https://akademik-stroy.ru/wp-content/uploads/materials/svajno-rostverkovyj-monolitnyj-zh-b-3.png
[area_modifier] => 146.24
[parent_name] => Фундамент
[parent_id] => 1
[material_sum] => 556104
[work_sum] => 310789
[total_sum] => 866893
[total_days] => 20
[display_material_sum] => 556 104
[display_work_sum] => 310 789
[display_total_sum] => 866 893
)
1
866 893₽
Работа:310 789 ₽
Материалы:556 104 ₽
Дни:20
stdClass Object
(
[id] => 72
[attribute_id] => 1
[name] => Монолитная ж/б плита
[material_modifier] => 1
[work_modifier] => 1
[options] => Array
(
[0] => 200 мм
[1] => 300 мм
[2] => 400 мм
[3] => 500 мм
[4] => 600 мм
)
[days] => [30,33,35,37,40]
[material_price] => [5348,8555,12788,14388,15189]
[work_price] => [4314,4881,7037,8061,10230]
[image] => https://akademik-stroy.ru/wp-content/uploads/materials/monolitnaya-zhb-plita.png
[area_modifier] => 146.24
[parent_name] => Фундамент
[parent_id] => 1
[material_sum] => 985435
[work_sum] => 662423
[total_sum] => 1647858
[total_days] => 30
[display_material_sum] => 985 435
[display_work_sum] => 662 423
[display_total_sum] => 1 647 858
)
1
1 647 858₽
Работа:662 423 ₽
Материалы:985 435 ₽
Дни:30
stdClass Object
(
[id] => 73
[attribute_id] => 1
[name] => Утепленная шведская плита
[material_modifier] => 1
[work_modifier] => 1
[options] => Array
(
[0] => 200 мм
[1] => 300 мм
[2] => 400 мм
[3] => 500 мм
[4] => 600 мм
)
[days] => [32,37,39,42,45]
[material_price] => [10249,12692,13760,14936,16230]
[work_price] => [5960,7337,8072,8878,9765]
[image] => https://akademik-stroy.ru/wp-content/uploads/materials/uteplennaya-shvedskaya-plita.jpg
[area_modifier] => 146.24
[parent_name] => Фундамент
[parent_id] => 1
[material_sum] => 1888505
[work_sum] => 915170
[total_sum] => 2803675
[total_days] => 32
[display_material_sum] => 1 888 505
[display_work_sum] => 915 170
[display_total_sum] => 2 803 675
)
1
2 803 675₽
Работа:915 170 ₽
Материалы:1 888 505 ₽
Дни:32
stdClass Object
(
[id] => 75
[attribute_id] => 1
[name] => Ленточный из ФБС
[material_modifier] => 1
[work_modifier] => 1
[options] => Array
(
[0] => толщ. 300 мм
[1] => толщ. 400 мм
[2] => толщ. 500 мм
[3] => толщ. 600 мм
)
[days] => [20,20,20,20]
[material_price] => [3675,4902,6126,7350]
[work_price] => [2451,3264,4083,4902]
[image] => https://akademik-stroy.ru/wp-content/uploads/materials/lentochnyj-iz-fbs.png
[area_modifier] => 146.24
[parent_name] => Фундамент
[parent_id] => 1
[material_sum] => 677164
[work_sum] => 376356
[total_sum] => 1053520
[total_days] => 20
[display_material_sum] => 677 164
[display_work_sum] => 376 356
[display_total_sum] => 1 053 520
)
1
1 053 520₽
Работа:376 356 ₽
Материалы:677 164 ₽
Дни:20
stdClass Object
(
[id] => 76
[attribute_id] => 1
[name] => Цокольный этаж из ФБС
[material_modifier] => 1
[work_modifier] => 1
[options] => Array
(
[0] => толщ. 300 мм
[1] => толщ. 400 мм
[2] => толщ. 500 мм
[3] => толщ. 600 мм
)
[days] => [30,32,34,36]
[material_price] => [20916,23299,26680,29060]
[work_price] => [17524,18700,19873,21046]
[image] => https://akademik-stroy.ru/wp-content/uploads/materials/cokolnyj-ehtazh-iz-fbs.jpg
[area_modifier] => 146.24
[parent_name] => Фундамент
[parent_id] => 1
[material_sum] => 3854032
[work_sum] => 2690845
[total_sum] => 6544877
[total_days] => 30
[display_material_sum] => 3 854 032
[display_work_sum] => 2 690 845
[display_total_sum] => 6 544 877
)
1
6 544 877₽
Работа:2 690 845 ₽
Материалы:3 854 032 ₽
Дни:30
stdClass Object
(
[id] => 77
[attribute_id] => 1
[name] => Цокольный этаж монолитный ж/б
[material_modifier] => 1
[work_modifier] => 1
[options] => Array
(
[0] => толщ. 200 мм
[1] => толщ. 300 мм
[2] => толщ. 400 мм
[3] => толщ. 500 мм
[4] => толщ. 600 мм
)
[days] => [40,42,44,46,48]
[material_price] => [25421,29148,32275,35602,37326]
[work_price] => [20441,21907,23375,24841,26306]
[image] => https://akademik-stroy.ru/wp-content/uploads/materials/cokolnyj-etazh-zh-b.jpg
[area_modifier] => 146.24
[parent_name] => Фундамент
[parent_id] => 1
[material_sum] => 4684134
[work_sum] => 3138756
[total_sum] => 7822890
[total_days] => 40
[display_material_sum] => 4 684 134
[display_work_sum] => 3 138 756
[display_total_sum] => 7 822 890
)
1
7 822 890₽
Работа:3 138 756 ₽
Материалы:4 684 134 ₽
Дни:40
stdClass Object
(
[id] => 191
[attribute_id] => 1
[name] => Винтовые сваи
[material_modifier] => 1
[work_modifier] => 1
[options] => Array
(
[0] => 57х200мм
[1] => 76х250мм
[2] => 108х300мм
[3] => 133х350мм
)
[days] => [1,1,2,2]
[material_price] => [1200,1300,1450,1600]
[work_price] => [400,600,900,1100]
[image] => https://akademik-stroy.ru/wp-content/uploads/materials/vintovye-svai.png
[area_modifier] => 146.24
[parent_name] => Фундамент
[parent_id] => 1
[material_sum] => 221115
[work_sum] => 61421
[total_sum] => 282536
[total_days] => 1
[display_material_sum] => 221 115
[display_work_sum] => 61 421
[display_total_sum] => 282 536
)
1
282 536₽
Работа:61 421 ₽
Материалы:221 115 ₽
Дни:1
stdClass Object
(
[id] => 3
[attribute_id] => 2
[name] => Деревянные балки
[material_modifier] => 1
[work_modifier] => 1
[options] => Array
(
[0] => без утепления
[1] => утепление 200 мм
[2] => утепление 250 мм
[3] => утепление 300 мм
[4] => утепление 350 мм
[5] => утепление 400 мм
[6] => утепление 450 мм
[7] => утепление 500 мм
)
[days] => [8,9,9,9,11,12,13,14]
[material_price] => [1634,2042,2344,2947,3149,3652,3354,3557]
[work_price] => [1230,1339,1393,1426,1460,1513,1587,1620]
[image] => https://akademik-stroy.ru/wp-content/uploads/materials/derevyannye-balki.png
[area_modifier] => 146.24
[parent_name] => Перекрытие цоколя
[parent_id] => 2
[material_sum] => 301085
[work_sum] => 188869
[total_sum] => 489954
[total_days] => 8
[display_material_sum] => 301 085
[display_work_sum] => 188 869
[display_total_sum] => 489 954
)
1
489 954₽
Работа:188 869 ₽
Материалы:301 085 ₽
Дни:8
stdClass Object
(
[id] => 4
[attribute_id] => 2
[name] => Сборные ж/б плиты
[material_modifier] => 1
[work_modifier] => 1
[options] => Array
(
[0] => без утепления
[1] => утепление 150мм
[2] => утепление 200мм
[3] => утепление 250мм
[4] => утепление 300мм
[5] => утепление 350мм
[6] => утепление 400мм
[7] => утепление 450мм
[8] => утепление 500мм
)
[days] => [13,15,15,15,15,15,15,15,15]
[material_price] => [3067,5577,5928,6679,7730,8782,9833,10884,11935]
[work_price] => [1520,1956,2102,2247,2392,2537,2684,2829,2974]
[image] => https://akademik-stroy.ru/wp-content/uploads/materials/sbornye-zh-b-plity-2.jpg
[area_modifier] => 146.24
[parent_name] => Перекрытие цоколя
[parent_id] => 2
[material_sum] => 565133
[work_sum] => 233399
[total_sum] => 798532
[total_days] => 13
[display_material_sum] => 565 133
[display_work_sum] => 233 399
[display_total_sum] => 798 532
)
1
798 532₽
Работа:233 399 ₽
Материалы:565 133 ₽
Дни:13
stdClass Object
(
[id] => 78
[attribute_id] => 2
[name] => Монолитная ж/б плита
[material_modifier] => 1
[work_modifier] => 1
[options] => Array
(
[0] => без утепления
[1] => утепление 150 мм
[2] => утепление 200 мм
[3] => утепление 250 мм
[4] => утепление 300 мм
[5] => утепление 350 мм
[6] => утепление 400 мм
[7] => утепление 450 мм
[8] => утепление 500 мм
)
[days] => [18,20,20,20,20,20,20,20,20]
[material_price] => [4837,6572,7224,7375,79426,8177,8728,9180,10031]
[work_price] => [3348,3921,4112,4302,4493,4684,4875,5066,5256]
[image] => https://akademik-stroy.ru/wp-content/uploads/materials/monolitnaya-zh-b-plita-2.jpg
[area_modifier] => 146.24
[parent_name] => Перекрытие цоколя
[parent_id] => 2
[material_sum] => 891277
[work_sum] => 514092
[total_sum] => 1405369
[total_days] => 18
[display_material_sum] => 891 277
[display_work_sum] => 514 092
[display_total_sum] => 1 405 369
)
1
1 405 369₽
Работа:514 092 ₽
Материалы:891 277 ₽
Дни:18
stdClass Object
(
[id] => 6
[attribute_id] => 3
[name] => Пеноблок
[material_modifier] => 1
[work_modifier] => 1
[options] => Array
(
[0] => 300 мм
[1] => 400 мм
[2] => 500 мм
[3] => 600 мм
)
[days] => [29,31,34,39]
[material_price] => [3000,4000,4500,4937]
[work_price] => [5033,5805,6400,8710]
[image] => https://akademik-stroy.ru/wp-content/uploads/materials/penoblok.jpg
[area_modifier] => 146.24
[parent_name] => Стены 1 этаж (несущие)
[parent_id] => 3
[material_sum] => 552787
[work_sum] => 772827
[total_sum] => 1325614
[total_days] => 29
[display_material_sum] => 552 787
[display_work_sum] => 772 827
[display_total_sum] => 1 325 614
)
1
1 325 614₽
Работа:772 827 ₽
Материалы:552 787 ₽
Дни:29
stdClass Object
(
[id] => 79
[attribute_id] => 3
[name] => Керамический блок
[material_modifier] => 1
[work_modifier] => 1
[options] => Array
(
[0] => 380 мм
[1] => 380 мм Thermo
[2] => 440 мм
[3] => 510 мм
)
[days] => [23,23,24,25]
[material_price] => [4510,5098,6093,8013]
[work_price] => [4737,4937,5903,6958]
[image] => https://akademik-stroy.ru/wp-content/uploads/materials/keramicheskij-blok.jpg
[area_modifier] => 146.24
[parent_name] => Стены 1 этаж (несущие)
[parent_id] => 3
[material_sum] => 831023
[work_sum] => 727376
[total_sum] => 1558399
[total_days] => 23
[display_material_sum] => 831 023
[display_work_sum] => 727 376
[display_total_sum] => 1 558 399
)
1
1 558 399₽
Работа:727 376 ₽
Материалы:831 023 ₽
Дни:23
stdClass Object
(
[id] => 80
[attribute_id] => 3
[name] => Кирпич
[material_modifier] => 1
[work_modifier] => 1
[options] => Array
(
[0] => Кирпич 250 мм
[1] => Кирпич 380 мм
[2] => Кирпич 510 мм
[3] => Кирпич 640 мм
[4] => Кирпич 770 мм
)
[days] => [30,30,31,33,36]
[material_price] => [5500,7142,9206,10171,12235]
[work_price] => [8736,10041,12018,15240,18462]
[image] => https://akademik-stroy.ru/wp-content/uploads/materials/kirpich.jpg
[area_modifier] => 146.24
[parent_name] => Стены 1 этаж (несущие)
[parent_id] => 3
[material_sum] => 1013443
[work_sum] => 1341430
[total_sum] => 2354873
[total_days] => 30
[display_material_sum] => 1 013 443
[display_work_sum] => 1 341 430
[display_total_sum] => 2 354 873
)
1
2 354 873₽
Работа:1 341 430 ₽
Материалы:1 013 443 ₽
Дни:30
stdClass Object
(
[id] => 81
[attribute_id] => 3
[name] => Монолитные
[material_modifier] => 1
[work_modifier] => 1
[options] => Array
(
[0] => 150 мм
[1] => 200 мм
[2] => 250 мм
[3] => 300 мм
[4] => 350 мм
[5] => 400 мм
)
[days] => [45,46,47,49,50,53]
[material_price] => [6545,7876,10175,12011,13908,15204]
[work_price] => [5106,6444,7698,8552,9807,11461]
[image] => https://akademik-stroy.ru/wp-content/uploads/materials/monolitnye.jpg
[area_modifier] => 146.24
[parent_name] => Стены 1 этаж (несущие)
[parent_id] => 3
[material_sum] => 1205997
[work_sum] => 784037
[total_sum] => 1990034
[total_days] => 45
[display_material_sum] => 1 205 997
[display_work_sum] => 784 037
[display_total_sum] => 1 990 034
)
1
1 990 034₽
Работа:784 037 ₽
Материалы:1 205 997 ₽
Дни:45
stdClass Object
(
[id] => 82
[attribute_id] => 3
[name] => Клееный брус
[material_modifier] => 1
[work_modifier] => 1
[options] => Array
(
[0] => 160 мм
[1] => 175 мм
[2] => 200 мм
[3] => 215 мм
[4] => 240 мм
[5] => 270 мм
[6] => 282 мм
)
[days] => [24,28,32,37,40,42,48]
[material_price] => [16975,18773,19950,20545,21599,22159,23275]
[work_price] => [4806,5287,5815,6397,7036,7740,8514]
[image] => https://akademik-stroy.ru/wp-content/uploads/materials/kleenyj-brus.jpg
[area_modifier] => 146.24
[parent_name] => Стены 1 этаж (несущие)
[parent_id] => 3
[material_sum] => 3127854
[work_sum] => 737971
[total_sum] => 3865825
[total_days] => 24
[display_material_sum] => 3 127 854
[display_work_sum] => 737 971
[display_total_sum] => 3 865 825
)
1
3 865 825₽
Работа:737 971 ₽
Материалы:3 127 854 ₽
Дни:24
stdClass Object
(
[id] => 83
[attribute_id] => 3
[name] => Каркасные
[material_modifier] => 1
[work_modifier] => 1
[options] => Array
(
[0] => 150 мм
[1] => 200 мм
[2] => 250 мм
[3] => 300 мм
)
[days] => [15,16,17,18]
[material_price] => [2379,2639,2898,3258]
[work_price] => [2418,2686,2985,3716]
[image] => https://akademik-stroy.ru/wp-content/uploads/materials/karkasnye.jpg
[area_modifier] => 146.24
[parent_name] => Стены 1 этаж (несущие)
[parent_id] => 3
[material_sum] => 438360
[work_sum] => 371289
[total_sum] => 809649
[total_days] => 15
[display_material_sum] => 438 360
[display_work_sum] => 371 289
[display_total_sum] => 809 649
)
1
809 649₽
Работа:371 289 ₽
Материалы:438 360 ₽
Дни:15
stdClass Object
(
[id] => 84
[attribute_id] => 3
[name] => СИП-панели
[material_modifier] => 1
[work_modifier] => 1
[options] => Array
(
[0] => 120 мм
[1] => 170 мм
[2] => 220 мм
)
[days] => [7,7,7]
[material_price] => [1210,1856,2292]
[work_price] => [1410,1551,1706]
[image] => https://akademik-stroy.ru/wp-content/uploads/materials/sip-paneli.jpg
[area_modifier] => 146.24
[parent_name] => Стены 1 этаж (несущие)
[parent_id] => 3
[material_sum] => 222958
[work_sum] => 216508
[total_sum] => 439466
[total_days] => 7
[display_material_sum] => 222 958
[display_work_sum] => 216 508
[display_total_sum] => 439 466
)
1
439 466₽
Работа:216 508 ₽
Материалы:222 958 ₽
Дни:7
stdClass Object
(
[id] => 85
[attribute_id] => 3
[name] => Сухой брус
[material_modifier] => 1
[work_modifier] => 1
[options] => Array
(
[0] => 150 мм
[1] => 180 мм
[2] => 200 мм
)
[days] => [7,8,9]
[material_price] => [6010,7190,8709]
[work_price] => [3204,3845,4229]
[image] => https://akademik-stroy.ru/wp-content/uploads/materials/suhoj-brus.jpg
[area_modifier] => 146.24
[parent_name] => Стены 1 этаж (несущие)
[parent_id] => 3
[material_sum] => 1107417
[work_sum] => 491981
[total_sum] => 1599398
[total_days] => 7
[display_material_sum] => 1 107 417
[display_work_sum] => 491 981
[display_total_sum] => 1 599 398
)
1
1 599 398₽
Работа:491 981 ₽
Материалы:1 107 417 ₽
Дни:7
stdClass Object
(
[id] => 86
[attribute_id] => 3
[name] => Профилированный брус
[material_modifier] => 1
[work_modifier] => 1
[options] => Array
(
[0] => 150 мм
[1] => 180 мм
[2] => 200 мм
)
[days] => [7,8,9]
[material_price] => [8190,9228,10051]
[work_price] => [3845,4614,5075]
[image] => https://akademik-stroy.ru/wp-content/uploads/materials/profilirovannyj-brus.jpg
[area_modifier] => 146.24
[parent_name] => Стены 1 этаж (несущие)
[parent_id] => 3
[material_sum] => 1509109
[work_sum] => 590407
[total_sum] => 2099516
[total_days] => 7
[display_material_sum] => 1 509 109
[display_work_sum] => 590 407
[display_total_sum] => 2 099 516
)
1
2 099 516₽
Работа:590 407 ₽
Материалы:1 509 109 ₽
Дни:7
stdClass Object
(
[id] => 87
[attribute_id] => 3
[name] => Оцилиндрованное бревно
[material_modifier] => 1
[work_modifier] => 1
[options] => Array
(
[0] => 180 мм
[1] => 220 мм
[2] => 260 мм
[3] => 320 мм
)
[days] => [7,8,9,10]
[material_price] => [75190,9532,10868,13116]
[work_price] => [3845,4691,5535,6863]
[image] => https://akademik-stroy.ru/wp-content/uploads/materials/ocilindrovannoe-brevno-1.jpg
[area_modifier] => 146.24
[parent_name] => Стены 1 этаж (несущие)
[parent_id] => 3
[material_sum] => 13854690
[work_sum] => 590407
[total_sum] => 14445097
[total_days] => 7
[display_material_sum] => 13 854 690
[display_work_sum] => 590 407
[display_total_sum] => 14 445 097
)
1
14 445 097₽
Работа:590 407 ₽
Материалы:13 854 690 ₽
Дни:7
stdClass Object
(
[id] => 88
[attribute_id] => 3
[name] => Срубы
[material_modifier] => 1
[work_modifier] => 1
[options] => Array
(
[0] => 260 мм
[1] => 320 мм
[2] => 360 мм
[3] => 400 мм
[4] => 500 мм
)
[days] => [7,8,9,10,11]
[material_price] => [37975,46709,52314,58069,73167]
[work_price] => [4806,5911,6621,7349,9260]
[image] => https://akademik-stroy.ru/wp-content/uploads/materials/sruby.jpg
[area_modifier] => 146.24
[parent_name] => Стены 1 этаж (несущие)
[parent_id] => 3
[material_sum] => 6997365
[work_sum] => 737971
[total_sum] => 7735336
[total_days] => 7
[display_material_sum] => 6 997 365
[display_work_sum] => 737 971
[display_total_sum] => 7 735 336
)
1
7 735 336₽
Работа:737 971 ₽
Материалы:6 997 365 ₽
Дни:7
stdClass Object
(
[id] => 174
[attribute_id] => 3
[name] => Брус
[material_modifier] => 1
[work_modifier] => 1
[options] => Array
(
[0] => 150 мм
[1] => 180 мм
[2] => 200 мм
)
[days] => [7,8,9]
[material_price] => [5127,6152,7367]
[work_price] => [1602,1922,2115]
[image] => https://akademik-stroy.ru/wp-content/uploads/materials/brus.jpg
[area_modifier] => 146.24
[parent_name] => Стены 1 этаж (несущие)
[parent_id] => 3
[material_sum] => 944713
[work_sum] => 245990
[total_sum] => 1190703
[total_days] => 7
[display_material_sum] => 944 713
[display_work_sum] => 245 990
[display_total_sum] => 1 190 703
)
1
1 190 703₽
Работа:245 990 ₽
Материалы:944 713 ₽
Дни:7
stdClass Object
(
[id] => 175
[attribute_id] => 3
[name] => Газобетон
[material_modifier] => 1
[work_modifier] => 1
[options] => Array
(
[0] => 300 мм
[1] => 375 мм
[2] => 400 мм
[3] => 500 мм
[4] => 600 мм
)
[days] => [29,31,35,37,44]
[material_price] => [4298,5573,6356,7288,9119]
[work_price] => [4538,5251,5926,6733,7195]
[image] => https://akademik-stroy.ru/wp-content/uploads/materials/gazobeton.jpg
[area_modifier] => 146.24
[parent_name] => Стены 1 этаж (несущие)
[parent_id] => 3
[material_sum] => 791960
[work_sum] => 696819
[total_sum] => 1488779
[total_days] => 29
[display_material_sum] => 791 960
[display_work_sum] => 696 819
[display_total_sum] => 1 488 779
)
1
1 488 779₽
Работа:696 819 ₽
Материалы:791 960 ₽
Дни:29
stdClass Object
(
[id] => 176
[attribute_id] => 3
[name] => Блок
[material_modifier] => 1
[work_modifier] => 1
[options] => Array
(
[0] => 300 мм
[1] => 375 мм
[2] => 400 мм
[3] => 500 мм
[4] => 600 мм
)
[days] => [29,31,35,37,44]
[material_price] => [2698,3973,4356,6588,7119]
[work_price] => [5038,5851,6426,8733,9195]
[image] => https://akademik-stroy.ru/wp-content/uploads/materials/blok.jpg
[area_modifier] => 146.24
[parent_name] => Стены 1 этаж (несущие)
[parent_id] => 3
[material_sum] => 497140
[work_sum] => 773595
[total_sum] => 1270735
[total_days] => 29
[display_material_sum] => 497 140
[display_work_sum] => 773 595
[display_total_sum] => 1 270 735
)
1
1 270 735₽
Работа:773 595 ₽
Материалы:497 140 ₽
Дни:29
stdClass Object
(
[id] => 177
[attribute_id] => 3
[name] => Газосиликатный блок
[material_modifier] => 1
[work_modifier] => 1
[options] => Array
(
[0] => 300 мм
[1] => 375 мм
[2] => 400 мм
[3] => 500 мм
[4] => 600 мм
)
[days] => [29,31,35,37,44]
[material_price] => [4298,5573,6356,7288,9119]
[work_price] => [4538,5251,5926,6733,7195]
[image] => https://akademik-stroy.ru/wp-content/uploads/materials/gazosilikatnyj-blok.jpg
[area_modifier] => 146.24
[parent_name] => Стены 1 этаж (несущие)
[parent_id] => 3
[material_sum] => 791960
[work_sum] => 696819
[total_sum] => 1488779
[total_days] => 29
[display_material_sum] => 791 960
[display_work_sum] => 696 819
[display_total_sum] => 1 488 779
)
1
1 488 779₽
Работа:696 819 ₽
Материалы:791 960 ₽
Дни:29
stdClass Object
(
[id] => 178
[attribute_id] => 3
[name] => Керамзитобетонный блок
[material_modifier] => 1
[work_modifier] => 1
[options] => Array
(
[0] => 300 мм
[1] => 375 мм
[2] => 400 мм
[3] => 500 мм
[4] => 600 мм
)
[days] => [23,23,24,25,28]
[material_price] => [3641,4298,5693,7613,9612]
[work_price] => [5737,5737,6903,7958,8901]
[image] => https://akademik-stroy.ru/wp-content/uploads/materials/keramzitobetonnyj-blok.jpg
[area_modifier] => 146.24
[parent_name] => Стены 1 этаж (несущие)
[parent_id] => 3
[material_sum] => 670899
[work_sum] => 880928
[total_sum] => 1551827
[total_days] => 23
[display_material_sum] => 670 899
[display_work_sum] => 880 928
[display_total_sum] => 1 551 827
)
1
1 551 827₽
Работа:880 928 ₽
Материалы:670 899 ₽
Дни:23
stdClass Object
(
[id] => 179
[attribute_id] => 3
[name] => Деревянные
[material_modifier] => 1
[work_modifier] => 1
[options] => Array
(
[0] => 180 мм
[1] => 220 мм
[2] => 260 мм
[3] => 320 мм
)
[days] => [7,8,9,10]
[material_price] => [7950,9458,11961,14472]
[work_price] => [4037,4925,5812,7207]
[image] => https://akademik-stroy.ru/wp-content/uploads/materials/derevyannye.jpg
[area_modifier] => 146.24
[parent_name] => Стены 1 этаж (несущие)
[parent_id] => 3
[material_sum] => 1464886
[work_sum] => 619889
[total_sum] => 2084775
[total_days] => 7
[display_material_sum] => 1 464 886
[display_work_sum] => 619 889
[display_total_sum] => 2 084 775
)
1
2 084 775₽
Работа:619 889 ₽
Материалы:1 464 886 ₽
Дни:7
stdClass Object
(
[id] => 181
[attribute_id] => 3
[name] => Камень
[material_modifier] => 1
[work_modifier] => 1
[options] => Array
(
[0] => 300 мм
[1] => 400 мм
[2] => 500 мм
[3] => 600 мм
)
[days] => [25,27,31,34]
[material_price] => [5262,6844,8330,9815]
[work_price] => [8331,9135,10427,11069]
[image] => https://akademik-stroy.ru/wp-content/uploads/materials/kamen.jpg
[area_modifier] => 146.24
[parent_name] => Стены 1 этаж (несущие)
[parent_id] => 3
[material_sum] => 969589
[work_sum] => 1279242
[total_sum] => 2248831
[total_days] => 25
[display_material_sum] => 969 589
[display_work_sum] => 1 279 242
[display_total_sum] => 2 248 831
)
1
2 248 831₽
Работа:1 279 242 ₽
Материалы:969 589 ₽
Дни:25
stdClass Object
(
[id] => 182
[attribute_id] => 3
[name] => Каркасно-щитовые
[material_modifier] => 1
[work_modifier] => 1
[options] => Array
(
[0] => 150 мм
[1] => 200 мм
[2] => 250 мм
[3] => 300 мм
[4] => 350 мм
[5] => 400 мм
)
[days] => [15,16,17,18,19,20]
[material_price] => [2379,2639,2898,3458,3601,4175]
[work_price] => [2538,2820,3134,3483,4062,5642]
[image] => https://akademik-stroy.ru/wp-content/uploads/materials/karkasno-shchitovye.jpg
[area_modifier] => 146.24
[parent_name] => Стены 1 этаж (несущие)
[parent_id] => 3
[material_sum] => 438360
[work_sum] => 389715
[total_sum] => 828075
[total_days] => 15
[display_material_sum] => 438 360
[display_work_sum] => 389 715
[display_total_sum] => 828 075
)
1
828 075₽
Работа:389 715 ₽
Материалы:438 360 ₽
Дни:15
stdClass Object
(
[id] => 183
[attribute_id] => 3
[name] => Рубленные
[material_modifier] => 1
[work_modifier] => 1
[options] => Array
(
[0] => 150 мм
[1] => 200 мм
[2] => 250 мм
[3] => 300 мм
[4] => 350 мм
[5] => 400 мм
)
[days] => [15,16,17,18,17,18]
[material_price] => [35950,50267,60583,75900,80217,100533]
[work_price] => [9612,12816,16020,19224,22428,25632]
[image] => https://akademik-stroy.ru/wp-content/uploads/materials/rublennye.jpg
[area_modifier] => 146.24
[parent_name] => Стены 1 этаж (несущие)
[parent_id] => 3
[material_sum] => 6624233
[work_sum] => 1475942
[total_sum] => 8100175
[total_days] => 15
[display_material_sum] => 6 624 233
[display_work_sum] => 1 475 942
[display_total_sum] => 8 100 175
)
1
8 100 175₽
Работа:1 475 942 ₽
Материалы:6 624 233 ₽
Дни:15
stdClass Object
(
[id] => 185
[attribute_id] => 3
[name] => Теплоблок
[material_modifier] => 1
[work_modifier] => 1
[options] => Array
(
[0] => 300 мм (с облицовкой, не покрашенный)
[1] => 400 мм (с облицовкой, не покрашенный)
[2] => 300 мм (с облицовкой, покрашенный)
[3] => 400 мм (с облицовкой, покрашенный)
)
[days] => [15,16,15,16]
[material_price] => [2888,3729,3957,4258]
[work_price] => [2564,3229,2949,3713]
[image] => https://akademik-stroy.ru/wp-content/uploads/materials/teploblok.jpg
[area_modifier] => 146.24
[parent_name] => Стены 1 этаж (несущие)
[parent_id] => 3
[material_sum] => 532150
[work_sum] => 393707
[total_sum] => 925857
[total_days] => 15
[display_material_sum] => 532 150
[display_work_sum] => 393 707
[display_total_sum] => 925 857
)
1
925 857₽
Работа:393 707 ₽
Материалы:532 150 ₽
Дни:15
stdClass Object
(
[id] => 186
[attribute_id] => 3
[name] => Арболитовые блоки
[material_modifier] => 1
[work_modifier] => 1
[options] => Array
(
[0] => 300 мм
[1] => 400 мм
[2] => 600 мм
)
[days] => [19,22,27]
[material_price] => [3210,4475,5852]
[work_price] => [4214,4788,5866]
[image] => https://akademik-stroy.ru/wp-content/uploads/materials/arbolitovye-bloki.png
[area_modifier] => 146.24
[parent_name] => Стены 1 этаж (несущие)
[parent_id] => 3
[material_sum] => 591482
[work_sum] => 647068
[total_sum] => 1238550
[total_days] => 19
[display_material_sum] => 591 482
[display_work_sum] => 647 068
[display_total_sum] => 1 238 550
)
1
1 238 550₽
Работа:647 068 ₽
Материалы:591 482 ₽
Дни:19
stdClass Object
(
[id] => 187
[attribute_id] => 3
[name] => Полистиролбетон
[material_modifier] => 1
[work_modifier] => 1
[options] => Array
(
[0] => 300 мм
[1] => 400 мм
[2] => 600 мм
)
[days] => [29,31,35]
[material_price] => [2798,4573,5256]
[work_price] => [5038,5851,6426]
[image] => https://akademik-stroy.ru/wp-content/uploads/materials/polistirolbeton.jpg
[area_modifier] => 146.24
[parent_name] => Стены 1 этаж (несущие)
[parent_id] => 3
[material_sum] => 515566
[work_sum] => 773595
[total_sum] => 1289161
[total_days] => 29
[display_material_sum] => 515 566
[display_work_sum] => 773 595
[display_total_sum] => 1 289 161
)
1
1 289 161₽
Работа:773 595 ₽
Материалы:515 566 ₽
Дни:29
stdClass Object
(
[id] => 188
[attribute_id] => 3
[name] => Шлакоблок
[material_modifier] => 1
[work_modifier] => 1
[options] => Array
(
[0] => 400 мм
[1] => 600 мм
)
[days] => [15,16]
[material_price] => [2391,3471]
[work_price] => [2642,3662]
[image] => https://akademik-stroy.ru/wp-content/uploads/materials/shlakoblok.jpg
[area_modifier] => 146.24
[parent_name] => Стены 1 этаж (несущие)
[parent_id] => 3
[material_sum] => 440571
[work_sum] => 405684
[total_sum] => 846255
[total_days] => 15
[display_material_sum] => 440 571
[display_work_sum] => 405 684
[display_total_sum] => 846 255
)
1
846 255₽
Работа:405 684 ₽
Материалы:440 571 ₽
Дни:15
stdClass Object
(
[id] => 189
[attribute_id] => 3
[name] => Теплая керамика
[material_modifier] => 1
[work_modifier] => 1
[options] => Array
(
[0] => 380 мм
[1] => 380 мм Thermo
[2] => 440 мм
[3] => 510 мм
)
[days] => [23,23,24,25]
[material_price] => [4510,5098,6093,8013]
[work_price] => [4737,4937,5903,6958]
[image] => https://akademik-stroy.ru/wp-content/uploads/materials/teplaya-keramika.jpg
[area_modifier] => 146.24
[parent_name] => Стены 1 этаж (несущие)
[parent_id] => 3
[material_sum] => 831023
[work_sum] => 727376
[total_sum] => 1558399
[total_days] => 23
[display_material_sum] => 831 023
[display_work_sum] => 727 376
[display_total_sum] => 1 558 399
)
1
1 558 399₽
Работа:727 376 ₽
Материалы:831 023 ₽
Дни:23
stdClass Object
(
[id] => 190
[attribute_id] => 3
[name] => Несъемная опалубка
[material_modifier] => 1
[work_modifier] => 1
[options] => Array
(
[0] => 200 мм
[1] => 250 мм
[2] => 300 мм
[3] => 350 мм
)
[days] => [15,17,19,21]
[material_price] => [3302,3902,4108,5008]
[work_price] => [2100,2100,2300,2534]
[image] => https://akademik-stroy.ru/wp-content/uploads/materials/nesemnaya-opalubka.jpg
[area_modifier] => 146.24
[parent_name] => Стены 1 этаж (несущие)
[parent_id] => 3
[material_sum] => 608434
[work_sum] => 322459
[total_sum] => 930893
[total_days] => 15
[display_material_sum] => 608 434
[display_work_sum] => 322 459
[display_total_sum] => 930 893
)
1
930 893₽
Работа:322 459 ₽
Материалы:608 434 ₽
Дни:15
stdClass Object
(
[id] => 251
[attribute_id] => 3
[name] => Бревно
[material_modifier] => 1
[work_modifier] => 1
[options] => Array
(
[0] => 260 мм
[1] => 320 мм
[2] => 360 мм
[3] => 400 мм
[4] => 500 мм
)
[days] => [7,8,9,10,11]
[material_price] => [1874,24045,26930,30972,38825]
[work_price] => [5046,6207,6952,7716,9723]
[image] => https://akademik-stroy.ru/wp-content/uploads/materials/sruby.jpg
[area_modifier] => 146.24
[parent_name] => Стены 1 этаж (несущие)
[parent_id] => 3
[material_sum] => 345308
[work_sum] => 774823
[total_sum] => 1120131
[total_days] => 7
[display_material_sum] => 345 308
[display_work_sum] => 774 823
[display_total_sum] => 1 120 131
)
1
1 120 131₽
Работа:774 823 ₽
Материалы:345 308 ₽
Дни:7
stdClass Object
(
[id] => 7
[attribute_id] => 4
[name] => Деревянные балки
[material_modifier] => 1
[work_modifier] => 1
[options] => Array
(
[0] => без утепления
[1] => утепление 200 мм
[2] => утепление 250 мм
[3] => утепление 300 мм
[4] => утепление 350 мм
[5] => утепление 400 мм
[6] => утепление 450 мм
[7] => утепление 500 мм
)
[days] => [8,9,9,9,11,12,13,14]
[material_price] => [1634,2042,2344,2947,3149,3652,3354,3557]
[work_price] => [1230,1339,1393,1426,1460,1513,1587,1620]
[image] => https://akademik-stroy.ru/wp-content/uploads/materials/derevyannye-balki.png
[area_modifier] => 146.24
[parent_name] => Перекрытие первого этажа
[parent_id] => 4
[material_sum] => 301085
[work_sum] => 188869
[total_sum] => 489954
[total_days] => 8
[display_material_sum] => 301 085
[display_work_sum] => 188 869
[display_total_sum] => 489 954
)
1
489 954₽
Работа:188 869 ₽
Материалы:301 085 ₽
Дни:8
stdClass Object
(
[id] => 8
[attribute_id] => 4
[name] => Сборные ж/б плиты
[material_modifier] => 1
[work_modifier] => 1
[options] => Array
(
[0] => без утепления
[1] => утепление 150 мм
[2] => утепление 200 мм
[3] => утепление 250 мм
[4] => утепление 300 мм
[5] => утепление 350 мм
[6] => утепление 400 мм
[7] => утепление 450 мм
[8] => утепление 500 мм
)
[days] => [13,15,15,15,15,15,15,15,15]
[material_price] => [3067,5577,5928,6679,7730,8782,9833,10884,11935]
[work_price] => [1520,1956,2102,2247,2392,2537,2684,2829,2974]
[image] => https://akademik-stroy.ru/wp-content/uploads/materials/sbornye-zh-b-plity-2.jpg
[area_modifier] => 146.24
[parent_name] => Перекрытие первого этажа
[parent_id] => 4
[material_sum] => 565133
[work_sum] => 233399
[total_sum] => 798532
[total_days] => 13
[display_material_sum] => 565 133
[display_work_sum] => 233 399
[display_total_sum] => 798 532
)
1
798 532₽
Работа:233 399 ₽
Материалы:565 133 ₽
Дни:13
stdClass Object
(
[id] => 89
[attribute_id] => 4
[name] => Монолитная ж/б плита
[material_modifier] => 1
[work_modifier] => 1
[options] => Array
(
[0] => без утепления
[1] => утепление 150 мм
[2] => утепление 200 мм
[3] => утепление 250 мм
[4] => утепление 300 мм
[5] => утепление 350 мм
[6] => утепление 400 мм
[7] => утепление 450 мм
[8] => утепление 500 мм
)
[days] => [18,20,20,20,20,20,20,20,20]
[material_price] => [4837,6572,7224,7375,79426,8177,8728,9180,10031]
[work_price] => [3348,3921,4112,4302,4493,4684,4875,5066,5256]
[image] => https://akademik-stroy.ru/wp-content/uploads/materials/monolitnaya-zh-b-plita-2.jpg
[area_modifier] => 146.24
[parent_name] => Перекрытие первого этажа
[parent_id] => 4
[material_sum] => 891277
[work_sum] => 514092
[total_sum] => 1405369
[total_days] => 18
[display_material_sum] => 891 277
[display_work_sum] => 514 092
[display_total_sum] => 1 405 369
)
1
1 405 369₽
Работа:514 092 ₽
Материалы:891 277 ₽
Дни:18
stdClass Object
(
[id] => 10
[attribute_id] => 5
[name] => Пеноблок
[material_modifier] => 1
[work_modifier] => 1
[options] => Array
(
[0] => 300 мм
[1] => 400 мм
[2] => 500 мм
[3] => 600 мм
)
[days] => [29,31,34,39]
[material_price] => [3000,4000,4500,4937]
[work_price] => [5033,5805,6400,8710]
[image] => https://akademik-stroy.ru/wp-content/uploads/materials/penoblok.jpg
[area_modifier] => 94.96
[parent_name] => Стены 2 этаж (несущие)
[parent_id] => 5
[material_sum] => 358949
[work_sum] => 501830
[total_sum] => 860779
[total_days] => 29
[display_material_sum] => 358 949
[display_work_sum] => 501 830
[display_total_sum] => 860 779
)
1
860 779₽
Работа:501 830 ₽
Материалы:358 949 ₽
Дни:29
stdClass Object
(
[id] => 90
[attribute_id] => 5
[name] => Керамический блок
[material_modifier] => 1
[work_modifier] => 1
[options] => Array
(
[0] => 380 мм
[1] => 380 мм Thermo
[2] => 440 мм
[3] => 510 мм
)
[days] => [23,23,24,25]
[material_price] => [4510,5098,6093,8013]
[work_price] => [4737,4937,5903,6958]
[image] => https://akademik-stroy.ru/wp-content/uploads/materials/keramicheskij-blok.jpg
[area_modifier] => 94.96
[parent_name] => Стены 2 этаж (несущие)
[parent_id] => 5
[material_sum] => 539620
[work_sum] => 472317
[total_sum] => 1011937
[total_days] => 23
[display_material_sum] => 539 620
[display_work_sum] => 472 317
[display_total_sum] => 1 011 937
)
1
1 011 937₽
Работа:472 317 ₽
Материалы:539 620 ₽
Дни:23
stdClass Object
(
[id] => 91
[attribute_id] => 5
[name] => Кирпич
[material_modifier] => 1
[work_modifier] => 1
[options] => Array
(
[0] => Кирпич 250 мм
[1] => Кирпич 380 мм
[2] => Кирпич 510 мм
[3] => Кирпич 640 мм
[4] => Кирпич 770 мм
)
[days] => [30,30,31,33,36]
[material_price] => [5500,7142,9206,10171,12235]
[work_price] => [8736,10041,12018,15240,18462]
[image] => https://akademik-stroy.ru/wp-content/uploads/materials/kirpich.jpg
[area_modifier] => 94.96
[parent_name] => Стены 2 этаж (несущие)
[parent_id] => 5
[material_sum] => 658073
[work_sum] => 871049
[total_sum] => 1529122
[total_days] => 30
[display_material_sum] => 658 073
[display_work_sum] => 871 049
[display_total_sum] => 1 529 122
)
1
1 529 122₽
Работа:871 049 ₽
Материалы:658 073 ₽
Дни:30
stdClass Object
(
[id] => 92
[attribute_id] => 5
[name] => Монолитные
[material_modifier] => 1
[work_modifier] => 1
[options] => Array
(
[0] => 150 мм
[1] => 200 мм
[2] => 250 мм
[3] => 300 мм
[4] => 350 мм
[5] => 400 мм
)
[days] => [45,46,47,49,50,53]
[material_price] => [6545,7876,10175,12011,13908,15204]
[work_price] => [5106,6444,7698,8552,9807,11461]
[image] => https://akademik-stroy.ru/wp-content/uploads/materials/monolitnye.jpg
[area_modifier] => 94.96
[parent_name] => Стены 2 этаж (несущие)
[parent_id] => 5
[material_sum] => 783107
[work_sum] => 509109
[total_sum] => 1292216
[total_days] => 45
[display_material_sum] => 783 107
[display_work_sum] => 509 109
[display_total_sum] => 1 292 216
)
1
1 292 216₽
Работа:509 109 ₽
Материалы:783 107 ₽
Дни:45
stdClass Object
(
[id] => 93
[attribute_id] => 5
[name] => Клееный брус
[material_modifier] => 1
[work_modifier] => 1
[options] => Array
(
[0] => 160 мм
[1] => 175 мм
[2] => 200 мм
[3] => 215 мм
[4] => 240 мм
[5] => 270 мм
[6] => 282 мм
)
[days] => [24,28,32,37,40,42,48]
[material_price] => [16975,18773,19950,20545,21599,22159,23275]
[work_price] => [4806,5287,5815,6397,7036,7740,8514]
[image] => https://akademik-stroy.ru/wp-content/uploads/materials/kleenyj-brus.jpg
[area_modifier] => 94.96
[parent_name] => Стены 2 этаж (несущие)
[parent_id] => 5
[material_sum] => 2031052
[work_sum] => 479197
[total_sum] => 2510249
[total_days] => 24
[display_material_sum] => 2 031 052
[display_work_sum] => 479 197
[display_total_sum] => 2 510 249
)
1
2 510 249₽
Работа:479 197 ₽
Материалы:2 031 052 ₽
Дни:24
stdClass Object
(
[id] => 94
[attribute_id] => 5
[name] => Каркасные
[material_modifier] => 1
[work_modifier] => 1
[options] => Array
(
[0] => 150 мм
[1] => 200 мм
[2] => 250 мм
[3] => 300 мм
)
[days] => [15,16,17,18]
[material_price] => [2379,2639,2898,3258]
[work_price] => [2418,2686,2985,3716]
[image] => https://akademik-stroy.ru/wp-content/uploads/materials/karkasnye.jpg
[area_modifier] => 94.96
[parent_name] => Стены 2 этаж (несущие)
[parent_id] => 5
[material_sum] => 284646
[work_sum] => 241094
[total_sum] => 525740
[total_days] => 15
[display_material_sum] => 284 646
[display_work_sum] => 241 094
[display_total_sum] => 525 740
)
1
525 740₽
Работа:241 094 ₽
Материалы:284 646 ₽
Дни:15
stdClass Object
(
[id] => 95
[attribute_id] => 5
[name] => СИП-панели
[material_modifier] => 1
[work_modifier] => 1
[options] => Array
(
[0] => 120 мм
[1] => 170 мм
[2] => 220 мм
)
[days] => [7,7,7]
[material_price] => [1210,1856,2292]
[work_price] => [1410,1551,1706]
[image] => https://akademik-stroy.ru/wp-content/uploads/materials/sip-paneli.jpg
[area_modifier] => 94.96
[parent_name] => Стены 2 этаж (несущие)
[parent_id] => 5
[material_sum] => 144776
[work_sum] => 140588
[total_sum] => 285364
[total_days] => 7
[display_material_sum] => 144 776
[display_work_sum] => 140 588
[display_total_sum] => 285 364
)
1
285 364₽
Работа:140 588 ₽
Материалы:144 776 ₽
Дни:7
stdClass Object
(
[id] => 96
[attribute_id] => 5
[name] => Сухой брус
[material_modifier] => 1
[work_modifier] => 1
[options] => Array
(
[0] => 150 мм
[1] => 180 мм
[2] => 200 мм
)
[days] => [7,8,9]
[material_price] => [6010,7190,8709]
[work_price] => [3204,3845,4229]
[image] => https://akademik-stroy.ru/wp-content/uploads/materials/suhoj-brus.jpg
[area_modifier] => 94.96
[parent_name] => Стены 2 этаж (несущие)
[parent_id] => 5
[material_sum] => 719094
[work_sum] => 319464
[total_sum] => 1038558
[total_days] => 7
[display_material_sum] => 719 094
[display_work_sum] => 319 464
[display_total_sum] => 1 038 558
)
1
1 038 558₽
Работа:319 464 ₽
Материалы:719 094 ₽
Дни:7
stdClass Object
(
[id] => 97
[attribute_id] => 5
[name] => Профилированный брус
[material_modifier] => 1
[work_modifier] => 1
[options] => Array
(
[0] => 150 мм
[1] => 180 мм
[2] => 200 мм
)
[days] => [7,8,9]
[material_price] => [8190,9228,10051]
[work_price] => [3845,4614,5075]
[image] => https://akademik-stroy.ru/wp-content/uploads/materials/profilirovannyj-brus.jpg
[area_modifier] => 94.96
[parent_name] => Стены 2 этаж (несущие)
[parent_id] => 5
[material_sum] => 979930
[work_sum] => 383377
[total_sum] => 1363307
[total_days] => 7
[display_material_sum] => 979 930
[display_work_sum] => 383 377
[display_total_sum] => 1 363 307
)
1
1 363 307₽
Работа:383 377 ₽
Материалы:979 930 ₽
Дни:7
stdClass Object
(
[id] => 98
[attribute_id] => 5
[name] => Оцилиндрованное бревно
[material_modifier] => 1
[work_modifier] => 1
[options] => Array
(
[0] => 180 мм
[1] => 220 мм
[2] => 260 мм
[3] => 320 мм
)
[days] => [7,8,9,10]
[material_price] => [75190,9532,10868,13116]
[work_price] => [3845,4691,5535,6863]
[image] => https://akademik-stroy.ru/wp-content/uploads/materials/ocilindrovannoe-brevno-1.jpg
[area_modifier] => 94.96
[parent_name] => Стены 2 этаж (несущие)
[parent_id] => 5
[material_sum] => 8996453
[work_sum] => 383377
[total_sum] => 9379830
[total_days] => 7
[display_material_sum] => 8 996 453
[display_work_sum] => 383 377
[display_total_sum] => 9 379 830
)
1
9 379 830₽
Работа:383 377 ₽
Материалы:8 996 453 ₽
Дни:7
stdClass Object
(
[id] => 99
[attribute_id] => 5
[name] => Срубы
[material_modifier] => 1
[work_modifier] => 1
[options] => Array
(
[0] => 260 мм
[1] => 320 мм
[2] => 360 мм
[3] => 400 мм
[4] => 500 мм
)
[days] => [7,8,9,10,11]
[material_price] => [16175,23709,26314,29069,32167]
[work_price] => [4806,5911,6621,7349,9260]
[image] => https://akademik-stroy.ru/wp-content/uploads/materials/suhoj-brus.jpg
[area_modifier] => 94.96
[parent_name] => Стены 2 этаж (несущие)
[parent_id] => 5
[material_sum] => 1935332
[work_sum] => 479197
[total_sum] => 2414529
[total_days] => 7
[display_material_sum] => 1 935 332
[display_work_sum] => 479 197
[display_total_sum] => 2 414 529
)
1
2 414 529₽
Работа:479 197 ₽
Материалы:1 935 332 ₽
Дни:7
stdClass Object
(
[id] => 194
[attribute_id] => 5
[name] => Брус
[material_modifier] => 1
[work_modifier] => 1
[options] => Array
(
[0] => 150 мм
[1] => 180 мм
[2] => 200 мм
)
[days] => [10,13,15]
[material_price] => [5127,6152,7367]
[work_price] => [1602,1922,2115]
[image] => https://akademik-stroy.ru/wp-content/uploads/materials/brus.jpg
[area_modifier] => 94.96
[parent_name] => Стены 2 этаж (несущие)
[parent_id] => 5
[material_sum] => 613443
[work_sum] => 159732
[total_sum] => 773175
[total_days] => 10
[display_material_sum] => 613 443
[display_work_sum] => 159 732
[display_total_sum] => 773 175
)
1
773 175₽
Работа:159 732 ₽
Материалы:613 443 ₽
Дни:10
stdClass Object
(
[id] => 195
[attribute_id] => 5
[name] => Газобетон
[material_modifier] => 1
[work_modifier] => 1
[options] => Array
(
[0] => 300 мм
[1] => 375 мм
[2] => 400 мм
[3] => 500 мм
[4] => 600 мм
)
[days] => [29,31,35,37,44]
[material_price] => [4298,5573,6356,7288,9119]
[work_price] => [4538,5251,5926,6733,7195]
[image] => https://akademik-stroy.ru/wp-content/uploads/materials/gazobeton.jpg
[area_modifier] => 94.96
[parent_name] => Стены 2 этаж (несущие)
[parent_id] => 5
[material_sum] => 514254
[work_sum] => 452475
[total_sum] => 966729
[total_days] => 29
[display_material_sum] => 514 254
[display_work_sum] => 452 475
[display_total_sum] => 966 729
)
1
966 729₽
Работа:452 475 ₽
Материалы:514 254 ₽
Дни:29
stdClass Object
(
[id] => 196
[attribute_id] => 5
[name] => Блок
[material_modifier] => 1
[work_modifier] => 1
[options] => Array
(
[0] => 300 мм
[1] => 375 мм
[2] => 400 мм
[3] => 500 мм
[4] => 600 мм
)
[days] => [29,31,35,37,44]
[material_price] => [2698,3973,4356,6588,7119]
[work_price] => [5038,5851,6426,8733,9195]
[image] => https://akademik-stroy.ru/wp-content/uploads/materials/blok.jpg
[area_modifier] => 94.96
[parent_name] => Стены 2 этаж (несущие)
[parent_id] => 5
[material_sum] => 322815
[work_sum] => 502329
[total_sum] => 825144
[total_days] => 29
[display_material_sum] => 322 815
[display_work_sum] => 502 329
[display_total_sum] => 825 144
)
1
825 144₽
Работа:502 329 ₽
Материалы:322 815 ₽
Дни:29
stdClass Object
(
[id] => 197
[attribute_id] => 5
[name] => Газосиликатный блок
[material_modifier] => 1
[work_modifier] => 1
[options] => Array
(
[0] => 300 мм
[1] => 375 мм
[2] => 400 мм
[3] => 500 мм
[4] => 600 мм
)
[days] => [29,31,35,37,44]
[material_price] => [4298,5573,6356,7288,9119]
[work_price] => [4538,5251,5926,6733,7195]
[image] => https://akademik-stroy.ru/wp-content/uploads/materials/gazosilikatnyj-blok.jpg
[area_modifier] => 94.96
[parent_name] => Стены 2 этаж (несущие)
[parent_id] => 5
[material_sum] => 514254
[work_sum] => 452475
[total_sum] => 966729
[total_days] => 29
[display_material_sum] => 514 254
[display_work_sum] => 452 475
[display_total_sum] => 966 729
)
1
966 729₽
Работа:452 475 ₽
Материалы:514 254 ₽
Дни:29
stdClass Object
(
[id] => 198
[attribute_id] => 5
[name] => Керамзитобетонный блок
[material_modifier] => 1
[work_modifier] => 1
[options] => Array
(
[0] => 300 мм
[1] => 375 мм
[2] => 400 мм
[3] => 500 мм
[4] => 600 мм
)
[days] => [23,23,24,25,28]
[material_price] => [3641,4298,5693,7613,9612]
[work_price] => [5737,5737,6903,7958,8901]
[image] => https://akademik-stroy.ru/wp-content/uploads/materials/keramzitobetonnyj-blok.jpg
[area_modifier] => 94.96
[parent_name] => Стены 2 этаж (несущие)
[parent_id] => 5
[material_sum] => 435644
[work_sum] => 572025
[total_sum] => 1007669
[total_days] => 23
[display_material_sum] => 435 644
[display_work_sum] => 572 025
[display_total_sum] => 1 007 669
)
1
1 007 669₽
Работа:572 025 ₽
Материалы:435 644 ₽
Дни:23
stdClass Object
(
[id] => 199
[attribute_id] => 5
[name] => Деревянные
[material_modifier] => 1
[work_modifier] => 1
[options] => Array
(
[0] => 180 мм
[1] => 220 мм
[2] => 260 мм
[3] => 320 мм
)
[days] => [7,8,9,10]
[material_price] => [7950,9458,11961,14472]
[work_price] => [4037,4925,5812,7207]
[image] => https://akademik-stroy.ru/wp-content/uploads/materials/derevyannye.jpg
[area_modifier] => 94.96
[parent_name] => Стены 2 этаж (несущие)
[parent_id] => 5
[material_sum] => 951214
[work_sum] => 402521
[total_sum] => 1353735
[total_days] => 7
[display_material_sum] => 951 214
[display_work_sum] => 402 521
[display_total_sum] => 1 353 735
)
1
1 353 735₽
Работа:402 521 ₽
Материалы:951 214 ₽
Дни:7
stdClass Object
(
[id] => 200
[attribute_id] => 5
[name] => Камень
[material_modifier] => 1
[work_modifier] => 1
[options] => Array
(
[0] => 300 мм
[1] => 400 мм
[2] => 500 мм
[3] => 600 мм
)
[days] => [25,27,31,34]
[material_price] => [5262,6844,8330,9815]
[work_price] => [8331,9135,10427,11069]
[image] => https://akademik-stroy.ru/wp-content/uploads/materials/kamen.jpg
[area_modifier] => 94.96
[parent_name] => Стены 2 этаж (несущие)
[parent_id] => 5
[material_sum] => 629596
[work_sum] => 830667
[total_sum] => 1460263
[total_days] => 25
[display_material_sum] => 629 596
[display_work_sum] => 830 667
[display_total_sum] => 1 460 263
)
1
1 460 263₽
Работа:830 667 ₽
Материалы:629 596 ₽
Дни:25
stdClass Object
(
[id] => 201
[attribute_id] => 5
[name] => Каркасно-щитовые
[material_modifier] => 1
[work_modifier] => 1
[options] => Array
(
[0] => 150 мм
[1] => 200 мм
[2] => 250 мм
[3] => 300 мм
[4] => 350 мм
[5] => 400 мм
)
[days] => [15,16,17,18,19,20]
[material_price] => [2379,2639,2898,3458,3601,4175]
[work_price] => [2538,2820,3134,3483,4062,5642]
[image] => https://akademik-stroy.ru/wp-content/uploads/materials/karkasno-shchitovye.jpg
[area_modifier] => 94.96
[parent_name] => Стены 2 этаж (несущие)
[parent_id] => 5
[material_sum] => 284646
[work_sum] => 253059
[total_sum] => 537705
[total_days] => 15
[display_material_sum] => 284 646
[display_work_sum] => 253 059
[display_total_sum] => 537 705
)
1
537 705₽
Работа:253 059 ₽
Материалы:284 646 ₽
Дни:15
stdClass Object
(
[id] => 202
[attribute_id] => 5
[name] => Рубленные
[material_modifier] => 1
[work_modifier] => 1
[options] => Array
(
[0] => 150 мм
[1] => 200 мм
[2] => 250 мм
[3] => 300 мм
[4] => 350 мм
[5] => 400 мм
)
[days] => [15,16,17,18,17,18]
[material_price] => [35950,50267,60583,75900,80217,100533]
[work_price] => [9612,12816,16020,19224,22428,25632]
[image] => https://akademik-stroy.ru/wp-content/uploads/materials/rublennye.jpg
[area_modifier] => 94.96
[parent_name] => Стены 2 этаж (несущие)
[parent_id] => 5
[material_sum] => 4301403
[work_sum] => 958393
[total_sum] => 5259796
[total_days] => 15
[display_material_sum] => 4 301 403
[display_work_sum] => 958 393
[display_total_sum] => 5 259 796
)
1
5 259 796₽
Работа:958 393 ₽
Материалы:4 301 403 ₽
Дни:15
stdClass Object
(
[id] => 203
[attribute_id] => 5
[name] => Теплоблок
[material_modifier] => 1
[work_modifier] => 1
[options] => Array
(
[0] => 300 мм (с облицовкой, не покрашенный)
[1] => 400 мм (с облицовкой, не покрашенный)
[2] => 300 мм (с облицовкой, покрашенный)
[3] => 400 мм (с облицовкой, покрашенный)
)
[days] => [15,16,15,16]
[material_price] => [2888,3729,3957,4258]
[work_price] => [2564,3229,2949,3713]
[image] => https://akademik-stroy.ru/wp-content/uploads/materials/teploblok.jpg
[area_modifier] => 94.96
[parent_name] => Стены 2 этаж (несущие)
[parent_id] => 5
[material_sum] => 345548
[work_sum] => 255651
[total_sum] => 601199
[total_days] => 15
[display_material_sum] => 345 548
[display_work_sum] => 255 651
[display_total_sum] => 601 199
)
1
601 199₽
Работа:255 651 ₽
Материалы:345 548 ₽
Дни:15
stdClass Object
(
[id] => 204
[attribute_id] => 5
[name] => Арболитовые блоки
[material_modifier] => 1
[work_modifier] => 1
[options] => Array
(
[0] => 300 мм
[1] => 400 мм
[2] => 600 мм
)
[days] => [19,22,27]
[material_price] => [3210,4475,5852]
[work_price] => [4214,4788,5866]
[image] => https://akademik-stroy.ru/wp-content/uploads/materials/arbolitovye-bloki.png
[area_modifier] => 94.96
[parent_name] => Стены 2 этаж (несущие)
[parent_id] => 5
[material_sum] => 384075
[work_sum] => 420170
[total_sum] => 804245
[total_days] => 19
[display_material_sum] => 384 075
[display_work_sum] => 420 170
[display_total_sum] => 804 245
)
1
804 245₽
Работа:420 170 ₽
Материалы:384 075 ₽
Дни:19
stdClass Object
(
[id] => 205
[attribute_id] => 5
[name] => Полистиролбетон
[material_modifier] => 1
[work_modifier] => 1
[options] => Array
(
[0] => 300 мм
[1] => 400 мм
[2] => 600 мм
)
[days] => [29,31,35]
[material_price] => [2798,4573,5256]
[work_price] => [5038,5851,6426]
[image] => https://akademik-stroy.ru/wp-content/uploads/materials/polistirolbeton.jpg
[area_modifier] => 94.96
[parent_name] => Стены 2 этаж (несущие)
[parent_id] => 5
[material_sum] => 334780
[work_sum] => 502329
[total_sum] => 837109
[total_days] => 29
[display_material_sum] => 334 780
[display_work_sum] => 502 329
[display_total_sum] => 837 109
)
1
837 109₽
Работа:502 329 ₽
Материалы:334 780 ₽
Дни:29
stdClass Object
(
[id] => 206
[attribute_id] => 5
[name] => Шлакоблок
[material_modifier] => 1
[work_modifier] => 1
[options] => Array
(
[0] => 400 мм
[1] => 600 мм
)
[days] => [15,16]
[material_price] => [2391,3471]
[work_price] => [2642,3662]
[image] => https://akademik-stroy.ru/wp-content/uploads/materials/shlakoblok.jpg
[area_modifier] => 94.96
[parent_name] => Стены 2 этаж (несущие)
[parent_id] => 5
[material_sum] => 286082
[work_sum] => 263429
[total_sum] => 549511
[total_days] => 15
[display_material_sum] => 286 082
[display_work_sum] => 263 429
[display_total_sum] => 549 511
)
1
549 511₽
Работа:263 429 ₽
Материалы:286 082 ₽
Дни:15
stdClass Object
(
[id] => 245
[attribute_id] => 5
[name] => Теплая керамика
[material_modifier] => 1
[work_modifier] => 1
[options] => Array
(
[0] => 380 мм
[1] => 380 мм Thermo
[2] => 440 мм
[3] => 510 мм
)
[days] => [10,10,11,12]
[material_price] => [4510,5098,6093,8013]
[work_price] => [4737,4937,5903,6958]
[image] => https://akademik-stroy.ru/wp-content/uploads/materials/teplaya-keramika.jpg
[area_modifier] => 94.96
[parent_name] => Стены 2 этаж (несущие)
[parent_id] => 5
[material_sum] => 539620
[work_sum] => 472317
[total_sum] => 1011937
[total_days] => 10
[display_material_sum] => 539 620
[display_work_sum] => 472 317
[display_total_sum] => 1 011 937
)
1
1 011 937₽
Работа:472 317 ₽
Материалы:539 620 ₽
Дни:10
stdClass Object
(
[id] => 246
[attribute_id] => 5
[name] => Несъемная опалубка
[material_modifier] => 1
[work_modifier] => 1
[options] => Array
(
[0] => 380 мм
[1] => 380 мм Thermo
[2] => 440 мм
[3] => 510 мм
)
[days] => [10,10,11,12]
[material_price] => [3302,3902,4108,5008]
[work_price] => [2100,2100,2300,2534]
[image] => https://akademik-stroy.ru/wp-content/uploads/materials/nesemnaya-opalubka.jpg
[area_modifier] => 94.96
[parent_name] => Стены 2 этаж (несущие)
[parent_id] => 5
[material_sum] => 395083
[work_sum] => 209387
[total_sum] => 604470
[total_days] => 10
[display_material_sum] => 395 083
[display_work_sum] => 209 387
[display_total_sum] => 604 470
)
1
604 470₽
Работа:209 387 ₽
Материалы:395 083 ₽
Дни:10
stdClass Object
(
[id] => 254
[attribute_id] => 5
[name] => Бревно
[material_modifier] => 1
[work_modifier] => 1
[options] => Array
(
[0] => 260 мм
[1] => 320 мм
[2] => 360 мм
[3] => 400 мм
[4] => 500 мм
)
[days] => [7,8,9,10,11]
[material_price] => [1874,24045,26930,30972,38825]
[work_price] => [5046,6207,6952,7716,9723]
[image] => https://akademik-stroy.ru/wp-content/uploads/materials/sruby.jpg
[area_modifier] => 94.96
[parent_name] => Стены 2 этаж (несущие)
[parent_id] => 5
[material_sum] => 224223
[work_sum] => 503127
[total_sum] => 727350
[total_days] => 7
[display_material_sum] => 224 223
[display_work_sum] => 503 127
[display_total_sum] => 727 350
)
1
727 350₽
Работа:503 127 ₽
Материалы:224 223 ₽
Дни:7
stdClass Object
(
[id] => 11
[attribute_id] => 6
[name] => Деревянные балки
[material_modifier] => 1
[work_modifier] => 1
[options] => Array
(
[0] => без утепления
[1] => утепление 200 мм
[2] => утепление 250 мм
[3] => утепление 300 мм
[4] => утепление 350 мм
[5] => утепление 400 мм
[6] => утепление 450 мм
[7] => утепление 500 мм
)
[days] => [8,9,9,9,11,12,13,14]
[material_price] => [1634,2042,2344,2947,3149,3652,3354,3557]
[work_price] => [1230,1339,1393,1426,1460,1513,1587,1620]
[image] => https://akademik-stroy.ru/wp-content/uploads/materials/derevyannye-balki.png
[area_modifier] => 94.96
[parent_name] => Перекрытие второго этажа
[parent_id] => 6
[material_sum] => 195507
[work_sum] => 122641
[total_sum] => 318148
[total_days] => 8
[display_material_sum] => 195 507
[display_work_sum] => 122 641
[display_total_sum] => 318 148
)
1
318 148₽
Работа:122 641 ₽
Материалы:195 507 ₽
Дни:8
stdClass Object
(
[id] => 12
[attribute_id] => 6
[name] => Сборные ж/б плиты
[material_modifier] => 1
[work_modifier] => 1
[options] => Array
(
[0] => без утепления
[1] => утепление 150 мм
[2] => утепление 200 мм
[3] => утепление 250 мм
[4] => утепление 300 мм
[5] => утепление 350 мм
[6] => утепление 400 мм
[7] => утепление 450 мм
[8] => утепление 500 мм
)
[days] => [13,15,15,15,15,15,15,15,15]
[material_price] => [3067,5577,5928,6679,7730,8782,9833,10884,11935]
[work_price] => [1520,1956,2102,2247,2392,2537,2684,2829,2974]
[image] => https://akademik-stroy.ru/wp-content/uploads/materials/sbornye-zh-b-plity-2.jpg
[area_modifier] => 94.96
[parent_name] => Перекрытие второго этажа
[parent_id] => 6
[material_sum] => 366965
[work_sum] => 151556
[total_sum] => 518521
[total_days] => 13
[display_material_sum] => 366 965
[display_work_sum] => 151 556
[display_total_sum] => 518 521
)
1
518 521₽
Работа:151 556 ₽
Материалы:366 965 ₽
Дни:13
stdClass Object
(
[id] => 100
[attribute_id] => 6
[name] => Монолитная ж/б плита
[material_modifier] => 1
[work_modifier] => 1
[options] => Array
(
[0] => без утепления
[1] => утепление 150 мм
[2] => утепление 200 мм
[3] => утепление 250 мм
[4] => утепление 300 мм
[5] => утепление 350 мм
[6] => утепление 400 мм
[7] => утепление 450 мм
[8] => утепление 500 мм
)
[days] => [18,20,20,20,20,20,20,20,20]
[material_price] => [4837,6572,7224,7375,79426,8177,8728,9180,10031]
[work_price] => [3348,3921,4112,4302,4493,4684,4875,5066,5256]
[image] => https://akademik-stroy.ru/wp-content/uploads/materials/monolitnaya-zh-b-plita-2.jpg
[area_modifier] => 94.96
[parent_name] => Перекрытие второго этажа
[parent_id] => 6
[material_sum] => 578745
[work_sum] => 333822
[total_sum] => 912567
[total_days] => 18
[display_material_sum] => 578 745
[display_work_sum] => 333 822
[display_total_sum] => 912 567
)
1
912 567₽
Работа:333 822 ₽
Материалы:578 745 ₽
Дни:18
stdClass Object
(
[id] => 164
[attribute_id] => 37
[name] => Металлочерепица
[material_modifier] => 1
[work_modifier] => 1
[options] => Array
(
)
[days] => [20]
[material_price] => [6112]
[work_price] => [5726]
[image] => https://akademik-stroy.ru/wp-content/uploads/materials/metallocherepica.jpg
[area_modifier] => 146.24
[parent_name] => Крыша (Скатная)
[parent_id] => 37
[material_sum] => 1126212
[work_sum] => 879239
[total_sum] => 2005451
[total_days] => 20
[display_material_sum] => 1 126 212
[display_work_sum] => 879 239
[display_total_sum] => 2 005 451
)
1
2 005 451₽
Работа:879 239 ₽
Материалы:1 126 212 ₽
Дни:20
stdClass Object
(
[id] => 165
[attribute_id] => 37
[name] => Гибкая черепица
[material_modifier] => 1
[work_modifier] => 1
[options] => Array
(
)
[days] => [20]
[material_price] => [6980]
[work_price] => [5950]
[image] => https://akademik-stroy.ru/wp-content/uploads/materials/gibkaya-cherepica.jpg
[area_modifier] => 146.24
[parent_name] => Крыша (Скатная)
[parent_id] => 37
[material_sum] => 1286152
[work_sum] => 913634
[total_sum] => 2199786
[total_days] => 20
[display_material_sum] => 1 286 152
[display_work_sum] => 913 634
[display_total_sum] => 2 199 786
)
1
2 199 786₽
Работа:913 634 ₽
Материалы:1 286 152 ₽
Дни:20
stdClass Object
(
[id] => 166
[attribute_id] => 37
[name] => Цементно-песчаная черепица
[material_modifier] => 1
[work_modifier] => 1
[options] => Array
(
)
[days] => [20]
[material_price] => [10560]
[work_price] => [9456]
[image] => https://akademik-stroy.ru/wp-content/uploads/materials/cementno-peschanaya-cherepica.jpg
[area_modifier] => 146.24
[parent_name] => Крыша (Скатная)
[parent_id] => 37
[material_sum] => 1945811
[work_sum] => 1451988
[total_sum] => 3397799
[total_days] => 20
[display_material_sum] => 1 945 811
[display_work_sum] => 1 451 988
[display_total_sum] => 3 397 799
)
1
3 397 799₽
Работа:1 451 988 ₽
Материалы:1 945 811 ₽
Дни:20
stdClass Object
(
[id] => 167
[attribute_id] => 37
[name] => Композитная черепица
[material_modifier] => 1
[work_modifier] => 1
[options] => Array
(
)
[days] => [20]
[material_price] => [9506]
[work_price] => [8905]
[image] => https://akademik-stroy.ru/wp-content/uploads/materials/kompozitnaya-cherepica.jpg
[area_modifier] => 146.24
[parent_name] => Крыша (Скатная)
[parent_id] => 37
[material_sum] => 1751598
[work_sum] => 1367381
[total_sum] => 3118979
[total_days] => 20
[display_material_sum] => 1 751 598
[display_work_sum] => 1 367 381
[display_total_sum] => 3 118 979
)
1
3 118 979₽
Работа:1 367 381 ₽
Материалы:1 751 598 ₽
Дни:20
stdClass Object
(
[id] => 168
[attribute_id] => 37
[name] => Керамическая черепица
[material_modifier] => 1
[work_modifier] => 1
[options] => Array
(
)
[days] => [20]
[material_price] => [12750]
[work_price] => [9456]
[image] => https://akademik-stroy.ru/wp-content/uploads/materials/keramicheskaya-cherepica.jpg
[area_modifier] => 146.24
[parent_name] => Крыша (Скатная)
[parent_id] => 37
[material_sum] => 2349346
[work_sum] => 1451988
[total_sum] => 3801334
[total_days] => 20
[display_material_sum] => 2 349 346
[display_work_sum] => 1 451 988
[display_total_sum] => 3 801 334
)
1
3 801 334₽
Работа:1 451 988 ₽
Материалы:2 349 346 ₽
Дни:20
stdClass Object
(
[id] => 169
[attribute_id] => 37
[name] => Металлическая фальцевая
[material_modifier] => 1
[work_modifier] => 1
[options] => Array
(
)
[days] => [20]
[material_price] => [8550]
[work_price] => [8190]
[image] => https://akademik-stroy.ru/wp-content/uploads/materials/metallicheskaya-falcevaya.jpg
[area_modifier] => 146.24
[parent_name] => Крыша (Скатная)
[parent_id] => 37
[material_sum] => 1575444
[work_sum] => 1257591
[total_sum] => 2833035
[total_days] => 20
[display_material_sum] => 1 575 444
[display_work_sum] => 1 257 591
[display_total_sum] => 2 833 035
)
1
2 833 035₽
Работа:1 257 591 ₽
Материалы:1 575 444 ₽
Дни:20
stdClass Object
(
[id] => 170
[attribute_id] => 37
[name] => Медная фальцевая
[material_modifier] => 1
[work_modifier] => 1
[options] => Array
(
)
[days] => [20]
[material_price] => [20450]
[work_price] => [16750]
[image] => https://akademik-stroy.ru/wp-content/uploads/materials/mednaya-falcevaya.jpg
[area_modifier] => 146.24
[parent_name] => Крыша (Скатная)
[parent_id] => 37
[material_sum] => 3768166
[work_sum] => 2571996
[total_sum] => 6340162
[total_days] => 20
[display_material_sum] => 3 768 166
[display_work_sum] => 2 571 996
[display_total_sum] => 6 340 162
)
1
6 340 162₽
Работа:2 571 996 ₽
Материалы:3 768 166 ₽
Дни:20
stdClass Object
(
[id] => 171
[attribute_id] => 37
[name] => Зеленая кровля
[material_modifier] => 1
[work_modifier] => 1
[options] => Array
(
)
[days] => [20]
[material_price] => [19850]
[work_price] => [16780]
[image] => https://akademik-stroy.ru/wp-content/uploads/materials/zelenaya-krovlya.jpg
[area_modifier] => 146.24
[parent_name] => Крыша (Скатная)
[parent_id] => 37
[material_sum] => 3657609
[work_sum] => 2576603
[total_sum] => 6234212
[total_days] => 20
[display_material_sum] => 3 657 609
[display_work_sum] => 2 576 603
[display_total_sum] => 6 234 212
)
1
6 234 212₽
Работа:2 576 603 ₽
Материалы:3 657 609 ₽
Дни:20
stdClass Object
(
[id] => 172
[attribute_id] => 37
[name] => Профлист
[material_modifier] => 1
[work_modifier] => 1
[options] => Array
(
)
[days] => [20]
[material_price] => [3450]
[work_price] => [3750]
[image] => https://akademik-stroy.ru/wp-content/uploads/materials/proflist.jpg
[area_modifier] => 146.24
[parent_name] => Крыша (Скатная)
[parent_id] => 37
[material_sum] => 635705
[work_sum] => 575820
[total_sum] => 1211525
[total_days] => 20
[display_material_sum] => 635 705
[display_work_sum] => 575 820
[display_total_sum] => 1 211 525
)
1
1 211 525₽
Работа:575 820 ₽
Материалы:635 705 ₽
Дни:20
stdClass Object
(
[id] => 51
[attribute_id] => 26
[name] => Есть
[material_modifier] => 1
[work_modifier] => 1
[options] => Array
(
[0] => Профиль 58 мм, 3-камерный, стеклопакет 2-камерный до 32 мм
[1] => Профиль 60 мм, 4-камерный, стеклопакет 2-камерный до 32 мм
[2] => Профиль 70 мм, 5-камерный, стеклопакет 2-камерный до 40 мм
[3] => Профиль 72 мм, 5-камерный, стеклопакет 2-камерный до 40 мм
[4] => Алюминиевые окна Alutech профиль 72 мм, стеклопакет 2-камерный
)
[days] => [3,3,3,3,3]
[material_price] => [1339,2124,2867,3023,29596]
[work_price] => [635,647,659,668,2579]
[image] => https://akademik-stroy.ru/wp-content/uploads/materials/okna.jpg
[area_modifier] => 195.73
[parent_name] => Окна
[parent_id] => 26
[material_sum] => 330224
[work_sum] => 130503
[total_sum] => 460727
[total_days] => 3
[display_material_sum] => 330 224
[display_work_sum] => 130 503
[display_total_sum] => 460 727
)
1
460 727₽
Работа:130 503 ₽
Материалы:330 224 ₽
Дни:3
stdClass Object
(
[id] => 52
[attribute_id] => 26
[name] => Нет
[material_modifier] => 2
[work_modifier] => 1
[options] =>
[days] => null
[material_price] => null
[work_price] => null
[image] => https://akademik-stroy.ru/wp-content/uploads/materials/okna.jpg
[area_modifier] => 195.73
[parent_name] => Окна
[parent_id] => 26
[material_sum] => 0
[work_sum] => 0
[total_sum] => 0
[total_days] => 0
[display_material_sum] => 0
[display_work_sum] => 0
[display_total_sum] => 0
)
1
0₽
Работа:0 ₽
Материалы:0 ₽
Дни:0
stdClass Object
(
[id] => 53
[attribute_id] => 27
[name] => Есть
[material_modifier] => 1
[work_modifier] => 1
[options] => Array
(
)
[days] => [1]
[material_price] => [10000]
[work_price] => [5500]
[image] => https://akademik-stroy.ru/wp-content/uploads/materials/dveri.jpg
[area_modifier] => 1
[parent_name] => Двери входные
[parent_id] => 27
[material_sum] => 12600
[work_sum] => 5775
[total_sum] => 18375
[total_days] => 1
[display_material_sum] => 12 600
[display_work_sum] => 5 775
[display_total_sum] => 18 375
)
1
18 375₽
Работа:5 775 ₽
Материалы:12 600 ₽
Дни:1
stdClass Object
(
[id] => 54
[attribute_id] => 27
[name] => Нет
[material_modifier] => 1
[work_modifier] => 1
[options] => Array
(
)
[days] => [0]
[material_price] => [0]
[work_price] => [0]
[image] => https://akademik-stroy.ru/wp-content/uploads/materials/dveri.jpg
[area_modifier] => 1
[parent_name] => Двери входные
[parent_id] => 27
[material_sum] => 0
[work_sum] => 0
[total_sum] => 0
[total_days] => 0
[display_material_sum] => 0
[display_work_sum] => 0
[display_total_sum] => 0
)
1
0₽
Работа:0 ₽
Материалы:0 ₽
Дни:0
stdClass Object
(
[id] => 25
[attribute_id] => 13
[name] => Нет
[material_modifier] => 1
[work_modifier] => 1
[options] => Array
(
)
[days] => [0]
[material_price] => [0]
[work_price] => [0]
[image] => https://akademik-stroy.ru/wp-content/uploads/materials/mineralovata-krov.jpg
[area_modifier] => 146.24
[parent_name] => Утепление кровли (Мансарда)
[parent_id] => 13
[material_sum] => 0
[work_sum] => 0
[total_sum] => 0
[total_days] => 0
[display_material_sum] => 0
[display_work_sum] => 0
[display_total_sum] => 0
)
1
0₽
Работа:0 ₽
Материалы:0 ₽
Дни:0
stdClass Object
(
[id] => 26
[attribute_id] => 13
[name] => Минераловатный
[material_modifier] => 1
[work_modifier] => 1
[options] => Array
(
[0] => 50 мм
[1] => 100 мм
[2] => 150 мм
[3] => 200 мм
[4] => 250 мм
[5] => 300 мм
[6] => 350 мм
[7] => 400 мм
[8] => 450 мм
[9] => 500 мм
)
[days] => [5,5,6,6,6,7,7,7,8,8]
[material_price] => [1158,1414,1772,2230,3602,4060,4974,5890,6408,7718]
[work_price] => [650,846,846,1098,1318,1450,1596,1754,1930,2122]
[image] => https://akademik-stroy.ru/wp-content/uploads/materials/mineralovata-krov.jpg
[area_modifier] => 146.24
[parent_name] => Утепление кровли (Мансарда)
[parent_id] => 13
[material_sum] => 213376
[work_sum] => 99809
[total_sum] => 313185
[total_days] => 5
[display_material_sum] => 213 376
[display_work_sum] => 99 809
[display_total_sum] => 313 185
)
1
313 185₽
Работа:99 809 ₽
Материалы:213 376 ₽
Дни:5
stdClass Object
(
[id] => 123
[attribute_id] => 13
[name] => Эковата (целлюлозная вата)
[material_modifier] => 1
[work_modifier] => 1
[options] => Array
(
[0] => 50 мм
[1] => 100 мм
[2] => 150 мм
[3] => 200 мм
[4] => 250 мм
[5] => 300 мм
[6] => 350 мм
[7] => 400 мм
[8] => 450 мм
[9] => 500 мм
)
[days] => [3,3,4,4,4,5,5,5,5,5]
[material_price] => [820,1638,2458,3276,5734,6552,8190,9828,11466,13104]
[work_price] => [234,304,304,396,474,522,574,632,694,764]
[image] => https://akademik-stroy.ru/wp-content/uploads/materials/ehkovata-krov.jpg
[area_modifier] => 146.24
[parent_name] => Утепление кровли (Мансарда)
[parent_id] => 13
[material_sum] => 151095
[work_sum] => 35931
[total_sum] => 187026
[total_days] => 3
[display_material_sum] => 151 095
[display_work_sum] => 35 931
[display_total_sum] => 187 026
)
1
187 026₽
Работа:35 931 ₽
Материалы:151 095 ₽
Дни:3
stdClass Object
(
[id] => 124
[attribute_id] => 13
[name] => Экструдированный пенополистирол
[material_modifier] => 1
[work_modifier] => 1
[options] => Array
(
[0] => 50 мм
[1] => 100 мм
[2] => 150 мм
[3] => 200 мм
[4] => 250 мм
[5] => 300 мм
[6] => 350 мм
[7] => 400 мм
[8] => 450 мм
[9] => 500 мм
)
[days] => [3,3,4,4,4,5,5,5,5,6]
[material_price] => [1146,2292,3438,4584,8020,9166,11458,13750,16040,18332]
[work_price] => [390,508,508,660,790,870,958,1052,1158,1274]
[image] => https://akademik-stroy.ru/wp-content/uploads/materials/epps-krov.jpg
[area_modifier] => 146.24
[parent_name] => Утепление кровли (Мансарда)
[parent_id] => 13
[material_sum] => 211165
[work_sum] => 59885
[total_sum] => 271050
[total_days] => 3
[display_material_sum] => 211 165
[display_work_sum] => 59 885
[display_total_sum] => 271 050
)
1
271 050₽
Работа:59 885 ₽
Материалы:211 165 ₽
Дни:3
stdClass Object
(
[id] => 125
[attribute_id] => 13
[name] => ПСБ (ППС-пенополистирол)
[material_modifier] => 1
[work_modifier] => 1
[options] => Array
(
[0] => 50 мм
[1] => 100 мм
[2] => 150 мм
[3] => 200 мм
[4] => 250 мм
[5] => 300 мм
[6] => 350 мм
[7] => 400 мм
[8] => 450 мм
[9] => 500 мм
)
[days] => [3,3,4,4,4,5,5,5,5,6]
[material_price] => [476,954,1430,1906,3336,3814,4766,5720,6674,7626]
[work_price] => [390,508,508,660,790,870,958,1052,1158,1274]
[image] => https://akademik-stroy.ru/wp-content/uploads/materials/psb-krov.jpg
[area_modifier] => 146.24
[parent_name] => Утепление кровли (Мансарда)
[parent_id] => 13
[material_sum] => 87709
[work_sum] => 59885
[total_sum] => 147594
[total_days] => 3
[display_material_sum] => 87 709
[display_work_sum] => 59 885
[display_total_sum] => 147 594
)
1
147 594₽
Работа:59 885 ₽
Материалы:87 709 ₽
Дни:3
stdClass Object
(
[id] => 126
[attribute_id] => 13
[name] => ППУ (Пенополиуретан)
[material_modifier] => 1
[work_modifier] => 1
[options] => Array
(
[0] => 50 мм
[1] => 100 мм
[2] => 150 мм
[3] => 200 мм
[4] => 250 мм
[5] => 300 мм
[6] => 350 мм
[7] => 400 мм
[8] => 450 мм
[9] => 500 мм
)
[days] => [2,2,3,3,3,3,4,4,4,4]
[material_price] => [2080,4160,6240,8320,14560,16640,20800,24960,29120,33280]
[work_price] => [234,304,304,396,474,522,574,632,694,764]
[image] => https://akademik-stroy.ru/wp-content/uploads/materials/ppu-krov.jpg
[area_modifier] => 146.24
[parent_name] => Утепление кровли (Мансарда)
[parent_id] => 13
[material_sum] => 383266
[work_sum] => 35931
[total_sum] => 419197
[total_days] => 2
[display_material_sum] => 383 266
[display_work_sum] => 35 931
[display_total_sum] => 419 197
)
1
419 197₽
Работа:35 931 ₽
Материалы:383 266 ₽
Дни:2
stdClass Object
(
[id] => 127
[attribute_id] => 13
[name] => PIR-плиты (пенополиизоцианурат)
[material_modifier] => 1
[work_modifier] => 1
[options] => Array
(
[0] => 50 мм
[1] => 100 мм
[2] => 150 мм
[3] => 200 мм
[4] => 250 мм
[5] => 300 мм
[6] => 350 мм
[7] => 400 мм
[8] => 450 мм
[9] => 500 мм
)
[days] => [3,3,4,4,4,5,5,5,5,6]
[material_price] => [2646,5290,7936,10580,18516,21162,26452,31742,37032,42324]
[work_price] => [390,508,508,660,790,870,958,1052,1158,1274]
[image] => https://akademik-stroy.ru/wp-content/uploads/materials/pir-krov.jpg
[area_modifier] => 146.24
[parent_name] => Утепление кровли (Мансарда)
[parent_id] => 13
[material_sum] => 487558
[work_sum] => 59885
[total_sum] => 547443
[total_days] => 3
[display_material_sum] => 487 558
[display_work_sum] => 59 885
[display_total_sum] => 547 443
)
1
547 443₽
Работа:59 885 ₽
Материалы:487 558 ₽
Дни:3
stdClass Object
(
[id] => 27
[attribute_id] => 14
[name] => Нет
[material_modifier] => 1
[work_modifier] => 1
[options] => Array
(
)
[days] => [0]
[material_price] => [0]
[work_price] => [0]
[image] => https://akademik-stroy.ru/wp-content/uploads/materials/mansardnye-okna-2.jpg
[area_modifier] => 1
[parent_name] => Мансардные окна
[parent_id] => 14
[material_sum] => 0
[work_sum] => 0
[total_sum] => 0
[total_days] => 0
[display_material_sum] => 0
[display_work_sum] => 0
[display_total_sum] => 0
)
1
0₽
Работа:0 ₽
Материалы:0 ₽
Дни:0
stdClass Object
(
[id] => 28
[attribute_id] => 14
[name] => Есть
[material_modifier] => 1
[work_modifier] => 1
[options] => Array
(
[0] => 55x78
[1] => 55x98
)
[days] => [6,7]
[material_price] => [47480,68700]
[work_price] => [17900,19500]
[image] => https://akademik-stroy.ru/wp-content/uploads/materials/mansardnye-okna-2.jpg
[area_modifier] => 1
[parent_name] => Мансардные окна
[parent_id] => 14
[material_sum] => 59825
[work_sum] => 18795
[total_sum] => 78620
[total_days] => 6
[display_material_sum] => 59 825
[display_work_sum] => 18 795
[display_total_sum] => 78 620
)
1
78 620₽
Работа:18 795 ₽
Материалы:59 825 ₽
Дни:6
stdClass Object
(
[id] => 29
[attribute_id] => 15
[name] => Нет
[material_modifier] => 1
[work_modifier] => 1
[options] => Array
(
)
[days] => [0]
[material_price] => [0]
[work_price] => [0]
[image] => https://akademik-stroy.ru/wp-content/uploads/materials/sofit.jpg
[area_modifier] => 146.24
[parent_name] => Подшивка кровли
[parent_id] => 15
[material_sum] => 0
[work_sum] => 0
[total_sum] => 0
[total_days] => 0
[display_material_sum] => 0
[display_work_sum] => 0
[display_total_sum] => 0
)
1
0₽
Работа:0 ₽
Материалы:0 ₽
Дни:0
stdClass Object
(
[id] => 30
[attribute_id] => 15
[name] => Есть
[material_modifier] => 1
[work_modifier] => 1
[options] => Array
(
[0] => Софиты (ПВХ)
[1] => Cedral
[2] => ДПК
[3] => Планкен
)
[days] => [7,10,9,8]
[material_price] => [1803,3213,3025,3150]
[work_price] => [1529,2188,2075,1923]
[image] => https://akademik-stroy.ru/wp-content/uploads/materials/sofit.jpg
[area_modifier] => 146.24
[parent_name] => Подшивка кровли
[parent_id] => 15
[material_sum] => 332225
[work_sum] => 234781
[total_sum] => 567006
[total_days] => 7
[display_material_sum] => 332 225
[display_work_sum] => 234 781
[display_total_sum] => 567 006
)
1
567 006₽
Работа:234 781 ₽
Материалы:332 225 ₽
Дни:7
stdClass Object
(
[id] => 31
[attribute_id] => 16
[name] => Нет
[material_modifier] => 1
[work_modifier] => 1
[options] => Array
(
)
[days] => [0]
[material_price] => [0]
[work_price] => [0]
[image] => https://akademik-stroy.ru/wp-content/uploads/materials/docke-standard-pvh.jpg
[area_modifier] => 146.24
[parent_name] => Водосточная система
[parent_id] => 16
[material_sum] => 0
[work_sum] => 0
[total_sum] => 0
[total_days] => 0
[display_material_sum] => 0
[display_work_sum] => 0
[display_total_sum] => 0
)
1
0₽
Работа:0 ₽
Материалы:0 ₽
Дни:0
stdClass Object
(
[id] => 32
[attribute_id] => 16
[name] => Есть
[material_modifier] => 1
[work_modifier] => 1
[options] => Array
(
[0] => Döcke Standard (ПВХ)
[1] => Металлические Grand Line
)
[days] => [7,7]
[material_price] => [1842,2703]
[work_price] => [1491,1529]
[image] => https://akademik-stroy.ru/wp-content/uploads/materials/docke-standard-pvh.jpg
[area_modifier] => 146.24
[parent_name] => Водосточная система
[parent_id] => 16
[material_sum] => 339411
[work_sum] => 228946
[total_sum] => 568357
[total_days] => 7
[display_material_sum] => 339 411
[display_work_sum] => 228 946
[display_total_sum] => 568 357
)
1
568 357₽
Работа:228 946 ₽
Материалы:339 411 ₽
Дни:7
stdClass Object
(
[id] => 33
[attribute_id] => 17
[name] => Нет
[material_modifier] => 1
[work_modifier] => 1
[options] => Array
(
)
[days] => [0]
[material_price] => [0]
[work_price] => [0]
[image] => https://akademik-stroy.ru/wp-content/uploads/materials/mineralovata.jpg
[area_modifier] => 241.2
[parent_name] => Дополнительное утепление наружных стен
[parent_id] => 17
[material_sum] => 0
[work_sum] => 0
[total_sum] => 0
[total_days] => 0
[display_material_sum] => 0
[display_work_sum] => 0
[display_total_sum] => 0
)
1
0₽
Работа:0 ₽
Материалы:0 ₽
Дни:0
stdClass Object
(
[id] => 34
[attribute_id] => 17
[name] => Минераловатный
[material_modifier] => 1
[work_modifier] => 1
[options] => Array
(
[0] => 50 мм
[1] => 100 мм
[2] => 150 мм
[3] => 200 мм
[4] => 250 мм
[5] => 300 мм
)
[days] => [7,8,10,12,14,15]
[material_price] => [3437,3613,3803,3915,4601,4830]
[work_price] => [2325,2423,2523,2749,2859,3025]
[image] => https://akademik-stroy.ru/wp-content/uploads/materials/mineralovata.jpg
[area_modifier] => 241.2
[parent_name] => Дополнительное утепление наружных стен
[parent_id] => 17
[material_sum] => 1044546
[work_sum] => 588830
[total_sum] => 1633376
[total_days] => 7
[display_material_sum] => 1 044 546
[display_work_sum] => 588 830
[display_total_sum] => 1 633 376
)
1
1 633 376₽
Работа:588 830 ₽
Материалы:1 044 546 ₽
Дни:7
stdClass Object
(
[id] => 128
[attribute_id] => 17
[name] => Эковата (целлюлозная вата)
[material_modifier] => 1
[work_modifier] => 1
[options] => Array
(
[0] => 50 мм
[1] => 100 мм
[2] => 150 мм
[3] => 200 мм
[4] => 250 мм
[5] => 300 мм
)
[days] => [3,4,5,6,7,8]
[material_price] => [810,1319,1629,1838,2267,2676]
[work_price] => [1225,1323,1423,1549,1659,1725]
[image] => https://akademik-stroy.ru/wp-content/uploads/materials/ehkovata.jpg
[area_modifier] => 241.2
[parent_name] => Дополнительное утепление наружных стен
[parent_id] => 17
[material_sum] => 246169
[work_sum] => 310244
[total_sum] => 556413
[total_days] => 3
[display_material_sum] => 246 169
[display_work_sum] => 310 244
[display_total_sum] => 556 413
)
1
556 413₽
Работа:310 244 ₽
Материалы:246 169 ₽
Дни:3
stdClass Object
(
[id] => 129
[attribute_id] => 17
[name] => Экструдированный пенополистирол
[material_modifier] => 1
[work_modifier] => 1
[options] => Array
(
[0] => 50 мм
[1] => 100 мм
[2] => 150 мм
[3] => 200 мм
[4] => 250 мм
[5] => 300 мм
)
[days] => [5,6,7,8,9,10]
[material_price] => [4560,4300,5119,6292,7010,8583]
[work_price] => [1795,1954,2254,2330,2595,2735]
[image] => https://akademik-stroy.ru/wp-content/uploads/materials/epps.jpg
[area_modifier] => 241.2
[parent_name] => Дополнительное утепление наружных стен
[parent_id] => 17
[material_sum] => 1385839
[work_sum] => 454602
[total_sum] => 1840441
[total_days] => 5
[display_material_sum] => 1 385 839
[display_work_sum] => 454 602
[display_total_sum] => 1 840 441
)
1
1 840 441₽
Работа:454 602 ₽
Материалы:1 385 839 ₽
Дни:5
stdClass Object
(
[id] => 130
[attribute_id] => 17
[name] => ПСБ (ППС-пенополистирол)
[material_modifier] => 1
[work_modifier] => 1
[options] => Array
(
[0] => 50 мм
[1] => 100 мм
[2] => 150 мм
[3] => 200 мм
[4] => 250 мм
[5] => 300 мм
)
[days] => [5,6,7,8,9,10]
[material_price] => [4822,5200,5819,6292,7010,7583]
[work_price] => [1795,1954,2254,2330,2595,2735]
[image] => https://akademik-stroy.ru/wp-content/uploads/materials/psb.jpg
[area_modifier] => 241.2
[parent_name] => Дополнительное утепление наружных стен
[parent_id] => 17
[material_sum] => 1465464
[work_sum] => 454602
[total_sum] => 1920066
[total_days] => 5
[display_material_sum] => 1 465 464
[display_work_sum] => 454 602
[display_total_sum] => 1 920 066
)
1
1 920 066₽
Работа:454 602 ₽
Материалы:1 465 464 ₽
Дни:5
stdClass Object
(
[id] => 131
[attribute_id] => 17
[name] => ППУ (Пенополиуретан)
[material_modifier] => 1
[work_modifier] => 1
[options] => Array
(
[0] => 50 мм
[1] => 100 мм
[2] => 150 мм
[3] => 200 мм
[4] => 250 мм
[5] => 300 мм
)
[days] => [3,4,5,6,7,8]
[material_price] => [2860,3400,4219,4592,5010,5583]
[work_price] => [729,900,980,1120,1280,1530]
[image] => https://akademik-stroy.ru/wp-content/uploads/materials/ppu.jpg
[area_modifier] => 241.2
[parent_name] => Дополнительное утепление наружных стен
[parent_id] => 17
[material_sum] => 869188
[work_sum] => 184627
[total_sum] => 1053815
[total_days] => 3
[display_material_sum] => 869 188
[display_work_sum] => 184 627
[display_total_sum] => 1 053 815
)
1
1 053 815₽
Работа:184 627 ₽
Материалы:869 188 ₽
Дни:3
stdClass Object
(
[id] => 132
[attribute_id] => 17
[name] => PIR-плиты (пенополиизоцианурат)
[material_modifier] => 1
[work_modifier] => 1
[options] => Array
(
[0] => 50 мм
[1] => 100 мм
[2] => 150 мм
[3] => 200 мм
[4] => 250 мм
[5] => 300 мм
)
[days] => [5,6,7,8,9,10]
[material_price] => [8323,15645,20968,25900,29258,30581]
[work_price] => [800,900,970,1150,1280,1330]
[image] => https://akademik-stroy.ru/wp-content/uploads/materials/pir.jpg
[area_modifier] => 241.2
[parent_name] => Дополнительное утепление наружных стен
[parent_id] => 17
[material_sum] => 2529460
[work_sum] => 202608
[total_sum] => 2732068
[total_days] => 5
[display_material_sum] => 2 529 460
[display_work_sum] => 202 608
[display_total_sum] => 2 732 068
)
1
2 732 068₽
Работа:202 608 ₽
Материалы:2 529 460 ₽
Дни:5
stdClass Object
(
[id] => 37
[attribute_id] => 19
[name] => Нет
[material_modifier] => 1
[work_modifier] => 1
[options] => Array
(
)
[days] => [0]
[material_price] => [0]
[work_price] => [0]
[image] => https://akademik-stroy.ru/wp-content/uploads/materials/imitaciya-brusa.jpg
[area_modifier] => 241.2
[parent_name] => Наружная отделка фасада
[parent_id] => 19
[material_sum] => 0
[work_sum] => 0
[total_sum] => 0
[total_days] => 0
[display_material_sum] => 0
[display_work_sum] => 0
[display_total_sum] => 0
)
1
0₽
Работа:0 ₽
Материалы:0 ₽
Дни:0
stdClass Object
(
[id] => 38
[attribute_id] => 19
[name] => Имитация бруса
[material_modifier] => 1
[work_modifier] => 1
[options] => Array
(
[0] => Сосна
[1] => Ель
[2] => Лиственница
)
[days] => [20,20,20]
[material_price] => [2994,2762,4954]
[work_price] => [1397,1231,1577]
[image] => https://akademik-stroy.ru/wp-content/uploads/materials/imitaciya-brusa.jpg
[area_modifier] => 241.2
[parent_name] => Наружная отделка фасада
[parent_id] => 19
[material_sum] => 909913
[work_sum] => 353804
[total_sum] => 1263717
[total_days] => 20
[display_material_sum] => 909 913
[display_work_sum] => 353 804
[display_total_sum] => 1 263 717
)
1
1 263 717₽
Работа:353 804 ₽
Материалы:909 913 ₽
Дни:20
stdClass Object
(
[id] => 136
[attribute_id] => 19
[name] => Планкен
[material_modifier] => 1
[work_modifier] => 1
[options] => Array
(
[0] => Сосна
[1] => Ель
[2] => Лиственница
)
[days] => [20,20,20]
[material_price] => [3194,2862,5154]
[work_price] => [1537,1354,1735]
[image] => https://akademik-stroy.ru/wp-content/uploads/materials/planken.jpg
[area_modifier] => 241.2
[parent_name] => Наружная отделка фасада
[parent_id] => 19
[material_sum] => 970695
[work_sum] => 389261
[total_sum] => 1359956
[total_days] => 20
[display_material_sum] => 970 695
[display_work_sum] => 389 261
[display_total_sum] => 1 359 956
)
1
1 359 956₽
Работа:389 261 ₽
Материалы:970 695 ₽
Дни:20
stdClass Object
(
[id] => 137
[attribute_id] => 19
[name] => Штукатурка
[material_modifier] => 1
[work_modifier] => 1
[options] => Array
(
[0] => Цементно-песчаная (минеральная)
[1] => Мокрый фасад
)
[days] => [35,35]
[material_price] => [2231,3938]
[work_price] => [1202,2422]
[image] => https://akademik-stroy.ru/wp-content/uploads/materials/shtukaturka.jpg
[area_modifier] => 241.2
[parent_name] => Наружная отделка фасада
[parent_id] => 19
[material_sum] => 678028
[work_sum] => 304419
[total_sum] => 982447
[total_days] => 35
[display_material_sum] => 678 028
[display_work_sum] => 304 419
[display_total_sum] => 982 447
)
1
982 447₽
Работа:304 419 ₽
Материалы:678 028 ₽
Дни:35
stdClass Object
(
[id] => 138
[attribute_id] => 19
[name] => Облицовочный кирпич
[material_modifier] => 1
[work_modifier] => 1
[options] => Array
(
[0] => Керамический
[1] => Клинкерный
[2] => Ручной формовки
[3] => Гиперпрессованный
[4] => Силикатный кирпич
)
[days] => [45,45,45,45,45]
[material_price] => [8174,9148,1040,1257,5876]
[work_price] => [3240,3758,4536,4017,3369]
[image] => https://akademik-stroy.ru/wp-content/uploads/materials/oblicovochnyj-kirpich.jpg
[area_modifier] => 241.2
[parent_name] => Наружная отделка фасада
[parent_id] => 19
[material_sum] => 2484177
[work_sum] => 820562
[total_sum] => 3304739
[total_days] => 45
[display_material_sum] => 2 484 177
[display_work_sum] => 820 562
[display_total_sum] => 3 304 739
)
1
3 304 739₽
Работа:820 562 ₽
Материалы:2 484 177 ₽
Дни:45
stdClass Object
(
[id] => 139
[attribute_id] => 19
[name] => Фасадная плитка
[material_modifier] => 1
[work_modifier] => 1
[options] => Array
(
[0] => Клинкерная
[1] => Керамическая
[2] => Плитка ручной формовки
)
[days] => [40,40,40]
[material_price] => [2974,1487,3470]
[work_price] => [3007,2592,3629]
[image] => https://akademik-stroy.ru/wp-content/uploads/materials/fasadnaya-plitka.jpg
[area_modifier] => 241.2
[parent_name] => Наружная отделка фасада
[parent_id] => 19
[material_sum] => 903834
[work_sum] => 761553
[total_sum] => 1665387
[total_days] => 40
[display_material_sum] => 903 834
[display_work_sum] => 761 553
[display_total_sum] => 1 665 387
)
1
1 665 387₽
Работа:761 553 ₽
Материалы:903 834 ₽
Дни:40
stdClass Object
(
[id] => 140
[attribute_id] => 19
[name] => Сайдинг
[material_modifier] => 1
[work_modifier] => 1
[options] => Array
(
[0] => Виниловый
[1] => Металлический
[2] => Фиброцементный
)
[days] => [20,20,20]
[material_price] => [1263,1944,4147]
[work_price] => [1263,1944,2074]
[image] => https://akademik-stroy.ru/wp-content/uploads/materials/sajding.jpg
[area_modifier] => 241.2
[parent_name] => Наружная отделка фасада
[parent_id] => 19
[material_sum] => 383841
[work_sum] => 319867
[total_sum] => 703708
[total_days] => 20
[display_material_sum] => 383 841
[display_work_sum] => 319 867
[display_total_sum] => 703 708
)
1
703 708₽
Работа:319 867 ₽
Материалы:383 841 ₽
Дни:20
stdClass Object
(
[id] => 141
[attribute_id] => 19
[name] => Камень
[material_modifier] => 1
[work_modifier] => 1
[options] => Array
(
[0] => Травертин
[1] => Дагестанский
[2] => Искусственный
[3] => Натуральный
[4] => Керамогранит
)
[days] => [45,45,45,45,45]
[material_price] => [4536,3888,2592,3240,2462]
[work_price] => [3240,3240,2462,3110,1944]
[image] => https://akademik-stroy.ru/wp-content/uploads/materials/kamen-1.jpg
[area_modifier] => 241.2
[parent_name] => Наружная отделка фасада
[parent_id] => 19
[material_sum] => 1378545
[work_sum] => 820562
[total_sum] => 2199107
[total_days] => 45
[display_material_sum] => 1 378 545
[display_work_sum] => 820 562
[display_total_sum] => 2 199 107
)
1
2 199 107₽
Работа:820 562 ₽
Материалы:1 378 545 ₽
Дни:45
stdClass Object
(
[id] => 142
[attribute_id] => 19
[name] => Термопанели
[material_modifier] => 1
[work_modifier] => 1
[options] => Array
(
)
[days] => [20]
[material_price] => [6221]
[work_price] => [2333]
[image] => https://akademik-stroy.ru/wp-content/uploads/materials/termo.png
[area_modifier] => 241.2
[parent_name] => Наружная отделка фасада
[parent_id] => 19
[material_sum] => 1890637
[work_sum] => 590856
[total_sum] => 2481493
[total_days] => 20
[display_material_sum] => 1 890 637
[display_work_sum] => 590 856
[display_total_sum] => 2 481 493
)
1
2 481 493₽
Работа:590 856 ₽
Материалы:1 890 637 ₽
Дни:20
stdClass Object
(
[id] => 143
[attribute_id] => 19
[name] => Плитка HAUBERK
[material_modifier] => 1
[work_modifier] => 1
[options] => Array
(
)
[days] => [20]
[material_price] => [2786]
[work_price] => [1944]
[image] => https://akademik-stroy.ru/wp-content/uploads/materials/hauberk.jpg
[area_modifier] => 241.2
[parent_name] => Наружная отделка фасада
[parent_id] => 19
[material_sum] => 846699
[work_sum] => 492337
[total_sum] => 1339036
[total_days] => 20
[display_material_sum] => 846 699
[display_work_sum] => 492 337
[display_total_sum] => 1 339 036
)
1
1 339 036₽
Работа:492 337 ₽
Материалы:846 699 ₽
Дни:20
stdClass Object
(
[id] => 144
[attribute_id] => 19
[name] => Фальцевый фасад
[material_modifier] => 1
[work_modifier] => 1
[options] => Array
(
)
[days] => [20]
[material_price] => [3240]
[work_price] => [2592]
[image] => https://akademik-stroy.ru/wp-content/uploads/materials/falcevyj-fasad.jpg
[area_modifier] => 241.2
[parent_name] => Наружная отделка фасада
[parent_id] => 19
[material_sum] => 984675
[work_sum] => 656450
[total_sum] => 1641125
[total_days] => 20
[display_material_sum] => 984 675
[display_work_sum] => 656 450
[display_total_sum] => 1 641 125
)
1
1 641 125₽
Работа:656 450 ₽
Материалы:984 675 ₽
Дни:20
stdClass Object
(
[id] => 145
[attribute_id] => 19
[name] => Комбинированный
[material_modifier] => 1
[work_modifier] => 1
[options] => Array
(
)
[days] => [20]
[material_price] => [4629]
[work_price] => [3499]
[image] => https://akademik-stroy.ru/wp-content/uploads/materials/Kombinirovannyj.jpg
[area_modifier] => 241.2
[parent_name] => Наружная отделка фасада
[parent_id] => 19
[material_sum] => 1406809
[work_sum] => 886157
[total_sum] => 2292966
[total_days] => 20
[display_material_sum] => 1 406 809
[display_work_sum] => 886 157
[display_total_sum] => 2 292 966
)
1
2 292 966₽
Работа:886 157 ₽
Материалы:1 406 809 ₽
Дни:20
stdClass Object
(
[id] => 257
[attribute_id] => 19
[name] => Японские фиброцементные
[material_modifier] => 1
[work_modifier] => 1
[options] => Array
(
)
[days] => [20]
[material_price] => [7043]
[work_price] => [2993]
[image] => https://akademik-stroy.ru/wp-content/uploads/materials/paneli.jpg
[area_modifier] => 241.2
[parent_name] => Наружная отделка фасада
[parent_id] => 19
[material_sum] => 2140452
[work_sum] => 758007
[total_sum] => 2898459
[total_days] => 20
[display_material_sum] => 2 140 452
[display_work_sum] => 758 007
[display_total_sum] => 2 898 459
)
1
2 898 459₽
Работа:758 007 ₽
Материалы:2 140 452 ₽
Дни:20
stdClass Object
(
[id] => 258
[attribute_id] => 19
[name] => Панели Каньон
[material_modifier] => 1
[work_modifier] => 1
[options] => Array
(
)
[days] => [20]
[material_price] => [4543]
[work_price] => [2592]
[image] => https://akademik-stroy.ru/wp-content/uploads/materials/kanon.png
[area_modifier] => 241.2
[parent_name] => Наружная отделка фасада
[parent_id] => 19
[material_sum] => 1380672
[work_sum] => 656450
[total_sum] => 2037122
[total_days] => 20
[display_material_sum] => 1 380 672
[display_work_sum] => 656 450
[display_total_sum] => 2 037 122
)
1
2 037 122₽
Работа:656 450 ₽
Материалы:1 380 672 ₽
Дни:20
stdClass Object
(
[id] => 39
[attribute_id] => 20
[name] => Нет
[material_modifier] => 1
[work_modifier] => 1
[options] => Array
(
)
[days] => [0]
[material_price] => [0]
[work_price] => [0]
[image] => https://akademik-stroy.ru/wp-content/uploads/materials/terrasy.jpg
[area_modifier] => 30
[parent_name] => Террасы, крыльца, навесы
[parent_id] => 20
[material_sum] => 0
[work_sum] => 0
[total_sum] => 0
[total_days] => 0
[display_material_sum] => 0
[display_work_sum] => 0
[display_total_sum] => 0
)
1
0₽
Работа:0 ₽
Материалы:0 ₽
Дни:0
stdClass Object
(
[id] => 40
[attribute_id] => 20
[name] => Есть
[material_modifier] => 1
[work_modifier] => 1
[options] => Array
(
)
[days] => [5]
[material_price] => [10450]
[work_price] => [1950]
[image] => https://akademik-stroy.ru/wp-content/uploads/materials/terrasy.jpg
[area_modifier] => 30
[parent_name] => Террасы, крыльца, навесы
[parent_id] => 20
[material_sum] => 395010
[work_sum] => 61425
[total_sum] => 456435
[total_days] => 5
[display_material_sum] => 395 010
[display_work_sum] => 61 425
[display_total_sum] => 456 435
)
1
456 435₽
Работа:61 425 ₽
Материалы:395 010 ₽
Дни:5
stdClass Object
(
[id] => 41
[attribute_id] => 21
[name] => Нет
[material_modifier] => 1
[work_modifier] => 1
[options] => Array
(
)
[days] => [0]
[material_price] => [0]
[work_price] => [0]
[image] => https://akademik-stroy.ru/wp-content/uploads/materials/balkony.jpg
[area_modifier] => 30
[parent_name] => Балконы
[parent_id] => 21
[material_sum] => 0
[work_sum] => 0
[total_sum] => 0
[total_days] => 0
[display_material_sum] => 0
[display_work_sum] => 0
[display_total_sum] => 0
)
1
0₽
Работа:0 ₽
Материалы:0 ₽
Дни:0
stdClass Object
(
[id] => 42
[attribute_id] => 21
[name] => Есть
[material_modifier] => 1
[work_modifier] => 1
[options] => Array
(
)
[days] => [12]
[material_price] => [3600]
[work_price] => [1950]
[image] => https://akademik-stroy.ru/wp-content/uploads/materials/balkony.jpg
[area_modifier] => 30
[parent_name] => Балконы
[parent_id] => 21
[material_sum] => 136080
[work_sum] => 61425
[total_sum] => 197505
[total_days] => 12
[display_material_sum] => 136 080
[display_work_sum] => 61 425
[display_total_sum] => 197 505
)
1
197 505₽
Работа:61 425 ₽
Материалы:136 080 ₽
Дни:12
stdClass Object
(
[id] => 43
[attribute_id] => 22
[name] => Нет
[material_modifier] => 1
[work_modifier] => 1
[options] => Array
(
)
[days] => [0]
[material_price] => [0]
[work_price] => [0]
[image] => https://akademik-stroy.ru/wp-content/uploads/materials/uteplennaya.jpg
[area_modifier] => 146.24
[parent_name] => Отмостка
[parent_id] => 22
[material_sum] => 0
[work_sum] => 0
[total_sum] => 0
[total_days] => 0
[display_material_sum] => 0
[display_work_sum] => 0
[display_total_sum] => 0
)
1
0₽
Работа:0 ₽
Материалы:0 ₽
Дни:0
stdClass Object
(
[id] => 44
[attribute_id] => 22
[name] => Утепленная отмостка
[material_modifier] => 1
[work_modifier] => 1
[options] => Array
(
)
[days] => [15]
[material_price] => [2550]
[work_price] => [1750]
[image] => https://akademik-stroy.ru/wp-content/uploads/materials/uteplennaya.jpg
[area_modifier] => 146.24
[parent_name] => Отмостка
[parent_id] => 22
[material_sum] => 469869
[work_sum] => 268716
[total_sum] => 738585
[total_days] => 15
[display_material_sum] => 469 869
[display_work_sum] => 268 716
[display_total_sum] => 738 585
)
1
738 585₽
Работа:268 716 ₽
Материалы:469 869 ₽
Дни:15
stdClass Object
(
[id] => 146
[attribute_id] => 22
[name] => Не утепленная отмостка
[material_modifier] => 1
[work_modifier] => 1
[options] => Array
(
)
[days] => [10]
[material_price] => [1650]
[work_price] => [1450]
[image] => https://akademik-stroy.ru/wp-content/uploads/materials/ne-uteplennaya.jpg
[area_modifier] => 146.24
[parent_name] => Отмостка
[parent_id] => 22
[material_sum] => 304033
[work_sum] => 222650
[total_sum] => 526683
[total_days] => 10
[display_material_sum] => 304 033
[display_work_sum] => 222 650
[display_total_sum] => 526 683
)
1
526 683₽
Работа:222 650 ₽
Материалы:304 033 ₽
Дни:10
stdClass Object
(
[id] => 45
[attribute_id] => 23
[name] => Нет
[material_modifier] => 1
[work_modifier] => 1
[options] => Array
(
)
[days] => [0]
[material_price] => [0]
[work_price] => [0]
[image] => https://akademik-stroy.ru/wp-content/uploads/materials/drenazh-2.jpg
[area_modifier] => 146.24
[parent_name] => Дренаж вокруг дома
[parent_id] => 23
[material_sum] => 0
[work_sum] => 0
[total_sum] => 0
[total_days] => 0
[display_material_sum] => 0
[display_work_sum] => 0
[display_total_sum] => 0
)
1
0₽
Работа:0 ₽
Материалы:0 ₽
Дни:0
stdClass Object
(
[id] => 46
[attribute_id] => 23
[name] => Есть
[material_modifier] => 1
[work_modifier] => 1
[options] => Array
(
)
[days] => [5]
[material_price] => [2366]
[work_price] => [1911]
[image] => https://akademik-stroy.ru/wp-content/uploads/materials/drenazh-2.jpg
[area_modifier] => 146.24
[parent_name] => Дренаж вокруг дома
[parent_id] => 23
[material_sum] => 435965
[work_sum] => 293438
[total_sum] => 729403
[total_days] => 5
[display_material_sum] => 435 965
[display_work_sum] => 293 438
[display_total_sum] => 729 403
)
1
729 403₽
Работа:293 438 ₽
Материалы:435 965 ₽
Дни:5
stdClass Object
(
[id] => 47
[attribute_id] => 24
[name] => Нет
[material_modifier] => 1
[work_modifier] => 1
[options] => Array
(
)
[days] => [0]
[material_price] => [0]
[work_price] => [0]
[image] => https://akademik-stroy.ru/wp-content/uploads/materials/septik.jpg
[area_modifier] => 1
[parent_name] => Автономная канализация (септики)
[parent_id] => 24
[material_sum] => 0
[work_sum] => 0
[total_sum] => 0
[total_days] => 0
[display_material_sum] => 0
[display_work_sum] => 0
[display_total_sum] => 0
)
1
0₽
Работа:0 ₽
Материалы:0 ₽
Дни:0
stdClass Object
(
[id] => 48
[attribute_id] => 24
[name] => Есть
[material_modifier] => 1
[work_modifier] => 1
[options] => Array
(
[0] => Для дачи на 4 человека
[1] => Для дома на 5 человек
[2] => Для дома на 6 человек
[3] => Для дома на 7 человек
[4] => Для дома на 10 человек
)
[days] => [7,7,7,8,8]
[material_price] => [196340,220500,240940,264200,293340]
[work_price] => [50000,55000,60500,66550,73206]
[image] => https://akademik-stroy.ru/wp-content/uploads/materials/septik.jpg
[area_modifier] => 1
[parent_name] => Автономная канализация (септики)
[parent_id] => 24
[material_sum] => 247388
[work_sum] => 52500
[total_sum] => 299888
[total_days] => 7
[display_material_sum] => 247 388
[display_work_sum] => 52 500
[display_total_sum] => 299 888
)
1
299 888₽
Работа:52 500 ₽
Материалы:247 388 ₽
Дни:7
stdClass Object
(
[id] => 49
[attribute_id] => 25
[name] => Нет
[material_modifier] => 1
[work_modifier] => 1
[options] => Array
(
)
[days] => [0]
[material_price] => [0]
[work_price] => [0]
[image] => https://akademik-stroy.ru/wp-content/uploads/materials/gkl.jpg
[area_modifier] => 241.2
[parent_name] => Внутренние (не несущие) перегородки
[parent_id] => 25
[material_sum] => 0
[work_sum] => 0
[total_sum] => 0
[total_days] => 0
[display_material_sum] => 0
[display_work_sum] => 0
[display_total_sum] => 0
)
1
0₽
Работа:0 ₽
Материалы:0 ₽
Дни:0
stdClass Object
(
[id] => 147
[attribute_id] => 25
[name] => Каркасно-обшивные
[material_modifier] => 1
[work_modifier] => 1
[options] => Array
(
[0] => 75 мм (без шумоизоляции)
[1] => 75 мм (с шумоизоляцией)
)
[days] => [11,11]
[material_price] => [580,970]
[work_price] => [380,570]
[image] => https://akademik-stroy.ru/wp-content/uploads/materials/gkl.jpg
[area_modifier] => 241.2
[parent_name] => Внутренние (не несущие) перегородки
[parent_id] => 25
[material_sum] => 176269
[work_sum] => 96239
[total_sum] => 272508
[total_days] => 11
[display_material_sum] => 176 269
[display_work_sum] => 96 239
[display_total_sum] => 272 508
)
1
272 508₽
Работа:96 239 ₽
Материалы:176 269 ₽
Дни:11
stdClass Object
(
[id] => 148
[attribute_id] => 25
[name] => Пазогребневые
[material_modifier] => 1
[work_modifier] => 1
[options] => Array
(
[0] => 80 мм
[1] => 100 мм
)
[days] => [5,5]
[material_price] => [1022,1313]
[work_price] => [600,700]
[image] => https://akademik-stroy.ru/wp-content/uploads/materials/pazogrebnevye-bloki.jpg
[area_modifier] => 241.2
[parent_name] => Внутренние (не несущие) перегородки
[parent_id] => 25
[material_sum] => 310598
[work_sum] => 151956
[total_sum] => 462554
[total_days] => 5
[display_material_sum] => 310 598
[display_work_sum] => 151 956
[display_total_sum] => 462 554
)
1
462 554₽
Работа:151 956 ₽
Материалы:310 598 ₽
Дни:5
stdClass Object
(
[id] => 149
[attribute_id] => 25
[name] => Газобетонные
[material_modifier] => 1
[work_modifier] => 1
[options] => Array
(
[0] => 100 мм
[1] => 200 мм
)
[days] => [11,11]
[material_price] => [1160,1920]
[work_price] => [700,900]
[image] => https://akademik-stroy.ru/wp-content/uploads/materials/gazobeton-2.jpg
[area_modifier] => 241.2
[parent_name] => Внутренние (не несущие) перегородки
[parent_id] => 25
[material_sum] => 352538
[work_sum] => 177282
[total_sum] => 529820
[total_days] => 11
[display_material_sum] => 352 538
[display_work_sum] => 177 282
[display_total_sum] => 529 820
)
1
529 820₽
Работа:177 282 ₽
Материалы:352 538 ₽
Дни:11
stdClass Object
(
[id] => 150
[attribute_id] => 25
[name] => Кирпичные
[material_modifier] => 1
[work_modifier] => 1
[options] => Array
(
[0] => 120 мм
[1] => 250 мм
[2] => 360 мм
)
[days] => [7,7,7]
[material_price] => [1785,3570,5355]
[work_price] => [900,1600,1800]
[image] => https://akademik-stroy.ru/wp-content/uploads/materials/kirpich-1.jpg
[area_modifier] => 241.2
[parent_name] => Внутренние (не несущие) перегородки
[parent_id] => 25
[material_sum] => 542483
[work_sum] => 227934
[total_sum] => 770417
[total_days] => 7
[display_material_sum] => 542 483
[display_work_sum] => 227 934
[display_total_sum] => 770 417
)
1
770 417₽
Работа:227 934 ₽
Материалы:542 483 ₽
Дни:7
stdClass Object
(
[id] => 55
[attribute_id] => 28
[name] => Нет
[material_modifier] => 1
[work_modifier] => 1
[options] => Array
(
)
[days] => [0]
[material_price] => [0]
[work_price] => [0]
[image] => https://akademik-stroy.ru/wp-content/uploads/materials/ehlektrika.jpg
[area_modifier] => 195.73
[parent_name] => Электрика
[parent_id] => 28
[material_sum] => 0
[work_sum] => 0
[total_sum] => 0
[total_days] => 0
[display_material_sum] => 0
[display_work_sum] => 0
[display_total_sum] => 0
)
1
0₽
Работа:0 ₽
Материалы:0 ₽
Дни:0
stdClass Object
(
[id] => 56
[attribute_id] => 28
[name] => Есть
[material_modifier] => 1
[work_modifier] => 1
[options] => Array
(
)
[days] => [10]
[material_price] => [650]
[work_price] => [950]
[image] => https://akademik-stroy.ru/wp-content/uploads/materials/ehlektrika.jpg
[area_modifier] => 195.73
[parent_name] => Электрика
[parent_id] => 28
[material_sum] => 160303
[work_sum] => 195241
[total_sum] => 355544
[total_days] => 10
[display_material_sum] => 160 303
[display_work_sum] => 195 241
[display_total_sum] => 355 544
)
1
355 544₽
Работа:195 241 ₽
Материалы:160 303 ₽
Дни:10
stdClass Object
(
[id] => 57
[attribute_id] => 29
[name] => Нет
[material_modifier] => 1
[work_modifier] => 1
[options] => Array
(
)
[days] => [0]
[material_price] => [0]
[work_price] => [0]
[image] => https://akademik-stroy.ru/wp-content/uploads/materials/santekhnika-kanalizaciya-1.jpg
[area_modifier] => 195.73
[parent_name] => Сантехника, канализация в доме
[parent_id] => 29
[material_sum] => 0
[work_sum] => 0
[total_sum] => 0
[total_days] => 0
[display_material_sum] => 0
[display_work_sum] => 0
[display_total_sum] => 0
)
1
0₽
Работа:0 ₽
Материалы:0 ₽
Дни:0
stdClass Object
(
[id] => 58
[attribute_id] => 29
[name] => Есть
[material_modifier] => 1
[work_modifier] => 1
[options] => Array
(
)
[days] => [10]
[material_price] => [600]
[work_price] => [730]
[image] => https://akademik-stroy.ru/wp-content/uploads/materials/santekhnika-kanalizaciya-1.jpg
[area_modifier] => 195.73
[parent_name] => Сантехника, канализация в доме
[parent_id] => 29
[material_sum] => 147972
[work_sum] => 150027
[total_sum] => 297999
[total_days] => 10
[display_material_sum] => 147 972
[display_work_sum] => 150 027
[display_total_sum] => 297 999
)
1
297 999₽
Работа:150 027 ₽
Материалы:147 972 ₽
Дни:10
stdClass Object
(
[id] => 59
[attribute_id] => 30
[name] => Нет
[material_modifier] => 1
[work_modifier] => 1
[options] => Array
(
)
[days] => [0]
[material_price] => [0]
[work_price] => [0]
[image] => https://akademik-stroy.ru/wp-content/uploads/materials/otoplenie-1.jpg
[area_modifier] => 195.73
[parent_name] => Отопление
[parent_id] => 30
[material_sum] => 0
[work_sum] => 0
[total_sum] => 0
[total_days] => 0
[display_material_sum] => 0
[display_work_sum] => 0
[display_total_sum] => 0
)
1
0₽
Работа:0 ₽
Материалы:0 ₽
Дни:0
stdClass Object
(
[id] => 60
[attribute_id] => 30
[name] => Есть
[material_modifier] => 1
[work_modifier] => 1
[options] => Array
(
)
[days] => [5]
[material_price] => [610]
[work_price] => [560]
[image] => https://akademik-stroy.ru/wp-content/uploads/materials/otoplenie-1.jpg
[area_modifier] => 195.73
[parent_name] => Отопление
[parent_id] => 30
[material_sum] => 150438
[work_sum] => 115089
[total_sum] => 265527
[total_days] => 5
[display_material_sum] => 150 438
[display_work_sum] => 115 089
[display_total_sum] => 265 527
)
1
265 527₽
Работа:115 089 ₽
Материалы:150 438 ₽
Дни:5
stdClass Object
(
[id] => 61
[attribute_id] => 31
[name] => Нет
[material_modifier] => 1
[work_modifier] => 1
[options] => Array
(
)
[days] => [0]
[material_price] => [0]
[work_price] => [0]
[image] => https://akademik-stroy.ru/wp-content/uploads/materials/vodyanye.jpg
[area_modifier] => 30
[parent_name] => Теплые полы
[parent_id] => 31
[material_sum] => 0
[work_sum] => 0
[total_sum] => 0
[total_days] => 0
[display_material_sum] => 0
[display_work_sum] => 0
[display_total_sum] => 0
)
1
0₽
Работа:0 ₽
Материалы:0 ₽
Дни:0
stdClass Object
(
[id] => 151
[attribute_id] => 31
[name] => Водяные
[material_modifier] => 1
[work_modifier] => 1
[options] => Array
(
)
[days] => [9]
[material_price] => [10200]
[work_price] => [2500]
[image] => https://akademik-stroy.ru/wp-content/uploads/materials/vodyanye.jpg
[area_modifier] => 30
[parent_name] => Теплые полы
[parent_id] => 31
[material_sum] => 385560
[work_sum] => 78750
[total_sum] => 464310
[total_days] => 9
[display_material_sum] => 385 560
[display_work_sum] => 78 750
[display_total_sum] => 464 310
)
1
464 310₽
Работа:78 750 ₽
Материалы:385 560 ₽
Дни:9
stdClass Object
(
[id] => 152
[attribute_id] => 31
[name] => Электро
[material_modifier] => 1
[work_modifier] => 1
[options] => Array
(
)
[days] => [5]
[material_price] => [6300]
[work_price] => [1500]
[image] => https://akademik-stroy.ru/wp-content/uploads/materials/ehlektricheskij.jpg
[area_modifier] => 30
[parent_name] => Теплые полы
[parent_id] => 31
[material_sum] => 238140
[work_sum] => 47250
[total_sum] => 285390
[total_days] => 5
[display_material_sum] => 238 140
[display_work_sum] => 47 250
[display_total_sum] => 285 390
)
1
285 390₽
Работа:47 250 ₽
Материалы:238 140 ₽
Дни:5
stdClass Object
(
[id] => 63
[attribute_id] => 32
[name] => Нет
[material_modifier] => 1
[work_modifier] => 1
[options] => Array
(
)
[days] => [0]
[material_price] => [0]
[work_price] => [0]
[image] => https://akademik-stroy.ru/wp-content/uploads/materials/shtukaturka-shpatlevka-1.jpg
[area_modifier] => 195.73
[parent_name] => Черновая отделка стен
[parent_id] => 32
[material_sum] => 0
[work_sum] => 0
[total_sum] => 0
[total_days] => 0
[display_material_sum] => 0
[display_work_sum] => 0
[display_total_sum] => 0
)
1
0₽
Работа:0 ₽
Материалы:0 ₽
Дни:0
stdClass Object
(
[id] => 153
[attribute_id] => 32
[name] => Штукатурка и шпатлевка
[material_modifier] => 1
[work_modifier] => 1
[options] => Array
(
)
[days] => [20]
[material_price] => [1850]
[work_price] => [2600]
[image] => https://akademik-stroy.ru/wp-content/uploads/materials/shtukaturka-shpatlevka-1.jpg
[area_modifier] => 195.73
[parent_name] => Черновая отделка стен
[parent_id] => 32
[material_sum] => 456247
[work_sum] => 534343
[total_sum] => 990590
[total_days] => 20
[display_material_sum] => 456 247
[display_work_sum] => 534 343
[display_total_sum] => 990 590
)
1
990 590₽
Работа:534 343 ₽
Материалы:456 247 ₽
Дни:20
stdClass Object
(
[id] => 154
[attribute_id] => 32
[name] => Гипсокортон на стены
[material_modifier] => 1
[work_modifier] => 1
[options] => Array
(
)
[days] => [15]
[material_price] => [950]
[work_price] => [2100]
[image] => https://akademik-stroy.ru/wp-content/uploads/materials/gkl-1.jpg
[area_modifier] => 195.73
[parent_name] => Черновая отделка стен
[parent_id] => 32
[material_sum] => 234289
[work_sum] => 431585
[total_sum] => 665874
[total_days] => 15
[display_material_sum] => 234 289
[display_work_sum] => 431 585
[display_total_sum] => 665 874
)
1
665 874₽
Работа:431 585 ₽
Материалы:234 289 ₽
Дни:15
stdClass Object
(
[id] => 155
[attribute_id] => 32
[name] => Вагонка
[material_modifier] => 1
[work_modifier] => 1
[options] => Array
(
)
[days] => [15]
[material_price] => [1250]
[work_price] => [950]
[image] => https://akademik-stroy.ru/wp-content/uploads/materials/vagonka.jpg
[area_modifier] => 195.73
[parent_name] => Черновая отделка стен
[parent_id] => 32
[material_sum] => 308275
[work_sum] => 195241
[total_sum] => 503516
[total_days] => 15
[display_material_sum] => 308 275
[display_work_sum] => 195 241
[display_total_sum] => 503 516
)
1
503 516₽
Работа:195 241 ₽
Материалы:308 275 ₽
Дни:15
stdClass Object
(
[id] => 65
[attribute_id] => 33
[name] => Нет
[material_modifier] => 1
[work_modifier] => 1
[options] => Array
(
)
[days] => [0]
[material_price] => [0]
[work_price] => [0]
[image] => https://akademik-stroy.ru/wp-content/uploads/materials/styazhka.jpg
[area_modifier] => 195.73
[parent_name] => Черновая отделка полов
[parent_id] => 33
[material_sum] => 0
[work_sum] => 0
[total_sum] => 0
[total_days] => 0
[display_material_sum] => 0
[display_work_sum] => 0
[display_total_sum] => 0
)
1
0₽
Работа:0 ₽
Материалы:0 ₽
Дни:0
stdClass Object
(
[id] => 156
[attribute_id] => 33
[name] => Стяжка + наливные полы
[material_modifier] => 1
[work_modifier] => 1
[options] => Array
(
)
[days] => [10]
[material_price] => [1000]
[work_price] => [900]
[image] => https://akademik-stroy.ru/wp-content/uploads/materials/styazhka.jpg
[area_modifier] => 195.73
[parent_name] => Черновая отделка полов
[parent_id] => 33
[material_sum] => 246620
[work_sum] => 184965
[total_sum] => 431585
[total_days] => 10
[display_material_sum] => 246 620
[display_work_sum] => 184 965
[display_total_sum] => 431 585
)
1
431 585₽
Работа:184 965 ₽
Материалы:246 620 ₽
Дни:10
stdClass Object
(
[id] => 157
[attribute_id] => 33
[name] => ОСБ на пол
[material_modifier] => 1
[work_modifier] => 1
[options] => Array
(
)
[days] => [7]
[material_price] => [580]
[work_price] => [350]
[image] => https://akademik-stroy.ru/wp-content/uploads/materials/osb-1.jpg
[area_modifier] => 195.73
[parent_name] => Черновая отделка полов
[parent_id] => 33
[material_sum] => 143039
[work_sum] => 71931
[total_sum] => 214970
[total_days] => 7
[display_material_sum] => 143 039
[display_work_sum] => 71 931
[display_total_sum] => 214 970
)
1
214 970₽
Работа:71 931 ₽
Материалы:143 039 ₽
Дни:7
stdClass Object
(
[id] => 67
[attribute_id] => 34
[name] => Нет
[material_modifier] => 1
[work_modifier] => 1
[options] => Array
(
)
[days] => [0]
[material_price] => [0]
[work_price] => [0]
[image] => https://akademik-stroy.ru/wp-content/uploads/materials/chistovaya-otdelka.jpg
[area_modifier] => 195.73
[parent_name] => Чистовая отделка стен и полов
[parent_id] => 34
[material_sum] => 0
[work_sum] => 0
[total_sum] => 0
[total_days] => 0
[display_material_sum] => 0
[display_work_sum] => 0
[display_total_sum] => 0
)
1
0₽
Работа:0 ₽
Материалы:0 ₽
Дни:0
stdClass Object
(
[id] => 68
[attribute_id] => 34
[name] => Есть
[material_modifier] => 1
[work_modifier] => 1
[options] => Array
(
)
[days] => [50]
[material_price] => [6000]
[work_price] => [3500]
[image] => https://akademik-stroy.ru/wp-content/uploads/materials/chistovaya-otdelka.jpg
[area_modifier] => 195.73
[parent_name] => Чистовая отделка стен и полов
[parent_id] => 34
[material_sum] => 1479719
[work_sum] => 719308
[total_sum] => 2199027
[total_days] => 50
[display_material_sum] => 1 479 719
[display_work_sum] => 719 308
[display_total_sum] => 2 199 027
)
1
2 199 027₽
Работа:719 308 ₽
Материалы:1 479 719 ₽
Дни:50
stdClass Object
(
[id] => 69
[attribute_id] => 35
[name] => Нет
[material_modifier] => 1
[work_modifier] => 1
[options] => Array
(
)
[days] => [0]
[material_price] => [0]
[work_price] => [0]
[image] => https://akademik-stroy.ru/wp-content/uploads/materials/mnogourovnevyj-gkl.jpg
[area_modifier] => 195.73
[parent_name] => Отделка потолка
[parent_id] => 35
[material_sum] => 0
[work_sum] => 0
[total_sum] => 0
[total_days] => 0
[display_material_sum] => 0
[display_work_sum] => 0
[display_total_sum] => 0
)
1
0₽
Работа:0 ₽
Материалы:0 ₽
Дни:0
stdClass Object
(
[id] => 70
[attribute_id] => 35
[name] => Есть
[material_modifier] => 1
[work_modifier] => 1
[options] => Array
(
[0] => Многоуровневый потолок из гипсокартона
[1] => Многоуровневый потолок из гипсокартона и натяжного потолка
[2] => Одноуровневый потолок из гипсокартона
[3] => Одноуровневый натяжной потолок
)
[days] => [10,10,1,1]
[material_price] => [900,700,700,600]
[work_price] => [1000,800,500,300]
[image] => https://akademik-stroy.ru/wp-content/uploads/materials/mnogourovnevyj-gkl.jpg
[area_modifier] => 195.73
[parent_name] => Отделка потолка
[parent_id] => 35
[material_sum] => 221958
[work_sum] => 205517
[total_sum] => 427475
[total_days] => 10
[display_material_sum] => 221 958
[display_work_sum] => 205 517
[display_total_sum] => 427 475
)
1
427 475₽
Работа:205 517 ₽
Материалы:221 958 ₽
Дни:10
Преимущества работы с нами
7 этапов оплаты
Независимый строительный надзор
Экологически чистые материалы
16 лет гарантии
Онлайн-кабинет с веб-камерой
Строители с опытом более 15 лет
Собственное производство









