Одноэтажный дом 8x13 - 114.43 м2 за руб.

ID-160698

Стоимость дома 4364587 руб.

Планировки

План первого этажа

floor image
  • 1. Тамбур 3,13 м²
  • 2. Коридор 8,28 м²
  • 3. Гостиная+кухня 22,30 м²
  • 4. Комната 8,51 м²
  • 5. Ванная комната 4,29 м²
  • 6. Котельная 4,80 м²
  • 7. Гараж 18,66 м²
  • 8. Крыльцо 3,78 м²
  • 9. Крыльцо 10,26 м²

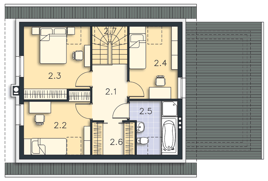
План мансарды

floor image
  • 1. Коридор 6,10 м²
  • 2. Комната 8,24 м²
  • 3. Комната 10,80 м²
  • 4. Комната 8,33 м²
  • 5. Ваная комната 5,19 м²
  • 6. Гардероб 2,03 м²
  • Лестница 3,77 м²

Площади дома

№ п/п Наименование Ед. из. Строительная площадь Полезная площадь
1 1 этаж м2 86.22 69.97
2 2 этаж м2 54.79 44.46
3 Итого м2 141.01 114.43
154 м2 Полезная
площадь
8 x 13 м Размеры
1 этаж Этажей
26 м2 Террасы
и балконы
1Без
гаража
4 Количество
спален
3 Количество
санузлов

Калькулятор опций

0

В ипотеку от 15 000 ₽/мес.

Фундамент
stdClass Object ( [id] => 1 [attribute_id] => 1 [name] => Ленточный монолитный ж/б [material_modifier] => 1 [work_modifier] => 1 [options] => Array ( [0] => размер 200 х 700 мм [1] => размер 300 х 900 мм [2] => размер 400 х 1 000 мм [3] => размер 500 х 1 100 мм [4] => размер 600 х 1 200 мм ) [days] => [20,21,22,25,30] [material_price] => [2823,3630,4475,5210,12047] [work_price] => [2154,2826,3731,4577,5293] [image] => https://akademik-stroy.ru/wp-content/uploads/materials/lentochnyj-monolitnyj-zh-b.jpg [area_modifier] => 86.22 [parent_name] => Фундамент [parent_id] => 1 [material_sum] => 335891 [work_sum] => 213576 [total_sum] => 549467 [total_days] => 20 [display_material_sum] => 335 891 [display_work_sum] => 213 576 [display_total_sum] => 549 467 ) 1
549 467
Работа:213 576
Материалы:335 891
Дни:20
stdClass Object ( [id] => 2 [attribute_id] => 1 [name] => Забивные Ж/Б сваи [material_modifier] => 1 [work_modifier] => 1 [options] => Array ( [0] => 150х150х3000мм [1] => 150х150х4000мм [2] => 200х200х3000мм [3] => 200х200х4000мм [4] => 200х200х5000мм [5] => 200х200х6000мм ) [days] => [2,2,2,2,2,2] [material_price] => [1990,2850,3255,4360,5120,6837] [work_price] => [1002,1185,1336,1438,1574,1839] [image] => https://akademik-stroy.ru/wp-content/uploads/materials/zabivnye-zh-b-svai.png [area_modifier] => 86.22 [parent_name] => Фундамент [parent_id] => 1 [material_sum] => 236777 [work_sum] => 99351 [total_sum] => 336128 [total_days] => 2 [display_material_sum] => 236 777 [display_work_sum] => 99 351 [display_total_sum] => 336 128 ) 1
336 128
Работа:99 351
Материалы:236 777
Дни:2
stdClass Object ( [id] => 71 [attribute_id] => 1 [name] => Свайно-ростверковый ж/б [material_modifier] => 1 [work_modifier] => 1 [options] => Array ( [0] => ростверк 200х300 мм [1] => ростверк 300х600 мм [2] => ростверк 400х900 мм [3] => ростверк 500х1200 мм ) [days] => [20,23,25,27] [material_price] => [3018,3474,7109,9792] [work_price] => [2024,3012,5635,7022] [image] => https://akademik-stroy.ru/wp-content/uploads/materials/svajno-rostverkovyj-monolitnyj-zh-b-3.png [area_modifier] => 86.22 [parent_name] => Фундамент [parent_id] => 1 [material_sum] => 359093 [work_sum] => 200686 [total_sum] => 559779 [total_days] => 20 [display_material_sum] => 359 093 [display_work_sum] => 200 686 [display_total_sum] => 559 779 ) 1
559 779
Работа:200 686
Материалы:359 093
Дни:20
stdClass Object ( [id] => 72 [attribute_id] => 1 [name] => Монолитная ж/б плита [material_modifier] => 1 [work_modifier] => 1 [options] => Array ( [0] => 200 мм [1] => 300 мм [2] => 400 мм [3] => 500 мм [4] => 600 мм ) [days] => [30,33,35,37,40] [material_price] => [5348,8555,12788,14388,15189] [work_price] => [4314,4881,7037,8061,10230] [image] => https://akademik-stroy.ru/wp-content/uploads/materials/monolitnaya-zhb-plita.png [area_modifier] => 86.22 [parent_name] => Фундамент [parent_id] => 1 [material_sum] => 636324 [work_sum] => 427746 [total_sum] => 1064070 [total_days] => 30 [display_material_sum] => 636 324 [display_work_sum] => 427 746 [display_total_sum] => 1 064 070 ) 1
1 064 070
Работа:427 746
Материалы:636 324
Дни:30
stdClass Object ( [id] => 73 [attribute_id] => 1 [name] => Утепленная шведская плита [material_modifier] => 1 [work_modifier] => 1 [options] => Array ( [0] => 200 мм [1] => 300 мм [2] => 400 мм [3] => 500 мм [4] => 600 мм ) [days] => [32,37,39,42,45] [material_price] => [10249,12692,13760,14936,16230] [work_price] => [5960,7337,8072,8878,9765] [image] => https://akademik-stroy.ru/wp-content/uploads/materials/uteplennaya-shvedskaya-plita.jpg [area_modifier] => 86.22 [parent_name] => Фундамент [parent_id] => 1 [material_sum] => 1219463 [work_sum] => 590952 [total_sum] => 1810415 [total_days] => 32 [display_material_sum] => 1 219 463 [display_work_sum] => 590 952 [display_total_sum] => 1 810 415 ) 1
1 810 415
Работа:590 952
Материалы:1 219 463
Дни:32
stdClass Object ( [id] => 75 [attribute_id] => 1 [name] => Ленточный из ФБС [material_modifier] => 1 [work_modifier] => 1 [options] => Array ( [0] => толщ. 300 мм [1] => толщ. 400 мм [2] => толщ. 500 мм [3] => толщ. 600 мм ) [days] => [20,20,20,20] [material_price] => [3675,4902,6126,7350] [work_price] => [2451,3264,4083,4902] [image] => https://akademik-stroy.ru/wp-content/uploads/materials/lentochnyj-iz-fbs.png [area_modifier] => 86.22 [parent_name] => Фундамент [parent_id] => 1 [material_sum] => 437265 [work_sum] => 243024 [total_sum] => 680289 [total_days] => 20 [display_material_sum] => 437 265 [display_work_sum] => 243 024 [display_total_sum] => 680 289 ) 1
680 289
Работа:243 024
Материалы:437 265
Дни:20
stdClass Object ( [id] => 76 [attribute_id] => 1 [name] => Цокольный этаж из ФБС [material_modifier] => 1 [work_modifier] => 1 [options] => Array ( [0] => толщ. 300 мм [1] => толщ. 400 мм [2] => толщ. 500 мм [3] => толщ. 600 мм ) [days] => [30,32,34,36] [material_price] => [20916,23299,26680,29060] [work_price] => [17524,18700,19873,21046] [image] => https://akademik-stroy.ru/wp-content/uploads/materials/cokolnyj-ehtazh-iz-fbs.jpg [area_modifier] => 86.22 [parent_name] => Фундамент [parent_id] => 1 [material_sum] => 2488661 [work_sum] => 1737557 [total_sum] => 4226218 [total_days] => 30 [display_material_sum] => 2 488 661 [display_work_sum] => 1 737 557 [display_total_sum] => 4 226 218 ) 1
4 226 218
Работа:1 737 557
Материалы:2 488 661
Дни:30
stdClass Object ( [id] => 77 [attribute_id] => 1 [name] => Цокольный этаж монолитный ж/б [material_modifier] => 1 [work_modifier] => 1 [options] => Array ( [0] => толщ. 200 мм [1] => толщ. 300 мм [2] => толщ. 400 мм [3] => толщ. 500 мм [4] => толщ. 600 мм ) [days] => [40,42,44,46,48] [material_price] => [25421,29148,32275,35602,37326] [work_price] => [20441,21907,23375,24841,26306] [image] => https://akademik-stroy.ru/wp-content/uploads/materials/cokolnyj-etazh-zh-b.jpg [area_modifier] => 86.22 [parent_name] => Фундамент [parent_id] => 1 [material_sum] => 3024682 [work_sum] => 2026786 [total_sum] => 5051468 [total_days] => 40 [display_material_sum] => 3 024 682 [display_work_sum] => 2 026 786 [display_total_sum] => 5 051 468 ) 1
5 051 468
Работа:2 026 786
Материалы:3 024 682
Дни:40
stdClass Object ( [id] => 191 [attribute_id] => 1 [name] => Винтовые сваи [material_modifier] => 1 [work_modifier] => 1 [options] => Array ( [0] => 57х200мм [1] => 76х250мм [2] => 108х300мм [3] => 133х350мм ) [days] => [1,1,2,2] [material_price] => [1200,1300,1450,1600] [work_price] => [400,600,900,1100] [image] => https://akademik-stroy.ru/wp-content/uploads/materials/vintovye-svai.png [area_modifier] => 86.22 [parent_name] => Фундамент [parent_id] => 1 [material_sum] => 142780 [work_sum] => 39661 [total_sum] => 182441 [total_days] => 1 [display_material_sum] => 142 780 [display_work_sum] => 39 661 [display_total_sum] => 182 441 ) 1
182 441
Работа:39 661
Материалы:142 780
Дни:1
Перекрытие цоколя
stdClass Object ( [id] => 3 [attribute_id] => 2 [name] => Деревянные балки [material_modifier] => 1 [work_modifier] => 1 [options] => Array ( [0] => без утепления [1] => утепление 200 мм [2] => утепление 250 мм [3] => утепление 300 мм [4] => утепление 350 мм [5] => утепление 400 мм [6] => утепление 450 мм [7] => утепление 500 мм ) [days] => [8,9,9,9,11,12,13,14] [material_price] => [1634,2042,2344,2947,3149,3652,3354,3557] [work_price] => [1230,1339,1393,1426,1460,1513,1587,1620] [image] => https://akademik-stroy.ru/wp-content/uploads/materials/derevyannye-balki.png [area_modifier] => 86.22 [parent_name] => Перекрытие цоколя [parent_id] => 2 [material_sum] => 194419 [work_sum] => 121958 [total_sum] => 316377 [total_days] => 8 [display_material_sum] => 194 419 [display_work_sum] => 121 958 [display_total_sum] => 316 377 ) 1
316 377
Работа:121 958
Материалы:194 419
Дни:8
stdClass Object ( [id] => 4 [attribute_id] => 2 [name] => Сборные ж/б плиты [material_modifier] => 1 [work_modifier] => 1 [options] => Array ( [0] => без утепления [1] => утепление 150мм [2] => утепление 200мм [3] => утепление 250мм [4] => утепление 300мм [5] => утепление 350мм [6] => утепление 400мм [7] => утепление 450мм [8] => утепление 500мм ) [days] => [13,15,15,15,15,15,15,15,15] [material_price] => [3067,5577,5928,6679,7730,8782,9833,10884,11935] [work_price] => [1520,1956,2102,2247,2392,2537,2684,2829,2974] [image] => https://akademik-stroy.ru/wp-content/uploads/materials/sbornye-zh-b-plity-2.jpg [area_modifier] => 86.22 [parent_name] => Перекрытие цоколя [parent_id] => 2 [material_sum] => 364923 [work_sum] => 150713 [total_sum] => 515636 [total_days] => 13 [display_material_sum] => 364 923 [display_work_sum] => 150 713 [display_total_sum] => 515 636 ) 1
515 636
Работа:150 713
Материалы:364 923
Дни:13
stdClass Object ( [id] => 78 [attribute_id] => 2 [name] => Монолитная ж/б плита [material_modifier] => 1 [work_modifier] => 1 [options] => Array ( [0] => без утепления [1] => утепление 150 мм [2] => утепление 200 мм [3] => утепление 250 мм [4] => утепление 300 мм [5] => утепление 350 мм [6] => утепление 400 мм [7] => утепление 450 мм [8] => утепление 500 мм ) [days] => [18,20,20,20,20,20,20,20,20] [material_price] => [4837,6572,7224,7375,79426,8177,8728,9180,10031] [work_price] => [3348,3921,4112,4302,4493,4684,4875,5066,5256] [image] => https://akademik-stroy.ru/wp-content/uploads/materials/monolitnaya-zh-b-plita-2.jpg [area_modifier] => 86.22 [parent_name] => Перекрытие цоколя [parent_id] => 2 [material_sum] => 575524 [work_sum] => 331964 [total_sum] => 907488 [total_days] => 18 [display_material_sum] => 575 524 [display_work_sum] => 331 964 [display_total_sum] => 907 488 ) 1
907 488
Работа:331 964
Материалы:575 524
Дни:18
Стены 1 этаж (несущие)
stdClass Object ( [id] => 6 [attribute_id] => 3 [name] => Пеноблок [material_modifier] => 1 [work_modifier] => 1 [options] => Array ( [0] => 300 мм [1] => 400 мм [2] => 500 мм [3] => 600 мм ) [days] => [29,31,34,39] [material_price] => [3000,4000,4500,4937] [work_price] => [5033,5805,6400,8710] [image] => https://akademik-stroy.ru/wp-content/uploads/materials/penoblok.jpg [area_modifier] => 86.22 [parent_name] => Стены 1 этаж (несущие) [parent_id] => 3 [material_sum] => 356951 [work_sum] => 499037 [total_sum] => 855988 [total_days] => 29 [display_material_sum] => 356 951 [display_work_sum] => 499 037 [display_total_sum] => 855 988 ) 1
855 988
Работа:499 037
Материалы:356 951
Дни:29
stdClass Object ( [id] => 79 [attribute_id] => 3 [name] => Керамический блок [material_modifier] => 1 [work_modifier] => 1 [options] => Array ( [0] => 380 мм [1] => 380 мм Thermo [2] => 440 мм [3] => 510 мм ) [days] => [23,23,24,25] [material_price] => [4510,5098,6093,8013] [work_price] => [4737,4937,5903,6958] [image] => https://akademik-stroy.ru/wp-content/uploads/materials/keramicheskij-blok.jpg [area_modifier] => 86.22 [parent_name] => Стены 1 этаж (несущие) [parent_id] => 3 [material_sum] => 536616 [work_sum] => 469688 [total_sum] => 1006304 [total_days] => 23 [display_material_sum] => 536 616 [display_work_sum] => 469 688 [display_total_sum] => 1 006 304 ) 1
1 006 304
Работа:469 688
Материалы:536 616
Дни:23
stdClass Object ( [id] => 80 [attribute_id] => 3 [name] => Кирпич [material_modifier] => 1 [work_modifier] => 1 [options] => Array ( [0] => Кирпич 250 мм [1] => Кирпич 380 мм [2] => Кирпич 510 мм [3] => Кирпич 640 мм [4] => Кирпич 770 мм ) [days] => [30,30,31,33,36] [material_price] => [5500,7142,9206,10171,12235] [work_price] => [8736,10041,12018,15240,18462] [image] => https://akademik-stroy.ru/wp-content/uploads/materials/kirpich.jpg [area_modifier] => 86.22 [parent_name] => Стены 1 этаж (несущие) [parent_id] => 3 [material_sum] => 654410 [work_sum] => 866201 [total_sum] => 1520611 [total_days] => 30 [display_material_sum] => 654 410 [display_work_sum] => 866 201 [display_total_sum] => 1 520 611 ) 1
1 520 611
Работа:866 201
Материалы:654 410
Дни:30
stdClass Object ( [id] => 81 [attribute_id] => 3 [name] => Монолитные [material_modifier] => 1 [work_modifier] => 1 [options] => Array ( [0] => 150 мм [1] => 200 мм [2] => 250 мм [3] => 300 мм [4] => 350 мм [5] => 400 мм ) [days] => [45,46,47,49,50,53] [material_price] => [6545,7876,10175,12011,13908,15204] [work_price] => [5106,6444,7698,8552,9807,11461] [image] => https://akademik-stroy.ru/wp-content/uploads/materials/monolitnye.jpg [area_modifier] => 86.22 [parent_name] => Стены 1 этаж (несущие) [parent_id] => 3 [material_sum] => 778748 [work_sum] => 506275 [total_sum] => 1285023 [total_days] => 45 [display_material_sum] => 778 748 [display_work_sum] => 506 275 [display_total_sum] => 1 285 023 ) 1
1 285 023
Работа:506 275
Материалы:778 748
Дни:45
stdClass Object ( [id] => 82 [attribute_id] => 3 [name] => Клееный брус [material_modifier] => 1 [work_modifier] => 1 [options] => Array ( [0] => 160 мм [1] => 175 мм [2] => 200 мм [3] => 215 мм [4] => 240 мм [5] => 270 мм [6] => 282 мм ) [days] => [24,28,32,37,40,42,48] [material_price] => [16975,18773,19950,20545,21599,22159,23275] [work_price] => [4806,5287,5815,6397,7036,7740,8514] [image] => https://akademik-stroy.ru/wp-content/uploads/materials/kleenyj-brus.jpg [area_modifier] => 86.22 [parent_name] => Стены 1 этаж (несущие) [parent_id] => 3 [material_sum] => 2019747 [work_sum] => 476529 [total_sum] => 2496276 [total_days] => 24 [display_material_sum] => 2 019 747 [display_work_sum] => 476 529 [display_total_sum] => 2 496 276 ) 1
2 496 276
Работа:476 529
Материалы:2 019 747
Дни:24
stdClass Object ( [id] => 83 [attribute_id] => 3 [name] => Каркасные [material_modifier] => 1 [work_modifier] => 1 [options] => Array ( [0] => 150 мм [1] => 200 мм [2] => 250 мм [3] => 300 мм ) [days] => [15,16,17,18] [material_price] => [2379,2639,2898,3258] [work_price] => [2418,2686,2985,3716] [image] => https://akademik-stroy.ru/wp-content/uploads/materials/karkasnye.jpg [area_modifier] => 86.22 [parent_name] => Стены 1 этаж (несущие) [parent_id] => 3 [material_sum] => 283062 [work_sum] => 239752 [total_sum] => 522814 [total_days] => 15 [display_material_sum] => 283 062 [display_work_sum] => 239 752 [display_total_sum] => 522 814 ) 1
522 814
Работа:239 752
Материалы:283 062
Дни:15
stdClass Object ( [id] => 84 [attribute_id] => 3 [name] => СИП-панели [material_modifier] => 1 [work_modifier] => 1 [options] => Array ( [0] => 120 мм [1] => 170 мм [2] => 220 мм ) [days] => [7,7,7] [material_price] => [1210,1856,2292] [work_price] => [1410,1551,1706] [image] => https://akademik-stroy.ru/wp-content/uploads/materials/sip-paneli.jpg [area_modifier] => 86.22 [parent_name] => Стены 1 этаж (несущие) [parent_id] => 3 [material_sum] => 143970 [work_sum] => 139806 [total_sum] => 283776 [total_days] => 7 [display_material_sum] => 143 970 [display_work_sum] => 139 806 [display_total_sum] => 283 776 ) 1
283 776
Работа:139 806
Материалы:143 970
Дни:7
stdClass Object ( [id] => 85 [attribute_id] => 3 [name] => Сухой брус [material_modifier] => 1 [work_modifier] => 1 [options] => Array ( [0] => 150 мм [1] => 180 мм [2] => 200 мм ) [days] => [7,8,9] [material_price] => [6010,7190,8709] [work_price] => [3204,3845,4229] [image] => https://akademik-stroy.ru/wp-content/uploads/materials/suhoj-brus.jpg [area_modifier] => 86.22 [parent_name] => Стены 1 этаж (несущие) [parent_id] => 3 [material_sum] => 715091 [work_sum] => 317686 [total_sum] => 1032777 [total_days] => 7 [display_material_sum] => 715 091 [display_work_sum] => 317 686 [display_total_sum] => 1 032 777 ) 1
1 032 777
Работа:317 686
Материалы:715 091
Дни:7
stdClass Object ( [id] => 86 [attribute_id] => 3 [name] => Профилированный брус [material_modifier] => 1 [work_modifier] => 1 [options] => Array ( [0] => 150 мм [1] => 180 мм [2] => 200 мм ) [days] => [7,8,9] [material_price] => [8190,9228,10051] [work_price] => [3845,4614,5075] [image] => https://akademik-stroy.ru/wp-content/uploads/materials/profilirovannyj-brus.jpg [area_modifier] => 86.22 [parent_name] => Стены 1 этаж (несущие) [parent_id] => 3 [material_sum] => 974476 [work_sum] => 381243 [total_sum] => 1355719 [total_days] => 7 [display_material_sum] => 974 476 [display_work_sum] => 381 243 [display_total_sum] => 1 355 719 ) 1
1 355 719
Работа:381 243
Материалы:974 476
Дни:7
stdClass Object ( [id] => 87 [attribute_id] => 3 [name] => Оцилиндрованное бревно [material_modifier] => 1 [work_modifier] => 1 [options] => Array ( [0] => 180 мм [1] => 220 мм [2] => 260 мм [3] => 320 мм ) [days] => [7,8,9,10] [material_price] => [75190,9532,10868,13116] [work_price] => [3845,4691,5535,6863] [image] => https://akademik-stroy.ru/wp-content/uploads/materials/ocilindrovannoe-brevno-1.jpg [area_modifier] => 86.22 [parent_name] => Стены 1 этаж (несущие) [parent_id] => 3 [material_sum] => 8946377 [work_sum] => 381243 [total_sum] => 9327620 [total_days] => 7 [display_material_sum] => 8 946 377 [display_work_sum] => 381 243 [display_total_sum] => 9 327 620 ) 1
9 327 620
Работа:381 243
Материалы:8 946 377
Дни:7
stdClass Object ( [id] => 88 [attribute_id] => 3 [name] => Срубы [material_modifier] => 1 [work_modifier] => 1 [options] => Array ( [0] => 260 мм [1] => 320 мм [2] => 360 мм [3] => 400 мм [4] => 500 мм ) [days] => [7,8,9,10,11] [material_price] => [37975,46709,52314,58069,73167] [work_price] => [4806,5911,6621,7349,9260] [image] => https://akademik-stroy.ru/wp-content/uploads/materials/sruby.jpg [area_modifier] => 86.22 [parent_name] => Стены 1 этаж (несущие) [parent_id] => 3 [material_sum] => 4518402 [work_sum] => 476529 [total_sum] => 4994931 [total_days] => 7 [display_material_sum] => 4 518 402 [display_work_sum] => 476 529 [display_total_sum] => 4 994 931 ) 1
4 994 931
Работа:476 529
Материалы:4 518 402
Дни:7
stdClass Object ( [id] => 174 [attribute_id] => 3 [name] => Брус [material_modifier] => 1 [work_modifier] => 1 [options] => Array ( [0] => 150 мм [1] => 180 мм [2] => 200 мм ) [days] => [7,8,9] [material_price] => [5127,6152,7367] [work_price] => [1602,1922,2115] [image] => https://akademik-stroy.ru/wp-content/uploads/materials/brus.jpg [area_modifier] => 86.22 [parent_name] => Стены 1 этаж (несущие) [parent_id] => 3 [material_sum] => 610029 [work_sum] => 158843 [total_sum] => 768872 [total_days] => 7 [display_material_sum] => 610 029 [display_work_sum] => 158 843 [display_total_sum] => 768 872 ) 1
768 872
Работа:158 843
Материалы:610 029
Дни:7
stdClass Object ( [id] => 175 [attribute_id] => 3 [name] => Газобетон [material_modifier] => 1 [work_modifier] => 1 [options] => Array ( [0] => 300 мм [1] => 375 мм [2] => 400 мм [3] => 500 мм [4] => 600 мм ) [days] => [29,31,35,37,44] [material_price] => [4298,5573,6356,7288,9119] [work_price] => [4538,5251,5926,6733,7195] [image] => https://akademik-stroy.ru/wp-content/uploads/materials/gazobeton.jpg [area_modifier] => 86.22 [parent_name] => Стены 1 этаж (несущие) [parent_id] => 3 [material_sum] => 511392 [work_sum] => 449956 [total_sum] => 961348 [total_days] => 29 [display_material_sum] => 511 392 [display_work_sum] => 449 956 [display_total_sum] => 961 348 ) 1
961 348
Работа:449 956
Материалы:511 392
Дни:29
stdClass Object ( [id] => 176 [attribute_id] => 3 [name] => Блок [material_modifier] => 1 [work_modifier] => 1 [options] => Array ( [0] => 300 мм [1] => 375 мм [2] => 400 мм [3] => 500 мм [4] => 600 мм ) [days] => [29,31,35,37,44] [material_price] => [2698,3973,4356,6588,7119] [work_price] => [5038,5851,6426,8733,9195] [image] => https://akademik-stroy.ru/wp-content/uploads/materials/blok.jpg [area_modifier] => 86.22 [parent_name] => Стены 1 этаж (несущие) [parent_id] => 3 [material_sum] => 321018 [work_sum] => 499533 [total_sum] => 820551 [total_days] => 29 [display_material_sum] => 321 018 [display_work_sum] => 499 533 [display_total_sum] => 820 551 ) 1
820 551
Работа:499 533
Материалы:321 018
Дни:29
stdClass Object ( [id] => 177 [attribute_id] => 3 [name] => Газосиликатный блок [material_modifier] => 1 [work_modifier] => 1 [options] => Array ( [0] => 300 мм [1] => 375 мм [2] => 400 мм [3] => 500 мм [4] => 600 мм ) [days] => [29,31,35,37,44] [material_price] => [4298,5573,6356,7288,9119] [work_price] => [4538,5251,5926,6733,7195] [image] => https://akademik-stroy.ru/wp-content/uploads/materials/gazosilikatnyj-blok.jpg [area_modifier] => 86.22 [parent_name] => Стены 1 этаж (несущие) [parent_id] => 3 [material_sum] => 511392 [work_sum] => 449956 [total_sum] => 961348 [total_days] => 29 [display_material_sum] => 511 392 [display_work_sum] => 449 956 [display_total_sum] => 961 348 ) 1
961 348
Работа:449 956
Материалы:511 392
Дни:29
stdClass Object ( [id] => 178 [attribute_id] => 3 [name] => Керамзитобетонный блок [material_modifier] => 1 [work_modifier] => 1 [options] => Array ( [0] => 300 мм [1] => 375 мм [2] => 400 мм [3] => 500 мм [4] => 600 мм ) [days] => [23,23,24,25,28] [material_price] => [3641,4298,5693,7613,9612] [work_price] => [5737,5737,6903,7958,8901] [image] => https://akademik-stroy.ru/wp-content/uploads/materials/keramzitobetonnyj-blok.jpg [area_modifier] => 86.22 [parent_name] => Стены 1 этаж (несущие) [parent_id] => 3 [material_sum] => 433219 [work_sum] => 568841 [total_sum] => 1002060 [total_days] => 23 [display_material_sum] => 433 219 [display_work_sum] => 568 841 [display_total_sum] => 1 002 060 ) 1
1 002 060
Работа:568 841
Материалы:433 219
Дни:23
stdClass Object ( [id] => 179 [attribute_id] => 3 [name] => Деревянные [material_modifier] => 1 [work_modifier] => 1 [options] => Array ( [0] => 180 мм [1] => 220 мм [2] => 260 мм [3] => 320 мм ) [days] => [7,8,9,10] [material_price] => [7950,9458,11961,14472] [work_price] => [4037,4925,5812,7207] [image] => https://akademik-stroy.ru/wp-content/uploads/materials/derevyannye.jpg [area_modifier] => 86.22 [parent_name] => Стены 1 этаж (несущие) [parent_id] => 3 [material_sum] => 945920 [work_sum] => 400281 [total_sum] => 1346201 [total_days] => 7 [display_material_sum] => 945 920 [display_work_sum] => 400 281 [display_total_sum] => 1 346 201 ) 1
1 346 201
Работа:400 281
Материалы:945 920
Дни:7
stdClass Object ( [id] => 181 [attribute_id] => 3 [name] => Камень [material_modifier] => 1 [work_modifier] => 1 [options] => Array ( [0] => 300 мм [1] => 400 мм [2] => 500 мм [3] => 600 мм ) [days] => [25,27,31,34] [material_price] => [5262,6844,8330,9815] [work_price] => [8331,9135,10427,11069] [image] => https://akademik-stroy.ru/wp-content/uploads/materials/kamen.jpg [area_modifier] => 86.22 [parent_name] => Стены 1 этаж (несущие) [parent_id] => 3 [material_sum] => 626092 [work_sum] => 826044 [total_sum] => 1452136 [total_days] => 25 [display_material_sum] => 626 092 [display_work_sum] => 826 044 [display_total_sum] => 1 452 136 ) 1
1 452 136
Работа:826 044
Материалы:626 092
Дни:25
stdClass Object ( [id] => 182 [attribute_id] => 3 [name] => Каркасно-щитовые [material_modifier] => 1 [work_modifier] => 1 [options] => Array ( [0] => 150 мм [1] => 200 мм [2] => 250 мм [3] => 300 мм [4] => 350 мм [5] => 400 мм ) [days] => [15,16,17,18,19,20] [material_price] => [2379,2639,2898,3458,3601,4175] [work_price] => [2538,2820,3134,3483,4062,5642] [image] => https://akademik-stroy.ru/wp-content/uploads/materials/karkasno-shchitovye.jpg [area_modifier] => 86.22 [parent_name] => Стены 1 этаж (несущие) [parent_id] => 3 [material_sum] => 283062 [work_sum] => 251650 [total_sum] => 534712 [total_days] => 15 [display_material_sum] => 283 062 [display_work_sum] => 251 650 [display_total_sum] => 534 712 ) 1
534 712
Работа:251 650
Материалы:283 062
Дни:15
stdClass Object ( [id] => 183 [attribute_id] => 3 [name] => Рубленные [material_modifier] => 1 [work_modifier] => 1 [options] => Array ( [0] => 150 мм [1] => 200 мм [2] => 250 мм [3] => 300 мм [4] => 350 мм [5] => 400 мм ) [days] => [15,16,17,18,17,18] [material_price] => [35950,50267,60583,75900,80217,100533] [work_price] => [9612,12816,16020,19224,22428,25632] [image] => https://akademik-stroy.ru/wp-content/uploads/materials/rublennye.jpg [area_modifier] => 86.22 [parent_name] => Стены 1 этаж (несущие) [parent_id] => 3 [material_sum] => 4277460 [work_sum] => 953059 [total_sum] => 5230519 [total_days] => 15 [display_material_sum] => 4 277 460 [display_work_sum] => 953 059 [display_total_sum] => 5 230 519 ) 1
5 230 519
Работа:953 059
Материалы:4 277 460
Дни:15
stdClass Object ( [id] => 185 [attribute_id] => 3 [name] => Теплоблок [material_modifier] => 1 [work_modifier] => 1 [options] => Array ( [0] => 300 мм (с облицовкой, не покрашенный) [1] => 400 мм (с облицовкой, не покрашенный) [2] => 300 мм (с облицовкой, покрашенный) [3] => 400 мм (с облицовкой, покрашенный) ) [days] => [15,16,15,16] [material_price] => [2888,3729,3957,4258] [work_price] => [2564,3229,2949,3713] [image] => https://akademik-stroy.ru/wp-content/uploads/materials/teploblok.jpg [area_modifier] => 86.22 [parent_name] => Стены 1 этаж (несущие) [parent_id] => 3 [material_sum] => 343625 [work_sum] => 254228 [total_sum] => 597853 [total_days] => 15 [display_material_sum] => 343 625 [display_work_sum] => 254 228 [display_total_sum] => 597 853 ) 1
597 853
Работа:254 228
Материалы:343 625
Дни:15
stdClass Object ( [id] => 186 [attribute_id] => 3 [name] => Арболитовые блоки [material_modifier] => 1 [work_modifier] => 1 [options] => Array ( [0] => 300 мм [1] => 400 мм [2] => 600 мм ) [days] => [19,22,27] [material_price] => [3210,4475,5852] [work_price] => [4214,4788,5866] [image] => https://akademik-stroy.ru/wp-content/uploads/materials/arbolitovye-bloki.png [area_modifier] => 86.22 [parent_name] => Стены 1 этаж (несущие) [parent_id] => 3 [material_sum] => 381937 [work_sum] => 417831 [total_sum] => 799768 [total_days] => 19 [display_material_sum] => 381 937 [display_work_sum] => 417 831 [display_total_sum] => 799 768 ) 1
799 768
Работа:417 831
Материалы:381 937
Дни:19
stdClass Object ( [id] => 187 [attribute_id] => 3 [name] => Полистиролбетон [material_modifier] => 1 [work_modifier] => 1 [options] => Array ( [0] => 300 мм [1] => 400 мм [2] => 600 мм ) [days] => [29,31,35] [material_price] => [2798,4573,5256] [work_price] => [5038,5851,6426] [image] => https://akademik-stroy.ru/wp-content/uploads/materials/polistirolbeton.jpg [area_modifier] => 86.22 [parent_name] => Стены 1 этаж (несущие) [parent_id] => 3 [material_sum] => 332916 [work_sum] => 499533 [total_sum] => 832449 [total_days] => 29 [display_material_sum] => 332 916 [display_work_sum] => 499 533 [display_total_sum] => 832 449 ) 1
832 449
Работа:499 533
Материалы:332 916
Дни:29
stdClass Object ( [id] => 188 [attribute_id] => 3 [name] => Шлакоблок [material_modifier] => 1 [work_modifier] => 1 [options] => Array ( [0] => 400 мм [1] => 600 мм ) [days] => [15,16] [material_price] => [2391,3471] [work_price] => [2642,3662] [image] => https://akademik-stroy.ru/wp-content/uploads/materials/shlakoblok.jpg [area_modifier] => 86.22 [parent_name] => Стены 1 этаж (несущие) [parent_id] => 3 [material_sum] => 284490 [work_sum] => 261962 [total_sum] => 546452 [total_days] => 15 [display_material_sum] => 284 490 [display_work_sum] => 261 962 [display_total_sum] => 546 452 ) 1
546 452
Работа:261 962
Материалы:284 490
Дни:15
stdClass Object ( [id] => 189 [attribute_id] => 3 [name] => Теплая керамика [material_modifier] => 1 [work_modifier] => 1 [options] => Array ( [0] => 380 мм [1] => 380 мм Thermo [2] => 440 мм [3] => 510 мм ) [days] => [23,23,24,25] [material_price] => [4510,5098,6093,8013] [work_price] => [4737,4937,5903,6958] [image] => https://akademik-stroy.ru/wp-content/uploads/materials/teplaya-keramika.jpg [area_modifier] => 86.22 [parent_name] => Стены 1 этаж (несущие) [parent_id] => 3 [material_sum] => 536616 [work_sum] => 469688 [total_sum] => 1006304 [total_days] => 23 [display_material_sum] => 536 616 [display_work_sum] => 469 688 [display_total_sum] => 1 006 304 ) 1
1 006 304
Работа:469 688
Материалы:536 616
Дни:23
stdClass Object ( [id] => 190 [attribute_id] => 3 [name] => Несъемная опалубка [material_modifier] => 1 [work_modifier] => 1 [options] => Array ( [0] => 200 мм [1] => 250 мм [2] => 300 мм [3] => 350 мм ) [days] => [15,17,19,21] [material_price] => [3302,3902,4108,5008] [work_price] => [2100,2100,2300,2534] [image] => https://akademik-stroy.ru/wp-content/uploads/materials/nesemnaya-opalubka.jpg [area_modifier] => 86.22 [parent_name] => Стены 1 этаж (несущие) [parent_id] => 3 [material_sum] => 392884 [work_sum] => 208221 [total_sum] => 601105 [total_days] => 15 [display_material_sum] => 392 884 [display_work_sum] => 208 221 [display_total_sum] => 601 105 ) 1
601 105
Работа:208 221
Материалы:392 884
Дни:15
stdClass Object ( [id] => 251 [attribute_id] => 3 [name] => Бревно [material_modifier] => 1 [work_modifier] => 1 [options] => Array ( [0] => 260 мм [1] => 320 мм [2] => 360 мм [3] => 400 мм [4] => 500 мм ) [days] => [7,8,9,10,11] [material_price] => [1874,24045,26930,30972,38825] [work_price] => [5046,6207,6952,7716,9723] [image] => https://akademik-stroy.ru/wp-content/uploads/materials/sruby.jpg [area_modifier] => 86.22 [parent_name] => Стены 1 этаж (несущие) [parent_id] => 3 [material_sum] => 222975 [work_sum] => 500326 [total_sum] => 723301 [total_days] => 7 [display_material_sum] => 222 975 [display_work_sum] => 500 326 [display_total_sum] => 723 301 ) 1
723 301
Работа:500 326
Материалы:222 975
Дни:7
Перекрытие первого этажа
stdClass Object ( [id] => 7 [attribute_id] => 4 [name] => Деревянные балки [material_modifier] => 1 [work_modifier] => 1 [options] => Array ( [0] => без утепления [1] => утепление 200 мм [2] => утепление 250 мм [3] => утепление 300 мм [4] => утепление 350 мм [5] => утепление 400 мм [6] => утепление 450 мм [7] => утепление 500 мм ) [days] => [8,9,9,9,11,12,13,14] [material_price] => [1634,2042,2344,2947,3149,3652,3354,3557] [work_price] => [1230,1339,1393,1426,1460,1513,1587,1620] [image] => https://akademik-stroy.ru/wp-content/uploads/materials/derevyannye-balki.png [area_modifier] => 86.22 [parent_name] => Перекрытие первого этажа [parent_id] => 4 [material_sum] => 194419 [work_sum] => 121958 [total_sum] => 316377 [total_days] => 8 [display_material_sum] => 194 419 [display_work_sum] => 121 958 [display_total_sum] => 316 377 ) 1
316 377
Работа:121 958
Материалы:194 419
Дни:8
stdClass Object ( [id] => 8 [attribute_id] => 4 [name] => Сборные ж/б плиты [material_modifier] => 1 [work_modifier] => 1 [options] => Array ( [0] => без утепления [1] => утепление 150 мм [2] => утепление 200 мм [3] => утепление 250 мм [4] => утепление 300 мм [5] => утепление 350 мм [6] => утепление 400 мм [7] => утепление 450 мм [8] => утепление 500 мм ) [days] => [13,15,15,15,15,15,15,15,15] [material_price] => [3067,5577,5928,6679,7730,8782,9833,10884,11935] [work_price] => [1520,1956,2102,2247,2392,2537,2684,2829,2974] [image] => https://akademik-stroy.ru/wp-content/uploads/materials/sbornye-zh-b-plity-2.jpg [area_modifier] => 86.22 [parent_name] => Перекрытие первого этажа [parent_id] => 4 [material_sum] => 364923 [work_sum] => 150713 [total_sum] => 515636 [total_days] => 13 [display_material_sum] => 364 923 [display_work_sum] => 150 713 [display_total_sum] => 515 636 ) 1
515 636
Работа:150 713
Материалы:364 923
Дни:13
stdClass Object ( [id] => 89 [attribute_id] => 4 [name] => Монолитная ж/б плита [material_modifier] => 1 [work_modifier] => 1 [options] => Array ( [0] => без утепления [1] => утепление 150 мм [2] => утепление 200 мм [3] => утепление 250 мм [4] => утепление 300 мм [5] => утепление 350 мм [6] => утепление 400 мм [7] => утепление 450 мм [8] => утепление 500 мм ) [days] => [18,20,20,20,20,20,20,20,20] [material_price] => [4837,6572,7224,7375,79426,8177,8728,9180,10031] [work_price] => [3348,3921,4112,4302,4493,4684,4875,5066,5256] [image] => https://akademik-stroy.ru/wp-content/uploads/materials/monolitnaya-zh-b-plita-2.jpg [area_modifier] => 86.22 [parent_name] => Перекрытие первого этажа [parent_id] => 4 [material_sum] => 575524 [work_sum] => 331964 [total_sum] => 907488 [total_days] => 18 [display_material_sum] => 575 524 [display_work_sum] => 331 964 [display_total_sum] => 907 488 ) 1
907 488
Работа:331 964
Материалы:575 524
Дни:18
Стены 2 этаж (несущие)
stdClass Object ( [id] => 10 [attribute_id] => 5 [name] => Пеноблок [material_modifier] => 1 [work_modifier] => 1 [options] => Array ( [0] => 300 мм [1] => 400 мм [2] => 500 мм [3] => 600 мм ) [days] => [29,31,34,39] [material_price] => [3000,4000,4500,4937] [work_price] => [5033,5805,6400,8710] [image] => https://akademik-stroy.ru/wp-content/uploads/materials/penoblok.jpg [area_modifier] => 54.79 [parent_name] => Стены 2 этаж (несущие) [parent_id] => 5 [material_sum] => 226831 [work_sum] => 317122 [total_sum] => 543953 [total_days] => 29 [display_material_sum] => 226 831 [display_work_sum] => 317 122 [display_total_sum] => 543 953 ) 1
543 953
Работа:317 122
Материалы:226 831
Дни:29
stdClass Object ( [id] => 90 [attribute_id] => 5 [name] => Керамический блок [material_modifier] => 1 [work_modifier] => 1 [options] => Array ( [0] => 380 мм [1] => 380 мм Thermo [2] => 440 мм [3] => 510 мм ) [days] => [23,23,24,25] [material_price] => [4510,5098,6093,8013] [work_price] => [4737,4937,5903,6958] [image] => https://akademik-stroy.ru/wp-content/uploads/materials/keramicheskij-blok.jpg [area_modifier] => 54.79 [parent_name] => Стены 2 этаж (несущие) [parent_id] => 5 [material_sum] => 341002 [work_sum] => 298471 [total_sum] => 639473 [total_days] => 23 [display_material_sum] => 341 002 [display_work_sum] => 298 471 [display_total_sum] => 639 473 ) 1
639 473
Работа:298 471
Материалы:341 002
Дни:23
stdClass Object ( [id] => 91 [attribute_id] => 5 [name] => Кирпич [material_modifier] => 1 [work_modifier] => 1 [options] => Array ( [0] => Кирпич 250 мм [1] => Кирпич 380 мм [2] => Кирпич 510 мм [3] => Кирпич 640 мм [4] => Кирпич 770 мм ) [days] => [30,30,31,33,36] [material_price] => [5500,7142,9206,10171,12235] [work_price] => [8736,10041,12018,15240,18462] [image] => https://akademik-stroy.ru/wp-content/uploads/materials/kirpich.jpg [area_modifier] => 54.79 [parent_name] => Стены 2 этаж (несущие) [parent_id] => 5 [material_sum] => 415856 [work_sum] => 550442 [total_sum] => 966298 [total_days] => 30 [display_material_sum] => 415 856 [display_work_sum] => 550 442 [display_total_sum] => 966 298 ) 1
966 298
Работа:550 442
Материалы:415 856
Дни:30
stdClass Object ( [id] => 92 [attribute_id] => 5 [name] => Монолитные [material_modifier] => 1 [work_modifier] => 1 [options] => Array ( [0] => 150 мм [1] => 200 мм [2] => 250 мм [3] => 300 мм [4] => 350 мм [5] => 400 мм ) [days] => [45,46,47,49,50,53] [material_price] => [6545,7876,10175,12011,13908,15204] [work_price] => [5106,6444,7698,8552,9807,11461] [image] => https://akademik-stroy.ru/wp-content/uploads/materials/monolitnye.jpg [area_modifier] => 54.79 [parent_name] => Стены 2 этаж (несущие) [parent_id] => 5 [material_sum] => 494869 [work_sum] => 321721 [total_sum] => 816590 [total_days] => 45 [display_material_sum] => 494 869 [display_work_sum] => 321 721 [display_total_sum] => 816 590 ) 1
816 590
Работа:321 721
Материалы:494 869
Дни:45
stdClass Object ( [id] => 93 [attribute_id] => 5 [name] => Клееный брус [material_modifier] => 1 [work_modifier] => 1 [options] => Array ( [0] => 160 мм [1] => 175 мм [2] => 200 мм [3] => 215 мм [4] => 240 мм [5] => 270 мм [6] => 282 мм ) [days] => [24,28,32,37,40,42,48] [material_price] => [16975,18773,19950,20545,21599,22159,23275] [work_price] => [4806,5287,5815,6397,7036,7740,8514] [image] => https://akademik-stroy.ru/wp-content/uploads/materials/kleenyj-brus.jpg [area_modifier] => 54.79 [parent_name] => Стены 2 этаж (несущие) [parent_id] => 5 [material_sum] => 1283483 [work_sum] => 302819 [total_sum] => 1586302 [total_days] => 24 [display_material_sum] => 1 283 483 [display_work_sum] => 302 819 [display_total_sum] => 1 586 302 ) 1
1 586 302
Работа:302 819
Материалы:1 283 483
Дни:24
stdClass Object ( [id] => 94 [attribute_id] => 5 [name] => Каркасные [material_modifier] => 1 [work_modifier] => 1 [options] => Array ( [0] => 150 мм [1] => 200 мм [2] => 250 мм [3] => 300 мм ) [days] => [15,16,17,18] [material_price] => [2379,2639,2898,3258] [work_price] => [2418,2686,2985,3716] [image] => https://akademik-stroy.ru/wp-content/uploads/materials/karkasnye.jpg [area_modifier] => 54.79 [parent_name] => Стены 2 этаж (несущие) [parent_id] => 5 [material_sum] => 179877 [work_sum] => 152355 [total_sum] => 332232 [total_days] => 15 [display_material_sum] => 179 877 [display_work_sum] => 152 355 [display_total_sum] => 332 232 ) 1
332 232
Работа:152 355
Материалы:179 877
Дни:15
stdClass Object ( [id] => 95 [attribute_id] => 5 [name] => СИП-панели [material_modifier] => 1 [work_modifier] => 1 [options] => Array ( [0] => 120 мм [1] => 170 мм [2] => 220 мм ) [days] => [7,7,7] [material_price] => [1210,1856,2292] [work_price] => [1410,1551,1706] [image] => https://akademik-stroy.ru/wp-content/uploads/materials/sip-paneli.jpg [area_modifier] => 54.79 [parent_name] => Стены 2 этаж (несущие) [parent_id] => 5 [material_sum] => 91488 [work_sum] => 88842 [total_sum] => 180330 [total_days] => 7 [display_material_sum] => 91 488 [display_work_sum] => 88 842 [display_total_sum] => 180 330 ) 1
180 330
Работа:88 842
Материалы:91 488
Дни:7
stdClass Object ( [id] => 96 [attribute_id] => 5 [name] => Сухой брус [material_modifier] => 1 [work_modifier] => 1 [options] => Array ( [0] => 150 мм [1] => 180 мм [2] => 200 мм ) [days] => [7,8,9] [material_price] => [6010,7190,8709] [work_price] => [3204,3845,4229] [image] => https://akademik-stroy.ru/wp-content/uploads/materials/suhoj-brus.jpg [area_modifier] => 54.79 [parent_name] => Стены 2 этаж (несущие) [parent_id] => 5 [material_sum] => 454417 [work_sum] => 201879 [total_sum] => 656296 [total_days] => 7 [display_material_sum] => 454 417 [display_work_sum] => 201 879 [display_total_sum] => 656 296 ) 1
656 296
Работа:201 879
Материалы:454 417
Дни:7
stdClass Object ( [id] => 97 [attribute_id] => 5 [name] => Профилированный брус [material_modifier] => 1 [work_modifier] => 1 [options] => Array ( [0] => 150 мм [1] => 180 мм [2] => 200 мм ) [days] => [7,8,9] [material_price] => [8190,9228,10051] [work_price] => [3845,4614,5075] [image] => https://akademik-stroy.ru/wp-content/uploads/materials/profilirovannyj-brus.jpg [area_modifier] => 54.79 [parent_name] => Стены 2 этаж (несущие) [parent_id] => 5 [material_sum] => 619248 [work_sum] => 242268 [total_sum] => 861516 [total_days] => 7 [display_material_sum] => 619 248 [display_work_sum] => 242 268 [display_total_sum] => 861 516 ) 1
861 516
Работа:242 268
Материалы:619 248
Дни:7
stdClass Object ( [id] => 98 [attribute_id] => 5 [name] => Оцилиндрованное бревно [material_modifier] => 1 [work_modifier] => 1 [options] => Array ( [0] => 180 мм [1] => 220 мм [2] => 260 мм [3] => 320 мм ) [days] => [7,8,9,10] [material_price] => [75190,9532,10868,13116] [work_price] => [3845,4691,5535,6863] [image] => https://akademik-stroy.ru/wp-content/uploads/materials/ocilindrovannoe-brevno-1.jpg [area_modifier] => 54.79 [parent_name] => Стены 2 этаж (несущие) [parent_id] => 5 [material_sum] => 5685131 [work_sum] => 242268 [total_sum] => 5927399 [total_days] => 7 [display_material_sum] => 5 685 131 [display_work_sum] => 242 268 [display_total_sum] => 5 927 399 ) 1
5 927 399
Работа:242 268
Материалы:5 685 131
Дни:7
stdClass Object ( [id] => 99 [attribute_id] => 5 [name] => Срубы [material_modifier] => 1 [work_modifier] => 1 [options] => Array ( [0] => 260 мм [1] => 320 мм [2] => 360 мм [3] => 400 мм [4] => 500 мм ) [days] => [7,8,9,10,11] [material_price] => [16175,23709,26314,29069,32167] [work_price] => [4806,5911,6621,7349,9260] [image] => https://akademik-stroy.ru/wp-content/uploads/materials/suhoj-brus.jpg [area_modifier] => 54.79 [parent_name] => Стены 2 этаж (несущие) [parent_id] => 5 [material_sum] => 1222995 [work_sum] => 302819 [total_sum] => 1525814 [total_days] => 7 [display_material_sum] => 1 222 995 [display_work_sum] => 302 819 [display_total_sum] => 1 525 814 ) 1
1 525 814
Работа:302 819
Материалы:1 222 995
Дни:7
stdClass Object ( [id] => 194 [attribute_id] => 5 [name] => Брус [material_modifier] => 1 [work_modifier] => 1 [options] => Array ( [0] => 150 мм [1] => 180 мм [2] => 200 мм ) [days] => [10,13,15] [material_price] => [5127,6152,7367] [work_price] => [1602,1922,2115] [image] => https://akademik-stroy.ru/wp-content/uploads/materials/brus.jpg [area_modifier] => 54.79 [parent_name] => Стены 2 этаж (несущие) [parent_id] => 5 [material_sum] => 387653 [work_sum] => 100940 [total_sum] => 488593 [total_days] => 10 [display_material_sum] => 387 653 [display_work_sum] => 100 940 [display_total_sum] => 488 593 ) 1
488 593
Работа:100 940
Материалы:387 653
Дни:10
stdClass Object ( [id] => 195 [attribute_id] => 5 [name] => Газобетон [material_modifier] => 1 [work_modifier] => 1 [options] => Array ( [0] => 300 мм [1] => 375 мм [2] => 400 мм [3] => 500 мм [4] => 600 мм ) [days] => [29,31,35,37,44] [material_price] => [4298,5573,6356,7288,9119] [work_price] => [4538,5251,5926,6733,7195] [image] => https://akademik-stroy.ru/wp-content/uploads/materials/gazobeton.jpg [area_modifier] => 54.79 [parent_name] => Стены 2 этаж (несущие) [parent_id] => 5 [material_sum] => 324973 [work_sum] => 285933 [total_sum] => 610906 [total_days] => 29 [display_material_sum] => 324 973 [display_work_sum] => 285 933 [display_total_sum] => 610 906 ) 1
610 906
Работа:285 933
Материалы:324 973
Дни:29
stdClass Object ( [id] => 196 [attribute_id] => 5 [name] => Блок [material_modifier] => 1 [work_modifier] => 1 [options] => Array ( [0] => 300 мм [1] => 375 мм [2] => 400 мм [3] => 500 мм [4] => 600 мм ) [days] => [29,31,35,37,44] [material_price] => [2698,3973,4356,6588,7119] [work_price] => [5038,5851,6426,8733,9195] [image] => https://akademik-stroy.ru/wp-content/uploads/materials/blok.jpg [area_modifier] => 54.79 [parent_name] => Стены 2 этаж (несущие) [parent_id] => 5 [material_sum] => 203996 [work_sum] => 317437 [total_sum] => 521433 [total_days] => 29 [display_material_sum] => 203 996 [display_work_sum] => 317 437 [display_total_sum] => 521 433 ) 1
521 433
Работа:317 437
Материалы:203 996
Дни:29
stdClass Object ( [id] => 197 [attribute_id] => 5 [name] => Газосиликатный блок [material_modifier] => 1 [work_modifier] => 1 [options] => Array ( [0] => 300 мм [1] => 375 мм [2] => 400 мм [3] => 500 мм [4] => 600 мм ) [days] => [29,31,35,37,44] [material_price] => [4298,5573,6356,7288,9119] [work_price] => [4538,5251,5926,6733,7195] [image] => https://akademik-stroy.ru/wp-content/uploads/materials/gazosilikatnyj-blok.jpg [area_modifier] => 54.79 [parent_name] => Стены 2 этаж (несущие) [parent_id] => 5 [material_sum] => 324973 [work_sum] => 285933 [total_sum] => 610906 [total_days] => 29 [display_material_sum] => 324 973 [display_work_sum] => 285 933 [display_total_sum] => 610 906 ) 1
610 906
Работа:285 933
Материалы:324 973
Дни:29
stdClass Object ( [id] => 198 [attribute_id] => 5 [name] => Керамзитобетонный блок [material_modifier] => 1 [work_modifier] => 1 [options] => Array ( [0] => 300 мм [1] => 375 мм [2] => 400 мм [3] => 500 мм [4] => 600 мм ) [days] => [23,23,24,25,28] [material_price] => [3641,4298,5693,7613,9612] [work_price] => [5737,5737,6903,7958,8901] [image] => https://akademik-stroy.ru/wp-content/uploads/materials/keramzitobetonnyj-blok.jpg [area_modifier] => 54.79 [parent_name] => Стены 2 этаж (несущие) [parent_id] => 5 [material_sum] => 275297 [work_sum] => 361480 [total_sum] => 636777 [total_days] => 23 [display_material_sum] => 275 297 [display_work_sum] => 361 480 [display_total_sum] => 636 777 ) 1
636 777
Работа:361 480
Материалы:275 297
Дни:23
stdClass Object ( [id] => 199 [attribute_id] => 5 [name] => Деревянные [material_modifier] => 1 [work_modifier] => 1 [options] => Array ( [0] => 180 мм [1] => 220 мм [2] => 260 мм [3] => 320 мм ) [days] => [7,8,9,10] [material_price] => [7950,9458,11961,14472] [work_price] => [4037,4925,5812,7207] [image] => https://akademik-stroy.ru/wp-content/uploads/materials/derevyannye.jpg [area_modifier] => 54.79 [parent_name] => Стены 2 этаж (несущие) [parent_id] => 5 [material_sum] => 601101 [work_sum] => 254365 [total_sum] => 855466 [total_days] => 7 [display_material_sum] => 601 101 [display_work_sum] => 254 365 [display_total_sum] => 855 466 ) 1
855 466
Работа:254 365
Материалы:601 101
Дни:7
stdClass Object ( [id] => 200 [attribute_id] => 5 [name] => Камень [material_modifier] => 1 [work_modifier] => 1 [options] => Array ( [0] => 300 мм [1] => 400 мм [2] => 500 мм [3] => 600 мм ) [days] => [25,27,31,34] [material_price] => [5262,6844,8330,9815] [work_price] => [8331,9135,10427,11069] [image] => https://akademik-stroy.ru/wp-content/uploads/materials/kamen.jpg [area_modifier] => 54.79 [parent_name] => Стены 2 этаж (несущие) [parent_id] => 5 [material_sum] => 397861 [work_sum] => 524924 [total_sum] => 922785 [total_days] => 25 [display_material_sum] => 397 861 [display_work_sum] => 524 924 [display_total_sum] => 922 785 ) 1
922 785
Работа:524 924
Материалы:397 861
Дни:25
stdClass Object ( [id] => 201 [attribute_id] => 5 [name] => Каркасно-щитовые [material_modifier] => 1 [work_modifier] => 1 [options] => Array ( [0] => 150 мм [1] => 200 мм [2] => 250 мм [3] => 300 мм [4] => 350 мм [5] => 400 мм ) [days] => [15,16,17,18,19,20] [material_price] => [2379,2639,2898,3458,3601,4175] [work_price] => [2538,2820,3134,3483,4062,5642] [image] => https://akademik-stroy.ru/wp-content/uploads/materials/karkasno-shchitovye.jpg [area_modifier] => 54.79 [parent_name] => Стены 2 этаж (несущие) [parent_id] => 5 [material_sum] => 179877 [work_sum] => 159916 [total_sum] => 339793 [total_days] => 15 [display_material_sum] => 179 877 [display_work_sum] => 159 916 [display_total_sum] => 339 793 ) 1
339 793
Работа:159 916
Материалы:179 877
Дни:15
stdClass Object ( [id] => 202 [attribute_id] => 5 [name] => Рубленные [material_modifier] => 1 [work_modifier] => 1 [options] => Array ( [0] => 150 мм [1] => 200 мм [2] => 250 мм [3] => 300 мм [4] => 350 мм [5] => 400 мм ) [days] => [15,16,17,18,17,18] [material_price] => [35950,50267,60583,75900,80217,100533] [work_price] => [9612,12816,16020,19224,22428,25632] [image] => https://akademik-stroy.ru/wp-content/uploads/materials/rublennye.jpg [area_modifier] => 54.79 [parent_name] => Стены 2 этаж (несущие) [parent_id] => 5 [material_sum] => 2718187 [work_sum] => 605638 [total_sum] => 3323825 [total_days] => 15 [display_material_sum] => 2 718 187 [display_work_sum] => 605 638 [display_total_sum] => 3 323 825 ) 1
3 323 825
Работа:605 638
Материалы:2 718 187
Дни:15
stdClass Object ( [id] => 203 [attribute_id] => 5 [name] => Теплоблок [material_modifier] => 1 [work_modifier] => 1 [options] => Array ( [0] => 300 мм (с облицовкой, не покрашенный) [1] => 400 мм (с облицовкой, не покрашенный) [2] => 300 мм (с облицовкой, покрашенный) [3] => 400 мм (с облицовкой, покрашенный) ) [days] => [15,16,15,16] [material_price] => [2888,3729,3957,4258] [work_price] => [2564,3229,2949,3713] [image] => https://akademik-stroy.ru/wp-content/uploads/materials/teploblok.jpg [area_modifier] => 54.79 [parent_name] => Стены 2 этаж (несущие) [parent_id] => 5 [material_sum] => 218362 [work_sum] => 161554 [total_sum] => 379916 [total_days] => 15 [display_material_sum] => 218 362 [display_work_sum] => 161 554 [display_total_sum] => 379 916 ) 1
379 916
Работа:161 554
Материалы:218 362
Дни:15
stdClass Object ( [id] => 204 [attribute_id] => 5 [name] => Арболитовые блоки [material_modifier] => 1 [work_modifier] => 1 [options] => Array ( [0] => 300 мм [1] => 400 мм [2] => 600 мм ) [days] => [19,22,27] [material_price] => [3210,4475,5852] [work_price] => [4214,4788,5866] [image] => https://akademik-stroy.ru/wp-content/uploads/materials/arbolitovye-bloki.png [area_modifier] => 54.79 [parent_name] => Стены 2 этаж (несущие) [parent_id] => 5 [material_sum] => 242709 [work_sum] => 265518 [total_sum] => 508227 [total_days] => 19 [display_material_sum] => 242 709 [display_work_sum] => 265 518 [display_total_sum] => 508 227 ) 1
508 227
Работа:265 518
Материалы:242 709
Дни:19
stdClass Object ( [id] => 205 [attribute_id] => 5 [name] => Полистиролбетон [material_modifier] => 1 [work_modifier] => 1 [options] => Array ( [0] => 300 мм [1] => 400 мм [2] => 600 мм ) [days] => [29,31,35] [material_price] => [2798,4573,5256] [work_price] => [5038,5851,6426] [image] => https://akademik-stroy.ru/wp-content/uploads/materials/polistirolbeton.jpg [area_modifier] => 54.79 [parent_name] => Стены 2 этаж (несущие) [parent_id] => 5 [material_sum] => 211557 [work_sum] => 317437 [total_sum] => 528994 [total_days] => 29 [display_material_sum] => 211 557 [display_work_sum] => 317 437 [display_total_sum] => 528 994 ) 1
528 994
Работа:317 437
Материалы:211 557
Дни:29
stdClass Object ( [id] => 206 [attribute_id] => 5 [name] => Шлакоблок [material_modifier] => 1 [work_modifier] => 1 [options] => Array ( [0] => 400 мм [1] => 600 мм ) [days] => [15,16] [material_price] => [2391,3471] [work_price] => [2642,3662] [image] => https://akademik-stroy.ru/wp-content/uploads/materials/shlakoblok.jpg [area_modifier] => 54.79 [parent_name] => Стены 2 этаж (несущие) [parent_id] => 5 [material_sum] => 180784 [work_sum] => 166468 [total_sum] => 347252 [total_days] => 15 [display_material_sum] => 180 784 [display_work_sum] => 166 468 [display_total_sum] => 347 252 ) 1
347 252
Работа:166 468
Материалы:180 784
Дни:15
stdClass Object ( [id] => 245 [attribute_id] => 5 [name] => Теплая керамика [material_modifier] => 1 [work_modifier] => 1 [options] => Array ( [0] => 380 мм [1] => 380 мм Thermo [2] => 440 мм [3] => 510 мм ) [days] => [10,10,11,12] [material_price] => [4510,5098,6093,8013] [work_price] => [4737,4937,5903,6958] [image] => https://akademik-stroy.ru/wp-content/uploads/materials/teplaya-keramika.jpg [area_modifier] => 54.79 [parent_name] => Стены 2 этаж (несущие) [parent_id] => 5 [material_sum] => 341002 [work_sum] => 298471 [total_sum] => 639473 [total_days] => 10 [display_material_sum] => 341 002 [display_work_sum] => 298 471 [display_total_sum] => 639 473 ) 1
639 473
Работа:298 471
Материалы:341 002
Дни:10
stdClass Object ( [id] => 246 [attribute_id] => 5 [name] => Несъемная опалубка [material_modifier] => 1 [work_modifier] => 1 [options] => Array ( [0] => 380 мм [1] => 380 мм Thermo [2] => 440 мм [3] => 510 мм ) [days] => [10,10,11,12] [material_price] => [3302,3902,4108,5008] [work_price] => [2100,2100,2300,2534] [image] => https://akademik-stroy.ru/wp-content/uploads/materials/nesemnaya-opalubka.jpg [area_modifier] => 54.79 [parent_name] => Стены 2 этаж (несущие) [parent_id] => 5 [material_sum] => 249665 [work_sum] => 132318 [total_sum] => 381983 [total_days] => 10 [display_material_sum] => 249 665 [display_work_sum] => 132 318 [display_total_sum] => 381 983 ) 1
381 983
Работа:132 318
Материалы:249 665
Дни:10
stdClass Object ( [id] => 254 [attribute_id] => 5 [name] => Бревно [material_modifier] => 1 [work_modifier] => 1 [options] => Array ( [0] => 260 мм [1] => 320 мм [2] => 360 мм [3] => 400 мм [4] => 500 мм ) [days] => [7,8,9,10,11] [material_price] => [1874,24045,26930,30972,38825] [work_price] => [5046,6207,6952,7716,9723] [image] => https://akademik-stroy.ru/wp-content/uploads/materials/sruby.jpg [area_modifier] => 54.79 [parent_name] => Стены 2 этаж (несущие) [parent_id] => 5 [material_sum] => 141694 [work_sum] => 317941 [total_sum] => 459635 [total_days] => 7 [display_material_sum] => 141 694 [display_work_sum] => 317 941 [display_total_sum] => 459 635 ) 1
459 635
Работа:317 941
Материалы:141 694
Дни:7
Крыша (Скатная)
stdClass Object ( [id] => 164 [attribute_id] => 37 [name] => Металлочерепица [material_modifier] => 1 [work_modifier] => 1 [options] => Array ( ) [days] => [20] [material_price] => [6112] [work_price] => [5726] [image] => https://akademik-stroy.ru/wp-content/uploads/materials/metallocherepica.jpg [area_modifier] => 86.22 [parent_name] => Крыша (Скатная) [parent_id] => 37 [material_sum] => 727228 [work_sum] => 567750 [total_sum] => 1294978 [total_days] => 20 [display_material_sum] => 727 228 [display_work_sum] => 567 750 [display_total_sum] => 1 294 978 ) 1
1 294 978
Работа:567 750
Материалы:727 228
Дни:20
stdClass Object ( [id] => 165 [attribute_id] => 37 [name] => Гибкая черепица [material_modifier] => 1 [work_modifier] => 1 [options] => Array ( ) [days] => [20] [material_price] => [6980] [work_price] => [5950] [image] => https://akademik-stroy.ru/wp-content/uploads/materials/gibkaya-cherepica.jpg [area_modifier] => 86.22 [parent_name] => Крыша (Скатная) [parent_id] => 37 [material_sum] => 830506 [work_sum] => 589960 [total_sum] => 1420466 [total_days] => 20 [display_material_sum] => 830 506 [display_work_sum] => 589 960 [display_total_sum] => 1 420 466 ) 1
1 420 466
Работа:589 960
Материалы:830 506
Дни:20
stdClass Object ( [id] => 166 [attribute_id] => 37 [name] => Цементно-песчаная черепица [material_modifier] => 1 [work_modifier] => 1 [options] => Array ( ) [days] => [20] [material_price] => [10560] [work_price] => [9456] [image] => https://akademik-stroy.ru/wp-content/uploads/materials/cementno-peschanaya-cherepica.jpg [area_modifier] => 86.22 [parent_name] => Крыша (Скатная) [parent_id] => 37 [material_sum] => 1256467 [work_sum] => 937591 [total_sum] => 2194058 [total_days] => 20 [display_material_sum] => 1 256 467 [display_work_sum] => 937 591 [display_total_sum] => 2 194 058 ) 1
2 194 058
Работа:937 591
Материалы:1 256 467
Дни:20
stdClass Object ( [id] => 167 [attribute_id] => 37 [name] => Композитная черепица [material_modifier] => 1 [work_modifier] => 1 [options] => Array ( ) [days] => [20] [material_price] => [9506] [work_price] => [8905] [image] => https://akademik-stroy.ru/wp-content/uploads/materials/kompozitnaya-cherepica.jpg [area_modifier] => 86.22 [parent_name] => Крыша (Скатная) [parent_id] => 37 [material_sum] => 1131058 [work_sum] => 882957 [total_sum] => 2014015 [total_days] => 20 [display_material_sum] => 1 131 058 [display_work_sum] => 882 957 [display_total_sum] => 2 014 015 ) 1
2 014 015
Работа:882 957
Материалы:1 131 058
Дни:20
stdClass Object ( [id] => 168 [attribute_id] => 37 [name] => Керамическая черепица [material_modifier] => 1 [work_modifier] => 1 [options] => Array ( ) [days] => [20] [material_price] => [12750] [work_price] => [9456] [image] => https://akademik-stroy.ru/wp-content/uploads/materials/keramicheskaya-cherepica.jpg [area_modifier] => 86.22 [parent_name] => Крыша (Скатная) [parent_id] => 37 [material_sum] => 1517041 [work_sum] => 937591 [total_sum] => 2454632 [total_days] => 20 [display_material_sum] => 1 517 041 [display_work_sum] => 937 591 [display_total_sum] => 2 454 632 ) 1
2 454 632
Работа:937 591
Материалы:1 517 041
Дни:20
stdClass Object ( [id] => 169 [attribute_id] => 37 [name] => Металлическая фальцевая [material_modifier] => 1 [work_modifier] => 1 [options] => Array ( ) [days] => [20] [material_price] => [8550] [work_price] => [8190] [image] => https://akademik-stroy.ru/wp-content/uploads/materials/metallicheskaya-falcevaya.jpg [area_modifier] => 86.22 [parent_name] => Крыша (Скатная) [parent_id] => 37 [material_sum] => 1017310 [work_sum] => 812063 [total_sum] => 1829373 [total_days] => 20 [display_material_sum] => 1 017 310 [display_work_sum] => 812 063 [display_total_sum] => 1 829 373 ) 1
1 829 373
Работа:812 063
Материалы:1 017 310
Дни:20
stdClass Object ( [id] => 170 [attribute_id] => 37 [name] => Медная фальцевая [material_modifier] => 1 [work_modifier] => 1 [options] => Array ( ) [days] => [20] [material_price] => [20450] [work_price] => [16750] [image] => https://akademik-stroy.ru/wp-content/uploads/materials/mednaya-falcevaya.jpg [area_modifier] => 86.22 [parent_name] => Крыша (Скатная) [parent_id] => 37 [material_sum] => 2433215 [work_sum] => 1660813 [total_sum] => 4094028 [total_days] => 20 [display_material_sum] => 2 433 215 [display_work_sum] => 1 660 813 [display_total_sum] => 4 094 028 ) 1
4 094 028
Работа:1 660 813
Материалы:2 433 215
Дни:20
stdClass Object ( [id] => 171 [attribute_id] => 37 [name] => Зеленая кровля [material_modifier] => 1 [work_modifier] => 1 [options] => Array ( ) [days] => [20] [material_price] => [19850] [work_price] => [16780] [image] => https://akademik-stroy.ru/wp-content/uploads/materials/zelenaya-krovlya.jpg [area_modifier] => 86.22 [parent_name] => Крыша (Скатная) [parent_id] => 37 [material_sum] => 2361824 [work_sum] => 1663787 [total_sum] => 4025611 [total_days] => 20 [display_material_sum] => 2 361 824 [display_work_sum] => 1 663 787 [display_total_sum] => 4 025 611 ) 1
4 025 611
Работа:1 663 787
Материалы:2 361 824
Дни:20
stdClass Object ( [id] => 172 [attribute_id] => 37 [name] => Профлист [material_modifier] => 1 [work_modifier] => 1 [options] => Array ( ) [days] => [20] [material_price] => [3450] [work_price] => [3750] [image] => https://akademik-stroy.ru/wp-content/uploads/materials/proflist.jpg [area_modifier] => 86.22 [parent_name] => Крыша (Скатная) [parent_id] => 37 [material_sum] => 410493 [work_sum] => 371824 [total_sum] => 782317 [total_days] => 20 [display_material_sum] => 410 493 [display_work_sum] => 371 824 [display_total_sum] => 782 317 ) 1
782 317
Работа:371 824
Материалы:410 493
Дни:20
Окна
stdClass Object ( [id] => 51 [attribute_id] => 26 [name] => Есть [material_modifier] => 1 [work_modifier] => 1 [options] => Array ( [0] => Профиль 58 мм, 3-камерный, стеклопакет 2-камерный до 32 мм [1] => Профиль 60 мм, 4-камерный, стеклопакет 2-камерный до 32 мм [2] => Профиль 70 мм, 5-камерный, стеклопакет 2-камерный до 40 мм [3] => Профиль 72 мм, 5-камерный, стеклопакет 2-камерный до 40 мм [4] => Алюминиевые окна Alutech профиль 72 мм, стеклопакет 2-камерный ) [days] => [3,3,3,3,3] [material_price] => [1339,2124,2867,3023,29596] [work_price] => [635,647,659,668,2579] [image] => https://akademik-stroy.ru/wp-content/uploads/materials/okna.jpg [area_modifier] => 114.43 [parent_name] => Окна [parent_id] => 26 [material_sum] => 211446 [work_sum] => 83563 [total_sum] => 295009 [total_days] => 3 [display_material_sum] => 211 446 [display_work_sum] => 83 563 [display_total_sum] => 295 009 ) 1
295 009
Работа:83 563
Материалы:211 446
Дни:3
stdClass Object ( [id] => 52 [attribute_id] => 26 [name] => Нет [material_modifier] => 2 [work_modifier] => 1 [options] => [days] => null [material_price] => null [work_price] => null [image] => https://akademik-stroy.ru/wp-content/uploads/materials/okna.jpg [area_modifier] => 114.43 [parent_name] => Окна [parent_id] => 26 [material_sum] => 0 [work_sum] => 0 [total_sum] => 0 [total_days] => 0 [display_material_sum] => 0 [display_work_sum] => 0 [display_total_sum] => 0 ) 1
0
Работа:0
Материалы:0
Дни:0
Двери входные
stdClass Object ( [id] => 53 [attribute_id] => 27 [name] => Есть [material_modifier] => 1 [work_modifier] => 1 [options] => Array ( ) [days] => [1] [material_price] => [10000] [work_price] => [5500] [image] => https://akademik-stroy.ru/wp-content/uploads/materials/dveri.jpg [area_modifier] => 1 [parent_name] => Двери входные [parent_id] => 27 [material_sum] => 13800 [work_sum] => 6325 [total_sum] => 20125 [total_days] => 1 [display_material_sum] => 13 800 [display_work_sum] => 6 325 [display_total_sum] => 20 125 ) 1
20 125
Работа:6 325
Материалы:13 800
Дни:1
stdClass Object ( [id] => 54 [attribute_id] => 27 [name] => Нет [material_modifier] => 1 [work_modifier] => 1 [options] => Array ( ) [days] => [0] [material_price] => [0] [work_price] => [0] [image] => https://akademik-stroy.ru/wp-content/uploads/materials/dveri.jpg [area_modifier] => 1 [parent_name] => Двери входные [parent_id] => 27 [material_sum] => 0 [work_sum] => 0 [total_sum] => 0 [total_days] => 0 [display_material_sum] => 0 [display_work_sum] => 0 [display_total_sum] => 0 ) 1
0
Работа:0
Материалы:0
Дни:0
Утепление кровли (Мансарда)
stdClass Object ( [id] => 25 [attribute_id] => 13 [name] => Нет [material_modifier] => 1 [work_modifier] => 1 [options] => Array ( ) [days] => [0] [material_price] => [0] [work_price] => [0] [image] => https://akademik-stroy.ru/wp-content/uploads/materials/mineralovata-krov.jpg [area_modifier] => 86.22 [parent_name] => Утепление кровли (Мансарда) [parent_id] => 13 [material_sum] => 0 [work_sum] => 0 [total_sum] => 0 [total_days] => 0 [display_material_sum] => 0 [display_work_sum] => 0 [display_total_sum] => 0 ) 1
0
Работа:0
Материалы:0
Дни:0
stdClass Object ( [id] => 26 [attribute_id] => 13 [name] => Минераловатный [material_modifier] => 1 [work_modifier] => 1 [options] => Array ( [0] => 50 мм [1] => 100 мм [2] => 150 мм [3] => 200 мм [4] => 250 мм [5] => 300 мм [6] => 350 мм [7] => 400 мм [8] => 450 мм [9] => 500 мм ) [days] => [5,5,6,6,6,7,7,7,8,8] [material_price] => [1158,1414,1772,2230,3602,4060,4974,5890,6408,7718] [work_price] => [650,846,846,1098,1318,1450,1596,1754,1930,2122] [image] => https://akademik-stroy.ru/wp-content/uploads/materials/mineralovata-krov.jpg [area_modifier] => 86.22 [parent_name] => Утепление кровли (Мансарда) [parent_id] => 13 [material_sum] => 137783 [work_sum] => 64449 [total_sum] => 202232 [total_days] => 5 [display_material_sum] => 137 783 [display_work_sum] => 64 449 [display_total_sum] => 202 232 ) 1
202 232
Работа:64 449
Материалы:137 783
Дни:5
stdClass Object ( [id] => 123 [attribute_id] => 13 [name] => Эковата (целлюлозная вата) [material_modifier] => 1 [work_modifier] => 1 [options] => Array ( [0] => 50 мм [1] => 100 мм [2] => 150 мм [3] => 200 мм [4] => 250 мм [5] => 300 мм [6] => 350 мм [7] => 400 мм [8] => 450 мм [9] => 500 мм ) [days] => [3,3,4,4,4,5,5,5,5,5] [material_price] => [820,1638,2458,3276,5734,6552,8190,9828,11466,13104] [work_price] => [234,304,304,396,474,522,574,632,694,764] [image] => https://akademik-stroy.ru/wp-content/uploads/materials/ehkovata-krov.jpg [area_modifier] => 86.22 [parent_name] => Утепление кровли (Мансарда) [parent_id] => 13 [material_sum] => 97567 [work_sum] => 23202 [total_sum] => 120769 [total_days] => 3 [display_material_sum] => 97 567 [display_work_sum] => 23 202 [display_total_sum] => 120 769 ) 1
120 769
Работа:23 202
Материалы:97 567
Дни:3
stdClass Object ( [id] => 124 [attribute_id] => 13 [name] => Экструдированный пенополистирол [material_modifier] => 1 [work_modifier] => 1 [options] => Array ( [0] => 50 мм [1] => 100 мм [2] => 150 мм [3] => 200 мм [4] => 250 мм [5] => 300 мм [6] => 350 мм [7] => 400 мм [8] => 450 мм [9] => 500 мм ) [days] => [3,3,4,4,4,5,5,5,5,6] [material_price] => [1146,2292,3438,4584,8020,9166,11458,13750,16040,18332] [work_price] => [390,508,508,660,790,870,958,1052,1158,1274] [image] => https://akademik-stroy.ru/wp-content/uploads/materials/epps-krov.jpg [area_modifier] => 86.22 [parent_name] => Утепление кровли (Мансарда) [parent_id] => 13 [material_sum] => 136355 [work_sum] => 38670 [total_sum] => 175025 [total_days] => 3 [display_material_sum] => 136 355 [display_work_sum] => 38 670 [display_total_sum] => 175 025 ) 1
175 025
Работа:38 670
Материалы:136 355
Дни:3
stdClass Object ( [id] => 125 [attribute_id] => 13 [name] => ПСБ (ППС-пенополистирол) [material_modifier] => 1 [work_modifier] => 1 [options] => Array ( [0] => 50 мм [1] => 100 мм [2] => 150 мм [3] => 200 мм [4] => 250 мм [5] => 300 мм [6] => 350 мм [7] => 400 мм [8] => 450 мм [9] => 500 мм ) [days] => [3,3,4,4,4,5,5,5,5,6] [material_price] => [476,954,1430,1906,3336,3814,4766,5720,6674,7626] [work_price] => [390,508,508,660,790,870,958,1052,1158,1274] [image] => https://akademik-stroy.ru/wp-content/uploads/materials/psb-krov.jpg [area_modifier] => 86.22 [parent_name] => Утепление кровли (Мансарда) [parent_id] => 13 [material_sum] => 56636 [work_sum] => 38670 [total_sum] => 95306 [total_days] => 3 [display_material_sum] => 56 636 [display_work_sum] => 38 670 [display_total_sum] => 95 306 ) 1
95 306
Работа:38 670
Материалы:56 636
Дни:3
stdClass Object ( [id] => 126 [attribute_id] => 13 [name] => ППУ (Пенополиуретан) [material_modifier] => 1 [work_modifier] => 1 [options] => Array ( [0] => 50 мм [1] => 100 мм [2] => 150 мм [3] => 200 мм [4] => 250 мм [5] => 300 мм [6] => 350 мм [7] => 400 мм [8] => 450 мм [9] => 500 мм ) [days] => [2,2,3,3,3,3,4,4,4,4] [material_price] => [2080,4160,6240,8320,14560,16640,20800,24960,29120,33280] [work_price] => [234,304,304,396,474,522,574,632,694,764] [image] => https://akademik-stroy.ru/wp-content/uploads/materials/ppu-krov.jpg [area_modifier] => 86.22 [parent_name] => Утепление кровли (Мансарда) [parent_id] => 13 [material_sum] => 247486 [work_sum] => 23202 [total_sum] => 270688 [total_days] => 2 [display_material_sum] => 247 486 [display_work_sum] => 23 202 [display_total_sum] => 270 688 ) 1
270 688
Работа:23 202
Материалы:247 486
Дни:2
stdClass Object ( [id] => 127 [attribute_id] => 13 [name] => PIR-плиты (пенополиизоцианурат) [material_modifier] => 1 [work_modifier] => 1 [options] => Array ( [0] => 50 мм [1] => 100 мм [2] => 150 мм [3] => 200 мм [4] => 250 мм [5] => 300 мм [6] => 350 мм [7] => 400 мм [8] => 450 мм [9] => 500 мм ) [days] => [3,3,4,4,4,5,5,5,5,6] [material_price] => [2646,5290,7936,10580,18516,21162,26452,31742,37032,42324] [work_price] => [390,508,508,660,790,870,958,1052,1158,1274] [image] => https://akademik-stroy.ru/wp-content/uploads/materials/pir-krov.jpg [area_modifier] => 86.22 [parent_name] => Утепление кровли (Мансарда) [parent_id] => 13 [material_sum] => 314831 [work_sum] => 38670 [total_sum] => 353501 [total_days] => 3 [display_material_sum] => 314 831 [display_work_sum] => 38 670 [display_total_sum] => 353 501 ) 1
353 501
Работа:38 670
Материалы:314 831
Дни:3
Мансардные окна
stdClass Object ( [id] => 27 [attribute_id] => 14 [name] => Нет [material_modifier] => 1 [work_modifier] => 1 [options] => Array ( ) [days] => [0] [material_price] => [0] [work_price] => [0] [image] => https://akademik-stroy.ru/wp-content/uploads/materials/mansardnye-okna-2.jpg [area_modifier] => 1 [parent_name] => Мансардные окна [parent_id] => 14 [material_sum] => 0 [work_sum] => 0 [total_sum] => 0 [total_days] => 0 [display_material_sum] => 0 [display_work_sum] => 0 [display_total_sum] => 0 ) 1
0
Работа:0
Материалы:0
Дни:0
stdClass Object ( [id] => 28 [attribute_id] => 14 [name] => Есть [material_modifier] => 1 [work_modifier] => 1 [options] => Array ( [0] => 55x78 [1] => 55x98 ) [days] => [6,7] [material_price] => [47480,68700] [work_price] => [17900,19500] [image] => https://akademik-stroy.ru/wp-content/uploads/materials/mansardnye-okna-2.jpg [area_modifier] => 1 [parent_name] => Мансардные окна [parent_id] => 14 [material_sum] => 65522 [work_sum] => 20585 [total_sum] => 86107 [total_days] => 6 [display_material_sum] => 65 522 [display_work_sum] => 20 585 [display_total_sum] => 86 107 ) 1
86 107
Работа:20 585
Материалы:65 522
Дни:6
Подшивка кровли
stdClass Object ( [id] => 29 [attribute_id] => 15 [name] => Нет [material_modifier] => 1 [work_modifier] => 1 [options] => Array ( ) [days] => [0] [material_price] => [0] [work_price] => [0] [image] => https://akademik-stroy.ru/wp-content/uploads/materials/sofit.jpg [area_modifier] => 86.22 [parent_name] => Подшивка кровли [parent_id] => 15 [material_sum] => 0 [work_sum] => 0 [total_sum] => 0 [total_days] => 0 [display_material_sum] => 0 [display_work_sum] => 0 [display_total_sum] => 0 ) 1
0
Работа:0
Материалы:0
Дни:0
stdClass Object ( [id] => 30 [attribute_id] => 15 [name] => Есть [material_modifier] => 1 [work_modifier] => 1 [options] => Array ( [0] => Софиты (ПВХ) [1] => Cedral [2] => ДПК [3] => Планкен ) [days] => [7,10,9,8] [material_price] => [1803,3213,3025,3150] [work_price] => [1529,2188,2075,1923] [image] => https://akademik-stroy.ru/wp-content/uploads/materials/sofit.jpg [area_modifier] => 86.22 [parent_name] => Подшивка кровли [parent_id] => 15 [material_sum] => 214527 [work_sum] => 151605 [total_sum] => 366132 [total_days] => 7 [display_material_sum] => 214 527 [display_work_sum] => 151 605 [display_total_sum] => 366 132 ) 1
366 132
Работа:151 605
Материалы:214 527
Дни:7
Водосточная система
stdClass Object ( [id] => 31 [attribute_id] => 16 [name] => Нет [material_modifier] => 1 [work_modifier] => 1 [options] => Array ( ) [days] => [0] [material_price] => [0] [work_price] => [0] [image] => https://akademik-stroy.ru/wp-content/uploads/materials/docke-standard-pvh.jpg [area_modifier] => 86.22 [parent_name] => Водосточная система [parent_id] => 16 [material_sum] => 0 [work_sum] => 0 [total_sum] => 0 [total_days] => 0 [display_material_sum] => 0 [display_work_sum] => 0 [display_total_sum] => 0 ) 1
0
Работа:0
Материалы:0
Дни:0
stdClass Object ( [id] => 32 [attribute_id] => 16 [name] => Есть [material_modifier] => 1 [work_modifier] => 1 [options] => Array ( [0] => Döcke Standard (ПВХ) [1] => Металлические Grand Line ) [days] => [7,7] [material_price] => [1842,2703] [work_price] => [1491,1529] [image] => https://akademik-stroy.ru/wp-content/uploads/materials/docke-standard-pvh.jpg [area_modifier] => 86.22 [parent_name] => Водосточная система [parent_id] => 16 [material_sum] => 219168 [work_sum] => 147837 [total_sum] => 367005 [total_days] => 7 [display_material_sum] => 219 168 [display_work_sum] => 147 837 [display_total_sum] => 367 005 ) 1
367 005
Работа:147 837
Материалы:219 168
Дни:7
Дополнительное утепление наружных стен
stdClass Object ( [id] => 33 [attribute_id] => 17 [name] => Нет [material_modifier] => 1 [work_modifier] => 1 [options] => Array ( ) [days] => [0] [material_price] => [0] [work_price] => [0] [image] => https://akademik-stroy.ru/wp-content/uploads/materials/mineralovata.jpg [area_modifier] => 141.01 [parent_name] => Дополнительное утепление наружных стен [parent_id] => 17 [material_sum] => 0 [work_sum] => 0 [total_sum] => 0 [total_days] => 0 [display_material_sum] => 0 [display_work_sum] => 0 [display_total_sum] => 0 ) 1
0
Работа:0
Материалы:0
Дни:0
stdClass Object ( [id] => 34 [attribute_id] => 17 [name] => Минераловатный [material_modifier] => 1 [work_modifier] => 1 [options] => Array ( [0] => 50 мм [1] => 100 мм [2] => 150 мм [3] => 200 мм [4] => 250 мм [5] => 300 мм ) [days] => [7,8,10,12,14,15] [material_price] => [3437,3613,3803,3915,4601,4830] [work_price] => [2325,2423,2523,2749,2859,3025] [image] => https://akademik-stroy.ru/wp-content/uploads/materials/mineralovata.jpg [area_modifier] => 141.01 [parent_name] => Дополнительное утепление наружных стен [parent_id] => 17 [material_sum] => 668819 [work_sum] => 377025 [total_sum] => 1045844 [total_days] => 7 [display_material_sum] => 668 819 [display_work_sum] => 377 025 [display_total_sum] => 1 045 844 ) 1
1 045 844
Работа:377 025
Материалы:668 819
Дни:7
stdClass Object ( [id] => 128 [attribute_id] => 17 [name] => Эковата (целлюлозная вата) [material_modifier] => 1 [work_modifier] => 1 [options] => Array ( [0] => 50 мм [1] => 100 мм [2] => 150 мм [3] => 200 мм [4] => 250 мм [5] => 300 мм ) [days] => [3,4,5,6,7,8] [material_price] => [810,1319,1629,1838,2267,2676] [work_price] => [1225,1323,1423,1549,1659,1725] [image] => https://akademik-stroy.ru/wp-content/uploads/materials/ehkovata.jpg [area_modifier] => 141.01 [parent_name] => Дополнительное утепление наружных стен [parent_id] => 17 [material_sum] => 157621 [work_sum] => 198648 [total_sum] => 356269 [total_days] => 3 [display_material_sum] => 157 621 [display_work_sum] => 198 648 [display_total_sum] => 356 269 ) 1
356 269
Работа:198 648
Материалы:157 621
Дни:3
stdClass Object ( [id] => 129 [attribute_id] => 17 [name] => Экструдированный пенополистирол [material_modifier] => 1 [work_modifier] => 1 [options] => Array ( [0] => 50 мм [1] => 100 мм [2] => 150 мм [3] => 200 мм [4] => 250 мм [5] => 300 мм ) [days] => [5,6,7,8,9,10] [material_price] => [4560,4300,5119,6292,7010,8583] [work_price] => [1795,1954,2254,2330,2595,2735] [image] => https://akademik-stroy.ru/wp-content/uploads/materials/epps.jpg [area_modifier] => 141.01 [parent_name] => Дополнительное утепление наружных стен [parent_id] => 17 [material_sum] => 887348 [work_sum] => 291080 [total_sum] => 1178428 [total_days] => 5 [display_material_sum] => 887 348 [display_work_sum] => 291 080 [display_total_sum] => 1 178 428 ) 1
1 178 428
Работа:291 080
Материалы:887 348
Дни:5
stdClass Object ( [id] => 130 [attribute_id] => 17 [name] => ПСБ (ППС-пенополистирол) [material_modifier] => 1 [work_modifier] => 1 [options] => Array ( [0] => 50 мм [1] => 100 мм [2] => 150 мм [3] => 200 мм [4] => 250 мм [5] => 300 мм ) [days] => [5,6,7,8,9,10] [material_price] => [4822,5200,5819,6292,7010,7583] [work_price] => [1795,1954,2254,2330,2595,2735] [image] => https://akademik-stroy.ru/wp-content/uploads/materials/psb.jpg [area_modifier] => 141.01 [parent_name] => Дополнительное утепление наружных стен [parent_id] => 17 [material_sum] => 938331 [work_sum] => 291080 [total_sum] => 1229411 [total_days] => 5 [display_material_sum] => 938 331 [display_work_sum] => 291 080 [display_total_sum] => 1 229 411 ) 1
1 229 411
Работа:291 080
Материалы:938 331
Дни:5
stdClass Object ( [id] => 131 [attribute_id] => 17 [name] => ППУ (Пенополиуретан) [material_modifier] => 1 [work_modifier] => 1 [options] => Array ( [0] => 50 мм [1] => 100 мм [2] => 150 мм [3] => 200 мм [4] => 250 мм [5] => 300 мм ) [days] => [3,4,5,6,7,8] [material_price] => [2860,3400,4219,4592,5010,5583] [work_price] => [729,900,980,1120,1280,1530] [image] => https://akademik-stroy.ru/wp-content/uploads/materials/ppu.jpg [area_modifier] => 141.01 [parent_name] => Дополнительное утепление наружных стен [parent_id] => 17 [material_sum] => 556538 [work_sum] => 118216 [total_sum] => 674754 [total_days] => 3 [display_material_sum] => 556 538 [display_work_sum] => 118 216 [display_total_sum] => 674 754 ) 1
674 754
Работа:118 216
Материалы:556 538
Дни:3
stdClass Object ( [id] => 132 [attribute_id] => 17 [name] => PIR-плиты (пенополиизоцианурат) [material_modifier] => 1 [work_modifier] => 1 [options] => Array ( [0] => 50 мм [1] => 100 мм [2] => 150 мм [3] => 200 мм [4] => 250 мм [5] => 300 мм ) [days] => [5,6,7,8,9,10] [material_price] => [8323,15645,20968,25900,29258,30581] [work_price] => [800,900,970,1150,1280,1330] [image] => https://akademik-stroy.ru/wp-content/uploads/materials/pir.jpg [area_modifier] => 141.01 [parent_name] => Дополнительное утепление наружных стен [parent_id] => 17 [material_sum] => 1619604 [work_sum] => 129729 [total_sum] => 1749333 [total_days] => 5 [display_material_sum] => 1 619 604 [display_work_sum] => 129 729 [display_total_sum] => 1 749 333 ) 1
1 749 333
Работа:129 729
Материалы:1 619 604
Дни:5
Наружная отделка фасада
stdClass Object ( [id] => 37 [attribute_id] => 19 [name] => Нет [material_modifier] => 1 [work_modifier] => 1 [options] => Array ( ) [days] => [0] [material_price] => [0] [work_price] => [0] [image] => https://akademik-stroy.ru/wp-content/uploads/materials/imitaciya-brusa.jpg [area_modifier] => 141.01 [parent_name] => Наружная отделка фасада [parent_id] => 19 [material_sum] => 0 [work_sum] => 0 [total_sum] => 0 [total_days] => 0 [display_material_sum] => 0 [display_work_sum] => 0 [display_total_sum] => 0 ) 1
0
Работа:0
Материалы:0
Дни:0
stdClass Object ( [id] => 38 [attribute_id] => 19 [name] => Имитация бруса [material_modifier] => 1 [work_modifier] => 1 [options] => Array ( [0] => Сосна [1] => Ель [2] => Лиственница ) [days] => [20,20,20] [material_price] => [2994,2762,4954] [work_price] => [1397,1231,1577] [image] => https://akademik-stroy.ru/wp-content/uploads/materials/imitaciya-brusa.jpg [area_modifier] => 141.01 [parent_name] => Наружная отделка фасада [parent_id] => 19 [material_sum] => 582614 [work_sum] => 226540 [total_sum] => 809154 [total_days] => 20 [display_material_sum] => 582 614 [display_work_sum] => 226 540 [display_total_sum] => 809 154 ) 1
809 154
Работа:226 540
Материалы:582 614
Дни:20
stdClass Object ( [id] => 136 [attribute_id] => 19 [name] => Планкен [material_modifier] => 1 [work_modifier] => 1 [options] => Array ( [0] => Сосна [1] => Ель [2] => Лиственница ) [days] => [20,20,20] [material_price] => [3194,2862,5154] [work_price] => [1537,1354,1735] [image] => https://akademik-stroy.ru/wp-content/uploads/materials/planken.jpg [area_modifier] => 141.01 [parent_name] => Наружная отделка фасада [parent_id] => 19 [material_sum] => 621533 [work_sum] => 249242 [total_sum] => 870775 [total_days] => 20 [display_material_sum] => 621 533 [display_work_sum] => 249 242 [display_total_sum] => 870 775 ) 1
870 775
Работа:249 242
Материалы:621 533
Дни:20
stdClass Object ( [id] => 137 [attribute_id] => 19 [name] => Штукатурка [material_modifier] => 1 [work_modifier] => 1 [options] => Array ( [0] => Цементно-песчаная (минеральная) [1] => Мокрый фасад ) [days] => [35,35] [material_price] => [2231,3938] [work_price] => [1202,2422] [image] => https://akademik-stroy.ru/wp-content/uploads/materials/shtukaturka.jpg [area_modifier] => 141.01 [parent_name] => Наружная отделка фасада [parent_id] => 19 [material_sum] => 434139 [work_sum] => 194918 [total_sum] => 629057 [total_days] => 35 [display_material_sum] => 434 139 [display_work_sum] => 194 918 [display_total_sum] => 629 057 ) 1
629 057
Работа:194 918
Материалы:434 139
Дни:35
stdClass Object ( [id] => 138 [attribute_id] => 19 [name] => Облицовочный кирпич [material_modifier] => 1 [work_modifier] => 1 [options] => Array ( [0] => Керамический [1] => Клинкерный [2] => Ручной формовки [3] => Гиперпрессованный [4] => Силикатный кирпич ) [days] => [45,45,45,45,45] [material_price] => [8174,9148,1040,1257,5876] [work_price] => [3240,3758,4536,4017,3369] [image] => https://akademik-stroy.ru/wp-content/uploads/materials/oblicovochnyj-kirpich.jpg [area_modifier] => 141.01 [parent_name] => Наружная отделка фасада [parent_id] => 19 [material_sum] => 1590610 [work_sum] => 525403 [total_sum] => 2116013 [total_days] => 45 [display_material_sum] => 1 590 610 [display_work_sum] => 525 403 [display_total_sum] => 2 116 013 ) 1
2 116 013
Работа:525 403
Материалы:1 590 610
Дни:45
stdClass Object ( [id] => 139 [attribute_id] => 19 [name] => Фасадная плитка [material_modifier] => 1 [work_modifier] => 1 [options] => Array ( [0] => Клинкерная [1] => Керамическая [2] => Плитка ручной формовки ) [days] => [40,40,40] [material_price] => [2974,1487,3470] [work_price] => [3007,2592,3629] [image] => https://akademik-stroy.ru/wp-content/uploads/materials/fasadnaya-plitka.jpg [area_modifier] => 141.01 [parent_name] => Наружная отделка фасада [parent_id] => 19 [material_sum] => 578722 [work_sum] => 487620 [total_sum] => 1066342 [total_days] => 40 [display_material_sum] => 578 722 [display_work_sum] => 487 620 [display_total_sum] => 1 066 342 ) 1
1 066 342
Работа:487 620
Материалы:578 722
Дни:40
stdClass Object ( [id] => 140 [attribute_id] => 19 [name] => Сайдинг [material_modifier] => 1 [work_modifier] => 1 [options] => Array ( [0] => Виниловый [1] => Металлический [2] => Фиброцементный ) [days] => [20,20,20] [material_price] => [1263,1944,4147] [work_price] => [1263,1944,2074] [image] => https://akademik-stroy.ru/wp-content/uploads/materials/sajding.jpg [area_modifier] => 141.01 [parent_name] => Наружная отделка фасада [parent_id] => 19 [material_sum] => 245772 [work_sum] => 204810 [total_sum] => 450582 [total_days] => 20 [display_material_sum] => 245 772 [display_work_sum] => 204 810 [display_total_sum] => 450 582 ) 1
450 582
Работа:204 810
Материалы:245 772
Дни:20
stdClass Object ( [id] => 141 [attribute_id] => 19 [name] => Камень [material_modifier] => 1 [work_modifier] => 1 [options] => Array ( [0] => Травертин [1] => Дагестанский [2] => Искусственный [3] => Натуральный [4] => Керамогранит ) [days] => [45,45,45,45,45] [material_price] => [4536,3888,2592,3240,2462] [work_price] => [3240,3240,2462,3110,1944] [image] => https://akademik-stroy.ru/wp-content/uploads/materials/kamen-1.jpg [area_modifier] => 141.01 [parent_name] => Наружная отделка фасада [parent_id] => 19 [material_sum] => 882677 [work_sum] => 525403 [total_sum] => 1408080 [total_days] => 45 [display_material_sum] => 882 677 [display_work_sum] => 525 403 [display_total_sum] => 1 408 080 ) 1
1 408 080
Работа:525 403
Материалы:882 677
Дни:45
stdClass Object ( [id] => 142 [attribute_id] => 19 [name] => Термопанели [material_modifier] => 1 [work_modifier] => 1 [options] => Array ( ) [days] => [20] [material_price] => [6221] [work_price] => [2333] [image] => https://akademik-stroy.ru/wp-content/uploads/materials/termo.png [area_modifier] => 141.01 [parent_name] => Наружная отделка фасада [parent_id] => 19 [material_sum] => 1210568 [work_sum] => 378323 [total_sum] => 1588891 [total_days] => 20 [display_material_sum] => 1 210 568 [display_work_sum] => 378 323 [display_total_sum] => 1 588 891 ) 1
1 588 891
Работа:378 323
Материалы:1 210 568
Дни:20
stdClass Object ( [id] => 143 [attribute_id] => 19 [name] => Плитка HAUBERK [material_modifier] => 1 [work_modifier] => 1 [options] => Array ( ) [days] => [20] [material_price] => [2786] [work_price] => [1944] [image] => https://akademik-stroy.ru/wp-content/uploads/materials/hauberk.jpg [area_modifier] => 141.01 [parent_name] => Наружная отделка фасада [parent_id] => 19 [material_sum] => 542138 [work_sum] => 315242 [total_sum] => 857380 [total_days] => 20 [display_material_sum] => 542 138 [display_work_sum] => 315 242 [display_total_sum] => 857 380 ) 1
857 380
Работа:315 242
Материалы:542 138
Дни:20
stdClass Object ( [id] => 144 [attribute_id] => 19 [name] => Фальцевый фасад [material_modifier] => 1 [work_modifier] => 1 [options] => Array ( ) [days] => [20] [material_price] => [3240] [work_price] => [2592] [image] => https://akademik-stroy.ru/wp-content/uploads/materials/falcevyj-fasad.jpg [area_modifier] => 141.01 [parent_name] => Наружная отделка фасада [parent_id] => 19 [material_sum] => 630484 [work_sum] => 420323 [total_sum] => 1050807 [total_days] => 20 [display_material_sum] => 630 484 [display_work_sum] => 420 323 [display_total_sum] => 1 050 807 ) 1
1 050 807
Работа:420 323
Материалы:630 484
Дни:20
stdClass Object ( [id] => 145 [attribute_id] => 19 [name] => Комбинированный [material_modifier] => 1 [work_modifier] => 1 [options] => Array ( ) [days] => [20] [material_price] => [4629] [work_price] => [3499] [image] => https://akademik-stroy.ru/wp-content/uploads/materials/Kombinirovannyj.jpg [area_modifier] => 141.01 [parent_name] => Наружная отделка фасада [parent_id] => 19 [material_sum] => 900775 [work_sum] => 567403 [total_sum] => 1468178 [total_days] => 20 [display_material_sum] => 900 775 [display_work_sum] => 567 403 [display_total_sum] => 1 468 178 ) 1
1 468 178
Работа:567 403
Материалы:900 775
Дни:20
stdClass Object ( [id] => 257 [attribute_id] => 19 [name] => Японские фиброцементные [material_modifier] => 1 [work_modifier] => 1 [options] => Array ( ) [days] => [20] [material_price] => [7043] [work_price] => [2993] [image] => https://akademik-stroy.ru/wp-content/uploads/materials/paneli.jpg [area_modifier] => 141.01 [parent_name] => Наружная отделка фасада [parent_id] => 19 [material_sum] => 1370524 [work_sum] => 485349 [total_sum] => 1855873 [total_days] => 20 [display_material_sum] => 1 370 524 [display_work_sum] => 485 349 [display_total_sum] => 1 855 873 ) 1
1 855 873
Работа:485 349
Материалы:1 370 524
Дни:20
stdClass Object ( [id] => 258 [attribute_id] => 19 [name] => Панели Каньон [material_modifier] => 1 [work_modifier] => 1 [options] => Array ( ) [days] => [20] [material_price] => [4543] [work_price] => [2592] [image] => https://akademik-stroy.ru/wp-content/uploads/materials/kanon.png [area_modifier] => 141.01 [parent_name] => Наружная отделка фасада [parent_id] => 19 [material_sum] => 884040 [work_sum] => 420323 [total_sum] => 1304363 [total_days] => 20 [display_material_sum] => 884 040 [display_work_sum] => 420 323 [display_total_sum] => 1 304 363 ) 1
1 304 363
Работа:420 323
Материалы:884 040
Дни:20
Террасы, крыльца, навесы
stdClass Object ( [id] => 39 [attribute_id] => 20 [name] => Нет [material_modifier] => 1 [work_modifier] => 1 [options] => Array ( ) [days] => [0] [material_price] => [0] [work_price] => [0] [image] => https://akademik-stroy.ru/wp-content/uploads/materials/terrasy.jpg [area_modifier] => 30 [parent_name] => Террасы, крыльца, навесы [parent_id] => 20 [material_sum] => 0 [work_sum] => 0 [total_sum] => 0 [total_days] => 0 [display_material_sum] => 0 [display_work_sum] => 0 [display_total_sum] => 0 ) 1
0
Работа:0
Материалы:0
Дни:0
stdClass Object ( [id] => 40 [attribute_id] => 20 [name] => Есть [material_modifier] => 1 [work_modifier] => 1 [options] => Array ( ) [days] => [5] [material_price] => [10450] [work_price] => [1950] [image] => https://akademik-stroy.ru/wp-content/uploads/materials/terrasy.jpg [area_modifier] => 30 [parent_name] => Террасы, крыльца, навесы [parent_id] => 20 [material_sum] => 432630 [work_sum] => 67275 [total_sum] => 499905 [total_days] => 5 [display_material_sum] => 432 630 [display_work_sum] => 67 275 [display_total_sum] => 499 905 ) 1
499 905
Работа:67 275
Материалы:432 630
Дни:5
Балконы
stdClass Object ( [id] => 41 [attribute_id] => 21 [name] => Нет [material_modifier] => 1 [work_modifier] => 1 [options] => Array ( ) [days] => [0] [material_price] => [0] [work_price] => [0] [image] => https://akademik-stroy.ru/wp-content/uploads/materials/balkony.jpg [area_modifier] => 30 [parent_name] => Балконы [parent_id] => 21 [material_sum] => 0 [work_sum] => 0 [total_sum] => 0 [total_days] => 0 [display_material_sum] => 0 [display_work_sum] => 0 [display_total_sum] => 0 ) 1
0
Работа:0
Материалы:0
Дни:0
stdClass Object ( [id] => 42 [attribute_id] => 21 [name] => Есть [material_modifier] => 1 [work_modifier] => 1 [options] => Array ( ) [days] => [12] [material_price] => [3600] [work_price] => [1950] [image] => https://akademik-stroy.ru/wp-content/uploads/materials/balkony.jpg [area_modifier] => 30 [parent_name] => Балконы [parent_id] => 21 [material_sum] => 149040 [work_sum] => 67275 [total_sum] => 216315 [total_days] => 12 [display_material_sum] => 149 040 [display_work_sum] => 67 275 [display_total_sum] => 216 315 ) 1
216 315
Работа:67 275
Материалы:149 040
Дни:12
Отмостка
stdClass Object ( [id] => 43 [attribute_id] => 22 [name] => Нет [material_modifier] => 1 [work_modifier] => 1 [options] => Array ( ) [days] => [0] [material_price] => [0] [work_price] => [0] [image] => https://akademik-stroy.ru/wp-content/uploads/materials/uteplennaya.jpg [area_modifier] => 86.22 [parent_name] => Отмостка [parent_id] => 22 [material_sum] => 0 [work_sum] => 0 [total_sum] => 0 [total_days] => 0 [display_material_sum] => 0 [display_work_sum] => 0 [display_total_sum] => 0 ) 1
0
Работа:0
Материалы:0
Дни:0
stdClass Object ( [id] => 44 [attribute_id] => 22 [name] => Утепленная отмостка [material_modifier] => 1 [work_modifier] => 1 [options] => Array ( ) [days] => [15] [material_price] => [2550] [work_price] => [1750] [image] => https://akademik-stroy.ru/wp-content/uploads/materials/uteplennaya.jpg [area_modifier] => 86.22 [parent_name] => Отмостка [parent_id] => 22 [material_sum] => 303408 [work_sum] => 173518 [total_sum] => 476926 [total_days] => 15 [display_material_sum] => 303 408 [display_work_sum] => 173 518 [display_total_sum] => 476 926 ) 1
476 926
Работа:173 518
Материалы:303 408
Дни:15
stdClass Object ( [id] => 146 [attribute_id] => 22 [name] => Не утепленная отмостка [material_modifier] => 1 [work_modifier] => 1 [options] => Array ( ) [days] => [10] [material_price] => [1650] [work_price] => [1450] [image] => https://akademik-stroy.ru/wp-content/uploads/materials/ne-uteplennaya.jpg [area_modifier] => 86.22 [parent_name] => Отмостка [parent_id] => 22 [material_sum] => 196323 [work_sum] => 143772 [total_sum] => 340095 [total_days] => 10 [display_material_sum] => 196 323 [display_work_sum] => 143 772 [display_total_sum] => 340 095 ) 1
340 095
Работа:143 772
Материалы:196 323
Дни:10
Дренаж вокруг дома
stdClass Object ( [id] => 45 [attribute_id] => 23 [name] => Нет [material_modifier] => 1 [work_modifier] => 1 [options] => Array ( ) [days] => [0] [material_price] => [0] [work_price] => [0] [image] => https://akademik-stroy.ru/wp-content/uploads/materials/drenazh-2.jpg [area_modifier] => 86.22 [parent_name] => Дренаж вокруг дома [parent_id] => 23 [material_sum] => 0 [work_sum] => 0 [total_sum] => 0 [total_days] => 0 [display_material_sum] => 0 [display_work_sum] => 0 [display_total_sum] => 0 ) 1
0
Работа:0
Материалы:0
Дни:0
stdClass Object ( [id] => 46 [attribute_id] => 23 [name] => Есть [material_modifier] => 1 [work_modifier] => 1 [options] => Array ( ) [days] => [5] [material_price] => [2366] [work_price] => [1911] [image] => https://akademik-stroy.ru/wp-content/uploads/materials/drenazh-2.jpg [area_modifier] => 86.22 [parent_name] => Дренаж вокруг дома [parent_id] => 23 [material_sum] => 281515 [work_sum] => 189481 [total_sum] => 470996 [total_days] => 5 [display_material_sum] => 281 515 [display_work_sum] => 189 481 [display_total_sum] => 470 996 ) 1
470 996
Работа:189 481
Материалы:281 515
Дни:5
Автономная канализация (септики)
stdClass Object ( [id] => 47 [attribute_id] => 24 [name] => Нет [material_modifier] => 1 [work_modifier] => 1 [options] => Array ( ) [days] => [0] [material_price] => [0] [work_price] => [0] [image] => https://akademik-stroy.ru/wp-content/uploads/materials/septik.jpg [area_modifier] => 1 [parent_name] => Автономная канализация (септики) [parent_id] => 24 [material_sum] => 0 [work_sum] => 0 [total_sum] => 0 [total_days] => 0 [display_material_sum] => 0 [display_work_sum] => 0 [display_total_sum] => 0 ) 1
0
Работа:0
Материалы:0
Дни:0
stdClass Object ( [id] => 48 [attribute_id] => 24 [name] => Есть [material_modifier] => 1 [work_modifier] => 1 [options] => Array ( [0] => Для дачи на 4 человека [1] => Для дома на 5 человек [2] => Для дома на 6 человек [3] => Для дома на 7 человек [4] => Для дома на 10 человек ) [days] => [7,7,7,8,8] [material_price] => [196340,220500,240940,264200,293340] [work_price] => [50000,55000,60500,66550,73206] [image] => https://akademik-stroy.ru/wp-content/uploads/materials/septik.jpg [area_modifier] => 1 [parent_name] => Автономная канализация (септики) [parent_id] => 24 [material_sum] => 270949 [work_sum] => 57500 [total_sum] => 328449 [total_days] => 7 [display_material_sum] => 270 949 [display_work_sum] => 57 500 [display_total_sum] => 328 449 ) 1
328 449
Работа:57 500
Материалы:270 949
Дни:7
Внутренние (не несущие) перегородки
stdClass Object ( [id] => 49 [attribute_id] => 25 [name] => Нет [material_modifier] => 1 [work_modifier] => 1 [options] => Array ( ) [days] => [0] [material_price] => [0] [work_price] => [0] [image] => https://akademik-stroy.ru/wp-content/uploads/materials/gkl.jpg [area_modifier] => 141.01 [parent_name] => Внутренние (не несущие) перегородки [parent_id] => 25 [material_sum] => 0 [work_sum] => 0 [total_sum] => 0 [total_days] => 0 [display_material_sum] => 0 [display_work_sum] => 0 [display_total_sum] => 0 ) 1
0
Работа:0
Материалы:0
Дни:0
stdClass Object ( [id] => 147 [attribute_id] => 25 [name] => Каркасно-обшивные [material_modifier] => 1 [work_modifier] => 1 [options] => Array ( [0] => 75 мм (без шумоизоляции) [1] => 75 мм (с шумоизоляцией) ) [days] => [11,11] [material_price] => [580,970] [work_price] => [380,570] [image] => https://akademik-stroy.ru/wp-content/uploads/materials/gkl.jpg [area_modifier] => 141.01 [parent_name] => Внутренние (не несущие) перегородки [parent_id] => 25 [material_sum] => 112864 [work_sum] => 61621 [total_sum] => 174485 [total_days] => 11 [display_material_sum] => 112 864 [display_work_sum] => 61 621 [display_total_sum] => 174 485 ) 1
174 485
Работа:61 621
Материалы:112 864
Дни:11
stdClass Object ( [id] => 148 [attribute_id] => 25 [name] => Пазогребневые [material_modifier] => 1 [work_modifier] => 1 [options] => Array ( [0] => 80 мм [1] => 100 мм ) [days] => [5,5] [material_price] => [1022,1313] [work_price] => [600,700] [image] => https://akademik-stroy.ru/wp-content/uploads/materials/pazogrebnevye-bloki.jpg [area_modifier] => 141.01 [parent_name] => Внутренние (не несущие) перегородки [parent_id] => 25 [material_sum] => 198875 [work_sum] => 97297 [total_sum] => 296172 [total_days] => 5 [display_material_sum] => 198 875 [display_work_sum] => 97 297 [display_total_sum] => 296 172 ) 1
296 172
Работа:97 297
Материалы:198 875
Дни:5
stdClass Object ( [id] => 149 [attribute_id] => 25 [name] => Газобетонные [material_modifier] => 1 [work_modifier] => 1 [options] => Array ( [0] => 100 мм [1] => 200 мм ) [days] => [11,11] [material_price] => [1160,1920] [work_price] => [700,900] [image] => https://akademik-stroy.ru/wp-content/uploads/materials/gazobeton-2.jpg [area_modifier] => 141.01 [parent_name] => Внутренние (не несущие) перегородки [parent_id] => 25 [material_sum] => 225729 [work_sum] => 113513 [total_sum] => 339242 [total_days] => 11 [display_material_sum] => 225 729 [display_work_sum] => 113 513 [display_total_sum] => 339 242 ) 1
339 242
Работа:113 513
Материалы:225 729
Дни:11
stdClass Object ( [id] => 150 [attribute_id] => 25 [name] => Кирпичные [material_modifier] => 1 [work_modifier] => 1 [options] => Array ( [0] => 120 мм [1] => 250 мм [2] => 360 мм ) [days] => [7,7,7] [material_price] => [1785,3570,5355] [work_price] => [900,1600,1800] [image] => https://akademik-stroy.ru/wp-content/uploads/materials/kirpich-1.jpg [area_modifier] => 141.01 [parent_name] => Внутренние (не несущие) перегородки [parent_id] => 25 [material_sum] => 347350 [work_sum] => 145945 [total_sum] => 493295 [total_days] => 7 [display_material_sum] => 347 350 [display_work_sum] => 145 945 [display_total_sum] => 493 295 ) 1
493 295
Работа:145 945
Материалы:347 350
Дни:7
Электрика
stdClass Object ( [id] => 55 [attribute_id] => 28 [name] => Нет [material_modifier] => 1 [work_modifier] => 1 [options] => Array ( ) [days] => [0] [material_price] => [0] [work_price] => [0] [image] => https://akademik-stroy.ru/wp-content/uploads/materials/ehlektrika.jpg [area_modifier] => 114.43 [parent_name] => Электрика [parent_id] => 28 [material_sum] => 0 [work_sum] => 0 [total_sum] => 0 [total_days] => 0 [display_material_sum] => 0 [display_work_sum] => 0 [display_total_sum] => 0 ) 1
0
Работа:0
Материалы:0
Дни:0
stdClass Object ( [id] => 56 [attribute_id] => 28 [name] => Есть [material_modifier] => 1 [work_modifier] => 1 [options] => Array ( ) [days] => [10] [material_price] => [650] [work_price] => [950] [image] => https://akademik-stroy.ru/wp-content/uploads/materials/ehlektrika.jpg [area_modifier] => 114.43 [parent_name] => Электрика [parent_id] => 28 [material_sum] => 102644 [work_sum] => 125015 [total_sum] => 227659 [total_days] => 10 [display_material_sum] => 102 644 [display_work_sum] => 125 015 [display_total_sum] => 227 659 ) 1
227 659
Работа:125 015
Материалы:102 644
Дни:10
Сантехника, канализация в доме
stdClass Object ( [id] => 57 [attribute_id] => 29 [name] => Нет [material_modifier] => 1 [work_modifier] => 1 [options] => Array ( ) [days] => [0] [material_price] => [0] [work_price] => [0] [image] => https://akademik-stroy.ru/wp-content/uploads/materials/santekhnika-kanalizaciya-1.jpg [area_modifier] => 114.43 [parent_name] => Сантехника, канализация в доме [parent_id] => 29 [material_sum] => 0 [work_sum] => 0 [total_sum] => 0 [total_days] => 0 [display_material_sum] => 0 [display_work_sum] => 0 [display_total_sum] => 0 ) 1
0
Работа:0
Материалы:0
Дни:0
stdClass Object ( [id] => 58 [attribute_id] => 29 [name] => Есть [material_modifier] => 1 [work_modifier] => 1 [options] => Array ( ) [days] => [10] [material_price] => [600] [work_price] => [730] [image] => https://akademik-stroy.ru/wp-content/uploads/materials/santekhnika-kanalizaciya-1.jpg [area_modifier] => 114.43 [parent_name] => Сантехника, канализация в доме [parent_id] => 29 [material_sum] => 94748 [work_sum] => 96064 [total_sum] => 190812 [total_days] => 10 [display_material_sum] => 94 748 [display_work_sum] => 96 064 [display_total_sum] => 190 812 ) 1
190 812
Работа:96 064
Материалы:94 748
Дни:10
Отопление
stdClass Object ( [id] => 59 [attribute_id] => 30 [name] => Нет [material_modifier] => 1 [work_modifier] => 1 [options] => Array ( ) [days] => [0] [material_price] => [0] [work_price] => [0] [image] => https://akademik-stroy.ru/wp-content/uploads/materials/otoplenie-1.jpg [area_modifier] => 114.43 [parent_name] => Отопление [parent_id] => 30 [material_sum] => 0 [work_sum] => 0 [total_sum] => 0 [total_days] => 0 [display_material_sum] => 0 [display_work_sum] => 0 [display_total_sum] => 0 ) 1
0
Работа:0
Материалы:0
Дни:0
stdClass Object ( [id] => 60 [attribute_id] => 30 [name] => Есть [material_modifier] => 1 [work_modifier] => 1 [options] => Array ( ) [days] => [5] [material_price] => [610] [work_price] => [560] [image] => https://akademik-stroy.ru/wp-content/uploads/materials/otoplenie-1.jpg [area_modifier] => 114.43 [parent_name] => Отопление [parent_id] => 30 [material_sum] => 96327 [work_sum] => 73693 [total_sum] => 170020 [total_days] => 5 [display_material_sum] => 96 327 [display_work_sum] => 73 693 [display_total_sum] => 170 020 ) 1
170 020
Работа:73 693
Материалы:96 327
Дни:5
Теплые полы
stdClass Object ( [id] => 61 [attribute_id] => 31 [name] => Нет [material_modifier] => 1 [work_modifier] => 1 [options] => Array ( ) [days] => [0] [material_price] => [0] [work_price] => [0] [image] => https://akademik-stroy.ru/wp-content/uploads/materials/vodyanye.jpg [area_modifier] => 30 [parent_name] => Теплые полы [parent_id] => 31 [material_sum] => 0 [work_sum] => 0 [total_sum] => 0 [total_days] => 0 [display_material_sum] => 0 [display_work_sum] => 0 [display_total_sum] => 0 ) 1
0
Работа:0
Материалы:0
Дни:0
stdClass Object ( [id] => 151 [attribute_id] => 31 [name] => Водяные [material_modifier] => 1 [work_modifier] => 1 [options] => Array ( ) [days] => [9] [material_price] => [10200] [work_price] => [2500] [image] => https://akademik-stroy.ru/wp-content/uploads/materials/vodyanye.jpg [area_modifier] => 30 [parent_name] => Теплые полы [parent_id] => 31 [material_sum] => 422280 [work_sum] => 86250 [total_sum] => 508530 [total_days] => 9 [display_material_sum] => 422 280 [display_work_sum] => 86 250 [display_total_sum] => 508 530 ) 1
508 530
Работа:86 250
Материалы:422 280
Дни:9
stdClass Object ( [id] => 152 [attribute_id] => 31 [name] => Электро [material_modifier] => 1 [work_modifier] => 1 [options] => Array ( ) [days] => [5] [material_price] => [6300] [work_price] => [1500] [image] => https://akademik-stroy.ru/wp-content/uploads/materials/ehlektricheskij.jpg [area_modifier] => 30 [parent_name] => Теплые полы [parent_id] => 31 [material_sum] => 260820 [work_sum] => 51750 [total_sum] => 312570 [total_days] => 5 [display_material_sum] => 260 820 [display_work_sum] => 51 750 [display_total_sum] => 312 570 ) 1
312 570
Работа:51 750
Материалы:260 820
Дни:5
Черновая отделка стен
stdClass Object ( [id] => 63 [attribute_id] => 32 [name] => Нет [material_modifier] => 1 [work_modifier] => 1 [options] => Array ( ) [days] => [0] [material_price] => [0] [work_price] => [0] [image] => https://akademik-stroy.ru/wp-content/uploads/materials/shtukaturka-shpatlevka-1.jpg [area_modifier] => 114.43 [parent_name] => Черновая отделка стен [parent_id] => 32 [material_sum] => 0 [work_sum] => 0 [total_sum] => 0 [total_days] => 0 [display_material_sum] => 0 [display_work_sum] => 0 [display_total_sum] => 0 ) 1
0
Работа:0
Материалы:0
Дни:0
stdClass Object ( [id] => 153 [attribute_id] => 32 [name] => Штукатурка и шпатлевка [material_modifier] => 1 [work_modifier] => 1 [options] => Array ( ) [days] => [20] [material_price] => [1850] [work_price] => [2600] [image] => https://akademik-stroy.ru/wp-content/uploads/materials/shtukaturka-shpatlevka-1.jpg [area_modifier] => 114.43 [parent_name] => Черновая отделка стен [parent_id] => 32 [material_sum] => 292140 [work_sum] => 342146 [total_sum] => 634286 [total_days] => 20 [display_material_sum] => 292 140 [display_work_sum] => 342 146 [display_total_sum] => 634 286 ) 1
634 286
Работа:342 146
Материалы:292 140
Дни:20
stdClass Object ( [id] => 154 [attribute_id] => 32 [name] => Гипсокортон на стены [material_modifier] => 1 [work_modifier] => 1 [options] => Array ( ) [days] => [15] [material_price] => [950] [work_price] => [2100] [image] => https://akademik-stroy.ru/wp-content/uploads/materials/gkl-1.jpg [area_modifier] => 114.43 [parent_name] => Черновая отделка стен [parent_id] => 32 [material_sum] => 150018 [work_sum] => 276348 [total_sum] => 426366 [total_days] => 15 [display_material_sum] => 150 018 [display_work_sum] => 276 348 [display_total_sum] => 426 366 ) 1
426 366
Работа:276 348
Материалы:150 018
Дни:15
stdClass Object ( [id] => 155 [attribute_id] => 32 [name] => Вагонка [material_modifier] => 1 [work_modifier] => 1 [options] => Array ( ) [days] => [15] [material_price] => [1250] [work_price] => [950] [image] => https://akademik-stroy.ru/wp-content/uploads/materials/vagonka.jpg [area_modifier] => 114.43 [parent_name] => Черновая отделка стен [parent_id] => 32 [material_sum] => 197392 [work_sum] => 125015 [total_sum] => 322407 [total_days] => 15 [display_material_sum] => 197 392 [display_work_sum] => 125 015 [display_total_sum] => 322 407 ) 1
322 407
Работа:125 015
Материалы:197 392
Дни:15
Черновая отделка полов
stdClass Object ( [id] => 65 [attribute_id] => 33 [name] => Нет [material_modifier] => 1 [work_modifier] => 1 [options] => Array ( ) [days] => [0] [material_price] => [0] [work_price] => [0] [image] => https://akademik-stroy.ru/wp-content/uploads/materials/styazhka.jpg [area_modifier] => 114.43 [parent_name] => Черновая отделка полов [parent_id] => 33 [material_sum] => 0 [work_sum] => 0 [total_sum] => 0 [total_days] => 0 [display_material_sum] => 0 [display_work_sum] => 0 [display_total_sum] => 0 ) 1
0
Работа:0
Материалы:0
Дни:0
stdClass Object ( [id] => 156 [attribute_id] => 33 [name] => Стяжка + наливные полы [material_modifier] => 1 [work_modifier] => 1 [options] => Array ( ) [days] => [10] [material_price] => [1000] [work_price] => [900] [image] => https://akademik-stroy.ru/wp-content/uploads/materials/styazhka.jpg [area_modifier] => 114.43 [parent_name] => Черновая отделка полов [parent_id] => 33 [material_sum] => 157913 [work_sum] => 118435 [total_sum] => 276348 [total_days] => 10 [display_material_sum] => 157 913 [display_work_sum] => 118 435 [display_total_sum] => 276 348 ) 1
276 348
Работа:118 435
Материалы:157 913
Дни:10
stdClass Object ( [id] => 157 [attribute_id] => 33 [name] => ОСБ на пол [material_modifier] => 1 [work_modifier] => 1 [options] => Array ( ) [days] => [7] [material_price] => [580] [work_price] => [350] [image] => https://akademik-stroy.ru/wp-content/uploads/materials/osb-1.jpg [area_modifier] => 114.43 [parent_name] => Черновая отделка полов [parent_id] => 33 [material_sum] => 91590 [work_sum] => 46058 [total_sum] => 137648 [total_days] => 7 [display_material_sum] => 91 590 [display_work_sum] => 46 058 [display_total_sum] => 137 648 ) 1
137 648
Работа:46 058
Материалы:91 590
Дни:7
Чистовая отделка стен и полов
stdClass Object ( [id] => 67 [attribute_id] => 34 [name] => Нет [material_modifier] => 1 [work_modifier] => 1 [options] => Array ( ) [days] => [0] [material_price] => [0] [work_price] => [0] [image] => https://akademik-stroy.ru/wp-content/uploads/materials/chistovaya-otdelka.jpg [area_modifier] => 114.43 [parent_name] => Чистовая отделка стен и полов [parent_id] => 34 [material_sum] => 0 [work_sum] => 0 [total_sum] => 0 [total_days] => 0 [display_material_sum] => 0 [display_work_sum] => 0 [display_total_sum] => 0 ) 1
0
Работа:0
Материалы:0
Дни:0
stdClass Object ( [id] => 68 [attribute_id] => 34 [name] => Есть [material_modifier] => 1 [work_modifier] => 1 [options] => Array ( ) [days] => [50] [material_price] => [6000] [work_price] => [3500] [image] => https://akademik-stroy.ru/wp-content/uploads/materials/chistovaya-otdelka.jpg [area_modifier] => 114.43 [parent_name] => Чистовая отделка стен и полов [parent_id] => 34 [material_sum] => 947480 [work_sum] => 460581 [total_sum] => 1408061 [total_days] => 50 [display_material_sum] => 947 480 [display_work_sum] => 460 581 [display_total_sum] => 1 408 061 ) 1
1 408 061
Работа:460 581
Материалы:947 480
Дни:50
Отделка потолка
stdClass Object ( [id] => 69 [attribute_id] => 35 [name] => Нет [material_modifier] => 1 [work_modifier] => 1 [options] => Array ( ) [days] => [0] [material_price] => [0] [work_price] => [0] [image] => https://akademik-stroy.ru/wp-content/uploads/materials/mnogourovnevyj-gkl.jpg [area_modifier] => 114.43 [parent_name] => Отделка потолка [parent_id] => 35 [material_sum] => 0 [work_sum] => 0 [total_sum] => 0 [total_days] => 0 [display_material_sum] => 0 [display_work_sum] => 0 [display_total_sum] => 0 ) 1
0
Работа:0
Материалы:0
Дни:0
stdClass Object ( [id] => 70 [attribute_id] => 35 [name] => Есть [material_modifier] => 1 [work_modifier] => 1 [options] => Array ( [0] => Многоуровневый потолок из гипсокартона [1] => Многоуровневый потолок из гипсокартона и натяжного потолка [2] => Одноуровневый потолок из гипсокартона [3] => Одноуровневый натяжной потолок ) [days] => [10,10,1,1] [material_price] => [900,700,700,600] [work_price] => [1000,800,500,300] [image] => https://akademik-stroy.ru/wp-content/uploads/materials/mnogourovnevyj-gkl.jpg [area_modifier] => 114.43 [parent_name] => Отделка потолка [parent_id] => 35 [material_sum] => 142122 [work_sum] => 131595 [total_sum] => 273717 [total_days] => 10 [display_material_sum] => 142 122 [display_work_sum] => 131 595 [display_total_sum] => 273 717 ) 1
273 717
Работа:131 595
Материалы:142 122
Дни:10

Преимущества работы с нами

icon

7 этапов оплаты

icon

Независимый строительный надзор

icon

Экологически чистые материалы

icon

16 лет гарантии

icon

Онлайн-кабинет с веб-камерой

icon

Строители с опытом более 15 лет

icon

Собственное производство