Одноэтажный дом 10x15 - 140 м2 за руб.

ID-161216

Стоимость дома 5121974 руб.

Планировки

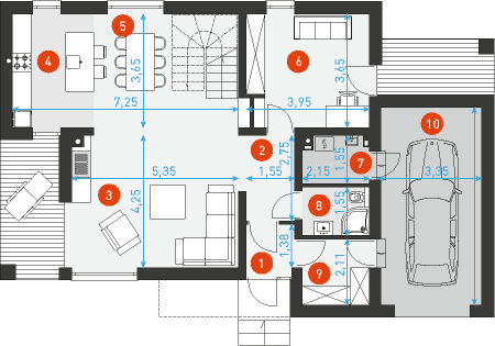
План первого этажа

floor image
  • 1. Тамбур 2,1 м²
  • 2. Коридор 4,6 м²
  • 3. Гостиная 23,6 м²
  • 4. Столовая 12,4 м²
  • 5. Кабинет 13,9 м²
  • 6. Котельная 3,0 м²
  • 7. Ванная комната 3,2 м²
  • 8. Проход 4,4 м²
  • Гараж 20,4 м²

План мансарды

floor image
  • 1. Коридор 6,6 м²
  • 2. Комната 16,1 м²
  • 3. Комната 14,9 м²
  • 4. Прачечная 2,7 м²
  • 5. Ванная комната 6,4 м²
  • 6. Гардероб 5,8 м²
  • Комната 13,2 м²

Площади дома

№ п/п Наименование Ед. из. Строительная площадь Полезная площадь
1 1 этаж м2 91.56 74.3
2 2 этаж м2 80.96 65.7
3 Итого м2 172.52 140
154 м2 Полезная
площадь
10 x 15 м Размеры
1 этаж Этажей
26 м2 Террасы
и балконы
1Без
гаража
4 Количество
спален
2 Количество
санузлов

Калькулятор опций

0

В ипотеку от 17 237 ₽/мес.

Фундамент
501 263
Работа:216 942
Материалы:284 321
Дни:20
301 342
Работа:100 917
Материалы:200 425
Дни:2
507 810
Работа:203 849
Материалы:303 961
Дни:20
973 118
Работа:434 489
Материалы:538 629
Дни:30
1 632 505
Работа:600 267
Материалы:1 032 238
Дни:32
616 986
Работа:246 855
Материалы:370 131
Дни:20
3 871 523
Работа:1 764 947
Материалы:2 106 576
Дни:30
4 619 037
Работа:2 058 736
Материалы:2 560 301
Дни:40
161 145
Работа:40 286
Материалы:120 859
Дни:1
Перекрытие цоколя
288 451
Работа:123 881
Материалы:164 570
Дни:8
461 984
Работа:153 088
Материалы:308 896
Дни:13
824 360
Работа:337 197
Материалы:487 163
Дни:18
Стены 1 этаж (несущие)
809 052
Работа:506 904
Материалы:302 148
Дни:29
931 321
Работа:477 092
Материалы:454 229
Дни:23
1 433 793
Работа:879 855
Материалы:553 938
Дни:30
1 173 442
Работа:514 256
Материалы:659 186
Дни:45
2 193 695
Работа:484 041
Материалы:1 709 654
Дни:24
483 134
Работа:243 531
Материалы:239 603
Дни:15
263 876
Работа:142 010
Материалы:121 866
Дни:7
927 997
Работа:322 694
Материалы:605 303
Дни:7
1 212 117
Работа:387 253
Материалы:824 864
Дни:7
7 960 089
Работа:387 253
Материалы:7 572 836
Дни:7
4 308 731
Работа:484 041
Материалы:3 824 690
Дни:7
677 718
Работа:161 347
Материалы:516 371
Дни:7
889 926
Работа:457 049
Материалы:432 877
Дни:29
779 139
Работа:507 407
Материалы:271 732
Дни:29
889 926
Работа:457 049
Материалы:432 877
Дни:29
944 515
Работа:577 808
Материалы:366 707
Дни:23
1 207 282
Работа:406 590
Материалы:800 692
Дни:7
1 369 033
Работа:839 065
Материалы:529 968
Дни:25
495 220
Работа:255 617
Материалы:239 603
Дни:15
4 588 822
Работа:968 082
Материалы:3 620 740
Дни:15
549 104
Работа:258 236
Материалы:290 868
Дни:15
747 715
Работа:424 417
Материалы:323 298
Дни:19
789 210
Работа:507 407
Материалы:281 803
Дни:29
506 904
Работа:266 092
Материалы:240 812
Дни:15
931 321
Работа:477 092
Материалы:454 229
Дни:23
544 068
Работа:211 504
Материалы:332 564
Дни:15
696 955
Работа:508 213
Материалы:188 742
Дни:7
Перекрытие первого этажа
288 451
Работа:123 881
Материалы:164 570
Дни:8
461 984
Работа:153 088
Материалы:308 896
Дни:13
824 360
Работа:337 197
Материалы:487 163
Дни:18
Стены 2 этаж (несущие)
715 387
Работа:448 219
Материалы:267 168
Дни:29
823 501
Работа:421 858
Материалы:401 643
Дни:23
1 267 801
Работа:777 993
Материалы:489 808
Дни:30
1 037 592
Работа:454 720
Материалы:582 872
Дни:45
1 939 729
Работа:428 003
Материалы:1 511 726
Дни:24
427 201
Работа:215 337
Материалы:211 864
Дни:15
233 327
Работа:125 569
Материалы:107 758
Дни:7
820 562
Работа:285 335
Материалы:535 227
Дни:7
1 071 789
Работа:342 420
Материалы:729 369
Дни:7
7 038 541
Работа:342 420
Материалы:6 696 121
Дни:7
1 868 484
Работа:428 003
Материалы:1 440 481
Дни:7
599 258
Работа:142 668
Материалы:456 590
Дни:10
786 899
Работа:404 136
Материалы:382 763
Дни:29
688 937
Работа:448 664
Материалы:240 273
Дни:29
786 899
Работа:404 136
Материалы:382 763
Дни:29
835 167
Работа:510 914
Материалы:324 253
Дни:23
1 067 514
Работа:359 519
Материалы:707 995
Дни:7
1 210 539
Работа:741 926
Материалы:468 613
Дни:25
437 888
Работа:226 024
Материалы:211 864
Дни:15
4 057 569
Работа:856 006
Материалы:3 201 563
Дни:15
485 534
Работа:228 340
Материалы:257 194
Дни:15
661 152
Работа:375 282
Материалы:285 870
Дни:19
697 843
Работа:448 664
Материалы:249 179
Дни:29
448 219
Работа:235 286
Материалы:212 933
Дни:15
823 501
Работа:421 858
Материалы:401 643
Дни:10
481 081
Работа:187 018
Материалы:294 063
Дни:10
616 268
Работа:449 377
Материалы:166 891
Дни:7
Крыша (Скатная)
1 192 276
Работа:576 700
Материалы:615 576
Дни:20
1 302 258
Работа:599 260
Материалы:702 998
Дни:20
2 015 931
Работа:952 370
Материалы:1 063 561
Дни:20
1 854 282
Работа:896 876
Материалы:957 406
Дни:20
2 236 499
Работа:952 370
Материалы:1 284 129
Дни:20
1 685 986
Работа:824 864
Материалы:861 122
Дни:20
3 746 635
Работа:1 686 993
Материалы:2 059 642
Дни:20
3 689 227
Работа:1 690 014
Материалы:1 999 213
Дни:20
725 155
Работа:377 685
Материалы:347 470
Дни:20
Окна
303 996
Работа:97 790
Материалы:206 206
Дни:3
0
Работа:0
Материалы:0
Дни:0
Двери входные
17 050
Работа:6 050
Материалы:11 000
Дни:1
0
Работа:0
Материалы:0
Дни:0
Утепление кровли (Мансарда)
0
Работа:0
Материалы:0
Дни:0
182 094
Работа:65 465
Материалы:116 629
Дни:5
106 155
Работа:23 568
Материалы:82 587
Дни:3
154 700
Работа:39 279
Материалы:115 421
Дни:3
87 220
Работа:39 279
Материалы:47 941
Дни:3
233 057
Работа:23 568
Материалы:209 489
Дни:2
305 774
Работа:39 279
Материалы:266 495
Дни:3
Мансардные окна
0
Работа:0
Материалы:0
Дни:0
71 918
Работа:19 690
Материалы:52 228
Дни:6
Подшивка кровли
0
Работа:0
Материалы:0
Дни:0
335 586
Работа:153 995
Материалы:181 591
Дни:7
Водосточная система
0
Работа:0
Материалы:0
Дни:0
335 687
Работа:150 168
Материалы:185 519
Дни:7
Дополнительное утепление наружных стен
0
Работа:0
Материалы:0
Дни:0
1 093 466
Работа:441 220
Материалы:652 246
Дни:7
386 186
Работа:232 471
Материалы:153 715
Дни:3
1 206 001
Работа:340 641
Материалы:865 360
Дни:5
1 255 722
Работа:340 641
Материалы:915 081
Дни:5
681 092
Работа:138 344
Материалы:542 748
Дни:3
1 731 290
Работа:151 818
Материалы:1 579 472
Дни:5
Наружная отделка фасада
0
Работа:0
Материалы:0
Дни:0
833 288
Работа:265 111
Материалы:568 177
Дни:20
897 812
Работа:291 680
Материалы:606 132
Дни:20
651 487
Работа:228 106
Материалы:423 381
Дни:35
2 166 057
Работа:614 861
Материалы:1 551 196
Дни:45
1 135 026
Работа:570 644
Материалы:564 382
Дни:40
479 364
Работа:239 682
Материалы:239 682
Дни:20
1 475 667
Работа:614 861
Материалы:860 806
Дни:45
1 623 310
Работа:442 738
Материалы:1 180 572
Дни:20
897 622
Работа:368 917
Материалы:528 705
Дни:20
1 106 750
Работа:491 889
Материалы:614 861
Дни:20
1 542 467
Работа:664 012
Материалы:878 455
Дни:20
1 904 552
Работа:567 988
Материалы:1 336 564
Дни:20
1 354 023
Работа:491 889
Материалы:862 134
Дни:20
Террасы, крыльца, навесы
0
Работа:0
Материалы:0
Дни:0
409 200
Работа:64 350
Материалы:344 850
Дни:5
Балконы
0
Работа:0
Материалы:0
Дни:0
183 150
Работа:64 350
Материалы:118 800
Дни:12
Отмостка
0
Работа:0
Материалы:0
Дни:0
433 079
Работа:176 253
Материалы:256 826
Дни:15
312 219
Работа:146 038
Материалы:166 181
Дни:10
Дренаж вокруг дома
0
Работа:0
Материалы:0
Дни:0
430 762
Работа:192 468
Материалы:238 294
Дни:5
Автономная канализация (септики)
0
Работа:0
Материалы:0
Дни:0
270 974
Работа:55 000
Материалы:215 974
Дни:7
Внутренние (не несущие) перегородки
0
Работа:0
Материалы:0
Дни:0
182 181
Работа:72 113
Материалы:110 068
Дни:11
307 810
Работа:113 863
Материалы:193 947
Дни:5
352 976
Работа:132 840
Материалы:220 136
Дни:11
509 538
Работа:170 795
Материалы:338 743
Дни:7
Электрика
0
Работа:0
Материалы:0
Дни:0
246 400
Работа:146 300
Материалы:100 100
Дни:10
Сантехника, канализация в доме
0
Работа:0
Материалы:0
Дни:0
204 820
Работа:112 420
Материалы:92 400
Дни:10
Отопление
0
Работа:0
Материалы:0
Дни:0
180 180
Работа:86 240
Материалы:93 940
Дни:5
Теплые полы
0
Работа:0
Материалы:0
Дни:0
419 100
Работа:82 500
Материалы:336 600
Дни:9
257 400
Работа:49 500
Материалы:207 900
Дни:5
Черновая отделка стен
0
Работа:0
Материалы:0
Дни:0
685 300
Работа:400 400
Материалы:284 900
Дни:20
469 700
Работа:323 400
Материалы:146 300
Дни:15
338 800
Работа:146 300
Материалы:192 500
Дни:15
Черновая отделка полов
0
Работа:0
Материалы:0
Дни:0
292 600
Работа:138 600
Материалы:154 000
Дни:10
143 220
Работа:53 900
Материалы:89 320
Дни:7
Чистовая отделка стен и полов
0
Работа:0
Материалы:0
Дни:0
1 463 000
Работа:539 000
Материалы:924 000
Дни:50
Отделка потолка
0
Работа:0
Материалы:0
Дни:0
292 600
Работа:154 000
Материалы:138 600
Дни:10

Преимущества работы с нами

icon

7 этапов оплаты

icon

Независимый строительный надзор

icon

Экологически чистые материалы

icon

16 лет гарантии

icon

Онлайн-кабинет с веб-камерой

icon

Строители с опытом более 15 лет

icon

Собственное производство