Одноэтажный дом 138.35 м2 за руб.
Планировки
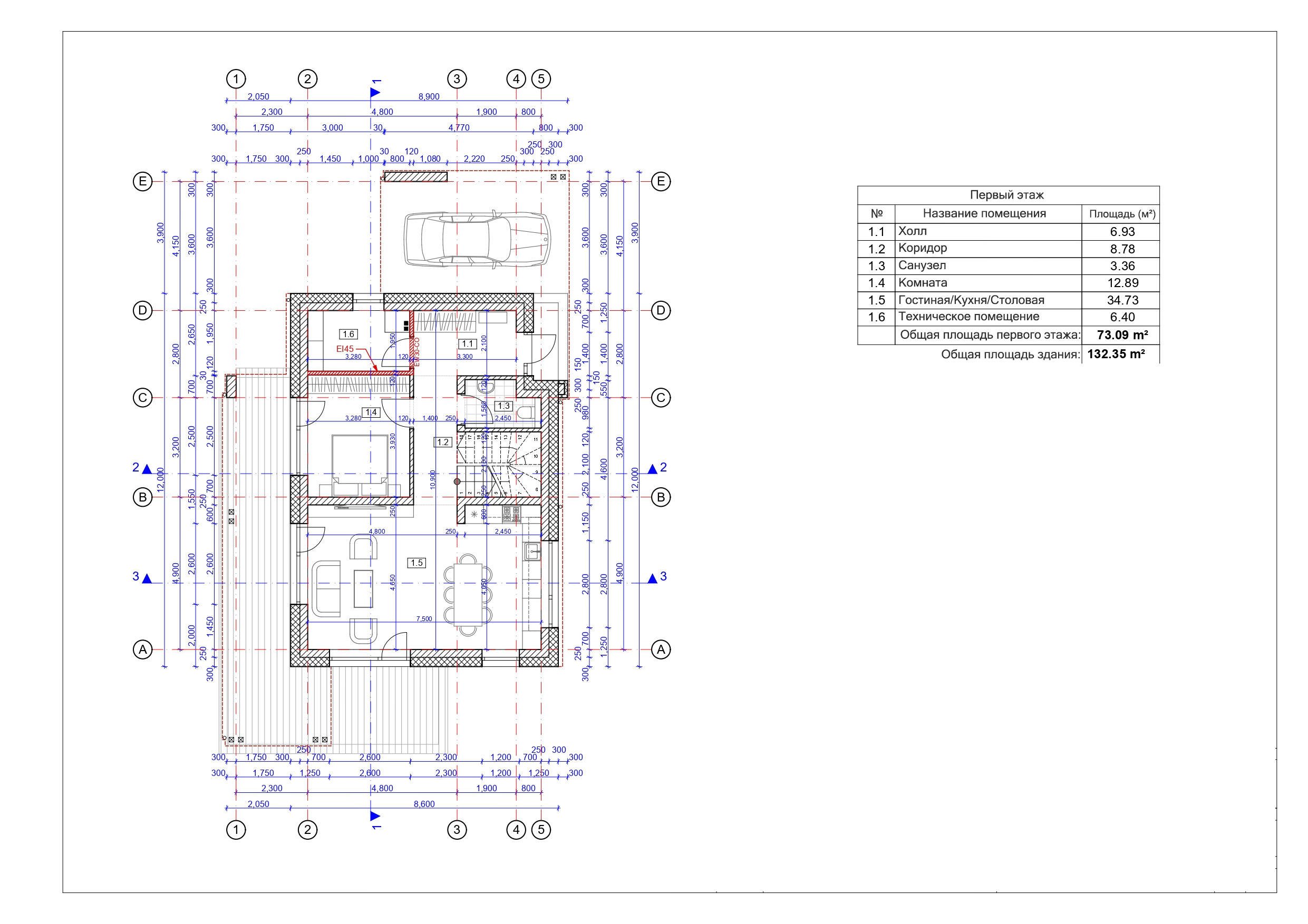
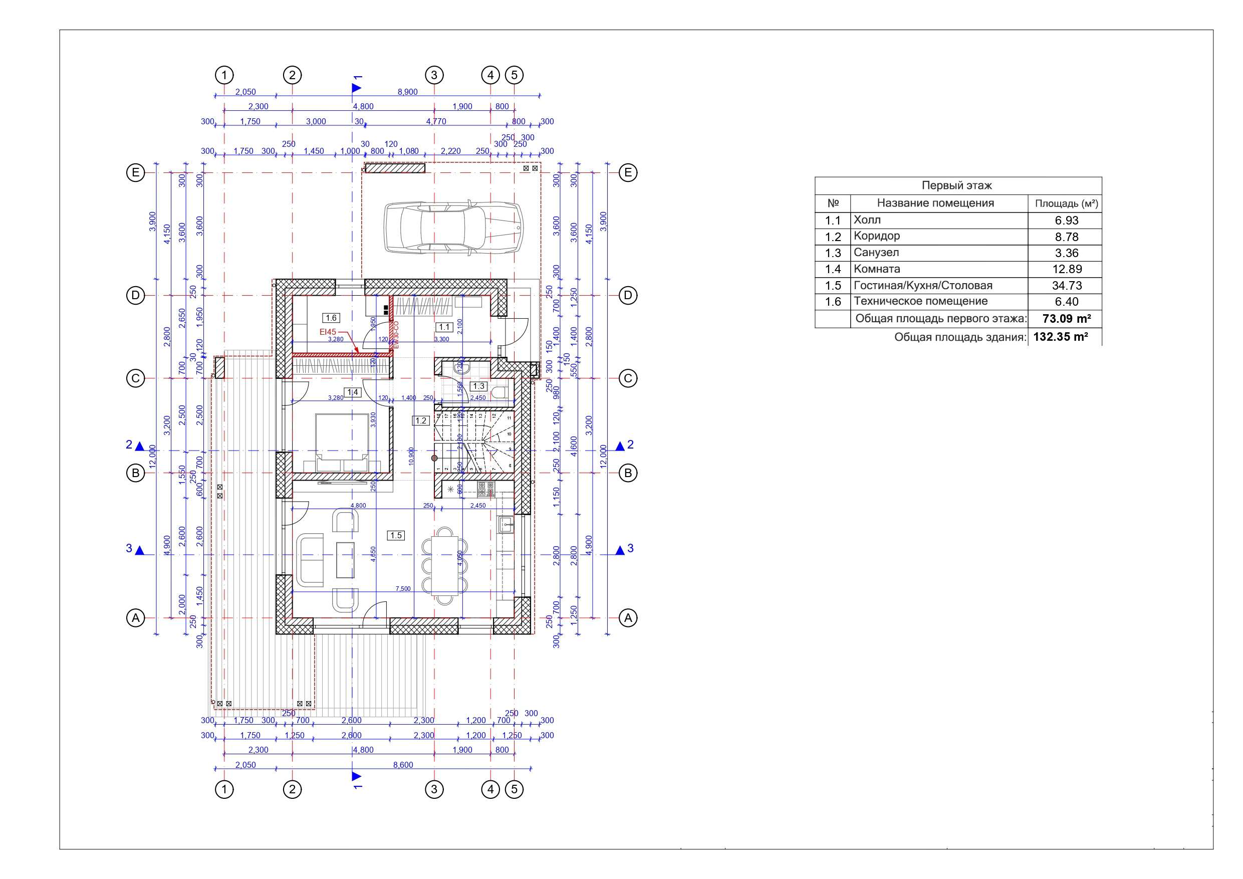
План первого этажа
- 1. Холл 6,93 м²
- 2. Коридор 8,78 м²
- 3. Санузел 3,36 м²
- 4. Комната 12,89 м²
- 5. Гостиная-Кухня-Столовая 34,73 м²
- 6. Тех.помещение 6,40 м²
- Общая площадь первый этаж 73,09 м²
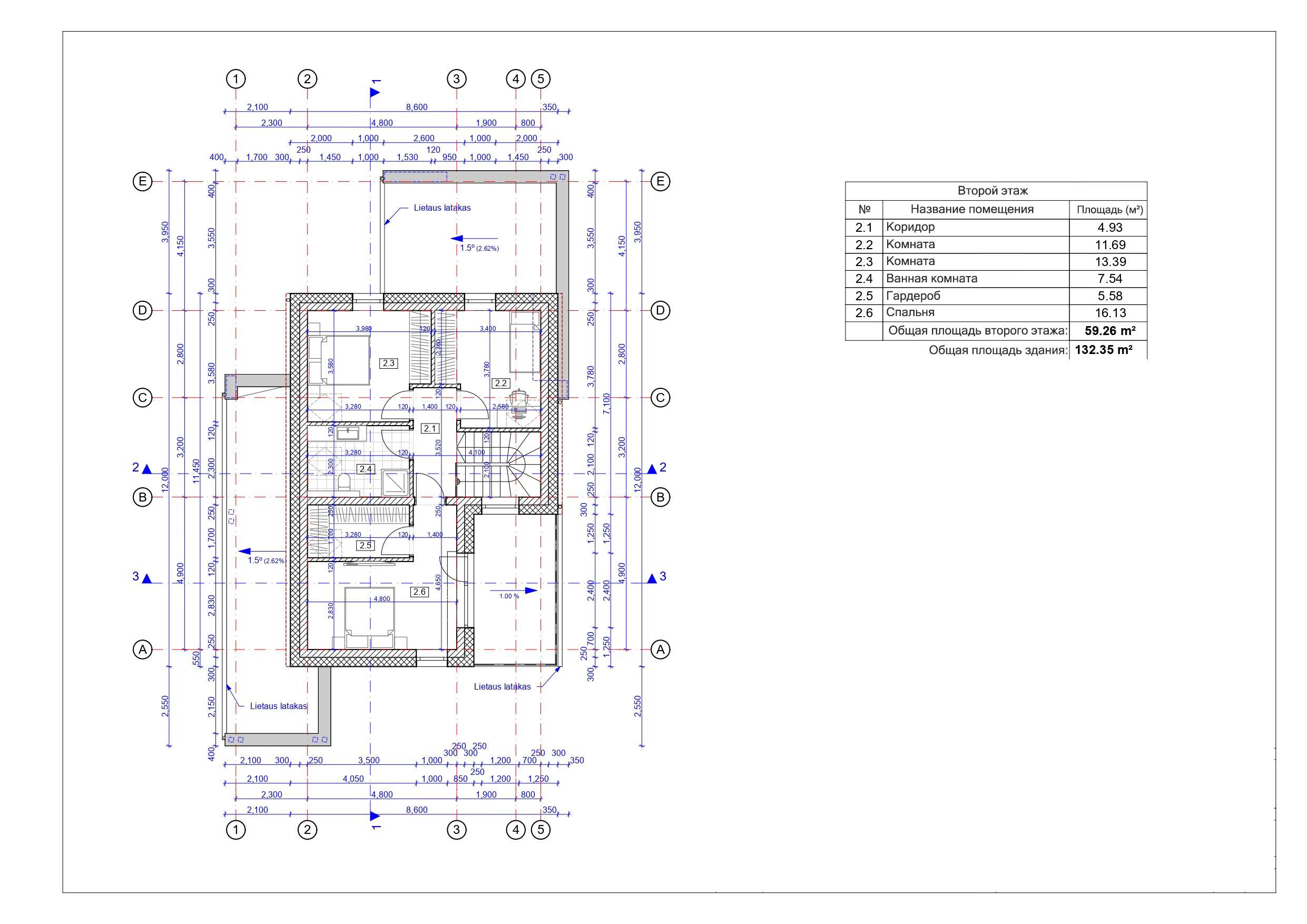
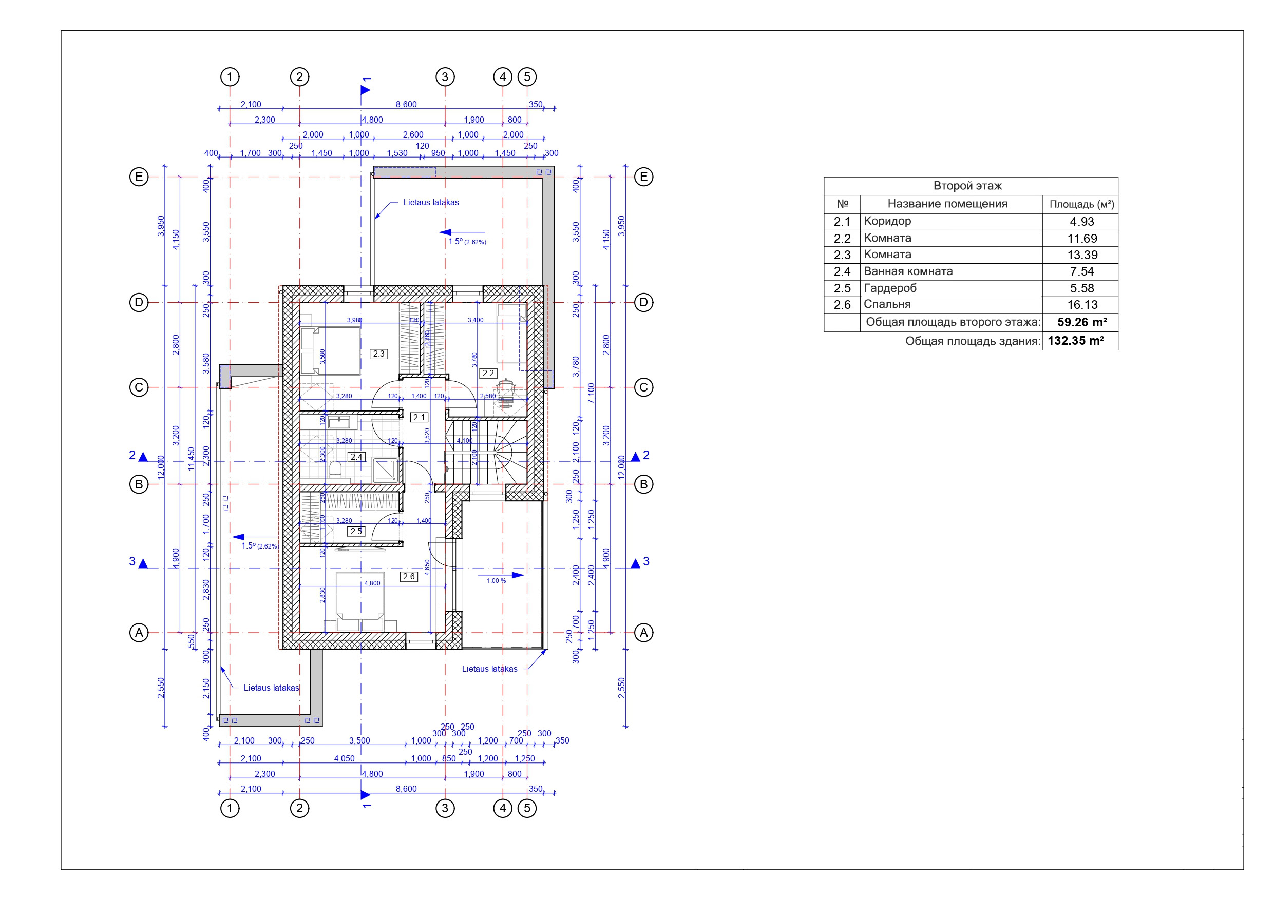
План второго этажа
- 1. Коридор 4,93 м²
- 2. Комната 11,69 м²
- 3. Комната 13,39 м²
- 4. Ванная комнаата 7,54 м²
- 5. Гардероб 5,58 м²
- 6. Спальня 16,13 м²
- Общая площадь второй этаж 59,26 м²
Площади дома
| № п/п | Наименование | Ед. из. | Строительная площадь | Полезная площадь |
| 1 | 1 этаж | м2 | 97.46 | 79.09 |
| 2 | 2 этаж | м2 | 73.03 | 59.26 |
| 3 | Итого | м2 | 170.49 | 138.35 |
154 м2
Полезная
площадь
площадь
1 этаж
Этажей
26 м2
Террасы
и балконы
и балконы
0Без
гаража
гаража
4
Количество
спален
спален
2
Количество
санузлов
санузлов
Калькулятор опций
0₽
В ипотеку от 17 212 ₽/мес.
0₽
0 дней
stdClass Object
(
[id] => 1
[attribute_id] => 1
[name] => Ленточный монолитный ж/б
[material_modifier] => 1
[work_modifier] => 1
[options] => Array
(
[0] => размер 200 х 700 мм
[1] => размер 300 х 900 мм
[2] => размер 400 х 1 000 мм
[3] => размер 500 х 1 100 мм
[4] => размер 600 х 1 200 мм
)
[days] => [20,21,22,25,30]
[material_price] => [2823,3630,4475,5210,12047]
[work_price] => [2154,2826,3731,4577,5293]
[image] => https://akademik-stroy.ru/wp-content/uploads/materials/lentochnyj-monolitnyj-zh-b.jpg
[area_modifier] => 97.46
[parent_name] => Фундамент
[parent_id] => 1
[material_sum] => 363171
[work_sum] => 230922
[total_sum] => 594093
[total_days] => 20
[display_material_sum] => 363 171
[display_work_sum] => 230 922
[display_total_sum] => 594 093
)
1
594 093₽
Работа:230 922 ₽
Материалы:363 171 ₽
Дни:20
stdClass Object
(
[id] => 2
[attribute_id] => 1
[name] => Забивные Ж/Б сваи
[material_modifier] => 1
[work_modifier] => 1
[options] => Array
(
[0] => 150х150х3000мм
[1] => 150х150х4000мм
[2] => 200х200х3000мм
[3] => 200х200х4000мм
[4] => 200х200х5000мм
[5] => 200х200х6000мм
)
[days] => [2,2,2,2,2,2]
[material_price] => [1990,2850,3255,4360,5120,6837]
[work_price] => [1002,1185,1336,1438,1574,1839]
[image] => https://akademik-stroy.ru/wp-content/uploads/materials/zabivnye-zh-b-svai.png
[area_modifier] => 97.46
[parent_name] => Фундамент
[parent_id] => 1
[material_sum] => 256008
[work_sum] => 107420
[total_sum] => 363428
[total_days] => 2
[display_material_sum] => 256 008
[display_work_sum] => 107 420
[display_total_sum] => 363 428
)
1
363 428₽
Работа:107 420 ₽
Материалы:256 008 ₽
Дни:2
stdClass Object
(
[id] => 71
[attribute_id] => 1
[name] => Свайно-ростверковый ж/б
[material_modifier] => 1
[work_modifier] => 1
[options] => Array
(
[0] => ростверк 200х300 мм
[1] => ростверк 300х600 мм
[2] => ростверк 400х900 мм
[3] => ростверк 500х1200 мм
)
[days] => [20,23,25,27]
[material_price] => [3018,3474,7109,9792]
[work_price] => [2024,3012,5635,7022]
[image] => https://akademik-stroy.ru/wp-content/uploads/materials/svajno-rostverkovyj-monolitnyj-zh-b-3.png
[area_modifier] => 97.46
[parent_name] => Фундамент
[parent_id] => 1
[material_sum] => 388257
[work_sum] => 216985
[total_sum] => 605242
[total_days] => 20
[display_material_sum] => 388 257
[display_work_sum] => 216 985
[display_total_sum] => 605 242
)
1
605 242₽
Работа:216 985 ₽
Материалы:388 257 ₽
Дни:20
stdClass Object
(
[id] => 72
[attribute_id] => 1
[name] => Монолитная ж/б плита
[material_modifier] => 1
[work_modifier] => 1
[options] => Array
(
[0] => 200 мм
[1] => 300 мм
[2] => 400 мм
[3] => 500 мм
[4] => 600 мм
)
[days] => [30,33,35,37,40]
[material_price] => [5348,8555,12788,14388,15189]
[work_price] => [4314,4881,7037,8061,10230]
[image] => https://akademik-stroy.ru/wp-content/uploads/materials/monolitnaya-zhb-plita.png
[area_modifier] => 97.46
[parent_name] => Фундамент
[parent_id] => 1
[material_sum] => 688005
[work_sum] => 462487
[total_sum] => 1150492
[total_days] => 30
[display_material_sum] => 688 005
[display_work_sum] => 462 487
[display_total_sum] => 1 150 492
)
1
1 150 492₽
Работа:462 487 ₽
Материалы:688 005 ₽
Дни:30
stdClass Object
(
[id] => 73
[attribute_id] => 1
[name] => Утепленная шведская плита
[material_modifier] => 1
[work_modifier] => 1
[options] => Array
(
[0] => 200 мм
[1] => 300 мм
[2] => 400 мм
[3] => 500 мм
[4] => 600 мм
)
[days] => [32,37,39,42,45]
[material_price] => [10249,12692,13760,14936,16230]
[work_price] => [5960,7337,8072,8878,9765]
[image] => https://akademik-stroy.ru/wp-content/uploads/materials/uteplennaya-shvedskaya-plita.jpg
[area_modifier] => 97.46
[parent_name] => Фундамент
[parent_id] => 1
[material_sum] => 1318505
[work_sum] => 638948
[total_sum] => 1957453
[total_days] => 32
[display_material_sum] => 1 318 505
[display_work_sum] => 638 948
[display_total_sum] => 1 957 453
)
1
1 957 453₽
Работа:638 948 ₽
Материалы:1 318 505 ₽
Дни:32
stdClass Object
(
[id] => 75
[attribute_id] => 1
[name] => Ленточный из ФБС
[material_modifier] => 1
[work_modifier] => 1
[options] => Array
(
[0] => толщ. 300 мм
[1] => толщ. 400 мм
[2] => толщ. 500 мм
[3] => толщ. 600 мм
)
[days] => [20,20,20,20]
[material_price] => [3675,4902,6126,7350]
[work_price] => [2451,3264,4083,4902]
[image] => https://akademik-stroy.ru/wp-content/uploads/materials/lentochnyj-iz-fbs.png
[area_modifier] => 97.46
[parent_name] => Фундамент
[parent_id] => 1
[material_sum] => 472778
[work_sum] => 262762
[total_sum] => 735540
[total_days] => 20
[display_material_sum] => 472 778
[display_work_sum] => 262 762
[display_total_sum] => 735 540
)
1
735 540₽
Работа:262 762 ₽
Материалы:472 778 ₽
Дни:20
stdClass Object
(
[id] => 76
[attribute_id] => 1
[name] => Цокольный этаж из ФБС
[material_modifier] => 1
[work_modifier] => 1
[options] => Array
(
[0] => толщ. 300 мм
[1] => толщ. 400 мм
[2] => толщ. 500 мм
[3] => толщ. 600 мм
)
[days] => [30,32,34,36]
[material_price] => [20916,23299,26680,29060]
[work_price] => [17524,18700,19873,21046]
[image] => https://akademik-stroy.ru/wp-content/uploads/materials/cokolnyj-ehtazh-iz-fbs.jpg
[area_modifier] => 97.46
[parent_name] => Фундамент
[parent_id] => 1
[material_sum] => 2690785
[work_sum] => 1878678
[total_sum] => 4569463
[total_days] => 30
[display_material_sum] => 2 690 785
[display_work_sum] => 1 878 678
[display_total_sum] => 4 569 463
)
1
4 569 463₽
Работа:1 878 678 ₽
Материалы:2 690 785 ₽
Дни:30
stdClass Object
(
[id] => 77
[attribute_id] => 1
[name] => Цокольный этаж монолитный ж/б
[material_modifier] => 1
[work_modifier] => 1
[options] => Array
(
[0] => толщ. 200 мм
[1] => толщ. 300 мм
[2] => толщ. 400 мм
[3] => толщ. 500 мм
[4] => толщ. 600 мм
)
[days] => [40,42,44,46,48]
[material_price] => [25421,29148,32275,35602,37326]
[work_price] => [20441,21907,23375,24841,26306]
[image] => https://akademik-stroy.ru/wp-content/uploads/materials/cokolnyj-etazh-zh-b.jpg
[area_modifier] => 97.46
[parent_name] => Фундамент
[parent_id] => 1
[material_sum] => 3270340
[work_sum] => 2191398
[total_sum] => 5461738
[total_days] => 40
[display_material_sum] => 3 270 340
[display_work_sum] => 2 191 398
[display_total_sum] => 5 461 738
)
1
5 461 738₽
Работа:2 191 398 ₽
Материалы:3 270 340 ₽
Дни:40
stdClass Object
(
[id] => 191
[attribute_id] => 1
[name] => Винтовые сваи
[material_modifier] => 1
[work_modifier] => 1
[options] => Array
(
[0] => 57х200мм
[1] => 76х250мм
[2] => 108х300мм
[3] => 133х350мм
)
[days] => [1,1,2,2]
[material_price] => [1200,1300,1450,1600]
[work_price] => [400,600,900,1100]
[image] => https://akademik-stroy.ru/wp-content/uploads/materials/vintovye-svai.png
[area_modifier] => 97.46
[parent_name] => Фундамент
[parent_id] => 1
[material_sum] => 154377
[work_sum] => 42882
[total_sum] => 197259
[total_days] => 1
[display_material_sum] => 154 377
[display_work_sum] => 42 882
[display_total_sum] => 197 259
)
1
197 259₽
Работа:42 882 ₽
Материалы:154 377 ₽
Дни:1
stdClass Object
(
[id] => 3
[attribute_id] => 2
[name] => Деревянные балки
[material_modifier] => 1
[work_modifier] => 1
[options] => Array
(
[0] => без утепления
[1] => утепление 200 мм
[2] => утепление 250 мм
[3] => утепление 300 мм
[4] => утепление 350 мм
[5] => утепление 400 мм
[6] => утепление 450 мм
[7] => утепление 500 мм
)
[days] => [8,9,9,9,11,12,13,14]
[material_price] => [1634,2042,2344,2947,3149,3652,3354,3557]
[work_price] => [1230,1339,1393,1426,1460,1513,1587,1620]
[image] => https://akademik-stroy.ru/wp-content/uploads/materials/derevyannye-balki.png
[area_modifier] => 97.46
[parent_name] => Перекрытие цоколя
[parent_id] => 2
[material_sum] => 210210
[work_sum] => 131863
[total_sum] => 342073
[total_days] => 8
[display_material_sum] => 210 210
[display_work_sum] => 131 863
[display_total_sum] => 342 073
)
1
342 073₽
Работа:131 863 ₽
Материалы:210 210 ₽
Дни:8
stdClass Object
(
[id] => 4
[attribute_id] => 2
[name] => Сборные ж/б плиты
[material_modifier] => 1
[work_modifier] => 1
[options] => Array
(
[0] => без утепления
[1] => утепление 150мм
[2] => утепление 200мм
[3] => утепление 250мм
[4] => утепление 300мм
[5] => утепление 350мм
[6] => утепление 400мм
[7] => утепление 450мм
[8] => утепление 500мм
)
[days] => [13,15,15,15,15,15,15,15,15]
[material_price] => [3067,5577,5928,6679,7730,8782,9833,10884,11935]
[work_price] => [1520,1956,2102,2247,2392,2537,2684,2829,2974]
[image] => https://akademik-stroy.ru/wp-content/uploads/materials/sbornye-zh-b-plity-2.jpg
[area_modifier] => 97.46
[parent_name] => Перекрытие цоколя
[parent_id] => 2
[material_sum] => 394561
[work_sum] => 162953
[total_sum] => 557514
[total_days] => 13
[display_material_sum] => 394 561
[display_work_sum] => 162 953
[display_total_sum] => 557 514
)
1
557 514₽
Работа:162 953 ₽
Материалы:394 561 ₽
Дни:13
stdClass Object
(
[id] => 78
[attribute_id] => 2
[name] => Монолитная ж/б плита
[material_modifier] => 1
[work_modifier] => 1
[options] => Array
(
[0] => без утепления
[1] => утепление 150 мм
[2] => утепление 200 мм
[3] => утепление 250 мм
[4] => утепление 300 мм
[5] => утепление 350 мм
[6] => утепление 400 мм
[7] => утепление 450 мм
[8] => утепление 500 мм
)
[days] => [18,20,20,20,20,20,20,20,20]
[material_price] => [4837,6572,7224,7375,79426,8177,8728,9180,10031]
[work_price] => [3348,3921,4112,4302,4493,4684,4875,5066,5256]
[image] => https://akademik-stroy.ru/wp-content/uploads/materials/monolitnaya-zh-b-plita-2.jpg
[area_modifier] => 97.46
[parent_name] => Перекрытие цоколя
[parent_id] => 2
[material_sum] => 622267
[work_sum] => 358926
[total_sum] => 981193
[total_days] => 18
[display_material_sum] => 622 267
[display_work_sum] => 358 926
[display_total_sum] => 981 193
)
1
981 193₽
Работа:358 926 ₽
Материалы:622 267 ₽
Дни:18
stdClass Object
(
[id] => 6
[attribute_id] => 3
[name] => Пеноблок
[material_modifier] => 1
[work_modifier] => 1
[options] => Array
(
[0] => 300 мм
[1] => 400 мм
[2] => 500 мм
[3] => 600 мм
)
[days] => [29,31,34,39]
[material_price] => [3000,4000,4500,4937]
[work_price] => [5033,5805,6400,8710]
[image] => https://akademik-stroy.ru/wp-content/uploads/materials/penoblok.jpg
[area_modifier] => 97.46
[parent_name] => Стены 1 этаж (несущие)
[parent_id] => 3
[material_sum] => 385942
[work_sum] => 539568
[total_sum] => 925510
[total_days] => 29
[display_material_sum] => 385 942
[display_work_sum] => 539 568
[display_total_sum] => 925 510
)
1
925 510₽
Работа:539 568 ₽
Материалы:385 942 ₽
Дни:29
stdClass Object
(
[id] => 79
[attribute_id] => 3
[name] => Керамический блок
[material_modifier] => 1
[work_modifier] => 1
[options] => Array
(
[0] => 380 мм
[1] => 380 мм Thermo
[2] => 440 мм
[3] => 510 мм
)
[days] => [23,23,24,25]
[material_price] => [4510,5098,6093,8013]
[work_price] => [4737,4937,5903,6958]
[image] => https://akademik-stroy.ru/wp-content/uploads/materials/keramicheskij-blok.jpg
[area_modifier] => 97.46
[parent_name] => Стены 1 этаж (несущие)
[parent_id] => 3
[material_sum] => 580199
[work_sum] => 507835
[total_sum] => 1088034
[total_days] => 23
[display_material_sum] => 580 199
[display_work_sum] => 507 835
[display_total_sum] => 1 088 034
)
1
1 088 034₽
Работа:507 835 ₽
Материалы:580 199 ₽
Дни:23
stdClass Object
(
[id] => 80
[attribute_id] => 3
[name] => Кирпич
[material_modifier] => 1
[work_modifier] => 1
[options] => Array
(
[0] => Кирпич 250 мм
[1] => Кирпич 380 мм
[2] => Кирпич 510 мм
[3] => Кирпич 640 мм
[4] => Кирпич 770 мм
)
[days] => [30,30,31,33,36]
[material_price] => [5500,7142,9206,10171,12235]
[work_price] => [8736,10041,12018,15240,18462]
[image] => https://akademik-stroy.ru/wp-content/uploads/materials/kirpich.jpg
[area_modifier] => 97.46
[parent_name] => Стены 1 этаж (несущие)
[parent_id] => 3
[material_sum] => 707560
[work_sum] => 936552
[total_sum] => 1644112
[total_days] => 30
[display_material_sum] => 707 560
[display_work_sum] => 936 552
[display_total_sum] => 1 644 112
)
1
1 644 112₽
Работа:936 552 ₽
Материалы:707 560 ₽
Дни:30
stdClass Object
(
[id] => 81
[attribute_id] => 3
[name] => Монолитные
[material_modifier] => 1
[work_modifier] => 1
[options] => Array
(
[0] => 150 мм
[1] => 200 мм
[2] => 250 мм
[3] => 300 мм
[4] => 350 мм
[5] => 400 мм
)
[days] => [45,46,47,49,50,53]
[material_price] => [6545,7876,10175,12011,13908,15204]
[work_price] => [5106,6444,7698,8552,9807,11461]
[image] => https://akademik-stroy.ru/wp-content/uploads/materials/monolitnye.jpg
[area_modifier] => 97.46
[parent_name] => Стены 1 этаж (несущие)
[parent_id] => 3
[material_sum] => 841996
[work_sum] => 547394
[total_sum] => 1389390
[total_days] => 45
[display_material_sum] => 841 996
[display_work_sum] => 547 394
[display_total_sum] => 1 389 390
)
1
1 389 390₽
Работа:547 394 ₽
Материалы:841 996 ₽
Дни:45
stdClass Object
(
[id] => 82
[attribute_id] => 3
[name] => Клееный брус
[material_modifier] => 1
[work_modifier] => 1
[options] => Array
(
[0] => 160 мм
[1] => 175 мм
[2] => 200 мм
[3] => 215 мм
[4] => 240 мм
[5] => 270 мм
[6] => 282 мм
)
[days] => [24,28,32,37,40,42,48]
[material_price] => [16975,18773,19950,20545,21599,22159,23275]
[work_price] => [4806,5287,5815,6397,7036,7740,8514]
[image] => https://akademik-stroy.ru/wp-content/uploads/materials/kleenyj-brus.jpg
[area_modifier] => 97.46
[parent_name] => Стены 1 этаж (несущие)
[parent_id] => 3
[material_sum] => 2183786
[work_sum] => 515232
[total_sum] => 2699018
[total_days] => 24
[display_material_sum] => 2 183 786
[display_work_sum] => 515 232
[display_total_sum] => 2 699 018
)
1
2 699 018₽
Работа:515 232 ₽
Материалы:2 183 786 ₽
Дни:24
stdClass Object
(
[id] => 83
[attribute_id] => 3
[name] => Каркасные
[material_modifier] => 1
[work_modifier] => 1
[options] => Array
(
[0] => 150 мм
[1] => 200 мм
[2] => 250 мм
[3] => 300 мм
)
[days] => [15,16,17,18]
[material_price] => [2379,2639,2898,3258]
[work_price] => [2418,2686,2985,3716]
[image] => https://akademik-stroy.ru/wp-content/uploads/materials/karkasnye.jpg
[area_modifier] => 97.46
[parent_name] => Стены 1 этаж (несущие)
[parent_id] => 3
[material_sum] => 306052
[work_sum] => 259224
[total_sum] => 565276
[total_days] => 15
[display_material_sum] => 306 052
[display_work_sum] => 259 224
[display_total_sum] => 565 276
)
1
565 276₽
Работа:259 224 ₽
Материалы:306 052 ₽
Дни:15
stdClass Object
(
[id] => 84
[attribute_id] => 3
[name] => СИП-панели
[material_modifier] => 1
[work_modifier] => 1
[options] => Array
(
[0] => 120 мм
[1] => 170 мм
[2] => 220 мм
)
[days] => [7,7,7]
[material_price] => [1210,1856,2292]
[work_price] => [1410,1551,1706]
[image] => https://akademik-stroy.ru/wp-content/uploads/materials/sip-paneli.jpg
[area_modifier] => 97.46
[parent_name] => Стены 1 этаж (несущие)
[parent_id] => 3
[material_sum] => 155663
[work_sum] => 151160
[total_sum] => 306823
[total_days] => 7
[display_material_sum] => 155 663
[display_work_sum] => 151 160
[display_total_sum] => 306 823
)
1
306 823₽
Работа:151 160 ₽
Материалы:155 663 ₽
Дни:7
stdClass Object
(
[id] => 85
[attribute_id] => 3
[name] => Сухой брус
[material_modifier] => 1
[work_modifier] => 1
[options] => Array
(
[0] => 150 мм
[1] => 180 мм
[2] => 200 мм
)
[days] => [7,8,9]
[material_price] => [6010,7190,8709]
[work_price] => [3204,3845,4229]
[image] => https://akademik-stroy.ru/wp-content/uploads/materials/suhoj-brus.jpg
[area_modifier] => 97.46
[parent_name] => Стены 1 этаж (несущие)
[parent_id] => 3
[material_sum] => 773170
[work_sum] => 343488
[total_sum] => 1116658
[total_days] => 7
[display_material_sum] => 773 170
[display_work_sum] => 343 488
[display_total_sum] => 1 116 658
)
1
1 116 658₽
Работа:343 488 ₽
Материалы:773 170 ₽
Дни:7
stdClass Object
(
[id] => 86
[attribute_id] => 3
[name] => Профилированный брус
[material_modifier] => 1
[work_modifier] => 1
[options] => Array
(
[0] => 150 мм
[1] => 180 мм
[2] => 200 мм
)
[days] => [7,8,9]
[material_price] => [8190,9228,10051]
[work_price] => [3845,4614,5075]
[image] => https://akademik-stroy.ru/wp-content/uploads/materials/profilirovannyj-brus.jpg
[area_modifier] => 97.46
[parent_name] => Стены 1 этаж (несущие)
[parent_id] => 3
[material_sum] => 1053621
[work_sum] => 412207
[total_sum] => 1465828
[total_days] => 7
[display_material_sum] => 1 053 621
[display_work_sum] => 412 207
[display_total_sum] => 1 465 828
)
1
1 465 828₽
Работа:412 207 ₽
Материалы:1 053 621 ₽
Дни:7
stdClass Object
(
[id] => 87
[attribute_id] => 3
[name] => Оцилиндрованное бревно
[material_modifier] => 1
[work_modifier] => 1
[options] => Array
(
[0] => 180 мм
[1] => 220 мм
[2] => 260 мм
[3] => 320 мм
)
[days] => [7,8,9,10]
[material_price] => [75190,9532,10868,13116]
[work_price] => [3845,4691,5535,6863]
[image] => https://akademik-stroy.ru/wp-content/uploads/materials/ocilindrovannoe-brevno-1.jpg
[area_modifier] => 97.46
[parent_name] => Стены 1 этаж (несущие)
[parent_id] => 3
[material_sum] => 9672983
[work_sum] => 412207
[total_sum] => 10085190
[total_days] => 7
[display_material_sum] => 9 672 983
[display_work_sum] => 412 207
[display_total_sum] => 10 085 190
)
1
10 085 190₽
Работа:412 207 ₽
Материалы:9 672 983 ₽
Дни:7
stdClass Object
(
[id] => 88
[attribute_id] => 3
[name] => Срубы
[material_modifier] => 1
[work_modifier] => 1
[options] => Array
(
[0] => 260 мм
[1] => 320 мм
[2] => 360 мм
[3] => 400 мм
[4] => 500 мм
)
[days] => [7,8,9,10,11]
[material_price] => [37975,46709,52314,58069,73167]
[work_price] => [4806,5911,6621,7349,9260]
[image] => https://akademik-stroy.ru/wp-content/uploads/materials/sruby.jpg
[area_modifier] => 97.46
[parent_name] => Стены 1 этаж (несущие)
[parent_id] => 3
[material_sum] => 4885377
[work_sum] => 515232
[total_sum] => 5400609
[total_days] => 7
[display_material_sum] => 4 885 377
[display_work_sum] => 515 232
[display_total_sum] => 5 400 609
)
1
5 400 609₽
Работа:515 232 ₽
Материалы:4 885 377 ₽
Дни:7
stdClass Object
(
[id] => 174
[attribute_id] => 3
[name] => Брус
[material_modifier] => 1
[work_modifier] => 1
[options] => Array
(
[0] => 150 мм
[1] => 180 мм
[2] => 200 мм
)
[days] => [7,8,9]
[material_price] => [5127,6152,7367]
[work_price] => [1602,1922,2115]
[image] => https://akademik-stroy.ru/wp-content/uploads/materials/brus.jpg
[area_modifier] => 97.46
[parent_name] => Стены 1 этаж (несущие)
[parent_id] => 3
[material_sum] => 659574
[work_sum] => 171744
[total_sum] => 831318
[total_days] => 7
[display_material_sum] => 659 574
[display_work_sum] => 171 744
[display_total_sum] => 831 318
)
1
831 318₽
Работа:171 744 ₽
Материалы:659 574 ₽
Дни:7
stdClass Object
(
[id] => 175
[attribute_id] => 3
[name] => Газобетон
[material_modifier] => 1
[work_modifier] => 1
[options] => Array
(
[0] => 300 мм
[1] => 375 мм
[2] => 400 мм
[3] => 500 мм
[4] => 600 мм
)
[days] => [29,31,35,37,44]
[material_price] => [4298,5573,6356,7288,9119]
[work_price] => [4538,5251,5926,6733,7195]
[image] => https://akademik-stroy.ru/wp-content/uploads/materials/gazobeton.jpg
[area_modifier] => 97.46
[parent_name] => Стены 1 этаж (несущие)
[parent_id] => 3
[material_sum] => 552926
[work_sum] => 486501
[total_sum] => 1039427
[total_days] => 29
[display_material_sum] => 552 926
[display_work_sum] => 486 501
[display_total_sum] => 1 039 427
)
1
1 039 427₽
Работа:486 501 ₽
Материалы:552 926 ₽
Дни:29
stdClass Object
(
[id] => 176
[attribute_id] => 3
[name] => Блок
[material_modifier] => 1
[work_modifier] => 1
[options] => Array
(
[0] => 300 мм
[1] => 375 мм
[2] => 400 мм
[3] => 500 мм
[4] => 600 мм
)
[days] => [29,31,35,37,44]
[material_price] => [2698,3973,4356,6588,7119]
[work_price] => [5038,5851,6426,8733,9195]
[image] => https://akademik-stroy.ru/wp-content/uploads/materials/blok.jpg
[area_modifier] => 97.46
[parent_name] => Стены 1 этаж (несущие)
[parent_id] => 3
[material_sum] => 347090
[work_sum] => 540104
[total_sum] => 887194
[total_days] => 29
[display_material_sum] => 347 090
[display_work_sum] => 540 104
[display_total_sum] => 887 194
)
1
887 194₽
Работа:540 104 ₽
Материалы:347 090 ₽
Дни:29
stdClass Object
(
[id] => 177
[attribute_id] => 3
[name] => Газосиликатный блок
[material_modifier] => 1
[work_modifier] => 1
[options] => Array
(
[0] => 300 мм
[1] => 375 мм
[2] => 400 мм
[3] => 500 мм
[4] => 600 мм
)
[days] => [29,31,35,37,44]
[material_price] => [4298,5573,6356,7288,9119]
[work_price] => [4538,5251,5926,6733,7195]
[image] => https://akademik-stroy.ru/wp-content/uploads/materials/gazosilikatnyj-blok.jpg
[area_modifier] => 97.46
[parent_name] => Стены 1 этаж (несущие)
[parent_id] => 3
[material_sum] => 552926
[work_sum] => 486501
[total_sum] => 1039427
[total_days] => 29
[display_material_sum] => 552 926
[display_work_sum] => 486 501
[display_total_sum] => 1 039 427
)
1
1 039 427₽
Работа:486 501 ₽
Материалы:552 926 ₽
Дни:29
stdClass Object
(
[id] => 178
[attribute_id] => 3
[name] => Керамзитобетонный блок
[material_modifier] => 1
[work_modifier] => 1
[options] => Array
(
[0] => 300 мм
[1] => 375 мм
[2] => 400 мм
[3] => 500 мм
[4] => 600 мм
)
[days] => [23,23,24,25,28]
[material_price] => [3641,4298,5693,7613,9612]
[work_price] => [5737,5737,6903,7958,8901]
[image] => https://akademik-stroy.ru/wp-content/uploads/materials/keramzitobetonnyj-blok.jpg
[area_modifier] => 97.46
[parent_name] => Стены 1 этаж (несущие)
[parent_id] => 3
[material_sum] => 468404
[work_sum] => 615041
[total_sum] => 1083445
[total_days] => 23
[display_material_sum] => 468 404
[display_work_sum] => 615 041
[display_total_sum] => 1 083 445
)
1
1 083 445₽
Работа:615 041 ₽
Материалы:468 404 ₽
Дни:23
stdClass Object
(
[id] => 179
[attribute_id] => 3
[name] => Деревянные
[material_modifier] => 1
[work_modifier] => 1
[options] => Array
(
[0] => 180 мм
[1] => 220 мм
[2] => 260 мм
[3] => 320 мм
)
[days] => [7,8,9,10]
[material_price] => [7950,9458,11961,14472]
[work_price] => [4037,4925,5812,7207]
[image] => https://akademik-stroy.ru/wp-content/uploads/materials/derevyannye.jpg
[area_modifier] => 97.46
[parent_name] => Стены 1 этаж (несущие)
[parent_id] => 3
[material_sum] => 1022745
[work_sum] => 432791
[total_sum] => 1455536
[total_days] => 7
[display_material_sum] => 1 022 745
[display_work_sum] => 432 791
[display_total_sum] => 1 455 536
)
1
1 455 536₽
Работа:432 791 ₽
Материалы:1 022 745 ₽
Дни:7
stdClass Object
(
[id] => 181
[attribute_id] => 3
[name] => Камень
[material_modifier] => 1
[work_modifier] => 1
[options] => Array
(
[0] => 300 мм
[1] => 400 мм
[2] => 500 мм
[3] => 600 мм
)
[days] => [25,27,31,34]
[material_price] => [5262,6844,8330,9815]
[work_price] => [8331,9135,10427,11069]
[image] => https://akademik-stroy.ru/wp-content/uploads/materials/kamen.jpg
[area_modifier] => 97.46
[parent_name] => Стены 1 этаж (несущие)
[parent_id] => 3
[material_sum] => 676942
[work_sum] => 893133
[total_sum] => 1570075
[total_days] => 25
[display_material_sum] => 676 942
[display_work_sum] => 893 133
[display_total_sum] => 1 570 075
)
1
1 570 075₽
Работа:893 133 ₽
Материалы:676 942 ₽
Дни:25
stdClass Object
(
[id] => 182
[attribute_id] => 3
[name] => Каркасно-щитовые
[material_modifier] => 1
[work_modifier] => 1
[options] => Array
(
[0] => 150 мм
[1] => 200 мм
[2] => 250 мм
[3] => 300 мм
[4] => 350 мм
[5] => 400 мм
)
[days] => [15,16,17,18,19,20]
[material_price] => [2379,2639,2898,3458,3601,4175]
[work_price] => [2538,2820,3134,3483,4062,5642]
[image] => https://akademik-stroy.ru/wp-content/uploads/materials/karkasno-shchitovye.jpg
[area_modifier] => 97.46
[parent_name] => Стены 1 этаж (несущие)
[parent_id] => 3
[material_sum] => 306052
[work_sum] => 272089
[total_sum] => 578141
[total_days] => 15
[display_material_sum] => 306 052
[display_work_sum] => 272 089
[display_total_sum] => 578 141
)
1
578 141₽
Работа:272 089 ₽
Материалы:306 052 ₽
Дни:15
stdClass Object
(
[id] => 183
[attribute_id] => 3
[name] => Рубленные
[material_modifier] => 1
[work_modifier] => 1
[options] => Array
(
[0] => 150 мм
[1] => 200 мм
[2] => 250 мм
[3] => 300 мм
[4] => 350 мм
[5] => 400 мм
)
[days] => [15,16,17,18,17,18]
[material_price] => [35950,50267,60583,75900,80217,100533]
[work_price] => [9612,12816,16020,19224,22428,25632]
[image] => https://akademik-stroy.ru/wp-content/uploads/materials/rublennye.jpg
[area_modifier] => 97.46
[parent_name] => Стены 1 этаж (несущие)
[parent_id] => 3
[material_sum] => 4624867
[work_sum] => 1030464
[total_sum] => 5655331
[total_days] => 15
[display_material_sum] => 4 624 867
[display_work_sum] => 1 030 464
[display_total_sum] => 5 655 331
)
1
5 655 331₽
Работа:1 030 464 ₽
Материалы:4 624 867 ₽
Дни:15
stdClass Object
(
[id] => 185
[attribute_id] => 3
[name] => Теплоблок
[material_modifier] => 1
[work_modifier] => 1
[options] => Array
(
[0] => 300 мм (с облицовкой, не покрашенный)
[1] => 400 мм (с облицовкой, не покрашенный)
[2] => 300 мм (с облицовкой, покрашенный)
[3] => 400 мм (с облицовкой, покрашенный)
)
[days] => [15,16,15,16]
[material_price] => [2888,3729,3957,4258]
[work_price] => [2564,3229,2949,3713]
[image] => https://akademik-stroy.ru/wp-content/uploads/materials/teploblok.jpg
[area_modifier] => 97.46
[parent_name] => Стены 1 этаж (несущие)
[parent_id] => 3
[material_sum] => 371533
[work_sum] => 274876
[total_sum] => 646409
[total_days] => 15
[display_material_sum] => 371 533
[display_work_sum] => 274 876
[display_total_sum] => 646 409
)
1
646 409₽
Работа:274 876 ₽
Материалы:371 533 ₽
Дни:15
stdClass Object
(
[id] => 186
[attribute_id] => 3
[name] => Арболитовые блоки
[material_modifier] => 1
[work_modifier] => 1
[options] => Array
(
[0] => 300 мм
[1] => 400 мм
[2] => 600 мм
)
[days] => [19,22,27]
[material_price] => [3210,4475,5852]
[work_price] => [4214,4788,5866]
[image] => https://akademik-stroy.ru/wp-content/uploads/materials/arbolitovye-bloki.png
[area_modifier] => 97.46
[parent_name] => Стены 1 этаж (несущие)
[parent_id] => 3
[material_sum] => 412958
[work_sum] => 451766
[total_sum] => 864724
[total_days] => 19
[display_material_sum] => 412 958
[display_work_sum] => 451 766
[display_total_sum] => 864 724
)
1
864 724₽
Работа:451 766 ₽
Материалы:412 958 ₽
Дни:19
stdClass Object
(
[id] => 187
[attribute_id] => 3
[name] => Полистиролбетон
[material_modifier] => 1
[work_modifier] => 1
[options] => Array
(
[0] => 300 мм
[1] => 400 мм
[2] => 600 мм
)
[days] => [29,31,35]
[material_price] => [2798,4573,5256]
[work_price] => [5038,5851,6426]
[image] => https://akademik-stroy.ru/wp-content/uploads/materials/polistirolbeton.jpg
[area_modifier] => 97.46
[parent_name] => Стены 1 этаж (несущие)
[parent_id] => 3
[material_sum] => 359955
[work_sum] => 540104
[total_sum] => 900059
[total_days] => 29
[display_material_sum] => 359 955
[display_work_sum] => 540 104
[display_total_sum] => 900 059
)
1
900 059₽
Работа:540 104 ₽
Материалы:359 955 ₽
Дни:29
stdClass Object
(
[id] => 188
[attribute_id] => 3
[name] => Шлакоблок
[material_modifier] => 1
[work_modifier] => 1
[options] => Array
(
[0] => 400 мм
[1] => 600 мм
)
[days] => [15,16]
[material_price] => [2391,3471]
[work_price] => [2642,3662]
[image] => https://akademik-stroy.ru/wp-content/uploads/materials/shlakoblok.jpg
[area_modifier] => 97.46
[parent_name] => Стены 1 этаж (несущие)
[parent_id] => 3
[material_sum] => 307595
[work_sum] => 283238
[total_sum] => 590833
[total_days] => 15
[display_material_sum] => 307 595
[display_work_sum] => 283 238
[display_total_sum] => 590 833
)
1
590 833₽
Работа:283 238 ₽
Материалы:307 595 ₽
Дни:15
stdClass Object
(
[id] => 189
[attribute_id] => 3
[name] => Теплая керамика
[material_modifier] => 1
[work_modifier] => 1
[options] => Array
(
[0] => 380 мм
[1] => 380 мм Thermo
[2] => 440 мм
[3] => 510 мм
)
[days] => [23,23,24,25]
[material_price] => [4510,5098,6093,8013]
[work_price] => [4737,4937,5903,6958]
[image] => https://akademik-stroy.ru/wp-content/uploads/materials/teplaya-keramika.jpg
[area_modifier] => 97.46
[parent_name] => Стены 1 этаж (несущие)
[parent_id] => 3
[material_sum] => 580199
[work_sum] => 507835
[total_sum] => 1088034
[total_days] => 23
[display_material_sum] => 580 199
[display_work_sum] => 507 835
[display_total_sum] => 1 088 034
)
1
1 088 034₽
Работа:507 835 ₽
Материалы:580 199 ₽
Дни:23
stdClass Object
(
[id] => 190
[attribute_id] => 3
[name] => Несъемная опалубка
[material_modifier] => 1
[work_modifier] => 1
[options] => Array
(
[0] => 200 мм
[1] => 250 мм
[2] => 300 мм
[3] => 350 мм
)
[days] => [15,17,19,21]
[material_price] => [3302,3902,4108,5008]
[work_price] => [2100,2100,2300,2534]
[image] => https://akademik-stroy.ru/wp-content/uploads/materials/nesemnaya-opalubka.jpg
[area_modifier] => 97.46
[parent_name] => Стены 1 этаж (несущие)
[parent_id] => 3
[material_sum] => 424793
[work_sum] => 225133
[total_sum] => 649926
[total_days] => 15
[display_material_sum] => 424 793
[display_work_sum] => 225 133
[display_total_sum] => 649 926
)
1
649 926₽
Работа:225 133 ₽
Материалы:424 793 ₽
Дни:15
stdClass Object
(
[id] => 251
[attribute_id] => 3
[name] => Бревно
[material_modifier] => 1
[work_modifier] => 1
[options] => Array
(
[0] => 260 мм
[1] => 320 мм
[2] => 360 мм
[3] => 400 мм
[4] => 500 мм
)
[days] => [7,8,9,10,11]
[material_price] => [1874,24045,26930,30972,38825]
[work_price] => [5046,6207,6952,7716,9723]
[image] => https://akademik-stroy.ru/wp-content/uploads/materials/sruby.jpg
[area_modifier] => 97.46
[parent_name] => Стены 1 этаж (несущие)
[parent_id] => 3
[material_sum] => 241085
[work_sum] => 540961
[total_sum] => 782046
[total_days] => 7
[display_material_sum] => 241 085
[display_work_sum] => 540 961
[display_total_sum] => 782 046
)
1
782 046₽
Работа:540 961 ₽
Материалы:241 085 ₽
Дни:7
stdClass Object
(
[id] => 7
[attribute_id] => 4
[name] => Деревянные балки
[material_modifier] => 1
[work_modifier] => 1
[options] => Array
(
[0] => без утепления
[1] => утепление 200 мм
[2] => утепление 250 мм
[3] => утепление 300 мм
[4] => утепление 350 мм
[5] => утепление 400 мм
[6] => утепление 450 мм
[7] => утепление 500 мм
)
[days] => [8,9,9,9,11,12,13,14]
[material_price] => [1634,2042,2344,2947,3149,3652,3354,3557]
[work_price] => [1230,1339,1393,1426,1460,1513,1587,1620]
[image] => https://akademik-stroy.ru/wp-content/uploads/materials/derevyannye-balki.png
[area_modifier] => 97.46
[parent_name] => Перекрытие первого этажа
[parent_id] => 4
[material_sum] => 210210
[work_sum] => 131863
[total_sum] => 342073
[total_days] => 8
[display_material_sum] => 210 210
[display_work_sum] => 131 863
[display_total_sum] => 342 073
)
1
342 073₽
Работа:131 863 ₽
Материалы:210 210 ₽
Дни:8
stdClass Object
(
[id] => 8
[attribute_id] => 4
[name] => Сборные ж/б плиты
[material_modifier] => 1
[work_modifier] => 1
[options] => Array
(
[0] => без утепления
[1] => утепление 150 мм
[2] => утепление 200 мм
[3] => утепление 250 мм
[4] => утепление 300 мм
[5] => утепление 350 мм
[6] => утепление 400 мм
[7] => утепление 450 мм
[8] => утепление 500 мм
)
[days] => [13,15,15,15,15,15,15,15,15]
[material_price] => [3067,5577,5928,6679,7730,8782,9833,10884,11935]
[work_price] => [1520,1956,2102,2247,2392,2537,2684,2829,2974]
[image] => https://akademik-stroy.ru/wp-content/uploads/materials/sbornye-zh-b-plity-2.jpg
[area_modifier] => 97.46
[parent_name] => Перекрытие первого этажа
[parent_id] => 4
[material_sum] => 394561
[work_sum] => 162953
[total_sum] => 557514
[total_days] => 13
[display_material_sum] => 394 561
[display_work_sum] => 162 953
[display_total_sum] => 557 514
)
1
557 514₽
Работа:162 953 ₽
Материалы:394 561 ₽
Дни:13
stdClass Object
(
[id] => 89
[attribute_id] => 4
[name] => Монолитная ж/б плита
[material_modifier] => 1
[work_modifier] => 1
[options] => Array
(
[0] => без утепления
[1] => утепление 150 мм
[2] => утепление 200 мм
[3] => утепление 250 мм
[4] => утепление 300 мм
[5] => утепление 350 мм
[6] => утепление 400 мм
[7] => утепление 450 мм
[8] => утепление 500 мм
)
[days] => [18,20,20,20,20,20,20,20,20]
[material_price] => [4837,6572,7224,7375,79426,8177,8728,9180,10031]
[work_price] => [3348,3921,4112,4302,4493,4684,4875,5066,5256]
[image] => https://akademik-stroy.ru/wp-content/uploads/materials/monolitnaya-zh-b-plita-2.jpg
[area_modifier] => 97.46
[parent_name] => Перекрытие первого этажа
[parent_id] => 4
[material_sum] => 622267
[work_sum] => 358926
[total_sum] => 981193
[total_days] => 18
[display_material_sum] => 622 267
[display_work_sum] => 358 926
[display_total_sum] => 981 193
)
1
981 193₽
Работа:358 926 ₽
Материалы:622 267 ₽
Дни:18
stdClass Object
(
[id] => 10
[attribute_id] => 5
[name] => Пеноблок
[material_modifier] => 1
[work_modifier] => 1
[options] => Array
(
[0] => 300 мм
[1] => 400 мм
[2] => 500 мм
[3] => 600 мм
)
[days] => [29,31,34,39]
[material_price] => [3000,4000,4500,4937]
[work_price] => [5033,5805,6400,8710]
[image] => https://akademik-stroy.ru/wp-content/uploads/materials/penoblok.jpg
[area_modifier] => 73.03
[parent_name] => Стены 2 этаж (несущие)
[parent_id] => 5
[material_sum] => 289199
[work_sum] => 404316
[total_sum] => 693515
[total_days] => 29
[display_material_sum] => 289 199
[display_work_sum] => 404 316
[display_total_sum] => 693 515
)
1
693 515₽
Работа:404 316 ₽
Материалы:289 199 ₽
Дни:29
stdClass Object
(
[id] => 90
[attribute_id] => 5
[name] => Керамический блок
[material_modifier] => 1
[work_modifier] => 1
[options] => Array
(
[0] => 380 мм
[1] => 380 мм Thermo
[2] => 440 мм
[3] => 510 мм
)
[days] => [23,23,24,25]
[material_price] => [4510,5098,6093,8013]
[work_price] => [4737,4937,5903,6958]
[image] => https://akademik-stroy.ru/wp-content/uploads/materials/keramicheskij-blok.jpg
[area_modifier] => 73.03
[parent_name] => Стены 2 этаж (несущие)
[parent_id] => 5
[material_sum] => 434762
[work_sum] => 380537
[total_sum] => 815299
[total_days] => 23
[display_material_sum] => 434 762
[display_work_sum] => 380 537
[display_total_sum] => 815 299
)
1
815 299₽
Работа:380 537 ₽
Материалы:434 762 ₽
Дни:23
stdClass Object
(
[id] => 91
[attribute_id] => 5
[name] => Кирпич
[material_modifier] => 1
[work_modifier] => 1
[options] => Array
(
[0] => Кирпич 250 мм
[1] => Кирпич 380 мм
[2] => Кирпич 510 мм
[3] => Кирпич 640 мм
[4] => Кирпич 770 мм
)
[days] => [30,30,31,33,36]
[material_price] => [5500,7142,9206,10171,12235]
[work_price] => [8736,10041,12018,15240,18462]
[image] => https://akademik-stroy.ru/wp-content/uploads/materials/kirpich.jpg
[area_modifier] => 73.03
[parent_name] => Стены 2 этаж (несущие)
[parent_id] => 5
[material_sum] => 530198
[work_sum] => 701789
[total_sum] => 1231987
[total_days] => 30
[display_material_sum] => 530 198
[display_work_sum] => 701 789
[display_total_sum] => 1 231 987
)
1
1 231 987₽
Работа:701 789 ₽
Материалы:530 198 ₽
Дни:30
stdClass Object
(
[id] => 92
[attribute_id] => 5
[name] => Монолитные
[material_modifier] => 1
[work_modifier] => 1
[options] => Array
(
[0] => 150 мм
[1] => 200 мм
[2] => 250 мм
[3] => 300 мм
[4] => 350 мм
[5] => 400 мм
)
[days] => [45,46,47,49,50,53]
[material_price] => [6545,7876,10175,12011,13908,15204]
[work_price] => [5106,6444,7698,8552,9807,11461]
[image] => https://akademik-stroy.ru/wp-content/uploads/materials/monolitnye.jpg
[area_modifier] => 73.03
[parent_name] => Стены 2 этаж (несущие)
[parent_id] => 5
[material_sum] => 630935
[work_sum] => 410180
[total_sum] => 1041115
[total_days] => 45
[display_material_sum] => 630 935
[display_work_sum] => 410 180
[display_total_sum] => 1 041 115
)
1
1 041 115₽
Работа:410 180 ₽
Материалы:630 935 ₽
Дни:45
stdClass Object
(
[id] => 93
[attribute_id] => 5
[name] => Клееный брус
[material_modifier] => 1
[work_modifier] => 1
[options] => Array
(
[0] => 160 мм
[1] => 175 мм
[2] => 200 мм
[3] => 215 мм
[4] => 240 мм
[5] => 270 мм
[6] => 282 мм
)
[days] => [24,28,32,37,40,42,48]
[material_price] => [16975,18773,19950,20545,21599,22159,23275]
[work_price] => [4806,5287,5815,6397,7036,7740,8514]
[image] => https://akademik-stroy.ru/wp-content/uploads/materials/kleenyj-brus.jpg
[area_modifier] => 73.03
[parent_name] => Стены 2 этаж (несущие)
[parent_id] => 5
[material_sum] => 1636383
[work_sum] => 386080
[total_sum] => 2022463
[total_days] => 24
[display_material_sum] => 1 636 383
[display_work_sum] => 386 080
[display_total_sum] => 2 022 463
)
1
2 022 463₽
Работа:386 080 ₽
Материалы:1 636 383 ₽
Дни:24
stdClass Object
(
[id] => 94
[attribute_id] => 5
[name] => Каркасные
[material_modifier] => 1
[work_modifier] => 1
[options] => Array
(
[0] => 150 мм
[1] => 200 мм
[2] => 250 мм
[3] => 300 мм
)
[days] => [15,16,17,18]
[material_price] => [2379,2639,2898,3258]
[work_price] => [2418,2686,2985,3716]
[image] => https://akademik-stroy.ru/wp-content/uploads/materials/karkasnye.jpg
[area_modifier] => 73.03
[parent_name] => Стены 2 этаж (несущие)
[parent_id] => 5
[material_sum] => 229335
[work_sum] => 194245
[total_sum] => 423580
[total_days] => 15
[display_material_sum] => 229 335
[display_work_sum] => 194 245
[display_total_sum] => 423 580
)
1
423 580₽
Работа:194 245 ₽
Материалы:229 335 ₽
Дни:15
stdClass Object
(
[id] => 95
[attribute_id] => 5
[name] => СИП-панели
[material_modifier] => 1
[work_modifier] => 1
[options] => Array
(
[0] => 120 мм
[1] => 170 мм
[2] => 220 мм
)
[days] => [7,7,7]
[material_price] => [1210,1856,2292]
[work_price] => [1410,1551,1706]
[image] => https://akademik-stroy.ru/wp-content/uploads/materials/sip-paneli.jpg
[area_modifier] => 73.03
[parent_name] => Стены 2 этаж (несущие)
[parent_id] => 5
[material_sum] => 116644
[work_sum] => 113270
[total_sum] => 229914
[total_days] => 7
[display_material_sum] => 116 644
[display_work_sum] => 113 270
[display_total_sum] => 229 914
)
1
229 914₽
Работа:113 270 ₽
Материалы:116 644 ₽
Дни:7
stdClass Object
(
[id] => 96
[attribute_id] => 5
[name] => Сухой брус
[material_modifier] => 1
[work_modifier] => 1
[options] => Array
(
[0] => 150 мм
[1] => 180 мм
[2] => 200 мм
)
[days] => [7,8,9]
[material_price] => [6010,7190,8709]
[work_price] => [3204,3845,4229]
[image] => https://akademik-stroy.ru/wp-content/uploads/materials/suhoj-brus.jpg
[area_modifier] => 73.03
[parent_name] => Стены 2 этаж (несущие)
[parent_id] => 5
[material_sum] => 579362
[work_sum] => 257387
[total_sum] => 836749
[total_days] => 7
[display_material_sum] => 579 362
[display_work_sum] => 257 387
[display_total_sum] => 836 749
)
1
836 749₽
Работа:257 387 ₽
Материалы:579 362 ₽
Дни:7
stdClass Object
(
[id] => 97
[attribute_id] => 5
[name] => Профилированный брус
[material_modifier] => 1
[work_modifier] => 1
[options] => Array
(
[0] => 150 мм
[1] => 180 мм
[2] => 200 мм
)
[days] => [7,8,9]
[material_price] => [8190,9228,10051]
[work_price] => [3845,4614,5075]
[image] => https://akademik-stroy.ru/wp-content/uploads/materials/profilirovannyj-brus.jpg
[area_modifier] => 73.03
[parent_name] => Стены 2 этаж (несущие)
[parent_id] => 5
[material_sum] => 789513
[work_sum] => 308880
[total_sum] => 1098393
[total_days] => 7
[display_material_sum] => 789 513
[display_work_sum] => 308 880
[display_total_sum] => 1 098 393
)
1
1 098 393₽
Работа:308 880 ₽
Материалы:789 513 ₽
Дни:7
stdClass Object
(
[id] => 98
[attribute_id] => 5
[name] => Оцилиндрованное бревно
[material_modifier] => 1
[work_modifier] => 1
[options] => Array
(
[0] => 180 мм
[1] => 220 мм
[2] => 260 мм
[3] => 320 мм
)
[days] => [7,8,9,10]
[material_price] => [75190,9532,10868,13116]
[work_price] => [3845,4691,5535,6863]
[image] => https://akademik-stroy.ru/wp-content/uploads/materials/ocilindrovannoe-brevno-1.jpg
[area_modifier] => 73.03
[parent_name] => Стены 2 этаж (несущие)
[parent_id] => 5
[material_sum] => 7248286
[work_sum] => 308880
[total_sum] => 7557166
[total_days] => 7
[display_material_sum] => 7 248 286
[display_work_sum] => 308 880
[display_total_sum] => 7 557 166
)
1
7 557 166₽
Работа:308 880 ₽
Материалы:7 248 286 ₽
Дни:7
stdClass Object
(
[id] => 99
[attribute_id] => 5
[name] => Срубы
[material_modifier] => 1
[work_modifier] => 1
[options] => Array
(
[0] => 260 мм
[1] => 320 мм
[2] => 360 мм
[3] => 400 мм
[4] => 500 мм
)
[days] => [7,8,9,10,11]
[material_price] => [16175,23709,26314,29069,32167]
[work_price] => [4806,5911,6621,7349,9260]
[image] => https://akademik-stroy.ru/wp-content/uploads/materials/suhoj-brus.jpg
[area_modifier] => 73.03
[parent_name] => Стены 2 этаж (несущие)
[parent_id] => 5
[material_sum] => 1559264
[work_sum] => 386080
[total_sum] => 1945344
[total_days] => 7
[display_material_sum] => 1 559 264
[display_work_sum] => 386 080
[display_total_sum] => 1 945 344
)
1
1 945 344₽
Работа:386 080 ₽
Материалы:1 559 264 ₽
Дни:7
stdClass Object
(
[id] => 194
[attribute_id] => 5
[name] => Брус
[material_modifier] => 1
[work_modifier] => 1
[options] => Array
(
[0] => 150 мм
[1] => 180 мм
[2] => 200 мм
)
[days] => [10,13,15]
[material_price] => [5127,6152,7367]
[work_price] => [1602,1922,2115]
[image] => https://akademik-stroy.ru/wp-content/uploads/materials/brus.jpg
[area_modifier] => 73.03
[parent_name] => Стены 2 этаж (несущие)
[parent_id] => 5
[material_sum] => 494241
[work_sum] => 128693
[total_sum] => 622934
[total_days] => 10
[display_material_sum] => 494 241
[display_work_sum] => 128 693
[display_total_sum] => 622 934
)
1
622 934₽
Работа:128 693 ₽
Материалы:494 241 ₽
Дни:10
stdClass Object
(
[id] => 195
[attribute_id] => 5
[name] => Газобетон
[material_modifier] => 1
[work_modifier] => 1
[options] => Array
(
[0] => 300 мм
[1] => 375 мм
[2] => 400 мм
[3] => 500 мм
[4] => 600 мм
)
[days] => [29,31,35,37,44]
[material_price] => [4298,5573,6356,7288,9119]
[work_price] => [4538,5251,5926,6733,7195]
[image] => https://akademik-stroy.ru/wp-content/uploads/materials/gazobeton.jpg
[area_modifier] => 73.03
[parent_name] => Стены 2 этаж (несущие)
[parent_id] => 5
[material_sum] => 414325
[work_sum] => 364551
[total_sum] => 778876
[total_days] => 29
[display_material_sum] => 414 325
[display_work_sum] => 364 551
[display_total_sum] => 778 876
)
1
778 876₽
Работа:364 551 ₽
Материалы:414 325 ₽
Дни:29
stdClass Object
(
[id] => 196
[attribute_id] => 5
[name] => Блок
[material_modifier] => 1
[work_modifier] => 1
[options] => Array
(
[0] => 300 мм
[1] => 375 мм
[2] => 400 мм
[3] => 500 мм
[4] => 600 мм
)
[days] => [29,31,35,37,44]
[material_price] => [2698,3973,4356,6588,7119]
[work_price] => [5038,5851,6426,8733,9195]
[image] => https://akademik-stroy.ru/wp-content/uploads/materials/blok.jpg
[area_modifier] => 73.03
[parent_name] => Стены 2 этаж (несущие)
[parent_id] => 5
[material_sum] => 260086
[work_sum] => 404718
[total_sum] => 664804
[total_days] => 29
[display_material_sum] => 260 086
[display_work_sum] => 404 718
[display_total_sum] => 664 804
)
1
664 804₽
Работа:404 718 ₽
Материалы:260 086 ₽
Дни:29
stdClass Object
(
[id] => 197
[attribute_id] => 5
[name] => Газосиликатный блок
[material_modifier] => 1
[work_modifier] => 1
[options] => Array
(
[0] => 300 мм
[1] => 375 мм
[2] => 400 мм
[3] => 500 мм
[4] => 600 мм
)
[days] => [29,31,35,37,44]
[material_price] => [4298,5573,6356,7288,9119]
[work_price] => [4538,5251,5926,6733,7195]
[image] => https://akademik-stroy.ru/wp-content/uploads/materials/gazosilikatnyj-blok.jpg
[area_modifier] => 73.03
[parent_name] => Стены 2 этаж (несущие)
[parent_id] => 5
[material_sum] => 414325
[work_sum] => 364551
[total_sum] => 778876
[total_days] => 29
[display_material_sum] => 414 325
[display_work_sum] => 364 551
[display_total_sum] => 778 876
)
1
778 876₽
Работа:364 551 ₽
Материалы:414 325 ₽
Дни:29
stdClass Object
(
[id] => 198
[attribute_id] => 5
[name] => Керамзитобетонный блок
[material_modifier] => 1
[work_modifier] => 1
[options] => Array
(
[0] => 300 мм
[1] => 375 мм
[2] => 400 мм
[3] => 500 мм
[4] => 600 мм
)
[days] => [23,23,24,25,28]
[material_price] => [3641,4298,5693,7613,9612]
[work_price] => [5737,5737,6903,7958,8901]
[image] => https://akademik-stroy.ru/wp-content/uploads/materials/keramzitobetonnyj-blok.jpg
[area_modifier] => 73.03
[parent_name] => Стены 2 этаж (несущие)
[parent_id] => 5
[material_sum] => 350991
[work_sum] => 460870
[total_sum] => 811861
[total_days] => 23
[display_material_sum] => 350 991
[display_work_sum] => 460 870
[display_total_sum] => 811 861
)
1
811 861₽
Работа:460 870 ₽
Материалы:350 991 ₽
Дни:23
stdClass Object
(
[id] => 199
[attribute_id] => 5
[name] => Деревянные
[material_modifier] => 1
[work_modifier] => 1
[options] => Array
(
[0] => 180 мм
[1] => 220 мм
[2] => 260 мм
[3] => 320 мм
)
[days] => [7,8,9,10]
[material_price] => [7950,9458,11961,14472]
[work_price] => [4037,4925,5812,7207]
[image] => https://akademik-stroy.ru/wp-content/uploads/materials/derevyannye.jpg
[area_modifier] => 73.03
[parent_name] => Стены 2 этаж (несущие)
[parent_id] => 5
[material_sum] => 766377
[work_sum] => 324304
[total_sum] => 1090681
[total_days] => 7
[display_material_sum] => 766 377
[display_work_sum] => 324 304
[display_total_sum] => 1 090 681
)
1
1 090 681₽
Работа:324 304 ₽
Материалы:766 377 ₽
Дни:7
stdClass Object
(
[id] => 200
[attribute_id] => 5
[name] => Камень
[material_modifier] => 1
[work_modifier] => 1
[options] => Array
(
[0] => 300 мм
[1] => 400 мм
[2] => 500 мм
[3] => 600 мм
)
[days] => [25,27,31,34]
[material_price] => [5262,6844,8330,9815]
[work_price] => [8331,9135,10427,11069]
[image] => https://akademik-stroy.ru/wp-content/uploads/materials/kamen.jpg
[area_modifier] => 73.03
[parent_name] => Стены 2 этаж (несущие)
[parent_id] => 5
[material_sum] => 507255
[work_sum] => 669254
[total_sum] => 1176509
[total_days] => 25
[display_material_sum] => 507 255
[display_work_sum] => 669 254
[display_total_sum] => 1 176 509
)
1
1 176 509₽
Работа:669 254 ₽
Материалы:507 255 ₽
Дни:25
stdClass Object
(
[id] => 201
[attribute_id] => 5
[name] => Каркасно-щитовые
[material_modifier] => 1
[work_modifier] => 1
[options] => Array
(
[0] => 150 мм
[1] => 200 мм
[2] => 250 мм
[3] => 300 мм
[4] => 350 мм
[5] => 400 мм
)
[days] => [15,16,17,18,19,20]
[material_price] => [2379,2639,2898,3458,3601,4175]
[work_price] => [2538,2820,3134,3483,4062,5642]
[image] => https://akademik-stroy.ru/wp-content/uploads/materials/karkasno-shchitovye.jpg
[area_modifier] => 73.03
[parent_name] => Стены 2 этаж (несущие)
[parent_id] => 5
[material_sum] => 229335
[work_sum] => 203885
[total_sum] => 433220
[total_days] => 15
[display_material_sum] => 229 335
[display_work_sum] => 203 885
[display_total_sum] => 433 220
)
1
433 220₽
Работа:203 885 ₽
Материалы:229 335 ₽
Дни:15
stdClass Object
(
[id] => 202
[attribute_id] => 5
[name] => Рубленные
[material_modifier] => 1
[work_modifier] => 1
[options] => Array
(
[0] => 150 мм
[1] => 200 мм
[2] => 250 мм
[3] => 300 мм
[4] => 350 мм
[5] => 400 мм
)
[days] => [15,16,17,18,17,18]
[material_price] => [35950,50267,60583,75900,80217,100533]
[work_price] => [9612,12816,16020,19224,22428,25632]
[image] => https://akademik-stroy.ru/wp-content/uploads/materials/rublennye.jpg
[area_modifier] => 73.03
[parent_name] => Стены 2 этаж (несущие)
[parent_id] => 5
[material_sum] => 3465566
[work_sum] => 772161
[total_sum] => 4237727
[total_days] => 15
[display_material_sum] => 3 465 566
[display_work_sum] => 772 161
[display_total_sum] => 4 237 727
)
1
4 237 727₽
Работа:772 161 ₽
Материалы:3 465 566 ₽
Дни:15
stdClass Object
(
[id] => 203
[attribute_id] => 5
[name] => Теплоблок
[material_modifier] => 1
[work_modifier] => 1
[options] => Array
(
[0] => 300 мм (с облицовкой, не покрашенный)
[1] => 400 мм (с облицовкой, не покрашенный)
[2] => 300 мм (с облицовкой, покрашенный)
[3] => 400 мм (с облицовкой, покрашенный)
)
[days] => [15,16,15,16]
[material_price] => [2888,3729,3957,4258]
[work_price] => [2564,3229,2949,3713]
[image] => https://akademik-stroy.ru/wp-content/uploads/materials/teploblok.jpg
[area_modifier] => 73.03
[parent_name] => Стены 2 этаж (несущие)
[parent_id] => 5
[material_sum] => 278402
[work_sum] => 205974
[total_sum] => 484376
[total_days] => 15
[display_material_sum] => 278 402
[display_work_sum] => 205 974
[display_total_sum] => 484 376
)
1
484 376₽
Работа:205 974 ₽
Материалы:278 402 ₽
Дни:15
stdClass Object
(
[id] => 204
[attribute_id] => 5
[name] => Арболитовые блоки
[material_modifier] => 1
[work_modifier] => 1
[options] => Array
(
[0] => 300 мм
[1] => 400 мм
[2] => 600 мм
)
[days] => [19,22,27]
[material_price] => [3210,4475,5852]
[work_price] => [4214,4788,5866]
[image] => https://akademik-stroy.ru/wp-content/uploads/materials/arbolitovye-bloki.png
[area_modifier] => 73.03
[parent_name] => Стены 2 этаж (несущие)
[parent_id] => 5
[material_sum] => 309443
[work_sum] => 338523
[total_sum] => 647966
[total_days] => 19
[display_material_sum] => 309 443
[display_work_sum] => 338 523
[display_total_sum] => 647 966
)
1
647 966₽
Работа:338 523 ₽
Материалы:309 443 ₽
Дни:19
stdClass Object
(
[id] => 205
[attribute_id] => 5
[name] => Полистиролбетон
[material_modifier] => 1
[work_modifier] => 1
[options] => Array
(
[0] => 300 мм
[1] => 400 мм
[2] => 600 мм
)
[days] => [29,31,35]
[material_price] => [2798,4573,5256]
[work_price] => [5038,5851,6426]
[image] => https://akademik-stroy.ru/wp-content/uploads/materials/polistirolbeton.jpg
[area_modifier] => 73.03
[parent_name] => Стены 2 этаж (несущие)
[parent_id] => 5
[material_sum] => 269726
[work_sum] => 404718
[total_sum] => 674444
[total_days] => 29
[display_material_sum] => 269 726
[display_work_sum] => 404 718
[display_total_sum] => 674 444
)
1
674 444₽
Работа:404 718 ₽
Материалы:269 726 ₽
Дни:29
stdClass Object
(
[id] => 206
[attribute_id] => 5
[name] => Шлакоблок
[material_modifier] => 1
[work_modifier] => 1
[options] => Array
(
[0] => 400 мм
[1] => 600 мм
)
[days] => [15,16]
[material_price] => [2391,3471]
[work_price] => [2642,3662]
[image] => https://akademik-stroy.ru/wp-content/uploads/materials/shlakoblok.jpg
[area_modifier] => 73.03
[parent_name] => Стены 2 этаж (несущие)
[parent_id] => 5
[material_sum] => 230491
[work_sum] => 212240
[total_sum] => 442731
[total_days] => 15
[display_material_sum] => 230 491
[display_work_sum] => 212 240
[display_total_sum] => 442 731
)
1
442 731₽
Работа:212 240 ₽
Материалы:230 491 ₽
Дни:15
stdClass Object
(
[id] => 245
[attribute_id] => 5
[name] => Теплая керамика
[material_modifier] => 1
[work_modifier] => 1
[options] => Array
(
[0] => 380 мм
[1] => 380 мм Thermo
[2] => 440 мм
[3] => 510 мм
)
[days] => [10,10,11,12]
[material_price] => [4510,5098,6093,8013]
[work_price] => [4737,4937,5903,6958]
[image] => https://akademik-stroy.ru/wp-content/uploads/materials/teplaya-keramika.jpg
[area_modifier] => 73.03
[parent_name] => Стены 2 этаж (несущие)
[parent_id] => 5
[material_sum] => 434762
[work_sum] => 380537
[total_sum] => 815299
[total_days] => 10
[display_material_sum] => 434 762
[display_work_sum] => 380 537
[display_total_sum] => 815 299
)
1
815 299₽
Работа:380 537 ₽
Материалы:434 762 ₽
Дни:10
stdClass Object
(
[id] => 246
[attribute_id] => 5
[name] => Несъемная опалубка
[material_modifier] => 1
[work_modifier] => 1
[options] => Array
(
[0] => 380 мм
[1] => 380 мм Thermo
[2] => 440 мм
[3] => 510 мм
)
[days] => [10,10,11,12]
[material_price] => [3302,3902,4108,5008]
[work_price] => [2100,2100,2300,2534]
[image] => https://akademik-stroy.ru/wp-content/uploads/materials/nesemnaya-opalubka.jpg
[area_modifier] => 73.03
[parent_name] => Стены 2 этаж (несущие)
[parent_id] => 5
[material_sum] => 318311
[work_sum] => 168699
[total_sum] => 487010
[total_days] => 10
[display_material_sum] => 318 311
[display_work_sum] => 168 699
[display_total_sum] => 487 010
)
1
487 010₽
Работа:168 699 ₽
Материалы:318 311 ₽
Дни:10
stdClass Object
(
[id] => 254
[attribute_id] => 5
[name] => Бревно
[material_modifier] => 1
[work_modifier] => 1
[options] => Array
(
[0] => 260 мм
[1] => 320 мм
[2] => 360 мм
[3] => 400 мм
[4] => 500 мм
)
[days] => [7,8,9,10,11]
[material_price] => [1874,24045,26930,30972,38825]
[work_price] => [5046,6207,6952,7716,9723]
[image] => https://akademik-stroy.ru/wp-content/uploads/materials/sruby.jpg
[area_modifier] => 73.03
[parent_name] => Стены 2 этаж (несущие)
[parent_id] => 5
[material_sum] => 180653
[work_sum] => 405360
[total_sum] => 586013
[total_days] => 7
[display_material_sum] => 180 653
[display_work_sum] => 405 360
[display_total_sum] => 586 013
)
1
586 013₽
Работа:405 360 ₽
Материалы:180 653 ₽
Дни:7
stdClass Object
(
[id] => 11
[attribute_id] => 6
[name] => Деревянные балки
[material_modifier] => 1
[work_modifier] => 1
[options] => Array
(
[0] => без утепления
[1] => утепление 200 мм
[2] => утепление 250 мм
[3] => утепление 300 мм
[4] => утепление 350 мм
[5] => утепление 400 мм
[6] => утепление 450 мм
[7] => утепление 500 мм
)
[days] => [8,9,9,9,11,12,13,14]
[material_price] => [1634,2042,2344,2947,3149,3652,3354,3557]
[work_price] => [1230,1339,1393,1426,1460,1513,1587,1620]
[image] => https://akademik-stroy.ru/wp-content/uploads/materials/derevyannye-balki.png
[area_modifier] => 73.03
[parent_name] => Перекрытие второго этажа
[parent_id] => 6
[material_sum] => 157517
[work_sum] => 98810
[total_sum] => 256327
[total_days] => 8
[display_material_sum] => 157 517
[display_work_sum] => 98 810
[display_total_sum] => 256 327
)
1
256 327₽
Работа:98 810 ₽
Материалы:157 517 ₽
Дни:8
stdClass Object
(
[id] => 12
[attribute_id] => 6
[name] => Сборные ж/б плиты
[material_modifier] => 1
[work_modifier] => 1
[options] => Array
(
[0] => без утепления
[1] => утепление 150 мм
[2] => утепление 200 мм
[3] => утепление 250 мм
[4] => утепление 300 мм
[5] => утепление 350 мм
[6] => утепление 400 мм
[7] => утепление 450 мм
[8] => утепление 500 мм
)
[days] => [13,15,15,15,15,15,15,15,15]
[material_price] => [3067,5577,5928,6679,7730,8782,9833,10884,11935]
[work_price] => [1520,1956,2102,2247,2392,2537,2684,2829,2974]
[image] => https://akademik-stroy.ru/wp-content/uploads/materials/sbornye-zh-b-plity-2.jpg
[area_modifier] => 73.03
[parent_name] => Перекрытие второго этажа
[parent_id] => 6
[material_sum] => 295658
[work_sum] => 122106
[total_sum] => 417764
[total_days] => 13
[display_material_sum] => 295 658
[display_work_sum] => 122 106
[display_total_sum] => 417 764
)
1
417 764₽
Работа:122 106 ₽
Материалы:295 658 ₽
Дни:13
stdClass Object
(
[id] => 100
[attribute_id] => 6
[name] => Монолитная ж/б плита
[material_modifier] => 1
[work_modifier] => 1
[options] => Array
(
[0] => без утепления
[1] => утепление 150 мм
[2] => утепление 200 мм
[3] => утепление 250 мм
[4] => утепление 300 мм
[5] => утепление 350 мм
[6] => утепление 400 мм
[7] => утепление 450 мм
[8] => утепление 500 мм
)
[days] => [18,20,20,20,20,20,20,20,20]
[material_price] => [4837,6572,7224,7375,79426,8177,8728,9180,10031]
[work_price] => [3348,3921,4112,4302,4493,4684,4875,5066,5256]
[image] => https://akademik-stroy.ru/wp-content/uploads/materials/monolitnaya-zh-b-plita-2.jpg
[area_modifier] => 73.03
[parent_name] => Перекрытие второго этажа
[parent_id] => 6
[material_sum] => 466285
[work_sum] => 268955
[total_sum] => 735240
[total_days] => 18
[display_material_sum] => 466 285
[display_work_sum] => 268 955
[display_total_sum] => 735 240
)
1
735 240₽
Работа:268 955 ₽
Материалы:466 285 ₽
Дни:18
stdClass Object
(
[id] => 164
[attribute_id] => 37
[name] => Металлочерепица
[material_modifier] => 1
[work_modifier] => 1
[options] => Array
(
)
[days] => [20]
[material_price] => [6112]
[work_price] => [5726]
[image] => https://akademik-stroy.ru/wp-content/uploads/materials/metallocherepica.jpg
[area_modifier] => 97.46
[parent_name] => Крыша (Скатная)
[parent_id] => 37
[material_sum] => 786292
[work_sum] => 613862
[total_sum] => 1400154
[total_days] => 20
[display_material_sum] => 786 292
[display_work_sum] => 613 862
[display_total_sum] => 1 400 154
)
1
1 400 154₽
Работа:613 862 ₽
Материалы:786 292 ₽
Дни:20
stdClass Object
(
[id] => 165
[attribute_id] => 37
[name] => Гибкая черепица
[material_modifier] => 1
[work_modifier] => 1
[options] => Array
(
)
[days] => [20]
[material_price] => [6980]
[work_price] => [5950]
[image] => https://akademik-stroy.ru/wp-content/uploads/materials/gibkaya-cherepica.jpg
[area_modifier] => 97.46
[parent_name] => Крыша (Скатная)
[parent_id] => 37
[material_sum] => 897957
[work_sum] => 637876
[total_sum] => 1535833
[total_days] => 20
[display_material_sum] => 897 957
[display_work_sum] => 637 876
[display_total_sum] => 1 535 833
)
1
1 535 833₽
Работа:637 876 ₽
Материалы:897 957 ₽
Дни:20
stdClass Object
(
[id] => 166
[attribute_id] => 37
[name] => Цементно-песчаная черепица
[material_modifier] => 1
[work_modifier] => 1
[options] => Array
(
)
[days] => [20]
[material_price] => [10560]
[work_price] => [9456]
[image] => https://akademik-stroy.ru/wp-content/uploads/materials/cementno-peschanaya-cherepica.jpg
[area_modifier] => 97.46
[parent_name] => Крыша (Скатная)
[parent_id] => 37
[material_sum] => 1358514
[work_sum] => 1013740
[total_sum] => 2372254
[total_days] => 20
[display_material_sum] => 1 358 514
[display_work_sum] => 1 013 740
[display_total_sum] => 2 372 254
)
1
2 372 254₽
Работа:1 013 740 ₽
Материалы:1 358 514 ₽
Дни:20
stdClass Object
(
[id] => 167
[attribute_id] => 37
[name] => Композитная черепица
[material_modifier] => 1
[work_modifier] => 1
[options] => Array
(
)
[days] => [20]
[material_price] => [9506]
[work_price] => [8905]
[image] => https://akademik-stroy.ru/wp-content/uploads/materials/kompozitnaya-cherepica.jpg
[area_modifier] => 97.46
[parent_name] => Крыша (Скатная)
[parent_id] => 37
[material_sum] => 1222920
[work_sum] => 954669
[total_sum] => 2177589
[total_days] => 20
[display_material_sum] => 1 222 920
[display_work_sum] => 954 669
[display_total_sum] => 2 177 589
)
1
2 177 589₽
Работа:954 669 ₽
Материалы:1 222 920 ₽
Дни:20
stdClass Object
(
[id] => 168
[attribute_id] => 37
[name] => Керамическая черепица
[material_modifier] => 1
[work_modifier] => 1
[options] => Array
(
)
[days] => [20]
[material_price] => [12750]
[work_price] => [9456]
[image] => https://akademik-stroy.ru/wp-content/uploads/materials/keramicheskaya-cherepica.jpg
[area_modifier] => 97.46
[parent_name] => Крыша (Скатная)
[parent_id] => 37
[material_sum] => 1640252
[work_sum] => 1013740
[total_sum] => 2653992
[total_days] => 20
[display_material_sum] => 1 640 252
[display_work_sum] => 1 013 740
[display_total_sum] => 2 653 992
)
1
2 653 992₽
Работа:1 013 740 ₽
Материалы:1 640 252 ₽
Дни:20
stdClass Object
(
[id] => 169
[attribute_id] => 37
[name] => Металлическая фальцевая
[material_modifier] => 1
[work_modifier] => 1
[options] => Array
(
)
[days] => [20]
[material_price] => [8550]
[work_price] => [8190]
[image] => https://akademik-stroy.ru/wp-content/uploads/materials/metallicheskaya-falcevaya.jpg
[area_modifier] => 97.46
[parent_name] => Крыша (Скатная)
[parent_id] => 37
[material_sum] => 1099934
[work_sum] => 878017
[total_sum] => 1977951
[total_days] => 20
[display_material_sum] => 1 099 934
[display_work_sum] => 878 017
[display_total_sum] => 1 977 951
)
1
1 977 951₽
Работа:878 017 ₽
Материалы:1 099 934 ₽
Дни:20
stdClass Object
(
[id] => 170
[attribute_id] => 37
[name] => Медная фальцевая
[material_modifier] => 1
[work_modifier] => 1
[options] => Array
(
)
[days] => [20]
[material_price] => [20450]
[work_price] => [16750]
[image] => https://akademik-stroy.ru/wp-content/uploads/materials/mednaya-falcevaya.jpg
[area_modifier] => 97.46
[parent_name] => Крыша (Скатная)
[parent_id] => 37
[material_sum] => 2630835
[work_sum] => 1795701
[total_sum] => 4426536
[total_days] => 20
[display_material_sum] => 2 630 835
[display_work_sum] => 1 795 701
[display_total_sum] => 4 426 536
)
1
4 426 536₽
Работа:1 795 701 ₽
Материалы:2 630 835 ₽
Дни:20
stdClass Object
(
[id] => 171
[attribute_id] => 37
[name] => Зеленая кровля
[material_modifier] => 1
[work_modifier] => 1
[options] => Array
(
)
[days] => [20]
[material_price] => [19850]
[work_price] => [16780]
[image] => https://akademik-stroy.ru/wp-content/uploads/materials/zelenaya-krovlya.jpg
[area_modifier] => 97.46
[parent_name] => Крыша (Скатная)
[parent_id] => 37
[material_sum] => 2553647
[work_sum] => 1798917
[total_sum] => 4352564
[total_days] => 20
[display_material_sum] => 2 553 647
[display_work_sum] => 1 798 917
[display_total_sum] => 4 352 564
)
1
4 352 564₽
Работа:1 798 917 ₽
Материалы:2 553 647 ₽
Дни:20
stdClass Object
(
[id] => 172
[attribute_id] => 37
[name] => Профлист
[material_modifier] => 1
[work_modifier] => 1
[options] => Array
(
)
[days] => [20]
[material_price] => [3450]
[work_price] => [3750]
[image] => https://akademik-stroy.ru/wp-content/uploads/materials/proflist.jpg
[area_modifier] => 97.46
[parent_name] => Крыша (Скатная)
[parent_id] => 37
[material_sum] => 443833
[work_sum] => 402023
[total_sum] => 845856
[total_days] => 20
[display_material_sum] => 443 833
[display_work_sum] => 402 023
[display_total_sum] => 845 856
)
1
845 856₽
Работа:402 023 ₽
Материалы:443 833 ₽
Дни:20
stdClass Object
(
[id] => 51
[attribute_id] => 26
[name] => Есть
[material_modifier] => 1
[work_modifier] => 1
[options] => Array
(
[0] => Профиль 58 мм, 3-камерный, стеклопакет 2-камерный до 32 мм
[1] => Профиль 60 мм, 4-камерный, стеклопакет 2-камерный до 32 мм
[2] => Профиль 70 мм, 5-камерный, стеклопакет 2-камерный до 40 мм
[3] => Профиль 72 мм, 5-камерный, стеклопакет 2-камерный до 40 мм
[4] => Алюминиевые окна Alutech профиль 72 мм, стеклопакет 2-камерный
)
[days] => [3,3,3,3,3]
[material_price] => [1339,2124,2867,3023,29596]
[work_price] => [635,647,659,668,2579]
[image] => https://akademik-stroy.ru/wp-content/uploads/materials/okna.jpg
[area_modifier] => 138.35
[parent_name] => Окна
[parent_id] => 26
[material_sum] => 244531
[work_sum] => 96637
[total_sum] => 341168
[total_days] => 3
[display_material_sum] => 244 531
[display_work_sum] => 96 637
[display_total_sum] => 341 168
)
1
341 168₽
Работа:96 637 ₽
Материалы:244 531 ₽
Дни:3
stdClass Object
(
[id] => 52
[attribute_id] => 26
[name] => Нет
[material_modifier] => 2
[work_modifier] => 1
[options] =>
[days] => null
[material_price] => null
[work_price] => null
[image] => https://akademik-stroy.ru/wp-content/uploads/materials/okna.jpg
[area_modifier] => 138.35
[parent_name] => Окна
[parent_id] => 26
[material_sum] => 0
[work_sum] => 0
[total_sum] => 0
[total_days] => 0
[display_material_sum] => 0
[display_work_sum] => 0
[display_total_sum] => 0
)
1
0₽
Работа:0 ₽
Материалы:0 ₽
Дни:0
stdClass Object
(
[id] => 53
[attribute_id] => 27
[name] => Есть
[material_modifier] => 1
[work_modifier] => 1
[options] => Array
(
)
[days] => [1]
[material_price] => [10000]
[work_price] => [5500]
[image] => https://akademik-stroy.ru/wp-content/uploads/materials/dveri.jpg
[area_modifier] => 1
[parent_name] => Двери входные
[parent_id] => 27
[material_sum] => 13200
[work_sum] => 6050
[total_sum] => 19250
[total_days] => 1
[display_material_sum] => 13 200
[display_work_sum] => 6 050
[display_total_sum] => 19 250
)
1
19 250₽
Работа:6 050 ₽
Материалы:13 200 ₽
Дни:1
stdClass Object
(
[id] => 54
[attribute_id] => 27
[name] => Нет
[material_modifier] => 1
[work_modifier] => 1
[options] => Array
(
)
[days] => [0]
[material_price] => [0]
[work_price] => [0]
[image] => https://akademik-stroy.ru/wp-content/uploads/materials/dveri.jpg
[area_modifier] => 1
[parent_name] => Двери входные
[parent_id] => 27
[material_sum] => 0
[work_sum] => 0
[total_sum] => 0
[total_days] => 0
[display_material_sum] => 0
[display_work_sum] => 0
[display_total_sum] => 0
)
1
0₽
Работа:0 ₽
Материалы:0 ₽
Дни:0
stdClass Object
(
[id] => 25
[attribute_id] => 13
[name] => Нет
[material_modifier] => 1
[work_modifier] => 1
[options] => Array
(
)
[days] => [0]
[material_price] => [0]
[work_price] => [0]
[image] => https://akademik-stroy.ru/wp-content/uploads/materials/mineralovata-krov.jpg
[area_modifier] => 97.46
[parent_name] => Утепление кровли (Мансарда)
[parent_id] => 13
[material_sum] => 0
[work_sum] => 0
[total_sum] => 0
[total_days] => 0
[display_material_sum] => 0
[display_work_sum] => 0
[display_total_sum] => 0
)
1
0₽
Работа:0 ₽
Материалы:0 ₽
Дни:0
stdClass Object
(
[id] => 26
[attribute_id] => 13
[name] => Минераловатный
[material_modifier] => 1
[work_modifier] => 1
[options] => Array
(
[0] => 50 мм
[1] => 100 мм
[2] => 150 мм
[3] => 200 мм
[4] => 250 мм
[5] => 300 мм
[6] => 350 мм
[7] => 400 мм
[8] => 450 мм
[9] => 500 мм
)
[days] => [5,5,6,6,6,7,7,7,8,8]
[material_price] => [1158,1414,1772,2230,3602,4060,4974,5890,6408,7718]
[work_price] => [650,846,846,1098,1318,1450,1596,1754,1930,2122]
[image] => https://akademik-stroy.ru/wp-content/uploads/materials/mineralovata-krov.jpg
[area_modifier] => 97.46
[parent_name] => Утепление кровли (Мансарда)
[parent_id] => 13
[material_sum] => 148973
[work_sum] => 69684
[total_sum] => 218657
[total_days] => 5
[display_material_sum] => 148 973
[display_work_sum] => 69 684
[display_total_sum] => 218 657
)
1
218 657₽
Работа:69 684 ₽
Материалы:148 973 ₽
Дни:5
stdClass Object
(
[id] => 123
[attribute_id] => 13
[name] => Эковата (целлюлозная вата)
[material_modifier] => 1
[work_modifier] => 1
[options] => Array
(
[0] => 50 мм
[1] => 100 мм
[2] => 150 мм
[3] => 200 мм
[4] => 250 мм
[5] => 300 мм
[6] => 350 мм
[7] => 400 мм
[8] => 450 мм
[9] => 500 мм
)
[days] => [3,3,4,4,4,5,5,5,5,5]
[material_price] => [820,1638,2458,3276,5734,6552,8190,9828,11466,13104]
[work_price] => [234,304,304,396,474,522,574,632,694,764]
[image] => https://akademik-stroy.ru/wp-content/uploads/materials/ehkovata-krov.jpg
[area_modifier] => 97.46
[parent_name] => Утепление кровли (Мансарда)
[parent_id] => 13
[material_sum] => 105491
[work_sum] => 25086
[total_sum] => 130577
[total_days] => 3
[display_material_sum] => 105 491
[display_work_sum] => 25 086
[display_total_sum] => 130 577
)
1
130 577₽
Работа:25 086 ₽
Материалы:105 491 ₽
Дни:3
stdClass Object
(
[id] => 124
[attribute_id] => 13
[name] => Экструдированный пенополистирол
[material_modifier] => 1
[work_modifier] => 1
[options] => Array
(
[0] => 50 мм
[1] => 100 мм
[2] => 150 мм
[3] => 200 мм
[4] => 250 мм
[5] => 300 мм
[6] => 350 мм
[7] => 400 мм
[8] => 450 мм
[9] => 500 мм
)
[days] => [3,3,4,4,4,5,5,5,5,6]
[material_price] => [1146,2292,3438,4584,8020,9166,11458,13750,16040,18332]
[work_price] => [390,508,508,660,790,870,958,1052,1158,1274]
[image] => https://akademik-stroy.ru/wp-content/uploads/materials/epps-krov.jpg
[area_modifier] => 97.46
[parent_name] => Утепление кровли (Мансарда)
[parent_id] => 13
[material_sum] => 147430
[work_sum] => 41810
[total_sum] => 189240
[total_days] => 3
[display_material_sum] => 147 430
[display_work_sum] => 41 810
[display_total_sum] => 189 240
)
1
189 240₽
Работа:41 810 ₽
Материалы:147 430 ₽
Дни:3
stdClass Object
(
[id] => 125
[attribute_id] => 13
[name] => ПСБ (ППС-пенополистирол)
[material_modifier] => 1
[work_modifier] => 1
[options] => Array
(
[0] => 50 мм
[1] => 100 мм
[2] => 150 мм
[3] => 200 мм
[4] => 250 мм
[5] => 300 мм
[6] => 350 мм
[7] => 400 мм
[8] => 450 мм
[9] => 500 мм
)
[days] => [3,3,4,4,4,5,5,5,5,6]
[material_price] => [476,954,1430,1906,3336,3814,4766,5720,6674,7626]
[work_price] => [390,508,508,660,790,870,958,1052,1158,1274]
[image] => https://akademik-stroy.ru/wp-content/uploads/materials/psb-krov.jpg
[area_modifier] => 97.46
[parent_name] => Утепление кровли (Мансарда)
[parent_id] => 13
[material_sum] => 61236
[work_sum] => 41810
[total_sum] => 103046
[total_days] => 3
[display_material_sum] => 61 236
[display_work_sum] => 41 810
[display_total_sum] => 103 046
)
1
103 046₽
Работа:41 810 ₽
Материалы:61 236 ₽
Дни:3
stdClass Object
(
[id] => 126
[attribute_id] => 13
[name] => ППУ (Пенополиуретан)
[material_modifier] => 1
[work_modifier] => 1
[options] => Array
(
[0] => 50 мм
[1] => 100 мм
[2] => 150 мм
[3] => 200 мм
[4] => 250 мм
[5] => 300 мм
[6] => 350 мм
[7] => 400 мм
[8] => 450 мм
[9] => 500 мм
)
[days] => [2,2,3,3,3,3,4,4,4,4]
[material_price] => [2080,4160,6240,8320,14560,16640,20800,24960,29120,33280]
[work_price] => [234,304,304,396,474,522,574,632,694,764]
[image] => https://akademik-stroy.ru/wp-content/uploads/materials/ppu-krov.jpg
[area_modifier] => 97.46
[parent_name] => Утепление кровли (Мансарда)
[parent_id] => 13
[material_sum] => 267586
[work_sum] => 25086
[total_sum] => 292672
[total_days] => 2
[display_material_sum] => 267 586
[display_work_sum] => 25 086
[display_total_sum] => 292 672
)
1
292 672₽
Работа:25 086 ₽
Материалы:267 586 ₽
Дни:2
stdClass Object
(
[id] => 127
[attribute_id] => 13
[name] => PIR-плиты (пенополиизоцианурат)
[material_modifier] => 1
[work_modifier] => 1
[options] => Array
(
[0] => 50 мм
[1] => 100 мм
[2] => 150 мм
[3] => 200 мм
[4] => 250 мм
[5] => 300 мм
[6] => 350 мм
[7] => 400 мм
[8] => 450 мм
[9] => 500 мм
)
[days] => [3,3,4,4,4,5,5,5,5,6]
[material_price] => [2646,5290,7936,10580,18516,21162,26452,31742,37032,42324]
[work_price] => [390,508,508,660,790,870,958,1052,1158,1274]
[image] => https://akademik-stroy.ru/wp-content/uploads/materials/pir-krov.jpg
[area_modifier] => 97.46
[parent_name] => Утепление кровли (Мансарда)
[parent_id] => 13
[material_sum] => 340400
[work_sum] => 41810
[total_sum] => 382210
[total_days] => 3
[display_material_sum] => 340 400
[display_work_sum] => 41 810
[display_total_sum] => 382 210
)
1
382 210₽
Работа:41 810 ₽
Материалы:340 400 ₽
Дни:3
stdClass Object
(
[id] => 27
[attribute_id] => 14
[name] => Нет
[material_modifier] => 1
[work_modifier] => 1
[options] => Array
(
)
[days] => [0]
[material_price] => [0]
[work_price] => [0]
[image] => https://akademik-stroy.ru/wp-content/uploads/materials/mansardnye-okna-2.jpg
[area_modifier] => 1
[parent_name] => Мансардные окна
[parent_id] => 14
[material_sum] => 0
[work_sum] => 0
[total_sum] => 0
[total_days] => 0
[display_material_sum] => 0
[display_work_sum] => 0
[display_total_sum] => 0
)
1
0₽
Работа:0 ₽
Материалы:0 ₽
Дни:0
stdClass Object
(
[id] => 28
[attribute_id] => 14
[name] => Есть
[material_modifier] => 1
[work_modifier] => 1
[options] => Array
(
[0] => 55x78
[1] => 55x98
)
[days] => [6,7]
[material_price] => [47480,68700]
[work_price] => [17900,19500]
[image] => https://akademik-stroy.ru/wp-content/uploads/materials/mansardnye-okna-2.jpg
[area_modifier] => 1
[parent_name] => Мансардные окна
[parent_id] => 14
[material_sum] => 62674
[work_sum] => 19690
[total_sum] => 82364
[total_days] => 6
[display_material_sum] => 62 674
[display_work_sum] => 19 690
[display_total_sum] => 82 364
)
1
82 364₽
Работа:19 690 ₽
Материалы:62 674 ₽
Дни:6
stdClass Object
(
[id] => 29
[attribute_id] => 15
[name] => Нет
[material_modifier] => 1
[work_modifier] => 1
[options] => Array
(
)
[days] => [0]
[material_price] => [0]
[work_price] => [0]
[image] => https://akademik-stroy.ru/wp-content/uploads/materials/sofit.jpg
[area_modifier] => 97.46
[parent_name] => Подшивка кровли
[parent_id] => 15
[material_sum] => 0
[work_sum] => 0
[total_sum] => 0
[total_days] => 0
[display_material_sum] => 0
[display_work_sum] => 0
[display_total_sum] => 0
)
1
0₽
Работа:0 ₽
Материалы:0 ₽
Дни:0
stdClass Object
(
[id] => 30
[attribute_id] => 15
[name] => Есть
[material_modifier] => 1
[work_modifier] => 1
[options] => Array
(
[0] => Софиты (ПВХ)
[1] => Cedral
[2] => ДПК
[3] => Планкен
)
[days] => [7,10,9,8]
[material_price] => [1803,3213,3025,3150]
[work_price] => [1529,2188,2075,1923]
[image] => https://akademik-stroy.ru/wp-content/uploads/materials/sofit.jpg
[area_modifier] => 97.46
[parent_name] => Подшивка кровли
[parent_id] => 15
[material_sum] => 231951
[work_sum] => 163918
[total_sum] => 395869
[total_days] => 7
[display_material_sum] => 231 951
[display_work_sum] => 163 918
[display_total_sum] => 395 869
)
1
395 869₽
Работа:163 918 ₽
Материалы:231 951 ₽
Дни:7
stdClass Object
(
[id] => 31
[attribute_id] => 16
[name] => Нет
[material_modifier] => 1
[work_modifier] => 1
[options] => Array
(
)
[days] => [0]
[material_price] => [0]
[work_price] => [0]
[image] => https://akademik-stroy.ru/wp-content/uploads/materials/docke-standard-pvh.jpg
[area_modifier] => 97.46
[parent_name] => Водосточная система
[parent_id] => 16
[material_sum] => 0
[work_sum] => 0
[total_sum] => 0
[total_days] => 0
[display_material_sum] => 0
[display_work_sum] => 0
[display_total_sum] => 0
)
1
0₽
Работа:0 ₽
Материалы:0 ₽
Дни:0
stdClass Object
(
[id] => 32
[attribute_id] => 16
[name] => Есть
[material_modifier] => 1
[work_modifier] => 1
[options] => Array
(
[0] => Döcke Standard (ПВХ)
[1] => Металлические Grand Line
)
[days] => [7,7]
[material_price] => [1842,2703]
[work_price] => [1491,1529]
[image] => https://akademik-stroy.ru/wp-content/uploads/materials/docke-standard-pvh.jpg
[area_modifier] => 97.46
[parent_name] => Водосточная система
[parent_id] => 16
[material_sum] => 236968
[work_sum] => 159844
[total_sum] => 396812
[total_days] => 7
[display_material_sum] => 236 968
[display_work_sum] => 159 844
[display_total_sum] => 396 812
)
1
396 812₽
Работа:159 844 ₽
Материалы:236 968 ₽
Дни:7
stdClass Object
(
[id] => 33
[attribute_id] => 17
[name] => Нет
[material_modifier] => 1
[work_modifier] => 1
[options] => Array
(
)
[days] => [0]
[material_price] => [0]
[work_price] => [0]
[image] => https://akademik-stroy.ru/wp-content/uploads/materials/mineralovata.jpg
[area_modifier] => 170.49
[parent_name] => Дополнительное утепление наружных стен
[parent_id] => 17
[material_sum] => 0
[work_sum] => 0
[total_sum] => 0
[total_days] => 0
[display_material_sum] => 0
[display_work_sum] => 0
[display_total_sum] => 0
)
1
0₽
Работа:0 ₽
Материалы:0 ₽
Дни:0
stdClass Object
(
[id] => 34
[attribute_id] => 17
[name] => Минераловатный
[material_modifier] => 1
[work_modifier] => 1
[options] => Array
(
[0] => 50 мм
[1] => 100 мм
[2] => 150 мм
[3] => 200 мм
[4] => 250 мм
[5] => 300 мм
)
[days] => [7,8,10,12,14,15]
[material_price] => [3437,3613,3803,3915,4601,4830]
[work_price] => [2325,2423,2523,2749,2859,3025]
[image] => https://akademik-stroy.ru/wp-content/uploads/materials/mineralovata.jpg
[area_modifier] => 170.49
[parent_name] => Дополнительное утепление наружных стен
[parent_id] => 17
[material_sum] => 773486
[work_sum] => 436028
[total_sum] => 1209514
[total_days] => 7
[display_material_sum] => 773 486
[display_work_sum] => 436 028
[display_total_sum] => 1 209 514
)
1
1 209 514₽
Работа:436 028 ₽
Материалы:773 486 ₽
Дни:7
stdClass Object
(
[id] => 128
[attribute_id] => 17
[name] => Эковата (целлюлозная вата)
[material_modifier] => 1
[work_modifier] => 1
[options] => Array
(
[0] => 50 мм
[1] => 100 мм
[2] => 150 мм
[3] => 200 мм
[4] => 250 мм
[5] => 300 мм
)
[days] => [3,4,5,6,7,8]
[material_price] => [810,1319,1629,1838,2267,2676]
[work_price] => [1225,1323,1423,1549,1659,1725]
[image] => https://akademik-stroy.ru/wp-content/uploads/materials/ehkovata.jpg
[area_modifier] => 170.49
[parent_name] => Дополнительное утепление наружных стен
[parent_id] => 17
[material_sum] => 182288
[work_sum] => 229735
[total_sum] => 412023
[total_days] => 3
[display_material_sum] => 182 288
[display_work_sum] => 229 735
[display_total_sum] => 412 023
)
1
412 023₽
Работа:229 735 ₽
Материалы:182 288 ₽
Дни:3
stdClass Object
(
[id] => 129
[attribute_id] => 17
[name] => Экструдированный пенополистирол
[material_modifier] => 1
[work_modifier] => 1
[options] => Array
(
[0] => 50 мм
[1] => 100 мм
[2] => 150 мм
[3] => 200 мм
[4] => 250 мм
[5] => 300 мм
)
[days] => [5,6,7,8,9,10]
[material_price] => [4560,4300,5119,6292,7010,8583]
[work_price] => [1795,1954,2254,2330,2595,2735]
[image] => https://akademik-stroy.ru/wp-content/uploads/materials/epps.jpg
[area_modifier] => 170.49
[parent_name] => Дополнительное утепление наружных стен
[parent_id] => 17
[material_sum] => 1026213
[work_sum] => 336633
[total_sum] => 1362846
[total_days] => 5
[display_material_sum] => 1 026 213
[display_work_sum] => 336 633
[display_total_sum] => 1 362 846
)
1
1 362 846₽
Работа:336 633 ₽
Материалы:1 026 213 ₽
Дни:5
stdClass Object
(
[id] => 130
[attribute_id] => 17
[name] => ПСБ (ППС-пенополистирол)
[material_modifier] => 1
[work_modifier] => 1
[options] => Array
(
[0] => 50 мм
[1] => 100 мм
[2] => 150 мм
[3] => 200 мм
[4] => 250 мм
[5] => 300 мм
)
[days] => [5,6,7,8,9,10]
[material_price] => [4822,5200,5819,6292,7010,7583]
[work_price] => [1795,1954,2254,2330,2595,2735]
[image] => https://akademik-stroy.ru/wp-content/uploads/materials/psb.jpg
[area_modifier] => 170.49
[parent_name] => Дополнительное утепление наружных стен
[parent_id] => 17
[material_sum] => 1085176
[work_sum] => 336633
[total_sum] => 1421809
[total_days] => 5
[display_material_sum] => 1 085 176
[display_work_sum] => 336 633
[display_total_sum] => 1 421 809
)
1
1 421 809₽
Работа:336 633 ₽
Материалы:1 085 176 ₽
Дни:5
stdClass Object
(
[id] => 131
[attribute_id] => 17
[name] => ППУ (Пенополиуретан)
[material_modifier] => 1
[work_modifier] => 1
[options] => Array
(
[0] => 50 мм
[1] => 100 мм
[2] => 150 мм
[3] => 200 мм
[4] => 250 мм
[5] => 300 мм
)
[days] => [3,4,5,6,7,8]
[material_price] => [2860,3400,4219,4592,5010,5583]
[work_price] => [729,900,980,1120,1280,1530]
[image] => https://akademik-stroy.ru/wp-content/uploads/materials/ppu.jpg
[area_modifier] => 170.49
[parent_name] => Дополнительное утепление наружных стен
[parent_id] => 17
[material_sum] => 643634
[work_sum] => 136716
[total_sum] => 780350
[total_days] => 3
[display_material_sum] => 643 634
[display_work_sum] => 136 716
[display_total_sum] => 780 350
)
1
780 350₽
Работа:136 716 ₽
Материалы:643 634 ₽
Дни:3
stdClass Object
(
[id] => 132
[attribute_id] => 17
[name] => PIR-плиты (пенополиизоцианурат)
[material_modifier] => 1
[work_modifier] => 1
[options] => Array
(
[0] => 50 мм
[1] => 100 мм
[2] => 150 мм
[3] => 200 мм
[4] => 250 мм
[5] => 300 мм
)
[days] => [5,6,7,8,9,10]
[material_price] => [8323,15645,20968,25900,29258,30581]
[work_price] => [800,900,970,1150,1280,1330]
[image] => https://akademik-stroy.ru/wp-content/uploads/materials/pir.jpg
[area_modifier] => 170.49
[parent_name] => Дополнительное утепление наружных стен
[parent_id] => 17
[material_sum] => 1873065
[work_sum] => 150031
[total_sum] => 2023096
[total_days] => 5
[display_material_sum] => 1 873 065
[display_work_sum] => 150 031
[display_total_sum] => 2 023 096
)
1
2 023 096₽
Работа:150 031 ₽
Материалы:1 873 065 ₽
Дни:5
stdClass Object
(
[id] => 37
[attribute_id] => 19
[name] => Нет
[material_modifier] => 1
[work_modifier] => 1
[options] => Array
(
)
[days] => [0]
[material_price] => [0]
[work_price] => [0]
[image] => https://akademik-stroy.ru/wp-content/uploads/materials/imitaciya-brusa.jpg
[area_modifier] => 170.49
[parent_name] => Наружная отделка фасада
[parent_id] => 19
[material_sum] => 0
[work_sum] => 0
[total_sum] => 0
[total_days] => 0
[display_material_sum] => 0
[display_work_sum] => 0
[display_total_sum] => 0
)
1
0₽
Работа:0 ₽
Материалы:0 ₽
Дни:0
stdClass Object
(
[id] => 38
[attribute_id] => 19
[name] => Имитация бруса
[material_modifier] => 1
[work_modifier] => 1
[options] => Array
(
[0] => Сосна
[1] => Ель
[2] => Лиственница
)
[days] => [20,20,20]
[material_price] => [2994,2762,4954]
[work_price] => [1397,1231,1577]
[image] => https://akademik-stroy.ru/wp-content/uploads/materials/imitaciya-brusa.jpg
[area_modifier] => 170.49
[parent_name] => Наружная отделка фасада
[parent_id] => 19
[material_sum] => 673790
[work_sum] => 261992
[total_sum] => 935782
[total_days] => 20
[display_material_sum] => 673 790
[display_work_sum] => 261 992
[display_total_sum] => 935 782
)
1
935 782₽
Работа:261 992 ₽
Материалы:673 790 ₽
Дни:20
stdClass Object
(
[id] => 136
[attribute_id] => 19
[name] => Планкен
[material_modifier] => 1
[work_modifier] => 1
[options] => Array
(
[0] => Сосна
[1] => Ель
[2] => Лиственница
)
[days] => [20,20,20]
[material_price] => [3194,2862,5154]
[work_price] => [1537,1354,1735]
[image] => https://akademik-stroy.ru/wp-content/uploads/materials/planken.jpg
[area_modifier] => 170.49
[parent_name] => Наружная отделка фасада
[parent_id] => 19
[material_sum] => 718799
[work_sum] => 288247
[total_sum] => 1007046
[total_days] => 20
[display_material_sum] => 718 799
[display_work_sum] => 288 247
[display_total_sum] => 1 007 046
)
1
1 007 046₽
Работа:288 247 ₽
Материалы:718 799 ₽
Дни:20
stdClass Object
(
[id] => 137
[attribute_id] => 19
[name] => Штукатурка
[material_modifier] => 1
[work_modifier] => 1
[options] => Array
(
[0] => Цементно-песчаная (минеральная)
[1] => Мокрый фасад
)
[days] => [35,35]
[material_price] => [2231,3938]
[work_price] => [1202,2422]
[image] => https://akademik-stroy.ru/wp-content/uploads/materials/shtukaturka.jpg
[area_modifier] => 170.49
[parent_name] => Наружная отделка фасада
[parent_id] => 19
[material_sum] => 502079
[work_sum] => 225422
[total_sum] => 727501
[total_days] => 35
[display_material_sum] => 502 079
[display_work_sum] => 225 422
[display_total_sum] => 727 501
)
1
727 501₽
Работа:225 422 ₽
Материалы:502 079 ₽
Дни:35
stdClass Object
(
[id] => 138
[attribute_id] => 19
[name] => Облицовочный кирпич
[material_modifier] => 1
[work_modifier] => 1
[options] => Array
(
[0] => Керамический
[1] => Клинкерный
[2] => Ручной формовки
[3] => Гиперпрессованный
[4] => Силикатный кирпич
)
[days] => [45,45,45,45,45]
[material_price] => [8174,9148,1040,1257,5876]
[work_price] => [3240,3758,4536,4017,3369]
[image] => https://akademik-stroy.ru/wp-content/uploads/materials/oblicovochnyj-kirpich.jpg
[area_modifier] => 170.49
[parent_name] => Наружная отделка фасада
[parent_id] => 19
[material_sum] => 1839533
[work_sum] => 607626
[total_sum] => 2447159
[total_days] => 45
[display_material_sum] => 1 839 533
[display_work_sum] => 607 626
[display_total_sum] => 2 447 159
)
1
2 447 159₽
Работа:607 626 ₽
Материалы:1 839 533 ₽
Дни:45
stdClass Object
(
[id] => 139
[attribute_id] => 19
[name] => Фасадная плитка
[material_modifier] => 1
[work_modifier] => 1
[options] => Array
(
[0] => Клинкерная
[1] => Керамическая
[2] => Плитка ручной формовки
)
[days] => [40,40,40]
[material_price] => [2974,1487,3470]
[work_price] => [3007,2592,3629]
[image] => https://akademik-stroy.ru/wp-content/uploads/materials/fasadnaya-plitka.jpg
[area_modifier] => 170.49
[parent_name] => Наружная отделка фасада
[parent_id] => 19
[material_sum] => 669289
[work_sum] => 563930
[total_sum] => 1233219
[total_days] => 40
[display_material_sum] => 669 289
[display_work_sum] => 563 930
[display_total_sum] => 1 233 219
)
1
1 233 219₽
Работа:563 930 ₽
Материалы:669 289 ₽
Дни:40
stdClass Object
(
[id] => 140
[attribute_id] => 19
[name] => Сайдинг
[material_modifier] => 1
[work_modifier] => 1
[options] => Array
(
[0] => Виниловый
[1] => Металлический
[2] => Фиброцементный
)
[days] => [20,20,20]
[material_price] => [1263,1944,4147]
[work_price] => [1263,1944,2074]
[image] => https://akademik-stroy.ru/wp-content/uploads/materials/sajding.jpg
[area_modifier] => 170.49
[parent_name] => Наружная отделка фасада
[parent_id] => 19
[material_sum] => 284234
[work_sum] => 236862
[total_sum] => 521096
[total_days] => 20
[display_material_sum] => 284 234
[display_work_sum] => 236 862
[display_total_sum] => 521 096
)
1
521 096₽
Работа:236 862 ₽
Материалы:284 234 ₽
Дни:20
stdClass Object
(
[id] => 141
[attribute_id] => 19
[name] => Камень
[material_modifier] => 1
[work_modifier] => 1
[options] => Array
(
[0] => Травертин
[1] => Дагестанский
[2] => Искусственный
[3] => Натуральный
[4] => Керамогранит
)
[days] => [45,45,45,45,45]
[material_price] => [4536,3888,2592,3240,2462]
[work_price] => [3240,3240,2462,3110,1944]
[image] => https://akademik-stroy.ru/wp-content/uploads/materials/kamen-1.jpg
[area_modifier] => 170.49
[parent_name] => Наружная отделка фасада
[parent_id] => 19
[material_sum] => 1020812
[work_sum] => 607626
[total_sum] => 1628438
[total_days] => 45
[display_material_sum] => 1 020 812
[display_work_sum] => 607 626
[display_total_sum] => 1 628 438
)
1
1 628 438₽
Работа:607 626 ₽
Материалы:1 020 812 ₽
Дни:45
stdClass Object
(
[id] => 142
[attribute_id] => 19
[name] => Термопанели
[material_modifier] => 1
[work_modifier] => 1
[options] => Array
(
)
[days] => [20]
[material_price] => [6221]
[work_price] => [2333]
[image] => https://akademik-stroy.ru/wp-content/uploads/materials/termo.png
[area_modifier] => 170.49
[parent_name] => Наружная отделка фасада
[parent_id] => 19
[material_sum] => 1400016
[work_sum] => 437528
[total_sum] => 1837544
[total_days] => 20
[display_material_sum] => 1 400 016
[display_work_sum] => 437 528
[display_total_sum] => 1 837 544
)
1
1 837 544₽
Работа:437 528 ₽
Материалы:1 400 016 ₽
Дни:20
stdClass Object
(
[id] => 143
[attribute_id] => 19
[name] => Плитка HAUBERK
[material_modifier] => 1
[work_modifier] => 1
[options] => Array
(
)
[days] => [20]
[material_price] => [2786]
[work_price] => [1944]
[image] => https://akademik-stroy.ru/wp-content/uploads/materials/hauberk.jpg
[area_modifier] => 170.49
[parent_name] => Наружная отделка фасада
[parent_id] => 19
[material_sum] => 626980
[work_sum] => 364576
[total_sum] => 991556
[total_days] => 20
[display_material_sum] => 626 980
[display_work_sum] => 364 576
[display_total_sum] => 991 556
)
1
991 556₽
Работа:364 576 ₽
Материалы:626 980 ₽
Дни:20
stdClass Object
(
[id] => 144
[attribute_id] => 19
[name] => Фальцевый фасад
[material_modifier] => 1
[work_modifier] => 1
[options] => Array
(
)
[days] => [20]
[material_price] => [3240]
[work_price] => [2592]
[image] => https://akademik-stroy.ru/wp-content/uploads/materials/falcevyj-fasad.jpg
[area_modifier] => 170.49
[parent_name] => Наружная отделка фасада
[parent_id] => 19
[material_sum] => 729152
[work_sum] => 486101
[total_sum] => 1215253
[total_days] => 20
[display_material_sum] => 729 152
[display_work_sum] => 486 101
[display_total_sum] => 1 215 253
)
1
1 215 253₽
Работа:486 101 ₽
Материалы:729 152 ₽
Дни:20
stdClass Object
(
[id] => 145
[attribute_id] => 19
[name] => Комбинированный
[material_modifier] => 1
[work_modifier] => 1
[options] => Array
(
)
[days] => [20]
[material_price] => [4629]
[work_price] => [3499]
[image] => https://akademik-stroy.ru/wp-content/uploads/materials/Kombinirovannyj.jpg
[area_modifier] => 170.49
[parent_name] => Наружная отделка фасада
[parent_id] => 19
[material_sum] => 1041742
[work_sum] => 656199
[total_sum] => 1697941
[total_days] => 20
[display_material_sum] => 1 041 742
[display_work_sum] => 656 199
[display_total_sum] => 1 697 941
)
1
1 697 941₽
Работа:656 199 ₽
Материалы:1 041 742 ₽
Дни:20
stdClass Object
(
[id] => 257
[attribute_id] => 19
[name] => Японские фиброцементные
[material_modifier] => 1
[work_modifier] => 1
[options] => Array
(
)
[days] => [20]
[material_price] => [7043]
[work_price] => [2993]
[image] => https://akademik-stroy.ru/wp-content/uploads/materials/paneli.jpg
[area_modifier] => 170.49
[parent_name] => Наружная отделка фасада
[parent_id] => 19
[material_sum] => 1585005
[work_sum] => 561304
[total_sum] => 2146309
[total_days] => 20
[display_material_sum] => 1 585 005
[display_work_sum] => 561 304
[display_total_sum] => 2 146 309
)
1
2 146 309₽
Работа:561 304 ₽
Материалы:1 585 005 ₽
Дни:20
stdClass Object
(
[id] => 258
[attribute_id] => 19
[name] => Панели Каньон
[material_modifier] => 1
[work_modifier] => 1
[options] => Array
(
)
[days] => [20]
[material_price] => [4543]
[work_price] => [2592]
[image] => https://akademik-stroy.ru/wp-content/uploads/materials/kanon.png
[area_modifier] => 170.49
[parent_name] => Наружная отделка фасада
[parent_id] => 19
[material_sum] => 1022388
[work_sum] => 486101
[total_sum] => 1508489
[total_days] => 20
[display_material_sum] => 1 022 388
[display_work_sum] => 486 101
[display_total_sum] => 1 508 489
)
1
1 508 489₽
Работа:486 101 ₽
Материалы:1 022 388 ₽
Дни:20
stdClass Object
(
[id] => 39
[attribute_id] => 20
[name] => Нет
[material_modifier] => 1
[work_modifier] => 1
[options] => Array
(
)
[days] => [0]
[material_price] => [0]
[work_price] => [0]
[image] => https://akademik-stroy.ru/wp-content/uploads/materials/terrasy.jpg
[area_modifier] => 30
[parent_name] => Террасы, крыльца, навесы
[parent_id] => 20
[material_sum] => 0
[work_sum] => 0
[total_sum] => 0
[total_days] => 0
[display_material_sum] => 0
[display_work_sum] => 0
[display_total_sum] => 0
)
1
0₽
Работа:0 ₽
Материалы:0 ₽
Дни:0
stdClass Object
(
[id] => 40
[attribute_id] => 20
[name] => Есть
[material_modifier] => 1
[work_modifier] => 1
[options] => Array
(
)
[days] => [5]
[material_price] => [10450]
[work_price] => [1950]
[image] => https://akademik-stroy.ru/wp-content/uploads/materials/terrasy.jpg
[area_modifier] => 30
[parent_name] => Террасы, крыльца, навесы
[parent_id] => 20
[material_sum] => 413820
[work_sum] => 64350
[total_sum] => 478170
[total_days] => 5
[display_material_sum] => 413 820
[display_work_sum] => 64 350
[display_total_sum] => 478 170
)
1
478 170₽
Работа:64 350 ₽
Материалы:413 820 ₽
Дни:5
stdClass Object
(
[id] => 41
[attribute_id] => 21
[name] => Нет
[material_modifier] => 1
[work_modifier] => 1
[options] => Array
(
)
[days] => [0]
[material_price] => [0]
[work_price] => [0]
[image] => https://akademik-stroy.ru/wp-content/uploads/materials/balkony.jpg
[area_modifier] => 30
[parent_name] => Балконы
[parent_id] => 21
[material_sum] => 0
[work_sum] => 0
[total_sum] => 0
[total_days] => 0
[display_material_sum] => 0
[display_work_sum] => 0
[display_total_sum] => 0
)
1
0₽
Работа:0 ₽
Материалы:0 ₽
Дни:0
stdClass Object
(
[id] => 42
[attribute_id] => 21
[name] => Есть
[material_modifier] => 1
[work_modifier] => 1
[options] => Array
(
)
[days] => [12]
[material_price] => [3600]
[work_price] => [1950]
[image] => https://akademik-stroy.ru/wp-content/uploads/materials/balkony.jpg
[area_modifier] => 30
[parent_name] => Балконы
[parent_id] => 21
[material_sum] => 142560
[work_sum] => 64350
[total_sum] => 206910
[total_days] => 12
[display_material_sum] => 142 560
[display_work_sum] => 64 350
[display_total_sum] => 206 910
)
1
206 910₽
Работа:64 350 ₽
Материалы:142 560 ₽
Дни:12
stdClass Object
(
[id] => 43
[attribute_id] => 22
[name] => Нет
[material_modifier] => 1
[work_modifier] => 1
[options] => Array
(
)
[days] => [0]
[material_price] => [0]
[work_price] => [0]
[image] => https://akademik-stroy.ru/wp-content/uploads/materials/uteplennaya.jpg
[area_modifier] => 97.46
[parent_name] => Отмостка
[parent_id] => 22
[material_sum] => 0
[work_sum] => 0
[total_sum] => 0
[total_days] => 0
[display_material_sum] => 0
[display_work_sum] => 0
[display_total_sum] => 0
)
1
0₽
Работа:0 ₽
Материалы:0 ₽
Дни:0
stdClass Object
(
[id] => 44
[attribute_id] => 22
[name] => Утепленная отмостка
[material_modifier] => 1
[work_modifier] => 1
[options] => Array
(
)
[days] => [15]
[material_price] => [2550]
[work_price] => [1750]
[image] => https://akademik-stroy.ru/wp-content/uploads/materials/uteplennaya.jpg
[area_modifier] => 97.46
[parent_name] => Отмостка
[parent_id] => 22
[material_sum] => 328050
[work_sum] => 187611
[total_sum] => 515661
[total_days] => 15
[display_material_sum] => 328 050
[display_work_sum] => 187 611
[display_total_sum] => 515 661
)
1
515 661₽
Работа:187 611 ₽
Материалы:328 050 ₽
Дни:15
stdClass Object
(
[id] => 146
[attribute_id] => 22
[name] => Не утепленная отмостка
[material_modifier] => 1
[work_modifier] => 1
[options] => Array
(
)
[days] => [10]
[material_price] => [1650]
[work_price] => [1450]
[image] => https://akademik-stroy.ru/wp-content/uploads/materials/ne-uteplennaya.jpg
[area_modifier] => 97.46
[parent_name] => Отмостка
[parent_id] => 22
[material_sum] => 212268
[work_sum] => 155449
[total_sum] => 367717
[total_days] => 10
[display_material_sum] => 212 268
[display_work_sum] => 155 449
[display_total_sum] => 367 717
)
1
367 717₽
Работа:155 449 ₽
Материалы:212 268 ₽
Дни:10
stdClass Object
(
[id] => 45
[attribute_id] => 23
[name] => Нет
[material_modifier] => 1
[work_modifier] => 1
[options] => Array
(
)
[days] => [0]
[material_price] => [0]
[work_price] => [0]
[image] => https://akademik-stroy.ru/wp-content/uploads/materials/drenazh-2.jpg
[area_modifier] => 97.46
[parent_name] => Дренаж вокруг дома
[parent_id] => 23
[material_sum] => 0
[work_sum] => 0
[total_sum] => 0
[total_days] => 0
[display_material_sum] => 0
[display_work_sum] => 0
[display_total_sum] => 0
)
1
0₽
Работа:0 ₽
Материалы:0 ₽
Дни:0
stdClass Object
(
[id] => 46
[attribute_id] => 23
[name] => Есть
[material_modifier] => 1
[work_modifier] => 1
[options] => Array
(
)
[days] => [5]
[material_price] => [2366]
[work_price] => [1911]
[image] => https://akademik-stroy.ru/wp-content/uploads/materials/drenazh-2.jpg
[area_modifier] => 97.46
[parent_name] => Дренаж вокруг дома
[parent_id] => 23
[material_sum] => 304379
[work_sum] => 204871
[total_sum] => 509250
[total_days] => 5
[display_material_sum] => 304 379
[display_work_sum] => 204 871
[display_total_sum] => 509 250
)
1
509 250₽
Работа:204 871 ₽
Материалы:304 379 ₽
Дни:5
stdClass Object
(
[id] => 47
[attribute_id] => 24
[name] => Нет
[material_modifier] => 1
[work_modifier] => 1
[options] => Array
(
)
[days] => [0]
[material_price] => [0]
[work_price] => [0]
[image] => https://akademik-stroy.ru/wp-content/uploads/materials/septik.jpg
[area_modifier] => 1
[parent_name] => Автономная канализация (септики)
[parent_id] => 24
[material_sum] => 0
[work_sum] => 0
[total_sum] => 0
[total_days] => 0
[display_material_sum] => 0
[display_work_sum] => 0
[display_total_sum] => 0
)
1
0₽
Работа:0 ₽
Материалы:0 ₽
Дни:0
stdClass Object
(
[id] => 48
[attribute_id] => 24
[name] => Есть
[material_modifier] => 1
[work_modifier] => 1
[options] => Array
(
[0] => Для дачи на 4 человека
[1] => Для дома на 5 человек
[2] => Для дома на 6 человек
[3] => Для дома на 7 человек
[4] => Для дома на 10 человек
)
[days] => [7,7,7,8,8]
[material_price] => [196340,220500,240940,264200,293340]
[work_price] => [50000,55000,60500,66550,73206]
[image] => https://akademik-stroy.ru/wp-content/uploads/materials/septik.jpg
[area_modifier] => 1
[parent_name] => Автономная канализация (септики)
[parent_id] => 24
[material_sum] => 259169
[work_sum] => 55000
[total_sum] => 314169
[total_days] => 7
[display_material_sum] => 259 169
[display_work_sum] => 55 000
[display_total_sum] => 314 169
)
1
314 169₽
Работа:55 000 ₽
Материалы:259 169 ₽
Дни:7
stdClass Object
(
[id] => 49
[attribute_id] => 25
[name] => Нет
[material_modifier] => 1
[work_modifier] => 1
[options] => Array
(
)
[days] => [0]
[material_price] => [0]
[work_price] => [0]
[image] => https://akademik-stroy.ru/wp-content/uploads/materials/gkl.jpg
[area_modifier] => 170.49
[parent_name] => Внутренние (не несущие) перегородки
[parent_id] => 25
[material_sum] => 0
[work_sum] => 0
[total_sum] => 0
[total_days] => 0
[display_material_sum] => 0
[display_work_sum] => 0
[display_total_sum] => 0
)
1
0₽
Работа:0 ₽
Материалы:0 ₽
Дни:0
stdClass Object
(
[id] => 147
[attribute_id] => 25
[name] => Каркасно-обшивные
[material_modifier] => 1
[work_modifier] => 1
[options] => Array
(
[0] => 75 мм (без шумоизоляции)
[1] => 75 мм (с шумоизоляцией)
)
[days] => [11,11]
[material_price] => [580,970]
[work_price] => [380,570]
[image] => https://akademik-stroy.ru/wp-content/uploads/materials/gkl.jpg
[area_modifier] => 170.49
[parent_name] => Внутренние (не несущие) перегородки
[parent_id] => 25
[material_sum] => 130527
[work_sum] => 71265
[total_sum] => 201792
[total_days] => 11
[display_material_sum] => 130 527
[display_work_sum] => 71 265
[display_total_sum] => 201 792
)
1
201 792₽
Работа:71 265 ₽
Материалы:130 527 ₽
Дни:11
stdClass Object
(
[id] => 148
[attribute_id] => 25
[name] => Пазогребневые
[material_modifier] => 1
[work_modifier] => 1
[options] => Array
(
[0] => 80 мм
[1] => 100 мм
)
[days] => [5,5]
[material_price] => [1022,1313]
[work_price] => [600,700]
[image] => https://akademik-stroy.ru/wp-content/uploads/materials/pazogrebnevye-bloki.jpg
[area_modifier] => 170.49
[parent_name] => Внутренние (не несущие) перегородки
[parent_id] => 25
[material_sum] => 229998
[work_sum] => 112523
[total_sum] => 342521
[total_days] => 5
[display_material_sum] => 229 998
[display_work_sum] => 112 523
[display_total_sum] => 342 521
)
1
342 521₽
Работа:112 523 ₽
Материалы:229 998 ₽
Дни:5
stdClass Object
(
[id] => 149
[attribute_id] => 25
[name] => Газобетонные
[material_modifier] => 1
[work_modifier] => 1
[options] => Array
(
[0] => 100 мм
[1] => 200 мм
)
[days] => [11,11]
[material_price] => [1160,1920]
[work_price] => [700,900]
[image] => https://akademik-stroy.ru/wp-content/uploads/materials/gazobeton-2.jpg
[area_modifier] => 170.49
[parent_name] => Внутренние (не несущие) перегородки
[parent_id] => 25
[material_sum] => 261054
[work_sum] => 131277
[total_sum] => 392331
[total_days] => 11
[display_material_sum] => 261 054
[display_work_sum] => 131 277
[display_total_sum] => 392 331
)
1
392 331₽
Работа:131 277 ₽
Материалы:261 054 ₽
Дни:11
stdClass Object
(
[id] => 150
[attribute_id] => 25
[name] => Кирпичные
[material_modifier] => 1
[work_modifier] => 1
[options] => Array
(
[0] => 120 мм
[1] => 250 мм
[2] => 360 мм
)
[days] => [7,7,7]
[material_price] => [1785,3570,5355]
[work_price] => [900,1600,1800]
[image] => https://akademik-stroy.ru/wp-content/uploads/materials/kirpich-1.jpg
[area_modifier] => 170.49
[parent_name] => Внутренние (не несущие) перегородки
[parent_id] => 25
[material_sum] => 401709
[work_sum] => 168785
[total_sum] => 570494
[total_days] => 7
[display_material_sum] => 401 709
[display_work_sum] => 168 785
[display_total_sum] => 570 494
)
1
570 494₽
Работа:168 785 ₽
Материалы:401 709 ₽
Дни:7
stdClass Object
(
[id] => 55
[attribute_id] => 28
[name] => Нет
[material_modifier] => 1
[work_modifier] => 1
[options] => Array
(
)
[days] => [0]
[material_price] => [0]
[work_price] => [0]
[image] => https://akademik-stroy.ru/wp-content/uploads/materials/ehlektrika.jpg
[area_modifier] => 138.35
[parent_name] => Электрика
[parent_id] => 28
[material_sum] => 0
[work_sum] => 0
[total_sum] => 0
[total_days] => 0
[display_material_sum] => 0
[display_work_sum] => 0
[display_total_sum] => 0
)
1
0₽
Работа:0 ₽
Материалы:0 ₽
Дни:0
stdClass Object
(
[id] => 56
[attribute_id] => 28
[name] => Есть
[material_modifier] => 1
[work_modifier] => 1
[options] => Array
(
)
[days] => [10]
[material_price] => [650]
[work_price] => [950]
[image] => https://akademik-stroy.ru/wp-content/uploads/materials/ehlektrika.jpg
[area_modifier] => 138.35
[parent_name] => Электрика
[parent_id] => 28
[material_sum] => 118704
[work_sum] => 144576
[total_sum] => 263280
[total_days] => 10
[display_material_sum] => 118 704
[display_work_sum] => 144 576
[display_total_sum] => 263 280
)
1
263 280₽
Работа:144 576 ₽
Материалы:118 704 ₽
Дни:10
stdClass Object
(
[id] => 57
[attribute_id] => 29
[name] => Нет
[material_modifier] => 1
[work_modifier] => 1
[options] => Array
(
)
[days] => [0]
[material_price] => [0]
[work_price] => [0]
[image] => https://akademik-stroy.ru/wp-content/uploads/materials/santekhnika-kanalizaciya-1.jpg
[area_modifier] => 138.35
[parent_name] => Сантехника, канализация в доме
[parent_id] => 29
[material_sum] => 0
[work_sum] => 0
[total_sum] => 0
[total_days] => 0
[display_material_sum] => 0
[display_work_sum] => 0
[display_total_sum] => 0
)
1
0₽
Работа:0 ₽
Материалы:0 ₽
Дни:0
stdClass Object
(
[id] => 58
[attribute_id] => 29
[name] => Есть
[material_modifier] => 1
[work_modifier] => 1
[options] => Array
(
)
[days] => [10]
[material_price] => [600]
[work_price] => [730]
[image] => https://akademik-stroy.ru/wp-content/uploads/materials/santekhnika-kanalizaciya-1.jpg
[area_modifier] => 138.35
[parent_name] => Сантехника, канализация в доме
[parent_id] => 29
[material_sum] => 109573
[work_sum] => 111095
[total_sum] => 220668
[total_days] => 10
[display_material_sum] => 109 573
[display_work_sum] => 111 095
[display_total_sum] => 220 668
)
1
220 668₽
Работа:111 095 ₽
Материалы:109 573 ₽
Дни:10
stdClass Object
(
[id] => 59
[attribute_id] => 30
[name] => Нет
[material_modifier] => 1
[work_modifier] => 1
[options] => Array
(
)
[days] => [0]
[material_price] => [0]
[work_price] => [0]
[image] => https://akademik-stroy.ru/wp-content/uploads/materials/otoplenie-1.jpg
[area_modifier] => 138.35
[parent_name] => Отопление
[parent_id] => 30
[material_sum] => 0
[work_sum] => 0
[total_sum] => 0
[total_days] => 0
[display_material_sum] => 0
[display_work_sum] => 0
[display_total_sum] => 0
)
1
0₽
Работа:0 ₽
Материалы:0 ₽
Дни:0
stdClass Object
(
[id] => 60
[attribute_id] => 30
[name] => Есть
[material_modifier] => 1
[work_modifier] => 1
[options] => Array
(
)
[days] => [5]
[material_price] => [610]
[work_price] => [560]
[image] => https://akademik-stroy.ru/wp-content/uploads/materials/otoplenie-1.jpg
[area_modifier] => 138.35
[parent_name] => Отопление
[parent_id] => 30
[material_sum] => 111399
[work_sum] => 85224
[total_sum] => 196623
[total_days] => 5
[display_material_sum] => 111 399
[display_work_sum] => 85 224
[display_total_sum] => 196 623
)
1
196 623₽
Работа:85 224 ₽
Материалы:111 399 ₽
Дни:5
stdClass Object
(
[id] => 61
[attribute_id] => 31
[name] => Нет
[material_modifier] => 1
[work_modifier] => 1
[options] => Array
(
)
[days] => [0]
[material_price] => [0]
[work_price] => [0]
[image] => https://akademik-stroy.ru/wp-content/uploads/materials/vodyanye.jpg
[area_modifier] => 30
[parent_name] => Теплые полы
[parent_id] => 31
[material_sum] => 0
[work_sum] => 0
[total_sum] => 0
[total_days] => 0
[display_material_sum] => 0
[display_work_sum] => 0
[display_total_sum] => 0
)
1
0₽
Работа:0 ₽
Материалы:0 ₽
Дни:0
stdClass Object
(
[id] => 151
[attribute_id] => 31
[name] => Водяные
[material_modifier] => 1
[work_modifier] => 1
[options] => Array
(
)
[days] => [9]
[material_price] => [10200]
[work_price] => [2500]
[image] => https://akademik-stroy.ru/wp-content/uploads/materials/vodyanye.jpg
[area_modifier] => 30
[parent_name] => Теплые полы
[parent_id] => 31
[material_sum] => 403920
[work_sum] => 82500
[total_sum] => 486420
[total_days] => 9
[display_material_sum] => 403 920
[display_work_sum] => 82 500
[display_total_sum] => 486 420
)
1
486 420₽
Работа:82 500 ₽
Материалы:403 920 ₽
Дни:9
stdClass Object
(
[id] => 152
[attribute_id] => 31
[name] => Электро
[material_modifier] => 1
[work_modifier] => 1
[options] => Array
(
)
[days] => [5]
[material_price] => [6300]
[work_price] => [1500]
[image] => https://akademik-stroy.ru/wp-content/uploads/materials/ehlektricheskij.jpg
[area_modifier] => 30
[parent_name] => Теплые полы
[parent_id] => 31
[material_sum] => 249480
[work_sum] => 49500
[total_sum] => 298980
[total_days] => 5
[display_material_sum] => 249 480
[display_work_sum] => 49 500
[display_total_sum] => 298 980
)
1
298 980₽
Работа:49 500 ₽
Материалы:249 480 ₽
Дни:5
stdClass Object
(
[id] => 63
[attribute_id] => 32
[name] => Нет
[material_modifier] => 1
[work_modifier] => 1
[options] => Array
(
)
[days] => [0]
[material_price] => [0]
[work_price] => [0]
[image] => https://akademik-stroy.ru/wp-content/uploads/materials/shtukaturka-shpatlevka-1.jpg
[area_modifier] => 138.35
[parent_name] => Черновая отделка стен
[parent_id] => 32
[material_sum] => 0
[work_sum] => 0
[total_sum] => 0
[total_days] => 0
[display_material_sum] => 0
[display_work_sum] => 0
[display_total_sum] => 0
)
1
0₽
Работа:0 ₽
Материалы:0 ₽
Дни:0
stdClass Object
(
[id] => 153
[attribute_id] => 32
[name] => Штукатурка и шпатлевка
[material_modifier] => 1
[work_modifier] => 1
[options] => Array
(
)
[days] => [20]
[material_price] => [1850]
[work_price] => [2600]
[image] => https://akademik-stroy.ru/wp-content/uploads/materials/shtukaturka-shpatlevka-1.jpg
[area_modifier] => 138.35
[parent_name] => Черновая отделка стен
[parent_id] => 32
[material_sum] => 337851
[work_sum] => 395681
[total_sum] => 733532
[total_days] => 20
[display_material_sum] => 337 851
[display_work_sum] => 395 681
[display_total_sum] => 733 532
)
1
733 532₽
Работа:395 681 ₽
Материалы:337 851 ₽
Дни:20
stdClass Object
(
[id] => 154
[attribute_id] => 32
[name] => Гипсокортон на стены
[material_modifier] => 1
[work_modifier] => 1
[options] => Array
(
)
[days] => [15]
[material_price] => [950]
[work_price] => [2100]
[image] => https://akademik-stroy.ru/wp-content/uploads/materials/gkl-1.jpg
[area_modifier] => 138.35
[parent_name] => Черновая отделка стен
[parent_id] => 32
[material_sum] => 173491
[work_sum] => 319589
[total_sum] => 493080
[total_days] => 15
[display_material_sum] => 173 491
[display_work_sum] => 319 589
[display_total_sum] => 493 080
)
1
493 080₽
Работа:319 589 ₽
Материалы:173 491 ₽
Дни:15
stdClass Object
(
[id] => 155
[attribute_id] => 32
[name] => Вагонка
[material_modifier] => 1
[work_modifier] => 1
[options] => Array
(
)
[days] => [15]
[material_price] => [1250]
[work_price] => [950]
[image] => https://akademik-stroy.ru/wp-content/uploads/materials/vagonka.jpg
[area_modifier] => 138.35
[parent_name] => Черновая отделка стен
[parent_id] => 32
[material_sum] => 228278
[work_sum] => 144576
[total_sum] => 372854
[total_days] => 15
[display_material_sum] => 228 278
[display_work_sum] => 144 576
[display_total_sum] => 372 854
)
1
372 854₽
Работа:144 576 ₽
Материалы:228 278 ₽
Дни:15
stdClass Object
(
[id] => 65
[attribute_id] => 33
[name] => Нет
[material_modifier] => 1
[work_modifier] => 1
[options] => Array
(
)
[days] => [0]
[material_price] => [0]
[work_price] => [0]
[image] => https://akademik-stroy.ru/wp-content/uploads/materials/styazhka.jpg
[area_modifier] => 138.35
[parent_name] => Черновая отделка полов
[parent_id] => 33
[material_sum] => 0
[work_sum] => 0
[total_sum] => 0
[total_days] => 0
[display_material_sum] => 0
[display_work_sum] => 0
[display_total_sum] => 0
)
1
0₽
Работа:0 ₽
Материалы:0 ₽
Дни:0
stdClass Object
(
[id] => 156
[attribute_id] => 33
[name] => Стяжка + наливные полы
[material_modifier] => 1
[work_modifier] => 1
[options] => Array
(
)
[days] => [10]
[material_price] => [1000]
[work_price] => [900]
[image] => https://akademik-stroy.ru/wp-content/uploads/materials/styazhka.jpg
[area_modifier] => 138.35
[parent_name] => Черновая отделка полов
[parent_id] => 33
[material_sum] => 182622
[work_sum] => 136967
[total_sum] => 319589
[total_days] => 10
[display_material_sum] => 182 622
[display_work_sum] => 136 967
[display_total_sum] => 319 589
)
1
319 589₽
Работа:136 967 ₽
Материалы:182 622 ₽
Дни:10
stdClass Object
(
[id] => 157
[attribute_id] => 33
[name] => ОСБ на пол
[material_modifier] => 1
[work_modifier] => 1
[options] => Array
(
)
[days] => [7]
[material_price] => [580]
[work_price] => [350]
[image] => https://akademik-stroy.ru/wp-content/uploads/materials/osb-1.jpg
[area_modifier] => 138.35
[parent_name] => Черновая отделка полов
[parent_id] => 33
[material_sum] => 105921
[work_sum] => 53265
[total_sum] => 159186
[total_days] => 7
[display_material_sum] => 105 921
[display_work_sum] => 53 265
[display_total_sum] => 159 186
)
1
159 186₽
Работа:53 265 ₽
Материалы:105 921 ₽
Дни:7
stdClass Object
(
[id] => 67
[attribute_id] => 34
[name] => Нет
[material_modifier] => 1
[work_modifier] => 1
[options] => Array
(
)
[days] => [0]
[material_price] => [0]
[work_price] => [0]
[image] => https://akademik-stroy.ru/wp-content/uploads/materials/chistovaya-otdelka.jpg
[area_modifier] => 138.35
[parent_name] => Чистовая отделка стен и полов
[parent_id] => 34
[material_sum] => 0
[work_sum] => 0
[total_sum] => 0
[total_days] => 0
[display_material_sum] => 0
[display_work_sum] => 0
[display_total_sum] => 0
)
1
0₽
Работа:0 ₽
Материалы:0 ₽
Дни:0
stdClass Object
(
[id] => 68
[attribute_id] => 34
[name] => Есть
[material_modifier] => 1
[work_modifier] => 1
[options] => Array
(
)
[days] => [50]
[material_price] => [6000]
[work_price] => [3500]
[image] => https://akademik-stroy.ru/wp-content/uploads/materials/chistovaya-otdelka.jpg
[area_modifier] => 138.35
[parent_name] => Чистовая отделка стен и полов
[parent_id] => 34
[material_sum] => 1095732
[work_sum] => 532648
[total_sum] => 1628380
[total_days] => 50
[display_material_sum] => 1 095 732
[display_work_sum] => 532 648
[display_total_sum] => 1 628 380
)
1
1 628 380₽
Работа:532 648 ₽
Материалы:1 095 732 ₽
Дни:50
stdClass Object
(
[id] => 69
[attribute_id] => 35
[name] => Нет
[material_modifier] => 1
[work_modifier] => 1
[options] => Array
(
)
[days] => [0]
[material_price] => [0]
[work_price] => [0]
[image] => https://akademik-stroy.ru/wp-content/uploads/materials/mnogourovnevyj-gkl.jpg
[area_modifier] => 138.35
[parent_name] => Отделка потолка
[parent_id] => 35
[material_sum] => 0
[work_sum] => 0
[total_sum] => 0
[total_days] => 0
[display_material_sum] => 0
[display_work_sum] => 0
[display_total_sum] => 0
)
1
0₽
Работа:0 ₽
Материалы:0 ₽
Дни:0
stdClass Object
(
[id] => 70
[attribute_id] => 35
[name] => Есть
[material_modifier] => 1
[work_modifier] => 1
[options] => Array
(
[0] => Многоуровневый потолок из гипсокартона
[1] => Многоуровневый потолок из гипсокартона и натяжного потолка
[2] => Одноуровневый потолок из гипсокартона
[3] => Одноуровневый натяжной потолок
)
[days] => [10,10,1,1]
[material_price] => [900,700,700,600]
[work_price] => [1000,800,500,300]
[image] => https://akademik-stroy.ru/wp-content/uploads/materials/mnogourovnevyj-gkl.jpg
[area_modifier] => 138.35
[parent_name] => Отделка потолка
[parent_id] => 35
[material_sum] => 164360
[work_sum] => 152185
[total_sum] => 316545
[total_days] => 10
[display_material_sum] => 164 360
[display_work_sum] => 152 185
[display_total_sum] => 316 545
)
1
316 545₽
Работа:152 185 ₽
Материалы:164 360 ₽
Дни:10
Преимущества работы с нами
7 этапов оплаты
Независимый строительный надзор
Экологически чистые материалы
16 лет гарантии
Онлайн-кабинет с веб-камерой
Строители с опытом более 15 лет
Собственное производство








