Одноэтажный дом 132.8 м2 за руб.
Планировки
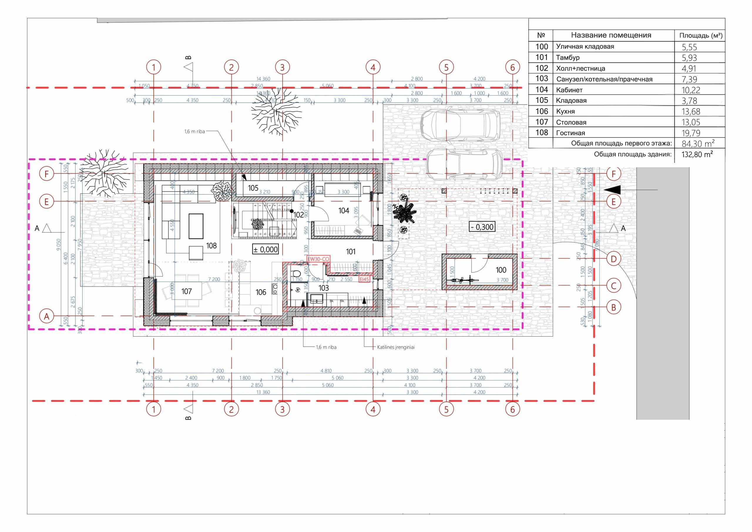
План первого этажа
- 1. Уличная кладовая 5,55 м²
- 2. Тамбур 5,93 м²
- 3. Холл+Лестница 4,91 м²
- 4. Котельная/Санузел 7,39 м²
- 5. Кабинет 10,22 м²
- 6. Кладовая 3,78 м²
- 7. Кухня 13,68 м²
- 8. Столовая 13,05 м²
- Гостиная 19,79 м²
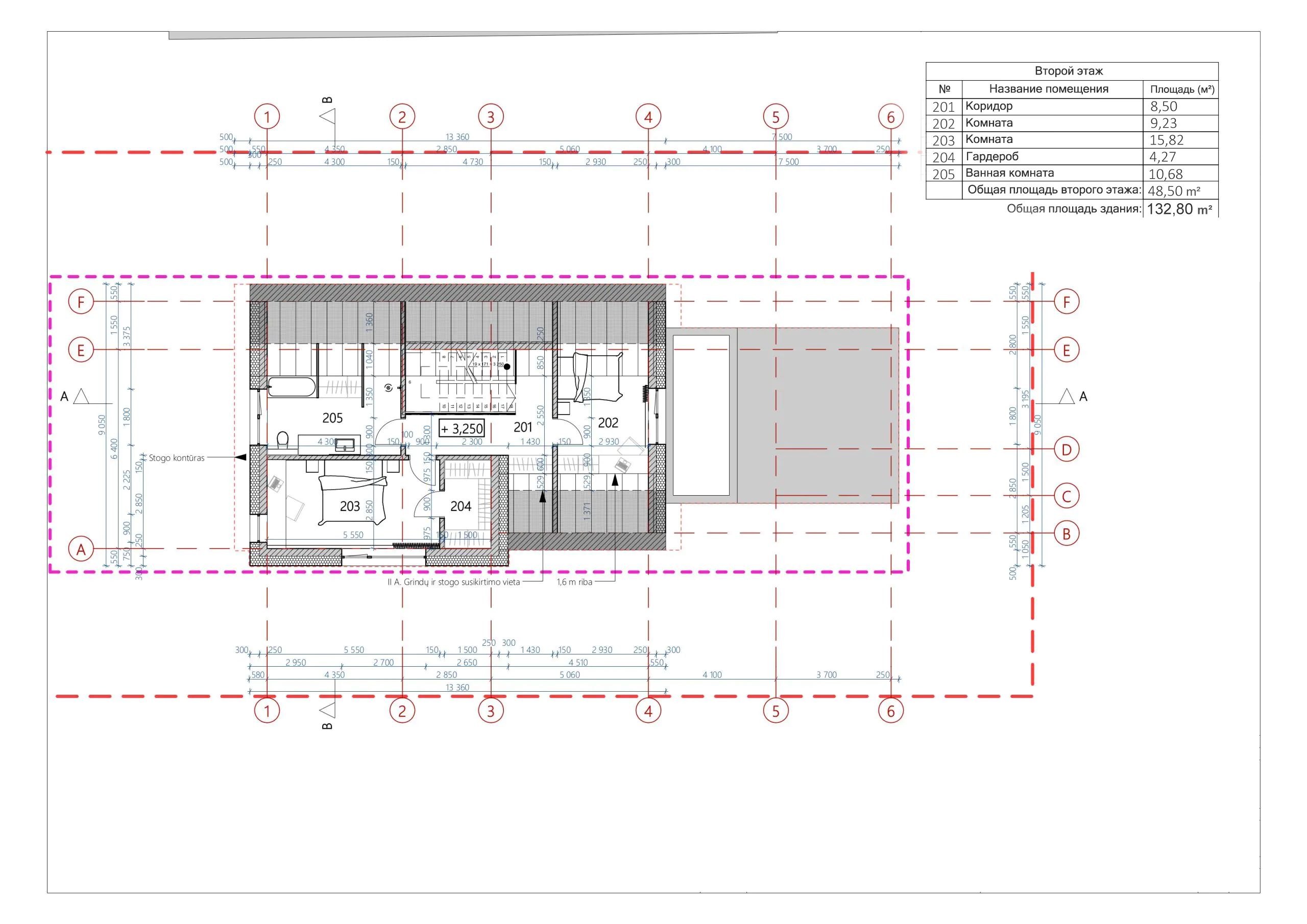
План мансарды
- 1. Коридор 8,50 м²
- 2. Комната 9,23 м²
- 3. Комната 15,82 м²
- 4. Гардероб 4,27 м²
- Ванная комната 10,68 м²
Площади дома
| № п/п | Наименование | Ед. из. | Строительная площадь | Полезная площадь |
| 1 | 1 этаж | м2 | 103.88 | 84.3 |
| 2 | 2 этаж | м2 | 59.77 | 48.5 |
| 3 | Итого | м2 | 163.65 | 132.8 |
154 м2
Полезная
площадь
площадь
1 этаж
Этажей
26 м2
Террасы
и балконы
и балконы
0Без
гаража
гаража
3
Количество
спален
спален
2
Количество
санузлов
санузлов
Калькулятор опций
0₽
В ипотеку от 16 720 ₽/мес.
0₽
0 дней
stdClass Object
(
[id] => 1
[attribute_id] => 1
[name] => Ленточный монолитный ж/б
[material_modifier] => 1
[work_modifier] => 1
[options] => Array
(
[0] => размер 200 х 700 мм
[1] => размер 300 х 900 мм
[2] => размер 400 х 1 000 мм
[3] => размер 500 х 1 100 мм
[4] => размер 600 х 1 200 мм
)
[days] => [20,21,22,25,30]
[material_price] => [2823,3630,4475,5210,12047]
[work_price] => [2154,2826,3731,4577,5293]
[image] => https://akademik-stroy.ru/wp-content/uploads/materials/lentochnyj-monolitnyj-zh-b.jpg
[area_modifier] => 103.88
[parent_name] => Фундамент
[parent_id] => 1
[material_sum] => 387094
[work_sum] => 246133
[total_sum] => 633227
[total_days] => 20
[display_material_sum] => 387 094
[display_work_sum] => 246 133
[display_total_sum] => 633 227
)
1
633 227₽
Работа:246 133 ₽
Материалы:387 094 ₽
Дни:20
stdClass Object
(
[id] => 2
[attribute_id] => 1
[name] => Забивные Ж/Б сваи
[material_modifier] => 1
[work_modifier] => 1
[options] => Array
(
[0] => 150х150х3000мм
[1] => 150х150х4000мм
[2] => 200х200х3000мм
[3] => 200х200х4000мм
[4] => 200х200х5000мм
[5] => 200х200х6000мм
)
[days] => [2,2,2,2,2,2]
[material_price] => [1990,2850,3255,4360,5120,6837]
[work_price] => [1002,1185,1336,1438,1574,1839]
[image] => https://akademik-stroy.ru/wp-content/uploads/materials/zabivnye-zh-b-svai.png
[area_modifier] => 103.88
[parent_name] => Фундамент
[parent_id] => 1
[material_sum] => 272872
[work_sum] => 114497
[total_sum] => 387369
[total_days] => 2
[display_material_sum] => 272 872
[display_work_sum] => 114 497
[display_total_sum] => 387 369
)
1
387 369₽
Работа:114 497 ₽
Материалы:272 872 ₽
Дни:2
stdClass Object
(
[id] => 71
[attribute_id] => 1
[name] => Свайно-ростверковый ж/б
[material_modifier] => 1
[work_modifier] => 1
[options] => Array
(
[0] => ростверк 200х300 мм
[1] => ростверк 300х600 мм
[2] => ростверк 400х900 мм
[3] => ростверк 500х1200 мм
)
[days] => [20,23,25,27]
[material_price] => [3018,3474,7109,9792]
[work_price] => [2024,3012,5635,7022]
[image] => https://akademik-stroy.ru/wp-content/uploads/materials/svajno-rostverkovyj-monolitnyj-zh-b-3.png
[area_modifier] => 103.88
[parent_name] => Фундамент
[parent_id] => 1
[material_sum] => 413833
[work_sum] => 231278
[total_sum] => 645111
[total_days] => 20
[display_material_sum] => 413 833
[display_work_sum] => 231 278
[display_total_sum] => 645 111
)
1
645 111₽
Работа:231 278 ₽
Материалы:413 833 ₽
Дни:20
stdClass Object
(
[id] => 72
[attribute_id] => 1
[name] => Монолитная ж/б плита
[material_modifier] => 1
[work_modifier] => 1
[options] => Array
(
[0] => 200 мм
[1] => 300 мм
[2] => 400 мм
[3] => 500 мм
[4] => 600 мм
)
[days] => [30,33,35,37,40]
[material_price] => [5348,8555,12788,14388,15189]
[work_price] => [4314,4881,7037,8061,10230]
[image] => https://akademik-stroy.ru/wp-content/uploads/materials/monolitnaya-zhb-plita.png
[area_modifier] => 103.88
[parent_name] => Фундамент
[parent_id] => 1
[material_sum] => 733326
[work_sum] => 492952
[total_sum] => 1226278
[total_days] => 30
[display_material_sum] => 733 326
[display_work_sum] => 492 952
[display_total_sum] => 1 226 278
)
1
1 226 278₽
Работа:492 952 ₽
Материалы:733 326 ₽
Дни:30
stdClass Object
(
[id] => 73
[attribute_id] => 1
[name] => Утепленная шведская плита
[material_modifier] => 1
[work_modifier] => 1
[options] => Array
(
[0] => 200 мм
[1] => 300 мм
[2] => 400 мм
[3] => 500 мм
[4] => 600 мм
)
[days] => [32,37,39,42,45]
[material_price] => [10249,12692,13760,14936,16230]
[work_price] => [5960,7337,8072,8878,9765]
[image] => https://akademik-stroy.ru/wp-content/uploads/materials/uteplennaya-shvedskaya-plita.jpg
[area_modifier] => 103.88
[parent_name] => Фундамент
[parent_id] => 1
[material_sum] => 1405359
[work_sum] => 681037
[total_sum] => 2086396
[total_days] => 32
[display_material_sum] => 1 405 359
[display_work_sum] => 681 037
[display_total_sum] => 2 086 396
)
1
2 086 396₽
Работа:681 037 ₽
Материалы:1 405 359 ₽
Дни:32
stdClass Object
(
[id] => 75
[attribute_id] => 1
[name] => Ленточный из ФБС
[material_modifier] => 1
[work_modifier] => 1
[options] => Array
(
[0] => толщ. 300 мм
[1] => толщ. 400 мм
[2] => толщ. 500 мм
[3] => толщ. 600 мм
)
[days] => [20,20,20,20]
[material_price] => [3675,4902,6126,7350]
[work_price] => [2451,3264,4083,4902]
[image] => https://akademik-stroy.ru/wp-content/uploads/materials/lentochnyj-iz-fbs.png
[area_modifier] => 103.88
[parent_name] => Фундамент
[parent_id] => 1
[material_sum] => 503922
[work_sum] => 280071
[total_sum] => 783993
[total_days] => 20
[display_material_sum] => 503 922
[display_work_sum] => 280 071
[display_total_sum] => 783 993
)
1
783 993₽
Работа:280 071 ₽
Материалы:503 922 ₽
Дни:20
stdClass Object
(
[id] => 76
[attribute_id] => 1
[name] => Цокольный этаж из ФБС
[material_modifier] => 1
[work_modifier] => 1
[options] => Array
(
[0] => толщ. 300 мм
[1] => толщ. 400 мм
[2] => толщ. 500 мм
[3] => толщ. 600 мм
)
[days] => [30,32,34,36]
[material_price] => [20916,23299,26680,29060]
[work_price] => [17524,18700,19873,21046]
[image] => https://akademik-stroy.ru/wp-content/uploads/materials/cokolnyj-ehtazh-iz-fbs.jpg
[area_modifier] => 103.88
[parent_name] => Фундамент
[parent_id] => 1
[material_sum] => 2868035
[work_sum] => 2002432
[total_sum] => 4870467
[total_days] => 30
[display_material_sum] => 2 868 035
[display_work_sum] => 2 002 432
[display_total_sum] => 4 870 467
)
1
4 870 467₽
Работа:2 002 432 ₽
Материалы:2 868 035 ₽
Дни:30
stdClass Object
(
[id] => 77
[attribute_id] => 1
[name] => Цокольный этаж монолитный ж/б
[material_modifier] => 1
[work_modifier] => 1
[options] => Array
(
[0] => толщ. 200 мм
[1] => толщ. 300 мм
[2] => толщ. 400 мм
[3] => толщ. 500 мм
[4] => толщ. 600 мм
)
[days] => [40,42,44,46,48]
[material_price] => [25421,29148,32275,35602,37326]
[work_price] => [20441,21907,23375,24841,26306]
[image] => https://akademik-stroy.ru/wp-content/uploads/materials/cokolnyj-etazh-zh-b.jpg
[area_modifier] => 103.88
[parent_name] => Фундамент
[parent_id] => 1
[material_sum] => 3485768
[work_sum] => 2335752
[total_sum] => 5821520
[total_days] => 40
[display_material_sum] => 3 485 768
[display_work_sum] => 2 335 752
[display_total_sum] => 5 821 520
)
1
5 821 520₽
Работа:2 335 752 ₽
Материалы:3 485 768 ₽
Дни:40
stdClass Object
(
[id] => 191
[attribute_id] => 1
[name] => Винтовые сваи
[material_modifier] => 1
[work_modifier] => 1
[options] => Array
(
[0] => 57х200мм
[1] => 76х250мм
[2] => 108х300мм
[3] => 133х350мм
)
[days] => [1,1,2,2]
[material_price] => [1200,1300,1450,1600]
[work_price] => [400,600,900,1100]
[image] => https://akademik-stroy.ru/wp-content/uploads/materials/vintovye-svai.png
[area_modifier] => 103.88
[parent_name] => Фундамент
[parent_id] => 1
[material_sum] => 164546
[work_sum] => 45707
[total_sum] => 210253
[total_days] => 1
[display_material_sum] => 164 546
[display_work_sum] => 45 707
[display_total_sum] => 210 253
)
1
210 253₽
Работа:45 707 ₽
Материалы:164 546 ₽
Дни:1
stdClass Object
(
[id] => 3
[attribute_id] => 2
[name] => Деревянные балки
[material_modifier] => 1
[work_modifier] => 1
[options] => Array
(
[0] => без утепления
[1] => утепление 200 мм
[2] => утепление 250 мм
[3] => утепление 300 мм
[4] => утепление 350 мм
[5] => утепление 400 мм
[6] => утепление 450 мм
[7] => утепление 500 мм
)
[days] => [8,9,9,9,11,12,13,14]
[material_price] => [1634,2042,2344,2947,3149,3652,3354,3557]
[work_price] => [1230,1339,1393,1426,1460,1513,1587,1620]
[image] => https://akademik-stroy.ru/wp-content/uploads/materials/derevyannye-balki.png
[area_modifier] => 103.88
[parent_name] => Перекрытие цоколя
[parent_id] => 2
[material_sum] => 224057
[work_sum] => 140550
[total_sum] => 364607
[total_days] => 8
[display_material_sum] => 224 057
[display_work_sum] => 140 550
[display_total_sum] => 364 607
)
1
364 607₽
Работа:140 550 ₽
Материалы:224 057 ₽
Дни:8
stdClass Object
(
[id] => 4
[attribute_id] => 2
[name] => Сборные ж/б плиты
[material_modifier] => 1
[work_modifier] => 1
[options] => Array
(
[0] => без утепления
[1] => утепление 150мм
[2] => утепление 200мм
[3] => утепление 250мм
[4] => утепление 300мм
[5] => утепление 350мм
[6] => утепление 400мм
[7] => утепление 450мм
[8] => утепление 500мм
)
[days] => [13,15,15,15,15,15,15,15,15]
[material_price] => [3067,5577,5928,6679,7730,8782,9833,10884,11935]
[work_price] => [1520,1956,2102,2247,2392,2537,2684,2829,2974]
[image] => https://akademik-stroy.ru/wp-content/uploads/materials/sbornye-zh-b-plity-2.jpg
[area_modifier] => 103.88
[parent_name] => Перекрытие цоколя
[parent_id] => 2
[material_sum] => 420552
[work_sum] => 173687
[total_sum] => 594239
[total_days] => 13
[display_material_sum] => 420 552
[display_work_sum] => 173 687
[display_total_sum] => 594 239
)
1
594 239₽
Работа:173 687 ₽
Материалы:420 552 ₽
Дни:13
stdClass Object
(
[id] => 78
[attribute_id] => 2
[name] => Монолитная ж/б плита
[material_modifier] => 1
[work_modifier] => 1
[options] => Array
(
[0] => без утепления
[1] => утепление 150 мм
[2] => утепление 200 мм
[3] => утепление 250 мм
[4] => утепление 300 мм
[5] => утепление 350 мм
[6] => утепление 400 мм
[7] => утепление 450 мм
[8] => утепление 500 мм
)
[days] => [18,20,20,20,20,20,20,20,20]
[material_price] => [4837,6572,7224,7375,79426,8177,8728,9180,10031]
[work_price] => [3348,3921,4112,4302,4493,4684,4875,5066,5256]
[image] => https://akademik-stroy.ru/wp-content/uploads/materials/monolitnaya-zh-b-plita-2.jpg
[area_modifier] => 103.88
[parent_name] => Перекрытие цоколя
[parent_id] => 2
[material_sum] => 663257
[work_sum] => 382569
[total_sum] => 1045826
[total_days] => 18
[display_material_sum] => 663 257
[display_work_sum] => 382 569
[display_total_sum] => 1 045 826
)
1
1 045 826₽
Работа:382 569 ₽
Материалы:663 257 ₽
Дни:18
stdClass Object
(
[id] => 6
[attribute_id] => 3
[name] => Пеноблок
[material_modifier] => 1
[work_modifier] => 1
[options] => Array
(
[0] => 300 мм
[1] => 400 мм
[2] => 500 мм
[3] => 600 мм
)
[days] => [29,31,34,39]
[material_price] => [3000,4000,4500,4937]
[work_price] => [5033,5805,6400,8710]
[image] => https://akademik-stroy.ru/wp-content/uploads/materials/penoblok.jpg
[area_modifier] => 103.88
[parent_name] => Стены 1 этаж (несущие)
[parent_id] => 3
[material_sum] => 411365
[work_sum] => 575111
[total_sum] => 986476
[total_days] => 29
[display_material_sum] => 411 365
[display_work_sum] => 575 111
[display_total_sum] => 986 476
)
1
986 476₽
Работа:575 111 ₽
Материалы:411 365 ₽
Дни:29
stdClass Object
(
[id] => 79
[attribute_id] => 3
[name] => Керамический блок
[material_modifier] => 1
[work_modifier] => 1
[options] => Array
(
[0] => 380 мм
[1] => 380 мм Thermo
[2] => 440 мм
[3] => 510 мм
)
[days] => [23,23,24,25]
[material_price] => [4510,5098,6093,8013]
[work_price] => [4737,4937,5903,6958]
[image] => https://akademik-stroy.ru/wp-content/uploads/materials/keramicheskij-blok.jpg
[area_modifier] => 103.88
[parent_name] => Стены 1 этаж (несущие)
[parent_id] => 3
[material_sum] => 618418
[work_sum] => 541288
[total_sum] => 1159706
[total_days] => 23
[display_material_sum] => 618 418
[display_work_sum] => 541 288
[display_total_sum] => 1 159 706
)
1
1 159 706₽
Работа:541 288 ₽
Материалы:618 418 ₽
Дни:23
stdClass Object
(
[id] => 80
[attribute_id] => 3
[name] => Кирпич
[material_modifier] => 1
[work_modifier] => 1
[options] => Array
(
[0] => Кирпич 250 мм
[1] => Кирпич 380 мм
[2] => Кирпич 510 мм
[3] => Кирпич 640 мм
[4] => Кирпич 770 мм
)
[days] => [30,30,31,33,36]
[material_price] => [5500,7142,9206,10171,12235]
[work_price] => [8736,10041,12018,15240,18462]
[image] => https://akademik-stroy.ru/wp-content/uploads/materials/kirpich.jpg
[area_modifier] => 103.88
[parent_name] => Стены 1 этаж (несущие)
[parent_id] => 3
[material_sum] => 754169
[work_sum] => 998245
[total_sum] => 1752414
[total_days] => 30
[display_material_sum] => 754 169
[display_work_sum] => 998 245
[display_total_sum] => 1 752 414
)
1
1 752 414₽
Работа:998 245 ₽
Материалы:754 169 ₽
Дни:30
stdClass Object
(
[id] => 81
[attribute_id] => 3
[name] => Монолитные
[material_modifier] => 1
[work_modifier] => 1
[options] => Array
(
[0] => 150 мм
[1] => 200 мм
[2] => 250 мм
[3] => 300 мм
[4] => 350 мм
[5] => 400 мм
)
[days] => [45,46,47,49,50,53]
[material_price] => [6545,7876,10175,12011,13908,15204]
[work_price] => [5106,6444,7698,8552,9807,11461]
[image] => https://akademik-stroy.ru/wp-content/uploads/materials/monolitnye.jpg
[area_modifier] => 103.88
[parent_name] => Стены 1 этаж (несущие)
[parent_id] => 3
[material_sum] => 897461
[work_sum] => 583452
[total_sum] => 1480913
[total_days] => 45
[display_material_sum] => 897 461
[display_work_sum] => 583 452
[display_total_sum] => 1 480 913
)
1
1 480 913₽
Работа:583 452 ₽
Материалы:897 461 ₽
Дни:45
stdClass Object
(
[id] => 82
[attribute_id] => 3
[name] => Клееный брус
[material_modifier] => 1
[work_modifier] => 1
[options] => Array
(
[0] => 160 мм
[1] => 175 мм
[2] => 200 мм
[3] => 215 мм
[4] => 240 мм
[5] => 270 мм
[6] => 282 мм
)
[days] => [24,28,32,37,40,42,48]
[material_price] => [16975,18773,19950,20545,21599,22159,23275]
[work_price] => [4806,5287,5815,6397,7036,7740,8514]
[image] => https://akademik-stroy.ru/wp-content/uploads/materials/kleenyj-brus.jpg
[area_modifier] => 103.88
[parent_name] => Стены 1 этаж (несущие)
[parent_id] => 3
[material_sum] => 2327639
[work_sum] => 549172
[total_sum] => 2876811
[total_days] => 24
[display_material_sum] => 2 327 639
[display_work_sum] => 549 172
[display_total_sum] => 2 876 811
)
1
2 876 811₽
Работа:549 172 ₽
Материалы:2 327 639 ₽
Дни:24
stdClass Object
(
[id] => 83
[attribute_id] => 3
[name] => Каркасные
[material_modifier] => 1
[work_modifier] => 1
[options] => Array
(
[0] => 150 мм
[1] => 200 мм
[2] => 250 мм
[3] => 300 мм
)
[days] => [15,16,17,18]
[material_price] => [2379,2639,2898,3258]
[work_price] => [2418,2686,2985,3716]
[image] => https://akademik-stroy.ru/wp-content/uploads/materials/karkasnye.jpg
[area_modifier] => 103.88
[parent_name] => Стены 1 этаж (несущие)
[parent_id] => 3
[material_sum] => 326212
[work_sum] => 276300
[total_sum] => 602512
[total_days] => 15
[display_material_sum] => 326 212
[display_work_sum] => 276 300
[display_total_sum] => 602 512
)
1
602 512₽
Работа:276 300 ₽
Материалы:326 212 ₽
Дни:15
stdClass Object
(
[id] => 84
[attribute_id] => 3
[name] => СИП-панели
[material_modifier] => 1
[work_modifier] => 1
[options] => Array
(
[0] => 120 мм
[1] => 170 мм
[2] => 220 мм
)
[days] => [7,7,7]
[material_price] => [1210,1856,2292]
[work_price] => [1410,1551,1706]
[image] => https://akademik-stroy.ru/wp-content/uploads/materials/sip-paneli.jpg
[area_modifier] => 103.88
[parent_name] => Стены 1 этаж (несущие)
[parent_id] => 3
[material_sum] => 165917
[work_sum] => 161118
[total_sum] => 327035
[total_days] => 7
[display_material_sum] => 165 917
[display_work_sum] => 161 118
[display_total_sum] => 327 035
)
1
327 035₽
Работа:161 118 ₽
Материалы:165 917 ₽
Дни:7
stdClass Object
(
[id] => 85
[attribute_id] => 3
[name] => Сухой брус
[material_modifier] => 1
[work_modifier] => 1
[options] => Array
(
[0] => 150 мм
[1] => 180 мм
[2] => 200 мм
)
[days] => [7,8,9]
[material_price] => [6010,7190,8709]
[work_price] => [3204,3845,4229]
[image] => https://akademik-stroy.ru/wp-content/uploads/materials/suhoj-brus.jpg
[area_modifier] => 103.88
[parent_name] => Стены 1 этаж (несущие)
[parent_id] => 3
[material_sum] => 824101
[work_sum] => 366115
[total_sum] => 1190216
[total_days] => 7
[display_material_sum] => 824 101
[display_work_sum] => 366 115
[display_total_sum] => 1 190 216
)
1
1 190 216₽
Работа:366 115 ₽
Материалы:824 101 ₽
Дни:7
stdClass Object
(
[id] => 86
[attribute_id] => 3
[name] => Профилированный брус
[material_modifier] => 1
[work_modifier] => 1
[options] => Array
(
[0] => 150 мм
[1] => 180 мм
[2] => 200 мм
)
[days] => [7,8,9]
[material_price] => [8190,9228,10051]
[work_price] => [3845,4614,5075]
[image] => https://akademik-stroy.ru/wp-content/uploads/materials/profilirovannyj-brus.jpg
[area_modifier] => 103.88
[parent_name] => Стены 1 этаж (несущие)
[parent_id] => 3
[material_sum] => 1123026
[work_sum] => 439360
[total_sum] => 1562386
[total_days] => 7
[display_material_sum] => 1 123 026
[display_work_sum] => 439 360
[display_total_sum] => 1 562 386
)
1
1 562 386₽
Работа:439 360 ₽
Материалы:1 123 026 ₽
Дни:7
stdClass Object
(
[id] => 87
[attribute_id] => 3
[name] => Оцилиндрованное бревно
[material_modifier] => 1
[work_modifier] => 1
[options] => Array
(
[0] => 180 мм
[1] => 220 мм
[2] => 260 мм
[3] => 320 мм
)
[days] => [7,8,9,10]
[material_price] => [75190,9532,10868,13116]
[work_price] => [3845,4691,5535,6863]
[image] => https://akademik-stroy.ru/wp-content/uploads/materials/ocilindrovannoe-brevno-1.jpg
[area_modifier] => 103.88
[parent_name] => Стены 1 этаж (несущие)
[parent_id] => 3
[material_sum] => 10310173
[work_sum] => 439360
[total_sum] => 10749533
[total_days] => 7
[display_material_sum] => 10 310 173
[display_work_sum] => 439 360
[display_total_sum] => 10 749 533
)
1
10 749 533₽
Работа:439 360 ₽
Материалы:10 310 173 ₽
Дни:7
stdClass Object
(
[id] => 88
[attribute_id] => 3
[name] => Срубы
[material_modifier] => 1
[work_modifier] => 1
[options] => Array
(
[0] => 260 мм
[1] => 320 мм
[2] => 360 мм
[3] => 400 мм
[4] => 500 мм
)
[days] => [7,8,9,10,11]
[material_price] => [37975,46709,52314,58069,73167]
[work_price] => [4806,5911,6621,7349,9260]
[image] => https://akademik-stroy.ru/wp-content/uploads/materials/sruby.jpg
[area_modifier] => 103.88
[parent_name] => Стены 1 этаж (несущие)
[parent_id] => 3
[material_sum] => 5207193
[work_sum] => 549172
[total_sum] => 5756365
[total_days] => 7
[display_material_sum] => 5 207 193
[display_work_sum] => 549 172
[display_total_sum] => 5 756 365
)
1
5 756 365₽
Работа:549 172 ₽
Материалы:5 207 193 ₽
Дни:7
stdClass Object
(
[id] => 174
[attribute_id] => 3
[name] => Брус
[material_modifier] => 1
[work_modifier] => 1
[options] => Array
(
[0] => 150 мм
[1] => 180 мм
[2] => 200 мм
)
[days] => [7,8,9]
[material_price] => [5127,6152,7367]
[work_price] => [1602,1922,2115]
[image] => https://akademik-stroy.ru/wp-content/uploads/materials/brus.jpg
[area_modifier] => 103.88
[parent_name] => Стены 1 этаж (несущие)
[parent_id] => 3
[material_sum] => 703022
[work_sum] => 183057
[total_sum] => 886079
[total_days] => 7
[display_material_sum] => 703 022
[display_work_sum] => 183 057
[display_total_sum] => 886 079
)
1
886 079₽
Работа:183 057 ₽
Материалы:703 022 ₽
Дни:7
stdClass Object
(
[id] => 175
[attribute_id] => 3
[name] => Газобетон
[material_modifier] => 1
[work_modifier] => 1
[options] => Array
(
[0] => 300 мм
[1] => 375 мм
[2] => 400 мм
[3] => 500 мм
[4] => 600 мм
)
[days] => [29,31,35,37,44]
[material_price] => [4298,5573,6356,7288,9119]
[work_price] => [4538,5251,5926,6733,7195]
[image] => https://akademik-stroy.ru/wp-content/uploads/materials/gazobeton.jpg
[area_modifier] => 103.88
[parent_name] => Стены 1 этаж (несущие)
[parent_id] => 3
[material_sum] => 589349
[work_sum] => 518548
[total_sum] => 1107897
[total_days] => 29
[display_material_sum] => 589 349
[display_work_sum] => 518 548
[display_total_sum] => 1 107 897
)
1
1 107 897₽
Работа:518 548 ₽
Материалы:589 349 ₽
Дни:29
stdClass Object
(
[id] => 176
[attribute_id] => 3
[name] => Блок
[material_modifier] => 1
[work_modifier] => 1
[options] => Array
(
[0] => 300 мм
[1] => 375 мм
[2] => 400 мм
[3] => 500 мм
[4] => 600 мм
)
[days] => [29,31,35,37,44]
[material_price] => [2698,3973,4356,6588,7119]
[work_price] => [5038,5851,6426,8733,9195]
[image] => https://akademik-stroy.ru/wp-content/uploads/materials/blok.jpg
[area_modifier] => 103.88
[parent_name] => Стены 1 этаж (несущие)
[parent_id] => 3
[material_sum] => 369954
[work_sum] => 575682
[total_sum] => 945636
[total_days] => 29
[display_material_sum] => 369 954
[display_work_sum] => 575 682
[display_total_sum] => 945 636
)
1
945 636₽
Работа:575 682 ₽
Материалы:369 954 ₽
Дни:29
stdClass Object
(
[id] => 177
[attribute_id] => 3
[name] => Газосиликатный блок
[material_modifier] => 1
[work_modifier] => 1
[options] => Array
(
[0] => 300 мм
[1] => 375 мм
[2] => 400 мм
[3] => 500 мм
[4] => 600 мм
)
[days] => [29,31,35,37,44]
[material_price] => [4298,5573,6356,7288,9119]
[work_price] => [4538,5251,5926,6733,7195]
[image] => https://akademik-stroy.ru/wp-content/uploads/materials/gazosilikatnyj-blok.jpg
[area_modifier] => 103.88
[parent_name] => Стены 1 этаж (несущие)
[parent_id] => 3
[material_sum] => 589349
[work_sum] => 518548
[total_sum] => 1107897
[total_days] => 29
[display_material_sum] => 589 349
[display_work_sum] => 518 548
[display_total_sum] => 1 107 897
)
1
1 107 897₽
Работа:518 548 ₽
Материалы:589 349 ₽
Дни:29
stdClass Object
(
[id] => 178
[attribute_id] => 3
[name] => Керамзитобетонный блок
[material_modifier] => 1
[work_modifier] => 1
[options] => Array
(
[0] => 300 мм
[1] => 375 мм
[2] => 400 мм
[3] => 500 мм
[4] => 600 мм
)
[days] => [23,23,24,25,28]
[material_price] => [3641,4298,5693,7613,9612]
[work_price] => [5737,5737,6903,7958,8901]
[image] => https://akademik-stroy.ru/wp-content/uploads/materials/keramzitobetonnyj-blok.jpg
[area_modifier] => 103.88
[parent_name] => Стены 1 этаж (несущие)
[parent_id] => 3
[material_sum] => 499260
[work_sum] => 655556
[total_sum] => 1154816
[total_days] => 23
[display_material_sum] => 499 260
[display_work_sum] => 655 556
[display_total_sum] => 1 154 816
)
1
1 154 816₽
Работа:655 556 ₽
Материалы:499 260 ₽
Дни:23
stdClass Object
(
[id] => 179
[attribute_id] => 3
[name] => Деревянные
[material_modifier] => 1
[work_modifier] => 1
[options] => Array
(
[0] => 180 мм
[1] => 220 мм
[2] => 260 мм
[3] => 320 мм
)
[days] => [7,8,9,10]
[material_price] => [7950,9458,11961,14472]
[work_price] => [4037,4925,5812,7207]
[image] => https://akademik-stroy.ru/wp-content/uploads/materials/derevyannye.jpg
[area_modifier] => 103.88
[parent_name] => Стены 1 этаж (несущие)
[parent_id] => 3
[material_sum] => 1090117
[work_sum] => 461300
[total_sum] => 1551417
[total_days] => 7
[display_material_sum] => 1 090 117
[display_work_sum] => 461 300
[display_total_sum] => 1 551 417
)
1
1 551 417₽
Работа:461 300 ₽
Материалы:1 090 117 ₽
Дни:7
stdClass Object
(
[id] => 181
[attribute_id] => 3
[name] => Камень
[material_modifier] => 1
[work_modifier] => 1
[options] => Array
(
[0] => 300 мм
[1] => 400 мм
[2] => 500 мм
[3] => 600 мм
)
[days] => [25,27,31,34]
[material_price] => [5262,6844,8330,9815]
[work_price] => [8331,9135,10427,11069]
[image] => https://akademik-stroy.ru/wp-content/uploads/materials/kamen.jpg
[area_modifier] => 103.88
[parent_name] => Стены 1 этаж (несущие)
[parent_id] => 3
[material_sum] => 721534
[work_sum] => 951967
[total_sum] => 1673501
[total_days] => 25
[display_material_sum] => 721 534
[display_work_sum] => 951 967
[display_total_sum] => 1 673 501
)
1
1 673 501₽
Работа:951 967 ₽
Материалы:721 534 ₽
Дни:25
stdClass Object
(
[id] => 182
[attribute_id] => 3
[name] => Каркасно-щитовые
[material_modifier] => 1
[work_modifier] => 1
[options] => Array
(
[0] => 150 мм
[1] => 200 мм
[2] => 250 мм
[3] => 300 мм
[4] => 350 мм
[5] => 400 мм
)
[days] => [15,16,17,18,19,20]
[material_price] => [2379,2639,2898,3458,3601,4175]
[work_price] => [2538,2820,3134,3483,4062,5642]
[image] => https://akademik-stroy.ru/wp-content/uploads/materials/karkasno-shchitovye.jpg
[area_modifier] => 103.88
[parent_name] => Стены 1 этаж (несущие)
[parent_id] => 3
[material_sum] => 326212
[work_sum] => 290012
[total_sum] => 616224
[total_days] => 15
[display_material_sum] => 326 212
[display_work_sum] => 290 012
[display_total_sum] => 616 224
)
1
616 224₽
Работа:290 012 ₽
Материалы:326 212 ₽
Дни:15
stdClass Object
(
[id] => 183
[attribute_id] => 3
[name] => Рубленные
[material_modifier] => 1
[work_modifier] => 1
[options] => Array
(
[0] => 150 мм
[1] => 200 мм
[2] => 250 мм
[3] => 300 мм
[4] => 350 мм
[5] => 400 мм
)
[days] => [15,16,17,18,17,18]
[material_price] => [35950,50267,60583,75900,80217,100533]
[work_price] => [9612,12816,16020,19224,22428,25632]
[image] => https://akademik-stroy.ru/wp-content/uploads/materials/rublennye.jpg
[area_modifier] => 103.88
[parent_name] => Стены 1 этаж (несущие)
[parent_id] => 3
[material_sum] => 4929522
[work_sum] => 1098344
[total_sum] => 6027866
[total_days] => 15
[display_material_sum] => 4 929 522
[display_work_sum] => 1 098 344
[display_total_sum] => 6 027 866
)
1
6 027 866₽
Работа:1 098 344 ₽
Материалы:4 929 522 ₽
Дни:15
stdClass Object
(
[id] => 185
[attribute_id] => 3
[name] => Теплоблок
[material_modifier] => 1
[work_modifier] => 1
[options] => Array
(
[0] => 300 мм (с облицовкой, не покрашенный)
[1] => 400 мм (с облицовкой, не покрашенный)
[2] => 300 мм (с облицовкой, покрашенный)
[3] => 400 мм (с облицовкой, покрашенный)
)
[days] => [15,16,15,16]
[material_price] => [2888,3729,3957,4258]
[work_price] => [2564,3229,2949,3713]
[image] => https://akademik-stroy.ru/wp-content/uploads/materials/teploblok.jpg
[area_modifier] => 103.88
[parent_name] => Стены 1 этаж (несущие)
[parent_id] => 3
[material_sum] => 396007
[work_sum] => 292983
[total_sum] => 688990
[total_days] => 15
[display_material_sum] => 396 007
[display_work_sum] => 292 983
[display_total_sum] => 688 990
)
1
688 990₽
Работа:292 983 ₽
Материалы:396 007 ₽
Дни:15
stdClass Object
(
[id] => 186
[attribute_id] => 3
[name] => Арболитовые блоки
[material_modifier] => 1
[work_modifier] => 1
[options] => Array
(
[0] => 300 мм
[1] => 400 мм
[2] => 600 мм
)
[days] => [19,22,27]
[material_price] => [3210,4475,5852]
[work_price] => [4214,4788,5866]
[image] => https://akademik-stroy.ru/wp-content/uploads/materials/arbolitovye-bloki.png
[area_modifier] => 103.88
[parent_name] => Стены 1 этаж (несущие)
[parent_id] => 3
[material_sum] => 440160
[work_sum] => 481525
[total_sum] => 921685
[total_days] => 19
[display_material_sum] => 440 160
[display_work_sum] => 481 525
[display_total_sum] => 921 685
)
1
921 685₽
Работа:481 525 ₽
Материалы:440 160 ₽
Дни:19
stdClass Object
(
[id] => 187
[attribute_id] => 3
[name] => Полистиролбетон
[material_modifier] => 1
[work_modifier] => 1
[options] => Array
(
[0] => 300 мм
[1] => 400 мм
[2] => 600 мм
)
[days] => [29,31,35]
[material_price] => [2798,4573,5256]
[work_price] => [5038,5851,6426]
[image] => https://akademik-stroy.ru/wp-content/uploads/materials/polistirolbeton.jpg
[area_modifier] => 103.88
[parent_name] => Стены 1 этаж (несущие)
[parent_id] => 3
[material_sum] => 383666
[work_sum] => 575682
[total_sum] => 959348
[total_days] => 29
[display_material_sum] => 383 666
[display_work_sum] => 575 682
[display_total_sum] => 959 348
)
1
959 348₽
Работа:575 682 ₽
Материалы:383 666 ₽
Дни:29
stdClass Object
(
[id] => 188
[attribute_id] => 3
[name] => Шлакоблок
[material_modifier] => 1
[work_modifier] => 1
[options] => Array
(
[0] => 400 мм
[1] => 600 мм
)
[days] => [15,16]
[material_price] => [2391,3471]
[work_price] => [2642,3662]
[image] => https://akademik-stroy.ru/wp-content/uploads/materials/shlakoblok.jpg
[area_modifier] => 103.88
[parent_name] => Стены 1 этаж (несущие)
[parent_id] => 3
[material_sum] => 327858
[work_sum] => 301896
[total_sum] => 629754
[total_days] => 15
[display_material_sum] => 327 858
[display_work_sum] => 301 896
[display_total_sum] => 629 754
)
1
629 754₽
Работа:301 896 ₽
Материалы:327 858 ₽
Дни:15
stdClass Object
(
[id] => 189
[attribute_id] => 3
[name] => Теплая керамика
[material_modifier] => 1
[work_modifier] => 1
[options] => Array
(
[0] => 380 мм
[1] => 380 мм Thermo
[2] => 440 мм
[3] => 510 мм
)
[days] => [23,23,24,25]
[material_price] => [4510,5098,6093,8013]
[work_price] => [4737,4937,5903,6958]
[image] => https://akademik-stroy.ru/wp-content/uploads/materials/teplaya-keramika.jpg
[area_modifier] => 103.88
[parent_name] => Стены 1 этаж (несущие)
[parent_id] => 3
[material_sum] => 618418
[work_sum] => 541288
[total_sum] => 1159706
[total_days] => 23
[display_material_sum] => 618 418
[display_work_sum] => 541 288
[display_total_sum] => 1 159 706
)
1
1 159 706₽
Работа:541 288 ₽
Материалы:618 418 ₽
Дни:23
stdClass Object
(
[id] => 190
[attribute_id] => 3
[name] => Несъемная опалубка
[material_modifier] => 1
[work_modifier] => 1
[options] => Array
(
[0] => 200 мм
[1] => 250 мм
[2] => 300 мм
[3] => 350 мм
)
[days] => [15,17,19,21]
[material_price] => [3302,3902,4108,5008]
[work_price] => [2100,2100,2300,2534]
[image] => https://akademik-stroy.ru/wp-content/uploads/materials/nesemnaya-opalubka.jpg
[area_modifier] => 103.88
[parent_name] => Стены 1 этаж (несущие)
[parent_id] => 3
[material_sum] => 452776
[work_sum] => 239963
[total_sum] => 692739
[total_days] => 15
[display_material_sum] => 452 776
[display_work_sum] => 239 963
[display_total_sum] => 692 739
)
1
692 739₽
Работа:239 963 ₽
Материалы:452 776 ₽
Дни:15
stdClass Object
(
[id] => 251
[attribute_id] => 3
[name] => Бревно
[material_modifier] => 1
[work_modifier] => 1
[options] => Array
(
[0] => 260 мм
[1] => 320 мм
[2] => 360 мм
[3] => 400 мм
[4] => 500 мм
)
[days] => [7,8,9,10,11]
[material_price] => [1874,24045,26930,30972,38825]
[work_price] => [5046,6207,6952,7716,9723]
[image] => https://akademik-stroy.ru/wp-content/uploads/materials/sruby.jpg
[area_modifier] => 103.88
[parent_name] => Стены 1 этаж (несущие)
[parent_id] => 3
[material_sum] => 256966
[work_sum] => 576596
[total_sum] => 833562
[total_days] => 7
[display_material_sum] => 256 966
[display_work_sum] => 576 596
[display_total_sum] => 833 562
)
1
833 562₽
Работа:576 596 ₽
Материалы:256 966 ₽
Дни:7
stdClass Object
(
[id] => 7
[attribute_id] => 4
[name] => Деревянные балки
[material_modifier] => 1
[work_modifier] => 1
[options] => Array
(
[0] => без утепления
[1] => утепление 200 мм
[2] => утепление 250 мм
[3] => утепление 300 мм
[4] => утепление 350 мм
[5] => утепление 400 мм
[6] => утепление 450 мм
[7] => утепление 500 мм
)
[days] => [8,9,9,9,11,12,13,14]
[material_price] => [1634,2042,2344,2947,3149,3652,3354,3557]
[work_price] => [1230,1339,1393,1426,1460,1513,1587,1620]
[image] => https://akademik-stroy.ru/wp-content/uploads/materials/derevyannye-balki.png
[area_modifier] => 103.88
[parent_name] => Перекрытие первого этажа
[parent_id] => 4
[material_sum] => 224057
[work_sum] => 140550
[total_sum] => 364607
[total_days] => 8
[display_material_sum] => 224 057
[display_work_sum] => 140 550
[display_total_sum] => 364 607
)
1
364 607₽
Работа:140 550 ₽
Материалы:224 057 ₽
Дни:8
stdClass Object
(
[id] => 8
[attribute_id] => 4
[name] => Сборные ж/б плиты
[material_modifier] => 1
[work_modifier] => 1
[options] => Array
(
[0] => без утепления
[1] => утепление 150 мм
[2] => утепление 200 мм
[3] => утепление 250 мм
[4] => утепление 300 мм
[5] => утепление 350 мм
[6] => утепление 400 мм
[7] => утепление 450 мм
[8] => утепление 500 мм
)
[days] => [13,15,15,15,15,15,15,15,15]
[material_price] => [3067,5577,5928,6679,7730,8782,9833,10884,11935]
[work_price] => [1520,1956,2102,2247,2392,2537,2684,2829,2974]
[image] => https://akademik-stroy.ru/wp-content/uploads/materials/sbornye-zh-b-plity-2.jpg
[area_modifier] => 103.88
[parent_name] => Перекрытие первого этажа
[parent_id] => 4
[material_sum] => 420552
[work_sum] => 173687
[total_sum] => 594239
[total_days] => 13
[display_material_sum] => 420 552
[display_work_sum] => 173 687
[display_total_sum] => 594 239
)
1
594 239₽
Работа:173 687 ₽
Материалы:420 552 ₽
Дни:13
stdClass Object
(
[id] => 89
[attribute_id] => 4
[name] => Монолитная ж/б плита
[material_modifier] => 1
[work_modifier] => 1
[options] => Array
(
[0] => без утепления
[1] => утепление 150 мм
[2] => утепление 200 мм
[3] => утепление 250 мм
[4] => утепление 300 мм
[5] => утепление 350 мм
[6] => утепление 400 мм
[7] => утепление 450 мм
[8] => утепление 500 мм
)
[days] => [18,20,20,20,20,20,20,20,20]
[material_price] => [4837,6572,7224,7375,79426,8177,8728,9180,10031]
[work_price] => [3348,3921,4112,4302,4493,4684,4875,5066,5256]
[image] => https://akademik-stroy.ru/wp-content/uploads/materials/monolitnaya-zh-b-plita-2.jpg
[area_modifier] => 103.88
[parent_name] => Перекрытие первого этажа
[parent_id] => 4
[material_sum] => 663257
[work_sum] => 382569
[total_sum] => 1045826
[total_days] => 18
[display_material_sum] => 663 257
[display_work_sum] => 382 569
[display_total_sum] => 1 045 826
)
1
1 045 826₽
Работа:382 569 ₽
Материалы:663 257 ₽
Дни:18
stdClass Object
(
[id] => 10
[attribute_id] => 5
[name] => Пеноблок
[material_modifier] => 1
[work_modifier] => 1
[options] => Array
(
[0] => 300 мм
[1] => 400 мм
[2] => 500 мм
[3] => 600 мм
)
[days] => [29,31,34,39]
[material_price] => [3000,4000,4500,4937]
[work_price] => [5033,5805,6400,8710]
[image] => https://akademik-stroy.ru/wp-content/uploads/materials/penoblok.jpg
[area_modifier] => 59.77
[parent_name] => Стены 2 этаж (несущие)
[parent_id] => 5
[material_sum] => 236689
[work_sum] => 330905
[total_sum] => 567594
[total_days] => 29
[display_material_sum] => 236 689
[display_work_sum] => 330 905
[display_total_sum] => 567 594
)
1
567 594₽
Работа:330 905 ₽
Материалы:236 689 ₽
Дни:29
stdClass Object
(
[id] => 90
[attribute_id] => 5
[name] => Керамический блок
[material_modifier] => 1
[work_modifier] => 1
[options] => Array
(
[0] => 380 мм
[1] => 380 мм Thermo
[2] => 440 мм
[3] => 510 мм
)
[days] => [23,23,24,25]
[material_price] => [4510,5098,6093,8013]
[work_price] => [4737,4937,5903,6958]
[image] => https://akademik-stroy.ru/wp-content/uploads/materials/keramicheskij-blok.jpg
[area_modifier] => 59.77
[parent_name] => Стены 2 этаж (несущие)
[parent_id] => 5
[material_sum] => 355823
[work_sum] => 311444
[total_sum] => 667267
[total_days] => 23
[display_material_sum] => 355 823
[display_work_sum] => 311 444
[display_total_sum] => 667 267
)
1
667 267₽
Работа:311 444 ₽
Материалы:355 823 ₽
Дни:23
stdClass Object
(
[id] => 91
[attribute_id] => 5
[name] => Кирпич
[material_modifier] => 1
[work_modifier] => 1
[options] => Array
(
[0] => Кирпич 250 мм
[1] => Кирпич 380 мм
[2] => Кирпич 510 мм
[3] => Кирпич 640 мм
[4] => Кирпич 770 мм
)
[days] => [30,30,31,33,36]
[material_price] => [5500,7142,9206,10171,12235]
[work_price] => [8736,10041,12018,15240,18462]
[image] => https://akademik-stroy.ru/wp-content/uploads/materials/kirpich.jpg
[area_modifier] => 59.77
[parent_name] => Стены 2 этаж (несущие)
[parent_id] => 5
[material_sum] => 433930
[work_sum] => 574366
[total_sum] => 1008296
[total_days] => 30
[display_material_sum] => 433 930
[display_work_sum] => 574 366
[display_total_sum] => 1 008 296
)
1
1 008 296₽
Работа:574 366 ₽
Материалы:433 930 ₽
Дни:30
stdClass Object
(
[id] => 92
[attribute_id] => 5
[name] => Монолитные
[material_modifier] => 1
[work_modifier] => 1
[options] => Array
(
[0] => 150 мм
[1] => 200 мм
[2] => 250 мм
[3] => 300 мм
[4] => 350 мм
[5] => 400 мм
)
[days] => [45,46,47,49,50,53]
[material_price] => [6545,7876,10175,12011,13908,15204]
[work_price] => [5106,6444,7698,8552,9807,11461]
[image] => https://akademik-stroy.ru/wp-content/uploads/materials/monolitnye.jpg
[area_modifier] => 59.77
[parent_name] => Стены 2 этаж (несущие)
[parent_id] => 5
[material_sum] => 516377
[work_sum] => 335704
[total_sum] => 852081
[total_days] => 45
[display_material_sum] => 516 377
[display_work_sum] => 335 704
[display_total_sum] => 852 081
)
1
852 081₽
Работа:335 704 ₽
Материалы:516 377 ₽
Дни:45
stdClass Object
(
[id] => 93
[attribute_id] => 5
[name] => Клееный брус
[material_modifier] => 1
[work_modifier] => 1
[options] => Array
(
[0] => 160 мм
[1] => 175 мм
[2] => 200 мм
[3] => 215 мм
[4] => 240 мм
[5] => 270 мм
[6] => 282 мм
)
[days] => [24,28,32,37,40,42,48]
[material_price] => [16975,18773,19950,20545,21599,22159,23275]
[work_price] => [4806,5287,5815,6397,7036,7740,8514]
[image] => https://akademik-stroy.ru/wp-content/uploads/materials/kleenyj-brus.jpg
[area_modifier] => 59.77
[parent_name] => Стены 2 этаж (несущие)
[parent_id] => 5
[material_sum] => 1339266
[work_sum] => 315980
[total_sum] => 1655246
[total_days] => 24
[display_material_sum] => 1 339 266
[display_work_sum] => 315 980
[display_total_sum] => 1 655 246
)
1
1 655 246₽
Работа:315 980 ₽
Материалы:1 339 266 ₽
Дни:24
stdClass Object
(
[id] => 94
[attribute_id] => 5
[name] => Каркасные
[material_modifier] => 1
[work_modifier] => 1
[options] => Array
(
[0] => 150 мм
[1] => 200 мм
[2] => 250 мм
[3] => 300 мм
)
[days] => [15,16,17,18]
[material_price] => [2379,2639,2898,3258]
[work_price] => [2418,2686,2985,3716]
[image] => https://akademik-stroy.ru/wp-content/uploads/materials/karkasnye.jpg
[area_modifier] => 59.77
[parent_name] => Стены 2 этаж (несущие)
[parent_id] => 5
[material_sum] => 187695
[work_sum] => 158976
[total_sum] => 346671
[total_days] => 15
[display_material_sum] => 187 695
[display_work_sum] => 158 976
[display_total_sum] => 346 671
)
1
346 671₽
Работа:158 976 ₽
Материалы:187 695 ₽
Дни:15
stdClass Object
(
[id] => 95
[attribute_id] => 5
[name] => СИП-панели
[material_modifier] => 1
[work_modifier] => 1
[options] => Array
(
[0] => 120 мм
[1] => 170 мм
[2] => 220 мм
)
[days] => [7,7,7]
[material_price] => [1210,1856,2292]
[work_price] => [1410,1551,1706]
[image] => https://akademik-stroy.ru/wp-content/uploads/materials/sip-paneli.jpg
[area_modifier] => 59.77
[parent_name] => Стены 2 этаж (несущие)
[parent_id] => 5
[material_sum] => 95465
[work_sum] => 92703
[total_sum] => 188168
[total_days] => 7
[display_material_sum] => 95 465
[display_work_sum] => 92 703
[display_total_sum] => 188 168
)
1
188 168₽
Работа:92 703 ₽
Материалы:95 465 ₽
Дни:7
stdClass Object
(
[id] => 96
[attribute_id] => 5
[name] => Сухой брус
[material_modifier] => 1
[work_modifier] => 1
[options] => Array
(
[0] => 150 мм
[1] => 180 мм
[2] => 200 мм
)
[days] => [7,8,9]
[material_price] => [6010,7190,8709]
[work_price] => [3204,3845,4229]
[image] => https://akademik-stroy.ru/wp-content/uploads/materials/suhoj-brus.jpg
[area_modifier] => 59.77
[parent_name] => Стены 2 этаж (несущие)
[parent_id] => 5
[material_sum] => 474167
[work_sum] => 210653
[total_sum] => 684820
[total_days] => 7
[display_material_sum] => 474 167
[display_work_sum] => 210 653
[display_total_sum] => 684 820
)
1
684 820₽
Работа:210 653 ₽
Материалы:474 167 ₽
Дни:7
stdClass Object
(
[id] => 97
[attribute_id] => 5
[name] => Профилированный брус
[material_modifier] => 1
[work_modifier] => 1
[options] => Array
(
[0] => 150 мм
[1] => 180 мм
[2] => 200 мм
)
[days] => [7,8,9]
[material_price] => [8190,9228,10051]
[work_price] => [3845,4614,5075]
[image] => https://akademik-stroy.ru/wp-content/uploads/materials/profilirovannyj-brus.jpg
[area_modifier] => 59.77
[parent_name] => Стены 2 этаж (несущие)
[parent_id] => 5
[material_sum] => 646162
[work_sum] => 252797
[total_sum] => 898959
[total_days] => 7
[display_material_sum] => 646 162
[display_work_sum] => 252 797
[display_total_sum] => 898 959
)
1
898 959₽
Работа:252 797 ₽
Материалы:646 162 ₽
Дни:7
stdClass Object
(
[id] => 98
[attribute_id] => 5
[name] => Оцилиндрованное бревно
[material_modifier] => 1
[work_modifier] => 1
[options] => Array
(
[0] => 180 мм
[1] => 220 мм
[2] => 260 мм
[3] => 320 мм
)
[days] => [7,8,9,10]
[material_price] => [75190,9532,10868,13116]
[work_price] => [3845,4691,5535,6863]
[image] => https://akademik-stroy.ru/wp-content/uploads/materials/ocilindrovannoe-brevno-1.jpg
[area_modifier] => 59.77
[parent_name] => Стены 2 этаж (несущие)
[parent_id] => 5
[material_sum] => 5932220
[work_sum] => 252797
[total_sum] => 6185017
[total_days] => 7
[display_material_sum] => 5 932 220
[display_work_sum] => 252 797
[display_total_sum] => 6 185 017
)
1
6 185 017₽
Работа:252 797 ₽
Материалы:5 932 220 ₽
Дни:7
stdClass Object
(
[id] => 99
[attribute_id] => 5
[name] => Срубы
[material_modifier] => 1
[work_modifier] => 1
[options] => Array
(
[0] => 260 мм
[1] => 320 мм
[2] => 360 мм
[3] => 400 мм
[4] => 500 мм
)
[days] => [7,8,9,10,11]
[material_price] => [16175,23709,26314,29069,32167]
[work_price] => [4806,5911,6621,7349,9260]
[image] => https://akademik-stroy.ru/wp-content/uploads/materials/suhoj-brus.jpg
[area_modifier] => 59.77
[parent_name] => Стены 2 этаж (несущие)
[parent_id] => 5
[material_sum] => 1276149
[work_sum] => 315980
[total_sum] => 1592129
[total_days] => 7
[display_material_sum] => 1 276 149
[display_work_sum] => 315 980
[display_total_sum] => 1 592 129
)
1
1 592 129₽
Работа:315 980 ₽
Материалы:1 276 149 ₽
Дни:7
stdClass Object
(
[id] => 194
[attribute_id] => 5
[name] => Брус
[material_modifier] => 1
[work_modifier] => 1
[options] => Array
(
[0] => 150 мм
[1] => 180 мм
[2] => 200 мм
)
[days] => [10,13,15]
[material_price] => [5127,6152,7367]
[work_price] => [1602,1922,2115]
[image] => https://akademik-stroy.ru/wp-content/uploads/materials/brus.jpg
[area_modifier] => 59.77
[parent_name] => Стены 2 этаж (несущие)
[parent_id] => 5
[material_sum] => 404502
[work_sum] => 105327
[total_sum] => 509829
[total_days] => 10
[display_material_sum] => 404 502
[display_work_sum] => 105 327
[display_total_sum] => 509 829
)
1
509 829₽
Работа:105 327 ₽
Материалы:404 502 ₽
Дни:10
stdClass Object
(
[id] => 195
[attribute_id] => 5
[name] => Газобетон
[material_modifier] => 1
[work_modifier] => 1
[options] => Array
(
[0] => 300 мм
[1] => 375 мм
[2] => 400 мм
[3] => 500 мм
[4] => 600 мм
)
[days] => [29,31,35,37,44]
[material_price] => [4298,5573,6356,7288,9119]
[work_price] => [4538,5251,5926,6733,7195]
[image] => https://akademik-stroy.ru/wp-content/uploads/materials/gazobeton.jpg
[area_modifier] => 59.77
[parent_name] => Стены 2 этаж (несущие)
[parent_id] => 5
[material_sum] => 339097
[work_sum] => 298360
[total_sum] => 637457
[total_days] => 29
[display_material_sum] => 339 097
[display_work_sum] => 298 360
[display_total_sum] => 637 457
)
1
637 457₽
Работа:298 360 ₽
Материалы:339 097 ₽
Дни:29
stdClass Object
(
[id] => 196
[attribute_id] => 5
[name] => Блок
[material_modifier] => 1
[work_modifier] => 1
[options] => Array
(
[0] => 300 мм
[1] => 375 мм
[2] => 400 мм
[3] => 500 мм
[4] => 600 мм
)
[days] => [29,31,35,37,44]
[material_price] => [2698,3973,4356,6588,7119]
[work_price] => [5038,5851,6426,8733,9195]
[image] => https://akademik-stroy.ru/wp-content/uploads/materials/blok.jpg
[area_modifier] => 59.77
[parent_name] => Стены 2 этаж (несущие)
[parent_id] => 5
[material_sum] => 212862
[work_sum] => 331233
[total_sum] => 544095
[total_days] => 29
[display_material_sum] => 212 862
[display_work_sum] => 331 233
[display_total_sum] => 544 095
)
1
544 095₽
Работа:331 233 ₽
Материалы:212 862 ₽
Дни:29
stdClass Object
(
[id] => 197
[attribute_id] => 5
[name] => Газосиликатный блок
[material_modifier] => 1
[work_modifier] => 1
[options] => Array
(
[0] => 300 мм
[1] => 375 мм
[2] => 400 мм
[3] => 500 мм
[4] => 600 мм
)
[days] => [29,31,35,37,44]
[material_price] => [4298,5573,6356,7288,9119]
[work_price] => [4538,5251,5926,6733,7195]
[image] => https://akademik-stroy.ru/wp-content/uploads/materials/gazosilikatnyj-blok.jpg
[area_modifier] => 59.77
[parent_name] => Стены 2 этаж (несущие)
[parent_id] => 5
[material_sum] => 339097
[work_sum] => 298360
[total_sum] => 637457
[total_days] => 29
[display_material_sum] => 339 097
[display_work_sum] => 298 360
[display_total_sum] => 637 457
)
1
637 457₽
Работа:298 360 ₽
Материалы:339 097 ₽
Дни:29
stdClass Object
(
[id] => 198
[attribute_id] => 5
[name] => Керамзитобетонный блок
[material_modifier] => 1
[work_modifier] => 1
[options] => Array
(
[0] => 300 мм
[1] => 375 мм
[2] => 400 мм
[3] => 500 мм
[4] => 600 мм
)
[days] => [23,23,24,25,28]
[material_price] => [3641,4298,5693,7613,9612]
[work_price] => [5737,5737,6903,7958,8901]
[image] => https://akademik-stroy.ru/wp-content/uploads/materials/keramzitobetonnyj-blok.jpg
[area_modifier] => 59.77
[parent_name] => Стены 2 этаж (несущие)
[parent_id] => 5
[material_sum] => 287262
[work_sum] => 377191
[total_sum] => 664453
[total_days] => 23
[display_material_sum] => 287 262
[display_work_sum] => 377 191
[display_total_sum] => 664 453
)
1
664 453₽
Работа:377 191 ₽
Материалы:287 262 ₽
Дни:23
stdClass Object
(
[id] => 199
[attribute_id] => 5
[name] => Деревянные
[material_modifier] => 1
[work_modifier] => 1
[options] => Array
(
[0] => 180 мм
[1] => 220 мм
[2] => 260 мм
[3] => 320 мм
)
[days] => [7,8,9,10]
[material_price] => [7950,9458,11961,14472]
[work_price] => [4037,4925,5812,7207]
[image] => https://akademik-stroy.ru/wp-content/uploads/materials/derevyannye.jpg
[area_modifier] => 59.77
[parent_name] => Стены 2 этаж (несущие)
[parent_id] => 5
[material_sum] => 627226
[work_sum] => 265421
[total_sum] => 892647
[total_days] => 7
[display_material_sum] => 627 226
[display_work_sum] => 265 421
[display_total_sum] => 892 647
)
1
892 647₽
Работа:265 421 ₽
Материалы:627 226 ₽
Дни:7
stdClass Object
(
[id] => 200
[attribute_id] => 5
[name] => Камень
[material_modifier] => 1
[work_modifier] => 1
[options] => Array
(
[0] => 300 мм
[1] => 400 мм
[2] => 500 мм
[3] => 600 мм
)
[days] => [25,27,31,34]
[material_price] => [5262,6844,8330,9815]
[work_price] => [8331,9135,10427,11069]
[image] => https://akademik-stroy.ru/wp-content/uploads/materials/kamen.jpg
[area_modifier] => 59.77
[parent_name] => Стены 2 этаж (несущие)
[parent_id] => 5
[material_sum] => 415153
[work_sum] => 547738
[total_sum] => 962891
[total_days] => 25
[display_material_sum] => 415 153
[display_work_sum] => 547 738
[display_total_sum] => 962 891
)
1
962 891₽
Работа:547 738 ₽
Материалы:415 153 ₽
Дни:25
stdClass Object
(
[id] => 201
[attribute_id] => 5
[name] => Каркасно-щитовые
[material_modifier] => 1
[work_modifier] => 1
[options] => Array
(
[0] => 150 мм
[1] => 200 мм
[2] => 250 мм
[3] => 300 мм
[4] => 350 мм
[5] => 400 мм
)
[days] => [15,16,17,18,19,20]
[material_price] => [2379,2639,2898,3458,3601,4175]
[work_price] => [2538,2820,3134,3483,4062,5642]
[image] => https://akademik-stroy.ru/wp-content/uploads/materials/karkasno-shchitovye.jpg
[area_modifier] => 59.77
[parent_name] => Стены 2 этаж (несущие)
[parent_id] => 5
[material_sum] => 187695
[work_sum] => 166866
[total_sum] => 354561
[total_days] => 15
[display_material_sum] => 187 695
[display_work_sum] => 166 866
[display_total_sum] => 354 561
)
1
354 561₽
Работа:166 866 ₽
Материалы:187 695 ₽
Дни:15
stdClass Object
(
[id] => 202
[attribute_id] => 5
[name] => Рубленные
[material_modifier] => 1
[work_modifier] => 1
[options] => Array
(
[0] => 150 мм
[1] => 200 мм
[2] => 250 мм
[3] => 300 мм
[4] => 350 мм
[5] => 400 мм
)
[days] => [15,16,17,18,17,18]
[material_price] => [35950,50267,60583,75900,80217,100533]
[work_price] => [9612,12816,16020,19224,22428,25632]
[image] => https://akademik-stroy.ru/wp-content/uploads/materials/rublennye.jpg
[area_modifier] => 59.77
[parent_name] => Стены 2 этаж (несущие)
[parent_id] => 5
[material_sum] => 2836326
[work_sum] => 631960
[total_sum] => 3468286
[total_days] => 15
[display_material_sum] => 2 836 326
[display_work_sum] => 631 960
[display_total_sum] => 3 468 286
)
1
3 468 286₽
Работа:631 960 ₽
Материалы:2 836 326 ₽
Дни:15
stdClass Object
(
[id] => 203
[attribute_id] => 5
[name] => Теплоблок
[material_modifier] => 1
[work_modifier] => 1
[options] => Array
(
[0] => 300 мм (с облицовкой, не покрашенный)
[1] => 400 мм (с облицовкой, не покрашенный)
[2] => 300 мм (с облицовкой, покрашенный)
[3] => 400 мм (с облицовкой, покрашенный)
)
[days] => [15,16,15,16]
[material_price] => [2888,3729,3957,4258]
[work_price] => [2564,3229,2949,3713]
[image] => https://akademik-stroy.ru/wp-content/uploads/materials/teploblok.jpg
[area_modifier] => 59.77
[parent_name] => Стены 2 этаж (несущие)
[parent_id] => 5
[material_sum] => 227853
[work_sum] => 168575
[total_sum] => 396428
[total_days] => 15
[display_material_sum] => 227 853
[display_work_sum] => 168 575
[display_total_sum] => 396 428
)
1
396 428₽
Работа:168 575 ₽
Материалы:227 853 ₽
Дни:15
stdClass Object
(
[id] => 204
[attribute_id] => 5
[name] => Арболитовые блоки
[material_modifier] => 1
[work_modifier] => 1
[options] => Array
(
[0] => 300 мм
[1] => 400 мм
[2] => 600 мм
)
[days] => [19,22,27]
[material_price] => [3210,4475,5852]
[work_price] => [4214,4788,5866]
[image] => https://akademik-stroy.ru/wp-content/uploads/materials/arbolitovye-bloki.png
[area_modifier] => 59.77
[parent_name] => Стены 2 этаж (несущие)
[parent_id] => 5
[material_sum] => 253257
[work_sum] => 277058
[total_sum] => 530315
[total_days] => 19
[display_material_sum] => 253 257
[display_work_sum] => 277 058
[display_total_sum] => 530 315
)
1
530 315₽
Работа:277 058 ₽
Материалы:253 257 ₽
Дни:19
stdClass Object
(
[id] => 205
[attribute_id] => 5
[name] => Полистиролбетон
[material_modifier] => 1
[work_modifier] => 1
[options] => Array
(
[0] => 300 мм
[1] => 400 мм
[2] => 600 мм
)
[days] => [29,31,35]
[material_price] => [2798,4573,5256]
[work_price] => [5038,5851,6426]
[image] => https://akademik-stroy.ru/wp-content/uploads/materials/polistirolbeton.jpg
[area_modifier] => 59.77
[parent_name] => Стены 2 этаж (несущие)
[parent_id] => 5
[material_sum] => 220752
[work_sum] => 331233
[total_sum] => 551985
[total_days] => 29
[display_material_sum] => 220 752
[display_work_sum] => 331 233
[display_total_sum] => 551 985
)
1
551 985₽
Работа:331 233 ₽
Материалы:220 752 ₽
Дни:29
stdClass Object
(
[id] => 206
[attribute_id] => 5
[name] => Шлакоблок
[material_modifier] => 1
[work_modifier] => 1
[options] => Array
(
[0] => 400 мм
[1] => 600 мм
)
[days] => [15,16]
[material_price] => [2391,3471]
[work_price] => [2642,3662]
[image] => https://akademik-stroy.ru/wp-content/uploads/materials/shlakoblok.jpg
[area_modifier] => 59.77
[parent_name] => Стены 2 этаж (несущие)
[parent_id] => 5
[material_sum] => 188641
[work_sum] => 173704
[total_sum] => 362345
[total_days] => 15
[display_material_sum] => 188 641
[display_work_sum] => 173 704
[display_total_sum] => 362 345
)
1
362 345₽
Работа:173 704 ₽
Материалы:188 641 ₽
Дни:15
stdClass Object
(
[id] => 245
[attribute_id] => 5
[name] => Теплая керамика
[material_modifier] => 1
[work_modifier] => 1
[options] => Array
(
[0] => 380 мм
[1] => 380 мм Thermo
[2] => 440 мм
[3] => 510 мм
)
[days] => [10,10,11,12]
[material_price] => [4510,5098,6093,8013]
[work_price] => [4737,4937,5903,6958]
[image] => https://akademik-stroy.ru/wp-content/uploads/materials/teplaya-keramika.jpg
[area_modifier] => 59.77
[parent_name] => Стены 2 этаж (несущие)
[parent_id] => 5
[material_sum] => 355823
[work_sum] => 311444
[total_sum] => 667267
[total_days] => 10
[display_material_sum] => 355 823
[display_work_sum] => 311 444
[display_total_sum] => 667 267
)
1
667 267₽
Работа:311 444 ₽
Материалы:355 823 ₽
Дни:10
stdClass Object
(
[id] => 246
[attribute_id] => 5
[name] => Несъемная опалубка
[material_modifier] => 1
[work_modifier] => 1
[options] => Array
(
[0] => 380 мм
[1] => 380 мм Thermo
[2] => 440 мм
[3] => 510 мм
)
[days] => [10,10,11,12]
[material_price] => [3302,3902,4108,5008]
[work_price] => [2100,2100,2300,2534]
[image] => https://akademik-stroy.ru/wp-content/uploads/materials/nesemnaya-opalubka.jpg
[area_modifier] => 59.77
[parent_name] => Стены 2 этаж (несущие)
[parent_id] => 5
[material_sum] => 260516
[work_sum] => 138069
[total_sum] => 398585
[total_days] => 10
[display_material_sum] => 260 516
[display_work_sum] => 138 069
[display_total_sum] => 398 585
)
1
398 585₽
Работа:138 069 ₽
Материалы:260 516 ₽
Дни:10
stdClass Object
(
[id] => 254
[attribute_id] => 5
[name] => Бревно
[material_modifier] => 1
[work_modifier] => 1
[options] => Array
(
[0] => 260 мм
[1] => 320 мм
[2] => 360 мм
[3] => 400 мм
[4] => 500 мм
)
[days] => [7,8,9,10,11]
[material_price] => [1874,24045,26930,30972,38825]
[work_price] => [5046,6207,6952,7716,9723]
[image] => https://akademik-stroy.ru/wp-content/uploads/materials/sruby.jpg
[area_modifier] => 59.77
[parent_name] => Стены 2 этаж (несущие)
[parent_id] => 5
[material_sum] => 147852
[work_sum] => 331759
[total_sum] => 479611
[total_days] => 7
[display_material_sum] => 147 852
[display_work_sum] => 331 759
[display_total_sum] => 479 611
)
1
479 611₽
Работа:331 759 ₽
Материалы:147 852 ₽
Дни:7
stdClass Object
(
[id] => 164
[attribute_id] => 37
[name] => Металлочерепица
[material_modifier] => 1
[work_modifier] => 1
[options] => Array
(
)
[days] => [20]
[material_price] => [6112]
[work_price] => [5726]
[image] => https://akademik-stroy.ru/wp-content/uploads/materials/metallocherepica.jpg
[area_modifier] => 103.88
[parent_name] => Крыша (Скатная)
[parent_id] => 37
[material_sum] => 838087
[work_sum] => 654299
[total_sum] => 1492386
[total_days] => 20
[display_material_sum] => 838 087
[display_work_sum] => 654 299
[display_total_sum] => 1 492 386
)
1
1 492 386₽
Работа:654 299 ₽
Материалы:838 087 ₽
Дни:20
stdClass Object
(
[id] => 165
[attribute_id] => 37
[name] => Гибкая черепица
[material_modifier] => 1
[work_modifier] => 1
[options] => Array
(
)
[days] => [20]
[material_price] => [6980]
[work_price] => [5950]
[image] => https://akademik-stroy.ru/wp-content/uploads/materials/gibkaya-cherepica.jpg
[area_modifier] => 103.88
[parent_name] => Крыша (Скатная)
[parent_id] => 37
[material_sum] => 957109
[work_sum] => 679895
[total_sum] => 1637004
[total_days] => 20
[display_material_sum] => 957 109
[display_work_sum] => 679 895
[display_total_sum] => 1 637 004
)
1
1 637 004₽
Работа:679 895 ₽
Материалы:957 109 ₽
Дни:20
stdClass Object
(
[id] => 166
[attribute_id] => 37
[name] => Цементно-песчаная черепица
[material_modifier] => 1
[work_modifier] => 1
[options] => Array
(
)
[days] => [20]
[material_price] => [10560]
[work_price] => [9456]
[image] => https://akademik-stroy.ru/wp-content/uploads/materials/cementno-peschanaya-cherepica.jpg
[area_modifier] => 103.88
[parent_name] => Крыша (Скатная)
[parent_id] => 37
[material_sum] => 1448004
[work_sum] => 1080518
[total_sum] => 2528522
[total_days] => 20
[display_material_sum] => 1 448 004
[display_work_sum] => 1 080 518
[display_total_sum] => 2 528 522
)
1
2 528 522₽
Работа:1 080 518 ₽
Материалы:1 448 004 ₽
Дни:20
stdClass Object
(
[id] => 167
[attribute_id] => 37
[name] => Композитная черепица
[material_modifier] => 1
[work_modifier] => 1
[options] => Array
(
)
[days] => [20]
[material_price] => [9506]
[work_price] => [8905]
[image] => https://akademik-stroy.ru/wp-content/uploads/materials/kompozitnaya-cherepica.jpg
[area_modifier] => 103.88
[parent_name] => Крыша (Скатная)
[parent_id] => 37
[material_sum] => 1303478
[work_sum] => 1017557
[total_sum] => 2321035
[total_days] => 20
[display_material_sum] => 1 303 478
[display_work_sum] => 1 017 557
[display_total_sum] => 2 321 035
)
1
2 321 035₽
Работа:1 017 557 ₽
Материалы:1 303 478 ₽
Дни:20
stdClass Object
(
[id] => 168
[attribute_id] => 37
[name] => Керамическая черепица
[material_modifier] => 1
[work_modifier] => 1
[options] => Array
(
)
[days] => [20]
[material_price] => [12750]
[work_price] => [9456]
[image] => https://akademik-stroy.ru/wp-content/uploads/materials/keramicheskaya-cherepica.jpg
[area_modifier] => 103.88
[parent_name] => Крыша (Скатная)
[parent_id] => 37
[material_sum] => 1748300
[work_sum] => 1080518
[total_sum] => 2828818
[total_days] => 20
[display_material_sum] => 1 748 300
[display_work_sum] => 1 080 518
[display_total_sum] => 2 828 818
)
1
2 828 818₽
Работа:1 080 518 ₽
Материалы:1 748 300 ₽
Дни:20
stdClass Object
(
[id] => 169
[attribute_id] => 37
[name] => Металлическая фальцевая
[material_modifier] => 1
[work_modifier] => 1
[options] => Array
(
)
[days] => [20]
[material_price] => [8550]
[work_price] => [8190]
[image] => https://akademik-stroy.ru/wp-content/uploads/materials/metallicheskaya-falcevaya.jpg
[area_modifier] => 103.88
[parent_name] => Крыша (Скатная)
[parent_id] => 37
[material_sum] => 1172390
[work_sum] => 935855
[total_sum] => 2108245
[total_days] => 20
[display_material_sum] => 1 172 390
[display_work_sum] => 935 855
[display_total_sum] => 2 108 245
)
1
2 108 245₽
Работа:935 855 ₽
Материалы:1 172 390 ₽
Дни:20
stdClass Object
(
[id] => 170
[attribute_id] => 37
[name] => Медная фальцевая
[material_modifier] => 1
[work_modifier] => 1
[options] => Array
(
)
[days] => [20]
[material_price] => [20450]
[work_price] => [16750]
[image] => https://akademik-stroy.ru/wp-content/uploads/materials/mednaya-falcevaya.jpg
[area_modifier] => 103.88
[parent_name] => Крыша (Скатная)
[parent_id] => 37
[material_sum] => 2804137
[work_sum] => 1913989
[total_sum] => 4718126
[total_days] => 20
[display_material_sum] => 2 804 137
[display_work_sum] => 1 913 989
[display_total_sum] => 4 718 126
)
1
4 718 126₽
Работа:1 913 989 ₽
Материалы:2 804 137 ₽
Дни:20
stdClass Object
(
[id] => 171
[attribute_id] => 37
[name] => Зеленая кровля
[material_modifier] => 1
[work_modifier] => 1
[options] => Array
(
)
[days] => [20]
[material_price] => [19850]
[work_price] => [16780]
[image] => https://akademik-stroy.ru/wp-content/uploads/materials/zelenaya-krovlya.jpg
[area_modifier] => 103.88
[parent_name] => Крыша (Скатная)
[parent_id] => 37
[material_sum] => 2721864
[work_sum] => 1917417
[total_sum] => 4639281
[total_days] => 20
[display_material_sum] => 2 721 864
[display_work_sum] => 1 917 417
[display_total_sum] => 4 639 281
)
1
4 639 281₽
Работа:1 917 417 ₽
Материалы:2 721 864 ₽
Дни:20
stdClass Object
(
[id] => 172
[attribute_id] => 37
[name] => Профлист
[material_modifier] => 1
[work_modifier] => 1
[options] => Array
(
)
[days] => [20]
[material_price] => [3450]
[work_price] => [3750]
[image] => https://akademik-stroy.ru/wp-content/uploads/materials/proflist.jpg
[area_modifier] => 103.88
[parent_name] => Крыша (Скатная)
[parent_id] => 37
[material_sum] => 473070
[work_sum] => 428505
[total_sum] => 901575
[total_days] => 20
[display_material_sum] => 473 070
[display_work_sum] => 428 505
[display_total_sum] => 901 575
)
1
901 575₽
Работа:428 505 ₽
Материалы:473 070 ₽
Дни:20
stdClass Object
(
[id] => 51
[attribute_id] => 26
[name] => Есть
[material_modifier] => 1
[work_modifier] => 1
[options] => Array
(
[0] => Профиль 58 мм, 3-камерный, стеклопакет 2-камерный до 32 мм
[1] => Профиль 60 мм, 4-камерный, стеклопакет 2-камерный до 32 мм
[2] => Профиль 70 мм, 5-камерный, стеклопакет 2-камерный до 40 мм
[3] => Профиль 72 мм, 5-камерный, стеклопакет 2-камерный до 40 мм
[4] => Алюминиевые окна Alutech профиль 72 мм, стеклопакет 2-камерный
)
[days] => [3,3,3,3,3]
[material_price] => [1339,2124,2867,3023,29596]
[work_price] => [635,647,659,668,2579]
[image] => https://akademik-stroy.ru/wp-content/uploads/materials/okna.jpg
[area_modifier] => 132.8
[parent_name] => Окна
[parent_id] => 26
[material_sum] => 234721
[work_sum] => 92761
[total_sum] => 327482
[total_days] => 3
[display_material_sum] => 234 721
[display_work_sum] => 92 761
[display_total_sum] => 327 482
)
1
327 482₽
Работа:92 761 ₽
Материалы:234 721 ₽
Дни:3
stdClass Object
(
[id] => 52
[attribute_id] => 26
[name] => Нет
[material_modifier] => 2
[work_modifier] => 1
[options] =>
[days] => null
[material_price] => null
[work_price] => null
[image] => https://akademik-stroy.ru/wp-content/uploads/materials/okna.jpg
[area_modifier] => 132.8
[parent_name] => Окна
[parent_id] => 26
[material_sum] => 0
[work_sum] => 0
[total_sum] => 0
[total_days] => 0
[display_material_sum] => 0
[display_work_sum] => 0
[display_total_sum] => 0
)
1
0₽
Работа:0 ₽
Материалы:0 ₽
Дни:0
stdClass Object
(
[id] => 53
[attribute_id] => 27
[name] => Есть
[material_modifier] => 1
[work_modifier] => 1
[options] => Array
(
)
[days] => [1]
[material_price] => [10000]
[work_price] => [5500]
[image] => https://akademik-stroy.ru/wp-content/uploads/materials/dveri.jpg
[area_modifier] => 1
[parent_name] => Двери входные
[parent_id] => 27
[material_sum] => 13200
[work_sum] => 6050
[total_sum] => 19250
[total_days] => 1
[display_material_sum] => 13 200
[display_work_sum] => 6 050
[display_total_sum] => 19 250
)
1
19 250₽
Работа:6 050 ₽
Материалы:13 200 ₽
Дни:1
stdClass Object
(
[id] => 54
[attribute_id] => 27
[name] => Нет
[material_modifier] => 1
[work_modifier] => 1
[options] => Array
(
)
[days] => [0]
[material_price] => [0]
[work_price] => [0]
[image] => https://akademik-stroy.ru/wp-content/uploads/materials/dveri.jpg
[area_modifier] => 1
[parent_name] => Двери входные
[parent_id] => 27
[material_sum] => 0
[work_sum] => 0
[total_sum] => 0
[total_days] => 0
[display_material_sum] => 0
[display_work_sum] => 0
[display_total_sum] => 0
)
1
0₽
Работа:0 ₽
Материалы:0 ₽
Дни:0
stdClass Object
(
[id] => 25
[attribute_id] => 13
[name] => Нет
[material_modifier] => 1
[work_modifier] => 1
[options] => Array
(
)
[days] => [0]
[material_price] => [0]
[work_price] => [0]
[image] => https://akademik-stroy.ru/wp-content/uploads/materials/mineralovata-krov.jpg
[area_modifier] => 103.88
[parent_name] => Утепление кровли (Мансарда)
[parent_id] => 13
[material_sum] => 0
[work_sum] => 0
[total_sum] => 0
[total_days] => 0
[display_material_sum] => 0
[display_work_sum] => 0
[display_total_sum] => 0
)
1
0₽
Работа:0 ₽
Материалы:0 ₽
Дни:0
stdClass Object
(
[id] => 26
[attribute_id] => 13
[name] => Минераловатный
[material_modifier] => 1
[work_modifier] => 1
[options] => Array
(
[0] => 50 мм
[1] => 100 мм
[2] => 150 мм
[3] => 200 мм
[4] => 250 мм
[5] => 300 мм
[6] => 350 мм
[7] => 400 мм
[8] => 450 мм
[9] => 500 мм
)
[days] => [5,5,6,6,6,7,7,7,8,8]
[material_price] => [1158,1414,1772,2230,3602,4060,4974,5890,6408,7718]
[work_price] => [650,846,846,1098,1318,1450,1596,1754,1930,2122]
[image] => https://akademik-stroy.ru/wp-content/uploads/materials/mineralovata-krov.jpg
[area_modifier] => 103.88
[parent_name] => Утепление кровли (Мансарда)
[parent_id] => 13
[material_sum] => 158787
[work_sum] => 74274
[total_sum] => 233061
[total_days] => 5
[display_material_sum] => 158 787
[display_work_sum] => 74 274
[display_total_sum] => 233 061
)
1
233 061₽
Работа:74 274 ₽
Материалы:158 787 ₽
Дни:5
stdClass Object
(
[id] => 123
[attribute_id] => 13
[name] => Эковата (целлюлозная вата)
[material_modifier] => 1
[work_modifier] => 1
[options] => Array
(
[0] => 50 мм
[1] => 100 мм
[2] => 150 мм
[3] => 200 мм
[4] => 250 мм
[5] => 300 мм
[6] => 350 мм
[7] => 400 мм
[8] => 450 мм
[9] => 500 мм
)
[days] => [3,3,4,4,4,5,5,5,5,5]
[material_price] => [820,1638,2458,3276,5734,6552,8190,9828,11466,13104]
[work_price] => [234,304,304,396,474,522,574,632,694,764]
[image] => https://akademik-stroy.ru/wp-content/uploads/materials/ehkovata-krov.jpg
[area_modifier] => 103.88
[parent_name] => Утепление кровли (Мансарда)
[parent_id] => 13
[material_sum] => 112440
[work_sum] => 26739
[total_sum] => 139179
[total_days] => 3
[display_material_sum] => 112 440
[display_work_sum] => 26 739
[display_total_sum] => 139 179
)
1
139 179₽
Работа:26 739 ₽
Материалы:112 440 ₽
Дни:3
stdClass Object
(
[id] => 124
[attribute_id] => 13
[name] => Экструдированный пенополистирол
[material_modifier] => 1
[work_modifier] => 1
[options] => Array
(
[0] => 50 мм
[1] => 100 мм
[2] => 150 мм
[3] => 200 мм
[4] => 250 мм
[5] => 300 мм
[6] => 350 мм
[7] => 400 мм
[8] => 450 мм
[9] => 500 мм
)
[days] => [3,3,4,4,4,5,5,5,5,6]
[material_price] => [1146,2292,3438,4584,8020,9166,11458,13750,16040,18332]
[work_price] => [390,508,508,660,790,870,958,1052,1158,1274]
[image] => https://akademik-stroy.ru/wp-content/uploads/materials/epps-krov.jpg
[area_modifier] => 103.88
[parent_name] => Утепление кровли (Мансарда)
[parent_id] => 13
[material_sum] => 157141
[work_sum] => 44565
[total_sum] => 201706
[total_days] => 3
[display_material_sum] => 157 141
[display_work_sum] => 44 565
[display_total_sum] => 201 706
)
1
201 706₽
Работа:44 565 ₽
Материалы:157 141 ₽
Дни:3
stdClass Object
(
[id] => 125
[attribute_id] => 13
[name] => ПСБ (ППС-пенополистирол)
[material_modifier] => 1
[work_modifier] => 1
[options] => Array
(
[0] => 50 мм
[1] => 100 мм
[2] => 150 мм
[3] => 200 мм
[4] => 250 мм
[5] => 300 мм
[6] => 350 мм
[7] => 400 мм
[8] => 450 мм
[9] => 500 мм
)
[days] => [3,3,4,4,4,5,5,5,5,6]
[material_price] => [476,954,1430,1906,3336,3814,4766,5720,6674,7626]
[work_price] => [390,508,508,660,790,870,958,1052,1158,1274]
[image] => https://akademik-stroy.ru/wp-content/uploads/materials/psb-krov.jpg
[area_modifier] => 103.88
[parent_name] => Утепление кровли (Мансарда)
[parent_id] => 13
[material_sum] => 65270
[work_sum] => 44565
[total_sum] => 109835
[total_days] => 3
[display_material_sum] => 65 270
[display_work_sum] => 44 565
[display_total_sum] => 109 835
)
1
109 835₽
Работа:44 565 ₽
Материалы:65 270 ₽
Дни:3
stdClass Object
(
[id] => 126
[attribute_id] => 13
[name] => ППУ (Пенополиуретан)
[material_modifier] => 1
[work_modifier] => 1
[options] => Array
(
[0] => 50 мм
[1] => 100 мм
[2] => 150 мм
[3] => 200 мм
[4] => 250 мм
[5] => 300 мм
[6] => 350 мм
[7] => 400 мм
[8] => 450 мм
[9] => 500 мм
)
[days] => [2,2,3,3,3,3,4,4,4,4]
[material_price] => [2080,4160,6240,8320,14560,16640,20800,24960,29120,33280]
[work_price] => [234,304,304,396,474,522,574,632,694,764]
[image] => https://akademik-stroy.ru/wp-content/uploads/materials/ppu-krov.jpg
[area_modifier] => 103.88
[parent_name] => Утепление кровли (Мансарда)
[parent_id] => 13
[material_sum] => 285213
[work_sum] => 26739
[total_sum] => 311952
[total_days] => 2
[display_material_sum] => 285 213
[display_work_sum] => 26 739
[display_total_sum] => 311 952
)
1
311 952₽
Работа:26 739 ₽
Материалы:285 213 ₽
Дни:2
stdClass Object
(
[id] => 127
[attribute_id] => 13
[name] => PIR-плиты (пенополиизоцианурат)
[material_modifier] => 1
[work_modifier] => 1
[options] => Array
(
[0] => 50 мм
[1] => 100 мм
[2] => 150 мм
[3] => 200 мм
[4] => 250 мм
[5] => 300 мм
[6] => 350 мм
[7] => 400 мм
[8] => 450 мм
[9] => 500 мм
)
[days] => [3,3,4,4,4,5,5,5,5,6]
[material_price] => [2646,5290,7936,10580,18516,21162,26452,31742,37032,42324]
[work_price] => [390,508,508,660,790,870,958,1052,1158,1274]
[image] => https://akademik-stroy.ru/wp-content/uploads/materials/pir-krov.jpg
[area_modifier] => 103.88
[parent_name] => Утепление кровли (Мансарда)
[parent_id] => 13
[material_sum] => 362824
[work_sum] => 44565
[total_sum] => 407389
[total_days] => 3
[display_material_sum] => 362 824
[display_work_sum] => 44 565
[display_total_sum] => 407 389
)
1
407 389₽
Работа:44 565 ₽
Материалы:362 824 ₽
Дни:3
stdClass Object
(
[id] => 27
[attribute_id] => 14
[name] => Нет
[material_modifier] => 1
[work_modifier] => 1
[options] => Array
(
)
[days] => [0]
[material_price] => [0]
[work_price] => [0]
[image] => https://akademik-stroy.ru/wp-content/uploads/materials/mansardnye-okna-2.jpg
[area_modifier] => 1
[parent_name] => Мансардные окна
[parent_id] => 14
[material_sum] => 0
[work_sum] => 0
[total_sum] => 0
[total_days] => 0
[display_material_sum] => 0
[display_work_sum] => 0
[display_total_sum] => 0
)
1
0₽
Работа:0 ₽
Материалы:0 ₽
Дни:0
stdClass Object
(
[id] => 28
[attribute_id] => 14
[name] => Есть
[material_modifier] => 1
[work_modifier] => 1
[options] => Array
(
[0] => 55x78
[1] => 55x98
)
[days] => [6,7]
[material_price] => [47480,68700]
[work_price] => [17900,19500]
[image] => https://akademik-stroy.ru/wp-content/uploads/materials/mansardnye-okna-2.jpg
[area_modifier] => 1
[parent_name] => Мансардные окна
[parent_id] => 14
[material_sum] => 62674
[work_sum] => 19690
[total_sum] => 82364
[total_days] => 6
[display_material_sum] => 62 674
[display_work_sum] => 19 690
[display_total_sum] => 82 364
)
1
82 364₽
Работа:19 690 ₽
Материалы:62 674 ₽
Дни:6
stdClass Object
(
[id] => 29
[attribute_id] => 15
[name] => Нет
[material_modifier] => 1
[work_modifier] => 1
[options] => Array
(
)
[days] => [0]
[material_price] => [0]
[work_price] => [0]
[image] => https://akademik-stroy.ru/wp-content/uploads/materials/sofit.jpg
[area_modifier] => 103.88
[parent_name] => Подшивка кровли
[parent_id] => 15
[material_sum] => 0
[work_sum] => 0
[total_sum] => 0
[total_days] => 0
[display_material_sum] => 0
[display_work_sum] => 0
[display_total_sum] => 0
)
1
0₽
Работа:0 ₽
Материалы:0 ₽
Дни:0
stdClass Object
(
[id] => 30
[attribute_id] => 15
[name] => Есть
[material_modifier] => 1
[work_modifier] => 1
[options] => Array
(
[0] => Софиты (ПВХ)
[1] => Cedral
[2] => ДПК
[3] => Планкен
)
[days] => [7,10,9,8]
[material_price] => [1803,3213,3025,3150]
[work_price] => [1529,2188,2075,1923]
[image] => https://akademik-stroy.ru/wp-content/uploads/materials/sofit.jpg
[area_modifier] => 103.88
[parent_name] => Подшивка кровли
[parent_id] => 15
[material_sum] => 247230
[work_sum] => 174716
[total_sum] => 421946
[total_days] => 7
[display_material_sum] => 247 230
[display_work_sum] => 174 716
[display_total_sum] => 421 946
)
1
421 946₽
Работа:174 716 ₽
Материалы:247 230 ₽
Дни:7
stdClass Object
(
[id] => 31
[attribute_id] => 16
[name] => Нет
[material_modifier] => 1
[work_modifier] => 1
[options] => Array
(
)
[days] => [0]
[material_price] => [0]
[work_price] => [0]
[image] => https://akademik-stroy.ru/wp-content/uploads/materials/docke-standard-pvh.jpg
[area_modifier] => 103.88
[parent_name] => Водосточная система
[parent_id] => 16
[material_sum] => 0
[work_sum] => 0
[total_sum] => 0
[total_days] => 0
[display_material_sum] => 0
[display_work_sum] => 0
[display_total_sum] => 0
)
1
0₽
Работа:0 ₽
Материалы:0 ₽
Дни:0
stdClass Object
(
[id] => 32
[attribute_id] => 16
[name] => Есть
[material_modifier] => 1
[work_modifier] => 1
[options] => Array
(
[0] => Döcke Standard (ПВХ)
[1] => Металлические Grand Line
)
[days] => [7,7]
[material_price] => [1842,2703]
[work_price] => [1491,1529]
[image] => https://akademik-stroy.ru/wp-content/uploads/materials/docke-standard-pvh.jpg
[area_modifier] => 103.88
[parent_name] => Водосточная система
[parent_id] => 16
[material_sum] => 252578
[work_sum] => 170374
[total_sum] => 422952
[total_days] => 7
[display_material_sum] => 252 578
[display_work_sum] => 170 374
[display_total_sum] => 422 952
)
1
422 952₽
Работа:170 374 ₽
Материалы:252 578 ₽
Дни:7
stdClass Object
(
[id] => 33
[attribute_id] => 17
[name] => Нет
[material_modifier] => 1
[work_modifier] => 1
[options] => Array
(
)
[days] => [0]
[material_price] => [0]
[work_price] => [0]
[image] => https://akademik-stroy.ru/wp-content/uploads/materials/mineralovata.jpg
[area_modifier] => 163.65
[parent_name] => Дополнительное утепление наружных стен
[parent_id] => 17
[material_sum] => 0
[work_sum] => 0
[total_sum] => 0
[total_days] => 0
[display_material_sum] => 0
[display_work_sum] => 0
[display_total_sum] => 0
)
1
0₽
Работа:0 ₽
Материалы:0 ₽
Дни:0
stdClass Object
(
[id] => 34
[attribute_id] => 17
[name] => Минераловатный
[material_modifier] => 1
[work_modifier] => 1
[options] => Array
(
[0] => 50 мм
[1] => 100 мм
[2] => 150 мм
[3] => 200 мм
[4] => 250 мм
[5] => 300 мм
)
[days] => [7,8,10,12,14,15]
[material_price] => [3437,3613,3803,3915,4601,4830]
[work_price] => [2325,2423,2523,2749,2859,3025]
[image] => https://akademik-stroy.ru/wp-content/uploads/materials/mineralovata.jpg
[area_modifier] => 163.65
[parent_name] => Дополнительное утепление наружных стен
[parent_id] => 17
[material_sum] => 742454
[work_sum] => 418535
[total_sum] => 1160989
[total_days] => 7
[display_material_sum] => 742 454
[display_work_sum] => 418 535
[display_total_sum] => 1 160 989
)
1
1 160 989₽
Работа:418 535 ₽
Материалы:742 454 ₽
Дни:7
stdClass Object
(
[id] => 128
[attribute_id] => 17
[name] => Эковата (целлюлозная вата)
[material_modifier] => 1
[work_modifier] => 1
[options] => Array
(
[0] => 50 мм
[1] => 100 мм
[2] => 150 мм
[3] => 200 мм
[4] => 250 мм
[5] => 300 мм
)
[days] => [3,4,5,6,7,8]
[material_price] => [810,1319,1629,1838,2267,2676]
[work_price] => [1225,1323,1423,1549,1659,1725]
[image] => https://akademik-stroy.ru/wp-content/uploads/materials/ehkovata.jpg
[area_modifier] => 163.65
[parent_name] => Дополнительное утепление наружных стен
[parent_id] => 17
[material_sum] => 174975
[work_sum] => 220518
[total_sum] => 395493
[total_days] => 3
[display_material_sum] => 174 975
[display_work_sum] => 220 518
[display_total_sum] => 395 493
)
1
395 493₽
Работа:220 518 ₽
Материалы:174 975 ₽
Дни:3
stdClass Object
(
[id] => 129
[attribute_id] => 17
[name] => Экструдированный пенополистирол
[material_modifier] => 1
[work_modifier] => 1
[options] => Array
(
[0] => 50 мм
[1] => 100 мм
[2] => 150 мм
[3] => 200 мм
[4] => 250 мм
[5] => 300 мм
)
[days] => [5,6,7,8,9,10]
[material_price] => [4560,4300,5119,6292,7010,8583]
[work_price] => [1795,1954,2254,2330,2595,2735]
[image] => https://akademik-stroy.ru/wp-content/uploads/materials/epps.jpg
[area_modifier] => 163.65
[parent_name] => Дополнительное утепление наружных стен
[parent_id] => 17
[material_sum] => 985042
[work_sum] => 323127
[total_sum] => 1308169
[total_days] => 5
[display_material_sum] => 985 042
[display_work_sum] => 323 127
[display_total_sum] => 1 308 169
)
1
1 308 169₽
Работа:323 127 ₽
Материалы:985 042 ₽
Дни:5
stdClass Object
(
[id] => 130
[attribute_id] => 17
[name] => ПСБ (ППС-пенополистирол)
[material_modifier] => 1
[work_modifier] => 1
[options] => Array
(
[0] => 50 мм
[1] => 100 мм
[2] => 150 мм
[3] => 200 мм
[4] => 250 мм
[5] => 300 мм
)
[days] => [5,6,7,8,9,10]
[material_price] => [4822,5200,5819,6292,7010,7583]
[work_price] => [1795,1954,2254,2330,2595,2735]
[image] => https://akademik-stroy.ru/wp-content/uploads/materials/psb.jpg
[area_modifier] => 163.65
[parent_name] => Дополнительное утепление наружных стен
[parent_id] => 17
[material_sum] => 1041639
[work_sum] => 323127
[total_sum] => 1364766
[total_days] => 5
[display_material_sum] => 1 041 639
[display_work_sum] => 323 127
[display_total_sum] => 1 364 766
)
1
1 364 766₽
Работа:323 127 ₽
Материалы:1 041 639 ₽
Дни:5
stdClass Object
(
[id] => 131
[attribute_id] => 17
[name] => ППУ (Пенополиуретан)
[material_modifier] => 1
[work_modifier] => 1
[options] => Array
(
[0] => 50 мм
[1] => 100 мм
[2] => 150 мм
[3] => 200 мм
[4] => 250 мм
[5] => 300 мм
)
[days] => [3,4,5,6,7,8]
[material_price] => [2860,3400,4219,4592,5010,5583]
[work_price] => [729,900,980,1120,1280,1530]
[image] => https://akademik-stroy.ru/wp-content/uploads/materials/ppu.jpg
[area_modifier] => 163.65
[parent_name] => Дополнительное утепление наружных стен
[parent_id] => 17
[material_sum] => 617811
[work_sum] => 131231
[total_sum] => 749042
[total_days] => 3
[display_material_sum] => 617 811
[display_work_sum] => 131 231
[display_total_sum] => 749 042
)
1
749 042₽
Работа:131 231 ₽
Материалы:617 811 ₽
Дни:3
stdClass Object
(
[id] => 132
[attribute_id] => 17
[name] => PIR-плиты (пенополиизоцианурат)
[material_modifier] => 1
[work_modifier] => 1
[options] => Array
(
[0] => 50 мм
[1] => 100 мм
[2] => 150 мм
[3] => 200 мм
[4] => 250 мм
[5] => 300 мм
)
[days] => [5,6,7,8,9,10]
[material_price] => [8323,15645,20968,25900,29258,30581]
[work_price] => [800,900,970,1150,1280,1330]
[image] => https://akademik-stroy.ru/wp-content/uploads/materials/pir.jpg
[area_modifier] => 163.65
[parent_name] => Дополнительное утепление наружных стен
[parent_id] => 17
[material_sum] => 1797918
[work_sum] => 144012
[total_sum] => 1941930
[total_days] => 5
[display_material_sum] => 1 797 918
[display_work_sum] => 144 012
[display_total_sum] => 1 941 930
)
1
1 941 930₽
Работа:144 012 ₽
Материалы:1 797 918 ₽
Дни:5
stdClass Object
(
[id] => 37
[attribute_id] => 19
[name] => Нет
[material_modifier] => 1
[work_modifier] => 1
[options] => Array
(
)
[days] => [0]
[material_price] => [0]
[work_price] => [0]
[image] => https://akademik-stroy.ru/wp-content/uploads/materials/imitaciya-brusa.jpg
[area_modifier] => 163.65
[parent_name] => Наружная отделка фасада
[parent_id] => 19
[material_sum] => 0
[work_sum] => 0
[total_sum] => 0
[total_days] => 0
[display_material_sum] => 0
[display_work_sum] => 0
[display_total_sum] => 0
)
1
0₽
Работа:0 ₽
Материалы:0 ₽
Дни:0
stdClass Object
(
[id] => 38
[attribute_id] => 19
[name] => Имитация бруса
[material_modifier] => 1
[work_modifier] => 1
[options] => Array
(
[0] => Сосна
[1] => Ель
[2] => Лиственница
)
[days] => [20,20,20]
[material_price] => [2994,2762,4954]
[work_price] => [1397,1231,1577]
[image] => https://akademik-stroy.ru/wp-content/uploads/materials/imitaciya-brusa.jpg
[area_modifier] => 163.65
[parent_name] => Наружная отделка фасада
[parent_id] => 19
[material_sum] => 646758
[work_sum] => 251481
[total_sum] => 898239
[total_days] => 20
[display_material_sum] => 646 758
[display_work_sum] => 251 481
[display_total_sum] => 898 239
)
1
898 239₽
Работа:251 481 ₽
Материалы:646 758 ₽
Дни:20
stdClass Object
(
[id] => 136
[attribute_id] => 19
[name] => Планкен
[material_modifier] => 1
[work_modifier] => 1
[options] => Array
(
[0] => Сосна
[1] => Ель
[2] => Лиственница
)
[days] => [20,20,20]
[material_price] => [3194,2862,5154]
[work_price] => [1537,1354,1735]
[image] => https://akademik-stroy.ru/wp-content/uploads/materials/planken.jpg
[area_modifier] => 163.65
[parent_name] => Наружная отделка фасада
[parent_id] => 19
[material_sum] => 689961
[work_sum] => 276683
[total_sum] => 966644
[total_days] => 20
[display_material_sum] => 689 961
[display_work_sum] => 276 683
[display_total_sum] => 966 644
)
1
966 644₽
Работа:276 683 ₽
Материалы:689 961 ₽
Дни:20
stdClass Object
(
[id] => 137
[attribute_id] => 19
[name] => Штукатурка
[material_modifier] => 1
[work_modifier] => 1
[options] => Array
(
[0] => Цементно-песчаная (минеральная)
[1] => Мокрый фасад
)
[days] => [35,35]
[material_price] => [2231,3938]
[work_price] => [1202,2422]
[image] => https://akademik-stroy.ru/wp-content/uploads/materials/shtukaturka.jpg
[area_modifier] => 163.65
[parent_name] => Наружная отделка фасада
[parent_id] => 19
[material_sum] => 481936
[work_sum] => 216378
[total_sum] => 698314
[total_days] => 35
[display_material_sum] => 481 936
[display_work_sum] => 216 378
[display_total_sum] => 698 314
)
1
698 314₽
Работа:216 378 ₽
Материалы:481 936 ₽
Дни:35
stdClass Object
(
[id] => 138
[attribute_id] => 19
[name] => Облицовочный кирпич
[material_modifier] => 1
[work_modifier] => 1
[options] => Array
(
[0] => Керамический
[1] => Клинкерный
[2] => Ручной формовки
[3] => Гиперпрессованный
[4] => Силикатный кирпич
)
[days] => [45,45,45,45,45]
[material_price] => [8174,9148,1040,1257,5876]
[work_price] => [3240,3758,4536,4017,3369]
[image] => https://akademik-stroy.ru/wp-content/uploads/materials/oblicovochnyj-kirpich.jpg
[area_modifier] => 163.65
[parent_name] => Наружная отделка фасада
[parent_id] => 19
[material_sum] => 1765731
[work_sum] => 583249
[total_sum] => 2348980
[total_days] => 45
[display_material_sum] => 1 765 731
[display_work_sum] => 583 249
[display_total_sum] => 2 348 980
)
1
2 348 980₽
Работа:583 249 ₽
Материалы:1 765 731 ₽
Дни:45
stdClass Object
(
[id] => 139
[attribute_id] => 19
[name] => Фасадная плитка
[material_modifier] => 1
[work_modifier] => 1
[options] => Array
(
[0] => Клинкерная
[1] => Керамическая
[2] => Плитка ручной формовки
)
[days] => [40,40,40]
[material_price] => [2974,1487,3470]
[work_price] => [3007,2592,3629]
[image] => https://akademik-stroy.ru/wp-content/uploads/materials/fasadnaya-plitka.jpg
[area_modifier] => 163.65
[parent_name] => Наружная отделка фасада
[parent_id] => 19
[material_sum] => 642438
[work_sum] => 541305
[total_sum] => 1183743
[total_days] => 40
[display_material_sum] => 642 438
[display_work_sum] => 541 305
[display_total_sum] => 1 183 743
)
1
1 183 743₽
Работа:541 305 ₽
Материалы:642 438 ₽
Дни:40
stdClass Object
(
[id] => 140
[attribute_id] => 19
[name] => Сайдинг
[material_modifier] => 1
[work_modifier] => 1
[options] => Array
(
[0] => Виниловый
[1] => Металлический
[2] => Фиброцементный
)
[days] => [20,20,20]
[material_price] => [1263,1944,4147]
[work_price] => [1263,1944,2074]
[image] => https://akademik-stroy.ru/wp-content/uploads/materials/sajding.jpg
[area_modifier] => 163.65
[parent_name] => Наружная отделка фасада
[parent_id] => 19
[material_sum] => 272831
[work_sum] => 227359
[total_sum] => 500190
[total_days] => 20
[display_material_sum] => 272 831
[display_work_sum] => 227 359
[display_total_sum] => 500 190
)
1
500 190₽
Работа:227 359 ₽
Материалы:272 831 ₽
Дни:20
stdClass Object
(
[id] => 141
[attribute_id] => 19
[name] => Камень
[material_modifier] => 1
[work_modifier] => 1
[options] => Array
(
[0] => Травертин
[1] => Дагестанский
[2] => Искусственный
[3] => Натуральный
[4] => Керамогранит
)
[days] => [45,45,45,45,45]
[material_price] => [4536,3888,2592,3240,2462]
[work_price] => [3240,3240,2462,3110,1944]
[image] => https://akademik-stroy.ru/wp-content/uploads/materials/kamen-1.jpg
[area_modifier] => 163.65
[parent_name] => Наружная отделка фасада
[parent_id] => 19
[material_sum] => 979858
[work_sum] => 583249
[total_sum] => 1563107
[total_days] => 45
[display_material_sum] => 979 858
[display_work_sum] => 583 249
[display_total_sum] => 1 563 107
)
1
1 563 107₽
Работа:583 249 ₽
Материалы:979 858 ₽
Дни:45
stdClass Object
(
[id] => 142
[attribute_id] => 19
[name] => Термопанели
[material_modifier] => 1
[work_modifier] => 1
[options] => Array
(
)
[days] => [20]
[material_price] => [6221]
[work_price] => [2333]
[image] => https://akademik-stroy.ru/wp-content/uploads/materials/termo.png
[area_modifier] => 163.65
[parent_name] => Наружная отделка фасада
[parent_id] => 19
[material_sum] => 1343848
[work_sum] => 419975
[total_sum] => 1763823
[total_days] => 20
[display_material_sum] => 1 343 848
[display_work_sum] => 419 975
[display_total_sum] => 1 763 823
)
1
1 763 823₽
Работа:419 975 ₽
Материалы:1 343 848 ₽
Дни:20
stdClass Object
(
[id] => 143
[attribute_id] => 19
[name] => Плитка HAUBERK
[material_modifier] => 1
[work_modifier] => 1
[options] => Array
(
)
[days] => [20]
[material_price] => [2786]
[work_price] => [1944]
[image] => https://akademik-stroy.ru/wp-content/uploads/materials/hauberk.jpg
[area_modifier] => 163.65
[parent_name] => Наружная отделка фасада
[parent_id] => 19
[material_sum] => 601826
[work_sum] => 349949
[total_sum] => 951775
[total_days] => 20
[display_material_sum] => 601 826
[display_work_sum] => 349 949
[display_total_sum] => 951 775
)
1
951 775₽
Работа:349 949 ₽
Материалы:601 826 ₽
Дни:20
stdClass Object
(
[id] => 144
[attribute_id] => 19
[name] => Фальцевый фасад
[material_modifier] => 1
[work_modifier] => 1
[options] => Array
(
)
[days] => [20]
[material_price] => [3240]
[work_price] => [2592]
[image] => https://akademik-stroy.ru/wp-content/uploads/materials/falcevyj-fasad.jpg
[area_modifier] => 163.65
[parent_name] => Наружная отделка фасада
[parent_id] => 19
[material_sum] => 699898
[work_sum] => 466599
[total_sum] => 1166497
[total_days] => 20
[display_material_sum] => 699 898
[display_work_sum] => 466 599
[display_total_sum] => 1 166 497
)
1
1 166 497₽
Работа:466 599 ₽
Материалы:699 898 ₽
Дни:20
stdClass Object
(
[id] => 145
[attribute_id] => 19
[name] => Комбинированный
[material_modifier] => 1
[work_modifier] => 1
[options] => Array
(
)
[days] => [20]
[material_price] => [4629]
[work_price] => [3499]
[image] => https://akademik-stroy.ru/wp-content/uploads/materials/Kombinirovannyj.jpg
[area_modifier] => 163.65
[parent_name] => Наружная отделка фасада
[parent_id] => 19
[material_sum] => 999947
[work_sum] => 629872
[total_sum] => 1629819
[total_days] => 20
[display_material_sum] => 999 947
[display_work_sum] => 629 872
[display_total_sum] => 1 629 819
)
1
1 629 819₽
Работа:629 872 ₽
Материалы:999 947 ₽
Дни:20
stdClass Object
(
[id] => 257
[attribute_id] => 19
[name] => Японские фиброцементные
[material_modifier] => 1
[work_modifier] => 1
[options] => Array
(
)
[days] => [20]
[material_price] => [7043]
[work_price] => [2993]
[image] => https://akademik-stroy.ru/wp-content/uploads/materials/paneli.jpg
[area_modifier] => 163.65
[parent_name] => Наружная отделка фасада
[parent_id] => 19
[material_sum] => 1521415
[work_sum] => 538785
[total_sum] => 2060200
[total_days] => 20
[display_material_sum] => 1 521 415
[display_work_sum] => 538 785
[display_total_sum] => 2 060 200
)
1
2 060 200₽
Работа:538 785 ₽
Материалы:1 521 415 ₽
Дни:20
stdClass Object
(
[id] => 258
[attribute_id] => 19
[name] => Панели Каньон
[material_modifier] => 1
[work_modifier] => 1
[options] => Array
(
)
[days] => [20]
[material_price] => [4543]
[work_price] => [2592]
[image] => https://akademik-stroy.ru/wp-content/uploads/materials/kanon.png
[area_modifier] => 163.65
[parent_name] => Наружная отделка фасада
[parent_id] => 19
[material_sum] => 981370
[work_sum] => 466599
[total_sum] => 1447969
[total_days] => 20
[display_material_sum] => 981 370
[display_work_sum] => 466 599
[display_total_sum] => 1 447 969
)
1
1 447 969₽
Работа:466 599 ₽
Материалы:981 370 ₽
Дни:20
stdClass Object
(
[id] => 39
[attribute_id] => 20
[name] => Нет
[material_modifier] => 1
[work_modifier] => 1
[options] => Array
(
)
[days] => [0]
[material_price] => [0]
[work_price] => [0]
[image] => https://akademik-stroy.ru/wp-content/uploads/materials/terrasy.jpg
[area_modifier] => 30
[parent_name] => Террасы, крыльца, навесы
[parent_id] => 20
[material_sum] => 0
[work_sum] => 0
[total_sum] => 0
[total_days] => 0
[display_material_sum] => 0
[display_work_sum] => 0
[display_total_sum] => 0
)
1
0₽
Работа:0 ₽
Материалы:0 ₽
Дни:0
stdClass Object
(
[id] => 40
[attribute_id] => 20
[name] => Есть
[material_modifier] => 1
[work_modifier] => 1
[options] => Array
(
)
[days] => [5]
[material_price] => [10450]
[work_price] => [1950]
[image] => https://akademik-stroy.ru/wp-content/uploads/materials/terrasy.jpg
[area_modifier] => 30
[parent_name] => Террасы, крыльца, навесы
[parent_id] => 20
[material_sum] => 413820
[work_sum] => 64350
[total_sum] => 478170
[total_days] => 5
[display_material_sum] => 413 820
[display_work_sum] => 64 350
[display_total_sum] => 478 170
)
1
478 170₽
Работа:64 350 ₽
Материалы:413 820 ₽
Дни:5
stdClass Object
(
[id] => 41
[attribute_id] => 21
[name] => Нет
[material_modifier] => 1
[work_modifier] => 1
[options] => Array
(
)
[days] => [0]
[material_price] => [0]
[work_price] => [0]
[image] => https://akademik-stroy.ru/wp-content/uploads/materials/balkony.jpg
[area_modifier] => 30
[parent_name] => Балконы
[parent_id] => 21
[material_sum] => 0
[work_sum] => 0
[total_sum] => 0
[total_days] => 0
[display_material_sum] => 0
[display_work_sum] => 0
[display_total_sum] => 0
)
1
0₽
Работа:0 ₽
Материалы:0 ₽
Дни:0
stdClass Object
(
[id] => 42
[attribute_id] => 21
[name] => Есть
[material_modifier] => 1
[work_modifier] => 1
[options] => Array
(
)
[days] => [12]
[material_price] => [3600]
[work_price] => [1950]
[image] => https://akademik-stroy.ru/wp-content/uploads/materials/balkony.jpg
[area_modifier] => 30
[parent_name] => Балконы
[parent_id] => 21
[material_sum] => 142560
[work_sum] => 64350
[total_sum] => 206910
[total_days] => 12
[display_material_sum] => 142 560
[display_work_sum] => 64 350
[display_total_sum] => 206 910
)
1
206 910₽
Работа:64 350 ₽
Материалы:142 560 ₽
Дни:12
stdClass Object
(
[id] => 43
[attribute_id] => 22
[name] => Нет
[material_modifier] => 1
[work_modifier] => 1
[options] => Array
(
)
[days] => [0]
[material_price] => [0]
[work_price] => [0]
[image] => https://akademik-stroy.ru/wp-content/uploads/materials/uteplennaya.jpg
[area_modifier] => 103.88
[parent_name] => Отмостка
[parent_id] => 22
[material_sum] => 0
[work_sum] => 0
[total_sum] => 0
[total_days] => 0
[display_material_sum] => 0
[display_work_sum] => 0
[display_total_sum] => 0
)
1
0₽
Работа:0 ₽
Материалы:0 ₽
Дни:0
stdClass Object
(
[id] => 44
[attribute_id] => 22
[name] => Утепленная отмостка
[material_modifier] => 1
[work_modifier] => 1
[options] => Array
(
)
[days] => [15]
[material_price] => [2550]
[work_price] => [1750]
[image] => https://akademik-stroy.ru/wp-content/uploads/materials/uteplennaya.jpg
[area_modifier] => 103.88
[parent_name] => Отмостка
[parent_id] => 22
[material_sum] => 349660
[work_sum] => 199969
[total_sum] => 549629
[total_days] => 15
[display_material_sum] => 349 660
[display_work_sum] => 199 969
[display_total_sum] => 549 629
)
1
549 629₽
Работа:199 969 ₽
Материалы:349 660 ₽
Дни:15
stdClass Object
(
[id] => 146
[attribute_id] => 22
[name] => Не утепленная отмостка
[material_modifier] => 1
[work_modifier] => 1
[options] => Array
(
)
[days] => [10]
[material_price] => [1650]
[work_price] => [1450]
[image] => https://akademik-stroy.ru/wp-content/uploads/materials/ne-uteplennaya.jpg
[area_modifier] => 103.88
[parent_name] => Отмостка
[parent_id] => 22
[material_sum] => 226251
[work_sum] => 165689
[total_sum] => 391940
[total_days] => 10
[display_material_sum] => 226 251
[display_work_sum] => 165 689
[display_total_sum] => 391 940
)
1
391 940₽
Работа:165 689 ₽
Материалы:226 251 ₽
Дни:10
stdClass Object
(
[id] => 45
[attribute_id] => 23
[name] => Нет
[material_modifier] => 1
[work_modifier] => 1
[options] => Array
(
)
[days] => [0]
[material_price] => [0]
[work_price] => [0]
[image] => https://akademik-stroy.ru/wp-content/uploads/materials/drenazh-2.jpg
[area_modifier] => 103.88
[parent_name] => Дренаж вокруг дома
[parent_id] => 23
[material_sum] => 0
[work_sum] => 0
[total_sum] => 0
[total_days] => 0
[display_material_sum] => 0
[display_work_sum] => 0
[display_total_sum] => 0
)
1
0₽
Работа:0 ₽
Материалы:0 ₽
Дни:0
stdClass Object
(
[id] => 46
[attribute_id] => 23
[name] => Есть
[material_modifier] => 1
[work_modifier] => 1
[options] => Array
(
)
[days] => [5]
[material_price] => [2366]
[work_price] => [1911]
[image] => https://akademik-stroy.ru/wp-content/uploads/materials/drenazh-2.jpg
[area_modifier] => 103.88
[parent_name] => Дренаж вокруг дома
[parent_id] => 23
[material_sum] => 324430
[work_sum] => 218366
[total_sum] => 542796
[total_days] => 5
[display_material_sum] => 324 430
[display_work_sum] => 218 366
[display_total_sum] => 542 796
)
1
542 796₽
Работа:218 366 ₽
Материалы:324 430 ₽
Дни:5
stdClass Object
(
[id] => 47
[attribute_id] => 24
[name] => Нет
[material_modifier] => 1
[work_modifier] => 1
[options] => Array
(
)
[days] => [0]
[material_price] => [0]
[work_price] => [0]
[image] => https://akademik-stroy.ru/wp-content/uploads/materials/septik.jpg
[area_modifier] => 1
[parent_name] => Автономная канализация (септики)
[parent_id] => 24
[material_sum] => 0
[work_sum] => 0
[total_sum] => 0
[total_days] => 0
[display_material_sum] => 0
[display_work_sum] => 0
[display_total_sum] => 0
)
1
0₽
Работа:0 ₽
Материалы:0 ₽
Дни:0
stdClass Object
(
[id] => 48
[attribute_id] => 24
[name] => Есть
[material_modifier] => 1
[work_modifier] => 1
[options] => Array
(
[0] => Для дачи на 4 человека
[1] => Для дома на 5 человек
[2] => Для дома на 6 человек
[3] => Для дома на 7 человек
[4] => Для дома на 10 человек
)
[days] => [7,7,7,8,8]
[material_price] => [196340,220500,240940,264200,293340]
[work_price] => [50000,55000,60500,66550,73206]
[image] => https://akademik-stroy.ru/wp-content/uploads/materials/septik.jpg
[area_modifier] => 1
[parent_name] => Автономная канализация (септики)
[parent_id] => 24
[material_sum] => 259169
[work_sum] => 55000
[total_sum] => 314169
[total_days] => 7
[display_material_sum] => 259 169
[display_work_sum] => 55 000
[display_total_sum] => 314 169
)
1
314 169₽
Работа:55 000 ₽
Материалы:259 169 ₽
Дни:7
stdClass Object
(
[id] => 49
[attribute_id] => 25
[name] => Нет
[material_modifier] => 1
[work_modifier] => 1
[options] => Array
(
)
[days] => [0]
[material_price] => [0]
[work_price] => [0]
[image] => https://akademik-stroy.ru/wp-content/uploads/materials/gkl.jpg
[area_modifier] => 163.65
[parent_name] => Внутренние (не несущие) перегородки
[parent_id] => 25
[material_sum] => 0
[work_sum] => 0
[total_sum] => 0
[total_days] => 0
[display_material_sum] => 0
[display_work_sum] => 0
[display_total_sum] => 0
)
1
0₽
Работа:0 ₽
Материалы:0 ₽
Дни:0
stdClass Object
(
[id] => 147
[attribute_id] => 25
[name] => Каркасно-обшивные
[material_modifier] => 1
[work_modifier] => 1
[options] => Array
(
[0] => 75 мм (без шумоизоляции)
[1] => 75 мм (с шумоизоляцией)
)
[days] => [11,11]
[material_price] => [580,970]
[work_price] => [380,570]
[image] => https://akademik-stroy.ru/wp-content/uploads/materials/gkl.jpg
[area_modifier] => 163.65
[parent_name] => Внутренние (не несущие) перегородки
[parent_id] => 25
[material_sum] => 125290
[work_sum] => 68406
[total_sum] => 193696
[total_days] => 11
[display_material_sum] => 125 290
[display_work_sum] => 68 406
[display_total_sum] => 193 696
)
1
193 696₽
Работа:68 406 ₽
Материалы:125 290 ₽
Дни:11
stdClass Object
(
[id] => 148
[attribute_id] => 25
[name] => Пазогребневые
[material_modifier] => 1
[work_modifier] => 1
[options] => Array
(
[0] => 80 мм
[1] => 100 мм
)
[days] => [5,5]
[material_price] => [1022,1313]
[work_price] => [600,700]
[image] => https://akademik-stroy.ru/wp-content/uploads/materials/pazogrebnevye-bloki.jpg
[area_modifier] => 163.65
[parent_name] => Внутренние (не несущие) перегородки
[parent_id] => 25
[material_sum] => 220770
[work_sum] => 108009
[total_sum] => 328779
[total_days] => 5
[display_material_sum] => 220 770
[display_work_sum] => 108 009
[display_total_sum] => 328 779
)
1
328 779₽
Работа:108 009 ₽
Материалы:220 770 ₽
Дни:5
stdClass Object
(
[id] => 149
[attribute_id] => 25
[name] => Газобетонные
[material_modifier] => 1
[work_modifier] => 1
[options] => Array
(
[0] => 100 мм
[1] => 200 мм
)
[days] => [11,11]
[material_price] => [1160,1920]
[work_price] => [700,900]
[image] => https://akademik-stroy.ru/wp-content/uploads/materials/gazobeton-2.jpg
[area_modifier] => 163.65
[parent_name] => Внутренние (не несущие) перегородки
[parent_id] => 25
[material_sum] => 250581
[work_sum] => 126011
[total_sum] => 376592
[total_days] => 11
[display_material_sum] => 250 581
[display_work_sum] => 126 011
[display_total_sum] => 376 592
)
1
376 592₽
Работа:126 011 ₽
Материалы:250 581 ₽
Дни:11
stdClass Object
(
[id] => 150
[attribute_id] => 25
[name] => Кирпичные
[material_modifier] => 1
[work_modifier] => 1
[options] => Array
(
[0] => 120 мм
[1] => 250 мм
[2] => 360 мм
)
[days] => [7,7,7]
[material_price] => [1785,3570,5355]
[work_price] => [900,1600,1800]
[image] => https://akademik-stroy.ru/wp-content/uploads/materials/kirpich-1.jpg
[area_modifier] => 163.65
[parent_name] => Внутренние (не несущие) перегородки
[parent_id] => 25
[material_sum] => 385592
[work_sum] => 162014
[total_sum] => 547606
[total_days] => 7
[display_material_sum] => 385 592
[display_work_sum] => 162 014
[display_total_sum] => 547 606
)
1
547 606₽
Работа:162 014 ₽
Материалы:385 592 ₽
Дни:7
stdClass Object
(
[id] => 55
[attribute_id] => 28
[name] => Нет
[material_modifier] => 1
[work_modifier] => 1
[options] => Array
(
)
[days] => [0]
[material_price] => [0]
[work_price] => [0]
[image] => https://akademik-stroy.ru/wp-content/uploads/materials/ehlektrika.jpg
[area_modifier] => 132.8
[parent_name] => Электрика
[parent_id] => 28
[material_sum] => 0
[work_sum] => 0
[total_sum] => 0
[total_days] => 0
[display_material_sum] => 0
[display_work_sum] => 0
[display_total_sum] => 0
)
1
0₽
Работа:0 ₽
Материалы:0 ₽
Дни:0
stdClass Object
(
[id] => 56
[attribute_id] => 28
[name] => Есть
[material_modifier] => 1
[work_modifier] => 1
[options] => Array
(
)
[days] => [10]
[material_price] => [650]
[work_price] => [950]
[image] => https://akademik-stroy.ru/wp-content/uploads/materials/ehlektrika.jpg
[area_modifier] => 132.8
[parent_name] => Электрика
[parent_id] => 28
[material_sum] => 113942
[work_sum] => 138776
[total_sum] => 252718
[total_days] => 10
[display_material_sum] => 113 942
[display_work_sum] => 138 776
[display_total_sum] => 252 718
)
1
252 718₽
Работа:138 776 ₽
Материалы:113 942 ₽
Дни:10
stdClass Object
(
[id] => 57
[attribute_id] => 29
[name] => Нет
[material_modifier] => 1
[work_modifier] => 1
[options] => Array
(
)
[days] => [0]
[material_price] => [0]
[work_price] => [0]
[image] => https://akademik-stroy.ru/wp-content/uploads/materials/santekhnika-kanalizaciya-1.jpg
[area_modifier] => 132.8
[parent_name] => Сантехника, канализация в доме
[parent_id] => 29
[material_sum] => 0
[work_sum] => 0
[total_sum] => 0
[total_days] => 0
[display_material_sum] => 0
[display_work_sum] => 0
[display_total_sum] => 0
)
1
0₽
Работа:0 ₽
Материалы:0 ₽
Дни:0
stdClass Object
(
[id] => 58
[attribute_id] => 29
[name] => Есть
[material_modifier] => 1
[work_modifier] => 1
[options] => Array
(
)
[days] => [10]
[material_price] => [600]
[work_price] => [730]
[image] => https://akademik-stroy.ru/wp-content/uploads/materials/santekhnika-kanalizaciya-1.jpg
[area_modifier] => 132.8
[parent_name] => Сантехника, канализация в доме
[parent_id] => 29
[material_sum] => 105178
[work_sum] => 106638
[total_sum] => 211816
[total_days] => 10
[display_material_sum] => 105 178
[display_work_sum] => 106 638
[display_total_sum] => 211 816
)
1
211 816₽
Работа:106 638 ₽
Материалы:105 178 ₽
Дни:10
stdClass Object
(
[id] => 59
[attribute_id] => 30
[name] => Нет
[material_modifier] => 1
[work_modifier] => 1
[options] => Array
(
)
[days] => [0]
[material_price] => [0]
[work_price] => [0]
[image] => https://akademik-stroy.ru/wp-content/uploads/materials/otoplenie-1.jpg
[area_modifier] => 132.8
[parent_name] => Отопление
[parent_id] => 30
[material_sum] => 0
[work_sum] => 0
[total_sum] => 0
[total_days] => 0
[display_material_sum] => 0
[display_work_sum] => 0
[display_total_sum] => 0
)
1
0₽
Работа:0 ₽
Материалы:0 ₽
Дни:0
stdClass Object
(
[id] => 60
[attribute_id] => 30
[name] => Есть
[material_modifier] => 1
[work_modifier] => 1
[options] => Array
(
)
[days] => [5]
[material_price] => [610]
[work_price] => [560]
[image] => https://akademik-stroy.ru/wp-content/uploads/materials/otoplenie-1.jpg
[area_modifier] => 132.8
[parent_name] => Отопление
[parent_id] => 30
[material_sum] => 106931
[work_sum] => 81805
[total_sum] => 188736
[total_days] => 5
[display_material_sum] => 106 931
[display_work_sum] => 81 805
[display_total_sum] => 188 736
)
1
188 736₽
Работа:81 805 ₽
Материалы:106 931 ₽
Дни:5
stdClass Object
(
[id] => 61
[attribute_id] => 31
[name] => Нет
[material_modifier] => 1
[work_modifier] => 1
[options] => Array
(
)
[days] => [0]
[material_price] => [0]
[work_price] => [0]
[image] => https://akademik-stroy.ru/wp-content/uploads/materials/vodyanye.jpg
[area_modifier] => 30
[parent_name] => Теплые полы
[parent_id] => 31
[material_sum] => 0
[work_sum] => 0
[total_sum] => 0
[total_days] => 0
[display_material_sum] => 0
[display_work_sum] => 0
[display_total_sum] => 0
)
1
0₽
Работа:0 ₽
Материалы:0 ₽
Дни:0
stdClass Object
(
[id] => 151
[attribute_id] => 31
[name] => Водяные
[material_modifier] => 1
[work_modifier] => 1
[options] => Array
(
)
[days] => [9]
[material_price] => [10200]
[work_price] => [2500]
[image] => https://akademik-stroy.ru/wp-content/uploads/materials/vodyanye.jpg
[area_modifier] => 30
[parent_name] => Теплые полы
[parent_id] => 31
[material_sum] => 403920
[work_sum] => 82500
[total_sum] => 486420
[total_days] => 9
[display_material_sum] => 403 920
[display_work_sum] => 82 500
[display_total_sum] => 486 420
)
1
486 420₽
Работа:82 500 ₽
Материалы:403 920 ₽
Дни:9
stdClass Object
(
[id] => 152
[attribute_id] => 31
[name] => Электро
[material_modifier] => 1
[work_modifier] => 1
[options] => Array
(
)
[days] => [5]
[material_price] => [6300]
[work_price] => [1500]
[image] => https://akademik-stroy.ru/wp-content/uploads/materials/ehlektricheskij.jpg
[area_modifier] => 30
[parent_name] => Теплые полы
[parent_id] => 31
[material_sum] => 249480
[work_sum] => 49500
[total_sum] => 298980
[total_days] => 5
[display_material_sum] => 249 480
[display_work_sum] => 49 500
[display_total_sum] => 298 980
)
1
298 980₽
Работа:49 500 ₽
Материалы:249 480 ₽
Дни:5
stdClass Object
(
[id] => 63
[attribute_id] => 32
[name] => Нет
[material_modifier] => 1
[work_modifier] => 1
[options] => Array
(
)
[days] => [0]
[material_price] => [0]
[work_price] => [0]
[image] => https://akademik-stroy.ru/wp-content/uploads/materials/shtukaturka-shpatlevka-1.jpg
[area_modifier] => 132.8
[parent_name] => Черновая отделка стен
[parent_id] => 32
[material_sum] => 0
[work_sum] => 0
[total_sum] => 0
[total_days] => 0
[display_material_sum] => 0
[display_work_sum] => 0
[display_total_sum] => 0
)
1
0₽
Работа:0 ₽
Материалы:0 ₽
Дни:0
stdClass Object
(
[id] => 153
[attribute_id] => 32
[name] => Штукатурка и шпатлевка
[material_modifier] => 1
[work_modifier] => 1
[options] => Array
(
)
[days] => [20]
[material_price] => [1850]
[work_price] => [2600]
[image] => https://akademik-stroy.ru/wp-content/uploads/materials/shtukaturka-shpatlevka-1.jpg
[area_modifier] => 132.8
[parent_name] => Черновая отделка стен
[parent_id] => 32
[material_sum] => 324298
[work_sum] => 379808
[total_sum] => 704106
[total_days] => 20
[display_material_sum] => 324 298
[display_work_sum] => 379 808
[display_total_sum] => 704 106
)
1
704 106₽
Работа:379 808 ₽
Материалы:324 298 ₽
Дни:20
stdClass Object
(
[id] => 154
[attribute_id] => 32
[name] => Гипсокортон на стены
[material_modifier] => 1
[work_modifier] => 1
[options] => Array
(
)
[days] => [15]
[material_price] => [950]
[work_price] => [2100]
[image] => https://akademik-stroy.ru/wp-content/uploads/materials/gkl-1.jpg
[area_modifier] => 132.8
[parent_name] => Черновая отделка стен
[parent_id] => 32
[material_sum] => 166531
[work_sum] => 306768
[total_sum] => 473299
[total_days] => 15
[display_material_sum] => 166 531
[display_work_sum] => 306 768
[display_total_sum] => 473 299
)
1
473 299₽
Работа:306 768 ₽
Материалы:166 531 ₽
Дни:15
stdClass Object
(
[id] => 155
[attribute_id] => 32
[name] => Вагонка
[material_modifier] => 1
[work_modifier] => 1
[options] => Array
(
)
[days] => [15]
[material_price] => [1250]
[work_price] => [950]
[image] => https://akademik-stroy.ru/wp-content/uploads/materials/vagonka.jpg
[area_modifier] => 132.8
[parent_name] => Черновая отделка стен
[parent_id] => 32
[material_sum] => 219120
[work_sum] => 138776
[total_sum] => 357896
[total_days] => 15
[display_material_sum] => 219 120
[display_work_sum] => 138 776
[display_total_sum] => 357 896
)
1
357 896₽
Работа:138 776 ₽
Материалы:219 120 ₽
Дни:15
stdClass Object
(
[id] => 65
[attribute_id] => 33
[name] => Нет
[material_modifier] => 1
[work_modifier] => 1
[options] => Array
(
)
[days] => [0]
[material_price] => [0]
[work_price] => [0]
[image] => https://akademik-stroy.ru/wp-content/uploads/materials/styazhka.jpg
[area_modifier] => 132.8
[parent_name] => Черновая отделка полов
[parent_id] => 33
[material_sum] => 0
[work_sum] => 0
[total_sum] => 0
[total_days] => 0
[display_material_sum] => 0
[display_work_sum] => 0
[display_total_sum] => 0
)
1
0₽
Работа:0 ₽
Материалы:0 ₽
Дни:0
stdClass Object
(
[id] => 156
[attribute_id] => 33
[name] => Стяжка + наливные полы
[material_modifier] => 1
[work_modifier] => 1
[options] => Array
(
)
[days] => [10]
[material_price] => [1000]
[work_price] => [900]
[image] => https://akademik-stroy.ru/wp-content/uploads/materials/styazhka.jpg
[area_modifier] => 132.8
[parent_name] => Черновая отделка полов
[parent_id] => 33
[material_sum] => 175296
[work_sum] => 131472
[total_sum] => 306768
[total_days] => 10
[display_material_sum] => 175 296
[display_work_sum] => 131 472
[display_total_sum] => 306 768
)
1
306 768₽
Работа:131 472 ₽
Материалы:175 296 ₽
Дни:10
stdClass Object
(
[id] => 157
[attribute_id] => 33
[name] => ОСБ на пол
[material_modifier] => 1
[work_modifier] => 1
[options] => Array
(
)
[days] => [7]
[material_price] => [580]
[work_price] => [350]
[image] => https://akademik-stroy.ru/wp-content/uploads/materials/osb-1.jpg
[area_modifier] => 132.8
[parent_name] => Черновая отделка полов
[parent_id] => 33
[material_sum] => 101672
[work_sum] => 51128
[total_sum] => 152800
[total_days] => 7
[display_material_sum] => 101 672
[display_work_sum] => 51 128
[display_total_sum] => 152 800
)
1
152 800₽
Работа:51 128 ₽
Материалы:101 672 ₽
Дни:7
stdClass Object
(
[id] => 67
[attribute_id] => 34
[name] => Нет
[material_modifier] => 1
[work_modifier] => 1
[options] => Array
(
)
[days] => [0]
[material_price] => [0]
[work_price] => [0]
[image] => https://akademik-stroy.ru/wp-content/uploads/materials/chistovaya-otdelka.jpg
[area_modifier] => 132.8
[parent_name] => Чистовая отделка стен и полов
[parent_id] => 34
[material_sum] => 0
[work_sum] => 0
[total_sum] => 0
[total_days] => 0
[display_material_sum] => 0
[display_work_sum] => 0
[display_total_sum] => 0
)
1
0₽
Работа:0 ₽
Материалы:0 ₽
Дни:0
stdClass Object
(
[id] => 68
[attribute_id] => 34
[name] => Есть
[material_modifier] => 1
[work_modifier] => 1
[options] => Array
(
)
[days] => [50]
[material_price] => [6000]
[work_price] => [3500]
[image] => https://akademik-stroy.ru/wp-content/uploads/materials/chistovaya-otdelka.jpg
[area_modifier] => 132.8
[parent_name] => Чистовая отделка стен и полов
[parent_id] => 34
[material_sum] => 1051776
[work_sum] => 511280
[total_sum] => 1563056
[total_days] => 50
[display_material_sum] => 1 051 776
[display_work_sum] => 511 280
[display_total_sum] => 1 563 056
)
1
1 563 056₽
Работа:511 280 ₽
Материалы:1 051 776 ₽
Дни:50
stdClass Object
(
[id] => 69
[attribute_id] => 35
[name] => Нет
[material_modifier] => 1
[work_modifier] => 1
[options] => Array
(
)
[days] => [0]
[material_price] => [0]
[work_price] => [0]
[image] => https://akademik-stroy.ru/wp-content/uploads/materials/mnogourovnevyj-gkl.jpg
[area_modifier] => 132.8
[parent_name] => Отделка потолка
[parent_id] => 35
[material_sum] => 0
[work_sum] => 0
[total_sum] => 0
[total_days] => 0
[display_material_sum] => 0
[display_work_sum] => 0
[display_total_sum] => 0
)
1
0₽
Работа:0 ₽
Материалы:0 ₽
Дни:0
stdClass Object
(
[id] => 70
[attribute_id] => 35
[name] => Есть
[material_modifier] => 1
[work_modifier] => 1
[options] => Array
(
[0] => Многоуровневый потолок из гипсокартона
[1] => Многоуровневый потолок из гипсокартона и натяжного потолка
[2] => Одноуровневый потолок из гипсокартона
[3] => Одноуровневый натяжной потолок
)
[days] => [10,10,1,1]
[material_price] => [900,700,700,600]
[work_price] => [1000,800,500,300]
[image] => https://akademik-stroy.ru/wp-content/uploads/materials/mnogourovnevyj-gkl.jpg
[area_modifier] => 132.8
[parent_name] => Отделка потолка
[parent_id] => 35
[material_sum] => 157766
[work_sum] => 146080
[total_sum] => 303846
[total_days] => 10
[display_material_sum] => 157 766
[display_work_sum] => 146 080
[display_total_sum] => 303 846
)
1
303 846₽
Работа:146 080 ₽
Материалы:157 766 ₽
Дни:10
Преимущества работы с нами
7 этапов оплаты
Независимый строительный надзор
Экологически чистые материалы
16 лет гарантии
Онлайн-кабинет с веб-камерой
Строители с опытом более 15 лет
Собственное производство














