Одноэтажный дом 226.54 м2 за руб.
Планировки
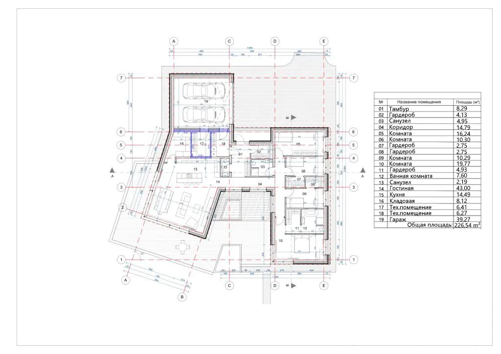
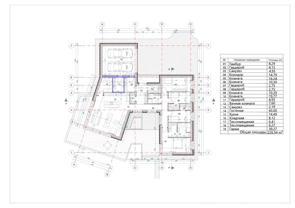
План первого этажа
- 1. Тамбур 8,29 м²
- 2. Гардероб 4,13 м²
- 3. Санузел 4,95 м²
- 4. Коридор 14,79 м²
- 5. Комната 16,24 м²
- 6. Комната 10,30 м²
- 7. Гардероб 2,75 м²
- 8. Гардероб 2,75 м²
- 9. Комната 10,29 м²
- 10. Комната 19,77 м²
- 11. Гардероб 4,93 м²
- 12. Ванная комната 7,60 м²
- 13. Санузел 2,19 м²
- 14. Гостиная 43,00 м²
- 15. Кухня 14,49 м²
- 16. Кладовая 8,12 м²
- 17. Тех.помещение 6,41 м²
- 18. Тех.помещение 6,27 м²
- Гараж 39,27 м²
Площади дома
| № п/п | Наименование | Ед. из. | Строительная площадь | Полезная площадь |
| 1 | 1 этаж | м2 | 279.17 | 226.54 |
| 2 | Итого | м2 | 279.17 | 226.54 |
154 м2
Полезная
площадь
площадь
1 этаж
Этажей
26 м2
Террасы
и балконы
и балконы
2Без
гаража
гаража
4
Количество
спален
спален
3
Количество
санузлов
санузлов
Калькулятор опций
0₽
В ипотеку от 31 645 ₽/мес.
0₽
0 дней
1 458 901₽
Работа:631 399 ₽
Материалы:827 502 ₽
Дни:20
877 041₽
Работа:293 715 ₽
Материалы:583 326 ₽
Дни:2
1 477 954₽
Работа:593 292 ₽
Материалы:884 662 ₽
Дни:20
2 832 207₽
Работа:1 264 556 ₽
Материалы:1 567 651 ₽
Дни:30
4 751 320₽
Работа:1 747 046 ₽
Материалы:3 004 274 ₽
Дни:32
1 795 705₽
Работа:718 458 ₽
Материалы:1 077 247 ₽
Дни:20
11 267 860₽
Работа:5 136 784 ₽
Материалы:6 131 076 ₽
Дни:30
13 443 460₽
Работа:5 991 840 ₽
Материалы:7 451 620 ₽
Дни:40
469 005₽
Работа:117 251 ₽
Материалы:351 754 ₽
Дни:1
839 520₽
Работа:360 548 ₽
Материалы:478 972 ₽
Дни:8
1 344 580₽
Работа:445 555 ₽
Материалы:899 025 ₽
Дни:13
2 399 257₽
Работа:981 394 ₽
Материалы:1 417 863 ₽
Дни:18
2 354 702₽
Работа:1 475 316 ₽
Материалы:879 386 ₽
Дни:29
2 710 560₽
Работа:1 388 550 ₽
Материалы:1 322 010 ₽
Дни:23
4 172 978₽
Работа:2 560 771 ₽
Материалы:1 612 207 ₽
Дни:30
3 415 240₽
Работа:1 496 714 ₽
Материалы:1 918 526 ₽
Дни:45
6 384 632₽
Работа:1 408 776 ₽
Материалы:4 975 856 ₽
Дни:24
1 406 138₽
Работа:708 785 ₽
Материалы:697 353 ₽
Дни:15
767 996₽
Работа:413 311 ₽
Материалы:354 685 ₽
Дни:7
2 700 886₽
Работа:939 184 ₽
Материалы:1 761 702 ₽
Дни:7
3 527 801₽
Работа:1 127 079 ₽
Материалы:2 400 722 ₽
Дни:7
23 167 411₽
Работа:1 127 079 ₽
Материалы:22 040 332 ₽
Дни:7
12 540 331₽
Работа:1 408 776 ₽
Материалы:11 131 555 ₽
Дни:7
1 972 462₽
Работа:469 592 ₽
Материалы:1 502 870 ₽
Дни:7
2 590 083₽
Работа:1 330 217 ₽
Материалы:1 259 866 ₽
Дни:29
2 267 642₽
Работа:1 476 781 ₽
Материалы:790 861 ₽
Дни:29
2 590 083₽
Работа:1 330 217 ₽
Материалы:1 259 866 ₽
Дни:29
2 748 959₽
Работа:1 681 678 ₽
Материалы:1 067 281 ₽
Дни:23
3 513 732₽
Работа:1 183 360 ₽
Материалы:2 330 372 ₽
Дни:7
3 984 496₽
Работа:2 442 054 ₽
Материалы:1 542 442 ₽
Дни:25
1 441 313₽
Работа:743 960 ₽
Материалы:697 353 ₽
Дни:15
13 355 521₽
Работа:2 817 551 ₽
Материалы:10 537 970 ₽
Дни:15
1 598 136₽
Работа:751 581 ₽
Материалы:846 555 ₽
Дни:15
2 176 185₽
Работа:1 235 243 ₽
Материалы:940 942 ₽
Дни:19
2 296 955₽
Работа:1 476 781 ₽
Материалы:820 174 ₽
Дни:29
1 475 315₽
Работа:774 445 ₽
Материалы:700 870 ₽
Дни:15
2 710 560₽
Работа:1 388 550 ₽
Материалы:1 322 010 ₽
Дни:23
1 583 480₽
Работа:615 570 ₽
Материалы:967 910 ₽
Дни:15
2 028 449₽
Работа:1 479 126 ₽
Материалы:549 323 ₽
Дни:7
839 520₽
Работа:360 548 ₽
Материалы:478 972 ₽
Дни:8
1 344 580₽
Работа:445 555 ₽
Материалы:899 025 ₽
Дни:13
2 399 257₽
Работа:981 394 ₽
Материалы:1 417 863 ₽
Дни:18
3 585 255₽
Работа:1 220 294 ₽
Материалы:2 364 961 ₽
Дни:10
5 423 463₽
Работа:2 475 763 ₽
Материалы:2 947 700 ₽
Дни:10
4 998 427₽
Работа:2 186 445 ₽
Материалы:2 811 982 ₽
Дни:10
0₽
Работа:0 ₽
Материалы:0 ₽
Дни:0
469 550₽
Работа:151 046 ₽
Материалы:318 504 ₽
Дни:3
0₽
Работа:0 ₽
Материалы:0 ₽
Дни:0
16 275₽
Работа:5 775 ₽
Материалы:10 500 ₽
Дни:1
0₽
Работа:0 ₽
Материалы:0 ₽
Дни:0
0₽
Работа:0 ₽
Материалы:0 ₽
Дни:0
976 998₽
Работа:437 055 ₽
Материалы:539 943 ₽
Дни:7
0₽
Работа:0 ₽
Материалы:0 ₽
Дни:0
1 689 007₽
Работа:681 524 ₽
Материалы:1 007 483 ₽
Дни:7
596 516₽
Работа:359 082 ₽
Материалы:237 434 ₽
Дни:3
1 862 832₽
Работа:526 166 ₽
Материалы:1 336 666 ₽
Дни:5
1 939 632₽
Работа:526 166 ₽
Материалы:1 413 466 ₽
Дни:5
1 052 039₽
Работа:213 691 ₽
Материалы:838 348 ₽
Дни:3
2 674 212₽
Работа:234 503 ₽
Материалы:2 439 709 ₽
Дни:5
0₽
Работа:0 ₽
Материалы:0 ₽
Дни:0
1 287 128₽
Работа:409 501 ₽
Материалы:877 627 ₽
Дни:20
1 386 791₽
Работа:450 539 ₽
Материалы:936 252 ₽
Дни:20
1 006 310₽
Работа:352 340 ₽
Материалы:653 970 ₽
Дни:35
3 345 768₽
Работа:949 736 ₽
Материалы:2 396 032 ₽
Дни:45
1 753 201₽
Работа:881 437 ₽
Материалы:871 764 ₽
Дни:40
740 442₽
Работа:370 221 ₽
Материалы:370 221 ₽
Дни:20
2 279 367₽
Работа:949 736 ₽
Материалы:1 329 631 ₽
Дни:45
2 507 421₽
Работа:683 869 ₽
Материалы:1 823 552 ₽
Дни:20
1 386 498₽
Работа:569 842 ₽
Материалы:816 656 ₽
Дни:20
1 709 525₽
Работа:759 789 ₽
Материалы:949 736 ₽
Дни:20
2 382 549₽
Работа:1 025 657 ₽
Материалы:1 356 892 ₽
Дни:20
2 941 838₽
Работа:877 334 ₽
Материалы:2 064 504 ₽
Дни:20
2 091 472₽
Работа:759 789 ₽
Материалы:1 331 683 ₽
Дни:20
0₽
Работа:0 ₽
Материалы:0 ₽
Дни:0
390 600₽
Работа:61 425 ₽
Материалы:329 175 ₽
Дни:5
0₽
Работа:0 ₽
Материалы:0 ₽
Дни:0
174 825₽
Работа:61 425 ₽
Материалы:113 400 ₽
Дни:12
0₽
Работа:0 ₽
Материалы:0 ₽
Дни:0
1 260 453₽
Работа:512 975 ₽
Материалы:747 478 ₽
Дни:15
908 698₽
Работа:425 036 ₽
Материалы:483 662 ₽
Дни:10
0₽
Работа:0 ₽
Материалы:0 ₽
Дни:0
1 253 711₽
Работа:560 169 ₽
Материалы:693 542 ₽
Дни:5
0₽
Работа:0 ₽
Материалы:0 ₽
Дни:0
258 657₽
Работа:52 500 ₽
Материалы:206 157 ₽
Дни:7
0₽
Работа:0 ₽
Материалы:0 ₽
Дни:0
281 404₽
Работа:111 389 ₽
Материалы:170 015 ₽
Дни:11
475 454₽
Работа:175 877 ₽
Материалы:299 577 ₽
Дни:5
545 219₽
Работа:205 190 ₽
Материалы:340 029 ₽
Дни:11
787 050₽
Работа:263 816 ₽
Материалы:523 234 ₽
Дни:7
0₽
Работа:0 ₽
Материалы:0 ₽
Дни:0
380 588₽
Работа:225 974 ₽
Материалы:154 614 ₽
Дни:10
0₽
Работа:0 ₽
Материалы:0 ₽
Дни:0
316 363₽
Работа:173 643 ₽
Материалы:142 720 ₽
Дни:10
0₽
Работа:0 ₽
Материалы:0 ₽
Дни:0
278 305₽
Работа:133 206 ₽
Материалы:145 099 ₽
Дни:5
0₽
Работа:0 ₽
Материалы:0 ₽
Дни:0
400 050₽
Работа:78 750 ₽
Материалы:321 300 ₽
Дни:9
245 700₽
Работа:47 250 ₽
Материалы:198 450 ₽
Дни:5
0₽
Работа:0 ₽
Материалы:0 ₽
Дни:0
1 058 508₽
Работа:618 454 ₽
Материалы:440 054 ₽
Дни:20
725 495₽
Работа:499 521 ₽
Материалы:225 974 ₽
Дни:15
523 308₽
Работа:225 974 ₽
Материалы:297 334 ₽
Дни:15
0₽
Работа:0 ₽
Материалы:0 ₽
Дни:0
451 947₽
Работа:214 080 ₽
Материалы:237 867 ₽
Дни:10
221 216₽
Работа:83 253 ₽
Материалы:137 963 ₽
Дни:7
0₽
Работа:0 ₽
Материалы:0 ₽
Дни:0
2 259 737₽
Работа:832 535 ₽
Материалы:1 427 202 ₽
Дни:50
0₽
Работа:0 ₽
Материалы:0 ₽
Дни:0
451 947₽
Работа:237 867 ₽
Материалы:214 080 ₽
Дни:10
Преимущества работы с нами
7 этапов оплаты
Независимый строительный надзор
Экологически чистые материалы
16 лет гарантии
Онлайн-кабинет с веб-камерой
Строители с опытом более 15 лет
Собственное производство








