Одноэтажный дом 177.64 м2 за руб.
Планировки
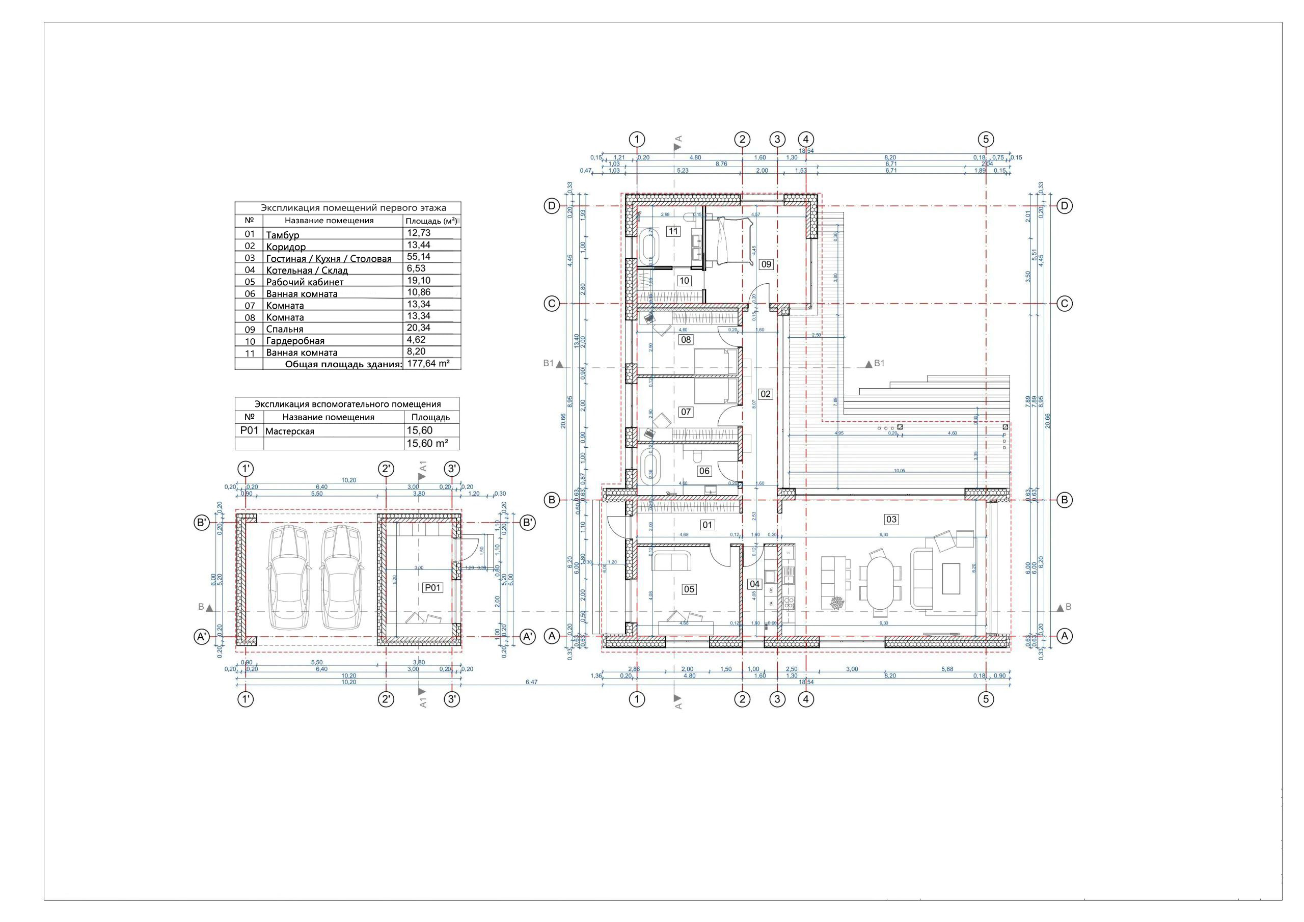
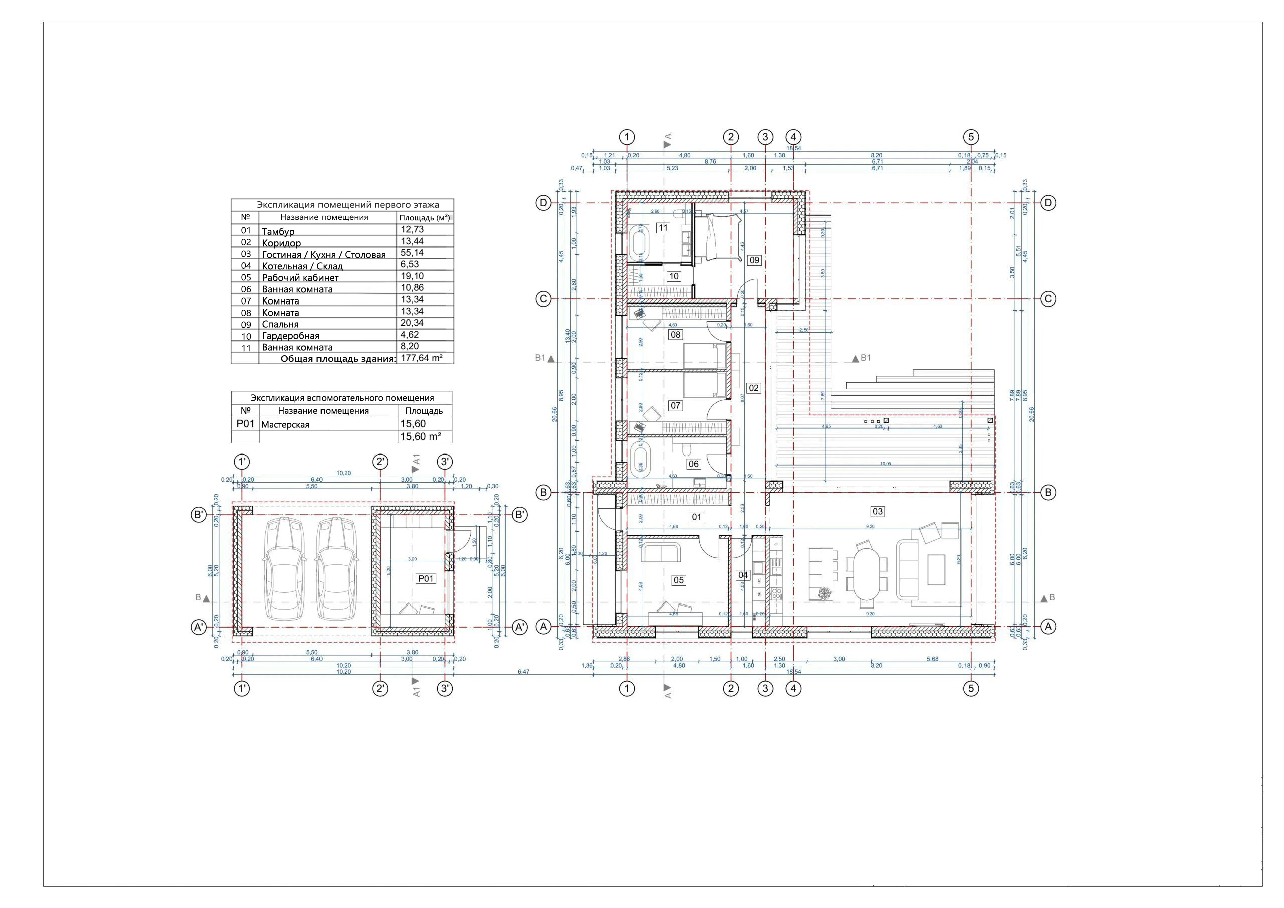
План первого этажа
- 1. Тамбур 12,73 м²
- 2. Коридор 13,44 м²
- 3. Гостиная-Кухня-Столовая 55,14 м²
- 4. Котельная-Прачечная 6,53 м²
- 5. Кабинет 19,10 м²
- 6. Ванная комната 10,86 м²
- 7. Комната 13,34 м²
- 8. Комната 13,34 м²
- 9. Спальня 20,34 м²
- 10. Гардероб 4,62 м²
- 11. Ванная комната 8,20 м²
- Общая площадь 177,64 м²
Площади дома
| № п/п | Наименование | Ед. из. | Строительная площадь | Полезная площадь |
| 1 | 1 этаж | м2 | 218.91 | 177.64 |
| 2 | Итого | м2 | 218.91 | 177.64 |
154 м2
Полезная
площадь
площадь
1 этаж
Этажей
26 м2
Террасы
и балконы
и балконы
1Без
гаража
гаража
4
Количество
спален
спален
2
Количество
санузлов
санузлов
Калькулятор опций
0₽
В ипотеку от 29 035 ₽/мес.
0₽
0 дней
1 143 991₽
Работа:495 109 ₽
Материалы:648 882 ₽
Дни:20
687 727₽
Работа:230 315 ₽
Материалы:457 412 ₽
Дни:2
1 158 932₽
Работа:465 228 ₽
Материалы:693 704 ₽
Дни:20
2 220 864₽
Работа:991 597 ₽
Материалы:1 229 267 ₽
Дни:30
3 725 728₽
Работа:1 369 939 ₽
Материалы:2 355 789 ₽
Дни:32
1 408 095₽
Работа:563 376 ₽
Материалы:844 719 ₽
Дни:20
8 835 646₽
Работа:4 027 988 ₽
Материалы:4 807 658 ₽
Дни:30
10 541 633₽
Работа:4 698 476 ₽
Материалы:5 843 157 ₽
Дни:40
367 769₽
Работа:91 942 ₽
Материалы:275 827 ₽
Дни:1
658 306₽
Работа:282 722 ₽
Материалы:375 584 ₽
Дни:8
1 054 347₽
Работа:349 380 ₽
Материалы:704 967 ₽
Дни:13
1 881 367₽
Работа:769 556 ₽
Материалы:1 111 811 ₽
Дни:18
1 846 430₽
Работа:1 156 863 ₽
Материалы:689 567 ₽
Дни:29
2 125 474₽
Работа:1 088 826 ₽
Материалы:1 036 648 ₽
Дни:23
3 272 223₽
Работа:2 008 018 ₽
Материалы:1 264 205 ₽
Дни:30
2 678 046₽
Работа:1 173 642 ₽
Материалы:1 504 404 ₽
Дни:45
5 006 483₽
Работа:1 104 686 ₽
Материалы:3 901 797 ₽
Дни:24
1 102 617₽
Работа:555 791 ₽
Материалы:546 826 ₽
Дни:15
602 221₽
Работа:324 096 ₽
Материалы:278 125 ₽
Дни:7
2 117 889₽
Работа:736 457 ₽
Материалы:1 381 432 ₽
Дни:7
2 766 311₽
Работа:883 794 ₽
Материалы:1 882 517 ₽
Дни:7
18 166 629₽
Работа:883 794 ₽
Материалы:17 282 835 ₽
Дни:7
9 833 449₽
Работа:1 104 686 ₽
Материалы:8 728 763 ₽
Дни:7
1 546 698₽
Работа:368 229 ₽
Материалы:1 178 469 ₽
Дни:7
2 031 003₽
Работа:1 043 084 ₽
Материалы:987 919 ₽
Дни:29
1 778 162₽
Работа:1 158 012 ₽
Материалы:620 150 ₽
Дни:29
2 031 003₽
Работа:1 043 084 ₽
Материалы:987 919 ₽
Дни:29
2 155 585₽
Работа:1 318 681 ₽
Материалы:836 904 ₽
Дни:23
2 755 278₽
Работа:927 927 ₽
Материалы:1 827 351 ₽
Дни:7
3 124 426₽
Работа:1 914 926 ₽
Материалы:1 209 500 ₽
Дни:25
1 130 199₽
Работа:583 373 ₽
Материалы:546 826 ₽
Дни:15
10 472 676₽
Работа:2 209 371 ₽
Материалы:8 263 305 ₽
Дни:15
1 253 173₽
Работа:589 350 ₽
Материалы:663 823 ₽
Дни:15
1 706 447₽
Работа:968 611 ₽
Материалы:737 836 ₽
Дни:19
1 801 148₽
Работа:1 158 012 ₽
Материалы:643 136 ₽
Дни:29
1 156 863₽
Работа:607 278 ₽
Материалы:549 585 ₽
Дни:15
2 125 474₽
Работа:1 088 826 ₽
Материалы:1 036 648 ₽
Дни:23
1 241 680₽
Работа:482 697 ₽
Материалы:758 983 ₽
Дни:15
1 590 600₽
Работа:1 159 851 ₽
Материалы:430 749 ₽
Дни:7
658 306₽
Работа:282 722 ₽
Материалы:375 584 ₽
Дни:8
1 054 347₽
Работа:349 380 ₽
Материалы:704 967 ₽
Дни:13
1 881 367₽
Работа:769 556 ₽
Материалы:1 111 811 ₽
Дни:18
2 721 030₽
Работа:1 316 153 ₽
Материалы:1 404 877 ₽
Дни:20
2 972 031₽
Работа:1 367 640 ₽
Материалы:1 604 391 ₽
Дни:20
4 600 788₽
Работа:2 173 514 ₽
Материалы:2 427 274 ₽
Дни:20
4 231 869₽
Работа:2 046 863 ₽
Материалы:2 185 006 ₽
Дни:20
5 104 172₽
Работа:2 173 514 ₽
Материалы:2 930 658 ₽
Дни:20
3 847 782₽
Работа:1 882 517 ₽
Материалы:1 965 265 ₽
Дни:20
8 550 625₽
Работа:3 850 080 ₽
Материалы:4 700 545 ₽
Дни:20
8 419 607₽
Работа:3 856 975 ₽
Материалы:4 562 632 ₽
Дни:20
1 654 959₽
Работа:861 958 ₽
Материалы:793 001 ₽
Дни:20
368 194₽
Работа:118 441 ₽
Материалы:249 753 ₽
Дни:3
0₽
Работа:0 ₽
Материалы:0 ₽
Дни:0
16 275₽
Работа:5 775 ₽
Материалы:10 500 ₽
Дни:1
0₽
Работа:0 ₽
Материалы:0 ₽
Дни:0
0₽
Работа:0 ₽
Материалы:0 ₽
Дни:0
415 579₽
Работа:149 406 ₽
Материалы:266 173 ₽
Дни:5
242 268₽
Работа:53 786 ₽
Материалы:188 482 ₽
Дни:3
353 058₽
Работа:89 644 ₽
Материалы:263 414 ₽
Дни:3
199 055₽
Работа:89 644 ₽
Материалы:109 411 ₽
Дни:3
531 885₽
Работа:53 786 ₽
Материалы:478 099 ₽
Дни:2
697 842₽
Работа:89 644 ₽
Материалы:608 198 ₽
Дни:3
0₽
Работа:0 ₽
Материалы:0 ₽
Дни:0
68 649₽
Работа:18 795 ₽
Материалы:49 854 ₽
Дни:6
0₽
Работа:0 ₽
Материалы:0 ₽
Дни:0
765 878₽
Работа:351 449 ₽
Материалы:414 429 ₽
Дни:7
0₽
Работа:0 ₽
Материалы:0 ₽
Дни:0
766 109₽
Работа:342 715 ₽
Материалы:423 394 ₽
Дни:7
0₽
Работа:0 ₽
Материалы:0 ₽
Дни:0
1 324 427₽
Работа:534 414 ₽
Материалы:790 013 ₽
Дни:7
467 756₽
Работа:281 573 ₽
Материалы:186 183 ₽
Дни:3
1 460 732₽
Работа:412 591 ₽
Материалы:1 048 141 ₽
Дни:5
1 520 954₽
Работа:412 591 ₽
Материалы:1 108 363 ₽
Дни:5
824 952₽
Работа:167 565 ₽
Материалы:657 387 ₽
Дни:3
2 096 971₽
Работа:183 884 ₽
Материалы:1 913 087 ₽
Дни:5
0₽
Работа:0 ₽
Материалы:0 ₽
Дни:0
1 009 295₽
Работа:321 108 ₽
Материалы:688 187 ₽
Дни:20
1 087 446₽
Работа:353 288 ₽
Материалы:734 158 ₽
Дни:20
789 094₽
Работа:276 286 ₽
Материалы:512 808 ₽
Дни:35
2 623 571₽
Работа:744 732 ₽
Материалы:1 878 839 ₽
Дни:45
1 374 765₽
Работа:691 175 ₽
Материалы:683 590 ₽
Дни:40
580 614₽
Работа:290 307 ₽
Материалы:290 307 ₽
Дни:20
1 787 357₽
Работа:744 732 ₽
Материалы:1 042 625 ₽
Дни:45
1 966 184₽
Работа:536 253 ₽
Материалы:1 429 931 ₽
Дни:20
1 087 216₽
Работа:446 839 ₽
Материалы:640 377 ₽
Дни:20
1 340 517₽
Работа:595 785 ₽
Материалы:744 732 ₽
Дни:20
1 868 265₽
Работа:804 264 ₽
Материалы:1 064 001 ₽
Дни:20
2 306 830₽
Работа:687 958 ₽
Материалы:1 618 872 ₽
Дни:20
1 640 019₽
Работа:595 785 ₽
Материалы:1 044 234 ₽
Дни:20
0₽
Работа:0 ₽
Материалы:0 ₽
Дни:0
390 600₽
Работа:61 425 ₽
Материалы:329 175 ₽
Дни:5
0₽
Работа:0 ₽
Материалы:0 ₽
Дни:0
174 825₽
Работа:61 425 ₽
Материалы:113 400 ₽
Дни:12
0₽
Работа:0 ₽
Материалы:0 ₽
Дни:0
988 379₽
Работа:402 247 ₽
Материалы:586 132 ₽
Дни:15
712 552₽
Работа:333 290 ₽
Материалы:379 262 ₽
Дни:10
0₽
Работа:0 ₽
Материалы:0 ₽
Дни:0
983 092₽
Работа:439 254 ₽
Материалы:543 838 ₽
Дни:5
0₽
Работа:0 ₽
Материалы:0 ₽
Дни:0
258 657₽
Работа:52 500 ₽
Материалы:206 157 ₽
Дни:7
0₽
Работа:0 ₽
Материалы:0 ₽
Дни:0
220 661₽
Работа:87 345 ₽
Материалы:133 316 ₽
Дни:11
372 825₽
Работа:137 913 ₽
Материалы:234 912 ₽
Дни:5
427 531₽
Работа:160 899 ₽
Материалы:266 632 ₽
Дни:11
617 162₽
Работа:206 870 ₽
Материалы:410 292 ₽
Дни:7
0₽
Работа:0 ₽
Материалы:0 ₽
Дни:0
298 435₽
Работа:177 196 ₽
Материалы:121 239 ₽
Дни:10
0₽
Работа:0 ₽
Материалы:0 ₽
Дни:0
248 074₽
Работа:136 161 ₽
Материалы:111 913 ₽
Дни:10
0₽
Работа:0 ₽
Материалы:0 ₽
Дни:0
218 230₽
Работа:104 452 ₽
Материалы:113 778 ₽
Дни:5
0₽
Работа:0 ₽
Материалы:0 ₽
Дни:0
400 050₽
Работа:78 750 ₽
Материалы:321 300 ₽
Дни:9
245 700₽
Работа:47 250 ₽
Материалы:198 450 ₽
Дни:5
0₽
Работа:0 ₽
Материалы:0 ₽
Дни:0
830 023₽
Работа:484 957 ₽
Материалы:345 066 ₽
Дни:20
568 892₽
Работа:391 696 ₽
Материалы:177 196 ₽
Дни:15
410 349₽
Работа:177 196 ₽
Материалы:233 153 ₽
Дни:15
0₽
Работа:0 ₽
Материалы:0 ₽
Дни:0
354 392₽
Работа:167 870 ₽
Материалы:186 522 ₽
Дни:10
173 466₽
Работа:65 283 ₽
Материалы:108 183 ₽
Дни:7
0₽
Работа:0 ₽
Материалы:0 ₽
Дни:0
1 771 959₽
Работа:652 827 ₽
Материалы:1 119 132 ₽
Дни:50
0₽
Работа:0 ₽
Материалы:0 ₽
Дни:0
354 392₽
Работа:186 522 ₽
Материалы:167 870 ₽
Дни:10
Преимущества работы с нами
7 этапов оплаты
Независимый строительный надзор
Экологически чистые материалы
16 лет гарантии
Онлайн-кабинет с веб-камерой
Строители с опытом более 15 лет
Собственное производство








