Одноэтажный дом 140.22 м2 за руб.
Планировки
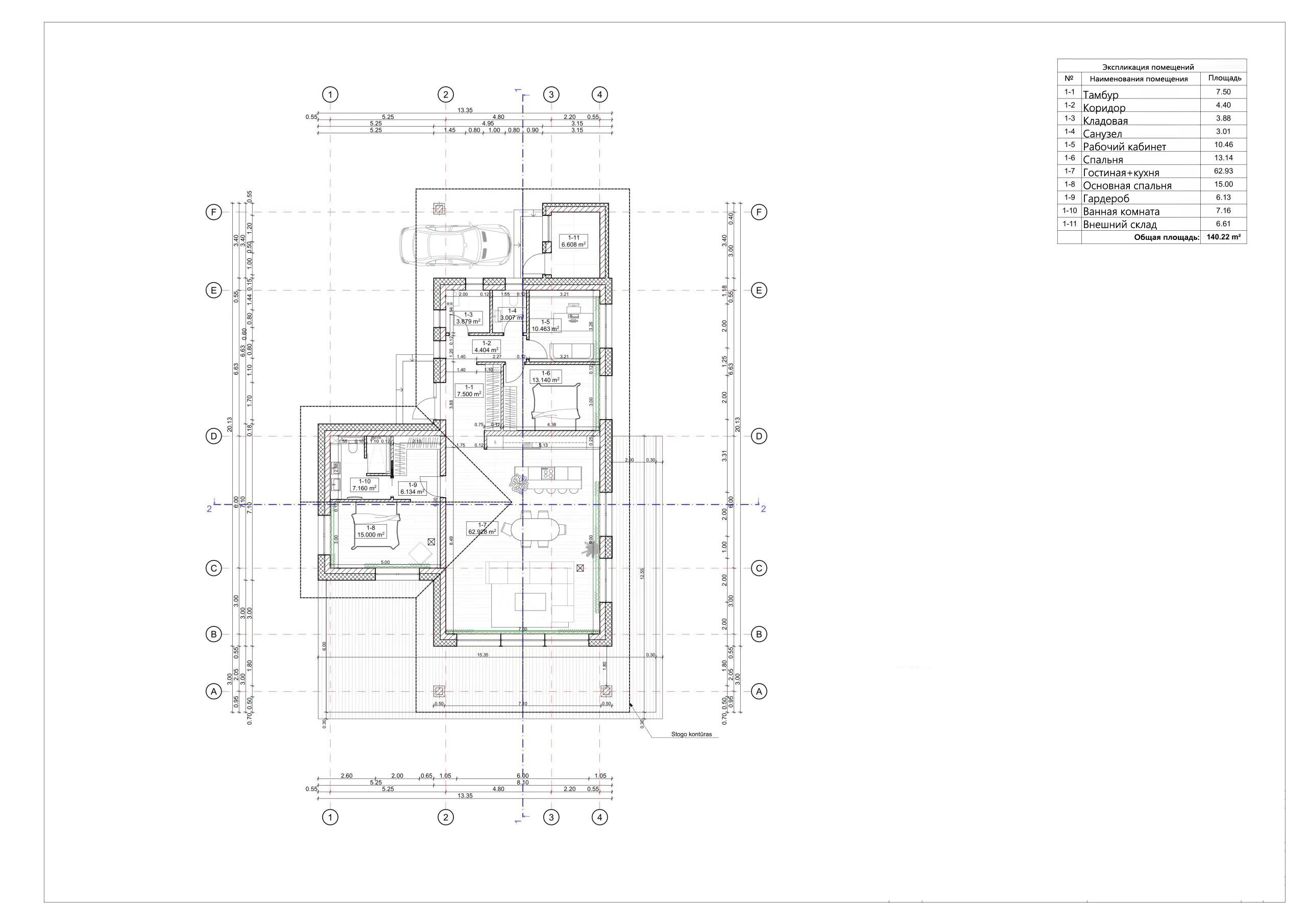
План первого этажа
- 1. Тамбур 7,50 м²
- 2. Коридор 4,40 м²
- 3. Кладовая 3,88 м²
- 4. Санузел 3,01 м²
- 5. Кабинет 10,46 м²
- 6. Спальня 13,14 м²
- 7. Гостиная-Кухня 62,93 м²
- 8. Спальня 15,00 м²
- 9. Гардероб 6,13 м²
- 10. Ванная комната 7,16 м²
- 11. Внешний склад 6,61 м²
- Общая площадь 140,22 м²
Площади дома
| № п/п | Наименование | Ед. из. | Строительная площадь | Полезная площадь |
| 1 | 1 этаж | м2 | 172.79 | 140.22 |
| 2 | Итого | м2 | 172.79 | 140.22 |
154 м2
Полезная
площадь
площадь
1 этаж
Этажей
26 м2
Террасы
и балконы
и балконы
0Без
гаража
гаража
3
Количество
спален
спален
2
Количество
санузлов
санузлов
Калькулятор опций
0₽
В ипотеку от 24 387 ₽/мес.
0₽
0 дней
945 974₽
Работа:409 409 ₽
Материалы:536 565 ₽
Дни:20
568 686₽
Работа:190 449 ₽
Материалы:378 237 ₽
Дни:2
958 328₽
Работа:384 700 ₽
Материалы:573 628 ₽
Дни:20
1 836 447₽
Работа:819 958 ₽
Материалы:1 016 489 ₽
Дни:30
3 080 828₽
Работа:1 132 811 ₽
Материалы:1 948 017 ₽
Дни:32
1 164 363₽
Работа:465 859 ₽
Материалы:698 504 ₽
Дни:20
7 306 252₽
Работа:3 330 769 ₽
Материалы:3 975 483 ₽
Дни:30
8 716 944₽
Работа:3 885 200 ₽
Материалы:4 831 744 ₽
Дни:40
304 111₽
Работа:76 028 ₽
Материалы:228 083 ₽
Дни:1
544 358₽
Работа:233 785 ₽
Материалы:310 573 ₽
Дни:8
871 847₽
Работа:288 905 ₽
Материалы:582 942 ₽
Дни:13
1 555 715₽
Работа:636 351 ₽
Материалы:919 364 ₽
Дни:18
1 526 824₽
Работа:956 617 ₽
Материалы:570 207 ₽
Дни:29
1 757 568₽
Работа:900 357 ₽
Материалы:857 211 ₽
Дни:23
2 705 823₽
Работа:1 660 443 ₽
Материалы:1 045 380 ₽
Дни:30
2 214 494₽
Работа:970 492 ₽
Материалы:1 244 002 ₽
Дни:45
4 139 893₽
Работа:913 472 ₽
Материалы:3 226 421 ₽
Дни:24
911 761₽
Работа:459 587 ₽
Материалы:452 174 ₽
Дни:15
497 980₽
Работа:267 997 ₽
Материалы:229 983 ₽
Дни:7
1 751 296₽
Работа:608 981 ₽
Материалы:1 142 315 ₽
Дни:7
2 287 480₽
Работа:730 815 ₽
Материалы:1 556 665 ₽
Дни:7
15 022 103₽
Работа:730 815 ₽
Материалы:14 291 288 ₽
Дни:7
8 131 342₽
Работа:913 472 ₽
Материалы:7 217 870 ₽
Дни:7
1 278 975₽
Работа:304 491 ₽
Материалы:974 484 ₽
Дни:7
1 679 450₽
Работа:862 533 ₽
Материалы:816 917 ₽
Дни:29
1 470 374₽
Работа:957 568 ₽
Материалы:512 806 ₽
Дни:29
1 679 450₽
Работа:862 533 ₽
Материалы:816 917 ₽
Дни:29
1 782 467₽
Работа:1 090 426 ₽
Материалы:692 041 ₽
Дни:23
2 278 358₽
Работа:767 309 ₽
Материалы:1 511 049 ₽
Дни:7
2 583 608₽
Работа:1 583 465 ₽
Материалы:1 000 143 ₽
Дни:25
934 569₽
Работа:482 395 ₽
Материалы:452 174 ₽
Дни:15
8 659 924₽
Работа:1 826 943 ₽
Материалы:6 832 981 ₽
Дни:15
1 036 256₽
Работа:487 337 ₽
Материалы:548 919 ₽
Дни:15
1 411 072₽
Работа:800 951 ₽
Материалы:610 121 ₽
Дни:19
1 489 381₽
Работа:957 568 ₽
Материалы:531 813 ₽
Дни:29
956 617₽
Работа:502 162 ₽
Материалы:454 455 ₽
Дни:15
1 757 568₽
Работа:900 357 ₽
Материалы:857 211 ₽
Дни:23
1 026 753₽
Работа:399 145 ₽
Материалы:627 608 ₽
Дни:15
1 315 277₽
Работа:959 088 ₽
Материалы:356 189 ₽
Дни:7
544 358₽
Работа:233 785 ₽
Материалы:310 573 ₽
Дни:8
871 847₽
Работа:288 905 ₽
Материалы:582 942 ₽
Дни:13
1 555 715₽
Работа:636 351 ₽
Материалы:919 364 ₽
Дни:18
2 250 037₽
Работа:1 088 335 ₽
Материалы:1 161 702 ₽
Дни:20
2 457 593₽
Работа:1 130 911 ₽
Материалы:1 326 682 ₽
Дни:20
3 804 421₽
Работа:1 797 292 ₽
Материалы:2 007 129 ₽
Дни:20
3 499 360₽
Работа:1 692 564 ₽
Материалы:1 806 796 ₽
Дни:20
4 220 672₽
Работа:1 797 292 ₽
Материалы:2 423 380 ₽
Дни:20
3 181 755₽
Работа:1 556 665 ₽
Материалы:1 625 090 ₽
Дни:20
7 070 567₽
Работа:3 183 656 ₽
Материалы:3 886 911 ₽
Дни:20
6 962 228₽
Работа:3 189 358 ₽
Материалы:3 772 870 ₽
Дни:20
1 368 497₽
Работа:712 759 ₽
Материалы:655 738 ₽
Дни:20
304 474₽
Работа:97 944 ₽
Материалы:206 530 ₽
Дни:3
0₽
Работа:0 ₽
Материалы:0 ₽
Дни:0
17 050₽
Работа:6 050 ₽
Материалы:11 000 ₽
Дни:1
0₽
Работа:0 ₽
Материалы:0 ₽
Дни:0
0₽
Работа:0 ₽
Материалы:0 ₽
Дни:0
343 645₽
Работа:123 545 ₽
Материалы:220 100 ₽
Дни:5
200 333₽
Работа:44 476 ₽
Материалы:155 857 ₽
Дни:3
291 946₽
Работа:74 127 ₽
Материалы:217 819 ₽
Дни:3
164 600₽
Работа:74 127 ₽
Материалы:90 473 ₽
Дни:3
439 820₽
Работа:44 476 ₽
Материалы:395 344 ₽
Дни:2
577 050₽
Работа:74 127 ₽
Материалы:502 923 ₽
Дни:3
0₽
Работа:0 ₽
Материалы:0 ₽
Дни:0
71 918₽
Работа:19 690 ₽
Материалы:52 228 ₽
Дни:6
0₽
Работа:0 ₽
Материалы:0 ₽
Дни:0
633 310₽
Работа:290 616 ₽
Материалы:342 694 ₽
Дни:7
0₽
Работа:0 ₽
Материалы:0 ₽
Дни:0
633 500₽
Работа:283 393 ₽
Материалы:350 107 ₽
Дни:7
0₽
Работа:0 ₽
Материалы:0 ₽
Дни:0
1 095 177₽
Работа:441 910 ₽
Материалы:653 267 ₽
Дни:7
386 791₽
Работа:232 835 ₽
Материалы:153 956 ₽
Дни:3
1 207 889₽
Работа:341 174 ₽
Материалы:866 715 ₽
Дни:5
1 257 687₽
Работа:341 174 ₽
Материалы:916 513 ₽
Дни:5
682 157₽
Работа:138 560 ₽
Материалы:543 597 ₽
Дни:3
1 733 999₽
Работа:152 055 ₽
Материалы:1 581 944 ₽
Дни:5
0₽
Работа:0 ₽
Материалы:0 ₽
Дни:0
834 593₽
Работа:265 526 ₽
Материалы:569 067 ₽
Дни:20
899 216₽
Работа:292 136 ₽
Материалы:607 080 ₽
Дни:20
652 507₽
Работа:228 463 ₽
Материалы:424 044 ₽
Дни:35
2 169 448₽
Работа:615 824 ₽
Материалы:1 553 624 ₽
Дни:45
1 136 802₽
Работа:571 537 ₽
Материалы:565 265 ₽
Дни:40
480 114₽
Работа:240 057 ₽
Материалы:240 057 ₽
Дни:20
1 477 977₽
Работа:615 824 ₽
Материалы:862 153 ₽
Дни:45
1 625 850₽
Работа:443 431 ₽
Материалы:1 182 419 ₽
Дни:20
899 026₽
Работа:369 494 ₽
Материалы:529 532 ₽
Дни:20
1 108 483₽
Работа:492 659 ₽
Материалы:615 824 ₽
Дни:20
1 544 880₽
Работа:665 051 ₽
Материалы:879 829 ₽
Дни:20
1 907 533₽
Работа:568 877 ₽
Материалы:1 338 656 ₽
Дни:20
1 356 142₽
Работа:492 659 ₽
Материалы:863 483 ₽
Дни:20
0₽
Работа:0 ₽
Материалы:0 ₽
Дни:0
409 200₽
Работа:64 350 ₽
Материалы:344 850 ₽
Дни:5
0₽
Работа:0 ₽
Материалы:0 ₽
Дни:0
183 150₽
Работа:64 350 ₽
Материалы:118 800 ₽
Дни:12
0₽
Работа:0 ₽
Материалы:0 ₽
Дни:0
817 297₽
Работа:332 621 ₽
Материалы:484 676 ₽
Дни:15
589 214₽
Работа:275 600 ₽
Материалы:313 614 ₽
Дни:10
0₽
Работа:0 ₽
Материалы:0 ₽
Дни:0
812 925₽
Работа:363 222 ₽
Материалы:449 703 ₽
Дни:5
0₽
Работа:0 ₽
Материалы:0 ₽
Дни:0
270 974₽
Работа:55 000 ₽
Материалы:215 974 ₽
Дни:7
0₽
Работа:0 ₽
Материалы:0 ₽
Дни:0
182 466₽
Работа:72 226 ₽
Материалы:110 240 ₽
Дни:11
308 292₽
Работа:114 041 ₽
Материалы:194 251 ₽
Дни:5
353 528₽
Работа:133 048 ₽
Материалы:220 480 ₽
Дни:11
510 335₽
Работа:171 062 ₽
Материалы:339 273 ₽
Дни:7
0₽
Работа:0 ₽
Материалы:0 ₽
Дни:0
246 787₽
Работа:146 530 ₽
Материалы:100 257 ₽
Дни:10
0₽
Работа:0 ₽
Материалы:0 ₽
Дни:0
205 142₽
Работа:112 597 ₽
Материалы:92 545 ₽
Дни:10
0₽
Работа:0 ₽
Материалы:0 ₽
Дни:0
180 464₽
Работа:86 376 ₽
Материалы:94 088 ₽
Дни:5
0₽
Работа:0 ₽
Материалы:0 ₽
Дни:0
419 100₽
Работа:82 500 ₽
Материалы:336 600 ₽
Дни:9
257 400₽
Работа:49 500 ₽
Материалы:207 900 ₽
Дни:5
0₽
Работа:0 ₽
Материалы:0 ₽
Дни:0
686 377₽
Работа:401 029 ₽
Материалы:285 348 ₽
Дни:20
470 438₽
Работа:323 908 ₽
Материалы:146 530 ₽
Дни:15
339 333₽
Работа:146 530 ₽
Материалы:192 803 ₽
Дни:15
0₽
Работа:0 ₽
Материалы:0 ₽
Дни:0
293 060₽
Работа:138 818 ₽
Материалы:154 242 ₽
Дни:10
143 445₽
Работа:53 985 ₽
Материалы:89 460 ₽
Дни:7
0₽
Работа:0 ₽
Материалы:0 ₽
Дни:0
1 465 299₽
Работа:539 847 ₽
Материалы:925 452 ₽
Дни:50
0₽
Работа:0 ₽
Материалы:0 ₽
Дни:0
293 060₽
Работа:154 242 ₽
Материалы:138 818 ₽
Дни:10
Преимущества работы с нами
7 этапов оплаты
Независимый строительный надзор
Экологически чистые материалы
16 лет гарантии
Онлайн-кабинет с веб-камерой
Строители с опытом более 15 лет
Собственное производство








