Одноэтажный дом 146.47 м2 за руб.
Планировки
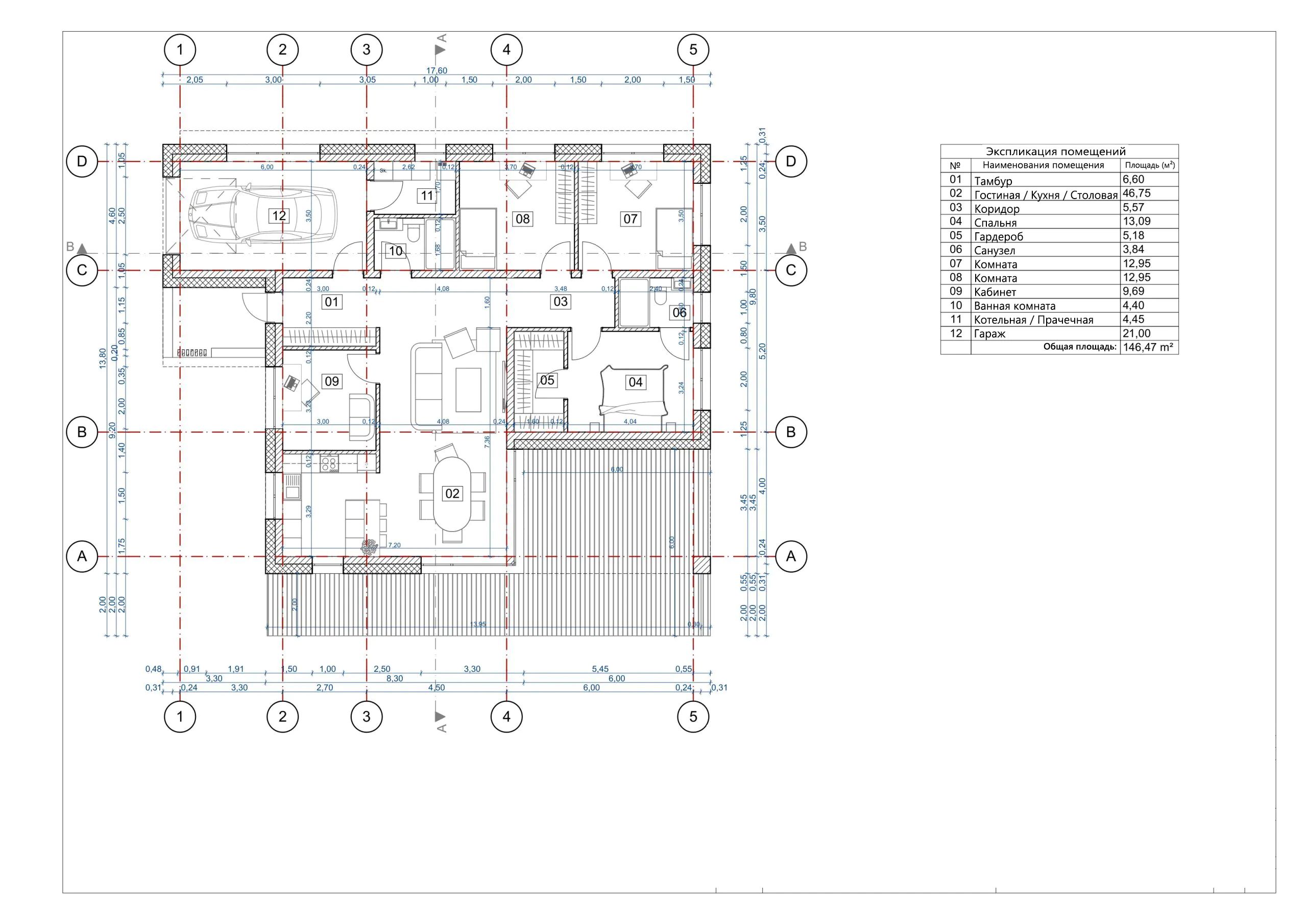
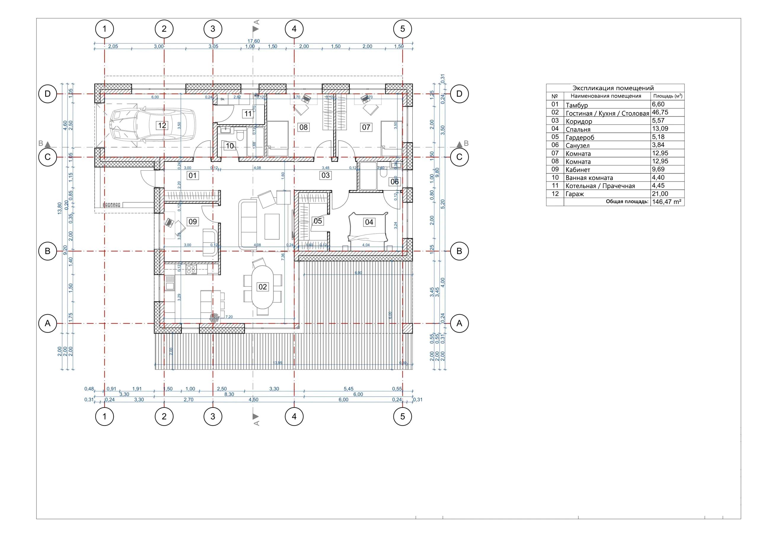
План первого этажа
- 1. Тамбур 6,60 м²
- 2. Гостиная-Кухня-Столовая 46,75 м²
- 3. Коридор 5,57 м²
- 4. Спальня 13,09 м²
- 5. Гардероб 5,18 м²
- 6. Санузел 3,84 м²
- 7. Комната 12,95 м²
- 8. Комната 12,95 м²
- 9. Кабинет 9,69 м²
- 10. Ванная комната 4,40 м²
- 11. Котельная-Прачечная 4,45 м²
- 12. Гараж 21,00 м²
- Общая площадь 146,47 м²
Площади дома
| № п/п | Наименование | Ед. из. | Строительная площадь | Полезная площадь |
| 1 | 1 этаж | м2 | 180.49 | 146.47 |
| 2 | Итого | м2 | 180.49 | 146.47 |
154 м2
Полезная
площадь
площадь
1 этаж
Этажей
26 м2
Террасы
и балконы
и балконы
1Без
гаража
гаража
3
Количество
спален
спален
2
Количество
санузлов
санузлов
Калькулятор опций
0₽
В ипотеку от 25 654 ₽/мес.
0₽
0 дней
988 129₽
Работа:427 653 ₽
Материалы:560 476 ₽
Дни:20
594 029₽
Работа:198 936 ₽
Материалы:395 093 ₽
Дни:2
1 001 034₽
Работа:401 843 ₽
Материалы:599 191 ₽
Дни:20
1 918 284₽
Работа:856 497 ₽
Материалы:1 061 787 ₽
Дни:30
3 218 118₽
Работа:1 183 292 ₽
Материалы:2 034 826 ₽
Дни:32
1 216 250₽
Работа:486 619 ₽
Материалы:729 631 ₽
Дни:20
7 631 839₽
Работа:3 479 197 ₽
Материалы:4 152 642 ₽
Дни:30
9 105 396₽
Работа:4 058 336 ₽
Материалы:5 047 060 ₽
Дни:40
317 663₽
Работа:79 416 ₽
Материалы:238 247 ₽
Дни:1
568 616₽
Работа:244 203 ₽
Материалы:324 413 ₽
Дни:8
910 698₽
Работа:301 779 ₽
Материалы:608 919 ₽
Дни:13
1 625 042₽
Работа:664 709 ₽
Материалы:960 333 ₽
Дни:18
1 594 864₽
Работа:999 247 ₽
Материалы:595 617 ₽
Дни:29
1 835 890₽
Работа:940 479 ₽
Материалы:895 411 ₽
Дни:23
2 826 402₽
Работа:1 734 437 ₽
Материалы:1 091 965 ₽
Дни:30
2 313 178₽
Работа:1 013 740 ₽
Материалы:1 299 438 ₽
Дни:45
4 324 378₽
Работа:954 178 ₽
Материалы:3 370 200 ₽
Дни:24
952 391₽
Работа:480 067 ₽
Материалы:472 324 ₽
Дни:15
520 172₽
Работа:279 940 ₽
Материалы:240 232 ₽
Дни:7
1 829 338₽
Работа:636 119 ₽
Материалы:1 193 219 ₽
Дни:7
2 389 416₽
Работа:763 382 ₽
Материалы:1 626 034 ₽
Дни:7
15 691 529₽
Работа:763 382 ₽
Материалы:14 928 147 ₽
Дни:7
8 493 697₽
Работа:954 178 ₽
Материалы:7 539 519 ₽
Дни:7
1 335 968₽
Работа:318 059 ₽
Материалы:1 017 909 ₽
Дни:7
1 754 291₽
Работа:900 970 ₽
Материалы:853 321 ₽
Дни:29
1 535 897₽
Работа:1 000 239 ₽
Материалы:535 658 ₽
Дни:29
1 754 291₽
Работа:900 970 ₽
Материалы:853 321 ₽
Дни:29
1 861 898₽
Работа:1 139 018 ₽
Материалы:722 880 ₽
Дни:23
2 379 887₽
Работа:801 502 ₽
Материалы:1 578 385 ₽
Дни:7
2 698 740₽
Работа:1 654 028 ₽
Материалы:1 044 712 ₽
Дни:25
976 216₽
Работа:503 892 ₽
Материалы:472 324 ₽
Дни:15
9 045 834₽
Работа:1 908 357 ₽
Материалы:7 137 477 ₽
Дни:15
1 082 435₽
Работа:509 054 ₽
Материалы:573 381 ₽
Дни:15
1 473 953₽
Работа:836 643 ₽
Материалы:637 310 ₽
Дни:19
1 555 751₽
Работа:1 000 239 ₽
Материалы:555 512 ₽
Дни:29
999 247₽
Работа:524 540 ₽
Материалы:474 707 ₽
Дни:15
1 835 890₽
Работа:940 479 ₽
Материалы:895 411 ₽
Дни:23
1 072 508₽
Работа:416 932 ₽
Материалы:655 576 ₽
Дни:15
1 373 890₽
Работа:1 001 828 ₽
Материалы:372 062 ₽
Дни:7
568 616₽
Работа:244 203 ₽
Материалы:324 413 ₽
Дни:8
910 698₽
Работа:301 779 ₽
Материалы:608 919 ₽
Дни:13
1 625 042₽
Работа:664 709 ₽
Материалы:960 333 ₽
Дни:18
2 428 331₽
Работа:826 518 ₽
Материалы:1 601 813 ₽
Дни:10
3 673 368₽
Работа:1 676 860 ₽
Материалы:1 996 508 ₽
Дни:10
3 385 487₽
Работа:1 480 902 ₽
Материалы:1 904 585 ₽
Дни:10
0₽
Работа:0 ₽
Материалы:0 ₽
Дни:0
318 045₽
Работа:102 309 ₽
Материалы:215 736 ₽
Дни:3
0₽
Работа:0 ₽
Материалы:0 ₽
Дни:0
17 050₽
Работа:6 050 ₽
Материалы:11 000 ₽
Дни:1
0₽
Работа:0 ₽
Материалы:0 ₽
Дни:0
0₽
Работа:0 ₽
Материалы:0 ₽
Дни:0
661 731₽
Работа:296 022 ₽
Материалы:365 709 ₽
Дни:7
0₽
Работа:0 ₽
Материалы:0 ₽
Дни:0
1 143 982₽
Работа:461 603 ₽
Материалы:682 379 ₽
Дни:7
404 027₽
Работа:243 210 ₽
Материалы:160 817 ₽
Дни:3
1 261 716₽
Работа:356 378 ₽
Материалы:905 338 ₽
Дни:5
1 313 733₽
Работа:356 378 ₽
Материалы:957 355 ₽
Дни:5
712 557₽
Работа:144 735 ₽
Материалы:567 822 ₽
Дни:3
1 811 271₽
Работа:158 831 ₽
Материалы:1 652 440 ₽
Дни:5
0₽
Работа:0 ₽
Материалы:0 ₽
Дни:0
871 785₽
Работа:277 359 ₽
Материалы:594 426 ₽
Дни:20
939 288₽
Работа:305 154 ₽
Материалы:634 134 ₽
Дни:20
681 585₽
Работа:238 644 ₽
Материалы:442 941 ₽
Дни:35
2 266 124₽
Работа:643 266 ₽
Материалы:1 622 858 ₽
Дни:45
1 187 462₽
Работа:597 007 ₽
Материалы:590 455 ₽
Дни:40
501 510₽
Работа:250 755 ₽
Материалы:250 755 ₽
Дни:20
1 543 839₽
Работа:643 266 ₽
Материалы:900 573 ₽
Дни:45
1 698 302₽
Работа:463 191 ₽
Материалы:1 235 111 ₽
Дни:20
939 090₽
Работа:385 960 ₽
Материалы:553 130 ₽
Дни:20
1 157 879₽
Работа:514 613 ₽
Материалы:643 266 ₽
Дни:20
1 613 725₽
Работа:694 688 ₽
Материалы:919 037 ₽
Дни:20
1 992 537₽
Работа:594 227 ₽
Материалы:1 398 310 ₽
Дни:20
1 416 576₽
Работа:514 613 ₽
Материалы:901 963 ₽
Дни:20
0₽
Работа:0 ₽
Материалы:0 ₽
Дни:0
409 200₽
Работа:64 350 ₽
Материалы:344 850 ₽
Дни:5
0₽
Работа:0 ₽
Материалы:0 ₽
Дни:0
183 150₽
Работа:64 350 ₽
Материалы:118 800 ₽
Дни:12
0₽
Работа:0 ₽
Материалы:0 ₽
Дни:0
853 717₽
Работа:347 443 ₽
Материалы:506 274 ₽
Дни:15
615 471₽
Работа:287 882 ₽
Материалы:327 589 ₽
Дни:10
0₽
Работа:0 ₽
Материалы:0 ₽
Дни:0
849 151₽
Работа:379 408 ₽
Материалы:469 743 ₽
Дни:5
0₽
Работа:0 ₽
Материалы:0 ₽
Дни:0
270 974₽
Работа:55 000 ₽
Материалы:215 974 ₽
Дни:7
0₽
Работа:0 ₽
Материалы:0 ₽
Дни:0
190 598₽
Работа:75 445 ₽
Материалы:115 153 ₽
Дни:11
322 030₽
Работа:119 123 ₽
Материалы:202 907 ₽
Дни:5
369 282₽
Работа:138 977 ₽
Материалы:230 305 ₽
Дни:11
533 077₽
Работа:178 685 ₽
Материалы:354 392 ₽
Дни:7
0₽
Работа:0 ₽
Материалы:0 ₽
Дни:0
257 787₽
Работа:153 061 ₽
Материалы:104 726 ₽
Дни:10
0₽
Работа:0 ₽
Материалы:0 ₽
Дни:0
214 285₽
Работа:117 615 ₽
Материалы:96 670 ₽
Дни:10
0₽
Работа:0 ₽
Материалы:0 ₽
Дни:0
188 507₽
Работа:90 226 ₽
Материалы:98 281 ₽
Дни:5
0₽
Работа:0 ₽
Материалы:0 ₽
Дни:0
419 100₽
Работа:82 500 ₽
Материалы:336 600 ₽
Дни:9
257 400₽
Работа:49 500 ₽
Материалы:207 900 ₽
Дни:5
0₽
Работа:0 ₽
Материалы:0 ₽
Дни:0
716 970₽
Работа:418 904 ₽
Материалы:298 066 ₽
Дни:20
491 407₽
Работа:338 346 ₽
Материалы:153 061 ₽
Дни:15
354 457₽
Работа:153 061 ₽
Материалы:201 396 ₽
Дни:15
0₽
Работа:0 ₽
Материалы:0 ₽
Дни:0
306 122₽
Работа:145 005 ₽
Материалы:161 117 ₽
Дни:10
149 839₽
Работа:56 391 ₽
Материалы:93 448 ₽
Дни:7
0₽
Работа:0 ₽
Материалы:0 ₽
Дни:0
1 530 612₽
Работа:563 910 ₽
Материалы:966 702 ₽
Дни:50
0₽
Работа:0 ₽
Материалы:0 ₽
Дни:0
306 122₽
Работа:161 117 ₽
Материалы:145 005 ₽
Дни:10
Преимущества работы с нами
7 этапов оплаты
Независимый строительный надзор
Экологически чистые материалы
16 лет гарантии
Онлайн-кабинет с веб-камерой
Строители с опытом более 15 лет
Собственное производство








