Одноэтажный дом 168.06 м2 за руб.
Планировки
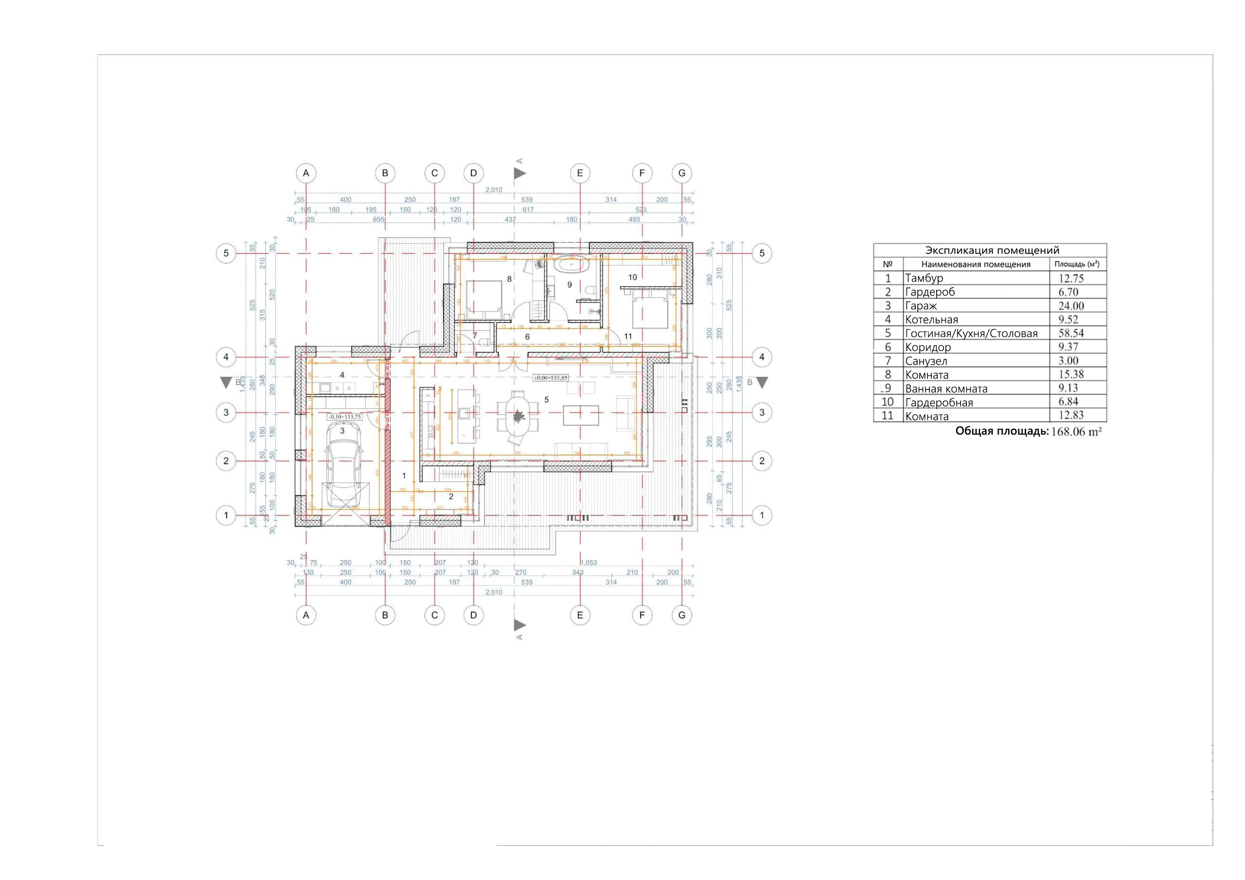
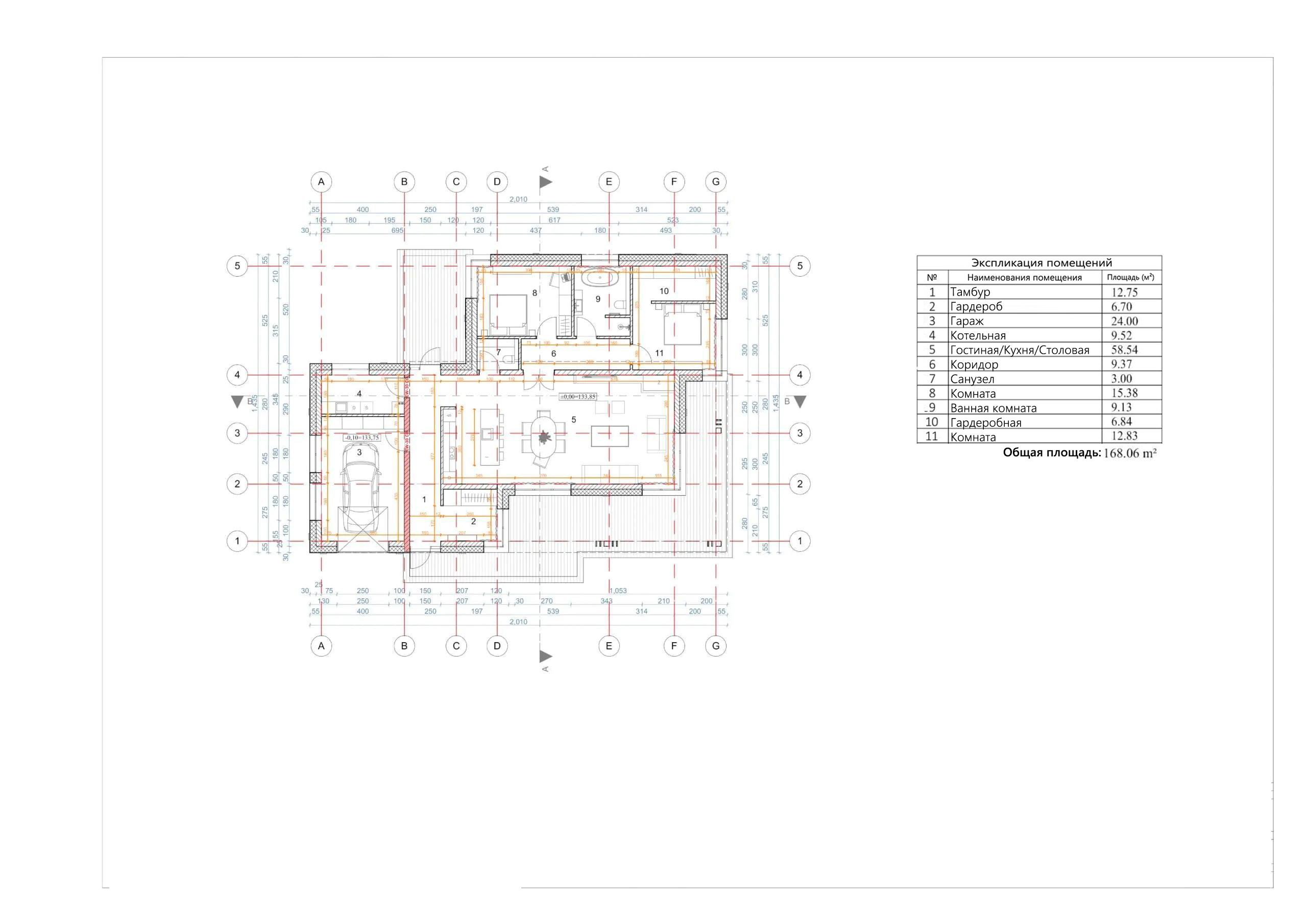
План первого этажа
- 1. Тамбур 12,75 м²
- 2. Гардероб 6,70 м²
- 3. Гараж 24,00 м²
- 4. Котельная 9,52 м²
- 5. Гостиная-Кухня-Столовая 58,54 м²
- 6. Коридор 9,37 м²
- 7. Санузел 3,00 м²
- 8. Комната 15,38 м²
- 9. Ванная комната 9,13 м²
- 10. Гардероб 6,84 м²
- 11. Комната 12,83 м²
- Общая площадь 168,06 м²
Площади дома
| № п/п | Наименование | Ед. из. | Строительная площадь | Полезная площадь |
| 1 | 1 этаж | м2 | 207.1 | 168.06 |
| 2 | Итого | м2 | 207.1 | 168.06 |
154 м2
Полезная
площадь
площадь
1 этаж
Этажей
26 м2
Террасы
и балконы
и балконы
1Без
гаража
гаража
2
Количество
спален
спален
2
Количество
санузлов
санузлов
Калькулятор опций
0₽
В ипотеку от 27 889 ₽/мес.
0₽
0 дней
1 082 273₽
Работа:468 398 ₽
Материалы:613 875 ₽
Дни:20
650 625₽
Работа:217 890 ₽
Материалы:432 735 ₽
Дни:2
1 096 408₽
Работа:440 129 ₽
Материалы:656 279 ₽
Дни:20
2 101 050₽
Работа:938 101 ₽
Материалы:1 162 949 ₽
Дни:30
3 524 728₽
Работа:1 296 032 ₽
Материалы:2 228 696 ₽
Дни:32
1 332 129₽
Работа:532 982 ₽
Материалы:799 147 ₽
Дни:20
8 358 970₽
Работа:3 810 681 ₽
Материалы:4 548 289 ₽
Дни:30
9 972 922₽
Работа:4 444 998 ₽
Материалы:5 527 924 ₽
Дни:40
347 928₽
Работа:86 982 ₽
Материалы:260 946 ₽
Дни:1
622 791₽
Работа:267 470 ₽
Материалы:355 321 ₽
Дни:8
997 466₽
Работа:330 532 ₽
Материалы:666 934 ₽
Дни:13
1 779 869₽
Работа:728 039 ₽
Материалы:1 051 830 ₽
Дни:18
1 746 816₽
Работа:1 094 451 ₽
Материалы:652 365 ₽
Дни:29
2 010 806₽
Работа:1 030 084 ₽
Материалы:980 722 ₽
Дни:23
3 095 690₽
Работа:1 899 687 ₽
Материалы:1 196 003 ₽
Дни:30
2 533 568₽
Работа:1 110 325 ₽
Материалы:1 423 243 ₽
Дни:45
4 736 388₽
Работа:1 045 089 ₽
Материалы:3 691 299 ₽
Дни:24
1 043 131₽
Работа:525 806 ₽
Материалы:517 325 ₽
Дни:15
569 733₽
Работа:306 612 ₽
Материалы:263 121 ₽
Дни:7
2 003 631₽
Работа:696 726 ₽
Материалы:1 306 905 ₽
Дни:7
2 617 070₽
Работа:836 114 ₽
Материалы:1 780 956 ₽
Дни:7
17 186 555₽
Работа:836 114 ₽
Материалы:16 350 441 ₽
Дни:7
9 302 943₽
Работа:1 045 089 ₽
Материалы:8 257 854 ₽
Дни:7
1 463 255₽
Работа:348 363 ₽
Материалы:1 114 892 ₽
Дни:7
1 921 433₽
Работа:986 811 ₽
Материалы:934 622 ₽
Дни:29
1 682 232₽
Работа:1 095 538 ₽
Материалы:586 694 ₽
Дни:29
1 921 433₽
Работа:986 811 ₽
Материалы:934 622 ₽
Дни:29
2 039 293₽
Работа:1 247 539 ₽
Материалы:791 754 ₽
Дни:23
2 606 633₽
Работа:877 866 ₽
Материалы:1 728 767 ₽
Дни:7
2 955 866₽
Работа:1 811 618 ₽
Материалы:1 144 248 ₽
Дни:25
1 069 226₽
Работа:551 901 ₽
Материалы:517 325 ₽
Дни:15
9 907 684₽
Работа:2 090 177 ₽
Материалы:7 817 507 ₽
Дни:15
1 185 565₽
Работа:557 555 ₽
Материалы:628 010 ₽
Дни:15
1 614 386₽
Работа:916 355 ₽
Материалы:698 031 ₽
Дни:19
1 703 977₽
Работа:1 095 538 ₽
Материалы:608 439 ₽
Дни:29
1 094 451₽
Работа:574 516 ₽
Материалы:519 935 ₽
Дни:15
2 010 806₽
Работа:1 030 084 ₽
Материалы:980 722 ₽
Дни:23
1 174 692₽
Работа:456 656 ₽
Материалы:718 036 ₽
Дни:15
1 504 789₽
Работа:1 097 278 ₽
Материалы:407 511 ₽
Дни:7
622 791₽
Работа:267 470 ₽
Материалы:355 321 ₽
Дни:8
997 466₽
Работа:330 532 ₽
Материалы:666 934 ₽
Дни:13
1 779 869₽
Работа:728 039 ₽
Материалы:1 051 830 ₽
Дни:18
2 659 692₽
Работа:905 265 ₽
Материалы:1 754 427 ₽
Дни:10
4 023 352₽
Работа:1 836 625 ₽
Материалы:2 186 727 ₽
Дни:10
3 708 043₽
Работа:1 621 997 ₽
Материалы:2 086 046 ₽
Дни:10
0₽
Работа:0 ₽
Материалы:0 ₽
Дни:0
348 338₽
Работа:112 054 ₽
Материалы:236 284 ₽
Дни:3
0₽
Работа:0 ₽
Материалы:0 ₽
Дни:0
16 275₽
Работа:5 775 ₽
Материалы:10 500 ₽
Дни:1
0₽
Работа:0 ₽
Материалы:0 ₽
Дни:0
0₽
Работа:0 ₽
Материалы:0 ₽
Дни:0
724 777₽
Работа:324 225 ₽
Материалы:400 552 ₽
Дни:7
0₽
Работа:0 ₽
Материалы:0 ₽
Дни:0
1 252 976₽
Работа:505 583 ₽
Материалы:747 393 ₽
Дни:7
442 521₽
Работа:266 382 ₽
Материалы:176 139 ₽
Дни:3
1 381 927₽
Работа:390 332 ₽
Материалы:991 595 ₽
Дни:5
1 438 900₽
Работа:390 332 ₽
Материалы:1 048 568 ₽
Дни:5
780 446₽
Работа:158 525 ₽
Материалы:621 921 ₽
Дни:3
1 983 842₽
Работа:173 964 ₽
Материалы:1 809 878 ₽
Дни:5
0₽
Работа:0 ₽
Материалы:0 ₽
Дни:0
954 845₽
Работа:303 785 ₽
Материалы:651 060 ₽
Дни:20
1 028 779₽
Работа:334 228 ₽
Материалы:694 551 ₽
Дни:20
746 523₽
Работа:261 381 ₽
Материалы:485 142 ₽
Дни:35
2 482 031₽
Работа:704 554 ₽
Материалы:1 777 477 ₽
Дни:45
1 300 598₽
Работа:653 887 ₽
Материалы:646 711 ₽
Дни:40
549 292₽
Работа:274 646 ₽
Материалы:274 646 ₽
Дни:20
1 690 930₽
Работа:704 554 ₽
Материалы:986 376 ₽
Дни:45
1 860 111₽
Работа:507 323 ₽
Материалы:1 352 788 ₽
Дни:20
1 028 563₽
Работа:422 733 ₽
Материалы:605 830 ₽
Дни:20
1 268 197₽
Работа:563 643 ₽
Материалы:704 554 ₽
Дни:20
1 767 474₽
Работа:760 875 ₽
Материалы:1 006 599 ₽
Дни:20
2 182 379₽
Работа:650 843 ₽
Материалы:1 531 536 ₽
Дни:20
1 551 541₽
Работа:563 643 ₽
Материалы:987 898 ₽
Дни:20
0₽
Работа:0 ₽
Материалы:0 ₽
Дни:0
390 600₽
Работа:61 425 ₽
Материалы:329 175 ₽
Дни:5
0₽
Работа:0 ₽
Материалы:0 ₽
Дни:0
174 825₽
Работа:61 425 ₽
Материалы:113 400 ₽
Дни:12
0₽
Работа:0 ₽
Материалы:0 ₽
Дни:0
935 056₽
Работа:380 546 ₽
Материалы:554 510 ₽
Дни:15
674 111₽
Работа:315 310 ₽
Материалы:358 801 ₽
Дни:10
0₽
Работа:0 ₽
Материалы:0 ₽
Дни:0
930 056₽
Работа:415 557 ₽
Материалы:514 499 ₽
Дни:5
0₽
Работа:0 ₽
Материалы:0 ₽
Дни:0
258 657₽
Работа:52 500 ₽
Материалы:206 157 ₽
Дни:7
0₽
Работа:0 ₽
Материалы:0 ₽
Дни:0
208 757₽
Работа:82 633 ₽
Материалы:126 124 ₽
Дни:11
352 712₽
Работа:130 473 ₽
Материалы:222 239 ₽
Дни:5
404 467₽
Работа:152 219 ₽
Материалы:252 248 ₽
Дни:11
583 867₽
Работа:195 710 ₽
Материалы:388 157 ₽
Дни:7
0₽
Работа:0 ₽
Материалы:0 ₽
Дни:0
282 341₽
Работа:167 640 ₽
Материалы:114 701 ₽
Дни:10
0₽
Работа:0 ₽
Материалы:0 ₽
Дни:0
234 696₽
Работа:128 818 ₽
Материалы:105 878 ₽
Дни:10
0₽
Работа:0 ₽
Материалы:0 ₽
Дни:0
206 461₽
Работа:98 819 ₽
Материалы:107 642 ₽
Дни:5
0₽
Работа:0 ₽
Материалы:0 ₽
Дни:0
400 050₽
Работа:78 750 ₽
Материалы:321 300 ₽
Дни:9
245 700₽
Работа:47 250 ₽
Материалы:198 450 ₽
Дни:5
0₽
Работа:0 ₽
Материалы:0 ₽
Дни:0
785 261₽
Работа:458 804 ₽
Материалы:326 457 ₽
Дни:20
538 212₽
Работа:370 572 ₽
Материалы:167 640 ₽
Дни:15
388 219₽
Работа:167 640 ₽
Материалы:220 579 ₽
Дни:15
0₽
Работа:0 ₽
Материалы:0 ₽
Дни:0
335 280₽
Работа:158 817 ₽
Материалы:176 463 ₽
Дни:10
164 111₽
Работа:61 762 ₽
Материалы:102 349 ₽
Дни:7
0₽
Работа:0 ₽
Материалы:0 ₽
Дни:0
1 676 399₽
Работа:617 621 ₽
Материалы:1 058 778 ₽
Дни:50
0₽
Работа:0 ₽
Материалы:0 ₽
Дни:0
335 280₽
Работа:176 463 ₽
Материалы:158 817 ₽
Дни:10
Преимущества работы с нами
7 этапов оплаты
Независимый строительный надзор
Экологически чистые материалы
16 лет гарантии
Онлайн-кабинет с веб-камерой
Строители с опытом более 15 лет
Собственное производство









