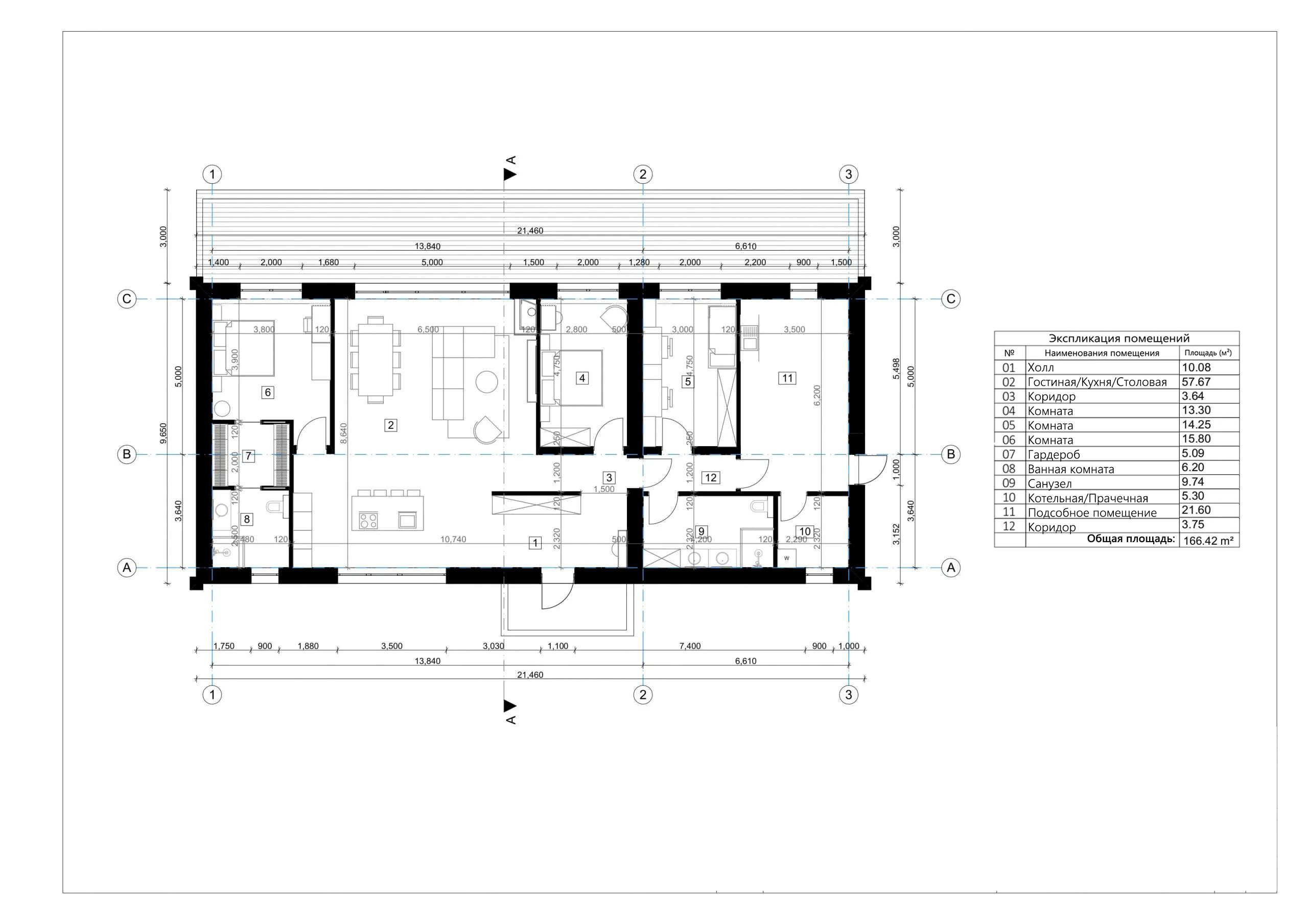
Одноэтажный дом 166.42 м2 за руб.
Планировки
План первого этажа
- 1. Холл 10,08 м²
- 2. Гостиная-Кухня-Столовая 57,67 м²
- 3. Коридор 3,64 м²
- 4. Комната 13,30 м²
- 5. Комната 14,25 м²
- 6. Комната 15,80 м²
- 7. Гардероб 5,09 м²
- 8. Ванная комната 6,20 м²
- 9. Санузел 9,74 м²
- 10. Котельная-Прачечная 5,30 м²
- 11. Подсобное помещение 21,60 м²
- 12. Коридор 3,75 м²
- Обща площадь 166,42 м²
План второго этажа
- 1. Гостиная-Кухня 15,84 м²
- 2. Прихожая 4,39 м²
- 3. Сауна 7,20 м²
- 4. Санузел 1,80 м²
- Общая площадь 29,23 м²
Площади дома
| № п/п | Наименование | Ед. из. | Строительная площадь | Полезная площадь |
| 1 | 1 этаж | м2 | 205.08 | 166.42 |
| 2 | Итого | м2 | 205.08 | 166.42 |
154 м2
Полезная
площадь
площадь
1 этаж
Этажей
26 м2
Террасы
и балконы
и балконы
0Без
гаража
гаража
3
Количество
спален
спален
2
Количество
санузлов
санузлов
Калькулятор опций
0₽
В ипотеку от 25 376 ₽/мес.
0₽
0 дней
stdClass Object
(
[id] => 1
[attribute_id] => 1
[name] => Ленточный монолитный ж/б
[material_modifier] => 1
[work_modifier] => 1
[options] => Array
(
[0] => размер 200 х 700 мм
[1] => размер 300 х 900 мм
[2] => размер 400 х 1 000 мм
[3] => размер 500 х 1 100 мм
[4] => размер 600 х 1 200 мм
)
[days] => [20,21,22,25,30]
[material_price] => [2823,3630,4475,5210,12047]
[work_price] => [2154,2826,3731,4577,5293]
[image] => https://akademik-stroy.ru/wp-content/uploads/materials/lentochnyj-monolitnyj-zh-b.jpg
[area_modifier] => 205.08
[parent_name] => Фундамент
[parent_id] => 1
[material_sum] => 729465
[work_sum] => 463829
[total_sum] => 1193294
[total_days] => 20
[display_material_sum] => 729 465
[display_work_sum] => 463 829
[display_total_sum] => 1 193 294
)
1
1 193 294₽
Работа:463 829 ₽
Материалы:729 465 ₽
Дни:20
stdClass Object
(
[id] => 2
[attribute_id] => 1
[name] => Забивные Ж/Б сваи
[material_modifier] => 1
[work_modifier] => 1
[options] => Array
(
[0] => 150х150х3000мм
[1] => 150х150х4000мм
[2] => 200х200х3000мм
[3] => 200х200х4000мм
[4] => 200х200х5000мм
[5] => 200х200х6000мм
)
[days] => [2,2,2,2,2,2]
[material_price] => [1990,2850,3255,4360,5120,6837]
[work_price] => [1002,1185,1336,1438,1574,1839]
[image] => https://akademik-stroy.ru/wp-content/uploads/materials/zabivnye-zh-b-svai.png
[area_modifier] => 205.08
[parent_name] => Фундамент
[parent_id] => 1
[material_sum] => 514218
[work_sum] => 215765
[total_sum] => 729983
[total_days] => 2
[display_material_sum] => 514 218
[display_work_sum] => 215 765
[display_total_sum] => 729 983
)
1
729 983₽
Работа:215 765 ₽
Материалы:514 218 ₽
Дни:2
stdClass Object
(
[id] => 71
[attribute_id] => 1
[name] => Свайно-ростверковый ж/б
[material_modifier] => 1
[work_modifier] => 1
[options] => Array
(
[0] => ростверк 200х300 мм
[1] => ростверк 300х600 мм
[2] => ростверк 400х900 мм
[3] => ростверк 500х1200 мм
)
[days] => [20,23,25,27]
[material_price] => [3018,3474,7109,9792]
[work_price] => [2024,3012,5635,7022]
[image] => https://akademik-stroy.ru/wp-content/uploads/materials/svajno-rostverkovyj-monolitnyj-zh-b-3.png
[area_modifier] => 205.08
[parent_name] => Фундамент
[parent_id] => 1
[material_sum] => 779854
[work_sum] => 435836
[total_sum] => 1215690
[total_days] => 20
[display_material_sum] => 779 854
[display_work_sum] => 435 836
[display_total_sum] => 1 215 690
)
1
1 215 690₽
Работа:435 836 ₽
Материалы:779 854 ₽
Дни:20
stdClass Object
(
[id] => 72
[attribute_id] => 1
[name] => Монолитная ж/б плита
[material_modifier] => 1
[work_modifier] => 1
[options] => Array
(
[0] => 200 мм
[1] => 300 мм
[2] => 400 мм
[3] => 500 мм
[4] => 600 мм
)
[days] => [30,33,35,37,40]
[material_price] => [5348,8555,12788,14388,15189]
[work_price] => [4314,4881,7037,8061,10230]
[image] => https://akademik-stroy.ru/wp-content/uploads/materials/monolitnaya-zhb-plita.png
[area_modifier] => 205.08
[parent_name] => Фундамент
[parent_id] => 1
[material_sum] => 1381927
[work_sum] => 928951
[total_sum] => 2310878
[total_days] => 30
[display_material_sum] => 1 381 927
[display_work_sum] => 928 951
[display_total_sum] => 2 310 878
)
1
2 310 878₽
Работа:928 951 ₽
Материалы:1 381 927 ₽
Дни:30
stdClass Object
(
[id] => 73
[attribute_id] => 1
[name] => Утепленная шведская плита
[material_modifier] => 1
[work_modifier] => 1
[options] => Array
(
[0] => 200 мм
[1] => 300 мм
[2] => 400 мм
[3] => 500 мм
[4] => 600 мм
)
[days] => [32,37,39,42,45]
[material_price] => [10249,12692,13760,14936,16230]
[work_price] => [5960,7337,8072,8878,9765]
[image] => https://akademik-stroy.ru/wp-content/uploads/materials/uteplennaya-shvedskaya-plita.jpg
[area_modifier] => 205.08
[parent_name] => Фундамент
[parent_id] => 1
[material_sum] => 2648350
[work_sum] => 1283391
[total_sum] => 3931741
[total_days] => 32
[display_material_sum] => 2 648 350
[display_work_sum] => 1 283 391
[display_total_sum] => 3 931 741
)
1
3 931 741₽
Работа:1 283 391 ₽
Материалы:2 648 350 ₽
Дни:32
stdClass Object
(
[id] => 75
[attribute_id] => 1
[name] => Ленточный из ФБС
[material_modifier] => 1
[work_modifier] => 1
[options] => Array
(
[0] => толщ. 300 мм
[1] => толщ. 400 мм
[2] => толщ. 500 мм
[3] => толщ. 600 мм
)
[days] => [20,20,20,20]
[material_price] => [3675,4902,6126,7350]
[work_price] => [2451,3264,4083,4902]
[image] => https://akademik-stroy.ru/wp-content/uploads/materials/lentochnyj-iz-fbs.png
[area_modifier] => 205.08
[parent_name] => Фундамент
[parent_id] => 1
[material_sum] => 949623
[work_sum] => 527784
[total_sum] => 1477407
[total_days] => 20
[display_material_sum] => 949 623
[display_work_sum] => 527 784
[display_total_sum] => 1 477 407
)
1
1 477 407₽
Работа:527 784 ₽
Материалы:949 623 ₽
Дни:20
stdClass Object
(
[id] => 76
[attribute_id] => 1
[name] => Цокольный этаж из ФБС
[material_modifier] => 1
[work_modifier] => 1
[options] => Array
(
[0] => толщ. 300 мм
[1] => толщ. 400 мм
[2] => толщ. 500 мм
[3] => толщ. 600 мм
)
[days] => [30,32,34,36]
[material_price] => [20916,23299,26680,29060]
[work_price] => [17524,18700,19873,21046]
[image] => https://akademik-stroy.ru/wp-content/uploads/materials/cokolnyj-ehtazh-iz-fbs.jpg
[area_modifier] => 205.08
[parent_name] => Фундамент
[parent_id] => 1
[material_sum] => 5404711
[work_sum] => 3773513
[total_sum] => 9178224
[total_days] => 30
[display_material_sum] => 5 404 711
[display_work_sum] => 3 773 513
[display_total_sum] => 9 178 224
)
1
9 178 224₽
Работа:3 773 513 ₽
Материалы:5 404 711 ₽
Дни:30
stdClass Object
(
[id] => 77
[attribute_id] => 1
[name] => Цокольный этаж монолитный ж/б
[material_modifier] => 1
[work_modifier] => 1
[options] => Array
(
[0] => толщ. 200 мм
[1] => толщ. 300 мм
[2] => толщ. 400 мм
[3] => толщ. 500 мм
[4] => толщ. 600 мм
)
[days] => [40,42,44,46,48]
[material_price] => [25421,29148,32275,35602,37326]
[work_price] => [20441,21907,23375,24841,26306]
[image] => https://akademik-stroy.ru/wp-content/uploads/materials/cokolnyj-etazh-zh-b.jpg
[area_modifier] => 205.08
[parent_name] => Фундамент
[parent_id] => 1
[material_sum] => 6568807
[work_sum] => 4401642
[total_sum] => 10970449
[total_days] => 40
[display_material_sum] => 6 568 807
[display_work_sum] => 4 401 642
[display_total_sum] => 10 970 449
)
1
10 970 449₽
Работа:4 401 642 ₽
Материалы:6 568 807 ₽
Дни:40
stdClass Object
(
[id] => 191
[attribute_id] => 1
[name] => Винтовые сваи
[material_modifier] => 1
[work_modifier] => 1
[options] => Array
(
[0] => 57х200мм
[1] => 76х250мм
[2] => 108х300мм
[3] => 133х350мм
)
[days] => [1,1,2,2]
[material_price] => [1200,1300,1450,1600]
[work_price] => [400,600,900,1100]
[image] => https://akademik-stroy.ru/wp-content/uploads/materials/vintovye-svai.png
[area_modifier] => 205.08
[parent_name] => Фундамент
[parent_id] => 1
[material_sum] => 310081
[work_sum] => 86134
[total_sum] => 396215
[total_days] => 1
[display_material_sum] => 310 081
[display_work_sum] => 86 134
[display_total_sum] => 396 215
)
1
396 215₽
Работа:86 134 ₽
Материалы:310 081 ₽
Дни:1
stdClass Object
(
[id] => 3
[attribute_id] => 2
[name] => Деревянные балки
[material_modifier] => 1
[work_modifier] => 1
[options] => Array
(
[0] => без утепления
[1] => утепление 200 мм
[2] => утепление 250 мм
[3] => утепление 300 мм
[4] => утепление 350 мм
[5] => утепление 400 мм
[6] => утепление 450 мм
[7] => утепление 500 мм
)
[days] => [8,9,9,9,11,12,13,14]
[material_price] => [1634,2042,2344,2947,3149,3652,3354,3557]
[work_price] => [1230,1339,1393,1426,1460,1513,1587,1620]
[image] => https://akademik-stroy.ru/wp-content/uploads/materials/derevyannye-balki.png
[area_modifier] => 205.08
[parent_name] => Перекрытие цоколя
[parent_id] => 2
[material_sum] => 422227
[work_sum] => 264861
[total_sum] => 687088
[total_days] => 8
[display_material_sum] => 422 227
[display_work_sum] => 264 861
[display_total_sum] => 687 088
)
1
687 088₽
Работа:264 861 ₽
Материалы:422 227 ₽
Дни:8
stdClass Object
(
[id] => 4
[attribute_id] => 2
[name] => Сборные ж/б плиты
[material_modifier] => 1
[work_modifier] => 1
[options] => Array
(
[0] => без утепления
[1] => утепление 150мм
[2] => утепление 200мм
[3] => утепление 250мм
[4] => утепление 300мм
[5] => утепление 350мм
[6] => утепление 400мм
[7] => утепление 450мм
[8] => утепление 500мм
)
[days] => [13,15,15,15,15,15,15,15,15]
[material_price] => [3067,5577,5928,6679,7730,8782,9833,10884,11935]
[work_price] => [1520,1956,2102,2247,2392,2537,2684,2829,2974]
[image] => https://akademik-stroy.ru/wp-content/uploads/materials/sbornye-zh-b-plity-2.jpg
[area_modifier] => 205.08
[parent_name] => Перекрытие цоколя
[parent_id] => 2
[material_sum] => 792515
[work_sum] => 327308
[total_sum] => 1119823
[total_days] => 13
[display_material_sum] => 792 515
[display_work_sum] => 327 308
[display_total_sum] => 1 119 823
)
1
1 119 823₽
Работа:327 308 ₽
Материалы:792 515 ₽
Дни:13
stdClass Object
(
[id] => 78
[attribute_id] => 2
[name] => Монолитная ж/б плита
[material_modifier] => 1
[work_modifier] => 1
[options] => Array
(
[0] => без утепления
[1] => утепление 150 мм
[2] => утепление 200 мм
[3] => утепление 250 мм
[4] => утепление 300 мм
[5] => утепление 350 мм
[6] => утепление 400 мм
[7] => утепление 450 мм
[8] => утепление 500 мм
)
[days] => [18,20,20,20,20,20,20,20,20]
[material_price] => [4837,6572,7224,7375,79426,8177,8728,9180,10031]
[work_price] => [3348,3921,4112,4302,4493,4684,4875,5066,5256]
[image] => https://akademik-stroy.ru/wp-content/uploads/materials/monolitnaya-zh-b-plita-2.jpg
[area_modifier] => 205.08
[parent_name] => Перекрытие цоколя
[parent_id] => 2
[material_sum] => 1249885
[work_sum] => 720938
[total_sum] => 1970823
[total_days] => 18
[display_material_sum] => 1 249 885
[display_work_sum] => 720 938
[display_total_sum] => 1 970 823
)
1
1 970 823₽
Работа:720 938 ₽
Материалы:1 249 885 ₽
Дни:18
stdClass Object
(
[id] => 6
[attribute_id] => 3
[name] => Пеноблок
[material_modifier] => 1
[work_modifier] => 1
[options] => Array
(
[0] => 300 мм
[1] => 400 мм
[2] => 500 мм
[3] => 600 мм
)
[days] => [29,31,34,39]
[material_price] => [3000,4000,4500,4937]
[work_price] => [5033,5805,6400,8710]
[image] => https://akademik-stroy.ru/wp-content/uploads/materials/penoblok.jpg
[area_modifier] => 205.08
[parent_name] => Стены 1 этаж (несущие)
[parent_id] => 3
[material_sum] => 775202
[work_sum] => 1083776
[total_sum] => 1858978
[total_days] => 29
[display_material_sum] => 775 202
[display_work_sum] => 1 083 776
[display_total_sum] => 1 858 978
)
1
1 858 978₽
Работа:1 083 776 ₽
Материалы:775 202 ₽
Дни:29
stdClass Object
(
[id] => 79
[attribute_id] => 3
[name] => Керамический блок
[material_modifier] => 1
[work_modifier] => 1
[options] => Array
(
[0] => 380 мм
[1] => 380 мм Thermo
[2] => 440 мм
[3] => 510 мм
)
[days] => [23,23,24,25]
[material_price] => [4510,5098,6093,8013]
[work_price] => [4737,4937,5903,6958]
[image] => https://akademik-stroy.ru/wp-content/uploads/materials/keramicheskij-blok.jpg
[area_modifier] => 205.08
[parent_name] => Стены 1 этаж (несущие)
[parent_id] => 3
[material_sum] => 1165388
[work_sum] => 1020037
[total_sum] => 2185425
[total_days] => 23
[display_material_sum] => 1 165 388
[display_work_sum] => 1 020 037
[display_total_sum] => 2 185 425
)
1
2 185 425₽
Работа:1 020 037 ₽
Материалы:1 165 388 ₽
Дни:23
stdClass Object
(
[id] => 80
[attribute_id] => 3
[name] => Кирпич
[material_modifier] => 1
[work_modifier] => 1
[options] => Array
(
[0] => Кирпич 250 мм
[1] => Кирпич 380 мм
[2] => Кирпич 510 мм
[3] => Кирпич 640 мм
[4] => Кирпич 770 мм
)
[days] => [30,30,31,33,36]
[material_price] => [5500,7142,9206,10171,12235]
[work_price] => [8736,10041,12018,15240,18462]
[image] => https://akademik-stroy.ru/wp-content/uploads/materials/kirpich.jpg
[area_modifier] => 205.08
[parent_name] => Стены 1 этаж (несущие)
[parent_id] => 3
[material_sum] => 1421204
[work_sum] => 1881158
[total_sum] => 3302362
[total_days] => 30
[display_material_sum] => 1 421 204
[display_work_sum] => 1 881 158
[display_total_sum] => 3 302 362
)
1
3 302 362₽
Работа:1 881 158 ₽
Материалы:1 421 204 ₽
Дни:30
stdClass Object
(
[id] => 81
[attribute_id] => 3
[name] => Монолитные
[material_modifier] => 1
[work_modifier] => 1
[options] => Array
(
[0] => 150 мм
[1] => 200 мм
[2] => 250 мм
[3] => 300 мм
[4] => 350 мм
[5] => 400 мм
)
[days] => [45,46,47,49,50,53]
[material_price] => [6545,7876,10175,12011,13908,15204]
[work_price] => [5106,6444,7698,8552,9807,11461]
[image] => https://akademik-stroy.ru/wp-content/uploads/materials/monolitnye.jpg
[area_modifier] => 205.08
[parent_name] => Стены 1 этаж (несущие)
[parent_id] => 3
[material_sum] => 1691233
[work_sum] => 1099495
[total_sum] => 2790728
[total_days] => 45
[display_material_sum] => 1 691 233
[display_work_sum] => 1 099 495
[display_total_sum] => 2 790 728
)
1
2 790 728₽
Работа:1 099 495 ₽
Материалы:1 691 233 ₽
Дни:45
stdClass Object
(
[id] => 82
[attribute_id] => 3
[name] => Клееный брус
[material_modifier] => 1
[work_modifier] => 1
[options] => Array
(
[0] => 160 мм
[1] => 175 мм
[2] => 200 мм
[3] => 215 мм
[4] => 240 мм
[5] => 270 мм
[6] => 282 мм
)
[days] => [24,28,32,37,40,42,48]
[material_price] => [16975,18773,19950,20545,21599,22159,23275]
[work_price] => [4806,5287,5815,6397,7036,7740,8514]
[image] => https://akademik-stroy.ru/wp-content/uploads/materials/kleenyj-brus.jpg
[area_modifier] => 205.08
[parent_name] => Стены 1 этаж (несущие)
[parent_id] => 3
[material_sum] => 4386354
[work_sum] => 1034895
[total_sum] => 5421249
[total_days] => 24
[display_material_sum] => 4 386 354
[display_work_sum] => 1 034 895
[display_total_sum] => 5 421 249
)
1
5 421 249₽
Работа:1 034 895 ₽
Материалы:4 386 354 ₽
Дни:24
stdClass Object
(
[id] => 83
[attribute_id] => 3
[name] => Каркасные
[material_modifier] => 1
[work_modifier] => 1
[options] => Array
(
[0] => 150 мм
[1] => 200 мм
[2] => 250 мм
[3] => 300 мм
)
[days] => [15,16,17,18]
[material_price] => [2379,2639,2898,3258]
[work_price] => [2418,2686,2985,3716]
[image] => https://akademik-stroy.ru/wp-content/uploads/materials/karkasnye.jpg
[area_modifier] => 205.08
[parent_name] => Стены 1 этаж (несущие)
[parent_id] => 3
[material_sum] => 614736
[work_sum] => 520678
[total_sum] => 1135414
[total_days] => 15
[display_material_sum] => 614 736
[display_work_sum] => 520 678
[display_total_sum] => 1 135 414
)
1
1 135 414₽
Работа:520 678 ₽
Материалы:614 736 ₽
Дни:15
stdClass Object
(
[id] => 84
[attribute_id] => 3
[name] => СИП-панели
[material_modifier] => 1
[work_modifier] => 1
[options] => Array
(
[0] => 120 мм
[1] => 170 мм
[2] => 220 мм
)
[days] => [7,7,7]
[material_price] => [1210,1856,2292]
[work_price] => [1410,1551,1706]
[image] => https://akademik-stroy.ru/wp-content/uploads/materials/sip-paneli.jpg
[area_modifier] => 205.08
[parent_name] => Стены 1 этаж (несущие)
[parent_id] => 3
[material_sum] => 312665
[work_sum] => 303621
[total_sum] => 616286
[total_days] => 7
[display_material_sum] => 312 665
[display_work_sum] => 303 621
[display_total_sum] => 616 286
)
1
616 286₽
Работа:303 621 ₽
Материалы:312 665 ₽
Дни:7
stdClass Object
(
[id] => 85
[attribute_id] => 3
[name] => Сухой брус
[material_modifier] => 1
[work_modifier] => 1
[options] => Array
(
[0] => 150 мм
[1] => 180 мм
[2] => 200 мм
)
[days] => [7,8,9]
[material_price] => [6010,7190,8709]
[work_price] => [3204,3845,4229]
[image] => https://akademik-stroy.ru/wp-content/uploads/materials/suhoj-brus.jpg
[area_modifier] => 205.08
[parent_name] => Стены 1 этаж (несущие)
[parent_id] => 3
[material_sum] => 1552989
[work_sum] => 689930
[total_sum] => 2242919
[total_days] => 7
[display_material_sum] => 1 552 989
[display_work_sum] => 689 930
[display_total_sum] => 2 242 919
)
1
2 242 919₽
Работа:689 930 ₽
Материалы:1 552 989 ₽
Дни:7
stdClass Object
(
[id] => 86
[attribute_id] => 3
[name] => Профилированный брус
[material_modifier] => 1
[work_modifier] => 1
[options] => Array
(
[0] => 150 мм
[1] => 180 мм
[2] => 200 мм
)
[days] => [7,8,9]
[material_price] => [8190,9228,10051]
[work_price] => [3845,4614,5075]
[image] => https://akademik-stroy.ru/wp-content/uploads/materials/profilirovannyj-brus.jpg
[area_modifier] => 205.08
[parent_name] => Стены 1 этаж (несущие)
[parent_id] => 3
[material_sum] => 2116303
[work_sum] => 827959
[total_sum] => 2944262
[total_days] => 7
[display_material_sum] => 2 116 303
[display_work_sum] => 827 959
[display_total_sum] => 2 944 262
)
1
2 944 262₽
Работа:827 959 ₽
Материалы:2 116 303 ₽
Дни:7
stdClass Object
(
[id] => 87
[attribute_id] => 3
[name] => Оцилиндрованное бревно
[material_modifier] => 1
[work_modifier] => 1
[options] => Array
(
[0] => 180 мм
[1] => 220 мм
[2] => 260 мм
[3] => 320 мм
)
[days] => [7,8,9,10]
[material_price] => [75190,9532,10868,13116]
[work_price] => [3845,4691,5535,6863]
[image] => https://akademik-stroy.ru/wp-content/uploads/materials/ocilindrovannoe-brevno-1.jpg
[area_modifier] => 205.08
[parent_name] => Стены 1 этаж (несущие)
[parent_id] => 3
[material_sum] => 19429156
[work_sum] => 827959
[total_sum] => 20257115
[total_days] => 7
[display_material_sum] => 19 429 156
[display_work_sum] => 827 959
[display_total_sum] => 20 257 115
)
1
20 257 115₽
Работа:827 959 ₽
Материалы:19 429 156 ₽
Дни:7
stdClass Object
(
[id] => 88
[attribute_id] => 3
[name] => Срубы
[material_modifier] => 1
[work_modifier] => 1
[options] => Array
(
[0] => 260 мм
[1] => 320 мм
[2] => 360 мм
[3] => 400 мм
[4] => 500 мм
)
[days] => [7,8,9,10,11]
[material_price] => [37975,46709,52314,58069,73167]
[work_price] => [4806,5911,6621,7349,9260]
[image] => https://akademik-stroy.ru/wp-content/uploads/materials/sruby.jpg
[area_modifier] => 205.08
[parent_name] => Стены 1 этаж (несущие)
[parent_id] => 3
[material_sum] => 9812770
[work_sum] => 1034895
[total_sum] => 10847665
[total_days] => 7
[display_material_sum] => 9 812 770
[display_work_sum] => 1 034 895
[display_total_sum] => 10 847 665
)
1
10 847 665₽
Работа:1 034 895 ₽
Материалы:9 812 770 ₽
Дни:7
stdClass Object
(
[id] => 174
[attribute_id] => 3
[name] => Брус
[material_modifier] => 1
[work_modifier] => 1
[options] => Array
(
[0] => 150 мм
[1] => 180 мм
[2] => 200 мм
)
[days] => [7,8,9]
[material_price] => [5127,6152,7367]
[work_price] => [1602,1922,2115]
[image] => https://akademik-stroy.ru/wp-content/uploads/materials/brus.jpg
[area_modifier] => 205.08
[parent_name] => Стены 1 этаж (несущие)
[parent_id] => 3
[material_sum] => 1324821
[work_sum] => 344965
[total_sum] => 1669786
[total_days] => 7
[display_material_sum] => 1 324 821
[display_work_sum] => 344 965
[display_total_sum] => 1 669 786
)
1
1 669 786₽
Работа:344 965 ₽
Материалы:1 324 821 ₽
Дни:7
stdClass Object
(
[id] => 175
[attribute_id] => 3
[name] => Газобетон
[material_modifier] => 1
[work_modifier] => 1
[options] => Array
(
[0] => 300 мм
[1] => 375 мм
[2] => 400 мм
[3] => 500 мм
[4] => 600 мм
)
[days] => [29,31,35,37,44]
[material_price] => [4298,5573,6356,7288,9119]
[work_price] => [4538,5251,5926,6733,7195]
[image] => https://akademik-stroy.ru/wp-content/uploads/materials/gazobeton.jpg
[area_modifier] => 205.08
[parent_name] => Стены 1 этаж (несущие)
[parent_id] => 3
[material_sum] => 1110607
[work_sum] => 977186
[total_sum] => 2087793
[total_days] => 29
[display_material_sum] => 1 110 607
[display_work_sum] => 977 186
[display_total_sum] => 2 087 793
)
1
2 087 793₽
Работа:977 186 ₽
Материалы:1 110 607 ₽
Дни:29
stdClass Object
(
[id] => 176
[attribute_id] => 3
[name] => Блок
[material_modifier] => 1
[work_modifier] => 1
[options] => Array
(
[0] => 300 мм
[1] => 375 мм
[2] => 400 мм
[3] => 500 мм
[4] => 600 мм
)
[days] => [29,31,35,37,44]
[material_price] => [2698,3973,4356,6588,7119]
[work_price] => [5038,5851,6426,8733,9195]
[image] => https://akademik-stroy.ru/wp-content/uploads/materials/blok.jpg
[area_modifier] => 205.08
[parent_name] => Стены 1 этаж (несущие)
[parent_id] => 3
[material_sum] => 697165
[work_sum] => 1084853
[total_sum] => 1782018
[total_days] => 29
[display_material_sum] => 697 165
[display_work_sum] => 1 084 853
[display_total_sum] => 1 782 018
)
1
1 782 018₽
Работа:1 084 853 ₽
Материалы:697 165 ₽
Дни:29
stdClass Object
(
[id] => 177
[attribute_id] => 3
[name] => Газосиликатный блок
[material_modifier] => 1
[work_modifier] => 1
[options] => Array
(
[0] => 300 мм
[1] => 375 мм
[2] => 400 мм
[3] => 500 мм
[4] => 600 мм
)
[days] => [29,31,35,37,44]
[material_price] => [4298,5573,6356,7288,9119]
[work_price] => [4538,5251,5926,6733,7195]
[image] => https://akademik-stroy.ru/wp-content/uploads/materials/gazosilikatnyj-blok.jpg
[area_modifier] => 205.08
[parent_name] => Стены 1 этаж (несущие)
[parent_id] => 3
[material_sum] => 1110607
[work_sum] => 977186
[total_sum] => 2087793
[total_days] => 29
[display_material_sum] => 1 110 607
[display_work_sum] => 977 186
[display_total_sum] => 2 087 793
)
1
2 087 793₽
Работа:977 186 ₽
Материалы:1 110 607 ₽
Дни:29
stdClass Object
(
[id] => 178
[attribute_id] => 3
[name] => Керамзитобетонный блок
[material_modifier] => 1
[work_modifier] => 1
[options] => Array
(
[0] => 300 мм
[1] => 375 мм
[2] => 400 мм
[3] => 500 мм
[4] => 600 мм
)
[days] => [23,23,24,25,28]
[material_price] => [3641,4298,5693,7613,9612]
[work_price] => [5737,5737,6903,7958,8901]
[image] => https://akademik-stroy.ru/wp-content/uploads/materials/keramzitobetonnyj-blok.jpg
[area_modifier] => 205.08
[parent_name] => Стены 1 этаж (несущие)
[parent_id] => 3
[material_sum] => 940837
[work_sum] => 1235371
[total_sum] => 2176208
[total_days] => 23
[display_material_sum] => 940 837
[display_work_sum] => 1 235 371
[display_total_sum] => 2 176 208
)
1
2 176 208₽
Работа:1 235 371 ₽
Материалы:940 837 ₽
Дни:23
stdClass Object
(
[id] => 179
[attribute_id] => 3
[name] => Деревянные
[material_modifier] => 1
[work_modifier] => 1
[options] => Array
(
[0] => 180 мм
[1] => 220 мм
[2] => 260 мм
[3] => 320 мм
)
[days] => [7,8,9,10]
[material_price] => [7950,9458,11961,14472]
[work_price] => [4037,4925,5812,7207]
[image] => https://akademik-stroy.ru/wp-content/uploads/materials/derevyannye.jpg
[area_modifier] => 205.08
[parent_name] => Стены 1 этаж (несущие)
[parent_id] => 3
[material_sum] => 2054286
[work_sum] => 869303
[total_sum] => 2923589
[total_days] => 7
[display_material_sum] => 2 054 286
[display_work_sum] => 869 303
[display_total_sum] => 2 923 589
)
1
2 923 589₽
Работа:869 303 ₽
Материалы:2 054 286 ₽
Дни:7
stdClass Object
(
[id] => 181
[attribute_id] => 3
[name] => Камень
[material_modifier] => 1
[work_modifier] => 1
[options] => Array
(
[0] => 300 мм
[1] => 400 мм
[2] => 500 мм
[3] => 600 мм
)
[days] => [25,27,31,34]
[material_price] => [5262,6844,8330,9815]
[work_price] => [8331,9135,10427,11069]
[image] => https://akademik-stroy.ru/wp-content/uploads/materials/kamen.jpg
[area_modifier] => 205.08
[parent_name] => Стены 1 этаж (несущие)
[parent_id] => 3
[material_sum] => 1359705
[work_sum] => 1793948
[total_sum] => 3153653
[total_days] => 25
[display_material_sum] => 1 359 705
[display_work_sum] => 1 793 948
[display_total_sum] => 3 153 653
)
1
3 153 653₽
Работа:1 793 948 ₽
Материалы:1 359 705 ₽
Дни:25
stdClass Object
(
[id] => 182
[attribute_id] => 3
[name] => Каркасно-щитовые
[material_modifier] => 1
[work_modifier] => 1
[options] => Array
(
[0] => 150 мм
[1] => 200 мм
[2] => 250 мм
[3] => 300 мм
[4] => 350 мм
[5] => 400 мм
)
[days] => [15,16,17,18,19,20]
[material_price] => [2379,2639,2898,3458,3601,4175]
[work_price] => [2538,2820,3134,3483,4062,5642]
[image] => https://akademik-stroy.ru/wp-content/uploads/materials/karkasno-shchitovye.jpg
[area_modifier] => 205.08
[parent_name] => Стены 1 этаж (несущие)
[parent_id] => 3
[material_sum] => 614736
[work_sum] => 546518
[total_sum] => 1161254
[total_days] => 15
[display_material_sum] => 614 736
[display_work_sum] => 546 518
[display_total_sum] => 1 161 254
)
1
1 161 254₽
Работа:546 518 ₽
Материалы:614 736 ₽
Дни:15
stdClass Object
(
[id] => 183
[attribute_id] => 3
[name] => Рубленные
[material_modifier] => 1
[work_modifier] => 1
[options] => Array
(
[0] => 150 мм
[1] => 200 мм
[2] => 250 мм
[3] => 300 мм
[4] => 350 мм
[5] => 400 мм
)
[days] => [15,16,17,18,17,18]
[material_price] => [35950,50267,60583,75900,80217,100533]
[work_price] => [9612,12816,16020,19224,22428,25632]
[image] => https://akademik-stroy.ru/wp-content/uploads/materials/rublennye.jpg
[area_modifier] => 205.08
[parent_name] => Стены 1 этаж (несущие)
[parent_id] => 3
[material_sum] => 9289509
[work_sum] => 2069790
[total_sum] => 11359299
[total_days] => 15
[display_material_sum] => 9 289 509
[display_work_sum] => 2 069 790
[display_total_sum] => 11 359 299
)
1
11 359 299₽
Работа:2 069 790 ₽
Материалы:9 289 509 ₽
Дни:15
stdClass Object
(
[id] => 185
[attribute_id] => 3
[name] => Теплоблок
[material_modifier] => 1
[work_modifier] => 1
[options] => Array
(
[0] => 300 мм (с облицовкой, не покрашенный)
[1] => 400 мм (с облицовкой, не покрашенный)
[2] => 300 мм (с облицовкой, покрашенный)
[3] => 400 мм (с облицовкой, покрашенный)
)
[days] => [15,16,15,16]
[material_price] => [2888,3729,3957,4258]
[work_price] => [2564,3229,2949,3713]
[image] => https://akademik-stroy.ru/wp-content/uploads/materials/teploblok.jpg
[area_modifier] => 205.08
[parent_name] => Стены 1 этаж (несущие)
[parent_id] => 3
[material_sum] => 746262
[work_sum] => 552116
[total_sum] => 1298378
[total_days] => 15
[display_material_sum] => 746 262
[display_work_sum] => 552 116
[display_total_sum] => 1 298 378
)
1
1 298 378₽
Работа:552 116 ₽
Материалы:746 262 ₽
Дни:15
stdClass Object
(
[id] => 186
[attribute_id] => 3
[name] => Арболитовые блоки
[material_modifier] => 1
[work_modifier] => 1
[options] => Array
(
[0] => 300 мм
[1] => 400 мм
[2] => 600 мм
)
[days] => [19,22,27]
[material_price] => [3210,4475,5852]
[work_price] => [4214,4788,5866]
[image] => https://akademik-stroy.ru/wp-content/uploads/materials/arbolitovye-bloki.png
[area_modifier] => 205.08
[parent_name] => Стены 1 этаж (несущие)
[parent_id] => 3
[material_sum] => 829467
[work_sum] => 907417
[total_sum] => 1736884
[total_days] => 19
[display_material_sum] => 829 467
[display_work_sum] => 907 417
[display_total_sum] => 1 736 884
)
1
1 736 884₽
Работа:907 417 ₽
Материалы:829 467 ₽
Дни:19
stdClass Object
(
[id] => 187
[attribute_id] => 3
[name] => Полистиролбетон
[material_modifier] => 1
[work_modifier] => 1
[options] => Array
(
[0] => 300 мм
[1] => 400 мм
[2] => 600 мм
)
[days] => [29,31,35]
[material_price] => [2798,4573,5256]
[work_price] => [5038,5851,6426]
[image] => https://akademik-stroy.ru/wp-content/uploads/materials/polistirolbeton.jpg
[area_modifier] => 205.08
[parent_name] => Стены 1 этаж (несущие)
[parent_id] => 3
[material_sum] => 723005
[work_sum] => 1084853
[total_sum] => 1807858
[total_days] => 29
[display_material_sum] => 723 005
[display_work_sum] => 1 084 853
[display_total_sum] => 1 807 858
)
1
1 807 858₽
Работа:1 084 853 ₽
Материалы:723 005 ₽
Дни:29
stdClass Object
(
[id] => 188
[attribute_id] => 3
[name] => Шлакоблок
[material_modifier] => 1
[work_modifier] => 1
[options] => Array
(
[0] => 400 мм
[1] => 600 мм
)
[days] => [15,16]
[material_price] => [2391,3471]
[work_price] => [2642,3662]
[image] => https://akademik-stroy.ru/wp-content/uploads/materials/shlakoblok.jpg
[area_modifier] => 205.08
[parent_name] => Стены 1 этаж (несущие)
[parent_id] => 3
[material_sum] => 617836
[work_sum] => 568912
[total_sum] => 1186748
[total_days] => 15
[display_material_sum] => 617 836
[display_work_sum] => 568 912
[display_total_sum] => 1 186 748
)
1
1 186 748₽
Работа:568 912 ₽
Материалы:617 836 ₽
Дни:15
stdClass Object
(
[id] => 189
[attribute_id] => 3
[name] => Теплая керамика
[material_modifier] => 1
[work_modifier] => 1
[options] => Array
(
[0] => 380 мм
[1] => 380 мм Thermo
[2] => 440 мм
[3] => 510 мм
)
[days] => [23,23,24,25]
[material_price] => [4510,5098,6093,8013]
[work_price] => [4737,4937,5903,6958]
[image] => https://akademik-stroy.ru/wp-content/uploads/materials/teplaya-keramika.jpg
[area_modifier] => 205.08
[parent_name] => Стены 1 этаж (несущие)
[parent_id] => 3
[material_sum] => 1165388
[work_sum] => 1020037
[total_sum] => 2185425
[total_days] => 23
[display_material_sum] => 1 165 388
[display_work_sum] => 1 020 037
[display_total_sum] => 2 185 425
)
1
2 185 425₽
Работа:1 020 037 ₽
Материалы:1 165 388 ₽
Дни:23
stdClass Object
(
[id] => 190
[attribute_id] => 3
[name] => Несъемная опалубка
[material_modifier] => 1
[work_modifier] => 1
[options] => Array
(
[0] => 200 мм
[1] => 250 мм
[2] => 300 мм
[3] => 350 мм
)
[days] => [15,17,19,21]
[material_price] => [3302,3902,4108,5008]
[work_price] => [2100,2100,2300,2534]
[image] => https://akademik-stroy.ru/wp-content/uploads/materials/nesemnaya-opalubka.jpg
[area_modifier] => 205.08
[parent_name] => Стены 1 этаж (несущие)
[parent_id] => 3
[material_sum] => 853239
[work_sum] => 452201
[total_sum] => 1305440
[total_days] => 15
[display_material_sum] => 853 239
[display_work_sum] => 452 201
[display_total_sum] => 1 305 440
)
1
1 305 440₽
Работа:452 201 ₽
Материалы:853 239 ₽
Дни:15
stdClass Object
(
[id] => 251
[attribute_id] => 3
[name] => Бревно
[material_modifier] => 1
[work_modifier] => 1
[options] => Array
(
[0] => 260 мм
[1] => 320 мм
[2] => 360 мм
[3] => 400 мм
[4] => 500 мм
)
[days] => [7,8,9,10,11]
[material_price] => [1874,24045,26930,30972,38825]
[work_price] => [5046,6207,6952,7716,9723]
[image] => https://akademik-stroy.ru/wp-content/uploads/materials/sruby.jpg
[area_modifier] => 205.08
[parent_name] => Стены 1 этаж (несущие)
[parent_id] => 3
[material_sum] => 484243
[work_sum] => 1086575
[total_sum] => 1570818
[total_days] => 7
[display_material_sum] => 484 243
[display_work_sum] => 1 086 575
[display_total_sum] => 1 570 818
)
1
1 570 818₽
Работа:1 086 575 ₽
Материалы:484 243 ₽
Дни:7
stdClass Object
(
[id] => 7
[attribute_id] => 4
[name] => Деревянные балки
[material_modifier] => 1
[work_modifier] => 1
[options] => Array
(
[0] => без утепления
[1] => утепление 200 мм
[2] => утепление 250 мм
[3] => утепление 300 мм
[4] => утепление 350 мм
[5] => утепление 400 мм
[6] => утепление 450 мм
[7] => утепление 500 мм
)
[days] => [8,9,9,9,11,12,13,14]
[material_price] => [1634,2042,2344,2947,3149,3652,3354,3557]
[work_price] => [1230,1339,1393,1426,1460,1513,1587,1620]
[image] => https://akademik-stroy.ru/wp-content/uploads/materials/derevyannye-balki.png
[area_modifier] => 205.08
[parent_name] => Перекрытие первого этажа
[parent_id] => 4
[material_sum] => 422227
[work_sum] => 264861
[total_sum] => 687088
[total_days] => 8
[display_material_sum] => 422 227
[display_work_sum] => 264 861
[display_total_sum] => 687 088
)
1
687 088₽
Работа:264 861 ₽
Материалы:422 227 ₽
Дни:8
stdClass Object
(
[id] => 8
[attribute_id] => 4
[name] => Сборные ж/б плиты
[material_modifier] => 1
[work_modifier] => 1
[options] => Array
(
[0] => без утепления
[1] => утепление 150 мм
[2] => утепление 200 мм
[3] => утепление 250 мм
[4] => утепление 300 мм
[5] => утепление 350 мм
[6] => утепление 400 мм
[7] => утепление 450 мм
[8] => утепление 500 мм
)
[days] => [13,15,15,15,15,15,15,15,15]
[material_price] => [3067,5577,5928,6679,7730,8782,9833,10884,11935]
[work_price] => [1520,1956,2102,2247,2392,2537,2684,2829,2974]
[image] => https://akademik-stroy.ru/wp-content/uploads/materials/sbornye-zh-b-plity-2.jpg
[area_modifier] => 205.08
[parent_name] => Перекрытие первого этажа
[parent_id] => 4
[material_sum] => 792515
[work_sum] => 327308
[total_sum] => 1119823
[total_days] => 13
[display_material_sum] => 792 515
[display_work_sum] => 327 308
[display_total_sum] => 1 119 823
)
1
1 119 823₽
Работа:327 308 ₽
Материалы:792 515 ₽
Дни:13
stdClass Object
(
[id] => 89
[attribute_id] => 4
[name] => Монолитная ж/б плита
[material_modifier] => 1
[work_modifier] => 1
[options] => Array
(
[0] => без утепления
[1] => утепление 150 мм
[2] => утепление 200 мм
[3] => утепление 250 мм
[4] => утепление 300 мм
[5] => утепление 350 мм
[6] => утепление 400 мм
[7] => утепление 450 мм
[8] => утепление 500 мм
)
[days] => [18,20,20,20,20,20,20,20,20]
[material_price] => [4837,6572,7224,7375,79426,8177,8728,9180,10031]
[work_price] => [3348,3921,4112,4302,4493,4684,4875,5066,5256]
[image] => https://akademik-stroy.ru/wp-content/uploads/materials/monolitnaya-zh-b-plita-2.jpg
[area_modifier] => 205.08
[parent_name] => Перекрытие первого этажа
[parent_id] => 4
[material_sum] => 1249885
[work_sum] => 720938
[total_sum] => 1970823
[total_days] => 18
[display_material_sum] => 1 249 885
[display_work_sum] => 720 938
[display_total_sum] => 1 970 823
)
1
1 970 823₽
Работа:720 938 ₽
Материалы:1 249 885 ₽
Дни:18
stdClass Object
(
[id] => 164
[attribute_id] => 37
[name] => Металлочерепица
[material_modifier] => 1
[work_modifier] => 1
[options] => Array
(
)
[days] => [20]
[material_price] => [6112]
[work_price] => [5726]
[image] => https://akademik-stroy.ru/wp-content/uploads/materials/metallocherepica.jpg
[area_modifier] => 205.08
[parent_name] => Крыша (Скатная)
[parent_id] => 37
[material_sum] => 1579346
[work_sum] => 1233002
[total_sum] => 2812348
[total_days] => 20
[display_material_sum] => 1 579 346
[display_work_sum] => 1 233 002
[display_total_sum] => 2 812 348
)
1
2 812 348₽
Работа:1 233 002 ₽
Материалы:1 579 346 ₽
Дни:20
stdClass Object
(
[id] => 165
[attribute_id] => 37
[name] => Гибкая черепица
[material_modifier] => 1
[work_modifier] => 1
[options] => Array
(
)
[days] => [20]
[material_price] => [6980]
[work_price] => [5950]
[image] => https://akademik-stroy.ru/wp-content/uploads/materials/gibkaya-cherepica.jpg
[area_modifier] => 205.08
[parent_name] => Крыша (Скатная)
[parent_id] => 37
[material_sum] => 1803638
[work_sum] => 1281237
[total_sum] => 3084875
[total_days] => 20
[display_material_sum] => 1 803 638
[display_work_sum] => 1 281 237
[display_total_sum] => 3 084 875
)
1
3 084 875₽
Работа:1 281 237 ₽
Материалы:1 803 638 ₽
Дни:20
stdClass Object
(
[id] => 166
[attribute_id] => 37
[name] => Цементно-песчаная черепица
[material_modifier] => 1
[work_modifier] => 1
[options] => Array
(
)
[days] => [20]
[material_price] => [10560]
[work_price] => [9456]
[image] => https://akademik-stroy.ru/wp-content/uploads/materials/cementno-peschanaya-cherepica.jpg
[area_modifier] => 205.08
[parent_name] => Крыша (Скатная)
[parent_id] => 37
[material_sum] => 2728712
[work_sum] => 2036198
[total_sum] => 4764910
[total_days] => 20
[display_material_sum] => 2 728 712
[display_work_sum] => 2 036 198
[display_total_sum] => 4 764 910
)
1
4 764 910₽
Работа:2 036 198 ₽
Материалы:2 728 712 ₽
Дни:20
stdClass Object
(
[id] => 167
[attribute_id] => 37
[name] => Композитная черепица
[material_modifier] => 1
[work_modifier] => 1
[options] => Array
(
)
[days] => [20]
[material_price] => [9506]
[work_price] => [8905]
[image] => https://akademik-stroy.ru/wp-content/uploads/materials/kompozitnaya-cherepica.jpg
[area_modifier] => 205.08
[parent_name] => Крыша (Скатная)
[parent_id] => 37
[material_sum] => 2456358
[work_sum] => 1917549
[total_sum] => 4373907
[total_days] => 20
[display_material_sum] => 2 456 358
[display_work_sum] => 1 917 549
[display_total_sum] => 4 373 907
)
1
4 373 907₽
Работа:1 917 549 ₽
Материалы:2 456 358 ₽
Дни:20
stdClass Object
(
[id] => 168
[attribute_id] => 37
[name] => Керамическая черепица
[material_modifier] => 1
[work_modifier] => 1
[options] => Array
(
)
[days] => [20]
[material_price] => [12750]
[work_price] => [9456]
[image] => https://akademik-stroy.ru/wp-content/uploads/materials/keramicheskaya-cherepica.jpg
[area_modifier] => 205.08
[parent_name] => Крыша (Скатная)
[parent_id] => 37
[material_sum] => 3294610
[work_sum] => 2036198
[total_sum] => 5330808
[total_days] => 20
[display_material_sum] => 3 294 610
[display_work_sum] => 2 036 198
[display_total_sum] => 5 330 808
)
1
5 330 808₽
Работа:2 036 198 ₽
Материалы:3 294 610 ₽
Дни:20
stdClass Object
(
[id] => 169
[attribute_id] => 37
[name] => Металлическая фальцевая
[material_modifier] => 1
[work_modifier] => 1
[options] => Array
(
)
[days] => [20]
[material_price] => [8550]
[work_price] => [8190]
[image] => https://akademik-stroy.ru/wp-content/uploads/materials/metallicheskaya-falcevaya.jpg
[area_modifier] => 205.08
[parent_name] => Крыша (Скатная)
[parent_id] => 37
[material_sum] => 2209327
[work_sum] => 1763585
[total_sum] => 3972912
[total_days] => 20
[display_material_sum] => 2 209 327
[display_work_sum] => 1 763 585
[display_total_sum] => 3 972 912
)
1
3 972 912₽
Работа:1 763 585 ₽
Материалы:2 209 327 ₽
Дни:20
stdClass Object
(
[id] => 170
[attribute_id] => 37
[name] => Медная фальцевая
[material_modifier] => 1
[work_modifier] => 1
[options] => Array
(
)
[days] => [20]
[material_price] => [20450]
[work_price] => [16750]
[image] => https://akademik-stroy.ru/wp-content/uploads/materials/mednaya-falcevaya.jpg
[area_modifier] => 205.08
[parent_name] => Крыша (Скатная)
[parent_id] => 37
[material_sum] => 5284296
[work_sum] => 3606845
[total_sum] => 8891141
[total_days] => 20
[display_material_sum] => 5 284 296
[display_work_sum] => 3 606 845
[display_total_sum] => 8 891 141
)
1
8 891 141₽
Работа:3 606 845 ₽
Материалы:5 284 296 ₽
Дни:20
stdClass Object
(
[id] => 171
[attribute_id] => 37
[name] => Зеленая кровля
[material_modifier] => 1
[work_modifier] => 1
[options] => Array
(
)
[days] => [20]
[material_price] => [19850]
[work_price] => [16780]
[image] => https://akademik-stroy.ru/wp-content/uploads/materials/zelenaya-krovlya.jpg
[area_modifier] => 205.08
[parent_name] => Крыша (Скатная)
[parent_id] => 37
[material_sum] => 5129256
[work_sum] => 3613305
[total_sum] => 8742561
[total_days] => 20
[display_material_sum] => 5 129 256
[display_work_sum] => 3 613 305
[display_total_sum] => 8 742 561
)
1
8 742 561₽
Работа:3 613 305 ₽
Материалы:5 129 256 ₽
Дни:20
stdClass Object
(
[id] => 172
[attribute_id] => 37
[name] => Профлист
[material_modifier] => 1
[work_modifier] => 1
[options] => Array
(
)
[days] => [20]
[material_price] => [3450]
[work_price] => [3750]
[image] => https://akademik-stroy.ru/wp-content/uploads/materials/proflist.jpg
[area_modifier] => 205.08
[parent_name] => Крыша (Скатная)
[parent_id] => 37
[material_sum] => 891483
[work_sum] => 807503
[total_sum] => 1698986
[total_days] => 20
[display_material_sum] => 891 483
[display_work_sum] => 807 503
[display_total_sum] => 1 698 986
)
1
1 698 986₽
Работа:807 503 ₽
Материалы:891 483 ₽
Дни:20
stdClass Object
(
[id] => 51
[attribute_id] => 26
[name] => Есть
[material_modifier] => 1
[work_modifier] => 1
[options] => Array
(
[0] => Профиль 58 мм, 3-камерный, стеклопакет 2-камерный до 32 мм
[1] => Профиль 60 мм, 4-камерный, стеклопакет 2-камерный до 32 мм
[2] => Профиль 70 мм, 5-камерный, стеклопакет 2-камерный до 40 мм
[3] => Профиль 72 мм, 5-камерный, стеклопакет 2-камерный до 40 мм
[4] => Алюминиевые окна Alutech профиль 72 мм, стеклопакет 2-камерный
)
[days] => [3,3,3,3,3]
[material_price] => [1339,2124,2867,3023,29596]
[work_price] => [635,647,659,668,2579]
[image] => https://akademik-stroy.ru/wp-content/uploads/materials/okna.jpg
[area_modifier] => 166.42
[parent_name] => Окна
[parent_id] => 26
[material_sum] => 280774
[work_sum] => 110961
[total_sum] => 391735
[total_days] => 3
[display_material_sum] => 280 774
[display_work_sum] => 110 961
[display_total_sum] => 391 735
)
1
391 735₽
Работа:110 961 ₽
Материалы:280 774 ₽
Дни:3
stdClass Object
(
[id] => 52
[attribute_id] => 26
[name] => Нет
[material_modifier] => 2
[work_modifier] => 1
[options] =>
[days] => null
[material_price] => null
[work_price] => null
[image] => https://akademik-stroy.ru/wp-content/uploads/materials/okna.jpg
[area_modifier] => 166.42
[parent_name] => Окна
[parent_id] => 26
[material_sum] => 0
[work_sum] => 0
[total_sum] => 0
[total_days] => 0
[display_material_sum] => 0
[display_work_sum] => 0
[display_total_sum] => 0
)
1
0₽
Работа:0 ₽
Материалы:0 ₽
Дни:0
stdClass Object
(
[id] => 53
[attribute_id] => 27
[name] => Есть
[material_modifier] => 1
[work_modifier] => 1
[options] => Array
(
)
[days] => [1]
[material_price] => [10000]
[work_price] => [5500]
[image] => https://akademik-stroy.ru/wp-content/uploads/materials/dveri.jpg
[area_modifier] => 1
[parent_name] => Двери входные
[parent_id] => 27
[material_sum] => 12600
[work_sum] => 5775
[total_sum] => 18375
[total_days] => 1
[display_material_sum] => 12 600
[display_work_sum] => 5 775
[display_total_sum] => 18 375
)
1
18 375₽
Работа:5 775 ₽
Материалы:12 600 ₽
Дни:1
stdClass Object
(
[id] => 54
[attribute_id] => 27
[name] => Нет
[material_modifier] => 1
[work_modifier] => 1
[options] => Array
(
)
[days] => [0]
[material_price] => [0]
[work_price] => [0]
[image] => https://akademik-stroy.ru/wp-content/uploads/materials/dveri.jpg
[area_modifier] => 1
[parent_name] => Двери входные
[parent_id] => 27
[material_sum] => 0
[work_sum] => 0
[total_sum] => 0
[total_days] => 0
[display_material_sum] => 0
[display_work_sum] => 0
[display_total_sum] => 0
)
1
0₽
Работа:0 ₽
Материалы:0 ₽
Дни:0
stdClass Object
(
[id] => 25
[attribute_id] => 13
[name] => Нет
[material_modifier] => 1
[work_modifier] => 1
[options] => Array
(
)
[days] => [0]
[material_price] => [0]
[work_price] => [0]
[image] => https://akademik-stroy.ru/wp-content/uploads/materials/mineralovata-krov.jpg
[area_modifier] => 205.08
[parent_name] => Утепление кровли (Мансарда)
[parent_id] => 13
[material_sum] => 0
[work_sum] => 0
[total_sum] => 0
[total_days] => 0
[display_material_sum] => 0
[display_work_sum] => 0
[display_total_sum] => 0
)
1
0₽
Работа:0 ₽
Материалы:0 ₽
Дни:0
stdClass Object
(
[id] => 26
[attribute_id] => 13
[name] => Минераловатный
[material_modifier] => 1
[work_modifier] => 1
[options] => Array
(
[0] => 50 мм
[1] => 100 мм
[2] => 150 мм
[3] => 200 мм
[4] => 250 мм
[5] => 300 мм
[6] => 350 мм
[7] => 400 мм
[8] => 450 мм
[9] => 500 мм
)
[days] => [5,5,6,6,6,7,7,7,8,8]
[material_price] => [1158,1414,1772,2230,3602,4060,4974,5890,6408,7718]
[work_price] => [650,846,846,1098,1318,1450,1596,1754,1930,2122]
[image] => https://akademik-stroy.ru/wp-content/uploads/materials/mineralovata-krov.jpg
[area_modifier] => 205.08
[parent_name] => Утепление кровли (Мансарда)
[parent_id] => 13
[material_sum] => 299228
[work_sum] => 139967
[total_sum] => 439195
[total_days] => 5
[display_material_sum] => 299 228
[display_work_sum] => 139 967
[display_total_sum] => 439 195
)
1
439 195₽
Работа:139 967 ₽
Материалы:299 228 ₽
Дни:5
stdClass Object
(
[id] => 123
[attribute_id] => 13
[name] => Эковата (целлюлозная вата)
[material_modifier] => 1
[work_modifier] => 1
[options] => Array
(
[0] => 50 мм
[1] => 100 мм
[2] => 150 мм
[3] => 200 мм
[4] => 250 мм
[5] => 300 мм
[6] => 350 мм
[7] => 400 мм
[8] => 450 мм
[9] => 500 мм
)
[days] => [3,3,4,4,4,5,5,5,5,5]
[material_price] => [820,1638,2458,3276,5734,6552,8190,9828,11466,13104]
[work_price] => [234,304,304,396,474,522,574,632,694,764]
[image] => https://akademik-stroy.ru/wp-content/uploads/materials/ehkovata-krov.jpg
[area_modifier] => 205.08
[parent_name] => Утепление кровли (Мансарда)
[parent_id] => 13
[material_sum] => 211889
[work_sum] => 50388
[total_sum] => 262277
[total_days] => 3
[display_material_sum] => 211 889
[display_work_sum] => 50 388
[display_total_sum] => 262 277
)
1
262 277₽
Работа:50 388 ₽
Материалы:211 889 ₽
Дни:3
stdClass Object
(
[id] => 124
[attribute_id] => 13
[name] => Экструдированный пенополистирол
[material_modifier] => 1
[work_modifier] => 1
[options] => Array
(
[0] => 50 мм
[1] => 100 мм
[2] => 150 мм
[3] => 200 мм
[4] => 250 мм
[5] => 300 мм
[6] => 350 мм
[7] => 400 мм
[8] => 450 мм
[9] => 500 мм
)
[days] => [3,3,4,4,4,5,5,5,5,6]
[material_price] => [1146,2292,3438,4584,8020,9166,11458,13750,16040,18332]
[work_price] => [390,508,508,660,790,870,958,1052,1158,1274]
[image] => https://akademik-stroy.ru/wp-content/uploads/materials/epps-krov.jpg
[area_modifier] => 205.08
[parent_name] => Утепление кровли (Мансарда)
[parent_id] => 13
[material_sum] => 296127
[work_sum] => 83980
[total_sum] => 380107
[total_days] => 3
[display_material_sum] => 296 127
[display_work_sum] => 83 980
[display_total_sum] => 380 107
)
1
380 107₽
Работа:83 980 ₽
Материалы:296 127 ₽
Дни:3
stdClass Object
(
[id] => 125
[attribute_id] => 13
[name] => ПСБ (ППС-пенополистирол)
[material_modifier] => 1
[work_modifier] => 1
[options] => Array
(
[0] => 50 мм
[1] => 100 мм
[2] => 150 мм
[3] => 200 мм
[4] => 250 мм
[5] => 300 мм
[6] => 350 мм
[7] => 400 мм
[8] => 450 мм
[9] => 500 мм
)
[days] => [3,3,4,4,4,5,5,5,5,6]
[material_price] => [476,954,1430,1906,3336,3814,4766,5720,6674,7626]
[work_price] => [390,508,508,660,790,870,958,1052,1158,1274]
[image] => https://akademik-stroy.ru/wp-content/uploads/materials/psb-krov.jpg
[area_modifier] => 205.08
[parent_name] => Утепление кровли (Мансарда)
[parent_id] => 13
[material_sum] => 122999
[work_sum] => 83980
[total_sum] => 206979
[total_days] => 3
[display_material_sum] => 122 999
[display_work_sum] => 83 980
[display_total_sum] => 206 979
)
1
206 979₽
Работа:83 980 ₽
Материалы:122 999 ₽
Дни:3
stdClass Object
(
[id] => 126
[attribute_id] => 13
[name] => ППУ (Пенополиуретан)
[material_modifier] => 1
[work_modifier] => 1
[options] => Array
(
[0] => 50 мм
[1] => 100 мм
[2] => 150 мм
[3] => 200 мм
[4] => 250 мм
[5] => 300 мм
[6] => 350 мм
[7] => 400 мм
[8] => 450 мм
[9] => 500 мм
)
[days] => [2,2,3,3,3,3,4,4,4,4]
[material_price] => [2080,4160,6240,8320,14560,16640,20800,24960,29120,33280]
[work_price] => [234,304,304,396,474,522,574,632,694,764]
[image] => https://akademik-stroy.ru/wp-content/uploads/materials/ppu-krov.jpg
[area_modifier] => 205.08
[parent_name] => Утепление кровли (Мансарда)
[parent_id] => 13
[material_sum] => 537474
[work_sum] => 50388
[total_sum] => 587862
[total_days] => 2
[display_material_sum] => 537 474
[display_work_sum] => 50 388
[display_total_sum] => 587 862
)
1
587 862₽
Работа:50 388 ₽
Материалы:537 474 ₽
Дни:2
stdClass Object
(
[id] => 127
[attribute_id] => 13
[name] => PIR-плиты (пенополиизоцианурат)
[material_modifier] => 1
[work_modifier] => 1
[options] => Array
(
[0] => 50 мм
[1] => 100 мм
[2] => 150 мм
[3] => 200 мм
[4] => 250 мм
[5] => 300 мм
[6] => 350 мм
[7] => 400 мм
[8] => 450 мм
[9] => 500 мм
)
[days] => [3,3,4,4,4,5,5,5,5,6]
[material_price] => [2646,5290,7936,10580,18516,21162,26452,31742,37032,42324]
[work_price] => [390,508,508,660,790,870,958,1052,1158,1274]
[image] => https://akademik-stroy.ru/wp-content/uploads/materials/pir-krov.jpg
[area_modifier] => 205.08
[parent_name] => Утепление кровли (Мансарда)
[parent_id] => 13
[material_sum] => 683729
[work_sum] => 83980
[total_sum] => 767709
[total_days] => 3
[display_material_sum] => 683 729
[display_work_sum] => 83 980
[display_total_sum] => 767 709
)
1
767 709₽
Работа:83 980 ₽
Материалы:683 729 ₽
Дни:3
stdClass Object
(
[id] => 27
[attribute_id] => 14
[name] => Нет
[material_modifier] => 1
[work_modifier] => 1
[options] => Array
(
)
[days] => [0]
[material_price] => [0]
[work_price] => [0]
[image] => https://akademik-stroy.ru/wp-content/uploads/materials/mansardnye-okna-2.jpg
[area_modifier] => 1
[parent_name] => Мансардные окна
[parent_id] => 14
[material_sum] => 0
[work_sum] => 0
[total_sum] => 0
[total_days] => 0
[display_material_sum] => 0
[display_work_sum] => 0
[display_total_sum] => 0
)
1
0₽
Работа:0 ₽
Материалы:0 ₽
Дни:0
stdClass Object
(
[id] => 28
[attribute_id] => 14
[name] => Есть
[material_modifier] => 1
[work_modifier] => 1
[options] => Array
(
[0] => 55x78
[1] => 55x98
)
[days] => [6,7]
[material_price] => [47480,68700]
[work_price] => [17900,19500]
[image] => https://akademik-stroy.ru/wp-content/uploads/materials/mansardnye-okna-2.jpg
[area_modifier] => 1
[parent_name] => Мансардные окна
[parent_id] => 14
[material_sum] => 59825
[work_sum] => 18795
[total_sum] => 78620
[total_days] => 6
[display_material_sum] => 59 825
[display_work_sum] => 18 795
[display_total_sum] => 78 620
)
1
78 620₽
Работа:18 795 ₽
Материалы:59 825 ₽
Дни:6
stdClass Object
(
[id] => 29
[attribute_id] => 15
[name] => Нет
[material_modifier] => 1
[work_modifier] => 1
[options] => Array
(
)
[days] => [0]
[material_price] => [0]
[work_price] => [0]
[image] => https://akademik-stroy.ru/wp-content/uploads/materials/sofit.jpg
[area_modifier] => 205.08
[parent_name] => Подшивка кровли
[parent_id] => 15
[material_sum] => 0
[work_sum] => 0
[total_sum] => 0
[total_days] => 0
[display_material_sum] => 0
[display_work_sum] => 0
[display_total_sum] => 0
)
1
0₽
Работа:0 ₽
Материалы:0 ₽
Дни:0
stdClass Object
(
[id] => 30
[attribute_id] => 15
[name] => Есть
[material_modifier] => 1
[work_modifier] => 1
[options] => Array
(
[0] => Софиты (ПВХ)
[1] => Cedral
[2] => ДПК
[3] => Планкен
)
[days] => [7,10,9,8]
[material_price] => [1803,3213,3025,3150]
[work_price] => [1529,2188,2075,1923]
[image] => https://akademik-stroy.ru/wp-content/uploads/materials/sofit.jpg
[area_modifier] => 205.08
[parent_name] => Подшивка кровли
[parent_id] => 15
[material_sum] => 465897
[work_sum] => 329246
[total_sum] => 795143
[total_days] => 7
[display_material_sum] => 465 897
[display_work_sum] => 329 246
[display_total_sum] => 795 143
)
1
795 143₽
Работа:329 246 ₽
Материалы:465 897 ₽
Дни:7
stdClass Object
(
[id] => 31
[attribute_id] => 16
[name] => Нет
[material_modifier] => 1
[work_modifier] => 1
[options] => Array
(
)
[days] => [0]
[material_price] => [0]
[work_price] => [0]
[image] => https://akademik-stroy.ru/wp-content/uploads/materials/docke-standard-pvh.jpg
[area_modifier] => 205.08
[parent_name] => Водосточная система
[parent_id] => 16
[material_sum] => 0
[work_sum] => 0
[total_sum] => 0
[total_days] => 0
[display_material_sum] => 0
[display_work_sum] => 0
[display_total_sum] => 0
)
1
0₽
Работа:0 ₽
Материалы:0 ₽
Дни:0
stdClass Object
(
[id] => 32
[attribute_id] => 16
[name] => Есть
[material_modifier] => 1
[work_modifier] => 1
[options] => Array
(
[0] => Döcke Standard (ПВХ)
[1] => Металлические Grand Line
)
[days] => [7,7]
[material_price] => [1842,2703]
[work_price] => [1491,1529]
[image] => https://akademik-stroy.ru/wp-content/uploads/materials/docke-standard-pvh.jpg
[area_modifier] => 205.08
[parent_name] => Водосточная система
[parent_id] => 16
[material_sum] => 475974
[work_sum] => 321063
[total_sum] => 797037
[total_days] => 7
[display_material_sum] => 475 974
[display_work_sum] => 321 063
[display_total_sum] => 797 037
)
1
797 037₽
Работа:321 063 ₽
Материалы:475 974 ₽
Дни:7
stdClass Object
(
[id] => 33
[attribute_id] => 17
[name] => Нет
[material_modifier] => 1
[work_modifier] => 1
[options] => Array
(
)
[days] => [0]
[material_price] => [0]
[work_price] => [0]
[image] => https://akademik-stroy.ru/wp-content/uploads/materials/mineralovata.jpg
[area_modifier] => 205.08
[parent_name] => Дополнительное утепление наружных стен
[parent_id] => 17
[material_sum] => 0
[work_sum] => 0
[total_sum] => 0
[total_days] => 0
[display_material_sum] => 0
[display_work_sum] => 0
[display_total_sum] => 0
)
1
0₽
Работа:0 ₽
Материалы:0 ₽
Дни:0
stdClass Object
(
[id] => 34
[attribute_id] => 17
[name] => Минераловатный
[material_modifier] => 1
[work_modifier] => 1
[options] => Array
(
[0] => 50 мм
[1] => 100 мм
[2] => 150 мм
[3] => 200 мм
[4] => 250 мм
[5] => 300 мм
)
[days] => [7,8,10,12,14,15]
[material_price] => [3437,3613,3803,3915,4601,4830]
[work_price] => [2325,2423,2523,2749,2859,3025]
[image] => https://akademik-stroy.ru/wp-content/uploads/materials/mineralovata.jpg
[area_modifier] => 205.08
[parent_name] => Дополнительное утепление наружных стен
[parent_id] => 17
[material_sum] => 888124
[work_sum] => 500652
[total_sum] => 1388776
[total_days] => 7
[display_material_sum] => 888 124
[display_work_sum] => 500 652
[display_total_sum] => 1 388 776
)
1
1 388 776₽
Работа:500 652 ₽
Материалы:888 124 ₽
Дни:7
stdClass Object
(
[id] => 128
[attribute_id] => 17
[name] => Эковата (целлюлозная вата)
[material_modifier] => 1
[work_modifier] => 1
[options] => Array
(
[0] => 50 мм
[1] => 100 мм
[2] => 150 мм
[3] => 200 мм
[4] => 250 мм
[5] => 300 мм
)
[days] => [3,4,5,6,7,8]
[material_price] => [810,1319,1629,1838,2267,2676]
[work_price] => [1225,1323,1423,1549,1659,1725]
[image] => https://akademik-stroy.ru/wp-content/uploads/materials/ehkovata.jpg
[area_modifier] => 205.08
[parent_name] => Дополнительное утепление наружных стен
[parent_id] => 17
[material_sum] => 209305
[work_sum] => 263784
[total_sum] => 473089
[total_days] => 3
[display_material_sum] => 209 305
[display_work_sum] => 263 784
[display_total_sum] => 473 089
)
1
473 089₽
Работа:263 784 ₽
Материалы:209 305 ₽
Дни:3
stdClass Object
(
[id] => 129
[attribute_id] => 17
[name] => Экструдированный пенополистирол
[material_modifier] => 1
[work_modifier] => 1
[options] => Array
(
[0] => 50 мм
[1] => 100 мм
[2] => 150 мм
[3] => 200 мм
[4] => 250 мм
[5] => 300 мм
)
[days] => [5,6,7,8,9,10]
[material_price] => [4560,4300,5119,6292,7010,8583]
[work_price] => [1795,1954,2254,2330,2595,2735]
[image] => https://akademik-stroy.ru/wp-content/uploads/materials/epps.jpg
[area_modifier] => 205.08
[parent_name] => Дополнительное утепление наружных стен
[parent_id] => 17
[material_sum] => 1178308
[work_sum] => 386525
[total_sum] => 1564833
[total_days] => 5
[display_material_sum] => 1 178 308
[display_work_sum] => 386 525
[display_total_sum] => 1 564 833
)
1
1 564 833₽
Работа:386 525 ₽
Материалы:1 178 308 ₽
Дни:5
stdClass Object
(
[id] => 130
[attribute_id] => 17
[name] => ПСБ (ППС-пенополистирол)
[material_modifier] => 1
[work_modifier] => 1
[options] => Array
(
[0] => 50 мм
[1] => 100 мм
[2] => 150 мм
[3] => 200 мм
[4] => 250 мм
[5] => 300 мм
)
[days] => [5,6,7,8,9,10]
[material_price] => [4822,5200,5819,6292,7010,7583]
[work_price] => [1795,1954,2254,2330,2595,2735]
[image] => https://akademik-stroy.ru/wp-content/uploads/materials/psb.jpg
[area_modifier] => 205.08
[parent_name] => Дополнительное утепление наружных стен
[parent_id] => 17
[material_sum] => 1246009
[work_sum] => 386525
[total_sum] => 1632534
[total_days] => 5
[display_material_sum] => 1 246 009
[display_work_sum] => 386 525
[display_total_sum] => 1 632 534
)
1
1 632 534₽
Работа:386 525 ₽
Материалы:1 246 009 ₽
Дни:5
stdClass Object
(
[id] => 131
[attribute_id] => 17
[name] => ППУ (Пенополиуретан)
[material_modifier] => 1
[work_modifier] => 1
[options] => Array
(
[0] => 50 мм
[1] => 100 мм
[2] => 150 мм
[3] => 200 мм
[4] => 250 мм
[5] => 300 мм
)
[days] => [3,4,5,6,7,8]
[material_price] => [2860,3400,4219,4592,5010,5583]
[work_price] => [729,900,980,1120,1280,1530]
[image] => https://akademik-stroy.ru/wp-content/uploads/materials/ppu.jpg
[area_modifier] => 205.08
[parent_name] => Дополнительное утепление наружных стен
[parent_id] => 17
[material_sum] => 739026
[work_sum] => 156978
[total_sum] => 896004
[total_days] => 3
[display_material_sum] => 739 026
[display_work_sum] => 156 978
[display_total_sum] => 896 004
)
1
896 004₽
Работа:156 978 ₽
Материалы:739 026 ₽
Дни:3
stdClass Object
(
[id] => 132
[attribute_id] => 17
[name] => PIR-плиты (пенополиизоцианурат)
[material_modifier] => 1
[work_modifier] => 1
[options] => Array
(
[0] => 50 мм
[1] => 100 мм
[2] => 150 мм
[3] => 200 мм
[4] => 250 мм
[5] => 300 мм
)
[days] => [5,6,7,8,9,10]
[material_price] => [8323,15645,20968,25900,29258,30581]
[work_price] => [800,900,970,1150,1280,1330]
[image] => https://akademik-stroy.ru/wp-content/uploads/materials/pir.jpg
[area_modifier] => 205.08
[parent_name] => Дополнительное утепление наружных стен
[parent_id] => 17
[material_sum] => 2150670
[work_sum] => 172267
[total_sum] => 2322937
[total_days] => 5
[display_material_sum] => 2 150 670
[display_work_sum] => 172 267
[display_total_sum] => 2 322 937
)
1
2 322 937₽
Работа:172 267 ₽
Материалы:2 150 670 ₽
Дни:5
stdClass Object
(
[id] => 37
[attribute_id] => 19
[name] => Нет
[material_modifier] => 1
[work_modifier] => 1
[options] => Array
(
)
[days] => [0]
[material_price] => [0]
[work_price] => [0]
[image] => https://akademik-stroy.ru/wp-content/uploads/materials/imitaciya-brusa.jpg
[area_modifier] => 205.08
[parent_name] => Наружная отделка фасада
[parent_id] => 19
[material_sum] => 0
[work_sum] => 0
[total_sum] => 0
[total_days] => 0
[display_material_sum] => 0
[display_work_sum] => 0
[display_total_sum] => 0
)
1
0₽
Работа:0 ₽
Материалы:0 ₽
Дни:0
stdClass Object
(
[id] => 38
[attribute_id] => 19
[name] => Имитация бруса
[material_modifier] => 1
[work_modifier] => 1
[options] => Array
(
[0] => Сосна
[1] => Ель
[2] => Лиственница
)
[days] => [20,20,20]
[material_price] => [2994,2762,4954]
[work_price] => [1397,1231,1577]
[image] => https://akademik-stroy.ru/wp-content/uploads/materials/imitaciya-brusa.jpg
[area_modifier] => 205.08
[parent_name] => Наружная отделка фасада
[parent_id] => 19
[material_sum] => 773652
[work_sum] => 300822
[total_sum] => 1074474
[total_days] => 20
[display_material_sum] => 773 652
[display_work_sum] => 300 822
[display_total_sum] => 1 074 474
)
1
1 074 474₽
Работа:300 822 ₽
Материалы:773 652 ₽
Дни:20
stdClass Object
(
[id] => 136
[attribute_id] => 19
[name] => Планкен
[material_modifier] => 1
[work_modifier] => 1
[options] => Array
(
[0] => Сосна
[1] => Ель
[2] => Лиственница
)
[days] => [20,20,20]
[material_price] => [3194,2862,5154]
[work_price] => [1537,1354,1735]
[image] => https://akademik-stroy.ru/wp-content/uploads/materials/planken.jpg
[area_modifier] => 205.08
[parent_name] => Наружная отделка фасада
[parent_id] => 19
[material_sum] => 825332
[work_sum] => 330968
[total_sum] => 1156300
[total_days] => 20
[display_material_sum] => 825 332
[display_work_sum] => 330 968
[display_total_sum] => 1 156 300
)
1
1 156 300₽
Работа:330 968 ₽
Материалы:825 332 ₽
Дни:20
stdClass Object
(
[id] => 137
[attribute_id] => 19
[name] => Штукатурка
[material_modifier] => 1
[work_modifier] => 1
[options] => Array
(
[0] => Цементно-песчаная (минеральная)
[1] => Мокрый фасад
)
[days] => [35,35]
[material_price] => [2231,3938]
[work_price] => [1202,2422]
[image] => https://akademik-stroy.ru/wp-content/uploads/materials/shtukaturka.jpg
[area_modifier] => 205.08
[parent_name] => Наружная отделка фасада
[parent_id] => 19
[material_sum] => 576492
[work_sum] => 258831
[total_sum] => 835323
[total_days] => 35
[display_material_sum] => 576 492
[display_work_sum] => 258 831
[display_total_sum] => 835 323
)
1
835 323₽
Работа:258 831 ₽
Материалы:576 492 ₽
Дни:35
stdClass Object
(
[id] => 138
[attribute_id] => 19
[name] => Облицовочный кирпич
[material_modifier] => 1
[work_modifier] => 1
[options] => Array
(
[0] => Керамический
[1] => Клинкерный
[2] => Ручной формовки
[3] => Гиперпрессованный
[4] => Силикатный кирпич
)
[days] => [45,45,45,45,45]
[material_price] => [8174,9148,1040,1257,5876]
[work_price] => [3240,3758,4536,4017,3369]
[image] => https://akademik-stroy.ru/wp-content/uploads/materials/oblicovochnyj-kirpich.jpg
[area_modifier] => 205.08
[parent_name] => Наружная отделка фасада
[parent_id] => 19
[material_sum] => 2112168
[work_sum] => 697682
[total_sum] => 2809850
[total_days] => 45
[display_material_sum] => 2 112 168
[display_work_sum] => 697 682
[display_total_sum] => 2 809 850
)
1
2 809 850₽
Работа:697 682 ₽
Материалы:2 112 168 ₽
Дни:45
stdClass Object
(
[id] => 139
[attribute_id] => 19
[name] => Фасадная плитка
[material_modifier] => 1
[work_modifier] => 1
[options] => Array
(
[0] => Клинкерная
[1] => Керамическая
[2] => Плитка ручной формовки
)
[days] => [40,40,40]
[material_price] => [2974,1487,3470]
[work_price] => [3007,2592,3629]
[image] => https://akademik-stroy.ru/wp-content/uploads/materials/fasadnaya-plitka.jpg
[area_modifier] => 205.08
[parent_name] => Наружная отделка фасада
[parent_id] => 19
[material_sum] => 768484
[work_sum] => 647509
[total_sum] => 1415993
[total_days] => 40
[display_material_sum] => 768 484
[display_work_sum] => 647 509
[display_total_sum] => 1 415 993
)
1
1 415 993₽
Работа:647 509 ₽
Материалы:768 484 ₽
Дни:40
stdClass Object
(
[id] => 140
[attribute_id] => 19
[name] => Сайдинг
[material_modifier] => 1
[work_modifier] => 1
[options] => Array
(
[0] => Виниловый
[1] => Металлический
[2] => Фиброцементный
)
[days] => [20,20,20]
[material_price] => [1263,1944,4147]
[work_price] => [1263,1944,2074]
[image] => https://akademik-stroy.ru/wp-content/uploads/materials/sajding.jpg
[area_modifier] => 205.08
[parent_name] => Наружная отделка фасада
[parent_id] => 19
[material_sum] => 326360
[work_sum] => 271967
[total_sum] => 598327
[total_days] => 20
[display_material_sum] => 326 360
[display_work_sum] => 271 967
[display_total_sum] => 598 327
)
1
598 327₽
Работа:271 967 ₽
Материалы:326 360 ₽
Дни:20
stdClass Object
(
[id] => 141
[attribute_id] => 19
[name] => Камень
[material_modifier] => 1
[work_modifier] => 1
[options] => Array
(
[0] => Травертин
[1] => Дагестанский
[2] => Искусственный
[3] => Натуральный
[4] => Керамогранит
)
[days] => [45,45,45,45,45]
[material_price] => [4536,3888,2592,3240,2462]
[work_price] => [3240,3240,2462,3110,1944]
[image] => https://akademik-stroy.ru/wp-content/uploads/materials/kamen-1.jpg
[area_modifier] => 205.08
[parent_name] => Наружная отделка фасада
[parent_id] => 19
[material_sum] => 1172106
[work_sum] => 697682
[total_sum] => 1869788
[total_days] => 45
[display_material_sum] => 1 172 106
[display_work_sum] => 697 682
[display_total_sum] => 1 869 788
)
1
1 869 788₽
Работа:697 682 ₽
Материалы:1 172 106 ₽
Дни:45
stdClass Object
(
[id] => 142
[attribute_id] => 19
[name] => Термопанели
[material_modifier] => 1
[work_modifier] => 1
[options] => Array
(
)
[days] => [20]
[material_price] => [6221]
[work_price] => [2333]
[image] => https://akademik-stroy.ru/wp-content/uploads/materials/termo.png
[area_modifier] => 205.08
[parent_name] => Наружная отделка фасада
[parent_id] => 19
[material_sum] => 1607511
[work_sum] => 502374
[total_sum] => 2109885
[total_days] => 20
[display_material_sum] => 1 607 511
[display_work_sum] => 502 374
[display_total_sum] => 2 109 885
)
1
2 109 885₽
Работа:502 374 ₽
Материалы:1 607 511 ₽
Дни:20
stdClass Object
(
[id] => 143
[attribute_id] => 19
[name] => Плитка HAUBERK
[material_modifier] => 1
[work_modifier] => 1
[options] => Array
(
)
[days] => [20]
[material_price] => [2786]
[work_price] => [1944]
[image] => https://akademik-stroy.ru/wp-content/uploads/materials/hauberk.jpg
[area_modifier] => 205.08
[parent_name] => Наружная отделка фасада
[parent_id] => 19
[material_sum] => 719905
[work_sum] => 418609
[total_sum] => 1138514
[total_days] => 20
[display_material_sum] => 719 905
[display_work_sum] => 418 609
[display_total_sum] => 1 138 514
)
1
1 138 514₽
Работа:418 609 ₽
Материалы:719 905 ₽
Дни:20
stdClass Object
(
[id] => 144
[attribute_id] => 19
[name] => Фальцевый фасад
[material_modifier] => 1
[work_modifier] => 1
[options] => Array
(
)
[days] => [20]
[material_price] => [3240]
[work_price] => [2592]
[image] => https://akademik-stroy.ru/wp-content/uploads/materials/falcevyj-fasad.jpg
[area_modifier] => 205.08
[parent_name] => Наружная отделка фасада
[parent_id] => 19
[material_sum] => 837219
[work_sum] => 558146
[total_sum] => 1395365
[total_days] => 20
[display_material_sum] => 837 219
[display_work_sum] => 558 146
[display_total_sum] => 1 395 365
)
1
1 395 365₽
Работа:558 146 ₽
Материалы:837 219 ₽
Дни:20
stdClass Object
(
[id] => 145
[attribute_id] => 19
[name] => Комбинированный
[material_modifier] => 1
[work_modifier] => 1
[options] => Array
(
)
[days] => [20]
[material_price] => [4629]
[work_price] => [3499]
[image] => https://akademik-stroy.ru/wp-content/uploads/materials/Kombinirovannyj.jpg
[area_modifier] => 205.08
[parent_name] => Наружная отделка фасада
[parent_id] => 19
[material_sum] => 1196137
[work_sum] => 753454
[total_sum] => 1949591
[total_days] => 20
[display_material_sum] => 1 196 137
[display_work_sum] => 753 454
[display_total_sum] => 1 949 591
)
1
1 949 591₽
Работа:753 454 ₽
Материалы:1 196 137 ₽
Дни:20
stdClass Object
(
[id] => 257
[attribute_id] => 19
[name] => Японские фиброцементные
[material_modifier] => 1
[work_modifier] => 1
[options] => Array
(
)
[days] => [20]
[material_price] => [7043]
[work_price] => [2993]
[image] => https://akademik-stroy.ru/wp-content/uploads/materials/paneli.jpg
[area_modifier] => 205.08
[parent_name] => Наружная отделка фасада
[parent_id] => 19
[material_sum] => 1819917
[work_sum] => 644495
[total_sum] => 2464412
[total_days] => 20
[display_material_sum] => 1 819 917
[display_work_sum] => 644 495
[display_total_sum] => 2 464 412
)
1
2 464 412₽
Работа:644 495 ₽
Материалы:1 819 917 ₽
Дни:20
stdClass Object
(
[id] => 258
[attribute_id] => 19
[name] => Панели Каньон
[material_modifier] => 1
[work_modifier] => 1
[options] => Array
(
)
[days] => [20]
[material_price] => [4543]
[work_price] => [2592]
[image] => https://akademik-stroy.ru/wp-content/uploads/materials/kanon.png
[area_modifier] => 205.08
[parent_name] => Наружная отделка фасада
[parent_id] => 19
[material_sum] => 1173915
[work_sum] => 558146
[total_sum] => 1732061
[total_days] => 20
[display_material_sum] => 1 173 915
[display_work_sum] => 558 146
[display_total_sum] => 1 732 061
)
1
1 732 061₽
Работа:558 146 ₽
Материалы:1 173 915 ₽
Дни:20
stdClass Object
(
[id] => 39
[attribute_id] => 20
[name] => Нет
[material_modifier] => 1
[work_modifier] => 1
[options] => Array
(
)
[days] => [0]
[material_price] => [0]
[work_price] => [0]
[image] => https://akademik-stroy.ru/wp-content/uploads/materials/terrasy.jpg
[area_modifier] => 30
[parent_name] => Террасы, крыльца, навесы
[parent_id] => 20
[material_sum] => 0
[work_sum] => 0
[total_sum] => 0
[total_days] => 0
[display_material_sum] => 0
[display_work_sum] => 0
[display_total_sum] => 0
)
1
0₽
Работа:0 ₽
Материалы:0 ₽
Дни:0
stdClass Object
(
[id] => 40
[attribute_id] => 20
[name] => Есть
[material_modifier] => 1
[work_modifier] => 1
[options] => Array
(
)
[days] => [5]
[material_price] => [10450]
[work_price] => [1950]
[image] => https://akademik-stroy.ru/wp-content/uploads/materials/terrasy.jpg
[area_modifier] => 30
[parent_name] => Террасы, крыльца, навесы
[parent_id] => 20
[material_sum] => 395010
[work_sum] => 61425
[total_sum] => 456435
[total_days] => 5
[display_material_sum] => 395 010
[display_work_sum] => 61 425
[display_total_sum] => 456 435
)
1
456 435₽
Работа:61 425 ₽
Материалы:395 010 ₽
Дни:5
stdClass Object
(
[id] => 41
[attribute_id] => 21
[name] => Нет
[material_modifier] => 1
[work_modifier] => 1
[options] => Array
(
)
[days] => [0]
[material_price] => [0]
[work_price] => [0]
[image] => https://akademik-stroy.ru/wp-content/uploads/materials/balkony.jpg
[area_modifier] => 30
[parent_name] => Балконы
[parent_id] => 21
[material_sum] => 0
[work_sum] => 0
[total_sum] => 0
[total_days] => 0
[display_material_sum] => 0
[display_work_sum] => 0
[display_total_sum] => 0
)
1
0₽
Работа:0 ₽
Материалы:0 ₽
Дни:0
stdClass Object
(
[id] => 42
[attribute_id] => 21
[name] => Есть
[material_modifier] => 1
[work_modifier] => 1
[options] => Array
(
)
[days] => [12]
[material_price] => [3600]
[work_price] => [1950]
[image] => https://akademik-stroy.ru/wp-content/uploads/materials/balkony.jpg
[area_modifier] => 30
[parent_name] => Балконы
[parent_id] => 21
[material_sum] => 136080
[work_sum] => 61425
[total_sum] => 197505
[total_days] => 12
[display_material_sum] => 136 080
[display_work_sum] => 61 425
[display_total_sum] => 197 505
)
1
197 505₽
Работа:61 425 ₽
Материалы:136 080 ₽
Дни:12
stdClass Object
(
[id] => 43
[attribute_id] => 22
[name] => Нет
[material_modifier] => 1
[work_modifier] => 1
[options] => Array
(
)
[days] => [0]
[material_price] => [0]
[work_price] => [0]
[image] => https://akademik-stroy.ru/wp-content/uploads/materials/uteplennaya.jpg
[area_modifier] => 205.08
[parent_name] => Отмостка
[parent_id] => 22
[material_sum] => 0
[work_sum] => 0
[total_sum] => 0
[total_days] => 0
[display_material_sum] => 0
[display_work_sum] => 0
[display_total_sum] => 0
)
1
0₽
Работа:0 ₽
Материалы:0 ₽
Дни:0
stdClass Object
(
[id] => 44
[attribute_id] => 22
[name] => Утепленная отмостка
[material_modifier] => 1
[work_modifier] => 1
[options] => Array
(
)
[days] => [15]
[material_price] => [2550]
[work_price] => [1750]
[image] => https://akademik-stroy.ru/wp-content/uploads/materials/uteplennaya.jpg
[area_modifier] => 205.08
[parent_name] => Отмостка
[parent_id] => 22
[material_sum] => 658922
[work_sum] => 376835
[total_sum] => 1035757
[total_days] => 15
[display_material_sum] => 658 922
[display_work_sum] => 376 835
[display_total_sum] => 1 035 757
)
1
1 035 757₽
Работа:376 835 ₽
Материалы:658 922 ₽
Дни:15
stdClass Object
(
[id] => 146
[attribute_id] => 22
[name] => Не утепленная отмостка
[material_modifier] => 1
[work_modifier] => 1
[options] => Array
(
)
[days] => [10]
[material_price] => [1650]
[work_price] => [1450]
[image] => https://akademik-stroy.ru/wp-content/uploads/materials/ne-uteplennaya.jpg
[area_modifier] => 205.08
[parent_name] => Отмостка
[parent_id] => 22
[material_sum] => 426361
[work_sum] => 312234
[total_sum] => 738595
[total_days] => 10
[display_material_sum] => 426 361
[display_work_sum] => 312 234
[display_total_sum] => 738 595
)
1
738 595₽
Работа:312 234 ₽
Материалы:426 361 ₽
Дни:10
stdClass Object
(
[id] => 45
[attribute_id] => 23
[name] => Нет
[material_modifier] => 1
[work_modifier] => 1
[options] => Array
(
)
[days] => [0]
[material_price] => [0]
[work_price] => [0]
[image] => https://akademik-stroy.ru/wp-content/uploads/materials/drenazh-2.jpg
[area_modifier] => 205.08
[parent_name] => Дренаж вокруг дома
[parent_id] => 23
[material_sum] => 0
[work_sum] => 0
[total_sum] => 0
[total_days] => 0
[display_material_sum] => 0
[display_work_sum] => 0
[display_total_sum] => 0
)
1
0₽
Работа:0 ₽
Материалы:0 ₽
Дни:0
stdClass Object
(
[id] => 46
[attribute_id] => 23
[name] => Есть
[material_modifier] => 1
[work_modifier] => 1
[options] => Array
(
)
[days] => [5]
[material_price] => [2366]
[work_price] => [1911]
[image] => https://akademik-stroy.ru/wp-content/uploads/materials/drenazh-2.jpg
[area_modifier] => 205.08
[parent_name] => Дренаж вокруг дома
[parent_id] => 23
[material_sum] => 611376
[work_sum] => 411503
[total_sum] => 1022879
[total_days] => 5
[display_material_sum] => 611 376
[display_work_sum] => 411 503
[display_total_sum] => 1 022 879
)
1
1 022 879₽
Работа:411 503 ₽
Материалы:611 376 ₽
Дни:5
stdClass Object
(
[id] => 47
[attribute_id] => 24
[name] => Нет
[material_modifier] => 1
[work_modifier] => 1
[options] => Array
(
)
[days] => [0]
[material_price] => [0]
[work_price] => [0]
[image] => https://akademik-stroy.ru/wp-content/uploads/materials/septik.jpg
[area_modifier] => 1
[parent_name] => Автономная канализация (септики)
[parent_id] => 24
[material_sum] => 0
[work_sum] => 0
[total_sum] => 0
[total_days] => 0
[display_material_sum] => 0
[display_work_sum] => 0
[display_total_sum] => 0
)
1
0₽
Работа:0 ₽
Материалы:0 ₽
Дни:0
stdClass Object
(
[id] => 48
[attribute_id] => 24
[name] => Есть
[material_modifier] => 1
[work_modifier] => 1
[options] => Array
(
[0] => Для дачи на 4 человека
[1] => Для дома на 5 человек
[2] => Для дома на 6 человек
[3] => Для дома на 7 человек
[4] => Для дома на 10 человек
)
[days] => [7,7,7,8,8]
[material_price] => [196340,220500,240940,264200,293340]
[work_price] => [50000,55000,60500,66550,73206]
[image] => https://akademik-stroy.ru/wp-content/uploads/materials/septik.jpg
[area_modifier] => 1
[parent_name] => Автономная канализация (септики)
[parent_id] => 24
[material_sum] => 247388
[work_sum] => 52500
[total_sum] => 299888
[total_days] => 7
[display_material_sum] => 247 388
[display_work_sum] => 52 500
[display_total_sum] => 299 888
)
1
299 888₽
Работа:52 500 ₽
Материалы:247 388 ₽
Дни:7
stdClass Object
(
[id] => 49
[attribute_id] => 25
[name] => Нет
[material_modifier] => 1
[work_modifier] => 1
[options] => Array
(
)
[days] => [0]
[material_price] => [0]
[work_price] => [0]
[image] => https://akademik-stroy.ru/wp-content/uploads/materials/gkl.jpg
[area_modifier] => 205.08
[parent_name] => Внутренние (не несущие) перегородки
[parent_id] => 25
[material_sum] => 0
[work_sum] => 0
[total_sum] => 0
[total_days] => 0
[display_material_sum] => 0
[display_work_sum] => 0
[display_total_sum] => 0
)
1
0₽
Работа:0 ₽
Материалы:0 ₽
Дни:0
stdClass Object
(
[id] => 147
[attribute_id] => 25
[name] => Каркасно-обшивные
[material_modifier] => 1
[work_modifier] => 1
[options] => Array
(
[0] => 75 мм (без шумоизоляции)
[1] => 75 мм (с шумоизоляцией)
)
[days] => [11,11]
[material_price] => [580,970]
[work_price] => [380,570]
[image] => https://akademik-stroy.ru/wp-content/uploads/materials/gkl.jpg
[area_modifier] => 205.08
[parent_name] => Внутренние (не несущие) перегородки
[parent_id] => 25
[material_sum] => 149872
[work_sum] => 81827
[total_sum] => 231699
[total_days] => 11
[display_material_sum] => 149 872
[display_work_sum] => 81 827
[display_total_sum] => 231 699
)
1
231 699₽
Работа:81 827 ₽
Материалы:149 872 ₽
Дни:11
stdClass Object
(
[id] => 148
[attribute_id] => 25
[name] => Пазогребневые
[material_modifier] => 1
[work_modifier] => 1
[options] => Array
(
[0] => 80 мм
[1] => 100 мм
)
[days] => [5,5]
[material_price] => [1022,1313]
[work_price] => [600,700]
[image] => https://akademik-stroy.ru/wp-content/uploads/materials/pazogrebnevye-bloki.jpg
[area_modifier] => 205.08
[parent_name] => Внутренние (не несущие) перегородки
[parent_id] => 25
[material_sum] => 264086
[work_sum] => 129200
[total_sum] => 393286
[total_days] => 5
[display_material_sum] => 264 086
[display_work_sum] => 129 200
[display_total_sum] => 393 286
)
1
393 286₽
Работа:129 200 ₽
Материалы:264 086 ₽
Дни:5
stdClass Object
(
[id] => 149
[attribute_id] => 25
[name] => Газобетонные
[material_modifier] => 1
[work_modifier] => 1
[options] => Array
(
[0] => 100 мм
[1] => 200 мм
)
[days] => [11,11]
[material_price] => [1160,1920]
[work_price] => [700,900]
[image] => https://akademik-stroy.ru/wp-content/uploads/materials/gazobeton-2.jpg
[area_modifier] => 205.08
[parent_name] => Внутренние (не несущие) перегородки
[parent_id] => 25
[material_sum] => 299745
[work_sum] => 150734
[total_sum] => 450479
[total_days] => 11
[display_material_sum] => 299 745
[display_work_sum] => 150 734
[display_total_sum] => 450 479
)
1
450 479₽
Работа:150 734 ₽
Материалы:299 745 ₽
Дни:11
stdClass Object
(
[id] => 150
[attribute_id] => 25
[name] => Кирпичные
[material_modifier] => 1
[work_modifier] => 1
[options] => Array
(
[0] => 120 мм
[1] => 250 мм
[2] => 360 мм
)
[days] => [7,7,7]
[material_price] => [1785,3570,5355]
[work_price] => [900,1600,1800]
[image] => https://akademik-stroy.ru/wp-content/uploads/materials/kirpich-1.jpg
[area_modifier] => 205.08
[parent_name] => Внутренние (не несущие) перегородки
[parent_id] => 25
[material_sum] => 461245
[work_sum] => 193801
[total_sum] => 655046
[total_days] => 7
[display_material_sum] => 461 245
[display_work_sum] => 193 801
[display_total_sum] => 655 046
)
1
655 046₽
Работа:193 801 ₽
Материалы:461 245 ₽
Дни:7
stdClass Object
(
[id] => 55
[attribute_id] => 28
[name] => Нет
[material_modifier] => 1
[work_modifier] => 1
[options] => Array
(
)
[days] => [0]
[material_price] => [0]
[work_price] => [0]
[image] => https://akademik-stroy.ru/wp-content/uploads/materials/ehlektrika.jpg
[area_modifier] => 166.42
[parent_name] => Электрика
[parent_id] => 28
[material_sum] => 0
[work_sum] => 0
[total_sum] => 0
[total_days] => 0
[display_material_sum] => 0
[display_work_sum] => 0
[display_total_sum] => 0
)
1
0₽
Работа:0 ₽
Материалы:0 ₽
Дни:0
stdClass Object
(
[id] => 56
[attribute_id] => 28
[name] => Есть
[material_modifier] => 1
[work_modifier] => 1
[options] => Array
(
)
[days] => [10]
[material_price] => [650]
[work_price] => [950]
[image] => https://akademik-stroy.ru/wp-content/uploads/materials/ehlektrika.jpg
[area_modifier] => 166.42
[parent_name] => Электрика
[parent_id] => 28
[material_sum] => 136298
[work_sum] => 166004
[total_sum] => 302302
[total_days] => 10
[display_material_sum] => 136 298
[display_work_sum] => 166 004
[display_total_sum] => 302 302
)
1
302 302₽
Работа:166 004 ₽
Материалы:136 298 ₽
Дни:10
stdClass Object
(
[id] => 57
[attribute_id] => 29
[name] => Нет
[material_modifier] => 1
[work_modifier] => 1
[options] => Array
(
)
[days] => [0]
[material_price] => [0]
[work_price] => [0]
[image] => https://akademik-stroy.ru/wp-content/uploads/materials/santekhnika-kanalizaciya-1.jpg
[area_modifier] => 166.42
[parent_name] => Сантехника, канализация в доме
[parent_id] => 29
[material_sum] => 0
[work_sum] => 0
[total_sum] => 0
[total_days] => 0
[display_material_sum] => 0
[display_work_sum] => 0
[display_total_sum] => 0
)
1
0₽
Работа:0 ₽
Материалы:0 ₽
Дни:0
stdClass Object
(
[id] => 58
[attribute_id] => 29
[name] => Есть
[material_modifier] => 1
[work_modifier] => 1
[options] => Array
(
)
[days] => [10]
[material_price] => [600]
[work_price] => [730]
[image] => https://akademik-stroy.ru/wp-content/uploads/materials/santekhnika-kanalizaciya-1.jpg
[area_modifier] => 166.42
[parent_name] => Сантехника, канализация в доме
[parent_id] => 29
[material_sum] => 125814
[work_sum] => 127561
[total_sum] => 253375
[total_days] => 10
[display_material_sum] => 125 814
[display_work_sum] => 127 561
[display_total_sum] => 253 375
)
1
253 375₽
Работа:127 561 ₽
Материалы:125 814 ₽
Дни:10
stdClass Object
(
[id] => 59
[attribute_id] => 30
[name] => Нет
[material_modifier] => 1
[work_modifier] => 1
[options] => Array
(
)
[days] => [0]
[material_price] => [0]
[work_price] => [0]
[image] => https://akademik-stroy.ru/wp-content/uploads/materials/otoplenie-1.jpg
[area_modifier] => 166.42
[parent_name] => Отопление
[parent_id] => 30
[material_sum] => 0
[work_sum] => 0
[total_sum] => 0
[total_days] => 0
[display_material_sum] => 0
[display_work_sum] => 0
[display_total_sum] => 0
)
1
0₽
Работа:0 ₽
Материалы:0 ₽
Дни:0
stdClass Object
(
[id] => 60
[attribute_id] => 30
[name] => Есть
[material_modifier] => 1
[work_modifier] => 1
[options] => Array
(
)
[days] => [5]
[material_price] => [610]
[work_price] => [560]
[image] => https://akademik-stroy.ru/wp-content/uploads/materials/otoplenie-1.jpg
[area_modifier] => 166.42
[parent_name] => Отопление
[parent_id] => 30
[material_sum] => 127910
[work_sum] => 97855
[total_sum] => 225765
[total_days] => 5
[display_material_sum] => 127 910
[display_work_sum] => 97 855
[display_total_sum] => 225 765
)
1
225 765₽
Работа:97 855 ₽
Материалы:127 910 ₽
Дни:5
stdClass Object
(
[id] => 61
[attribute_id] => 31
[name] => Нет
[material_modifier] => 1
[work_modifier] => 1
[options] => Array
(
)
[days] => [0]
[material_price] => [0]
[work_price] => [0]
[image] => https://akademik-stroy.ru/wp-content/uploads/materials/vodyanye.jpg
[area_modifier] => 30
[parent_name] => Теплые полы
[parent_id] => 31
[material_sum] => 0
[work_sum] => 0
[total_sum] => 0
[total_days] => 0
[display_material_sum] => 0
[display_work_sum] => 0
[display_total_sum] => 0
)
1
0₽
Работа:0 ₽
Материалы:0 ₽
Дни:0
stdClass Object
(
[id] => 151
[attribute_id] => 31
[name] => Водяные
[material_modifier] => 1
[work_modifier] => 1
[options] => Array
(
)
[days] => [9]
[material_price] => [10200]
[work_price] => [2500]
[image] => https://akademik-stroy.ru/wp-content/uploads/materials/vodyanye.jpg
[area_modifier] => 30
[parent_name] => Теплые полы
[parent_id] => 31
[material_sum] => 385560
[work_sum] => 78750
[total_sum] => 464310
[total_days] => 9
[display_material_sum] => 385 560
[display_work_sum] => 78 750
[display_total_sum] => 464 310
)
1
464 310₽
Работа:78 750 ₽
Материалы:385 560 ₽
Дни:9
stdClass Object
(
[id] => 152
[attribute_id] => 31
[name] => Электро
[material_modifier] => 1
[work_modifier] => 1
[options] => Array
(
)
[days] => [5]
[material_price] => [6300]
[work_price] => [1500]
[image] => https://akademik-stroy.ru/wp-content/uploads/materials/ehlektricheskij.jpg
[area_modifier] => 30
[parent_name] => Теплые полы
[parent_id] => 31
[material_sum] => 238140
[work_sum] => 47250
[total_sum] => 285390
[total_days] => 5
[display_material_sum] => 238 140
[display_work_sum] => 47 250
[display_total_sum] => 285 390
)
1
285 390₽
Работа:47 250 ₽
Материалы:238 140 ₽
Дни:5
stdClass Object
(
[id] => 63
[attribute_id] => 32
[name] => Нет
[material_modifier] => 1
[work_modifier] => 1
[options] => Array
(
)
[days] => [0]
[material_price] => [0]
[work_price] => [0]
[image] => https://akademik-stroy.ru/wp-content/uploads/materials/shtukaturka-shpatlevka-1.jpg
[area_modifier] => 166.42
[parent_name] => Черновая отделка стен
[parent_id] => 32
[material_sum] => 0
[work_sum] => 0
[total_sum] => 0
[total_days] => 0
[display_material_sum] => 0
[display_work_sum] => 0
[display_total_sum] => 0
)
1
0₽
Работа:0 ₽
Материалы:0 ₽
Дни:0
stdClass Object
(
[id] => 153
[attribute_id] => 32
[name] => Штукатурка и шпатлевка
[material_modifier] => 1
[work_modifier] => 1
[options] => Array
(
)
[days] => [20]
[material_price] => [1850]
[work_price] => [2600]
[image] => https://akademik-stroy.ru/wp-content/uploads/materials/shtukaturka-shpatlevka-1.jpg
[area_modifier] => 166.42
[parent_name] => Черновая отделка стен
[parent_id] => 32
[material_sum] => 387925
[work_sum] => 454327
[total_sum] => 842252
[total_days] => 20
[display_material_sum] => 387 925
[display_work_sum] => 454 327
[display_total_sum] => 842 252
)
1
842 252₽
Работа:454 327 ₽
Материалы:387 925 ₽
Дни:20
stdClass Object
(
[id] => 154
[attribute_id] => 32
[name] => Гипсокортон на стены
[material_modifier] => 1
[work_modifier] => 1
[options] => Array
(
)
[days] => [15]
[material_price] => [950]
[work_price] => [2100]
[image] => https://akademik-stroy.ru/wp-content/uploads/materials/gkl-1.jpg
[area_modifier] => 166.42
[parent_name] => Черновая отделка стен
[parent_id] => 32
[material_sum] => 199205
[work_sum] => 366956
[total_sum] => 566161
[total_days] => 15
[display_material_sum] => 199 205
[display_work_sum] => 366 956
[display_total_sum] => 566 161
)
1
566 161₽
Работа:366 956 ₽
Материалы:199 205 ₽
Дни:15
stdClass Object
(
[id] => 155
[attribute_id] => 32
[name] => Вагонка
[material_modifier] => 1
[work_modifier] => 1
[options] => Array
(
)
[days] => [15]
[material_price] => [1250]
[work_price] => [950]
[image] => https://akademik-stroy.ru/wp-content/uploads/materials/vagonka.jpg
[area_modifier] => 166.42
[parent_name] => Черновая отделка стен
[parent_id] => 32
[material_sum] => 262112
[work_sum] => 166004
[total_sum] => 428116
[total_days] => 15
[display_material_sum] => 262 112
[display_work_sum] => 166 004
[display_total_sum] => 428 116
)
1
428 116₽
Работа:166 004 ₽
Материалы:262 112 ₽
Дни:15
stdClass Object
(
[id] => 65
[attribute_id] => 33
[name] => Нет
[material_modifier] => 1
[work_modifier] => 1
[options] => Array
(
)
[days] => [0]
[material_price] => [0]
[work_price] => [0]
[image] => https://akademik-stroy.ru/wp-content/uploads/materials/styazhka.jpg
[area_modifier] => 166.42
[parent_name] => Черновая отделка полов
[parent_id] => 33
[material_sum] => 0
[work_sum] => 0
[total_sum] => 0
[total_days] => 0
[display_material_sum] => 0
[display_work_sum] => 0
[display_total_sum] => 0
)
1
0₽
Работа:0 ₽
Материалы:0 ₽
Дни:0
stdClass Object
(
[id] => 156
[attribute_id] => 33
[name] => Стяжка + наливные полы
[material_modifier] => 1
[work_modifier] => 1
[options] => Array
(
)
[days] => [10]
[material_price] => [1000]
[work_price] => [900]
[image] => https://akademik-stroy.ru/wp-content/uploads/materials/styazhka.jpg
[area_modifier] => 166.42
[parent_name] => Черновая отделка полов
[parent_id] => 33
[material_sum] => 209689
[work_sum] => 157267
[total_sum] => 366956
[total_days] => 10
[display_material_sum] => 209 689
[display_work_sum] => 157 267
[display_total_sum] => 366 956
)
1
366 956₽
Работа:157 267 ₽
Материалы:209 689 ₽
Дни:10
stdClass Object
(
[id] => 157
[attribute_id] => 33
[name] => ОСБ на пол
[material_modifier] => 1
[work_modifier] => 1
[options] => Array
(
)
[days] => [7]
[material_price] => [580]
[work_price] => [350]
[image] => https://akademik-stroy.ru/wp-content/uploads/materials/osb-1.jpg
[area_modifier] => 166.42
[parent_name] => Черновая отделка полов
[parent_id] => 33
[material_sum] => 121620
[work_sum] => 61159
[total_sum] => 182779
[total_days] => 7
[display_material_sum] => 121 620
[display_work_sum] => 61 159
[display_total_sum] => 182 779
)
1
182 779₽
Работа:61 159 ₽
Материалы:121 620 ₽
Дни:7
stdClass Object
(
[id] => 67
[attribute_id] => 34
[name] => Нет
[material_modifier] => 1
[work_modifier] => 1
[options] => Array
(
)
[days] => [0]
[material_price] => [0]
[work_price] => [0]
[image] => https://akademik-stroy.ru/wp-content/uploads/materials/chistovaya-otdelka.jpg
[area_modifier] => 166.42
[parent_name] => Чистовая отделка стен и полов
[parent_id] => 34
[material_sum] => 0
[work_sum] => 0
[total_sum] => 0
[total_days] => 0
[display_material_sum] => 0
[display_work_sum] => 0
[display_total_sum] => 0
)
1
0₽
Работа:0 ₽
Материалы:0 ₽
Дни:0
stdClass Object
(
[id] => 68
[attribute_id] => 34
[name] => Есть
[material_modifier] => 1
[work_modifier] => 1
[options] => Array
(
)
[days] => [50]
[material_price] => [6000]
[work_price] => [3500]
[image] => https://akademik-stroy.ru/wp-content/uploads/materials/chistovaya-otdelka.jpg
[area_modifier] => 166.42
[parent_name] => Чистовая отделка стен и полов
[parent_id] => 34
[material_sum] => 1258135
[work_sum] => 611594
[total_sum] => 1869729
[total_days] => 50
[display_material_sum] => 1 258 135
[display_work_sum] => 611 594
[display_total_sum] => 1 869 729
)
1
1 869 729₽
Работа:611 594 ₽
Материалы:1 258 135 ₽
Дни:50
stdClass Object
(
[id] => 69
[attribute_id] => 35
[name] => Нет
[material_modifier] => 1
[work_modifier] => 1
[options] => Array
(
)
[days] => [0]
[material_price] => [0]
[work_price] => [0]
[image] => https://akademik-stroy.ru/wp-content/uploads/materials/mnogourovnevyj-gkl.jpg
[area_modifier] => 166.42
[parent_name] => Отделка потолка
[parent_id] => 35
[material_sum] => 0
[work_sum] => 0
[total_sum] => 0
[total_days] => 0
[display_material_sum] => 0
[display_work_sum] => 0
[display_total_sum] => 0
)
1
0₽
Работа:0 ₽
Материалы:0 ₽
Дни:0
stdClass Object
(
[id] => 70
[attribute_id] => 35
[name] => Есть
[material_modifier] => 1
[work_modifier] => 1
[options] => Array
(
[0] => Многоуровневый потолок из гипсокартона
[1] => Многоуровневый потолок из гипсокартона и натяжного потолка
[2] => Одноуровневый потолок из гипсокартона
[3] => Одноуровневый натяжной потолок
)
[days] => [10,10,1,1]
[material_price] => [900,700,700,600]
[work_price] => [1000,800,500,300]
[image] => https://akademik-stroy.ru/wp-content/uploads/materials/mnogourovnevyj-gkl.jpg
[area_modifier] => 166.42
[parent_name] => Отделка потолка
[parent_id] => 35
[material_sum] => 188720
[work_sum] => 174741
[total_sum] => 363461
[total_days] => 10
[display_material_sum] => 188 720
[display_work_sum] => 174 741
[display_total_sum] => 363 461
)
1
363 461₽
Работа:174 741 ₽
Материалы:188 720 ₽
Дни:10
Преимущества работы с нами
7 этапов оплаты
Независимый строительный надзор
Экологически чистые материалы
16 лет гарантии
Онлайн-кабинет с веб-камерой
Строители с опытом более 15 лет
Собственное производство








