Одноэтажный дом 155.92 м2 за руб.
Планировки
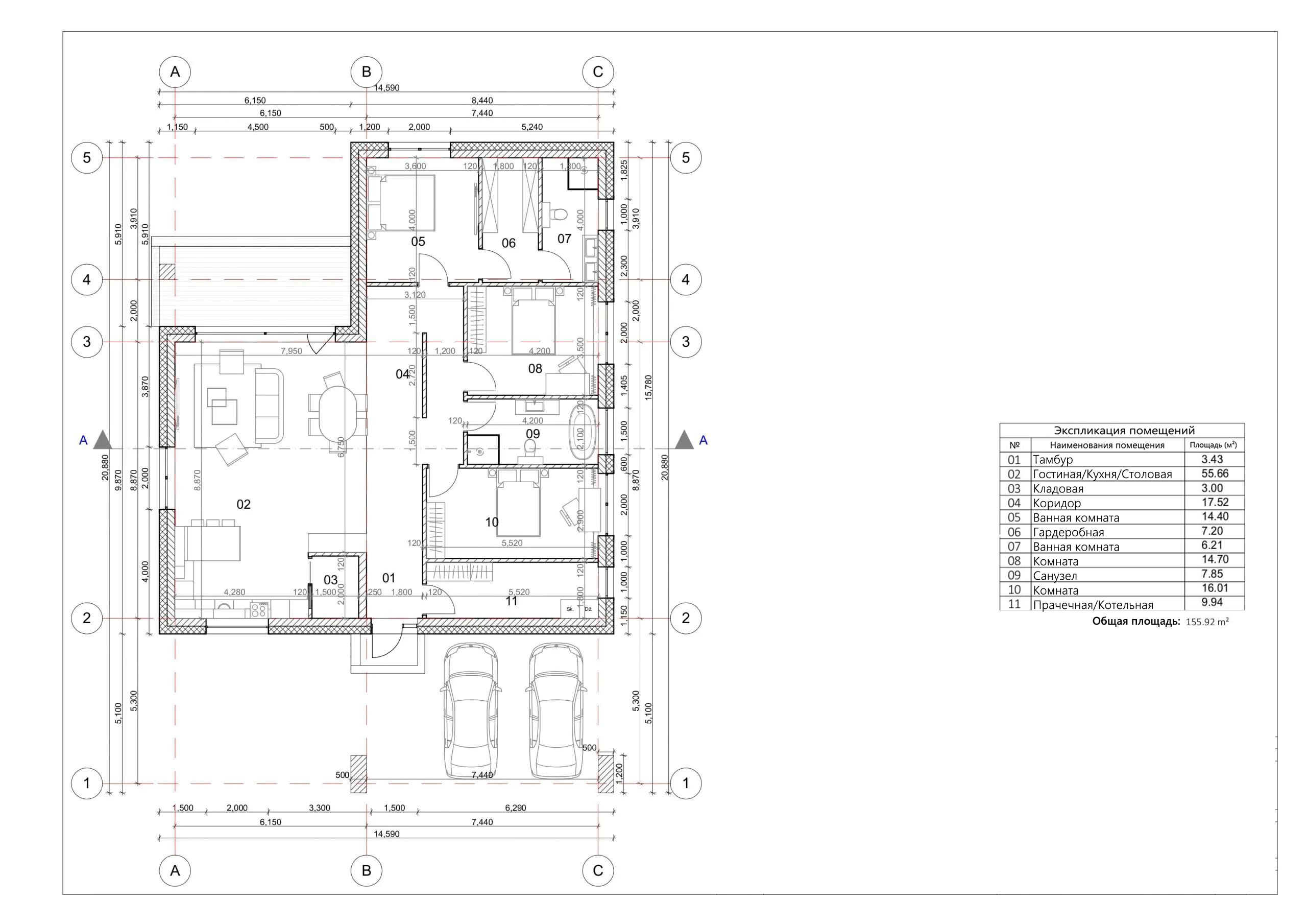
План первого этажа
- 1. Тамбур 3,43 м²
- 2. Гостиная-Кухня-Столовая 55,66 м²
- 3. Кладовая 3,00 м²
- 4. Коридор 17,52 м²
- 5. Ванная комната 14,40 м²
- 6. Гардеробная 7,20 м²
- 7. Ванная комната 6,21 м²
- 8. Комната 14,70 м²
- 9. Санузел 7,85 м²
- 10. Котельная-Прачечная 9,94 м²
- Общая площадь 155,92 м²
Площади дома
| № п/п | Наименование | Ед. из. | Строительная площадь | Полезная площадь |
| 1 | 1 этаж | м2 | 192.14 | 155.92 |
| 2 | Итого | м2 | 192.14 | 155.92 |
154 м2
Полезная
площадь
площадь
1 этаж
Этажей
26 м2
Террасы
и балконы
и балконы
0Без
гаража
гаража
3
Количество
спален
спален
2
Количество
санузлов
санузлов
Калькулятор опций
0₽
В ипотеку от 26 875 ₽/мес.
0₽
0 дней
1 051 909₽
Работа:455 257 ₽
Материалы:596 652 ₽
Дни:20
632 371₽
Работа:211 777 ₽
Материалы:420 594 ₽
Дни:2
1 065 646₽
Работа:427 780 ₽
Материалы:637 866 ₽
Дни:20
2 042 102₽
Работа:911 781 ₽
Материалы:1 130 321 ₽
Дни:30
3 425 837₽
Работа:1 259 670 ₽
Материалы:2 166 167 ₽
Дни:32
1 294 755₽
Работа:518 029 ₽
Материалы:776 726 ₽
Дни:20
8 124 447₽
Работа:3 703 767 ₽
Материалы:4 420 680 ₽
Дни:30
9 693 117₽
Работа:4 320 287 ₽
Материалы:5 372 830 ₽
Дни:40
338 167₽
Работа:84 542 ₽
Материалы:253 625 ₽
Дни:1
605 317₽
Работа:259 965 ₽
Материалы:345 352 ₽
Дни:8
969 481₽
Работа:321 258 ₽
Материалы:648 223 ₽
Дни:13
1 729 932₽
Работа:707 613 ₽
Материалы:1 022 319 ₽
Дни:18
1 697 807₽
Работа:1 063 745 ₽
Материалы:634 062 ₽
Дни:29
1 954 391₽
Работа:1 001 184 ₽
Материалы:953 207 ₽
Дни:23
3 008 836₽
Работа:1 846 389 ₽
Материалы:1 162 447 ₽
Дни:30
2 462 486₽
Работа:1 079 174 ₽
Материалы:1 383 312 ₽
Дни:45
4 603 501₽
Работа:1 015 767 ₽
Материалы:3 587 734 ₽
Дни:24
1 013 865₽
Работа:511 054 ₽
Материалы:502 811 ₽
Дни:15
553 747₽
Работа:298 009 ₽
Материалы:255 738 ₽
Дни:7
1 947 416₽
Работа:677 178 ₽
Материалы:1 270 238 ₽
Дни:7
2 543 645₽
Работа:812 656 ₽
Материалы:1 730 989 ₽
Дни:7
16 704 363₽
Работа:812 656 ₽
Материалы:15 891 707 ₽
Дни:7
9 041 935₽
Работа:1 015 767 ₽
Материалы:8 026 168 ₽
Дни:7
1 422 201₽
Работа:338 589 ₽
Материалы:1 083 612 ₽
Дни:7
1 867 523₽
Работа:959 124 ₽
Материалы:908 399 ₽
Дни:29
1 635 034₽
Работа:1 064 801 ₽
Материалы:570 233 ₽
Дни:29
1 867 523₽
Работа:959 124 ₽
Материалы:908 399 ₽
Дни:29
1 982 078₽
Работа:1 212 538 ₽
Материалы:769 540 ₽
Дни:23
2 533 500₽
Работа:853 236 ₽
Материалы:1 680 264 ₽
Дни:7
2 872 935₽
Работа:1 760 790 ₽
Материалы:1 112 145 ₽
Дни:25
1 039 227₽
Работа:536 416 ₽
Материалы:502 811 ₽
Дни:15
9 629 711₽
Работа:2 031 535 ₽
Материалы:7 598 176 ₽
Дни:15
1 152 302₽
Работа:541 912 ₽
Материалы:610 390 ₽
Дни:15
1 569 092₽
Работа:890 646 ₽
Материалы:678 446 ₽
Дни:19
1 656 169₽
Работа:1 064 801 ₽
Материалы:591 368 ₽
Дни:29
1 063 744₽
Работа:558 397 ₽
Материалы:505 347 ₽
Дни:15
1 954 391₽
Работа:1 001 184 ₽
Материалы:953 207 ₽
Дни:23
1 141 734₽
Работа:443 843 ₽
Материалы:697 891 ₽
Дни:15
1 462 569₽
Работа:1 066 492 ₽
Материалы:396 077 ₽
Дни:7
605 317₽
Работа:259 965 ₽
Материалы:345 352 ₽
Дни:8
969 481₽
Работа:321 258 ₽
Материалы:648 223 ₽
Дни:13
1 729 932₽
Работа:707 613 ₽
Материалы:1 022 319 ₽
Дни:18
2 502 009₽
Работа:1 210 213 ₽
Материалы:1 291 796 ₽
Дни:20
2 732 807₽
Работа:1 257 556 ₽
Материалы:1 475 251 ₽
Дни:20
4 230 461₽
Работа:1 998 563 ₽
Материалы:2 231 898 ₽
Дни:20
3 891 238₽
Работа:1 882 107 ₽
Материалы:2 009 131 ₽
Дни:20
4 693 327₽
Работа:1 998 563 ₽
Материалы:2 694 764 ₽
Дни:20
3 538 066₽
Работа:1 730 989 ₽
Материалы:1 807 077 ₽
Дни:20
7 862 369₽
Работа:3 540 180 ₽
Материалы:4 322 189 ₽
Дни:20
7 741 897₽
Работа:3 546 520 ₽
Материалы:4 195 377 ₽
Дни:20
1 521 749₽
Работа:792 578 ₽
Материалы:729 171 ₽
Дни:20
338 565₽
Работа:108 910 ₽
Материалы:229 655 ₽
Дни:3
0₽
Работа:0 ₽
Материалы:0 ₽
Дни:0
17 050₽
Работа:6 050 ₽
Материалы:11 000 ₽
Дни:1
0₽
Работа:0 ₽
Материалы:0 ₽
Дни:0
0₽
Работа:0 ₽
Материалы:0 ₽
Дни:0
382 128₽
Работа:137 380 ₽
Материалы:244 748 ₽
Дни:5
222 767₽
Работа:49 457 ₽
Материалы:173 310 ₽
Дни:3
324 640₽
Работа:82 428 ₽
Материалы:242 212 ₽
Дни:3
183 033₽
Работа:82 428 ₽
Материалы:100 605 ₽
Дни:3
489 073₽
Работа:49 457 ₽
Материалы:439 616 ₽
Дни:2
641 671₽
Работа:82 428 ₽
Материалы:559 243 ₽
Дни:3
0₽
Работа:0 ₽
Материалы:0 ₽
Дни:0
71 918₽
Работа:19 690 ₽
Материалы:52 228 ₽
Дни:6
0₽
Работа:0 ₽
Материалы:0 ₽
Дни:0
704 231₽
Работа:323 160 ₽
Материалы:381 071 ₽
Дни:7
0₽
Работа:0 ₽
Материалы:0 ₽
Дни:0
704 443₽
Работа:315 129 ₽
Материалы:389 314 ₽
Дни:7
0₽
Работа:0 ₽
Материалы:0 ₽
Дни:0
1 217 822₽
Работа:491 398 ₽
Материалы:726 424 ₽
Дни:7
430 106₽
Работа:258 909 ₽
Материалы:171 197 ₽
Дни:3
1 343 154₽
Работа:379 380 ₽
Материалы:963 774 ₽
Дни:5
1 398 529₽
Работа:379 380 ₽
Материалы:1 019 149 ₽
Дни:5
758 549₽
Работа:154 077 ₽
Материалы:604 472 ₽
Дни:3
1 928 182₽
Работа:169 083 ₽
Материалы:1 759 099 ₽
Дни:5
0₽
Работа:0 ₽
Материалы:0 ₽
Дни:0
928 056₽
Работа:295 262 ₽
Материалы:632 794 ₽
Дни:20
999 916₽
Работа:324 851 ₽
Материалы:675 065 ₽
Дни:20
725 579₽
Работа:254 048 ₽
Материалы:471 531 ₽
Дни:35
2 412 395₽
Работа:684 787 ₽
Материалы:1 727 608 ₽
Дни:45
1 264 108₽
Работа:635 541 ₽
Материалы:628 567 ₽
Дни:40
533 880₽
Работа:266 940 ₽
Материалы:266 940 ₽
Дни:20
1 643 489₽
Работа:684 787 ₽
Материалы:958 702 ₽
Дни:45
1 807 922₽
Работа:493 089 ₽
Материалы:1 314 833 ₽
Дни:20
999 704₽
Работа:410 872 ₽
Материалы:588 832 ₽
Дни:20
1 232 617₽
Работа:547 830 ₽
Материалы:684 787 ₽
Дни:20
1 717 886₽
Работа:739 528 ₽
Материалы:978 358 ₽
Дни:20
2 121 149₽
Работа:632 583 ₽
Материалы:1 488 566 ₽
Дни:20
1 508 011₽
Работа:547 830 ₽
Материалы:960 181 ₽
Дни:20
0₽
Работа:0 ₽
Материалы:0 ₽
Дни:0
409 200₽
Работа:64 350 ₽
Материалы:344 850 ₽
Дни:5
0₽
Работа:0 ₽
Материалы:0 ₽
Дни:0
183 150₽
Работа:64 350 ₽
Материалы:118 800 ₽
Дни:12
0₽
Работа:0 ₽
Материалы:0 ₽
Дни:0
908 823₽
Работа:369 870 ₽
Материалы:538 953 ₽
Дни:15
655 197₽
Работа:306 463 ₽
Материалы:348 734 ₽
Дни:10
0₽
Работа:0 ₽
Материалы:0 ₽
Дни:0
903 961₽
Работа:403 897 ₽
Материалы:500 064 ₽
Дни:5
0₽
Работа:0 ₽
Материалы:0 ₽
Дни:0
270 974₽
Работа:55 000 ₽
Материалы:215 974 ₽
Дни:7
0₽
Работа:0 ₽
Материалы:0 ₽
Дни:0
202 900₽
Работа:80 315 ₽
Материалы:122 585 ₽
Дни:11
342 816₽
Работа:126 812 ₽
Материалы:216 004 ₽
Дни:5
393 119₽
Работа:147 948 ₽
Материалы:245 171 ₽
Дни:11
567 486₽
Работа:190 219 ₽
Материалы:377 267 ₽
Дни:7
0₽
Работа:0 ₽
Материалы:0 ₽
Дни:0
274 419₽
Работа:162 936 ₽
Материалы:111 483 ₽
Дни:10
0₽
Работа:0 ₽
Материалы:0 ₽
Дни:0
228 111₽
Работа:125 204 ₽
Материалы:102 907 ₽
Дни:10
0₽
Работа:0 ₽
Материалы:0 ₽
Дни:0
200 669₽
Работа:96 047 ₽
Материалы:104 622 ₽
Дни:5
0₽
Работа:0 ₽
Материалы:0 ₽
Дни:0
419 100₽
Работа:82 500 ₽
Материалы:336 600 ₽
Дни:9
257 400₽
Работа:49 500 ₽
Материалы:207 900 ₽
Дни:5
0₽
Работа:0 ₽
Материалы:0 ₽
Дни:0
763 228₽
Работа:445 931 ₽
Материалы:317 297 ₽
Дни:20
523 111₽
Работа:360 175 ₽
Материалы:162 936 ₽
Дни:15
377 326₽
Работа:162 936 ₽
Материалы:214 390 ₽
Дни:15
0₽
Работа:0 ₽
Материалы:0 ₽
Дни:0
325 873₽
Работа:154 361 ₽
Материалы:171 512 ₽
Дни:10
159 506₽
Работа:60 029 ₽
Материалы:99 477 ₽
Дни:7
0₽
Работа:0 ₽
Материалы:0 ₽
Дни:0
1 629 364₽
Работа:600 292 ₽
Материалы:1 029 072 ₽
Дни:50
0₽
Работа:0 ₽
Материалы:0 ₽
Дни:0
325 873₽
Работа:171 512 ₽
Материалы:154 361 ₽
Дни:10
Преимущества работы с нами
7 этапов оплаты
Независимый строительный надзор
Экологически чистые материалы
16 лет гарантии
Онлайн-кабинет с веб-камерой
Строители с опытом более 15 лет
Собственное производство







