Одноэтажный дом 170.17 м2 за руб.
Планировки
План первого этажа
- 1. Тамбур 9,13 м²
- 2. Гостиная-Столовая 48,21 м²
- 3. Кухня 17,76 м²
- 4. Кладовая 4,00 м²
- 5. Комната 14,50 м²
- 6. Комната 15,90 м²
- 7. Комната 14,82 м²
- 8. Гардеробная 5,51 м²
- 9. Санузел 4,07 м²
- 10. Ванная комната 8,12 м²
- 11. Прачечная 8,57 м²
- 12. Кабинет 12,00 м²
- 13. Подсобное помещение 7,58 м²
- 14. Общая площадь 170,17 м²
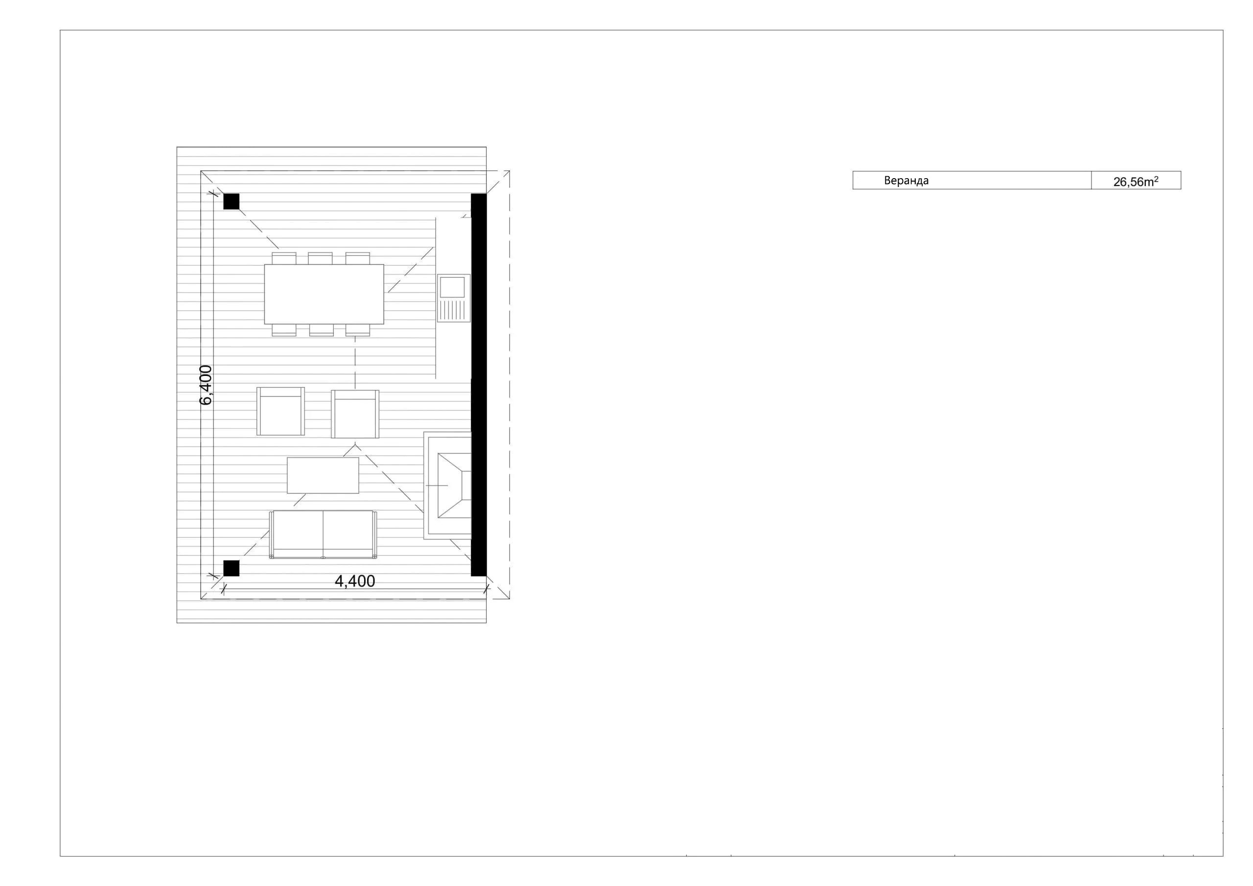
- 15. Общая площадь веранда 26,56 м²
- Общая площадь гараж 36,00 м²
Площади дома
| № п/п | Наименование | Ед. из. | Строительная площадь | Полезная площадь |
| 1 | 1 этаж | м2 | 209.7 | 170.17 |
| 2 | Итого | м2 | 209.7 | 170.17 |
154 м2
Полезная
площадь
площадь
1 этаж
Этажей
26 м2
Террасы
и балконы
и балконы
1Без
гаража
гаража
3
Количество
спален
спален
2
Количество
санузлов
санузлов
Калькулятор опций
0₽
В ипотеку от 27 905 ₽/мес.
0₽
0 дней
1 095 860₽
Работа:474 278 ₽
Материалы:621 582 ₽
Дни:20
658 793₽
Работа:220 625 ₽
Материалы:438 168 ₽
Дни:2
1 110 172₽
Работа:445 654 ₽
Материалы:664 518 ₽
Дни:20
2 127 427₽
Работа:949 878 ₽
Материалы:1 177 549 ₽
Дни:30
3 568 979₽
Работа:1 312 303 ₽
Материалы:2 256 676 ₽
Дни:32
1 348 853₽
Работа:539 673 ₽
Материалы:809 180 ₽
Дни:20
8 463 911₽
Работа:3 858 522 ₽
Материалы:4 605 389 ₽
Дни:30
10 098 125₽
Работа:4 500 802 ₽
Материалы:5 597 323 ₽
Дни:40
352 296₽
Работа:88 074 ₽
Материалы:264 222 ₽
Дни:1
630 610₽
Работа:270 828 ₽
Материалы:359 782 ₽
Дни:8
1 009 988₽
Работа:334 681 ₽
Материалы:675 307 ₽
Дни:13
1 802 214₽
Работа:737 179 ₽
Материалы:1 065 035 ₽
Дни:18
1 768 746₽
Работа:1 108 191 ₽
Материалы:660 555 ₽
Дни:29
2 036 050₽
Работа:1 043 016 ₽
Материалы:993 034 ₽
Дни:23
3 134 554₽
Работа:1 923 536 ₽
Материалы:1 211 018 ₽
Дни:30
2 565 376₽
Работа:1 124 265 ₽
Материалы:1 441 111 ₽
Дни:45
4 795 849₽
Работа:1 058 209 ₽
Материалы:3 737 640 ₽
Дни:24
1 056 227₽
Работа:532 407 ₽
Материалы:523 820 ₽
Дни:15
576 885₽
Работа:310 461 ₽
Материалы:266 424 ₽
Дни:7
2 028 785₽
Работа:705 473 ₽
Материалы:1 323 312 ₽
Дни:7
2 649 926₽
Работа:846 611 ₽
Материалы:1 803 315 ₽
Дни:7
17 402 321₽
Работа:846 611 ₽
Материалы:16 555 710 ₽
Дни:7
9 419 734₽
Работа:1 058 209 ₽
Материалы:8 361 525 ₽
Дни:7
1 481 624₽
Работа:352 736 ₽
Материалы:1 128 888 ₽
Дни:7
1 945 555₽
Работа:999 200 ₽
Материалы:946 355 ₽
Дни:29
1 703 351₽
Работа:1 109 292 ₽
Материалы:594 059 ₽
Дни:29
1 945 555₽
Работа:999 200 ₽
Материалы:946 355 ₽
Дни:29
2 064 895₽
Работа:1 263 201 ₽
Материалы:801 694 ₽
Дни:23
2 639 358₽
Работа:888 887 ₽
Материалы:1 750 471 ₽
Дни:7
2 992 974₽
Работа:1 834 361 ₽
Материалы:1 158 613 ₽
Дни:25
1 082 650₽
Работа:558 830 ₽
Материалы:523 820 ₽
Дни:15
10 032 069₽
Работа:2 116 418 ₽
Материалы:7 915 651 ₽
Дни:15
1 200 448₽
Работа:564 554 ₽
Материалы:635 894 ₽
Дни:15
1 634 654₽
Работа:927 860 ₽
Материалы:706 794 ₽
Дни:19
1 725 370₽
Работа:1 109 292 ₽
Материалы:616 078 ₽
Дни:29
1 108 191₽
Работа:581 729 ₽
Материалы:526 462 ₽
Дни:15
2 036 050₽
Работа:1 043 016 ₽
Материалы:993 034 ₽
Дни:23
1 189 440₽
Работа:462 389 ₽
Материалы:727 051 ₽
Дни:15
1 523 681₽
Работа:1 111 054 ₽
Материалы:412 627 ₽
Дни:7
630 610₽
Работа:270 828 ₽
Материалы:359 782 ₽
Дни:8
1 009 988₽
Работа:334 681 ₽
Материалы:675 307 ₽
Дни:13
1 802 214₽
Работа:737 179 ₽
Материалы:1 065 035 ₽
Дни:18
2 606 550₽
Работа:1 260 779 ₽
Материалы:1 345 771 ₽
Дни:20
2 846 992₽
Работа:1 310 101 ₽
Материалы:1 536 891 ₽
Дни:20
4 407 223₽
Работа:2 082 069 ₽
Материалы:2 325 154 ₽
Дни:20
4 053 826₽
Работа:1 960 747 ₽
Материалы:2 093 079 ₽
Дни:20
4 889 428₽
Работа:2 082 069 ₽
Материалы:2 807 359 ₽
Дни:20
3 685 897₽
Работа:1 803 315 ₽
Материалы:1 882 582 ₽
Дни:20
8 190 882₽
Работа:3 688 099 ₽
Материалы:4 502 783 ₽
Дни:20
8 065 376₽
Работа:3 694 704 ₽
Материалы:4 370 672 ₽
Дни:20
1 585 332₽
Работа:825 694 ₽
Материалы:759 638 ₽
Дни:20
352 712₽
Работа:113 461 ₽
Материалы:239 251 ₽
Дни:3
0₽
Работа:0 ₽
Материалы:0 ₽
Дни:0
16 275₽
Работа:5 775 ₽
Материалы:10 500 ₽
Дни:1
0₽
Работа:0 ₽
Материалы:0 ₽
Дни:0
0₽
Работа:0 ₽
Материалы:0 ₽
Дни:0
398 094₽
Работа:143 120 ₽
Материалы:254 974 ₽
Дни:5
232 075₽
Работа:51 523 ₽
Материалы:180 552 ₽
Дни:3
338 204₽
Работа:85 872 ₽
Материалы:252 332 ₽
Дни:3
190 680₽
Работа:85 872 ₽
Материалы:104 808 ₽
Дни:3
509 508₽
Работа:51 523 ₽
Материалы:457 985 ₽
Дни:2
668 482₽
Работа:85 872 ₽
Материалы:582 610 ₽
Дни:3
0₽
Работа:0 ₽
Материалы:0 ₽
Дни:0
68 649₽
Работа:18 795 ₽
Материалы:49 854 ₽
Дни:6
0₽
Работа:0 ₽
Материалы:0 ₽
Дни:0
733 657₽
Работа:336 663 ₽
Материалы:396 994 ₽
Дни:7
0₽
Работа:0 ₽
Материалы:0 ₽
Дни:0
733 877₽
Работа:328 296 ₽
Материалы:405 581 ₽
Дни:7
0₽
Работа:0 ₽
Материалы:0 ₽
Дни:0
1 268 706₽
Работа:511 930 ₽
Материалы:756 776 ₽
Дни:7
448 077₽
Работа:269 727 ₽
Материалы:178 350 ₽
Дни:3
1 399 276₽
Работа:395 232 ₽
Материалы:1 004 044 ₽
Дни:5
1 456 964₽
Работа:395 232 ₽
Материалы:1 061 732 ₽
Дни:5
790 244₽
Работа:160 515 ₽
Материалы:629 729 ₽
Дни:3
2 008 748₽
Работа:176 148 ₽
Материалы:1 832 600 ₽
Дни:5
0₽
Работа:0 ₽
Материалы:0 ₽
Дни:0
966 832₽
Работа:307 598 ₽
Материалы:659 234 ₽
Дни:20
1 041 695₽
Работа:338 424 ₽
Материалы:703 271 ₽
Дни:20
755 895₽
Работа:264 662 ₽
Материалы:491 233 ₽
Дни:35
2 513 191₽
Работа:713 399 ₽
Материалы:1 799 792 ₽
Дни:45
1 316 926₽
Работа:662 096 ₽
Материалы:654 830 ₽
Дни:40
556 188₽
Работа:278 094 ₽
Материалы:278 094 ₽
Дни:20
1 712 158₽
Работа:713 399 ₽
Материалы:998 759 ₽
Дни:45
1 883 463₽
Работа:513 692 ₽
Материалы:1 369 771 ₽
Дни:20
1 041 475₽
Работа:428 040 ₽
Материалы:613 435 ₽
Дни:20
1 284 119₽
Работа:570 720 ₽
Материалы:713 399 ₽
Дни:20
1 789 663₽
Работа:770 427 ₽
Материалы:1 019 236 ₽
Дни:20
2 209 777₽
Работа:659 014 ₽
Материалы:1 550 763 ₽
Дни:20
1 571 020₽
Работа:570 720 ₽
Материалы:1 000 300 ₽
Дни:20
0₽
Работа:0 ₽
Материалы:0 ₽
Дни:0
390 600₽
Работа:61 425 ₽
Материалы:329 175 ₽
Дни:5
0₽
Работа:0 ₽
Материалы:0 ₽
Дни:0
174 825₽
Работа:61 425 ₽
Материалы:113 400 ₽
Дни:12
0₽
Работа:0 ₽
Материалы:0 ₽
Дни:0
946 796₽
Работа:385 324 ₽
Материалы:561 472 ₽
Дни:15
682 573₽
Работа:319 268 ₽
Материалы:363 305 ₽
Дни:10
0₽
Работа:0 ₽
Материалы:0 ₽
Дни:0
941 732₽
Работа:420 774 ₽
Материалы:520 958 ₽
Дни:5
0₽
Работа:0 ₽
Материалы:0 ₽
Дни:0
258 657₽
Работа:52 500 ₽
Материалы:206 157 ₽
Дни:7
0₽
Работа:0 ₽
Материалы:0 ₽
Дни:0
211 377₽
Работа:83 670 ₽
Материалы:127 707 ₽
Дни:11
357 140₽
Работа:132 111 ₽
Материалы:225 029 ₽
Дни:5
409 545₽
Работа:154 130 ₽
Материалы:255 415 ₽
Дни:11
591 197₽
Работа:198 167 ₽
Материалы:393 030 ₽
Дни:7
0₽
Работа:0 ₽
Материалы:0 ₽
Дни:0
285 886₽
Работа:169 745 ₽
Материалы:116 141 ₽
Дни:10
0₽
Работа:0 ₽
Материалы:0 ₽
Дни:0
237 642₽
Работа:130 435 ₽
Материалы:107 207 ₽
Дни:10
0₽
Работа:0 ₽
Материалы:0 ₽
Дни:0
209 054₽
Работа:100 060 ₽
Материалы:108 994 ₽
Дни:5
0₽
Работа:0 ₽
Материалы:0 ₽
Дни:0
400 050₽
Работа:78 750 ₽
Материалы:321 300 ₽
Дни:9
245 700₽
Работа:47 250 ₽
Материалы:198 450 ₽
Дни:5
0₽
Работа:0 ₽
Материалы:0 ₽
Дни:0
795 119₽
Работа:464 564 ₽
Материалы:330 555 ₽
Дни:20
544 970₽
Работа:375 225 ₽
Материалы:169 745 ₽
Дни:15
393 093₽
Работа:169 745 ₽
Материалы:223 348 ₽
Дни:15
0₽
Работа:0 ₽
Материалы:0 ₽
Дни:0
339 490₽
Работа:160 811 ₽
Материалы:178 679 ₽
Дни:10
166 171₽
Работа:62 537 ₽
Материалы:103 634 ₽
Дни:7
0₽
Работа:0 ₽
Материалы:0 ₽
Дни:0
1 697 446₽
Работа:625 375 ₽
Материалы:1 072 071 ₽
Дни:50
0₽
Работа:0 ₽
Материалы:0 ₽
Дни:0
339 490₽
Работа:178 679 ₽
Материалы:160 811 ₽
Дни:10
Преимущества работы с нами
7 этапов оплаты
Независимый строительный надзор
Экологически чистые материалы
16 лет гарантии
Онлайн-кабинет с веб-камерой
Строители с опытом более 15 лет
Собственное производство









