Одноэтажный дом 140.03 м2 за руб.
Планировки
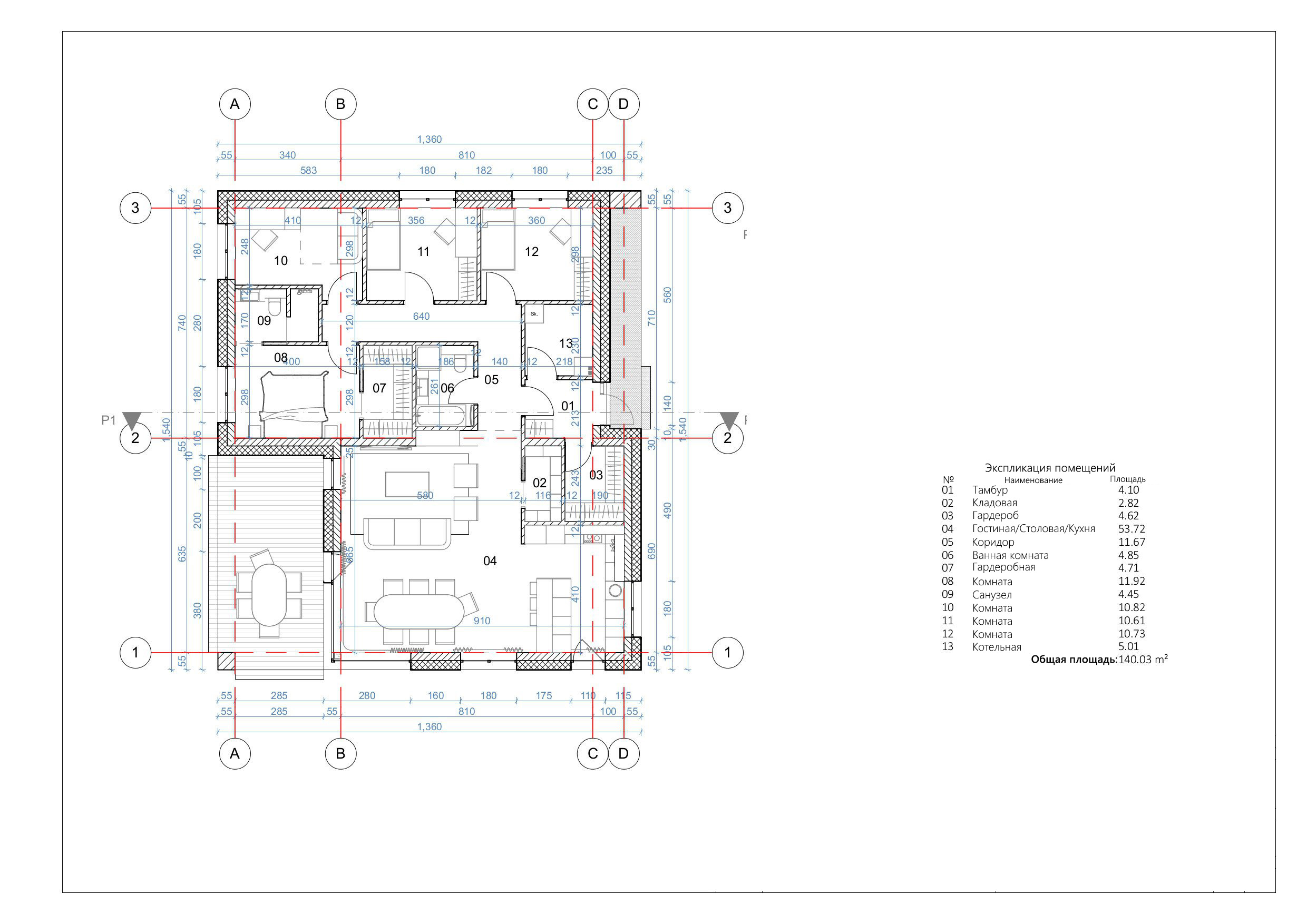
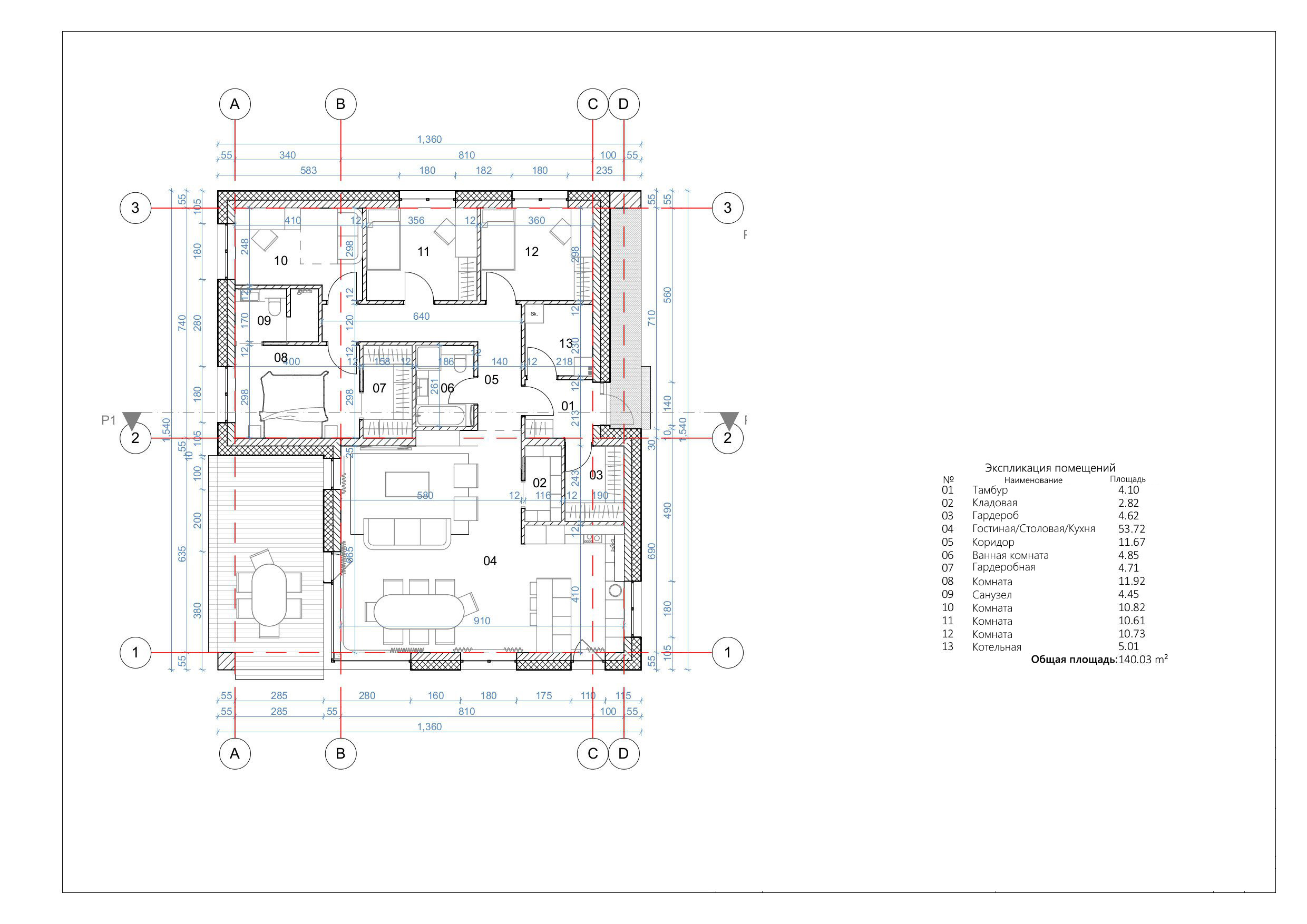
План первого этажа
- 1. Тамбур 4,10 м²
- 2. Кладовая 2,82 м²
- 3. Грдероб 4,62 м²
- 4. Гостиная-Кухня-Столовая 53,72 м²
- 5. Коридор 11,67 м²
- 6. Ванная комната 4,85 м²
- 7. Гардеробная 4,71 м²
- 8. Комната 11,92 м²
- 9. Санузел 4,45 м²
- 10. Комната 10,82 м²
- 11. Комната 10,61 м²
- 12. Комната 10,73 м²
- 13. Котельная 5,01 м²
- Общая площадь 140,03 м²
Площади дома
| № п/п | Наименование | Ед. из. | Строительная площадь | Полезная площадь |
| 1 | 1 этаж | м2 | 172.56 | 140.03 |
| 2 | Итого | м2 | 172.56 | 140.03 |
154 м2
Полезная
площадь
площадь
1 этаж
Этажей
26 м2
Террасы
и балконы
и балконы
1Без
гаража
гаража
4
Количество
спален
спален
2
Количество
санузлов
санузлов
Калькулятор опций
0₽
В ипотеку от 22 628 ₽/мес.
0₽
0 дней
stdClass Object
(
[id] => 1
[attribute_id] => 1
[name] => Ленточный монолитный ж/б
[material_modifier] => 1
[work_modifier] => 1
[options] => Array
(
[0] => размер 200 х 700 мм
[1] => размер 300 х 900 мм
[2] => размер 400 х 1 000 мм
[3] => размер 500 х 1 100 мм
[4] => размер 600 х 1 200 мм
)
[days] => [20,21,22,25,30]
[material_price] => [2823,3630,4475,5210,12047]
[work_price] => [2154,2826,3731,4577,5293]
[image] => https://akademik-stroy.ru/wp-content/uploads/materials/lentochnyj-monolitnyj-zh-b.jpg
[area_modifier] => 172.56
[parent_name] => Фундамент
[parent_id] => 1
[material_sum] => 643021
[work_sum] => 408864
[total_sum] => 1051885
[total_days] => 20
[display_material_sum] => 643 021
[display_work_sum] => 408 864
[display_total_sum] => 1 051 885
)
1
1 051 885₽
Работа:408 864 ₽
Материалы:643 021 ₽
Дни:20
stdClass Object
(
[id] => 2
[attribute_id] => 1
[name] => Забивные Ж/Б сваи
[material_modifier] => 1
[work_modifier] => 1
[options] => Array
(
[0] => 150х150х3000мм
[1] => 150х150х4000мм
[2] => 200х200х3000мм
[3] => 200х200х4000мм
[4] => 200х200х5000мм
[5] => 200х200х6000мм
)
[days] => [2,2,2,2,2,2]
[material_price] => [1990,2850,3255,4360,5120,6837]
[work_price] => [1002,1185,1336,1438,1574,1839]
[image] => https://akademik-stroy.ru/wp-content/uploads/materials/zabivnye-zh-b-svai.png
[area_modifier] => 172.56
[parent_name] => Фундамент
[parent_id] => 1
[material_sum] => 453281
[work_sum] => 190196
[total_sum] => 643477
[total_days] => 2
[display_material_sum] => 453 281
[display_work_sum] => 190 196
[display_total_sum] => 643 477
)
1
643 477₽
Работа:190 196 ₽
Материалы:453 281 ₽
Дни:2
stdClass Object
(
[id] => 71
[attribute_id] => 1
[name] => Свайно-ростверковый ж/б
[material_modifier] => 1
[work_modifier] => 1
[options] => Array
(
[0] => ростверк 200х300 мм
[1] => ростверк 300х600 мм
[2] => ростверк 400х900 мм
[3] => ростверк 500х1200 мм
)
[days] => [20,23,25,27]
[material_price] => [3018,3474,7109,9792]
[work_price] => [2024,3012,5635,7022]
[image] => https://akademik-stroy.ru/wp-content/uploads/materials/svajno-rostverkovyj-monolitnyj-zh-b-3.png
[area_modifier] => 172.56
[parent_name] => Фундамент
[parent_id] => 1
[material_sum] => 687438
[work_sum] => 384188
[total_sum] => 1071626
[total_days] => 20
[display_material_sum] => 687 438
[display_work_sum] => 384 188
[display_total_sum] => 1 071 626
)
1
1 071 626₽
Работа:384 188 ₽
Материалы:687 438 ₽
Дни:20
stdClass Object
(
[id] => 72
[attribute_id] => 1
[name] => Монолитная ж/б плита
[material_modifier] => 1
[work_modifier] => 1
[options] => Array
(
[0] => 200 мм
[1] => 300 мм
[2] => 400 мм
[3] => 500 мм
[4] => 600 мм
)
[days] => [30,33,35,37,40]
[material_price] => [5348,8555,12788,14388,15189]
[work_price] => [4314,4881,7037,8061,10230]
[image] => https://akademik-stroy.ru/wp-content/uploads/materials/monolitnaya-zhb-plita.png
[area_modifier] => 172.56
[parent_name] => Фундамент
[parent_id] => 1
[material_sum] => 1218163
[work_sum] => 818866
[total_sum] => 2037029
[total_days] => 30
[display_material_sum] => 1 218 163
[display_work_sum] => 818 866
[display_total_sum] => 2 037 029
)
1
2 037 029₽
Работа:818 866 ₽
Материалы:1 218 163 ₽
Дни:30
stdClass Object
(
[id] => 73
[attribute_id] => 1
[name] => Утепленная шведская плита
[material_modifier] => 1
[work_modifier] => 1
[options] => Array
(
[0] => 200 мм
[1] => 300 мм
[2] => 400 мм
[3] => 500 мм
[4] => 600 мм
)
[days] => [32,37,39,42,45]
[material_price] => [10249,12692,13760,14936,16230]
[work_price] => [5960,7337,8072,8878,9765]
[image] => https://akademik-stroy.ru/wp-content/uploads/materials/uteplennaya-shvedskaya-plita.jpg
[area_modifier] => 172.56
[parent_name] => Фундамент
[parent_id] => 1
[material_sum] => 2334509
[work_sum] => 1131303
[total_sum] => 3465812
[total_days] => 32
[display_material_sum] => 2 334 509
[display_work_sum] => 1 131 303
[display_total_sum] => 3 465 812
)
1
3 465 812₽
Работа:1 131 303 ₽
Материалы:2 334 509 ₽
Дни:32
stdClass Object
(
[id] => 75
[attribute_id] => 1
[name] => Ленточный из ФБС
[material_modifier] => 1
[work_modifier] => 1
[options] => Array
(
[0] => толщ. 300 мм
[1] => толщ. 400 мм
[2] => толщ. 500 мм
[3] => толщ. 600 мм
)
[days] => [20,20,20,20]
[material_price] => [3675,4902,6126,7350]
[work_price] => [2451,3264,4083,4902]
[image] => https://akademik-stroy.ru/wp-content/uploads/materials/lentochnyj-iz-fbs.png
[area_modifier] => 172.56
[parent_name] => Фундамент
[parent_id] => 1
[material_sum] => 837089
[work_sum] => 465239
[total_sum] => 1302328
[total_days] => 20
[display_material_sum] => 837 089
[display_work_sum] => 465 239
[display_total_sum] => 1 302 328
)
1
1 302 328₽
Работа:465 239 ₽
Материалы:837 089 ₽
Дни:20
stdClass Object
(
[id] => 76
[attribute_id] => 1
[name] => Цокольный этаж из ФБС
[material_modifier] => 1
[work_modifier] => 1
[options] => Array
(
[0] => толщ. 300 мм
[1] => толщ. 400 мм
[2] => толщ. 500 мм
[3] => толщ. 600 мм
)
[days] => [30,32,34,36]
[material_price] => [20916,23299,26680,29060]
[work_price] => [17524,18700,19873,21046]
[image] => https://akademik-stroy.ru/wp-content/uploads/materials/cokolnyj-ehtazh-iz-fbs.jpg
[area_modifier] => 172.56
[parent_name] => Фундамент
[parent_id] => 1
[material_sum] => 4764230
[work_sum] => 3326336
[total_sum] => 8090566
[total_days] => 30
[display_material_sum] => 4 764 230
[display_work_sum] => 3 326 336
[display_total_sum] => 8 090 566
)
1
8 090 566₽
Работа:3 326 336 ₽
Материалы:4 764 230 ₽
Дни:30
stdClass Object
(
[id] => 77
[attribute_id] => 1
[name] => Цокольный этаж монолитный ж/б
[material_modifier] => 1
[work_modifier] => 1
[options] => Array
(
[0] => толщ. 200 мм
[1] => толщ. 300 мм
[2] => толщ. 400 мм
[3] => толщ. 500 мм
[4] => толщ. 600 мм
)
[days] => [40,42,44,46,48]
[material_price] => [25421,29148,32275,35602,37326]
[work_price] => [20441,21907,23375,24841,26306]
[image] => https://akademik-stroy.ru/wp-content/uploads/materials/cokolnyj-etazh-zh-b.jpg
[area_modifier] => 172.56
[parent_name] => Фундамент
[parent_id] => 1
[material_sum] => 5790375
[work_sum] => 3880029
[total_sum] => 9670404
[total_days] => 40
[display_material_sum] => 5 790 375
[display_work_sum] => 3 880 029
[display_total_sum] => 9 670 404
)
1
9 670 404₽
Работа:3 880 029 ₽
Материалы:5 790 375 ₽
Дни:40
stdClass Object
(
[id] => 191
[attribute_id] => 1
[name] => Винтовые сваи
[material_modifier] => 1
[work_modifier] => 1
[options] => Array
(
[0] => 57х200мм
[1] => 76х250мм
[2] => 108х300мм
[3] => 133х350мм
)
[days] => [1,1,2,2]
[material_price] => [1200,1300,1450,1600]
[work_price] => [400,600,900,1100]
[image] => https://akademik-stroy.ru/wp-content/uploads/materials/vintovye-svai.png
[area_modifier] => 172.56
[parent_name] => Фундамент
[parent_id] => 1
[material_sum] => 273335
[work_sum] => 75926
[total_sum] => 349261
[total_days] => 1
[display_material_sum] => 273 335
[display_work_sum] => 75 926
[display_total_sum] => 349 261
)
1
349 261₽
Работа:75 926 ₽
Материалы:273 335 ₽
Дни:1
stdClass Object
(
[id] => 3
[attribute_id] => 2
[name] => Деревянные балки
[material_modifier] => 1
[work_modifier] => 1
[options] => Array
(
[0] => без утепления
[1] => утепление 200 мм
[2] => утепление 250 мм
[3] => утепление 300 мм
[4] => утепление 350 мм
[5] => утепление 400 мм
[6] => утепление 450 мм
[7] => утепление 500 мм
)
[days] => [8,9,9,9,11,12,13,14]
[material_price] => [1634,2042,2344,2947,3149,3652,3354,3557]
[work_price] => [1230,1339,1393,1426,1460,1513,1587,1620]
[image] => https://akademik-stroy.ru/wp-content/uploads/materials/derevyannye-balki.png
[area_modifier] => 172.56
[parent_name] => Перекрытие цоколя
[parent_id] => 2
[material_sum] => 372191
[work_sum] => 233474
[total_sum] => 605665
[total_days] => 8
[display_material_sum] => 372 191
[display_work_sum] => 233 474
[display_total_sum] => 605 665
)
1
605 665₽
Работа:233 474 ₽
Материалы:372 191 ₽
Дни:8
stdClass Object
(
[id] => 4
[attribute_id] => 2
[name] => Сборные ж/б плиты
[material_modifier] => 1
[work_modifier] => 1
[options] => Array
(
[0] => без утепления
[1] => утепление 150мм
[2] => утепление 200мм
[3] => утепление 250мм
[4] => утепление 300мм
[5] => утепление 350мм
[6] => утепление 400мм
[7] => утепление 450мм
[8] => утепление 500мм
)
[days] => [13,15,15,15,15,15,15,15,15]
[material_price] => [3067,5577,5928,6679,7730,8782,9833,10884,11935]
[work_price] => [1520,1956,2102,2247,2392,2537,2684,2829,2974]
[image] => https://akademik-stroy.ru/wp-content/uploads/materials/sbornye-zh-b-plity-2.jpg
[area_modifier] => 172.56
[parent_name] => Перекрытие цоколя
[parent_id] => 2
[material_sum] => 698599
[work_sum] => 288520
[total_sum] => 987119
[total_days] => 13
[display_material_sum] => 698 599
[display_work_sum] => 288 520
[display_total_sum] => 987 119
)
1
987 119₽
Работа:288 520 ₽
Материалы:698 599 ₽
Дни:13
stdClass Object
(
[id] => 78
[attribute_id] => 2
[name] => Монолитная ж/б плита
[material_modifier] => 1
[work_modifier] => 1
[options] => Array
(
[0] => без утепления
[1] => утепление 150 мм
[2] => утепление 200 мм
[3] => утепление 250 мм
[4] => утепление 300 мм
[5] => утепление 350 мм
[6] => утепление 400 мм
[7] => утепление 450 мм
[8] => утепление 500 мм
)
[days] => [18,20,20,20,20,20,20,20,20]
[material_price] => [4837,6572,7224,7375,79426,8177,8728,9180,10031]
[work_price] => [3348,3921,4112,4302,4493,4684,4875,5066,5256]
[image] => https://akademik-stroy.ru/wp-content/uploads/materials/monolitnaya-zh-b-plita-2.jpg
[area_modifier] => 172.56
[parent_name] => Перекрытие цоколя
[parent_id] => 2
[material_sum] => 1101768
[work_sum] => 635504
[total_sum] => 1737272
[total_days] => 18
[display_material_sum] => 1 101 768
[display_work_sum] => 635 504
[display_total_sum] => 1 737 272
)
1
1 737 272₽
Работа:635 504 ₽
Материалы:1 101 768 ₽
Дни:18
stdClass Object
(
[id] => 6
[attribute_id] => 3
[name] => Пеноблок
[material_modifier] => 1
[work_modifier] => 1
[options] => Array
(
[0] => 300 мм
[1] => 400 мм
[2] => 500 мм
[3] => 600 мм
)
[days] => [29,31,34,39]
[material_price] => [3000,4000,4500,4937]
[work_price] => [5033,5805,6400,8710]
[image] => https://akademik-stroy.ru/wp-content/uploads/materials/penoblok.jpg
[area_modifier] => 172.56
[parent_name] => Стены 1 этаж (несущие)
[parent_id] => 3
[material_sum] => 683338
[work_sum] => 955344
[total_sum] => 1638682
[total_days] => 29
[display_material_sum] => 683 338
[display_work_sum] => 955 344
[display_total_sum] => 1 638 682
)
1
1 638 682₽
Работа:955 344 ₽
Материалы:683 338 ₽
Дни:29
stdClass Object
(
[id] => 79
[attribute_id] => 3
[name] => Керамический блок
[material_modifier] => 1
[work_modifier] => 1
[options] => Array
(
[0] => 380 мм
[1] => 380 мм Thermo
[2] => 440 мм
[3] => 510 мм
)
[days] => [23,23,24,25]
[material_price] => [4510,5098,6093,8013]
[work_price] => [4737,4937,5903,6958]
[image] => https://akademik-stroy.ru/wp-content/uploads/materials/keramicheskij-blok.jpg
[area_modifier] => 172.56
[parent_name] => Стены 1 этаж (несущие)
[parent_id] => 3
[material_sum] => 1027284
[work_sum] => 899158
[total_sum] => 1926442
[total_days] => 23
[display_material_sum] => 1 027 284
[display_work_sum] => 899 158
[display_total_sum] => 1 926 442
)
1
1 926 442₽
Работа:899 158 ₽
Материалы:1 027 284 ₽
Дни:23
stdClass Object
(
[id] => 80
[attribute_id] => 3
[name] => Кирпич
[material_modifier] => 1
[work_modifier] => 1
[options] => Array
(
[0] => Кирпич 250 мм
[1] => Кирпич 380 мм
[2] => Кирпич 510 мм
[3] => Кирпич 640 мм
[4] => Кирпич 770 мм
)
[days] => [30,30,31,33,36]
[material_price] => [5500,7142,9206,10171,12235]
[work_price] => [8736,10041,12018,15240,18462]
[image] => https://akademik-stroy.ru/wp-content/uploads/materials/kirpich.jpg
[area_modifier] => 172.56
[parent_name] => Стены 1 этаж (несущие)
[parent_id] => 3
[material_sum] => 1252786
[work_sum] => 1658233
[total_sum] => 2911019
[total_days] => 30
[display_material_sum] => 1 252 786
[display_work_sum] => 1 658 233
[display_total_sum] => 2 911 019
)
1
2 911 019₽
Работа:1 658 233 ₽
Материалы:1 252 786 ₽
Дни:30
stdClass Object
(
[id] => 81
[attribute_id] => 3
[name] => Монолитные
[material_modifier] => 1
[work_modifier] => 1
[options] => Array
(
[0] => 150 мм
[1] => 200 мм
[2] => 250 мм
[3] => 300 мм
[4] => 350 мм
[5] => 400 мм
)
[days] => [45,46,47,49,50,53]
[material_price] => [6545,7876,10175,12011,13908,15204]
[work_price] => [5106,6444,7698,8552,9807,11461]
[image] => https://akademik-stroy.ru/wp-content/uploads/materials/monolitnye.jpg
[area_modifier] => 172.56
[parent_name] => Стены 1 этаж (несущие)
[parent_id] => 3
[material_sum] => 1490815
[work_sum] => 969200
[total_sum] => 2460015
[total_days] => 45
[display_material_sum] => 1 490 815
[display_work_sum] => 969 200
[display_total_sum] => 2 460 015
)
1
2 460 015₽
Работа:969 200 ₽
Материалы:1 490 815 ₽
Дни:45
stdClass Object
(
[id] => 82
[attribute_id] => 3
[name] => Клееный брус
[material_modifier] => 1
[work_modifier] => 1
[options] => Array
(
[0] => 160 мм
[1] => 175 мм
[2] => 200 мм
[3] => 215 мм
[4] => 240 мм
[5] => 270 мм
[6] => 282 мм
)
[days] => [24,28,32,37,40,42,48]
[material_price] => [16975,18773,19950,20545,21599,22159,23275]
[work_price] => [4806,5287,5815,6397,7036,7740,8514]
[image] => https://akademik-stroy.ru/wp-content/uploads/materials/kleenyj-brus.jpg
[area_modifier] => 172.56
[parent_name] => Стены 1 этаж (несущие)
[parent_id] => 3
[material_sum] => 3866552
[work_sum] => 912256
[total_sum] => 4778808
[total_days] => 24
[display_material_sum] => 3 866 552
[display_work_sum] => 912 256
[display_total_sum] => 4 778 808
)
1
4 778 808₽
Работа:912 256 ₽
Материалы:3 866 552 ₽
Дни:24
stdClass Object
(
[id] => 83
[attribute_id] => 3
[name] => Каркасные
[material_modifier] => 1
[work_modifier] => 1
[options] => Array
(
[0] => 150 мм
[1] => 200 мм
[2] => 250 мм
[3] => 300 мм
)
[days] => [15,16,17,18]
[material_price] => [2379,2639,2898,3258]
[work_price] => [2418,2686,2985,3716]
[image] => https://akademik-stroy.ru/wp-content/uploads/materials/karkasnye.jpg
[area_modifier] => 172.56
[parent_name] => Стены 1 этаж (несущие)
[parent_id] => 3
[material_sum] => 541887
[work_sum] => 458975
[total_sum] => 1000862
[total_days] => 15
[display_material_sum] => 541 887
[display_work_sum] => 458 975
[display_total_sum] => 1 000 862
)
1
1 000 862₽
Работа:458 975 ₽
Материалы:541 887 ₽
Дни:15
stdClass Object
(
[id] => 84
[attribute_id] => 3
[name] => СИП-панели
[material_modifier] => 1
[work_modifier] => 1
[options] => Array
(
[0] => 120 мм
[1] => 170 мм
[2] => 220 мм
)
[days] => [7,7,7]
[material_price] => [1210,1856,2292]
[work_price] => [1410,1551,1706]
[image] => https://akademik-stroy.ru/wp-content/uploads/materials/sip-paneli.jpg
[area_modifier] => 172.56
[parent_name] => Стены 1 этаж (несущие)
[parent_id] => 3
[material_sum] => 275613
[work_sum] => 267641
[total_sum] => 543254
[total_days] => 7
[display_material_sum] => 275 613
[display_work_sum] => 267 641
[display_total_sum] => 543 254
)
1
543 254₽
Работа:267 641 ₽
Материалы:275 613 ₽
Дни:7
stdClass Object
(
[id] => 85
[attribute_id] => 3
[name] => Сухой брус
[material_modifier] => 1
[work_modifier] => 1
[options] => Array
(
[0] => 150 мм
[1] => 180 мм
[2] => 200 мм
)
[days] => [7,8,9]
[material_price] => [6010,7190,8709]
[work_price] => [3204,3845,4229]
[image] => https://akademik-stroy.ru/wp-content/uploads/materials/suhoj-brus.jpg
[area_modifier] => 172.56
[parent_name] => Стены 1 этаж (несущие)
[parent_id] => 3
[material_sum] => 1368953
[work_sum] => 608170
[total_sum] => 1977123
[total_days] => 7
[display_material_sum] => 1 368 953
[display_work_sum] => 608 170
[display_total_sum] => 1 977 123
)
1
1 977 123₽
Работа:608 170 ₽
Материалы:1 368 953 ₽
Дни:7
stdClass Object
(
[id] => 86
[attribute_id] => 3
[name] => Профилированный брус
[material_modifier] => 1
[work_modifier] => 1
[options] => Array
(
[0] => 150 мм
[1] => 180 мм
[2] => 200 мм
)
[days] => [7,8,9]
[material_price] => [8190,9228,10051]
[work_price] => [3845,4614,5075]
[image] => https://akademik-stroy.ru/wp-content/uploads/materials/profilirovannyj-brus.jpg
[area_modifier] => 172.56
[parent_name] => Стены 1 этаж (несущие)
[parent_id] => 3
[material_sum] => 1865512
[work_sum] => 729843
[total_sum] => 2595355
[total_days] => 7
[display_material_sum] => 1 865 512
[display_work_sum] => 729 843
[display_total_sum] => 2 595 355
)
1
2 595 355₽
Работа:729 843 ₽
Материалы:1 865 512 ₽
Дни:7
stdClass Object
(
[id] => 87
[attribute_id] => 3
[name] => Оцилиндрованное бревно
[material_modifier] => 1
[work_modifier] => 1
[options] => Array
(
[0] => 180 мм
[1] => 220 мм
[2] => 260 мм
[3] => 320 мм
)
[days] => [7,8,9,10]
[material_price] => [75190,9532,10868,13116]
[work_price] => [3845,4691,5535,6863]
[image] => https://akademik-stroy.ru/wp-content/uploads/materials/ocilindrovannoe-brevno-1.jpg
[area_modifier] => 172.56
[parent_name] => Стены 1 этаж (несущие)
[parent_id] => 3
[material_sum] => 17126718
[work_sum] => 729843
[total_sum] => 17856561
[total_days] => 7
[display_material_sum] => 17 126 718
[display_work_sum] => 729 843
[display_total_sum] => 17 856 561
)
1
17 856 561₽
Работа:729 843 ₽
Материалы:17 126 718 ₽
Дни:7
stdClass Object
(
[id] => 88
[attribute_id] => 3
[name] => Срубы
[material_modifier] => 1
[work_modifier] => 1
[options] => Array
(
[0] => 260 мм
[1] => 320 мм
[2] => 360 мм
[3] => 400 мм
[4] => 500 мм
)
[days] => [7,8,9,10,11]
[material_price] => [37975,46709,52314,58069,73167]
[work_price] => [4806,5911,6621,7349,9260]
[image] => https://akademik-stroy.ru/wp-content/uploads/materials/sruby.jpg
[area_modifier] => 172.56
[parent_name] => Стены 1 этаж (несущие)
[parent_id] => 3
[material_sum] => 8649915
[work_sum] => 912256
[total_sum] => 9562171
[total_days] => 7
[display_material_sum] => 8 649 915
[display_work_sum] => 912 256
[display_total_sum] => 9 562 171
)
1
9 562 171₽
Работа:912 256 ₽
Материалы:8 649 915 ₽
Дни:7
stdClass Object
(
[id] => 174
[attribute_id] => 3
[name] => Брус
[material_modifier] => 1
[work_modifier] => 1
[options] => Array
(
[0] => 150 мм
[1] => 180 мм
[2] => 200 мм
)
[days] => [7,8,9]
[material_price] => [5127,6152,7367]
[work_price] => [1602,1922,2115]
[image] => https://akademik-stroy.ru/wp-content/uploads/materials/brus.jpg
[area_modifier] => 172.56
[parent_name] => Стены 1 этаж (несущие)
[parent_id] => 3
[material_sum] => 1167824
[work_sum] => 304085
[total_sum] => 1471909
[total_days] => 7
[display_material_sum] => 1 167 824
[display_work_sum] => 304 085
[display_total_sum] => 1 471 909
)
1
1 471 909₽
Работа:304 085 ₽
Материалы:1 167 824 ₽
Дни:7
stdClass Object
(
[id] => 175
[attribute_id] => 3
[name] => Газобетон
[material_modifier] => 1
[work_modifier] => 1
[options] => Array
(
[0] => 300 мм
[1] => 375 мм
[2] => 400 мм
[3] => 500 мм
[4] => 600 мм
)
[days] => [29,31,35,37,44]
[material_price] => [4298,5573,6356,7288,9119]
[work_price] => [4538,5251,5926,6733,7195]
[image] => https://akademik-stroy.ru/wp-content/uploads/materials/gazobeton.jpg
[area_modifier] => 172.56
[parent_name] => Стены 1 этаж (несущие)
[parent_id] => 3
[material_sum] => 978995
[work_sum] => 861385
[total_sum] => 1840380
[total_days] => 29
[display_material_sum] => 978 995
[display_work_sum] => 861 385
[display_total_sum] => 1 840 380
)
1
1 840 380₽
Работа:861 385 ₽
Материалы:978 995 ₽
Дни:29
stdClass Object
(
[id] => 176
[attribute_id] => 3
[name] => Блок
[material_modifier] => 1
[work_modifier] => 1
[options] => Array
(
[0] => 300 мм
[1] => 375 мм
[2] => 400 мм
[3] => 500 мм
[4] => 600 мм
)
[days] => [29,31,35,37,44]
[material_price] => [2698,3973,4356,6588,7119]
[work_price] => [5038,5851,6426,8733,9195]
[image] => https://akademik-stroy.ru/wp-content/uploads/materials/blok.jpg
[area_modifier] => 172.56
[parent_name] => Стены 1 этаж (несущие)
[parent_id] => 3
[material_sum] => 614548
[work_sum] => 956293
[total_sum] => 1570841
[total_days] => 29
[display_material_sum] => 614 548
[display_work_sum] => 956 293
[display_total_sum] => 1 570 841
)
1
1 570 841₽
Работа:956 293 ₽
Материалы:614 548 ₽
Дни:29
stdClass Object
(
[id] => 177
[attribute_id] => 3
[name] => Газосиликатный блок
[material_modifier] => 1
[work_modifier] => 1
[options] => Array
(
[0] => 300 мм
[1] => 375 мм
[2] => 400 мм
[3] => 500 мм
[4] => 600 мм
)
[days] => [29,31,35,37,44]
[material_price] => [4298,5573,6356,7288,9119]
[work_price] => [4538,5251,5926,6733,7195]
[image] => https://akademik-stroy.ru/wp-content/uploads/materials/gazosilikatnyj-blok.jpg
[area_modifier] => 172.56
[parent_name] => Стены 1 этаж (несущие)
[parent_id] => 3
[material_sum] => 978995
[work_sum] => 861385
[total_sum] => 1840380
[total_days] => 29
[display_material_sum] => 978 995
[display_work_sum] => 861 385
[display_total_sum] => 1 840 380
)
1
1 840 380₽
Работа:861 385 ₽
Материалы:978 995 ₽
Дни:29
stdClass Object
(
[id] => 178
[attribute_id] => 3
[name] => Керамзитобетонный блок
[material_modifier] => 1
[work_modifier] => 1
[options] => Array
(
[0] => 300 мм
[1] => 375 мм
[2] => 400 мм
[3] => 500 мм
[4] => 600 мм
)
[days] => [23,23,24,25,28]
[material_price] => [3641,4298,5693,7613,9612]
[work_price] => [5737,5737,6903,7958,8901]
[image] => https://akademik-stroy.ru/wp-content/uploads/materials/keramzitobetonnyj-blok.jpg
[area_modifier] => 172.56
[parent_name] => Стены 1 этаж (несущие)
[parent_id] => 3
[material_sum] => 829344
[work_sum] => 1088974
[total_sum] => 1918318
[total_days] => 23
[display_material_sum] => 829 344
[display_work_sum] => 1 088 974
[display_total_sum] => 1 918 318
)
1
1 918 318₽
Работа:1 088 974 ₽
Материалы:829 344 ₽
Дни:23
stdClass Object
(
[id] => 179
[attribute_id] => 3
[name] => Деревянные
[material_modifier] => 1
[work_modifier] => 1
[options] => Array
(
[0] => 180 мм
[1] => 220 мм
[2] => 260 мм
[3] => 320 мм
)
[days] => [7,8,9,10]
[material_price] => [7950,9458,11961,14472]
[work_price] => [4037,4925,5812,7207]
[image] => https://akademik-stroy.ru/wp-content/uploads/materials/derevyannye.jpg
[area_modifier] => 172.56
[parent_name] => Стены 1 этаж (несущие)
[parent_id] => 3
[material_sum] => 1810845
[work_sum] => 766287
[total_sum] => 2577132
[total_days] => 7
[display_material_sum] => 1 810 845
[display_work_sum] => 766 287
[display_total_sum] => 2 577 132
)
1
2 577 132₽
Работа:766 287 ₽
Материалы:1 810 845 ₽
Дни:7
stdClass Object
(
[id] => 181
[attribute_id] => 3
[name] => Камень
[material_modifier] => 1
[work_modifier] => 1
[options] => Array
(
[0] => 300 мм
[1] => 400 мм
[2] => 500 мм
[3] => 600 мм
)
[days] => [25,27,31,34]
[material_price] => [5262,6844,8330,9815]
[work_price] => [8331,9135,10427,11069]
[image] => https://akademik-stroy.ru/wp-content/uploads/materials/kamen.jpg
[area_modifier] => 172.56
[parent_name] => Стены 1 этаж (несущие)
[parent_id] => 3
[material_sum] => 1198574
[work_sum] => 1581357
[total_sum] => 2779931
[total_days] => 25
[display_material_sum] => 1 198 574
[display_work_sum] => 1 581 357
[display_total_sum] => 2 779 931
)
1
2 779 931₽
Работа:1 581 357 ₽
Материалы:1 198 574 ₽
Дни:25
stdClass Object
(
[id] => 182
[attribute_id] => 3
[name] => Каркасно-щитовые
[material_modifier] => 1
[work_modifier] => 1
[options] => Array
(
[0] => 150 мм
[1] => 200 мм
[2] => 250 мм
[3] => 300 мм
[4] => 350 мм
[5] => 400 мм
)
[days] => [15,16,17,18,19,20]
[material_price] => [2379,2639,2898,3458,3601,4175]
[work_price] => [2538,2820,3134,3483,4062,5642]
[image] => https://akademik-stroy.ru/wp-content/uploads/materials/karkasno-shchitovye.jpg
[area_modifier] => 172.56
[parent_name] => Стены 1 этаж (несущие)
[parent_id] => 3
[material_sum] => 541887
[work_sum] => 481753
[total_sum] => 1023640
[total_days] => 15
[display_material_sum] => 541 887
[display_work_sum] => 481 753
[display_total_sum] => 1 023 640
)
1
1 023 640₽
Работа:481 753 ₽
Материалы:541 887 ₽
Дни:15
stdClass Object
(
[id] => 183
[attribute_id] => 3
[name] => Рубленные
[material_modifier] => 1
[work_modifier] => 1
[options] => Array
(
[0] => 150 мм
[1] => 200 мм
[2] => 250 мм
[3] => 300 мм
[4] => 350 мм
[5] => 400 мм
)
[days] => [15,16,17,18,17,18]
[material_price] => [35950,50267,60583,75900,80217,100533]
[work_price] => [9612,12816,16020,19224,22428,25632]
[image] => https://akademik-stroy.ru/wp-content/uploads/materials/rublennye.jpg
[area_modifier] => 172.56
[parent_name] => Стены 1 этаж (несущие)
[parent_id] => 3
[material_sum] => 8188662
[work_sum] => 1824511
[total_sum] => 10013173
[total_days] => 15
[display_material_sum] => 8 188 662
[display_work_sum] => 1 824 511
[display_total_sum] => 10 013 173
)
1
10 013 173₽
Работа:1 824 511 ₽
Материалы:8 188 662 ₽
Дни:15
stdClass Object
(
[id] => 185
[attribute_id] => 3
[name] => Теплоблок
[material_modifier] => 1
[work_modifier] => 1
[options] => Array
(
[0] => 300 мм (с облицовкой, не покрашенный)
[1] => 400 мм (с облицовкой, не покрашенный)
[2] => 300 мм (с облицовкой, покрашенный)
[3] => 400 мм (с облицовкой, покрашенный)
)
[days] => [15,16,15,16]
[material_price] => [2888,3729,3957,4258]
[work_price] => [2564,3229,2949,3713]
[image] => https://akademik-stroy.ru/wp-content/uploads/materials/teploblok.jpg
[area_modifier] => 172.56
[parent_name] => Стены 1 этаж (несущие)
[parent_id] => 3
[material_sum] => 657826
[work_sum] => 486688
[total_sum] => 1144514
[total_days] => 15
[display_material_sum] => 657 826
[display_work_sum] => 486 688
[display_total_sum] => 1 144 514
)
1
1 144 514₽
Работа:486 688 ₽
Материалы:657 826 ₽
Дни:15
stdClass Object
(
[id] => 186
[attribute_id] => 3
[name] => Арболитовые блоки
[material_modifier] => 1
[work_modifier] => 1
[options] => Array
(
[0] => 300 мм
[1] => 400 мм
[2] => 600 мм
)
[days] => [19,22,27]
[material_price] => [3210,4475,5852]
[work_price] => [4214,4788,5866]
[image] => https://akademik-stroy.ru/wp-content/uploads/materials/arbolitovye-bloki.png
[area_modifier] => 172.56
[parent_name] => Стены 1 этаж (несущие)
[parent_id] => 3
[material_sum] => 731171
[work_sum] => 799885
[total_sum] => 1531056
[total_days] => 19
[display_material_sum] => 731 171
[display_work_sum] => 799 885
[display_total_sum] => 1 531 056
)
1
1 531 056₽
Работа:799 885 ₽
Материалы:731 171 ₽
Дни:19
stdClass Object
(
[id] => 187
[attribute_id] => 3
[name] => Полистиролбетон
[material_modifier] => 1
[work_modifier] => 1
[options] => Array
(
[0] => 300 мм
[1] => 400 мм
[2] => 600 мм
)
[days] => [29,31,35]
[material_price] => [2798,4573,5256]
[work_price] => [5038,5851,6426]
[image] => https://akademik-stroy.ru/wp-content/uploads/materials/polistirolbeton.jpg
[area_modifier] => 172.56
[parent_name] => Стены 1 этаж (несущие)
[parent_id] => 3
[material_sum] => 637326
[work_sum] => 956293
[total_sum] => 1593619
[total_days] => 29
[display_material_sum] => 637 326
[display_work_sum] => 956 293
[display_total_sum] => 1 593 619
)
1
1 593 619₽
Работа:956 293 ₽
Материалы:637 326 ₽
Дни:29
stdClass Object
(
[id] => 188
[attribute_id] => 3
[name] => Шлакоблок
[material_modifier] => 1
[work_modifier] => 1
[options] => Array
(
[0] => 400 мм
[1] => 600 мм
)
[days] => [15,16]
[material_price] => [2391,3471]
[work_price] => [2642,3662]
[image] => https://akademik-stroy.ru/wp-content/uploads/materials/shlakoblok.jpg
[area_modifier] => 172.56
[parent_name] => Стены 1 этаж (несущие)
[parent_id] => 3
[material_sum] => 544620
[work_sum] => 501494
[total_sum] => 1046114
[total_days] => 15
[display_material_sum] => 544 620
[display_work_sum] => 501 494
[display_total_sum] => 1 046 114
)
1
1 046 114₽
Работа:501 494 ₽
Материалы:544 620 ₽
Дни:15
stdClass Object
(
[id] => 189
[attribute_id] => 3
[name] => Теплая керамика
[material_modifier] => 1
[work_modifier] => 1
[options] => Array
(
[0] => 380 мм
[1] => 380 мм Thermo
[2] => 440 мм
[3] => 510 мм
)
[days] => [23,23,24,25]
[material_price] => [4510,5098,6093,8013]
[work_price] => [4737,4937,5903,6958]
[image] => https://akademik-stroy.ru/wp-content/uploads/materials/teplaya-keramika.jpg
[area_modifier] => 172.56
[parent_name] => Стены 1 этаж (несущие)
[parent_id] => 3
[material_sum] => 1027284
[work_sum] => 899158
[total_sum] => 1926442
[total_days] => 23
[display_material_sum] => 1 027 284
[display_work_sum] => 899 158
[display_total_sum] => 1 926 442
)
1
1 926 442₽
Работа:899 158 ₽
Материалы:1 027 284 ₽
Дни:23
stdClass Object
(
[id] => 190
[attribute_id] => 3
[name] => Несъемная опалубка
[material_modifier] => 1
[work_modifier] => 1
[options] => Array
(
[0] => 200 мм
[1] => 250 мм
[2] => 300 мм
[3] => 350 мм
)
[days] => [15,17,19,21]
[material_price] => [3302,3902,4108,5008]
[work_price] => [2100,2100,2300,2534]
[image] => https://akademik-stroy.ru/wp-content/uploads/materials/nesemnaya-opalubka.jpg
[area_modifier] => 172.56
[parent_name] => Стены 1 этаж (несущие)
[parent_id] => 3
[material_sum] => 752127
[work_sum] => 398614
[total_sum] => 1150741
[total_days] => 15
[display_material_sum] => 752 127
[display_work_sum] => 398 614
[display_total_sum] => 1 150 741
)
1
1 150 741₽
Работа:398 614 ₽
Материалы:752 127 ₽
Дни:15
stdClass Object
(
[id] => 251
[attribute_id] => 3
[name] => Бревно
[material_modifier] => 1
[work_modifier] => 1
[options] => Array
(
[0] => 260 мм
[1] => 320 мм
[2] => 360 мм
[3] => 400 мм
[4] => 500 мм
)
[days] => [7,8,9,10,11]
[material_price] => [1874,24045,26930,30972,38825]
[work_price] => [5046,6207,6952,7716,9723]
[image] => https://akademik-stroy.ru/wp-content/uploads/materials/sruby.jpg
[area_modifier] => 172.56
[parent_name] => Стены 1 этаж (несущие)
[parent_id] => 3
[material_sum] => 426858
[work_sum] => 957812
[total_sum] => 1384670
[total_days] => 7
[display_material_sum] => 426 858
[display_work_sum] => 957 812
[display_total_sum] => 1 384 670
)
1
1 384 670₽
Работа:957 812 ₽
Материалы:426 858 ₽
Дни:7
stdClass Object
(
[id] => 7
[attribute_id] => 4
[name] => Деревянные балки
[material_modifier] => 1
[work_modifier] => 1
[options] => Array
(
[0] => без утепления
[1] => утепление 200 мм
[2] => утепление 250 мм
[3] => утепление 300 мм
[4] => утепление 350 мм
[5] => утепление 400 мм
[6] => утепление 450 мм
[7] => утепление 500 мм
)
[days] => [8,9,9,9,11,12,13,14]
[material_price] => [1634,2042,2344,2947,3149,3652,3354,3557]
[work_price] => [1230,1339,1393,1426,1460,1513,1587,1620]
[image] => https://akademik-stroy.ru/wp-content/uploads/materials/derevyannye-balki.png
[area_modifier] => 172.56
[parent_name] => Перекрытие первого этажа
[parent_id] => 4
[material_sum] => 372191
[work_sum] => 233474
[total_sum] => 605665
[total_days] => 8
[display_material_sum] => 372 191
[display_work_sum] => 233 474
[display_total_sum] => 605 665
)
1
605 665₽
Работа:233 474 ₽
Материалы:372 191 ₽
Дни:8
stdClass Object
(
[id] => 8
[attribute_id] => 4
[name] => Сборные ж/б плиты
[material_modifier] => 1
[work_modifier] => 1
[options] => Array
(
[0] => без утепления
[1] => утепление 150 мм
[2] => утепление 200 мм
[3] => утепление 250 мм
[4] => утепление 300 мм
[5] => утепление 350 мм
[6] => утепление 400 мм
[7] => утепление 450 мм
[8] => утепление 500 мм
)
[days] => [13,15,15,15,15,15,15,15,15]
[material_price] => [3067,5577,5928,6679,7730,8782,9833,10884,11935]
[work_price] => [1520,1956,2102,2247,2392,2537,2684,2829,2974]
[image] => https://akademik-stroy.ru/wp-content/uploads/materials/sbornye-zh-b-plity-2.jpg
[area_modifier] => 172.56
[parent_name] => Перекрытие первого этажа
[parent_id] => 4
[material_sum] => 698599
[work_sum] => 288520
[total_sum] => 987119
[total_days] => 13
[display_material_sum] => 698 599
[display_work_sum] => 288 520
[display_total_sum] => 987 119
)
1
987 119₽
Работа:288 520 ₽
Материалы:698 599 ₽
Дни:13
stdClass Object
(
[id] => 89
[attribute_id] => 4
[name] => Монолитная ж/б плита
[material_modifier] => 1
[work_modifier] => 1
[options] => Array
(
[0] => без утепления
[1] => утепление 150 мм
[2] => утепление 200 мм
[3] => утепление 250 мм
[4] => утепление 300 мм
[5] => утепление 350 мм
[6] => утепление 400 мм
[7] => утепление 450 мм
[8] => утепление 500 мм
)
[days] => [18,20,20,20,20,20,20,20,20]
[material_price] => [4837,6572,7224,7375,79426,8177,8728,9180,10031]
[work_price] => [3348,3921,4112,4302,4493,4684,4875,5066,5256]
[image] => https://akademik-stroy.ru/wp-content/uploads/materials/monolitnaya-zh-b-plita-2.jpg
[area_modifier] => 172.56
[parent_name] => Перекрытие первого этажа
[parent_id] => 4
[material_sum] => 1101768
[work_sum] => 635504
[total_sum] => 1737272
[total_days] => 18
[display_material_sum] => 1 101 768
[display_work_sum] => 635 504
[display_total_sum] => 1 737 272
)
1
1 737 272₽
Работа:635 504 ₽
Материалы:1 101 768 ₽
Дни:18
stdClass Object
(
[id] => 164
[attribute_id] => 37
[name] => Металлочерепица
[material_modifier] => 1
[work_modifier] => 1
[options] => Array
(
)
[days] => [20]
[material_price] => [6112]
[work_price] => [5726]
[image] => https://akademik-stroy.ru/wp-content/uploads/materials/metallocherepica.jpg
[area_modifier] => 172.56
[parent_name] => Крыша (Скатная)
[parent_id] => 37
[material_sum] => 1392186
[work_sum] => 1086886
[total_sum] => 2479072
[total_days] => 20
[display_material_sum] => 1 392 186
[display_work_sum] => 1 086 886
[display_total_sum] => 2 479 072
)
1
2 479 072₽
Работа:1 086 886 ₽
Материалы:1 392 186 ₽
Дни:20
stdClass Object
(
[id] => 165
[attribute_id] => 37
[name] => Гибкая черепица
[material_modifier] => 1
[work_modifier] => 1
[options] => Array
(
)
[days] => [20]
[material_price] => [6980]
[work_price] => [5950]
[image] => https://akademik-stroy.ru/wp-content/uploads/materials/gibkaya-cherepica.jpg
[area_modifier] => 172.56
[parent_name] => Крыша (Скатная)
[parent_id] => 37
[material_sum] => 1589899
[work_sum] => 1129405
[total_sum] => 2719304
[total_days] => 20
[display_material_sum] => 1 589 899
[display_work_sum] => 1 129 405
[display_total_sum] => 2 719 304
)
1
2 719 304₽
Работа:1 129 405 ₽
Материалы:1 589 899 ₽
Дни:20
stdClass Object
(
[id] => 166
[attribute_id] => 37
[name] => Цементно-песчаная черепица
[material_modifier] => 1
[work_modifier] => 1
[options] => Array
(
)
[days] => [20]
[material_price] => [10560]
[work_price] => [9456]
[image] => https://akademik-stroy.ru/wp-content/uploads/materials/cementno-peschanaya-cherepica.jpg
[area_modifier] => 172.56
[parent_name] => Крыша (Скатная)
[parent_id] => 37
[material_sum] => 2405348
[work_sum] => 1794900
[total_sum] => 4200248
[total_days] => 20
[display_material_sum] => 2 405 348
[display_work_sum] => 1 794 900
[display_total_sum] => 4 200 248
)
1
4 200 248₽
Работа:1 794 900 ₽
Материалы:2 405 348 ₽
Дни:20
stdClass Object
(
[id] => 167
[attribute_id] => 37
[name] => Композитная черепица
[material_modifier] => 1
[work_modifier] => 1
[options] => Array
(
)
[days] => [20]
[material_price] => [9506]
[work_price] => [8905]
[image] => https://akademik-stroy.ru/wp-content/uploads/materials/kompozitnaya-cherepica.jpg
[area_modifier] => 172.56
[parent_name] => Крыша (Скатная)
[parent_id] => 37
[material_sum] => 2165269
[work_sum] => 1690311
[total_sum] => 3855580
[total_days] => 20
[display_material_sum] => 2 165 269
[display_work_sum] => 1 690 311
[display_total_sum] => 3 855 580
)
1
3 855 580₽
Работа:1 690 311 ₽
Материалы:2 165 269 ₽
Дни:20
stdClass Object
(
[id] => 168
[attribute_id] => 37
[name] => Керамическая черепица
[material_modifier] => 1
[work_modifier] => 1
[options] => Array
(
)
[days] => [20]
[material_price] => [12750]
[work_price] => [9456]
[image] => https://akademik-stroy.ru/wp-content/uploads/materials/keramicheskaya-cherepica.jpg
[area_modifier] => 172.56
[parent_name] => Крыша (Скатная)
[parent_id] => 37
[material_sum] => 2904185
[work_sum] => 1794900
[total_sum] => 4699085
[total_days] => 20
[display_material_sum] => 2 904 185
[display_work_sum] => 1 794 900
[display_total_sum] => 4 699 085
)
1
4 699 085₽
Работа:1 794 900 ₽
Материалы:2 904 185 ₽
Дни:20
stdClass Object
(
[id] => 169
[attribute_id] => 37
[name] => Металлическая фальцевая
[material_modifier] => 1
[work_modifier] => 1
[options] => Array
(
)
[days] => [20]
[material_price] => [8550]
[work_price] => [8190]
[image] => https://akademik-stroy.ru/wp-content/uploads/materials/metallicheskaya-falcevaya.jpg
[area_modifier] => 172.56
[parent_name] => Крыша (Скатная)
[parent_id] => 37
[material_sum] => 1947512
[work_sum] => 1554593
[total_sum] => 3502105
[total_days] => 20
[display_material_sum] => 1 947 512
[display_work_sum] => 1 554 593
[display_total_sum] => 3 502 105
)
1
3 502 105₽
Работа:1 554 593 ₽
Материалы:1 947 512 ₽
Дни:20
stdClass Object
(
[id] => 170
[attribute_id] => 37
[name] => Медная фальцевая
[material_modifier] => 1
[work_modifier] => 1
[options] => Array
(
)
[days] => [20]
[material_price] => [20450]
[work_price] => [16750]
[image] => https://akademik-stroy.ru/wp-content/uploads/materials/mednaya-falcevaya.jpg
[area_modifier] => 172.56
[parent_name] => Крыша (Скатная)
[parent_id] => 37
[material_sum] => 4658085
[work_sum] => 3179418
[total_sum] => 7837503
[total_days] => 20
[display_material_sum] => 4 658 085
[display_work_sum] => 3 179 418
[display_total_sum] => 7 837 503
)
1
7 837 503₽
Работа:3 179 418 ₽
Материалы:4 658 085 ₽
Дни:20
stdClass Object
(
[id] => 171
[attribute_id] => 37
[name] => Зеленая кровля
[material_modifier] => 1
[work_modifier] => 1
[options] => Array
(
)
[days] => [20]
[material_price] => [19850]
[work_price] => [16780]
[image] => https://akademik-stroy.ru/wp-content/uploads/materials/zelenaya-krovlya.jpg
[area_modifier] => 172.56
[parent_name] => Крыша (Скатная)
[parent_id] => 37
[material_sum] => 4521417
[work_sum] => 3185112
[total_sum] => 7706529
[total_days] => 20
[display_material_sum] => 4 521 417
[display_work_sum] => 3 185 112
[display_total_sum] => 7 706 529
)
1
7 706 529₽
Работа:3 185 112 ₽
Материалы:4 521 417 ₽
Дни:20
stdClass Object
(
[id] => 172
[attribute_id] => 37
[name] => Профлист
[material_modifier] => 1
[work_modifier] => 1
[options] => Array
(
)
[days] => [20]
[material_price] => [3450]
[work_price] => [3750]
[image] => https://akademik-stroy.ru/wp-content/uploads/materials/proflist.jpg
[area_modifier] => 172.56
[parent_name] => Крыша (Скатная)
[parent_id] => 37
[material_sum] => 785838
[work_sum] => 711810
[total_sum] => 1497648
[total_days] => 20
[display_material_sum] => 785 838
[display_work_sum] => 711 810
[display_total_sum] => 1 497 648
)
1
1 497 648₽
Работа:711 810 ₽
Материалы:785 838 ₽
Дни:20
stdClass Object
(
[id] => 51
[attribute_id] => 26
[name] => Есть
[material_modifier] => 1
[work_modifier] => 1
[options] => Array
(
[0] => Профиль 58 мм, 3-камерный, стеклопакет 2-камерный до 32 мм
[1] => Профиль 60 мм, 4-камерный, стеклопакет 2-камерный до 32 мм
[2] => Профиль 70 мм, 5-камерный, стеклопакет 2-камерный до 40 мм
[3] => Профиль 72 мм, 5-камерный, стеклопакет 2-камерный до 40 мм
[4] => Алюминиевые окна Alutech профиль 72 мм, стеклопакет 2-камерный
)
[days] => [3,3,3,3,3]
[material_price] => [1339,2124,2867,3023,29596]
[work_price] => [635,647,659,668,2579]
[image] => https://akademik-stroy.ru/wp-content/uploads/materials/okna.jpg
[area_modifier] => 140.03
[parent_name] => Окна
[parent_id] => 26
[material_sum] => 247500
[work_sum] => 97811
[total_sum] => 345311
[total_days] => 3
[display_material_sum] => 247 500
[display_work_sum] => 97 811
[display_total_sum] => 345 311
)
1
345 311₽
Работа:97 811 ₽
Материалы:247 500 ₽
Дни:3
stdClass Object
(
[id] => 52
[attribute_id] => 26
[name] => Нет
[material_modifier] => 2
[work_modifier] => 1
[options] =>
[days] => null
[material_price] => null
[work_price] => null
[image] => https://akademik-stroy.ru/wp-content/uploads/materials/okna.jpg
[area_modifier] => 140.03
[parent_name] => Окна
[parent_id] => 26
[material_sum] => 0
[work_sum] => 0
[total_sum] => 0
[total_days] => 0
[display_material_sum] => 0
[display_work_sum] => 0
[display_total_sum] => 0
)
1
0₽
Работа:0 ₽
Материалы:0 ₽
Дни:0
stdClass Object
(
[id] => 53
[attribute_id] => 27
[name] => Есть
[material_modifier] => 1
[work_modifier] => 1
[options] => Array
(
)
[days] => [1]
[material_price] => [10000]
[work_price] => [5500]
[image] => https://akademik-stroy.ru/wp-content/uploads/materials/dveri.jpg
[area_modifier] => 1
[parent_name] => Двери входные
[parent_id] => 27
[material_sum] => 13200
[work_sum] => 6050
[total_sum] => 19250
[total_days] => 1
[display_material_sum] => 13 200
[display_work_sum] => 6 050
[display_total_sum] => 19 250
)
1
19 250₽
Работа:6 050 ₽
Материалы:13 200 ₽
Дни:1
stdClass Object
(
[id] => 54
[attribute_id] => 27
[name] => Нет
[material_modifier] => 1
[work_modifier] => 1
[options] => Array
(
)
[days] => [0]
[material_price] => [0]
[work_price] => [0]
[image] => https://akademik-stroy.ru/wp-content/uploads/materials/dveri.jpg
[area_modifier] => 1
[parent_name] => Двери входные
[parent_id] => 27
[material_sum] => 0
[work_sum] => 0
[total_sum] => 0
[total_days] => 0
[display_material_sum] => 0
[display_work_sum] => 0
[display_total_sum] => 0
)
1
0₽
Работа:0 ₽
Материалы:0 ₽
Дни:0
stdClass Object
(
[id] => 25
[attribute_id] => 13
[name] => Нет
[material_modifier] => 1
[work_modifier] => 1
[options] => Array
(
)
[days] => [0]
[material_price] => [0]
[work_price] => [0]
[image] => https://akademik-stroy.ru/wp-content/uploads/materials/mineralovata-krov.jpg
[area_modifier] => 172.56
[parent_name] => Утепление кровли (Мансарда)
[parent_id] => 13
[material_sum] => 0
[work_sum] => 0
[total_sum] => 0
[total_days] => 0
[display_material_sum] => 0
[display_work_sum] => 0
[display_total_sum] => 0
)
1
0₽
Работа:0 ₽
Материалы:0 ₽
Дни:0
stdClass Object
(
[id] => 26
[attribute_id] => 13
[name] => Минераловатный
[material_modifier] => 1
[work_modifier] => 1
[options] => Array
(
[0] => 50 мм
[1] => 100 мм
[2] => 150 мм
[3] => 200 мм
[4] => 250 мм
[5] => 300 мм
[6] => 350 мм
[7] => 400 мм
[8] => 450 мм
[9] => 500 мм
)
[days] => [5,5,6,6,6,7,7,7,8,8]
[material_price] => [1158,1414,1772,2230,3602,4060,4974,5890,6408,7718]
[work_price] => [650,846,846,1098,1318,1450,1596,1754,1930,2122]
[image] => https://akademik-stroy.ru/wp-content/uploads/materials/mineralovata-krov.jpg
[area_modifier] => 172.56
[parent_name] => Утепление кровли (Мансарда)
[parent_id] => 13
[material_sum] => 263768
[work_sum] => 123380
[total_sum] => 387148
[total_days] => 5
[display_material_sum] => 263 768
[display_work_sum] => 123 380
[display_total_sum] => 387 148
)
1
387 148₽
Работа:123 380 ₽
Материалы:263 768 ₽
Дни:5
stdClass Object
(
[id] => 123
[attribute_id] => 13
[name] => Эковата (целлюлозная вата)
[material_modifier] => 1
[work_modifier] => 1
[options] => Array
(
[0] => 50 мм
[1] => 100 мм
[2] => 150 мм
[3] => 200 мм
[4] => 250 мм
[5] => 300 мм
[6] => 350 мм
[7] => 400 мм
[8] => 450 мм
[9] => 500 мм
)
[days] => [3,3,4,4,4,5,5,5,5,5]
[material_price] => [820,1638,2458,3276,5734,6552,8190,9828,11466,13104]
[work_price] => [234,304,304,396,474,522,574,632,694,764]
[image] => https://akademik-stroy.ru/wp-content/uploads/materials/ehkovata-krov.jpg
[area_modifier] => 172.56
[parent_name] => Утепление кровли (Мансарда)
[parent_id] => 13
[material_sum] => 186779
[work_sum] => 44417
[total_sum] => 231196
[total_days] => 3
[display_material_sum] => 186 779
[display_work_sum] => 44 417
[display_total_sum] => 231 196
)
1
231 196₽
Работа:44 417 ₽
Материалы:186 779 ₽
Дни:3
stdClass Object
(
[id] => 124
[attribute_id] => 13
[name] => Экструдированный пенополистирол
[material_modifier] => 1
[work_modifier] => 1
[options] => Array
(
[0] => 50 мм
[1] => 100 мм
[2] => 150 мм
[3] => 200 мм
[4] => 250 мм
[5] => 300 мм
[6] => 350 мм
[7] => 400 мм
[8] => 450 мм
[9] => 500 мм
)
[days] => [3,3,4,4,4,5,5,5,5,6]
[material_price] => [1146,2292,3438,4584,8020,9166,11458,13750,16040,18332]
[work_price] => [390,508,508,660,790,870,958,1052,1158,1274]
[image] => https://akademik-stroy.ru/wp-content/uploads/materials/epps-krov.jpg
[area_modifier] => 172.56
[parent_name] => Утепление кровли (Мансарда)
[parent_id] => 13
[material_sum] => 261035
[work_sum] => 74028
[total_sum] => 335063
[total_days] => 3
[display_material_sum] => 261 035
[display_work_sum] => 74 028
[display_total_sum] => 335 063
)
1
335 063₽
Работа:74 028 ₽
Материалы:261 035 ₽
Дни:3
stdClass Object
(
[id] => 125
[attribute_id] => 13
[name] => ПСБ (ППС-пенополистирол)
[material_modifier] => 1
[work_modifier] => 1
[options] => Array
(
[0] => 50 мм
[1] => 100 мм
[2] => 150 мм
[3] => 200 мм
[4] => 250 мм
[5] => 300 мм
[6] => 350 мм
[7] => 400 мм
[8] => 450 мм
[9] => 500 мм
)
[days] => [3,3,4,4,4,5,5,5,5,6]
[material_price] => [476,954,1430,1906,3336,3814,4766,5720,6674,7626]
[work_price] => [390,508,508,660,790,870,958,1052,1158,1274]
[image] => https://akademik-stroy.ru/wp-content/uploads/materials/psb-krov.jpg
[area_modifier] => 172.56
[parent_name] => Утепление кровли (Мансарда)
[parent_id] => 13
[material_sum] => 108423
[work_sum] => 74028
[total_sum] => 182451
[total_days] => 3
[display_material_sum] => 108 423
[display_work_sum] => 74 028
[display_total_sum] => 182 451
)
1
182 451₽
Работа:74 028 ₽
Материалы:108 423 ₽
Дни:3
stdClass Object
(
[id] => 126
[attribute_id] => 13
[name] => ППУ (Пенополиуретан)
[material_modifier] => 1
[work_modifier] => 1
[options] => Array
(
[0] => 50 мм
[1] => 100 мм
[2] => 150 мм
[3] => 200 мм
[4] => 250 мм
[5] => 300 мм
[6] => 350 мм
[7] => 400 мм
[8] => 450 мм
[9] => 500 мм
)
[days] => [2,2,3,3,3,3,4,4,4,4]
[material_price] => [2080,4160,6240,8320,14560,16640,20800,24960,29120,33280]
[work_price] => [234,304,304,396,474,522,574,632,694,764]
[image] => https://akademik-stroy.ru/wp-content/uploads/materials/ppu-krov.jpg
[area_modifier] => 172.56
[parent_name] => Утепление кровли (Мансарда)
[parent_id] => 13
[material_sum] => 473781
[work_sum] => 44417
[total_sum] => 518198
[total_days] => 2
[display_material_sum] => 473 781
[display_work_sum] => 44 417
[display_total_sum] => 518 198
)
1
518 198₽
Работа:44 417 ₽
Материалы:473 781 ₽
Дни:2
stdClass Object
(
[id] => 127
[attribute_id] => 13
[name] => PIR-плиты (пенополиизоцианурат)
[material_modifier] => 1
[work_modifier] => 1
[options] => Array
(
[0] => 50 мм
[1] => 100 мм
[2] => 150 мм
[3] => 200 мм
[4] => 250 мм
[5] => 300 мм
[6] => 350 мм
[7] => 400 мм
[8] => 450 мм
[9] => 500 мм
)
[days] => [3,3,4,4,4,5,5,5,5,6]
[material_price] => [2646,5290,7936,10580,18516,21162,26452,31742,37032,42324]
[work_price] => [390,508,508,660,790,870,958,1052,1158,1274]
[image] => https://akademik-stroy.ru/wp-content/uploads/materials/pir-krov.jpg
[area_modifier] => 172.56
[parent_name] => Утепление кровли (Мансарда)
[parent_id] => 13
[material_sum] => 602704
[work_sum] => 74028
[total_sum] => 676732
[total_days] => 3
[display_material_sum] => 602 704
[display_work_sum] => 74 028
[display_total_sum] => 676 732
)
1
676 732₽
Работа:74 028 ₽
Материалы:602 704 ₽
Дни:3
stdClass Object
(
[id] => 27
[attribute_id] => 14
[name] => Нет
[material_modifier] => 1
[work_modifier] => 1
[options] => Array
(
)
[days] => [0]
[material_price] => [0]
[work_price] => [0]
[image] => https://akademik-stroy.ru/wp-content/uploads/materials/mansardnye-okna-2.jpg
[area_modifier] => 1
[parent_name] => Мансардные окна
[parent_id] => 14
[material_sum] => 0
[work_sum] => 0
[total_sum] => 0
[total_days] => 0
[display_material_sum] => 0
[display_work_sum] => 0
[display_total_sum] => 0
)
1
0₽
Работа:0 ₽
Материалы:0 ₽
Дни:0
stdClass Object
(
[id] => 28
[attribute_id] => 14
[name] => Есть
[material_modifier] => 1
[work_modifier] => 1
[options] => Array
(
[0] => 55x78
[1] => 55x98
)
[days] => [6,7]
[material_price] => [47480,68700]
[work_price] => [17900,19500]
[image] => https://akademik-stroy.ru/wp-content/uploads/materials/mansardnye-okna-2.jpg
[area_modifier] => 1
[parent_name] => Мансардные окна
[parent_id] => 14
[material_sum] => 62674
[work_sum] => 19690
[total_sum] => 82364
[total_days] => 6
[display_material_sum] => 62 674
[display_work_sum] => 19 690
[display_total_sum] => 82 364
)
1
82 364₽
Работа:19 690 ₽
Материалы:62 674 ₽
Дни:6
stdClass Object
(
[id] => 29
[attribute_id] => 15
[name] => Нет
[material_modifier] => 1
[work_modifier] => 1
[options] => Array
(
)
[days] => [0]
[material_price] => [0]
[work_price] => [0]
[image] => https://akademik-stroy.ru/wp-content/uploads/materials/sofit.jpg
[area_modifier] => 172.56
[parent_name] => Подшивка кровли
[parent_id] => 15
[material_sum] => 0
[work_sum] => 0
[total_sum] => 0
[total_days] => 0
[display_material_sum] => 0
[display_work_sum] => 0
[display_total_sum] => 0
)
1
0₽
Работа:0 ₽
Материалы:0 ₽
Дни:0
stdClass Object
(
[id] => 30
[attribute_id] => 15
[name] => Есть
[material_modifier] => 1
[work_modifier] => 1
[options] => Array
(
[0] => Софиты (ПВХ)
[1] => Cedral
[2] => ДПК
[3] => Планкен
)
[days] => [7,10,9,8]
[material_price] => [1803,3213,3025,3150]
[work_price] => [1529,2188,2075,1923]
[image] => https://akademik-stroy.ru/wp-content/uploads/materials/sofit.jpg
[area_modifier] => 172.56
[parent_name] => Подшивка кровли
[parent_id] => 15
[material_sum] => 410686
[work_sum] => 290229
[total_sum] => 700915
[total_days] => 7
[display_material_sum] => 410 686
[display_work_sum] => 290 229
[display_total_sum] => 700 915
)
1
700 915₽
Работа:290 229 ₽
Материалы:410 686 ₽
Дни:7
stdClass Object
(
[id] => 31
[attribute_id] => 16
[name] => Нет
[material_modifier] => 1
[work_modifier] => 1
[options] => Array
(
)
[days] => [0]
[material_price] => [0]
[work_price] => [0]
[image] => https://akademik-stroy.ru/wp-content/uploads/materials/docke-standard-pvh.jpg
[area_modifier] => 172.56
[parent_name] => Водосточная система
[parent_id] => 16
[material_sum] => 0
[work_sum] => 0
[total_sum] => 0
[total_days] => 0
[display_material_sum] => 0
[display_work_sum] => 0
[display_total_sum] => 0
)
1
0₽
Работа:0 ₽
Материалы:0 ₽
Дни:0
stdClass Object
(
[id] => 32
[attribute_id] => 16
[name] => Есть
[material_modifier] => 1
[work_modifier] => 1
[options] => Array
(
[0] => Döcke Standard (ПВХ)
[1] => Металлические Grand Line
)
[days] => [7,7]
[material_price] => [1842,2703]
[work_price] => [1491,1529]
[image] => https://akademik-stroy.ru/wp-content/uploads/materials/docke-standard-pvh.jpg
[area_modifier] => 172.56
[parent_name] => Водосточная система
[parent_id] => 16
[material_sum] => 419569
[work_sum] => 283016
[total_sum] => 702585
[total_days] => 7
[display_material_sum] => 419 569
[display_work_sum] => 283 016
[display_total_sum] => 702 585
)
1
702 585₽
Работа:283 016 ₽
Материалы:419 569 ₽
Дни:7
stdClass Object
(
[id] => 33
[attribute_id] => 17
[name] => Нет
[material_modifier] => 1
[work_modifier] => 1
[options] => Array
(
)
[days] => [0]
[material_price] => [0]
[work_price] => [0]
[image] => https://akademik-stroy.ru/wp-content/uploads/materials/mineralovata.jpg
[area_modifier] => 172.56
[parent_name] => Дополнительное утепление наружных стен
[parent_id] => 17
[material_sum] => 0
[work_sum] => 0
[total_sum] => 0
[total_days] => 0
[display_material_sum] => 0
[display_work_sum] => 0
[display_total_sum] => 0
)
1
0₽
Работа:0 ₽
Материалы:0 ₽
Дни:0
stdClass Object
(
[id] => 34
[attribute_id] => 17
[name] => Минераловатный
[material_modifier] => 1
[work_modifier] => 1
[options] => Array
(
[0] => 50 мм
[1] => 100 мм
[2] => 150 мм
[3] => 200 мм
[4] => 250 мм
[5] => 300 мм
)
[days] => [7,8,10,12,14,15]
[material_price] => [3437,3613,3803,3915,4601,4830]
[work_price] => [2325,2423,2523,2749,2859,3025]
[image] => https://akademik-stroy.ru/wp-content/uploads/materials/mineralovata.jpg
[area_modifier] => 172.56
[parent_name] => Дополнительное утепление наружных стен
[parent_id] => 17
[material_sum] => 782877
[work_sum] => 441322
[total_sum] => 1224199
[total_days] => 7
[display_material_sum] => 782 877
[display_work_sum] => 441 322
[display_total_sum] => 1 224 199
)
1
1 224 199₽
Работа:441 322 ₽
Материалы:782 877 ₽
Дни:7
stdClass Object
(
[id] => 128
[attribute_id] => 17
[name] => Эковата (целлюлозная вата)
[material_modifier] => 1
[work_modifier] => 1
[options] => Array
(
[0] => 50 мм
[1] => 100 мм
[2] => 150 мм
[3] => 200 мм
[4] => 250 мм
[5] => 300 мм
)
[days] => [3,4,5,6,7,8]
[material_price] => [810,1319,1629,1838,2267,2676]
[work_price] => [1225,1323,1423,1549,1659,1725]
[image] => https://akademik-stroy.ru/wp-content/uploads/materials/ehkovata.jpg
[area_modifier] => 172.56
[parent_name] => Дополнительное утепление наружных стен
[parent_id] => 17
[material_sum] => 184501
[work_sum] => 232525
[total_sum] => 417026
[total_days] => 3
[display_material_sum] => 184 501
[display_work_sum] => 232 525
[display_total_sum] => 417 026
)
1
417 026₽
Работа:232 525 ₽
Материалы:184 501 ₽
Дни:3
stdClass Object
(
[id] => 129
[attribute_id] => 17
[name] => Экструдированный пенополистирол
[material_modifier] => 1
[work_modifier] => 1
[options] => Array
(
[0] => 50 мм
[1] => 100 мм
[2] => 150 мм
[3] => 200 мм
[4] => 250 мм
[5] => 300 мм
)
[days] => [5,6,7,8,9,10]
[material_price] => [4560,4300,5119,6292,7010,8583]
[work_price] => [1795,1954,2254,2330,2595,2735]
[image] => https://akademik-stroy.ru/wp-content/uploads/materials/epps.jpg
[area_modifier] => 172.56
[parent_name] => Дополнительное утепление наружных стен
[parent_id] => 17
[material_sum] => 1038673
[work_sum] => 340720
[total_sum] => 1379393
[total_days] => 5
[display_material_sum] => 1 038 673
[display_work_sum] => 340 720
[display_total_sum] => 1 379 393
)
1
1 379 393₽
Работа:340 720 ₽
Материалы:1 038 673 ₽
Дни:5
stdClass Object
(
[id] => 130
[attribute_id] => 17
[name] => ПСБ (ППС-пенополистирол)
[material_modifier] => 1
[work_modifier] => 1
[options] => Array
(
[0] => 50 мм
[1] => 100 мм
[2] => 150 мм
[3] => 200 мм
[4] => 250 мм
[5] => 300 мм
)
[days] => [5,6,7,8,9,10]
[material_price] => [4822,5200,5819,6292,7010,7583]
[work_price] => [1795,1954,2254,2330,2595,2735]
[image] => https://akademik-stroy.ru/wp-content/uploads/materials/psb.jpg
[area_modifier] => 172.56
[parent_name] => Дополнительное утепление наружных стен
[parent_id] => 17
[material_sum] => 1098351
[work_sum] => 340720
[total_sum] => 1439071
[total_days] => 5
[display_material_sum] => 1 098 351
[display_work_sum] => 340 720
[display_total_sum] => 1 439 071
)
1
1 439 071₽
Работа:340 720 ₽
Материалы:1 098 351 ₽
Дни:5
stdClass Object
(
[id] => 131
[attribute_id] => 17
[name] => ППУ (Пенополиуретан)
[material_modifier] => 1
[work_modifier] => 1
[options] => Array
(
[0] => 50 мм
[1] => 100 мм
[2] => 150 мм
[3] => 200 мм
[4] => 250 мм
[5] => 300 мм
)
[days] => [3,4,5,6,7,8]
[material_price] => [2860,3400,4219,4592,5010,5583]
[work_price] => [729,900,980,1120,1280,1530]
[image] => https://akademik-stroy.ru/wp-content/uploads/materials/ppu.jpg
[area_modifier] => 172.56
[parent_name] => Дополнительное утепление наружных стен
[parent_id] => 17
[material_sum] => 651449
[work_sum] => 138376
[total_sum] => 789825
[total_days] => 3
[display_material_sum] => 651 449
[display_work_sum] => 138 376
[display_total_sum] => 789 825
)
1
789 825₽
Работа:138 376 ₽
Материалы:651 449 ₽
Дни:3
stdClass Object
(
[id] => 132
[attribute_id] => 17
[name] => PIR-плиты (пенополиизоцианурат)
[material_modifier] => 1
[work_modifier] => 1
[options] => Array
(
[0] => 50 мм
[1] => 100 мм
[2] => 150 мм
[3] => 200 мм
[4] => 250 мм
[5] => 300 мм
)
[days] => [5,6,7,8,9,10]
[material_price] => [8323,15645,20968,25900,29258,30581]
[work_price] => [800,900,970,1150,1280,1330]
[image] => https://akademik-stroy.ru/wp-content/uploads/materials/pir.jpg
[area_modifier] => 172.56
[parent_name] => Дополнительное утепление наружных стен
[parent_id] => 17
[material_sum] => 1895806
[work_sum] => 151853
[total_sum] => 2047659
[total_days] => 5
[display_material_sum] => 1 895 806
[display_work_sum] => 151 853
[display_total_sum] => 2 047 659
)
1
2 047 659₽
Работа:151 853 ₽
Материалы:1 895 806 ₽
Дни:5
stdClass Object
(
[id] => 37
[attribute_id] => 19
[name] => Нет
[material_modifier] => 1
[work_modifier] => 1
[options] => Array
(
)
[days] => [0]
[material_price] => [0]
[work_price] => [0]
[image] => https://akademik-stroy.ru/wp-content/uploads/materials/imitaciya-brusa.jpg
[area_modifier] => 172.56
[parent_name] => Наружная отделка фасада
[parent_id] => 19
[material_sum] => 0
[work_sum] => 0
[total_sum] => 0
[total_days] => 0
[display_material_sum] => 0
[display_work_sum] => 0
[display_total_sum] => 0
)
1
0₽
Работа:0 ₽
Материалы:0 ₽
Дни:0
stdClass Object
(
[id] => 38
[attribute_id] => 19
[name] => Имитация бруса
[material_modifier] => 1
[work_modifier] => 1
[options] => Array
(
[0] => Сосна
[1] => Ель
[2] => Лиственница
)
[days] => [20,20,20]
[material_price] => [2994,2762,4954]
[work_price] => [1397,1231,1577]
[image] => https://akademik-stroy.ru/wp-content/uploads/materials/imitaciya-brusa.jpg
[area_modifier] => 172.56
[parent_name] => Наружная отделка фасада
[parent_id] => 19
[material_sum] => 681971
[work_sum] => 265173
[total_sum] => 947144
[total_days] => 20
[display_material_sum] => 681 971
[display_work_sum] => 265 173
[display_total_sum] => 947 144
)
1
947 144₽
Работа:265 173 ₽
Материалы:681 971 ₽
Дни:20
stdClass Object
(
[id] => 136
[attribute_id] => 19
[name] => Планкен
[material_modifier] => 1
[work_modifier] => 1
[options] => Array
(
[0] => Сосна
[1] => Ель
[2] => Лиственница
)
[days] => [20,20,20]
[material_price] => [3194,2862,5154]
[work_price] => [1537,1354,1735]
[image] => https://akademik-stroy.ru/wp-content/uploads/materials/planken.jpg
[area_modifier] => 172.56
[parent_name] => Наружная отделка фасада
[parent_id] => 19
[material_sum] => 727527
[work_sum] => 291747
[total_sum] => 1019274
[total_days] => 20
[display_material_sum] => 727 527
[display_work_sum] => 291 747
[display_total_sum] => 1 019 274
)
1
1 019 274₽
Работа:291 747 ₽
Материалы:727 527 ₽
Дни:20
stdClass Object
(
[id] => 137
[attribute_id] => 19
[name] => Штукатурка
[material_modifier] => 1
[work_modifier] => 1
[options] => Array
(
[0] => Цементно-песчаная (минеральная)
[1] => Мокрый фасад
)
[days] => [35,35]
[material_price] => [2231,3938]
[work_price] => [1202,2422]
[image] => https://akademik-stroy.ru/wp-content/uploads/materials/shtukaturka.jpg
[area_modifier] => 172.56
[parent_name] => Наружная отделка фасада
[parent_id] => 19
[material_sum] => 508175
[work_sum] => 228159
[total_sum] => 736334
[total_days] => 35
[display_material_sum] => 508 175
[display_work_sum] => 228 159
[display_total_sum] => 736 334
)
1
736 334₽
Работа:228 159 ₽
Материалы:508 175 ₽
Дни:35
stdClass Object
(
[id] => 138
[attribute_id] => 19
[name] => Облицовочный кирпич
[material_modifier] => 1
[work_modifier] => 1
[options] => Array
(
[0] => Керамический
[1] => Клинкерный
[2] => Ручной формовки
[3] => Гиперпрессованный
[4] => Силикатный кирпич
)
[days] => [45,45,45,45,45]
[material_price] => [8174,9148,1040,1257,5876]
[work_price] => [3240,3758,4536,4017,3369]
[image] => https://akademik-stroy.ru/wp-content/uploads/materials/oblicovochnyj-kirpich.jpg
[area_modifier] => 172.56
[parent_name] => Наружная отделка фасада
[parent_id] => 19
[material_sum] => 1861867
[work_sum] => 615004
[total_sum] => 2476871
[total_days] => 45
[display_material_sum] => 1 861 867
[display_work_sum] => 615 004
[display_total_sum] => 2 476 871
)
1
2 476 871₽
Работа:615 004 ₽
Материалы:1 861 867 ₽
Дни:45
stdClass Object
(
[id] => 139
[attribute_id] => 19
[name] => Фасадная плитка
[material_modifier] => 1
[work_modifier] => 1
[options] => Array
(
[0] => Клинкерная
[1] => Керамическая
[2] => Плитка ручной формовки
)
[days] => [40,40,40]
[material_price] => [2974,1487,3470]
[work_price] => [3007,2592,3629]
[image] => https://akademik-stroy.ru/wp-content/uploads/materials/fasadnaya-plitka.jpg
[area_modifier] => 172.56
[parent_name] => Наружная отделка фасада
[parent_id] => 19
[material_sum] => 677415
[work_sum] => 570777
[total_sum] => 1248192
[total_days] => 40
[display_material_sum] => 677 415
[display_work_sum] => 570 777
[display_total_sum] => 1 248 192
)
1
1 248 192₽
Работа:570 777 ₽
Материалы:677 415 ₽
Дни:40
stdClass Object
(
[id] => 140
[attribute_id] => 19
[name] => Сайдинг
[material_modifier] => 1
[work_modifier] => 1
[options] => Array
(
[0] => Виниловый
[1] => Металлический
[2] => Фиброцементный
)
[days] => [20,20,20]
[material_price] => [1263,1944,4147]
[work_price] => [1263,1944,2074]
[image] => https://akademik-stroy.ru/wp-content/uploads/materials/sajding.jpg
[area_modifier] => 172.56
[parent_name] => Наружная отделка фасада
[parent_id] => 19
[material_sum] => 287685
[work_sum] => 239738
[total_sum] => 527423
[total_days] => 20
[display_material_sum] => 287 685
[display_work_sum] => 239 738
[display_total_sum] => 527 423
)
1
527 423₽
Работа:239 738 ₽
Материалы:287 685 ₽
Дни:20
stdClass Object
(
[id] => 141
[attribute_id] => 19
[name] => Камень
[material_modifier] => 1
[work_modifier] => 1
[options] => Array
(
[0] => Травертин
[1] => Дагестанский
[2] => Искусственный
[3] => Натуральный
[4] => Керамогранит
)
[days] => [45,45,45,45,45]
[material_price] => [4536,3888,2592,3240,2462]
[work_price] => [3240,3240,2462,3110,1944]
[image] => https://akademik-stroy.ru/wp-content/uploads/materials/kamen-1.jpg
[area_modifier] => 172.56
[parent_name] => Наружная отделка фасада
[parent_id] => 19
[material_sum] => 1033206
[work_sum] => 615004
[total_sum] => 1648210
[total_days] => 45
[display_material_sum] => 1 033 206
[display_work_sum] => 615 004
[display_total_sum] => 1 648 210
)
1
1 648 210₽
Работа:615 004 ₽
Материалы:1 033 206 ₽
Дни:45
stdClass Object
(
[id] => 142
[attribute_id] => 19
[name] => Термопанели
[material_modifier] => 1
[work_modifier] => 1
[options] => Array
(
)
[days] => [20]
[material_price] => [6221]
[work_price] => [2333]
[image] => https://akademik-stroy.ru/wp-content/uploads/materials/termo.png
[area_modifier] => 172.56
[parent_name] => Наружная отделка фасада
[parent_id] => 19
[material_sum] => 1417014
[work_sum] => 442841
[total_sum] => 1859855
[total_days] => 20
[display_material_sum] => 1 417 014
[display_work_sum] => 442 841
[display_total_sum] => 1 859 855
)
1
1 859 855₽
Работа:442 841 ₽
Материалы:1 417 014 ₽
Дни:20
stdClass Object
(
[id] => 143
[attribute_id] => 19
[name] => Плитка HAUBERK
[material_modifier] => 1
[work_modifier] => 1
[options] => Array
(
)
[days] => [20]
[material_price] => [2786]
[work_price] => [1944]
[image] => https://akademik-stroy.ru/wp-content/uploads/materials/hauberk.jpg
[area_modifier] => 172.56
[parent_name] => Наружная отделка фасада
[parent_id] => 19
[material_sum] => 634593
[work_sum] => 369002
[total_sum] => 1003595
[total_days] => 20
[display_material_sum] => 634 593
[display_work_sum] => 369 002
[display_total_sum] => 1 003 595
)
1
1 003 595₽
Работа:369 002 ₽
Материалы:634 593 ₽
Дни:20
stdClass Object
(
[id] => 144
[attribute_id] => 19
[name] => Фальцевый фасад
[material_modifier] => 1
[work_modifier] => 1
[options] => Array
(
)
[days] => [20]
[material_price] => [3240]
[work_price] => [2592]
[image] => https://akademik-stroy.ru/wp-content/uploads/materials/falcevyj-fasad.jpg
[area_modifier] => 172.56
[parent_name] => Наружная отделка фасада
[parent_id] => 19
[material_sum] => 738005
[work_sum] => 492003
[total_sum] => 1230008
[total_days] => 20
[display_material_sum] => 738 005
[display_work_sum] => 492 003
[display_total_sum] => 1 230 008
)
1
1 230 008₽
Работа:492 003 ₽
Материалы:738 005 ₽
Дни:20
stdClass Object
(
[id] => 145
[attribute_id] => 19
[name] => Комбинированный
[material_modifier] => 1
[work_modifier] => 1
[options] => Array
(
)
[days] => [20]
[material_price] => [4629]
[work_price] => [3499]
[image] => https://akademik-stroy.ru/wp-content/uploads/materials/Kombinirovannyj.jpg
[area_modifier] => 172.56
[parent_name] => Наружная отделка фасада
[parent_id] => 19
[material_sum] => 1054390
[work_sum] => 664166
[total_sum] => 1718556
[total_days] => 20
[display_material_sum] => 1 054 390
[display_work_sum] => 664 166
[display_total_sum] => 1 718 556
)
1
1 718 556₽
Работа:664 166 ₽
Материалы:1 054 390 ₽
Дни:20
stdClass Object
(
[id] => 257
[attribute_id] => 19
[name] => Японские фиброцементные
[material_modifier] => 1
[work_modifier] => 1
[options] => Array
(
)
[days] => [20]
[material_price] => [7043]
[work_price] => [2993]
[image] => https://akademik-stroy.ru/wp-content/uploads/materials/paneli.jpg
[area_modifier] => 172.56
[parent_name] => Наружная отделка фасада
[parent_id] => 19
[material_sum] => 1604249
[work_sum] => 568119
[total_sum] => 2172368
[total_days] => 20
[display_material_sum] => 1 604 249
[display_work_sum] => 568 119
[display_total_sum] => 2 172 368
)
1
2 172 368₽
Работа:568 119 ₽
Материалы:1 604 249 ₽
Дни:20
stdClass Object
(
[id] => 258
[attribute_id] => 19
[name] => Панели Каньон
[material_modifier] => 1
[work_modifier] => 1
[options] => Array
(
)
[days] => [20]
[material_price] => [4543]
[work_price] => [2592]
[image] => https://akademik-stroy.ru/wp-content/uploads/materials/kanon.png
[area_modifier] => 172.56
[parent_name] => Наружная отделка фасада
[parent_id] => 19
[material_sum] => 1034801
[work_sum] => 492003
[total_sum] => 1526804
[total_days] => 20
[display_material_sum] => 1 034 801
[display_work_sum] => 492 003
[display_total_sum] => 1 526 804
)
1
1 526 804₽
Работа:492 003 ₽
Материалы:1 034 801 ₽
Дни:20
stdClass Object
(
[id] => 39
[attribute_id] => 20
[name] => Нет
[material_modifier] => 1
[work_modifier] => 1
[options] => Array
(
)
[days] => [0]
[material_price] => [0]
[work_price] => [0]
[image] => https://akademik-stroy.ru/wp-content/uploads/materials/terrasy.jpg
[area_modifier] => 30
[parent_name] => Террасы, крыльца, навесы
[parent_id] => 20
[material_sum] => 0
[work_sum] => 0
[total_sum] => 0
[total_days] => 0
[display_material_sum] => 0
[display_work_sum] => 0
[display_total_sum] => 0
)
1
0₽
Работа:0 ₽
Материалы:0 ₽
Дни:0
stdClass Object
(
[id] => 40
[attribute_id] => 20
[name] => Есть
[material_modifier] => 1
[work_modifier] => 1
[options] => Array
(
)
[days] => [5]
[material_price] => [10450]
[work_price] => [1950]
[image] => https://akademik-stroy.ru/wp-content/uploads/materials/terrasy.jpg
[area_modifier] => 30
[parent_name] => Террасы, крыльца, навесы
[parent_id] => 20
[material_sum] => 413820
[work_sum] => 64350
[total_sum] => 478170
[total_days] => 5
[display_material_sum] => 413 820
[display_work_sum] => 64 350
[display_total_sum] => 478 170
)
1
478 170₽
Работа:64 350 ₽
Материалы:413 820 ₽
Дни:5
stdClass Object
(
[id] => 41
[attribute_id] => 21
[name] => Нет
[material_modifier] => 1
[work_modifier] => 1
[options] => Array
(
)
[days] => [0]
[material_price] => [0]
[work_price] => [0]
[image] => https://akademik-stroy.ru/wp-content/uploads/materials/balkony.jpg
[area_modifier] => 30
[parent_name] => Балконы
[parent_id] => 21
[material_sum] => 0
[work_sum] => 0
[total_sum] => 0
[total_days] => 0
[display_material_sum] => 0
[display_work_sum] => 0
[display_total_sum] => 0
)
1
0₽
Работа:0 ₽
Материалы:0 ₽
Дни:0
stdClass Object
(
[id] => 42
[attribute_id] => 21
[name] => Есть
[material_modifier] => 1
[work_modifier] => 1
[options] => Array
(
)
[days] => [12]
[material_price] => [3600]
[work_price] => [1950]
[image] => https://akademik-stroy.ru/wp-content/uploads/materials/balkony.jpg
[area_modifier] => 30
[parent_name] => Балконы
[parent_id] => 21
[material_sum] => 142560
[work_sum] => 64350
[total_sum] => 206910
[total_days] => 12
[display_material_sum] => 142 560
[display_work_sum] => 64 350
[display_total_sum] => 206 910
)
1
206 910₽
Работа:64 350 ₽
Материалы:142 560 ₽
Дни:12
stdClass Object
(
[id] => 43
[attribute_id] => 22
[name] => Нет
[material_modifier] => 1
[work_modifier] => 1
[options] => Array
(
)
[days] => [0]
[material_price] => [0]
[work_price] => [0]
[image] => https://akademik-stroy.ru/wp-content/uploads/materials/uteplennaya.jpg
[area_modifier] => 172.56
[parent_name] => Отмостка
[parent_id] => 22
[material_sum] => 0
[work_sum] => 0
[total_sum] => 0
[total_days] => 0
[display_material_sum] => 0
[display_work_sum] => 0
[display_total_sum] => 0
)
1
0₽
Работа:0 ₽
Материалы:0 ₽
Дни:0
stdClass Object
(
[id] => 44
[attribute_id] => 22
[name] => Утепленная отмостка
[material_modifier] => 1
[work_modifier] => 1
[options] => Array
(
)
[days] => [15]
[material_price] => [2550]
[work_price] => [1750]
[image] => https://akademik-stroy.ru/wp-content/uploads/materials/uteplennaya.jpg
[area_modifier] => 172.56
[parent_name] => Отмостка
[parent_id] => 22
[material_sum] => 580837
[work_sum] => 332178
[total_sum] => 913015
[total_days] => 15
[display_material_sum] => 580 837
[display_work_sum] => 332 178
[display_total_sum] => 913 015
)
1
913 015₽
Работа:332 178 ₽
Материалы:580 837 ₽
Дни:15
stdClass Object
(
[id] => 146
[attribute_id] => 22
[name] => Не утепленная отмостка
[material_modifier] => 1
[work_modifier] => 1
[options] => Array
(
)
[days] => [10]
[material_price] => [1650]
[work_price] => [1450]
[image] => https://akademik-stroy.ru/wp-content/uploads/materials/ne-uteplennaya.jpg
[area_modifier] => 172.56
[parent_name] => Отмостка
[parent_id] => 22
[material_sum] => 375836
[work_sum] => 275233
[total_sum] => 651069
[total_days] => 10
[display_material_sum] => 375 836
[display_work_sum] => 275 233
[display_total_sum] => 651 069
)
1
651 069₽
Работа:275 233 ₽
Материалы:375 836 ₽
Дни:10
stdClass Object
(
[id] => 45
[attribute_id] => 23
[name] => Нет
[material_modifier] => 1
[work_modifier] => 1
[options] => Array
(
)
[days] => [0]
[material_price] => [0]
[work_price] => [0]
[image] => https://akademik-stroy.ru/wp-content/uploads/materials/drenazh-2.jpg
[area_modifier] => 172.56
[parent_name] => Дренаж вокруг дома
[parent_id] => 23
[material_sum] => 0
[work_sum] => 0
[total_sum] => 0
[total_days] => 0
[display_material_sum] => 0
[display_work_sum] => 0
[display_total_sum] => 0
)
1
0₽
Работа:0 ₽
Материалы:0 ₽
Дни:0
stdClass Object
(
[id] => 46
[attribute_id] => 23
[name] => Есть
[material_modifier] => 1
[work_modifier] => 1
[options] => Array
(
)
[days] => [5]
[material_price] => [2366]
[work_price] => [1911]
[image] => https://akademik-stroy.ru/wp-content/uploads/materials/drenazh-2.jpg
[area_modifier] => 172.56
[parent_name] => Дренаж вокруг дома
[parent_id] => 23
[material_sum] => 538926
[work_sum] => 362738
[total_sum] => 901664
[total_days] => 5
[display_material_sum] => 538 926
[display_work_sum] => 362 738
[display_total_sum] => 901 664
)
1
901 664₽
Работа:362 738 ₽
Материалы:538 926 ₽
Дни:5
stdClass Object
(
[id] => 47
[attribute_id] => 24
[name] => Нет
[material_modifier] => 1
[work_modifier] => 1
[options] => Array
(
)
[days] => [0]
[material_price] => [0]
[work_price] => [0]
[image] => https://akademik-stroy.ru/wp-content/uploads/materials/septik.jpg
[area_modifier] => 1
[parent_name] => Автономная канализация (септики)
[parent_id] => 24
[material_sum] => 0
[work_sum] => 0
[total_sum] => 0
[total_days] => 0
[display_material_sum] => 0
[display_work_sum] => 0
[display_total_sum] => 0
)
1
0₽
Работа:0 ₽
Материалы:0 ₽
Дни:0
stdClass Object
(
[id] => 48
[attribute_id] => 24
[name] => Есть
[material_modifier] => 1
[work_modifier] => 1
[options] => Array
(
[0] => Для дачи на 4 человека
[1] => Для дома на 5 человек
[2] => Для дома на 6 человек
[3] => Для дома на 7 человек
[4] => Для дома на 10 человек
)
[days] => [7,7,7,8,8]
[material_price] => [196340,220500,240940,264200,293340]
[work_price] => [50000,55000,60500,66550,73206]
[image] => https://akademik-stroy.ru/wp-content/uploads/materials/septik.jpg
[area_modifier] => 1
[parent_name] => Автономная канализация (септики)
[parent_id] => 24
[material_sum] => 259169
[work_sum] => 55000
[total_sum] => 314169
[total_days] => 7
[display_material_sum] => 259 169
[display_work_sum] => 55 000
[display_total_sum] => 314 169
)
1
314 169₽
Работа:55 000 ₽
Материалы:259 169 ₽
Дни:7
stdClass Object
(
[id] => 49
[attribute_id] => 25
[name] => Нет
[material_modifier] => 1
[work_modifier] => 1
[options] => Array
(
)
[days] => [0]
[material_price] => [0]
[work_price] => [0]
[image] => https://akademik-stroy.ru/wp-content/uploads/materials/gkl.jpg
[area_modifier] => 172.56
[parent_name] => Внутренние (не несущие) перегородки
[parent_id] => 25
[material_sum] => 0
[work_sum] => 0
[total_sum] => 0
[total_days] => 0
[display_material_sum] => 0
[display_work_sum] => 0
[display_total_sum] => 0
)
1
0₽
Работа:0 ₽
Материалы:0 ₽
Дни:0
stdClass Object
(
[id] => 147
[attribute_id] => 25
[name] => Каркасно-обшивные
[material_modifier] => 1
[work_modifier] => 1
[options] => Array
(
[0] => 75 мм (без шумоизоляции)
[1] => 75 мм (с шумоизоляцией)
)
[days] => [11,11]
[material_price] => [580,970]
[work_price] => [380,570]
[image] => https://akademik-stroy.ru/wp-content/uploads/materials/gkl.jpg
[area_modifier] => 172.56
[parent_name] => Внутренние (не несущие) перегородки
[parent_id] => 25
[material_sum] => 132112
[work_sum] => 72130
[total_sum] => 204242
[total_days] => 11
[display_material_sum] => 132 112
[display_work_sum] => 72 130
[display_total_sum] => 204 242
)
1
204 242₽
Работа:72 130 ₽
Материалы:132 112 ₽
Дни:11
stdClass Object
(
[id] => 148
[attribute_id] => 25
[name] => Пазогребневые
[material_modifier] => 1
[work_modifier] => 1
[options] => Array
(
[0] => 80 мм
[1] => 100 мм
)
[days] => [5,5]
[material_price] => [1022,1313]
[work_price] => [600,700]
[image] => https://akademik-stroy.ru/wp-content/uploads/materials/pazogrebnevye-bloki.jpg
[area_modifier] => 172.56
[parent_name] => Внутренние (не несущие) перегородки
[parent_id] => 25
[material_sum] => 232790
[work_sum] => 113890
[total_sum] => 346680
[total_days] => 5
[display_material_sum] => 232 790
[display_work_sum] => 113 890
[display_total_sum] => 346 680
)
1
346 680₽
Работа:113 890 ₽
Материалы:232 790 ₽
Дни:5
stdClass Object
(
[id] => 149
[attribute_id] => 25
[name] => Газобетонные
[material_modifier] => 1
[work_modifier] => 1
[options] => Array
(
[0] => 100 мм
[1] => 200 мм
)
[days] => [11,11]
[material_price] => [1160,1920]
[work_price] => [700,900]
[image] => https://akademik-stroy.ru/wp-content/uploads/materials/gazobeton-2.jpg
[area_modifier] => 172.56
[parent_name] => Внутренние (не несущие) перегородки
[parent_id] => 25
[material_sum] => 264224
[work_sum] => 132871
[total_sum] => 397095
[total_days] => 11
[display_material_sum] => 264 224
[display_work_sum] => 132 871
[display_total_sum] => 397 095
)
1
397 095₽
Работа:132 871 ₽
Материалы:264 224 ₽
Дни:11
stdClass Object
(
[id] => 150
[attribute_id] => 25
[name] => Кирпичные
[material_modifier] => 1
[work_modifier] => 1
[options] => Array
(
[0] => 120 мм
[1] => 250 мм
[2] => 360 мм
)
[days] => [7,7,7]
[material_price] => [1785,3570,5355]
[work_price] => [900,1600,1800]
[image] => https://akademik-stroy.ru/wp-content/uploads/materials/kirpich-1.jpg
[area_modifier] => 172.56
[parent_name] => Внутренние (не несущие) перегородки
[parent_id] => 25
[material_sum] => 406586
[work_sum] => 170834
[total_sum] => 577420
[total_days] => 7
[display_material_sum] => 406 586
[display_work_sum] => 170 834
[display_total_sum] => 577 420
)
1
577 420₽
Работа:170 834 ₽
Материалы:406 586 ₽
Дни:7
stdClass Object
(
[id] => 55
[attribute_id] => 28
[name] => Нет
[material_modifier] => 1
[work_modifier] => 1
[options] => Array
(
)
[days] => [0]
[material_price] => [0]
[work_price] => [0]
[image] => https://akademik-stroy.ru/wp-content/uploads/materials/ehlektrika.jpg
[area_modifier] => 140.03
[parent_name] => Электрика
[parent_id] => 28
[material_sum] => 0
[work_sum] => 0
[total_sum] => 0
[total_days] => 0
[display_material_sum] => 0
[display_work_sum] => 0
[display_total_sum] => 0
)
1
0₽
Работа:0 ₽
Материалы:0 ₽
Дни:0
stdClass Object
(
[id] => 56
[attribute_id] => 28
[name] => Есть
[material_modifier] => 1
[work_modifier] => 1
[options] => Array
(
)
[days] => [10]
[material_price] => [650]
[work_price] => [950]
[image] => https://akademik-stroy.ru/wp-content/uploads/materials/ehlektrika.jpg
[area_modifier] => 140.03
[parent_name] => Электрика
[parent_id] => 28
[material_sum] => 120146
[work_sum] => 146331
[total_sum] => 266477
[total_days] => 10
[display_material_sum] => 120 146
[display_work_sum] => 146 331
[display_total_sum] => 266 477
)
1
266 477₽
Работа:146 331 ₽
Материалы:120 146 ₽
Дни:10
stdClass Object
(
[id] => 57
[attribute_id] => 29
[name] => Нет
[material_modifier] => 1
[work_modifier] => 1
[options] => Array
(
)
[days] => [0]
[material_price] => [0]
[work_price] => [0]
[image] => https://akademik-stroy.ru/wp-content/uploads/materials/santekhnika-kanalizaciya-1.jpg
[area_modifier] => 140.03
[parent_name] => Сантехника, канализация в доме
[parent_id] => 29
[material_sum] => 0
[work_sum] => 0
[total_sum] => 0
[total_days] => 0
[display_material_sum] => 0
[display_work_sum] => 0
[display_total_sum] => 0
)
1
0₽
Работа:0 ₽
Материалы:0 ₽
Дни:0
stdClass Object
(
[id] => 58
[attribute_id] => 29
[name] => Есть
[material_modifier] => 1
[work_modifier] => 1
[options] => Array
(
)
[days] => [10]
[material_price] => [600]
[work_price] => [730]
[image] => https://akademik-stroy.ru/wp-content/uploads/materials/santekhnika-kanalizaciya-1.jpg
[area_modifier] => 140.03
[parent_name] => Сантехника, канализация в доме
[parent_id] => 29
[material_sum] => 110904
[work_sum] => 112444
[total_sum] => 223348
[total_days] => 10
[display_material_sum] => 110 904
[display_work_sum] => 112 444
[display_total_sum] => 223 348
)
1
223 348₽
Работа:112 444 ₽
Материалы:110 904 ₽
Дни:10
stdClass Object
(
[id] => 59
[attribute_id] => 30
[name] => Нет
[material_modifier] => 1
[work_modifier] => 1
[options] => Array
(
)
[days] => [0]
[material_price] => [0]
[work_price] => [0]
[image] => https://akademik-stroy.ru/wp-content/uploads/materials/otoplenie-1.jpg
[area_modifier] => 140.03
[parent_name] => Отопление
[parent_id] => 30
[material_sum] => 0
[work_sum] => 0
[total_sum] => 0
[total_days] => 0
[display_material_sum] => 0
[display_work_sum] => 0
[display_total_sum] => 0
)
1
0₽
Работа:0 ₽
Материалы:0 ₽
Дни:0
stdClass Object
(
[id] => 60
[attribute_id] => 30
[name] => Есть
[material_modifier] => 1
[work_modifier] => 1
[options] => Array
(
)
[days] => [5]
[material_price] => [610]
[work_price] => [560]
[image] => https://akademik-stroy.ru/wp-content/uploads/materials/otoplenie-1.jpg
[area_modifier] => 140.03
[parent_name] => Отопление
[parent_id] => 30
[material_sum] => 112752
[work_sum] => 86258
[total_sum] => 199010
[total_days] => 5
[display_material_sum] => 112 752
[display_work_sum] => 86 258
[display_total_sum] => 199 010
)
1
199 010₽
Работа:86 258 ₽
Материалы:112 752 ₽
Дни:5
stdClass Object
(
[id] => 61
[attribute_id] => 31
[name] => Нет
[material_modifier] => 1
[work_modifier] => 1
[options] => Array
(
)
[days] => [0]
[material_price] => [0]
[work_price] => [0]
[image] => https://akademik-stroy.ru/wp-content/uploads/materials/vodyanye.jpg
[area_modifier] => 30
[parent_name] => Теплые полы
[parent_id] => 31
[material_sum] => 0
[work_sum] => 0
[total_sum] => 0
[total_days] => 0
[display_material_sum] => 0
[display_work_sum] => 0
[display_total_sum] => 0
)
1
0₽
Работа:0 ₽
Материалы:0 ₽
Дни:0
stdClass Object
(
[id] => 151
[attribute_id] => 31
[name] => Водяные
[material_modifier] => 1
[work_modifier] => 1
[options] => Array
(
)
[days] => [9]
[material_price] => [10200]
[work_price] => [2500]
[image] => https://akademik-stroy.ru/wp-content/uploads/materials/vodyanye.jpg
[area_modifier] => 30
[parent_name] => Теплые полы
[parent_id] => 31
[material_sum] => 403920
[work_sum] => 82500
[total_sum] => 486420
[total_days] => 9
[display_material_sum] => 403 920
[display_work_sum] => 82 500
[display_total_sum] => 486 420
)
1
486 420₽
Работа:82 500 ₽
Материалы:403 920 ₽
Дни:9
stdClass Object
(
[id] => 152
[attribute_id] => 31
[name] => Электро
[material_modifier] => 1
[work_modifier] => 1
[options] => Array
(
)
[days] => [5]
[material_price] => [6300]
[work_price] => [1500]
[image] => https://akademik-stroy.ru/wp-content/uploads/materials/ehlektricheskij.jpg
[area_modifier] => 30
[parent_name] => Теплые полы
[parent_id] => 31
[material_sum] => 249480
[work_sum] => 49500
[total_sum] => 298980
[total_days] => 5
[display_material_sum] => 249 480
[display_work_sum] => 49 500
[display_total_sum] => 298 980
)
1
298 980₽
Работа:49 500 ₽
Материалы:249 480 ₽
Дни:5
stdClass Object
(
[id] => 63
[attribute_id] => 32
[name] => Нет
[material_modifier] => 1
[work_modifier] => 1
[options] => Array
(
)
[days] => [0]
[material_price] => [0]
[work_price] => [0]
[image] => https://akademik-stroy.ru/wp-content/uploads/materials/shtukaturka-shpatlevka-1.jpg
[area_modifier] => 140.03
[parent_name] => Черновая отделка стен
[parent_id] => 32
[material_sum] => 0
[work_sum] => 0
[total_sum] => 0
[total_days] => 0
[display_material_sum] => 0
[display_work_sum] => 0
[display_total_sum] => 0
)
1
0₽
Работа:0 ₽
Материалы:0 ₽
Дни:0
stdClass Object
(
[id] => 153
[attribute_id] => 32
[name] => Штукатурка и шпатлевка
[material_modifier] => 1
[work_modifier] => 1
[options] => Array
(
)
[days] => [20]
[material_price] => [1850]
[work_price] => [2600]
[image] => https://akademik-stroy.ru/wp-content/uploads/materials/shtukaturka-shpatlevka-1.jpg
[area_modifier] => 140.03
[parent_name] => Черновая отделка стен
[parent_id] => 32
[material_sum] => 341953
[work_sum] => 400486
[total_sum] => 742439
[total_days] => 20
[display_material_sum] => 341 953
[display_work_sum] => 400 486
[display_total_sum] => 742 439
)
1
742 439₽
Работа:400 486 ₽
Материалы:341 953 ₽
Дни:20
stdClass Object
(
[id] => 154
[attribute_id] => 32
[name] => Гипсокортон на стены
[material_modifier] => 1
[work_modifier] => 1
[options] => Array
(
)
[days] => [15]
[material_price] => [950]
[work_price] => [2100]
[image] => https://akademik-stroy.ru/wp-content/uploads/materials/gkl-1.jpg
[area_modifier] => 140.03
[parent_name] => Черновая отделка стен
[parent_id] => 32
[material_sum] => 175598
[work_sum] => 323469
[total_sum] => 499067
[total_days] => 15
[display_material_sum] => 175 598
[display_work_sum] => 323 469
[display_total_sum] => 499 067
)
1
499 067₽
Работа:323 469 ₽
Материалы:175 598 ₽
Дни:15
stdClass Object
(
[id] => 155
[attribute_id] => 32
[name] => Вагонка
[material_modifier] => 1
[work_modifier] => 1
[options] => Array
(
)
[days] => [15]
[material_price] => [1250]
[work_price] => [950]
[image] => https://akademik-stroy.ru/wp-content/uploads/materials/vagonka.jpg
[area_modifier] => 140.03
[parent_name] => Черновая отделка стен
[parent_id] => 32
[material_sum] => 231050
[work_sum] => 146331
[total_sum] => 377381
[total_days] => 15
[display_material_sum] => 231 050
[display_work_sum] => 146 331
[display_total_sum] => 377 381
)
1
377 381₽
Работа:146 331 ₽
Материалы:231 050 ₽
Дни:15
stdClass Object
(
[id] => 65
[attribute_id] => 33
[name] => Нет
[material_modifier] => 1
[work_modifier] => 1
[options] => Array
(
)
[days] => [0]
[material_price] => [0]
[work_price] => [0]
[image] => https://akademik-stroy.ru/wp-content/uploads/materials/styazhka.jpg
[area_modifier] => 140.03
[parent_name] => Черновая отделка полов
[parent_id] => 33
[material_sum] => 0
[work_sum] => 0
[total_sum] => 0
[total_days] => 0
[display_material_sum] => 0
[display_work_sum] => 0
[display_total_sum] => 0
)
1
0₽
Работа:0 ₽
Материалы:0 ₽
Дни:0
stdClass Object
(
[id] => 156
[attribute_id] => 33
[name] => Стяжка + наливные полы
[material_modifier] => 1
[work_modifier] => 1
[options] => Array
(
)
[days] => [10]
[material_price] => [1000]
[work_price] => [900]
[image] => https://akademik-stroy.ru/wp-content/uploads/materials/styazhka.jpg
[area_modifier] => 140.03
[parent_name] => Черновая отделка полов
[parent_id] => 33
[material_sum] => 184840
[work_sum] => 138630
[total_sum] => 323470
[total_days] => 10
[display_material_sum] => 184 840
[display_work_sum] => 138 630
[display_total_sum] => 323 470
)
1
323 470₽
Работа:138 630 ₽
Материалы:184 840 ₽
Дни:10
stdClass Object
(
[id] => 157
[attribute_id] => 33
[name] => ОСБ на пол
[material_modifier] => 1
[work_modifier] => 1
[options] => Array
(
)
[days] => [7]
[material_price] => [580]
[work_price] => [350]
[image] => https://akademik-stroy.ru/wp-content/uploads/materials/osb-1.jpg
[area_modifier] => 140.03
[parent_name] => Черновая отделка полов
[parent_id] => 33
[material_sum] => 107207
[work_sum] => 53912
[total_sum] => 161119
[total_days] => 7
[display_material_sum] => 107 207
[display_work_sum] => 53 912
[display_total_sum] => 161 119
)
1
161 119₽
Работа:53 912 ₽
Материалы:107 207 ₽
Дни:7
stdClass Object
(
[id] => 67
[attribute_id] => 34
[name] => Нет
[material_modifier] => 1
[work_modifier] => 1
[options] => Array
(
)
[days] => [0]
[material_price] => [0]
[work_price] => [0]
[image] => https://akademik-stroy.ru/wp-content/uploads/materials/chistovaya-otdelka.jpg
[area_modifier] => 140.03
[parent_name] => Чистовая отделка стен и полов
[parent_id] => 34
[material_sum] => 0
[work_sum] => 0
[total_sum] => 0
[total_days] => 0
[display_material_sum] => 0
[display_work_sum] => 0
[display_total_sum] => 0
)
1
0₽
Работа:0 ₽
Материалы:0 ₽
Дни:0
stdClass Object
(
[id] => 68
[attribute_id] => 34
[name] => Есть
[material_modifier] => 1
[work_modifier] => 1
[options] => Array
(
)
[days] => [50]
[material_price] => [6000]
[work_price] => [3500]
[image] => https://akademik-stroy.ru/wp-content/uploads/materials/chistovaya-otdelka.jpg
[area_modifier] => 140.03
[parent_name] => Чистовая отделка стен и полов
[parent_id] => 34
[material_sum] => 1109038
[work_sum] => 539116
[total_sum] => 1648154
[total_days] => 50
[display_material_sum] => 1 109 038
[display_work_sum] => 539 116
[display_total_sum] => 1 648 154
)
1
1 648 154₽
Работа:539 116 ₽
Материалы:1 109 038 ₽
Дни:50
stdClass Object
(
[id] => 69
[attribute_id] => 35
[name] => Нет
[material_modifier] => 1
[work_modifier] => 1
[options] => Array
(
)
[days] => [0]
[material_price] => [0]
[work_price] => [0]
[image] => https://akademik-stroy.ru/wp-content/uploads/materials/mnogourovnevyj-gkl.jpg
[area_modifier] => 140.03
[parent_name] => Отделка потолка
[parent_id] => 35
[material_sum] => 0
[work_sum] => 0
[total_sum] => 0
[total_days] => 0
[display_material_sum] => 0
[display_work_sum] => 0
[display_total_sum] => 0
)
1
0₽
Работа:0 ₽
Материалы:0 ₽
Дни:0
stdClass Object
(
[id] => 70
[attribute_id] => 35
[name] => Есть
[material_modifier] => 1
[work_modifier] => 1
[options] => Array
(
[0] => Многоуровневый потолок из гипсокартона
[1] => Многоуровневый потолок из гипсокартона и натяжного потолка
[2] => Одноуровневый потолок из гипсокартона
[3] => Одноуровневый натяжной потолок
)
[days] => [10,10,1,1]
[material_price] => [900,700,700,600]
[work_price] => [1000,800,500,300]
[image] => https://akademik-stroy.ru/wp-content/uploads/materials/mnogourovnevyj-gkl.jpg
[area_modifier] => 140.03
[parent_name] => Отделка потолка
[parent_id] => 35
[material_sum] => 166356
[work_sum] => 154033
[total_sum] => 320389
[total_days] => 10
[display_material_sum] => 166 356
[display_work_sum] => 154 033
[display_total_sum] => 320 389
)
1
320 389₽
Работа:154 033 ₽
Материалы:166 356 ₽
Дни:10
Преимущества работы с нами
7 этапов оплаты
Независимый строительный надзор
Экологически чистые материалы
16 лет гарантии
Онлайн-кабинет с веб-камерой
Строители с опытом более 15 лет
Собственное производство






