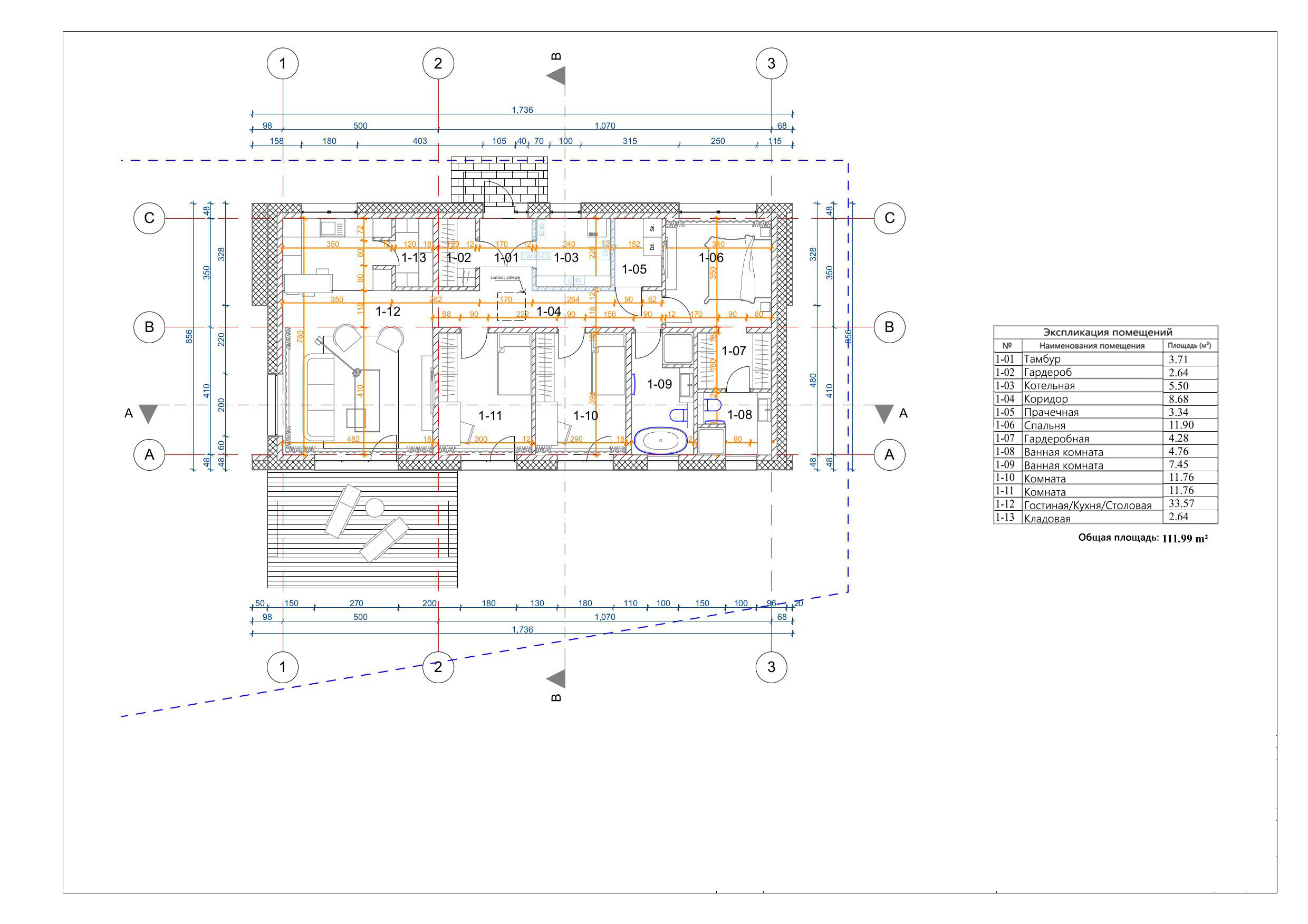
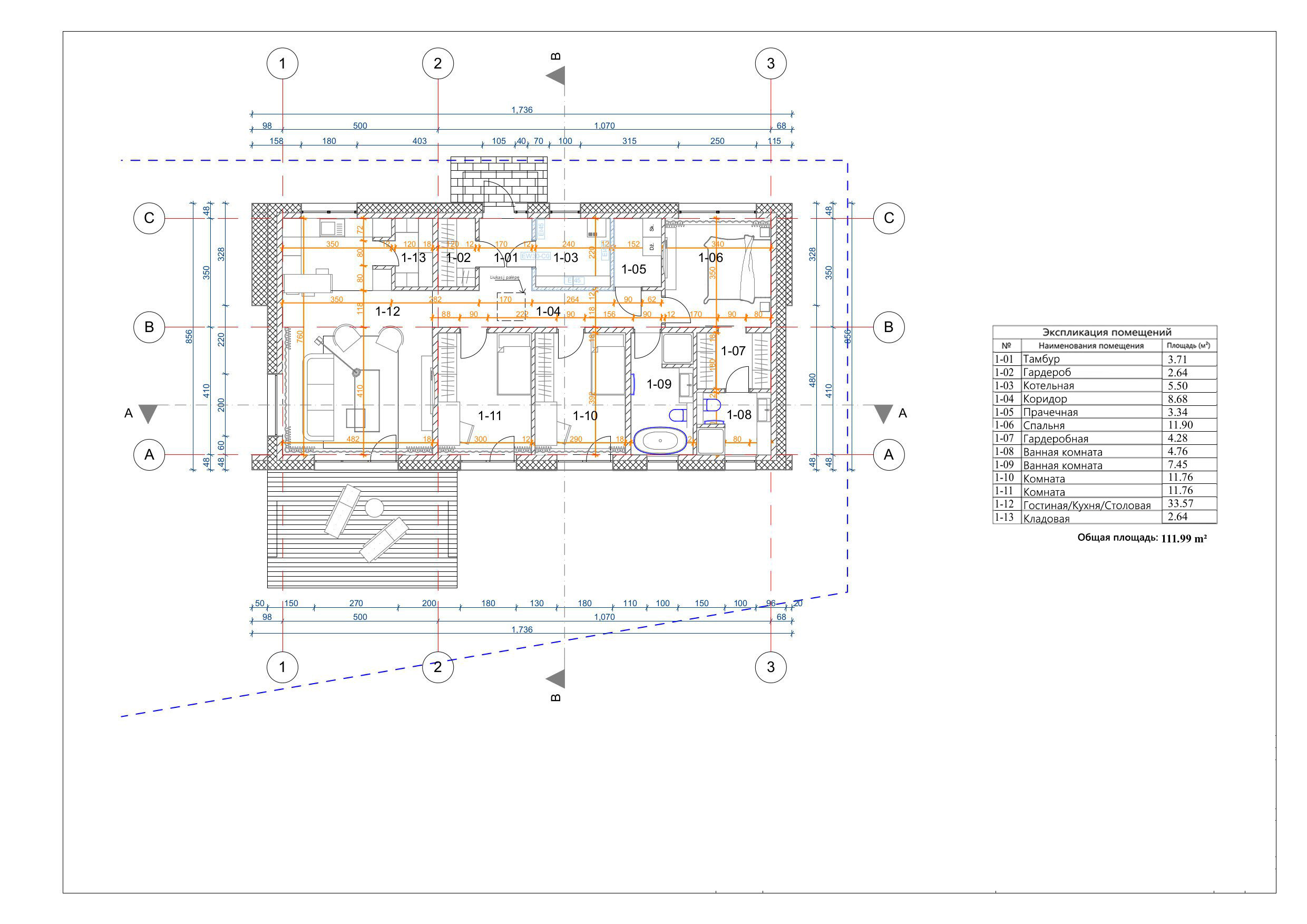
Одноэтажный дом 111.99 м2 за руб.
Планировки
План первого этажа
- 1. Тамбур 3,71 м²
- 2. Гардероб 2,64 м²
- 3. Котельная 5,50 м²
- 4. Коридор 8,68 м²
- 5. Прачечная 3,34 м²
- 6. Спальня 11,90 м²
- 7. Гардеробная 4,28 м²
- 8. Ванная комната 4,76 м²
- 9. Ванная комната 7,45 м²
- 10. Комната 11,76 м²
- 11. Комната 11,76 м²
- 12. Гостиная-Кухня-Столовая 33,57 м²
- 13. Кладовая 2,64 м²
- Общая площадь 111,99 м²
Площади дома
| № п/п | Наименование | Ед. из. | Строительная площадь | Полезная площадь |
| 1 | 1 этаж | м2 | 138.01 | 111.99 |
| 2 | Итого | м2 | 138.01 | 111.99 |
154 м2
Полезная
площадь
площадь
1 этаж
Этажей
26 м2
Террасы
и балконы
и балконы
0Без
гаража
гаража
3
Количество
спален
спален
2
Количество
санузлов
санузлов
Калькулятор опций
0₽
В ипотеку от 19 278 ₽/мес.
0₽
0 дней
stdClass Object
(
[id] => 1
[attribute_id] => 1
[name] => Ленточный монолитный ж/б
[material_modifier] => 1
[work_modifier] => 1
[options] => Array
(
[0] => размер 200 х 700 мм
[1] => размер 300 х 900 мм
[2] => размер 400 х 1 000 мм
[3] => размер 500 х 1 100 мм
[4] => размер 600 х 1 200 мм
)
[days] => [20,21,22,25,30]
[material_price] => [2823,3630,4475,5210,12047]
[work_price] => [2154,2826,3731,4577,5293]
[image] => https://akademik-stroy.ru/wp-content/uploads/materials/lentochnyj-monolitnyj-zh-b.jpg
[area_modifier] => 138.01
[parent_name] => Фундамент
[parent_id] => 1
[material_sum] => 537651
[work_sum] => 341865
[total_sum] => 879516
[total_days] => 20
[display_material_sum] => 537 651
[display_work_sum] => 341 865
[display_total_sum] => 879 516
)
1
879 516₽
Работа:341 865 ₽
Материалы:537 651 ₽
Дни:20
stdClass Object
(
[id] => 2
[attribute_id] => 1
[name] => Забивные Ж/Б сваи
[material_modifier] => 1
[work_modifier] => 1
[options] => Array
(
[0] => 150х150х3000мм
[1] => 150х150х4000мм
[2] => 200х200х3000мм
[3] => 200х200х4000мм
[4] => 200х200х5000мм
[5] => 200х200х6000мм
)
[days] => [2,2,2,2,2,2]
[material_price] => [1990,2850,3255,4360,5120,6837]
[work_price] => [1002,1185,1336,1438,1574,1839]
[image] => https://akademik-stroy.ru/wp-content/uploads/materials/zabivnye-zh-b-svai.png
[area_modifier] => 138.01
[parent_name] => Фундамент
[parent_id] => 1
[material_sum] => 379003
[work_sum] => 159029
[total_sum] => 538032
[total_days] => 2
[display_material_sum] => 379 003
[display_work_sum] => 159 029
[display_total_sum] => 538 032
)
1
538 032₽
Работа:159 029 ₽
Материалы:379 003 ₽
Дни:2
stdClass Object
(
[id] => 71
[attribute_id] => 1
[name] => Свайно-ростверковый ж/б
[material_modifier] => 1
[work_modifier] => 1
[options] => Array
(
[0] => ростверк 200х300 мм
[1] => ростверк 300х600 мм
[2] => ростверк 400х900 мм
[3] => ростверк 500х1200 мм
)
[days] => [20,23,25,27]
[material_price] => [3018,3474,7109,9792]
[work_price] => [2024,3012,5635,7022]
[image] => https://akademik-stroy.ru/wp-content/uploads/materials/svajno-rostverkovyj-monolitnyj-zh-b-3.png
[area_modifier] => 138.01
[parent_name] => Фундамент
[parent_id] => 1
[material_sum] => 574790
[work_sum] => 321232
[total_sum] => 896022
[total_days] => 20
[display_material_sum] => 574 790
[display_work_sum] => 321 232
[display_total_sum] => 896 022
)
1
896 022₽
Работа:321 232 ₽
Материалы:574 790 ₽
Дни:20
stdClass Object
(
[id] => 72
[attribute_id] => 1
[name] => Монолитная ж/б плита
[material_modifier] => 1
[work_modifier] => 1
[options] => Array
(
[0] => 200 мм
[1] => 300 мм
[2] => 400 мм
[3] => 500 мм
[4] => 600 мм
)
[days] => [30,33,35,37,40]
[material_price] => [5348,8555,12788,14388,15189]
[work_price] => [4314,4881,7037,8061,10230]
[image] => https://akademik-stroy.ru/wp-content/uploads/materials/monolitnaya-zhb-plita.png
[area_modifier] => 138.01
[parent_name] => Фундамент
[parent_id] => 1
[material_sum] => 1018547
[work_sum] => 684681
[total_sum] => 1703228
[total_days] => 30
[display_material_sum] => 1 018 547
[display_work_sum] => 684 681
[display_total_sum] => 1 703 228
)
1
1 703 228₽
Работа:684 681 ₽
Материалы:1 018 547 ₽
Дни:30
stdClass Object
(
[id] => 73
[attribute_id] => 1
[name] => Утепленная шведская плита
[material_modifier] => 1
[work_modifier] => 1
[options] => Array
(
[0] => 200 мм
[1] => 300 мм
[2] => 400 мм
[3] => 500 мм
[4] => 600 мм
)
[days] => [32,37,39,42,45]
[material_price] => [10249,12692,13760,14936,16230]
[work_price] => [5960,7337,8072,8878,9765]
[image] => https://akademik-stroy.ru/wp-content/uploads/materials/uteplennaya-shvedskaya-plita.jpg
[area_modifier] => 138.01
[parent_name] => Фундамент
[parent_id] => 1
[material_sum] => 1951961
[work_sum] => 945921
[total_sum] => 2897882
[total_days] => 32
[display_material_sum] => 1 951 961
[display_work_sum] => 945 921
[display_total_sum] => 2 897 882
)
1
2 897 882₽
Работа:945 921 ₽
Материалы:1 951 961 ₽
Дни:32
stdClass Object
(
[id] => 75
[attribute_id] => 1
[name] => Ленточный из ФБС
[material_modifier] => 1
[work_modifier] => 1
[options] => Array
(
[0] => толщ. 300 мм
[1] => толщ. 400 мм
[2] => толщ. 500 мм
[3] => толщ. 600 мм
)
[days] => [20,20,20,20]
[material_price] => [3675,4902,6126,7350]
[work_price] => [2451,3264,4083,4902]
[image] => https://akademik-stroy.ru/wp-content/uploads/materials/lentochnyj-iz-fbs.png
[area_modifier] => 138.01
[parent_name] => Фундамент
[parent_id] => 1
[material_sum] => 699918
[work_sum] => 389002
[total_sum] => 1088920
[total_days] => 20
[display_material_sum] => 699 918
[display_work_sum] => 389 002
[display_total_sum] => 1 088 920
)
1
1 088 920₽
Работа:389 002 ₽
Материалы:699 918 ₽
Дни:20
stdClass Object
(
[id] => 76
[attribute_id] => 1
[name] => Цокольный этаж из ФБС
[material_modifier] => 1
[work_modifier] => 1
[options] => Array
(
[0] => толщ. 300 мм
[1] => толщ. 400 мм
[2] => толщ. 500 мм
[3] => толщ. 600 мм
)
[days] => [30,32,34,36]
[material_price] => [20916,23299,26680,29060]
[work_price] => [17524,18700,19873,21046]
[image] => https://akademik-stroy.ru/wp-content/uploads/materials/cokolnyj-ehtazh-iz-fbs.jpg
[area_modifier] => 138.01
[parent_name] => Фундамент
[parent_id] => 1
[material_sum] => 3983532
[work_sum] => 2781260
[total_sum] => 6764792
[total_days] => 30
[display_material_sum] => 3 983 532
[display_work_sum] => 2 781 260
[display_total_sum] => 6 764 792
)
1
6 764 792₽
Работа:2 781 260 ₽
Материалы:3 983 532 ₽
Дни:30
stdClass Object
(
[id] => 77
[attribute_id] => 1
[name] => Цокольный этаж монолитный ж/б
[material_modifier] => 1
[work_modifier] => 1
[options] => Array
(
[0] => толщ. 200 мм
[1] => толщ. 300 мм
[2] => толщ. 400 мм
[3] => толщ. 500 мм
[4] => толщ. 600 мм
)
[days] => [40,42,44,46,48]
[material_price] => [25421,29148,32275,35602,37326]
[work_price] => [20441,21907,23375,24841,26306]
[image] => https://akademik-stroy.ru/wp-content/uploads/materials/cokolnyj-etazh-zh-b.jpg
[area_modifier] => 138.01
[parent_name] => Фундамент
[parent_id] => 1
[material_sum] => 4841526
[work_sum] => 3244222
[total_sum] => 8085748
[total_days] => 40
[display_material_sum] => 4 841 526
[display_work_sum] => 3 244 222
[display_total_sum] => 8 085 748
)
1
8 085 748₽
Работа:3 244 222 ₽
Материалы:4 841 526 ₽
Дни:40
stdClass Object
(
[id] => 191
[attribute_id] => 1
[name] => Винтовые сваи
[material_modifier] => 1
[work_modifier] => 1
[options] => Array
(
[0] => 57х200мм
[1] => 76х250мм
[2] => 108х300мм
[3] => 133х350мм
)
[days] => [1,1,2,2]
[material_price] => [1200,1300,1450,1600]
[work_price] => [400,600,900,1100]
[image] => https://akademik-stroy.ru/wp-content/uploads/materials/vintovye-svai.png
[area_modifier] => 138.01
[parent_name] => Фундамент
[parent_id] => 1
[material_sum] => 228545
[work_sum] => 63485
[total_sum] => 292030
[total_days] => 1
[display_material_sum] => 228 545
[display_work_sum] => 63 485
[display_total_sum] => 292 030
)
1
292 030₽
Работа:63 485 ₽
Материалы:228 545 ₽
Дни:1
stdClass Object
(
[id] => 3
[attribute_id] => 2
[name] => Деревянные балки
[material_modifier] => 1
[work_modifier] => 1
[options] => Array
(
[0] => без утепления
[1] => утепление 200 мм
[2] => утепление 250 мм
[3] => утепление 300 мм
[4] => утепление 350 мм
[5] => утепление 400 мм
[6] => утепление 450 мм
[7] => утепление 500 мм
)
[days] => [8,9,9,9,11,12,13,14]
[material_price] => [1634,2042,2344,2947,3149,3652,3354,3557]
[work_price] => [1230,1339,1393,1426,1460,1513,1587,1620]
[image] => https://akademik-stroy.ru/wp-content/uploads/materials/derevyannye-balki.png
[area_modifier] => 138.01
[parent_name] => Перекрытие цоколя
[parent_id] => 2
[material_sum] => 311202
[work_sum] => 195215
[total_sum] => 506417
[total_days] => 8
[display_material_sum] => 311 202
[display_work_sum] => 195 215
[display_total_sum] => 506 417
)
1
506 417₽
Работа:195 215 ₽
Материалы:311 202 ₽
Дни:8
stdClass Object
(
[id] => 4
[attribute_id] => 2
[name] => Сборные ж/б плиты
[material_modifier] => 1
[work_modifier] => 1
[options] => Array
(
[0] => без утепления
[1] => утепление 150мм
[2] => утепление 200мм
[3] => утепление 250мм
[4] => утепление 300мм
[5] => утепление 350мм
[6] => утепление 400мм
[7] => утепление 450мм
[8] => утепление 500мм
)
[days] => [13,15,15,15,15,15,15,15,15]
[material_price] => [3067,5577,5928,6679,7730,8782,9833,10884,11935]
[work_price] => [1520,1956,2102,2247,2392,2537,2684,2829,2974]
[image] => https://akademik-stroy.ru/wp-content/uploads/materials/sbornye-zh-b-plity-2.jpg
[area_modifier] => 138.01
[parent_name] => Перекрытие цоколя
[parent_id] => 2
[material_sum] => 584122
[work_sum] => 241241
[total_sum] => 825363
[total_days] => 13
[display_material_sum] => 584 122
[display_work_sum] => 241 241
[display_total_sum] => 825 363
)
1
825 363₽
Работа:241 241 ₽
Материалы:584 122 ₽
Дни:13
stdClass Object
(
[id] => 78
[attribute_id] => 2
[name] => Монолитная ж/б плита
[material_modifier] => 1
[work_modifier] => 1
[options] => Array
(
[0] => без утепления
[1] => утепление 150 мм
[2] => утепление 200 мм
[3] => утепление 250 мм
[4] => утепление 300 мм
[5] => утепление 350 мм
[6] => утепление 400 мм
[7] => утепление 450 мм
[8] => утепление 500 мм
)
[days] => [18,20,20,20,20,20,20,20,20]
[material_price] => [4837,6572,7224,7375,79426,8177,8728,9180,10031]
[work_price] => [3348,3921,4112,4302,4493,4684,4875,5066,5256]
[image] => https://akademik-stroy.ru/wp-content/uploads/materials/monolitnaya-zh-b-plita-2.jpg
[area_modifier] => 138.01
[parent_name] => Перекрытие цоколя
[parent_id] => 2
[material_sum] => 921225
[work_sum] => 531366
[total_sum] => 1452591
[total_days] => 18
[display_material_sum] => 921 225
[display_work_sum] => 531 366
[display_total_sum] => 1 452 591
)
1
1 452 591₽
Работа:531 366 ₽
Материалы:921 225 ₽
Дни:18
stdClass Object
(
[id] => 6
[attribute_id] => 3
[name] => Пеноблок
[material_modifier] => 1
[work_modifier] => 1
[options] => Array
(
[0] => 300 мм
[1] => 400 мм
[2] => 500 мм
[3] => 600 мм
)
[days] => [29,31,34,39]
[material_price] => [3000,4000,4500,4937]
[work_price] => [5033,5805,6400,8710]
[image] => https://akademik-stroy.ru/wp-content/uploads/materials/penoblok.jpg
[area_modifier] => 138.01
[parent_name] => Стены 1 этаж (несущие)
[parent_id] => 3
[material_sum] => 571361
[work_sum] => 798795
[total_sum] => 1370156
[total_days] => 29
[display_material_sum] => 571 361
[display_work_sum] => 798 795
[display_total_sum] => 1 370 156
)
1
1 370 156₽
Работа:798 795 ₽
Материалы:571 361 ₽
Дни:29
stdClass Object
(
[id] => 79
[attribute_id] => 3
[name] => Керамический блок
[material_modifier] => 1
[work_modifier] => 1
[options] => Array
(
[0] => 380 мм
[1] => 380 мм Thermo
[2] => 440 мм
[3] => 510 мм
)
[days] => [23,23,24,25]
[material_price] => [4510,5098,6093,8013]
[work_price] => [4737,4937,5903,6958]
[image] => https://akademik-stroy.ru/wp-content/uploads/materials/keramicheskij-blok.jpg
[area_modifier] => 138.01
[parent_name] => Стены 1 этаж (несущие)
[parent_id] => 3
[material_sum] => 858947
[work_sum] => 751816
[total_sum] => 1610763
[total_days] => 23
[display_material_sum] => 858 947
[display_work_sum] => 751 816
[display_total_sum] => 1 610 763
)
1
1 610 763₽
Работа:751 816 ₽
Материалы:858 947 ₽
Дни:23
stdClass Object
(
[id] => 80
[attribute_id] => 3
[name] => Кирпич
[material_modifier] => 1
[work_modifier] => 1
[options] => Array
(
[0] => Кирпич 250 мм
[1] => Кирпич 380 мм
[2] => Кирпич 510 мм
[3] => Кирпич 640 мм
[4] => Кирпич 770 мм
)
[days] => [30,30,31,33,36]
[material_price] => [5500,7142,9206,10171,12235]
[work_price] => [8736,10041,12018,15240,18462]
[image] => https://akademik-stroy.ru/wp-content/uploads/materials/kirpich.jpg
[area_modifier] => 138.01
[parent_name] => Стены 1 этаж (несущие)
[parent_id] => 3
[material_sum] => 1047496
[work_sum] => 1386504
[total_sum] => 2434000
[total_days] => 30
[display_material_sum] => 1 047 496
[display_work_sum] => 1 386 504
[display_total_sum] => 2 434 000
)
1
2 434 000₽
Работа:1 386 504 ₽
Материалы:1 047 496 ₽
Дни:30
stdClass Object
(
[id] => 81
[attribute_id] => 3
[name] => Монолитные
[material_modifier] => 1
[work_modifier] => 1
[options] => Array
(
[0] => 150 мм
[1] => 200 мм
[2] => 250 мм
[3] => 300 мм
[4] => 350 мм
[5] => 400 мм
)
[days] => [45,46,47,49,50,53]
[material_price] => [6545,7876,10175,12011,13908,15204]
[work_price] => [5106,6444,7698,8552,9807,11461]
[image] => https://akademik-stroy.ru/wp-content/uploads/materials/monolitnye.jpg
[area_modifier] => 138.01
[parent_name] => Стены 1 этаж (несущие)
[parent_id] => 3
[material_sum] => 1246520
[work_sum] => 810381
[total_sum] => 2056901
[total_days] => 45
[display_material_sum] => 1 246 520
[display_work_sum] => 810 381
[display_total_sum] => 2 056 901
)
1
2 056 901₽
Работа:810 381 ₽
Материалы:1 246 520 ₽
Дни:45
stdClass Object
(
[id] => 82
[attribute_id] => 3
[name] => Клееный брус
[material_modifier] => 1
[work_modifier] => 1
[options] => Array
(
[0] => 160 мм
[1] => 175 мм
[2] => 200 мм
[3] => 215 мм
[4] => 240 мм
[5] => 270 мм
[6] => 282 мм
)
[days] => [24,28,32,37,40,42,48]
[material_price] => [16975,18773,19950,20545,21599,22159,23275]
[work_price] => [4806,5287,5815,6397,7036,7740,8514]
[image] => https://akademik-stroy.ru/wp-content/uploads/materials/kleenyj-brus.jpg
[area_modifier] => 138.01
[parent_name] => Стены 1 этаж (несущие)
[parent_id] => 3
[material_sum] => 3232953
[work_sum] => 762767
[total_sum] => 3995720
[total_days] => 24
[display_material_sum] => 3 232 953
[display_work_sum] => 762 767
[display_total_sum] => 3 995 720
)
1
3 995 720₽
Работа:762 767 ₽
Материалы:3 232 953 ₽
Дни:24
stdClass Object
(
[id] => 83
[attribute_id] => 3
[name] => Каркасные
[material_modifier] => 1
[work_modifier] => 1
[options] => Array
(
[0] => 150 мм
[1] => 200 мм
[2] => 250 мм
[3] => 300 мм
)
[days] => [15,16,17,18]
[material_price] => [2379,2639,2898,3258]
[work_price] => [2418,2686,2985,3716]
[image] => https://akademik-stroy.ru/wp-content/uploads/materials/karkasnye.jpg
[area_modifier] => 138.01
[parent_name] => Стены 1 этаж (несущие)
[parent_id] => 3
[material_sum] => 453090
[work_sum] => 383764
[total_sum] => 836854
[total_days] => 15
[display_material_sum] => 453 090
[display_work_sum] => 383 764
[display_total_sum] => 836 854
)
1
836 854₽
Работа:383 764 ₽
Материалы:453 090 ₽
Дни:15
stdClass Object
(
[id] => 84
[attribute_id] => 3
[name] => СИП-панели
[material_modifier] => 1
[work_modifier] => 1
[options] => Array
(
[0] => 120 мм
[1] => 170 мм
[2] => 220 мм
)
[days] => [7,7,7]
[material_price] => [1210,1856,2292]
[work_price] => [1410,1551,1706]
[image] => https://akademik-stroy.ru/wp-content/uploads/materials/sip-paneli.jpg
[area_modifier] => 138.01
[parent_name] => Стены 1 этаж (несущие)
[parent_id] => 3
[material_sum] => 230449
[work_sum] => 223783
[total_sum] => 454232
[total_days] => 7
[display_material_sum] => 230 449
[display_work_sum] => 223 783
[display_total_sum] => 454 232
)
1
454 232₽
Работа:223 783 ₽
Материалы:230 449 ₽
Дни:7
stdClass Object
(
[id] => 85
[attribute_id] => 3
[name] => Сухой брус
[material_modifier] => 1
[work_modifier] => 1
[options] => Array
(
[0] => 150 мм
[1] => 180 мм
[2] => 200 мм
)
[days] => [7,8,9]
[material_price] => [6010,7190,8709]
[work_price] => [3204,3845,4229]
[image] => https://akademik-stroy.ru/wp-content/uploads/materials/suhoj-brus.jpg
[area_modifier] => 138.01
[parent_name] => Стены 1 этаж (несущие)
[parent_id] => 3
[material_sum] => 1144627
[work_sum] => 508512
[total_sum] => 1653139
[total_days] => 7
[display_material_sum] => 1 144 627
[display_work_sum] => 508 512
[display_total_sum] => 1 653 139
)
1
1 653 139₽
Работа:508 512 ₽
Материалы:1 144 627 ₽
Дни:7
stdClass Object
(
[id] => 86
[attribute_id] => 3
[name] => Профилированный брус
[material_modifier] => 1
[work_modifier] => 1
[options] => Array
(
[0] => 150 мм
[1] => 180 мм
[2] => 200 мм
)
[days] => [7,8,9]
[material_price] => [8190,9228,10051]
[work_price] => [3845,4614,5075]
[image] => https://akademik-stroy.ru/wp-content/uploads/materials/profilirovannyj-brus.jpg
[area_modifier] => 138.01
[parent_name] => Стены 1 этаж (несущие)
[parent_id] => 3
[material_sum] => 1559817
[work_sum] => 610246
[total_sum] => 2170063
[total_days] => 7
[display_material_sum] => 1 559 817
[display_work_sum] => 610 246
[display_total_sum] => 2 170 063
)
1
2 170 063₽
Работа:610 246 ₽
Материалы:1 559 817 ₽
Дни:7
stdClass Object
(
[id] => 87
[attribute_id] => 3
[name] => Оцилиндрованное бревно
[material_modifier] => 1
[work_modifier] => 1
[options] => Array
(
[0] => 180 мм
[1] => 220 мм
[2] => 260 мм
[3] => 320 мм
)
[days] => [7,8,9,10]
[material_price] => [75190,9532,10868,13116]
[work_price] => [3845,4691,5535,6863]
[image] => https://akademik-stroy.ru/wp-content/uploads/materials/ocilindrovannoe-brevno-1.jpg
[area_modifier] => 138.01
[parent_name] => Стены 1 этаж (несущие)
[parent_id] => 3
[material_sum] => 14320221
[work_sum] => 610246
[total_sum] => 14930467
[total_days] => 7
[display_material_sum] => 14 320 221
[display_work_sum] => 610 246
[display_total_sum] => 14 930 467
)
1
14 930 467₽
Работа:610 246 ₽
Материалы:14 320 221 ₽
Дни:7
stdClass Object
(
[id] => 88
[attribute_id] => 3
[name] => Срубы
[material_modifier] => 1
[work_modifier] => 1
[options] => Array
(
[0] => 260 мм
[1] => 320 мм
[2] => 360 мм
[3] => 400 мм
[4] => 500 мм
)
[days] => [7,8,9,10,11]
[material_price] => [37975,46709,52314,58069,73167]
[work_price] => [4806,5911,6621,7349,9260]
[image] => https://akademik-stroy.ru/wp-content/uploads/materials/sruby.jpg
[area_modifier] => 138.01
[parent_name] => Стены 1 этаж (несущие)
[parent_id] => 3
[material_sum] => 7232483
[work_sum] => 762767
[total_sum] => 7995250
[total_days] => 7
[display_material_sum] => 7 232 483
[display_work_sum] => 762 767
[display_total_sum] => 7 995 250
)
1
7 995 250₽
Работа:762 767 ₽
Материалы:7 232 483 ₽
Дни:7
stdClass Object
(
[id] => 174
[attribute_id] => 3
[name] => Брус
[material_modifier] => 1
[work_modifier] => 1
[options] => Array
(
[0] => 150 мм
[1] => 180 мм
[2] => 200 мм
)
[days] => [7,8,9]
[material_price] => [5127,6152,7367]
[work_price] => [1602,1922,2115]
[image] => https://akademik-stroy.ru/wp-content/uploads/materials/brus.jpg
[area_modifier] => 138.01
[parent_name] => Стены 1 этаж (несущие)
[parent_id] => 3
[material_sum] => 976457
[work_sum] => 254256
[total_sum] => 1230713
[total_days] => 7
[display_material_sum] => 976 457
[display_work_sum] => 254 256
[display_total_sum] => 1 230 713
)
1
1 230 713₽
Работа:254 256 ₽
Материалы:976 457 ₽
Дни:7
stdClass Object
(
[id] => 175
[attribute_id] => 3
[name] => Газобетон
[material_modifier] => 1
[work_modifier] => 1
[options] => Array
(
[0] => 300 мм
[1] => 375 мм
[2] => 400 мм
[3] => 500 мм
[4] => 600 мм
)
[days] => [29,31,35,37,44]
[material_price] => [4298,5573,6356,7288,9119]
[work_price] => [4538,5251,5926,6733,7195]
[image] => https://akademik-stroy.ru/wp-content/uploads/materials/gazobeton.jpg
[area_modifier] => 138.01
[parent_name] => Стены 1 этаж (несущие)
[parent_id] => 3
[material_sum] => 818570
[work_sum] => 720233
[total_sum] => 1538803
[total_days] => 29
[display_material_sum] => 818 570
[display_work_sum] => 720 233
[display_total_sum] => 1 538 803
)
1
1 538 803₽
Работа:720 233 ₽
Материалы:818 570 ₽
Дни:29
stdClass Object
(
[id] => 176
[attribute_id] => 3
[name] => Блок
[material_modifier] => 1
[work_modifier] => 1
[options] => Array
(
[0] => 300 мм
[1] => 375 мм
[2] => 400 мм
[3] => 500 мм
[4] => 600 мм
)
[days] => [29,31,35,37,44]
[material_price] => [2698,3973,4356,6588,7119]
[work_price] => [5038,5851,6426,8733,9195]
[image] => https://akademik-stroy.ru/wp-content/uploads/materials/blok.jpg
[area_modifier] => 138.01
[parent_name] => Стены 1 этаж (несущие)
[parent_id] => 3
[material_sum] => 513844
[work_sum] => 799589
[total_sum] => 1313433
[total_days] => 29
[display_material_sum] => 513 844
[display_work_sum] => 799 589
[display_total_sum] => 1 313 433
)
1
1 313 433₽
Работа:799 589 ₽
Материалы:513 844 ₽
Дни:29
stdClass Object
(
[id] => 177
[attribute_id] => 3
[name] => Газосиликатный блок
[material_modifier] => 1
[work_modifier] => 1
[options] => Array
(
[0] => 300 мм
[1] => 375 мм
[2] => 400 мм
[3] => 500 мм
[4] => 600 мм
)
[days] => [29,31,35,37,44]
[material_price] => [4298,5573,6356,7288,9119]
[work_price] => [4538,5251,5926,6733,7195]
[image] => https://akademik-stroy.ru/wp-content/uploads/materials/gazosilikatnyj-blok.jpg
[area_modifier] => 138.01
[parent_name] => Стены 1 этаж (несущие)
[parent_id] => 3
[material_sum] => 818570
[work_sum] => 720233
[total_sum] => 1538803
[total_days] => 29
[display_material_sum] => 818 570
[display_work_sum] => 720 233
[display_total_sum] => 1 538 803
)
1
1 538 803₽
Работа:720 233 ₽
Материалы:818 570 ₽
Дни:29
stdClass Object
(
[id] => 178
[attribute_id] => 3
[name] => Керамзитобетонный блок
[material_modifier] => 1
[work_modifier] => 1
[options] => Array
(
[0] => 300 мм
[1] => 375 мм
[2] => 400 мм
[3] => 500 мм
[4] => 600 мм
)
[days] => [23,23,24,25,28]
[material_price] => [3641,4298,5693,7613,9612]
[work_price] => [5737,5737,6903,7958,8901]
[image] => https://akademik-stroy.ru/wp-content/uploads/materials/keramzitobetonnyj-blok.jpg
[area_modifier] => 138.01
[parent_name] => Стены 1 этаж (несущие)
[parent_id] => 3
[material_sum] => 693442
[work_sum] => 910528
[total_sum] => 1603970
[total_days] => 23
[display_material_sum] => 693 442
[display_work_sum] => 910 528
[display_total_sum] => 1 603 970
)
1
1 603 970₽
Работа:910 528 ₽
Материалы:693 442 ₽
Дни:23
stdClass Object
(
[id] => 179
[attribute_id] => 3
[name] => Деревянные
[material_modifier] => 1
[work_modifier] => 1
[options] => Array
(
[0] => 180 мм
[1] => 220 мм
[2] => 260 мм
[3] => 320 мм
)
[days] => [7,8,9,10]
[material_price] => [7950,9458,11961,14472]
[work_price] => [4037,4925,5812,7207]
[image] => https://akademik-stroy.ru/wp-content/uploads/materials/derevyannye.jpg
[area_modifier] => 138.01
[parent_name] => Стены 1 этаж (несущие)
[parent_id] => 3
[material_sum] => 1514108
[work_sum] => 640718
[total_sum] => 2154826
[total_days] => 7
[display_material_sum] => 1 514 108
[display_work_sum] => 640 718
[display_total_sum] => 2 154 826
)
1
2 154 826₽
Работа:640 718 ₽
Материалы:1 514 108 ₽
Дни:7
stdClass Object
(
[id] => 181
[attribute_id] => 3
[name] => Камень
[material_modifier] => 1
[work_modifier] => 1
[options] => Array
(
[0] => 300 мм
[1] => 400 мм
[2] => 500 мм
[3] => 600 мм
)
[days] => [25,27,31,34]
[material_price] => [5262,6844,8330,9815]
[work_price] => [8331,9135,10427,11069]
[image] => https://akademik-stroy.ru/wp-content/uploads/materials/kamen.jpg
[area_modifier] => 138.01
[parent_name] => Стены 1 этаж (несущие)
[parent_id] => 3
[material_sum] => 1002168
[work_sum] => 1322226
[total_sum] => 2324394
[total_days] => 25
[display_material_sum] => 1 002 168
[display_work_sum] => 1 322 226
[display_total_sum] => 2 324 394
)
1
2 324 394₽
Работа:1 322 226 ₽
Материалы:1 002 168 ₽
Дни:25
stdClass Object
(
[id] => 182
[attribute_id] => 3
[name] => Каркасно-щитовые
[material_modifier] => 1
[work_modifier] => 1
[options] => Array
(
[0] => 150 мм
[1] => 200 мм
[2] => 250 мм
[3] => 300 мм
[4] => 350 мм
[5] => 400 мм
)
[days] => [15,16,17,18,19,20]
[material_price] => [2379,2639,2898,3458,3601,4175]
[work_price] => [2538,2820,3134,3483,4062,5642]
[image] => https://akademik-stroy.ru/wp-content/uploads/materials/karkasno-shchitovye.jpg
[area_modifier] => 138.01
[parent_name] => Стены 1 этаж (несущие)
[parent_id] => 3
[material_sum] => 453090
[work_sum] => 402810
[total_sum] => 855900
[total_days] => 15
[display_material_sum] => 453 090
[display_work_sum] => 402 810
[display_total_sum] => 855 900
)
1
855 900₽
Работа:402 810 ₽
Материалы:453 090 ₽
Дни:15
stdClass Object
(
[id] => 183
[attribute_id] => 3
[name] => Рубленные
[material_modifier] => 1
[work_modifier] => 1
[options] => Array
(
[0] => 150 мм
[1] => 200 мм
[2] => 250 мм
[3] => 300 мм
[4] => 350 мм
[5] => 400 мм
)
[days] => [15,16,17,18,17,18]
[material_price] => [35950,50267,60583,75900,80217,100533]
[work_price] => [9612,12816,16020,19224,22428,25632]
[image] => https://akademik-stroy.ru/wp-content/uploads/materials/rublennye.jpg
[area_modifier] => 138.01
[parent_name] => Стены 1 этаж (несущие)
[parent_id] => 3
[material_sum] => 6846814
[work_sum] => 1525535
[total_sum] => 8372349
[total_days] => 15
[display_material_sum] => 6 846 814
[display_work_sum] => 1 525 535
[display_total_sum] => 8 372 349
)
1
8 372 349₽
Работа:1 525 535 ₽
Материалы:6 846 814 ₽
Дни:15
stdClass Object
(
[id] => 185
[attribute_id] => 3
[name] => Теплоблок
[material_modifier] => 1
[work_modifier] => 1
[options] => Array
(
[0] => 300 мм (с облицовкой, не покрашенный)
[1] => 400 мм (с облицовкой, не покрашенный)
[2] => 300 мм (с облицовкой, покрашенный)
[3] => 400 мм (с облицовкой, покрашенный)
)
[days] => [15,16,15,16]
[material_price] => [2888,3729,3957,4258]
[work_price] => [2564,3229,2949,3713]
[image] => https://akademik-stroy.ru/wp-content/uploads/materials/teploblok.jpg
[area_modifier] => 138.01
[parent_name] => Стены 1 этаж (несущие)
[parent_id] => 3
[material_sum] => 550031
[work_sum] => 406936
[total_sum] => 956967
[total_days] => 15
[display_material_sum] => 550 031
[display_work_sum] => 406 936
[display_total_sum] => 956 967
)
1
956 967₽
Работа:406 936 ₽
Материалы:550 031 ₽
Дни:15
stdClass Object
(
[id] => 186
[attribute_id] => 3
[name] => Арболитовые блоки
[material_modifier] => 1
[work_modifier] => 1
[options] => Array
(
[0] => 300 мм
[1] => 400 мм
[2] => 600 мм
)
[days] => [19,22,27]
[material_price] => [3210,4475,5852]
[work_price] => [4214,4788,5866]
[image] => https://akademik-stroy.ru/wp-content/uploads/materials/arbolitovye-bloki.png
[area_modifier] => 138.01
[parent_name] => Стены 1 этаж (несущие)
[parent_id] => 3
[material_sum] => 611357
[work_sum] => 668810
[total_sum] => 1280167
[total_days] => 19
[display_material_sum] => 611 357
[display_work_sum] => 668 810
[display_total_sum] => 1 280 167
)
1
1 280 167₽
Работа:668 810 ₽
Материалы:611 357 ₽
Дни:19
stdClass Object
(
[id] => 187
[attribute_id] => 3
[name] => Полистиролбетон
[material_modifier] => 1
[work_modifier] => 1
[options] => Array
(
[0] => 300 мм
[1] => 400 мм
[2] => 600 мм
)
[days] => [29,31,35]
[material_price] => [2798,4573,5256]
[work_price] => [5038,5851,6426]
[image] => https://akademik-stroy.ru/wp-content/uploads/materials/polistirolbeton.jpg
[area_modifier] => 138.01
[parent_name] => Стены 1 этаж (несущие)
[parent_id] => 3
[material_sum] => 532890
[work_sum] => 799589
[total_sum] => 1332479
[total_days] => 29
[display_material_sum] => 532 890
[display_work_sum] => 799 589
[display_total_sum] => 1 332 479
)
1
1 332 479₽
Работа:799 589 ₽
Материалы:532 890 ₽
Дни:29
stdClass Object
(
[id] => 188
[attribute_id] => 3
[name] => Шлакоблок
[material_modifier] => 1
[work_modifier] => 1
[options] => Array
(
[0] => 400 мм
[1] => 600 мм
)
[days] => [15,16]
[material_price] => [2391,3471]
[work_price] => [2642,3662]
[image] => https://akademik-stroy.ru/wp-content/uploads/materials/shlakoblok.jpg
[area_modifier] => 138.01
[parent_name] => Стены 1 этаж (несущие)
[parent_id] => 3
[material_sum] => 455375
[work_sum] => 419316
[total_sum] => 874691
[total_days] => 15
[display_material_sum] => 455 375
[display_work_sum] => 419 316
[display_total_sum] => 874 691
)
1
874 691₽
Работа:419 316 ₽
Материалы:455 375 ₽
Дни:15
stdClass Object
(
[id] => 189
[attribute_id] => 3
[name] => Теплая керамика
[material_modifier] => 1
[work_modifier] => 1
[options] => Array
(
[0] => 380 мм
[1] => 380 мм Thermo
[2] => 440 мм
[3] => 510 мм
)
[days] => [23,23,24,25]
[material_price] => [4510,5098,6093,8013]
[work_price] => [4737,4937,5903,6958]
[image] => https://akademik-stroy.ru/wp-content/uploads/materials/teplaya-keramika.jpg
[area_modifier] => 138.01
[parent_name] => Стены 1 этаж (несущие)
[parent_id] => 3
[material_sum] => 858947
[work_sum] => 751816
[total_sum] => 1610763
[total_days] => 23
[display_material_sum] => 858 947
[display_work_sum] => 751 816
[display_total_sum] => 1 610 763
)
1
1 610 763₽
Работа:751 816 ₽
Материалы:858 947 ₽
Дни:23
stdClass Object
(
[id] => 190
[attribute_id] => 3
[name] => Несъемная опалубка
[material_modifier] => 1
[work_modifier] => 1
[options] => Array
(
[0] => 200 мм
[1] => 250 мм
[2] => 300 мм
[3] => 350 мм
)
[days] => [15,17,19,21]
[material_price] => [3302,3902,4108,5008]
[work_price] => [2100,2100,2300,2534]
[image] => https://akademik-stroy.ru/wp-content/uploads/materials/nesemnaya-opalubka.jpg
[area_modifier] => 138.01
[parent_name] => Стены 1 этаж (несущие)
[parent_id] => 3
[material_sum] => 628878
[work_sum] => 333294
[total_sum] => 962172
[total_days] => 15
[display_material_sum] => 628 878
[display_work_sum] => 333 294
[display_total_sum] => 962 172
)
1
962 172₽
Работа:333 294 ₽
Материалы:628 878 ₽
Дни:15
stdClass Object
(
[id] => 251
[attribute_id] => 3
[name] => Бревно
[material_modifier] => 1
[work_modifier] => 1
[options] => Array
(
[0] => 260 мм
[1] => 320 мм
[2] => 360 мм
[3] => 400 мм
[4] => 500 мм
)
[days] => [7,8,9,10,11]
[material_price] => [1874,24045,26930,30972,38825]
[work_price] => [5046,6207,6952,7716,9723]
[image] => https://akademik-stroy.ru/wp-content/uploads/materials/sruby.jpg
[area_modifier] => 138.01
[parent_name] => Стены 1 этаж (несущие)
[parent_id] => 3
[material_sum] => 356910
[work_sum] => 800858
[total_sum] => 1157768
[total_days] => 7
[display_material_sum] => 356 910
[display_work_sum] => 800 858
[display_total_sum] => 1 157 768
)
1
1 157 768₽
Работа:800 858 ₽
Материалы:356 910 ₽
Дни:7
stdClass Object
(
[id] => 7
[attribute_id] => 4
[name] => Деревянные балки
[material_modifier] => 1
[work_modifier] => 1
[options] => Array
(
[0] => без утепления
[1] => утепление 200 мм
[2] => утепление 250 мм
[3] => утепление 300 мм
[4] => утепление 350 мм
[5] => утепление 400 мм
[6] => утепление 450 мм
[7] => утепление 500 мм
)
[days] => [8,9,9,9,11,12,13,14]
[material_price] => [1634,2042,2344,2947,3149,3652,3354,3557]
[work_price] => [1230,1339,1393,1426,1460,1513,1587,1620]
[image] => https://akademik-stroy.ru/wp-content/uploads/materials/derevyannye-balki.png
[area_modifier] => 138.01
[parent_name] => Перекрытие первого этажа
[parent_id] => 4
[material_sum] => 311202
[work_sum] => 195215
[total_sum] => 506417
[total_days] => 8
[display_material_sum] => 311 202
[display_work_sum] => 195 215
[display_total_sum] => 506 417
)
1
506 417₽
Работа:195 215 ₽
Материалы:311 202 ₽
Дни:8
stdClass Object
(
[id] => 8
[attribute_id] => 4
[name] => Сборные ж/б плиты
[material_modifier] => 1
[work_modifier] => 1
[options] => Array
(
[0] => без утепления
[1] => утепление 150 мм
[2] => утепление 200 мм
[3] => утепление 250 мм
[4] => утепление 300 мм
[5] => утепление 350 мм
[6] => утепление 400 мм
[7] => утепление 450 мм
[8] => утепление 500 мм
)
[days] => [13,15,15,15,15,15,15,15,15]
[material_price] => [3067,5577,5928,6679,7730,8782,9833,10884,11935]
[work_price] => [1520,1956,2102,2247,2392,2537,2684,2829,2974]
[image] => https://akademik-stroy.ru/wp-content/uploads/materials/sbornye-zh-b-plity-2.jpg
[area_modifier] => 138.01
[parent_name] => Перекрытие первого этажа
[parent_id] => 4
[material_sum] => 584122
[work_sum] => 241241
[total_sum] => 825363
[total_days] => 13
[display_material_sum] => 584 122
[display_work_sum] => 241 241
[display_total_sum] => 825 363
)
1
825 363₽
Работа:241 241 ₽
Материалы:584 122 ₽
Дни:13
stdClass Object
(
[id] => 89
[attribute_id] => 4
[name] => Монолитная ж/б плита
[material_modifier] => 1
[work_modifier] => 1
[options] => Array
(
[0] => без утепления
[1] => утепление 150 мм
[2] => утепление 200 мм
[3] => утепление 250 мм
[4] => утепление 300 мм
[5] => утепление 350 мм
[6] => утепление 400 мм
[7] => утепление 450 мм
[8] => утепление 500 мм
)
[days] => [18,20,20,20,20,20,20,20,20]
[material_price] => [4837,6572,7224,7375,79426,8177,8728,9180,10031]
[work_price] => [3348,3921,4112,4302,4493,4684,4875,5066,5256]
[image] => https://akademik-stroy.ru/wp-content/uploads/materials/monolitnaya-zh-b-plita-2.jpg
[area_modifier] => 138.01
[parent_name] => Перекрытие первого этажа
[parent_id] => 4
[material_sum] => 921225
[work_sum] => 531366
[total_sum] => 1452591
[total_days] => 18
[display_material_sum] => 921 225
[display_work_sum] => 531 366
[display_total_sum] => 1 452 591
)
1
1 452 591₽
Работа:531 366 ₽
Материалы:921 225 ₽
Дни:18
stdClass Object
(
[id] => 164
[attribute_id] => 37
[name] => Металлочерепица
[material_modifier] => 1
[work_modifier] => 1
[options] => Array
(
)
[days] => [20]
[material_price] => [6112]
[work_price] => [5726]
[image] => https://akademik-stroy.ru/wp-content/uploads/materials/metallocherepica.jpg
[area_modifier] => 138.01
[parent_name] => Крыша (Скатная)
[parent_id] => 37
[material_sum] => 1164054
[work_sum] => 908782
[total_sum] => 2072836
[total_days] => 20
[display_material_sum] => 1 164 054
[display_work_sum] => 908 782
[display_total_sum] => 2 072 836
)
1
2 072 836₽
Работа:908 782 ₽
Материалы:1 164 054 ₽
Дни:20
stdClass Object
(
[id] => 165
[attribute_id] => 37
[name] => Гибкая черепица
[material_modifier] => 1
[work_modifier] => 1
[options] => Array
(
)
[days] => [20]
[material_price] => [6980]
[work_price] => [5950]
[image] => https://akademik-stroy.ru/wp-content/uploads/materials/gibkaya-cherepica.jpg
[area_modifier] => 138.01
[parent_name] => Крыша (Скатная)
[parent_id] => 37
[material_sum] => 1329368
[work_sum] => 944333
[total_sum] => 2273701
[total_days] => 20
[display_material_sum] => 1 329 368
[display_work_sum] => 944 333
[display_total_sum] => 2 273 701
)
1
2 273 701₽
Работа:944 333 ₽
Материалы:1 329 368 ₽
Дни:20
stdClass Object
(
[id] => 166
[attribute_id] => 37
[name] => Цементно-песчаная черепица
[material_modifier] => 1
[work_modifier] => 1
[options] => Array
(
)
[days] => [20]
[material_price] => [10560]
[work_price] => [9456]
[image] => https://akademik-stroy.ru/wp-content/uploads/materials/cementno-peschanaya-cherepica.jpg
[area_modifier] => 138.01
[parent_name] => Крыша (Скатная)
[parent_id] => 37
[material_sum] => 2011192
[work_sum] => 1500776
[total_sum] => 3511968
[total_days] => 20
[display_material_sum] => 2 011 192
[display_work_sum] => 1 500 776
[display_total_sum] => 3 511 968
)
1
3 511 968₽
Работа:1 500 776 ₽
Материалы:2 011 192 ₽
Дни:20
stdClass Object
(
[id] => 167
[attribute_id] => 37
[name] => Композитная черепица
[material_modifier] => 1
[work_modifier] => 1
[options] => Array
(
)
[days] => [20]
[material_price] => [9506]
[work_price] => [8905]
[image] => https://akademik-stroy.ru/wp-content/uploads/materials/kompozitnaya-cherepica.jpg
[area_modifier] => 138.01
[parent_name] => Крыша (Скатная)
[parent_id] => 37
[material_sum] => 1810454
[work_sum] => 1413326
[total_sum] => 3223780
[total_days] => 20
[display_material_sum] => 1 810 454
[display_work_sum] => 1 413 326
[display_total_sum] => 3 223 780
)
1
3 223 780₽
Работа:1 413 326 ₽
Материалы:1 810 454 ₽
Дни:20
stdClass Object
(
[id] => 168
[attribute_id] => 37
[name] => Керамическая черепица
[material_modifier] => 1
[work_modifier] => 1
[options] => Array
(
)
[days] => [20]
[material_price] => [12750]
[work_price] => [9456]
[image] => https://akademik-stroy.ru/wp-content/uploads/materials/keramicheskaya-cherepica.jpg
[area_modifier] => 138.01
[parent_name] => Крыша (Скатная)
[parent_id] => 37
[material_sum] => 2428286
[work_sum] => 1500776
[total_sum] => 3929062
[total_days] => 20
[display_material_sum] => 2 428 286
[display_work_sum] => 1 500 776
[display_total_sum] => 3 929 062
)
1
3 929 062₽
Работа:1 500 776 ₽
Материалы:2 428 286 ₽
Дни:20
stdClass Object
(
[id] => 169
[attribute_id] => 37
[name] => Металлическая фальцевая
[material_modifier] => 1
[work_modifier] => 1
[options] => Array
(
)
[days] => [20]
[material_price] => [8550]
[work_price] => [8190]
[image] => https://akademik-stroy.ru/wp-content/uploads/materials/metallicheskaya-falcevaya.jpg
[area_modifier] => 138.01
[parent_name] => Крыша (Скатная)
[parent_id] => 37
[material_sum] => 1628380
[work_sum] => 1299847
[total_sum] => 2928227
[total_days] => 20
[display_material_sum] => 1 628 380
[display_work_sum] => 1 299 847
[display_total_sum] => 2 928 227
)
1
2 928 227₽
Работа:1 299 847 ₽
Материалы:1 628 380 ₽
Дни:20
stdClass Object
(
[id] => 170
[attribute_id] => 37
[name] => Медная фальцевая
[material_modifier] => 1
[work_modifier] => 1
[options] => Array
(
)
[days] => [20]
[material_price] => [20450]
[work_price] => [16750]
[image] => https://akademik-stroy.ru/wp-content/uploads/materials/mednaya-falcevaya.jpg
[area_modifier] => 138.01
[parent_name] => Крыша (Скатная)
[parent_id] => 37
[material_sum] => 3894780
[work_sum] => 2658418
[total_sum] => 6553198
[total_days] => 20
[display_material_sum] => 3 894 780
[display_work_sum] => 2 658 418
[display_total_sum] => 6 553 198
)
1
6 553 198₽
Работа:2 658 418 ₽
Материалы:3 894 780 ₽
Дни:20
stdClass Object
(
[id] => 171
[attribute_id] => 37
[name] => Зеленая кровля
[material_modifier] => 1
[work_modifier] => 1
[options] => Array
(
)
[days] => [20]
[material_price] => [19850]
[work_price] => [16780]
[image] => https://akademik-stroy.ru/wp-content/uploads/materials/zelenaya-krovlya.jpg
[area_modifier] => 138.01
[parent_name] => Крыша (Скатная)
[parent_id] => 37
[material_sum] => 3780508
[work_sum] => 2663179
[total_sum] => 6443687
[total_days] => 20
[display_material_sum] => 3 780 508
[display_work_sum] => 2 663 179
[display_total_sum] => 6 443 687
)
1
6 443 687₽
Работа:2 663 179 ₽
Материалы:3 780 508 ₽
Дни:20
stdClass Object
(
[id] => 172
[attribute_id] => 37
[name] => Профлист
[material_modifier] => 1
[work_modifier] => 1
[options] => Array
(
)
[days] => [20]
[material_price] => [3450]
[work_price] => [3750]
[image] => https://akademik-stroy.ru/wp-content/uploads/materials/proflist.jpg
[area_modifier] => 138.01
[parent_name] => Крыша (Скатная)
[parent_id] => 37
[material_sum] => 657066
[work_sum] => 595168
[total_sum] => 1252234
[total_days] => 20
[display_material_sum] => 657 066
[display_work_sum] => 595 168
[display_total_sum] => 1 252 234
)
1
1 252 234₽
Работа:595 168 ₽
Материалы:657 066 ₽
Дни:20
stdClass Object
(
[id] => 51
[attribute_id] => 26
[name] => Есть
[material_modifier] => 1
[work_modifier] => 1
[options] => Array
(
[0] => Профиль 58 мм, 3-камерный, стеклопакет 2-камерный до 32 мм
[1] => Профиль 60 мм, 4-камерный, стеклопакет 2-камерный до 32 мм
[2] => Профиль 70 мм, 5-камерный, стеклопакет 2-камерный до 40 мм
[3] => Профиль 72 мм, 5-камерный, стеклопакет 2-камерный до 40 мм
[4] => Алюминиевые окна Alutech профиль 72 мм, стеклопакет 2-камерный
)
[days] => [3,3,3,3,3]
[material_price] => [1339,2124,2867,3023,29596]
[work_price] => [635,647,659,668,2579]
[image] => https://akademik-stroy.ru/wp-content/uploads/materials/okna.jpg
[area_modifier] => 111.99
[parent_name] => Окна
[parent_id] => 26
[material_sum] => 206937
[work_sum] => 81781
[total_sum] => 288718
[total_days] => 3
[display_material_sum] => 206 937
[display_work_sum] => 81 781
[display_total_sum] => 288 718
)
1
288 718₽
Работа:81 781 ₽
Материалы:206 937 ₽
Дни:3
stdClass Object
(
[id] => 52
[attribute_id] => 26
[name] => Нет
[material_modifier] => 2
[work_modifier] => 1
[options] =>
[days] => null
[material_price] => null
[work_price] => null
[image] => https://akademik-stroy.ru/wp-content/uploads/materials/okna.jpg
[area_modifier] => 111.99
[parent_name] => Окна
[parent_id] => 26
[material_sum] => 0
[work_sum] => 0
[total_sum] => 0
[total_days] => 0
[display_material_sum] => 0
[display_work_sum] => 0
[display_total_sum] => 0
)
1
0₽
Работа:0 ₽
Материалы:0 ₽
Дни:0
stdClass Object
(
[id] => 53
[attribute_id] => 27
[name] => Есть
[material_modifier] => 1
[work_modifier] => 1
[options] => Array
(
)
[days] => [1]
[material_price] => [10000]
[work_price] => [5500]
[image] => https://akademik-stroy.ru/wp-content/uploads/materials/dveri.jpg
[area_modifier] => 1
[parent_name] => Двери входные
[parent_id] => 27
[material_sum] => 13800
[work_sum] => 6325
[total_sum] => 20125
[total_days] => 1
[display_material_sum] => 13 800
[display_work_sum] => 6 325
[display_total_sum] => 20 125
)
1
20 125₽
Работа:6 325 ₽
Материалы:13 800 ₽
Дни:1
stdClass Object
(
[id] => 54
[attribute_id] => 27
[name] => Нет
[material_modifier] => 1
[work_modifier] => 1
[options] => Array
(
)
[days] => [0]
[material_price] => [0]
[work_price] => [0]
[image] => https://akademik-stroy.ru/wp-content/uploads/materials/dveri.jpg
[area_modifier] => 1
[parent_name] => Двери входные
[parent_id] => 27
[material_sum] => 0
[work_sum] => 0
[total_sum] => 0
[total_days] => 0
[display_material_sum] => 0
[display_work_sum] => 0
[display_total_sum] => 0
)
1
0₽
Работа:0 ₽
Материалы:0 ₽
Дни:0
stdClass Object
(
[id] => 25
[attribute_id] => 13
[name] => Нет
[material_modifier] => 1
[work_modifier] => 1
[options] => Array
(
)
[days] => [0]
[material_price] => [0]
[work_price] => [0]
[image] => https://akademik-stroy.ru/wp-content/uploads/materials/mineralovata-krov.jpg
[area_modifier] => 138.01
[parent_name] => Утепление кровли (Мансарда)
[parent_id] => 13
[material_sum] => 0
[work_sum] => 0
[total_sum] => 0
[total_days] => 0
[display_material_sum] => 0
[display_work_sum] => 0
[display_total_sum] => 0
)
1
0₽
Работа:0 ₽
Материалы:0 ₽
Дни:0
stdClass Object
(
[id] => 26
[attribute_id] => 13
[name] => Минераловатный
[material_modifier] => 1
[work_modifier] => 1
[options] => Array
(
[0] => 50 мм
[1] => 100 мм
[2] => 150 мм
[3] => 200 мм
[4] => 250 мм
[5] => 300 мм
[6] => 350 мм
[7] => 400 мм
[8] => 450 мм
[9] => 500 мм
)
[days] => [5,5,6,6,6,7,7,7,8,8]
[material_price] => [1158,1414,1772,2230,3602,4060,4974,5890,6408,7718]
[work_price] => [650,846,846,1098,1318,1450,1596,1754,1930,2122]
[image] => https://akademik-stroy.ru/wp-content/uploads/materials/mineralovata-krov.jpg
[area_modifier] => 138.01
[parent_name] => Утепление кровли (Мансарда)
[parent_id] => 13
[material_sum] => 220546
[work_sum] => 103162
[total_sum] => 323708
[total_days] => 5
[display_material_sum] => 220 546
[display_work_sum] => 103 162
[display_total_sum] => 323 708
)
1
323 708₽
Работа:103 162 ₽
Материалы:220 546 ₽
Дни:5
stdClass Object
(
[id] => 123
[attribute_id] => 13
[name] => Эковата (целлюлозная вата)
[material_modifier] => 1
[work_modifier] => 1
[options] => Array
(
[0] => 50 мм
[1] => 100 мм
[2] => 150 мм
[3] => 200 мм
[4] => 250 мм
[5] => 300 мм
[6] => 350 мм
[7] => 400 мм
[8] => 450 мм
[9] => 500 мм
)
[days] => [3,3,4,4,4,5,5,5,5,5]
[material_price] => [820,1638,2458,3276,5734,6552,8190,9828,11466,13104]
[work_price] => [234,304,304,396,474,522,574,632,694,764]
[image] => https://akademik-stroy.ru/wp-content/uploads/materials/ehkovata-krov.jpg
[area_modifier] => 138.01
[parent_name] => Утепление кровли (Мансарда)
[parent_id] => 13
[material_sum] => 156172
[work_sum] => 37138
[total_sum] => 193310
[total_days] => 3
[display_material_sum] => 156 172
[display_work_sum] => 37 138
[display_total_sum] => 193 310
)
1
193 310₽
Работа:37 138 ₽
Материалы:156 172 ₽
Дни:3
stdClass Object
(
[id] => 124
[attribute_id] => 13
[name] => Экструдированный пенополистирол
[material_modifier] => 1
[work_modifier] => 1
[options] => Array
(
[0] => 50 мм
[1] => 100 мм
[2] => 150 мм
[3] => 200 мм
[4] => 250 мм
[5] => 300 мм
[6] => 350 мм
[7] => 400 мм
[8] => 450 мм
[9] => 500 мм
)
[days] => [3,3,4,4,4,5,5,5,5,6]
[material_price] => [1146,2292,3438,4584,8020,9166,11458,13750,16040,18332]
[work_price] => [390,508,508,660,790,870,958,1052,1158,1274]
[image] => https://akademik-stroy.ru/wp-content/uploads/materials/epps-krov.jpg
[area_modifier] => 138.01
[parent_name] => Утепление кровли (Мансарда)
[parent_id] => 13
[material_sum] => 218260
[work_sum] => 61897
[total_sum] => 280157
[total_days] => 3
[display_material_sum] => 218 260
[display_work_sum] => 61 897
[display_total_sum] => 280 157
)
1
280 157₽
Работа:61 897 ₽
Материалы:218 260 ₽
Дни:3
stdClass Object
(
[id] => 125
[attribute_id] => 13
[name] => ПСБ (ППС-пенополистирол)
[material_modifier] => 1
[work_modifier] => 1
[options] => Array
(
[0] => 50 мм
[1] => 100 мм
[2] => 150 мм
[3] => 200 мм
[4] => 250 мм
[5] => 300 мм
[6] => 350 мм
[7] => 400 мм
[8] => 450 мм
[9] => 500 мм
)
[days] => [3,3,4,4,4,5,5,5,5,6]
[material_price] => [476,954,1430,1906,3336,3814,4766,5720,6674,7626]
[work_price] => [390,508,508,660,790,870,958,1052,1158,1274]
[image] => https://akademik-stroy.ru/wp-content/uploads/materials/psb-krov.jpg
[area_modifier] => 138.01
[parent_name] => Утепление кровли (Мансарда)
[parent_id] => 13
[material_sum] => 90656
[work_sum] => 61897
[total_sum] => 152553
[total_days] => 3
[display_material_sum] => 90 656
[display_work_sum] => 61 897
[display_total_sum] => 152 553
)
1
152 553₽
Работа:61 897 ₽
Материалы:90 656 ₽
Дни:3
stdClass Object
(
[id] => 126
[attribute_id] => 13
[name] => ППУ (Пенополиуретан)
[material_modifier] => 1
[work_modifier] => 1
[options] => Array
(
[0] => 50 мм
[1] => 100 мм
[2] => 150 мм
[3] => 200 мм
[4] => 250 мм
[5] => 300 мм
[6] => 350 мм
[7] => 400 мм
[8] => 450 мм
[9] => 500 мм
)
[days] => [2,2,3,3,3,3,4,4,4,4]
[material_price] => [2080,4160,6240,8320,14560,16640,20800,24960,29120,33280]
[work_price] => [234,304,304,396,474,522,574,632,694,764]
[image] => https://akademik-stroy.ru/wp-content/uploads/materials/ppu-krov.jpg
[area_modifier] => 138.01
[parent_name] => Утепление кровли (Мансарда)
[parent_id] => 13
[material_sum] => 396144
[work_sum] => 37138
[total_sum] => 433282
[total_days] => 2
[display_material_sum] => 396 144
[display_work_sum] => 37 138
[display_total_sum] => 433 282
)
1
433 282₽
Работа:37 138 ₽
Материалы:396 144 ₽
Дни:2
stdClass Object
(
[id] => 127
[attribute_id] => 13
[name] => PIR-плиты (пенополиизоцианурат)
[material_modifier] => 1
[work_modifier] => 1
[options] => Array
(
[0] => 50 мм
[1] => 100 мм
[2] => 150 мм
[3] => 200 мм
[4] => 250 мм
[5] => 300 мм
[6] => 350 мм
[7] => 400 мм
[8] => 450 мм
[9] => 500 мм
)
[days] => [3,3,4,4,4,5,5,5,5,6]
[material_price] => [2646,5290,7936,10580,18516,21162,26452,31742,37032,42324]
[work_price] => [390,508,508,660,790,870,958,1052,1158,1274]
[image] => https://akademik-stroy.ru/wp-content/uploads/materials/pir-krov.jpg
[area_modifier] => 138.01
[parent_name] => Утепление кровли (Мансарда)
[parent_id] => 13
[material_sum] => 503941
[work_sum] => 61897
[total_sum] => 565838
[total_days] => 3
[display_material_sum] => 503 941
[display_work_sum] => 61 897
[display_total_sum] => 565 838
)
1
565 838₽
Работа:61 897 ₽
Материалы:503 941 ₽
Дни:3
stdClass Object
(
[id] => 27
[attribute_id] => 14
[name] => Нет
[material_modifier] => 1
[work_modifier] => 1
[options] => Array
(
)
[days] => [0]
[material_price] => [0]
[work_price] => [0]
[image] => https://akademik-stroy.ru/wp-content/uploads/materials/mansardnye-okna-2.jpg
[area_modifier] => 1
[parent_name] => Мансардные окна
[parent_id] => 14
[material_sum] => 0
[work_sum] => 0
[total_sum] => 0
[total_days] => 0
[display_material_sum] => 0
[display_work_sum] => 0
[display_total_sum] => 0
)
1
0₽
Работа:0 ₽
Материалы:0 ₽
Дни:0
stdClass Object
(
[id] => 28
[attribute_id] => 14
[name] => Есть
[material_modifier] => 1
[work_modifier] => 1
[options] => Array
(
[0] => 55x78
[1] => 55x98
)
[days] => [6,7]
[material_price] => [47480,68700]
[work_price] => [17900,19500]
[image] => https://akademik-stroy.ru/wp-content/uploads/materials/mansardnye-okna-2.jpg
[area_modifier] => 1
[parent_name] => Мансардные окна
[parent_id] => 14
[material_sum] => 65522
[work_sum] => 20585
[total_sum] => 86107
[total_days] => 6
[display_material_sum] => 65 522
[display_work_sum] => 20 585
[display_total_sum] => 86 107
)
1
86 107₽
Работа:20 585 ₽
Материалы:65 522 ₽
Дни:6
stdClass Object
(
[id] => 29
[attribute_id] => 15
[name] => Нет
[material_modifier] => 1
[work_modifier] => 1
[options] => Array
(
)
[days] => [0]
[material_price] => [0]
[work_price] => [0]
[image] => https://akademik-stroy.ru/wp-content/uploads/materials/sofit.jpg
[area_modifier] => 138.01
[parent_name] => Подшивка кровли
[parent_id] => 15
[material_sum] => 0
[work_sum] => 0
[total_sum] => 0
[total_days] => 0
[display_material_sum] => 0
[display_work_sum] => 0
[display_total_sum] => 0
)
1
0₽
Работа:0 ₽
Материалы:0 ₽
Дни:0
stdClass Object
(
[id] => 30
[attribute_id] => 15
[name] => Есть
[material_modifier] => 1
[work_modifier] => 1
[options] => Array
(
[0] => Софиты (ПВХ)
[1] => Cedral
[2] => ДПК
[3] => Планкен
)
[days] => [7,10,9,8]
[material_price] => [1803,3213,3025,3150]
[work_price] => [1529,2188,2075,1923]
[image] => https://akademik-stroy.ru/wp-content/uploads/materials/sofit.jpg
[area_modifier] => 138.01
[parent_name] => Подшивка кровли
[parent_id] => 15
[material_sum] => 343388
[work_sum] => 242670
[total_sum] => 586058
[total_days] => 7
[display_material_sum] => 343 388
[display_work_sum] => 242 670
[display_total_sum] => 586 058
)
1
586 058₽
Работа:242 670 ₽
Материалы:343 388 ₽
Дни:7
stdClass Object
(
[id] => 31
[attribute_id] => 16
[name] => Нет
[material_modifier] => 1
[work_modifier] => 1
[options] => Array
(
)
[days] => [0]
[material_price] => [0]
[work_price] => [0]
[image] => https://akademik-stroy.ru/wp-content/uploads/materials/docke-standard-pvh.jpg
[area_modifier] => 138.01
[parent_name] => Водосточная система
[parent_id] => 16
[material_sum] => 0
[work_sum] => 0
[total_sum] => 0
[total_days] => 0
[display_material_sum] => 0
[display_work_sum] => 0
[display_total_sum] => 0
)
1
0₽
Работа:0 ₽
Материалы:0 ₽
Дни:0
stdClass Object
(
[id] => 32
[attribute_id] => 16
[name] => Есть
[material_modifier] => 1
[work_modifier] => 1
[options] => Array
(
[0] => Döcke Standard (ПВХ)
[1] => Металлические Grand Line
)
[days] => [7,7]
[material_price] => [1842,2703]
[work_price] => [1491,1529]
[image] => https://akademik-stroy.ru/wp-content/uploads/materials/docke-standard-pvh.jpg
[area_modifier] => 138.01
[parent_name] => Водосточная система
[parent_id] => 16
[material_sum] => 350816
[work_sum] => 236639
[total_sum] => 587455
[total_days] => 7
[display_material_sum] => 350 816
[display_work_sum] => 236 639
[display_total_sum] => 587 455
)
1
587 455₽
Работа:236 639 ₽
Материалы:350 816 ₽
Дни:7
stdClass Object
(
[id] => 33
[attribute_id] => 17
[name] => Нет
[material_modifier] => 1
[work_modifier] => 1
[options] => Array
(
)
[days] => [0]
[material_price] => [0]
[work_price] => [0]
[image] => https://akademik-stroy.ru/wp-content/uploads/materials/mineralovata.jpg
[area_modifier] => 138.01
[parent_name] => Дополнительное утепление наружных стен
[parent_id] => 17
[material_sum] => 0
[work_sum] => 0
[total_sum] => 0
[total_days] => 0
[display_material_sum] => 0
[display_work_sum] => 0
[display_total_sum] => 0
)
1
0₽
Работа:0 ₽
Материалы:0 ₽
Дни:0
stdClass Object
(
[id] => 34
[attribute_id] => 17
[name] => Минераловатный
[material_modifier] => 1
[work_modifier] => 1
[options] => Array
(
[0] => 50 мм
[1] => 100 мм
[2] => 150 мм
[3] => 200 мм
[4] => 250 мм
[5] => 300 мм
)
[days] => [7,8,10,12,14,15]
[material_price] => [3437,3613,3803,3915,4601,4830]
[work_price] => [2325,2423,2523,2749,2859,3025]
[image] => https://akademik-stroy.ru/wp-content/uploads/materials/mineralovata.jpg
[area_modifier] => 138.01
[parent_name] => Дополнительное утепление наружных стен
[parent_id] => 17
[material_sum] => 654590
[work_sum] => 369004
[total_sum] => 1023594
[total_days] => 7
[display_material_sum] => 654 590
[display_work_sum] => 369 004
[display_total_sum] => 1 023 594
)
1
1 023 594₽
Работа:369 004 ₽
Материалы:654 590 ₽
Дни:7
stdClass Object
(
[id] => 128
[attribute_id] => 17
[name] => Эковата (целлюлозная вата)
[material_modifier] => 1
[work_modifier] => 1
[options] => Array
(
[0] => 50 мм
[1] => 100 мм
[2] => 150 мм
[3] => 200 мм
[4] => 250 мм
[5] => 300 мм
)
[days] => [3,4,5,6,7,8]
[material_price] => [810,1319,1629,1838,2267,2676]
[work_price] => [1225,1323,1423,1549,1659,1725]
[image] => https://akademik-stroy.ru/wp-content/uploads/materials/ehkovata.jpg
[area_modifier] => 138.01
[parent_name] => Дополнительное утепление наружных стен
[parent_id] => 17
[material_sum] => 154268
[work_sum] => 194422
[total_sum] => 348690
[total_days] => 3
[display_material_sum] => 154 268
[display_work_sum] => 194 422
[display_total_sum] => 348 690
)
1
348 690₽
Работа:194 422 ₽
Материалы:154 268 ₽
Дни:3
stdClass Object
(
[id] => 129
[attribute_id] => 17
[name] => Экструдированный пенополистирол
[material_modifier] => 1
[work_modifier] => 1
[options] => Array
(
[0] => 50 мм
[1] => 100 мм
[2] => 150 мм
[3] => 200 мм
[4] => 250 мм
[5] => 300 мм
)
[days] => [5,6,7,8,9,10]
[material_price] => [4560,4300,5119,6292,7010,8583]
[work_price] => [1795,1954,2254,2330,2595,2735]
[image] => https://akademik-stroy.ru/wp-content/uploads/materials/epps.jpg
[area_modifier] => 138.01
[parent_name] => Дополнительное утепление наружных стен
[parent_id] => 17
[material_sum] => 868469
[work_sum] => 284887
[total_sum] => 1153356
[total_days] => 5
[display_material_sum] => 868 469
[display_work_sum] => 284 887
[display_total_sum] => 1 153 356
)
1
1 153 356₽
Работа:284 887 ₽
Материалы:868 469 ₽
Дни:5
stdClass Object
(
[id] => 130
[attribute_id] => 17
[name] => ПСБ (ППС-пенополистирол)
[material_modifier] => 1
[work_modifier] => 1
[options] => Array
(
[0] => 50 мм
[1] => 100 мм
[2] => 150 мм
[3] => 200 мм
[4] => 250 мм
[5] => 300 мм
)
[days] => [5,6,7,8,9,10]
[material_price] => [4822,5200,5819,6292,7010,7583]
[work_price] => [1795,1954,2254,2330,2595,2735]
[image] => https://akademik-stroy.ru/wp-content/uploads/materials/psb.jpg
[area_modifier] => 138.01
[parent_name] => Дополнительное утепление наружных стен
[parent_id] => 17
[material_sum] => 918368
[work_sum] => 284887
[total_sum] => 1203255
[total_days] => 5
[display_material_sum] => 918 368
[display_work_sum] => 284 887
[display_total_sum] => 1 203 255
)
1
1 203 255₽
Работа:284 887 ₽
Материалы:918 368 ₽
Дни:5
stdClass Object
(
[id] => 131
[attribute_id] => 17
[name] => ППУ (Пенополиуретан)
[material_modifier] => 1
[work_modifier] => 1
[options] => Array
(
[0] => 50 мм
[1] => 100 мм
[2] => 150 мм
[3] => 200 мм
[4] => 250 мм
[5] => 300 мм
)
[days] => [3,4,5,6,7,8]
[material_price] => [2860,3400,4219,4592,5010,5583]
[work_price] => [729,900,980,1120,1280,1530]
[image] => https://akademik-stroy.ru/wp-content/uploads/materials/ppu.jpg
[area_modifier] => 138.01
[parent_name] => Дополнительное утепление наружных стен
[parent_id] => 17
[material_sum] => 544698
[work_sum] => 115701
[total_sum] => 660399
[total_days] => 3
[display_material_sum] => 544 698
[display_work_sum] => 115 701
[display_total_sum] => 660 399
)
1
660 399₽
Работа:115 701 ₽
Материалы:544 698 ₽
Дни:3
stdClass Object
(
[id] => 132
[attribute_id] => 17
[name] => PIR-плиты (пенополиизоцианурат)
[material_modifier] => 1
[work_modifier] => 1
[options] => Array
(
[0] => 50 мм
[1] => 100 мм
[2] => 150 мм
[3] => 200 мм
[4] => 250 мм
[5] => 300 мм
)
[days] => [5,6,7,8,9,10]
[material_price] => [8323,15645,20968,25900,29258,30581]
[work_price] => [800,900,970,1150,1280,1330]
[image] => https://akademik-stroy.ru/wp-content/uploads/materials/pir.jpg
[area_modifier] => 138.01
[parent_name] => Дополнительное утепление наружных стен
[parent_id] => 17
[material_sum] => 1585147
[work_sum] => 126969
[total_sum] => 1712116
[total_days] => 5
[display_material_sum] => 1 585 147
[display_work_sum] => 126 969
[display_total_sum] => 1 712 116
)
1
1 712 116₽
Работа:126 969 ₽
Материалы:1 585 147 ₽
Дни:5
stdClass Object
(
[id] => 37
[attribute_id] => 19
[name] => Нет
[material_modifier] => 1
[work_modifier] => 1
[options] => Array
(
)
[days] => [0]
[material_price] => [0]
[work_price] => [0]
[image] => https://akademik-stroy.ru/wp-content/uploads/materials/imitaciya-brusa.jpg
[area_modifier] => 138.01
[parent_name] => Наружная отделка фасада
[parent_id] => 19
[material_sum] => 0
[work_sum] => 0
[total_sum] => 0
[total_days] => 0
[display_material_sum] => 0
[display_work_sum] => 0
[display_total_sum] => 0
)
1
0₽
Работа:0 ₽
Материалы:0 ₽
Дни:0
stdClass Object
(
[id] => 38
[attribute_id] => 19
[name] => Имитация бруса
[material_modifier] => 1
[work_modifier] => 1
[options] => Array
(
[0] => Сосна
[1] => Ель
[2] => Лиственница
)
[days] => [20,20,20]
[material_price] => [2994,2762,4954]
[work_price] => [1397,1231,1577]
[image] => https://akademik-stroy.ru/wp-content/uploads/materials/imitaciya-brusa.jpg
[area_modifier] => 138.01
[parent_name] => Наружная отделка фасада
[parent_id] => 19
[material_sum] => 570219
[work_sum] => 221720
[total_sum] => 791939
[total_days] => 20
[display_material_sum] => 570 219
[display_work_sum] => 221 720
[display_total_sum] => 791 939
)
1
791 939₽
Работа:221 720 ₽
Материалы:570 219 ₽
Дни:20
stdClass Object
(
[id] => 136
[attribute_id] => 19
[name] => Планкен
[material_modifier] => 1
[work_modifier] => 1
[options] => Array
(
[0] => Сосна
[1] => Ель
[2] => Лиственница
)
[days] => [20,20,20]
[material_price] => [3194,2862,5154]
[work_price] => [1537,1354,1735]
[image] => https://akademik-stroy.ru/wp-content/uploads/materials/planken.jpg
[area_modifier] => 138.01
[parent_name] => Наружная отделка фасада
[parent_id] => 19
[material_sum] => 608309
[work_sum] => 243940
[total_sum] => 852249
[total_days] => 20
[display_material_sum] => 608 309
[display_work_sum] => 243 940
[display_total_sum] => 852 249
)
1
852 249₽
Работа:243 940 ₽
Материалы:608 309 ₽
Дни:20
stdClass Object
(
[id] => 137
[attribute_id] => 19
[name] => Штукатурка
[material_modifier] => 1
[work_modifier] => 1
[options] => Array
(
[0] => Цементно-песчаная (минеральная)
[1] => Мокрый фасад
)
[days] => [35,35]
[material_price] => [2231,3938]
[work_price] => [1202,2422]
[image] => https://akademik-stroy.ru/wp-content/uploads/materials/shtukaturka.jpg
[area_modifier] => 138.01
[parent_name] => Наружная отделка фасада
[parent_id] => 19
[material_sum] => 424902
[work_sum] => 190771
[total_sum] => 615673
[total_days] => 35
[display_material_sum] => 424 902
[display_work_sum] => 190 771
[display_total_sum] => 615 673
)
1
615 673₽
Работа:190 771 ₽
Материалы:424 902 ₽
Дни:35
stdClass Object
(
[id] => 138
[attribute_id] => 19
[name] => Облицовочный кирпич
[material_modifier] => 1
[work_modifier] => 1
[options] => Array
(
[0] => Керамический
[1] => Клинкерный
[2] => Ручной формовки
[3] => Гиперпрессованный
[4] => Силикатный кирпич
)
[days] => [45,45,45,45,45]
[material_price] => [8174,9148,1040,1257,5876]
[work_price] => [3240,3758,4536,4017,3369]
[image] => https://akademik-stroy.ru/wp-content/uploads/materials/oblicovochnyj-kirpich.jpg
[area_modifier] => 138.01
[parent_name] => Наружная отделка фасада
[parent_id] => 19
[material_sum] => 1556769
[work_sum] => 514225
[total_sum] => 2070994
[total_days] => 45
[display_material_sum] => 1 556 769
[display_work_sum] => 514 225
[display_total_sum] => 2 070 994
)
1
2 070 994₽
Работа:514 225 ₽
Материалы:1 556 769 ₽
Дни:45
stdClass Object
(
[id] => 139
[attribute_id] => 19
[name] => Фасадная плитка
[material_modifier] => 1
[work_modifier] => 1
[options] => Array
(
[0] => Клинкерная
[1] => Керамическая
[2] => Плитка ручной формовки
)
[days] => [40,40,40]
[material_price] => [2974,1487,3470]
[work_price] => [3007,2592,3629]
[image] => https://akademik-stroy.ru/wp-content/uploads/materials/fasadnaya-plitka.jpg
[area_modifier] => 138.01
[parent_name] => Наружная отделка фасада
[parent_id] => 19
[material_sum] => 566410
[work_sum] => 477245
[total_sum] => 1043655
[total_days] => 40
[display_material_sum] => 566 410
[display_work_sum] => 477 245
[display_total_sum] => 1 043 655
)
1
1 043 655₽
Работа:477 245 ₽
Материалы:566 410 ₽
Дни:40
stdClass Object
(
[id] => 140
[attribute_id] => 19
[name] => Сайдинг
[material_modifier] => 1
[work_modifier] => 1
[options] => Array
(
[0] => Виниловый
[1] => Металлический
[2] => Фиброцементный
)
[days] => [20,20,20]
[material_price] => [1263,1944,4147]
[work_price] => [1263,1944,2074]
[image] => https://akademik-stroy.ru/wp-content/uploads/materials/sajding.jpg
[area_modifier] => 138.01
[parent_name] => Наружная отделка фасада
[parent_id] => 19
[material_sum] => 240543
[work_sum] => 200453
[total_sum] => 440996
[total_days] => 20
[display_material_sum] => 240 543
[display_work_sum] => 200 453
[display_total_sum] => 440 996
)
1
440 996₽
Работа:200 453 ₽
Материалы:240 543 ₽
Дни:20
stdClass Object
(
[id] => 141
[attribute_id] => 19
[name] => Камень
[material_modifier] => 1
[work_modifier] => 1
[options] => Array
(
[0] => Травертин
[1] => Дагестанский
[2] => Искусственный
[3] => Натуральный
[4] => Керамогранит
)
[days] => [45,45,45,45,45]
[material_price] => [4536,3888,2592,3240,2462]
[work_price] => [3240,3240,2462,3110,1944]
[image] => https://akademik-stroy.ru/wp-content/uploads/materials/kamen-1.jpg
[area_modifier] => 138.01
[parent_name] => Наружная отделка фасада
[parent_id] => 19
[material_sum] => 863898
[work_sum] => 514225
[total_sum] => 1378123
[total_days] => 45
[display_material_sum] => 863 898
[display_work_sum] => 514 225
[display_total_sum] => 1 378 123
)
1
1 378 123₽
Работа:514 225 ₽
Материалы:863 898 ₽
Дни:45
stdClass Object
(
[id] => 142
[attribute_id] => 19
[name] => Термопанели
[material_modifier] => 1
[work_modifier] => 1
[options] => Array
(
)
[days] => [20]
[material_price] => [6221]
[work_price] => [2333]
[image] => https://akademik-stroy.ru/wp-content/uploads/materials/termo.png
[area_modifier] => 138.01
[parent_name] => Наружная отделка фасада
[parent_id] => 19
[material_sum] => 1184813
[work_sum] => 370274
[total_sum] => 1555087
[total_days] => 20
[display_material_sum] => 1 184 813
[display_work_sum] => 370 274
[display_total_sum] => 1 555 087
)
1
1 555 087₽
Работа:370 274 ₽
Материалы:1 184 813 ₽
Дни:20
stdClass Object
(
[id] => 143
[attribute_id] => 19
[name] => Плитка HAUBERK
[material_modifier] => 1
[work_modifier] => 1
[options] => Array
(
)
[days] => [20]
[material_price] => [2786]
[work_price] => [1944]
[image] => https://akademik-stroy.ru/wp-content/uploads/materials/hauberk.jpg
[area_modifier] => 138.01
[parent_name] => Наружная отделка фасада
[parent_id] => 19
[material_sum] => 530604
[work_sum] => 308535
[total_sum] => 839139
[total_days] => 20
[display_material_sum] => 530 604
[display_work_sum] => 308 535
[display_total_sum] => 839 139
)
1
839 139₽
Работа:308 535 ₽
Материалы:530 604 ₽
Дни:20
stdClass Object
(
[id] => 144
[attribute_id] => 19
[name] => Фальцевый фасад
[material_modifier] => 1
[work_modifier] => 1
[options] => Array
(
)
[days] => [20]
[material_price] => [3240]
[work_price] => [2592]
[image] => https://akademik-stroy.ru/wp-content/uploads/materials/falcevyj-fasad.jpg
[area_modifier] => 138.01
[parent_name] => Наружная отделка фасада
[parent_id] => 19
[material_sum] => 617070
[work_sum] => 411380
[total_sum] => 1028450
[total_days] => 20
[display_material_sum] => 617 070
[display_work_sum] => 411 380
[display_total_sum] => 1 028 450
)
1
1 028 450₽
Работа:411 380 ₽
Материалы:617 070 ₽
Дни:20
stdClass Object
(
[id] => 145
[attribute_id] => 19
[name] => Комбинированный
[material_modifier] => 1
[work_modifier] => 1
[options] => Array
(
)
[days] => [20]
[material_price] => [4629]
[work_price] => [3499]
[image] => https://akademik-stroy.ru/wp-content/uploads/materials/Kombinirovannyj.jpg
[area_modifier] => 138.01
[parent_name] => Наружная отделка фасада
[parent_id] => 19
[material_sum] => 881611
[work_sum] => 555332
[total_sum] => 1436943
[total_days] => 20
[display_material_sum] => 881 611
[display_work_sum] => 555 332
[display_total_sum] => 1 436 943
)
1
1 436 943₽
Работа:555 332 ₽
Материалы:881 611 ₽
Дни:20
stdClass Object
(
[id] => 257
[attribute_id] => 19
[name] => Японские фиброцементные
[material_modifier] => 1
[work_modifier] => 1
[options] => Array
(
)
[days] => [20]
[material_price] => [7043]
[work_price] => [2993]
[image] => https://akademik-stroy.ru/wp-content/uploads/materials/paneli.jpg
[area_modifier] => 138.01
[parent_name] => Наружная отделка фасада
[parent_id] => 19
[material_sum] => 1341366
[work_sum] => 475024
[total_sum] => 1816390
[total_days] => 20
[display_material_sum] => 1 341 366
[display_work_sum] => 475 024
[display_total_sum] => 1 816 390
)
1
1 816 390₽
Работа:475 024 ₽
Материалы:1 341 366 ₽
Дни:20
stdClass Object
(
[id] => 258
[attribute_id] => 19
[name] => Панели Каньон
[material_modifier] => 1
[work_modifier] => 1
[options] => Array
(
)
[days] => [20]
[material_price] => [4543]
[work_price] => [2592]
[image] => https://akademik-stroy.ru/wp-content/uploads/materials/kanon.png
[area_modifier] => 138.01
[parent_name] => Наружная отделка фасада
[parent_id] => 19
[material_sum] => 865232
[work_sum] => 411380
[total_sum] => 1276612
[total_days] => 20
[display_material_sum] => 865 232
[display_work_sum] => 411 380
[display_total_sum] => 1 276 612
)
1
1 276 612₽
Работа:411 380 ₽
Материалы:865 232 ₽
Дни:20
stdClass Object
(
[id] => 39
[attribute_id] => 20
[name] => Нет
[material_modifier] => 1
[work_modifier] => 1
[options] => Array
(
)
[days] => [0]
[material_price] => [0]
[work_price] => [0]
[image] => https://akademik-stroy.ru/wp-content/uploads/materials/terrasy.jpg
[area_modifier] => 30
[parent_name] => Террасы, крыльца, навесы
[parent_id] => 20
[material_sum] => 0
[work_sum] => 0
[total_sum] => 0
[total_days] => 0
[display_material_sum] => 0
[display_work_sum] => 0
[display_total_sum] => 0
)
1
0₽
Работа:0 ₽
Материалы:0 ₽
Дни:0
stdClass Object
(
[id] => 40
[attribute_id] => 20
[name] => Есть
[material_modifier] => 1
[work_modifier] => 1
[options] => Array
(
)
[days] => [5]
[material_price] => [10450]
[work_price] => [1950]
[image] => https://akademik-stroy.ru/wp-content/uploads/materials/terrasy.jpg
[area_modifier] => 30
[parent_name] => Террасы, крыльца, навесы
[parent_id] => 20
[material_sum] => 432630
[work_sum] => 67275
[total_sum] => 499905
[total_days] => 5
[display_material_sum] => 432 630
[display_work_sum] => 67 275
[display_total_sum] => 499 905
)
1
499 905₽
Работа:67 275 ₽
Материалы:432 630 ₽
Дни:5
stdClass Object
(
[id] => 41
[attribute_id] => 21
[name] => Нет
[material_modifier] => 1
[work_modifier] => 1
[options] => Array
(
)
[days] => [0]
[material_price] => [0]
[work_price] => [0]
[image] => https://akademik-stroy.ru/wp-content/uploads/materials/balkony.jpg
[area_modifier] => 30
[parent_name] => Балконы
[parent_id] => 21
[material_sum] => 0
[work_sum] => 0
[total_sum] => 0
[total_days] => 0
[display_material_sum] => 0
[display_work_sum] => 0
[display_total_sum] => 0
)
1
0₽
Работа:0 ₽
Материалы:0 ₽
Дни:0
stdClass Object
(
[id] => 42
[attribute_id] => 21
[name] => Есть
[material_modifier] => 1
[work_modifier] => 1
[options] => Array
(
)
[days] => [12]
[material_price] => [3600]
[work_price] => [1950]
[image] => https://akademik-stroy.ru/wp-content/uploads/materials/balkony.jpg
[area_modifier] => 30
[parent_name] => Балконы
[parent_id] => 21
[material_sum] => 149040
[work_sum] => 67275
[total_sum] => 216315
[total_days] => 12
[display_material_sum] => 149 040
[display_work_sum] => 67 275
[display_total_sum] => 216 315
)
1
216 315₽
Работа:67 275 ₽
Материалы:149 040 ₽
Дни:12
stdClass Object
(
[id] => 43
[attribute_id] => 22
[name] => Нет
[material_modifier] => 1
[work_modifier] => 1
[options] => Array
(
)
[days] => [0]
[material_price] => [0]
[work_price] => [0]
[image] => https://akademik-stroy.ru/wp-content/uploads/materials/uteplennaya.jpg
[area_modifier] => 138.01
[parent_name] => Отмостка
[parent_id] => 22
[material_sum] => 0
[work_sum] => 0
[total_sum] => 0
[total_days] => 0
[display_material_sum] => 0
[display_work_sum] => 0
[display_total_sum] => 0
)
1
0₽
Работа:0 ₽
Материалы:0 ₽
Дни:0
stdClass Object
(
[id] => 44
[attribute_id] => 22
[name] => Утепленная отмостка
[material_modifier] => 1
[work_modifier] => 1
[options] => Array
(
)
[days] => [15]
[material_price] => [2550]
[work_price] => [1750]
[image] => https://akademik-stroy.ru/wp-content/uploads/materials/uteplennaya.jpg
[area_modifier] => 138.01
[parent_name] => Отмостка
[parent_id] => 22
[material_sum] => 485657
[work_sum] => 277745
[total_sum] => 763402
[total_days] => 15
[display_material_sum] => 485 657
[display_work_sum] => 277 745
[display_total_sum] => 763 402
)
1
763 402₽
Работа:277 745 ₽
Материалы:485 657 ₽
Дни:15
stdClass Object
(
[id] => 146
[attribute_id] => 22
[name] => Не утепленная отмостка
[material_modifier] => 1
[work_modifier] => 1
[options] => Array
(
)
[days] => [10]
[material_price] => [1650]
[work_price] => [1450]
[image] => https://akademik-stroy.ru/wp-content/uploads/materials/ne-uteplennaya.jpg
[area_modifier] => 138.01
[parent_name] => Отмостка
[parent_id] => 22
[material_sum] => 314249
[work_sum] => 230132
[total_sum] => 544381
[total_days] => 10
[display_material_sum] => 314 249
[display_work_sum] => 230 132
[display_total_sum] => 544 381
)
1
544 381₽
Работа:230 132 ₽
Материалы:314 249 ₽
Дни:10
stdClass Object
(
[id] => 45
[attribute_id] => 23
[name] => Нет
[material_modifier] => 1
[work_modifier] => 1
[options] => Array
(
)
[days] => [0]
[material_price] => [0]
[work_price] => [0]
[image] => https://akademik-stroy.ru/wp-content/uploads/materials/drenazh-2.jpg
[area_modifier] => 138.01
[parent_name] => Дренаж вокруг дома
[parent_id] => 23
[material_sum] => 0
[work_sum] => 0
[total_sum] => 0
[total_days] => 0
[display_material_sum] => 0
[display_work_sum] => 0
[display_total_sum] => 0
)
1
0₽
Работа:0 ₽
Материалы:0 ₽
Дни:0
stdClass Object
(
[id] => 46
[attribute_id] => 23
[name] => Есть
[material_modifier] => 1
[work_modifier] => 1
[options] => Array
(
)
[days] => [5]
[material_price] => [2366]
[work_price] => [1911]
[image] => https://akademik-stroy.ru/wp-content/uploads/materials/drenazh-2.jpg
[area_modifier] => 138.01
[parent_name] => Дренаж вокруг дома
[parent_id] => 23
[material_sum] => 450614
[work_sum] => 303298
[total_sum] => 753912
[total_days] => 5
[display_material_sum] => 450 614
[display_work_sum] => 303 298
[display_total_sum] => 753 912
)
1
753 912₽
Работа:303 298 ₽
Материалы:450 614 ₽
Дни:5
stdClass Object
(
[id] => 47
[attribute_id] => 24
[name] => Нет
[material_modifier] => 1
[work_modifier] => 1
[options] => Array
(
)
[days] => [0]
[material_price] => [0]
[work_price] => [0]
[image] => https://akademik-stroy.ru/wp-content/uploads/materials/septik.jpg
[area_modifier] => 1
[parent_name] => Автономная канализация (септики)
[parent_id] => 24
[material_sum] => 0
[work_sum] => 0
[total_sum] => 0
[total_days] => 0
[display_material_sum] => 0
[display_work_sum] => 0
[display_total_sum] => 0
)
1
0₽
Работа:0 ₽
Материалы:0 ₽
Дни:0
stdClass Object
(
[id] => 48
[attribute_id] => 24
[name] => Есть
[material_modifier] => 1
[work_modifier] => 1
[options] => Array
(
[0] => Для дачи на 4 человека
[1] => Для дома на 5 человек
[2] => Для дома на 6 человек
[3] => Для дома на 7 человек
[4] => Для дома на 10 человек
)
[days] => [7,7,7,8,8]
[material_price] => [196340,220500,240940,264200,293340]
[work_price] => [50000,55000,60500,66550,73206]
[image] => https://akademik-stroy.ru/wp-content/uploads/materials/septik.jpg
[area_modifier] => 1
[parent_name] => Автономная канализация (септики)
[parent_id] => 24
[material_sum] => 270949
[work_sum] => 57500
[total_sum] => 328449
[total_days] => 7
[display_material_sum] => 270 949
[display_work_sum] => 57 500
[display_total_sum] => 328 449
)
1
328 449₽
Работа:57 500 ₽
Материалы:270 949 ₽
Дни:7
stdClass Object
(
[id] => 49
[attribute_id] => 25
[name] => Нет
[material_modifier] => 1
[work_modifier] => 1
[options] => Array
(
)
[days] => [0]
[material_price] => [0]
[work_price] => [0]
[image] => https://akademik-stroy.ru/wp-content/uploads/materials/gkl.jpg
[area_modifier] => 138.01
[parent_name] => Внутренние (не несущие) перегородки
[parent_id] => 25
[material_sum] => 0
[work_sum] => 0
[total_sum] => 0
[total_days] => 0
[display_material_sum] => 0
[display_work_sum] => 0
[display_total_sum] => 0
)
1
0₽
Работа:0 ₽
Материалы:0 ₽
Дни:0
stdClass Object
(
[id] => 147
[attribute_id] => 25
[name] => Каркасно-обшивные
[material_modifier] => 1
[work_modifier] => 1
[options] => Array
(
[0] => 75 мм (без шумоизоляции)
[1] => 75 мм (с шумоизоляцией)
)
[days] => [11,11]
[material_price] => [580,970]
[work_price] => [380,570]
[image] => https://akademik-stroy.ru/wp-content/uploads/materials/gkl.jpg
[area_modifier] => 138.01
[parent_name] => Внутренние (не несущие) перегородки
[parent_id] => 25
[material_sum] => 110463
[work_sum] => 60310
[total_sum] => 170773
[total_days] => 11
[display_material_sum] => 110 463
[display_work_sum] => 60 310
[display_total_sum] => 170 773
)
1
170 773₽
Работа:60 310 ₽
Материалы:110 463 ₽
Дни:11
stdClass Object
(
[id] => 148
[attribute_id] => 25
[name] => Пазогребневые
[material_modifier] => 1
[work_modifier] => 1
[options] => Array
(
[0] => 80 мм
[1] => 100 мм
)
[days] => [5,5]
[material_price] => [1022,1313]
[work_price] => [600,700]
[image] => https://akademik-stroy.ru/wp-content/uploads/materials/pazogrebnevye-bloki.jpg
[area_modifier] => 138.01
[parent_name] => Внутренние (не несущие) перегородки
[parent_id] => 25
[material_sum] => 194644
[work_sum] => 95227
[total_sum] => 289871
[total_days] => 5
[display_material_sum] => 194 644
[display_work_sum] => 95 227
[display_total_sum] => 289 871
)
1
289 871₽
Работа:95 227 ₽
Материалы:194 644 ₽
Дни:5
stdClass Object
(
[id] => 149
[attribute_id] => 25
[name] => Газобетонные
[material_modifier] => 1
[work_modifier] => 1
[options] => Array
(
[0] => 100 мм
[1] => 200 мм
)
[days] => [11,11]
[material_price] => [1160,1920]
[work_price] => [700,900]
[image] => https://akademik-stroy.ru/wp-content/uploads/materials/gazobeton-2.jpg
[area_modifier] => 138.01
[parent_name] => Внутренние (не несущие) перегородки
[parent_id] => 25
[material_sum] => 220926
[work_sum] => 111098
[total_sum] => 332024
[total_days] => 11
[display_material_sum] => 220 926
[display_work_sum] => 111 098
[display_total_sum] => 332 024
)
1
332 024₽
Работа:111 098 ₽
Материалы:220 926 ₽
Дни:11
stdClass Object
(
[id] => 150
[attribute_id] => 25
[name] => Кирпичные
[material_modifier] => 1
[work_modifier] => 1
[options] => Array
(
[0] => 120 мм
[1] => 250 мм
[2] => 360 мм
)
[days] => [7,7,7]
[material_price] => [1785,3570,5355]
[work_price] => [900,1600,1800]
[image] => https://akademik-stroy.ru/wp-content/uploads/materials/kirpich-1.jpg
[area_modifier] => 138.01
[parent_name] => Внутренние (не несущие) перегородки
[parent_id] => 25
[material_sum] => 339960
[work_sum] => 142840
[total_sum] => 482800
[total_days] => 7
[display_material_sum] => 339 960
[display_work_sum] => 142 840
[display_total_sum] => 482 800
)
1
482 800₽
Работа:142 840 ₽
Материалы:339 960 ₽
Дни:7
stdClass Object
(
[id] => 55
[attribute_id] => 28
[name] => Нет
[material_modifier] => 1
[work_modifier] => 1
[options] => Array
(
)
[days] => [0]
[material_price] => [0]
[work_price] => [0]
[image] => https://akademik-stroy.ru/wp-content/uploads/materials/ehlektrika.jpg
[area_modifier] => 111.99
[parent_name] => Электрика
[parent_id] => 28
[material_sum] => 0
[work_sum] => 0
[total_sum] => 0
[total_days] => 0
[display_material_sum] => 0
[display_work_sum] => 0
[display_total_sum] => 0
)
1
0₽
Работа:0 ₽
Материалы:0 ₽
Дни:0
stdClass Object
(
[id] => 56
[attribute_id] => 28
[name] => Есть
[material_modifier] => 1
[work_modifier] => 1
[options] => Array
(
)
[days] => [10]
[material_price] => [650]
[work_price] => [950]
[image] => https://akademik-stroy.ru/wp-content/uploads/materials/ehlektrika.jpg
[area_modifier] => 111.99
[parent_name] => Электрика
[parent_id] => 28
[material_sum] => 100455
[work_sum] => 122349
[total_sum] => 222804
[total_days] => 10
[display_material_sum] => 100 455
[display_work_sum] => 122 349
[display_total_sum] => 222 804
)
1
222 804₽
Работа:122 349 ₽
Материалы:100 455 ₽
Дни:10
stdClass Object
(
[id] => 57
[attribute_id] => 29
[name] => Нет
[material_modifier] => 1
[work_modifier] => 1
[options] => Array
(
)
[days] => [0]
[material_price] => [0]
[work_price] => [0]
[image] => https://akademik-stroy.ru/wp-content/uploads/materials/santekhnika-kanalizaciya-1.jpg
[area_modifier] => 111.99
[parent_name] => Сантехника, канализация в доме
[parent_id] => 29
[material_sum] => 0
[work_sum] => 0
[total_sum] => 0
[total_days] => 0
[display_material_sum] => 0
[display_work_sum] => 0
[display_total_sum] => 0
)
1
0₽
Работа:0 ₽
Материалы:0 ₽
Дни:0
stdClass Object
(
[id] => 58
[attribute_id] => 29
[name] => Есть
[material_modifier] => 1
[work_modifier] => 1
[options] => Array
(
)
[days] => [10]
[material_price] => [600]
[work_price] => [730]
[image] => https://akademik-stroy.ru/wp-content/uploads/materials/santekhnika-kanalizaciya-1.jpg
[area_modifier] => 111.99
[parent_name] => Сантехника, канализация в доме
[parent_id] => 29
[material_sum] => 92728
[work_sum] => 94016
[total_sum] => 186744
[total_days] => 10
[display_material_sum] => 92 728
[display_work_sum] => 94 016
[display_total_sum] => 186 744
)
1
186 744₽
Работа:94 016 ₽
Материалы:92 728 ₽
Дни:10
stdClass Object
(
[id] => 59
[attribute_id] => 30
[name] => Нет
[material_modifier] => 1
[work_modifier] => 1
[options] => Array
(
)
[days] => [0]
[material_price] => [0]
[work_price] => [0]
[image] => https://akademik-stroy.ru/wp-content/uploads/materials/otoplenie-1.jpg
[area_modifier] => 111.99
[parent_name] => Отопление
[parent_id] => 30
[material_sum] => 0
[work_sum] => 0
[total_sum] => 0
[total_days] => 0
[display_material_sum] => 0
[display_work_sum] => 0
[display_total_sum] => 0
)
1
0₽
Работа:0 ₽
Материалы:0 ₽
Дни:0
stdClass Object
(
[id] => 60
[attribute_id] => 30
[name] => Есть
[material_modifier] => 1
[work_modifier] => 1
[options] => Array
(
)
[days] => [5]
[material_price] => [610]
[work_price] => [560]
[image] => https://akademik-stroy.ru/wp-content/uploads/materials/otoplenie-1.jpg
[area_modifier] => 111.99
[parent_name] => Отопление
[parent_id] => 30
[material_sum] => 94273
[work_sum] => 72122
[total_sum] => 166395
[total_days] => 5
[display_material_sum] => 94 273
[display_work_sum] => 72 122
[display_total_sum] => 166 395
)
1
166 395₽
Работа:72 122 ₽
Материалы:94 273 ₽
Дни:5
stdClass Object
(
[id] => 61
[attribute_id] => 31
[name] => Нет
[material_modifier] => 1
[work_modifier] => 1
[options] => Array
(
)
[days] => [0]
[material_price] => [0]
[work_price] => [0]
[image] => https://akademik-stroy.ru/wp-content/uploads/materials/vodyanye.jpg
[area_modifier] => 30
[parent_name] => Теплые полы
[parent_id] => 31
[material_sum] => 0
[work_sum] => 0
[total_sum] => 0
[total_days] => 0
[display_material_sum] => 0
[display_work_sum] => 0
[display_total_sum] => 0
)
1
0₽
Работа:0 ₽
Материалы:0 ₽
Дни:0
stdClass Object
(
[id] => 151
[attribute_id] => 31
[name] => Водяные
[material_modifier] => 1
[work_modifier] => 1
[options] => Array
(
)
[days] => [9]
[material_price] => [10200]
[work_price] => [2500]
[image] => https://akademik-stroy.ru/wp-content/uploads/materials/vodyanye.jpg
[area_modifier] => 30
[parent_name] => Теплые полы
[parent_id] => 31
[material_sum] => 422280
[work_sum] => 86250
[total_sum] => 508530
[total_days] => 9
[display_material_sum] => 422 280
[display_work_sum] => 86 250
[display_total_sum] => 508 530
)
1
508 530₽
Работа:86 250 ₽
Материалы:422 280 ₽
Дни:9
stdClass Object
(
[id] => 152
[attribute_id] => 31
[name] => Электро
[material_modifier] => 1
[work_modifier] => 1
[options] => Array
(
)
[days] => [5]
[material_price] => [6300]
[work_price] => [1500]
[image] => https://akademik-stroy.ru/wp-content/uploads/materials/ehlektricheskij.jpg
[area_modifier] => 30
[parent_name] => Теплые полы
[parent_id] => 31
[material_sum] => 260820
[work_sum] => 51750
[total_sum] => 312570
[total_days] => 5
[display_material_sum] => 260 820
[display_work_sum] => 51 750
[display_total_sum] => 312 570
)
1
312 570₽
Работа:51 750 ₽
Материалы:260 820 ₽
Дни:5
stdClass Object
(
[id] => 63
[attribute_id] => 32
[name] => Нет
[material_modifier] => 1
[work_modifier] => 1
[options] => Array
(
)
[days] => [0]
[material_price] => [0]
[work_price] => [0]
[image] => https://akademik-stroy.ru/wp-content/uploads/materials/shtukaturka-shpatlevka-1.jpg
[area_modifier] => 111.99
[parent_name] => Черновая отделка стен
[parent_id] => 32
[material_sum] => 0
[work_sum] => 0
[total_sum] => 0
[total_days] => 0
[display_material_sum] => 0
[display_work_sum] => 0
[display_total_sum] => 0
)
1
0₽
Работа:0 ₽
Материалы:0 ₽
Дни:0
stdClass Object
(
[id] => 153
[attribute_id] => 32
[name] => Штукатурка и шпатлевка
[material_modifier] => 1
[work_modifier] => 1
[options] => Array
(
)
[days] => [20]
[material_price] => [1850]
[work_price] => [2600]
[image] => https://akademik-stroy.ru/wp-content/uploads/materials/shtukaturka-shpatlevka-1.jpg
[area_modifier] => 111.99
[parent_name] => Черновая отделка стен
[parent_id] => 32
[material_sum] => 285910
[work_sum] => 334850
[total_sum] => 620760
[total_days] => 20
[display_material_sum] => 285 910
[display_work_sum] => 334 850
[display_total_sum] => 620 760
)
1
620 760₽
Работа:334 850 ₽
Материалы:285 910 ₽
Дни:20
stdClass Object
(
[id] => 154
[attribute_id] => 32
[name] => Гипсокортон на стены
[material_modifier] => 1
[work_modifier] => 1
[options] => Array
(
)
[days] => [15]
[material_price] => [950]
[work_price] => [2100]
[image] => https://akademik-stroy.ru/wp-content/uploads/materials/gkl-1.jpg
[area_modifier] => 111.99
[parent_name] => Черновая отделка стен
[parent_id] => 32
[material_sum] => 146819
[work_sum] => 270456
[total_sum] => 417275
[total_days] => 15
[display_material_sum] => 146 819
[display_work_sum] => 270 456
[display_total_sum] => 417 275
)
1
417 275₽
Работа:270 456 ₽
Материалы:146 819 ₽
Дни:15
stdClass Object
(
[id] => 155
[attribute_id] => 32
[name] => Вагонка
[material_modifier] => 1
[work_modifier] => 1
[options] => Array
(
)
[days] => [15]
[material_price] => [1250]
[work_price] => [950]
[image] => https://akademik-stroy.ru/wp-content/uploads/materials/vagonka.jpg
[area_modifier] => 111.99
[parent_name] => Черновая отделка стен
[parent_id] => 32
[material_sum] => 193183
[work_sum] => 122349
[total_sum] => 315532
[total_days] => 15
[display_material_sum] => 193 183
[display_work_sum] => 122 349
[display_total_sum] => 315 532
)
1
315 532₽
Работа:122 349 ₽
Материалы:193 183 ₽
Дни:15
stdClass Object
(
[id] => 65
[attribute_id] => 33
[name] => Нет
[material_modifier] => 1
[work_modifier] => 1
[options] => Array
(
)
[days] => [0]
[material_price] => [0]
[work_price] => [0]
[image] => https://akademik-stroy.ru/wp-content/uploads/materials/styazhka.jpg
[area_modifier] => 111.99
[parent_name] => Черновая отделка полов
[parent_id] => 33
[material_sum] => 0
[work_sum] => 0
[total_sum] => 0
[total_days] => 0
[display_material_sum] => 0
[display_work_sum] => 0
[display_total_sum] => 0
)
1
0₽
Работа:0 ₽
Материалы:0 ₽
Дни:0
stdClass Object
(
[id] => 156
[attribute_id] => 33
[name] => Стяжка + наливные полы
[material_modifier] => 1
[work_modifier] => 1
[options] => Array
(
)
[days] => [10]
[material_price] => [1000]
[work_price] => [900]
[image] => https://akademik-stroy.ru/wp-content/uploads/materials/styazhka.jpg
[area_modifier] => 111.99
[parent_name] => Черновая отделка полов
[parent_id] => 33
[material_sum] => 154546
[work_sum] => 115910
[total_sum] => 270456
[total_days] => 10
[display_material_sum] => 154 546
[display_work_sum] => 115 910
[display_total_sum] => 270 456
)
1
270 456₽
Работа:115 910 ₽
Материалы:154 546 ₽
Дни:10
stdClass Object
(
[id] => 157
[attribute_id] => 33
[name] => ОСБ на пол
[material_modifier] => 1
[work_modifier] => 1
[options] => Array
(
)
[days] => [7]
[material_price] => [580]
[work_price] => [350]
[image] => https://akademik-stroy.ru/wp-content/uploads/materials/osb-1.jpg
[area_modifier] => 111.99
[parent_name] => Черновая отделка полов
[parent_id] => 33
[material_sum] => 89637
[work_sum] => 45076
[total_sum] => 134713
[total_days] => 7
[display_material_sum] => 89 637
[display_work_sum] => 45 076
[display_total_sum] => 134 713
)
1
134 713₽
Работа:45 076 ₽
Материалы:89 637 ₽
Дни:7
stdClass Object
(
[id] => 67
[attribute_id] => 34
[name] => Нет
[material_modifier] => 1
[work_modifier] => 1
[options] => Array
(
)
[days] => [0]
[material_price] => [0]
[work_price] => [0]
[image] => https://akademik-stroy.ru/wp-content/uploads/materials/chistovaya-otdelka.jpg
[area_modifier] => 111.99
[parent_name] => Чистовая отделка стен и полов
[parent_id] => 34
[material_sum] => 0
[work_sum] => 0
[total_sum] => 0
[total_days] => 0
[display_material_sum] => 0
[display_work_sum] => 0
[display_total_sum] => 0
)
1
0₽
Работа:0 ₽
Материалы:0 ₽
Дни:0
stdClass Object
(
[id] => 68
[attribute_id] => 34
[name] => Есть
[material_modifier] => 1
[work_modifier] => 1
[options] => Array
(
)
[days] => [50]
[material_price] => [6000]
[work_price] => [3500]
[image] => https://akademik-stroy.ru/wp-content/uploads/materials/chistovaya-otdelka.jpg
[area_modifier] => 111.99
[parent_name] => Чистовая отделка стен и полов
[parent_id] => 34
[material_sum] => 927277
[work_sum] => 450760
[total_sum] => 1378037
[total_days] => 50
[display_material_sum] => 927 277
[display_work_sum] => 450 760
[display_total_sum] => 1 378 037
)
1
1 378 037₽
Работа:450 760 ₽
Материалы:927 277 ₽
Дни:50
stdClass Object
(
[id] => 69
[attribute_id] => 35
[name] => Нет
[material_modifier] => 1
[work_modifier] => 1
[options] => Array
(
)
[days] => [0]
[material_price] => [0]
[work_price] => [0]
[image] => https://akademik-stroy.ru/wp-content/uploads/materials/mnogourovnevyj-gkl.jpg
[area_modifier] => 111.99
[parent_name] => Отделка потолка
[parent_id] => 35
[material_sum] => 0
[work_sum] => 0
[total_sum] => 0
[total_days] => 0
[display_material_sum] => 0
[display_work_sum] => 0
[display_total_sum] => 0
)
1
0₽
Работа:0 ₽
Материалы:0 ₽
Дни:0
stdClass Object
(
[id] => 70
[attribute_id] => 35
[name] => Есть
[material_modifier] => 1
[work_modifier] => 1
[options] => Array
(
[0] => Многоуровневый потолок из гипсокартона
[1] => Многоуровневый потолок из гипсокартона и натяжного потолка
[2] => Одноуровневый потолок из гипсокартона
[3] => Одноуровневый натяжной потолок
)
[days] => [10,10,1,1]
[material_price] => [900,700,700,600]
[work_price] => [1000,800,500,300]
[image] => https://akademik-stroy.ru/wp-content/uploads/materials/mnogourovnevyj-gkl.jpg
[area_modifier] => 111.99
[parent_name] => Отделка потолка
[parent_id] => 35
[material_sum] => 139092
[work_sum] => 128789
[total_sum] => 267881
[total_days] => 10
[display_material_sum] => 139 092
[display_work_sum] => 128 789
[display_total_sum] => 267 881
)
1
267 881₽
Работа:128 789 ₽
Материалы:139 092 ₽
Дни:10
Преимущества работы с нами
7 этапов оплаты
Независимый строительный надзор
Экологически чистые материалы
16 лет гарантии
Онлайн-кабинет с веб-камерой
Строители с опытом более 15 лет
Собственное производство







