Одноэтажный дом 188.4 м2 за руб.
Планировки
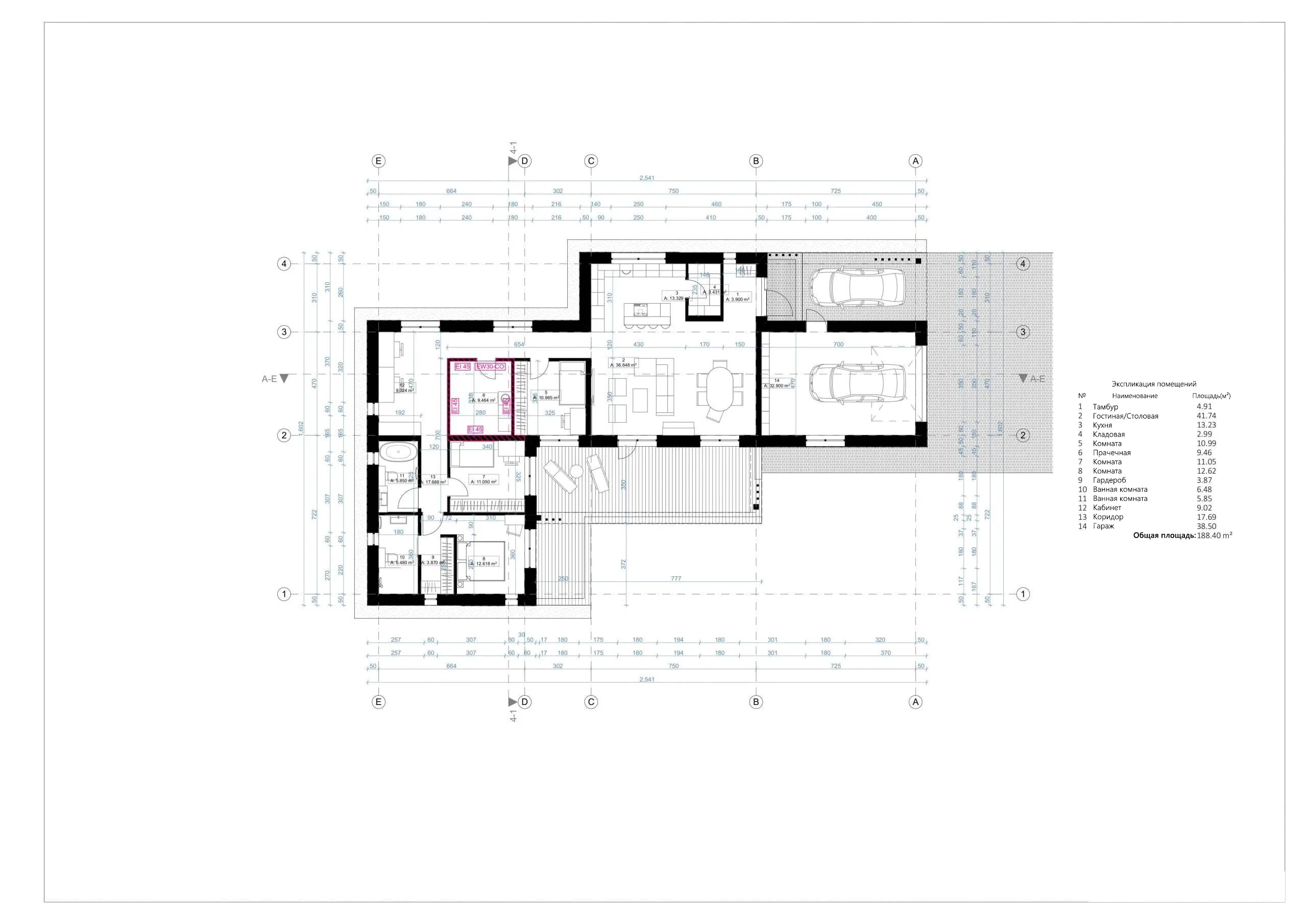
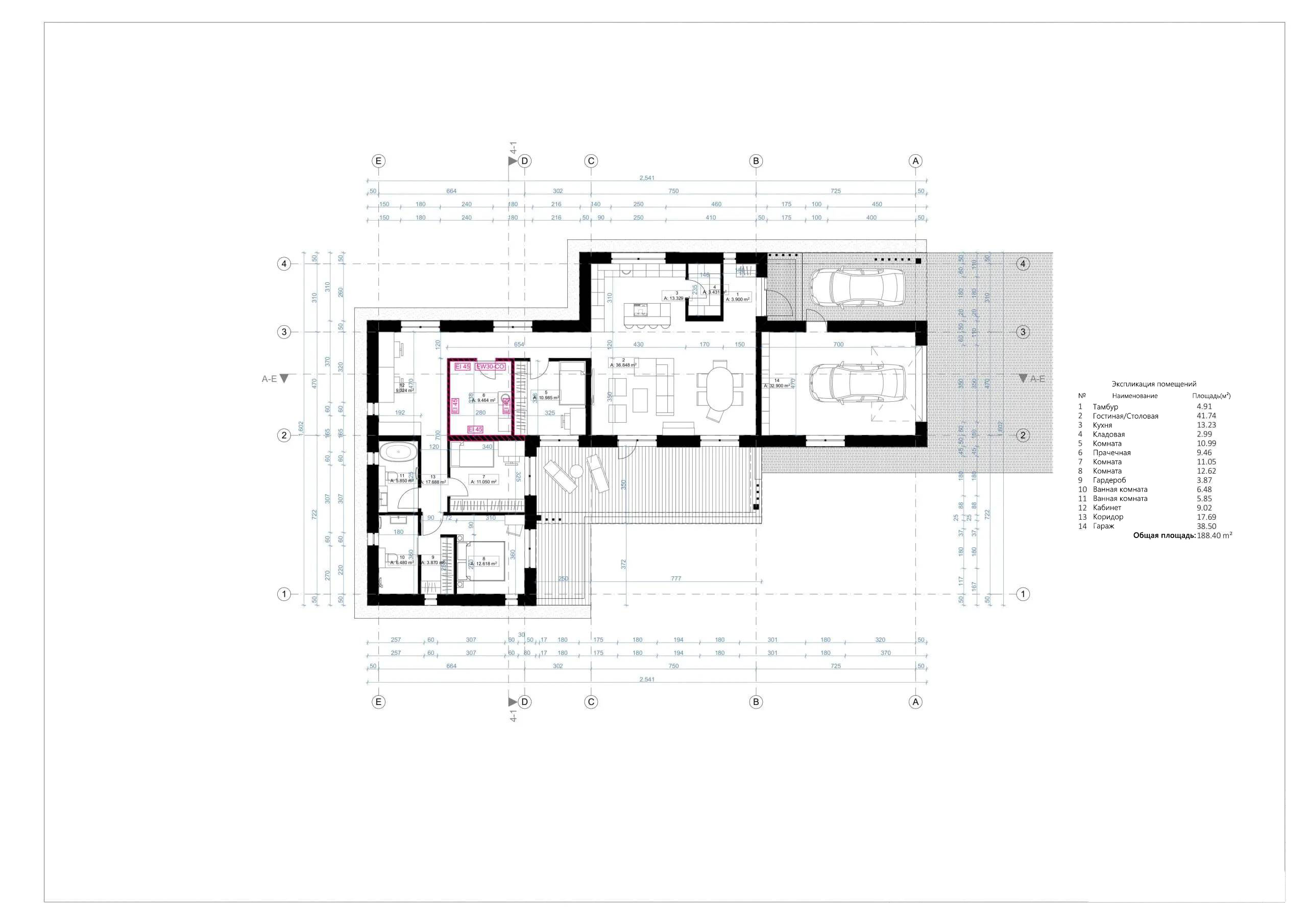
План первого этажа
- 1. Тамбур 4,91 м²
- 2. Гостиная-Столовая 41,74 м²
- 3. Кухня 13,23 м²
- 4. Кладовая 2,99 м²
- 5. Комната 10,99 м²
- 6. Прачечная 9,46 м²
- 7. Комната 11,05 м²
- 8. Комната 12,62 м²
- 9. Гардероб 3,87 м²
- 10. Ванная комната 6,48 м²
- 11. Ванная комната 5,85 м²
- 12. Кабинет 9,02 м²
- 13. Коридор 17,69 м²
- 14. Гараж 38,50 м²
- Общая площадь 188,40 м²
Площади дома
| № п/п | Наименование | Ед. из. | Строительная площадь | Полезная площадь |
| 1 | 1 этаж | м2 | 232.17 | 188.4 |
| 2 | Итого | м2 | 232.17 | 188.4 |
154 м2
Полезная
площадь
площадь
1 этаж
Этажей
26 м2
Террасы
и балконы
и балконы
1Без
гаража
гаража
3
Количество
спален
спален
2
Количество
санузлов
санузлов
Калькулятор опций
0₽
В ипотеку от 29 007 ₽/мес.
0₽
0 дней
stdClass Object
(
[id] => 1
[attribute_id] => 1
[name] => Ленточный монолитный ж/б
[material_modifier] => 1
[work_modifier] => 1
[options] => Array
(
[0] => размер 200 х 700 мм
[1] => размер 300 х 900 мм
[2] => размер 400 х 1 000 мм
[3] => размер 500 х 1 100 мм
[4] => размер 600 х 1 200 мм
)
[days] => [20,21,22,25,30]
[material_price] => [2823,3630,4475,5210,12047]
[work_price] => [2154,2826,3731,4577,5293]
[image] => https://akademik-stroy.ru/wp-content/uploads/materials/lentochnyj-monolitnyj-zh-b.jpg
[area_modifier] => 232.17
[parent_name] => Фундамент
[parent_id] => 1
[material_sum] => 825824
[work_sum] => 525099
[total_sum] => 1350923
[total_days] => 20
[display_material_sum] => 825 824
[display_work_sum] => 525 099
[display_total_sum] => 1 350 923
)
1
1 350 923₽
Работа:525 099 ₽
Материалы:825 824 ₽
Дни:20
stdClass Object
(
[id] => 2
[attribute_id] => 1
[name] => Забивные Ж/Б сваи
[material_modifier] => 1
[work_modifier] => 1
[options] => Array
(
[0] => 150х150х3000мм
[1] => 150х150х4000мм
[2] => 200х200х3000мм
[3] => 200х200х4000мм
[4] => 200х200х5000мм
[5] => 200х200х6000мм
)
[days] => [2,2,2,2,2,2]
[material_price] => [1990,2850,3255,4360,5120,6837]
[work_price] => [1002,1185,1336,1438,1574,1839]
[image] => https://akademik-stroy.ru/wp-content/uploads/materials/zabivnye-zh-b-svai.png
[area_modifier] => 232.17
[parent_name] => Фундамент
[parent_id] => 1
[material_sum] => 582143
[work_sum] => 244266
[total_sum] => 826409
[total_days] => 2
[display_material_sum] => 582 143
[display_work_sum] => 244 266
[display_total_sum] => 826 409
)
1
826 409₽
Работа:244 266 ₽
Материалы:582 143 ₽
Дни:2
stdClass Object
(
[id] => 71
[attribute_id] => 1
[name] => Свайно-ростверковый ж/б
[material_modifier] => 1
[work_modifier] => 1
[options] => Array
(
[0] => ростверк 200х300 мм
[1] => ростверк 300х600 мм
[2] => ростверк 400х900 мм
[3] => ростверк 500х1200 мм
)
[days] => [20,23,25,27]
[material_price] => [3018,3474,7109,9792]
[work_price] => [2024,3012,5635,7022]
[image] => https://akademik-stroy.ru/wp-content/uploads/materials/svajno-rostverkovyj-monolitnyj-zh-b-3.png
[area_modifier] => 232.17
[parent_name] => Фундамент
[parent_id] => 1
[material_sum] => 882868
[work_sum] => 493408
[total_sum] => 1376276
[total_days] => 20
[display_material_sum] => 882 868
[display_work_sum] => 493 408
[display_total_sum] => 1 376 276
)
1
1 376 276₽
Работа:493 408 ₽
Материалы:882 868 ₽
Дни:20
stdClass Object
(
[id] => 72
[attribute_id] => 1
[name] => Монолитная ж/б плита
[material_modifier] => 1
[work_modifier] => 1
[options] => Array
(
[0] => 200 мм
[1] => 300 мм
[2] => 400 мм
[3] => 500 мм
[4] => 600 мм
)
[days] => [30,33,35,37,40]
[material_price] => [5348,8555,12788,14388,15189]
[work_price] => [4314,4881,7037,8061,10230]
[image] => https://akademik-stroy.ru/wp-content/uploads/materials/monolitnaya-zhb-plita.png
[area_modifier] => 232.17
[parent_name] => Фундамент
[parent_id] => 1
[material_sum] => 1564473
[work_sum] => 1051660
[total_sum] => 2616133
[total_days] => 30
[display_material_sum] => 1 564 473
[display_work_sum] => 1 051 660
[display_total_sum] => 2 616 133
)
1
2 616 133₽
Работа:1 051 660 ₽
Материалы:1 564 473 ₽
Дни:30
stdClass Object
(
[id] => 73
[attribute_id] => 1
[name] => Утепленная шведская плита
[material_modifier] => 1
[work_modifier] => 1
[options] => Array
(
[0] => 200 мм
[1] => 300 мм
[2] => 400 мм
[3] => 500 мм
[4] => 600 мм
)
[days] => [32,37,39,42,45]
[material_price] => [10249,12692,13760,14936,16230]
[work_price] => [5960,7337,8072,8878,9765]
[image] => https://akademik-stroy.ru/wp-content/uploads/materials/uteplennaya-shvedskaya-plita.jpg
[area_modifier] => 232.17
[parent_name] => Фундамент
[parent_id] => 1
[material_sum] => 2998183
[work_sum] => 1452920
[total_sum] => 4451103
[total_days] => 32
[display_material_sum] => 2 998 183
[display_work_sum] => 1 452 920
[display_total_sum] => 4 451 103
)
1
4 451 103₽
Работа:1 452 920 ₽
Материалы:2 998 183 ₽
Дни:32
stdClass Object
(
[id] => 75
[attribute_id] => 1
[name] => Ленточный из ФБС
[material_modifier] => 1
[work_modifier] => 1
[options] => Array
(
[0] => толщ. 300 мм
[1] => толщ. 400 мм
[2] => толщ. 500 мм
[3] => толщ. 600 мм
)
[days] => [20,20,20,20]
[material_price] => [3675,4902,6126,7350]
[work_price] => [2451,3264,4083,4902]
[image] => https://akademik-stroy.ru/wp-content/uploads/materials/lentochnyj-iz-fbs.png
[area_modifier] => 232.17
[parent_name] => Фундамент
[parent_id] => 1
[material_sum] => 1075063
[work_sum] => 597501
[total_sum] => 1672564
[total_days] => 20
[display_material_sum] => 1 075 063
[display_work_sum] => 597 501
[display_total_sum] => 1 672 564
)
1
1 672 564₽
Работа:597 501 ₽
Материалы:1 075 063 ₽
Дни:20
stdClass Object
(
[id] => 76
[attribute_id] => 1
[name] => Цокольный этаж из ФБС
[material_modifier] => 1
[work_modifier] => 1
[options] => Array
(
[0] => толщ. 300 мм
[1] => толщ. 400 мм
[2] => толщ. 500 мм
[3] => толщ. 600 мм
)
[days] => [30,32,34,36]
[material_price] => [20916,23299,26680,29060]
[work_price] => [17524,18700,19873,21046]
[image] => https://akademik-stroy.ru/wp-content/uploads/materials/cokolnyj-ehtazh-iz-fbs.jpg
[area_modifier] => 232.17
[parent_name] => Фундамент
[parent_id] => 1
[material_sum] => 6118645
[work_sum] => 4271974
[total_sum] => 10390619
[total_days] => 30
[display_material_sum] => 6 118 645
[display_work_sum] => 4 271 974
[display_total_sum] => 10 390 619
)
1
10 390 619₽
Работа:4 271 974 ₽
Материалы:6 118 645 ₽
Дни:30
stdClass Object
(
[id] => 77
[attribute_id] => 1
[name] => Цокольный этаж монолитный ж/б
[material_modifier] => 1
[work_modifier] => 1
[options] => Array
(
[0] => толщ. 200 мм
[1] => толщ. 300 мм
[2] => толщ. 400 мм
[3] => толщ. 500 мм
[4] => толщ. 600 мм
)
[days] => [40,42,44,46,48]
[material_price] => [25421,29148,32275,35602,37326]
[work_price] => [20441,21907,23375,24841,26306]
[image] => https://akademik-stroy.ru/wp-content/uploads/materials/cokolnyj-etazh-zh-b.jpg
[area_modifier] => 232.17
[parent_name] => Фундамент
[parent_id] => 1
[material_sum] => 7436512
[work_sum] => 4983076
[total_sum] => 12419588
[total_days] => 40
[display_material_sum] => 7 436 512
[display_work_sum] => 4 983 076
[display_total_sum] => 12 419 588
)
1
12 419 588₽
Работа:4 983 076 ₽
Материалы:7 436 512 ₽
Дни:40
stdClass Object
(
[id] => 191
[attribute_id] => 1
[name] => Винтовые сваи
[material_modifier] => 1
[work_modifier] => 1
[options] => Array
(
[0] => 57х200мм
[1] => 76х250мм
[2] => 108х300мм
[3] => 133х350мм
)
[days] => [1,1,2,2]
[material_price] => [1200,1300,1450,1600]
[work_price] => [400,600,900,1100]
[image] => https://akademik-stroy.ru/wp-content/uploads/materials/vintovye-svai.png
[area_modifier] => 232.17
[parent_name] => Фундамент
[parent_id] => 1
[material_sum] => 351041
[work_sum] => 97511
[total_sum] => 448552
[total_days] => 1
[display_material_sum] => 351 041
[display_work_sum] => 97 511
[display_total_sum] => 448 552
)
1
448 552₽
Работа:97 511 ₽
Материалы:351 041 ₽
Дни:1
stdClass Object
(
[id] => 3
[attribute_id] => 2
[name] => Деревянные балки
[material_modifier] => 1
[work_modifier] => 1
[options] => Array
(
[0] => без утепления
[1] => утепление 200 мм
[2] => утепление 250 мм
[3] => утепление 300 мм
[4] => утепление 350 мм
[5] => утепление 400 мм
[6] => утепление 450 мм
[7] => утепление 500 мм
)
[days] => [8,9,9,9,11,12,13,14]
[material_price] => [1634,2042,2344,2947,3149,3652,3354,3557]
[work_price] => [1230,1339,1393,1426,1460,1513,1587,1620]
[image] => https://akademik-stroy.ru/wp-content/uploads/materials/derevyannye-balki.png
[area_modifier] => 232.17
[parent_name] => Перекрытие цоколя
[parent_id] => 2
[material_sum] => 478001
[work_sum] => 299848
[total_sum] => 777849
[total_days] => 8
[display_material_sum] => 478 001
[display_work_sum] => 299 848
[display_total_sum] => 777 849
)
1
777 849₽
Работа:299 848 ₽
Материалы:478 001 ₽
Дни:8
stdClass Object
(
[id] => 4
[attribute_id] => 2
[name] => Сборные ж/б плиты
[material_modifier] => 1
[work_modifier] => 1
[options] => Array
(
[0] => без утепления
[1] => утепление 150мм
[2] => утепление 200мм
[3] => утепление 250мм
[4] => утепление 300мм
[5] => утепление 350мм
[6] => утепление 400мм
[7] => утепление 450мм
[8] => утепление 500мм
)
[days] => [13,15,15,15,15,15,15,15,15]
[material_price] => [3067,5577,5928,6679,7730,8782,9833,10884,11935]
[work_price] => [1520,1956,2102,2247,2392,2537,2684,2829,2974]
[image] => https://akademik-stroy.ru/wp-content/uploads/materials/sbornye-zh-b-plity-2.jpg
[area_modifier] => 232.17
[parent_name] => Перекрытие цоколя
[parent_id] => 2
[material_sum] => 897202
[work_sum] => 370543
[total_sum] => 1267745
[total_days] => 13
[display_material_sum] => 897 202
[display_work_sum] => 370 543
[display_total_sum] => 1 267 745
)
1
1 267 745₽
Работа:370 543 ₽
Материалы:897 202 ₽
Дни:13
stdClass Object
(
[id] => 78
[attribute_id] => 2
[name] => Монолитная ж/б плита
[material_modifier] => 1
[work_modifier] => 1
[options] => Array
(
[0] => без утепления
[1] => утепление 150 мм
[2] => утепление 200 мм
[3] => утепление 250 мм
[4] => утепление 300 мм
[5] => утепление 350 мм
[6] => утепление 400 мм
[7] => утепление 450 мм
[8] => утепление 500 мм
)
[days] => [18,20,20,20,20,20,20,20,20]
[material_price] => [4837,6572,7224,7375,79426,8177,8728,9180,10031]
[work_price] => [3348,3921,4112,4302,4493,4684,4875,5066,5256]
[image] => https://akademik-stroy.ru/wp-content/uploads/materials/monolitnaya-zh-b-plita-2.jpg
[area_modifier] => 232.17
[parent_name] => Перекрытие цоколя
[parent_id] => 2
[material_sum] => 1414988
[work_sum] => 816170
[total_sum] => 2231158
[total_days] => 18
[display_material_sum] => 1 414 988
[display_work_sum] => 816 170
[display_total_sum] => 2 231 158
)
1
2 231 158₽
Работа:816 170 ₽
Материалы:1 414 988 ₽
Дни:18
stdClass Object
(
[id] => 6
[attribute_id] => 3
[name] => Пеноблок
[material_modifier] => 1
[work_modifier] => 1
[options] => Array
(
[0] => 300 мм
[1] => 400 мм
[2] => 500 мм
[3] => 600 мм
)
[days] => [29,31,34,39]
[material_price] => [3000,4000,4500,4937]
[work_price] => [5033,5805,6400,8710]
[image] => https://akademik-stroy.ru/wp-content/uploads/materials/penoblok.jpg
[area_modifier] => 232.17
[parent_name] => Стены 1 этаж (несущие)
[parent_id] => 3
[material_sum] => 877603
[work_sum] => 1226937
[total_sum] => 2104540
[total_days] => 29
[display_material_sum] => 877 603
[display_work_sum] => 1 226 937
[display_total_sum] => 2 104 540
)
1
2 104 540₽
Работа:1 226 937 ₽
Материалы:877 603 ₽
Дни:29
stdClass Object
(
[id] => 79
[attribute_id] => 3
[name] => Керамический блок
[material_modifier] => 1
[work_modifier] => 1
[options] => Array
(
[0] => 380 мм
[1] => 380 мм Thermo
[2] => 440 мм
[3] => 510 мм
)
[days] => [23,23,24,25]
[material_price] => [4510,5098,6093,8013]
[work_price] => [4737,4937,5903,6958]
[image] => https://akademik-stroy.ru/wp-content/uploads/materials/keramicheskij-blok.jpg
[area_modifier] => 232.17
[parent_name] => Стены 1 этаж (несущие)
[parent_id] => 3
[material_sum] => 1319329
[work_sum] => 1154779
[total_sum] => 2474108
[total_days] => 23
[display_material_sum] => 1 319 329
[display_work_sum] => 1 154 779
[display_total_sum] => 2 474 108
)
1
2 474 108₽
Работа:1 154 779 ₽
Материалы:1 319 329 ₽
Дни:23
stdClass Object
(
[id] => 80
[attribute_id] => 3
[name] => Кирпич
[material_modifier] => 1
[work_modifier] => 1
[options] => Array
(
[0] => Кирпич 250 мм
[1] => Кирпич 380 мм
[2] => Кирпич 510 мм
[3] => Кирпич 640 мм
[4] => Кирпич 770 мм
)
[days] => [30,30,31,33,36]
[material_price] => [5500,7142,9206,10171,12235]
[work_price] => [8736,10041,12018,15240,18462]
[image] => https://akademik-stroy.ru/wp-content/uploads/materials/kirpich.jpg
[area_modifier] => 232.17
[parent_name] => Стены 1 этаж (несущие)
[parent_id] => 3
[material_sum] => 1608938
[work_sum] => 2129649
[total_sum] => 3738587
[total_days] => 30
[display_material_sum] => 1 608 938
[display_work_sum] => 2 129 649
[display_total_sum] => 3 738 587
)
1
3 738 587₽
Работа:2 129 649 ₽
Материалы:1 608 938 ₽
Дни:30
stdClass Object
(
[id] => 81
[attribute_id] => 3
[name] => Монолитные
[material_modifier] => 1
[work_modifier] => 1
[options] => Array
(
[0] => 150 мм
[1] => 200 мм
[2] => 250 мм
[3] => 300 мм
[4] => 350 мм
[5] => 400 мм
)
[days] => [45,46,47,49,50,53]
[material_price] => [6545,7876,10175,12011,13908,15204]
[work_price] => [5106,6444,7698,8552,9807,11461]
[image] => https://akademik-stroy.ru/wp-content/uploads/materials/monolitnye.jpg
[area_modifier] => 232.17
[parent_name] => Стены 1 этаж (несущие)
[parent_id] => 3
[material_sum] => 1914636
[work_sum] => 1244733
[total_sum] => 3159369
[total_days] => 45
[display_material_sum] => 1 914 636
[display_work_sum] => 1 244 733
[display_total_sum] => 3 159 369
)
1
3 159 369₽
Работа:1 244 733 ₽
Материалы:1 914 636 ₽
Дни:45
stdClass Object
(
[id] => 82
[attribute_id] => 3
[name] => Клееный брус
[material_modifier] => 1
[work_modifier] => 1
[options] => Array
(
[0] => 160 мм
[1] => 175 мм
[2] => 200 мм
[3] => 215 мм
[4] => 240 мм
[5] => 270 мм
[6] => 282 мм
)
[days] => [24,28,32,37,40,42,48]
[material_price] => [16975,18773,19950,20545,21599,22159,23275]
[work_price] => [4806,5287,5815,6397,7036,7740,8514]
[image] => https://akademik-stroy.ru/wp-content/uploads/materials/kleenyj-brus.jpg
[area_modifier] => 232.17
[parent_name] => Стены 1 этаж (несущие)
[parent_id] => 3
[material_sum] => 4965768
[work_sum] => 1171599
[total_sum] => 6137367
[total_days] => 24
[display_material_sum] => 4 965 768
[display_work_sum] => 1 171 599
[display_total_sum] => 6 137 367
)
1
6 137 367₽
Работа:1 171 599 ₽
Материалы:4 965 768 ₽
Дни:24
stdClass Object
(
[id] => 83
[attribute_id] => 3
[name] => Каркасные
[material_modifier] => 1
[work_modifier] => 1
[options] => Array
(
[0] => 150 мм
[1] => 200 мм
[2] => 250 мм
[3] => 300 мм
)
[days] => [15,16,17,18]
[material_price] => [2379,2639,2898,3258]
[work_price] => [2418,2686,2985,3716]
[image] => https://akademik-stroy.ru/wp-content/uploads/materials/karkasnye.jpg
[area_modifier] => 232.17
[parent_name] => Стены 1 этаж (несущие)
[parent_id] => 3
[material_sum] => 695939
[work_sum] => 589456
[total_sum] => 1285395
[total_days] => 15
[display_material_sum] => 695 939
[display_work_sum] => 589 456
[display_total_sum] => 1 285 395
)
1
1 285 395₽
Работа:589 456 ₽
Материалы:695 939 ₽
Дни:15
stdClass Object
(
[id] => 84
[attribute_id] => 3
[name] => СИП-панели
[material_modifier] => 1
[work_modifier] => 1
[options] => Array
(
[0] => 120 мм
[1] => 170 мм
[2] => 220 мм
)
[days] => [7,7,7]
[material_price] => [1210,1856,2292]
[work_price] => [1410,1551,1706]
[image] => https://akademik-stroy.ru/wp-content/uploads/materials/sip-paneli.jpg
[area_modifier] => 232.17
[parent_name] => Стены 1 этаж (несущие)
[parent_id] => 3
[material_sum] => 353966
[work_sum] => 343728
[total_sum] => 697694
[total_days] => 7
[display_material_sum] => 353 966
[display_work_sum] => 343 728
[display_total_sum] => 697 694
)
1
697 694₽
Работа:343 728 ₽
Материалы:353 966 ₽
Дни:7
stdClass Object
(
[id] => 85
[attribute_id] => 3
[name] => Сухой брус
[material_modifier] => 1
[work_modifier] => 1
[options] => Array
(
[0] => 150 мм
[1] => 180 мм
[2] => 200 мм
)
[days] => [7,8,9]
[material_price] => [6010,7190,8709]
[work_price] => [3204,3845,4229]
[image] => https://akademik-stroy.ru/wp-content/uploads/materials/suhoj-brus.jpg
[area_modifier] => 232.17
[parent_name] => Стены 1 этаж (несущие)
[parent_id] => 3
[material_sum] => 1758131
[work_sum] => 781066
[total_sum] => 2539197
[total_days] => 7
[display_material_sum] => 1 758 131
[display_work_sum] => 781 066
[display_total_sum] => 2 539 197
)
1
2 539 197₽
Работа:781 066 ₽
Материалы:1 758 131 ₽
Дни:7
stdClass Object
(
[id] => 86
[attribute_id] => 3
[name] => Профилированный брус
[material_modifier] => 1
[work_modifier] => 1
[options] => Array
(
[0] => 150 мм
[1] => 180 мм
[2] => 200 мм
)
[days] => [7,8,9]
[material_price] => [8190,9228,10051]
[work_price] => [3845,4614,5075]
[image] => https://akademik-stroy.ru/wp-content/uploads/materials/profilirovannyj-brus.jpg
[area_modifier] => 232.17
[parent_name] => Стены 1 этаж (несущие)
[parent_id] => 3
[material_sum] => 2395855
[work_sum] => 937328
[total_sum] => 3333183
[total_days] => 7
[display_material_sum] => 2 395 855
[display_work_sum] => 937 328
[display_total_sum] => 3 333 183
)
1
3 333 183₽
Работа:937 328 ₽
Материалы:2 395 855 ₽
Дни:7
stdClass Object
(
[id] => 87
[attribute_id] => 3
[name] => Оцилиндрованное бревно
[material_modifier] => 1
[work_modifier] => 1
[options] => Array
(
[0] => 180 мм
[1] => 220 мм
[2] => 260 мм
[3] => 320 мм
)
[days] => [7,8,9,10]
[material_price] => [75190,9532,10868,13116]
[work_price] => [3845,4691,5535,6863]
[image] => https://akademik-stroy.ru/wp-content/uploads/materials/ocilindrovannoe-brevno-1.jpg
[area_modifier] => 232.17
[parent_name] => Стены 1 этаж (несущие)
[parent_id] => 3
[material_sum] => 21995646
[work_sum] => 937328
[total_sum] => 22932974
[total_days] => 7
[display_material_sum] => 21 995 646
[display_work_sum] => 937 328
[display_total_sum] => 22 932 974
)
1
22 932 974₽
Работа:937 328 ₽
Материалы:21 995 646 ₽
Дни:7
stdClass Object
(
[id] => 88
[attribute_id] => 3
[name] => Срубы
[material_modifier] => 1
[work_modifier] => 1
[options] => Array
(
[0] => 260 мм
[1] => 320 мм
[2] => 360 мм
[3] => 400 мм
[4] => 500 мм
)
[days] => [7,8,9,10,11]
[material_price] => [37975,46709,52314,58069,73167]
[work_price] => [4806,5911,6621,7349,9260]
[image] => https://akademik-stroy.ru/wp-content/uploads/materials/sruby.jpg
[area_modifier] => 232.17
[parent_name] => Стены 1 этаж (несущие)
[parent_id] => 3
[material_sum] => 11108986
[work_sum] => 1171599
[total_sum] => 12280585
[total_days] => 7
[display_material_sum] => 11 108 986
[display_work_sum] => 1 171 599
[display_total_sum] => 12 280 585
)
1
12 280 585₽
Работа:1 171 599 ₽
Материалы:11 108 986 ₽
Дни:7
stdClass Object
(
[id] => 174
[attribute_id] => 3
[name] => Брус
[material_modifier] => 1
[work_modifier] => 1
[options] => Array
(
[0] => 150 мм
[1] => 180 мм
[2] => 200 мм
)
[days] => [7,8,9]
[material_price] => [5127,6152,7367]
[work_price] => [1602,1922,2115]
[image] => https://akademik-stroy.ru/wp-content/uploads/materials/brus.jpg
[area_modifier] => 232.17
[parent_name] => Стены 1 этаж (несущие)
[parent_id] => 3
[material_sum] => 1499823
[work_sum] => 390533
[total_sum] => 1890356
[total_days] => 7
[display_material_sum] => 1 499 823
[display_work_sum] => 390 533
[display_total_sum] => 1 890 356
)
1
1 890 356₽
Работа:390 533 ₽
Материалы:1 499 823 ₽
Дни:7
stdClass Object
(
[id] => 175
[attribute_id] => 3
[name] => Газобетон
[material_modifier] => 1
[work_modifier] => 1
[options] => Array
(
[0] => 300 мм
[1] => 375 мм
[2] => 400 мм
[3] => 500 мм
[4] => 600 мм
)
[days] => [29,31,35,37,44]
[material_price] => [4298,5573,6356,7288,9119]
[work_price] => [4538,5251,5926,6733,7195]
[image] => https://akademik-stroy.ru/wp-content/uploads/materials/gazobeton.jpg
[area_modifier] => 232.17
[parent_name] => Стены 1 этаж (несущие)
[parent_id] => 3
[material_sum] => 1257312
[work_sum] => 1106267
[total_sum] => 2363579
[total_days] => 29
[display_material_sum] => 1 257 312
[display_work_sum] => 1 106 267
[display_total_sum] => 2 363 579
)
1
2 363 579₽
Работа:1 106 267 ₽
Материалы:1 257 312 ₽
Дни:29
stdClass Object
(
[id] => 176
[attribute_id] => 3
[name] => Блок
[material_modifier] => 1
[work_modifier] => 1
[options] => Array
(
[0] => 300 мм
[1] => 375 мм
[2] => 400 мм
[3] => 500 мм
[4] => 600 мм
)
[days] => [29,31,35,37,44]
[material_price] => [2698,3973,4356,6588,7119]
[work_price] => [5038,5851,6426,8733,9195]
[image] => https://akademik-stroy.ru/wp-content/uploads/materials/blok.jpg
[area_modifier] => 232.17
[parent_name] => Стены 1 этаж (несущие)
[parent_id] => 3
[material_sum] => 789257
[work_sum] => 1228156
[total_sum] => 2017413
[total_days] => 29
[display_material_sum] => 789 257
[display_work_sum] => 1 228 156
[display_total_sum] => 2 017 413
)
1
2 017 413₽
Работа:1 228 156 ₽
Материалы:789 257 ₽
Дни:29
stdClass Object
(
[id] => 177
[attribute_id] => 3
[name] => Газосиликатный блок
[material_modifier] => 1
[work_modifier] => 1
[options] => Array
(
[0] => 300 мм
[1] => 375 мм
[2] => 400 мм
[3] => 500 мм
[4] => 600 мм
)
[days] => [29,31,35,37,44]
[material_price] => [4298,5573,6356,7288,9119]
[work_price] => [4538,5251,5926,6733,7195]
[image] => https://akademik-stroy.ru/wp-content/uploads/materials/gazosilikatnyj-blok.jpg
[area_modifier] => 232.17
[parent_name] => Стены 1 этаж (несущие)
[parent_id] => 3
[material_sum] => 1257312
[work_sum] => 1106267
[total_sum] => 2363579
[total_days] => 29
[display_material_sum] => 1 257 312
[display_work_sum] => 1 106 267
[display_total_sum] => 2 363 579
)
1
2 363 579₽
Работа:1 106 267 ₽
Материалы:1 257 312 ₽
Дни:29
stdClass Object
(
[id] => 178
[attribute_id] => 3
[name] => Керамзитобетонный блок
[material_modifier] => 1
[work_modifier] => 1
[options] => Array
(
[0] => 300 мм
[1] => 375 мм
[2] => 400 мм
[3] => 500 мм
[4] => 600 мм
)
[days] => [23,23,24,25,28]
[material_price] => [3641,4298,5693,7613,9612]
[work_price] => [5737,5737,6903,7958,8901]
[image] => https://akademik-stroy.ru/wp-content/uploads/materials/keramzitobetonnyj-blok.jpg
[area_modifier] => 232.17
[parent_name] => Стены 1 этаж (несущие)
[parent_id] => 3
[material_sum] => 1065117
[work_sum] => 1398557
[total_sum] => 2463674
[total_days] => 23
[display_material_sum] => 1 065 117
[display_work_sum] => 1 398 557
[display_total_sum] => 2 463 674
)
1
2 463 674₽
Работа:1 398 557 ₽
Материалы:1 065 117 ₽
Дни:23
stdClass Object
(
[id] => 179
[attribute_id] => 3
[name] => Деревянные
[material_modifier] => 1
[work_modifier] => 1
[options] => Array
(
[0] => 180 мм
[1] => 220 мм
[2] => 260 мм
[3] => 320 мм
)
[days] => [7,8,9,10]
[material_price] => [7950,9458,11961,14472]
[work_price] => [4037,4925,5812,7207]
[image] => https://akademik-stroy.ru/wp-content/uploads/materials/derevyannye.jpg
[area_modifier] => 232.17
[parent_name] => Стены 1 этаж (несущие)
[parent_id] => 3
[material_sum] => 2325647
[work_sum] => 984134
[total_sum] => 3309781
[total_days] => 7
[display_material_sum] => 2 325 647
[display_work_sum] => 984 134
[display_total_sum] => 3 309 781
)
1
3 309 781₽
Работа:984 134 ₽
Материалы:2 325 647 ₽
Дни:7
stdClass Object
(
[id] => 181
[attribute_id] => 3
[name] => Камень
[material_modifier] => 1
[work_modifier] => 1
[options] => Array
(
[0] => 300 мм
[1] => 400 мм
[2] => 500 мм
[3] => 600 мм
)
[days] => [25,27,31,34]
[material_price] => [5262,6844,8330,9815]
[work_price] => [8331,9135,10427,11069]
[image] => https://akademik-stroy.ru/wp-content/uploads/materials/kamen.jpg
[area_modifier] => 232.17
[parent_name] => Стены 1 этаж (несущие)
[parent_id] => 3
[material_sum] => 1539315
[work_sum] => 2030919
[total_sum] => 3570234
[total_days] => 25
[display_material_sum] => 1 539 315
[display_work_sum] => 2 030 919
[display_total_sum] => 3 570 234
)
1
3 570 234₽
Работа:2 030 919 ₽
Материалы:1 539 315 ₽
Дни:25
stdClass Object
(
[id] => 182
[attribute_id] => 3
[name] => Каркасно-щитовые
[material_modifier] => 1
[work_modifier] => 1
[options] => Array
(
[0] => 150 мм
[1] => 200 мм
[2] => 250 мм
[3] => 300 мм
[4] => 350 мм
[5] => 400 мм
)
[days] => [15,16,17,18,19,20]
[material_price] => [2379,2639,2898,3458,3601,4175]
[work_price] => [2538,2820,3134,3483,4062,5642]
[image] => https://akademik-stroy.ru/wp-content/uploads/materials/karkasno-shchitovye.jpg
[area_modifier] => 232.17
[parent_name] => Стены 1 этаж (несущие)
[parent_id] => 3
[material_sum] => 695939
[work_sum] => 618710
[total_sum] => 1314649
[total_days] => 15
[display_material_sum] => 695 939
[display_work_sum] => 618 710
[display_total_sum] => 1 314 649
)
1
1 314 649₽
Работа:618 710 ₽
Материалы:695 939 ₽
Дни:15
stdClass Object
(
[id] => 183
[attribute_id] => 3
[name] => Рубленные
[material_modifier] => 1
[work_modifier] => 1
[options] => Array
(
[0] => 150 мм
[1] => 200 мм
[2] => 250 мм
[3] => 300 мм
[4] => 350 мм
[5] => 400 мм
)
[days] => [15,16,17,18,17,18]
[material_price] => [35950,50267,60583,75900,80217,100533]
[work_price] => [9612,12816,16020,19224,22428,25632]
[image] => https://akademik-stroy.ru/wp-content/uploads/materials/rublennye.jpg
[area_modifier] => 232.17
[parent_name] => Стены 1 этаж (несущие)
[parent_id] => 3
[material_sum] => 10516604
[work_sum] => 2343199
[total_sum] => 12859803
[total_days] => 15
[display_material_sum] => 10 516 604
[display_work_sum] => 2 343 199
[display_total_sum] => 12 859 803
)
1
12 859 803₽
Работа:2 343 199 ₽
Материалы:10 516 604 ₽
Дни:15
stdClass Object
(
[id] => 185
[attribute_id] => 3
[name] => Теплоблок
[material_modifier] => 1
[work_modifier] => 1
[options] => Array
(
[0] => 300 мм (с облицовкой, не покрашенный)
[1] => 400 мм (с облицовкой, не покрашенный)
[2] => 300 мм (с облицовкой, покрашенный)
[3] => 400 мм (с облицовкой, покрашенный)
)
[days] => [15,16,15,16]
[material_price] => [2888,3729,3957,4258]
[work_price] => [2564,3229,2949,3713]
[image] => https://akademik-stroy.ru/wp-content/uploads/materials/teploblok.jpg
[area_modifier] => 232.17
[parent_name] => Стены 1 этаж (несущие)
[parent_id] => 3
[material_sum] => 844839
[work_sum] => 625048
[total_sum] => 1469887
[total_days] => 15
[display_material_sum] => 844 839
[display_work_sum] => 625 048
[display_total_sum] => 1 469 887
)
1
1 469 887₽
Работа:625 048 ₽
Материалы:844 839 ₽
Дни:15
stdClass Object
(
[id] => 186
[attribute_id] => 3
[name] => Арболитовые блоки
[material_modifier] => 1
[work_modifier] => 1
[options] => Array
(
[0] => 300 мм
[1] => 400 мм
[2] => 600 мм
)
[days] => [19,22,27]
[material_price] => [3210,4475,5852]
[work_price] => [4214,4788,5866]
[image] => https://akademik-stroy.ru/wp-content/uploads/materials/arbolitovye-bloki.png
[area_modifier] => 232.17
[parent_name] => Стены 1 этаж (несущие)
[parent_id] => 3
[material_sum] => 939035
[work_sum] => 1027283
[total_sum] => 1966318
[total_days] => 19
[display_material_sum] => 939 035
[display_work_sum] => 1 027 283
[display_total_sum] => 1 966 318
)
1
1 966 318₽
Работа:1 027 283 ₽
Материалы:939 035 ₽
Дни:19
stdClass Object
(
[id] => 187
[attribute_id] => 3
[name] => Полистиролбетон
[material_modifier] => 1
[work_modifier] => 1
[options] => Array
(
[0] => 300 мм
[1] => 400 мм
[2] => 600 мм
)
[days] => [29,31,35]
[material_price] => [2798,4573,5256]
[work_price] => [5038,5851,6426]
[image] => https://akademik-stroy.ru/wp-content/uploads/materials/polistirolbeton.jpg
[area_modifier] => 232.17
[parent_name] => Стены 1 этаж (несущие)
[parent_id] => 3
[material_sum] => 818511
[work_sum] => 1228156
[total_sum] => 2046667
[total_days] => 29
[display_material_sum] => 818 511
[display_work_sum] => 1 228 156
[display_total_sum] => 2 046 667
)
1
2 046 667₽
Работа:1 228 156 ₽
Материалы:818 511 ₽
Дни:29
stdClass Object
(
[id] => 188
[attribute_id] => 3
[name] => Шлакоблок
[material_modifier] => 1
[work_modifier] => 1
[options] => Array
(
[0] => 400 мм
[1] => 600 мм
)
[days] => [15,16]
[material_price] => [2391,3471]
[work_price] => [2642,3662]
[image] => https://akademik-stroy.ru/wp-content/uploads/materials/shlakoblok.jpg
[area_modifier] => 232.17
[parent_name] => Стены 1 этаж (несущие)
[parent_id] => 3
[material_sum] => 699449
[work_sum] => 644063
[total_sum] => 1343512
[total_days] => 15
[display_material_sum] => 699 449
[display_work_sum] => 644 063
[display_total_sum] => 1 343 512
)
1
1 343 512₽
Работа:644 063 ₽
Материалы:699 449 ₽
Дни:15
stdClass Object
(
[id] => 189
[attribute_id] => 3
[name] => Теплая керамика
[material_modifier] => 1
[work_modifier] => 1
[options] => Array
(
[0] => 380 мм
[1] => 380 мм Thermo
[2] => 440 мм
[3] => 510 мм
)
[days] => [23,23,24,25]
[material_price] => [4510,5098,6093,8013]
[work_price] => [4737,4937,5903,6958]
[image] => https://akademik-stroy.ru/wp-content/uploads/materials/teplaya-keramika.jpg
[area_modifier] => 232.17
[parent_name] => Стены 1 этаж (несущие)
[parent_id] => 3
[material_sum] => 1319329
[work_sum] => 1154779
[total_sum] => 2474108
[total_days] => 23
[display_material_sum] => 1 319 329
[display_work_sum] => 1 154 779
[display_total_sum] => 2 474 108
)
1
2 474 108₽
Работа:1 154 779 ₽
Материалы:1 319 329 ₽
Дни:23
stdClass Object
(
[id] => 190
[attribute_id] => 3
[name] => Несъемная опалубка
[material_modifier] => 1
[work_modifier] => 1
[options] => Array
(
[0] => 200 мм
[1] => 250 мм
[2] => 300 мм
[3] => 350 мм
)
[days] => [15,17,19,21]
[material_price] => [3302,3902,4108,5008]
[work_price] => [2100,2100,2300,2534]
[image] => https://akademik-stroy.ru/wp-content/uploads/materials/nesemnaya-opalubka.jpg
[area_modifier] => 232.17
[parent_name] => Стены 1 этаж (несущие)
[parent_id] => 3
[material_sum] => 965948
[work_sum] => 511935
[total_sum] => 1477883
[total_days] => 15
[display_material_sum] => 965 948
[display_work_sum] => 511 935
[display_total_sum] => 1 477 883
)
1
1 477 883₽
Работа:511 935 ₽
Материалы:965 948 ₽
Дни:15
stdClass Object
(
[id] => 251
[attribute_id] => 3
[name] => Бревно
[material_modifier] => 1
[work_modifier] => 1
[options] => Array
(
[0] => 260 мм
[1] => 320 мм
[2] => 360 мм
[3] => 400 мм
[4] => 500 мм
)
[days] => [7,8,9,10,11]
[material_price] => [1874,24045,26930,30972,38825]
[work_price] => [5046,6207,6952,7716,9723]
[image] => https://akademik-stroy.ru/wp-content/uploads/materials/sruby.jpg
[area_modifier] => 232.17
[parent_name] => Стены 1 этаж (несущие)
[parent_id] => 3
[material_sum] => 548209
[work_sum] => 1230106
[total_sum] => 1778315
[total_days] => 7
[display_material_sum] => 548 209
[display_work_sum] => 1 230 106
[display_total_sum] => 1 778 315
)
1
1 778 315₽
Работа:1 230 106 ₽
Материалы:548 209 ₽
Дни:7
stdClass Object
(
[id] => 7
[attribute_id] => 4
[name] => Деревянные балки
[material_modifier] => 1
[work_modifier] => 1
[options] => Array
(
[0] => без утепления
[1] => утепление 200 мм
[2] => утепление 250 мм
[3] => утепление 300 мм
[4] => утепление 350 мм
[5] => утепление 400 мм
[6] => утепление 450 мм
[7] => утепление 500 мм
)
[days] => [8,9,9,9,11,12,13,14]
[material_price] => [1634,2042,2344,2947,3149,3652,3354,3557]
[work_price] => [1230,1339,1393,1426,1460,1513,1587,1620]
[image] => https://akademik-stroy.ru/wp-content/uploads/materials/derevyannye-balki.png
[area_modifier] => 232.17
[parent_name] => Перекрытие первого этажа
[parent_id] => 4
[material_sum] => 478001
[work_sum] => 299848
[total_sum] => 777849
[total_days] => 8
[display_material_sum] => 478 001
[display_work_sum] => 299 848
[display_total_sum] => 777 849
)
1
777 849₽
Работа:299 848 ₽
Материалы:478 001 ₽
Дни:8
stdClass Object
(
[id] => 8
[attribute_id] => 4
[name] => Сборные ж/б плиты
[material_modifier] => 1
[work_modifier] => 1
[options] => Array
(
[0] => без утепления
[1] => утепление 150 мм
[2] => утепление 200 мм
[3] => утепление 250 мм
[4] => утепление 300 мм
[5] => утепление 350 мм
[6] => утепление 400 мм
[7] => утепление 450 мм
[8] => утепление 500 мм
)
[days] => [13,15,15,15,15,15,15,15,15]
[material_price] => [3067,5577,5928,6679,7730,8782,9833,10884,11935]
[work_price] => [1520,1956,2102,2247,2392,2537,2684,2829,2974]
[image] => https://akademik-stroy.ru/wp-content/uploads/materials/sbornye-zh-b-plity-2.jpg
[area_modifier] => 232.17
[parent_name] => Перекрытие первого этажа
[parent_id] => 4
[material_sum] => 897202
[work_sum] => 370543
[total_sum] => 1267745
[total_days] => 13
[display_material_sum] => 897 202
[display_work_sum] => 370 543
[display_total_sum] => 1 267 745
)
1
1 267 745₽
Работа:370 543 ₽
Материалы:897 202 ₽
Дни:13
stdClass Object
(
[id] => 89
[attribute_id] => 4
[name] => Монолитная ж/б плита
[material_modifier] => 1
[work_modifier] => 1
[options] => Array
(
[0] => без утепления
[1] => утепление 150 мм
[2] => утепление 200 мм
[3] => утепление 250 мм
[4] => утепление 300 мм
[5] => утепление 350 мм
[6] => утепление 400 мм
[7] => утепление 450 мм
[8] => утепление 500 мм
)
[days] => [18,20,20,20,20,20,20,20,20]
[material_price] => [4837,6572,7224,7375,79426,8177,8728,9180,10031]
[work_price] => [3348,3921,4112,4302,4493,4684,4875,5066,5256]
[image] => https://akademik-stroy.ru/wp-content/uploads/materials/monolitnaya-zh-b-plita-2.jpg
[area_modifier] => 232.17
[parent_name] => Перекрытие первого этажа
[parent_id] => 4
[material_sum] => 1414988
[work_sum] => 816170
[total_sum] => 2231158
[total_days] => 18
[display_material_sum] => 1 414 988
[display_work_sum] => 816 170
[display_total_sum] => 2 231 158
)
1
2 231 158₽
Работа:816 170 ₽
Материалы:1 414 988 ₽
Дни:18
stdClass Object
(
[id] => 160
[attribute_id] => 36
[name] => Не эксплуатируемая
[material_modifier] => 1
[work_modifier] => 1
[options] => Array
(
)
[days] => [10]
[material_price] => [8068]
[work_price] => [4163]
[image] => https://akademik-stroy.ru/wp-content/uploads/materials/ne-ehkspluatiruemaya-3.jpg
[area_modifier] => 232.17
[parent_name] => Плоская крыша
[parent_id] => 36
[material_sum] => 2360166
[work_sum] => 1014850
[total_sum] => 3375016
[total_days] => 10
[display_material_sum] => 2 360 166
[display_work_sum] => 1 014 850
[display_total_sum] => 3 375 016
)
1
3 375 016₽
Работа:1 014 850 ₽
Материалы:2 360 166 ₽
Дни:10
stdClass Object
(
[id] => 161
[attribute_id] => 36
[name] => Зеленая кровля (Эксплуатируемая)
[material_modifier] => 1
[work_modifier] => 1
[options] => Array
(
)
[days] => [10]
[material_price] => [10056]
[work_price] => [8446]
[image] => https://akademik-stroy.ru/wp-content/uploads/materials/zelenaya-krovlya-2.jpg
[area_modifier] => 232.17
[parent_name] => Плоская крыша
[parent_id] => 36
[material_sum] => 2941724
[work_sum] => 2058953
[total_sum] => 5000677
[total_days] => 10
[display_material_sum] => 2 941 724
[display_work_sum] => 2 058 953
[display_total_sum] => 5 000 677
)
1
5 000 677₽
Работа:2 058 953 ₽
Материалы:2 941 724 ₽
Дни:10
stdClass Object
(
[id] => 162
[attribute_id] => 36
[name] => Эксплуатируемая
[material_modifier] => 1
[work_modifier] => 1
[options] => Array
(
)
[days] => [10]
[material_price] => [9593]
[work_price] => [7459]
[image] => https://akademik-stroy.ru/wp-content/uploads/materials/ehkspluatiruemaya-2.jpg
[area_modifier] => 232.17
[parent_name] => Плоская крыша
[parent_id] => 36
[material_sum] => 2806281
[work_sum] => 1818344
[total_sum] => 4624625
[total_days] => 10
[display_material_sum] => 2 806 281
[display_work_sum] => 1 818 344
[display_total_sum] => 4 624 625
)
1
4 624 625₽
Работа:1 818 344 ₽
Материалы:2 806 281 ₽
Дни:10
stdClass Object
(
[id] => 163
[attribute_id] => 36
[name] => Нет
[material_modifier] => 1
[work_modifier] => 1
[options] => Array
(
)
[days] => [0]
[material_price] => [0]
[work_price] => [0]
[image] => https://akademik-stroy.ru/wp-content/uploads/materials/ne-ehkspluatiruemaya-3.jpg
[area_modifier] => 232.17
[parent_name] => Плоская крыша
[parent_id] => 36
[material_sum] => 0
[work_sum] => 0
[total_sum] => 0
[total_days] => 0
[display_material_sum] => 0
[display_work_sum] => 0
[display_total_sum] => 0
)
1
0₽
Работа:0 ₽
Материалы:0 ₽
Дни:0
stdClass Object
(
[id] => 51
[attribute_id] => 26
[name] => Есть
[material_modifier] => 1
[work_modifier] => 1
[options] => Array
(
[0] => Профиль 58 мм, 3-камерный, стеклопакет 2-камерный до 32 мм
[1] => Профиль 60 мм, 4-камерный, стеклопакет 2-камерный до 32 мм
[2] => Профиль 70 мм, 5-камерный, стеклопакет 2-камерный до 40 мм
[3] => Профиль 72 мм, 5-камерный, стеклопакет 2-камерный до 40 мм
[4] => Алюминиевые окна Alutech профиль 72 мм, стеклопакет 2-камерный
)
[days] => [3,3,3,3,3]
[material_price] => [1339,2124,2867,3023,29596]
[work_price] => [635,647,659,668,2579]
[image] => https://akademik-stroy.ru/wp-content/uploads/materials/okna.jpg
[area_modifier] => 188.4
[parent_name] => Окна
[parent_id] => 26
[material_sum] => 317857
[work_sum] => 125616
[total_sum] => 443473
[total_days] => 3
[display_material_sum] => 317 857
[display_work_sum] => 125 616
[display_total_sum] => 443 473
)
1
443 473₽
Работа:125 616 ₽
Материалы:317 857 ₽
Дни:3
stdClass Object
(
[id] => 52
[attribute_id] => 26
[name] => Нет
[material_modifier] => 2
[work_modifier] => 1
[options] =>
[days] => null
[material_price] => null
[work_price] => null
[image] => https://akademik-stroy.ru/wp-content/uploads/materials/okna.jpg
[area_modifier] => 188.4
[parent_name] => Окна
[parent_id] => 26
[material_sum] => 0
[work_sum] => 0
[total_sum] => 0
[total_days] => 0
[display_material_sum] => 0
[display_work_sum] => 0
[display_total_sum] => 0
)
1
0₽
Работа:0 ₽
Материалы:0 ₽
Дни:0
stdClass Object
(
[id] => 53
[attribute_id] => 27
[name] => Есть
[material_modifier] => 1
[work_modifier] => 1
[options] => Array
(
)
[days] => [1]
[material_price] => [10000]
[work_price] => [5500]
[image] => https://akademik-stroy.ru/wp-content/uploads/materials/dveri.jpg
[area_modifier] => 1
[parent_name] => Двери входные
[parent_id] => 27
[material_sum] => 12600
[work_sum] => 5775
[total_sum] => 18375
[total_days] => 1
[display_material_sum] => 12 600
[display_work_sum] => 5 775
[display_total_sum] => 18 375
)
1
18 375₽
Работа:5 775 ₽
Материалы:12 600 ₽
Дни:1
stdClass Object
(
[id] => 54
[attribute_id] => 27
[name] => Нет
[material_modifier] => 1
[work_modifier] => 1
[options] => Array
(
)
[days] => [0]
[material_price] => [0]
[work_price] => [0]
[image] => https://akademik-stroy.ru/wp-content/uploads/materials/dveri.jpg
[area_modifier] => 1
[parent_name] => Двери входные
[parent_id] => 27
[material_sum] => 0
[work_sum] => 0
[total_sum] => 0
[total_days] => 0
[display_material_sum] => 0
[display_work_sum] => 0
[display_total_sum] => 0
)
1
0₽
Работа:0 ₽
Материалы:0 ₽
Дни:0
stdClass Object
(
[id] => 31
[attribute_id] => 16
[name] => Нет
[material_modifier] => 1
[work_modifier] => 1
[options] => Array
(
)
[days] => [0]
[material_price] => [0]
[work_price] => [0]
[image] => https://akademik-stroy.ru/wp-content/uploads/materials/docke-standard-pvh.jpg
[area_modifier] => 232.17
[parent_name] => Водосточная система
[parent_id] => 16
[material_sum] => 0
[work_sum] => 0
[total_sum] => 0
[total_days] => 0
[display_material_sum] => 0
[display_work_sum] => 0
[display_total_sum] => 0
)
1
0₽
Работа:0 ₽
Материалы:0 ₽
Дни:0
stdClass Object
(
[id] => 32
[attribute_id] => 16
[name] => Есть
[material_modifier] => 1
[work_modifier] => 1
[options] => Array
(
[0] => Döcke Standard (ПВХ)
[1] => Металлические Grand Line
)
[days] => [7,7]
[material_price] => [1842,2703]
[work_price] => [1491,1529]
[image] => https://akademik-stroy.ru/wp-content/uploads/materials/docke-standard-pvh.jpg
[area_modifier] => 232.17
[parent_name] => Водосточная система
[parent_id] => 16
[material_sum] => 538848
[work_sum] => 363474
[total_sum] => 902322
[total_days] => 7
[display_material_sum] => 538 848
[display_work_sum] => 363 474
[display_total_sum] => 902 322
)
1
902 322₽
Работа:363 474 ₽
Материалы:538 848 ₽
Дни:7
stdClass Object
(
[id] => 33
[attribute_id] => 17
[name] => Нет
[material_modifier] => 1
[work_modifier] => 1
[options] => Array
(
)
[days] => [0]
[material_price] => [0]
[work_price] => [0]
[image] => https://akademik-stroy.ru/wp-content/uploads/materials/mineralovata.jpg
[area_modifier] => 232.17
[parent_name] => Дополнительное утепление наружных стен
[parent_id] => 17
[material_sum] => 0
[work_sum] => 0
[total_sum] => 0
[total_days] => 0
[display_material_sum] => 0
[display_work_sum] => 0
[display_total_sum] => 0
)
1
0₽
Работа:0 ₽
Материалы:0 ₽
Дни:0
stdClass Object
(
[id] => 34
[attribute_id] => 17
[name] => Минераловатный
[material_modifier] => 1
[work_modifier] => 1
[options] => Array
(
[0] => 50 мм
[1] => 100 мм
[2] => 150 мм
[3] => 200 мм
[4] => 250 мм
[5] => 300 мм
)
[days] => [7,8,10,12,14,15]
[material_price] => [3437,3613,3803,3915,4601,4830]
[work_price] => [2325,2423,2523,2749,2859,3025]
[image] => https://akademik-stroy.ru/wp-content/uploads/materials/mineralovata.jpg
[area_modifier] => 232.17
[parent_name] => Дополнительное утепление наружных стен
[parent_id] => 17
[material_sum] => 1005440
[work_sum] => 566785
[total_sum] => 1572225
[total_days] => 7
[display_material_sum] => 1 005 440
[display_work_sum] => 566 785
[display_total_sum] => 1 572 225
)
1
1 572 225₽
Работа:566 785 ₽
Материалы:1 005 440 ₽
Дни:7
stdClass Object
(
[id] => 128
[attribute_id] => 17
[name] => Эковата (целлюлозная вата)
[material_modifier] => 1
[work_modifier] => 1
[options] => Array
(
[0] => 50 мм
[1] => 100 мм
[2] => 150 мм
[3] => 200 мм
[4] => 250 мм
[5] => 300 мм
)
[days] => [3,4,5,6,7,8]
[material_price] => [810,1319,1629,1838,2267,2676]
[work_price] => [1225,1323,1423,1549,1659,1725]
[image] => https://akademik-stroy.ru/wp-content/uploads/materials/ehkovata.jpg
[area_modifier] => 232.17
[parent_name] => Дополнительное утепление наружных стен
[parent_id] => 17
[material_sum] => 236953
[work_sum] => 298629
[total_sum] => 535582
[total_days] => 3
[display_material_sum] => 236 953
[display_work_sum] => 298 629
[display_total_sum] => 535 582
)
1
535 582₽
Работа:298 629 ₽
Материалы:236 953 ₽
Дни:3
stdClass Object
(
[id] => 129
[attribute_id] => 17
[name] => Экструдированный пенополистирол
[material_modifier] => 1
[work_modifier] => 1
[options] => Array
(
[0] => 50 мм
[1] => 100 мм
[2] => 150 мм
[3] => 200 мм
[4] => 250 мм
[5] => 300 мм
)
[days] => [5,6,7,8,9,10]
[material_price] => [4560,4300,5119,6292,7010,8583]
[work_price] => [1795,1954,2254,2330,2595,2735]
[image] => https://akademik-stroy.ru/wp-content/uploads/materials/epps.jpg
[area_modifier] => 232.17
[parent_name] => Дополнительное утепление наружных стен
[parent_id] => 17
[material_sum] => 1333956
[work_sum] => 437582
[total_sum] => 1771538
[total_days] => 5
[display_material_sum] => 1 333 956
[display_work_sum] => 437 582
[display_total_sum] => 1 771 538
)
1
1 771 538₽
Работа:437 582 ₽
Материалы:1 333 956 ₽
Дни:5
stdClass Object
(
[id] => 130
[attribute_id] => 17
[name] => ПСБ (ППС-пенополистирол)
[material_modifier] => 1
[work_modifier] => 1
[options] => Array
(
[0] => 50 мм
[1] => 100 мм
[2] => 150 мм
[3] => 200 мм
[4] => 250 мм
[5] => 300 мм
)
[days] => [5,6,7,8,9,10]
[material_price] => [4822,5200,5819,6292,7010,7583]
[work_price] => [1795,1954,2254,2330,2595,2735]
[image] => https://akademik-stroy.ru/wp-content/uploads/materials/psb.jpg
[area_modifier] => 232.17
[parent_name] => Дополнительное утепление наружных стен
[parent_id] => 17
[material_sum] => 1410600
[work_sum] => 437582
[total_sum] => 1848182
[total_days] => 5
[display_material_sum] => 1 410 600
[display_work_sum] => 437 582
[display_total_sum] => 1 848 182
)
1
1 848 182₽
Работа:437 582 ₽
Материалы:1 410 600 ₽
Дни:5
stdClass Object
(
[id] => 131
[attribute_id] => 17
[name] => ППУ (Пенополиуретан)
[material_modifier] => 1
[work_modifier] => 1
[options] => Array
(
[0] => 50 мм
[1] => 100 мм
[2] => 150 мм
[3] => 200 мм
[4] => 250 мм
[5] => 300 мм
)
[days] => [3,4,5,6,7,8]
[material_price] => [2860,3400,4219,4592,5010,5583]
[work_price] => [729,900,980,1120,1280,1530]
[image] => https://akademik-stroy.ru/wp-content/uploads/materials/ppu.jpg
[area_modifier] => 232.17
[parent_name] => Дополнительное утепление наружных стен
[parent_id] => 17
[material_sum] => 836648
[work_sum] => 177715
[total_sum] => 1014363
[total_days] => 3
[display_material_sum] => 836 648
[display_work_sum] => 177 715
[display_total_sum] => 1 014 363
)
1
1 014 363₽
Работа:177 715 ₽
Материалы:836 648 ₽
Дни:3
stdClass Object
(
[id] => 132
[attribute_id] => 17
[name] => PIR-плиты (пенополиизоцианурат)
[material_modifier] => 1
[work_modifier] => 1
[options] => Array
(
[0] => 50 мм
[1] => 100 мм
[2] => 150 мм
[3] => 200 мм
[4] => 250 мм
[5] => 300 мм
)
[days] => [5,6,7,8,9,10]
[material_price] => [8323,15645,20968,25900,29258,30581]
[work_price] => [800,900,970,1150,1280,1330]
[image] => https://akademik-stroy.ru/wp-content/uploads/materials/pir.jpg
[area_modifier] => 232.17
[parent_name] => Дополнительное утепление наружных стен
[parent_id] => 17
[material_sum] => 2434762
[work_sum] => 195023
[total_sum] => 2629785
[total_days] => 5
[display_material_sum] => 2 434 762
[display_work_sum] => 195 023
[display_total_sum] => 2 629 785
)
1
2 629 785₽
Работа:195 023 ₽
Материалы:2 434 762 ₽
Дни:5
stdClass Object
(
[id] => 37
[attribute_id] => 19
[name] => Нет
[material_modifier] => 1
[work_modifier] => 1
[options] => Array
(
)
[days] => [0]
[material_price] => [0]
[work_price] => [0]
[image] => https://akademik-stroy.ru/wp-content/uploads/materials/imitaciya-brusa.jpg
[area_modifier] => 232.17
[parent_name] => Наружная отделка фасада
[parent_id] => 19
[material_sum] => 0
[work_sum] => 0
[total_sum] => 0
[total_days] => 0
[display_material_sum] => 0
[display_work_sum] => 0
[display_total_sum] => 0
)
1
0₽
Работа:0 ₽
Материалы:0 ₽
Дни:0
stdClass Object
(
[id] => 38
[attribute_id] => 19
[name] => Имитация бруса
[material_modifier] => 1
[work_modifier] => 1
[options] => Array
(
[0] => Сосна
[1] => Ель
[2] => Лиственница
)
[days] => [20,20,20]
[material_price] => [2994,2762,4954]
[work_price] => [1397,1231,1577]
[image] => https://akademik-stroy.ru/wp-content/uploads/materials/imitaciya-brusa.jpg
[area_modifier] => 232.17
[parent_name] => Наружная отделка фасада
[parent_id] => 19
[material_sum] => 875847
[work_sum] => 340559
[total_sum] => 1216406
[total_days] => 20
[display_material_sum] => 875 847
[display_work_sum] => 340 559
[display_total_sum] => 1 216 406
)
1
1 216 406₽
Работа:340 559 ₽
Материалы:875 847 ₽
Дни:20
stdClass Object
(
[id] => 136
[attribute_id] => 19
[name] => Планкен
[material_modifier] => 1
[work_modifier] => 1
[options] => Array
(
[0] => Сосна
[1] => Ель
[2] => Лиственница
)
[days] => [20,20,20]
[material_price] => [3194,2862,5154]
[work_price] => [1537,1354,1735]
[image] => https://akademik-stroy.ru/wp-content/uploads/materials/planken.jpg
[area_modifier] => 232.17
[parent_name] => Наружная отделка фасада
[parent_id] => 19
[material_sum] => 934354
[work_sum] => 374688
[total_sum] => 1309042
[total_days] => 20
[display_material_sum] => 934 354
[display_work_sum] => 374 688
[display_total_sum] => 1 309 042
)
1
1 309 042₽
Работа:374 688 ₽
Материалы:934 354 ₽
Дни:20
stdClass Object
(
[id] => 137
[attribute_id] => 19
[name] => Штукатурка
[material_modifier] => 1
[work_modifier] => 1
[options] => Array
(
[0] => Цементно-песчаная (минеральная)
[1] => Мокрый фасад
)
[days] => [35,35]
[material_price] => [2231,3938]
[work_price] => [1202,2422]
[image] => https://akademik-stroy.ru/wp-content/uploads/materials/shtukaturka.jpg
[area_modifier] => 232.17
[parent_name] => Наружная отделка фасада
[parent_id] => 19
[material_sum] => 652644
[work_sum] => 293022
[total_sum] => 945666
[total_days] => 35
[display_material_sum] => 652 644
[display_work_sum] => 293 022
[display_total_sum] => 945 666
)
1
945 666₽
Работа:293 022 ₽
Материалы:652 644 ₽
Дни:35
stdClass Object
(
[id] => 138
[attribute_id] => 19
[name] => Облицовочный кирпич
[material_modifier] => 1
[work_modifier] => 1
[options] => Array
(
[0] => Керамический
[1] => Клинкерный
[2] => Ручной формовки
[3] => Гиперпрессованный
[4] => Силикатный кирпич
)
[days] => [45,45,45,45,45]
[material_price] => [8174,9148,1040,1257,5876]
[work_price] => [3240,3758,4536,4017,3369]
[image] => https://akademik-stroy.ru/wp-content/uploads/materials/oblicovochnyj-kirpich.jpg
[area_modifier] => 232.17
[parent_name] => Наружная отделка фасада
[parent_id] => 19
[material_sum] => 2391175
[work_sum] => 789842
[total_sum] => 3181017
[total_days] => 45
[display_material_sum] => 2 391 175
[display_work_sum] => 789 842
[display_total_sum] => 3 181 017
)
1
3 181 017₽
Работа:789 842 ₽
Материалы:2 391 175 ₽
Дни:45
stdClass Object
(
[id] => 139
[attribute_id] => 19
[name] => Фасадная плитка
[material_modifier] => 1
[work_modifier] => 1
[options] => Array
(
[0] => Клинкерная
[1] => Керамическая
[2] => Плитка ручной формовки
)
[days] => [40,40,40]
[material_price] => [2974,1487,3470]
[work_price] => [3007,2592,3629]
[image] => https://akademik-stroy.ru/wp-content/uploads/materials/fasadnaya-plitka.jpg
[area_modifier] => 232.17
[parent_name] => Наружная отделка фасада
[parent_id] => 19
[material_sum] => 869997
[work_sum] => 733042
[total_sum] => 1603039
[total_days] => 40
[display_material_sum] => 869 997
[display_work_sum] => 733 042
[display_total_sum] => 1 603 039
)
1
1 603 039₽
Работа:733 042 ₽
Материалы:869 997 ₽
Дни:40
stdClass Object
(
[id] => 140
[attribute_id] => 19
[name] => Сайдинг
[material_modifier] => 1
[work_modifier] => 1
[options] => Array
(
[0] => Виниловый
[1] => Металлический
[2] => Фиброцементный
)
[days] => [20,20,20]
[material_price] => [1263,1944,4147]
[work_price] => [1263,1944,2074]
[image] => https://akademik-stroy.ru/wp-content/uploads/materials/sajding.jpg
[area_modifier] => 232.17
[parent_name] => Наружная отделка фасада
[parent_id] => 19
[material_sum] => 369471
[work_sum] => 307892
[total_sum] => 677363
[total_days] => 20
[display_material_sum] => 369 471
[display_work_sum] => 307 892
[display_total_sum] => 677 363
)
1
677 363₽
Работа:307 892 ₽
Материалы:369 471 ₽
Дни:20
stdClass Object
(
[id] => 141
[attribute_id] => 19
[name] => Камень
[material_modifier] => 1
[work_modifier] => 1
[options] => Array
(
[0] => Травертин
[1] => Дагестанский
[2] => Искусственный
[3] => Натуральный
[4] => Керамогранит
)
[days] => [45,45,45,45,45]
[material_price] => [4536,3888,2592,3240,2462]
[work_price] => [3240,3240,2462,3110,1944]
[image] => https://akademik-stroy.ru/wp-content/uploads/materials/kamen-1.jpg
[area_modifier] => 232.17
[parent_name] => Наружная отделка фасада
[parent_id] => 19
[material_sum] => 1326935
[work_sum] => 789842
[total_sum] => 2116777
[total_days] => 45
[display_material_sum] => 1 326 935
[display_work_sum] => 789 842
[display_total_sum] => 2 116 777
)
1
2 116 777₽
Работа:789 842 ₽
Материалы:1 326 935 ₽
Дни:45
stdClass Object
(
[id] => 142
[attribute_id] => 19
[name] => Термопанели
[material_modifier] => 1
[work_modifier] => 1
[options] => Array
(
)
[days] => [20]
[material_price] => [6221]
[work_price] => [2333]
[image] => https://akademik-stroy.ru/wp-content/uploads/materials/termo.png
[area_modifier] => 232.17
[parent_name] => Наружная отделка фасада
[parent_id] => 19
[material_sum] => 1819855
[work_sum] => 568735
[total_sum] => 2388590
[total_days] => 20
[display_material_sum] => 1 819 855
[display_work_sum] => 568 735
[display_total_sum] => 2 388 590
)
1
2 388 590₽
Работа:568 735 ₽
Материалы:1 819 855 ₽
Дни:20
stdClass Object
(
[id] => 143
[attribute_id] => 19
[name] => Плитка HAUBERK
[material_modifier] => 1
[work_modifier] => 1
[options] => Array
(
)
[days] => [20]
[material_price] => [2786]
[work_price] => [1944]
[image] => https://akademik-stroy.ru/wp-content/uploads/materials/hauberk.jpg
[area_modifier] => 232.17
[parent_name] => Наружная отделка фасада
[parent_id] => 19
[material_sum] => 815000
[work_sum] => 473905
[total_sum] => 1288905
[total_days] => 20
[display_material_sum] => 815 000
[display_work_sum] => 473 905
[display_total_sum] => 1 288 905
)
1
1 288 905₽
Работа:473 905 ₽
Материалы:815 000 ₽
Дни:20
stdClass Object
(
[id] => 144
[attribute_id] => 19
[name] => Фальцевый фасад
[material_modifier] => 1
[work_modifier] => 1
[options] => Array
(
)
[days] => [20]
[material_price] => [3240]
[work_price] => [2592]
[image] => https://akademik-stroy.ru/wp-content/uploads/materials/falcevyj-fasad.jpg
[area_modifier] => 232.17
[parent_name] => Наружная отделка фасада
[parent_id] => 19
[material_sum] => 947811
[work_sum] => 631874
[total_sum] => 1579685
[total_days] => 20
[display_material_sum] => 947 811
[display_work_sum] => 631 874
[display_total_sum] => 1 579 685
)
1
1 579 685₽
Работа:631 874 ₽
Материалы:947 811 ₽
Дни:20
stdClass Object
(
[id] => 145
[attribute_id] => 19
[name] => Комбинированный
[material_modifier] => 1
[work_modifier] => 1
[options] => Array
(
)
[days] => [20]
[material_price] => [4629]
[work_price] => [3499]
[image] => https://akademik-stroy.ru/wp-content/uploads/materials/Kombinirovannyj.jpg
[area_modifier] => 232.17
[parent_name] => Наружная отделка фасада
[parent_id] => 19
[material_sum] => 1354141
[work_sum] => 852981
[total_sum] => 2207122
[total_days] => 20
[display_material_sum] => 1 354 141
[display_work_sum] => 852 981
[display_total_sum] => 2 207 122
)
1
2 207 122₽
Работа:852 981 ₽
Материалы:1 354 141 ₽
Дни:20
stdClass Object
(
[id] => 257
[attribute_id] => 19
[name] => Японские фиброцементные
[material_modifier] => 1
[work_modifier] => 1
[options] => Array
(
)
[days] => [20]
[material_price] => [7043]
[work_price] => [2993]
[image] => https://akademik-stroy.ru/wp-content/uploads/materials/paneli.jpg
[area_modifier] => 232.17
[parent_name] => Наружная отделка фасада
[parent_id] => 19
[material_sum] => 2060318
[work_sum] => 729629
[total_sum] => 2789947
[total_days] => 20
[display_material_sum] => 2 060 318
[display_work_sum] => 729 629
[display_total_sum] => 2 789 947
)
1
2 789 947₽
Работа:729 629 ₽
Материалы:2 060 318 ₽
Дни:20
stdClass Object
(
[id] => 258
[attribute_id] => 19
[name] => Панели Каньон
[material_modifier] => 1
[work_modifier] => 1
[options] => Array
(
)
[days] => [20]
[material_price] => [4543]
[work_price] => [2592]
[image] => https://akademik-stroy.ru/wp-content/uploads/materials/kanon.png
[area_modifier] => 232.17
[parent_name] => Наружная отделка фасада
[parent_id] => 19
[material_sum] => 1328983
[work_sum] => 631874
[total_sum] => 1960857
[total_days] => 20
[display_material_sum] => 1 328 983
[display_work_sum] => 631 874
[display_total_sum] => 1 960 857
)
1
1 960 857₽
Работа:631 874 ₽
Материалы:1 328 983 ₽
Дни:20
stdClass Object
(
[id] => 39
[attribute_id] => 20
[name] => Нет
[material_modifier] => 1
[work_modifier] => 1
[options] => Array
(
)
[days] => [0]
[material_price] => [0]
[work_price] => [0]
[image] => https://akademik-stroy.ru/wp-content/uploads/materials/terrasy.jpg
[area_modifier] => 30
[parent_name] => Террасы, крыльца, навесы
[parent_id] => 20
[material_sum] => 0
[work_sum] => 0
[total_sum] => 0
[total_days] => 0
[display_material_sum] => 0
[display_work_sum] => 0
[display_total_sum] => 0
)
1
0₽
Работа:0 ₽
Материалы:0 ₽
Дни:0
stdClass Object
(
[id] => 40
[attribute_id] => 20
[name] => Есть
[material_modifier] => 1
[work_modifier] => 1
[options] => Array
(
)
[days] => [5]
[material_price] => [10450]
[work_price] => [1950]
[image] => https://akademik-stroy.ru/wp-content/uploads/materials/terrasy.jpg
[area_modifier] => 30
[parent_name] => Террасы, крыльца, навесы
[parent_id] => 20
[material_sum] => 395010
[work_sum] => 61425
[total_sum] => 456435
[total_days] => 5
[display_material_sum] => 395 010
[display_work_sum] => 61 425
[display_total_sum] => 456 435
)
1
456 435₽
Работа:61 425 ₽
Материалы:395 010 ₽
Дни:5
stdClass Object
(
[id] => 41
[attribute_id] => 21
[name] => Нет
[material_modifier] => 1
[work_modifier] => 1
[options] => Array
(
)
[days] => [0]
[material_price] => [0]
[work_price] => [0]
[image] => https://akademik-stroy.ru/wp-content/uploads/materials/balkony.jpg
[area_modifier] => 30
[parent_name] => Балконы
[parent_id] => 21
[material_sum] => 0
[work_sum] => 0
[total_sum] => 0
[total_days] => 0
[display_material_sum] => 0
[display_work_sum] => 0
[display_total_sum] => 0
)
1
0₽
Работа:0 ₽
Материалы:0 ₽
Дни:0
stdClass Object
(
[id] => 42
[attribute_id] => 21
[name] => Есть
[material_modifier] => 1
[work_modifier] => 1
[options] => Array
(
)
[days] => [12]
[material_price] => [3600]
[work_price] => [1950]
[image] => https://akademik-stroy.ru/wp-content/uploads/materials/balkony.jpg
[area_modifier] => 30
[parent_name] => Балконы
[parent_id] => 21
[material_sum] => 136080
[work_sum] => 61425
[total_sum] => 197505
[total_days] => 12
[display_material_sum] => 136 080
[display_work_sum] => 61 425
[display_total_sum] => 197 505
)
1
197 505₽
Работа:61 425 ₽
Материалы:136 080 ₽
Дни:12
stdClass Object
(
[id] => 43
[attribute_id] => 22
[name] => Нет
[material_modifier] => 1
[work_modifier] => 1
[options] => Array
(
)
[days] => [0]
[material_price] => [0]
[work_price] => [0]
[image] => https://akademik-stroy.ru/wp-content/uploads/materials/uteplennaya.jpg
[area_modifier] => 232.17
[parent_name] => Отмостка
[parent_id] => 22
[material_sum] => 0
[work_sum] => 0
[total_sum] => 0
[total_days] => 0
[display_material_sum] => 0
[display_work_sum] => 0
[display_total_sum] => 0
)
1
0₽
Работа:0 ₽
Материалы:0 ₽
Дни:0
stdClass Object
(
[id] => 44
[attribute_id] => 22
[name] => Утепленная отмостка
[material_modifier] => 1
[work_modifier] => 1
[options] => Array
(
)
[days] => [15]
[material_price] => [2550]
[work_price] => [1750]
[image] => https://akademik-stroy.ru/wp-content/uploads/materials/uteplennaya.jpg
[area_modifier] => 232.17
[parent_name] => Отмостка
[parent_id] => 22
[material_sum] => 745962
[work_sum] => 426612
[total_sum] => 1172574
[total_days] => 15
[display_material_sum] => 745 962
[display_work_sum] => 426 612
[display_total_sum] => 1 172 574
)
1
1 172 574₽
Работа:426 612 ₽
Материалы:745 962 ₽
Дни:15
stdClass Object
(
[id] => 146
[attribute_id] => 22
[name] => Не утепленная отмостка
[material_modifier] => 1
[work_modifier] => 1
[options] => Array
(
)
[days] => [10]
[material_price] => [1650]
[work_price] => [1450]
[image] => https://akademik-stroy.ru/wp-content/uploads/materials/ne-uteplennaya.jpg
[area_modifier] => 232.17
[parent_name] => Отмостка
[parent_id] => 22
[material_sum] => 482681
[work_sum] => 353479
[total_sum] => 836160
[total_days] => 10
[display_material_sum] => 482 681
[display_work_sum] => 353 479
[display_total_sum] => 836 160
)
1
836 160₽
Работа:353 479 ₽
Материалы:482 681 ₽
Дни:10
stdClass Object
(
[id] => 45
[attribute_id] => 23
[name] => Нет
[material_modifier] => 1
[work_modifier] => 1
[options] => Array
(
)
[days] => [0]
[material_price] => [0]
[work_price] => [0]
[image] => https://akademik-stroy.ru/wp-content/uploads/materials/drenazh-2.jpg
[area_modifier] => 232.17
[parent_name] => Дренаж вокруг дома
[parent_id] => 23
[material_sum] => 0
[work_sum] => 0
[total_sum] => 0
[total_days] => 0
[display_material_sum] => 0
[display_work_sum] => 0
[display_total_sum] => 0
)
1
0₽
Работа:0 ₽
Материалы:0 ₽
Дни:0
stdClass Object
(
[id] => 46
[attribute_id] => 23
[name] => Есть
[material_modifier] => 1
[work_modifier] => 1
[options] => Array
(
)
[days] => [5]
[material_price] => [2366]
[work_price] => [1911]
[image] => https://akademik-stroy.ru/wp-content/uploads/materials/drenazh-2.jpg
[area_modifier] => 232.17
[parent_name] => Дренаж вокруг дома
[parent_id] => 23
[material_sum] => 692136
[work_sum] => 465861
[total_sum] => 1157997
[total_days] => 5
[display_material_sum] => 692 136
[display_work_sum] => 465 861
[display_total_sum] => 1 157 997
)
1
1 157 997₽
Работа:465 861 ₽
Материалы:692 136 ₽
Дни:5
stdClass Object
(
[id] => 47
[attribute_id] => 24
[name] => Нет
[material_modifier] => 1
[work_modifier] => 1
[options] => Array
(
)
[days] => [0]
[material_price] => [0]
[work_price] => [0]
[image] => https://akademik-stroy.ru/wp-content/uploads/materials/septik.jpg
[area_modifier] => 1
[parent_name] => Автономная канализация (септики)
[parent_id] => 24
[material_sum] => 0
[work_sum] => 0
[total_sum] => 0
[total_days] => 0
[display_material_sum] => 0
[display_work_sum] => 0
[display_total_sum] => 0
)
1
0₽
Работа:0 ₽
Материалы:0 ₽
Дни:0
stdClass Object
(
[id] => 48
[attribute_id] => 24
[name] => Есть
[material_modifier] => 1
[work_modifier] => 1
[options] => Array
(
[0] => Для дачи на 4 человека
[1] => Для дома на 5 человек
[2] => Для дома на 6 человек
[3] => Для дома на 7 человек
[4] => Для дома на 10 человек
)
[days] => [7,7,7,8,8]
[material_price] => [196340,220500,240940,264200,293340]
[work_price] => [50000,55000,60500,66550,73206]
[image] => https://akademik-stroy.ru/wp-content/uploads/materials/septik.jpg
[area_modifier] => 1
[parent_name] => Автономная канализация (септики)
[parent_id] => 24
[material_sum] => 247388
[work_sum] => 52500
[total_sum] => 299888
[total_days] => 7
[display_material_sum] => 247 388
[display_work_sum] => 52 500
[display_total_sum] => 299 888
)
1
299 888₽
Работа:52 500 ₽
Материалы:247 388 ₽
Дни:7
stdClass Object
(
[id] => 49
[attribute_id] => 25
[name] => Нет
[material_modifier] => 1
[work_modifier] => 1
[options] => Array
(
)
[days] => [0]
[material_price] => [0]
[work_price] => [0]
[image] => https://akademik-stroy.ru/wp-content/uploads/materials/gkl.jpg
[area_modifier] => 232.17
[parent_name] => Внутренние (не несущие) перегородки
[parent_id] => 25
[material_sum] => 0
[work_sum] => 0
[total_sum] => 0
[total_days] => 0
[display_material_sum] => 0
[display_work_sum] => 0
[display_total_sum] => 0
)
1
0₽
Работа:0 ₽
Материалы:0 ₽
Дни:0
stdClass Object
(
[id] => 147
[attribute_id] => 25
[name] => Каркасно-обшивные
[material_modifier] => 1
[work_modifier] => 1
[options] => Array
(
[0] => 75 мм (без шумоизоляции)
[1] => 75 мм (с шумоизоляцией)
)
[days] => [11,11]
[material_price] => [580,970]
[work_price] => [380,570]
[image] => https://akademik-stroy.ru/wp-content/uploads/materials/gkl.jpg
[area_modifier] => 232.17
[parent_name] => Внутренние (не несущие) перегородки
[parent_id] => 25
[material_sum] => 169670
[work_sum] => 92636
[total_sum] => 262306
[total_days] => 11
[display_material_sum] => 169 670
[display_work_sum] => 92 636
[display_total_sum] => 262 306
)
1
262 306₽
Работа:92 636 ₽
Материалы:169 670 ₽
Дни:11
stdClass Object
(
[id] => 148
[attribute_id] => 25
[name] => Пазогребневые
[material_modifier] => 1
[work_modifier] => 1
[options] => Array
(
[0] => 80 мм
[1] => 100 мм
)
[days] => [5,5]
[material_price] => [1022,1313]
[work_price] => [600,700]
[image] => https://akademik-stroy.ru/wp-content/uploads/materials/pazogrebnevye-bloki.jpg
[area_modifier] => 232.17
[parent_name] => Внутренние (не несущие) перегородки
[parent_id] => 25
[material_sum] => 298970
[work_sum] => 146267
[total_sum] => 445237
[total_days] => 5
[display_material_sum] => 298 970
[display_work_sum] => 146 267
[display_total_sum] => 445 237
)
1
445 237₽
Работа:146 267 ₽
Материалы:298 970 ₽
Дни:5
stdClass Object
(
[id] => 149
[attribute_id] => 25
[name] => Газобетонные
[material_modifier] => 1
[work_modifier] => 1
[options] => Array
(
[0] => 100 мм
[1] => 200 мм
)
[days] => [11,11]
[material_price] => [1160,1920]
[work_price] => [700,900]
[image] => https://akademik-stroy.ru/wp-content/uploads/materials/gazobeton-2.jpg
[area_modifier] => 232.17
[parent_name] => Внутренние (не несущие) перегородки
[parent_id] => 25
[material_sum] => 339340
[work_sum] => 170645
[total_sum] => 509985
[total_days] => 11
[display_material_sum] => 339 340
[display_work_sum] => 170 645
[display_total_sum] => 509 985
)
1
509 985₽
Работа:170 645 ₽
Материалы:339 340 ₽
Дни:11
stdClass Object
(
[id] => 150
[attribute_id] => 25
[name] => Кирпичные
[material_modifier] => 1
[work_modifier] => 1
[options] => Array
(
[0] => 120 мм
[1] => 250 мм
[2] => 360 мм
)
[days] => [7,7,7]
[material_price] => [1785,3570,5355]
[work_price] => [900,1600,1800]
[image] => https://akademik-stroy.ru/wp-content/uploads/materials/kirpich-1.jpg
[area_modifier] => 232.17
[parent_name] => Внутренние (не несущие) перегородки
[parent_id] => 25
[material_sum] => 522174
[work_sum] => 219401
[total_sum] => 741575
[total_days] => 7
[display_material_sum] => 522 174
[display_work_sum] => 219 401
[display_total_sum] => 741 575
)
1
741 575₽
Работа:219 401 ₽
Материалы:522 174 ₽
Дни:7
stdClass Object
(
[id] => 55
[attribute_id] => 28
[name] => Нет
[material_modifier] => 1
[work_modifier] => 1
[options] => Array
(
)
[days] => [0]
[material_price] => [0]
[work_price] => [0]
[image] => https://akademik-stroy.ru/wp-content/uploads/materials/ehlektrika.jpg
[area_modifier] => 188.4
[parent_name] => Электрика
[parent_id] => 28
[material_sum] => 0
[work_sum] => 0
[total_sum] => 0
[total_days] => 0
[display_material_sum] => 0
[display_work_sum] => 0
[display_total_sum] => 0
)
1
0₽
Работа:0 ₽
Материалы:0 ₽
Дни:0
stdClass Object
(
[id] => 56
[attribute_id] => 28
[name] => Есть
[material_modifier] => 1
[work_modifier] => 1
[options] => Array
(
)
[days] => [10]
[material_price] => [650]
[work_price] => [950]
[image] => https://akademik-stroy.ru/wp-content/uploads/materials/ehlektrika.jpg
[area_modifier] => 188.4
[parent_name] => Электрика
[parent_id] => 28
[material_sum] => 154300
[work_sum] => 187929
[total_sum] => 342229
[total_days] => 10
[display_material_sum] => 154 300
[display_work_sum] => 187 929
[display_total_sum] => 342 229
)
1
342 229₽
Работа:187 929 ₽
Материалы:154 300 ₽
Дни:10
stdClass Object
(
[id] => 57
[attribute_id] => 29
[name] => Нет
[material_modifier] => 1
[work_modifier] => 1
[options] => Array
(
)
[days] => [0]
[material_price] => [0]
[work_price] => [0]
[image] => https://akademik-stroy.ru/wp-content/uploads/materials/santekhnika-kanalizaciya-1.jpg
[area_modifier] => 188.4
[parent_name] => Сантехника, канализация в доме
[parent_id] => 29
[material_sum] => 0
[work_sum] => 0
[total_sum] => 0
[total_days] => 0
[display_material_sum] => 0
[display_work_sum] => 0
[display_total_sum] => 0
)
1
0₽
Работа:0 ₽
Материалы:0 ₽
Дни:0
stdClass Object
(
[id] => 58
[attribute_id] => 29
[name] => Есть
[material_modifier] => 1
[work_modifier] => 1
[options] => Array
(
)
[days] => [10]
[material_price] => [600]
[work_price] => [730]
[image] => https://akademik-stroy.ru/wp-content/uploads/materials/santekhnika-kanalizaciya-1.jpg
[area_modifier] => 188.4
[parent_name] => Сантехника, канализация в доме
[parent_id] => 29
[material_sum] => 142430
[work_sum] => 144409
[total_sum] => 286839
[total_days] => 10
[display_material_sum] => 142 430
[display_work_sum] => 144 409
[display_total_sum] => 286 839
)
1
286 839₽
Работа:144 409 ₽
Материалы:142 430 ₽
Дни:10
stdClass Object
(
[id] => 59
[attribute_id] => 30
[name] => Нет
[material_modifier] => 1
[work_modifier] => 1
[options] => Array
(
)
[days] => [0]
[material_price] => [0]
[work_price] => [0]
[image] => https://akademik-stroy.ru/wp-content/uploads/materials/otoplenie-1.jpg
[area_modifier] => 188.4
[parent_name] => Отопление
[parent_id] => 30
[material_sum] => 0
[work_sum] => 0
[total_sum] => 0
[total_days] => 0
[display_material_sum] => 0
[display_work_sum] => 0
[display_total_sum] => 0
)
1
0₽
Работа:0 ₽
Материалы:0 ₽
Дни:0
stdClass Object
(
[id] => 60
[attribute_id] => 30
[name] => Есть
[material_modifier] => 1
[work_modifier] => 1
[options] => Array
(
)
[days] => [5]
[material_price] => [610]
[work_price] => [560]
[image] => https://akademik-stroy.ru/wp-content/uploads/materials/otoplenie-1.jpg
[area_modifier] => 188.4
[parent_name] => Отопление
[parent_id] => 30
[material_sum] => 144804
[work_sum] => 110779
[total_sum] => 255583
[total_days] => 5
[display_material_sum] => 144 804
[display_work_sum] => 110 779
[display_total_sum] => 255 583
)
1
255 583₽
Работа:110 779 ₽
Материалы:144 804 ₽
Дни:5
stdClass Object
(
[id] => 61
[attribute_id] => 31
[name] => Нет
[material_modifier] => 1
[work_modifier] => 1
[options] => Array
(
)
[days] => [0]
[material_price] => [0]
[work_price] => [0]
[image] => https://akademik-stroy.ru/wp-content/uploads/materials/vodyanye.jpg
[area_modifier] => 30
[parent_name] => Теплые полы
[parent_id] => 31
[material_sum] => 0
[work_sum] => 0
[total_sum] => 0
[total_days] => 0
[display_material_sum] => 0
[display_work_sum] => 0
[display_total_sum] => 0
)
1
0₽
Работа:0 ₽
Материалы:0 ₽
Дни:0
stdClass Object
(
[id] => 151
[attribute_id] => 31
[name] => Водяные
[material_modifier] => 1
[work_modifier] => 1
[options] => Array
(
)
[days] => [9]
[material_price] => [10200]
[work_price] => [2500]
[image] => https://akademik-stroy.ru/wp-content/uploads/materials/vodyanye.jpg
[area_modifier] => 30
[parent_name] => Теплые полы
[parent_id] => 31
[material_sum] => 385560
[work_sum] => 78750
[total_sum] => 464310
[total_days] => 9
[display_material_sum] => 385 560
[display_work_sum] => 78 750
[display_total_sum] => 464 310
)
1
464 310₽
Работа:78 750 ₽
Материалы:385 560 ₽
Дни:9
stdClass Object
(
[id] => 152
[attribute_id] => 31
[name] => Электро
[material_modifier] => 1
[work_modifier] => 1
[options] => Array
(
)
[days] => [5]
[material_price] => [6300]
[work_price] => [1500]
[image] => https://akademik-stroy.ru/wp-content/uploads/materials/ehlektricheskij.jpg
[area_modifier] => 30
[parent_name] => Теплые полы
[parent_id] => 31
[material_sum] => 238140
[work_sum] => 47250
[total_sum] => 285390
[total_days] => 5
[display_material_sum] => 238 140
[display_work_sum] => 47 250
[display_total_sum] => 285 390
)
1
285 390₽
Работа:47 250 ₽
Материалы:238 140 ₽
Дни:5
stdClass Object
(
[id] => 63
[attribute_id] => 32
[name] => Нет
[material_modifier] => 1
[work_modifier] => 1
[options] => Array
(
)
[days] => [0]
[material_price] => [0]
[work_price] => [0]
[image] => https://akademik-stroy.ru/wp-content/uploads/materials/shtukaturka-shpatlevka-1.jpg
[area_modifier] => 188.4
[parent_name] => Черновая отделка стен
[parent_id] => 32
[material_sum] => 0
[work_sum] => 0
[total_sum] => 0
[total_days] => 0
[display_material_sum] => 0
[display_work_sum] => 0
[display_total_sum] => 0
)
1
0₽
Работа:0 ₽
Материалы:0 ₽
Дни:0
stdClass Object
(
[id] => 153
[attribute_id] => 32
[name] => Штукатурка и шпатлевка
[material_modifier] => 1
[work_modifier] => 1
[options] => Array
(
)
[days] => [20]
[material_price] => [1850]
[work_price] => [2600]
[image] => https://akademik-stroy.ru/wp-content/uploads/materials/shtukaturka-shpatlevka-1.jpg
[area_modifier] => 188.4
[parent_name] => Черновая отделка стен
[parent_id] => 32
[material_sum] => 439160
[work_sum] => 514332
[total_sum] => 953492
[total_days] => 20
[display_material_sum] => 439 160
[display_work_sum] => 514 332
[display_total_sum] => 953 492
)
1
953 492₽
Работа:514 332 ₽
Материалы:439 160 ₽
Дни:20
stdClass Object
(
[id] => 154
[attribute_id] => 32
[name] => Гипсокортон на стены
[material_modifier] => 1
[work_modifier] => 1
[options] => Array
(
)
[days] => [15]
[material_price] => [950]
[work_price] => [2100]
[image] => https://akademik-stroy.ru/wp-content/uploads/materials/gkl-1.jpg
[area_modifier] => 188.4
[parent_name] => Черновая отделка стен
[parent_id] => 32
[material_sum] => 225515
[work_sum] => 415422
[total_sum] => 640937
[total_days] => 15
[display_material_sum] => 225 515
[display_work_sum] => 415 422
[display_total_sum] => 640 937
)
1
640 937₽
Работа:415 422 ₽
Материалы:225 515 ₽
Дни:15
stdClass Object
(
[id] => 155
[attribute_id] => 32
[name] => Вагонка
[material_modifier] => 1
[work_modifier] => 1
[options] => Array
(
)
[days] => [15]
[material_price] => [1250]
[work_price] => [950]
[image] => https://akademik-stroy.ru/wp-content/uploads/materials/vagonka.jpg
[area_modifier] => 188.4
[parent_name] => Черновая отделка стен
[parent_id] => 32
[material_sum] => 296730
[work_sum] => 187929
[total_sum] => 484659
[total_days] => 15
[display_material_sum] => 296 730
[display_work_sum] => 187 929
[display_total_sum] => 484 659
)
1
484 659₽
Работа:187 929 ₽
Материалы:296 730 ₽
Дни:15
stdClass Object
(
[id] => 65
[attribute_id] => 33
[name] => Нет
[material_modifier] => 1
[work_modifier] => 1
[options] => Array
(
)
[days] => [0]
[material_price] => [0]
[work_price] => [0]
[image] => https://akademik-stroy.ru/wp-content/uploads/materials/styazhka.jpg
[area_modifier] => 188.4
[parent_name] => Черновая отделка полов
[parent_id] => 33
[material_sum] => 0
[work_sum] => 0
[total_sum] => 0
[total_days] => 0
[display_material_sum] => 0
[display_work_sum] => 0
[display_total_sum] => 0
)
1
0₽
Работа:0 ₽
Материалы:0 ₽
Дни:0
stdClass Object
(
[id] => 156
[attribute_id] => 33
[name] => Стяжка + наливные полы
[material_modifier] => 1
[work_modifier] => 1
[options] => Array
(
)
[days] => [10]
[material_price] => [1000]
[work_price] => [900]
[image] => https://akademik-stroy.ru/wp-content/uploads/materials/styazhka.jpg
[area_modifier] => 188.4
[parent_name] => Черновая отделка полов
[parent_id] => 33
[material_sum] => 237384
[work_sum] => 178038
[total_sum] => 415422
[total_days] => 10
[display_material_sum] => 237 384
[display_work_sum] => 178 038
[display_total_sum] => 415 422
)
1
415 422₽
Работа:178 038 ₽
Материалы:237 384 ₽
Дни:10
stdClass Object
(
[id] => 157
[attribute_id] => 33
[name] => ОСБ на пол
[material_modifier] => 1
[work_modifier] => 1
[options] => Array
(
)
[days] => [7]
[material_price] => [580]
[work_price] => [350]
[image] => https://akademik-stroy.ru/wp-content/uploads/materials/osb-1.jpg
[area_modifier] => 188.4
[parent_name] => Черновая отделка полов
[parent_id] => 33
[material_sum] => 137683
[work_sum] => 69237
[total_sum] => 206920
[total_days] => 7
[display_material_sum] => 137 683
[display_work_sum] => 69 237
[display_total_sum] => 206 920
)
1
206 920₽
Работа:69 237 ₽
Материалы:137 683 ₽
Дни:7
stdClass Object
(
[id] => 67
[attribute_id] => 34
[name] => Нет
[material_modifier] => 1
[work_modifier] => 1
[options] => Array
(
)
[days] => [0]
[material_price] => [0]
[work_price] => [0]
[image] => https://akademik-stroy.ru/wp-content/uploads/materials/chistovaya-otdelka.jpg
[area_modifier] => 188.4
[parent_name] => Чистовая отделка стен и полов
[parent_id] => 34
[material_sum] => 0
[work_sum] => 0
[total_sum] => 0
[total_days] => 0
[display_material_sum] => 0
[display_work_sum] => 0
[display_total_sum] => 0
)
1
0₽
Работа:0 ₽
Материалы:0 ₽
Дни:0
stdClass Object
(
[id] => 68
[attribute_id] => 34
[name] => Есть
[material_modifier] => 1
[work_modifier] => 1
[options] => Array
(
)
[days] => [50]
[material_price] => [6000]
[work_price] => [3500]
[image] => https://akademik-stroy.ru/wp-content/uploads/materials/chistovaya-otdelka.jpg
[area_modifier] => 188.4
[parent_name] => Чистовая отделка стен и полов
[parent_id] => 34
[material_sum] => 1424304
[work_sum] => 692370
[total_sum] => 2116674
[total_days] => 50
[display_material_sum] => 1 424 304
[display_work_sum] => 692 370
[display_total_sum] => 2 116 674
)
1
2 116 674₽
Работа:692 370 ₽
Материалы:1 424 304 ₽
Дни:50
stdClass Object
(
[id] => 69
[attribute_id] => 35
[name] => Нет
[material_modifier] => 1
[work_modifier] => 1
[options] => Array
(
)
[days] => [0]
[material_price] => [0]
[work_price] => [0]
[image] => https://akademik-stroy.ru/wp-content/uploads/materials/mnogourovnevyj-gkl.jpg
[area_modifier] => 188.4
[parent_name] => Отделка потолка
[parent_id] => 35
[material_sum] => 0
[work_sum] => 0
[total_sum] => 0
[total_days] => 0
[display_material_sum] => 0
[display_work_sum] => 0
[display_total_sum] => 0
)
1
0₽
Работа:0 ₽
Материалы:0 ₽
Дни:0
stdClass Object
(
[id] => 70
[attribute_id] => 35
[name] => Есть
[material_modifier] => 1
[work_modifier] => 1
[options] => Array
(
[0] => Многоуровневый потолок из гипсокартона
[1] => Многоуровневый потолок из гипсокартона и натяжного потолка
[2] => Одноуровневый потолок из гипсокартона
[3] => Одноуровневый натяжной потолок
)
[days] => [10,10,1,1]
[material_price] => [900,700,700,600]
[work_price] => [1000,800,500,300]
[image] => https://akademik-stroy.ru/wp-content/uploads/materials/mnogourovnevyj-gkl.jpg
[area_modifier] => 188.4
[parent_name] => Отделка потолка
[parent_id] => 35
[material_sum] => 213646
[work_sum] => 197820
[total_sum] => 411466
[total_days] => 10
[display_material_sum] => 213 646
[display_work_sum] => 197 820
[display_total_sum] => 411 466
)
1
411 466₽
Работа:197 820 ₽
Материалы:213 646 ₽
Дни:10
Преимущества работы с нами
7 этапов оплаты
Независимый строительный надзор
Экологически чистые материалы
16 лет гарантии
Онлайн-кабинет с веб-камерой
Строители с опытом более 15 лет
Собственное производство





