Одноэтажный дом 193.35 м2 за руб.

ID-162163

Стоимость дома 7656442 руб.

Планировки

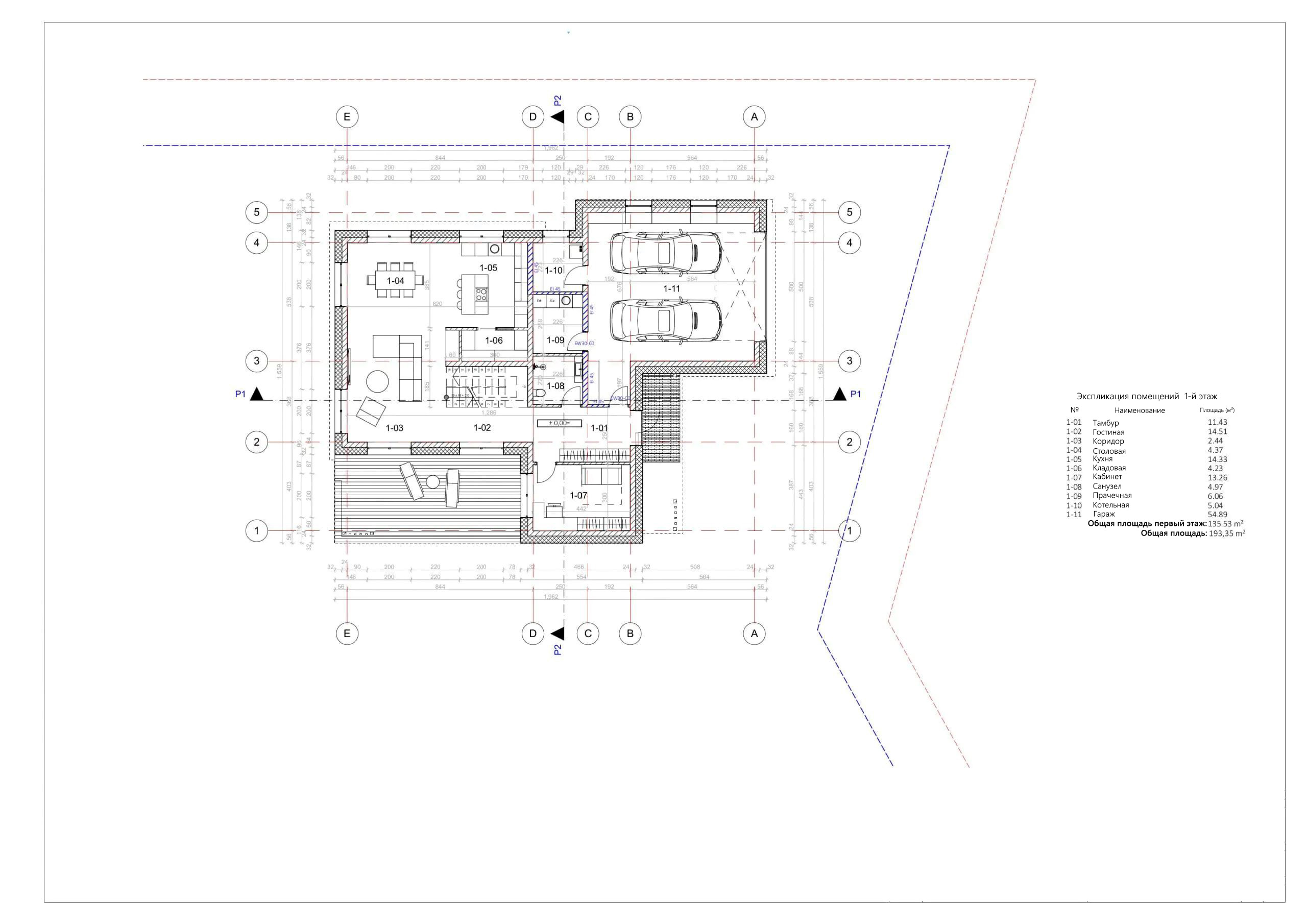
План первого этажа

floor image
  • 1. Тамбур 11,43 м²
  • 2. Гостиная 14,51 м²
  • 3. Коридор 2,44 м²
  • 4. Столовая 14,33 м²
  • 5. Кухня 13,26 м²
  • 6. Кладовая 4,23 м²
  • 7. Кабинет 13,26 м²
  • 8. Санузел 4,97 м²
  • 9. Прачечная 6,06 м²
  • 10. Котельная 5,04 м²
  • 11. Гараж 54,89 м²
  • Общая площадь первый этаж 135,53 м²

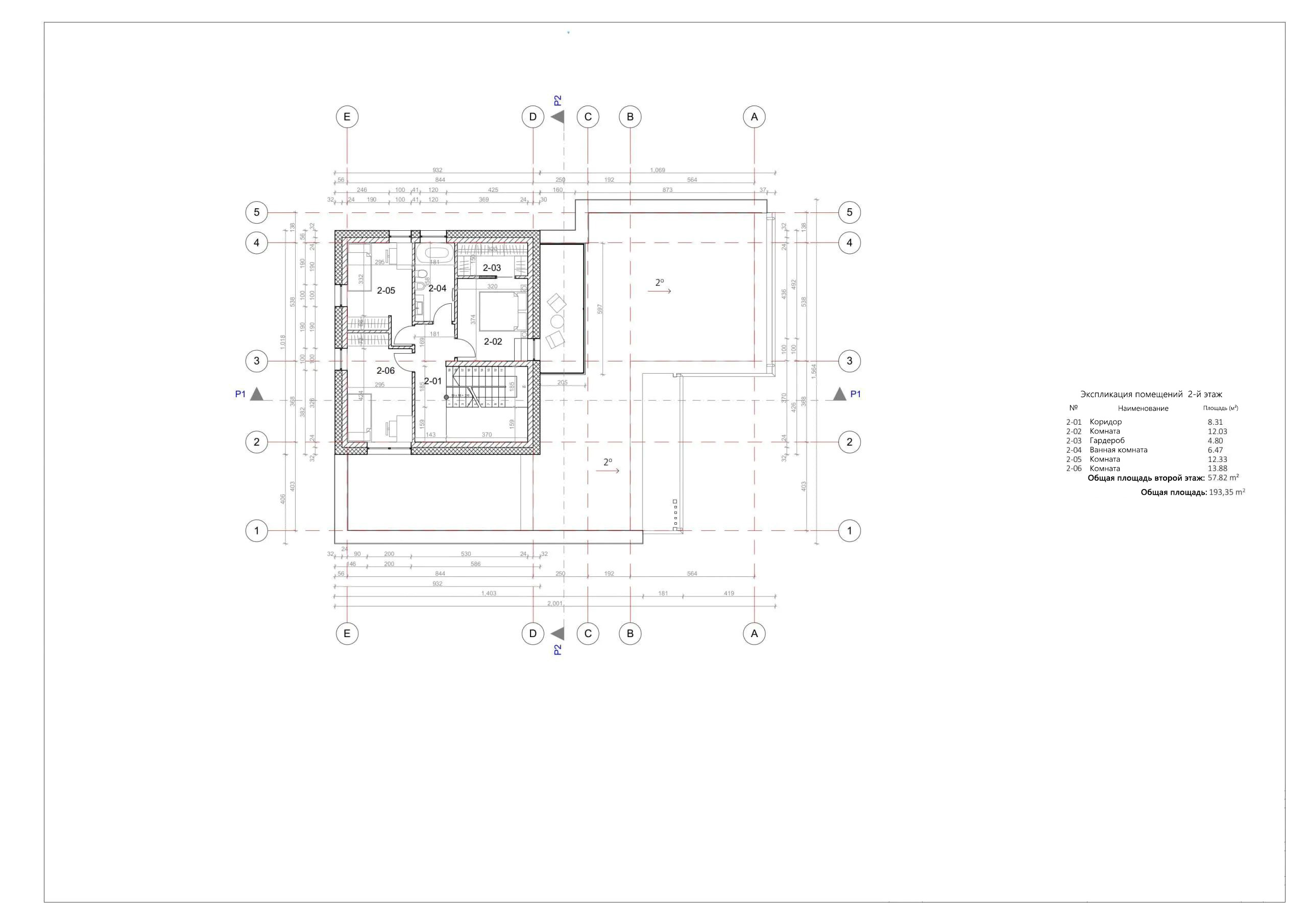
План второго этажа

floor image
  • 1. Коридор 8,31 м²
  • 2. Комната 12,03 м²
  • 3. Гардероб 4,80 м²
  • 4. Ванная комната 6,47 м²
  • 5. Комната 12,33 м²
  • 6. Комната 13,88 м²
  • Общая площадь второй этаж 57,82 м²

Площади дома

№ п/п Наименование Ед. из. Строительная площадь Полезная площадь
1 1 этаж м2 167.01 135.53
2 2 этаж м2 71.25 57.82
3 Итого м2 238.26 193.35
154 м2 Полезная
площадь
1 этаж Этажей
26 м2 Террасы
и балконы
2Без
гаража
4 Количество
спален
2 Количество
санузлов

Калькулятор опций

0

В ипотеку от 24 723 ₽/мес.

Фундамент
stdClass Object ( [id] => 1 [attribute_id] => 1 [name] => Ленточный монолитный ж/б [material_modifier] => 1 [work_modifier] => 1 [options] => Array ( [0] => размер 200 х 700 мм [1] => размер 300 х 900 мм [2] => размер 400 х 1 000 мм [3] => размер 500 х 1 100 мм [4] => размер 600 х 1 200 мм ) [days] => [20,21,22,25,30] [material_price] => [2823,3630,4475,5210,12047] [work_price] => [2154,2826,3731,4577,5293] [image] => https://akademik-stroy.ru/wp-content/uploads/materials/lentochnyj-monolitnyj-zh-b.jpg [area_modifier] => 167.01 [parent_name] => Фундамент [parent_id] => 1 [material_sum] => 594051 [work_sum] => 377727 [total_sum] => 971778 [total_days] => 20 [display_material_sum] => 594 051 [display_work_sum] => 377 727 [display_total_sum] => 971 778 ) 1
971 778
Работа:377 727
Материалы:594 051
Дни:20
stdClass Object ( [id] => 2 [attribute_id] => 1 [name] => Забивные Ж/Б сваи [material_modifier] => 1 [work_modifier] => 1 [options] => Array ( [0] => 150х150х3000мм [1] => 150х150х4000мм [2] => 200х200х3000мм [3] => 200х200х4000мм [4] => 200х200х5000мм [5] => 200х200х6000мм ) [days] => [2,2,2,2,2,2] [material_price] => [1990,2850,3255,4360,5120,6837] [work_price] => [1002,1185,1336,1438,1574,1839] [image] => https://akademik-stroy.ru/wp-content/uploads/materials/zabivnye-zh-b-svai.png [area_modifier] => 167.01 [parent_name] => Фундамент [parent_id] => 1 [material_sum] => 418761 [work_sum] => 175711 [total_sum] => 594472 [total_days] => 2 [display_material_sum] => 418 761 [display_work_sum] => 175 711 [display_total_sum] => 594 472 ) 1
594 472
Работа:175 711
Материалы:418 761
Дни:2
stdClass Object ( [id] => 71 [attribute_id] => 1 [name] => Свайно-ростверковый ж/б [material_modifier] => 1 [work_modifier] => 1 [options] => Array ( [0] => ростверк 200х300 мм [1] => ростверк 300х600 мм [2] => ростверк 400х900 мм [3] => ростверк 500х1200 мм ) [days] => [20,23,25,27] [material_price] => [3018,3474,7109,9792] [work_price] => [2024,3012,5635,7022] [image] => https://akademik-stroy.ru/wp-content/uploads/materials/svajno-rostverkovyj-monolitnyj-zh-b-3.png [area_modifier] => 167.01 [parent_name] => Фундамент [parent_id] => 1 [material_sum] => 635086 [work_sum] => 354930 [total_sum] => 990016 [total_days] => 20 [display_material_sum] => 635 086 [display_work_sum] => 354 930 [display_total_sum] => 990 016 ) 1
990 016
Работа:354 930
Материалы:635 086
Дни:20
stdClass Object ( [id] => 72 [attribute_id] => 1 [name] => Монолитная ж/б плита [material_modifier] => 1 [work_modifier] => 1 [options] => Array ( [0] => 200 мм [1] => 300 мм [2] => 400 мм [3] => 500 мм [4] => 600 мм ) [days] => [30,33,35,37,40] [material_price] => [5348,8555,12788,14388,15189] [work_price] => [4314,4881,7037,8061,10230] [image] => https://akademik-stroy.ru/wp-content/uploads/materials/monolitnaya-zhb-plita.png [area_modifier] => 167.01 [parent_name] => Фундамент [parent_id] => 1 [material_sum] => 1125394 [work_sum] => 756505 [total_sum] => 1881899 [total_days] => 30 [display_material_sum] => 1 125 394 [display_work_sum] => 756 505 [display_total_sum] => 1 881 899 ) 1
1 881 899
Работа:756 505
Материалы:1 125 394
Дни:30
stdClass Object ( [id] => 73 [attribute_id] => 1 [name] => Утепленная шведская плита [material_modifier] => 1 [work_modifier] => 1 [options] => Array ( [0] => 200 мм [1] => 300 мм [2] => 400 мм [3] => 500 мм [4] => 600 мм ) [days] => [32,37,39,42,45] [material_price] => [10249,12692,13760,14936,16230] [work_price] => [5960,7337,8072,8878,9765] [image] => https://akademik-stroy.ru/wp-content/uploads/materials/uteplennaya-shvedskaya-plita.jpg [area_modifier] => 167.01 [parent_name] => Фундамент [parent_id] => 1 [material_sum] => 2156724 [work_sum] => 1045149 [total_sum] => 3201873 [total_days] => 32 [display_material_sum] => 2 156 724 [display_work_sum] => 1 045 149 [display_total_sum] => 3 201 873 ) 1
3 201 873
Работа:1 045 149
Материалы:2 156 724
Дни:32
stdClass Object ( [id] => 75 [attribute_id] => 1 [name] => Ленточный из ФБС [material_modifier] => 1 [work_modifier] => 1 [options] => Array ( [0] => толщ. 300 мм [1] => толщ. 400 мм [2] => толщ. 500 мм [3] => толщ. 600 мм ) [days] => [20,20,20,20] [material_price] => [3675,4902,6126,7350] [work_price] => [2451,3264,4083,4902] [image] => https://akademik-stroy.ru/wp-content/uploads/materials/lentochnyj-iz-fbs.png [area_modifier] => 167.01 [parent_name] => Фундамент [parent_id] => 1 [material_sum] => 773340 [work_sum] => 429809 [total_sum] => 1203149 [total_days] => 20 [display_material_sum] => 773 340 [display_work_sum] => 429 809 [display_total_sum] => 1 203 149 ) 1
1 203 149
Работа:429 809
Материалы:773 340
Дни:20
stdClass Object ( [id] => 76 [attribute_id] => 1 [name] => Цокольный этаж из ФБС [material_modifier] => 1 [work_modifier] => 1 [options] => Array ( [0] => толщ. 300 мм [1] => толщ. 400 мм [2] => толщ. 500 мм [3] => толщ. 600 мм ) [days] => [30,32,34,36] [material_price] => [20916,23299,26680,29060] [work_price] => [17524,18700,19873,21046] [image] => https://akademik-stroy.ru/wp-content/uploads/materials/cokolnyj-ehtazh-iz-fbs.jpg [area_modifier] => 167.01 [parent_name] => Фундамент [parent_id] => 1 [material_sum] => 4401408 [work_sum] => 3073017 [total_sum] => 7474425 [total_days] => 30 [display_material_sum] => 4 401 408 [display_work_sum] => 3 073 017 [display_total_sum] => 7 474 425 ) 1
7 474 425
Работа:3 073 017
Материалы:4 401 408
Дни:30
stdClass Object ( [id] => 77 [attribute_id] => 1 [name] => Цокольный этаж монолитный ж/б [material_modifier] => 1 [work_modifier] => 1 [options] => Array ( [0] => толщ. 200 мм [1] => толщ. 300 мм [2] => толщ. 400 мм [3] => толщ. 500 мм [4] => толщ. 600 мм ) [days] => [40,42,44,46,48] [material_price] => [25421,29148,32275,35602,37326] [work_price] => [20441,21907,23375,24841,26306] [image] => https://akademik-stroy.ru/wp-content/uploads/materials/cokolnyj-etazh-zh-b.jpg [area_modifier] => 167.01 [parent_name] => Фундамент [parent_id] => 1 [material_sum] => 5349407 [work_sum] => 3584544 [total_sum] => 8933951 [total_days] => 40 [display_material_sum] => 5 349 407 [display_work_sum] => 3 584 544 [display_total_sum] => 8 933 951 ) 1
8 933 951
Работа:3 584 544
Материалы:5 349 407
Дни:40
stdClass Object ( [id] => 191 [attribute_id] => 1 [name] => Винтовые сваи [material_modifier] => 1 [work_modifier] => 1 [options] => Array ( [0] => 57х200мм [1] => 76х250мм [2] => 108х300мм [3] => 133х350мм ) [days] => [1,1,2,2] [material_price] => [1200,1300,1450,1600] [work_price] => [400,600,900,1100] [image] => https://akademik-stroy.ru/wp-content/uploads/materials/vintovye-svai.png [area_modifier] => 167.01 [parent_name] => Фундамент [parent_id] => 1 [material_sum] => 252519 [work_sum] => 70144 [total_sum] => 322663 [total_days] => 1 [display_material_sum] => 252 519 [display_work_sum] => 70 144 [display_total_sum] => 322 663 ) 1
322 663
Работа:70 144
Материалы:252 519
Дни:1
Перекрытие цоколя
stdClass Object ( [id] => 3 [attribute_id] => 2 [name] => Деревянные балки [material_modifier] => 1 [work_modifier] => 1 [options] => Array ( [0] => без утепления [1] => утепление 200 мм [2] => утепление 250 мм [3] => утепление 300 мм [4] => утепление 350 мм [5] => утепление 400 мм [6] => утепление 450 мм [7] => утепление 500 мм ) [days] => [8,9,9,9,11,12,13,14] [material_price] => [1634,2042,2344,2947,3149,3652,3354,3557] [work_price] => [1230,1339,1393,1426,1460,1513,1587,1620] [image] => https://akademik-stroy.ru/wp-content/uploads/materials/derevyannye-balki.png [area_modifier] => 167.01 [parent_name] => Перекрытие цоколя [parent_id] => 2 [material_sum] => 343847 [work_sum] => 215693 [total_sum] => 559540 [total_days] => 8 [display_material_sum] => 343 847 [display_work_sum] => 215 693 [display_total_sum] => 559 540 ) 1
559 540
Работа:215 693
Материалы:343 847
Дни:8
stdClass Object ( [id] => 4 [attribute_id] => 2 [name] => Сборные ж/б плиты [material_modifier] => 1 [work_modifier] => 1 [options] => Array ( [0] => без утепления [1] => утепление 150мм [2] => утепление 200мм [3] => утепление 250мм [4] => утепление 300мм [5] => утепление 350мм [6] => утепление 400мм [7] => утепление 450мм [8] => утепление 500мм ) [days] => [13,15,15,15,15,15,15,15,15] [material_price] => [3067,5577,5928,6679,7730,8782,9833,10884,11935] [work_price] => [1520,1956,2102,2247,2392,2537,2684,2829,2974] [image] => https://akademik-stroy.ru/wp-content/uploads/materials/sbornye-zh-b-plity-2.jpg [area_modifier] => 167.01 [parent_name] => Перекрытие цоколя [parent_id] => 2 [material_sum] => 645397 [work_sum] => 266548 [total_sum] => 911945 [total_days] => 13 [display_material_sum] => 645 397 [display_work_sum] => 266 548 [display_total_sum] => 911 945 ) 1
911 945
Работа:266 548
Материалы:645 397
Дни:13
stdClass Object ( [id] => 78 [attribute_id] => 2 [name] => Монолитная ж/б плита [material_modifier] => 1 [work_modifier] => 1 [options] => Array ( [0] => без утепления [1] => утепление 150 мм [2] => утепление 200 мм [3] => утепление 250 мм [4] => утепление 300 мм [5] => утепление 350 мм [6] => утепление 400 мм [7] => утепление 450 мм [8] => утепление 500 мм ) [days] => [18,20,20,20,20,20,20,20,20] [material_price] => [4837,6572,7224,7375,79426,8177,8728,9180,10031] [work_price] => [3348,3921,4112,4302,4493,4684,4875,5066,5256] [image] => https://akademik-stroy.ru/wp-content/uploads/materials/monolitnaya-zh-b-plita-2.jpg [area_modifier] => 167.01 [parent_name] => Перекрытие цоколя [parent_id] => 2 [material_sum] => 1017862 [work_sum] => 587107 [total_sum] => 1604969 [total_days] => 18 [display_material_sum] => 1 017 862 [display_work_sum] => 587 107 [display_total_sum] => 1 604 969 ) 1
1 604 969
Работа:587 107
Материалы:1 017 862
Дни:18
Стены 1 этаж (несущие)
stdClass Object ( [id] => 6 [attribute_id] => 3 [name] => Пеноблок [material_modifier] => 1 [work_modifier] => 1 [options] => Array ( [0] => 300 мм [1] => 400 мм [2] => 500 мм [3] => 600 мм ) [days] => [29,31,34,39] [material_price] => [3000,4000,4500,4937] [work_price] => [5033,5805,6400,8710] [image] => https://akademik-stroy.ru/wp-content/uploads/materials/penoblok.jpg [area_modifier] => 167.01 [parent_name] => Стены 1 этаж (несущие) [parent_id] => 3 [material_sum] => 631298 [work_sum] => 882589 [total_sum] => 1513887 [total_days] => 29 [display_material_sum] => 631 298 [display_work_sum] => 882 589 [display_total_sum] => 1 513 887 ) 1
1 513 887
Работа:882 589
Материалы:631 298
Дни:29
stdClass Object ( [id] => 79 [attribute_id] => 3 [name] => Керамический блок [material_modifier] => 1 [work_modifier] => 1 [options] => Array ( [0] => 380 мм [1] => 380 мм Thermo [2] => 440 мм [3] => 510 мм ) [days] => [23,23,24,25] [material_price] => [4510,5098,6093,8013] [work_price] => [4737,4937,5903,6958] [image] => https://akademik-stroy.ru/wp-content/uploads/materials/keramicheskij-blok.jpg [area_modifier] => 167.01 [parent_name] => Стены 1 этаж (несущие) [parent_id] => 3 [material_sum] => 949051 [work_sum] => 830683 [total_sum] => 1779734 [total_days] => 23 [display_material_sum] => 949 051 [display_work_sum] => 830 683 [display_total_sum] => 1 779 734 ) 1
1 779 734
Работа:830 683
Материалы:949 051
Дни:23
stdClass Object ( [id] => 80 [attribute_id] => 3 [name] => Кирпич [material_modifier] => 1 [work_modifier] => 1 [options] => Array ( [0] => Кирпич 250 мм [1] => Кирпич 380 мм [2] => Кирпич 510 мм [3] => Кирпич 640 мм [4] => Кирпич 770 мм ) [days] => [30,30,31,33,36] [material_price] => [5500,7142,9206,10171,12235] [work_price] => [8736,10041,12018,15240,18462] [image] => https://akademik-stroy.ru/wp-content/uploads/materials/kirpich.jpg [area_modifier] => 167.01 [parent_name] => Стены 1 этаж (несущие) [parent_id] => 3 [material_sum] => 1157379 [work_sum] => 1531949 [total_sum] => 2689328 [total_days] => 30 [display_material_sum] => 1 157 379 [display_work_sum] => 1 531 949 [display_total_sum] => 2 689 328 ) 1
2 689 328
Работа:1 531 949
Материалы:1 157 379
Дни:30
stdClass Object ( [id] => 81 [attribute_id] => 3 [name] => Монолитные [material_modifier] => 1 [work_modifier] => 1 [options] => Array ( [0] => 150 мм [1] => 200 мм [2] => 250 мм [3] => 300 мм [4] => 350 мм [5] => 400 мм ) [days] => [45,46,47,49,50,53] [material_price] => [6545,7876,10175,12011,13908,15204] [work_price] => [5106,6444,7698,8552,9807,11461] [image] => https://akademik-stroy.ru/wp-content/uploads/materials/monolitnye.jpg [area_modifier] => 167.01 [parent_name] => Стены 1 этаж (несущие) [parent_id] => 3 [material_sum] => 1377281 [work_sum] => 895391 [total_sum] => 2272672 [total_days] => 45 [display_material_sum] => 1 377 281 [display_work_sum] => 895 391 [display_total_sum] => 2 272 672 ) 1
2 272 672
Работа:895 391
Материалы:1 377 281
Дни:45
stdClass Object ( [id] => 82 [attribute_id] => 3 [name] => Клееный брус [material_modifier] => 1 [work_modifier] => 1 [options] => Array ( [0] => 160 мм [1] => 175 мм [2] => 200 мм [3] => 215 мм [4] => 240 мм [5] => 270 мм [6] => 282 мм ) [days] => [24,28,32,37,40,42,48] [material_price] => [16975,18773,19950,20545,21599,22159,23275] [work_price] => [4806,5287,5815,6397,7036,7740,8514] [image] => https://akademik-stroy.ru/wp-content/uploads/materials/kleenyj-brus.jpg [area_modifier] => 167.01 [parent_name] => Стены 1 этаж (несущие) [parent_id] => 3 [material_sum] => 3572093 [work_sum] => 842783 [total_sum] => 4414876 [total_days] => 24 [display_material_sum] => 3 572 093 [display_work_sum] => 842 783 [display_total_sum] => 4 414 876 ) 1
4 414 876
Работа:842 783
Материалы:3 572 093
Дни:24
stdClass Object ( [id] => 83 [attribute_id] => 3 [name] => Каркасные [material_modifier] => 1 [work_modifier] => 1 [options] => Array ( [0] => 150 мм [1] => 200 мм [2] => 250 мм [3] => 300 мм ) [days] => [15,16,17,18] [material_price] => [2379,2639,2898,3258] [work_price] => [2418,2686,2985,3716] [image] => https://akademik-stroy.ru/wp-content/uploads/materials/karkasnye.jpg [area_modifier] => 167.01 [parent_name] => Стены 1 этаж (несущие) [parent_id] => 3 [material_sum] => 500619 [work_sum] => 424022 [total_sum] => 924641 [total_days] => 15 [display_material_sum] => 500 619 [display_work_sum] => 424 022 [display_total_sum] => 924 641 ) 1
924 641
Работа:424 022
Материалы:500 619
Дни:15
stdClass Object ( [id] => 84 [attribute_id] => 3 [name] => СИП-панели [material_modifier] => 1 [work_modifier] => 1 [options] => Array ( [0] => 120 мм [1] => 170 мм [2] => 220 мм ) [days] => [7,7,7] [material_price] => [1210,1856,2292] [work_price] => [1410,1551,1706] [image] => https://akademik-stroy.ru/wp-content/uploads/materials/sip-paneli.jpg [area_modifier] => 167.01 [parent_name] => Стены 1 этаж (несущие) [parent_id] => 3 [material_sum] => 254623 [work_sum] => 247258 [total_sum] => 501881 [total_days] => 7 [display_material_sum] => 254 623 [display_work_sum] => 247 258 [display_total_sum] => 501 881 ) 1
501 881
Работа:247 258
Материалы:254 623
Дни:7
stdClass Object ( [id] => 85 [attribute_id] => 3 [name] => Сухой брус [material_modifier] => 1 [work_modifier] => 1 [options] => Array ( [0] => 150 мм [1] => 180 мм [2] => 200 мм ) [days] => [7,8,9] [material_price] => [6010,7190,8709] [work_price] => [3204,3845,4229] [image] => https://akademik-stroy.ru/wp-content/uploads/materials/suhoj-brus.jpg [area_modifier] => 167.01 [parent_name] => Стены 1 этаж (несущие) [parent_id] => 3 [material_sum] => 1264700 [work_sum] => 561855 [total_sum] => 1826555 [total_days] => 7 [display_material_sum] => 1 264 700 [display_work_sum] => 561 855 [display_total_sum] => 1 826 555 ) 1
1 826 555
Работа:561 855
Материалы:1 264 700
Дни:7
stdClass Object ( [id] => 86 [attribute_id] => 3 [name] => Профилированный брус [material_modifier] => 1 [work_modifier] => 1 [options] => Array ( [0] => 150 мм [1] => 180 мм [2] => 200 мм ) [days] => [7,8,9] [material_price] => [8190,9228,10051] [work_price] => [3845,4614,5075] [image] => https://akademik-stroy.ru/wp-content/uploads/materials/profilirovannyj-brus.jpg [area_modifier] => 167.01 [parent_name] => Стены 1 этаж (несущие) [parent_id] => 3 [material_sum] => 1723443 [work_sum] => 674261 [total_sum] => 2397704 [total_days] => 7 [display_material_sum] => 1 723 443 [display_work_sum] => 674 261 [display_total_sum] => 2 397 704 ) 1
2 397 704
Работа:674 261
Материалы:1 723 443
Дни:7
stdClass Object ( [id] => 87 [attribute_id] => 3 [name] => Оцилиндрованное бревно [material_modifier] => 1 [work_modifier] => 1 [options] => Array ( [0] => 180 мм [1] => 220 мм [2] => 260 мм [3] => 320 мм ) [days] => [7,8,9,10] [material_price] => [75190,9532,10868,13116] [work_price] => [3845,4691,5535,6863] [image] => https://akademik-stroy.ru/wp-content/uploads/materials/ocilindrovannoe-brevno-1.jpg [area_modifier] => 167.01 [parent_name] => Стены 1 этаж (несущие) [parent_id] => 3 [material_sum] => 15822427 [work_sum] => 674261 [total_sum] => 16496688 [total_days] => 7 [display_material_sum] => 15 822 427 [display_work_sum] => 674 261 [display_total_sum] => 16 496 688 ) 1
16 496 688
Работа:674 261
Материалы:15 822 427
Дни:7
stdClass Object ( [id] => 88 [attribute_id] => 3 [name] => Срубы [material_modifier] => 1 [work_modifier] => 1 [options] => Array ( [0] => 260 мм [1] => 320 мм [2] => 360 мм [3] => 400 мм [4] => 500 мм ) [days] => [7,8,9,10,11] [material_price] => [37975,46709,52314,58069,73167] [work_price] => [4806,5911,6621,7349,9260] [image] => https://akademik-stroy.ru/wp-content/uploads/materials/sruby.jpg [area_modifier] => 167.01 [parent_name] => Стены 1 этаж (несущие) [parent_id] => 3 [material_sum] => 7991178 [work_sum] => 842783 [total_sum] => 8833961 [total_days] => 7 [display_material_sum] => 7 991 178 [display_work_sum] => 842 783 [display_total_sum] => 8 833 961 ) 1
8 833 961
Работа:842 783
Материалы:7 991 178
Дни:7
stdClass Object ( [id] => 174 [attribute_id] => 3 [name] => Брус [material_modifier] => 1 [work_modifier] => 1 [options] => Array ( [0] => 150 мм [1] => 180 мм [2] => 200 мм ) [days] => [7,8,9] [material_price] => [5127,6152,7367] [work_price] => [1602,1922,2115] [image] => https://akademik-stroy.ru/wp-content/uploads/materials/brus.jpg [area_modifier] => 167.01 [parent_name] => Стены 1 этаж (несущие) [parent_id] => 3 [material_sum] => 1078888 [work_sum] => 280928 [total_sum] => 1359816 [total_days] => 7 [display_material_sum] => 1 078 888 [display_work_sum] => 280 928 [display_total_sum] => 1 359 816 ) 1
1 359 816
Работа:280 928
Материалы:1 078 888
Дни:7
stdClass Object ( [id] => 175 [attribute_id] => 3 [name] => Газобетон [material_modifier] => 1 [work_modifier] => 1 [options] => Array ( [0] => 300 мм [1] => 375 мм [2] => 400 мм [3] => 500 мм [4] => 600 мм ) [days] => [29,31,35,37,44] [material_price] => [4298,5573,6356,7288,9119] [work_price] => [4538,5251,5926,6733,7195] [image] => https://akademik-stroy.ru/wp-content/uploads/materials/gazobeton.jpg [area_modifier] => 167.01 [parent_name] => Стены 1 этаж (несущие) [parent_id] => 3 [material_sum] => 904439 [work_sum] => 795786 [total_sum] => 1700225 [total_days] => 29 [display_material_sum] => 904 439 [display_work_sum] => 795 786 [display_total_sum] => 1 700 225 ) 1
1 700 225
Работа:795 786
Материалы:904 439
Дни:29
stdClass Object ( [id] => 176 [attribute_id] => 3 [name] => Блок [material_modifier] => 1 [work_modifier] => 1 [options] => Array ( [0] => 300 мм [1] => 375 мм [2] => 400 мм [3] => 500 мм [4] => 600 мм ) [days] => [29,31,35,37,44] [material_price] => [2698,3973,4356,6588,7119] [work_price] => [5038,5851,6426,8733,9195] [image] => https://akademik-stroy.ru/wp-content/uploads/materials/blok.jpg [area_modifier] => 167.01 [parent_name] => Стены 1 этаж (несущие) [parent_id] => 3 [material_sum] => 567747 [work_sum] => 883466 [total_sum] => 1451213 [total_days] => 29 [display_material_sum] => 567 747 [display_work_sum] => 883 466 [display_total_sum] => 1 451 213 ) 1
1 451 213
Работа:883 466
Материалы:567 747
Дни:29
stdClass Object ( [id] => 177 [attribute_id] => 3 [name] => Газосиликатный блок [material_modifier] => 1 [work_modifier] => 1 [options] => Array ( [0] => 300 мм [1] => 375 мм [2] => 400 мм [3] => 500 мм [4] => 600 мм ) [days] => [29,31,35,37,44] [material_price] => [4298,5573,6356,7288,9119] [work_price] => [4538,5251,5926,6733,7195] [image] => https://akademik-stroy.ru/wp-content/uploads/materials/gazosilikatnyj-blok.jpg [area_modifier] => 167.01 [parent_name] => Стены 1 этаж (несущие) [parent_id] => 3 [material_sum] => 904439 [work_sum] => 795786 [total_sum] => 1700225 [total_days] => 29 [display_material_sum] => 904 439 [display_work_sum] => 795 786 [display_total_sum] => 1 700 225 ) 1
1 700 225
Работа:795 786
Материалы:904 439
Дни:29
stdClass Object ( [id] => 178 [attribute_id] => 3 [name] => Керамзитобетонный блок [material_modifier] => 1 [work_modifier] => 1 [options] => Array ( [0] => 300 мм [1] => 375 мм [2] => 400 мм [3] => 500 мм [4] => 600 мм ) [days] => [23,23,24,25,28] [material_price] => [3641,4298,5693,7613,9612] [work_price] => [5737,5737,6903,7958,8901] [image] => https://akademik-stroy.ru/wp-content/uploads/materials/keramzitobetonnyj-blok.jpg [area_modifier] => 167.01 [parent_name] => Стены 1 этаж (несущие) [parent_id] => 3 [material_sum] => 766185 [work_sum] => 1006043 [total_sum] => 1772228 [total_days] => 23 [display_material_sum] => 766 185 [display_work_sum] => 1 006 043 [display_total_sum] => 1 772 228 ) 1
1 772 228
Работа:1 006 043
Материалы:766 185
Дни:23
stdClass Object ( [id] => 179 [attribute_id] => 3 [name] => Деревянные [material_modifier] => 1 [work_modifier] => 1 [options] => Array ( [0] => 180 мм [1] => 220 мм [2] => 260 мм [3] => 320 мм ) [days] => [7,8,9,10] [material_price] => [7950,9458,11961,14472] [work_price] => [4037,4925,5812,7207] [image] => https://akademik-stroy.ru/wp-content/uploads/materials/derevyannye.jpg [area_modifier] => 167.01 [parent_name] => Стены 1 этаж (несущие) [parent_id] => 3 [material_sum] => 1672939 [work_sum] => 707930 [total_sum] => 2380869 [total_days] => 7 [display_material_sum] => 1 672 939 [display_work_sum] => 707 930 [display_total_sum] => 2 380 869 ) 1
2 380 869
Работа:707 930
Материалы:1 672 939
Дни:7
stdClass Object ( [id] => 181 [attribute_id] => 3 [name] => Камень [material_modifier] => 1 [work_modifier] => 1 [options] => Array ( [0] => 300 мм [1] => 400 мм [2] => 500 мм [3] => 600 мм ) [days] => [25,27,31,34] [material_price] => [5262,6844,8330,9815] [work_price] => [8331,9135,10427,11069] [image] => https://akademik-stroy.ru/wp-content/uploads/materials/kamen.jpg [area_modifier] => 167.01 [parent_name] => Стены 1 этаж (несущие) [parent_id] => 3 [material_sum] => 1107296 [work_sum] => 1460928 [total_sum] => 2568224 [total_days] => 25 [display_material_sum] => 1 107 296 [display_work_sum] => 1 460 928 [display_total_sum] => 2 568 224 ) 1
2 568 224
Работа:1 460 928
Материалы:1 107 296
Дни:25
stdClass Object ( [id] => 182 [attribute_id] => 3 [name] => Каркасно-щитовые [material_modifier] => 1 [work_modifier] => 1 [options] => Array ( [0] => 150 мм [1] => 200 мм [2] => 250 мм [3] => 300 мм [4] => 350 мм [5] => 400 мм ) [days] => [15,16,17,18,19,20] [material_price] => [2379,2639,2898,3458,3601,4175] [work_price] => [2538,2820,3134,3483,4062,5642] [image] => https://akademik-stroy.ru/wp-content/uploads/materials/karkasno-shchitovye.jpg [area_modifier] => 167.01 [parent_name] => Стены 1 этаж (несущие) [parent_id] => 3 [material_sum] => 500619 [work_sum] => 445065 [total_sum] => 945684 [total_days] => 15 [display_material_sum] => 500 619 [display_work_sum] => 445 065 [display_total_sum] => 945 684 ) 1
945 684
Работа:445 065
Материалы:500 619
Дни:15
stdClass Object ( [id] => 183 [attribute_id] => 3 [name] => Рубленные [material_modifier] => 1 [work_modifier] => 1 [options] => Array ( [0] => 150 мм [1] => 200 мм [2] => 250 мм [3] => 300 мм [4] => 350 мм [5] => 400 мм ) [days] => [15,16,17,18,17,18] [material_price] => [35950,50267,60583,75900,80217,100533] [work_price] => [9612,12816,16020,19224,22428,25632] [image] => https://akademik-stroy.ru/wp-content/uploads/materials/rublennye.jpg [area_modifier] => 167.01 [parent_name] => Стены 1 этаж (несущие) [parent_id] => 3 [material_sum] => 7565052 [work_sum] => 1685565 [total_sum] => 9250617 [total_days] => 15 [display_material_sum] => 7 565 052 [display_work_sum] => 1 685 565 [display_total_sum] => 9 250 617 ) 1
9 250 617
Работа:1 685 565
Материалы:7 565 052
Дни:15
stdClass Object ( [id] => 185 [attribute_id] => 3 [name] => Теплоблок [material_modifier] => 1 [work_modifier] => 1 [options] => Array ( [0] => 300 мм (с облицовкой, не покрашенный) [1] => 400 мм (с облицовкой, не покрашенный) [2] => 300 мм (с облицовкой, покрашенный) [3] => 400 мм (с облицовкой, покрашенный) ) [days] => [15,16,15,16] [material_price] => [2888,3729,3957,4258] [work_price] => [2564,3229,2949,3713] [image] => https://akademik-stroy.ru/wp-content/uploads/materials/teploblok.jpg [area_modifier] => 167.01 [parent_name] => Стены 1 этаж (несущие) [parent_id] => 3 [material_sum] => 607729 [work_sum] => 449624 [total_sum] => 1057353 [total_days] => 15 [display_material_sum] => 607 729 [display_work_sum] => 449 624 [display_total_sum] => 1 057 353 ) 1
1 057 353
Работа:449 624
Материалы:607 729
Дни:15
stdClass Object ( [id] => 186 [attribute_id] => 3 [name] => Арболитовые блоки [material_modifier] => 1 [work_modifier] => 1 [options] => Array ( [0] => 300 мм [1] => 400 мм [2] => 600 мм ) [days] => [19,22,27] [material_price] => [3210,4475,5852] [work_price] => [4214,4788,5866] [image] => https://akademik-stroy.ru/wp-content/uploads/materials/arbolitovye-bloki.png [area_modifier] => 167.01 [parent_name] => Стены 1 этаж (несущие) [parent_id] => 3 [material_sum] => 675489 [work_sum] => 738969 [total_sum] => 1414458 [total_days] => 19 [display_material_sum] => 675 489 [display_work_sum] => 738 969 [display_total_sum] => 1 414 458 ) 1
1 414 458
Работа:738 969
Материалы:675 489
Дни:19
stdClass Object ( [id] => 187 [attribute_id] => 3 [name] => Полистиролбетон [material_modifier] => 1 [work_modifier] => 1 [options] => Array ( [0] => 300 мм [1] => 400 мм [2] => 600 мм ) [days] => [29,31,35] [material_price] => [2798,4573,5256] [work_price] => [5038,5851,6426] [image] => https://akademik-stroy.ru/wp-content/uploads/materials/polistirolbeton.jpg [area_modifier] => 167.01 [parent_name] => Стены 1 этаж (несущие) [parent_id] => 3 [material_sum] => 588790 [work_sum] => 883466 [total_sum] => 1472256 [total_days] => 29 [display_material_sum] => 588 790 [display_work_sum] => 883 466 [display_total_sum] => 1 472 256 ) 1
1 472 256
Работа:883 466
Материалы:588 790
Дни:29
stdClass Object ( [id] => 188 [attribute_id] => 3 [name] => Шлакоблок [material_modifier] => 1 [work_modifier] => 1 [options] => Array ( [0] => 400 мм [1] => 600 мм ) [days] => [15,16] [material_price] => [2391,3471] [work_price] => [2642,3662] [image] => https://akademik-stroy.ru/wp-content/uploads/materials/shlakoblok.jpg [area_modifier] => 167.01 [parent_name] => Стены 1 этаж (несущие) [parent_id] => 3 [material_sum] => 503144 [work_sum] => 463302 [total_sum] => 966446 [total_days] => 15 [display_material_sum] => 503 144 [display_work_sum] => 463 302 [display_total_sum] => 966 446 ) 1
966 446
Работа:463 302
Материалы:503 144
Дни:15
stdClass Object ( [id] => 189 [attribute_id] => 3 [name] => Теплая керамика [material_modifier] => 1 [work_modifier] => 1 [options] => Array ( [0] => 380 мм [1] => 380 мм Thermo [2] => 440 мм [3] => 510 мм ) [days] => [23,23,24,25] [material_price] => [4510,5098,6093,8013] [work_price] => [4737,4937,5903,6958] [image] => https://akademik-stroy.ru/wp-content/uploads/materials/teplaya-keramika.jpg [area_modifier] => 167.01 [parent_name] => Стены 1 этаж (несущие) [parent_id] => 3 [material_sum] => 949051 [work_sum] => 830683 [total_sum] => 1779734 [total_days] => 23 [display_material_sum] => 949 051 [display_work_sum] => 830 683 [display_total_sum] => 1 779 734 ) 1
1 779 734
Работа:830 683
Материалы:949 051
Дни:23
stdClass Object ( [id] => 190 [attribute_id] => 3 [name] => Несъемная опалубка [material_modifier] => 1 [work_modifier] => 1 [options] => Array ( [0] => 200 мм [1] => 250 мм [2] => 300 мм [3] => 350 мм ) [days] => [15,17,19,21] [material_price] => [3302,3902,4108,5008] [work_price] => [2100,2100,2300,2534] [image] => https://akademik-stroy.ru/wp-content/uploads/materials/nesemnaya-opalubka.jpg [area_modifier] => 167.01 [parent_name] => Стены 1 этаж (несущие) [parent_id] => 3 [material_sum] => 694848 [work_sum] => 368257 [total_sum] => 1063105 [total_days] => 15 [display_material_sum] => 694 848 [display_work_sum] => 368 257 [display_total_sum] => 1 063 105 ) 1
1 063 105
Работа:368 257
Материалы:694 848
Дни:15
stdClass Object ( [id] => 251 [attribute_id] => 3 [name] => Бревно [material_modifier] => 1 [work_modifier] => 1 [options] => Array ( [0] => 260 мм [1] => 320 мм [2] => 360 мм [3] => 400 мм [4] => 500 мм ) [days] => [7,8,9,10,11] [material_price] => [1874,24045,26930,30972,38825] [work_price] => [5046,6207,6952,7716,9723] [image] => https://akademik-stroy.ru/wp-content/uploads/materials/sruby.jpg [area_modifier] => 167.01 [parent_name] => Стены 1 этаж (несущие) [parent_id] => 3 [material_sum] => 394351 [work_sum] => 884869 [total_sum] => 1279220 [total_days] => 7 [display_material_sum] => 394 351 [display_work_sum] => 884 869 [display_total_sum] => 1 279 220 ) 1
1 279 220
Работа:884 869
Материалы:394 351
Дни:7
Перекрытие первого этажа
stdClass Object ( [id] => 7 [attribute_id] => 4 [name] => Деревянные балки [material_modifier] => 1 [work_modifier] => 1 [options] => Array ( [0] => без утепления [1] => утепление 200 мм [2] => утепление 250 мм [3] => утепление 300 мм [4] => утепление 350 мм [5] => утепление 400 мм [6] => утепление 450 мм [7] => утепление 500 мм ) [days] => [8,9,9,9,11,12,13,14] [material_price] => [1634,2042,2344,2947,3149,3652,3354,3557] [work_price] => [1230,1339,1393,1426,1460,1513,1587,1620] [image] => https://akademik-stroy.ru/wp-content/uploads/materials/derevyannye-balki.png [area_modifier] => 167.01 [parent_name] => Перекрытие первого этажа [parent_id] => 4 [material_sum] => 343847 [work_sum] => 215693 [total_sum] => 559540 [total_days] => 8 [display_material_sum] => 343 847 [display_work_sum] => 215 693 [display_total_sum] => 559 540 ) 1
559 540
Работа:215 693
Материалы:343 847
Дни:8
stdClass Object ( [id] => 8 [attribute_id] => 4 [name] => Сборные ж/б плиты [material_modifier] => 1 [work_modifier] => 1 [options] => Array ( [0] => без утепления [1] => утепление 150 мм [2] => утепление 200 мм [3] => утепление 250 мм [4] => утепление 300 мм [5] => утепление 350 мм [6] => утепление 400 мм [7] => утепление 450 мм [8] => утепление 500 мм ) [days] => [13,15,15,15,15,15,15,15,15] [material_price] => [3067,5577,5928,6679,7730,8782,9833,10884,11935] [work_price] => [1520,1956,2102,2247,2392,2537,2684,2829,2974] [image] => https://akademik-stroy.ru/wp-content/uploads/materials/sbornye-zh-b-plity-2.jpg [area_modifier] => 167.01 [parent_name] => Перекрытие первого этажа [parent_id] => 4 [material_sum] => 645397 [work_sum] => 266548 [total_sum] => 911945 [total_days] => 13 [display_material_sum] => 645 397 [display_work_sum] => 266 548 [display_total_sum] => 911 945 ) 1
911 945
Работа:266 548
Материалы:645 397
Дни:13
stdClass Object ( [id] => 89 [attribute_id] => 4 [name] => Монолитная ж/б плита [material_modifier] => 1 [work_modifier] => 1 [options] => Array ( [0] => без утепления [1] => утепление 150 мм [2] => утепление 200 мм [3] => утепление 250 мм [4] => утепление 300 мм [5] => утепление 350 мм [6] => утепление 400 мм [7] => утепление 450 мм [8] => утепление 500 мм ) [days] => [18,20,20,20,20,20,20,20,20] [material_price] => [4837,6572,7224,7375,79426,8177,8728,9180,10031] [work_price] => [3348,3921,4112,4302,4493,4684,4875,5066,5256] [image] => https://akademik-stroy.ru/wp-content/uploads/materials/monolitnaya-zh-b-plita-2.jpg [area_modifier] => 167.01 [parent_name] => Перекрытие первого этажа [parent_id] => 4 [material_sum] => 1017862 [work_sum] => 587107 [total_sum] => 1604969 [total_days] => 18 [display_material_sum] => 1 017 862 [display_work_sum] => 587 107 [display_total_sum] => 1 604 969 ) 1
1 604 969
Работа:587 107
Материалы:1 017 862
Дни:18
Стены 2 этаж (несущие)
stdClass Object ( [id] => 10 [attribute_id] => 5 [name] => Пеноблок [material_modifier] => 1 [work_modifier] => 1 [options] => Array ( [0] => 300 мм [1] => 400 мм [2] => 500 мм [3] => 600 мм ) [days] => [29,31,34,39] [material_price] => [3000,4000,4500,4937] [work_price] => [5033,5805,6400,8710] [image] => https://akademik-stroy.ru/wp-content/uploads/materials/penoblok.jpg [area_modifier] => 71.25 [parent_name] => Стены 2 этаж (несущие) [parent_id] => 5 [material_sum] => 269325 [work_sum] => 376531 [total_sum] => 645856 [total_days] => 29 [display_material_sum] => 269 325 [display_work_sum] => 376 531 [display_total_sum] => 645 856 ) 1
645 856
Работа:376 531
Материалы:269 325
Дни:29
stdClass Object ( [id] => 90 [attribute_id] => 5 [name] => Керамический блок [material_modifier] => 1 [work_modifier] => 1 [options] => Array ( [0] => 380 мм [1] => 380 мм Thermo [2] => 440 мм [3] => 510 мм ) [days] => [23,23,24,25] [material_price] => [4510,5098,6093,8013] [work_price] => [4737,4937,5903,6958] [image] => https://akademik-stroy.ru/wp-content/uploads/materials/keramicheskij-blok.jpg [area_modifier] => 71.25 [parent_name] => Стены 2 этаж (несущие) [parent_id] => 5 [material_sum] => 404885 [work_sum] => 354387 [total_sum] => 759272 [total_days] => 23 [display_material_sum] => 404 885 [display_work_sum] => 354 387 [display_total_sum] => 759 272 ) 1
759 272
Работа:354 387
Материалы:404 885
Дни:23
stdClass Object ( [id] => 91 [attribute_id] => 5 [name] => Кирпич [material_modifier] => 1 [work_modifier] => 1 [options] => Array ( [0] => Кирпич 250 мм [1] => Кирпич 380 мм [2] => Кирпич 510 мм [3] => Кирпич 640 мм [4] => Кирпич 770 мм ) [days] => [30,30,31,33,36] [material_price] => [5500,7142,9206,10171,12235] [work_price] => [8736,10041,12018,15240,18462] [image] => https://akademik-stroy.ru/wp-content/uploads/materials/kirpich.jpg [area_modifier] => 71.25 [parent_name] => Стены 2 этаж (несущие) [parent_id] => 5 [material_sum] => 493763 [work_sum] => 653562 [total_sum] => 1147325 [total_days] => 30 [display_material_sum] => 493 763 [display_work_sum] => 653 562 [display_total_sum] => 1 147 325 ) 1
1 147 325
Работа:653 562
Материалы:493 763
Дни:30
stdClass Object ( [id] => 92 [attribute_id] => 5 [name] => Монолитные [material_modifier] => 1 [work_modifier] => 1 [options] => Array ( [0] => 150 мм [1] => 200 мм [2] => 250 мм [3] => 300 мм [4] => 350 мм [5] => 400 мм ) [days] => [45,46,47,49,50,53] [material_price] => [6545,7876,10175,12011,13908,15204] [work_price] => [5106,6444,7698,8552,9807,11461] [image] => https://akademik-stroy.ru/wp-content/uploads/materials/monolitnye.jpg [area_modifier] => 71.25 [parent_name] => Стены 2 этаж (несущие) [parent_id] => 5 [material_sum] => 587577 [work_sum] => 381993 [total_sum] => 969570 [total_days] => 45 [display_material_sum] => 587 577 [display_work_sum] => 381 993 [display_total_sum] => 969 570 ) 1
969 570
Работа:381 993
Материалы:587 577
Дни:45
stdClass Object ( [id] => 93 [attribute_id] => 5 [name] => Клееный брус [material_modifier] => 1 [work_modifier] => 1 [options] => Array ( [0] => 160 мм [1] => 175 мм [2] => 200 мм [3] => 215 мм [4] => 240 мм [5] => 270 мм [6] => 282 мм ) [days] => [24,28,32,37,40,42,48] [material_price] => [16975,18773,19950,20545,21599,22159,23275] [work_price] => [4806,5287,5815,6397,7036,7740,8514] [image] => https://akademik-stroy.ru/wp-content/uploads/materials/kleenyj-brus.jpg [area_modifier] => 71.25 [parent_name] => Стены 2 этаж (несущие) [parent_id] => 5 [material_sum] => 1523931 [work_sum] => 359549 [total_sum] => 1883480 [total_days] => 24 [display_material_sum] => 1 523 931 [display_work_sum] => 359 549 [display_total_sum] => 1 883 480 ) 1
1 883 480
Работа:359 549
Материалы:1 523 931
Дни:24
stdClass Object ( [id] => 94 [attribute_id] => 5 [name] => Каркасные [material_modifier] => 1 [work_modifier] => 1 [options] => Array ( [0] => 150 мм [1] => 200 мм [2] => 250 мм [3] => 300 мм ) [days] => [15,16,17,18] [material_price] => [2379,2639,2898,3258] [work_price] => [2418,2686,2985,3716] [image] => https://akademik-stroy.ru/wp-content/uploads/materials/karkasnye.jpg [area_modifier] => 71.25 [parent_name] => Стены 2 этаж (несущие) [parent_id] => 5 [material_sum] => 213575 [work_sum] => 180897 [total_sum] => 394472 [total_days] => 15 [display_material_sum] => 213 575 [display_work_sum] => 180 897 [display_total_sum] => 394 472 ) 1
394 472
Работа:180 897
Материалы:213 575
Дни:15
stdClass Object ( [id] => 95 [attribute_id] => 5 [name] => СИП-панели [material_modifier] => 1 [work_modifier] => 1 [options] => Array ( [0] => 120 мм [1] => 170 мм [2] => 220 мм ) [days] => [7,7,7] [material_price] => [1210,1856,2292] [work_price] => [1410,1551,1706] [image] => https://akademik-stroy.ru/wp-content/uploads/materials/sip-paneli.jpg [area_modifier] => 71.25 [parent_name] => Стены 2 этаж (несущие) [parent_id] => 5 [material_sum] => 108628 [work_sum] => 105486 [total_sum] => 214114 [total_days] => 7 [display_material_sum] => 108 628 [display_work_sum] => 105 486 [display_total_sum] => 214 114 ) 1
214 114
Работа:105 486
Материалы:108 628
Дни:7
stdClass Object ( [id] => 96 [attribute_id] => 5 [name] => Сухой брус [material_modifier] => 1 [work_modifier] => 1 [options] => Array ( [0] => 150 мм [1] => 180 мм [2] => 200 мм ) [days] => [7,8,9] [material_price] => [6010,7190,8709] [work_price] => [3204,3845,4229] [image] => https://akademik-stroy.ru/wp-content/uploads/materials/suhoj-brus.jpg [area_modifier] => 71.25 [parent_name] => Стены 2 этаж (несущие) [parent_id] => 5 [material_sum] => 539548 [work_sum] => 239699 [total_sum] => 779247 [total_days] => 7 [display_material_sum] => 539 548 [display_work_sum] => 239 699 [display_total_sum] => 779 247 ) 1
779 247
Работа:239 699
Материалы:539 548
Дни:7
stdClass Object ( [id] => 97 [attribute_id] => 5 [name] => Профилированный брус [material_modifier] => 1 [work_modifier] => 1 [options] => Array ( [0] => 150 мм [1] => 180 мм [2] => 200 мм ) [days] => [7,8,9] [material_price] => [8190,9228,10051] [work_price] => [3845,4614,5075] [image] => https://akademik-stroy.ru/wp-content/uploads/materials/profilirovannyj-brus.jpg [area_modifier] => 71.25 [parent_name] => Стены 2 этаж (несущие) [parent_id] => 5 [material_sum] => 735257 [work_sum] => 287654 [total_sum] => 1022911 [total_days] => 7 [display_material_sum] => 735 257 [display_work_sum] => 287 654 [display_total_sum] => 1 022 911 ) 1
1 022 911
Работа:287 654
Материалы:735 257
Дни:7
stdClass Object ( [id] => 98 [attribute_id] => 5 [name] => Оцилиндрованное бревно [material_modifier] => 1 [work_modifier] => 1 [options] => Array ( [0] => 180 мм [1] => 220 мм [2] => 260 мм [3] => 320 мм ) [days] => [7,8,9,10] [material_price] => [75190,9532,10868,13116] [work_price] => [3845,4691,5535,6863] [image] => https://akademik-stroy.ru/wp-content/uploads/materials/ocilindrovannoe-brevno-1.jpg [area_modifier] => 71.25 [parent_name] => Стены 2 этаж (несущие) [parent_id] => 5 [material_sum] => 6750182 [work_sum] => 287654 [total_sum] => 7037836 [total_days] => 7 [display_material_sum] => 6 750 182 [display_work_sum] => 287 654 [display_total_sum] => 7 037 836 ) 1
7 037 836
Работа:287 654
Материалы:6 750 182
Дни:7
stdClass Object ( [id] => 99 [attribute_id] => 5 [name] => Срубы [material_modifier] => 1 [work_modifier] => 1 [options] => Array ( [0] => 260 мм [1] => 320 мм [2] => 360 мм [3] => 400 мм [4] => 500 мм ) [days] => [7,8,9,10,11] [material_price] => [16175,23709,26314,29069,32167] [work_price] => [4806,5911,6621,7349,9260] [image] => https://akademik-stroy.ru/wp-content/uploads/materials/suhoj-brus.jpg [area_modifier] => 71.25 [parent_name] => Стены 2 этаж (несущие) [parent_id] => 5 [material_sum] => 1452111 [work_sum] => 359549 [total_sum] => 1811660 [total_days] => 7 [display_material_sum] => 1 452 111 [display_work_sum] => 359 549 [display_total_sum] => 1 811 660 ) 1
1 811 660
Работа:359 549
Материалы:1 452 111
Дни:7
stdClass Object ( [id] => 194 [attribute_id] => 5 [name] => Брус [material_modifier] => 1 [work_modifier] => 1 [options] => Array ( [0] => 150 мм [1] => 180 мм [2] => 200 мм ) [days] => [10,13,15] [material_price] => [5127,6152,7367] [work_price] => [1602,1922,2115] [image] => https://akademik-stroy.ru/wp-content/uploads/materials/brus.jpg [area_modifier] => 71.25 [parent_name] => Стены 2 этаж (несущие) [parent_id] => 5 [material_sum] => 460276 [work_sum] => 119850 [total_sum] => 580126 [total_days] => 10 [display_material_sum] => 460 276 [display_work_sum] => 119 850 [display_total_sum] => 580 126 ) 1
580 126
Работа:119 850
Материалы:460 276
Дни:10
stdClass Object ( [id] => 195 [attribute_id] => 5 [name] => Газобетон [material_modifier] => 1 [work_modifier] => 1 [options] => Array ( [0] => 300 мм [1] => 375 мм [2] => 400 мм [3] => 500 мм [4] => 600 мм ) [days] => [29,31,35,37,44] [material_price] => [4298,5573,6356,7288,9119] [work_price] => [4538,5251,5926,6733,7195] [image] => https://akademik-stroy.ru/wp-content/uploads/materials/gazobeton.jpg [area_modifier] => 71.25 [parent_name] => Стены 2 этаж (несущие) [parent_id] => 5 [material_sum] => 385853 [work_sum] => 339499 [total_sum] => 725352 [total_days] => 29 [display_material_sum] => 385 853 [display_work_sum] => 339 499 [display_total_sum] => 725 352 ) 1
725 352
Работа:339 499
Материалы:385 853
Дни:29
stdClass Object ( [id] => 196 [attribute_id] => 5 [name] => Блок [material_modifier] => 1 [work_modifier] => 1 [options] => Array ( [0] => 300 мм [1] => 375 мм [2] => 400 мм [3] => 500 мм [4] => 600 мм ) [days] => [29,31,35,37,44] [material_price] => [2698,3973,4356,6588,7119] [work_price] => [5038,5851,6426,8733,9195] [image] => https://akademik-stroy.ru/wp-content/uploads/materials/blok.jpg [area_modifier] => 71.25 [parent_name] => Стены 2 этаж (несущие) [parent_id] => 5 [material_sum] => 242213 [work_sum] => 376905 [total_sum] => 619118 [total_days] => 29 [display_material_sum] => 242 213 [display_work_sum] => 376 905 [display_total_sum] => 619 118 ) 1
619 118
Работа:376 905
Материалы:242 213
Дни:29
stdClass Object ( [id] => 197 [attribute_id] => 5 [name] => Газосиликатный блок [material_modifier] => 1 [work_modifier] => 1 [options] => Array ( [0] => 300 мм [1] => 375 мм [2] => 400 мм [3] => 500 мм [4] => 600 мм ) [days] => [29,31,35,37,44] [material_price] => [4298,5573,6356,7288,9119] [work_price] => [4538,5251,5926,6733,7195] [image] => https://akademik-stroy.ru/wp-content/uploads/materials/gazosilikatnyj-blok.jpg [area_modifier] => 71.25 [parent_name] => Стены 2 этаж (несущие) [parent_id] => 5 [material_sum] => 385853 [work_sum] => 339499 [total_sum] => 725352 [total_days] => 29 [display_material_sum] => 385 853 [display_work_sum] => 339 499 [display_total_sum] => 725 352 ) 1
725 352
Работа:339 499
Материалы:385 853
Дни:29
stdClass Object ( [id] => 198 [attribute_id] => 5 [name] => Керамзитобетонный блок [material_modifier] => 1 [work_modifier] => 1 [options] => Array ( [0] => 300 мм [1] => 375 мм [2] => 400 мм [3] => 500 мм [4] => 600 мм ) [days] => [23,23,24,25,28] [material_price] => [3641,4298,5693,7613,9612] [work_price] => [5737,5737,6903,7958,8901] [image] => https://akademik-stroy.ru/wp-content/uploads/materials/keramzitobetonnyj-blok.jpg [area_modifier] => 71.25 [parent_name] => Стены 2 этаж (несущие) [parent_id] => 5 [material_sum] => 326871 [work_sum] => 429199 [total_sum] => 756070 [total_days] => 23 [display_material_sum] => 326 871 [display_work_sum] => 429 199 [display_total_sum] => 756 070 ) 1
756 070
Работа:429 199
Материалы:326 871
Дни:23
stdClass Object ( [id] => 199 [attribute_id] => 5 [name] => Деревянные [material_modifier] => 1 [work_modifier] => 1 [options] => Array ( [0] => 180 мм [1] => 220 мм [2] => 260 мм [3] => 320 мм ) [days] => [7,8,9,10] [material_price] => [7950,9458,11961,14472] [work_price] => [4037,4925,5812,7207] [image] => https://akademik-stroy.ru/wp-content/uploads/materials/derevyannye.jpg [area_modifier] => 71.25 [parent_name] => Стены 2 этаж (несущие) [parent_id] => 5 [material_sum] => 713711 [work_sum] => 302018 [total_sum] => 1015729 [total_days] => 7 [display_material_sum] => 713 711 [display_work_sum] => 302 018 [display_total_sum] => 1 015 729 ) 1
1 015 729
Работа:302 018
Материалы:713 711
Дни:7
stdClass Object ( [id] => 200 [attribute_id] => 5 [name] => Камень [material_modifier] => 1 [work_modifier] => 1 [options] => Array ( [0] => 300 мм [1] => 400 мм [2] => 500 мм [3] => 600 мм ) [days] => [25,27,31,34] [material_price] => [5262,6844,8330,9815] [work_price] => [8331,9135,10427,11069] [image] => https://akademik-stroy.ru/wp-content/uploads/materials/kamen.jpg [area_modifier] => 71.25 [parent_name] => Стены 2 этаж (несущие) [parent_id] => 5 [material_sum] => 472396 [work_sum] => 623263 [total_sum] => 1095659 [total_days] => 25 [display_material_sum] => 472 396 [display_work_sum] => 623 263 [display_total_sum] => 1 095 659 ) 1
1 095 659
Работа:623 263
Материалы:472 396
Дни:25
stdClass Object ( [id] => 201 [attribute_id] => 5 [name] => Каркасно-щитовые [material_modifier] => 1 [work_modifier] => 1 [options] => Array ( [0] => 150 мм [1] => 200 мм [2] => 250 мм [3] => 300 мм [4] => 350 мм [5] => 400 мм ) [days] => [15,16,17,18,19,20] [material_price] => [2379,2639,2898,3458,3601,4175] [work_price] => [2538,2820,3134,3483,4062,5642] [image] => https://akademik-stroy.ru/wp-content/uploads/materials/karkasno-shchitovye.jpg [area_modifier] => 71.25 [parent_name] => Стены 2 этаж (несущие) [parent_id] => 5 [material_sum] => 213575 [work_sum] => 189874 [total_sum] => 403449 [total_days] => 15 [display_material_sum] => 213 575 [display_work_sum] => 189 874 [display_total_sum] => 403 449 ) 1
403 449
Работа:189 874
Материалы:213 575
Дни:15
stdClass Object ( [id] => 202 [attribute_id] => 5 [name] => Рубленные [material_modifier] => 1 [work_modifier] => 1 [options] => Array ( [0] => 150 мм [1] => 200 мм [2] => 250 мм [3] => 300 мм [4] => 350 мм [5] => 400 мм ) [days] => [15,16,17,18,17,18] [material_price] => [35950,50267,60583,75900,80217,100533] [work_price] => [9612,12816,16020,19224,22428,25632] [image] => https://akademik-stroy.ru/wp-content/uploads/materials/rublennye.jpg [area_modifier] => 71.25 [parent_name] => Стены 2 этаж (несущие) [parent_id] => 5 [material_sum] => 3227411 [work_sum] => 719098 [total_sum] => 3946509 [total_days] => 15 [display_material_sum] => 3 227 411 [display_work_sum] => 719 098 [display_total_sum] => 3 946 509 ) 1
3 946 509
Работа:719 098
Материалы:3 227 411
Дни:15
stdClass Object ( [id] => 203 [attribute_id] => 5 [name] => Теплоблок [material_modifier] => 1 [work_modifier] => 1 [options] => Array ( [0] => 300 мм (с облицовкой, не покрашенный) [1] => 400 мм (с облицовкой, не покрашенный) [2] => 300 мм (с облицовкой, покрашенный) [3] => 400 мм (с облицовкой, покрашенный) ) [days] => [15,16,15,16] [material_price] => [2888,3729,3957,4258] [work_price] => [2564,3229,2949,3713] [image] => https://akademik-stroy.ru/wp-content/uploads/materials/teploblok.jpg [area_modifier] => 71.25 [parent_name] => Стены 2 этаж (несущие) [parent_id] => 5 [material_sum] => 259270 [work_sum] => 191819 [total_sum] => 451089 [total_days] => 15 [display_material_sum] => 259 270 [display_work_sum] => 191 819 [display_total_sum] => 451 089 ) 1
451 089
Работа:191 819
Материалы:259 270
Дни:15
stdClass Object ( [id] => 204 [attribute_id] => 5 [name] => Арболитовые блоки [material_modifier] => 1 [work_modifier] => 1 [options] => Array ( [0] => 300 мм [1] => 400 мм [2] => 600 мм ) [days] => [19,22,27] [material_price] => [3210,4475,5852] [work_price] => [4214,4788,5866] [image] => https://akademik-stroy.ru/wp-content/uploads/materials/arbolitovye-bloki.png [area_modifier] => 71.25 [parent_name] => Стены 2 этаж (несущие) [parent_id] => 5 [material_sum] => 288178 [work_sum] => 315260 [total_sum] => 603438 [total_days] => 19 [display_material_sum] => 288 178 [display_work_sum] => 315 260 [display_total_sum] => 603 438 ) 1
603 438
Работа:315 260
Материалы:288 178
Дни:19
stdClass Object ( [id] => 205 [attribute_id] => 5 [name] => Полистиролбетон [material_modifier] => 1 [work_modifier] => 1 [options] => Array ( [0] => 300 мм [1] => 400 мм [2] => 600 мм ) [days] => [29,31,35] [material_price] => [2798,4573,5256] [work_price] => [5038,5851,6426] [image] => https://akademik-stroy.ru/wp-content/uploads/materials/polistirolbeton.jpg [area_modifier] => 71.25 [parent_name] => Стены 2 этаж (несущие) [parent_id] => 5 [material_sum] => 251190 [work_sum] => 376905 [total_sum] => 628095 [total_days] => 29 [display_material_sum] => 251 190 [display_work_sum] => 376 905 [display_total_sum] => 628 095 ) 1
628 095
Работа:376 905
Материалы:251 190
Дни:29
stdClass Object ( [id] => 206 [attribute_id] => 5 [name] => Шлакоблок [material_modifier] => 1 [work_modifier] => 1 [options] => Array ( [0] => 400 мм [1] => 600 мм ) [days] => [15,16] [material_price] => [2391,3471] [work_price] => [2642,3662] [image] => https://akademik-stroy.ru/wp-content/uploads/materials/shlakoblok.jpg [area_modifier] => 71.25 [parent_name] => Стены 2 этаж (несущие) [parent_id] => 5 [material_sum] => 214652 [work_sum] => 197655 [total_sum] => 412307 [total_days] => 15 [display_material_sum] => 214 652 [display_work_sum] => 197 655 [display_total_sum] => 412 307 ) 1
412 307
Работа:197 655
Материалы:214 652
Дни:15
stdClass Object ( [id] => 245 [attribute_id] => 5 [name] => Теплая керамика [material_modifier] => 1 [work_modifier] => 1 [options] => Array ( [0] => 380 мм [1] => 380 мм Thermo [2] => 440 мм [3] => 510 мм ) [days] => [10,10,11,12] [material_price] => [4510,5098,6093,8013] [work_price] => [4737,4937,5903,6958] [image] => https://akademik-stroy.ru/wp-content/uploads/materials/teplaya-keramika.jpg [area_modifier] => 71.25 [parent_name] => Стены 2 этаж (несущие) [parent_id] => 5 [material_sum] => 404885 [work_sum] => 354387 [total_sum] => 759272 [total_days] => 10 [display_material_sum] => 404 885 [display_work_sum] => 354 387 [display_total_sum] => 759 272 ) 1
759 272
Работа:354 387
Материалы:404 885
Дни:10
stdClass Object ( [id] => 246 [attribute_id] => 5 [name] => Несъемная опалубка [material_modifier] => 1 [work_modifier] => 1 [options] => Array ( [0] => 380 мм [1] => 380 мм Thermo [2] => 440 мм [3] => 510 мм ) [days] => [10,10,11,12] [material_price] => [3302,3902,4108,5008] [work_price] => [2100,2100,2300,2534] [image] => https://akademik-stroy.ru/wp-content/uploads/materials/nesemnaya-opalubka.jpg [area_modifier] => 71.25 [parent_name] => Стены 2 этаж (несущие) [parent_id] => 5 [material_sum] => 296437 [work_sum] => 157106 [total_sum] => 453543 [total_days] => 10 [display_material_sum] => 296 437 [display_work_sum] => 157 106 [display_total_sum] => 453 543 ) 1
453 543
Работа:157 106
Материалы:296 437
Дни:10
stdClass Object ( [id] => 254 [attribute_id] => 5 [name] => Бревно [material_modifier] => 1 [work_modifier] => 1 [options] => Array ( [0] => 260 мм [1] => 320 мм [2] => 360 мм [3] => 400 мм [4] => 500 мм ) [days] => [7,8,9,10,11] [material_price] => [1874,24045,26930,30972,38825] [work_price] => [5046,6207,6952,7716,9723] [image] => https://akademik-stroy.ru/wp-content/uploads/materials/sruby.jpg [area_modifier] => 71.25 [parent_name] => Стены 2 этаж (несущие) [parent_id] => 5 [material_sum] => 168238 [work_sum] => 377504 [total_sum] => 545742 [total_days] => 7 [display_material_sum] => 168 238 [display_work_sum] => 377 504 [display_total_sum] => 545 742 ) 1
545 742
Работа:377 504
Материалы:168 238
Дни:7
Перекрытие второго этажа
stdClass Object ( [id] => 11 [attribute_id] => 6 [name] => Деревянные балки [material_modifier] => 1 [work_modifier] => 1 [options] => Array ( [0] => без утепления [1] => утепление 200 мм [2] => утепление 250 мм [3] => утепление 300 мм [4] => утепление 350 мм [5] => утепление 400 мм [6] => утепление 450 мм [7] => утепление 500 мм ) [days] => [8,9,9,9,11,12,13,14] [material_price] => [1634,2042,2344,2947,3149,3652,3354,3557] [work_price] => [1230,1339,1393,1426,1460,1513,1587,1620] [image] => https://akademik-stroy.ru/wp-content/uploads/materials/derevyannye-balki.png [area_modifier] => 71.25 [parent_name] => Перекрытие второго этажа [parent_id] => 6 [material_sum] => 146692 [work_sum] => 92019 [total_sum] => 238711 [total_days] => 8 [display_material_sum] => 146 692 [display_work_sum] => 92 019 [display_total_sum] => 238 711 ) 1
238 711
Работа:92 019
Материалы:146 692
Дни:8
stdClass Object ( [id] => 12 [attribute_id] => 6 [name] => Сборные ж/б плиты [material_modifier] => 1 [work_modifier] => 1 [options] => Array ( [0] => без утепления [1] => утепление 150 мм [2] => утепление 200 мм [3] => утепление 250 мм [4] => утепление 300 мм [5] => утепление 350 мм [6] => утепление 400 мм [7] => утепление 450 мм [8] => утепление 500 мм ) [days] => [13,15,15,15,15,15,15,15,15] [material_price] => [3067,5577,5928,6679,7730,8782,9833,10884,11935] [work_price] => [1520,1956,2102,2247,2392,2537,2684,2829,2974] [image] => https://akademik-stroy.ru/wp-content/uploads/materials/sbornye-zh-b-plity-2.jpg [area_modifier] => 71.25 [parent_name] => Перекрытие второго этажа [parent_id] => 6 [material_sum] => 275340 [work_sum] => 113715 [total_sum] => 389055 [total_days] => 13 [display_material_sum] => 275 340 [display_work_sum] => 113 715 [display_total_sum] => 389 055 ) 1
389 055
Работа:113 715
Материалы:275 340
Дни:13
stdClass Object ( [id] => 100 [attribute_id] => 6 [name] => Монолитная ж/б плита [material_modifier] => 1 [work_modifier] => 1 [options] => Array ( [0] => без утепления [1] => утепление 150 мм [2] => утепление 200 мм [3] => утепление 250 мм [4] => утепление 300 мм [5] => утепление 350 мм [6] => утепление 400 мм [7] => утепление 450 мм [8] => утепление 500 мм ) [days] => [18,20,20,20,20,20,20,20,20] [material_price] => [4837,6572,7224,7375,79426,8177,8728,9180,10031] [work_price] => [3348,3921,4112,4302,4493,4684,4875,5066,5256] [image] => https://akademik-stroy.ru/wp-content/uploads/materials/monolitnaya-zh-b-plita-2.jpg [area_modifier] => 71.25 [parent_name] => Перекрытие второго этажа [parent_id] => 6 [material_sum] => 434242 [work_sum] => 250472 [total_sum] => 684714 [total_days] => 18 [display_material_sum] => 434 242 [display_work_sum] => 250 472 [display_total_sum] => 684 714 ) 1
684 714
Работа:250 472
Материалы:434 242
Дни:18
Плоская крыша
stdClass Object ( [id] => 160 [attribute_id] => 36 [name] => Не эксплуатируемая [material_modifier] => 1 [work_modifier] => 1 [options] => Array ( ) [days] => [10] [material_price] => [8068] [work_price] => [4163] [image] => https://akademik-stroy.ru/wp-content/uploads/materials/ne-ehkspluatiruemaya-3.jpg [area_modifier] => 167.01 [parent_name] => Плоская крыша [parent_id] => 36 [material_sum] => 1697770 [work_sum] => 730026 [total_sum] => 2427796 [total_days] => 10 [display_material_sum] => 1 697 770 [display_work_sum] => 730 026 [display_total_sum] => 2 427 796 ) 1
2 427 796
Работа:730 026
Материалы:1 697 770
Дни:10
stdClass Object ( [id] => 161 [attribute_id] => 36 [name] => Зеленая кровля (Эксплуатируемая) [material_modifier] => 1 [work_modifier] => 1 [options] => Array ( ) [days] => [10] [material_price] => [10056] [work_price] => [8446] [image] => https://akademik-stroy.ru/wp-content/uploads/materials/zelenaya-krovlya-2.jpg [area_modifier] => 167.01 [parent_name] => Плоская крыша [parent_id] => 36 [material_sum] => 2116110 [work_sum] => 1481095 [total_sum] => 3597205 [total_days] => 10 [display_material_sum] => 2 116 110 [display_work_sum] => 1 481 095 [display_total_sum] => 3 597 205 ) 1
3 597 205
Работа:1 481 095
Материалы:2 116 110
Дни:10
stdClass Object ( [id] => 162 [attribute_id] => 36 [name] => Эксплуатируемая [material_modifier] => 1 [work_modifier] => 1 [options] => Array ( ) [days] => [10] [material_price] => [9593] [work_price] => [7459] [image] => https://akademik-stroy.ru/wp-content/uploads/materials/ehkspluatiruemaya-2.jpg [area_modifier] => 167.01 [parent_name] => Плоская крыша [parent_id] => 36 [material_sum] => 2018680 [work_sum] => 1308014 [total_sum] => 3326694 [total_days] => 10 [display_material_sum] => 2 018 680 [display_work_sum] => 1 308 014 [display_total_sum] => 3 326 694 ) 1
3 326 694
Работа:1 308 014
Материалы:2 018 680
Дни:10
stdClass Object ( [id] => 163 [attribute_id] => 36 [name] => Нет [material_modifier] => 1 [work_modifier] => 1 [options] => Array ( ) [days] => [0] [material_price] => [0] [work_price] => [0] [image] => https://akademik-stroy.ru/wp-content/uploads/materials/ne-ehkspluatiruemaya-3.jpg [area_modifier] => 167.01 [parent_name] => Плоская крыша [parent_id] => 36 [material_sum] => 0 [work_sum] => 0 [total_sum] => 0 [total_days] => 0 [display_material_sum] => 0 [display_work_sum] => 0 [display_total_sum] => 0 ) 1
0
Работа:0
Материалы:0
Дни:0
Окна
stdClass Object ( [id] => 51 [attribute_id] => 26 [name] => Есть [material_modifier] => 1 [work_modifier] => 1 [options] => Array ( [0] => Профиль 58 мм, 3-камерный, стеклопакет 2-камерный до 32 мм [1] => Профиль 60 мм, 4-камерный, стеклопакет 2-камерный до 32 мм [2] => Профиль 70 мм, 5-камерный, стеклопакет 2-камерный до 40 мм [3] => Профиль 72 мм, 5-камерный, стеклопакет 2-камерный до 40 мм [4] => Алюминиевые окна Alutech профиль 72 мм, стеклопакет 2-камерный ) [days] => [3,3,3,3,3] [material_price] => [1339,2124,2867,3023,29596] [work_price] => [635,647,659,668,2579] [image] => https://akademik-stroy.ru/wp-content/uploads/materials/okna.jpg [area_modifier] => 193.35 [parent_name] => Окна [parent_id] => 26 [material_sum] => 326209 [work_sum] => 128916 [total_sum] => 455125 [total_days] => 3 [display_material_sum] => 326 209 [display_work_sum] => 128 916 [display_total_sum] => 455 125 ) 1
455 125
Работа:128 916
Материалы:326 209
Дни:3
stdClass Object ( [id] => 52 [attribute_id] => 26 [name] => Нет [material_modifier] => 2 [work_modifier] => 1 [options] => [days] => null [material_price] => null [work_price] => null [image] => https://akademik-stroy.ru/wp-content/uploads/materials/okna.jpg [area_modifier] => 193.35 [parent_name] => Окна [parent_id] => 26 [material_sum] => 0 [work_sum] => 0 [total_sum] => 0 [total_days] => 0 [display_material_sum] => 0 [display_work_sum] => 0 [display_total_sum] => 0 ) 1
0
Работа:0
Материалы:0
Дни:0
Двери входные
stdClass Object ( [id] => 53 [attribute_id] => 27 [name] => Есть [material_modifier] => 1 [work_modifier] => 1 [options] => Array ( ) [days] => [1] [material_price] => [10000] [work_price] => [5500] [image] => https://akademik-stroy.ru/wp-content/uploads/materials/dveri.jpg [area_modifier] => 1 [parent_name] => Двери входные [parent_id] => 27 [material_sum] => 12600 [work_sum] => 5775 [total_sum] => 18375 [total_days] => 1 [display_material_sum] => 12 600 [display_work_sum] => 5 775 [display_total_sum] => 18 375 ) 1
18 375
Работа:5 775
Материалы:12 600
Дни:1
stdClass Object ( [id] => 54 [attribute_id] => 27 [name] => Нет [material_modifier] => 1 [work_modifier] => 1 [options] => Array ( ) [days] => [0] [material_price] => [0] [work_price] => [0] [image] => https://akademik-stroy.ru/wp-content/uploads/materials/dveri.jpg [area_modifier] => 1 [parent_name] => Двери входные [parent_id] => 27 [material_sum] => 0 [work_sum] => 0 [total_sum] => 0 [total_days] => 0 [display_material_sum] => 0 [display_work_sum] => 0 [display_total_sum] => 0 ) 1
0
Работа:0
Материалы:0
Дни:0
Водосточная система
stdClass Object ( [id] => 31 [attribute_id] => 16 [name] => Нет [material_modifier] => 1 [work_modifier] => 1 [options] => Array ( ) [days] => [0] [material_price] => [0] [work_price] => [0] [image] => https://akademik-stroy.ru/wp-content/uploads/materials/docke-standard-pvh.jpg [area_modifier] => 167.01 [parent_name] => Водосточная система [parent_id] => 16 [material_sum] => 0 [work_sum] => 0 [total_sum] => 0 [total_days] => 0 [display_material_sum] => 0 [display_work_sum] => 0 [display_total_sum] => 0 ) 1
0
Работа:0
Материалы:0
Дни:0
stdClass Object ( [id] => 32 [attribute_id] => 16 [name] => Есть [material_modifier] => 1 [work_modifier] => 1 [options] => Array ( [0] => Döcke Standard (ПВХ) [1] => Металлические Grand Line ) [days] => [7,7] [material_price] => [1842,2703] [work_price] => [1491,1529] [image] => https://akademik-stroy.ru/wp-content/uploads/materials/docke-standard-pvh.jpg [area_modifier] => 167.01 [parent_name] => Водосточная система [parent_id] => 16 [material_sum] => 387617 [work_sum] => 261463 [total_sum] => 649080 [total_days] => 7 [display_material_sum] => 387 617 [display_work_sum] => 261 463 [display_total_sum] => 649 080 ) 1
649 080
Работа:261 463
Материалы:387 617
Дни:7
Дополнительное утепление наружных стен
stdClass Object ( [id] => 33 [attribute_id] => 17 [name] => Нет [material_modifier] => 1 [work_modifier] => 1 [options] => Array ( ) [days] => [0] [material_price] => [0] [work_price] => [0] [image] => https://akademik-stroy.ru/wp-content/uploads/materials/mineralovata.jpg [area_modifier] => 238.27 [parent_name] => Дополнительное утепление наружных стен [parent_id] => 17 [material_sum] => 0 [work_sum] => 0 [total_sum] => 0 [total_days] => 0 [display_material_sum] => 0 [display_work_sum] => 0 [display_total_sum] => 0 ) 1
0
Работа:0
Материалы:0
Дни:0
stdClass Object ( [id] => 34 [attribute_id] => 17 [name] => Минераловатный [material_modifier] => 1 [work_modifier] => 1 [options] => Array ( [0] => 50 мм [1] => 100 мм [2] => 150 мм [3] => 200 мм [4] => 250 мм [5] => 300 мм ) [days] => [7,8,10,12,14,15] [material_price] => [3437,3613,3803,3915,4601,4830] [work_price] => [2325,2423,2523,2749,2859,3025] [image] => https://akademik-stroy.ru/wp-content/uploads/materials/mineralovata.jpg [area_modifier] => 238.27 [parent_name] => Дополнительное утепление наружных стен [parent_id] => 17 [material_sum] => 1031857 [work_sum] => 581677 [total_sum] => 1613534 [total_days] => 7 [display_material_sum] => 1 031 857 [display_work_sum] => 581 677 [display_total_sum] => 1 613 534 ) 1
1 613 534
Работа:581 677
Материалы:1 031 857
Дни:7
stdClass Object ( [id] => 128 [attribute_id] => 17 [name] => Эковата (целлюлозная вата) [material_modifier] => 1 [work_modifier] => 1 [options] => Array ( [0] => 50 мм [1] => 100 мм [2] => 150 мм [3] => 200 мм [4] => 250 мм [5] => 300 мм ) [days] => [3,4,5,6,7,8] [material_price] => [810,1319,1629,1838,2267,2676] [work_price] => [1225,1323,1423,1549,1659,1725] [image] => https://akademik-stroy.ru/wp-content/uploads/materials/ehkovata.jpg [area_modifier] => 238.27 [parent_name] => Дополнительное утепление наружных стен [parent_id] => 17 [material_sum] => 243178 [work_sum] => 306475 [total_sum] => 549653 [total_days] => 3 [display_material_sum] => 243 178 [display_work_sum] => 306 475 [display_total_sum] => 549 653 ) 1
549 653
Работа:306 475
Материалы:243 178
Дни:3
stdClass Object ( [id] => 129 [attribute_id] => 17 [name] => Экструдированный пенополистирол [material_modifier] => 1 [work_modifier] => 1 [options] => Array ( [0] => 50 мм [1] => 100 мм [2] => 150 мм [3] => 200 мм [4] => 250 мм [5] => 300 мм ) [days] => [5,6,7,8,9,10] [material_price] => [4560,4300,5119,6292,7010,8583] [work_price] => [1795,1954,2254,2330,2595,2735] [image] => https://akademik-stroy.ru/wp-content/uploads/materials/epps.jpg [area_modifier] => 238.27 [parent_name] => Дополнительное утепление наружных стен [parent_id] => 17 [material_sum] => 1369004 [work_sum] => 449079 [total_sum] => 1818083 [total_days] => 5 [display_material_sum] => 1 369 004 [display_work_sum] => 449 079 [display_total_sum] => 1 818 083 ) 1
1 818 083
Работа:449 079
Материалы:1 369 004
Дни:5
stdClass Object ( [id] => 130 [attribute_id] => 17 [name] => ПСБ (ППС-пенополистирол) [material_modifier] => 1 [work_modifier] => 1 [options] => Array ( [0] => 50 мм [1] => 100 мм [2] => 150 мм [3] => 200 мм [4] => 250 мм [5] => 300 мм ) [days] => [5,6,7,8,9,10] [material_price] => [4822,5200,5819,6292,7010,7583] [work_price] => [1795,1954,2254,2330,2595,2735] [image] => https://akademik-stroy.ru/wp-content/uploads/materials/psb.jpg [area_modifier] => 238.27 [parent_name] => Дополнительное утепление наружных стен [parent_id] => 17 [material_sum] => 1447662 [work_sum] => 449079 [total_sum] => 1896741 [total_days] => 5 [display_material_sum] => 1 447 662 [display_work_sum] => 449 079 [display_total_sum] => 1 896 741 ) 1
1 896 741
Работа:449 079
Материалы:1 447 662
Дни:5
stdClass Object ( [id] => 131 [attribute_id] => 17 [name] => ППУ (Пенополиуретан) [material_modifier] => 1 [work_modifier] => 1 [options] => Array ( [0] => 50 мм [1] => 100 мм [2] => 150 мм [3] => 200 мм [4] => 250 мм [5] => 300 мм ) [days] => [3,4,5,6,7,8] [material_price] => [2860,3400,4219,4592,5010,5583] [work_price] => [729,900,980,1120,1280,1530] [image] => https://akademik-stroy.ru/wp-content/uploads/materials/ppu.jpg [area_modifier] => 238.27 [parent_name] => Дополнительное утепление наружных стен [parent_id] => 17 [material_sum] => 858630 [work_sum] => 182384 [total_sum] => 1041014 [total_days] => 3 [display_material_sum] => 858 630 [display_work_sum] => 182 384 [display_total_sum] => 1 041 014 ) 1
1 041 014
Работа:182 384
Материалы:858 630
Дни:3
stdClass Object ( [id] => 132 [attribute_id] => 17 [name] => PIR-плиты (пенополиизоцианурат) [material_modifier] => 1 [work_modifier] => 1 [options] => Array ( [0] => 50 мм [1] => 100 мм [2] => 150 мм [3] => 200 мм [4] => 250 мм [5] => 300 мм ) [days] => [5,6,7,8,9,10] [material_price] => [8323,15645,20968,25900,29258,30581] [work_price] => [800,900,970,1150,1280,1330] [image] => https://akademik-stroy.ru/wp-content/uploads/materials/pir.jpg [area_modifier] => 238.27 [parent_name] => Дополнительное утепление наружных стен [parent_id] => 17 [material_sum] => 2498733 [work_sum] => 200147 [total_sum] => 2698880 [total_days] => 5 [display_material_sum] => 2 498 733 [display_work_sum] => 200 147 [display_total_sum] => 2 698 880 ) 1
2 698 880
Работа:200 147
Материалы:2 498 733
Дни:5
Наружная отделка фасада
stdClass Object ( [id] => 37 [attribute_id] => 19 [name] => Нет [material_modifier] => 1 [work_modifier] => 1 [options] => Array ( ) [days] => [0] [material_price] => [0] [work_price] => [0] [image] => https://akademik-stroy.ru/wp-content/uploads/materials/imitaciya-brusa.jpg [area_modifier] => 238.27 [parent_name] => Наружная отделка фасада [parent_id] => 19 [material_sum] => 0 [work_sum] => 0 [total_sum] => 0 [total_days] => 0 [display_material_sum] => 0 [display_work_sum] => 0 [display_total_sum] => 0 ) 1
0
Работа:0
Материалы:0
Дни:0
stdClass Object ( [id] => 38 [attribute_id] => 19 [name] => Имитация бруса [material_modifier] => 1 [work_modifier] => 1 [options] => Array ( [0] => Сосна [1] => Ель [2] => Лиственница ) [days] => [20,20,20] [material_price] => [2994,2762,4954] [work_price] => [1397,1231,1577] [image] => https://akademik-stroy.ru/wp-content/uploads/materials/imitaciya-brusa.jpg [area_modifier] => 238.27 [parent_name] => Наружная отделка фасада [parent_id] => 19 [material_sum] => 898859 [work_sum] => 349506 [total_sum] => 1248365 [total_days] => 20 [display_material_sum] => 898 859 [display_work_sum] => 349 506 [display_total_sum] => 1 248 365 ) 1
1 248 365
Работа:349 506
Материалы:898 859
Дни:20
stdClass Object ( [id] => 136 [attribute_id] => 19 [name] => Планкен [material_modifier] => 1 [work_modifier] => 1 [options] => Array ( [0] => Сосна [1] => Ель [2] => Лиственница ) [days] => [20,20,20] [material_price] => [3194,2862,5154] [work_price] => [1537,1354,1735] [image] => https://akademik-stroy.ru/wp-content/uploads/materials/planken.jpg [area_modifier] => 238.27 [parent_name] => Наружная отделка фасада [parent_id] => 19 [material_sum] => 958903 [work_sum] => 384532 [total_sum] => 1343435 [total_days] => 20 [display_material_sum] => 958 903 [display_work_sum] => 384 532 [display_total_sum] => 1 343 435 ) 1
1 343 435
Работа:384 532
Материалы:958 903
Дни:20
stdClass Object ( [id] => 137 [attribute_id] => 19 [name] => Штукатурка [material_modifier] => 1 [work_modifier] => 1 [options] => Array ( [0] => Цементно-песчаная (минеральная) [1] => Мокрый фасад ) [days] => [35,35] [material_price] => [2231,3938] [work_price] => [1202,2422] [image] => https://akademik-stroy.ru/wp-content/uploads/materials/shtukaturka.jpg [area_modifier] => 238.27 [parent_name] => Наружная отделка фасада [parent_id] => 19 [material_sum] => 669791 [work_sum] => 300721 [total_sum] => 970512 [total_days] => 35 [display_material_sum] => 669 791 [display_work_sum] => 300 721 [display_total_sum] => 970 512 ) 1
970 512
Работа:300 721
Материалы:669 791
Дни:35
stdClass Object ( [id] => 138 [attribute_id] => 19 [name] => Облицовочный кирпич [material_modifier] => 1 [work_modifier] => 1 [options] => Array ( [0] => Керамический [1] => Клинкерный [2] => Ручной формовки [3] => Гиперпрессованный [4] => Силикатный кирпич ) [days] => [45,45,45,45,45] [material_price] => [8174,9148,1040,1257,5876] [work_price] => [3240,3758,4536,4017,3369] [image] => https://akademik-stroy.ru/wp-content/uploads/materials/oblicovochnyj-kirpich.jpg [area_modifier] => 238.27 [parent_name] => Наружная отделка фасада [parent_id] => 19 [material_sum] => 2454000 [work_sum] => 810595 [total_sum] => 3264595 [total_days] => 45 [display_material_sum] => 2 454 000 [display_work_sum] => 810 595 [display_total_sum] => 3 264 595 ) 1
3 264 595
Работа:810 595
Материалы:2 454 000
Дни:45
stdClass Object ( [id] => 139 [attribute_id] => 19 [name] => Фасадная плитка [material_modifier] => 1 [work_modifier] => 1 [options] => Array ( [0] => Клинкерная [1] => Керамическая [2] => Плитка ручной формовки ) [days] => [40,40,40] [material_price] => [2974,1487,3470] [work_price] => [3007,2592,3629] [image] => https://akademik-stroy.ru/wp-content/uploads/materials/fasadnaya-plitka.jpg [area_modifier] => 238.27 [parent_name] => Наружная отделка фасада [parent_id] => 19 [material_sum] => 892855 [work_sum] => 752302 [total_sum] => 1645157 [total_days] => 40 [display_material_sum] => 892 855 [display_work_sum] => 752 302 [display_total_sum] => 1 645 157 ) 1
1 645 157
Работа:752 302
Материалы:892 855
Дни:40
stdClass Object ( [id] => 140 [attribute_id] => 19 [name] => Сайдинг [material_modifier] => 1 [work_modifier] => 1 [options] => Array ( [0] => Виниловый [1] => Металлический [2] => Фиброцементный ) [days] => [20,20,20] [material_price] => [1263,1944,4147] [work_price] => [1263,1944,2074] [image] => https://akademik-stroy.ru/wp-content/uploads/materials/sajding.jpg [area_modifier] => 238.27 [parent_name] => Наружная отделка фасада [parent_id] => 19 [material_sum] => 379178 [work_sum] => 315982 [total_sum] => 695160 [total_days] => 20 [display_material_sum] => 379 178 [display_work_sum] => 315 982 [display_total_sum] => 695 160 ) 1
695 160
Работа:315 982
Материалы:379 178
Дни:20
stdClass Object ( [id] => 141 [attribute_id] => 19 [name] => Камень [material_modifier] => 1 [work_modifier] => 1 [options] => Array ( [0] => Травертин [1] => Дагестанский [2] => Искусственный [3] => Натуральный [4] => Керамогранит ) [days] => [45,45,45,45,45] [material_price] => [4536,3888,2592,3240,2462] [work_price] => [3240,3240,2462,3110,1944] [image] => https://akademik-stroy.ru/wp-content/uploads/materials/kamen-1.jpg [area_modifier] => 238.27 [parent_name] => Наружная отделка фасада [parent_id] => 19 [material_sum] => 1361799 [work_sum] => 810595 [total_sum] => 2172394 [total_days] => 45 [display_material_sum] => 1 361 799 [display_work_sum] => 810 595 [display_total_sum] => 2 172 394 ) 1
2 172 394
Работа:810 595
Материалы:1 361 799
Дни:45
stdClass Object ( [id] => 142 [attribute_id] => 19 [name] => Термопанели [material_modifier] => 1 [work_modifier] => 1 [options] => Array ( ) [days] => [20] [material_price] => [6221] [work_price] => [2333] [image] => https://akademik-stroy.ru/wp-content/uploads/materials/termo.png [area_modifier] => 238.27 [parent_name] => Наружная отделка фасада [parent_id] => 19 [material_sum] => 1867670 [work_sum] => 583678 [total_sum] => 2451348 [total_days] => 20 [display_material_sum] => 1 867 670 [display_work_sum] => 583 678 [display_total_sum] => 2 451 348 ) 1
2 451 348
Работа:583 678
Материалы:1 867 670
Дни:20
stdClass Object ( [id] => 143 [attribute_id] => 19 [name] => Плитка HAUBERK [material_modifier] => 1 [work_modifier] => 1 [options] => Array ( ) [days] => [20] [material_price] => [2786] [work_price] => [1944] [image] => https://akademik-stroy.ru/wp-content/uploads/materials/hauberk.jpg [area_modifier] => 238.27 [parent_name] => Наружная отделка фасада [parent_id] => 19 [material_sum] => 836413 [work_sum] => 486357 [total_sum] => 1322770 [total_days] => 20 [display_material_sum] => 836 413 [display_work_sum] => 486 357 [display_total_sum] => 1 322 770 ) 1
1 322 770
Работа:486 357
Материалы:836 413
Дни:20
stdClass Object ( [id] => 144 [attribute_id] => 19 [name] => Фальцевый фасад [material_modifier] => 1 [work_modifier] => 1 [options] => Array ( ) [days] => [20] [material_price] => [3240] [work_price] => [2592] [image] => https://akademik-stroy.ru/wp-content/uploads/materials/falcevyj-fasad.jpg [area_modifier] => 238.27 [parent_name] => Наружная отделка фасада [parent_id] => 19 [material_sum] => 972713 [work_sum] => 648476 [total_sum] => 1621189 [total_days] => 20 [display_material_sum] => 972 713 [display_work_sum] => 648 476 [display_total_sum] => 1 621 189 ) 1
1 621 189
Работа:648 476
Материалы:972 713
Дни:20
stdClass Object ( [id] => 145 [attribute_id] => 19 [name] => Комбинированный [material_modifier] => 1 [work_modifier] => 1 [options] => Array ( ) [days] => [20] [material_price] => [4629] [work_price] => [3499] [image] => https://akademik-stroy.ru/wp-content/uploads/materials/Kombinirovannyj.jpg [area_modifier] => 238.27 [parent_name] => Наружная отделка фасада [parent_id] => 19 [material_sum] => 1389719 [work_sum] => 875392 [total_sum] => 2265111 [total_days] => 20 [display_material_sum] => 1 389 719 [display_work_sum] => 875 392 [display_total_sum] => 2 265 111 ) 1
2 265 111
Работа:875 392
Материалы:1 389 719
Дни:20
stdClass Object ( [id] => 257 [attribute_id] => 19 [name] => Японские фиброцементные [material_modifier] => 1 [work_modifier] => 1 [options] => Array ( ) [days] => [20] [material_price] => [7043] [work_price] => [2993] [image] => https://akademik-stroy.ru/wp-content/uploads/materials/paneli.jpg [area_modifier] => 238.27 [parent_name] => Наружная отделка фасада [parent_id] => 19 [material_sum] => 2114451 [work_sum] => 748799 [total_sum] => 2863250 [total_days] => 20 [display_material_sum] => 2 114 451 [display_work_sum] => 748 799 [display_total_sum] => 2 863 250 ) 1
2 863 250
Работа:748 799
Материалы:2 114 451
Дни:20
stdClass Object ( [id] => 258 [attribute_id] => 19 [name] => Панели Каньон [material_modifier] => 1 [work_modifier] => 1 [options] => Array ( ) [days] => [20] [material_price] => [4543] [work_price] => [2592] [image] => https://akademik-stroy.ru/wp-content/uploads/materials/kanon.png [area_modifier] => 238.27 [parent_name] => Наружная отделка фасада [parent_id] => 19 [material_sum] => 1363900 [work_sum] => 648476 [total_sum] => 2012376 [total_days] => 20 [display_material_sum] => 1 363 900 [display_work_sum] => 648 476 [display_total_sum] => 2 012 376 ) 1
2 012 376
Работа:648 476
Материалы:1 363 900
Дни:20
Террасы, крыльца, навесы
stdClass Object ( [id] => 39 [attribute_id] => 20 [name] => Нет [material_modifier] => 1 [work_modifier] => 1 [options] => Array ( ) [days] => [0] [material_price] => [0] [work_price] => [0] [image] => https://akademik-stroy.ru/wp-content/uploads/materials/terrasy.jpg [area_modifier] => 30 [parent_name] => Террасы, крыльца, навесы [parent_id] => 20 [material_sum] => 0 [work_sum] => 0 [total_sum] => 0 [total_days] => 0 [display_material_sum] => 0 [display_work_sum] => 0 [display_total_sum] => 0 ) 1
0
Работа:0
Материалы:0
Дни:0
stdClass Object ( [id] => 40 [attribute_id] => 20 [name] => Есть [material_modifier] => 1 [work_modifier] => 1 [options] => Array ( ) [days] => [5] [material_price] => [10450] [work_price] => [1950] [image] => https://akademik-stroy.ru/wp-content/uploads/materials/terrasy.jpg [area_modifier] => 30 [parent_name] => Террасы, крыльца, навесы [parent_id] => 20 [material_sum] => 395010 [work_sum] => 61425 [total_sum] => 456435 [total_days] => 5 [display_material_sum] => 395 010 [display_work_sum] => 61 425 [display_total_sum] => 456 435 ) 1
456 435
Работа:61 425
Материалы:395 010
Дни:5
Балконы
stdClass Object ( [id] => 41 [attribute_id] => 21 [name] => Нет [material_modifier] => 1 [work_modifier] => 1 [options] => Array ( ) [days] => [0] [material_price] => [0] [work_price] => [0] [image] => https://akademik-stroy.ru/wp-content/uploads/materials/balkony.jpg [area_modifier] => 30 [parent_name] => Балконы [parent_id] => 21 [material_sum] => 0 [work_sum] => 0 [total_sum] => 0 [total_days] => 0 [display_material_sum] => 0 [display_work_sum] => 0 [display_total_sum] => 0 ) 1
0
Работа:0
Материалы:0
Дни:0
stdClass Object ( [id] => 42 [attribute_id] => 21 [name] => Есть [material_modifier] => 1 [work_modifier] => 1 [options] => Array ( ) [days] => [12] [material_price] => [3600] [work_price] => [1950] [image] => https://akademik-stroy.ru/wp-content/uploads/materials/balkony.jpg [area_modifier] => 30 [parent_name] => Балконы [parent_id] => 21 [material_sum] => 136080 [work_sum] => 61425 [total_sum] => 197505 [total_days] => 12 [display_material_sum] => 136 080 [display_work_sum] => 61 425 [display_total_sum] => 197 505 ) 1
197 505
Работа:61 425
Материалы:136 080
Дни:12
Отмостка
stdClass Object ( [id] => 43 [attribute_id] => 22 [name] => Нет [material_modifier] => 1 [work_modifier] => 1 [options] => Array ( ) [days] => [0] [material_price] => [0] [work_price] => [0] [image] => https://akademik-stroy.ru/wp-content/uploads/materials/uteplennaya.jpg [area_modifier] => 167.01 [parent_name] => Отмостка [parent_id] => 22 [material_sum] => 0 [work_sum] => 0 [total_sum] => 0 [total_days] => 0 [display_material_sum] => 0 [display_work_sum] => 0 [display_total_sum] => 0 ) 1
0
Работа:0
Материалы:0
Дни:0
stdClass Object ( [id] => 44 [attribute_id] => 22 [name] => Утепленная отмостка [material_modifier] => 1 [work_modifier] => 1 [options] => Array ( ) [days] => [15] [material_price] => [2550] [work_price] => [1750] [image] => https://akademik-stroy.ru/wp-content/uploads/materials/uteplennaya.jpg [area_modifier] => 167.01 [parent_name] => Отмостка [parent_id] => 22 [material_sum] => 536603 [work_sum] => 306881 [total_sum] => 843484 [total_days] => 15 [display_material_sum] => 536 603 [display_work_sum] => 306 881 [display_total_sum] => 843 484 ) 1
843 484
Работа:306 881
Материалы:536 603
Дни:15
stdClass Object ( [id] => 146 [attribute_id] => 22 [name] => Не утепленная отмостка [material_modifier] => 1 [work_modifier] => 1 [options] => Array ( ) [days] => [10] [material_price] => [1650] [work_price] => [1450] [image] => https://akademik-stroy.ru/wp-content/uploads/materials/ne-uteplennaya.jpg [area_modifier] => 167.01 [parent_name] => Отмостка [parent_id] => 22 [material_sum] => 347214 [work_sum] => 254273 [total_sum] => 601487 [total_days] => 10 [display_material_sum] => 347 214 [display_work_sum] => 254 273 [display_total_sum] => 601 487 ) 1
601 487
Работа:254 273
Материалы:347 214
Дни:10
Дренаж вокруг дома
stdClass Object ( [id] => 45 [attribute_id] => 23 [name] => Нет [material_modifier] => 1 [work_modifier] => 1 [options] => Array ( ) [days] => [0] [material_price] => [0] [work_price] => [0] [image] => https://akademik-stroy.ru/wp-content/uploads/materials/drenazh-2.jpg [area_modifier] => 167.01 [parent_name] => Дренаж вокруг дома [parent_id] => 23 [material_sum] => 0 [work_sum] => 0 [total_sum] => 0 [total_days] => 0 [display_material_sum] => 0 [display_work_sum] => 0 [display_total_sum] => 0 ) 1
0
Работа:0
Материалы:0
Дни:0
stdClass Object ( [id] => 46 [attribute_id] => 23 [name] => Есть [material_modifier] => 1 [work_modifier] => 1 [options] => Array ( ) [days] => [5] [material_price] => [2366] [work_price] => [1911] [image] => https://akademik-stroy.ru/wp-content/uploads/materials/drenazh-2.jpg [area_modifier] => 167.01 [parent_name] => Дренаж вокруг дома [parent_id] => 23 [material_sum] => 497884 [work_sum] => 335114 [total_sum] => 832998 [total_days] => 5 [display_material_sum] => 497 884 [display_work_sum] => 335 114 [display_total_sum] => 832 998 ) 1
832 998
Работа:335 114
Материалы:497 884
Дни:5
Автономная канализация (септики)
stdClass Object ( [id] => 47 [attribute_id] => 24 [name] => Нет [material_modifier] => 1 [work_modifier] => 1 [options] => Array ( ) [days] => [0] [material_price] => [0] [work_price] => [0] [image] => https://akademik-stroy.ru/wp-content/uploads/materials/septik.jpg [area_modifier] => 1 [parent_name] => Автономная канализация (септики) [parent_id] => 24 [material_sum] => 0 [work_sum] => 0 [total_sum] => 0 [total_days] => 0 [display_material_sum] => 0 [display_work_sum] => 0 [display_total_sum] => 0 ) 1
0
Работа:0
Материалы:0
Дни:0
stdClass Object ( [id] => 48 [attribute_id] => 24 [name] => Есть [material_modifier] => 1 [work_modifier] => 1 [options] => Array ( [0] => Для дачи на 4 человека [1] => Для дома на 5 человек [2] => Для дома на 6 человек [3] => Для дома на 7 человек [4] => Для дома на 10 человек ) [days] => [7,7,7,8,8] [material_price] => [196340,220500,240940,264200,293340] [work_price] => [50000,55000,60500,66550,73206] [image] => https://akademik-stroy.ru/wp-content/uploads/materials/septik.jpg [area_modifier] => 1 [parent_name] => Автономная канализация (септики) [parent_id] => 24 [material_sum] => 247388 [work_sum] => 52500 [total_sum] => 299888 [total_days] => 7 [display_material_sum] => 247 388 [display_work_sum] => 52 500 [display_total_sum] => 299 888 ) 1
299 888
Работа:52 500
Материалы:247 388
Дни:7
Внутренние (не несущие) перегородки
stdClass Object ( [id] => 49 [attribute_id] => 25 [name] => Нет [material_modifier] => 1 [work_modifier] => 1 [options] => Array ( ) [days] => [0] [material_price] => [0] [work_price] => [0] [image] => https://akademik-stroy.ru/wp-content/uploads/materials/gkl.jpg [area_modifier] => 238.27 [parent_name] => Внутренние (не несущие) перегородки [parent_id] => 25 [material_sum] => 0 [work_sum] => 0 [total_sum] => 0 [total_days] => 0 [display_material_sum] => 0 [display_work_sum] => 0 [display_total_sum] => 0 ) 1
0
Работа:0
Материалы:0
Дни:0
stdClass Object ( [id] => 147 [attribute_id] => 25 [name] => Каркасно-обшивные [material_modifier] => 1 [work_modifier] => 1 [options] => Array ( [0] => 75 мм (без шумоизоляции) [1] => 75 мм (с шумоизоляцией) ) [days] => [11,11] [material_price] => [580,970] [work_price] => [380,570] [image] => https://akademik-stroy.ru/wp-content/uploads/materials/gkl.jpg [area_modifier] => 238.27 [parent_name] => Внутренние (не несущие) перегородки [parent_id] => 25 [material_sum] => 174128 [work_sum] => 95070 [total_sum] => 269198 [total_days] => 11 [display_material_sum] => 174 128 [display_work_sum] => 95 070 [display_total_sum] => 269 198 ) 1
269 198
Работа:95 070
Материалы:174 128
Дни:11
stdClass Object ( [id] => 148 [attribute_id] => 25 [name] => Пазогребневые [material_modifier] => 1 [work_modifier] => 1 [options] => Array ( [0] => 80 мм [1] => 100 мм ) [days] => [5,5] [material_price] => [1022,1313] [work_price] => [600,700] [image] => https://akademik-stroy.ru/wp-content/uploads/materials/pazogrebnevye-bloki.jpg [area_modifier] => 238.27 [parent_name] => Внутренние (не несущие) перегородки [parent_id] => 25 [material_sum] => 306825 [work_sum] => 150110 [total_sum] => 456935 [total_days] => 5 [display_material_sum] => 306 825 [display_work_sum] => 150 110 [display_total_sum] => 456 935 ) 1
456 935
Работа:150 110
Материалы:306 825
Дни:5
stdClass Object ( [id] => 149 [attribute_id] => 25 [name] => Газобетонные [material_modifier] => 1 [work_modifier] => 1 [options] => Array ( [0] => 100 мм [1] => 200 мм ) [days] => [11,11] [material_price] => [1160,1920] [work_price] => [700,900] [image] => https://akademik-stroy.ru/wp-content/uploads/materials/gazobeton-2.jpg [area_modifier] => 238.27 [parent_name] => Внутренние (не несущие) перегородки [parent_id] => 25 [material_sum] => 348255 [work_sum] => 175128 [total_sum] => 523383 [total_days] => 11 [display_material_sum] => 348 255 [display_work_sum] => 175 128 [display_total_sum] => 523 383 ) 1
523 383
Работа:175 128
Материалы:348 255
Дни:11
stdClass Object ( [id] => 150 [attribute_id] => 25 [name] => Кирпичные [material_modifier] => 1 [work_modifier] => 1 [options] => Array ( [0] => 120 мм [1] => 250 мм [2] => 360 мм ) [days] => [7,7,7] [material_price] => [1785,3570,5355] [work_price] => [900,1600,1800] [image] => https://akademik-stroy.ru/wp-content/uploads/materials/kirpich-1.jpg [area_modifier] => 238.27 [parent_name] => Внутренние (не несущие) перегородки [parent_id] => 25 [material_sum] => 535893 [work_sum] => 225165 [total_sum] => 761058 [total_days] => 7 [display_material_sum] => 535 893 [display_work_sum] => 225 165 [display_total_sum] => 761 058 ) 1
761 058
Работа:225 165
Материалы:535 893
Дни:7
Электрика
stdClass Object ( [id] => 55 [attribute_id] => 28 [name] => Нет [material_modifier] => 1 [work_modifier] => 1 [options] => Array ( ) [days] => [0] [material_price] => [0] [work_price] => [0] [image] => https://akademik-stroy.ru/wp-content/uploads/materials/ehlektrika.jpg [area_modifier] => 193.35 [parent_name] => Электрика [parent_id] => 28 [material_sum] => 0 [work_sum] => 0 [total_sum] => 0 [total_days] => 0 [display_material_sum] => 0 [display_work_sum] => 0 [display_total_sum] => 0 ) 1
0
Работа:0
Материалы:0
Дни:0
stdClass Object ( [id] => 56 [attribute_id] => 28 [name] => Есть [material_modifier] => 1 [work_modifier] => 1 [options] => Array ( ) [days] => [10] [material_price] => [650] [work_price] => [950] [image] => https://akademik-stroy.ru/wp-content/uploads/materials/ehlektrika.jpg [area_modifier] => 193.35 [parent_name] => Электрика [parent_id] => 28 [material_sum] => 158354 [work_sum] => 192867 [total_sum] => 351221 [total_days] => 10 [display_material_sum] => 158 354 [display_work_sum] => 192 867 [display_total_sum] => 351 221 ) 1
351 221
Работа:192 867
Материалы:158 354
Дни:10
Сантехника, канализация в доме
stdClass Object ( [id] => 57 [attribute_id] => 29 [name] => Нет [material_modifier] => 1 [work_modifier] => 1 [options] => Array ( ) [days] => [0] [material_price] => [0] [work_price] => [0] [image] => https://akademik-stroy.ru/wp-content/uploads/materials/santekhnika-kanalizaciya-1.jpg [area_modifier] => 193.35 [parent_name] => Сантехника, канализация в доме [parent_id] => 29 [material_sum] => 0 [work_sum] => 0 [total_sum] => 0 [total_days] => 0 [display_material_sum] => 0 [display_work_sum] => 0 [display_total_sum] => 0 ) 1
0
Работа:0
Материалы:0
Дни:0
stdClass Object ( [id] => 58 [attribute_id] => 29 [name] => Есть [material_modifier] => 1 [work_modifier] => 1 [options] => Array ( ) [days] => [10] [material_price] => [600] [work_price] => [730] [image] => https://akademik-stroy.ru/wp-content/uploads/materials/santekhnika-kanalizaciya-1.jpg [area_modifier] => 193.35 [parent_name] => Сантехника, канализация в доме [parent_id] => 29 [material_sum] => 146173 [work_sum] => 148203 [total_sum] => 294376 [total_days] => 10 [display_material_sum] => 146 173 [display_work_sum] => 148 203 [display_total_sum] => 294 376 ) 1
294 376
Работа:148 203
Материалы:146 173
Дни:10
Отопление
stdClass Object ( [id] => 59 [attribute_id] => 30 [name] => Нет [material_modifier] => 1 [work_modifier] => 1 [options] => Array ( ) [days] => [0] [material_price] => [0] [work_price] => [0] [image] => https://akademik-stroy.ru/wp-content/uploads/materials/otoplenie-1.jpg [area_modifier] => 193.35 [parent_name] => Отопление [parent_id] => 30 [material_sum] => 0 [work_sum] => 0 [total_sum] => 0 [total_days] => 0 [display_material_sum] => 0 [display_work_sum] => 0 [display_total_sum] => 0 ) 1
0
Работа:0
Материалы:0
Дни:0
stdClass Object ( [id] => 60 [attribute_id] => 30 [name] => Есть [material_modifier] => 1 [work_modifier] => 1 [options] => Array ( ) [days] => [5] [material_price] => [610] [work_price] => [560] [image] => https://akademik-stroy.ru/wp-content/uploads/materials/otoplenie-1.jpg [area_modifier] => 193.35 [parent_name] => Отопление [parent_id] => 30 [material_sum] => 148609 [work_sum] => 113690 [total_sum] => 262299 [total_days] => 5 [display_material_sum] => 148 609 [display_work_sum] => 113 690 [display_total_sum] => 262 299 ) 1
262 299
Работа:113 690
Материалы:148 609
Дни:5
Теплые полы
stdClass Object ( [id] => 61 [attribute_id] => 31 [name] => Нет [material_modifier] => 1 [work_modifier] => 1 [options] => Array ( ) [days] => [0] [material_price] => [0] [work_price] => [0] [image] => https://akademik-stroy.ru/wp-content/uploads/materials/vodyanye.jpg [area_modifier] => 30 [parent_name] => Теплые полы [parent_id] => 31 [material_sum] => 0 [work_sum] => 0 [total_sum] => 0 [total_days] => 0 [display_material_sum] => 0 [display_work_sum] => 0 [display_total_sum] => 0 ) 1
0
Работа:0
Материалы:0
Дни:0
stdClass Object ( [id] => 151 [attribute_id] => 31 [name] => Водяные [material_modifier] => 1 [work_modifier] => 1 [options] => Array ( ) [days] => [9] [material_price] => [10200] [work_price] => [2500] [image] => https://akademik-stroy.ru/wp-content/uploads/materials/vodyanye.jpg [area_modifier] => 30 [parent_name] => Теплые полы [parent_id] => 31 [material_sum] => 385560 [work_sum] => 78750 [total_sum] => 464310 [total_days] => 9 [display_material_sum] => 385 560 [display_work_sum] => 78 750 [display_total_sum] => 464 310 ) 1
464 310
Работа:78 750
Материалы:385 560
Дни:9
stdClass Object ( [id] => 152 [attribute_id] => 31 [name] => Электро [material_modifier] => 1 [work_modifier] => 1 [options] => Array ( ) [days] => [5] [material_price] => [6300] [work_price] => [1500] [image] => https://akademik-stroy.ru/wp-content/uploads/materials/ehlektricheskij.jpg [area_modifier] => 30 [parent_name] => Теплые полы [parent_id] => 31 [material_sum] => 238140 [work_sum] => 47250 [total_sum] => 285390 [total_days] => 5 [display_material_sum] => 238 140 [display_work_sum] => 47 250 [display_total_sum] => 285 390 ) 1
285 390
Работа:47 250
Материалы:238 140
Дни:5
Черновая отделка стен
stdClass Object ( [id] => 63 [attribute_id] => 32 [name] => Нет [material_modifier] => 1 [work_modifier] => 1 [options] => Array ( ) [days] => [0] [material_price] => [0] [work_price] => [0] [image] => https://akademik-stroy.ru/wp-content/uploads/materials/shtukaturka-shpatlevka-1.jpg [area_modifier] => 193.35 [parent_name] => Черновая отделка стен [parent_id] => 32 [material_sum] => 0 [work_sum] => 0 [total_sum] => 0 [total_days] => 0 [display_material_sum] => 0 [display_work_sum] => 0 [display_total_sum] => 0 ) 1
0
Работа:0
Материалы:0
Дни:0
stdClass Object ( [id] => 153 [attribute_id] => 32 [name] => Штукатурка и шпатлевка [material_modifier] => 1 [work_modifier] => 1 [options] => Array ( ) [days] => [20] [material_price] => [1850] [work_price] => [2600] [image] => https://akademik-stroy.ru/wp-content/uploads/materials/shtukaturka-shpatlevka-1.jpg [area_modifier] => 193.35 [parent_name] => Черновая отделка стен [parent_id] => 32 [material_sum] => 450699 [work_sum] => 527846 [total_sum] => 978545 [total_days] => 20 [display_material_sum] => 450 699 [display_work_sum] => 527 846 [display_total_sum] => 978 545 ) 1
978 545
Работа:527 846
Материалы:450 699
Дни:20
stdClass Object ( [id] => 154 [attribute_id] => 32 [name] => Гипсокортон на стены [material_modifier] => 1 [work_modifier] => 1 [options] => Array ( ) [days] => [15] [material_price] => [950] [work_price] => [2100] [image] => https://akademik-stroy.ru/wp-content/uploads/materials/gkl-1.jpg [area_modifier] => 193.35 [parent_name] => Черновая отделка стен [parent_id] => 32 [material_sum] => 231440 [work_sum] => 426337 [total_sum] => 657777 [total_days] => 15 [display_material_sum] => 231 440 [display_work_sum] => 426 337 [display_total_sum] => 657 777 ) 1
657 777
Работа:426 337
Материалы:231 440
Дни:15
stdClass Object ( [id] => 155 [attribute_id] => 32 [name] => Вагонка [material_modifier] => 1 [work_modifier] => 1 [options] => Array ( ) [days] => [15] [material_price] => [1250] [work_price] => [950] [image] => https://akademik-stroy.ru/wp-content/uploads/materials/vagonka.jpg [area_modifier] => 193.35 [parent_name] => Черновая отделка стен [parent_id] => 32 [material_sum] => 304526 [work_sum] => 192867 [total_sum] => 497393 [total_days] => 15 [display_material_sum] => 304 526 [display_work_sum] => 192 867 [display_total_sum] => 497 393 ) 1
497 393
Работа:192 867
Материалы:304 526
Дни:15
Черновая отделка полов
stdClass Object ( [id] => 65 [attribute_id] => 33 [name] => Нет [material_modifier] => 1 [work_modifier] => 1 [options] => Array ( ) [days] => [0] [material_price] => [0] [work_price] => [0] [image] => https://akademik-stroy.ru/wp-content/uploads/materials/styazhka.jpg [area_modifier] => 193.35 [parent_name] => Черновая отделка полов [parent_id] => 33 [material_sum] => 0 [work_sum] => 0 [total_sum] => 0 [total_days] => 0 [display_material_sum] => 0 [display_work_sum] => 0 [display_total_sum] => 0 ) 1
0
Работа:0
Материалы:0
Дни:0
stdClass Object ( [id] => 156 [attribute_id] => 33 [name] => Стяжка + наливные полы [material_modifier] => 1 [work_modifier] => 1 [options] => Array ( ) [days] => [10] [material_price] => [1000] [work_price] => [900] [image] => https://akademik-stroy.ru/wp-content/uploads/materials/styazhka.jpg [area_modifier] => 193.35 [parent_name] => Черновая отделка полов [parent_id] => 33 [material_sum] => 243621 [work_sum] => 182716 [total_sum] => 426337 [total_days] => 10 [display_material_sum] => 243 621 [display_work_sum] => 182 716 [display_total_sum] => 426 337 ) 1
426 337
Работа:182 716
Материалы:243 621
Дни:10
stdClass Object ( [id] => 157 [attribute_id] => 33 [name] => ОСБ на пол [material_modifier] => 1 [work_modifier] => 1 [options] => Array ( ) [days] => [7] [material_price] => [580] [work_price] => [350] [image] => https://akademik-stroy.ru/wp-content/uploads/materials/osb-1.jpg [area_modifier] => 193.35 [parent_name] => Черновая отделка полов [parent_id] => 33 [material_sum] => 141300 [work_sum] => 71056 [total_sum] => 212356 [total_days] => 7 [display_material_sum] => 141 300 [display_work_sum] => 71 056 [display_total_sum] => 212 356 ) 1
212 356
Работа:71 056
Материалы:141 300
Дни:7
Чистовая отделка стен и полов
stdClass Object ( [id] => 67 [attribute_id] => 34 [name] => Нет [material_modifier] => 1 [work_modifier] => 1 [options] => Array ( ) [days] => [0] [material_price] => [0] [work_price] => [0] [image] => https://akademik-stroy.ru/wp-content/uploads/materials/chistovaya-otdelka.jpg [area_modifier] => 193.35 [parent_name] => Чистовая отделка стен и полов [parent_id] => 34 [material_sum] => 0 [work_sum] => 0 [total_sum] => 0 [total_days] => 0 [display_material_sum] => 0 [display_work_sum] => 0 [display_total_sum] => 0 ) 1
0
Работа:0
Материалы:0
Дни:0
stdClass Object ( [id] => 68 [attribute_id] => 34 [name] => Есть [material_modifier] => 1 [work_modifier] => 1 [options] => Array ( ) [days] => [50] [material_price] => [6000] [work_price] => [3500] [image] => https://akademik-stroy.ru/wp-content/uploads/materials/chistovaya-otdelka.jpg [area_modifier] => 193.35 [parent_name] => Чистовая отделка стен и полов [parent_id] => 34 [material_sum] => 1461726 [work_sum] => 710561 [total_sum] => 2172287 [total_days] => 50 [display_material_sum] => 1 461 726 [display_work_sum] => 710 561 [display_total_sum] => 2 172 287 ) 1
2 172 287
Работа:710 561
Материалы:1 461 726
Дни:50
Отделка потолка
stdClass Object ( [id] => 69 [attribute_id] => 35 [name] => Нет [material_modifier] => 1 [work_modifier] => 1 [options] => Array ( ) [days] => [0] [material_price] => [0] [work_price] => [0] [image] => https://akademik-stroy.ru/wp-content/uploads/materials/mnogourovnevyj-gkl.jpg [area_modifier] => 193.35 [parent_name] => Отделка потолка [parent_id] => 35 [material_sum] => 0 [work_sum] => 0 [total_sum] => 0 [total_days] => 0 [display_material_sum] => 0 [display_work_sum] => 0 [display_total_sum] => 0 ) 1
0
Работа:0
Материалы:0
Дни:0
stdClass Object ( [id] => 70 [attribute_id] => 35 [name] => Есть [material_modifier] => 1 [work_modifier] => 1 [options] => Array ( [0] => Многоуровневый потолок из гипсокартона [1] => Многоуровневый потолок из гипсокартона и натяжного потолка [2] => Одноуровневый потолок из гипсокартона [3] => Одноуровневый натяжной потолок ) [days] => [10,10,1,1] [material_price] => [900,700,700,600] [work_price] => [1000,800,500,300] [image] => https://akademik-stroy.ru/wp-content/uploads/materials/mnogourovnevyj-gkl.jpg [area_modifier] => 193.35 [parent_name] => Отделка потолка [parent_id] => 35 [material_sum] => 219259 [work_sum] => 203018 [total_sum] => 422277 [total_days] => 10 [display_material_sum] => 219 259 [display_work_sum] => 203 018 [display_total_sum] => 422 277 ) 1
422 277
Работа:203 018
Материалы:219 259
Дни:10

Преимущества работы с нами

icon

7 этапов оплаты

icon

Независимый строительный надзор

icon

Экологически чистые материалы

icon

16 лет гарантии

icon

Онлайн-кабинет с веб-камерой

icon

Строители с опытом более 15 лет

icon

Собственное производство