Одноэтажный дом 180.68 м2 за руб.
Планировки
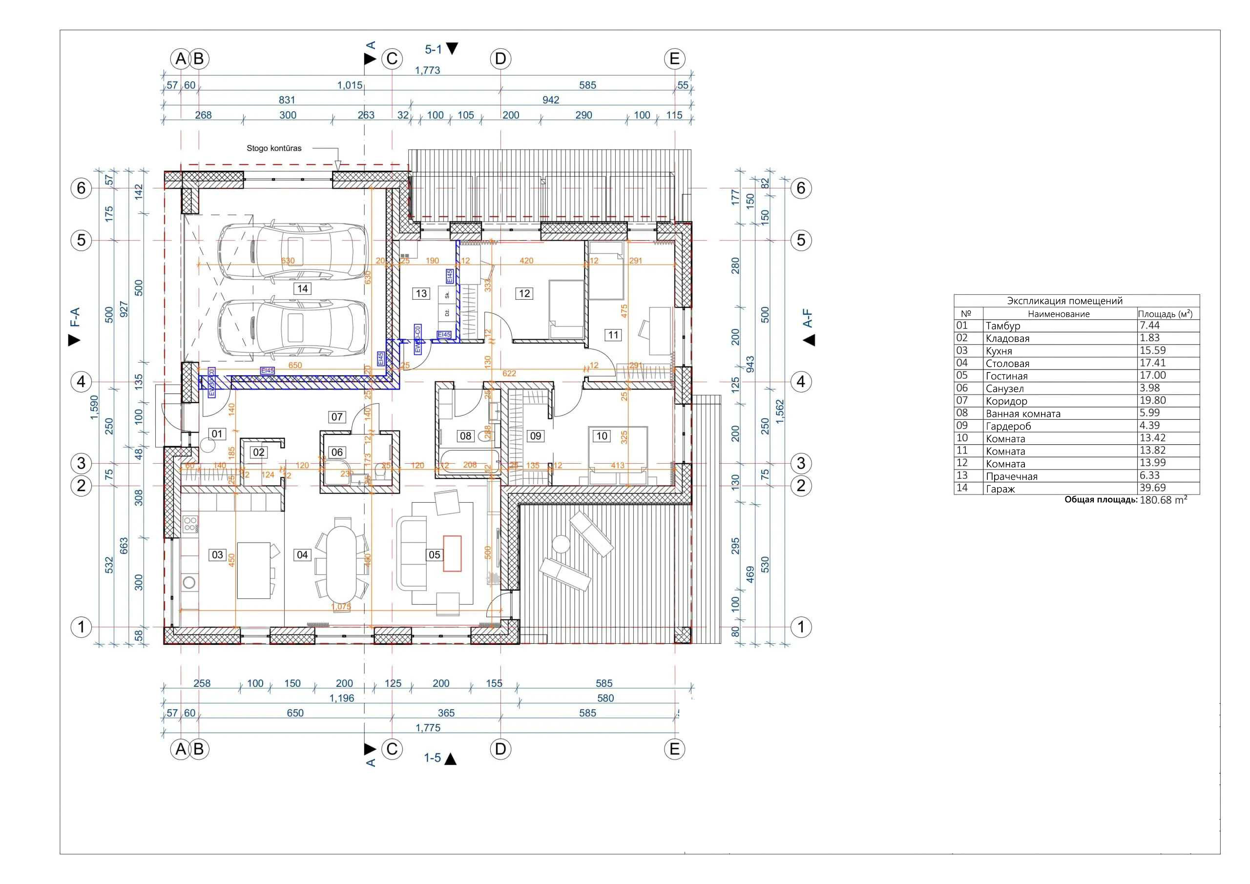
План первого этажа
- 1. Тамбур 7,44 м²
- 2. Кладовая 1,83 м²
- 3. Кухня 15,59 м²
- 4. Столовая 17,41 м²
- 5. Гостиная 17,00 м²
- 6. Санузел 3,98 м²
- 7. Коридор 19,80 м²
- 8. Ванная комната 5,99 м²
- 9. Гардероб 4,39 м²
- 10. Комната 13,42 м²
- 11. Комната 13,82 м²
- 12. Комната 13,99 м²
- 13. Прачечная 6,33 м²
- 14. Гараж 39,69 м²
- Общая площадь 180,68 м²
Площади дома
| № п/п | Наименование | Ед. из. | Строительная площадь | Полезная площадь |
| 1 | 1 этаж | м2 | 222.65 | 180.68 |
| 2 | Итого | м2 | 222.65 | 180.68 |
154 м2
Полезная
площадь
площадь
1 этаж
Этажей
26 м2
Террасы
и балконы
и балконы
1Без
гаража
гаража
3
Количество
спален
спален
2
Количество
санузлов
санузлов
Калькулятор опций
0₽
В ипотеку от 29 820 ₽/мес.
0₽
0 дней
1 163 536₽
Работа:503 568 ₽
Материалы:659 968 ₽
Дни:20
699 477₽
Работа:234 250 ₽
Материалы:465 227 ₽
Дни:2
1 178 732₽
Работа:473 176 ₽
Материалы:705 556 ₽
Дни:20
2 258 807₽
Работа:1 008 538 ₽
Материалы:1 250 269 ₽
Дни:30
3 789 381₽
Работа:1 393 344 ₽
Материалы:2 396 037 ₽
Дни:32
1 432 152₽
Работа:573 001 ₽
Материалы:859 151 ₽
Дни:20
8 986 600₽
Работа:4 096 805 ₽
Материалы:4 889 795 ₽
Дни:30
10 721 733₽
Работа:4 778 748 ₽
Материалы:5 942 985 ₽
Дни:40
374 052₽
Работа:93 513 ₽
Материалы:280 539 ₽
Дни:1
669 553₽
Работа:287 552 ₽
Материалы:382 001 ₽
Дни:8
1 072 360₽
Работа:355 349 ₽
Материалы:717 011 ₽
Дни:13
1 913 510₽
Работа:782 704 ₽
Материалы:1 130 806 ₽
Дни:18
1 877 975₽
Работа:1 176 627 ₽
Материалы:701 348 ₽
Дни:29
2 161 787₽
Работа:1 107 428 ₽
Материалы:1 054 359 ₽
Дни:23
3 328 128₽
Работа:2 042 324 ₽
Материалы:1 285 804 ₽
Дни:30
2 723 799₽
Работа:1 193 693 ₽
Материалы:1 530 106 ₽
Дни:45
5 092 017₽
Работа:1 123 559 ₽
Материалы:3 968 458 ₽
Дни:24
1 121 455₽
Работа:565 286 ₽
Материалы:556 169 ₽
Дни:15
612 510₽
Работа:329 633 ₽
Материалы:282 877 ₽
Дни:7
2 154 072₽
Работа:749 039 ₽
Материалы:1 405 033 ₽
Дни:7
2 813 573₽
Работа:898 894 ₽
Материалы:1 914 679 ₽
Дни:7
18 477 000₽
Работа:898 894 ₽
Материалы:17 578 106 ₽
Дни:7
10 001 449₽
Работа:1 123 559 ₽
Материалы:8 877 890 ₽
Дни:7
1 573 123₽
Работа:374 520 ₽
Материалы:1 198 603 ₽
Дни:7
2 065 702₽
Работа:1 060 905 ₽
Материалы:1 004 797 ₽
Дни:29
1 808 541₽
Работа:1 177 796 ₽
Материалы:630 745 ₽
Дни:29
2 065 702₽
Работа:1 060 905 ₽
Материалы:1 004 797 ₽
Дни:29
2 192 412₽
Работа:1 341 210 ₽
Материалы:851 202 ₽
Дни:23
2 802 351₽
Работа:943 780 ₽
Материалы:1 858 571 ₽
Дни:7
3 177 806₽
Работа:1 947 642 ₽
Материалы:1 230 164 ₽
Дни:25
1 149 509₽
Работа:593 340 ₽
Материалы:556 169 ₽
Дни:15
10 651 598₽
Работа:2 247 117 ₽
Материалы:8 404 481 ₽
Дни:15
1 274 582₽
Работа:599 418 ₽
Материалы:675 164 ₽
Дни:15
1 735 601₽
Работа:985 159 ₽
Материалы:750 442 ₽
Дни:19
1 831 919₽
Работа:1 177 796 ₽
Материалы:654 123 ₽
Дни:29
1 176 627₽
Работа:617 653 ₽
Материалы:558 974 ₽
Дни:15
2 161 787₽
Работа:1 107 428 ₽
Материалы:1 054 359 ₽
Дни:23
1 262 893₽
Работа:490 943 ₽
Материалы:771 950 ₽
Дни:15
1 617 774₽
Работа:1 179 666 ₽
Материалы:438 108 ₽
Дни:7
669 553₽
Работа:287 552 ₽
Материалы:382 001 ₽
Дни:8
1 072 360₽
Работа:355 349 ₽
Материалы:717 011 ₽
Дни:13
1 913 510₽
Работа:782 704 ₽
Материалы:1 130 806 ₽
Дни:18
2 859 394₽
Работа:973 237 ₽
Материалы:1 886 157 ₽
Дни:10
4 325 444₽
Работа:1 974 527 ₽
Материалы:2 350 917 ₽
Дни:10
3 986 460₽
Работа:1 743 784 ₽
Материалы:2 242 676 ₽
Дни:10
0₽
Работа:0 ₽
Материалы:0 ₽
Дни:0
374 495₽
Работа:120 468 ₽
Материалы:254 027 ₽
Дни:3
0₽
Работа:0 ₽
Материалы:0 ₽
Дни:0
16 275₽
Работа:5 775 ₽
Материалы:10 500 ₽
Дни:1
0₽
Работа:0 ₽
Материалы:0 ₽
Дни:0
0₽
Работа:0 ₽
Материалы:0 ₽
Дни:0
779 197₽
Работа:348 570 ₽
Материалы:430 627 ₽
Дни:7
0₽
Работа:0 ₽
Материалы:0 ₽
Дни:0
1 347 054₽
Работа:543 544 ₽
Материалы:803 510 ₽
Дни:7
475 748₽
Работа:286 384 ₽
Материалы:189 364 ₽
Дни:3
1 485 688₽
Работа:419 640 ₽
Материалы:1 066 048 ₽
Дни:5
1 546 939₽
Работа:419 640 ₽
Материалы:1 127 299 ₽
Дни:5
839 045₽
Работа:170 427 ₽
Материалы:668 618 ₽
Дни:3
2 132 798₽
Работа:187 026 ₽
Материалы:1 945 772 ₽
Дни:5
0₽
Работа:0 ₽
Материалы:0 ₽
Дни:0
1 026 539₽
Работа:326 594 ₽
Материалы:699 945 ₽
Дни:20
1 106 025₽
Работа:359 324 ₽
Материалы:746 701 ₽
Дни:20
802 576₽
Работа:281 007 ₽
Материалы:521 569 ₽
Дни:35
2 668 393₽
Работа:757 455 ₽
Материалы:1 910 938 ₽
Дни:45
1 398 253₽
Работа:702 984 ₽
Материалы:695 269 ₽
Дни:40
590 534₽
Работа:295 267 ₽
Материалы:295 267 ₽
Дни:20
1 817 892₽
Работа:757 455 ₽
Материалы:1 060 437 ₽
Дни:45
1 999 776₽
Работа:545 415 ₽
Материалы:1 454 361 ₽
Дни:20
1 105 791₽
Работа:454 473 ₽
Материалы:651 318 ₽
Дни:20
1 363 419₽
Работа:605 964 ₽
Материалы:757 455 ₽
Дни:20
1 900 184₽
Работа:818 005 ₽
Материалы:1 082 179 ₽
Дни:20
2 346 241₽
Работа:699 711 ₽
Материалы:1 646 530 ₽
Дни:20
1 668 038₽
Работа:605 964 ₽
Материалы:1 062 074 ₽
Дни:20
0₽
Работа:0 ₽
Материалы:0 ₽
Дни:0
390 600₽
Работа:61 425 ₽
Материалы:329 175 ₽
Дни:5
0₽
Работа:0 ₽
Материалы:0 ₽
Дни:0
174 825₽
Работа:61 425 ₽
Материалы:113 400 ₽
Дни:12
0₽
Работа:0 ₽
Материалы:0 ₽
Дни:0
1 005 264₽
Работа:409 119 ₽
Материалы:596 145 ₽
Дни:15
724 726₽
Работа:338 985 ₽
Материалы:385 741 ₽
Дни:10
0₽
Работа:0 ₽
Материалы:0 ₽
Дни:0
999 887₽
Работа:446 758 ₽
Материалы:553 129 ₽
Дни:5
0₽
Работа:0 ₽
Материалы:0 ₽
Дни:0
258 657₽
Работа:52 500 ₽
Материалы:206 157 ₽
Дни:7
0₽
Работа:0 ₽
Материалы:0 ₽
Дни:0
224 431₽
Работа:88 837 ₽
Материалы:135 594 ₽
Дни:11
379 196₽
Работа:140 270 ₽
Материалы:238 926 ₽
Дни:5
434 836₽
Работа:163 648 ₽
Материалы:271 188 ₽
Дни:11
627 706₽
Работа:210 404 ₽
Материалы:417 302 ₽
Дни:7
0₽
Работа:0 ₽
Материалы:0 ₽
Дни:0
303 542₽
Работа:180 228 ₽
Материалы:123 314 ₽
Дни:10
0₽
Работа:0 ₽
Материалы:0 ₽
Дни:0
252 319₽
Работа:138 491 ₽
Материалы:113 828 ₽
Дни:10
0₽
Работа:0 ₽
Материалы:0 ₽
Дни:0
221 966₽
Работа:106 240 ₽
Материалы:115 726 ₽
Дни:5
0₽
Работа:0 ₽
Материалы:0 ₽
Дни:0
400 050₽
Работа:78 750 ₽
Материалы:321 300 ₽
Дни:9
245 700₽
Работа:47 250 ₽
Материалы:198 450 ₽
Дни:5
0₽
Работа:0 ₽
Материалы:0 ₽
Дни:0
844 227₽
Работа:493 256 ₽
Материалы:350 971 ₽
Дни:20
578 627₽
Работа:398 399 ₽
Материалы:180 228 ₽
Дни:15
417 371₽
Работа:180 228 ₽
Материалы:237 143 ₽
Дни:15
0₽
Работа:0 ₽
Материалы:0 ₽
Дни:0
360 457₽
Работа:170 743 ₽
Материалы:189 714 ₽
Дни:10
176 434₽
Работа:66 400 ₽
Материалы:110 034 ₽
Дни:7
0₽
Работа:0 ₽
Материалы:0 ₽
Дни:0
1 802 283₽
Работа:663 999 ₽
Материалы:1 138 284 ₽
Дни:50
0₽
Работа:0 ₽
Материалы:0 ₽
Дни:0
360 457₽
Работа:189 714 ₽
Материалы:170 743 ₽
Дни:10
Преимущества работы с нами
7 этапов оплаты
Независимый строительный надзор
Экологически чистые материалы
16 лет гарантии
Онлайн-кабинет с веб-камерой
Строители с опытом более 15 лет
Собственное производство






