Одноэтажный дом 144.67 м2 за руб.
Планировки
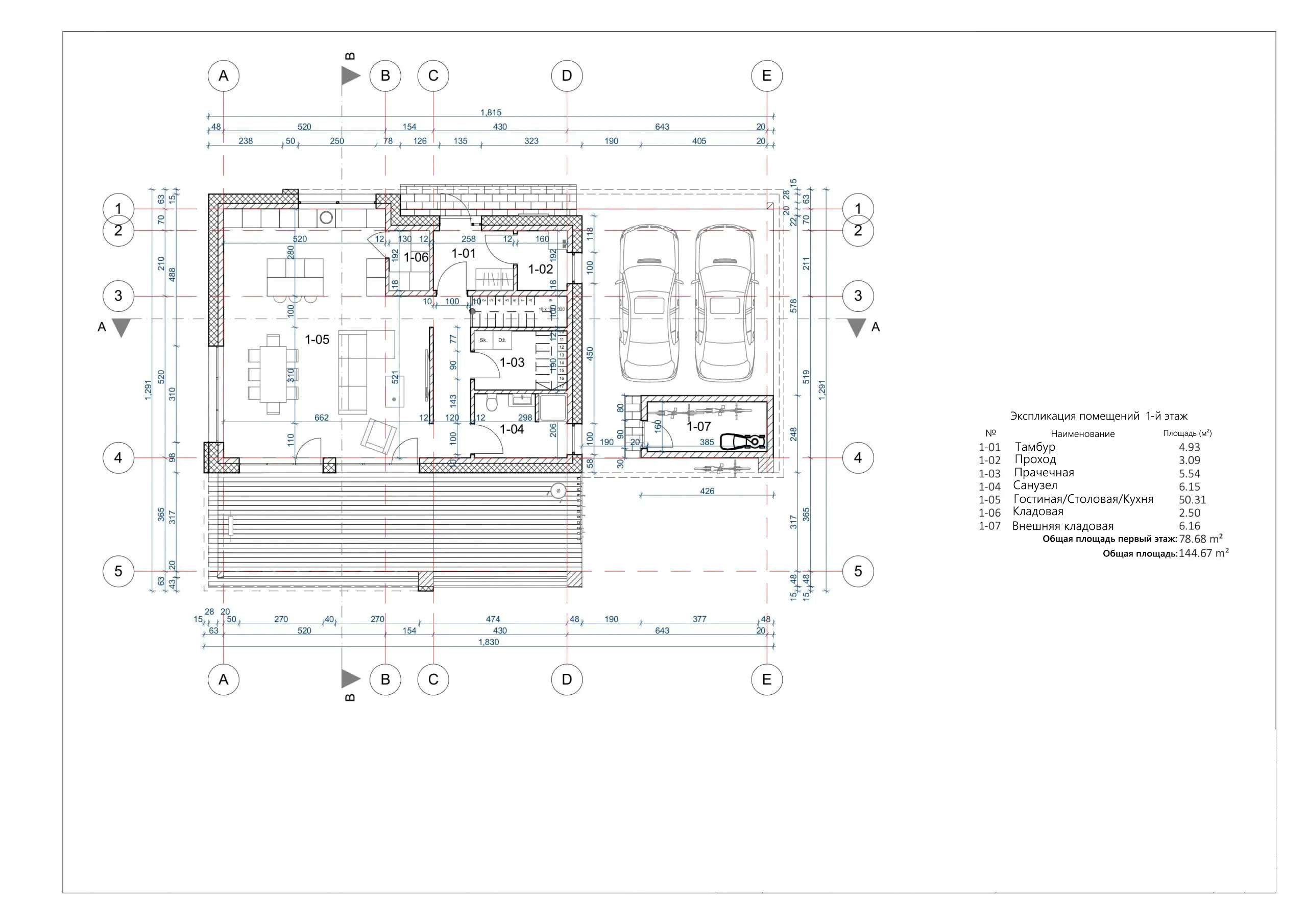
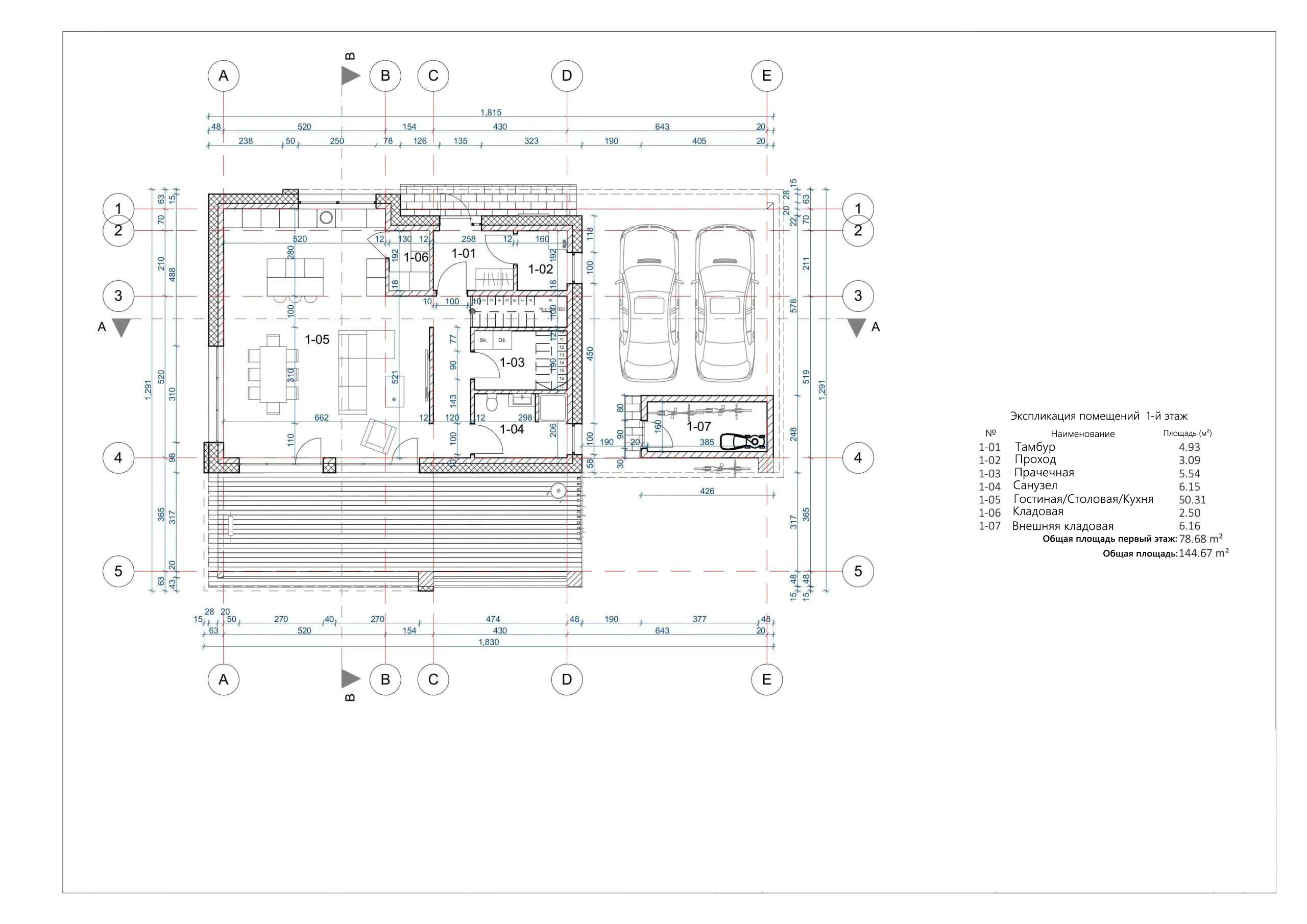
План первого этажа
- 1. Тамбур 4,93 м²
- 2. Проход 3,09 м²
- 3. Прачечная 5,54 м²
- 4. Санузел 6,15 м²
- 5. Гостиная-Кухня-Столовая 50,31 м²
- 6. Кладовая 2,50 м²
- 7. Внешняя кладовая 6,16 м²
- Общая площадь первый этаж 78,68 м²
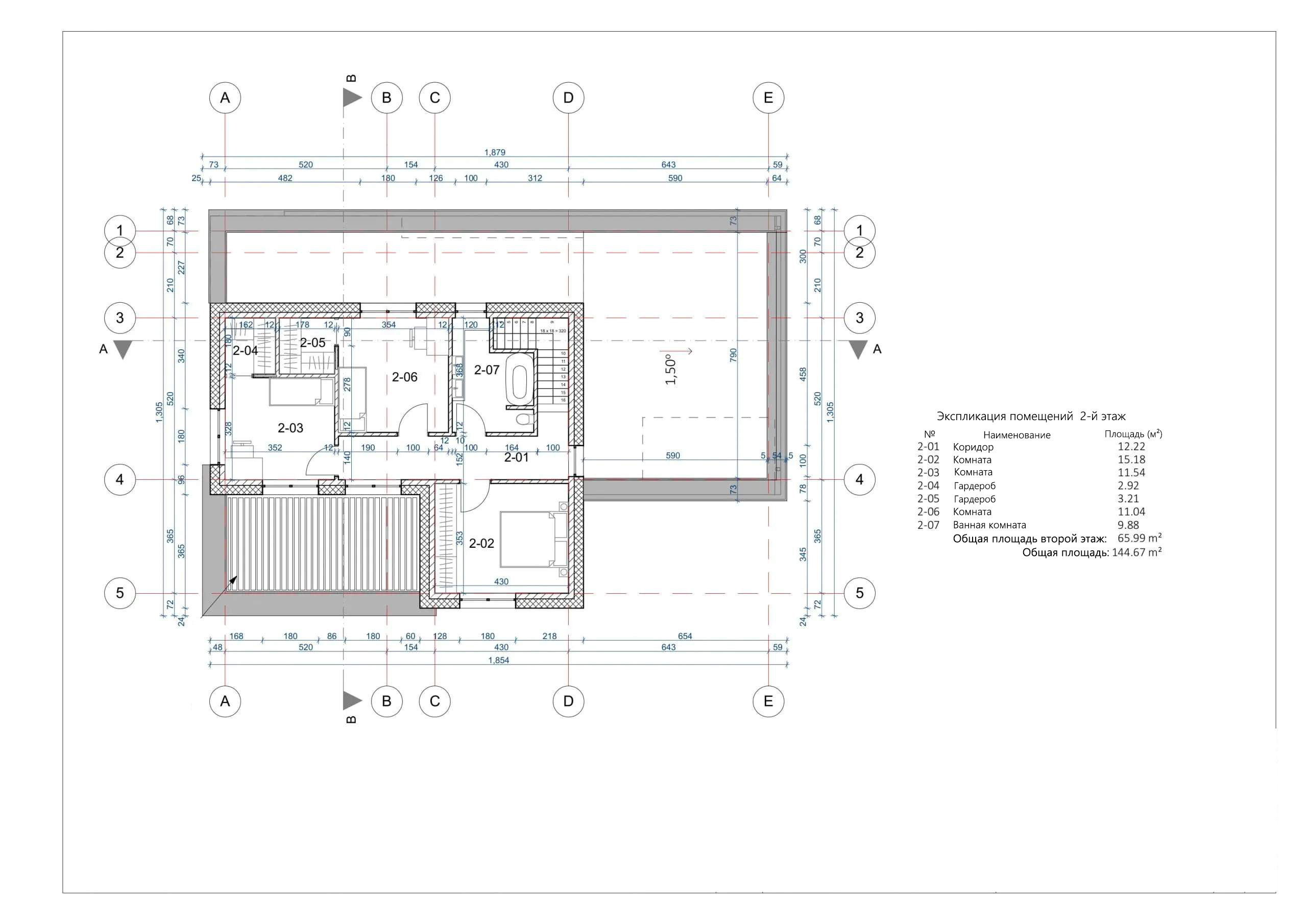
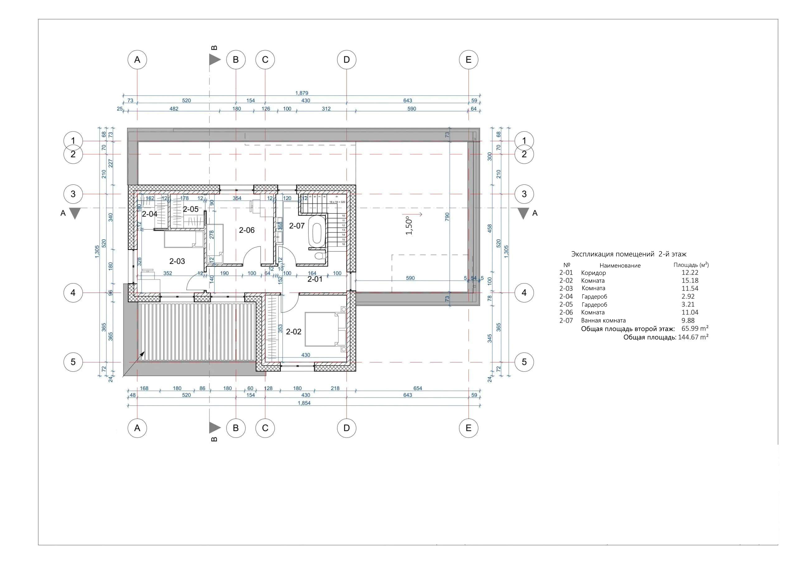
План второго этажа
- 1. Коридор 12,22 м²
- 2. Комната 15,18 м²
- 3. Комната 11,54 м²
- 4. Гардероб 2,92 м²
- 5. Гардероб 3,21 м²
- 6. Комната 11,04 м²
- 7. Ванная комната 9,88 м²
- Общая площадь второй этаж 65,99 м²
Площади дома
| № п/п | Наименование | Ед. из. | Строительная площадь | Полезная площадь |
| 1 | 1 этаж | м2 | 96.96 | 78.68 |
| 2 | 2 этаж | м2 | 81.32 | 65.99 |
| 3 | Итого | м2 | 178.28 | 144.67 |
154 м2
Полезная
площадь
площадь
1 этаж
Этажей
26 м2
Террасы
и балконы
и балконы
0Без
гаража
гаража
4
Количество
спален
спален
2
Количество
санузлов
санузлов
Калькулятор опций
0₽
В ипотеку от 19 003 ₽/мес.
0₽
0 дней
530 827₽
Работа:229 737 ₽
Материалы:301 090 ₽
Дни:20
319 114₽
Работа:106 869 ₽
Материалы:212 245 ₽
Дни:2
537 760₽
Работа:215 872 ₽
Материалы:321 888 ₽
Дни:20
1 030 510₽
Работа:460 114 ₽
Материалы:570 396 ₽
Дни:30
1 728 787₽
Работа:635 670 ₽
Материалы:1 093 117 ₽
Дни:32
653 375₽
Работа:261 414 ₽
Материалы:391 961 ₽
Дни:20
4 099 857₽
Работа:1 869 040 ₽
Материалы:2 230 817 ₽
Дни:30
4 891 457₽
Работа:2 180 155 ₽
Материалы:2 711 302 ₽
Дни:40
170 649₽
Работа:42 662 ₽
Материалы:127 987 ₽
Дни:1
305 463₽
Работа:131 187 ₽
Материалы:174 276 ₽
Дни:8
489 231₽
Работа:162 117 ₽
Материалы:327 114 ₽
Дни:13
872 979₽
Работа:357 084 ₽
Материалы:515 895 ₽
Дни:18
856 768₽
Работа:536 800 ₽
Материалы:319 968 ₽
Дни:29
986 248₽
Работа:505 229 ₽
Материалы:481 019 ₽
Дни:23
1 518 355₽
Работа:931 747 ₽
Материалы:586 608 ₽
Дни:30
1 242 650₽
Работа:544 586 ₽
Материалы:698 064 ₽
Дни:45
2 323 075₽
Работа:512 589 ₽
Материалы:1 810 486 ₽
Дни:24
511 629₽
Работа:257 894 ₽
Материалы:253 735 ₽
Дни:15
279 439₽
Работа:150 385 ₽
Материалы:129 054 ₽
Дни:7
982 729₽
Работа:341 726 ₽
Материалы:641 003 ₽
Дни:7
1 283 605₽
Работа:410 092 ₽
Материалы:873 513 ₽
Дни:7
8 429 557₽
Работа:410 092 ₽
Материалы:8 019 465 ₽
Дни:7
4 562 851₽
Работа:512 589 ₽
Материалы:4 050 262 ₽
Дни:7
717 688₽
Работа:170 863 ₽
Материалы:546 825 ₽
Дни:7
942 412₽
Работа:484 005 ₽
Материалы:458 407 ₽
Дни:29
825 091₽
Работа:537 333 ₽
Материалы:287 758 ₽
Дни:29
942 412₽
Работа:484 005 ₽
Материалы:458 407 ₽
Дни:29
1 000 219₽
Работа:611 885 ₽
Материалы:388 334 ₽
Дни:23
1 278 485₽
Работа:430 570 ₽
Материалы:847 915 ₽
Дни:7
1 449 775₽
Работа:888 551 ₽
Материалы:561 224 ₽
Дни:25
524 428₽
Работа:270 693 ₽
Материалы:253 735 ₽
Дни:15
4 859 460₽
Работа:1 025 177 ₽
Материалы:3 834 283 ₽
Дни:15
581 489₽
Работа:273 466 ₽
Материалы:308 023 ₽
Дни:15
791 814₽
Работа:449 448 ₽
Материалы:342 366 ₽
Дни:19
835 756₽
Работа:537 333 ₽
Материалы:298 423 ₽
Дни:29
536 799₽
Работа:281 785 ₽
Материалы:255 014 ₽
Дни:15
986 248₽
Работа:505 229 ₽
Материалы:481 019 ₽
Дни:23
576 156₽
Работа:223 978 ₽
Материалы:352 178 ₽
Дни:15
738 059₽
Работа:538 186 ₽
Материалы:199 873 ₽
Дни:7
305 463₽
Работа:131 187 ₽
Материалы:174 276 ₽
Дни:8
489 231₽
Работа:162 117 ₽
Материалы:327 114 ₽
Дни:13
872 979₽
Работа:357 084 ₽
Материалы:515 895 ₽
Дни:18
718 568₽
Работа:450 212 ₽
Материалы:268 356 ₽
Дни:29
827 163₽
Работа:423 734 ₽
Материалы:403 429 ₽
Дни:23
1 273 439₽
Работа:781 453 ₽
Материалы:491 986 ₽
Дни:30
1 042 205₽
Работа:456 742 ₽
Материалы:585 463 ₽
Дни:45
1 948 354₽
Работа:429 906 ₽
Материалы:1 518 448 ₽
Дни:24
429 101₽
Работа:216 295 ₽
Материалы:212 806 ₽
Дни:15
234 364₽
Работа:126 127 ₽
Материалы:108 237 ₽
Дни:7
824 211₽
Работа:286 604 ₽
Материалы:537 607 ₽
Дни:7
1 076 555₽
Работа:343 943 ₽
Материалы:732 612 ₽
Дни:7
7 069 839₽
Работа:343 943 ₽
Материалы:6 725 896 ₽
Дни:7
1 876 792₽
Работа:429 906 ₽
Материалы:1 446 886 ₽
Дни:7
601 922₽
Работа:143 302 ₽
Материалы:458 620 ₽
Дни:10
790 398₽
Работа:405 933 ₽
Материалы:384 465 ₽
Дни:29
692 000₽
Работа:450 659 ₽
Материалы:241 341 ₽
Дни:29
790 398₽
Работа:405 933 ₽
Материалы:384 465 ₽
Дни:29
838 881₽
Работа:513 186 ₽
Материалы:325 695 ₽
Дни:23
1 072 261₽
Работа:361 118 ₽
Материалы:711 143 ₽
Дни:7
1 215 921₽
Работа:745 225 ₽
Материалы:470 696 ₽
Дни:25
439 835₽
Работа:227 029 ₽
Материалы:212 806 ₽
Дни:15
4 075 612₽
Работа:859 813 ₽
Материалы:3 215 799 ₽
Дни:15
487 692₽
Работа:229 355 ₽
Материалы:258 337 ₽
Дни:15
664 092₽
Работа:376 951 ₽
Материалы:287 141 ₽
Дни:19
700 946₽
Работа:450 659 ₽
Материалы:250 287 ₽
Дни:29
450 212₽
Работа:236 332 ₽
Материалы:213 880 ₽
Дни:15
827 163₽
Работа:423 734 ₽
Материалы:403 429 ₽
Дни:10
483 220₽
Работа:187 849 ₽
Материалы:295 371 ₽
Дни:10
619 008₽
Работа:451 375 ₽
Материалы:167 633 ₽
Дни:7
256 191₽
Работа:110 026 ₽
Материалы:146 165 ₽
Дни:8
410 316₽
Работа:135 967 ₽
Материалы:274 349 ₽
Дни:13
732 164₽
Работа:299 485 ₽
Материалы:432 679 ₽
Дни:18
1 304 510₽
Работа:444 009 ₽
Материалы:860 501 ₽
Дни:10
1 973 350₽
Работа:900 817 ₽
Материалы:1 072 533 ₽
Дни:10
1 818 698₽
Работа:795 547 ₽
Материалы:1 023 151 ₽
Дни:10
0₽
Работа:0 ₽
Материалы:0 ₽
Дни:0
314 136₽
Работа:101 052 ₽
Материалы:213 084 ₽
Дни:3
0₽
Работа:0 ₽
Материалы:0 ₽
Дни:0
17 050₽
Работа:6 050 ₽
Материалы:11 000 ₽
Дни:1
0₽
Работа:0 ₽
Материалы:0 ₽
Дни:0
0₽
Работа:0 ₽
Материалы:0 ₽
Дни:0
355 484₽
Работа:159 024 ₽
Материалы:196 460 ₽
Дни:7
0₽
Работа:0 ₽
Материалы:0 ₽
Дни:0
1 129 974₽
Работа:455 951 ₽
Материалы:674 023 ₽
Дни:7
399 079₽
Работа:240 232 ₽
Материалы:158 847 ₽
Дни:3
1 246 266₽
Работа:352 014 ₽
Материалы:894 252 ₽
Дни:5
1 297 647₽
Работа:352 014 ₽
Материалы:945 633 ₽
Дни:5
703 832₽
Работа:142 963 ₽
Материалы:560 869 ₽
Дни:3
1 789 093₽
Работа:156 886 ₽
Материалы:1 632 207 ₽
Дни:5
0₽
Работа:0 ₽
Материалы:0 ₽
Дни:0
861 110₽
Работа:273 963 ₽
Материалы:587 147 ₽
Дни:20
927 787₽
Работа:301 418 ₽
Материалы:626 369 ₽
Дни:20
673 239₽
Работа:235 722 ₽
Материалы:437 517 ₽
Дни:35
2 238 377₽
Работа:635 390 ₽
Материалы:1 602 987 ₽
Дни:45
1 172 922₽
Работа:589 697 ₽
Материалы:583 225 ₽
Дни:40
495 368₽
Работа:247 684 ₽
Материалы:247 684 ₽
Дни:20
1 524 936₽
Работа:635 390 ₽
Материалы:889 546 ₽
Дни:45
1 677 508₽
Работа:457 520 ₽
Материалы:1 219 988 ₽
Дни:20
927 591₽
Работа:381 234 ₽
Материалы:546 357 ₽
Дни:20
1 143 702₽
Работа:508 312 ₽
Материалы:635 390 ₽
Дни:20
1 593 966₽
Работа:686 182 ₽
Материалы:907 784 ₽
Дни:20
1 968 140₽
Работа:586 951 ₽
Материалы:1 381 189 ₽
Дни:20
1 399 231₽
Работа:508 312 ₽
Материалы:890 919 ₽
Дни:20
0₽
Работа:0 ₽
Материалы:0 ₽
Дни:0
409 200₽
Работа:64 350 ₽
Материалы:344 850 ₽
Дни:5
0₽
Работа:0 ₽
Материалы:0 ₽
Дни:0
183 150₽
Работа:64 350 ₽
Материалы:118 800 ₽
Дни:12
0₽
Работа:0 ₽
Материалы:0 ₽
Дни:0
458 621₽
Работа:186 648 ₽
Материалы:271 973 ₽
Дни:15
330 633₽
Работа:154 651 ₽
Материалы:175 982 ₽
Дни:10
0₽
Работа:0 ₽
Материалы:0 ₽
Дни:0
456 168₽
Работа:203 820 ₽
Материалы:252 348 ₽
Дни:5
0₽
Работа:0 ₽
Материалы:0 ₽
Дни:0
270 974₽
Работа:55 000 ₽
Материалы:215 974 ₽
Дни:7
0₽
Работа:0 ₽
Материалы:0 ₽
Дни:0
188 264₽
Работа:74 521 ₽
Материалы:113 743 ₽
Дни:11
318 087₽
Работа:117 665 ₽
Материалы:200 422 ₽
Дни:5
364 761₽
Работа:137 276 ₽
Материалы:227 485 ₽
Дни:11
526 550₽
Работа:176 497 ₽
Материалы:350 053 ₽
Дни:7
0₽
Работа:0 ₽
Материалы:0 ₽
Дни:0
254 619₽
Работа:151 180 ₽
Материалы:103 439 ₽
Дни:10
0₽
Работа:0 ₽
Материалы:0 ₽
Дни:0
211 652₽
Работа:116 170 ₽
Материалы:95 482 ₽
Дни:10
0₽
Работа:0 ₽
Материалы:0 ₽
Дни:0
186 191₽
Работа:89 117 ₽
Материалы:97 074 ₽
Дни:5
0₽
Работа:0 ₽
Материалы:0 ₽
Дни:0
419 100₽
Работа:82 500 ₽
Материалы:336 600 ₽
Дни:9
257 400₽
Работа:49 500 ₽
Материалы:207 900 ₽
Дни:5
0₽
Работа:0 ₽
Материалы:0 ₽
Дни:0
708 159₽
Работа:413 756 ₽
Материалы:294 403 ₽
Дни:20
485 368₽
Работа:334 188 ₽
Материалы:151 180 ₽
Дни:15
350 101₽
Работа:151 180 ₽
Материалы:198 921 ₽
Дни:15
0₽
Работа:0 ₽
Материалы:0 ₽
Дни:0
302 360₽
Работа:143 223 ₽
Материалы:159 137 ₽
Дни:10
147 997₽
Работа:55 698 ₽
Материалы:92 299 ₽
Дни:7
0₽
Работа:0 ₽
Материалы:0 ₽
Дни:0
1 511 802₽
Работа:556 980 ₽
Материалы:954 822 ₽
Дни:50
0₽
Работа:0 ₽
Материалы:0 ₽
Дни:0
302 360₽
Работа:159 137 ₽
Материалы:143 223 ₽
Дни:10
Преимущества работы с нами
7 этапов оплаты
Независимый строительный надзор
Экологически чистые материалы
16 лет гарантии
Онлайн-кабинет с веб-камерой
Строители с опытом более 15 лет
Собственное производство







