Одноэтажный дом 205.14 м2 за руб.
Планировки
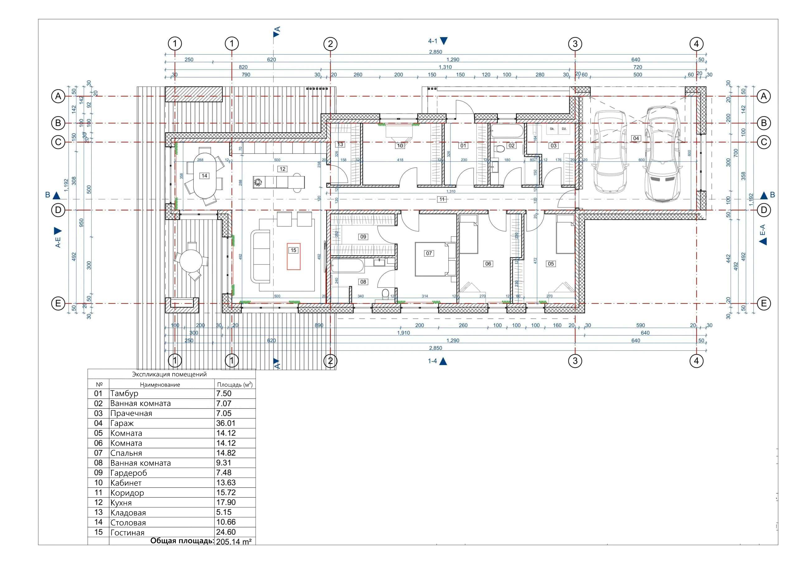
План первого этажа
- 1. Тамбур 7,50 м²
- 2. Ванная комната 7,07 м²
- 3. Прачечная 7,05 м²
- 4. Гараж 36,01 м²
- 5. Комната 14,12 м²
- 6. Комната 14,12 м²
- 7. Спальня 14,82 м²
- 8. Ванная комната 9,31 м²
- 9. Гардероб 7,48 м²
- 10. Кабинет 13,63 м²
- 11. Коридор 15,72 м²
- 12. Кухня 17,90 м²
- 13. Кладовая 5,15 м²
- 14. Столовая 10,66 м²
- 15. Гостиная 24,60 м²
- Общая площадь 205,14 м²
Площади дома
| № п/п | Наименование | Ед. из. | Строительная площадь | Полезная площадь |
| 1 | 1 этаж | м2 | 252.79 | 205.14 |
| 2 | Итого | м2 | 252.79 | 205.14 |
154 м2
Полезная
площадь
площадь
1 этаж
Этажей
26 м2
Террасы
и балконы
и балконы
1Без
гаража
гаража
4
Количество
спален
спален
2
Количество
санузлов
санузлов
Калькулятор опций
0₽
В ипотеку от 31 645 ₽/мес.
0₽
0 дней
1 321 042₽
Работа:571 735 ₽
Материалы:749 307 ₽
Дни:20
794 165₽
Работа:265 960 ₽
Материалы:528 205 ₽
Дни:2
1 338 295₽
Работа:537 229 ₽
Материалы:801 066 ₽
Дни:20
2 564 580₽
Работа:1 145 063 ₽
Материалы:1 419 517 ₽
Дни:30
4 302 347₽
Работа:1 581 960 ₽
Материалы:2 720 387 ₽
Дни:32
1 626 021₽
Работа:650 568 ₽
Материалы:975 453 ₽
Дни:20
10 203 110₽
Работа:4 651 387 ₽
Материалы:5 551 723 ₽
Дни:30
12 173 127₽
Работа:5 425 644 ₽
Материалы:6 747 483 ₽
Дни:40
424 687₽
Работа:106 172 ₽
Материалы:318 515 ₽
Дни:1
760 190₽
Работа:326 478 ₽
Материалы:433 712 ₽
Дни:8
1 217 525₽
Работа:403 453 ₽
Материалы:814 072 ₽
Дни:13
2 172 540₽
Работа:888 658 ₽
Материалы:1 283 882 ₽
Дни:18
2 132 196₽
Работа:1 335 907 ₽
Материалы:796 289 ₽
Дни:29
2 454 427₽
Работа:1 257 340 ₽
Материалы:1 197 087 ₽
Дни:23
3 778 654₽
Работа:2 318 792 ₽
Материалы:1 459 862 ₽
Дни:30
3 092 519₽
Работа:1 355 283 ₽
Материалы:1 737 236 ₽
Дни:45
5 781 320₽
Работа:1 275 654 ₽
Материалы:4 505 666 ₽
Дни:24
1 273 266₽
Работа:641 809 ₽
Материалы:631 457 ₽
Дни:15
695 426₽
Работа:374 256 ₽
Материалы:321 170 ₽
Дни:7
2 445 667₽
Работа:850 436 ₽
Материалы:1 595 231 ₽
Дни:7
3 194 444₽
Работа:1 020 576 ₽
Материалы:2 173 868 ₽
Дни:7
20 978 220₽
Работа:1 020 576 ₽
Материалы:19 957 644 ₽
Дни:7
11 355 339₽
Работа:1 275 654 ₽
Материалы:10 079 685 ₽
Дни:7
1 786 075₽
Работа:425 218 ₽
Материалы:1 360 857 ₽
Дни:7
2 345 335₽
Работа:1 204 519 ₽
Материалы:1 140 816 ₽
Дни:29
2 053 363₽
Работа:1 337 234 ₽
Материалы:716 129 ₽
Дни:29
2 345 335₽
Работа:1 204 519 ₽
Материалы:1 140 816 ₽
Дни:29
2 489 198₽
Работа:1 522 769 ₽
Материалы:966 429 ₽
Дни:23
3 181 704₽
Работа:1 071 539 ₽
Материалы:2 110 165 ₽
Дни:7
3 607 983₽
Работа:2 211 293 ₽
Материалы:1 396 690 ₽
Дни:25
1 305 117₽
Работа:673 660 ₽
Материалы:631 457 ₽
Дни:15
12 093 499₽
Работа:2 551 308 ₽
Материалы:9 542 191 ₽
Дни:15
1 447 121₽
Работа:680 561 ₽
Материалы:766 560 ₽
Дни:15
1 970 549₽
Работа:1 118 520 ₽
Материалы:852 029 ₽
Дни:19
2 079 906₽
Работа:1 337 234 ₽
Материалы:742 672 ₽
Дни:29
1 335 907₽
Работа:701 265 ₽
Материалы:634 642 ₽
Дни:15
2 454 427₽
Работа:1 257 340 ₽
Материалы:1 197 087 ₽
Дни:23
1 433 850₽
Работа:557 402 ₽
Материалы:876 448 ₽
Дни:15
1 836 772₽
Работа:1 339 357 ₽
Материалы:497 415 ₽
Дни:7
760 190₽
Работа:326 478 ₽
Материалы:433 712 ₽
Дни:8
1 217 525₽
Работа:403 453 ₽
Материалы:814 072 ₽
Дни:13
2 172 540₽
Работа:888 658 ₽
Материалы:1 283 882 ₽
Дни:18
3 246 468₽
Работа:1 104 983 ₽
Материалы:2 141 485 ₽
Дни:10
4 910 977₽
Работа:2 241 818 ₽
Материалы:2 669 159 ₽
Дни:10
4 526 104₽
Работа:1 979 839 ₽
Материалы:2 546 265 ₽
Дни:10
0₽
Работа:0 ₽
Материалы:0 ₽
Дни:0
425 194₽
Работа:136 777 ₽
Материалы:288 417 ₽
Дни:3
0₽
Работа:0 ₽
Материалы:0 ₽
Дни:0
16 275₽
Работа:5 775 ₽
Материалы:10 500 ₽
Дни:1
0₽
Работа:0 ₽
Материалы:0 ₽
Дни:0
0₽
Работа:0 ₽
Материалы:0 ₽
Дни:0
884 676₽
Работа:395 755 ₽
Материалы:488 921 ₽
Дни:7
0₽
Работа:0 ₽
Материалы:0 ₽
Дни:0
1 529 405₽
Работа:617 124 ₽
Материалы:912 281 ₽
Дни:7
540 149₽
Работа:325 151 ₽
Материалы:214 998 ₽
Дни:3
1 686 805₽
Работа:476 446 ₽
Материалы:1 210 359 ₽
Дни:5
1 756 347₽
Работа:476 446 ₽
Материалы:1 279 901 ₽
Дни:5
952 626₽
Работа:193 498 ₽
Материалы:759 128 ₽
Дни:3
2 421 514₽
Работа:212 344 ₽
Материалы:2 209 170 ₽
Дни:5
0₽
Работа:0 ₽
Материалы:0 ₽
Дни:0
1 165 501₽
Работа:370 805 ₽
Материалы:794 696 ₽
Дни:20
1 255 747₽
Работа:407 965 ₽
Материалы:847 782 ₽
Дни:20
911 219₽
Работа:319 046 ₽
Материалы:592 173 ₽
Дни:35
3 029 613₽
Работа:859 992 ₽
Материалы:2 169 621 ₽
Дни:45
1 587 534₽
Работа:798 147 ₽
Материалы:789 387 ₽
Дни:40
670 474₽
Работа:335 237 ₽
Материалы:335 237 ₽
Дни:20
2 063 980₽
Работа:859 992 ₽
Материалы:1 203 988 ₽
Дни:45
2 270 484₽
Работа:619 247 ₽
Материалы:1 651 237 ₽
Дни:20
1 255 482₽
Работа:515 995 ₽
Материалы:739 487 ₽
Дни:20
1 547 985₽
Работа:687 993 ₽
Материалы:859 992 ₽
Дни:20
2 157 411₽
Работа:928 738 ₽
Материалы:1 228 673 ₽
Дни:20
2 663 850₽
Работа:794 430 ₽
Материалы:1 869 420 ₽
Дни:20
1 893 839₽
Работа:687 993 ₽
Материалы:1 205 846 ₽
Дни:20
0₽
Работа:0 ₽
Материалы:0 ₽
Дни:0
390 600₽
Работа:61 425 ₽
Материалы:329 175 ₽
Дни:5
0₽
Работа:0 ₽
Материалы:0 ₽
Дни:0
174 825₽
Работа:61 425 ₽
Материалы:113 400 ₽
Дни:12
0₽
Работа:0 ₽
Материалы:0 ₽
Дни:0
1 141 347₽
Работа:464 502 ₽
Материалы:676 845 ₽
Дни:15
822 832₽
Работа:384 873 ₽
Материалы:437 959 ₽
Дни:10
0₽
Работа:0 ₽
Материалы:0 ₽
Дни:0
1 135 242₽
Работа:507 236 ₽
Материалы:628 006 ₽
Дни:5
0₽
Работа:0 ₽
Материалы:0 ₽
Дни:0
258 657₽
Работа:52 500 ₽
Материалы:206 157 ₽
Дни:7
0₽
Работа:0 ₽
Материалы:0 ₽
Дни:0
254 812₽
Работа:100 863 ₽
Материалы:153 949 ₽
Дни:11
430 527₽
Работа:159 258 ₽
Материалы:271 269 ₽
Дни:5
493 699₽
Работа:185 801 ₽
Материалы:307 898 ₽
Дни:11
712 679₽
Работа:238 887 ₽
Материалы:473 792 ₽
Дни:7
0₽
Работа:0 ₽
Материалы:0 ₽
Дни:0
344 635₽
Работа:204 627 ₽
Материалы:140 008 ₽
Дни:10
0₽
Работа:0 ₽
Материалы:0 ₽
Дни:0
286 478₽
Работа:157 240 ₽
Материалы:129 238 ₽
Дни:10
0₽
Работа:0 ₽
Материалы:0 ₽
Дни:0
252 014₽
Работа:120 622 ₽
Материалы:131 392 ₽
Дни:5
0₽
Работа:0 ₽
Материалы:0 ₽
Дни:0
400 050₽
Работа:78 750 ₽
Материалы:321 300 ₽
Дни:9
245 700₽
Работа:47 250 ₽
Материалы:198 450 ₽
Дни:5
0₽
Работа:0 ₽
Материалы:0 ₽
Дни:0
958 516₽
Работа:560 032 ₽
Материалы:398 484 ₽
Дни:20
656 961₽
Работа:452 334 ₽
Материалы:204 627 ₽
Дни:15
473 873₽
Работа:204 627 ₽
Материалы:269 246 ₽
Дни:15
0₽
Работа:0 ₽
Материалы:0 ₽
Дни:0
409 254₽
Работа:193 857 ₽
Материалы:215 397 ₽
Дни:10
200 319₽
Работа:75 389 ₽
Материалы:124 930 ₽
Дни:7
0₽
Работа:0 ₽
Материалы:0 ₽
Дни:0
2 046 272₽
Работа:753 890 ₽
Материалы:1 292 382 ₽
Дни:50
0₽
Работа:0 ₽
Материалы:0 ₽
Дни:0
409 254₽
Работа:215 397 ₽
Материалы:193 857 ₽
Дни:10
Преимущества работы с нами
7 этапов оплаты
Независимый строительный надзор
Экологически чистые материалы
16 лет гарантии
Онлайн-кабинет с веб-камерой
Строители с опытом более 15 лет
Собственное производство








