Одноэтажный дом 238.59 м2 за руб.
Планировки
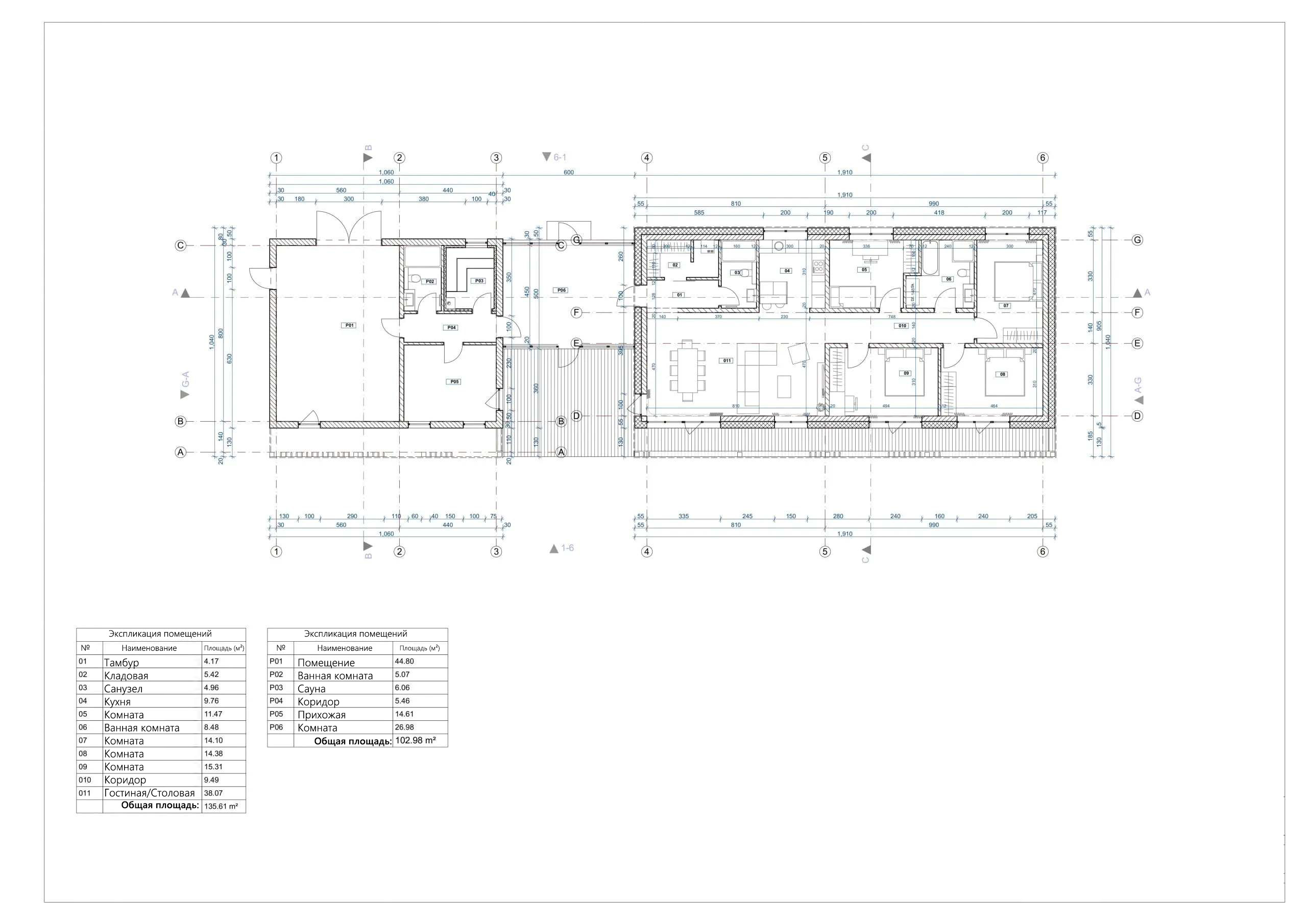
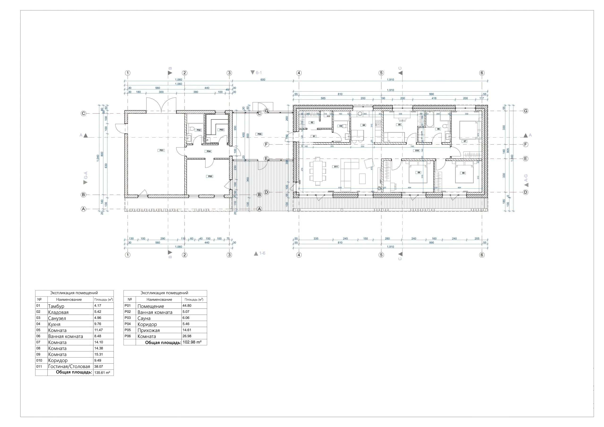
План первого этажа
- 1. Тамбур 4,17 м²
- 2. Кладовая 5,42 м²
- 3. Санузел 4,96 м²
- 4. Кухня 9,76 м²
- 5. Комната 11,47 м²
- 6. Ванная комната 8,48 м²
- 7. Комната 14,10 м²
- 8. Комната 14,38 м²
- 9. Комната 15,31 м²
- 10. Коридор 9,49 м²
- 11. Гостиная-Столовая 38,07 м²
- 12. Гараж 44,80 м²
- 13. Санузел 5,07 м²
- 14. Сауна 6,06 м²
- 15. Коридор 5,46 м²
- 16. Прихожая 14,61 м²
- 17. Комната 26,98 м²
- Общая площадь 238,59 м²
Площади дома
| № п/п | Наименование | Ед. из. | Строительная площадь | Полезная площадь |
| 1 | 1 этаж | м2 | 294.01 | 238.59 |
| 2 | Итого | м2 | 294.01 | 238.59 |
154 м2
Полезная
площадь
площадь
1 этаж
Этажей
26 м2
Террасы
и балконы
и балконы
0Без
гаража
гаража
4
Количество
спален
спален
2
Количество
санузлов
санузлов
Калькулятор опций
0₽
В ипотеку от 31 645 ₽/мес.
0₽
0 дней
stdClass Object
(
[id] => 1
[attribute_id] => 1
[name] => Ленточный монолитный ж/б
[material_modifier] => 1
[work_modifier] => 1
[options] => Array
(
[0] => размер 200 х 700 мм
[1] => размер 300 х 900 мм
[2] => размер 400 х 1 000 мм
[3] => размер 500 х 1 100 мм
[4] => размер 600 х 1 200 мм
)
[days] => [20,21,22,25,30]
[material_price] => [2823,3630,4475,5210,12047]
[work_price] => [2154,2826,3731,4577,5293]
[image] => https://akademik-stroy.ru/wp-content/uploads/materials/lentochnyj-monolitnyj-zh-b.jpg
[area_modifier] => 294.01
[parent_name] => Фундамент
[parent_id] => 1
[material_sum] => 1045788
[work_sum] => 664962
[total_sum] => 1710750
[total_days] => 20
[display_material_sum] => 1 045 788
[display_work_sum] => 664 962
[display_total_sum] => 1 710 750
)
1
1 710 750₽
Работа:664 962 ₽
Материалы:1 045 788 ₽
Дни:20
stdClass Object
(
[id] => 2
[attribute_id] => 1
[name] => Забивные Ж/Б сваи
[material_modifier] => 1
[work_modifier] => 1
[options] => Array
(
[0] => 150х150х3000мм
[1] => 150х150х4000мм
[2] => 200х200х3000мм
[3] => 200х200х4000мм
[4] => 200х200х5000мм
[5] => 200х200х6000мм
)
[days] => [2,2,2,2,2,2]
[material_price] => [1990,2850,3255,4360,5120,6837]
[work_price] => [1002,1185,1336,1438,1574,1839]
[image] => https://akademik-stroy.ru/wp-content/uploads/materials/zabivnye-zh-b-svai.png
[area_modifier] => 294.01
[parent_name] => Фундамент
[parent_id] => 1
[material_sum] => 737201
[work_sum] => 309328
[total_sum] => 1046529
[total_days] => 2
[display_material_sum] => 737 201
[display_work_sum] => 309 328
[display_total_sum] => 1 046 529
)
1
1 046 529₽
Работа:309 328 ₽
Материалы:737 201 ₽
Дни:2
stdClass Object
(
[id] => 71
[attribute_id] => 1
[name] => Свайно-ростверковый ж/б
[material_modifier] => 1
[work_modifier] => 1
[options] => Array
(
[0] => ростверк 200х300 мм
[1] => ростверк 300х600 мм
[2] => ростверк 400х900 мм
[3] => ростверк 500х1200 мм
)
[days] => [20,23,25,27]
[material_price] => [3018,3474,7109,9792]
[work_price] => [2024,3012,5635,7022]
[image] => https://akademik-stroy.ru/wp-content/uploads/materials/svajno-rostverkovyj-monolitnyj-zh-b-3.png
[area_modifier] => 294.01
[parent_name] => Фундамент
[parent_id] => 1
[material_sum] => 1118026
[work_sum] => 624830
[total_sum] => 1742856
[total_days] => 20
[display_material_sum] => 1 118 026
[display_work_sum] => 624 830
[display_total_sum] => 1 742 856
)
1
1 742 856₽
Работа:624 830 ₽
Материалы:1 118 026 ₽
Дни:20
stdClass Object
(
[id] => 72
[attribute_id] => 1
[name] => Монолитная ж/б плита
[material_modifier] => 1
[work_modifier] => 1
[options] => Array
(
[0] => 200 мм
[1] => 300 мм
[2] => 400 мм
[3] => 500 мм
[4] => 600 мм
)
[days] => [30,33,35,37,40]
[material_price] => [5348,8555,12788,14388,15189]
[work_price] => [4314,4881,7037,8061,10230]
[image] => https://akademik-stroy.ru/wp-content/uploads/materials/monolitnaya-zhb-plita.png
[area_modifier] => 294.01
[parent_name] => Фундамент
[parent_id] => 1
[material_sum] => 1981181
[work_sum] => 1331777
[total_sum] => 3312958
[total_days] => 30
[display_material_sum] => 1 981 181
[display_work_sum] => 1 331 777
[display_total_sum] => 3 312 958
)
1
3 312 958₽
Работа:1 331 777 ₽
Материалы:1 981 181 ₽
Дни:30
stdClass Object
(
[id] => 73
[attribute_id] => 1
[name] => Утепленная шведская плита
[material_modifier] => 1
[work_modifier] => 1
[options] => Array
(
[0] => 200 мм
[1] => 300 мм
[2] => 400 мм
[3] => 500 мм
[4] => 600 мм
)
[days] => [32,37,39,42,45]
[material_price] => [10249,12692,13760,14936,16230]
[work_price] => [5960,7337,8072,8878,9765]
[image] => https://akademik-stroy.ru/wp-content/uploads/materials/uteplennaya-shvedskaya-plita.jpg
[area_modifier] => 294.01
[parent_name] => Фундамент
[parent_id] => 1
[material_sum] => 3796769
[work_sum] => 1839915
[total_sum] => 5636684
[total_days] => 32
[display_material_sum] => 3 796 769
[display_work_sum] => 1 839 915
[display_total_sum] => 5 636 684
)
1
5 636 684₽
Работа:1 839 915 ₽
Материалы:3 796 769 ₽
Дни:32
stdClass Object
(
[id] => 75
[attribute_id] => 1
[name] => Ленточный из ФБС
[material_modifier] => 1
[work_modifier] => 1
[options] => Array
(
[0] => толщ. 300 мм
[1] => толщ. 400 мм
[2] => толщ. 500 мм
[3] => толщ. 600 мм
)
[days] => [20,20,20,20]
[material_price] => [3675,4902,6126,7350]
[work_price] => [2451,3264,4083,4902]
[image] => https://akademik-stroy.ru/wp-content/uploads/materials/lentochnyj-iz-fbs.png
[area_modifier] => 294.01
[parent_name] => Фундамент
[parent_id] => 1
[material_sum] => 1361413
[work_sum] => 756649
[total_sum] => 2118062
[total_days] => 20
[display_material_sum] => 1 361 413
[display_work_sum] => 756 649
[display_total_sum] => 2 118 062
)
1
2 118 062₽
Работа:756 649 ₽
Материалы:1 361 413 ₽
Дни:20
stdClass Object
(
[id] => 76
[attribute_id] => 1
[name] => Цокольный этаж из ФБС
[material_modifier] => 1
[work_modifier] => 1
[options] => Array
(
[0] => толщ. 300 мм
[1] => толщ. 400 мм
[2] => толщ. 500 мм
[3] => толщ. 600 мм
)
[days] => [30,32,34,36]
[material_price] => [20916,23299,26680,29060]
[work_price] => [17524,18700,19873,21046]
[image] => https://akademik-stroy.ru/wp-content/uploads/materials/cokolnyj-ehtazh-iz-fbs.jpg
[area_modifier] => 294.01
[parent_name] => Фундамент
[parent_id] => 1
[material_sum] => 7748387
[work_sum] => 5409843
[total_sum] => 13158230
[total_days] => 30
[display_material_sum] => 7 748 387
[display_work_sum] => 5 409 843
[display_total_sum] => 13 158 230
)
1
13 158 230₽
Работа:5 409 843 ₽
Материалы:7 748 387 ₽
Дни:30
stdClass Object
(
[id] => 77
[attribute_id] => 1
[name] => Цокольный этаж монолитный ж/б
[material_modifier] => 1
[work_modifier] => 1
[options] => Array
(
[0] => толщ. 200 мм
[1] => толщ. 300 мм
[2] => толщ. 400 мм
[3] => толщ. 500 мм
[4] => толщ. 600 мм
)
[days] => [40,42,44,46,48]
[material_price] => [25421,29148,32275,35602,37326]
[work_price] => [20441,21907,23375,24841,26306]
[image] => https://akademik-stroy.ru/wp-content/uploads/materials/cokolnyj-etazh-zh-b.jpg
[area_modifier] => 294.01
[parent_name] => Фундамент
[parent_id] => 1
[material_sum] => 9417276
[work_sum] => 6310351
[total_sum] => 15727627
[total_days] => 40
[display_material_sum] => 9 417 276
[display_work_sum] => 6 310 351
[display_total_sum] => 15 727 627
)
1
15 727 627₽
Работа:6 310 351 ₽
Материалы:9 417 276 ₽
Дни:40
stdClass Object
(
[id] => 191
[attribute_id] => 1
[name] => Винтовые сваи
[material_modifier] => 1
[work_modifier] => 1
[options] => Array
(
[0] => 57х200мм
[1] => 76х250мм
[2] => 108х300мм
[3] => 133х350мм
)
[days] => [1,1,2,2]
[material_price] => [1200,1300,1450,1600]
[work_price] => [400,600,900,1100]
[image] => https://akademik-stroy.ru/wp-content/uploads/materials/vintovye-svai.png
[area_modifier] => 294.01
[parent_name] => Фундамент
[parent_id] => 1
[material_sum] => 444543
[work_sum] => 123484
[total_sum] => 568027
[total_days] => 1
[display_material_sum] => 444 543
[display_work_sum] => 123 484
[display_total_sum] => 568 027
)
1
568 027₽
Работа:123 484 ₽
Материалы:444 543 ₽
Дни:1
stdClass Object
(
[id] => 3
[attribute_id] => 2
[name] => Деревянные балки
[material_modifier] => 1
[work_modifier] => 1
[options] => Array
(
[0] => без утепления
[1] => утепление 200 мм
[2] => утепление 250 мм
[3] => утепление 300 мм
[4] => утепление 350 мм
[5] => утепление 400 мм
[6] => утепление 450 мм
[7] => утепление 500 мм
)
[days] => [8,9,9,9,11,12,13,14]
[material_price] => [1634,2042,2344,2947,3149,3652,3354,3557]
[work_price] => [1230,1339,1393,1426,1460,1513,1587,1620]
[image] => https://akademik-stroy.ru/wp-content/uploads/materials/derevyannye-balki.png
[area_modifier] => 294.01
[parent_name] => Перекрытие цоколя
[parent_id] => 2
[material_sum] => 605320
[work_sum] => 379714
[total_sum] => 985034
[total_days] => 8
[display_material_sum] => 605 320
[display_work_sum] => 379 714
[display_total_sum] => 985 034
)
1
985 034₽
Работа:379 714 ₽
Материалы:605 320 ₽
Дни:8
stdClass Object
(
[id] => 4
[attribute_id] => 2
[name] => Сборные ж/б плиты
[material_modifier] => 1
[work_modifier] => 1
[options] => Array
(
[0] => без утепления
[1] => утепление 150мм
[2] => утепление 200мм
[3] => утепление 250мм
[4] => утепление 300мм
[5] => утепление 350мм
[6] => утепление 400мм
[7] => утепление 450мм
[8] => утепление 500мм
)
[days] => [13,15,15,15,15,15,15,15,15]
[material_price] => [3067,5577,5928,6679,7730,8782,9833,10884,11935]
[work_price] => [1520,1956,2102,2247,2392,2537,2684,2829,2974]
[image] => https://akademik-stroy.ru/wp-content/uploads/materials/sbornye-zh-b-plity-2.jpg
[area_modifier] => 294.01
[parent_name] => Перекрытие цоколя
[parent_id] => 2
[material_sum] => 1136178
[work_sum] => 469240
[total_sum] => 1605418
[total_days] => 13
[display_material_sum] => 1 136 178
[display_work_sum] => 469 240
[display_total_sum] => 1 605 418
)
1
1 605 418₽
Работа:469 240 ₽
Материалы:1 136 178 ₽
Дни:13
stdClass Object
(
[id] => 78
[attribute_id] => 2
[name] => Монолитная ж/б плита
[material_modifier] => 1
[work_modifier] => 1
[options] => Array
(
[0] => без утепления
[1] => утепление 150 мм
[2] => утепление 200 мм
[3] => утепление 250 мм
[4] => утепление 300 мм
[5] => утепление 350 мм
[6] => утепление 400 мм
[7] => утепление 450 мм
[8] => утепление 500 мм
)
[days] => [18,20,20,20,20,20,20,20,20]
[material_price] => [4837,6572,7224,7375,79426,8177,8728,9180,10031]
[work_price] => [3348,3921,4112,4302,4493,4684,4875,5066,5256]
[image] => https://akademik-stroy.ru/wp-content/uploads/materials/monolitnaya-zh-b-plita-2.jpg
[area_modifier] => 294.01
[parent_name] => Перекрытие цоколя
[parent_id] => 2
[material_sum] => 1791879
[work_sum] => 1033563
[total_sum] => 2825442
[total_days] => 18
[display_material_sum] => 1 791 879
[display_work_sum] => 1 033 563
[display_total_sum] => 2 825 442
)
1
2 825 442₽
Работа:1 033 563 ₽
Материалы:1 791 879 ₽
Дни:18
stdClass Object
(
[id] => 6
[attribute_id] => 3
[name] => Пеноблок
[material_modifier] => 1
[work_modifier] => 1
[options] => Array
(
[0] => 300 мм
[1] => 400 мм
[2] => 500 мм
[3] => 600 мм
)
[days] => [29,31,34,39]
[material_price] => [3000,4000,4500,4937]
[work_price] => [5033,5805,6400,8710]
[image] => https://akademik-stroy.ru/wp-content/uploads/materials/penoblok.jpg
[area_modifier] => 294.01
[parent_name] => Стены 1 этаж (несущие)
[parent_id] => 3
[material_sum] => 1111358
[work_sum] => 1553740
[total_sum] => 2665098
[total_days] => 29
[display_material_sum] => 1 111 358
[display_work_sum] => 1 553 740
[display_total_sum] => 2 665 098
)
1
2 665 098₽
Работа:1 553 740 ₽
Материалы:1 111 358 ₽
Дни:29
stdClass Object
(
[id] => 79
[attribute_id] => 3
[name] => Керамический блок
[material_modifier] => 1
[work_modifier] => 1
[options] => Array
(
[0] => 380 мм
[1] => 380 мм Thermo
[2] => 440 мм
[3] => 510 мм
)
[days] => [23,23,24,25]
[material_price] => [4510,5098,6093,8013]
[work_price] => [4737,4937,5903,6958]
[image] => https://akademik-stroy.ru/wp-content/uploads/materials/keramicheskij-blok.jpg
[area_modifier] => 294.01
[parent_name] => Стены 1 этаж (несущие)
[parent_id] => 3
[material_sum] => 1670741
[work_sum] => 1462362
[total_sum] => 3133103
[total_days] => 23
[display_material_sum] => 1 670 741
[display_work_sum] => 1 462 362
[display_total_sum] => 3 133 103
)
1
3 133 103₽
Работа:1 462 362 ₽
Материалы:1 670 741 ₽
Дни:23
stdClass Object
(
[id] => 80
[attribute_id] => 3
[name] => Кирпич
[material_modifier] => 1
[work_modifier] => 1
[options] => Array
(
[0] => Кирпич 250 мм
[1] => Кирпич 380 мм
[2] => Кирпич 510 мм
[3] => Кирпич 640 мм
[4] => Кирпич 770 мм
)
[days] => [30,30,31,33,36]
[material_price] => [5500,7142,9206,10171,12235]
[work_price] => [8736,10041,12018,15240,18462]
[image] => https://akademik-stroy.ru/wp-content/uploads/materials/kirpich.jpg
[area_modifier] => 294.01
[parent_name] => Стены 1 этаж (несущие)
[parent_id] => 3
[material_sum] => 2037489
[work_sum] => 2696895
[total_sum] => 4734384
[total_days] => 30
[display_material_sum] => 2 037 489
[display_work_sum] => 2 696 895
[display_total_sum] => 4 734 384
)
1
4 734 384₽
Работа:2 696 895 ₽
Материалы:2 037 489 ₽
Дни:30
stdClass Object
(
[id] => 81
[attribute_id] => 3
[name] => Монолитные
[material_modifier] => 1
[work_modifier] => 1
[options] => Array
(
[0] => 150 мм
[1] => 200 мм
[2] => 250 мм
[3] => 300 мм
[4] => 350 мм
[5] => 400 мм
)
[days] => [45,46,47,49,50,53]
[material_price] => [6545,7876,10175,12011,13908,15204]
[work_price] => [5106,6444,7698,8552,9807,11461]
[image] => https://akademik-stroy.ru/wp-content/uploads/materials/monolitnye.jpg
[area_modifier] => 294.01
[parent_name] => Стены 1 этаж (несущие)
[parent_id] => 3
[material_sum] => 2424612
[work_sum] => 1576276
[total_sum] => 4000888
[total_days] => 45
[display_material_sum] => 2 424 612
[display_work_sum] => 1 576 276
[display_total_sum] => 4 000 888
)
1
4 000 888₽
Работа:1 576 276 ₽
Материалы:2 424 612 ₽
Дни:45
stdClass Object
(
[id] => 82
[attribute_id] => 3
[name] => Клееный брус
[material_modifier] => 1
[work_modifier] => 1
[options] => Array
(
[0] => 160 мм
[1] => 175 мм
[2] => 200 мм
[3] => 215 мм
[4] => 240 мм
[5] => 270 мм
[6] => 282 мм
)
[days] => [24,28,32,37,40,42,48]
[material_price] => [16975,18773,19950,20545,21599,22159,23275]
[work_price] => [4806,5287,5815,6397,7036,7740,8514]
[image] => https://akademik-stroy.ru/wp-content/uploads/materials/kleenyj-brus.jpg
[area_modifier] => 294.01
[parent_name] => Стены 1 этаж (несущие)
[parent_id] => 3
[material_sum] => 6288433
[work_sum] => 1483663
[total_sum] => 7772096
[total_days] => 24
[display_material_sum] => 6 288 433
[display_work_sum] => 1 483 663
[display_total_sum] => 7 772 096
)
1
7 772 096₽
Работа:1 483 663 ₽
Материалы:6 288 433 ₽
Дни:24
stdClass Object
(
[id] => 83
[attribute_id] => 3
[name] => Каркасные
[material_modifier] => 1
[work_modifier] => 1
[options] => Array
(
[0] => 150 мм
[1] => 200 мм
[2] => 250 мм
[3] => 300 мм
)
[days] => [15,16,17,18]
[material_price] => [2379,2639,2898,3258]
[work_price] => [2418,2686,2985,3716]
[image] => https://akademik-stroy.ru/wp-content/uploads/materials/karkasnye.jpg
[area_modifier] => 294.01
[parent_name] => Стены 1 этаж (несущие)
[parent_id] => 3
[material_sum] => 881307
[work_sum] => 746462
[total_sum] => 1627769
[total_days] => 15
[display_material_sum] => 881 307
[display_work_sum] => 746 462
[display_total_sum] => 1 627 769
)
1
1 627 769₽
Работа:746 462 ₽
Материалы:881 307 ₽
Дни:15
stdClass Object
(
[id] => 84
[attribute_id] => 3
[name] => СИП-панели
[material_modifier] => 1
[work_modifier] => 1
[options] => Array
(
[0] => 120 мм
[1] => 170 мм
[2] => 220 мм
)
[days] => [7,7,7]
[material_price] => [1210,1856,2292]
[work_price] => [1410,1551,1706]
[image] => https://akademik-stroy.ru/wp-content/uploads/materials/sip-paneli.jpg
[area_modifier] => 294.01
[parent_name] => Стены 1 этаж (несущие)
[parent_id] => 3
[material_sum] => 448248
[work_sum] => 435282
[total_sum] => 883530
[total_days] => 7
[display_material_sum] => 448 248
[display_work_sum] => 435 282
[display_total_sum] => 883 530
)
1
883 530₽
Работа:435 282 ₽
Материалы:448 248 ₽
Дни:7
stdClass Object
(
[id] => 85
[attribute_id] => 3
[name] => Сухой брус
[material_modifier] => 1
[work_modifier] => 1
[options] => Array
(
[0] => 150 мм
[1] => 180 мм
[2] => 200 мм
)
[days] => [7,8,9]
[material_price] => [6010,7190,8709]
[work_price] => [3204,3845,4229]
[image] => https://akademik-stroy.ru/wp-content/uploads/materials/suhoj-brus.jpg
[area_modifier] => 294.01
[parent_name] => Стены 1 этаж (несущие)
[parent_id] => 3
[material_sum] => 2226420
[work_sum] => 989108
[total_sum] => 3215528
[total_days] => 7
[display_material_sum] => 2 226 420
[display_work_sum] => 989 108
[display_total_sum] => 3 215 528
)
1
3 215 528₽
Работа:989 108 ₽
Материалы:2 226 420 ₽
Дни:7
stdClass Object
(
[id] => 86
[attribute_id] => 3
[name] => Профилированный брус
[material_modifier] => 1
[work_modifier] => 1
[options] => Array
(
[0] => 150 мм
[1] => 180 мм
[2] => 200 мм
)
[days] => [7,8,9]
[material_price] => [8190,9228,10051]
[work_price] => [3845,4614,5075]
[image] => https://akademik-stroy.ru/wp-content/uploads/materials/profilirovannyj-brus.jpg
[area_modifier] => 294.01
[parent_name] => Стены 1 этаж (несущие)
[parent_id] => 3
[material_sum] => 3034007
[work_sum] => 1186992
[total_sum] => 4220999
[total_days] => 7
[display_material_sum] => 3 034 007
[display_work_sum] => 1 186 992
[display_total_sum] => 4 220 999
)
1
4 220 999₽
Работа:1 186 992 ₽
Материалы:3 034 007 ₽
Дни:7
stdClass Object
(
[id] => 87
[attribute_id] => 3
[name] => Оцилиндрованное бревно
[material_modifier] => 1
[work_modifier] => 1
[options] => Array
(
[0] => 180 мм
[1] => 220 мм
[2] => 260 мм
[3] => 320 мм
)
[days] => [7,8,9,10]
[material_price] => [75190,9532,10868,13116]
[work_price] => [3845,4691,5535,6863]
[image] => https://akademik-stroy.ru/wp-content/uploads/materials/ocilindrovannoe-brevno-1.jpg
[area_modifier] => 294.01
[parent_name] => Стены 1 этаж (несущие)
[parent_id] => 3
[material_sum] => 27854331
[work_sum] => 1186992
[total_sum] => 29041323
[total_days] => 7
[display_material_sum] => 27 854 331
[display_work_sum] => 1 186 992
[display_total_sum] => 29 041 323
)
1
29 041 323₽
Работа:1 186 992 ₽
Материалы:27 854 331 ₽
Дни:7
stdClass Object
(
[id] => 88
[attribute_id] => 3
[name] => Срубы
[material_modifier] => 1
[work_modifier] => 1
[options] => Array
(
[0] => 260 мм
[1] => 320 мм
[2] => 360 мм
[3] => 400 мм
[4] => 500 мм
)
[days] => [7,8,9,10,11]
[material_price] => [37975,46709,52314,58069,73167]
[work_price] => [4806,5911,6621,7349,9260]
[image] => https://akademik-stroy.ru/wp-content/uploads/materials/sruby.jpg
[area_modifier] => 294.01
[parent_name] => Стены 1 этаж (несущие)
[parent_id] => 3
[material_sum] => 14067937
[work_sum] => 1483663
[total_sum] => 15551600
[total_days] => 7
[display_material_sum] => 14 067 937
[display_work_sum] => 1 483 663
[display_total_sum] => 15 551 600
)
1
15 551 600₽
Работа:1 483 663 ₽
Материалы:14 067 937 ₽
Дни:7
stdClass Object
(
[id] => 174
[attribute_id] => 3
[name] => Брус
[material_modifier] => 1
[work_modifier] => 1
[options] => Array
(
[0] => 150 мм
[1] => 180 мм
[2] => 200 мм
)
[days] => [7,8,9]
[material_price] => [5127,6152,7367]
[work_price] => [1602,1922,2115]
[image] => https://akademik-stroy.ru/wp-content/uploads/materials/brus.jpg
[area_modifier] => 294.01
[parent_name] => Стены 1 этаж (несущие)
[parent_id] => 3
[material_sum] => 1899310
[work_sum] => 494554
[total_sum] => 2393864
[total_days] => 7
[display_material_sum] => 1 899 310
[display_work_sum] => 494 554
[display_total_sum] => 2 393 864
)
1
2 393 864₽
Работа:494 554 ₽
Материалы:1 899 310 ₽
Дни:7
stdClass Object
(
[id] => 175
[attribute_id] => 3
[name] => Газобетон
[material_modifier] => 1
[work_modifier] => 1
[options] => Array
(
[0] => 300 мм
[1] => 375 мм
[2] => 400 мм
[3] => 500 мм
[4] => 600 мм
)
[days] => [29,31,35,37,44]
[material_price] => [4298,5573,6356,7288,9119]
[work_price] => [4538,5251,5926,6733,7195]
[image] => https://akademik-stroy.ru/wp-content/uploads/materials/gazobeton.jpg
[area_modifier] => 294.01
[parent_name] => Стены 1 этаж (несущие)
[parent_id] => 3
[material_sum] => 1592205
[work_sum] => 1400928
[total_sum] => 2993133
[total_days] => 29
[display_material_sum] => 1 592 205
[display_work_sum] => 1 400 928
[display_total_sum] => 2 993 133
)
1
2 993 133₽
Работа:1 400 928 ₽
Материалы:1 592 205 ₽
Дни:29
stdClass Object
(
[id] => 176
[attribute_id] => 3
[name] => Блок
[material_modifier] => 1
[work_modifier] => 1
[options] => Array
(
[0] => 300 мм
[1] => 375 мм
[2] => 400 мм
[3] => 500 мм
[4] => 600 мм
)
[days] => [29,31,35,37,44]
[material_price] => [2698,3973,4356,6588,7119]
[work_price] => [5038,5851,6426,8733,9195]
[image] => https://akademik-stroy.ru/wp-content/uploads/materials/blok.jpg
[area_modifier] => 294.01
[parent_name] => Стены 1 этаж (несущие)
[parent_id] => 3
[material_sum] => 999481
[work_sum] => 1555283
[total_sum] => 2554764
[total_days] => 29
[display_material_sum] => 999 481
[display_work_sum] => 1 555 283
[display_total_sum] => 2 554 764
)
1
2 554 764₽
Работа:1 555 283 ₽
Материалы:999 481 ₽
Дни:29
stdClass Object
(
[id] => 177
[attribute_id] => 3
[name] => Газосиликатный блок
[material_modifier] => 1
[work_modifier] => 1
[options] => Array
(
[0] => 300 мм
[1] => 375 мм
[2] => 400 мм
[3] => 500 мм
[4] => 600 мм
)
[days] => [29,31,35,37,44]
[material_price] => [4298,5573,6356,7288,9119]
[work_price] => [4538,5251,5926,6733,7195]
[image] => https://akademik-stroy.ru/wp-content/uploads/materials/gazosilikatnyj-blok.jpg
[area_modifier] => 294.01
[parent_name] => Стены 1 этаж (несущие)
[parent_id] => 3
[material_sum] => 1592205
[work_sum] => 1400928
[total_sum] => 2993133
[total_days] => 29
[display_material_sum] => 1 592 205
[display_work_sum] => 1 400 928
[display_total_sum] => 2 993 133
)
1
2 993 133₽
Работа:1 400 928 ₽
Материалы:1 592 205 ₽
Дни:29
stdClass Object
(
[id] => 178
[attribute_id] => 3
[name] => Керамзитобетонный блок
[material_modifier] => 1
[work_modifier] => 1
[options] => Array
(
[0] => 300 мм
[1] => 375 мм
[2] => 400 мм
[3] => 500 мм
[4] => 600 мм
)
[days] => [23,23,24,25,28]
[material_price] => [3641,4298,5693,7613,9612]
[work_price] => [5737,5737,6903,7958,8901]
[image] => https://akademik-stroy.ru/wp-content/uploads/materials/keramzitobetonnyj-blok.jpg
[area_modifier] => 294.01
[parent_name] => Стены 1 этаж (несущие)
[parent_id] => 3
[material_sum] => 1348818
[work_sum] => 1771072
[total_sum] => 3119890
[total_days] => 23
[display_material_sum] => 1 348 818
[display_work_sum] => 1 771 072
[display_total_sum] => 3 119 890
)
1
3 119 890₽
Работа:1 771 072 ₽
Материалы:1 348 818 ₽
Дни:23
stdClass Object
(
[id] => 179
[attribute_id] => 3
[name] => Деревянные
[material_modifier] => 1
[work_modifier] => 1
[options] => Array
(
[0] => 180 мм
[1] => 220 мм
[2] => 260 мм
[3] => 320 мм
)
[days] => [7,8,9,10]
[material_price] => [7950,9458,11961,14472]
[work_price] => [4037,4925,5812,7207]
[image] => https://akademik-stroy.ru/wp-content/uploads/materials/derevyannye.jpg
[area_modifier] => 294.01
[parent_name] => Стены 1 этаж (несущие)
[parent_id] => 3
[material_sum] => 2945098
[work_sum] => 1246264
[total_sum] => 4191362
[total_days] => 7
[display_material_sum] => 2 945 098
[display_work_sum] => 1 246 264
[display_total_sum] => 4 191 362
)
1
4 191 362₽
Работа:1 246 264 ₽
Материалы:2 945 098 ₽
Дни:7
stdClass Object
(
[id] => 181
[attribute_id] => 3
[name] => Камень
[material_modifier] => 1
[work_modifier] => 1
[options] => Array
(
[0] => 300 мм
[1] => 400 мм
[2] => 500 мм
[3] => 600 мм
)
[days] => [25,27,31,34]
[material_price] => [5262,6844,8330,9815]
[work_price] => [8331,9135,10427,11069]
[image] => https://akademik-stroy.ru/wp-content/uploads/materials/kamen.jpg
[area_modifier] => 294.01
[parent_name] => Стены 1 этаж (несущие)
[parent_id] => 3
[material_sum] => 1949322
[work_sum] => 2571867
[total_sum] => 4521189
[total_days] => 25
[display_material_sum] => 1 949 322
[display_work_sum] => 2 571 867
[display_total_sum] => 4 521 189
)
1
4 521 189₽
Работа:2 571 867 ₽
Материалы:1 949 322 ₽
Дни:25
stdClass Object
(
[id] => 182
[attribute_id] => 3
[name] => Каркасно-щитовые
[material_modifier] => 1
[work_modifier] => 1
[options] => Array
(
[0] => 150 мм
[1] => 200 мм
[2] => 250 мм
[3] => 300 мм
[4] => 350 мм
[5] => 400 мм
)
[days] => [15,16,17,18,19,20]
[material_price] => [2379,2639,2898,3458,3601,4175]
[work_price] => [2538,2820,3134,3483,4062,5642]
[image] => https://akademik-stroy.ru/wp-content/uploads/materials/karkasno-shchitovye.jpg
[area_modifier] => 294.01
[parent_name] => Стены 1 этаж (несущие)
[parent_id] => 3
[material_sum] => 881307
[work_sum] => 783507
[total_sum] => 1664814
[total_days] => 15
[display_material_sum] => 881 307
[display_work_sum] => 783 507
[display_total_sum] => 1 664 814
)
1
1 664 814₽
Работа:783 507 ₽
Материалы:881 307 ₽
Дни:15
stdClass Object
(
[id] => 183
[attribute_id] => 3
[name] => Рубленные
[material_modifier] => 1
[work_modifier] => 1
[options] => Array
(
[0] => 150 мм
[1] => 200 мм
[2] => 250 мм
[3] => 300 мм
[4] => 350 мм
[5] => 400 мм
)
[days] => [15,16,17,18,17,18]
[material_price] => [35950,50267,60583,75900,80217,100533]
[work_price] => [9612,12816,16020,19224,22428,25632]
[image] => https://akademik-stroy.ru/wp-content/uploads/materials/rublennye.jpg
[area_modifier] => 294.01
[parent_name] => Стены 1 этаж (несущие)
[parent_id] => 3
[material_sum] => 13317771
[work_sum] => 2967325
[total_sum] => 16285096
[total_days] => 15
[display_material_sum] => 13 317 771
[display_work_sum] => 2 967 325
[display_total_sum] => 16 285 096
)
1
16 285 096₽
Работа:2 967 325 ₽
Материалы:13 317 771 ₽
Дни:15
stdClass Object
(
[id] => 185
[attribute_id] => 3
[name] => Теплоблок
[material_modifier] => 1
[work_modifier] => 1
[options] => Array
(
[0] => 300 мм (с облицовкой, не покрашенный)
[1] => 400 мм (с облицовкой, не покрашенный)
[2] => 300 мм (с облицовкой, покрашенный)
[3] => 400 мм (с облицовкой, покрашенный)
)
[days] => [15,16,15,16]
[material_price] => [2888,3729,3957,4258]
[work_price] => [2564,3229,2949,3713]
[image] => https://akademik-stroy.ru/wp-content/uploads/materials/teploblok.jpg
[area_modifier] => 294.01
[parent_name] => Стены 1 этаж (несущие)
[parent_id] => 3
[material_sum] => 1069867
[work_sum] => 791534
[total_sum] => 1861401
[total_days] => 15
[display_material_sum] => 1 069 867
[display_work_sum] => 791 534
[display_total_sum] => 1 861 401
)
1
1 861 401₽
Работа:791 534 ₽
Материалы:1 069 867 ₽
Дни:15
stdClass Object
(
[id] => 186
[attribute_id] => 3
[name] => Арболитовые блоки
[material_modifier] => 1
[work_modifier] => 1
[options] => Array
(
[0] => 300 мм
[1] => 400 мм
[2] => 600 мм
)
[days] => [19,22,27]
[material_price] => [3210,4475,5852]
[work_price] => [4214,4788,5866]
[image] => https://akademik-stroy.ru/wp-content/uploads/materials/arbolitovye-bloki.png
[area_modifier] => 294.01
[parent_name] => Стены 1 этаж (несущие)
[parent_id] => 3
[material_sum] => 1189153
[work_sum] => 1300906
[total_sum] => 2490059
[total_days] => 19
[display_material_sum] => 1 189 153
[display_work_sum] => 1 300 906
[display_total_sum] => 2 490 059
)
1
2 490 059₽
Работа:1 300 906 ₽
Материалы:1 189 153 ₽
Дни:19
stdClass Object
(
[id] => 187
[attribute_id] => 3
[name] => Полистиролбетон
[material_modifier] => 1
[work_modifier] => 1
[options] => Array
(
[0] => 300 мм
[1] => 400 мм
[2] => 600 мм
)
[days] => [29,31,35]
[material_price] => [2798,4573,5256]
[work_price] => [5038,5851,6426]
[image] => https://akademik-stroy.ru/wp-content/uploads/materials/polistirolbeton.jpg
[area_modifier] => 294.01
[parent_name] => Стены 1 этаж (несущие)
[parent_id] => 3
[material_sum] => 1036526
[work_sum] => 1555283
[total_sum] => 2591809
[total_days] => 29
[display_material_sum] => 1 036 526
[display_work_sum] => 1 555 283
[display_total_sum] => 2 591 809
)
1
2 591 809₽
Работа:1 555 283 ₽
Материалы:1 036 526 ₽
Дни:29
stdClass Object
(
[id] => 188
[attribute_id] => 3
[name] => Шлакоблок
[material_modifier] => 1
[work_modifier] => 1
[options] => Array
(
[0] => 400 мм
[1] => 600 мм
)
[days] => [15,16]
[material_price] => [2391,3471]
[work_price] => [2642,3662]
[image] => https://akademik-stroy.ru/wp-content/uploads/materials/shlakoblok.jpg
[area_modifier] => 294.01
[parent_name] => Стены 1 этаж (несущие)
[parent_id] => 3
[material_sum] => 885752
[work_sum] => 815613
[total_sum] => 1701365
[total_days] => 15
[display_material_sum] => 885 752
[display_work_sum] => 815 613
[display_total_sum] => 1 701 365
)
1
1 701 365₽
Работа:815 613 ₽
Материалы:885 752 ₽
Дни:15
stdClass Object
(
[id] => 189
[attribute_id] => 3
[name] => Теплая керамика
[material_modifier] => 1
[work_modifier] => 1
[options] => Array
(
[0] => 380 мм
[1] => 380 мм Thermo
[2] => 440 мм
[3] => 510 мм
)
[days] => [23,23,24,25]
[material_price] => [4510,5098,6093,8013]
[work_price] => [4737,4937,5903,6958]
[image] => https://akademik-stroy.ru/wp-content/uploads/materials/teplaya-keramika.jpg
[area_modifier] => 294.01
[parent_name] => Стены 1 этаж (несущие)
[parent_id] => 3
[material_sum] => 1670741
[work_sum] => 1462362
[total_sum] => 3133103
[total_days] => 23
[display_material_sum] => 1 670 741
[display_work_sum] => 1 462 362
[display_total_sum] => 3 133 103
)
1
3 133 103₽
Работа:1 462 362 ₽
Материалы:1 670 741 ₽
Дни:23
stdClass Object
(
[id] => 190
[attribute_id] => 3
[name] => Несъемная опалубка
[material_modifier] => 1
[work_modifier] => 1
[options] => Array
(
[0] => 200 мм
[1] => 250 мм
[2] => 300 мм
[3] => 350 мм
)
[days] => [15,17,19,21]
[material_price] => [3302,3902,4108,5008]
[work_price] => [2100,2100,2300,2534]
[image] => https://akademik-stroy.ru/wp-content/uploads/materials/nesemnaya-opalubka.jpg
[area_modifier] => 294.01
[parent_name] => Стены 1 этаж (несущие)
[parent_id] => 3
[material_sum] => 1223234
[work_sum] => 648292
[total_sum] => 1871526
[total_days] => 15
[display_material_sum] => 1 223 234
[display_work_sum] => 648 292
[display_total_sum] => 1 871 526
)
1
1 871 526₽
Работа:648 292 ₽
Материалы:1 223 234 ₽
Дни:15
stdClass Object
(
[id] => 251
[attribute_id] => 3
[name] => Бревно
[material_modifier] => 1
[work_modifier] => 1
[options] => Array
(
[0] => 260 мм
[1] => 320 мм
[2] => 360 мм
[3] => 400 мм
[4] => 500 мм
)
[days] => [7,8,9,10,11]
[material_price] => [1874,24045,26930,30972,38825]
[work_price] => [5046,6207,6952,7716,9723]
[image] => https://akademik-stroy.ru/wp-content/uploads/materials/sruby.jpg
[area_modifier] => 294.01
[parent_name] => Стены 1 этаж (несущие)
[parent_id] => 3
[material_sum] => 694228
[work_sum] => 1557753
[total_sum] => 2251981
[total_days] => 7
[display_material_sum] => 694 228
[display_work_sum] => 1 557 753
[display_total_sum] => 2 251 981
)
1
2 251 981₽
Работа:1 557 753 ₽
Материалы:694 228 ₽
Дни:7
stdClass Object
(
[id] => 7
[attribute_id] => 4
[name] => Деревянные балки
[material_modifier] => 1
[work_modifier] => 1
[options] => Array
(
[0] => без утепления
[1] => утепление 200 мм
[2] => утепление 250 мм
[3] => утепление 300 мм
[4] => утепление 350 мм
[5] => утепление 400 мм
[6] => утепление 450 мм
[7] => утепление 500 мм
)
[days] => [8,9,9,9,11,12,13,14]
[material_price] => [1634,2042,2344,2947,3149,3652,3354,3557]
[work_price] => [1230,1339,1393,1426,1460,1513,1587,1620]
[image] => https://akademik-stroy.ru/wp-content/uploads/materials/derevyannye-balki.png
[area_modifier] => 294.01
[parent_name] => Перекрытие первого этажа
[parent_id] => 4
[material_sum] => 605320
[work_sum] => 379714
[total_sum] => 985034
[total_days] => 8
[display_material_sum] => 605 320
[display_work_sum] => 379 714
[display_total_sum] => 985 034
)
1
985 034₽
Работа:379 714 ₽
Материалы:605 320 ₽
Дни:8
stdClass Object
(
[id] => 8
[attribute_id] => 4
[name] => Сборные ж/б плиты
[material_modifier] => 1
[work_modifier] => 1
[options] => Array
(
[0] => без утепления
[1] => утепление 150 мм
[2] => утепление 200 мм
[3] => утепление 250 мм
[4] => утепление 300 мм
[5] => утепление 350 мм
[6] => утепление 400 мм
[7] => утепление 450 мм
[8] => утепление 500 мм
)
[days] => [13,15,15,15,15,15,15,15,15]
[material_price] => [3067,5577,5928,6679,7730,8782,9833,10884,11935]
[work_price] => [1520,1956,2102,2247,2392,2537,2684,2829,2974]
[image] => https://akademik-stroy.ru/wp-content/uploads/materials/sbornye-zh-b-plity-2.jpg
[area_modifier] => 294.01
[parent_name] => Перекрытие первого этажа
[parent_id] => 4
[material_sum] => 1136178
[work_sum] => 469240
[total_sum] => 1605418
[total_days] => 13
[display_material_sum] => 1 136 178
[display_work_sum] => 469 240
[display_total_sum] => 1 605 418
)
1
1 605 418₽
Работа:469 240 ₽
Материалы:1 136 178 ₽
Дни:13
stdClass Object
(
[id] => 89
[attribute_id] => 4
[name] => Монолитная ж/б плита
[material_modifier] => 1
[work_modifier] => 1
[options] => Array
(
[0] => без утепления
[1] => утепление 150 мм
[2] => утепление 200 мм
[3] => утепление 250 мм
[4] => утепление 300 мм
[5] => утепление 350 мм
[6] => утепление 400 мм
[7] => утепление 450 мм
[8] => утепление 500 мм
)
[days] => [18,20,20,20,20,20,20,20,20]
[material_price] => [4837,6572,7224,7375,79426,8177,8728,9180,10031]
[work_price] => [3348,3921,4112,4302,4493,4684,4875,5066,5256]
[image] => https://akademik-stroy.ru/wp-content/uploads/materials/monolitnaya-zh-b-plita-2.jpg
[area_modifier] => 294.01
[parent_name] => Перекрытие первого этажа
[parent_id] => 4
[material_sum] => 1791879
[work_sum] => 1033563
[total_sum] => 2825442
[total_days] => 18
[display_material_sum] => 1 791 879
[display_work_sum] => 1 033 563
[display_total_sum] => 2 825 442
)
1
2 825 442₽
Работа:1 033 563 ₽
Материалы:1 791 879 ₽
Дни:18
stdClass Object
(
[id] => 164
[attribute_id] => 37
[name] => Металлочерепица
[material_modifier] => 1
[work_modifier] => 1
[options] => Array
(
)
[days] => [20]
[material_price] => [6112]
[work_price] => [5726]
[image] => https://akademik-stroy.ru/wp-content/uploads/materials/metallocherepica.jpg
[area_modifier] => 294.01
[parent_name] => Крыша (Скатная)
[parent_id] => 37
[material_sum] => 2264206
[work_sum] => 1767676
[total_sum] => 4031882
[total_days] => 20
[display_material_sum] => 2 264 206
[display_work_sum] => 1 767 676
[display_total_sum] => 4 031 882
)
1
4 031 882₽
Работа:1 767 676 ₽
Материалы:2 264 206 ₽
Дни:20
stdClass Object
(
[id] => 165
[attribute_id] => 37
[name] => Гибкая черепица
[material_modifier] => 1
[work_modifier] => 1
[options] => Array
(
)
[days] => [20]
[material_price] => [6980]
[work_price] => [5950]
[image] => https://akademik-stroy.ru/wp-content/uploads/materials/gibkaya-cherepica.jpg
[area_modifier] => 294.01
[parent_name] => Крыша (Скатная)
[parent_id] => 37
[material_sum] => 2585759
[work_sum] => 1836827
[total_sum] => 4422586
[total_days] => 20
[display_material_sum] => 2 585 759
[display_work_sum] => 1 836 827
[display_total_sum] => 4 422 586
)
1
4 422 586₽
Работа:1 836 827 ₽
Материалы:2 585 759 ₽
Дни:20
stdClass Object
(
[id] => 166
[attribute_id] => 37
[name] => Цементно-песчаная черепица
[material_modifier] => 1
[work_modifier] => 1
[options] => Array
(
)
[days] => [20]
[material_price] => [10560]
[work_price] => [9456]
[image] => https://akademik-stroy.ru/wp-content/uploads/materials/cementno-peschanaya-cherepica.jpg
[area_modifier] => 294.01
[parent_name] => Крыша (Скатная)
[parent_id] => 37
[material_sum] => 3911979
[work_sum] => 2919166
[total_sum] => 6831145
[total_days] => 20
[display_material_sum] => 3 911 979
[display_work_sum] => 2 919 166
[display_total_sum] => 6 831 145
)
1
6 831 145₽
Работа:2 919 166 ₽
Материалы:3 911 979 ₽
Дни:20
stdClass Object
(
[id] => 167
[attribute_id] => 37
[name] => Композитная черепица
[material_modifier] => 1
[work_modifier] => 1
[options] => Array
(
)
[days] => [20]
[material_price] => [9506]
[work_price] => [8905]
[image] => https://akademik-stroy.ru/wp-content/uploads/materials/kompozitnaya-cherepica.jpg
[area_modifier] => 294.01
[parent_name] => Крыша (Скатная)
[parent_id] => 37
[material_sum] => 3521522
[work_sum] => 2749067
[total_sum] => 6270589
[total_days] => 20
[display_material_sum] => 3 521 522
[display_work_sum] => 2 749 067
[display_total_sum] => 6 270 589
)
1
6 270 589₽
Работа:2 749 067 ₽
Материалы:3 521 522 ₽
Дни:20
stdClass Object
(
[id] => 168
[attribute_id] => 37
[name] => Керамическая черепица
[material_modifier] => 1
[work_modifier] => 1
[options] => Array
(
)
[days] => [20]
[material_price] => [12750]
[work_price] => [9456]
[image] => https://akademik-stroy.ru/wp-content/uploads/materials/keramicheskaya-cherepica.jpg
[area_modifier] => 294.01
[parent_name] => Крыша (Скатная)
[parent_id] => 37
[material_sum] => 4723271
[work_sum] => 2919166
[total_sum] => 7642437
[total_days] => 20
[display_material_sum] => 4 723 271
[display_work_sum] => 2 919 166
[display_total_sum] => 7 642 437
)
1
7 642 437₽
Работа:2 919 166 ₽
Материалы:4 723 271 ₽
Дни:20
stdClass Object
(
[id] => 169
[attribute_id] => 37
[name] => Металлическая фальцевая
[material_modifier] => 1
[work_modifier] => 1
[options] => Array
(
)
[days] => [20]
[material_price] => [8550]
[work_price] => [8190]
[image] => https://akademik-stroy.ru/wp-content/uploads/materials/metallicheskaya-falcevaya.jpg
[area_modifier] => 294.01
[parent_name] => Крыша (Скатная)
[parent_id] => 37
[material_sum] => 3167370
[work_sum] => 2528339
[total_sum] => 5695709
[total_days] => 20
[display_material_sum] => 3 167 370
[display_work_sum] => 2 528 339
[display_total_sum] => 5 695 709
)
1
5 695 709₽
Работа:2 528 339 ₽
Материалы:3 167 370 ₽
Дни:20
stdClass Object
(
[id] => 170
[attribute_id] => 37
[name] => Медная фальцевая
[material_modifier] => 1
[work_modifier] => 1
[options] => Array
(
)
[days] => [20]
[material_price] => [20450]
[work_price] => [16750]
[image] => https://akademik-stroy.ru/wp-content/uploads/materials/mednaya-falcevaya.jpg
[area_modifier] => 294.01
[parent_name] => Крыша (Скатная)
[parent_id] => 37
[material_sum] => 7575756
[work_sum] => 5170901
[total_sum] => 12746657
[total_days] => 20
[display_material_sum] => 7 575 756
[display_work_sum] => 5 170 901
[display_total_sum] => 12 746 657
)
1
12 746 657₽
Работа:5 170 901 ₽
Материалы:7 575 756 ₽
Дни:20
stdClass Object
(
[id] => 171
[attribute_id] => 37
[name] => Зеленая кровля
[material_modifier] => 1
[work_modifier] => 1
[options] => Array
(
)
[days] => [20]
[material_price] => [19850]
[work_price] => [16780]
[image] => https://akademik-stroy.ru/wp-content/uploads/materials/zelenaya-krovlya.jpg
[area_modifier] => 294.01
[parent_name] => Крыша (Скатная)
[parent_id] => 37
[material_sum] => 7353484
[work_sum] => 5180162
[total_sum] => 12533646
[total_days] => 20
[display_material_sum] => 7 353 484
[display_work_sum] => 5 180 162
[display_total_sum] => 12 533 646
)
1
12 533 646₽
Работа:5 180 162 ₽
Материалы:7 353 484 ₽
Дни:20
stdClass Object
(
[id] => 172
[attribute_id] => 37
[name] => Профлист
[material_modifier] => 1
[work_modifier] => 1
[options] => Array
(
)
[days] => [20]
[material_price] => [3450]
[work_price] => [3750]
[image] => https://akademik-stroy.ru/wp-content/uploads/materials/proflist.jpg
[area_modifier] => 294.01
[parent_name] => Крыша (Скатная)
[parent_id] => 37
[material_sum] => 1278061
[work_sum] => 1157664
[total_sum] => 2435725
[total_days] => 20
[display_material_sum] => 1 278 061
[display_work_sum] => 1 157 664
[display_total_sum] => 2 435 725
)
1
2 435 725₽
Работа:1 157 664 ₽
Материалы:1 278 061 ₽
Дни:20
stdClass Object
(
[id] => 51
[attribute_id] => 26
[name] => Есть
[material_modifier] => 1
[work_modifier] => 1
[options] => Array
(
[0] => Профиль 58 мм, 3-камерный, стеклопакет 2-камерный до 32 мм
[1] => Профиль 60 мм, 4-камерный, стеклопакет 2-камерный до 32 мм
[2] => Профиль 70 мм, 5-камерный, стеклопакет 2-камерный до 40 мм
[3] => Профиль 72 мм, 5-камерный, стеклопакет 2-камерный до 40 мм
[4] => Алюминиевые окна Alutech профиль 72 мм, стеклопакет 2-камерный
)
[days] => [3,3,3,3,3]
[material_price] => [1339,2124,2867,3023,29596]
[work_price] => [635,647,659,668,2579]
[image] => https://akademik-stroy.ru/wp-content/uploads/materials/okna.jpg
[area_modifier] => 238.59
[parent_name] => Окна
[parent_id] => 26
[material_sum] => 402535
[work_sum] => 159080
[total_sum] => 561615
[total_days] => 3
[display_material_sum] => 402 535
[display_work_sum] => 159 080
[display_total_sum] => 561 615
)
1
561 615₽
Работа:159 080 ₽
Материалы:402 535 ₽
Дни:3
stdClass Object
(
[id] => 52
[attribute_id] => 26
[name] => Нет
[material_modifier] => 2
[work_modifier] => 1
[options] =>
[days] => null
[material_price] => null
[work_price] => null
[image] => https://akademik-stroy.ru/wp-content/uploads/materials/okna.jpg
[area_modifier] => 238.59
[parent_name] => Окна
[parent_id] => 26
[material_sum] => 0
[work_sum] => 0
[total_sum] => 0
[total_days] => 0
[display_material_sum] => 0
[display_work_sum] => 0
[display_total_sum] => 0
)
1
0₽
Работа:0 ₽
Материалы:0 ₽
Дни:0
stdClass Object
(
[id] => 53
[attribute_id] => 27
[name] => Есть
[material_modifier] => 1
[work_modifier] => 1
[options] => Array
(
)
[days] => [1]
[material_price] => [10000]
[work_price] => [5500]
[image] => https://akademik-stroy.ru/wp-content/uploads/materials/dveri.jpg
[area_modifier] => 1
[parent_name] => Двери входные
[parent_id] => 27
[material_sum] => 12600
[work_sum] => 5775
[total_sum] => 18375
[total_days] => 1
[display_material_sum] => 12 600
[display_work_sum] => 5 775
[display_total_sum] => 18 375
)
1
18 375₽
Работа:5 775 ₽
Материалы:12 600 ₽
Дни:1
stdClass Object
(
[id] => 54
[attribute_id] => 27
[name] => Нет
[material_modifier] => 1
[work_modifier] => 1
[options] => Array
(
)
[days] => [0]
[material_price] => [0]
[work_price] => [0]
[image] => https://akademik-stroy.ru/wp-content/uploads/materials/dveri.jpg
[area_modifier] => 1
[parent_name] => Двери входные
[parent_id] => 27
[material_sum] => 0
[work_sum] => 0
[total_sum] => 0
[total_days] => 0
[display_material_sum] => 0
[display_work_sum] => 0
[display_total_sum] => 0
)
1
0₽
Работа:0 ₽
Материалы:0 ₽
Дни:0
stdClass Object
(
[id] => 25
[attribute_id] => 13
[name] => Нет
[material_modifier] => 1
[work_modifier] => 1
[options] => Array
(
)
[days] => [0]
[material_price] => [0]
[work_price] => [0]
[image] => https://akademik-stroy.ru/wp-content/uploads/materials/mineralovata-krov.jpg
[area_modifier] => 294.01
[parent_name] => Утепление кровли (Мансарда)
[parent_id] => 13
[material_sum] => 0
[work_sum] => 0
[total_sum] => 0
[total_days] => 0
[display_material_sum] => 0
[display_work_sum] => 0
[display_total_sum] => 0
)
1
0₽
Работа:0 ₽
Материалы:0 ₽
Дни:0
stdClass Object
(
[id] => 26
[attribute_id] => 13
[name] => Минераловатный
[material_modifier] => 1
[work_modifier] => 1
[options] => Array
(
[0] => 50 мм
[1] => 100 мм
[2] => 150 мм
[3] => 200 мм
[4] => 250 мм
[5] => 300 мм
[6] => 350 мм
[7] => 400 мм
[8] => 450 мм
[9] => 500 мм
)
[days] => [5,5,6,6,6,7,7,7,8,8]
[material_price] => [1158,1414,1772,2230,3602,4060,4974,5890,6408,7718]
[work_price] => [650,846,846,1098,1318,1450,1596,1754,1930,2122]
[image] => https://akademik-stroy.ru/wp-content/uploads/materials/mineralovata-krov.jpg
[area_modifier] => 294.01
[parent_name] => Утепление кровли (Мансарда)
[parent_id] => 13
[material_sum] => 428984
[work_sum] => 200662
[total_sum] => 629646
[total_days] => 5
[display_material_sum] => 428 984
[display_work_sum] => 200 662
[display_total_sum] => 629 646
)
1
629 646₽
Работа:200 662 ₽
Материалы:428 984 ₽
Дни:5
stdClass Object
(
[id] => 123
[attribute_id] => 13
[name] => Эковата (целлюлозная вата)
[material_modifier] => 1
[work_modifier] => 1
[options] => Array
(
[0] => 50 мм
[1] => 100 мм
[2] => 150 мм
[3] => 200 мм
[4] => 250 мм
[5] => 300 мм
[6] => 350 мм
[7] => 400 мм
[8] => 450 мм
[9] => 500 мм
)
[days] => [3,3,4,4,4,5,5,5,5,5]
[material_price] => [820,1638,2458,3276,5734,6552,8190,9828,11466,13104]
[work_price] => [234,304,304,396,474,522,574,632,694,764]
[image] => https://akademik-stroy.ru/wp-content/uploads/materials/ehkovata-krov.jpg
[area_modifier] => 294.01
[parent_name] => Утепление кровли (Мансарда)
[parent_id] => 13
[material_sum] => 303771
[work_sum] => 72238
[total_sum] => 376009
[total_days] => 3
[display_material_sum] => 303 771
[display_work_sum] => 72 238
[display_total_sum] => 376 009
)
1
376 009₽
Работа:72 238 ₽
Материалы:303 771 ₽
Дни:3
stdClass Object
(
[id] => 124
[attribute_id] => 13
[name] => Экструдированный пенополистирол
[material_modifier] => 1
[work_modifier] => 1
[options] => Array
(
[0] => 50 мм
[1] => 100 мм
[2] => 150 мм
[3] => 200 мм
[4] => 250 мм
[5] => 300 мм
[6] => 350 мм
[7] => 400 мм
[8] => 450 мм
[9] => 500 мм
)
[days] => [3,3,4,4,4,5,5,5,5,6]
[material_price] => [1146,2292,3438,4584,8020,9166,11458,13750,16040,18332]
[work_price] => [390,508,508,660,790,870,958,1052,1158,1274]
[image] => https://akademik-stroy.ru/wp-content/uploads/materials/epps-krov.jpg
[area_modifier] => 294.01
[parent_name] => Утепление кровли (Мансарда)
[parent_id] => 13
[material_sum] => 424539
[work_sum] => 120397
[total_sum] => 544936
[total_days] => 3
[display_material_sum] => 424 539
[display_work_sum] => 120 397
[display_total_sum] => 544 936
)
1
544 936₽
Работа:120 397 ₽
Материалы:424 539 ₽
Дни:3
stdClass Object
(
[id] => 125
[attribute_id] => 13
[name] => ПСБ (ППС-пенополистирол)
[material_modifier] => 1
[work_modifier] => 1
[options] => Array
(
[0] => 50 мм
[1] => 100 мм
[2] => 150 мм
[3] => 200 мм
[4] => 250 мм
[5] => 300 мм
[6] => 350 мм
[7] => 400 мм
[8] => 450 мм
[9] => 500 мм
)
[days] => [3,3,4,4,4,5,5,5,5,6]
[material_price] => [476,954,1430,1906,3336,3814,4766,5720,6674,7626]
[work_price] => [390,508,508,660,790,870,958,1052,1158,1274]
[image] => https://akademik-stroy.ru/wp-content/uploads/materials/psb-krov.jpg
[area_modifier] => 294.01
[parent_name] => Утепление кровли (Мансарда)
[parent_id] => 13
[material_sum] => 176335
[work_sum] => 120397
[total_sum] => 296732
[total_days] => 3
[display_material_sum] => 176 335
[display_work_sum] => 120 397
[display_total_sum] => 296 732
)
1
296 732₽
Работа:120 397 ₽
Материалы:176 335 ₽
Дни:3
stdClass Object
(
[id] => 126
[attribute_id] => 13
[name] => ППУ (Пенополиуретан)
[material_modifier] => 1
[work_modifier] => 1
[options] => Array
(
[0] => 50 мм
[1] => 100 мм
[2] => 150 мм
[3] => 200 мм
[4] => 250 мм
[5] => 300 мм
[6] => 350 мм
[7] => 400 мм
[8] => 450 мм
[9] => 500 мм
)
[days] => [2,2,3,3,3,3,4,4,4,4]
[material_price] => [2080,4160,6240,8320,14560,16640,20800,24960,29120,33280]
[work_price] => [234,304,304,396,474,522,574,632,694,764]
[image] => https://akademik-stroy.ru/wp-content/uploads/materials/ppu-krov.jpg
[area_modifier] => 294.01
[parent_name] => Утепление кровли (Мансарда)
[parent_id] => 13
[material_sum] => 770541
[work_sum] => 72238
[total_sum] => 842779
[total_days] => 2
[display_material_sum] => 770 541
[display_work_sum] => 72 238
[display_total_sum] => 842 779
)
1
842 779₽
Работа:72 238 ₽
Материалы:770 541 ₽
Дни:2
stdClass Object
(
[id] => 127
[attribute_id] => 13
[name] => PIR-плиты (пенополиизоцианурат)
[material_modifier] => 1
[work_modifier] => 1
[options] => Array
(
[0] => 50 мм
[1] => 100 мм
[2] => 150 мм
[3] => 200 мм
[4] => 250 мм
[5] => 300 мм
[6] => 350 мм
[7] => 400 мм
[8] => 450 мм
[9] => 500 мм
)
[days] => [3,3,4,4,4,5,5,5,5,6]
[material_price] => [2646,5290,7936,10580,18516,21162,26452,31742,37032,42324]
[work_price] => [390,508,508,660,790,870,958,1052,1158,1274]
[image] => https://akademik-stroy.ru/wp-content/uploads/materials/pir-krov.jpg
[area_modifier] => 294.01
[parent_name] => Утепление кровли (Мансарда)
[parent_id] => 13
[material_sum] => 980218
[work_sum] => 120397
[total_sum] => 1100615
[total_days] => 3
[display_material_sum] => 980 218
[display_work_sum] => 120 397
[display_total_sum] => 1 100 615
)
1
1 100 615₽
Работа:120 397 ₽
Материалы:980 218 ₽
Дни:3
stdClass Object
(
[id] => 27
[attribute_id] => 14
[name] => Нет
[material_modifier] => 1
[work_modifier] => 1
[options] => Array
(
)
[days] => [0]
[material_price] => [0]
[work_price] => [0]
[image] => https://akademik-stroy.ru/wp-content/uploads/materials/mansardnye-okna-2.jpg
[area_modifier] => 1
[parent_name] => Мансардные окна
[parent_id] => 14
[material_sum] => 0
[work_sum] => 0
[total_sum] => 0
[total_days] => 0
[display_material_sum] => 0
[display_work_sum] => 0
[display_total_sum] => 0
)
1
0₽
Работа:0 ₽
Материалы:0 ₽
Дни:0
stdClass Object
(
[id] => 28
[attribute_id] => 14
[name] => Есть
[material_modifier] => 1
[work_modifier] => 1
[options] => Array
(
[0] => 55x78
[1] => 55x98
)
[days] => [6,7]
[material_price] => [47480,68700]
[work_price] => [17900,19500]
[image] => https://akademik-stroy.ru/wp-content/uploads/materials/mansardnye-okna-2.jpg
[area_modifier] => 1
[parent_name] => Мансардные окна
[parent_id] => 14
[material_sum] => 59825
[work_sum] => 18795
[total_sum] => 78620
[total_days] => 6
[display_material_sum] => 59 825
[display_work_sum] => 18 795
[display_total_sum] => 78 620
)
1
78 620₽
Работа:18 795 ₽
Материалы:59 825 ₽
Дни:6
stdClass Object
(
[id] => 29
[attribute_id] => 15
[name] => Нет
[material_modifier] => 1
[work_modifier] => 1
[options] => Array
(
)
[days] => [0]
[material_price] => [0]
[work_price] => [0]
[image] => https://akademik-stroy.ru/wp-content/uploads/materials/sofit.jpg
[area_modifier] => 294.01
[parent_name] => Подшивка кровли
[parent_id] => 15
[material_sum] => 0
[work_sum] => 0
[total_sum] => 0
[total_days] => 0
[display_material_sum] => 0
[display_work_sum] => 0
[display_total_sum] => 0
)
1
0₽
Работа:0 ₽
Материалы:0 ₽
Дни:0
stdClass Object
(
[id] => 30
[attribute_id] => 15
[name] => Есть
[material_modifier] => 1
[work_modifier] => 1
[options] => Array
(
[0] => Софиты (ПВХ)
[1] => Cedral
[2] => ДПК
[3] => Планкен
)
[days] => [7,10,9,8]
[material_price] => [1803,3213,3025,3150]
[work_price] => [1529,2188,2075,1923]
[image] => https://akademik-stroy.ru/wp-content/uploads/materials/sofit.jpg
[area_modifier] => 294.01
[parent_name] => Подшивка кровли
[parent_id] => 15
[material_sum] => 667926
[work_sum] => 472018
[total_sum] => 1139944
[total_days] => 7
[display_material_sum] => 667 926
[display_work_sum] => 472 018
[display_total_sum] => 1 139 944
)
1
1 139 944₽
Работа:472 018 ₽
Материалы:667 926 ₽
Дни:7
stdClass Object
(
[id] => 31
[attribute_id] => 16
[name] => Нет
[material_modifier] => 1
[work_modifier] => 1
[options] => Array
(
)
[days] => [0]
[material_price] => [0]
[work_price] => [0]
[image] => https://akademik-stroy.ru/wp-content/uploads/materials/docke-standard-pvh.jpg
[area_modifier] => 294.01
[parent_name] => Водосточная система
[parent_id] => 16
[material_sum] => 0
[work_sum] => 0
[total_sum] => 0
[total_days] => 0
[display_material_sum] => 0
[display_work_sum] => 0
[display_total_sum] => 0
)
1
0₽
Работа:0 ₽
Материалы:0 ₽
Дни:0
stdClass Object
(
[id] => 32
[attribute_id] => 16
[name] => Есть
[material_modifier] => 1
[work_modifier] => 1
[options] => Array
(
[0] => Döcke Standard (ПВХ)
[1] => Металлические Grand Line
)
[days] => [7,7]
[material_price] => [1842,2703]
[work_price] => [1491,1529]
[image] => https://akademik-stroy.ru/wp-content/uploads/materials/docke-standard-pvh.jpg
[area_modifier] => 294.01
[parent_name] => Водосточная система
[parent_id] => 16
[material_sum] => 682374
[work_sum] => 460287
[total_sum] => 1142661
[total_days] => 7
[display_material_sum] => 682 374
[display_work_sum] => 460 287
[display_total_sum] => 1 142 661
)
1
1 142 661₽
Работа:460 287 ₽
Материалы:682 374 ₽
Дни:7
stdClass Object
(
[id] => 33
[attribute_id] => 17
[name] => Нет
[material_modifier] => 1
[work_modifier] => 1
[options] => Array
(
)
[days] => [0]
[material_price] => [0]
[work_price] => [0]
[image] => https://akademik-stroy.ru/wp-content/uploads/materials/mineralovata.jpg
[area_modifier] => 294.01
[parent_name] => Дополнительное утепление наружных стен
[parent_id] => 17
[material_sum] => 0
[work_sum] => 0
[total_sum] => 0
[total_days] => 0
[display_material_sum] => 0
[display_work_sum] => 0
[display_total_sum] => 0
)
1
0₽
Работа:0 ₽
Материалы:0 ₽
Дни:0
stdClass Object
(
[id] => 34
[attribute_id] => 17
[name] => Минераловатный
[material_modifier] => 1
[work_modifier] => 1
[options] => Array
(
[0] => 50 мм
[1] => 100 мм
[2] => 150 мм
[3] => 200 мм
[4] => 250 мм
[5] => 300 мм
)
[days] => [7,8,10,12,14,15]
[material_price] => [3437,3613,3803,3915,4601,4830]
[work_price] => [2325,2423,2523,2749,2859,3025]
[image] => https://akademik-stroy.ru/wp-content/uploads/materials/mineralovata.jpg
[area_modifier] => 294.01
[parent_name] => Дополнительное утепление наружных стен
[parent_id] => 17
[material_sum] => 1273246
[work_sum] => 717752
[total_sum] => 1990998
[total_days] => 7
[display_material_sum] => 1 273 246
[display_work_sum] => 717 752
[display_total_sum] => 1 990 998
)
1
1 990 998₽
Работа:717 752 ₽
Материалы:1 273 246 ₽
Дни:7
stdClass Object
(
[id] => 128
[attribute_id] => 17
[name] => Эковата (целлюлозная вата)
[material_modifier] => 1
[work_modifier] => 1
[options] => Array
(
[0] => 50 мм
[1] => 100 мм
[2] => 150 мм
[3] => 200 мм
[4] => 250 мм
[5] => 300 мм
)
[days] => [3,4,5,6,7,8]
[material_price] => [810,1319,1629,1838,2267,2676]
[work_price] => [1225,1323,1423,1549,1659,1725]
[image] => https://akademik-stroy.ru/wp-content/uploads/materials/ehkovata.jpg
[area_modifier] => 294.01
[parent_name] => Дополнительное утепление наружных стен
[parent_id] => 17
[material_sum] => 300067
[work_sum] => 378170
[total_sum] => 678237
[total_days] => 3
[display_material_sum] => 300 067
[display_work_sum] => 378 170
[display_total_sum] => 678 237
)
1
678 237₽
Работа:378 170 ₽
Материалы:300 067 ₽
Дни:3
stdClass Object
(
[id] => 129
[attribute_id] => 17
[name] => Экструдированный пенополистирол
[material_modifier] => 1
[work_modifier] => 1
[options] => Array
(
[0] => 50 мм
[1] => 100 мм
[2] => 150 мм
[3] => 200 мм
[4] => 250 мм
[5] => 300 мм
)
[days] => [5,6,7,8,9,10]
[material_price] => [4560,4300,5119,6292,7010,8583]
[work_price] => [1795,1954,2254,2330,2595,2735]
[image] => https://akademik-stroy.ru/wp-content/uploads/materials/epps.jpg
[area_modifier] => 294.01
[parent_name] => Дополнительное утепление наружных стен
[parent_id] => 17
[material_sum] => 1689264
[work_sum] => 554135
[total_sum] => 2243399
[total_days] => 5
[display_material_sum] => 1 689 264
[display_work_sum] => 554 135
[display_total_sum] => 2 243 399
)
1
2 243 399₽
Работа:554 135 ₽
Материалы:1 689 264 ₽
Дни:5
stdClass Object
(
[id] => 130
[attribute_id] => 17
[name] => ПСБ (ППС-пенополистирол)
[material_modifier] => 1
[work_modifier] => 1
[options] => Array
(
[0] => 50 мм
[1] => 100 мм
[2] => 150 мм
[3] => 200 мм
[4] => 250 мм
[5] => 300 мм
)
[days] => [5,6,7,8,9,10]
[material_price] => [4822,5200,5819,6292,7010,7583]
[work_price] => [1795,1954,2254,2330,2595,2735]
[image] => https://akademik-stroy.ru/wp-content/uploads/materials/psb.jpg
[area_modifier] => 294.01
[parent_name] => Дополнительное утепление наружных стен
[parent_id] => 17
[material_sum] => 1786322
[work_sum] => 554135
[total_sum] => 2340457
[total_days] => 5
[display_material_sum] => 1 786 322
[display_work_sum] => 554 135
[display_total_sum] => 2 340 457
)
1
2 340 457₽
Работа:554 135 ₽
Материалы:1 786 322 ₽
Дни:5
stdClass Object
(
[id] => 131
[attribute_id] => 17
[name] => ППУ (Пенополиуретан)
[material_modifier] => 1
[work_modifier] => 1
[options] => Array
(
[0] => 50 мм
[1] => 100 мм
[2] => 150 мм
[3] => 200 мм
[4] => 250 мм
[5] => 300 мм
)
[days] => [3,4,5,6,7,8]
[material_price] => [2860,3400,4219,4592,5010,5583]
[work_price] => [729,900,980,1120,1280,1530]
[image] => https://akademik-stroy.ru/wp-content/uploads/materials/ppu.jpg
[area_modifier] => 294.01
[parent_name] => Дополнительное утепление наружных стен
[parent_id] => 17
[material_sum] => 1059494
[work_sum] => 225050
[total_sum] => 1284544
[total_days] => 3
[display_material_sum] => 1 059 494
[display_work_sum] => 225 050
[display_total_sum] => 1 284 544
)
1
1 284 544₽
Работа:225 050 ₽
Материалы:1 059 494 ₽
Дни:3
stdClass Object
(
[id] => 132
[attribute_id] => 17
[name] => PIR-плиты (пенополиизоцианурат)
[material_modifier] => 1
[work_modifier] => 1
[options] => Array
(
[0] => 50 мм
[1] => 100 мм
[2] => 150 мм
[3] => 200 мм
[4] => 250 мм
[5] => 300 мм
)
[days] => [5,6,7,8,9,10]
[material_price] => [8323,15645,20968,25900,29258,30581]
[work_price] => [800,900,970,1150,1280,1330]
[image] => https://akademik-stroy.ru/wp-content/uploads/materials/pir.jpg
[area_modifier] => 294.01
[parent_name] => Дополнительное утепление наружных стен
[parent_id] => 17
[material_sum] => 3083277
[work_sum] => 246968
[total_sum] => 3330245
[total_days] => 5
[display_material_sum] => 3 083 277
[display_work_sum] => 246 968
[display_total_sum] => 3 330 245
)
1
3 330 245₽
Работа:246 968 ₽
Материалы:3 083 277 ₽
Дни:5
stdClass Object
(
[id] => 37
[attribute_id] => 19
[name] => Нет
[material_modifier] => 1
[work_modifier] => 1
[options] => Array
(
)
[days] => [0]
[material_price] => [0]
[work_price] => [0]
[image] => https://akademik-stroy.ru/wp-content/uploads/materials/imitaciya-brusa.jpg
[area_modifier] => 294.01
[parent_name] => Наружная отделка фасада
[parent_id] => 19
[material_sum] => 0
[work_sum] => 0
[total_sum] => 0
[total_days] => 0
[display_material_sum] => 0
[display_work_sum] => 0
[display_total_sum] => 0
)
1
0₽
Работа:0 ₽
Материалы:0 ₽
Дни:0
stdClass Object
(
[id] => 38
[attribute_id] => 19
[name] => Имитация бруса
[material_modifier] => 1
[work_modifier] => 1
[options] => Array
(
[0] => Сосна
[1] => Ель
[2] => Лиственница
)
[days] => [20,20,20]
[material_price] => [2994,2762,4954]
[work_price] => [1397,1231,1577]
[image] => https://akademik-stroy.ru/wp-content/uploads/materials/imitaciya-brusa.jpg
[area_modifier] => 294.01
[parent_name] => Наружная отделка фасада
[parent_id] => 19
[material_sum] => 1109135
[work_sum] => 431269
[total_sum] => 1540404
[total_days] => 20
[display_material_sum] => 1 109 135
[display_work_sum] => 431 269
[display_total_sum] => 1 540 404
)
1
1 540 404₽
Работа:431 269 ₽
Материалы:1 109 135 ₽
Дни:20
stdClass Object
(
[id] => 136
[attribute_id] => 19
[name] => Планкен
[material_modifier] => 1
[work_modifier] => 1
[options] => Array
(
[0] => Сосна
[1] => Ель
[2] => Лиственница
)
[days] => [20,20,20]
[material_price] => [3194,2862,5154]
[work_price] => [1537,1354,1735]
[image] => https://akademik-stroy.ru/wp-content/uploads/materials/planken.jpg
[area_modifier] => 294.01
[parent_name] => Наружная отделка фасада
[parent_id] => 19
[material_sum] => 1183226
[work_sum] => 474488
[total_sum] => 1657714
[total_days] => 20
[display_material_sum] => 1 183 226
[display_work_sum] => 474 488
[display_total_sum] => 1 657 714
)
1
1 657 714₽
Работа:474 488 ₽
Материалы:1 183 226 ₽
Дни:20
stdClass Object
(
[id] => 137
[attribute_id] => 19
[name] => Штукатурка
[material_modifier] => 1
[work_modifier] => 1
[options] => Array
(
[0] => Цементно-песчаная (минеральная)
[1] => Мокрый фасад
)
[days] => [35,35]
[material_price] => [2231,3938]
[work_price] => [1202,2422]
[image] => https://akademik-stroy.ru/wp-content/uploads/materials/shtukaturka.jpg
[area_modifier] => 294.01
[parent_name] => Наружная отделка фасада
[parent_id] => 19
[material_sum] => 826480
[work_sum] => 371070
[total_sum] => 1197550
[total_days] => 35
[display_material_sum] => 826 480
[display_work_sum] => 371 070
[display_total_sum] => 1 197 550
)
1
1 197 550₽
Работа:371 070 ₽
Материалы:826 480 ₽
Дни:35
stdClass Object
(
[id] => 138
[attribute_id] => 19
[name] => Облицовочный кирпич
[material_modifier] => 1
[work_modifier] => 1
[options] => Array
(
[0] => Керамический
[1] => Клинкерный
[2] => Ручной формовки
[3] => Гиперпрессованный
[4] => Силикатный кирпич
)
[days] => [45,45,45,45,45]
[material_price] => [8174,9148,1040,1257,5876]
[work_price] => [3240,3758,4536,4017,3369]
[image] => https://akademik-stroy.ru/wp-content/uploads/materials/oblicovochnyj-kirpich.jpg
[area_modifier] => 294.01
[parent_name] => Наружная отделка фасада
[parent_id] => 19
[material_sum] => 3028080
[work_sum] => 1000222
[total_sum] => 4028302
[total_days] => 45
[display_material_sum] => 3 028 080
[display_work_sum] => 1 000 222
[display_total_sum] => 4 028 302
)
1
4 028 302₽
Работа:1 000 222 ₽
Материалы:3 028 080 ₽
Дни:45
stdClass Object
(
[id] => 139
[attribute_id] => 19
[name] => Фасадная плитка
[material_modifier] => 1
[work_modifier] => 1
[options] => Array
(
[0] => Клинкерная
[1] => Керамическая
[2] => Плитка ручной формовки
)
[days] => [40,40,40]
[material_price] => [2974,1487,3470]
[work_price] => [3007,2592,3629]
[image] => https://akademik-stroy.ru/wp-content/uploads/materials/fasadnaya-plitka.jpg
[area_modifier] => 294.01
[parent_name] => Наружная отделка фасада
[parent_id] => 19
[material_sum] => 1101726
[work_sum] => 928292
[total_sum] => 2030018
[total_days] => 40
[display_material_sum] => 1 101 726
[display_work_sum] => 928 292
[display_total_sum] => 2 030 018
)
1
2 030 018₽
Работа:928 292 ₽
Материалы:1 101 726 ₽
Дни:40
stdClass Object
(
[id] => 140
[attribute_id] => 19
[name] => Сайдинг
[material_modifier] => 1
[work_modifier] => 1
[options] => Array
(
[0] => Виниловый
[1] => Металлический
[2] => Фиброцементный
)
[days] => [20,20,20]
[material_price] => [1263,1944,4147]
[work_price] => [1263,1944,2074]
[image] => https://akademik-stroy.ru/wp-content/uploads/materials/sajding.jpg
[area_modifier] => 294.01
[parent_name] => Наружная отделка фасада
[parent_id] => 19
[material_sum] => 467882
[work_sum] => 389901
[total_sum] => 857783
[total_days] => 20
[display_material_sum] => 467 882
[display_work_sum] => 389 901
[display_total_sum] => 857 783
)
1
857 783₽
Работа:389 901 ₽
Материалы:467 882 ₽
Дни:20
stdClass Object
(
[id] => 141
[attribute_id] => 19
[name] => Камень
[material_modifier] => 1
[work_modifier] => 1
[options] => Array
(
[0] => Травертин
[1] => Дагестанский
[2] => Искусственный
[3] => Натуральный
[4] => Керамогранит
)
[days] => [45,45,45,45,45]
[material_price] => [4536,3888,2592,3240,2462]
[work_price] => [3240,3240,2462,3110,1944]
[image] => https://akademik-stroy.ru/wp-content/uploads/materials/kamen-1.jpg
[area_modifier] => 294.01
[parent_name] => Наружная отделка фасада
[parent_id] => 19
[material_sum] => 1680373
[work_sum] => 1000222
[total_sum] => 2680595
[total_days] => 45
[display_material_sum] => 1 680 373
[display_work_sum] => 1 000 222
[display_total_sum] => 2 680 595
)
1
2 680 595₽
Работа:1 000 222 ₽
Материалы:1 680 373 ₽
Дни:45
stdClass Object
(
[id] => 142
[attribute_id] => 19
[name] => Термопанели
[material_modifier] => 1
[work_modifier] => 1
[options] => Array
(
)
[days] => [20]
[material_price] => [6221]
[work_price] => [2333]
[image] => https://akademik-stroy.ru/wp-content/uploads/materials/termo.png
[area_modifier] => 294.01
[parent_name] => Наружная отделка фасада
[parent_id] => 19
[material_sum] => 2304586
[work_sum] => 720222
[total_sum] => 3024808
[total_days] => 20
[display_material_sum] => 2 304 586
[display_work_sum] => 720 222
[display_total_sum] => 3 024 808
)
1
3 024 808₽
Работа:720 222 ₽
Материалы:2 304 586 ₽
Дни:20
stdClass Object
(
[id] => 143
[attribute_id] => 19
[name] => Плитка HAUBERK
[material_modifier] => 1
[work_modifier] => 1
[options] => Array
(
)
[days] => [20]
[material_price] => [2786]
[work_price] => [1944]
[image] => https://akademik-stroy.ru/wp-content/uploads/materials/hauberk.jpg
[area_modifier] => 294.01
[parent_name] => Наружная отделка фасада
[parent_id] => 19
[material_sum] => 1032081
[work_sum] => 600133
[total_sum] => 1632214
[total_days] => 20
[display_material_sum] => 1 032 081
[display_work_sum] => 600 133
[display_total_sum] => 1 632 214
)
1
1 632 214₽
Работа:600 133 ₽
Материалы:1 032 081 ₽
Дни:20
stdClass Object
(
[id] => 144
[attribute_id] => 19
[name] => Фальцевый фасад
[material_modifier] => 1
[work_modifier] => 1
[options] => Array
(
)
[days] => [20]
[material_price] => [3240]
[work_price] => [2592]
[image] => https://akademik-stroy.ru/wp-content/uploads/materials/falcevyj-fasad.jpg
[area_modifier] => 294.01
[parent_name] => Наружная отделка фасада
[parent_id] => 19
[material_sum] => 1200266
[work_sum] => 800178
[total_sum] => 2000444
[total_days] => 20
[display_material_sum] => 1 200 266
[display_work_sum] => 800 178
[display_total_sum] => 2 000 444
)
1
2 000 444₽
Работа:800 178 ₽
Материалы:1 200 266 ₽
Дни:20
stdClass Object
(
[id] => 145
[attribute_id] => 19
[name] => Комбинированный
[material_modifier] => 1
[work_modifier] => 1
[options] => Array
(
)
[days] => [20]
[material_price] => [4629]
[work_price] => [3499]
[image] => https://akademik-stroy.ru/wp-content/uploads/materials/Kombinirovannyj.jpg
[area_modifier] => 294.01
[parent_name] => Наружная отделка фасада
[parent_id] => 19
[material_sum] => 1714825
[work_sum] => 1080178
[total_sum] => 2795003
[total_days] => 20
[display_material_sum] => 1 714 825
[display_work_sum] => 1 080 178
[display_total_sum] => 2 795 003
)
1
2 795 003₽
Работа:1 080 178 ₽
Материалы:1 714 825 ₽
Дни:20
stdClass Object
(
[id] => 257
[attribute_id] => 19
[name] => Японские фиброцементные
[material_modifier] => 1
[work_modifier] => 1
[options] => Array
(
)
[days] => [20]
[material_price] => [7043]
[work_price] => [2993]
[image] => https://akademik-stroy.ru/wp-content/uploads/materials/paneli.jpg
[area_modifier] => 294.01
[parent_name] => Наружная отделка фасада
[parent_id] => 19
[material_sum] => 2609098
[work_sum] => 923971
[total_sum] => 3533069
[total_days] => 20
[display_material_sum] => 2 609 098
[display_work_sum] => 923 971
[display_total_sum] => 3 533 069
)
1
3 533 069₽
Работа:923 971 ₽
Материалы:2 609 098 ₽
Дни:20
stdClass Object
(
[id] => 258
[attribute_id] => 19
[name] => Панели Каньон
[material_modifier] => 1
[work_modifier] => 1
[options] => Array
(
)
[days] => [20]
[material_price] => [4543]
[work_price] => [2592]
[image] => https://akademik-stroy.ru/wp-content/uploads/materials/kanon.png
[area_modifier] => 294.01
[parent_name] => Наружная отделка фасада
[parent_id] => 19
[material_sum] => 1682966
[work_sum] => 800178
[total_sum] => 2483144
[total_days] => 20
[display_material_sum] => 1 682 966
[display_work_sum] => 800 178
[display_total_sum] => 2 483 144
)
1
2 483 144₽
Работа:800 178 ₽
Материалы:1 682 966 ₽
Дни:20
stdClass Object
(
[id] => 39
[attribute_id] => 20
[name] => Нет
[material_modifier] => 1
[work_modifier] => 1
[options] => Array
(
)
[days] => [0]
[material_price] => [0]
[work_price] => [0]
[image] => https://akademik-stroy.ru/wp-content/uploads/materials/terrasy.jpg
[area_modifier] => 30
[parent_name] => Террасы, крыльца, навесы
[parent_id] => 20
[material_sum] => 0
[work_sum] => 0
[total_sum] => 0
[total_days] => 0
[display_material_sum] => 0
[display_work_sum] => 0
[display_total_sum] => 0
)
1
0₽
Работа:0 ₽
Материалы:0 ₽
Дни:0
stdClass Object
(
[id] => 40
[attribute_id] => 20
[name] => Есть
[material_modifier] => 1
[work_modifier] => 1
[options] => Array
(
)
[days] => [5]
[material_price] => [10450]
[work_price] => [1950]
[image] => https://akademik-stroy.ru/wp-content/uploads/materials/terrasy.jpg
[area_modifier] => 30
[parent_name] => Террасы, крыльца, навесы
[parent_id] => 20
[material_sum] => 395010
[work_sum] => 61425
[total_sum] => 456435
[total_days] => 5
[display_material_sum] => 395 010
[display_work_sum] => 61 425
[display_total_sum] => 456 435
)
1
456 435₽
Работа:61 425 ₽
Материалы:395 010 ₽
Дни:5
stdClass Object
(
[id] => 41
[attribute_id] => 21
[name] => Нет
[material_modifier] => 1
[work_modifier] => 1
[options] => Array
(
)
[days] => [0]
[material_price] => [0]
[work_price] => [0]
[image] => https://akademik-stroy.ru/wp-content/uploads/materials/balkony.jpg
[area_modifier] => 30
[parent_name] => Балконы
[parent_id] => 21
[material_sum] => 0
[work_sum] => 0
[total_sum] => 0
[total_days] => 0
[display_material_sum] => 0
[display_work_sum] => 0
[display_total_sum] => 0
)
1
0₽
Работа:0 ₽
Материалы:0 ₽
Дни:0
stdClass Object
(
[id] => 42
[attribute_id] => 21
[name] => Есть
[material_modifier] => 1
[work_modifier] => 1
[options] => Array
(
)
[days] => [12]
[material_price] => [3600]
[work_price] => [1950]
[image] => https://akademik-stroy.ru/wp-content/uploads/materials/balkony.jpg
[area_modifier] => 30
[parent_name] => Балконы
[parent_id] => 21
[material_sum] => 136080
[work_sum] => 61425
[total_sum] => 197505
[total_days] => 12
[display_material_sum] => 136 080
[display_work_sum] => 61 425
[display_total_sum] => 197 505
)
1
197 505₽
Работа:61 425 ₽
Материалы:136 080 ₽
Дни:12
stdClass Object
(
[id] => 43
[attribute_id] => 22
[name] => Нет
[material_modifier] => 1
[work_modifier] => 1
[options] => Array
(
)
[days] => [0]
[material_price] => [0]
[work_price] => [0]
[image] => https://akademik-stroy.ru/wp-content/uploads/materials/uteplennaya.jpg
[area_modifier] => 294.01
[parent_name] => Отмостка
[parent_id] => 22
[material_sum] => 0
[work_sum] => 0
[total_sum] => 0
[total_days] => 0
[display_material_sum] => 0
[display_work_sum] => 0
[display_total_sum] => 0
)
1
0₽
Работа:0 ₽
Материалы:0 ₽
Дни:0
stdClass Object
(
[id] => 44
[attribute_id] => 22
[name] => Утепленная отмостка
[material_modifier] => 1
[work_modifier] => 1
[options] => Array
(
)
[days] => [15]
[material_price] => [2550]
[work_price] => [1750]
[image] => https://akademik-stroy.ru/wp-content/uploads/materials/uteplennaya.jpg
[area_modifier] => 294.01
[parent_name] => Отмостка
[parent_id] => 22
[material_sum] => 944654
[work_sum] => 540243
[total_sum] => 1484897
[total_days] => 15
[display_material_sum] => 944 654
[display_work_sum] => 540 243
[display_total_sum] => 1 484 897
)
1
1 484 897₽
Работа:540 243 ₽
Материалы:944 654 ₽
Дни:15
stdClass Object
(
[id] => 146
[attribute_id] => 22
[name] => Не утепленная отмостка
[material_modifier] => 1
[work_modifier] => 1
[options] => Array
(
)
[days] => [10]
[material_price] => [1650]
[work_price] => [1450]
[image] => https://akademik-stroy.ru/wp-content/uploads/materials/ne-uteplennaya.jpg
[area_modifier] => 294.01
[parent_name] => Отмостка
[parent_id] => 22
[material_sum] => 611247
[work_sum] => 447630
[total_sum] => 1058877
[total_days] => 10
[display_material_sum] => 611 247
[display_work_sum] => 447 630
[display_total_sum] => 1 058 877
)
1
1 058 877₽
Работа:447 630 ₽
Материалы:611 247 ₽
Дни:10
stdClass Object
(
[id] => 45
[attribute_id] => 23
[name] => Нет
[material_modifier] => 1
[work_modifier] => 1
[options] => Array
(
)
[days] => [0]
[material_price] => [0]
[work_price] => [0]
[image] => https://akademik-stroy.ru/wp-content/uploads/materials/drenazh-2.jpg
[area_modifier] => 294.01
[parent_name] => Дренаж вокруг дома
[parent_id] => 23
[material_sum] => 0
[work_sum] => 0
[total_sum] => 0
[total_days] => 0
[display_material_sum] => 0
[display_work_sum] => 0
[display_total_sum] => 0
)
1
0₽
Работа:0 ₽
Материалы:0 ₽
Дни:0
stdClass Object
(
[id] => 46
[attribute_id] => 23
[name] => Есть
[material_modifier] => 1
[work_modifier] => 1
[options] => Array
(
)
[days] => [5]
[material_price] => [2366]
[work_price] => [1911]
[image] => https://akademik-stroy.ru/wp-content/uploads/materials/drenazh-2.jpg
[area_modifier] => 294.01
[parent_name] => Дренаж вокруг дома
[parent_id] => 23
[material_sum] => 876491
[work_sum] => 589946
[total_sum] => 1466437
[total_days] => 5
[display_material_sum] => 876 491
[display_work_sum] => 589 946
[display_total_sum] => 1 466 437
)
1
1 466 437₽
Работа:589 946 ₽
Материалы:876 491 ₽
Дни:5
stdClass Object
(
[id] => 47
[attribute_id] => 24
[name] => Нет
[material_modifier] => 1
[work_modifier] => 1
[options] => Array
(
)
[days] => [0]
[material_price] => [0]
[work_price] => [0]
[image] => https://akademik-stroy.ru/wp-content/uploads/materials/septik.jpg
[area_modifier] => 1
[parent_name] => Автономная канализация (септики)
[parent_id] => 24
[material_sum] => 0
[work_sum] => 0
[total_sum] => 0
[total_days] => 0
[display_material_sum] => 0
[display_work_sum] => 0
[display_total_sum] => 0
)
1
0₽
Работа:0 ₽
Материалы:0 ₽
Дни:0
stdClass Object
(
[id] => 48
[attribute_id] => 24
[name] => Есть
[material_modifier] => 1
[work_modifier] => 1
[options] => Array
(
[0] => Для дачи на 4 человека
[1] => Для дома на 5 человек
[2] => Для дома на 6 человек
[3] => Для дома на 7 человек
[4] => Для дома на 10 человек
)
[days] => [7,7,7,8,8]
[material_price] => [196340,220500,240940,264200,293340]
[work_price] => [50000,55000,60500,66550,73206]
[image] => https://akademik-stroy.ru/wp-content/uploads/materials/septik.jpg
[area_modifier] => 1
[parent_name] => Автономная канализация (септики)
[parent_id] => 24
[material_sum] => 247388
[work_sum] => 52500
[total_sum] => 299888
[total_days] => 7
[display_material_sum] => 247 388
[display_work_sum] => 52 500
[display_total_sum] => 299 888
)
1
299 888₽
Работа:52 500 ₽
Материалы:247 388 ₽
Дни:7
stdClass Object
(
[id] => 49
[attribute_id] => 25
[name] => Нет
[material_modifier] => 1
[work_modifier] => 1
[options] => Array
(
)
[days] => [0]
[material_price] => [0]
[work_price] => [0]
[image] => https://akademik-stroy.ru/wp-content/uploads/materials/gkl.jpg
[area_modifier] => 294.01
[parent_name] => Внутренние (не несущие) перегородки
[parent_id] => 25
[material_sum] => 0
[work_sum] => 0
[total_sum] => 0
[total_days] => 0
[display_material_sum] => 0
[display_work_sum] => 0
[display_total_sum] => 0
)
1
0₽
Работа:0 ₽
Материалы:0 ₽
Дни:0
stdClass Object
(
[id] => 147
[attribute_id] => 25
[name] => Каркасно-обшивные
[material_modifier] => 1
[work_modifier] => 1
[options] => Array
(
[0] => 75 мм (без шумоизоляции)
[1] => 75 мм (с шумоизоляцией)
)
[days] => [11,11]
[material_price] => [580,970]
[work_price] => [380,570]
[image] => https://akademik-stroy.ru/wp-content/uploads/materials/gkl.jpg
[area_modifier] => 294.01
[parent_name] => Внутренние (не несущие) перегородки
[parent_id] => 25
[material_sum] => 214863
[work_sum] => 117310
[total_sum] => 332173
[total_days] => 11
[display_material_sum] => 214 863
[display_work_sum] => 117 310
[display_total_sum] => 332 173
)
1
332 173₽
Работа:117 310 ₽
Материалы:214 863 ₽
Дни:11
stdClass Object
(
[id] => 148
[attribute_id] => 25
[name] => Пазогребневые
[material_modifier] => 1
[work_modifier] => 1
[options] => Array
(
[0] => 80 мм
[1] => 100 мм
)
[days] => [5,5]
[material_price] => [1022,1313]
[work_price] => [600,700]
[image] => https://akademik-stroy.ru/wp-content/uploads/materials/pazogrebnevye-bloki.jpg
[area_modifier] => 294.01
[parent_name] => Внутренние (не несущие) перегородки
[parent_id] => 25
[material_sum] => 378603
[work_sum] => 185226
[total_sum] => 563829
[total_days] => 5
[display_material_sum] => 378 603
[display_work_sum] => 185 226
[display_total_sum] => 563 829
)
1
563 829₽
Работа:185 226 ₽
Материалы:378 603 ₽
Дни:5
stdClass Object
(
[id] => 149
[attribute_id] => 25
[name] => Газобетонные
[material_modifier] => 1
[work_modifier] => 1
[options] => Array
(
[0] => 100 мм
[1] => 200 мм
)
[days] => [11,11]
[material_price] => [1160,1920]
[work_price] => [700,900]
[image] => https://akademik-stroy.ru/wp-content/uploads/materials/gazobeton-2.jpg
[area_modifier] => 294.01
[parent_name] => Внутренние (не несущие) перегородки
[parent_id] => 25
[material_sum] => 429725
[work_sum] => 216097
[total_sum] => 645822
[total_days] => 11
[display_material_sum] => 429 725
[display_work_sum] => 216 097
[display_total_sum] => 645 822
)
1
645 822₽
Работа:216 097 ₽
Материалы:429 725 ₽
Дни:11
stdClass Object
(
[id] => 150
[attribute_id] => 25
[name] => Кирпичные
[material_modifier] => 1
[work_modifier] => 1
[options] => Array
(
[0] => 120 мм
[1] => 250 мм
[2] => 360 мм
)
[days] => [7,7,7]
[material_price] => [1785,3570,5355]
[work_price] => [900,1600,1800]
[image] => https://akademik-stroy.ru/wp-content/uploads/materials/kirpich-1.jpg
[area_modifier] => 294.01
[parent_name] => Внутренние (не несущие) перегородки
[parent_id] => 25
[material_sum] => 661258
[work_sum] => 277839
[total_sum] => 939097
[total_days] => 7
[display_material_sum] => 661 258
[display_work_sum] => 277 839
[display_total_sum] => 939 097
)
1
939 097₽
Работа:277 839 ₽
Материалы:661 258 ₽
Дни:7
stdClass Object
(
[id] => 55
[attribute_id] => 28
[name] => Нет
[material_modifier] => 1
[work_modifier] => 1
[options] => Array
(
)
[days] => [0]
[material_price] => [0]
[work_price] => [0]
[image] => https://akademik-stroy.ru/wp-content/uploads/materials/ehlektrika.jpg
[area_modifier] => 238.59
[parent_name] => Электрика
[parent_id] => 28
[material_sum] => 0
[work_sum] => 0
[total_sum] => 0
[total_days] => 0
[display_material_sum] => 0
[display_work_sum] => 0
[display_total_sum] => 0
)
1
0₽
Работа:0 ₽
Материалы:0 ₽
Дни:0
stdClass Object
(
[id] => 56
[attribute_id] => 28
[name] => Есть
[material_modifier] => 1
[work_modifier] => 1
[options] => Array
(
)
[days] => [10]
[material_price] => [650]
[work_price] => [950]
[image] => https://akademik-stroy.ru/wp-content/uploads/materials/ehlektrika.jpg
[area_modifier] => 238.59
[parent_name] => Электрика
[parent_id] => 28
[material_sum] => 195405
[work_sum] => 237994
[total_sum] => 433399
[total_days] => 10
[display_material_sum] => 195 405
[display_work_sum] => 237 994
[display_total_sum] => 433 399
)
1
433 399₽
Работа:237 994 ₽
Материалы:195 405 ₽
Дни:10
stdClass Object
(
[id] => 57
[attribute_id] => 29
[name] => Нет
[material_modifier] => 1
[work_modifier] => 1
[options] => Array
(
)
[days] => [0]
[material_price] => [0]
[work_price] => [0]
[image] => https://akademik-stroy.ru/wp-content/uploads/materials/santekhnika-kanalizaciya-1.jpg
[area_modifier] => 238.59
[parent_name] => Сантехника, канализация в доме
[parent_id] => 29
[material_sum] => 0
[work_sum] => 0
[total_sum] => 0
[total_days] => 0
[display_material_sum] => 0
[display_work_sum] => 0
[display_total_sum] => 0
)
1
0₽
Работа:0 ₽
Материалы:0 ₽
Дни:0
stdClass Object
(
[id] => 58
[attribute_id] => 29
[name] => Есть
[material_modifier] => 1
[work_modifier] => 1
[options] => Array
(
)
[days] => [10]
[material_price] => [600]
[work_price] => [730]
[image] => https://akademik-stroy.ru/wp-content/uploads/materials/santekhnika-kanalizaciya-1.jpg
[area_modifier] => 238.59
[parent_name] => Сантехника, канализация в доме
[parent_id] => 29
[material_sum] => 180374
[work_sum] => 182879
[total_sum] => 363253
[total_days] => 10
[display_material_sum] => 180 374
[display_work_sum] => 182 879
[display_total_sum] => 363 253
)
1
363 253₽
Работа:182 879 ₽
Материалы:180 374 ₽
Дни:10
stdClass Object
(
[id] => 59
[attribute_id] => 30
[name] => Нет
[material_modifier] => 1
[work_modifier] => 1
[options] => Array
(
)
[days] => [0]
[material_price] => [0]
[work_price] => [0]
[image] => https://akademik-stroy.ru/wp-content/uploads/materials/otoplenie-1.jpg
[area_modifier] => 238.59
[parent_name] => Отопление
[parent_id] => 30
[material_sum] => 0
[work_sum] => 0
[total_sum] => 0
[total_days] => 0
[display_material_sum] => 0
[display_work_sum] => 0
[display_total_sum] => 0
)
1
0₽
Работа:0 ₽
Материалы:0 ₽
Дни:0
stdClass Object
(
[id] => 60
[attribute_id] => 30
[name] => Есть
[material_modifier] => 1
[work_modifier] => 1
[options] => Array
(
)
[days] => [5]
[material_price] => [610]
[work_price] => [560]
[image] => https://akademik-stroy.ru/wp-content/uploads/materials/otoplenie-1.jpg
[area_modifier] => 238.59
[parent_name] => Отопление
[parent_id] => 30
[material_sum] => 183380
[work_sum] => 140291
[total_sum] => 323671
[total_days] => 5
[display_material_sum] => 183 380
[display_work_sum] => 140 291
[display_total_sum] => 323 671
)
1
323 671₽
Работа:140 291 ₽
Материалы:183 380 ₽
Дни:5
stdClass Object
(
[id] => 61
[attribute_id] => 31
[name] => Нет
[material_modifier] => 1
[work_modifier] => 1
[options] => Array
(
)
[days] => [0]
[material_price] => [0]
[work_price] => [0]
[image] => https://akademik-stroy.ru/wp-content/uploads/materials/vodyanye.jpg
[area_modifier] => 30
[parent_name] => Теплые полы
[parent_id] => 31
[material_sum] => 0
[work_sum] => 0
[total_sum] => 0
[total_days] => 0
[display_material_sum] => 0
[display_work_sum] => 0
[display_total_sum] => 0
)
1
0₽
Работа:0 ₽
Материалы:0 ₽
Дни:0
stdClass Object
(
[id] => 151
[attribute_id] => 31
[name] => Водяные
[material_modifier] => 1
[work_modifier] => 1
[options] => Array
(
)
[days] => [9]
[material_price] => [10200]
[work_price] => [2500]
[image] => https://akademik-stroy.ru/wp-content/uploads/materials/vodyanye.jpg
[area_modifier] => 30
[parent_name] => Теплые полы
[parent_id] => 31
[material_sum] => 385560
[work_sum] => 78750
[total_sum] => 464310
[total_days] => 9
[display_material_sum] => 385 560
[display_work_sum] => 78 750
[display_total_sum] => 464 310
)
1
464 310₽
Работа:78 750 ₽
Материалы:385 560 ₽
Дни:9
stdClass Object
(
[id] => 152
[attribute_id] => 31
[name] => Электро
[material_modifier] => 1
[work_modifier] => 1
[options] => Array
(
)
[days] => [5]
[material_price] => [6300]
[work_price] => [1500]
[image] => https://akademik-stroy.ru/wp-content/uploads/materials/ehlektricheskij.jpg
[area_modifier] => 30
[parent_name] => Теплые полы
[parent_id] => 31
[material_sum] => 238140
[work_sum] => 47250
[total_sum] => 285390
[total_days] => 5
[display_material_sum] => 238 140
[display_work_sum] => 47 250
[display_total_sum] => 285 390
)
1
285 390₽
Работа:47 250 ₽
Материалы:238 140 ₽
Дни:5
stdClass Object
(
[id] => 63
[attribute_id] => 32
[name] => Нет
[material_modifier] => 1
[work_modifier] => 1
[options] => Array
(
)
[days] => [0]
[material_price] => [0]
[work_price] => [0]
[image] => https://akademik-stroy.ru/wp-content/uploads/materials/shtukaturka-shpatlevka-1.jpg
[area_modifier] => 238.59
[parent_name] => Черновая отделка стен
[parent_id] => 32
[material_sum] => 0
[work_sum] => 0
[total_sum] => 0
[total_days] => 0
[display_material_sum] => 0
[display_work_sum] => 0
[display_total_sum] => 0
)
1
0₽
Работа:0 ₽
Материалы:0 ₽
Дни:0
stdClass Object
(
[id] => 153
[attribute_id] => 32
[name] => Штукатурка и шпатлевка
[material_modifier] => 1
[work_modifier] => 1
[options] => Array
(
)
[days] => [20]
[material_price] => [1850]
[work_price] => [2600]
[image] => https://akademik-stroy.ru/wp-content/uploads/materials/shtukaturka-shpatlevka-1.jpg
[area_modifier] => 238.59
[parent_name] => Черновая отделка стен
[parent_id] => 32
[material_sum] => 556153
[work_sum] => 651351
[total_sum] => 1207504
[total_days] => 20
[display_material_sum] => 556 153
[display_work_sum] => 651 351
[display_total_sum] => 1 207 504
)
1
1 207 504₽
Работа:651 351 ₽
Материалы:556 153 ₽
Дни:20
stdClass Object
(
[id] => 154
[attribute_id] => 32
[name] => Гипсокортон на стены
[material_modifier] => 1
[work_modifier] => 1
[options] => Array
(
)
[days] => [15]
[material_price] => [950]
[work_price] => [2100]
[image] => https://akademik-stroy.ru/wp-content/uploads/materials/gkl-1.jpg
[area_modifier] => 238.59
[parent_name] => Черновая отделка стен
[parent_id] => 32
[material_sum] => 285592
[work_sum] => 526091
[total_sum] => 811683
[total_days] => 15
[display_material_sum] => 285 592
[display_work_sum] => 526 091
[display_total_sum] => 811 683
)
1
811 683₽
Работа:526 091 ₽
Материалы:285 592 ₽
Дни:15
stdClass Object
(
[id] => 155
[attribute_id] => 32
[name] => Вагонка
[material_modifier] => 1
[work_modifier] => 1
[options] => Array
(
)
[days] => [15]
[material_price] => [1250]
[work_price] => [950]
[image] => https://akademik-stroy.ru/wp-content/uploads/materials/vagonka.jpg
[area_modifier] => 238.59
[parent_name] => Черновая отделка стен
[parent_id] => 32
[material_sum] => 375779
[work_sum] => 237994
[total_sum] => 613773
[total_days] => 15
[display_material_sum] => 375 779
[display_work_sum] => 237 994
[display_total_sum] => 613 773
)
1
613 773₽
Работа:237 994 ₽
Материалы:375 779 ₽
Дни:15
stdClass Object
(
[id] => 65
[attribute_id] => 33
[name] => Нет
[material_modifier] => 1
[work_modifier] => 1
[options] => Array
(
)
[days] => [0]
[material_price] => [0]
[work_price] => [0]
[image] => https://akademik-stroy.ru/wp-content/uploads/materials/styazhka.jpg
[area_modifier] => 238.59
[parent_name] => Черновая отделка полов
[parent_id] => 33
[material_sum] => 0
[work_sum] => 0
[total_sum] => 0
[total_days] => 0
[display_material_sum] => 0
[display_work_sum] => 0
[display_total_sum] => 0
)
1
0₽
Работа:0 ₽
Материалы:0 ₽
Дни:0
stdClass Object
(
[id] => 156
[attribute_id] => 33
[name] => Стяжка + наливные полы
[material_modifier] => 1
[work_modifier] => 1
[options] => Array
(
)
[days] => [10]
[material_price] => [1000]
[work_price] => [900]
[image] => https://akademik-stroy.ru/wp-content/uploads/materials/styazhka.jpg
[area_modifier] => 238.59
[parent_name] => Черновая отделка полов
[parent_id] => 33
[material_sum] => 300623
[work_sum] => 225468
[total_sum] => 526091
[total_days] => 10
[display_material_sum] => 300 623
[display_work_sum] => 225 468
[display_total_sum] => 526 091
)
1
526 091₽
Работа:225 468 ₽
Материалы:300 623 ₽
Дни:10
stdClass Object
(
[id] => 157
[attribute_id] => 33
[name] => ОСБ на пол
[material_modifier] => 1
[work_modifier] => 1
[options] => Array
(
)
[days] => [7]
[material_price] => [580]
[work_price] => [350]
[image] => https://akademik-stroy.ru/wp-content/uploads/materials/osb-1.jpg
[area_modifier] => 238.59
[parent_name] => Черновая отделка полов
[parent_id] => 33
[material_sum] => 174362
[work_sum] => 87682
[total_sum] => 262044
[total_days] => 7
[display_material_sum] => 174 362
[display_work_sum] => 87 682
[display_total_sum] => 262 044
)
1
262 044₽
Работа:87 682 ₽
Материалы:174 362 ₽
Дни:7
stdClass Object
(
[id] => 67
[attribute_id] => 34
[name] => Нет
[material_modifier] => 1
[work_modifier] => 1
[options] => Array
(
)
[days] => [0]
[material_price] => [0]
[work_price] => [0]
[image] => https://akademik-stroy.ru/wp-content/uploads/materials/chistovaya-otdelka.jpg
[area_modifier] => 238.59
[parent_name] => Чистовая отделка стен и полов
[parent_id] => 34
[material_sum] => 0
[work_sum] => 0
[total_sum] => 0
[total_days] => 0
[display_material_sum] => 0
[display_work_sum] => 0
[display_total_sum] => 0
)
1
0₽
Работа:0 ₽
Материалы:0 ₽
Дни:0
stdClass Object
(
[id] => 68
[attribute_id] => 34
[name] => Есть
[material_modifier] => 1
[work_modifier] => 1
[options] => Array
(
)
[days] => [50]
[material_price] => [6000]
[work_price] => [3500]
[image] => https://akademik-stroy.ru/wp-content/uploads/materials/chistovaya-otdelka.jpg
[area_modifier] => 238.59
[parent_name] => Чистовая отделка стен и полов
[parent_id] => 34
[material_sum] => 1803740
[work_sum] => 876818
[total_sum] => 2680558
[total_days] => 50
[display_material_sum] => 1 803 740
[display_work_sum] => 876 818
[display_total_sum] => 2 680 558
)
1
2 680 558₽
Работа:876 818 ₽
Материалы:1 803 740 ₽
Дни:50
stdClass Object
(
[id] => 69
[attribute_id] => 35
[name] => Нет
[material_modifier] => 1
[work_modifier] => 1
[options] => Array
(
)
[days] => [0]
[material_price] => [0]
[work_price] => [0]
[image] => https://akademik-stroy.ru/wp-content/uploads/materials/mnogourovnevyj-gkl.jpg
[area_modifier] => 238.59
[parent_name] => Отделка потолка
[parent_id] => 35
[material_sum] => 0
[work_sum] => 0
[total_sum] => 0
[total_days] => 0
[display_material_sum] => 0
[display_work_sum] => 0
[display_total_sum] => 0
)
1
0₽
Работа:0 ₽
Материалы:0 ₽
Дни:0
stdClass Object
(
[id] => 70
[attribute_id] => 35
[name] => Есть
[material_modifier] => 1
[work_modifier] => 1
[options] => Array
(
[0] => Многоуровневый потолок из гипсокартона
[1] => Многоуровневый потолок из гипсокартона и натяжного потолка
[2] => Одноуровневый потолок из гипсокартона
[3] => Одноуровневый натяжной потолок
)
[days] => [10,10,1,1]
[material_price] => [900,700,700,600]
[work_price] => [1000,800,500,300]
[image] => https://akademik-stroy.ru/wp-content/uploads/materials/mnogourovnevyj-gkl.jpg
[area_modifier] => 238.59
[parent_name] => Отделка потолка
[parent_id] => 35
[material_sum] => 270561
[work_sum] => 250520
[total_sum] => 521081
[total_days] => 10
[display_material_sum] => 270 561
[display_work_sum] => 250 520
[display_total_sum] => 521 081
)
1
521 081₽
Работа:250 520 ₽
Материалы:270 561 ₽
Дни:10
Преимущества работы с нами
7 этапов оплаты
Независимый строительный надзор
Экологически чистые материалы
16 лет гарантии
Онлайн-кабинет с веб-камерой
Строители с опытом более 15 лет
Собственное производство





