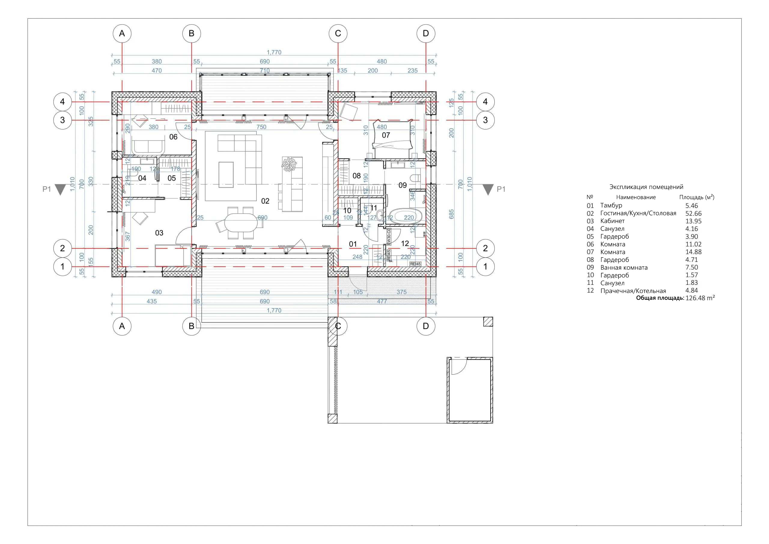
Одноэтажный дом 126.48 м2 (газосиликатный блок) за руб.
Планировки
План первого этажа
- 1. Тамбур 5,46 м²
- 2. Гостиная-Кухня-Столовая 52,66 м²
- 3. Кабинет 13,95 м²
- 4. Санузел 4,16 м²
- 5. Гардероб 3,90 м²
- 6. Комната 11,02 м²
- 7. Комната 14,88 м²
- 8. Гардероб 4,71 м²
- 9. Ванная комната 7,50 м²
- 10. Гардероб 1,57 м²
- 11. Санузел 1,83 м²
- 12. Прачечная-Котельная 4,84 м²
- Общая площадь 126,48 м²
Площади дома
| № п/п | Наименование | Ед. из. | Строительная площадь | Полезная площадь |
| 1 | 1 этаж | м2 | 155.86 | 126.48 |
| 2 | Итого | м2 | 155.86 | 126.48 |
154 м2
Полезная
площадь
площадь
1 этаж
Этажей
26 м2
Террасы
и балконы
и балконы
0Без
гаража
гаража
3
Количество
спален
спален
3
Количество
санузлов
санузлов
Калькулятор опций
0₽
В ипотеку от 20 648 ₽/мес.
0₽
0 дней
stdClass Object
(
[id] => 1
[attribute_id] => 1
[name] => Ленточный монолитный ж/б
[material_modifier] => 1
[work_modifier] => 1
[options] => Array
(
[0] => размер 200 х 700 мм
[1] => размер 300 х 900 мм
[2] => размер 400 х 1 000 мм
[3] => размер 500 х 1 100 мм
[4] => размер 600 х 1 200 мм
)
[days] => [20,21,22,25,30]
[material_price] => [2823,3630,4475,5210,12047]
[work_price] => [2154,2826,3731,4577,5293]
[image] => https://akademik-stroy.ru/wp-content/uploads/materials/lentochnyj-monolitnyj-zh-b.jpg
[area_modifier] => 155.86
[parent_name] => Фундамент
[parent_id] => 1
[material_sum] => 580790
[work_sum] => 369295
[total_sum] => 950085
[total_days] => 20
[display_material_sum] => 580 790
[display_work_sum] => 369 295
[display_total_sum] => 950 085
)
1
950 085₽
Работа:369 295 ₽
Материалы:580 790 ₽
Дни:20
stdClass Object
(
[id] => 2
[attribute_id] => 1
[name] => Забивные Ж/Б сваи
[material_modifier] => 1
[work_modifier] => 1
[options] => Array
(
[0] => 150х150х3000мм
[1] => 150х150х4000мм
[2] => 200х200х3000мм
[3] => 200х200х4000мм
[4] => 200х200х5000мм
[5] => 200х200х6000мм
)
[days] => [2,2,2,2,2,2]
[material_price] => [1990,2850,3255,4360,5120,6837]
[work_price] => [1002,1185,1336,1438,1574,1839]
[image] => https://akademik-stroy.ru/wp-content/uploads/materials/zabivnye-zh-b-svai.png
[area_modifier] => 155.86
[parent_name] => Фундамент
[parent_id] => 1
[material_sum] => 409413
[work_sum] => 171789
[total_sum] => 581202
[total_days] => 2
[display_material_sum] => 409 413
[display_work_sum] => 171 789
[display_total_sum] => 581 202
)
1
581 202₽
Работа:171 789 ₽
Материалы:409 413 ₽
Дни:2
stdClass Object
(
[id] => 71
[attribute_id] => 1
[name] => Свайно-ростверковый ж/б
[material_modifier] => 1
[work_modifier] => 1
[options] => Array
(
[0] => ростверк 200х300 мм
[1] => ростверк 300х600 мм
[2] => ростверк 400х900 мм
[3] => ростверк 500х1200 мм
)
[days] => [20,23,25,27]
[material_price] => [3018,3474,7109,9792]
[work_price] => [2024,3012,5635,7022]
[image] => https://akademik-stroy.ru/wp-content/uploads/materials/svajno-rostverkovyj-monolitnyj-zh-b-3.png
[area_modifier] => 155.86
[parent_name] => Фундамент
[parent_id] => 1
[material_sum] => 620909
[work_sum] => 347007
[total_sum] => 967916
[total_days] => 20
[display_material_sum] => 620 909
[display_work_sum] => 347 007
[display_total_sum] => 967 916
)
1
967 916₽
Работа:347 007 ₽
Материалы:620 909 ₽
Дни:20
stdClass Object
(
[id] => 72
[attribute_id] => 1
[name] => Монолитная ж/б плита
[material_modifier] => 1
[work_modifier] => 1
[options] => Array
(
[0] => 200 мм
[1] => 300 мм
[2] => 400 мм
[3] => 500 мм
[4] => 600 мм
)
[days] => [30,33,35,37,40]
[material_price] => [5348,8555,12788,14388,15189]
[work_price] => [4314,4881,7037,8061,10230]
[image] => https://akademik-stroy.ru/wp-content/uploads/materials/monolitnaya-zhb-plita.png
[area_modifier] => 155.86
[parent_name] => Фундамент
[parent_id] => 1
[material_sum] => 1100272
[work_sum] => 739618
[total_sum] => 1839890
[total_days] => 30
[display_material_sum] => 1 100 272
[display_work_sum] => 739 618
[display_total_sum] => 1 839 890
)
1
1 839 890₽
Работа:739 618 ₽
Материалы:1 100 272 ₽
Дни:30
stdClass Object
(
[id] => 73
[attribute_id] => 1
[name] => Утепленная шведская плита
[material_modifier] => 1
[work_modifier] => 1
[options] => Array
(
[0] => 200 мм
[1] => 300 мм
[2] => 400 мм
[3] => 500 мм
[4] => 600 мм
)
[days] => [32,37,39,42,45]
[material_price] => [10249,12692,13760,14936,16230]
[work_price] => [5960,7337,8072,8878,9765]
[image] => https://akademik-stroy.ru/wp-content/uploads/materials/uteplennaya-shvedskaya-plita.jpg
[area_modifier] => 155.86
[parent_name] => Фундамент
[parent_id] => 1
[material_sum] => 2108580
[work_sum] => 1021818
[total_sum] => 3130398
[total_days] => 32
[display_material_sum] => 2 108 580
[display_work_sum] => 1 021 818
[display_total_sum] => 3 130 398
)
1
3 130 398₽
Работа:1 021 818 ₽
Материалы:2 108 580 ₽
Дни:32
stdClass Object
(
[id] => 75
[attribute_id] => 1
[name] => Ленточный из ФБС
[material_modifier] => 1
[work_modifier] => 1
[options] => Array
(
[0] => толщ. 300 мм
[1] => толщ. 400 мм
[2] => толщ. 500 мм
[3] => толщ. 600 мм
)
[days] => [20,20,20,20]
[material_price] => [3675,4902,6126,7350]
[work_price] => [2451,3264,4083,4902]
[image] => https://akademik-stroy.ru/wp-content/uploads/materials/lentochnyj-iz-fbs.png
[area_modifier] => 155.86
[parent_name] => Фундамент
[parent_id] => 1
[material_sum] => 756077
[work_sum] => 420214
[total_sum] => 1176291
[total_days] => 20
[display_material_sum] => 756 077
[display_work_sum] => 420 214
[display_total_sum] => 1 176 291
)
1
1 176 291₽
Работа:420 214 ₽
Материалы:756 077 ₽
Дни:20
stdClass Object
(
[id] => 76
[attribute_id] => 1
[name] => Цокольный этаж из ФБС
[material_modifier] => 1
[work_modifier] => 1
[options] => Array
(
[0] => толщ. 300 мм
[1] => толщ. 400 мм
[2] => толщ. 500 мм
[3] => толщ. 600 мм
)
[days] => [30,32,34,36]
[material_price] => [20916,23299,26680,29060]
[work_price] => [17524,18700,19873,21046]
[image] => https://akademik-stroy.ru/wp-content/uploads/materials/cokolnyj-ehtazh-iz-fbs.jpg
[area_modifier] => 155.86
[parent_name] => Фундамент
[parent_id] => 1
[material_sum] => 4303157
[work_sum] => 3004420
[total_sum] => 7307577
[total_days] => 30
[display_material_sum] => 4 303 157
[display_work_sum] => 3 004 420
[display_total_sum] => 7 307 577
)
1
7 307 577₽
Работа:3 004 420 ₽
Материалы:4 303 157 ₽
Дни:30
stdClass Object
(
[id] => 77
[attribute_id] => 1
[name] => Цокольный этаж монолитный ж/б
[material_modifier] => 1
[work_modifier] => 1
[options] => Array
(
[0] => толщ. 200 мм
[1] => толщ. 300 мм
[2] => толщ. 400 мм
[3] => толщ. 500 мм
[4] => толщ. 600 мм
)
[days] => [40,42,44,46,48]
[material_price] => [25421,29148,32275,35602,37326]
[work_price] => [20441,21907,23375,24841,26306]
[image] => https://akademik-stroy.ru/wp-content/uploads/materials/cokolnyj-etazh-zh-b.jpg
[area_modifier] => 155.86
[parent_name] => Фундамент
[parent_id] => 1
[material_sum] => 5229995
[work_sum] => 3504528
[total_sum] => 8734523
[total_days] => 40
[display_material_sum] => 5 229 995
[display_work_sum] => 3 504 528
[display_total_sum] => 8 734 523
)
1
8 734 523₽
Работа:3 504 528 ₽
Материалы:5 229 995 ₽
Дни:40
stdClass Object
(
[id] => 191
[attribute_id] => 1
[name] => Винтовые сваи
[material_modifier] => 1
[work_modifier] => 1
[options] => Array
(
[0] => 57х200мм
[1] => 76х250мм
[2] => 108х300мм
[3] => 133х350мм
)
[days] => [1,1,2,2]
[material_price] => [1200,1300,1450,1600]
[work_price] => [400,600,900,1100]
[image] => https://akademik-stroy.ru/wp-content/uploads/materials/vintovye-svai.png
[area_modifier] => 155.86
[parent_name] => Фундамент
[parent_id] => 1
[material_sum] => 246882
[work_sum] => 68578
[total_sum] => 315460
[total_days] => 1
[display_material_sum] => 246 882
[display_work_sum] => 68 578
[display_total_sum] => 315 460
)
1
315 460₽
Работа:68 578 ₽
Материалы:246 882 ₽
Дни:1
stdClass Object
(
[id] => 3
[attribute_id] => 2
[name] => Деревянные балки
[material_modifier] => 1
[work_modifier] => 1
[options] => Array
(
[0] => без утепления
[1] => утепление 200 мм
[2] => утепление 250 мм
[3] => утепление 300 мм
[4] => утепление 350 мм
[5] => утепление 400 мм
[6] => утепление 450 мм
[7] => утепление 500 мм
)
[days] => [8,9,9,9,11,12,13,14]
[material_price] => [1634,2042,2344,2947,3149,3652,3354,3557]
[work_price] => [1230,1339,1393,1426,1460,1513,1587,1620]
[image] => https://akademik-stroy.ru/wp-content/uploads/materials/derevyannye-balki.png
[area_modifier] => 155.86
[parent_name] => Перекрытие цоколя
[parent_id] => 2
[material_sum] => 336171
[work_sum] => 210879
[total_sum] => 547050
[total_days] => 8
[display_material_sum] => 336 171
[display_work_sum] => 210 879
[display_total_sum] => 547 050
)
1
547 050₽
Работа:210 879 ₽
Материалы:336 171 ₽
Дни:8
stdClass Object
(
[id] => 4
[attribute_id] => 2
[name] => Сборные ж/б плиты
[material_modifier] => 1
[work_modifier] => 1
[options] => Array
(
[0] => без утепления
[1] => утепление 150мм
[2] => утепление 200мм
[3] => утепление 250мм
[4] => утепление 300мм
[5] => утепление 350мм
[6] => утепление 400мм
[7] => утепление 450мм
[8] => утепление 500мм
)
[days] => [13,15,15,15,15,15,15,15,15]
[material_price] => [3067,5577,5928,6679,7730,8782,9833,10884,11935]
[work_price] => [1520,1956,2102,2247,2392,2537,2684,2829,2974]
[image] => https://akademik-stroy.ru/wp-content/uploads/materials/sbornye-zh-b-plity-2.jpg
[area_modifier] => 155.86
[parent_name] => Перекрытие цоколя
[parent_id] => 2
[material_sum] => 630990
[work_sum] => 260598
[total_sum] => 891588
[total_days] => 13
[display_material_sum] => 630 990
[display_work_sum] => 260 598
[display_total_sum] => 891 588
)
1
891 588₽
Работа:260 598 ₽
Материалы:630 990 ₽
Дни:13
stdClass Object
(
[id] => 78
[attribute_id] => 2
[name] => Монолитная ж/б плита
[material_modifier] => 1
[work_modifier] => 1
[options] => Array
(
[0] => без утепления
[1] => утепление 150 мм
[2] => утепление 200 мм
[3] => утепление 250 мм
[4] => утепление 300 мм
[5] => утепление 350 мм
[6] => утепление 400 мм
[7] => утепление 450 мм
[8] => утепление 500 мм
)
[days] => [18,20,20,20,20,20,20,20,20]
[material_price] => [4837,6572,7224,7375,79426,8177,8728,9180,10031]
[work_price] => [3348,3921,4112,4302,4493,4684,4875,5066,5256]
[image] => https://akademik-stroy.ru/wp-content/uploads/materials/monolitnaya-zh-b-plita-2.jpg
[area_modifier] => 155.86
[parent_name] => Перекрытие цоколя
[parent_id] => 2
[material_sum] => 995141
[work_sum] => 574001
[total_sum] => 1569142
[total_days] => 18
[display_material_sum] => 995 141
[display_work_sum] => 574 001
[display_total_sum] => 1 569 142
)
1
1 569 142₽
Работа:574 001 ₽
Материалы:995 141 ₽
Дни:18
stdClass Object
(
[id] => 6
[attribute_id] => 3
[name] => Пеноблок
[material_modifier] => 1
[work_modifier] => 1
[options] => Array
(
[0] => 300 мм
[1] => 400 мм
[2] => 500 мм
[3] => 600 мм
)
[days] => [29,31,34,39]
[material_price] => [3000,4000,4500,4937]
[work_price] => [5033,5805,6400,8710]
[image] => https://akademik-stroy.ru/wp-content/uploads/materials/penoblok.jpg
[area_modifier] => 155.86
[parent_name] => Стены 1 этаж (несущие)
[parent_id] => 3
[material_sum] => 617206
[work_sum] => 862888
[total_sum] => 1480094
[total_days] => 29
[display_material_sum] => 617 206
[display_work_sum] => 862 888
[display_total_sum] => 1 480 094
)
1
1 480 094₽
Работа:862 888 ₽
Материалы:617 206 ₽
Дни:29
stdClass Object
(
[id] => 79
[attribute_id] => 3
[name] => Керамический блок
[material_modifier] => 1
[work_modifier] => 1
[options] => Array
(
[0] => 380 мм
[1] => 380 мм Thermo
[2] => 440 мм
[3] => 510 мм
)
[days] => [23,23,24,25]
[material_price] => [4510,5098,6093,8013]
[work_price] => [4737,4937,5903,6958]
[image] => https://akademik-stroy.ru/wp-content/uploads/materials/keramicheskij-blok.jpg
[area_modifier] => 155.86
[parent_name] => Стены 1 этаж (несущие)
[parent_id] => 3
[material_sum] => 927866
[work_sum] => 812140
[total_sum] => 1740006
[total_days] => 23
[display_material_sum] => 927 866
[display_work_sum] => 812 140
[display_total_sum] => 1 740 006
)
1
1 740 006₽
Работа:812 140 ₽
Материалы:927 866 ₽
Дни:23
stdClass Object
(
[id] => 80
[attribute_id] => 3
[name] => Кирпич
[material_modifier] => 1
[work_modifier] => 1
[options] => Array
(
[0] => Кирпич 250 мм
[1] => Кирпич 380 мм
[2] => Кирпич 510 мм
[3] => Кирпич 640 мм
[4] => Кирпич 770 мм
)
[days] => [30,30,31,33,36]
[material_price] => [5500,7142,9206,10171,12235]
[work_price] => [8736,10041,12018,15240,18462]
[image] => https://akademik-stroy.ru/wp-content/uploads/materials/kirpich.jpg
[area_modifier] => 155.86
[parent_name] => Стены 1 этаж (несущие)
[parent_id] => 3
[material_sum] => 1131544
[work_sum] => 1497752
[total_sum] => 2629296
[total_days] => 30
[display_material_sum] => 1 131 544
[display_work_sum] => 1 497 752
[display_total_sum] => 2 629 296
)
1
2 629 296₽
Работа:1 497 752 ₽
Материалы:1 131 544 ₽
Дни:30
stdClass Object
(
[id] => 81
[attribute_id] => 3
[name] => Монолитные
[material_modifier] => 1
[work_modifier] => 1
[options] => Array
(
[0] => 150 мм
[1] => 200 мм
[2] => 250 мм
[3] => 300 мм
[4] => 350 мм
[5] => 400 мм
)
[days] => [45,46,47,49,50,53]
[material_price] => [6545,7876,10175,12011,13908,15204]
[work_price] => [5106,6444,7698,8552,9807,11461]
[image] => https://akademik-stroy.ru/wp-content/uploads/materials/monolitnye.jpg
[area_modifier] => 155.86
[parent_name] => Стены 1 этаж (несущие)
[parent_id] => 3
[material_sum] => 1346537
[work_sum] => 875403
[total_sum] => 2221940
[total_days] => 45
[display_material_sum] => 1 346 537
[display_work_sum] => 875 403
[display_total_sum] => 2 221 940
)
1
2 221 940₽
Работа:875 403 ₽
Материалы:1 346 537 ₽
Дни:45
stdClass Object
(
[id] => 82
[attribute_id] => 3
[name] => Клееный брус
[material_modifier] => 1
[work_modifier] => 1
[options] => Array
(
[0] => 160 мм
[1] => 175 мм
[2] => 200 мм
[3] => 215 мм
[4] => 240 мм
[5] => 270 мм
[6] => 282 мм
)
[days] => [24,28,32,37,40,42,48]
[material_price] => [16975,18773,19950,20545,21599,22159,23275]
[work_price] => [4806,5287,5815,6397,7036,7740,8514]
[image] => https://akademik-stroy.ru/wp-content/uploads/materials/kleenyj-brus.jpg
[area_modifier] => 155.86
[parent_name] => Стены 1 этаж (несущие)
[parent_id] => 3
[material_sum] => 3492355
[work_sum] => 823969
[total_sum] => 4316324
[total_days] => 24
[display_material_sum] => 3 492 355
[display_work_sum] => 823 969
[display_total_sum] => 4 316 324
)
1
4 316 324₽
Работа:823 969 ₽
Материалы:3 492 355 ₽
Дни:24
stdClass Object
(
[id] => 83
[attribute_id] => 3
[name] => Каркасные
[material_modifier] => 1
[work_modifier] => 1
[options] => Array
(
[0] => 150 мм
[1] => 200 мм
[2] => 250 мм
[3] => 300 мм
)
[days] => [15,16,17,18]
[material_price] => [2379,2639,2898,3258]
[work_price] => [2418,2686,2985,3716]
[image] => https://akademik-stroy.ru/wp-content/uploads/materials/karkasnye.jpg
[area_modifier] => 155.86
[parent_name] => Стены 1 этаж (несущие)
[parent_id] => 3
[material_sum] => 489444
[work_sum] => 414556
[total_sum] => 904000
[total_days] => 15
[display_material_sum] => 489 444
[display_work_sum] => 414 556
[display_total_sum] => 904 000
)
1
904 000₽
Работа:414 556 ₽
Материалы:489 444 ₽
Дни:15
stdClass Object
(
[id] => 84
[attribute_id] => 3
[name] => СИП-панели
[material_modifier] => 1
[work_modifier] => 1
[options] => Array
(
[0] => 120 мм
[1] => 170 мм
[2] => 220 мм
)
[days] => [7,7,7]
[material_price] => [1210,1856,2292]
[work_price] => [1410,1551,1706]
[image] => https://akademik-stroy.ru/wp-content/uploads/materials/sip-paneli.jpg
[area_modifier] => 155.86
[parent_name] => Стены 1 этаж (несущие)
[parent_id] => 3
[material_sum] => 248940
[work_sum] => 241739
[total_sum] => 490679
[total_days] => 7
[display_material_sum] => 248 940
[display_work_sum] => 241 739
[display_total_sum] => 490 679
)
1
490 679₽
Работа:241 739 ₽
Материалы:248 940 ₽
Дни:7
stdClass Object
(
[id] => 85
[attribute_id] => 3
[name] => Сухой брус
[material_modifier] => 1
[work_modifier] => 1
[options] => Array
(
[0] => 150 мм
[1] => 180 мм
[2] => 200 мм
)
[days] => [7,8,9]
[material_price] => [6010,7190,8709]
[work_price] => [3204,3845,4229]
[image] => https://akademik-stroy.ru/wp-content/uploads/materials/suhoj-brus.jpg
[area_modifier] => 155.86
[parent_name] => Стены 1 этаж (несущие)
[parent_id] => 3
[material_sum] => 1236469
[work_sum] => 549313
[total_sum] => 1785782
[total_days] => 7
[display_material_sum] => 1 236 469
[display_work_sum] => 549 313
[display_total_sum] => 1 785 782
)
1
1 785 782₽
Работа:549 313 ₽
Материалы:1 236 469 ₽
Дни:7
stdClass Object
(
[id] => 86
[attribute_id] => 3
[name] => Профилированный брус
[material_modifier] => 1
[work_modifier] => 1
[options] => Array
(
[0] => 150 мм
[1] => 180 мм
[2] => 200 мм
)
[days] => [7,8,9]
[material_price] => [8190,9228,10051]
[work_price] => [3845,4614,5075]
[image] => https://akademik-stroy.ru/wp-content/uploads/materials/profilirovannyj-brus.jpg
[area_modifier] => 155.86
[parent_name] => Стены 1 этаж (несущие)
[parent_id] => 3
[material_sum] => 1684971
[work_sum] => 659210
[total_sum] => 2344181
[total_days] => 7
[display_material_sum] => 1 684 971
[display_work_sum] => 659 210
[display_total_sum] => 2 344 181
)
1
2 344 181₽
Работа:659 210 ₽
Материалы:1 684 971 ₽
Дни:7
stdClass Object
(
[id] => 87
[attribute_id] => 3
[name] => Оцилиндрованное бревно
[material_modifier] => 1
[work_modifier] => 1
[options] => Array
(
[0] => 180 мм
[1] => 220 мм
[2] => 260 мм
[3] => 320 мм
)
[days] => [7,8,9,10]
[material_price] => [75190,9532,10868,13116]
[work_price] => [3845,4691,5535,6863]
[image] => https://akademik-stroy.ru/wp-content/uploads/materials/ocilindrovannoe-brevno-1.jpg
[area_modifier] => 155.86
[parent_name] => Стены 1 этаж (несущие)
[parent_id] => 3
[material_sum] => 15469230
[work_sum] => 659210
[total_sum] => 16128440
[total_days] => 7
[display_material_sum] => 15 469 230
[display_work_sum] => 659 210
[display_total_sum] => 16 128 440
)
1
16 128 440₽
Работа:659 210 ₽
Материалы:15 469 230 ₽
Дни:7
stdClass Object
(
[id] => 88
[attribute_id] => 3
[name] => Срубы
[material_modifier] => 1
[work_modifier] => 1
[options] => Array
(
[0] => 260 мм
[1] => 320 мм
[2] => 360 мм
[3] => 400 мм
[4] => 500 мм
)
[days] => [7,8,9,10,11]
[material_price] => [37975,46709,52314,58069,73167]
[work_price] => [4806,5911,6621,7349,9260]
[image] => https://akademik-stroy.ru/wp-content/uploads/materials/sruby.jpg
[area_modifier] => 155.86
[parent_name] => Стены 1 этаж (несущие)
[parent_id] => 3
[material_sum] => 7812794
[work_sum] => 823969
[total_sum] => 8636763
[total_days] => 7
[display_material_sum] => 7 812 794
[display_work_sum] => 823 969
[display_total_sum] => 8 636 763
)
1
8 636 763₽
Работа:823 969 ₽
Материалы:7 812 794 ₽
Дни:7
stdClass Object
(
[id] => 174
[attribute_id] => 3
[name] => Брус
[material_modifier] => 1
[work_modifier] => 1
[options] => Array
(
[0] => 150 мм
[1] => 180 мм
[2] => 200 мм
)
[days] => [7,8,9]
[material_price] => [5127,6152,7367]
[work_price] => [1602,1922,2115]
[image] => https://akademik-stroy.ru/wp-content/uploads/materials/brus.jpg
[area_modifier] => 155.86
[parent_name] => Стены 1 этаж (несущие)
[parent_id] => 3
[material_sum] => 1054804
[work_sum] => 274656
[total_sum] => 1329460
[total_days] => 7
[display_material_sum] => 1 054 804
[display_work_sum] => 274 656
[display_total_sum] => 1 329 460
)
1
1 329 460₽
Работа:274 656 ₽
Материалы:1 054 804 ₽
Дни:7
stdClass Object
(
[id] => 175
[attribute_id] => 3
[name] => Газобетон
[material_modifier] => 1
[work_modifier] => 1
[options] => Array
(
[0] => 300 мм
[1] => 375 мм
[2] => 400 мм
[3] => 500 мм
[4] => 600 мм
)
[days] => [29,31,35,37,44]
[material_price] => [4298,5573,6356,7288,9119]
[work_price] => [4538,5251,5926,6733,7195]
[image] => https://akademik-stroy.ru/wp-content/uploads/materials/gazobeton.jpg
[area_modifier] => 155.86
[parent_name] => Стены 1 этаж (несущие)
[parent_id] => 3
[material_sum] => 884250
[work_sum] => 778022
[total_sum] => 1662272
[total_days] => 29
[display_material_sum] => 884 250
[display_work_sum] => 778 022
[display_total_sum] => 1 662 272
)
1
1 662 272₽
Работа:778 022 ₽
Материалы:884 250 ₽
Дни:29
stdClass Object
(
[id] => 176
[attribute_id] => 3
[name] => Блок
[material_modifier] => 1
[work_modifier] => 1
[options] => Array
(
[0] => 300 мм
[1] => 375 мм
[2] => 400 мм
[3] => 500 мм
[4] => 600 мм
)
[days] => [29,31,35,37,44]
[material_price] => [2698,3973,4356,6588,7119]
[work_price] => [5038,5851,6426,8733,9195]
[image] => https://akademik-stroy.ru/wp-content/uploads/materials/blok.jpg
[area_modifier] => 155.86
[parent_name] => Стены 1 этаж (несущие)
[parent_id] => 3
[material_sum] => 555074
[work_sum] => 863745
[total_sum] => 1418819
[total_days] => 29
[display_material_sum] => 555 074
[display_work_sum] => 863 745
[display_total_sum] => 1 418 819
)
1
1 418 819₽
Работа:863 745 ₽
Материалы:555 074 ₽
Дни:29
stdClass Object
(
[id] => 177
[attribute_id] => 3
[name] => Газосиликатный блок
[material_modifier] => 1
[work_modifier] => 1
[options] => Array
(
[0] => 300 мм
[1] => 375 мм
[2] => 400 мм
[3] => 500 мм
[4] => 600 мм
)
[days] => [29,31,35,37,44]
[material_price] => [4298,5573,6356,7288,9119]
[work_price] => [4538,5251,5926,6733,7195]
[image] => https://akademik-stroy.ru/wp-content/uploads/materials/gazosilikatnyj-blok.jpg
[area_modifier] => 155.86
[parent_name] => Стены 1 этаж (несущие)
[parent_id] => 3
[material_sum] => 884250
[work_sum] => 778022
[total_sum] => 1662272
[total_days] => 29
[display_material_sum] => 884 250
[display_work_sum] => 778 022
[display_total_sum] => 1 662 272
)
1
1 662 272₽
Работа:778 022 ₽
Материалы:884 250 ₽
Дни:29
stdClass Object
(
[id] => 178
[attribute_id] => 3
[name] => Керамзитобетонный блок
[material_modifier] => 1
[work_modifier] => 1
[options] => Array
(
[0] => 300 мм
[1] => 375 мм
[2] => 400 мм
[3] => 500 мм
[4] => 600 мм
)
[days] => [23,23,24,25,28]
[material_price] => [3641,4298,5693,7613,9612]
[work_price] => [5737,5737,6903,7958,8901]
[image] => https://akademik-stroy.ru/wp-content/uploads/materials/keramzitobetonnyj-blok.jpg
[area_modifier] => 155.86
[parent_name] => Стены 1 этаж (несущие)
[parent_id] => 3
[material_sum] => 749082
[work_sum] => 983586
[total_sum] => 1732668
[total_days] => 23
[display_material_sum] => 749 082
[display_work_sum] => 983 586
[display_total_sum] => 1 732 668
)
1
1 732 668₽
Работа:983 586 ₽
Материалы:749 082 ₽
Дни:23
stdClass Object
(
[id] => 179
[attribute_id] => 3
[name] => Деревянные
[material_modifier] => 1
[work_modifier] => 1
[options] => Array
(
[0] => 180 мм
[1] => 220 мм
[2] => 260 мм
[3] => 320 мм
)
[days] => [7,8,9,10]
[material_price] => [7950,9458,11961,14472]
[work_price] => [4037,4925,5812,7207]
[image] => https://akademik-stroy.ru/wp-content/uploads/materials/derevyannye.jpg
[area_modifier] => 155.86
[parent_name] => Стены 1 этаж (несущие)
[parent_id] => 3
[material_sum] => 1635595
[work_sum] => 692128
[total_sum] => 2327723
[total_days] => 7
[display_material_sum] => 1 635 595
[display_work_sum] => 692 128
[display_total_sum] => 2 327 723
)
1
2 327 723₽
Работа:692 128 ₽
Материалы:1 635 595 ₽
Дни:7
stdClass Object
(
[id] => 181
[attribute_id] => 3
[name] => Камень
[material_modifier] => 1
[work_modifier] => 1
[options] => Array
(
[0] => 300 мм
[1] => 400 мм
[2] => 500 мм
[3] => 600 мм
)
[days] => [25,27,31,34]
[material_price] => [5262,6844,8330,9815]
[work_price] => [8331,9135,10427,11069]
[image] => https://akademik-stroy.ru/wp-content/uploads/materials/kamen.jpg
[area_modifier] => 155.86
[parent_name] => Стены 1 этаж (несущие)
[parent_id] => 3
[material_sum] => 1082579
[work_sum] => 1428317
[total_sum] => 2510896
[total_days] => 25
[display_material_sum] => 1 082 579
[display_work_sum] => 1 428 317
[display_total_sum] => 2 510 896
)
1
2 510 896₽
Работа:1 428 317 ₽
Материалы:1 082 579 ₽
Дни:25
stdClass Object
(
[id] => 182
[attribute_id] => 3
[name] => Каркасно-щитовые
[material_modifier] => 1
[work_modifier] => 1
[options] => Array
(
[0] => 150 мм
[1] => 200 мм
[2] => 250 мм
[3] => 300 мм
[4] => 350 мм
[5] => 400 мм
)
[days] => [15,16,17,18,19,20]
[material_price] => [2379,2639,2898,3458,3601,4175]
[work_price] => [2538,2820,3134,3483,4062,5642]
[image] => https://akademik-stroy.ru/wp-content/uploads/materials/karkasno-shchitovye.jpg
[area_modifier] => 155.86
[parent_name] => Стены 1 этаж (несущие)
[parent_id] => 3
[material_sum] => 489444
[work_sum] => 435130
[total_sum] => 924574
[total_days] => 15
[display_material_sum] => 489 444
[display_work_sum] => 435 130
[display_total_sum] => 924 574
)
1
924 574₽
Работа:435 130 ₽
Материалы:489 444 ₽
Дни:15
stdClass Object
(
[id] => 183
[attribute_id] => 3
[name] => Рубленные
[material_modifier] => 1
[work_modifier] => 1
[options] => Array
(
[0] => 150 мм
[1] => 200 мм
[2] => 250 мм
[3] => 300 мм
[4] => 350 мм
[5] => 400 мм
)
[days] => [15,16,17,18,17,18]
[material_price] => [35950,50267,60583,75900,80217,100533]
[work_price] => [9612,12816,16020,19224,22428,25632]
[image] => https://akademik-stroy.ru/wp-content/uploads/materials/rublennye.jpg
[area_modifier] => 155.86
[parent_name] => Стены 1 этаж (несущие)
[parent_id] => 3
[material_sum] => 7396180
[work_sum] => 1647939
[total_sum] => 9044119
[total_days] => 15
[display_material_sum] => 7 396 180
[display_work_sum] => 1 647 939
[display_total_sum] => 9 044 119
)
1
9 044 119₽
Работа:1 647 939 ₽
Материалы:7 396 180 ₽
Дни:15
stdClass Object
(
[id] => 185
[attribute_id] => 3
[name] => Теплоблок
[material_modifier] => 1
[work_modifier] => 1
[options] => Array
(
[0] => 300 мм (с облицовкой, не покрашенный)
[1] => 400 мм (с облицовкой, не покрашенный)
[2] => 300 мм (с облицовкой, покрашенный)
[3] => 400 мм (с облицовкой, покрашенный)
)
[days] => [15,16,15,16]
[material_price] => [2888,3729,3957,4258]
[work_price] => [2564,3229,2949,3713]
[image] => https://akademik-stroy.ru/wp-content/uploads/materials/teploblok.jpg
[area_modifier] => 155.86
[parent_name] => Стены 1 этаж (несущие)
[parent_id] => 3
[material_sum] => 594163
[work_sum] => 439588
[total_sum] => 1033751
[total_days] => 15
[display_material_sum] => 594 163
[display_work_sum] => 439 588
[display_total_sum] => 1 033 751
)
1
1 033 751₽
Работа:439 588 ₽
Материалы:594 163 ₽
Дни:15
stdClass Object
(
[id] => 186
[attribute_id] => 3
[name] => Арболитовые блоки
[material_modifier] => 1
[work_modifier] => 1
[options] => Array
(
[0] => 300 мм
[1] => 400 мм
[2] => 600 мм
)
[days] => [19,22,27]
[material_price] => [3210,4475,5852]
[work_price] => [4214,4788,5866]
[image] => https://akademik-stroy.ru/wp-content/uploads/materials/arbolitovye-bloki.png
[area_modifier] => 155.86
[parent_name] => Стены 1 этаж (несущие)
[parent_id] => 3
[material_sum] => 660410
[work_sum] => 722473
[total_sum] => 1382883
[total_days] => 19
[display_material_sum] => 660 410
[display_work_sum] => 722 473
[display_total_sum] => 1 382 883
)
1
1 382 883₽
Работа:722 473 ₽
Материалы:660 410 ₽
Дни:19
stdClass Object
(
[id] => 187
[attribute_id] => 3
[name] => Полистиролбетон
[material_modifier] => 1
[work_modifier] => 1
[options] => Array
(
[0] => 300 мм
[1] => 400 мм
[2] => 600 мм
)
[days] => [29,31,35]
[material_price] => [2798,4573,5256]
[work_price] => [5038,5851,6426]
[image] => https://akademik-stroy.ru/wp-content/uploads/materials/polistirolbeton.jpg
[area_modifier] => 155.86
[parent_name] => Стены 1 этаж (несущие)
[parent_id] => 3
[material_sum] => 575647
[work_sum] => 863745
[total_sum] => 1439392
[total_days] => 29
[display_material_sum] => 575 647
[display_work_sum] => 863 745
[display_total_sum] => 1 439 392
)
1
1 439 392₽
Работа:863 745 ₽
Материалы:575 647 ₽
Дни:29
stdClass Object
(
[id] => 188
[attribute_id] => 3
[name] => Шлакоблок
[material_modifier] => 1
[work_modifier] => 1
[options] => Array
(
[0] => 400 мм
[1] => 600 мм
)
[days] => [15,16]
[material_price] => [2391,3471]
[work_price] => [2642,3662]
[image] => https://akademik-stroy.ru/wp-content/uploads/materials/shlakoblok.jpg
[area_modifier] => 155.86
[parent_name] => Стены 1 этаж (несущие)
[parent_id] => 3
[material_sum] => 491913
[work_sum] => 452960
[total_sum] => 944873
[total_days] => 15
[display_material_sum] => 491 913
[display_work_sum] => 452 960
[display_total_sum] => 944 873
)
1
944 873₽
Работа:452 960 ₽
Материалы:491 913 ₽
Дни:15
stdClass Object
(
[id] => 189
[attribute_id] => 3
[name] => Теплая керамика
[material_modifier] => 1
[work_modifier] => 1
[options] => Array
(
[0] => 380 мм
[1] => 380 мм Thermo
[2] => 440 мм
[3] => 510 мм
)
[days] => [23,23,24,25]
[material_price] => [4510,5098,6093,8013]
[work_price] => [4737,4937,5903,6958]
[image] => https://akademik-stroy.ru/wp-content/uploads/materials/teplaya-keramika.jpg
[area_modifier] => 155.86
[parent_name] => Стены 1 этаж (несущие)
[parent_id] => 3
[material_sum] => 927866
[work_sum] => 812140
[total_sum] => 1740006
[total_days] => 23
[display_material_sum] => 927 866
[display_work_sum] => 812 140
[display_total_sum] => 1 740 006
)
1
1 740 006₽
Работа:812 140 ₽
Материалы:927 866 ₽
Дни:23
stdClass Object
(
[id] => 190
[attribute_id] => 3
[name] => Несъемная опалубка
[material_modifier] => 1
[work_modifier] => 1
[options] => Array
(
[0] => 200 мм
[1] => 250 мм
[2] => 300 мм
[3] => 350 мм
)
[days] => [15,17,19,21]
[material_price] => [3302,3902,4108,5008]
[work_price] => [2100,2100,2300,2534]
[image] => https://akademik-stroy.ru/wp-content/uploads/materials/nesemnaya-opalubka.jpg
[area_modifier] => 155.86
[parent_name] => Стены 1 этаж (несущие)
[parent_id] => 3
[material_sum] => 679338
[work_sum] => 360037
[total_sum] => 1039375
[total_days] => 15
[display_material_sum] => 679 338
[display_work_sum] => 360 037
[display_total_sum] => 1 039 375
)
1
1 039 375₽
Работа:360 037 ₽
Материалы:679 338 ₽
Дни:15
stdClass Object
(
[id] => 251
[attribute_id] => 3
[name] => Бревно
[material_modifier] => 1
[work_modifier] => 1
[options] => Array
(
[0] => 260 мм
[1] => 320 мм
[2] => 360 мм
[3] => 400 мм
[4] => 500 мм
)
[days] => [7,8,9,10,11]
[material_price] => [1874,24045,26930,30972,38825]
[work_price] => [5046,6207,6952,7716,9723]
[image] => https://akademik-stroy.ru/wp-content/uploads/materials/sruby.jpg
[area_modifier] => 155.86
[parent_name] => Стены 1 этаж (несущие)
[parent_id] => 3
[material_sum] => 385548
[work_sum] => 865117
[total_sum] => 1250665
[total_days] => 7
[display_material_sum] => 385 548
[display_work_sum] => 865 117
[display_total_sum] => 1 250 665
)
1
1 250 665₽
Работа:865 117 ₽
Материалы:385 548 ₽
Дни:7
stdClass Object
(
[id] => 7
[attribute_id] => 4
[name] => Деревянные балки
[material_modifier] => 1
[work_modifier] => 1
[options] => Array
(
[0] => без утепления
[1] => утепление 200 мм
[2] => утепление 250 мм
[3] => утепление 300 мм
[4] => утепление 350 мм
[5] => утепление 400 мм
[6] => утепление 450 мм
[7] => утепление 500 мм
)
[days] => [8,9,9,9,11,12,13,14]
[material_price] => [1634,2042,2344,2947,3149,3652,3354,3557]
[work_price] => [1230,1339,1393,1426,1460,1513,1587,1620]
[image] => https://akademik-stroy.ru/wp-content/uploads/materials/derevyannye-balki.png
[area_modifier] => 155.86
[parent_name] => Перекрытие первого этажа
[parent_id] => 4
[material_sum] => 336171
[work_sum] => 210879
[total_sum] => 547050
[total_days] => 8
[display_material_sum] => 336 171
[display_work_sum] => 210 879
[display_total_sum] => 547 050
)
1
547 050₽
Работа:210 879 ₽
Материалы:336 171 ₽
Дни:8
stdClass Object
(
[id] => 8
[attribute_id] => 4
[name] => Сборные ж/б плиты
[material_modifier] => 1
[work_modifier] => 1
[options] => Array
(
[0] => без утепления
[1] => утепление 150 мм
[2] => утепление 200 мм
[3] => утепление 250 мм
[4] => утепление 300 мм
[5] => утепление 350 мм
[6] => утепление 400 мм
[7] => утепление 450 мм
[8] => утепление 500 мм
)
[days] => [13,15,15,15,15,15,15,15,15]
[material_price] => [3067,5577,5928,6679,7730,8782,9833,10884,11935]
[work_price] => [1520,1956,2102,2247,2392,2537,2684,2829,2974]
[image] => https://akademik-stroy.ru/wp-content/uploads/materials/sbornye-zh-b-plity-2.jpg
[area_modifier] => 155.86
[parent_name] => Перекрытие первого этажа
[parent_id] => 4
[material_sum] => 630990
[work_sum] => 260598
[total_sum] => 891588
[total_days] => 13
[display_material_sum] => 630 990
[display_work_sum] => 260 598
[display_total_sum] => 891 588
)
1
891 588₽
Работа:260 598 ₽
Материалы:630 990 ₽
Дни:13
stdClass Object
(
[id] => 89
[attribute_id] => 4
[name] => Монолитная ж/б плита
[material_modifier] => 1
[work_modifier] => 1
[options] => Array
(
[0] => без утепления
[1] => утепление 150 мм
[2] => утепление 200 мм
[3] => утепление 250 мм
[4] => утепление 300 мм
[5] => утепление 350 мм
[6] => утепление 400 мм
[7] => утепление 450 мм
[8] => утепление 500 мм
)
[days] => [18,20,20,20,20,20,20,20,20]
[material_price] => [4837,6572,7224,7375,79426,8177,8728,9180,10031]
[work_price] => [3348,3921,4112,4302,4493,4684,4875,5066,5256]
[image] => https://akademik-stroy.ru/wp-content/uploads/materials/monolitnaya-zh-b-plita-2.jpg
[area_modifier] => 155.86
[parent_name] => Перекрытие первого этажа
[parent_id] => 4
[material_sum] => 995141
[work_sum] => 574001
[total_sum] => 1569142
[total_days] => 18
[display_material_sum] => 995 141
[display_work_sum] => 574 001
[display_total_sum] => 1 569 142
)
1
1 569 142₽
Работа:574 001 ₽
Материалы:995 141 ₽
Дни:18
stdClass Object
(
[id] => 164
[attribute_id] => 37
[name] => Металлочерепица
[material_modifier] => 1
[work_modifier] => 1
[options] => Array
(
)
[days] => [20]
[material_price] => [6112]
[work_price] => [5726]
[image] => https://akademik-stroy.ru/wp-content/uploads/materials/metallocherepica.jpg
[area_modifier] => 155.86
[parent_name] => Крыша (Скатная)
[parent_id] => 37
[material_sum] => 1257454
[work_sum] => 981700
[total_sum] => 2239154
[total_days] => 20
[display_material_sum] => 1 257 454
[display_work_sum] => 981 700
[display_total_sum] => 2 239 154
)
1
2 239 154₽
Работа:981 700 ₽
Материалы:1 257 454 ₽
Дни:20
stdClass Object
(
[id] => 165
[attribute_id] => 37
[name] => Гибкая черепица
[material_modifier] => 1
[work_modifier] => 1
[options] => Array
(
)
[days] => [20]
[material_price] => [6980]
[work_price] => [5950]
[image] => https://akademik-stroy.ru/wp-content/uploads/materials/gibkaya-cherepica.jpg
[area_modifier] => 155.86
[parent_name] => Крыша (Скатная)
[parent_id] => 37
[material_sum] => 1436032
[work_sum] => 1020104
[total_sum] => 2456136
[total_days] => 20
[display_material_sum] => 1 436 032
[display_work_sum] => 1 020 104
[display_total_sum] => 2 456 136
)
1
2 456 136₽
Работа:1 020 104 ₽
Материалы:1 436 032 ₽
Дни:20
stdClass Object
(
[id] => 166
[attribute_id] => 37
[name] => Цементно-песчаная черепица
[material_modifier] => 1
[work_modifier] => 1
[options] => Array
(
)
[days] => [20]
[material_price] => [10560]
[work_price] => [9456]
[image] => https://akademik-stroy.ru/wp-content/uploads/materials/cementno-peschanaya-cherepica.jpg
[area_modifier] => 155.86
[parent_name] => Крыша (Скатная)
[parent_id] => 37
[material_sum] => 2172564
[work_sum] => 1621193
[total_sum] => 3793757
[total_days] => 20
[display_material_sum] => 2 172 564
[display_work_sum] => 1 621 193
[display_total_sum] => 3 793 757
)
1
3 793 757₽
Работа:1 621 193 ₽
Материалы:2 172 564 ₽
Дни:20
stdClass Object
(
[id] => 167
[attribute_id] => 37
[name] => Композитная черепица
[material_modifier] => 1
[work_modifier] => 1
[options] => Array
(
)
[days] => [20]
[material_price] => [9506]
[work_price] => [8905]
[image] => https://akademik-stroy.ru/wp-content/uploads/materials/kompozitnaya-cherepica.jpg
[area_modifier] => 155.86
[parent_name] => Крыша (Скатная)
[parent_id] => 37
[material_sum] => 1955719
[work_sum] => 1526727
[total_sum] => 3482446
[total_days] => 20
[display_material_sum] => 1 955 719
[display_work_sum] => 1 526 727
[display_total_sum] => 3 482 446
)
1
3 482 446₽
Работа:1 526 727 ₽
Материалы:1 955 719 ₽
Дни:20
stdClass Object
(
[id] => 168
[attribute_id] => 37
[name] => Керамическая черепица
[material_modifier] => 1
[work_modifier] => 1
[options] => Array
(
)
[days] => [20]
[material_price] => [12750]
[work_price] => [9456]
[image] => https://akademik-stroy.ru/wp-content/uploads/materials/keramicheskaya-cherepica.jpg
[area_modifier] => 155.86
[parent_name] => Крыша (Скатная)
[parent_id] => 37
[material_sum] => 2623124
[work_sum] => 1621193
[total_sum] => 4244317
[total_days] => 20
[display_material_sum] => 2 623 124
[display_work_sum] => 1 621 193
[display_total_sum] => 4 244 317
)
1
4 244 317₽
Работа:1 621 193 ₽
Материалы:2 623 124 ₽
Дни:20
stdClass Object
(
[id] => 169
[attribute_id] => 37
[name] => Металлическая фальцевая
[material_modifier] => 1
[work_modifier] => 1
[options] => Array
(
)
[days] => [20]
[material_price] => [8550]
[work_price] => [8190]
[image] => https://akademik-stroy.ru/wp-content/uploads/materials/metallicheskaya-falcevaya.jpg
[area_modifier] => 155.86
[parent_name] => Крыша (Скатная)
[parent_id] => 37
[material_sum] => 1759036
[work_sum] => 1404143
[total_sum] => 3163179
[total_days] => 20
[display_material_sum] => 1 759 036
[display_work_sum] => 1 404 143
[display_total_sum] => 3 163 179
)
1
3 163 179₽
Работа:1 404 143 ₽
Материалы:1 759 036 ₽
Дни:20
stdClass Object
(
[id] => 170
[attribute_id] => 37
[name] => Медная фальцевая
[material_modifier] => 1
[work_modifier] => 1
[options] => Array
(
)
[days] => [20]
[material_price] => [20450]
[work_price] => [16750]
[image] => https://akademik-stroy.ru/wp-content/uploads/materials/mednaya-falcevaya.jpg
[area_modifier] => 155.86
[parent_name] => Крыша (Скатная)
[parent_id] => 37
[material_sum] => 4207285
[work_sum] => 2871721
[total_sum] => 7079006
[total_days] => 20
[display_material_sum] => 4 207 285
[display_work_sum] => 2 871 721
[display_total_sum] => 7 079 006
)
1
7 079 006₽
Работа:2 871 721 ₽
Материалы:4 207 285 ₽
Дни:20
stdClass Object
(
[id] => 171
[attribute_id] => 37
[name] => Зеленая кровля
[material_modifier] => 1
[work_modifier] => 1
[options] => Array
(
)
[days] => [20]
[material_price] => [19850]
[work_price] => [16780]
[image] => https://akademik-stroy.ru/wp-content/uploads/materials/zelenaya-krovlya.jpg
[area_modifier] => 155.86
[parent_name] => Крыша (Скатная)
[parent_id] => 37
[material_sum] => 4083844
[work_sum] => 2876864
[total_sum] => 6960708
[total_days] => 20
[display_material_sum] => 4 083 844
[display_work_sum] => 2 876 864
[display_total_sum] => 6 960 708
)
1
6 960 708₽
Работа:2 876 864 ₽
Материалы:4 083 844 ₽
Дни:20
stdClass Object
(
[id] => 172
[attribute_id] => 37
[name] => Профлист
[material_modifier] => 1
[work_modifier] => 1
[options] => Array
(
)
[days] => [20]
[material_price] => [3450]
[work_price] => [3750]
[image] => https://akademik-stroy.ru/wp-content/uploads/materials/proflist.jpg
[area_modifier] => 155.86
[parent_name] => Крыша (Скатная)
[parent_id] => 37
[material_sum] => 709786
[work_sum] => 642923
[total_sum] => 1352709
[total_days] => 20
[display_material_sum] => 709 786
[display_work_sum] => 642 923
[display_total_sum] => 1 352 709
)
1
1 352 709₽
Работа:642 923 ₽
Материалы:709 786 ₽
Дни:20
stdClass Object
(
[id] => 51
[attribute_id] => 26
[name] => Есть
[material_modifier] => 1
[work_modifier] => 1
[options] => Array
(
[0] => Профиль 58 мм, 3-камерный, стеклопакет 2-камерный до 32 мм
[1] => Профиль 60 мм, 4-камерный, стеклопакет 2-камерный до 32 мм
[2] => Профиль 70 мм, 5-камерный, стеклопакет 2-камерный до 40 мм
[3] => Профиль 72 мм, 5-камерный, стеклопакет 2-камерный до 40 мм
[4] => Алюминиевые окна Alutech профиль 72 мм, стеклопакет 2-камерный
)
[days] => [3,3,3,3,3]
[material_price] => [1339,2124,2867,3023,29596]
[work_price] => [635,647,659,668,2579]
[image] => https://akademik-stroy.ru/wp-content/uploads/materials/okna.jpg
[area_modifier] => 126.48
[parent_name] => Окна
[parent_id] => 26
[material_sum] => 223551
[work_sum] => 88346
[total_sum] => 311897
[total_days] => 3
[display_material_sum] => 223 551
[display_work_sum] => 88 346
[display_total_sum] => 311 897
)
1
311 897₽
Работа:88 346 ₽
Материалы:223 551 ₽
Дни:3
stdClass Object
(
[id] => 52
[attribute_id] => 26
[name] => Нет
[material_modifier] => 2
[work_modifier] => 1
[options] =>
[days] => null
[material_price] => null
[work_price] => null
[image] => https://akademik-stroy.ru/wp-content/uploads/materials/okna.jpg
[area_modifier] => 126.48
[parent_name] => Окна
[parent_id] => 26
[material_sum] => 0
[work_sum] => 0
[total_sum] => 0
[total_days] => 0
[display_material_sum] => 0
[display_work_sum] => 0
[display_total_sum] => 0
)
1
0₽
Работа:0 ₽
Материалы:0 ₽
Дни:0
stdClass Object
(
[id] => 53
[attribute_id] => 27
[name] => Есть
[material_modifier] => 1
[work_modifier] => 1
[options] => Array
(
)
[days] => [1]
[material_price] => [10000]
[work_price] => [5500]
[image] => https://akademik-stroy.ru/wp-content/uploads/materials/dveri.jpg
[area_modifier] => 1
[parent_name] => Двери входные
[parent_id] => 27
[material_sum] => 13200
[work_sum] => 6050
[total_sum] => 19250
[total_days] => 1
[display_material_sum] => 13 200
[display_work_sum] => 6 050
[display_total_sum] => 19 250
)
1
19 250₽
Работа:6 050 ₽
Материалы:13 200 ₽
Дни:1
stdClass Object
(
[id] => 54
[attribute_id] => 27
[name] => Нет
[material_modifier] => 1
[work_modifier] => 1
[options] => Array
(
)
[days] => [0]
[material_price] => [0]
[work_price] => [0]
[image] => https://akademik-stroy.ru/wp-content/uploads/materials/dveri.jpg
[area_modifier] => 1
[parent_name] => Двери входные
[parent_id] => 27
[material_sum] => 0
[work_sum] => 0
[total_sum] => 0
[total_days] => 0
[display_material_sum] => 0
[display_work_sum] => 0
[display_total_sum] => 0
)
1
0₽
Работа:0 ₽
Материалы:0 ₽
Дни:0
stdClass Object
(
[id] => 25
[attribute_id] => 13
[name] => Нет
[material_modifier] => 1
[work_modifier] => 1
[options] => Array
(
)
[days] => [0]
[material_price] => [0]
[work_price] => [0]
[image] => https://akademik-stroy.ru/wp-content/uploads/materials/mineralovata-krov.jpg
[area_modifier] => 155.86
[parent_name] => Утепление кровли (Мансарда)
[parent_id] => 13
[material_sum] => 0
[work_sum] => 0
[total_sum] => 0
[total_days] => 0
[display_material_sum] => 0
[display_work_sum] => 0
[display_total_sum] => 0
)
1
0₽
Работа:0 ₽
Материалы:0 ₽
Дни:0
stdClass Object
(
[id] => 26
[attribute_id] => 13
[name] => Минераловатный
[material_modifier] => 1
[work_modifier] => 1
[options] => Array
(
[0] => 50 мм
[1] => 100 мм
[2] => 150 мм
[3] => 200 мм
[4] => 250 мм
[5] => 300 мм
[6] => 350 мм
[7] => 400 мм
[8] => 450 мм
[9] => 500 мм
)
[days] => [5,5,6,6,6,7,7,7,8,8]
[material_price] => [1158,1414,1772,2230,3602,4060,4974,5890,6408,7718]
[work_price] => [650,846,846,1098,1318,1450,1596,1754,1930,2122]
[image] => https://akademik-stroy.ru/wp-content/uploads/materials/mineralovata-krov.jpg
[area_modifier] => 155.86
[parent_name] => Утепление кровли (Мансарда)
[parent_id] => 13
[material_sum] => 238241
[work_sum] => 111440
[total_sum] => 349681
[total_days] => 5
[display_material_sum] => 238 241
[display_work_sum] => 111 440
[display_total_sum] => 349 681
)
1
349 681₽
Работа:111 440 ₽
Материалы:238 241 ₽
Дни:5
stdClass Object
(
[id] => 123
[attribute_id] => 13
[name] => Эковата (целлюлозная вата)
[material_modifier] => 1
[work_modifier] => 1
[options] => Array
(
[0] => 50 мм
[1] => 100 мм
[2] => 150 мм
[3] => 200 мм
[4] => 250 мм
[5] => 300 мм
[6] => 350 мм
[7] => 400 мм
[8] => 450 мм
[9] => 500 мм
)
[days] => [3,3,4,4,4,5,5,5,5,5]
[material_price] => [820,1638,2458,3276,5734,6552,8190,9828,11466,13104]
[work_price] => [234,304,304,396,474,522,574,632,694,764]
[image] => https://akademik-stroy.ru/wp-content/uploads/materials/ehkovata-krov.jpg
[area_modifier] => 155.86
[parent_name] => Утепление кровли (Мансарда)
[parent_id] => 13
[material_sum] => 168703
[work_sum] => 40118
[total_sum] => 208821
[total_days] => 3
[display_material_sum] => 168 703
[display_work_sum] => 40 118
[display_total_sum] => 208 821
)
1
208 821₽
Работа:40 118 ₽
Материалы:168 703 ₽
Дни:3
stdClass Object
(
[id] => 124
[attribute_id] => 13
[name] => Экструдированный пенополистирол
[material_modifier] => 1
[work_modifier] => 1
[options] => Array
(
[0] => 50 мм
[1] => 100 мм
[2] => 150 мм
[3] => 200 мм
[4] => 250 мм
[5] => 300 мм
[6] => 350 мм
[7] => 400 мм
[8] => 450 мм
[9] => 500 мм
)
[days] => [3,3,4,4,4,5,5,5,5,6]
[material_price] => [1146,2292,3438,4584,8020,9166,11458,13750,16040,18332]
[work_price] => [390,508,508,660,790,870,958,1052,1158,1274]
[image] => https://akademik-stroy.ru/wp-content/uploads/materials/epps-krov.jpg
[area_modifier] => 155.86
[parent_name] => Утепление кровли (Мансарда)
[parent_id] => 13
[material_sum] => 235773
[work_sum] => 66864
[total_sum] => 302637
[total_days] => 3
[display_material_sum] => 235 773
[display_work_sum] => 66 864
[display_total_sum] => 302 637
)
1
302 637₽
Работа:66 864 ₽
Материалы:235 773 ₽
Дни:3
stdClass Object
(
[id] => 125
[attribute_id] => 13
[name] => ПСБ (ППС-пенополистирол)
[material_modifier] => 1
[work_modifier] => 1
[options] => Array
(
[0] => 50 мм
[1] => 100 мм
[2] => 150 мм
[3] => 200 мм
[4] => 250 мм
[5] => 300 мм
[6] => 350 мм
[7] => 400 мм
[8] => 450 мм
[9] => 500 мм
)
[days] => [3,3,4,4,4,5,5,5,5,6]
[material_price] => [476,954,1430,1906,3336,3814,4766,5720,6674,7626]
[work_price] => [390,508,508,660,790,870,958,1052,1158,1274]
[image] => https://akademik-stroy.ru/wp-content/uploads/materials/psb-krov.jpg
[area_modifier] => 155.86
[parent_name] => Утепление кровли (Мансарда)
[parent_id] => 13
[material_sum] => 97930
[work_sum] => 66864
[total_sum] => 164794
[total_days] => 3
[display_material_sum] => 97 930
[display_work_sum] => 66 864
[display_total_sum] => 164 794
)
1
164 794₽
Работа:66 864 ₽
Материалы:97 930 ₽
Дни:3
stdClass Object
(
[id] => 126
[attribute_id] => 13
[name] => ППУ (Пенополиуретан)
[material_modifier] => 1
[work_modifier] => 1
[options] => Array
(
[0] => 50 мм
[1] => 100 мм
[2] => 150 мм
[3] => 200 мм
[4] => 250 мм
[5] => 300 мм
[6] => 350 мм
[7] => 400 мм
[8] => 450 мм
[9] => 500 мм
)
[days] => [2,2,3,3,3,3,4,4,4,4]
[material_price] => [2080,4160,6240,8320,14560,16640,20800,24960,29120,33280]
[work_price] => [234,304,304,396,474,522,574,632,694,764]
[image] => https://akademik-stroy.ru/wp-content/uploads/materials/ppu-krov.jpg
[area_modifier] => 155.86
[parent_name] => Утепление кровли (Мансарда)
[parent_id] => 13
[material_sum] => 427929
[work_sum] => 40118
[total_sum] => 468047
[total_days] => 2
[display_material_sum] => 427 929
[display_work_sum] => 40 118
[display_total_sum] => 468 047
)
1
468 047₽
Работа:40 118 ₽
Материалы:427 929 ₽
Дни:2
stdClass Object
(
[id] => 127
[attribute_id] => 13
[name] => PIR-плиты (пенополиизоцианурат)
[material_modifier] => 1
[work_modifier] => 1
[options] => Array
(
[0] => 50 мм
[1] => 100 мм
[2] => 150 мм
[3] => 200 мм
[4] => 250 мм
[5] => 300 мм
[6] => 350 мм
[7] => 400 мм
[8] => 450 мм
[9] => 500 мм
)
[days] => [3,3,4,4,4,5,5,5,5,6]
[material_price] => [2646,5290,7936,10580,18516,21162,26452,31742,37032,42324]
[work_price] => [390,508,508,660,790,870,958,1052,1158,1274]
[image] => https://akademik-stroy.ru/wp-content/uploads/materials/pir-krov.jpg
[area_modifier] => 155.86
[parent_name] => Утепление кровли (Мансарда)
[parent_id] => 13
[material_sum] => 544375
[work_sum] => 66864
[total_sum] => 611239
[total_days] => 3
[display_material_sum] => 544 375
[display_work_sum] => 66 864
[display_total_sum] => 611 239
)
1
611 239₽
Работа:66 864 ₽
Материалы:544 375 ₽
Дни:3
stdClass Object
(
[id] => 27
[attribute_id] => 14
[name] => Нет
[material_modifier] => 1
[work_modifier] => 1
[options] => Array
(
)
[days] => [0]
[material_price] => [0]
[work_price] => [0]
[image] => https://akademik-stroy.ru/wp-content/uploads/materials/mansardnye-okna-2.jpg
[area_modifier] => 1
[parent_name] => Мансардные окна
[parent_id] => 14
[material_sum] => 0
[work_sum] => 0
[total_sum] => 0
[total_days] => 0
[display_material_sum] => 0
[display_work_sum] => 0
[display_total_sum] => 0
)
1
0₽
Работа:0 ₽
Материалы:0 ₽
Дни:0
stdClass Object
(
[id] => 28
[attribute_id] => 14
[name] => Есть
[material_modifier] => 1
[work_modifier] => 1
[options] => Array
(
[0] => 55x78
[1] => 55x98
)
[days] => [6,7]
[material_price] => [47480,68700]
[work_price] => [17900,19500]
[image] => https://akademik-stroy.ru/wp-content/uploads/materials/mansardnye-okna-2.jpg
[area_modifier] => 1
[parent_name] => Мансардные окна
[parent_id] => 14
[material_sum] => 62674
[work_sum] => 19690
[total_sum] => 82364
[total_days] => 6
[display_material_sum] => 62 674
[display_work_sum] => 19 690
[display_total_sum] => 82 364
)
1
82 364₽
Работа:19 690 ₽
Материалы:62 674 ₽
Дни:6
stdClass Object
(
[id] => 29
[attribute_id] => 15
[name] => Нет
[material_modifier] => 1
[work_modifier] => 1
[options] => Array
(
)
[days] => [0]
[material_price] => [0]
[work_price] => [0]
[image] => https://akademik-stroy.ru/wp-content/uploads/materials/sofit.jpg
[area_modifier] => 155.86
[parent_name] => Подшивка кровли
[parent_id] => 15
[material_sum] => 0
[work_sum] => 0
[total_sum] => 0
[total_days] => 0
[display_material_sum] => 0
[display_work_sum] => 0
[display_total_sum] => 0
)
1
0₽
Работа:0 ₽
Материалы:0 ₽
Дни:0
stdClass Object
(
[id] => 30
[attribute_id] => 15
[name] => Есть
[material_modifier] => 1
[work_modifier] => 1
[options] => Array
(
[0] => Софиты (ПВХ)
[1] => Cedral
[2] => ДПК
[3] => Планкен
)
[days] => [7,10,9,8]
[material_price] => [1803,3213,3025,3150]
[work_price] => [1529,2188,2075,1923]
[image] => https://akademik-stroy.ru/wp-content/uploads/materials/sofit.jpg
[area_modifier] => 155.86
[parent_name] => Подшивка кровли
[parent_id] => 15
[material_sum] => 370941
[work_sum] => 262141
[total_sum] => 633082
[total_days] => 7
[display_material_sum] => 370 941
[display_work_sum] => 262 141
[display_total_sum] => 633 082
)
1
633 082₽
Работа:262 141 ₽
Материалы:370 941 ₽
Дни:7
stdClass Object
(
[id] => 31
[attribute_id] => 16
[name] => Нет
[material_modifier] => 1
[work_modifier] => 1
[options] => Array
(
)
[days] => [0]
[material_price] => [0]
[work_price] => [0]
[image] => https://akademik-stroy.ru/wp-content/uploads/materials/docke-standard-pvh.jpg
[area_modifier] => 155.86
[parent_name] => Водосточная система
[parent_id] => 16
[material_sum] => 0
[work_sum] => 0
[total_sum] => 0
[total_days] => 0
[display_material_sum] => 0
[display_work_sum] => 0
[display_total_sum] => 0
)
1
0₽
Работа:0 ₽
Материалы:0 ₽
Дни:0
stdClass Object
(
[id] => 32
[attribute_id] => 16
[name] => Есть
[material_modifier] => 1
[work_modifier] => 1
[options] => Array
(
[0] => Döcke Standard (ПВХ)
[1] => Металлические Grand Line
)
[days] => [7,7]
[material_price] => [1842,2703]
[work_price] => [1491,1529]
[image] => https://akademik-stroy.ru/wp-content/uploads/materials/docke-standard-pvh.jpg
[area_modifier] => 155.86
[parent_name] => Водосточная система
[parent_id] => 16
[material_sum] => 378964
[work_sum] => 255626
[total_sum] => 634590
[total_days] => 7
[display_material_sum] => 378 964
[display_work_sum] => 255 626
[display_total_sum] => 634 590
)
1
634 590₽
Работа:255 626 ₽
Материалы:378 964 ₽
Дни:7
stdClass Object
(
[id] => 33
[attribute_id] => 17
[name] => Нет
[material_modifier] => 1
[work_modifier] => 1
[options] => Array
(
)
[days] => [0]
[material_price] => [0]
[work_price] => [0]
[image] => https://akademik-stroy.ru/wp-content/uploads/materials/mineralovata.jpg
[area_modifier] => 155.86
[parent_name] => Дополнительное утепление наружных стен
[parent_id] => 17
[material_sum] => 0
[work_sum] => 0
[total_sum] => 0
[total_days] => 0
[display_material_sum] => 0
[display_work_sum] => 0
[display_total_sum] => 0
)
1
0₽
Работа:0 ₽
Материалы:0 ₽
Дни:0
stdClass Object
(
[id] => 34
[attribute_id] => 17
[name] => Минераловатный
[material_modifier] => 1
[work_modifier] => 1
[options] => Array
(
[0] => 50 мм
[1] => 100 мм
[2] => 150 мм
[3] => 200 мм
[4] => 250 мм
[5] => 300 мм
)
[days] => [7,8,10,12,14,15]
[material_price] => [3437,3613,3803,3915,4601,4830]
[work_price] => [2325,2423,2523,2749,2859,3025]
[image] => https://akademik-stroy.ru/wp-content/uploads/materials/mineralovata.jpg
[area_modifier] => 155.86
[parent_name] => Дополнительное утепление наружных стен
[parent_id] => 17
[material_sum] => 707112
[work_sum] => 398612
[total_sum] => 1105724
[total_days] => 7
[display_material_sum] => 707 112
[display_work_sum] => 398 612
[display_total_sum] => 1 105 724
)
1
1 105 724₽
Работа:398 612 ₽
Материалы:707 112 ₽
Дни:7
stdClass Object
(
[id] => 128
[attribute_id] => 17
[name] => Эковата (целлюлозная вата)
[material_modifier] => 1
[work_modifier] => 1
[options] => Array
(
[0] => 50 мм
[1] => 100 мм
[2] => 150 мм
[3] => 200 мм
[4] => 250 мм
[5] => 300 мм
)
[days] => [3,4,5,6,7,8]
[material_price] => [810,1319,1629,1838,2267,2676]
[work_price] => [1225,1323,1423,1549,1659,1725]
[image] => https://akademik-stroy.ru/wp-content/uploads/materials/ehkovata.jpg
[area_modifier] => 155.86
[parent_name] => Дополнительное утепление наружных стен
[parent_id] => 17
[material_sum] => 166646
[work_sum] => 210021
[total_sum] => 376667
[total_days] => 3
[display_material_sum] => 166 646
[display_work_sum] => 210 021
[display_total_sum] => 376 667
)
1
376 667₽
Работа:210 021 ₽
Материалы:166 646 ₽
Дни:3
stdClass Object
(
[id] => 129
[attribute_id] => 17
[name] => Экструдированный пенополистирол
[material_modifier] => 1
[work_modifier] => 1
[options] => Array
(
[0] => 50 мм
[1] => 100 мм
[2] => 150 мм
[3] => 200 мм
[4] => 250 мм
[5] => 300 мм
)
[days] => [5,6,7,8,9,10]
[material_price] => [4560,4300,5119,6292,7010,8583]
[work_price] => [1795,1954,2254,2330,2595,2735]
[image] => https://akademik-stroy.ru/wp-content/uploads/materials/epps.jpg
[area_modifier] => 155.86
[parent_name] => Дополнительное утепление наружных стен
[parent_id] => 17
[material_sum] => 938153
[work_sum] => 307746
[total_sum] => 1245899
[total_days] => 5
[display_material_sum] => 938 153
[display_work_sum] => 307 746
[display_total_sum] => 1 245 899
)
1
1 245 899₽
Работа:307 746 ₽
Материалы:938 153 ₽
Дни:5
stdClass Object
(
[id] => 130
[attribute_id] => 17
[name] => ПСБ (ППС-пенополистирол)
[material_modifier] => 1
[work_modifier] => 1
[options] => Array
(
[0] => 50 мм
[1] => 100 мм
[2] => 150 мм
[3] => 200 мм
[4] => 250 мм
[5] => 300 мм
)
[days] => [5,6,7,8,9,10]
[material_price] => [4822,5200,5819,6292,7010,7583]
[work_price] => [1795,1954,2254,2330,2595,2735]
[image] => https://akademik-stroy.ru/wp-content/uploads/materials/psb.jpg
[area_modifier] => 155.86
[parent_name] => Дополнительное утепление наружных стен
[parent_id] => 17
[material_sum] => 992055
[work_sum] => 307746
[total_sum] => 1299801
[total_days] => 5
[display_material_sum] => 992 055
[display_work_sum] => 307 746
[display_total_sum] => 1 299 801
)
1
1 299 801₽
Работа:307 746 ₽
Материалы:992 055 ₽
Дни:5
stdClass Object
(
[id] => 131
[attribute_id] => 17
[name] => ППУ (Пенополиуретан)
[material_modifier] => 1
[work_modifier] => 1
[options] => Array
(
[0] => 50 мм
[1] => 100 мм
[2] => 150 мм
[3] => 200 мм
[4] => 250 мм
[5] => 300 мм
)
[days] => [3,4,5,6,7,8]
[material_price] => [2860,3400,4219,4592,5010,5583]
[work_price] => [729,900,980,1120,1280,1530]
[image] => https://akademik-stroy.ru/wp-content/uploads/materials/ppu.jpg
[area_modifier] => 155.86
[parent_name] => Дополнительное утепление наружных стен
[parent_id] => 17
[material_sum] => 588403
[work_sum] => 124984
[total_sum] => 713387
[total_days] => 3
[display_material_sum] => 588 403
[display_work_sum] => 124 984
[display_total_sum] => 713 387
)
1
713 387₽
Работа:124 984 ₽
Материалы:588 403 ₽
Дни:3
stdClass Object
(
[id] => 132
[attribute_id] => 17
[name] => PIR-плиты (пенополиизоцианурат)
[material_modifier] => 1
[work_modifier] => 1
[options] => Array
(
[0] => 50 мм
[1] => 100 мм
[2] => 150 мм
[3] => 200 мм
[4] => 250 мм
[5] => 300 мм
)
[days] => [5,6,7,8,9,10]
[material_price] => [8323,15645,20968,25900,29258,30581]
[work_price] => [800,900,970,1150,1280,1330]
[image] => https://akademik-stroy.ru/wp-content/uploads/materials/pir.jpg
[area_modifier] => 155.86
[parent_name] => Дополнительное утепление наружных стен
[parent_id] => 17
[material_sum] => 1712334
[work_sum] => 137157
[total_sum] => 1849491
[total_days] => 5
[display_material_sum] => 1 712 334
[display_work_sum] => 137 157
[display_total_sum] => 1 849 491
)
1
1 849 491₽
Работа:137 157 ₽
Материалы:1 712 334 ₽
Дни:5
stdClass Object
(
[id] => 37
[attribute_id] => 19
[name] => Нет
[material_modifier] => 1
[work_modifier] => 1
[options] => Array
(
)
[days] => [0]
[material_price] => [0]
[work_price] => [0]
[image] => https://akademik-stroy.ru/wp-content/uploads/materials/imitaciya-brusa.jpg
[area_modifier] => 155.86
[parent_name] => Наружная отделка фасада
[parent_id] => 19
[material_sum] => 0
[work_sum] => 0
[total_sum] => 0
[total_days] => 0
[display_material_sum] => 0
[display_work_sum] => 0
[display_total_sum] => 0
)
1
0₽
Работа:0 ₽
Материалы:0 ₽
Дни:0
stdClass Object
(
[id] => 38
[attribute_id] => 19
[name] => Имитация бруса
[material_modifier] => 1
[work_modifier] => 1
[options] => Array
(
[0] => Сосна
[1] => Ель
[2] => Лиственница
)
[days] => [20,20,20]
[material_price] => [2994,2762,4954]
[work_price] => [1397,1231,1577]
[image] => https://akademik-stroy.ru/wp-content/uploads/materials/imitaciya-brusa.jpg
[area_modifier] => 155.86
[parent_name] => Наружная отделка фасада
[parent_id] => 19
[material_sum] => 615971
[work_sum] => 239510
[total_sum] => 855481
[total_days] => 20
[display_material_sum] => 615 971
[display_work_sum] => 239 510
[display_total_sum] => 855 481
)
1
855 481₽
Работа:239 510 ₽
Материалы:615 971 ₽
Дни:20
stdClass Object
(
[id] => 136
[attribute_id] => 19
[name] => Планкен
[material_modifier] => 1
[work_modifier] => 1
[options] => Array
(
[0] => Сосна
[1] => Ель
[2] => Лиственница
)
[days] => [20,20,20]
[material_price] => [3194,2862,5154]
[work_price] => [1537,1354,1735]
[image] => https://akademik-stroy.ru/wp-content/uploads/materials/planken.jpg
[area_modifier] => 155.86
[parent_name] => Наружная отделка фасада
[parent_id] => 19
[material_sum] => 657118
[work_sum] => 263513
[total_sum] => 920631
[total_days] => 20
[display_material_sum] => 657 118
[display_work_sum] => 263 513
[display_total_sum] => 920 631
)
1
920 631₽
Работа:263 513 ₽
Материалы:657 118 ₽
Дни:20
stdClass Object
(
[id] => 137
[attribute_id] => 19
[name] => Штукатурка
[material_modifier] => 1
[work_modifier] => 1
[options] => Array
(
[0] => Цементно-песчаная (минеральная)
[1] => Мокрый фасад
)
[days] => [35,35]
[material_price] => [2231,3938]
[work_price] => [1202,2422]
[image] => https://akademik-stroy.ru/wp-content/uploads/materials/shtukaturka.jpg
[area_modifier] => 155.86
[parent_name] => Наружная отделка фасада
[parent_id] => 19
[material_sum] => 458995
[work_sum] => 206078
[total_sum] => 665073
[total_days] => 35
[display_material_sum] => 458 995
[display_work_sum] => 206 078
[display_total_sum] => 665 073
)
1
665 073₽
Работа:206 078 ₽
Материалы:458 995 ₽
Дни:35
stdClass Object
(
[id] => 138
[attribute_id] => 19
[name] => Облицовочный кирпич
[material_modifier] => 1
[work_modifier] => 1
[options] => Array
(
[0] => Керамический
[1] => Клинкерный
[2] => Ручной формовки
[3] => Гиперпрессованный
[4] => Силикатный кирпич
)
[days] => [45,45,45,45,45]
[material_price] => [8174,9148,1040,1257,5876]
[work_price] => [3240,3758,4536,4017,3369]
[image] => https://akademik-stroy.ru/wp-content/uploads/materials/oblicovochnyj-kirpich.jpg
[area_modifier] => 155.86
[parent_name] => Наружная отделка фасада
[parent_id] => 19
[material_sum] => 1681680
[work_sum] => 555485
[total_sum] => 2237165
[total_days] => 45
[display_material_sum] => 1 681 680
[display_work_sum] => 555 485
[display_total_sum] => 2 237 165
)
1
2 237 165₽
Работа:555 485 ₽
Материалы:1 681 680 ₽
Дни:45
stdClass Object
(
[id] => 139
[attribute_id] => 19
[name] => Фасадная плитка
[material_modifier] => 1
[work_modifier] => 1
[options] => Array
(
[0] => Клинкерная
[1] => Керамическая
[2] => Плитка ручной формовки
)
[days] => [40,40,40]
[material_price] => [2974,1487,3470]
[work_price] => [3007,2592,3629]
[image] => https://akademik-stroy.ru/wp-content/uploads/materials/fasadnaya-plitka.jpg
[area_modifier] => 155.86
[parent_name] => Наружная отделка фасада
[parent_id] => 19
[material_sum] => 611856
[work_sum] => 515538
[total_sum] => 1127394
[total_days] => 40
[display_material_sum] => 611 856
[display_work_sum] => 515 538
[display_total_sum] => 1 127 394
)
1
1 127 394₽
Работа:515 538 ₽
Материалы:611 856 ₽
Дни:40
stdClass Object
(
[id] => 140
[attribute_id] => 19
[name] => Сайдинг
[material_modifier] => 1
[work_modifier] => 1
[options] => Array
(
[0] => Виниловый
[1] => Металлический
[2] => Фиброцементный
)
[days] => [20,20,20]
[material_price] => [1263,1944,4147]
[work_price] => [1263,1944,2074]
[image] => https://akademik-stroy.ru/wp-content/uploads/materials/sajding.jpg
[area_modifier] => 155.86
[parent_name] => Наружная отделка фасада
[parent_id] => 19
[material_sum] => 259844
[work_sum] => 216536
[total_sum] => 476380
[total_days] => 20
[display_material_sum] => 259 844
[display_work_sum] => 216 536
[display_total_sum] => 476 380
)
1
476 380₽
Работа:216 536 ₽
Материалы:259 844 ₽
Дни:20
stdClass Object
(
[id] => 141
[attribute_id] => 19
[name] => Камень
[material_modifier] => 1
[work_modifier] => 1
[options] => Array
(
[0] => Травертин
[1] => Дагестанский
[2] => Искусственный
[3] => Натуральный
[4] => Керамогранит
)
[days] => [45,45,45,45,45]
[material_price] => [4536,3888,2592,3240,2462]
[work_price] => [3240,3240,2462,3110,1944]
[image] => https://akademik-stroy.ru/wp-content/uploads/materials/kamen-1.jpg
[area_modifier] => 155.86
[parent_name] => Наружная отделка фасада
[parent_id] => 19
[material_sum] => 933215
[work_sum] => 555485
[total_sum] => 1488700
[total_days] => 45
[display_material_sum] => 933 215
[display_work_sum] => 555 485
[display_total_sum] => 1 488 700
)
1
1 488 700₽
Работа:555 485 ₽
Материалы:933 215 ₽
Дни:45
stdClass Object
(
[id] => 142
[attribute_id] => 19
[name] => Термопанели
[material_modifier] => 1
[work_modifier] => 1
[options] => Array
(
)
[days] => [20]
[material_price] => [6221]
[work_price] => [2333]
[image] => https://akademik-stroy.ru/wp-content/uploads/materials/termo.png
[area_modifier] => 155.86
[parent_name] => Наружная отделка фасада
[parent_id] => 19
[material_sum] => 1279879
[work_sum] => 399984
[total_sum] => 1679863
[total_days] => 20
[display_material_sum] => 1 279 879
[display_work_sum] => 399 984
[display_total_sum] => 1 679 863
)
1
1 679 863₽
Работа:399 984 ₽
Материалы:1 279 879 ₽
Дни:20
stdClass Object
(
[id] => 143
[attribute_id] => 19
[name] => Плитка HAUBERK
[material_modifier] => 1
[work_modifier] => 1
[options] => Array
(
)
[days] => [20]
[material_price] => [2786]
[work_price] => [1944]
[image] => https://akademik-stroy.ru/wp-content/uploads/materials/hauberk.jpg
[area_modifier] => 155.86
[parent_name] => Наружная отделка фасада
[parent_id] => 19
[material_sum] => 573178
[work_sum] => 333291
[total_sum] => 906469
[total_days] => 20
[display_material_sum] => 573 178
[display_work_sum] => 333 291
[display_total_sum] => 906 469
)
1
906 469₽
Работа:333 291 ₽
Материалы:573 178 ₽
Дни:20
stdClass Object
(
[id] => 144
[attribute_id] => 19
[name] => Фальцевый фасад
[material_modifier] => 1
[work_modifier] => 1
[options] => Array
(
)
[days] => [20]
[material_price] => [3240]
[work_price] => [2592]
[image] => https://akademik-stroy.ru/wp-content/uploads/materials/falcevyj-fasad.jpg
[area_modifier] => 155.86
[parent_name] => Наружная отделка фасада
[parent_id] => 19
[material_sum] => 666582
[work_sum] => 444388
[total_sum] => 1110970
[total_days] => 20
[display_material_sum] => 666 582
[display_work_sum] => 444 388
[display_total_sum] => 1 110 970
)
1
1 110 970₽
Работа:444 388 ₽
Материалы:666 582 ₽
Дни:20
stdClass Object
(
[id] => 145
[attribute_id] => 19
[name] => Комбинированный
[material_modifier] => 1
[work_modifier] => 1
[options] => Array
(
)
[days] => [20]
[material_price] => [4629]
[work_price] => [3499]
[image] => https://akademik-stroy.ru/wp-content/uploads/materials/Kombinirovannyj.jpg
[area_modifier] => 155.86
[parent_name] => Наружная отделка фасада
[parent_id] => 19
[material_sum] => 952348
[work_sum] => 599890
[total_sum] => 1552238
[total_days] => 20
[display_material_sum] => 952 348
[display_work_sum] => 599 890
[display_total_sum] => 1 552 238
)
1
1 552 238₽
Работа:599 890 ₽
Материалы:952 348 ₽
Дни:20
stdClass Object
(
[id] => 257
[attribute_id] => 19
[name] => Японские фиброцементные
[material_modifier] => 1
[work_modifier] => 1
[options] => Array
(
)
[days] => [20]
[material_price] => [7043]
[work_price] => [2993]
[image] => https://akademik-stroy.ru/wp-content/uploads/materials/paneli.jpg
[area_modifier] => 155.86
[parent_name] => Наружная отделка фасада
[parent_id] => 19
[material_sum] => 1448993
[work_sum] => 513138
[total_sum] => 1962131
[total_days] => 20
[display_material_sum] => 1 448 993
[display_work_sum] => 513 138
[display_total_sum] => 1 962 131
)
1
1 962 131₽
Работа:513 138 ₽
Материалы:1 448 993 ₽
Дни:20
stdClass Object
(
[id] => 258
[attribute_id] => 19
[name] => Панели Каньон
[material_modifier] => 1
[work_modifier] => 1
[options] => Array
(
)
[days] => [20]
[material_price] => [4543]
[work_price] => [2592]
[image] => https://akademik-stroy.ru/wp-content/uploads/materials/kanon.png
[area_modifier] => 155.86
[parent_name] => Наружная отделка фасада
[parent_id] => 19
[material_sum] => 934655
[work_sum] => 444388
[total_sum] => 1379043
[total_days] => 20
[display_material_sum] => 934 655
[display_work_sum] => 444 388
[display_total_sum] => 1 379 043
)
1
1 379 043₽
Работа:444 388 ₽
Материалы:934 655 ₽
Дни:20
stdClass Object
(
[id] => 39
[attribute_id] => 20
[name] => Нет
[material_modifier] => 1
[work_modifier] => 1
[options] => Array
(
)
[days] => [0]
[material_price] => [0]
[work_price] => [0]
[image] => https://akademik-stroy.ru/wp-content/uploads/materials/terrasy.jpg
[area_modifier] => 30
[parent_name] => Террасы, крыльца, навесы
[parent_id] => 20
[material_sum] => 0
[work_sum] => 0
[total_sum] => 0
[total_days] => 0
[display_material_sum] => 0
[display_work_sum] => 0
[display_total_sum] => 0
)
1
0₽
Работа:0 ₽
Материалы:0 ₽
Дни:0
stdClass Object
(
[id] => 40
[attribute_id] => 20
[name] => Есть
[material_modifier] => 1
[work_modifier] => 1
[options] => Array
(
)
[days] => [5]
[material_price] => [10450]
[work_price] => [1950]
[image] => https://akademik-stroy.ru/wp-content/uploads/materials/terrasy.jpg
[area_modifier] => 30
[parent_name] => Террасы, крыльца, навесы
[parent_id] => 20
[material_sum] => 413820
[work_sum] => 64350
[total_sum] => 478170
[total_days] => 5
[display_material_sum] => 413 820
[display_work_sum] => 64 350
[display_total_sum] => 478 170
)
1
478 170₽
Работа:64 350 ₽
Материалы:413 820 ₽
Дни:5
stdClass Object
(
[id] => 41
[attribute_id] => 21
[name] => Нет
[material_modifier] => 1
[work_modifier] => 1
[options] => Array
(
)
[days] => [0]
[material_price] => [0]
[work_price] => [0]
[image] => https://akademik-stroy.ru/wp-content/uploads/materials/balkony.jpg
[area_modifier] => 30
[parent_name] => Балконы
[parent_id] => 21
[material_sum] => 0
[work_sum] => 0
[total_sum] => 0
[total_days] => 0
[display_material_sum] => 0
[display_work_sum] => 0
[display_total_sum] => 0
)
1
0₽
Работа:0 ₽
Материалы:0 ₽
Дни:0
stdClass Object
(
[id] => 42
[attribute_id] => 21
[name] => Есть
[material_modifier] => 1
[work_modifier] => 1
[options] => Array
(
)
[days] => [12]
[material_price] => [3600]
[work_price] => [1950]
[image] => https://akademik-stroy.ru/wp-content/uploads/materials/balkony.jpg
[area_modifier] => 30
[parent_name] => Балконы
[parent_id] => 21
[material_sum] => 142560
[work_sum] => 64350
[total_sum] => 206910
[total_days] => 12
[display_material_sum] => 142 560
[display_work_sum] => 64 350
[display_total_sum] => 206 910
)
1
206 910₽
Работа:64 350 ₽
Материалы:142 560 ₽
Дни:12
stdClass Object
(
[id] => 43
[attribute_id] => 22
[name] => Нет
[material_modifier] => 1
[work_modifier] => 1
[options] => Array
(
)
[days] => [0]
[material_price] => [0]
[work_price] => [0]
[image] => https://akademik-stroy.ru/wp-content/uploads/materials/uteplennaya.jpg
[area_modifier] => 155.86
[parent_name] => Отмостка
[parent_id] => 22
[material_sum] => 0
[work_sum] => 0
[total_sum] => 0
[total_days] => 0
[display_material_sum] => 0
[display_work_sum] => 0
[display_total_sum] => 0
)
1
0₽
Работа:0 ₽
Материалы:0 ₽
Дни:0
stdClass Object
(
[id] => 44
[attribute_id] => 22
[name] => Утепленная отмостка
[material_modifier] => 1
[work_modifier] => 1
[options] => Array
(
)
[days] => [15]
[material_price] => [2550]
[work_price] => [1750]
[image] => https://akademik-stroy.ru/wp-content/uploads/materials/uteplennaya.jpg
[area_modifier] => 155.86
[parent_name] => Отмостка
[parent_id] => 22
[material_sum] => 524625
[work_sum] => 300031
[total_sum] => 824656
[total_days] => 15
[display_material_sum] => 524 625
[display_work_sum] => 300 031
[display_total_sum] => 824 656
)
1
824 656₽
Работа:300 031 ₽
Материалы:524 625 ₽
Дни:15
stdClass Object
(
[id] => 146
[attribute_id] => 22
[name] => Не утепленная отмостка
[material_modifier] => 1
[work_modifier] => 1
[options] => Array
(
)
[days] => [10]
[material_price] => [1650]
[work_price] => [1450]
[image] => https://akademik-stroy.ru/wp-content/uploads/materials/ne-uteplennaya.jpg
[area_modifier] => 155.86
[parent_name] => Отмостка
[parent_id] => 22
[material_sum] => 339463
[work_sum] => 248597
[total_sum] => 588060
[total_days] => 10
[display_material_sum] => 339 463
[display_work_sum] => 248 597
[display_total_sum] => 588 060
)
1
588 060₽
Работа:248 597 ₽
Материалы:339 463 ₽
Дни:10
stdClass Object
(
[id] => 45
[attribute_id] => 23
[name] => Нет
[material_modifier] => 1
[work_modifier] => 1
[options] => Array
(
)
[days] => [0]
[material_price] => [0]
[work_price] => [0]
[image] => https://akademik-stroy.ru/wp-content/uploads/materials/drenazh-2.jpg
[area_modifier] => 155.86
[parent_name] => Дренаж вокруг дома
[parent_id] => 23
[material_sum] => 0
[work_sum] => 0
[total_sum] => 0
[total_days] => 0
[display_material_sum] => 0
[display_work_sum] => 0
[display_total_sum] => 0
)
1
0₽
Работа:0 ₽
Материалы:0 ₽
Дни:0
stdClass Object
(
[id] => 46
[attribute_id] => 23
[name] => Есть
[material_modifier] => 1
[work_modifier] => 1
[options] => Array
(
)
[days] => [5]
[material_price] => [2366]
[work_price] => [1911]
[image] => https://akademik-stroy.ru/wp-content/uploads/materials/drenazh-2.jpg
[area_modifier] => 155.86
[parent_name] => Дренаж вокруг дома
[parent_id] => 23
[material_sum] => 486769
[work_sum] => 327633
[total_sum] => 814402
[total_days] => 5
[display_material_sum] => 486 769
[display_work_sum] => 327 633
[display_total_sum] => 814 402
)
1
814 402₽
Работа:327 633 ₽
Материалы:486 769 ₽
Дни:5
stdClass Object
(
[id] => 47
[attribute_id] => 24
[name] => Нет
[material_modifier] => 1
[work_modifier] => 1
[options] => Array
(
)
[days] => [0]
[material_price] => [0]
[work_price] => [0]
[image] => https://akademik-stroy.ru/wp-content/uploads/materials/septik.jpg
[area_modifier] => 1
[parent_name] => Автономная канализация (септики)
[parent_id] => 24
[material_sum] => 0
[work_sum] => 0
[total_sum] => 0
[total_days] => 0
[display_material_sum] => 0
[display_work_sum] => 0
[display_total_sum] => 0
)
1
0₽
Работа:0 ₽
Материалы:0 ₽
Дни:0
stdClass Object
(
[id] => 48
[attribute_id] => 24
[name] => Есть
[material_modifier] => 1
[work_modifier] => 1
[options] => Array
(
[0] => Для дачи на 4 человека
[1] => Для дома на 5 человек
[2] => Для дома на 6 человек
[3] => Для дома на 7 человек
[4] => Для дома на 10 человек
)
[days] => [7,7,7,8,8]
[material_price] => [196340,220500,240940,264200,293340]
[work_price] => [50000,55000,60500,66550,73206]
[image] => https://akademik-stroy.ru/wp-content/uploads/materials/septik.jpg
[area_modifier] => 1
[parent_name] => Автономная канализация (септики)
[parent_id] => 24
[material_sum] => 259169
[work_sum] => 55000
[total_sum] => 314169
[total_days] => 7
[display_material_sum] => 259 169
[display_work_sum] => 55 000
[display_total_sum] => 314 169
)
1
314 169₽
Работа:55 000 ₽
Материалы:259 169 ₽
Дни:7
stdClass Object
(
[id] => 49
[attribute_id] => 25
[name] => Нет
[material_modifier] => 1
[work_modifier] => 1
[options] => Array
(
)
[days] => [0]
[material_price] => [0]
[work_price] => [0]
[image] => https://akademik-stroy.ru/wp-content/uploads/materials/gkl.jpg
[area_modifier] => 155.86
[parent_name] => Внутренние (не несущие) перегородки
[parent_id] => 25
[material_sum] => 0
[work_sum] => 0
[total_sum] => 0
[total_days] => 0
[display_material_sum] => 0
[display_work_sum] => 0
[display_total_sum] => 0
)
1
0₽
Работа:0 ₽
Материалы:0 ₽
Дни:0
stdClass Object
(
[id] => 147
[attribute_id] => 25
[name] => Каркасно-обшивные
[material_modifier] => 1
[work_modifier] => 1
[options] => Array
(
[0] => 75 мм (без шумоизоляции)
[1] => 75 мм (с шумоизоляцией)
)
[days] => [11,11]
[material_price] => [580,970]
[work_price] => [380,570]
[image] => https://akademik-stroy.ru/wp-content/uploads/materials/gkl.jpg
[area_modifier] => 155.86
[parent_name] => Внутренние (не несущие) перегородки
[parent_id] => 25
[material_sum] => 119326
[work_sum] => 65149
[total_sum] => 184475
[total_days] => 11
[display_material_sum] => 119 326
[display_work_sum] => 65 149
[display_total_sum] => 184 475
)
1
184 475₽
Работа:65 149 ₽
Материалы:119 326 ₽
Дни:11
stdClass Object
(
[id] => 148
[attribute_id] => 25
[name] => Пазогребневые
[material_modifier] => 1
[work_modifier] => 1
[options] => Array
(
[0] => 80 мм
[1] => 100 мм
)
[days] => [5,5]
[material_price] => [1022,1313]
[work_price] => [600,700]
[image] => https://akademik-stroy.ru/wp-content/uploads/materials/pazogrebnevye-bloki.jpg
[area_modifier] => 155.86
[parent_name] => Внутренние (не несущие) перегородки
[parent_id] => 25
[material_sum] => 210261
[work_sum] => 102868
[total_sum] => 313129
[total_days] => 5
[display_material_sum] => 210 261
[display_work_sum] => 102 868
[display_total_sum] => 313 129
)
1
313 129₽
Работа:102 868 ₽
Материалы:210 261 ₽
Дни:5
stdClass Object
(
[id] => 149
[attribute_id] => 25
[name] => Газобетонные
[material_modifier] => 1
[work_modifier] => 1
[options] => Array
(
[0] => 100 мм
[1] => 200 мм
)
[days] => [11,11]
[material_price] => [1160,1920]
[work_price] => [700,900]
[image] => https://akademik-stroy.ru/wp-content/uploads/materials/gazobeton-2.jpg
[area_modifier] => 155.86
[parent_name] => Внутренние (не несущие) перегородки
[parent_id] => 25
[material_sum] => 238653
[work_sum] => 120012
[total_sum] => 358665
[total_days] => 11
[display_material_sum] => 238 653
[display_work_sum] => 120 012
[display_total_sum] => 358 665
)
1
358 665₽
Работа:120 012 ₽
Материалы:238 653 ₽
Дни:11
stdClass Object
(
[id] => 150
[attribute_id] => 25
[name] => Кирпичные
[material_modifier] => 1
[work_modifier] => 1
[options] => Array
(
[0] => 120 мм
[1] => 250 мм
[2] => 360 мм
)
[days] => [7,7,7]
[material_price] => [1785,3570,5355]
[work_price] => [900,1600,1800]
[image] => https://akademik-stroy.ru/wp-content/uploads/materials/kirpich-1.jpg
[area_modifier] => 155.86
[parent_name] => Внутренние (не несущие) перегородки
[parent_id] => 25
[material_sum] => 367237
[work_sum] => 154301
[total_sum] => 521538
[total_days] => 7
[display_material_sum] => 367 237
[display_work_sum] => 154 301
[display_total_sum] => 521 538
)
1
521 538₽
Работа:154 301 ₽
Материалы:367 237 ₽
Дни:7
stdClass Object
(
[id] => 55
[attribute_id] => 28
[name] => Нет
[material_modifier] => 1
[work_modifier] => 1
[options] => Array
(
)
[days] => [0]
[material_price] => [0]
[work_price] => [0]
[image] => https://akademik-stroy.ru/wp-content/uploads/materials/ehlektrika.jpg
[area_modifier] => 126.48
[parent_name] => Электрика
[parent_id] => 28
[material_sum] => 0
[work_sum] => 0
[total_sum] => 0
[total_days] => 0
[display_material_sum] => 0
[display_work_sum] => 0
[display_total_sum] => 0
)
1
0₽
Работа:0 ₽
Материалы:0 ₽
Дни:0
stdClass Object
(
[id] => 56
[attribute_id] => 28
[name] => Есть
[material_modifier] => 1
[work_modifier] => 1
[options] => Array
(
)
[days] => [10]
[material_price] => [650]
[work_price] => [950]
[image] => https://akademik-stroy.ru/wp-content/uploads/materials/ehlektrika.jpg
[area_modifier] => 126.48
[parent_name] => Электрика
[parent_id] => 28
[material_sum] => 108520
[work_sum] => 132172
[total_sum] => 240692
[total_days] => 10
[display_material_sum] => 108 520
[display_work_sum] => 132 172
[display_total_sum] => 240 692
)
1
240 692₽
Работа:132 172 ₽
Материалы:108 520 ₽
Дни:10
stdClass Object
(
[id] => 57
[attribute_id] => 29
[name] => Нет
[material_modifier] => 1
[work_modifier] => 1
[options] => Array
(
)
[days] => [0]
[material_price] => [0]
[work_price] => [0]
[image] => https://akademik-stroy.ru/wp-content/uploads/materials/santekhnika-kanalizaciya-1.jpg
[area_modifier] => 126.48
[parent_name] => Сантехника, канализация в доме
[parent_id] => 29
[material_sum] => 0
[work_sum] => 0
[total_sum] => 0
[total_days] => 0
[display_material_sum] => 0
[display_work_sum] => 0
[display_total_sum] => 0
)
1
0₽
Работа:0 ₽
Материалы:0 ₽
Дни:0
stdClass Object
(
[id] => 58
[attribute_id] => 29
[name] => Есть
[material_modifier] => 1
[work_modifier] => 1
[options] => Array
(
)
[days] => [10]
[material_price] => [600]
[work_price] => [730]
[image] => https://akademik-stroy.ru/wp-content/uploads/materials/santekhnika-kanalizaciya-1.jpg
[area_modifier] => 126.48
[parent_name] => Сантехника, канализация в доме
[parent_id] => 29
[material_sum] => 100172
[work_sum] => 101563
[total_sum] => 201735
[total_days] => 10
[display_material_sum] => 100 172
[display_work_sum] => 101 563
[display_total_sum] => 201 735
)
1
201 735₽
Работа:101 563 ₽
Материалы:100 172 ₽
Дни:10
stdClass Object
(
[id] => 59
[attribute_id] => 30
[name] => Нет
[material_modifier] => 1
[work_modifier] => 1
[options] => Array
(
)
[days] => [0]
[material_price] => [0]
[work_price] => [0]
[image] => https://akademik-stroy.ru/wp-content/uploads/materials/otoplenie-1.jpg
[area_modifier] => 126.48
[parent_name] => Отопление
[parent_id] => 30
[material_sum] => 0
[work_sum] => 0
[total_sum] => 0
[total_days] => 0
[display_material_sum] => 0
[display_work_sum] => 0
[display_total_sum] => 0
)
1
0₽
Работа:0 ₽
Материалы:0 ₽
Дни:0
stdClass Object
(
[id] => 60
[attribute_id] => 30
[name] => Есть
[material_modifier] => 1
[work_modifier] => 1
[options] => Array
(
)
[days] => [5]
[material_price] => [610]
[work_price] => [560]
[image] => https://akademik-stroy.ru/wp-content/uploads/materials/otoplenie-1.jpg
[area_modifier] => 126.48
[parent_name] => Отопление
[parent_id] => 30
[material_sum] => 101842
[work_sum] => 77912
[total_sum] => 179754
[total_days] => 5
[display_material_sum] => 101 842
[display_work_sum] => 77 912
[display_total_sum] => 179 754
)
1
179 754₽
Работа:77 912 ₽
Материалы:101 842 ₽
Дни:5
stdClass Object
(
[id] => 61
[attribute_id] => 31
[name] => Нет
[material_modifier] => 1
[work_modifier] => 1
[options] => Array
(
)
[days] => [0]
[material_price] => [0]
[work_price] => [0]
[image] => https://akademik-stroy.ru/wp-content/uploads/materials/vodyanye.jpg
[area_modifier] => 30
[parent_name] => Теплые полы
[parent_id] => 31
[material_sum] => 0
[work_sum] => 0
[total_sum] => 0
[total_days] => 0
[display_material_sum] => 0
[display_work_sum] => 0
[display_total_sum] => 0
)
1
0₽
Работа:0 ₽
Материалы:0 ₽
Дни:0
stdClass Object
(
[id] => 151
[attribute_id] => 31
[name] => Водяные
[material_modifier] => 1
[work_modifier] => 1
[options] => Array
(
)
[days] => [9]
[material_price] => [10200]
[work_price] => [2500]
[image] => https://akademik-stroy.ru/wp-content/uploads/materials/vodyanye.jpg
[area_modifier] => 30
[parent_name] => Теплые полы
[parent_id] => 31
[material_sum] => 403920
[work_sum] => 82500
[total_sum] => 486420
[total_days] => 9
[display_material_sum] => 403 920
[display_work_sum] => 82 500
[display_total_sum] => 486 420
)
1
486 420₽
Работа:82 500 ₽
Материалы:403 920 ₽
Дни:9
stdClass Object
(
[id] => 152
[attribute_id] => 31
[name] => Электро
[material_modifier] => 1
[work_modifier] => 1
[options] => Array
(
)
[days] => [5]
[material_price] => [6300]
[work_price] => [1500]
[image] => https://akademik-stroy.ru/wp-content/uploads/materials/ehlektricheskij.jpg
[area_modifier] => 30
[parent_name] => Теплые полы
[parent_id] => 31
[material_sum] => 249480
[work_sum] => 49500
[total_sum] => 298980
[total_days] => 5
[display_material_sum] => 249 480
[display_work_sum] => 49 500
[display_total_sum] => 298 980
)
1
298 980₽
Работа:49 500 ₽
Материалы:249 480 ₽
Дни:5
stdClass Object
(
[id] => 63
[attribute_id] => 32
[name] => Нет
[material_modifier] => 1
[work_modifier] => 1
[options] => Array
(
)
[days] => [0]
[material_price] => [0]
[work_price] => [0]
[image] => https://akademik-stroy.ru/wp-content/uploads/materials/shtukaturka-shpatlevka-1.jpg
[area_modifier] => 126.48
[parent_name] => Черновая отделка стен
[parent_id] => 32
[material_sum] => 0
[work_sum] => 0
[total_sum] => 0
[total_days] => 0
[display_material_sum] => 0
[display_work_sum] => 0
[display_total_sum] => 0
)
1
0₽
Работа:0 ₽
Материалы:0 ₽
Дни:0
stdClass Object
(
[id] => 153
[attribute_id] => 32
[name] => Штукатурка и шпатлевка
[material_modifier] => 1
[work_modifier] => 1
[options] => Array
(
)
[days] => [20]
[material_price] => [1850]
[work_price] => [2600]
[image] => https://akademik-stroy.ru/wp-content/uploads/materials/shtukaturka-shpatlevka-1.jpg
[area_modifier] => 126.48
[parent_name] => Черновая отделка стен
[parent_id] => 32
[material_sum] => 308864
[work_sum] => 361733
[total_sum] => 670597
[total_days] => 20
[display_material_sum] => 308 864
[display_work_sum] => 361 733
[display_total_sum] => 670 597
)
1
670 597₽
Работа:361 733 ₽
Материалы:308 864 ₽
Дни:20
stdClass Object
(
[id] => 154
[attribute_id] => 32
[name] => Гипсокортон на стены
[material_modifier] => 1
[work_modifier] => 1
[options] => Array
(
)
[days] => [15]
[material_price] => [950]
[work_price] => [2100]
[image] => https://akademik-stroy.ru/wp-content/uploads/materials/gkl-1.jpg
[area_modifier] => 126.48
[parent_name] => Черновая отделка стен
[parent_id] => 32
[material_sum] => 158606
[work_sum] => 292169
[total_sum] => 450775
[total_days] => 15
[display_material_sum] => 158 606
[display_work_sum] => 292 169
[display_total_sum] => 450 775
)
1
450 775₽
Работа:292 169 ₽
Материалы:158 606 ₽
Дни:15
stdClass Object
(
[id] => 155
[attribute_id] => 32
[name] => Вагонка
[material_modifier] => 1
[work_modifier] => 1
[options] => Array
(
)
[days] => [15]
[material_price] => [1250]
[work_price] => [950]
[image] => https://akademik-stroy.ru/wp-content/uploads/materials/vagonka.jpg
[area_modifier] => 126.48
[parent_name] => Черновая отделка стен
[parent_id] => 32
[material_sum] => 208692
[work_sum] => 132172
[total_sum] => 340864
[total_days] => 15
[display_material_sum] => 208 692
[display_work_sum] => 132 172
[display_total_sum] => 340 864
)
1
340 864₽
Работа:132 172 ₽
Материалы:208 692 ₽
Дни:15
stdClass Object
(
[id] => 65
[attribute_id] => 33
[name] => Нет
[material_modifier] => 1
[work_modifier] => 1
[options] => Array
(
)
[days] => [0]
[material_price] => [0]
[work_price] => [0]
[image] => https://akademik-stroy.ru/wp-content/uploads/materials/styazhka.jpg
[area_modifier] => 126.48
[parent_name] => Черновая отделка полов
[parent_id] => 33
[material_sum] => 0
[work_sum] => 0
[total_sum] => 0
[total_days] => 0
[display_material_sum] => 0
[display_work_sum] => 0
[display_total_sum] => 0
)
1
0₽
Работа:0 ₽
Материалы:0 ₽
Дни:0
stdClass Object
(
[id] => 156
[attribute_id] => 33
[name] => Стяжка + наливные полы
[material_modifier] => 1
[work_modifier] => 1
[options] => Array
(
)
[days] => [10]
[material_price] => [1000]
[work_price] => [900]
[image] => https://akademik-stroy.ru/wp-content/uploads/materials/styazhka.jpg
[area_modifier] => 126.48
[parent_name] => Черновая отделка полов
[parent_id] => 33
[material_sum] => 166954
[work_sum] => 125215
[total_sum] => 292169
[total_days] => 10
[display_material_sum] => 166 954
[display_work_sum] => 125 215
[display_total_sum] => 292 169
)
1
292 169₽
Работа:125 215 ₽
Материалы:166 954 ₽
Дни:10
stdClass Object
(
[id] => 157
[attribute_id] => 33
[name] => ОСБ на пол
[material_modifier] => 1
[work_modifier] => 1
[options] => Array
(
)
[days] => [7]
[material_price] => [580]
[work_price] => [350]
[image] => https://akademik-stroy.ru/wp-content/uploads/materials/osb-1.jpg
[area_modifier] => 126.48
[parent_name] => Черновая отделка полов
[parent_id] => 33
[material_sum] => 96833
[work_sum] => 48695
[total_sum] => 145528
[total_days] => 7
[display_material_sum] => 96 833
[display_work_sum] => 48 695
[display_total_sum] => 145 528
)
1
145 528₽
Работа:48 695 ₽
Материалы:96 833 ₽
Дни:7
stdClass Object
(
[id] => 67
[attribute_id] => 34
[name] => Нет
[material_modifier] => 1
[work_modifier] => 1
[options] => Array
(
)
[days] => [0]
[material_price] => [0]
[work_price] => [0]
[image] => https://akademik-stroy.ru/wp-content/uploads/materials/chistovaya-otdelka.jpg
[area_modifier] => 126.48
[parent_name] => Чистовая отделка стен и полов
[parent_id] => 34
[material_sum] => 0
[work_sum] => 0
[total_sum] => 0
[total_days] => 0
[display_material_sum] => 0
[display_work_sum] => 0
[display_total_sum] => 0
)
1
0₽
Работа:0 ₽
Материалы:0 ₽
Дни:0
stdClass Object
(
[id] => 68
[attribute_id] => 34
[name] => Есть
[material_modifier] => 1
[work_modifier] => 1
[options] => Array
(
)
[days] => [50]
[material_price] => [6000]
[work_price] => [3500]
[image] => https://akademik-stroy.ru/wp-content/uploads/materials/chistovaya-otdelka.jpg
[area_modifier] => 126.48
[parent_name] => Чистовая отделка стен и полов
[parent_id] => 34
[material_sum] => 1001722
[work_sum] => 486948
[total_sum] => 1488670
[total_days] => 50
[display_material_sum] => 1 001 722
[display_work_sum] => 486 948
[display_total_sum] => 1 488 670
)
1
1 488 670₽
Работа:486 948 ₽
Материалы:1 001 722 ₽
Дни:50
stdClass Object
(
[id] => 69
[attribute_id] => 35
[name] => Нет
[material_modifier] => 1
[work_modifier] => 1
[options] => Array
(
)
[days] => [0]
[material_price] => [0]
[work_price] => [0]
[image] => https://akademik-stroy.ru/wp-content/uploads/materials/mnogourovnevyj-gkl.jpg
[area_modifier] => 126.48
[parent_name] => Отделка потолка
[parent_id] => 35
[material_sum] => 0
[work_sum] => 0
[total_sum] => 0
[total_days] => 0
[display_material_sum] => 0
[display_work_sum] => 0
[display_total_sum] => 0
)
1
0₽
Работа:0 ₽
Материалы:0 ₽
Дни:0
stdClass Object
(
[id] => 70
[attribute_id] => 35
[name] => Есть
[material_modifier] => 1
[work_modifier] => 1
[options] => Array
(
[0] => Многоуровневый потолок из гипсокартона
[1] => Многоуровневый потолок из гипсокартона и натяжного потолка
[2] => Одноуровневый потолок из гипсокартона
[3] => Одноуровневый натяжной потолок
)
[days] => [10,10,1,1]
[material_price] => [900,700,700,600]
[work_price] => [1000,800,500,300]
[image] => https://akademik-stroy.ru/wp-content/uploads/materials/mnogourovnevyj-gkl.jpg
[area_modifier] => 126.48
[parent_name] => Отделка потолка
[parent_id] => 35
[material_sum] => 150258
[work_sum] => 139128
[total_sum] => 289386
[total_days] => 10
[display_material_sum] => 150 258
[display_work_sum] => 139 128
[display_total_sum] => 289 386
)
1
289 386₽
Работа:139 128 ₽
Материалы:150 258 ₽
Дни:10
Преимущества работы с нами
7 этапов оплаты
Независимый строительный надзор
Экологически чистые материалы
16 лет гарантии
Онлайн-кабинет с веб-камерой
Строители с опытом более 15 лет
Собственное производство






