Одноэтажный дом 127.76 м2 за руб.
Планировки
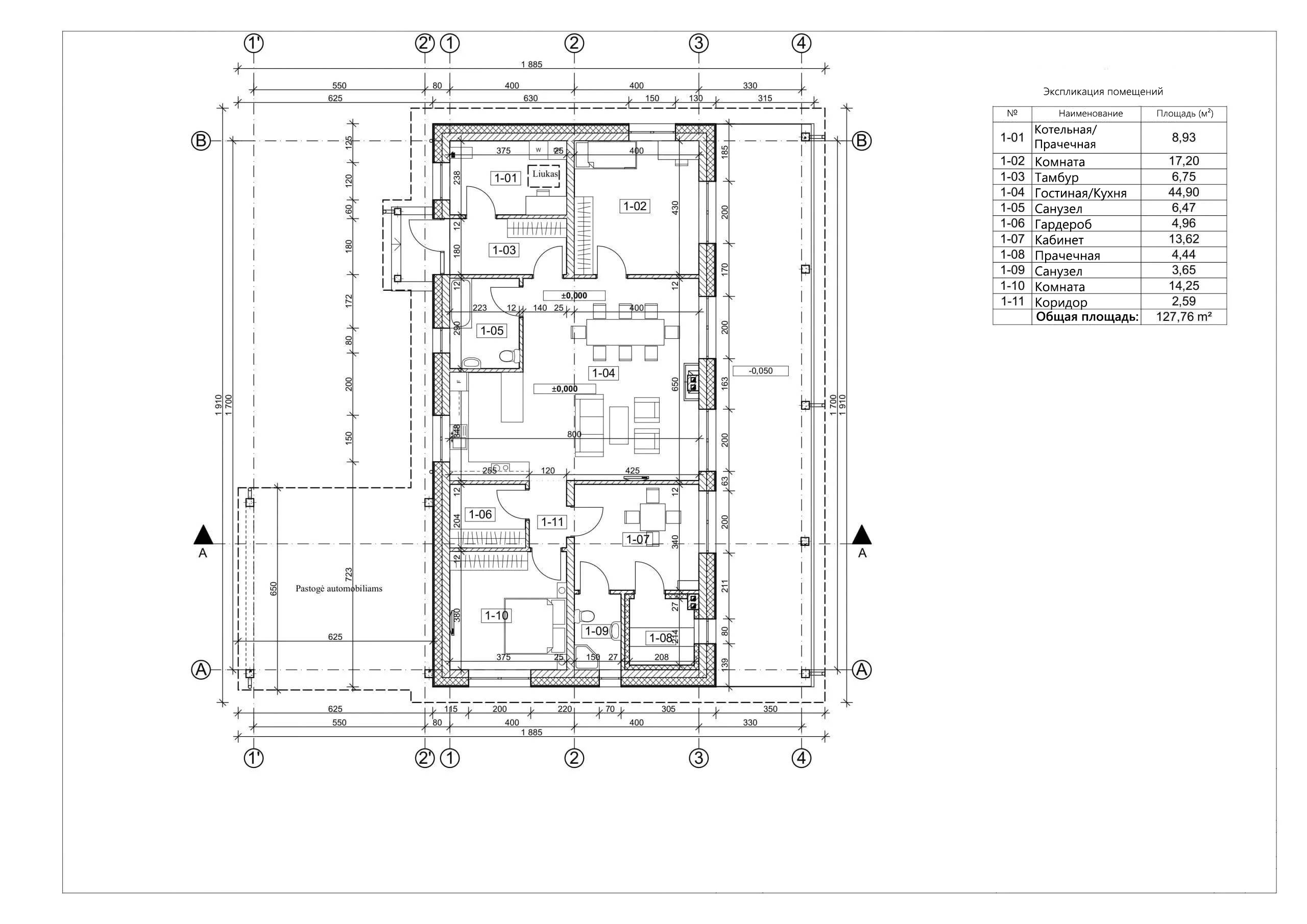
План первого этажа
- 1. Котельная-Прачечная 8,93 м²
- 2. Комната 17,20 м²
- 3. Тамбур 6,75 м²
- 4. Гостиная-Кухня 44,90 м²
- 5. Санузел 6,47 м²
- 6. Гардероб 4,96 м²
- 7. Кабинет 13,62 м²
- 8. Прачечная 4,44 м²
- 9. Санузел 3,65 м²
- 10. Комната 14,25 м²
- 11. Коридор 2,59 м²
- Общая площадь 127,76 м²
Площади дома
| № п/п | Наименование | Ед. из. | Строительная площадь | Полезная площадь |
| 1 | 1 этаж | м2 | 157.44 | 127.76 |
| 2 | Итого | м2 | 157.44 | 127.76 |
154 м2
Полезная
площадь
площадь
1 этаж
Этажей
26 м2
Террасы
и балконы
и балконы
0Без
гаража
гаража
4
Количество
спален
спален
2
Количество
санузлов
санузлов
Калькулятор опций
0₽
В ипотеку от 20 835 ₽/мес.
0₽
0 дней
stdClass Object
(
[id] => 1
[attribute_id] => 1
[name] => Ленточный монолитный ж/б
[material_modifier] => 1
[work_modifier] => 1
[options] => Array
(
[0] => размер 200 х 700 мм
[1] => размер 300 х 900 мм
[2] => размер 400 х 1 000 мм
[3] => размер 500 х 1 100 мм
[4] => размер 600 х 1 200 мм
)
[days] => [20,21,22,25,30]
[material_price] => [2823,3630,4475,5210,12047]
[work_price] => [2154,2826,3731,4577,5293]
[image] => https://akademik-stroy.ru/wp-content/uploads/materials/lentochnyj-monolitnyj-zh-b.jpg
[area_modifier] => 157.44
[parent_name] => Фундамент
[parent_id] => 1
[material_sum] => 586678
[work_sum] => 373038
[total_sum] => 959716
[total_days] => 20
[display_material_sum] => 586 678
[display_work_sum] => 373 038
[display_total_sum] => 959 716
)
1
959 716₽
Работа:373 038 ₽
Материалы:586 678 ₽
Дни:20
stdClass Object
(
[id] => 2
[attribute_id] => 1
[name] => Забивные Ж/Б сваи
[material_modifier] => 1
[work_modifier] => 1
[options] => Array
(
[0] => 150х150х3000мм
[1] => 150х150х4000мм
[2] => 200х200х3000мм
[3] => 200х200х4000мм
[4] => 200х200х5000мм
[5] => 200х200х6000мм
)
[days] => [2,2,2,2,2,2]
[material_price] => [1990,2850,3255,4360,5120,6837]
[work_price] => [1002,1185,1336,1438,1574,1839]
[image] => https://akademik-stroy.ru/wp-content/uploads/materials/zabivnye-zh-b-svai.png
[area_modifier] => 157.44
[parent_name] => Фундамент
[parent_id] => 1
[material_sum] => 413563
[work_sum] => 173530
[total_sum] => 587093
[total_days] => 2
[display_material_sum] => 413 563
[display_work_sum] => 173 530
[display_total_sum] => 587 093
)
1
587 093₽
Работа:173 530 ₽
Материалы:413 563 ₽
Дни:2
stdClass Object
(
[id] => 71
[attribute_id] => 1
[name] => Свайно-ростверковый ж/б
[material_modifier] => 1
[work_modifier] => 1
[options] => Array
(
[0] => ростверк 200х300 мм
[1] => ростверк 300х600 мм
[2] => ростверк 400х900 мм
[3] => ростверк 500х1200 мм
)
[days] => [20,23,25,27]
[material_price] => [3018,3474,7109,9792]
[work_price] => [2024,3012,5635,7022]
[image] => https://akademik-stroy.ru/wp-content/uploads/materials/svajno-rostverkovyj-monolitnyj-zh-b-3.png
[area_modifier] => 157.44
[parent_name] => Фундамент
[parent_id] => 1
[material_sum] => 627203
[work_sum] => 350524
[total_sum] => 977727
[total_days] => 20
[display_material_sum] => 627 203
[display_work_sum] => 350 524
[display_total_sum] => 977 727
)
1
977 727₽
Работа:350 524 ₽
Материалы:627 203 ₽
Дни:20
stdClass Object
(
[id] => 72
[attribute_id] => 1
[name] => Монолитная ж/б плита
[material_modifier] => 1
[work_modifier] => 1
[options] => Array
(
[0] => 200 мм
[1] => 300 мм
[2] => 400 мм
[3] => 500 мм
[4] => 600 мм
)
[days] => [30,33,35,37,40]
[material_price] => [5348,8555,12788,14388,15189]
[work_price] => [4314,4881,7037,8061,10230]
[image] => https://akademik-stroy.ru/wp-content/uploads/materials/monolitnaya-zhb-plita.png
[area_modifier] => 157.44
[parent_name] => Фундамент
[parent_id] => 1
[material_sum] => 1111426
[work_sum] => 747116
[total_sum] => 1858542
[total_days] => 30
[display_material_sum] => 1 111 426
[display_work_sum] => 747 116
[display_total_sum] => 1 858 542
)
1
1 858 542₽
Работа:747 116 ₽
Материалы:1 111 426 ₽
Дни:30
stdClass Object
(
[id] => 73
[attribute_id] => 1
[name] => Утепленная шведская плита
[material_modifier] => 1
[work_modifier] => 1
[options] => Array
(
[0] => 200 мм
[1] => 300 мм
[2] => 400 мм
[3] => 500 мм
[4] => 600 мм
)
[days] => [32,37,39,42,45]
[material_price] => [10249,12692,13760,14936,16230]
[work_price] => [5960,7337,8072,8878,9765]
[image] => https://akademik-stroy.ru/wp-content/uploads/materials/uteplennaya-shvedskaya-plita.jpg
[area_modifier] => 157.44
[parent_name] => Фундамент
[parent_id] => 1
[material_sum] => 2129955
[work_sum] => 1032177
[total_sum] => 3162132
[total_days] => 32
[display_material_sum] => 2 129 955
[display_work_sum] => 1 032 177
[display_total_sum] => 3 162 132
)
1
3 162 132₽
Работа:1 032 177 ₽
Материалы:2 129 955 ₽
Дни:32
stdClass Object
(
[id] => 75
[attribute_id] => 1
[name] => Ленточный из ФБС
[material_modifier] => 1
[work_modifier] => 1
[options] => Array
(
[0] => толщ. 300 мм
[1] => толщ. 400 мм
[2] => толщ. 500 мм
[3] => толщ. 600 мм
)
[days] => [20,20,20,20]
[material_price] => [3675,4902,6126,7350]
[work_price] => [2451,3264,4083,4902]
[image] => https://akademik-stroy.ru/wp-content/uploads/materials/lentochnyj-iz-fbs.png
[area_modifier] => 157.44
[parent_name] => Фундамент
[parent_id] => 1
[material_sum] => 763741
[work_sum] => 424474
[total_sum] => 1188215
[total_days] => 20
[display_material_sum] => 763 741
[display_work_sum] => 424 474
[display_total_sum] => 1 188 215
)
1
1 188 215₽
Работа:424 474 ₽
Материалы:763 741 ₽
Дни:20
stdClass Object
(
[id] => 76
[attribute_id] => 1
[name] => Цокольный этаж из ФБС
[material_modifier] => 1
[work_modifier] => 1
[options] => Array
(
[0] => толщ. 300 мм
[1] => толщ. 400 мм
[2] => толщ. 500 мм
[3] => толщ. 600 мм
)
[days] => [30,32,34,36]
[material_price] => [20916,23299,26680,29060]
[work_price] => [17524,18700,19873,21046]
[image] => https://akademik-stroy.ru/wp-content/uploads/materials/cokolnyj-ehtazh-iz-fbs.jpg
[area_modifier] => 157.44
[parent_name] => Фундамент
[parent_id] => 1
[material_sum] => 4346780
[work_sum] => 3034876
[total_sum] => 7381656
[total_days] => 30
[display_material_sum] => 4 346 780
[display_work_sum] => 3 034 876
[display_total_sum] => 7 381 656
)
1
7 381 656₽
Работа:3 034 876 ₽
Материалы:4 346 780 ₽
Дни:30
stdClass Object
(
[id] => 77
[attribute_id] => 1
[name] => Цокольный этаж монолитный ж/б
[material_modifier] => 1
[work_modifier] => 1
[options] => Array
(
[0] => толщ. 200 мм
[1] => толщ. 300 мм
[2] => толщ. 400 мм
[3] => толщ. 500 мм
[4] => толщ. 600 мм
)
[days] => [40,42,44,46,48]
[material_price] => [25421,29148,32275,35602,37326]
[work_price] => [20441,21907,23375,24841,26306]
[image] => https://akademik-stroy.ru/wp-content/uploads/materials/cokolnyj-etazh-zh-b.jpg
[area_modifier] => 157.44
[parent_name] => Фундамент
[parent_id] => 1
[material_sum] => 5283013
[work_sum] => 3540054
[total_sum] => 8823067
[total_days] => 40
[display_material_sum] => 5 283 013
[display_work_sum] => 3 540 054
[display_total_sum] => 8 823 067
)
1
8 823 067₽
Работа:3 540 054 ₽
Материалы:5 283 013 ₽
Дни:40
stdClass Object
(
[id] => 191
[attribute_id] => 1
[name] => Винтовые сваи
[material_modifier] => 1
[work_modifier] => 1
[options] => Array
(
[0] => 57х200мм
[1] => 76х250мм
[2] => 108х300мм
[3] => 133х350мм
)
[days] => [1,1,2,2]
[material_price] => [1200,1300,1450,1600]
[work_price] => [400,600,900,1100]
[image] => https://akademik-stroy.ru/wp-content/uploads/materials/vintovye-svai.png
[area_modifier] => 157.44
[parent_name] => Фундамент
[parent_id] => 1
[material_sum] => 249385
[work_sum] => 69274
[total_sum] => 318659
[total_days] => 1
[display_material_sum] => 249 385
[display_work_sum] => 69 274
[display_total_sum] => 318 659
)
1
318 659₽
Работа:69 274 ₽
Материалы:249 385 ₽
Дни:1
stdClass Object
(
[id] => 3
[attribute_id] => 2
[name] => Деревянные балки
[material_modifier] => 1
[work_modifier] => 1
[options] => Array
(
[0] => без утепления
[1] => утепление 200 мм
[2] => утепление 250 мм
[3] => утепление 300 мм
[4] => утепление 350 мм
[5] => утепление 400 мм
[6] => утепление 450 мм
[7] => утепление 500 мм
)
[days] => [8,9,9,9,11,12,13,14]
[material_price] => [1634,2042,2344,2947,3149,3652,3354,3557]
[work_price] => [1230,1339,1393,1426,1460,1513,1587,1620]
[image] => https://akademik-stroy.ru/wp-content/uploads/materials/derevyannye-balki.png
[area_modifier] => 157.44
[parent_name] => Перекрытие цоколя
[parent_id] => 2
[material_sum] => 339579
[work_sum] => 213016
[total_sum] => 552595
[total_days] => 8
[display_material_sum] => 339 579
[display_work_sum] => 213 016
[display_total_sum] => 552 595
)
1
552 595₽
Работа:213 016 ₽
Материалы:339 579 ₽
Дни:8
stdClass Object
(
[id] => 4
[attribute_id] => 2
[name] => Сборные ж/б плиты
[material_modifier] => 1
[work_modifier] => 1
[options] => Array
(
[0] => без утепления
[1] => утепление 150мм
[2] => утепление 200мм
[3] => утепление 250мм
[4] => утепление 300мм
[5] => утепление 350мм
[6] => утепление 400мм
[7] => утепление 450мм
[8] => утепление 500мм
)
[days] => [13,15,15,15,15,15,15,15,15]
[material_price] => [3067,5577,5928,6679,7730,8782,9833,10884,11935]
[work_price] => [1520,1956,2102,2247,2392,2537,2684,2829,2974]
[image] => https://akademik-stroy.ru/wp-content/uploads/materials/sbornye-zh-b-plity-2.jpg
[area_modifier] => 157.44
[parent_name] => Перекрытие цоколя
[parent_id] => 2
[material_sum] => 637386
[work_sum] => 263240
[total_sum] => 900626
[total_days] => 13
[display_material_sum] => 637 386
[display_work_sum] => 263 240
[display_total_sum] => 900 626
)
1
900 626₽
Работа:263 240 ₽
Материалы:637 386 ₽
Дни:13
stdClass Object
(
[id] => 78
[attribute_id] => 2
[name] => Монолитная ж/б плита
[material_modifier] => 1
[work_modifier] => 1
[options] => Array
(
[0] => без утепления
[1] => утепление 150 мм
[2] => утепление 200 мм
[3] => утепление 250 мм
[4] => утепление 300 мм
[5] => утепление 350 мм
[6] => утепление 400 мм
[7] => утепление 450 мм
[8] => утепление 500 мм
)
[days] => [18,20,20,20,20,20,20,20,20]
[material_price] => [4837,6572,7224,7375,79426,8177,8728,9180,10031]
[work_price] => [3348,3921,4112,4302,4493,4684,4875,5066,5256]
[image] => https://akademik-stroy.ru/wp-content/uploads/materials/monolitnaya-zh-b-plita-2.jpg
[area_modifier] => 157.44
[parent_name] => Перекрытие цоколя
[parent_id] => 2
[material_sum] => 1005229
[work_sum] => 579820
[total_sum] => 1585049
[total_days] => 18
[display_material_sum] => 1 005 229
[display_work_sum] => 579 820
[display_total_sum] => 1 585 049
)
1
1 585 049₽
Работа:579 820 ₽
Материалы:1 005 229 ₽
Дни:18
stdClass Object
(
[id] => 6
[attribute_id] => 3
[name] => Пеноблок
[material_modifier] => 1
[work_modifier] => 1
[options] => Array
(
[0] => 300 мм
[1] => 400 мм
[2] => 500 мм
[3] => 600 мм
)
[days] => [29,31,34,39]
[material_price] => [3000,4000,4500,4937]
[work_price] => [5033,5805,6400,8710]
[image] => https://akademik-stroy.ru/wp-content/uploads/materials/penoblok.jpg
[area_modifier] => 157.44
[parent_name] => Стены 1 этаж (несущие)
[parent_id] => 3
[material_sum] => 623462
[work_sum] => 871635
[total_sum] => 1495097
[total_days] => 29
[display_material_sum] => 623 462
[display_work_sum] => 871 635
[display_total_sum] => 1 495 097
)
1
1 495 097₽
Работа:871 635 ₽
Материалы:623 462 ₽
Дни:29
stdClass Object
(
[id] => 79
[attribute_id] => 3
[name] => Керамический блок
[material_modifier] => 1
[work_modifier] => 1
[options] => Array
(
[0] => 380 мм
[1] => 380 мм Thermo
[2] => 440 мм
[3] => 510 мм
)
[days] => [23,23,24,25]
[material_price] => [4510,5098,6093,8013]
[work_price] => [4737,4937,5903,6958]
[image] => https://akademik-stroy.ru/wp-content/uploads/materials/keramicheskij-blok.jpg
[area_modifier] => 157.44
[parent_name] => Стены 1 этаж (несущие)
[parent_id] => 3
[material_sum] => 937272
[work_sum] => 820373
[total_sum] => 1757645
[total_days] => 23
[display_material_sum] => 937 272
[display_work_sum] => 820 373
[display_total_sum] => 1 757 645
)
1
1 757 645₽
Работа:820 373 ₽
Материалы:937 272 ₽
Дни:23
stdClass Object
(
[id] => 80
[attribute_id] => 3
[name] => Кирпич
[material_modifier] => 1
[work_modifier] => 1
[options] => Array
(
[0] => Кирпич 250 мм
[1] => Кирпич 380 мм
[2] => Кирпич 510 мм
[3] => Кирпич 640 мм
[4] => Кирпич 770 мм
)
[days] => [30,30,31,33,36]
[material_price] => [5500,7142,9206,10171,12235]
[work_price] => [8736,10041,12018,15240,18462]
[image] => https://akademik-stroy.ru/wp-content/uploads/materials/kirpich.jpg
[area_modifier] => 157.44
[parent_name] => Стены 1 этаж (несущие)
[parent_id] => 3
[material_sum] => 1143014
[work_sum] => 1512935
[total_sum] => 2655949
[total_days] => 30
[display_material_sum] => 1 143 014
[display_work_sum] => 1 512 935
[display_total_sum] => 2 655 949
)
1
2 655 949₽
Работа:1 512 935 ₽
Материалы:1 143 014 ₽
Дни:30
stdClass Object
(
[id] => 81
[attribute_id] => 3
[name] => Монолитные
[material_modifier] => 1
[work_modifier] => 1
[options] => Array
(
[0] => 150 мм
[1] => 200 мм
[2] => 250 мм
[3] => 300 мм
[4] => 350 мм
[5] => 400 мм
)
[days] => [45,46,47,49,50,53]
[material_price] => [6545,7876,10175,12011,13908,15204]
[work_price] => [5106,6444,7698,8552,9807,11461]
[image] => https://akademik-stroy.ru/wp-content/uploads/materials/monolitnye.jpg
[area_modifier] => 157.44
[parent_name] => Стены 1 этаж (несущие)
[parent_id] => 3
[material_sum] => 1360187
[work_sum] => 884278
[total_sum] => 2244465
[total_days] => 45
[display_material_sum] => 1 360 187
[display_work_sum] => 884 278
[display_total_sum] => 2 244 465
)
1
2 244 465₽
Работа:884 278 ₽
Материалы:1 360 187 ₽
Дни:45
stdClass Object
(
[id] => 82
[attribute_id] => 3
[name] => Клееный брус
[material_modifier] => 1
[work_modifier] => 1
[options] => Array
(
[0] => 160 мм
[1] => 175 мм
[2] => 200 мм
[3] => 215 мм
[4] => 240 мм
[5] => 270 мм
[6] => 282 мм
)
[days] => [24,28,32,37,40,42,48]
[material_price] => [16975,18773,19950,20545,21599,22159,23275]
[work_price] => [4806,5287,5815,6397,7036,7740,8514]
[image] => https://akademik-stroy.ru/wp-content/uploads/materials/kleenyj-brus.jpg
[area_modifier] => 157.44
[parent_name] => Стены 1 этаж (несущие)
[parent_id] => 3
[material_sum] => 3527758
[work_sum] => 832322
[total_sum] => 4360080
[total_days] => 24
[display_material_sum] => 3 527 758
[display_work_sum] => 832 322
[display_total_sum] => 4 360 080
)
1
4 360 080₽
Работа:832 322 ₽
Материалы:3 527 758 ₽
Дни:24
stdClass Object
(
[id] => 83
[attribute_id] => 3
[name] => Каркасные
[material_modifier] => 1
[work_modifier] => 1
[options] => Array
(
[0] => 150 мм
[1] => 200 мм
[2] => 250 мм
[3] => 300 мм
)
[days] => [15,16,17,18]
[material_price] => [2379,2639,2898,3258]
[work_price] => [2418,2686,2985,3716]
[image] => https://akademik-stroy.ru/wp-content/uploads/materials/karkasnye.jpg
[area_modifier] => 157.44
[parent_name] => Стены 1 этаж (несущие)
[parent_id] => 3
[material_sum] => 494406
[work_sum] => 418759
[total_sum] => 913165
[total_days] => 15
[display_material_sum] => 494 406
[display_work_sum] => 418 759
[display_total_sum] => 913 165
)
1
913 165₽
Работа:418 759 ₽
Материалы:494 406 ₽
Дни:15
stdClass Object
(
[id] => 84
[attribute_id] => 3
[name] => СИП-панели
[material_modifier] => 1
[work_modifier] => 1
[options] => Array
(
[0] => 120 мм
[1] => 170 мм
[2] => 220 мм
)
[days] => [7,7,7]
[material_price] => [1210,1856,2292]
[work_price] => [1410,1551,1706]
[image] => https://akademik-stroy.ru/wp-content/uploads/materials/sip-paneli.jpg
[area_modifier] => 157.44
[parent_name] => Стены 1 этаж (несущие)
[parent_id] => 3
[material_sum] => 251463
[work_sum] => 244189
[total_sum] => 495652
[total_days] => 7
[display_material_sum] => 251 463
[display_work_sum] => 244 189
[display_total_sum] => 495 652
)
1
495 652₽
Работа:244 189 ₽
Материалы:251 463 ₽
Дни:7
stdClass Object
(
[id] => 85
[attribute_id] => 3
[name] => Сухой брус
[material_modifier] => 1
[work_modifier] => 1
[options] => Array
(
[0] => 150 мм
[1] => 180 мм
[2] => 200 мм
)
[days] => [7,8,9]
[material_price] => [6010,7190,8709]
[work_price] => [3204,3845,4229]
[image] => https://akademik-stroy.ru/wp-content/uploads/materials/suhoj-brus.jpg
[area_modifier] => 157.44
[parent_name] => Стены 1 этаж (несущие)
[parent_id] => 3
[material_sum] => 1249003
[work_sum] => 554882
[total_sum] => 1803885
[total_days] => 7
[display_material_sum] => 1 249 003
[display_work_sum] => 554 882
[display_total_sum] => 1 803 885
)
1
1 803 885₽
Работа:554 882 ₽
Материалы:1 249 003 ₽
Дни:7
stdClass Object
(
[id] => 86
[attribute_id] => 3
[name] => Профилированный брус
[material_modifier] => 1
[work_modifier] => 1
[options] => Array
(
[0] => 150 мм
[1] => 180 мм
[2] => 200 мм
)
[days] => [7,8,9]
[material_price] => [8190,9228,10051]
[work_price] => [3845,4614,5075]
[image] => https://akademik-stroy.ru/wp-content/uploads/materials/profilirovannyj-brus.jpg
[area_modifier] => 157.44
[parent_name] => Стены 1 этаж (несущие)
[parent_id] => 3
[material_sum] => 1702052
[work_sum] => 665892
[total_sum] => 2367944
[total_days] => 7
[display_material_sum] => 1 702 052
[display_work_sum] => 665 892
[display_total_sum] => 2 367 944
)
1
2 367 944₽
Работа:665 892 ₽
Материалы:1 702 052 ₽
Дни:7
stdClass Object
(
[id] => 87
[attribute_id] => 3
[name] => Оцилиндрованное бревно
[material_modifier] => 1
[work_modifier] => 1
[options] => Array
(
[0] => 180 мм
[1] => 220 мм
[2] => 260 мм
[3] => 320 мм
)
[days] => [7,8,9,10]
[material_price] => [75190,9532,10868,13116]
[work_price] => [3845,4691,5535,6863]
[image] => https://akademik-stroy.ru/wp-content/uploads/materials/ocilindrovannoe-brevno-1.jpg
[area_modifier] => 157.44
[parent_name] => Стены 1 этаж (несущие)
[parent_id] => 3
[material_sum] => 15626046
[work_sum] => 665892
[total_sum] => 16291938
[total_days] => 7
[display_material_sum] => 15 626 046
[display_work_sum] => 665 892
[display_total_sum] => 16 291 938
)
1
16 291 938₽
Работа:665 892 ₽
Материалы:15 626 046 ₽
Дни:7
stdClass Object
(
[id] => 88
[attribute_id] => 3
[name] => Срубы
[material_modifier] => 1
[work_modifier] => 1
[options] => Array
(
[0] => 260 мм
[1] => 320 мм
[2] => 360 мм
[3] => 400 мм
[4] => 500 мм
)
[days] => [7,8,9,10,11]
[material_price] => [37975,46709,52314,58069,73167]
[work_price] => [4806,5911,6621,7349,9260]
[image] => https://akademik-stroy.ru/wp-content/uploads/materials/sruby.jpg
[area_modifier] => 157.44
[parent_name] => Стены 1 этаж (несущие)
[parent_id] => 3
[material_sum] => 7891995
[work_sum] => 832322
[total_sum] => 8724317
[total_days] => 7
[display_material_sum] => 7 891 995
[display_work_sum] => 832 322
[display_total_sum] => 8 724 317
)
1
8 724 317₽
Работа:832 322 ₽
Материалы:7 891 995 ₽
Дни:7
stdClass Object
(
[id] => 174
[attribute_id] => 3
[name] => Брус
[material_modifier] => 1
[work_modifier] => 1
[options] => Array
(
[0] => 150 мм
[1] => 180 мм
[2] => 200 мм
)
[days] => [7,8,9]
[material_price] => [5127,6152,7367]
[work_price] => [1602,1922,2115]
[image] => https://akademik-stroy.ru/wp-content/uploads/materials/brus.jpg
[area_modifier] => 157.44
[parent_name] => Стены 1 этаж (несущие)
[parent_id] => 3
[material_sum] => 1065497
[work_sum] => 277441
[total_sum] => 1342938
[total_days] => 7
[display_material_sum] => 1 065 497
[display_work_sum] => 277 441
[display_total_sum] => 1 342 938
)
1
1 342 938₽
Работа:277 441 ₽
Материалы:1 065 497 ₽
Дни:7
stdClass Object
(
[id] => 175
[attribute_id] => 3
[name] => Газобетон
[material_modifier] => 1
[work_modifier] => 1
[options] => Array
(
[0] => 300 мм
[1] => 375 мм
[2] => 400 мм
[3] => 500 мм
[4] => 600 мм
)
[days] => [29,31,35,37,44]
[material_price] => [4298,5573,6356,7288,9119]
[work_price] => [4538,5251,5926,6733,7195]
[image] => https://akademik-stroy.ru/wp-content/uploads/materials/gazobeton.jpg
[area_modifier] => 157.44
[parent_name] => Стены 1 этаж (несущие)
[parent_id] => 3
[material_sum] => 893214
[work_sum] => 785909
[total_sum] => 1679123
[total_days] => 29
[display_material_sum] => 893 214
[display_work_sum] => 785 909
[display_total_sum] => 1 679 123
)
1
1 679 123₽
Работа:785 909 ₽
Материалы:893 214 ₽
Дни:29
stdClass Object
(
[id] => 176
[attribute_id] => 3
[name] => Блок
[material_modifier] => 1
[work_modifier] => 1
[options] => Array
(
[0] => 300 мм
[1] => 375 мм
[2] => 400 мм
[3] => 500 мм
[4] => 600 мм
)
[days] => [29,31,35,37,44]
[material_price] => [2698,3973,4356,6588,7119]
[work_price] => [5038,5851,6426,8733,9195]
[image] => https://akademik-stroy.ru/wp-content/uploads/materials/blok.jpg
[area_modifier] => 157.44
[parent_name] => Стены 1 этаж (несущие)
[parent_id] => 3
[material_sum] => 560701
[work_sum] => 872501
[total_sum] => 1433202
[total_days] => 29
[display_material_sum] => 560 701
[display_work_sum] => 872 501
[display_total_sum] => 1 433 202
)
1
1 433 202₽
Работа:872 501 ₽
Материалы:560 701 ₽
Дни:29
stdClass Object
(
[id] => 177
[attribute_id] => 3
[name] => Газосиликатный блок
[material_modifier] => 1
[work_modifier] => 1
[options] => Array
(
[0] => 300 мм
[1] => 375 мм
[2] => 400 мм
[3] => 500 мм
[4] => 600 мм
)
[days] => [29,31,35,37,44]
[material_price] => [4298,5573,6356,7288,9119]
[work_price] => [4538,5251,5926,6733,7195]
[image] => https://akademik-stroy.ru/wp-content/uploads/materials/gazosilikatnyj-blok.jpg
[area_modifier] => 157.44
[parent_name] => Стены 1 этаж (несущие)
[parent_id] => 3
[material_sum] => 893214
[work_sum] => 785909
[total_sum] => 1679123
[total_days] => 29
[display_material_sum] => 893 214
[display_work_sum] => 785 909
[display_total_sum] => 1 679 123
)
1
1 679 123₽
Работа:785 909 ₽
Материалы:893 214 ₽
Дни:29
stdClass Object
(
[id] => 178
[attribute_id] => 3
[name] => Керамзитобетонный блок
[material_modifier] => 1
[work_modifier] => 1
[options] => Array
(
[0] => 300 мм
[1] => 375 мм
[2] => 400 мм
[3] => 500 мм
[4] => 600 мм
)
[days] => [23,23,24,25,28]
[material_price] => [3641,4298,5693,7613,9612]
[work_price] => [5737,5737,6903,7958,8901]
[image] => https://akademik-stroy.ru/wp-content/uploads/materials/keramzitobetonnyj-blok.jpg
[area_modifier] => 157.44
[parent_name] => Стены 1 этаж (несущие)
[parent_id] => 3
[material_sum] => 756676
[work_sum] => 993557
[total_sum] => 1750233
[total_days] => 23
[display_material_sum] => 756 676
[display_work_sum] => 993 557
[display_total_sum] => 1 750 233
)
1
1 750 233₽
Работа:993 557 ₽
Материалы:756 676 ₽
Дни:23
stdClass Object
(
[id] => 179
[attribute_id] => 3
[name] => Деревянные
[material_modifier] => 1
[work_modifier] => 1
[options] => Array
(
[0] => 180 мм
[1] => 220 мм
[2] => 260 мм
[3] => 320 мм
)
[days] => [7,8,9,10]
[material_price] => [7950,9458,11961,14472]
[work_price] => [4037,4925,5812,7207]
[image] => https://akademik-stroy.ru/wp-content/uploads/materials/derevyannye.jpg
[area_modifier] => 157.44
[parent_name] => Стены 1 этаж (несущие)
[parent_id] => 3
[material_sum] => 1652175
[work_sum] => 699144
[total_sum] => 2351319
[total_days] => 7
[display_material_sum] => 1 652 175
[display_work_sum] => 699 144
[display_total_sum] => 2 351 319
)
1
2 351 319₽
Работа:699 144 ₽
Материалы:1 652 175 ₽
Дни:7
stdClass Object
(
[id] => 181
[attribute_id] => 3
[name] => Камень
[material_modifier] => 1
[work_modifier] => 1
[options] => Array
(
[0] => 300 мм
[1] => 400 мм
[2] => 500 мм
[3] => 600 мм
)
[days] => [25,27,31,34]
[material_price] => [5262,6844,8330,9815]
[work_price] => [8331,9135,10427,11069]
[image] => https://akademik-stroy.ru/wp-content/uploads/materials/kamen.jpg
[area_modifier] => 157.44
[parent_name] => Стены 1 этаж (несущие)
[parent_id] => 3
[material_sum] => 1093553
[work_sum] => 1442796
[total_sum] => 2536349
[total_days] => 25
[display_material_sum] => 1 093 553
[display_work_sum] => 1 442 796
[display_total_sum] => 2 536 349
)
1
2 536 349₽
Работа:1 442 796 ₽
Материалы:1 093 553 ₽
Дни:25
stdClass Object
(
[id] => 182
[attribute_id] => 3
[name] => Каркасно-щитовые
[material_modifier] => 1
[work_modifier] => 1
[options] => Array
(
[0] => 150 мм
[1] => 200 мм
[2] => 250 мм
[3] => 300 мм
[4] => 350 мм
[5] => 400 мм
)
[days] => [15,16,17,18,19,20]
[material_price] => [2379,2639,2898,3458,3601,4175]
[work_price] => [2538,2820,3134,3483,4062,5642]
[image] => https://akademik-stroy.ru/wp-content/uploads/materials/karkasno-shchitovye.jpg
[area_modifier] => 157.44
[parent_name] => Стены 1 этаж (несущие)
[parent_id] => 3
[material_sum] => 494406
[work_sum] => 439541
[total_sum] => 933947
[total_days] => 15
[display_material_sum] => 494 406
[display_work_sum] => 439 541
[display_total_sum] => 933 947
)
1
933 947₽
Работа:439 541 ₽
Материалы:494 406 ₽
Дни:15
stdClass Object
(
[id] => 183
[attribute_id] => 3
[name] => Рубленные
[material_modifier] => 1
[work_modifier] => 1
[options] => Array
(
[0] => 150 мм
[1] => 200 мм
[2] => 250 мм
[3] => 300 мм
[4] => 350 мм
[5] => 400 мм
)
[days] => [15,16,17,18,17,18]
[material_price] => [35950,50267,60583,75900,80217,100533]
[work_price] => [9612,12816,16020,19224,22428,25632]
[image] => https://akademik-stroy.ru/wp-content/uploads/materials/rublennye.jpg
[area_modifier] => 157.44
[parent_name] => Стены 1 этаж (несущие)
[parent_id] => 3
[material_sum] => 7471158
[work_sum] => 1664645
[total_sum] => 9135803
[total_days] => 15
[display_material_sum] => 7 471 158
[display_work_sum] => 1 664 645
[display_total_sum] => 9 135 803
)
1
9 135 803₽
Работа:1 664 645 ₽
Материалы:7 471 158 ₽
Дни:15
stdClass Object
(
[id] => 185
[attribute_id] => 3
[name] => Теплоблок
[material_modifier] => 1
[work_modifier] => 1
[options] => Array
(
[0] => 300 мм (с облицовкой, не покрашенный)
[1] => 400 мм (с облицовкой, не покрашенный)
[2] => 300 мм (с облицовкой, покрашенный)
[3] => 400 мм (с облицовкой, покрашенный)
)
[days] => [15,16,15,16]
[material_price] => [2888,3729,3957,4258]
[work_price] => [2564,3229,2949,3713]
[image] => https://akademik-stroy.ru/wp-content/uploads/materials/teploblok.jpg
[area_modifier] => 157.44
[parent_name] => Стены 1 этаж (несущие)
[parent_id] => 3
[material_sum] => 600186
[work_sum] => 444044
[total_sum] => 1044230
[total_days] => 15
[display_material_sum] => 600 186
[display_work_sum] => 444 044
[display_total_sum] => 1 044 230
)
1
1 044 230₽
Работа:444 044 ₽
Материалы:600 186 ₽
Дни:15
stdClass Object
(
[id] => 186
[attribute_id] => 3
[name] => Арболитовые блоки
[material_modifier] => 1
[work_modifier] => 1
[options] => Array
(
[0] => 300 мм
[1] => 400 мм
[2] => 600 мм
)
[days] => [19,22,27]
[material_price] => [3210,4475,5852]
[work_price] => [4214,4788,5866]
[image] => https://akademik-stroy.ru/wp-content/uploads/materials/arbolitovye-bloki.png
[area_modifier] => 157.44
[parent_name] => Стены 1 этаж (несущие)
[parent_id] => 3
[material_sum] => 667105
[work_sum] => 729797
[total_sum] => 1396902
[total_days] => 19
[display_material_sum] => 667 105
[display_work_sum] => 729 797
[display_total_sum] => 1 396 902
)
1
1 396 902₽
Работа:729 797 ₽
Материалы:667 105 ₽
Дни:19
stdClass Object
(
[id] => 187
[attribute_id] => 3
[name] => Полистиролбетон
[material_modifier] => 1
[work_modifier] => 1
[options] => Array
(
[0] => 300 мм
[1] => 400 мм
[2] => 600 мм
)
[days] => [29,31,35]
[material_price] => [2798,4573,5256]
[work_price] => [5038,5851,6426]
[image] => https://akademik-stroy.ru/wp-content/uploads/materials/polistirolbeton.jpg
[area_modifier] => 157.44
[parent_name] => Стены 1 этаж (несущие)
[parent_id] => 3
[material_sum] => 581483
[work_sum] => 872501
[total_sum] => 1453984
[total_days] => 29
[display_material_sum] => 581 483
[display_work_sum] => 872 501
[display_total_sum] => 1 453 984
)
1
1 453 984₽
Работа:872 501 ₽
Материалы:581 483 ₽
Дни:29
stdClass Object
(
[id] => 188
[attribute_id] => 3
[name] => Шлакоблок
[material_modifier] => 1
[work_modifier] => 1
[options] => Array
(
[0] => 400 мм
[1] => 600 мм
)
[days] => [15,16]
[material_price] => [2391,3471]
[work_price] => [2642,3662]
[image] => https://akademik-stroy.ru/wp-content/uploads/materials/shlakoblok.jpg
[area_modifier] => 157.44
[parent_name] => Стены 1 этаж (несущие)
[parent_id] => 3
[material_sum] => 496900
[work_sum] => 457552
[total_sum] => 954452
[total_days] => 15
[display_material_sum] => 496 900
[display_work_sum] => 457 552
[display_total_sum] => 954 452
)
1
954 452₽
Работа:457 552 ₽
Материалы:496 900 ₽
Дни:15
stdClass Object
(
[id] => 189
[attribute_id] => 3
[name] => Теплая керамика
[material_modifier] => 1
[work_modifier] => 1
[options] => Array
(
[0] => 380 мм
[1] => 380 мм Thermo
[2] => 440 мм
[3] => 510 мм
)
[days] => [23,23,24,25]
[material_price] => [4510,5098,6093,8013]
[work_price] => [4737,4937,5903,6958]
[image] => https://akademik-stroy.ru/wp-content/uploads/materials/teplaya-keramika.jpg
[area_modifier] => 157.44
[parent_name] => Стены 1 этаж (несущие)
[parent_id] => 3
[material_sum] => 937272
[work_sum] => 820373
[total_sum] => 1757645
[total_days] => 23
[display_material_sum] => 937 272
[display_work_sum] => 820 373
[display_total_sum] => 1 757 645
)
1
1 757 645₽
Работа:820 373 ₽
Материалы:937 272 ₽
Дни:23
stdClass Object
(
[id] => 190
[attribute_id] => 3
[name] => Несъемная опалубка
[material_modifier] => 1
[work_modifier] => 1
[options] => Array
(
[0] => 200 мм
[1] => 250 мм
[2] => 300 мм
[3] => 350 мм
)
[days] => [15,17,19,21]
[material_price] => [3302,3902,4108,5008]
[work_price] => [2100,2100,2300,2534]
[image] => https://akademik-stroy.ru/wp-content/uploads/materials/nesemnaya-opalubka.jpg
[area_modifier] => 157.44
[parent_name] => Стены 1 этаж (несущие)
[parent_id] => 3
[material_sum] => 686224
[work_sum] => 363686
[total_sum] => 1049910
[total_days] => 15
[display_material_sum] => 686 224
[display_work_sum] => 363 686
[display_total_sum] => 1 049 910
)
1
1 049 910₽
Работа:363 686 ₽
Материалы:686 224 ₽
Дни:15
stdClass Object
(
[id] => 251
[attribute_id] => 3
[name] => Бревно
[material_modifier] => 1
[work_modifier] => 1
[options] => Array
(
[0] => 260 мм
[1] => 320 мм
[2] => 360 мм
[3] => 400 мм
[4] => 500 мм
)
[days] => [7,8,9,10,11]
[material_price] => [1874,24045,26930,30972,38825]
[work_price] => [5046,6207,6952,7716,9723]
[image] => https://akademik-stroy.ru/wp-content/uploads/materials/sruby.jpg
[area_modifier] => 157.44
[parent_name] => Стены 1 этаж (несущие)
[parent_id] => 3
[material_sum] => 389456
[work_sum] => 873886
[total_sum] => 1263342
[total_days] => 7
[display_material_sum] => 389 456
[display_work_sum] => 873 886
[display_total_sum] => 1 263 342
)
1
1 263 342₽
Работа:873 886 ₽
Материалы:389 456 ₽
Дни:7
stdClass Object
(
[id] => 7
[attribute_id] => 4
[name] => Деревянные балки
[material_modifier] => 1
[work_modifier] => 1
[options] => Array
(
[0] => без утепления
[1] => утепление 200 мм
[2] => утепление 250 мм
[3] => утепление 300 мм
[4] => утепление 350 мм
[5] => утепление 400 мм
[6] => утепление 450 мм
[7] => утепление 500 мм
)
[days] => [8,9,9,9,11,12,13,14]
[material_price] => [1634,2042,2344,2947,3149,3652,3354,3557]
[work_price] => [1230,1339,1393,1426,1460,1513,1587,1620]
[image] => https://akademik-stroy.ru/wp-content/uploads/materials/derevyannye-balki.png
[area_modifier] => 157.44
[parent_name] => Перекрытие первого этажа
[parent_id] => 4
[material_sum] => 339579
[work_sum] => 213016
[total_sum] => 552595
[total_days] => 8
[display_material_sum] => 339 579
[display_work_sum] => 213 016
[display_total_sum] => 552 595
)
1
552 595₽
Работа:213 016 ₽
Материалы:339 579 ₽
Дни:8
stdClass Object
(
[id] => 8
[attribute_id] => 4
[name] => Сборные ж/б плиты
[material_modifier] => 1
[work_modifier] => 1
[options] => Array
(
[0] => без утепления
[1] => утепление 150 мм
[2] => утепление 200 мм
[3] => утепление 250 мм
[4] => утепление 300 мм
[5] => утепление 350 мм
[6] => утепление 400 мм
[7] => утепление 450 мм
[8] => утепление 500 мм
)
[days] => [13,15,15,15,15,15,15,15,15]
[material_price] => [3067,5577,5928,6679,7730,8782,9833,10884,11935]
[work_price] => [1520,1956,2102,2247,2392,2537,2684,2829,2974]
[image] => https://akademik-stroy.ru/wp-content/uploads/materials/sbornye-zh-b-plity-2.jpg
[area_modifier] => 157.44
[parent_name] => Перекрытие первого этажа
[parent_id] => 4
[material_sum] => 637386
[work_sum] => 263240
[total_sum] => 900626
[total_days] => 13
[display_material_sum] => 637 386
[display_work_sum] => 263 240
[display_total_sum] => 900 626
)
1
900 626₽
Работа:263 240 ₽
Материалы:637 386 ₽
Дни:13
stdClass Object
(
[id] => 89
[attribute_id] => 4
[name] => Монолитная ж/б плита
[material_modifier] => 1
[work_modifier] => 1
[options] => Array
(
[0] => без утепления
[1] => утепление 150 мм
[2] => утепление 200 мм
[3] => утепление 250 мм
[4] => утепление 300 мм
[5] => утепление 350 мм
[6] => утепление 400 мм
[7] => утепление 450 мм
[8] => утепление 500 мм
)
[days] => [18,20,20,20,20,20,20,20,20]
[material_price] => [4837,6572,7224,7375,79426,8177,8728,9180,10031]
[work_price] => [3348,3921,4112,4302,4493,4684,4875,5066,5256]
[image] => https://akademik-stroy.ru/wp-content/uploads/materials/monolitnaya-zh-b-plita-2.jpg
[area_modifier] => 157.44
[parent_name] => Перекрытие первого этажа
[parent_id] => 4
[material_sum] => 1005229
[work_sum] => 579820
[total_sum] => 1585049
[total_days] => 18
[display_material_sum] => 1 005 229
[display_work_sum] => 579 820
[display_total_sum] => 1 585 049
)
1
1 585 049₽
Работа:579 820 ₽
Материалы:1 005 229 ₽
Дни:18
stdClass Object
(
[id] => 164
[attribute_id] => 37
[name] => Металлочерепица
[material_modifier] => 1
[work_modifier] => 1
[options] => Array
(
)
[days] => [20]
[material_price] => [6112]
[work_price] => [5726]
[image] => https://akademik-stroy.ru/wp-content/uploads/materials/metallocherepica.jpg
[area_modifier] => 157.44
[parent_name] => Крыша (Скатная)
[parent_id] => 37
[material_sum] => 1270201
[work_sum] => 991652
[total_sum] => 2261853
[total_days] => 20
[display_material_sum] => 1 270 201
[display_work_sum] => 991 652
[display_total_sum] => 2 261 853
)
1
2 261 853₽
Работа:991 652 ₽
Материалы:1 270 201 ₽
Дни:20
stdClass Object
(
[id] => 165
[attribute_id] => 37
[name] => Гибкая черепица
[material_modifier] => 1
[work_modifier] => 1
[options] => Array
(
)
[days] => [20]
[material_price] => [6980]
[work_price] => [5950]
[image] => https://akademik-stroy.ru/wp-content/uploads/materials/gibkaya-cherepica.jpg
[area_modifier] => 157.44
[parent_name] => Крыша (Скатная)
[parent_id] => 37
[material_sum] => 1450589
[work_sum] => 1030445
[total_sum] => 2481034
[total_days] => 20
[display_material_sum] => 1 450 589
[display_work_sum] => 1 030 445
[display_total_sum] => 2 481 034
)
1
2 481 034₽
Работа:1 030 445 ₽
Материалы:1 450 589 ₽
Дни:20
stdClass Object
(
[id] => 166
[attribute_id] => 37
[name] => Цементно-песчаная черепица
[material_modifier] => 1
[work_modifier] => 1
[options] => Array
(
)
[days] => [20]
[material_price] => [10560]
[work_price] => [9456]
[image] => https://akademik-stroy.ru/wp-content/uploads/materials/cementno-peschanaya-cherepica.jpg
[area_modifier] => 157.44
[parent_name] => Крыша (Скатная)
[parent_id] => 37
[material_sum] => 2194588
[work_sum] => 1637628
[total_sum] => 3832216
[total_days] => 20
[display_material_sum] => 2 194 588
[display_work_sum] => 1 637 628
[display_total_sum] => 3 832 216
)
1
3 832 216₽
Работа:1 637 628 ₽
Материалы:2 194 588 ₽
Дни:20
stdClass Object
(
[id] => 167
[attribute_id] => 37
[name] => Композитная черепица
[material_modifier] => 1
[work_modifier] => 1
[options] => Array
(
)
[days] => [20]
[material_price] => [9506]
[work_price] => [8905]
[image] => https://akademik-stroy.ru/wp-content/uploads/materials/kompozitnaya-cherepica.jpg
[area_modifier] => 157.44
[parent_name] => Крыша (Скатная)
[parent_id] => 37
[material_sum] => 1975545
[work_sum] => 1542204
[total_sum] => 3517749
[total_days] => 20
[display_material_sum] => 1 975 545
[display_work_sum] => 1 542 204
[display_total_sum] => 3 517 749
)
1
3 517 749₽
Работа:1 542 204 ₽
Материалы:1 975 545 ₽
Дни:20
stdClass Object
(
[id] => 168
[attribute_id] => 37
[name] => Керамическая черепица
[material_modifier] => 1
[work_modifier] => 1
[options] => Array
(
)
[days] => [20]
[material_price] => [12750]
[work_price] => [9456]
[image] => https://akademik-stroy.ru/wp-content/uploads/materials/keramicheskaya-cherepica.jpg
[area_modifier] => 157.44
[parent_name] => Крыша (Скатная)
[parent_id] => 37
[material_sum] => 2649715
[work_sum] => 1637628
[total_sum] => 4287343
[total_days] => 20
[display_material_sum] => 2 649 715
[display_work_sum] => 1 637 628
[display_total_sum] => 4 287 343
)
1
4 287 343₽
Работа:1 637 628 ₽
Материалы:2 649 715 ₽
Дни:20
stdClass Object
(
[id] => 169
[attribute_id] => 37
[name] => Металлическая фальцевая
[material_modifier] => 1
[work_modifier] => 1
[options] => Array
(
)
[days] => [20]
[material_price] => [8550]
[work_price] => [8190]
[image] => https://akademik-stroy.ru/wp-content/uploads/materials/metallicheskaya-falcevaya.jpg
[area_modifier] => 157.44
[parent_name] => Крыша (Скатная)
[parent_id] => 37
[material_sum] => 1776868
[work_sum] => 1418377
[total_sum] => 3195245
[total_days] => 20
[display_material_sum] => 1 776 868
[display_work_sum] => 1 418 377
[display_total_sum] => 3 195 245
)
1
3 195 245₽
Работа:1 418 377 ₽
Материалы:1 776 868 ₽
Дни:20
stdClass Object
(
[id] => 170
[attribute_id] => 37
[name] => Медная фальцевая
[material_modifier] => 1
[work_modifier] => 1
[options] => Array
(
)
[days] => [20]
[material_price] => [20450]
[work_price] => [16750]
[image] => https://akademik-stroy.ru/wp-content/uploads/materials/mednaya-falcevaya.jpg
[area_modifier] => 157.44
[parent_name] => Крыша (Скатная)
[parent_id] => 37
[material_sum] => 4249935
[work_sum] => 2900832
[total_sum] => 7150767
[total_days] => 20
[display_material_sum] => 4 249 935
[display_work_sum] => 2 900 832
[display_total_sum] => 7 150 767
)
1
7 150 767₽
Работа:2 900 832 ₽
Материалы:4 249 935 ₽
Дни:20
stdClass Object
(
[id] => 171
[attribute_id] => 37
[name] => Зеленая кровля
[material_modifier] => 1
[work_modifier] => 1
[options] => Array
(
)
[days] => [20]
[material_price] => [19850]
[work_price] => [16780]
[image] => https://akademik-stroy.ru/wp-content/uploads/materials/zelenaya-krovlya.jpg
[area_modifier] => 157.44
[parent_name] => Крыша (Скатная)
[parent_id] => 37
[material_sum] => 4125243
[work_sum] => 2906028
[total_sum] => 7031271
[total_days] => 20
[display_material_sum] => 4 125 243
[display_work_sum] => 2 906 028
[display_total_sum] => 7 031 271
)
1
7 031 271₽
Работа:2 906 028 ₽
Материалы:4 125 243 ₽
Дни:20
stdClass Object
(
[id] => 172
[attribute_id] => 37
[name] => Профлист
[material_modifier] => 1
[work_modifier] => 1
[options] => Array
(
)
[days] => [20]
[material_price] => [3450]
[work_price] => [3750]
[image] => https://akademik-stroy.ru/wp-content/uploads/materials/proflist.jpg
[area_modifier] => 157.44
[parent_name] => Крыша (Скатная)
[parent_id] => 37
[material_sum] => 716982
[work_sum] => 649440
[total_sum] => 1366422
[total_days] => 20
[display_material_sum] => 716 982
[display_work_sum] => 649 440
[display_total_sum] => 1 366 422
)
1
1 366 422₽
Работа:649 440 ₽
Материалы:716 982 ₽
Дни:20
stdClass Object
(
[id] => 51
[attribute_id] => 26
[name] => Есть
[material_modifier] => 1
[work_modifier] => 1
[options] => Array
(
[0] => Профиль 58 мм, 3-камерный, стеклопакет 2-камерный до 32 мм
[1] => Профиль 60 мм, 4-камерный, стеклопакет 2-камерный до 32 мм
[2] => Профиль 70 мм, 5-камерный, стеклопакет 2-камерный до 40 мм
[3] => Профиль 72 мм, 5-камерный, стеклопакет 2-камерный до 40 мм
[4] => Алюминиевые окна Alutech профиль 72 мм, стеклопакет 2-камерный
)
[days] => [3,3,3,3,3]
[material_price] => [1339,2124,2867,3023,29596]
[work_price] => [635,647,659,668,2579]
[image] => https://akademik-stroy.ru/wp-content/uploads/materials/okna.jpg
[area_modifier] => 127.76
[parent_name] => Окна
[parent_id] => 26
[material_sum] => 225813
[work_sum] => 89240
[total_sum] => 315053
[total_days] => 3
[display_material_sum] => 225 813
[display_work_sum] => 89 240
[display_total_sum] => 315 053
)
1
315 053₽
Работа:89 240 ₽
Материалы:225 813 ₽
Дни:3
stdClass Object
(
[id] => 52
[attribute_id] => 26
[name] => Нет
[material_modifier] => 2
[work_modifier] => 1
[options] =>
[days] => null
[material_price] => null
[work_price] => null
[image] => https://akademik-stroy.ru/wp-content/uploads/materials/okna.jpg
[area_modifier] => 127.76
[parent_name] => Окна
[parent_id] => 26
[material_sum] => 0
[work_sum] => 0
[total_sum] => 0
[total_days] => 0
[display_material_sum] => 0
[display_work_sum] => 0
[display_total_sum] => 0
)
1
0₽
Работа:0 ₽
Материалы:0 ₽
Дни:0
stdClass Object
(
[id] => 53
[attribute_id] => 27
[name] => Есть
[material_modifier] => 1
[work_modifier] => 1
[options] => Array
(
)
[days] => [1]
[material_price] => [10000]
[work_price] => [5500]
[image] => https://akademik-stroy.ru/wp-content/uploads/materials/dveri.jpg
[area_modifier] => 1
[parent_name] => Двери входные
[parent_id] => 27
[material_sum] => 13200
[work_sum] => 6050
[total_sum] => 19250
[total_days] => 1
[display_material_sum] => 13 200
[display_work_sum] => 6 050
[display_total_sum] => 19 250
)
1
19 250₽
Работа:6 050 ₽
Материалы:13 200 ₽
Дни:1
stdClass Object
(
[id] => 54
[attribute_id] => 27
[name] => Нет
[material_modifier] => 1
[work_modifier] => 1
[options] => Array
(
)
[days] => [0]
[material_price] => [0]
[work_price] => [0]
[image] => https://akademik-stroy.ru/wp-content/uploads/materials/dveri.jpg
[area_modifier] => 1
[parent_name] => Двери входные
[parent_id] => 27
[material_sum] => 0
[work_sum] => 0
[total_sum] => 0
[total_days] => 0
[display_material_sum] => 0
[display_work_sum] => 0
[display_total_sum] => 0
)
1
0₽
Работа:0 ₽
Материалы:0 ₽
Дни:0
stdClass Object
(
[id] => 25
[attribute_id] => 13
[name] => Нет
[material_modifier] => 1
[work_modifier] => 1
[options] => Array
(
)
[days] => [0]
[material_price] => [0]
[work_price] => [0]
[image] => https://akademik-stroy.ru/wp-content/uploads/materials/mineralovata-krov.jpg
[area_modifier] => 157.44
[parent_name] => Утепление кровли (Мансарда)
[parent_id] => 13
[material_sum] => 0
[work_sum] => 0
[total_sum] => 0
[total_days] => 0
[display_material_sum] => 0
[display_work_sum] => 0
[display_total_sum] => 0
)
1
0₽
Работа:0 ₽
Материалы:0 ₽
Дни:0
stdClass Object
(
[id] => 26
[attribute_id] => 13
[name] => Минераловатный
[material_modifier] => 1
[work_modifier] => 1
[options] => Array
(
[0] => 50 мм
[1] => 100 мм
[2] => 150 мм
[3] => 200 мм
[4] => 250 мм
[5] => 300 мм
[6] => 350 мм
[7] => 400 мм
[8] => 450 мм
[9] => 500 мм
)
[days] => [5,5,6,6,6,7,7,7,8,8]
[material_price] => [1158,1414,1772,2230,3602,4060,4974,5890,6408,7718]
[work_price] => [650,846,846,1098,1318,1450,1596,1754,1930,2122]
[image] => https://akademik-stroy.ru/wp-content/uploads/materials/mineralovata-krov.jpg
[area_modifier] => 157.44
[parent_name] => Утепление кровли (Мансарда)
[parent_id] => 13
[material_sum] => 240656
[work_sum] => 112570
[total_sum] => 353226
[total_days] => 5
[display_material_sum] => 240 656
[display_work_sum] => 112 570
[display_total_sum] => 353 226
)
1
353 226₽
Работа:112 570 ₽
Материалы:240 656 ₽
Дни:5
stdClass Object
(
[id] => 123
[attribute_id] => 13
[name] => Эковата (целлюлозная вата)
[material_modifier] => 1
[work_modifier] => 1
[options] => Array
(
[0] => 50 мм
[1] => 100 мм
[2] => 150 мм
[3] => 200 мм
[4] => 250 мм
[5] => 300 мм
[6] => 350 мм
[7] => 400 мм
[8] => 450 мм
[9] => 500 мм
)
[days] => [3,3,4,4,4,5,5,5,5,5]
[material_price] => [820,1638,2458,3276,5734,6552,8190,9828,11466,13104]
[work_price] => [234,304,304,396,474,522,574,632,694,764]
[image] => https://akademik-stroy.ru/wp-content/uploads/materials/ehkovata-krov.jpg
[area_modifier] => 157.44
[parent_name] => Утепление кровли (Мансарда)
[parent_id] => 13
[material_sum] => 170413
[work_sum] => 40525
[total_sum] => 210938
[total_days] => 3
[display_material_sum] => 170 413
[display_work_sum] => 40 525
[display_total_sum] => 210 938
)
1
210 938₽
Работа:40 525 ₽
Материалы:170 413 ₽
Дни:3
stdClass Object
(
[id] => 124
[attribute_id] => 13
[name] => Экструдированный пенополистирол
[material_modifier] => 1
[work_modifier] => 1
[options] => Array
(
[0] => 50 мм
[1] => 100 мм
[2] => 150 мм
[3] => 200 мм
[4] => 250 мм
[5] => 300 мм
[6] => 350 мм
[7] => 400 мм
[8] => 450 мм
[9] => 500 мм
)
[days] => [3,3,4,4,4,5,5,5,5,6]
[material_price] => [1146,2292,3438,4584,8020,9166,11458,13750,16040,18332]
[work_price] => [390,508,508,660,790,870,958,1052,1158,1274]
[image] => https://akademik-stroy.ru/wp-content/uploads/materials/epps-krov.jpg
[area_modifier] => 157.44
[parent_name] => Утепление кровли (Мансарда)
[parent_id] => 13
[material_sum] => 238163
[work_sum] => 67542
[total_sum] => 305705
[total_days] => 3
[display_material_sum] => 238 163
[display_work_sum] => 67 542
[display_total_sum] => 305 705
)
1
305 705₽
Работа:67 542 ₽
Материалы:238 163 ₽
Дни:3
stdClass Object
(
[id] => 125
[attribute_id] => 13
[name] => ПСБ (ППС-пенополистирол)
[material_modifier] => 1
[work_modifier] => 1
[options] => Array
(
[0] => 50 мм
[1] => 100 мм
[2] => 150 мм
[3] => 200 мм
[4] => 250 мм
[5] => 300 мм
[6] => 350 мм
[7] => 400 мм
[8] => 450 мм
[9] => 500 мм
)
[days] => [3,3,4,4,4,5,5,5,5,6]
[material_price] => [476,954,1430,1906,3336,3814,4766,5720,6674,7626]
[work_price] => [390,508,508,660,790,870,958,1052,1158,1274]
[image] => https://akademik-stroy.ru/wp-content/uploads/materials/psb-krov.jpg
[area_modifier] => 157.44
[parent_name] => Утепление кровли (Мансарда)
[parent_id] => 13
[material_sum] => 98923
[work_sum] => 67542
[total_sum] => 166465
[total_days] => 3
[display_material_sum] => 98 923
[display_work_sum] => 67 542
[display_total_sum] => 166 465
)
1
166 465₽
Работа:67 542 ₽
Материалы:98 923 ₽
Дни:3
stdClass Object
(
[id] => 126
[attribute_id] => 13
[name] => ППУ (Пенополиуретан)
[material_modifier] => 1
[work_modifier] => 1
[options] => Array
(
[0] => 50 мм
[1] => 100 мм
[2] => 150 мм
[3] => 200 мм
[4] => 250 мм
[5] => 300 мм
[6] => 350 мм
[7] => 400 мм
[8] => 450 мм
[9] => 500 мм
)
[days] => [2,2,3,3,3,3,4,4,4,4]
[material_price] => [2080,4160,6240,8320,14560,16640,20800,24960,29120,33280]
[work_price] => [234,304,304,396,474,522,574,632,694,764]
[image] => https://akademik-stroy.ru/wp-content/uploads/materials/ppu-krov.jpg
[area_modifier] => 157.44
[parent_name] => Утепление кровли (Мансарда)
[parent_id] => 13
[material_sum] => 432267
[work_sum] => 40525
[total_sum] => 472792
[total_days] => 2
[display_material_sum] => 432 267
[display_work_sum] => 40 525
[display_total_sum] => 472 792
)
1
472 792₽
Работа:40 525 ₽
Материалы:432 267 ₽
Дни:2
stdClass Object
(
[id] => 127
[attribute_id] => 13
[name] => PIR-плиты (пенополиизоцианурат)
[material_modifier] => 1
[work_modifier] => 1
[options] => Array
(
[0] => 50 мм
[1] => 100 мм
[2] => 150 мм
[3] => 200 мм
[4] => 250 мм
[5] => 300 мм
[6] => 350 мм
[7] => 400 мм
[8] => 450 мм
[9] => 500 мм
)
[days] => [3,3,4,4,4,5,5,5,5,6]
[material_price] => [2646,5290,7936,10580,18516,21162,26452,31742,37032,42324]
[work_price] => [390,508,508,660,790,870,958,1052,1158,1274]
[image] => https://akademik-stroy.ru/wp-content/uploads/materials/pir-krov.jpg
[area_modifier] => 157.44
[parent_name] => Утепление кровли (Мансарда)
[parent_id] => 13
[material_sum] => 549894
[work_sum] => 67542
[total_sum] => 617436
[total_days] => 3
[display_material_sum] => 549 894
[display_work_sum] => 67 542
[display_total_sum] => 617 436
)
1
617 436₽
Работа:67 542 ₽
Материалы:549 894 ₽
Дни:3
stdClass Object
(
[id] => 27
[attribute_id] => 14
[name] => Нет
[material_modifier] => 1
[work_modifier] => 1
[options] => Array
(
)
[days] => [0]
[material_price] => [0]
[work_price] => [0]
[image] => https://akademik-stroy.ru/wp-content/uploads/materials/mansardnye-okna-2.jpg
[area_modifier] => 1
[parent_name] => Мансардные окна
[parent_id] => 14
[material_sum] => 0
[work_sum] => 0
[total_sum] => 0
[total_days] => 0
[display_material_sum] => 0
[display_work_sum] => 0
[display_total_sum] => 0
)
1
0₽
Работа:0 ₽
Материалы:0 ₽
Дни:0
stdClass Object
(
[id] => 28
[attribute_id] => 14
[name] => Есть
[material_modifier] => 1
[work_modifier] => 1
[options] => Array
(
[0] => 55x78
[1] => 55x98
)
[days] => [6,7]
[material_price] => [47480,68700]
[work_price] => [17900,19500]
[image] => https://akademik-stroy.ru/wp-content/uploads/materials/mansardnye-okna-2.jpg
[area_modifier] => 1
[parent_name] => Мансардные окна
[parent_id] => 14
[material_sum] => 62674
[work_sum] => 19690
[total_sum] => 82364
[total_days] => 6
[display_material_sum] => 62 674
[display_work_sum] => 19 690
[display_total_sum] => 82 364
)
1
82 364₽
Работа:19 690 ₽
Материалы:62 674 ₽
Дни:6
stdClass Object
(
[id] => 29
[attribute_id] => 15
[name] => Нет
[material_modifier] => 1
[work_modifier] => 1
[options] => Array
(
)
[days] => [0]
[material_price] => [0]
[work_price] => [0]
[image] => https://akademik-stroy.ru/wp-content/uploads/materials/sofit.jpg
[area_modifier] => 157.44
[parent_name] => Подшивка кровли
[parent_id] => 15
[material_sum] => 0
[work_sum] => 0
[total_sum] => 0
[total_days] => 0
[display_material_sum] => 0
[display_work_sum] => 0
[display_total_sum] => 0
)
1
0₽
Работа:0 ₽
Материалы:0 ₽
Дни:0
stdClass Object
(
[id] => 30
[attribute_id] => 15
[name] => Есть
[material_modifier] => 1
[work_modifier] => 1
[options] => Array
(
[0] => Софиты (ПВХ)
[1] => Cedral
[2] => ДПК
[3] => Планкен
)
[days] => [7,10,9,8]
[material_price] => [1803,3213,3025,3150]
[work_price] => [1529,2188,2075,1923]
[image] => https://akademik-stroy.ru/wp-content/uploads/materials/sofit.jpg
[area_modifier] => 157.44
[parent_name] => Подшивка кровли
[parent_id] => 15
[material_sum] => 374701
[work_sum] => 264798
[total_sum] => 639499
[total_days] => 7
[display_material_sum] => 374 701
[display_work_sum] => 264 798
[display_total_sum] => 639 499
)
1
639 499₽
Работа:264 798 ₽
Материалы:374 701 ₽
Дни:7
stdClass Object
(
[id] => 31
[attribute_id] => 16
[name] => Нет
[material_modifier] => 1
[work_modifier] => 1
[options] => Array
(
)
[days] => [0]
[material_price] => [0]
[work_price] => [0]
[image] => https://akademik-stroy.ru/wp-content/uploads/materials/docke-standard-pvh.jpg
[area_modifier] => 157.44
[parent_name] => Водосточная система
[parent_id] => 16
[material_sum] => 0
[work_sum] => 0
[total_sum] => 0
[total_days] => 0
[display_material_sum] => 0
[display_work_sum] => 0
[display_total_sum] => 0
)
1
0₽
Работа:0 ₽
Материалы:0 ₽
Дни:0
stdClass Object
(
[id] => 32
[attribute_id] => 16
[name] => Есть
[material_modifier] => 1
[work_modifier] => 1
[options] => Array
(
[0] => Döcke Standard (ПВХ)
[1] => Металлические Grand Line
)
[days] => [7,7]
[material_price] => [1842,2703]
[work_price] => [1491,1529]
[image] => https://akademik-stroy.ru/wp-content/uploads/materials/docke-standard-pvh.jpg
[area_modifier] => 157.44
[parent_name] => Водосточная система
[parent_id] => 16
[material_sum] => 382806
[work_sum] => 258217
[total_sum] => 641023
[total_days] => 7
[display_material_sum] => 382 806
[display_work_sum] => 258 217
[display_total_sum] => 641 023
)
1
641 023₽
Работа:258 217 ₽
Материалы:382 806 ₽
Дни:7
stdClass Object
(
[id] => 33
[attribute_id] => 17
[name] => Нет
[material_modifier] => 1
[work_modifier] => 1
[options] => Array
(
)
[days] => [0]
[material_price] => [0]
[work_price] => [0]
[image] => https://akademik-stroy.ru/wp-content/uploads/materials/mineralovata.jpg
[area_modifier] => 157.44
[parent_name] => Дополнительное утепление наружных стен
[parent_id] => 17
[material_sum] => 0
[work_sum] => 0
[total_sum] => 0
[total_days] => 0
[display_material_sum] => 0
[display_work_sum] => 0
[display_total_sum] => 0
)
1
0₽
Работа:0 ₽
Материалы:0 ₽
Дни:0
stdClass Object
(
[id] => 34
[attribute_id] => 17
[name] => Минераловатный
[material_modifier] => 1
[work_modifier] => 1
[options] => Array
(
[0] => 50 мм
[1] => 100 мм
[2] => 150 мм
[3] => 200 мм
[4] => 250 мм
[5] => 300 мм
)
[days] => [7,8,10,12,14,15]
[material_price] => [3437,3613,3803,3915,4601,4830]
[work_price] => [2325,2423,2523,2749,2859,3025]
[image] => https://akademik-stroy.ru/wp-content/uploads/materials/mineralovata.jpg
[area_modifier] => 157.44
[parent_name] => Дополнительное утепление наружных стен
[parent_id] => 17
[material_sum] => 714280
[work_sum] => 402653
[total_sum] => 1116933
[total_days] => 7
[display_material_sum] => 714 280
[display_work_sum] => 402 653
[display_total_sum] => 1 116 933
)
1
1 116 933₽
Работа:402 653 ₽
Материалы:714 280 ₽
Дни:7
stdClass Object
(
[id] => 128
[attribute_id] => 17
[name] => Эковата (целлюлозная вата)
[material_modifier] => 1
[work_modifier] => 1
[options] => Array
(
[0] => 50 мм
[1] => 100 мм
[2] => 150 мм
[3] => 200 мм
[4] => 250 мм
[5] => 300 мм
)
[days] => [3,4,5,6,7,8]
[material_price] => [810,1319,1629,1838,2267,2676]
[work_price] => [1225,1323,1423,1549,1659,1725]
[image] => https://akademik-stroy.ru/wp-content/uploads/materials/ehkovata.jpg
[area_modifier] => 157.44
[parent_name] => Дополнительное утепление наружных стен
[parent_id] => 17
[material_sum] => 168335
[work_sum] => 212150
[total_sum] => 380485
[total_days] => 3
[display_material_sum] => 168 335
[display_work_sum] => 212 150
[display_total_sum] => 380 485
)
1
380 485₽
Работа:212 150 ₽
Материалы:168 335 ₽
Дни:3
stdClass Object
(
[id] => 129
[attribute_id] => 17
[name] => Экструдированный пенополистирол
[material_modifier] => 1
[work_modifier] => 1
[options] => Array
(
[0] => 50 мм
[1] => 100 мм
[2] => 150 мм
[3] => 200 мм
[4] => 250 мм
[5] => 300 мм
)
[days] => [5,6,7,8,9,10]
[material_price] => [4560,4300,5119,6292,7010,8583]
[work_price] => [1795,1954,2254,2330,2595,2735]
[image] => https://akademik-stroy.ru/wp-content/uploads/materials/epps.jpg
[area_modifier] => 157.44
[parent_name] => Дополнительное утепление наружных стен
[parent_id] => 17
[material_sum] => 947663
[work_sum] => 310865
[total_sum] => 1258528
[total_days] => 5
[display_material_sum] => 947 663
[display_work_sum] => 310 865
[display_total_sum] => 1 258 528
)
1
1 258 528₽
Работа:310 865 ₽
Материалы:947 663 ₽
Дни:5
stdClass Object
(
[id] => 130
[attribute_id] => 17
[name] => ПСБ (ППС-пенополистирол)
[material_modifier] => 1
[work_modifier] => 1
[options] => Array
(
[0] => 50 мм
[1] => 100 мм
[2] => 150 мм
[3] => 200 мм
[4] => 250 мм
[5] => 300 мм
)
[days] => [5,6,7,8,9,10]
[material_price] => [4822,5200,5819,6292,7010,7583]
[work_price] => [1795,1954,2254,2330,2595,2735]
[image] => https://akademik-stroy.ru/wp-content/uploads/materials/psb.jpg
[area_modifier] => 157.44
[parent_name] => Дополнительное утепление наружных стен
[parent_id] => 17
[material_sum] => 1002112
[work_sum] => 310865
[total_sum] => 1312977
[total_days] => 5
[display_material_sum] => 1 002 112
[display_work_sum] => 310 865
[display_total_sum] => 1 312 977
)
1
1 312 977₽
Работа:310 865 ₽
Материалы:1 002 112 ₽
Дни:5
stdClass Object
(
[id] => 131
[attribute_id] => 17
[name] => ППУ (Пенополиуретан)
[material_modifier] => 1
[work_modifier] => 1
[options] => Array
(
[0] => 50 мм
[1] => 100 мм
[2] => 150 мм
[3] => 200 мм
[4] => 250 мм
[5] => 300 мм
)
[days] => [3,4,5,6,7,8]
[material_price] => [2860,3400,4219,4592,5010,5583]
[work_price] => [729,900,980,1120,1280,1530]
[image] => https://akademik-stroy.ru/wp-content/uploads/materials/ppu.jpg
[area_modifier] => 157.44
[parent_name] => Дополнительное утепление наружных стен
[parent_id] => 17
[material_sum] => 594367
[work_sum] => 126251
[total_sum] => 720618
[total_days] => 3
[display_material_sum] => 594 367
[display_work_sum] => 126 251
[display_total_sum] => 720 618
)
1
720 618₽
Работа:126 251 ₽
Материалы:594 367 ₽
Дни:3
stdClass Object
(
[id] => 132
[attribute_id] => 17
[name] => PIR-плиты (пенополиизоцианурат)
[material_modifier] => 1
[work_modifier] => 1
[options] => Array
(
[0] => 50 мм
[1] => 100 мм
[2] => 150 мм
[3] => 200 мм
[4] => 250 мм
[5] => 300 мм
)
[days] => [5,6,7,8,9,10]
[material_price] => [8323,15645,20968,25900,29258,30581]
[work_price] => [800,900,970,1150,1280,1330]
[image] => https://akademik-stroy.ru/wp-content/uploads/materials/pir.jpg
[area_modifier] => 157.44
[parent_name] => Дополнительное утепление наружных стен
[parent_id] => 17
[material_sum] => 1729693
[work_sum] => 138547
[total_sum] => 1868240
[total_days] => 5
[display_material_sum] => 1 729 693
[display_work_sum] => 138 547
[display_total_sum] => 1 868 240
)
1
1 868 240₽
Работа:138 547 ₽
Материалы:1 729 693 ₽
Дни:5
stdClass Object
(
[id] => 37
[attribute_id] => 19
[name] => Нет
[material_modifier] => 1
[work_modifier] => 1
[options] => Array
(
)
[days] => [0]
[material_price] => [0]
[work_price] => [0]
[image] => https://akademik-stroy.ru/wp-content/uploads/materials/imitaciya-brusa.jpg
[area_modifier] => 157.44
[parent_name] => Наружная отделка фасада
[parent_id] => 19
[material_sum] => 0
[work_sum] => 0
[total_sum] => 0
[total_days] => 0
[display_material_sum] => 0
[display_work_sum] => 0
[display_total_sum] => 0
)
1
0₽
Работа:0 ₽
Материалы:0 ₽
Дни:0
stdClass Object
(
[id] => 38
[attribute_id] => 19
[name] => Имитация бруса
[material_modifier] => 1
[work_modifier] => 1
[options] => Array
(
[0] => Сосна
[1] => Ель
[2] => Лиственница
)
[days] => [20,20,20]
[material_price] => [2994,2762,4954]
[work_price] => [1397,1231,1577]
[image] => https://akademik-stroy.ru/wp-content/uploads/materials/imitaciya-brusa.jpg
[area_modifier] => 157.44
[parent_name] => Наружная отделка фасада
[parent_id] => 19
[material_sum] => 622215
[work_sum] => 241938
[total_sum] => 864153
[total_days] => 20
[display_material_sum] => 622 215
[display_work_sum] => 241 938
[display_total_sum] => 864 153
)
1
864 153₽
Работа:241 938 ₽
Материалы:622 215 ₽
Дни:20
stdClass Object
(
[id] => 136
[attribute_id] => 19
[name] => Планкен
[material_modifier] => 1
[work_modifier] => 1
[options] => Array
(
[0] => Сосна
[1] => Ель
[2] => Лиственница
)
[days] => [20,20,20]
[material_price] => [3194,2862,5154]
[work_price] => [1537,1354,1735]
[image] => https://akademik-stroy.ru/wp-content/uploads/materials/planken.jpg
[area_modifier] => 157.44
[parent_name] => Наружная отделка фасада
[parent_id] => 19
[material_sum] => 663780
[work_sum] => 266184
[total_sum] => 929964
[total_days] => 20
[display_material_sum] => 663 780
[display_work_sum] => 266 184
[display_total_sum] => 929 964
)
1
929 964₽
Работа:266 184 ₽
Материалы:663 780 ₽
Дни:20
stdClass Object
(
[id] => 137
[attribute_id] => 19
[name] => Штукатурка
[material_modifier] => 1
[work_modifier] => 1
[options] => Array
(
[0] => Цементно-песчаная (минеральная)
[1] => Мокрый фасад
)
[days] => [35,35]
[material_price] => [2231,3938]
[work_price] => [1202,2422]
[image] => https://akademik-stroy.ru/wp-content/uploads/materials/shtukaturka.jpg
[area_modifier] => 157.44
[parent_name] => Наружная отделка фасада
[parent_id] => 19
[material_sum] => 463648
[work_sum] => 208167
[total_sum] => 671815
[total_days] => 35
[display_material_sum] => 463 648
[display_work_sum] => 208 167
[display_total_sum] => 671 815
)
1
671 815₽
Работа:208 167 ₽
Материалы:463 648 ₽
Дни:35
stdClass Object
(
[id] => 138
[attribute_id] => 19
[name] => Облицовочный кирпич
[material_modifier] => 1
[work_modifier] => 1
[options] => Array
(
[0] => Керамический
[1] => Клинкерный
[2] => Ручной формовки
[3] => Гиперпрессованный
[4] => Силикатный кирпич
)
[days] => [45,45,45,45,45]
[material_price] => [8174,9148,1040,1257,5876]
[work_price] => [3240,3758,4536,4017,3369]
[image] => https://akademik-stroy.ru/wp-content/uploads/materials/oblicovochnyj-kirpich.jpg
[area_modifier] => 157.44
[parent_name] => Наружная отделка фасада
[parent_id] => 19
[material_sum] => 1698727
[work_sum] => 561116
[total_sum] => 2259843
[total_days] => 45
[display_material_sum] => 1 698 727
[display_work_sum] => 561 116
[display_total_sum] => 2 259 843
)
1
2 259 843₽
Работа:561 116 ₽
Материалы:1 698 727 ₽
Дни:45
stdClass Object
(
[id] => 139
[attribute_id] => 19
[name] => Фасадная плитка
[material_modifier] => 1
[work_modifier] => 1
[options] => Array
(
[0] => Клинкерная
[1] => Керамическая
[2] => Плитка ручной формовки
)
[days] => [40,40,40]
[material_price] => [2974,1487,3470]
[work_price] => [3007,2592,3629]
[image] => https://akademik-stroy.ru/wp-content/uploads/materials/fasadnaya-plitka.jpg
[area_modifier] => 157.44
[parent_name] => Наружная отделка фасада
[parent_id] => 19
[material_sum] => 618059
[work_sum] => 520764
[total_sum] => 1138823
[total_days] => 40
[display_material_sum] => 618 059
[display_work_sum] => 520 764
[display_total_sum] => 1 138 823
)
1
1 138 823₽
Работа:520 764 ₽
Материалы:618 059 ₽
Дни:40
stdClass Object
(
[id] => 140
[attribute_id] => 19
[name] => Сайдинг
[material_modifier] => 1
[work_modifier] => 1
[options] => Array
(
[0] => Виниловый
[1] => Металлический
[2] => Фиброцементный
)
[days] => [20,20,20]
[material_price] => [1263,1944,4147]
[work_price] => [1263,1944,2074]
[image] => https://akademik-stroy.ru/wp-content/uploads/materials/sajding.jpg
[area_modifier] => 157.44
[parent_name] => Наружная отделка фасада
[parent_id] => 19
[material_sum] => 262478
[work_sum] => 218731
[total_sum] => 481209
[total_days] => 20
[display_material_sum] => 262 478
[display_work_sum] => 218 731
[display_total_sum] => 481 209
)
1
481 209₽
Работа:218 731 ₽
Материалы:262 478 ₽
Дни:20
stdClass Object
(
[id] => 141
[attribute_id] => 19
[name] => Камень
[material_modifier] => 1
[work_modifier] => 1
[options] => Array
(
[0] => Травертин
[1] => Дагестанский
[2] => Искусственный
[3] => Натуральный
[4] => Керамогранит
)
[days] => [45,45,45,45,45]
[material_price] => [4536,3888,2592,3240,2462]
[work_price] => [3240,3240,2462,3110,1944]
[image] => https://akademik-stroy.ru/wp-content/uploads/materials/kamen-1.jpg
[area_modifier] => 157.44
[parent_name] => Наружная отделка фасада
[parent_id] => 19
[material_sum] => 942675
[work_sum] => 561116
[total_sum] => 1503791
[total_days] => 45
[display_material_sum] => 942 675
[display_work_sum] => 561 116
[display_total_sum] => 1 503 791
)
1
1 503 791₽
Работа:561 116 ₽
Материалы:942 675 ₽
Дни:45
stdClass Object
(
[id] => 142
[attribute_id] => 19
[name] => Термопанели
[material_modifier] => 1
[work_modifier] => 1
[options] => Array
(
)
[days] => [20]
[material_price] => [6221]
[work_price] => [2333]
[image] => https://akademik-stroy.ru/wp-content/uploads/materials/termo.png
[area_modifier] => 157.44
[parent_name] => Наружная отделка фасада
[parent_id] => 19
[material_sum] => 1292853
[work_sum] => 404038
[total_sum] => 1696891
[total_days] => 20
[display_material_sum] => 1 292 853
[display_work_sum] => 404 038
[display_total_sum] => 1 696 891
)
1
1 696 891₽
Работа:404 038 ₽
Материалы:1 292 853 ₽
Дни:20
stdClass Object
(
[id] => 143
[attribute_id] => 19
[name] => Плитка HAUBERK
[material_modifier] => 1
[work_modifier] => 1
[options] => Array
(
)
[days] => [20]
[material_price] => [2786]
[work_price] => [1944]
[image] => https://akademik-stroy.ru/wp-content/uploads/materials/hauberk.jpg
[area_modifier] => 157.44
[parent_name] => Наружная отделка фасада
[parent_id] => 19
[material_sum] => 578989
[work_sum] => 336670
[total_sum] => 915659
[total_days] => 20
[display_material_sum] => 578 989
[display_work_sum] => 336 670
[display_total_sum] => 915 659
)
1
915 659₽
Работа:336 670 ₽
Материалы:578 989 ₽
Дни:20
stdClass Object
(
[id] => 144
[attribute_id] => 19
[name] => Фальцевый фасад
[material_modifier] => 1
[work_modifier] => 1
[options] => Array
(
)
[days] => [20]
[material_price] => [3240]
[work_price] => [2592]
[image] => https://akademik-stroy.ru/wp-content/uploads/materials/falcevyj-fasad.jpg
[area_modifier] => 157.44
[parent_name] => Наружная отделка фасада
[parent_id] => 19
[material_sum] => 673339
[work_sum] => 448893
[total_sum] => 1122232
[total_days] => 20
[display_material_sum] => 673 339
[display_work_sum] => 448 893
[display_total_sum] => 1 122 232
)
1
1 122 232₽
Работа:448 893 ₽
Материалы:673 339 ₽
Дни:20
stdClass Object
(
[id] => 145
[attribute_id] => 19
[name] => Комбинированный
[material_modifier] => 1
[work_modifier] => 1
[options] => Array
(
)
[days] => [20]
[material_price] => [4629]
[work_price] => [3499]
[image] => https://akademik-stroy.ru/wp-content/uploads/materials/Kombinirovannyj.jpg
[area_modifier] => 157.44
[parent_name] => Наружная отделка фасада
[parent_id] => 19
[material_sum] => 962002
[work_sum] => 605971
[total_sum] => 1567973
[total_days] => 20
[display_material_sum] => 962 002
[display_work_sum] => 605 971
[display_total_sum] => 1 567 973
)
1
1 567 973₽
Работа:605 971 ₽
Материалы:962 002 ₽
Дни:20
stdClass Object
(
[id] => 257
[attribute_id] => 19
[name] => Японские фиброцементные
[material_modifier] => 1
[work_modifier] => 1
[options] => Array
(
)
[days] => [20]
[material_price] => [7043]
[work_price] => [2993]
[image] => https://akademik-stroy.ru/wp-content/uploads/materials/paneli.jpg
[area_modifier] => 157.44
[parent_name] => Наружная отделка фасада
[parent_id] => 19
[material_sum] => 1463682
[work_sum] => 518340
[total_sum] => 1982022
[total_days] => 20
[display_material_sum] => 1 463 682
[display_work_sum] => 518 340
[display_total_sum] => 1 982 022
)
1
1 982 022₽
Работа:518 340 ₽
Материалы:1 463 682 ₽
Дни:20
stdClass Object
(
[id] => 258
[attribute_id] => 19
[name] => Панели Каньон
[material_modifier] => 1
[work_modifier] => 1
[options] => Array
(
)
[days] => [20]
[material_price] => [4543]
[work_price] => [2592]
[image] => https://akademik-stroy.ru/wp-content/uploads/materials/kanon.png
[area_modifier] => 157.44
[parent_name] => Наружная отделка фасада
[parent_id] => 19
[material_sum] => 944130
[work_sum] => 448893
[total_sum] => 1393023
[total_days] => 20
[display_material_sum] => 944 130
[display_work_sum] => 448 893
[display_total_sum] => 1 393 023
)
1
1 393 023₽
Работа:448 893 ₽
Материалы:944 130 ₽
Дни:20
stdClass Object
(
[id] => 39
[attribute_id] => 20
[name] => Нет
[material_modifier] => 1
[work_modifier] => 1
[options] => Array
(
)
[days] => [0]
[material_price] => [0]
[work_price] => [0]
[image] => https://akademik-stroy.ru/wp-content/uploads/materials/terrasy.jpg
[area_modifier] => 30
[parent_name] => Террасы, крыльца, навесы
[parent_id] => 20
[material_sum] => 0
[work_sum] => 0
[total_sum] => 0
[total_days] => 0
[display_material_sum] => 0
[display_work_sum] => 0
[display_total_sum] => 0
)
1
0₽
Работа:0 ₽
Материалы:0 ₽
Дни:0
stdClass Object
(
[id] => 40
[attribute_id] => 20
[name] => Есть
[material_modifier] => 1
[work_modifier] => 1
[options] => Array
(
)
[days] => [5]
[material_price] => [10450]
[work_price] => [1950]
[image] => https://akademik-stroy.ru/wp-content/uploads/materials/terrasy.jpg
[area_modifier] => 30
[parent_name] => Террасы, крыльца, навесы
[parent_id] => 20
[material_sum] => 413820
[work_sum] => 64350
[total_sum] => 478170
[total_days] => 5
[display_material_sum] => 413 820
[display_work_sum] => 64 350
[display_total_sum] => 478 170
)
1
478 170₽
Работа:64 350 ₽
Материалы:413 820 ₽
Дни:5
stdClass Object
(
[id] => 41
[attribute_id] => 21
[name] => Нет
[material_modifier] => 1
[work_modifier] => 1
[options] => Array
(
)
[days] => [0]
[material_price] => [0]
[work_price] => [0]
[image] => https://akademik-stroy.ru/wp-content/uploads/materials/balkony.jpg
[area_modifier] => 30
[parent_name] => Балконы
[parent_id] => 21
[material_sum] => 0
[work_sum] => 0
[total_sum] => 0
[total_days] => 0
[display_material_sum] => 0
[display_work_sum] => 0
[display_total_sum] => 0
)
1
0₽
Работа:0 ₽
Материалы:0 ₽
Дни:0
stdClass Object
(
[id] => 42
[attribute_id] => 21
[name] => Есть
[material_modifier] => 1
[work_modifier] => 1
[options] => Array
(
)
[days] => [12]
[material_price] => [3600]
[work_price] => [1950]
[image] => https://akademik-stroy.ru/wp-content/uploads/materials/balkony.jpg
[area_modifier] => 30
[parent_name] => Балконы
[parent_id] => 21
[material_sum] => 142560
[work_sum] => 64350
[total_sum] => 206910
[total_days] => 12
[display_material_sum] => 142 560
[display_work_sum] => 64 350
[display_total_sum] => 206 910
)
1
206 910₽
Работа:64 350 ₽
Материалы:142 560 ₽
Дни:12
stdClass Object
(
[id] => 43
[attribute_id] => 22
[name] => Нет
[material_modifier] => 1
[work_modifier] => 1
[options] => Array
(
)
[days] => [0]
[material_price] => [0]
[work_price] => [0]
[image] => https://akademik-stroy.ru/wp-content/uploads/materials/uteplennaya.jpg
[area_modifier] => 157.44
[parent_name] => Отмостка
[parent_id] => 22
[material_sum] => 0
[work_sum] => 0
[total_sum] => 0
[total_days] => 0
[display_material_sum] => 0
[display_work_sum] => 0
[display_total_sum] => 0
)
1
0₽
Работа:0 ₽
Материалы:0 ₽
Дни:0
stdClass Object
(
[id] => 44
[attribute_id] => 22
[name] => Утепленная отмостка
[material_modifier] => 1
[work_modifier] => 1
[options] => Array
(
)
[days] => [15]
[material_price] => [2550]
[work_price] => [1750]
[image] => https://akademik-stroy.ru/wp-content/uploads/materials/uteplennaya.jpg
[area_modifier] => 157.44
[parent_name] => Отмостка
[parent_id] => 22
[material_sum] => 529943
[work_sum] => 303072
[total_sum] => 833015
[total_days] => 15
[display_material_sum] => 529 943
[display_work_sum] => 303 072
[display_total_sum] => 833 015
)
1
833 015₽
Работа:303 072 ₽
Материалы:529 943 ₽
Дни:15
stdClass Object
(
[id] => 146
[attribute_id] => 22
[name] => Не утепленная отмостка
[material_modifier] => 1
[work_modifier] => 1
[options] => Array
(
)
[days] => [10]
[material_price] => [1650]
[work_price] => [1450]
[image] => https://akademik-stroy.ru/wp-content/uploads/materials/ne-uteplennaya.jpg
[area_modifier] => 157.44
[parent_name] => Отмостка
[parent_id] => 22
[material_sum] => 342904
[work_sum] => 251117
[total_sum] => 594021
[total_days] => 10
[display_material_sum] => 342 904
[display_work_sum] => 251 117
[display_total_sum] => 594 021
)
1
594 021₽
Работа:251 117 ₽
Материалы:342 904 ₽
Дни:10
stdClass Object
(
[id] => 45
[attribute_id] => 23
[name] => Нет
[material_modifier] => 1
[work_modifier] => 1
[options] => Array
(
)
[days] => [0]
[material_price] => [0]
[work_price] => [0]
[image] => https://akademik-stroy.ru/wp-content/uploads/materials/drenazh-2.jpg
[area_modifier] => 157.44
[parent_name] => Дренаж вокруг дома
[parent_id] => 23
[material_sum] => 0
[work_sum] => 0
[total_sum] => 0
[total_days] => 0
[display_material_sum] => 0
[display_work_sum] => 0
[display_total_sum] => 0
)
1
0₽
Работа:0 ₽
Материалы:0 ₽
Дни:0
stdClass Object
(
[id] => 46
[attribute_id] => 23
[name] => Есть
[material_modifier] => 1
[work_modifier] => 1
[options] => Array
(
)
[days] => [5]
[material_price] => [2366]
[work_price] => [1911]
[image] => https://akademik-stroy.ru/wp-content/uploads/materials/drenazh-2.jpg
[area_modifier] => 157.44
[parent_name] => Дренаж вокруг дома
[parent_id] => 23
[material_sum] => 491704
[work_sum] => 330955
[total_sum] => 822659
[total_days] => 5
[display_material_sum] => 491 704
[display_work_sum] => 330 955
[display_total_sum] => 822 659
)
1
822 659₽
Работа:330 955 ₽
Материалы:491 704 ₽
Дни:5
stdClass Object
(
[id] => 47
[attribute_id] => 24
[name] => Нет
[material_modifier] => 1
[work_modifier] => 1
[options] => Array
(
)
[days] => [0]
[material_price] => [0]
[work_price] => [0]
[image] => https://akademik-stroy.ru/wp-content/uploads/materials/septik.jpg
[area_modifier] => 1
[parent_name] => Автономная канализация (септики)
[parent_id] => 24
[material_sum] => 0
[work_sum] => 0
[total_sum] => 0
[total_days] => 0
[display_material_sum] => 0
[display_work_sum] => 0
[display_total_sum] => 0
)
1
0₽
Работа:0 ₽
Материалы:0 ₽
Дни:0
stdClass Object
(
[id] => 48
[attribute_id] => 24
[name] => Есть
[material_modifier] => 1
[work_modifier] => 1
[options] => Array
(
[0] => Для дачи на 4 человека
[1] => Для дома на 5 человек
[2] => Для дома на 6 человек
[3] => Для дома на 7 человек
[4] => Для дома на 10 человек
)
[days] => [7,7,7,8,8]
[material_price] => [196340,220500,240940,264200,293340]
[work_price] => [50000,55000,60500,66550,73206]
[image] => https://akademik-stroy.ru/wp-content/uploads/materials/septik.jpg
[area_modifier] => 1
[parent_name] => Автономная канализация (септики)
[parent_id] => 24
[material_sum] => 259169
[work_sum] => 55000
[total_sum] => 314169
[total_days] => 7
[display_material_sum] => 259 169
[display_work_sum] => 55 000
[display_total_sum] => 314 169
)
1
314 169₽
Работа:55 000 ₽
Материалы:259 169 ₽
Дни:7
stdClass Object
(
[id] => 49
[attribute_id] => 25
[name] => Нет
[material_modifier] => 1
[work_modifier] => 1
[options] => Array
(
)
[days] => [0]
[material_price] => [0]
[work_price] => [0]
[image] => https://akademik-stroy.ru/wp-content/uploads/materials/gkl.jpg
[area_modifier] => 157.44
[parent_name] => Внутренние (не несущие) перегородки
[parent_id] => 25
[material_sum] => 0
[work_sum] => 0
[total_sum] => 0
[total_days] => 0
[display_material_sum] => 0
[display_work_sum] => 0
[display_total_sum] => 0
)
1
0₽
Работа:0 ₽
Материалы:0 ₽
Дни:0
stdClass Object
(
[id] => 147
[attribute_id] => 25
[name] => Каркасно-обшивные
[material_modifier] => 1
[work_modifier] => 1
[options] => Array
(
[0] => 75 мм (без шумоизоляции)
[1] => 75 мм (с шумоизоляцией)
)
[days] => [11,11]
[material_price] => [580,970]
[work_price] => [380,570]
[image] => https://akademik-stroy.ru/wp-content/uploads/materials/gkl.jpg
[area_modifier] => 157.44
[parent_name] => Внутренние (не несущие) перегородки
[parent_id] => 25
[material_sum] => 120536
[work_sum] => 65810
[total_sum] => 186346
[total_days] => 11
[display_material_sum] => 120 536
[display_work_sum] => 65 810
[display_total_sum] => 186 346
)
1
186 346₽
Работа:65 810 ₽
Материалы:120 536 ₽
Дни:11
stdClass Object
(
[id] => 148
[attribute_id] => 25
[name] => Пазогребневые
[material_modifier] => 1
[work_modifier] => 1
[options] => Array
(
[0] => 80 мм
[1] => 100 мм
)
[days] => [5,5]
[material_price] => [1022,1313]
[work_price] => [600,700]
[image] => https://akademik-stroy.ru/wp-content/uploads/materials/pazogrebnevye-bloki.jpg
[area_modifier] => 157.44
[parent_name] => Внутренние (не несущие) перегородки
[parent_id] => 25
[material_sum] => 212393
[work_sum] => 103910
[total_sum] => 316303
[total_days] => 5
[display_material_sum] => 212 393
[display_work_sum] => 103 910
[display_total_sum] => 316 303
)
1
316 303₽
Работа:103 910 ₽
Материалы:212 393 ₽
Дни:5
stdClass Object
(
[id] => 149
[attribute_id] => 25
[name] => Газобетонные
[material_modifier] => 1
[work_modifier] => 1
[options] => Array
(
[0] => 100 мм
[1] => 200 мм
)
[days] => [11,11]
[material_price] => [1160,1920]
[work_price] => [700,900]
[image] => https://akademik-stroy.ru/wp-content/uploads/materials/gazobeton-2.jpg
[area_modifier] => 157.44
[parent_name] => Внутренние (не несущие) перегородки
[parent_id] => 25
[material_sum] => 241072
[work_sum] => 121229
[total_sum] => 362301
[total_days] => 11
[display_material_sum] => 241 072
[display_work_sum] => 121 229
[display_total_sum] => 362 301
)
1
362 301₽
Работа:121 229 ₽
Материалы:241 072 ₽
Дни:11
stdClass Object
(
[id] => 150
[attribute_id] => 25
[name] => Кирпичные
[material_modifier] => 1
[work_modifier] => 1
[options] => Array
(
[0] => 120 мм
[1] => 250 мм
[2] => 360 мм
)
[days] => [7,7,7]
[material_price] => [1785,3570,5355]
[work_price] => [900,1600,1800]
[image] => https://akademik-stroy.ru/wp-content/uploads/materials/kirpich-1.jpg
[area_modifier] => 157.44
[parent_name] => Внутренние (не несущие) перегородки
[parent_id] => 25
[material_sum] => 370960
[work_sum] => 155866
[total_sum] => 526826
[total_days] => 7
[display_material_sum] => 370 960
[display_work_sum] => 155 866
[display_total_sum] => 526 826
)
1
526 826₽
Работа:155 866 ₽
Материалы:370 960 ₽
Дни:7
stdClass Object
(
[id] => 55
[attribute_id] => 28
[name] => Нет
[material_modifier] => 1
[work_modifier] => 1
[options] => Array
(
)
[days] => [0]
[material_price] => [0]
[work_price] => [0]
[image] => https://akademik-stroy.ru/wp-content/uploads/materials/ehlektrika.jpg
[area_modifier] => 127.76
[parent_name] => Электрика
[parent_id] => 28
[material_sum] => 0
[work_sum] => 0
[total_sum] => 0
[total_days] => 0
[display_material_sum] => 0
[display_work_sum] => 0
[display_total_sum] => 0
)
1
0₽
Работа:0 ₽
Материалы:0 ₽
Дни:0
stdClass Object
(
[id] => 56
[attribute_id] => 28
[name] => Есть
[material_modifier] => 1
[work_modifier] => 1
[options] => Array
(
)
[days] => [10]
[material_price] => [650]
[work_price] => [950]
[image] => https://akademik-stroy.ru/wp-content/uploads/materials/ehlektrika.jpg
[area_modifier] => 127.76
[parent_name] => Электрика
[parent_id] => 28
[material_sum] => 109618
[work_sum] => 133509
[total_sum] => 243127
[total_days] => 10
[display_material_sum] => 109 618
[display_work_sum] => 133 509
[display_total_sum] => 243 127
)
1
243 127₽
Работа:133 509 ₽
Материалы:109 618 ₽
Дни:10
stdClass Object
(
[id] => 57
[attribute_id] => 29
[name] => Нет
[material_modifier] => 1
[work_modifier] => 1
[options] => Array
(
)
[days] => [0]
[material_price] => [0]
[work_price] => [0]
[image] => https://akademik-stroy.ru/wp-content/uploads/materials/santekhnika-kanalizaciya-1.jpg
[area_modifier] => 127.76
[parent_name] => Сантехника, канализация в доме
[parent_id] => 29
[material_sum] => 0
[work_sum] => 0
[total_sum] => 0
[total_days] => 0
[display_material_sum] => 0
[display_work_sum] => 0
[display_total_sum] => 0
)
1
0₽
Работа:0 ₽
Материалы:0 ₽
Дни:0
stdClass Object
(
[id] => 58
[attribute_id] => 29
[name] => Есть
[material_modifier] => 1
[work_modifier] => 1
[options] => Array
(
)
[days] => [10]
[material_price] => [600]
[work_price] => [730]
[image] => https://akademik-stroy.ru/wp-content/uploads/materials/santekhnika-kanalizaciya-1.jpg
[area_modifier] => 127.76
[parent_name] => Сантехника, канализация в доме
[parent_id] => 29
[material_sum] => 101186
[work_sum] => 102591
[total_sum] => 203777
[total_days] => 10
[display_material_sum] => 101 186
[display_work_sum] => 102 591
[display_total_sum] => 203 777
)
1
203 777₽
Работа:102 591 ₽
Материалы:101 186 ₽
Дни:10
stdClass Object
(
[id] => 59
[attribute_id] => 30
[name] => Нет
[material_modifier] => 1
[work_modifier] => 1
[options] => Array
(
)
[days] => [0]
[material_price] => [0]
[work_price] => [0]
[image] => https://akademik-stroy.ru/wp-content/uploads/materials/otoplenie-1.jpg
[area_modifier] => 127.76
[parent_name] => Отопление
[parent_id] => 30
[material_sum] => 0
[work_sum] => 0
[total_sum] => 0
[total_days] => 0
[display_material_sum] => 0
[display_work_sum] => 0
[display_total_sum] => 0
)
1
0₽
Работа:0 ₽
Материалы:0 ₽
Дни:0
stdClass Object
(
[id] => 60
[attribute_id] => 30
[name] => Есть
[material_modifier] => 1
[work_modifier] => 1
[options] => Array
(
)
[days] => [5]
[material_price] => [610]
[work_price] => [560]
[image] => https://akademik-stroy.ru/wp-content/uploads/materials/otoplenie-1.jpg
[area_modifier] => 127.76
[parent_name] => Отопление
[parent_id] => 30
[material_sum] => 102872
[work_sum] => 78700
[total_sum] => 181572
[total_days] => 5
[display_material_sum] => 102 872
[display_work_sum] => 78 700
[display_total_sum] => 181 572
)
1
181 572₽
Работа:78 700 ₽
Материалы:102 872 ₽
Дни:5
stdClass Object
(
[id] => 61
[attribute_id] => 31
[name] => Нет
[material_modifier] => 1
[work_modifier] => 1
[options] => Array
(
)
[days] => [0]
[material_price] => [0]
[work_price] => [0]
[image] => https://akademik-stroy.ru/wp-content/uploads/materials/vodyanye.jpg
[area_modifier] => 30
[parent_name] => Теплые полы
[parent_id] => 31
[material_sum] => 0
[work_sum] => 0
[total_sum] => 0
[total_days] => 0
[display_material_sum] => 0
[display_work_sum] => 0
[display_total_sum] => 0
)
1
0₽
Работа:0 ₽
Материалы:0 ₽
Дни:0
stdClass Object
(
[id] => 151
[attribute_id] => 31
[name] => Водяные
[material_modifier] => 1
[work_modifier] => 1
[options] => Array
(
)
[days] => [9]
[material_price] => [10200]
[work_price] => [2500]
[image] => https://akademik-stroy.ru/wp-content/uploads/materials/vodyanye.jpg
[area_modifier] => 30
[parent_name] => Теплые полы
[parent_id] => 31
[material_sum] => 403920
[work_sum] => 82500
[total_sum] => 486420
[total_days] => 9
[display_material_sum] => 403 920
[display_work_sum] => 82 500
[display_total_sum] => 486 420
)
1
486 420₽
Работа:82 500 ₽
Материалы:403 920 ₽
Дни:9
stdClass Object
(
[id] => 152
[attribute_id] => 31
[name] => Электро
[material_modifier] => 1
[work_modifier] => 1
[options] => Array
(
)
[days] => [5]
[material_price] => [6300]
[work_price] => [1500]
[image] => https://akademik-stroy.ru/wp-content/uploads/materials/ehlektricheskij.jpg
[area_modifier] => 30
[parent_name] => Теплые полы
[parent_id] => 31
[material_sum] => 249480
[work_sum] => 49500
[total_sum] => 298980
[total_days] => 5
[display_material_sum] => 249 480
[display_work_sum] => 49 500
[display_total_sum] => 298 980
)
1
298 980₽
Работа:49 500 ₽
Материалы:249 480 ₽
Дни:5
stdClass Object
(
[id] => 63
[attribute_id] => 32
[name] => Нет
[material_modifier] => 1
[work_modifier] => 1
[options] => Array
(
)
[days] => [0]
[material_price] => [0]
[work_price] => [0]
[image] => https://akademik-stroy.ru/wp-content/uploads/materials/shtukaturka-shpatlevka-1.jpg
[area_modifier] => 127.76
[parent_name] => Черновая отделка стен
[parent_id] => 32
[material_sum] => 0
[work_sum] => 0
[total_sum] => 0
[total_days] => 0
[display_material_sum] => 0
[display_work_sum] => 0
[display_total_sum] => 0
)
1
0₽
Работа:0 ₽
Материалы:0 ₽
Дни:0
stdClass Object
(
[id] => 153
[attribute_id] => 32
[name] => Штукатурка и шпатлевка
[material_modifier] => 1
[work_modifier] => 1
[options] => Array
(
)
[days] => [20]
[material_price] => [1850]
[work_price] => [2600]
[image] => https://akademik-stroy.ru/wp-content/uploads/materials/shtukaturka-shpatlevka-1.jpg
[area_modifier] => 127.76
[parent_name] => Черновая отделка стен
[parent_id] => 32
[material_sum] => 311990
[work_sum] => 365394
[total_sum] => 677384
[total_days] => 20
[display_material_sum] => 311 990
[display_work_sum] => 365 394
[display_total_sum] => 677 384
)
1
677 384₽
Работа:365 394 ₽
Материалы:311 990 ₽
Дни:20
stdClass Object
(
[id] => 154
[attribute_id] => 32
[name] => Гипсокортон на стены
[material_modifier] => 1
[work_modifier] => 1
[options] => Array
(
)
[days] => [15]
[material_price] => [950]
[work_price] => [2100]
[image] => https://akademik-stroy.ru/wp-content/uploads/materials/gkl-1.jpg
[area_modifier] => 127.76
[parent_name] => Черновая отделка стен
[parent_id] => 32
[material_sum] => 160211
[work_sum] => 295126
[total_sum] => 455337
[total_days] => 15
[display_material_sum] => 160 211
[display_work_sum] => 295 126
[display_total_sum] => 455 337
)
1
455 337₽
Работа:295 126 ₽
Материалы:160 211 ₽
Дни:15
stdClass Object
(
[id] => 155
[attribute_id] => 32
[name] => Вагонка
[material_modifier] => 1
[work_modifier] => 1
[options] => Array
(
)
[days] => [15]
[material_price] => [1250]
[work_price] => [950]
[image] => https://akademik-stroy.ru/wp-content/uploads/materials/vagonka.jpg
[area_modifier] => 127.76
[parent_name] => Черновая отделка стен
[parent_id] => 32
[material_sum] => 210804
[work_sum] => 133509
[total_sum] => 344313
[total_days] => 15
[display_material_sum] => 210 804
[display_work_sum] => 133 509
[display_total_sum] => 344 313
)
1
344 313₽
Работа:133 509 ₽
Материалы:210 804 ₽
Дни:15
stdClass Object
(
[id] => 65
[attribute_id] => 33
[name] => Нет
[material_modifier] => 1
[work_modifier] => 1
[options] => Array
(
)
[days] => [0]
[material_price] => [0]
[work_price] => [0]
[image] => https://akademik-stroy.ru/wp-content/uploads/materials/styazhka.jpg
[area_modifier] => 127.76
[parent_name] => Черновая отделка полов
[parent_id] => 33
[material_sum] => 0
[work_sum] => 0
[total_sum] => 0
[total_days] => 0
[display_material_sum] => 0
[display_work_sum] => 0
[display_total_sum] => 0
)
1
0₽
Работа:0 ₽
Материалы:0 ₽
Дни:0
stdClass Object
(
[id] => 156
[attribute_id] => 33
[name] => Стяжка + наливные полы
[material_modifier] => 1
[work_modifier] => 1
[options] => Array
(
)
[days] => [10]
[material_price] => [1000]
[work_price] => [900]
[image] => https://akademik-stroy.ru/wp-content/uploads/materials/styazhka.jpg
[area_modifier] => 127.76
[parent_name] => Черновая отделка полов
[parent_id] => 33
[material_sum] => 168643
[work_sum] => 126482
[total_sum] => 295125
[total_days] => 10
[display_material_sum] => 168 643
[display_work_sum] => 126 482
[display_total_sum] => 295 125
)
1
295 125₽
Работа:126 482 ₽
Материалы:168 643 ₽
Дни:10
stdClass Object
(
[id] => 157
[attribute_id] => 33
[name] => ОСБ на пол
[material_modifier] => 1
[work_modifier] => 1
[options] => Array
(
)
[days] => [7]
[material_price] => [580]
[work_price] => [350]
[image] => https://akademik-stroy.ru/wp-content/uploads/materials/osb-1.jpg
[area_modifier] => 127.76
[parent_name] => Черновая отделка полов
[parent_id] => 33
[material_sum] => 97813
[work_sum] => 49188
[total_sum] => 147001
[total_days] => 7
[display_material_sum] => 97 813
[display_work_sum] => 49 188
[display_total_sum] => 147 001
)
1
147 001₽
Работа:49 188 ₽
Материалы:97 813 ₽
Дни:7
stdClass Object
(
[id] => 67
[attribute_id] => 34
[name] => Нет
[material_modifier] => 1
[work_modifier] => 1
[options] => Array
(
)
[days] => [0]
[material_price] => [0]
[work_price] => [0]
[image] => https://akademik-stroy.ru/wp-content/uploads/materials/chistovaya-otdelka.jpg
[area_modifier] => 127.76
[parent_name] => Чистовая отделка стен и полов
[parent_id] => 34
[material_sum] => 0
[work_sum] => 0
[total_sum] => 0
[total_days] => 0
[display_material_sum] => 0
[display_work_sum] => 0
[display_total_sum] => 0
)
1
0₽
Работа:0 ₽
Материалы:0 ₽
Дни:0
stdClass Object
(
[id] => 68
[attribute_id] => 34
[name] => Есть
[material_modifier] => 1
[work_modifier] => 1
[options] => Array
(
)
[days] => [50]
[material_price] => [6000]
[work_price] => [3500]
[image] => https://akademik-stroy.ru/wp-content/uploads/materials/chistovaya-otdelka.jpg
[area_modifier] => 127.76
[parent_name] => Чистовая отделка стен и полов
[parent_id] => 34
[material_sum] => 1011859
[work_sum] => 491876
[total_sum] => 1503735
[total_days] => 50
[display_material_sum] => 1 011 859
[display_work_sum] => 491 876
[display_total_sum] => 1 503 735
)
1
1 503 735₽
Работа:491 876 ₽
Материалы:1 011 859 ₽
Дни:50
stdClass Object
(
[id] => 69
[attribute_id] => 35
[name] => Нет
[material_modifier] => 1
[work_modifier] => 1
[options] => Array
(
)
[days] => [0]
[material_price] => [0]
[work_price] => [0]
[image] => https://akademik-stroy.ru/wp-content/uploads/materials/mnogourovnevyj-gkl.jpg
[area_modifier] => 127.76
[parent_name] => Отделка потолка
[parent_id] => 35
[material_sum] => 0
[work_sum] => 0
[total_sum] => 0
[total_days] => 0
[display_material_sum] => 0
[display_work_sum] => 0
[display_total_sum] => 0
)
1
0₽
Работа:0 ₽
Материалы:0 ₽
Дни:0
stdClass Object
(
[id] => 70
[attribute_id] => 35
[name] => Есть
[material_modifier] => 1
[work_modifier] => 1
[options] => Array
(
[0] => Многоуровневый потолок из гипсокартона
[1] => Многоуровневый потолок из гипсокартона и натяжного потолка
[2] => Одноуровневый потолок из гипсокартона
[3] => Одноуровневый натяжной потолок
)
[days] => [10,10,1,1]
[material_price] => [900,700,700,600]
[work_price] => [1000,800,500,300]
[image] => https://akademik-stroy.ru/wp-content/uploads/materials/mnogourovnevyj-gkl.jpg
[area_modifier] => 127.76
[parent_name] => Отделка потолка
[parent_id] => 35
[material_sum] => 151779
[work_sum] => 140536
[total_sum] => 292315
[total_days] => 10
[display_material_sum] => 151 779
[display_work_sum] => 140 536
[display_total_sum] => 292 315
)
1
292 315₽
Работа:140 536 ₽
Материалы:151 779 ₽
Дни:10
Преимущества работы с нами
7 этапов оплаты
Независимый строительный надзор
Экологически чистые материалы
16 лет гарантии
Онлайн-кабинет с веб-камерой
Строители с опытом более 15 лет
Собственное производство







