Одноэтажный дом 178.11 м2 за руб.

ID-162487

Стоимость дома 8610308 руб.

Планировки

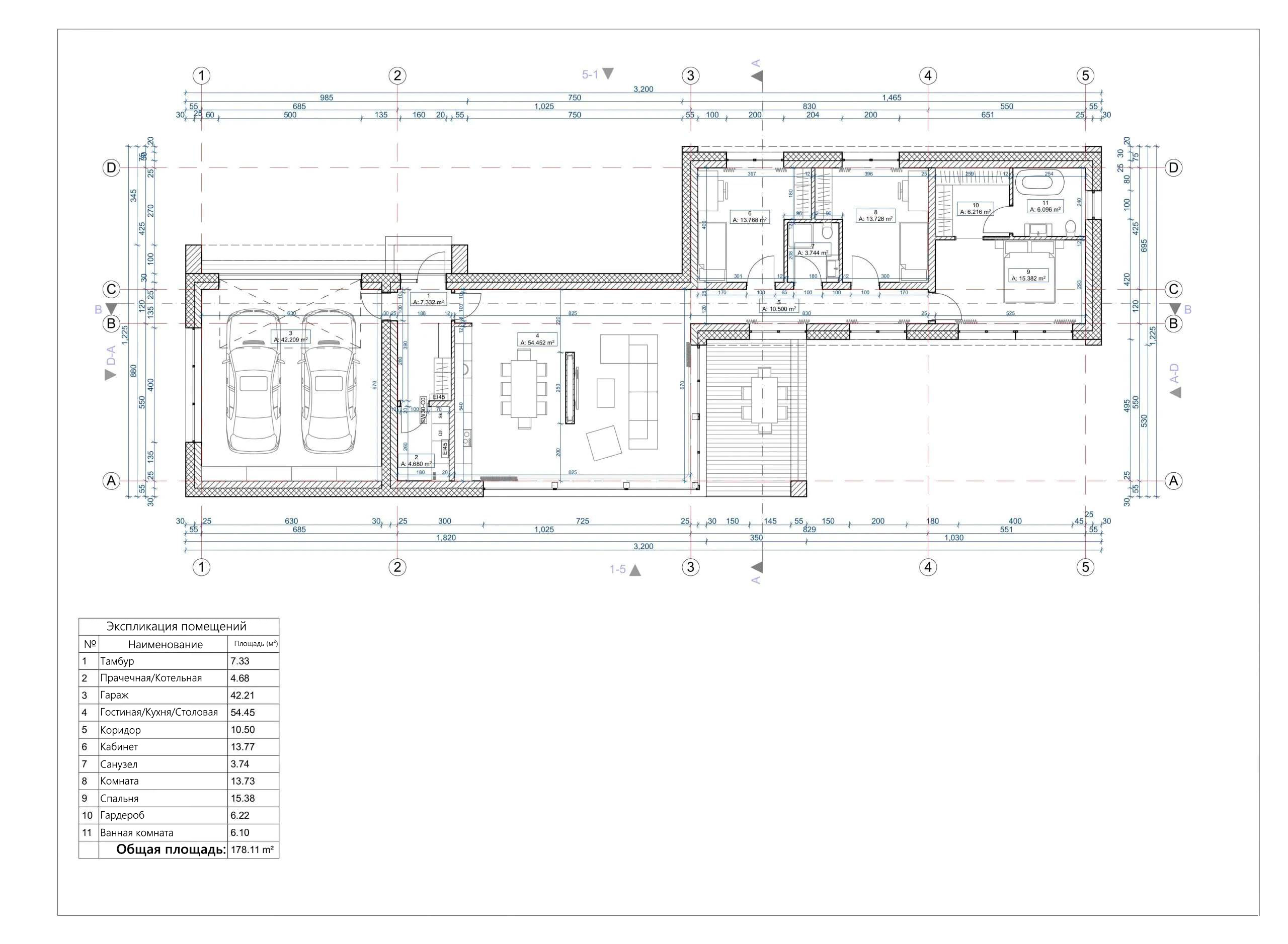
План первого этажа

floor image
  • 1. Тамбур 7,33 м²
  • 2. Котельная-Прачечная 4,68 м²
  • 3. Гараж 42,21 м²
  • 4. Гостиная-Кухня-Столовая 54,45 м²
  • 5. Коридор 10,50 м²
  • 6. Кабинет 13,77 м²
  • 7. Санузел 3,74 м²
  • 8. Комната 13,73 м²
  • 9. Спальня 15,38 м²
  • 10. Гардероб 6,22 м²
  • 11. Ванная комната 6,10 м²
  • Общая площадь 178,11 м²

Площади дома

№ п/п Наименование Ед. из. Строительная площадь Полезная площадь
1 1 этаж м2 219.48 178.11
2 Итого м2 219.48 178.11
154 м2 Полезная
площадь
1 этаж Этажей
26 м2 Террасы
и балконы
2Без
гаража
3 Количество
спален
2 Количество
санузлов

Калькулятор опций

0

В ипотеку от 27 540 ₽/мес.

Фундамент
stdClass Object ( [id] => 1 [attribute_id] => 1 [name] => Ленточный монолитный ж/б [material_modifier] => 1 [work_modifier] => 1 [options] => Array ( [0] => размер 200 х 700 мм [1] => размер 300 х 900 мм [2] => размер 400 х 1 000 мм [3] => размер 500 х 1 100 мм [4] => размер 600 х 1 200 мм ) [days] => [20,21,22,25,30] [material_price] => [2823,3630,4475,5210,12047] [work_price] => [2154,2826,3731,4577,5293] [image] => https://akademik-stroy.ru/wp-content/uploads/materials/lentochnyj-monolitnyj-zh-b.jpg [area_modifier] => 219.48 [parent_name] => Фундамент [parent_id] => 1 [material_sum] => 780686 [work_sum] => 496398 [total_sum] => 1277084 [total_days] => 20 [display_material_sum] => 780 686 [display_work_sum] => 496 398 [display_total_sum] => 1 277 084 ) 1
1 277 084
Работа:496 398
Материалы:780 686
Дни:20
stdClass Object ( [id] => 2 [attribute_id] => 1 [name] => Забивные Ж/Б сваи [material_modifier] => 1 [work_modifier] => 1 [options] => Array ( [0] => 150х150х3000мм [1] => 150х150х4000мм [2] => 200х200х3000мм [3] => 200х200х4000мм [4] => 200х200х5000мм [5] => 200х200х6000мм ) [days] => [2,2,2,2,2,2] [material_price] => [1990,2850,3255,4360,5120,6837] [work_price] => [1002,1185,1336,1438,1574,1839] [image] => https://akademik-stroy.ru/wp-content/uploads/materials/zabivnye-zh-b-svai.png [area_modifier] => 219.48 [parent_name] => Фундамент [parent_id] => 1 [material_sum] => 550324 [work_sum] => 230915 [total_sum] => 781239 [total_days] => 2 [display_material_sum] => 550 324 [display_work_sum] => 230 915 [display_total_sum] => 781 239 ) 1
781 239
Работа:230 915
Материалы:550 324
Дни:2
stdClass Object ( [id] => 71 [attribute_id] => 1 [name] => Свайно-ростверковый ж/б [material_modifier] => 1 [work_modifier] => 1 [options] => Array ( [0] => ростверк 200х300 мм [1] => ростверк 300х600 мм [2] => ростверк 400х900 мм [3] => ростверк 500х1200 мм ) [days] => [20,23,25,27] [material_price] => [3018,3474,7109,9792] [work_price] => [2024,3012,5635,7022] [image] => https://akademik-stroy.ru/wp-content/uploads/materials/svajno-rostverkovyj-monolitnyj-zh-b-3.png [area_modifier] => 219.48 [parent_name] => Фундамент [parent_id] => 1 [material_sum] => 834612 [work_sum] => 466439 [total_sum] => 1301051 [total_days] => 20 [display_material_sum] => 834 612 [display_work_sum] => 466 439 [display_total_sum] => 1 301 051 ) 1
1 301 051
Работа:466 439
Материалы:834 612
Дни:20
stdClass Object ( [id] => 72 [attribute_id] => 1 [name] => Монолитная ж/б плита [material_modifier] => 1 [work_modifier] => 1 [options] => Array ( [0] => 200 мм [1] => 300 мм [2] => 400 мм [3] => 500 мм [4] => 600 мм ) [days] => [30,33,35,37,40] [material_price] => [5348,8555,12788,14388,15189] [work_price] => [4314,4881,7037,8061,10230] [image] => https://akademik-stroy.ru/wp-content/uploads/materials/monolitnaya-zhb-plita.png [area_modifier] => 219.48 [parent_name] => Фундамент [parent_id] => 1 [material_sum] => 1478962 [work_sum] => 994179 [total_sum] => 2473141 [total_days] => 30 [display_material_sum] => 1 478 962 [display_work_sum] => 994 179 [display_total_sum] => 2 473 141 ) 1
2 473 141
Работа:994 179
Материалы:1 478 962
Дни:30
stdClass Object ( [id] => 73 [attribute_id] => 1 [name] => Утепленная шведская плита [material_modifier] => 1 [work_modifier] => 1 [options] => Array ( [0] => 200 мм [1] => 300 мм [2] => 400 мм [3] => 500 мм [4] => 600 мм ) [days] => [32,37,39,42,45] [material_price] => [10249,12692,13760,14936,16230] [work_price] => [5960,7337,8072,8878,9765] [image] => https://akademik-stroy.ru/wp-content/uploads/materials/uteplennaya-shvedskaya-plita.jpg [area_modifier] => 219.48 [parent_name] => Фундамент [parent_id] => 1 [material_sum] => 2834308 [work_sum] => 1373506 [total_sum] => 4207814 [total_days] => 32 [display_material_sum] => 2 834 308 [display_work_sum] => 1 373 506 [display_total_sum] => 4 207 814 ) 1
4 207 814
Работа:1 373 506
Материалы:2 834 308
Дни:32
stdClass Object ( [id] => 75 [attribute_id] => 1 [name] => Ленточный из ФБС [material_modifier] => 1 [work_modifier] => 1 [options] => Array ( [0] => толщ. 300 мм [1] => толщ. 400 мм [2] => толщ. 500 мм [3] => толщ. 600 мм ) [days] => [20,20,20,20] [material_price] => [3675,4902,6126,7350] [work_price] => [2451,3264,4083,4902] [image] => https://akademik-stroy.ru/wp-content/uploads/materials/lentochnyj-iz-fbs.png [area_modifier] => 219.48 [parent_name] => Фундамент [parent_id] => 1 [material_sum] => 1016302 [work_sum] => 564843 [total_sum] => 1581145 [total_days] => 20 [display_material_sum] => 1 016 302 [display_work_sum] => 564 843 [display_total_sum] => 1 581 145 ) 1
1 581 145
Работа:564 843
Материалы:1 016 302
Дни:20
stdClass Object ( [id] => 76 [attribute_id] => 1 [name] => Цокольный этаж из ФБС [material_modifier] => 1 [work_modifier] => 1 [options] => Array ( [0] => толщ. 300 мм [1] => толщ. 400 мм [2] => толщ. 500 мм [3] => толщ. 600 мм ) [days] => [30,32,34,36] [material_price] => [20916,23299,26680,29060] [work_price] => [17524,18700,19873,21046] [image] => https://akademik-stroy.ru/wp-content/uploads/materials/cokolnyj-ehtazh-iz-fbs.jpg [area_modifier] => 219.48 [parent_name] => Фундамент [parent_id] => 1 [material_sum] => 5784211 [work_sum] => 4038476 [total_sum] => 9822687 [total_days] => 30 [display_material_sum] => 5 784 211 [display_work_sum] => 4 038 476 [display_total_sum] => 9 822 687 ) 1
9 822 687
Работа:4 038 476
Материалы:5 784 211
Дни:30
stdClass Object ( [id] => 77 [attribute_id] => 1 [name] => Цокольный этаж монолитный ж/б [material_modifier] => 1 [work_modifier] => 1 [options] => Array ( [0] => толщ. 200 мм [1] => толщ. 300 мм [2] => толщ. 400 мм [3] => толщ. 500 мм [4] => толщ. 600 мм ) [days] => [40,42,44,46,48] [material_price] => [25421,29148,32275,35602,37326] [work_price] => [20441,21907,23375,24841,26306] [image] => https://akademik-stroy.ru/wp-content/uploads/materials/cokolnyj-etazh-zh-b.jpg [area_modifier] => 219.48 [parent_name] => Фундамент [parent_id] => 1 [material_sum] => 7030045 [work_sum] => 4710710 [total_sum] => 11740755 [total_days] => 40 [display_material_sum] => 7 030 045 [display_work_sum] => 4 710 710 [display_total_sum] => 11 740 755 ) 1
11 740 755
Работа:4 710 710
Материалы:7 030 045
Дни:40
stdClass Object ( [id] => 191 [attribute_id] => 1 [name] => Винтовые сваи [material_modifier] => 1 [work_modifier] => 1 [options] => Array ( [0] => 57х200мм [1] => 76х250мм [2] => 108х300мм [3] => 133х350мм ) [days] => [1,1,2,2] [material_price] => [1200,1300,1450,1600] [work_price] => [400,600,900,1100] [image] => https://akademik-stroy.ru/wp-content/uploads/materials/vintovye-svai.png [area_modifier] => 219.48 [parent_name] => Фундамент [parent_id] => 1 [material_sum] => 331854 [work_sum] => 92182 [total_sum] => 424036 [total_days] => 1 [display_material_sum] => 331 854 [display_work_sum] => 92 182 [display_total_sum] => 424 036 ) 1
424 036
Работа:92 182
Материалы:331 854
Дни:1
Перекрытие цоколя
stdClass Object ( [id] => 3 [attribute_id] => 2 [name] => Деревянные балки [material_modifier] => 1 [work_modifier] => 1 [options] => Array ( [0] => без утепления [1] => утепление 200 мм [2] => утепление 250 мм [3] => утепление 300 мм [4] => утепление 350 мм [5] => утепление 400 мм [6] => утепление 450 мм [7] => утепление 500 мм ) [days] => [8,9,9,9,11,12,13,14] [material_price] => [1634,2042,2344,2947,3149,3652,3354,3557] [work_price] => [1230,1339,1393,1426,1460,1513,1587,1620] [image] => https://akademik-stroy.ru/wp-content/uploads/materials/derevyannye-balki.png [area_modifier] => 219.48 [parent_name] => Перекрытие цоколя [parent_id] => 2 [material_sum] => 451874 [work_sum] => 283458 [total_sum] => 735332 [total_days] => 8 [display_material_sum] => 451 874 [display_work_sum] => 283 458 [display_total_sum] => 735 332 ) 1
735 332
Работа:283 458
Материалы:451 874
Дни:8
stdClass Object ( [id] => 4 [attribute_id] => 2 [name] => Сборные ж/б плиты [material_modifier] => 1 [work_modifier] => 1 [options] => Array ( [0] => без утепления [1] => утепление 150мм [2] => утепление 200мм [3] => утепление 250мм [4] => утепление 300мм [5] => утепление 350мм [6] => утепление 400мм [7] => утепление 450мм [8] => утепление 500мм ) [days] => [13,15,15,15,15,15,15,15,15] [material_price] => [3067,5577,5928,6679,7730,8782,9833,10884,11935] [work_price] => [1520,1956,2102,2247,2392,2537,2684,2829,2974] [image] => https://akademik-stroy.ru/wp-content/uploads/materials/sbornye-zh-b-plity-2.jpg [area_modifier] => 219.48 [parent_name] => Перекрытие цоколя [parent_id] => 2 [material_sum] => 848163 [work_sum] => 350290 [total_sum] => 1198453 [total_days] => 13 [display_material_sum] => 848 163 [display_work_sum] => 350 290 [display_total_sum] => 1 198 453 ) 1
1 198 453
Работа:350 290
Материалы:848 163
Дни:13
stdClass Object ( [id] => 78 [attribute_id] => 2 [name] => Монолитная ж/б плита [material_modifier] => 1 [work_modifier] => 1 [options] => Array ( [0] => без утепления [1] => утепление 150 мм [2] => утепление 200 мм [3] => утепление 250 мм [4] => утепление 300 мм [5] => утепление 350 мм [6] => утепление 400 мм [7] => утепление 450 мм [8] => утепление 500 мм ) [days] => [18,20,20,20,20,20,20,20,20] [material_price] => [4837,6572,7224,7375,79426,8177,8728,9180,10031] [work_price] => [3348,3921,4112,4302,4493,4684,4875,5066,5256] [image] => https://akademik-stroy.ru/wp-content/uploads/materials/monolitnaya-zh-b-plita-2.jpg [area_modifier] => 219.48 [parent_name] => Перекрытие цоколя [parent_id] => 2 [material_sum] => 1337647 [work_sum] => 771560 [total_sum] => 2109207 [total_days] => 18 [display_material_sum] => 1 337 647 [display_work_sum] => 771 560 [display_total_sum] => 2 109 207 ) 1
2 109 207
Работа:771 560
Материалы:1 337 647
Дни:18
Стены 1 этаж (несущие)
stdClass Object ( [id] => 6 [attribute_id] => 3 [name] => Пеноблок [material_modifier] => 1 [work_modifier] => 1 [options] => Array ( [0] => 300 мм [1] => 400 мм [2] => 500 мм [3] => 600 мм ) [days] => [29,31,34,39] [material_price] => [3000,4000,4500,4937] [work_price] => [5033,5805,6400,8710] [image] => https://akademik-stroy.ru/wp-content/uploads/materials/penoblok.jpg [area_modifier] => 219.48 [parent_name] => Стены 1 этаж (несущие) [parent_id] => 3 [material_sum] => 829634 [work_sum] => 1159875 [total_sum] => 1989509 [total_days] => 29 [display_material_sum] => 829 634 [display_work_sum] => 1 159 875 [display_total_sum] => 1 989 509 ) 1
1 989 509
Работа:1 159 875
Материалы:829 634
Дни:29
stdClass Object ( [id] => 79 [attribute_id] => 3 [name] => Керамический блок [material_modifier] => 1 [work_modifier] => 1 [options] => Array ( [0] => 380 мм [1] => 380 мм Thermo [2] => 440 мм [3] => 510 мм ) [days] => [23,23,24,25] [material_price] => [4510,5098,6093,8013] [work_price] => [4737,4937,5903,6958] [image] => https://akademik-stroy.ru/wp-content/uploads/materials/keramicheskij-blok.jpg [area_modifier] => 219.48 [parent_name] => Стены 1 этаж (несущие) [parent_id] => 3 [material_sum] => 1247217 [work_sum] => 1091661 [total_sum] => 2338878 [total_days] => 23 [display_material_sum] => 1 247 217 [display_work_sum] => 1 091 661 [display_total_sum] => 2 338 878 ) 1
2 338 878
Работа:1 091 661
Материалы:1 247 217
Дни:23
stdClass Object ( [id] => 80 [attribute_id] => 3 [name] => Кирпич [material_modifier] => 1 [work_modifier] => 1 [options] => Array ( [0] => Кирпич 250 мм [1] => Кирпич 380 мм [2] => Кирпич 510 мм [3] => Кирпич 640 мм [4] => Кирпич 770 мм ) [days] => [30,30,31,33,36] [material_price] => [5500,7142,9206,10171,12235] [work_price] => [8736,10041,12018,15240,18462] [image] => https://akademik-stroy.ru/wp-content/uploads/materials/kirpich.jpg [area_modifier] => 219.48 [parent_name] => Стены 1 этаж (несущие) [parent_id] => 3 [material_sum] => 1520996 [work_sum] => 2013246 [total_sum] => 3534242 [total_days] => 30 [display_material_sum] => 1 520 996 [display_work_sum] => 2 013 246 [display_total_sum] => 3 534 242 ) 1
3 534 242
Работа:2 013 246
Материалы:1 520 996
Дни:30
stdClass Object ( [id] => 81 [attribute_id] => 3 [name] => Монолитные [material_modifier] => 1 [work_modifier] => 1 [options] => Array ( [0] => 150 мм [1] => 200 мм [2] => 250 мм [3] => 300 мм [4] => 350 мм [5] => 400 мм ) [days] => [45,46,47,49,50,53] [material_price] => [6545,7876,10175,12011,13908,15204] [work_price] => [5106,6444,7698,8552,9807,11461] [image] => https://akademik-stroy.ru/wp-content/uploads/materials/monolitnye.jpg [area_modifier] => 219.48 [parent_name] => Стены 1 этаж (несущие) [parent_id] => 3 [material_sum] => 1809986 [work_sum] => 1176698 [total_sum] => 2986684 [total_days] => 45 [display_material_sum] => 1 809 986 [display_work_sum] => 1 176 698 [display_total_sum] => 2 986 684 ) 1
2 986 684
Работа:1 176 698
Материалы:1 809 986
Дни:45
stdClass Object ( [id] => 82 [attribute_id] => 3 [name] => Клееный брус [material_modifier] => 1 [work_modifier] => 1 [options] => Array ( [0] => 160 мм [1] => 175 мм [2] => 200 мм [3] => 215 мм [4] => 240 мм [5] => 270 мм [6] => 282 мм ) [days] => [24,28,32,37,40,42,48] [material_price] => [16975,18773,19950,20545,21599,22159,23275] [work_price] => [4806,5287,5815,6397,7036,7740,8514] [image] => https://akademik-stroy.ru/wp-content/uploads/materials/kleenyj-brus.jpg [area_modifier] => 219.48 [parent_name] => Стены 1 этаж (несущие) [parent_id] => 3 [material_sum] => 4694348 [work_sum] => 1107562 [total_sum] => 5801910 [total_days] => 24 [display_material_sum] => 4 694 348 [display_work_sum] => 1 107 562 [display_total_sum] => 5 801 910 ) 1
5 801 910
Работа:1 107 562
Материалы:4 694 348
Дни:24
stdClass Object ( [id] => 83 [attribute_id] => 3 [name] => Каркасные [material_modifier] => 1 [work_modifier] => 1 [options] => Array ( [0] => 150 мм [1] => 200 мм [2] => 250 мм [3] => 300 мм ) [days] => [15,16,17,18] [material_price] => [2379,2639,2898,3258] [work_price] => [2418,2686,2985,3716] [image] => https://akademik-stroy.ru/wp-content/uploads/materials/karkasnye.jpg [area_modifier] => 219.48 [parent_name] => Стены 1 этаж (несущие) [parent_id] => 3 [material_sum] => 657900 [work_sum] => 557238 [total_sum] => 1215138 [total_days] => 15 [display_material_sum] => 657 900 [display_work_sum] => 557 238 [display_total_sum] => 1 215 138 ) 1
1 215 138
Работа:557 238
Материалы:657 900
Дни:15
stdClass Object ( [id] => 84 [attribute_id] => 3 [name] => СИП-панели [material_modifier] => 1 [work_modifier] => 1 [options] => Array ( [0] => 120 мм [1] => 170 мм [2] => 220 мм ) [days] => [7,7,7] [material_price] => [1210,1856,2292] [work_price] => [1410,1551,1706] [image] => https://akademik-stroy.ru/wp-content/uploads/materials/sip-paneli.jpg [area_modifier] => 219.48 [parent_name] => Стены 1 этаж (несущие) [parent_id] => 3 [material_sum] => 334619 [work_sum] => 324940 [total_sum] => 659559 [total_days] => 7 [display_material_sum] => 334 619 [display_work_sum] => 324 940 [display_total_sum] => 659 559 ) 1
659 559
Работа:324 940
Материалы:334 619
Дни:7
stdClass Object ( [id] => 85 [attribute_id] => 3 [name] => Сухой брус [material_modifier] => 1 [work_modifier] => 1 [options] => Array ( [0] => 150 мм [1] => 180 мм [2] => 200 мм ) [days] => [7,8,9] [material_price] => [6010,7190,8709] [work_price] => [3204,3845,4229] [image] => https://akademik-stroy.ru/wp-content/uploads/materials/suhoj-brus.jpg [area_modifier] => 219.48 [parent_name] => Стены 1 этаж (несущие) [parent_id] => 3 [material_sum] => 1662034 [work_sum] => 738375 [total_sum] => 2400409 [total_days] => 7 [display_material_sum] => 1 662 034 [display_work_sum] => 738 375 [display_total_sum] => 2 400 409 ) 1
2 400 409
Работа:738 375
Материалы:1 662 034
Дни:7
stdClass Object ( [id] => 86 [attribute_id] => 3 [name] => Профилированный брус [material_modifier] => 1 [work_modifier] => 1 [options] => Array ( [0] => 150 мм [1] => 180 мм [2] => 200 мм ) [days] => [7,8,9] [material_price] => [8190,9228,10051] [work_price] => [3845,4614,5075] [image] => https://akademik-stroy.ru/wp-content/uploads/materials/profilirovannyj-brus.jpg [area_modifier] => 219.48 [parent_name] => Стены 1 этаж (несущие) [parent_id] => 3 [material_sum] => 2264902 [work_sum] => 886096 [total_sum] => 3150998 [total_days] => 7 [display_material_sum] => 2 264 902 [display_work_sum] => 886 096 [display_total_sum] => 3 150 998 ) 1
3 150 998
Работа:886 096
Материалы:2 264 902
Дни:7
stdClass Object ( [id] => 87 [attribute_id] => 3 [name] => Оцилиндрованное бревно [material_modifier] => 1 [work_modifier] => 1 [options] => Array ( [0] => 180 мм [1] => 220 мм [2] => 260 мм [3] => 320 мм ) [days] => [7,8,9,10] [material_price] => [75190,9532,10868,13116] [work_price] => [3845,4691,5535,6863] [image] => https://akademik-stroy.ru/wp-content/uploads/materials/ocilindrovannoe-brevno-1.jpg [area_modifier] => 219.48 [parent_name] => Стены 1 этаж (несущие) [parent_id] => 3 [material_sum] => 20793404 [work_sum] => 886096 [total_sum] => 21679500 [total_days] => 7 [display_material_sum] => 20 793 404 [display_work_sum] => 886 096 [display_total_sum] => 21 679 500 ) 1
21 679 500
Работа:886 096
Материалы:20 793 404
Дни:7
stdClass Object ( [id] => 88 [attribute_id] => 3 [name] => Срубы [material_modifier] => 1 [work_modifier] => 1 [options] => Array ( [0] => 260 мм [1] => 320 мм [2] => 360 мм [3] => 400 мм [4] => 500 мм ) [days] => [7,8,9,10,11] [material_price] => [37975,46709,52314,58069,73167] [work_price] => [4806,5911,6621,7349,9260] [image] => https://akademik-stroy.ru/wp-content/uploads/materials/sruby.jpg [area_modifier] => 219.48 [parent_name] => Стены 1 этаж (несущие) [parent_id] => 3 [material_sum] => 10501789 [work_sum] => 1107562 [total_sum] => 11609351 [total_days] => 7 [display_material_sum] => 10 501 789 [display_work_sum] => 1 107 562 [display_total_sum] => 11 609 351 ) 1
11 609 351
Работа:1 107 562
Материалы:10 501 789
Дни:7
stdClass Object ( [id] => 174 [attribute_id] => 3 [name] => Брус [material_modifier] => 1 [work_modifier] => 1 [options] => Array ( [0] => 150 мм [1] => 180 мм [2] => 200 мм ) [days] => [7,8,9] [material_price] => [5127,6152,7367] [work_price] => [1602,1922,2115] [image] => https://akademik-stroy.ru/wp-content/uploads/materials/brus.jpg [area_modifier] => 219.48 [parent_name] => Стены 1 этаж (несущие) [parent_id] => 3 [material_sum] => 1417845 [work_sum] => 369187 [total_sum] => 1787032 [total_days] => 7 [display_material_sum] => 1 417 845 [display_work_sum] => 369 187 [display_total_sum] => 1 787 032 ) 1
1 787 032
Работа:369 187
Материалы:1 417 845
Дни:7
stdClass Object ( [id] => 175 [attribute_id] => 3 [name] => Газобетон [material_modifier] => 1 [work_modifier] => 1 [options] => Array ( [0] => 300 мм [1] => 375 мм [2] => 400 мм [3] => 500 мм [4] => 600 мм ) [days] => [29,31,35,37,44] [material_price] => [4298,5573,6356,7288,9119] [work_price] => [4538,5251,5926,6733,7195] [image] => https://akademik-stroy.ru/wp-content/uploads/materials/gazobeton.jpg [area_modifier] => 219.48 [parent_name] => Стены 1 этаж (несущие) [parent_id] => 3 [material_sum] => 1188590 [work_sum] => 1045800 [total_sum] => 2234390 [total_days] => 29 [display_material_sum] => 1 188 590 [display_work_sum] => 1 045 800 [display_total_sum] => 2 234 390 ) 1
2 234 390
Работа:1 045 800
Материалы:1 188 590
Дни:29
stdClass Object ( [id] => 176 [attribute_id] => 3 [name] => Блок [material_modifier] => 1 [work_modifier] => 1 [options] => Array ( [0] => 300 мм [1] => 375 мм [2] => 400 мм [3] => 500 мм [4] => 600 мм ) [days] => [29,31,35,37,44] [material_price] => [2698,3973,4356,6588,7119] [work_price] => [5038,5851,6426,8733,9195] [image] => https://akademik-stroy.ru/wp-content/uploads/materials/blok.jpg [area_modifier] => 219.48 [parent_name] => Стены 1 этаж (несущие) [parent_id] => 3 [material_sum] => 746118 [work_sum] => 1161027 [total_sum] => 1907145 [total_days] => 29 [display_material_sum] => 746 118 [display_work_sum] => 1 161 027 [display_total_sum] => 1 907 145 ) 1
1 907 145
Работа:1 161 027
Материалы:746 118
Дни:29
stdClass Object ( [id] => 177 [attribute_id] => 3 [name] => Газосиликатный блок [material_modifier] => 1 [work_modifier] => 1 [options] => Array ( [0] => 300 мм [1] => 375 мм [2] => 400 мм [3] => 500 мм [4] => 600 мм ) [days] => [29,31,35,37,44] [material_price] => [4298,5573,6356,7288,9119] [work_price] => [4538,5251,5926,6733,7195] [image] => https://akademik-stroy.ru/wp-content/uploads/materials/gazosilikatnyj-blok.jpg [area_modifier] => 219.48 [parent_name] => Стены 1 этаж (несущие) [parent_id] => 3 [material_sum] => 1188590 [work_sum] => 1045800 [total_sum] => 2234390 [total_days] => 29 [display_material_sum] => 1 188 590 [display_work_sum] => 1 045 800 [display_total_sum] => 2 234 390 ) 1
2 234 390
Работа:1 045 800
Материалы:1 188 590
Дни:29
stdClass Object ( [id] => 178 [attribute_id] => 3 [name] => Керамзитобетонный блок [material_modifier] => 1 [work_modifier] => 1 [options] => Array ( [0] => 300 мм [1] => 375 мм [2] => 400 мм [3] => 500 мм [4] => 600 мм ) [days] => [23,23,24,25,28] [material_price] => [3641,4298,5693,7613,9612] [work_price] => [5737,5737,6903,7958,8901] [image] => https://akademik-stroy.ru/wp-content/uploads/materials/keramzitobetonnyj-blok.jpg [area_modifier] => 219.48 [parent_name] => Стены 1 этаж (несущие) [parent_id] => 3 [material_sum] => 1006900 [work_sum] => 1322115 [total_sum] => 2329015 [total_days] => 23 [display_material_sum] => 1 006 900 [display_work_sum] => 1 322 115 [display_total_sum] => 2 329 015 ) 1
2 329 015
Работа:1 322 115
Материалы:1 006 900
Дни:23
stdClass Object ( [id] => 179 [attribute_id] => 3 [name] => Деревянные [material_modifier] => 1 [work_modifier] => 1 [options] => Array ( [0] => 180 мм [1] => 220 мм [2] => 260 мм [3] => 320 мм ) [days] => [7,8,9,10] [material_price] => [7950,9458,11961,14472] [work_price] => [4037,4925,5812,7207] [image] => https://akademik-stroy.ru/wp-content/uploads/materials/derevyannye.jpg [area_modifier] => 219.48 [parent_name] => Стены 1 этаж (несущие) [parent_id] => 3 [material_sum] => 2198531 [work_sum] => 930343 [total_sum] => 3128874 [total_days] => 7 [display_material_sum] => 2 198 531 [display_work_sum] => 930 343 [display_total_sum] => 3 128 874 ) 1
3 128 874
Работа:930 343
Материалы:2 198 531
Дни:7
stdClass Object ( [id] => 181 [attribute_id] => 3 [name] => Камень [material_modifier] => 1 [work_modifier] => 1 [options] => Array ( [0] => 300 мм [1] => 400 мм [2] => 500 мм [3] => 600 мм ) [days] => [25,27,31,34] [material_price] => [5262,6844,8330,9815] [work_price] => [8331,9135,10427,11069] [image] => https://akademik-stroy.ru/wp-content/uploads/materials/kamen.jpg [area_modifier] => 219.48 [parent_name] => Стены 1 этаж (несущие) [parent_id] => 3 [material_sum] => 1455179 [work_sum] => 1919912 [total_sum] => 3375091 [total_days] => 25 [display_material_sum] => 1 455 179 [display_work_sum] => 1 919 912 [display_total_sum] => 3 375 091 ) 1
3 375 091
Работа:1 919 912
Материалы:1 455 179
Дни:25
stdClass Object ( [id] => 182 [attribute_id] => 3 [name] => Каркасно-щитовые [material_modifier] => 1 [work_modifier] => 1 [options] => Array ( [0] => 150 мм [1] => 200 мм [2] => 250 мм [3] => 300 мм [4] => 350 мм [5] => 400 мм ) [days] => [15,16,17,18,19,20] [material_price] => [2379,2639,2898,3458,3601,4175] [work_price] => [2538,2820,3134,3483,4062,5642] [image] => https://akademik-stroy.ru/wp-content/uploads/materials/karkasno-shchitovye.jpg [area_modifier] => 219.48 [parent_name] => Стены 1 этаж (несущие) [parent_id] => 3 [material_sum] => 657900 [work_sum] => 584892 [total_sum] => 1242792 [total_days] => 15 [display_material_sum] => 657 900 [display_work_sum] => 584 892 [display_total_sum] => 1 242 792 ) 1
1 242 792
Работа:584 892
Материалы:657 900
Дни:15
stdClass Object ( [id] => 183 [attribute_id] => 3 [name] => Рубленные [material_modifier] => 1 [work_modifier] => 1 [options] => Array ( [0] => 150 мм [1] => 200 мм [2] => 250 мм [3] => 300 мм [4] => 350 мм [5] => 400 мм ) [days] => [15,16,17,18,17,18] [material_price] => [35950,50267,60583,75900,80217,100533] [work_price] => [9612,12816,16020,19224,22428,25632] [image] => https://akademik-stroy.ru/wp-content/uploads/materials/rublennye.jpg [area_modifier] => 219.48 [parent_name] => Стены 1 этаж (несущие) [parent_id] => 3 [material_sum] => 9941786 [work_sum] => 2215124 [total_sum] => 12156910 [total_days] => 15 [display_material_sum] => 9 941 786 [display_work_sum] => 2 215 124 [display_total_sum] => 12 156 910 ) 1
12 156 910
Работа:2 215 124
Материалы:9 941 786
Дни:15
stdClass Object ( [id] => 185 [attribute_id] => 3 [name] => Теплоблок [material_modifier] => 1 [work_modifier] => 1 [options] => Array ( [0] => 300 мм (с облицовкой, не покрашенный) [1] => 400 мм (с облицовкой, не покрашенный) [2] => 300 мм (с облицовкой, покрашенный) [3] => 400 мм (с облицовкой, покрашенный) ) [days] => [15,16,15,16] [material_price] => [2888,3729,3957,4258] [work_price] => [2564,3229,2949,3713] [image] => https://akademik-stroy.ru/wp-content/uploads/materials/teploblok.jpg [area_modifier] => 219.48 [parent_name] => Стены 1 этаж (несущие) [parent_id] => 3 [material_sum] => 798661 [work_sum] => 590884 [total_sum] => 1389545 [total_days] => 15 [display_material_sum] => 798 661 [display_work_sum] => 590 884 [display_total_sum] => 1 389 545 ) 1
1 389 545
Работа:590 884
Материалы:798 661
Дни:15
stdClass Object ( [id] => 186 [attribute_id] => 3 [name] => Арболитовые блоки [material_modifier] => 1 [work_modifier] => 1 [options] => Array ( [0] => 300 мм [1] => 400 мм [2] => 600 мм ) [days] => [19,22,27] [material_price] => [3210,4475,5852] [work_price] => [4214,4788,5866] [image] => https://akademik-stroy.ru/wp-content/uploads/materials/arbolitovye-bloki.png [area_modifier] => 219.48 [parent_name] => Стены 1 этаж (несущие) [parent_id] => 3 [material_sum] => 887709 [work_sum] => 971133 [total_sum] => 1858842 [total_days] => 19 [display_material_sum] => 887 709 [display_work_sum] => 971 133 [display_total_sum] => 1 858 842 ) 1
1 858 842
Работа:971 133
Материалы:887 709
Дни:19
stdClass Object ( [id] => 187 [attribute_id] => 3 [name] => Полистиролбетон [material_modifier] => 1 [work_modifier] => 1 [options] => Array ( [0] => 300 мм [1] => 400 мм [2] => 600 мм ) [days] => [29,31,35] [material_price] => [2798,4573,5256] [work_price] => [5038,5851,6426] [image] => https://akademik-stroy.ru/wp-content/uploads/materials/polistirolbeton.jpg [area_modifier] => 219.48 [parent_name] => Стены 1 этаж (несущие) [parent_id] => 3 [material_sum] => 773772 [work_sum] => 1161027 [total_sum] => 1934799 [total_days] => 29 [display_material_sum] => 773 772 [display_work_sum] => 1 161 027 [display_total_sum] => 1 934 799 ) 1
1 934 799
Работа:1 161 027
Материалы:773 772
Дни:29
stdClass Object ( [id] => 188 [attribute_id] => 3 [name] => Шлакоблок [material_modifier] => 1 [work_modifier] => 1 [options] => Array ( [0] => 400 мм [1] => 600 мм ) [days] => [15,16] [material_price] => [2391,3471] [work_price] => [2642,3662] [image] => https://akademik-stroy.ru/wp-content/uploads/materials/shlakoblok.jpg [area_modifier] => 219.48 [parent_name] => Стены 1 этаж (несущие) [parent_id] => 3 [material_sum] => 661219 [work_sum] => 608859 [total_sum] => 1270078 [total_days] => 15 [display_material_sum] => 661 219 [display_work_sum] => 608 859 [display_total_sum] => 1 270 078 ) 1
1 270 078
Работа:608 859
Материалы:661 219
Дни:15
stdClass Object ( [id] => 189 [attribute_id] => 3 [name] => Теплая керамика [material_modifier] => 1 [work_modifier] => 1 [options] => Array ( [0] => 380 мм [1] => 380 мм Thermo [2] => 440 мм [3] => 510 мм ) [days] => [23,23,24,25] [material_price] => [4510,5098,6093,8013] [work_price] => [4737,4937,5903,6958] [image] => https://akademik-stroy.ru/wp-content/uploads/materials/teplaya-keramika.jpg [area_modifier] => 219.48 [parent_name] => Стены 1 этаж (несущие) [parent_id] => 3 [material_sum] => 1247217 [work_sum] => 1091661 [total_sum] => 2338878 [total_days] => 23 [display_material_sum] => 1 247 217 [display_work_sum] => 1 091 661 [display_total_sum] => 2 338 878 ) 1
2 338 878
Работа:1 091 661
Материалы:1 247 217
Дни:23
stdClass Object ( [id] => 190 [attribute_id] => 3 [name] => Несъемная опалубка [material_modifier] => 1 [work_modifier] => 1 [options] => Array ( [0] => 200 мм [1] => 250 мм [2] => 300 мм [3] => 350 мм ) [days] => [15,17,19,21] [material_price] => [3302,3902,4108,5008] [work_price] => [2100,2100,2300,2534] [image] => https://akademik-stroy.ru/wp-content/uploads/materials/nesemnaya-opalubka.jpg [area_modifier] => 219.48 [parent_name] => Стены 1 этаж (несущие) [parent_id] => 3 [material_sum] => 913151 [work_sum] => 483953 [total_sum] => 1397104 [total_days] => 15 [display_material_sum] => 913 151 [display_work_sum] => 483 953 [display_total_sum] => 1 397 104 ) 1
1 397 104
Работа:483 953
Материалы:913 151
Дни:15
stdClass Object ( [id] => 251 [attribute_id] => 3 [name] => Бревно [material_modifier] => 1 [work_modifier] => 1 [options] => Array ( [0] => 260 мм [1] => 320 мм [2] => 360 мм [3] => 400 мм [4] => 500 мм ) [days] => [7,8,9,10,11] [material_price] => [1874,24045,26930,30972,38825] [work_price] => [5046,6207,6952,7716,9723] [image] => https://akademik-stroy.ru/wp-content/uploads/materials/sruby.jpg [area_modifier] => 219.48 [parent_name] => Стены 1 этаж (несущие) [parent_id] => 3 [material_sum] => 518245 [work_sum] => 1162871 [total_sum] => 1681116 [total_days] => 7 [display_material_sum] => 518 245 [display_work_sum] => 1 162 871 [display_total_sum] => 1 681 116 ) 1
1 681 116
Работа:1 162 871
Материалы:518 245
Дни:7
Перекрытие первого этажа
stdClass Object ( [id] => 7 [attribute_id] => 4 [name] => Деревянные балки [material_modifier] => 1 [work_modifier] => 1 [options] => Array ( [0] => без утепления [1] => утепление 200 мм [2] => утепление 250 мм [3] => утепление 300 мм [4] => утепление 350 мм [5] => утепление 400 мм [6] => утепление 450 мм [7] => утепление 500 мм ) [days] => [8,9,9,9,11,12,13,14] [material_price] => [1634,2042,2344,2947,3149,3652,3354,3557] [work_price] => [1230,1339,1393,1426,1460,1513,1587,1620] [image] => https://akademik-stroy.ru/wp-content/uploads/materials/derevyannye-balki.png [area_modifier] => 219.48 [parent_name] => Перекрытие первого этажа [parent_id] => 4 [material_sum] => 451874 [work_sum] => 283458 [total_sum] => 735332 [total_days] => 8 [display_material_sum] => 451 874 [display_work_sum] => 283 458 [display_total_sum] => 735 332 ) 1
735 332
Работа:283 458
Материалы:451 874
Дни:8
stdClass Object ( [id] => 8 [attribute_id] => 4 [name] => Сборные ж/б плиты [material_modifier] => 1 [work_modifier] => 1 [options] => Array ( [0] => без утепления [1] => утепление 150 мм [2] => утепление 200 мм [3] => утепление 250 мм [4] => утепление 300 мм [5] => утепление 350 мм [6] => утепление 400 мм [7] => утепление 450 мм [8] => утепление 500 мм ) [days] => [13,15,15,15,15,15,15,15,15] [material_price] => [3067,5577,5928,6679,7730,8782,9833,10884,11935] [work_price] => [1520,1956,2102,2247,2392,2537,2684,2829,2974] [image] => https://akademik-stroy.ru/wp-content/uploads/materials/sbornye-zh-b-plity-2.jpg [area_modifier] => 219.48 [parent_name] => Перекрытие первого этажа [parent_id] => 4 [material_sum] => 848163 [work_sum] => 350290 [total_sum] => 1198453 [total_days] => 13 [display_material_sum] => 848 163 [display_work_sum] => 350 290 [display_total_sum] => 1 198 453 ) 1
1 198 453
Работа:350 290
Материалы:848 163
Дни:13
stdClass Object ( [id] => 89 [attribute_id] => 4 [name] => Монолитная ж/б плита [material_modifier] => 1 [work_modifier] => 1 [options] => Array ( [0] => без утепления [1] => утепление 150 мм [2] => утепление 200 мм [3] => утепление 250 мм [4] => утепление 300 мм [5] => утепление 350 мм [6] => утепление 400 мм [7] => утепление 450 мм [8] => утепление 500 мм ) [days] => [18,20,20,20,20,20,20,20,20] [material_price] => [4837,6572,7224,7375,79426,8177,8728,9180,10031] [work_price] => [3348,3921,4112,4302,4493,4684,4875,5066,5256] [image] => https://akademik-stroy.ru/wp-content/uploads/materials/monolitnaya-zh-b-plita-2.jpg [area_modifier] => 219.48 [parent_name] => Перекрытие первого этажа [parent_id] => 4 [material_sum] => 1337647 [work_sum] => 771560 [total_sum] => 2109207 [total_days] => 18 [display_material_sum] => 1 337 647 [display_work_sum] => 771 560 [display_total_sum] => 2 109 207 ) 1
2 109 207
Работа:771 560
Материалы:1 337 647
Дни:18
Плоская крыша
stdClass Object ( [id] => 160 [attribute_id] => 36 [name] => Не эксплуатируемая [material_modifier] => 1 [work_modifier] => 1 [options] => Array ( ) [days] => [10] [material_price] => [8068] [work_price] => [4163] [image] => https://akademik-stroy.ru/wp-content/uploads/materials/ne-ehkspluatiruemaya-3.jpg [area_modifier] => 219.48 [parent_name] => Плоская крыша [parent_id] => 36 [material_sum] => 2231163 [work_sum] => 959380 [total_sum] => 3190543 [total_days] => 10 [display_material_sum] => 2 231 163 [display_work_sum] => 959 380 [display_total_sum] => 3 190 543 ) 1
3 190 543
Работа:959 380
Материалы:2 231 163
Дни:10
stdClass Object ( [id] => 161 [attribute_id] => 36 [name] => Зеленая кровля (Эксплуатируемая) [material_modifier] => 1 [work_modifier] => 1 [options] => Array ( ) [days] => [10] [material_price] => [10056] [work_price] => [8446] [image] => https://akademik-stroy.ru/wp-content/uploads/materials/zelenaya-krovlya-2.jpg [area_modifier] => 219.48 [parent_name] => Плоская крыша [parent_id] => 36 [material_sum] => 2780935 [work_sum] => 1946414 [total_sum] => 4727349 [total_days] => 10 [display_material_sum] => 2 780 935 [display_work_sum] => 1 946 414 [display_total_sum] => 4 727 349 ) 1
4 727 349
Работа:1 946 414
Материалы:2 780 935
Дни:10
stdClass Object ( [id] => 162 [attribute_id] => 36 [name] => Эксплуатируемая [material_modifier] => 1 [work_modifier] => 1 [options] => Array ( ) [days] => [10] [material_price] => [9593] [work_price] => [7459] [image] => https://akademik-stroy.ru/wp-content/uploads/materials/ehkspluatiruemaya-2.jpg [area_modifier] => 219.48 [parent_name] => Плоская крыша [parent_id] => 36 [material_sum] => 2652894 [work_sum] => 1718956 [total_sum] => 4371850 [total_days] => 10 [display_material_sum] => 2 652 894 [display_work_sum] => 1 718 956 [display_total_sum] => 4 371 850 ) 1
4 371 850
Работа:1 718 956
Материалы:2 652 894
Дни:10
stdClass Object ( [id] => 163 [attribute_id] => 36 [name] => Нет [material_modifier] => 1 [work_modifier] => 1 [options] => Array ( ) [days] => [0] [material_price] => [0] [work_price] => [0] [image] => https://akademik-stroy.ru/wp-content/uploads/materials/ne-ehkspluatiruemaya-3.jpg [area_modifier] => 219.48 [parent_name] => Плоская крыша [parent_id] => 36 [material_sum] => 0 [work_sum] => 0 [total_sum] => 0 [total_days] => 0 [display_material_sum] => 0 [display_work_sum] => 0 [display_total_sum] => 0 ) 1
0
Работа:0
Материалы:0
Дни:0
Окна
stdClass Object ( [id] => 51 [attribute_id] => 26 [name] => Есть [material_modifier] => 1 [work_modifier] => 1 [options] => Array ( [0] => Профиль 58 мм, 3-камерный, стеклопакет 2-камерный до 32 мм [1] => Профиль 60 мм, 4-камерный, стеклопакет 2-камерный до 32 мм [2] => Профиль 70 мм, 5-камерный, стеклопакет 2-камерный до 40 мм [3] => Профиль 72 мм, 5-камерный, стеклопакет 2-камерный до 40 мм [4] => Алюминиевые окна Alutech профиль 72 мм, стеклопакет 2-камерный ) [days] => [3,3,3,3,3] [material_price] => [1339,2124,2867,3023,29596] [work_price] => [635,647,659,668,2579] [image] => https://akademik-stroy.ru/wp-content/uploads/materials/okna.jpg [area_modifier] => 178.11 [parent_name] => Окна [parent_id] => 26 [material_sum] => 300497 [work_sum] => 118755 [total_sum] => 419252 [total_days] => 3 [display_material_sum] => 300 497 [display_work_sum] => 118 755 [display_total_sum] => 419 252 ) 1
419 252
Работа:118 755
Материалы:300 497
Дни:3
stdClass Object ( [id] => 52 [attribute_id] => 26 [name] => Нет [material_modifier] => 2 [work_modifier] => 1 [options] => [days] => null [material_price] => null [work_price] => null [image] => https://akademik-stroy.ru/wp-content/uploads/materials/okna.jpg [area_modifier] => 178.11 [parent_name] => Окна [parent_id] => 26 [material_sum] => 0 [work_sum] => 0 [total_sum] => 0 [total_days] => 0 [display_material_sum] => 0 [display_work_sum] => 0 [display_total_sum] => 0 ) 1
0
Работа:0
Материалы:0
Дни:0
Двери входные
stdClass Object ( [id] => 53 [attribute_id] => 27 [name] => Есть [material_modifier] => 1 [work_modifier] => 1 [options] => Array ( ) [days] => [1] [material_price] => [10000] [work_price] => [5500] [image] => https://akademik-stroy.ru/wp-content/uploads/materials/dveri.jpg [area_modifier] => 1 [parent_name] => Двери входные [parent_id] => 27 [material_sum] => 12600 [work_sum] => 5775 [total_sum] => 18375 [total_days] => 1 [display_material_sum] => 12 600 [display_work_sum] => 5 775 [display_total_sum] => 18 375 ) 1
18 375
Работа:5 775
Материалы:12 600
Дни:1
stdClass Object ( [id] => 54 [attribute_id] => 27 [name] => Нет [material_modifier] => 1 [work_modifier] => 1 [options] => Array ( ) [days] => [0] [material_price] => [0] [work_price] => [0] [image] => https://akademik-stroy.ru/wp-content/uploads/materials/dveri.jpg [area_modifier] => 1 [parent_name] => Двери входные [parent_id] => 27 [material_sum] => 0 [work_sum] => 0 [total_sum] => 0 [total_days] => 0 [display_material_sum] => 0 [display_work_sum] => 0 [display_total_sum] => 0 ) 1
0
Работа:0
Материалы:0
Дни:0
Водосточная система
stdClass Object ( [id] => 31 [attribute_id] => 16 [name] => Нет [material_modifier] => 1 [work_modifier] => 1 [options] => Array ( ) [days] => [0] [material_price] => [0] [work_price] => [0] [image] => https://akademik-stroy.ru/wp-content/uploads/materials/docke-standard-pvh.jpg [area_modifier] => 219.48 [parent_name] => Водосточная система [parent_id] => 16 [material_sum] => 0 [work_sum] => 0 [total_sum] => 0 [total_days] => 0 [display_material_sum] => 0 [display_work_sum] => 0 [display_total_sum] => 0 ) 1
0
Работа:0
Материалы:0
Дни:0
stdClass Object ( [id] => 32 [attribute_id] => 16 [name] => Есть [material_modifier] => 1 [work_modifier] => 1 [options] => Array ( [0] => Döcke Standard (ПВХ) [1] => Металлические Grand Line ) [days] => [7,7] [material_price] => [1842,2703] [work_price] => [1491,1529] [image] => https://akademik-stroy.ru/wp-content/uploads/materials/docke-standard-pvh.jpg [area_modifier] => 219.48 [parent_name] => Водосточная система [parent_id] => 16 [material_sum] => 509396 [work_sum] => 343607 [total_sum] => 853003 [total_days] => 7 [display_material_sum] => 509 396 [display_work_sum] => 343 607 [display_total_sum] => 853 003 ) 1
853 003
Работа:343 607
Материалы:509 396
Дни:7
Дополнительное утепление наружных стен
stdClass Object ( [id] => 33 [attribute_id] => 17 [name] => Нет [material_modifier] => 1 [work_modifier] => 1 [options] => Array ( ) [days] => [0] [material_price] => [0] [work_price] => [0] [image] => https://akademik-stroy.ru/wp-content/uploads/materials/mineralovata.jpg [area_modifier] => 219.48 [parent_name] => Дополнительное утепление наружных стен [parent_id] => 17 [material_sum] => 0 [work_sum] => 0 [total_sum] => 0 [total_days] => 0 [display_material_sum] => 0 [display_work_sum] => 0 [display_total_sum] => 0 ) 1
0
Работа:0
Материалы:0
Дни:0
stdClass Object ( [id] => 34 [attribute_id] => 17 [name] => Минераловатный [material_modifier] => 1 [work_modifier] => 1 [options] => Array ( [0] => 50 мм [1] => 100 мм [2] => 150 мм [3] => 200 мм [4] => 250 мм [5] => 300 мм ) [days] => [7,8,10,12,14,15] [material_price] => [3437,3613,3803,3915,4601,4830] [work_price] => [2325,2423,2523,2749,2859,3025] [image] => https://akademik-stroy.ru/wp-content/uploads/materials/mineralovata.jpg [area_modifier] => 219.48 [parent_name] => Дополнительное утепление наружных стен [parent_id] => 17 [material_sum] => 950484 [work_sum] => 535806 [total_sum] => 1486290 [total_days] => 7 [display_material_sum] => 950 484 [display_work_sum] => 535 806 [display_total_sum] => 1 486 290 ) 1
1 486 290
Работа:535 806
Материалы:950 484
Дни:7
stdClass Object ( [id] => 128 [attribute_id] => 17 [name] => Эковата (целлюлозная вата) [material_modifier] => 1 [work_modifier] => 1 [options] => Array ( [0] => 50 мм [1] => 100 мм [2] => 150 мм [3] => 200 мм [4] => 250 мм [5] => 300 мм ) [days] => [3,4,5,6,7,8] [material_price] => [810,1319,1629,1838,2267,2676] [work_price] => [1225,1323,1423,1549,1659,1725] [image] => https://akademik-stroy.ru/wp-content/uploads/materials/ehkovata.jpg [area_modifier] => 219.48 [parent_name] => Дополнительное утепление наружных стен [parent_id] => 17 [material_sum] => 224001 [work_sum] => 282306 [total_sum] => 506307 [total_days] => 3 [display_material_sum] => 224 001 [display_work_sum] => 282 306 [display_total_sum] => 506 307 ) 1
506 307
Работа:282 306
Материалы:224 001
Дни:3
stdClass Object ( [id] => 129 [attribute_id] => 17 [name] => Экструдированный пенополистирол [material_modifier] => 1 [work_modifier] => 1 [options] => Array ( [0] => 50 мм [1] => 100 мм [2] => 150 мм [3] => 200 мм [4] => 250 мм [5] => 300 мм ) [days] => [5,6,7,8,9,10] [material_price] => [4560,4300,5119,6292,7010,8583] [work_price] => [1795,1954,2254,2330,2595,2735] [image] => https://akademik-stroy.ru/wp-content/uploads/materials/epps.jpg [area_modifier] => 219.48 [parent_name] => Дополнительное утепление наружных стен [parent_id] => 17 [material_sum] => 1261044 [work_sum] => 413665 [total_sum] => 1674709 [total_days] => 5 [display_material_sum] => 1 261 044 [display_work_sum] => 413 665 [display_total_sum] => 1 674 709 ) 1
1 674 709
Работа:413 665
Материалы:1 261 044
Дни:5
stdClass Object ( [id] => 130 [attribute_id] => 17 [name] => ПСБ (ППС-пенополистирол) [material_modifier] => 1 [work_modifier] => 1 [options] => Array ( [0] => 50 мм [1] => 100 мм [2] => 150 мм [3] => 200 мм [4] => 250 мм [5] => 300 мм ) [days] => [5,6,7,8,9,10] [material_price] => [4822,5200,5819,6292,7010,7583] [work_price] => [1795,1954,2254,2330,2595,2735] [image] => https://akademik-stroy.ru/wp-content/uploads/materials/psb.jpg [area_modifier] => 219.48 [parent_name] => Дополнительное утепление наружных стен [parent_id] => 17 [material_sum] => 1333499 [work_sum] => 413665 [total_sum] => 1747164 [total_days] => 5 [display_material_sum] => 1 333 499 [display_work_sum] => 413 665 [display_total_sum] => 1 747 164 ) 1
1 747 164
Работа:413 665
Материалы:1 333 499
Дни:5
stdClass Object ( [id] => 131 [attribute_id] => 17 [name] => ППУ (Пенополиуретан) [material_modifier] => 1 [work_modifier] => 1 [options] => Array ( [0] => 50 мм [1] => 100 мм [2] => 150 мм [3] => 200 мм [4] => 250 мм [5] => 300 мм ) [days] => [3,4,5,6,7,8] [material_price] => [2860,3400,4219,4592,5010,5583] [work_price] => [729,900,980,1120,1280,1530] [image] => https://akademik-stroy.ru/wp-content/uploads/materials/ppu.jpg [area_modifier] => 219.48 [parent_name] => Дополнительное утепление наружных стен [parent_id] => 17 [material_sum] => 790918 [work_sum] => 168001 [total_sum] => 958919 [total_days] => 3 [display_material_sum] => 790 918 [display_work_sum] => 168 001 [display_total_sum] => 958 919 ) 1
958 919
Работа:168 001
Материалы:790 918
Дни:3
stdClass Object ( [id] => 132 [attribute_id] => 17 [name] => PIR-плиты (пенополиизоцианурат) [material_modifier] => 1 [work_modifier] => 1 [options] => Array ( [0] => 50 мм [1] => 100 мм [2] => 150 мм [3] => 200 мм [4] => 250 мм [5] => 300 мм ) [days] => [5,6,7,8,9,10] [material_price] => [8323,15645,20968,25900,29258,30581] [work_price] => [800,900,970,1150,1280,1330] [image] => https://akademik-stroy.ru/wp-content/uploads/materials/pir.jpg [area_modifier] => 219.48 [parent_name] => Дополнительное утепление наружных стен [parent_id] => 17 [material_sum] => 2301682 [work_sum] => 184363 [total_sum] => 2486045 [total_days] => 5 [display_material_sum] => 2 301 682 [display_work_sum] => 184 363 [display_total_sum] => 2 486 045 ) 1
2 486 045
Работа:184 363
Материалы:2 301 682
Дни:5
Наружная отделка фасада
stdClass Object ( [id] => 37 [attribute_id] => 19 [name] => Нет [material_modifier] => 1 [work_modifier] => 1 [options] => Array ( ) [days] => [0] [material_price] => [0] [work_price] => [0] [image] => https://akademik-stroy.ru/wp-content/uploads/materials/imitaciya-brusa.jpg [area_modifier] => 219.48 [parent_name] => Наружная отделка фасада [parent_id] => 19 [material_sum] => 0 [work_sum] => 0 [total_sum] => 0 [total_days] => 0 [display_material_sum] => 0 [display_work_sum] => 0 [display_total_sum] => 0 ) 1
0
Работа:0
Материалы:0
Дни:0
stdClass Object ( [id] => 38 [attribute_id] => 19 [name] => Имитация бруса [material_modifier] => 1 [work_modifier] => 1 [options] => Array ( [0] => Сосна [1] => Ель [2] => Лиственница ) [days] => [20,20,20] [material_price] => [2994,2762,4954] [work_price] => [1397,1231,1577] [image] => https://akademik-stroy.ru/wp-content/uploads/materials/imitaciya-brusa.jpg [area_modifier] => 219.48 [parent_name] => Наружная отделка фасада [parent_id] => 19 [material_sum] => 827975 [work_sum] => 321944 [total_sum] => 1149919 [total_days] => 20 [display_material_sum] => 827 975 [display_work_sum] => 321 944 [display_total_sum] => 1 149 919 ) 1
1 149 919
Работа:321 944
Материалы:827 975
Дни:20
stdClass Object ( [id] => 136 [attribute_id] => 19 [name] => Планкен [material_modifier] => 1 [work_modifier] => 1 [options] => Array ( [0] => Сосна [1] => Ель [2] => Лиственница ) [days] => [20,20,20] [material_price] => [3194,2862,5154] [work_price] => [1537,1354,1735] [image] => https://akademik-stroy.ru/wp-content/uploads/materials/planken.jpg [area_modifier] => 219.48 [parent_name] => Наружная отделка фасада [parent_id] => 19 [material_sum] => 883284 [work_sum] => 354208 [total_sum] => 1237492 [total_days] => 20 [display_material_sum] => 883 284 [display_work_sum] => 354 208 [display_total_sum] => 1 237 492 ) 1
1 237 492
Работа:354 208
Материалы:883 284
Дни:20
stdClass Object ( [id] => 137 [attribute_id] => 19 [name] => Штукатурка [material_modifier] => 1 [work_modifier] => 1 [options] => Array ( [0] => Цементно-песчаная (минеральная) [1] => Мокрый фасад ) [days] => [35,35] [material_price] => [2231,3938] [work_price] => [1202,2422] [image] => https://akademik-stroy.ru/wp-content/uploads/materials/shtukaturka.jpg [area_modifier] => 219.48 [parent_name] => Наружная отделка фасада [parent_id] => 19 [material_sum] => 616971 [work_sum] => 277006 [total_sum] => 893977 [total_days] => 35 [display_material_sum] => 616 971 [display_work_sum] => 277 006 [display_total_sum] => 893 977 ) 1
893 977
Работа:277 006
Материалы:616 971
Дни:35
stdClass Object ( [id] => 138 [attribute_id] => 19 [name] => Облицовочный кирпич [material_modifier] => 1 [work_modifier] => 1 [options] => Array ( [0] => Керамический [1] => Клинкерный [2] => Ручной формовки [3] => Гиперпрессованный [4] => Силикатный кирпич ) [days] => [45,45,45,45,45] [material_price] => [8174,9148,1040,1257,5876] [work_price] => [3240,3758,4536,4017,3369] [image] => https://akademik-stroy.ru/wp-content/uploads/materials/oblicovochnyj-kirpich.jpg [area_modifier] => 219.48 [parent_name] => Наружная отделка фасада [parent_id] => 19 [material_sum] => 2260477 [work_sum] => 746671 [total_sum] => 3007148 [total_days] => 45 [display_material_sum] => 2 260 477 [display_work_sum] => 746 671 [display_total_sum] => 3 007 148 ) 1
3 007 148
Работа:746 671
Материалы:2 260 477
Дни:45
stdClass Object ( [id] => 139 [attribute_id] => 19 [name] => Фасадная плитка [material_modifier] => 1 [work_modifier] => 1 [options] => Array ( [0] => Клинкерная [1] => Керамическая [2] => Плитка ручной формовки ) [days] => [40,40,40] [material_price] => [2974,1487,3470] [work_price] => [3007,2592,3629] [image] => https://akademik-stroy.ru/wp-content/uploads/materials/fasadnaya-plitka.jpg [area_modifier] => 219.48 [parent_name] => Наружная отделка фасада [parent_id] => 19 [material_sum] => 822444 [work_sum] => 692975 [total_sum] => 1515419 [total_days] => 40 [display_material_sum] => 822 444 [display_work_sum] => 692 975 [display_total_sum] => 1 515 419 ) 1
1 515 419
Работа:692 975
Материалы:822 444
Дни:40
stdClass Object ( [id] => 140 [attribute_id] => 19 [name] => Сайдинг [material_modifier] => 1 [work_modifier] => 1 [options] => Array ( [0] => Виниловый [1] => Металлический [2] => Фиброцементный ) [days] => [20,20,20] [material_price] => [1263,1944,4147] [work_price] => [1263,1944,2074] [image] => https://akademik-stroy.ru/wp-content/uploads/materials/sajding.jpg [area_modifier] => 219.48 [parent_name] => Наружная отделка фасада [parent_id] => 19 [material_sum] => 349276 [work_sum] => 291063 [total_sum] => 640339 [total_days] => 20 [display_material_sum] => 349 276 [display_work_sum] => 291 063 [display_total_sum] => 640 339 ) 1
640 339
Работа:291 063
Материалы:349 276
Дни:20
stdClass Object ( [id] => 141 [attribute_id] => 19 [name] => Камень [material_modifier] => 1 [work_modifier] => 1 [options] => Array ( [0] => Травертин [1] => Дагестанский [2] => Искусственный [3] => Натуральный [4] => Керамогранит ) [days] => [45,45,45,45,45] [material_price] => [4536,3888,2592,3240,2462] [work_price] => [3240,3240,2462,3110,1944] [image] => https://akademik-stroy.ru/wp-content/uploads/materials/kamen-1.jpg [area_modifier] => 219.48 [parent_name] => Наружная отделка фасада [parent_id] => 19 [material_sum] => 1254407 [work_sum] => 746671 [total_sum] => 2001078 [total_days] => 45 [display_material_sum] => 1 254 407 [display_work_sum] => 746 671 [display_total_sum] => 2 001 078 ) 1
2 001 078
Работа:746 671
Материалы:1 254 407
Дни:45
stdClass Object ( [id] => 142 [attribute_id] => 19 [name] => Термопанели [material_modifier] => 1 [work_modifier] => 1 [options] => Array ( ) [days] => [20] [material_price] => [6221] [work_price] => [2333] [image] => https://akademik-stroy.ru/wp-content/uploads/materials/termo.png [area_modifier] => 219.48 [parent_name] => Наружная отделка фасада [parent_id] => 19 [material_sum] => 1720385 [work_sum] => 537649 [total_sum] => 2258034 [total_days] => 20 [display_material_sum] => 1 720 385 [display_work_sum] => 537 649 [display_total_sum] => 2 258 034 ) 1
2 258 034
Работа:537 649
Материалы:1 720 385
Дни:20
stdClass Object ( [id] => 143 [attribute_id] => 19 [name] => Плитка HAUBERK [material_modifier] => 1 [work_modifier] => 1 [options] => Array ( ) [days] => [20] [material_price] => [2786] [work_price] => [1944] [image] => https://akademik-stroy.ru/wp-content/uploads/materials/hauberk.jpg [area_modifier] => 219.48 [parent_name] => Наружная отделка фасада [parent_id] => 19 [material_sum] => 770454 [work_sum] => 448003 [total_sum] => 1218457 [total_days] => 20 [display_material_sum] => 770 454 [display_work_sum] => 448 003 [display_total_sum] => 1 218 457 ) 1
1 218 457
Работа:448 003
Материалы:770 454
Дни:20
stdClass Object ( [id] => 144 [attribute_id] => 19 [name] => Фальцевый фасад [material_modifier] => 1 [work_modifier] => 1 [options] => Array ( ) [days] => [20] [material_price] => [3240] [work_price] => [2592] [image] => https://akademik-stroy.ru/wp-content/uploads/materials/falcevyj-fasad.jpg [area_modifier] => 219.48 [parent_name] => Наружная отделка фасада [parent_id] => 19 [material_sum] => 896005 [work_sum] => 597337 [total_sum] => 1493342 [total_days] => 20 [display_material_sum] => 896 005 [display_work_sum] => 597 337 [display_total_sum] => 1 493 342 ) 1
1 493 342
Работа:597 337
Материалы:896 005
Дни:20
stdClass Object ( [id] => 145 [attribute_id] => 19 [name] => Комбинированный [material_modifier] => 1 [work_modifier] => 1 [options] => Array ( ) [days] => [20] [material_price] => [4629] [work_price] => [3499] [image] => https://akademik-stroy.ru/wp-content/uploads/materials/Kombinirovannyj.jpg [area_modifier] => 219.48 [parent_name] => Наружная отделка фасада [parent_id] => 19 [material_sum] => 1280126 [work_sum] => 806359 [total_sum] => 2086485 [total_days] => 20 [display_material_sum] => 1 280 126 [display_work_sum] => 806 359 [display_total_sum] => 2 086 485 ) 1
2 086 485
Работа:806 359
Материалы:1 280 126
Дни:20
stdClass Object ( [id] => 257 [attribute_id] => 19 [name] => Японские фиброцементные [material_modifier] => 1 [work_modifier] => 1 [options] => Array ( ) [days] => [20] [material_price] => [7043] [work_price] => [2993] [image] => https://akademik-stroy.ru/wp-content/uploads/materials/paneli.jpg [area_modifier] => 219.48 [parent_name] => Наружная отделка фасада [parent_id] => 19 [material_sum] => 1947705 [work_sum] => 689749 [total_sum] => 2637454 [total_days] => 20 [display_material_sum] => 1 947 705 [display_work_sum] => 689 749 [display_total_sum] => 2 637 454 ) 1
2 637 454
Работа:689 749
Материалы:1 947 705
Дни:20
stdClass Object ( [id] => 258 [attribute_id] => 19 [name] => Панели Каньон [material_modifier] => 1 [work_modifier] => 1 [options] => Array ( ) [days] => [20] [material_price] => [4543] [work_price] => [2592] [image] => https://akademik-stroy.ru/wp-content/uploads/materials/kanon.png [area_modifier] => 219.48 [parent_name] => Наружная отделка фасада [parent_id] => 19 [material_sum] => 1256343 [work_sum] => 597337 [total_sum] => 1853680 [total_days] => 20 [display_material_sum] => 1 256 343 [display_work_sum] => 597 337 [display_total_sum] => 1 853 680 ) 1
1 853 680
Работа:597 337
Материалы:1 256 343
Дни:20
Террасы, крыльца, навесы
stdClass Object ( [id] => 39 [attribute_id] => 20 [name] => Нет [material_modifier] => 1 [work_modifier] => 1 [options] => Array ( ) [days] => [0] [material_price] => [0] [work_price] => [0] [image] => https://akademik-stroy.ru/wp-content/uploads/materials/terrasy.jpg [area_modifier] => 30 [parent_name] => Террасы, крыльца, навесы [parent_id] => 20 [material_sum] => 0 [work_sum] => 0 [total_sum] => 0 [total_days] => 0 [display_material_sum] => 0 [display_work_sum] => 0 [display_total_sum] => 0 ) 1
0
Работа:0
Материалы:0
Дни:0
stdClass Object ( [id] => 40 [attribute_id] => 20 [name] => Есть [material_modifier] => 1 [work_modifier] => 1 [options] => Array ( ) [days] => [5] [material_price] => [10450] [work_price] => [1950] [image] => https://akademik-stroy.ru/wp-content/uploads/materials/terrasy.jpg [area_modifier] => 30 [parent_name] => Террасы, крыльца, навесы [parent_id] => 20 [material_sum] => 395010 [work_sum] => 61425 [total_sum] => 456435 [total_days] => 5 [display_material_sum] => 395 010 [display_work_sum] => 61 425 [display_total_sum] => 456 435 ) 1
456 435
Работа:61 425
Материалы:395 010
Дни:5
Балконы
stdClass Object ( [id] => 41 [attribute_id] => 21 [name] => Нет [material_modifier] => 1 [work_modifier] => 1 [options] => Array ( ) [days] => [0] [material_price] => [0] [work_price] => [0] [image] => https://akademik-stroy.ru/wp-content/uploads/materials/balkony.jpg [area_modifier] => 30 [parent_name] => Балконы [parent_id] => 21 [material_sum] => 0 [work_sum] => 0 [total_sum] => 0 [total_days] => 0 [display_material_sum] => 0 [display_work_sum] => 0 [display_total_sum] => 0 ) 1
0
Работа:0
Материалы:0
Дни:0
stdClass Object ( [id] => 42 [attribute_id] => 21 [name] => Есть [material_modifier] => 1 [work_modifier] => 1 [options] => Array ( ) [days] => [12] [material_price] => [3600] [work_price] => [1950] [image] => https://akademik-stroy.ru/wp-content/uploads/materials/balkony.jpg [area_modifier] => 30 [parent_name] => Балконы [parent_id] => 21 [material_sum] => 136080 [work_sum] => 61425 [total_sum] => 197505 [total_days] => 12 [display_material_sum] => 136 080 [display_work_sum] => 61 425 [display_total_sum] => 197 505 ) 1
197 505
Работа:61 425
Материалы:136 080
Дни:12
Отмостка
stdClass Object ( [id] => 43 [attribute_id] => 22 [name] => Нет [material_modifier] => 1 [work_modifier] => 1 [options] => Array ( ) [days] => [0] [material_price] => [0] [work_price] => [0] [image] => https://akademik-stroy.ru/wp-content/uploads/materials/uteplennaya.jpg [area_modifier] => 219.48 [parent_name] => Отмостка [parent_id] => 22 [material_sum] => 0 [work_sum] => 0 [total_sum] => 0 [total_days] => 0 [display_material_sum] => 0 [display_work_sum] => 0 [display_total_sum] => 0 ) 1
0
Работа:0
Материалы:0
Дни:0
stdClass Object ( [id] => 44 [attribute_id] => 22 [name] => Утепленная отмостка [material_modifier] => 1 [work_modifier] => 1 [options] => Array ( ) [days] => [15] [material_price] => [2550] [work_price] => [1750] [image] => https://akademik-stroy.ru/wp-content/uploads/materials/uteplennaya.jpg [area_modifier] => 219.48 [parent_name] => Отмостка [parent_id] => 22 [material_sum] => 705189 [work_sum] => 403295 [total_sum] => 1108484 [total_days] => 15 [display_material_sum] => 705 189 [display_work_sum] => 403 295 [display_total_sum] => 1 108 484 ) 1
1 108 484
Работа:403 295
Материалы:705 189
Дни:15
stdClass Object ( [id] => 146 [attribute_id] => 22 [name] => Не утепленная отмостка [material_modifier] => 1 [work_modifier] => 1 [options] => Array ( ) [days] => [10] [material_price] => [1650] [work_price] => [1450] [image] => https://akademik-stroy.ru/wp-content/uploads/materials/ne-uteplennaya.jpg [area_modifier] => 219.48 [parent_name] => Отмостка [parent_id] => 22 [material_sum] => 456299 [work_sum] => 334158 [total_sum] => 790457 [total_days] => 10 [display_material_sum] => 456 299 [display_work_sum] => 334 158 [display_total_sum] => 790 457 ) 1
790 457
Работа:334 158
Материалы:456 299
Дни:10
Дренаж вокруг дома
stdClass Object ( [id] => 45 [attribute_id] => 23 [name] => Нет [material_modifier] => 1 [work_modifier] => 1 [options] => Array ( ) [days] => [0] [material_price] => [0] [work_price] => [0] [image] => https://akademik-stroy.ru/wp-content/uploads/materials/drenazh-2.jpg [area_modifier] => 219.48 [parent_name] => Дренаж вокруг дома [parent_id] => 23 [material_sum] => 0 [work_sum] => 0 [total_sum] => 0 [total_days] => 0 [display_material_sum] => 0 [display_work_sum] => 0 [display_total_sum] => 0 ) 1
0
Работа:0
Материалы:0
Дни:0
stdClass Object ( [id] => 46 [attribute_id] => 23 [name] => Есть [material_modifier] => 1 [work_modifier] => 1 [options] => Array ( ) [days] => [5] [material_price] => [2366] [work_price] => [1911] [image] => https://akademik-stroy.ru/wp-content/uploads/materials/drenazh-2.jpg [area_modifier] => 219.48 [parent_name] => Дренаж вокруг дома [parent_id] => 23 [material_sum] => 654305 [work_sum] => 440398 [total_sum] => 1094703 [total_days] => 5 [display_material_sum] => 654 305 [display_work_sum] => 440 398 [display_total_sum] => 1 094 703 ) 1
1 094 703
Работа:440 398
Материалы:654 305
Дни:5
Автономная канализация (септики)
stdClass Object ( [id] => 47 [attribute_id] => 24 [name] => Нет [material_modifier] => 1 [work_modifier] => 1 [options] => Array ( ) [days] => [0] [material_price] => [0] [work_price] => [0] [image] => https://akademik-stroy.ru/wp-content/uploads/materials/septik.jpg [area_modifier] => 1 [parent_name] => Автономная канализация (септики) [parent_id] => 24 [material_sum] => 0 [work_sum] => 0 [total_sum] => 0 [total_days] => 0 [display_material_sum] => 0 [display_work_sum] => 0 [display_total_sum] => 0 ) 1
0
Работа:0
Материалы:0
Дни:0
stdClass Object ( [id] => 48 [attribute_id] => 24 [name] => Есть [material_modifier] => 1 [work_modifier] => 1 [options] => Array ( [0] => Для дачи на 4 человека [1] => Для дома на 5 человек [2] => Для дома на 6 человек [3] => Для дома на 7 человек [4] => Для дома на 10 человек ) [days] => [7,7,7,8,8] [material_price] => [196340,220500,240940,264200,293340] [work_price] => [50000,55000,60500,66550,73206] [image] => https://akademik-stroy.ru/wp-content/uploads/materials/septik.jpg [area_modifier] => 1 [parent_name] => Автономная канализация (септики) [parent_id] => 24 [material_sum] => 247388 [work_sum] => 52500 [total_sum] => 299888 [total_days] => 7 [display_material_sum] => 247 388 [display_work_sum] => 52 500 [display_total_sum] => 299 888 ) 1
299 888
Работа:52 500
Материалы:247 388
Дни:7
Внутренние (не несущие) перегородки
stdClass Object ( [id] => 49 [attribute_id] => 25 [name] => Нет [material_modifier] => 1 [work_modifier] => 1 [options] => Array ( ) [days] => [0] [material_price] => [0] [work_price] => [0] [image] => https://akademik-stroy.ru/wp-content/uploads/materials/gkl.jpg [area_modifier] => 219.48 [parent_name] => Внутренние (не несущие) перегородки [parent_id] => 25 [material_sum] => 0 [work_sum] => 0 [total_sum] => 0 [total_days] => 0 [display_material_sum] => 0 [display_work_sum] => 0 [display_total_sum] => 0 ) 1
0
Работа:0
Материалы:0
Дни:0
stdClass Object ( [id] => 147 [attribute_id] => 25 [name] => Каркасно-обшивные [material_modifier] => 1 [work_modifier] => 1 [options] => Array ( [0] => 75 мм (без шумоизоляции) [1] => 75 мм (с шумоизоляцией) ) [days] => [11,11] [material_price] => [580,970] [work_price] => [380,570] [image] => https://akademik-stroy.ru/wp-content/uploads/materials/gkl.jpg [area_modifier] => 219.48 [parent_name] => Внутренние (не несущие) перегородки [parent_id] => 25 [material_sum] => 160396 [work_sum] => 87573 [total_sum] => 247969 [total_days] => 11 [display_material_sum] => 160 396 [display_work_sum] => 87 573 [display_total_sum] => 247 969 ) 1
247 969
Работа:87 573
Материалы:160 396
Дни:11
stdClass Object ( [id] => 148 [attribute_id] => 25 [name] => Пазогребневые [material_modifier] => 1 [work_modifier] => 1 [options] => Array ( [0] => 80 мм [1] => 100 мм ) [days] => [5,5] [material_price] => [1022,1313] [work_price] => [600,700] [image] => https://akademik-stroy.ru/wp-content/uploads/materials/pazogrebnevye-bloki.jpg [area_modifier] => 219.48 [parent_name] => Внутренние (не несущие) перегородки [parent_id] => 25 [material_sum] => 282629 [work_sum] => 138272 [total_sum] => 420901 [total_days] => 5 [display_material_sum] => 282 629 [display_work_sum] => 138 272 [display_total_sum] => 420 901 ) 1
420 901
Работа:138 272
Материалы:282 629
Дни:5
stdClass Object ( [id] => 149 [attribute_id] => 25 [name] => Газобетонные [material_modifier] => 1 [work_modifier] => 1 [options] => Array ( [0] => 100 мм [1] => 200 мм ) [days] => [11,11] [material_price] => [1160,1920] [work_price] => [700,900] [image] => https://akademik-stroy.ru/wp-content/uploads/materials/gazobeton-2.jpg [area_modifier] => 219.48 [parent_name] => Внутренние (не несущие) перегородки [parent_id] => 25 [material_sum] => 320792 [work_sum] => 161318 [total_sum] => 482110 [total_days] => 11 [display_material_sum] => 320 792 [display_work_sum] => 161 318 [display_total_sum] => 482 110 ) 1
482 110
Работа:161 318
Материалы:320 792
Дни:11
stdClass Object ( [id] => 150 [attribute_id] => 25 [name] => Кирпичные [material_modifier] => 1 [work_modifier] => 1 [options] => Array ( [0] => 120 мм [1] => 250 мм [2] => 360 мм ) [days] => [7,7,7] [material_price] => [1785,3570,5355] [work_price] => [900,1600,1800] [image] => https://akademik-stroy.ru/wp-content/uploads/materials/kirpich-1.jpg [area_modifier] => 219.48 [parent_name] => Внутренние (не несущие) перегородки [parent_id] => 25 [material_sum] => 493632 [work_sum] => 207409 [total_sum] => 701041 [total_days] => 7 [display_material_sum] => 493 632 [display_work_sum] => 207 409 [display_total_sum] => 701 041 ) 1
701 041
Работа:207 409
Материалы:493 632
Дни:7
Электрика
stdClass Object ( [id] => 55 [attribute_id] => 28 [name] => Нет [material_modifier] => 1 [work_modifier] => 1 [options] => Array ( ) [days] => [0] [material_price] => [0] [work_price] => [0] [image] => https://akademik-stroy.ru/wp-content/uploads/materials/ehlektrika.jpg [area_modifier] => 178.11 [parent_name] => Электрика [parent_id] => 28 [material_sum] => 0 [work_sum] => 0 [total_sum] => 0 [total_days] => 0 [display_material_sum] => 0 [display_work_sum] => 0 [display_total_sum] => 0 ) 1
0
Работа:0
Материалы:0
Дни:0
stdClass Object ( [id] => 56 [attribute_id] => 28 [name] => Есть [material_modifier] => 1 [work_modifier] => 1 [options] => Array ( ) [days] => [10] [material_price] => [650] [work_price] => [950] [image] => https://akademik-stroy.ru/wp-content/uploads/materials/ehlektrika.jpg [area_modifier] => 178.11 [parent_name] => Электрика [parent_id] => 28 [material_sum] => 145872 [work_sum] => 177665 [total_sum] => 323537 [total_days] => 10 [display_material_sum] => 145 872 [display_work_sum] => 177 665 [display_total_sum] => 323 537 ) 1
323 537
Работа:177 665
Материалы:145 872
Дни:10
Сантехника, канализация в доме
stdClass Object ( [id] => 57 [attribute_id] => 29 [name] => Нет [material_modifier] => 1 [work_modifier] => 1 [options] => Array ( ) [days] => [0] [material_price] => [0] [work_price] => [0] [image] => https://akademik-stroy.ru/wp-content/uploads/materials/santekhnika-kanalizaciya-1.jpg [area_modifier] => 178.11 [parent_name] => Сантехника, канализация в доме [parent_id] => 29 [material_sum] => 0 [work_sum] => 0 [total_sum] => 0 [total_days] => 0 [display_material_sum] => 0 [display_work_sum] => 0 [display_total_sum] => 0 ) 1
0
Работа:0
Материалы:0
Дни:0
stdClass Object ( [id] => 58 [attribute_id] => 29 [name] => Есть [material_modifier] => 1 [work_modifier] => 1 [options] => Array ( ) [days] => [10] [material_price] => [600] [work_price] => [730] [image] => https://akademik-stroy.ru/wp-content/uploads/materials/santekhnika-kanalizaciya-1.jpg [area_modifier] => 178.11 [parent_name] => Сантехника, канализация в доме [parent_id] => 29 [material_sum] => 134651 [work_sum] => 136521 [total_sum] => 271172 [total_days] => 10 [display_material_sum] => 134 651 [display_work_sum] => 136 521 [display_total_sum] => 271 172 ) 1
271 172
Работа:136 521
Материалы:134 651
Дни:10
Отопление
stdClass Object ( [id] => 59 [attribute_id] => 30 [name] => Нет [material_modifier] => 1 [work_modifier] => 1 [options] => Array ( ) [days] => [0] [material_price] => [0] [work_price] => [0] [image] => https://akademik-stroy.ru/wp-content/uploads/materials/otoplenie-1.jpg [area_modifier] => 178.11 [parent_name] => Отопление [parent_id] => 30 [material_sum] => 0 [work_sum] => 0 [total_sum] => 0 [total_days] => 0 [display_material_sum] => 0 [display_work_sum] => 0 [display_total_sum] => 0 ) 1
0
Работа:0
Материалы:0
Дни:0
stdClass Object ( [id] => 60 [attribute_id] => 30 [name] => Есть [material_modifier] => 1 [work_modifier] => 1 [options] => Array ( ) [days] => [5] [material_price] => [610] [work_price] => [560] [image] => https://akademik-stroy.ru/wp-content/uploads/materials/otoplenie-1.jpg [area_modifier] => 178.11 [parent_name] => Отопление [parent_id] => 30 [material_sum] => 136895 [work_sum] => 104729 [total_sum] => 241624 [total_days] => 5 [display_material_sum] => 136 895 [display_work_sum] => 104 729 [display_total_sum] => 241 624 ) 1
241 624
Работа:104 729
Материалы:136 895
Дни:5
Теплые полы
stdClass Object ( [id] => 61 [attribute_id] => 31 [name] => Нет [material_modifier] => 1 [work_modifier] => 1 [options] => Array ( ) [days] => [0] [material_price] => [0] [work_price] => [0] [image] => https://akademik-stroy.ru/wp-content/uploads/materials/vodyanye.jpg [area_modifier] => 30 [parent_name] => Теплые полы [parent_id] => 31 [material_sum] => 0 [work_sum] => 0 [total_sum] => 0 [total_days] => 0 [display_material_sum] => 0 [display_work_sum] => 0 [display_total_sum] => 0 ) 1
0
Работа:0
Материалы:0
Дни:0
stdClass Object ( [id] => 151 [attribute_id] => 31 [name] => Водяные [material_modifier] => 1 [work_modifier] => 1 [options] => Array ( ) [days] => [9] [material_price] => [10200] [work_price] => [2500] [image] => https://akademik-stroy.ru/wp-content/uploads/materials/vodyanye.jpg [area_modifier] => 30 [parent_name] => Теплые полы [parent_id] => 31 [material_sum] => 385560 [work_sum] => 78750 [total_sum] => 464310 [total_days] => 9 [display_material_sum] => 385 560 [display_work_sum] => 78 750 [display_total_sum] => 464 310 ) 1
464 310
Работа:78 750
Материалы:385 560
Дни:9
stdClass Object ( [id] => 152 [attribute_id] => 31 [name] => Электро [material_modifier] => 1 [work_modifier] => 1 [options] => Array ( ) [days] => [5] [material_price] => [6300] [work_price] => [1500] [image] => https://akademik-stroy.ru/wp-content/uploads/materials/ehlektricheskij.jpg [area_modifier] => 30 [parent_name] => Теплые полы [parent_id] => 31 [material_sum] => 238140 [work_sum] => 47250 [total_sum] => 285390 [total_days] => 5 [display_material_sum] => 238 140 [display_work_sum] => 47 250 [display_total_sum] => 285 390 ) 1
285 390
Работа:47 250
Материалы:238 140
Дни:5
Черновая отделка стен
stdClass Object ( [id] => 63 [attribute_id] => 32 [name] => Нет [material_modifier] => 1 [work_modifier] => 1 [options] => Array ( ) [days] => [0] [material_price] => [0] [work_price] => [0] [image] => https://akademik-stroy.ru/wp-content/uploads/materials/shtukaturka-shpatlevka-1.jpg [area_modifier] => 178.11 [parent_name] => Черновая отделка стен [parent_id] => 32 [material_sum] => 0 [work_sum] => 0 [total_sum] => 0 [total_days] => 0 [display_material_sum] => 0 [display_work_sum] => 0 [display_total_sum] => 0 ) 1
0
Работа:0
Материалы:0
Дни:0
stdClass Object ( [id] => 153 [attribute_id] => 32 [name] => Штукатурка и шпатлевка [material_modifier] => 1 [work_modifier] => 1 [options] => Array ( ) [days] => [20] [material_price] => [1850] [work_price] => [2600] [image] => https://akademik-stroy.ru/wp-content/uploads/materials/shtukaturka-shpatlevka-1.jpg [area_modifier] => 178.11 [parent_name] => Черновая отделка стен [parent_id] => 32 [material_sum] => 415174 [work_sum] => 486240 [total_sum] => 901414 [total_days] => 20 [display_material_sum] => 415 174 [display_work_sum] => 486 240 [display_total_sum] => 901 414 ) 1
901 414
Работа:486 240
Материалы:415 174
Дни:20
stdClass Object ( [id] => 154 [attribute_id] => 32 [name] => Гипсокортон на стены [material_modifier] => 1 [work_modifier] => 1 [options] => Array ( ) [days] => [15] [material_price] => [950] [work_price] => [2100] [image] => https://akademik-stroy.ru/wp-content/uploads/materials/gkl-1.jpg [area_modifier] => 178.11 [parent_name] => Черновая отделка стен [parent_id] => 32 [material_sum] => 213198 [work_sum] => 392733 [total_sum] => 605931 [total_days] => 15 [display_material_sum] => 213 198 [display_work_sum] => 392 733 [display_total_sum] => 605 931 ) 1
605 931
Работа:392 733
Материалы:213 198
Дни:15
stdClass Object ( [id] => 155 [attribute_id] => 32 [name] => Вагонка [material_modifier] => 1 [work_modifier] => 1 [options] => Array ( ) [days] => [15] [material_price] => [1250] [work_price] => [950] [image] => https://akademik-stroy.ru/wp-content/uploads/materials/vagonka.jpg [area_modifier] => 178.11 [parent_name] => Черновая отделка стен [parent_id] => 32 [material_sum] => 280523 [work_sum] => 177665 [total_sum] => 458188 [total_days] => 15 [display_material_sum] => 280 523 [display_work_sum] => 177 665 [display_total_sum] => 458 188 ) 1
458 188
Работа:177 665
Материалы:280 523
Дни:15
Черновая отделка полов
stdClass Object ( [id] => 65 [attribute_id] => 33 [name] => Нет [material_modifier] => 1 [work_modifier] => 1 [options] => Array ( ) [days] => [0] [material_price] => [0] [work_price] => [0] [image] => https://akademik-stroy.ru/wp-content/uploads/materials/styazhka.jpg [area_modifier] => 178.11 [parent_name] => Черновая отделка полов [parent_id] => 33 [material_sum] => 0 [work_sum] => 0 [total_sum] => 0 [total_days] => 0 [display_material_sum] => 0 [display_work_sum] => 0 [display_total_sum] => 0 ) 1
0
Работа:0
Материалы:0
Дни:0
stdClass Object ( [id] => 156 [attribute_id] => 33 [name] => Стяжка + наливные полы [material_modifier] => 1 [work_modifier] => 1 [options] => Array ( ) [days] => [10] [material_price] => [1000] [work_price] => [900] [image] => https://akademik-stroy.ru/wp-content/uploads/materials/styazhka.jpg [area_modifier] => 178.11 [parent_name] => Черновая отделка полов [parent_id] => 33 [material_sum] => 224419 [work_sum] => 168314 [total_sum] => 392733 [total_days] => 10 [display_material_sum] => 224 419 [display_work_sum] => 168 314 [display_total_sum] => 392 733 ) 1
392 733
Работа:168 314
Материалы:224 419
Дни:10
stdClass Object ( [id] => 157 [attribute_id] => 33 [name] => ОСБ на пол [material_modifier] => 1 [work_modifier] => 1 [options] => Array ( ) [days] => [7] [material_price] => [580] [work_price] => [350] [image] => https://akademik-stroy.ru/wp-content/uploads/materials/osb-1.jpg [area_modifier] => 178.11 [parent_name] => Черновая отделка полов [parent_id] => 33 [material_sum] => 130163 [work_sum] => 65455 [total_sum] => 195618 [total_days] => 7 [display_material_sum] => 130 163 [display_work_sum] => 65 455 [display_total_sum] => 195 618 ) 1
195 618
Работа:65 455
Материалы:130 163
Дни:7
Чистовая отделка стен и полов
stdClass Object ( [id] => 67 [attribute_id] => 34 [name] => Нет [material_modifier] => 1 [work_modifier] => 1 [options] => Array ( ) [days] => [0] [material_price] => [0] [work_price] => [0] [image] => https://akademik-stroy.ru/wp-content/uploads/materials/chistovaya-otdelka.jpg [area_modifier] => 178.11 [parent_name] => Чистовая отделка стен и полов [parent_id] => 34 [material_sum] => 0 [work_sum] => 0 [total_sum] => 0 [total_days] => 0 [display_material_sum] => 0 [display_work_sum] => 0 [display_total_sum] => 0 ) 1
0
Работа:0
Материалы:0
Дни:0
stdClass Object ( [id] => 68 [attribute_id] => 34 [name] => Есть [material_modifier] => 1 [work_modifier] => 1 [options] => Array ( ) [days] => [50] [material_price] => [6000] [work_price] => [3500] [image] => https://akademik-stroy.ru/wp-content/uploads/materials/chistovaya-otdelka.jpg [area_modifier] => 178.11 [parent_name] => Чистовая отделка стен и полов [parent_id] => 34 [material_sum] => 1346512 [work_sum] => 654554 [total_sum] => 2001066 [total_days] => 50 [display_material_sum] => 1 346 512 [display_work_sum] => 654 554 [display_total_sum] => 2 001 066 ) 1
2 001 066
Работа:654 554
Материалы:1 346 512
Дни:50
Отделка потолка
stdClass Object ( [id] => 69 [attribute_id] => 35 [name] => Нет [material_modifier] => 1 [work_modifier] => 1 [options] => Array ( ) [days] => [0] [material_price] => [0] [work_price] => [0] [image] => https://akademik-stroy.ru/wp-content/uploads/materials/mnogourovnevyj-gkl.jpg [area_modifier] => 178.11 [parent_name] => Отделка потолка [parent_id] => 35 [material_sum] => 0 [work_sum] => 0 [total_sum] => 0 [total_days] => 0 [display_material_sum] => 0 [display_work_sum] => 0 [display_total_sum] => 0 ) 1
0
Работа:0
Материалы:0
Дни:0
stdClass Object ( [id] => 70 [attribute_id] => 35 [name] => Есть [material_modifier] => 1 [work_modifier] => 1 [options] => Array ( [0] => Многоуровневый потолок из гипсокартона [1] => Многоуровневый потолок из гипсокартона и натяжного потолка [2] => Одноуровневый потолок из гипсокартона [3] => Одноуровневый натяжной потолок ) [days] => [10,10,1,1] [material_price] => [900,700,700,600] [work_price] => [1000,800,500,300] [image] => https://akademik-stroy.ru/wp-content/uploads/materials/mnogourovnevyj-gkl.jpg [area_modifier] => 178.11 [parent_name] => Отделка потолка [parent_id] => 35 [material_sum] => 201977 [work_sum] => 187016 [total_sum] => 388993 [total_days] => 10 [display_material_sum] => 201 977 [display_work_sum] => 187 016 [display_total_sum] => 388 993 ) 1
388 993
Работа:187 016
Материалы:201 977
Дни:10

Преимущества работы с нами

icon

7 этапов оплаты

icon

Независимый строительный надзор

icon

Экологически чистые материалы

icon

16 лет гарантии

icon

Онлайн-кабинет с веб-камерой

icon

Строители с опытом более 15 лет

icon

Собственное производство