Одноэтажный дом 288.49 м2 за руб.
Планировки
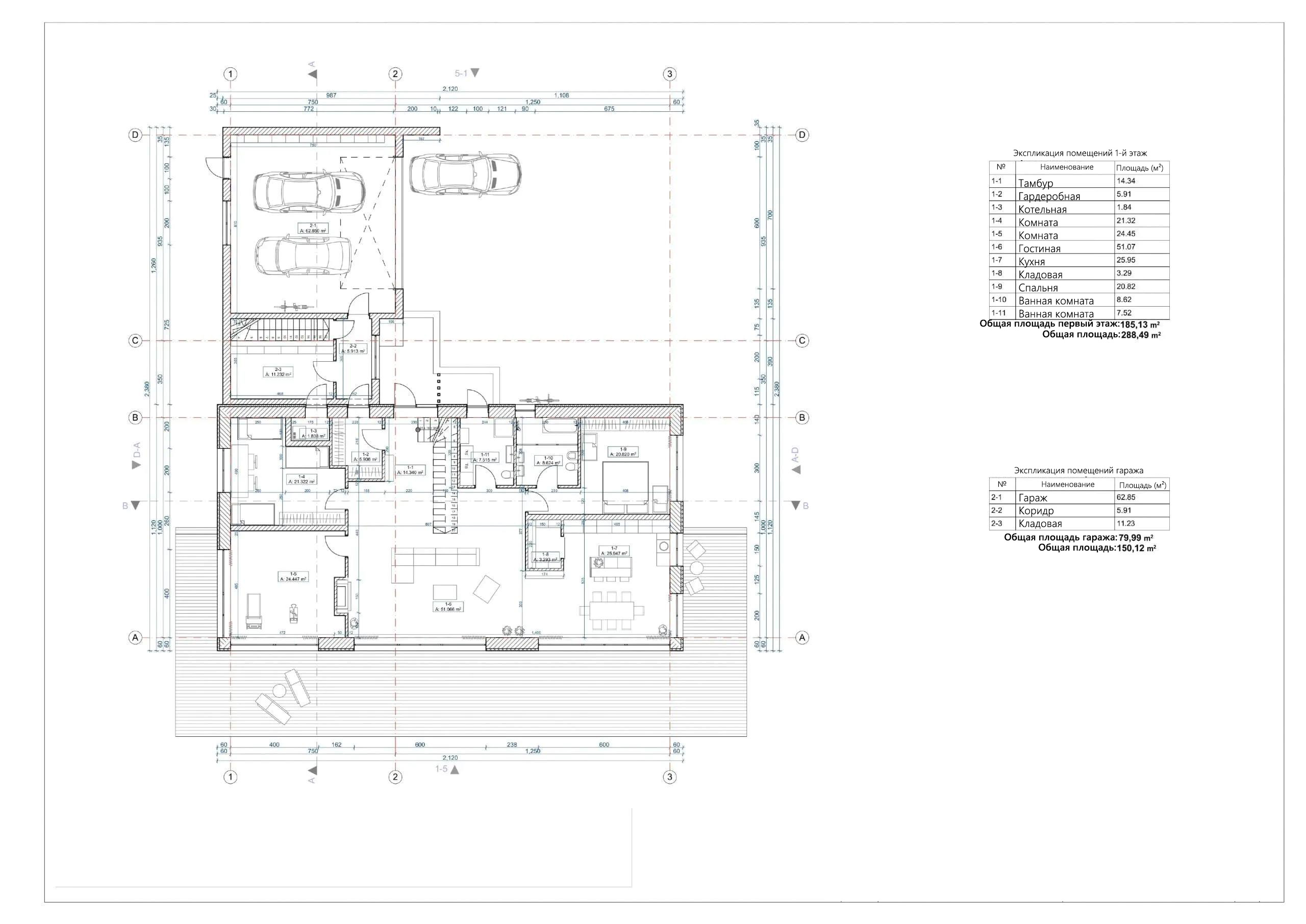
План первого этажа
- 1. Тамбур 14,34 м²
- 2. Гардероб 5,91 м²
- 3. Котельная 1,84 м²
- 4. Комната 21,32 м²
- 5. Комната 24,45 м²
- 6. Гостиная 51,07 м²
- 7. Кухня 25,95 м²
- 8. Кладовая 3,29 м²
- 9. Спальня 20,82 м²
- 10. Ванная комната 8,62 м²
- 11. Ванная комната 7,52 м²
- 12. Гараж 62,85 м²
- 13. Коридор 5,91 м²
- 14. Кладовая 11,23 м²
- Общая площадь первый этаж 265,12 м²
План мансарды
- 1. Коридор 9,13 м²
- 2. Ванная комната 7,14 м²
- 3. Гостиная 37,68 м²
- 4. Помещение 49,41 м²
- Общая площадь второй этаж 103,36 м²
Площади дома
| № п/п | Наименование | Ед. из. | Строительная площадь | Полезная площадь |
| 1 | 1 этаж | м2 | 228.14 | 185.13 |
| 2 | 2 этаж | м2 | 127.37 | 103.36 |
| 3 | Итого | м2 | 355.51 | 288.49 |
154 м2
Полезная
площадь
площадь
1 этаж
Этажей
26 м2
Террасы
и балконы
и балконы
2Без
гаража
гаража
4
Количество
спален
спален
3
Количество
санузлов
санузлов
Калькулятор опций
0₽
В ипотеку от 31 086 ₽/мес.
0₽
0 дней
stdClass Object
(
[id] => 1
[attribute_id] => 1
[name] => Ленточный монолитный ж/б
[material_modifier] => 1
[work_modifier] => 1
[options] => Array
(
[0] => размер 200 х 700 мм
[1] => размер 300 х 900 мм
[2] => размер 400 х 1 000 мм
[3] => размер 500 х 1 100 мм
[4] => размер 600 х 1 200 мм
)
[days] => [20,21,22,25,30]
[material_price] => [2823,3630,4475,5210,12047]
[work_price] => [2154,2826,3731,4577,5293]
[image] => https://akademik-stroy.ru/wp-content/uploads/materials/lentochnyj-monolitnyj-zh-b.jpg
[area_modifier] => 228.14
[parent_name] => Фундамент
[parent_id] => 1
[material_sum] => 772847
[work_sum] => 491414
[total_sum] => 1264261
[total_days] => 20
[display_material_sum] => 772 847
[display_work_sum] => 491 414
[display_total_sum] => 1 264 261
)
1
1 264 261₽
Работа:491 414 ₽
Материалы:772 847 ₽
Дни:20
stdClass Object
(
[id] => 2
[attribute_id] => 1
[name] => Забивные Ж/Б сваи
[material_modifier] => 1
[work_modifier] => 1
[options] => Array
(
[0] => 150х150х3000мм
[1] => 150х150х4000мм
[2] => 200х200х3000мм
[3] => 200х200х4000мм
[4] => 200х200х5000мм
[5] => 200х200х6000мм
)
[days] => [2,2,2,2,2,2]
[material_price] => [1990,2850,3255,4360,5120,6837]
[work_price] => [1002,1185,1336,1438,1574,1839]
[image] => https://akademik-stroy.ru/wp-content/uploads/materials/zabivnye-zh-b-svai.png
[area_modifier] => 228.14
[parent_name] => Фундамент
[parent_id] => 1
[material_sum] => 544798
[work_sum] => 228596
[total_sum] => 773394
[total_days] => 2
[display_material_sum] => 544 798
[display_work_sum] => 228 596
[display_total_sum] => 773 394
)
1
773 394₽
Работа:228 596 ₽
Материалы:544 798 ₽
Дни:2
stdClass Object
(
[id] => 71
[attribute_id] => 1
[name] => Свайно-ростверковый ж/б
[material_modifier] => 1
[work_modifier] => 1
[options] => Array
(
[0] => ростверк 200х300 мм
[1] => ростверк 300х600 мм
[2] => ростверк 400х900 мм
[3] => ростверк 500х1200 мм
)
[days] => [20,23,25,27]
[material_price] => [3018,3474,7109,9792]
[work_price] => [2024,3012,5635,7022]
[image] => https://akademik-stroy.ru/wp-content/uploads/materials/svajno-rostverkovyj-monolitnyj-zh-b-3.png
[area_modifier] => 228.14
[parent_name] => Фундамент
[parent_id] => 1
[material_sum] => 826232
[work_sum] => 461755
[total_sum] => 1287987
[total_days] => 20
[display_material_sum] => 826 232
[display_work_sum] => 461 755
[display_total_sum] => 1 287 987
)
1
1 287 987₽
Работа:461 755 ₽
Материалы:826 232 ₽
Дни:20
stdClass Object
(
[id] => 72
[attribute_id] => 1
[name] => Монолитная ж/б плита
[material_modifier] => 1
[work_modifier] => 1
[options] => Array
(
[0] => 200 мм
[1] => 300 мм
[2] => 400 мм
[3] => 500 мм
[4] => 600 мм
)
[days] => [30,33,35,37,40]
[material_price] => [5348,8555,12788,14388,15189]
[work_price] => [4314,4881,7037,8061,10230]
[image] => https://akademik-stroy.ru/wp-content/uploads/materials/monolitnaya-zhb-plita.png
[area_modifier] => 228.14
[parent_name] => Фундамент
[parent_id] => 1
[material_sum] => 1464111
[work_sum] => 984196
[total_sum] => 2448307
[total_days] => 30
[display_material_sum] => 1 464 111
[display_work_sum] => 984 196
[display_total_sum] => 2 448 307
)
1
2 448 307₽
Работа:984 196 ₽
Материалы:1 464 111 ₽
Дни:30
stdClass Object
(
[id] => 73
[attribute_id] => 1
[name] => Утепленная шведская плита
[material_modifier] => 1
[work_modifier] => 1
[options] => Array
(
[0] => 200 мм
[1] => 300 мм
[2] => 400 мм
[3] => 500 мм
[4] => 600 мм
)
[days] => [32,37,39,42,45]
[material_price] => [10249,12692,13760,14936,16230]
[work_price] => [5960,7337,8072,8878,9765]
[image] => https://akademik-stroy.ru/wp-content/uploads/materials/uteplennaya-shvedskaya-plita.jpg
[area_modifier] => 228.14
[parent_name] => Фундамент
[parent_id] => 1
[material_sum] => 2805848
[work_sum] => 1359714
[total_sum] => 4165562
[total_days] => 32
[display_material_sum] => 2 805 848
[display_work_sum] => 1 359 714
[display_total_sum] => 4 165 562
)
1
4 165 562₽
Работа:1 359 714 ₽
Материалы:2 805 848 ₽
Дни:32
stdClass Object
(
[id] => 75
[attribute_id] => 1
[name] => Ленточный из ФБС
[material_modifier] => 1
[work_modifier] => 1
[options] => Array
(
[0] => толщ. 300 мм
[1] => толщ. 400 мм
[2] => толщ. 500 мм
[3] => толщ. 600 мм
)
[days] => [20,20,20,20]
[material_price] => [3675,4902,6126,7350]
[work_price] => [2451,3264,4083,4902]
[image] => https://akademik-stroy.ru/wp-content/uploads/materials/lentochnyj-iz-fbs.png
[area_modifier] => 228.14
[parent_name] => Фундамент
[parent_id] => 1
[material_sum] => 1006097
[work_sum] => 559171
[total_sum] => 1565268
[total_days] => 20
[display_material_sum] => 1 006 097
[display_work_sum] => 559 171
[display_total_sum] => 1 565 268
)
1
1 565 268₽
Работа:559 171 ₽
Материалы:1 006 097 ₽
Дни:20
stdClass Object
(
[id] => 76
[attribute_id] => 1
[name] => Цокольный этаж из ФБС
[material_modifier] => 1
[work_modifier] => 1
[options] => Array
(
[0] => толщ. 300 мм
[1] => толщ. 400 мм
[2] => толщ. 500 мм
[3] => толщ. 600 мм
)
[days] => [30,32,34,36]
[material_price] => [20916,23299,26680,29060]
[work_price] => [17524,18700,19873,21046]
[image] => https://akademik-stroy.ru/wp-content/uploads/materials/cokolnyj-ehtazh-iz-fbs.jpg
[area_modifier] => 228.14
[parent_name] => Фундамент
[parent_id] => 1
[material_sum] => 5726131
[work_sum] => 3997925
[total_sum] => 9724056
[total_days] => 30
[display_material_sum] => 5 726 131
[display_work_sum] => 3 997 925
[display_total_sum] => 9 724 056
)
1
9 724 056₽
Работа:3 997 925 ₽
Материалы:5 726 131 ₽
Дни:30
stdClass Object
(
[id] => 77
[attribute_id] => 1
[name] => Цокольный этаж монолитный ж/б
[material_modifier] => 1
[work_modifier] => 1
[options] => Array
(
[0] => толщ. 200 мм
[1] => толщ. 300 мм
[2] => толщ. 400 мм
[3] => толщ. 500 мм
[4] => толщ. 600 мм
)
[days] => [40,42,44,46,48]
[material_price] => [25421,29148,32275,35602,37326]
[work_price] => [20441,21907,23375,24841,26306]
[image] => https://akademik-stroy.ru/wp-content/uploads/materials/cokolnyj-etazh-zh-b.jpg
[area_modifier] => 228.14
[parent_name] => Фундамент
[parent_id] => 1
[material_sum] => 6959456
[work_sum] => 4663410
[total_sum] => 11622866
[total_days] => 40
[display_material_sum] => 6 959 456
[display_work_sum] => 4 663 410
[display_total_sum] => 11 622 866
)
1
11 622 866₽
Работа:4 663 410 ₽
Материалы:6 959 456 ₽
Дни:40
stdClass Object
(
[id] => 191
[attribute_id] => 1
[name] => Винтовые сваи
[material_modifier] => 1
[work_modifier] => 1
[options] => Array
(
[0] => 57х200мм
[1] => 76х250мм
[2] => 108х300мм
[3] => 133х350мм
)
[days] => [1,1,2,2]
[material_price] => [1200,1300,1450,1600]
[work_price] => [400,600,900,1100]
[image] => https://akademik-stroy.ru/wp-content/uploads/materials/vintovye-svai.png
[area_modifier] => 228.14
[parent_name] => Фундамент
[parent_id] => 1
[material_sum] => 328522
[work_sum] => 91256
[total_sum] => 419778
[total_days] => 1
[display_material_sum] => 328 522
[display_work_sum] => 91 256
[display_total_sum] => 419 778
)
1
419 778₽
Работа:91 256 ₽
Материалы:328 522 ₽
Дни:1
stdClass Object
(
[id] => 3
[attribute_id] => 2
[name] => Деревянные балки
[material_modifier] => 1
[work_modifier] => 1
[options] => Array
(
[0] => без утепления
[1] => утепление 200 мм
[2] => утепление 250 мм
[3] => утепление 300 мм
[4] => утепление 350 мм
[5] => утепление 400 мм
[6] => утепление 450 мм
[7] => утепление 500 мм
)
[days] => [8,9,9,9,11,12,13,14]
[material_price] => [1634,2042,2344,2947,3149,3652,3354,3557]
[work_price] => [1230,1339,1393,1426,1460,1513,1587,1620]
[image] => https://akademik-stroy.ru/wp-content/uploads/materials/derevyannye-balki.png
[area_modifier] => 228.14
[parent_name] => Перекрытие цоколя
[parent_id] => 2
[material_sum] => 447337
[work_sum] => 280612
[total_sum] => 727949
[total_days] => 8
[display_material_sum] => 447 337
[display_work_sum] => 280 612
[display_total_sum] => 727 949
)
1
727 949₽
Работа:280 612 ₽
Материалы:447 337 ₽
Дни:8
stdClass Object
(
[id] => 4
[attribute_id] => 2
[name] => Сборные ж/б плиты
[material_modifier] => 1
[work_modifier] => 1
[options] => Array
(
[0] => без утепления
[1] => утепление 150мм
[2] => утепление 200мм
[3] => утепление 250мм
[4] => утепление 300мм
[5] => утепление 350мм
[6] => утепление 400мм
[7] => утепление 450мм
[8] => утепление 500мм
)
[days] => [13,15,15,15,15,15,15,15,15]
[material_price] => [3067,5577,5928,6679,7730,8782,9833,10884,11935]
[work_price] => [1520,1956,2102,2247,2392,2537,2684,2829,2974]
[image] => https://akademik-stroy.ru/wp-content/uploads/materials/sbornye-zh-b-plity-2.jpg
[area_modifier] => 228.14
[parent_name] => Перекрытие цоколя
[parent_id] => 2
[material_sum] => 839646
[work_sum] => 346773
[total_sum] => 1186419
[total_days] => 13
[display_material_sum] => 839 646
[display_work_sum] => 346 773
[display_total_sum] => 1 186 419
)
1
1 186 419₽
Работа:346 773 ₽
Материалы:839 646 ₽
Дни:13
stdClass Object
(
[id] => 78
[attribute_id] => 2
[name] => Монолитная ж/б плита
[material_modifier] => 1
[work_modifier] => 1
[options] => Array
(
[0] => без утепления
[1] => утепление 150 мм
[2] => утепление 200 мм
[3] => утепление 250 мм
[4] => утепление 300 мм
[5] => утепление 350 мм
[6] => утепление 400 мм
[7] => утепление 450 мм
[8] => утепление 500 мм
)
[days] => [18,20,20,20,20,20,20,20,20]
[material_price] => [4837,6572,7224,7375,79426,8177,8728,9180,10031]
[work_price] => [3348,3921,4112,4302,4493,4684,4875,5066,5256]
[image] => https://akademik-stroy.ru/wp-content/uploads/materials/monolitnaya-zh-b-plita-2.jpg
[area_modifier] => 228.14
[parent_name] => Перекрытие цоколя
[parent_id] => 2
[material_sum] => 1324216
[work_sum] => 763813
[total_sum] => 2088029
[total_days] => 18
[display_material_sum] => 1 324 216
[display_work_sum] => 763 813
[display_total_sum] => 2 088 029
)
1
2 088 029₽
Работа:763 813 ₽
Материалы:1 324 216 ₽
Дни:18
stdClass Object
(
[id] => 6
[attribute_id] => 3
[name] => Пеноблок
[material_modifier] => 1
[work_modifier] => 1
[options] => Array
(
[0] => 300 мм
[1] => 400 мм
[2] => 500 мм
[3] => 600 мм
)
[days] => [29,31,34,39]
[material_price] => [3000,4000,4500,4937]
[work_price] => [5033,5805,6400,8710]
[image] => https://akademik-stroy.ru/wp-content/uploads/materials/penoblok.jpg
[area_modifier] => 228.14
[parent_name] => Стены 1 этаж (несущие)
[parent_id] => 3
[material_sum] => 821304
[work_sum] => 1148229
[total_sum] => 1969533
[total_days] => 29
[display_material_sum] => 821 304
[display_work_sum] => 1 148 229
[display_total_sum] => 1 969 533
)
1
1 969 533₽
Работа:1 148 229 ₽
Материалы:821 304 ₽
Дни:29
stdClass Object
(
[id] => 79
[attribute_id] => 3
[name] => Керамический блок
[material_modifier] => 1
[work_modifier] => 1
[options] => Array
(
[0] => 380 мм
[1] => 380 мм Thermo
[2] => 440 мм
[3] => 510 мм
)
[days] => [23,23,24,25]
[material_price] => [4510,5098,6093,8013]
[work_price] => [4737,4937,5903,6958]
[image] => https://akademik-stroy.ru/wp-content/uploads/materials/keramicheskij-blok.jpg
[area_modifier] => 228.14
[parent_name] => Стены 1 этаж (несущие)
[parent_id] => 3
[material_sum] => 1234694
[work_sum] => 1080699
[total_sum] => 2315393
[total_days] => 23
[display_material_sum] => 1 234 694
[display_work_sum] => 1 080 699
[display_total_sum] => 2 315 393
)
1
2 315 393₽
Работа:1 080 699 ₽
Материалы:1 234 694 ₽
Дни:23
stdClass Object
(
[id] => 80
[attribute_id] => 3
[name] => Кирпич
[material_modifier] => 1
[work_modifier] => 1
[options] => Array
(
[0] => Кирпич 250 мм
[1] => Кирпич 380 мм
[2] => Кирпич 510 мм
[3] => Кирпич 640 мм
[4] => Кирпич 770 мм
)
[days] => [30,30,31,33,36]
[material_price] => [5500,7142,9206,10171,12235]
[work_price] => [8736,10041,12018,15240,18462]
[image] => https://akademik-stroy.ru/wp-content/uploads/materials/kirpich.jpg
[area_modifier] => 228.14
[parent_name] => Стены 1 этаж (несущие)
[parent_id] => 3
[material_sum] => 1505724
[work_sum] => 1993031
[total_sum] => 3498755
[total_days] => 30
[display_material_sum] => 1 505 724
[display_work_sum] => 1 993 031
[display_total_sum] => 3 498 755
)
1
3 498 755₽
Работа:1 993 031 ₽
Материалы:1 505 724 ₽
Дни:30
stdClass Object
(
[id] => 81
[attribute_id] => 3
[name] => Монолитные
[material_modifier] => 1
[work_modifier] => 1
[options] => Array
(
[0] => 150 мм
[1] => 200 мм
[2] => 250 мм
[3] => 300 мм
[4] => 350 мм
[5] => 400 мм
)
[days] => [45,46,47,49,50,53]
[material_price] => [6545,7876,10175,12011,13908,15204]
[work_price] => [5106,6444,7698,8552,9807,11461]
[image] => https://akademik-stroy.ru/wp-content/uploads/materials/monolitnye.jpg
[area_modifier] => 228.14
[parent_name] => Стены 1 этаж (несущие)
[parent_id] => 3
[material_sum] => 1791812
[work_sum] => 1164883
[total_sum] => 2956695
[total_days] => 45
[display_material_sum] => 1 791 812
[display_work_sum] => 1 164 883
[display_total_sum] => 2 956 695
)
1
2 956 695₽
Работа:1 164 883 ₽
Материалы:1 791 812 ₽
Дни:45
stdClass Object
(
[id] => 82
[attribute_id] => 3
[name] => Клееный брус
[material_modifier] => 1
[work_modifier] => 1
[options] => Array
(
[0] => 160 мм
[1] => 175 мм
[2] => 200 мм
[3] => 215 мм
[4] => 240 мм
[5] => 270 мм
[6] => 282 мм
)
[days] => [24,28,32,37,40,42,48]
[material_price] => [16975,18773,19950,20545,21599,22159,23275]
[work_price] => [4806,5287,5815,6397,7036,7740,8514]
[image] => https://akademik-stroy.ru/wp-content/uploads/materials/kleenyj-brus.jpg
[area_modifier] => 228.14
[parent_name] => Стены 1 этаж (несущие)
[parent_id] => 3
[material_sum] => 4647212
[work_sum] => 1096441
[total_sum] => 5743653
[total_days] => 24
[display_material_sum] => 4 647 212
[display_work_sum] => 1 096 441
[display_total_sum] => 5 743 653
)
1
5 743 653₽
Работа:1 096 441 ₽
Материалы:4 647 212 ₽
Дни:24
stdClass Object
(
[id] => 83
[attribute_id] => 3
[name] => Каркасные
[material_modifier] => 1
[work_modifier] => 1
[options] => Array
(
[0] => 150 мм
[1] => 200 мм
[2] => 250 мм
[3] => 300 мм
)
[days] => [15,16,17,18]
[material_price] => [2379,2639,2898,3258]
[work_price] => [2418,2686,2985,3716]
[image] => https://akademik-stroy.ru/wp-content/uploads/materials/karkasnye.jpg
[area_modifier] => 228.14
[parent_name] => Стены 1 этаж (несущие)
[parent_id] => 3
[material_sum] => 651294
[work_sum] => 551643
[total_sum] => 1202937
[total_days] => 15
[display_material_sum] => 651 294
[display_work_sum] => 551 643
[display_total_sum] => 1 202 937
)
1
1 202 937₽
Работа:551 643 ₽
Материалы:651 294 ₽
Дни:15
stdClass Object
(
[id] => 84
[attribute_id] => 3
[name] => СИП-панели
[material_modifier] => 1
[work_modifier] => 1
[options] => Array
(
[0] => 120 мм
[1] => 170 мм
[2] => 220 мм
)
[days] => [7,7,7]
[material_price] => [1210,1856,2292]
[work_price] => [1410,1551,1706]
[image] => https://akademik-stroy.ru/wp-content/uploads/materials/sip-paneli.jpg
[area_modifier] => 228.14
[parent_name] => Стены 1 этаж (несущие)
[parent_id] => 3
[material_sum] => 331259
[work_sum] => 321677
[total_sum] => 652936
[total_days] => 7
[display_material_sum] => 331 259
[display_work_sum] => 321 677
[display_total_sum] => 652 936
)
1
652 936₽
Работа:321 677 ₽
Материалы:331 259 ₽
Дни:7
stdClass Object
(
[id] => 85
[attribute_id] => 3
[name] => Сухой брус
[material_modifier] => 1
[work_modifier] => 1
[options] => Array
(
[0] => 150 мм
[1] => 180 мм
[2] => 200 мм
)
[days] => [7,8,9]
[material_price] => [6010,7190,8709]
[work_price] => [3204,3845,4229]
[image] => https://akademik-stroy.ru/wp-content/uploads/materials/suhoj-brus.jpg
[area_modifier] => 228.14
[parent_name] => Стены 1 этаж (несущие)
[parent_id] => 3
[material_sum] => 1645346
[work_sum] => 730961
[total_sum] => 2376307
[total_days] => 7
[display_material_sum] => 1 645 346
[display_work_sum] => 730 961
[display_total_sum] => 2 376 307
)
1
2 376 307₽
Работа:730 961 ₽
Материалы:1 645 346 ₽
Дни:7
stdClass Object
(
[id] => 86
[attribute_id] => 3
[name] => Профилированный брус
[material_modifier] => 1
[work_modifier] => 1
[options] => Array
(
[0] => 150 мм
[1] => 180 мм
[2] => 200 мм
)
[days] => [7,8,9]
[material_price] => [8190,9228,10051]
[work_price] => [3845,4614,5075]
[image] => https://akademik-stroy.ru/wp-content/uploads/materials/profilirovannyj-brus.jpg
[area_modifier] => 228.14
[parent_name] => Стены 1 этаж (несущие)
[parent_id] => 3
[material_sum] => 2242160
[work_sum] => 877198
[total_sum] => 3119358
[total_days] => 7
[display_material_sum] => 2 242 160
[display_work_sum] => 877 198
[display_total_sum] => 3 119 358
)
1
3 119 358₽
Работа:877 198 ₽
Материалы:2 242 160 ₽
Дни:7
stdClass Object
(
[id] => 87
[attribute_id] => 3
[name] => Оцилиндрованное бревно
[material_modifier] => 1
[work_modifier] => 1
[options] => Array
(
[0] => 180 мм
[1] => 220 мм
[2] => 260 мм
[3] => 320 мм
)
[days] => [7,8,9,10]
[material_price] => [75190,9532,10868,13116]
[work_price] => [3845,4691,5535,6863]
[image] => https://akademik-stroy.ru/wp-content/uploads/materials/ocilindrovannoe-brevno-1.jpg
[area_modifier] => 228.14
[parent_name] => Стены 1 этаж (несущие)
[parent_id] => 3
[material_sum] => 20584616
[work_sum] => 877198
[total_sum] => 21461814
[total_days] => 7
[display_material_sum] => 20 584 616
[display_work_sum] => 877 198
[display_total_sum] => 21 461 814
)
1
21 461 814₽
Работа:877 198 ₽
Материалы:20 584 616 ₽
Дни:7
stdClass Object
(
[id] => 88
[attribute_id] => 3
[name] => Срубы
[material_modifier] => 1
[work_modifier] => 1
[options] => Array
(
[0] => 260 мм
[1] => 320 мм
[2] => 360 мм
[3] => 400 мм
[4] => 500 мм
)
[days] => [7,8,9,10,11]
[material_price] => [37975,46709,52314,58069,73167]
[work_price] => [4806,5911,6621,7349,9260]
[image] => https://akademik-stroy.ru/wp-content/uploads/materials/sruby.jpg
[area_modifier] => 228.14
[parent_name] => Стены 1 этаж (несущие)
[parent_id] => 3
[material_sum] => 10396340
[work_sum] => 1096441
[total_sum] => 11492781
[total_days] => 7
[display_material_sum] => 10 396 340
[display_work_sum] => 1 096 441
[display_total_sum] => 11 492 781
)
1
11 492 781₽
Работа:1 096 441 ₽
Материалы:10 396 340 ₽
Дни:7
stdClass Object
(
[id] => 174
[attribute_id] => 3
[name] => Брус
[material_modifier] => 1
[work_modifier] => 1
[options] => Array
(
[0] => 150 мм
[1] => 180 мм
[2] => 200 мм
)
[days] => [7,8,9]
[material_price] => [5127,6152,7367]
[work_price] => [1602,1922,2115]
[image] => https://akademik-stroy.ru/wp-content/uploads/materials/brus.jpg
[area_modifier] => 228.14
[parent_name] => Стены 1 этаж (несущие)
[parent_id] => 3
[material_sum] => 1403609
[work_sum] => 365480
[total_sum] => 1769089
[total_days] => 7
[display_material_sum] => 1 403 609
[display_work_sum] => 365 480
[display_total_sum] => 1 769 089
)
1
1 769 089₽
Работа:365 480 ₽
Материалы:1 403 609 ₽
Дни:7
stdClass Object
(
[id] => 175
[attribute_id] => 3
[name] => Газобетон
[material_modifier] => 1
[work_modifier] => 1
[options] => Array
(
[0] => 300 мм
[1] => 375 мм
[2] => 400 мм
[3] => 500 мм
[4] => 600 мм
)
[days] => [29,31,35,37,44]
[material_price] => [4298,5573,6356,7288,9119]
[work_price] => [4538,5251,5926,6733,7195]
[image] => https://akademik-stroy.ru/wp-content/uploads/materials/gazobeton.jpg
[area_modifier] => 228.14
[parent_name] => Стены 1 этаж (несущие)
[parent_id] => 3
[material_sum] => 1176655
[work_sum] => 1035299
[total_sum] => 2211954
[total_days] => 29
[display_material_sum] => 1 176 655
[display_work_sum] => 1 035 299
[display_total_sum] => 2 211 954
)
1
2 211 954₽
Работа:1 035 299 ₽
Материалы:1 176 655 ₽
Дни:29
stdClass Object
(
[id] => 176
[attribute_id] => 3
[name] => Блок
[material_modifier] => 1
[work_modifier] => 1
[options] => Array
(
[0] => 300 мм
[1] => 375 мм
[2] => 400 мм
[3] => 500 мм
[4] => 600 мм
)
[days] => [29,31,35,37,44]
[material_price] => [2698,3973,4356,6588,7119]
[work_price] => [5038,5851,6426,8733,9195]
[image] => https://akademik-stroy.ru/wp-content/uploads/materials/blok.jpg
[area_modifier] => 228.14
[parent_name] => Стены 1 этаж (несущие)
[parent_id] => 3
[material_sum] => 738626
[work_sum] => 1149369
[total_sum] => 1887995
[total_days] => 29
[display_material_sum] => 738 626
[display_work_sum] => 1 149 369
[display_total_sum] => 1 887 995
)
1
1 887 995₽
Работа:1 149 369 ₽
Материалы:738 626 ₽
Дни:29
stdClass Object
(
[id] => 177
[attribute_id] => 3
[name] => Газосиликатный блок
[material_modifier] => 1
[work_modifier] => 1
[options] => Array
(
[0] => 300 мм
[1] => 375 мм
[2] => 400 мм
[3] => 500 мм
[4] => 600 мм
)
[days] => [29,31,35,37,44]
[material_price] => [4298,5573,6356,7288,9119]
[work_price] => [4538,5251,5926,6733,7195]
[image] => https://akademik-stroy.ru/wp-content/uploads/materials/gazosilikatnyj-blok.jpg
[area_modifier] => 228.14
[parent_name] => Стены 1 этаж (несущие)
[parent_id] => 3
[material_sum] => 1176655
[work_sum] => 1035299
[total_sum] => 2211954
[total_days] => 29
[display_material_sum] => 1 176 655
[display_work_sum] => 1 035 299
[display_total_sum] => 2 211 954
)
1
2 211 954₽
Работа:1 035 299 ₽
Материалы:1 176 655 ₽
Дни:29
stdClass Object
(
[id] => 178
[attribute_id] => 3
[name] => Керамзитобетонный блок
[material_modifier] => 1
[work_modifier] => 1
[options] => Array
(
[0] => 300 мм
[1] => 375 мм
[2] => 400 мм
[3] => 500 мм
[4] => 600 мм
)
[days] => [23,23,24,25,28]
[material_price] => [3641,4298,5693,7613,9612]
[work_price] => [5737,5737,6903,7958,8901]
[image] => https://akademik-stroy.ru/wp-content/uploads/materials/keramzitobetonnyj-blok.jpg
[area_modifier] => 228.14
[parent_name] => Стены 1 этаж (несущие)
[parent_id] => 3
[material_sum] => 996789
[work_sum] => 1308839
[total_sum] => 2305628
[total_days] => 23
[display_material_sum] => 996 789
[display_work_sum] => 1 308 839
[display_total_sum] => 2 305 628
)
1
2 305 628₽
Работа:1 308 839 ₽
Материалы:996 789 ₽
Дни:23
stdClass Object
(
[id] => 179
[attribute_id] => 3
[name] => Деревянные
[material_modifier] => 1
[work_modifier] => 1
[options] => Array
(
[0] => 180 мм
[1] => 220 мм
[2] => 260 мм
[3] => 320 мм
)
[days] => [7,8,9,10]
[material_price] => [7950,9458,11961,14472]
[work_price] => [4037,4925,5812,7207]
[image] => https://akademik-stroy.ru/wp-content/uploads/materials/derevyannye.jpg
[area_modifier] => 228.14
[parent_name] => Стены 1 этаж (несущие)
[parent_id] => 3
[material_sum] => 2176456
[work_sum] => 921001
[total_sum] => 3097457
[total_days] => 7
[display_material_sum] => 2 176 456
[display_work_sum] => 921 001
[display_total_sum] => 3 097 457
)
1
3 097 457₽
Работа:921 001 ₽
Материалы:2 176 456 ₽
Дни:7
stdClass Object
(
[id] => 181
[attribute_id] => 3
[name] => Камень
[material_modifier] => 1
[work_modifier] => 1
[options] => Array
(
[0] => 300 мм
[1] => 400 мм
[2] => 500 мм
[3] => 600 мм
)
[days] => [25,27,31,34]
[material_price] => [5262,6844,8330,9815]
[work_price] => [8331,9135,10427,11069]
[image] => https://akademik-stroy.ru/wp-content/uploads/materials/kamen.jpg
[area_modifier] => 228.14
[parent_name] => Стены 1 этаж (несущие)
[parent_id] => 3
[material_sum] => 1440567
[work_sum] => 1900634
[total_sum] => 3341201
[total_days] => 25
[display_material_sum] => 1 440 567
[display_work_sum] => 1 900 634
[display_total_sum] => 3 341 201
)
1
3 341 201₽
Работа:1 900 634 ₽
Материалы:1 440 567 ₽
Дни:25
stdClass Object
(
[id] => 182
[attribute_id] => 3
[name] => Каркасно-щитовые
[material_modifier] => 1
[work_modifier] => 1
[options] => Array
(
[0] => 150 мм
[1] => 200 мм
[2] => 250 мм
[3] => 300 мм
[4] => 350 мм
[5] => 400 мм
)
[days] => [15,16,17,18,19,20]
[material_price] => [2379,2639,2898,3458,3601,4175]
[work_price] => [2538,2820,3134,3483,4062,5642]
[image] => https://akademik-stroy.ru/wp-content/uploads/materials/karkasno-shchitovye.jpg
[area_modifier] => 228.14
[parent_name] => Стены 1 этаж (несущие)
[parent_id] => 3
[material_sum] => 651294
[work_sum] => 579019
[total_sum] => 1230313
[total_days] => 15
[display_material_sum] => 651 294
[display_work_sum] => 579 019
[display_total_sum] => 1 230 313
)
1
1 230 313₽
Работа:579 019 ₽
Материалы:651 294 ₽
Дни:15
stdClass Object
(
[id] => 183
[attribute_id] => 3
[name] => Рубленные
[material_modifier] => 1
[work_modifier] => 1
[options] => Array
(
[0] => 150 мм
[1] => 200 мм
[2] => 250 мм
[3] => 300 мм
[4] => 350 мм
[5] => 400 мм
)
[days] => [15,16,17,18,17,18]
[material_price] => [35950,50267,60583,75900,80217,100533]
[work_price] => [9612,12816,16020,19224,22428,25632]
[image] => https://akademik-stroy.ru/wp-content/uploads/materials/rublennye.jpg
[area_modifier] => 228.14
[parent_name] => Стены 1 этаж (несущие)
[parent_id] => 3
[material_sum] => 9841960
[work_sum] => 2192882
[total_sum] => 12034842
[total_days] => 15
[display_material_sum] => 9 841 960
[display_work_sum] => 2 192 882
[display_total_sum] => 12 034 842
)
1
12 034 842₽
Работа:2 192 882 ₽
Материалы:9 841 960 ₽
Дни:15
stdClass Object
(
[id] => 185
[attribute_id] => 3
[name] => Теплоблок
[material_modifier] => 1
[work_modifier] => 1
[options] => Array
(
[0] => 300 мм (с облицовкой, не покрашенный)
[1] => 400 мм (с облицовкой, не покрашенный)
[2] => 300 мм (с облицовкой, покрашенный)
[3] => 400 мм (с облицовкой, покрашенный)
)
[days] => [15,16,15,16]
[material_price] => [2888,3729,3957,4258]
[work_price] => [2564,3229,2949,3713]
[image] => https://akademik-stroy.ru/wp-content/uploads/materials/teploblok.jpg
[area_modifier] => 228.14
[parent_name] => Стены 1 этаж (несущие)
[parent_id] => 3
[material_sum] => 790642
[work_sum] => 584951
[total_sum] => 1375593
[total_days] => 15
[display_material_sum] => 790 642
[display_work_sum] => 584 951
[display_total_sum] => 1 375 593
)
1
1 375 593₽
Работа:584 951 ₽
Материалы:790 642 ₽
Дни:15
stdClass Object
(
[id] => 186
[attribute_id] => 3
[name] => Арболитовые блоки
[material_modifier] => 1
[work_modifier] => 1
[options] => Array
(
[0] => 300 мм
[1] => 400 мм
[2] => 600 мм
)
[days] => [19,22,27]
[material_price] => [3210,4475,5852]
[work_price] => [4214,4788,5866]
[image] => https://akademik-stroy.ru/wp-content/uploads/materials/arbolitovye-bloki.png
[area_modifier] => 228.14
[parent_name] => Стены 1 этаж (несущие)
[parent_id] => 3
[material_sum] => 878795
[work_sum] => 961382
[total_sum] => 1840177
[total_days] => 19
[display_material_sum] => 878 795
[display_work_sum] => 961 382
[display_total_sum] => 1 840 177
)
1
1 840 177₽
Работа:961 382 ₽
Материалы:878 795 ₽
Дни:19
stdClass Object
(
[id] => 187
[attribute_id] => 3
[name] => Полистиролбетон
[material_modifier] => 1
[work_modifier] => 1
[options] => Array
(
[0] => 300 мм
[1] => 400 мм
[2] => 600 мм
)
[days] => [29,31,35]
[material_price] => [2798,4573,5256]
[work_price] => [5038,5851,6426]
[image] => https://akademik-stroy.ru/wp-content/uploads/materials/polistirolbeton.jpg
[area_modifier] => 228.14
[parent_name] => Стены 1 этаж (несущие)
[parent_id] => 3
[material_sum] => 766003
[work_sum] => 1149369
[total_sum] => 1915372
[total_days] => 29
[display_material_sum] => 766 003
[display_work_sum] => 1 149 369
[display_total_sum] => 1 915 372
)
1
1 915 372₽
Работа:1 149 369 ₽
Материалы:766 003 ₽
Дни:29
stdClass Object
(
[id] => 188
[attribute_id] => 3
[name] => Шлакоблок
[material_modifier] => 1
[work_modifier] => 1
[options] => Array
(
[0] => 400 мм
[1] => 600 мм
)
[days] => [15,16]
[material_price] => [2391,3471]
[work_price] => [2642,3662]
[image] => https://akademik-stroy.ru/wp-content/uploads/materials/shlakoblok.jpg
[area_modifier] => 228.14
[parent_name] => Стены 1 этаж (несущие)
[parent_id] => 3
[material_sum] => 654579
[work_sum] => 602746
[total_sum] => 1257325
[total_days] => 15
[display_material_sum] => 654 579
[display_work_sum] => 602 746
[display_total_sum] => 1 257 325
)
1
1 257 325₽
Работа:602 746 ₽
Материалы:654 579 ₽
Дни:15
stdClass Object
(
[id] => 189
[attribute_id] => 3
[name] => Теплая керамика
[material_modifier] => 1
[work_modifier] => 1
[options] => Array
(
[0] => 380 мм
[1] => 380 мм Thermo
[2] => 440 мм
[3] => 510 мм
)
[days] => [23,23,24,25]
[material_price] => [4510,5098,6093,8013]
[work_price] => [4737,4937,5903,6958]
[image] => https://akademik-stroy.ru/wp-content/uploads/materials/teplaya-keramika.jpg
[area_modifier] => 228.14
[parent_name] => Стены 1 этаж (несущие)
[parent_id] => 3
[material_sum] => 1234694
[work_sum] => 1080699
[total_sum] => 2315393
[total_days] => 23
[display_material_sum] => 1 234 694
[display_work_sum] => 1 080 699
[display_total_sum] => 2 315 393
)
1
2 315 393₽
Работа:1 080 699 ₽
Материалы:1 234 694 ₽
Дни:23
stdClass Object
(
[id] => 190
[attribute_id] => 3
[name] => Несъемная опалубка
[material_modifier] => 1
[work_modifier] => 1
[options] => Array
(
[0] => 200 мм
[1] => 250 мм
[2] => 300 мм
[3] => 350 мм
)
[days] => [15,17,19,21]
[material_price] => [3302,3902,4108,5008]
[work_price] => [2100,2100,2300,2534]
[image] => https://akademik-stroy.ru/wp-content/uploads/materials/nesemnaya-opalubka.jpg
[area_modifier] => 228.14
[parent_name] => Стены 1 этаж (несущие)
[parent_id] => 3
[material_sum] => 903982
[work_sum] => 479094
[total_sum] => 1383076
[total_days] => 15
[display_material_sum] => 903 982
[display_work_sum] => 479 094
[display_total_sum] => 1 383 076
)
1
1 383 076₽
Работа:479 094 ₽
Материалы:903 982 ₽
Дни:15
stdClass Object
(
[id] => 251
[attribute_id] => 3
[name] => Бревно
[material_modifier] => 1
[work_modifier] => 1
[options] => Array
(
[0] => 260 мм
[1] => 320 мм
[2] => 360 мм
[3] => 400 мм
[4] => 500 мм
)
[days] => [7,8,9,10,11]
[material_price] => [1874,24045,26930,30972,38825]
[work_price] => [5046,6207,6952,7716,9723]
[image] => https://akademik-stroy.ru/wp-content/uploads/materials/sruby.jpg
[area_modifier] => 228.14
[parent_name] => Стены 1 этаж (несущие)
[parent_id] => 3
[material_sum] => 513041
[work_sum] => 1151194
[total_sum] => 1664235
[total_days] => 7
[display_material_sum] => 513 041
[display_work_sum] => 1 151 194
[display_total_sum] => 1 664 235
)
1
1 664 235₽
Работа:1 151 194 ₽
Материалы:513 041 ₽
Дни:7
stdClass Object
(
[id] => 7
[attribute_id] => 4
[name] => Деревянные балки
[material_modifier] => 1
[work_modifier] => 1
[options] => Array
(
[0] => без утепления
[1] => утепление 200 мм
[2] => утепление 250 мм
[3] => утепление 300 мм
[4] => утепление 350 мм
[5] => утепление 400 мм
[6] => утепление 450 мм
[7] => утепление 500 мм
)
[days] => [8,9,9,9,11,12,13,14]
[material_price] => [1634,2042,2344,2947,3149,3652,3354,3557]
[work_price] => [1230,1339,1393,1426,1460,1513,1587,1620]
[image] => https://akademik-stroy.ru/wp-content/uploads/materials/derevyannye-balki.png
[area_modifier] => 228.14
[parent_name] => Перекрытие первого этажа
[parent_id] => 4
[material_sum] => 447337
[work_sum] => 280612
[total_sum] => 727949
[total_days] => 8
[display_material_sum] => 447 337
[display_work_sum] => 280 612
[display_total_sum] => 727 949
)
1
727 949₽
Работа:280 612 ₽
Материалы:447 337 ₽
Дни:8
stdClass Object
(
[id] => 8
[attribute_id] => 4
[name] => Сборные ж/б плиты
[material_modifier] => 1
[work_modifier] => 1
[options] => Array
(
[0] => без утепления
[1] => утепление 150 мм
[2] => утепление 200 мм
[3] => утепление 250 мм
[4] => утепление 300 мм
[5] => утепление 350 мм
[6] => утепление 400 мм
[7] => утепление 450 мм
[8] => утепление 500 мм
)
[days] => [13,15,15,15,15,15,15,15,15]
[material_price] => [3067,5577,5928,6679,7730,8782,9833,10884,11935]
[work_price] => [1520,1956,2102,2247,2392,2537,2684,2829,2974]
[image] => https://akademik-stroy.ru/wp-content/uploads/materials/sbornye-zh-b-plity-2.jpg
[area_modifier] => 228.14
[parent_name] => Перекрытие первого этажа
[parent_id] => 4
[material_sum] => 839646
[work_sum] => 346773
[total_sum] => 1186419
[total_days] => 13
[display_material_sum] => 839 646
[display_work_sum] => 346 773
[display_total_sum] => 1 186 419
)
1
1 186 419₽
Работа:346 773 ₽
Материалы:839 646 ₽
Дни:13
stdClass Object
(
[id] => 89
[attribute_id] => 4
[name] => Монолитная ж/б плита
[material_modifier] => 1
[work_modifier] => 1
[options] => Array
(
[0] => без утепления
[1] => утепление 150 мм
[2] => утепление 200 мм
[3] => утепление 250 мм
[4] => утепление 300 мм
[5] => утепление 350 мм
[6] => утепление 400 мм
[7] => утепление 450 мм
[8] => утепление 500 мм
)
[days] => [18,20,20,20,20,20,20,20,20]
[material_price] => [4837,6572,7224,7375,79426,8177,8728,9180,10031]
[work_price] => [3348,3921,4112,4302,4493,4684,4875,5066,5256]
[image] => https://akademik-stroy.ru/wp-content/uploads/materials/monolitnaya-zh-b-plita-2.jpg
[area_modifier] => 228.14
[parent_name] => Перекрытие первого этажа
[parent_id] => 4
[material_sum] => 1324216
[work_sum] => 763813
[total_sum] => 2088029
[total_days] => 18
[display_material_sum] => 1 324 216
[display_work_sum] => 763 813
[display_total_sum] => 2 088 029
)
1
2 088 029₽
Работа:763 813 ₽
Материалы:1 324 216 ₽
Дни:18
stdClass Object
(
[id] => 10
[attribute_id] => 5
[name] => Пеноблок
[material_modifier] => 1
[work_modifier] => 1
[options] => Array
(
[0] => 300 мм
[1] => 400 мм
[2] => 500 мм
[3] => 600 мм
)
[days] => [29,31,34,39]
[material_price] => [3000,4000,4500,4937]
[work_price] => [5033,5805,6400,8710]
[image] => https://akademik-stroy.ru/wp-content/uploads/materials/penoblok.jpg
[area_modifier] => 127.37
[parent_name] => Стены 2 этаж (несущие)
[parent_id] => 5
[material_sum] => 458532
[work_sum] => 641053
[total_sum] => 1099585
[total_days] => 29
[display_material_sum] => 458 532
[display_work_sum] => 641 053
[display_total_sum] => 1 099 585
)
1
1 099 585₽
Работа:641 053 ₽
Материалы:458 532 ₽
Дни:29
stdClass Object
(
[id] => 90
[attribute_id] => 5
[name] => Керамический блок
[material_modifier] => 1
[work_modifier] => 1
[options] => Array
(
[0] => 380 мм
[1] => 380 мм Thermo
[2] => 440 мм
[3] => 510 мм
)
[days] => [23,23,24,25]
[material_price] => [4510,5098,6093,8013]
[work_price] => [4737,4937,5903,6958]
[image] => https://akademik-stroy.ru/wp-content/uploads/materials/keramicheskij-blok.jpg
[area_modifier] => 127.37
[parent_name] => Стены 2 этаж (несущие)
[parent_id] => 5
[material_sum] => 689326
[work_sum] => 603352
[total_sum] => 1292678
[total_days] => 23
[display_material_sum] => 689 326
[display_work_sum] => 603 352
[display_total_sum] => 1 292 678
)
1
1 292 678₽
Работа:603 352 ₽
Материалы:689 326 ₽
Дни:23
stdClass Object
(
[id] => 91
[attribute_id] => 5
[name] => Кирпич
[material_modifier] => 1
[work_modifier] => 1
[options] => Array
(
[0] => Кирпич 250 мм
[1] => Кирпич 380 мм
[2] => Кирпич 510 мм
[3] => Кирпич 640 мм
[4] => Кирпич 770 мм
)
[days] => [30,30,31,33,36]
[material_price] => [5500,7142,9206,10171,12235]
[work_price] => [8736,10041,12018,15240,18462]
[image] => https://akademik-stroy.ru/wp-content/uploads/materials/kirpich.jpg
[area_modifier] => 127.37
[parent_name] => Стены 2 этаж (несущие)
[parent_id] => 5
[material_sum] => 840642
[work_sum] => 1112704
[total_sum] => 1953346
[total_days] => 30
[display_material_sum] => 840 642
[display_work_sum] => 1 112 704
[display_total_sum] => 1 953 346
)
1
1 953 346₽
Работа:1 112 704 ₽
Материалы:840 642 ₽
Дни:30
stdClass Object
(
[id] => 92
[attribute_id] => 5
[name] => Монолитные
[material_modifier] => 1
[work_modifier] => 1
[options] => Array
(
[0] => 150 мм
[1] => 200 мм
[2] => 250 мм
[3] => 300 мм
[4] => 350 мм
[5] => 400 мм
)
[days] => [45,46,47,49,50,53]
[material_price] => [6545,7876,10175,12011,13908,15204]
[work_price] => [5106,6444,7698,8552,9807,11461]
[image] => https://akademik-stroy.ru/wp-content/uploads/materials/monolitnye.jpg
[area_modifier] => 127.37
[parent_name] => Стены 2 этаж (несущие)
[parent_id] => 5
[material_sum] => 1000364
[work_sum] => 650351
[total_sum] => 1650715
[total_days] => 45
[display_material_sum] => 1 000 364
[display_work_sum] => 650 351
[display_total_sum] => 1 650 715
)
1
1 650 715₽
Работа:650 351 ₽
Материалы:1 000 364 ₽
Дни:45
stdClass Object
(
[id] => 93
[attribute_id] => 5
[name] => Клееный брус
[material_modifier] => 1
[work_modifier] => 1
[options] => Array
(
[0] => 160 мм
[1] => 175 мм
[2] => 200 мм
[3] => 215 мм
[4] => 240 мм
[5] => 270 мм
[6] => 282 мм
)
[days] => [24,28,32,37,40,42,48]
[material_price] => [16975,18773,19950,20545,21599,22159,23275]
[work_price] => [4806,5287,5815,6397,7036,7740,8514]
[image] => https://akademik-stroy.ru/wp-content/uploads/materials/kleenyj-brus.jpg
[area_modifier] => 127.37
[parent_name] => Стены 2 этаж (несущие)
[parent_id] => 5
[material_sum] => 2594527
[work_sum] => 612140
[total_sum] => 3206667
[total_days] => 24
[display_material_sum] => 2 594 527
[display_work_sum] => 612 140
[display_total_sum] => 3 206 667
)
1
3 206 667₽
Работа:612 140 ₽
Материалы:2 594 527 ₽
Дни:24
stdClass Object
(
[id] => 94
[attribute_id] => 5
[name] => Каркасные
[material_modifier] => 1
[work_modifier] => 1
[options] => Array
(
[0] => 150 мм
[1] => 200 мм
[2] => 250 мм
[3] => 300 мм
)
[days] => [15,16,17,18]
[material_price] => [2379,2639,2898,3258]
[work_price] => [2418,2686,2985,3716]
[image] => https://akademik-stroy.ru/wp-content/uploads/materials/karkasnye.jpg
[area_modifier] => 127.37
[parent_name] => Стены 2 этаж (несущие)
[parent_id] => 5
[material_sum] => 363616
[work_sum] => 307981
[total_sum] => 671597
[total_days] => 15
[display_material_sum] => 363 616
[display_work_sum] => 307 981
[display_total_sum] => 671 597
)
1
671 597₽
Работа:307 981 ₽
Материалы:363 616 ₽
Дни:15
stdClass Object
(
[id] => 95
[attribute_id] => 5
[name] => СИП-панели
[material_modifier] => 1
[work_modifier] => 1
[options] => Array
(
[0] => 120 мм
[1] => 170 мм
[2] => 220 мм
)
[days] => [7,7,7]
[material_price] => [1210,1856,2292]
[work_price] => [1410,1551,1706]
[image] => https://akademik-stroy.ru/wp-content/uploads/materials/sip-paneli.jpg
[area_modifier] => 127.37
[parent_name] => Стены 2 этаж (несущие)
[parent_id] => 5
[material_sum] => 184941
[work_sum] => 179592
[total_sum] => 364533
[total_days] => 7
[display_material_sum] => 184 941
[display_work_sum] => 179 592
[display_total_sum] => 364 533
)
1
364 533₽
Работа:179 592 ₽
Материалы:184 941 ₽
Дни:7
stdClass Object
(
[id] => 96
[attribute_id] => 5
[name] => Сухой брус
[material_modifier] => 1
[work_modifier] => 1
[options] => Array
(
[0] => 150 мм
[1] => 180 мм
[2] => 200 мм
)
[days] => [7,8,9]
[material_price] => [6010,7190,8709]
[work_price] => [3204,3845,4229]
[image] => https://akademik-stroy.ru/wp-content/uploads/materials/suhoj-brus.jpg
[area_modifier] => 127.37
[parent_name] => Стены 2 этаж (несущие)
[parent_id] => 5
[material_sum] => 918592
[work_sum] => 408093
[total_sum] => 1326685
[total_days] => 7
[display_material_sum] => 918 592
[display_work_sum] => 408 093
[display_total_sum] => 1 326 685
)
1
1 326 685₽
Работа:408 093 ₽
Материалы:918 592 ₽
Дни:7
stdClass Object
(
[id] => 97
[attribute_id] => 5
[name] => Профилированный брус
[material_modifier] => 1
[work_modifier] => 1
[options] => Array
(
[0] => 150 мм
[1] => 180 мм
[2] => 200 мм
)
[days] => [7,8,9]
[material_price] => [8190,9228,10051]
[work_price] => [3845,4614,5075]
[image] => https://akademik-stroy.ru/wp-content/uploads/materials/profilirovannyj-brus.jpg
[area_modifier] => 127.37
[parent_name] => Стены 2 этаж (несущие)
[parent_id] => 5
[material_sum] => 1251792
[work_sum] => 489738
[total_sum] => 1741530
[total_days] => 7
[display_material_sum] => 1 251 792
[display_work_sum] => 489 738
[display_total_sum] => 1 741 530
)
1
1 741 530₽
Работа:489 738 ₽
Материалы:1 251 792 ₽
Дни:7
stdClass Object
(
[id] => 98
[attribute_id] => 5
[name] => Оцилиндрованное бревно
[material_modifier] => 1
[work_modifier] => 1
[options] => Array
(
[0] => 180 мм
[1] => 220 мм
[2] => 260 мм
[3] => 320 мм
)
[days] => [7,8,9,10]
[material_price] => [75190,9532,10868,13116]
[work_price] => [3845,4691,5535,6863]
[image] => https://akademik-stroy.ru/wp-content/uploads/materials/ocilindrovannoe-brevno-1.jpg
[area_modifier] => 127.37
[parent_name] => Стены 2 этаж (несущие)
[parent_id] => 5
[material_sum] => 11492340
[work_sum] => 489738
[total_sum] => 11982078
[total_days] => 7
[display_material_sum] => 11 492 340
[display_work_sum] => 489 738
[display_total_sum] => 11 982 078
)
1
11 982 078₽
Работа:489 738 ₽
Материалы:11 492 340 ₽
Дни:7
stdClass Object
(
[id] => 99
[attribute_id] => 5
[name] => Срубы
[material_modifier] => 1
[work_modifier] => 1
[options] => Array
(
[0] => 260 мм
[1] => 320 мм
[2] => 360 мм
[3] => 400 мм
[4] => 500 мм
)
[days] => [7,8,9,10,11]
[material_price] => [16175,23709,26314,29069,32167]
[work_price] => [4806,5911,6621,7349,9260]
[image] => https://akademik-stroy.ru/wp-content/uploads/materials/suhoj-brus.jpg
[area_modifier] => 127.37
[parent_name] => Стены 2 этаж (несущие)
[parent_id] => 5
[material_sum] => 2472252
[work_sum] => 612140
[total_sum] => 3084392
[total_days] => 7
[display_material_sum] => 2 472 252
[display_work_sum] => 612 140
[display_total_sum] => 3 084 392
)
1
3 084 392₽
Работа:612 140 ₽
Материалы:2 472 252 ₽
Дни:7
stdClass Object
(
[id] => 194
[attribute_id] => 5
[name] => Брус
[material_modifier] => 1
[work_modifier] => 1
[options] => Array
(
[0] => 150 мм
[1] => 180 мм
[2] => 200 мм
)
[days] => [10,13,15]
[material_price] => [5127,6152,7367]
[work_price] => [1602,1922,2115]
[image] => https://akademik-stroy.ru/wp-content/uploads/materials/brus.jpg
[area_modifier] => 127.37
[parent_name] => Стены 2 этаж (несущие)
[parent_id] => 5
[material_sum] => 783631
[work_sum] => 204047
[total_sum] => 987678
[total_days] => 10
[display_material_sum] => 783 631
[display_work_sum] => 204 047
[display_total_sum] => 987 678
)
1
987 678₽
Работа:204 047 ₽
Материалы:783 631 ₽
Дни:10
stdClass Object
(
[id] => 195
[attribute_id] => 5
[name] => Газобетон
[material_modifier] => 1
[work_modifier] => 1
[options] => Array
(
[0] => 300 мм
[1] => 375 мм
[2] => 400 мм
[3] => 500 мм
[4] => 600 мм
)
[days] => [29,31,35,37,44]
[material_price] => [4298,5573,6356,7288,9119]
[work_price] => [4538,5251,5926,6733,7195]
[image] => https://akademik-stroy.ru/wp-content/uploads/materials/gazobeton.jpg
[area_modifier] => 127.37
[parent_name] => Стены 2 этаж (несущие)
[parent_id] => 5
[material_sum] => 656924
[work_sum] => 578005
[total_sum] => 1234929
[total_days] => 29
[display_material_sum] => 656 924
[display_work_sum] => 578 005
[display_total_sum] => 1 234 929
)
1
1 234 929₽
Работа:578 005 ₽
Материалы:656 924 ₽
Дни:29
stdClass Object
(
[id] => 196
[attribute_id] => 5
[name] => Блок
[material_modifier] => 1
[work_modifier] => 1
[options] => Array
(
[0] => 300 мм
[1] => 375 мм
[2] => 400 мм
[3] => 500 мм
[4] => 600 мм
)
[days] => [29,31,35,37,44]
[material_price] => [2698,3973,4356,6588,7119]
[work_price] => [5038,5851,6426,8733,9195]
[image] => https://akademik-stroy.ru/wp-content/uploads/materials/blok.jpg
[area_modifier] => 127.37
[parent_name] => Стены 2 этаж (несущие)
[parent_id] => 5
[material_sum] => 412373
[work_sum] => 641690
[total_sum] => 1054063
[total_days] => 29
[display_material_sum] => 412 373
[display_work_sum] => 641 690
[display_total_sum] => 1 054 063
)
1
1 054 063₽
Работа:641 690 ₽
Материалы:412 373 ₽
Дни:29
stdClass Object
(
[id] => 197
[attribute_id] => 5
[name] => Газосиликатный блок
[material_modifier] => 1
[work_modifier] => 1
[options] => Array
(
[0] => 300 мм
[1] => 375 мм
[2] => 400 мм
[3] => 500 мм
[4] => 600 мм
)
[days] => [29,31,35,37,44]
[material_price] => [4298,5573,6356,7288,9119]
[work_price] => [4538,5251,5926,6733,7195]
[image] => https://akademik-stroy.ru/wp-content/uploads/materials/gazosilikatnyj-blok.jpg
[area_modifier] => 127.37
[parent_name] => Стены 2 этаж (несущие)
[parent_id] => 5
[material_sum] => 656924
[work_sum] => 578005
[total_sum] => 1234929
[total_days] => 29
[display_material_sum] => 656 924
[display_work_sum] => 578 005
[display_total_sum] => 1 234 929
)
1
1 234 929₽
Работа:578 005 ₽
Материалы:656 924 ₽
Дни:29
stdClass Object
(
[id] => 198
[attribute_id] => 5
[name] => Керамзитобетонный блок
[material_modifier] => 1
[work_modifier] => 1
[options] => Array
(
[0] => 300 мм
[1] => 375 мм
[2] => 400 мм
[3] => 500 мм
[4] => 600 мм
)
[days] => [23,23,24,25,28]
[material_price] => [3641,4298,5693,7613,9612]
[work_price] => [5737,5737,6903,7958,8901]
[image] => https://akademik-stroy.ru/wp-content/uploads/materials/keramzitobetonnyj-blok.jpg
[area_modifier] => 127.37
[parent_name] => Стены 2 этаж (несущие)
[parent_id] => 5
[material_sum] => 556505
[work_sum] => 730722
[total_sum] => 1287227
[total_days] => 23
[display_material_sum] => 556 505
[display_work_sum] => 730 722
[display_total_sum] => 1 287 227
)
1
1 287 227₽
Работа:730 722 ₽
Материалы:556 505 ₽
Дни:23
stdClass Object
(
[id] => 199
[attribute_id] => 5
[name] => Деревянные
[material_modifier] => 1
[work_modifier] => 1
[options] => Array
(
[0] => 180 мм
[1] => 220 мм
[2] => 260 мм
[3] => 320 мм
)
[days] => [7,8,9,10]
[material_price] => [7950,9458,11961,14472]
[work_price] => [4037,4925,5812,7207]
[image] => https://akademik-stroy.ru/wp-content/uploads/materials/derevyannye.jpg
[area_modifier] => 127.37
[parent_name] => Стены 2 этаж (несущие)
[parent_id] => 5
[material_sum] => 1215110
[work_sum] => 514193
[total_sum] => 1729303
[total_days] => 7
[display_material_sum] => 1 215 110
[display_work_sum] => 514 193
[display_total_sum] => 1 729 303
)
1
1 729 303₽
Работа:514 193 ₽
Материалы:1 215 110 ₽
Дни:7
stdClass Object
(
[id] => 200
[attribute_id] => 5
[name] => Камень
[material_modifier] => 1
[work_modifier] => 1
[options] => Array
(
[0] => 300 мм
[1] => 400 мм
[2] => 500 мм
[3] => 600 мм
)
[days] => [25,27,31,34]
[material_price] => [5262,6844,8330,9815]
[work_price] => [8331,9135,10427,11069]
[image] => https://akademik-stroy.ru/wp-content/uploads/materials/kamen.jpg
[area_modifier] => 127.37
[parent_name] => Стены 2 этаж (несущие)
[parent_id] => 5
[material_sum] => 804265
[work_sum] => 1061119
[total_sum] => 1865384
[total_days] => 25
[display_material_sum] => 804 265
[display_work_sum] => 1 061 119
[display_total_sum] => 1 865 384
)
1
1 865 384₽
Работа:1 061 119 ₽
Материалы:804 265 ₽
Дни:25
stdClass Object
(
[id] => 201
[attribute_id] => 5
[name] => Каркасно-щитовые
[material_modifier] => 1
[work_modifier] => 1
[options] => Array
(
[0] => 150 мм
[1] => 200 мм
[2] => 250 мм
[3] => 300 мм
[4] => 350 мм
[5] => 400 мм
)
[days] => [15,16,17,18,19,20]
[material_price] => [2379,2639,2898,3458,3601,4175]
[work_price] => [2538,2820,3134,3483,4062,5642]
[image] => https://akademik-stroy.ru/wp-content/uploads/materials/karkasno-shchitovye.jpg
[area_modifier] => 127.37
[parent_name] => Стены 2 этаж (несущие)
[parent_id] => 5
[material_sum] => 363616
[work_sum] => 323265
[total_sum] => 686881
[total_days] => 15
[display_material_sum] => 363 616
[display_work_sum] => 323 265
[display_total_sum] => 686 881
)
1
686 881₽
Работа:323 265 ₽
Материалы:363 616 ₽
Дни:15
stdClass Object
(
[id] => 202
[attribute_id] => 5
[name] => Рубленные
[material_modifier] => 1
[work_modifier] => 1
[options] => Array
(
[0] => 150 мм
[1] => 200 мм
[2] => 250 мм
[3] => 300 мм
[4] => 350 мм
[5] => 400 мм
)
[days] => [15,16,17,18,17,18]
[material_price] => [35950,50267,60583,75900,80217,100533]
[work_price] => [9612,12816,16020,19224,22428,25632]
[image] => https://akademik-stroy.ru/wp-content/uploads/materials/rublennye.jpg
[area_modifier] => 127.37
[parent_name] => Стены 2 этаж (несущие)
[parent_id] => 5
[material_sum] => 5494742
[work_sum] => 1224280
[total_sum] => 6719022
[total_days] => 15
[display_material_sum] => 5 494 742
[display_work_sum] => 1 224 280
[display_total_sum] => 6 719 022
)
1
6 719 022₽
Работа:1 224 280 ₽
Материалы:5 494 742 ₽
Дни:15
stdClass Object
(
[id] => 203
[attribute_id] => 5
[name] => Теплоблок
[material_modifier] => 1
[work_modifier] => 1
[options] => Array
(
[0] => 300 мм (с облицовкой, не покрашенный)
[1] => 400 мм (с облицовкой, не покрашенный)
[2] => 300 мм (с облицовкой, покрашенный)
[3] => 400 мм (с облицовкой, покрашенный)
)
[days] => [15,16,15,16]
[material_price] => [2888,3729,3957,4258]
[work_price] => [2564,3229,2949,3713]
[image] => https://akademik-stroy.ru/wp-content/uploads/materials/teploblok.jpg
[area_modifier] => 127.37
[parent_name] => Стены 2 этаж (несущие)
[parent_id] => 5
[material_sum] => 441413
[work_sum] => 326577
[total_sum] => 767990
[total_days] => 15
[display_material_sum] => 441 413
[display_work_sum] => 326 577
[display_total_sum] => 767 990
)
1
767 990₽
Работа:326 577 ₽
Материалы:441 413 ₽
Дни:15
stdClass Object
(
[id] => 204
[attribute_id] => 5
[name] => Арболитовые блоки
[material_modifier] => 1
[work_modifier] => 1
[options] => Array
(
[0] => 300 мм
[1] => 400 мм
[2] => 600 мм
)
[days] => [19,22,27]
[material_price] => [3210,4475,5852]
[work_price] => [4214,4788,5866]
[image] => https://akademik-stroy.ru/wp-content/uploads/materials/arbolitovye-bloki.png
[area_modifier] => 127.37
[parent_name] => Стены 2 этаж (несущие)
[parent_id] => 5
[material_sum] => 490629
[work_sum] => 536737
[total_sum] => 1027366
[total_days] => 19
[display_material_sum] => 490 629
[display_work_sum] => 536 737
[display_total_sum] => 1 027 366
)
1
1 027 366₽
Работа:536 737 ₽
Материалы:490 629 ₽
Дни:19
stdClass Object
(
[id] => 205
[attribute_id] => 5
[name] => Полистиролбетон
[material_modifier] => 1
[work_modifier] => 1
[options] => Array
(
[0] => 300 мм
[1] => 400 мм
[2] => 600 мм
)
[days] => [29,31,35]
[material_price] => [2798,4573,5256]
[work_price] => [5038,5851,6426]
[image] => https://akademik-stroy.ru/wp-content/uploads/materials/polistirolbeton.jpg
[area_modifier] => 127.37
[parent_name] => Стены 2 этаж (несущие)
[parent_id] => 5
[material_sum] => 427658
[work_sum] => 641690
[total_sum] => 1069348
[total_days] => 29
[display_material_sum] => 427 658
[display_work_sum] => 641 690
[display_total_sum] => 1 069 348
)
1
1 069 348₽
Работа:641 690 ₽
Материалы:427 658 ₽
Дни:29
stdClass Object
(
[id] => 206
[attribute_id] => 5
[name] => Шлакоблок
[material_modifier] => 1
[work_modifier] => 1
[options] => Array
(
[0] => 400 мм
[1] => 600 мм
)
[days] => [15,16]
[material_price] => [2391,3471]
[work_price] => [2642,3662]
[image] => https://akademik-stroy.ru/wp-content/uploads/materials/shlakoblok.jpg
[area_modifier] => 127.37
[parent_name] => Стены 2 этаж (несущие)
[parent_id] => 5
[material_sum] => 365450
[work_sum] => 336512
[total_sum] => 701962
[total_days] => 15
[display_material_sum] => 365 450
[display_work_sum] => 336 512
[display_total_sum] => 701 962
)
1
701 962₽
Работа:336 512 ₽
Материалы:365 450 ₽
Дни:15
stdClass Object
(
[id] => 245
[attribute_id] => 5
[name] => Теплая керамика
[material_modifier] => 1
[work_modifier] => 1
[options] => Array
(
[0] => 380 мм
[1] => 380 мм Thermo
[2] => 440 мм
[3] => 510 мм
)
[days] => [10,10,11,12]
[material_price] => [4510,5098,6093,8013]
[work_price] => [4737,4937,5903,6958]
[image] => https://akademik-stroy.ru/wp-content/uploads/materials/teplaya-keramika.jpg
[area_modifier] => 127.37
[parent_name] => Стены 2 этаж (несущие)
[parent_id] => 5
[material_sum] => 689326
[work_sum] => 603352
[total_sum] => 1292678
[total_days] => 10
[display_material_sum] => 689 326
[display_work_sum] => 603 352
[display_total_sum] => 1 292 678
)
1
1 292 678₽
Работа:603 352 ₽
Материалы:689 326 ₽
Дни:10
stdClass Object
(
[id] => 246
[attribute_id] => 5
[name] => Несъемная опалубка
[material_modifier] => 1
[work_modifier] => 1
[options] => Array
(
[0] => 380 мм
[1] => 380 мм Thermo
[2] => 440 мм
[3] => 510 мм
)
[days] => [10,10,11,12]
[material_price] => [3302,3902,4108,5008]
[work_price] => [2100,2100,2300,2534]
[image] => https://akademik-stroy.ru/wp-content/uploads/materials/nesemnaya-opalubka.jpg
[area_modifier] => 127.37
[parent_name] => Стены 2 этаж (несущие)
[parent_id] => 5
[material_sum] => 504691
[work_sum] => 267477
[total_sum] => 772168
[total_days] => 10
[display_material_sum] => 504 691
[display_work_sum] => 267 477
[display_total_sum] => 772 168
)
1
772 168₽
Работа:267 477 ₽
Материалы:504 691 ₽
Дни:10
stdClass Object
(
[id] => 254
[attribute_id] => 5
[name] => Бревно
[material_modifier] => 1
[work_modifier] => 1
[options] => Array
(
[0] => 260 мм
[1] => 320 мм
[2] => 360 мм
[3] => 400 мм
[4] => 500 мм
)
[days] => [7,8,9,10,11]
[material_price] => [1874,24045,26930,30972,38825]
[work_price] => [5046,6207,6952,7716,9723]
[image] => https://akademik-stroy.ru/wp-content/uploads/materials/sruby.jpg
[area_modifier] => 127.37
[parent_name] => Стены 2 этаж (несущие)
[parent_id] => 5
[material_sum] => 286430
[work_sum] => 642709
[total_sum] => 929139
[total_days] => 7
[display_material_sum] => 286 430
[display_work_sum] => 642 709
[display_total_sum] => 929 139
)
1
929 139₽
Работа:642 709 ₽
Материалы:286 430 ₽
Дни:7
stdClass Object
(
[id] => 164
[attribute_id] => 37
[name] => Металлочерепица
[material_modifier] => 1
[work_modifier] => 1
[options] => Array
(
)
[days] => [20]
[material_price] => [6112]
[work_price] => [5726]
[image] => https://akademik-stroy.ru/wp-content/uploads/materials/metallocherepica.jpg
[area_modifier] => 228.14
[parent_name] => Крыша (Скатная)
[parent_id] => 37
[material_sum] => 1673270
[work_sum] => 1306330
[total_sum] => 2979600
[total_days] => 20
[display_material_sum] => 1 673 270
[display_work_sum] => 1 306 330
[display_total_sum] => 2 979 600
)
1
2 979 600₽
Работа:1 306 330 ₽
Материалы:1 673 270 ₽
Дни:20
stdClass Object
(
[id] => 165
[attribute_id] => 37
[name] => Гибкая черепица
[material_modifier] => 1
[work_modifier] => 1
[options] => Array
(
)
[days] => [20]
[material_price] => [6980]
[work_price] => [5950]
[image] => https://akademik-stroy.ru/wp-content/uploads/materials/gibkaya-cherepica.jpg
[area_modifier] => 228.14
[parent_name] => Крыша (Скатная)
[parent_id] => 37
[material_sum] => 1910901
[work_sum] => 1357433
[total_sum] => 3268334
[total_days] => 20
[display_material_sum] => 1 910 901
[display_work_sum] => 1 357 433
[display_total_sum] => 3 268 334
)
1
3 268 334₽
Работа:1 357 433 ₽
Материалы:1 910 901 ₽
Дни:20
stdClass Object
(
[id] => 166
[attribute_id] => 37
[name] => Цементно-песчаная черепица
[material_modifier] => 1
[work_modifier] => 1
[options] => Array
(
)
[days] => [20]
[material_price] => [10560]
[work_price] => [9456]
[image] => https://akademik-stroy.ru/wp-content/uploads/materials/cementno-peschanaya-cherepica.jpg
[area_modifier] => 228.14
[parent_name] => Крыша (Скатная)
[parent_id] => 37
[material_sum] => 2890990
[work_sum] => 2157292
[total_sum] => 5048282
[total_days] => 20
[display_material_sum] => 2 890 990
[display_work_sum] => 2 157 292
[display_total_sum] => 5 048 282
)
1
5 048 282₽
Работа:2 157 292 ₽
Материалы:2 890 990 ₽
Дни:20
stdClass Object
(
[id] => 167
[attribute_id] => 37
[name] => Композитная черепица
[material_modifier] => 1
[work_modifier] => 1
[options] => Array
(
)
[days] => [20]
[material_price] => [9506]
[work_price] => [8905]
[image] => https://akademik-stroy.ru/wp-content/uploads/materials/kompozitnaya-cherepica.jpg
[area_modifier] => 228.14
[parent_name] => Крыша (Скатная)
[parent_id] => 37
[material_sum] => 2602439
[work_sum] => 2031587
[total_sum] => 4634026
[total_days] => 20
[display_material_sum] => 2 602 439
[display_work_sum] => 2 031 587
[display_total_sum] => 4 634 026
)
1
4 634 026₽
Работа:2 031 587 ₽
Материалы:2 602 439 ₽
Дни:20
stdClass Object
(
[id] => 168
[attribute_id] => 37
[name] => Керамическая черепица
[material_modifier] => 1
[work_modifier] => 1
[options] => Array
(
)
[days] => [20]
[material_price] => [12750]
[work_price] => [9456]
[image] => https://akademik-stroy.ru/wp-content/uploads/materials/keramicheskaya-cherepica.jpg
[area_modifier] => 228.14
[parent_name] => Крыша (Скатная)
[parent_id] => 37
[material_sum] => 3490542
[work_sum] => 2157292
[total_sum] => 5647834
[total_days] => 20
[display_material_sum] => 3 490 542
[display_work_sum] => 2 157 292
[display_total_sum] => 5 647 834
)
1
5 647 834₽
Работа:2 157 292 ₽
Материалы:3 490 542 ₽
Дни:20
stdClass Object
(
[id] => 169
[attribute_id] => 37
[name] => Металлическая фальцевая
[material_modifier] => 1
[work_modifier] => 1
[options] => Array
(
)
[days] => [20]
[material_price] => [8550]
[work_price] => [8190]
[image] => https://akademik-stroy.ru/wp-content/uploads/materials/metallicheskaya-falcevaya.jpg
[area_modifier] => 228.14
[parent_name] => Крыша (Скатная)
[parent_id] => 37
[material_sum] => 2340716
[work_sum] => 1868467
[total_sum] => 4209183
[total_days] => 20
[display_material_sum] => 2 340 716
[display_work_sum] => 1 868 467
[display_total_sum] => 4 209 183
)
1
4 209 183₽
Работа:1 868 467 ₽
Материалы:2 340 716 ₽
Дни:20
stdClass Object
(
[id] => 170
[attribute_id] => 37
[name] => Медная фальцевая
[material_modifier] => 1
[work_modifier] => 1
[options] => Array
(
)
[days] => [20]
[material_price] => [20450]
[work_price] => [16750]
[image] => https://akademik-stroy.ru/wp-content/uploads/materials/mednaya-falcevaya.jpg
[area_modifier] => 228.14
[parent_name] => Крыша (Скатная)
[parent_id] => 37
[material_sum] => 5598556
[work_sum] => 3821345
[total_sum] => 9419901
[total_days] => 20
[display_material_sum] => 5 598 556
[display_work_sum] => 3 821 345
[display_total_sum] => 9 419 901
)
1
9 419 901₽
Работа:3 821 345 ₽
Материалы:5 598 556 ₽
Дни:20
stdClass Object
(
[id] => 171
[attribute_id] => 37
[name] => Зеленая кровля
[material_modifier] => 1
[work_modifier] => 1
[options] => Array
(
)
[days] => [20]
[material_price] => [19850]
[work_price] => [16780]
[image] => https://akademik-stroy.ru/wp-content/uploads/materials/zelenaya-krovlya.jpg
[area_modifier] => 228.14
[parent_name] => Крыша (Скатная)
[parent_id] => 37
[material_sum] => 5434295
[work_sum] => 3828189
[total_sum] => 9262484
[total_days] => 20
[display_material_sum] => 5 434 295
[display_work_sum] => 3 828 189
[display_total_sum] => 9 262 484
)
1
9 262 484₽
Работа:3 828 189 ₽
Материалы:5 434 295 ₽
Дни:20
stdClass Object
(
[id] => 172
[attribute_id] => 37
[name] => Профлист
[material_modifier] => 1
[work_modifier] => 1
[options] => Array
(
)
[days] => [20]
[material_price] => [3450]
[work_price] => [3750]
[image] => https://akademik-stroy.ru/wp-content/uploads/materials/proflist.jpg
[area_modifier] => 228.14
[parent_name] => Крыша (Скатная)
[parent_id] => 37
[material_sum] => 944500
[work_sum] => 855525
[total_sum] => 1800025
[total_days] => 20
[display_material_sum] => 944 500
[display_work_sum] => 855 525
[display_total_sum] => 1 800 025
)
1
1 800 025₽
Работа:855 525 ₽
Материалы:944 500 ₽
Дни:20
stdClass Object
(
[id] => 51
[attribute_id] => 26
[name] => Есть
[material_modifier] => 1
[work_modifier] => 1
[options] => Array
(
[0] => Профиль 58 мм, 3-камерный, стеклопакет 2-камерный до 32 мм
[1] => Профиль 60 мм, 4-камерный, стеклопакет 2-камерный до 32 мм
[2] => Профиль 70 мм, 5-камерный, стеклопакет 2-камерный до 40 мм
[3] => Профиль 72 мм, 5-камерный, стеклопакет 2-камерный до 40 мм
[4] => Алюминиевые окна Alutech профиль 72 мм, стеклопакет 2-камерный
)
[days] => [3,3,3,3,3]
[material_price] => [1339,2124,2867,3023,29596]
[work_price] => [635,647,659,668,2579]
[image] => https://akademik-stroy.ru/wp-content/uploads/materials/okna.jpg
[area_modifier] => 288.49
[parent_name] => Окна
[parent_id] => 26
[material_sum] => 463546
[work_sum] => 183191
[total_sum] => 646737
[total_days] => 3
[display_material_sum] => 463 546
[display_work_sum] => 183 191
[display_total_sum] => 646 737
)
1
646 737₽
Работа:183 191 ₽
Материалы:463 546 ₽
Дни:3
stdClass Object
(
[id] => 52
[attribute_id] => 26
[name] => Нет
[material_modifier] => 2
[work_modifier] => 1
[options] =>
[days] => null
[material_price] => null
[work_price] => null
[image] => https://akademik-stroy.ru/wp-content/uploads/materials/okna.jpg
[area_modifier] => 288.49
[parent_name] => Окна
[parent_id] => 26
[material_sum] => 0
[work_sum] => 0
[total_sum] => 0
[total_days] => 0
[display_material_sum] => 0
[display_work_sum] => 0
[display_total_sum] => 0
)
1
0₽
Работа:0 ₽
Материалы:0 ₽
Дни:0
stdClass Object
(
[id] => 53
[attribute_id] => 27
[name] => Есть
[material_modifier] => 1
[work_modifier] => 1
[options] => Array
(
)
[days] => [1]
[material_price] => [10000]
[work_price] => [5500]
[image] => https://akademik-stroy.ru/wp-content/uploads/materials/dveri.jpg
[area_modifier] => 1
[parent_name] => Двери входные
[parent_id] => 27
[material_sum] => 12000
[work_sum] => 5500
[total_sum] => 17500
[total_days] => 1
[display_material_sum] => 12 000
[display_work_sum] => 5 500
[display_total_sum] => 17 500
)
1
17 500₽
Работа:5 500 ₽
Материалы:12 000 ₽
Дни:1
stdClass Object
(
[id] => 54
[attribute_id] => 27
[name] => Нет
[material_modifier] => 1
[work_modifier] => 1
[options] => Array
(
)
[days] => [0]
[material_price] => [0]
[work_price] => [0]
[image] => https://akademik-stroy.ru/wp-content/uploads/materials/dveri.jpg
[area_modifier] => 1
[parent_name] => Двери входные
[parent_id] => 27
[material_sum] => 0
[work_sum] => 0
[total_sum] => 0
[total_days] => 0
[display_material_sum] => 0
[display_work_sum] => 0
[display_total_sum] => 0
)
1
0₽
Работа:0 ₽
Материалы:0 ₽
Дни:0
stdClass Object
(
[id] => 25
[attribute_id] => 13
[name] => Нет
[material_modifier] => 1
[work_modifier] => 1
[options] => Array
(
)
[days] => [0]
[material_price] => [0]
[work_price] => [0]
[image] => https://akademik-stroy.ru/wp-content/uploads/materials/mineralovata-krov.jpg
[area_modifier] => 228.14
[parent_name] => Утепление кровли (Мансарда)
[parent_id] => 13
[material_sum] => 0
[work_sum] => 0
[total_sum] => 0
[total_days] => 0
[display_material_sum] => 0
[display_work_sum] => 0
[display_total_sum] => 0
)
1
0₽
Работа:0 ₽
Материалы:0 ₽
Дни:0
stdClass Object
(
[id] => 26
[attribute_id] => 13
[name] => Минераловатный
[material_modifier] => 1
[work_modifier] => 1
[options] => Array
(
[0] => 50 мм
[1] => 100 мм
[2] => 150 мм
[3] => 200 мм
[4] => 250 мм
[5] => 300 мм
[6] => 350 мм
[7] => 400 мм
[8] => 450 мм
[9] => 500 мм
)
[days] => [5,5,6,6,6,7,7,7,8,8]
[material_price] => [1158,1414,1772,2230,3602,4060,4974,5890,6408,7718]
[work_price] => [650,846,846,1098,1318,1450,1596,1754,1930,2122]
[image] => https://akademik-stroy.ru/wp-content/uploads/materials/mineralovata-krov.jpg
[area_modifier] => 228.14
[parent_name] => Утепление кровли (Мансарда)
[parent_id] => 13
[material_sum] => 317023
[work_sum] => 148291
[total_sum] => 465314
[total_days] => 5
[display_material_sum] => 317 023
[display_work_sum] => 148 291
[display_total_sum] => 465 314
)
1
465 314₽
Работа:148 291 ₽
Материалы:317 023 ₽
Дни:5
stdClass Object
(
[id] => 123
[attribute_id] => 13
[name] => Эковата (целлюлозная вата)
[material_modifier] => 1
[work_modifier] => 1
[options] => Array
(
[0] => 50 мм
[1] => 100 мм
[2] => 150 мм
[3] => 200 мм
[4] => 250 мм
[5] => 300 мм
[6] => 350 мм
[7] => 400 мм
[8] => 450 мм
[9] => 500 мм
)
[days] => [3,3,4,4,4,5,5,5,5,5]
[material_price] => [820,1638,2458,3276,5734,6552,8190,9828,11466,13104]
[work_price] => [234,304,304,396,474,522,574,632,694,764]
[image] => https://akademik-stroy.ru/wp-content/uploads/materials/ehkovata-krov.jpg
[area_modifier] => 228.14
[parent_name] => Утепление кровли (Мансарда)
[parent_id] => 13
[material_sum] => 224490
[work_sum] => 53385
[total_sum] => 277875
[total_days] => 3
[display_material_sum] => 224 490
[display_work_sum] => 53 385
[display_total_sum] => 277 875
)
1
277 875₽
Работа:53 385 ₽
Материалы:224 490 ₽
Дни:3
stdClass Object
(
[id] => 124
[attribute_id] => 13
[name] => Экструдированный пенополистирол
[material_modifier] => 1
[work_modifier] => 1
[options] => Array
(
[0] => 50 мм
[1] => 100 мм
[2] => 150 мм
[3] => 200 мм
[4] => 250 мм
[5] => 300 мм
[6] => 350 мм
[7] => 400 мм
[8] => 450 мм
[9] => 500 мм
)
[days] => [3,3,4,4,4,5,5,5,5,6]
[material_price] => [1146,2292,3438,4584,8020,9166,11458,13750,16040,18332]
[work_price] => [390,508,508,660,790,870,958,1052,1158,1274]
[image] => https://akademik-stroy.ru/wp-content/uploads/materials/epps-krov.jpg
[area_modifier] => 228.14
[parent_name] => Утепление кровли (Мансарда)
[parent_id] => 13
[material_sum] => 313738
[work_sum] => 88975
[total_sum] => 402713
[total_days] => 3
[display_material_sum] => 313 738
[display_work_sum] => 88 975
[display_total_sum] => 402 713
)
1
402 713₽
Работа:88 975 ₽
Материалы:313 738 ₽
Дни:3
stdClass Object
(
[id] => 125
[attribute_id] => 13
[name] => ПСБ (ППС-пенополистирол)
[material_modifier] => 1
[work_modifier] => 1
[options] => Array
(
[0] => 50 мм
[1] => 100 мм
[2] => 150 мм
[3] => 200 мм
[4] => 250 мм
[5] => 300 мм
[6] => 350 мм
[7] => 400 мм
[8] => 450 мм
[9] => 500 мм
)
[days] => [3,3,4,4,4,5,5,5,5,6]
[material_price] => [476,954,1430,1906,3336,3814,4766,5720,6674,7626]
[work_price] => [390,508,508,660,790,870,958,1052,1158,1274]
[image] => https://akademik-stroy.ru/wp-content/uploads/materials/psb-krov.jpg
[area_modifier] => 228.14
[parent_name] => Утепление кровли (Мансарда)
[parent_id] => 13
[material_sum] => 130314
[work_sum] => 88975
[total_sum] => 219289
[total_days] => 3
[display_material_sum] => 130 314
[display_work_sum] => 88 975
[display_total_sum] => 219 289
)
1
219 289₽
Работа:88 975 ₽
Материалы:130 314 ₽
Дни:3
stdClass Object
(
[id] => 126
[attribute_id] => 13
[name] => ППУ (Пенополиуретан)
[material_modifier] => 1
[work_modifier] => 1
[options] => Array
(
[0] => 50 мм
[1] => 100 мм
[2] => 150 мм
[3] => 200 мм
[4] => 250 мм
[5] => 300 мм
[6] => 350 мм
[7] => 400 мм
[8] => 450 мм
[9] => 500 мм
)
[days] => [2,2,3,3,3,3,4,4,4,4]
[material_price] => [2080,4160,6240,8320,14560,16640,20800,24960,29120,33280]
[work_price] => [234,304,304,396,474,522,574,632,694,764]
[image] => https://akademik-stroy.ru/wp-content/uploads/materials/ppu-krov.jpg
[area_modifier] => 228.14
[parent_name] => Утепление кровли (Мансарда)
[parent_id] => 13
[material_sum] => 569437
[work_sum] => 53385
[total_sum] => 622822
[total_days] => 2
[display_material_sum] => 569 437
[display_work_sum] => 53 385
[display_total_sum] => 622 822
)
1
622 822₽
Работа:53 385 ₽
Материалы:569 437 ₽
Дни:2
stdClass Object
(
[id] => 127
[attribute_id] => 13
[name] => PIR-плиты (пенополиизоцианурат)
[material_modifier] => 1
[work_modifier] => 1
[options] => Array
(
[0] => 50 мм
[1] => 100 мм
[2] => 150 мм
[3] => 200 мм
[4] => 250 мм
[5] => 300 мм
[6] => 350 мм
[7] => 400 мм
[8] => 450 мм
[9] => 500 мм
)
[days] => [3,3,4,4,4,5,5,5,5,6]
[material_price] => [2646,5290,7936,10580,18516,21162,26452,31742,37032,42324]
[work_price] => [390,508,508,660,790,870,958,1052,1158,1274]
[image] => https://akademik-stroy.ru/wp-content/uploads/materials/pir-krov.jpg
[area_modifier] => 228.14
[parent_name] => Утепление кровли (Мансарда)
[parent_id] => 13
[material_sum] => 724390
[work_sum] => 88975
[total_sum] => 813365
[total_days] => 3
[display_material_sum] => 724 390
[display_work_sum] => 88 975
[display_total_sum] => 813 365
)
1
813 365₽
Работа:88 975 ₽
Материалы:724 390 ₽
Дни:3
stdClass Object
(
[id] => 27
[attribute_id] => 14
[name] => Нет
[material_modifier] => 1
[work_modifier] => 1
[options] => Array
(
)
[days] => [0]
[material_price] => [0]
[work_price] => [0]
[image] => https://akademik-stroy.ru/wp-content/uploads/materials/mansardnye-okna-2.jpg
[area_modifier] => 1
[parent_name] => Мансардные окна
[parent_id] => 14
[material_sum] => 0
[work_sum] => 0
[total_sum] => 0
[total_days] => 0
[display_material_sum] => 0
[display_work_sum] => 0
[display_total_sum] => 0
)
1
0₽
Работа:0 ₽
Материалы:0 ₽
Дни:0
stdClass Object
(
[id] => 28
[attribute_id] => 14
[name] => Есть
[material_modifier] => 1
[work_modifier] => 1
[options] => Array
(
[0] => 55x78
[1] => 55x98
)
[days] => [6,7]
[material_price] => [47480,68700]
[work_price] => [17900,19500]
[image] => https://akademik-stroy.ru/wp-content/uploads/materials/mansardnye-okna-2.jpg
[area_modifier] => 1
[parent_name] => Мансардные окна
[parent_id] => 14
[material_sum] => 56976
[work_sum] => 17900
[total_sum] => 74876
[total_days] => 6
[display_material_sum] => 56 976
[display_work_sum] => 17 900
[display_total_sum] => 74 876
)
1
74 876₽
Работа:17 900 ₽
Материалы:56 976 ₽
Дни:6
stdClass Object
(
[id] => 29
[attribute_id] => 15
[name] => Нет
[material_modifier] => 1
[work_modifier] => 1
[options] => Array
(
)
[days] => [0]
[material_price] => [0]
[work_price] => [0]
[image] => https://akademik-stroy.ru/wp-content/uploads/materials/sofit.jpg
[area_modifier] => 228.14
[parent_name] => Подшивка кровли
[parent_id] => 15
[material_sum] => 0
[work_sum] => 0
[total_sum] => 0
[total_days] => 0
[display_material_sum] => 0
[display_work_sum] => 0
[display_total_sum] => 0
)
1
0₽
Работа:0 ₽
Материалы:0 ₽
Дни:0
stdClass Object
(
[id] => 30
[attribute_id] => 15
[name] => Есть
[material_modifier] => 1
[work_modifier] => 1
[options] => Array
(
[0] => Софиты (ПВХ)
[1] => Cedral
[2] => ДПК
[3] => Планкен
)
[days] => [7,10,9,8]
[material_price] => [1803,3213,3025,3150]
[work_price] => [1529,2188,2075,1923]
[image] => https://akademik-stroy.ru/wp-content/uploads/materials/sofit.jpg
[area_modifier] => 228.14
[parent_name] => Подшивка кровли
[parent_id] => 15
[material_sum] => 493604
[work_sum] => 348826
[total_sum] => 842430
[total_days] => 7
[display_material_sum] => 493 604
[display_work_sum] => 348 826
[display_total_sum] => 842 430
)
1
842 430₽
Работа:348 826 ₽
Материалы:493 604 ₽
Дни:7
stdClass Object
(
[id] => 31
[attribute_id] => 16
[name] => Нет
[material_modifier] => 1
[work_modifier] => 1
[options] => Array
(
)
[days] => [0]
[material_price] => [0]
[work_price] => [0]
[image] => https://akademik-stroy.ru/wp-content/uploads/materials/docke-standard-pvh.jpg
[area_modifier] => 228.14
[parent_name] => Водосточная система
[parent_id] => 16
[material_sum] => 0
[work_sum] => 0
[total_sum] => 0
[total_days] => 0
[display_material_sum] => 0
[display_work_sum] => 0
[display_total_sum] => 0
)
1
0₽
Работа:0 ₽
Материалы:0 ₽
Дни:0
stdClass Object
(
[id] => 32
[attribute_id] => 16
[name] => Есть
[material_modifier] => 1
[work_modifier] => 1
[options] => Array
(
[0] => Döcke Standard (ПВХ)
[1] => Металлические Grand Line
)
[days] => [7,7]
[material_price] => [1842,2703]
[work_price] => [1491,1529]
[image] => https://akademik-stroy.ru/wp-content/uploads/materials/docke-standard-pvh.jpg
[area_modifier] => 228.14
[parent_name] => Водосточная система
[parent_id] => 16
[material_sum] => 504281
[work_sum] => 340157
[total_sum] => 844438
[total_days] => 7
[display_material_sum] => 504 281
[display_work_sum] => 340 157
[display_total_sum] => 844 438
)
1
844 438₽
Работа:340 157 ₽
Материалы:504 281 ₽
Дни:7
stdClass Object
(
[id] => 33
[attribute_id] => 17
[name] => Нет
[material_modifier] => 1
[work_modifier] => 1
[options] => Array
(
)
[days] => [0]
[material_price] => [0]
[work_price] => [0]
[image] => https://akademik-stroy.ru/wp-content/uploads/materials/mineralovata.jpg
[area_modifier] => 355.51
[parent_name] => Дополнительное утепление наружных стен
[parent_id] => 17
[material_sum] => 0
[work_sum] => 0
[total_sum] => 0
[total_days] => 0
[display_material_sum] => 0
[display_work_sum] => 0
[display_total_sum] => 0
)
1
0₽
Работа:0 ₽
Материалы:0 ₽
Дни:0
stdClass Object
(
[id] => 34
[attribute_id] => 17
[name] => Минераловатный
[material_modifier] => 1
[work_modifier] => 1
[options] => Array
(
[0] => 50 мм
[1] => 100 мм
[2] => 150 мм
[3] => 200 мм
[4] => 250 мм
[5] => 300 мм
)
[days] => [7,8,10,12,14,15]
[material_price] => [3437,3613,3803,3915,4601,4830]
[work_price] => [2325,2423,2523,2749,2859,3025]
[image] => https://akademik-stroy.ru/wp-content/uploads/materials/mineralovata.jpg
[area_modifier] => 355.51
[parent_name] => Дополнительное утепление наружных стен
[parent_id] => 17
[material_sum] => 1466265
[work_sum] => 826561
[total_sum] => 2292826
[total_days] => 7
[display_material_sum] => 1 466 265
[display_work_sum] => 826 561
[display_total_sum] => 2 292 826
)
1
2 292 826₽
Работа:826 561 ₽
Материалы:1 466 265 ₽
Дни:7
stdClass Object
(
[id] => 128
[attribute_id] => 17
[name] => Эковата (целлюлозная вата)
[material_modifier] => 1
[work_modifier] => 1
[options] => Array
(
[0] => 50 мм
[1] => 100 мм
[2] => 150 мм
[3] => 200 мм
[4] => 250 мм
[5] => 300 мм
)
[days] => [3,4,5,6,7,8]
[material_price] => [810,1319,1629,1838,2267,2676]
[work_price] => [1225,1323,1423,1549,1659,1725]
[image] => https://akademik-stroy.ru/wp-content/uploads/materials/ehkovata.jpg
[area_modifier] => 355.51
[parent_name] => Дополнительное утепление наружных стен
[parent_id] => 17
[material_sum] => 345556
[work_sum] => 435500
[total_sum] => 781056
[total_days] => 3
[display_material_sum] => 345 556
[display_work_sum] => 435 500
[display_total_sum] => 781 056
)
1
781 056₽
Работа:435 500 ₽
Материалы:345 556 ₽
Дни:3
stdClass Object
(
[id] => 129
[attribute_id] => 17
[name] => Экструдированный пенополистирол
[material_modifier] => 1
[work_modifier] => 1
[options] => Array
(
[0] => 50 мм
[1] => 100 мм
[2] => 150 мм
[3] => 200 мм
[4] => 250 мм
[5] => 300 мм
)
[days] => [5,6,7,8,9,10]
[material_price] => [4560,4300,5119,6292,7010,8583]
[work_price] => [1795,1954,2254,2330,2595,2735]
[image] => https://akademik-stroy.ru/wp-content/uploads/materials/epps.jpg
[area_modifier] => 355.51
[parent_name] => Дополнительное утепление наружных стен
[parent_id] => 17
[material_sum] => 1945351
[work_sum] => 638140
[total_sum] => 2583491
[total_days] => 5
[display_material_sum] => 1 945 351
[display_work_sum] => 638 140
[display_total_sum] => 2 583 491
)
1
2 583 491₽
Работа:638 140 ₽
Материалы:1 945 351 ₽
Дни:5
stdClass Object
(
[id] => 130
[attribute_id] => 17
[name] => ПСБ (ППС-пенополистирол)
[material_modifier] => 1
[work_modifier] => 1
[options] => Array
(
[0] => 50 мм
[1] => 100 мм
[2] => 150 мм
[3] => 200 мм
[4] => 250 мм
[5] => 300 мм
)
[days] => [5,6,7,8,9,10]
[material_price] => [4822,5200,5819,6292,7010,7583]
[work_price] => [1795,1954,2254,2330,2595,2735]
[image] => https://akademik-stroy.ru/wp-content/uploads/materials/psb.jpg
[area_modifier] => 355.51
[parent_name] => Дополнительное утепление наружных стен
[parent_id] => 17
[material_sum] => 2057123
[work_sum] => 638140
[total_sum] => 2695263
[total_days] => 5
[display_material_sum] => 2 057 123
[display_work_sum] => 638 140
[display_total_sum] => 2 695 263
)
1
2 695 263₽
Работа:638 140 ₽
Материалы:2 057 123 ₽
Дни:5
stdClass Object
(
[id] => 131
[attribute_id] => 17
[name] => ППУ (Пенополиуретан)
[material_modifier] => 1
[work_modifier] => 1
[options] => Array
(
[0] => 50 мм
[1] => 100 мм
[2] => 150 мм
[3] => 200 мм
[4] => 250 мм
[5] => 300 мм
)
[days] => [3,4,5,6,7,8]
[material_price] => [2860,3400,4219,4592,5010,5583]
[work_price] => [729,900,980,1120,1280,1530]
[image] => https://akademik-stroy.ru/wp-content/uploads/materials/ppu.jpg
[area_modifier] => 355.51
[parent_name] => Дополнительное утепление наружных стен
[parent_id] => 17
[material_sum] => 1220110
[work_sum] => 259167
[total_sum] => 1479277
[total_days] => 3
[display_material_sum] => 1 220 110
[display_work_sum] => 259 167
[display_total_sum] => 1 479 277
)
1
1 479 277₽
Работа:259 167 ₽
Материалы:1 220 110 ₽
Дни:3
stdClass Object
(
[id] => 132
[attribute_id] => 17
[name] => PIR-плиты (пенополиизоцианурат)
[material_modifier] => 1
[work_modifier] => 1
[options] => Array
(
[0] => 50 мм
[1] => 100 мм
[2] => 150 мм
[3] => 200 мм
[4] => 250 мм
[5] => 300 мм
)
[days] => [5,6,7,8,9,10]
[material_price] => [8323,15645,20968,25900,29258,30581]
[work_price] => [800,900,970,1150,1280,1330]
[image] => https://akademik-stroy.ru/wp-content/uploads/materials/pir.jpg
[area_modifier] => 355.51
[parent_name] => Дополнительное утепление наружных стен
[parent_id] => 17
[material_sum] => 3550692
[work_sum] => 284408
[total_sum] => 3835100
[total_days] => 5
[display_material_sum] => 3 550 692
[display_work_sum] => 284 408
[display_total_sum] => 3 835 100
)
1
3 835 100₽
Работа:284 408 ₽
Материалы:3 550 692 ₽
Дни:5
stdClass Object
(
[id] => 37
[attribute_id] => 19
[name] => Нет
[material_modifier] => 1
[work_modifier] => 1
[options] => Array
(
)
[days] => [0]
[material_price] => [0]
[work_price] => [0]
[image] => https://akademik-stroy.ru/wp-content/uploads/materials/imitaciya-brusa.jpg
[area_modifier] => 355.51
[parent_name] => Наружная отделка фасада
[parent_id] => 19
[material_sum] => 0
[work_sum] => 0
[total_sum] => 0
[total_days] => 0
[display_material_sum] => 0
[display_work_sum] => 0
[display_total_sum] => 0
)
1
0₽
Работа:0 ₽
Материалы:0 ₽
Дни:0
stdClass Object
(
[id] => 38
[attribute_id] => 19
[name] => Имитация бруса
[material_modifier] => 1
[work_modifier] => 1
[options] => Array
(
[0] => Сосна
[1] => Ель
[2] => Лиственница
)
[days] => [20,20,20]
[material_price] => [2994,2762,4954]
[work_price] => [1397,1231,1577]
[image] => https://akademik-stroy.ru/wp-content/uploads/materials/imitaciya-brusa.jpg
[area_modifier] => 355.51
[parent_name] => Наружная отделка фасада
[parent_id] => 19
[material_sum] => 1277276
[work_sum] => 496647
[total_sum] => 1773923
[total_days] => 20
[display_material_sum] => 1 277 276
[display_work_sum] => 496 647
[display_total_sum] => 1 773 923
)
1
1 773 923₽
Работа:496 647 ₽
Материалы:1 277 276 ₽
Дни:20
stdClass Object
(
[id] => 136
[attribute_id] => 19
[name] => Планкен
[material_modifier] => 1
[work_modifier] => 1
[options] => Array
(
[0] => Сосна
[1] => Ель
[2] => Лиственница
)
[days] => [20,20,20]
[material_price] => [3194,2862,5154]
[work_price] => [1537,1354,1735]
[image] => https://akademik-stroy.ru/wp-content/uploads/materials/planken.jpg
[area_modifier] => 355.51
[parent_name] => Наружная отделка фасада
[parent_id] => 19
[material_sum] => 1362599
[work_sum] => 546419
[total_sum] => 1909018
[total_days] => 20
[display_material_sum] => 1 362 599
[display_work_sum] => 546 419
[display_total_sum] => 1 909 018
)
1
1 909 018₽
Работа:546 419 ₽
Материалы:1 362 599 ₽
Дни:20
stdClass Object
(
[id] => 137
[attribute_id] => 19
[name] => Штукатурка
[material_modifier] => 1
[work_modifier] => 1
[options] => Array
(
[0] => Цементно-песчаная (минеральная)
[1] => Мокрый фасад
)
[days] => [35,35]
[material_price] => [2231,3938]
[work_price] => [1202,2422]
[image] => https://akademik-stroy.ru/wp-content/uploads/materials/shtukaturka.jpg
[area_modifier] => 355.51
[parent_name] => Наружная отделка фасада
[parent_id] => 19
[material_sum] => 951771
[work_sum] => 427323
[total_sum] => 1379094
[total_days] => 35
[display_material_sum] => 951 771
[display_work_sum] => 427 323
[display_total_sum] => 1 379 094
)
1
1 379 094₽
Работа:427 323 ₽
Материалы:951 771 ₽
Дни:35
stdClass Object
(
[id] => 138
[attribute_id] => 19
[name] => Облицовочный кирпич
[material_modifier] => 1
[work_modifier] => 1
[options] => Array
(
[0] => Керамический
[1] => Клинкерный
[2] => Ручной формовки
[3] => Гиперпрессованный
[4] => Силикатный кирпич
)
[days] => [45,45,45,45,45]
[material_price] => [8174,9148,1040,1257,5876]
[work_price] => [3240,3758,4536,4017,3369]
[image] => https://akademik-stroy.ru/wp-content/uploads/materials/oblicovochnyj-kirpich.jpg
[area_modifier] => 355.51
[parent_name] => Наружная отделка фасада
[parent_id] => 19
[material_sum] => 3487126
[work_sum] => 1151852
[total_sum] => 4638978
[total_days] => 45
[display_material_sum] => 3 487 126
[display_work_sum] => 1 151 852
[display_total_sum] => 4 638 978
)
1
4 638 978₽
Работа:1 151 852 ₽
Материалы:3 487 126 ₽
Дни:45
stdClass Object
(
[id] => 139
[attribute_id] => 19
[name] => Фасадная плитка
[material_modifier] => 1
[work_modifier] => 1
[options] => Array
(
[0] => Клинкерная
[1] => Керамическая
[2] => Плитка ручной формовки
)
[days] => [40,40,40]
[material_price] => [2974,1487,3470]
[work_price] => [3007,2592,3629]
[image] => https://akademik-stroy.ru/wp-content/uploads/materials/fasadnaya-plitka.jpg
[area_modifier] => 355.51
[parent_name] => Наружная отделка фасада
[parent_id] => 19
[material_sum] => 1268744
[work_sum] => 1069019
[total_sum] => 2337763
[total_days] => 40
[display_material_sum] => 1 268 744
[display_work_sum] => 1 069 019
[display_total_sum] => 2 337 763
)
1
2 337 763₽
Работа:1 069 019 ₽
Материалы:1 268 744 ₽
Дни:40
stdClass Object
(
[id] => 140
[attribute_id] => 19
[name] => Сайдинг
[material_modifier] => 1
[work_modifier] => 1
[options] => Array
(
[0] => Виниловый
[1] => Металлический
[2] => Фиброцементный
)
[days] => [20,20,20]
[material_price] => [1263,1944,4147]
[work_price] => [1263,1944,2074]
[image] => https://akademik-stroy.ru/wp-content/uploads/materials/sajding.jpg
[area_modifier] => 355.51
[parent_name] => Наружная отделка фасада
[parent_id] => 19
[material_sum] => 538811
[work_sum] => 449009
[total_sum] => 987820
[total_days] => 20
[display_material_sum] => 538 811
[display_work_sum] => 449 009
[display_total_sum] => 987 820
)
1
987 820₽
Работа:449 009 ₽
Материалы:538 811 ₽
Дни:20
stdClass Object
(
[id] => 141
[attribute_id] => 19
[name] => Камень
[material_modifier] => 1
[work_modifier] => 1
[options] => Array
(
[0] => Травертин
[1] => Дагестанский
[2] => Искусственный
[3] => Натуральный
[4] => Керамогранит
)
[days] => [45,45,45,45,45]
[material_price] => [4536,3888,2592,3240,2462]
[work_price] => [3240,3240,2462,3110,1944]
[image] => https://akademik-stroy.ru/wp-content/uploads/materials/kamen-1.jpg
[area_modifier] => 355.51
[parent_name] => Наружная отделка фасада
[parent_id] => 19
[material_sum] => 1935112
[work_sum] => 1151852
[total_sum] => 3086964
[total_days] => 45
[display_material_sum] => 1 935 112
[display_work_sum] => 1 151 852
[display_total_sum] => 3 086 964
)
1
3 086 964₽
Работа:1 151 852 ₽
Материалы:1 935 112 ₽
Дни:45
stdClass Object
(
[id] => 142
[attribute_id] => 19
[name] => Термопанели
[material_modifier] => 1
[work_modifier] => 1
[options] => Array
(
)
[days] => [20]
[material_price] => [6221]
[work_price] => [2333]
[image] => https://akademik-stroy.ru/wp-content/uploads/materials/termo.png
[area_modifier] => 355.51
[parent_name] => Наружная отделка фасада
[parent_id] => 19
[material_sum] => 2653953
[work_sum] => 829405
[total_sum] => 3483358
[total_days] => 20
[display_material_sum] => 2 653 953
[display_work_sum] => 829 405
[display_total_sum] => 3 483 358
)
1
3 483 358₽
Работа:829 405 ₽
Материалы:2 653 953 ₽
Дни:20
stdClass Object
(
[id] => 143
[attribute_id] => 19
[name] => Плитка HAUBERK
[material_modifier] => 1
[work_modifier] => 1
[options] => Array
(
)
[days] => [20]
[material_price] => [2786]
[work_price] => [1944]
[image] => https://akademik-stroy.ru/wp-content/uploads/materials/hauberk.jpg
[area_modifier] => 355.51
[parent_name] => Наружная отделка фасада
[parent_id] => 19
[material_sum] => 1188541
[work_sum] => 691111
[total_sum] => 1879652
[total_days] => 20
[display_material_sum] => 1 188 541
[display_work_sum] => 691 111
[display_total_sum] => 1 879 652
)
1
1 879 652₽
Работа:691 111 ₽
Материалы:1 188 541 ₽
Дни:20
stdClass Object
(
[id] => 144
[attribute_id] => 19
[name] => Фальцевый фасад
[material_modifier] => 1
[work_modifier] => 1
[options] => Array
(
)
[days] => [20]
[material_price] => [3240]
[work_price] => [2592]
[image] => https://akademik-stroy.ru/wp-content/uploads/materials/falcevyj-fasad.jpg
[area_modifier] => 355.51
[parent_name] => Наружная отделка фасада
[parent_id] => 19
[material_sum] => 1382223
[work_sum] => 921482
[total_sum] => 2303705
[total_days] => 20
[display_material_sum] => 1 382 223
[display_work_sum] => 921 482
[display_total_sum] => 2 303 705
)
1
2 303 705₽
Работа:921 482 ₽
Материалы:1 382 223 ₽
Дни:20
stdClass Object
(
[id] => 145
[attribute_id] => 19
[name] => Комбинированный
[material_modifier] => 1
[work_modifier] => 1
[options] => Array
(
)
[days] => [20]
[material_price] => [4629]
[work_price] => [3499]
[image] => https://akademik-stroy.ru/wp-content/uploads/materials/Kombinirovannyj.jpg
[area_modifier] => 355.51
[parent_name] => Наружная отделка фасада
[parent_id] => 19
[material_sum] => 1974787
[work_sum] => 1243929
[total_sum] => 3218716
[total_days] => 20
[display_material_sum] => 1 974 787
[display_work_sum] => 1 243 929
[display_total_sum] => 3 218 716
)
1
3 218 716₽
Работа:1 243 929 ₽
Материалы:1 974 787 ₽
Дни:20
stdClass Object
(
[id] => 257
[attribute_id] => 19
[name] => Японские фиброцементные
[material_modifier] => 1
[work_modifier] => 1
[options] => Array
(
)
[days] => [20]
[material_price] => [7043]
[work_price] => [2993]
[image] => https://akademik-stroy.ru/wp-content/uploads/materials/paneli.jpg
[area_modifier] => 355.51
[parent_name] => Наружная отделка фасада
[parent_id] => 19
[material_sum] => 3004628
[work_sum] => 1064041
[total_sum] => 4068669
[total_days] => 20
[display_material_sum] => 3 004 628
[display_work_sum] => 1 064 041
[display_total_sum] => 4 068 669
)
1
4 068 669₽
Работа:1 064 041 ₽
Материалы:3 004 628 ₽
Дни:20
stdClass Object
(
[id] => 258
[attribute_id] => 19
[name] => Панели Каньон
[material_modifier] => 1
[work_modifier] => 1
[options] => Array
(
)
[days] => [20]
[material_price] => [4543]
[work_price] => [2592]
[image] => https://akademik-stroy.ru/wp-content/uploads/materials/kanon.png
[area_modifier] => 355.51
[parent_name] => Наружная отделка фасада
[parent_id] => 19
[material_sum] => 1938098
[work_sum] => 921482
[total_sum] => 2859580
[total_days] => 20
[display_material_sum] => 1 938 098
[display_work_sum] => 921 482
[display_total_sum] => 2 859 580
)
1
2 859 580₽
Работа:921 482 ₽
Материалы:1 938 098 ₽
Дни:20
stdClass Object
(
[id] => 39
[attribute_id] => 20
[name] => Нет
[material_modifier] => 1
[work_modifier] => 1
[options] => Array
(
)
[days] => [0]
[material_price] => [0]
[work_price] => [0]
[image] => https://akademik-stroy.ru/wp-content/uploads/materials/terrasy.jpg
[area_modifier] => 30
[parent_name] => Террасы, крыльца, навесы
[parent_id] => 20
[material_sum] => 0
[work_sum] => 0
[total_sum] => 0
[total_days] => 0
[display_material_sum] => 0
[display_work_sum] => 0
[display_total_sum] => 0
)
1
0₽
Работа:0 ₽
Материалы:0 ₽
Дни:0
stdClass Object
(
[id] => 40
[attribute_id] => 20
[name] => Есть
[material_modifier] => 1
[work_modifier] => 1
[options] => Array
(
)
[days] => [5]
[material_price] => [10450]
[work_price] => [1950]
[image] => https://akademik-stroy.ru/wp-content/uploads/materials/terrasy.jpg
[area_modifier] => 30
[parent_name] => Террасы, крыльца, навесы
[parent_id] => 20
[material_sum] => 376200
[work_sum] => 58500
[total_sum] => 434700
[total_days] => 5
[display_material_sum] => 376 200
[display_work_sum] => 58 500
[display_total_sum] => 434 700
)
1
434 700₽
Работа:58 500 ₽
Материалы:376 200 ₽
Дни:5
stdClass Object
(
[id] => 41
[attribute_id] => 21
[name] => Нет
[material_modifier] => 1
[work_modifier] => 1
[options] => Array
(
)
[days] => [0]
[material_price] => [0]
[work_price] => [0]
[image] => https://akademik-stroy.ru/wp-content/uploads/materials/balkony.jpg
[area_modifier] => 30
[parent_name] => Балконы
[parent_id] => 21
[material_sum] => 0
[work_sum] => 0
[total_sum] => 0
[total_days] => 0
[display_material_sum] => 0
[display_work_sum] => 0
[display_total_sum] => 0
)
1
0₽
Работа:0 ₽
Материалы:0 ₽
Дни:0
stdClass Object
(
[id] => 42
[attribute_id] => 21
[name] => Есть
[material_modifier] => 1
[work_modifier] => 1
[options] => Array
(
)
[days] => [12]
[material_price] => [3600]
[work_price] => [1950]
[image] => https://akademik-stroy.ru/wp-content/uploads/materials/balkony.jpg
[area_modifier] => 30
[parent_name] => Балконы
[parent_id] => 21
[material_sum] => 129600
[work_sum] => 58500
[total_sum] => 188100
[total_days] => 12
[display_material_sum] => 129 600
[display_work_sum] => 58 500
[display_total_sum] => 188 100
)
1
188 100₽
Работа:58 500 ₽
Материалы:129 600 ₽
Дни:12
stdClass Object
(
[id] => 43
[attribute_id] => 22
[name] => Нет
[material_modifier] => 1
[work_modifier] => 1
[options] => Array
(
)
[days] => [0]
[material_price] => [0]
[work_price] => [0]
[image] => https://akademik-stroy.ru/wp-content/uploads/materials/uteplennaya.jpg
[area_modifier] => 228.14
[parent_name] => Отмостка
[parent_id] => 22
[material_sum] => 0
[work_sum] => 0
[total_sum] => 0
[total_days] => 0
[display_material_sum] => 0
[display_work_sum] => 0
[display_total_sum] => 0
)
1
0₽
Работа:0 ₽
Материалы:0 ₽
Дни:0
stdClass Object
(
[id] => 44
[attribute_id] => 22
[name] => Утепленная отмостка
[material_modifier] => 1
[work_modifier] => 1
[options] => Array
(
)
[days] => [15]
[material_price] => [2550]
[work_price] => [1750]
[image] => https://akademik-stroy.ru/wp-content/uploads/materials/uteplennaya.jpg
[area_modifier] => 228.14
[parent_name] => Отмостка
[parent_id] => 22
[material_sum] => 698108
[work_sum] => 399245
[total_sum] => 1097353
[total_days] => 15
[display_material_sum] => 698 108
[display_work_sum] => 399 245
[display_total_sum] => 1 097 353
)
1
1 097 353₽
Работа:399 245 ₽
Материалы:698 108 ₽
Дни:15
stdClass Object
(
[id] => 146
[attribute_id] => 22
[name] => Не утепленная отмостка
[material_modifier] => 1
[work_modifier] => 1
[options] => Array
(
)
[days] => [10]
[material_price] => [1650]
[work_price] => [1450]
[image] => https://akademik-stroy.ru/wp-content/uploads/materials/ne-uteplennaya.jpg
[area_modifier] => 228.14
[parent_name] => Отмостка
[parent_id] => 22
[material_sum] => 451717
[work_sum] => 330803
[total_sum] => 782520
[total_days] => 10
[display_material_sum] => 451 717
[display_work_sum] => 330 803
[display_total_sum] => 782 520
)
1
782 520₽
Работа:330 803 ₽
Материалы:451 717 ₽
Дни:10
stdClass Object
(
[id] => 45
[attribute_id] => 23
[name] => Нет
[material_modifier] => 1
[work_modifier] => 1
[options] => Array
(
)
[days] => [0]
[material_price] => [0]
[work_price] => [0]
[image] => https://akademik-stroy.ru/wp-content/uploads/materials/drenazh-2.jpg
[area_modifier] => 228.14
[parent_name] => Дренаж вокруг дома
[parent_id] => 23
[material_sum] => 0
[work_sum] => 0
[total_sum] => 0
[total_days] => 0
[display_material_sum] => 0
[display_work_sum] => 0
[display_total_sum] => 0
)
1
0₽
Работа:0 ₽
Материалы:0 ₽
Дни:0
stdClass Object
(
[id] => 46
[attribute_id] => 23
[name] => Есть
[material_modifier] => 1
[work_modifier] => 1
[options] => Array
(
)
[days] => [5]
[material_price] => [2366]
[work_price] => [1911]
[image] => https://akademik-stroy.ru/wp-content/uploads/materials/drenazh-2.jpg
[area_modifier] => 228.14
[parent_name] => Дренаж вокруг дома
[parent_id] => 23
[material_sum] => 647735
[work_sum] => 435976
[total_sum] => 1083711
[total_days] => 5
[display_material_sum] => 647 735
[display_work_sum] => 435 976
[display_total_sum] => 1 083 711
)
1
1 083 711₽
Работа:435 976 ₽
Материалы:647 735 ₽
Дни:5
stdClass Object
(
[id] => 47
[attribute_id] => 24
[name] => Нет
[material_modifier] => 1
[work_modifier] => 1
[options] => Array
(
)
[days] => [0]
[material_price] => [0]
[work_price] => [0]
[image] => https://akademik-stroy.ru/wp-content/uploads/materials/septik.jpg
[area_modifier] => 1
[parent_name] => Автономная канализация (септики)
[parent_id] => 24
[material_sum] => 0
[work_sum] => 0
[total_sum] => 0
[total_days] => 0
[display_material_sum] => 0
[display_work_sum] => 0
[display_total_sum] => 0
)
1
0₽
Работа:0 ₽
Материалы:0 ₽
Дни:0
stdClass Object
(
[id] => 48
[attribute_id] => 24
[name] => Есть
[material_modifier] => 1
[work_modifier] => 1
[options] => Array
(
[0] => Для дачи на 4 человека
[1] => Для дома на 5 человек
[2] => Для дома на 6 человек
[3] => Для дома на 7 человек
[4] => Для дома на 10 человек
)
[days] => [7,7,7,8,8]
[material_price] => [196340,220500,240940,264200,293340]
[work_price] => [50000,55000,60500,66550,73206]
[image] => https://akademik-stroy.ru/wp-content/uploads/materials/septik.jpg
[area_modifier] => 1
[parent_name] => Автономная канализация (септики)
[parent_id] => 24
[material_sum] => 235608
[work_sum] => 50000
[total_sum] => 285608
[total_days] => 7
[display_material_sum] => 235 608
[display_work_sum] => 50 000
[display_total_sum] => 285 608
)
1
285 608₽
Работа:50 000 ₽
Материалы:235 608 ₽
Дни:7
stdClass Object
(
[id] => 49
[attribute_id] => 25
[name] => Нет
[material_modifier] => 1
[work_modifier] => 1
[options] => Array
(
)
[days] => [0]
[material_price] => [0]
[work_price] => [0]
[image] => https://akademik-stroy.ru/wp-content/uploads/materials/gkl.jpg
[area_modifier] => 355.51
[parent_name] => Внутренние (не несущие) перегородки
[parent_id] => 25
[material_sum] => 0
[work_sum] => 0
[total_sum] => 0
[total_days] => 0
[display_material_sum] => 0
[display_work_sum] => 0
[display_total_sum] => 0
)
1
0₽
Работа:0 ₽
Материалы:0 ₽
Дни:0
stdClass Object
(
[id] => 147
[attribute_id] => 25
[name] => Каркасно-обшивные
[material_modifier] => 1
[work_modifier] => 1
[options] => Array
(
[0] => 75 мм (без шумоизоляции)
[1] => 75 мм (с шумоизоляцией)
)
[days] => [11,11]
[material_price] => [580,970]
[work_price] => [380,570]
[image] => https://akademik-stroy.ru/wp-content/uploads/materials/gkl.jpg
[area_modifier] => 355.51
[parent_name] => Внутренние (не несущие) перегородки
[parent_id] => 25
[material_sum] => 247435
[work_sum] => 135094
[total_sum] => 382529
[total_days] => 11
[display_material_sum] => 247 435
[display_work_sum] => 135 094
[display_total_sum] => 382 529
)
1
382 529₽
Работа:135 094 ₽
Материалы:247 435 ₽
Дни:11
stdClass Object
(
[id] => 148
[attribute_id] => 25
[name] => Пазогребневые
[material_modifier] => 1
[work_modifier] => 1
[options] => Array
(
[0] => 80 мм
[1] => 100 мм
)
[days] => [5,5]
[material_price] => [1022,1313]
[work_price] => [600,700]
[image] => https://akademik-stroy.ru/wp-content/uploads/materials/pazogrebnevye-bloki.jpg
[area_modifier] => 355.51
[parent_name] => Внутренние (не несущие) перегородки
[parent_id] => 25
[material_sum] => 435997
[work_sum] => 213306
[total_sum] => 649303
[total_days] => 5
[display_material_sum] => 435 997
[display_work_sum] => 213 306
[display_total_sum] => 649 303
)
1
649 303₽
Работа:213 306 ₽
Материалы:435 997 ₽
Дни:5
stdClass Object
(
[id] => 149
[attribute_id] => 25
[name] => Газобетонные
[material_modifier] => 1
[work_modifier] => 1
[options] => Array
(
[0] => 100 мм
[1] => 200 мм
)
[days] => [11,11]
[material_price] => [1160,1920]
[work_price] => [700,900]
[image] => https://akademik-stroy.ru/wp-content/uploads/materials/gazobeton-2.jpg
[area_modifier] => 355.51
[parent_name] => Внутренние (не несущие) перегородки
[parent_id] => 25
[material_sum] => 494870
[work_sum] => 248857
[total_sum] => 743727
[total_days] => 11
[display_material_sum] => 494 870
[display_work_sum] => 248 857
[display_total_sum] => 743 727
)
1
743 727₽
Работа:248 857 ₽
Материалы:494 870 ₽
Дни:11
stdClass Object
(
[id] => 150
[attribute_id] => 25
[name] => Кирпичные
[material_modifier] => 1
[work_modifier] => 1
[options] => Array
(
[0] => 120 мм
[1] => 250 мм
[2] => 360 мм
)
[days] => [7,7,7]
[material_price] => [1785,3570,5355]
[work_price] => [900,1600,1800]
[image] => https://akademik-stroy.ru/wp-content/uploads/materials/kirpich-1.jpg
[area_modifier] => 355.51
[parent_name] => Внутренние (не несущие) перегородки
[parent_id] => 25
[material_sum] => 761502
[work_sum] => 319959
[total_sum] => 1081461
[total_days] => 7
[display_material_sum] => 761 502
[display_work_sum] => 319 959
[display_total_sum] => 1 081 461
)
1
1 081 461₽
Работа:319 959 ₽
Материалы:761 502 ₽
Дни:7
stdClass Object
(
[id] => 55
[attribute_id] => 28
[name] => Нет
[material_modifier] => 1
[work_modifier] => 1
[options] => Array
(
)
[days] => [0]
[material_price] => [0]
[work_price] => [0]
[image] => https://akademik-stroy.ru/wp-content/uploads/materials/ehlektrika.jpg
[area_modifier] => 288.49
[parent_name] => Электрика
[parent_id] => 28
[material_sum] => 0
[work_sum] => 0
[total_sum] => 0
[total_days] => 0
[display_material_sum] => 0
[display_work_sum] => 0
[display_total_sum] => 0
)
1
0₽
Работа:0 ₽
Материалы:0 ₽
Дни:0
stdClass Object
(
[id] => 56
[attribute_id] => 28
[name] => Есть
[material_modifier] => 1
[work_modifier] => 1
[options] => Array
(
)
[days] => [10]
[material_price] => [650]
[work_price] => [950]
[image] => https://akademik-stroy.ru/wp-content/uploads/materials/ehlektrika.jpg
[area_modifier] => 288.49
[parent_name] => Электрика
[parent_id] => 28
[material_sum] => 225022
[work_sum] => 274066
[total_sum] => 499088
[total_days] => 10
[display_material_sum] => 225 022
[display_work_sum] => 274 066
[display_total_sum] => 499 088
)
1
499 088₽
Работа:274 066 ₽
Материалы:225 022 ₽
Дни:10
stdClass Object
(
[id] => 57
[attribute_id] => 29
[name] => Нет
[material_modifier] => 1
[work_modifier] => 1
[options] => Array
(
)
[days] => [0]
[material_price] => [0]
[work_price] => [0]
[image] => https://akademik-stroy.ru/wp-content/uploads/materials/santekhnika-kanalizaciya-1.jpg
[area_modifier] => 288.49
[parent_name] => Сантехника, канализация в доме
[parent_id] => 29
[material_sum] => 0
[work_sum] => 0
[total_sum] => 0
[total_days] => 0
[display_material_sum] => 0
[display_work_sum] => 0
[display_total_sum] => 0
)
1
0₽
Работа:0 ₽
Материалы:0 ₽
Дни:0
stdClass Object
(
[id] => 58
[attribute_id] => 29
[name] => Есть
[material_modifier] => 1
[work_modifier] => 1
[options] => Array
(
)
[days] => [10]
[material_price] => [600]
[work_price] => [730]
[image] => https://akademik-stroy.ru/wp-content/uploads/materials/santekhnika-kanalizaciya-1.jpg
[area_modifier] => 288.49
[parent_name] => Сантехника, канализация в доме
[parent_id] => 29
[material_sum] => 207713
[work_sum] => 210598
[total_sum] => 418311
[total_days] => 10
[display_material_sum] => 207 713
[display_work_sum] => 210 598
[display_total_sum] => 418 311
)
1
418 311₽
Работа:210 598 ₽
Материалы:207 713 ₽
Дни:10
stdClass Object
(
[id] => 59
[attribute_id] => 30
[name] => Нет
[material_modifier] => 1
[work_modifier] => 1
[options] => Array
(
)
[days] => [0]
[material_price] => [0]
[work_price] => [0]
[image] => https://akademik-stroy.ru/wp-content/uploads/materials/otoplenie-1.jpg
[area_modifier] => 288.49
[parent_name] => Отопление
[parent_id] => 30
[material_sum] => 0
[work_sum] => 0
[total_sum] => 0
[total_days] => 0
[display_material_sum] => 0
[display_work_sum] => 0
[display_total_sum] => 0
)
1
0₽
Работа:0 ₽
Материалы:0 ₽
Дни:0
stdClass Object
(
[id] => 60
[attribute_id] => 30
[name] => Есть
[material_modifier] => 1
[work_modifier] => 1
[options] => Array
(
)
[days] => [5]
[material_price] => [610]
[work_price] => [560]
[image] => https://akademik-stroy.ru/wp-content/uploads/materials/otoplenie-1.jpg
[area_modifier] => 288.49
[parent_name] => Отопление
[parent_id] => 30
[material_sum] => 211175
[work_sum] => 161554
[total_sum] => 372729
[total_days] => 5
[display_material_sum] => 211 175
[display_work_sum] => 161 554
[display_total_sum] => 372 729
)
1
372 729₽
Работа:161 554 ₽
Материалы:211 175 ₽
Дни:5
stdClass Object
(
[id] => 61
[attribute_id] => 31
[name] => Нет
[material_modifier] => 1
[work_modifier] => 1
[options] => Array
(
)
[days] => [0]
[material_price] => [0]
[work_price] => [0]
[image] => https://akademik-stroy.ru/wp-content/uploads/materials/vodyanye.jpg
[area_modifier] => 30
[parent_name] => Теплые полы
[parent_id] => 31
[material_sum] => 0
[work_sum] => 0
[total_sum] => 0
[total_days] => 0
[display_material_sum] => 0
[display_work_sum] => 0
[display_total_sum] => 0
)
1
0₽
Работа:0 ₽
Материалы:0 ₽
Дни:0
stdClass Object
(
[id] => 151
[attribute_id] => 31
[name] => Водяные
[material_modifier] => 1
[work_modifier] => 1
[options] => Array
(
)
[days] => [9]
[material_price] => [10200]
[work_price] => [2500]
[image] => https://akademik-stroy.ru/wp-content/uploads/materials/vodyanye.jpg
[area_modifier] => 30
[parent_name] => Теплые полы
[parent_id] => 31
[material_sum] => 367200
[work_sum] => 75000
[total_sum] => 442200
[total_days] => 9
[display_material_sum] => 367 200
[display_work_sum] => 75 000
[display_total_sum] => 442 200
)
1
442 200₽
Работа:75 000 ₽
Материалы:367 200 ₽
Дни:9
stdClass Object
(
[id] => 152
[attribute_id] => 31
[name] => Электро
[material_modifier] => 1
[work_modifier] => 1
[options] => Array
(
)
[days] => [5]
[material_price] => [6300]
[work_price] => [1500]
[image] => https://akademik-stroy.ru/wp-content/uploads/materials/ehlektricheskij.jpg
[area_modifier] => 30
[parent_name] => Теплые полы
[parent_id] => 31
[material_sum] => 226800
[work_sum] => 45000
[total_sum] => 271800
[total_days] => 5
[display_material_sum] => 226 800
[display_work_sum] => 45 000
[display_total_sum] => 271 800
)
1
271 800₽
Работа:45 000 ₽
Материалы:226 800 ₽
Дни:5
stdClass Object
(
[id] => 63
[attribute_id] => 32
[name] => Нет
[material_modifier] => 1
[work_modifier] => 1
[options] => Array
(
)
[days] => [0]
[material_price] => [0]
[work_price] => [0]
[image] => https://akademik-stroy.ru/wp-content/uploads/materials/shtukaturka-shpatlevka-1.jpg
[area_modifier] => 288.49
[parent_name] => Черновая отделка стен
[parent_id] => 32
[material_sum] => 0
[work_sum] => 0
[total_sum] => 0
[total_days] => 0
[display_material_sum] => 0
[display_work_sum] => 0
[display_total_sum] => 0
)
1
0₽
Работа:0 ₽
Материалы:0 ₽
Дни:0
stdClass Object
(
[id] => 153
[attribute_id] => 32
[name] => Штукатурка и шпатлевка
[material_modifier] => 1
[work_modifier] => 1
[options] => Array
(
)
[days] => [20]
[material_price] => [1850]
[work_price] => [2600]
[image] => https://akademik-stroy.ru/wp-content/uploads/materials/shtukaturka-shpatlevka-1.jpg
[area_modifier] => 288.49
[parent_name] => Черновая отделка стен
[parent_id] => 32
[material_sum] => 640448
[work_sum] => 750074
[total_sum] => 1390522
[total_days] => 20
[display_material_sum] => 640 448
[display_work_sum] => 750 074
[display_total_sum] => 1 390 522
)
1
1 390 522₽
Работа:750 074 ₽
Материалы:640 448 ₽
Дни:20
stdClass Object
(
[id] => 154
[attribute_id] => 32
[name] => Гипсокортон на стены
[material_modifier] => 1
[work_modifier] => 1
[options] => Array
(
)
[days] => [15]
[material_price] => [950]
[work_price] => [2100]
[image] => https://akademik-stroy.ru/wp-content/uploads/materials/gkl-1.jpg
[area_modifier] => 288.49
[parent_name] => Черновая отделка стен
[parent_id] => 32
[material_sum] => 328879
[work_sum] => 605829
[total_sum] => 934708
[total_days] => 15
[display_material_sum] => 328 879
[display_work_sum] => 605 829
[display_total_sum] => 934 708
)
1
934 708₽
Работа:605 829 ₽
Материалы:328 879 ₽
Дни:15
stdClass Object
(
[id] => 155
[attribute_id] => 32
[name] => Вагонка
[material_modifier] => 1
[work_modifier] => 1
[options] => Array
(
)
[days] => [15]
[material_price] => [1250]
[work_price] => [950]
[image] => https://akademik-stroy.ru/wp-content/uploads/materials/vagonka.jpg
[area_modifier] => 288.49
[parent_name] => Черновая отделка стен
[parent_id] => 32
[material_sum] => 432735
[work_sum] => 274066
[total_sum] => 706801
[total_days] => 15
[display_material_sum] => 432 735
[display_work_sum] => 274 066
[display_total_sum] => 706 801
)
1
706 801₽
Работа:274 066 ₽
Материалы:432 735 ₽
Дни:15
stdClass Object
(
[id] => 65
[attribute_id] => 33
[name] => Нет
[material_modifier] => 1
[work_modifier] => 1
[options] => Array
(
)
[days] => [0]
[material_price] => [0]
[work_price] => [0]
[image] => https://akademik-stroy.ru/wp-content/uploads/materials/styazhka.jpg
[area_modifier] => 288.49
[parent_name] => Черновая отделка полов
[parent_id] => 33
[material_sum] => 0
[work_sum] => 0
[total_sum] => 0
[total_days] => 0
[display_material_sum] => 0
[display_work_sum] => 0
[display_total_sum] => 0
)
1
0₽
Работа:0 ₽
Материалы:0 ₽
Дни:0
stdClass Object
(
[id] => 156
[attribute_id] => 33
[name] => Стяжка + наливные полы
[material_modifier] => 1
[work_modifier] => 1
[options] => Array
(
)
[days] => [10]
[material_price] => [1000]
[work_price] => [900]
[image] => https://akademik-stroy.ru/wp-content/uploads/materials/styazhka.jpg
[area_modifier] => 288.49
[parent_name] => Черновая отделка полов
[parent_id] => 33
[material_sum] => 346188
[work_sum] => 259641
[total_sum] => 605829
[total_days] => 10
[display_material_sum] => 346 188
[display_work_sum] => 259 641
[display_total_sum] => 605 829
)
1
605 829₽
Работа:259 641 ₽
Материалы:346 188 ₽
Дни:10
stdClass Object
(
[id] => 157
[attribute_id] => 33
[name] => ОСБ на пол
[material_modifier] => 1
[work_modifier] => 1
[options] => Array
(
)
[days] => [7]
[material_price] => [580]
[work_price] => [350]
[image] => https://akademik-stroy.ru/wp-content/uploads/materials/osb-1.jpg
[area_modifier] => 288.49
[parent_name] => Черновая отделка полов
[parent_id] => 33
[material_sum] => 200789
[work_sum] => 100972
[total_sum] => 301761
[total_days] => 7
[display_material_sum] => 200 789
[display_work_sum] => 100 972
[display_total_sum] => 301 761
)
1
301 761₽
Работа:100 972 ₽
Материалы:200 789 ₽
Дни:7
stdClass Object
(
[id] => 67
[attribute_id] => 34
[name] => Нет
[material_modifier] => 1
[work_modifier] => 1
[options] => Array
(
)
[days] => [0]
[material_price] => [0]
[work_price] => [0]
[image] => https://akademik-stroy.ru/wp-content/uploads/materials/chistovaya-otdelka.jpg
[area_modifier] => 288.49
[parent_name] => Чистовая отделка стен и полов
[parent_id] => 34
[material_sum] => 0
[work_sum] => 0
[total_sum] => 0
[total_days] => 0
[display_material_sum] => 0
[display_work_sum] => 0
[display_total_sum] => 0
)
1
0₽
Работа:0 ₽
Материалы:0 ₽
Дни:0
stdClass Object
(
[id] => 68
[attribute_id] => 34
[name] => Есть
[material_modifier] => 1
[work_modifier] => 1
[options] => Array
(
)
[days] => [50]
[material_price] => [6000]
[work_price] => [3500]
[image] => https://akademik-stroy.ru/wp-content/uploads/materials/chistovaya-otdelka.jpg
[area_modifier] => 288.49
[parent_name] => Чистовая отделка стен и полов
[parent_id] => 34
[material_sum] => 2077128
[work_sum] => 1009715
[total_sum] => 3086843
[total_days] => 50
[display_material_sum] => 2 077 128
[display_work_sum] => 1 009 715
[display_total_sum] => 3 086 843
)
1
3 086 843₽
Работа:1 009 715 ₽
Материалы:2 077 128 ₽
Дни:50
stdClass Object
(
[id] => 69
[attribute_id] => 35
[name] => Нет
[material_modifier] => 1
[work_modifier] => 1
[options] => Array
(
)
[days] => [0]
[material_price] => [0]
[work_price] => [0]
[image] => https://akademik-stroy.ru/wp-content/uploads/materials/mnogourovnevyj-gkl.jpg
[area_modifier] => 288.49
[parent_name] => Отделка потолка
[parent_id] => 35
[material_sum] => 0
[work_sum] => 0
[total_sum] => 0
[total_days] => 0
[display_material_sum] => 0
[display_work_sum] => 0
[display_total_sum] => 0
)
1
0₽
Работа:0 ₽
Материалы:0 ₽
Дни:0
stdClass Object
(
[id] => 70
[attribute_id] => 35
[name] => Есть
[material_modifier] => 1
[work_modifier] => 1
[options] => Array
(
[0] => Многоуровневый потолок из гипсокартона
[1] => Многоуровневый потолок из гипсокартона и натяжного потолка
[2] => Одноуровневый потолок из гипсокартона
[3] => Одноуровневый натяжной потолок
)
[days] => [10,10,1,1]
[material_price] => [900,700,700,600]
[work_price] => [1000,800,500,300]
[image] => https://akademik-stroy.ru/wp-content/uploads/materials/mnogourovnevyj-gkl.jpg
[area_modifier] => 288.49
[parent_name] => Отделка потолка
[parent_id] => 35
[material_sum] => 311569
[work_sum] => 288490
[total_sum] => 600059
[total_days] => 10
[display_material_sum] => 311 569
[display_work_sum] => 288 490
[display_total_sum] => 600 059
)
1
600 059₽
Работа:288 490 ₽
Материалы:311 569 ₽
Дни:10
Преимущества работы с нами
7 этапов оплаты
Независимый строительный надзор
Экологически чистые материалы
16 лет гарантии
Онлайн-кабинет с веб-камерой
Строители с опытом более 15 лет
Собственное производство








