Одноэтажный дом 171.35 м2 за руб.
Планировки
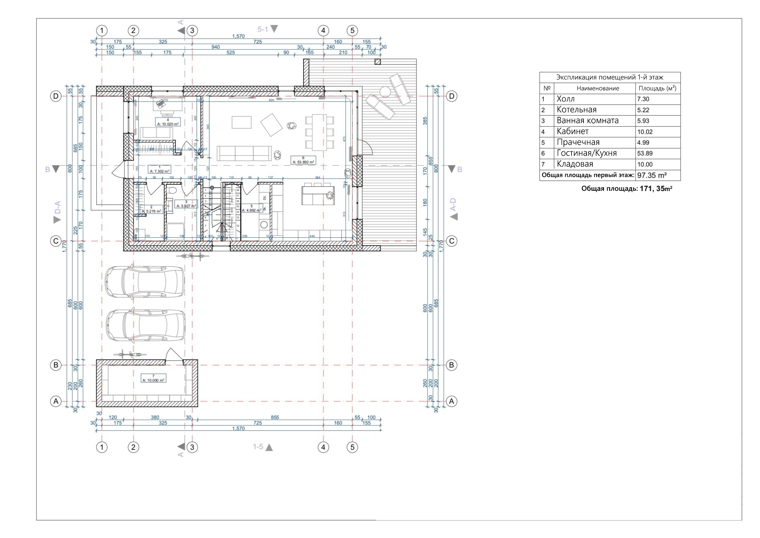
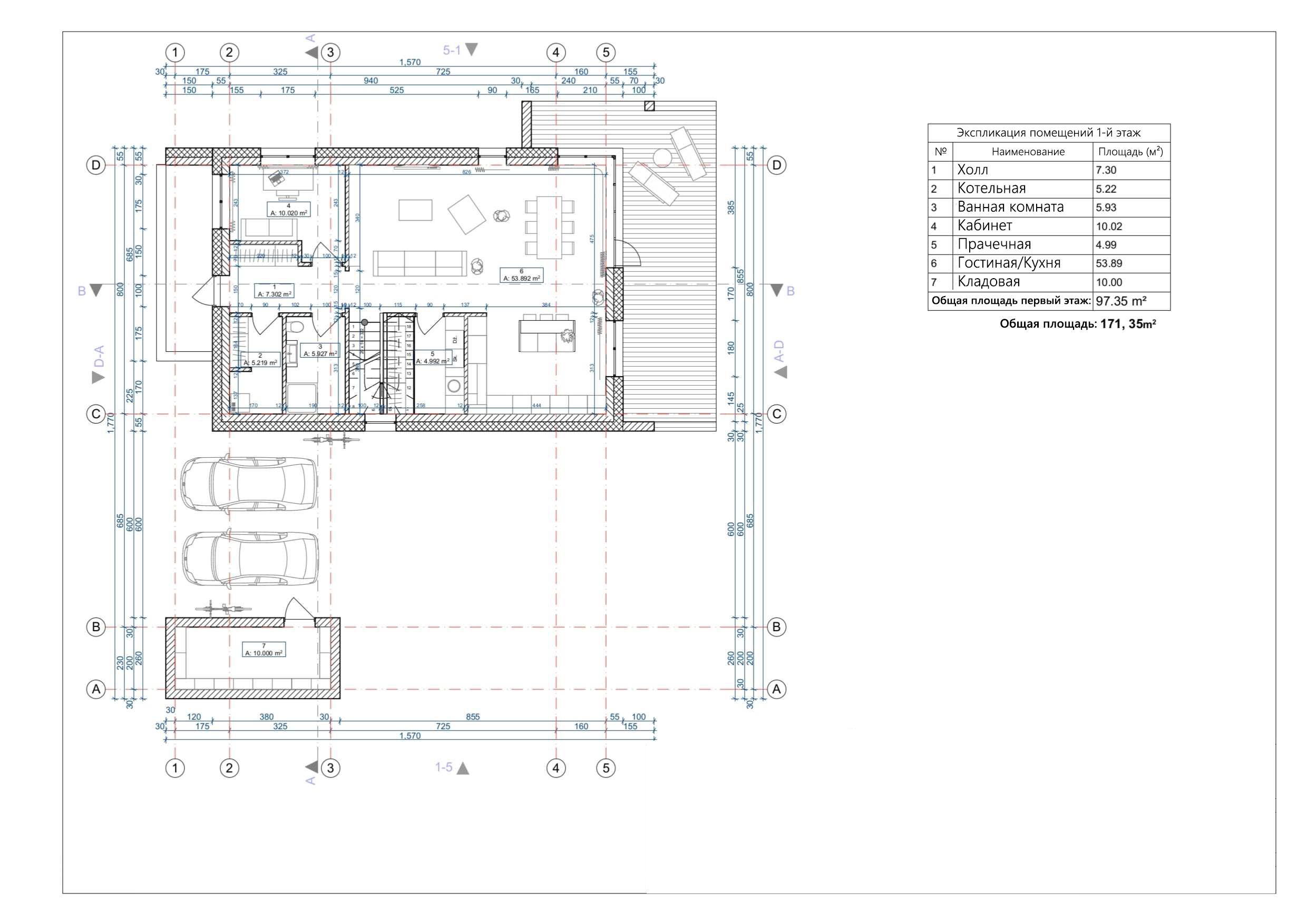
План первого этажа
- 1. Холл 7,30 м²
- 2. Котельная 5,22 м²
- 3. Ванная комната 5,93 м²
- 4. Кабинет 10,02 м²
- 5. Прачечная 4,99 м²
- 6. Гостиная-Кухня-Столовая 53,89 м²
- 7. Кладовая 10,00 м²
- Общая площадь первый этаж 97,35 м²
План второго этажа
- 1. Коридор 4,95 м²
- 2. Комната 13,45 м²
- 3. Комната 13,86 м²
- 4. Ванная комната 6,79 м²
- 5. Комната 20,63 м²
- 6. Ванная комната 8,33 м²
- 7. Гардероб 5,99 м²
- Общая площадь второй этаж 74,00 м²
Площади дома
| № п/п | Наименование | Ед. из. | Строительная площадь | Полезная площадь |
| 1 | 1 этаж | м2 | 119.96 | 97.35 |
| 2 | 2 этаж | м2 | 91.19 | 74 |
| 3 | Итого | м2 | 211.15 | 171.35 |
154 м2
Полезная
площадь
площадь
1 этаж
Этажей
26 м2
Террасы
и балконы
и балконы
1Без
гаража
гаража
4
Количество
спален
спален
2
Количество
санузлов
санузлов
Калькулятор опций
0₽
В ипотеку от 19 901 ₽/мес.
0₽
0 дней
stdClass Object
(
[id] => 1
[attribute_id] => 1
[name] => Ленточный монолитный ж/б
[material_modifier] => 1
[work_modifier] => 1
[options] => Array
(
[0] => размер 200 х 700 мм
[1] => размер 300 х 900 мм
[2] => размер 400 х 1 000 мм
[3] => размер 500 х 1 100 мм
[4] => размер 600 х 1 200 мм
)
[days] => [20,21,22,25,30]
[material_price] => [2823,3630,4475,5210,12047]
[work_price] => [2154,2826,3731,4577,5293]
[image] => https://akademik-stroy.ru/wp-content/uploads/materials/lentochnyj-monolitnyj-zh-b.jpg
[area_modifier] => 119.96
[parent_name] => Фундамент
[parent_id] => 1
[material_sum] => 426695
[work_sum] => 271314
[total_sum] => 698009
[total_days] => 20
[display_material_sum] => 426 695
[display_work_sum] => 271 314
[display_total_sum] => 698 009
)
1
698 009₽
Работа:271 314 ₽
Материалы:426 695 ₽
Дни:20
stdClass Object
(
[id] => 2
[attribute_id] => 1
[name] => Забивные Ж/Б сваи
[material_modifier] => 1
[work_modifier] => 1
[options] => Array
(
[0] => 150х150х3000мм
[1] => 150х150х4000мм
[2] => 200х200х3000мм
[3] => 200х200х4000мм
[4] => 200х200х5000мм
[5] => 200х200х6000мм
)
[days] => [2,2,2,2,2,2]
[material_price] => [1990,2850,3255,4360,5120,6837]
[work_price] => [1002,1185,1336,1438,1574,1839]
[image] => https://akademik-stroy.ru/wp-content/uploads/materials/zabivnye-zh-b-svai.png
[area_modifier] => 119.96
[parent_name] => Фундамент
[parent_id] => 1
[material_sum] => 300788
[work_sum] => 126210
[total_sum] => 426998
[total_days] => 2
[display_material_sum] => 300 788
[display_work_sum] => 126 210
[display_total_sum] => 426 998
)
1
426 998₽
Работа:126 210 ₽
Материалы:300 788 ₽
Дни:2
stdClass Object
(
[id] => 71
[attribute_id] => 1
[name] => Свайно-ростверковый ж/б
[material_modifier] => 1
[work_modifier] => 1
[options] => Array
(
[0] => ростверк 200х300 мм
[1] => ростверк 300х600 мм
[2] => ростверк 400х900 мм
[3] => ростверк 500х1200 мм
)
[days] => [20,23,25,27]
[material_price] => [3018,3474,7109,9792]
[work_price] => [2024,3012,5635,7022]
[image] => https://akademik-stroy.ru/wp-content/uploads/materials/svajno-rostverkovyj-monolitnyj-zh-b-3.png
[area_modifier] => 119.96
[parent_name] => Фундамент
[parent_id] => 1
[material_sum] => 456169
[work_sum] => 254939
[total_sum] => 711108
[total_days] => 20
[display_material_sum] => 456 169
[display_work_sum] => 254 939
[display_total_sum] => 711 108
)
1
711 108₽
Работа:254 939 ₽
Материалы:456 169 ₽
Дни:20
stdClass Object
(
[id] => 72
[attribute_id] => 1
[name] => Монолитная ж/б плита
[material_modifier] => 1
[work_modifier] => 1
[options] => Array
(
[0] => 200 мм
[1] => 300 мм
[2] => 400 мм
[3] => 500 мм
[4] => 600 мм
)
[days] => [30,33,35,37,40]
[material_price] => [5348,8555,12788,14388,15189]
[work_price] => [4314,4881,7037,8061,10230]
[image] => https://akademik-stroy.ru/wp-content/uploads/materials/monolitnaya-zhb-plita.png
[area_modifier] => 119.96
[parent_name] => Фундамент
[parent_id] => 1
[material_sum] => 808348
[work_sum] => 543383
[total_sum] => 1351731
[total_days] => 30
[display_material_sum] => 808 348
[display_work_sum] => 543 383
[display_total_sum] => 1 351 731
)
1
1 351 731₽
Работа:543 383 ₽
Материалы:808 348 ₽
Дни:30
stdClass Object
(
[id] => 73
[attribute_id] => 1
[name] => Утепленная шведская плита
[material_modifier] => 1
[work_modifier] => 1
[options] => Array
(
[0] => 200 мм
[1] => 300 мм
[2] => 400 мм
[3] => 500 мм
[4] => 600 мм
)
[days] => [32,37,39,42,45]
[material_price] => [10249,12692,13760,14936,16230]
[work_price] => [5960,7337,8072,8878,9765]
[image] => https://akademik-stroy.ru/wp-content/uploads/materials/uteplennaya-shvedskaya-plita.jpg
[area_modifier] => 119.96
[parent_name] => Фундамент
[parent_id] => 1
[material_sum] => 1549132
[work_sum] => 750710
[total_sum] => 2299842
[total_days] => 32
[display_material_sum] => 1 549 132
[display_work_sum] => 750 710
[display_total_sum] => 2 299 842
)
1
2 299 842₽
Работа:750 710 ₽
Материалы:1 549 132 ₽
Дни:32
stdClass Object
(
[id] => 75
[attribute_id] => 1
[name] => Ленточный из ФБС
[material_modifier] => 1
[work_modifier] => 1
[options] => Array
(
[0] => толщ. 300 мм
[1] => толщ. 400 мм
[2] => толщ. 500 мм
[3] => толщ. 600 мм
)
[days] => [20,20,20,20]
[material_price] => [3675,4902,6126,7350]
[work_price] => [2451,3264,4083,4902]
[image] => https://akademik-stroy.ru/wp-content/uploads/materials/lentochnyj-iz-fbs.png
[area_modifier] => 119.96
[parent_name] => Фундамент
[parent_id] => 1
[material_sum] => 555475
[work_sum] => 308723
[total_sum] => 864198
[total_days] => 20
[display_material_sum] => 555 475
[display_work_sum] => 308 723
[display_total_sum] => 864 198
)
1
864 198₽
Работа:308 723 ₽
Материалы:555 475 ₽
Дни:20
stdClass Object
(
[id] => 76
[attribute_id] => 1
[name] => Цокольный этаж из ФБС
[material_modifier] => 1
[work_modifier] => 1
[options] => Array
(
[0] => толщ. 300 мм
[1] => толщ. 400 мм
[2] => толщ. 500 мм
[3] => толщ. 600 мм
)
[days] => [30,32,34,36]
[material_price] => [20916,23299,26680,29060]
[work_price] => [17524,18700,19873,21046]
[image] => https://akademik-stroy.ru/wp-content/uploads/materials/cokolnyj-ehtazh-iz-fbs.jpg
[area_modifier] => 119.96
[parent_name] => Фундамент
[parent_id] => 1
[material_sum] => 3161445
[work_sum] => 2207288
[total_sum] => 5368733
[total_days] => 30
[display_material_sum] => 3 161 445
[display_work_sum] => 2 207 288
[display_total_sum] => 5 368 733
)
1
5 368 733₽
Работа:2 207 288 ₽
Материалы:3 161 445 ₽
Дни:30
stdClass Object
(
[id] => 77
[attribute_id] => 1
[name] => Цокольный этаж монолитный ж/б
[material_modifier] => 1
[work_modifier] => 1
[options] => Array
(
[0] => толщ. 200 мм
[1] => толщ. 300 мм
[2] => толщ. 400 мм
[3] => толщ. 500 мм
[4] => толщ. 600 мм
)
[days] => [40,42,44,46,48]
[material_price] => [25421,29148,32275,35602,37326]
[work_price] => [20441,21907,23375,24841,26306]
[image] => https://akademik-stroy.ru/wp-content/uploads/materials/cokolnyj-etazh-zh-b.jpg
[area_modifier] => 119.96
[parent_name] => Фундамент
[parent_id] => 1
[material_sum] => 3842374
[work_sum] => 2574707
[total_sum] => 6417081
[total_days] => 40
[display_material_sum] => 3 842 374
[display_work_sum] => 2 574 707
[display_total_sum] => 6 417 081
)
1
6 417 081₽
Работа:2 574 707 ₽
Материалы:3 842 374 ₽
Дни:40
stdClass Object
(
[id] => 191
[attribute_id] => 1
[name] => Винтовые сваи
[material_modifier] => 1
[work_modifier] => 1
[options] => Array
(
[0] => 57х200мм
[1] => 76х250мм
[2] => 108х300мм
[3] => 133х350мм
)
[days] => [1,1,2,2]
[material_price] => [1200,1300,1450,1600]
[work_price] => [400,600,900,1100]
[image] => https://akademik-stroy.ru/wp-content/uploads/materials/vintovye-svai.png
[area_modifier] => 119.96
[parent_name] => Фундамент
[parent_id] => 1
[material_sum] => 181380
[work_sum] => 50383
[total_sum] => 231763
[total_days] => 1
[display_material_sum] => 181 380
[display_work_sum] => 50 383
[display_total_sum] => 231 763
)
1
231 763₽
Работа:50 383 ₽
Материалы:181 380 ₽
Дни:1
stdClass Object
(
[id] => 3
[attribute_id] => 2
[name] => Деревянные балки
[material_modifier] => 1
[work_modifier] => 1
[options] => Array
(
[0] => без утепления
[1] => утепление 200 мм
[2] => утепление 250 мм
[3] => утепление 300 мм
[4] => утепление 350 мм
[5] => утепление 400 мм
[6] => утепление 450 мм
[7] => утепление 500 мм
)
[days] => [8,9,9,9,11,12,13,14]
[material_price] => [1634,2042,2344,2947,3149,3652,3354,3557]
[work_price] => [1230,1339,1393,1426,1460,1513,1587,1620]
[image] => https://akademik-stroy.ru/wp-content/uploads/materials/derevyannye-balki.png
[area_modifier] => 119.96
[parent_name] => Перекрытие цоколя
[parent_id] => 2
[material_sum] => 246978
[work_sum] => 154928
[total_sum] => 401906
[total_days] => 8
[display_material_sum] => 246 978
[display_work_sum] => 154 928
[display_total_sum] => 401 906
)
1
401 906₽
Работа:154 928 ₽
Материалы:246 978 ₽
Дни:8
stdClass Object
(
[id] => 4
[attribute_id] => 2
[name] => Сборные ж/б плиты
[material_modifier] => 1
[work_modifier] => 1
[options] => Array
(
[0] => без утепления
[1] => утепление 150мм
[2] => утепление 200мм
[3] => утепление 250мм
[4] => утепление 300мм
[5] => утепление 350мм
[6] => утепление 400мм
[7] => утепление 450мм
[8] => утепление 500мм
)
[days] => [13,15,15,15,15,15,15,15,15]
[material_price] => [3067,5577,5928,6679,7730,8782,9833,10884,11935]
[work_price] => [1520,1956,2102,2247,2392,2537,2684,2829,2974]
[image] => https://akademik-stroy.ru/wp-content/uploads/materials/sbornye-zh-b-plity-2.jpg
[area_modifier] => 119.96
[parent_name] => Перекрытие цоколя
[parent_id] => 2
[material_sum] => 463576
[work_sum] => 191456
[total_sum] => 655032
[total_days] => 13
[display_material_sum] => 463 576
[display_work_sum] => 191 456
[display_total_sum] => 655 032
)
1
655 032₽
Работа:191 456 ₽
Материалы:463 576 ₽
Дни:13
stdClass Object
(
[id] => 78
[attribute_id] => 2
[name] => Монолитная ж/б плита
[material_modifier] => 1
[work_modifier] => 1
[options] => Array
(
[0] => без утепления
[1] => утепление 150 мм
[2] => утепление 200 мм
[3] => утепление 250 мм
[4] => утепление 300 мм
[5] => утепление 350 мм
[6] => утепление 400 мм
[7] => утепление 450 мм
[8] => утепление 500 мм
)
[days] => [18,20,20,20,20,20,20,20,20]
[material_price] => [4837,6572,7224,7375,79426,8177,8728,9180,10031]
[work_price] => [3348,3921,4112,4302,4493,4684,4875,5066,5256]
[image] => https://akademik-stroy.ru/wp-content/uploads/materials/monolitnaya-zh-b-plita-2.jpg
[area_modifier] => 119.96
[parent_name] => Перекрытие цоколя
[parent_id] => 2
[material_sum] => 731111
[work_sum] => 421707
[total_sum] => 1152818
[total_days] => 18
[display_material_sum] => 731 111
[display_work_sum] => 421 707
[display_total_sum] => 1 152 818
)
1
1 152 818₽
Работа:421 707 ₽
Материалы:731 111 ₽
Дни:18
stdClass Object
(
[id] => 6
[attribute_id] => 3
[name] => Пеноблок
[material_modifier] => 1
[work_modifier] => 1
[options] => Array
(
[0] => 300 мм
[1] => 400 мм
[2] => 500 мм
[3] => 600 мм
)
[days] => [29,31,34,39]
[material_price] => [3000,4000,4500,4937]
[work_price] => [5033,5805,6400,8710]
[image] => https://akademik-stroy.ru/wp-content/uploads/materials/penoblok.jpg
[area_modifier] => 119.96
[parent_name] => Стены 1 этаж (несущие)
[parent_id] => 3
[material_sum] => 453449
[work_sum] => 633947
[total_sum] => 1087396
[total_days] => 29
[display_material_sum] => 453 449
[display_work_sum] => 633 947
[display_total_sum] => 1 087 396
)
1
1 087 396₽
Работа:633 947 ₽
Материалы:453 449 ₽
Дни:29
stdClass Object
(
[id] => 79
[attribute_id] => 3
[name] => Керамический блок
[material_modifier] => 1
[work_modifier] => 1
[options] => Array
(
[0] => 380 мм
[1] => 380 мм Thermo
[2] => 440 мм
[3] => 510 мм
)
[days] => [23,23,24,25]
[material_price] => [4510,5098,6093,8013]
[work_price] => [4737,4937,5903,6958]
[image] => https://akademik-stroy.ru/wp-content/uploads/materials/keramicheskij-blok.jpg
[area_modifier] => 119.96
[parent_name] => Стены 1 этаж (несущие)
[parent_id] => 3
[material_sum] => 681685
[work_sum] => 596663
[total_sum] => 1278348
[total_days] => 23
[display_material_sum] => 681 685
[display_work_sum] => 596 663
[display_total_sum] => 1 278 348
)
1
1 278 348₽
Работа:596 663 ₽
Материалы:681 685 ₽
Дни:23
stdClass Object
(
[id] => 80
[attribute_id] => 3
[name] => Кирпич
[material_modifier] => 1
[work_modifier] => 1
[options] => Array
(
[0] => Кирпич 250 мм
[1] => Кирпич 380 мм
[2] => Кирпич 510 мм
[3] => Кирпич 640 мм
[4] => Кирпич 770 мм
)
[days] => [30,30,31,33,36]
[material_price] => [5500,7142,9206,10171,12235]
[work_price] => [8736,10041,12018,15240,18462]
[image] => https://akademik-stroy.ru/wp-content/uploads/materials/kirpich.jpg
[area_modifier] => 119.96
[parent_name] => Стены 1 этаж (несущие)
[parent_id] => 3
[material_sum] => 831323
[work_sum] => 1100369
[total_sum] => 1931692
[total_days] => 30
[display_material_sum] => 831 323
[display_work_sum] => 1 100 369
[display_total_sum] => 1 931 692
)
1
1 931 692₽
Работа:1 100 369 ₽
Материалы:831 323 ₽
Дни:30
stdClass Object
(
[id] => 81
[attribute_id] => 3
[name] => Монолитные
[material_modifier] => 1
[work_modifier] => 1
[options] => Array
(
[0] => 150 мм
[1] => 200 мм
[2] => 250 мм
[3] => 300 мм
[4] => 350 мм
[5] => 400 мм
)
[days] => [45,46,47,49,50,53]
[material_price] => [6545,7876,10175,12011,13908,15204]
[work_price] => [5106,6444,7698,8552,9807,11461]
[image] => https://akademik-stroy.ru/wp-content/uploads/materials/monolitnye.jpg
[area_modifier] => 119.96
[parent_name] => Стены 1 этаж (несущие)
[parent_id] => 3
[material_sum] => 989274
[work_sum] => 643142
[total_sum] => 1632416
[total_days] => 45
[display_material_sum] => 989 274
[display_work_sum] => 643 142
[display_total_sum] => 1 632 416
)
1
1 632 416₽
Работа:643 142 ₽
Материалы:989 274 ₽
Дни:45
stdClass Object
(
[id] => 82
[attribute_id] => 3
[name] => Клееный брус
[material_modifier] => 1
[work_modifier] => 1
[options] => Array
(
[0] => 160 мм
[1] => 175 мм
[2] => 200 мм
[3] => 215 мм
[4] => 240 мм
[5] => 270 мм
[6] => 282 мм
)
[days] => [24,28,32,37,40,42,48]
[material_price] => [16975,18773,19950,20545,21599,22159,23275]
[work_price] => [4806,5287,5815,6397,7036,7740,8514]
[image] => https://akademik-stroy.ru/wp-content/uploads/materials/kleenyj-brus.jpg
[area_modifier] => 119.96
[parent_name] => Стены 1 этаж (несущие)
[parent_id] => 3
[material_sum] => 2565764
[work_sum] => 605354
[total_sum] => 3171118
[total_days] => 24
[display_material_sum] => 2 565 764
[display_work_sum] => 605 354
[display_total_sum] => 3 171 118
)
1
3 171 118₽
Работа:605 354 ₽
Материалы:2 565 764 ₽
Дни:24
stdClass Object
(
[id] => 83
[attribute_id] => 3
[name] => Каркасные
[material_modifier] => 1
[work_modifier] => 1
[options] => Array
(
[0] => 150 мм
[1] => 200 мм
[2] => 250 мм
[3] => 300 мм
)
[days] => [15,16,17,18]
[material_price] => [2379,2639,2898,3258]
[work_price] => [2418,2686,2985,3716]
[image] => https://akademik-stroy.ru/wp-content/uploads/materials/karkasnye.jpg
[area_modifier] => 119.96
[parent_name] => Стены 1 этаж (несущие)
[parent_id] => 3
[material_sum] => 359585
[work_sum] => 304566
[total_sum] => 664151
[total_days] => 15
[display_material_sum] => 359 585
[display_work_sum] => 304 566
[display_total_sum] => 664 151
)
1
664 151₽
Работа:304 566 ₽
Материалы:359 585 ₽
Дни:15
stdClass Object
(
[id] => 84
[attribute_id] => 3
[name] => СИП-панели
[material_modifier] => 1
[work_modifier] => 1
[options] => Array
(
[0] => 120 мм
[1] => 170 мм
[2] => 220 мм
)
[days] => [7,7,7]
[material_price] => [1210,1856,2292]
[work_price] => [1410,1551,1706]
[image] => https://akademik-stroy.ru/wp-content/uploads/materials/sip-paneli.jpg
[area_modifier] => 119.96
[parent_name] => Стены 1 этаж (несущие)
[parent_id] => 3
[material_sum] => 182891
[work_sum] => 177601
[total_sum] => 360492
[total_days] => 7
[display_material_sum] => 182 891
[display_work_sum] => 177 601
[display_total_sum] => 360 492
)
1
360 492₽
Работа:177 601 ₽
Материалы:182 891 ₽
Дни:7
stdClass Object
(
[id] => 85
[attribute_id] => 3
[name] => Сухой брус
[material_modifier] => 1
[work_modifier] => 1
[options] => Array
(
[0] => 150 мм
[1] => 180 мм
[2] => 200 мм
)
[days] => [7,8,9]
[material_price] => [6010,7190,8709]
[work_price] => [3204,3845,4229]
[image] => https://akademik-stroy.ru/wp-content/uploads/materials/suhoj-brus.jpg
[area_modifier] => 119.96
[parent_name] => Стены 1 этаж (несущие)
[parent_id] => 3
[material_sum] => 908409
[work_sum] => 403569
[total_sum] => 1311978
[total_days] => 7
[display_material_sum] => 908 409
[display_work_sum] => 403 569
[display_total_sum] => 1 311 978
)
1
1 311 978₽
Работа:403 569 ₽
Материалы:908 409 ₽
Дни:7
stdClass Object
(
[id] => 86
[attribute_id] => 3
[name] => Профилированный брус
[material_modifier] => 1
[work_modifier] => 1
[options] => Array
(
[0] => 150 мм
[1] => 180 мм
[2] => 200 мм
)
[days] => [7,8,9]
[material_price] => [8190,9228,10051]
[work_price] => [3845,4614,5075]
[image] => https://akademik-stroy.ru/wp-content/uploads/materials/profilirovannyj-brus.jpg
[area_modifier] => 119.96
[parent_name] => Стены 1 этаж (несущие)
[parent_id] => 3
[material_sum] => 1237915
[work_sum] => 484309
[total_sum] => 1722224
[total_days] => 7
[display_material_sum] => 1 237 915
[display_work_sum] => 484 309
[display_total_sum] => 1 722 224
)
1
1 722 224₽
Работа:484 309 ₽
Материалы:1 237 915 ₽
Дни:7
stdClass Object
(
[id] => 87
[attribute_id] => 3
[name] => Оцилиндрованное бревно
[material_modifier] => 1
[work_modifier] => 1
[options] => Array
(
[0] => 180 мм
[1] => 220 мм
[2] => 260 мм
[3] => 320 мм
)
[days] => [7,8,9,10]
[material_price] => [75190,9532,10868,13116]
[work_price] => [3845,4691,5535,6863]
[image] => https://akademik-stroy.ru/wp-content/uploads/materials/ocilindrovannoe-brevno-1.jpg
[area_modifier] => 119.96
[parent_name] => Стены 1 этаж (несущие)
[parent_id] => 3
[material_sum] => 11364938
[work_sum] => 484309
[total_sum] => 11849247
[total_days] => 7
[display_material_sum] => 11 364 938
[display_work_sum] => 484 309
[display_total_sum] => 11 849 247
)
1
11 849 247₽
Работа:484 309 ₽
Материалы:11 364 938 ₽
Дни:7
stdClass Object
(
[id] => 88
[attribute_id] => 3
[name] => Срубы
[material_modifier] => 1
[work_modifier] => 1
[options] => Array
(
[0] => 260 мм
[1] => 320 мм
[2] => 360 мм
[3] => 400 мм
[4] => 500 мм
)
[days] => [7,8,9,10,11]
[material_price] => [37975,46709,52314,58069,73167]
[work_price] => [4806,5911,6621,7349,9260]
[image] => https://akademik-stroy.ru/wp-content/uploads/materials/sruby.jpg
[area_modifier] => 119.96
[parent_name] => Стены 1 этаж (несущие)
[parent_id] => 3
[material_sum] => 5739906
[work_sum] => 605354
[total_sum] => 6345260
[total_days] => 7
[display_material_sum] => 5 739 906
[display_work_sum] => 605 354
[display_total_sum] => 6 345 260
)
1
6 345 260₽
Работа:605 354 ₽
Материалы:5 739 906 ₽
Дни:7
stdClass Object
(
[id] => 174
[attribute_id] => 3
[name] => Брус
[material_modifier] => 1
[work_modifier] => 1
[options] => Array
(
[0] => 150 мм
[1] => 180 мм
[2] => 200 мм
)
[days] => [7,8,9]
[material_price] => [5127,6152,7367]
[work_price] => [1602,1922,2115]
[image] => https://akademik-stroy.ru/wp-content/uploads/materials/brus.jpg
[area_modifier] => 119.96
[parent_name] => Стены 1 этаж (несущие)
[parent_id] => 3
[material_sum] => 774944
[work_sum] => 201785
[total_sum] => 976729
[total_days] => 7
[display_material_sum] => 774 944
[display_work_sum] => 201 785
[display_total_sum] => 976 729
)
1
976 729₽
Работа:201 785 ₽
Материалы:774 944 ₽
Дни:7
stdClass Object
(
[id] => 175
[attribute_id] => 3
[name] => Газобетон
[material_modifier] => 1
[work_modifier] => 1
[options] => Array
(
[0] => 300 мм
[1] => 375 мм
[2] => 400 мм
[3] => 500 мм
[4] => 600 мм
)
[days] => [29,31,35,37,44]
[material_price] => [4298,5573,6356,7288,9119]
[work_price] => [4538,5251,5926,6733,7195]
[image] => https://akademik-stroy.ru/wp-content/uploads/materials/gazobeton.jpg
[area_modifier] => 119.96
[parent_name] => Стены 1 этаж (несущие)
[parent_id] => 3
[material_sum] => 649641
[work_sum] => 571597
[total_sum] => 1221238
[total_days] => 29
[display_material_sum] => 649 641
[display_work_sum] => 571 597
[display_total_sum] => 1 221 238
)
1
1 221 238₽
Работа:571 597 ₽
Материалы:649 641 ₽
Дни:29
stdClass Object
(
[id] => 176
[attribute_id] => 3
[name] => Блок
[material_modifier] => 1
[work_modifier] => 1
[options] => Array
(
[0] => 300 мм
[1] => 375 мм
[2] => 400 мм
[3] => 500 мм
[4] => 600 мм
)
[days] => [29,31,35,37,44]
[material_price] => [2698,3973,4356,6588,7119]
[work_price] => [5038,5851,6426,8733,9195]
[image] => https://akademik-stroy.ru/wp-content/uploads/materials/blok.jpg
[area_modifier] => 119.96
[parent_name] => Стены 1 этаж (несущие)
[parent_id] => 3
[material_sum] => 407802
[work_sum] => 634576
[total_sum] => 1042378
[total_days] => 29
[display_material_sum] => 407 802
[display_work_sum] => 634 576
[display_total_sum] => 1 042 378
)
1
1 042 378₽
Работа:634 576 ₽
Материалы:407 802 ₽
Дни:29
stdClass Object
(
[id] => 177
[attribute_id] => 3
[name] => Газосиликатный блок
[material_modifier] => 1
[work_modifier] => 1
[options] => Array
(
[0] => 300 мм
[1] => 375 мм
[2] => 400 мм
[3] => 500 мм
[4] => 600 мм
)
[days] => [29,31,35,37,44]
[material_price] => [4298,5573,6356,7288,9119]
[work_price] => [4538,5251,5926,6733,7195]
[image] => https://akademik-stroy.ru/wp-content/uploads/materials/gazosilikatnyj-blok.jpg
[area_modifier] => 119.96
[parent_name] => Стены 1 этаж (несущие)
[parent_id] => 3
[material_sum] => 649641
[work_sum] => 571597
[total_sum] => 1221238
[total_days] => 29
[display_material_sum] => 649 641
[display_work_sum] => 571 597
[display_total_sum] => 1 221 238
)
1
1 221 238₽
Работа:571 597 ₽
Материалы:649 641 ₽
Дни:29
stdClass Object
(
[id] => 178
[attribute_id] => 3
[name] => Керамзитобетонный блок
[material_modifier] => 1
[work_modifier] => 1
[options] => Array
(
[0] => 300 мм
[1] => 375 мм
[2] => 400 мм
[3] => 500 мм
[4] => 600 мм
)
[days] => [23,23,24,25,28]
[material_price] => [3641,4298,5693,7613,9612]
[work_price] => [5737,5737,6903,7958,8901]
[image] => https://akademik-stroy.ru/wp-content/uploads/materials/keramzitobetonnyj-blok.jpg
[area_modifier] => 119.96
[parent_name] => Стены 1 этаж (несущие)
[parent_id] => 3
[material_sum] => 550336
[work_sum] => 722621
[total_sum] => 1272957
[total_days] => 23
[display_material_sum] => 550 336
[display_work_sum] => 722 621
[display_total_sum] => 1 272 957
)
1
1 272 957₽
Работа:722 621 ₽
Материалы:550 336 ₽
Дни:23
stdClass Object
(
[id] => 179
[attribute_id] => 3
[name] => Деревянные
[material_modifier] => 1
[work_modifier] => 1
[options] => Array
(
[0] => 180 мм
[1] => 220 мм
[2] => 260 мм
[3] => 320 мм
)
[days] => [7,8,9,10]
[material_price] => [7950,9458,11961,14472]
[work_price] => [4037,4925,5812,7207]
[image] => https://akademik-stroy.ru/wp-content/uploads/materials/derevyannye.jpg
[area_modifier] => 119.96
[parent_name] => Стены 1 этаж (несущие)
[parent_id] => 3
[material_sum] => 1201639
[work_sum] => 508492
[total_sum] => 1710131
[total_days] => 7
[display_material_sum] => 1 201 639
[display_work_sum] => 508 492
[display_total_sum] => 1 710 131
)
1
1 710 131₽
Работа:508 492 ₽
Материалы:1 201 639 ₽
Дни:7
stdClass Object
(
[id] => 181
[attribute_id] => 3
[name] => Камень
[material_modifier] => 1
[work_modifier] => 1
[options] => Array
(
[0] => 300 мм
[1] => 400 мм
[2] => 500 мм
[3] => 600 мм
)
[days] => [25,27,31,34]
[material_price] => [5262,6844,8330,9815]
[work_price] => [8331,9135,10427,11069]
[image] => https://akademik-stroy.ru/wp-content/uploads/materials/kamen.jpg
[area_modifier] => 119.96
[parent_name] => Стены 1 этаж (несущие)
[parent_id] => 3
[material_sum] => 795349
[work_sum] => 1049356
[total_sum] => 1844705
[total_days] => 25
[display_material_sum] => 795 349
[display_work_sum] => 1 049 356
[display_total_sum] => 1 844 705
)
1
1 844 705₽
Работа:1 049 356 ₽
Материалы:795 349 ₽
Дни:25
stdClass Object
(
[id] => 182
[attribute_id] => 3
[name] => Каркасно-щитовые
[material_modifier] => 1
[work_modifier] => 1
[options] => Array
(
[0] => 150 мм
[1] => 200 мм
[2] => 250 мм
[3] => 300 мм
[4] => 350 мм
[5] => 400 мм
)
[days] => [15,16,17,18,19,20]
[material_price] => [2379,2639,2898,3458,3601,4175]
[work_price] => [2538,2820,3134,3483,4062,5642]
[image] => https://akademik-stroy.ru/wp-content/uploads/materials/karkasno-shchitovye.jpg
[area_modifier] => 119.96
[parent_name] => Стены 1 этаж (несущие)
[parent_id] => 3
[material_sum] => 359585
[work_sum] => 319681
[total_sum] => 679266
[total_days] => 15
[display_material_sum] => 359 585
[display_work_sum] => 319 681
[display_total_sum] => 679 266
)
1
679 266₽
Работа:319 681 ₽
Материалы:359 585 ₽
Дни:15
stdClass Object
(
[id] => 183
[attribute_id] => 3
[name] => Рубленные
[material_modifier] => 1
[work_modifier] => 1
[options] => Array
(
[0] => 150 мм
[1] => 200 мм
[2] => 250 мм
[3] => 300 мм
[4] => 350 мм
[5] => 400 мм
)
[days] => [15,16,17,18,17,18]
[material_price] => [35950,50267,60583,75900,80217,100533]
[work_price] => [9612,12816,16020,19224,22428,25632]
[image] => https://akademik-stroy.ru/wp-content/uploads/materials/rublennye.jpg
[area_modifier] => 119.96
[parent_name] => Стены 1 этаж (несущие)
[parent_id] => 3
[material_sum] => 5433828
[work_sum] => 1210708
[total_sum] => 6644536
[total_days] => 15
[display_material_sum] => 5 433 828
[display_work_sum] => 1 210 708
[display_total_sum] => 6 644 536
)
1
6 644 536₽
Работа:1 210 708 ₽
Материалы:5 433 828 ₽
Дни:15
stdClass Object
(
[id] => 185
[attribute_id] => 3
[name] => Теплоблок
[material_modifier] => 1
[work_modifier] => 1
[options] => Array
(
[0] => 300 мм (с облицовкой, не покрашенный)
[1] => 400 мм (с облицовкой, не покрашенный)
[2] => 300 мм (с облицовкой, покрашенный)
[3] => 400 мм (с облицовкой, покрашенный)
)
[days] => [15,16,15,16]
[material_price] => [2888,3729,3957,4258]
[work_price] => [2564,3229,2949,3713]
[image] => https://akademik-stroy.ru/wp-content/uploads/materials/teploblok.jpg
[area_modifier] => 119.96
[parent_name] => Стены 1 этаж (несущие)
[parent_id] => 3
[material_sum] => 436520
[work_sum] => 322956
[total_sum] => 759476
[total_days] => 15
[display_material_sum] => 436 520
[display_work_sum] => 322 956
[display_total_sum] => 759 476
)
1
759 476₽
Работа:322 956 ₽
Материалы:436 520 ₽
Дни:15
stdClass Object
(
[id] => 186
[attribute_id] => 3
[name] => Арболитовые блоки
[material_modifier] => 1
[work_modifier] => 1
[options] => Array
(
[0] => 300 мм
[1] => 400 мм
[2] => 600 мм
)
[days] => [19,22,27]
[material_price] => [3210,4475,5852]
[work_price] => [4214,4788,5866]
[image] => https://akademik-stroy.ru/wp-content/uploads/materials/arbolitovye-bloki.png
[area_modifier] => 119.96
[parent_name] => Стены 1 этаж (несущие)
[parent_id] => 3
[material_sum] => 485190
[work_sum] => 530787
[total_sum] => 1015977
[total_days] => 19
[display_material_sum] => 485 190
[display_work_sum] => 530 787
[display_total_sum] => 1 015 977
)
1
1 015 977₽
Работа:530 787 ₽
Материалы:485 190 ₽
Дни:19
stdClass Object
(
[id] => 187
[attribute_id] => 3
[name] => Полистиролбетон
[material_modifier] => 1
[work_modifier] => 1
[options] => Array
(
[0] => 300 мм
[1] => 400 мм
[2] => 600 мм
)
[days] => [29,31,35]
[material_price] => [2798,4573,5256]
[work_price] => [5038,5851,6426]
[image] => https://akademik-stroy.ru/wp-content/uploads/materials/polistirolbeton.jpg
[area_modifier] => 119.96
[parent_name] => Стены 1 этаж (несущие)
[parent_id] => 3
[material_sum] => 422917
[work_sum] => 634576
[total_sum] => 1057493
[total_days] => 29
[display_material_sum] => 422 917
[display_work_sum] => 634 576
[display_total_sum] => 1 057 493
)
1
1 057 493₽
Работа:634 576 ₽
Материалы:422 917 ₽
Дни:29
stdClass Object
(
[id] => 188
[attribute_id] => 3
[name] => Шлакоблок
[material_modifier] => 1
[work_modifier] => 1
[options] => Array
(
[0] => 400 мм
[1] => 600 мм
)
[days] => [15,16]
[material_price] => [2391,3471]
[work_price] => [2642,3662]
[image] => https://akademik-stroy.ru/wp-content/uploads/materials/shlakoblok.jpg
[area_modifier] => 119.96
[parent_name] => Стены 1 этаж (несущие)
[parent_id] => 3
[material_sum] => 361399
[work_sum] => 332781
[total_sum] => 694180
[total_days] => 15
[display_material_sum] => 361 399
[display_work_sum] => 332 781
[display_total_sum] => 694 180
)
1
694 180₽
Работа:332 781 ₽
Материалы:361 399 ₽
Дни:15
stdClass Object
(
[id] => 189
[attribute_id] => 3
[name] => Теплая керамика
[material_modifier] => 1
[work_modifier] => 1
[options] => Array
(
[0] => 380 мм
[1] => 380 мм Thermo
[2] => 440 мм
[3] => 510 мм
)
[days] => [23,23,24,25]
[material_price] => [4510,5098,6093,8013]
[work_price] => [4737,4937,5903,6958]
[image] => https://akademik-stroy.ru/wp-content/uploads/materials/teplaya-keramika.jpg
[area_modifier] => 119.96
[parent_name] => Стены 1 этаж (несущие)
[parent_id] => 3
[material_sum] => 681685
[work_sum] => 596663
[total_sum] => 1278348
[total_days] => 23
[display_material_sum] => 681 685
[display_work_sum] => 596 663
[display_total_sum] => 1 278 348
)
1
1 278 348₽
Работа:596 663 ₽
Материалы:681 685 ₽
Дни:23
stdClass Object
(
[id] => 190
[attribute_id] => 3
[name] => Несъемная опалубка
[material_modifier] => 1
[work_modifier] => 1
[options] => Array
(
[0] => 200 мм
[1] => 250 мм
[2] => 300 мм
[3] => 350 мм
)
[days] => [15,17,19,21]
[material_price] => [3302,3902,4108,5008]
[work_price] => [2100,2100,2300,2534]
[image] => https://akademik-stroy.ru/wp-content/uploads/materials/nesemnaya-opalubka.jpg
[area_modifier] => 119.96
[parent_name] => Стены 1 этаж (несущие)
[parent_id] => 3
[material_sum] => 499096
[work_sum] => 264512
[total_sum] => 763608
[total_days] => 15
[display_material_sum] => 499 096
[display_work_sum] => 264 512
[display_total_sum] => 763 608
)
1
763 608₽
Работа:264 512 ₽
Материалы:499 096 ₽
Дни:15
stdClass Object
(
[id] => 251
[attribute_id] => 3
[name] => Бревно
[material_modifier] => 1
[work_modifier] => 1
[options] => Array
(
[0] => 260 мм
[1] => 320 мм
[2] => 360 мм
[3] => 400 мм
[4] => 500 мм
)
[days] => [7,8,9,10,11]
[material_price] => [1874,24045,26930,30972,38825]
[work_price] => [5046,6207,6952,7716,9723]
[image] => https://akademik-stroy.ru/wp-content/uploads/materials/sruby.jpg
[area_modifier] => 119.96
[parent_name] => Стены 1 этаж (несущие)
[parent_id] => 3
[material_sum] => 283254
[work_sum] => 635584
[total_sum] => 918838
[total_days] => 7
[display_material_sum] => 283 254
[display_work_sum] => 635 584
[display_total_sum] => 918 838
)
1
918 838₽
Работа:635 584 ₽
Материалы:283 254 ₽
Дни:7
stdClass Object
(
[id] => 7
[attribute_id] => 4
[name] => Деревянные балки
[material_modifier] => 1
[work_modifier] => 1
[options] => Array
(
[0] => без утепления
[1] => утепление 200 мм
[2] => утепление 250 мм
[3] => утепление 300 мм
[4] => утепление 350 мм
[5] => утепление 400 мм
[6] => утепление 450 мм
[7] => утепление 500 мм
)
[days] => [8,9,9,9,11,12,13,14]
[material_price] => [1634,2042,2344,2947,3149,3652,3354,3557]
[work_price] => [1230,1339,1393,1426,1460,1513,1587,1620]
[image] => https://akademik-stroy.ru/wp-content/uploads/materials/derevyannye-balki.png
[area_modifier] => 119.96
[parent_name] => Перекрытие первого этажа
[parent_id] => 4
[material_sum] => 246978
[work_sum] => 154928
[total_sum] => 401906
[total_days] => 8
[display_material_sum] => 246 978
[display_work_sum] => 154 928
[display_total_sum] => 401 906
)
1
401 906₽
Работа:154 928 ₽
Материалы:246 978 ₽
Дни:8
stdClass Object
(
[id] => 8
[attribute_id] => 4
[name] => Сборные ж/б плиты
[material_modifier] => 1
[work_modifier] => 1
[options] => Array
(
[0] => без утепления
[1] => утепление 150 мм
[2] => утепление 200 мм
[3] => утепление 250 мм
[4] => утепление 300 мм
[5] => утепление 350 мм
[6] => утепление 400 мм
[7] => утепление 450 мм
[8] => утепление 500 мм
)
[days] => [13,15,15,15,15,15,15,15,15]
[material_price] => [3067,5577,5928,6679,7730,8782,9833,10884,11935]
[work_price] => [1520,1956,2102,2247,2392,2537,2684,2829,2974]
[image] => https://akademik-stroy.ru/wp-content/uploads/materials/sbornye-zh-b-plity-2.jpg
[area_modifier] => 119.96
[parent_name] => Перекрытие первого этажа
[parent_id] => 4
[material_sum] => 463576
[work_sum] => 191456
[total_sum] => 655032
[total_days] => 13
[display_material_sum] => 463 576
[display_work_sum] => 191 456
[display_total_sum] => 655 032
)
1
655 032₽
Работа:191 456 ₽
Материалы:463 576 ₽
Дни:13
stdClass Object
(
[id] => 89
[attribute_id] => 4
[name] => Монолитная ж/б плита
[material_modifier] => 1
[work_modifier] => 1
[options] => Array
(
[0] => без утепления
[1] => утепление 150 мм
[2] => утепление 200 мм
[3] => утепление 250 мм
[4] => утепление 300 мм
[5] => утепление 350 мм
[6] => утепление 400 мм
[7] => утепление 450 мм
[8] => утепление 500 мм
)
[days] => [18,20,20,20,20,20,20,20,20]
[material_price] => [4837,6572,7224,7375,79426,8177,8728,9180,10031]
[work_price] => [3348,3921,4112,4302,4493,4684,4875,5066,5256]
[image] => https://akademik-stroy.ru/wp-content/uploads/materials/monolitnaya-zh-b-plita-2.jpg
[area_modifier] => 119.96
[parent_name] => Перекрытие первого этажа
[parent_id] => 4
[material_sum] => 731111
[work_sum] => 421707
[total_sum] => 1152818
[total_days] => 18
[display_material_sum] => 731 111
[display_work_sum] => 421 707
[display_total_sum] => 1 152 818
)
1
1 152 818₽
Работа:421 707 ₽
Материалы:731 111 ₽
Дни:18
stdClass Object
(
[id] => 10
[attribute_id] => 5
[name] => Пеноблок
[material_modifier] => 1
[work_modifier] => 1
[options] => Array
(
[0] => 300 мм
[1] => 400 мм
[2] => 500 мм
[3] => 600 мм
)
[days] => [29,31,34,39]
[material_price] => [3000,4000,4500,4937]
[work_price] => [5033,5805,6400,8710]
[image] => https://akademik-stroy.ru/wp-content/uploads/materials/penoblok.jpg
[area_modifier] => 91.19
[parent_name] => Стены 2 этаж (несущие)
[parent_id] => 5
[material_sum] => 344698
[work_sum] => 481907
[total_sum] => 826605
[total_days] => 29
[display_material_sum] => 344 698
[display_work_sum] => 481 907
[display_total_sum] => 826 605
)
1
826 605₽
Работа:481 907 ₽
Материалы:344 698 ₽
Дни:29
stdClass Object
(
[id] => 90
[attribute_id] => 5
[name] => Керамический блок
[material_modifier] => 1
[work_modifier] => 1
[options] => Array
(
[0] => 380 мм
[1] => 380 мм Thermo
[2] => 440 мм
[3] => 510 мм
)
[days] => [23,23,24,25]
[material_price] => [4510,5098,6093,8013]
[work_price] => [4737,4937,5903,6958]
[image] => https://akademik-stroy.ru/wp-content/uploads/materials/keramicheskij-blok.jpg
[area_modifier] => 91.19
[parent_name] => Стены 2 этаж (несущие)
[parent_id] => 5
[material_sum] => 518196
[work_sum] => 453565
[total_sum] => 971761
[total_days] => 23
[display_material_sum] => 518 196
[display_work_sum] => 453 565
[display_total_sum] => 971 761
)
1
971 761₽
Работа:453 565 ₽
Материалы:518 196 ₽
Дни:23
stdClass Object
(
[id] => 91
[attribute_id] => 5
[name] => Кирпич
[material_modifier] => 1
[work_modifier] => 1
[options] => Array
(
[0] => Кирпич 250 мм
[1] => Кирпич 380 мм
[2] => Кирпич 510 мм
[3] => Кирпич 640 мм
[4] => Кирпич 770 мм
)
[days] => [30,30,31,33,36]
[material_price] => [5500,7142,9206,10171,12235]
[work_price] => [8736,10041,12018,15240,18462]
[image] => https://akademik-stroy.ru/wp-content/uploads/materials/kirpich.jpg
[area_modifier] => 91.19
[parent_name] => Стены 2 этаж (несущие)
[parent_id] => 5
[material_sum] => 631947
[work_sum] => 836468
[total_sum] => 1468415
[total_days] => 30
[display_material_sum] => 631 947
[display_work_sum] => 836 468
[display_total_sum] => 1 468 415
)
1
1 468 415₽
Работа:836 468 ₽
Материалы:631 947 ₽
Дни:30
stdClass Object
(
[id] => 92
[attribute_id] => 5
[name] => Монолитные
[material_modifier] => 1
[work_modifier] => 1
[options] => Array
(
[0] => 150 мм
[1] => 200 мм
[2] => 250 мм
[3] => 300 мм
[4] => 350 мм
[5] => 400 мм
)
[days] => [45,46,47,49,50,53]
[material_price] => [6545,7876,10175,12011,13908,15204]
[work_price] => [5106,6444,7698,8552,9807,11461]
[image] => https://akademik-stroy.ru/wp-content/uploads/materials/monolitnye.jpg
[area_modifier] => 91.19
[parent_name] => Стены 2 этаж (несущие)
[parent_id] => 5
[material_sum] => 752017
[work_sum] => 488897
[total_sum] => 1240914
[total_days] => 45
[display_material_sum] => 752 017
[display_work_sum] => 488 897
[display_total_sum] => 1 240 914
)
1
1 240 914₽
Работа:488 897 ₽
Материалы:752 017 ₽
Дни:45
stdClass Object
(
[id] => 93
[attribute_id] => 5
[name] => Клееный брус
[material_modifier] => 1
[work_modifier] => 1
[options] => Array
(
[0] => 160 мм
[1] => 175 мм
[2] => 200 мм
[3] => 215 мм
[4] => 240 мм
[5] => 270 мм
[6] => 282 мм
)
[days] => [24,28,32,37,40,42,48]
[material_price] => [16975,18773,19950,20545,21599,22159,23275]
[work_price] => [4806,5287,5815,6397,7036,7740,8514]
[image] => https://akademik-stroy.ru/wp-content/uploads/materials/kleenyj-brus.jpg
[area_modifier] => 91.19
[parent_name] => Стены 2 этаж (несущие)
[parent_id] => 5
[material_sum] => 1950417
[work_sum] => 460172
[total_sum] => 2410589
[total_days] => 24
[display_material_sum] => 1 950 417
[display_work_sum] => 460 172
[display_total_sum] => 2 410 589
)
1
2 410 589₽
Работа:460 172 ₽
Материалы:1 950 417 ₽
Дни:24
stdClass Object
(
[id] => 94
[attribute_id] => 5
[name] => Каркасные
[material_modifier] => 1
[work_modifier] => 1
[options] => Array
(
[0] => 150 мм
[1] => 200 мм
[2] => 250 мм
[3] => 300 мм
)
[days] => [15,16,17,18]
[material_price] => [2379,2639,2898,3258]
[work_price] => [2418,2686,2985,3716]
[image] => https://akademik-stroy.ru/wp-content/uploads/materials/karkasnye.jpg
[area_modifier] => 91.19
[parent_name] => Стены 2 этаж (несущие)
[parent_id] => 5
[material_sum] => 273346
[work_sum] => 231522
[total_sum] => 504868
[total_days] => 15
[display_material_sum] => 273 346
[display_work_sum] => 231 522
[display_total_sum] => 504 868
)
1
504 868₽
Работа:231 522 ₽
Материалы:273 346 ₽
Дни:15
stdClass Object
(
[id] => 95
[attribute_id] => 5
[name] => СИП-панели
[material_modifier] => 1
[work_modifier] => 1
[options] => Array
(
[0] => 120 мм
[1] => 170 мм
[2] => 220 мм
)
[days] => [7,7,7]
[material_price] => [1210,1856,2292]
[work_price] => [1410,1551,1706]
[image] => https://akademik-stroy.ru/wp-content/uploads/materials/sip-paneli.jpg
[area_modifier] => 91.19
[parent_name] => Стены 2 этаж (несущие)
[parent_id] => 5
[material_sum] => 139028
[work_sum] => 135007
[total_sum] => 274035
[total_days] => 7
[display_material_sum] => 139 028
[display_work_sum] => 135 007
[display_total_sum] => 274 035
)
1
274 035₽
Работа:135 007 ₽
Материалы:139 028 ₽
Дни:7
stdClass Object
(
[id] => 96
[attribute_id] => 5
[name] => Сухой брус
[material_modifier] => 1
[work_modifier] => 1
[options] => Array
(
[0] => 150 мм
[1] => 180 мм
[2] => 200 мм
)
[days] => [7,8,9]
[material_price] => [6010,7190,8709]
[work_price] => [3204,3845,4229]
[image] => https://akademik-stroy.ru/wp-content/uploads/materials/suhoj-brus.jpg
[area_modifier] => 91.19
[parent_name] => Стены 2 этаж (несущие)
[parent_id] => 5
[material_sum] => 690545
[work_sum] => 306781
[total_sum] => 997326
[total_days] => 7
[display_material_sum] => 690 545
[display_work_sum] => 306 781
[display_total_sum] => 997 326
)
1
997 326₽
Работа:306 781 ₽
Материалы:690 545 ₽
Дни:7
stdClass Object
(
[id] => 97
[attribute_id] => 5
[name] => Профилированный брус
[material_modifier] => 1
[work_modifier] => 1
[options] => Array
(
[0] => 150 мм
[1] => 180 мм
[2] => 200 мм
)
[days] => [7,8,9]
[material_price] => [8190,9228,10051]
[work_price] => [3845,4614,5075]
[image] => https://akademik-stroy.ru/wp-content/uploads/materials/profilirovannyj-brus.jpg
[area_modifier] => 91.19
[parent_name] => Стены 2 этаж (несущие)
[parent_id] => 5
[material_sum] => 941026
[work_sum] => 368157
[total_sum] => 1309183
[total_days] => 7
[display_material_sum] => 941 026
[display_work_sum] => 368 157
[display_total_sum] => 1 309 183
)
1
1 309 183₽
Работа:368 157 ₽
Материалы:941 026 ₽
Дни:7
stdClass Object
(
[id] => 98
[attribute_id] => 5
[name] => Оцилиндрованное бревно
[material_modifier] => 1
[work_modifier] => 1
[options] => Array
(
[0] => 180 мм
[1] => 220 мм
[2] => 260 мм
[3] => 320 мм
)
[days] => [7,8,9,10]
[material_price] => [75190,9532,10868,13116]
[work_price] => [3845,4691,5535,6863]
[image] => https://akademik-stroy.ru/wp-content/uploads/materials/ocilindrovannoe-brevno-1.jpg
[area_modifier] => 91.19
[parent_name] => Стены 2 этаж (несущие)
[parent_id] => 5
[material_sum] => 8639286
[work_sum] => 368157
[total_sum] => 9007443
[total_days] => 7
[display_material_sum] => 8 639 286
[display_work_sum] => 368 157
[display_total_sum] => 9 007 443
)
1
9 007 443₽
Работа:368 157 ₽
Материалы:8 639 286 ₽
Дни:7
stdClass Object
(
[id] => 99
[attribute_id] => 5
[name] => Срубы
[material_modifier] => 1
[work_modifier] => 1
[options] => Array
(
[0] => 260 мм
[1] => 320 мм
[2] => 360 мм
[3] => 400 мм
[4] => 500 мм
)
[days] => [7,8,9,10,11]
[material_price] => [16175,23709,26314,29069,32167]
[work_price] => [4806,5911,6621,7349,9260]
[image] => https://akademik-stroy.ru/wp-content/uploads/materials/suhoj-brus.jpg
[area_modifier] => 91.19
[parent_name] => Стены 2 этаж (несущие)
[parent_id] => 5
[material_sum] => 1858498
[work_sum] => 460172
[total_sum] => 2318670
[total_days] => 7
[display_material_sum] => 1 858 498
[display_work_sum] => 460 172
[display_total_sum] => 2 318 670
)
1
2 318 670₽
Работа:460 172 ₽
Материалы:1 858 498 ₽
Дни:7
stdClass Object
(
[id] => 194
[attribute_id] => 5
[name] => Брус
[material_modifier] => 1
[work_modifier] => 1
[options] => Array
(
[0] => 150 мм
[1] => 180 мм
[2] => 200 мм
)
[days] => [10,13,15]
[material_price] => [5127,6152,7367]
[work_price] => [1602,1922,2115]
[image] => https://akademik-stroy.ru/wp-content/uploads/materials/brus.jpg
[area_modifier] => 91.19
[parent_name] => Стены 2 этаж (несущие)
[parent_id] => 5
[material_sum] => 589089
[work_sum] => 153391
[total_sum] => 742480
[total_days] => 10
[display_material_sum] => 589 089
[display_work_sum] => 153 391
[display_total_sum] => 742 480
)
1
742 480₽
Работа:153 391 ₽
Материалы:589 089 ₽
Дни:10
stdClass Object
(
[id] => 195
[attribute_id] => 5
[name] => Газобетон
[material_modifier] => 1
[work_modifier] => 1
[options] => Array
(
[0] => 300 мм
[1] => 375 мм
[2] => 400 мм
[3] => 500 мм
[4] => 600 мм
)
[days] => [29,31,35,37,44]
[material_price] => [4298,5573,6356,7288,9119]
[work_price] => [4538,5251,5926,6733,7195]
[image] => https://akademik-stroy.ru/wp-content/uploads/materials/gazobeton.jpg
[area_modifier] => 91.19
[parent_name] => Стены 2 этаж (несущие)
[parent_id] => 5
[material_sum] => 493838
[work_sum] => 434511
[total_sum] => 928349
[total_days] => 29
[display_material_sum] => 493 838
[display_work_sum] => 434 511
[display_total_sum] => 928 349
)
1
928 349₽
Работа:434 511 ₽
Материалы:493 838 ₽
Дни:29
stdClass Object
(
[id] => 196
[attribute_id] => 5
[name] => Блок
[material_modifier] => 1
[work_modifier] => 1
[options] => Array
(
[0] => 300 мм
[1] => 375 мм
[2] => 400 мм
[3] => 500 мм
[4] => 600 мм
)
[days] => [29,31,35,37,44]
[material_price] => [2698,3973,4356,6588,7119]
[work_price] => [5038,5851,6426,8733,9195]
[image] => https://akademik-stroy.ru/wp-content/uploads/materials/blok.jpg
[area_modifier] => 91.19
[parent_name] => Стены 2 этаж (несущие)
[parent_id] => 5
[material_sum] => 309999
[work_sum] => 482386
[total_sum] => 792385
[total_days] => 29
[display_material_sum] => 309 999
[display_work_sum] => 482 386
[display_total_sum] => 792 385
)
1
792 385₽
Работа:482 386 ₽
Материалы:309 999 ₽
Дни:29
stdClass Object
(
[id] => 197
[attribute_id] => 5
[name] => Газосиликатный блок
[material_modifier] => 1
[work_modifier] => 1
[options] => Array
(
[0] => 300 мм
[1] => 375 мм
[2] => 400 мм
[3] => 500 мм
[4] => 600 мм
)
[days] => [29,31,35,37,44]
[material_price] => [4298,5573,6356,7288,9119]
[work_price] => [4538,5251,5926,6733,7195]
[image] => https://akademik-stroy.ru/wp-content/uploads/materials/gazosilikatnyj-blok.jpg
[area_modifier] => 91.19
[parent_name] => Стены 2 этаж (несущие)
[parent_id] => 5
[material_sum] => 493838
[work_sum] => 434511
[total_sum] => 928349
[total_days] => 29
[display_material_sum] => 493 838
[display_work_sum] => 434 511
[display_total_sum] => 928 349
)
1
928 349₽
Работа:434 511 ₽
Материалы:493 838 ₽
Дни:29
stdClass Object
(
[id] => 198
[attribute_id] => 5
[name] => Керамзитобетонный блок
[material_modifier] => 1
[work_modifier] => 1
[options] => Array
(
[0] => 300 мм
[1] => 375 мм
[2] => 400 мм
[3] => 500 мм
[4] => 600 мм
)
[days] => [23,23,24,25,28]
[material_price] => [3641,4298,5693,7613,9612]
[work_price] => [5737,5737,6903,7958,8901]
[image] => https://akademik-stroy.ru/wp-content/uploads/materials/keramzitobetonnyj-blok.jpg
[area_modifier] => 91.19
[parent_name] => Стены 2 этаж (несущие)
[parent_id] => 5
[material_sum] => 418349
[work_sum] => 549315
[total_sum] => 967664
[total_days] => 23
[display_material_sum] => 418 349
[display_work_sum] => 549 315
[display_total_sum] => 967 664
)
1
967 664₽
Работа:549 315 ₽
Материалы:418 349 ₽
Дни:23
stdClass Object
(
[id] => 199
[attribute_id] => 5
[name] => Деревянные
[material_modifier] => 1
[work_modifier] => 1
[options] => Array
(
[0] => 180 мм
[1] => 220 мм
[2] => 260 мм
[3] => 320 мм
)
[days] => [7,8,9,10]
[material_price] => [7950,9458,11961,14472]
[work_price] => [4037,4925,5812,7207]
[image] => https://akademik-stroy.ru/wp-content/uploads/materials/derevyannye.jpg
[area_modifier] => 91.19
[parent_name] => Стены 2 этаж (несущие)
[parent_id] => 5
[material_sum] => 913450
[work_sum] => 386541
[total_sum] => 1299991
[total_days] => 7
[display_material_sum] => 913 450
[display_work_sum] => 386 541
[display_total_sum] => 1 299 991
)
1
1 299 991₽
Работа:386 541 ₽
Материалы:913 450 ₽
Дни:7
stdClass Object
(
[id] => 200
[attribute_id] => 5
[name] => Камень
[material_modifier] => 1
[work_modifier] => 1
[options] => Array
(
[0] => 300 мм
[1] => 400 мм
[2] => 500 мм
[3] => 600 мм
)
[days] => [25,27,31,34]
[material_price] => [5262,6844,8330,9815]
[work_price] => [8331,9135,10427,11069]
[image] => https://akademik-stroy.ru/wp-content/uploads/materials/kamen.jpg
[area_modifier] => 91.19
[parent_name] => Стены 2 этаж (несущие)
[parent_id] => 5
[material_sum] => 604601
[work_sum] => 797689
[total_sum] => 1402290
[total_days] => 25
[display_material_sum] => 604 601
[display_work_sum] => 797 689
[display_total_sum] => 1 402 290
)
1
1 402 290₽
Работа:797 689 ₽
Материалы:604 601 ₽
Дни:25
stdClass Object
(
[id] => 201
[attribute_id] => 5
[name] => Каркасно-щитовые
[material_modifier] => 1
[work_modifier] => 1
[options] => Array
(
[0] => 150 мм
[1] => 200 мм
[2] => 250 мм
[3] => 300 мм
[4] => 350 мм
[5] => 400 мм
)
[days] => [15,16,17,18,19,20]
[material_price] => [2379,2639,2898,3458,3601,4175]
[work_price] => [2538,2820,3134,3483,4062,5642]
[image] => https://akademik-stroy.ru/wp-content/uploads/materials/karkasno-shchitovye.jpg
[area_modifier] => 91.19
[parent_name] => Стены 2 этаж (несущие)
[parent_id] => 5
[material_sum] => 273346
[work_sum] => 243012
[total_sum] => 516358
[total_days] => 15
[display_material_sum] => 273 346
[display_work_sum] => 243 012
[display_total_sum] => 516 358
)
1
516 358₽
Работа:243 012 ₽
Материалы:273 346 ₽
Дни:15
stdClass Object
(
[id] => 202
[attribute_id] => 5
[name] => Рубленные
[material_modifier] => 1
[work_modifier] => 1
[options] => Array
(
[0] => 150 мм
[1] => 200 мм
[2] => 250 мм
[3] => 300 мм
[4] => 350 мм
[5] => 400 мм
)
[days] => [15,16,17,18,17,18]
[material_price] => [35950,50267,60583,75900,80217,100533]
[work_price] => [9612,12816,16020,19224,22428,25632]
[image] => https://akademik-stroy.ru/wp-content/uploads/materials/rublennye.jpg
[area_modifier] => 91.19
[parent_name] => Стены 2 этаж (несущие)
[parent_id] => 5
[material_sum] => 4130633
[work_sum] => 920344
[total_sum] => 5050977
[total_days] => 15
[display_material_sum] => 4 130 633
[display_work_sum] => 920 344
[display_total_sum] => 5 050 977
)
1
5 050 977₽
Работа:920 344 ₽
Материалы:4 130 633 ₽
Дни:15
stdClass Object
(
[id] => 203
[attribute_id] => 5
[name] => Теплоблок
[material_modifier] => 1
[work_modifier] => 1
[options] => Array
(
[0] => 300 мм (с облицовкой, не покрашенный)
[1] => 400 мм (с облицовкой, не покрашенный)
[2] => 300 мм (с облицовкой, покрашенный)
[3] => 400 мм (с облицовкой, покрашенный)
)
[days] => [15,16,15,16]
[material_price] => [2888,3729,3957,4258]
[work_price] => [2564,3229,2949,3713]
[image] => https://akademik-stroy.ru/wp-content/uploads/materials/teploblok.jpg
[area_modifier] => 91.19
[parent_name] => Стены 2 этаж (несущие)
[parent_id] => 5
[material_sum] => 331829
[work_sum] => 245502
[total_sum] => 577331
[total_days] => 15
[display_material_sum] => 331 829
[display_work_sum] => 245 502
[display_total_sum] => 577 331
)
1
577 331₽
Работа:245 502 ₽
Материалы:331 829 ₽
Дни:15
stdClass Object
(
[id] => 204
[attribute_id] => 5
[name] => Арболитовые блоки
[material_modifier] => 1
[work_modifier] => 1
[options] => Array
(
[0] => 300 мм
[1] => 400 мм
[2] => 600 мм
)
[days] => [19,22,27]
[material_price] => [3210,4475,5852]
[work_price] => [4214,4788,5866]
[image] => https://akademik-stroy.ru/wp-content/uploads/materials/arbolitovye-bloki.png
[area_modifier] => 91.19
[parent_name] => Стены 2 этаж (несущие)
[parent_id] => 5
[material_sum] => 368827
[work_sum] => 403488
[total_sum] => 772315
[total_days] => 19
[display_material_sum] => 368 827
[display_work_sum] => 403 488
[display_total_sum] => 772 315
)
1
772 315₽
Работа:403 488 ₽
Материалы:368 827 ₽
Дни:19
stdClass Object
(
[id] => 205
[attribute_id] => 5
[name] => Полистиролбетон
[material_modifier] => 1
[work_modifier] => 1
[options] => Array
(
[0] => 300 мм
[1] => 400 мм
[2] => 600 мм
)
[days] => [29,31,35]
[material_price] => [2798,4573,5256]
[work_price] => [5038,5851,6426]
[image] => https://akademik-stroy.ru/wp-content/uploads/materials/polistirolbeton.jpg
[area_modifier] => 91.19
[parent_name] => Стены 2 этаж (несущие)
[parent_id] => 5
[material_sum] => 321489
[work_sum] => 482386
[total_sum] => 803875
[total_days] => 29
[display_material_sum] => 321 489
[display_work_sum] => 482 386
[display_total_sum] => 803 875
)
1
803 875₽
Работа:482 386 ₽
Материалы:321 489 ₽
Дни:29
stdClass Object
(
[id] => 206
[attribute_id] => 5
[name] => Шлакоблок
[material_modifier] => 1
[work_modifier] => 1
[options] => Array
(
[0] => 400 мм
[1] => 600 мм
)
[days] => [15,16]
[material_price] => [2391,3471]
[work_price] => [2642,3662]
[image] => https://akademik-stroy.ru/wp-content/uploads/materials/shlakoblok.jpg
[area_modifier] => 91.19
[parent_name] => Стены 2 этаж (несущие)
[parent_id] => 5
[material_sum] => 274724
[work_sum] => 252970
[total_sum] => 527694
[total_days] => 15
[display_material_sum] => 274 724
[display_work_sum] => 252 970
[display_total_sum] => 527 694
)
1
527 694₽
Работа:252 970 ₽
Материалы:274 724 ₽
Дни:15
stdClass Object
(
[id] => 245
[attribute_id] => 5
[name] => Теплая керамика
[material_modifier] => 1
[work_modifier] => 1
[options] => Array
(
[0] => 380 мм
[1] => 380 мм Thermo
[2] => 440 мм
[3] => 510 мм
)
[days] => [10,10,11,12]
[material_price] => [4510,5098,6093,8013]
[work_price] => [4737,4937,5903,6958]
[image] => https://akademik-stroy.ru/wp-content/uploads/materials/teplaya-keramika.jpg
[area_modifier] => 91.19
[parent_name] => Стены 2 этаж (несущие)
[parent_id] => 5
[material_sum] => 518196
[work_sum] => 453565
[total_sum] => 971761
[total_days] => 10
[display_material_sum] => 518 196
[display_work_sum] => 453 565
[display_total_sum] => 971 761
)
1
971 761₽
Работа:453 565 ₽
Материалы:518 196 ₽
Дни:10
stdClass Object
(
[id] => 246
[attribute_id] => 5
[name] => Несъемная опалубка
[material_modifier] => 1
[work_modifier] => 1
[options] => Array
(
[0] => 380 мм
[1] => 380 мм Thermo
[2] => 440 мм
[3] => 510 мм
)
[days] => [10,10,11,12]
[material_price] => [3302,3902,4108,5008]
[work_price] => [2100,2100,2300,2534]
[image] => https://akademik-stroy.ru/wp-content/uploads/materials/nesemnaya-opalubka.jpg
[area_modifier] => 91.19
[parent_name] => Стены 2 этаж (несущие)
[parent_id] => 5
[material_sum] => 379398
[work_sum] => 201074
[total_sum] => 580472
[total_days] => 10
[display_material_sum] => 379 398
[display_work_sum] => 201 074
[display_total_sum] => 580 472
)
1
580 472₽
Работа:201 074 ₽
Материалы:379 398 ₽
Дни:10
stdClass Object
(
[id] => 254
[attribute_id] => 5
[name] => Бревно
[material_modifier] => 1
[work_modifier] => 1
[options] => Array
(
[0] => 260 мм
[1] => 320 мм
[2] => 360 мм
[3] => 400 мм
[4] => 500 мм
)
[days] => [7,8,9,10,11]
[material_price] => [1874,24045,26930,30972,38825]
[work_price] => [5046,6207,6952,7716,9723]
[image] => https://akademik-stroy.ru/wp-content/uploads/materials/sruby.jpg
[area_modifier] => 91.19
[parent_name] => Стены 2 этаж (несущие)
[parent_id] => 5
[material_sum] => 215321
[work_sum] => 483152
[total_sum] => 698473
[total_days] => 7
[display_material_sum] => 215 321
[display_work_sum] => 483 152
[display_total_sum] => 698 473
)
1
698 473₽
Работа:483 152 ₽
Материалы:215 321 ₽
Дни:7
stdClass Object
(
[id] => 11
[attribute_id] => 6
[name] => Деревянные балки
[material_modifier] => 1
[work_modifier] => 1
[options] => Array
(
[0] => без утепления
[1] => утепление 200 мм
[2] => утепление 250 мм
[3] => утепление 300 мм
[4] => утепление 350 мм
[5] => утепление 400 мм
[6] => утепление 450 мм
[7] => утепление 500 мм
)
[days] => [8,9,9,9,11,12,13,14]
[material_price] => [1634,2042,2344,2947,3149,3652,3354,3557]
[work_price] => [1230,1339,1393,1426,1460,1513,1587,1620]
[image] => https://akademik-stroy.ru/wp-content/uploads/materials/derevyannye-balki.png
[area_modifier] => 91.19
[parent_name] => Перекрытие второго этажа
[parent_id] => 6
[material_sum] => 187746
[work_sum] => 117772
[total_sum] => 305518
[total_days] => 8
[display_material_sum] => 187 746
[display_work_sum] => 117 772
[display_total_sum] => 305 518
)
1
305 518₽
Работа:117 772 ₽
Материалы:187 746 ₽
Дни:8
stdClass Object
(
[id] => 12
[attribute_id] => 6
[name] => Сборные ж/б плиты
[material_modifier] => 1
[work_modifier] => 1
[options] => Array
(
[0] => без утепления
[1] => утепление 150 мм
[2] => утепление 200 мм
[3] => утепление 250 мм
[4] => утепление 300 мм
[5] => утепление 350 мм
[6] => утепление 400 мм
[7] => утепление 450 мм
[8] => утепление 500 мм
)
[days] => [13,15,15,15,15,15,15,15,15]
[material_price] => [3067,5577,5928,6679,7730,8782,9833,10884,11935]
[work_price] => [1520,1956,2102,2247,2392,2537,2684,2829,2974]
[image] => https://akademik-stroy.ru/wp-content/uploads/materials/sbornye-zh-b-plity-2.jpg
[area_modifier] => 91.19
[parent_name] => Перекрытие второго этажа
[parent_id] => 6
[material_sum] => 352396
[work_sum] => 145539
[total_sum] => 497935
[total_days] => 13
[display_material_sum] => 352 396
[display_work_sum] => 145 539
[display_total_sum] => 497 935
)
1
497 935₽
Работа:145 539 ₽
Материалы:352 396 ₽
Дни:13
stdClass Object
(
[id] => 100
[attribute_id] => 6
[name] => Монолитная ж/б плита
[material_modifier] => 1
[work_modifier] => 1
[options] => Array
(
[0] => без утепления
[1] => утепление 150 мм
[2] => утепление 200 мм
[3] => утепление 250 мм
[4] => утепление 300 мм
[5] => утепление 350 мм
[6] => утепление 400 мм
[7] => утепление 450 мм
[8] => утепление 500 мм
)
[days] => [18,20,20,20,20,20,20,20,20]
[material_price] => [4837,6572,7224,7375,79426,8177,8728,9180,10031]
[work_price] => [3348,3921,4112,4302,4493,4684,4875,5066,5256]
[image] => https://akademik-stroy.ru/wp-content/uploads/materials/monolitnaya-zh-b-plita-2.jpg
[area_modifier] => 91.19
[parent_name] => Перекрытие второго этажа
[parent_id] => 6
[material_sum] => 555768
[work_sum] => 320569
[total_sum] => 876337
[total_days] => 18
[display_material_sum] => 555 768
[display_work_sum] => 320 569
[display_total_sum] => 876 337
)
1
876 337₽
Работа:320 569 ₽
Материалы:555 768 ₽
Дни:18
stdClass Object
(
[id] => 164
[attribute_id] => 37
[name] => Металлочерепица
[material_modifier] => 1
[work_modifier] => 1
[options] => Array
(
)
[days] => [20]
[material_price] => [6112]
[work_price] => [5726]
[image] => https://akademik-stroy.ru/wp-content/uploads/materials/metallocherepica.jpg
[area_modifier] => 119.96
[parent_name] => Крыша (Скатная)
[parent_id] => 37
[material_sum] => 923826
[work_sum] => 721236
[total_sum] => 1645062
[total_days] => 20
[display_material_sum] => 923 826
[display_work_sum] => 721 236
[display_total_sum] => 1 645 062
)
1
1 645 062₽
Работа:721 236 ₽
Материалы:923 826 ₽
Дни:20
stdClass Object
(
[id] => 165
[attribute_id] => 37
[name] => Гибкая черепица
[material_modifier] => 1
[work_modifier] => 1
[options] => Array
(
)
[days] => [20]
[material_price] => [6980]
[work_price] => [5950]
[image] => https://akademik-stroy.ru/wp-content/uploads/materials/gibkaya-cherepica.jpg
[area_modifier] => 119.96
[parent_name] => Крыша (Скатная)
[parent_id] => 37
[material_sum] => 1055024
[work_sum] => 749450
[total_sum] => 1804474
[total_days] => 20
[display_material_sum] => 1 055 024
[display_work_sum] => 749 450
[display_total_sum] => 1 804 474
)
1
1 804 474₽
Работа:749 450 ₽
Материалы:1 055 024 ₽
Дни:20
stdClass Object
(
[id] => 166
[attribute_id] => 37
[name] => Цементно-песчаная черепица
[material_modifier] => 1
[work_modifier] => 1
[options] => Array
(
)
[days] => [20]
[material_price] => [10560]
[work_price] => [9456]
[image] => https://akademik-stroy.ru/wp-content/uploads/materials/cementno-peschanaya-cherepica.jpg
[area_modifier] => 119.96
[parent_name] => Крыша (Скатная)
[parent_id] => 37
[material_sum] => 1596140
[work_sum] => 1191059
[total_sum] => 2787199
[total_days] => 20
[display_material_sum] => 1 596 140
[display_work_sum] => 1 191 059
[display_total_sum] => 2 787 199
)
1
2 787 199₽
Работа:1 191 059 ₽
Материалы:1 596 140 ₽
Дни:20
stdClass Object
(
[id] => 167
[attribute_id] => 37
[name] => Композитная черепица
[material_modifier] => 1
[work_modifier] => 1
[options] => Array
(
)
[days] => [20]
[material_price] => [9506]
[work_price] => [8905]
[image] => https://akademik-stroy.ru/wp-content/uploads/materials/kompozitnaya-cherepica.jpg
[area_modifier] => 119.96
[parent_name] => Крыша (Скатная)
[parent_id] => 37
[material_sum] => 1436828
[work_sum] => 1121656
[total_sum] => 2558484
[total_days] => 20
[display_material_sum] => 1 436 828
[display_work_sum] => 1 121 656
[display_total_sum] => 2 558 484
)
1
2 558 484₽
Работа:1 121 656 ₽
Материалы:1 436 828 ₽
Дни:20
stdClass Object
(
[id] => 168
[attribute_id] => 37
[name] => Керамическая черепица
[material_modifier] => 1
[work_modifier] => 1
[options] => Array
(
)
[days] => [20]
[material_price] => [12750]
[work_price] => [9456]
[image] => https://akademik-stroy.ru/wp-content/uploads/materials/keramicheskaya-cherepica.jpg
[area_modifier] => 119.96
[parent_name] => Крыша (Скатная)
[parent_id] => 37
[material_sum] => 1927157
[work_sum] => 1191059
[total_sum] => 3118216
[total_days] => 20
[display_material_sum] => 1 927 157
[display_work_sum] => 1 191 059
[display_total_sum] => 3 118 216
)
1
3 118 216₽
Работа:1 191 059 ₽
Материалы:1 927 157 ₽
Дни:20
stdClass Object
(
[id] => 169
[attribute_id] => 37
[name] => Металлическая фальцевая
[material_modifier] => 1
[work_modifier] => 1
[options] => Array
(
)
[days] => [20]
[material_price] => [8550]
[work_price] => [8190]
[image] => https://akademik-stroy.ru/wp-content/uploads/materials/metallicheskaya-falcevaya.jpg
[area_modifier] => 119.96
[parent_name] => Крыша (Скатная)
[parent_id] => 37
[material_sum] => 1292329
[work_sum] => 1031596
[total_sum] => 2323925
[total_days] => 20
[display_material_sum] => 1 292 329
[display_work_sum] => 1 031 596
[display_total_sum] => 2 323 925
)
1
2 323 925₽
Работа:1 031 596 ₽
Материалы:1 292 329 ₽
Дни:20
stdClass Object
(
[id] => 170
[attribute_id] => 37
[name] => Медная фальцевая
[material_modifier] => 1
[work_modifier] => 1
[options] => Array
(
)
[days] => [20]
[material_price] => [20450]
[work_price] => [16750]
[image] => https://akademik-stroy.ru/wp-content/uploads/materials/mednaya-falcevaya.jpg
[area_modifier] => 119.96
[parent_name] => Крыша (Скатная)
[parent_id] => 37
[material_sum] => 3091009
[work_sum] => 2109797
[total_sum] => 5200806
[total_days] => 20
[display_material_sum] => 3 091 009
[display_work_sum] => 2 109 797
[display_total_sum] => 5 200 806
)
1
5 200 806₽
Работа:2 109 797 ₽
Материалы:3 091 009 ₽
Дни:20
stdClass Object
(
[id] => 171
[attribute_id] => 37
[name] => Зеленая кровля
[material_modifier] => 1
[work_modifier] => 1
[options] => Array
(
)
[days] => [20]
[material_price] => [19850]
[work_price] => [16780]
[image] => https://akademik-stroy.ru/wp-content/uploads/materials/zelenaya-krovlya.jpg
[area_modifier] => 119.96
[parent_name] => Крыша (Скатная)
[parent_id] => 37
[material_sum] => 3000320
[work_sum] => 2113575
[total_sum] => 5113895
[total_days] => 20
[display_material_sum] => 3 000 320
[display_work_sum] => 2 113 575
[display_total_sum] => 5 113 895
)
1
5 113 895₽
Работа:2 113 575 ₽
Материалы:3 000 320 ₽
Дни:20
stdClass Object
(
[id] => 172
[attribute_id] => 37
[name] => Профлист
[material_modifier] => 1
[work_modifier] => 1
[options] => Array
(
)
[days] => [20]
[material_price] => [3450]
[work_price] => [3750]
[image] => https://akademik-stroy.ru/wp-content/uploads/materials/proflist.jpg
[area_modifier] => 119.96
[parent_name] => Крыша (Скатная)
[parent_id] => 37
[material_sum] => 521466
[work_sum] => 472343
[total_sum] => 993809
[total_days] => 20
[display_material_sum] => 521 466
[display_work_sum] => 472 343
[display_total_sum] => 993 809
)
1
993 809₽
Работа:472 343 ₽
Материалы:521 466 ₽
Дни:20
stdClass Object
(
[id] => 51
[attribute_id] => 26
[name] => Есть
[material_modifier] => 1
[work_modifier] => 1
[options] => Array
(
[0] => Профиль 58 мм, 3-камерный, стеклопакет 2-камерный до 32 мм
[1] => Профиль 60 мм, 4-камерный, стеклопакет 2-камерный до 32 мм
[2] => Профиль 70 мм, 5-камерный, стеклопакет 2-камерный до 40 мм
[3] => Профиль 72 мм, 5-камерный, стеклопакет 2-камерный до 40 мм
[4] => Алюминиевые окна Alutech профиль 72 мм, стеклопакет 2-камерный
)
[days] => [3,3,3,3,3]
[material_price] => [1339,2124,2867,3023,29596]
[work_price] => [635,647,659,668,2579]
[image] => https://akademik-stroy.ru/wp-content/uploads/materials/okna.jpg
[area_modifier] => 171.35
[parent_name] => Окна
[parent_id] => 26
[material_sum] => 289091
[work_sum] => 114248
[total_sum] => 403339
[total_days] => 3
[display_material_sum] => 289 091
[display_work_sum] => 114 248
[display_total_sum] => 403 339
)
1
403 339₽
Работа:114 248 ₽
Материалы:289 091 ₽
Дни:3
stdClass Object
(
[id] => 52
[attribute_id] => 26
[name] => Нет
[material_modifier] => 2
[work_modifier] => 1
[options] =>
[days] => null
[material_price] => null
[work_price] => null
[image] => https://akademik-stroy.ru/wp-content/uploads/materials/okna.jpg
[area_modifier] => 171.35
[parent_name] => Окна
[parent_id] => 26
[material_sum] => 0
[work_sum] => 0
[total_sum] => 0
[total_days] => 0
[display_material_sum] => 0
[display_work_sum] => 0
[display_total_sum] => 0
)
1
0₽
Работа:0 ₽
Материалы:0 ₽
Дни:0
stdClass Object
(
[id] => 53
[attribute_id] => 27
[name] => Есть
[material_modifier] => 1
[work_modifier] => 1
[options] => Array
(
)
[days] => [1]
[material_price] => [10000]
[work_price] => [5500]
[image] => https://akademik-stroy.ru/wp-content/uploads/materials/dveri.jpg
[area_modifier] => 1
[parent_name] => Двери входные
[parent_id] => 27
[material_sum] => 12600
[work_sum] => 5775
[total_sum] => 18375
[total_days] => 1
[display_material_sum] => 12 600
[display_work_sum] => 5 775
[display_total_sum] => 18 375
)
1
18 375₽
Работа:5 775 ₽
Материалы:12 600 ₽
Дни:1
stdClass Object
(
[id] => 54
[attribute_id] => 27
[name] => Нет
[material_modifier] => 1
[work_modifier] => 1
[options] => Array
(
)
[days] => [0]
[material_price] => [0]
[work_price] => [0]
[image] => https://akademik-stroy.ru/wp-content/uploads/materials/dveri.jpg
[area_modifier] => 1
[parent_name] => Двери входные
[parent_id] => 27
[material_sum] => 0
[work_sum] => 0
[total_sum] => 0
[total_days] => 0
[display_material_sum] => 0
[display_work_sum] => 0
[display_total_sum] => 0
)
1
0₽
Работа:0 ₽
Материалы:0 ₽
Дни:0
stdClass Object
(
[id] => 25
[attribute_id] => 13
[name] => Нет
[material_modifier] => 1
[work_modifier] => 1
[options] => Array
(
)
[days] => [0]
[material_price] => [0]
[work_price] => [0]
[image] => https://akademik-stroy.ru/wp-content/uploads/materials/mineralovata-krov.jpg
[area_modifier] => 119.96
[parent_name] => Утепление кровли (Мансарда)
[parent_id] => 13
[material_sum] => 0
[work_sum] => 0
[total_sum] => 0
[total_days] => 0
[display_material_sum] => 0
[display_work_sum] => 0
[display_total_sum] => 0
)
1
0₽
Работа:0 ₽
Материалы:0 ₽
Дни:0
stdClass Object
(
[id] => 26
[attribute_id] => 13
[name] => Минераловатный
[material_modifier] => 1
[work_modifier] => 1
[options] => Array
(
[0] => 50 мм
[1] => 100 мм
[2] => 150 мм
[3] => 200 мм
[4] => 250 мм
[5] => 300 мм
[6] => 350 мм
[7] => 400 мм
[8] => 450 мм
[9] => 500 мм
)
[days] => [5,5,6,6,6,7,7,7,8,8]
[material_price] => [1158,1414,1772,2230,3602,4060,4974,5890,6408,7718]
[work_price] => [650,846,846,1098,1318,1450,1596,1754,1930,2122]
[image] => https://akademik-stroy.ru/wp-content/uploads/materials/mineralovata-krov.jpg
[area_modifier] => 119.96
[parent_name] => Утепление кровли (Мансарда)
[parent_id] => 13
[material_sum] => 175031
[work_sum] => 81873
[total_sum] => 256904
[total_days] => 5
[display_material_sum] => 175 031
[display_work_sum] => 81 873
[display_total_sum] => 256 904
)
1
256 904₽
Работа:81 873 ₽
Материалы:175 031 ₽
Дни:5
stdClass Object
(
[id] => 123
[attribute_id] => 13
[name] => Эковата (целлюлозная вата)
[material_modifier] => 1
[work_modifier] => 1
[options] => Array
(
[0] => 50 мм
[1] => 100 мм
[2] => 150 мм
[3] => 200 мм
[4] => 250 мм
[5] => 300 мм
[6] => 350 мм
[7] => 400 мм
[8] => 450 мм
[9] => 500 мм
)
[days] => [3,3,4,4,4,5,5,5,5,5]
[material_price] => [820,1638,2458,3276,5734,6552,8190,9828,11466,13104]
[work_price] => [234,304,304,396,474,522,574,632,694,764]
[image] => https://akademik-stroy.ru/wp-content/uploads/materials/ehkovata-krov.jpg
[area_modifier] => 119.96
[parent_name] => Утепление кровли (Мансарда)
[parent_id] => 13
[material_sum] => 123943
[work_sum] => 29474
[total_sum] => 153417
[total_days] => 3
[display_material_sum] => 123 943
[display_work_sum] => 29 474
[display_total_sum] => 153 417
)
1
153 417₽
Работа:29 474 ₽
Материалы:123 943 ₽
Дни:3
stdClass Object
(
[id] => 124
[attribute_id] => 13
[name] => Экструдированный пенополистирол
[material_modifier] => 1
[work_modifier] => 1
[options] => Array
(
[0] => 50 мм
[1] => 100 мм
[2] => 150 мм
[3] => 200 мм
[4] => 250 мм
[5] => 300 мм
[6] => 350 мм
[7] => 400 мм
[8] => 450 мм
[9] => 500 мм
)
[days] => [3,3,4,4,4,5,5,5,5,6]
[material_price] => [1146,2292,3438,4584,8020,9166,11458,13750,16040,18332]
[work_price] => [390,508,508,660,790,870,958,1052,1158,1274]
[image] => https://akademik-stroy.ru/wp-content/uploads/materials/epps-krov.jpg
[area_modifier] => 119.96
[parent_name] => Утепление кровли (Мансарда)
[parent_id] => 13
[material_sum] => 173217
[work_sum] => 49124
[total_sum] => 222341
[total_days] => 3
[display_material_sum] => 173 217
[display_work_sum] => 49 124
[display_total_sum] => 222 341
)
1
222 341₽
Работа:49 124 ₽
Материалы:173 217 ₽
Дни:3
stdClass Object
(
[id] => 125
[attribute_id] => 13
[name] => ПСБ (ППС-пенополистирол)
[material_modifier] => 1
[work_modifier] => 1
[options] => Array
(
[0] => 50 мм
[1] => 100 мм
[2] => 150 мм
[3] => 200 мм
[4] => 250 мм
[5] => 300 мм
[6] => 350 мм
[7] => 400 мм
[8] => 450 мм
[9] => 500 мм
)
[days] => [3,3,4,4,4,5,5,5,5,6]
[material_price] => [476,954,1430,1906,3336,3814,4766,5720,6674,7626]
[work_price] => [390,508,508,660,790,870,958,1052,1158,1274]
[image] => https://akademik-stroy.ru/wp-content/uploads/materials/psb-krov.jpg
[area_modifier] => 119.96
[parent_name] => Утепление кровли (Мансарда)
[parent_id] => 13
[material_sum] => 71947
[work_sum] => 49124
[total_sum] => 121071
[total_days] => 3
[display_material_sum] => 71 947
[display_work_sum] => 49 124
[display_total_sum] => 121 071
)
1
121 071₽
Работа:49 124 ₽
Материалы:71 947 ₽
Дни:3
stdClass Object
(
[id] => 126
[attribute_id] => 13
[name] => ППУ (Пенополиуретан)
[material_modifier] => 1
[work_modifier] => 1
[options] => Array
(
[0] => 50 мм
[1] => 100 мм
[2] => 150 мм
[3] => 200 мм
[4] => 250 мм
[5] => 300 мм
[6] => 350 мм
[7] => 400 мм
[8] => 450 мм
[9] => 500 мм
)
[days] => [2,2,3,3,3,3,4,4,4,4]
[material_price] => [2080,4160,6240,8320,14560,16640,20800,24960,29120,33280]
[work_price] => [234,304,304,396,474,522,574,632,694,764]
[image] => https://akademik-stroy.ru/wp-content/uploads/materials/ppu-krov.jpg
[area_modifier] => 119.96
[parent_name] => Утепление кровли (Мансарда)
[parent_id] => 13
[material_sum] => 314391
[work_sum] => 29474
[total_sum] => 343865
[total_days] => 2
[display_material_sum] => 314 391
[display_work_sum] => 29 474
[display_total_sum] => 343 865
)
1
343 865₽
Работа:29 474 ₽
Материалы:314 391 ₽
Дни:2
stdClass Object
(
[id] => 127
[attribute_id] => 13
[name] => PIR-плиты (пенополиизоцианурат)
[material_modifier] => 1
[work_modifier] => 1
[options] => Array
(
[0] => 50 мм
[1] => 100 мм
[2] => 150 мм
[3] => 200 мм
[4] => 250 мм
[5] => 300 мм
[6] => 350 мм
[7] => 400 мм
[8] => 450 мм
[9] => 500 мм
)
[days] => [3,3,4,4,4,5,5,5,5,6]
[material_price] => [2646,5290,7936,10580,18516,21162,26452,31742,37032,42324]
[work_price] => [390,508,508,660,790,870,958,1052,1158,1274]
[image] => https://akademik-stroy.ru/wp-content/uploads/materials/pir-krov.jpg
[area_modifier] => 119.96
[parent_name] => Утепление кровли (Мансарда)
[parent_id] => 13
[material_sum] => 399942
[work_sum] => 49124
[total_sum] => 449066
[total_days] => 3
[display_material_sum] => 399 942
[display_work_sum] => 49 124
[display_total_sum] => 449 066
)
1
449 066₽
Работа:49 124 ₽
Материалы:399 942 ₽
Дни:3
stdClass Object
(
[id] => 27
[attribute_id] => 14
[name] => Нет
[material_modifier] => 1
[work_modifier] => 1
[options] => Array
(
)
[days] => [0]
[material_price] => [0]
[work_price] => [0]
[image] => https://akademik-stroy.ru/wp-content/uploads/materials/mansardnye-okna-2.jpg
[area_modifier] => 1
[parent_name] => Мансардные окна
[parent_id] => 14
[material_sum] => 0
[work_sum] => 0
[total_sum] => 0
[total_days] => 0
[display_material_sum] => 0
[display_work_sum] => 0
[display_total_sum] => 0
)
1
0₽
Работа:0 ₽
Материалы:0 ₽
Дни:0
stdClass Object
(
[id] => 28
[attribute_id] => 14
[name] => Есть
[material_modifier] => 1
[work_modifier] => 1
[options] => Array
(
[0] => 55x78
[1] => 55x98
)
[days] => [6,7]
[material_price] => [47480,68700]
[work_price] => [17900,19500]
[image] => https://akademik-stroy.ru/wp-content/uploads/materials/mansardnye-okna-2.jpg
[area_modifier] => 1
[parent_name] => Мансардные окна
[parent_id] => 14
[material_sum] => 59825
[work_sum] => 18795
[total_sum] => 78620
[total_days] => 6
[display_material_sum] => 59 825
[display_work_sum] => 18 795
[display_total_sum] => 78 620
)
1
78 620₽
Работа:18 795 ₽
Материалы:59 825 ₽
Дни:6
stdClass Object
(
[id] => 29
[attribute_id] => 15
[name] => Нет
[material_modifier] => 1
[work_modifier] => 1
[options] => Array
(
)
[days] => [0]
[material_price] => [0]
[work_price] => [0]
[image] => https://akademik-stroy.ru/wp-content/uploads/materials/sofit.jpg
[area_modifier] => 119.96
[parent_name] => Подшивка кровли
[parent_id] => 15
[material_sum] => 0
[work_sum] => 0
[total_sum] => 0
[total_days] => 0
[display_material_sum] => 0
[display_work_sum] => 0
[display_total_sum] => 0
)
1
0₽
Работа:0 ₽
Материалы:0 ₽
Дни:0
stdClass Object
(
[id] => 30
[attribute_id] => 15
[name] => Есть
[material_modifier] => 1
[work_modifier] => 1
[options] => Array
(
[0] => Софиты (ПВХ)
[1] => Cedral
[2] => ДПК
[3] => Планкен
)
[days] => [7,10,9,8]
[material_price] => [1803,3213,3025,3150]
[work_price] => [1529,2188,2075,1923]
[image] => https://akademik-stroy.ru/wp-content/uploads/materials/sofit.jpg
[area_modifier] => 119.96
[parent_name] => Подшивка кровли
[parent_id] => 15
[material_sum] => 272523
[work_sum] => 192590
[total_sum] => 465113
[total_days] => 7
[display_material_sum] => 272 523
[display_work_sum] => 192 590
[display_total_sum] => 465 113
)
1
465 113₽
Работа:192 590 ₽
Материалы:272 523 ₽
Дни:7
stdClass Object
(
[id] => 31
[attribute_id] => 16
[name] => Нет
[material_modifier] => 1
[work_modifier] => 1
[options] => Array
(
)
[days] => [0]
[material_price] => [0]
[work_price] => [0]
[image] => https://akademik-stroy.ru/wp-content/uploads/materials/docke-standard-pvh.jpg
[area_modifier] => 119.96
[parent_name] => Водосточная система
[parent_id] => 16
[material_sum] => 0
[work_sum] => 0
[total_sum] => 0
[total_days] => 0
[display_material_sum] => 0
[display_work_sum] => 0
[display_total_sum] => 0
)
1
0₽
Работа:0 ₽
Материалы:0 ₽
Дни:0
stdClass Object
(
[id] => 32
[attribute_id] => 16
[name] => Есть
[material_modifier] => 1
[work_modifier] => 1
[options] => Array
(
[0] => Döcke Standard (ПВХ)
[1] => Металлические Grand Line
)
[days] => [7,7]
[material_price] => [1842,2703]
[work_price] => [1491,1529]
[image] => https://akademik-stroy.ru/wp-content/uploads/materials/docke-standard-pvh.jpg
[area_modifier] => 119.96
[parent_name] => Водосточная система
[parent_id] => 16
[material_sum] => 278418
[work_sum] => 187803
[total_sum] => 466221
[total_days] => 7
[display_material_sum] => 278 418
[display_work_sum] => 187 803
[display_total_sum] => 466 221
)
1
466 221₽
Работа:187 803 ₽
Материалы:278 418 ₽
Дни:7
stdClass Object
(
[id] => 33
[attribute_id] => 17
[name] => Нет
[material_modifier] => 1
[work_modifier] => 1
[options] => Array
(
)
[days] => [0]
[material_price] => [0]
[work_price] => [0]
[image] => https://akademik-stroy.ru/wp-content/uploads/materials/mineralovata.jpg
[area_modifier] => 211.15
[parent_name] => Дополнительное утепление наружных стен
[parent_id] => 17
[material_sum] => 0
[work_sum] => 0
[total_sum] => 0
[total_days] => 0
[display_material_sum] => 0
[display_work_sum] => 0
[display_total_sum] => 0
)
1
0₽
Работа:0 ₽
Материалы:0 ₽
Дни:0
stdClass Object
(
[id] => 34
[attribute_id] => 17
[name] => Минераловатный
[material_modifier] => 1
[work_modifier] => 1
[options] => Array
(
[0] => 50 мм
[1] => 100 мм
[2] => 150 мм
[3] => 200 мм
[4] => 250 мм
[5] => 300 мм
)
[days] => [7,8,10,12,14,15]
[material_price] => [3437,3613,3803,3915,4601,4830]
[work_price] => [2325,2423,2523,2749,2859,3025]
[image] => https://akademik-stroy.ru/wp-content/uploads/materials/mineralovata.jpg
[area_modifier] => 211.15
[parent_name] => Дополнительное утепление наружных стен
[parent_id] => 17
[material_sum] => 914410
[work_sum] => 515470
[total_sum] => 1429880
[total_days] => 7
[display_material_sum] => 914 410
[display_work_sum] => 515 470
[display_total_sum] => 1 429 880
)
1
1 429 880₽
Работа:515 470 ₽
Материалы:914 410 ₽
Дни:7
stdClass Object
(
[id] => 128
[attribute_id] => 17
[name] => Эковата (целлюлозная вата)
[material_modifier] => 1
[work_modifier] => 1
[options] => Array
(
[0] => 50 мм
[1] => 100 мм
[2] => 150 мм
[3] => 200 мм
[4] => 250 мм
[5] => 300 мм
)
[days] => [3,4,5,6,7,8]
[material_price] => [810,1319,1629,1838,2267,2676]
[work_price] => [1225,1323,1423,1549,1659,1725]
[image] => https://akademik-stroy.ru/wp-content/uploads/materials/ehkovata.jpg
[area_modifier] => 211.15
[parent_name] => Дополнительное утепление наружных стен
[parent_id] => 17
[material_sum] => 215500
[work_sum] => 271592
[total_sum] => 487092
[total_days] => 3
[display_material_sum] => 215 500
[display_work_sum] => 271 592
[display_total_sum] => 487 092
)
1
487 092₽
Работа:271 592 ₽
Материалы:215 500 ₽
Дни:3
stdClass Object
(
[id] => 129
[attribute_id] => 17
[name] => Экструдированный пенополистирол
[material_modifier] => 1
[work_modifier] => 1
[options] => Array
(
[0] => 50 мм
[1] => 100 мм
[2] => 150 мм
[3] => 200 мм
[4] => 250 мм
[5] => 300 мм
)
[days] => [5,6,7,8,9,10]
[material_price] => [4560,4300,5119,6292,7010,8583]
[work_price] => [1795,1954,2254,2330,2595,2735]
[image] => https://akademik-stroy.ru/wp-content/uploads/materials/epps.jpg
[area_modifier] => 211.15
[parent_name] => Дополнительное утепление наружных стен
[parent_id] => 17
[material_sum] => 1213183
[work_sum] => 397965
[total_sum] => 1611148
[total_days] => 5
[display_material_sum] => 1 213 183
[display_work_sum] => 397 965
[display_total_sum] => 1 611 148
)
1
1 611 148₽
Работа:397 965 ₽
Материалы:1 213 183 ₽
Дни:5
stdClass Object
(
[id] => 130
[attribute_id] => 17
[name] => ПСБ (ППС-пенополистирол)
[material_modifier] => 1
[work_modifier] => 1
[options] => Array
(
[0] => 50 мм
[1] => 100 мм
[2] => 150 мм
[3] => 200 мм
[4] => 250 мм
[5] => 300 мм
)
[days] => [5,6,7,8,9,10]
[material_price] => [4822,5200,5819,6292,7010,7583]
[work_price] => [1795,1954,2254,2330,2595,2735]
[image] => https://akademik-stroy.ru/wp-content/uploads/materials/psb.jpg
[area_modifier] => 211.15
[parent_name] => Дополнительное утепление наружных стен
[parent_id] => 17
[material_sum] => 1282888
[work_sum] => 397965
[total_sum] => 1680853
[total_days] => 5
[display_material_sum] => 1 282 888
[display_work_sum] => 397 965
[display_total_sum] => 1 680 853
)
1
1 680 853₽
Работа:397 965 ₽
Материалы:1 282 888 ₽
Дни:5
stdClass Object
(
[id] => 131
[attribute_id] => 17
[name] => ППУ (Пенополиуретан)
[material_modifier] => 1
[work_modifier] => 1
[options] => Array
(
[0] => 50 мм
[1] => 100 мм
[2] => 150 мм
[3] => 200 мм
[4] => 250 мм
[5] => 300 мм
)
[days] => [3,4,5,6,7,8]
[material_price] => [2860,3400,4219,4592,5010,5583]
[work_price] => [729,900,980,1120,1280,1530]
[image] => https://akademik-stroy.ru/wp-content/uploads/materials/ppu.jpg
[area_modifier] => 211.15
[parent_name] => Дополнительное утепление наружных стен
[parent_id] => 17
[material_sum] => 760900
[work_sum] => 161625
[total_sum] => 922525
[total_days] => 3
[display_material_sum] => 760 900
[display_work_sum] => 161 625
[display_total_sum] => 922 525
)
1
922 525₽
Работа:161 625 ₽
Материалы:760 900 ₽
Дни:3
stdClass Object
(
[id] => 132
[attribute_id] => 17
[name] => PIR-плиты (пенополиизоцианурат)
[material_modifier] => 1
[work_modifier] => 1
[options] => Array
(
[0] => 50 мм
[1] => 100 мм
[2] => 150 мм
[3] => 200 мм
[4] => 250 мм
[5] => 300 мм
)
[days] => [5,6,7,8,9,10]
[material_price] => [8323,15645,20968,25900,29258,30581]
[work_price] => [800,900,970,1150,1280,1330]
[image] => https://akademik-stroy.ru/wp-content/uploads/materials/pir.jpg
[area_modifier] => 211.15
[parent_name] => Дополнительное утепление наружных стен
[parent_id] => 17
[material_sum] => 2214326
[work_sum] => 177366
[total_sum] => 2391692
[total_days] => 5
[display_material_sum] => 2 214 326
[display_work_sum] => 177 366
[display_total_sum] => 2 391 692
)
1
2 391 692₽
Работа:177 366 ₽
Материалы:2 214 326 ₽
Дни:5
stdClass Object
(
[id] => 37
[attribute_id] => 19
[name] => Нет
[material_modifier] => 1
[work_modifier] => 1
[options] => Array
(
)
[days] => [0]
[material_price] => [0]
[work_price] => [0]
[image] => https://akademik-stroy.ru/wp-content/uploads/materials/imitaciya-brusa.jpg
[area_modifier] => 211.15
[parent_name] => Наружная отделка фасада
[parent_id] => 19
[material_sum] => 0
[work_sum] => 0
[total_sum] => 0
[total_days] => 0
[display_material_sum] => 0
[display_work_sum] => 0
[display_total_sum] => 0
)
1
0₽
Работа:0 ₽
Материалы:0 ₽
Дни:0
stdClass Object
(
[id] => 38
[attribute_id] => 19
[name] => Имитация бруса
[material_modifier] => 1
[work_modifier] => 1
[options] => Array
(
[0] => Сосна
[1] => Ель
[2] => Лиственница
)
[days] => [20,20,20]
[material_price] => [2994,2762,4954]
[work_price] => [1397,1231,1577]
[image] => https://akademik-stroy.ru/wp-content/uploads/materials/imitaciya-brusa.jpg
[area_modifier] => 211.15
[parent_name] => Наружная отделка фасада
[parent_id] => 19
[material_sum] => 796551
[work_sum] => 309725
[total_sum] => 1106276
[total_days] => 20
[display_material_sum] => 796 551
[display_work_sum] => 309 725
[display_total_sum] => 1 106 276
)
1
1 106 276₽
Работа:309 725 ₽
Материалы:796 551 ₽
Дни:20
stdClass Object
(
[id] => 136
[attribute_id] => 19
[name] => Планкен
[material_modifier] => 1
[work_modifier] => 1
[options] => Array
(
[0] => Сосна
[1] => Ель
[2] => Лиственница
)
[days] => [20,20,20]
[material_price] => [3194,2862,5154]
[work_price] => [1537,1354,1735]
[image] => https://akademik-stroy.ru/wp-content/uploads/materials/planken.jpg
[area_modifier] => 211.15
[parent_name] => Наружная отделка фасада
[parent_id] => 19
[material_sum] => 849761
[work_sum] => 340764
[total_sum] => 1190525
[total_days] => 20
[display_material_sum] => 849 761
[display_work_sum] => 340 764
[display_total_sum] => 1 190 525
)
1
1 190 525₽
Работа:340 764 ₽
Материалы:849 761 ₽
Дни:20
stdClass Object
(
[id] => 137
[attribute_id] => 19
[name] => Штукатурка
[material_modifier] => 1
[work_modifier] => 1
[options] => Array
(
[0] => Цементно-песчаная (минеральная)
[1] => Мокрый фасад
)
[days] => [35,35]
[material_price] => [2231,3938]
[work_price] => [1202,2422]
[image] => https://akademik-stroy.ru/wp-content/uploads/materials/shtukaturka.jpg
[area_modifier] => 211.15
[parent_name] => Наружная отделка фасада
[parent_id] => 19
[material_sum] => 593555
[work_sum] => 266492
[total_sum] => 860047
[total_days] => 35
[display_material_sum] => 593 555
[display_work_sum] => 266 492
[display_total_sum] => 860 047
)
1
860 047₽
Работа:266 492 ₽
Материалы:593 555 ₽
Дни:35
stdClass Object
(
[id] => 138
[attribute_id] => 19
[name] => Облицовочный кирпич
[material_modifier] => 1
[work_modifier] => 1
[options] => Array
(
[0] => Керамический
[1] => Клинкерный
[2] => Ручной формовки
[3] => Гиперпрессованный
[4] => Силикатный кирпич
)
[days] => [45,45,45,45,45]
[material_price] => [8174,9148,1040,1257,5876]
[work_price] => [3240,3758,4536,4017,3369]
[image] => https://akademik-stroy.ru/wp-content/uploads/materials/oblicovochnyj-kirpich.jpg
[area_modifier] => 211.15
[parent_name] => Наружная отделка фасада
[parent_id] => 19
[material_sum] => 2174685
[work_sum] => 718332
[total_sum] => 2893017
[total_days] => 45
[display_material_sum] => 2 174 685
[display_work_sum] => 718 332
[display_total_sum] => 2 893 017
)
1
2 893 017₽
Работа:718 332 ₽
Материалы:2 174 685 ₽
Дни:45
stdClass Object
(
[id] => 139
[attribute_id] => 19
[name] => Фасадная плитка
[material_modifier] => 1
[work_modifier] => 1
[options] => Array
(
[0] => Клинкерная
[1] => Керамическая
[2] => Плитка ручной формовки
)
[days] => [40,40,40]
[material_price] => [2974,1487,3470]
[work_price] => [3007,2592,3629]
[image] => https://akademik-stroy.ru/wp-content/uploads/materials/fasadnaya-plitka.jpg
[area_modifier] => 211.15
[parent_name] => Наружная отделка фасада
[parent_id] => 19
[material_sum] => 791230
[work_sum] => 666674
[total_sum] => 1457904
[total_days] => 40
[display_material_sum] => 791 230
[display_work_sum] => 666 674
[display_total_sum] => 1 457 904
)
1
1 457 904₽
Работа:666 674 ₽
Материалы:791 230 ₽
Дни:40
stdClass Object
(
[id] => 140
[attribute_id] => 19
[name] => Сайдинг
[material_modifier] => 1
[work_modifier] => 1
[options] => Array
(
[0] => Виниловый
[1] => Металлический
[2] => Фиброцементный
)
[days] => [20,20,20]
[material_price] => [1263,1944,4147]
[work_price] => [1263,1944,2074]
[image] => https://akademik-stroy.ru/wp-content/uploads/materials/sajding.jpg
[area_modifier] => 211.15
[parent_name] => Наружная отделка фасада
[parent_id] => 19
[material_sum] => 336020
[work_sum] => 280017
[total_sum] => 616037
[total_days] => 20
[display_material_sum] => 336 020
[display_work_sum] => 280 017
[display_total_sum] => 616 037
)
1
616 037₽
Работа:280 017 ₽
Материалы:336 020 ₽
Дни:20
stdClass Object
(
[id] => 141
[attribute_id] => 19
[name] => Камень
[material_modifier] => 1
[work_modifier] => 1
[options] => Array
(
[0] => Травертин
[1] => Дагестанский
[2] => Искусственный
[3] => Натуральный
[4] => Керамогранит
)
[days] => [45,45,45,45,45]
[material_price] => [4536,3888,2592,3240,2462]
[work_price] => [3240,3240,2462,3110,1944]
[image] => https://akademik-stroy.ru/wp-content/uploads/materials/kamen-1.jpg
[area_modifier] => 211.15
[parent_name] => Наружная отделка фасада
[parent_id] => 19
[material_sum] => 1206798
[work_sum] => 718332
[total_sum] => 1925130
[total_days] => 45
[display_material_sum] => 1 206 798
[display_work_sum] => 718 332
[display_total_sum] => 1 925 130
)
1
1 925 130₽
Работа:718 332 ₽
Материалы:1 206 798 ₽
Дни:45
stdClass Object
(
[id] => 142
[attribute_id] => 19
[name] => Термопанели
[material_modifier] => 1
[work_modifier] => 1
[options] => Array
(
)
[days] => [20]
[material_price] => [6221]
[work_price] => [2333]
[image] => https://akademik-stroy.ru/wp-content/uploads/materials/termo.png
[area_modifier] => 211.15
[parent_name] => Наружная отделка фасада
[parent_id] => 19
[material_sum] => 1655091
[work_sum] => 517244
[total_sum] => 2172335
[total_days] => 20
[display_material_sum] => 1 655 091
[display_work_sum] => 517 244
[display_total_sum] => 2 172 335
)
1
2 172 335₽
Работа:517 244 ₽
Материалы:1 655 091 ₽
Дни:20
stdClass Object
(
[id] => 143
[attribute_id] => 19
[name] => Плитка HAUBERK
[material_modifier] => 1
[work_modifier] => 1
[options] => Array
(
)
[days] => [20]
[material_price] => [2786]
[work_price] => [1944]
[image] => https://akademik-stroy.ru/wp-content/uploads/materials/hauberk.jpg
[area_modifier] => 211.15
[parent_name] => Наружная отделка фасада
[parent_id] => 19
[material_sum] => 741213
[work_sum] => 430999
[total_sum] => 1172212
[total_days] => 20
[display_material_sum] => 741 213
[display_work_sum] => 430 999
[display_total_sum] => 1 172 212
)
1
1 172 212₽
Работа:430 999 ₽
Материалы:741 213 ₽
Дни:20
stdClass Object
(
[id] => 144
[attribute_id] => 19
[name] => Фальцевый фасад
[material_modifier] => 1
[work_modifier] => 1
[options] => Array
(
)
[days] => [20]
[material_price] => [3240]
[work_price] => [2592]
[image] => https://akademik-stroy.ru/wp-content/uploads/materials/falcevyj-fasad.jpg
[area_modifier] => 211.15
[parent_name] => Наружная отделка фасада
[parent_id] => 19
[material_sum] => 861999
[work_sum] => 574666
[total_sum] => 1436665
[total_days] => 20
[display_material_sum] => 861 999
[display_work_sum] => 574 666
[display_total_sum] => 1 436 665
)
1
1 436 665₽
Работа:574 666 ₽
Материалы:861 999 ₽
Дни:20
stdClass Object
(
[id] => 145
[attribute_id] => 19
[name] => Комбинированный
[material_modifier] => 1
[work_modifier] => 1
[options] => Array
(
)
[days] => [20]
[material_price] => [4629]
[work_price] => [3499]
[image] => https://akademik-stroy.ru/wp-content/uploads/materials/Kombinirovannyj.jpg
[area_modifier] => 211.15
[parent_name] => Наружная отделка фасада
[parent_id] => 19
[material_sum] => 1231541
[work_sum] => 775755
[total_sum] => 2007296
[total_days] => 20
[display_material_sum] => 1 231 541
[display_work_sum] => 775 755
[display_total_sum] => 2 007 296
)
1
2 007 296₽
Работа:775 755 ₽
Материалы:1 231 541 ₽
Дни:20
stdClass Object
(
[id] => 257
[attribute_id] => 19
[name] => Японские фиброцементные
[material_modifier] => 1
[work_modifier] => 1
[options] => Array
(
)
[days] => [20]
[material_price] => [7043]
[work_price] => [2993]
[image] => https://akademik-stroy.ru/wp-content/uploads/materials/paneli.jpg
[area_modifier] => 211.15
[parent_name] => Наружная отделка фасада
[parent_id] => 19
[material_sum] => 1873783
[work_sum] => 663571
[total_sum] => 2537354
[total_days] => 20
[display_material_sum] => 1 873 783
[display_work_sum] => 663 571
[display_total_sum] => 2 537 354
)
1
2 537 354₽
Работа:663 571 ₽
Материалы:1 873 783 ₽
Дни:20
stdClass Object
(
[id] => 258
[attribute_id] => 19
[name] => Панели Каньон
[material_modifier] => 1
[work_modifier] => 1
[options] => Array
(
)
[days] => [20]
[material_price] => [4543]
[work_price] => [2592]
[image] => https://akademik-stroy.ru/wp-content/uploads/materials/kanon.png
[area_modifier] => 211.15
[parent_name] => Наружная отделка фасада
[parent_id] => 19
[material_sum] => 1208661
[work_sum] => 574666
[total_sum] => 1783327
[total_days] => 20
[display_material_sum] => 1 208 661
[display_work_sum] => 574 666
[display_total_sum] => 1 783 327
)
1
1 783 327₽
Работа:574 666 ₽
Материалы:1 208 661 ₽
Дни:20
stdClass Object
(
[id] => 39
[attribute_id] => 20
[name] => Нет
[material_modifier] => 1
[work_modifier] => 1
[options] => Array
(
)
[days] => [0]
[material_price] => [0]
[work_price] => [0]
[image] => https://akademik-stroy.ru/wp-content/uploads/materials/terrasy.jpg
[area_modifier] => 30
[parent_name] => Террасы, крыльца, навесы
[parent_id] => 20
[material_sum] => 0
[work_sum] => 0
[total_sum] => 0
[total_days] => 0
[display_material_sum] => 0
[display_work_sum] => 0
[display_total_sum] => 0
)
1
0₽
Работа:0 ₽
Материалы:0 ₽
Дни:0
stdClass Object
(
[id] => 40
[attribute_id] => 20
[name] => Есть
[material_modifier] => 1
[work_modifier] => 1
[options] => Array
(
)
[days] => [5]
[material_price] => [10450]
[work_price] => [1950]
[image] => https://akademik-stroy.ru/wp-content/uploads/materials/terrasy.jpg
[area_modifier] => 30
[parent_name] => Террасы, крыльца, навесы
[parent_id] => 20
[material_sum] => 395010
[work_sum] => 61425
[total_sum] => 456435
[total_days] => 5
[display_material_sum] => 395 010
[display_work_sum] => 61 425
[display_total_sum] => 456 435
)
1
456 435₽
Работа:61 425 ₽
Материалы:395 010 ₽
Дни:5
stdClass Object
(
[id] => 41
[attribute_id] => 21
[name] => Нет
[material_modifier] => 1
[work_modifier] => 1
[options] => Array
(
)
[days] => [0]
[material_price] => [0]
[work_price] => [0]
[image] => https://akademik-stroy.ru/wp-content/uploads/materials/balkony.jpg
[area_modifier] => 30
[parent_name] => Балконы
[parent_id] => 21
[material_sum] => 0
[work_sum] => 0
[total_sum] => 0
[total_days] => 0
[display_material_sum] => 0
[display_work_sum] => 0
[display_total_sum] => 0
)
1
0₽
Работа:0 ₽
Материалы:0 ₽
Дни:0
stdClass Object
(
[id] => 42
[attribute_id] => 21
[name] => Есть
[material_modifier] => 1
[work_modifier] => 1
[options] => Array
(
)
[days] => [12]
[material_price] => [3600]
[work_price] => [1950]
[image] => https://akademik-stroy.ru/wp-content/uploads/materials/balkony.jpg
[area_modifier] => 30
[parent_name] => Балконы
[parent_id] => 21
[material_sum] => 136080
[work_sum] => 61425
[total_sum] => 197505
[total_days] => 12
[display_material_sum] => 136 080
[display_work_sum] => 61 425
[display_total_sum] => 197 505
)
1
197 505₽
Работа:61 425 ₽
Материалы:136 080 ₽
Дни:12
stdClass Object
(
[id] => 43
[attribute_id] => 22
[name] => Нет
[material_modifier] => 1
[work_modifier] => 1
[options] => Array
(
)
[days] => [0]
[material_price] => [0]
[work_price] => [0]
[image] => https://akademik-stroy.ru/wp-content/uploads/materials/uteplennaya.jpg
[area_modifier] => 119.96
[parent_name] => Отмостка
[parent_id] => 22
[material_sum] => 0
[work_sum] => 0
[total_sum] => 0
[total_days] => 0
[display_material_sum] => 0
[display_work_sum] => 0
[display_total_sum] => 0
)
1
0₽
Работа:0 ₽
Материалы:0 ₽
Дни:0
stdClass Object
(
[id] => 44
[attribute_id] => 22
[name] => Утепленная отмостка
[material_modifier] => 1
[work_modifier] => 1
[options] => Array
(
)
[days] => [15]
[material_price] => [2550]
[work_price] => [1750]
[image] => https://akademik-stroy.ru/wp-content/uploads/materials/uteplennaya.jpg
[area_modifier] => 119.96
[parent_name] => Отмостка
[parent_id] => 22
[material_sum] => 385431
[work_sum] => 220427
[total_sum] => 605858
[total_days] => 15
[display_material_sum] => 385 431
[display_work_sum] => 220 427
[display_total_sum] => 605 858
)
1
605 858₽
Работа:220 427 ₽
Материалы:385 431 ₽
Дни:15
stdClass Object
(
[id] => 146
[attribute_id] => 22
[name] => Не утепленная отмостка
[material_modifier] => 1
[work_modifier] => 1
[options] => Array
(
)
[days] => [10]
[material_price] => [1650]
[work_price] => [1450]
[image] => https://akademik-stroy.ru/wp-content/uploads/materials/ne-uteplennaya.jpg
[area_modifier] => 119.96
[parent_name] => Отмостка
[parent_id] => 22
[material_sum] => 249397
[work_sum] => 182639
[total_sum] => 432036
[total_days] => 10
[display_material_sum] => 249 397
[display_work_sum] => 182 639
[display_total_sum] => 432 036
)
1
432 036₽
Работа:182 639 ₽
Материалы:249 397 ₽
Дни:10
stdClass Object
(
[id] => 45
[attribute_id] => 23
[name] => Нет
[material_modifier] => 1
[work_modifier] => 1
[options] => Array
(
)
[days] => [0]
[material_price] => [0]
[work_price] => [0]
[image] => https://akademik-stroy.ru/wp-content/uploads/materials/drenazh-2.jpg
[area_modifier] => 119.96
[parent_name] => Дренаж вокруг дома
[parent_id] => 23
[material_sum] => 0
[work_sum] => 0
[total_sum] => 0
[total_days] => 0
[display_material_sum] => 0
[display_work_sum] => 0
[display_total_sum] => 0
)
1
0₽
Работа:0 ₽
Материалы:0 ₽
Дни:0
stdClass Object
(
[id] => 46
[attribute_id] => 23
[name] => Есть
[material_modifier] => 1
[work_modifier] => 1
[options] => Array
(
)
[days] => [5]
[material_price] => [2366]
[work_price] => [1911]
[image] => https://akademik-stroy.ru/wp-content/uploads/materials/drenazh-2.jpg
[area_modifier] => 119.96
[parent_name] => Дренаж вокруг дома
[parent_id] => 23
[material_sum] => 357620
[work_sum] => 240706
[total_sum] => 598326
[total_days] => 5
[display_material_sum] => 357 620
[display_work_sum] => 240 706
[display_total_sum] => 598 326
)
1
598 326₽
Работа:240 706 ₽
Материалы:357 620 ₽
Дни:5
stdClass Object
(
[id] => 47
[attribute_id] => 24
[name] => Нет
[material_modifier] => 1
[work_modifier] => 1
[options] => Array
(
)
[days] => [0]
[material_price] => [0]
[work_price] => [0]
[image] => https://akademik-stroy.ru/wp-content/uploads/materials/septik.jpg
[area_modifier] => 1
[parent_name] => Автономная канализация (септики)
[parent_id] => 24
[material_sum] => 0
[work_sum] => 0
[total_sum] => 0
[total_days] => 0
[display_material_sum] => 0
[display_work_sum] => 0
[display_total_sum] => 0
)
1
0₽
Работа:0 ₽
Материалы:0 ₽
Дни:0
stdClass Object
(
[id] => 48
[attribute_id] => 24
[name] => Есть
[material_modifier] => 1
[work_modifier] => 1
[options] => Array
(
[0] => Для дачи на 4 человека
[1] => Для дома на 5 человек
[2] => Для дома на 6 человек
[3] => Для дома на 7 человек
[4] => Для дома на 10 человек
)
[days] => [7,7,7,8,8]
[material_price] => [196340,220500,240940,264200,293340]
[work_price] => [50000,55000,60500,66550,73206]
[image] => https://akademik-stroy.ru/wp-content/uploads/materials/septik.jpg
[area_modifier] => 1
[parent_name] => Автономная канализация (септики)
[parent_id] => 24
[material_sum] => 247388
[work_sum] => 52500
[total_sum] => 299888
[total_days] => 7
[display_material_sum] => 247 388
[display_work_sum] => 52 500
[display_total_sum] => 299 888
)
1
299 888₽
Работа:52 500 ₽
Материалы:247 388 ₽
Дни:7
stdClass Object
(
[id] => 49
[attribute_id] => 25
[name] => Нет
[material_modifier] => 1
[work_modifier] => 1
[options] => Array
(
)
[days] => [0]
[material_price] => [0]
[work_price] => [0]
[image] => https://akademik-stroy.ru/wp-content/uploads/materials/gkl.jpg
[area_modifier] => 211.15
[parent_name] => Внутренние (не несущие) перегородки
[parent_id] => 25
[material_sum] => 0
[work_sum] => 0
[total_sum] => 0
[total_days] => 0
[display_material_sum] => 0
[display_work_sum] => 0
[display_total_sum] => 0
)
1
0₽
Работа:0 ₽
Материалы:0 ₽
Дни:0
stdClass Object
(
[id] => 147
[attribute_id] => 25
[name] => Каркасно-обшивные
[material_modifier] => 1
[work_modifier] => 1
[options] => Array
(
[0] => 75 мм (без шумоизоляции)
[1] => 75 мм (с шумоизоляцией)
)
[days] => [11,11]
[material_price] => [580,970]
[work_price] => [380,570]
[image] => https://akademik-stroy.ru/wp-content/uploads/materials/gkl.jpg
[area_modifier] => 211.15
[parent_name] => Внутренние (не несущие) перегородки
[parent_id] => 25
[material_sum] => 154308
[work_sum] => 84249
[total_sum] => 238557
[total_days] => 11
[display_material_sum] => 154 308
[display_work_sum] => 84 249
[display_total_sum] => 238 557
)
1
238 557₽
Работа:84 249 ₽
Материалы:154 308 ₽
Дни:11
stdClass Object
(
[id] => 148
[attribute_id] => 25
[name] => Пазогребневые
[material_modifier] => 1
[work_modifier] => 1
[options] => Array
(
[0] => 80 мм
[1] => 100 мм
)
[days] => [5,5]
[material_price] => [1022,1313]
[work_price] => [600,700]
[image] => https://akademik-stroy.ru/wp-content/uploads/materials/pazogrebnevye-bloki.jpg
[area_modifier] => 211.15
[parent_name] => Внутренние (не несущие) перегородки
[parent_id] => 25
[material_sum] => 271902
[work_sum] => 133025
[total_sum] => 404927
[total_days] => 5
[display_material_sum] => 271 902
[display_work_sum] => 133 025
[display_total_sum] => 404 927
)
1
404 927₽
Работа:133 025 ₽
Материалы:271 902 ₽
Дни:5
stdClass Object
(
[id] => 149
[attribute_id] => 25
[name] => Газобетонные
[material_modifier] => 1
[work_modifier] => 1
[options] => Array
(
[0] => 100 мм
[1] => 200 мм
)
[days] => [11,11]
[material_price] => [1160,1920]
[work_price] => [700,900]
[image] => https://akademik-stroy.ru/wp-content/uploads/materials/gazobeton-2.jpg
[area_modifier] => 211.15
[parent_name] => Внутренние (не несущие) перегородки
[parent_id] => 25
[material_sum] => 308617
[work_sum] => 155195
[total_sum] => 463812
[total_days] => 11
[display_material_sum] => 308 617
[display_work_sum] => 155 195
[display_total_sum] => 463 812
)
1
463 812₽
Работа:155 195 ₽
Материалы:308 617 ₽
Дни:11
stdClass Object
(
[id] => 150
[attribute_id] => 25
[name] => Кирпичные
[material_modifier] => 1
[work_modifier] => 1
[options] => Array
(
[0] => 120 мм
[1] => 250 мм
[2] => 360 мм
)
[days] => [7,7,7]
[material_price] => [1785,3570,5355]
[work_price] => [900,1600,1800]
[image] => https://akademik-stroy.ru/wp-content/uploads/materials/kirpich-1.jpg
[area_modifier] => 211.15
[parent_name] => Внутренние (не несущие) перегородки
[parent_id] => 25
[material_sum] => 474897
[work_sum] => 199537
[total_sum] => 674434
[total_days] => 7
[display_material_sum] => 474 897
[display_work_sum] => 199 537
[display_total_sum] => 674 434
)
1
674 434₽
Работа:199 537 ₽
Материалы:474 897 ₽
Дни:7
stdClass Object
(
[id] => 55
[attribute_id] => 28
[name] => Нет
[material_modifier] => 1
[work_modifier] => 1
[options] => Array
(
)
[days] => [0]
[material_price] => [0]
[work_price] => [0]
[image] => https://akademik-stroy.ru/wp-content/uploads/materials/ehlektrika.jpg
[area_modifier] => 171.35
[parent_name] => Электрика
[parent_id] => 28
[material_sum] => 0
[work_sum] => 0
[total_sum] => 0
[total_days] => 0
[display_material_sum] => 0
[display_work_sum] => 0
[display_total_sum] => 0
)
1
0₽
Работа:0 ₽
Материалы:0 ₽
Дни:0
stdClass Object
(
[id] => 56
[attribute_id] => 28
[name] => Есть
[material_modifier] => 1
[work_modifier] => 1
[options] => Array
(
)
[days] => [10]
[material_price] => [650]
[work_price] => [950]
[image] => https://akademik-stroy.ru/wp-content/uploads/materials/ehlektrika.jpg
[area_modifier] => 171.35
[parent_name] => Электрика
[parent_id] => 28
[material_sum] => 140336
[work_sum] => 170922
[total_sum] => 311258
[total_days] => 10
[display_material_sum] => 140 336
[display_work_sum] => 170 922
[display_total_sum] => 311 258
)
1
311 258₽
Работа:170 922 ₽
Материалы:140 336 ₽
Дни:10
stdClass Object
(
[id] => 57
[attribute_id] => 29
[name] => Нет
[material_modifier] => 1
[work_modifier] => 1
[options] => Array
(
)
[days] => [0]
[material_price] => [0]
[work_price] => [0]
[image] => https://akademik-stroy.ru/wp-content/uploads/materials/santekhnika-kanalizaciya-1.jpg
[area_modifier] => 171.35
[parent_name] => Сантехника, канализация в доме
[parent_id] => 29
[material_sum] => 0
[work_sum] => 0
[total_sum] => 0
[total_days] => 0
[display_material_sum] => 0
[display_work_sum] => 0
[display_total_sum] => 0
)
1
0₽
Работа:0 ₽
Материалы:0 ₽
Дни:0
stdClass Object
(
[id] => 58
[attribute_id] => 29
[name] => Есть
[material_modifier] => 1
[work_modifier] => 1
[options] => Array
(
)
[days] => [10]
[material_price] => [600]
[work_price] => [730]
[image] => https://akademik-stroy.ru/wp-content/uploads/materials/santekhnika-kanalizaciya-1.jpg
[area_modifier] => 171.35
[parent_name] => Сантехника, канализация в доме
[parent_id] => 29
[material_sum] => 129541
[work_sum] => 131340
[total_sum] => 260881
[total_days] => 10
[display_material_sum] => 129 541
[display_work_sum] => 131 340
[display_total_sum] => 260 881
)
1
260 881₽
Работа:131 340 ₽
Материалы:129 541 ₽
Дни:10
stdClass Object
(
[id] => 59
[attribute_id] => 30
[name] => Нет
[material_modifier] => 1
[work_modifier] => 1
[options] => Array
(
)
[days] => [0]
[material_price] => [0]
[work_price] => [0]
[image] => https://akademik-stroy.ru/wp-content/uploads/materials/otoplenie-1.jpg
[area_modifier] => 171.35
[parent_name] => Отопление
[parent_id] => 30
[material_sum] => 0
[work_sum] => 0
[total_sum] => 0
[total_days] => 0
[display_material_sum] => 0
[display_work_sum] => 0
[display_total_sum] => 0
)
1
0₽
Работа:0 ₽
Материалы:0 ₽
Дни:0
stdClass Object
(
[id] => 60
[attribute_id] => 30
[name] => Есть
[material_modifier] => 1
[work_modifier] => 1
[options] => Array
(
)
[days] => [5]
[material_price] => [610]
[work_price] => [560]
[image] => https://akademik-stroy.ru/wp-content/uploads/materials/otoplenie-1.jpg
[area_modifier] => 171.35
[parent_name] => Отопление
[parent_id] => 30
[material_sum] => 131700
[work_sum] => 100754
[total_sum] => 232454
[total_days] => 5
[display_material_sum] => 131 700
[display_work_sum] => 100 754
[display_total_sum] => 232 454
)
1
232 454₽
Работа:100 754 ₽
Материалы:131 700 ₽
Дни:5
stdClass Object
(
[id] => 61
[attribute_id] => 31
[name] => Нет
[material_modifier] => 1
[work_modifier] => 1
[options] => Array
(
)
[days] => [0]
[material_price] => [0]
[work_price] => [0]
[image] => https://akademik-stroy.ru/wp-content/uploads/materials/vodyanye.jpg
[area_modifier] => 30
[parent_name] => Теплые полы
[parent_id] => 31
[material_sum] => 0
[work_sum] => 0
[total_sum] => 0
[total_days] => 0
[display_material_sum] => 0
[display_work_sum] => 0
[display_total_sum] => 0
)
1
0₽
Работа:0 ₽
Материалы:0 ₽
Дни:0
stdClass Object
(
[id] => 151
[attribute_id] => 31
[name] => Водяные
[material_modifier] => 1
[work_modifier] => 1
[options] => Array
(
)
[days] => [9]
[material_price] => [10200]
[work_price] => [2500]
[image] => https://akademik-stroy.ru/wp-content/uploads/materials/vodyanye.jpg
[area_modifier] => 30
[parent_name] => Теплые полы
[parent_id] => 31
[material_sum] => 385560
[work_sum] => 78750
[total_sum] => 464310
[total_days] => 9
[display_material_sum] => 385 560
[display_work_sum] => 78 750
[display_total_sum] => 464 310
)
1
464 310₽
Работа:78 750 ₽
Материалы:385 560 ₽
Дни:9
stdClass Object
(
[id] => 152
[attribute_id] => 31
[name] => Электро
[material_modifier] => 1
[work_modifier] => 1
[options] => Array
(
)
[days] => [5]
[material_price] => [6300]
[work_price] => [1500]
[image] => https://akademik-stroy.ru/wp-content/uploads/materials/ehlektricheskij.jpg
[area_modifier] => 30
[parent_name] => Теплые полы
[parent_id] => 31
[material_sum] => 238140
[work_sum] => 47250
[total_sum] => 285390
[total_days] => 5
[display_material_sum] => 238 140
[display_work_sum] => 47 250
[display_total_sum] => 285 390
)
1
285 390₽
Работа:47 250 ₽
Материалы:238 140 ₽
Дни:5
stdClass Object
(
[id] => 63
[attribute_id] => 32
[name] => Нет
[material_modifier] => 1
[work_modifier] => 1
[options] => Array
(
)
[days] => [0]
[material_price] => [0]
[work_price] => [0]
[image] => https://akademik-stroy.ru/wp-content/uploads/materials/shtukaturka-shpatlevka-1.jpg
[area_modifier] => 171.35
[parent_name] => Черновая отделка стен
[parent_id] => 32
[material_sum] => 0
[work_sum] => 0
[total_sum] => 0
[total_days] => 0
[display_material_sum] => 0
[display_work_sum] => 0
[display_total_sum] => 0
)
1
0₽
Работа:0 ₽
Материалы:0 ₽
Дни:0
stdClass Object
(
[id] => 153
[attribute_id] => 32
[name] => Штукатурка и шпатлевка
[material_modifier] => 1
[work_modifier] => 1
[options] => Array
(
)
[days] => [20]
[material_price] => [1850]
[work_price] => [2600]
[image] => https://akademik-stroy.ru/wp-content/uploads/materials/shtukaturka-shpatlevka-1.jpg
[area_modifier] => 171.35
[parent_name] => Черновая отделка стен
[parent_id] => 32
[material_sum] => 399417
[work_sum] => 467786
[total_sum] => 867203
[total_days] => 20
[display_material_sum] => 399 417
[display_work_sum] => 467 786
[display_total_sum] => 867 203
)
1
867 203₽
Работа:467 786 ₽
Материалы:399 417 ₽
Дни:20
stdClass Object
(
[id] => 154
[attribute_id] => 32
[name] => Гипсокортон на стены
[material_modifier] => 1
[work_modifier] => 1
[options] => Array
(
)
[days] => [15]
[material_price] => [950]
[work_price] => [2100]
[image] => https://akademik-stroy.ru/wp-content/uploads/materials/gkl-1.jpg
[area_modifier] => 171.35
[parent_name] => Черновая отделка стен
[parent_id] => 32
[material_sum] => 205106
[work_sum] => 377827
[total_sum] => 582933
[total_days] => 15
[display_material_sum] => 205 106
[display_work_sum] => 377 827
[display_total_sum] => 582 933
)
1
582 933₽
Работа:377 827 ₽
Материалы:205 106 ₽
Дни:15
stdClass Object
(
[id] => 155
[attribute_id] => 32
[name] => Вагонка
[material_modifier] => 1
[work_modifier] => 1
[options] => Array
(
)
[days] => [15]
[material_price] => [1250]
[work_price] => [950]
[image] => https://akademik-stroy.ru/wp-content/uploads/materials/vagonka.jpg
[area_modifier] => 171.35
[parent_name] => Черновая отделка стен
[parent_id] => 32
[material_sum] => 269876
[work_sum] => 170922
[total_sum] => 440798
[total_days] => 15
[display_material_sum] => 269 876
[display_work_sum] => 170 922
[display_total_sum] => 440 798
)
1
440 798₽
Работа:170 922 ₽
Материалы:269 876 ₽
Дни:15
stdClass Object
(
[id] => 65
[attribute_id] => 33
[name] => Нет
[material_modifier] => 1
[work_modifier] => 1
[options] => Array
(
)
[days] => [0]
[material_price] => [0]
[work_price] => [0]
[image] => https://akademik-stroy.ru/wp-content/uploads/materials/styazhka.jpg
[area_modifier] => 171.35
[parent_name] => Черновая отделка полов
[parent_id] => 33
[material_sum] => 0
[work_sum] => 0
[total_sum] => 0
[total_days] => 0
[display_material_sum] => 0
[display_work_sum] => 0
[display_total_sum] => 0
)
1
0₽
Работа:0 ₽
Материалы:0 ₽
Дни:0
stdClass Object
(
[id] => 156
[attribute_id] => 33
[name] => Стяжка + наливные полы
[material_modifier] => 1
[work_modifier] => 1
[options] => Array
(
)
[days] => [10]
[material_price] => [1000]
[work_price] => [900]
[image] => https://akademik-stroy.ru/wp-content/uploads/materials/styazhka.jpg
[area_modifier] => 171.35
[parent_name] => Черновая отделка полов
[parent_id] => 33
[material_sum] => 215901
[work_sum] => 161926
[total_sum] => 377827
[total_days] => 10
[display_material_sum] => 215 901
[display_work_sum] => 161 926
[display_total_sum] => 377 827
)
1
377 827₽
Работа:161 926 ₽
Материалы:215 901 ₽
Дни:10
stdClass Object
(
[id] => 157
[attribute_id] => 33
[name] => ОСБ на пол
[material_modifier] => 1
[work_modifier] => 1
[options] => Array
(
)
[days] => [7]
[material_price] => [580]
[work_price] => [350]
[image] => https://akademik-stroy.ru/wp-content/uploads/materials/osb-1.jpg
[area_modifier] => 171.35
[parent_name] => Черновая отделка полов
[parent_id] => 33
[material_sum] => 125223
[work_sum] => 62971
[total_sum] => 188194
[total_days] => 7
[display_material_sum] => 125 223
[display_work_sum] => 62 971
[display_total_sum] => 188 194
)
1
188 194₽
Работа:62 971 ₽
Материалы:125 223 ₽
Дни:7
stdClass Object
(
[id] => 67
[attribute_id] => 34
[name] => Нет
[material_modifier] => 1
[work_modifier] => 1
[options] => Array
(
)
[days] => [0]
[material_price] => [0]
[work_price] => [0]
[image] => https://akademik-stroy.ru/wp-content/uploads/materials/chistovaya-otdelka.jpg
[area_modifier] => 171.35
[parent_name] => Чистовая отделка стен и полов
[parent_id] => 34
[material_sum] => 0
[work_sum] => 0
[total_sum] => 0
[total_days] => 0
[display_material_sum] => 0
[display_work_sum] => 0
[display_total_sum] => 0
)
1
0₽
Работа:0 ₽
Материалы:0 ₽
Дни:0
stdClass Object
(
[id] => 68
[attribute_id] => 34
[name] => Есть
[material_modifier] => 1
[work_modifier] => 1
[options] => Array
(
)
[days] => [50]
[material_price] => [6000]
[work_price] => [3500]
[image] => https://akademik-stroy.ru/wp-content/uploads/materials/chistovaya-otdelka.jpg
[area_modifier] => 171.35
[parent_name] => Чистовая отделка стен и полов
[parent_id] => 34
[material_sum] => 1295406
[work_sum] => 629711
[total_sum] => 1925117
[total_days] => 50
[display_material_sum] => 1 295 406
[display_work_sum] => 629 711
[display_total_sum] => 1 925 117
)
1
1 925 117₽
Работа:629 711 ₽
Материалы:1 295 406 ₽
Дни:50
stdClass Object
(
[id] => 69
[attribute_id] => 35
[name] => Нет
[material_modifier] => 1
[work_modifier] => 1
[options] => Array
(
)
[days] => [0]
[material_price] => [0]
[work_price] => [0]
[image] => https://akademik-stroy.ru/wp-content/uploads/materials/mnogourovnevyj-gkl.jpg
[area_modifier] => 171.35
[parent_name] => Отделка потолка
[parent_id] => 35
[material_sum] => 0
[work_sum] => 0
[total_sum] => 0
[total_days] => 0
[display_material_sum] => 0
[display_work_sum] => 0
[display_total_sum] => 0
)
1
0₽
Работа:0 ₽
Материалы:0 ₽
Дни:0
stdClass Object
(
[id] => 70
[attribute_id] => 35
[name] => Есть
[material_modifier] => 1
[work_modifier] => 1
[options] => Array
(
[0] => Многоуровневый потолок из гипсокартона
[1] => Многоуровневый потолок из гипсокартона и натяжного потолка
[2] => Одноуровневый потолок из гипсокартона
[3] => Одноуровневый натяжной потолок
)
[days] => [10,10,1,1]
[material_price] => [900,700,700,600]
[work_price] => [1000,800,500,300]
[image] => https://akademik-stroy.ru/wp-content/uploads/materials/mnogourovnevyj-gkl.jpg
[area_modifier] => 171.35
[parent_name] => Отделка потолка
[parent_id] => 35
[material_sum] => 194311
[work_sum] => 179918
[total_sum] => 374229
[total_days] => 10
[display_material_sum] => 194 311
[display_work_sum] => 179 918
[display_total_sum] => 374 229
)
1
374 229₽
Работа:179 918 ₽
Материалы:194 311 ₽
Дни:10
Преимущества работы с нами
7 этапов оплаты
Независимый строительный надзор
Экологически чистые материалы
16 лет гарантии
Онлайн-кабинет с веб-камерой
Строители с опытом более 15 лет
Собственное производство







