Одноэтажный дом 101.1 м2 за руб.
Планировки
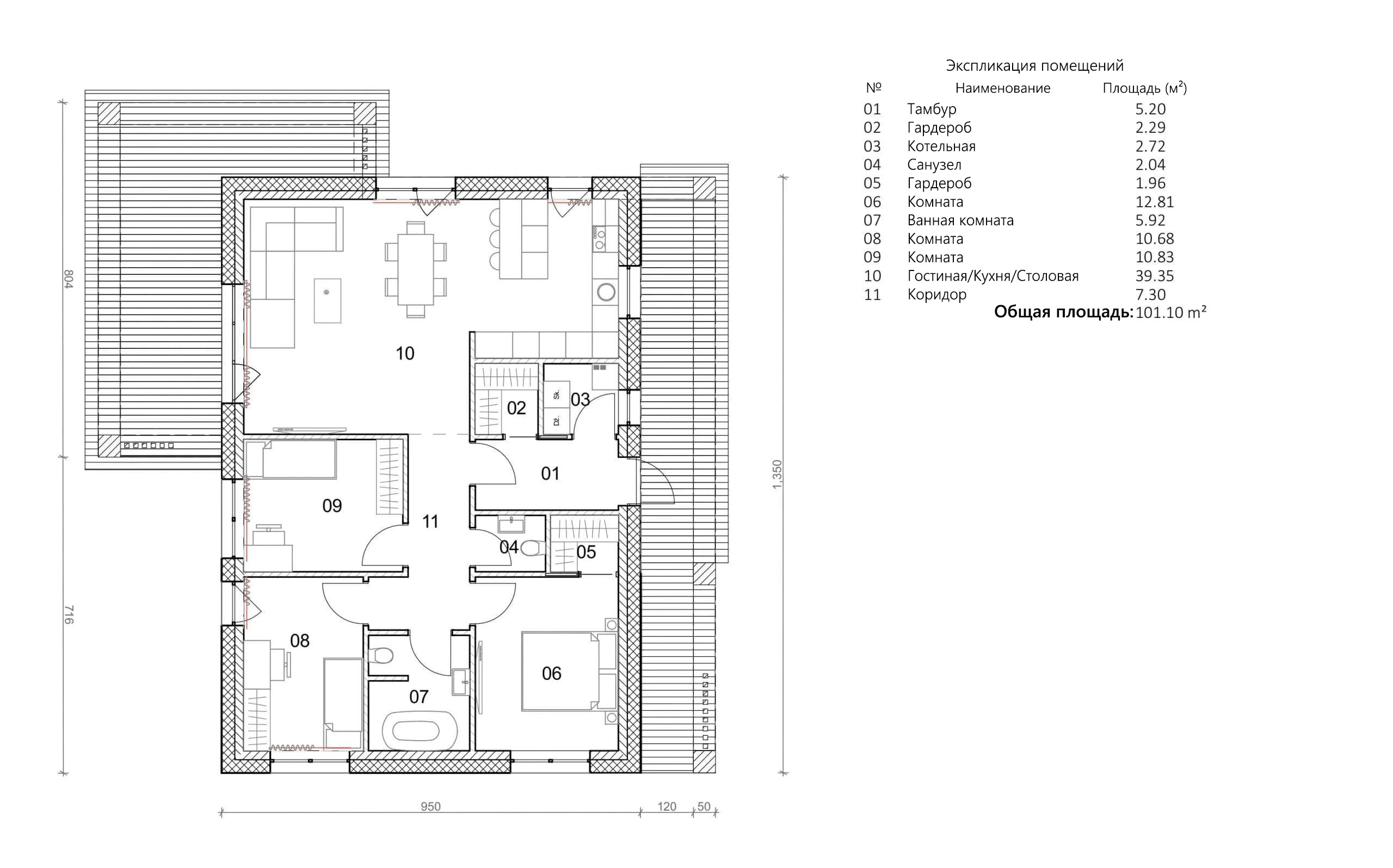
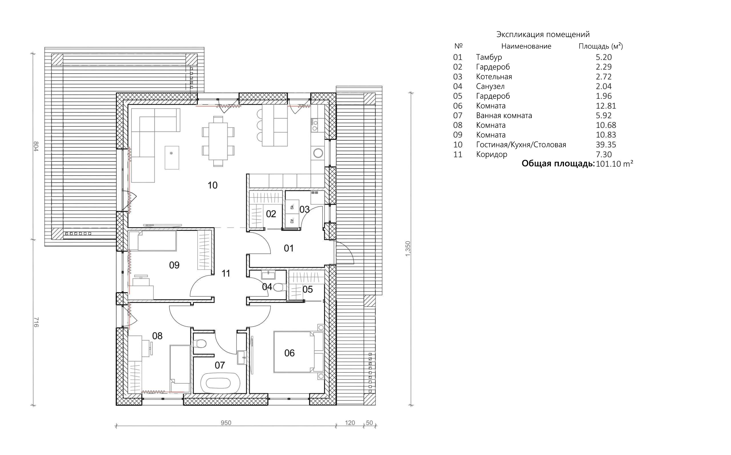
План первого этажа
- 1. Тамбур 2,29 м²
- 2. Гардероб 2,29 м²
- 3. Котельная 2,72 м²
- 4. Санузел 2,04 м²
- 5. Гардероб 1,96 м²
- 6. Комната 12,81 м²
- 7. Ванная комната 5,92 м²
- 8. Комната 10,69 м²
- 9. Комната 10,83 м²
- 10. Гостиная-Кухня-Столовая 39,35 м²
- 11. Коридор 7,30 м²
- Общая площадь 101,10 м²
Площади дома
| № п/п | Наименование | Ед. из. | Строительная площадь | Полезная площадь |
| 1 | 1 этаж | м2 | 124.59 | 101.1 |
| 2 | Итого | м2 | 124.59 | 101.1 |
154 м2
Полезная
площадь
площадь
1 этаж
Этажей
26 м2
Террасы
и балконы
и балконы
0Без
гаража
гаража
3
Количество
спален
спален
2
Количество
санузлов
санузлов
Калькулятор опций
0₽
В ипотеку от 17 946 ₽/мес.
0₽
0 дней
stdClass Object
(
[id] => 1
[attribute_id] => 1
[name] => Ленточный монолитный ж/б
[material_modifier] => 1
[work_modifier] => 1
[options] => Array
(
[0] => размер 200 х 700 мм
[1] => размер 300 х 900 мм
[2] => размер 400 х 1 000 мм
[3] => размер 500 х 1 100 мм
[4] => размер 600 х 1 200 мм
)
[days] => [20,21,22,25,30]
[material_price] => [2823,3630,4475,5210,12047]
[work_price] => [2154,2826,3731,4577,5293]
[image] => https://akademik-stroy.ru/wp-content/uploads/materials/lentochnyj-monolitnyj-zh-b.jpg
[area_modifier] => 124.59
[parent_name] => Фундамент
[parent_id] => 1
[material_sum] => 485370
[work_sum] => 308622
[total_sum] => 793992
[total_days] => 20
[display_material_sum] => 485 370
[display_work_sum] => 308 622
[display_total_sum] => 793 992
)
1
793 992₽
Работа:308 622 ₽
Материалы:485 370 ₽
Дни:20
stdClass Object
(
[id] => 2
[attribute_id] => 1
[name] => Забивные Ж/Б сваи
[material_modifier] => 1
[work_modifier] => 1
[options] => Array
(
[0] => 150х150х3000мм
[1] => 150х150х4000мм
[2] => 200х200х3000мм
[3] => 200х200х4000мм
[4] => 200х200х5000мм
[5] => 200х200х6000мм
)
[days] => [2,2,2,2,2,2]
[material_price] => [1990,2850,3255,4360,5120,6837]
[work_price] => [1002,1185,1336,1438,1574,1839]
[image] => https://akademik-stroy.ru/wp-content/uploads/materials/zabivnye-zh-b-svai.png
[area_modifier] => 124.59
[parent_name] => Фундамент
[parent_id] => 1
[material_sum] => 342149
[work_sum] => 143565
[total_sum] => 485714
[total_days] => 2
[display_material_sum] => 342 149
[display_work_sum] => 143 565
[display_total_sum] => 485 714
)
1
485 714₽
Работа:143 565 ₽
Материалы:342 149 ₽
Дни:2
stdClass Object
(
[id] => 71
[attribute_id] => 1
[name] => Свайно-ростверковый ж/б
[material_modifier] => 1
[work_modifier] => 1
[options] => Array
(
[0] => ростверк 200х300 мм
[1] => ростверк 300х600 мм
[2] => ростверк 400х900 мм
[3] => ростверк 500х1200 мм
)
[days] => [20,23,25,27]
[material_price] => [3018,3474,7109,9792]
[work_price] => [2024,3012,5635,7022]
[image] => https://akademik-stroy.ru/wp-content/uploads/materials/svajno-rostverkovyj-monolitnyj-zh-b-3.png
[area_modifier] => 124.59
[parent_name] => Фундамент
[parent_id] => 1
[material_sum] => 518897
[work_sum] => 289996
[total_sum] => 808893
[total_days] => 20
[display_material_sum] => 518 897
[display_work_sum] => 289 996
[display_total_sum] => 808 893
)
1
808 893₽
Работа:289 996 ₽
Материалы:518 897 ₽
Дни:20
stdClass Object
(
[id] => 72
[attribute_id] => 1
[name] => Монолитная ж/б плита
[material_modifier] => 1
[work_modifier] => 1
[options] => Array
(
[0] => 200 мм
[1] => 300 мм
[2] => 400 мм
[3] => 500 мм
[4] => 600 мм
)
[days] => [30,33,35,37,40]
[material_price] => [5348,8555,12788,14388,15189]
[work_price] => [4314,4881,7037,8061,10230]
[image] => https://akademik-stroy.ru/wp-content/uploads/materials/monolitnaya-zhb-plita.png
[area_modifier] => 124.59
[parent_name] => Фундамент
[parent_id] => 1
[material_sum] => 919504
[work_sum] => 618103
[total_sum] => 1537607
[total_days] => 30
[display_material_sum] => 919 504
[display_work_sum] => 618 103
[display_total_sum] => 1 537 607
)
1
1 537 607₽
Работа:618 103 ₽
Материалы:919 504 ₽
Дни:30
stdClass Object
(
[id] => 73
[attribute_id] => 1
[name] => Утепленная шведская плита
[material_modifier] => 1
[work_modifier] => 1
[options] => Array
(
[0] => 200 мм
[1] => 300 мм
[2] => 400 мм
[3] => 500 мм
[4] => 600 мм
)
[days] => [32,37,39,42,45]
[material_price] => [10249,12692,13760,14936,16230]
[work_price] => [5960,7337,8072,8878,9765]
[image] => https://akademik-stroy.ru/wp-content/uploads/materials/uteplennaya-shvedskaya-plita.jpg
[area_modifier] => 124.59
[parent_name] => Фундамент
[parent_id] => 1
[material_sum] => 1762154
[work_sum] => 853940
[total_sum] => 2616094
[total_days] => 32
[display_material_sum] => 1 762 154
[display_work_sum] => 853 940
[display_total_sum] => 2 616 094
)
1
2 616 094₽
Работа:853 940 ₽
Материалы:1 762 154 ₽
Дни:32
stdClass Object
(
[id] => 75
[attribute_id] => 1
[name] => Ленточный из ФБС
[material_modifier] => 1
[work_modifier] => 1
[options] => Array
(
[0] => толщ. 300 мм
[1] => толщ. 400 мм
[2] => толщ. 500 мм
[3] => толщ. 600 мм
)
[days] => [20,20,20,20]
[material_price] => [3675,4902,6126,7350]
[work_price] => [2451,3264,4083,4902]
[image] => https://akademik-stroy.ru/wp-content/uploads/materials/lentochnyj-iz-fbs.png
[area_modifier] => 124.59
[parent_name] => Фундамент
[parent_id] => 1
[material_sum] => 631858
[work_sum] => 351176
[total_sum] => 983034
[total_days] => 20
[display_material_sum] => 631 858
[display_work_sum] => 351 176
[display_total_sum] => 983 034
)
1
983 034₽
Работа:351 176 ₽
Материалы:631 858 ₽
Дни:20
stdClass Object
(
[id] => 76
[attribute_id] => 1
[name] => Цокольный этаж из ФБС
[material_modifier] => 1
[work_modifier] => 1
[options] => Array
(
[0] => толщ. 300 мм
[1] => толщ. 400 мм
[2] => толщ. 500 мм
[3] => толщ. 600 мм
)
[days] => [30,32,34,36]
[material_price] => [20916,23299,26680,29060]
[work_price] => [17524,18700,19873,21046]
[image] => https://akademik-stroy.ru/wp-content/uploads/materials/cokolnyj-ehtazh-iz-fbs.jpg
[area_modifier] => 124.59
[parent_name] => Фундамент
[parent_id] => 1
[material_sum] => 3596176
[work_sum] => 2510812
[total_sum] => 6106988
[total_days] => 30
[display_material_sum] => 3 596 176
[display_work_sum] => 2 510 812
[display_total_sum] => 6 106 988
)
1
6 106 988₽
Работа:2 510 812 ₽
Материалы:3 596 176 ₽
Дни:30
stdClass Object
(
[id] => 77
[attribute_id] => 1
[name] => Цокольный этаж монолитный ж/б
[material_modifier] => 1
[work_modifier] => 1
[options] => Array
(
[0] => толщ. 200 мм
[1] => толщ. 300 мм
[2] => толщ. 400 мм
[3] => толщ. 500 мм
[4] => толщ. 600 мм
)
[days] => [40,42,44,46,48]
[material_price] => [25421,29148,32275,35602,37326]
[work_price] => [20441,21907,23375,24841,26306]
[image] => https://akademik-stroy.ru/wp-content/uploads/materials/cokolnyj-etazh-zh-b.jpg
[area_modifier] => 124.59
[parent_name] => Фундамент
[parent_id] => 1
[material_sum] => 4370739
[work_sum] => 2928756
[total_sum] => 7299495
[total_days] => 40
[display_material_sum] => 4 370 739
[display_work_sum] => 2 928 756
[display_total_sum] => 7 299 495
)
1
7 299 495₽
Работа:2 928 756 ₽
Материалы:4 370 739 ₽
Дни:40
stdClass Object
(
[id] => 191
[attribute_id] => 1
[name] => Винтовые сваи
[material_modifier] => 1
[work_modifier] => 1
[options] => Array
(
[0] => 57х200мм
[1] => 76х250мм
[2] => 108х300мм
[3] => 133х350мм
)
[days] => [1,1,2,2]
[material_price] => [1200,1300,1450,1600]
[work_price] => [400,600,900,1100]
[image] => https://akademik-stroy.ru/wp-content/uploads/materials/vintovye-svai.png
[area_modifier] => 124.59
[parent_name] => Фундамент
[parent_id] => 1
[material_sum] => 206321
[work_sum] => 57311
[total_sum] => 263632
[total_days] => 1
[display_material_sum] => 206 321
[display_work_sum] => 57 311
[display_total_sum] => 263 632
)
1
263 632₽
Работа:57 311 ₽
Материалы:206 321 ₽
Дни:1
stdClass Object
(
[id] => 3
[attribute_id] => 2
[name] => Деревянные балки
[material_modifier] => 1
[work_modifier] => 1
[options] => Array
(
[0] => без утепления
[1] => утепление 200 мм
[2] => утепление 250 мм
[3] => утепление 300 мм
[4] => утепление 350 мм
[5] => утепление 400 мм
[6] => утепление 450 мм
[7] => утепление 500 мм
)
[days] => [8,9,9,9,11,12,13,14]
[material_price] => [1634,2042,2344,2947,3149,3652,3354,3557]
[work_price] => [1230,1339,1393,1426,1460,1513,1587,1620]
[image] => https://akademik-stroy.ru/wp-content/uploads/materials/derevyannye-balki.png
[area_modifier] => 124.59
[parent_name] => Перекрытие цоколя
[parent_id] => 2
[material_sum] => 280940
[work_sum] => 176233
[total_sum] => 457173
[total_days] => 8
[display_material_sum] => 280 940
[display_work_sum] => 176 233
[display_total_sum] => 457 173
)
1
457 173₽
Работа:176 233 ₽
Материалы:280 940 ₽
Дни:8
stdClass Object
(
[id] => 4
[attribute_id] => 2
[name] => Сборные ж/б плиты
[material_modifier] => 1
[work_modifier] => 1
[options] => Array
(
[0] => без утепления
[1] => утепление 150мм
[2] => утепление 200мм
[3] => утепление 250мм
[4] => утепление 300мм
[5] => утепление 350мм
[6] => утепление 400мм
[7] => утепление 450мм
[8] => утепление 500мм
)
[days] => [13,15,15,15,15,15,15,15,15]
[material_price] => [3067,5577,5928,6679,7730,8782,9833,10884,11935]
[work_price] => [1520,1956,2102,2247,2392,2537,2684,2829,2974]
[image] => https://akademik-stroy.ru/wp-content/uploads/materials/sbornye-zh-b-plity-2.jpg
[area_modifier] => 124.59
[parent_name] => Перекрытие цоколя
[parent_id] => 2
[material_sum] => 527322
[work_sum] => 217783
[total_sum] => 745105
[total_days] => 13
[display_material_sum] => 527 322
[display_work_sum] => 217 783
[display_total_sum] => 745 105
)
1
745 105₽
Работа:217 783 ₽
Материалы:527 322 ₽
Дни:13
stdClass Object
(
[id] => 78
[attribute_id] => 2
[name] => Монолитная ж/б плита
[material_modifier] => 1
[work_modifier] => 1
[options] => Array
(
[0] => без утепления
[1] => утепление 150 мм
[2] => утепление 200 мм
[3] => утепление 250 мм
[4] => утепление 300 мм
[5] => утепление 350 мм
[6] => утепление 400 мм
[7] => утепление 450 мм
[8] => утепление 500 мм
)
[days] => [18,20,20,20,20,20,20,20,20]
[material_price] => [4837,6572,7224,7375,79426,8177,8728,9180,10031]
[work_price] => [3348,3921,4112,4302,4493,4684,4875,5066,5256]
[image] => https://akademik-stroy.ru/wp-content/uploads/materials/monolitnaya-zh-b-plita-2.jpg
[area_modifier] => 124.59
[parent_name] => Перекрытие цоколя
[parent_id] => 2
[material_sum] => 831646
[work_sum] => 479696
[total_sum] => 1311342
[total_days] => 18
[display_material_sum] => 831 646
[display_work_sum] => 479 696
[display_total_sum] => 1 311 342
)
1
1 311 342₽
Работа:479 696 ₽
Материалы:831 646 ₽
Дни:18
stdClass Object
(
[id] => 6
[attribute_id] => 3
[name] => Пеноблок
[material_modifier] => 1
[work_modifier] => 1
[options] => Array
(
[0] => 300 мм
[1] => 400 мм
[2] => 500 мм
[3] => 600 мм
)
[days] => [29,31,34,39]
[material_price] => [3000,4000,4500,4937]
[work_price] => [5033,5805,6400,8710]
[image] => https://akademik-stroy.ru/wp-content/uploads/materials/penoblok.jpg
[area_modifier] => 124.59
[parent_name] => Стены 1 этаж (несущие)
[parent_id] => 3
[material_sum] => 515803
[work_sum] => 721121
[total_sum] => 1236924
[total_days] => 29
[display_material_sum] => 515 803
[display_work_sum] => 721 121
[display_total_sum] => 1 236 924
)
1
1 236 924₽
Работа:721 121 ₽
Материалы:515 803 ₽
Дни:29
stdClass Object
(
[id] => 79
[attribute_id] => 3
[name] => Керамический блок
[material_modifier] => 1
[work_modifier] => 1
[options] => Array
(
[0] => 380 мм
[1] => 380 мм Thermo
[2] => 440 мм
[3] => 510 мм
)
[days] => [23,23,24,25]
[material_price] => [4510,5098,6093,8013]
[work_price] => [4737,4937,5903,6958]
[image] => https://akademik-stroy.ru/wp-content/uploads/materials/keramicheskij-blok.jpg
[area_modifier] => 124.59
[parent_name] => Стены 1 этаж (несущие)
[parent_id] => 3
[material_sum] => 775423
[work_sum] => 678710
[total_sum] => 1454133
[total_days] => 23
[display_material_sum] => 775 423
[display_work_sum] => 678 710
[display_total_sum] => 1 454 133
)
1
1 454 133₽
Работа:678 710 ₽
Материалы:775 423 ₽
Дни:23
stdClass Object
(
[id] => 80
[attribute_id] => 3
[name] => Кирпич
[material_modifier] => 1
[work_modifier] => 1
[options] => Array
(
[0] => Кирпич 250 мм
[1] => Кирпич 380 мм
[2] => Кирпич 510 мм
[3] => Кирпич 640 мм
[4] => Кирпич 770 мм
)
[days] => [30,30,31,33,36]
[material_price] => [5500,7142,9206,10171,12235]
[work_price] => [8736,10041,12018,15240,18462]
[image] => https://akademik-stroy.ru/wp-content/uploads/materials/kirpich.jpg
[area_modifier] => 124.59
[parent_name] => Стены 1 этаж (несущие)
[parent_id] => 3
[material_sum] => 945638
[work_sum] => 1251681
[total_sum] => 2197319
[total_days] => 30
[display_material_sum] => 945 638
[display_work_sum] => 1 251 681
[display_total_sum] => 2 197 319
)
1
2 197 319₽
Работа:1 251 681 ₽
Материалы:945 638 ₽
Дни:30
stdClass Object
(
[id] => 81
[attribute_id] => 3
[name] => Монолитные
[material_modifier] => 1
[work_modifier] => 1
[options] => Array
(
[0] => 150 мм
[1] => 200 мм
[2] => 250 мм
[3] => 300 мм
[4] => 350 мм
[5] => 400 мм
)
[days] => [45,46,47,49,50,53]
[material_price] => [6545,7876,10175,12011,13908,15204]
[work_price] => [5106,6444,7698,8552,9807,11461]
[image] => https://akademik-stroy.ru/wp-content/uploads/materials/monolitnye.jpg
[area_modifier] => 124.59
[parent_name] => Стены 1 этаж (несущие)
[parent_id] => 3
[material_sum] => 1125309
[work_sum] => 731580
[total_sum] => 1856889
[total_days] => 45
[display_material_sum] => 1 125 309
[display_work_sum] => 731 580
[display_total_sum] => 1 856 889
)
1
1 856 889₽
Работа:731 580 ₽
Материалы:1 125 309 ₽
Дни:45
stdClass Object
(
[id] => 82
[attribute_id] => 3
[name] => Клееный брус
[material_modifier] => 1
[work_modifier] => 1
[options] => Array
(
[0] => 160 мм
[1] => 175 мм
[2] => 200 мм
[3] => 215 мм
[4] => 240 мм
[5] => 270 мм
[6] => 282 мм
)
[days] => [24,28,32,37,40,42,48]
[material_price] => [16975,18773,19950,20545,21599,22159,23275]
[work_price] => [4806,5287,5815,6397,7036,7740,8514]
[image] => https://akademik-stroy.ru/wp-content/uploads/materials/kleenyj-brus.jpg
[area_modifier] => 124.59
[parent_name] => Стены 1 этаж (несущие)
[parent_id] => 3
[material_sum] => 2918583
[work_sum] => 688596
[total_sum] => 3607179
[total_days] => 24
[display_material_sum] => 2 918 583
[display_work_sum] => 688 596
[display_total_sum] => 3 607 179
)
1
3 607 179₽
Работа:688 596 ₽
Материалы:2 918 583 ₽
Дни:24
stdClass Object
(
[id] => 83
[attribute_id] => 3
[name] => Каркасные
[material_modifier] => 1
[work_modifier] => 1
[options] => Array
(
[0] => 150 мм
[1] => 200 мм
[2] => 250 мм
[3] => 300 мм
)
[days] => [15,16,17,18]
[material_price] => [2379,2639,2898,3258]
[work_price] => [2418,2686,2985,3716]
[image] => https://akademik-stroy.ru/wp-content/uploads/materials/karkasnye.jpg
[area_modifier] => 124.59
[parent_name] => Стены 1 этаж (несущие)
[parent_id] => 3
[material_sum] => 409031
[work_sum] => 346447
[total_sum] => 755478
[total_days] => 15
[display_material_sum] => 409 031
[display_work_sum] => 346 447
[display_total_sum] => 755 478
)
1
755 478₽
Работа:346 447 ₽
Материалы:409 031 ₽
Дни:15
stdClass Object
(
[id] => 84
[attribute_id] => 3
[name] => СИП-панели
[material_modifier] => 1
[work_modifier] => 1
[options] => Array
(
[0] => 120 мм
[1] => 170 мм
[2] => 220 мм
)
[days] => [7,7,7]
[material_price] => [1210,1856,2292]
[work_price] => [1410,1551,1706]
[image] => https://akademik-stroy.ru/wp-content/uploads/materials/sip-paneli.jpg
[area_modifier] => 124.59
[parent_name] => Стены 1 этаж (несущие)
[parent_id] => 3
[material_sum] => 208040
[work_sum] => 202023
[total_sum] => 410063
[total_days] => 7
[display_material_sum] => 208 040
[display_work_sum] => 202 023
[display_total_sum] => 410 063
)
1
410 063₽
Работа:202 023 ₽
Материалы:208 040 ₽
Дни:7
stdClass Object
(
[id] => 85
[attribute_id] => 3
[name] => Сухой брус
[material_modifier] => 1
[work_modifier] => 1
[options] => Array
(
[0] => 150 мм
[1] => 180 мм
[2] => 200 мм
)
[days] => [7,8,9]
[material_price] => [6010,7190,8709]
[work_price] => [3204,3845,4229]
[image] => https://akademik-stroy.ru/wp-content/uploads/materials/suhoj-brus.jpg
[area_modifier] => 124.59
[parent_name] => Стены 1 этаж (несущие)
[parent_id] => 3
[material_sum] => 1033325
[work_sum] => 459064
[total_sum] => 1492389
[total_days] => 7
[display_material_sum] => 1 033 325
[display_work_sum] => 459 064
[display_total_sum] => 1 492 389
)
1
1 492 389₽
Работа:459 064 ₽
Материалы:1 033 325 ₽
Дни:7
stdClass Object
(
[id] => 86
[attribute_id] => 3
[name] => Профилированный брус
[material_modifier] => 1
[work_modifier] => 1
[options] => Array
(
[0] => 150 мм
[1] => 180 мм
[2] => 200 мм
)
[days] => [7,8,9]
[material_price] => [8190,9228,10051]
[work_price] => [3845,4614,5075]
[image] => https://akademik-stroy.ru/wp-content/uploads/materials/profilirovannyj-brus.jpg
[area_modifier] => 124.59
[parent_name] => Стены 1 этаж (несущие)
[parent_id] => 3
[material_sum] => 1408141
[work_sum] => 550906
[total_sum] => 1959047
[total_days] => 7
[display_material_sum] => 1 408 141
[display_work_sum] => 550 906
[display_total_sum] => 1 959 047
)
1
1 959 047₽
Работа:550 906 ₽
Материалы:1 408 141 ₽
Дни:7
stdClass Object
(
[id] => 87
[attribute_id] => 3
[name] => Оцилиндрованное бревно
[material_modifier] => 1
[work_modifier] => 1
[options] => Array
(
[0] => 180 мм
[1] => 220 мм
[2] => 260 мм
[3] => 320 мм
)
[days] => [7,8,9,10]
[material_price] => [75190,9532,10868,13116]
[work_price] => [3845,4691,5535,6863]
[image] => https://akademik-stroy.ru/wp-content/uploads/materials/ocilindrovannoe-brevno-1.jpg
[area_modifier] => 124.59
[parent_name] => Стены 1 этаж (несущие)
[parent_id] => 3
[material_sum] => 12927732
[work_sum] => 550906
[total_sum] => 13478638
[total_days] => 7
[display_material_sum] => 12 927 732
[display_work_sum] => 550 906
[display_total_sum] => 13 478 638
)
1
13 478 638₽
Работа:550 906 ₽
Материалы:12 927 732 ₽
Дни:7
stdClass Object
(
[id] => 88
[attribute_id] => 3
[name] => Срубы
[material_modifier] => 1
[work_modifier] => 1
[options] => Array
(
[0] => 260 мм
[1] => 320 мм
[2] => 360 мм
[3] => 400 мм
[4] => 500 мм
)
[days] => [7,8,9,10,11]
[material_price] => [37975,46709,52314,58069,73167]
[work_price] => [4806,5911,6621,7349,9260]
[image] => https://akademik-stroy.ru/wp-content/uploads/materials/sruby.jpg
[area_modifier] => 124.59
[parent_name] => Стены 1 этаж (несущие)
[parent_id] => 3
[material_sum] => 6529201
[work_sum] => 688596
[total_sum] => 7217797
[total_days] => 7
[display_material_sum] => 6 529 201
[display_work_sum] => 688 596
[display_total_sum] => 7 217 797
)
1
7 217 797₽
Работа:688 596 ₽
Материалы:6 529 201 ₽
Дни:7
stdClass Object
(
[id] => 174
[attribute_id] => 3
[name] => Брус
[material_modifier] => 1
[work_modifier] => 1
[options] => Array
(
[0] => 150 мм
[1] => 180 мм
[2] => 200 мм
)
[days] => [7,8,9]
[material_price] => [5127,6152,7367]
[work_price] => [1602,1922,2115]
[image] => https://akademik-stroy.ru/wp-content/uploads/materials/brus.jpg
[area_modifier] => 124.59
[parent_name] => Стены 1 этаж (несущие)
[parent_id] => 3
[material_sum] => 881507
[work_sum] => 229532
[total_sum] => 1111039
[total_days] => 7
[display_material_sum] => 881 507
[display_work_sum] => 229 532
[display_total_sum] => 1 111 039
)
1
1 111 039₽
Работа:229 532 ₽
Материалы:881 507 ₽
Дни:7
stdClass Object
(
[id] => 175
[attribute_id] => 3
[name] => Газобетон
[material_modifier] => 1
[work_modifier] => 1
[options] => Array
(
[0] => 300 мм
[1] => 375 мм
[2] => 400 мм
[3] => 500 мм
[4] => 600 мм
)
[days] => [29,31,35,37,44]
[material_price] => [4298,5573,6356,7288,9119]
[work_price] => [4538,5251,5926,6733,7195]
[image] => https://akademik-stroy.ru/wp-content/uploads/materials/gazobeton.jpg
[area_modifier] => 124.59
[parent_name] => Стены 1 этаж (несущие)
[parent_id] => 3
[material_sum] => 738973
[work_sum] => 650198
[total_sum] => 1389171
[total_days] => 29
[display_material_sum] => 738 973
[display_work_sum] => 650 198
[display_total_sum] => 1 389 171
)
1
1 389 171₽
Работа:650 198 ₽
Материалы:738 973 ₽
Дни:29
stdClass Object
(
[id] => 176
[attribute_id] => 3
[name] => Блок
[material_modifier] => 1
[work_modifier] => 1
[options] => Array
(
[0] => 300 мм
[1] => 375 мм
[2] => 400 мм
[3] => 500 мм
[4] => 600 мм
)
[days] => [29,31,35,37,44]
[material_price] => [2698,3973,4356,6588,7119]
[work_price] => [5038,5851,6426,8733,9195]
[image] => https://akademik-stroy.ru/wp-content/uploads/materials/blok.jpg
[area_modifier] => 124.59
[parent_name] => Стены 1 этаж (несущие)
[parent_id] => 3
[material_sum] => 463878
[work_sum] => 721837
[total_sum] => 1185715
[total_days] => 29
[display_material_sum] => 463 878
[display_work_sum] => 721 837
[display_total_sum] => 1 185 715
)
1
1 185 715₽
Работа:721 837 ₽
Материалы:463 878 ₽
Дни:29
stdClass Object
(
[id] => 177
[attribute_id] => 3
[name] => Газосиликатный блок
[material_modifier] => 1
[work_modifier] => 1
[options] => Array
(
[0] => 300 мм
[1] => 375 мм
[2] => 400 мм
[3] => 500 мм
[4] => 600 мм
)
[days] => [29,31,35,37,44]
[material_price] => [4298,5573,6356,7288,9119]
[work_price] => [4538,5251,5926,6733,7195]
[image] => https://akademik-stroy.ru/wp-content/uploads/materials/gazosilikatnyj-blok.jpg
[area_modifier] => 124.59
[parent_name] => Стены 1 этаж (несущие)
[parent_id] => 3
[material_sum] => 738973
[work_sum] => 650198
[total_sum] => 1389171
[total_days] => 29
[display_material_sum] => 738 973
[display_work_sum] => 650 198
[display_total_sum] => 1 389 171
)
1
1 389 171₽
Работа:650 198 ₽
Материалы:738 973 ₽
Дни:29
stdClass Object
(
[id] => 178
[attribute_id] => 3
[name] => Керамзитобетонный блок
[material_modifier] => 1
[work_modifier] => 1
[options] => Array
(
[0] => 300 мм
[1] => 375 мм
[2] => 400 мм
[3] => 500 мм
[4] => 600 мм
)
[days] => [23,23,24,25,28]
[material_price] => [3641,4298,5693,7613,9612]
[work_price] => [5737,5737,6903,7958,8901]
[image] => https://akademik-stroy.ru/wp-content/uploads/materials/keramzitobetonnyj-blok.jpg
[area_modifier] => 124.59
[parent_name] => Стены 1 этаж (несущие)
[parent_id] => 3
[material_sum] => 626012
[work_sum] => 821989
[total_sum] => 1448001
[total_days] => 23
[display_material_sum] => 626 012
[display_work_sum] => 821 989
[display_total_sum] => 1 448 001
)
1
1 448 001₽
Работа:821 989 ₽
Материалы:626 012 ₽
Дни:23
stdClass Object
(
[id] => 179
[attribute_id] => 3
[name] => Деревянные
[material_modifier] => 1
[work_modifier] => 1
[options] => Array
(
[0] => 180 мм
[1] => 220 мм
[2] => 260 мм
[3] => 320 мм
)
[days] => [7,8,9,10]
[material_price] => [7950,9458,11961,14472]
[work_price] => [4037,4925,5812,7207]
[image] => https://akademik-stroy.ru/wp-content/uploads/materials/derevyannye.jpg
[area_modifier] => 124.59
[parent_name] => Стены 1 этаж (несущие)
[parent_id] => 3
[material_sum] => 1366877
[work_sum] => 578415
[total_sum] => 1945292
[total_days] => 7
[display_material_sum] => 1 366 877
[display_work_sum] => 578 415
[display_total_sum] => 1 945 292
)
1
1 945 292₽
Работа:578 415 ₽
Материалы:1 366 877 ₽
Дни:7
stdClass Object
(
[id] => 181
[attribute_id] => 3
[name] => Камень
[material_modifier] => 1
[work_modifier] => 1
[options] => Array
(
[0] => 300 мм
[1] => 400 мм
[2] => 500 мм
[3] => 600 мм
)
[days] => [25,27,31,34]
[material_price] => [5262,6844,8330,9815]
[work_price] => [8331,9135,10427,11069]
[image] => https://akademik-stroy.ru/wp-content/uploads/materials/kamen.jpg
[area_modifier] => 124.59
[parent_name] => Стены 1 этаж (несущие)
[parent_id] => 3
[material_sum] => 904718
[work_sum] => 1193653
[total_sum] => 2098371
[total_days] => 25
[display_material_sum] => 904 718
[display_work_sum] => 1 193 653
[display_total_sum] => 2 098 371
)
1
2 098 371₽
Работа:1 193 653 ₽
Материалы:904 718 ₽
Дни:25
stdClass Object
(
[id] => 182
[attribute_id] => 3
[name] => Каркасно-щитовые
[material_modifier] => 1
[work_modifier] => 1
[options] => Array
(
[0] => 150 мм
[1] => 200 мм
[2] => 250 мм
[3] => 300 мм
[4] => 350 мм
[5] => 400 мм
)
[days] => [15,16,17,18,19,20]
[material_price] => [2379,2639,2898,3458,3601,4175]
[work_price] => [2538,2820,3134,3483,4062,5642]
[image] => https://akademik-stroy.ru/wp-content/uploads/materials/karkasno-shchitovye.jpg
[area_modifier] => 124.59
[parent_name] => Стены 1 этаж (несущие)
[parent_id] => 3
[material_sum] => 409031
[work_sum] => 363641
[total_sum] => 772672
[total_days] => 15
[display_material_sum] => 409 031
[display_work_sum] => 363 641
[display_total_sum] => 772 672
)
1
772 672₽
Работа:363 641 ₽
Материалы:409 031 ₽
Дни:15
stdClass Object
(
[id] => 183
[attribute_id] => 3
[name] => Рубленные
[material_modifier] => 1
[work_modifier] => 1
[options] => Array
(
[0] => 150 мм
[1] => 200 мм
[2] => 250 мм
[3] => 300 мм
[4] => 350 мм
[5] => 400 мм
)
[days] => [15,16,17,18,17,18]
[material_price] => [35950,50267,60583,75900,80217,100533]
[work_price] => [9612,12816,16020,19224,22428,25632]
[image] => https://akademik-stroy.ru/wp-content/uploads/materials/rublennye.jpg
[area_modifier] => 124.59
[parent_name] => Стены 1 этаж (несущие)
[parent_id] => 3
[material_sum] => 6181034
[work_sum] => 1377193
[total_sum] => 7558227
[total_days] => 15
[display_material_sum] => 6 181 034
[display_work_sum] => 1 377 193
[display_total_sum] => 7 558 227
)
1
7 558 227₽
Работа:1 377 193 ₽
Материалы:6 181 034 ₽
Дни:15
stdClass Object
(
[id] => 185
[attribute_id] => 3
[name] => Теплоблок
[material_modifier] => 1
[work_modifier] => 1
[options] => Array
(
[0] => 300 мм (с облицовкой, не покрашенный)
[1] => 400 мм (с облицовкой, не покрашенный)
[2] => 300 мм (с облицовкой, покрашенный)
[3] => 400 мм (с облицовкой, покрашенный)
)
[days] => [15,16,15,16]
[material_price] => [2888,3729,3957,4258]
[work_price] => [2564,3229,2949,3713]
[image] => https://akademik-stroy.ru/wp-content/uploads/materials/teploblok.jpg
[area_modifier] => 124.59
[parent_name] => Стены 1 этаж (несущие)
[parent_id] => 3
[material_sum] => 496546
[work_sum] => 367366
[total_sum] => 863912
[total_days] => 15
[display_material_sum] => 496 546
[display_work_sum] => 367 366
[display_total_sum] => 863 912
)
1
863 912₽
Работа:367 366 ₽
Материалы:496 546 ₽
Дни:15
stdClass Object
(
[id] => 186
[attribute_id] => 3
[name] => Арболитовые блоки
[material_modifier] => 1
[work_modifier] => 1
[options] => Array
(
[0] => 300 мм
[1] => 400 мм
[2] => 600 мм
)
[days] => [19,22,27]
[material_price] => [3210,4475,5852]
[work_price] => [4214,4788,5866]
[image] => https://akademik-stroy.ru/wp-content/uploads/materials/arbolitovye-bloki.png
[area_modifier] => 124.59
[parent_name] => Стены 1 этаж (несущие)
[parent_id] => 3
[material_sum] => 551909
[work_sum] => 603776
[total_sum] => 1155685
[total_days] => 19
[display_material_sum] => 551 909
[display_work_sum] => 603 776
[display_total_sum] => 1 155 685
)
1
1 155 685₽
Работа:603 776 ₽
Материалы:551 909 ₽
Дни:19
stdClass Object
(
[id] => 187
[attribute_id] => 3
[name] => Полистиролбетон
[material_modifier] => 1
[work_modifier] => 1
[options] => Array
(
[0] => 300 мм
[1] => 400 мм
[2] => 600 мм
)
[days] => [29,31,35]
[material_price] => [2798,4573,5256]
[work_price] => [5038,5851,6426]
[image] => https://akademik-stroy.ru/wp-content/uploads/materials/polistirolbeton.jpg
[area_modifier] => 124.59
[parent_name] => Стены 1 этаж (несущие)
[parent_id] => 3
[material_sum] => 481072
[work_sum] => 721837
[total_sum] => 1202909
[total_days] => 29
[display_material_sum] => 481 072
[display_work_sum] => 721 837
[display_total_sum] => 1 202 909
)
1
1 202 909₽
Работа:721 837 ₽
Материалы:481 072 ₽
Дни:29
stdClass Object
(
[id] => 188
[attribute_id] => 3
[name] => Шлакоблок
[material_modifier] => 1
[work_modifier] => 1
[options] => Array
(
[0] => 400 мм
[1] => 600 мм
)
[days] => [15,16]
[material_price] => [2391,3471]
[work_price] => [2642,3662]
[image] => https://akademik-stroy.ru/wp-content/uploads/materials/shlakoblok.jpg
[area_modifier] => 124.59
[parent_name] => Стены 1 этаж (несущие)
[parent_id] => 3
[material_sum] => 411095
[work_sum] => 378542
[total_sum] => 789637
[total_days] => 15
[display_material_sum] => 411 095
[display_work_sum] => 378 542
[display_total_sum] => 789 637
)
1
789 637₽
Работа:378 542 ₽
Материалы:411 095 ₽
Дни:15
stdClass Object
(
[id] => 189
[attribute_id] => 3
[name] => Теплая керамика
[material_modifier] => 1
[work_modifier] => 1
[options] => Array
(
[0] => 380 мм
[1] => 380 мм Thermo
[2] => 440 мм
[3] => 510 мм
)
[days] => [23,23,24,25]
[material_price] => [4510,5098,6093,8013]
[work_price] => [4737,4937,5903,6958]
[image] => https://akademik-stroy.ru/wp-content/uploads/materials/teplaya-keramika.jpg
[area_modifier] => 124.59
[parent_name] => Стены 1 этаж (несущие)
[parent_id] => 3
[material_sum] => 775423
[work_sum] => 678710
[total_sum] => 1454133
[total_days] => 23
[display_material_sum] => 775 423
[display_work_sum] => 678 710
[display_total_sum] => 1 454 133
)
1
1 454 133₽
Работа:678 710 ₽
Материалы:775 423 ₽
Дни:23
stdClass Object
(
[id] => 190
[attribute_id] => 3
[name] => Несъемная опалубка
[material_modifier] => 1
[work_modifier] => 1
[options] => Array
(
[0] => 200 мм
[1] => 250 мм
[2] => 300 мм
[3] => 350 мм
)
[days] => [15,17,19,21]
[material_price] => [3302,3902,4108,5008]
[work_price] => [2100,2100,2300,2534]
[image] => https://akademik-stroy.ru/wp-content/uploads/materials/nesemnaya-opalubka.jpg
[area_modifier] => 124.59
[parent_name] => Стены 1 этаж (несущие)
[parent_id] => 3
[material_sum] => 567727
[work_sum] => 300885
[total_sum] => 868612
[total_days] => 15
[display_material_sum] => 567 727
[display_work_sum] => 300 885
[display_total_sum] => 868 612
)
1
868 612₽
Работа:300 885 ₽
Материалы:567 727 ₽
Дни:15
stdClass Object
(
[id] => 251
[attribute_id] => 3
[name] => Бревно
[material_modifier] => 1
[work_modifier] => 1
[options] => Array
(
[0] => 260 мм
[1] => 320 мм
[2] => 360 мм
[3] => 400 мм
[4] => 500 мм
)
[days] => [7,8,9,10,11]
[material_price] => [1874,24045,26930,30972,38825]
[work_price] => [5046,6207,6952,7716,9723]
[image] => https://akademik-stroy.ru/wp-content/uploads/materials/sruby.jpg
[area_modifier] => 124.59
[parent_name] => Стены 1 этаж (несущие)
[parent_id] => 3
[material_sum] => 322205
[work_sum] => 722983
[total_sum] => 1045188
[total_days] => 7
[display_material_sum] => 322 205
[display_work_sum] => 722 983
[display_total_sum] => 1 045 188
)
1
1 045 188₽
Работа:722 983 ₽
Материалы:322 205 ₽
Дни:7
stdClass Object
(
[id] => 7
[attribute_id] => 4
[name] => Деревянные балки
[material_modifier] => 1
[work_modifier] => 1
[options] => Array
(
[0] => без утепления
[1] => утепление 200 мм
[2] => утепление 250 мм
[3] => утепление 300 мм
[4] => утепление 350 мм
[5] => утепление 400 мм
[6] => утепление 450 мм
[7] => утепление 500 мм
)
[days] => [8,9,9,9,11,12,13,14]
[material_price] => [1634,2042,2344,2947,3149,3652,3354,3557]
[work_price] => [1230,1339,1393,1426,1460,1513,1587,1620]
[image] => https://akademik-stroy.ru/wp-content/uploads/materials/derevyannye-balki.png
[area_modifier] => 124.59
[parent_name] => Перекрытие первого этажа
[parent_id] => 4
[material_sum] => 280940
[work_sum] => 176233
[total_sum] => 457173
[total_days] => 8
[display_material_sum] => 280 940
[display_work_sum] => 176 233
[display_total_sum] => 457 173
)
1
457 173₽
Работа:176 233 ₽
Материалы:280 940 ₽
Дни:8
stdClass Object
(
[id] => 8
[attribute_id] => 4
[name] => Сборные ж/б плиты
[material_modifier] => 1
[work_modifier] => 1
[options] => Array
(
[0] => без утепления
[1] => утепление 150 мм
[2] => утепление 200 мм
[3] => утепление 250 мм
[4] => утепление 300 мм
[5] => утепление 350 мм
[6] => утепление 400 мм
[7] => утепление 450 мм
[8] => утепление 500 мм
)
[days] => [13,15,15,15,15,15,15,15,15]
[material_price] => [3067,5577,5928,6679,7730,8782,9833,10884,11935]
[work_price] => [1520,1956,2102,2247,2392,2537,2684,2829,2974]
[image] => https://akademik-stroy.ru/wp-content/uploads/materials/sbornye-zh-b-plity-2.jpg
[area_modifier] => 124.59
[parent_name] => Перекрытие первого этажа
[parent_id] => 4
[material_sum] => 527322
[work_sum] => 217783
[total_sum] => 745105
[total_days] => 13
[display_material_sum] => 527 322
[display_work_sum] => 217 783
[display_total_sum] => 745 105
)
1
745 105₽
Работа:217 783 ₽
Материалы:527 322 ₽
Дни:13
stdClass Object
(
[id] => 89
[attribute_id] => 4
[name] => Монолитная ж/б плита
[material_modifier] => 1
[work_modifier] => 1
[options] => Array
(
[0] => без утепления
[1] => утепление 150 мм
[2] => утепление 200 мм
[3] => утепление 250 мм
[4] => утепление 300 мм
[5] => утепление 350 мм
[6] => утепление 400 мм
[7] => утепление 450 мм
[8] => утепление 500 мм
)
[days] => [18,20,20,20,20,20,20,20,20]
[material_price] => [4837,6572,7224,7375,79426,8177,8728,9180,10031]
[work_price] => [3348,3921,4112,4302,4493,4684,4875,5066,5256]
[image] => https://akademik-stroy.ru/wp-content/uploads/materials/monolitnaya-zh-b-plita-2.jpg
[area_modifier] => 124.59
[parent_name] => Перекрытие первого этажа
[parent_id] => 4
[material_sum] => 831646
[work_sum] => 479696
[total_sum] => 1311342
[total_days] => 18
[display_material_sum] => 831 646
[display_work_sum] => 479 696
[display_total_sum] => 1 311 342
)
1
1 311 342₽
Работа:479 696 ₽
Материалы:831 646 ₽
Дни:18
stdClass Object
(
[id] => 160
[attribute_id] => 36
[name] => Не эксплуатируемая
[material_modifier] => 1
[work_modifier] => 1
[options] => Array
(
)
[days] => [10]
[material_price] => [8068]
[work_price] => [4163]
[image] => https://akademik-stroy.ru/wp-content/uploads/materials/ne-ehkspluatiruemaya-3.jpg
[area_modifier] => 124.59
[parent_name] => Плоская крыша
[parent_id] => 36
[material_sum] => 1387165
[work_sum] => 596468
[total_sum] => 1983633
[total_days] => 10
[display_material_sum] => 1 387 165
[display_work_sum] => 596 468
[display_total_sum] => 1 983 633
)
1
1 983 633₽
Работа:596 468 ₽
Материалы:1 387 165 ₽
Дни:10
stdClass Object
(
[id] => 161
[attribute_id] => 36
[name] => Зеленая кровля (Эксплуатируемая)
[material_modifier] => 1
[work_modifier] => 1
[options] => Array
(
)
[days] => [10]
[material_price] => [10056]
[work_price] => [8446]
[image] => https://akademik-stroy.ru/wp-content/uploads/materials/zelenaya-krovlya-2.jpg
[area_modifier] => 124.59
[parent_name] => Плоская крыша
[parent_id] => 36
[material_sum] => 1728970
[work_sum] => 1210130
[total_sum] => 2939100
[total_days] => 10
[display_material_sum] => 1 728 970
[display_work_sum] => 1 210 130
[display_total_sum] => 2 939 100
)
1
2 939 100₽
Работа:1 210 130 ₽
Материалы:1 728 970 ₽
Дни:10
stdClass Object
(
[id] => 162
[attribute_id] => 36
[name] => Эксплуатируемая
[material_modifier] => 1
[work_modifier] => 1
[options] => Array
(
)
[days] => [10]
[material_price] => [9593]
[work_price] => [7459]
[image] => https://akademik-stroy.ru/wp-content/uploads/materials/ehkspluatiruemaya-2.jpg
[area_modifier] => 124.59
[parent_name] => Плоская крыша
[parent_id] => 36
[material_sum] => 1649365
[work_sum] => 1068714
[total_sum] => 2718079
[total_days] => 10
[display_material_sum] => 1 649 365
[display_work_sum] => 1 068 714
[display_total_sum] => 2 718 079
)
1
2 718 079₽
Работа:1 068 714 ₽
Материалы:1 649 365 ₽
Дни:10
stdClass Object
(
[id] => 163
[attribute_id] => 36
[name] => Нет
[material_modifier] => 1
[work_modifier] => 1
[options] => Array
(
)
[days] => [0]
[material_price] => [0]
[work_price] => [0]
[image] => https://akademik-stroy.ru/wp-content/uploads/materials/ne-ehkspluatiruemaya-3.jpg
[area_modifier] => 124.59
[parent_name] => Плоская крыша
[parent_id] => 36
[material_sum] => 0
[work_sum] => 0
[total_sum] => 0
[total_days] => 0
[display_material_sum] => 0
[display_work_sum] => 0
[display_total_sum] => 0
)
1
0₽
Работа:0 ₽
Материалы:0 ₽
Дни:0
stdClass Object
(
[id] => 51
[attribute_id] => 26
[name] => Есть
[material_modifier] => 1
[work_modifier] => 1
[options] => Array
(
[0] => Профиль 58 мм, 3-камерный, стеклопакет 2-камерный до 32 мм
[1] => Профиль 60 мм, 4-камерный, стеклопакет 2-камерный до 32 мм
[2] => Профиль 70 мм, 5-камерный, стеклопакет 2-камерный до 40 мм
[3] => Профиль 72 мм, 5-камерный, стеклопакет 2-камерный до 40 мм
[4] => Алюминиевые окна Alutech профиль 72 мм, стеклопакет 2-камерный
)
[days] => [3,3,3,3,3]
[material_price] => [1339,2124,2867,3023,29596]
[work_price] => [635,647,659,668,2579]
[image] => https://akademik-stroy.ru/wp-content/uploads/materials/okna.jpg
[area_modifier] => 101.1
[parent_name] => Окна
[parent_id] => 26
[material_sum] => 186815
[work_sum] => 73828
[total_sum] => 260643
[total_days] => 3
[display_material_sum] => 186 815
[display_work_sum] => 73 828
[display_total_sum] => 260 643
)
1
260 643₽
Работа:73 828 ₽
Материалы:186 815 ₽
Дни:3
stdClass Object
(
[id] => 52
[attribute_id] => 26
[name] => Нет
[material_modifier] => 2
[work_modifier] => 1
[options] =>
[days] => null
[material_price] => null
[work_price] => null
[image] => https://akademik-stroy.ru/wp-content/uploads/materials/okna.jpg
[area_modifier] => 101.1
[parent_name] => Окна
[parent_id] => 26
[material_sum] => 0
[work_sum] => 0
[total_sum] => 0
[total_days] => 0
[display_material_sum] => 0
[display_work_sum] => 0
[display_total_sum] => 0
)
1
0₽
Работа:0 ₽
Материалы:0 ₽
Дни:0
stdClass Object
(
[id] => 53
[attribute_id] => 27
[name] => Есть
[material_modifier] => 1
[work_modifier] => 1
[options] => Array
(
)
[days] => [1]
[material_price] => [10000]
[work_price] => [5500]
[image] => https://akademik-stroy.ru/wp-content/uploads/materials/dveri.jpg
[area_modifier] => 1
[parent_name] => Двери входные
[parent_id] => 27
[material_sum] => 13800
[work_sum] => 6325
[total_sum] => 20125
[total_days] => 1
[display_material_sum] => 13 800
[display_work_sum] => 6 325
[display_total_sum] => 20 125
)
1
20 125₽
Работа:6 325 ₽
Материалы:13 800 ₽
Дни:1
stdClass Object
(
[id] => 54
[attribute_id] => 27
[name] => Нет
[material_modifier] => 1
[work_modifier] => 1
[options] => Array
(
)
[days] => [0]
[material_price] => [0]
[work_price] => [0]
[image] => https://akademik-stroy.ru/wp-content/uploads/materials/dveri.jpg
[area_modifier] => 1
[parent_name] => Двери входные
[parent_id] => 27
[material_sum] => 0
[work_sum] => 0
[total_sum] => 0
[total_days] => 0
[display_material_sum] => 0
[display_work_sum] => 0
[display_total_sum] => 0
)
1
0₽
Работа:0 ₽
Материалы:0 ₽
Дни:0
stdClass Object
(
[id] => 31
[attribute_id] => 16
[name] => Нет
[material_modifier] => 1
[work_modifier] => 1
[options] => Array
(
)
[days] => [0]
[material_price] => [0]
[work_price] => [0]
[image] => https://akademik-stroy.ru/wp-content/uploads/materials/docke-standard-pvh.jpg
[area_modifier] => 124.59
[parent_name] => Водосточная система
[parent_id] => 16
[material_sum] => 0
[work_sum] => 0
[total_sum] => 0
[total_days] => 0
[display_material_sum] => 0
[display_work_sum] => 0
[display_total_sum] => 0
)
1
0₽
Работа:0 ₽
Материалы:0 ₽
Дни:0
stdClass Object
(
[id] => 32
[attribute_id] => 16
[name] => Есть
[material_modifier] => 1
[work_modifier] => 1
[options] => Array
(
[0] => Döcke Standard (ПВХ)
[1] => Металлические Grand Line
)
[days] => [7,7]
[material_price] => [1842,2703]
[work_price] => [1491,1529]
[image] => https://akademik-stroy.ru/wp-content/uploads/materials/docke-standard-pvh.jpg
[area_modifier] => 124.59
[parent_name] => Водосточная система
[parent_id] => 16
[material_sum] => 316703
[work_sum] => 213628
[total_sum] => 530331
[total_days] => 7
[display_material_sum] => 316 703
[display_work_sum] => 213 628
[display_total_sum] => 530 331
)
1
530 331₽
Работа:213 628 ₽
Материалы:316 703 ₽
Дни:7
stdClass Object
(
[id] => 33
[attribute_id] => 17
[name] => Нет
[material_modifier] => 1
[work_modifier] => 1
[options] => Array
(
)
[days] => [0]
[material_price] => [0]
[work_price] => [0]
[image] => https://akademik-stroy.ru/wp-content/uploads/materials/mineralovata.jpg
[area_modifier] => 124.59
[parent_name] => Дополнительное утепление наружных стен
[parent_id] => 17
[material_sum] => 0
[work_sum] => 0
[total_sum] => 0
[total_days] => 0
[display_material_sum] => 0
[display_work_sum] => 0
[display_total_sum] => 0
)
1
0₽
Работа:0 ₽
Материалы:0 ₽
Дни:0
stdClass Object
(
[id] => 34
[attribute_id] => 17
[name] => Минераловатный
[material_modifier] => 1
[work_modifier] => 1
[options] => Array
(
[0] => 50 мм
[1] => 100 мм
[2] => 150 мм
[3] => 200 мм
[4] => 250 мм
[5] => 300 мм
)
[days] => [7,8,10,12,14,15]
[material_price] => [3437,3613,3803,3915,4601,4830]
[work_price] => [2325,2423,2523,2749,2859,3025]
[image] => https://akademik-stroy.ru/wp-content/uploads/materials/mineralovata.jpg
[area_modifier] => 124.59
[parent_name] => Дополнительное утепление наружных стен
[parent_id] => 17
[material_sum] => 590938
[work_sum] => 333123
[total_sum] => 924061
[total_days] => 7
[display_material_sum] => 590 938
[display_work_sum] => 333 123
[display_total_sum] => 924 061
)
1
924 061₽
Работа:333 123 ₽
Материалы:590 938 ₽
Дни:7
stdClass Object
(
[id] => 128
[attribute_id] => 17
[name] => Эковата (целлюлозная вата)
[material_modifier] => 1
[work_modifier] => 1
[options] => Array
(
[0] => 50 мм
[1] => 100 мм
[2] => 150 мм
[3] => 200 мм
[4] => 250 мм
[5] => 300 мм
)
[days] => [3,4,5,6,7,8]
[material_price] => [810,1319,1629,1838,2267,2676]
[work_price] => [1225,1323,1423,1549,1659,1725]
[image] => https://akademik-stroy.ru/wp-content/uploads/materials/ehkovata.jpg
[area_modifier] => 124.59
[parent_name] => Дополнительное утепление наружных стен
[parent_id] => 17
[material_sum] => 139267
[work_sum] => 175516
[total_sum] => 314783
[total_days] => 3
[display_material_sum] => 139 267
[display_work_sum] => 175 516
[display_total_sum] => 314 783
)
1
314 783₽
Работа:175 516 ₽
Материалы:139 267 ₽
Дни:3
stdClass Object
(
[id] => 129
[attribute_id] => 17
[name] => Экструдированный пенополистирол
[material_modifier] => 1
[work_modifier] => 1
[options] => Array
(
[0] => 50 мм
[1] => 100 мм
[2] => 150 мм
[3] => 200 мм
[4] => 250 мм
[5] => 300 мм
)
[days] => [5,6,7,8,9,10]
[material_price] => [4560,4300,5119,6292,7010,8583]
[work_price] => [1795,1954,2254,2330,2595,2735]
[image] => https://akademik-stroy.ru/wp-content/uploads/materials/epps.jpg
[area_modifier] => 124.59
[parent_name] => Дополнительное утепление наружных стен
[parent_id] => 17
[material_sum] => 784020
[work_sum] => 257185
[total_sum] => 1041205
[total_days] => 5
[display_material_sum] => 784 020
[display_work_sum] => 257 185
[display_total_sum] => 1 041 205
)
1
1 041 205₽
Работа:257 185 ₽
Материалы:784 020 ₽
Дни:5
stdClass Object
(
[id] => 130
[attribute_id] => 17
[name] => ПСБ (ППС-пенополистирол)
[material_modifier] => 1
[work_modifier] => 1
[options] => Array
(
[0] => 50 мм
[1] => 100 мм
[2] => 150 мм
[3] => 200 мм
[4] => 250 мм
[5] => 300 мм
)
[days] => [5,6,7,8,9,10]
[material_price] => [4822,5200,5819,6292,7010,7583]
[work_price] => [1795,1954,2254,2330,2595,2735]
[image] => https://akademik-stroy.ru/wp-content/uploads/materials/psb.jpg
[area_modifier] => 124.59
[parent_name] => Дополнительное утепление наружных стен
[parent_id] => 17
[material_sum] => 829067
[work_sum] => 257185
[total_sum] => 1086252
[total_days] => 5
[display_material_sum] => 829 067
[display_work_sum] => 257 185
[display_total_sum] => 1 086 252
)
1
1 086 252₽
Работа:257 185 ₽
Материалы:829 067 ₽
Дни:5
stdClass Object
(
[id] => 131
[attribute_id] => 17
[name] => ППУ (Пенополиуретан)
[material_modifier] => 1
[work_modifier] => 1
[options] => Array
(
[0] => 50 мм
[1] => 100 мм
[2] => 150 мм
[3] => 200 мм
[4] => 250 мм
[5] => 300 мм
)
[days] => [3,4,5,6,7,8]
[material_price] => [2860,3400,4219,4592,5010,5583]
[work_price] => [729,900,980,1120,1280,1530]
[image] => https://akademik-stroy.ru/wp-content/uploads/materials/ppu.jpg
[area_modifier] => 124.59
[parent_name] => Дополнительное утепление наружных стен
[parent_id] => 17
[material_sum] => 491732
[work_sum] => 104450
[total_sum] => 596182
[total_days] => 3
[display_material_sum] => 491 732
[display_work_sum] => 104 450
[display_total_sum] => 596 182
)
1
596 182₽
Работа:104 450 ₽
Материалы:491 732 ₽
Дни:3
stdClass Object
(
[id] => 132
[attribute_id] => 17
[name] => PIR-плиты (пенополиизоцианурат)
[material_modifier] => 1
[work_modifier] => 1
[options] => Array
(
[0] => 50 мм
[1] => 100 мм
[2] => 150 мм
[3] => 200 мм
[4] => 250 мм
[5] => 300 мм
)
[days] => [5,6,7,8,9,10]
[material_price] => [8323,15645,20968,25900,29258,30581]
[work_price] => [800,900,970,1150,1280,1330]
[image] => https://akademik-stroy.ru/wp-content/uploads/materials/pir.jpg
[area_modifier] => 124.59
[parent_name] => Дополнительное утепление наружных стен
[parent_id] => 17
[material_sum] => 1431008
[work_sum] => 114623
[total_sum] => 1545631
[total_days] => 5
[display_material_sum] => 1 431 008
[display_work_sum] => 114 623
[display_total_sum] => 1 545 631
)
1
1 545 631₽
Работа:114 623 ₽
Материалы:1 431 008 ₽
Дни:5
stdClass Object
(
[id] => 37
[attribute_id] => 19
[name] => Нет
[material_modifier] => 1
[work_modifier] => 1
[options] => Array
(
)
[days] => [0]
[material_price] => [0]
[work_price] => [0]
[image] => https://akademik-stroy.ru/wp-content/uploads/materials/imitaciya-brusa.jpg
[area_modifier] => 124.59
[parent_name] => Наружная отделка фасада
[parent_id] => 19
[material_sum] => 0
[work_sum] => 0
[total_sum] => 0
[total_days] => 0
[display_material_sum] => 0
[display_work_sum] => 0
[display_total_sum] => 0
)
1
0₽
Работа:0 ₽
Материалы:0 ₽
Дни:0
stdClass Object
(
[id] => 38
[attribute_id] => 19
[name] => Имитация бруса
[material_modifier] => 1
[work_modifier] => 1
[options] => Array
(
[0] => Сосна
[1] => Ель
[2] => Лиственница
)
[days] => [20,20,20]
[material_price] => [2994,2762,4954]
[work_price] => [1397,1231,1577]
[image] => https://akademik-stroy.ru/wp-content/uploads/materials/imitaciya-brusa.jpg
[area_modifier] => 124.59
[parent_name] => Наружная отделка фасада
[parent_id] => 19
[material_sum] => 514771
[work_sum] => 200160
[total_sum] => 714931
[total_days] => 20
[display_material_sum] => 514 771
[display_work_sum] => 200 160
[display_total_sum] => 714 931
)
1
714 931₽
Работа:200 160 ₽
Материалы:514 771 ₽
Дни:20
stdClass Object
(
[id] => 136
[attribute_id] => 19
[name] => Планкен
[material_modifier] => 1
[work_modifier] => 1
[options] => Array
(
[0] => Сосна
[1] => Ель
[2] => Лиственница
)
[days] => [20,20,20]
[material_price] => [3194,2862,5154]
[work_price] => [1537,1354,1735]
[image] => https://akademik-stroy.ru/wp-content/uploads/materials/planken.jpg
[area_modifier] => 124.59
[parent_name] => Наружная отделка фасада
[parent_id] => 19
[material_sum] => 549158
[work_sum] => 220219
[total_sum] => 769377
[total_days] => 20
[display_material_sum] => 549 158
[display_work_sum] => 220 219
[display_total_sum] => 769 377
)
1
769 377₽
Работа:220 219 ₽
Материалы:549 158 ₽
Дни:20
stdClass Object
(
[id] => 137
[attribute_id] => 19
[name] => Штукатурка
[material_modifier] => 1
[work_modifier] => 1
[options] => Array
(
[0] => Цементно-песчаная (минеральная)
[1] => Мокрый фасад
)
[days] => [35,35]
[material_price] => [2231,3938]
[work_price] => [1202,2422]
[image] => https://akademik-stroy.ru/wp-content/uploads/materials/shtukaturka.jpg
[area_modifier] => 124.59
[parent_name] => Наружная отделка фасада
[parent_id] => 19
[material_sum] => 383585
[work_sum] => 172221
[total_sum] => 555806
[total_days] => 35
[display_material_sum] => 383 585
[display_work_sum] => 172 221
[display_total_sum] => 555 806
)
1
555 806₽
Работа:172 221 ₽
Материалы:383 585 ₽
Дни:35
stdClass Object
(
[id] => 138
[attribute_id] => 19
[name] => Облицовочный кирпич
[material_modifier] => 1
[work_modifier] => 1
[options] => Array
(
[0] => Керамический
[1] => Клинкерный
[2] => Ручной формовки
[3] => Гиперпрессованный
[4] => Силикатный кирпич
)
[days] => [45,45,45,45,45]
[material_price] => [8174,9148,1040,1257,5876]
[work_price] => [3240,3758,4536,4017,3369]
[image] => https://akademik-stroy.ru/wp-content/uploads/materials/oblicovochnyj-kirpich.jpg
[area_modifier] => 124.59
[parent_name] => Наружная отделка фасада
[parent_id] => 19
[material_sum] => 1405390
[work_sum] => 464222
[total_sum] => 1869612
[total_days] => 45
[display_material_sum] => 1 405 390
[display_work_sum] => 464 222
[display_total_sum] => 1 869 612
)
1
1 869 612₽
Работа:464 222 ₽
Материалы:1 405 390 ₽
Дни:45
stdClass Object
(
[id] => 139
[attribute_id] => 19
[name] => Фасадная плитка
[material_modifier] => 1
[work_modifier] => 1
[options] => Array
(
[0] => Клинкерная
[1] => Керамическая
[2] => Плитка ручной формовки
)
[days] => [40,40,40]
[material_price] => [2974,1487,3470]
[work_price] => [3007,2592,3629]
[image] => https://akademik-stroy.ru/wp-content/uploads/materials/fasadnaya-plitka.jpg
[area_modifier] => 124.59
[parent_name] => Наружная отделка фасада
[parent_id] => 19
[material_sum] => 511332
[work_sum] => 430838
[total_sum] => 942170
[total_days] => 40
[display_material_sum] => 511 332
[display_work_sum] => 430 838
[display_total_sum] => 942 170
)
1
942 170₽
Работа:430 838 ₽
Материалы:511 332 ₽
Дни:40
stdClass Object
(
[id] => 140
[attribute_id] => 19
[name] => Сайдинг
[material_modifier] => 1
[work_modifier] => 1
[options] => Array
(
[0] => Виниловый
[1] => Металлический
[2] => Фиброцементный
)
[days] => [20,20,20]
[material_price] => [1263,1944,4147]
[work_price] => [1263,1944,2074]
[image] => https://akademik-stroy.ru/wp-content/uploads/materials/sajding.jpg
[area_modifier] => 124.59
[parent_name] => Наружная отделка фасада
[parent_id] => 19
[material_sum] => 217153
[work_sum] => 180961
[total_sum] => 398114
[total_days] => 20
[display_material_sum] => 217 153
[display_work_sum] => 180 961
[display_total_sum] => 398 114
)
1
398 114₽
Работа:180 961 ₽
Материалы:217 153 ₽
Дни:20
stdClass Object
(
[id] => 141
[attribute_id] => 19
[name] => Камень
[material_modifier] => 1
[work_modifier] => 1
[options] => Array
(
[0] => Травертин
[1] => Дагестанский
[2] => Искусственный
[3] => Натуральный
[4] => Керамогранит
)
[days] => [45,45,45,45,45]
[material_price] => [4536,3888,2592,3240,2462]
[work_price] => [3240,3240,2462,3110,1944]
[image] => https://akademik-stroy.ru/wp-content/uploads/materials/kamen-1.jpg
[area_modifier] => 124.59
[parent_name] => Наружная отделка фасада
[parent_id] => 19
[material_sum] => 779894
[work_sum] => 464222
[total_sum] => 1244116
[total_days] => 45
[display_material_sum] => 779 894
[display_work_sum] => 464 222
[display_total_sum] => 1 244 116
)
1
1 244 116₽
Работа:464 222 ₽
Материалы:779 894 ₽
Дни:45
stdClass Object
(
[id] => 142
[attribute_id] => 19
[name] => Термопанели
[material_modifier] => 1
[work_modifier] => 1
[options] => Array
(
)
[days] => [20]
[material_price] => [6221]
[work_price] => [2333]
[image] => https://akademik-stroy.ru/wp-content/uploads/materials/termo.png
[area_modifier] => 124.59
[parent_name] => Наружная отделка фасада
[parent_id] => 19
[material_sum] => 1069603
[work_sum] => 334269
[total_sum] => 1403872
[total_days] => 20
[display_material_sum] => 1 069 603
[display_work_sum] => 334 269
[display_total_sum] => 1 403 872
)
1
1 403 872₽
Работа:334 269 ₽
Материалы:1 069 603 ₽
Дни:20
stdClass Object
(
[id] => 143
[attribute_id] => 19
[name] => Плитка HAUBERK
[material_modifier] => 1
[work_modifier] => 1
[options] => Array
(
)
[days] => [20]
[material_price] => [2786]
[work_price] => [1944]
[image] => https://akademik-stroy.ru/wp-content/uploads/materials/hauberk.jpg
[area_modifier] => 124.59
[parent_name] => Наружная отделка фасада
[parent_id] => 19
[material_sum] => 479009
[work_sum] => 278533
[total_sum] => 757542
[total_days] => 20
[display_material_sum] => 479 009
[display_work_sum] => 278 533
[display_total_sum] => 757 542
)
1
757 542₽
Работа:278 533 ₽
Материалы:479 009 ₽
Дни:20
stdClass Object
(
[id] => 144
[attribute_id] => 19
[name] => Фальцевый фасад
[material_modifier] => 1
[work_modifier] => 1
[options] => Array
(
)
[days] => [20]
[material_price] => [3240]
[work_price] => [2592]
[image] => https://akademik-stroy.ru/wp-content/uploads/materials/falcevyj-fasad.jpg
[area_modifier] => 124.59
[parent_name] => Наружная отделка фасада
[parent_id] => 19
[material_sum] => 557067
[work_sum] => 371378
[total_sum] => 928445
[total_days] => 20
[display_material_sum] => 557 067
[display_work_sum] => 371 378
[display_total_sum] => 928 445
)
1
928 445₽
Работа:371 378 ₽
Материалы:557 067 ₽
Дни:20
stdClass Object
(
[id] => 145
[attribute_id] => 19
[name] => Комбинированный
[material_modifier] => 1
[work_modifier] => 1
[options] => Array
(
)
[days] => [20]
[material_price] => [4629]
[work_price] => [3499]
[image] => https://akademik-stroy.ru/wp-content/uploads/materials/Kombinirovannyj.jpg
[area_modifier] => 124.59
[parent_name] => Наружная отделка фасада
[parent_id] => 19
[material_sum] => 795883
[work_sum] => 501331
[total_sum] => 1297214
[total_days] => 20
[display_material_sum] => 795 883
[display_work_sum] => 501 331
[display_total_sum] => 1 297 214
)
1
1 297 214₽
Работа:501 331 ₽
Материалы:795 883 ₽
Дни:20
stdClass Object
(
[id] => 257
[attribute_id] => 19
[name] => Японские фиброцементные
[material_modifier] => 1
[work_modifier] => 1
[options] => Array
(
)
[days] => [20]
[material_price] => [7043]
[work_price] => [2993]
[image] => https://akademik-stroy.ru/wp-content/uploads/materials/paneli.jpg
[area_modifier] => 124.59
[parent_name] => Наружная отделка фасада
[parent_id] => 19
[material_sum] => 1210933
[work_sum] => 428833
[total_sum] => 1639766
[total_days] => 20
[display_material_sum] => 1 210 933
[display_work_sum] => 428 833
[display_total_sum] => 1 639 766
)
1
1 639 766₽
Работа:428 833 ₽
Материалы:1 210 933 ₽
Дни:20
stdClass Object
(
[id] => 258
[attribute_id] => 19
[name] => Панели Каньон
[material_modifier] => 1
[work_modifier] => 1
[options] => Array
(
)
[days] => [20]
[material_price] => [4543]
[work_price] => [2592]
[image] => https://akademik-stroy.ru/wp-content/uploads/materials/kanon.png
[area_modifier] => 124.59
[parent_name] => Наружная отделка фасада
[parent_id] => 19
[material_sum] => 781097
[work_sum] => 371378
[total_sum] => 1152475
[total_days] => 20
[display_material_sum] => 781 097
[display_work_sum] => 371 378
[display_total_sum] => 1 152 475
)
1
1 152 475₽
Работа:371 378 ₽
Материалы:781 097 ₽
Дни:20
stdClass Object
(
[id] => 39
[attribute_id] => 20
[name] => Нет
[material_modifier] => 1
[work_modifier] => 1
[options] => Array
(
)
[days] => [0]
[material_price] => [0]
[work_price] => [0]
[image] => https://akademik-stroy.ru/wp-content/uploads/materials/terrasy.jpg
[area_modifier] => 30
[parent_name] => Террасы, крыльца, навесы
[parent_id] => 20
[material_sum] => 0
[work_sum] => 0
[total_sum] => 0
[total_days] => 0
[display_material_sum] => 0
[display_work_sum] => 0
[display_total_sum] => 0
)
1
0₽
Работа:0 ₽
Материалы:0 ₽
Дни:0
stdClass Object
(
[id] => 40
[attribute_id] => 20
[name] => Есть
[material_modifier] => 1
[work_modifier] => 1
[options] => Array
(
)
[days] => [5]
[material_price] => [10450]
[work_price] => [1950]
[image] => https://akademik-stroy.ru/wp-content/uploads/materials/terrasy.jpg
[area_modifier] => 30
[parent_name] => Террасы, крыльца, навесы
[parent_id] => 20
[material_sum] => 432630
[work_sum] => 67275
[total_sum] => 499905
[total_days] => 5
[display_material_sum] => 432 630
[display_work_sum] => 67 275
[display_total_sum] => 499 905
)
1
499 905₽
Работа:67 275 ₽
Материалы:432 630 ₽
Дни:5
stdClass Object
(
[id] => 41
[attribute_id] => 21
[name] => Нет
[material_modifier] => 1
[work_modifier] => 1
[options] => Array
(
)
[days] => [0]
[material_price] => [0]
[work_price] => [0]
[image] => https://akademik-stroy.ru/wp-content/uploads/materials/balkony.jpg
[area_modifier] => 30
[parent_name] => Балконы
[parent_id] => 21
[material_sum] => 0
[work_sum] => 0
[total_sum] => 0
[total_days] => 0
[display_material_sum] => 0
[display_work_sum] => 0
[display_total_sum] => 0
)
1
0₽
Работа:0 ₽
Материалы:0 ₽
Дни:0
stdClass Object
(
[id] => 42
[attribute_id] => 21
[name] => Есть
[material_modifier] => 1
[work_modifier] => 1
[options] => Array
(
)
[days] => [12]
[material_price] => [3600]
[work_price] => [1950]
[image] => https://akademik-stroy.ru/wp-content/uploads/materials/balkony.jpg
[area_modifier] => 30
[parent_name] => Балконы
[parent_id] => 21
[material_sum] => 149040
[work_sum] => 67275
[total_sum] => 216315
[total_days] => 12
[display_material_sum] => 149 040
[display_work_sum] => 67 275
[display_total_sum] => 216 315
)
1
216 315₽
Работа:67 275 ₽
Материалы:149 040 ₽
Дни:12
stdClass Object
(
[id] => 43
[attribute_id] => 22
[name] => Нет
[material_modifier] => 1
[work_modifier] => 1
[options] => Array
(
)
[days] => [0]
[material_price] => [0]
[work_price] => [0]
[image] => https://akademik-stroy.ru/wp-content/uploads/materials/uteplennaya.jpg
[area_modifier] => 124.59
[parent_name] => Отмостка
[parent_id] => 22
[material_sum] => 0
[work_sum] => 0
[total_sum] => 0
[total_days] => 0
[display_material_sum] => 0
[display_work_sum] => 0
[display_total_sum] => 0
)
1
0₽
Работа:0 ₽
Материалы:0 ₽
Дни:0
stdClass Object
(
[id] => 44
[attribute_id] => 22
[name] => Утепленная отмостка
[material_modifier] => 1
[work_modifier] => 1
[options] => Array
(
)
[days] => [15]
[material_price] => [2550]
[work_price] => [1750]
[image] => https://akademik-stroy.ru/wp-content/uploads/materials/uteplennaya.jpg
[area_modifier] => 124.59
[parent_name] => Отмостка
[parent_id] => 22
[material_sum] => 438432
[work_sum] => 250737
[total_sum] => 689169
[total_days] => 15
[display_material_sum] => 438 432
[display_work_sum] => 250 737
[display_total_sum] => 689 169
)
1
689 169₽
Работа:250 737 ₽
Материалы:438 432 ₽
Дни:15
stdClass Object
(
[id] => 146
[attribute_id] => 22
[name] => Не утепленная отмостка
[material_modifier] => 1
[work_modifier] => 1
[options] => Array
(
)
[days] => [10]
[material_price] => [1650]
[work_price] => [1450]
[image] => https://akademik-stroy.ru/wp-content/uploads/materials/ne-uteplennaya.jpg
[area_modifier] => 124.59
[parent_name] => Отмостка
[parent_id] => 22
[material_sum] => 283691
[work_sum] => 207754
[total_sum] => 491445
[total_days] => 10
[display_material_sum] => 283 691
[display_work_sum] => 207 754
[display_total_sum] => 491 445
)
1
491 445₽
Работа:207 754 ₽
Материалы:283 691 ₽
Дни:10
stdClass Object
(
[id] => 45
[attribute_id] => 23
[name] => Нет
[material_modifier] => 1
[work_modifier] => 1
[options] => Array
(
)
[days] => [0]
[material_price] => [0]
[work_price] => [0]
[image] => https://akademik-stroy.ru/wp-content/uploads/materials/drenazh-2.jpg
[area_modifier] => 124.59
[parent_name] => Дренаж вокруг дома
[parent_id] => 23
[material_sum] => 0
[work_sum] => 0
[total_sum] => 0
[total_days] => 0
[display_material_sum] => 0
[display_work_sum] => 0
[display_total_sum] => 0
)
1
0₽
Работа:0 ₽
Материалы:0 ₽
Дни:0
stdClass Object
(
[id] => 46
[attribute_id] => 23
[name] => Есть
[material_modifier] => 1
[work_modifier] => 1
[options] => Array
(
)
[days] => [5]
[material_price] => [2366]
[work_price] => [1911]
[image] => https://akademik-stroy.ru/wp-content/uploads/materials/drenazh-2.jpg
[area_modifier] => 124.59
[parent_name] => Дренаж вокруг дома
[parent_id] => 23
[material_sum] => 406796
[work_sum] => 273805
[total_sum] => 680601
[total_days] => 5
[display_material_sum] => 406 796
[display_work_sum] => 273 805
[display_total_sum] => 680 601
)
1
680 601₽
Работа:273 805 ₽
Материалы:406 796 ₽
Дни:5
stdClass Object
(
[id] => 47
[attribute_id] => 24
[name] => Нет
[material_modifier] => 1
[work_modifier] => 1
[options] => Array
(
)
[days] => [0]
[material_price] => [0]
[work_price] => [0]
[image] => https://akademik-stroy.ru/wp-content/uploads/materials/septik.jpg
[area_modifier] => 1
[parent_name] => Автономная канализация (септики)
[parent_id] => 24
[material_sum] => 0
[work_sum] => 0
[total_sum] => 0
[total_days] => 0
[display_material_sum] => 0
[display_work_sum] => 0
[display_total_sum] => 0
)
1
0₽
Работа:0 ₽
Материалы:0 ₽
Дни:0
stdClass Object
(
[id] => 48
[attribute_id] => 24
[name] => Есть
[material_modifier] => 1
[work_modifier] => 1
[options] => Array
(
[0] => Для дачи на 4 человека
[1] => Для дома на 5 человек
[2] => Для дома на 6 человек
[3] => Для дома на 7 человек
[4] => Для дома на 10 человек
)
[days] => [7,7,7,8,8]
[material_price] => [196340,220500,240940,264200,293340]
[work_price] => [50000,55000,60500,66550,73206]
[image] => https://akademik-stroy.ru/wp-content/uploads/materials/septik.jpg
[area_modifier] => 1
[parent_name] => Автономная канализация (септики)
[parent_id] => 24
[material_sum] => 270949
[work_sum] => 57500
[total_sum] => 328449
[total_days] => 7
[display_material_sum] => 270 949
[display_work_sum] => 57 500
[display_total_sum] => 328 449
)
1
328 449₽
Работа:57 500 ₽
Материалы:270 949 ₽
Дни:7
stdClass Object
(
[id] => 49
[attribute_id] => 25
[name] => Нет
[material_modifier] => 1
[work_modifier] => 1
[options] => Array
(
)
[days] => [0]
[material_price] => [0]
[work_price] => [0]
[image] => https://akademik-stroy.ru/wp-content/uploads/materials/gkl.jpg
[area_modifier] => 124.59
[parent_name] => Внутренние (не несущие) перегородки
[parent_id] => 25
[material_sum] => 0
[work_sum] => 0
[total_sum] => 0
[total_days] => 0
[display_material_sum] => 0
[display_work_sum] => 0
[display_total_sum] => 0
)
1
0₽
Работа:0 ₽
Материалы:0 ₽
Дни:0
stdClass Object
(
[id] => 147
[attribute_id] => 25
[name] => Каркасно-обшивные
[material_modifier] => 1
[work_modifier] => 1
[options] => Array
(
[0] => 75 мм (без шумоизоляции)
[1] => 75 мм (с шумоизоляцией)
)
[days] => [11,11]
[material_price] => [580,970]
[work_price] => [380,570]
[image] => https://akademik-stroy.ru/wp-content/uploads/materials/gkl.jpg
[area_modifier] => 124.59
[parent_name] => Внутренние (не несущие) перегородки
[parent_id] => 25
[material_sum] => 99722
[work_sum] => 54446
[total_sum] => 154168
[total_days] => 11
[display_material_sum] => 99 722
[display_work_sum] => 54 446
[display_total_sum] => 154 168
)
1
154 168₽
Работа:54 446 ₽
Материалы:99 722 ₽
Дни:11
stdClass Object
(
[id] => 148
[attribute_id] => 25
[name] => Пазогребневые
[material_modifier] => 1
[work_modifier] => 1
[options] => Array
(
[0] => 80 мм
[1] => 100 мм
)
[days] => [5,5]
[material_price] => [1022,1313]
[work_price] => [600,700]
[image] => https://akademik-stroy.ru/wp-content/uploads/materials/pazogrebnevye-bloki.jpg
[area_modifier] => 124.59
[parent_name] => Внутренние (не несущие) перегородки
[parent_id] => 25
[material_sum] => 175717
[work_sum] => 85967
[total_sum] => 261684
[total_days] => 5
[display_material_sum] => 175 717
[display_work_sum] => 85 967
[display_total_sum] => 261 684
)
1
261 684₽
Работа:85 967 ₽
Материалы:175 717 ₽
Дни:5
stdClass Object
(
[id] => 149
[attribute_id] => 25
[name] => Газобетонные
[material_modifier] => 1
[work_modifier] => 1
[options] => Array
(
[0] => 100 мм
[1] => 200 мм
)
[days] => [11,11]
[material_price] => [1160,1920]
[work_price] => [700,900]
[image] => https://akademik-stroy.ru/wp-content/uploads/materials/gazobeton-2.jpg
[area_modifier] => 124.59
[parent_name] => Внутренние (не несущие) перегородки
[parent_id] => 25
[material_sum] => 199444
[work_sum] => 100295
[total_sum] => 299739
[total_days] => 11
[display_material_sum] => 199 444
[display_work_sum] => 100 295
[display_total_sum] => 299 739
)
1
299 739₽
Работа:100 295 ₽
Материалы:199 444 ₽
Дни:11
stdClass Object
(
[id] => 150
[attribute_id] => 25
[name] => Кирпичные
[material_modifier] => 1
[work_modifier] => 1
[options] => Array
(
[0] => 120 мм
[1] => 250 мм
[2] => 360 мм
)
[days] => [7,7,7]
[material_price] => [1785,3570,5355]
[work_price] => [900,1600,1800]
[image] => https://akademik-stroy.ru/wp-content/uploads/materials/kirpich-1.jpg
[area_modifier] => 124.59
[parent_name] => Внутренние (не несущие) перегородки
[parent_id] => 25
[material_sum] => 306903
[work_sum] => 128951
[total_sum] => 435854
[total_days] => 7
[display_material_sum] => 306 903
[display_work_sum] => 128 951
[display_total_sum] => 435 854
)
1
435 854₽
Работа:128 951 ₽
Материалы:306 903 ₽
Дни:7
stdClass Object
(
[id] => 55
[attribute_id] => 28
[name] => Нет
[material_modifier] => 1
[work_modifier] => 1
[options] => Array
(
)
[days] => [0]
[material_price] => [0]
[work_price] => [0]
[image] => https://akademik-stroy.ru/wp-content/uploads/materials/ehlektrika.jpg
[area_modifier] => 101.1
[parent_name] => Электрика
[parent_id] => 28
[material_sum] => 0
[work_sum] => 0
[total_sum] => 0
[total_days] => 0
[display_material_sum] => 0
[display_work_sum] => 0
[display_total_sum] => 0
)
1
0₽
Работа:0 ₽
Материалы:0 ₽
Дни:0
stdClass Object
(
[id] => 56
[attribute_id] => 28
[name] => Есть
[material_modifier] => 1
[work_modifier] => 1
[options] => Array
(
)
[days] => [10]
[material_price] => [650]
[work_price] => [950]
[image] => https://akademik-stroy.ru/wp-content/uploads/materials/ehlektrika.jpg
[area_modifier] => 101.1
[parent_name] => Электрика
[parent_id] => 28
[material_sum] => 90687
[work_sum] => 110452
[total_sum] => 201139
[total_days] => 10
[display_material_sum] => 90 687
[display_work_sum] => 110 452
[display_total_sum] => 201 139
)
1
201 139₽
Работа:110 452 ₽
Материалы:90 687 ₽
Дни:10
stdClass Object
(
[id] => 57
[attribute_id] => 29
[name] => Нет
[material_modifier] => 1
[work_modifier] => 1
[options] => Array
(
)
[days] => [0]
[material_price] => [0]
[work_price] => [0]
[image] => https://akademik-stroy.ru/wp-content/uploads/materials/santekhnika-kanalizaciya-1.jpg
[area_modifier] => 101.1
[parent_name] => Сантехника, канализация в доме
[parent_id] => 29
[material_sum] => 0
[work_sum] => 0
[total_sum] => 0
[total_days] => 0
[display_material_sum] => 0
[display_work_sum] => 0
[display_total_sum] => 0
)
1
0₽
Работа:0 ₽
Материалы:0 ₽
Дни:0
stdClass Object
(
[id] => 58
[attribute_id] => 29
[name] => Есть
[material_modifier] => 1
[work_modifier] => 1
[options] => Array
(
)
[days] => [10]
[material_price] => [600]
[work_price] => [730]
[image] => https://akademik-stroy.ru/wp-content/uploads/materials/santekhnika-kanalizaciya-1.jpg
[area_modifier] => 101.1
[parent_name] => Сантехника, канализация в доме
[parent_id] => 29
[material_sum] => 83711
[work_sum] => 84873
[total_sum] => 168584
[total_days] => 10
[display_material_sum] => 83 711
[display_work_sum] => 84 873
[display_total_sum] => 168 584
)
1
168 584₽
Работа:84 873 ₽
Материалы:83 711 ₽
Дни:10
stdClass Object
(
[id] => 59
[attribute_id] => 30
[name] => Нет
[material_modifier] => 1
[work_modifier] => 1
[options] => Array
(
)
[days] => [0]
[material_price] => [0]
[work_price] => [0]
[image] => https://akademik-stroy.ru/wp-content/uploads/materials/otoplenie-1.jpg
[area_modifier] => 101.1
[parent_name] => Отопление
[parent_id] => 30
[material_sum] => 0
[work_sum] => 0
[total_sum] => 0
[total_days] => 0
[display_material_sum] => 0
[display_work_sum] => 0
[display_total_sum] => 0
)
1
0₽
Работа:0 ₽
Материалы:0 ₽
Дни:0
stdClass Object
(
[id] => 60
[attribute_id] => 30
[name] => Есть
[material_modifier] => 1
[work_modifier] => 1
[options] => Array
(
)
[days] => [5]
[material_price] => [610]
[work_price] => [560]
[image] => https://akademik-stroy.ru/wp-content/uploads/materials/otoplenie-1.jpg
[area_modifier] => 101.1
[parent_name] => Отопление
[parent_id] => 30
[material_sum] => 85106
[work_sum] => 65108
[total_sum] => 150214
[total_days] => 5
[display_material_sum] => 85 106
[display_work_sum] => 65 108
[display_total_sum] => 150 214
)
1
150 214₽
Работа:65 108 ₽
Материалы:85 106 ₽
Дни:5
stdClass Object
(
[id] => 61
[attribute_id] => 31
[name] => Нет
[material_modifier] => 1
[work_modifier] => 1
[options] => Array
(
)
[days] => [0]
[material_price] => [0]
[work_price] => [0]
[image] => https://akademik-stroy.ru/wp-content/uploads/materials/vodyanye.jpg
[area_modifier] => 30
[parent_name] => Теплые полы
[parent_id] => 31
[material_sum] => 0
[work_sum] => 0
[total_sum] => 0
[total_days] => 0
[display_material_sum] => 0
[display_work_sum] => 0
[display_total_sum] => 0
)
1
0₽
Работа:0 ₽
Материалы:0 ₽
Дни:0
stdClass Object
(
[id] => 151
[attribute_id] => 31
[name] => Водяные
[material_modifier] => 1
[work_modifier] => 1
[options] => Array
(
)
[days] => [9]
[material_price] => [10200]
[work_price] => [2500]
[image] => https://akademik-stroy.ru/wp-content/uploads/materials/vodyanye.jpg
[area_modifier] => 30
[parent_name] => Теплые полы
[parent_id] => 31
[material_sum] => 422280
[work_sum] => 86250
[total_sum] => 508530
[total_days] => 9
[display_material_sum] => 422 280
[display_work_sum] => 86 250
[display_total_sum] => 508 530
)
1
508 530₽
Работа:86 250 ₽
Материалы:422 280 ₽
Дни:9
stdClass Object
(
[id] => 152
[attribute_id] => 31
[name] => Электро
[material_modifier] => 1
[work_modifier] => 1
[options] => Array
(
)
[days] => [5]
[material_price] => [6300]
[work_price] => [1500]
[image] => https://akademik-stroy.ru/wp-content/uploads/materials/ehlektricheskij.jpg
[area_modifier] => 30
[parent_name] => Теплые полы
[parent_id] => 31
[material_sum] => 260820
[work_sum] => 51750
[total_sum] => 312570
[total_days] => 5
[display_material_sum] => 260 820
[display_work_sum] => 51 750
[display_total_sum] => 312 570
)
1
312 570₽
Работа:51 750 ₽
Материалы:260 820 ₽
Дни:5
stdClass Object
(
[id] => 63
[attribute_id] => 32
[name] => Нет
[material_modifier] => 1
[work_modifier] => 1
[options] => Array
(
)
[days] => [0]
[material_price] => [0]
[work_price] => [0]
[image] => https://akademik-stroy.ru/wp-content/uploads/materials/shtukaturka-shpatlevka-1.jpg
[area_modifier] => 101.1
[parent_name] => Черновая отделка стен
[parent_id] => 32
[material_sum] => 0
[work_sum] => 0
[total_sum] => 0
[total_days] => 0
[display_material_sum] => 0
[display_work_sum] => 0
[display_total_sum] => 0
)
1
0₽
Работа:0 ₽
Материалы:0 ₽
Дни:0
stdClass Object
(
[id] => 153
[attribute_id] => 32
[name] => Штукатурка и шпатлевка
[material_modifier] => 1
[work_modifier] => 1
[options] => Array
(
)
[days] => [20]
[material_price] => [1850]
[work_price] => [2600]
[image] => https://akademik-stroy.ru/wp-content/uploads/materials/shtukaturka-shpatlevka-1.jpg
[area_modifier] => 101.1
[parent_name] => Черновая отделка стен
[parent_id] => 32
[material_sum] => 258108
[work_sum] => 302289
[total_sum] => 560397
[total_days] => 20
[display_material_sum] => 258 108
[display_work_sum] => 302 289
[display_total_sum] => 560 397
)
1
560 397₽
Работа:302 289 ₽
Материалы:258 108 ₽
Дни:20
stdClass Object
(
[id] => 154
[attribute_id] => 32
[name] => Гипсокортон на стены
[material_modifier] => 1
[work_modifier] => 1
[options] => Array
(
)
[days] => [15]
[material_price] => [950]
[work_price] => [2100]
[image] => https://akademik-stroy.ru/wp-content/uploads/materials/gkl-1.jpg
[area_modifier] => 101.1
[parent_name] => Черновая отделка стен
[parent_id] => 32
[material_sum] => 132542
[work_sum] => 244157
[total_sum] => 376699
[total_days] => 15
[display_material_sum] => 132 542
[display_work_sum] => 244 157
[display_total_sum] => 376 699
)
1
376 699₽
Работа:244 157 ₽
Материалы:132 542 ₽
Дни:15
stdClass Object
(
[id] => 155
[attribute_id] => 32
[name] => Вагонка
[material_modifier] => 1
[work_modifier] => 1
[options] => Array
(
)
[days] => [15]
[material_price] => [1250]
[work_price] => [950]
[image] => https://akademik-stroy.ru/wp-content/uploads/materials/vagonka.jpg
[area_modifier] => 101.1
[parent_name] => Черновая отделка стен
[parent_id] => 32
[material_sum] => 174398
[work_sum] => 110452
[total_sum] => 284850
[total_days] => 15
[display_material_sum] => 174 398
[display_work_sum] => 110 452
[display_total_sum] => 284 850
)
1
284 850₽
Работа:110 452 ₽
Материалы:174 398 ₽
Дни:15
stdClass Object
(
[id] => 65
[attribute_id] => 33
[name] => Нет
[material_modifier] => 1
[work_modifier] => 1
[options] => Array
(
)
[days] => [0]
[material_price] => [0]
[work_price] => [0]
[image] => https://akademik-stroy.ru/wp-content/uploads/materials/styazhka.jpg
[area_modifier] => 101.1
[parent_name] => Черновая отделка полов
[parent_id] => 33
[material_sum] => 0
[work_sum] => 0
[total_sum] => 0
[total_days] => 0
[display_material_sum] => 0
[display_work_sum] => 0
[display_total_sum] => 0
)
1
0₽
Работа:0 ₽
Материалы:0 ₽
Дни:0
stdClass Object
(
[id] => 156
[attribute_id] => 33
[name] => Стяжка + наливные полы
[material_modifier] => 1
[work_modifier] => 1
[options] => Array
(
)
[days] => [10]
[material_price] => [1000]
[work_price] => [900]
[image] => https://akademik-stroy.ru/wp-content/uploads/materials/styazhka.jpg
[area_modifier] => 101.1
[parent_name] => Черновая отделка полов
[parent_id] => 33
[material_sum] => 139518
[work_sum] => 104639
[total_sum] => 244157
[total_days] => 10
[display_material_sum] => 139 518
[display_work_sum] => 104 639
[display_total_sum] => 244 157
)
1
244 157₽
Работа:104 639 ₽
Материалы:139 518 ₽
Дни:10
stdClass Object
(
[id] => 157
[attribute_id] => 33
[name] => ОСБ на пол
[material_modifier] => 1
[work_modifier] => 1
[options] => Array
(
)
[days] => [7]
[material_price] => [580]
[work_price] => [350]
[image] => https://akademik-stroy.ru/wp-content/uploads/materials/osb-1.jpg
[area_modifier] => 101.1
[parent_name] => Черновая отделка полов
[parent_id] => 33
[material_sum] => 80920
[work_sum] => 40693
[total_sum] => 121613
[total_days] => 7
[display_material_sum] => 80 920
[display_work_sum] => 40 693
[display_total_sum] => 121 613
)
1
121 613₽
Работа:40 693 ₽
Материалы:80 920 ₽
Дни:7
stdClass Object
(
[id] => 67
[attribute_id] => 34
[name] => Нет
[material_modifier] => 1
[work_modifier] => 1
[options] => Array
(
)
[days] => [0]
[material_price] => [0]
[work_price] => [0]
[image] => https://akademik-stroy.ru/wp-content/uploads/materials/chistovaya-otdelka.jpg
[area_modifier] => 101.1
[parent_name] => Чистовая отделка стен и полов
[parent_id] => 34
[material_sum] => 0
[work_sum] => 0
[total_sum] => 0
[total_days] => 0
[display_material_sum] => 0
[display_work_sum] => 0
[display_total_sum] => 0
)
1
0₽
Работа:0 ₽
Материалы:0 ₽
Дни:0
stdClass Object
(
[id] => 68
[attribute_id] => 34
[name] => Есть
[material_modifier] => 1
[work_modifier] => 1
[options] => Array
(
)
[days] => [50]
[material_price] => [6000]
[work_price] => [3500]
[image] => https://akademik-stroy.ru/wp-content/uploads/materials/chistovaya-otdelka.jpg
[area_modifier] => 101.1
[parent_name] => Чистовая отделка стен и полов
[parent_id] => 34
[material_sum] => 837108
[work_sum] => 406928
[total_sum] => 1244036
[total_days] => 50
[display_material_sum] => 837 108
[display_work_sum] => 406 928
[display_total_sum] => 1 244 036
)
1
1 244 036₽
Работа:406 928 ₽
Материалы:837 108 ₽
Дни:50
stdClass Object
(
[id] => 69
[attribute_id] => 35
[name] => Нет
[material_modifier] => 1
[work_modifier] => 1
[options] => Array
(
)
[days] => [0]
[material_price] => [0]
[work_price] => [0]
[image] => https://akademik-stroy.ru/wp-content/uploads/materials/mnogourovnevyj-gkl.jpg
[area_modifier] => 101.1
[parent_name] => Отделка потолка
[parent_id] => 35
[material_sum] => 0
[work_sum] => 0
[total_sum] => 0
[total_days] => 0
[display_material_sum] => 0
[display_work_sum] => 0
[display_total_sum] => 0
)
1
0₽
Работа:0 ₽
Материалы:0 ₽
Дни:0
stdClass Object
(
[id] => 70
[attribute_id] => 35
[name] => Есть
[material_modifier] => 1
[work_modifier] => 1
[options] => Array
(
[0] => Многоуровневый потолок из гипсокартона
[1] => Многоуровневый потолок из гипсокартона и натяжного потолка
[2] => Одноуровневый потолок из гипсокартона
[3] => Одноуровневый натяжной потолок
)
[days] => [10,10,1,1]
[material_price] => [900,700,700,600]
[work_price] => [1000,800,500,300]
[image] => https://akademik-stroy.ru/wp-content/uploads/materials/mnogourovnevyj-gkl.jpg
[area_modifier] => 101.1
[parent_name] => Отделка потолка
[parent_id] => 35
[material_sum] => 125566
[work_sum] => 116265
[total_sum] => 241831
[total_days] => 10
[display_material_sum] => 125 566
[display_work_sum] => 116 265
[display_total_sum] => 241 831
)
1
241 831₽
Работа:116 265 ₽
Материалы:125 566 ₽
Дни:10
Преимущества работы с нами
7 этапов оплаты
Независимый строительный надзор
Экологически чистые материалы
16 лет гарантии
Онлайн-кабинет с веб-камерой
Строители с опытом более 15 лет
Собственное производство





