Одноэтажный дом 211.74 м2 за руб.
Планировки
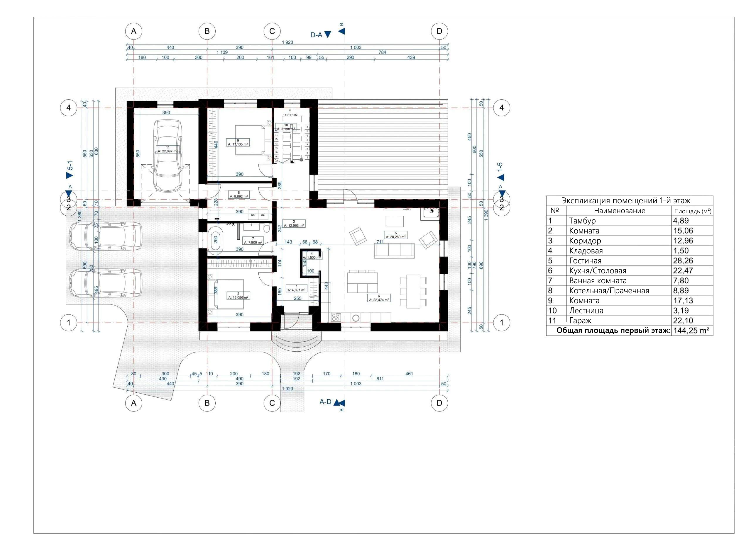
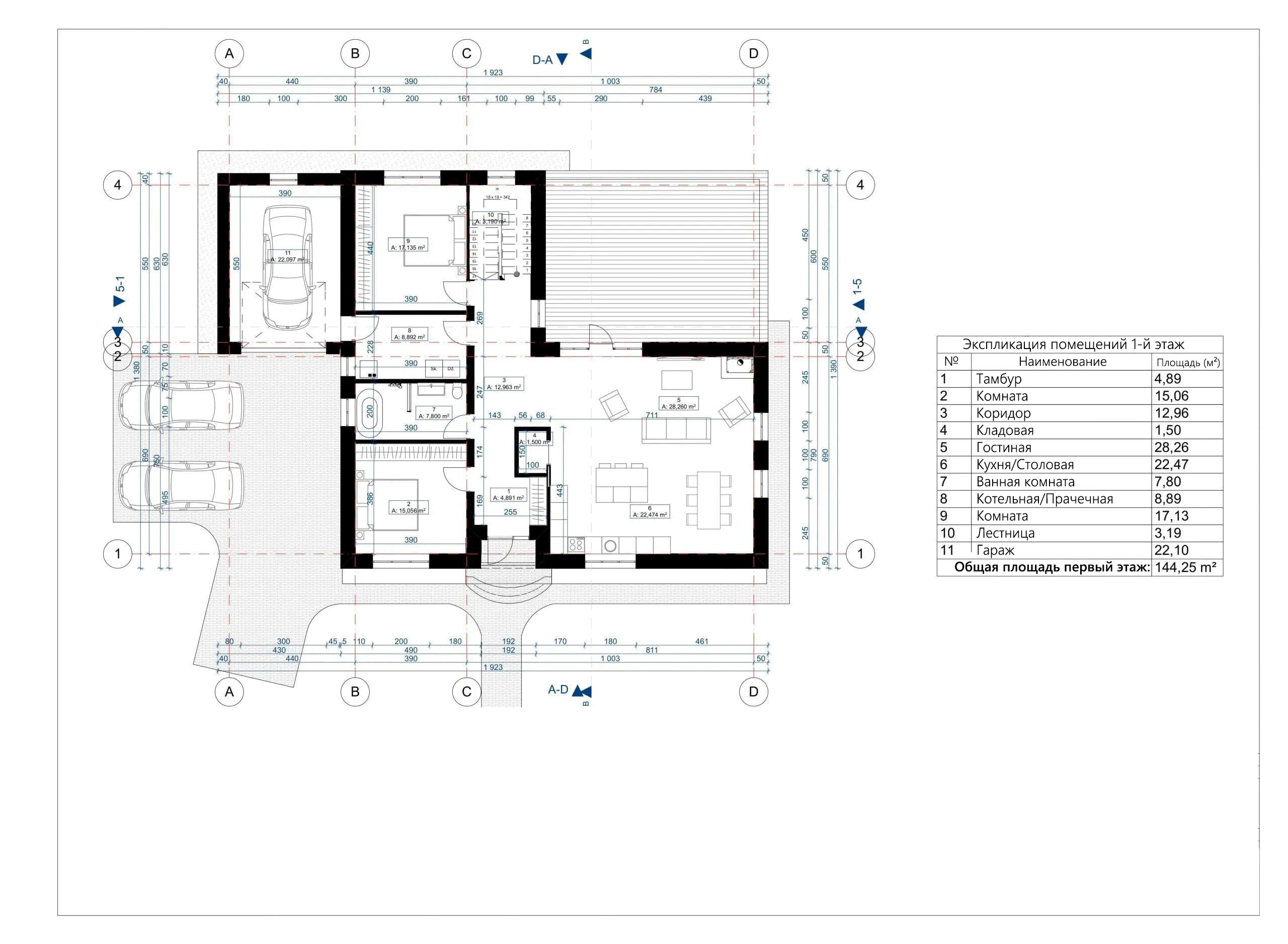
План первого этажа
- 1. Тамбур 4,89 м²
- 2. Комната 15,06 м²
- 3. Коридор 12,96 м²
- 4. Кладовая 1,50 м²
- 5. Гостиная 28,26 м²
- 6. Кухня-Столовая 22,47 м²
- 7. Ванная комната 7,80 м²
- 8. Котельная-прачечная 8,89 м²
- 9. Комната 17,13 м²
- 10. Лестница 3,19 м²
- 11. Гараж 22,10 м²
- Общая площадь первый этаж 144,25 м²
План второго этажа
- 1. Коридор 21,46 м²
- 2. Комната 15,87 м²
- 3. Ванная комната 6,73 м²
- 4. Комната 12,00 м²
- 5. Комната 11,43 м²
- Общая площадь второй этаж 67,49 м²
Площади дома
| № п/п | Наименование | Ед. из. | Строительная площадь | Полезная площадь |
| 1 | 1 этаж | м2 | 177.76 | 144.25 |
| 2 | 2 этаж | м2 | 83.17 | 67.49 |
| 3 | Итого | м2 | 260.93 | 211.74 |
154 м2
Полезная
площадь
площадь
1 этаж
Этажей
26 м2
Террасы
и балконы
и балконы
1Без
гаража
гаража
5+
Количество
спален
спален
4
Количество
санузлов
санузлов
Калькулятор опций
0₽
В ипотеку от 25 254 ₽/мес.
0₽
0 дней
stdClass Object
(
[id] => 1
[attribute_id] => 1
[name] => Ленточный монолитный ж/б
[material_modifier] => 1
[work_modifier] => 1
[options] => Array
(
[0] => размер 200 х 700 мм
[1] => размер 300 х 900 мм
[2] => размер 400 х 1 000 мм
[3] => размер 500 х 1 100 мм
[4] => размер 600 х 1 200 мм
)
[days] => [20,21,22,25,30]
[material_price] => [2823,3630,4475,5210,12047]
[work_price] => [2154,2826,3731,4577,5293]
[image] => https://akademik-stroy.ru/wp-content/uploads/materials/lentochnyj-monolitnyj-zh-b.jpg
[area_modifier] => 177.76
[parent_name] => Фундамент
[parent_id] => 1
[material_sum] => 632289
[work_sum] => 402040
[total_sum] => 1034329
[total_days] => 20
[display_material_sum] => 632 289
[display_work_sum] => 402 040
[display_total_sum] => 1 034 329
)
1
1 034 329₽
Работа:402 040 ₽
Материалы:632 289 ₽
Дни:20
stdClass Object
(
[id] => 2
[attribute_id] => 1
[name] => Забивные Ж/Б сваи
[material_modifier] => 1
[work_modifier] => 1
[options] => Array
(
[0] => 150х150х3000мм
[1] => 150х150х4000мм
[2] => 200х200х3000мм
[3] => 200х200х4000мм
[4] => 200х200х5000мм
[5] => 200х200х6000мм
)
[days] => [2,2,2,2,2,2]
[material_price] => [1990,2850,3255,4360,5120,6837]
[work_price] => [1002,1185,1336,1438,1574,1839]
[image] => https://akademik-stroy.ru/wp-content/uploads/materials/zabivnye-zh-b-svai.png
[area_modifier] => 177.76
[parent_name] => Фундамент
[parent_id] => 1
[material_sum] => 445715
[work_sum] => 187021
[total_sum] => 632736
[total_days] => 2
[display_material_sum] => 445 715
[display_work_sum] => 187 021
[display_total_sum] => 632 736
)
1
632 736₽
Работа:187 021 ₽
Материалы:445 715 ₽
Дни:2
stdClass Object
(
[id] => 71
[attribute_id] => 1
[name] => Свайно-ростверковый ж/б
[material_modifier] => 1
[work_modifier] => 1
[options] => Array
(
[0] => ростверк 200х300 мм
[1] => ростверк 300х600 мм
[2] => ростверк 400х900 мм
[3] => ростверк 500х1200 мм
)
[days] => [20,23,25,27]
[material_price] => [3018,3474,7109,9792]
[work_price] => [2024,3012,5635,7022]
[image] => https://akademik-stroy.ru/wp-content/uploads/materials/svajno-rostverkovyj-monolitnyj-zh-b-3.png
[area_modifier] => 177.76
[parent_name] => Фундамент
[parent_id] => 1
[material_sum] => 675964
[work_sum] => 377776
[total_sum] => 1053740
[total_days] => 20
[display_material_sum] => 675 964
[display_work_sum] => 377 776
[display_total_sum] => 1 053 740
)
1
1 053 740₽
Работа:377 776 ₽
Материалы:675 964 ₽
Дни:20
stdClass Object
(
[id] => 72
[attribute_id] => 1
[name] => Монолитная ж/б плита
[material_modifier] => 1
[work_modifier] => 1
[options] => Array
(
[0] => 200 мм
[1] => 300 мм
[2] => 400 мм
[3] => 500 мм
[4] => 600 мм
)
[days] => [30,33,35,37,40]
[material_price] => [5348,8555,12788,14388,15189]
[work_price] => [4314,4881,7037,8061,10230]
[image] => https://akademik-stroy.ru/wp-content/uploads/materials/monolitnaya-zhb-plita.png
[area_modifier] => 177.76
[parent_name] => Фундамент
[parent_id] => 1
[material_sum] => 1197832
[work_sum] => 805199
[total_sum] => 2003031
[total_days] => 30
[display_material_sum] => 1 197 832
[display_work_sum] => 805 199
[display_total_sum] => 2 003 031
)
1
2 003 031₽
Работа:805 199 ₽
Материалы:1 197 832 ₽
Дни:30
stdClass Object
(
[id] => 73
[attribute_id] => 1
[name] => Утепленная шведская плита
[material_modifier] => 1
[work_modifier] => 1
[options] => Array
(
[0] => 200 мм
[1] => 300 мм
[2] => 400 мм
[3] => 500 мм
[4] => 600 мм
)
[days] => [32,37,39,42,45]
[material_price] => [10249,12692,13760,14936,16230]
[work_price] => [5960,7337,8072,8878,9765]
[image] => https://akademik-stroy.ru/wp-content/uploads/materials/uteplennaya-shvedskaya-plita.jpg
[area_modifier] => 177.76
[parent_name] => Фундамент
[parent_id] => 1
[material_sum] => 2295546
[work_sum] => 1112422
[total_sum] => 3407968
[total_days] => 32
[display_material_sum] => 2 295 546
[display_work_sum] => 1 112 422
[display_total_sum] => 3 407 968
)
1
3 407 968₽
Работа:1 112 422 ₽
Материалы:2 295 546 ₽
Дни:32
stdClass Object
(
[id] => 75
[attribute_id] => 1
[name] => Ленточный из ФБС
[material_modifier] => 1
[work_modifier] => 1
[options] => Array
(
[0] => толщ. 300 мм
[1] => толщ. 400 мм
[2] => толщ. 500 мм
[3] => толщ. 600 мм
)
[days] => [20,20,20,20]
[material_price] => [3675,4902,6126,7350]
[work_price] => [2451,3264,4083,4902]
[image] => https://akademik-stroy.ru/wp-content/uploads/materials/lentochnyj-iz-fbs.png
[area_modifier] => 177.76
[parent_name] => Фундамент
[parent_id] => 1
[material_sum] => 823118
[work_sum] => 457474
[total_sum] => 1280592
[total_days] => 20
[display_material_sum] => 823 118
[display_work_sum] => 457 474
[display_total_sum] => 1 280 592
)
1
1 280 592₽
Работа:457 474 ₽
Материалы:823 118 ₽
Дни:20
stdClass Object
(
[id] => 76
[attribute_id] => 1
[name] => Цокольный этаж из ФБС
[material_modifier] => 1
[work_modifier] => 1
[options] => Array
(
[0] => толщ. 300 мм
[1] => толщ. 400 мм
[2] => толщ. 500 мм
[3] => толщ. 600 мм
)
[days] => [30,32,34,36]
[material_price] => [20916,23299,26680,29060]
[work_price] => [17524,18700,19873,21046]
[image] => https://akademik-stroy.ru/wp-content/uploads/materials/cokolnyj-ehtazh-iz-fbs.jpg
[area_modifier] => 177.76
[parent_name] => Фундамент
[parent_id] => 1
[material_sum] => 4684715
[work_sum] => 3270820
[total_sum] => 7955535
[total_days] => 30
[display_material_sum] => 4 684 715
[display_work_sum] => 3 270 820
[display_total_sum] => 7 955 535
)
1
7 955 535₽
Работа:3 270 820 ₽
Материалы:4 684 715 ₽
Дни:30
stdClass Object
(
[id] => 77
[attribute_id] => 1
[name] => Цокольный этаж монолитный ж/б
[material_modifier] => 1
[work_modifier] => 1
[options] => Array
(
[0] => толщ. 200 мм
[1] => толщ. 300 мм
[2] => толщ. 400 мм
[3] => толщ. 500 мм
[4] => толщ. 600 мм
)
[days] => [40,42,44,46,48]
[material_price] => [25421,29148,32275,35602,37326]
[work_price] => [20441,21907,23375,24841,26306]
[image] => https://akademik-stroy.ru/wp-content/uploads/materials/cokolnyj-etazh-zh-b.jpg
[area_modifier] => 177.76
[parent_name] => Фундамент
[parent_id] => 1
[material_sum] => 5693735
[work_sum] => 3815272
[total_sum] => 9509007
[total_days] => 40
[display_material_sum] => 5 693 735
[display_work_sum] => 3 815 272
[display_total_sum] => 9 509 007
)
1
9 509 007₽
Работа:3 815 272 ₽
Материалы:5 693 735 ₽
Дни:40
stdClass Object
(
[id] => 191
[attribute_id] => 1
[name] => Винтовые сваи
[material_modifier] => 1
[work_modifier] => 1
[options] => Array
(
[0] => 57х200мм
[1] => 76х250мм
[2] => 108х300мм
[3] => 133х350мм
)
[days] => [1,1,2,2]
[material_price] => [1200,1300,1450,1600]
[work_price] => [400,600,900,1100]
[image] => https://akademik-stroy.ru/wp-content/uploads/materials/vintovye-svai.png
[area_modifier] => 177.76
[parent_name] => Фундамент
[parent_id] => 1
[material_sum] => 268773
[work_sum] => 74659
[total_sum] => 343432
[total_days] => 1
[display_material_sum] => 268 773
[display_work_sum] => 74 659
[display_total_sum] => 343 432
)
1
343 432₽
Работа:74 659 ₽
Материалы:268 773 ₽
Дни:1
stdClass Object
(
[id] => 3
[attribute_id] => 2
[name] => Деревянные балки
[material_modifier] => 1
[work_modifier] => 1
[options] => Array
(
[0] => без утепления
[1] => утепление 200 мм
[2] => утепление 250 мм
[3] => утепление 300 мм
[4] => утепление 350 мм
[5] => утепление 400 мм
[6] => утепление 450 мм
[7] => утепление 500 мм
)
[days] => [8,9,9,9,11,12,13,14]
[material_price] => [1634,2042,2344,2947,3149,3652,3354,3557]
[work_price] => [1230,1339,1393,1426,1460,1513,1587,1620]
[image] => https://akademik-stroy.ru/wp-content/uploads/materials/derevyannye-balki.png
[area_modifier] => 177.76
[parent_name] => Перекрытие цоколя
[parent_id] => 2
[material_sum] => 365979
[work_sum] => 229577
[total_sum] => 595556
[total_days] => 8
[display_material_sum] => 365 979
[display_work_sum] => 229 577
[display_total_sum] => 595 556
)
1
595 556₽
Работа:229 577 ₽
Материалы:365 979 ₽
Дни:8
stdClass Object
(
[id] => 4
[attribute_id] => 2
[name] => Сборные ж/б плиты
[material_modifier] => 1
[work_modifier] => 1
[options] => Array
(
[0] => без утепления
[1] => утепление 150мм
[2] => утепление 200мм
[3] => утепление 250мм
[4] => утепление 300мм
[5] => утепление 350мм
[6] => утепление 400мм
[7] => утепление 450мм
[8] => утепление 500мм
)
[days] => [13,15,15,15,15,15,15,15,15]
[material_price] => [3067,5577,5928,6679,7730,8782,9833,10884,11935]
[work_price] => [1520,1956,2102,2247,2392,2537,2684,2829,2974]
[image] => https://akademik-stroy.ru/wp-content/uploads/materials/sbornye-zh-b-plity-2.jpg
[area_modifier] => 177.76
[parent_name] => Перекрытие цоколя
[parent_id] => 2
[material_sum] => 686939
[work_sum] => 283705
[total_sum] => 970644
[total_days] => 13
[display_material_sum] => 686 939
[display_work_sum] => 283 705
[display_total_sum] => 970 644
)
1
970 644₽
Работа:283 705 ₽
Материалы:686 939 ₽
Дни:13
stdClass Object
(
[id] => 78
[attribute_id] => 2
[name] => Монолитная ж/б плита
[material_modifier] => 1
[work_modifier] => 1
[options] => Array
(
[0] => без утепления
[1] => утепление 150 мм
[2] => утепление 200 мм
[3] => утепление 250 мм
[4] => утепление 300 мм
[5] => утепление 350 мм
[6] => утепление 400 мм
[7] => утепление 450 мм
[8] => утепление 500 мм
)
[days] => [18,20,20,20,20,20,20,20,20]
[material_price] => [4837,6572,7224,7375,79426,8177,8728,9180,10031]
[work_price] => [3348,3921,4112,4302,4493,4684,4875,5066,5256]
[image] => https://akademik-stroy.ru/wp-content/uploads/materials/monolitnaya-zh-b-plita-2.jpg
[area_modifier] => 177.76
[parent_name] => Перекрытие цоколя
[parent_id] => 2
[material_sum] => 1083380
[work_sum] => 624898
[total_sum] => 1708278
[total_days] => 18
[display_material_sum] => 1 083 380
[display_work_sum] => 624 898
[display_total_sum] => 1 708 278
)
1
1 708 278₽
Работа:624 898 ₽
Материалы:1 083 380 ₽
Дни:18
stdClass Object
(
[id] => 6
[attribute_id] => 3
[name] => Пеноблок
[material_modifier] => 1
[work_modifier] => 1
[options] => Array
(
[0] => 300 мм
[1] => 400 мм
[2] => 500 мм
[3] => 600 мм
)
[days] => [29,31,34,39]
[material_price] => [3000,4000,4500,4937]
[work_price] => [5033,5805,6400,8710]
[image] => https://akademik-stroy.ru/wp-content/uploads/materials/penoblok.jpg
[area_modifier] => 177.76
[parent_name] => Стены 1 этаж (несущие)
[parent_id] => 3
[material_sum] => 671933
[work_sum] => 939399
[total_sum] => 1611332
[total_days] => 29
[display_material_sum] => 671 933
[display_work_sum] => 939 399
[display_total_sum] => 1 611 332
)
1
1 611 332₽
Работа:939 399 ₽
Материалы:671 933 ₽
Дни:29
stdClass Object
(
[id] => 79
[attribute_id] => 3
[name] => Керамический блок
[material_modifier] => 1
[work_modifier] => 1
[options] => Array
(
[0] => 380 мм
[1] => 380 мм Thermo
[2] => 440 мм
[3] => 510 мм
)
[days] => [23,23,24,25]
[material_price] => [4510,5098,6093,8013]
[work_price] => [4737,4937,5903,6958]
[image] => https://akademik-stroy.ru/wp-content/uploads/materials/keramicheskij-blok.jpg
[area_modifier] => 177.76
[parent_name] => Стены 1 этаж (несущие)
[parent_id] => 3
[material_sum] => 1010139
[work_sum] => 884152
[total_sum] => 1894291
[total_days] => 23
[display_material_sum] => 1 010 139
[display_work_sum] => 884 152
[display_total_sum] => 1 894 291
)
1
1 894 291₽
Работа:884 152 ₽
Материалы:1 010 139 ₽
Дни:23
stdClass Object
(
[id] => 80
[attribute_id] => 3
[name] => Кирпич
[material_modifier] => 1
[work_modifier] => 1
[options] => Array
(
[0] => Кирпич 250 мм
[1] => Кирпич 380 мм
[2] => Кирпич 510 мм
[3] => Кирпич 640 мм
[4] => Кирпич 770 мм
)
[days] => [30,30,31,33,36]
[material_price] => [5500,7142,9206,10171,12235]
[work_price] => [8736,10041,12018,15240,18462]
[image] => https://akademik-stroy.ru/wp-content/uploads/materials/kirpich.jpg
[area_modifier] => 177.76
[parent_name] => Стены 1 этаж (несущие)
[parent_id] => 3
[material_sum] => 1231877
[work_sum] => 1630557
[total_sum] => 2862434
[total_days] => 30
[display_material_sum] => 1 231 877
[display_work_sum] => 1 630 557
[display_total_sum] => 2 862 434
)
1
2 862 434₽
Работа:1 630 557 ₽
Материалы:1 231 877 ₽
Дни:30
stdClass Object
(
[id] => 81
[attribute_id] => 3
[name] => Монолитные
[material_modifier] => 1
[work_modifier] => 1
[options] => Array
(
[0] => 150 мм
[1] => 200 мм
[2] => 250 мм
[3] => 300 мм
[4] => 350 мм
[5] => 400 мм
)
[days] => [45,46,47,49,50,53]
[material_price] => [6545,7876,10175,12011,13908,15204]
[work_price] => [5106,6444,7698,8552,9807,11461]
[image] => https://akademik-stroy.ru/wp-content/uploads/materials/monolitnye.jpg
[area_modifier] => 177.76
[parent_name] => Стены 1 этаж (несущие)
[parent_id] => 3
[material_sum] => 1465933
[work_sum] => 953025
[total_sum] => 2418958
[total_days] => 45
[display_material_sum] => 1 465 933
[display_work_sum] => 953 025
[display_total_sum] => 2 418 958
)
1
2 418 958₽
Работа:953 025 ₽
Материалы:1 465 933 ₽
Дни:45
stdClass Object
(
[id] => 82
[attribute_id] => 3
[name] => Клееный брус
[material_modifier] => 1
[work_modifier] => 1
[options] => Array
(
[0] => 160 мм
[1] => 175 мм
[2] => 200 мм
[3] => 215 мм
[4] => 240 мм
[5] => 270 мм
[6] => 282 мм
)
[days] => [24,28,32,37,40,42,48]
[material_price] => [16975,18773,19950,20545,21599,22159,23275]
[work_price] => [4806,5287,5815,6397,7036,7740,8514]
[image] => https://akademik-stroy.ru/wp-content/uploads/materials/kleenyj-brus.jpg
[area_modifier] => 177.76
[parent_name] => Стены 1 этаж (несущие)
[parent_id] => 3
[material_sum] => 3802020
[work_sum] => 897030
[total_sum] => 4699050
[total_days] => 24
[display_material_sum] => 3 802 020
[display_work_sum] => 897 030
[display_total_sum] => 4 699 050
)
1
4 699 050₽
Работа:897 030 ₽
Материалы:3 802 020 ₽
Дни:24
stdClass Object
(
[id] => 83
[attribute_id] => 3
[name] => Каркасные
[material_modifier] => 1
[work_modifier] => 1
[options] => Array
(
[0] => 150 мм
[1] => 200 мм
[2] => 250 мм
[3] => 300 мм
)
[days] => [15,16,17,18]
[material_price] => [2379,2639,2898,3258]
[work_price] => [2418,2686,2985,3716]
[image] => https://akademik-stroy.ru/wp-content/uploads/materials/karkasnye.jpg
[area_modifier] => 177.76
[parent_name] => Стены 1 этаж (несущие)
[parent_id] => 3
[material_sum] => 532843
[work_sum] => 451315
[total_sum] => 984158
[total_days] => 15
[display_material_sum] => 532 843
[display_work_sum] => 451 315
[display_total_sum] => 984 158
)
1
984 158₽
Работа:451 315 ₽
Материалы:532 843 ₽
Дни:15
stdClass Object
(
[id] => 84
[attribute_id] => 3
[name] => СИП-панели
[material_modifier] => 1
[work_modifier] => 1
[options] => Array
(
[0] => 120 мм
[1] => 170 мм
[2] => 220 мм
)
[days] => [7,7,7]
[material_price] => [1210,1856,2292]
[work_price] => [1410,1551,1706]
[image] => https://akademik-stroy.ru/wp-content/uploads/materials/sip-paneli.jpg
[area_modifier] => 177.76
[parent_name] => Стены 1 этаж (несущие)
[parent_id] => 3
[material_sum] => 271013
[work_sum] => 263174
[total_sum] => 534187
[total_days] => 7
[display_material_sum] => 271 013
[display_work_sum] => 263 174
[display_total_sum] => 534 187
)
1
534 187₽
Работа:263 174 ₽
Материалы:271 013 ₽
Дни:7
stdClass Object
(
[id] => 85
[attribute_id] => 3
[name] => Сухой брус
[material_modifier] => 1
[work_modifier] => 1
[options] => Array
(
[0] => 150 мм
[1] => 180 мм
[2] => 200 мм
)
[days] => [7,8,9]
[material_price] => [6010,7190,8709]
[work_price] => [3204,3845,4229]
[image] => https://akademik-stroy.ru/wp-content/uploads/materials/suhoj-brus.jpg
[area_modifier] => 177.76
[parent_name] => Стены 1 этаж (несущие)
[parent_id] => 3
[material_sum] => 1346105
[work_sum] => 598020
[total_sum] => 1944125
[total_days] => 7
[display_material_sum] => 1 346 105
[display_work_sum] => 598 020
[display_total_sum] => 1 944 125
)
1
1 944 125₽
Работа:598 020 ₽
Материалы:1 346 105 ₽
Дни:7
stdClass Object
(
[id] => 86
[attribute_id] => 3
[name] => Профилированный брус
[material_modifier] => 1
[work_modifier] => 1
[options] => Array
(
[0] => 150 мм
[1] => 180 мм
[2] => 200 мм
)
[days] => [7,8,9]
[material_price] => [8190,9228,10051]
[work_price] => [3845,4614,5075]
[image] => https://akademik-stroy.ru/wp-content/uploads/materials/profilirovannyj-brus.jpg
[area_modifier] => 177.76
[parent_name] => Стены 1 этаж (несущие)
[parent_id] => 3
[material_sum] => 1834377
[work_sum] => 717662
[total_sum] => 2552039
[total_days] => 7
[display_material_sum] => 1 834 377
[display_work_sum] => 717 662
[display_total_sum] => 2 552 039
)
1
2 552 039₽
Работа:717 662 ₽
Материалы:1 834 377 ₽
Дни:7
stdClass Object
(
[id] => 87
[attribute_id] => 3
[name] => Оцилиндрованное бревно
[material_modifier] => 1
[work_modifier] => 1
[options] => Array
(
[0] => 180 мм
[1] => 220 мм
[2] => 260 мм
[3] => 320 мм
)
[days] => [7,8,9,10]
[material_price] => [75190,9532,10868,13116]
[work_price] => [3845,4691,5535,6863]
[image] => https://akademik-stroy.ru/wp-content/uploads/materials/ocilindrovannoe-brevno-1.jpg
[area_modifier] => 177.76
[parent_name] => Стены 1 этаж (несущие)
[parent_id] => 3
[material_sum] => 16840876
[work_sum] => 717662
[total_sum] => 17558538
[total_days] => 7
[display_material_sum] => 16 840 876
[display_work_sum] => 717 662
[display_total_sum] => 17 558 538
)
1
17 558 538₽
Работа:717 662 ₽
Материалы:16 840 876 ₽
Дни:7
stdClass Object
(
[id] => 88
[attribute_id] => 3
[name] => Срубы
[material_modifier] => 1
[work_modifier] => 1
[options] => Array
(
[0] => 260 мм
[1] => 320 мм
[2] => 360 мм
[3] => 400 мм
[4] => 500 мм
)
[days] => [7,8,9,10,11]
[material_price] => [37975,46709,52314,58069,73167]
[work_price] => [4806,5911,6621,7349,9260]
[image] => https://akademik-stroy.ru/wp-content/uploads/materials/sruby.jpg
[area_modifier] => 177.76
[parent_name] => Стены 1 этаж (несущие)
[parent_id] => 3
[material_sum] => 8505549
[work_sum] => 897030
[total_sum] => 9402579
[total_days] => 7
[display_material_sum] => 8 505 549
[display_work_sum] => 897 030
[display_total_sum] => 9 402 579
)
1
9 402 579₽
Работа:897 030 ₽
Материалы:8 505 549 ₽
Дни:7
stdClass Object
(
[id] => 174
[attribute_id] => 3
[name] => Брус
[material_modifier] => 1
[work_modifier] => 1
[options] => Array
(
[0] => 150 мм
[1] => 180 мм
[2] => 200 мм
)
[days] => [7,8,9]
[material_price] => [5127,6152,7367]
[work_price] => [1602,1922,2115]
[image] => https://akademik-stroy.ru/wp-content/uploads/materials/brus.jpg
[area_modifier] => 177.76
[parent_name] => Стены 1 этаж (несущие)
[parent_id] => 3
[material_sum] => 1148333
[work_sum] => 299010
[total_sum] => 1447343
[total_days] => 7
[display_material_sum] => 1 148 333
[display_work_sum] => 299 010
[display_total_sum] => 1 447 343
)
1
1 447 343₽
Работа:299 010 ₽
Материалы:1 148 333 ₽
Дни:7
stdClass Object
(
[id] => 175
[attribute_id] => 3
[name] => Газобетон
[material_modifier] => 1
[work_modifier] => 1
[options] => Array
(
[0] => 300 мм
[1] => 375 мм
[2] => 400 мм
[3] => 500 мм
[4] => 600 мм
)
[days] => [29,31,35,37,44]
[material_price] => [4298,5573,6356,7288,9119]
[work_price] => [4538,5251,5926,6733,7195]
[image] => https://akademik-stroy.ru/wp-content/uploads/materials/gazobeton.jpg
[area_modifier] => 177.76
[parent_name] => Стены 1 этаж (несущие)
[parent_id] => 3
[material_sum] => 962656
[work_sum] => 847009
[total_sum] => 1809665
[total_days] => 29
[display_material_sum] => 962 656
[display_work_sum] => 847 009
[display_total_sum] => 1 809 665
)
1
1 809 665₽
Работа:847 009 ₽
Материалы:962 656 ₽
Дни:29
stdClass Object
(
[id] => 176
[attribute_id] => 3
[name] => Блок
[material_modifier] => 1
[work_modifier] => 1
[options] => Array
(
[0] => 300 мм
[1] => 375 мм
[2] => 400 мм
[3] => 500 мм
[4] => 600 мм
)
[days] => [29,31,35,37,44]
[material_price] => [2698,3973,4356,6588,7119]
[work_price] => [5038,5851,6426,8733,9195]
[image] => https://akademik-stroy.ru/wp-content/uploads/materials/blok.jpg
[area_modifier] => 177.76
[parent_name] => Стены 1 этаж (несущие)
[parent_id] => 3
[material_sum] => 604292
[work_sum] => 940333
[total_sum] => 1544625
[total_days] => 29
[display_material_sum] => 604 292
[display_work_sum] => 940 333
[display_total_sum] => 1 544 625
)
1
1 544 625₽
Работа:940 333 ₽
Материалы:604 292 ₽
Дни:29
stdClass Object
(
[id] => 177
[attribute_id] => 3
[name] => Газосиликатный блок
[material_modifier] => 1
[work_modifier] => 1
[options] => Array
(
[0] => 300 мм
[1] => 375 мм
[2] => 400 мм
[3] => 500 мм
[4] => 600 мм
)
[days] => [29,31,35,37,44]
[material_price] => [4298,5573,6356,7288,9119]
[work_price] => [4538,5251,5926,6733,7195]
[image] => https://akademik-stroy.ru/wp-content/uploads/materials/gazosilikatnyj-blok.jpg
[area_modifier] => 177.76
[parent_name] => Стены 1 этаж (несущие)
[parent_id] => 3
[material_sum] => 962656
[work_sum] => 847009
[total_sum] => 1809665
[total_days] => 29
[display_material_sum] => 962 656
[display_work_sum] => 847 009
[display_total_sum] => 1 809 665
)
1
1 809 665₽
Работа:847 009 ₽
Материалы:962 656 ₽
Дни:29
stdClass Object
(
[id] => 178
[attribute_id] => 3
[name] => Керамзитобетонный блок
[material_modifier] => 1
[work_modifier] => 1
[options] => Array
(
[0] => 300 мм
[1] => 375 мм
[2] => 400 мм
[3] => 500 мм
[4] => 600 мм
)
[days] => [23,23,24,25,28]
[material_price] => [3641,4298,5693,7613,9612]
[work_price] => [5737,5737,6903,7958,8901]
[image] => https://akademik-stroy.ru/wp-content/uploads/materials/keramzitobetonnyj-blok.jpg
[area_modifier] => 177.76
[parent_name] => Стены 1 этаж (несущие)
[parent_id] => 3
[material_sum] => 815502
[work_sum] => 1070800
[total_sum] => 1886302
[total_days] => 23
[display_material_sum] => 815 502
[display_work_sum] => 1 070 800
[display_total_sum] => 1 886 302
)
1
1 886 302₽
Работа:1 070 800 ₽
Материалы:815 502 ₽
Дни:23
stdClass Object
(
[id] => 179
[attribute_id] => 3
[name] => Деревянные
[material_modifier] => 1
[work_modifier] => 1
[options] => Array
(
[0] => 180 мм
[1] => 220 мм
[2] => 260 мм
[3] => 320 мм
)
[days] => [7,8,9,10]
[material_price] => [7950,9458,11961,14472]
[work_price] => [4037,4925,5812,7207]
[image] => https://akademik-stroy.ru/wp-content/uploads/materials/derevyannye.jpg
[area_modifier] => 177.76
[parent_name] => Стены 1 этаж (несущие)
[parent_id] => 3
[material_sum] => 1780622
[work_sum] => 753498
[total_sum] => 2534120
[total_days] => 7
[display_material_sum] => 1 780 622
[display_work_sum] => 753 498
[display_total_sum] => 2 534 120
)
1
2 534 120₽
Работа:753 498 ₽
Материалы:1 780 622 ₽
Дни:7
stdClass Object
(
[id] => 181
[attribute_id] => 3
[name] => Камень
[material_modifier] => 1
[work_modifier] => 1
[options] => Array
(
[0] => 300 мм
[1] => 400 мм
[2] => 500 мм
[3] => 600 мм
)
[days] => [25,27,31,34]
[material_price] => [5262,6844,8330,9815]
[work_price] => [8331,9135,10427,11069]
[image] => https://akademik-stroy.ru/wp-content/uploads/materials/kamen.jpg
[area_modifier] => 177.76
[parent_name] => Стены 1 этаж (несущие)
[parent_id] => 3
[material_sum] => 1178570
[work_sum] => 1554964
[total_sum] => 2733534
[total_days] => 25
[display_material_sum] => 1 178 570
[display_work_sum] => 1 554 964
[display_total_sum] => 2 733 534
)
1
2 733 534₽
Работа:1 554 964 ₽
Материалы:1 178 570 ₽
Дни:25
stdClass Object
(
[id] => 182
[attribute_id] => 3
[name] => Каркасно-щитовые
[material_modifier] => 1
[work_modifier] => 1
[options] => Array
(
[0] => 150 мм
[1] => 200 мм
[2] => 250 мм
[3] => 300 мм
[4] => 350 мм
[5] => 400 мм
)
[days] => [15,16,17,18,19,20]
[material_price] => [2379,2639,2898,3458,3601,4175]
[work_price] => [2538,2820,3134,3483,4062,5642]
[image] => https://akademik-stroy.ru/wp-content/uploads/materials/karkasno-shchitovye.jpg
[area_modifier] => 177.76
[parent_name] => Стены 1 этаж (несущие)
[parent_id] => 3
[material_sum] => 532843
[work_sum] => 473713
[total_sum] => 1006556
[total_days] => 15
[display_material_sum] => 532 843
[display_work_sum] => 473 713
[display_total_sum] => 1 006 556
)
1
1 006 556₽
Работа:473 713 ₽
Материалы:532 843 ₽
Дни:15
stdClass Object
(
[id] => 183
[attribute_id] => 3
[name] => Рубленные
[material_modifier] => 1
[work_modifier] => 1
[options] => Array
(
[0] => 150 мм
[1] => 200 мм
[2] => 250 мм
[3] => 300 мм
[4] => 350 мм
[5] => 400 мм
)
[days] => [15,16,17,18,17,18]
[material_price] => [35950,50267,60583,75900,80217,100533]
[work_price] => [9612,12816,16020,19224,22428,25632]
[image] => https://akademik-stroy.ru/wp-content/uploads/materials/rublennye.jpg
[area_modifier] => 177.76
[parent_name] => Стены 1 этаж (несущие)
[parent_id] => 3
[material_sum] => 8051995
[work_sum] => 1794061
[total_sum] => 9846056
[total_days] => 15
[display_material_sum] => 8 051 995
[display_work_sum] => 1 794 061
[display_total_sum] => 9 846 056
)
1
9 846 056₽
Работа:1 794 061 ₽
Материалы:8 051 995 ₽
Дни:15
stdClass Object
(
[id] => 185
[attribute_id] => 3
[name] => Теплоблок
[material_modifier] => 1
[work_modifier] => 1
[options] => Array
(
[0] => 300 мм (с облицовкой, не покрашенный)
[1] => 400 мм (с облицовкой, не покрашенный)
[2] => 300 мм (с облицовкой, покрашенный)
[3] => 400 мм (с облицовкой, покрашенный)
)
[days] => [15,16,15,16]
[material_price] => [2888,3729,3957,4258]
[work_price] => [2564,3229,2949,3713]
[image] => https://akademik-stroy.ru/wp-content/uploads/materials/teploblok.jpg
[area_modifier] => 177.76
[parent_name] => Стены 1 этаж (несущие)
[parent_id] => 3
[material_sum] => 646847
[work_sum] => 478565
[total_sum] => 1125412
[total_days] => 15
[display_material_sum] => 646 847
[display_work_sum] => 478 565
[display_total_sum] => 1 125 412
)
1
1 125 412₽
Работа:478 565 ₽
Материалы:646 847 ₽
Дни:15
stdClass Object
(
[id] => 186
[attribute_id] => 3
[name] => Арболитовые блоки
[material_modifier] => 1
[work_modifier] => 1
[options] => Array
(
[0] => 300 мм
[1] => 400 мм
[2] => 600 мм
)
[days] => [19,22,27]
[material_price] => [3210,4475,5852]
[work_price] => [4214,4788,5866]
[image] => https://akademik-stroy.ru/wp-content/uploads/materials/arbolitovye-bloki.png
[area_modifier] => 177.76
[parent_name] => Стены 1 этаж (несущие)
[parent_id] => 3
[material_sum] => 718968
[work_sum] => 786535
[total_sum] => 1505503
[total_days] => 19
[display_material_sum] => 718 968
[display_work_sum] => 786 535
[display_total_sum] => 1 505 503
)
1
1 505 503₽
Работа:786 535 ₽
Материалы:718 968 ₽
Дни:19
stdClass Object
(
[id] => 187
[attribute_id] => 3
[name] => Полистиролбетон
[material_modifier] => 1
[work_modifier] => 1
[options] => Array
(
[0] => 300 мм
[1] => 400 мм
[2] => 600 мм
)
[days] => [29,31,35]
[material_price] => [2798,4573,5256]
[work_price] => [5038,5851,6426]
[image] => https://akademik-stroy.ru/wp-content/uploads/materials/polistirolbeton.jpg
[area_modifier] => 177.76
[parent_name] => Стены 1 этаж (несущие)
[parent_id] => 3
[material_sum] => 626689
[work_sum] => 940333
[total_sum] => 1567022
[total_days] => 29
[display_material_sum] => 626 689
[display_work_sum] => 940 333
[display_total_sum] => 1 567 022
)
1
1 567 022₽
Работа:940 333 ₽
Материалы:626 689 ₽
Дни:29
stdClass Object
(
[id] => 188
[attribute_id] => 3
[name] => Шлакоблок
[material_modifier] => 1
[work_modifier] => 1
[options] => Array
(
[0] => 400 мм
[1] => 600 мм
)
[days] => [15,16]
[material_price] => [2391,3471]
[work_price] => [2642,3662]
[image] => https://akademik-stroy.ru/wp-content/uploads/materials/shlakoblok.jpg
[area_modifier] => 177.76
[parent_name] => Стены 1 этаж (несущие)
[parent_id] => 3
[material_sum] => 535530
[work_sum] => 493124
[total_sum] => 1028654
[total_days] => 15
[display_material_sum] => 535 530
[display_work_sum] => 493 124
[display_total_sum] => 1 028 654
)
1
1 028 654₽
Работа:493 124 ₽
Материалы:535 530 ₽
Дни:15
stdClass Object
(
[id] => 189
[attribute_id] => 3
[name] => Теплая керамика
[material_modifier] => 1
[work_modifier] => 1
[options] => Array
(
[0] => 380 мм
[1] => 380 мм Thermo
[2] => 440 мм
[3] => 510 мм
)
[days] => [23,23,24,25]
[material_price] => [4510,5098,6093,8013]
[work_price] => [4737,4937,5903,6958]
[image] => https://akademik-stroy.ru/wp-content/uploads/materials/teplaya-keramika.jpg
[area_modifier] => 177.76
[parent_name] => Стены 1 этаж (несущие)
[parent_id] => 3
[material_sum] => 1010139
[work_sum] => 884152
[total_sum] => 1894291
[total_days] => 23
[display_material_sum] => 1 010 139
[display_work_sum] => 884 152
[display_total_sum] => 1 894 291
)
1
1 894 291₽
Работа:884 152 ₽
Материалы:1 010 139 ₽
Дни:23
stdClass Object
(
[id] => 190
[attribute_id] => 3
[name] => Несъемная опалубка
[material_modifier] => 1
[work_modifier] => 1
[options] => Array
(
[0] => 200 мм
[1] => 250 мм
[2] => 300 мм
[3] => 350 мм
)
[days] => [15,17,19,21]
[material_price] => [3302,3902,4108,5008]
[work_price] => [2100,2100,2300,2534]
[image] => https://akademik-stroy.ru/wp-content/uploads/materials/nesemnaya-opalubka.jpg
[area_modifier] => 177.76
[parent_name] => Стены 1 этаж (несущие)
[parent_id] => 3
[material_sum] => 739574
[work_sum] => 391961
[total_sum] => 1131535
[total_days] => 15
[display_material_sum] => 739 574
[display_work_sum] => 391 961
[display_total_sum] => 1 131 535
)
1
1 131 535₽
Работа:391 961 ₽
Материалы:739 574 ₽
Дни:15
stdClass Object
(
[id] => 251
[attribute_id] => 3
[name] => Бревно
[material_modifier] => 1
[work_modifier] => 1
[options] => Array
(
[0] => 260 мм
[1] => 320 мм
[2] => 360 мм
[3] => 400 мм
[4] => 500 мм
)
[days] => [7,8,9,10,11]
[material_price] => [1874,24045,26930,30972,38825]
[work_price] => [5046,6207,6952,7716,9723]
[image] => https://akademik-stroy.ru/wp-content/uploads/materials/sruby.jpg
[area_modifier] => 177.76
[parent_name] => Стены 1 этаж (несущие)
[parent_id] => 3
[material_sum] => 419734
[work_sum] => 941826
[total_sum] => 1361560
[total_days] => 7
[display_material_sum] => 419 734
[display_work_sum] => 941 826
[display_total_sum] => 1 361 560
)
1
1 361 560₽
Работа:941 826 ₽
Материалы:419 734 ₽
Дни:7
stdClass Object
(
[id] => 7
[attribute_id] => 4
[name] => Деревянные балки
[material_modifier] => 1
[work_modifier] => 1
[options] => Array
(
[0] => без утепления
[1] => утепление 200 мм
[2] => утепление 250 мм
[3] => утепление 300 мм
[4] => утепление 350 мм
[5] => утепление 400 мм
[6] => утепление 450 мм
[7] => утепление 500 мм
)
[days] => [8,9,9,9,11,12,13,14]
[material_price] => [1634,2042,2344,2947,3149,3652,3354,3557]
[work_price] => [1230,1339,1393,1426,1460,1513,1587,1620]
[image] => https://akademik-stroy.ru/wp-content/uploads/materials/derevyannye-balki.png
[area_modifier] => 177.76
[parent_name] => Перекрытие первого этажа
[parent_id] => 4
[material_sum] => 365979
[work_sum] => 229577
[total_sum] => 595556
[total_days] => 8
[display_material_sum] => 365 979
[display_work_sum] => 229 577
[display_total_sum] => 595 556
)
1
595 556₽
Работа:229 577 ₽
Материалы:365 979 ₽
Дни:8
stdClass Object
(
[id] => 8
[attribute_id] => 4
[name] => Сборные ж/б плиты
[material_modifier] => 1
[work_modifier] => 1
[options] => Array
(
[0] => без утепления
[1] => утепление 150 мм
[2] => утепление 200 мм
[3] => утепление 250 мм
[4] => утепление 300 мм
[5] => утепление 350 мм
[6] => утепление 400 мм
[7] => утепление 450 мм
[8] => утепление 500 мм
)
[days] => [13,15,15,15,15,15,15,15,15]
[material_price] => [3067,5577,5928,6679,7730,8782,9833,10884,11935]
[work_price] => [1520,1956,2102,2247,2392,2537,2684,2829,2974]
[image] => https://akademik-stroy.ru/wp-content/uploads/materials/sbornye-zh-b-plity-2.jpg
[area_modifier] => 177.76
[parent_name] => Перекрытие первого этажа
[parent_id] => 4
[material_sum] => 686939
[work_sum] => 283705
[total_sum] => 970644
[total_days] => 13
[display_material_sum] => 686 939
[display_work_sum] => 283 705
[display_total_sum] => 970 644
)
1
970 644₽
Работа:283 705 ₽
Материалы:686 939 ₽
Дни:13
stdClass Object
(
[id] => 89
[attribute_id] => 4
[name] => Монолитная ж/б плита
[material_modifier] => 1
[work_modifier] => 1
[options] => Array
(
[0] => без утепления
[1] => утепление 150 мм
[2] => утепление 200 мм
[3] => утепление 250 мм
[4] => утепление 300 мм
[5] => утепление 350 мм
[6] => утепление 400 мм
[7] => утепление 450 мм
[8] => утепление 500 мм
)
[days] => [18,20,20,20,20,20,20,20,20]
[material_price] => [4837,6572,7224,7375,79426,8177,8728,9180,10031]
[work_price] => [3348,3921,4112,4302,4493,4684,4875,5066,5256]
[image] => https://akademik-stroy.ru/wp-content/uploads/materials/monolitnaya-zh-b-plita-2.jpg
[area_modifier] => 177.76
[parent_name] => Перекрытие первого этажа
[parent_id] => 4
[material_sum] => 1083380
[work_sum] => 624898
[total_sum] => 1708278
[total_days] => 18
[display_material_sum] => 1 083 380
[display_work_sum] => 624 898
[display_total_sum] => 1 708 278
)
1
1 708 278₽
Работа:624 898 ₽
Материалы:1 083 380 ₽
Дни:18
stdClass Object
(
[id] => 10
[attribute_id] => 5
[name] => Пеноблок
[material_modifier] => 1
[work_modifier] => 1
[options] => Array
(
[0] => 300 мм
[1] => 400 мм
[2] => 500 мм
[3] => 600 мм
)
[days] => [29,31,34,39]
[material_price] => [3000,4000,4500,4937]
[work_price] => [5033,5805,6400,8710]
[image] => https://akademik-stroy.ru/wp-content/uploads/materials/penoblok.jpg
[area_modifier] => 83.17
[parent_name] => Стены 2 этаж (несущие)
[parent_id] => 5
[material_sum] => 314383
[work_sum] => 439524
[total_sum] => 753907
[total_days] => 29
[display_material_sum] => 314 383
[display_work_sum] => 439 524
[display_total_sum] => 753 907
)
1
753 907₽
Работа:439 524 ₽
Материалы:314 383 ₽
Дни:29
stdClass Object
(
[id] => 90
[attribute_id] => 5
[name] => Керамический блок
[material_modifier] => 1
[work_modifier] => 1
[options] => Array
(
[0] => 380 мм
[1] => 380 мм Thermo
[2] => 440 мм
[3] => 510 мм
)
[days] => [23,23,24,25]
[material_price] => [4510,5098,6093,8013]
[work_price] => [4737,4937,5903,6958]
[image] => https://akademik-stroy.ru/wp-content/uploads/materials/keramicheskij-blok.jpg
[area_modifier] => 83.17
[parent_name] => Стены 2 этаж (несущие)
[parent_id] => 5
[material_sum] => 472622
[work_sum] => 413675
[total_sum] => 886297
[total_days] => 23
[display_material_sum] => 472 622
[display_work_sum] => 413 675
[display_total_sum] => 886 297
)
1
886 297₽
Работа:413 675 ₽
Материалы:472 622 ₽
Дни:23
stdClass Object
(
[id] => 91
[attribute_id] => 5
[name] => Кирпич
[material_modifier] => 1
[work_modifier] => 1
[options] => Array
(
[0] => Кирпич 250 мм
[1] => Кирпич 380 мм
[2] => Кирпич 510 мм
[3] => Кирпич 640 мм
[4] => Кирпич 770 мм
)
[days] => [30,30,31,33,36]
[material_price] => [5500,7142,9206,10171,12235]
[work_price] => [8736,10041,12018,15240,18462]
[image] => https://akademik-stroy.ru/wp-content/uploads/materials/kirpich.jpg
[area_modifier] => 83.17
[parent_name] => Стены 2 этаж (несущие)
[parent_id] => 5
[material_sum] => 576368
[work_sum] => 762902
[total_sum] => 1339270
[total_days] => 30
[display_material_sum] => 576 368
[display_work_sum] => 762 902
[display_total_sum] => 1 339 270
)
1
1 339 270₽
Работа:762 902 ₽
Материалы:576 368 ₽
Дни:30
stdClass Object
(
[id] => 92
[attribute_id] => 5
[name] => Монолитные
[material_modifier] => 1
[work_modifier] => 1
[options] => Array
(
[0] => 150 мм
[1] => 200 мм
[2] => 250 мм
[3] => 300 мм
[4] => 350 мм
[5] => 400 мм
)
[days] => [45,46,47,49,50,53]
[material_price] => [6545,7876,10175,12011,13908,15204]
[work_price] => [5106,6444,7698,8552,9807,11461]
[image] => https://akademik-stroy.ru/wp-content/uploads/materials/monolitnye.jpg
[area_modifier] => 83.17
[parent_name] => Стены 2 этаж (несущие)
[parent_id] => 5
[material_sum] => 685878
[work_sum] => 445899
[total_sum] => 1131777
[total_days] => 45
[display_material_sum] => 685 878
[display_work_sum] => 445 899
[display_total_sum] => 1 131 777
)
1
1 131 777₽
Работа:445 899 ₽
Материалы:685 878 ₽
Дни:45
stdClass Object
(
[id] => 93
[attribute_id] => 5
[name] => Клееный брус
[material_modifier] => 1
[work_modifier] => 1
[options] => Array
(
[0] => 160 мм
[1] => 175 мм
[2] => 200 мм
[3] => 215 мм
[4] => 240 мм
[5] => 270 мм
[6] => 282 мм
)
[days] => [24,28,32,37,40,42,48]
[material_price] => [16975,18773,19950,20545,21599,22159,23275]
[work_price] => [4806,5287,5815,6397,7036,7740,8514]
[image] => https://akademik-stroy.ru/wp-content/uploads/materials/kleenyj-brus.jpg
[area_modifier] => 83.17
[parent_name] => Стены 2 этаж (несущие)
[parent_id] => 5
[material_sum] => 1778882
[work_sum] => 419701
[total_sum] => 2198583
[total_days] => 24
[display_material_sum] => 1 778 882
[display_work_sum] => 419 701
[display_total_sum] => 2 198 583
)
1
2 198 583₽
Работа:419 701 ₽
Материалы:1 778 882 ₽
Дни:24
stdClass Object
(
[id] => 94
[attribute_id] => 5
[name] => Каркасные
[material_modifier] => 1
[work_modifier] => 1
[options] => Array
(
[0] => 150 мм
[1] => 200 мм
[2] => 250 мм
[3] => 300 мм
)
[days] => [15,16,17,18]
[material_price] => [2379,2639,2898,3258]
[work_price] => [2418,2686,2985,3716]
[image] => https://akademik-stroy.ru/wp-content/uploads/materials/karkasnye.jpg
[area_modifier] => 83.17
[parent_name] => Стены 2 этаж (несущие)
[parent_id] => 5
[material_sum] => 249305
[work_sum] => 211160
[total_sum] => 460465
[total_days] => 15
[display_material_sum] => 249 305
[display_work_sum] => 211 160
[display_total_sum] => 460 465
)
1
460 465₽
Работа:211 160 ₽
Материалы:249 305 ₽
Дни:15
stdClass Object
(
[id] => 95
[attribute_id] => 5
[name] => СИП-панели
[material_modifier] => 1
[work_modifier] => 1
[options] => Array
(
[0] => 120 мм
[1] => 170 мм
[2] => 220 мм
)
[days] => [7,7,7]
[material_price] => [1210,1856,2292]
[work_price] => [1410,1551,1706]
[image] => https://akademik-stroy.ru/wp-content/uploads/materials/sip-paneli.jpg
[area_modifier] => 83.17
[parent_name] => Стены 2 этаж (несущие)
[parent_id] => 5
[material_sum] => 126801
[work_sum] => 123133
[total_sum] => 249934
[total_days] => 7
[display_material_sum] => 126 801
[display_work_sum] => 123 133
[display_total_sum] => 249 934
)
1
249 934₽
Работа:123 133 ₽
Материалы:126 801 ₽
Дни:7
stdClass Object
(
[id] => 96
[attribute_id] => 5
[name] => Сухой брус
[material_modifier] => 1
[work_modifier] => 1
[options] => Array
(
[0] => 150 мм
[1] => 180 мм
[2] => 200 мм
)
[days] => [7,8,9]
[material_price] => [6010,7190,8709]
[work_price] => [3204,3845,4229]
[image] => https://akademik-stroy.ru/wp-content/uploads/materials/suhoj-brus.jpg
[area_modifier] => 83.17
[parent_name] => Стены 2 этаж (несущие)
[parent_id] => 5
[material_sum] => 629813
[work_sum] => 279801
[total_sum] => 909614
[total_days] => 7
[display_material_sum] => 629 813
[display_work_sum] => 279 801
[display_total_sum] => 909 614
)
1
909 614₽
Работа:279 801 ₽
Материалы:629 813 ₽
Дни:7
stdClass Object
(
[id] => 97
[attribute_id] => 5
[name] => Профилированный брус
[material_modifier] => 1
[work_modifier] => 1
[options] => Array
(
[0] => 150 мм
[1] => 180 мм
[2] => 200 мм
)
[days] => [7,8,9]
[material_price] => [8190,9228,10051]
[work_price] => [3845,4614,5075]
[image] => https://akademik-stroy.ru/wp-content/uploads/materials/profilirovannyj-brus.jpg
[area_modifier] => 83.17
[parent_name] => Стены 2 этаж (несущие)
[parent_id] => 5
[material_sum] => 858264
[work_sum] => 335778
[total_sum] => 1194042
[total_days] => 7
[display_material_sum] => 858 264
[display_work_sum] => 335 778
[display_total_sum] => 1 194 042
)
1
1 194 042₽
Работа:335 778 ₽
Материалы:858 264 ₽
Дни:7
stdClass Object
(
[id] => 98
[attribute_id] => 5
[name] => Оцилиндрованное бревно
[material_modifier] => 1
[work_modifier] => 1
[options] => Array
(
[0] => 180 мм
[1] => 220 мм
[2] => 260 мм
[3] => 320 мм
)
[days] => [7,8,9,10]
[material_price] => [75190,9532,10868,13116]
[work_price] => [3845,4691,5535,6863]
[image] => https://akademik-stroy.ru/wp-content/uploads/materials/ocilindrovannoe-brevno-1.jpg
[area_modifier] => 83.17
[parent_name] => Стены 2 этаж (несущие)
[parent_id] => 5
[material_sum] => 7879476
[work_sum] => 335778
[total_sum] => 8215254
[total_days] => 7
[display_material_sum] => 7 879 476
[display_work_sum] => 335 778
[display_total_sum] => 8 215 254
)
1
8 215 254₽
Работа:335 778 ₽
Материалы:7 879 476 ₽
Дни:7
stdClass Object
(
[id] => 99
[attribute_id] => 5
[name] => Срубы
[material_modifier] => 1
[work_modifier] => 1
[options] => Array
(
[0] => 260 мм
[1] => 320 мм
[2] => 360 мм
[3] => 400 мм
[4] => 500 мм
)
[days] => [7,8,9,10,11]
[material_price] => [16175,23709,26314,29069,32167]
[work_price] => [4806,5911,6621,7349,9260]
[image] => https://akademik-stroy.ru/wp-content/uploads/materials/suhoj-brus.jpg
[area_modifier] => 83.17
[parent_name] => Стены 2 этаж (несущие)
[parent_id] => 5
[material_sum] => 1695046
[work_sum] => 419701
[total_sum] => 2114747
[total_days] => 7
[display_material_sum] => 1 695 046
[display_work_sum] => 419 701
[display_total_sum] => 2 114 747
)
1
2 114 747₽
Работа:419 701 ₽
Материалы:1 695 046 ₽
Дни:7
stdClass Object
(
[id] => 194
[attribute_id] => 5
[name] => Брус
[material_modifier] => 1
[work_modifier] => 1
[options] => Array
(
[0] => 150 мм
[1] => 180 мм
[2] => 200 мм
)
[days] => [10,13,15]
[material_price] => [5127,6152,7367]
[work_price] => [1602,1922,2115]
[image] => https://akademik-stroy.ru/wp-content/uploads/materials/brus.jpg
[area_modifier] => 83.17
[parent_name] => Стены 2 этаж (несущие)
[parent_id] => 5
[material_sum] => 537280
[work_sum] => 139900
[total_sum] => 677180
[total_days] => 10
[display_material_sum] => 537 280
[display_work_sum] => 139 900
[display_total_sum] => 677 180
)
1
677 180₽
Работа:139 900 ₽
Материалы:537 280 ₽
Дни:10
stdClass Object
(
[id] => 195
[attribute_id] => 5
[name] => Газобетон
[material_modifier] => 1
[work_modifier] => 1
[options] => Array
(
[0] => 300 мм
[1] => 375 мм
[2] => 400 мм
[3] => 500 мм
[4] => 600 мм
)
[days] => [29,31,35,37,44]
[material_price] => [4298,5573,6356,7288,9119]
[work_price] => [4538,5251,5926,6733,7195]
[image] => https://akademik-stroy.ru/wp-content/uploads/materials/gazobeton.jpg
[area_modifier] => 83.17
[parent_name] => Стены 2 этаж (несущие)
[parent_id] => 5
[material_sum] => 450405
[work_sum] => 396297
[total_sum] => 846702
[total_days] => 29
[display_material_sum] => 450 405
[display_work_sum] => 396 297
[display_total_sum] => 846 702
)
1
846 702₽
Работа:396 297 ₽
Материалы:450 405 ₽
Дни:29
stdClass Object
(
[id] => 196
[attribute_id] => 5
[name] => Блок
[material_modifier] => 1
[work_modifier] => 1
[options] => Array
(
[0] => 300 мм
[1] => 375 мм
[2] => 400 мм
[3] => 500 мм
[4] => 600 мм
)
[days] => [29,31,35,37,44]
[material_price] => [2698,3973,4356,6588,7119]
[work_price] => [5038,5851,6426,8733,9195]
[image] => https://akademik-stroy.ru/wp-content/uploads/materials/blok.jpg
[area_modifier] => 83.17
[parent_name] => Стены 2 этаж (несущие)
[parent_id] => 5
[material_sum] => 282735
[work_sum] => 439961
[total_sum] => 722696
[total_days] => 29
[display_material_sum] => 282 735
[display_work_sum] => 439 961
[display_total_sum] => 722 696
)
1
722 696₽
Работа:439 961 ₽
Материалы:282 735 ₽
Дни:29
stdClass Object
(
[id] => 197
[attribute_id] => 5
[name] => Газосиликатный блок
[material_modifier] => 1
[work_modifier] => 1
[options] => Array
(
[0] => 300 мм
[1] => 375 мм
[2] => 400 мм
[3] => 500 мм
[4] => 600 мм
)
[days] => [29,31,35,37,44]
[material_price] => [4298,5573,6356,7288,9119]
[work_price] => [4538,5251,5926,6733,7195]
[image] => https://akademik-stroy.ru/wp-content/uploads/materials/gazosilikatnyj-blok.jpg
[area_modifier] => 83.17
[parent_name] => Стены 2 этаж (несущие)
[parent_id] => 5
[material_sum] => 450405
[work_sum] => 396297
[total_sum] => 846702
[total_days] => 29
[display_material_sum] => 450 405
[display_work_sum] => 396 297
[display_total_sum] => 846 702
)
1
846 702₽
Работа:396 297 ₽
Материалы:450 405 ₽
Дни:29
stdClass Object
(
[id] => 198
[attribute_id] => 5
[name] => Керамзитобетонный блок
[material_modifier] => 1
[work_modifier] => 1
[options] => Array
(
[0] => 300 мм
[1] => 375 мм
[2] => 400 мм
[3] => 500 мм
[4] => 600 мм
)
[days] => [23,23,24,25,28]
[material_price] => [3641,4298,5693,7613,9612]
[work_price] => [5737,5737,6903,7958,8901]
[image] => https://akademik-stroy.ru/wp-content/uploads/materials/keramzitobetonnyj-blok.jpg
[area_modifier] => 83.17
[parent_name] => Стены 2 этаж (несущие)
[parent_id] => 5
[material_sum] => 381556
[work_sum] => 501004
[total_sum] => 882560
[total_days] => 23
[display_material_sum] => 381 556
[display_work_sum] => 501 004
[display_total_sum] => 882 560
)
1
882 560₽
Работа:501 004 ₽
Материалы:381 556 ₽
Дни:23
stdClass Object
(
[id] => 199
[attribute_id] => 5
[name] => Деревянные
[material_modifier] => 1
[work_modifier] => 1
[options] => Array
(
[0] => 180 мм
[1] => 220 мм
[2] => 260 мм
[3] => 320 мм
)
[days] => [7,8,9,10]
[material_price] => [7950,9458,11961,14472]
[work_price] => [4037,4925,5812,7207]
[image] => https://akademik-stroy.ru/wp-content/uploads/materials/derevyannye.jpg
[area_modifier] => 83.17
[parent_name] => Стены 2 этаж (несущие)
[parent_id] => 5
[material_sum] => 833114
[work_sum] => 352545
[total_sum] => 1185659
[total_days] => 7
[display_material_sum] => 833 114
[display_work_sum] => 352 545
[display_total_sum] => 1 185 659
)
1
1 185 659₽
Работа:352 545 ₽
Материалы:833 114 ₽
Дни:7
stdClass Object
(
[id] => 200
[attribute_id] => 5
[name] => Камень
[material_modifier] => 1
[work_modifier] => 1
[options] => Array
(
[0] => 300 мм
[1] => 400 мм
[2] => 500 мм
[3] => 600 мм
)
[days] => [25,27,31,34]
[material_price] => [5262,6844,8330,9815]
[work_price] => [8331,9135,10427,11069]
[image] => https://akademik-stroy.ru/wp-content/uploads/materials/kamen.jpg
[area_modifier] => 83.17
[parent_name] => Стены 2 этаж (несущие)
[parent_id] => 5
[material_sum] => 551427
[work_sum] => 727534
[total_sum] => 1278961
[total_days] => 25
[display_material_sum] => 551 427
[display_work_sum] => 727 534
[display_total_sum] => 1 278 961
)
1
1 278 961₽
Работа:727 534 ₽
Материалы:551 427 ₽
Дни:25
stdClass Object
(
[id] => 201
[attribute_id] => 5
[name] => Каркасно-щитовые
[material_modifier] => 1
[work_modifier] => 1
[options] => Array
(
[0] => 150 мм
[1] => 200 мм
[2] => 250 мм
[3] => 300 мм
[4] => 350 мм
[5] => 400 мм
)
[days] => [15,16,17,18,19,20]
[material_price] => [2379,2639,2898,3458,3601,4175]
[work_price] => [2538,2820,3134,3483,4062,5642]
[image] => https://akademik-stroy.ru/wp-content/uploads/materials/karkasno-shchitovye.jpg
[area_modifier] => 83.17
[parent_name] => Стены 2 этаж (несущие)
[parent_id] => 5
[material_sum] => 249305
[work_sum] => 221640
[total_sum] => 470945
[total_days] => 15
[display_material_sum] => 249 305
[display_work_sum] => 221 640
[display_total_sum] => 470 945
)
1
470 945₽
Работа:221 640 ₽
Материалы:249 305 ₽
Дни:15
stdClass Object
(
[id] => 202
[attribute_id] => 5
[name] => Рубленные
[material_modifier] => 1
[work_modifier] => 1
[options] => Array
(
[0] => 150 мм
[1] => 200 мм
[2] => 250 мм
[3] => 300 мм
[4] => 350 мм
[5] => 400 мм
)
[days] => [15,16,17,18,17,18]
[material_price] => [35950,50267,60583,75900,80217,100533]
[work_price] => [9612,12816,16020,19224,22428,25632]
[image] => https://akademik-stroy.ru/wp-content/uploads/materials/rublennye.jpg
[area_modifier] => 83.17
[parent_name] => Стены 2 этаж (несущие)
[parent_id] => 5
[material_sum] => 3767351
[work_sum] => 839402
[total_sum] => 4606753
[total_days] => 15
[display_material_sum] => 3 767 351
[display_work_sum] => 839 402
[display_total_sum] => 4 606 753
)
1
4 606 753₽
Работа:839 402 ₽
Материалы:3 767 351 ₽
Дни:15
stdClass Object
(
[id] => 203
[attribute_id] => 5
[name] => Теплоблок
[material_modifier] => 1
[work_modifier] => 1
[options] => Array
(
[0] => 300 мм (с облицовкой, не покрашенный)
[1] => 400 мм (с облицовкой, не покрашенный)
[2] => 300 мм (с облицовкой, покрашенный)
[3] => 400 мм (с облицовкой, покрашенный)
)
[days] => [15,16,15,16]
[material_price] => [2888,3729,3957,4258]
[work_price] => [2564,3229,2949,3713]
[image] => https://akademik-stroy.ru/wp-content/uploads/materials/teploblok.jpg
[area_modifier] => 83.17
[parent_name] => Стены 2 этаж (несущие)
[parent_id] => 5
[material_sum] => 302646
[work_sum] => 223910
[total_sum] => 526556
[total_days] => 15
[display_material_sum] => 302 646
[display_work_sum] => 223 910
[display_total_sum] => 526 556
)
1
526 556₽
Работа:223 910 ₽
Материалы:302 646 ₽
Дни:15
stdClass Object
(
[id] => 204
[attribute_id] => 5
[name] => Арболитовые блоки
[material_modifier] => 1
[work_modifier] => 1
[options] => Array
(
[0] => 300 мм
[1] => 400 мм
[2] => 600 мм
)
[days] => [19,22,27]
[material_price] => [3210,4475,5852]
[work_price] => [4214,4788,5866]
[image] => https://akademik-stroy.ru/wp-content/uploads/materials/arbolitovye-bloki.png
[area_modifier] => 83.17
[parent_name] => Стены 2 этаж (несущие)
[parent_id] => 5
[material_sum] => 336389
[work_sum] => 368002
[total_sum] => 704391
[total_days] => 19
[display_material_sum] => 336 389
[display_work_sum] => 368 002
[display_total_sum] => 704 391
)
1
704 391₽
Работа:368 002 ₽
Материалы:336 389 ₽
Дни:19
stdClass Object
(
[id] => 205
[attribute_id] => 5
[name] => Полистиролбетон
[material_modifier] => 1
[work_modifier] => 1
[options] => Array
(
[0] => 300 мм
[1] => 400 мм
[2] => 600 мм
)
[days] => [29,31,35]
[material_price] => [2798,4573,5256]
[work_price] => [5038,5851,6426]
[image] => https://akademik-stroy.ru/wp-content/uploads/materials/polistirolbeton.jpg
[area_modifier] => 83.17
[parent_name] => Стены 2 этаж (несущие)
[parent_id] => 5
[material_sum] => 293214
[work_sum] => 439961
[total_sum] => 733175
[total_days] => 29
[display_material_sum] => 293 214
[display_work_sum] => 439 961
[display_total_sum] => 733 175
)
1
733 175₽
Работа:439 961 ₽
Материалы:293 214 ₽
Дни:29
stdClass Object
(
[id] => 206
[attribute_id] => 5
[name] => Шлакоблок
[material_modifier] => 1
[work_modifier] => 1
[options] => Array
(
[0] => 400 мм
[1] => 600 мм
)
[days] => [15,16]
[material_price] => [2391,3471]
[work_price] => [2642,3662]
[image] => https://akademik-stroy.ru/wp-content/uploads/materials/shlakoblok.jpg
[area_modifier] => 83.17
[parent_name] => Стены 2 этаж (несущие)
[parent_id] => 5
[material_sum] => 250563
[work_sum] => 230722
[total_sum] => 481285
[total_days] => 15
[display_material_sum] => 250 563
[display_work_sum] => 230 722
[display_total_sum] => 481 285
)
1
481 285₽
Работа:230 722 ₽
Материалы:250 563 ₽
Дни:15
stdClass Object
(
[id] => 245
[attribute_id] => 5
[name] => Теплая керамика
[material_modifier] => 1
[work_modifier] => 1
[options] => Array
(
[0] => 380 мм
[1] => 380 мм Thermo
[2] => 440 мм
[3] => 510 мм
)
[days] => [10,10,11,12]
[material_price] => [4510,5098,6093,8013]
[work_price] => [4737,4937,5903,6958]
[image] => https://akademik-stroy.ru/wp-content/uploads/materials/teplaya-keramika.jpg
[area_modifier] => 83.17
[parent_name] => Стены 2 этаж (несущие)
[parent_id] => 5
[material_sum] => 472622
[work_sum] => 413675
[total_sum] => 886297
[total_days] => 10
[display_material_sum] => 472 622
[display_work_sum] => 413 675
[display_total_sum] => 886 297
)
1
886 297₽
Работа:413 675 ₽
Материалы:472 622 ₽
Дни:10
stdClass Object
(
[id] => 246
[attribute_id] => 5
[name] => Несъемная опалубка
[material_modifier] => 1
[work_modifier] => 1
[options] => Array
(
[0] => 380 мм
[1] => 380 мм Thermo
[2] => 440 мм
[3] => 510 мм
)
[days] => [10,10,11,12]
[material_price] => [3302,3902,4108,5008]
[work_price] => [2100,2100,2300,2534]
[image] => https://akademik-stroy.ru/wp-content/uploads/materials/nesemnaya-opalubka.jpg
[area_modifier] => 83.17
[parent_name] => Стены 2 этаж (несущие)
[parent_id] => 5
[material_sum] => 346030
[work_sum] => 183390
[total_sum] => 529420
[total_days] => 10
[display_material_sum] => 346 030
[display_work_sum] => 183 390
[display_total_sum] => 529 420
)
1
529 420₽
Работа:183 390 ₽
Материалы:346 030 ₽
Дни:10
stdClass Object
(
[id] => 254
[attribute_id] => 5
[name] => Бревно
[material_modifier] => 1
[work_modifier] => 1
[options] => Array
(
[0] => 260 мм
[1] => 320 мм
[2] => 360 мм
[3] => 400 мм
[4] => 500 мм
)
[days] => [7,8,9,10,11]
[material_price] => [1874,24045,26930,30972,38825]
[work_price] => [5046,6207,6952,7716,9723]
[image] => https://akademik-stroy.ru/wp-content/uploads/materials/sruby.jpg
[area_modifier] => 83.17
[parent_name] => Стены 2 этаж (несущие)
[parent_id] => 5
[material_sum] => 196384
[work_sum] => 440660
[total_sum] => 637044
[total_days] => 7
[display_material_sum] => 196 384
[display_work_sum] => 440 660
[display_total_sum] => 637 044
)
1
637 044₽
Работа:440 660 ₽
Материалы:196 384 ₽
Дни:7
stdClass Object
(
[id] => 164
[attribute_id] => 37
[name] => Металлочерепица
[material_modifier] => 1
[work_modifier] => 1
[options] => Array
(
)
[days] => [20]
[material_price] => [6112]
[work_price] => [5726]
[image] => https://akademik-stroy.ru/wp-content/uploads/materials/metallocherepica.jpg
[area_modifier] => 177.76
[parent_name] => Крыша (Скатная)
[parent_id] => 37
[material_sum] => 1368951
[work_sum] => 1068746
[total_sum] => 2437697
[total_days] => 20
[display_material_sum] => 1 368 951
[display_work_sum] => 1 068 746
[display_total_sum] => 2 437 697
)
1
2 437 697₽
Работа:1 068 746 ₽
Материалы:1 368 951 ₽
Дни:20
stdClass Object
(
[id] => 165
[attribute_id] => 37
[name] => Гибкая черепица
[material_modifier] => 1
[work_modifier] => 1
[options] => Array
(
)
[days] => [20]
[material_price] => [6980]
[work_price] => [5950]
[image] => https://akademik-stroy.ru/wp-content/uploads/materials/gibkaya-cherepica.jpg
[area_modifier] => 177.76
[parent_name] => Крыша (Скатная)
[parent_id] => 37
[material_sum] => 1563364
[work_sum] => 1110556
[total_sum] => 2673920
[total_days] => 20
[display_material_sum] => 1 563 364
[display_work_sum] => 1 110 556
[display_total_sum] => 2 673 920
)
1
2 673 920₽
Работа:1 110 556 ₽
Материалы:1 563 364 ₽
Дни:20
stdClass Object
(
[id] => 166
[attribute_id] => 37
[name] => Цементно-песчаная черепица
[material_modifier] => 1
[work_modifier] => 1
[options] => Array
(
)
[days] => [20]
[material_price] => [10560]
[work_price] => [9456]
[image] => https://akademik-stroy.ru/wp-content/uploads/materials/cementno-peschanaya-cherepica.jpg
[area_modifier] => 177.76
[parent_name] => Крыша (Скатная)
[parent_id] => 37
[material_sum] => 2365203
[work_sum] => 1764943
[total_sum] => 4130146
[total_days] => 20
[display_material_sum] => 2 365 203
[display_work_sum] => 1 764 943
[display_total_sum] => 4 130 146
)
1
4 130 146₽
Работа:1 764 943 ₽
Материалы:2 365 203 ₽
Дни:20
stdClass Object
(
[id] => 167
[attribute_id] => 37
[name] => Композитная черепица
[material_modifier] => 1
[work_modifier] => 1
[options] => Array
(
)
[days] => [20]
[material_price] => [9506]
[work_price] => [8905]
[image] => https://akademik-stroy.ru/wp-content/uploads/materials/kompozitnaya-cherepica.jpg
[area_modifier] => 177.76
[parent_name] => Крыша (Скатная)
[parent_id] => 37
[material_sum] => 2129131
[work_sum] => 1662100
[total_sum] => 3791231
[total_days] => 20
[display_material_sum] => 2 129 131
[display_work_sum] => 1 662 100
[display_total_sum] => 3 791 231
)
1
3 791 231₽
Работа:1 662 100 ₽
Материалы:2 129 131 ₽
Дни:20
stdClass Object
(
[id] => 168
[attribute_id] => 37
[name] => Керамическая черепица
[material_modifier] => 1
[work_modifier] => 1
[options] => Array
(
)
[days] => [20]
[material_price] => [12750]
[work_price] => [9456]
[image] => https://akademik-stroy.ru/wp-content/uploads/materials/keramicheskaya-cherepica.jpg
[area_modifier] => 177.76
[parent_name] => Крыша (Скатная)
[parent_id] => 37
[material_sum] => 2855714
[work_sum] => 1764943
[total_sum] => 4620657
[total_days] => 20
[display_material_sum] => 2 855 714
[display_work_sum] => 1 764 943
[display_total_sum] => 4 620 657
)
1
4 620 657₽
Работа:1 764 943 ₽
Материалы:2 855 714 ₽
Дни:20
stdClass Object
(
[id] => 169
[attribute_id] => 37
[name] => Металлическая фальцевая
[material_modifier] => 1
[work_modifier] => 1
[options] => Array
(
)
[days] => [20]
[material_price] => [8550]
[work_price] => [8190]
[image] => https://akademik-stroy.ru/wp-content/uploads/materials/metallicheskaya-falcevaya.jpg
[area_modifier] => 177.76
[parent_name] => Крыша (Скатная)
[parent_id] => 37
[material_sum] => 1915008
[work_sum] => 1528647
[total_sum] => 3443655
[total_days] => 20
[display_material_sum] => 1 915 008
[display_work_sum] => 1 528 647
[display_total_sum] => 3 443 655
)
1
3 443 655₽
Работа:1 528 647 ₽
Материалы:1 915 008 ₽
Дни:20
stdClass Object
(
[id] => 170
[attribute_id] => 37
[name] => Медная фальцевая
[material_modifier] => 1
[work_modifier] => 1
[options] => Array
(
)
[days] => [20]
[material_price] => [20450]
[work_price] => [16750]
[image] => https://akademik-stroy.ru/wp-content/uploads/materials/mednaya-falcevaya.jpg
[area_modifier] => 177.76
[parent_name] => Крыша (Скатная)
[parent_id] => 37
[material_sum] => 4580342
[work_sum] => 3126354
[total_sum] => 7706696
[total_days] => 20
[display_material_sum] => 4 580 342
[display_work_sum] => 3 126 354
[display_total_sum] => 7 706 696
)
1
7 706 696₽
Работа:3 126 354 ₽
Материалы:4 580 342 ₽
Дни:20
stdClass Object
(
[id] => 171
[attribute_id] => 37
[name] => Зеленая кровля
[material_modifier] => 1
[work_modifier] => 1
[options] => Array
(
)
[days] => [20]
[material_price] => [19850]
[work_price] => [16780]
[image] => https://akademik-stroy.ru/wp-content/uploads/materials/zelenaya-krovlya.jpg
[area_modifier] => 177.76
[parent_name] => Крыша (Скатная)
[parent_id] => 37
[material_sum] => 4445955
[work_sum] => 3131953
[total_sum] => 7577908
[total_days] => 20
[display_material_sum] => 4 445 955
[display_work_sum] => 3 131 953
[display_total_sum] => 7 577 908
)
1
7 577 908₽
Работа:3 131 953 ₽
Материалы:4 445 955 ₽
Дни:20
stdClass Object
(
[id] => 172
[attribute_id] => 37
[name] => Профлист
[material_modifier] => 1
[work_modifier] => 1
[options] => Array
(
)
[days] => [20]
[material_price] => [3450]
[work_price] => [3750]
[image] => https://akademik-stroy.ru/wp-content/uploads/materials/proflist.jpg
[area_modifier] => 177.76
[parent_name] => Крыша (Скатная)
[parent_id] => 37
[material_sum] => 772723
[work_sum] => 699930
[total_sum] => 1472653
[total_days] => 20
[display_material_sum] => 772 723
[display_work_sum] => 699 930
[display_total_sum] => 1 472 653
)
1
1 472 653₽
Работа:699 930 ₽
Материалы:772 723 ₽
Дни:20
stdClass Object
(
[id] => 51
[attribute_id] => 26
[name] => Есть
[material_modifier] => 1
[work_modifier] => 1
[options] => Array
(
[0] => Профиль 58 мм, 3-камерный, стеклопакет 2-камерный до 32 мм
[1] => Профиль 60 мм, 4-камерный, стеклопакет 2-камерный до 32 мм
[2] => Профиль 70 мм, 5-камерный, стеклопакет 2-камерный до 40 мм
[3] => Профиль 72 мм, 5-камерный, стеклопакет 2-камерный до 40 мм
[4] => Алюминиевые окна Alutech профиль 72 мм, стеклопакет 2-камерный
)
[days] => [3,3,3,3,3]
[material_price] => [1339,2124,2867,3023,29596]
[work_price] => [635,647,659,668,2579]
[image] => https://akademik-stroy.ru/wp-content/uploads/materials/okna.jpg
[area_modifier] => 211.74
[parent_name] => Окна
[parent_id] => 26
[material_sum] => 357235
[work_sum] => 141178
[total_sum] => 498413
[total_days] => 3
[display_material_sum] => 357 235
[display_work_sum] => 141 178
[display_total_sum] => 498 413
)
1
498 413₽
Работа:141 178 ₽
Материалы:357 235 ₽
Дни:3
stdClass Object
(
[id] => 52
[attribute_id] => 26
[name] => Нет
[material_modifier] => 2
[work_modifier] => 1
[options] =>
[days] => null
[material_price] => null
[work_price] => null
[image] => https://akademik-stroy.ru/wp-content/uploads/materials/okna.jpg
[area_modifier] => 211.74
[parent_name] => Окна
[parent_id] => 26
[material_sum] => 0
[work_sum] => 0
[total_sum] => 0
[total_days] => 0
[display_material_sum] => 0
[display_work_sum] => 0
[display_total_sum] => 0
)
1
0₽
Работа:0 ₽
Материалы:0 ₽
Дни:0
stdClass Object
(
[id] => 53
[attribute_id] => 27
[name] => Есть
[material_modifier] => 1
[work_modifier] => 1
[options] => Array
(
)
[days] => [1]
[material_price] => [10000]
[work_price] => [5500]
[image] => https://akademik-stroy.ru/wp-content/uploads/materials/dveri.jpg
[area_modifier] => 1
[parent_name] => Двери входные
[parent_id] => 27
[material_sum] => 12600
[work_sum] => 5775
[total_sum] => 18375
[total_days] => 1
[display_material_sum] => 12 600
[display_work_sum] => 5 775
[display_total_sum] => 18 375
)
1
18 375₽
Работа:5 775 ₽
Материалы:12 600 ₽
Дни:1
stdClass Object
(
[id] => 54
[attribute_id] => 27
[name] => Нет
[material_modifier] => 1
[work_modifier] => 1
[options] => Array
(
)
[days] => [0]
[material_price] => [0]
[work_price] => [0]
[image] => https://akademik-stroy.ru/wp-content/uploads/materials/dveri.jpg
[area_modifier] => 1
[parent_name] => Двери входные
[parent_id] => 27
[material_sum] => 0
[work_sum] => 0
[total_sum] => 0
[total_days] => 0
[display_material_sum] => 0
[display_work_sum] => 0
[display_total_sum] => 0
)
1
0₽
Работа:0 ₽
Материалы:0 ₽
Дни:0
stdClass Object
(
[id] => 25
[attribute_id] => 13
[name] => Нет
[material_modifier] => 1
[work_modifier] => 1
[options] => Array
(
)
[days] => [0]
[material_price] => [0]
[work_price] => [0]
[image] => https://akademik-stroy.ru/wp-content/uploads/materials/mineralovata-krov.jpg
[area_modifier] => 177.76
[parent_name] => Утепление кровли (Мансарда)
[parent_id] => 13
[material_sum] => 0
[work_sum] => 0
[total_sum] => 0
[total_days] => 0
[display_material_sum] => 0
[display_work_sum] => 0
[display_total_sum] => 0
)
1
0₽
Работа:0 ₽
Материалы:0 ₽
Дни:0
stdClass Object
(
[id] => 26
[attribute_id] => 13
[name] => Минераловатный
[material_modifier] => 1
[work_modifier] => 1
[options] => Array
(
[0] => 50 мм
[1] => 100 мм
[2] => 150 мм
[3] => 200 мм
[4] => 250 мм
[5] => 300 мм
[6] => 350 мм
[7] => 400 мм
[8] => 450 мм
[9] => 500 мм
)
[days] => [5,5,6,6,6,7,7,7,8,8]
[material_price] => [1158,1414,1772,2230,3602,4060,4974,5890,6408,7718]
[work_price] => [650,846,846,1098,1318,1450,1596,1754,1930,2122]
[image] => https://akademik-stroy.ru/wp-content/uploads/materials/mineralovata-krov.jpg
[area_modifier] => 177.76
[parent_name] => Утепление кровли (Мансарда)
[parent_id] => 13
[material_sum] => 259366
[work_sum] => 121321
[total_sum] => 380687
[total_days] => 5
[display_material_sum] => 259 366
[display_work_sum] => 121 321
[display_total_sum] => 380 687
)
1
380 687₽
Работа:121 321 ₽
Материалы:259 366 ₽
Дни:5
stdClass Object
(
[id] => 123
[attribute_id] => 13
[name] => Эковата (целлюлозная вата)
[material_modifier] => 1
[work_modifier] => 1
[options] => Array
(
[0] => 50 мм
[1] => 100 мм
[2] => 150 мм
[3] => 200 мм
[4] => 250 мм
[5] => 300 мм
[6] => 350 мм
[7] => 400 мм
[8] => 450 мм
[9] => 500 мм
)
[days] => [3,3,4,4,4,5,5,5,5,5]
[material_price] => [820,1638,2458,3276,5734,6552,8190,9828,11466,13104]
[work_price] => [234,304,304,396,474,522,574,632,694,764]
[image] => https://akademik-stroy.ru/wp-content/uploads/materials/ehkovata-krov.jpg
[area_modifier] => 177.76
[parent_name] => Утепление кровли (Мансарда)
[parent_id] => 13
[material_sum] => 183662
[work_sum] => 43676
[total_sum] => 227338
[total_days] => 3
[display_material_sum] => 183 662
[display_work_sum] => 43 676
[display_total_sum] => 227 338
)
1
227 338₽
Работа:43 676 ₽
Материалы:183 662 ₽
Дни:3
stdClass Object
(
[id] => 124
[attribute_id] => 13
[name] => Экструдированный пенополистирол
[material_modifier] => 1
[work_modifier] => 1
[options] => Array
(
[0] => 50 мм
[1] => 100 мм
[2] => 150 мм
[3] => 200 мм
[4] => 250 мм
[5] => 300 мм
[6] => 350 мм
[7] => 400 мм
[8] => 450 мм
[9] => 500 мм
)
[days] => [3,3,4,4,4,5,5,5,5,6]
[material_price] => [1146,2292,3438,4584,8020,9166,11458,13750,16040,18332]
[work_price] => [390,508,508,660,790,870,958,1052,1158,1274]
[image] => https://akademik-stroy.ru/wp-content/uploads/materials/epps-krov.jpg
[area_modifier] => 177.76
[parent_name] => Утепление кровли (Мансарда)
[parent_id] => 13
[material_sum] => 256678
[work_sum] => 72793
[total_sum] => 329471
[total_days] => 3
[display_material_sum] => 256 678
[display_work_sum] => 72 793
[display_total_sum] => 329 471
)
1
329 471₽
Работа:72 793 ₽
Материалы:256 678 ₽
Дни:3
stdClass Object
(
[id] => 125
[attribute_id] => 13
[name] => ПСБ (ППС-пенополистирол)
[material_modifier] => 1
[work_modifier] => 1
[options] => Array
(
[0] => 50 мм
[1] => 100 мм
[2] => 150 мм
[3] => 200 мм
[4] => 250 мм
[5] => 300 мм
[6] => 350 мм
[7] => 400 мм
[8] => 450 мм
[9] => 500 мм
)
[days] => [3,3,4,4,4,5,5,5,5,6]
[material_price] => [476,954,1430,1906,3336,3814,4766,5720,6674,7626]
[work_price] => [390,508,508,660,790,870,958,1052,1158,1274]
[image] => https://akademik-stroy.ru/wp-content/uploads/materials/psb-krov.jpg
[area_modifier] => 177.76
[parent_name] => Утепление кровли (Мансарда)
[parent_id] => 13
[material_sum] => 106613
[work_sum] => 72793
[total_sum] => 179406
[total_days] => 3
[display_material_sum] => 106 613
[display_work_sum] => 72 793
[display_total_sum] => 179 406
)
1
179 406₽
Работа:72 793 ₽
Материалы:106 613 ₽
Дни:3
stdClass Object
(
[id] => 126
[attribute_id] => 13
[name] => ППУ (Пенополиуретан)
[material_modifier] => 1
[work_modifier] => 1
[options] => Array
(
[0] => 50 мм
[1] => 100 мм
[2] => 150 мм
[3] => 200 мм
[4] => 250 мм
[5] => 300 мм
[6] => 350 мм
[7] => 400 мм
[8] => 450 мм
[9] => 500 мм
)
[days] => [2,2,3,3,3,3,4,4,4,4]
[material_price] => [2080,4160,6240,8320,14560,16640,20800,24960,29120,33280]
[work_price] => [234,304,304,396,474,522,574,632,694,764]
[image] => https://akademik-stroy.ru/wp-content/uploads/materials/ppu-krov.jpg
[area_modifier] => 177.76
[parent_name] => Утепление кровли (Мансарда)
[parent_id] => 13
[material_sum] => 465873
[work_sum] => 43676
[total_sum] => 509549
[total_days] => 2
[display_material_sum] => 465 873
[display_work_sum] => 43 676
[display_total_sum] => 509 549
)
1
509 549₽
Работа:43 676 ₽
Материалы:465 873 ₽
Дни:2
stdClass Object
(
[id] => 127
[attribute_id] => 13
[name] => PIR-плиты (пенополиизоцианурат)
[material_modifier] => 1
[work_modifier] => 1
[options] => Array
(
[0] => 50 мм
[1] => 100 мм
[2] => 150 мм
[3] => 200 мм
[4] => 250 мм
[5] => 300 мм
[6] => 350 мм
[7] => 400 мм
[8] => 450 мм
[9] => 500 мм
)
[days] => [3,3,4,4,4,5,5,5,5,6]
[material_price] => [2646,5290,7936,10580,18516,21162,26452,31742,37032,42324]
[work_price] => [390,508,508,660,790,870,958,1052,1158,1274]
[image] => https://akademik-stroy.ru/wp-content/uploads/materials/pir-krov.jpg
[area_modifier] => 177.76
[parent_name] => Утепление кровли (Мансарда)
[parent_id] => 13
[material_sum] => 592645
[work_sum] => 72793
[total_sum] => 665438
[total_days] => 3
[display_material_sum] => 592 645
[display_work_sum] => 72 793
[display_total_sum] => 665 438
)
1
665 438₽
Работа:72 793 ₽
Материалы:592 645 ₽
Дни:3
stdClass Object
(
[id] => 27
[attribute_id] => 14
[name] => Нет
[material_modifier] => 1
[work_modifier] => 1
[options] => Array
(
)
[days] => [0]
[material_price] => [0]
[work_price] => [0]
[image] => https://akademik-stroy.ru/wp-content/uploads/materials/mansardnye-okna-2.jpg
[area_modifier] => 1
[parent_name] => Мансардные окна
[parent_id] => 14
[material_sum] => 0
[work_sum] => 0
[total_sum] => 0
[total_days] => 0
[display_material_sum] => 0
[display_work_sum] => 0
[display_total_sum] => 0
)
1
0₽
Работа:0 ₽
Материалы:0 ₽
Дни:0
stdClass Object
(
[id] => 28
[attribute_id] => 14
[name] => Есть
[material_modifier] => 1
[work_modifier] => 1
[options] => Array
(
[0] => 55x78
[1] => 55x98
)
[days] => [6,7]
[material_price] => [47480,68700]
[work_price] => [17900,19500]
[image] => https://akademik-stroy.ru/wp-content/uploads/materials/mansardnye-okna-2.jpg
[area_modifier] => 1
[parent_name] => Мансардные окна
[parent_id] => 14
[material_sum] => 59825
[work_sum] => 18795
[total_sum] => 78620
[total_days] => 6
[display_material_sum] => 59 825
[display_work_sum] => 18 795
[display_total_sum] => 78 620
)
1
78 620₽
Работа:18 795 ₽
Материалы:59 825 ₽
Дни:6
stdClass Object
(
[id] => 29
[attribute_id] => 15
[name] => Нет
[material_modifier] => 1
[work_modifier] => 1
[options] => Array
(
)
[days] => [0]
[material_price] => [0]
[work_price] => [0]
[image] => https://akademik-stroy.ru/wp-content/uploads/materials/sofit.jpg
[area_modifier] => 177.76
[parent_name] => Подшивка кровли
[parent_id] => 15
[material_sum] => 0
[work_sum] => 0
[total_sum] => 0
[total_days] => 0
[display_material_sum] => 0
[display_work_sum] => 0
[display_total_sum] => 0
)
1
0₽
Работа:0 ₽
Материалы:0 ₽
Дни:0
stdClass Object
(
[id] => 30
[attribute_id] => 15
[name] => Есть
[material_modifier] => 1
[work_modifier] => 1
[options] => Array
(
[0] => Софиты (ПВХ)
[1] => Cedral
[2] => ДПК
[3] => Планкен
)
[days] => [7,10,9,8]
[material_price] => [1803,3213,3025,3150]
[work_price] => [1529,2188,2075,1923]
[image] => https://akademik-stroy.ru/wp-content/uploads/materials/sofit.jpg
[area_modifier] => 177.76
[parent_name] => Подшивка кровли
[parent_id] => 15
[material_sum] => 403832
[work_sum] => 285385
[total_sum] => 689217
[total_days] => 7
[display_material_sum] => 403 832
[display_work_sum] => 285 385
[display_total_sum] => 689 217
)
1
689 217₽
Работа:285 385 ₽
Материалы:403 832 ₽
Дни:7
stdClass Object
(
[id] => 31
[attribute_id] => 16
[name] => Нет
[material_modifier] => 1
[work_modifier] => 1
[options] => Array
(
)
[days] => [0]
[material_price] => [0]
[work_price] => [0]
[image] => https://akademik-stroy.ru/wp-content/uploads/materials/docke-standard-pvh.jpg
[area_modifier] => 177.76
[parent_name] => Водосточная система
[parent_id] => 16
[material_sum] => 0
[work_sum] => 0
[total_sum] => 0
[total_days] => 0
[display_material_sum] => 0
[display_work_sum] => 0
[display_total_sum] => 0
)
1
0₽
Работа:0 ₽
Материалы:0 ₽
Дни:0
stdClass Object
(
[id] => 32
[attribute_id] => 16
[name] => Есть
[material_modifier] => 1
[work_modifier] => 1
[options] => Array
(
[0] => Döcke Standard (ПВХ)
[1] => Металлические Grand Line
)
[days] => [7,7]
[material_price] => [1842,2703]
[work_price] => [1491,1529]
[image] => https://akademik-stroy.ru/wp-content/uploads/materials/docke-standard-pvh.jpg
[area_modifier] => 177.76
[parent_name] => Водосточная система
[parent_id] => 16
[material_sum] => 412567
[work_sum] => 278292
[total_sum] => 690859
[total_days] => 7
[display_material_sum] => 412 567
[display_work_sum] => 278 292
[display_total_sum] => 690 859
)
1
690 859₽
Работа:278 292 ₽
Материалы:412 567 ₽
Дни:7
stdClass Object
(
[id] => 33
[attribute_id] => 17
[name] => Нет
[material_modifier] => 1
[work_modifier] => 1
[options] => Array
(
)
[days] => [0]
[material_price] => [0]
[work_price] => [0]
[image] => https://akademik-stroy.ru/wp-content/uploads/materials/mineralovata.jpg
[area_modifier] => 260.93
[parent_name] => Дополнительное утепление наружных стен
[parent_id] => 17
[material_sum] => 0
[work_sum] => 0
[total_sum] => 0
[total_days] => 0
[display_material_sum] => 0
[display_work_sum] => 0
[display_total_sum] => 0
)
1
0₽
Работа:0 ₽
Материалы:0 ₽
Дни:0
stdClass Object
(
[id] => 34
[attribute_id] => 17
[name] => Минераловатный
[material_modifier] => 1
[work_modifier] => 1
[options] => Array
(
[0] => 50 мм
[1] => 100 мм
[2] => 150 мм
[3] => 200 мм
[4] => 250 мм
[5] => 300 мм
)
[days] => [7,8,10,12,14,15]
[material_price] => [3437,3613,3803,3915,4601,4830]
[work_price] => [2325,2423,2523,2749,2859,3025]
[image] => https://akademik-stroy.ru/wp-content/uploads/materials/mineralovata.jpg
[area_modifier] => 260.93
[parent_name] => Дополнительное утепление наружных стен
[parent_id] => 17
[material_sum] => 1129989
[work_sum] => 636995
[total_sum] => 1766984
[total_days] => 7
[display_material_sum] => 1 129 989
[display_work_sum] => 636 995
[display_total_sum] => 1 766 984
)
1
1 766 984₽
Работа:636 995 ₽
Материалы:1 129 989 ₽
Дни:7
stdClass Object
(
[id] => 128
[attribute_id] => 17
[name] => Эковата (целлюлозная вата)
[material_modifier] => 1
[work_modifier] => 1
[options] => Array
(
[0] => 50 мм
[1] => 100 мм
[2] => 150 мм
[3] => 200 мм
[4] => 250 мм
[5] => 300 мм
)
[days] => [3,4,5,6,7,8]
[material_price] => [810,1319,1629,1838,2267,2676]
[work_price] => [1225,1323,1423,1549,1659,1725]
[image] => https://akademik-stroy.ru/wp-content/uploads/materials/ehkovata.jpg
[area_modifier] => 260.93
[parent_name] => Дополнительное утепление наружных стен
[parent_id] => 17
[material_sum] => 266305
[work_sum] => 335621
[total_sum] => 601926
[total_days] => 3
[display_material_sum] => 266 305
[display_work_sum] => 335 621
[display_total_sum] => 601 926
)
1
601 926₽
Работа:335 621 ₽
Материалы:266 305 ₽
Дни:3
stdClass Object
(
[id] => 129
[attribute_id] => 17
[name] => Экструдированный пенополистирол
[material_modifier] => 1
[work_modifier] => 1
[options] => Array
(
[0] => 50 мм
[1] => 100 мм
[2] => 150 мм
[3] => 200 мм
[4] => 250 мм
[5] => 300 мм
)
[days] => [5,6,7,8,9,10]
[material_price] => [4560,4300,5119,6292,7010,8583]
[work_price] => [1795,1954,2254,2330,2595,2735]
[image] => https://akademik-stroy.ru/wp-content/uploads/materials/epps.jpg
[area_modifier] => 260.93
[parent_name] => Дополнительное утепление наружных стен
[parent_id] => 17
[material_sum] => 1499199
[work_sum] => 491788
[total_sum] => 1990987
[total_days] => 5
[display_material_sum] => 1 499 199
[display_work_sum] => 491 788
[display_total_sum] => 1 990 987
)
1
1 990 987₽
Работа:491 788 ₽
Материалы:1 499 199 ₽
Дни:5
stdClass Object
(
[id] => 130
[attribute_id] => 17
[name] => ПСБ (ППС-пенополистирол)
[material_modifier] => 1
[work_modifier] => 1
[options] => Array
(
[0] => 50 мм
[1] => 100 мм
[2] => 150 мм
[3] => 200 мм
[4] => 250 мм
[5] => 300 мм
)
[days] => [5,6,7,8,9,10]
[material_price] => [4822,5200,5819,6292,7010,7583]
[work_price] => [1795,1954,2254,2330,2595,2735]
[image] => https://akademik-stroy.ru/wp-content/uploads/materials/psb.jpg
[area_modifier] => 260.93
[parent_name] => Дополнительное утепление наружных стен
[parent_id] => 17
[material_sum] => 1585338
[work_sum] => 491788
[total_sum] => 2077126
[total_days] => 5
[display_material_sum] => 1 585 338
[display_work_sum] => 491 788
[display_total_sum] => 2 077 126
)
1
2 077 126₽
Работа:491 788 ₽
Материалы:1 585 338 ₽
Дни:5
stdClass Object
(
[id] => 131
[attribute_id] => 17
[name] => ППУ (Пенополиуретан)
[material_modifier] => 1
[work_modifier] => 1
[options] => Array
(
[0] => 50 мм
[1] => 100 мм
[2] => 150 мм
[3] => 200 мм
[4] => 250 мм
[5] => 300 мм
)
[days] => [3,4,5,6,7,8]
[material_price] => [2860,3400,4219,4592,5010,5583]
[work_price] => [729,900,980,1120,1280,1530]
[image] => https://akademik-stroy.ru/wp-content/uploads/materials/ppu.jpg
[area_modifier] => 260.93
[parent_name] => Дополнительное утепление наружных стен
[parent_id] => 17
[material_sum] => 940287
[work_sum] => 199729
[total_sum] => 1140016
[total_days] => 3
[display_material_sum] => 940 287
[display_work_sum] => 199 729
[display_total_sum] => 1 140 016
)
1
1 140 016₽
Работа:199 729 ₽
Материалы:940 287 ₽
Дни:3
stdClass Object
(
[id] => 132
[attribute_id] => 17
[name] => PIR-плиты (пенополиизоцианурат)
[material_modifier] => 1
[work_modifier] => 1
[options] => Array
(
[0] => 50 мм
[1] => 100 мм
[2] => 150 мм
[3] => 200 мм
[4] => 250 мм
[5] => 300 мм
)
[days] => [5,6,7,8,9,10]
[material_price] => [8323,15645,20968,25900,29258,30581]
[work_price] => [800,900,970,1150,1280,1330]
[image] => https://akademik-stroy.ru/wp-content/uploads/materials/pir.jpg
[area_modifier] => 260.93
[parent_name] => Дополнительное утепление наружных стен
[parent_id] => 17
[material_sum] => 2736368
[work_sum] => 219181
[total_sum] => 2955549
[total_days] => 5
[display_material_sum] => 2 736 368
[display_work_sum] => 219 181
[display_total_sum] => 2 955 549
)
1
2 955 549₽
Работа:219 181 ₽
Материалы:2 736 368 ₽
Дни:5
stdClass Object
(
[id] => 37
[attribute_id] => 19
[name] => Нет
[material_modifier] => 1
[work_modifier] => 1
[options] => Array
(
)
[days] => [0]
[material_price] => [0]
[work_price] => [0]
[image] => https://akademik-stroy.ru/wp-content/uploads/materials/imitaciya-brusa.jpg
[area_modifier] => 260.93
[parent_name] => Наружная отделка фасада
[parent_id] => 19
[material_sum] => 0
[work_sum] => 0
[total_sum] => 0
[total_days] => 0
[display_material_sum] => 0
[display_work_sum] => 0
[display_total_sum] => 0
)
1
0₽
Работа:0 ₽
Материалы:0 ₽
Дни:0
stdClass Object
(
[id] => 38
[attribute_id] => 19
[name] => Имитация бруса
[material_modifier] => 1
[work_modifier] => 1
[options] => Array
(
[0] => Сосна
[1] => Ель
[2] => Лиственница
)
[days] => [20,20,20]
[material_price] => [2994,2762,4954]
[work_price] => [1397,1231,1577]
[image] => https://akademik-stroy.ru/wp-content/uploads/materials/imitaciya-brusa.jpg
[area_modifier] => 260.93
[parent_name] => Наружная отделка фасада
[parent_id] => 19
[material_sum] => 984343
[work_sum] => 382745
[total_sum] => 1367088
[total_days] => 20
[display_material_sum] => 984 343
[display_work_sum] => 382 745
[display_total_sum] => 1 367 088
)
1
1 367 088₽
Работа:382 745 ₽
Материалы:984 343 ₽
Дни:20
stdClass Object
(
[id] => 136
[attribute_id] => 19
[name] => Планкен
[material_modifier] => 1
[work_modifier] => 1
[options] => Array
(
[0] => Сосна
[1] => Ель
[2] => Лиственница
)
[days] => [20,20,20]
[material_price] => [3194,2862,5154]
[work_price] => [1537,1354,1735]
[image] => https://akademik-stroy.ru/wp-content/uploads/materials/planken.jpg
[area_modifier] => 260.93
[parent_name] => Наружная отделка фасада
[parent_id] => 19
[material_sum] => 1050097
[work_sum] => 421102
[total_sum] => 1471199
[total_days] => 20
[display_material_sum] => 1 050 097
[display_work_sum] => 421 102
[display_total_sum] => 1 471 199
)
1
1 471 199₽
Работа:421 102 ₽
Материалы:1 050 097 ₽
Дни:20
stdClass Object
(
[id] => 137
[attribute_id] => 19
[name] => Штукатурка
[material_modifier] => 1
[work_modifier] => 1
[options] => Array
(
[0] => Цементно-песчаная (минеральная)
[1] => Мокрый фасад
)
[days] => [35,35]
[material_price] => [2231,3938]
[work_price] => [1202,2422]
[image] => https://akademik-stroy.ru/wp-content/uploads/materials/shtukaturka.jpg
[area_modifier] => 260.93
[parent_name] => Наружная отделка фасада
[parent_id] => 19
[material_sum] => 733490
[work_sum] => 329320
[total_sum] => 1062810
[total_days] => 35
[display_material_sum] => 733 490
[display_work_sum] => 329 320
[display_total_sum] => 1 062 810
)
1
1 062 810₽
Работа:329 320 ₽
Материалы:733 490 ₽
Дни:35
stdClass Object
(
[id] => 138
[attribute_id] => 19
[name] => Облицовочный кирпич
[material_modifier] => 1
[work_modifier] => 1
[options] => Array
(
[0] => Керамический
[1] => Клинкерный
[2] => Ручной формовки
[3] => Гиперпрессованный
[4] => Силикатный кирпич
)
[days] => [45,45,45,45,45]
[material_price] => [8174,9148,1040,1257,5876]
[work_price] => [3240,3758,4536,4017,3369]
[image] => https://akademik-stroy.ru/wp-content/uploads/materials/oblicovochnyj-kirpich.jpg
[area_modifier] => 260.93
[parent_name] => Наружная отделка фасада
[parent_id] => 19
[material_sum] => 2687381
[work_sum] => 887684
[total_sum] => 3575065
[total_days] => 45
[display_material_sum] => 2 687 381
[display_work_sum] => 887 684
[display_total_sum] => 3 575 065
)
1
3 575 065₽
Работа:887 684 ₽
Материалы:2 687 381 ₽
Дни:45
stdClass Object
(
[id] => 139
[attribute_id] => 19
[name] => Фасадная плитка
[material_modifier] => 1
[work_modifier] => 1
[options] => Array
(
[0] => Клинкерная
[1] => Керамическая
[2] => Плитка ручной формовки
)
[days] => [40,40,40]
[material_price] => [2974,1487,3470]
[work_price] => [3007,2592,3629]
[image] => https://akademik-stroy.ru/wp-content/uploads/materials/fasadnaya-plitka.jpg
[area_modifier] => 260.93
[parent_name] => Наружная отделка фасада
[parent_id] => 19
[material_sum] => 977767
[work_sum] => 823847
[total_sum] => 1801614
[total_days] => 40
[display_material_sum] => 977 767
[display_work_sum] => 823 847
[display_total_sum] => 1 801 614
)
1
1 801 614₽
Работа:823 847 ₽
Материалы:977 767 ₽
Дни:40
stdClass Object
(
[id] => 140
[attribute_id] => 19
[name] => Сайдинг
[material_modifier] => 1
[work_modifier] => 1
[options] => Array
(
[0] => Виниловый
[1] => Металлический
[2] => Фиброцементный
)
[days] => [20,20,20]
[material_price] => [1263,1944,4147]
[work_price] => [1263,1944,2074]
[image] => https://akademik-stroy.ru/wp-content/uploads/materials/sajding.jpg
[area_modifier] => 260.93
[parent_name] => Наружная отделка фасада
[parent_id] => 19
[material_sum] => 415239
[work_sum] => 346032
[total_sum] => 761271
[total_days] => 20
[display_material_sum] => 415 239
[display_work_sum] => 346 032
[display_total_sum] => 761 271
)
1
761 271₽
Работа:346 032 ₽
Материалы:415 239 ₽
Дни:20
stdClass Object
(
[id] => 141
[attribute_id] => 19
[name] => Камень
[material_modifier] => 1
[work_modifier] => 1
[options] => Array
(
[0] => Травертин
[1] => Дагестанский
[2] => Искусственный
[3] => Натуральный
[4] => Керамогранит
)
[days] => [45,45,45,45,45]
[material_price] => [4536,3888,2592,3240,2462]
[work_price] => [3240,3240,2462,3110,1944]
[image] => https://akademik-stroy.ru/wp-content/uploads/materials/kamen-1.jpg
[area_modifier] => 260.93
[parent_name] => Наружная отделка фасада
[parent_id] => 19
[material_sum] => 1491309
[work_sum] => 887684
[total_sum] => 2378993
[total_days] => 45
[display_material_sum] => 1 491 309
[display_work_sum] => 887 684
[display_total_sum] => 2 378 993
)
1
2 378 993₽
Работа:887 684 ₽
Материалы:1 491 309 ₽
Дни:45
stdClass Object
(
[id] => 142
[attribute_id] => 19
[name] => Термопанели
[material_modifier] => 1
[work_modifier] => 1
[options] => Array
(
)
[days] => [20]
[material_price] => [6221]
[work_price] => [2333]
[image] => https://akademik-stroy.ru/wp-content/uploads/materials/termo.png
[area_modifier] => 260.93
[parent_name] => Наружная отделка фасада
[parent_id] => 19
[material_sum] => 2045289
[work_sum] => 639187
[total_sum] => 2684476
[total_days] => 20
[display_material_sum] => 2 045 289
[display_work_sum] => 639 187
[display_total_sum] => 2 684 476
)
1
2 684 476₽
Работа:639 187 ₽
Материалы:2 045 289 ₽
Дни:20
stdClass Object
(
[id] => 143
[attribute_id] => 19
[name] => Плитка HAUBERK
[material_modifier] => 1
[work_modifier] => 1
[options] => Array
(
)
[days] => [20]
[material_price] => [2786]
[work_price] => [1944]
[image] => https://akademik-stroy.ru/wp-content/uploads/materials/hauberk.jpg
[area_modifier] => 260.93
[parent_name] => Наружная отделка фасада
[parent_id] => 19
[material_sum] => 915958
[work_sum] => 532610
[total_sum] => 1448568
[total_days] => 20
[display_material_sum] => 915 958
[display_work_sum] => 532 610
[display_total_sum] => 1 448 568
)
1
1 448 568₽
Работа:532 610 ₽
Материалы:915 958 ₽
Дни:20
stdClass Object
(
[id] => 144
[attribute_id] => 19
[name] => Фальцевый фасад
[material_modifier] => 1
[work_modifier] => 1
[options] => Array
(
)
[days] => [20]
[material_price] => [3240]
[work_price] => [2592]
[image] => https://akademik-stroy.ru/wp-content/uploads/materials/falcevyj-fasad.jpg
[area_modifier] => 260.93
[parent_name] => Наружная отделка фасада
[parent_id] => 19
[material_sum] => 1065221
[work_sum] => 710147
[total_sum] => 1775368
[total_days] => 20
[display_material_sum] => 1 065 221
[display_work_sum] => 710 147
[display_total_sum] => 1 775 368
)
1
1 775 368₽
Работа:710 147 ₽
Материалы:1 065 221 ₽
Дни:20
stdClass Object
(
[id] => 145
[attribute_id] => 19
[name] => Комбинированный
[material_modifier] => 1
[work_modifier] => 1
[options] => Array
(
)
[days] => [20]
[material_price] => [4629]
[work_price] => [3499]
[image] => https://akademik-stroy.ru/wp-content/uploads/materials/Kombinirovannyj.jpg
[area_modifier] => 260.93
[parent_name] => Наружная отделка фасада
[parent_id] => 19
[material_sum] => 1521885
[work_sum] => 958644
[total_sum] => 2480529
[total_days] => 20
[display_material_sum] => 1 521 885
[display_work_sum] => 958 644
[display_total_sum] => 2 480 529
)
1
2 480 529₽
Работа:958 644 ₽
Материалы:1 521 885 ₽
Дни:20
stdClass Object
(
[id] => 257
[attribute_id] => 19
[name] => Японские фиброцементные
[material_modifier] => 1
[work_modifier] => 1
[options] => Array
(
)
[days] => [20]
[material_price] => [7043]
[work_price] => [2993]
[image] => https://akademik-stroy.ru/wp-content/uploads/materials/paneli.jpg
[area_modifier] => 260.93
[parent_name] => Наружная отделка фасада
[parent_id] => 19
[material_sum] => 2315540
[work_sum] => 820012
[total_sum] => 3135552
[total_days] => 20
[display_material_sum] => 2 315 540
[display_work_sum] => 820 012
[display_total_sum] => 3 135 552
)
1
3 135 552₽
Работа:820 012 ₽
Материалы:2 315 540 ₽
Дни:20
stdClass Object
(
[id] => 258
[attribute_id] => 19
[name] => Панели Каньон
[material_modifier] => 1
[work_modifier] => 1
[options] => Array
(
)
[days] => [20]
[material_price] => [4543]
[work_price] => [2592]
[image] => https://akademik-stroy.ru/wp-content/uploads/materials/kanon.png
[area_modifier] => 260.93
[parent_name] => Наружная отделка фасада
[parent_id] => 19
[material_sum] => 1493610
[work_sum] => 710147
[total_sum] => 2203757
[total_days] => 20
[display_material_sum] => 1 493 610
[display_work_sum] => 710 147
[display_total_sum] => 2 203 757
)
1
2 203 757₽
Работа:710 147 ₽
Материалы:1 493 610 ₽
Дни:20
stdClass Object
(
[id] => 39
[attribute_id] => 20
[name] => Нет
[material_modifier] => 1
[work_modifier] => 1
[options] => Array
(
)
[days] => [0]
[material_price] => [0]
[work_price] => [0]
[image] => https://akademik-stroy.ru/wp-content/uploads/materials/terrasy.jpg
[area_modifier] => 30
[parent_name] => Террасы, крыльца, навесы
[parent_id] => 20
[material_sum] => 0
[work_sum] => 0
[total_sum] => 0
[total_days] => 0
[display_material_sum] => 0
[display_work_sum] => 0
[display_total_sum] => 0
)
1
0₽
Работа:0 ₽
Материалы:0 ₽
Дни:0
stdClass Object
(
[id] => 40
[attribute_id] => 20
[name] => Есть
[material_modifier] => 1
[work_modifier] => 1
[options] => Array
(
)
[days] => [5]
[material_price] => [10450]
[work_price] => [1950]
[image] => https://akademik-stroy.ru/wp-content/uploads/materials/terrasy.jpg
[area_modifier] => 30
[parent_name] => Террасы, крыльца, навесы
[parent_id] => 20
[material_sum] => 395010
[work_sum] => 61425
[total_sum] => 456435
[total_days] => 5
[display_material_sum] => 395 010
[display_work_sum] => 61 425
[display_total_sum] => 456 435
)
1
456 435₽
Работа:61 425 ₽
Материалы:395 010 ₽
Дни:5
stdClass Object
(
[id] => 41
[attribute_id] => 21
[name] => Нет
[material_modifier] => 1
[work_modifier] => 1
[options] => Array
(
)
[days] => [0]
[material_price] => [0]
[work_price] => [0]
[image] => https://akademik-stroy.ru/wp-content/uploads/materials/balkony.jpg
[area_modifier] => 30
[parent_name] => Балконы
[parent_id] => 21
[material_sum] => 0
[work_sum] => 0
[total_sum] => 0
[total_days] => 0
[display_material_sum] => 0
[display_work_sum] => 0
[display_total_sum] => 0
)
1
0₽
Работа:0 ₽
Материалы:0 ₽
Дни:0
stdClass Object
(
[id] => 42
[attribute_id] => 21
[name] => Есть
[material_modifier] => 1
[work_modifier] => 1
[options] => Array
(
)
[days] => [12]
[material_price] => [3600]
[work_price] => [1950]
[image] => https://akademik-stroy.ru/wp-content/uploads/materials/balkony.jpg
[area_modifier] => 30
[parent_name] => Балконы
[parent_id] => 21
[material_sum] => 136080
[work_sum] => 61425
[total_sum] => 197505
[total_days] => 12
[display_material_sum] => 136 080
[display_work_sum] => 61 425
[display_total_sum] => 197 505
)
1
197 505₽
Работа:61 425 ₽
Материалы:136 080 ₽
Дни:12
stdClass Object
(
[id] => 43
[attribute_id] => 22
[name] => Нет
[material_modifier] => 1
[work_modifier] => 1
[options] => Array
(
)
[days] => [0]
[material_price] => [0]
[work_price] => [0]
[image] => https://akademik-stroy.ru/wp-content/uploads/materials/uteplennaya.jpg
[area_modifier] => 177.76
[parent_name] => Отмостка
[parent_id] => 22
[material_sum] => 0
[work_sum] => 0
[total_sum] => 0
[total_days] => 0
[display_material_sum] => 0
[display_work_sum] => 0
[display_total_sum] => 0
)
1
0₽
Работа:0 ₽
Материалы:0 ₽
Дни:0
stdClass Object
(
[id] => 44
[attribute_id] => 22
[name] => Утепленная отмостка
[material_modifier] => 1
[work_modifier] => 1
[options] => Array
(
)
[days] => [15]
[material_price] => [2550]
[work_price] => [1750]
[image] => https://akademik-stroy.ru/wp-content/uploads/materials/uteplennaya.jpg
[area_modifier] => 177.76
[parent_name] => Отмостка
[parent_id] => 22
[material_sum] => 571143
[work_sum] => 326634
[total_sum] => 897777
[total_days] => 15
[display_material_sum] => 571 143
[display_work_sum] => 326 634
[display_total_sum] => 897 777
)
1
897 777₽
Работа:326 634 ₽
Материалы:571 143 ₽
Дни:15
stdClass Object
(
[id] => 146
[attribute_id] => 22
[name] => Не утепленная отмостка
[material_modifier] => 1
[work_modifier] => 1
[options] => Array
(
)
[days] => [10]
[material_price] => [1650]
[work_price] => [1450]
[image] => https://akademik-stroy.ru/wp-content/uploads/materials/ne-uteplennaya.jpg
[area_modifier] => 177.76
[parent_name] => Отмостка
[parent_id] => 22
[material_sum] => 369563
[work_sum] => 270640
[total_sum] => 640203
[total_days] => 10
[display_material_sum] => 369 563
[display_work_sum] => 270 640
[display_total_sum] => 640 203
)
1
640 203₽
Работа:270 640 ₽
Материалы:369 563 ₽
Дни:10
stdClass Object
(
[id] => 45
[attribute_id] => 23
[name] => Нет
[material_modifier] => 1
[work_modifier] => 1
[options] => Array
(
)
[days] => [0]
[material_price] => [0]
[work_price] => [0]
[image] => https://akademik-stroy.ru/wp-content/uploads/materials/drenazh-2.jpg
[area_modifier] => 177.76
[parent_name] => Дренаж вокруг дома
[parent_id] => 23
[material_sum] => 0
[work_sum] => 0
[total_sum] => 0
[total_days] => 0
[display_material_sum] => 0
[display_work_sum] => 0
[display_total_sum] => 0
)
1
0₽
Работа:0 ₽
Материалы:0 ₽
Дни:0
stdClass Object
(
[id] => 46
[attribute_id] => 23
[name] => Есть
[material_modifier] => 1
[work_modifier] => 1
[options] => Array
(
)
[days] => [5]
[material_price] => [2366]
[work_price] => [1911]
[image] => https://akademik-stroy.ru/wp-content/uploads/materials/drenazh-2.jpg
[area_modifier] => 177.76
[parent_name] => Дренаж вокруг дома
[parent_id] => 23
[material_sum] => 529931
[work_sum] => 356684
[total_sum] => 886615
[total_days] => 5
[display_material_sum] => 529 931
[display_work_sum] => 356 684
[display_total_sum] => 886 615
)
1
886 615₽
Работа:356 684 ₽
Материалы:529 931 ₽
Дни:5
stdClass Object
(
[id] => 47
[attribute_id] => 24
[name] => Нет
[material_modifier] => 1
[work_modifier] => 1
[options] => Array
(
)
[days] => [0]
[material_price] => [0]
[work_price] => [0]
[image] => https://akademik-stroy.ru/wp-content/uploads/materials/septik.jpg
[area_modifier] => 1
[parent_name] => Автономная канализация (септики)
[parent_id] => 24
[material_sum] => 0
[work_sum] => 0
[total_sum] => 0
[total_days] => 0
[display_material_sum] => 0
[display_work_sum] => 0
[display_total_sum] => 0
)
1
0₽
Работа:0 ₽
Материалы:0 ₽
Дни:0
stdClass Object
(
[id] => 48
[attribute_id] => 24
[name] => Есть
[material_modifier] => 1
[work_modifier] => 1
[options] => Array
(
[0] => Для дачи на 4 человека
[1] => Для дома на 5 человек
[2] => Для дома на 6 человек
[3] => Для дома на 7 человек
[4] => Для дома на 10 человек
)
[days] => [7,7,7,8,8]
[material_price] => [196340,220500,240940,264200,293340]
[work_price] => [50000,55000,60500,66550,73206]
[image] => https://akademik-stroy.ru/wp-content/uploads/materials/septik.jpg
[area_modifier] => 1
[parent_name] => Автономная канализация (септики)
[parent_id] => 24
[material_sum] => 247388
[work_sum] => 52500
[total_sum] => 299888
[total_days] => 7
[display_material_sum] => 247 388
[display_work_sum] => 52 500
[display_total_sum] => 299 888
)
1
299 888₽
Работа:52 500 ₽
Материалы:247 388 ₽
Дни:7
stdClass Object
(
[id] => 49
[attribute_id] => 25
[name] => Нет
[material_modifier] => 1
[work_modifier] => 1
[options] => Array
(
)
[days] => [0]
[material_price] => [0]
[work_price] => [0]
[image] => https://akademik-stroy.ru/wp-content/uploads/materials/gkl.jpg
[area_modifier] => 260.93
[parent_name] => Внутренние (не несущие) перегородки
[parent_id] => 25
[material_sum] => 0
[work_sum] => 0
[total_sum] => 0
[total_days] => 0
[display_material_sum] => 0
[display_work_sum] => 0
[display_total_sum] => 0
)
1
0₽
Работа:0 ₽
Материалы:0 ₽
Дни:0
stdClass Object
(
[id] => 147
[attribute_id] => 25
[name] => Каркасно-обшивные
[material_modifier] => 1
[work_modifier] => 1
[options] => Array
(
[0] => 75 мм (без шумоизоляции)
[1] => 75 мм (с шумоизоляцией)
)
[days] => [11,11]
[material_price] => [580,970]
[work_price] => [380,570]
[image] => https://akademik-stroy.ru/wp-content/uploads/materials/gkl.jpg
[area_modifier] => 260.93
[parent_name] => Внутренние (не несущие) перегородки
[parent_id] => 25
[material_sum] => 190688
[work_sum] => 104111
[total_sum] => 294799
[total_days] => 11
[display_material_sum] => 190 688
[display_work_sum] => 104 111
[display_total_sum] => 294 799
)
1
294 799₽
Работа:104 111 ₽
Материалы:190 688 ₽
Дни:11
stdClass Object
(
[id] => 148
[attribute_id] => 25
[name] => Пазогребневые
[material_modifier] => 1
[work_modifier] => 1
[options] => Array
(
[0] => 80 мм
[1] => 100 мм
)
[days] => [5,5]
[material_price] => [1022,1313]
[work_price] => [600,700]
[image] => https://akademik-stroy.ru/wp-content/uploads/materials/pazogrebnevye-bloki.jpg
[area_modifier] => 260.93
[parent_name] => Внутренние (не несущие) перегородки
[parent_id] => 25
[material_sum] => 336005
[work_sum] => 164386
[total_sum] => 500391
[total_days] => 5
[display_material_sum] => 336 005
[display_work_sum] => 164 386
[display_total_sum] => 500 391
)
1
500 391₽
Работа:164 386 ₽
Материалы:336 005 ₽
Дни:5
stdClass Object
(
[id] => 149
[attribute_id] => 25
[name] => Газобетонные
[material_modifier] => 1
[work_modifier] => 1
[options] => Array
(
[0] => 100 мм
[1] => 200 мм
)
[days] => [11,11]
[material_price] => [1160,1920]
[work_price] => [700,900]
[image] => https://akademik-stroy.ru/wp-content/uploads/materials/gazobeton-2.jpg
[area_modifier] => 260.93
[parent_name] => Внутренние (не несущие) перегородки
[parent_id] => 25
[material_sum] => 381375
[work_sum] => 191784
[total_sum] => 573159
[total_days] => 11
[display_material_sum] => 381 375
[display_work_sum] => 191 784
[display_total_sum] => 573 159
)
1
573 159₽
Работа:191 784 ₽
Материалы:381 375 ₽
Дни:11
stdClass Object
(
[id] => 150
[attribute_id] => 25
[name] => Кирпичные
[material_modifier] => 1
[work_modifier] => 1
[options] => Array
(
[0] => 120 мм
[1] => 250 мм
[2] => 360 мм
)
[days] => [7,7,7]
[material_price] => [1785,3570,5355]
[work_price] => [900,1600,1800]
[image] => https://akademik-stroy.ru/wp-content/uploads/materials/kirpich-1.jpg
[area_modifier] => 260.93
[parent_name] => Внутренние (не несущие) перегородки
[parent_id] => 25
[material_sum] => 586858
[work_sum] => 246579
[total_sum] => 833437
[total_days] => 7
[display_material_sum] => 586 858
[display_work_sum] => 246 579
[display_total_sum] => 833 437
)
1
833 437₽
Работа:246 579 ₽
Материалы:586 858 ₽
Дни:7
stdClass Object
(
[id] => 55
[attribute_id] => 28
[name] => Нет
[material_modifier] => 1
[work_modifier] => 1
[options] => Array
(
)
[days] => [0]
[material_price] => [0]
[work_price] => [0]
[image] => https://akademik-stroy.ru/wp-content/uploads/materials/ehlektrika.jpg
[area_modifier] => 211.74
[parent_name] => Электрика
[parent_id] => 28
[material_sum] => 0
[work_sum] => 0
[total_sum] => 0
[total_days] => 0
[display_material_sum] => 0
[display_work_sum] => 0
[display_total_sum] => 0
)
1
0₽
Работа:0 ₽
Материалы:0 ₽
Дни:0
stdClass Object
(
[id] => 56
[attribute_id] => 28
[name] => Есть
[material_modifier] => 1
[work_modifier] => 1
[options] => Array
(
)
[days] => [10]
[material_price] => [650]
[work_price] => [950]
[image] => https://akademik-stroy.ru/wp-content/uploads/materials/ehlektrika.jpg
[area_modifier] => 211.74
[parent_name] => Электрика
[parent_id] => 28
[material_sum] => 173415
[work_sum] => 211211
[total_sum] => 384626
[total_days] => 10
[display_material_sum] => 173 415
[display_work_sum] => 211 211
[display_total_sum] => 384 626
)
1
384 626₽
Работа:211 211 ₽
Материалы:173 415 ₽
Дни:10
stdClass Object
(
[id] => 57
[attribute_id] => 29
[name] => Нет
[material_modifier] => 1
[work_modifier] => 1
[options] => Array
(
)
[days] => [0]
[material_price] => [0]
[work_price] => [0]
[image] => https://akademik-stroy.ru/wp-content/uploads/materials/santekhnika-kanalizaciya-1.jpg
[area_modifier] => 211.74
[parent_name] => Сантехника, канализация в доме
[parent_id] => 29
[material_sum] => 0
[work_sum] => 0
[total_sum] => 0
[total_days] => 0
[display_material_sum] => 0
[display_work_sum] => 0
[display_total_sum] => 0
)
1
0₽
Работа:0 ₽
Материалы:0 ₽
Дни:0
stdClass Object
(
[id] => 58
[attribute_id] => 29
[name] => Есть
[material_modifier] => 1
[work_modifier] => 1
[options] => Array
(
)
[days] => [10]
[material_price] => [600]
[work_price] => [730]
[image] => https://akademik-stroy.ru/wp-content/uploads/materials/santekhnika-kanalizaciya-1.jpg
[area_modifier] => 211.74
[parent_name] => Сантехника, канализация в доме
[parent_id] => 29
[material_sum] => 160075
[work_sum] => 162299
[total_sum] => 322374
[total_days] => 10
[display_material_sum] => 160 075
[display_work_sum] => 162 299
[display_total_sum] => 322 374
)
1
322 374₽
Работа:162 299 ₽
Материалы:160 075 ₽
Дни:10
stdClass Object
(
[id] => 59
[attribute_id] => 30
[name] => Нет
[material_modifier] => 1
[work_modifier] => 1
[options] => Array
(
)
[days] => [0]
[material_price] => [0]
[work_price] => [0]
[image] => https://akademik-stroy.ru/wp-content/uploads/materials/otoplenie-1.jpg
[area_modifier] => 211.74
[parent_name] => Отопление
[parent_id] => 30
[material_sum] => 0
[work_sum] => 0
[total_sum] => 0
[total_days] => 0
[display_material_sum] => 0
[display_work_sum] => 0
[display_total_sum] => 0
)
1
0₽
Работа:0 ₽
Материалы:0 ₽
Дни:0
stdClass Object
(
[id] => 60
[attribute_id] => 30
[name] => Есть
[material_modifier] => 1
[work_modifier] => 1
[options] => Array
(
)
[days] => [5]
[material_price] => [610]
[work_price] => [560]
[image] => https://akademik-stroy.ru/wp-content/uploads/materials/otoplenie-1.jpg
[area_modifier] => 211.74
[parent_name] => Отопление
[parent_id] => 30
[material_sum] => 162743
[work_sum] => 124503
[total_sum] => 287246
[total_days] => 5
[display_material_sum] => 162 743
[display_work_sum] => 124 503
[display_total_sum] => 287 246
)
1
287 246₽
Работа:124 503 ₽
Материалы:162 743 ₽
Дни:5
stdClass Object
(
[id] => 61
[attribute_id] => 31
[name] => Нет
[material_modifier] => 1
[work_modifier] => 1
[options] => Array
(
)
[days] => [0]
[material_price] => [0]
[work_price] => [0]
[image] => https://akademik-stroy.ru/wp-content/uploads/materials/vodyanye.jpg
[area_modifier] => 30
[parent_name] => Теплые полы
[parent_id] => 31
[material_sum] => 0
[work_sum] => 0
[total_sum] => 0
[total_days] => 0
[display_material_sum] => 0
[display_work_sum] => 0
[display_total_sum] => 0
)
1
0₽
Работа:0 ₽
Материалы:0 ₽
Дни:0
stdClass Object
(
[id] => 151
[attribute_id] => 31
[name] => Водяные
[material_modifier] => 1
[work_modifier] => 1
[options] => Array
(
)
[days] => [9]
[material_price] => [10200]
[work_price] => [2500]
[image] => https://akademik-stroy.ru/wp-content/uploads/materials/vodyanye.jpg
[area_modifier] => 30
[parent_name] => Теплые полы
[parent_id] => 31
[material_sum] => 385560
[work_sum] => 78750
[total_sum] => 464310
[total_days] => 9
[display_material_sum] => 385 560
[display_work_sum] => 78 750
[display_total_sum] => 464 310
)
1
464 310₽
Работа:78 750 ₽
Материалы:385 560 ₽
Дни:9
stdClass Object
(
[id] => 152
[attribute_id] => 31
[name] => Электро
[material_modifier] => 1
[work_modifier] => 1
[options] => Array
(
)
[days] => [5]
[material_price] => [6300]
[work_price] => [1500]
[image] => https://akademik-stroy.ru/wp-content/uploads/materials/ehlektricheskij.jpg
[area_modifier] => 30
[parent_name] => Теплые полы
[parent_id] => 31
[material_sum] => 238140
[work_sum] => 47250
[total_sum] => 285390
[total_days] => 5
[display_material_sum] => 238 140
[display_work_sum] => 47 250
[display_total_sum] => 285 390
)
1
285 390₽
Работа:47 250 ₽
Материалы:238 140 ₽
Дни:5
stdClass Object
(
[id] => 63
[attribute_id] => 32
[name] => Нет
[material_modifier] => 1
[work_modifier] => 1
[options] => Array
(
)
[days] => [0]
[material_price] => [0]
[work_price] => [0]
[image] => https://akademik-stroy.ru/wp-content/uploads/materials/shtukaturka-shpatlevka-1.jpg
[area_modifier] => 211.74
[parent_name] => Черновая отделка стен
[parent_id] => 32
[material_sum] => 0
[work_sum] => 0
[total_sum] => 0
[total_days] => 0
[display_material_sum] => 0
[display_work_sum] => 0
[display_total_sum] => 0
)
1
0₽
Работа:0 ₽
Материалы:0 ₽
Дни:0
stdClass Object
(
[id] => 153
[attribute_id] => 32
[name] => Штукатурка и шпатлевка
[material_modifier] => 1
[work_modifier] => 1
[options] => Array
(
)
[days] => [20]
[material_price] => [1850]
[work_price] => [2600]
[image] => https://akademik-stroy.ru/wp-content/uploads/materials/shtukaturka-shpatlevka-1.jpg
[area_modifier] => 211.74
[parent_name] => Черновая отделка стен
[parent_id] => 32
[material_sum] => 493566
[work_sum] => 578050
[total_sum] => 1071616
[total_days] => 20
[display_material_sum] => 493 566
[display_work_sum] => 578 050
[display_total_sum] => 1 071 616
)
1
1 071 616₽
Работа:578 050 ₽
Материалы:493 566 ₽
Дни:20
stdClass Object
(
[id] => 154
[attribute_id] => 32
[name] => Гипсокортон на стены
[material_modifier] => 1
[work_modifier] => 1
[options] => Array
(
)
[days] => [15]
[material_price] => [950]
[work_price] => [2100]
[image] => https://akademik-stroy.ru/wp-content/uploads/materials/gkl-1.jpg
[area_modifier] => 211.74
[parent_name] => Черновая отделка стен
[parent_id] => 32
[material_sum] => 253453
[work_sum] => 466887
[total_sum] => 720340
[total_days] => 15
[display_material_sum] => 253 453
[display_work_sum] => 466 887
[display_total_sum] => 720 340
)
1
720 340₽
Работа:466 887 ₽
Материалы:253 453 ₽
Дни:15
stdClass Object
(
[id] => 155
[attribute_id] => 32
[name] => Вагонка
[material_modifier] => 1
[work_modifier] => 1
[options] => Array
(
)
[days] => [15]
[material_price] => [1250]
[work_price] => [950]
[image] => https://akademik-stroy.ru/wp-content/uploads/materials/vagonka.jpg
[area_modifier] => 211.74
[parent_name] => Черновая отделка стен
[parent_id] => 32
[material_sum] => 333491
[work_sum] => 211211
[total_sum] => 544702
[total_days] => 15
[display_material_sum] => 333 491
[display_work_sum] => 211 211
[display_total_sum] => 544 702
)
1
544 702₽
Работа:211 211 ₽
Материалы:333 491 ₽
Дни:15
stdClass Object
(
[id] => 65
[attribute_id] => 33
[name] => Нет
[material_modifier] => 1
[work_modifier] => 1
[options] => Array
(
)
[days] => [0]
[material_price] => [0]
[work_price] => [0]
[image] => https://akademik-stroy.ru/wp-content/uploads/materials/styazhka.jpg
[area_modifier] => 211.74
[parent_name] => Черновая отделка полов
[parent_id] => 33
[material_sum] => 0
[work_sum] => 0
[total_sum] => 0
[total_days] => 0
[display_material_sum] => 0
[display_work_sum] => 0
[display_total_sum] => 0
)
1
0₽
Работа:0 ₽
Материалы:0 ₽
Дни:0
stdClass Object
(
[id] => 156
[attribute_id] => 33
[name] => Стяжка + наливные полы
[material_modifier] => 1
[work_modifier] => 1
[options] => Array
(
)
[days] => [10]
[material_price] => [1000]
[work_price] => [900]
[image] => https://akademik-stroy.ru/wp-content/uploads/materials/styazhka.jpg
[area_modifier] => 211.74
[parent_name] => Черновая отделка полов
[parent_id] => 33
[material_sum] => 266792
[work_sum] => 200094
[total_sum] => 466886
[total_days] => 10
[display_material_sum] => 266 792
[display_work_sum] => 200 094
[display_total_sum] => 466 886
)
1
466 886₽
Работа:200 094 ₽
Материалы:266 792 ₽
Дни:10
stdClass Object
(
[id] => 157
[attribute_id] => 33
[name] => ОСБ на пол
[material_modifier] => 1
[work_modifier] => 1
[options] => Array
(
)
[days] => [7]
[material_price] => [580]
[work_price] => [350]
[image] => https://akademik-stroy.ru/wp-content/uploads/materials/osb-1.jpg
[area_modifier] => 211.74
[parent_name] => Черновая отделка полов
[parent_id] => 33
[material_sum] => 154740
[work_sum] => 77814
[total_sum] => 232554
[total_days] => 7
[display_material_sum] => 154 740
[display_work_sum] => 77 814
[display_total_sum] => 232 554
)
1
232 554₽
Работа:77 814 ₽
Материалы:154 740 ₽
Дни:7
stdClass Object
(
[id] => 67
[attribute_id] => 34
[name] => Нет
[material_modifier] => 1
[work_modifier] => 1
[options] => Array
(
)
[days] => [0]
[material_price] => [0]
[work_price] => [0]
[image] => https://akademik-stroy.ru/wp-content/uploads/materials/chistovaya-otdelka.jpg
[area_modifier] => 211.74
[parent_name] => Чистовая отделка стен и полов
[parent_id] => 34
[material_sum] => 0
[work_sum] => 0
[total_sum] => 0
[total_days] => 0
[display_material_sum] => 0
[display_work_sum] => 0
[display_total_sum] => 0
)
1
0₽
Работа:0 ₽
Материалы:0 ₽
Дни:0
stdClass Object
(
[id] => 68
[attribute_id] => 34
[name] => Есть
[material_modifier] => 1
[work_modifier] => 1
[options] => Array
(
)
[days] => [50]
[material_price] => [6000]
[work_price] => [3500]
[image] => https://akademik-stroy.ru/wp-content/uploads/materials/chistovaya-otdelka.jpg
[area_modifier] => 211.74
[parent_name] => Чистовая отделка стен и полов
[parent_id] => 34
[material_sum] => 1600754
[work_sum] => 778145
[total_sum] => 2378899
[total_days] => 50
[display_material_sum] => 1 600 754
[display_work_sum] => 778 145
[display_total_sum] => 2 378 899
)
1
2 378 899₽
Работа:778 145 ₽
Материалы:1 600 754 ₽
Дни:50
stdClass Object
(
[id] => 69
[attribute_id] => 35
[name] => Нет
[material_modifier] => 1
[work_modifier] => 1
[options] => Array
(
)
[days] => [0]
[material_price] => [0]
[work_price] => [0]
[image] => https://akademik-stroy.ru/wp-content/uploads/materials/mnogourovnevyj-gkl.jpg
[area_modifier] => 211.74
[parent_name] => Отделка потолка
[parent_id] => 35
[material_sum] => 0
[work_sum] => 0
[total_sum] => 0
[total_days] => 0
[display_material_sum] => 0
[display_work_sum] => 0
[display_total_sum] => 0
)
1
0₽
Работа:0 ₽
Материалы:0 ₽
Дни:0
stdClass Object
(
[id] => 70
[attribute_id] => 35
[name] => Есть
[material_modifier] => 1
[work_modifier] => 1
[options] => Array
(
[0] => Многоуровневый потолок из гипсокартона
[1] => Многоуровневый потолок из гипсокартона и натяжного потолка
[2] => Одноуровневый потолок из гипсокартона
[3] => Одноуровневый натяжной потолок
)
[days] => [10,10,1,1]
[material_price] => [900,700,700,600]
[work_price] => [1000,800,500,300]
[image] => https://akademik-stroy.ru/wp-content/uploads/materials/mnogourovnevyj-gkl.jpg
[area_modifier] => 211.74
[parent_name] => Отделка потолка
[parent_id] => 35
[material_sum] => 240113
[work_sum] => 222327
[total_sum] => 462440
[total_days] => 10
[display_material_sum] => 240 113
[display_work_sum] => 222 327
[display_total_sum] => 462 440
)
1
462 440₽
Работа:222 327 ₽
Материалы:240 113 ₽
Дни:10
Преимущества работы с нами
7 этапов оплаты
Независимый строительный надзор
Экологически чистые материалы
16 лет гарантии
Онлайн-кабинет с веб-камерой
Строители с опытом более 15 лет
Собственное производство










