Одноэтажный дом 162.4 м2 за руб.

ID-162678

Стоимость дома 7688013 руб.

Планировки

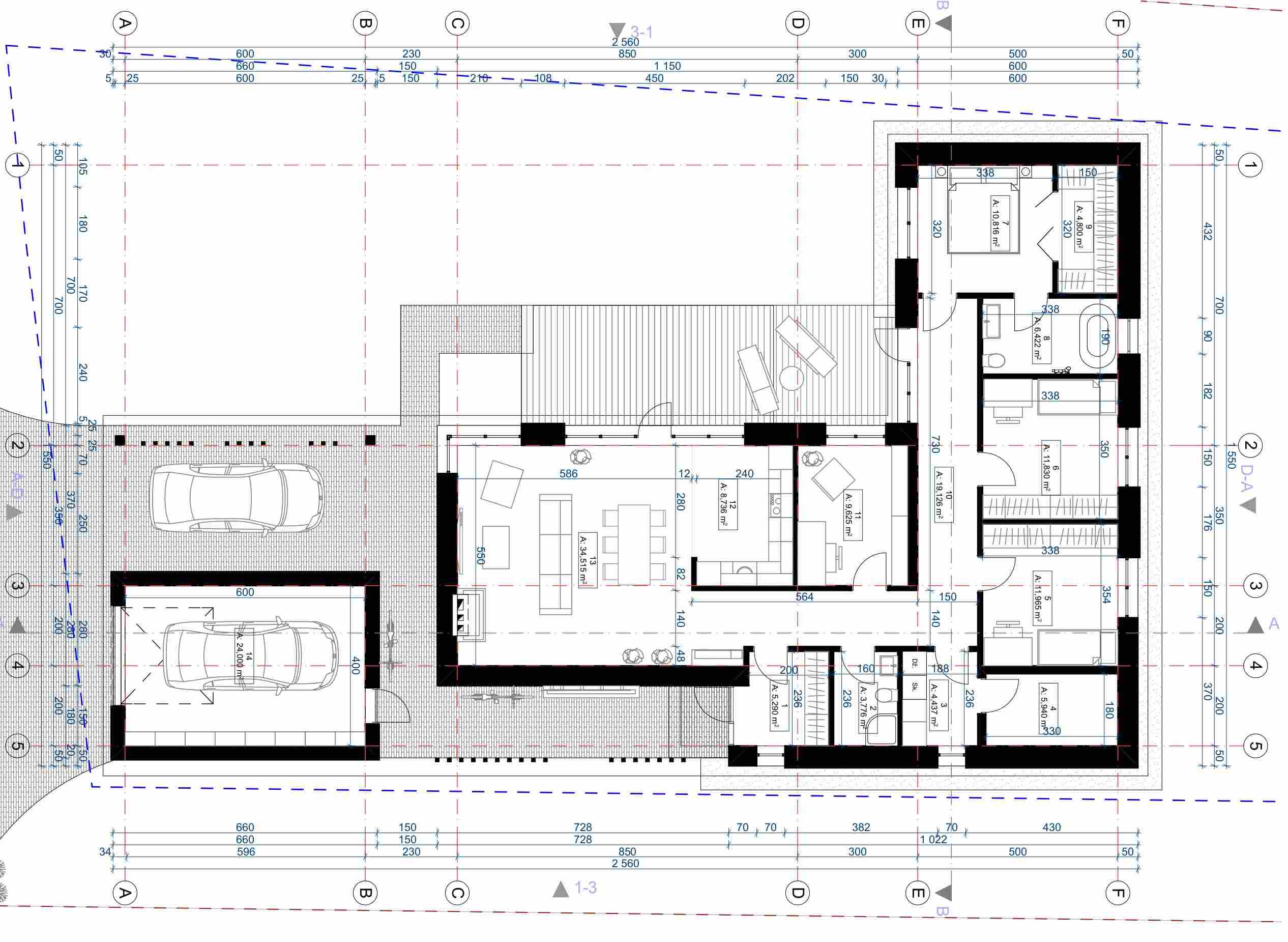
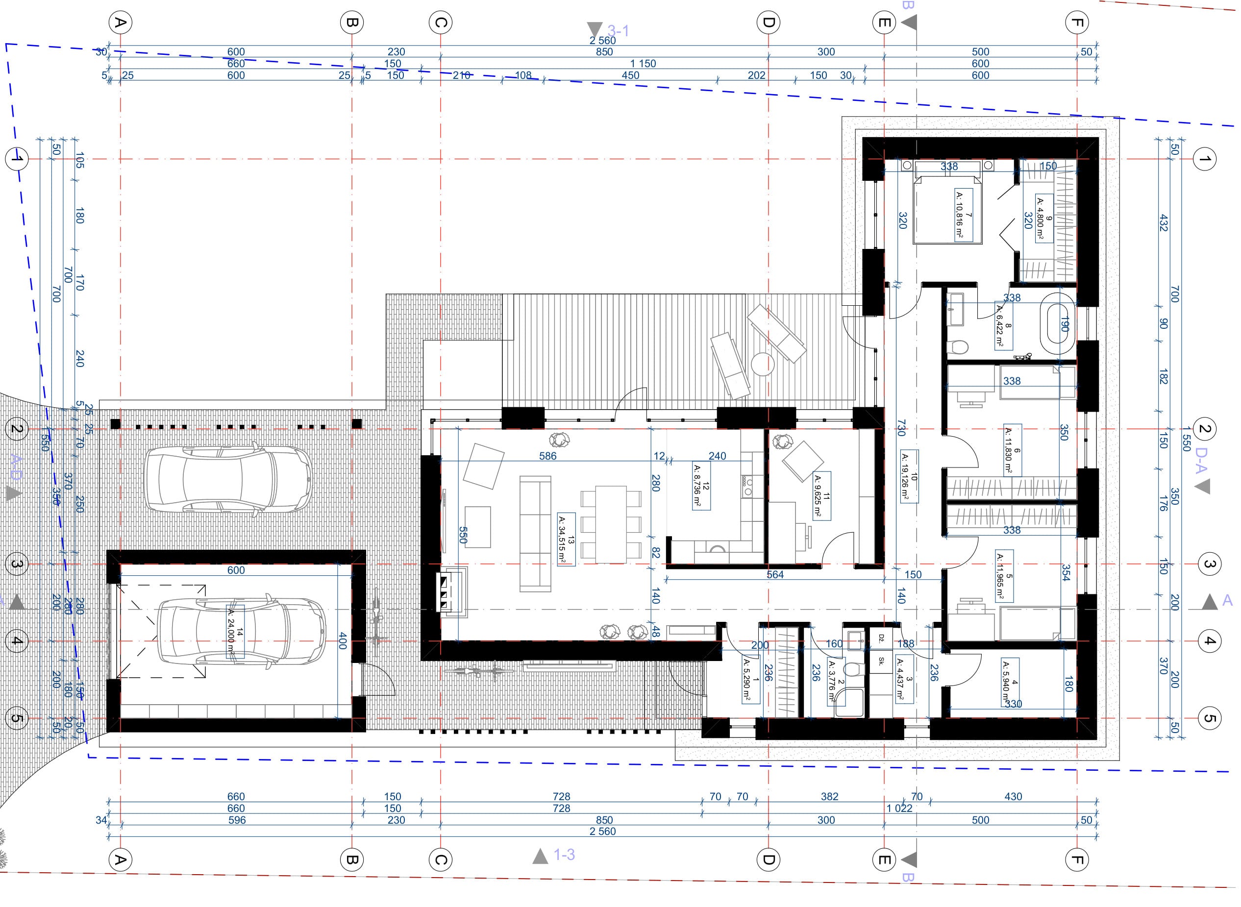
План первого этажа

floor image
  • 1. Тамбур 5,29 м²
  • 2. Санузел 3,77 м²
  • 3. Котельная 4,43 м²
  • 4. Прачечная 5,94 м²
  • 5. Комната 11,96 м²
  • 6. Комната 11,83 м²
  • 7. Комната 10,81 м²
  • 8. Ванная комната 6,42 м²
  • 9. Гардероб 4,80 м²
  • 10. Коридор 19,12 м²
  • 11. Кабинет 9,62 м²
  • 12. Кухня 8,73 м²
  • 13. Столовая-Гостиная 34,51 м²
  • Гараж 24,00 м²

Площади дома

№ п/п Наименование Ед. из. Строительная площадь Полезная площадь
1 1 этаж м2 200.13 162.4
2 Итого м2 200.13 162.4
154 м2 Полезная
площадь
1 этаж Этажей
26 м2 Террасы
и балконы
1Без
гаража
4 Количество
спален
2 Количество
санузлов

Калькулятор опций

0

В ипотеку от 24 816 ₽/мес.

Фундамент
stdClass Object ( [id] => 1 [attribute_id] => 1 [name] => Ленточный монолитный ж/б [material_modifier] => 1 [work_modifier] => 1 [options] => Array ( [0] => размер 200 х 700 мм [1] => размер 300 х 900 мм [2] => размер 400 х 1 000 мм [3] => размер 500 х 1 100 мм [4] => размер 600 х 1 200 мм ) [days] => [20,21,22,25,30] [material_price] => [2823,3630,4475,5210,12047] [work_price] => [2154,2826,3731,4577,5293] [image] => https://akademik-stroy.ru/wp-content/uploads/materials/lentochnyj-monolitnyj-zh-b.jpg [area_modifier] => 200.13 [parent_name] => Фундамент [parent_id] => 1 [material_sum] => 711858 [work_sum] => 452634 [total_sum] => 1164492 [total_days] => 20 [display_material_sum] => 711 858 [display_work_sum] => 452 634 [display_total_sum] => 1 164 492 ) 1
1 164 492
Работа:452 634
Материалы:711 858
Дни:20
stdClass Object ( [id] => 2 [attribute_id] => 1 [name] => Забивные Ж/Б сваи [material_modifier] => 1 [work_modifier] => 1 [options] => Array ( [0] => 150х150х3000мм [1] => 150х150х4000мм [2] => 200х200х3000мм [3] => 200х200х4000мм [4] => 200х200х5000мм [5] => 200х200х6000мм ) [days] => [2,2,2,2,2,2] [material_price] => [1990,2850,3255,4360,5120,6837] [work_price] => [1002,1185,1336,1438,1574,1839] [image] => https://akademik-stroy.ru/wp-content/uploads/materials/zabivnye-zh-b-svai.png [area_modifier] => 200.13 [parent_name] => Фундамент [parent_id] => 1 [material_sum] => 501806 [work_sum] => 210557 [total_sum] => 712363 [total_days] => 2 [display_material_sum] => 501 806 [display_work_sum] => 210 557 [display_total_sum] => 712 363 ) 1
712 363
Работа:210 557
Материалы:501 806
Дни:2
stdClass Object ( [id] => 71 [attribute_id] => 1 [name] => Свайно-ростверковый ж/б [material_modifier] => 1 [work_modifier] => 1 [options] => Array ( [0] => ростверк 200х300 мм [1] => ростверк 300х600 мм [2] => ростверк 400х900 мм [3] => ростверк 500х1200 мм ) [days] => [20,23,25,27] [material_price] => [3018,3474,7109,9792] [work_price] => [2024,3012,5635,7022] [image] => https://akademik-stroy.ru/wp-content/uploads/materials/svajno-rostverkovyj-monolitnyj-zh-b-3.png [area_modifier] => 200.13 [parent_name] => Фундамент [parent_id] => 1 [material_sum] => 761030 [work_sum] => 425316 [total_sum] => 1186346 [total_days] => 20 [display_material_sum] => 761 030 [display_work_sum] => 425 316 [display_total_sum] => 1 186 346 ) 1
1 186 346
Работа:425 316
Материалы:761 030
Дни:20
stdClass Object ( [id] => 72 [attribute_id] => 1 [name] => Монолитная ж/б плита [material_modifier] => 1 [work_modifier] => 1 [options] => Array ( [0] => 200 мм [1] => 300 мм [2] => 400 мм [3] => 500 мм [4] => 600 мм ) [days] => [30,33,35,37,40] [material_price] => [5348,8555,12788,14388,15189] [work_price] => [4314,4881,7037,8061,10230] [image] => https://akademik-stroy.ru/wp-content/uploads/materials/monolitnaya-zhb-plita.png [area_modifier] => 200.13 [parent_name] => Фундамент [parent_id] => 1 [material_sum] => 1348572 [work_sum] => 906529 [total_sum] => 2255101 [total_days] => 30 [display_material_sum] => 1 348 572 [display_work_sum] => 906 529 [display_total_sum] => 2 255 101 ) 1
2 255 101
Работа:906 529
Материалы:1 348 572
Дни:30
stdClass Object ( [id] => 73 [attribute_id] => 1 [name] => Утепленная шведская плита [material_modifier] => 1 [work_modifier] => 1 [options] => Array ( [0] => 200 мм [1] => 300 мм [2] => 400 мм [3] => 500 мм [4] => 600 мм ) [days] => [32,37,39,42,45] [material_price] => [10249,12692,13760,14936,16230] [work_price] => [5960,7337,8072,8878,9765] [image] => https://akademik-stroy.ru/wp-content/uploads/materials/uteplennaya-shvedskaya-plita.jpg [area_modifier] => 200.13 [parent_name] => Фундамент [parent_id] => 1 [material_sum] => 2584427 [work_sum] => 1252414 [total_sum] => 3836841 [total_days] => 32 [display_material_sum] => 2 584 427 [display_work_sum] => 1 252 414 [display_total_sum] => 3 836 841 ) 1
3 836 841
Работа:1 252 414
Материалы:2 584 427
Дни:32
stdClass Object ( [id] => 75 [attribute_id] => 1 [name] => Ленточный из ФБС [material_modifier] => 1 [work_modifier] => 1 [options] => Array ( [0] => толщ. 300 мм [1] => толщ. 400 мм [2] => толщ. 500 мм [3] => толщ. 600 мм ) [days] => [20,20,20,20] [material_price] => [3675,4902,6126,7350] [work_price] => [2451,3264,4083,4902] [image] => https://akademik-stroy.ru/wp-content/uploads/materials/lentochnyj-iz-fbs.png [area_modifier] => 200.13 [parent_name] => Фундамент [parent_id] => 1 [material_sum] => 926702 [work_sum] => 515045 [total_sum] => 1441747 [total_days] => 20 [display_material_sum] => 926 702 [display_work_sum] => 515 045 [display_total_sum] => 1 441 747 ) 1
1 441 747
Работа:515 045
Материалы:926 702
Дни:20
stdClass Object ( [id] => 76 [attribute_id] => 1 [name] => Цокольный этаж из ФБС [material_modifier] => 1 [work_modifier] => 1 [options] => Array ( [0] => толщ. 300 мм [1] => толщ. 400 мм [2] => толщ. 500 мм [3] => толщ. 600 мм ) [days] => [30,32,34,36] [material_price] => [20916,23299,26680,29060] [work_price] => [17524,18700,19873,21046] [image] => https://akademik-stroy.ru/wp-content/uploads/materials/cokolnyj-ehtazh-iz-fbs.jpg [area_modifier] => 200.13 [parent_name] => Фундамент [parent_id] => 1 [material_sum] => 5274258 [work_sum] => 3682432 [total_sum] => 8956690 [total_days] => 30 [display_material_sum] => 5 274 258 [display_work_sum] => 3 682 432 [display_total_sum] => 8 956 690 ) 1
8 956 690
Работа:3 682 432
Материалы:5 274 258
Дни:30
stdClass Object ( [id] => 77 [attribute_id] => 1 [name] => Цокольный этаж монолитный ж/б [material_modifier] => 1 [work_modifier] => 1 [options] => Array ( [0] => толщ. 200 мм [1] => толщ. 300 мм [2] => толщ. 400 мм [3] => толщ. 500 мм [4] => толщ. 600 мм ) [days] => [40,42,44,46,48] [material_price] => [25421,29148,32275,35602,37326] [work_price] => [20441,21907,23375,24841,26306] [image] => https://akademik-stroy.ru/wp-content/uploads/materials/cokolnyj-etazh-zh-b.jpg [area_modifier] => 200.13 [parent_name] => Фундамент [parent_id] => 1 [material_sum] => 6410256 [work_sum] => 4295400 [total_sum] => 10705656 [total_days] => 40 [display_material_sum] => 6 410 256 [display_work_sum] => 4 295 400 [display_total_sum] => 10 705 656 ) 1
10 705 656
Работа:4 295 400
Материалы:6 410 256
Дни:40
stdClass Object ( [id] => 191 [attribute_id] => 1 [name] => Винтовые сваи [material_modifier] => 1 [work_modifier] => 1 [options] => Array ( [0] => 57х200мм [1] => 76х250мм [2] => 108х300мм [3] => 133х350мм ) [days] => [1,1,2,2] [material_price] => [1200,1300,1450,1600] [work_price] => [400,600,900,1100] [image] => https://akademik-stroy.ru/wp-content/uploads/materials/vintovye-svai.png [area_modifier] => 200.13 [parent_name] => Фундамент [parent_id] => 1 [material_sum] => 302597 [work_sum] => 84055 [total_sum] => 386652 [total_days] => 1 [display_material_sum] => 302 597 [display_work_sum] => 84 055 [display_total_sum] => 386 652 ) 1
386 652
Работа:84 055
Материалы:302 597
Дни:1
Перекрытие цоколя
stdClass Object ( [id] => 3 [attribute_id] => 2 [name] => Деревянные балки [material_modifier] => 1 [work_modifier] => 1 [options] => Array ( [0] => без утепления [1] => утепление 200 мм [2] => утепление 250 мм [3] => утепление 300 мм [4] => утепление 350 мм [5] => утепление 400 мм [6] => утепление 450 мм [7] => утепление 500 мм ) [days] => [8,9,9,9,11,12,13,14] [material_price] => [1634,2042,2344,2947,3149,3652,3354,3557] [work_price] => [1230,1339,1393,1426,1460,1513,1587,1620] [image] => https://akademik-stroy.ru/wp-content/uploads/materials/derevyannye-balki.png [area_modifier] => 200.13 [parent_name] => Перекрытие цоколя [parent_id] => 2 [material_sum] => 412036 [work_sum] => 258468 [total_sum] => 670504 [total_days] => 8 [display_material_sum] => 412 036 [display_work_sum] => 258 468 [display_total_sum] => 670 504 ) 1
670 504
Работа:258 468
Материалы:412 036
Дни:8
stdClass Object ( [id] => 4 [attribute_id] => 2 [name] => Сборные ж/б плиты [material_modifier] => 1 [work_modifier] => 1 [options] => Array ( [0] => без утепления [1] => утепление 150мм [2] => утепление 200мм [3] => утепление 250мм [4] => утепление 300мм [5] => утепление 350мм [6] => утепление 400мм [7] => утепление 450мм [8] => утепление 500мм ) [days] => [13,15,15,15,15,15,15,15,15] [material_price] => [3067,5577,5928,6679,7730,8782,9833,10884,11935] [work_price] => [1520,1956,2102,2247,2392,2537,2684,2829,2974] [image] => https://akademik-stroy.ru/wp-content/uploads/materials/sbornye-zh-b-plity-2.jpg [area_modifier] => 200.13 [parent_name] => Перекрытие цоколя [parent_id] => 2 [material_sum] => 773386 [work_sum] => 319407 [total_sum] => 1092793 [total_days] => 13 [display_material_sum] => 773 386 [display_work_sum] => 319 407 [display_total_sum] => 1 092 793 ) 1
1 092 793
Работа:319 407
Материалы:773 386
Дни:13
stdClass Object ( [id] => 78 [attribute_id] => 2 [name] => Монолитная ж/б плита [material_modifier] => 1 [work_modifier] => 1 [options] => Array ( [0] => без утепления [1] => утепление 150 мм [2] => утепление 200 мм [3] => утепление 250 мм [4] => утепление 300 мм [5] => утепление 350 мм [6] => утепление 400 мм [7] => утепление 450 мм [8] => утепление 500 мм ) [days] => [18,20,20,20,20,20,20,20,20] [material_price] => [4837,6572,7224,7375,79426,8177,8728,9180,10031] [work_price] => [3348,3921,4112,4302,4493,4684,4875,5066,5256] [image] => https://akademik-stroy.ru/wp-content/uploads/materials/monolitnaya-zh-b-plita-2.jpg [area_modifier] => 200.13 [parent_name] => Перекрытие цоколя [parent_id] => 2 [material_sum] => 1219716 [work_sum] => 703537 [total_sum] => 1923253 [total_days] => 18 [display_material_sum] => 1 219 716 [display_work_sum] => 703 537 [display_total_sum] => 1 923 253 ) 1
1 923 253
Работа:703 537
Материалы:1 219 716
Дни:18
Стены 1 этаж (несущие)
stdClass Object ( [id] => 6 [attribute_id] => 3 [name] => Пеноблок [material_modifier] => 1 [work_modifier] => 1 [options] => Array ( [0] => 300 мм [1] => 400 мм [2] => 500 мм [3] => 600 мм ) [days] => [29,31,34,39] [material_price] => [3000,4000,4500,4937] [work_price] => [5033,5805,6400,8710] [image] => https://akademik-stroy.ru/wp-content/uploads/materials/penoblok.jpg [area_modifier] => 200.13 [parent_name] => Стены 1 этаж (несущие) [parent_id] => 3 [material_sum] => 756491 [work_sum] => 1057617 [total_sum] => 1814108 [total_days] => 29 [display_material_sum] => 756 491 [display_work_sum] => 1 057 617 [display_total_sum] => 1 814 108 ) 1
1 814 108
Работа:1 057 617
Материалы:756 491
Дни:29
stdClass Object ( [id] => 79 [attribute_id] => 3 [name] => Керамический блок [material_modifier] => 1 [work_modifier] => 1 [options] => Array ( [0] => 380 мм [1] => 380 мм Thermo [2] => 440 мм [3] => 510 мм ) [days] => [23,23,24,25] [material_price] => [4510,5098,6093,8013] [work_price] => [4737,4937,5903,6958] [image] => https://akademik-stroy.ru/wp-content/uploads/materials/keramicheskij-blok.jpg [area_modifier] => 200.13 [parent_name] => Стены 1 этаж (несущие) [parent_id] => 3 [material_sum] => 1137259 [work_sum] => 995417 [total_sum] => 2132676 [total_days] => 23 [display_material_sum] => 1 137 259 [display_work_sum] => 995 417 [display_total_sum] => 2 132 676 ) 1
2 132 676
Работа:995 417
Материалы:1 137 259
Дни:23
stdClass Object ( [id] => 80 [attribute_id] => 3 [name] => Кирпич [material_modifier] => 1 [work_modifier] => 1 [options] => Array ( [0] => Кирпич 250 мм [1] => Кирпич 380 мм [2] => Кирпич 510 мм [3] => Кирпич 640 мм [4] => Кирпич 770 мм ) [days] => [30,30,31,33,36] [material_price] => [5500,7142,9206,10171,12235] [work_price] => [8736,10041,12018,15240,18462] [image] => https://akademik-stroy.ru/wp-content/uploads/materials/kirpich.jpg [area_modifier] => 200.13 [parent_name] => Стены 1 этаж (несущие) [parent_id] => 3 [material_sum] => 1386901 [work_sum] => 1835752 [total_sum] => 3222653 [total_days] => 30 [display_material_sum] => 1 386 901 [display_work_sum] => 1 835 752 [display_total_sum] => 3 222 653 ) 1
3 222 653
Работа:1 835 752
Материалы:1 386 901
Дни:30
stdClass Object ( [id] => 81 [attribute_id] => 3 [name] => Монолитные [material_modifier] => 1 [work_modifier] => 1 [options] => Array ( [0] => 150 мм [1] => 200 мм [2] => 250 мм [3] => 300 мм [4] => 350 мм [5] => 400 мм ) [days] => [45,46,47,49,50,53] [material_price] => [6545,7876,10175,12011,13908,15204] [work_price] => [5106,6444,7698,8552,9807,11461] [image] => https://akademik-stroy.ru/wp-content/uploads/materials/monolitnye.jpg [area_modifier] => 200.13 [parent_name] => Стены 1 этаж (несущие) [parent_id] => 3 [material_sum] => 1650412 [work_sum] => 1072957 [total_sum] => 2723369 [total_days] => 45 [display_material_sum] => 1 650 412 [display_work_sum] => 1 072 957 [display_total_sum] => 2 723 369 ) 1
2 723 369
Работа:1 072 957
Материалы:1 650 412
Дни:45
stdClass Object ( [id] => 82 [attribute_id] => 3 [name] => Клееный брус [material_modifier] => 1 [work_modifier] => 1 [options] => Array ( [0] => 160 мм [1] => 175 мм [2] => 200 мм [3] => 215 мм [4] => 240 мм [5] => 270 мм [6] => 282 мм ) [days] => [24,28,32,37,40,42,48] [material_price] => [16975,18773,19950,20545,21599,22159,23275] [work_price] => [4806,5287,5815,6397,7036,7740,8514] [image] => https://akademik-stroy.ru/wp-content/uploads/materials/kleenyj-brus.jpg [area_modifier] => 200.13 [parent_name] => Стены 1 этаж (несущие) [parent_id] => 3 [material_sum] => 4280481 [work_sum] => 1009916 [total_sum] => 5290397 [total_days] => 24 [display_material_sum] => 4 280 481 [display_work_sum] => 1 009 916 [display_total_sum] => 5 290 397 ) 1
5 290 397
Работа:1 009 916
Материалы:4 280 481
Дни:24
stdClass Object ( [id] => 83 [attribute_id] => 3 [name] => Каркасные [material_modifier] => 1 [work_modifier] => 1 [options] => Array ( [0] => 150 мм [1] => 200 мм [2] => 250 мм [3] => 300 мм ) [days] => [15,16,17,18] [material_price] => [2379,2639,2898,3258] [work_price] => [2418,2686,2985,3716] [image] => https://akademik-stroy.ru/wp-content/uploads/materials/karkasnye.jpg [area_modifier] => 200.13 [parent_name] => Стены 1 этаж (несущие) [parent_id] => 3 [material_sum] => 599898 [work_sum] => 508110 [total_sum] => 1108008 [total_days] => 15 [display_material_sum] => 599 898 [display_work_sum] => 508 110 [display_total_sum] => 1 108 008 ) 1
1 108 008
Работа:508 110
Материалы:599 898
Дни:15
stdClass Object ( [id] => 84 [attribute_id] => 3 [name] => СИП-панели [material_modifier] => 1 [work_modifier] => 1 [options] => Array ( [0] => 120 мм [1] => 170 мм [2] => 220 мм ) [days] => [7,7,7] [material_price] => [1210,1856,2292] [work_price] => [1410,1551,1706] [image] => https://akademik-stroy.ru/wp-content/uploads/materials/sip-paneli.jpg [area_modifier] => 200.13 [parent_name] => Стены 1 этаж (несущие) [parent_id] => 3 [material_sum] => 305118 [work_sum] => 296292 [total_sum] => 601410 [total_days] => 7 [display_material_sum] => 305 118 [display_work_sum] => 296 292 [display_total_sum] => 601 410 ) 1
601 410
Работа:296 292
Материалы:305 118
Дни:7
stdClass Object ( [id] => 85 [attribute_id] => 3 [name] => Сухой брус [material_modifier] => 1 [work_modifier] => 1 [options] => Array ( [0] => 150 мм [1] => 180 мм [2] => 200 мм ) [days] => [7,8,9] [material_price] => [6010,7190,8709] [work_price] => [3204,3845,4229] [image] => https://akademik-stroy.ru/wp-content/uploads/materials/suhoj-brus.jpg [area_modifier] => 200.13 [parent_name] => Стены 1 этаж (несущие) [parent_id] => 3 [material_sum] => 1515504 [work_sum] => 673277 [total_sum] => 2188781 [total_days] => 7 [display_material_sum] => 1 515 504 [display_work_sum] => 673 277 [display_total_sum] => 2 188 781 ) 1
2 188 781
Работа:673 277
Материалы:1 515 504
Дни:7
stdClass Object ( [id] => 86 [attribute_id] => 3 [name] => Профилированный брус [material_modifier] => 1 [work_modifier] => 1 [options] => Array ( [0] => 150 мм [1] => 180 мм [2] => 200 мм ) [days] => [7,8,9] [material_price] => [8190,9228,10051] [work_price] => [3845,4614,5075] [image] => https://akademik-stroy.ru/wp-content/uploads/materials/profilirovannyj-brus.jpg [area_modifier] => 200.13 [parent_name] => Стены 1 этаж (несущие) [parent_id] => 3 [material_sum] => 2065222 [work_sum] => 807975 [total_sum] => 2873197 [total_days] => 7 [display_material_sum] => 2 065 222 [display_work_sum] => 807 975 [display_total_sum] => 2 873 197 ) 1
2 873 197
Работа:807 975
Материалы:2 065 222
Дни:7
stdClass Object ( [id] => 87 [attribute_id] => 3 [name] => Оцилиндрованное бревно [material_modifier] => 1 [work_modifier] => 1 [options] => Array ( [0] => 180 мм [1] => 220 мм [2] => 260 мм [3] => 320 мм ) [days] => [7,8,9,10] [material_price] => [75190,9532,10868,13116] [work_price] => [3845,4691,5535,6863] [image] => https://akademik-stroy.ru/wp-content/uploads/materials/ocilindrovannoe-brevno-1.jpg [area_modifier] => 200.13 [parent_name] => Стены 1 этаж (несущие) [parent_id] => 3 [material_sum] => 18960196 [work_sum] => 807975 [total_sum] => 19768171 [total_days] => 7 [display_material_sum] => 18 960 196 [display_work_sum] => 807 975 [display_total_sum] => 19 768 171 ) 1
19 768 171
Работа:807 975
Материалы:18 960 196
Дни:7
stdClass Object ( [id] => 88 [attribute_id] => 3 [name] => Срубы [material_modifier] => 1 [work_modifier] => 1 [options] => Array ( [0] => 260 мм [1] => 320 мм [2] => 360 мм [3] => 400 мм [4] => 500 мм ) [days] => [7,8,9,10,11] [material_price] => [37975,46709,52314,58069,73167] [work_price] => [4806,5911,6621,7349,9260] [image] => https://akademik-stroy.ru/wp-content/uploads/materials/sruby.jpg [area_modifier] => 200.13 [parent_name] => Стены 1 этаж (несущие) [parent_id] => 3 [material_sum] => 9575920 [work_sum] => 1009916 [total_sum] => 10585836 [total_days] => 7 [display_material_sum] => 9 575 920 [display_work_sum] => 1 009 916 [display_total_sum] => 10 585 836 ) 1
10 585 836
Работа:1 009 916
Материалы:9 575 920
Дни:7
stdClass Object ( [id] => 174 [attribute_id] => 3 [name] => Брус [material_modifier] => 1 [work_modifier] => 1 [options] => Array ( [0] => 150 мм [1] => 180 мм [2] => 200 мм ) [days] => [7,8,9] [material_price] => [5127,6152,7367] [work_price] => [1602,1922,2115] [image] => https://akademik-stroy.ru/wp-content/uploads/materials/brus.jpg [area_modifier] => 200.13 [parent_name] => Стены 1 этаж (несущие) [parent_id] => 3 [material_sum] => 1292844 [work_sum] => 336639 [total_sum] => 1629483 [total_days] => 7 [display_material_sum] => 1 292 844 [display_work_sum] => 336 639 [display_total_sum] => 1 629 483 ) 1
1 629 483
Работа:336 639
Материалы:1 292 844
Дни:7
stdClass Object ( [id] => 175 [attribute_id] => 3 [name] => Газобетон [material_modifier] => 1 [work_modifier] => 1 [options] => Array ( [0] => 300 мм [1] => 375 мм [2] => 400 мм [3] => 500 мм [4] => 600 мм ) [days] => [29,31,35,37,44] [material_price] => [4298,5573,6356,7288,9119] [work_price] => [4538,5251,5926,6733,7195] [image] => https://akademik-stroy.ru/wp-content/uploads/materials/gazobeton.jpg [area_modifier] => 200.13 [parent_name] => Стены 1 этаж (несущие) [parent_id] => 3 [material_sum] => 1083800 [work_sum] => 953599 [total_sum] => 2037399 [total_days] => 29 [display_material_sum] => 1 083 800 [display_work_sum] => 953 599 [display_total_sum] => 2 037 399 ) 1
2 037 399
Работа:953 599
Материалы:1 083 800
Дни:29
stdClass Object ( [id] => 176 [attribute_id] => 3 [name] => Блок [material_modifier] => 1 [work_modifier] => 1 [options] => Array ( [0] => 300 мм [1] => 375 мм [2] => 400 мм [3] => 500 мм [4] => 600 мм ) [days] => [29,31,35,37,44] [material_price] => [2698,3973,4356,6588,7119] [work_price] => [5038,5851,6426,8733,9195] [image] => https://akademik-stroy.ru/wp-content/uploads/materials/blok.jpg [area_modifier] => 200.13 [parent_name] => Стены 1 этаж (несущие) [parent_id] => 3 [material_sum] => 680338 [work_sum] => 1058668 [total_sum] => 1739006 [total_days] => 29 [display_material_sum] => 680 338 [display_work_sum] => 1 058 668 [display_total_sum] => 1 739 006 ) 1
1 739 006
Работа:1 058 668
Материалы:680 338
Дни:29
stdClass Object ( [id] => 177 [attribute_id] => 3 [name] => Газосиликатный блок [material_modifier] => 1 [work_modifier] => 1 [options] => Array ( [0] => 300 мм [1] => 375 мм [2] => 400 мм [3] => 500 мм [4] => 600 мм ) [days] => [29,31,35,37,44] [material_price] => [4298,5573,6356,7288,9119] [work_price] => [4538,5251,5926,6733,7195] [image] => https://akademik-stroy.ru/wp-content/uploads/materials/gazosilikatnyj-blok.jpg [area_modifier] => 200.13 [parent_name] => Стены 1 этаж (несущие) [parent_id] => 3 [material_sum] => 1083800 [work_sum] => 953599 [total_sum] => 2037399 [total_days] => 29 [display_material_sum] => 1 083 800 [display_work_sum] => 953 599 [display_total_sum] => 2 037 399 ) 1
2 037 399
Работа:953 599
Материалы:1 083 800
Дни:29
stdClass Object ( [id] => 178 [attribute_id] => 3 [name] => Керамзитобетонный блок [material_modifier] => 1 [work_modifier] => 1 [options] => Array ( [0] => 300 мм [1] => 375 мм [2] => 400 мм [3] => 500 мм [4] => 600 мм ) [days] => [23,23,24,25,28] [material_price] => [3641,4298,5693,7613,9612] [work_price] => [5737,5737,6903,7958,8901] [image] => https://akademik-stroy.ru/wp-content/uploads/materials/keramzitobetonnyj-blok.jpg [area_modifier] => 200.13 [parent_name] => Стены 1 этаж (несущие) [parent_id] => 3 [material_sum] => 918128 [work_sum] => 1205553 [total_sum] => 2123681 [total_days] => 23 [display_material_sum] => 918 128 [display_work_sum] => 1 205 553 [display_total_sum] => 2 123 681 ) 1
2 123 681
Работа:1 205 553
Материалы:918 128
Дни:23
stdClass Object ( [id] => 179 [attribute_id] => 3 [name] => Деревянные [material_modifier] => 1 [work_modifier] => 1 [options] => Array ( [0] => 180 мм [1] => 220 мм [2] => 260 мм [3] => 320 мм ) [days] => [7,8,9,10] [material_price] => [7950,9458,11961,14472] [work_price] => [4037,4925,5812,7207] [image] => https://akademik-stroy.ru/wp-content/uploads/materials/derevyannye.jpg [area_modifier] => 200.13 [parent_name] => Стены 1 этаж (несущие) [parent_id] => 3 [material_sum] => 2004702 [work_sum] => 848321 [total_sum] => 2853023 [total_days] => 7 [display_material_sum] => 2 004 702 [display_work_sum] => 848 321 [display_total_sum] => 2 853 023 ) 1
2 853 023
Работа:848 321
Материалы:2 004 702
Дни:7
stdClass Object ( [id] => 181 [attribute_id] => 3 [name] => Камень [material_modifier] => 1 [work_modifier] => 1 [options] => Array ( [0] => 300 мм [1] => 400 мм [2] => 500 мм [3] => 600 мм ) [days] => [25,27,31,34] [material_price] => [5262,6844,8330,9815] [work_price] => [8331,9135,10427,11069] [image] => https://akademik-stroy.ru/wp-content/uploads/materials/kamen.jpg [area_modifier] => 200.13 [parent_name] => Стены 1 этаж (несущие) [parent_id] => 3 [material_sum] => 1326886 [work_sum] => 1750647 [total_sum] => 3077533 [total_days] => 25 [display_material_sum] => 1 326 886 [display_work_sum] => 1 750 647 [display_total_sum] => 3 077 533 ) 1
3 077 533
Работа:1 750 647
Материалы:1 326 886
Дни:25
stdClass Object ( [id] => 182 [attribute_id] => 3 [name] => Каркасно-щитовые [material_modifier] => 1 [work_modifier] => 1 [options] => Array ( [0] => 150 мм [1] => 200 мм [2] => 250 мм [3] => 300 мм [4] => 350 мм [5] => 400 мм ) [days] => [15,16,17,18,19,20] [material_price] => [2379,2639,2898,3458,3601,4175] [work_price] => [2538,2820,3134,3483,4062,5642] [image] => https://akademik-stroy.ru/wp-content/uploads/materials/karkasno-shchitovye.jpg [area_modifier] => 200.13 [parent_name] => Стены 1 этаж (несущие) [parent_id] => 3 [material_sum] => 599898 [work_sum] => 533326 [total_sum] => 1133224 [total_days] => 15 [display_material_sum] => 599 898 [display_work_sum] => 533 326 [display_total_sum] => 1 133 224 ) 1
1 133 224
Работа:533 326
Материалы:599 898
Дни:15
stdClass Object ( [id] => 183 [attribute_id] => 3 [name] => Рубленные [material_modifier] => 1 [work_modifier] => 1 [options] => Array ( [0] => 150 мм [1] => 200 мм [2] => 250 мм [3] => 300 мм [4] => 350 мм [5] => 400 мм ) [days] => [15,16,17,18,17,18] [material_price] => [35950,50267,60583,75900,80217,100533] [work_price] => [9612,12816,16020,19224,22428,25632] [image] => https://akademik-stroy.ru/wp-content/uploads/materials/rublennye.jpg [area_modifier] => 200.13 [parent_name] => Стены 1 этаж (несущие) [parent_id] => 3 [material_sum] => 9065289 [work_sum] => 2019832 [total_sum] => 11085121 [total_days] => 15 [display_material_sum] => 9 065 289 [display_work_sum] => 2 019 832 [display_total_sum] => 11 085 121 ) 1
11 085 121
Работа:2 019 832
Материалы:9 065 289
Дни:15
stdClass Object ( [id] => 185 [attribute_id] => 3 [name] => Теплоблок [material_modifier] => 1 [work_modifier] => 1 [options] => Array ( [0] => 300 мм (с облицовкой, не покрашенный) [1] => 400 мм (с облицовкой, не покрашенный) [2] => 300 мм (с облицовкой, покрашенный) [3] => 400 мм (с облицовкой, покрашенный) ) [days] => [15,16,15,16] [material_price] => [2888,3729,3957,4258] [work_price] => [2564,3229,2949,3713] [image] => https://akademik-stroy.ru/wp-content/uploads/materials/teploblok.jpg [area_modifier] => 200.13 [parent_name] => Стены 1 этаж (несущие) [parent_id] => 3 [material_sum] => 728249 [work_sum] => 538790 [total_sum] => 1267039 [total_days] => 15 [display_material_sum] => 728 249 [display_work_sum] => 538 790 [display_total_sum] => 1 267 039 ) 1
1 267 039
Работа:538 790
Материалы:728 249
Дни:15
stdClass Object ( [id] => 186 [attribute_id] => 3 [name] => Арболитовые блоки [material_modifier] => 1 [work_modifier] => 1 [options] => Array ( [0] => 300 мм [1] => 400 мм [2] => 600 мм ) [days] => [19,22,27] [material_price] => [3210,4475,5852] [work_price] => [4214,4788,5866] [image] => https://akademik-stroy.ru/wp-content/uploads/materials/arbolitovye-bloki.png [area_modifier] => 200.13 [parent_name] => Стены 1 этаж (несущие) [parent_id] => 3 [material_sum] => 809446 [work_sum] => 885515 [total_sum] => 1694961 [total_days] => 19 [display_material_sum] => 809 446 [display_work_sum] => 885 515 [display_total_sum] => 1 694 961 ) 1
1 694 961
Работа:885 515
Материалы:809 446
Дни:19
stdClass Object ( [id] => 187 [attribute_id] => 3 [name] => Полистиролбетон [material_modifier] => 1 [work_modifier] => 1 [options] => Array ( [0] => 300 мм [1] => 400 мм [2] => 600 мм ) [days] => [29,31,35] [material_price] => [2798,4573,5256] [work_price] => [5038,5851,6426] [image] => https://akademik-stroy.ru/wp-content/uploads/materials/polistirolbeton.jpg [area_modifier] => 200.13 [parent_name] => Стены 1 этаж (несущие) [parent_id] => 3 [material_sum] => 705554 [work_sum] => 1058668 [total_sum] => 1764222 [total_days] => 29 [display_material_sum] => 705 554 [display_work_sum] => 1 058 668 [display_total_sum] => 1 764 222 ) 1
1 764 222
Работа:1 058 668
Материалы:705 554
Дни:29
stdClass Object ( [id] => 188 [attribute_id] => 3 [name] => Шлакоблок [material_modifier] => 1 [work_modifier] => 1 [options] => Array ( [0] => 400 мм [1] => 600 мм ) [days] => [15,16] [material_price] => [2391,3471] [work_price] => [2642,3662] [image] => https://akademik-stroy.ru/wp-content/uploads/materials/shlakoblok.jpg [area_modifier] => 200.13 [parent_name] => Стены 1 этаж (несущие) [parent_id] => 3 [material_sum] => 602924 [work_sum] => 555181 [total_sum] => 1158105 [total_days] => 15 [display_material_sum] => 602 924 [display_work_sum] => 555 181 [display_total_sum] => 1 158 105 ) 1
1 158 105
Работа:555 181
Материалы:602 924
Дни:15
stdClass Object ( [id] => 189 [attribute_id] => 3 [name] => Теплая керамика [material_modifier] => 1 [work_modifier] => 1 [options] => Array ( [0] => 380 мм [1] => 380 мм Thermo [2] => 440 мм [3] => 510 мм ) [days] => [23,23,24,25] [material_price] => [4510,5098,6093,8013] [work_price] => [4737,4937,5903,6958] [image] => https://akademik-stroy.ru/wp-content/uploads/materials/teplaya-keramika.jpg [area_modifier] => 200.13 [parent_name] => Стены 1 этаж (несущие) [parent_id] => 3 [material_sum] => 1137259 [work_sum] => 995417 [total_sum] => 2132676 [total_days] => 23 [display_material_sum] => 1 137 259 [display_work_sum] => 995 417 [display_total_sum] => 2 132 676 ) 1
2 132 676
Работа:995 417
Материалы:1 137 259
Дни:23
stdClass Object ( [id] => 190 [attribute_id] => 3 [name] => Несъемная опалубка [material_modifier] => 1 [work_modifier] => 1 [options] => Array ( [0] => 200 мм [1] => 250 мм [2] => 300 мм [3] => 350 мм ) [days] => [15,17,19,21] [material_price] => [3302,3902,4108,5008] [work_price] => [2100,2100,2300,2534] [image] => https://akademik-stroy.ru/wp-content/uploads/materials/nesemnaya-opalubka.jpg [area_modifier] => 200.13 [parent_name] => Стены 1 этаж (несущие) [parent_id] => 3 [material_sum] => 832645 [work_sum] => 441287 [total_sum] => 1273932 [total_days] => 15 [display_material_sum] => 832 645 [display_work_sum] => 441 287 [display_total_sum] => 1 273 932 ) 1
1 273 932
Работа:441 287
Материалы:832 645
Дни:15
stdClass Object ( [id] => 251 [attribute_id] => 3 [name] => Бревно [material_modifier] => 1 [work_modifier] => 1 [options] => Array ( [0] => 260 мм [1] => 320 мм [2] => 360 мм [3] => 400 мм [4] => 500 мм ) [days] => [7,8,9,10,11] [material_price] => [1874,24045,26930,30972,38825] [work_price] => [5046,6207,6952,7716,9723] [image] => https://akademik-stroy.ru/wp-content/uploads/materials/sruby.jpg [area_modifier] => 200.13 [parent_name] => Стены 1 этаж (несущие) [parent_id] => 3 [material_sum] => 472555 [work_sum] => 1060349 [total_sum] => 1532904 [total_days] => 7 [display_material_sum] => 472 555 [display_work_sum] => 1 060 349 [display_total_sum] => 1 532 904 ) 1
1 532 904
Работа:1 060 349
Материалы:472 555
Дни:7
Перекрытие первого этажа
stdClass Object ( [id] => 7 [attribute_id] => 4 [name] => Деревянные балки [material_modifier] => 1 [work_modifier] => 1 [options] => Array ( [0] => без утепления [1] => утепление 200 мм [2] => утепление 250 мм [3] => утепление 300 мм [4] => утепление 350 мм [5] => утепление 400 мм [6] => утепление 450 мм [7] => утепление 500 мм ) [days] => [8,9,9,9,11,12,13,14] [material_price] => [1634,2042,2344,2947,3149,3652,3354,3557] [work_price] => [1230,1339,1393,1426,1460,1513,1587,1620] [image] => https://akademik-stroy.ru/wp-content/uploads/materials/derevyannye-balki.png [area_modifier] => 200.13 [parent_name] => Перекрытие первого этажа [parent_id] => 4 [material_sum] => 412036 [work_sum] => 258468 [total_sum] => 670504 [total_days] => 8 [display_material_sum] => 412 036 [display_work_sum] => 258 468 [display_total_sum] => 670 504 ) 1
670 504
Работа:258 468
Материалы:412 036
Дни:8
stdClass Object ( [id] => 8 [attribute_id] => 4 [name] => Сборные ж/б плиты [material_modifier] => 1 [work_modifier] => 1 [options] => Array ( [0] => без утепления [1] => утепление 150 мм [2] => утепление 200 мм [3] => утепление 250 мм [4] => утепление 300 мм [5] => утепление 350 мм [6] => утепление 400 мм [7] => утепление 450 мм [8] => утепление 500 мм ) [days] => [13,15,15,15,15,15,15,15,15] [material_price] => [3067,5577,5928,6679,7730,8782,9833,10884,11935] [work_price] => [1520,1956,2102,2247,2392,2537,2684,2829,2974] [image] => https://akademik-stroy.ru/wp-content/uploads/materials/sbornye-zh-b-plity-2.jpg [area_modifier] => 200.13 [parent_name] => Перекрытие первого этажа [parent_id] => 4 [material_sum] => 773386 [work_sum] => 319407 [total_sum] => 1092793 [total_days] => 13 [display_material_sum] => 773 386 [display_work_sum] => 319 407 [display_total_sum] => 1 092 793 ) 1
1 092 793
Работа:319 407
Материалы:773 386
Дни:13
stdClass Object ( [id] => 89 [attribute_id] => 4 [name] => Монолитная ж/б плита [material_modifier] => 1 [work_modifier] => 1 [options] => Array ( [0] => без утепления [1] => утепление 150 мм [2] => утепление 200 мм [3] => утепление 250 мм [4] => утепление 300 мм [5] => утепление 350 мм [6] => утепление 400 мм [7] => утепление 450 мм [8] => утепление 500 мм ) [days] => [18,20,20,20,20,20,20,20,20] [material_price] => [4837,6572,7224,7375,79426,8177,8728,9180,10031] [work_price] => [3348,3921,4112,4302,4493,4684,4875,5066,5256] [image] => https://akademik-stroy.ru/wp-content/uploads/materials/monolitnaya-zh-b-plita-2.jpg [area_modifier] => 200.13 [parent_name] => Перекрытие первого этажа [parent_id] => 4 [material_sum] => 1219716 [work_sum] => 703537 [total_sum] => 1923253 [total_days] => 18 [display_material_sum] => 1 219 716 [display_work_sum] => 703 537 [display_total_sum] => 1 923 253 ) 1
1 923 253
Работа:703 537
Материалы:1 219 716
Дни:18
Крыша (Скатная)
stdClass Object ( [id] => 164 [attribute_id] => 37 [name] => Металлочерепица [material_modifier] => 1 [work_modifier] => 1 [options] => Array ( ) [days] => [20] [material_price] => [6112] [work_price] => [5726] [image] => https://akademik-stroy.ru/wp-content/uploads/materials/metallocherepica.jpg [area_modifier] => 200.13 [parent_name] => Крыша (Скатная) [parent_id] => 37 [material_sum] => 1541225 [work_sum] => 1203242 [total_sum] => 2744467 [total_days] => 20 [display_material_sum] => 1 541 225 [display_work_sum] => 1 203 242 [display_total_sum] => 2 744 467 ) 1
2 744 467
Работа:1 203 242
Материалы:1 541 225
Дни:20
stdClass Object ( [id] => 165 [attribute_id] => 37 [name] => Гибкая черепица [material_modifier] => 1 [work_modifier] => 1 [options] => Array ( ) [days] => [20] [material_price] => [6980] [work_price] => [5950] [image] => https://akademik-stroy.ru/wp-content/uploads/materials/gibkaya-cherepica.jpg [area_modifier] => 200.13 [parent_name] => Крыша (Скатная) [parent_id] => 37 [material_sum] => 1760103 [work_sum] => 1250312 [total_sum] => 3010415 [total_days] => 20 [display_material_sum] => 1 760 103 [display_work_sum] => 1 250 312 [display_total_sum] => 3 010 415 ) 1
3 010 415
Работа:1 250 312
Материалы:1 760 103
Дни:20
stdClass Object ( [id] => 166 [attribute_id] => 37 [name] => Цементно-песчаная черепица [material_modifier] => 1 [work_modifier] => 1 [options] => Array ( ) [days] => [20] [material_price] => [10560] [work_price] => [9456] [image] => https://akademik-stroy.ru/wp-content/uploads/materials/cementno-peschanaya-cherepica.jpg [area_modifier] => 200.13 [parent_name] => Крыша (Скатная) [parent_id] => 37 [material_sum] => 2662850 [work_sum] => 1987051 [total_sum] => 4649901 [total_days] => 20 [display_material_sum] => 2 662 850 [display_work_sum] => 1 987 051 [display_total_sum] => 4 649 901 ) 1
4 649 901
Работа:1 987 051
Материалы:2 662 850
Дни:20
stdClass Object ( [id] => 167 [attribute_id] => 37 [name] => Композитная черепица [material_modifier] => 1 [work_modifier] => 1 [options] => Array ( ) [days] => [20] [material_price] => [9506] [work_price] => [8905] [image] => https://akademik-stroy.ru/wp-content/uploads/materials/kompozitnaya-cherepica.jpg [area_modifier] => 200.13 [parent_name] => Крыша (Скатная) [parent_id] => 37 [material_sum] => 2397069 [work_sum] => 1871266 [total_sum] => 4268335 [total_days] => 20 [display_material_sum] => 2 397 069 [display_work_sum] => 1 871 266 [display_total_sum] => 4 268 335 ) 1
4 268 335
Работа:1 871 266
Материалы:2 397 069
Дни:20
stdClass Object ( [id] => 168 [attribute_id] => 37 [name] => Керамическая черепица [material_modifier] => 1 [work_modifier] => 1 [options] => Array ( ) [days] => [20] [material_price] => [12750] [work_price] => [9456] [image] => https://akademik-stroy.ru/wp-content/uploads/materials/keramicheskaya-cherepica.jpg [area_modifier] => 200.13 [parent_name] => Крыша (Скатная) [parent_id] => 37 [material_sum] => 3215088 [work_sum] => 1987051 [total_sum] => 5202139 [total_days] => 20 [display_material_sum] => 3 215 088 [display_work_sum] => 1 987 051 [display_total_sum] => 5 202 139 ) 1
5 202 139
Работа:1 987 051
Материалы:3 215 088
Дни:20
stdClass Object ( [id] => 169 [attribute_id] => 37 [name] => Металлическая фальцевая [material_modifier] => 1 [work_modifier] => 1 [options] => Array ( ) [days] => [20] [material_price] => [8550] [work_price] => [8190] [image] => https://akademik-stroy.ru/wp-content/uploads/materials/metallicheskaya-falcevaya.jpg [area_modifier] => 200.13 [parent_name] => Крыша (Скатная) [parent_id] => 37 [material_sum] => 2156000 [work_sum] => 1721018 [total_sum] => 3877018 [total_days] => 20 [display_material_sum] => 2 156 000 [display_work_sum] => 1 721 018 [display_total_sum] => 3 877 018 ) 1
3 877 018
Работа:1 721 018
Материалы:2 156 000
Дни:20
stdClass Object ( [id] => 170 [attribute_id] => 37 [name] => Медная фальцевая [material_modifier] => 1 [work_modifier] => 1 [options] => Array ( ) [days] => [20] [material_price] => [20450] [work_price] => [16750] [image] => https://akademik-stroy.ru/wp-content/uploads/materials/mednaya-falcevaya.jpg [area_modifier] => 200.13 [parent_name] => Крыша (Скатная) [parent_id] => 37 [material_sum] => 5156750 [work_sum] => 3519786 [total_sum] => 8676536 [total_days] => 20 [display_material_sum] => 5 156 750 [display_work_sum] => 3 519 786 [display_total_sum] => 8 676 536 ) 1
8 676 536
Работа:3 519 786
Материалы:5 156 750
Дни:20
stdClass Object ( [id] => 171 [attribute_id] => 37 [name] => Зеленая кровля [material_modifier] => 1 [work_modifier] => 1 [options] => Array ( ) [days] => [20] [material_price] => [19850] [work_price] => [16780] [image] => https://akademik-stroy.ru/wp-content/uploads/materials/zelenaya-krovlya.jpg [area_modifier] => 200.13 [parent_name] => Крыша (Скатная) [parent_id] => 37 [material_sum] => 5005451 [work_sum] => 3526090 [total_sum] => 8531541 [total_days] => 20 [display_material_sum] => 5 005 451 [display_work_sum] => 3 526 090 [display_total_sum] => 8 531 541 ) 1
8 531 541
Работа:3 526 090
Материалы:5 005 451
Дни:20
stdClass Object ( [id] => 172 [attribute_id] => 37 [name] => Профлист [material_modifier] => 1 [work_modifier] => 1 [options] => Array ( ) [days] => [20] [material_price] => [3450] [work_price] => [3750] [image] => https://akademik-stroy.ru/wp-content/uploads/materials/proflist.jpg [area_modifier] => 200.13 [parent_name] => Крыша (Скатная) [parent_id] => 37 [material_sum] => 869965 [work_sum] => 788012 [total_sum] => 1657977 [total_days] => 20 [display_material_sum] => 869 965 [display_work_sum] => 788 012 [display_total_sum] => 1 657 977 ) 1
1 657 977
Работа:788 012
Материалы:869 965
Дни:20
Окна
stdClass Object ( [id] => 51 [attribute_id] => 26 [name] => Есть [material_modifier] => 1 [work_modifier] => 1 [options] => Array ( [0] => Профиль 58 мм, 3-камерный, стеклопакет 2-камерный до 32 мм [1] => Профиль 60 мм, 4-камерный, стеклопакет 2-камерный до 32 мм [2] => Профиль 70 мм, 5-камерный, стеклопакет 2-камерный до 40 мм [3] => Профиль 72 мм, 5-камерный, стеклопакет 2-камерный до 40 мм [4] => Алюминиевые окна Alutech профиль 72 мм, стеклопакет 2-камерный ) [days] => [3,3,3,3,3] [material_price] => [1339,2124,2867,3023,29596] [work_price] => [635,647,659,668,2579] [image] => https://akademik-stroy.ru/wp-content/uploads/materials/okna.jpg [area_modifier] => 162.4 [parent_name] => Окна [parent_id] => 26 [material_sum] => 273992 [work_sum] => 108280 [total_sum] => 382272 [total_days] => 3 [display_material_sum] => 273 992 [display_work_sum] => 108 280 [display_total_sum] => 382 272 ) 1
382 272
Работа:108 280
Материалы:273 992
Дни:3
stdClass Object ( [id] => 52 [attribute_id] => 26 [name] => Нет [material_modifier] => 2 [work_modifier] => 1 [options] => [days] => null [material_price] => null [work_price] => null [image] => https://akademik-stroy.ru/wp-content/uploads/materials/okna.jpg [area_modifier] => 162.4 [parent_name] => Окна [parent_id] => 26 [material_sum] => 0 [work_sum] => 0 [total_sum] => 0 [total_days] => 0 [display_material_sum] => 0 [display_work_sum] => 0 [display_total_sum] => 0 ) 1
0
Работа:0
Материалы:0
Дни:0
Двери входные
stdClass Object ( [id] => 53 [attribute_id] => 27 [name] => Есть [material_modifier] => 1 [work_modifier] => 1 [options] => Array ( ) [days] => [1] [material_price] => [10000] [work_price] => [5500] [image] => https://akademik-stroy.ru/wp-content/uploads/materials/dveri.jpg [area_modifier] => 1 [parent_name] => Двери входные [parent_id] => 27 [material_sum] => 12600 [work_sum] => 5775 [total_sum] => 18375 [total_days] => 1 [display_material_sum] => 12 600 [display_work_sum] => 5 775 [display_total_sum] => 18 375 ) 1
18 375
Работа:5 775
Материалы:12 600
Дни:1
stdClass Object ( [id] => 54 [attribute_id] => 27 [name] => Нет [material_modifier] => 1 [work_modifier] => 1 [options] => Array ( ) [days] => [0] [material_price] => [0] [work_price] => [0] [image] => https://akademik-stroy.ru/wp-content/uploads/materials/dveri.jpg [area_modifier] => 1 [parent_name] => Двери входные [parent_id] => 27 [material_sum] => 0 [work_sum] => 0 [total_sum] => 0 [total_days] => 0 [display_material_sum] => 0 [display_work_sum] => 0 [display_total_sum] => 0 ) 1
0
Работа:0
Материалы:0
Дни:0
Утепление кровли (Мансарда)
stdClass Object ( [id] => 25 [attribute_id] => 13 [name] => Нет [material_modifier] => 1 [work_modifier] => 1 [options] => Array ( ) [days] => [0] [material_price] => [0] [work_price] => [0] [image] => https://akademik-stroy.ru/wp-content/uploads/materials/mineralovata-krov.jpg [area_modifier] => 200.13 [parent_name] => Утепление кровли (Мансарда) [parent_id] => 13 [material_sum] => 0 [work_sum] => 0 [total_sum] => 0 [total_days] => 0 [display_material_sum] => 0 [display_work_sum] => 0 [display_total_sum] => 0 ) 1
0
Работа:0
Материалы:0
Дни:0
stdClass Object ( [id] => 26 [attribute_id] => 13 [name] => Минераловатный [material_modifier] => 1 [work_modifier] => 1 [options] => Array ( [0] => 50 мм [1] => 100 мм [2] => 150 мм [3] => 200 мм [4] => 250 мм [5] => 300 мм [6] => 350 мм [7] => 400 мм [8] => 450 мм [9] => 500 мм ) [days] => [5,5,6,6,6,7,7,7,8,8] [material_price] => [1158,1414,1772,2230,3602,4060,4974,5890,6408,7718] [work_price] => [650,846,846,1098,1318,1450,1596,1754,1930,2122] [image] => https://akademik-stroy.ru/wp-content/uploads/materials/mineralovata-krov.jpg [area_modifier] => 200.13 [parent_name] => Утепление кровли (Мансарда) [parent_id] => 13 [material_sum] => 292006 [work_sum] => 136589 [total_sum] => 428595 [total_days] => 5 [display_material_sum] => 292 006 [display_work_sum] => 136 589 [display_total_sum] => 428 595 ) 1
428 595
Работа:136 589
Материалы:292 006
Дни:5
stdClass Object ( [id] => 123 [attribute_id] => 13 [name] => Эковата (целлюлозная вата) [material_modifier] => 1 [work_modifier] => 1 [options] => Array ( [0] => 50 мм [1] => 100 мм [2] => 150 мм [3] => 200 мм [4] => 250 мм [5] => 300 мм [6] => 350 мм [7] => 400 мм [8] => 450 мм [9] => 500 мм ) [days] => [3,3,4,4,4,5,5,5,5,5] [material_price] => [820,1638,2458,3276,5734,6552,8190,9828,11466,13104] [work_price] => [234,304,304,396,474,522,574,632,694,764] [image] => https://akademik-stroy.ru/wp-content/uploads/materials/ehkovata-krov.jpg [area_modifier] => 200.13 [parent_name] => Утепление кровли (Мансарда) [parent_id] => 13 [material_sum] => 206774 [work_sum] => 49172 [total_sum] => 255946 [total_days] => 3 [display_material_sum] => 206 774 [display_work_sum] => 49 172 [display_total_sum] => 255 946 ) 1
255 946
Работа:49 172
Материалы:206 774
Дни:3
stdClass Object ( [id] => 124 [attribute_id] => 13 [name] => Экструдированный пенополистирол [material_modifier] => 1 [work_modifier] => 1 [options] => Array ( [0] => 50 мм [1] => 100 мм [2] => 150 мм [3] => 200 мм [4] => 250 мм [5] => 300 мм [6] => 350 мм [7] => 400 мм [8] => 450 мм [9] => 500 мм ) [days] => [3,3,4,4,4,5,5,5,5,6] [material_price] => [1146,2292,3438,4584,8020,9166,11458,13750,16040,18332] [work_price] => [390,508,508,660,790,870,958,1052,1158,1274] [image] => https://akademik-stroy.ru/wp-content/uploads/materials/epps-krov.jpg [area_modifier] => 200.13 [parent_name] => Утепление кровли (Мансарда) [parent_id] => 13 [material_sum] => 288980 [work_sum] => 81953 [total_sum] => 370933 [total_days] => 3 [display_material_sum] => 288 980 [display_work_sum] => 81 953 [display_total_sum] => 370 933 ) 1
370 933
Работа:81 953
Материалы:288 980
Дни:3
stdClass Object ( [id] => 125 [attribute_id] => 13 [name] => ПСБ (ППС-пенополистирол) [material_modifier] => 1 [work_modifier] => 1 [options] => Array ( [0] => 50 мм [1] => 100 мм [2] => 150 мм [3] => 200 мм [4] => 250 мм [5] => 300 мм [6] => 350 мм [7] => 400 мм [8] => 450 мм [9] => 500 мм ) [days] => [3,3,4,4,4,5,5,5,5,6] [material_price] => [476,954,1430,1906,3336,3814,4766,5720,6674,7626] [work_price] => [390,508,508,660,790,870,958,1052,1158,1274] [image] => https://akademik-stroy.ru/wp-content/uploads/materials/psb-krov.jpg [area_modifier] => 200.13 [parent_name] => Утепление кровли (Мансарда) [parent_id] => 13 [material_sum] => 120030 [work_sum] => 81953 [total_sum] => 201983 [total_days] => 3 [display_material_sum] => 120 030 [display_work_sum] => 81 953 [display_total_sum] => 201 983 ) 1
201 983
Работа:81 953
Материалы:120 030
Дни:3
stdClass Object ( [id] => 126 [attribute_id] => 13 [name] => ППУ (Пенополиуретан) [material_modifier] => 1 [work_modifier] => 1 [options] => Array ( [0] => 50 мм [1] => 100 мм [2] => 150 мм [3] => 200 мм [4] => 250 мм [5] => 300 мм [6] => 350 мм [7] => 400 мм [8] => 450 мм [9] => 500 мм ) [days] => [2,2,3,3,3,3,4,4,4,4] [material_price] => [2080,4160,6240,8320,14560,16640,20800,24960,29120,33280] [work_price] => [234,304,304,396,474,522,574,632,694,764] [image] => https://akademik-stroy.ru/wp-content/uploads/materials/ppu-krov.jpg [area_modifier] => 200.13 [parent_name] => Утепление кровли (Мансарда) [parent_id] => 13 [material_sum] => 524501 [work_sum] => 49172 [total_sum] => 573673 [total_days] => 2 [display_material_sum] => 524 501 [display_work_sum] => 49 172 [display_total_sum] => 573 673 ) 1
573 673
Работа:49 172
Материалы:524 501
Дни:2
stdClass Object ( [id] => 127 [attribute_id] => 13 [name] => PIR-плиты (пенополиизоцианурат) [material_modifier] => 1 [work_modifier] => 1 [options] => Array ( [0] => 50 мм [1] => 100 мм [2] => 150 мм [3] => 200 мм [4] => 250 мм [5] => 300 мм [6] => 350 мм [7] => 400 мм [8] => 450 мм [9] => 500 мм ) [days] => [3,3,4,4,4,5,5,5,5,6] [material_price] => [2646,5290,7936,10580,18516,21162,26452,31742,37032,42324] [work_price] => [390,508,508,660,790,870,958,1052,1158,1274] [image] => https://akademik-stroy.ru/wp-content/uploads/materials/pir-krov.jpg [area_modifier] => 200.13 [parent_name] => Утепление кровли (Мансарда) [parent_id] => 13 [material_sum] => 667225 [work_sum] => 81953 [total_sum] => 749178 [total_days] => 3 [display_material_sum] => 667 225 [display_work_sum] => 81 953 [display_total_sum] => 749 178 ) 1
749 178
Работа:81 953
Материалы:667 225
Дни:3
Мансардные окна
stdClass Object ( [id] => 27 [attribute_id] => 14 [name] => Нет [material_modifier] => 1 [work_modifier] => 1 [options] => Array ( ) [days] => [0] [material_price] => [0] [work_price] => [0] [image] => https://akademik-stroy.ru/wp-content/uploads/materials/mansardnye-okna-2.jpg [area_modifier] => 1 [parent_name] => Мансардные окна [parent_id] => 14 [material_sum] => 0 [work_sum] => 0 [total_sum] => 0 [total_days] => 0 [display_material_sum] => 0 [display_work_sum] => 0 [display_total_sum] => 0 ) 1
0
Работа:0
Материалы:0
Дни:0
stdClass Object ( [id] => 28 [attribute_id] => 14 [name] => Есть [material_modifier] => 1 [work_modifier] => 1 [options] => Array ( [0] => 55x78 [1] => 55x98 ) [days] => [6,7] [material_price] => [47480,68700] [work_price] => [17900,19500] [image] => https://akademik-stroy.ru/wp-content/uploads/materials/mansardnye-okna-2.jpg [area_modifier] => 1 [parent_name] => Мансардные окна [parent_id] => 14 [material_sum] => 59825 [work_sum] => 18795 [total_sum] => 78620 [total_days] => 6 [display_material_sum] => 59 825 [display_work_sum] => 18 795 [display_total_sum] => 78 620 ) 1
78 620
Работа:18 795
Материалы:59 825
Дни:6
Подшивка кровли
stdClass Object ( [id] => 29 [attribute_id] => 15 [name] => Нет [material_modifier] => 1 [work_modifier] => 1 [options] => Array ( ) [days] => [0] [material_price] => [0] [work_price] => [0] [image] => https://akademik-stroy.ru/wp-content/uploads/materials/sofit.jpg [area_modifier] => 200.13 [parent_name] => Подшивка кровли [parent_id] => 15 [material_sum] => 0 [work_sum] => 0 [total_sum] => 0 [total_days] => 0 [display_material_sum] => 0 [display_work_sum] => 0 [display_total_sum] => 0 ) 1
0
Работа:0
Материалы:0
Дни:0
stdClass Object ( [id] => 30 [attribute_id] => 15 [name] => Есть [material_modifier] => 1 [work_modifier] => 1 [options] => Array ( [0] => Софиты (ПВХ) [1] => Cedral [2] => ДПК [3] => Планкен ) [days] => [7,10,9,8] [material_price] => [1803,3213,3025,3150] [work_price] => [1529,2188,2075,1923] [image] => https://akademik-stroy.ru/wp-content/uploads/materials/sofit.jpg [area_modifier] => 200.13 [parent_name] => Подшивка кровли [parent_id] => 15 [material_sum] => 454651 [work_sum] => 321299 [total_sum] => 775950 [total_days] => 7 [display_material_sum] => 454 651 [display_work_sum] => 321 299 [display_total_sum] => 775 950 ) 1
775 950
Работа:321 299
Материалы:454 651
Дни:7
Водосточная система
stdClass Object ( [id] => 31 [attribute_id] => 16 [name] => Нет [material_modifier] => 1 [work_modifier] => 1 [options] => Array ( ) [days] => [0] [material_price] => [0] [work_price] => [0] [image] => https://akademik-stroy.ru/wp-content/uploads/materials/docke-standard-pvh.jpg [area_modifier] => 200.13 [parent_name] => Водосточная система [parent_id] => 16 [material_sum] => 0 [work_sum] => 0 [total_sum] => 0 [total_days] => 0 [display_material_sum] => 0 [display_work_sum] => 0 [display_total_sum] => 0 ) 1
0
Работа:0
Материалы:0
Дни:0
stdClass Object ( [id] => 32 [attribute_id] => 16 [name] => Есть [material_modifier] => 1 [work_modifier] => 1 [options] => Array ( [0] => Döcke Standard (ПВХ) [1] => Металлические Grand Line ) [days] => [7,7] [material_price] => [1842,2703] [work_price] => [1491,1529] [image] => https://akademik-stroy.ru/wp-content/uploads/materials/docke-standard-pvh.jpg [area_modifier] => 200.13 [parent_name] => Водосточная система [parent_id] => 16 [material_sum] => 464486 [work_sum] => 313314 [total_sum] => 777800 [total_days] => 7 [display_material_sum] => 464 486 [display_work_sum] => 313 314 [display_total_sum] => 777 800 ) 1
777 800
Работа:313 314
Материалы:464 486
Дни:7
Дополнительное утепление наружных стен
stdClass Object ( [id] => 33 [attribute_id] => 17 [name] => Нет [material_modifier] => 1 [work_modifier] => 1 [options] => Array ( ) [days] => [0] [material_price] => [0] [work_price] => [0] [image] => https://akademik-stroy.ru/wp-content/uploads/materials/mineralovata.jpg [area_modifier] => 200.13 [parent_name] => Дополнительное утепление наружных стен [parent_id] => 17 [material_sum] => 0 [work_sum] => 0 [total_sum] => 0 [total_days] => 0 [display_material_sum] => 0 [display_work_sum] => 0 [display_total_sum] => 0 ) 1
0
Работа:0
Материалы:0
Дни:0
stdClass Object ( [id] => 34 [attribute_id] => 17 [name] => Минераловатный [material_modifier] => 1 [work_modifier] => 1 [options] => Array ( [0] => 50 мм [1] => 100 мм [2] => 150 мм [3] => 200 мм [4] => 250 мм [5] => 300 мм ) [days] => [7,8,10,12,14,15] [material_price] => [3437,3613,3803,3915,4601,4830] [work_price] => [2325,2423,2523,2749,2859,3025] [image] => https://akademik-stroy.ru/wp-content/uploads/materials/mineralovata.jpg [area_modifier] => 200.13 [parent_name] => Дополнительное утепление наружных стен [parent_id] => 17 [material_sum] => 866687 [work_sum] => 488567 [total_sum] => 1355254 [total_days] => 7 [display_material_sum] => 866 687 [display_work_sum] => 488 567 [display_total_sum] => 1 355 254 ) 1
1 355 254
Работа:488 567
Материалы:866 687
Дни:7
stdClass Object ( [id] => 128 [attribute_id] => 17 [name] => Эковата (целлюлозная вата) [material_modifier] => 1 [work_modifier] => 1 [options] => Array ( [0] => 50 мм [1] => 100 мм [2] => 150 мм [3] => 200 мм [4] => 250 мм [5] => 300 мм ) [days] => [3,4,5,6,7,8] [material_price] => [810,1319,1629,1838,2267,2676] [work_price] => [1225,1323,1423,1549,1659,1725] [image] => https://akademik-stroy.ru/wp-content/uploads/materials/ehkovata.jpg [area_modifier] => 200.13 [parent_name] => Дополнительное утепление наружных стен [parent_id] => 17 [material_sum] => 204253 [work_sum] => 257417 [total_sum] => 461670 [total_days] => 3 [display_material_sum] => 204 253 [display_work_sum] => 257 417 [display_total_sum] => 461 670 ) 1
461 670
Работа:257 417
Материалы:204 253
Дни:3
stdClass Object ( [id] => 129 [attribute_id] => 17 [name] => Экструдированный пенополистирол [material_modifier] => 1 [work_modifier] => 1 [options] => Array ( [0] => 50 мм [1] => 100 мм [2] => 150 мм [3] => 200 мм [4] => 250 мм [5] => 300 мм ) [days] => [5,6,7,8,9,10] [material_price] => [4560,4300,5119,6292,7010,8583] [work_price] => [1795,1954,2254,2330,2595,2735] [image] => https://akademik-stroy.ru/wp-content/uploads/materials/epps.jpg [area_modifier] => 200.13 [parent_name] => Дополнительное утепление наружных стен [parent_id] => 17 [material_sum] => 1149867 [work_sum] => 377195 [total_sum] => 1527062 [total_days] => 5 [display_material_sum] => 1 149 867 [display_work_sum] => 377 195 [display_total_sum] => 1 527 062 ) 1
1 527 062
Работа:377 195
Материалы:1 149 867
Дни:5
stdClass Object ( [id] => 130 [attribute_id] => 17 [name] => ПСБ (ППС-пенополистирол) [material_modifier] => 1 [work_modifier] => 1 [options] => Array ( [0] => 50 мм [1] => 100 мм [2] => 150 мм [3] => 200 мм [4] => 250 мм [5] => 300 мм ) [days] => [5,6,7,8,9,10] [material_price] => [4822,5200,5819,6292,7010,7583] [work_price] => [1795,1954,2254,2330,2595,2735] [image] => https://akademik-stroy.ru/wp-content/uploads/materials/psb.jpg [area_modifier] => 200.13 [parent_name] => Дополнительное утепление наружных стен [parent_id] => 17 [material_sum] => 1215934 [work_sum] => 377195 [total_sum] => 1593129 [total_days] => 5 [display_material_sum] => 1 215 934 [display_work_sum] => 377 195 [display_total_sum] => 1 593 129 ) 1
1 593 129
Работа:377 195
Материалы:1 215 934
Дни:5
stdClass Object ( [id] => 131 [attribute_id] => 17 [name] => ППУ (Пенополиуретан) [material_modifier] => 1 [work_modifier] => 1 [options] => Array ( [0] => 50 мм [1] => 100 мм [2] => 150 мм [3] => 200 мм [4] => 250 мм [5] => 300 мм ) [days] => [3,4,5,6,7,8] [material_price] => [2860,3400,4219,4592,5010,5583] [work_price] => [729,900,980,1120,1280,1530] [image] => https://akademik-stroy.ru/wp-content/uploads/materials/ppu.jpg [area_modifier] => 200.13 [parent_name] => Дополнительное утепление наружных стен [parent_id] => 17 [material_sum] => 721188 [work_sum] => 153190 [total_sum] => 874378 [total_days] => 3 [display_material_sum] => 721 188 [display_work_sum] => 153 190 [display_total_sum] => 874 378 ) 1
874 378
Работа:153 190
Материалы:721 188
Дни:3
stdClass Object ( [id] => 132 [attribute_id] => 17 [name] => PIR-плиты (пенополиизоцианурат) [material_modifier] => 1 [work_modifier] => 1 [options] => Array ( [0] => 50 мм [1] => 100 мм [2] => 150 мм [3] => 200 мм [4] => 250 мм [5] => 300 мм ) [days] => [5,6,7,8,9,10] [material_price] => [8323,15645,20968,25900,29258,30581] [work_price] => [800,900,970,1150,1280,1330] [image] => https://akademik-stroy.ru/wp-content/uploads/materials/pir.jpg [area_modifier] => 200.13 [parent_name] => Дополнительное утепление наружных стен [parent_id] => 17 [material_sum] => 2098759 [work_sum] => 168109 [total_sum] => 2266868 [total_days] => 5 [display_material_sum] => 2 098 759 [display_work_sum] => 168 109 [display_total_sum] => 2 266 868 ) 1
2 266 868
Работа:168 109
Материалы:2 098 759
Дни:5
Наружная отделка фасада
stdClass Object ( [id] => 37 [attribute_id] => 19 [name] => Нет [material_modifier] => 1 [work_modifier] => 1 [options] => Array ( ) [days] => [0] [material_price] => [0] [work_price] => [0] [image] => https://akademik-stroy.ru/wp-content/uploads/materials/imitaciya-brusa.jpg [area_modifier] => 200.13 [parent_name] => Наружная отделка фасада [parent_id] => 19 [material_sum] => 0 [work_sum] => 0 [total_sum] => 0 [total_days] => 0 [display_material_sum] => 0 [display_work_sum] => 0 [display_total_sum] => 0 ) 1
0
Работа:0
Материалы:0
Дни:0
stdClass Object ( [id] => 38 [attribute_id] => 19 [name] => Имитация бруса [material_modifier] => 1 [work_modifier] => 1 [options] => Array ( [0] => Сосна [1] => Ель [2] => Лиственница ) [days] => [20,20,20] [material_price] => [2994,2762,4954] [work_price] => [1397,1231,1577] [image] => https://akademik-stroy.ru/wp-content/uploads/materials/imitaciya-brusa.jpg [area_modifier] => 200.13 [parent_name] => Наружная отделка фасада [parent_id] => 19 [material_sum] => 754978 [work_sum] => 293561 [total_sum] => 1048539 [total_days] => 20 [display_material_sum] => 754 978 [display_work_sum] => 293 561 [display_total_sum] => 1 048 539 ) 1
1 048 539
Работа:293 561
Материалы:754 978
Дни:20
stdClass Object ( [id] => 136 [attribute_id] => 19 [name] => Планкен [material_modifier] => 1 [work_modifier] => 1 [options] => Array ( [0] => Сосна [1] => Ель [2] => Лиственница ) [days] => [20,20,20] [material_price] => [3194,2862,5154] [work_price] => [1537,1354,1735] [image] => https://akademik-stroy.ru/wp-content/uploads/materials/planken.jpg [area_modifier] => 200.13 [parent_name] => Наружная отделка фасада [parent_id] => 19 [material_sum] => 805411 [work_sum] => 322980 [total_sum] => 1128391 [total_days] => 20 [display_material_sum] => 805 411 [display_work_sum] => 322 980 [display_total_sum] => 1 128 391 ) 1
1 128 391
Работа:322 980
Материалы:805 411
Дни:20
stdClass Object ( [id] => 137 [attribute_id] => 19 [name] => Штукатурка [material_modifier] => 1 [work_modifier] => 1 [options] => Array ( [0] => Цементно-песчаная (минеральная) [1] => Мокрый фасад ) [days] => [35,35] [material_price] => [2231,3938] [work_price] => [1202,2422] [image] => https://akademik-stroy.ru/wp-content/uploads/materials/shtukaturka.jpg [area_modifier] => 200.13 [parent_name] => Наружная отделка фасада [parent_id] => 19 [material_sum] => 562577 [work_sum] => 252584 [total_sum] => 815161 [total_days] => 35 [display_material_sum] => 562 577 [display_work_sum] => 252 584 [display_total_sum] => 815 161 ) 1
815 161
Работа:252 584
Материалы:562 577
Дни:35
stdClass Object ( [id] => 138 [attribute_id] => 19 [name] => Облицовочный кирпич [material_modifier] => 1 [work_modifier] => 1 [options] => Array ( [0] => Керамический [1] => Клинкерный [2] => Ручной формовки [3] => Гиперпрессованный [4] => Силикатный кирпич ) [days] => [45,45,45,45,45] [material_price] => [8174,9148,1040,1257,5876] [work_price] => [3240,3758,4536,4017,3369] [image] => https://akademik-stroy.ru/wp-content/uploads/materials/oblicovochnyj-kirpich.jpg [area_modifier] => 200.13 [parent_name] => Наружная отделка фасада [parent_id] => 19 [material_sum] => 2061187 [work_sum] => 680842 [total_sum] => 2742029 [total_days] => 45 [display_material_sum] => 2 061 187 [display_work_sum] => 680 842 [display_total_sum] => 2 742 029 ) 1
2 742 029
Работа:680 842
Материалы:2 061 187
Дни:45
stdClass Object ( [id] => 139 [attribute_id] => 19 [name] => Фасадная плитка [material_modifier] => 1 [work_modifier] => 1 [options] => Array ( [0] => Клинкерная [1] => Керамическая [2] => Плитка ручной формовки ) [days] => [40,40,40] [material_price] => [2974,1487,3470] [work_price] => [3007,2592,3629] [image] => https://akademik-stroy.ru/wp-content/uploads/materials/fasadnaya-plitka.jpg [area_modifier] => 200.13 [parent_name] => Наружная отделка фасада [parent_id] => 19 [material_sum] => 749935 [work_sum] => 631880 [total_sum] => 1381815 [total_days] => 40 [display_material_sum] => 749 935 [display_work_sum] => 631 880 [display_total_sum] => 1 381 815 ) 1
1 381 815
Работа:631 880
Материалы:749 935
Дни:40
stdClass Object ( [id] => 140 [attribute_id] => 19 [name] => Сайдинг [material_modifier] => 1 [work_modifier] => 1 [options] => Array ( [0] => Виниловый [1] => Металлический [2] => Фиброцементный ) [days] => [20,20,20] [material_price] => [1263,1944,4147] [work_price] => [1263,1944,2074] [image] => https://akademik-stroy.ru/wp-content/uploads/materials/sajding.jpg [area_modifier] => 200.13 [parent_name] => Наружная отделка фасада [parent_id] => 19 [material_sum] => 318483 [work_sum] => 265402 [total_sum] => 583885 [total_days] => 20 [display_material_sum] => 318 483 [display_work_sum] => 265 402 [display_total_sum] => 583 885 ) 1
583 885
Работа:265 402
Материалы:318 483
Дни:20
stdClass Object ( [id] => 141 [attribute_id] => 19 [name] => Камень [material_modifier] => 1 [work_modifier] => 1 [options] => Array ( [0] => Травертин [1] => Дагестанский [2] => Искусственный [3] => Натуральный [4] => Керамогранит ) [days] => [45,45,45,45,45] [material_price] => [4536,3888,2592,3240,2462] [work_price] => [3240,3240,2462,3110,1944] [image] => https://akademik-stroy.ru/wp-content/uploads/materials/kamen-1.jpg [area_modifier] => 200.13 [parent_name] => Наружная отделка фасада [parent_id] => 19 [material_sum] => 1143815 [work_sum] => 680842 [total_sum] => 1824657 [total_days] => 45 [display_material_sum] => 1 143 815 [display_work_sum] => 680 842 [display_total_sum] => 1 824 657 ) 1
1 824 657
Работа:680 842
Материалы:1 143 815
Дни:45
stdClass Object ( [id] => 142 [attribute_id] => 19 [name] => Термопанели [material_modifier] => 1 [work_modifier] => 1 [options] => Array ( ) [days] => [20] [material_price] => [6221] [work_price] => [2333] [image] => https://akademik-stroy.ru/wp-content/uploads/materials/termo.png [area_modifier] => 200.13 [parent_name] => Наружная отделка фасада [parent_id] => 19 [material_sum] => 1568711 [work_sum] => 490248 [total_sum] => 2058959 [total_days] => 20 [display_material_sum] => 1 568 711 [display_work_sum] => 490 248 [display_total_sum] => 2 058 959 ) 1
2 058 959
Работа:490 248
Материалы:1 568 711
Дни:20
stdClass Object ( [id] => 143 [attribute_id] => 19 [name] => Плитка HAUBERK [material_modifier] => 1 [work_modifier] => 1 [options] => Array ( ) [days] => [20] [material_price] => [2786] [work_price] => [1944] [image] => https://akademik-stroy.ru/wp-content/uploads/materials/hauberk.jpg [area_modifier] => 200.13 [parent_name] => Наружная отделка фасада [parent_id] => 19 [material_sum] => 702528 [work_sum] => 408505 [total_sum] => 1111033 [total_days] => 20 [display_material_sum] => 702 528 [display_work_sum] => 408 505 [display_total_sum] => 1 111 033 ) 1
1 111 033
Работа:408 505
Материалы:702 528
Дни:20
stdClass Object ( [id] => 144 [attribute_id] => 19 [name] => Фальцевый фасад [material_modifier] => 1 [work_modifier] => 1 [options] => Array ( ) [days] => [20] [material_price] => [3240] [work_price] => [2592] [image] => https://akademik-stroy.ru/wp-content/uploads/materials/falcevyj-fasad.jpg [area_modifier] => 200.13 [parent_name] => Наружная отделка фасада [parent_id] => 19 [material_sum] => 817011 [work_sum] => 544674 [total_sum] => 1361685 [total_days] => 20 [display_material_sum] => 817 011 [display_work_sum] => 544 674 [display_total_sum] => 1 361 685 ) 1
1 361 685
Работа:544 674
Материалы:817 011
Дни:20
stdClass Object ( [id] => 145 [attribute_id] => 19 [name] => Комбинированный [material_modifier] => 1 [work_modifier] => 1 [options] => Array ( ) [days] => [20] [material_price] => [4629] [work_price] => [3499] [image] => https://akademik-stroy.ru/wp-content/uploads/materials/Kombinirovannyj.jpg [area_modifier] => 200.13 [parent_name] => Наружная отделка фасада [parent_id] => 19 [material_sum] => 1167266 [work_sum] => 735268 [total_sum] => 1902534 [total_days] => 20 [display_material_sum] => 1 167 266 [display_work_sum] => 735 268 [display_total_sum] => 1 902 534 ) 1
1 902 534
Работа:735 268
Материалы:1 167 266
Дни:20
stdClass Object ( [id] => 257 [attribute_id] => 19 [name] => Японские фиброцементные [material_modifier] => 1 [work_modifier] => 1 [options] => Array ( ) [days] => [20] [material_price] => [7043] [work_price] => [2993] [image] => https://akademik-stroy.ru/wp-content/uploads/materials/paneli.jpg [area_modifier] => 200.13 [parent_name] => Наружная отделка фасада [parent_id] => 19 [material_sum] => 1775990 [work_sum] => 628939 [total_sum] => 2404929 [total_days] => 20 [display_material_sum] => 1 775 990 [display_work_sum] => 628 939 [display_total_sum] => 2 404 929 ) 1
2 404 929
Работа:628 939
Материалы:1 775 990
Дни:20
stdClass Object ( [id] => 258 [attribute_id] => 19 [name] => Панели Каньон [material_modifier] => 1 [work_modifier] => 1 [options] => Array ( ) [days] => [20] [material_price] => [4543] [work_price] => [2592] [image] => https://akademik-stroy.ru/wp-content/uploads/materials/kanon.png [area_modifier] => 200.13 [parent_name] => Наружная отделка фасада [parent_id] => 19 [material_sum] => 1145580 [work_sum] => 544674 [total_sum] => 1690254 [total_days] => 20 [display_material_sum] => 1 145 580 [display_work_sum] => 544 674 [display_total_sum] => 1 690 254 ) 1
1 690 254
Работа:544 674
Материалы:1 145 580
Дни:20
Террасы, крыльца, навесы
stdClass Object ( [id] => 39 [attribute_id] => 20 [name] => Нет [material_modifier] => 1 [work_modifier] => 1 [options] => Array ( ) [days] => [0] [material_price] => [0] [work_price] => [0] [image] => https://akademik-stroy.ru/wp-content/uploads/materials/terrasy.jpg [area_modifier] => 30 [parent_name] => Террасы, крыльца, навесы [parent_id] => 20 [material_sum] => 0 [work_sum] => 0 [total_sum] => 0 [total_days] => 0 [display_material_sum] => 0 [display_work_sum] => 0 [display_total_sum] => 0 ) 1
0
Работа:0
Материалы:0
Дни:0
stdClass Object ( [id] => 40 [attribute_id] => 20 [name] => Есть [material_modifier] => 1 [work_modifier] => 1 [options] => Array ( ) [days] => [5] [material_price] => [10450] [work_price] => [1950] [image] => https://akademik-stroy.ru/wp-content/uploads/materials/terrasy.jpg [area_modifier] => 30 [parent_name] => Террасы, крыльца, навесы [parent_id] => 20 [material_sum] => 395010 [work_sum] => 61425 [total_sum] => 456435 [total_days] => 5 [display_material_sum] => 395 010 [display_work_sum] => 61 425 [display_total_sum] => 456 435 ) 1
456 435
Работа:61 425
Материалы:395 010
Дни:5
Балконы
stdClass Object ( [id] => 41 [attribute_id] => 21 [name] => Нет [material_modifier] => 1 [work_modifier] => 1 [options] => Array ( ) [days] => [0] [material_price] => [0] [work_price] => [0] [image] => https://akademik-stroy.ru/wp-content/uploads/materials/balkony.jpg [area_modifier] => 30 [parent_name] => Балконы [parent_id] => 21 [material_sum] => 0 [work_sum] => 0 [total_sum] => 0 [total_days] => 0 [display_material_sum] => 0 [display_work_sum] => 0 [display_total_sum] => 0 ) 1
0
Работа:0
Материалы:0
Дни:0
stdClass Object ( [id] => 42 [attribute_id] => 21 [name] => Есть [material_modifier] => 1 [work_modifier] => 1 [options] => Array ( ) [days] => [12] [material_price] => [3600] [work_price] => [1950] [image] => https://akademik-stroy.ru/wp-content/uploads/materials/balkony.jpg [area_modifier] => 30 [parent_name] => Балконы [parent_id] => 21 [material_sum] => 136080 [work_sum] => 61425 [total_sum] => 197505 [total_days] => 12 [display_material_sum] => 136 080 [display_work_sum] => 61 425 [display_total_sum] => 197 505 ) 1
197 505
Работа:61 425
Материалы:136 080
Дни:12
Отмостка
stdClass Object ( [id] => 43 [attribute_id] => 22 [name] => Нет [material_modifier] => 1 [work_modifier] => 1 [options] => Array ( ) [days] => [0] [material_price] => [0] [work_price] => [0] [image] => https://akademik-stroy.ru/wp-content/uploads/materials/uteplennaya.jpg [area_modifier] => 200.13 [parent_name] => Отмостка [parent_id] => 22 [material_sum] => 0 [work_sum] => 0 [total_sum] => 0 [total_days] => 0 [display_material_sum] => 0 [display_work_sum] => 0 [display_total_sum] => 0 ) 1
0
Работа:0
Материалы:0
Дни:0
stdClass Object ( [id] => 44 [attribute_id] => 22 [name] => Утепленная отмостка [material_modifier] => 1 [work_modifier] => 1 [options] => Array ( ) [days] => [15] [material_price] => [2550] [work_price] => [1750] [image] => https://akademik-stroy.ru/wp-content/uploads/materials/uteplennaya.jpg [area_modifier] => 200.13 [parent_name] => Отмостка [parent_id] => 22 [material_sum] => 643018 [work_sum] => 367739 [total_sum] => 1010757 [total_days] => 15 [display_material_sum] => 643 018 [display_work_sum] => 367 739 [display_total_sum] => 1 010 757 ) 1
1 010 757
Работа:367 739
Материалы:643 018
Дни:15
stdClass Object ( [id] => 146 [attribute_id] => 22 [name] => Не утепленная отмостка [material_modifier] => 1 [work_modifier] => 1 [options] => Array ( ) [days] => [10] [material_price] => [1650] [work_price] => [1450] [image] => https://akademik-stroy.ru/wp-content/uploads/materials/ne-uteplennaya.jpg [area_modifier] => 200.13 [parent_name] => Отмостка [parent_id] => 22 [material_sum] => 416070 [work_sum] => 304698 [total_sum] => 720768 [total_days] => 10 [display_material_sum] => 416 070 [display_work_sum] => 304 698 [display_total_sum] => 720 768 ) 1
720 768
Работа:304 698
Материалы:416 070
Дни:10
Дренаж вокруг дома
stdClass Object ( [id] => 45 [attribute_id] => 23 [name] => Нет [material_modifier] => 1 [work_modifier] => 1 [options] => Array ( ) [days] => [0] [material_price] => [0] [work_price] => [0] [image] => https://akademik-stroy.ru/wp-content/uploads/materials/drenazh-2.jpg [area_modifier] => 200.13 [parent_name] => Дренаж вокруг дома [parent_id] => 23 [material_sum] => 0 [work_sum] => 0 [total_sum] => 0 [total_days] => 0 [display_material_sum] => 0 [display_work_sum] => 0 [display_total_sum] => 0 ) 1
0
Работа:0
Материалы:0
Дни:0
stdClass Object ( [id] => 46 [attribute_id] => 23 [name] => Есть [material_modifier] => 1 [work_modifier] => 1 [options] => Array ( ) [days] => [5] [material_price] => [2366] [work_price] => [1911] [image] => https://akademik-stroy.ru/wp-content/uploads/materials/drenazh-2.jpg [area_modifier] => 200.13 [parent_name] => Дренаж вокруг дома [parent_id] => 23 [material_sum] => 596620 [work_sum] => 401571 [total_sum] => 998191 [total_days] => 5 [display_material_sum] => 596 620 [display_work_sum] => 401 571 [display_total_sum] => 998 191 ) 1
998 191
Работа:401 571
Материалы:596 620
Дни:5
Автономная канализация (септики)
stdClass Object ( [id] => 47 [attribute_id] => 24 [name] => Нет [material_modifier] => 1 [work_modifier] => 1 [options] => Array ( ) [days] => [0] [material_price] => [0] [work_price] => [0] [image] => https://akademik-stroy.ru/wp-content/uploads/materials/septik.jpg [area_modifier] => 1 [parent_name] => Автономная канализация (септики) [parent_id] => 24 [material_sum] => 0 [work_sum] => 0 [total_sum] => 0 [total_days] => 0 [display_material_sum] => 0 [display_work_sum] => 0 [display_total_sum] => 0 ) 1
0
Работа:0
Материалы:0
Дни:0
stdClass Object ( [id] => 48 [attribute_id] => 24 [name] => Есть [material_modifier] => 1 [work_modifier] => 1 [options] => Array ( [0] => Для дачи на 4 человека [1] => Для дома на 5 человек [2] => Для дома на 6 человек [3] => Для дома на 7 человек [4] => Для дома на 10 человек ) [days] => [7,7,7,8,8] [material_price] => [196340,220500,240940,264200,293340] [work_price] => [50000,55000,60500,66550,73206] [image] => https://akademik-stroy.ru/wp-content/uploads/materials/septik.jpg [area_modifier] => 1 [parent_name] => Автономная канализация (септики) [parent_id] => 24 [material_sum] => 247388 [work_sum] => 52500 [total_sum] => 299888 [total_days] => 7 [display_material_sum] => 247 388 [display_work_sum] => 52 500 [display_total_sum] => 299 888 ) 1
299 888
Работа:52 500
Материалы:247 388
Дни:7
Внутренние (не несущие) перегородки
stdClass Object ( [id] => 49 [attribute_id] => 25 [name] => Нет [material_modifier] => 1 [work_modifier] => 1 [options] => Array ( ) [days] => [0] [material_price] => [0] [work_price] => [0] [image] => https://akademik-stroy.ru/wp-content/uploads/materials/gkl.jpg [area_modifier] => 200.13 [parent_name] => Внутренние (не несущие) перегородки [parent_id] => 25 [material_sum] => 0 [work_sum] => 0 [total_sum] => 0 [total_days] => 0 [display_material_sum] => 0 [display_work_sum] => 0 [display_total_sum] => 0 ) 1
0
Работа:0
Материалы:0
Дни:0
stdClass Object ( [id] => 147 [attribute_id] => 25 [name] => Каркасно-обшивные [material_modifier] => 1 [work_modifier] => 1 [options] => Array ( [0] => 75 мм (без шумоизоляции) [1] => 75 мм (с шумоизоляцией) ) [days] => [11,11] [material_price] => [580,970] [work_price] => [380,570] [image] => https://akademik-stroy.ru/wp-content/uploads/materials/gkl.jpg [area_modifier] => 200.13 [parent_name] => Внутренние (не несущие) перегородки [parent_id] => 25 [material_sum] => 146255 [work_sum] => 79852 [total_sum] => 226107 [total_days] => 11 [display_material_sum] => 146 255 [display_work_sum] => 79 852 [display_total_sum] => 226 107 ) 1
226 107
Работа:79 852
Материалы:146 255
Дни:11
stdClass Object ( [id] => 148 [attribute_id] => 25 [name] => Пазогребневые [material_modifier] => 1 [work_modifier] => 1 [options] => Array ( [0] => 80 мм [1] => 100 мм ) [days] => [5,5] [material_price] => [1022,1313] [work_price] => [600,700] [image] => https://akademik-stroy.ru/wp-content/uploads/materials/pazogrebnevye-bloki.jpg [area_modifier] => 200.13 [parent_name] => Внутренние (не несущие) перегородки [parent_id] => 25 [material_sum] => 257711 [work_sum] => 126082 [total_sum] => 383793 [total_days] => 5 [display_material_sum] => 257 711 [display_work_sum] => 126 082 [display_total_sum] => 383 793 ) 1
383 793
Работа:126 082
Материалы:257 711
Дни:5
stdClass Object ( [id] => 149 [attribute_id] => 25 [name] => Газобетонные [material_modifier] => 1 [work_modifier] => 1 [options] => Array ( [0] => 100 мм [1] => 200 мм ) [days] => [11,11] [material_price] => [1160,1920] [work_price] => [700,900] [image] => https://akademik-stroy.ru/wp-content/uploads/materials/gazobeton-2.jpg [area_modifier] => 200.13 [parent_name] => Внутренние (не несущие) перегородки [parent_id] => 25 [material_sum] => 292510 [work_sum] => 147096 [total_sum] => 439606 [total_days] => 11 [display_material_sum] => 292 510 [display_work_sum] => 147 096 [display_total_sum] => 439 606 ) 1
439 606
Работа:147 096
Материалы:292 510
Дни:11
stdClass Object ( [id] => 150 [attribute_id] => 25 [name] => Кирпичные [material_modifier] => 1 [work_modifier] => 1 [options] => Array ( [0] => 120 мм [1] => 250 мм [2] => 360 мм ) [days] => [7,7,7] [material_price] => [1785,3570,5355] [work_price] => [900,1600,1800] [image] => https://akademik-stroy.ru/wp-content/uploads/materials/kirpich-1.jpg [area_modifier] => 200.13 [parent_name] => Внутренние (не несущие) перегородки [parent_id] => 25 [material_sum] => 450112 [work_sum] => 189123 [total_sum] => 639235 [total_days] => 7 [display_material_sum] => 450 112 [display_work_sum] => 189 123 [display_total_sum] => 639 235 ) 1
639 235
Работа:189 123
Материалы:450 112
Дни:7
Электрика
stdClass Object ( [id] => 55 [attribute_id] => 28 [name] => Нет [material_modifier] => 1 [work_modifier] => 1 [options] => Array ( ) [days] => [0] [material_price] => [0] [work_price] => [0] [image] => https://akademik-stroy.ru/wp-content/uploads/materials/ehlektrika.jpg [area_modifier] => 162.4 [parent_name] => Электрика [parent_id] => 28 [material_sum] => 0 [work_sum] => 0 [total_sum] => 0 [total_days] => 0 [display_material_sum] => 0 [display_work_sum] => 0 [display_total_sum] => 0 ) 1
0
Работа:0
Материалы:0
Дни:0
stdClass Object ( [id] => 56 [attribute_id] => 28 [name] => Есть [material_modifier] => 1 [work_modifier] => 1 [options] => Array ( ) [days] => [10] [material_price] => [650] [work_price] => [950] [image] => https://akademik-stroy.ru/wp-content/uploads/materials/ehlektrika.jpg [area_modifier] => 162.4 [parent_name] => Электрика [parent_id] => 28 [material_sum] => 133006 [work_sum] => 161994 [total_sum] => 295000 [total_days] => 10 [display_material_sum] => 133 006 [display_work_sum] => 161 994 [display_total_sum] => 295 000 ) 1
295 000
Работа:161 994
Материалы:133 006
Дни:10
Сантехника, канализация в доме
stdClass Object ( [id] => 57 [attribute_id] => 29 [name] => Нет [material_modifier] => 1 [work_modifier] => 1 [options] => Array ( ) [days] => [0] [material_price] => [0] [work_price] => [0] [image] => https://akademik-stroy.ru/wp-content/uploads/materials/santekhnika-kanalizaciya-1.jpg [area_modifier] => 162.4 [parent_name] => Сантехника, канализация в доме [parent_id] => 29 [material_sum] => 0 [work_sum] => 0 [total_sum] => 0 [total_days] => 0 [display_material_sum] => 0 [display_work_sum] => 0 [display_total_sum] => 0 ) 1
0
Работа:0
Материалы:0
Дни:0
stdClass Object ( [id] => 58 [attribute_id] => 29 [name] => Есть [material_modifier] => 1 [work_modifier] => 1 [options] => Array ( ) [days] => [10] [material_price] => [600] [work_price] => [730] [image] => https://akademik-stroy.ru/wp-content/uploads/materials/santekhnika-kanalizaciya-1.jpg [area_modifier] => 162.4 [parent_name] => Сантехника, канализация в доме [parent_id] => 29 [material_sum] => 122774 [work_sum] => 124480 [total_sum] => 247254 [total_days] => 10 [display_material_sum] => 122 774 [display_work_sum] => 124 480 [display_total_sum] => 247 254 ) 1
247 254
Работа:124 480
Материалы:122 774
Дни:10
Отопление
stdClass Object ( [id] => 59 [attribute_id] => 30 [name] => Нет [material_modifier] => 1 [work_modifier] => 1 [options] => Array ( ) [days] => [0] [material_price] => [0] [work_price] => [0] [image] => https://akademik-stroy.ru/wp-content/uploads/materials/otoplenie-1.jpg [area_modifier] => 162.4 [parent_name] => Отопление [parent_id] => 30 [material_sum] => 0 [work_sum] => 0 [total_sum] => 0 [total_days] => 0 [display_material_sum] => 0 [display_work_sum] => 0 [display_total_sum] => 0 ) 1
0
Работа:0
Материалы:0
Дни:0
stdClass Object ( [id] => 60 [attribute_id] => 30 [name] => Есть [material_modifier] => 1 [work_modifier] => 1 [options] => Array ( ) [days] => [5] [material_price] => [610] [work_price] => [560] [image] => https://akademik-stroy.ru/wp-content/uploads/materials/otoplenie-1.jpg [area_modifier] => 162.4 [parent_name] => Отопление [parent_id] => 30 [material_sum] => 124821 [work_sum] => 95491 [total_sum] => 220312 [total_days] => 5 [display_material_sum] => 124 821 [display_work_sum] => 95 491 [display_total_sum] => 220 312 ) 1
220 312
Работа:95 491
Материалы:124 821
Дни:5
Теплые полы
stdClass Object ( [id] => 61 [attribute_id] => 31 [name] => Нет [material_modifier] => 1 [work_modifier] => 1 [options] => Array ( ) [days] => [0] [material_price] => [0] [work_price] => [0] [image] => https://akademik-stroy.ru/wp-content/uploads/materials/vodyanye.jpg [area_modifier] => 30 [parent_name] => Теплые полы [parent_id] => 31 [material_sum] => 0 [work_sum] => 0 [total_sum] => 0 [total_days] => 0 [display_material_sum] => 0 [display_work_sum] => 0 [display_total_sum] => 0 ) 1
0
Работа:0
Материалы:0
Дни:0
stdClass Object ( [id] => 151 [attribute_id] => 31 [name] => Водяные [material_modifier] => 1 [work_modifier] => 1 [options] => Array ( ) [days] => [9] [material_price] => [10200] [work_price] => [2500] [image] => https://akademik-stroy.ru/wp-content/uploads/materials/vodyanye.jpg [area_modifier] => 30 [parent_name] => Теплые полы [parent_id] => 31 [material_sum] => 385560 [work_sum] => 78750 [total_sum] => 464310 [total_days] => 9 [display_material_sum] => 385 560 [display_work_sum] => 78 750 [display_total_sum] => 464 310 ) 1
464 310
Работа:78 750
Материалы:385 560
Дни:9
stdClass Object ( [id] => 152 [attribute_id] => 31 [name] => Электро [material_modifier] => 1 [work_modifier] => 1 [options] => Array ( ) [days] => [5] [material_price] => [6300] [work_price] => [1500] [image] => https://akademik-stroy.ru/wp-content/uploads/materials/ehlektricheskij.jpg [area_modifier] => 30 [parent_name] => Теплые полы [parent_id] => 31 [material_sum] => 238140 [work_sum] => 47250 [total_sum] => 285390 [total_days] => 5 [display_material_sum] => 238 140 [display_work_sum] => 47 250 [display_total_sum] => 285 390 ) 1
285 390
Работа:47 250
Материалы:238 140
Дни:5
Черновая отделка стен
stdClass Object ( [id] => 63 [attribute_id] => 32 [name] => Нет [material_modifier] => 1 [work_modifier] => 1 [options] => Array ( ) [days] => [0] [material_price] => [0] [work_price] => [0] [image] => https://akademik-stroy.ru/wp-content/uploads/materials/shtukaturka-shpatlevka-1.jpg [area_modifier] => 162.4 [parent_name] => Черновая отделка стен [parent_id] => 32 [material_sum] => 0 [work_sum] => 0 [total_sum] => 0 [total_days] => 0 [display_material_sum] => 0 [display_work_sum] => 0 [display_total_sum] => 0 ) 1
0
Работа:0
Материалы:0
Дни:0
stdClass Object ( [id] => 153 [attribute_id] => 32 [name] => Штукатурка и шпатлевка [material_modifier] => 1 [work_modifier] => 1 [options] => Array ( ) [days] => [20] [material_price] => [1850] [work_price] => [2600] [image] => https://akademik-stroy.ru/wp-content/uploads/materials/shtukaturka-shpatlevka-1.jpg [area_modifier] => 162.4 [parent_name] => Черновая отделка стен [parent_id] => 32 [material_sum] => 378554 [work_sum] => 443352 [total_sum] => 821906 [total_days] => 20 [display_material_sum] => 378 554 [display_work_sum] => 443 352 [display_total_sum] => 821 906 ) 1
821 906
Работа:443 352
Материалы:378 554
Дни:20
stdClass Object ( [id] => 154 [attribute_id] => 32 [name] => Гипсокортон на стены [material_modifier] => 1 [work_modifier] => 1 [options] => Array ( ) [days] => [15] [material_price] => [950] [work_price] => [2100] [image] => https://akademik-stroy.ru/wp-content/uploads/materials/gkl-1.jpg [area_modifier] => 162.4 [parent_name] => Черновая отделка стен [parent_id] => 32 [material_sum] => 194393 [work_sum] => 358092 [total_sum] => 552485 [total_days] => 15 [display_material_sum] => 194 393 [display_work_sum] => 358 092 [display_total_sum] => 552 485 ) 1
552 485
Работа:358 092
Материалы:194 393
Дни:15
stdClass Object ( [id] => 155 [attribute_id] => 32 [name] => Вагонка [material_modifier] => 1 [work_modifier] => 1 [options] => Array ( ) [days] => [15] [material_price] => [1250] [work_price] => [950] [image] => https://akademik-stroy.ru/wp-content/uploads/materials/vagonka.jpg [area_modifier] => 162.4 [parent_name] => Черновая отделка стен [parent_id] => 32 [material_sum] => 255780 [work_sum] => 161994 [total_sum] => 417774 [total_days] => 15 [display_material_sum] => 255 780 [display_work_sum] => 161 994 [display_total_sum] => 417 774 ) 1
417 774
Работа:161 994
Материалы:255 780
Дни:15
Черновая отделка полов
stdClass Object ( [id] => 65 [attribute_id] => 33 [name] => Нет [material_modifier] => 1 [work_modifier] => 1 [options] => Array ( ) [days] => [0] [material_price] => [0] [work_price] => [0] [image] => https://akademik-stroy.ru/wp-content/uploads/materials/styazhka.jpg [area_modifier] => 162.4 [parent_name] => Черновая отделка полов [parent_id] => 33 [material_sum] => 0 [work_sum] => 0 [total_sum] => 0 [total_days] => 0 [display_material_sum] => 0 [display_work_sum] => 0 [display_total_sum] => 0 ) 1
0
Работа:0
Материалы:0
Дни:0
stdClass Object ( [id] => 156 [attribute_id] => 33 [name] => Стяжка + наливные полы [material_modifier] => 1 [work_modifier] => 1 [options] => Array ( ) [days] => [10] [material_price] => [1000] [work_price] => [900] [image] => https://akademik-stroy.ru/wp-content/uploads/materials/styazhka.jpg [area_modifier] => 162.4 [parent_name] => Черновая отделка полов [parent_id] => 33 [material_sum] => 204624 [work_sum] => 153468 [total_sum] => 358092 [total_days] => 10 [display_material_sum] => 204 624 [display_work_sum] => 153 468 [display_total_sum] => 358 092 ) 1
358 092
Работа:153 468
Материалы:204 624
Дни:10
stdClass Object ( [id] => 157 [attribute_id] => 33 [name] => ОСБ на пол [material_modifier] => 1 [work_modifier] => 1 [options] => Array ( ) [days] => [7] [material_price] => [580] [work_price] => [350] [image] => https://akademik-stroy.ru/wp-content/uploads/materials/osb-1.jpg [area_modifier] => 162.4 [parent_name] => Черновая отделка полов [parent_id] => 33 [material_sum] => 118682 [work_sum] => 59682 [total_sum] => 178364 [total_days] => 7 [display_material_sum] => 118 682 [display_work_sum] => 59 682 [display_total_sum] => 178 364 ) 1
178 364
Работа:59 682
Материалы:118 682
Дни:7
Чистовая отделка стен и полов
stdClass Object ( [id] => 67 [attribute_id] => 34 [name] => Нет [material_modifier] => 1 [work_modifier] => 1 [options] => Array ( ) [days] => [0] [material_price] => [0] [work_price] => [0] [image] => https://akademik-stroy.ru/wp-content/uploads/materials/chistovaya-otdelka.jpg [area_modifier] => 162.4 [parent_name] => Чистовая отделка стен и полов [parent_id] => 34 [material_sum] => 0 [work_sum] => 0 [total_sum] => 0 [total_days] => 0 [display_material_sum] => 0 [display_work_sum] => 0 [display_total_sum] => 0 ) 1
0
Работа:0
Материалы:0
Дни:0
stdClass Object ( [id] => 68 [attribute_id] => 34 [name] => Есть [material_modifier] => 1 [work_modifier] => 1 [options] => Array ( ) [days] => [50] [material_price] => [6000] [work_price] => [3500] [image] => https://akademik-stroy.ru/wp-content/uploads/materials/chistovaya-otdelka.jpg [area_modifier] => 162.4 [parent_name] => Чистовая отделка стен и полов [parent_id] => 34 [material_sum] => 1227744 [work_sum] => 596820 [total_sum] => 1824564 [total_days] => 50 [display_material_sum] => 1 227 744 [display_work_sum] => 596 820 [display_total_sum] => 1 824 564 ) 1
1 824 564
Работа:596 820
Материалы:1 227 744
Дни:50
Отделка потолка
stdClass Object ( [id] => 69 [attribute_id] => 35 [name] => Нет [material_modifier] => 1 [work_modifier] => 1 [options] => Array ( ) [days] => [0] [material_price] => [0] [work_price] => [0] [image] => https://akademik-stroy.ru/wp-content/uploads/materials/mnogourovnevyj-gkl.jpg [area_modifier] => 162.4 [parent_name] => Отделка потолка [parent_id] => 35 [material_sum] => 0 [work_sum] => 0 [total_sum] => 0 [total_days] => 0 [display_material_sum] => 0 [display_work_sum] => 0 [display_total_sum] => 0 ) 1
0
Работа:0
Материалы:0
Дни:0
stdClass Object ( [id] => 70 [attribute_id] => 35 [name] => Есть [material_modifier] => 1 [work_modifier] => 1 [options] => Array ( [0] => Многоуровневый потолок из гипсокартона [1] => Многоуровневый потолок из гипсокартона и натяжного потолка [2] => Одноуровневый потолок из гипсокартона [3] => Одноуровневый натяжной потолок ) [days] => [10,10,1,1] [material_price] => [900,700,700,600] [work_price] => [1000,800,500,300] [image] => https://akademik-stroy.ru/wp-content/uploads/materials/mnogourovnevyj-gkl.jpg [area_modifier] => 162.4 [parent_name] => Отделка потолка [parent_id] => 35 [material_sum] => 184162 [work_sum] => 170520 [total_sum] => 354682 [total_days] => 10 [display_material_sum] => 184 162 [display_work_sum] => 170 520 [display_total_sum] => 354 682 ) 1
354 682
Работа:170 520
Материалы:184 162
Дни:10

Преимущества работы с нами

icon

7 этапов оплаты

icon

Независимый строительный надзор

icon

Экологически чистые материалы

icon

16 лет гарантии

icon

Онлайн-кабинет с веб-камерой

icon

Строители с опытом более 15 лет

icon

Собственное производство